Второй этаж своими руками – Как построить второй этаж на старом доме своими руками
Второй этаж и мансарда: расширяем дом своими руками
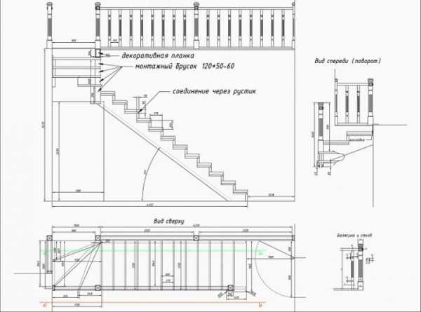
Многие люди сейчас перебираются жить в частный дом. Причин такой эмиграции может быть несколько: слишком маленькая жилая площадь, слишком большие цены на коммунальные услуги, шумные соседи и многое другое. К счастью, даже самый маленький домик можно расширить, сделав в нем дополнительный второй этаж.

Полноценный второй этаж или мансарда?
Когда встает вопрос об увеличении жилой площади в частном доме, первое, что приходит в голову – это как будет выглядеть будущий второй этаж.
Всего существует несколько вариантов:
- Создание полноценного второго этажа;
- Видоизменение мансарды.
Выбор в пользу одного или другого стоит сделать, обращая внимание на несколько факторов:
- Если требуется сделать дом более оригинальным и привлекательным, тогда рекомендуется выстроить второй этаж под мансардой. Во-первых, совершенно другой вид приобретет крыша, станет более непропорциональной формы. Во вторых, можно украсить её дополнительными атрибутами, например, декоративным балконом;
- Самый важный показатель – это площадь помещения. Естественно, если выстраивать полноценный второй этаж с прямыми стенами и ровным потолком, то пространства будет значительно больше. Даже, при правильно построенной мансарде добиться такого же результата не получится;
- Для многих людей основным фактором является стоимость постройки. Конечно же, формирование мансарды обойдется в несколько раз дешевле, нежели постройка полноценного этажа.
Стоит обращать внимание и на то, для чего будет предназначен будущий второй этаж. Например, если необходимо сделать небольшую дополнительную спальню, игровую комнату для детей или отдельный кабинет, то не стоить тратить лишние средства, лучше отдать предпочтение мансарде.
Второй этаж строится в том случае, если необходимо сделать несколько комнат, коридор и дополнительный санузел.
Подготовительные работы
Прежде, чем приступить к работе, требуется подготовить все необходимые материалы и совершить ряд подготовительных работ. В первую очередь, стоит позаботиться, чтобы в наличии было все самое необходимо.
Для постройки второго этажа понадобится следующее:
- Брус или кирпич. Одним словом, основной материал из которого будет выполнена постройка. Он не должен отличаться от того, которым был выстроен первый этаж;
- Следует заранее подготовить несколько деревянных балок одинаковой формы. Они будут выполнять удерживающую функцию, сохраняя форму и объем;
- Внешнюю сторону придется обшивать при помощи специальных тонких панелей ДСП
; - Понадобится также дополнительный утеплитель, в качестве которого может быть использована минеральная вата или пенополистирол. Приблизительно его толщина должна составлять около 16 мм.
Первый этап подготовительной работы – это расчет необходимого материала. Этот показатель зависит напрямую от того, какой площади будет будущий этаж. Еще одна важная часть подготовительных работ – это оценка рисков.
Оценка рисков
Прежде чем приступить к формированию второго этажа или миниатюрной мансарды, требуется обратиться в строительное агентство, которое позволит определить, можно ли дополнительно нагружать дом. К сожалению, сделать подобную процедуру самостоятельно невозможно.
К клиенту на участок выедет группа квалифицированных сотрудников, которая сделает ряд следующих работ:
- Оценят состояние старого фундамента и несущих стен, определив, сможет ли эта конструкция выдержать нагрузку, если да, то в каком количестве;
- Определят необходимость укрепления частного дома, и каким способом это лучше сделать;
- Рассчитают точный коэффициент запаса прочности и жесткости;
По результатам завершения работ клиенту будет выдан список документов о техническом состоянии здания и несущий способности конструкции, также будет вынесен вердикт о возможности создания надстройки.
Технологии возведения второго этажа
Всего существует несколько технологии, опираясь на которые можно сделать просторный второй этаж в своем доме:
- Большой популярностью среди строителей пользуется каркасная технология. В первую очередь, она приобрела такой спрос благодаря незначительному весу. Практически любое, даже старое здание будет способно вынести такую нагрузку. Также она выделяется такими качествами, как устойчивость к возгоранию и низкие затраты на покупку материала. Еще одно достоинство заключается в том, что строительную работу можно проводить абсолютно при любых погодных условиях;
- Конструкции из металла или каменной кладки являются самыми прочными, но и дорогостоящими. В основном, их применяют при необходимости сделать второй этаж, который прослужит более 100 лет. Единственным недостатком является большой вес материалов, могут возникнуть трудности с их подъемом на первый этаж;
- Промежуточным вариантом является укладка древесины, в этом случае придется воспроизвести достаточно сложную строительную работу.
При выборе технологии также стоит обращать внимание на то, с какой целью создается второй этаж.
Основные работы
Весь процесс формирования дополнительного помещения можно разделить на несколько основных этапов:
Укрепления фундамента
Строительство стоит начать с самого важного этапа – укрепления фундамента и стен. Этот процесс сделает здание наиболее безопасным для проживания.
Все работы можно разделить на несколько основных этапов:
- Дом нужно освободить от всей мебели, которая в нем находилось;
- Здание следует поднять на небольшое расстояние при помощи домкрата;
- С внешней стороны фундамента требуется натянуть специальныйармопояс. В первую очередь, следует сделать мощную подушку из песка, уложив его под низ траншеи. Далее, поверх старого фундамента требуется сделать обрешетку из деревянного перекрытия. В последнюю очередь нужно натянуть арматуру. Благодаря этой хитрость, конструкцию можно нагружать еще более, чем на 200 килограмм;
- С внешней и внутренней стороны дома нужно укрепить стены, выстроив дополнительные деревянные балки в зонах перекрытия;
- Со стороны внешнего каркаса также выстраиваются дополнительные балки в горизонтальном направлении по всему периметру.
Сразу же после укрепления здания, можно приступить к основным работам по формированию второго этажа.
Строительство дополнительного этажа
- Первое, что нужно сделать – это подготовить крышу к новым работам. Сначала, требуется снять все кровельное покрытие. После чего, необходимо аккуратно демонтировать строительный каркас и изъять все несущие балки;
- Как только этот процесс завершен, можно поднять весь необходимый материал на второй этаж при помощи специального подъемного крана;
- Теперь, можно приступить к процессу создания будущих стен. Для этого вдоль площади периметра требуется установить вертикальные продольные балки. Впоследствии к ним будут прикреплены стропила;
- Теперь, можно приступить к формированию стен, сделав обшивку из панелей ДСП. При необходимости можно дополнительно уплотнить их утеплителем или изоляционным материалом;
- На каркасе крыше обустраивается обрешетка, на которую будет наложен кровельный материал.
Вся основная работа выполнена, теперь, останется обустроить пол, стены и потолок в новом помещении.
Проем и лестница
Перед началом работы, стоит определить, где будет располагаться лестница на второй этаж и проемы для будущих окон.
Для их формирования стоит сделать несколько основных шагов:
- С внешних сторон требуется заранее сделать проемы, в которых будут сформированы окна, в соответствии с их параметрами;
- Внешние перекрытия лучше сделать из сплошных панелей ДСП, в них впоследствии легче будет сделать проемы под межкомнатные двери;
- В последнюю очередь, формируется лестница, позволяющая перемещаться с первого этажа на второй.
Конечно же, построение полноценного второго этажа – это задача трудоемкая. Формирование мансарды займет в несколько раз меньше времени и усилий.
Особенности постройки мансарды
Существует несколько особенностей построения мансарды. Такие нехитрые правила помогут значительно облегчить процесс формирования.
Кроме этого, новый этаж получится качественным и долговечным:
- Самый простой, но при этом дорогостоящий способ – это купить готовую конструкцию. При этом весь процесс её сборки займет не более одной недели;
- Не рекомендуется использовать деревянный материал, так как он недолговечный, лучше отдать предпочтение кирпичу или высококачественному брусу;
- Между утеплителем и стропильными балками обязательно нужно оставлять небольшое расстояние, где впоследствии будет выложен пароизоляционный материал.
Советы от строителей
- Не рекомендуется излишне нагружать второй этаж. Для строительства перегородок и стен лучше использовать легкий материал, например, гипсокартон.Это же касается и мебели;
- Перед строительством второго этажа заранее стоит подумать о лестничном проеме: где он будет внутри или снаружи. Соответственно, нужно будет оставить определенное место;
- Помимо всего материала, требуется также заранее припасти толстые веревки, с помощью них можно создать прекрасное подъемное устройство, которое позволит переместить весь материал на верхний этаж.
Частный дом – это прекрасная возможность заметно расширить свою жилую площадь, причем, сделать это можно как в вертикальном, так и в горизонтальном направлении.
Второй этаж и мансарда: расширяем дом своими руками
Оценка: 4.7 31 голосовЧитайте также:
okarkase.ru
Деревянная лестница на второй этаж своими руками: фото + видео
Двухэтажные дома или коттеджи должны быть оснащены надежными лестницами. В качестве материала изготовления этих конструкций чаще всего выбирают дерево. Деревянные лестницы на второй этаж можно приобрести готовыми или сделать самостоятельно. Выбрав второй вариант, вы снизите свои материальные затраты и сделаете именно то, что вам действительно нужно
Виды конструкций
Чтобы построить лестничную конструкцию, необходимо уметь пользоваться инструментом, знать правила построения эскизов и чертежей. Это позволит:
- запроектировать все составляющие элементы конструкции;
- учесть потенциально слабые места и исправить недостатки еще на стадии проекта;
- рассчитать размеры ступеней таким образом, чтобы было удобно подниматься и спускаться.
Для изготовления лестницы лучше всего использовать древесину. Этот строительный материал является экологически чистым, практичным, податливым в работе, что особенно важно для начинающих мастеров. С помощью специального инструмента можно сделать лестницу такой формы, которая идеально бы подходила к вашему интерьеру:
- прямой или закругленной;
- простой или декоративной;
- тяжелой или легкой.
Выделяют следующие популярные виды конструкций деревянных лестниц:
Выбор схемы лестницы
Для частного дома или деревенской дачи подходит как маршевая, так и винтовая лестница. Однако следует не забывать, что спиральные конструкции требуют очень точного монтажа, а также специальных элементов (например, перила закругленной формы). Чтобы их сделать, нужно овладеть технологией профессионального монтажа.
Особенно это касается более сложных лестничных конструкций, которые на начальном этапе можно использовать лишь как образец для вдохновения, а не подражания. Не стоит полагаться на готовые схемы, так как в них не учитываются все особенности вашей ситуации.
Что же касается маршевых лестниц, то изготовить и установить своими руками их гораздо проще. Они бывают различных конфигураций:
- прямыми одномаршевыми;

- забежными поворотными: право- или левозаходными, в зависимости от планировки дома;

- П-образными двухмаршевыми;

При размещении лестницы на 2 этаж, насчитывающей свыше 10 ступеней, рекомендуется разделить ее площадкой с поворотом, после чего она может пойти вверх вдоль стены под углом 90 или 180 градусов.
Выбор той или иной модели зависит от вашего вкуса и особенностей планировки дома.
Подготовка материалов
Прежде чем самому сделать деревянную лестницу на второй этаж, необходимо определиться с выбором строительного материала. Самыми популярными породами дерева являются сосна и лиственница. По эксплуатационным характеристикам изделия из лиственницы лучше, так как меньше подвержены гниению.
Лиственница не боится влаги, более того, при впитывании жидкости структура становится более крепкой. Это достаточно весомое преимущество, так как в доме всегда будет небольшая влажность. Для строительства лестницы подойдут также: дуб, кедр, бук и другие породы древесины, но по стоимости это не самое дешевое удовольствие.
Срок службы дерева во многом зависит от того, как просушены пиломатериалы. Предельная степень влажности древесины должна быть не более 12%.
Хорошо просушенные доски стоят дороже, но это с лихвой компенсируется за счет долговечности лестницы.
Если пиломатериалы достаточно влажные, то придется самостоятельно сушить древесину. Для этого ее помещают в хорошо проветриваемое помещение с постоянным температурным режимом на срок не менее 3 месяцев.
Расчет основных параметров лестницы
Существуют определенные рекомендуемые размеры. Точные параметры лестничной конструкции на второй этаж рассчитываются при построении схемы.
Ширина
Стандартная ширина лестницы – от 90 до 150 см. Но при расчете данного показателя следует принимать во внимание следующие моменты:
- насколько удобно будет одновременно двум людям идти навстречу друг другу;
- позволяет ли выбранная вами ширина переносить по лестнице крупногабаритные предметы (мебель, технику).
Комфортный диапазон ширины лестницы для частного дома – 1100-1300 мм. Меньше – затруднения при переноске мебели; больше – избыток занимаемого места.Длина
Для вычисления данного показателя потребуются принять размеры ступеней и посчитать их количество. Опыт показывает, что, выполняя чертеж самостоятельно на бумаге, допускаются ошибки. В результате этого лестница в реальности становится длиннее, чем на рисунке. Выйти из подобной ситуации можно следующим образом: включить в лестничную конструкцию несколько забежных ступеней.
Высота
Определяя общую высоту, неопытные мастера зачастую допускают ошибки. Они берут в расчет только расстояние от чернового пола до потолка комнаты верхнего этажа. Это не совсем правильно. При составлении чертежа нужно учитывать чистовую отметку 1 этажа и толщину пола на верхнем этаже вместе с финишной отделкой.
Параметры проема в перекрытии
Важно оставить достаточно пространства между ступеньками и перекрытием верхнего этажа. Как правило, оно равняется росту наиболее высокого человека и составляет приблизительно 190 – 200 см.

Уклон лестницы
Чтобы построить деревянную лестницу на второй этаж своими руками, рекомендуется соблюсти уклон лестничной конструкции 40-45 градусов. Если превысить этот показатель, то на ней будет тяжело подниматься людям преклонного возраста, маленьким детям.
Оптимальный угол наклона лестницы находится в диапазоне 30 – 37°При выборе пологой конструкции повышается расход строительных материалов и сокращается полезная площадь комнаты. Поэтому при расчете этого показателя следует исходить из доступного места.
Ступени
Их составными элементами являются проступь и подступенок. При определении размера проступи необходимо ориентироваться на 45 размер стопы. Поэтому оптимальной шириной ступеней считается 30 см.
Размер подступенка, в зависимости от уклона лестницы, составляет от 15 до 20 см.
Чтобы подсчитать количество ступеней, следует высоту всей конструкции разделить на высоту одной ступени. Последняя величина выводится путем суммирования толщины доски и высоты подступенка.
При построении чертежей важно учитывать следующее:
- Все ступени должны быть одинаковые по размеру.
- Если в конструкции насчитывается свыше 18 ступеней, то целесообразно внести в проект 2 марша и предусмотреть площадку. Ее называют смотровой, поворотной или промежуточной. Местом ее расположения может быть центр пролета или участок недалеко от начала лестницы.
Онлайн-калькулятор для расчета
Для вашего удобства все вычисления вы можете произвести при помощи удобного онлайн-калькулятора расчета лестницы. В результате вы получите готовые чертежи и спецификацию материалов.
Монтаж маршевой деревянной лестницы
Установка деревянной межэтажной лестницы начинается с изготовления косоуров (или тетив), проступей и подступенков.
Развертка лестницы по стене с указанием размеровПроступи вырезаются из доски по ранее заготовленному шаблону. Стандартная их толщина варьируется от 30 до 40 см. Если сделать больше, то это будет неоправданный расход материалов и утяжеление конструкции. Подступенки выполняют в сооружении декоративную функцию. Поэтому на них можно сэкономить, используя доску 10-15 мм.
Косоуры изготавливают из цельной доски, на которой отсутствуют какие-либо дефекты. Оба косоура должны быть идентичны, чтобы лестница не получилась асимметричной и перекошенной.
Разметка косоура
Вариант изготовления косоура с кобылками
Сборка тетивы со стяжками жесткостиСборка каркаса
Установка косоуров начинается с проделывания пропилов на балке перекрытия, расположенной вверху лестничного пролета. Иногда пропилы заменяются упорами из металла, которые следует крепить к вертикали перекрытия анкерами. Независимо от того, какой способ вы выберите, косоуры должны быть крепко зафиксированы к перекрытию.
Варианты фиксации элементовНа нижнем этаже по линии самой первой ступени устанавливают в полу опорный брус. В качестве крепежа используют анкеры.
Крепление косоура к полуМонтаж составных частей
Установить ступени не составит особого труда. Вырезы косоуров промазывают клеем и приставляют к ним подступенки, которые затем необходимо выровнять и закрепить с помощью шурупов.
Крепление подступенков к косоурамПоверх укладывают проступи и фиксируют их к подступенкам, косоурам. Под них рекомендуется положить полимерные прокладки в виде лент. Это предотвратит появление скрипа в результате трения друг о друга деревянных деталей.
Способы установки ступеней на косоур
Крепление ступеней к тетивеФункцию ограждения выполняют балясины, монтируя которые важно правильно соблюсти ровность. С этой целью устанавливают верхний и нижний столбик и соединяют их между собой натянутой ниткой. Она служит ориентиром при установке остальных элементов. Балясины можно прикрепить шурупами или саморезами, которые маскируют затиркой или заглушками.
Схема крепления огражденийПоручень устанавливают и фиксируют на балясинах. Он может быть деревянным, железным либо из другого материала.
Финишная обработка
После монтажа все поверхности необходимо отшлифовать, включая труднодоступные места, торцы, стыки. Затем конструкция обрабатывается защитными средствами, покрывается лаком или краской.
Особенности изготовления винтовой лестницы
Изготовление и монтаж деревянных лестниц винтового типа на второй этаж гораздо сложнее, чем маршевых. Но, с другой стороны, они позволяют экономить полезную площадь и помещаются там, где для маршевой конструкции было бы недостаточно места.
Винтовые конструкции экономят жилое пространствоСамый оптимальный вариант – это установка спиральной конструкции с центральной опорой. В данном случае ступени в форме треугольника либо трапеции крепятся непосредственно к ней. Для придания конструкции надежности опорный столб со специально приделанной пятой ставится вертикально и бетонируется у основания.
Установка винтовой лестницыВ ступенях с более узкого края проделываются отверстия, с помощью которых их нанизывают на опорную трубу. Между ступенями устанавливаются вставки в форме цилиндра, которые определяют высоту конструктивных элементов. Последняя ступень на верхнем ярусе устанавливается заподлицо проему в перекрытии на втором этаже и выступает в качестве дополнительного опорного элемента.
Чтобы было удобно спускаться и подниматься, вертикальный интервал между рядами ступеней должен составлять не менее двух метров. А ширина лестничного пролета в чистоте – не менее 90 см.
Зачастую прибегают к более компактным моделям винтовых лестниц. Позволительно это лишь тогда, когда ею не планируют пользоваться часто. Это касается, к примеру, дачных лестниц или для подъема на чердак.
Самой удобной глубиной проступи считается от 15 см у центрального столба и от 35 см с внешнего края. Высота подступенка равняется в среднем около 20 см. Однако иногда можно и вовсе от них отказаться. Это позволит сделать конструкцию более удобной, снизить ее вес, а также сократить затраты на строительные материалы.
Читайте подробную статью о том, как самостоятельно изготовить деревянную винтовую лестницу.
domzastroika.ru
винтовая, маршевая, на больцах, фото, видео
Если в частном доме не один этаж, без лестницы не обойтись. Но кроме того, что она должна соединять этажи, лестница еще должна вписываться в интерьер. Поэтому при выборе конструкции обращать надо внимание не только не габариты и то, сколько места она занимает в помещении, но и обязательно учитывать стилистику. Тогда лестница на второй этаж, сделанная своими руками будет не только функциональным предметом, но еще и украшением интерьера. Работа сложная и ответственная, но справится можно.
Виды лестниц на второй этаж в частном доме
Содержание статьи
Если говорить об устройстве, то межэтажные лестницы бывают трех типов:
- Винтовые или спиральные. Занимают меньше всего места, хорошо смотрятся, но не очень удобны в эксплуатации. Чаще всего используются как дополнительные.

Самые компактные межэтажные лестницы
- На больцах. Ступени крепятся на специальных металлических болтах — больцах. В конструкции отсутствуют тяжеловесные элементы крепления, из-за чего визуально сооружение смотрится легким.

Лестницы на больцах — очень интересно выглядят
- Маршевые. Самый распространенный тип. Могут состоять из одного, двух и более маршев (элементов). При наличии нескольких маршев между ними делают площадки — поворотные или нет — зависит от выбора владельцев, но в основном определяется габаритами помещения и выделенной площадью.

Маршевые есть двух типов — на косоурах и тетивах
Все эти конструкции могут быть сделаны из металла, дерева, бетона, стекла, мрамора и других декоративных камней, а еще часто используют комбинации этих материалов. Но чаще всего лестница на второй этаж своими руками делается из дерева, немного реже — из металла или комбинаций металла и древесины.
Кроме того есть два вида степеней — открытые и закрытые. В открытых лестницах есть только горизонтально расположенная часть — сама ступенька, в закрытых — еще и вертикальная часть — подступенок.

Ступени могут быть открытыми и закрытыми
Нормы для проектирования
Разрабатывая проект лестницы, важно сделать так, чтобы она была удобной и безопасной. Есть вполне конкретные цифры и рекомендации, которые касаются параметров ступеней и общего угла подъема:
- Угол наклона должен находиться в пределах 30-50°. Оптимальный наклон — 45°, при меньшем угле ходить удобно, но требуется много места, при большем слишком крутой подъем вызывает затруднения.

Желательно чтобы угол наклона лестницы вписывался в данный сектор. В таблице приведены стандартные размеры проступи и подступенка для каждого угла наклона
- Количество ступеней нечетное.
- Ширина ступени (проступи) находится в пределах 22-30 см. Самые удобные ступеньки имеют ширину порядка 25 см — на них становишься всей ступней. При более узких пятка висит, и основная нагрузка приходится на носок.
- Высота подступенка (расстояние от одной ступени до другой) 15-20 см. При слишком маленькой высоте приходится часто переставлять ноги, что некомфортно, при большой сложно задирать ноги (особенно пожилым людям).
- Высота перил 90-120 см.
- Минимальная ширина лестницы — 80 см.
Количество ступеней определяется путем элементарного деления высоты планируемой лестницы на выбранную высоту подступенка. Например, высота помещения 285 см. Решено сделать угол подъема в 40°. По таблице видим, что высота подступенка 19 см. Делим 285 см / 19 см = 15 ступеней. Если количество получается четным, соответственно чуть корректируем размер, чтобы получить нечетное число.
Если одна из ступеней получается меньше на несколько сантиметров, эту высоту «отбирают» у первой ступеньки. Все остальные, включая последнюю, должны быть одинаковыми.
При выборе размеров ступеней комфортность можно проверить. Если удвоенную высоту подступенка сложить с выбранной шириной ступени, результат должен быть от 60 мс до 64 см. Второй вариант проверки — сумма длин проступи и подступенка оптимально равна 45 см, но допустимы отклонения на 2 см в обе стороны.

Как проверить комфортность и безопасность лестницы
Все эти параметры должны закладываться при проектировании дома. Если же дом уже построен, приходится исходить из того, что есть и подгонять размеры к существующим габаритам.
Винтовая лестница
Как уже говорили, винтовая лестница в частном доме занимает меньше всего места. Но у нее есть серьезный недостаток: по ней неудобно ходить, а поднять на второй этаж что-либо громоздкое практически невозможно. Так что они не очень популярны, хотя смотрятся неплохо и нормально вписываются в любой интерьер.
Особенности расчета
При проектировании винтовой лестницы надо принимать во внимание, что в некоторых положениях, над головой находятся другие ступени. Поэтому сделать маленькие подступенки не получится.
Следующая особенность — ступени все имеют неодинаковую ширину — с одной уже, с другой — шире. Узкой частью они крепятся к центральной опоре (столбу), широкой — к стенам или балясинам. Норматив по ширине проступи измеряют в средней части, а широкая не должна быть больше 40 см.
Ширина пролета — от 50 см до 100 см. На всю конструкцию идет удвоенное расстояние — необходим квадрат со стороной от 100 см до 200 см.
Конструкция на сборной колонне
Этот тип винтовой лестницы сделать проще всего: ставится труба, на которую надеваются деревянные элементы — ступени, промежуточные цилиндры и т.д..

Устройство винтовой лестницы на центральном столбе
Если смотреть подробнее, то кроме металлической трубы (в данном случае диаметром 40 мм), ступеней и балясин (есть в любой конструкции) имеются точеные деревянные цилиндры (сегменты), которые задают расстояние от одной ступени до другой.

Элементы винтовой деревянной лестницы
С другой стороны расстояние между ступенями Выдерживается при помощи запилов на балясинах. В эти пазы крепят ступени (на клей + крепеж).

То же устройство, но в металле
Монтаж лестницы на второй этаж своими руками начитается с установки столба. В полу первого этажа и потолке второго делают отверстие, равное диаметру столба. Вставляем трубу в отверстие, надеваем увеличенную шайбу, закручиваем гайку. Далее сборка проста: на стержень насаживаются соответствующие элементы, параллельно с установкой ступени ставится и закрепляется балясина. Размеры ступеней для данной спиральной лестницы с заданными параметрами есть в чертеже.

Чертеж элементов винтовой лестницы с размерами
Ступени вырезаются из клееной доски или мебельного щита. Можно использовать массив, но мебельного качества, то есть без каких-либо дефектов и высушенный, с влажностью не более 8-12%. Хотя более надежной считается клеенная древесина: ее точно не поведет и она не растрескается при усушке.
Пример сборки подобной конструкции смотрите в видео. В нем столб сборный, но можно использовать и цельный, правда собирать ступени будет неудобно — каждый раз придется подниматься на лестницу.
Конструкция винтовой лестницы из металла представлена в следующем видео-фрагменте. Для тех, кто дружит со сваркой этот вариант будет проще.
Винтовая лестница на второй этаж: фото интересных вариантов
Маршевая лестница на второй этаж
Маршевые лестницы — самые популярные. Во-первых, ими пользоваться удобно, во-вторых, технология их строительства давно отработана. Особенностей расчета немного. Важно определиться с количеством маршей. В одном участке должно быть от 3 до 15 о ступеней. Самые удобные имеют 11-13 штук. Если по расчету получается, что ступеней должно быть больше, их делят на несколько участков, между которыми делают площадки. Размеры площадок кратны длине шага (600-630 мм). Тогда подъем и спуск не будут вызывать неудобств.
Виды
Лестницы с площадками занимают довольно много места. Если места не хватает, добавляют повороты. Самый распространенный вариант — расположить лестницу по двум смежным стенам углам. Также для экономии места можно вместо площадки сделать забежные (поворотные) ступени. Только один момент: участок с забежными ступенями — самый травмоопасный. Если в семье есть маленькие дети или пожилые люди, лучше сделайте площадку.

Забежные ступени еще можно описать как поворотные
Как уже говорили раньше, маршевые лестницы делают на косоурах (балки с пилообразным краем) и на теривах (просто наклонная балка). Крепление ступеней к балкам-тетивам требует больше времени и мастерства. Обычно под каждую ступень вырезается «посадочное» место — в доске выбирается паз. Для дополнительной надежности снизу еще прибиваются бруски или устанавливаются уголки. Вариант с уголками надежный, но довольно спорный с эстетической точки зрения. Если вся лестница сделана из дерева, металлические детали очень «режут» взгляд. Аккуратно обработанные бруски смотрятся намного органичнее. Впрочем, при достаточной толщине досок для ступеней и ширины тетивы, можно обойтись и без дополнительного крепежа. В этом случае важно, чтобы ступени не прогибались, иначе они могут выскочить из пазов.

Маршевая лестница на тетивах
Сборка ступеней на косоурах более простая: у вас есть две-три опоры, к которым крепят вырезанные по размерам детали. Основная задача — правильно разметить и выпилить косоуры.

Это лестница на косоурах — один из фрагментов сборки
Монтаж маршевой лестницы с пошаговыми фото
Косоуры делают из широкой доски 75-80 мм толщиной и 350-400 мм шириной. Если нет массивной сухой доски, можно использовать клеенные. Как рассчитать косоур описано в виде, но собирать лестницу на второй этаж можно не только как отдельно стоящую.
Пример сборки лестницы на косоурах у стены дальше. Сначала крепим опорные столбы, на которые будут опираться забежные ступени. К этим столбам крепим верхние косоуры.

Установка верхних косоуров
Затем ставим нижние. Косоур возле стены крепим поверх декоративной доски — ее проще мыть и грязь менее видна, чем на стене.

Крепим нижние косоуры — один к столбу, второй к отделочной доске
Промежуточные косоуры устанавливаются в последнюю очередь. Так проще состыковать все элементы.

Косоуры установлены
Начинается монтаж ступеней. После того как они нарезаны, отшлифованы и покрашены все просто: ставим на место, завсерливаем отверстие под саморез, потом закручиваем его.

Монтаж ступеней
Следующий шаг — крепление балясин. В данном случае они сделаны из нержавеющей трубы с деревянными вставками. Под каждую балясину сверлится отверстие, в которое вставляется трубка фиксируется она на шпильку или любым другим доступным способом.

Отверстия под установку балясин

Сами балясины и перила

Вид сверху
Фото интересных маршевых лестниц на 2 этаж
Лестницы на больцах
Самые необычные по виду — межэтажные лестницы на больцах. Больцы — это особый вид металлического крепежа, который одним краем крепится к ступням, вторым — к опоре.

Некоторые виды больцев
Конструкция получается очень легкой на вид, но несущая способность таких устройств немалая — порядка 220 кг.

Лестница на больцах — воздушное сооружение
Одной стороной ступени могут крепиться непосредственно к стене (тоже на больца), а также к тетиве или косоуру. Противоположная часть обычно крепится к раме, закрепленной в межэтажном перекрытии. Это и есть несущий элемент. От него опускаются вниз больца, которые затем крепятся к некоторой части ступеней. Те же, которые оказались без опоры, держатся за счет перераспределения нагрузки. Самостоятельный расчет и проектирование в этом случае очень проблематично, надежнее заказать разработку проекта.
Фото некоторых лестниц на 2 этаж на больцах
stroychik.ru
Как сделать лестницу на второй этаж своими руками: фото и чертежи с размерами
Дерево пользуется неизменной популярностью среди владельцев частных домов. Этот податливый материал сгодится для любых строительных работ. Особенно ярко потенциал древесины раскрывается при устройстве лестниц на второй этаж. Расскажем о том, как грамотно составить проект, рассчитать размеры и подобрать инструменты.
Виды межэтажных лестниц

Существуют следующие виды межэтажных лестниц:
-
Одномаршевые.
-
Одномаршевые с площадкой.
-
Двухмаршевые.
-
Винтовые.
-
Спиральные.
-
Циркульные.
-
Комбинированные.
Конечный выбор зависит от габаритов и геометрии помещения. Самый простой вариант — одномаршевый, а наиболее сложный — комбинированный.
Как рассчитать размеры лестницы на второй этаж

Подробный чертеж лестницы в разрезе изображен на рисунке ниже. Перед изготовлением элементов конструкции следует определиться с ее размерами.
Так как будет конструироваться лестница на второй этаж, то высота известна заранее — это расстояние между этажами.
Нужно замерить расстояние от потолка до пола с учетом толщины перекрытия. В нашем случае это 2700 мм:

Теперь необходимо рассчитать число ступеней.
У ступени различают горизонтальную плоскость — проступь и вертикальную (высоту подъёма) — подступёнок. Бывают лестницы с подступёнком и без него.
Практикой доказано, что оптимальная высота ступени рассчитывается, исходя из показателей 150-200 мм. Например, размер ступеней лестницы у нас составляет 200 мм. Тогда 2700 мм делится на 200 мм, и получается 13 ступеней.
В СНИП точно определены размеры:
-
Для жилых и общественных помещений: высота подступёнок — 148 мм, ширина проступи — 300 мм.
-
Для подвальных и чердачных помещений: высота подступёнок — 171 мм, ширина проступи — 260 мм.
Схема установки ступеней:

Зачастую ступени опираются на вырезы в тетивах, вставляются или врезаются во внутреннюю часть их поверхности.
Дальше необходимо спроецировать конструкцию лестницы на пол помещения с тем, чтобы определить, как она будет размещаться в комнате. Ширина проступи лестницы лежит в пределах 250-300 мм. У нас это 250 мм, и после умножения величины на 13 ступеней, получается размер проекции, равный 3250 мм.
Последнее, что нужно сделать — вычислить длину лестницы. Она определяется по теореме Пифагора. Это значение соответствует квадратному корню, взятому из суммы квадратов катетов прямоугольного треугольника.
В нашем случае гипотенуза равняется 3260 мм. Это и есть искомая длина.
Как сделать элементы лестницы

Следующий этап — изготовление деталей и элементов лестницы. Необходимо взять деревянный брус сечением 140×60 мм, из которого будут изготавливаться косоуры.
Косоур — несущая конструкция лестничного марша, в виде балки (бруска) с гребенкой по верху, на которую устанавливаются ступени.
Расчетные данные для разметки косоура:

Разметка по шаблону косоура с одинаковыми размерами ступеней:

Их нужно два штуки, и изготавливаются они из досок толщиной 30-40 мм — 13 ступеней, а из досок толщиной 25-30 мм получается 13 подступёнков. Длину ступени следует выбирать исходя из размеров комнаты.
Также следует принимать во внимание, что при ширине лестничного марша меньше 1 метра возникнут определенные неудобства при строительстве и эксплуатации лестницы.
Покупая дерево для строительства лестницы, уделите внимание качеству материала. Он должен быть однородного цвета, без сероватых участков, деформаций и трещин.
Влажность древесины вы не сможете определить без специальных приборов, но слишком большое количество «воды» чувствуется на вес — такая доска будет намного тяжелее, чем вы ожидали.
Строганое дерево (а именно такую древесину следует покупать) должно быть гладким, без шероховатостей, без сучков и других дефектов. Особенно следует избегать сучков на брусьях для лестничных косоуров.
На одном погонном метре пиломатериалов не должно быть больше одного сучка.
Если не удалось найти доски требуемой ширины, то можно сделать ступеньки из нескольких узких досок, соединив их мебельными нагелями на клею:

Для того, чтобы соединить доски нагелями, в боковых гранях высверливаются углубления, равные половину длины нагеля, и деревянный гвоздь вбиваются молотком до упора. Дальше его торцы смазываются краской, и доски сдвигаются друг к другу боковыми гранями.
В тех местах, где остался след краски, высверливаются отверстия на глубину немного больше, чем выступающие нагели.
И доски, и деревянные гвозди в тех местах, где они будут состыковываться, необходимо смазать клеем и собрать. Чтобы не осталось следов на поверхности от ударов молотка, нужно подкладывать деревянную планку. Нагели нужно крепить через каждые 150-200 мм.
Такая ступенька, собранная из нескольких досок, полностью заменит изготовленную из цельной доски. Недостаток этой ступени — миниатюрный зазор, ведь пиломатериалы не получится совместить абсолютно точно, поэтому поверхность нужно будет доработать рубанком, чтобы окончательно ее выровнять.
Как собрать лестницу на второй этаж

Перед сборкой лестницы в единую конструкцию нужно примерить все детали, и при необходимости подогнать их под размеры. После этого следует зачистить элементы шлифовальной шкуркой. Особое внимание уделите торцевым поверхностям.
Соединять все детали нужно нержавеющими шурупами с предварительной промазкой поверхностей клеем ПВА, столярным клеем или Бустилатом.

Затем все элементы лестницы покрываются морилкой, а после нее наносится несколько слоев прозрачного водостойкого лака. Если морилки нет, то разрешается обработать деревянные поверхности разогретой олифой 2-3 раза. Состав лучше наносить до сборки деталей, чтобы головки шурупов не испачкались.
Чтобы защитить места, на которые будет наноситься клей, от лака и олифы, их заклеивают специальным малярным скотчем.

Если вы хотите, чтобы ваша лестница выглядела изящнее и элегантнее, можно использовать схему с врезными ступенями. Разметка всех элементов в этом случае выполняется так же, как и прежде.
Чтобы прорезать пазы в косоурах для жесткой фиксации ступеней вместе с ножовкой используется и стамеска:

Сборку этой конструкции лучше выполнять не шурупами, а крепить ступени болтами с закругленной головкой, которая снабжена прорезью под шлицевую широкую отвертку.
Соединение делается так:
-
После выборки пазов под ступени в косоуре нужно просверлить отверстия диаметром 10 мм в центральной части паза.
-
Ступенька вставляется в паз, и через просверленное отверстие делается метка. Затем на этом месте высверливается отверстие для того, чтобы можно было ввинтить резьбовую вставку.
-
Ввёртыши лучше всего использовать под болты с резьбой М8 длиной 40-50 мм.
-
Вставку необходимо ввинтить в ступеньку, которую затем вставить в паз и затянуть болтом. Такой способ монтажа обеспечит превосходную надежность и хорошую прочность.Крепить можно и мебельными винтами.
-
Головку винта нужно утопить в высверленную фаску, которая потом будет закрыта декоративной пластмассовой заглушкой.
Все крепежные детали и сверла по дереву можно купить в строительных магазинах.
Построить деревянную лестницу на второй этаж без надежной фиксации невозможно. Но, если конструкция небольшого размера: для дачного домика в 5-6 ступеней, то дополнительные крепления для ступеней устраивать не обязательно. Добротный каркас выдержит нагрузки.
Инструменты для сборки лестницы

С чертежами, конструкцией и процессом сборки деревянной лестницы своими руками все понятно. А инструменты потребуются вот какие:
-
Чтобы сверлить отверстия, понадобится ручная или электрическая дрель, на крайний случай — коловорот.
-
Чтобы резать доски и другие деревянные детали, необходима ножовка по дереву. Для мелких элементов можно использовать ножовку по металлу с крупными зубцами.
-
Для крепления болтов, винтов и шурупов потребуются отвертки с соответствующим набором наконечников или электрический (аккумуляторный) шуруповерт. Можно пользоваться и электродрелью, но она слишком тяжелая.
-
Чтобы делать пазы, следует запастись стамеской. Пригодится и легкий молоток. Массы в 200-250 граммов будет достаточно.
-
При шлифовке и выравнивании пиломатериалов не обойтись без рубанка и наждачной бумаги всех размеров: крупной, средней и мелкой.
-
Для разметки и замера нужно захватить с собой рулетку, слесарный угол, простой твердый карандаш и несколько линеек длиной 50-80 см.
Мелкозернистой бумагой обязательно нужно зачищать все детали, иначе после высыхания лака волокна дерева станут топорщиться, что отрицательно скажется на внешнем виде всей лестницы.
Обучающее видео

В завершении материала предлагаем посмотреть видео с изготовлением деревянной двухмаршевой лестницы:
Распродажа (-55%):
bydom.ru
Как соорудить Металлическую лестницу на второй этаж своими руками в частном доме: Инструкция +Фото и Видео
Некоторые люди не хотят строить одноэтажный дом и строят многоэтажный, а передвигаться по дому без лестниц будет невозможно. Лестницы бывают разных форм и изготовленные из разных материалов. Лестницы, которые находятся между этажами, делают деревянными, металлическими и бетонными.
Металлическая лестница на второй этаж своими руками
В статье мы расскажем о лестнице из металла, которая будет расположена между этажами. Но свойства, которые имеет металл, дают возможность изготовления лестниц любых конструкций и при этом крепких, нетяжеловесных, красивых, даже воздушных лестниц.
Сооружение простой лестницы на другой этаж с одним маршем дело не сложное, при наличии некоторых навыков. А вот лестницу с несколькими маршами, изготовить сложнее, но можно же всему научиться, было бы желание.
Лестницы бывают деревянные, металлические или бетонные .
Проект и расчёты для лестниц находящихся между этажами из любых материалов, ни чем не отличаются.
Для них существуют обычные требования:
- В частном доме самая небольшая ширина лестницы составляет 900 сантиметров.
- Нормальная высота ступенек является 160 — 180 миллиметров.
- Минимально допустимая глубина ступеней составляет 270 миллиметров.
- Перила на лестнице боковой напор должны выдерживать примерно в сто килограмм.
- Расстояние между стойками перил должно составлять 150 миллиметров и, если в семье дети необходимо сделать это расстояние в 120 миллиметров.
- Лестницы изготавливают кованными и сварными.
Лестницы существуют следующих типов:
На косоурах. На одном косоуре, то есть на двутавре или швеллере. Они играют роль опоры, их размещают посередине конструкции и прикрепляют ступени. Данные лестницы выглядят воздушными, лёгкими, но нагрузку выдерживают с достоинством.- На тетиве.
- На больцах.
- Винтовые.
Существуют лестницы:
- одномаршевые и двухпролётные;
- прямые и с поворотом.

Если вы не обладаете особыми навыками по возведению лестниц, то начните с простого варианта, то есть с одномаршевой конструкции.
Необходимые расчёты
В организациях, которые занимаются разработкой проектов, используют специальные компьютерные программы, при помощи этих программ проектируют 3D модели конструкций. В 3D модели, очень легко изменить параметры разных деталей.
После утверждения финишного варианта, компьютерная программа подготавливает спецификацию и чертежи лестницы из металла.
Но в нашем случае, расчёты придётся делать без помощи компьютерной программы. Мы рассмотрим простой вариант прямой одномаршевой конструкции.
Основные требования к глубине и высоте ступеней уже известны. Необходимо сделать замеры между точками, то есть от начала до конца лестницы от пола первого этажа и высоту между полом первого и второго этажей. Теперь определяем длину лестницы, нужно помнить, что средний угол наклона является от тридцати до сорока пяти градусов.
Чтобы посчитать длину лестницы необходимо вспомнить геометрию, то есть про прямоугольный треугольник. Ведь в прямоугольном треугольнике квадрат гипотенузы равен сумме двух квадратов катетов.
Производим расчёт имеющихся параметров и извлекаем квадратный корень и получаем длину лестницы.
Дальше необходимо рассчитать подходящее количество ступеней.
Необходимые для работы материалы, инструменты
Для сооружения межэтажной металлической лестницы нам чтобы возвести межэтажную металлическую лестницу понадобятся следующие инструменты и материалы.
Инструменты:
сварочный аппарат;- лестница;
- болгарка;
- маска для сварки, рукавицы и специальные очки;
- дрель со свёрлами по металлу;
- шлифовальные диски;
- устойчивый стол из металла;
- тиски;
- струбцина;
- карандаш;
- рулетка и угольник;
Материалы:
Грунтовка;- Уайт — спирит;
- Краска по металлу
- Так же для двух косоуров используют квадратную трубу из профиля.
- Для того чтобы сварить опоры ступеней необходимы уголки, усиленные арматурой.
- Сами ступени и подступенки делают из четырёхмиллиметровой стали и отделывают деревом.
Проведение работ
Этапы работ:
Резка заготовок;- Изготовление кобылок, то есть узлов для присоединения ступеней;
- Сваривание опорных уголков;
- Монтаж косоуров;
- Приваривание ступеней и перил;
- Шлифовка;
- Грунтовка и покраска;
Первым делом из уголков изготавливают углы для крепления ступеней, то есть кобылки.
Нельзя допустить ошибку, чтобы не было различных перекосов и изъянов, которые испортят лестницу.
Так же кобылки должны быть одинаковыми и должны находиться точно друг напротив друга. Кобылки изготавливают из уголка, путём вырезания выборки и состыковки уголков между собой.
В итоге получаются Г- образные узлы полками вниз и внутрь. Для нашей конструкции необходимо четырнадцать пар этих узлов и в каждой из пар одна опора будет левой, а вторая правой. Затем кронштейны привариваем чтобы соединить ступени и горизонтальную перекладину между каждой из пар уголков.
Горизонтальную перекладину изготавливаем тоже из уголка. Усиливают конструкцию при помощи косынок, их привариваем снизу ступени по направлению к каждому из косоуров.
По ребру квадратной трубы из профиля производим разметку и по разметке привариваем кобылки к ребру косоура, второй косоур приставляют к первому косоуру с кобылками и переносим разметку.
Делаем проверку по уровню и затем привариваем косоуры нижним концом к платформе опоры. Если в домах бетонный фундамент, то опорная платформа устанавливается в бетоне. К опорной стойке крепим верхний конец, опорная стойка закреплена к перекрытию между этажами анкерами из стали. Затем ещё раз кобылки необходимо проверить по уровню.
В том случае, если лестница сделана возле стены, то для придания конструкции, жесткости один косоур приваривают к кронштейнам, которые закреплены на стене.
Финишные работы заключаются в приваривании ступеней к кобылкам, так же можно закрепить их болтами, но в этом случае необходимо ступени обшить деревом. Так же ступени можно установить деревянные, на кобылки при помощи винтовых соединений.
Советы по монтажу
Вроде возведение конструкции межэтажной лестницы не такое уж сложное занятие, но эта работа требует точности, аккуратности и внимательности.
Верхнюю ступень монтируют на небольшом расстоянии от стены, очень важно чтобы между стеной и ступенью был зазор, такой чтобы проходил лист обоев.- Перила всегда приваривают сбоку лестницы, так чтобы не изменить ее ширину.
- Все детали в местах сварки шлифуют, то есть все швы, зазубрины и заусенцы, затем металлической щёткой сметают металлические частицы. После этого лестницу из металла грунтуют и окрашивают.
- Ступени из дерева монтируют после того как краска окончательно высохнет.
Качественные сварочные работы — это гарант к долгому сроку эксплуатации лестницы. А антикоррозийное покрытие надолго защитит металл от порчи.- Со временем металлическую лестницу можно будет, отделать разными материалами и за счёт отделки она не будет смотреться громоздкой.
- Если вы вдруг не уверены в своих силах, или не умеете производить какие то работы, то лучше всего воспользоваться услугами профессиональных рабочих.
- Главным фактором выбора лестницы из металла является экономия средств.
- Лестница в первую очередь должна быть удобной, не сильно крутой и не сильно пологой.
В статье мы рассказали, как сделать металлическую лестницу на второй этаж.
Конечно, из какого материала делать лестницу решать только вам и никому больше, но лестница из металла получается визуально лёгкой, поэтому мы рекомендуем именно эту конструкцию.
Надеемся, что данная информация была вам полезной. Желаем вам удачи, терпения и вдохновения!
ТОП 9 магазинов, где я выгодно закупаюсь
ТОП 7 по товарам и мебели для дома:
7 лучших строительных и мебельных магазинов!
- Akson.ru- это интернет-гипермаркет строительных и отделочных материалов!
- homex.ru- HomeX.ru предлагает большой выбор качественных отделочных, материалов, света и сантехники от лучших производителей с быстрой доставкой по Москве и России.
- Instrumtorg.ru – это интернет – магазин строительного, автомобильного, крепежного, режущего и другого инструмента, необходимого каждому мастеру.
- Qpstol.ru — «Купистол» стремится предоставить лучший сервис своим клиентам. 5 звёзд на ЯндексМаркет.
- Lifemebel.ru- гипермаркет мебели с оборотом более 50 000 000 в месяц!
- Ezakaz.ru- Представленная на сайте мебель изготавливается на собственной фабрике в Москве, а так же проверенными производителями из Китая, Индонезии, Малайзии и Тайваня.»
- Mebelion.ru- – крупнейший интернет-магазин по продаже мебели, светильников, интерьерного декора и других товаров для красивого и уютного дома.
domsdelat.ru
Лестница на второй этаж своими руками? Ничего сложного! – Свой дом мечты
Требования к современной архитектуре таковы, что одноэтажный дом не удовлетворяет потребностей заказчика. Соответственно, с ростом этажности строения возникает дополнительный необходимый элемент – лестница. Сделать жилище оригинальным и стильным может лестница на второй этаж, своими руками ее сделать совсем не трудно. Для воплощения задуманного требуется не только иметь определенные навыки, но и умение делать расчеты будущей конструкции.
Расчет лестницы на второй этаж
Для расчета конструктивных элементов лестницы необходимо, в первую очередь, выбрать ее место расположения. На выбор влияет функциональность и имеющаяся свободная площадь в месте установки конструкции. Конфигурация помещения, в частности, то, как располагаются стены по отношению к лестнице, а также величина пространства от пола первого этажа до пола второго, являются одними из определяющих факторов. Помимо этого, требуется принимать во внимание расположение в пространстве дверных проемов. При правильном учете совокупности указанных факторов производится оптимальный подбор типа и варианта исполнения лестницы.
Примерные размеры лестничного маршаПри этом следует учитывать определенные критерии, которые лежат в основе расчета лестницы. Ширина ее должна быть 1,5-3,0 м. Размеры площадки лестницы должны быть выполнены в соответствии с шириной марша, сопряженного с ней. Не допускается различная высота ступеней, их перепады и изгибы.
Определяем параметры ступеней
Деревянная лестницаПри вычислении размеров ступеней базовыми данными являются длина, уклон и ширина марша, а также пропорциональность геометрических размеров.
Под шириной лестничного пролета понимается пространство между стеной и перилами или расстояние от одного перила до противоположного ему. Рекомендуется, в среднем, принимать 0,9 м. Для случая ограничения ступеней стеной этот параметр увеличивают до 1,1 м. Ширина с учетом размеров ограждения и тетивы называется общей. Если в расчет не брать эти элементы, то принято считать такую ширину чистовой.
В соответствии с нормативными требованиями, чистовая ширина из расчета на одного человека составляет 800 мм, но не менее 700 мм, для двух человек – 1000 мм. Важным требованием к чистовой ширине является постоянная величина ее на всем протяжении пролета. В среднем ширина ступеней, если считать по средней длине пролета, равна 200 мм.
Требования к углу наклона
Величина оптимального наклона лестничного марша находится в пределах 35-40°. Если лестницу выполнить круче, 45°, то возникают сложности перемещения по ней физического характера, а также такая конструкция может представлять опасность. При организации пологого марша существенно возрастают ее размеры и, соответственно, стоимость изделия.
Расчет угла наклона лестницыОпределение высоты и глубины ступеней
Высота ступеней определяет комфортность перемещения по лестнице. Наиболее приемлемая глубина подъема-спуска находится в пределах 290-300 мм при высоте подступенка порядка 160-180 мм. Причем глубина более 320 мм не допускается. Если глубину сделать больше указанной величины, то для преодоления ступеньки необходимо будет делать два шага. В некоторых случаях могут быть применены ступени, имеющие различный шаг или поворот.
Пример расчета высоты и глубины ступенейСуществуют конструктивные решения, когда недостаток свободного пространства или соображения создания большего комфорта обуславливают применения нависания ступеней друг над другом. При этом максимальная величина нависания составляет 40 мм.
Некоторые особенности при расчете лестниц
Правильно рассчитанная лестница удобнаПри вычислении параметров лестницы и межмаршевой площадки, следует учитывать, что ширина последней не должна быть менее 1400 мм. Это требование обусловлено тем фактом, что данная величина равна двум шагам человека. Ширина площадки в чистом виде соответствовать чистовой ширине марша.
Кроме этого существуют определенные критерии организации ограждений на лестнице. Расстояние от ступени перила рекомендуется принимать 900 мм – для маршевой лестницы, 1100 мм – для винтовой.
Промежутки, образующиеся между балясинами, должны составлять не менее 120 мм. Это требование обусловлено мерами предосторожности. Правильно выбранная их ширина позволяет достичь необходимой жесткости и прочности всей конструкции.
Для достижения комфорта и безопасности перемещения человека среднего роста расстояние от ступенек до потолка должно быть 1,9-2,0 м.
Поворотная лестница
Конструктивные особенности лестниц такого типа заключаются в том, что площадка между маршами заменяется ступенями. Для расчета принимаются во внимание такие параметры, как длина и высота пролета, число ступеней общее и количество поворотных элементов. Принято считать, что число ступеней, требуемых для реализации поворота, должно быть три.
Лестница с наличием забежных ступеней
Забежные ступениВ этом случае существенным фактором является место расположения забежных ступеней на лестнице. В ходе проведения расчетов следует учитывать следующие требования:
- минимальная ширина соответствующая широкой части должна быть 4000 мм;
- кривизна в части поворота должна иметь радиус 300 мм;
- в целях безопасности конструкция должна иметь плавность на всей протяженности марша;
- забежные ступени должны иметь ширину не менее 200 мм (по средней линии).
Лестницы на второй этаж из дерева
Использование дерева в качестве материала для лестницы вполне оправдано. Деревянные конструкции обладают надежностью и длительным сроком эксплуатации, а правильная обработка средствами защиты устраняет биологические факторы, негативно влияющие на материал. Дерево хорошо поддается обработке, что позволяет создавать уникальные изделия. Натуральный материал позволяет достичь безопасности в экологическом плане. Помимо этого, деревянные конструкции создают дополнительный комфорт для жильцов, так как обладают способностью создавать беспрепятственное движение воздуха в помещении и нормализует в нем влажность. Красота лестницы, изготовленной из дерева, гармоничное сочетание с любым интерьером, а также возможность создания оригинальных декоративных элементов являются неоспоримыми преимуществами материала.
Лестница из дерева экологична и долговечнаПри всех несомненных положительных свойствах дерева, оно имеет определенные недостатки. Стоимость деревянного изделия не позволяет считать их доступными для всех слоев населения. Это обусловлено тем, что процессы подготовки материала, обработки его и установки готовой конструкции весьма затратны из-за применения ручного труда. Кроме этого, сроки производства имеют существенную длительность. При эксплуатации деревянные изделия требуют соответствующего ухода, регулярного обновления его покрытия.
Лестницы на второй этаж из металла
Достичь одного из главных требований к конструкции лестниц – безопасности – позволяет использование металла при их изготовлении. Металлические изделия обладают значительной прочностью и стойкостью к износу. Благодаря механическим свойствам материала производство лестниц из металла позволяет достичь существенной экономии площади для ее размещения.
При сравнении с бетонными, вес металлических конструкций гораздо меньше, что упрощает их перемещение и монтаж.
Существенным преимуществом металла является его технологичность. Это обстоятельство позволяет производить операции с ним вне производственных помещений, имея только базовые навыки работы с металлом. Достаточная пластичность металла дает возможность при обработке давлением получать разнообразные конфигурации элементов конструкции, которые могут соперничать с деревянным декором. Также имеется возможность обработки деталей на металлорежущих станках.
Необычная лестница с коваными периламиСвойство окисления стали на воздухе можно отнести к недостаткам металлических лестниц. Поэтому необходимы определенные затраты на приобретение и нанесение средств защиты. Использование сталей нержавеющих марок также увеличивает стоимость изделия.
Лестница из металла в светлой комнатеЛестницы на второй этаж из бетона
Бетонные лестницы обладают значительными прочностными свойствами при использовании высококачественного бетона и правильного армирования. Износостойкость изделия позволяет эксплуатировать его на протяжении полувека. Материал обеспечивает цельность конструкции и пожаробезопасность при достаточном разнообразии форм.
Проект лестницы из бетонаВ то же время вид такой лестницы не отличается изысканностью и чересчур громоздок. В обязательном порядке требуется дополнительная отделка конструкции. При этом основным требованием является достижение определенной влажности материала, что увеличивает длительность технологического процесса. Монтаж бетонной лестницы требует определенных специализированных навыков. Бетон имеет существенный вес, что обуславливает большую нагрузку на несущие элементы здания.
В идеальном случае избежать недостатков описанных материалов и добиться максимального качества и изящности лестницы можно путем их комбинирования.
Фото лестниц
В предлагаемой подборке фотографий вы можете обратить внимание на разные виды лестниц и выбрать оптимальный для вас вариант.
Лестница на второй этаж
Лестница должна быть удобной
Деревянная лестница экологична
Материалы можно комбинировать
Лестница – важная деталь интерьераsmall-house.ru
Как сделать в комнате второй этаж: фото и видео урок.
Подготовительный процесс перед установкой второго этажа в комнате
Прежде чем приступить к установке второго этажа в комнате, следует выполнить ряд подготовительных работ. В первую очередь, нужно все хорошо продумать до мелочей, определиться с тем, как он будет выглядеть в конечном виде, и составить его эскиз.
Чтобы создать чертеж, можно посоветоваться со специалистом: он поможет с выбором материалов, поможет определиться с видом конструкции, которая подойдет для помещения, а также даст дельные советы, с чего начать и чем закончить работу.
Для создания такого сооружения понадобится немаленькое количество строительных материалов, поэтому лучше их приготовить заранее, чтобы все нужное было под рукой.
Для строительства второго этажа огромную роль играет размер помещения и высота потолка. Минимальная высота потолка должна быть около 3,2 метра, а чтобы построить два полноценных этажа понадобится около 4,5 метров. От высоты потолка зависит то, какая именно комната разместится на конструкции. Если сооружение устанавливается для спальни то, будет достаточно 2 метра в высоту, а если на втором этаже планируется размещение кладовки – будет достаточно и 1,5 метра.


Нужно учесть, что маленькая комната не подойдет для строительства подобных конструкций, так как в ней должны поместиться ступеньки, а кроме них в помещении должна находиться еще и мебель.
Обычная лестница занимает большую часть комнаты. Чтобы подняться на второй этаж понадобится около 15 ступеней, а это уже немало. Но если помещение не настолько большое и не позволяет установить такого рода лестницу – ее можно заменить выдвижной. Такие, в основном, устанавливают на чердаках, они занимают значительно меньше места и являются не менее удобными.

Чтобы самостоятельно без труда изготовить лестницу, посмотрите видеоурок.
Как установить второй этаж в комнате
Чтобы второй ярус комнаты прослужил долгое время, приступив к его установке, следует выполнить пошаговую инструкцию.
Шаг 1. В первую очередь нужно сделать прочный каркас из брусьев.
Шаг 2. Укладываем на каркас балки.
Вся конструкция должна прочно крепиться к стенам. Если балки сделаны из металла, то нужно будет их приварить или прочно закрепить болтами. Металлическая конструкция выглядит более привлекательно, нежели деревянная, так как она значительно тоньше. Деревянная конструкция будет выглядеть мощной.

Шаг 3. Прикрепляем конструкцию к стенам и потолку с помощью кронштейнов. Приобрести их можно в любом строительном магазине.
Шаг 4. После того, как каркас установлен, нужно покрыть полы второго этажа. Это можно сделать деревянными досками, ДСП или специальным стеклом.
Шаг 5. Делаем ограждение. Оно может быть выполнено из любого материала, высотой не менее одного метра.
Шаг 6. Устанавливаем лестницу. В зависимости от того, какой размер помещения, определяем место, где она будет расположена.
Вентиляция и освещение второго этажа комнаты
Известный факт, что теплый воздух скапливается под потолком. И поэтому находиться вверху комнаты без вентиляции долгое время невозможно.
В основном, второй ярус комнаты устанавливают недалеко от вентиляционных систем, но если это невозможно, то такую систему можно сделать самому. Например, пустить вентиляцию через крышу или объединить ее с другой комнатой с помощью гибких труб и вентилятора.
Что касается освещения, то все зависит от того, какая комната на втором этаже. Если это спальня, то будет достаточно светильника, а если планируется там сделать кабинет или библиотеку, нужно будет естественное освещение. Для этого придется внести изменения в стене и проделать там окно.



ogodom.ru






На косоурах. На одном косоуре, то есть на двутавре или швеллере. Они играют роль опоры, их размещают посередине конструкции и прикрепляют ступени. Данные лестницы выглядят воздушными, лёгкими, но нагрузку выдерживают с достоинством.
сварочный аппарат;
Грунтовка;
Резка заготовок;
Верхнюю ступень монтируют на небольшом расстоянии от стены, очень важно чтобы между стеной и ступенью был зазор, такой чтобы проходил лист обоев.
Качественные сварочные работы — это гарант к долгому сроку эксплуатации лестницы. А антикоррозийное покрытие надолго защитит металл от порчи.