Заземление контур – Как правильно сделать контур заземления: таблицы, формулы
Контур заземления — требования, виды и монтаж
Содержание:
- Общие сведения о заземляющем контуре
- Требования ПУЭ к контуру заземления
- Типы и конструкции заземления
- Инструменты и материалы
- Монтажные работы
- Проверка заземляющего контура
Система подачи электроэнергии соединяется через распределительный щит с внутренней проводкой помещений и обеспечивает питанием все имеющиеся бытовые приборы и оборудование. В процессе эксплуатации вполне возможно возникновение неисправностей и аварийных ситуаций, приводящих к токовым утечкам. В связи с этим в каждом доме выполняются защитные мероприятия, среди которых важную роль играет контур заземления, устанавливаемый отдельно или совместно с устройствами защитного отключения.
Данные системы монтируются в соответствии с ПУЭ, защищая людей и оборудование от поражающего действия электротока.
Общие сведения о заземляющем контуре
Стандартный контур заземления представляет собой комплекс металлических конструкций, размещенных в земле, на определенных расстояниях между собой и незначительном удалении от защищаемого объекта.

Данная схема выполняет следующие функции:
- Защищают людей от поражения электротоком, а приборы и оборудование – от перепадов напряжения.
- За счет сопротивления не дают энергии бесконтрольно растекаться в окружающей среде.
- Обеспечивают защиту от последствий ударов молнии.
Если требуется сделать наружный контур заземления в этом случае большинство конструкций изготавливается из стальных труб, уголков, гладких прутков и других профильных материалов. Длина каждого элемента не превышает 3 метров. Они забиваются кувалдой в твердый грунт, засыпаются землей и утрамбовываются. Нежелательно использовать бетон, поскольку в дальнейшем ремонт таких конструкций будет невозможен.
Забитые электроды соединяются между собой тонкой стальной полосой, толщиной не менее 4 мм. Крепления осуществляются сваркой или болтовыми соединениями. Далее конструкция соединяется специальным заземляющим кабелем со всеми приборами, находящимися в доме, в первую очередь с высоким потреблением нагрузки. Для повышения качества работы системы нередко на объекте дополнительно устраивается внутренний контур заземления.

Данные для расчетов конструкции можно получить путем проведения необходимых исследований. В соответствии с типом и характером грунта определяется глубина залегания электродов, их количество и другие параметры. Выбирается наиболее подходящий материал для изготовления конструктивных элементов. Идеальными вариантами под контур заземляемого объекта считаются глинистые грунты, суглинки и черноземы.
Запрещается устанавливать заземление в каменистых или скальных грунтах, поскольку они являются проводниками тока и обладают низким сопротивлением.
Требования ПУЭ к контуру заземления
Прежде чем проектировать и на практике осуществлять устройство контура заземления, следует внимательно изучить требования ПУЭ по данному вопросу. Это позволит избежать ошибок, качественно выполнить соединения и подключения, соблюдая все нормативы и стандарты. Изучив нормативную документацию, вполне возможно самостоятельно изготовить внешний контур заземления, при наличии теоретических знаний и практических навыков.
В соответствии с ПУЭ, каждый выход из здания должен иметь повторный контур заземления. Для этих целей рекомендуется воспользоваться естественными заземлителями из числа расположенных рядом металлических и железобетонных конструкций. Большая часть их поверхности должна контактировать с грунтом. Если контур заземления дома соединяется с конструкциями, расположенными в условиях агрессивной среды, они должны быть защищены специальным покрытием.

Правилами определяются и те элементы, которые не могут служить контуром заземления. В первую очередь, это изделия из железобетона, находящиеся под напряжением, трубопроводы для транспортировки горючих веществ, трубы канализации и отопления. Если без естественных заземлителей никак не обойтись, необходимо выполнить предварительные расчеты и решить, как правильно сделать выбор той или иной конструкции, после чего выбирается наиболее оптимальная схема подключения.
При возведении новых зданий применяются искусственные заземляющие контуры, монтируемые в процессе строительства. Данный способ заземления используется чаще всего, поскольку на местах не всегда имеется возможность воспользоваться естественными факторами. Следует учитывать и сопротивление грунтов, непосредственно влияющее на работоспособность систем, в том числе и на контур заземления ТП.
Если почва постоянно влажная, то ее сопротивление всегда будет ниже допустимого уровня. Эти и другие параметры нужно брать во внимание при расчетах и разработке конструкции заземляющего контура.
Типы и конструкции заземления
В частных домах требования ПУЭ допускают использование различных типов заземлений. В конструкцию обычного контура входят вертикальные электроды и одна горизонтальная перемычка. Все элементы должны быть одного размера и с круглым сечением в разрезе. Обычно они изготавливаются из толстой арматуры, труб или стальных прутьев.

Классической фигурой является контур заземления с конфигурацией треугольник, состоящий из арматурных прутьев в количестве 3 штук, размером 2 метра и более. Чем больше расстояние между прутками, тем эффективнее будет работать система. Минимальная дистанция составляет 1,5 м.
После того как электроды забиты в грунт, они соединяются между собой. На каждую сторону устанавливается отдельная полоса, закрепляемая на одной и той же высоте. Это и есть медные или стальные горизонтальные заземлители устанавливаемые на верхнюю часть штырей.
Место для установки контура в частном доме выбирается там, куда люди заходят очень редко. Предпочтение отдается северной стороне, которая плохо освещается и способствует сохранению в почве большого количества влаги. Расстояние от контура до стены дома должно быть не менее 1 метра.

В другом варианте заземление имеет конструкцию глубинного типа. В нем практически отсутствуют минусы, характерные для обычного способа, поскольку используется модульно-штыревая система. Весь комплект для сборки, сделанный на заводе, в техническом плане подтверждается сертификатом. Основным преимуществом данных систем является их соответствие нормативам, они отличаются повышенным сроком службы – от 30 лет и выше.
Электрический заряд стабильно растекается, независимо от погодных условий. Глубина залегания электродов достигает 30 метров, обеспечивая качество и надежность заземления, а вся собранная схема не требует постоянных проверок.
Инструменты и материалы
Для расчета материалов проводятся необходимые измерения, после чего составляется подробная схема контура с привязкой к конкретному зданию.
Затем нужно подготовить инструменты. Обязательно понадобится лопата, кувалда, набор гаечных ключей, перфоратор, болгарка с отрезными кругами, сварочный аппарат с электродами, измерительные приборы для замеров тока, напряжения и сопротивления.

Перечень материалов состоит из следующих наименований:
- Стальные уголки для электродов с полками 50х50 или 60х60 мм, длиной от 2 метров и выше. Технические требования ПУЭ допускают использование вместо них стальных труб в качестве заземлителя, диаметром не ниже 32 мм. Средняя толщина стенок составляет 3-4 мм и более.
- Материалы для горизонтальных заземлителей в количестве 3 металлических полос. Длина соответствует размеру стороны треугольника, толщина – 4-6 мм, ширина – от 4 до 6 см.
- Соединительная полоса из нержавеющей стали, соединяющая заземляющий контур с крыльцом здания. Размеры сечения составляют 40х4 или 50х5 мм.
- Медный токопровод, сечением не менее 6-7 мм2.
- Набор болтов М8, М10.
Технические характеристики проводников выбираются по специальным таблицам. Их размеры должны быть не меньше указанных, все отклонения допускаются только в большую сторону.
Монтажные работы
После того как было определено место установки заземляющего контура, составлен чертеж, выполнены все расчеты и подготовительные работы, можно приступать к непосредственному монтажу конструкций и решать, как сделать контур заземления в данных условиях.
Вначале нужно выкопать траншею глубиной от 70 до 100 см. В вершинах треугольника с помощью кувалды забиваются уголки, обеспечивающие первоначальное сопротивление системы. Средняя глубина забивки составляет 2-3 м. Если грунт слишком твердый и электроды в него входят плохо, необходимо использовать специальный бур, высверлить отверстия и уже в них вставить заземлители.
Перед монтажом концы металлических электродов рекомендуется заострить, чтобы они легче входили в грунт. Штыри не нужно забивать полностью в землю, над ее поверхностью должно оставаться примерно 30 см для крепления. Далее горизонтальные и вертикальные части свариваются между собой, и вся конструкция подключается к металлической полосе, которая, в свою очередь, соединяется с заземляющим проводником.
Затем этот заземлительный провод соединяется с шиной, установленной в распределительном щитке. В местах соединений производится обработка антикоррозийными составами.
Проверка заземляющего контура
После решения, как сделать контур заземления, следует проверить работоспособность полученной конструкции. Проверка начинается с мест соединений. С этой целью выполняется простукивание молотком сварных швов, а болтовые соединения проверяются гаечными ключами.
Для замеров сопротивления привлекаются квалифицированные специалисты, которые составляют акт по итогам проверки. В системе ТТ этот показатель должен быть низким, а в системе TN-C-S, наоборот, с более высоким значением.
Если нет возможностей для официальной проверки, она легко делается своими силами. В этом случае следует выяснить, смогут ли бытовые приборы нормально работать при токе, максимальном для установленного автоматического выключателя. С этой целью используется специальная схема, когда берется переносная розетка, от которой один провод подключается к фазе, а второй – к заземляющему контуру.
После этого в розетку включается заданная нагрузка мощностью в пределах 2 кВт. Если она работает устойчиво, а падение напряжения между фазным и заземляющим проводником не превышает 10В, значит заземление хорошее, выполняет требования ПУЭ и свои функции в полном объеме. Данная операция требует осторожности и соблюдения мер электробезопасности, особенно в местах непосредственного расположения защитного контура.
electric-220.ru
Контур заземления дома.Монтаж контура заземления.Электрощиты.Сборка.Проектирование.Схемы.
Контур заземления дома, попробуем смонтировать его самостоятельно. Ранее уже была написана статья, что такое заземление частного дома и для чего оно нам необходимо.
Я не буду рассматривать монтаж контура заземления в квартире многоэтажного дома, по той простой причине, что в многоэтажках, либо есть защитный проводник PE (третий провод у вас в квартире), либо его нет. И пытаться сделать защитное заземление в квартире самостоятельно (присоединять провод к трубам отопления, к электрощиту на этаже) – это верх глупости и беспечности!
Контур заземления дома, представляет собой металлоконструкцию, состоящую из горизонтальных и вертикальных электродов (заземлителей) – стальные уголки, полосы, трубы.

Заземляющие электроды контура заземление дома, длиной в среднем 2-3 метра, забивают в грунт кувалдой и соединяют между собой стальной полосой при помощи сварки. Как правило, верхние слои грунта обладают бОльшим сопротивлением, чем нижние, поэтому электроды необходимо забивать в землю, как можно глубже, но без фанатизма. Согласно ПУЭ, заземляющие электроды контура заземления дома, должны быть либо из меди, либо стальными.
Есть в продаже и уже готовые модульно-штыревые системы заземления для частного дома, но их стоимость и монтаж будет, конечно, на порядок выше, чем вы сделаете самостоятельно.

Чернозем, глина, суглинок, торф наиболее подходят для монтажа контура заземления дома. Каменный и скальный грунт для монтажа контура заземления не подходят. Здесь думаю понятно, что чем выше удельное сопротивление грунта, коим обладают каменистые и скальные, тем большее значение сопротивления будет самого контура заземления.

Располагают контур заземления дома на расстоянии не ближе 1 метра от жилья, но и не дальше 10 метров. Лучше всего располагать контур заземления дома в месте, которое чаще всего будет находиться в тени.
Чаще всего встречается контур заземления дома в виде равностороннего треугольника, в вершины которого вбиты электроды, соединенные между собой стальной полосой. Необходимо знать, что чем ближе расположены между собой электроды контура заземления дома, тем меньше его эффективность. Можно располагать электроды в одну линию, но в данном случае необходимо 4-5 электродов, расстояние между которыми будет в 1 метр. Наименьшие размеры заземляющих электродов(заземлителей) указаны в ПУЭ.

Чтобы соорудить контур заземления дома, нам необходимо выкопать лопатой траншею в виде равностороннего треугольника со сторонами около 3 метров, глубиной 0,6-0,7 м и шириной 0,4-0,5 метра.

По вершинам треугольника контура заземления дома забиваем электроды (стальные уголки 40х40х5) длиной около 3 метров, но забиваем не до конца, оставляя 0,15-0,25 м над грунтом.

Чтобы было легче забивать электроды, их лучше заранее заострить, например, шлифмашинкой.

Можно пробурить небольшие колодцы под заземляющие электроды контура заземления дома.

Далее качественно привариваем сваркой к вершинам нашего контура заземления дома, стальную полосу.


Не забываем места сварки контура заземления дома, обработать специальным антикоррозийным покрытием, но ни в коем случае, не краской, которая является диэлектриком и не проводит ток. Также не стоит соединять пластины с уголками при помощи болтовых соединений, со временем соединение ослабевает, ржавеет, и контур заземления дома теряет эффективность.

Затем от ближайшей вершины треугольника контура заземления к дому, прокладываем стальную пластину к главной заземляющей шине(ГЗШ) нашего электрощита. Можно соединить контур заземления дома с ГЗШ электрощита по-другому, выводим стальную полосу над землей,например, у отмостки дома, привариваем к ней болт и подсоединяем медную шину, либо медный гибкий провод, сечением не менее 10 кв.мм.


После окончания работ по монтажу контура заземления дома, необходимо проверить правильность и качество монтажа. Для этого необходимо провести визуальный осмотр контура заземления, проверить болтовые соединения, качество сварных швов на наличие трещин и замерить сопротивление контура заземления.
Сопротивление контура заземления измеряется специальными приборами, и должно быть согласно ПУЭ п.7.1.101 не более 30 Ом, как для трехфазной электросети напряжением 380 В, так и для однофазной напряжением 220 В, и чем меньше сопротивление конутра заземления, тем для нас будет лучше. Замеряют сопротивление контура заземления дома при сухой погоде летом, и максимальном промерзании грунта зимой, т.е. когда сопротивление самого грунта максимально.
Многие сайты на электрическую тематику, в том числе и топовые, а также инспектора энергонадзора, то ли по незнанию, то для каких-то своих корыстных целей, вводят людей в заблуждение, приводя значение сопротивления контура заземления в 4 Ома. Это неверно и если внимательно прочитать требования ПУЭ, относится к трансформаторам и генераторам, нейтрали которых непосредственно присоединены к контуру заземления. А сопротивление контура заземления частного дома будет, как указывалось мною выше не более 30 Ом.
Заказать измерение сопротивления и монтаж контура заземления частного дома, как правило, можно у сетевой организации, которая выдавала вам технические условия для присоединения к электрическим сетям.
Если вы заказывали проект электроснабжения частного дома, то все необходимые расчеты, наименование и параметры материалов для контура заземления дома, будут указаны в проекте.

Помните, что правильно рассчитанный и смонтированный контур заземления дома — это ваша безопасность.
Спасибо за внимание.
elektroschyt.ru
Контур заземления
Контур заземления классически представляет собой группу соединенных горизонтальным проводником вертикальных электродов небольшой глубины, смонтированных около объекта на относительно небольшом взаимном расстоянии друг от друга.
В качестве заземляющих электродов в таком заземляющем устройстве традиционно использовали стальной уголок либо арматура длинами 3 метра, которые забивали в грунт с помощью кувалды.
В качестве соединительного проводника использовали стальную полосу 4х40 мм, которая укладывалась в заранее подготовленную канаву глубиной 0,5 — 0,7 метра. Проводник присоединялся к смонтированным заземлителям электро- или газосваркой.
Контур заземления для экономии места обычно «сворачивают» вокруг здания вдоль стен (по периметру). Если взглянуть на этот заземлитель сверху, можно сказать, что электроды смонтированы по контуру здания (отсюда и название).
Таким образом контур заземления — это заземлитель, состоящий из нескольких электродов (группы электродов), соединенных друг с другом и смонтированных вокруг здания по его контуру.
Контур заземления: классический или современный?
Классический контур заземления | |
| Большая площадь установки | Крайне малая площадь установки (вплоть до монтажа в подвале дома) |
| Необходимы сварные работы | Все элементы заземлителя легко соединяются резьбовыми соединениями (не влияет на механические и электрические свойства заземлителя) |
| Требуется резка материала | Все детали изготовлены промышленным способом с гарантировано высоким качеством |
| Требуется транспортировка грузовым автомобилем | Полутораметровая упаковка штырей и коробка с дополнительными элементами умещается в обычный легковой автомобиль |
| Длительный и физически тяжелый процесс установки, требующий привлечения сварщика | Быстрая установка своими силами. Для установки заземлителя требуется только один человек. Элементы конструкции имеют вес не более 2х килограмм. |
zandz.com
Как технологически правильно устроить контур заземления по схеме
Если в оборудовании повреждена изоляция, то части, которые не должны проводить электрический ток, могут оказаться под действием напряжения. Прикасаясь по привычке к ручкам, кожуху или корпусу, пользователь получает удар током, и становится проводником его в землю. Сила тока в 0,1 А смертельно опасна для человека. Так как сопротивление тела колеблется в пределах от сотен до тысяч Ом, то приборы с маленьким напряжением становятся угрозой.Действенной мерой защиты от электрических травм является заземление. Это устройство представляет собой продуманное соединение одной из частей установки с землей, которое делается с помощью элементов и проводников заземления. Они собираются в группы и закладываются в грунт. Основным правилом защитных устройств является то, что сопротивление заземления во много раз меньше этого показателя человеческого тела.
Чтобы определить максимально возможное сопротивление защитного заземления нужно просуммировать напряжение техники и замыкающих земельных токов. Кроме того, следует определиться с наличием изолированного или заземленного нейтрального проводника и другими важными технологическими особенностями, которые установлены в правилах ПУЭ.
Наружный заземляющий контур
Схема заземляющего устройства состоит из наружных естественных или искусственных элементов, проложенных в земле и собранных в общий контур. В устройство защиты входят и внутренние сети проводников на стенах, которые присоединяются к наружному контуру.Элементы из металла, проложенные в земле, обеспечивают большую площадь соприкосновения с грунтом и имеют малое сопротивление. В качестве наружных элементов широко используют находящиеся в земле металлические трубчатые магистрали. Не подключают к заземлению трубопроводы взрывчатых и легковоспламеняющихся веществ.
Детали обсадных труб, металлического каркаса в железобетонных конструкциях домов, нулевые провода воздушной электропроводки с напряжением 1000 В с повторным заземлением успешно применяют в качестве элементов наружной защиты. Все случайные металлические элементы обязательно подсоединяются в двух местах к защитному контуру.
Все узлы соединяются сваркой, длина шва определяется в зависимости от сечения проводника. Если невозможно сварить детали, тогда применяют хомуты со стороны места входа магистрали в строение. Сварочные соединения обрабатывают битумом для защиты от преждевременной коррозии.
Обязательно заземляют:
- корпуса и кожухи электрических установок, агрегатов и их приводов, конструкционные каркасы распределительных щитов управления, шкафов и щитков;
- корпуса и конструкции из металла кабельных муфт, железные обмотки проводов и кабелей, металлические трубы для прокладки проводки;
- трансформаторные вторичные обмотки.
Не защищают заземлением:
- конструкции опорных изоляторов проводки;
- приборы, помещенные на заземленных платформах, так как на них предусматривается необработанное место для контакта с плоскостью;
- корпуса приборов измерения и контроля, которые стоят в наборных щитках или шкафах.
Если нет подходящих естественных элементов заземления, контур наружной защиты выполняют из искусственно подобранных в соответствии с ПУЭ. По типу они бывают горизонтальными, заглубленными и вертикальными.
Горизонтальными элементами служат полосы стали толщиной более 4 мм и шириной не менее 10 мм, которые прокладываются в горизонтальном направлении в земле и связывают вертикальные стержни.
Горизонтальные и заглубленные варианты являются родственными по конструкции, они закладываются на дно ямы при установке опор электропередач. Заземление изготавливается по проекту монтажной организацией в мастерских. Материалом служит стальная полоса или круглая арматура.
Вертикальное заземление представляет собой забитые в грунт трубы или металлический прокат и стальную арматуру.
Монтаж контура наружного заземления выполняется по специальным схемам и в соответствии с ПУЭ. Все подготовительные работы в виде пробивки отверстий, установке закладных деталей, рытье траншей, осуществляется на первом этапе работ.
От чего зависит величина сопротивления заземления:
- разновидности грунта на участке, его структуры и состояния;
- глубины прокладки электродов;
- свойств материалов и сечения электродов.
Свойства грунта определяются его способностью сопротивляться растеканию электрического тока в толще земли. Для контура считается лучше, если этот показатель меньше.
Заземление рабочее и защитное устройство
Защитное устройство спасает человека от удара электричеством, а включенные в сеть бытовые приборы от поломки при пробое напряжения на корпус. Рабочее заземляющее устройство организовывает защиту и нормальное функционирование электрических приборов. Рабочее заземление постоянного действия применяется только для промысленного электрического оборудования, а бытовые приборы заземляются через ноль розетки. Но некоторые бытовые агрегаты следует наглухо защитить заземлением:- стиральная машина с большой собственной электроемкостью, работающая во влажных условиях, пробивает на корпус и «щиплет» руку;
- на микроволновых печах сзади стоит специальная клемма для дополнительного заземления, так как в ней установлен источник сверхвысоких частот. Если в розетке недостаточный контакт, то прибор может выдавать неучтенные волны на опасном для здоровья уровне;
- варочные поверхности электрической духовки и индукционной печи, в которых внутренняя проводка работает при критических состояниях и ток иногда пробивает на корпус;
- настольный компьютер стационарного вида утечку электричества дает большую. Корпусные плавающие потенциалы приводят к замедлению работы и снижению производительности, и заземление крепят за любой подходящий винт на задней панели.
В некоторых случаях нельзя рассчитывать только на одно заземление, так как грунт не относится к линейным проводникам электричества. Его сопротивление определяется рабочим напряжением и площади контакта с элементом контура. Если разнести два контура на расстояние друг от друга на 1,2– 1,5 метра, то площадь соприкосновения эффективно увеличивается в сто раз. Нельзя увеличивать расстояние разноса больше указанного размера, это повлечет разрыв потенциального поля, и площадь сразу сокращается.
Нельзя заземляющие проводники выводить в наружное пространство и подключать их к неподготовленным площадкам контакта. Любой металл обладает своим потенциалом и при влажных наружных условиях начинается коррозия и разрушение. Наличие смазки на контакте помогает только в сухих условиях. Если коррозия пойдет под оболочку проводника, то в критической ситуации проводник моментально отгорит и контур не защитит человека от поражения.
Если электрические установки подключать в последовательном порядке и подсоединять не один заземляющий проводник на шину, а несколько, то авария на одном приборе потянет за собой и остальные. Они не смогут работать производительно, так как будут несовместимы в электромагнитном плане.
Для устройства контура идеально подходят влажные глины, суглинки и торфяные грунты. Практически невозможно установить защитную конструкцию в каменистой земле и скальных породах.
Работы по изготовлению и монтажу контура
Если в доме и на участке нет заземления, устраивают такую конструкцию на вводе в жилище, что является повторным заземлением. Чаще всего подключение электричества от городской линии электропередач в дом идет по воздуху, и устройство вторичного заземления требуется по правилам ПУЭ.На первом этапе выбирают месторасположения, размеры и форма контура. Устанавливают его недалеко от ввода, а по форме контур бывает треугольный, прямоугольный или в виде линии, который состоит из любого числа вертикальных штырей, собранных стальной полосой.
На чем заострить внимание:
- при устройстве горизонтальных контуров глубина ям не должна быть меньше 0,5– 0,8 м;
- глубина закладки вертикальных металлических профилей с учетом траншеи составляет не менее 3,5– 3,8 м;
- на выбор длины вертикальных элементов влияет тип почвы, глубина замерзания земли, относительная влажность грунта;
- для эффективности контура увеличение его в диаметре не так важно, гораздо лучше добавить его длину;
- расстояние между вертикальными элементами должно быть не менее длины одного из них. Если принять это расстояние меньше, то производительность контура снижается.
Земляные подготовительные работы
Для разметки устанавливают колышки с натянутой бечевкой и разметку выполняют штыком лопаты. Землю по разметке выкапывают на глубину траншеи по ширине 30 см. Для нижнего слоя подсыпают мягкий грунт слоем 25 см в виде чернозема без мусора и каменных добавлений, который непосредственно будет контактировать с элементами заземления. Иногда используют привозной грунт с добавлением торфа или перегноя. Во время обратной засыпки после устройства контура грунт периодически послойно уплотняют.
Устройство контура
В углах траншеи забивают вертикальные штыри, которые предварительно оставляют над уровнем земли на 30 см, что нужно для удобства выполнения сварочных работ. После этого приваривают горизонтальные полосы с запасом длины на концах. Полосовую сталь нельзя натягивать, она должна располагаться свободно.К выполнению сварки предъявляются особые требования. Все длины швов регламентированы в нормативных справочниках в зависимости от различного сочетания полос, кругляка и квадрата между собой. Обычно для однотипного профиля длина шва принимается 100 мм, а разнотипные элементы привариваются с созданием наибольшей площади соприкосновения и обваривают все места соединения.
После окончания сварочного соединения все места сварки окрашивают краской или обмазывают битумом. Для вертикальных стержней контура и горизонтальных элементов не допускается наличие краски на протяжении всей поверхности.
Далее равномерно забивают всю сваренную конструкцию в грунт (осаживают). Для облегчения места входа в землю поливают водой. Ударные нагрузки на места сварки проверяют неоднократно прочность конструкции. Предварительное затачивание концов вертикальных швов болгаркой или точильным кругом очень облегчит забивание.
Для подключения контура к вводу и к распределительному ящику используют полосу металла, которую жестко фиксируют на указанных конструкциях.
Как измерить заземление
После изготовления контура удостоверяются в его надежности, для чего измеряют сопротивление растеканию электрического тока в земле и сопротивление сваренного металлического контура. Для этого в настоящее время существуют разнообразные электронные приборы. Пользуются и старыми советскими надежными устройствами. Бытовой тестер для этого подойдет мало, так как земля не является линейным проводником тока.Беру напрокат или одалживают электронный современный прибор или старый советский ручной мегомметр индукционного способа действия. Проверить сопротивление контура не удастся ручным прибором, но при тщательно и правильно выполненном сварном соединении оно десятилетиями находится в норме.
Сопротивление растекания проверяют голыми зачищенными электродами, которые погружают в землю на глубину до одного метра на расстоянии полутора метров друг от друга. При этом выдерживают полярность меггера, контур защиты должен выдерживать молниевый удар. Но разрушительная сила такого природного катастрофического явления приравнивается к взрыву и заземление от него может не спасти.
Поэтому для измерения сопротивления текучести крутят ручку меггера и определяют показания на шкале. Пользоваться в этом случае сетевым напряжением, миллиамперметром и резистором очень опасно.
Собственник дома, самостоятельно выполнивший устройство заземления, не может полноценно оценить его качество просто визуальным осмотром и иногда требуется пригласить специалиста, владеющего профессиональными приемами и знаниями. Это может быть работник электротехнической службы любого крупного предприятия.
Все нормативные документы предъявляют требования по омическому сопротивлению в зависимости от многочисленных факторов. Ими учитываются эксплуатационные условия, климат, действующие напряжения электрических приборов, особенности электроснабжения и схема подключения. И в зависимости от этого формируется максимально допустимый предел сопротивления почвы текучести тока, который варьируется в очень большом диапазоне.Исходя из опытных замеров, в соответствии с нормативными схемами, допустимый показатель для частного дома составляет 4 Ома. Это вполне реальная цифра, которая поможет защитить человека от поражения током. Уменьшение показателя будет более благоприятно для повышения эффективности защиты электроприборов в жилище.
elektro.guru
Контур защитного заземления. Схема, фото, пояснения
Контуром заземления называют находящееся в земле соединение горизонтальных и вертикальных заземлителей (электродов).

Совокупность помещённых в грунт электродов и заземляющего провода, который соединяет данный контур и главную заземляющую шину (ГЗШ) являет собой заземляющее устройство (ЗУ). Важнейшей характеристикой ЗУ является переходное сопротивление (металлосвязь) и сопротивление контура растеканию токов в земле.
От качества выполненных работ зависит заземление каждой розетки в доме и надёжность молниезащиты.
Расчет контура
Сопротивление контура заземления зависит от:
- параметров заземлителей: длины, площади контакта, количества электродов, расстояния между ними;
- длины соединяющих заземлители проводников;
- удельного сопротивления грунтов;
- влажности почвы;
- солёности грунта;
- температуры времени года;
Чтобы правильно выполнить все расчеты, необходимо иметь инженерное образование, и разобрать множество формул.
Из практического опыта известно, что ни одна из методик расчета не учитывает в полной мере все факторы, поэтому после выполнения работ результаты измерений практически всегда неожиданны. Поэтому часто пользуются типичным проектом, проверяя соответствие параметров у готового контура.
Естественно, что в отношении контура заземления для электростанции или большого производства расчеты обязательны, но для бытового использования можно выбрать подходящую схему заземляющего устройства и качественно её воплотить в металле, правильно выбрав место установки.
Даже без произведения расчётов из таблицы можно понять, какой тип грунта будет лучше всего для заземляющего устройства.
Как правило, в частном секторе для заземления используют одноконтурную схему, которая состоит из трёх вертикальных штырей, труб или уголков, соединённых между собой стальными полосами.
Использование одноконтурного заземления для частного домаСоединение электродов в заземляющем устройстве выполняется в виде горизонтального равностороннего треугольника с вертикальными заземлителями, находящимися на его вершинах.
Типичная схема заземления небольшого частного домаТакой проект заземляющего контура подходит для большинства небольших коттеджей и дачных домиков, получаемых однофазное энергоснабжение, выполненное по схеме TN-С-S, с повторным заземлением и разделением совмещённого нулевого провода PEN системы TN-С.
Но намного более надёжной будет схема с несколькими контурами, из-за того, что в одном месте свойства грунта могут измениться, он может высохнуть в жару, или промёрзнуть зимой, также вследствие проведённых рядом земляных работ могут измениться подземные водяные потоки.
Схема двойного контура зземленияНаиболее лучшей схемой традиционного заземляющего контура является кольцевая, или прямоугольная, обустроенная вокруг дома.
Заземление сделанное по периметру , самое надежноеВнутренний контур является ГЗШ и обеспечивает более рациональное подключение защитного провода PE к розеткам и корпусам электрооборудования. Для обустройства внешнего контура необходимо отойти от здания на расстояние не менее полторы – двух метров. Такую же схему используют для контура заземления трансформаторной подстанции.
Схема заземления Трансформаторного пунктаДля более сложных зданий горизонтальные заземлители прокладывают по периметру фундамента, на отдалении, требующемся, чтобы не вызвать осадку грунта при земляных работах.

Также применяют контур заземления в виде сетки.
Земляные работы
Поскольку контур заземления прокладывается в земле, то без земляных работ не обойтись.
Копают траншеи или яму глубиной ниже полуметра, вбивают в дно вертикальные электроды и прокладывают горизонтальные заземлители также по дну, соединяя в единый контур.
Контур заземления по типу треугольника по вершинам вбиты вертикальные заземлители
Засыпают траншею однородным грунтом без камней и мусора, утрамбовывая. Часто при прокладке вводной подземной линии электропередач, чтобы сэкономить на земляных работах, прокладывают горизонтальный линейный заземлитель в данной траншее, с установкой вертикальных электродов.
Зазыпка контура заземления и вывод на шину РЕВ данном случае необходимо будет поверх установленного заземляющего контура насыпать подушку из грунта, плотно утрамбовав, после чего насыпают прослойку из песка, для прокладки кабеля. Самое главное при данных обстоятельствах проследить, чтобы выступающие части заземлителей не соприкасались и не повредили кабель.
Независимо от типа ЗУ, его установка должна производиться ниже точки промерзания грунта, из-за того, что замерзшая вода в почве в виде льда перестаёт быть проводником, и заземление теряет эффективность.
Установка Заземляющего контура ниже точки промерзания грунта и в скалеДанное обстоятельство не имеет никакого значения в случае применения глубинных заземлителей, которые устанавливаются в скважинах на значительную глубину 20-50 м.
Материалы заземлителей и заземляющего проводника
Применяют для электродов стальной металлопрокат, или медные проводники. Не допускается применение алюминия в качестве электродов. Использовать алюминиевый кабель в качестве заземляющего проводника допускается лишь в изоляции, защищающей жилу от коррозии, но в этом случае придётся уделить повышенное внимание герметизации болтового соединения.
Для соединения электродов применяют тот же вид металлопроката, что и при сборке заземлителей.
Использование заземлителей, покрытых медью.
В данной таблице не указан сравнительно новый, инновационный материал для заземлителей –омеднённые прутки, покрытые тонким слоем (0,275 мм) меди.

Для данного материала следует применять параметры, указанные для оцинкованной стали.
Выпускаются такие заземлители в виде комплектов для быстрого монтажа заземляющего устройства.
Примечательно, что с их помощью можно монтировать глубинные заземлители без бурения скважин – на первый штырь навинчивается острый наконечник, который облегчает прохождение электрода в грунт.
При помощи соединительной муфты прикручивается ударопрочная головка, Не дающая металлу и резьбовому соединению разрушаться при ударах.
По мере углубления, головку отвинчивают, вкручивают новый стержень, на него прикручивают другую муфту, снова присоединяют головку и продолжают процесс забивания модульного заземлителя до требуемой глубины.
Часто для облегчения работ, вместо кувалды используют вибромолот. К последнему штырю крепят заземляющий провод или горизонтальный заземлитель, прокладываемый в виде полосы, покрытой медью, при помощи специального хомута.
Модульная установка заземляющего контураТакой монтаж позволяет обойтись без сварочных работ, производится достаточно быстро. Минусом может быть недобросовестная затяжка болтов, поэтому в месте крепежа будет не лишним предусмотреть небольшие колодцы для проведения технологического осмотра и подтяжки соединений.
Схема контура модульного заземляющего контураКонтур заземления из стального металлопроката
Наиболее подходящим видом проката в качестве материала для вертикальных заземлителей будет уголок или труба (круглая или профильная). Для облегчения забивания уголок или трубу надрезают под углом 30-45º.
заостренный уголок для вертикального заземлителяБольший угол затруднит прохождение плотных слоёв грунта, а при меньшем возможно загибания металла на кончике. Забивают заземлители в дно траншеи или ямы при помощи кувалды или вибромолота. Металл от ударов кувалды неизбежно расклепается, но это не страшно – главное хорошо проварить место соединения вертикального и горизонтального заземлителя.
Вибромолот для забивания вертикального заземлителяПроверка контура заземления
Проверяют сварные швы, простукивая их молотом, а затяжку гаек при помощи ключа. Измерять сопротивление должны производить специалисты лицензированной электрической лаборатории, они же выдадут акт.

В системе TT чем меньше сопротивление, тем лучше, но в отношении TN-С-S не стоит, чтобы сопротивление было меньше чем у трансформаторной подстанции – 4 Ом, иначе вся нагрузка на заземление воздушной линии ляжет на данный домашний контур.

Оборудование для измерений слишком дорого, поэтому существует народный метод – в идеале контур должен обеспечивать работу домашних электроприборов на максимально возможном для автомата токе. Для этого один провод от переносной розетки подключат к фазе, а другой к контуру заземления, и в розетку включают нагрузку.
На практике контур считается хорошим, если подключаемый между фазой и заземлением электронагревательный прибор мощностью 2 кВт будет исправно работать, и падение напряжения между фазой и заземлением будет не больше 10 В. Но надо быть очень осторожным, проводя такие манипуляции и не находиться в этот момент вблизи контура.
infoelectrik.ru
инструкция по монтажу + фото
Добрый день, дорогие читатели. В этой статье мы с вами поговорим про контур заземления. Вы узнаете наиболее подробную информацию о том, что он из себя представляет. После того как вы приобретаете дачный участок или частный дом вы обязательно должны будете получить разрешение от энергосберегающей организации на присоединение определенной мощности электроэнергии.
На данном этапе работ практически у каждого может возникнуть проблема с электромонтажом контура заземления. Контур заземления дома считается обязательной процедурой. Также он может потребоваться при реконструкции старой электропроводки. В этой статье вы найдете подробную информацию о том, как выполнить монтаж контура заземления своими руками на даче или в частном доме. Если вы решили выполнить контур заземления, тогда вам необходимо знать, что такое защита IP.
Контур заземления
Заземление – это специальное заземляющее устройство, которое предназначается для соединения с землей различных частей электрооборудования. Для каждой системы заземления вы можете встретить определенное отличие требований. Сопротивление ЗУ может зависеть от следующих факторов:
- Типа грунта.
- Состояния земли.
- Структурного состава грунта.
- Глубины электродов.
- Количества электродов.
- Свойства электродов.
Это основные факторы, которые могут нести значительное влияние на сопротивление заземляющих устройств.
Контур заземления – это соединение между собою горизонтальных и вертикальных электродов. Чем сопротивление будет меньше, тем лучше. Измерение контура заземления необходимо выполнять сразу после его монтажа. Сделать это можно с помощью специальных приборов.
Вот список грунтов, которые идеально подойдут для монтажа контура заземления:
- Торф.
- Суглинок.
- Глина, которая имеет высокую влажность.
Также существуют грунты, которые не подходят для монтажа контура заземления:
- Камень.
- Скала.
Иногда один грунт может иметь разные свойства. Они будут зависеть от окружающей среды. Именно поэтому сопротивление контура заземления необходимо измерять сразу после монтажа. В этой статье мы предоставим вашему вниманию наиболее распространенный способ монтажа контура заземления.
Подготовительные работы
Сначала вам необходимо определиться с местом, где можно монтировать контур заземления. Лучше выбрать место, где рядом находится распределительное устройство.
Заземляющие электроды по правилам ПУЭ должны быть медными или из черной оцинкованной стали. Их поверхность не должна быть окрашенной. Ниже представлена таблица, которая предоставляет вашему вниманию рекомендуемые размеры горизонтальных заземлителей.
В качестве вертикальных заземлителей вы можете использовать:
- Стальной уголок, который имеет размеры (50х50х5мм).
- Стальную полосу с диаметром (40х4мм).
Эти материалы отлично подойдут для того, чтобы монтировать контур заземления.
Монтаж контура заземления
Теперь вам необходимо выкопать треугольную траншею. При необходимости выкопать траншею можно и в виде прямой линии. Ее длина должна составлять 4-5 метров. Ширина траншеи должна составлять 0.5 метра, а ее глубина 0.7 метра.
У вершины треугольника вам необходимо будет забить вертикальный уголок, который имеет длину 3 метра. При необходимости вместо кувалды вы можете использовать бур. Если ваша траншея выполнена в виде прямой линии тогда потребуется 4 вертикальных уголка. Забивать их необходимо через каждый метр. Забивать стальные уголки необходимо не полностью. На поверхности необходимо оставить 20 см уголка. Затем с помощью сварочного аппарата необходимо приварить к стальным уголкам горизонтальную линию, которая будет идти в электрический щиток на шину PE.
В примере, который мы вам предоставили, контур заземления выполнен из стальной полосы. Вот схема контура заземления, которая облегчит вам работу.
Затем стальную полосу необходимо проложить до шины PE.Вот фотография, на которой можно увидеть этот процесс.
При необходимости вы можете воспользоваться и другим способом. Для этого из земли необходимо вывести горизонтальный заземляющий проводник в виде стальной полосы. К нему вам необходимо провести еще один проводник, который будет вести к шине PE. Этот проводник должен обладать следующими характеристиками:
- Медный иметь сечение не менее 10 кв.мм.
- Алюминиевый иметь сечение не менее 16 кв.мм.
- Стальной иметь сечение не менее 75 кв.мм.
Завершающий этап работ
После монтажа вам также необходимо осмотреть контур заземления. После этого следует провести замер его сопротивления. Качественное заземление станет надежной защитой от поражения током.
Читайте также: система заземления TT.
vse-elektrichestvo.ru
Заземление своими руками, делаем контур
Защитное заземление для дачи и дома
Защитное заземление – это преднамеренное электрическое соединение части электроустановки (ЭУ) с заземляющим устройством с целью обеспечения электробезопасности.
Назначение защитного заземления – устранение опасности поражения электрическим током в случае прикосновения человека к корпусу электроустановки или другим конструктивным частя, оказавшимся под напряжением.
Принцип действия защитного заземления состоит в снижении до безопасного уровня напряжений прикосновения и шага, обусловленных замыканием на корпус. Этого достигают уменьшением потенциала заземленного оборудования за счет снижения сопротивления заземлителя, а также путем выравнивания потенциала основания, на котором стоит человек. И заземленного оборудования за счет подъема потенциала основания до уровня, равного или близкого к уровню потенциала заземленного оборудования.
Если говорить человеческим языком, то поскольку ток идет по пути наименьшего сопротивления, то чем меньше будет сопротивление заземляющего устройства, тем лучше, это своеобразная ловушка для электротока. Тоесть минуя вас (сопротивление от 1000 Ом), как источник повышенного сопротивления он пойдет путем наименьшего сопротивления, которым будет заземляющий контур (сопротивление не больше 10 Ом).
А поскольку при монтаже современной электропроводки, как правило, устанавливаются элементы защиты (автоматические выключатели, дифференциальные автоматические выключатели — УЗО), то при пробое изоляции и замыкании на заземленный корпус сработает защита и линия обесточится.
Вот в принципе для чего служит заземление, которое называют защитным.
В квартирах, как правило, используется защитное зануление, а вот на даче и в частном доме, где такая защита практически не используется из-за отсутствия техусловий. Нам на помощь прейдет защитное заземление.
Защитное заземление. Видео пояснение.
Заземление своими руками
Мы можем выполнить заземление своими руками. Для этого выберем самое простое групповое заземляющее устройство с искусственными заземлителями, выполненное в виде равнобедренного треугольника.
Для этого выберем место около дома (дачи) на расстоянии не далее метра (рекомендуется) от стены или цоколя здания и выкопаем траншею в виде равностороннего треугольника глубиной 0,8м и сторонами по 3м.
Под вертикальные заземлители желательно выбурить в углах траншеи три скважины глубиной по три метра. Даже если вы решили забить заземлители кувалдой. То для облегчения работы советую выкопать скважины 1,5 м и заострить с помощью болгарки материал, который будете использовать для вертикальных заземлителей.
Материал для вертикальных заземлителей: труба 50×3 либо сталь круглая сечение 10 мм2 или сталь угловая 50×50×5, три штуки по 3м.
Затем по периметру к установленным вертикальным заземлителям привариваем стальную полосу, которая играет роль горизонтального заземлителя.
Материал для горизонтального заземлителя: сталь полосовая 40×4, длина 9м.
После к смонтированному контуру заземления привариваем заземляющий проводник с приваренным болтом М6 или М8 для крепления провода заземления.
Материал для заземляющего проводника: сталь круглая сечение 6 мм2 или сталь полосовая 40×4.
Для уменьшения сопротивления заземляющего устройства (контур заземления) рекомендуется соединить его с естественными заземлителями.
Естественные заземлители, рекомендуемые к использованию:
Проложенные в земле водопроводные и другие металлические трубопроводы, за исключением трубопроводов горючих жидкостей, горючих или взрывчатых газов и смесей;
Обсадные трубы скважин;
Металлические и железобетонные конструкции зданий и сооружений, находящиеся в соприкосновении с землей;
Металлические шунты гидротехнических сооружений и т.п.
Внимание!
Все соединения выполняются сваркой (без вариантов — только сварка)!
Готовая конструкция со всеми траншеями заполняется однородным грунтом без щебня и строительного мусора.
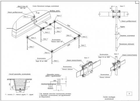
Контур заземления | Схема

Увеличить рис.
1 – Крепление. Болт М6, М8
2 – Горизонтальный заземлитель.
Сталь полосовая 40×4.
3 – Варианты заземляющих электродов (вертикальные заземлители):
а) – Труба 50×3
б) – сталь круглая сечение 10 мм2
в) – Сталь угловая 50×50×5.
4 – Заземляющий проводник.
Сталь круглая сечение 6мм2
или сталь полосовая 40×4.
5 – Медный провод заземления сечение 4мм2.
Алюминиевый провод заземления сечение 6мм2.
6 – Сварной шов
Сопротивление заземления зависит от удельного сопротивления грунта.
Таблица удельного сопротивления грунта – (Ом/м):
| Грунт | Ом/м | Грунт | Ом/м |
| Песок влажный | 500 | Сланец глинистый | 55 |
| Супесок | 300 | Чернозем | 50 |
| Гравий глинистый | 300 | Садовая земля | 40 |
| Супесь влажная | 150 | Зола, пепел | 40 |
| Смесь глины и песка | 150 | Суглинок пластичный | 30 |
| Суглинок полутвердый | 100 | Торф | 25 |
| Глина полутвердая | 60 | Глина пластичная | 20 |
Изменение удельного сопротивления грунта в зависимости от климатической зоны, в которой расположен участок (таблица)
| Климат-кая зона | Характеристика зоны. Средняя Т0С | Вертикальные заземлители длиной 3м | Вертикальные заземлители длиной 5м |
| 1 | Января — 180С Июля + 170С Продолжит. Замерзания Воды 180 дней | 1,65 | 1,35 |
| 2 | Января — 120С Июля +200С Продолжит. Замерзания Воды 150 дней | 1,45 | 1,25 |
| 3 | Января — 50С Июля +230С Продолжит. Замерзания Воды 100 дней | 1,3 | 1,15 |
| 4 | Января +30С Июля +250С Продолжит. Замерзания воды 0 дней | 1,1 | 1,1 |
Если у вас нет возможности измерить сопротивление самостоятельно, требуется вызов квалифицированных специалистов из электролаборатории.
Кустарный метод проверки: подключение обычной лампы накаливания к фазе и к проводу заземления, соблюдая электробезопасность. При низком сопротивлении лампа должна гореть в полный накал. Но это не дает представления об истинном значении сопротивления заземляющего устройства (не выше 10 Ом).
Теперь вы представляете устройство заземления и как самостоятельно собрать его контур.
Удачного монтажа!
Читайте также: Защитное зануление, Устройство защитного отключения (УЗО)
———————————————————————
Источники:
Г. А. Дулицкий, А.П. Комаревцев справочник «Электробезопасность при эксплуатации электроустановок до 1000В».
Сайт: «ЭлектроАС» http://elektroas.ru
Евгений Новиков
Эксперт проекта Masstter.com
Статья помогла вам?
Дайте нам об этом знать — поставьте оценку
Загрузка…masstter.com
