Баня дом фото проекты – одноэтажные варианты размером 6х8 под одной крышей с гаражом, двухэтажные бани с пристроем и бильярдом
Баня в доме проекты фото
Проекты домов с банями под одной крышей
С развитием банной культуры и появлением просторных комнат для отдыха в помещении с парной пришла идея проживания в бане. Такой образ жизни придется по душе многим российским мужчинам, особенно, если оборудовать помещение всем необходимым: небольшим холодильником и диваном, а также имеет подключение к водопроводу. Тем не менее, проживать в спартанских условиях для солидного семейного человека не слишком удобно, поэтому все более популярными становятся проекты домов с встроенными банями.
Такие дома удовлетворяют все бытовые потребности человека. Они могут иметь несколько спален, подключенный к канализации санузел, гараж, гостиную, кухню, гардероб и походить скорее на обычный жилой дом, нежели на баню. Но наличие парилки и печи для бани всегда придает помещению дополнительной привлекательности.
Существует также и другой, более холостяцкий вариант дома-бани, где основной акцент сделан на неотъемлемые атрибуты бани (парную, душевую, тамбур, комнату отдыха, бильярдную и даже бассейн) с жилой комнатой, которая скорее напоминает квартиру-студию.
Изготовлены такие помещения могут быть как с традиционных для бани материалов – дерева и бруса, так и из кирпича либо даже натурального камня на выбор клиента.
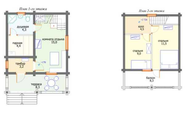
Дачный дом из оцилиндрованного бревна
Двухэтажный дачный домик из оцилиндрованного бревна выглядит очень мило и по-деревенски. Кроме того, дом оснащен дополнительным бонусом – собственной баней.

На первом этаже здания стандартно находятся парилка, ванная комната и гостиная, которая совмещена с кухней. Второй этаж вмещает в себя две уютных спальни разных размеров, которые соединены общим балконом и небольшой коридор.

Гостевой дом с баней и бильярдной (133,3 м2)
Милый и просторный угловой дере
superbany.ru
Популярные проекты бани, домов с террасой с фото
В России бани существовали издревле. И если раньше на Руси задачей бани была поддержка чистоты, то сейчас это не только сооружение для гигиенических целей, но и замечательное место для отдыха, а также способ подчеркнуть свою состоятельность, так как баню может позволить себе не каждый человек. Это строение в наши дни возводят добротно из качественных материалов, чтобы оно было надежным, теплым и практичным. Современная баня может быть целым комплексом, содержащим в себе все, что может находиться в обычном доме: это и бассейн, и комната отдыха, и открытая веранда, и сама парилка.
Стандартный проект одноэтажной бани с жилым помещением
В наши дни баня может иметь жилой этаж, который существенно экономит пространство, если участок небольшой. Там также может быть веранда, которую можно защитить от назойливых насекомых и проводить там летние вечера в прохладном уютном месте. На террасе для бани есть возможность поставить печь для барбекю. Такая площадка станет отличным местом для отдыха и приема гостей. Размеры подобной пристройки, конечно, зависят от возможностей участка, однако можно сделать ее как максимально большой, так и миниатюрной, и, выбирая проект бани с террасой, следует ориентироваться именно на размеры территории и расположение на ней других объектов.
Баня с большой террасой из клееного бруса с отделкой блок-хаус
Если вы хотите выгодно распределить пространство, то баня или дом с террасой – наиболее грамотное решение. У вас появится дополнительная площадь для отдыха, защищенная от дождя и солнца, при этом наполненная свежим воздухом. По расходам на строительство она не обходится сильно дорого. Наиболее популярные проекты террас – конструкции под одной крышей с домом, а также под открытым небом или со стеклянными стенами. Если вы решили строить баню с террасой, то это правильный выбор, так как такое строительство обойдется намного дешевле, чем отдельное возведение бани и отдельное – беседки.
Баня со стеклянной верандой
Баня с крытой верандой
Классические варианты
Если вы только собираетесь строить баню, и у вас достаточно большой участок, то вы можете выбрать проект бани 6х9 с террасой: такая баня будет очень удобна для большой компании или семьи, а терраса будет иметь общий фундамент с баней. Само здание позволит разместить внутри не только парилку, но и другие атрибуты домашнего уюта и комфорта, а на втором этаже бани можно устроить комнату для гостей, которая будет иметь большую площадь. Баня 6×9 может быть сделана из сруба, оцилиндрованного бревна или клееного бруса, а также каменных материалов. Лучше всего строить ее из рубленого бревна, которое более долговечно и лучше удерживает тепло. Такие проекты домов с террасой, фото одного из которых размещено ниже, довольно популярны, хотя и стоят дороже. Посмотреть обзор бани из бруса можно здесь:
Строительство сруба бани 6×9 с верандой
Если вы хотите расширить жилую площадь дома, то можно достроить баню, которая может быть как отдельным строением, так и примыкающим к дому.
Для такого случая отлично подойдет проект бани 6х6 с террасой, который оптимально увеличит ваш дом и добавит уютную площадку для летнего отдыха. Теперь в жару вы сможете находиться на улице и наслаждаться свежим воздухом и пением птиц. Увеличение пространства дома будет сделано довольно грамотно, поскольку подобный размер бани аккуратно впишется на любом участке и хорошо сочетается с любым коттеджем.
Проект бани с террасой 6×6
Угловые строения
Помимо типовых строений, весьма распространенным становится проект угловой бани с террасой, который считается довольно новой находкой в строительстве. Данное строение отличается уникальной формой. Такая баня будет занимать гораздо меньше места на участке, при этом за счет своей угловой формы она будет достаточно просторной внутри. Такую баню нужно строить с террасой, тогда она гармонично вписывается в дизайн всего строения в целом. Ее можно возводить практически из любых материалов: выбор в основном обусловлен финансовыми возможностями владельца, а также сочетаемостью готового вида бани с другими постройками и домом.
Модель и проект угловой бани
Угловые бани часто возводятся в случае, когда нужно, чтобы строение находилось вплотную к коттеджу. Террасы, примыкающие к дому, могут быть и стандартной формы – прямоугольной, квадратной. Однако именно угловая конструкция отличается, прежде всего, удобным и эргономичным размещением, благодаря чему планировка участка становится наиболее логичной и красивой. Кроме того, такое решение поможет не только грамотно распределить свободную площадь на участке, но и привести в порядок примыкающую к дому территорию. На террасе приятно отдыхать в теплую погоду, и теперь и дождь не помешает вам насладиться теплыми летними днями. Существуют проекты террас углового типа разной стоимости и размеров, так что выбрать подходящий не составит труда.
Баня, примыкающая к дому
Современные проекты веранд и террас подходят не только для загородных домов и бань, но и для магазинов, дач и других объектов, к которым технически возможно присоединить террасу.
Двухэтажные варианты с жилым помещением
Все актуальнее становится рациональное использование территории земельного участка, на котором находится жилое строение. Участки, как правило, небольшие, а хозяевам часто хочется не только жить в уютном большом доме, но и разместить у себя во дворе дачу, беседку и по возможности еще какие-нибудь объекты для своего удобства. Особенно это актуально, если строительство только начинается.
Если на участке пока еще нет дома, но вы в дальнейшем планируете возвести жилое строение, то умнее всего начинать строительство с бани, так как она послужит и после завершения строительных работ. На первых порах баня может служить как летний домик, и ее можно использовать по прямому назначению или даже хранить в ней какие-то инструменты. После того как дом будет достроен, баня прекрасно впишется в дизайн участка и станет прекрасным местом для вашего отдыха с друзьями или семьей. Если начинать строительство с возведения или доставки готового строительного вагончика, то после того, как он станет не нужен, возникнет вопрос, как убрать его с участка, а это лишняя и совершенно не нужная проблема. Поэтому лучше, если на участке сначала появится баня. Двухэтажные проекты с террасой являются наиболее актуальными; если вы планируете дальнейшее строительство, хотите получить еще одну дополнительную комнату, в которой можно будет отдыхать или размещать гостей, желаете сэкономить полезное пространство участка, то такая конструкция подойдет идеально.
Деревянная двухэтажная баня
Банные коттеджи с террасами
Коттедж с большой террасой и обустроенными внутри помещениями для бани – это не только красиво, но и удобно. На террасе вы сможете организовать беседку, мангал для приготовления шашлыков и прочих блюд, которые требуют открытого воздуха для приготовления. Данная пристройка в доме может быть и площадкой для игр ребенка, и отличным местом для танцев, и сбора гостей. Вы можете читать или отдыхать там даже в плохую погоду, так как терраса обычно защищена от дождя и солнца. Можно повесить сетки от комаров или сделать декоративные занавески, которые будут защищать от ветра и мух.
Дом-баня с террасой
Недорогие варианты
Каркасные дома с террасой являются наиболее недорогими по сравнению с остальными. Преимуществами каркасных домов является то, что дом обходится по цене значительно дешевле аналога из блока или кирпича, при этом не уступает ему по качеству. Важным достоинством каркасного строительства является и то, что такой дом возводится в крайне сжатые сроки, что очень актуально, например, для дачного участка или тех людей, которые не хотят затягивать строительство надолго. Преимуществом такого строительства можно считать и то, что после строительства каркасного дома остается мало мусора. Популярным считается проект дома с большой террасой: такая конструкция визуально увеличит пространство дома, но при этом не очень много украдет места у двора.
Каркасный дом с террасой
Если вы любите классику, вас наверняка заинтересуют проекты деревянных домов с террасой. Деревянные дома не только имеют привлекательный внешний вид и не нуждаются во внутренней и наружной отделке, что значительно экономит средства заказчика, но и прекрасно вписываются в пейзаж загородной местности. Такой дом будет великолепно смотреться рядом с баней из сруба. Как правило, деревянные дома возводятся достаточно быстро, при этом они неприхотливы в эксплуатации, не требуют для своего строительства тяжелой техники и возводятся достаточно быстро.
Современные дома-проекты с террасами могут быть использованы не только для частного строительства. Например, популярностью уже давно пользуются проекты кафе с террасой. Фото можно увидеть ниже. Они эксплуатируются в основном летом, и пристройка позволяет расширить площадь и вынести часть столиков наружу.
Терраса летнего типа, пристроенная к кафе
bouw.ru
Баня и дом под одной крышей: как воплотить проект
Строительный проект, в ходе которого строения баня и дом располагаются под одной крышей, стал популярен не так давно, но успел заслужить любовь собственников участка. Возводится строение в условиях сильного желания иметь собственную баню и нехватки пространства на участке.
Преимущества и недостатки дома с баней
Дизайн подобного плана выгоден не только в экономии места, но и денежных средств. На строительство совмещенного здания уходит намного меньше строительных материалов, чем на отдельно стоящие постройки. Сложный для самостоятельного воплощения проект бани, расположенной под одной крышей с частным домом, окажется выполнимым, если рассмотреть его преимущества и недостатки.
Строительство совмещенного загородного комплекса имеет массу преимуществ:
- комфорт жильцов. Вход располагается непосредственно в жилом здании, что удобно для его обитателей.
- домашняя сауна – отличное профилактическое средство против сезонных простуд, поэтому ее не только удобно, но и полезно.
- экономия материалов для строительства, ведь не нужно строить 2 здания, все находится рядом.
- на маленьких участках строение будет компактным, а расположение коммуникаций останется неизменным.
При всем удобстве и компактности подобные строения есть ряд особенностей – строгое следование технике пожарной безопасности и правилам инженерно-технических норм.
Начало строительных работ
Перед возведением банного комплекса в доме стоит уделить внимание проектированию и предварительной подготовке.
Нюансы проектирования
Постройки оправданы, если владельцы загородной недвижимости учтут специфику объединения сауны и жилого здания:
- в деревянных конструкциях нужна пароизоляция, чтобы они не разрушились преждевременно;
- габаритные строения нуждаются в установке мощного котла, работающего на электричестве или газовом топливе;
- обязательно продумывается канализационный слив, и учитываются расходы на откачку воды;
- для качественной тяги камина и парилки нужно обустроить две дымоходные трубы;
- комната для водных процедур обязательно отделывается плиткой и наливными полами.
Если учесть все нюансы, вам обязательно удастся воплотить проект собственноручно.
Планируем постройку
Строительство бани, совмещенной с домом, начинается с определения типа постройки. Ее обустраивают как пристройку к основному зданию или закладывают с жилыми помещениями. Прочность общей конструкции создает ленточный фундамент под помещение. Стены предпочтительно сооружать из того же материала, что и жилое здание.
Банный комплекс в жилом строении предусматривает следующее:
- продуманную вентиляционную систему (при ее отсутствии влага из бани будет распространяться по всем жилым комнатам, неся сырость, плесень и грибки на стенах).
- двойную гидроизоляцию на стенах и как снаружи, так и внутри бани.
- совмещение с сантехническим узлом в доме – экономия средств на эксплуатацию.
- общую электрическую проводку бани и дома.
При объединении обеих строений предпочтительно в соседней к парилке комнате сделать кухню или коридор-переход.
Популярные идеи проектов
Владельцы собственных участков делают банно-жилые сооружения знаком респектабельности и комфортного отдыха. Станьте одним из них – возьмите на заметку несложные идеи планировки:
- парилку с дверью, выходящую в ванную комнату дома;
- полноценную сауну с помывочной, парной и помещением для релакса;
- сауну с бассейном или джакузи;
- с выходом на улицу, чтобы окунуться с головой в прохладный снег.
Неплохо оборудовать домашнюю «терму» отдельным входом, который даст возможность ее отдельного, независимого использования.
Фундамент банного комплекса
Дом с баней под одной крышей требует особого внимания к заливке фундамента. Основание должно быть цельным, но выстроенным отдельно от жилых помещений. Так уменьшается вероятность трещин по всей площади основы из-за высокой влажности.
Основные моменты при заливке основы
При заливке фундаментальной конструкции необходимо проложить 2 отдельные канализационные трубы, даже, если имеется центральная канализация.
Стандартная глубина ленточного фундамента под одноэтажное здание составляет 0, 5 м, а ширина – около 30 см. Заливку нужно проводить в теплое время года для лучшего застывания строительных растворов и во избежание растрескивания.
Алгоритм закладки фундамента
Чтобы построить совместный с дачным домом банный комплекс, необходимо соблюдать правильный алгоритм проведения работ. Начинают с обустройства фундамента:
- По периметру будущего основания забиваются колышки для ориентира.
- При помощи ориентиров натягивается строительный шпагат.
- В соответствии с разметкой выкапывается ров (ширина 30 см, глубина 50 см), с максимально ровными стенками. Отдельно роется траншея под канализационную трубу.
- На дно ямы засыпается смесь из щебня и песка, высотой 35 см и утрамбовывается.
- Из досок сколачивается опалубка, которая устанавливается по периметру канавы. Это поднимает банный фундамент на 20 см выше уровня грунта.
- Изнутри опалубка гидроизолируется – укрывается слоем рубероида.
- На песчано-щебневую подушку укладываются стальные прутья для армирования фундамента.
- Сверху заливается бетонная смесь и оставляется до полного затвердения.
Рекомендовано в этот период накрыть бетон пленкой и периодически смачивать из пульверизатора во избежание появления трещин. Высохший слой бетона покрывается слоем гидроизоляции – мастикой или рубероидом.
Строительство стен и окон
Построенный из кирпича банный комплекс прослужит долгие годы, если правильно соблюдать схему работ. Если баня возводится как пристройка к основному дому, обеспечивайте идеальную стыковку стен и их надежную связку. Для этого просверливаются отверстия, в которые вставляются арматурные прутья, закрепленные в стене бани.
Типовая планировка банного комплекса
Перед строительством стен важно рассчитать, какую площадь займет парилка. Важным ее элементами являются:
- лавки для сидения;
- жаровня с камнями;
- полки и подставки для веников;
- вентиляция;
- комната для отдыха;
- парилка;
- душевая или бассейн.
Исходя из количества конструкций, выбирайте материал.
Из каких материалов строят баню?
Комбинированные строения придадут архитектуре участка органичность и завершенность. Из всех видов стройматериалов наибольшей популярностью пользуются:
- блочный пенобетон. Его небольшой вес исключает дополнительное усиление фундамента. Блоки легко распиливаются ножовкой, но требуют обустройства пароизоляционных и вентиляционных систем;
- брус. Деревянный материал характеризуется низкой теплопроводностью и экологичностью;
- кирпич. Отличается высокими жаростойкими свойствами, привлекательным внешним видом и способностью выдерживать понижение температуры. При строительстве бани, расположенной под одной крышей с вашим домом, нужно продумать теплоизоляцию и защиту от влаги;
- камень. Долговечен и прочен. Во время строительных работ важно организовать вентиляционную систему приточно-вытяжного типа и продумать теплоизоляцию;
- арболит. Представляет собой блоки на основе цемента, опилок, органики, соломы и камыша. Банный комплекс получит хорошие показатели прочности, шумоизоляции, небольшой усадки и устойчивость к колебаниям температур.
Выполнив основные стены и помещения сауны, можно перейти к организации оконных систем.
Как сделать окна?
Окна рекомендовано устанавливать из металлопластика – они просты в уходе и долговечны. Помните о том, что каждое окно должно быть снабжено форточкой для проветривания помещения. Для парилки выбирайте жаростойкие элементы из силикатного либо кварцевого стекла.
Укладка кровельного покрытия
Совмещенные проекты бани и жилого дома должны под одной крышей иметь цельную кровельную конструкцию. Наиболее устойчива в использовании крыша с двух-, трех- и четырехскатного типа. Общая кровля предусматривает два дымоотводных канала – отдельно для каждой конструкции.
Инструкция монтажа крыши
Для самостоятельного воплощения проекта достаточно остановиться на двухскатной крыше. Ее монтируют на стропильный каркас с наклоном 20 градусов. На получившуюся конструкцию устанавливается кровельное покрытие. Возможные щели заделываются при помощи монтажной пены.
Наиболее популярными кровельными материалами являются металлочерепица и оцинкованный профиль. Строительные мероприятия протекают так:
- На возведенные стены укладывается мауэрлат. Для него используются деревянная балка, зафиксированная анкерами, под которую настилается рулонный изолятор.
- Сверху мауэрлата располагаются потолочные балки с шагом 60 см. Их торцы должны быть длиннее мауэрлата.
- На потолочные сваи монтируются листы ДСП в качестве чернового пола.
- Устанавливаются балки-подпорки, держащие стропила. На них закрепляется поперечный брус.
- Стропильный каркас соединяется с потолочными балками и поперечным брусом с помощью гвоздей 200 мм.
- Для придания конструкции устойчивости стропила укрепляются поперечными балками.
- Делают «строительный пирог» из слоев пароизоляционного и теплоизоляционного материалов.
- Вентилируемую кровлю бани усиливают обрешеткой из дерева, уложенной на изоляционные материалы.
- На полученную конструкцию монтируются кровельные материалы, формируется один конек и устанавливаются ливневки.
Правильный монтаж крыши обеспечивает хорошую вентиляцию помещения и предотвращает скопление лишней влаги внутри бани после использования.
Обустройство утепления
Утеплительные материалы, выпускаемые современными производителями, обеспечивают качественное сохранение тепла. Владельцам частных домов рекомендуют остановиться на эковате или базальтовом утеплителе.
Расходы на утепление будут рациональными благодаря качеству материалов:
- пожаробезопасности и устойчивости к возгораниям, предотвращению проникновения огня в помещение жилого назначения;
- экологической чистотой и безопасностью для организма жильцов;
- предотвращению образования конденсата;
- простоте монтажа и недорогой стоимости.
Утеплитель укладывают с внутренней и наружной стороны, что максимально сокращает теплопотери.
Банный пол и внутренняя отделка
Мероприятия по обустройству напольного покрытия и отделочные работы проводятся комплексно.
Правильная стяжка
Формируя напольное покрытие руководствуйтесь простой технологией:
- стяжка пола должна быть из бетона с легким уклоном в сторону сливного отверстия.
- в качестве утеплителя для банного пола используется керамзит или пеноплекс.
- сливная труба выходит в выгребную яму или подключена к центральной канализации. Не стоит размещать ее непосредственно под зданием бани, лучше на расстоянии около 1-2 м.
Гидроизоляционный материал укладывается на стены бани изнутри.
Внутренняя отделка
При обустройстве внутренней отделки следует помнить о том, что помещение будет подвергаться большой влажности:
- для оформления пола традиционно используется керамическая плитка с низкой степенью скольжения.
- дачный банный комплекс обшивается изнутри вагонкой, иногда керамической плиткой, которая при правильном подборе выглядит не менее стильно и отличается долговечностью.
- на этапе внутренней отделки внутрь помещения устанавливается необходимое оборудование и мебель.
- интерьер бани создавайте, руководствуясь личными предпочтениями и вкусами.
- при наличии свободной площади в банном комплексе можно оборудовать мини-бассейн, а так же гостевую комнату для отдыха после парилки.
Наружная отделка должна соответствовать отделке дома для создания уютного ландшафтного дизайна дачного участка.
Современное проектирование зданий ускоряет строительные работы и, к тому же, существенно экономит финансы. Потратив немного времени, вы станете счастливым собственником персонального банного комплекса, насладитесь его уютом и комфортом.
На заметку! Обязательно необходимо правильно подобрать оборудование для бани. Печи для бани от компании Теплодар по заявлениям производителя являются качественными и обладают высокими эксплуатационными свойствами. Стоит отметить, что производитель изготавливает большой ассортимент продукции для бань любых типов и размеров.
idachi.ru
Варианты и плюсы проекта жилой бани
Проект жилой бани в последнее время являются одним из самых популярных в России вариантов строительства данного здания, доступных на сегодняшний день.
Связано это в первую очередь с дороговизной земли, особенно в пригородах больших городов, из-за чего владельцы земельных участков начинают экономить буквально каждый кв. м, и стараются совмещать несколько строений под одной крышей. В результате можно наблюдать, как возводятся бани, совмещённые с гостевыми домами, или имеющие жилые комнаты.
Плюсы и минусы жилых бань
Жилые бани и их проекты имеют как плюсы, так и минусы. Связано это с тем, что подобное строение представляет собой небольшой особняк, который специально разделён на несколько функциональных зон, в которые могут входить достаточно разные по своему назначению помещения. Например, это:
- кухня-студия;
- спальня;
- комната для отдыха;
- непосредственно банные помещения – моечная и парная.
С технической точки зрения подобные строения могут реализовываться, например, как проект бани со вторым жилым этажом, или как проекты бань с жилой комнатой отдыха. При этом в любом случае такие здания строятся на одном фундаменте с использованием общих инженерных коммуникаций. В результате владелец земельного участка получает в своё распоряжение целый комплекс помещений, позволяющий не только получать удовольствие от комфортного отдыха в бани, но и жить в нём со всеми удобствами, характерными для обыкновенного жилого дома.
Стоит сразу же сказать о том, что проекты бани с жилой комнатой имеют всего лишь один недостаток — большая стоимость строительства. При этом стройку требуется провести быстро, не растягивая её на несколько лет.
Дело в том, что при поэтапном строительстве здание может просесть, в результате чего пристраиваемые новые части могут оказаться на разных уровнях составами, а в уже построенных частях пойдут трещины.
Что же касается достоинств такого проекта, то первым из них является экономический аспект. Дело в том, что находящиеся под одной крышей здания выгоднее содержать с финансовой точки зрения. Это касается отопления, пользования электричеством и канализацией, проведения капитального ремонта. Отдельно стоящие здания гораздо дороже в эксплуатации, так как требуют индивидуального обслуживания.
Вторым плюсом совмещённых проектов является возможность значительно расширить жилую площадь помещений, имеющихся на участке. Такую возможность могут оценить семьи, в которых подрастают дети или же те, кто переехал в данную местность из другого региона. При этом не потребуется приобретать дополнительно земельную площадь или расширять существующую.
Когда строится баня с жилой комнатой, проект её подразумевает постоянное проживание в ней людей, поэтому важно соблюсти все противопожарные требования с максимально возможным использованием всей площади земельного участка. Дело в том, что СНИПы требуют выдерживать расстояние при строительстве банных сооружений в 5 м от других зданий. Если же их совместить с жилыми комнатами, вы сможете использовать площадь участка под баней для проживания в ней членов вашей семьи, и вам не потребуется строить на участке второй дом.
Варианты проектов жилых бань
В настоящее время на строительном рынке представлены самые разнообразные проекты строительства бань с жилыми помещениями. При этом совместить исключительно банные комнаты и жилые можно только двумя способами: построив их на одном этаже, и разведя их по разным этажам. Так, жилая баня и проект её строительства, подразумевающий строительство жилых комнат в одном здании с парилкой и моечной, обычно включает в себя 2 зоны, иногда с разными выходами.
Перовая зона – это непосредственно сама баня. Вторая – жилые помещения. В принципе это обычный дом с баней, поэтому каких-либо изысков от него в отношении оснащения самой парилки ожидать не приходится. При этом вам придётся обустраивать более надёжную и эффективную вентиляцию, позволяющую удалять все испарения из парилки и моечной наружу. Также придётся выполнить усиленную гидроизоляцию совмещённого помещения, так как влага из бани будет проникать в жилые помещения и портить их.
Второй вариант строительства жилой бани защищён от необходимости обустройства усиленной вентиляции и гидроизоляции, так как все жилые помещения будет находиться на втором этаже. Проект бани с жилым вторым этажом может быть выполнен с мансардой или без. Если вы отдадите предпочтение классическому варианту, то вы сможете построить жилые комнаты большей площади, кроме того, они лучше будут приспособлены для проживания зимой.
Если же вам понравилась жилая баня с мансардой, то проекты её будут предусматривать возможность возведения лёгких конструкций. При этом площадь жилой комнаты мансарды будет меньшей, чем если бы вы предпочли классическую конструкцию. Однако вариант строительства бани с жилой мансардой стоит дешевле по сравнению с возведением жилого дома с полноценным вторым этажом.
Есть и ещё один вариант совмещения бани и жилого дома – это пристройка. В принципе это достаточно неплохой выход в том случае, когда вам обязательно нужно её построить, а места на земельном участке мало. При этом вам придётся в обязательном порядке учитывать при строительстве соблюдение противопожарных норм и правил, а также необходимость правильно вписать пристройку в уже существующий архитектурный ансамбль.
Наиболее популярный проект жилой бани
Что же касается наиболее популярных видов бань, совмещённых с жилыми комнатами, то на сегодня россияне предпочитают проект бани 6х6 со вторым жилым этажом. Объясняется это тем, что такое здание занимает мало места, при этом комнаты в нем достаточно просторны для того, чтобы жить в них круглый год. При этом протопить их возможно с наименьшим расходом топлива. Это очень важно в том случае, когда ваша баня будет располагаться за городом.
Второй по популярности вариант – баня, расположенная внутри гостевого дома. В принципе такой проект нельзя назвать самостоятельным, так как в этом случае парилка и моечная становятся разновидностью ванной комнаты, но зато они будут максимально интегрированы в конструкцию дома. Кроме того, в данном случае можно будет совмещать баню с размещением гостей на достаточно долгое время. А ведь дом приспособлен для жизни гораздо лучше, чем второй этаж бани или же мансарда.
Что же касается популярности проектов с точки зрения архитектуры, то, пожалуй, на первом месте находится классический стиль или же традиционная русская баня из дерева. Вторым по популярности можно назвать финские дома или скандинавский стиль, а третьим – стиль модерн.
Число комнат в данном случае бывает ограниченным, так как хотя бы 2 помещения будут отданы под баню. Таким образом, вы сможете получить всего лишь 3-4 комнаты для проживания при условии строительства второго этажа или мансарды. Данное обстоятельство стоит учитывать в том случае, когда вам понадобится баня со вторым жилым этажом и проекты, учитывающие возможность строительства второго этажа.
Существует 2 варианта выбора проекта строительства жилой бани – самостоятельно и с помощью профессионального архитектора. Самостоятельно вы можете подобрать вариант строительства здания в том случае, когда оно будет иметь небольшие размеры, и вы планируете возвести его отдельно. Если же вы собираетесь возвести архитектурный комплекс, то вам придётся в любом случае обратиться к профессиональному архитектору, так как самостоятельно учесть все нюансы строительства настоящего жилого дома большой площади со встроенной баней вы не сможете.
Технические нюансы строительства
Строительство бань, совмещённых с жилыми помещениями, имеет некоторые нюансы, которые в обязательном порядке должны быть отражены в проекте. Так, например, если вы решите построить двухэтажное здание, вам потребуется значительно усилить фундамент строения. Если для обычной бани вполне достаточно лёгкого ленточного фундамента, двухэтажное строение потребует значительно заглубить его, а также использовать при его возведении армировочную сетку.
Кроме того, придётся уделить большое внимание обустройству дренажа фундамента, а также гидроизоляции, что не характерно для жилого помещения. Дело в том, что баня генерирует большое количество сточных вод, которые могут проникать в жилые помещения и портить их. Кроме того, плохо устроенная канализация может просто размыть фундамент здания. В связи с этим вам придётся дополнительно потратиться на создание хорошей дренажной и канализационной системы, а также на гидроизоляцию.
В бане создаются высокие температуры, которые могут сочетаться с повышенной влажностью. Моечная может выделять весьма неприятные запахи, которые могут разноситься по жилым комнатам.
Избавиться от них поможет только правильно выполненная мощная вентиляционная система. Естественно, что она будет стоить весьма приличных денег, поэтому эти расходы необходимо будет учесть ещё на стадии разработки.
Дизайн бани с жилыми помещениями также имеет свои особенности. Так, к примеру, обычно парилка не имеет окон, поэтому, если у вас будет построена двухэтажная баня, то первый этаж будет иметь всего лишь 1 окно – в предбаннике или моечной. Что касается отделки описываемого строения, то она может быть любой: керамическая плитка, сайдинг, металлопрофиль. При этом, если вы будете производить строительство из дерева, то вам вполне достаточно будет покрыть наружные стены лаком.
Строить самостоятельно или заказать?
После того, как вы определитесь с проектом вашей бани и учтёте все технические нюансы строительства, перед вами встанет вопрос, строить ли её самостоятельно, или же заказать строительство у специалистов. У каждого варианта есть свои плюсы и минусы, которые стоит взвесить, прежде чем принять необходимое решение.
Так, если вы решите заняться самостоятельным строительством, у вас возникнет возможность построить жилую баню именно в таком виде, в котором она вам необходима. Вы сможете самостоятельно увеличить или уменьшить размеры той или иной комнаты, а также добавить в их оснащение дополнительные архитектурные элементы.
Кроме того, самостоятельное строительство позволит вам значительно сэкономить денежные средства на оплату работы строителей и закупку строительных материалов. Дело в том, что если вы будете покупать стройматериалы для вашей бани самостоятельно, вы сможете получить экономию до 10%.
Что же касается минусов, то основной из них – невозможность без наличия специальных знаний учесть все нюансы строительства бани, находящейся в жилом помещении. К ним относятся как технические моменты, так и соответствие требованиям санитарных норм и правил, а также правилам противопожарной безопасности.
В том случае, когда вы решите выбрать или заказать проект строительства в строительной компании, вы будете избавлены от переживаний по поводу соответствия его требованиям законодательства. Кроме того, такие проекты обычно уже проверены клиентами, поэтому вы на выходе получите удобное и комфортабельное здание.
Ещё один плюс в решении поручить работу строителям – отсутствие необходимости вашего постоянного присутствия на стройплощадке. Так, вам будет достаточно только выбрать понравившейся проект и заключить договор строительства. Далее вам нужно будет только периодически приезжать для того, чтобы принять тот или иной этап выполнения работ и оплатить его.
К минусам возведения бани с помощью профессиональных строителей можно отнести, во-первых, невозможность внести в проект строительства какие-либо изменения. Дело в том, что строители будут придерживаться согласованного проекта, и, если вы решите добавить ещё комнату или же уменьшить одну из существующих, сделать это вам, скорее всего, не удастся.
Во-вторых, обычно стоимость строительства завышается строительными компаниями. Достигается это с помощью закупки строительных материалов по завышенным ценам у своих поставщиков или же изменения объёма выполненных работ. В этом случае вы можете переплатить до половины реальной стоимости всего строительства.
В любом случае окончательное решение стоит принимать только после того, как вы учтёте и рассчитаете свои силы и возможности как физические, так и материальные.
banyabest.ru
10 преимуществ и недостатков дома с баней [+13 ФОТО]
Дома с баней встречаются часто, при этом не менее часто встречаются различные мнения насчет такого решения, как негативные, так и позитивные.
Мы решили разобраться, насколько уместна баня в частном доме, и как правильно ее обустроить.

Дом с баней внутри – привычное решение.
Баня внутри дома
Преимущества

Баня — совмещенная с домом, это удобно.
Чтобы получить наиболее объективную картину, мы рассмотрим все «за» и «против» размещения бани в доме.
Начнем с положительных сторон:
- Когда строится баня вместе с домом, вам нет необходимости тратиться на отдельный фундамент и отдельную кровлю, а это два наиболее дорогих узла в конструкции жилого помещения;
- При совмещении банной парилки и дома обогрев, водоснабжение и канализация объединены в одну систему, поэтому ставить отдельную котельную, септик и систему подачи воды нужды нет, а это значительно удешевляет проект;
- Баня внутри дома не нуждается в мощной отдельной теплоизоляции, просто общая теплоизоляция делается с учетом требований парилки;
- Загородный дом — совмещенный с баней, не требует отдельного куска территории участка, что в ряде случаев является определяющей причиной выбора этого варианта;
- Домик с баней – это удобно. Нет необходимости бегать из помещения в помещение по двору, что особенно актуально в холодный сезон. Кроме того, всегда рядом кухня, комнаты для отдыха, всевозможные удобства;
- Нет необходимости в обустройстве отдельного санузла для бани, так как в доме он и так предусмотрен;
- Дом отапливается по умолчанию, и необходимость поддерживать в бане положительную температуру зимой отпадает автоматически.

Совмещенная баня имеет все удобства жилого дома.
Важно!
По-сути, вам остается только добавить к вашей ванной комнате парилку, так как остальные помещения (раздевалка, душевая, комната для отдыха) уже присутствуют в доме.
Мы видим, что основные преимущества сводятся к экономии и удобству, а это, согласитесь, в наше время достаточно важно. Очень часто владельцы загородных домов просто не в состоянии выделить на участке место, подходящее под все требования СНиП и ГОСТ, поэтому выбора у них нет. Значительная экономия средств и удобство расположенной прямо в доме парилки – вот основные аргументы сторонников совмещения банного и жилого помещений.
Недостатки

На фото гостевой дом с банным помещением и террасой.
Как и все строительные технологии, совмещенный с баней дом имеет свои недостатки.
Они, в основном, продиктованы особенностями эксплуатации банного помещения, и особенно – соображениями безопасности:
- Для парилки характерна очень высокая влажность и температура, которые при некачественной тепло- и гидроизоляции помещения способны нанести существенный вред многим конструкционным узлам и элементам дома и привести к его преждевременной порче, а также – к повышенному износу;
- Печное оборудование представляет повышенную пожарную опасность. В случае его расположения вблизи жилых помещений, тем более, внутри них, требования по обеспечению безопасности особенно строгие. Даже при их соблюдении вы не можете полностью исключить риск возгорания, а это большая ответственность;
- Сжигание больших объемов углеводородного топлива приводит к выделению значительного количества угарного газа (CO), который является опасным токсином, вдыхание которого приводит к серьезным отравлениям и даже к смерти. Поэтому вентиляция бани и отвод продуктов сгорания должны соответствовать самым жестким требованиям.

Смежные с парилкой помещения можно стилизовать под русскую баню.
Важно!
При самостоятельном монтаже внутридомовой бани следует неукоснительно выполнять все требования безопасности и технические условия, которые должны быть учтены в проекте.
Баня в доме своими руками без грамотного проекта не строится, так как это крайне опасно.
Вывод из этого такой: если вы решили сэкономить и совместить баню с домом, вам потребуется минимизировать все возможные риски. Это можно сделать с помощью современных строительных материалов и технологий, однако заниматься их подбором и определять способ монтажа должен профессионал еще на этапе проектирования.
Монтаж

С особой ответственностью следует отнестись к печному оборудованию.
Мы не будем подробно рассматривать строительство всего дома, а лишь остановимся на самых ответственных моментах.
Поэтому инструкция, которая последует, не является пошаговым руководством, а только касается узлов, на которые следует обратить особое внимание:
- Проект. Мы не устанем повторять, что проектирование – один из самых важных этапов любого строительства, тем более, когда речь идет о потенциально опасных объектах. Совмещенная парилка должна проектироваться вместе с домом, а работать над проектом обязан профессиональный инженер-строитель, имеющий квалификацию, достаточную для подобных задач;

Без проекта – никуда.
- Фундамент. При создании фундамента следует сразу закладывать ту его часть, которая будет служить основанием для печи. Это значительно упростит работу в дальнейшем;

Печной фундамент лучше закладывать сразу.
- Защита от влаги. Гидроизоляция всех узлов, контактирующих с зоной парилки и душевой, должна быть повышенной и многоуровневой, и защищать следует все поверхности: пол, стены и потолок;

Гидроизоляция всех узлов производится особенно тщательно.
- Теплоизоляция. Если в доме не предусмотрена внешняя теплоизоляция стен, то ее придется сделать хотя бы на стенах парной и душевой, кроме того, парную лучше изолировать полностью, чтобы она не отдавала тепло смежным комнатам;

Утечки тепла лучше предотвратить во всех направлениях.
- Вентиляция. Кроме естественной вентиляции дома, вам следует оборудовать систему принудительного продува помещений, которая полностью исключит возможность накопления угарного газа и других продуктов сгорания топлива;
Принудительная система вентиляции – лучшее средство от накопления угарного газа.
- Если стены парной и душевой состоят из бруса, то нижние венцы следует подбирать очень тщательно: лучше, если они будут из лиственницы или клееного бруса, причем их обработка антисептиками, антипиренами и влагоотталкивающими составами должна быть безупречной и сертифицированной;

Нижние венцы следует подбирать очень тщательно.
- Отвод дымовых газов. Печь должна быть оборудована эффективной системой отвода продуктов сгорания дров или газа. Места соприкосновения дымохода со строительными конструкциями (стены, перекрытия, кровля) должны быть оформлены специальными фасонными частями, которые препятствуют нагреванию этих конструкций от трубы бани;

Дымоход монтируют с использованием специальных переходников с термозащитой.
- Печное оборудование должно соответствовать нормам СНиП и ГОСТ, лучше, если оно будет построено профессионалом или куплено в магазине.
Важно!
Несмотря на то, что цена проекта возрастает от дополнительных требований и условий безопасности, тепло- и гидроизоляции, вентиляции и прочих, пренебрегать ими нельзя – это крайне опасно для дома и его жильцов.
Вывод
Совместить баню и дом в одном помещении можно, но это потребует определенного подхода к строительству ряда узлов и конструкций. Не меньшее внимание придется уделить мерам безопасности, связанным с эксплуатацией печного оборудования, отводом дымовых газов и вентиляцией.
Подробнее о правилах этих моментов расскажет видео в этой статье, которое мы для вас подобрали и разместили.
9ban.ru
14 рекомендаций по созданию проектов домов с баней под одной крышей [+7 ФОТО]
Обычно баню строят отдельно от жилого дома, под нее выделяется своя функциональная зона с дополнительным набором коммуникаций. Однако если размер загородного участка не позволяет развернуться, можно возвести единое строение под одной кровельной конструкцией.
С экономической точки зрения это будет даже выгоднее – не придется тратить деньги на организацию новых инженерных сетей. Правильный проект дома с баней под одной крышей – это целый комплекс, в котором не только комфортно жить, но и принимать оздоровительные процедуры.

Строить баню и дом под общей крышей выгодно
Опасность возникновения пожара или повышенной влажности в жилых помещениях преувеличены. Если учтены все нюансы, то даже при попадании пара в комнаты, влажность увеличится на 1-2 часа. Важно только организовать паро- и гидроизоляцию.
Как возвести дом и баню под общей крышей

Ленточный фундамент для дома с баней
Начало
Существует два варианта для строительства бани и дома под одной кровлей: еще на стадии проектирования жилого дома или уже после его возведения, в качестве пристройки к стене.
Второй вариант более распространен. Для него своими руками с использованием лопаты, выкапывается траншея и укладывается монолитный ленточный фундамент.
Внешние стены бани предпочтительно сооружать из того же материала, что и дом – кирпича, бруса, бревна или пеноблоков. Это избавит от необходимости делать дополнительные стыковочные элементы.
Если хочется иметь настоящую русскую баню из бревен, а жилой дом обшит сайдингом, то это не проблема. На бревно укладывается теплоизолирующий слой минеральной ваты, и сверху также укрывается все тем же сайдингом.
Что важно учитывать, если проект бани с односкатной крышей будет являться частью дома:
- Правильный расчет системы вентилирования – более высокая влажность способна привести к разрушению несущих конструкций;
- Нужна качественная гидроизоляция – баня должна хорошо просыхать после всех процедур;
- В качестве смежной стены использовать кухонную, тогда появится возможность сделать общую печь, кроме того это способствует более быстрому устранению лишней влаги;
- Когда в доме предусмотрена централизованная или автономная канализация, то допустимо совмещать баню с санузлом. Это избавит от лишних затрат по организации удаления сточных вод бани в слив;
- Возможно прокладывание общей электропроводки между капитальной постройкой и баней.

Удаление сточных вод
Тонкости совмещения дома и бани в проектах

Фото дома с баней под одной крышей
Существует три степени совмещения бани с домом:
- Расположение банного комплекса на первом этаже жилого строения, тогда проекты дома и баня под одной крышей закладываются еще на стадии планирования;
- Полноценный пристрой сруба к одной из стен — тогда парная, предбанник и помывочная заключены в собственные четыре стены. При этом кровельная конструкция дома продляется, закрывая, вновь обретенный пристрой;
- Третий вариант предполагает, что баня имеет с домом одну общую стену, что значительно облегчает их стыковку и переход из одного строения в другое.

Проект крыши для бани, расположенной на первом этаже дома
Если дом и баня, объединенные под одной крышей, имеют разные входы, то это может стать проблемой в зимний период. Чтобы избежать переохлаждения и сделать строение более комфортным, его можно дополнить беседкой. (см. также статью Особенности утепления потолка бани)
Она станет связующим звеном между ними. Цена такого проекта достаточно велика, но по удобству использования он значительно превосходит остальные, более простые.
Беседка для банного комплекса и жилого дома

Проект бани с беседкой под одной крышей, когда она с домом является одним целым
Объединить три строения, различных по степени сложности и назначению, можно только после консультации с архитектором. Они требуют особого подхода, в первую очередь тогда, когда проекты бани с беседкой под одной крышей не были включены в часть жилого дома.
Как сделать беседку комфортной:
- Так как она будет служить переходом из дома в баню не только летом, но и зимой, ее следует сделать более закрытой, и по возможности застеклить. Окна делают большими для хорошей естественной освещенности;
- Полы не должны быть из плитки или камня – оптимальное решение – это деревянные доски. Они теплые и не скользкие;
- Если еще на этапе проектирования, все три сооружения предполагалось объединить в одно, то нужна одна система отопления, водоснабжения и электричества. А это существенная экономия – беседка будет теплой, в ней можно спать или устроить летнюю кухню.
Обратите внимание!
Единый монолитный фундамент послужит хороший опорой для нескольких построек.
Поэтому задумывая возведение на загородном участке нескольких зданий, их лучше делать в одном стиле и под одной крышей.

Одна крыша – несколько зданий
Есть простая инструкция, как сделать баню с беседкой и домом безопасной и комфортной для использования:
- Организовать хорошую вентиляцию для устранения лишней влажности;
- Рационально использовать земельный участок – возможно объединение жилых помещений и бани станет более верным решением, чем соединить их беседкой;
- проекты бань с односкатной крышей хорошо подходят для присоединения к дому, а беседку к ним пристроить уже не составит труда.
Теперь стало значительно проще создать красивый и оригинальный архитектурный ансамбль.
Вывод
Баня – излюбленное место отдыха для русского человека, сегодня это не только средство добиться чистоты тела, но и возможность получить массу приятных эмоций. (см. также статью Проекты бань из оцилиндрованного бревна: варианты)
А если рядом будет еще жилой дом и беседка, то это добавит радости от посещения бани. Видео в этой статье подробнее расскажет о современных банных комплексах под одной с домом крышей.
9ban.ru
