Мангал из металла чертежи – размеры и чертежи, пошаговая инструкция изготовления, как сварить самому
Мангал своими руками из металла: чертежи, инструкция
Для того чтобы отдых всегда был комфортным, стоит сделать мангал своими руками, подобрав его параметры по личным предпочтениям.
Многие с наступлением теплых дней находят время, чтобы провести его на природе. При этом практически каждый отдых не проходит без шашлыков: готовить их не сложно, главное вовремя переворачивать, ведь продукты уже подготовлены дома заранее. Чтобы получить такое вкуснейшее блюдо, потребуется специальная конструкция – мангал. Но при покупке данного элемента стоит учесть, что дешевые модели могут быть некачественными. Многие из них изготавливают из тонкого металла, а значит они не держат жар. В таких условиях приготовить хорошо прожаренное блюдо просто не получится. По этой причине такую конструкцию лучше сделать самостоятельно, так как она будет отвечать всем требованиям, а результат – ожиданиям.
Размеры
На начальном этапе создания металлического мангала стоит обязательно правильно выбрать размеры конструкции, так как от этого зависит насколько успешен будет процесс приготовления.
Ширина. Как правило такой параметр имеет стандартное значение – 30 см, так как размер шампура 25 см, и он как раз идеально помещается на таком мангале. При более широкой конструкции тепло будет зря прогревать воздух.
Длина. Этот параметр влияет на количество шампуров, которые можно будет разместить в мангале. Стоит учесть, что между каждым шампуром должно остаться 8 см свободного пространства. Поэтому чаще всего делают длину 1 м, чтобы поместилось десять шампуров. Однако при самостоятельной реализации длина может быть любой.
Высота бортиков. Рассчитывают так: между углями и мясом должна быть прослойка воздуха. В таком случае стенка подбирается в высоту16 см. Важно учесть, что при больших значениях будет уходить больше топлива.
Высота всей конструкции с длиной ножек рассчитывается в зависимости от удобства ее использования во время переворачивания шампуров. Для этого сгибают руку в локте и измеряют полученное расстояние от почвы до конструкции.
Устройство мангала из металла
Обычно конструкция мангала достаточно проста. Она представляет собой металлический короб, для изготовления которого берутся листы стали толщиной до 3 мм. Чтобы изготовить такой предмет, потребуются инструменты:
- машинка для резки металла;
- дрель, сварочный аппарат;
- рулетка, керно.
Поэтапная инструкция:
Прежде чем начать работы, стоит нарисовать схему на листе бумаги, чтобы обдумать, как выложить детали. После этого с помощью рулетки нужно нанести разметку на металлический лист:
100х16 см – передняя и задняя стенка, две части;
100х30 см – дно, 1 шт.;
30х16 см – две боковые стенки.
В случае отсутствия сварочного аппарата нужно будет предусмотреть припуск для загиба и оставить 40 мм.
Технология процесса:
1. По краю отмечают длину мангала, затем проводят горизонтальную линию для получения значений глубины и ширины дна. Параллельно краю листа проводят еще одну линию – длинные стенки. Должен получиться прямоугольник, который отрезают с помощью болгарки.
Нужно сделать прорезы на глубину 1 мм, по которым сгибается стальной лист. В результате получится конструкция в форме буквы П.
Затем нужно вырезать боковые короткие стенки. Их прихватывают сваркой к полученному корпусу. После того как выйдет параллелепипед, линии стыка стоит обварить. Делают это внутри, чтобы не испортить внешний вид.
2. После проведенных работ нужно предусмотреть приток воздуха в полученный ящик, что улучшит горение в процессе приготовления. Для этого на фронтальной и задней стенках высверливают отверстия диаметром 10-15 мм через равные промежутки друг от друга. Их располагают по низу на расстоянии 2 см от края.
Устанавливаем основу на ножки
Чтобы сделать ножки для мангала своими руками из металла, необходимо взять уголки или трубки. Их длина будет зависеть от произведенных расчетов высоты всего изделия. Как провести правильно расчеты было описано выше.
Выбирать материал для ножек стоит в зависимости от того, что хочется получить: для разборной конструкции больше подходят трубки. Их крепят с помощью болтов, которые придется приваривать к каждой стороне элемента.
Делают это так: просверливают в углу полученного ящика отверстия чуть большего диаметра, чем у крепежных элементов. Над ними внутри ящика приваривают гайки, в которые и нужно будет закрутить болты с трубками.
Мангал с крышей из металла
Если на участке создать легкую металлическую конструкцию мангала c крышей, ее можно будет расположить в любом месте на участке, ведь она легко перемещается. К тому же у нее будет еще важный плюс – защита от дождя.
Чтобы создать мангал с крышей из металла, понадобятся материалы:
- Металлический лист;
- Уголки, профильные трубки;
- Аппарат для сварки.
Такая конструкция должна иметь помимо мангала следующие элементы: каркас, крыша и при необходимости дополнительный столик.
Профильные трубки позволят сделать полочки для дров, стойки. Если их заменить кованными прутьями, каркас получится более изящный.
Создавая навес для мангала из металла, стоит учесть, что такой элемент будет постоянно находиться под воздействием высоких температур, а значит лучше использовать металлическую либо керамическую черепицу. Также подойдет шифер.
Как сделать каркас
Прежде чем сделать каркас стоит обратить внимание, что для его изготовления понадобятся 4 либо 6 стоек, для прочности соединенных перегородками: снизу, на уровне мангала, и сверху.
При планировании каркаса можно на средних перегородках, расположенных сбоку, разместить столик. Чтобы мангал стоял крепко, вертикальные опоры должны быть размещены по углам крыши.
Кровля конструкции должна иметь размеры, превышающие габариты жаровни. В этом случае она сможет выполнять свою функцию: защита от непогоды человека, готовящего пищу.
Мангал с казаном из металла
Чтобы защитить жаровню и пищу во время ее приготовления от сильного дождя, лучше сделать мангал с казаном из металла. Крышка казана будет ограждать посуду от копоти, а если установить внутри решетку, можно одновременно размещать посуду разных объемов.
Также стоит прикрепить дымоходную трубу: это позволит избежать появления запаха дыма в пище.
Инструкция изготовления:
Изготавливают печь, в которой делают отверстие по размерам большой кастрюли. Вырезанную часть в дальнейшем используют для крышки казана, которая должна соответствовать размерам основы печки.
После этого сваривают короб-основание на который сбоку устанавливают печь. Чтобы получился мангал с вытяжкой из металла,
Чертежи
При создании мангала можно воспользоваться уже готовыми чертежами.
Если изменить размеры под себя, получится сделать персональную и уникальную конструкцию, не затратив много времени на подготовку схем.
Чем покрасить мангал из металла
В случае если на полученной конструкции проступили ржавые пятна, избавиться от них можно зачистив их щеткой и шкурками. Также чтобы полученному изделию придать красивый вид, его при желании можно легко выкрасить. При этом обязательно нужно применять специальная краску, выдерживающую высокие температуры. Для этого подойдет термостойкая эмаль либо соответствующая краска.
archidea.com.ua
варианты конструкций, чертежи и видеоинструкция – Свой дом мечты
Согласитесь, так приятно побаловать себя сочным, румяным шашлыком или запеченными на решетке овощами с ароматом дымка. Что для этого потребуется? Продукты и, конечно же, мангал. Именно об этом, незаменимом в летнее время предмете, и пойдет речь.
Как правило, мангалом или жаровней принято называть металлический короб с перфорацией для циркуляции воздуха, устанавливаемый на ножках. И, хотя варианты его оформления могут быть весьма разнообразны, при желании вы легко можете сделать мангал из металла своими руками. Сегодня мы рассмотрим самые интересные и практичные идеи для создания металлической жаровни и способы их реализации.
Какими бывают мангалы? Варианты конструкций из металла
Мангалы могут быть разнообразны по конструкцииПо своим габаритам мангалы делятся на две основные группы – переносные и стационарные. Конструкции, не предназначенные для переноски, отличаются большей массивностью, устанавливаются на основание из кирпича или камня и нередко украшаются различными коваными элементами. Такие мангалы часто размещают внутри беседки или под навесом, что дает возможность использовать их даже в плохую погоду.
Разборные мангалы, как правило, имеют небольшой вес и размеры. Они используются для выездов на природу или в пеших прогулках. Самым простым вариантом являются две раздельные металлические опоры с зазубринами для шампуров, размещаемые друг напротив друга. Такая модель очень удобна благодаря своей компактности, но имеет и недостаток – одновременно на ней можно приготовить всего несколько порций шашлыка.
Некоторые переносные конструкции могут быть оснащены также дополнительными решетками, выдвижным столиком или другими необходимыми аксессуарами. Однако это влечет за собой утрату мобильности – из-за возросшего веса их сложно переносить вручную.
Обычный мангалПо толщине стенок варианты конструкций из металла могут быть тонкостенными и толстостенными. Более тонкий и, соответственно, более легкий металл применяется для создания переносных моделей. Это не лучшим образом сказывается на их прочности, поэтому использовать в них допустимо только магазинные или заранее заготовленные угли, так как длительный накал, необходимый для образования достаточного количества углей, быстро приведет тонкие стенки в негодность.
Стационарные мангалы разумнее делать толстостенными. Для их изготовления чаще всего применяют стальные листы толщиной в 4 мм и более. Это обходится дороже, но и прослужить они могут в несколько раз дольше тонкостенных аналогов.
Создание мангала из железной бочки (с коптильней или без нее)
Сделать небольшой мангал можно из листового металла, но если нужна более вместительная конструкция, то лучше взять за основу обычную железную бочку или баллон. К преимуществам такой модели относится не только простота сборки, но и большая функциональность готового изделия – его можно легко превратить в коптильню. Рассмотрим создание мангала из железной бочки более детально.
Необходимые материалы
Хотя конструкции мангалов из бочки могут несколько отличаться, к примеру, наличием или отсутствием крышки и коптильни, но перечень необходимых инструментов и материалов для них схож. Для работы вам понадобятся:
Чертежи и фото: пошаговая инструкция для изготовления
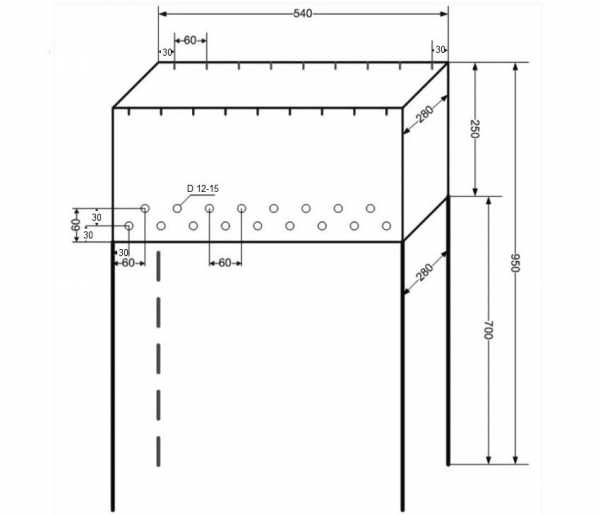
Первым делом потребуется составить чертеж будущей конструкции. На нем следует обозначить высоту и ширину самого мангала, размеры ножек, наметить места для перфорации и фасок (скошенных прорезей в металле) для шампуров. Фасок, как правило, делают 8 штук или более, а перфорацию лучше разместить на высоте около 10 см от днища. Высоту ножек подбирают индивидуально.
Если планируется использовать мангал в качестве коптильни, то необходимо также предусмотреть трубу для выхода дыма. Приведенные ниже чертежи и фото, а также пошаговая инструкция по сборке, помогут вам разобраться в нюансах создания мангала из бочки.
Схема мангала с коптильнейПосле того как чертеж будущей конструкции готов, можно приступать к делу. Последовательность действий следующая:
Основные работы на этом считаются завершенными и наступает очередь отделки, а именно – окрашивания. Для этой цели можно использовать термоустойчивую краску, продающуюся в баллончиках, она достаточно стойкая и удобна для нанесения. Оформленный таким образом мангал будет выглядеть намного эстетичней, кроме того, покрытие защитит его от ржавчины.
Завершение работы над мангаломВидео: советы по сборке мангала от профессионалов
Если вы не можете назвать себя опытным сварщиком и конструктором, рекомендуем посмотреть видео, в котором наглядно показаны все этапы создания металлического мангала из бочки и его отделки.
Интересные идеи для мангалов: практично и красиво
Конечно, мангал – вещь для приготовления шашлыка практически незаменимая. Но хотелось бы, чтобы, помимо выполнения своей основной функции, он еще и был привлекателен внешне. Представляем вашему вниманию интересные идеи для мангалов, которые, без сомнения, смогут украсить двор и удивить гостей.
Такой стальной мангал, с вместительной поленницей и удобными полочками для продуктов, легко справится с приготовлением шашлыка даже на большую компанию и органично впишется в ландшафт любого участка.

Следующая модель, напротив, отличается компактностью и отлично подойдет тем, у кого нет во дворе лишнего свободного пространства. Кроме того, она выполнена в виде тележки, что значительно упрощает ее перемещение.

Еще одна оригинальная идея – мангал, закрепленный на стене. Конструкция позволяет раскладывать его при необходимости, а после использования снова превращать в элемент декора. Очень удобно!

Нельзя обойти вниманием и самый компактный из металлических мангалов, которым можно пользоваться даже в квартире. Хотя его размеры не позволяют приготовить полноценный шашлык, но для колбасок и овощей он вполне подходит.

И напоследок – интересное решение для владельцев старого, ненужного автомобиля. Его передняя часть, впрочем, как и багажник, может превратиться в симпатичный декоративный мангал на колесах.

Как видите, создание жаровни из металла процесс достаточно простой, а приспособить под него можно практически все что угодно. Поэтому, если у вас в хозяйстве еще нет столь полезного предмета – осмотритесь, возможно, какие-то старые или ненужные вещи только и ждут, чтобы вы превратили их в удобный и оригинальный мангал.
small-house.ru
Мангал своими руками из металла: фото, видео, размеры, чертежи
Мангал своими руками из металла: фото, видео, размеры, чертежи. Незаменимыми помощниками в частном доме или на дачном участке являются мангалы из металла своими руками. Размеры, фото законченных жаровен, приведенные в этой статье, помогут справиться с их обустройством самостоятельно. Подобные изделия довольно часто используются при проведении праздников на природе, однако чтобы понять, какое устройство необходимо, нужно разобраться в их разновидностях. Готовый чертеж мангала из металла с размером короба и опор можно использовать в работе как образец.
Металлический мангал с коваными элементами
Самый простой вариант мангала из металла своими руками размеры, фото которого приведены ниже, представляет собой обыкновенный прямоугольный «аквариум» на ножках. В его основание засыпаются угли, за счет которых и создается жар. Однако существует множество современных образцов, принципиально отличающихся от стандартного. Они более усовершенствованы и красивы.

Размеры стандартного мангала на ножках
Можно выделить несколько вариантов исполнения мангалов:
- стационарный. Довольно массивная конструкция, чаще всего устанавливаемая на жесткое основание. Металлические мангалы могут стать интересным и в то же время красивым элементом дизайна участка. Тому в подтверждение и фото мангалов с коптильней из металла своими руками (чертежи таких моделей можно найти в интернете). Современные умельцы предложат различные формы подобных изделий, из которых можно будет выбрать оригинальный вариант для домашнего использования. Он прослужит долгие годы;

Стационарный кованый мангал
- переносной. Основным отличием таких конструкций является их компактность и разборность. Они значительно меньше по весу, чем их стационарные собратья, и могут легко поместиться в багажнике автомобиля. Единственным минусом портативных изделий можно считать недолговечность. Их изготавливают из более тонких металлических листов, чтобы уменьшить общую массу. Слишком тонкий материал часто деформируется и прогорает;

Примеры переносных мангалов из металла
- передвижной. Обычно это довольно крупные конструкции, часто неразборного типа, дополнительно оборудованные колесиками для удобства перемещения по участку. Часто украшают коваными элементами такие мангалы из металла своими руками. Размеры, фото таких изделий довольно разнообразны и среди большого набора вариантов можно выбрать самый подходящий.

Передвижной мангал-барбекю с колесами
Отдельно стоит отметить электрический мангал. Для удобства пользователей в нем предусмотрено автоматическое вращение шампуров. На такой жаровне мясо прожаривается равномерно. Существуют и полностью электризованные экземпляры, на которых вместо углей используются нагревающиеся спирали.

Чертеж мангала из бочки с электро-вертелом
Простейший походный мангал своими руками. Фото, чертежи
Самый простой и легкий в изготовлении переносной мангал представляет собой две небольшие стойки в виде буквы «П» из металла, которые втыкают в землю. Естественно, места под угли в нем нет, их располагают на земле непосредственно между стойками.
Его минусы:
- маленькая высота не позволяет жарить мясо стоя;
- открытое пространство – довольно большая потеря жара.

Простейший походный мангал
Такое изделие можно легко взять в пеший поход. Оно занимает мало места и поместится даже в рюкзак. Для его изготовления потребуются два уголка, длина которых будет равна длине мангала, а также четыре металлические стойки и детали для крепления конструкции. Фото мангала из металла демонстрирует простоту такого приспособления.
Полезный совет! Для стандартного мангала обычно используют металлический лист толщиной около 2 мм. Чем больше толщина, тем долговечнее будет конструкция, поэтому некоторые мастера используют металл толщиной 5 мм.

Конструкция простейшего походного мангала
Несложно собрать стационарный мангал из металла своими руками. Для создания простейшей прямоугольной жаровни потребуется:
- стальной лист;
- арматура или уголки для стоек;
- болгарка с подходящим камнем;
- дрель;
- газо- или электросварочный аппарат.

Шаг 1: сваривание корпуса и ножек мангала
Предварительно стоит подготовить чертеж будущей конструкции. Здесь нужно предусмотреть высоту готового изделия, его ширину и длину, отметить расстояния между перфорационными прорезями, а также нахождение фасок для шампуров. Стандартное расстояние между вентиляционными щелями в мангале из металла своими руками составляет 7-8 см, их устраивают примерно на таком же расстоянии от дна конструкции. Количество фасок зависит от того, сколько шампуров планируется использовать. Стандартное их число – 8.
Шаг 2: создание дополнительной съемной подставки
Мангал своими руками: чертежи и фото. Пошаговая инструкция изготовления
Как мангал своими руками из металла? Чертежи, схемы, фото, видео-материалы, имеющиеся в интернете, могут стать примером для самостоятельного изготовления качественного и долговечного изделия. Размеры мангала из металла выбирают индивидуально, рассчитывая на желаемое количество шампуров в одной закладке:
- На металле отмечают границы стенок и дна будущего изделия.
- По проведенным линиям разрезают лист.
- Перфорационные отверстия выполняются дрелью.
- Прорезают фаски на верхних краях длинных стенок.
- Все детали соединяются сваркой.
- Ножки заостряют снизу, срезав болгаркой угол.
- Приваривают стойки к коробу.
Шаг 3: мангал со съемной подставкой сделан своими руками
Полезный совет! Ножки мангала можно выполнить из прутьев. Для этого в верхней их части нарезают резьбу, а ко дну короба приваривают подходящие по размеру гайки. Неплохо справляются с нагрузкой стойки из уголка, соединяемые с основной конструкцией при помощи болтов. Их при необходимости можно открутить.

Шаг: 4 использование мангала для приготовления пищи
Не нужно использовать сварочный аппарат для создания мангала из металла своими руками. Чертежи, фото подобных изделий подскажут, как правильно собрать конструкцию. Оптимальный размер короба будущей конструкции составляет 70х30 см. При разрезании металлического листа оставляют около 4 см на стыки. На стенках выполняют небольшие прорези и сгибают листы таким образом, чтобы можно было состыковать углы и дно конструкции. На каждой детали, в том числе и на ножках, высверливают отверстия под шурупы.
Конструкция разборного мангала
Такой мангал легко собирается и разбирается, поэтому его легко брать с собой на природу. Установка подобной жаровни займет всего несколько минут.
Полезный совет! Если детали конструкции соединить мебельными обвесами, то выполненный своими руками мангал из металла можно будет складывать после окончания готовки.
Металлический мангал с навесом
Оригинальные идеи мангалов
Довольно легко изготовить шашлычницу из обычной металлической бочки. Готовый мангал может быть в двух вариантах: с крышкой и без. Для этого бочку разрезают на две неравные части, меньшая из которых будет служить крышкой. Края полученных металлических форм тщательно зачищают от заусенцев и обрезков. К нижней части, предназначенной для жарки, приваривают ножки из уголков или тонкой трубы. Выполняют вентиляционные прорези, а к краям стенок приваривают небольшие полочки. На них удобно класть решетку для жарки, а также шампура.
Мангал сделанный своими руками из бочки
Верхнюю меньшую часть тоже обваривают по краям уголком, на обе части крепят петли и соединяют конструкцию воедино. Довольно легко сделать коптильню из такого мангала из металла своими руками. Фото, размеры подобных изделий помогут самостоятельно собрать необходимую конструкцию для дома.
Оригинальный мангал-барбекю
Неплохо смотрятся мангалы с элементами ковки. Часто их оборудуют дополнительными приспособлениями:
- полками;
- подставками;
- колесиками.

Кованый мангал в виде кареты
Современные мастера-дизайнеры создают поистине уникальные конструкции для жарки в виде пиратских сундуков, небольших автомобилей или паровозов. Их украшают коваными узорами или цветами. Подобные мангалы станут прекрасными элементами декора любого дачного или придомового участка.
Примеры креативных самодельных мангалов
Защита от коррозии
Любое металлическое изделие необходимо защитить от коррозии. Для окраски обычно используют специализированные составы, устойчивые к большому жару. Существуют и другие способы защиты. Довольно распространенным считается воронение. В результате подобного процесса на металлическом листе появляется совершенно черная пленка, защищающая изделие от высокой температуры.
openfile.ru
