ΠΠ°ΡΠ½ΡΠΉ Π΄ΠΎΠΌΠΈΠΊ Ρ ΡΠ΅ΡΡΠ°ΡΠΎΠΉ ΡΠΎΡΠΎ β (120 Π€ΠΎΡΠΎ) ΠΠΏΠΈΡΠ°Π½ΠΈΠ΅ ΠΈ Π’ΡΠ΅Π±ΠΎΠ²Π°Π½ΠΈΡ
ΠΎΡΠΎΠ±Π΅Π½Π½ΠΎΡΡΠΈ Π»Π΅ΡΠ½ΠΈΡ ΠΏΠΎΡΡΡΠΎΠ΅ΠΊ, ΠΊΠ°ΠΊ ΠΏΡΠΈΡΡΡΠΎΠΈΡΡ, Π²Π°ΡΠΈΠ°Π½ΡΡ, ΠΏΡΠΎΠ΅ΠΊΡΡ, ΡΠΎΡΠΎ ΠΈ Π²ΠΈΠ΄Π΅ΠΎ
ΠΠ°ΡΠ° ΡΠ²Π»ΡΠ΅ΡΡΡ ΠΎΡΠ»ΠΈΡΠ½ΡΠΌ ΠΌΠ΅ΡΡΠΎΠΌ Π΄Π»Ρ ΠΎΡΠ΄ΡΡ Π° Π½Π° ΠΏΡΠΈΡΠΎΠ΄Π΅. Π§Π°ΡΠ΅ Π²ΡΠ΅Π³ΠΎ ΡΡΠΎ Π·Π΄Π°Π½ΠΈΠ΅ ΠΈΠΌΠ΅Π΅Ρ Π½Π΅Π±ΠΎΠ»ΡΡΠΈΠ΅ ΡΠ°Π·ΠΌΠ΅ΡΡ: Π½Π° ΠΎΠ΄Π½Ρ-Π΄Π²Π΅ ΠΊΠΎΠΌΠ½Π°ΡΡ, ΠΊΡΡ Π½Ρ ΠΈ Π²Π°Π½Π½ΡΡ.
ΠΠ΄Π½Π°ΠΊΠΎ Π΅ΡΠ»ΠΈ ΠΏΡΠΈΡΡΡΠΎΠΈΡΡ Π²Π΅ΡΠ°Π½Π΄Ρ ΠΊ Π΄Π°ΡΠ½ΠΎΠΌΡ Π΄ΠΎΠΌΡ, ΡΠΎ ΠΎΠ½Π° ΡΠ°ΡΡΠΈΡΠΈΡ Π΅Π³ΠΎ ΠΏΠΎΠ»Π΅Π·Π½ΡΡ ΠΏΠ»ΠΎΡΠ°Π΄Ρ ΠΈ ΡΡΠ°Π½Π΅Ρ Π»ΡΠ±ΠΈΠΌΡΠΌ ΠΌΠ΅ΡΡΠΎΠΌ Π΄Π»Ρ Π²ΡΠ΅Ρ Π΄ΠΎΠΌΠΎΡΠ°Π΄ΡΠ΅Π². Π‘ΠΎΠΎΡΡΠΆΠ΅Π½ΠΈΠ΅ Π΄Π°ΡΡ Π²ΠΎΠ·ΠΌΠΎΠΆΠ½ΠΎΡΡΡ Π±Π΅Π· ΠΏΠΎΠΌΠ΅Ρ Π½Π°ΡΠ»Π°Π΄ΠΈΡΡΡΡ ΠΊΡΠ°ΡΠΎΡΠ°ΠΌΠΈ ΠΏΡΠΈΡΠΎΠ΄Ρ ΠΈ Π·Π°Π³ΠΎΡΠΎΠ΄Π½ΠΎΠΉ ΡΠΈΡΠΈΠ½ΠΎΠΉ.

ΠΡΠΈΡΡΡΠΎΠΉΠΊΠ° Π·Π½Π°ΡΠΈΡΠ΅Π»ΡΠ½ΠΎ ΡΠ°ΡΡΠΈΡΡΠ΅Ρ Π²ΠΎΠ·ΠΌΠΎΠΆΠ½ΠΎΡΡΠΈ Π·Π°Π³ΠΎΡΠΎΠ΄Π½ΠΎΠ³ΠΎ Π΄ΠΎΠΌΠ°.
Π’ΠΈΠΏΡ ΠΏΡΠΈΡΡΡΠΎΠ΅ΠΊ
ΠΠ·Π²Π΅ΡΡΠ½ΠΎ Π΄Π²Π° ΡΠΈΠΏΠ° Π²Π΅ΡΠ°Π½Π΄: Π»Π΅ΡΠ½ΠΈΠ΅ β ΠΎΡΠΊΡΡΡΡΠ΅ ΠΈ Π²ΡΠ΅ΡΠ΅Π·ΠΎΠ½Π½ΡΠ΅ β Π·Π°ΠΊΡΡΡΡΠ΅.
ΠΡΠΊΡΡΡΡΠ΅ ΡΠΎΠΎΡΡΠΆΠ΅Π½ΠΈΡ

ΠΡΠΊΡΡΡΠ°Ρ Π²Π΅ΡΠ°Π½Π΄Π°.
- ΠΡΠΊΡΡΡΠ°Ρ Π²Π΅ΡΠ°Π½Π΄Π° Π΄Π°ΡΠ½ΠΎΠ³ΠΎ Π΄ΠΎΠΌΠΈΠΊΠ° ΠΈΡΠΏΠΎΠ»ΡΠ·ΡΠ΅ΡΡΡ ΡΠΎΠ»ΡΠΊΠΎ Π² ΡΠ΅ΠΏΠ»ΡΠΉ ΠΏΠ΅ΡΠΈΠΎΠ΄ Π³ΠΎΠ΄Π°. Π‘ΠΎΠΎΡΡΠΆΠ΅Π½ΠΈΠ΅ ΠΎΡΠ΅Π½Ρ ΠΏΡΠΎΡΡΠΎΠ΅ ΠΈ Π±ΠΎΠ»Π΅Π΅ Π²ΡΠ΅Π³ΠΎ ΠΏΠΎΡ ΠΎΠΆΠ΅ Π½Π° ΠΏΡΠΎΡΡΠΎΡΠ½ΠΎΠ΅ ΠΊΡΡΠ»ΡΡΠΎ.
- ΠΠ½ΠΎ ΠΎΠΏΡΠΈΠΌΠ°Π»ΡΠ½ΠΎ ΠΏΠΎΠ΄Ρ ΠΎΠ΄ΠΈΡ Π΄Π»Ρ ΡΡΡΡΠΎΠΉΡΡΠ²Π° ΡΠ΅ΠΌΠ΅ΠΉΠ½ΡΡ Π·Π°Π²ΡΡΠ°ΠΊΠΎΠ², ΠΎΠ±Π΅Π΄ΠΎΠ² ΠΈ ΡΠΆΠΈΠ½ΠΎΠ².
- ΠΠ°ΠΆΠ΅ ΠΊΠΎΠ³Π΄Π° Π΄ΠΎΠΌ ΡΠΆΠ΅ Π΄Π°Π²Π½ΠΎ ΡΠΊΡΠΏΠ»ΡΠ°ΡΠΈΡΡΠ΅ΡΡΡ, ΡΠΎ ΡΠ°ΠΊΡΡ Π²Π΅ΡΠ°Π½Π΄Ρ Π² Π»ΡΠ±ΠΎΠΉ ΠΌΠΎΠΌΠ΅Π½Ρ ΠΌΠΎΠΆΠ½ΠΎ ΠΊ Π½Π΅ΠΌΡ ΠΏΡΠΈΡΡΡΠΎΠΈΡΡ ΡΠ²ΠΎΠΈΠΌΠΈ ΡΡΠΊΠ°ΠΌΠΈ.
- ΠΠ° Π½Π΅ΠΉ ΠΌΠΎΠΆΠ½ΠΎ ΠΏΠΎΠΌΠ΅ΡΡΠΈΡΡ Π»ΡΠ±ΡΡ Π»Π΅Π³ΠΊΡΡ ΠΌΠ΅Π±Π΅Π»Ρ. ΠΠ±ΡΡΠ½ΠΎ ΡΡΠΎ Π±ΠΎΠ»ΡΡΠΎΠΉ Π΄Π°ΡΠ½ΡΠΉ ΠΎΠ±Π΅Π΄Π΅Π½Π½ΡΠΉ ΡΡΠΎΠ» ΠΈ ΡΡΡΠ»ΡΡ, ΠΊΡΠ΅ΡΠ»Π° Π΄Π»Ρ ΠΎΡΠ΄ΡΡ Π° ΠΈΠ»ΠΈ Π΄ΠΈΠ²Π°Π½.
- ΠΠ΅ΡΠ°Π½Π΄Π° ΠΎΡΠΊΡΡΡΠΎΠ³ΠΎ ΡΠΈΠΏΠ° ΠΌΠΎΠΆΠ΅Ρ ΠΈΠΌΠ΅ΡΡ Π»ΡΠ±ΡΡ ΡΠΎΡΠΌΡ, Π° ΡΠ°ΠΊΠΆΠ΅ ΡΠ°Π·ΠΌΠ΅Ρ β ΠΌΠ°Π»Π΅Π½ΡΠΊΠΈΠΉ ΠΈΠ»ΠΈ Π±ΠΎΠ»ΡΡΠΎΠΉ. ΠΡΠ»ΠΈ ΡΠ΄Π΅Π»Π°ΡΡ Π΅Π΅ ΡΡΡΠ½ΠΎΠΉ, ΠΊΠΎΠΌΡΠΎΡΡΠ½ΠΎΠΉ ΠΈ ΠΎΠΊΡΠ°ΡΠΈΡΡ Π² Π½Π°ΡΡΡΠ°Π»ΡΠ½ΡΠΉ ΡΠ΅ΠΏΠ»ΡΠΉ ΡΠ²Π΅Ρ, ΡΠΎ ΠΎΠ½Π° ΡΡΠ°Π½Π΅Ρ ΠΎΠ΄Π½ΠΈΠΌ ΠΈΠ· ΡΠ°ΠΌΡΡ Π²Π°ΡΠΈΡ Π»ΡΠ±ΠΈΠΌΡΡ ΠΌΠ΅ΡΡ Π΄Π°ΡΠΈ.
ΠΠ°ΠΊΡΡΡΠ°Ρ Π²Π΅ΡΠ°Π½Π΄Π°

ΠΠ°ΠΊΡΡΡΠ°Ρ ΠΈ ΡΡΠ΅ΠΏΠ»Π΅Π½Π½Π°Ρ ΠΏΡΠΈΡΡΡΠΎΠΉΠΊΠ° Π±ΡΠ΄Π΅Ρ ΠΏΠΎΠ»Π½ΠΎΡΠ΅Π½Π½ΠΎΠΉ ΠΊΠΎΠΌΠ½Π°ΡΠΎΠΉ.
- ΠΠ°ΠΊΡΡΡΡΠ΅ ΡΠΎΠΎΡΡΠΆΠ΅Π½ΠΈΡ ΠΏΡΠΈΠ³ΠΎΠ΄Π½Ρ Π΄Π»Ρ Π²ΡΠ΅ΠΌΡΠΏΡΠΎΠ²ΠΎΠΆΠ΄Π΅Π½ΠΈΡ Π² Π»ΡΠ±ΠΎΠΉ ΡΠ΅Π·ΠΎΠ½ Π³ΠΎΠ΄Π°.
- ΠΠ΅ΡΠ΅Π΄ ΡΠ΅ΠΌ, ΠΊΠ°ΠΊ ΠΏΡΠΈΡΡΡΠΎΠΈΡΡ Π²Π΅ΡΠ°Π½Π΄Ρ ΠΊ Π΄Π°ΡΠ½ΠΎΠΌΡ Π΄ΠΎΠΌΠΈΠΊΡ, Π½Π°Π΄ΠΎ ΡΡΠ΅ΡΡΡ, ΡΡΠΎ Π·ΠΈΠΌΠΎΠΉ ΡΡΠΎ ΠΏΠΎΠΌΠ΅ΡΠ΅Π½ΠΈΠ΅ Π±ΡΠ΄Π΅Ρ Π½Π°ΠΈΠ±ΠΎΠ»Π΅Π΅ Ρ ΠΎΠ»ΠΎΠ΄Π½ΡΠΌ. ΠΠΎΡΡΠΎΠΌΡ Π΅Π³ΠΎ ΡΠ΅Π»Π΅ΡΠΎΠΎΠ±ΡΠ°Π·Π½ΠΎ ΠΎΡΠ½Π°ΡΡΠΈΡΡ ΡΡΠ΅ΠΊΠ»ΠΎΠΏΠ°ΠΊΠ΅ΡΠ°ΠΌΠΈ ΠΈ ΡΡΡΠ°Π½ΠΎΠ²ΠΈΡΡ ΠΎΠ±ΠΎΠ³ΡΠ΅Π²Π°ΡΠ΅Π»ΡΠ½ΡΡ ΡΠΈΡΡΠ΅ΠΌΡ, Π½Π°ΠΏΡΠΈΠΌΠ΅Ρ Β«ΡΠ΅ΠΏΠ»ΡΠ΅ ΠΏΠΎΠ»ΡΒ».
- Π§ΡΠΎΠ±Ρ ΠΊΠΎΠΌΠ½Π°ΡΠ° Π±ΡΠ»Π° Π½Π°ΠΏΠΎΠ»Π½Π΅Π½Π° Π΅ΡΡΠ΅ΡΡΠ²Π΅Π½Π½ΡΠΌ ΡΠ²Π΅ΡΠΎΠΌ, ΠΎΠΊΠ½Π° Π² Π½Π΅ΠΉ Π΄ΠΎΠ»ΠΆΠ½Ρ Π±ΡΡΡ Π±ΠΎΠ»ΡΡΠΈΠΌΠΈ ΠΈ ΠΈΠ΄ΡΠΈ ΠΏΠΎ Π΅Π΅ ΠΏΠ΅ΡΠΈΠΌΠ΅ΡΡΡ.
- Π’Π΅ΠΏΠ»ΡΡ Π²Π΅ΡΠ°Π½Π΄Ρ ΠΌΠΎΠΆΠ½ΠΎ ΠΏΡΠ΅Π²ΡΠ°ΡΠΈΡΡ Π² ΠΊΠ°Π±ΠΈΠ½Π΅Ρ, ΠΊΡΡ Π½Ρ, Π±ΠΈΠ±Π»ΠΈΠΎΡΠ΅ΠΊΡ, ΠΏΡΠΈΡ ΠΎΠΆΡΡ, ΠΈΠ³ΡΠΎΠ²ΡΡ ΠΊΠΎΠΌΠ½Π°ΡΡ ΠΈ ΠΏΡ.
- ΠΡΡ ΠΎΠ΄Ρ ΠΈΠ· ΡΡΠΎΠ³ΠΎ, ΠΊΠΎΠ³Π΄Π° ΡΠΎΠΎΡΡΠΆΠ°ΡΡΡΡ Π΄Π°ΡΠ½ΡΠ΅ Π΄ΠΎΠΌΠΈΠΊΠΈ Ρ Π²Π΅ΡΠ°Π½Π΄ΠΎΠΉ β ΠΏΡΠΎΠ΅ΠΊΡΡ ΠΈΡ Π΄ΠΎΠ»ΠΆΠ½Ρ ΡΡΠΈΡΡΠ²Π°ΡΡ ΠΏΡΠ΅Π΄Π½Π°Π·Π½Π°ΡΠ΅Π½ΠΈΠ΅ ΠΏΡΠΈΡΡΡΠΎΠΉΠΊΠΈ. ΠΠ°ΠΏΡΠΈΠΌΠ΅Ρ, Π΅ΡΠ»ΠΈ ΠΎΠ½Π° Π±ΡΠ΄Π΅Ρ ΡΠ»ΡΠΆΠΈΡΡ ΠΊΡΡ Π½Π΅ΠΉ, ΡΡΠ΅Π½Ρ Π΅Π΅ Π΄ΠΎΠ»ΠΆΠ½Ρ Π±ΡΡΡ ΠΎΠ±Π»ΠΈΡΠΎΠ²Π°Π½Ρ Π²Π»Π°Π³ΠΎΡΡΠΎΠΉΠΊΠΈΠΌΠΈ ΠΌΠ°ΡΠ΅ΡΠΈΠ°Π»Π°ΠΌΠΈ, Π° ΠΎΡΡΠ΅ΠΊΠ»ΡΡΡ Π½Π°Π΄ΠΎ Π»ΠΈΡΡ Π²Π΅ΡΡ ΡΡΠ΅Π½.
ΠΠ±ΡΠ°ΡΠΈΡΠ΅ Π²Π½ΠΈΠΌΠ°Π½ΠΈΠ΅!
ΠΡΠ»ΠΈ Π·Π°ΠΊΡΡΡΡΡ Π²Π΅ΡΠ°Π½Π΄Ρ Π½Π΅ ΡΡΠ΅ΠΏΠ»ΡΡΡ, ΡΠΎ ΠΊΡΠΎΠΌΠ΅ ΠΎΡΠ΅Π²ΠΈΠ΄Π½ΠΎΠ³ΠΎ Π½Π΅Π΄ΠΎΡΡΠ°ΡΠΊΠ° Π΄Π°Π½Π½ΠΎΠ³ΠΎ ΡΠ°ΠΊΡΠ°, ΡΠ΅ΡΠ΅Π½ΠΈΠ΅ Π±ΡΠ΄Π΅Ρ ΠΈΠΌΠ΅ΡΡ ΠΈ ΡΠ²ΠΎΠΈ ΠΏΠ»ΡΡΡ.
ΠΠ°ΠΏΡΠΈΠΌΠ΅Ρ, ΡΠ΅Π½Π° ΠΏΡΠΈΡΡΡΠΎΠΉΠΊΠΈ Π±ΡΠ΄Π΅Ρ ΠΌΠ΅Π½ΡΡΠ΅.
Π‘ΡΠΊΠΎΠ½ΠΎΠΌΠΈΡΡ ΡΡΡ ΠΌΠΎΠΆΠ½ΠΎ, ΡΠΌΠ΅Π½ΡΡΠΈΠ² ΡΠΎΠ»ΡΠΈΠ½Ρ ΡΡΠ΅Π½, Π½Π΅ ΠΈΡΠΏΠΎΠ»ΡΠ·ΡΡ ΡΠ΅ΠΏΠ»ΠΎΠΈΠ·ΠΎΠ»ΡΡΠΈΡ, ΠΏΡΠΈΠΌΠ΅Π½ΠΈΠ² ΠΎΠ±Π»Π΅Π³ΡΠ΅Π½Π½ΡΠΉ ΡΡΠ½Π΄Π°ΠΌΠ΅Π½Ρ.
ΠΠ»Π°Π½ΠΈΡΠΎΠ²ΠΊΠ° Π΄ΠΎΠΌΠΈΠΊΠ° Ρ Π²Π΅ΡΠ°Π½Π΄ΠΎΠΉ ΠΌΠΎΠΆΠ΅Ρ Π±ΡΡΡ ΠΌΠ½ΠΎΠ³ΠΎΠΎΠ±ΡΠ°Π·Π½ΠΎΠΉ, Ρ. ΠΊ. ΠΎΠ½Π° ΠΏΡΠ΅ΠΊΡΠ°ΡΠ½ΠΎ ΡΠΎΡΠ΅ΡΠ°Π΅ΡΡΡ Ρ Π°ΡΡ ΠΈΡΠ΅ΠΊΡΡΡΠΎΠΉ ΠΏΡΠΎΡΡΡΡ ΠΏΡΡΠΌΠΎΡΠ³ΠΎΠ»ΡΠ½ΡΡ Π·Π΄Π°Π½ΠΈΠΉ, ΠΊΠ°ΠΊ ΠΎΠ΄Π½ΠΎ-, ΡΠ°ΠΊ ΠΈ Π΄Π²ΡΡ ΡΡΠ°ΠΆΠ½ΡΡ . ΠΠΎΡΡΠΎΠΌΡ Π½Π΅ Π±ΠΎΠΉΡΠ΅ΡΡ ΠΏΡΠΈ ΠΏΡΠΎΠ΅ΠΊΡΠΈΡΠΎΠ²Π°Π½ΠΈΠΈ ΡΠΊΡΠΏΠ΅ΡΠΈΠΌΠ΅Π½ΡΠΈΡΠΎΠ²Π°ΡΡ.
ΠΡΠΎΠ΅ΠΊΡΠΈΡΠΎΠ²Π°Π½ΠΈΠ΅ ΠΈ Π²ΠΎΠ·Π²Π΅Π΄Π΅Π½ΠΈΠ΅ Π΄ΠΎΠΌΠ°

ΠΡΠΎΠ΅ΠΊΡ Π΄ΠΎΠΌΠΈΠΊΠ°, ΠΈΠΌΠ΅ΡΡΠ΅Π³ΠΎ Π²Π΅ΡΠ°Π½Π΄Ρ.
ΠΠ°ΡΠΈΠ°Π½ΡΡ Π΄Π°ΡΠ½ΡΡ Π΄ΠΎΠΌΠΎΠ² Ρ Π²Π΅ΡΠ°Π½Π΄ΠΎΠΉ ΠΌΠΎΠΆΠ½ΠΎ ΡΠ°Π·ΡΠ°Π±Π°ΡΡΠ²Π°ΡΡ ΡΠ°ΠΌΠΎΡΡΠΎΡΡΠ΅Π»ΡΠ½ΠΎ Π»ΠΈΠ±ΠΎ ΠΎΠ±ΡΠ°ΡΠΈΡΡΡΡ Π² ΠΏΡΠΎΠ΅ΠΊΡΠ½ΡΡ ΠΊΠΎΠΌΠΏΠ°Π½ΠΈΡ.
ΠΠ°ΠΊΠΎΠΉ ΠΏΡΡΡ Π²ΡΠ±ΡΠ°ΡΡ

ΠΠΎΠ½ΡΡΡΡΠΊΡΠΈΡ ΠΏΡΠΎΡΡΠΎΠΉ ΠΏΡΠΈΡΡΡΠΎΠΉΠΊΠΈ.
- Π Π»ΡΠ±ΠΎΠΌ ΡΠ»ΡΡΠ°Π΅, Π΄Π°Π½Π½ΡΠΉ ΡΡΠ°ΠΏ ΡΠ»Π΅Π΄ΡΠ΅Ρ Π½Π°ΡΠΈΠ½Π°ΡΡ Ρ Π²ΡΠ±ΠΎΡΠ° ΡΡΠ°ΡΡΠΊΠ° Π΄Π»Ρ Π·Π°ΡΡΡΠΎΠΉΠΊΠΈ.
- ΠΡΠΎΠ΅ΠΊΡΠΈΡΠΎΠ²Π°ΡΡ Π΄ΠΎΠΌ Ρ ΠΏΡΠΈΡΡΡΠΎΠΉΠΊΠΎΠΉ ΡΠ»Π΅Π΄ΡΠ΅Ρ, ΡΡΠΈΡΡΠ²Π°Ρ ΡΠ°Π·ΠΌΠ΅Ρ ΡΡΠ°ΡΡΠΊΠ°, Π΅Π³ΠΎ ΡΠ΅Π»ΡΠ΅Ρ ΠΈ Π»Π°Π½Π΄ΡΠ°ΡΡ, ΠΎΡΠΎΠ±Π΅Π½Π½ΠΎΡΡΠΈ ΠΏΠΎΡΠ²Ρ, Π½Π°Π»ΠΈΡΠΈΠ΅ ΠΈΠ½ΠΆΠ΅Π½Π΅ΡΠ½ΡΡ ΠΊΠΎΠΌΠΌΡΠ½ΠΈΠΊΠ°ΡΠΈΠΉ.
- ΠΡΠΎΠ΅ΠΊΡΡ Π΄Π°ΡΠ½ΡΡ Π΄ΠΎΠΌΠΎΠ² Ρ Π²Π΅ΡΠ°Π½Π΄ΠΎΠΉ ΡΠ°Π·Π΄Π΅Π»ΡΡΡΡΡ Π½Π° ΡΠΈΠΏΠΎΠ²ΡΠ΅ ΠΈ ΠΈΠ½Π΄ΠΈΠ²ΠΈΠ΄ΡΠ°Π»ΡΠ½ΡΠ΅. ΠΠ΅ΡΠ²ΡΠΉ Π²Π°ΡΠΈΠ°Π½Ρ Π±ΠΎΠ»Π΅Π΅ ΡΠΊΠΎΠ½ΠΎΠΌΠΈΡΠ΅Π½, Π½ΠΎ ΠΈΡΠΎΠ³ ΡΠ°Π±ΠΎΡ Π½Π΅ Π±ΡΠ΄Π΅Ρ ΠΎΡΠΈΠ³ΠΈΠ½Π°Π»ΡΠ½ΡΠΌ.
- ΠΡΠΈΡΠΈΠ½Π° Π΄Π΅ΡΠ΅Π²ΠΈΠ·Π½Ρ ΡΠΈΠΏΠΎΠ²ΡΡ ΠΏΡΠΎΠ΅ΠΊΡΠΎΠ² Π² ΡΠΎΠΌ, ΡΡΠΎ ΠΎΠ½ΠΈ ΡΠ°Π·ΡΠ°Π±ΠΎΡΠ°Π½Ρ ΠΏΠΎ ΡΠ°Π±Π»ΠΎΠ½Ρ ΠΈ Π½Π΅ ΡΡΠΈΡΡΠ²Π°ΡΡ ΠΎΡΠΎΠ±Π΅Π½Π½ΠΎΡΡΠΈ ΠΊΠΎΠ½ΠΊΡΠ΅ΡΠ½ΡΡ ΡΠ»ΡΡΠ°Π΅Π². Π’ΡΡ ΠΏΡΠΎΠ΅ΠΊΡΠΈΡΠΎΠ²ΡΠΈΠΊΡ Π½Π°Π΄ΠΎ Π»ΠΈΡΡ ΠΏΡΠΈΠ²ΡΠ·Π°ΡΡ Π΄ΠΎΠΊΡΠΌΠ΅Π½ΡΠ°ΡΠΈΡ ΠΊ Π²Π°ΡΠ΅ΠΌΡ ΡΡΠ°ΡΡΠΊΡ.
- ΠΠ»Π°Π²Π½ΠΎΠ΅ ΠΎΡΠ»ΠΈΡΠΈΠ΅ ΠΎΡΠΈΠ³ΠΈΠ½Π°Π»ΡΠ½ΡΡ ΠΏΡΠΎΠ΅ΠΊΡΠΎΠ² ΠΎΡ ΡΠΈΠΏΠΎΠ²ΡΡ Π°Π½Π°Π»ΠΎΠ³ΠΎΠ² ΡΠΎΡΡΠΎΠΈΡ Π² ΡΠΎΠΌ, ΡΡΠΎ Π΄ΠΎΠΌ ΠΈ ΠΏΡΠΈΡΡΡΠΎΠΉΠΊΠ° ΠΊ Π½Π΅ΠΌΡ Π±ΡΠ΄ΡΡ ΡΠ½ΠΈΠΊΠ°Π»ΡΠ½ΡΠΌΠΈ. ΠΠΌΠ΅ΡΡΠ΅ Ρ ΠΏΡΠ΅ΠΈΠΌΡΡΠ΅ΡΡΠ²Π°ΠΌΠΈ, Π΄Π°Π½Π½ΡΠΉ Π²Π°ΡΠΈΠ°Π½Ρ ΠΈΠΌΠ΅Π΅Ρ ΠΈ Π½Π΅Π΄ΠΎΡΡΠ°ΡΠΊΠΈ. ΠΡΠ½ΠΎΠ²Π½ΠΎΠΉ ΠΌΠΈΠ½ΡΡ β Π·Π½Π°ΡΠΈΡΠ΅Π»ΡΠ½Π°Ρ ΡΡΠΎΠΈΠΌΠΎΡΡΡ ΠΏΡΠΎΠ΅ΠΊΡΠΈΡΠΎΠ²Π°Π½ΠΈΡ.
Π‘ΠΎΠΎΡΡΠΆΠ΅Π½ΠΈΠ΅ ΠΏΡΠΈΡΡΡΠΎΠΉΠΊΠΈ

ΠΠ΅ΡΠ°Π½Π΄Π° Π½Π° ΡΡΠΎΠ»Π±ΡΠ°ΡΠΎΠΌ ΡΡΠ½Π΄Π°ΠΌΠ΅Π½ΡΠ΅.
ΠΡΠ»ΠΈ Π΄Π°ΡΠ½ΡΠΉ Π΄ΠΎΠΌΠΈΠΊ ΠΈΠ·Π½Π°ΡΠ°Π»ΡΠ½ΠΎ ΡΠΎΠΎΡΡΠΆΠ°Π»ΡΡ Π±Π΅Π· Π²Π΅ΡΠ°Π½Π΄Ρ, Π΅Π΅ ΠΌΠΎΠΆΠ½ΠΎ Π² Π»ΡΠ±ΠΎΠΉ ΠΌΠΎΠΌΠ΅Π½Ρ ΠΏΡΠΈΡΡΡΠΎΠΈΡΡ ΠΊ Π½Π΅ΠΌΡ. ΠΠ»Ρ ΡΡΠΎΠ³ΠΎ ΠΌΠΎΠΆΠ½ΠΎ Π½Π°Π½ΡΡΡ ΠΏΡΠΎΡΠ΅ΡΡΠΈΠΎΠ½Π°Π»ΡΠ½ΡΡ ΡΡΡΠΎΠΈΡΠ΅Π»Π΅ΠΉ Π»ΠΈΠ±ΠΎ ΠΎΡΡΡΠ΅ΡΡΠ²ΠΈΡΡ ΡΠ°Π±ΠΎΡΡ ΡΠ°ΠΌΠΎΡΡΠΎΡΡΠ΅Π»ΡΠ½ΠΎ.
ΠΠ½ΠΈ Π½Π΅ ΡΠ²Π»ΡΡΡΡΡ ΡΠ»ΠΎΠΆΠ½ΡΠΌΠΈ ΠΈ ΡΡΠ»ΠΎΠ²Π½ΠΎ ΡΠ°Π·Π΄Π΅Π»ΡΡΡΡΡ Π½Π° ΡΡΠΈ ΡΡΠ°Π΄ΠΈΠΈ.
- Π‘ΠΎΠΎΡΡΠΆΠ΅Π½ΠΈΠ΅ ΡΡΠ½Π΄Π°ΠΌΠ΅Π½ΡΠ½ΠΎΠΉ ΠΎΡΠ½ΠΎΠ²Ρ Π΄Π»Ρ Π²Π΅ΡΠ°Π½Π΄Ρ Π΄Π°ΡΠ½ΠΎΠ³ΠΎ Π΄ΠΎΠΌΠ°. Π’ΡΡ ΠΏΠ΅ΡΠ²ΠΎΠ½Π°ΡΠ°Π»ΡΠ½ΠΎ Π½Π΅ΠΎΠ±Ρ ΠΎΠ΄ΠΈΠΌΠΎ ΡΠΎΡΠ½ΠΎ ΠΎΠΏΡΠ΅Π΄Π΅Π»ΠΈΡΡ ΡΡΡΠΎΠΈΡΠ΅Π»ΡΠ½ΡΠΉ ΠΌΠ°ΡΠ΅ΡΠΈΠ°Π», ΠΈΠ· ΠΊΠΎΡΠΎΡΠΎΠ³ΠΎ Π±ΡΠ΄Π΅Ρ ΠΏΡΠΎΠΈΠ·Π²ΠΎΠ΄ΠΈΡΡΡΡ Π²ΠΎΠ·Π²Π΅Π΄Π΅Π½ΠΈΠ΅ Π²Π΅ΡΠ°Π½Π΄Ρ. ΠΡΡ ΠΎΠ΄Ρ ΠΈΠ· ΡΡΠΎΠ³ΠΎ, ΠΈ ΡΠ»Π΅Π΄ΡΠ΅Ρ Π²ΡΠ±ΠΈΡΠ°ΡΡ ΠΎΠΏΡΠΈΠΌΠ°Π»ΡΠ½ΡΠΉ Π²Π°ΡΠΈΠ°Π½Ρ ΡΡΠ½Π΄Π°ΠΌΠ΅Π½ΡΠ°.
ΠΠ±ΡΠ°ΡΠΈΡΠ΅ Π²Π½ΠΈΠΌΠ°Π½ΠΈΠ΅!
ΠΠ°ΡΠ½ΡΠΉ Π»Π΅ΡΠ½ΠΈΠΉ Π΄ΠΎΠΌΠΈΠΊ Ρ Π²Π΅ΡΠ°Π½Π΄ΠΎΠΉ Π»Π΅Π³ΠΊΠΎΠ³ΠΎ ΡΠΈΠΏΠ°, Π²ΠΎΠ·Π²Π΅Π΄Π΅Π½Π½ΠΎΠΉ ΠΈΠ· Π΄ΡΠ΅Π²Π΅ΡΠΈΠ½Ρ, ΠΊΠ°ΡΠΊΠ°ΡΠ½ΡΡ Π»ΠΈΠ±ΠΎ ΠΏΠ»Π°ΡΡΠΈΠΊΠΎΠ²ΡΡ ΠΊΠΎΠ½ΡΡΡΡΠΊΡΠΈΠΉ, ΠΌΠΎΠΆΠ½ΠΎ ΡΠΎΠΎΡΡΠΆΠ°ΡΡ Π½Π° ΠΎΡΠ½ΠΎΠ²Π°Π½ΠΈΠΈ ΡΡΠΎΠ»Π±ΡΠ°ΡΠΎΠ³ΠΎ ΡΠΈΠΏΠ°.
ΠΡΠ»ΠΈ ΠΏΡΠΈΡΡΡΠΎΠΉΠΊΠ° Π±ΡΠ΄Π΅Ρ Π΄Π΅Π»Π°ΡΡΡΡ ΠΈΠ· ΠΊΠΈΡΠΏΠΈΡΠ°, ΠΊΠ°ΠΌΠ½Ρ ΠΈ Π΄ΡΡΠ³ΠΈΡ ΡΡΠΆΠ΅Π»ΡΡ ΡΡΡΠΎΠΈΡΠ΅Π»ΡΠ½ΡΡ ΠΌΠ°ΡΠ΅ΡΠΈΠ°Π»ΠΎΠ², ΡΠΎ Π½Π΅ΠΎΠ±Ρ ΠΎΠ΄ΠΈΠΌΠΎ ΠΏΠΎΠ΄ΡΠΌΠ°ΡΡ ΠΎ Π±ΠΎΠ»Π΅Π΅ ΠΏΡΠΎΡΠ½ΠΎΠΌ ΠΈ Π½Π°Π΄Π΅ΠΆΠ½ΠΎΠΌ ΠΎΡΠ½ΠΎΠ²Π°Π½ΠΈΠΈ.ΠΠ°ΠΏΡΠΈΠΌΠ΅Ρ, ΠΎ Π»Π΅Π½ΡΠΎΡΠ½ΠΎΠΌ Π·Π°Π³Π»ΡΠ±Π»Π΅Π½Π½ΠΎΠΌ ΡΡΠ½Π΄Π°ΠΌΠ΅Π½ΡΠ΅.

ΠΠ° ΡΠΎΡΠΎ ΠΊΠ°ΡΠΊΠ°ΡΠ½ΠΎΠ΅ ΡΠΎΠΎΡΡΠΆΠ΅Π½ΠΈΠ΅.
- Π‘ΠΎΠΎΡΡΠΆΠ΅Π½ΠΈΠ΅ ΡΡΠ΅Π½ ΠΏΡΠΈΡΡΡΠΎΠΉΠΊΠΈ. ΠΠ½ΡΡΡΡΠΊΡΠΈΡ ΠΏΡΠ΅Π΄ΡΠΏΡΠ΅ΠΆΠ΄Π°Π΅Ρ, ΡΡΠΎ Π΄Π°Π½Π½ΡΠΉ ΡΡΠ°ΠΏ ΡΡΡΠΎΠΈΡΠ΅Π»ΡΠ½ΡΡ
ΡΠ°Π±ΠΎΡ ΡΠ²Π»ΡΠ΅ΡΡΡ Π½Π°ΠΈΠ±ΠΎΠ»Π΅Π΅ ΡΡΡΠ΄Π½ΡΠΌ ΠΈ ΠΎΡΠ²Π΅ΡΡΡΠ²Π΅Π½Π½ΡΠΌ.
ΠΡΠΈ ΡΡΡΠΎΠΈΡΠ΅Π»ΡΡΡΠ²Π΅ Π²Π΅ΡΠ°Π½Π΄Ρ ΠΌΠΎΠΆΠ½ΠΎ ΠΏΡΠΈΠΌΠ΅Π½ΠΈΡΡ ΠΊΠ°ΡΠΊΠ°Ρ ΠΈΠ· ΠΌΠ΅ΡΠ°Π»Π»Π° β ΡΡΠ°Π»ΠΈ Π»ΠΈΠ±ΠΎ Π°Π»ΡΠΌΠΈΠ½ΠΈΡ. ΠΠ³ΠΎ Π·Π°ΡΠ΅ΠΌ ΠΌΠΎΠΆΠ½ΠΎ ΠΎΠ±ΡΠΈΡΡ Π»ΠΈΡΡΠΎΠ²ΡΠΌ ΠΏΠ»Π°ΡΡΠΈΠΊΠΎΠΌ, Π²Π»Π°Π³ΠΎΡΡΠΎΠΉΠΊΠΎΠΉ ΡΠ°Π½Π΅ΡΠΎΠΉ, Π΄ΠΎΡΠΊΠ°ΠΌΠΈ Π»ΠΈΠ±ΠΎ ΠΏΠ»Π°ΡΡΠΈΠΊΠΎΠ²ΠΎΠΉ ΠΈΠ»ΠΈ Π΄Π΅ΡΠ΅Π²ΡΠ½Π½ΠΎΠΉ Π²Π°Π³ΠΎΠ½ΠΊΠΎΠΉ.
ΠΠΎΠ³Π΄Π° ΡΠΎΠΎΡΡΠΆΠ°ΡΡΡΡ ΠΎΠ±ΡΠΈΡΠ½ΡΠ΅ Π΄Π°ΡΠ½ΡΠ΅ Π²Π΅ΡΠ°Π½Π΄Ρ β ΠΏΡΠΈΠ»Π΅Π³Π°ΡΡΠΈΠ΅ ΠΊ Π΄ΠΎΠΌΡ, ΠΌΠΎΠΆΠ½ΠΎ ΠΈΡΠΏΠΎΠ»ΡΠ·ΠΎΠ²Π°ΡΡ Π΄Π΅ΡΠ΅Π²ΡΠ½Π½ΡΠΉ Π±ΡΡΡ, ΠΊΠΈΡΠΏΠΈΡ, ΠΊΠ°ΠΌΠ΅Π½Ρ. - ΠΠ΄ΡΠ΅Π»ΠΎΡΠ½ΡΠ΅ ΡΠ°Π±ΠΎΡΡ ΡΠΎΡΡΠΎΡΡ ΠΈΠ· ΠΏΠΎΠΊΡΠ°ΡΠΊΠΈ, Π»Π°ΠΊΠΈΡΠΎΠ²Π°Π½ΠΈΡ, ΠΏΠΎΠ±Π΅Π»ΠΊΠΈ, ΠΎΠ±Π»ΠΈΡΠΎΠ²ΠΊΠΈ ΡΡΠ΅Π½ ΡΠ°Π·Π½ΡΠΌΠΈ ΠΌΠ°ΡΠ΅ΡΠΈΠ°Π»Π°ΠΌΠΈ. ΠΡΠΎ ΠΊΠΎΠΌΠΏΠ»Π΅ΠΊΡ ΠΌΠ΅ΡΠΎΠΏΡΠΈΡΡΠΈΠΉ, Π½ΡΠΆΠ½ΡΡ Π΄Π»Ρ ΡΠΎΠ³ΠΎ, ΡΡΠΎΠ± ΠΏΡΠΈΡΡΡΠΎΠΉΠΊΠ° Π²ΡΠ³Π»ΡΠ΄Π΅Π»Π° ΡΡΡΠ΅ΡΠΈΡΠ½ΠΎ.
ΠΡΠ΅ Π²ΡΡΠ΅ Π½Π°Π·Π²Π°Π½Π½ΡΠ΅ ΡΠ°Π±ΠΎΡΡ, Π΅ΡΠ»ΠΈ Π²Ρ ΠΈΠΌΠ΅Π΅ΡΠ΅ Π½ΡΠΆΠ½ΡΠ΅ Π½Π°Π²ΡΠΊΠΈ, ΠΌΠΎΠΆΠ½ΠΎ ΠΎΡΡΡΠ΅ΡΡΠ²ΠΈΡΡ ΡΠ²ΠΎΠΈΠΌΠΈ ΡΠΈΠ»Π°ΠΌΠΈ.
ΠΡΠ²ΠΎΠ΄
ΠΠ΅ΡΠ°Π½Π΄Π° Π½Π°ΠΌΠ½ΠΎΠ³ΠΎ ΡΠ²Π΅Π»ΠΈΡΠΈΠ²Π°Π΅Ρ ΡΡΠ½ΠΊΡΠΈΠΎΠ½Π°Π»ΡΠ½ΡΠ΅ Π²ΠΎΠ·ΠΌΠΎΠΆΠ½ΠΎΡΡΠΈ Π΄Π°ΡΠ½ΠΎΠ³ΠΎ Π΄ΠΎΠΌΠΈΠΊΠ°. ΠΡΡ ΠΏΡΠΈΡΡΡΠΎΠΉΠΊΡ Π½Π΅ ΡΠ°ΠΊ ΡΠΆ ΡΠ»ΠΎΠΆΠ½ΠΎ ΡΠ΄Π΅Π»Π°ΡΡ ΠΈ ΡΠ°ΠΌΠΎΡΡΠΎΡΡΠ΅Π»ΡΠ½ΠΎ. ΠΠ»Π°Π²Π½ΠΎΠ΅ ΡΡΡ β ΡΡΠ΅ΡΡΡ ΠΎΡΠΎΠ±Π΅Π½Π½ΠΎΡΡΠΈ ΠΆΠΈΠ»ΠΎΠ³ΠΎ Π·Π΄Π°Π½ΠΈΡ ΠΈ ΠΎΠ±ΡΡΡΡΠΎΠΈΡΡ Π΄ΠΎΠΏΠΎΠ»Π½ΠΈΡΠ΅Π»ΡΠ½ΡΡ ΠΏΠ»ΠΎΡΠ°Π΄Ρ, ΠΈΡΡ ΠΎΠ΄Ρ ΠΈΠ· ΡΠ²ΠΎΠΈΡ ΠΏΠΎΡΡΠ΅Π±Π½ΠΎΡΡΠ΅ΠΉ.
ΠΠΈΠ΄Π΅ΠΎ Π² ΡΡΠΎΠΉ ΡΡΠ°ΡΡΠ΅ ΠΏΡΠ΅Π΄ΠΎΡΡΠ°Π²ΠΈΡ Π²Π°ΠΌ ΠΌΠ½ΠΎΠ³ΠΎ Π΄ΠΎΠΏΠΎΠ»Π½ΠΈΡΠ΅Π»ΡΠ½ΠΎΠΉ ΠΈΠ½ΡΠΎΡΠΌΠ°ΡΠΈΠΈ.
ΠΠΎΠ±Π°Π²ΠΈΡΡ Π² ΠΈΠ·Π±ΡΠ°Π½Π½ΠΎΠ΅ ΠΠ΅ΡΡΠΈΡ Π΄Π»Ρ ΠΏΠ΅ΡΠ°ΡΠΈ9dach.ru
ΠΠ°ΡΠ½ΡΠΉ Π΄ΠΎΠΌ Ρ Π²Π΅ΡΠ°Π½Π΄ΠΎΠΉ ΠΌΠΎΠΆΠ΅Ρ Π±ΡΡΡ Π½Π΅ ΡΠΎΠ»ΡΠΊΠΎ ΠΌΠ΅ΡΡΠΎΠΌ ΠΎΡΠ΄ΡΡ Π°, Π½ΠΎ ΠΈ ΡΠ°Π±ΠΎΡΡ

ΠΠΎ ΡΠΈΠΊΠ΅Π½Π΄Π° ΠΌΠΈΠ½ΠΈΠΌΡΠΌ Π½Π΅Π΄Π΅Π»Ρ, Π½ΠΎ Π²Π°ΠΌ ΡΠΆΠ΅ Π²ΡΠ΅ ΡΠ°Π²Π½ΠΎ β Π±ΡΠΊΠ²Π°Π»ΡΠ½ΠΎ ΡΠ΅Π³ΠΎΠ΄Π½Ρ Π²Ρ ΡΠ΅ΡΠΈΠ»ΠΈ ΡΠΊΠ°ΡΠΈΡΡ Π² ΡΡΠΎΡΠΎΠ½Ρ Π΄Π°ΡΠ½ΠΎΠ³ΠΎ Π΄ΠΎΠΌΠ° Ρ Π²Π΅ΡΠ°Π½Π΄ΠΎΠΉ β ΠΏΠΎΠ΄Π°Π»ΡΡΠ΅ ΠΎΡ ΡΡΠΌΠ½ΠΎΠ³ΠΎ Π³ΠΎΡΠΎΠ΄Π° ΠΈ ΡΠΊΡΡΠ½ΠΎΠ³ΠΎ ΠΎΡΠΈΡΠ°. Π ΠΏΡΠ°Π²Π΄Π°, ΡΡΡ Π΅ΡΡΡ Π³Π΄Π΅ ΡΠ°Π·ΠΎΠ³Π½Π°ΡΡΡΡ: Π³ΡΠ΅ΡΡΡΡ Ρ ΠΊΠ°ΠΌΠΈΠ½Π° ΠΏΠΎΡΠ»Π΅ ΡΠ΅ΠΌΠ΅ΠΉΠ½ΠΎΠΉ Π²ΡΠ»Π°Π·ΠΊΠΈ Π² Π»Π΅Ρ; Π»ΠΎΠ²ΠΈΡΡ Π΄Π·ΡΠ½ Π² ΠΏΠΎΠ»ΠΎΡΠ°ΡΠΎΠΌ Π³Π°ΠΌΠ°ΠΊΠ΅ Ρ ΠΊΡΡΠΆΠΊΠΎΠΉ ΡΠ°Ρ; ΡΡΡ Π΄Π°ΠΆΠ΅ ΠΏΠΈΡΠΎΠ³ΠΈ ΠΏΠΎΠ»ΡΡΠ°ΡΡΡΡ Π²ΠΊΡΡΠ½Π΅Π΅.
Π£ΡΡΠ½ΡΠΉ Π΄Π°ΡΠ½ΡΠΉ Π΄ΠΎΠΌ ΡΠΎ ΡΡΠΈΠ»ΡΠ½ΠΎΠΉ Π²Π΅ΡΠ°Π½Π΄ΠΎΠΉ β ΠΈΠΌΠ΅Π½Π½ΠΎ ΡΠΎ ΠΌΠ΅ΡΡΠΎ, Π³Π΄Π΅ ΡΡΠ°ΡΠ΅Π½ΡΠΊΠΈΠΉ ΠΈ ΠΏΡΠΎΡ ΡΠ΄ΠΈΠ²ΡΠΈΠΉΡΡ ΠΏΠ»Π΅Π΄ ΠΎΠ±ΡΠ΅ΡΠ°Π΅Ρ Π½ΠΎΠ²ΡΡ ΠΆΠΈΠ·Π½Ρ: Π·Π΄Π΅ΡΡ Π²Π°ΠΆΠ½ΠΎ ΡΠΎ, ΠΊΠ°ΠΊ ΡΡ ΡΠ΅Π±Ρ ΡΡΠ²ΡΡΠ²ΡΠ΅ΡΡ, Π° Π½Π΅ ΡΠΎ, ΡΡΠΎ ΠΎ ΡΠ΅Π±Π΅ Π΄ΡΠΌΠ°ΡΡ Π΄ΡΡΠ³ΠΈΠ΅.
ΠΠ°ΠΊ ΡΠ΄Π΅Π»Π°ΡΡ Π΄Π°ΡΠ½ΡΠΉ Π΄ΠΎΠΌ ΡΡΠΈΠ»ΡΠ½ΡΠΌ Ρ ΠΏΠΎΠΌΠΎΡΡΡ Π²Π΅ΡΠ°Π½Π΄Ρ?
Π€ΠΎΡΠΎ 1 β Π―ΡΠΊΠ°Ρ Π»Π΅ΡΠ½ΡΡ Π·ΠΎΠ½Π°ΠΠΎΠΌΡΠΎΡΡΠ½Π°Ρ Π²Π΅ΡΠ°Π½Π΄Π° Π½Π° Π΄Π°ΡΠ΅ ΠΌΠΎΠΆΠ΅Ρ ΡΡΠ°ΡΡ Π΄Π»Ρ Π²Π°Ρ Π²ΡΠ΅ΠΌ: ΠΊΡΡ Π½Π΅ΠΉ, ΠΈΠ³ΡΠΎΠ²ΠΎΠΉ ΠΏΠ»ΠΎΡΠ°Π΄ΠΊΠΎΠΉ ΠΈ Π΄Π°ΠΆΠ΅ ΠΊΠ°Π±ΠΈΠ½Π΅ΡΠΎΠΌ.Β ΠΠ°Π»Π΅Π½ΡΠΊΠ°Ρ ΡΠ΅ΡΡΠ°ΡΠ° Π΄Π»Ρ ΠΎΡΠ΄ΡΡ Π° β ΡΡΠΎ Π½Π΅ΠΎΡΡΠ΅ΠΌΠ»Π΅ΠΌΠ°Ρ ΡΠ°ΡΡΡ Π»ΡΠ±ΠΎΠ³ΠΎ ΠΎΠ΄Π½ΠΎΡΡΠ°ΠΆΠ½ΠΎΠ³ΠΎ Π΄ΠΎΠΌΠ°.
Π€ΠΎΡΠΎ 2 β ΠΠ°ΡΠΈΠ°Π½Ρ ΠΎΡΠΊΡΡΡΠΎΠΉ Π΄Π΅ΡΠ΅Π²ΡΠ½Π½ΠΎΠΉ ΡΠ΅ΡΡΠ°ΡΡΠ‘ΠΎΠ²ΡΠ΅ΠΌΠ΅Π½Π½ΡΠΉ ΡΡΠΎΠ», Π½Π΅ΡΠΊΠΎΠ»ΡΠΊΠΎ ΠΊΠΎΠΌΠΏΠ°ΠΊΡΠ½ΡΡ ΡΡΡΠ»ΡΠ΅Π² ΠΈ ΡΠ²Π΅ΡΡΡΠΈΠ΅ ΡΠ°ΡΡΠ΅Π½ΠΈΡ Π·Π°ΡΡΠ°Π²ΡΡ ΠΏΠΎΡΡΠ²ΡΡΠ²ΠΎΠ²Π°ΡΡ Π·Π°ΠΏΠ°Ρ Π»Π΅ΡΠ° Π΄Π°ΠΆΠ΅ Ρ ΠΎΠ»ΠΎΠ΄Π½ΠΎΠΉ Π·ΠΈΠΌΠΎΠΉ. Π’ΡΡ ΠΌΠΎΠΆΠ½ΠΎ ΡΡΡΡΠΎΠΈΡΡ ΡΠ°ΠΌΡΠΉ ΠΏΠΎΠ·Π΄Π½ΠΈΠΉ Π·Π°Π²ΡΡΠ°ΠΊ, ΠΏΠ»Π°Π²Π½ΠΎ ΠΏΠ΅ΡΠ΅ΡΠ΅ΠΊΠ°ΡΡΠΈΠΉ Π² ΡΠΆΠΈΠ½; ΠΎΡΠΊΠ»ΡΡΠΈΡΡ ΡΠ΅Π»Π΅ΡΠΎΠ½ ΠΈ Π½Π°ΠΊΠΎΠ½Π΅Ρ-ΡΠΎ Π·Π°Π±ΡΡΡ ΠΏΡΠΎ Π±Π΅ΡΠΊΠΎΠ½Π΅ΡΠ½ΡΠΉ ΠΏΠΎΡΠΎΠΊ ΡΠ»Π΅ΠΊΡΡΠΎΠ½Π½ΡΡ ΠΏΠΈΡΠ΅ΠΌ. ΠΠ΄Π΅ΡΡ Π½ΡΠΆΠ½ΠΎ Π»Π΅Π½ΠΈΡΡΡΡ ΠΈ Π±ΡΡΡ ΡΠ³ΠΎΠΈΡΡΠΎΠΌ.
Π€ΠΎΡΠΎ 3 β ΠΠΎΠΌΠΏΠ°ΠΊΡΠ½Π°Ρ ΡΡΠΎΠ»ΠΎΠ²Π°Ρ ΠΈΠ· Π½Π°ΡΡΡΠ°Π»ΡΠ½ΡΡ
ΠΌΠ°ΡΠ΅ΡΠΈΠ°Π»ΠΎΠ²ΠΠ³ΡΠΎΠΌΠ½ΠΎΠΉ ΠΏΠΎΠΏΡΠ»ΡΡΠ½ΠΎΡΡΡΡ ΡΠ΅Π³ΠΎΠ΄Π½Ρ ΠΏΠΎΠ»ΡΠ·ΡΡΡΡΡ Π΄ΠΎΠΌΠ° Ρ ΠΎΡΠΊΡΡΡΠΎΠΉ ΠΏΠ»ΠΎΡΠ°Π΄ΠΊΠΎΠΉ.
Π€ΠΎΡΠΎ 4 β ΠΡΠΊΡΡΡΠ°Ρ ΠΏΠ»ΠΎΡΠ°Π΄ΠΊΠ° Π² ΠΌΠΈΠ½ΠΈΠΌΠ°Π»ΠΈΡΡΠΈΡΠ½ΠΎΠΌ ΡΡΠΈΠ»Π΅Π’Π°ΠΊΠΈΠΌ ΠΎΠ±ΡΠ°Π·ΠΎΠΌ ΡΠΎΠ·Π΄Π°Π΅ΡΡΡ Π°ΡΠΌΠΎΡΡΠ΅ΡΠ° Π΄ΡΡΠΆΠ΅ΡΠΊΠΎΠ³ΠΎ ΠΏΠΈΠΊΠ½ΠΈΠΊΠ°: Π»ΠΎΠΊΠ°ΡΠΈΡ Π½Π΅ ΠΌΠ΅Π½ΡΠ΅ΡΡΡ, ΡΠΎΠ»ΡΠΊΠΎ ΡΡΠ°Π½ΠΎΠ²ΠΈΡΡΡ ΡΠ»Π΅Π³ΠΊΠ° ΡΠΈΠ²ΠΈΠ»ΠΈΠ·ΠΎΠ²Π°Π½Π½Π΅Π΅ β Π½Π° ΡΡΡΠ»ΡΡΡ ΠΈ Π·Π° ΡΡΠΎΠ»ΠΎΠΌ.
Π€ΠΎΡΠΎ 5 β ΠΡΠΎΡΡΠ°Ρ Π»Π΅ΡΠ½ΡΡ Π²Π΅ΡΠ°Π½Π΄Π°Π ΡΠΎΠΌΡ ΠΆΠ΅ Π΅ΡΠ»ΠΈ Π²Ρ Π·Π°ΡΠ΄Π»ΡΠ΅ Π΄Π°ΡΠ½ΠΈΠΊΠΈ, Π° ΠΎΠ³ΠΎΡΠΎΠ΄ β Π²Π°ΡΠ΅ Π²ΡΠ΅, ΠΎΡΠΊΡΡΡΠ°Ρ Π²Π΅ΡΠ°Π½Π΄Π° ΠΏΠΎΠ·Π²ΠΎΠ»ΠΈΡ Π»ΡΠ±ΠΎΠ²Π°ΡΡΡΡ ΠΏΡΠΎΠ΄Π΅Π»Π°Π½Π½ΡΠΌ ΡΡΡΠ΄ΠΎΠΌ.
Π€ΠΎΡΠΎ 6 β ΠΠΎΠ½Π° ΠΎΡΠ΄ΡΡ
Π° ΠΏΠΎ-Π΄Π΅ΡΠ΅Π²Π΅Π½ΡΠΊΠΈΠΠΠΠΠ! ΠΠ»Ρ ΡΠΎΠ³ΠΎ ΡΡΠΎΠ±Ρ Π² ΠΊΠΎΠΌΠΏΠ»Π΅ΠΊΡΠ΅ Π²Π°Ρ Π΄ΠΎΠΌ Π²ΡΠ³Π»ΡΠ΄Π΅Π» ΡΠ΅Π»ΠΎΡΡΠ½ΠΎ ΠΈ Π³Π°ΡΠΌΠΎΠ½ΠΈΡΠ½ΠΎ, Π½Π΅ΠΎΠ±Ρ ΠΎΠ΄ΠΈΠΌΠΎ ΠΈΡΠΏΠΎΠ»ΡΠ·ΠΎΠ²Π°ΡΡ ΠΎΠ΄ΠΈΠ½Π°ΠΊΠΎΠ²ΡΠ΅ Β ΠΈΠ»ΠΈ ΠΏΡΠΎΡΡΠΎ ΡΠΎΠ²ΠΌΠ΅ΡΡΠΈΠΌΡΠ΅ ΠΌΠ°ΡΠ΅ΡΠΈΠ°Π»Ρ. ΠΠ°ΠΏΡΠΈΠΌΠ΅Ρ, ΠΊ ΡΠΊΠΎΠ»ΠΎΠ³ΠΈΡΠ΅ΡΠΊΠΈ ΡΠΈΡΡΠΎΠΌΡ Π΄Π΅ΡΠ΅Π²ΡΠ½Π½ΠΎΠΌΡ Π΄ΠΎΠΌΠΈΠΊΡ ΠΈΠ΄Π΅Π°Π»ΡΠ½ΠΎ ΠΏΠΎΠ΄ΠΎΠΉΠ΄Π΅Ρ Π²Π΅ΡΠ°Π½Π΄Π°, ΡΠ΄Π΅Π»Π°Π½Π½Π°Ρ ΠΈΠ· ΡΠ°ΠΊΠΈΡ ΠΆΠ΅ ΠΊΠΎΠΌΠΏΠΎΠ½Π΅Π½ΡΠΎΠ².
Π€ΠΎΡΠΎ 7 β ΠΡΠΈΡΠΎΠ΄Π½ΡΠ΅ ΠΌΠ°ΡΠ΅ΡΠΈΠ°Π»Ρ ΠΏΡΠ΅ΠΊΡΠ°ΡΠ½ΠΎ ΡΠΎΡΠ΅ΡΠ°ΡΡΡΡ Ρ ΠΏΠ»Π΅ΡΠ΅Π½ΠΎΠΉ ΠΌΠ΅Π±Π΅Π»ΡΡΠΡΠΈΡΡΡΠΎΠΈΡΡ Π²Π΅ΡΠ°Π½Π΄Ρ ΠΊ Π΄Π°ΡΠ½ΠΎΠΌΡ Π΄ΠΎΠΌΡ: Π½ΡΠΆΠ½Π° Π»ΠΈ ΠΏΠΎΠΌΠΎΡΡ ΡΡΡΠΎΠΈΡΠ΅Π»Π΅ΠΉ?
Π€ΠΎΡΠΎ 8 β ΠΠ΅ΡΠΊΠΎΠ»ΡΠΊΠΎ Π±ΡΠ΅Π²Π΅Π½ Ρ Π½Π°Π²Π΅ΡΠΎΠΌ β Π²Π΅ΡΠ°Π½Π΄Π° Π³ΠΎΡΠΎΠ²Π°ΠΡΠΈΡΡΡΠΎΠΈΡΡ Π²Π΅ΡΠ°Π½Π΄Ρ Π΄ΠΎΠ²ΠΎΠ»ΡΠ½ΠΎ Π»Π΅Π³ΠΊΠΎ. ΠΡΠΎ ΠΌΠΎΠΆΠ½ΠΎ ΡΠ΄Π΅Π»Π°ΡΡ Π΄Π°ΠΆΠ΅ ΡΠ°ΠΌΠΎΡΡΠΎΡΡΠ΅Π»ΡΠ½ΠΎ, ΠΏΠΎΡΠΊΠΎΠ»ΡΠΊΡ ΠΊΠΎΠ½ΡΡΡΡΠΊΡΠΈΡ ΠΏΠΎΠΌΠ΅ΡΠ΅Π½ΠΈΡ Π½Π΅ ΡΠ²Π»ΡΠ΅ΡΡΡ ΡΠ»ΠΎΠΆΠ½ΠΎΠΉ ΠΈ Π²ΠΏΠΈΡΡΠ²Π°Π΅ΡΡΡ ΠΏΡΠ°ΠΊΡΠΈΡΠ΅ΡΠΊΠΈ Π² Π»ΡΠ±ΡΡ ΠΏΠΎΡΡΡΠΎΠΉΠΊΡ.
Π€ΠΎΡΠΎ 9 β ΠΡΡΠΎΠ²Π½ΡΡΡ ΡΡΠ½Π΄Π°ΠΌΠ΅Π½Ρ ΠΌΠΎΠΆΠ½ΠΎ Ρ ΠΏΠΎΠΌΠΎΡΡΡ ΡΡΡΠΏΠ΅Π½Π΅ΠΊΠΡΠ΅ΠΆΠ΄Π΅ ΡΠ΅ΠΌ Π½Π°ΡΠ°ΡΡ ΠΏΡΠΎΡΠ΅ΡΡ, ΡΠ»Π΅Π΄ΡΠ΅Ρ ΡΡΠ°ΡΠ΅Π»ΡΠ½ΠΎ ΠΏΡΠΎΠ΄ΡΠΌΠ°ΡΡ ΠΏΡΠΎΠ΅ΠΊΡ. ΠΠ΅Π·Π°Π²ΠΈΡΠΈΠΌΠΎ ΠΎΡ ΡΠΎΠ³ΠΎ, ΠΊΡΠΎ Π±ΡΠ΄Π΅Ρ Π·Π°Π½ΠΈΠΌΠ°ΡΡΡΡ ΡΡΡΠΎΠΈΡΠ΅Π»ΡΡΡΠ²ΠΎΠΌ β Π²Ρ ΠΈΠ»ΠΈ ΡΠ°Π±ΠΎΡΠ°Ρ Π±ΡΠΈΠ³Π°Π΄Π°, Π³ΡΠ°ΠΌΠΎΡΠ½ΡΠΉ ΠΏΡΠΎΠ΅ΠΊΡ ΠΎΠ±ΡΠ·Π°ΡΠ΅Π»ΡΠ½ΠΎ ΠΏΡΠΈΠ²Π΅Π΄Π΅Ρ Π²Π°Ρ ΠΊ ΠΆΠ΅Π»Π°Π΅ΠΌΠΎΠΌΡ ΡΠ΅Π·ΡΠ»ΡΡΠ°ΡΡ.
ΠΠ°ΠΆΠ½ΠΎ! Β ΠΠ΅ Π·Π°Π±ΡΠ²Π°ΠΉΡΠ΅ ΠΎ ΡΠΎΠΌ, ΡΡΠΎ Π³Π»ΡΠ±ΠΈΠ½Π° ΡΡΠ½Π΄Π°ΠΌΠ΅Π½ΡΠ° Π²Π΅ΡΠ°Π½Π΄Ρ Π΄ΠΎΠ»ΠΆΠ½Π° ΡΠ°Π²Π½ΡΡΡΡΡ ΡΡΠΎΠ²Π½Ρ Π΄ΠΎΠΌΠ°. ΠΠ½Π°ΡΠ΅ ΡΠΈΡΠΊΡΠ΅ΡΠ΅ ΠΎΠ±Π·Π°Π²Π΅ΡΡΠΈΡΡ ΠΏΠ΅ΡΠ΅ΠΊΠΎΡΠ°ΠΌΠΈ.
Π€ΠΎΡΠΎ 10 β ΠΡΠΈΠΌΠ΅Ρ ΠΊΠ°ΡΠ΅ΡΡΠ²Π΅Π½Π½ΠΎΠ³ΠΎ ΠΊΡΠ΅ΠΏΠ»Π΅Π½ΠΈΡ ΠΊΠ°ΡΠΊΠ°ΡΠ°ΠΠ±ΡΡΠ½ΠΎ Π΄Π»Ρ ΠΏΠΎΡΡΡΠΎΠ΅Π½ΠΈΡ Π²Π΅ΡΠ°Π½Π΄Ρ Π²ΡΠ±ΠΈΡΠ°ΡΡ ΡΠ°ΠΊΠΈΠ΅ ΠΌΠ°ΡΠ΅ΡΠΈΠ°Π»Ρ:
- Π΄Π΅ΡΠ΅Π²ΠΎ;
- ΠΏΠ»Π°ΡΡΠΈΠΊ;
- ΠΏΠ»ΠΈΡΠΊΡ;
- Π³ΠΈΠΏΡΠΎΠΊΠ°ΡΡΠΎΠ½.
ΠΠ»Ρ ΠΊΠ°ΡΠΊΠ°ΡΠ° ΡΠ°ΡΠ΅ Π²ΡΠ΅Π³ΠΎ ΠΈΡΠΏΠΎΠ»ΡΠ·ΡΡΡ Π±ΡΡΡΡΡ ΠΈ Π±ΡΠ΅Π²Π½Π°. Π‘ΡΠ΅Π½Ρ Π²Π΅ΡΠ°Π½Π΄Ρ Π΄ΠΎΠ»ΠΆΠ½Ρ ΠΌΠ°ΠΊΡΠΈΠΌΠ°Π»ΡΠ½ΠΎ ΠΏΠ»ΠΎΡΠ½ΠΎ ΠΏΡΠΈΠ»Π΅Π³Π°ΡΡ ΠΊ Π·Π΄Π°Π½ΠΈΡ. Π ΡΠΎ Π²ΡΠ΅ΠΌΡ ΠΊΠ°ΠΊ ΠΊΡΡΡΠ° Π»Π΅ΡΠ½Π΅ΠΉ Π·ΠΎΠ½Ρ ΠΌΠΎΠΆΠ΅Ρ Π±ΡΡΡ Π±ΠΎΠ»Π΅Π΅ ΠΏΠΎΠ»ΠΎΠ³ΠΎΠΉ ΠΏΠΎ ΠΎΡΠ½ΠΎΡΠ΅Π½ΠΈΡ ΠΊ Π΄ΠΎΠΌΡ.
Π€ΠΎΡΠΎ 11 β ΠΠΎΠ»ΡΡΠΈΠ΅ ΠΎΠΊΠ½Π° ΡΠΎ ΡΡΠΎΡΠΎΠ½Ρ Π²Π΅ΡΠ°Π½Π΄Ρ ΡΠ΄Π΅Π»Π°ΡΡ Π΄ΠΎΠΌ ΡΠ²Π΅ΡΠ»Π΅Π΅Π’ΡΠ°Π΄ΠΈΡΠΈΠΎΠ½Π½ΠΎ Π²Π΅ΡΠ°Π½Π΄Π° Π°ΡΡΠΎΡΠΈΠΈΡΡΠ΅ΡΡΡ ΡΠΎ ΡΠ²Π΅ΡΠ»ΠΎΠΉ ΡΠ°ΡΡΡΡ Π΄ΠΎΠΌΠ°. ΠΠ»Ρ ΡΠ°ΠΊΠΎΠ³ΠΎ ΡΡΡΠ΅ΠΊΡΠ° Π½Π΅ΠΎΠ±Ρ ΠΎΠ΄ΠΈΠΌΠΎ Ρ 2-3 ΡΡΠΎΡΠΎΠ½ ΡΠ°ΡΠΏΠΎΠ»ΠΎΠΆΠΈΡΡ Π±ΠΎΠ»ΡΡΠΈΠ΅ ΠΎΠΊΠ½Π°. Π ΠΎΡΠΎΠ±ΠΎ ΡΠΎΠ»Π½Π΅ΡΠ½ΠΎΠ΅ Π²ΡΠ΅ΠΌΡ ΠΌΠΎΠΆΠ½ΠΎ ΡΠ°Π·Π²Π΅ΡΠΈΡΡ Π½Π° ΠΎΠΊΠ½Π°Ρ Π·Π°Π½Π°Π²Π΅ΡΠΊΠΈ, ΡΡΠΎΡΡ ΠΈΠ· ΡΠΎΠ»ΠΎΠΌΠΊΠΈ ΠΈΠ»ΠΈ ΠΌΠ°ΡΠΎΠ²ΡΠ΅ ΠΆΠ°Π»ΡΠ·ΠΈ.

ΠΡΠΈΠΌΠ΅ΡΠΎΠΌ Ρ ΠΎΡΠΎΡΠ΅Π³ΠΎ Π²ΠΊΡΡΠ° ΡΠ΅Π³ΠΎΠ΄Π½Ρ Π²ΡΡΡΡΠΏΠ°ΡΡ ΠΎΡΡΠ΅ΠΊΠ»Π΅Π½Π½ΡΠ΅ Π΄Π²Π΅ΡΠΈ, ΠΊΠΎΡΠΎΡΡΠ΅ ΠΏΡΠΈΠ΄Π°ΡΡ ΡΠ³ΠΎΠ»ΠΊΡ Π΅ΡΠ΅ Π±ΠΎΠ»ΡΡΠ΅ΠΉ Π»Π΅Π³ΠΊΠΎΡΡΠΈ.
Π€ΠΎΡΠΎ 13 β ΠΡΠ°ΠΌΠΎΡΠ½Π°Ρ ΡΠ°ΡΡΡΠ°Π½ΠΎΠ²ΠΊΠ° ΠΌΠ΅Π±Π΅Π»ΠΈ ΡΠΏΠ°ΡΡΡ Π»ΡΠ±ΠΎΠΉ ΠΈΠ½ΡΠ΅ΡΡΠ΅ΡΠΡΡΠΏΠ½ΡΡ ΠΌΠ΅Π±Π΅Π»Ρ (ΡΠΊΠ°ΡΡ, ΠΊΠΎΠΌΠΎΠ΄Ρ, ΡΡΠ°ΠΆΠ΅ΡΠΊΠΈ) ΡΠ°Π·ΠΌΠ΅ΡΠ°ΠΉΡΠ΅ Ρ Π³Π»ΡΡ ΠΎΠΉ ΡΡΠ΅Π½Ρ. ΠΡΡΡΠΈΠΌ ΠΌΠ΅ΡΡΠΎΠΌ Π΄Π»Ρ ΡΡΠΎΠ»ΠΈΠΊΠ° ΡΡΠ°Π½Π΅Ρ Π·ΠΎΠ½Π° Ρ ΠΎΠΊΠ½Π° ΠΈΠ»ΠΈ Π² ΡΠ΅Π½ΡΡΠ΅ ΠΏΠΎΠΌΠ΅ΡΠ΅Π½ΠΈΡ. Π’Π°ΠΌ ΠΆΠ΅ ΠΌΠΎΠΆΠ½ΠΎ ΡΠ°Π·ΠΌΠ΅ΡΡΠΈΡΡ Π΄ΠΈΠ²Π°Π½ΡΠΈΠΊΠΈ ΠΈ ΠΊΡΠ΅ΡΠ»Π°.
ΠΠΎΠ΄Π½ΡΠ΅ Π²Π°ΡΠΈΠ°Π½ΡΡ Π΄Π΅ΠΊΠΎΡΠΈΡΠΎΠ²Π°Π½ΠΈΡ Π²Π΅ΡΠ°Π½Π΄Ρ Π΄Π°ΡΠ½ΠΎΠ³ΠΎ Π΄ΠΎΠΌΠ°
Π€ΠΎΡΠΎ 14 β ΠΡΡΠ΅Π½ΠΊΠΈ Π±Π΅Π»ΠΎΠ³ΠΎ Π½ΠΈΠΊΠΎΠ³Π΄Π° Π½Π΅ Π±ΡΠ΄ΡΡ ΡΠΌΠΎΡΡΠ΅ΡΡΡΡ ΠΏΠΎΡΠ»ΠΎΠΠ΅ΡΠ°Π½Π΄Π° β ΡΡΠΎ ΡΠ°ΠΊΠ°Ρ ΠΆΠ΅ ΠΊΠΎΠΌΠ½Π°ΡΠ°, ΠΊΠ°ΠΊ ΠΈ Π²ΡΠ΅ ΠΎΡΡΠ°Π»ΡΠ½ΡΠ΅. Π‘ΠΎΠΎΡΠ²Π΅ΡΡΡΠ²Π΅Π½Π½ΠΎ, ΠΊ Π΅Π΅ ΠΎΠ±ΠΎΡΡΠ΄ΠΎΠ²Π°Π½ΠΈΡ Π½ΡΠΆΠ½ΠΎ ΠΏΠΎΠ΄ΠΎΠΉΡΠΈ Ρ Π΄ΠΎΠ»ΠΆΠ½ΠΎΠΉ ΡΠ΅ΡΡΠ΅Π·Π½ΠΎΡΡΡΡ. ΠΡΠ΅ΠΆΠ΄Π΅ Π²ΡΠ΅Π³ΠΎ ΡΡΠΎΠΈΡ ΠΎΠΏΡΠ΅Π΄Π΅Π»ΠΈΡΡ, Π² ΠΊΠ°ΠΊΠΈΡ ΡΠ΅Π»ΡΡ Π²Ρ Ρ ΠΎΡΠΈΡΠ΅ ΠΈΡΠΏΠΎΠ»ΡΠ·ΠΎΠ²Π°ΡΡ ΠΏΠΎΠΌΠ΅ΡΠ΅Π½ΠΈΠ΅.
Π€ΠΎΡΠΎ 15 β ΠΠ°ΠΊΠΎΠ½ΠΈΡΠ½Π°Ρ ΡΠ΅ΡΡΠ°ΡΠ° Π² Π±Π΅Π»ΠΎΠΌ Π΄Π΅ΡΠ΅Π²Π΅ΠΠΎ ΡΡΠ½ΠΊΡΠΈΠΎΠ½Π°Π»ΡΠ½ΠΎΠΌΡ Π½Π°Π·Π½Π°ΡΠ΅Π½ΠΈΡ Π²ΡΠ΄Π΅Π»ΡΡΡ ΡΡΠΈ ΡΠΈΠΏΠ° Π²Π΅ΡΠ°Π½Π΄Ρ:
- ΠΎΡΠΊΡΡΡΠ°Ρ;
- Π·Π°ΠΊΡΡΡΠ°Ρ;
- ΠΊΠΎΠΌΠ±ΠΈΠ½ΠΈΡΠΎΠ²Π°Π½Π½Π°Ρ.
Π€ΠΎΡΠΎ 16 β ΠΠ΅ΡΠ΅Π²ΡΠ½Π½ΡΠ΅ ΡΠΊΠ°ΠΌΠ΅ΠΉΠΊΠΈ ΠΏΠΎΠ΄ΠΎΠΉΠ΄ΡΡ Π΄Π»Ρ ΠΎΡΠΊΡΡΡΠΎΠΉ Π·ΠΎΠ½ΡΠΡΠΊΡΡΡΠ°Ρ ΠΏΡΠ΅Π΄Π½Π°Π·Π½Π°ΡΠ΅Π½Π° ΡΠΎΠ»ΡΠΊΠΎ Π΄Π»Ρ Ρ ΠΎΡΠΎΡΠ΅ΠΉ ΠΏΠΎΠ³ΠΎΠ΄Ρ. ΠΠΎΡΡΠΎΠΌΡ ΠΈΠ΄Π΅Π°Π»ΡΠ½ΡΠΌ Π΄ΠΎΠΏΠΎΠ»Π½Π΅Π½ΠΈΠ΅ΠΌ ΠΊ Π½Π΅ΠΉ ΡΡΠ°Π½Π΅Ρ ΡΠ°Π΄ΠΎΠ²Π°Ρ ΡΠΊΠ»Π°Π΄Π½Π°Ρ ΠΌΠ΅Π±Π΅Π»Ρ.Β ΠΠ°ΠΊΡΡΡΡΠΉ ΠΆΠ΅ Π²Π°ΡΠΈΠ°Π½Ρ ΠΌΠΎΠΆΠ΅Ρ ΠΏΡΠΎΡΠΈΠ²ΠΎΡΡΠΎΡΡΡ ΠΏΡΠ°ΠΊΡΠΈΡΠ΅ΡΠΊΠΈ Π»ΡΠ±ΡΠΌ ΠΏΡΠΈΡΠΎΠ΄Π½ΡΠΌ ΡΡΠ»ΠΎΠ²ΠΈΡΠΌ. ΠΠ΅Π·ΡΡΠ»ΠΎΠ²Π½ΠΎ, ΡΡΠΎ ΠΎΡΠΊΡΡΠ²Π°Π΅Ρ ΡΠΈΡΠΎΠΊΠΎΠ΅ ΠΏΠΎΠ»Π΅ Π΄Π»Ρ ΠΈΠ½ΡΠ΅ΡΡΠ΅ΡΠ½ΠΎΠΉ ΡΠ°Π½ΡΠ°Π·ΠΈΠΈ.
ΠΠΠΠΠ! Π‘Π΅Π³ΠΎΠ΄Π½Ρ Π²ΠΎΠ·ΠΌΠΎΠΆΠ½ΠΎ ΠΏΠΎΡΡΡΠΎΠΈΡΡ ΠΊΠΎΠΌΠ±ΠΈΠ½ΠΈΡΠΎΠ²Π°Π½Π½ΡΡ Π²Π΅ΡΠ°Π½Π΄Ρ, ΠΊΠΎΡΠΎΡΠ°Ρ Π²ΠΊΠ»ΡΡΠ°Π΅Ρ ΡΠ»Π΅ΠΌΠ΅Π½ΡΡ ΠΊΠ°ΠΊ Π·Π°ΠΊΡΡΡΠΎΠΉ, ΡΠ°ΠΊ ΠΈ ΠΎΡΠΊΡΡΡΠΎΠΉ Π·ΠΎΠ½Ρ.
Π€ΠΎΡΠΎ 17 β ΠΠΎΠΌΠ±ΠΈΠ½Π°ΡΠΈΡ ΠΎΡΠΊΡΡΡΠΎΠΉ ΠΈ Π·Π°ΠΊΡΡΡΠΎΠΉ Π·ΠΎΠ½ΡΠ’Π΅ΠΏΠ΅ΡΡ ΡΡΡ ΠΌΠΎΠΆΠ½ΠΎ ΡΠΏΠΎΠ»Π½Π° Π½Π°ΡΠ»Π°Π΄ΠΈΡΡΡΡ ΠΏΡΠ΅ΠΊΡΠ°ΡΠ½ΡΠΌ Π²ΠΈΠ΄ΠΎΠΌ, Π΄Π°ΠΆΠ΅ Π²ΠΎ Π²ΡΠ΅ΠΌΡ ΡΠ½Π΅ΠΆΠ½ΠΎΠΉ Π±ΡΡΠΈ, ΠΈ ΠΎΠΊΠ°Π·Π°ΡΡΡΡ Π² Π΄Π²ΡΡ ΡΠ°Π³Π°Ρ ΠΎΡ ΡΠ΅ΠΏΠ»ΠΎΠΉ ΠΊΠΎΠΌΠ½Π°ΡΡ Ρ ΠΌΡΠ³ΠΊΠΈΠΌ Π΄ΠΈΠ²Π°Π½ΠΎΠΌ ΠΈ Π²ΡΠ·Π°Π½ΡΠΌΠΈ ΠΏΠΎΠ΄ΡΡΠΊΠ°ΠΌΠΈ; ΠΏΠΎΠ΄ΡΡΠ°ΡΡ ΡΠ²Π΅ΠΆΠΈΠΌ Π²ΠΎΠ·Π΄ΡΡ ΠΎΠΌ ΠΈ Π½Π΅ ΡΠ³ΠΎΡΠ΅ΡΡ ΠΏΠΎΠ΄ Π°Π³ΡΠ΅ΡΡΠΈΠ²Π½ΡΠΌ Π»Π΅ΡΠ½ΠΈΠΌ ΡΠΎΠ»Π½ΡΠ΅ΠΌ.
Π€ΠΎΡΠΎ 18 β ΠΠΊΡΠ΅Π½ΡΡ: ΡΡΠΎΠΏΠΈΡΠ΅ΡΠΊΠΈΠΉ ΠΏΡΠΈΠ½Ρ, ΡΠΊΠ·ΠΎΡΠΈΡΠ΅ΡΠΊΠΈΠ΅ ΡΠ°ΡΡΠ΅Π½ΠΈΡ ΠΈ Π½Π°ΡΡΡΠ°Π»ΡΠ½ΡΠ΅ ΠΌΠ°ΡΠ΅ΡΠΈΠ°Π»ΡΠ’Π΅ΠΌ, ΠΊΡΠΎ Π»ΡΠ±ΠΈΡ ΡΠΌΠΎΡΡΠ΅ΡΡ Π½Π° Π΄ΠΎΠΆΠ΄Ρ, Π½ΠΎ ΠΎΡΡΠ°Π²Π°ΡΡΡΡ ΠΏΡΠΈ ΡΡΠΎΠΌ Π°Π±ΡΠΎΠ»ΡΡΠ½ΠΎ ΡΡΡ ΠΈΠΌ, ΠΏΠΎΠ΄ΠΎΠΉΠ΄Π΅Ρ Π²Π°ΡΠΈΠ°Π½Ρ ΠΎΡΡΠ΅ΠΊΠ»Π΅Π½Π½ΠΎΠΉ Π²Π΅ΡΠ°Π½Π΄Ρ, ΠΊΠΎΡΠΎΡΡΡ ΠΌΠΎΠΆΠ½ΠΎ ΠΎΠ±ΡΡΡΡΠΎΠΈΡΡ ΠΊΠ°ΠΊ ΠΎΠ±ΡΡΠ½ΡΡ ΠΊΠΎΠΌΠ½Π°ΡΡ. ΠΡΡΡΠΈΠΌ ΡΠ°ΡΠΏΠΎΠ»ΠΎΠΆΠ΅Π½ΠΈΠ΅ΠΌ Π΄Π»Ρ ΡΠ°ΠΊΠΎΠΉ Π²Π΅ΡΠ°Π½Π΄Ρ ΡΡΠ°Π½Π΅Ρ Π·Π΅Π»Π΅Π½Π°Ρ Π·ΠΎΠ½Π° ΡΡΠ°ΡΡΠΊΠ°.
Π€ΠΎΡΠΎ 19 β Π‘ΠΊΠ°Π·ΠΎΡΠ½ΡΠΉ ΡΠ³ΠΎΠ»ΠΎΠΊ Π΄Π»Ρ Π΄Π²ΠΎΠΈΡ
ΠΠ»Π°ΡΡΠΈΡΠ΅ΡΠΊΠ°Ρ Π²Π΅ΡΠ°Π½Π΄Π° Π²ΡΠ³Π»ΡΠ΄ΠΈΡ ΠΊΠ°ΠΊ ΠΌΠΈΠ½ΠΈ-Π³ΠΎΡΡΠΈΠ½Π°Ρ.
Π€ΠΎΡΠΎ 20 β Π’ΡΠ°Π΄ΠΈΡΠΈΠΎΠ½Π½ΠΎΠ΅ ΡΠ΅ΡΠ΅Π½ΠΈΠ΅ Π΄Π°ΡΠ½ΠΎΠΉ ΠΏΠ»ΠΎΡΠ°Π΄ΠΊΠΈΠΠ΄Π΅ΡΡ ΠΏΡΠΈΠ½ΠΈΠΌΠ°ΡΡ Π³ΠΎΡΡΠ΅ΠΉ ΠΈ ΠΎΡΠ΄ΡΡ Π°ΡΡ Π² ΡΠ΅ΠΌΠ΅ΠΉΠ½ΠΎΠΌ ΠΊΡΡΠ³Ρ. ΠΠΎΠΌΠΏΠΎΠ·ΠΈΡΠΈΡ ΠΈΠ· Π±ΠΎΠ»ΡΡΠΎΠ³ΠΎ ΠΌΡΠ³ΠΊΠΎΠ³ΠΎ Π΄ΠΈΠ²Π°Π½Π°, Π½Π΅ΡΠΊΠΎΠ»ΡΠΊΠΈΡ ΠΊΡΠ΅ΡΠ΅Π», ΡΡΠΎΠ»ΠΈΠΊΠ° ΠΈ Π½Π°Π±ΠΎΡΠ° Π½Π°ΡΡΠΎΠ»ΡΠ½ΡΡ ΠΈΠ³Ρ ΡΠ΄Π΅Π»Π°ΡΡ ΡΡΠΎΡ ΡΠ³ΠΎΠ»ΠΎΠΊ Π»ΡΠ±ΠΈΠΌΠΎΠΉ Π·ΠΎΠ½ΠΎΠΉ Π΄Π»Ρ ΠΎΡΠ΄ΡΡ Π°. ΠΠΈΠ²Π°Π½Ρ Π±ΠΎΠ»ΡΡΠΎΠ³ΠΎ ΡΠΎΡΠΌΠ°ΡΠ° ΠΌΠΎΠΆΠ½ΠΎ ΠΏΠΎΠ΄ΠΎΠ±ΡΠ°ΡΡ Π² ΠΊΠΎΠ»Π»Π΅ΠΊΡΠΈΡΡ Robertirattan.Β ΠΠΎΠΏΠΎΠ»Π½ΠΈΡΡ ΠΏΠΎΠ΄ΠΎΠ±Π½ΡΡ ΠΊΠΎΠΌΠ½Π°ΡΡ ΠΌΠΎΠΆΠ½ΠΎ ΠΏΠΎΠ΄Π²Π΅ΡΠ½ΡΠΌ Π΄ΠΈΠ²Π°Π½ΠΎΠΌ-ΠΊΠ°ΡΠ΅Π»Π΅ΠΉ.
Π€ΠΎΡΠΎ 21 β ΠΠ»Π΅Π³Π°Π½ΡΠ½Π°Ρ ΠΈ ΠΊΠΎΠΌΡΠΎΡΡΠ½Π°Ρ ΠΌΠ΅Π±Π΅Π»Ρ Π΄Π»Ρ ΡΠ΅ΡΡΠ°ΡΡΠΠΎ Π½Π΅ ΡΡΠΎΠΈΡ Π·Π°Π±ΡΠ²Π°ΡΡ, ΡΡΠΎ ΡΡΠΎΡ Π²Π°ΡΠΈΠ°Π½Ρ ΠΏΠΎΠ΄Ρ ΠΎΠ΄ΠΈΡ ΡΠΎΠ»ΡΠΊΠΎ Π΄Π»Ρ ΠΏΡΠΎΡΠ½ΡΡ ΠΏΠΎΡΠΎΠ»ΠΎΡΠ½ΡΡ ΠΊΠΎΠ½ΡΡΡΡΠΊΡΠΈΠΉ.
Π€ΠΎΡΠΎ 22 β Π£ΡΡΠ½ΡΠΉ Π΄ΠΈΠ²Π°Π½-ΠΊΠ°ΡΠ΅Π»ΡΠΠ΄Π½ΠΈΠΌ ΠΈΠ· ΡΠ°ΠΌΡΡ ΠΏΠΎΠΏΡΠ»ΡΡΠ½ΡΡ ΡΡΠΈΠ»Π΅ΠΉ ΡΠ΅Π³ΠΎΠ΄Π½Ρ ΡΠ²Π»ΡΠ΅ΡΡΡ Π±ΡΠΈΡΠ°Π½ΡΠΊΠΈΠΉ ΠΊΠΎΠ»ΠΎΠ½ΠΈΠ°Π»ΡΠ½ΡΠΉ Ρ ΠΏΡΠΈΡΡΡΠ΅ΠΉ Π΅ΠΌΡ ΠΏΠ»Π΅ΡΠ΅Π½ΠΎΠΉ ΠΌΠ΅Π±Π΅Π»ΡΡ, Π² ΡΠΎΡΡΠ°Π² ΠΊΠΎΡΠΎΡΠΎΠΉ Π²Ρ ΠΎΠ΄ΡΡ ΠΏΡΠΎΡΠ½ΡΠ΅ Π½Π°ΡΡΡΠ°Π»ΡΠ½ΡΠ΅ ΠΌΠ°ΡΠ΅ΡΠΈΠ°Π»Ρ (Π±Π°ΠΌΠ±ΡΠΊ ΠΈΠ»ΠΈ ΠΊΡΠ°ΡΠ½ΠΎΠ΅ Π΄Π΅ΡΠ΅Π²ΠΎ). Π’Π°ΠΊΠΈΠ΅ ΡΠ»Π΅ΠΌΠ΅Π½ΡΡ Π΅ΡΡΡ Π² ΠΊΠΎΠ»Π»Π΅ΠΊΡΠΈΡΡ Π’Π΅ΡΡΠ°ΡΠ° Luxe ΠΈ Destiny, Mazuvo Swiss. ΠΠΎΠΏΠΎΠ»Π½ΡΡ ΡΡΠΎΡ ΠΎΠ±ΡΠ°Π· ΠΊΡΠ΅ΡΠ»Π°-ΠΊΠ°ΡΠ°Π»ΠΊΠΈ ΡΠΈΡΠΌΡ Pradex.
Π€ΠΎΡΠΎ 23 β ΠΠΎΠΌΠ½ΠΈΡΠ΅ ΠΎ Π·Π°ΡΠΈΡΠ΅ Π΄Π΅ΡΠ΅Π²ΡΠ½Π½ΠΎΠ³ΠΎ ΠΏΠΎΠΊΡΡΡΠΈΡ Π½Π°ΡΡΠΆΠ½ΠΎΠΉ Π·ΠΎΠ½Ρ Π΄ΠΎΠΌΠ°ΠΠ½ΡΠ΅ΡΠ΅ΡΠ½ΡΠΌ ΡΠ΅ΡΠ΅Π½ΠΈΠ΅ΠΌ ΡΡΠ°Π½Π΅Ρ ΡΡΠ°Π½ΡΡΠΎΡΠΌΠ°ΡΠΈΡ Π²Π΅ΡΠ°Π½Π΄Ρ Π² Π»Π΅ΡΠ½ΡΡ ΠΊΡΡ Π½Ρ. Π’ΠΎΠ³Π΄Π° ΠΏΡΠΈΠ²ΡΡΠ½ΡΡ ΠΌΡΠ³ΠΊΡΡ ΠΌΠ΅Π±Π΅Π»Ρ ΠΏΡΠΈΠ΄ΡΡΡΡ Π·Π°ΠΌΠ΅Π½ΠΈΡΡ Π½Π° ΠΏΠ΅ΡΡ, Π³ΡΠΈΠ»Ρ ΠΈΠ»ΠΈ ΠΌΠ°Π½Π³Π°Π». ΠΡΡ Π½Ρ ΠΌΠΎΠΆΠ½ΠΎ ΡΠ΄Π°ΡΠ½ΠΎ ΡΠΎΠ²ΠΌΠ΅ΡΡΠΈΡΡ ΡΠΎ ΡΡΠΎΠ»ΠΎΠ²ΠΎΠΉ, ΡΠ°Π·Π΄Π΅Π»ΠΈΠ² Π²Π΅ΡΠ°Π½Π΄Ρ Π½Π° Π΄Π²Π΅ Π·ΠΎΠ½Ρ.
Π€ΠΎΡΠΎ 24 β Π£Π½ΠΈΠ²Π΅ΡΡΠ°Π»ΡΠ½Π°Ρ Π²Π΅ΡΠ°Π½Π΄Π°-ΠΊΡΡ
Π½Ρ Ρ Π·ΠΎΠ½ΠΎΠΉ ΡΡΠΎΠ»ΠΎΠ²ΠΎΠΉΠ―ΡΠΊΠ°Ρ ΠΈ ΡΠΏΠ΅ΡΠΈΠ°Π»ΡΠ½ΠΎ ΠΎΠ±ΠΎΡΡΠ΄ΠΎΠ²Π°Π½Π½Π°Ρ Π²Π΅ΡΠ°Π½Π΄Π° Π±ΡΠ΄Π΅Ρ Ρ ΠΎΡΠΎΡΠ΅ΠΉ ΠΈΠ³ΡΠΎΠ²ΠΎΠΉ ΠΊΠΎΠΌΠ½Π°ΡΠΎΠΉ Π΄Π»Ρ Π΄Π΅ΡΠ΅ΠΉ. ΠΡΠΆΠ½ΠΎ ΡΠΎΠ»ΡΠΊΠΎ ΠΏΠΎΠ΄ΠΎΠ±ΡΠ°ΡΡ ΠΌΠ΅Π±Π΅Π»Ρ Π±Π΅Π· ΠΎΡΡΡΡΡ ΡΠ³Π»ΠΎΠ², ΠΏΠΎΡΡΠ°Π²ΠΈΡΡ Π½Π΅Π±ΠΎΠ»ΡΡΠΎΠΉ Π΄ΠΈΠ²Π°Π½ ΠΈ ΡΡΠΈΠΊΠΈ Ρ ΠΈΠ³ΡΡΡΠΊΠ°ΠΌΠΈ β Π΄Π΅ΡΠΈ Π±ΡΠ΄ΡΡ ΡΡΠ°ΡΡΠ»ΠΈΠ²Ρ.
Π€ΠΎΡΠΎ 25 β ΠΠ΅Π·ΠΎΠΏΠ°ΡΠ½ΠΎΠ΅ ΠΏΡΠΎΡΡΡΠ°Π½ΡΡΠ²ΠΎ Π΄Π»Ρ Π²Π°ΡΠΈΡ
Π΄Π΅ΡΠ΅ΠΉΠΡΠ»ΠΈ ΠΎΡΠ΄ΡΡ ΠΏΡΠΈΡ ΠΎΠ΄ΠΈΡΡΡ ΡΠΎΠ²ΠΌΠ΅ΡΠ°ΡΡ Ρ ΡΠ°Π±ΠΎΡΠΎΠΉ, Π° Π΄Π΅ΡΠΈ Π·Π°ΡΠ°ΡΡΡΡ ΠΎΡΠ²Π»Π΅ΠΊΠ°ΡΡ ΠΎΡ Π²ΡΠΏΠΎΠ»Π½Π΅Π½ΠΈΡ Π²Π°ΠΆΠ½ΡΡ Π΄Π΅Π», Π²Π΅ΡΠ°Π½Π΄Π° ΠΏΡΠΎΡΡΠΎ ΠΌΠΎΠΆΠ΅Ρ ΠΏΡΠ΅Π²ΡΠ°ΡΠΈΡΡΡΡ Π² Π΄ΠΎΡΡΠΎΠΉΠ½ΡΠΉ ΠΊΠ°Π±ΠΈΠ½Π΅Ρ. ΠΠ»Π΅Π³Π°Π½ΡΠ½ΡΠΉ ΠΏΠΈΡΡΠΌΠ΅Π½Π½ΡΠΉ ΡΡΠΎΠ» Ρ ΠΊΠΎΠΆΠ°Π½ΡΠΌ ΠΊΡΠ΅ΡΠ»ΠΎΠΌ Π² Π΄ΠΎΠΏΠΎΠ»Π½Π΅Π½ΠΈΠΈ Π½Π΅ΡΠΊΠΎΠ»ΡΠΊΠΈΡ ΠΏΠΎΠ»ΠΎΠΊ Π΄Π»Ρ Π΄ΠΎΠΊΡΠΌΠ΅Π½ΡΠΎΠ² ΡΠΎΠ·Π΄Π°Π΄ΡΡ Π°ΡΠΌΠΎΡΡΠ΅ΡΡ Π½Π°ΡΡΠΎΡΡΠ΅ΠΉ ΡΠ°Π±ΠΎΡΠ΅ΠΉ ΠΎΠ±ΡΡΠ°Π½ΠΎΠ²ΠΊΠΈ.
Π€ΠΎΡΠΎ 26 β Π¦Π΅Π»ΡΠ½Π°Ρ Π΄Π΅ΡΠ΅Π²ΡΠ½Π½Π°Ρ ΡΠ΅ΡΡΠ°ΡΠ°Π‘ΠΎΡΡΠ°Π²ΠΈΡΡ ΡΠ°ΠΊΠΎΠΉ Π½Π°Π±ΠΎΡ Π²ΠΎΠ·ΠΌΠΎΠΆΠ½ΠΎ Ρ ΠΏΠΎΠΌΠΎΡΡΡ ΠΠΠΠ ΠΈΠ»ΠΈ Mobilsedia.Β ΠΠ»Ρ ΡΠ΅Π»Π°ΠΊΡ-Π·ΠΎΠ½Ρ ΠΏΠΎΠ΄ΠΎΠΉΠ΄Π΅Ρ Π±ΠΈΠ»ΡΡΡΠ΄Π½ΡΠΉ ΡΡΠΎΠ» ΠΈΠ· ΠΊΠΎΠ»Π»Π΅ΠΊΡΠΈΠΈ Π ΡΠΏΡΡΠ Π»ΠΈΠ±ΠΎ Π΄ΠΎΠΌΠ°ΡΠ½ΠΈΠΉ ΠΊΠΈΠ½ΠΎΡΠ΅Π°ΡΡ.Β Π ΠΈΠ½ΡΠ΅ΡΡΠ΅ΡΠ΅ Π»ΡΠ±ΠΎΠΉ Π²Π΅ΡΠ°Π½Π΄Ρ Π³Π°ΡΠΌΠΎΠ½ΠΈΡΠ½ΠΎ Π±ΡΠ΄Π΅Ρ ΡΠΌΠΎΡΡΠ΅ΡΡΡΡ Π·Π΅Π»Π΅Π½ΡΠΉ ΡΠ³ΠΎΠ»ΠΎΠΊ.
Π€ΠΎΡΠΎ 27 β ΠΠ°ΡΠ½ΡΠ΅ Π΄ΠΆΡΠ½Π³Π»ΠΈΠΡΠ»ΠΈ ΠΊΠΎΠ½ΡΠ΅Π½ΡΡΠΈΡΠΎΠ²Π°Π½Π½Π°Ρ Π·Π΅Π»Π΅Π½Ρ ΡΡΠ°Π»Π° ΡΠ΅ΡΠ΅ΡΡΡΡ Π½Π°Π²ΡΠ·ΡΠΈΠ²ΠΎΠΉ Π΄Π»Ρ ΠΎΠ΄Π½ΠΎΠΉ Π·ΠΎΠ½Ρ, ΡΠ°ΡΡΡΠ°Π²ΡΡΠ΅ ΡΠ°ΡΡΠ΅Π½ΠΈΡ Π² Π³ΠΎΡΡΠΊΠ°Ρ ΠΏΠΎ Π²ΡΠ΅ΠΉ ΡΠ΅ΡΡΠΈΡΠΎΡΠΈΠΈ ΡΠ΅ΡΡΠ°ΡΡ.
ΠΠ°ΠΆΠ½ΠΎ! ΠΠ»Π°Π²Π½ΠΎΠ΅ ΡΡΠ»ΠΎΠ²ΠΈΠ΅ β ΡΡΠΎ ΠΏΡΠΎΡΡΡΠ°Π½ΡΡΠ²ΠΎ ΠΈ ΠΊΠΎΠΌΡΠΎΡΡ. ΠΠΎΡΡΠΎΠΌΡ Π½Π΅ ΡΡΠΎΠΈΡ ΠΏΠ΅ΡΠ΅Π³ΡΡΠΆΠ°ΡΡ ΠΏΠΎΠΌΠ΅ΡΠ΅Π½ΠΈΠ΅ Π»ΠΈΡΠ½Π΅ΠΉ ΠΌΠ΅Π±Π΅Π»ΡΡ ΠΈ Π³ΡΠΎΠΌΠΎΠ·Π΄ΠΊΠΈΠΌΠΈ Π°ΠΊΡΠ΅ΡΡΡΠ°ΡΠ°ΠΌΠΈ.
Π€ΠΎΡΠΎ 28 β ΠΠ°ΠΊΠΎΠ½ΠΈΡΠ½ΡΠ΅ Π³ΠΎΡΡΠΊΠΈ Π΄Π»Ρ Π²Π°ΡΠ΅Π³ΠΎ ΠΈΠ½ΡΠ΅ΡΡΠ΅ΡΠ°ΠΠ°ΡΠ½ΡΠΉ Π΄ΠΎΠΌ Ρ ΡΠ΅ΡΡΠ°ΡΠΎΠΉ ΠΈΠ»ΠΈ Π²Π΅ΡΠ°Π½Π΄ΠΎΠΉ: Π² ΡΡΠΌ ΡΠ°Π·Π½ΠΈΡΠ°?
ΠΡΠ΅ΠΊΡΠ°ΡΠ½ΠΎΠΉ Π°Π»ΡΡΠ΅ΡΠ½Π°ΡΠΈΠ²ΠΎΠΉ Π²Π΅ΡΠ°Π½Π΄Ρ ΡΡΠ°Π½Π΅Ρ Π»Π΅ΡΠ½ΡΡ ΡΠ΅ΡΡΠ°ΡΠ°. Π ΠΎΡΠ»ΠΈΡΠΈΠ΅ ΠΎΡ Π²Π΅ΡΠ°Π½Π΄Ρ ΠΎΠ½Π°Β ΡΠ°ΡΠΏΠΎΠ»Π°Π³Π°Π΅ΡΡΡ Π·Π° ΠΏΡΠ΅Π΄Π΅Π»Π°ΠΌΠΈ Π΄ΠΎΠΌΠ° Π½Π° ΠΎΡΠ΄Π΅Π»ΡΠ½ΠΎ ΡΡΠΎΡΡΠ΅ΠΌ ΠΏΡΠΈΠΏΠΎΠ΄Π½ΡΡΠΎΠΌ ΠΎΡΠ½ΠΎΠ²Π°Π½ΠΈΠΈ.
Π€ΠΎΡΠΎ 29 β ΠΡΠΈΠ³ΠΈΠ½Π°Π»ΡΠ½Π°Ρ ΡΠ΅ΡΡΠ°ΡΠ° ΠΈΠ· Π½Π°ΡΡΡΠ°Π»ΡΠ½ΡΡ
ΠΌΠ°ΡΠ΅ΡΠΈΠ°Π»ΠΎΠ²ΠΠ»Π°Π²Π½ΡΠ΅ ΡΠ»Π΅ΠΌΠ΅Π½ΡΡ ΡΠ΅ΡΡΠ°ΡΡ β ΡΡΠΎ ΡΡΡΠ½ΡΠ΅ Π΄ΠΈΠ²Π°Π½Ρ ΠΈ ΠΊΡΠ΅ΡΠ»Π°, ΠΎΠ±Π΅Π΄Π΅Π½Π½ΡΠ΅ ΡΡΠΎΠ»Ρ ΠΈ ΡΡΠΈΠ»ΠΈΠ·ΠΎΠ²Π°Π½Π½ΡΠ΅ Π³Π°ΠΌΠ°ΠΊΠΈ.
Π€ΠΎΡΠΎ 30 β ΠΡΠ°Π²ΠΈΠ»ΡΠ½ΡΠΉ Π³Π°ΠΌΠ°ΠΊ Π½Π΅ ΠΏΠΎΠΌΠ΅ΡΠ°Π΅Ρ Π΄Π°ΠΆΠ΅ ΡΡΠΎΠ»ΠΎΠ²ΠΎΠΉ Π·ΠΎΠ½Π΅Π’Π΅ΡΡΠ°ΡΡ Π΄Π΅Π»ΡΡ Π½Π° ΡΡΠΈ ΡΠΈΠΏΠ°:
- ΠΎΡΠΊΡΡΡΡΠ΅;
- Π·Π°ΠΊΡΡΡΡΠ΅;
- ΡΠ½ΠΈΠ²Π΅ΡΡΠ°Π»ΡΠ½ΡΠ΅.
Π€ΠΎΡΠΎ 31 β ΠΡΠ½ΠΈΡΠ΅ΡΠΊΠΈΠ΅ ΠΌΠΎΡΠΈΠ²Ρ Π² ΠΈΠ½ΡΠ΅ΡΡΠ΅ΡΠ΅ Π½Π°ΡΡΠΆΠ½ΠΎΠΉ Π·ΠΎΠ½Ρ Π΄ΠΎΠΌΠ°ΠΡΠΊΡΡΡΠ°Ρ ΠΏΠ»ΠΎΡΠ°Π΄ΠΊΠ° Π΄ΠΎΡΡΡΠΏΠ½Π° ΡΠΎΠ»ΡΠΊΠΎ Π² ΡΠ΅ΠΏΠ»ΡΡ ΠΏΠΎΡΡ Π³ΠΎΠ΄Π°. Π’ΡΠ°Π΄ΠΈΡΠΈΠΎΠ½Π½ΠΎ ΠΎΠ½Π° ΠΏΡΠ΅Π΄ΡΡΠ°Π²Π»ΡΠ΅Ρ ΡΠΎΠ±ΠΎΠΉ Π·ΠΎΠ½Ρ Ρ Π½Π°Π²Π΅ΡΠΎΠΌ ΠΈΠ»ΠΈ Π±Π΅Π· Π½Π΅Π³ΠΎ, Π½Π° ΡΠ΅ΡΡΠΈΡΠΎΡΠΈΠΈ ΠΊΠΎΡΠΎΡΠΎΠΉ ΡΠ°ΡΠΏΠΎΠ»ΠΎΠΆΠ΅Π½ Π½Π΅Π±ΠΎΠ»ΡΡΠΎΠΉ ΠΆΡΡΠ½Π°Π»ΡΠ½ΡΠΉ ΡΡΠΎΠ»ΠΈΠΊ Π΄Π»Ρ Π»Π°Π½ΡΠ°, ΡΡΠ΅Π½ΠΈΡ ΠΊΠ½ΠΈΠ³ Π»ΠΈΠ±ΠΎ Π½Π°ΡΡΠΎΠ»ΡΠ½ΡΡ ΠΈΠ³Ρ.
Π€ΠΎΡΠΎ 32 β ΠΠΈΠ½ΠΈΠΌΠ°Π»ΠΈΠ·ΠΌ Π²ΡΠ΅Π³Π΄Π° Π² ΠΌΠΎΠ΄Π΅ΠΠ°ΠΊΡΡΡΠ°Ρ ΡΠ΅ΡΡΠ°ΡΠ° ΡΡΠ΅Π±ΡΠ΅Ρ ΠΊ ΡΠ΅Π±Π΅ Π΄ΡΡΠ³ΠΎΠ³ΠΎ ΠΏΠΎΠ΄Ρ ΠΎΠ΄Π°. ΠΠΎ ΡΠ²ΠΎΠ΅ΠΉ ΠΏΡΠΈΡΠΎΠ΄Π΅ ΠΎΠ½Π° ΠΌΠ΅Π½Π΅Π΅ Π»ΡΠ³ΠΊΠ°Ρ, ΠΏΠΎΡΠΊΠΎΠ»ΡΠΊΡ ΡΠΎΡΡΠΎΠΈΡ ΠΈΠ· ΠΏΡΠΎΡΠ½ΠΎΠ³ΠΎ ΡΡΠ½Π΄Π°ΠΌΠ΅Π½ΡΠ° ΠΈ ΠΊΠ°ΠΏΠΈΡΠ°Π»ΡΠ½ΡΡ ΡΡΠ΅Π½. ΠΠ΅ΠΎΠ±Ρ ΠΎΠ΄ΠΈΠΌΡΠΌ ΡΠ»Π΅ΠΌΠ΅Π½ΡΠΎΠΌ Π΄Π»Ρ ΠΊΠΎΠΌΡΠΎΡΡΠ°Π±Π΅Π»ΡΠ½ΠΎΠ³ΠΎ ΠΎΡΠ΄ΡΡ Π° ΡΡΠ°Π½Π΅Ρ Π½Π°Π»ΠΈΡΠΈΠ΅ ΠΎΡΠΎΠΏΠΈΡΠ΅Π»ΡΠ½ΠΎΠΉ ΠΈ Π²Π΅Π½ΡΠΈΠ»ΡΡΠΈΠΎΠ½Π½ΠΎΠΉ ΡΠΈΡΡΠ΅ΠΌ. Π£Π½ΠΈΠ²Π΅ΡΡΠ°Π»ΡΠ½Π°Ρ ΡΠ΅ΡΡΠ°ΡΠ° ΠΎΠ±ΡΡΠ½ΠΎ ΠΏΠ»Π°Π½ΠΈΡΡΠ΅ΡΡΡ ΡΠΎ ΡΡΠ΅ΠΌΠ½ΡΠΌΠΈ ΡΡΠ΅ΠΊΠ»ΠΎΠΏΠ°ΠΊΠ΅ΡΠ°ΠΌΠΈ ΠΈ Π΄Π²Π΅ΡΡΠΌΠΈ Π»ΠΈΠ±ΠΎ ΠΆΠ΅ Π²ΠΊΠ»ΡΡΠ°Π΅Ρ Π² ΡΠ΅Π±Ρ ΠΌΠ΅Ρ Π°Π½ΠΈΠ·ΠΌ ΡΠΊΠ»Π°Π΄Π½ΠΎΠΉ ΠΊΡΡΡΠΈ ΠΈ ΡΡΠ΅Π½, ΡΡΠΎ Π² Π»ΡΠ±ΠΎΠΉ ΠΌΠΎΠΌΠ΅Π½Ρ ΠΌΠΎΠΆΠ΅Ρ ΡΠ΄Π΅Π»Π°ΡΡ Π΅Π΅ ΠΎΡΠΊΡΡΡΠΎΠΉ.
Π€ΠΎΡΠΎ 33 β ΠΡΠΈΠΌΠ΅Ρ Π»Π΅ΡΠ½Π΅ΠΉ ΡΠ΅ΡΡΠ°ΡΡΠ‘Π°ΠΌΡΠΌΠΈ ΠΏΠΎΠΏΡΠ»ΡΡΠ½ΡΠΌΠΈ ΠΊΠΎΠ½ΡΠΈΠ³ΡΡΠ°ΡΠΈΡΠΌΠΈ Π΄Π°ΡΠ½ΡΡ ΡΠ΅ΡΡΠ°Ρ ΠΌΠΎΠΆΠ½ΠΎ Π½Π°Π·Π²Π°ΡΡ ΡΠ°ΠΊΠΈΠ΅:
- ΠΏΡΡΠΌΠΎΡΠ³ΠΎΠ»ΡΠ½ΡΠ΅;
- ΡΠΎΠΌΠ±ΠΎΠ²ΠΈΠ΄Π½ΡΠ΅;
- ΡΠ°Π΄ΠΈΡΡΠ½ΡΠ΅;
- ΠΎΠ²Π°Π»ΡΠ½ΡΠ΅;
- ΠΊΡΡΠ³Π»ΡΠ΅.
Π€ΠΎΡΠΎ 34 β ΠΠ΅Π·ΠΎΠΏΠ°ΡΠ½Π°Ρ Π·ΠΎΠ½Π° Π΄Π»Ρ Π΄Π΅ΡΠ΅ΠΉΠΠΈΠ·Π°ΠΉΠ½ ΡΠ΅ΡΡΠ°Ρ ΠΏΠΎΠ΄ΠΎΠ±Π½ΡΠΉ ΡΡΠΈΠ»Ρ Π²Π΅ΡΠ°Π½Π΄. ΠΠ°ΡΠ΅ΡΡΠ²Π΅Π½Π½ΡΡ ΠΌΠ΅Π±Π΅Π»Ρ ΠΌΠΎΠΆΠ½ΠΎ Π½Π°ΠΉΡΠΈ Π² ΠΊΠΎΠ»Π»Π΅ΠΊΡΠΈΡΡ Baxter, Vogue, Nardi. ΠΠ»Π°Π²Π½ΠΎΠ΅, Π³ΡΠ°ΠΌΠΎΡΠ½ΠΎ ΠΈ Π³Π°ΡΠΌΠΎΠ½ΠΈΡΠ½ΠΎ ΠΏΠΎΠ΄ΠΎΠ±ΡΠ°ΡΡ Π²ΡΠ΅ Π½Π΅ΠΎΠ±Ρ ΠΎΠ΄ΠΈΠΌΡΠ΅ ΡΠ»Π΅ΠΌΠ΅Π½ΡΡ.
Π€ΠΎΡΠΎ 35 β Π‘ΠΎΠ²ΠΌΠ΅ΡΡΠΈΡΡ ΠΌΠΎΠΆΠ½ΠΎ ΠΏΡΠ°ΠΊΡΠΈΡΠ΅ΡΠΊΠΈ Π²ΡΡΠ§ΡΠΎ ΡΠΊΠ°ΠΆΠ΅Ρ ΠΎ Ρ ΠΎΠ·ΡΠΈΠ½Π΅ ΠΊΡΡΠ»ΡΡΠΎ Π΄Π»Ρ Π΅Π³ΠΎ Π΄Π°ΡΠ½ΠΎΠ³ΠΎ Π΄ΠΎΠΌΠ°?
Π‘ΡΠΈΠ»ΡΠ½ΠΎΠ΅ ΠΊΡΡΠ»ΡΡΠΎ β Π²ΠΈΠ·ΠΈΡΠ½Π°Ρ ΠΊΠ°ΡΡΠΎΡΠΊΠ° Π»ΡΠ±ΠΎΠ³ΠΎ Π΄ΠΎΠΌΠ°. ΠΠ»Ρ ΡΠΊΡΠ°ΡΠ΅Π½ΠΈΡ ΡΠ°ΡΡΠΎ ΠΈΡΠΏΠΎΠ»ΡΠ·ΡΡΡ ΡΠΊΡΠ»ΡΠΏΡΡΡΡ, ΠΊΠΎΠ»ΠΎΠ½Π½Ρ ΠΈΠ»ΠΈ ΡΠ°ΡΡΠ΅Π½ΠΈΡ. ΠΡΠΈ Π²ΡΠ±ΠΎΡΠ΅ Π΄Π΅ΠΊΠΎΡΠ°ΡΠΈΠ²Π½ΡΡ ΡΠ»Π΅ΠΌΠ΅Π½ΡΠΎΠ² ΡΡΠΎΠΈΡ ΡΡΠΈΡΡΠ²Π°ΡΡ ΠΎΠ±ΡΡΡ ΡΡΠΈΠ»ΠΈΡΡΠΈΠΊΡ Π΄ΠΎΠΌΠ°.
Π€ΠΎΡΠΎ 36 β ΠΠ΅ΡΠ°Π½Π΄Π° Π² ΠΏΡΠΎΠ²Π°Π½ΡΠΊΠΎΠΌ ΡΡΠΈΠ»Π΅ΠΡΠ½ΠΎΠ²Π½ΡΠ΅ ΡΠΎΡΡΠ°Π²Π½ΡΠ΅ ΡΠ°ΡΡΠΈ ΠΊΡΡΠ»ΡΡΠ°:
- ΡΡΡΠΏΠ΅Π½ΠΈ;
- ΠΏΠ΅ΡΠΈΠ»Π°;
- ΠΊΠΎΠ·ΡΡΠ΅ΠΊ;
- ΠΏΠ»ΠΎΡΠ°Π΄ΠΊΠ°.
ΠΠ΅ΡΠ΅Π²ΡΠ½Π½ΠΎΠ΅ ΠΊΡΡΠ»ΡΡΠΎ
Π€ΠΎΡΠΎ 37 β Π‘ΡΠΈΠ»ΡΠ½ΠΎΠ΅ Π΄Π΅ΡΠ΅Π²ΡΠ½Π½ΠΎΠ΅ ΠΊΡΡΠ»ΡΡΠΎΠ‘Π°ΠΌΡΠΌ ΠΏΡΠΎΡΡΡΠΌ ΠΈ ΠΎΠ΄Π½ΠΎΠ²ΡΠ΅ΠΌΠ΅Π½Π½ΠΎ ΡΠ°ΡΠΏΡΠΎΡΡΡΠ°Π½Π΅Π½Π½ΡΠΌ Π²Π°ΡΠΈΠ°Π½ΡΠΎΠΌ ΡΠ²Π»ΡΠ΅ΡΡΡ Π΄Π΅ΡΠ΅Π²ΡΠ½Π½ΠΎΠ΅ ΠΊΡΡΠ»ΡΡΠΎ. ΠΠ»Ρ Π½Π΅Π³ΠΎ ΠΎΠ±ΡΡΠ½ΠΎ Π²ΡΠ±ΠΈΡΠ°ΡΡ ΠΎΡΠ΅Π½Ρ ΠΏΡΠΎΡΠ½ΡΠ΅ ΠΈ Π΄ΠΎΠ»Π³ΠΎΠ²Π΅ΡΠ½ΡΠ΅ ΠΌΠ°ΡΠ΅ΡΠΈΠ°Π»Ρ β ΡΠΎΡΠ½Ρ, Π΅Π»Ρ, Π»ΠΈΡΡΠ²Π΅Π½Π½ΠΈΡΡ ΠΈΠ»ΠΈ Π΄ΡΠ±.
ΠΠ°ΠΆΠ½ΠΎ! ΠΡΠ»ΠΈ ΡΠ°Π·Π½ΠΈΡΠ° Π²ΡΡΠΎΡ ΠΌΠ΅ΠΆΠ΄Ρ Π·Π΅ΠΌΠ»Π΅ΠΉ ΠΈ ΠΏΠΎΠ»ΠΎΠΌ ΠΏΡΠ΅Π²ΡΡΠ°Π΅Ρ 50 ΡΠ°Π½ΡΠΈΠΌΠ΅ΡΡΠΎΠ², ΠΊΡΡΠ»ΡΡΠΎ ΡΠ»Π΅Π΄ΡΠ΅Ρ Π΄ΠΎΠΏΠΎΠ»Π½ΠΈΡΡ ΡΡΡΠΏΠ΅Π½ΡΠΊΠ°ΠΌΠΈ ΠΈΠ»ΠΈ Π»Π΅ΡΡΠ½ΠΈΡΠ΅ΠΉ.
Π€ΠΎΡΠΎ 38 β ΠΠΊΡΠ΅Π½ΡΡ: ΡΠ΅ΠΌΠ½ΡΠΉ ΡΠ°ΡΠ°Π΄, Π·Π΅Π»Π΅Π½ΡΠ΅ ΡΠ°ΡΡΠ΅Π½ΠΈΡ, ΡΠ²Π΅ΡΠ»ΡΠΉ ΡΠ΅ΠΊΡΡΠΈΠ»ΡΠΡΡΠ»ΡΡΠΎ ΠΎΠ±ΡΡΡΡΠ°ΠΈΠ²Π°ΡΡ ΠΈΠ· Π΄ΠΎΡΠΎΠΊ ΠΈ Π±ΡΠ΅Π²Π΅Π½. ΠΡΠ΄Π΅Π»ΠΊΠΎΠΉ Π·Π°ΡΠ°ΡΡΡΡ ΡΠ»ΡΠΆΠ°Ρ ΡΠ°ΠΉΠ΄ΠΈΠ½Π³ΠΈ ΠΈ Π±Π»ΠΎΠΊ-Ρ Π°ΡΡΡ.Β ΠΡΠΈΠΌΡΠΊΠ°ΡΡΡΡ ΠΊ Π΄Π²Π΅ΡΠΈ Π²Ρ ΠΎΠ΄Π½ΡΡ Π·ΠΎΠ½Ρ Π½Π΅ΡΠ΅Π΄ΠΊΠΎ ΠΏΠΎΠΊΡΡΠ²Π°ΡΡ Π½Π°Π²Π΅ΡΠΎΠΌ, ΠΏΠΎΡΠΊΠΎΠ»ΡΠΊΡ ΡΡΠΎ Π·Π°ΡΠΈΡΠΈΡ Π΄ΠΎΠΌ ΠΎΡ ΡΠ½Π΅Π³Π° ΠΈ Π΄ΠΎΠΆΠ΄Ρ. ΠΠ»Π°Π²Π½ΠΎΠ΅, Π½Π΅ Π΄Π΅Π»Π°ΡΡ Π½Π°Π²Π΅Ρ ΠΈΠ· ΠΌΠ΅ΡΠ°Π»Π»Π°, ΠΈΠ½Π°ΡΠ΅ ΠΏΠΎΡΡΠ΅Π΄ΠΈ Π½ΠΎΡΠΈ ΠΌΠΎΠΆΠ½ΠΎ ΠΏΡΠΎΡΠ½ΡΡΡΡΡ ΠΎΡ ΡΡΡΠ°ΡΠ½ΠΎΠ³ΠΎ Π³ΡΠΎΡ ΠΎΡΠ° Π²ΠΎ Π²ΡΠ΅ΠΌΡ Π΄ΠΎΠΆΠ΄Ρ ΠΈΠ»ΠΈ, Π΅ΡΡ Ρ ΡΠΆΠ΅, β Π³ΡΠ°Π΄Π°.
Π€ΠΎΡΠΎ 39 β ΠΠΎΠΌΠΏΠ°ΠΊΡΠ½ΡΠΉ ΠΈ Π»Π΅Π³ΠΊΠΈΠΉ Π½Π°Π²Π΅ΡΠΠΈΡΠΏΠΈΡΠ½ΠΎΠ΅ ΠΊΡΡΠ»ΡΡΠΎ
ΠΠ°ΠΆΠ½ΠΎ! ΠΡΠΏΠΎΠ»ΡΠ·ΡΠΉΡΠ΅ Π΄Π»Ρ ΠΊΡΡΠ»ΡΡΠ° ΡΠΎΠ»ΡΠΊΠΎ Π½ΠΎΠ²ΡΠ΅ ΠΊΠΈΡΠΏΠΈΡΠΈ.
Π€ΠΎΡΠΎ 40 β Π’Π΅ΡΡΠ°ΡΠ° ΠΈΠ· ΠΊΠΈΡΠΏΠΈΡΠ°ΠΡΠ΄ΠΆΠ΅ΡΠ½ΡΠΌ Π²Π°ΡΠΈΠ°Π½ΡΠΎΠΌ ΡΠ²Π»ΡΠ΅ΡΡΡ ΠΊΠΈΡΠΏΠΈΡΠ½ΠΎΠ΅ ΠΊΡΡΠ»ΡΡΠΎ. ΠΠ³ΠΎ ΡΠ΅Π½Π° ΠΎΠ±ΡΡΡΠ½ΡΠ΅ΡΡΡ ΡΠ²ΠΎΠΉΡΡΠ²ΠΎΠΌ ΠΊΡΠΎΡΠΈΡΡΡΡ.
ΠΠ΅ΡΠ°Π»Π»ΠΈΡΠ΅ΡΠΊΠΎΠ΅ ΠΊΡΡΠ»ΡΡΠΎ
Π€ΠΎΡΠΎ 41 β ΠΠΎΠ»ΡΡΠΈΠ΅ Π·ΠΎΠ½ΡΡ Π² Π»Π΅ΡΠ½ΠΈΠΉ ΠΏΠ΅ΡΠΈΠΎΠ΄ ΠΏΠΎΠ»Π½ΠΎΡΠ΅Π½Π½ΠΎ ΠΌΠΎΠ³ΡΡ Π·Π°ΠΌΠ΅Π½ΠΈΡΡ ΠΊΡΡΡΡ Β ΠΠ°ΠΈΠ±ΠΎΠ»Π΅Π΅ ΠΏΡΠ°ΠΊΡΠΈΡΠ½ΡΠΌ Π±ΡΠ΄Π΅Ρ ΠΌΠ΅ΡΠ°Π»Π»ΠΈΡΠ΅ΡΠΊΠΎΠ΅ ΠΊΡΡΠ»ΡΡΠΎ. Π ΠΎΡΠ»ΠΈΡΠΈΠ΅ ΠΎΡ ΠΊΠΈΡΠΏΠΈΡΠ° ΠΎΠ½ Π½Π΅ ΠΊΡΠΎΡΠΈΡΡΡ ΠΈ Π½Π΅ ΠΏΡΠΎΡΠ΅Π΄Π°Π΅Ρ. Π‘Π°ΠΌΡΠΌ ΡΡΠΈΠ»ΡΠ½ΡΠΌ ΡΡΠΈΡΠ°Π΅ΡΡΡ ΠΊΡΡΠ»ΡΡΠΎ ΠΈΠ· ΠΊΠΎΠ²Π°Π½ΠΎΠ³ΠΎ ΠΌΠ΅ΡΠ°Π»Π»Π°. ΠΠΎ ΡΡΠΎΡ Π²Π°ΡΠΈΠ°Π½Ρ ΠΎΠ±ΠΎΠΉΠ΄Π΅ΡΡΡ Π΄ΠΎΡΠΎΠΆΠ΅. ΠΠ΅ΡΠ°Π»Π» ΠΏΡΠΎΡΠ»ΡΠΆΠΈΡ Π΄ΠΎΠ»ΡΡΠ΅, Π΅ΡΠ»ΠΈ ΠΎΠ±ΡΠ°Π±ΠΎΡΠ°ΡΡ Π΅Π³ΠΎ ΡΠΏΠ΅ΡΠΈΠ°Π»ΡΠ½ΡΠΌ Π°Π½ΡΠΈΠΊΠΎΡΡΠΎΠ·ΠΈΠΉΠ½ΡΠΌ ΡΡΠ΅Π΄ΡΡΠ²ΠΎΠΌ. ΠΠ»Π°Π²Π½ΠΎΠ΅ β Π½Π΅ ΠΏΠ΅ΡΠ΅Π±ΠΎΡΡΠΈΡΡ Π² ΠΏΠΎΠ³ΠΎΠ½Π΅ Π·Π° ΡΠΎΠ²ΡΠ΅ΠΌΠ΅Π½Π½ΡΠΌ ΠΈΠ½ΡΠ΅ΡΡΠ΅ΡΠΎΠΌ.
Π€ΠΎΡΠΎ 42 β ΠΠ°ΡΠΈΠ°Π½Ρ ΡΡΠ΅ΠΊΠ»ΡΠ½Π½ΠΎΠΉ Π²Π΅ΡΠ°Π½Π΄ΡΠΠ°ΡΡΠ΅Ρ-ΠΊΠ»Π°ΡΡ: ΡΠ΅ΡΡΠ°ΡΠ° ΡΠ²ΠΎΠΈΠΌΠΈ ΡΡΠΊΠ°ΠΌΠΈ
etotdom.com
ΡΠ΅ΡΡΠ΅ΠΆΠΈ ΠΈ ΡΠΎΡΠΎ Β» ΠΠ½ΡΠ΅Ρ-Π΅Ρ.ΡΡ
ΠΠ°Π³ΠΎΡΠΎΠ΄Π½ΡΠ΅ ΠΈ Π΄Π°ΡΠ½ΡΠ΅ ΠΊΠΎΡΡΠ΅Π΄ΠΆΠΈ ΠΈΠ½ΠΎΠ³Π΄Π° ΠΈΠΌΠ΅ΡΡ ΠΎΠ±ΡΡΡ ΠΊΡΡΡΡ Ρ Π±Π°Π½Π΅ΠΉ, Π²Π΅ΡΠ°Π½Π΄ΠΎΠΉ, ΡΠ΅ΡΡΠ°ΡΠΎΠΉ ΠΈΠ»ΠΈ Π³Π°ΡΠ°ΠΆΠΎΠΌ. ΠΡΠΎ ΡΡΠΈΡΡΠ²Π°Π΅ΡΡΡ Π΅ΡΠ΅ Π½Π° ΡΡΠ°Π΄ΠΈΠΈ ΡΠ°Π·ΡΠ°Π±ΠΎΡΠΊΠΈ ΠΏΡΠΎΠ΅ΠΊΡΠ° Π±ΡΠ΄ΡΡΠ΅Π³ΠΎ Π΄ΠΎΠΌΠ°. ΠΠΎΠ»ΡΡΠΈΡΡ ΡΠ΅ΡΡΠ΅ΠΆ ΡΠΈΠΏΠΎΠ²ΠΎΠΉ ΠΏΠΎΡΡΡΠΎΠΉΠΊΠΈ ΠΌΠΎΠΆΠ½ΠΎ Π±Π΅ΡΠΏΠ»Π°ΡΠ½ΠΎ. ΠΠΎΡΠΎΠ²ΡΠ΅ ΡΡ
Π΅ΠΌΡ ΠΈ ΡΠΎΡΠΎ Π΅ΡΡΡ Π² ΡΡΠ°ΡΡΠ΅.
ΠΠ°ΠΊΠΈΠΌ ΠΌΠΎΠΆΠ΅Ρ Π±ΡΡΡ ΠΏΡΠΎΠ΅ΠΊΡ Π·Π°Π³ΠΎΡΠΎΠ΄Π½ΠΎΠ³ΠΎ Π΄ΠΎΠΌΠ°
Π‘ΠΎΠ±ΠΈΡΠ°ΡΡΡ ΡΡΡΠΎΠΈΡΡ Π΄Π°ΡΠ½ΡΠΉ ΠΊΠΎΡΡΠ΅Π΄ΠΆ, Π½ΡΠΆΠ½ΠΎ Π² ΠΏΠ΅ΡΠ²ΡΡ ΠΎΡΠ΅ΡΠ΅Π΄Ρ ΠΏΠΎΠ΄ΡΠΌΠ°ΡΡ, ΡΡΠΎ Π²Ρ Ρ ΠΎΡΠΈΡΠ΅ ΠΏΠΎΠ»ΡΡΠΈΡΡ Π² ΠΈΡΠΎΠ³Π΅. ΠΡΠ»ΠΈ ΠΏΠΎΠΏΡΡΠ°ΡΡΡΡ ΠΏΡΠΎΠ°Π½Π°Π»ΠΈΠ·ΠΈΡΠΎΠ²Π°ΡΡ ΡΠ°ΠΌΡΠ΅ Π²ΠΎΡΡΡΠ΅Π±ΠΎΠ²Π°Π½Π½ΡΠ΅ ΠΏΡΠΎΠ΅ΠΊΡΡ, ΡΠΎ Π½Π΅ΡΠΎΠΌΠ½Π΅Π½Π½ΡΠΌ ΡΠ°Π²ΠΎΡΠΈΡΠΎΠΌ ΡΡΠ°Π½Π΅Ρ ΠΊΠΎΠΌΠΏΠ°ΠΊΡΠ½ΠΎΠ΅ ΠΎΠ΄Π½ΠΎΡΡΠ°ΠΆΠ½ΠΎΠ΅ Π·Π΄Π°Π½ΠΈΠ΅ Ρ ΡΠ΅ΡΠ΄Π°ΠΊΠΎΠΌ. ΠΠ»Ρ Π²ΡΠ΅ΠΌΠ΅Π½Π½ΠΎΠ³ΠΎ ΠΏΡΠ΅Π±ΡΠ²Π°Π½ΠΈΡ Π½Π° Π΄Π°ΡΠ΅ Π±ΠΎΠ»ΡΡΠ΅Π³ΠΎ, ΠΏΠΎΠΆΠ°Π»ΡΠΉ, ΠΈ Π½Π΅ Π½Π°Π΄ΠΎ. ΠΠ»Π°Π²Π½ΠΎΠ΅, ΡΡΠΎΠ±Ρ Π²ΡΠ΅ ΠΊΠΎΠΌΠΌΡΠ½ΠΈΠΊΠ°ΡΠΈΠΈ Π±ΡΠ»ΠΈ Π½Π° ΠΌΠ΅ΡΡΠ΅, Π° Π²Π½ΡΡΡΠΈ Π±ΡΠ»ΠΎ ΡΠ²Π΅ΡΠ»ΠΎ, ΡΠ΅ΠΏΠ»ΠΎ ΠΈ ΡΡΡΠ½ΠΎ.
ΠΠ΄Π½Π°ΠΊΠΎ Π²ΡΡ ΡΠ°ΡΠ΅ Π²Π»Π°Π΄Π΅Π»ΡΡΡ Π·Π΅ΠΌΠ΅Π»ΡΠ½ΡΡ ΡΡΠ°ΡΡΠΊΠΎΠ² ΡΡΠ°ΡΠ°ΡΡΡΡ ΡΠΎΠ·Π΄Π°ΡΡ Π½Π° ΠΏΡΠΈΠΎΠ±ΡΠ΅ΡΠ΅Π½Π½ΠΎΠΉ ΡΠ΅ΡΡΠΈΡΠΎΡΠΈΠΈ Π½Π΅ Β«Π²ΡΠ΅ΠΌΡΠ½ΠΊΡΒ», Π° ΠΏΠΎΠ»Π½ΠΎΡΠ΅Π½Π½ΡΠΉ Π΄ΠΎΠΌΠΈΠΊ, Π³Π΄Π΅ ΠΌΠΎΠΆΠ½ΠΎ ΠΆΠΈΡΡ Ρ ΠΊΠΎΠΌΡΠΎΡΡΠΎΠΌ Π½Π° ΡΠ²Π΅ΠΆΠ΅ΠΌ Π²ΠΎΠ·Π΄ΡΡ Π΅ ΠΈ Π² Π»ΡΠ±ΠΎΠ΅ Π²ΡΠ΅ΠΌΡ Π³ΠΎΠ΄Π° ΠΏΡΠΈΠ½ΠΈΠΌΠ°ΡΡ Π³ΠΎΡΡΠ΅ΠΉ. ΠΠΌΠ΅Π½Π½ΠΎ ΠΏΠΎΡΡΠΎΠΌΡ Π΄Π°ΡΠΈ ΡΡΡΠΎΡΡ Ρ Π±Π°Π½ΡΠΌΠΈ, ΡΠ΅ΡΡΠ°ΡΠ°ΠΌΠΈ, Π²Π΅ΡΠ°Π½Π΄Π°ΠΌΠΈ, Π³Π°ΡΠ°ΠΆΠ°ΠΌΠΈ, Π° ΡΠ°ΠΊΠΆΠ΅ Π΄Π΅Π»Π°ΡΡ ΠΈΡ Π΄Π²ΡΡ ΡΡΠ°ΠΆΠ½ΡΠΌΠΈ.

ΠΠ°Π³ΠΎΡΠΎΠ΄Π½ΡΠΉ Π΄ΠΎΠΌ Ρ ΠΌΠ°Π½ΡΠ°ΡΠ΄ΠΎΠΉ
Π§ΡΠΎΠ±Ρ ΠΎΠΏΡΠ΅Π΄Π΅Π»ΠΈΡΡΡΡ, ΠΊΠ°ΠΊΠΈΠΌ Π±ΡΠ΄Π΅Ρ Π²Π°Ρ Π·Π°Π³ΠΎΡΠΎΠ΄Π½ΡΠΉ ΠΊΠΎΡΡΠ΅Π΄ΠΆ, ΠΏΡΠΈΠΌΠΈΡΠ΅ Π²ΠΎ Π²Π½ΠΈΠΌΠ°Π½ΠΈΠ΅ ΡΠ°ΠΊΠΈΠ΅ ΠΊΡΠΈΡΠ΅ΡΠΈΠΈ Π²ΡΠ±ΠΎΡΠ° Π³ΠΎΡΠΎΠ²ΠΎΠ³ΠΎ ΠΏΡΠΎΠ΅ΠΊΡΠ°:
- ΠΠ΅ΡΠΈΠΎΠ΄ΠΈΡΠ½ΠΎΡΡΡ ΠΈΡΠΏΠΎΠ»ΡΠ·ΠΎΠ²Π°Π½ΠΈΡ Π·Π΄Π°Π½ΠΈΡ β ΡΠΎΠ»ΡΠΊΠΎ Π² Π»Π΅ΡΠ½ΠΈΠΉ ΡΠ΅Π·ΠΎΠ½ ΠΈΠ»ΠΈ Π½Π° ΠΏΡΠΎΡΡΠΆΠ΅Π½ΠΈΠΈ Π²ΡΠ΅Π³ΠΎ Π³ΠΎΠ΄Π°. ΠΡ ΡΡΠΎΠ³ΠΎ Π·Π°Π²ΠΈΡΡΡ ΠΈ ΡΠΎΠ»ΡΠΈΠ½Π° ΡΡΠ΅Π½, ΠΈ ΠΊΠ°ΡΠ΅ΡΡΠ²ΠΎ ΡΡΠ΅ΠΏΠ»Π΅Π½ΠΈΡ ΠΊΠΎΠ½ΡΡΡΡΠΊΡΠΈΠΈ.
- ΠΠΎΠ»ΠΈΡΠ΅ΡΡΠ²ΠΎ ΡΡΠ°ΠΆΠ΅ΠΉ ΠΈ ΠΊΠΎΠΌΠ½Π°Ρ. ΠΠ΄Π΅ΡΡ Π²ΡΡ Π·Π°Π²ΠΈΡΠΈΡ ΠΎΡ ΡΠΎΠ³ΠΎ, Π½Π°ΡΠΊΠΎΠ»ΡΠΊΠΎ Π²Π΅Π»ΠΈΠΊΠ° Π²Π°ΡΠ° ΡΠ΅ΠΌΡΡ, Π° ΡΠ°ΠΊΠΆΠ΅ ΠΊΠ°ΠΊΠΎΠ²Ρ Π²Π°ΡΠΈ ΡΠΈΠ½Π°Π½ΡΠΎΠ²ΡΠ΅ Π²ΠΎΠ·ΠΌΠΎΠΆΠ½ΠΎΡΡΠΈ. Π₯ΠΎΡΡ ΡΠΏΠ΅ΡΠΈΠ°Π»ΠΈΡΡΡ ΡΠ±Π΅ΠΆΠ΄Π°ΡΡ, ΡΡΠΎ Π·Π°ΡΡΠ°ΡΡ Π½Π° Π΄Π²ΡΡ ΡΡΠ°ΠΆΠ½ΡΠΉ Π΄ΠΎΠΌ Π½Π΅ Π½Π°ΠΌΠ½ΠΎΠ³ΠΎ Π²ΡΡΠ΅, ΡΠ΅ΠΌ Π½Π° ΠΎΠ΄Π½ΠΎΡΡΠ°ΠΆΠ½ΡΠΉ.
- ΠΡΠ΄ΠΆΠ΅Ρ ΠΏΠΎΡΡΡΠΎΠΉΠΊΠΈ. ΠΠ΄ΠΈΠ½ ΠΈΠ· ΠΎΡΠ½ΠΎΠ²Π½ΡΡ ΡΠ°ΠΊΡΠΎΡΠΎΠ², Π²Π»ΠΈΡΡΡΠΈΡ Π½Π° Π²ΡΠ±ΠΎΡ ΠΏΡΠΎΠ΅ΠΊΡΠ° Π΄ΠΎΠΌΠ°.
- ΠΠ½ΡΡΡΠ΅Π½Π½Π΅Π΅ Π½Π°ΠΏΠΎΠ»Π½Π΅Π½ΠΈΠ΅: ΡΠ°Π·ΠΌΠ΅ΡΡ ΠΈ ΡΠ°ΡΠΏΠΎΠ»ΠΎΠΆΠ΅Π½ΠΈΠ΅ ΠΊΠΎΠΌΠ½Π°Ρ, ΠΊΠΎΠ»ΠΈΡΠ΅ΡΡΠ²ΠΎ ΠΈ ΡΠΎΡΠΌΡ ΠΎΠΊΠΎΠ½ ΠΈ Ρ.Π΄. ΠΡΠΈ ΡΡΠΎΠΌ ΡΠΈΠΏΠΎΠ²ΡΠ΅ ΠΏΡΠΎΠ΅ΠΊΡΡ, ΠΊΠ°ΠΊ ΠΏΡΠ°Π²ΠΈΠ»ΠΎ, ΠΏΡΠ΅Π΄ΠΏΠΎΠ»Π°Π³Π°ΡΡ Π²Π½Π΅ΡΠ΅Π½ΠΈΠ΅ ΠΊΠΎΡΡΠ΅ΠΊΡΠΈΠ² ΠΏΠΎ Π²ΠΊΡΡΡ ΠΈ ΠΆΠ΅Π»Π°Π½ΠΈΡ Π·Π°ΠΊΠ°Π·ΡΠΈΠΊΠ°.
- ΠΠ΅Π»ΠΈΡΠΈΠ½Π° ΡΡΠ°ΡΡΠΊΠ° ΠΈ ΠΎΡΠΎΠ±Π΅Π½Π½ΠΎΡΡΠΈ ΠΌΠ΅ΡΡΠ½ΠΎΠ³ΠΎ ΡΠ΅Π»ΡΠ΅ΡΠ°. ΠΡ ΡΡΠΎΠ³ΠΎ Π·Π°Π²ΠΈΡΠΈΡ Π½Π΅ ΡΠΎΠ»ΡΠΊΠΎ ΠΏΠ»ΠΎΡΠ°Π΄Ρ Π±ΡΠ΄ΡΡΠ΅Π³ΠΎ Π·Π΄Π°Π½ΠΈΡ, Π½ΠΎ ΠΈ Π²ΡΠ±ΠΎΡ ΡΡΠ½Π΄Π°ΠΌΠ΅Π½ΡΠ°, Π° ΡΠ°ΠΊΠΆΠ΅ ΡΠ°ΡΠΏΠΎΠ»ΠΎΠΆΠ΅Π½ΠΈΠ΅ Π½Π° ΡΠ΅ΡΡΠΈΡΠΎΡΠΈΠΈ ΠΈΠ½ΡΡ ΡΡΡΠΎΠ΅Π½ΠΈΠΉ.
Π‘ΠΎΠ²Π΅Ρ. Π‘ΡΠ΅Π΄ΠΈ ΡΠ°ΠΌΡΡ ΠΏΠΎΠΏΡΠ»ΡΡΠ½ΡΡ Π²ΠΈΠ΄ΠΎΠ² ΡΡΠ½Π΄Π°ΠΌΠ΅Π½ΡΠ° ΠΏΠΎΠ΄ Π΄Π°ΡΠ½ΡΠΉ Π΄ΠΎΠΌ β Π»Π΅Π½ΡΠΎΡΠ½ΡΠΉ. ΠΠ½ Π²ΡΠ΄Π΅ΡΠΆΠΈΠ²Π°Π΅Ρ ΠΊΠ°ΠΊ Π»Π΅Π³ΠΊΠΈΠ΅, ΡΠ°ΠΊ ΠΈ ΠΌΠ°ΡΡΠΈΠ²Π½ΡΠ΅ ΠΊΠΎΠ½ΡΡΡΡΠΊΡΠΈΠΈ, Π΄ΠΎΠ»Π³ΠΎΠ²Π΅ΡΠ΅Π½ ΠΈ ΠΌΠΎΠΆΠ΅Ρ Π±ΡΡΡ ΡΠ΄Π΅Π»Π°Π½ Π±Π΅Π· ΠΏΡΠΈΠ²Π»Π΅ΡΠ΅Π½ΠΈΡ ΡΠΏΠ΅ΡΠΈΠ°Π»ΠΈΡΡΠΎΠ².
ΠΠΎΡΠΎΠ²ΡΠΉ ΠΏΡΠΎΠ΅ΠΊΡ ΠΌΠΎΠΆΠ½ΠΎ ΠΊΡΠΏΠΈΡΡ ΠΈΠ»ΠΈ Π½Π°ΠΉΡΠΈ Π² ΡΠ²ΠΎΠ±ΠΎΠ΄Π½ΠΎΠΌ Π΄ΠΎΡΡΡΠΏΠ΅ ΡΠΎΠ²Π΅ΡΡΠ΅Π½Π½ΠΎ Π±Π΅ΡΠΏΠ»Π°ΡΠ½ΠΎ. ΠΡΠΈΠΎΠ±ΡΠ΅ΡΠ°Ρ ΡΠΈΠΏΠΎΠ²ΡΡ ΡΡ Π΅ΠΌΡ Π΄Π»Ρ Π²ΠΎΠ·Π²Π΅Π΄Π΅Π½ΠΈΡ Π΄Π°ΡΠ½ΠΎΠ³ΠΎ Π΄ΠΎΠΌΠ°, Π²Ρ ΠΏΠΎΠ»ΡΡΠ°Π΅ΡΠ΅ ΡΡΠ΄ ΠΏΡΠ΅ΠΈΠΌΡΡΠ΅ΡΡΠ²:
- ΡΠΆΠ΅ ΡΠ°Π·ΡΠ°Π±ΠΎΡΠ°Π½Π° Π²ΡΡ Π½ΡΠΆΠ½Π°Ρ Π΄ΠΎΠΊΡΠΌΠ΅Π½ΡΠ°ΡΠΈΡ;
- ΠΌΠΎΠΆΠ½ΠΎ ΡΡΠ°Π·Ρ ΠΆΠ΅ ΡΠ²ΠΈΠ΄Π΅ΡΡ Π±ΡΠ΄ΡΡΠ΅Π΅ ΡΡΡΠΎΠ΅Π½ΠΈΠ΅;
- ΠΏΡΠ°ΠΊΡΠΈΡΠ΅ΡΠΊΠΈ ΠΈΡΠΊΠ»ΡΡΠ΅Π½Ρ Π½Π΅ΠΏΡΠ΅Π΄Π²ΠΈΠ΄Π΅Π½Π½ΡΠ΅ ΡΠΈΡΡΠ°ΡΠΈΠΈ, ΠΏΠΎΡΠΊΠΎΠ»ΡΠΊΡ ΠΏΠΎΠ΄ΠΎΠ±Π½ΡΠΉ ΠΏΡΠΎΠ΅ΠΊΡ ΡΠΆΠ΅ ΠΈΡΠΏΠΎΠ»ΡΠ·ΠΎΠ²Π°Π»ΡΡ Π² ΡΡΡΠΎΠΈΡΠ΅Π»ΡΡΡΠ²Π΅, Π·Π°ΡΠ°ΡΡΡΡ β Π½Π΅ΠΎΠ΄Π½ΠΎΠΊΡΠ°ΡΠ½ΠΎ.
ΠΠΎΡΠΎΠ²ΡΠ΅ ΠΏΡΠΎΠ΅ΠΊΡΡ Π΄Π°ΡΠ½ΡΡ Π΄ΠΎΠΌΠΎΠ² Ρ Π±Π°Π½Π΅ΠΉ ΠΏΠΎΠ΄ ΠΎΠ΄Π½ΠΎΠΉ ΠΊΡΡΡΠ΅ΠΉ. ΠΠ»ΡΡΡ ΠΈ ΠΌΠΈΠ½ΡΡΡ. ΠΡΠ·ΡΠ²Ρ Π²Π»Π°Π΄Π΅Π»ΡΡΠ΅Π²
Π§Π°ΡΠ΅ Π²ΡΠ΅Π³ΠΎ Π½Π° ΠΏΠΎΠ΄ΠΎΠ±Π½ΡΡ ΡΠ΅ΡΡΠ΅ΠΆΠ°Ρ ΠΌΠΎΠΆΠ½ΠΎ ΡΠ²ΠΈΠ΄Π΅ΡΡ Π±Π°Π½Ρ, Π²Ρ ΠΎΠ΄ Π² ΠΊΠΎΡΠΎΡΡΡ Π²ΠΎΠ·ΠΌΠΎΠΆΠ΅Π½ Π»ΠΈΠ±ΠΎ ΡΡΠ°Π·Ρ ΠΈΠ· Π΄ΠΎΠΌΠ°, Π»ΠΈΠ±ΠΎ ΡΠ΅ΡΠ΅Π· ΡΠ΅ΡΡΠ°ΡΡ. ΠΡΠΈ ΠΏΠ»Π°Π½ΠΈΡΠΎΠ²ΠΊΠ΅ ΡΠΎΠ²ΠΌΠ΅ΡΠ΅Π½Π½ΠΎΠ³ΠΎ Π·Π΄Π°Π½ΠΈΡ ΠΏΠ°ΡΠΈΠ»ΠΊΡ ΠΎΠ±ΠΎΡΡΠ΄ΡΡΡ Π² ΡΠ°Π·Π»ΠΈΡΠ½ΡΡ ΠΌΠ΅ΡΡΠ°Ρ , Π½Π°ΠΏΡΠΈΠΌΠ΅Ρ, Π² ΡΠΎΠΊΠΎΠ»ΡΠ½ΠΎΠΌ ΡΡΠ°ΠΆΠ΅. ΠΡΡΡ Π²Π°ΡΠΈΠ°Π½ΡΡ, ΠΊΠΎΠ³Π΄Π° Π±Π°Π½Ρ ΠΈΠ»ΠΈ ΡΠ°ΡΠ½Π° ΡΡΠ°Π½ΠΎΠ²ΠΈΡΡΡ ΠΏΡΠΎΠ΄ΠΎΠ»ΠΆΠ΅Π½ΠΈΠ΅ΠΌ Π΄ΠΎΠΌΠ°, Ρ.Π΅. ΠΎΠ΄Π½ΠΎΠΉ ΠΈΠ· ΠΊΠΎΠΌΠ½Π°Ρ. ΠΠ½ΠΎΠ³Π΄Π° ΠΏΠ΅ΡΡΠΎΠ½Π°Π»ΡΠ½ΡΡ Π΄ΠΎΠΌΠ°ΡΠ½ΡΡ ΠΏΠ°ΡΠΈΠ»ΠΊΡ ΡΠ°ΡΠΏΠΎΠ»Π°Π³Π°ΡΡ Π² Π΅Π΄ΠΈΠ½ΠΎΠΌ ΠΊΠΎΠΌΠΏΠ»Π΅ΠΊΡΠ΅ Ρ Π²Π°Π½Π½ΠΎΠΉ ΠΈ ΡΡΠ°Π»Π΅ΡΠΎΠΌ.

ΠΠ»Π°Π½ Π΄Π²ΡΡ ΡΡΠ°ΠΆΠ½ΠΎΠ³ΠΎ Π΄ΠΎΠΌΠ° Ρ Π±Π°Π½Π΅ΠΉ
Π£Π΄ΠΎΠ±ΡΡΠ²Π° ΠΎΠ±ΡΠ΅Π΄ΠΈΠ½Π΅Π½Π½ΠΎΠ³ΠΎ ΠΏΡΠΎΠ΅ΠΊΡΠ° ΠΎΡΠ΅Π²ΠΈΠ΄Π½Ρ:
- ΠΊΡΡΠ³Π»ΡΠΉ Π³ΠΎΠ΄, Π² Π»ΡΠ±ΡΡ ΠΏΠΎΠ³ΠΎΠ΄Ρ ΠΌΠΎΠΆΠ½ΠΎ Ρ ΠΎΠ΄ΠΈΡΡ ΠΈΠ· ΠΏΠ°ΡΠΈΠ»ΠΊΠΈ Π² Π΄ΠΎΠΌ, ΠΎΠ΄Π΅Π²ΡΠΈΡΡ Π² Ρ Π°Π»Π°Ρ ΠΈ ΡΠ°ΠΏΠΎΡΠΊΠΈ;
- Π½Π΅ ΠΏΡΠΈΡ ΠΎΠ΄ΠΈΡΡΡ Π±Π΅ΡΠΏΠΎΠΊΠΎΠΈΡΡΡΡ ΠΎ ΡΠΎΠΌ, ΡΡΠΎ ΡΠ°Π·Π³ΠΎΡΡΡΠ΅Π½Π½ΡΠ΅ ΠΏΠΎΡΠ»Π΅ Π±Π°Π½ΠΈ ΡΠ»Π΅Π½Ρ ΡΠ΅ΠΌΡΠΈ, ΠΏΠΎΠΏΠ°Π² Π½Π° ΡΠ»ΠΈΡΡ, ΠΏΠΎΠ΄Ρ Π²Π°ΡΡΡ ΠΏΡΠΎΡΡΡΠ΄Ρ;
- ΠΌΠΎΠΆΠ½ΠΎ ΡΡΠΊΠΎΠ½ΠΎΠΌΠΈΡΡ Π½Π° ΡΡΡΠΎΠΉΠΌΠ°ΡΠ΅ΡΠΈΠ°Π»Π°Ρ , Π²Π΅Π΄Ρ ΠΏΠΎΠΌΠΈΠΌΠΎ ΠΊΡΡΡΠΈ ΠΎΠ±Π° Π·Π΄Π°Π½ΠΈΡ Π·Π°ΡΠ°ΡΡΡΡ ΠΈΠΌΠ΅ΡΡ ΠΎΠ±ΡΡΡ ΡΡΠ΅Π½Ρ;
- Π½Π°Π»ΠΈΡΠΎ ΡΠΊΠΎΠ½ΠΎΠΌΠΈΡ ΠΈ ΡΠ΅ΡΡΠΈΡΠΎΡΠΈΠΈ Π΄Π°ΡΠ½ΠΎΠ³ΠΎ ΡΡΠ°ΡΡΠΊΠ°: Π² ΡΠΎΠΌ ΠΌΠ΅ΡΡΠ΅, Π³Π΄Π΅ ΠΏΠ»Π°Π½ΠΈΡΠΎΠ²Π°Π»ΠΎΡΡ Π²ΠΎΠ·Π²Π΅Π΄Π΅Π½ΠΈΠ΅ Π±Π°Π½ΠΈ, ΡΠ΄Π°ΡΡΡΡ ΠΏΠΎΡΡΠ°Π²ΠΈΡΡ Π³Π°ΡΠ°ΠΆ ΠΈΠ»ΠΈ ΡΠ°ΡΠ°ΠΉ.
ΠΡΠΈ ΡΡΠΎΠΌ Π½Π΅Π»ΡΠ·Ρ Π·Π°Π±ΡΠ²Π°ΡΡ ΠΈ ΠΎ Π½Π΅Π΄ΠΎΡΡΠ°ΡΠΊΠ°Ρ , ΠΊΠΎΡΠΎΡΡΠΉ ΠΈΠΌΠ΅Π΅Ρ ΠΏΡΠΎΠ΅ΠΊΡ Π΄ΠΎΠΌΠ° ΠΈ Π±Π°Π½ΠΈ ΠΏΠΎΠ΄ ΠΎΠ±ΡΠ΅ΠΉ ΠΊΡΠΎΠ²Π»Π΅ΠΉ:
- ΡΠ°ΠΊΠΎΠ΅ ΡΡΡΠΎΠ΅Π½ΠΈΠ΅, ΠΎΡΠΎΠ±Π΅Π½Π½ΠΎΠ΅ Π²ΠΎΠ·Π²Π΅Π΄Π΅Π½Π½ΠΎΠ΅ ΠΈΠ· Π΄Π΅ΡΠ΅Π²Π°, ΠΈΠΌΠ΅Π΅Ρ Π²ΡΡΠΎΠΊΡΡ ΡΡΠ΅ΠΏΠ΅Π½Ρ ΠΏΠΎΠΆΠ°ΡΠΎΠΎΠΏΠ°ΡΠ½ΠΎΡΡΠΈ;
- ΠΏΠΎ ΡΠΎΠΉ ΠΆΠ΅ ΠΏΡΠΈΡΠΈΠ½Π΅ Π²ΡΡΠ΄ Π»ΠΈ ΡΠ΄Π°ΡΡΡΡ Π·Π°ΡΡΡΠ°Ρ ΠΎΠ²Π°ΡΡ ΠΏΠΎΡΡΡΠΎΠΉΠΊΡ. ΠΠ½ΠΎΠ³ΠΈΠ΅ ΠΊΠΎΠΌΠΏΠ°Π½ΠΈΠΈ Π½Π΅ ΠΆΠ΅Π»Π°ΡΡ Π²ΡΠ΄Π°Π²Π°ΡΡ ΠΏΠΎΠ»ΠΈΡ, Π²Π΅Π΄Ρ ΡΠΈΡΠΊ ΠΏΠΎΡΡΠΈ ΠΈΠ»ΠΈ ΡΠ½ΠΈΡΡΠΎΠΆΠ΅Π½ΠΈΡ Π½Π΅Π΄Π²ΠΈΠΆΠΈΠΌΠΎΡΡΠΈ ΠΎΠ³Π½Π΅ΠΌ ΡΠ»ΠΈΡΠΊΠΎΠΌ Π²Π΅Π»ΠΈΠΊ;
- Π½Π΅ΠΊΠΎΡΠΎΡΡΠ΅ ΡΠ»ΡΠΆΠ±Ρ ΠΌΠΎΠ³ΡΡ ΠΎΡΠΊΠ°Π·Π°ΡΡ Π² ΠΏΠΎΠ΄ΠΊΠ»ΡΡΠ΅Π½ΠΈΠΈ ΠΊΠΎΠΌΠΌΡΠ½ΠΈΠΊΠ°ΡΠΈΠΉ β ΡΠ°ΡΠ΅ Π²ΡΠ΅Π³ΠΎ ΡΡΠΎ ΠΏΡΠΎΠΈΡΡ ΠΎΠ΄ΠΈΡ, ΠΊΠΎΠ³Π΄Π° ΠΏΡΠΈ ΡΡΡΠΎΠΈΡΠ΅Π»ΡΡΡΠ²Π΅ Π½Π΅ Π±ΡΠ»ΠΈ ΡΠΎΠ±Π»ΡΠ΄Π΅Π½Ρ ΠΎΠΏΡΠ΅Π΄Π΅Π»Π΅Π½Π½ΡΠ΅ ΡΡΠ΅Π±ΠΎΠ²Π°Π½ΠΈΡ;
- ΡΠ°Π·Π»ΠΈΡΠ½ΡΠ΅ ΠΈΠ½ΡΡΠ°Π½ΡΠΈΠΈ, Π½Π°ΠΏΡΠΈΠΌΠ΅Ρ, ΠΠ’Π, ΠΌΠΎΠ³ΡΡ Π½Π΅ ΠΏΠΎΠ΄ΠΏΠΈΡΠ°ΡΡ Π½ΡΠΆΠ½ΡΠ΅ Π±ΡΠΌΠ°Π³ΠΈ ΠΈΠ·-Π·Π° Π½Π°ΡΡΡΠ΅Π½ΠΈΡ Π½ΠΎΡΠΌ.
ΠΠ½ΠΈΠΌΠ°Π½ΠΈΠ΅! Π‘ΠΠΈΠ Π³Π»Π°ΡΠΈΡ, ΡΡΠΎ ΡΠ°ΡΡΡΠΎΡΠ½ΠΈΠ΅ ΠΎΡ Π΄Π°ΡΠ½ΠΎΠ³ΠΎ Π΄ΠΎΠΌΠ° Π΄ΠΎ Π΄ΡΡΠ°, Π±Π°Π½ΠΈ ΠΈΠ»ΠΈ ΡΠ°ΡΠ½Ρ Π΄ΠΎΠ»ΠΆΠ½ΠΎ Π±ΡΡΡ ΠΌΠΈΠ½ΠΈΠΌΡΠΌ 8 ΠΌ.
ΠΠ°Π½Ρ ΠΈ Π΄ΠΎΠΌ Ρ ΠΎΠ±ΡΠ΅ΠΉ ΠΊΡΡΡΠ΅ΠΉ β ΠΏΠΎΠΆΠ°Π»ΡΠΉ, ΠΎΠ΄ΠΈΠ½ ΠΈΠ· Π½Π°ΠΈΠ±ΠΎΠ»Π΅Π΅ ΡΠΏΠΎΡΠ½ΡΡ ΠΏΡΠΎΠ΅ΠΊΡΠΎΠ², ΠΎ ΡΠ΅ΠΌ Π³ΠΎΠ²ΠΎΡΡΡ ΠΈ ΠΎΡΠ·ΡΠ²Ρ:
- ΡΠ»ΠΈΡΠΊΠΎΠΌ ΡΠΆ ΡΠ°Π·Π½ΡΠ΅ Ρ Π°ΡΠ°ΠΊΡΠ΅ΡΠΈΡΡΠΈΠΊΠΈ ΡΠ΅ΠΌΠΏΠ΅ΡΠ°ΡΡΡ ΠΈ Π²Π»Π°ΠΆΠ½ΠΎΡΡΠΈ ΠΈΠΌΠ΅ΡΡ Π΄ΠΎΠΌ ΠΈ Π±Π°Π½Ρ, ΠΏΠΎΡΡΠΎΠΌΡ ΠΈΡ ΡΠΎΡΠ΅ΡΠ°Π½ΠΈΠ΅ Π² ΠΎΠ΄Π½ΠΎΠΌ ΠΏΡΠΎΠ΅ΠΊΡΠ΅ Π½Π΅ΡΠ΅Π»Π΅ΡΠΎΠΎΠ±ΡΠ°Π·Π½ΠΎ;
- Π΅ΡΠ»ΠΈ Π²Π·ΡΡΡ Π·Π° ΠΏΡΠ°Π²ΠΈΠ»ΠΎ Π½Π΅ Π²ΡΡ ΠΎΠ΄ΠΈΡΡ ΠΈΠ· Π±Π°Π½ΠΈ ΡΡΠ°Π·Ρ ΠΏΠΎΡΠ»Π΅ Π·Π°Π²Π΅ΡΡΠ΅Π½ΠΈΡ ΠΏΡΠΎΡΠ΅Π΄ΡΡ, ΡΠΎ ΠΌΠΎΠΆΠ½ΠΎ ΠΏΠΎΡΠ΅ΡΠ°ΡΡ Π΅Π΅ Π±Π΅Π· ΠΏΡΠΎΠ±Π»Π΅ΠΌ Π΄Π°ΠΆΠ΅ Π·ΠΈΠΌΠΎΠΉ. ΠΡΠΈ ΡΡΠΎΠΌ Π»ΡΡΡΠ΅ ΠΎΠ±Π° Π·Π΄Π°Π½ΠΈΡ ΠΏΠΎΡΡΡΠΎΠΈΡΡ ΠΎΡΠ΄Π΅Π»ΡΠ½ΠΎ;
- ΠΏΡΠΈ Π½Π΅Π΄ΠΎΡΡΠ°ΡΠΎΡΠ½ΠΎΠΉ Π·Π²ΡΠΊΠΎΠΈΠ·ΠΎΠ»ΡΡΠΈΠΈ Π³ΡΠΎΠΌΠΊΠΈΠ΅ Β«Π±Π°Π½Π½ΡΠ΅ ΠΏΠΎΡΠΈΠ΄Π΅Π»ΠΊΠΈΒ» ΠΌΠΎΠ³ΡΡ Π΄ΠΎΡΡΠ°Π²Π»ΡΡΡ Π½Π΅ΡΠ΄ΠΎΠ±ΡΡΠ²Π° ΡΠ»Π΅Π½Π°ΠΌ ΡΠ΅ΠΌΡΠΈ, Π½Π°Ρ ΠΎΠ΄ΡΡΠΈΠΌΡΡ Π² Π΄ΠΎΠΌΠ΅;
- Π² Π»Π΅ΡΠ½ΠΈΠΉ Π·Π½ΠΎΠΉ ΡΠΎΠΏΠΊΠ° Π±Π°Π½Π½ΠΎΠΉ ΠΏΠ΅ΡΠΈ β Π½Π΅ ΡΠ°ΠΌΠ°Ρ ΠΏΡΠΈΡΡΠ½Π°Ρ ΠΏΡΠΎΡΠ΅Π΄ΡΡΠ°;
- ΠΎΡΠ΅Π½Ρ ΡΠ΄ΠΎΠ±Π΅Π½ ΠΏΡΠΎΠ΅ΠΊΡ, Π³Π΄Π΅ Π²Ρ ΠΎΠ΄ Π² Π±Π°Π½Ρ ΡΠ΄Π΅Π»Π°Π½ ΠΈΠ· ΠΏΡΠΈΡ ΠΎΠΆΠ΅ΠΉ, ΠΏΠ°ΡΠ°Π»Π»Π΅Π»ΡΠ½ΠΎ ΡΠΎ Π²Ρ ΠΎΠ΄ΠΎΠΌ Π² ΡΠ°ΠΌ Π΄ΠΎΠΌ;
- Π² ΠΏΠ»Π°Π½Π΅ ΡΠΈΡΠΊΠ° Π²ΠΎΠ·Π½ΠΈΠΊΠ½ΠΎΠ²Π΅Π½ΠΈΡ ΠΏΠΎΠΆΠ°ΡΠ° ΡΠΎΠ²ΠΌΠ΅ΡΠ΅Π½Π½ΡΠΉ ΠΏΡΠΎΠ΅ΠΊΡ Π½Π΅ ΠΎΠΏΠ°ΡΠ½Π΅Π΅, ΡΠ΅ΠΌ Π΄Π°ΡΠ° Ρ ΠΏΠ΅ΡΠ½ΡΠΌ ΠΎΡΠΎΠΏΠ»Π΅Π½ΠΈΠ΅ΠΌ;
- Π±Π°Π½Ρ, ΠΏΡΠΈΡΡΡΠΎΠ΅Π½Π½Π°Ρ ΠΊ Π΄ΠΎΠΌΡ β Ρ ΠΎΡΠΎΡΠ΅Π΅ ΡΠ΅ΡΠ΅Π½ΠΈΡ Π΄Π»Ρ ΡΠ΅ΠΌΡΠΈ Π² ΠΊΠΎΡΠΎΡΠΎΠΉ Π΅ΡΡΡ ΠΏΠΎΠΆΠΈΠ»ΡΠ΅ Π»ΡΠ΄ΠΈ ΠΈΠ»ΠΈ Π΄Π΅ΡΠΈ.

ΠΠΎΠΌ ΠΈΠ· ΡΡΡΠ±Π° Ρ Π±Π°Π½Π΅ΠΉ
Π Π΅ΡΠΈΠ²ΡΠΈΡΡ Π½Π° ΡΠ°Π·ΡΠ°Π±ΠΎΡΠΊΡ ΠΈ Π΄Π°Π»ΡΠ½Π΅ΠΉΡΠ΅Π΅ Π²ΠΎΠΏΠ»ΠΎΡΠ΅Π½ΠΈΠ΅ ΠΏΡΠΎΠ΅ΠΊΡΠ° Π΄Π°ΡΠ½ΠΎΠ³ΠΎ Π΄ΠΎΠΌΠΈΠΊΠ° Ρ Π±Π°Π½Π΅ΠΉ, Π½ΡΠΆΠ½ΠΎ ΠΏΠΎΠΌΠ½ΠΈΡΡ ΠΎ Π½Π΅ΠΊΠΎΡΠΎΡΡΡ Π²Π°ΠΆΠ½ΡΡ Π½ΡΠ°Π½ΡΠ°Ρ :
- ΠΡΠΈ ΠΈΡΠΏΠΎΠ»ΡΠ·ΠΎΠ²Π°Π½ΠΈΠΈ Π² ΡΡΡΠΎΠΈΡΠ΅Π»ΡΡΡΠ²Π΅ Π΄Π΅ΡΠ΅Π²Π° ΠΎΡΠ΅Π½Ρ ΡΠ°ΡΡΠΎ Π½Π΅ΠΈΠ·Π±Π΅ΠΆΠ½Ρ ΠΏΡΠΎΠ±Π»Π΅ΠΌΡ Ρ ΡΡΡΠΎΡΡΡΡ, ΠΎΡ ΠΊΠΎΡΠΎΡΠΎΠΉ Π²ΡΡ ΠΊΠΎΠ½ΡΡΡΡΠΊΡΠΈΡ ΡΠΊΠΎΡΠ΅Π΅ ΠΏΡΠΈΠ΄Π΅Ρ Π² Π½Π΅Π³ΠΎΠ΄Π½ΠΎΡΡΡ.
- ΠΠΎΠ»ΡΡΠΈΠ΅ ΡΠ°Π·ΠΌΠ΅ΡΡ ΠΏΠΎΠΌΠ΅ΡΠ΅Π½ΠΈΠΉ, ΡΠ²Π΅Π»ΠΈΡΠ΅Π½Π½ΡΠ΅ Π·Π° ΡΡΠ΅Ρ ΠΏΠ°ΡΠ½ΠΎΠΉ ΠΊΠΎΠΌΠ½Π°ΡΡ, ΠΏΠΎΠ²Π»Π΅ΠΊΡΡ Π΄ΠΎΠΏΠΎΠ»Π½ΠΈΡΠ΅Π»ΡΠ½ΡΠ΅ ΡΠ°ΡΡ ΠΎΠ΄Ρ Π½Π° ΠΎΡΠΎΠΏΠ»Π΅Π½ΠΈΠ΅.
- ΠΡΠΆΠ½ΠΎ ΠΏΡΠΎΠ΄ΡΠΌΠ°ΡΡ ΠΎΠ±ΡΡΡΡΠΎΠΉΡΡΠ²ΠΎ ΡΠΈΡΡΠ΅ΠΌΡ ΠΊΠ°Π½Π°Π»ΠΈΠ·Π°ΡΠΈΠΈ: ΠΎΠ±ΡΠΈΠΉ ΡΠ»ΠΈΠ² ΠΈ Π΄Π»Ρ Π±Π°Π½ΠΈ, ΠΈ Π΄Π»Ρ Π΄ΠΎΠΌΠ° Π½Π΅ ΡΠ΅ΠΊΠΎΠΌΠ΅Π½Π΄ΡΠ΅ΡΡΡ ΠΈΠ·-Π·Π° ΡΡΠ΅Π·ΠΌΠ΅ΡΠ½ΠΎΠΉ Π½Π°Π³ΡΡΠ·ΠΊΠΈ Π½Π° ΡΡΡΠ±Ρ.
- ΠΠ»Ρ Π±Π°Π½Π½ΠΎΠ³ΠΎ ΠΏΠΎΠΌΠ΅ΡΠ΅Π½ΠΈΡ Π½ΡΠΆΠ΅Π½ ΠΎΡΠ΄Π΅Π»ΡΠ½ΡΠΉ Π΄ΡΠΌΠΎΡ ΠΎΠ΄, Π° ΡΡΠΎ Π΅ΡΠ΅ ΠΎΠ΄Π½ΠΎ ΠΎΡΠ²Π΅ΡΡΡΠΈΠ΅ Π² ΠΎΠ±ΡΠ΅ΠΉ ΠΊΡΡΡΠ΅.
- ΠΠΎΠ΅ΡΠ½Π°Ρ ΠΊΠΎΠΌΠ½Π°ΡΠ° Π΄ΠΎΠ»ΠΆΠ½Π° ΠΈΠΌΠ΅ΡΡ ΠΏΠΎΠ» Ρ ΠΏΡΠΎΡΠ΅ΠΊΠ°ΡΡΠ΅ΠΉ ΠΊΠΎΠ½ΡΡΡΡΠΊΡΠΈΠ΅ΠΉ (ΡΠΏΠ΅ΡΠΈΠ°Π»ΡΠ½ΡΠΌΠΈ ΡΠ΅Π»ΡΠΌΠΈ Π΄Π»Ρ ΡΠ»ΠΈΠ²Π° Π²ΠΎΠ΄Ρ) ΠΈΠ»ΠΈ Π±ΡΡΡ Π²ΡΠ»ΠΎΠΆΠ΅Π½Π° ΠΏΠ»ΠΈΡΠΊΠΎΠΉ. Π ΠΈΠ½ΠΎΠΌ ΡΠ»ΡΡΠ°Π΅ Π΅Π΅ Π½Π΅Π²ΠΎΠ·ΠΌΠΎΠΆΠ½ΠΎ Π±ΡΠ΄Π΅Ρ Ρ ΠΎΡΠΎΡΠΎ Π²ΡΡΡΡΠΈΡΡ.
- ΠΠΎΠ±ΡΠΎΡΠ½Π°Ρ Π²Π΅Π½ΡΠΈΠ»ΡΡΠΈΡ ΠΈ Ρ ΠΎΡΠΎΡΠ΅Π΅ ΠΏΡΠΎΠ²Π΅ΡΡΠΈΠ²Π°Π½ΠΈΠ΅ Π² Π±Π°Π½Π΅ ΠΎΠ±ΡΠ·Π°ΡΠ΅Π»ΡΠ½Ρ! ΠΡΠ»ΠΈ ΠΏΡΠ΅Π½Π΅Π±ΡΠ΅ΡΡ ΡΡΠΈΠΌ, Π² Π΄ΠΎΠΌΠ΅ ΠΌΠΎΠΆΠ΅Ρ ΠΏΠΎΡΠ΅Π»ΠΈΡΡΡΡ Π·Π°ΠΏΠ°Ρ ΡΡΡΠΎΡΡΠΈ. ΠΡΠ²Π΅ΡΡΠΈ Π΅Π³ΠΎ ΠΎΡΠ΅Π½Ρ ΡΡΡΠ΄Π½ΠΎ.
- ΠΠ»Π°Π½ΠΈΡΡΡ ΡΡΡΠ°Π½ΠΎΠ²ΠΊΡ Π² Π±Π°Π½Π½ΠΎΠΌ ΠΏΠΎΠΌΠ΅ΡΠ΅Π½ΠΈΠΈ ΠΏΠ΅ΡΠΊΠΈ, ΠΊΠΎΡΠΎΡΠ°Ρ ΡΠΎΠΏΠΈΡΡΡ Π΄ΡΠΎΠ²Π°ΠΌΠΈ, ΡΠ»Π΅Π΄ΡΠ΅Ρ ΠΎΠ±Π΅ΡΠΏΠ΅ΡΠΈΡΡ Ρ ΠΎΡΠΎΡΡΡ ΡΡΠ³Ρ, ΡΡΠΎΠ±Ρ ΡΠ°ΠΆΠ° Π½Π΅ ΠΎΡΠ΅Π΄Π°Π»Π° Π½Π° ΠΏΠΎΡΠΎΠ»ΠΊΠ°Ρ Π² ΠΆΠΈΠ»ΡΡ ΠΊΠΎΠΌΠ½Π°ΡΠ°Ρ .
Π‘ΠΎΠ²Π΅Ρ. ΠΡΠΎΠΊΠ»Π°Π΄ΠΊΡ ΡΠ»Π΅ΠΊΡΡΠΈΡΠ΅ΡΠΊΠΎΠΉ ΠΏΡΠΎΠ²ΠΎΠ΄ΠΊΠΈ ΡΡΠΎΠΈΡ Π΄ΠΎΠ²Π΅ΡΠΈΡΡ ΠΏΡΠΎΡΠ΅ΡΡΠΈΠΎΠ½Π°Π»Π°ΠΌ, ΡΡΠΎΠ±Ρ Π½Π΅ ΡΠΎΠ·Π΄Π°Π²Π°ΡΡ Π΄ΠΎΠΏΠΎΠ»Π½ΠΈΡΠ΅Π»ΡΠ½ΡΠΉ ΡΠΈΡΠΊ Π²ΠΎΠ·Π³ΠΎΡΠ°Π½ΠΈΡ ΠΊΠΎΠ½ΡΡΡΡΠΊΡΠΈΠΈ.
ΠΡΠΎΠ΅ΠΊΡΡ Π΄Π°ΡΠ½ΡΡ Π΄ΠΎΠΌΠΎΠ² Ρ ΠΌΠ°Π½ΡΠ°ΡΠ΄ΠΎΠΉ ΠΈ Π²Π΅ΡΠ°Π½Π΄ΠΎΠΉ: ΠΎΡΠΎΠ±Π΅Π½Π½ΠΎΡΡΠΈ
Π§Π°ΡΠ΅ Π²ΡΠ΅Π³ΠΎ ΠΊΠΎΡΡΠ΅Π΄ΠΆΠΈ Ρ Π²Π΅ΡΠ°Π½Π΄ΠΎΠΉ ΠΈΠ»ΠΈ ΠΌΠ°Π½ΡΠ°ΡΠ΄ΠΎΠΉ ΠΈΠΌΠ΅ΡΡ ΡΠ°Π·ΠΌΠ΅ΡΡ 6Ρ 8. ΠΠ»ΠΎΡΠ°Π΄Ρ ΡΠ°ΠΊΠΎΠΉ ΠΏΠΎΡΡΡΠΎΠΉΠΊΠΈ ΠΊΠΎΠ»Π΅Π±Π»Π΅ΡΡΡ, ΠΊΠ°ΠΊ ΠΏΡΠ°Π²ΠΈΠ»ΠΎ, ΠΎΡ 60 Π΄ΠΎ 75 ΠΊΠ². ΠΌ. ΠΠ° ΠΏΠ΅ΡΠ²ΠΎΠΌ ΡΡΠ°ΠΆΠ΅ ΠΎΠ±ΡΡΠ½ΠΎ ΡΠ°ΡΠΏΠΎΠ»Π°Π³Π°ΡΡ ΠΊΡΡ Π½Ρ, Π²Π°Π½Π½ΡΡ Ρ ΡΡΠ°Π»Π΅ΡΠΎΠΌ, Π³ΠΎΡΡΠΈΠ½ΡΡ, Π° ΡΠ°ΠΊΠΆΠ΅ ΡΠ°ΠΌΡ Π²Π΅ΡΠ°Π½Π΄Ρ. Π Π·Π°Π²ΠΈΡΠΈΠΌΠΎΡΡΠΈ ΠΎΡ ΡΠ°Π·ΡΠ°Π±ΠΎΡΠ°Π½Π½ΠΎΠ³ΠΎ ΠΏΡΠΎΠ΅ΠΊΡΠ° ΠΎΠ½Π° ΠΌΠΎΠΆΠ΅Ρ Π±ΡΡΡ ΠΏΡΠΎΡΡΠΎΡΠ½ΠΎΠΉ ΠΈΠ»ΠΈ ΠΌΠ°Π»Π΅Π½ΡΠΊΠΎΠΉ, Π½ΠΎ ΠΎΡ ΡΡΠΎΠ³ΠΎ Π½Π΅ ΠΌΠ΅Π½Π΅Π΅ ΠΊΠΎΠΌΡΠΎΡΡΠ½ΠΎΠΉ. ΠΠ΅ΡΠ°Π½Π΄Π° β ΡΡΠΎ ΠΎΡΠΎΠ±ΠΎΠ΅ ΠΌΠ΅ΡΡΠΎ Π² Π΄ΠΎΠΌΠ΅, Π³Π΄Π΅ Ρ ΠΎΡΠΎΡΠΎ ΠΎΡΠ΄ΠΎΡ Π½ΡΡΡ ΠΏΠΎΡΠ»Π΅ Π½Π°ΠΏΡΡΠΆΠ΅Π½Π½ΠΎΠ³ΠΎ Π΄Π½Ρ, ΠΏΠΎΡΠ°Π΅Π²Π½ΠΈΡΠ°ΡΡ ΠΈ ΠΏΠΎΠ±Π΅ΡΠ΅Π΄ΠΎΠ²Π°ΡΡ, ΠΏΠΎΡΡΠΎΠΌΡ ΠΏΠΎΠ΄ΠΎΠ±Π½ΡΠ΅ ΠΏΡΠΎΠ΅ΠΊΡΡ Π΄ΠΎΡΡΠ°ΡΠΎΡΠ½ΠΎ ΠΏΠΎΠΏΡΠ»ΡΡΠ½Ρ.

ΠΠ°ΡΠ½ΡΠΉ Π΄ΠΎΠΌ Ρ ΠΌΠ°Π½ΡΠ°ΡΠ΄ΠΎΠΉ ΠΈ Π²Π΅ΡΠ°Π½Π΄ΠΎΠΉ
ΠΠ΅ ΠΌΠ΅Π½Π΅Π΅ ΡΠ°ΡΠΏΡΠΎΡΡΡΠ°Π½Π΅Π½ΠΎ ΡΡΡΠΎΠΈΡΠ΅Π»ΡΡΡΠ²ΠΎ Π΄Π°ΡΠ½ΡΡ Π΄ΠΎΠΌΠΈΠΊΠΎΠ², Π΄ΠΎΠΏΠΎΠ»Π½Π΅Π½Π½ΡΡ Π½Π΅ ΡΠΎΠ»ΡΠΊΠΎ Π²Π΅ΡΠ°Π½Π΄ΠΎΠΉ, Π½ΠΎ ΠΈ ΠΌΠ°Π½ΡΠ°ΡΠ΄ΠΎΠΉ. ΠΡΠΎ ΠΎΡΠ»ΠΈΡΠ½Π°Ρ Π²ΠΎΠ·ΠΌΠΎΠΆΠ½ΠΎΡΡΡ ΠΈΡΠΏΠΎΠ»ΡΠ·ΠΎΠ²Π°ΡΡ ΡΠ΅ΡΠ΄Π°ΡΠ½ΠΎΠ΅ ΠΏΠΎΠΌΠ΅ΡΠ΅Π½ΠΈΠ΅ Π² ΠΊΠ°ΡΠ΅ΡΡΠ²Π΅ Π²ΡΠΎΡΠΎΠ³ΠΎ ΡΡΠ°ΠΆΠ° Π² Π΄Π°ΡΠ½ΠΎΠΌ Π΄ΠΎΠΌΠ΅ 6Ρ 8.Β ΠΠ΄Π΅ΡΡ ΡΠΌΠ΅ΡΡΠ½ΠΎ ΡΠ°Π·ΠΌΠ΅ΡΡΠΈΡΡ ΡΠΏΠ°Π»ΡΠ½Ρ ΠΈΠ»ΠΈ ΠΏΠ΅ΡΡΠΎΠ½Π°Π»ΡΠ½ΡΠΉ ΠΊΠ°Π±ΠΈΠ½Π΅Ρ. Π‘ΡΡΠΎΠΈΡΠ΅Π»ΡΡΡΠ²ΠΎ ΠΌΠ°Π½ΡΠ°ΡΠ΄Ρ ΠΈΠΌΠ΅Π΅Ρ ΡΠ»Π΅Π΄ΡΡΡΠΈΠ΅ ΠΏΡΠ΅ΠΈΠΌΡΡΠ΅ΡΡΠ²Π°:
- ΡΠ²Π΅Π»ΠΈΡΠ΅Π½ΠΈΠ΅ ΠΏΠΎΠ»Π΅Π·Π½ΠΎΠΉ ΠΆΠΈΠ»ΠΏΠ»ΠΎΡΠ°Π΄ΠΈ;
- Π²ΡΠ³ΠΎΠ΄Π½ΠΎΠ΅ ΠΊΠ°ΠΏΠΈΡΠ°Π»ΠΎΠ²Π»ΠΎΠΆΠ΅Π½ΠΈΠ΅ β ΠΏΠΎΠ»Π½ΠΎΡΠ΅Π½Π½ΡΠΉ 2-ΠΉ ΡΡΠ°ΠΆ ΠΎΠ±Ρ ΠΎΠ΄ΠΈΡΡΡ Π³ΠΎΡΠ°Π·Π΄ΠΎ Π΄ΠΎΡΠΎΠΆΠ΅;
- ΠΏΡΠΈΠ²Π»Π΅ΠΊΠ°ΡΠ΅Π»ΡΠ½ΡΠΉ Π²Π½Π΅ΡΠ½ΠΈΠΉ Π²ΠΈΠ΄ Π΄ΠΎΠΌΠ°;
- ΡΠΎΠΊΡΠ°ΡΠ΅Π½ΠΈΠ΅ ΠΏΠΎΡΠ΅ΡΡ ΡΠ΅ΠΏΠ»Π° Π² ΠΎΡΠ΅Π½Π½Π΅-Π·ΠΈΠΌΠ½ΠΈΠΉ ΠΏΠ΅ΡΠΈΠΎΠ΄.
Π‘ΠΎΠ²Π΅Ρ. ΠΠ°ΡΠ½ΡΠΉ Π΄ΠΎΠΌ Ρ ΠΌΠ°Π½ΡΠ°ΡΠ΄ΠΎΠΉ ΠΈ Π²Π΅ΡΠ°Π½Π΄ΠΎΠΉ ΠΌΠΎΠΆΠ΅Ρ Π±ΡΡΡ Π²ΠΎΠ·Π²Π΅Π΄Π΅Π½ ΠΈΠ· Π±ΡΡΡΠ°, Π±ΡΠ΅Π²Π΅Π½, ΠΊΠΈΡΠΏΠΈΡΠ°, ΠΊΠ°ΡΠΊΠ°ΡΠ½ΠΎ-ΡΠΈΡΠΎΠ²ΡΡ ΠΏΠ°Π½Π΅Π»Π΅ΠΉ ΠΈΠ»ΠΈ ΠΏΠ΅Π½ΠΎΠ±Π»ΠΎΠΊΠΎΠ². ΠΠ°ΠΆΠ΄ΡΠΉ ΠΈΠ· ΡΡΠΈΡ ΠΌΠ°ΡΠ΅ΡΠΈΠ°Π»ΠΎΠ² ΠΈΠΌΠ΅Π΅Ρ ΠΏΠ»ΡΡΡ ΠΈ ΠΌΠΈΠ½ΡΡΡ, Π° ΡΠ°ΠΊΠΆΠ΅ ΠΎΡΠΎΠ±Π΅Π½Π½ΠΎΡΡΠΈ, ΠΊΠΎΡΠΎΡΡΠ΅ Π½ΡΠΆΠ½ΠΎ ΡΡΠΈΡΡΠ²Π°ΡΡ, ΠΏΡΠΈΡΡΡΠΏΠ°Ρ ΠΊ ΡΡΡΠΎΠΉΠΊΠ΅.
ΠΠ° Π²ΡΠ±ΠΎΡ ΠΌΠ°ΡΠ΅ΡΠΈΠ°Π»Π° Π·Π°ΡΠ°ΡΡΡΡ Π²Π»ΠΈΡΡΡ Π½Π΅ ΡΠΎΠ»ΡΠΊΠΎ ΡΠ΅Π½Π°, Π½ΠΎ ΠΈ ΡΠΊΠΎΡΠΎΡΡΡ Π²ΠΎΠ·Π²Π΅Π΄Π΅Π½ΠΈΡ Π·Π΄Π°Π½ΠΈΡ, Π° ΡΠ°ΠΊΠΆΠ΅ Π²ΠΎΠ·ΠΌΠΎΠΆΠ½ΠΎΡΡΡ Π±ΡΡΡΡΠΎΠ³ΠΎ Π·Π°ΡΠ΅Π»Π΅Π½ΠΈΡ. ΠΠ½ΠΎΠ³Π΄Π° Π²ΠΎΠ·ΠΌΠΎΠΆΠ½ΠΎ ΠΊΠΎΠΌΠ±ΠΈΠ½ΠΈΡΠΎΠ²Π°Π½ΠΈΠ΅: Π½Π°ΠΏΡΠΈΠΌΠ΅Ρ, ΠΏΠ΅ΡΠ²ΡΠΉ ΡΡΠ°ΠΆ ΡΡΡΠΎΡΡ ΠΈΠ· Π±ΡΡΡΡΠ΅Π², Π° Π²ΡΠΎΡΠΎΠΉ, Ρ ΠΌΠ°Π½ΡΠ°ΡΠ΄ΠΎΠΉ, Π΄Π΅Π»Π°ΡΡ ΠΊΠ°ΡΠΊΠ°ΡΠ½ΡΠΌ. ΠΡΡ ΡΡΠΎ ΠΎΠ³ΠΎΠ²Π°ΡΠΈΠ²Π°Π΅ΡΡΡ Π½Π° ΡΡΠ°Π΄ΠΈΠΈ ΠΏΡΠΎΠ΅ΠΊΡΠΈΡΠΎΠ²Π°Π½ΠΈΡ.
Π‘ΡΡΠΎΠΈΡΠ΅Π»ΡΡΡΠ²ΠΎ ΠΊΠ°ΡΠΊΠ°ΡΠ½ΠΎΠ³ΠΎ Π΄ΠΎΠΌΠ° Π΄Π»Ρ Π΄Π°ΡΠΈ: Π²ΠΈΠ΄Π΅ΠΎ
ΠΠ°ΡΠ½ΡΠΉ Π΄ΠΎΠΌ: ΡΠΎΡΠΎ
inter-er.ru
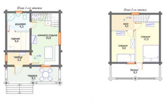
ΠΎΡΠΎΠ±Π΅Π½Π½ΠΎΡΡΠΈ ΠΎΠ΄Π½ΠΎΡΡΠ°ΠΆΠ½ΡΡ Π΄Π°ΡΠ½ΡΡ Π΄ΠΎΠΌΠΎΠ² Ρ Π²Π΅ΡΠ°Π½Π΄Π°ΠΌΠΈ, ΠΏΡΠΎΠ΅ΠΊΡΡ, ΡΠΎΡΠΎ ΠΈ Π²ΠΈΠ΄Π΅ΠΎ
ΠΠ»Π°Π³ΠΎΡΡΡΡΠΎΠΉΡΡΠ²ΠΎ Π΄Π°ΡΠ½ΠΎΠ³ΠΎ ΡΡΠ°ΡΡΠΊΠ° ΡΠ²Π»ΡΠ΅ΡΡΡ Π΄ΠΎΠ²ΠΎΠ»ΡΠ½ΠΎ ΠΎΡΠ²Π΅ΡΡΡΠ²Π΅Π½Π½ΡΠΌ ΠΏΡΠΎΡΠ΅ΡΡΠΎΠΌ, ΠΊΠΎΡΠΎΡΡΠΉ Π½Π΅ ΡΠΎΠ»ΡΠΊΠΎ ΠΏΡΠ΅Π΄ΠΏΠΎΠ»Π°Π³Π°Π΅Ρ ΡΠ°Π·ΠΌΠ΅ΡΠ΅Π½ΠΈΠ΅ Π½Π° ΠΎΠ±ΡΠ΅ΠΊΡΠ΅ ΡΡΡΠΎΠ΅Π½ΠΈΠΉ, Π½ΠΎ ΠΈ ΠΏΡΠ°Π²ΠΈΠ»ΡΠ½ΡΠΉ ΠΏΠΎΠ΄Π±ΠΎΡ ΠΈΡ ΠΊΠΎΠ½ΡΡΡΡΠΊΡΠΈΠΈ. ΠΡΠΎΠ±Π΅Π½Π½ΠΎ ΡΡΠΎ Π²Π°ΠΆΠ½ΠΎ Π΄Π»Ρ ΠΎΡΠ³Π°Π½ΠΈΠ·Π°ΡΠΈΠΈ ΠΊΠΎΠΌΡΠΎΡΡΠ° ΠΈ ΡΡΡΠ°, ΠΏΠΎΡΠΊΠΎΠ»ΡΠΊΡ ΠΈΠΌΠ΅Π½Π½ΠΎ ΡΡΠΈ ΠΊΡΠΈΡΠ΅ΡΠΈΠΈ ΠΎΠ±ΡΡΠ½ΠΎ Π²ΡΠ΄Π²ΠΈΠ³Π°ΡΡΡΡ Π½Π° ΠΏΠ΅ΡΠ²ΠΎΠ΅ ΠΌΠ΅ΡΡΠΎ Π² ΠΏΠΎΠ΄ΠΎΠ±Π½ΡΡ ΡΠ»ΡΡΠ°ΡΡ . Π£ΡΠΈΡΡΠ²Π°Ρ ΡΡΠΎ, ΠΏΡΠΎΡΠ΅ΡΡΠΈΠΎΠ½Π°Π»Ρ ΡΠ΅ΠΊΠΎΠΌΠ΅Π½Π΄ΡΡΡ ΠΎΠ±ΡΠ°ΡΠ°ΡΡ Π²Π½ΠΈΠΌΠ°Π½ΠΈΠ΅ Π½Π° ΠΏΡΠΎΠ΅ΠΊΡΡ Π΄Π°ΡΠ½ΡΡ Π΄ΠΎΠΌΠΎΠ² Ρ ΡΠ΅ΡΡΠ°ΡΠΎΠΉ.

ΠΡΠ±ΠΈΡΠ΅Π»ΡΡΠΊΠΎΠ΅ ΡΠΎΡΠΎ ΠΊΠ»Π°ΡΡΠΈΡΠ΅ΡΠΊΠΎΠΉ ΠΊΠΎΠ½ΡΡΡΡΠΊΡΠΈΠΈ ΡΠ΅ΡΡΠ°ΡΡ
ΠΠ°Π·Π½Π°ΡΠ΅Π½ΠΈΠ΅ ΠΈ ΡΠ°Π·Π½ΠΎΠ²ΠΈΠ΄Π½ΠΎΡΡΠΈ
ΠΠ»Ρ Π½Π°ΡΠ°Π»Π° Π½Π΅ΠΎΠ±Ρ ΠΎΠ΄ΠΈΠΌΠΎ ΡΠΊΠ°Π·Π°ΡΡ ΠΎ ΡΠΎΠΌ, ΡΡΠΎ ΡΡΡΠ΅ΡΡΠ²ΡΠ΅Ρ Π½Π΅ΡΠΊΠΎΠ»ΡΠΊΠΎ Π²Π°ΡΠΈΠ°Π½ΡΠΎΠ² ΡΠΎΠ·Π΄Π°Π½ΠΈΡ ΠΏΠΎΠ΄ΠΎΠ±Π½ΡΡ ΠΊΠΎΠ½ΡΡΡΡΠΊΡΠΈΠΉ. ΠΡΠΈ ΡΡΠΎΠΌ ΠΎΠ½ΠΈ ΠΏΡΠ΅Π΄ΠΏΠΎΠ»Π°Π³Π°ΡΡ ΠΈΡΠΏΠΎΠ»ΡΠ·ΠΎΠ²Π°Π½ΠΈΠ΅ ΡΠ°Π·Π»ΠΈΡΠ½ΡΡ ΠΌΠ°ΡΠ΅ΡΠΈΠ°Π»ΠΎΠ², ΠΈ Π΄Π°ΠΆΠ΅ ΠΏΡΠΈΠΌΠ΅Π½Π΅Π½ΠΈΠ΅ Π΄ΡΡΠ³ΠΈΡ Π΄ΠΎΠΏΠΎΠ»Π½ΠΈΡΠ΅Π»ΡΠ½ΡΡ ΠΏΡΠ΅Π΄ΠΌΠ΅ΡΠΎΠ² ΠΈΠ½ΡΠ΅ΡΡΠ΅ΡΠ°. ΠΠ΄Π½Π°ΠΊΠΎ Π½Π΅ Π²ΡΠ΅ ΠΏΠΎΠ΄ΠΎΠ±Π½ΡΠ΅ ΠΊΠΎΠ½ΡΡΡΡΠΊΡΠΈΠΈ ΠΏΠΎΠ΄Ρ ΠΎΠ΄ΡΡ ΠΏΠΎΠ΄ ΠΏΠΎΠ½ΡΡΠΈΠ΅ ΡΠ΅ΡΡΠ°ΡΡ ΠΈ ΠΌΠΎΠ³ΡΡ ΠΊΠ°ΡΠ΄ΠΈΠ½Π°Π»ΡΠ½ΠΎ ΠΎΡΠ»ΠΈΡΠ°ΡΡΡ Π΄ΡΡΠ³ ΠΎΡ Π΄ΡΡΠ³Π°.

ΠΠ΅ Π²ΡΠ΅Π³Π΄Π° ΠΏΠΎΠ΄ΠΎΠ±Π½ΡΠ΅ ΡΠΈΠΏΡ ΡΡΡΠΎΠ΅Π½ΠΈΠΉ ΠΎΠ±Π»Π°Π΄Π°ΡΡ ΠΊΡΡΡΠ΅ΠΉ, ΠΏΠΎΡΠΊΠΎΠ»ΡΠΊΡ Π½Π΅ΠΊΠΎΡΠΎΡΡΠ΅ Π²Π»Π°Π΄Π΅Π»ΡΡΡ ΠΏΡΠ΅Π΄ΠΏΠΎΡΠΈΡΠ°ΡΡ ΠΏΡΠΎΠ²ΠΎΠ΄ΠΈΡΡ Π²ΡΠ΅ΠΌΡ Π½Π° ΡΠΎΠ»Π½ΡΠ΅
Π Π°Π·Π½ΠΎΠ²ΠΈΠ΄Π½ΠΎΡΡΠΈ
ΠΡΠ΅ΠΆΠ΄Π΅ Π²ΡΠ΅Π³ΠΎ,ΡΠ»Π΅Π΄ΡΠ΅Ρ Π·Π½Π°ΡΡ, ΡΡΠΎ ΡΡΡΠ΅ΡΡΠ²ΡΡΡ ΡΠ΅ΡΡΠ°ΡΡ ΠΈ Π²Π΅ΡΠ°Π½Π΄Ρ. ΠΡΠΈ ΠΊΠΎΠ½ΡΡΡΡΠΊΡΠΈΠΈ Π½Π° ΠΏΠ΅ΡΠ²ΡΠΉ Π²Π·Π³Π»ΡΠ΄ ΠΈΠΌΠ΅ΡΡ ΠΎΠ΄ΠΈΠ½Π°ΠΊΠΎΠ²ΠΎΠ΅ Π½Π°Π·Π½Π°ΡΠ΅Π½ΠΈΠ΅ ΠΈ ΡΠΎΡΠΌΡ, Π½ΠΎ ΠΏΡΠΈ ΡΡΠΎΠΌ ΠΏΡΠΈΠ½ΡΠΈΠΏΠΈΠ°Π»ΡΠ½ΠΎ ΠΎΡΠ»ΠΈΡΠ°ΡΡΡΡ Π΄ΡΡΠ³ ΠΎΡ Π΄ΡΡΠ³Π°.

ΠΠ΅ΠΊΠΎΡΠΎΡΡΠ΅ ΠΈΠ·Π΄Π΅Π»ΠΈΡ ΠΏΠΎΠ»Π½ΠΎΡΡΡΡ Π»ΠΈΡΠ΅Π½Ρ ΡΡΠ½Π΄Π°ΠΌΠ΅Π½ΡΠΎΠ², Π½ΠΎ ΡΠΎΠ³Π΄Π° ΠΆΠ΅Π»Π°ΡΠ΅Π»ΡΠ½ΠΎ ΡΠ΄Π΅Π»Π°ΡΡ Π΄ΡΠ΅Π½Π°ΠΆΠ½ΡΡ ΡΠΈΡΡΠ΅ΠΌΡ Π΄Π»Ρ ΠΎΡΠ²ΠΎΠ΄Π° Π²ΠΎΠ΄Ρ
- ΠΠ±ΡΡΠ½ΠΎ Π²Π΅ΡΠ°Π½Π΄Π° ΡΡΠΎ Π·Π°ΠΊΡΡΡΠΎΠ΅ ΠΏΠΎΠΌΠ΅ΡΠ΅Π½ΠΈΠ΅, ΠΊΠΎΡΠΎΡΠΎΠ΅ ΠΌΠΎΠΆΠ΅Ρ ΡΠ°ΡΠΏΠΎΠ»Π°Π³Π°ΡΡΡΡ Π½Π° ΠΎΠ΄Π½ΠΎΠΌ ΡΡΠ½Π΄Π°ΠΌΠ΅Π½ΡΠ΅ Π²ΠΌΠ΅ΡΡΠ΅ Ρ ΠΎΡΠ½ΠΎΠ²Π½ΡΠΌ Π·Π΄Π°Π½ΠΈΠ΅ΠΌ. Π‘ΡΠΎΠΈΡ ΠΎΡΠΌΠ΅ΡΠΈΡΡ, ΡΡΠΎ ΠΎΡΠ΅Π½Ρ ΡΠ°ΡΡΠΎ ΠΎΠ½Π° ΡΠ²Π»ΡΠ΅ΡΡΡ ΡΠ°ΡΡΡΡ ΠΎΡΠ½ΠΎΠ²Π½ΠΎΠΉ ΠΊΠΎΠ½ΡΡΡΡΠΊΡΠΈΠΈ ΠΈ ΠΈΠΌΠ΅Π΅Ρ ΡΠΎΠ±ΡΡΠ²Π΅Π½Π½ΠΎΠ΅ ΡΡΠ΅ΠΏΠ»Π΅Π½ΠΈΠ΅ ΠΈ Π΄Π°ΠΆΠ΅ ΠΎΡΠΎΠΏΠ»Π΅Π½ΠΈΠ΅.
- Π ΠΎΡΠ»ΠΈΡΠΈΠ΅ ΠΎΡ Π²Π΅ΡΠ°Π½Π΄Ρ ΡΠ΅ΡΡΠ°ΡΠ° ΠΏΡΠ°ΠΊΡΠΈΡΠ΅ΡΠΊΠΈ Π²ΡΠ΅Π³Π΄Π° ΠΈΠΌΠ΅Π΅Ρ ΡΠ²ΠΎΠ΅ ΡΠΎΠ±ΡΡΠ²Π΅Π½Π½ΠΎΠ΅ ΠΎΡΠ½ΠΎΠ²Π°Π½ΠΈΠ΅, ΠΊΠΎΡΠΎΡΠΎΠ΅ Π²ΠΎΠ·Π²ΡΡΠ°Π΅ΡΡΡ Π½Π°Π΄ ΠΏΠΎΠ²Π΅ΡΡ Π½ΠΎΡΡΡΡ Π½Π° ΠΎΠΏΡΠ΅Π΄Π΅Π»Π΅Π½Π½ΠΎΠΌ ΡΠ°ΡΡΡΠΎΡΠ½ΠΈΠΈ. ΠΡΠΈ ΡΡΠΎΠΌ ΡΠ°ΠΊΠΈΠ΅ ΠΊΠΎΠ½ΡΡΡΡΠΊΡΠΈΠΈ Π²ΡΠ΅Π³Π΄Π° ΠΎΡΡΠ°ΡΡΡΡ ΠΎΡΠΊΡΡΡΡΠΌΠΈ ΠΈ ΠΌΠΎΠ³ΡΡ ΠΏΡΠΈΠΌΡΠΊΠ°ΡΡ ΠΊ Π³ΠΎΡΠΎΠ²ΠΎΠΌΡ Π·Π΄Π°Π½ΠΈΡ.

ΠΠΎ ΡΠ²ΠΎΠ΅ΠΉ ΠΏΠ»ΠΎΡΠ°Π΄ΠΈ ΠΏΠΎΠ΄ΠΎΠ±Π½ΡΠ΅ ΠΈΠ·Π΄Π΅Π»ΠΈΡ ΠΌΠΎΠ³ΡΡ Π±ΡΡΡ ΡΠ°ΠΌΡΠ΅ Π½Π΅ΠΎΠ±ΡΡΠ½ΡΠ΅ ΠΈ Π΄Π°ΠΆΠ΅ ΠΏΡΠ΅Π²ΡΡΠ°ΡΡ Π³Π°Π±Π°ΡΠΈΡΡ ΠΎΡΠ½ΠΎΠ²Π½ΠΎΠ³ΠΎ ΡΡΡΠΎΠ΅Π½ΠΈΡ
- ΠΠ΅ΠΎΠ±Ρ ΠΎΠ΄ΠΈΠΌΠΎ ΡΠΏΠΎΠΌΡΠ½ΡΡΡ ΠΈ ΠΎ ΡΠΎΠΌ, ΡΡΠΎ ΡΡΡΠ΅ΡΡΠ²ΡΡΡ ΠΈ Π΄Π°ΡΠ½ΡΠ΅ Π±ΡΡΠΎΠ²ΠΊΠΈ Ρ ΡΠ΅ΡΡΠ°ΡΠΎΠΉ. Π’Π°ΠΊΠΈΠ΅ ΠΊΠΎΠ½ΡΡΡΡΠΊΡΠΈΠΈ ΠΈΠΌΠ΅ΡΡ Π²ΡΠ΅ΠΌΠ΅Π½Π½ΡΠ΅ Π½Π°Π²Π΅ΡΡ ΠΈΠ»ΠΈ ΠΏΠΎΠ΄Π²ΠΈΠΆΠ½ΡΠ΅ ΡΠ΅Π½ΡΡ Π΄Π»Ρ Π΄Π°ΡΠ½ΡΡ ΡΡΠ°ΡΡΠΊΠΎΠ², ΠΊΠΎΡΠΎΡΡΠ΅ Π½Π°ΠΊΡΡΠ²Π°ΡΡ ΡΠ΅ΡΡΠΈΡΠΎΡΠΈΡ Π²ΠΎΠ·Π»Π΅ ΠΏΠΎΠΌΠ΅ΡΠ΅Π½ΠΈΡ.
- Π‘ΡΠΎΠΈΡ ΡΠΏΠΎΠΌΡΠ½ΡΡΡ ΠΈ ΠΎ ΡΠΎΠΌ, ΡΡΠΎ ΡΡΡΠ΅ΡΡΠ²ΡΡΡ ΠΈ ΡΠ°ΠΊΠΈΠ΅ Π²ΠΈΠ΄Ρ ΡΠ΅ΡΡΠ°Ρ, ΠΊΠΎΡΠΎΡΡΠ΅ Π½Π΅ ΠΏΡΠ΅Π΄ΠΏΠΎΠ»Π°Π³Π°ΡΡ Π½Π°Π»ΠΈΡΠΈΡ ΠΊΡΠΎΠ²Π»ΠΈ. ΠΡΠ΅ Π·Π°Π²ΠΈΡΠΈΡ ΠΎΡ Π»ΠΈΡΠ½ΡΡ ΠΏΡΠ΅Π΄ΠΏΠΎΡΡΠ΅Π½ΠΈΠΉ Π±ΡΠ΄ΡΡΠΈΡ Π²Π»Π°Π΄Π΅Π»ΡΡΠ΅Π².
Π‘ΠΎΠ²Π΅Ρ!
ΠΡΠ±ΠΎΡ Π½Π΅ΠΎΠ±Ρ ΠΎΠ΄ΠΈΠΌΠΎΠ³ΠΎ ΡΠΈΠΏΠ° ΡΡΡΠΎΠ΅Π½ΠΈΡ ΡΠ²Π»ΡΠ΅ΡΡΡ ΠΏΡΠ΅ΡΠΎΠ³Π°ΡΠΈΠ²ΠΎΠΉ Π±ΡΠ΄ΡΡΠΈΡ Π²Π»Π°Π΄Π΅Π»ΡΡΠ΅Π², ΠΏΠΎΡΠΊΠΎΠ»ΡΠΊΡ ΡΡΠΎ ΡΠ²ΡΠ·Π°Π½ΠΎ Π½Π΅ ΡΠΎΠ»ΡΠΊΠΎ Ρ ΡΡΠΎΠ²Π½Π΅ΠΌ ΠΊΠΎΠΌΡΠΎΡΡΠ° ΡΠΎΠΉ ΠΈΠ»ΠΈ ΠΈΠ½ΠΎΠΉ ΠΊΠΎΠ½ΡΡΡΡΠΊΡΠΈΠΈ, Π½ΠΎ ΠΈ Ρ Π΄ΠΎΠΏΠΎΠ»Π½ΠΈΡΠ΅Π»ΡΠ½ΡΠΌΠΈ ΡΠ°ΡΡ ΠΎΠ΄Π°ΠΌΠΈ Π½Π° ΠΌΠ°ΡΠ΅ΡΠΈΠ°Π»Ρ ΠΈ ΠΈΠ·Π³ΠΎΡΠΎΠ²Π»Π΅Π½ΠΈΠ΅.

ΠΠ½ΡΡΡΠ΅Π½Π½ΠΈΠΉ ΠΈΠ½ΡΠ΅ΡΡΠ΅Ρ Π²Π΅ΡΠ°Π½Π΄Ρ ΠΌΠΎΠΆΠ΅Ρ Π½Π°ΠΏΠΎΠΌΠΈΠ½Π°ΡΡ ΡΠ΅Π»ΡΡ ΠΏΠΎΠ»Π½ΠΎΡΠ΅Π½Π½ΡΡ ΠΊΠΎΠΌΠ½Π°ΡΡ
ΠΠ°Π·Π½Π°ΡΠ΅Π½ΠΈΠ΅
ΠΠ΅ΠΎΠ±Ρ ΠΎΠ΄ΠΈΠΌΠΎ ΡΠΊΠ°Π·Π°ΡΡ, ΡΡΠΎ ΠΎΡΠ½ΠΎΠ²Π½ΠΎΠ΅ Π½Π°Π·Π½Π°ΡΠ΅Π½ΠΈΠ΅ ΡΡΡΠΎΠ΅Π½ΠΈΠΉ ΠΏΠΎΠ΄ΠΎΠ±Π½ΠΎΠ³ΠΎ ΡΠΈΠΏΠ° Π·Π°ΠΊΠ»ΡΡΠ°Π΅ΡΡΡ Π² ΡΠΎΠ·Π΄Π°Π½ΠΈΠΈ ΠΎΠΏΡΠ΅Π΄Π΅Π»Π΅Π½Π½ΠΎΠ³ΠΎ ΠΌΠ΅ΡΡΠ° ΠΎΡΠ΄ΡΡ Π°, Π·Π°ΡΠΈΡΠ΅Π½Π½ΠΎΠ³ΠΎ ΠΎΡ ΡΠΎΠ»Π½Π΅ΡΠ½ΠΎΠ³ΠΎ ΡΠ²Π΅ΡΠ° ΠΈ Π΄ΡΡΠ³ΠΈΡ ΠΏΠΎΠ³ΠΎΠ΄Π½ΡΡ ΡΠ²Π»Π΅Π½ΠΈΠΉ. ΠΡΠΈ ΡΡΠΎΠΌ ΠΎΠΏΡΠ΅Π΄Π΅Π»Π΅Π½Π½Π°Ρ Π²ΠΎΠ·Π²ΡΡΠ΅Π½Π½ΠΎΡΡΡ ΠΎΡΠ½ΠΎΠ²Π°Π½ΠΈΡ ΠΏΠΎΠ·Π²ΠΎΠ»ΡΠ΅Ρ Π½Π°Ρ ΠΎΠ΄ΠΈΡΡΡΡ ΡΠ°ΠΌ Π΄Π°ΠΆΠ΅ ΠΏΡΠΈ ΠΏΠΎΠ΄Π½ΡΡΠΈΠΈ ΡΡΠΎΠ²Π½Ρ Π²ΠΎΠ΄Ρ Π²ΠΎ Π²ΡΠ΅ΠΌΡ Π΄ΠΎΠΆΠ΄Ρ.

ΠΡΠΈΠ³ΠΈΠ½Π°Π»ΡΠ½ΠΎΠ΅ Π΄ΠΈΠ·Π°ΠΉΠ½Π΅ΡΡΠΊΠΎΠ΅ ΡΠ΅ΡΠ΅Π½ΠΈΠ΅, ΠΏΠΎΠ·Π²ΠΎΠ»ΡΡΡΠ΅Π΅ ΡΠΎΠ·Π΄Π°ΡΡ ΡΠ΅ΡΡΠ°ΡΡ ΡΠ³Π»ΠΎΠ²ΠΎΠ³ΠΎ ΡΠΈΠΏΠ° Ρ ΠΎΠ΄Π½ΠΎΠΉ ΡΡΠΎΡΠΎΠ½ΠΎΠΉ ΠΏΠΎΠ΄ Π½Π°Π²Π΅ΡΠΎΠΌ
ΠΡΠ»ΠΈ Π²Π΅ΡΠ°Π½Π΄Π° Π·Π°ΡΡΠ΅ΠΊΠ»Π΅Π½Π°, ΡΠΎ Π΅Π΅ ΠΌΠΎΠΆΠ½ΠΎ ΡΠΊΡΠΏΠ»ΡΠ°ΡΠΈΡΠΎΠ²Π°ΡΡ Π΄Π°ΠΆΠ΅ Π² Π·ΠΈΠΌΠ½ΠΈΠΉ ΠΏΠ΅ΡΠΈΠΎΠ΄ Π³ΠΎΠ΄Π°. ΠΠ½Π° ΡΡΠ°Π½Π΅Ρ ΠΎΡΠ»ΠΈΡΠ½ΡΠΌ ΠΌΠ΅ΡΡΠΎΠΌ Π΄Π»Ρ Ρ ΡΠ°Π½Π΅Π½ΠΈΡ ΠΎΠΏΡΠ΅Π΄Π΅Π»Π΅Π½Π½ΡΡ ΠΏΡΠΎΠ΄ΡΠΊΡΠΎΠ² ΠΈΠ»ΠΈ ΠΆΠ΅ ΠΌΠΎΠΆΠ΅Ρ ΠΈΡΠΏΠΎΠ»ΡΠ·ΠΎΠ²Π°ΡΡΡΡ Π² ΠΊΠ°ΡΠ΅ΡΡΠ²Π΅ ΠΏΠΎΠΌΠ΅ΡΠ΅Π½ΠΈΡ Π΄Π»Ρ ΠΏΡΠΈΠ΅ΠΌΠ° ΠΏΠΈΡΠΈ, ΠΏΡΠΈ ΡΠΎΠΎΡΠ²Π΅ΡΡΡΠ²ΡΡΡΠ΅ΠΌ ΡΡΠ΅ΠΏΠ»Π΅Π½ΠΈΠΈ.
Π£ΡΠΈΡΡΠ²Π°Ρ ΠΏΠΎΠ΄ΠΎΠ±Π½ΠΎΠ΅ Π½Π°Π·Π½Π°ΡΠ΅Π½ΠΈΠ΅, ΠΏΡΠΎΠ΅ΠΊΡΡ Π΄Π°ΡΠ½ΡΡ Π΄ΠΎΠΌΠΈΠΊΠΎΠ² Ρ ΡΠ΅ΡΡΠ°ΡΠΎΠΉ ΠΎΡΠ΅Π½Ρ ΡΠ°ΡΡΠΎ ΠΏΡΠ΅Π΄ΠΏΠΎΠ»Π°Π³Π°ΡΡ ΡΡΡΠ°Π½ΠΎΠ²ΠΊΡ Π½Π° ΡΡΠΎΠΉ ΠΊΠΎΠ½ΡΡΡΡΠΊΡΠΈΠΈ Π³ΡΠΈΠ»Π΅ΠΉ, ΠΏΠ΅ΡΠ΅ΠΉ ΠΈΠ»ΠΈ ΠΌΠ°Π½Π³Π°Π»ΠΎΠ². ΠΡΠΈ ΡΡΠΎΠΌ ΠΏΡΠ°ΠΊΡΠΈΡΠ΅ΡΠΊΠΈ Π²ΡΠ΅Π³Π΄Π° ΠΎΠ½ΠΈ ΡΠ²Π»ΡΡΡΡΡ ΡΡΠ°ΡΠΈΠΎΠ½Π°ΡΠ½ΡΠΌΠΈ ΠΈ ΠΈΠΌΠ΅ΡΡ ΠΏΡΠΎΡΠ½ΠΎΠ΅ ΠΈ Π½Π°Π΄Π΅ΠΆΠ½ΠΎΠ΅ ΠΎΡΠ½ΠΎΠ²Π°Π½ΠΈΠ΅, Π½Π΅ ΡΠ²ΡΠ·Π°Π½Π½ΠΎΠ΅ Ρ ΠΎΠ±ΡΠΈΠΌ ΡΡΡΠΎΠ΅Π½ΠΈΠ΅ΠΌ.
Π‘ΠΎΠ²Π΅Ρ!
ΠΠ΅ΠΊΠΎΡΠΎΡΡΠ΅ Π»ΡΠ΄ΠΈ ΡΡΠΈΡΠ°ΡΡ, ΡΡΠΎ ΡΠΎΠ·Π΄Π°Π½ΠΈΠ΅ ΡΠ°ΠΊΠΈΡ Π΄ΠΎΠΏΠΎΠ»Π½Π΅Π½ΠΈΠΉ ΠΊ ΠΊΠΎΠ½ΡΡΡΡΠΊΡΠΈΠΈ Π΄ΠΎΠΌΠ° ΡΠ²Π»ΡΠ΅ΡΡΡ Π½Π΅ΠΎΠΏΡΠ°Π²Π΄Π°Π½Π½ΠΎΠΉ ΡΠΎΡΠΊΠΎΡΡΡ ΠΈ ΠΏΠ΅ΡΠ΅Π²ΠΎΠ΄ΠΎΠΌ ΡΠ²ΠΎΠ±ΠΎΠ΄Π½ΠΎΠ³ΠΎ ΠΏΡΠΎΡΡΡΠ°Π½ΡΡΠ²Π°.
ΠΠ΄Π½Π°ΠΊΠΎ ΠΎΡΡΡΠΈΠ² ΡΠΎΡ ΡΡΠΎΠ²Π΅Π½Ρ ΠΊΠΎΠΌΡΠΎΡΡΠ°, ΠΊΠΎΡΠΎΡΡΠΉ ΠΎΠ½ΠΈ ΠΏΡΠ΅Π΄Π»Π°Π³Π°ΡΡ ΠΈΡ ΠΌΠ½Π΅Π½ΠΈΠ΅ ΡΡΠ°Π·Ρ ΡΠ΅Π·ΠΊΠΎ ΠΌΠ΅Π½ΡΠ΅ΡΡΡ.

Π Π½Π΅ΠΊΠΎΡΠΎΡΡΡ ΡΠ»ΡΡΠ°ΡΡ ΠΏΠ»ΠΎΡΠ°Π΄Ρ ΡΠ°ΠΊΠΎΠ³ΠΎ Π΄ΠΎΠΏΠΎΠ»Π½ΠΈΡΠ΅Π»ΡΠ½ΠΎΠ³ΠΎ ΡΠΎΠΎΡΡΠΆΠ΅Π½ΠΈΡ ΠΌΠΎΠΆΠ΅Ρ ΠΏΡΠ΅Π²ΡΡΠ°ΡΡ ΠΎΡΠ½ΠΎΠ²Π½ΠΎΠ΅ ΡΡΡΠΎΠ΅Π½ΠΈΠ΅ ΠΈ ΡΠ°ΡΠΏΠΎΠ»Π°Π³Π°ΡΡΡΡ ΠΏΠΎ Π²ΡΠ΅ΠΌΡ Π΅Π³ΠΎ ΠΏΠ΅ΡΠΈΠΌΠ΅ΡΡΡ, ΡΡΠΎ ΠΎΡΠ»ΠΈΡΠ½ΠΎ ΠΏΠΎΠ΄Ρ ΠΎΠ΄ΠΈΡ Π΄Π»Ρ Π½Π΅Π±ΠΎΠ»ΡΡΠΈΡ Π΄Π°ΡΠ½ΡΡ Π΄ΠΎΠΌΠΎΠ²
ΠΡΠΎΠ±Π΅Π½Π½ΠΎΡΡΠΈ ΠΈΠ·Π³ΠΎΡΠΎΠ²Π»Π΅Π½ΠΈΡ
ΠΡΠ½ΠΎΠ²Π½ΡΠΌΠΈ ΡΠ»Π΅ΠΌΠ΅Π½ΡΠ°ΠΌΠΈ ΠΏΠΎΠ΄ΠΎΠ±Π½ΡΡ ΠΊΠΎΠ½ΡΡΡΡΠΊΡΠΈΠΉ ΡΠ²Π»ΡΡΡΡΡ ΠΊΡΡΡΠ° ΠΈ ΠΎΡΠ½ΠΎΠ²Π°Π½ΠΈΠ΅. Π€Π°ΠΊΡΠΈΡΠ΅ΡΠΊΠΈ ΠΎΠ½ΠΈ ΡΠΎΠ»ΡΠΊΠΎ ΠΈΠ· Π½ΠΈΡ ΠΈ ΡΠΎΡΡΠΎΡΡ, Π° Π·Π½Π°ΡΠΈΡ, ΠΏΡΠΈ ΠΈΡ ΠΌΠΎΠ½ΡΠ°ΠΆΠ΅ Π½Π΅ΠΎΠ±Ρ ΠΎΠ΄ΠΈΠΌΠΎ ΠΎΠ±ΡΠ°ΡΠΈΡΡ ΠΎΡΠΎΠ±ΠΎΠ΅ Π²Π½ΠΈΠΌΠ°Π½ΠΈΠ΅ Π½Π° ΠΊΠ°ΡΠ΅ΡΡΠ²ΠΎ ΠΈ ΠΎΡΠΎΠ±Π΅Π½Π½ΠΎΡΡΡΡ ΡΠΈΠΊΡΠ°ΡΠΈΠΈ.

ΠΡΠΏΠΎΠ»ΡΠ·ΠΎΠ²Π°Π½ΠΈΠ΅ ΡΠ²Π°ΠΉΠ½ΡΡ ΡΡΠ½Π΄Π°ΠΌΠ΅Π½ΡΠΎΠ² ΠΈΠ»ΠΈ Π±Π΅ΡΠΎΠ½Π½ΡΡ ΠΎΠΏΠΎΡ ΡΡΠΈΡΠ°Π΅ΡΡΡ ΡΠ°ΠΌΡΠΌ ΠΏΡΠΎΡΡΡΠΌ ΡΠ΅Ρ Π½ΠΈΡΠ΅ΡΠΊΠΈΠΌ ΡΠ΅ΡΠ΅Π½ΠΈΠ΅ΠΌ ΠΏΡΠΈ ΡΠΎΠ·Π΄Π°Π½ΠΈΠΈ ΠΎΡΠ½ΠΎΠ²Π°Π½ΠΈΠΉ
ΠΡΠ½ΠΎΠ²Π°Π½ΠΈΠ΅
ΠΠ°ΠΌΠ½ΠΎΠ³ΠΎ ΠΏΡΠΎΡΠ΅ ΡΠΎΠ·Π΄Π°Π²Π°ΡΡ ΠΎΡΠ½ΠΎΠ²Π°Π½ΠΈΠ΅ Π΄Π»Ρ ΡΠ°ΠΊΠΎΠΉ ΠΊΠΎΠ½ΡΡΡΡΠΊΡΠΈΠΈ Π²ΠΌΠ΅ΡΡΠ΅ Ρ ΡΡΠ½Π΄Π°ΠΌΠ΅Π½ΡΠΎΠΌ Π΄Π»Ρ ΠΎΡΠ½ΠΎΠ²Π½ΠΎΠ³ΠΎ ΡΡΡΠΎΠ΅Π½ΠΈΡ Π΄Π°ΡΠ½ΠΎΠ³ΠΎ Π΄ΠΎΠΌΠ°. ΠΡΠΎΠ±Π΅Π½Π½ΠΎ Π΅ΡΠ»ΠΈ ΠΏΡΠΎΠ΅ΠΊΡΠΈΡΡΠ΅ΡΡΡ ΠΎΠ΄Π½ΠΎΡΡΠ°ΠΆΠ½ΡΠΉ Π΄Π°ΡΠ½ΡΠΉ Π΄ΠΎΠΌ Ρ ΡΠ΅ΡΡΠ°ΡΠΎΠΉ. Π’Π°ΠΊ ΠΌΠΎΠΆΠ½ΠΎ ΠΈΠ·Π±Π΅ΠΆΠ°ΡΡ ΠΏΡΠΎΠ±Π»Π΅ΠΌ Ρ ΡΠ°Π·Π½ΠΎΠΉ ΡΡΠ°Π΄ΠΊΠΎΠΉ, ΠΊΠΎΡΠΎΡΡΠ΅ ΠΎΠ±ΡΡΠ½ΠΎ Π²ΠΎΠ·Π½ΠΈΠΊΠ°ΡΡ Π² Π½ΠΎΠ²ΡΡ Π·Π΄Π°Π½ΠΈΡΡ .

ΠΠ΅ΠΊΠΎΡΠΎΡΡΠ΅ Π²ΠΈΠ΄Ρ ΠΏΠΎΠ΄ΠΎΠ±Π½ΡΡ ΠΈΠ·Π΄Π΅Π»ΠΈΠΉ Π½ΡΠΆΠ΄Π°ΡΡΡΡ Π½Π΅ ΡΠΎΠ»ΡΠΊΠΎ Π² ΠΊΠ°ΡΠ΅ΡΡΠ²Π΅Π½Π½ΠΎΠΌ ΠΎΡΠ½ΠΎΠ²Π°Π½ΠΈΠΈ, Π½ΠΎ ΠΈ Π² Π΄ΠΎΠΏΠΎΠ»Π½ΠΈΡΠ΅Π»ΡΠ½ΠΎΠΌ ΡΡΠΈΠ»Π΅Π½ΠΈΠΈ
- ΠΡΠ»ΠΈ ΡΠ΅ΡΡΠ°ΡΠ° ΠΈΠ»ΠΈ Π²Π΅ΡΠ°Π½Π΄Π° ΡΠΎΠ·Π΄Π°ΡΡΡΡ Π² ΠΊΠ°ΡΠ΅ΡΡΠ²Π΅ ΠΏΡΠΈΡΡΡΠΎΠΉΠΊΠΈ ΠΊ ΡΠΆΠ΅ Π³ΠΎΡΠΎΠ²ΠΎΠΌΡ ΡΡΡΠΎΠ΅Π½ΠΈΡ, ΡΠΎ Π½Π΅ ΡΠ»Π΅Π΄ΡΠ΅Ρ ΡΠ²ΡΠ·ΡΠ²Π°ΡΡ Π΄Π²Π° ΠΎΡΠ½ΠΎΠ²Π°Π½ΠΈΡ ΠΌΠ΅ΠΆΠ΄Ρ ΡΠΎΠ±ΠΎΠΉ. ΠΡΠΈ ΡΡΠΎΠΌ ΠΏΡΠΎΡΠ΅ΡΡΠΈΠΎΠ½Π°Π»ΡΠ½ΡΠ΅ ΠΌΠ°ΡΡΠ΅ΡΠ° ΡΠ΅ΠΊΠΎΠΌΠ΅Π½Π΄ΡΡΡ ΠΈΡΠΏΠΎΠ»ΡΠ·ΠΎΠ²Π°ΡΡ ΡΠ²Π°ΠΉΠ½ΡΠ΅ ΡΡΠ½Π΄Π°ΠΌΠ΅Π½ΡΡ, Π½Π° ΠΊΠΎΡΠΎΡΡΠ΅ ΡΠΊΠ»Π°Π΄ΡΠ²Π°ΡΡ Π΄Π΅ΡΠ΅Π²ΡΠ½Π½ΡΠΉ Π½Π°ΡΡΠΈΠ».
- ΠΠ΄Π½Π°ΠΊΠΎ Π½Π΅ΠΎΠ±Ρ ΠΎΠ΄ΠΈΠΌΠΎ ΠΏΠΎΠΌΠ½ΠΈΡΡ, ΡΡΠΎ Π΅ΡΠ»ΠΈ Π½ΡΠΆΠ½ΠΎ ΡΡΡΠ°Π½ΠΎΠ²ΠΈΡΡ Π½Π° ΠΏΠ»ΠΎΡΠ°Π΄ΠΊΠ΅ ΠΊΠ°ΠΌΠΈΠ½, ΠΌΠ°Π½Π³Π°Π» ΠΈΠ»ΠΈ Π±Π°ΡΠ±Π΅ΠΊΡ, ΡΠΎ ΠΏΠΎΠ΄ Π½Π΅Π³ΠΎ ΡΡΠΎΠΈΡ ΡΠ°ΠΊΠΆΠ΅ Π΄Π΅Π»Π°ΡΡ ΡΡΠ½Π΄Π°ΠΌΠ΅Π½Ρ ΠΈΠ»ΠΈ ΠΎΠΏΠΎΡΡ. Π’Π°ΠΊΠΆΠ΅ ΡΡΠΎΠΈΡ ΡΠΎΠ·Π΄Π°ΡΡ ΠΏΡΠΎΡΠ»ΠΎΠΉΠΊΡ, ΠΊΠΎΡΠΎΡΠ°Ρ Π±Ρ ΠΏΡΠ΅ΠΏΡΡΡΡΠ²ΠΎΠ²Π°Π»Π° ΡΠ°ΡΠΏΡΠ΅Π΄Π΅Π»Π΅Π½ΠΈΡ ΡΠ΅ΠΏΠ»Π° ΠΈΠ»ΠΈ Π²ΠΎΠ·Π³ΠΎΡΠ°Π½ΠΈΡ. ΠΠ΄Π½Π°ΠΊΠΎ ΡΠ»Π΅Π΄ΡΠ΅Ρ ΠΏΠΎΠΌΠ½ΠΈΡΡ, ΡΡΠΎ ΡΠ΅Π½Π° Π½Π° ΠΎΠ³Π½Π΅ΡΠΏΠΎΡΠ½ΡΠ΅ ΠΌΠ°ΡΠ΅ΡΠΈΠ°Π»Ρ Ρ ΠΎΡΠΎΡΠ΅Π³ΠΎ ΠΊΠ°ΡΠ΅ΡΡΠ²Π° Π΄ΠΎΠ²ΠΎΠ»ΡΠ½ΠΎ Π²ΡΡΠΎΠΊΠ°, Π½ΠΎ Π½Π° ΡΡΠΎΠΌ Π½Π΅ Π½ΡΠΆΠ½ΠΎ ΡΠΊΠΎΠ½ΠΎΠΌΠΈΡΡ.
Π‘ΠΎΠ²Π΅Ρ!
ΠΡΠΎΡΠ΅ΡΡΠΈΠΎΠ½Π°Π»ΡΠ½ΡΠ΅ ΠΌΠ°ΡΡΠ΅ΡΠ° ΡΠ΅ΠΊΠΎΠΌΠ΅Π½Π΄ΡΡΡ ΠΈΡΠΏΠΎΠ»ΡΠ·ΠΎΠ²Π°ΡΡ ΠΈΠΌΠ΅Π½Π½ΠΎ Π²ΠΈΠ½ΡΠΎΠ²ΡΠ΅ ΡΠ²Π°ΠΈ, ΠΏΠΎΡΠΊΠΎΠ»ΡΠΊΡ ΠΎΠ½ΠΈ ΡΠΎΠ·Π΄Π°ΡΡ ΠΎΠΏΡΠ΅Π΄Π΅Π»Π΅Π½Π½ΠΎΠ΅ Π²ΠΎΠ·Π²ΡΡΠ΅Π½ΠΈΠ΅ Π½Π°Π΄ Π·Π΅ΠΌΠ»Π΅ΠΉ ΠΈ Π½Π΅ ΠΏΡΠ΅ΠΏΡΡΡΡΠ²ΡΡΡ ΠΏΡΠΎΡΠΎΠΊΡ Π²ΠΎΠ΄Ρ.ΠΡΠΈ ΡΡΠΎΠΌ ΡΡΠΎΠΈΠΌΠΎΡΡΡ ΡΠ°ΠΊΠΎΠ³ΠΎ ΡΡΠ½Π΄Π°ΠΌΠ΅Π½ΡΠ° ΠΈ ΡΡΠΎΠΊ Π΅Π³ΠΎ Π²ΠΎΠ·Π²Π΅Π΄Π΅Π½ΠΈΡ Π²ΠΏΠΎΠ»Π½Π΅ ΠΏΡΠΈΠ΅ΠΌΠ»Π΅ΠΌΡ ΠΈ ΡΠ²Π»ΡΡΡΡΡ ΠΏΡΠ΅ΠΊΡΠ°ΡΠ½ΠΎΠΉ Π°Π»ΡΡΠ΅ΡΠ½Π°ΡΠΈΠ²ΠΎΠΉ Π΄Π»Ρ Π΄ΡΡΠ³ΠΈΡ ΡΠΈΠΏΠΎΠ² ΠΎΡΠ½ΠΎΠ²Π°Π½ΠΈΡ.

Π§Π°ΡΡΡ ΠΏΠ»ΠΎΡΠ°Π΄ΠΊΠΈ ΠΌΠΎΠΆΠ½ΠΎ Π·Π°Π²Π΅ΡΡΠΈ ΠΏΠΎΠ΄ ΠΎΠ±ΡΡΡ ΠΊΡΠΎΠ²Π»Ρ, Π² ΡΠΎ Π²ΡΠ΅ΠΌΡ ΠΊΠ°ΠΊ ΠΎΡΡΠ°Π»ΡΠ½Π°Ρ ΠΏΠ»ΠΎΡΠ°Π΄Ρ ΠΌΠΎΠΆΠ΅Ρ ΠΎΡΡΠ°Π²Π°ΡΡΡΡ ΠΏΠΎΠ΄ ΠΎΡΠΊΡΡΡΡΠΌ Π½Π΅Π±ΠΎΠΌ
ΠΡΡΡΠ°
Π‘ΠΎΠ·Π΄Π°Π½ΠΈΠ΅ ΠΊΡΠΎΠ²Π»ΠΈ Π΄Π»Ρ ΠΏΠΎΠ΄ΠΎΠ±Π½ΡΡ ΠΏΠ»ΠΎΡΠ°Π΄ΠΎΠΊ ΡΠ²Π»ΡΠ΅ΡΡΡ ΠΎΡΠ΅Π½Ρ ΠΎΡΠ²Π΅ΡΡΡΠ²Π΅Π½Π½ΡΠΌ ΠΏΡΠΎΡΠ΅ΡΡΠΎΠΌ, ΠΏΠΎΡΠΊΠΎΠ»ΡΠΊΡ ΠΈΠΌΠ΅Π½Π½ΠΎ ΠΎΡ Π½Π΅Π³ΠΎ Π·Π°Π²ΠΈΡΠΈΡ ΡΡΠΎΠ²Π΅Π½Ρ ΠΊΠΎΠΌΡΠΎΡΡΠ° ΠΈ Π΄Π°ΠΆΠ΅ ΡΡΠΎΠΊ ΡΠΊΡΠΏΠ»ΡΠ°ΡΠ°ΡΠΈΠΈ. ΠΡΠΈ ΡΡΠΎΠΌ ΠΈΠ½ΡΡΡΡΠΊΡΠΈΡ ΠΏΠΎ ΠΌΠΎΠ½ΡΠ°ΠΆΡ ΡΠ΅ΠΊΠΎΠΌΠ΅Π½Π΄ΡΠ΅Ρ ΠΎΡΠΎΠ±ΠΎΠ΅ Π²Π½ΠΈΠΌΠ°Π½ΠΈΠ΅ ΡΠ΄Π΅Π»ΡΡΡ ΠΌΠ΅ΡΡΠ°ΠΌ ΡΠΎΠ΅Π΄ΠΈΠ½Π΅Π½ΠΈΡ Π΅Π΅ Ρ ΠΎΡΠ½ΠΎΠ²Π½ΡΠΌ ΡΡΡΠΎΠ΅Π½ΠΈΠ΅ΠΌ, Π΅ΡΠ»ΠΈ Ρ Π½ΠΈΡ Π½Π΅Ρ ΠΎΠ±ΡΠ΅Π³ΠΎ ΠΏΠΎΠΊΡΡΡΠΈΡ.

Π‘ΠΎΠ·Π΄Π°Π½ΠΈΠ΅ ΡΠΏΠ΅ΡΠΈΡΠΈΡΠ΅ΡΠΊΠΈΡ Π²ΠΈΠ΄ΠΎΠ² ΠΊΡΠΎΠ²Π»ΠΈ ΠΏΠΎΠ·Π²ΠΎΠ»ΠΈΡ ΡΠ΅ΡΠΈΡΡ ΠΌΠ°ΡΡΡ ΠΏΡΠΎΠ±Π»Π΅ΠΌ Ρ Π²ΡΠ±ΠΎΡΠΎΠΌ
Π‘Π°ΠΌΠΎΠ΅ ΠΏΡΠΎΡΡΠΎΠ΅ ΡΠ΅ΡΠ΅Π½ΠΈΠ΅ Π² ΡΠ°ΠΊΠΈΡ ΠΏΡΠΎΠ΅ΠΊΡΠ°Ρ ΠΏΡΠ΅Π΄ΠΏΠΎΠ»Π°Π³Π°Π΅Ρ ΠΈΠ·Π³ΠΎΡΠΎΠ²Π»Π΅Π½ΠΈΠ΅ ΠΎΠ΄Π½ΠΎΡΠΊΠ°ΡΠ½ΠΎΠ³ΠΎ ΠΊΠΎΠ·ΡΡΡΠΊΠ°, ΠΊΠΎΡΠΎΡΡΠΉ Π±Ρ ΡΠΈΠΊΡΠΈΡΠΎΠ²Π°Π»ΡΡ Π½Π° ΡΡΠ΅Π½Π΅. Π ΡΠ°ΠΊΠΎΠΌ ΡΠ»ΡΡΠ°Π΅ Π½ΡΠΆΠ½ΠΎ ΠΏΠΎΠ·Π°Π±ΠΎΡΠΈΡΡΡΡ ΠΎ Π³Π΅ΡΠΌΠ΅ΡΠΈΠ·Π°ΡΠΈΠΈ ΡΡΡΠΊΠ° ΠΈ ΡΡΡΠ°Π½ΠΎΠ²ΠΈΡΡ Π»ΠΈΠ²Π½Π΅Π²ΠΊΠΈ ΠΏΠΎ Π²ΡΠ΅ΠΌΡ ΠΏΠ΅ΡΠΈΠΌΠ΅ΡΡΡ Ρ ΠΎΡΠ²ΠΎΠ΄ΠΎΠΌ Π½Π° ΠΎΠ΄Π½Ρ ΡΡΠΎΡΠΎΠ½Ρ.
ΠΡΠ»ΠΈ ΠΏΡΠΎΠ΅ΠΊΡ ΡΠ°Π·ΡΠ°Π±Π°ΡΡΠ²Π°Π΅ΡΡΡ ΡΠ²ΠΎΠΈΠΌΠΈ ΡΡΠΊΠ°ΠΌΠΈ Π΅ΡΠ΅ Π΄ΠΎ Π²ΠΎΠ·Π²Π΅Π΄Π΅Π½ΠΈΡ Π²ΡΠ΅Π³ΠΎ Π·Π΄Π°Π½ΠΈΡ, ΡΠΎ ΠΏΡΠΎΡΠ΅ΡΡΠΈΠΎΠ½Π°Π»ΡΠ½ΡΠ΅ ΠΌΠ°ΡΡΠ΅ΡΠ° ΡΠ΅ΠΊΠΎΠΌΠ΅Π½Π΄ΡΡΡ ΠΈΡΠΏΠΎΠ»ΡΠ·ΠΎΠ²Π°ΡΡ ΠΎΠ±ΡΡΡ ΠΊΡΡΡΡ Π΄Π»Ρ Π΄ΠΎΠΌΠ° ΠΈ ΡΠ΅ΡΡΠ°ΡΡ. ΠΡΠΎ ΠΏΠΎΠ·Π²ΠΎΠ»ΠΈΡ ΠΈΠ·Π±Π°Π²ΠΈΡΡΡΡ ΠΎΡ ΠΏΡΠΎΠ±Π»Π΅ΠΌΠ½ΡΡ ΡΡΡΠΊΠΎΠ² ΠΈ ΠΏΠ΅ΡΠ΅ΠΏΠ°Π΄ΠΎΠ² ΡΡΠΎΠ²Π½Ρ ΠΏΡΠΈ ΡΡΠ°Π΄ΠΊΠ΅.
Π‘ΠΎΠ²Π΅Ρ!
ΠΠ΅ ΡΡΠΎΠΈΡ Π΄Π΅Π»Π°ΡΡ ΠΊΡΠΎΠ²Π»Ρ Π΄Π»Ρ ΡΠ°ΠΊΠΈΡ ΡΡΡΠΎΠ΅Π½ΠΈΠΉ ΡΠ»ΠΈΡΠΊΠΎΠΌ ΡΡΠΆΠ΅Π»ΠΎΠΉ, ΡΡΠΎΠ±Ρ ΠΎΠ½Π° Π½Π΅ ΡΠΎΠ·Π΄Π°Π²Π°Π»Π° Π±ΠΎΠ»ΡΡΠΈΠ΅ Π½Π°Π³ΡΡΠ·ΠΊΠΈ Π½Π° ΠΎΡΠ½ΠΎΠ²Π°Π½ΠΈΠ΅ ΠΈ ΠΎΠΏΠΎΡΡ.
ΠΠ΄Π½Π°ΠΊΠΎ ΠΎΠ½Π° Π΄ΠΎΠ»ΠΆΠ½Π° Π±ΡΡΡ Π΄ΠΎΡΡΠ°ΡΠΎΡΠ½ΠΎ ΠΏΡΠΎΡΠ½ΠΎΠΉ, ΡΡΠΎΠ±Ρ Π²ΡΠ΄Π΅ΡΠΆΠΈΠ²Π°ΡΡ ΡΠΈΠ»ΡΠ½ΡΠ΅ ΠΏΠΎΡΡΠ²Ρ Π²Π΅ΡΡΠ°, ΠΏΠΎΡΠΊΠΎΠ»ΡΠΊΡ ΡΠ΅ΡΡΠ°ΡΡ ΡΠ²Π»ΡΡΡΡΡ ΠΎΡΠΊΡΡΡΡΠΌΠΈ.

Π Π°Π·Π»ΠΈΡΠ½ΡΠ΅ Π²ΠΈΠ΄Ρ Π΄ΠΈΠ·Π°ΠΉΠ½Π΅ΡΡΠΊΠΈΡ ΡΠ΅ΡΠ΅Π½ΠΈΠΉ ΠΏΠΎ ΡΠΎΠ·Π΄Π°Π½ΠΈΡ ΠΏΠΎΠΊΡΡΡΠΈΡ ΠΈ Π΅Π³ΠΎ ΠΎΡΠΎΡΠΌΠ»Π΅Π½ΠΈΡ
ΠΡΠ²ΠΎΠ΄
ΠΠ·Π½Π°ΠΊΠΎΠΌΠΈΠ²ΡΠΈΡΡ Ρ Π²ΠΈΠ΄Π΅ΠΎ Π² ΡΡΠΎΠΉ ΡΡΠ°ΡΡΠ΅ ΠΌΠΎΠΆΠ½ΠΎ Π΄Π΅ΡΠ°Π»ΡΠ½ΠΎ ΠΈΠ·ΡΡΠΈΡΡ ΠΏΠΎΠ΄ΠΎΠ±Π½ΡΠ΅ ΠΊΠΎΠ½ΡΡΡΡΠΊΡΠΈΠΈ ΠΈ ΠΈΡ Π²Π°ΡΠΈΠ°Π½ΡΡ ΠΈΠ·Π³ΠΎΡΠΎΠ²Π»Π΅Π½ΠΈΡ. Π’Π°ΠΊΠΆΠ΅ Π²Π·ΡΠ² Π²ΠΎ Π²Π½ΠΈΠΌΠ°Π½ΠΈΠ΅ Π΄Π°Π½Π½ΡΡ ΡΡΠ°ΡΡΡ, ΡΠ»Π΅Π΄ΡΠ΅Ρ ΡΠ΄Π΅Π»Π°ΡΡ Π²ΡΠ²ΠΎΠ΄ ΠΎ ΡΠΎΠΌ, ΡΡΠΎ Π΄Π°ΠΆΠ΅ ΠΊ ΡΠ°ΠΊΠΎΠΌΡ, ΠΏΡΠΎΡΡΠΎΠΌΡ Π½Π° ΠΏΠ΅ΡΠ²ΡΠΉ Π²Π·Π³Π»ΡΠ΄, ΡΡΡΠΎΠ΅Π½ΠΈΡ Π½Π΅ΠΎΠ±Ρ ΠΎΠ΄ΠΈΠΌΠΎ ΠΏΠΎΠ΄Ρ ΠΎΠ΄ΠΈΡΡ ΡΠΎ Π·Π½Π°Π½ΠΈΠ΅ΠΌ Π΄Π΅Π»Π° ΠΈ ΡΠΎΠΎΡΠ²Π΅ΡΡΡΠ²ΡΡΡΠ΅ΠΉ ΠΏΠΎΠ΄Π³ΠΎΡΠΎΠ²ΠΊΠΎΠΉ.
ΠΠΎΠ±Π°Π²ΠΈΡΡ Π² ΠΈΠ·Π±ΡΠ°Π½Π½ΠΎΠ΅ ΠΠ΅ΡΡΠΈΡ Π΄Π»Ρ ΠΏΠ΅ΡΠ°ΡΠΈ9dach.ru
ΠΠ΅ΡΠΊΠΎΠ»ΡΠΊΠΎ ΠΏΡΠΈΠΌΠ΅ΡΠΎΠ² ΠΏΠΎΡΡΡΠΎΠΉΠΊΠΈ Π΄Π°ΡΠ½ΡΡ Π΄ΠΎΠΌΠΈΠΊΠΎΠ²
Π‘ΠΎΠ΄Π΅ΡΠΆΠ°Π½ΠΈΠ΅:
1. ΠΠ°ΡΠ½ΡΠ΅ Π΄ΠΎΠΌΠΈΠΊΠΈ Π½Π° Π»ΡΠ±ΠΈΠΌΡΡ ΡΡΠ°ΡΡΠΊΠ°Ρ Π΄Π»Ρ Π°ΠΊΡΠΈΠ²Π½ΠΎΠ³ΠΎ ΠΎΡΠ΄ΡΡ Π°.
2. Π‘ΠΊΠ°Π·ΠΎΡΠ½ΠΎΠ΅ Π±ΡΠ΅Π²Π΅Π½ΡΠ°ΡΠΎΠ΅ ΡΡΠ΄ΠΎ Π΄Π»Ρ ΡΠΊΡΡΠ΅Π½ΡΡΠΈΡΠ½ΡΡ Π»ΡΠ±ΠΈΡΠ΅Π»Π΅ΠΉ ΠΏΡΠΈΡΠΎΠ΄Ρ.
3. ΠΠ²ΡΡ ΡΡΠΎΠ²Π½Π΅Π²Π°Ρ Π³Π΅ΠΎΠΌΠ΅ΡΡΠΈΡ Π΄Π»Ρ Π΄Π²ΡΡ Π΄Π΅ΡΠ΅Π²ΡΠ½Π½ΡΡ Π΄Π°ΡΠ½ΡΡ Π΄ΠΎΠΌΠΎΠ².
4. ΠΠ΅ΡΠ½Π°Ρ ΡΠ°ΠΉΠ½Π° Π΄ΠΎΠΌΠ° Ρ Π²Π΅ΡΠ°Π½Π΄ΠΎΠΉ ΠΈ ΡΠ΅ΡΡΠ°ΡΠΎΠΉ.
5. Π’ΡΠ΅ΡΠ³ΠΎΠ»ΡΠ½ΡΠΉ Π΄ΠΎΠΌ Ρ ΡΠ΅ΡΡΠ°ΡΠΎΠΉ, Π²Π΅ΡΠ°Π½Π΄ΠΎΠΉ ΠΈ Π±ΠΈΠ±Π»ΠΈΠΎΡΠ΅ΠΊΠΎΠΉ Π² Π³ΡΡΡΠ»ΡΡΠΊΠΎΠΌ ΡΡΠΈΠ»Π΅.
6. ΠΠΎΠΌ — ΡΠ°ΠΊΡΡΠΊΠ° ΠΈΠ· Π΄ΡΠ΅Π²Π΅ΡΠΈΠ½Ρ.
7. ΠΠΎΠΌΠ° — ΡΡΠ΅ΠΉΠ»Π΅ΡΡ. ΠΠ½ΡΠ΅ΡΡΠ΅Ρ ΠΈ ΠΏΡΠΈΠΌΠ΅Π½Π΅Π½ΠΈΠ΅.
8. ΠΠ΅Π»ΠΎΠ΅ ΠΌΠ΅ΡΠ°Π»Π»ΠΎΠΏΠ»Π°ΡΡΠΈΠΊΠΎΠ²ΠΎΠ΅ Π΄ΠΈΠ²ΠΎ Π΄Π»Ρ Π²Π°ΡΠΈΡ ΡΡΠ°ΡΡΠΊΠΎΠ² Π² Π΄Π²ΡΡ Π²Π°ΡΠΈΠ°ΡΠΈΡΡ .
1. ΠΠ°ΡΠ½ΡΠ΅ Π΄ΠΎΠΌΠΈΠΊΠΈ Π½Π° Π»ΡΠ±ΠΈΠΌΡΡ ΡΡΠ°ΡΡΠΊΠ°Ρ Π΄Π»Ρ Π°ΠΊΡΠΈΠ²Π½ΠΎΠ³ΠΎ ΠΎΡΠ΄ΡΡ Π°.
ΠΡΠΈΠΎΠ±ΡΠ΅ΡΠ°Ρ Π΄ΠΎΠ»Π³ΠΎΠΆΠ΄Π°Π½Π½ΡΠΉ, ΡΡΠ°ΡΠ΅Π»ΡΠ½ΠΎ ΠΏΠΎΠ΄Π±ΠΈΡΠ°Π΅ΠΌΡΠΉ ΡΡΠ°ΡΡΠΎΠΊ ΠΈ ΠΎΡΠ½ΡΠ²ΡΠΈΡΡ ΠΎΡ ΠΏΠ΅ΡΠ²ΡΡ Π²ΠΎΡΡΠΎΡΠΆΠ΅Π½Π½ΡΡ ΡΠΌΠΎΡΠΈΠΉ, ΠΌΡ Π½Π°ΡΠΈΠ½Π°Π΅ΠΌ Π·Π°Π΄ΡΠΌΡΠ²Π°ΡΡΡΡ ΠΎ Π΅Π³ΠΎ Π±Π»Π°Π³ΠΎΡΡΡΡΠΎΠΉΡΡΠ²Π΅. ΠΠ°ΠΆΠ΅ Π΅ΡΠ»ΠΈ Π½Π° ΡΡΠ°ΡΡΠΊΠ΅ ΡΠΆΠ΅ ΡΡΠΎΠΈΡ ΠΏΠΎΡΡΡΠΎΠ΅Π½Π½ΡΠΉ Π±Π»Π°Π³ΠΎΡΡΡΡΠΎΠ΅Π½Π½ΡΠΉ Π΄ΠΎΠΌΠΈΠΊ Π²ΡΠ΅ ΡΠ°Π²Π½ΠΎ Π½ΠΎΠ²ΡΠ΅ Π²Π»Π°Π΄Π΅Π»ΡΡΡ ΡΡΡΠ΅ΠΌΡΡΡΡ ΡΡΠΎ-ΡΠΎ ΠΏΠ΅ΡΠ΅Π΄Π΅Π»Π°ΡΡ, Π΄ΠΎΡΡΡΠΎΠΈΡΡ ΠΈΠ»ΠΈ ΠΏΠ΅ΡΠ΅ΠΎΡΠΎΡΠΌΠΈΡΡ. ΠΡΠ»ΠΈ ΠΆΠ΅ Π²Ρ ΠΏΡΠΈΠΎΠ±ΡΠ΅Π»ΠΈ ΡΠΎΠ²Π΅ΡΡΠ΅Π½Π½ΠΎ ΠΏΡΡΡΠΎΠΉ ΡΡΠ°ΡΡΠΎΠΊ, ΡΠΎ ΠΏΡΠΎΡΡΡΠ°Π½ΡΡΠ²ΠΎ Π΄Π»Ρ ΡΠ΅Π°Π»ΠΈΠ·Π°ΡΠΈΠΈ Π²Π°ΡΠΈΡ ΠΆΠ΅Π»Π°Π½ΠΈΠΉ Π±Π΅Π·Π³ΡΠ°Π½ΠΈΡΠ½ΠΎ. ΠΠ°Π²Π΅ΡΠ½ΡΠΊΠ° Π²Ρ ΡΠΆΠ΅ Π½Π΅ ΡΠ°Π· ΠΏΡΠΈΡΠΌΠ°ΡΡΠΈΠ²Π°Π»ΠΈΡΡ ΠΊ ΡΠΎΡΠ΅Π΄ΡΠΊΠΈΠΌ Π΄ΠΎΠΌΠΈΠΊΠ°ΠΌ ΠΈ ΠΏΡΠΎΡΡΠΎ ΠΏΡΠΎΠ΅Π·ΠΆΠ°Ρ ΡΠ΅ΡΠ΅Π· ΠΏΠΎΡΠ΅Π»ΠΊΠΈ ΠΎΠ±ΡΠ°ΡΠ°Π»ΠΈ Π²Π½ΠΈΠΌΠ°Π½ΠΈΠ΅ Π½Π° ΡΠ°ΡΡΠ½ΡΠ΅ ΡΡΡΠΎΠ΅Π½ΠΈΡ. Π Π½Π°ΡΠ΅ΠΉ ΡΡΠ°ΡΡΠ΅ ΠΏΡΠ΅Π΄ΡΡΠ°Π²Π»Π΅Π½Ρ Π½Π΅ΡΠΊΠΎΠ»ΡΠΊΠΎ Π²Π°ΡΠΈΠ°Π½ΡΠΎΠ² Π½Π΅ΠΎΠ±ΡΠΊΠ½ΠΎΠ²Π΅Π½Π½ΡΡ Π΄ΠΎΠΌΠΈΠΊΠΎΠ² Π΄Π»Ρ Π΄Π°ΡΠΈ. ΠΡΠ΅Π΄ΡΡΠ°Π²Π»Π΅Π½Π½ΡΠ΅ Π΄Π°ΡΠ½ΡΠ΅ Π΄ΠΎΠΌΠ° Ρ Π²Π΅ΡΠ°Π½Π΄ΠΎΠΉ Π½Π°Π²Π΅ΡΠ½ΡΠΊΠ° ΡΠΎΠ²ΡΠ΅ΠΌ Π½Π΅ ΠΏΠΎΡ ΠΎΠΆΠΈ Π½Π° ΡΠ΅ ΡΡΠΎ Π²Π°ΠΌ ΠΏΡΠΈΡ ΠΎΠ΄ΠΈΠ»ΠΎΡΡ Π²ΠΈΠ΄Π΅ΡΡ ΠΈ ΠΎΡ ΡΠΎΠ³ΠΎ ΠΎΠ½ΠΈ ΡΡΠ°Π½ΠΎΠ²ΡΡΡΡ Π΅ΡΠ΅ Π±ΠΎΠ»Π΅Π΅ ΠΏΡΠΈΠ²Π»Π΅ΠΊΠ°ΡΠ΅Π»ΡΠ½ΡΠΌΠΈ. Π ΡΠΎΠΌΡ ΠΆΠ΅ Π΄ΠΎΠΌΠΈΠΊ ΡΠ°Π΄ΠΎΠ²ΡΠΉ Ρ Π²Π΅ΡΠ°Π½Π΄ΠΎΠΉ ΠΈΠ»ΠΈ ΡΠ΅ΡΡΠ°ΡΠΎΠΉ ΠΌΠΎΠΆΠ½ΠΎ ΠΏΠΎΡΡΡΠΎΠΈΡΡ, Π½Π΅ Π²ΠΊΠ»Π°Π΄ΡΠ²Π°Ρ ΡΠ΅Π»ΡΠ΅ ΡΠΎΡΡΠΎΡΠ½ΠΈΡ, Π½ΠΎ ΠΏΡΠΈ ΡΡΠΎΠΌ ΡΡΠ°ΡΡ Π²Π»Π°Π΄Π΅Π»ΡΡΠ΅ΠΌ ΠΎΠ±ΡΡΡΡΠΎΠ΅Π½Π½ΠΎΠ³ΠΎ ΠΊΠΎΠΌΡΠΎΡΡΠ°Π±Π΅Π»ΡΠ½ΠΎΠ³ΠΎ ΠΆΠΈΠ»ΡΡ.
2. Π‘ΠΊΠ°Π·ΠΎΡΠ½ΠΎΠ΅ Π±ΡΠ΅Π²Π΅Π½ΡΠ°ΡΠΎΠ΅ ΡΡΠ΄ΠΎ Π΄Π»Ρ ΡΠΊΡΡΠ΅Π½ΡΡΠΈΡΠ½ΡΡ Π»ΡΠ±ΠΈΡΠ΅Π»Π΅ΠΉ ΠΏΡΠΈΡΠΎΠ΄Ρ. (Π ΠΈΡ. 1, 2)
Π‘ΠΊΠ°Π·ΠΎΡΠ½ΠΎΠ΅ Π±ΡΠ΅Π²Π΅Π½ΡΠ°ΡΠΎΠ΅ ΡΡΠ΄ΠΎ Π΄Π»Ρ ΡΠΊΡΡΠ΅Π½ΡΡΠΈΡΠ½ΡΡ Π»ΡΠ±ΠΈΡΠ΅Π»Π΅ΠΉ ΠΏΡΠΈΡΠΎΠ΄Ρ
Π Π½Π°ΡΠ΅ΠΉ ΡΡΠ°ΡΡΠ΅ ΠΏΡΠ΅Π΄ΡΡΠ°Π²Π»Π΅Π½Ρ Π½Π΅ΡΠΊΠΎΠ»ΡΠΊΠΎ Π²Π°ΡΠΈΠ°Π½ΡΠΎΠ² Π½Π΅ΠΎΠ±ΡΠΊΠ½ΠΎΠ²Π΅Π½Π½ΡΡ
Π΄ΠΎΠΌΠΈΠΊΠΎΠ² Π΄Π»Ρ Π΄Π°ΡΠΈ. ΠΡΠ΅Π΄ΡΡΠ°Π²Π»Π΅Π½Π½ΡΠ΅ Π΄Π°ΡΠ½ΡΠ΅ Π΄ΠΎΠΌΠ° Ρ Π²Π΅ΡΠ°Π½Π΄ΠΎΠΉ Π½Π°Π²Π΅ΡΠ½ΡΠΊΠ° ΡΠΎΠ²ΡΠ΅ΠΌ Π½Π΅ ΠΏΠΎΡ
ΠΎΠΆΠΈ Π½Π° ΡΠ΅ ΡΡΠΎ Π²Π°ΠΌ ΠΏΡΠΈΡ
ΠΎΠ΄ΠΈΠ»ΠΎΡΡ Π²ΠΈΠ΄Π΅ΡΡ ΠΈ ΠΎΡ ΡΠΎΠ³ΠΎ ΠΎΠ½ΠΈ ΡΡΠ°Π½ΠΎΠ²ΡΡΡΡ Π΅ΡΠ΅ Π±ΠΎΠ»Π΅Π΅ ΠΏΡΠΈΠ²Π»Π΅ΠΊΠ°ΡΠ΅Π»ΡΠ½ΡΠΌΠΈ. Π ΡΠΎΠΌΡ ΠΆΠ΅ Π΄ΠΎΠΌΠΈΠΊ ΡΠ°Π΄ΠΎΠ²ΡΠΉ Ρ Π²Π΅ΡΠ°Π½Π΄ΠΎΠΉ ΠΈΠ»ΠΈ ΡΠ΅ΡΡΠ°ΡΠΎΠΉ ΠΌΠΎΠΆΠ½ΠΎ ΠΏΠΎΡΡΡΠΎΠΈΡΡ, Π½Π΅ Π²ΠΊΠ»Π°Π΄ΡΠ²Π°Ρ ΡΠ΅Π»ΡΠ΅ ΡΠΎΡΡΠΎΡΠ½ΠΈΡ, Π½ΠΎ ΠΏΡΠΈ ΡΡΠΎΠΌ ΡΡΠ°ΡΡ Π²Π»Π°Π΄Π΅Π»ΡΡΠ΅ΠΌ ΠΎΠ±ΡΡΡΡΠΎΠ΅Π½Π½ΠΎΠ³ΠΎ ΠΊΠΎΠΌΡΠΎΡΡΠ°Π±Π΅Π»ΡΠ½ΠΎΠ³ΠΎ ΠΆΠΈΠ»ΡΡ 2. Π‘ΠΊΠ°Π·ΠΎΡΠ½ΠΎΠ΅ Π±ΡΠ΅Π²Π΅Π½ΡΠ°ΡΠΎΠ΅ ΡΡΠ΄ΠΎ Π΄Π»Ρ ΡΠΊΡΡΠ΅Π½ΡΡΠΈΡΠ½ΡΡ
Π»ΡΠ±ΠΈΡΠ΅Π»Π΅ΠΉ ΠΏΡΠΈΡΠΎΠ΄Ρ. Michail RybakovΠ‘ΠΊΠ°Π·ΠΎΡΠ½ΠΎΠ΅ Π±ΡΠ΅Π²Π΅Π½ΡΠ°ΡΠΎΠ΅ ΡΡΠ΄ΠΎ Π΄Π»Ρ ΡΠΊΡΡΠ΅Π½ΡΡΠΈΡΠ½ΡΡ Π»ΡΠ±ΠΈΡΠ΅Π»Π΅ΠΉ ΠΏΡΠΈΡΠΎΠ΄Ρ
Π Π½Π°ΡΠ΅ΠΉ ΡΡΠ°ΡΡΠ΅ ΠΏΡΠ΅Π΄ΡΡΠ°Π²Π»Π΅Π½Ρ Π½Π΅ΡΠΊΠΎΠ»ΡΠΊΠΎ Π²Π°ΡΠΈΠ°Π½ΡΠΎΠ² Π½Π΅ΠΎΠ±ΡΠΊΠ½ΠΎΠ²Π΅Π½Π½ΡΡ
Π΄ΠΎΠΌΠΈΠΊΠΎΠ² Π΄Π»Ρ Π΄Π°ΡΠΈ. ΠΡΠ΅Π΄ΡΡΠ°Π²Π»Π΅Π½Π½ΡΠ΅ Π΄Π°ΡΠ½ΡΠ΅ Π΄ΠΎΠΌΠ° Ρ Π²Π΅ΡΠ°Π½Π΄ΠΎΠΉ Π½Π°Π²Π΅ΡΠ½ΡΠΊΠ° ΡΠΎΠ²ΡΠ΅ΠΌ Π½Π΅ ΠΏΠΎΡ
ΠΎΠΆΠΈ Π½Π° ΡΠ΅ ΡΡΠΎ Π²Π°ΠΌ ΠΏΡΠΈΡ
ΠΎΠ΄ΠΈΠ»ΠΎΡΡ Π²ΠΈΠ΄Π΅ΡΡ ΠΈ ΠΎΡ ΡΠΎΠ³ΠΎ ΠΎΠ½ΠΈ ΡΡΠ°Π½ΠΎΠ²ΡΡΡΡ Π΅ΡΠ΅ Π±ΠΎΠ»Π΅Π΅ ΠΏΡΠΈΠ²Π»Π΅ΠΊΠ°ΡΠ΅Π»ΡΠ½ΡΠΌΠΈ. Π ΡΠΎΠΌΡ ΠΆΠ΅ Π΄ΠΎΠΌΠΈΠΊ ΡΠ°Π΄ΠΎΠ²ΡΠΉ Ρ Π²Π΅ΡΠ°Π½Π΄ΠΎΠΉ ΠΈΠ»ΠΈ ΡΠ΅ΡΡΠ°ΡΠΎΠΉ ΠΌΠΎΠΆΠ½ΠΎ ΠΏΠΎΡΡΡΠΎΠΈΡΡ, Π½Π΅ Π²ΠΊΠ»Π°Π΄ΡΠ²Π°Ρ ΡΠ΅Π»ΡΠ΅ ΡΠΎΡΡΠΎΡΠ½ΠΈΡ, Π½ΠΎ ΠΏΡΠΈ ΡΡΠΎΠΌ ΡΡΠ°ΡΡ Π²Π»Π°Π΄Π΅Π»ΡΡΠ΅ΠΌ ΠΎΠ±ΡΡΡΡΠΎΠ΅Π½Π½ΠΎΠ³ΠΎ ΠΊΠΎΠΌΡΠΎΡΡΠ°Π±Π΅Π»ΡΠ½ΠΎΠ³ΠΎ ΠΆΠΈΠ»ΡΡ 2. Π‘ΠΊΠ°Π·ΠΎΡΠ½ΠΎΠ΅ Π±ΡΠ΅Π²Π΅Π½ΡΠ°ΡΠΎΠ΅ ΡΡΠ΄ΠΎ Π΄Π»Ρ ΡΠΊΡΡΠ΅Π½ΡΡΠΈΡΠ½ΡΡ
Π»ΡΠ±ΠΈΡΠ΅Π»Π΅ΠΉ ΠΏΡΠΈΡΠΎΠ΄Ρ. Michail RybakovΠΠ΅ΡΠΏΠΎΠ΄ΠΎΠ±Π½ΡΠΉ Π΄Π°ΠΆΠ΅ ΡΠΊΠ°Π·ΠΎΡΠ½ΡΠΉ Π΄ΠΎΠΌΠΈΠΊ Π΄Π»Ρ Π΄Π°ΡΠΈ ΠΏΡΠ΅Π΄ΡΡΠ°Π²Π»Π΅Π½ Π½Π° Π΄Π°Π½Π½ΡΡ ΡΠΎΡΠΎ. ΠΡΠ΅Π²Π΅Π½ΡΠ°ΡΠΎΠ΅ ΡΠΎΠΎΡΡΠΆΠ΅Π½ΠΈΠ΅ Π½Π°ΠΏΠΎΠΌΠΈΠ½Π°Π΅Ρ ΠΈΠ·Π»ΠΎΠΌΠ°Π½Π½ΡΠΉ ΡΡΠ°Π±Π΅Π»Ρ Π±ΡΠ΅Π²Π΅Π½. ΠΠΎΠ»ΡΡΠΎΠ΅ ΠΏΠ°Π½ΠΎΡΠ°ΠΌΠ½ΠΎΠ΅ ΠΎΠΊΠ½ΠΎ Π² ΡΡΠ΅Π½Π΅ ΠΎΡΠΊΡΡΠ²Π°Π΅Ρ Π²ΠΈΠ΄ Π½Π° ΡΠ°Π΄ ΠΈ Π·Π°ΡΡΠΎΡΠΈΠ²Π°Π΅ΡΡΡ ΠΏΠΎ ΠΌΠ΅ΡΠ΅ Π½Π΅ΠΎΠ±Ρ ΠΎΠ΄ΠΈΠΌΠΎΡΡΠΈ. (Π ΠΈΡ. 3)
ΠΠΎΠ»ΡΡΠΎΠ΅ ΠΏΠ°Π½ΠΎΡΠ°ΠΌΠ½ΠΎΠ΅ ΠΎΠΊΠ½ΠΎ Π² ΡΡΠ΅Π½Π΅ ΠΎΡΠΊΡΡΠ²Π°Π΅Ρ Π²ΠΈΠ΄ Π½Π° ΡΠ°Π΄ ΠΈ Π·Π°ΡΡΠΎΡΠΈΠ²Π°Π΅ΡΡΡ ΠΏΠΎ ΠΌΠ΅ΡΠ΅ Π½Π΅ΠΎΠ±Ρ ΠΎΠ΄ΠΈΠΌΠΎΡΡΠΈ
Π‘ΠΊΠ°Π·ΠΎΡΠ½ΠΎΠ΅ Π±ΡΠ΅Π²Π΅Π½ΡΠ°ΡΠΎΠ΅ ΡΡΠ΄ΠΎ Π΄Π»Ρ ΡΠΊΡΡΠ΅Π½ΡΡΠΈΡΠ½ΡΡ
Π»ΡΠ±ΠΈΡΠ΅Π»Π΅ΠΉ ΠΏΡΠΈΡΠΎΠ΄Ρ. ΠΠ΅ΡΠΏΠΎΠ΄ΠΎΠ±Π½ΡΠΉ Π΄Π°ΠΆΠ΅ ΡΠΊΠ°Π·ΠΎΡΠ½ΡΠΉ Π΄ΠΎΠΌΠΈΠΊ Π΄Π»Ρ Π΄Π°ΡΠΈ ΠΏΡΠ΅Π΄ΡΡΠ°Π²Π»Π΅Π½ Π½Π° Π΄Π°Π½Π½ΡΡ
ΡΠΎΡΠΎ. ΠΡΠ΅Π²Π΅Π½ΡΠ°ΡΠΎΠ΅ ΡΠΎΠΎΡΡΠΆΠ΅Π½ΠΈΠ΅ Π½Π°ΠΏΠΎΠΌΠΈΠ½Π°Π΅Ρ ΠΈΠ·Π»ΠΎΠΌΠ°Π½Π½ΡΠΉ ΡΡΠ°Π±Π΅Π»Ρ Π±ΡΠ΅Π²Π΅Π½. ΠΠΎΠ»ΡΡΠΎΠ΅ ΠΏΠ°Π½ΠΎΡΠ°ΠΌΠ½ΠΎΠ΅ ΠΎΠΊΠ½ΠΎ Π² ΡΡΠ΅Π½Π΅ ΠΎΡΠΊΡΡΠ²Π°Π΅Ρ Π²ΠΈΠ΄ Π½Π° ΡΠ°Π΄ ΠΈ Π·Π°ΡΡΠΎΡΠΈΠ²Π°Π΅ΡΡΡ ΠΏΠΎ ΠΌΠ΅ΡΠ΅ Π½Π΅ΠΎΠ±Ρ
ΠΎΠ΄ΠΈΠΌΠΎΡΡΠΈ. Michail RybakovΠΠ»Ρ ΠΎΡΠ΄Π΅Π»ΠΊΠΈ ΡΡΠ΅Π½ ΠΌΠΎΠΆΠ½ΠΎ ΠΈΡΠΏΠΎΠ»ΡΠ·ΠΎΠ²Π°ΡΡ Π³ΠΎΡΠΎΠ²ΡΠΉ Π±Π»ΠΎΠΊ Ρ Π°ΡΡ ΠΈΠ»ΠΈ ΡΠ°ΡΠΏΡΡΠ΅Π½Π½ΡΠ΅ ΡΠ°ΠΌΠΎΡΡΠΎΡΡΠ΅Π»ΡΠ½ΠΎ Π±ΡΠ΅Π²Π½Π°. Π’ΠΎΡΡΠ΅Π²ΡΠ΅ ΡΡΠ΅Π½Ρ ΠΎΠ±Π»ΠΈΡΠΎΠ²Π°Π½Ρ Π½Π°ΠΏΠΈΠ»Π΅Π½Π½ΡΠΌΠΈ ΠΈΠ· ΡΠ΅Π»ΡΠ½ΡΡ Π±ΡΠ΅Π²Π΅Π½ Π±ΡΡΡΠΊΠ°ΠΌΠΈ — ΠΊΡΡΠΆΠΎΡΠΊΠ°ΠΌΠΈ. ΠΠ½ΡΡΡΠ΅Π½Π½ΡΡ ΠΎΡΠ΄Π΅Π»ΠΊΠ° ΡΡΠ΅Π½ , ΠΏΠΎΡΠΎΠ»ΠΊΠ° ΠΈ ΠΏΠΎΠ»Π° ΡΠ°ΠΊ ΠΆΠ΅ Π²ΡΠΏΠΎΠ»Π½Π΅Π½Π° ΠΈΠ· Π΄ΡΠ΅Π²Π΅ΡΠΈΠ½Ρ. (Π ΠΈΡ. 4)
ΠΠ½ΡΡΡΠ΅Π½Π½ΡΡ ΠΎΡΠ΄Π΅Π»ΠΊΠ° ΡΡΠ΅Π½ , ΠΏΠΎΡΠΎΠ»ΠΊΠ° ΠΈ ΠΏΠΎΠ»Π° ΡΠ°ΠΊ ΠΆΠ΅ Π²ΡΠΏΠΎΠ»Π½Π΅Π½Π° ΠΈΠ· Π΄ΡΠ΅Π²Π΅ΡΠΈΠ½Ρ
ΠΠΎΠ»ΡΡΠΎΠ΅ ΠΏΠ°Π½ΠΎΡΠ°ΠΌΠ½ΠΎΠ΅ ΠΎΠΊΠ½ΠΎ Π² ΡΡΠ΅Π½Π΅ ΠΎΡΠΊΡΡΠ²Π°Π΅Ρ Π²ΠΈΠ΄ Π½Π° ΡΠ°Π΄ ΠΈ Π·Π°ΡΡΠΎΡΠΈΠ²Π°Π΅ΡΡΡ ΠΏΠΎ ΠΌΠ΅ΡΠ΅ Π½Π΅ΠΎΠ±Ρ
ΠΎΠ΄ΠΈΠΌΠΎΡΡΠΈ. ΠΠ»Ρ ΠΎΡΠ΄Π΅Π»ΠΊΠΈ ΡΡΠ΅Π½ ΠΌΠΎΠΆΠ½ΠΎ ΠΈΡΠΏΠΎΠ»ΡΠ·ΠΎΠ²Π°ΡΡ Π³ΠΎΡΠΎΠ²ΡΠΉ Π±Π»ΠΎΠΊ Ρ
Π°ΡΡ ΠΈΠ»ΠΈ ΡΠ°ΡΠΏΡΡΠ΅Π½Π½ΡΠ΅ ΡΠ°ΠΌΠΎΡΡΠΎΡΡΠ΅Π»ΡΠ½ΠΎ Π±ΡΠ΅Π²Π½Π°. Π’ΠΎΡΡΠ΅Π²ΡΠ΅ ΡΡΠ΅Π½Ρ ΠΎΠ±Π»ΠΈΡΠΎΠ²Π°Π½Ρ Π½Π°ΠΏΠΈΠ»Π΅Π½Π½ΡΠΌΠΈ ΠΈΠ· ΡΠ΅Π»ΡΠ½ΡΡ
Π±ΡΠ΅Π²Π΅Π½ Π±ΡΡΡΠΊΠ°ΠΌΠΈ — ΠΊΡΡΠΆΠΎΡΠΊΠ°ΠΌΠΈ. ΠΠ½ΡΡΡΠ΅Π½Π½ΡΡ ΠΎΡΠ΄Π΅Π»ΠΊΠ° ΡΡΠ΅Π½ , ΠΏΠΎΡΠΎΠ»ΠΊΠ° ΠΈ ΠΏΠΎΠ»Π° ΡΠ°ΠΊ ΠΆΠ΅ Π²ΡΠΏΠΎΠ»Π½Π΅Π½Π° ΠΈΠ· Π΄ΡΠ΅Π²Π΅ΡΠΈΠ½Ρ. Michail RybakovΠ’Π°ΠΊΠΎΠΉ Π΄ΠΎΠΌΠΈΠΊ Π΄ΠΎΡΡΠ°ΡΠΎΡΠ½ΠΎ ΡΠ΅ΠΏΠ»ΡΠΉ ΠΈ Π΄Π»Ρ Π·ΠΈΠΌΡ, ΠΏΠΎΠ΄ΠΊΠ»ΡΡΠΈΡΠ΅ Π΅Π³ΠΎ ΡΠ»Π΅ΠΊΡΡΠΈΡΠ΅ΡΡΠ²Ρ ΠΈ Π½Π°ΡΠ»Π°ΠΆΠ΄Π°ΠΉΡΠ΅ΡΡ Π·Π°Π³ΠΎΡΠΎΠ΄Π½ΡΠΌΠΈ ΠΏΠΎΠ΅Π·Π΄ΠΊΠ°ΠΌΠΈ Π΄Π°ΠΆΠ΅ Π² Ρ ΠΎΠ»ΠΎΠ΄Π½ΡΠΉ ΠΏΠ΅ΡΠΈΠΎΠ΄ Π³ΠΎΠ΄Π°. ΠΠ±ΡΠ°ΡΠΈΡΠ΅ Π²Π½ΠΈΠΌΠ°Π½ΠΈΠ΅ Π»ΠΈΡΡ Π½Π° ΡΠΎ, ΡΡΠΎΠ±Ρ Π΄ΡΠ΅Π²Π΅ΡΠΈΠ½Π°, ΠΈΠ· ΠΊΠΎΡΠΎΡΠΎΠΉ ΠΈΠ·Π³ΠΎΡΠΎΠ²Π»Π΅Π½ Π΄Π°ΡΠ½ΡΠΉ Π΄ΠΎΠΌΠΈΠΊ , Π΄ΠΎΠ»ΠΆΠ½Π° Π±ΡΡΡ ΠΎΠ±ΡΠ·Π°ΡΠ΅Π»ΡΠ½ΠΎ ΠΎΠ±ΡΠ°Π±ΠΎΡΠ°Π½Π° Π°Π½ΡΠΈΡΠ΅ΠΏΡΠΈΡΠ΅ΡΠΊΠΈΠΌΠΈ ΡΡΠ΅Π΄ΡΡΠ²Π°ΠΌΠΈ Ρ ΡΠ°Π·Π»ΠΈΡΠ½ΡΠΌΠΈ ΠΏΡΠΎΡΠΈΠ²ΠΎΠ³ΡΠΈΠ±ΠΊΠΎΠ²ΡΠΌΠΈ Π΄ΠΎΠ±Π°Π²ΠΊΠ°ΠΌΠΈ. ΠΠ΅ ΠΏΠΎΠΌΠ΅ΡΠ°Π΅Ρ ΠΈ ΠΎΠ±ΡΠ°Π±ΠΎΡΠΊΠ° Π²ΠΎΠ΄ΠΎΠΎΡΡΠ°Π»ΠΊΠΈΠ²Π°ΡΡΠΈΠΌΠΈ Π²Π΅ΡΠ΅ΡΡΠ²Π°ΠΌΠΈ. ΠΠΎΠ΄ΡΠΎΠ±Π½Π΅Π΅ ΠΎ ΡΠΎΠΌ, ΠΊΠ°ΠΊ ΠΎΠ±ΡΠ°Π±Π°ΡΡΠ²Π°ΡΡ Π΄Π΅ΡΠ΅Π²ΡΠ½Π½ΡΠ΅ Π΄Π΅ΡΠ°Π»ΠΈ ΠΈ ΠΊΠ°ΠΊΠΈΠ΅ ΠΈΠ½ΡΡΡΡΠΌΠ΅Π½ΡΡ ΠΏΡΠΈ ΡΡΠΎΠΌ ΠΌΠΎΠ³ΡΡ ΠΏΠΎΠ½Π°Π΄ΠΎΠ±ΠΈΡΡΡΡ ΡΠ°ΡΡΠΊΠ°Π·Π°Π½ΠΎ Π² ΡΡΠ°ΡΡΡΡ : «ΠΠ»Π°ΡΡΠΈΡΠΈΠΊΠ°ΡΠΈΡ ΠΊΠ»Π΅Ρ» , «ΠΠ°ΠΊ ΠΏΠΎΠΊΡΡΡΡ Π΄Π΅ΡΠ΅Π²ΠΎ ΠΌΠΎΡΠΈΠ»ΠΊΠΎΠΉ» , «ΠΠΎΡΠΈΠ»ΠΊΠ° Π΄Π»Ρ Π΄Π΅ΡΠ΅Π²Π°» , «Π‘ΡΠΎΠ»ΡΡΠ½ΡΠΉ ΠΈΠ½ΡΡΡΡΠΌΠ΅Π½Ρ» .
3. ΠΠ²ΡΡ ΡΡΠΎΠ²Π½Π΅Π²Π°Ρ Π³Π΅ΠΎΠΌΠ΅ΡΡΠΈΡ Π΄Π»Ρ Π΄Π²ΡΡ Π΄Π΅ΡΠ΅Π²ΡΠ½Π½ΡΡ Π΄Π°ΡΠ½ΡΡ Π΄ΠΎΠΌΠΎΠ². (Π ΠΈΡ. 5, 6)
ΠΠ²ΡΡ ΡΡΠΎΠ²Π½Π΅Π²Π°Ρ Π³Π΅ΠΎΠΌΠ΅ΡΡΠΈΡ Π΄Π»Ρ Π΄Π²ΡΡ Π΄Π΅ΡΠ΅Π²ΡΠ½Π½ΡΡ Π΄Π°ΡΠ½ΡΡ Π΄ΠΎΠΌΠΎΠ²
ΠΠ±ΡΠ°ΡΠΈΡΠ΅ Π²Π½ΠΈΠΌΠ°Π½ΠΈΠ΅ Π»ΠΈΡΡ Π½Π° ΡΠΎ, ΡΡΠΎΠ±Ρ Π΄ΡΠ΅Π²Π΅ΡΠΈΠ½Π°, ΠΈΠ· ΠΊΠΎΡΠΎΡΠΎΠΉ ΠΈΠ·Π³ΠΎΡΠΎΠ²Π»Π΅Π½ Π΄Π°ΡΠ½ΡΠΉ Π΄ΠΎΠΌΠΈΠΊ , Π΄ΠΎΠ»ΠΆΠ½Π° Π±ΡΡΡ ΠΎΠ±ΡΠ·Π°ΡΠ΅Π»ΡΠ½ΠΎ ΠΎΠ±ΡΠ°Π±ΠΎΡΠ°Π½Π° Π°Π½ΡΠΈΡΠ΅ΠΏΡΠΈΡΠ΅ΡΠΊΠΈΠΌΠΈ ΡΡΠ΅Π΄ΡΡΠ²Π°ΠΌΠΈ Ρ ΡΠ°Π·Π»ΠΈΡΠ½ΡΠΌΠΈ ΠΏΡΠΎΡΠΈΠ²ΠΎΠ³ΡΠΈΠ±ΠΊΠΎΠ²ΡΠΌΠΈ Π΄ΠΎΠ±Π°Π²ΠΊΠ°ΠΌΠΈ. ΠΠ΅ ΠΏΠΎΠΌΠ΅ΡΠ°Π΅Ρ ΠΈ ΠΎΠ±ΡΠ°Π±ΠΎΡΠΊΠ° Π²ΠΎΠ΄ΠΎΠΎΡΡΠ°Π»ΠΊΠΈΠ²Π°ΡΡΠΈΠΌΠΈ Π²Π΅ΡΠ΅ΡΡΠ²Π°ΠΌΠΈ. ΠΠΎΠ΄ΡΠΎΠ±Π½Π΅Π΅ ΠΎ ΡΠΎΠΌ, ΠΊΠ°ΠΊ ΠΎΠ±ΡΠ°Π±Π°ΡΡΠ²Π°ΡΡ Π΄Π΅ΡΠ΅Π²ΡΠ½Π½ΡΠ΅ Π΄Π΅ΡΠ°Π»ΠΈ ΠΈ ΠΊΠ°ΠΊΠΈΠ΅ ΠΈΠ½ΡΡΡΡΠΌΠ΅Π½ΡΡ ΠΏΡΠΈ ΡΡΠΎΠΌ ΠΌΠΎΠ³ΡΡ ΠΏΠΎΠ½Π°Π΄ΠΎΠ±ΠΈΡΡΡΡ ΡΠ°ΡΡΠΊΠ°Π·Π°Π½ΠΎ Π² ΡΡΠ°ΡΡΡΡ
: ΠΠ»Π°ΡΡΠΈΡΠΈΠΊΠ°ΡΠΈΡ ΠΊΠ»Π΅Ρ , ΠΠ°ΠΊ ΠΏΠΎΠΊΡΡΡΡ Π΄Π΅ΡΠ΅Π²ΠΎ ΠΌΠΎΡΠΈΠ»ΠΊΠΎΠΉ , ΠΠΎΡΠΈΠ»ΠΊΠ° Π΄Π»Ρ Π΄Π΅ΡΠ΅Π²Π° , Π‘ΡΠΎΠ»ΡΡΠ½ΡΠΉ ΠΈΠ½ΡΡΡΡΠΌΠ΅Π½Ρ 3. ΠΠ²ΡΡ
ΡΡΠΎΠ²Π½Π΅Π²Π°Ρ Π³Π΅ΠΎΠΌΠ΅ΡΡΠΈΡ Π΄Π»Ρ Π΄Π²ΡΡ
Π΄Π΅ΡΠ΅Π²ΡΠ½Π½ΡΡ
Π΄Π°ΡΠ½ΡΡ
Π΄ΠΎΠΌΠΎΠ². Michail RybakovΠΠ²ΡΡ ΡΡΠΎΠ²Π½Π΅Π²Π°Ρ Π³Π΅ΠΎΠΌΠ΅ΡΡΠΈΡ Π΄Π»Ρ Π΄Π²ΡΡ Π΄Π΅ΡΠ΅Π²ΡΠ½Π½ΡΡ Π΄Π°ΡΠ½ΡΡ Π΄ΠΎΠΌΠΎΠ²
ΠΠ±ΡΠ°ΡΠΈΡΠ΅ Π²Π½ΠΈΠΌΠ°Π½ΠΈΠ΅ Π»ΠΈΡΡ Π½Π° ΡΠΎ, ΡΡΠΎΠ±Ρ Π΄ΡΠ΅Π²Π΅ΡΠΈΠ½Π°, ΠΈΠ· ΠΊΠΎΡΠΎΡΠΎΠΉ ΠΈΠ·Π³ΠΎΡΠΎΠ²Π»Π΅Π½ Π΄Π°ΡΠ½ΡΠΉ Π΄ΠΎΠΌΠΈΠΊ , Π΄ΠΎΠ»ΠΆΠ½Π° Π±ΡΡΡ ΠΎΠ±ΡΠ·Π°ΡΠ΅Π»ΡΠ½ΠΎ ΠΎΠ±ΡΠ°Π±ΠΎΡΠ°Π½Π° Π°Π½ΡΠΈΡΠ΅ΠΏΡΠΈΡΠ΅ΡΠΊΠΈΠΌΠΈ ΡΡΠ΅Π΄ΡΡΠ²Π°ΠΌΠΈ Ρ ΡΠ°Π·Π»ΠΈΡΠ½ΡΠΌΠΈ ΠΏΡΠΎΡΠΈΠ²ΠΎΠ³ΡΠΈΠ±ΠΊΠΎΠ²ΡΠΌΠΈ Π΄ΠΎΠ±Π°Π²ΠΊΠ°ΠΌΠΈ. ΠΠ΅ ΠΏΠΎΠΌΠ΅ΡΠ°Π΅Ρ ΠΈ ΠΎΠ±ΡΠ°Π±ΠΎΡΠΊΠ° Π²ΠΎΠ΄ΠΎΠΎΡΡΠ°Π»ΠΊΠΈΠ²Π°ΡΡΠΈΠΌΠΈ Π²Π΅ΡΠ΅ΡΡΠ²Π°ΠΌΠΈ. ΠΠΎΠ΄ΡΠΎΠ±Π½Π΅Π΅ ΠΎ ΡΠΎΠΌ, ΠΊΠ°ΠΊ ΠΎΠ±ΡΠ°Π±Π°ΡΡΠ²Π°ΡΡ Π΄Π΅ΡΠ΅Π²ΡΠ½Π½ΡΠ΅ Π΄Π΅ΡΠ°Π»ΠΈ ΠΈ ΠΊΠ°ΠΊΠΈΠ΅ ΠΈΠ½ΡΡΡΡΠΌΠ΅Π½ΡΡ ΠΏΡΠΈ ΡΡΠΎΠΌ ΠΌΠΎΠ³ΡΡ ΠΏΠΎΠ½Π°Π΄ΠΎΠ±ΠΈΡΡΡΡ ΡΠ°ΡΡΠΊΠ°Π·Π°Π½ΠΎ Π² ΡΡΠ°ΡΡΡΡ
: ΠΠ»Π°ΡΡΠΈΡΠΈΠΊΠ°ΡΠΈΡ ΠΊΠ»Π΅Ρ , ΠΠ°ΠΊ ΠΏΠΎΠΊΡΡΡΡ Π΄Π΅ΡΠ΅Π²ΠΎ ΠΌΠΎΡΠΈΠ»ΠΊΠΎΠΉ , ΠΠΎΡΠΈΠ»ΠΊΠ° Π΄Π»Ρ Π΄Π΅ΡΠ΅Π²Π° , Π‘ΡΠΎΠ»ΡΡΠ½ΡΠΉ ΠΈΠ½ΡΡΡΡΠΌΠ΅Π½Ρ 3. ΠΠ²ΡΡ
ΡΡΠΎΠ²Π½Π΅Π²Π°Ρ Π³Π΅ΠΎΠΌΠ΅ΡΡΠΈΡ Π΄Π»Ρ Π΄Π²ΡΡ
Π΄Π΅ΡΠ΅Π²ΡΠ½Π½ΡΡ
Π΄Π°ΡΠ½ΡΡ
Π΄ΠΎΠΌΠΎΠ². Michail RybakovΠΡΠ»ΠΈΡΠ½Π°Ρ ΠΈΠ΄Π΅Ρ Π΄ΠΎΠΌΠ° Π΄Π»Ρ ΡΠ΅Ρ , ΠΊΡΠΎ ΠΌΠ΅ΡΡΠ°Π» ΠΎ ΠΆΠΈΠ»ΠΈΡΠ΅ Π² ΡΠΊΠΎ ΡΡΠΈΠ»Π΅. ΠΡΠΈΠ³ΠΈΠ½Π°Π»ΡΠ½Π°Ρ ΠΈΠ΄Π΅Ρ ΠΎΡΠ΄Π΅Π»ΠΊΠΈ ΡΡΠ΅Π½, ΠΊΠΎΡΠΎΡΠ°Ρ ΡΠΎΡΡΠΎΠΈΡ ΠΈΠ· Π½Π°ΡΠ΅Π·Π°Π½Π½ΡΡ Π²Π΅ΡΠΎΠΊ Π½Π°ΡΡΡΠ°Π»ΡΠ½ΠΎΠ³ΠΎ Π΄Π΅ΡΠ΅Π²Π°, ΠΎΡΠ΅Π½Ρ ΠΎΡΠ³Π°Π½ΠΈΡΠ½ΠΎ Π²ΠΏΠΈΡΠ΅ΡΡΡ Π² ΡΠΎΠ²Π΅ΡΡΠ΅Π½Π½ΠΎ Π»ΡΠ±ΠΎΠΉ Π»Π°Π½Π΄ΡΠ°ΡΡΠ½ΡΠΉ Π΄ΠΈΠ·Π°ΠΉΠ½ ΡΡΠ°ΡΡΠΊΠ°. (Π ΠΈΡ. 7, 8)
ΠΡΠΈΠ³ΠΈΠ½Π°Π»ΡΠ½Π°Ρ ΠΈΠ΄Π΅Ρ ΠΎΡΠ΄Π΅Π»ΠΊΠΈ ΡΡΠ΅Π½, ΠΊΠΎΡΠΎΡΠ°Ρ ΡΠΎΡΡΠΎΠΈΡ ΠΈΠ· Π½Π°ΡΠ΅Π·Π°Π½Π½ΡΡ Π²Π΅ΡΠΎΠΊ Π½Π°ΡΡΡΠ°Π»ΡΠ½ΠΎΠ³ΠΎ Π΄Π΅ΡΠ΅Π²Π°, ΠΎΡΠ΅Π½Ρ ΠΎΡΠ³Π°Π½ΠΈΡΠ½ΠΎ Π²ΠΏΠΈΡΠ΅ΡΡΡ Π² ΡΠΎΠ²Π΅ΡΡΠ΅Π½Π½ΠΎ Π»ΡΠ±ΠΎΠΉ Π»Π°Π½Π΄ΡΠ°ΡΡΠ½ΡΠΉ Π΄ΠΈΠ·Π°ΠΉΠ½ ΡΡΠ°ΡΡΠΊΠ°
ΠΠΎΠ΄ΡΠΎΠ±Π½Π΅Π΅ ΠΎ ΡΠΎΠΌ, ΠΊΠ°ΠΊ ΠΎΠ±ΡΠ°Π±Π°ΡΡΠ²Π°ΡΡ Π΄Π΅ΡΠ΅Π²ΡΠ½Π½ΡΠ΅ Π΄Π΅ΡΠ°Π»ΠΈ ΠΈ ΠΊΠ°ΠΊΠΈΠ΅ ΠΈΠ½ΡΡΡΡΠΌΠ΅Π½ΡΡ ΠΏΡΠΈ ΡΡΠΎΠΌ ΠΌΠΎΠ³ΡΡ ΠΏΠΎΠ½Π°Π΄ΠΎΠ±ΠΈΡΡΡΡ ΡΠ°ΡΡΠΊΠ°Π·Π°Π½ΠΎ Π² ΡΡΠ°ΡΡΡΡ
: ΠΠ»Π°ΡΡΠΈΡΠΈΠΊΠ°ΡΠΈΡ ΠΊΠ»Π΅Ρ , ΠΠ°ΠΊ ΠΏΠΎΠΊΡΡΡΡ Π΄Π΅ΡΠ΅Π²ΠΎ ΠΌΠΎΡΠΈΠ»ΠΊΠΎΠΉ , ΠΠΎΡΠΈΠ»ΠΊΠ° Π΄Π»Ρ Π΄Π΅ΡΠ΅Π²Π° , Π‘ΡΠΎΠ»ΡΡΠ½ΡΠΉ ΠΈΠ½ΡΡΡΡΠΌΠ΅Π½Ρ 3. ΠΠ²ΡΡ
ΡΡΠΎΠ²Π½Π΅Π²Π°Ρ Π³Π΅ΠΎΠΌΠ΅ΡΡΠΈΡ Π΄Π»Ρ Π΄Π²ΡΡ
Π΄Π΅ΡΠ΅Π²ΡΠ½Π½ΡΡ
Π΄Π°ΡΠ½ΡΡ
Π΄ΠΎΠΌΠΎΠ². ΠΡΠ»ΠΈΡΠ½Π°Ρ ΠΈΠ΄Π΅Ρ Π΄ΠΎΠΌΠ° Π΄Π»Ρ ΡΠ΅Ρ
, ΠΊΡΠΎ ΠΌΠ΅ΡΡΠ°Π» ΠΎ ΠΆΠΈΠ»ΠΈΡΠ΅ Π² ΡΠΊΠΎ ΡΡΠΈΠ»Π΅. ΠΡΠΈΠ³ΠΈΠ½Π°Π»ΡΠ½Π°Ρ ΠΈΠ΄Π΅Ρ ΠΎΡΠ΄Π΅Π»ΠΊΠΈ ΡΡΠ΅Π½, ΠΊΠΎΡΠΎΡΠ°Ρ ΡΠΎΡΡΠΎΠΈΡ ΠΈΠ· Π½Π°ΡΠ΅Π·Π°Π½Π½ΡΡ
Π²Π΅ΡΠΎΠΊ Π½Π°ΡΡΡΠ°Π»ΡΠ½ΠΎΠ³ΠΎ Π΄Π΅ΡΠ΅Π²Π°, ΠΎΡΠ΅Π½Ρ ΠΎΡΠ³Π°Π½ΠΈΡΠ½ΠΎ Π²ΠΏΠΈΡΠ΅ΡΡΡ Π² ΡΠΎΠ²Π΅ΡΡΠ΅Π½Π½ΠΎ Π»ΡΠ±ΠΎΠΉ Π»Π°Π½Π΄ΡΠ°ΡΡΠ½ΡΠΉ Π΄ΠΈΠ·Π°ΠΉΠ½ ΡΡΠ°ΡΡΠΊΠ°. Michail RybakovΠΡΠΈΠ³ΠΈΠ½Π°Π»ΡΠ½Π°Ρ ΠΈΠ΄Π΅Ρ ΠΎΡΠ΄Π΅Π»ΠΊΠΈ ΡΡΠ΅Π½, ΠΊΠΎΡΠΎΡΠ°Ρ ΡΠΎΡΡΠΎΠΈΡ ΠΈΠ· Π½Π°ΡΠ΅Π·Π°Π½Π½ΡΡ Π²Π΅ΡΠΎΠΊ Π½Π°ΡΡΡΠ°Π»ΡΠ½ΠΎΠ³ΠΎ Π΄Π΅ΡΠ΅Π²Π°, ΠΎΡΠ΅Π½Ρ ΠΎΡΠ³Π°Π½ΠΈΡΠ½ΠΎ Π²ΠΏΠΈΡΠ΅ΡΡΡ Π² ΡΠΎΠ²Π΅ΡΡΠ΅Π½Π½ΠΎ Π»ΡΠ±ΠΎΠΉ Π»Π°Π½Π΄ΡΠ°ΡΡΠ½ΡΠΉ Π΄ΠΈΠ·Π°ΠΉΠ½ ΡΡΠ°ΡΡΠΊΠ°
ΠΠΎΠ΄ΡΠΎΠ±Π½Π΅Π΅ ΠΎ ΡΠΎΠΌ, ΠΊΠ°ΠΊ ΠΎΠ±ΡΠ°Π±Π°ΡΡΠ²Π°ΡΡ Π΄Π΅ΡΠ΅Π²ΡΠ½Π½ΡΠ΅ Π΄Π΅ΡΠ°Π»ΠΈ ΠΈ ΠΊΠ°ΠΊΠΈΠ΅ ΠΈΠ½ΡΡΡΡΠΌΠ΅Π½ΡΡ ΠΏΡΠΈ ΡΡΠΎΠΌ ΠΌΠΎΠ³ΡΡ ΠΏΠΎΠ½Π°Π΄ΠΎΠ±ΠΈΡΡΡΡ ΡΠ°ΡΡΠΊΠ°Π·Π°Π½ΠΎ Π² ΡΡΠ°ΡΡΡΡ
: ΠΠ»Π°ΡΡΠΈΡΠΈΠΊΠ°ΡΠΈΡ ΠΊΠ»Π΅Ρ , ΠΠ°ΠΊ ΠΏΠΎΠΊΡΡΡΡ Π΄Π΅ΡΠ΅Π²ΠΎ ΠΌΠΎΡΠΈΠ»ΠΊΠΎΠΉ , ΠΠΎΡΠΈΠ»ΠΊΠ° Π΄Π»Ρ Π΄Π΅ΡΠ΅Π²Π° , Π‘ΡΠΎΠ»ΡΡΠ½ΡΠΉ ΠΈΠ½ΡΡΡΡΠΌΠ΅Π½Ρ 3. ΠΠ²ΡΡ
ΡΡΠΎΠ²Π½Π΅Π²Π°Ρ Π³Π΅ΠΎΠΌΠ΅ΡΡΠΈΡ Π΄Π»Ρ Π΄Π²ΡΡ
Π΄Π΅ΡΠ΅Π²ΡΠ½Π½ΡΡ
Π΄Π°ΡΠ½ΡΡ
Π΄ΠΎΠΌΠΎΠ². ΠΡΠ»ΠΈΡΠ½Π°Ρ ΠΈΠ΄Π΅Ρ Π΄ΠΎΠΌΠ° Π΄Π»Ρ ΡΠ΅Ρ
, ΠΊΡΠΎ ΠΌΠ΅ΡΡΠ°Π» ΠΎ ΠΆΠΈΠ»ΠΈΡΠ΅ Π² ΡΠΊΠΎ ΡΡΠΈΠ»Π΅. ΠΡΠΈΠ³ΠΈΠ½Π°Π»ΡΠ½Π°Ρ ΠΈΠ΄Π΅Ρ ΠΎΡΠ΄Π΅Π»ΠΊΠΈ ΡΡΠ΅Π½, ΠΊΠΎΡΠΎΡΠ°Ρ ΡΠΎΡΡΠΎΠΈΡ ΠΈΠ· Π½Π°ΡΠ΅Π·Π°Π½Π½ΡΡ
Π²Π΅ΡΠΎΠΊ Π½Π°ΡΡΡΠ°Π»ΡΠ½ΠΎΠ³ΠΎ Π΄Π΅ΡΠ΅Π²Π°, ΠΎΡΠ΅Π½Ρ ΠΎΡΠ³Π°Π½ΠΈΡΠ½ΠΎ Π²ΠΏΠΈΡΠ΅ΡΡΡ Π² ΡΠΎΠ²Π΅ΡΡΠ΅Π½Π½ΠΎ Π»ΡΠ±ΠΎΠΉ Π»Π°Π½Π΄ΡΠ°ΡΡΠ½ΡΠΉ Π΄ΠΈΠ·Π°ΠΉΠ½ ΡΡΠ°ΡΡΠΊΠ°. Michail RybakovΠ‘Π»ΠΎΠΆΠ½ΡΠ΅ Π½Π° ΠΏΠ΅ΡΠ²ΡΠΉ Π²Π·Π³Π»ΡΠ΄ Π΄ΠΎΠΌΠ° Π½Π° ΡΠ°ΠΌΠΎΠΌ Π΄Π΅Π»Π΅ Π΄ΠΎΠ²ΠΎΠ»ΡΠ½ΠΎ ΠΏΡΠΎΡΡΡ ΠΈ Π΄ΠΎΡΡΡΠΏΠ½Ρ Π΄Π»Ρ ΠΏΠΎΡΡΡΠΎΠΉΠΊΠΈ. ΠΠ°Π³Π»ΡΠ΄Π½ΠΎ ΡΡΠΎ ΠΏΠΎΠΊΠ°Π·ΡΠ²Π°ΡΡ ΡΠ΅ΡΡΠ΅ΠΆΠΈ Π΄ΠΎΠΌΠΎΠ². (Π ΠΈΡ. 9, 10)
ΠΠ°Π³Π»ΡΠ΄Π½ΠΎ ΡΡΠΎ ΠΏΠΎΠΊΠ°Π·ΡΠ²Π°ΡΡ ΡΠ΅ΡΡΠ΅ΠΆΠΈ Π΄ΠΎΠΌΠΎΠ²
ΠΡΠ»ΠΈΡΠ½Π°Ρ ΠΈΠ΄Π΅Ρ Π΄ΠΎΠΌΠ° Π΄Π»Ρ ΡΠ΅Ρ
, ΠΊΡΠΎ ΠΌΠ΅ΡΡΠ°Π» ΠΎ ΠΆΠΈΠ»ΠΈΡΠ΅ Π² ΡΠΊΠΎ ΡΡΠΈΠ»Π΅. ΠΡΠΈΠ³ΠΈΠ½Π°Π»ΡΠ½Π°Ρ ΠΈΠ΄Π΅Ρ ΠΎΡΠ΄Π΅Π»ΠΊΠΈ ΡΡΠ΅Π½, ΠΊΠΎΡΠΎΡΠ°Ρ ΡΠΎΡΡΠΎΠΈΡ ΠΈΠ· Π½Π°ΡΠ΅Π·Π°Π½Π½ΡΡ
Π²Π΅ΡΠΎΠΊ Π½Π°ΡΡΡΠ°Π»ΡΠ½ΠΎΠ³ΠΎ Π΄Π΅ΡΠ΅Π²Π°, ΠΎΡΠ΅Π½Ρ ΠΎΡΠ³Π°Π½ΠΈΡΠ½ΠΎ Π²ΠΏΠΈΡΠ΅ΡΡΡ Π² ΡΠΎΠ²Π΅ΡΡΠ΅Π½Π½ΠΎ Π»ΡΠ±ΠΎΠΉ Π»Π°Π½Π΄ΡΠ°ΡΡΠ½ΡΠΉ Π΄ΠΈΠ·Π°ΠΉΠ½ ΡΡΠ°ΡΡΠΊΠ°. Π‘Π»ΠΎΠΆΠ½ΡΠ΅ Π½Π° ΠΏΠ΅ΡΠ²ΡΠΉ Π²Π·Π³Π»ΡΠ΄ Π΄ΠΎΠΌΠ° Π½Π° ΡΠ°ΠΌΠΎΠΌ Π΄Π΅Π»Π΅ Π΄ΠΎΠ²ΠΎΠ»ΡΠ½ΠΎ ΠΏΡΠΎΡΡΡ ΠΈ Π΄ΠΎΡΡΡΠΏΠ½Ρ Π΄Π»Ρ ΠΏΠΎΡΡΡΠΎΠΉΠΊΠΈ. ΠΠ°Π³Π»ΡΠ΄Π½ΠΎ ΡΡΠΎ ΠΏΠΎΠΊΠ°Π·ΡΠ²Π°ΡΡ ΡΠ΅ΡΡΠ΅ΠΆΠΈ Π΄ΠΎΠΌΠΎΠ². Michail RybakovΠΠ°Π³Π»ΡΠ΄Π½ΠΎ ΡΡΠΎ ΠΏΠΎΠΊΠ°Π·ΡΠ²Π°ΡΡ ΡΠ΅ΡΡΠ΅ΠΆΠΈ Π΄ΠΎΠΌΠΎΠ²
ΠΡΠ»ΠΈΡΠ½Π°Ρ ΠΈΠ΄Π΅Ρ Π΄ΠΎΠΌΠ° Π΄Π»Ρ ΡΠ΅Ρ
, ΠΊΡΠΎ ΠΌΠ΅ΡΡΠ°Π» ΠΎ ΠΆΠΈΠ»ΠΈΡΠ΅ Π² ΡΠΊΠΎ ΡΡΠΈΠ»Π΅. ΠΡΠΈΠ³ΠΈΠ½Π°Π»ΡΠ½Π°Ρ ΠΈΠ΄Π΅Ρ ΠΎΡΠ΄Π΅Π»ΠΊΠΈ ΡΡΠ΅Π½, ΠΊΠΎΡΠΎΡΠ°Ρ ΡΠΎΡΡΠΎΠΈΡ ΠΈΠ· Π½Π°ΡΠ΅Π·Π°Π½Π½ΡΡ
Π²Π΅ΡΠΎΠΊ Π½Π°ΡΡΡΠ°Π»ΡΠ½ΠΎΠ³ΠΎ Π΄Π΅ΡΠ΅Π²Π°, ΠΎΡΠ΅Π½Ρ ΠΎΡΠ³Π°Π½ΠΈΡΠ½ΠΎ Π²ΠΏΠΈΡΠ΅ΡΡΡ Π² ΡΠΎΠ²Π΅ΡΡΠ΅Π½Π½ΠΎ Π»ΡΠ±ΠΎΠΉ Π»Π°Π½Π΄ΡΠ°ΡΡΠ½ΡΠΉ Π΄ΠΈΠ·Π°ΠΉΠ½ ΡΡΠ°ΡΡΠΊΠ°. Π‘Π»ΠΎΠΆΠ½ΡΠ΅ Π½Π° ΠΏΠ΅ΡΠ²ΡΠΉ Π²Π·Π³Π»ΡΠ΄ Π΄ΠΎΠΌΠ° Π½Π° ΡΠ°ΠΌΠΎΠΌ Π΄Π΅Π»Π΅ Π΄ΠΎΠ²ΠΎΠ»ΡΠ½ΠΎ ΠΏΡΠΎΡΡΡ ΠΈ Π΄ΠΎΡΡΡΠΏΠ½Ρ Π΄Π»Ρ ΠΏΠΎΡΡΡΠΎΠΉΠΊΠΈ. ΠΠ°Π³Π»ΡΠ΄Π½ΠΎ ΡΡΠΎ ΠΏΠΎΠΊΠ°Π·ΡΠ²Π°ΡΡ ΡΠ΅ΡΡΠ΅ΠΆΠΈ Π΄ΠΎΠΌΠΎΠ². Michail Rybakov Π‘ΡΠ²ΠΎΠ»Ρ Π΄Π΅ΡΠ΅Π²ΡΠ΅Π² Π»Π΅Π³ΠΊΠΎ Π½Π°Π±ΠΈΡΠ°ΡΡΡΡ ΠΈ ΡΠΈΠΊΡΠΈΡΡΡΡΡΡ ΠΊ Π΄Π΅ΡΠ΅Π²ΡΠ½Π½ΠΎΠΉ ΠΎΡΠ½ΠΎΠ²Π΅ Π΄ΠΎΠΌΠ°. ΠΡΠΎΡΠΎΠΉ ΠΆΠ΅ ΠΏΡΠΎΠ΅ΠΊΡ Π΄ΠΎΠΌΠ° Π²ΠΎΠΎΠ±ΡΠ΅ ΠΏΡΠ΅Π΄ΡΡΠΌΠ°ΡΡΠΈΠ²Π°Π΅Ρ ΠΏΠΎΠ»Π½ΠΎΠ΅ ΠΎΡΡΠ΅ΠΊΠ»Π΅Π½ΠΈΠ΅ Π²ΡΠ΅Ρ
ΡΡΠ΅Π½, ΡΡΡ ΠΏΠΎΠ²Π΅ΡΡ
Π½ΠΎΡΡΡ Π² Π΄Π°Π»ΡΠ½Π΅ΠΉΡΠ΅ΠΌ Π·Π°ΠΊΡΡΠ²Π°Π΅ΡΡΡ ΡΡΠ»ΠΎΠ½Π½ΡΠΌΠΈ ΡΡΠΎΡΠ°ΠΌΠΈ, Ρ Π»Π°ΠΌΠ΅Π»ΡΠΌΠΈ, ΠΈΠ·Π³ΠΎΡΠΎΠ²Π»Π΅Π½Π½ΡΠΌΠΈ ΠΈΠ· Π½Π°ΡΡΡΠ°Π»ΡΠ½ΠΎΠ³ΠΎ Π΄Π΅ΡΠ΅Π²Π° ΠΈΠ»ΠΈ ΠΈΠ· ΠΏΠ»Π°ΡΡΠΈΠΊΠ° Ρ ΠΈΠΌΠΈΡΠ°ΡΠΈΠ΅ΠΉ Π½Π°ΡΡΡΠ°Π»ΡΠ½ΠΎΠΉ Π΄ΡΠ΅Π²Π΅ΡΠΈΠ½Ρ. («ΠΠ°Π»ΡΠ·ΠΈ Π½Π° Π±Π°Π»ΠΊΠΎΠ½» , «Π¨ΡΠΎΡΡ Π½Π° Π±Π°Π»ΠΊΠΎΠ½» , «ΠΠΈΠ΄Ρ ΠΈ ΡΠ°Π·Π»ΠΈΡΠΈΡ ΡΡΠΎΡ. » , «Π‘ΡΠΎΠ»ΡΡΠ½ΡΠΉ ΠΈΠ½ΡΡΡΡΠΌΠ΅Π½Ρ» ). ΠΠΎΠΏΠΎΠ»Π½ΠΈΡΠ΅Π»ΡΠ½ΠΎ Π΄ΠΎΡΡΡΠΎΠ΅Π½Π½Π°Ρ Π²Π΅ΡΠ°Π½Π΄Π° ΠΊ Π΄ΠΎΠΌΡ ΡΠ²ΠΎΠΈΠΌΠΈ ΡΡΠΊΠ°ΠΌΠΈ ΡΠΎΠ»ΡΠΊΠΎ ΡΡΠΈΠ»ΠΈΡ ΡΠΌΠΎΡΠΈΠΎΠ½Π°Π»ΡΠ½ΠΎΠ΅ ΡΠ΄ΠΎΠ²Π»Π΅ΡΠ²ΠΎΡΠ΅Π½ΠΈΠ΅ ΠΎΡ Π²ΠΎΠ·Π²Π΅Π΄Π΅Π½ΠΈΡ ΡΠ°ΠΊΠΎΠΉ Π½Π΅Π²Π΅ΡΠΎΡΡΠ½ΠΎΠΉ ΠΏΠΎ ΠΊΠΎΠ½ΡΡΡΡΠΊΡΠΈΠΈ ΠΏΠΎΡΡΡΠΎΠΉΠΊΠΈ. (» Π‘ΡΡΠΎΠΈΠΌ Π²Π΅ΡΠ°Π½Π΄Ρ ΡΠ²ΠΎΠΈΠΌΠΈ ΡΡΠΊΠ°ΠΌΠΈ» ). (Π ΠΈΡ. 11)ΠΠΎΠΏΠΎΠ»Π½ΠΈΡΠ΅Π»ΡΠ½ΠΎ Π΄ΠΎΡΡΡΠΎΠ΅Π½Π½Π°Ρ Π²Π΅ΡΠ°Π½Π΄Π° ΠΊ Π΄ΠΎΠΌΡ ΡΠ²ΠΎΠΈΠΌΠΈ ΡΡΠΊΠ°ΠΌΠΈ ΡΠΎΠ»ΡΠΊΠΎ ΡΡΠΈΠ»ΠΈΡ ΡΠΌΠΎΡΠΈΠΎΠ½Π°Π»ΡΠ½ΠΎΠ΅ ΡΠ΄ΠΎΠ²Π»Π΅ΡΠ²ΠΎΡΠ΅Π½ΠΈΠ΅ ΠΎΡ Π²ΠΎΠ·Π²Π΅Π΄Π΅Π½ΠΈΡ ΡΠ°ΠΊΠΎΠΉ Π½Π΅Π²Π΅ΡΠΎΡΡΠ½ΠΎΠΉ ΠΏΠΎ ΠΊΠΎΠ½ΡΡΡΡΠΊΡΠΈΠΈ ΠΏΠΎΡΡΡΠΎΠΉΠΊΠΈ ( Π‘ΡΡΠΎΠΈΠΌ Π²Π΅ΡΠ°Π½Π΄Ρ ΡΠ²ΠΎΠΈΠΌΠΈ ΡΡΠΊΠ°ΠΌΠΈ )
ΠΠ°Π³Π»ΡΠ΄Π½ΠΎ ΡΡΠΎ ΠΏΠΎΠΊΠ°Π·ΡΠ²Π°ΡΡ ΡΠ΅ΡΡΠ΅ΠΆΠΈ Π΄ΠΎΠΌΠΎΠ². Π‘ΡΠ²ΠΎΠ»Ρ Π΄Π΅ΡΠ΅Π²ΡΠ΅Π² Π»Π΅Π³ΠΊΠΎ Π½Π°Π±ΠΈΡΠ°ΡΡΡΡ ΠΈ ΡΠΈΠΊΡΠΈΡΡΡΡΡΡ ΠΊ Π΄Π΅ΡΠ΅Π²ΡΠ½Π½ΠΎΠΉ ΠΎΡΠ½ΠΎΠ²Π΅ Π΄ΠΎΠΌΠ°. ΠΡΠΎΡΠΎΠΉ ΠΆΠ΅ ΠΏΡΠΎΠ΅ΠΊΡ Π΄ΠΎΠΌΠ° Π²ΠΎΠΎΠ±ΡΠ΅ ΠΏΡΠ΅Π΄ΡΡΠΌΠ°ΡΡΠΈΠ²Π°Π΅Ρ ΠΏΠΎΠ»Π½ΠΎΠ΅ ΠΎΡΡΠ΅ΠΊΠ»Π΅Π½ΠΈΠ΅ Π²ΡΠ΅Ρ
ΡΡΠ΅Π½, ΡΡΡ ΠΏΠΎΠ²Π΅ΡΡ
Π½ΠΎΡΡΡ Π² Π΄Π°Π»ΡΠ½Π΅ΠΉΡΠ΅ΠΌ Π·Π°ΠΊΡΡΠ²Π°Π΅ΡΡΡ ΡΡΠ»ΠΎΠ½Π½ΡΠΌΠΈ ΡΡΠΎΡΠ°ΠΌΠΈ, Ρ Π»Π°ΠΌΠ΅Π»ΡΠΌΠΈ, ΠΈΠ·Π³ΠΎΡΠΎΠ²Π»Π΅Π½Π½ΡΠΌΠΈ ΠΈΠ· Π½Π°ΡΡΡΠ°Π»ΡΠ½ΠΎΠ³ΠΎ Π΄Π΅ΡΠ΅Π²Π° ΠΈΠ»ΠΈ ΠΈΠ· ΠΏΠ»Π°ΡΡΠΈΠΊΠ° Ρ ΠΈΠΌΠΈΡΠ°ΡΠΈΠ΅ΠΉ Π½Π°ΡΡΡΠ°Π»ΡΠ½ΠΎΠΉ Π΄ΡΠ΅Π²Π΅ΡΠΈΠ½Ρ ( ΠΠ°Π»ΡΠ·ΠΈ Π½Π° Π±Π°Π»ΠΊΠΎΠ½ , Π¨ΡΠΎΡΡ Π½Π° Π±Π°Π»ΠΊΠΎΠ½ , ΠΠΈΠ΄Ρ ΠΈ ΡΠ°Π·Π»ΠΈΡΠΈΡ ΡΡΠΎΡ , Π‘ΡΠΎΠ»ΡΡΠ½ΡΠΉ ΠΈΠ½ΡΡΡΡΠΌΠ΅Π½Ρ ). ΠΠΎΠΏΠΎΠ»Π½ΠΈΡΠ΅Π»ΡΠ½ΠΎ Π΄ΠΎΡΡΡΠΎΠ΅Π½Π½Π°Ρ Π²Π΅ΡΠ°Π½Π΄Π° ΠΊ Π΄ΠΎΠΌΡ ΡΠ²ΠΎΠΈΠΌΠΈ ΡΡΠΊΠ°ΠΌΠΈ ΡΠΎΠ»ΡΠΊΠΎ ΡΡΠΈΠ»ΠΈΡ ΡΠΌΠΎΡΠΈΠΎΠ½Π°Π»ΡΠ½ΠΎΠ΅ ΡΠ΄ΠΎΠ²Π»Π΅ΡΠ²ΠΎΡΠ΅Π½ΠΈΠ΅ ΠΎΡ Π²ΠΎΠ·Π²Π΅Π΄Π΅Π½ΠΈΡ ΡΠ°ΠΊΠΎΠΉ Π½Π΅Π²Π΅ΡΠΎΡΡΠ½ΠΎΠΉ ΠΏΠΎ ΠΊΠΎΠ½ΡΡΡΡΠΊΡΠΈΠΈ ΠΏΠΎΡΡΡΠΎΠΉΠΊΠΈ ( Π‘ΡΡΠΎΠΈΠΌ Π²Π΅ΡΠ°Π½Π΄Ρ ΡΠ²ΠΎΠΈΠΌΠΈ ΡΡΠΊΠ°ΠΌΠΈ ). Michail RybakovΠΠ½ΡΡΡΠ΅Π½Π½ΡΡ ΠΎΡΠ΄Π΅Π»ΠΊΠ° Π΄Π°Π½Π½ΡΡ Π΄ΠΎΠΌΠΎΠ² ΡΠ°ΠΊ ΠΆΠ΅ Π½Π΅ ΡΠ»ΠΎΠΆΠ½Π°. Π£ΡΠ΅ΠΏΠ»ΠΈΠ² ΡΡΠ΅Π½Ρ, ΠΏΠΎΡΠΎΠ»ΠΎΠΊ, ΠΈ ΠΏΠΎΠ» Π±ΡΠ»Π° ΠΏΡΠΎΠΈΠ·Π²Π΅Π΄Π΅Π½Π° ΠΎΠ±ΡΠΈΠ²ΠΊΠ° Π»ΠΈΡΡΠ°ΠΌΠΈ Π³ΠΈΠΏΡΠΎΠΊΠ°ΡΡΠΎΠ½Π°. ΠΠ΅ΠΊΠΎΡΠ°ΡΠΈΠ²Π½Π°Ρ ΠΎΡΠ΄Π΅Π»ΠΊΠ° ΠΏΠΎΠ²Π΅ΡΡ Π½ΠΎΡΡΠ΅ΠΉ ΠΌΠΎΠΆΠ΅Ρ Π²ΡΠΏΠΎΠ»Π½ΡΡΡΡΡ ΡΠΎΠΎΡΠ²Π΅ΡΡΡΠ²Π΅Π½Π½ΠΎ Π²Π°ΡΠΈΠΌ ΠΏΠΎΠΆΠ΅Π»Π°Π½ΠΈΡΠΌ. Π‘ΡΠ΅Π½Ρ ΠΌΠΎΠΆΠ½ΠΎ ΠΎΠΊΠ»Π΅ΠΈΡΡ ΠΎΠ±ΠΎΡΠΌΠΈ, ΠΎΠΊΡΠ°ΡΠΈΡΡ ΠΈΠ»ΠΈ Π΄Π΅ΠΊΠΎΡΠΈΡΠΎΠ²Π°ΡΡ ΠΆΠΈΠ΄ΠΊΠΈΠΌΠΈ ΠΎΠ±ΠΎΡΠΌΠΈ ΠΈ ΡΡΠ΅Π½ΠΎΠ²ΡΠΌΠΈ ΠΏΠ°Π½Π΅Π»ΡΠΌΠΈ. ΠΡΠ΄Π΅Π»ΠΊΠ° ΠΏΠΎΡΠΎΠ»ΠΊΠ° ΡΠ°ΠΊ ΠΆΠ΅ Π½ΠΈ ΡΠ΅ΠΌ Π½Π΅ ΠΎΠ³ΡΠ°Π½ΠΈΡΠ΅Π½Π°. ΠΠΎΠΆΠ½ΠΎ ΠΈΡΠΏΠΎΠ»ΡΠ·ΠΎΠ²Π°ΡΡ Π½Π°ΡΡΠΆΠ½ΡΠ΅ ΠΏΠΎΠ»ΠΎΡΠ½Π°, ΠΏΠ»ΠΈΡΠΊΡ ΠΠΠ₯, Π½Π°Π±ΠΎΡΠ½ΡΡ ΡΠ΅ΠΉΠΊΡ ΠΈΠ»ΠΈ ΠΎΡΡΠ°Π²ΠΈΡΡ ΡΠΎΡ ΠΆΠ΅ Π³ΠΈΠΏΡΠΎΠΊΠ°ΡΡΠΎΠ½ ΠΏΠΎΠΊΡΡΠ² Π΅Π³ΠΎ ΠΊΡΠ°ΡΠΊΠΎΠΉ ΠΈΠ»ΠΈ ΠΎΠ±ΠΎΡΠΌΠΈ. ΠΠ΅ΡΠ΅Π²ΡΠ½Π½ΡΠΉ ΠΏΠΎΠ» Ρ ΠΎΠ΄ΠΈΠ½Π°ΠΊΠΎΠ²ΡΠΌ ΡΡΠΏΠ΅Ρ ΠΎΠΌ ΠΏΠΎΠΊΡΡΠ²Π°Π΅ΡΡΡ ΠΊΠ°ΠΊ Π»ΠΈΠ½ΠΎΠ»Π΅ΡΠΌΠΎΠΌ ΠΈΠ»ΠΈ Π»Π°ΠΌΠΈΠ½Π°ΡΠΎΠΌ, ΡΠ°ΠΊ ΠΈ ΠΊΠ΅ΡΠ°ΠΌΠΈΡΠ΅ΡΠΊΠΎΠΉ ΠΏΠ»ΠΈΡΠΊΠΎΠΉ Π΄Π»Ρ ΠΏΠΎΠ»Π°. Π ΠΏΠΎΠ΄ΡΠΎΠ±Π½ΠΎΡΡΡΡ ΠΈΠ·ΡΡΠΈΡΡ Π²ΡΠ΅ ΠΏΡΠΎΡΠ΅ΡΡΡ, ΡΠ²ΡΠ·Π°Π½Π½ΡΠ΅ Ρ Π΄Π΅ΠΊΠΎΡΠ°ΡΠΈΠ²Π½ΠΎΠΉ ΠΎΡΠ΄Π΅Π»ΠΊΠΎΠΉ ΠΎΠΏΠΈΡΠ°Π½Ρ Π² ΡΠ»Π΅Π΄ΡΡΡΠΈΡ ΡΡΠ°ΡΡΡΡ : «ΠΠΈΠ΄Ρ Π½Π°ΡΡΠΆΠ½ΡΡ ΠΏΠΎΡΠΎΠ»ΠΊΠΎΠ²» , «ΠΠ»ΠΈΡΠΊΠ° Π½Π° ΠΏΠΎΡΠΎΠ»ΠΎΠΊ» , «ΠΠΈΠ΄Ρ ΠΏΠΎΡΠΎΠ»ΠΊΠΎΠ². ΠΡ ΠΎΡΠ½ΠΎΠ²Π½ΡΠ΅ ΠΏΡΠ΅ΠΈΠΌΡΡΠ΅ΡΡΠ²Π° ΠΈ Π½Π΅Π΄ΠΎΡΡΠ°ΡΠΊΠΈ» , «ΠΠΎΠ΄Π²Π΅ΡΠ½ΡΠ΅ ΠΏΠΎΡΠΎΠ»ΠΊΠΈ» , «ΠΠ°ΡΠ΅ΡΡΠ²Π΅Π½Π½Π°Ρ ΠΏΠΎΠΊΡΠ°ΡΠΊΠ° — ΠΊΡΠ°ΡΠΈΠ²ΡΠ΅ ΡΡΠ΅Π½Ρ Π² ΠΊΠ²Π°ΡΡΠΈΡΠ΅» , «ΠΠ°Π½Π΅Π»ΠΈ ΡΡΠ΅Π½ΠΎΠ²ΡΠ΅. ΠΠΈΠ΄Ρ, ΠΎΡΠΎΠ±Π΅Π½Π½ΠΎΡΡΠΈ. Π€ΠΎΡΠΎ.» , «ΠΠ°ΠΌΠΈΠ½Π°Ρ ΠΈΠ»ΠΈ Π»ΠΈΠ½ΠΎΠ»Π΅ΡΠΌ ΡΡΠΎ Π»ΡΡΡΠ΅» , «ΠΠΈΠ΄Ρ Π½Π°ΠΏΠΎΠ»ΡΠ½ΡΡ ΠΏΠΎΠΊΡΡΡΠΈΠΉ» , «Π£ΠΊΠ»Π°Π΄ΠΊΠ° ΠΏΠ»ΠΈΡΠΊΠΈ Π½Π° Π΄Π΅ΡΠ΅Π²ΡΠ½Π½ΡΠΉ ΠΏΠΎΠ»» .
4. ΠΠ΅ΡΠ½Π°Ρ ΡΠ°ΠΉΠ½Π° Π΄ΠΎΠΌΠ° Ρ Π²Π΅ΡΠ°Π½Π΄ΠΎΠΉ ΠΈ ΡΠ΅ΡΡΠ°ΡΠΎΠΉ. (Π ΠΈΡ. 12)
ΠΠ΅ΡΠ½Π°Ρ ΡΠ°ΠΉΠ½Π° Π΄ΠΎΠΌΠ° Ρ Π²Π΅ΡΠ°Π½Π΄ΠΎΠΉ ΠΈ ΡΠ΅ΡΡΠ°ΡΠΎΠΉ
ΠΡ
ΠΎΡΠ½ΠΎΠ²Π½ΡΠ΅ ΠΏΡΠ΅ΠΈΠΌΡΡΠ΅ΡΡΠ²Π° ΠΈ Π½Π΅Π΄ΠΎΡΡΠ°ΡΠΊΠΈ , ΠΠΎΠ΄Π²Π΅ΡΠ½ΡΠ΅ ΠΏΠΎΡΠΎΠ»ΠΊΠΈ , ΠΠ°ΡΠ΅ΡΡΠ²Π΅Π½Π½Π°Ρ ΠΏΠΎΠΊΡΠ°ΡΠΊΠ° — ΠΊΡΠ°ΡΠΈΠ²ΡΠ΅ ΡΡΠ΅Π½Ρ Π² ΠΊΠ²Π°ΡΡΠΈΡΠ΅ , ΠΠ°Π½Π΅Π»ΠΈ ΡΡΠ΅Π½ΠΎΠ²ΡΠ΅. ΠΠΈΠ΄Ρ, ΠΎΡΠΎΠ±Π΅Π½Π½ΠΎΡΡΠΈ. Π€ΠΎΡΠΎ , ΠΠ°ΠΌΠΈΠ½Π°Ρ ΠΈΠ»ΠΈ Π»ΠΈΠ½ΠΎΠ»Π΅ΡΠΌ ΡΡΠΎ Π»ΡΡΡΠ΅ , ΠΠΈΠ΄Ρ Π½Π°ΠΏΠΎΠ»ΡΠ½ΡΡ
ΠΏΠΎΠΊΡΡΡΠΈΠΉ , Π£ΠΊΠ»Π°Π΄ΠΊΠ° ΠΏΠ»ΠΈΡΠΊΠΈ Π½Π° Π΄Π΅ΡΠ΅Π²ΡΠ½Π½ΡΠΉ ΠΏΠΎΠ» 4. ΠΠ΅ΡΠ½Π°Ρ ΡΠ°ΠΉΠ½Π° Π΄ΠΎΠΌΠ° Ρ Π²Π΅ΡΠ°Π½Π΄ΠΎΠΉ ΠΈ ΡΠ΅ΡΡΠ°ΡΠΎΠΉ. Michail RybakovΠ§ΡΠ΄Π΅ΡΠ½ΡΠΉ Π½Π΅Π±ΠΎΠ»ΡΡΠΎΠΉ Π΄ΠΎΠΌΠΈΠΊ ΡΠ°ΡΠΏΠΎΠ»ΠΎΠΆΠ΅Π½Π½ΡΠΉ Π² ΡΠΈΡ ΠΎΠΉ Π»Π΅ΡΠ½ΠΎΠΉ Π³ΡΡΠ΅ Π»ΠΈΡΡΠ²Ρ Π·Π°Π²ΠΎΡΠ°ΠΆΠΈΠ²Π°Π΅Ρ ΡΠ²ΠΎΠΈΠΌ ΡΠΊΡΠΎΠΌΠ½ΡΠΌ, ΠΏΡΠ°ΠΊΡΠΈΡΠ½ΡΠΌ ΠΈ ΠΏΡΠΈΠ²Π»Π΅ΠΊΠ°ΡΠ΅Π»ΡΠ½ΡΠΌ Π²ΠΈΠ΄ΠΎΠΌ. ΠΡΠ΅ Π² Π΅Π³ΠΎ Π΄ΠΈΠ·Π°ΠΉΠ½Π΅ ΠΏΡΠΎΠ΄ΡΠΌΠ°Π½ΠΎ, ΠΏΡΠΎΡΡΠΎ ΠΈ Π²Π΅Π»ΠΈΠΊΠΎΠ»Π΅ΠΏΠ½ΠΎ ΠΎΠ΄Π½ΠΎΠ²ΡΠ΅ΠΌΠ΅Π½Π½ΠΎ. Π‘ΡΠ΅Π½Ρ ΠΎΠ±ΡΠΈΡΡ Π΄ΠΎΡΠΊΠΎΠΉ ΠΈ ΡΡΠ΅ΠΏΠ»Π΅Π½Ρ. («Π£ΡΠ΅ΠΏΠ»Π΅Π½ΠΈΠ΅ ΡΡΠ΅Π½» , «Π£ΡΠ΅ΠΏΠ»Π΅Π½ΠΈΠ΅ ΠΏΠΎΡΠΎΠ»ΠΊΠ°» ). ΠΠ»Ρ ΠΎΡΡΠ΅ΠΊΠ»Π΅Π½ΠΈΡ ΠΈΡΠΏΠΎΠ»ΡΠ·ΠΎΠ²Π°Π½Ρ ΡΠ°ΠΌΡ ΠΈΠ· ΠΌΠ½ΠΎΠ³ΠΎΠΊΠ°ΠΌΠ΅ΡΠ½ΠΎΠ³ΠΎ ΠΏΡΠΎΡΠΈΠ»Ρ ΠΈ ΡΡΡΠΎΠΉΡΠΈΠ²ΠΎΠ΅ ΠΊ ΡΠ΄Π°ΡΠ°ΠΌ ΡΡΠ΅ΠΊΠ»ΠΎ. ΠΠΎΠ΄Π²Π΅ΡΠ½ΠΎΠΉ ΠΏΠΎΡΠΎΠ»ΠΎΠΊ ΠΈ Π½Π°ΡΡΠΆΠ½ΡΠΉ ΠΊΠ°ΡΠ½ΠΈΠ· Π·Π΄Π°Π½ΠΈΡ ΡΠ½Π°Π±ΠΆΠ΅Π½ Π±ΠΎΠ»ΡΡΠΈΠΌ ΠΊΠΎΠ»ΠΈΡΠ΅ΡΡΠ²ΠΎΠΌ Π²ΡΡΡΠΎΠ΅Π½Π½ΡΡ ΡΠΎΡΠ΅ΡΠ½ΡΡ ΡΠ²Π΅ΡΠΈΠ»ΡΠ½ΠΈΠΊΠΎΠ². (Π ΠΈΡ. 13)
ΠΠΎΠ΄Π²Π΅ΡΠ½ΠΎΠΉ ΠΏΠΎΡΠΎΠ»ΠΎΠΊ ΠΈ Π½Π°ΡΡΠΆΠ½ΡΠΉ ΠΊΠ°ΡΠ½ΠΈΠ· Π·Π΄Π°Π½ΠΈΡ ΡΠ½Π°Π±ΠΆΠ΅Π½ Π±ΠΎΠ»ΡΡΠΈΠΌ ΠΊΠΎΠ»ΠΈΡΠ΅ΡΡΠ²ΠΎΠΌ Π²ΡΡΡΠΎΠ΅Π½Π½ΡΡ ΡΠΎΡΠ΅ΡΠ½ΡΡ ΡΠ²Π΅ΡΠΈΠ»ΡΠ½ΠΈΠΊΠΎΠ²
Π§ΡΠ΄Π΅ΡΠ½ΡΠΉ Π½Π΅Π±ΠΎΠ»ΡΡΠΎΠΉ Π΄ΠΎΠΌΠΈΠΊ ΡΠ°ΡΠΏΠΎΠ»ΠΎΠΆΠ΅Π½Π½ΡΠΉ Π² ΡΠΈΡ
ΠΎΠΉ Π»Π΅ΡΠ½ΠΎΠΉ Π³ΡΡΠ΅ Π»ΠΈΡΡΠ²Ρ Π·Π°Π²ΠΎΡΠ°ΠΆΠΈΠ²Π°Π΅Ρ ΡΠ²ΠΎΠΈΠΌ ΡΠΊΡΠΎΠΌΠ½ΡΠΌ, ΠΏΡΠ°ΠΊΡΠΈΡΠ½ΡΠΌ ΠΈ ΠΏΡΠΈΠ²Π»Π΅ΠΊΠ°ΡΠ΅Π»ΡΠ½ΡΠΌ Π²ΠΈΠ΄ΠΎΠΌ. ΠΡΠ΅ Π² Π΅Π³ΠΎ Π΄ΠΈΠ·Π°ΠΉΠ½Π΅ ΠΏΡΠΎΠ΄ΡΠΌΠ°Π½ΠΎ, ΠΏΡΠΎΡΡΠΎ ΠΈ Π²Π΅Π»ΠΈΠΊΠΎΠ»Π΅ΠΏΠ½ΠΎ ΠΎΠ΄Π½ΠΎΠ²ΡΠ΅ΠΌΠ΅Π½Π½ΠΎ. Π‘ΡΠ΅Π½Ρ ΠΎΠ±ΡΠΈΡΡ Π΄ΠΎΡΠΊΠΎΠΉ ΠΈ ΡΡΠ΅ΠΏΠ»Π΅Π½Ρ ( Π£ΡΠ΅ΠΏΠ»Π΅Π½ΠΈΠ΅ ΡΡΠ΅Π½ , Π£ΡΠ΅ΠΏΠ»Π΅Π½ΠΈΠ΅ ΠΏΠΎΡΠΎΠ»ΠΊΠ° ). ΠΠ»Ρ ΠΎΡΡΠ΅ΠΊΠ»Π΅Π½ΠΈΡ ΠΈΡΠΏΠΎΠ»ΡΠ·ΠΎΠ²Π°Π½Ρ ΡΠ°ΠΌΡ ΠΈΠ· ΠΌΠ½ΠΎΠ³ΠΎΠΊΠ°ΠΌΠ΅ΡΠ½ΠΎΠ³ΠΎ ΠΏΡΠΎΡΠΈΠ»Ρ ΠΈ ΡΡΡΠΎΠΉΡΠΈΠ²ΠΎΠ΅ ΠΊ ΡΠ΄Π°ΡΠ°ΠΌ ΡΡΠ΅ΠΊΠ»ΠΎ. ΠΠΎΠ΄Π²Π΅ΡΠ½ΠΎΠΉ ΠΏΠΎΡΠΎΠ»ΠΎΠΊ ΠΈ Π½Π°ΡΡΠΆΠ½ΡΠΉ ΠΊΠ°ΡΠ½ΠΈΠ· Π·Π΄Π°Π½ΠΈΡ ΡΠ½Π°Π±ΠΆΠ΅Π½ Π±ΠΎΠ»ΡΡΠΈΠΌ ΠΊΠΎΠ»ΠΈΡΠ΅ΡΡΠ²ΠΎΠΌ Π²ΡΡΡΠΎΠ΅Π½Π½ΡΡ
ΡΠΎΡΠ΅ΡΠ½ΡΡ
ΡΠ²Π΅ΡΠΈΠ»ΡΠ½ΠΈΠΊΠΎΠ². Michail RybakovΠΡ ΠΎΠ΄Π½ΡΠ΅ Π΄Π²Π΅ΡΠΈ ΡΡΠΈΠΏΠ»Π΅ΠΊΡ ΠΈΠΌΠ΅ΡΡ ΡΠΊΠ»Π°Π΄Π½ΡΡ ΠΊΠΎΠ½ΡΡΡΡΠΊΡΠΈΡ Π΄Π²Π΅ΡΠΈ — ΠΊΠ½ΠΈΠΆΠΊΠΈ. («ΠΠ²Π΅ΡΠΈ ΡΡΠΈΠΏΠ»Π΅ΠΊΡ. ΠΎΡΠΎΠ±Π΅Π½Π½ΠΎΡΡΠΈ ΠΈ ΠΎΠ±ΡΠ°Π±ΠΎΡΠΊΠ°», ΠΡΠ΄Π΅Π»ΠΊΠ° ΡΠ»ΠΈΡΠ½ΠΎΠ³ΠΎ ΠΊΠ°ΡΠ½ΠΈΠ·Π° Π²ΡΠΏΠΎΠ»Π½Π΅Π½Π° ΠΈΠ· Π΄Π΅ΡΠ΅Π²ΡΠ½Π½ΡΡ ΡΠ΅Π΅ΡΠ΅ΠΊ Π΄ΠΎΠΏΠΎΠ»Π½ΡΠ΅Ρ Π²Π½Π΅ΡΠ½ΡΡ ΠΎΠ±ΡΠΈΠ²ΠΊΡ ΡΠ΅ΡΡΠ°ΡΡ ΠΈ ΠΏΡΠΎΠ΄ΠΎΠ»ΠΆΠ΅Π½Π° Π² ΠΎΡΠΎΡΠΌΠ»Π΅Π½ΠΈΠΈ Π±ΠΎΠΊΠΎΠ²ΠΎΠΉ ΡΡΠ΅Π½Ρ Π·Π°ΡΠΈΡΠ°ΡΡΠ΅ΠΉ Π²Ρ ΠΎΠ΄Π½ΡΡ Π΄Π²Π΅ΡΡ. ΠΠ½ΡΡΡΠΈ ΠΏΠΎΡΠΎΠ»ΠΎΠΊ ΠΎΠ±ΡΡΡΡΠΎΠ΅Π½ ΠΎΠ΄Π½ΠΎΡΡΠΎΠ²Π½Π΅Π²ΠΎΠΉ Π³ΠΈΠΏΡΠΎΠΊΠ°ΡΡΠΎΠ½Π½ΠΎΠΉ ΠΏΠΎΠ΄Π²Π΅ΡΠ½ΠΎΠΉ ΠΊΠΎΠ½ΡΡΡΡΠΊΡΠΈΠ΅ΠΉ Ρ Π²ΠΌΠΎΠ½ΡΠΈΡΠΎΠ²Π°Π½Π½ΠΎΠΉ ΠΎΡΠΊΡΡΡΠΎΠΉ ΠΏΠΎΠ΄ΡΠ²Π΅ΡΠΊΠΎΠΉ. (Π ΠΈΡ. 14) ΠΠΊΠ»Π΅Π΅Π½Π½ΡΠ΅ ΡΠ°ΠΊΡΡΡΠ½ΡΠΌΠΈ ΠΎΠ±ΠΎΡΠΌΠΈ ΠΈ ΠΎΠΊΡΠ°ΡΠ΅Π½Π½ΡΠ΅ Π² ΠΎΠ΄ΠΈΠ½ ΡΠ²Π΅Ρ ΡΠ°ΠΊΠΈΠ΅ ΠΏΠΎΠ²Π΅ΡΡ Π½ΠΎΡΡΠΈ ΠΎΡΡΠ°Π²Π»ΡΡΡ Π±Π΅ΡΠΏΡΠ΅ΡΠ΅Π΄Π΅Π½ΡΠ½ΡΡ Π²ΠΎΠ·ΠΌΠΎΠΆΠ½ΠΎΡΡΡ ΠΏΡΠΎΡΠ²ΠΈΡΡ ΡΠ²ΠΎΠΉ ΡΠ²ΠΎΡΡΠ΅ΡΠΊΠΈΠΉ ΠΏΠΎΡΠ΅Π½ΡΠΈΠ°Π» ΠΈ ΡΠΊΡΠ°ΡΠΈΡΡ ΡΡΠ΅Π½Ρ ΡΡΠ°ΡΠ΅Π»ΡΠ½ΠΎ ΠΏΠΎΠ΄ΠΎΠ±ΡΠ°Π½Π½ΡΠΌΠΈ ΠΏΡΠ΅Π΄ΠΌΠ΅ΡΠ°ΠΌΠΈ Π΄Π΅ΠΊΠΎΡΠ°. ΠΠ»Π°Π³ΠΎΠ΄Π°ΡΡ ΡΡΡΠ°Π½ΠΎΠ²Π»Π΅Π½Π½ΠΎΠΌΡ ΠΎΡΠΎΠΏΠ»Π΅Π½ΠΈΡ ΠΈ Π½Π°Π»ΠΈΡΠΈΡ Π² ΠΊΠΎΠΌΠ½Π°ΡΠ°Ρ ΡΠ°Π΄ΠΈΠ°ΡΠΎΡΠΎΠ² ΠΎΡΠΎΠΏΠ»Π΅Π½ΠΈΡ Π² ΡΠ°ΠΊΠΎΠΌ Π΄ΠΎΠΌΠΈΠΊΠ΅ Π±ΡΠ΄Π΅Ρ ΡΠ΅ΠΏΠ»ΠΎ ΠΈ ΡΡΡΠ½ΠΎ Π² Π»ΡΠ±ΡΡ, Π΄Π°ΠΆΠ΅ ΡΠ°ΠΌΡΡ Π΄ΠΎΠΆΠ΄Π»ΠΈΠ²ΡΡ ΠΈ ΠΏΠ°ΡΠΌΡΡΠ½ΡΡ ΠΏΠΎΠ³ΠΎΠ΄Ρ. («ΠΠΎΡΠΎΠ»ΠΎΠΊ ΠΈΠ· Π³ΠΈΠΏΡΠΎΠΊΠ°ΡΡΠΎΠ½Π° Ρ ΠΏΠΎΠ΄ΡΠ²Π΅ΡΠΊΠΎΠΉ» , «ΠΠ°ΠΊ ΡΠ΄Π΅Π»Π°ΡΡ ΠΏΠΎΡΠΎΠ»ΠΎΠΊ ΠΈΠ· Π³ΠΈΠΏΡΠΎΠΊΠ°ΡΡΠΎΠ½Π°» , «ΠΠΎΠΊΡΠ°ΡΠΊΠ° ΠΏΠΎΡΠΎΠ»ΠΊΠ°» , «ΠΠ°ΡΠ΅ΡΡΠ²Π΅Π½Π½Π°Ρ ΠΏΠΎΠΊΡΠ°ΡΠΊΠ° — ΠΊΡΠ°ΡΠΈΠ²ΡΠ΅ ΡΡΠ΅Π½Ρ Π² ΠΊΠ²Π°ΡΡΠΈΡΠ΅» , «ΠΠ΅ΠΊΠΎΡΠΎΡΡΠ΅ Π½ΡΠ°Π½ΡΡ Π²ΡΠ±ΠΎΡΠ° ΠΎΠ±ΠΎΠ΅Π² ΠΏΠΎΠ΄ ΠΏΠΎΠΊΡΠ°ΡΠΊΡ» , «ΠΡΠ±ΠΈΡΠ°Π΅ΠΌ ΠΎΠ±ΠΎΠΈ Π΄Π»Ρ ΡΡΠ΅Π½» , «ΠΠ»Π΅ΠΉΠΊΠ° ΠΎΠ±ΠΎΠ΅Π² ΠΎΡ «Π» Π΄ΠΎ «Π―»» ).
ΠΡΠ΅ ΠΎΠ΄ΠΈΠ½ ΠΏΡΠΎΠ΅ΠΊΡ Π΄ΠΎΠΌΠ° ΠΏΡΡΠΌΠΎΡΠ³ΠΎΠ»ΡΠ½ΠΎΠΉ ΡΠΎΡΠΌΡ ΠΏΠΎΠΊΠ°Π·Π°Π½ Π½Π° ΡΡΠΈΡ Π΄Π²ΡΡ ΡΠΎΡΠΎ. (Π ΠΈΡ. 15, 16)
ΠΠ»Π°Π³ΠΎΠ΄Π°ΡΡ ΡΡΡΠ°Π½ΠΎΠ²Π»Π΅Π½Π½ΠΎΠΌΡ ΠΎΡΠΎΠΏΠ»Π΅Π½ΠΈΡ ΠΈ Π½Π°Π»ΠΈΡΠΈΡ Π² ΠΊΠΎΠΌΠ½Π°ΡΠ°Ρ ΡΠ°Π΄ΠΈΠ°ΡΠΎΡΠΎΠ² ΠΎΡΠΎΠΏΠ»Π΅Π½ΠΈΡ Π² ΡΠ°ΠΊΠΎΠΌ Π΄ΠΎΠΌΠΈΠΊΠ΅ Π±ΡΠ΄Π΅Ρ ΡΠ΅ΠΏΠ»ΠΎ ΠΈ ΡΡΡΠ½ΠΎ Π² Π»ΡΠ±ΡΡ, Π΄Π°ΠΆΠ΅ ΡΠ°ΠΌΡΡ Π΄ΠΎΠΆΠ΄Π»ΠΈΠ²ΡΡ ΠΈ ΠΏΠ°ΡΠΌΡΡΠ½ΡΡ ΠΏΠΎΠ³ΠΎΠ΄Ρ ( ΠΠΎΡΠΎΠ»ΠΎΠΊ ΠΈΠ· Π³ΠΈΠΏΡΠΎΠΊΠ°ΡΡΠΎΠ½Π° Ρ ΠΏΠΎΠ΄ΡΠ²Π΅ΡΠΊΠΎΠΉ , ΠΠ°ΠΊ ΡΠ΄Π΅Π»Π°ΡΡ ΠΏΠΎΡΠΎΠ»ΠΎΠΊ ΠΈΠ· Π³ΠΈΠΏΡΠΎΠΊΠ°ΡΡΠΎΠ½Π° , ΠΠΎΠΊΡΠ°ΡΠΊΠ° ΠΏΠΎΡΠΎΠ»ΠΊΠ° , ΠΠ°ΡΠ΅ΡΡΠ²Π΅Π½Π½Π°Ρ ΠΏΠΎΠΊΡΠ°ΡΠΊΠ° — ΠΊΡΠ°ΡΠΈΠ²ΡΠ΅ ΡΡΠ΅Π½Ρ Π² ΠΊΠ²Π°ΡΡΠΈΡΠ΅ , ΠΠ΅ΠΊΠΎΡΠΎΡΡΠ΅ Π½ΡΠ°Π½ΡΡ Π²ΡΠ±ΠΎΡΠ° ΠΎΠ±ΠΎΠ΅Π² ΠΏΠΎΠ΄ ΠΏΠΎΠΊΡΠ°ΡΠΊΡ , ΠΡΠ±ΠΈΡΠ°Π΅ΠΌ ΠΎΠ±ΠΎΠΈ Π΄Π»Ρ ΡΡΠ΅Π½ , ΠΠ»Π΅ΠΉΠΊΠ° ΠΎΠ±ΠΎΠ΅Π² ΠΎΡ Π Π΄ΠΎ Π― ) ΠΡΠ΅ ΠΎΠ΄ΠΈΠ½ ΠΏΡΠΎΠ΅ΠΊΡ Π΄ΠΎΠΌΠ° ΠΏΡΡΠΌΠΎΡΠ³ΠΎΠ»ΡΠ½ΠΎΠΉ ΡΠΎΡΠΌΡ ΠΏΠΎΠΊΠ°Π·Π°Π½ Π½Π° ΡΡΠΈΡ Π΄Π²ΡΡ ΡΠΎΡΠΎ
ΠΠΎΠ΄Π²Π΅ΡΠ½ΠΎΠΉ ΠΏΠΎΡΠΎΠ»ΠΎΠΊ ΠΈ Π½Π°ΡΡΠΆΠ½ΡΠΉ ΠΊΠ°ΡΠ½ΠΈΠ· Π·Π΄Π°Π½ΠΈΡ ΡΠ½Π°Π±ΠΆΠ΅Π½ Π±ΠΎΠ»ΡΡΠΈΠΌ ΠΊΠΎΠ»ΠΈΡΠ΅ΡΡΠ²ΠΎΠΌ Π²ΡΡΡΠΎΠ΅Π½Π½ΡΡ
ΡΠΎΡΠ΅ΡΠ½ΡΡ
ΡΠ²Π΅ΡΠΈΠ»ΡΠ½ΠΈΠΊΠΎΠ². ΠΡ
ΠΎΠ΄Π½ΡΠ΅ Π΄Π²Π΅ΡΠΈ ΡΡΠΈΠΏΠ»Π΅ΠΊΡ ΠΈΠΌΠ΅ΡΡ ΡΠΊΠ»Π°Π΄Π½ΡΡ ΠΊΠΎΠ½ΡΡΡΡΠΊΡΠΈΡ Π΄Π²Π΅ΡΠΈ — ΠΊΠ½ΠΈΠΆΠΊΠΈ ( ΠΠ²Π΅ΡΠΈ ΡΡΠΈΠΏΠ»Π΅ΠΊΡ ΠΎΡΠΎΠ±Π΅Π½Π½ΠΎΡΡΠΈ ΠΈ ΠΎΠ±ΡΠ°Π±ΠΎΡΠΊΠ° , ΠΡΠ΄Π΅Π»ΠΊΠ° ΡΠ»ΠΈΡΠ½ΠΎΠ³ΠΎ ΠΊΠ°ΡΠ½ΠΈΠ·Π° Π²ΡΠΏΠΎΠ»Π½Π΅Π½Π° ΠΈΠ· Π΄Π΅ΡΠ΅Π²ΡΠ½Π½ΡΡ
ΡΠ΅Π΅ΡΠ΅ΠΊ Π΄ΠΎΠΏΠΎΠ»Π½ΡΠ΅Ρ Π²Π½Π΅ΡΠ½ΡΡ ΠΎΠ±ΡΠΈΠ²ΠΊΡ ΡΠ΅ΡΡΠ°ΡΡ ΠΈ ΠΏΡΠΎΠ΄ΠΎΠ»ΠΆΠ΅Π½Π° Π² ΠΎΡΠΎΡΠΌΠ»Π΅Π½ΠΈΠΈ Π±ΠΎΠΊΠΎΠ²ΠΎΠΉ ΡΡΠ΅Π½Ρ Π·Π°ΡΠΈΡΠ°ΡΡΠ΅ΠΉ Π²Ρ
ΠΎΠ΄Π½ΡΡ Π΄Π²Π΅ΡΡ. ΠΠ½ΡΡΡΠΈ ΠΏΠΎΡΠΎΠ»ΠΎΠΊ ΠΎΠ±ΡΡΡΡΠΎΠ΅Π½ ΠΎΠ΄Π½ΠΎΡΡΠΎΠ²Π½Π΅Π²ΠΎΠΉ Π³ΠΈΠΏΡΠΎΠΊΠ°ΡΡΠΎΠ½Π½ΠΎΠΉ ΠΏΠΎΠ΄Π²Π΅ΡΠ½ΠΎΠΉ ΠΊΠΎΠ½ΡΡΡΡΠΊΡΠΈΠ΅ΠΉ Ρ Π²ΠΌΠΎΠ½ΡΠΈΡΠΎΠ²Π°Π½Π½ΠΎΠΉ ΠΎΡΠΊΡΡΡΠΎΠΉ ΠΏΠΎΠ΄ΡΠ²Π΅ΡΠΊΠΎΠΉ. ΠΠ»Π°Π³ΠΎΠ΄Π°ΡΡ ΡΡΡΠ°Π½ΠΎΠ²Π»Π΅Π½Π½ΠΎΠΌΡ ΠΎΡΠΎΠΏΠ»Π΅Π½ΠΈΡ ΠΈ Π½Π°Π»ΠΈΡΠΈΡ Π² ΠΊΠΎΠΌΠ½Π°ΡΠ°Ρ
ΡΠ°Π΄ΠΈΠ°ΡΠΎΡΠΎΠ² ΠΎΡΠΎΠΏΠ»Π΅Π½ΠΈΡ Π² ΡΠ°ΠΊΠΎΠΌ Π΄ΠΎΠΌΠΈΠΊΠ΅ Π±ΡΠ΄Π΅Ρ ΡΠ΅ΠΏΠ»ΠΎ ΠΈ ΡΡΡΠ½ΠΎ Π² Π»ΡΠ±ΡΡ, Π΄Π°ΠΆΠ΅ ΡΠ°ΠΌΡΡ Π΄ΠΎΠΆΠ΄Π»ΠΈΠ²ΡΡ ΠΈ ΠΏΠ°ΡΠΌΡΡΠ½ΡΡ ΠΏΠΎΠ³ΠΎΠ΄Ρ ( ΠΠΎΡΠΎΠ»ΠΎΠΊ ΠΈΠ· Π³ΠΈΠΏΡΠΎΠΊΠ°ΡΡΠΎΠ½Π° Ρ ΠΏΠΎΠ΄ΡΠ²Π΅ΡΠΊΠΎΠΉ , ΠΠ°ΠΊ ΡΠ΄Π΅Π»Π°ΡΡ ΠΏΠΎΡΠΎΠ»ΠΎΠΊ ΠΈΠ· Π³ΠΈΠΏΡΠΎΠΊΠ°ΡΡΠΎΠ½Π° , ΠΠΎΠΊΡΠ°ΡΠΊΠ° ΠΏΠΎΡΠΎΠ»ΠΊΠ° , ΠΠ°ΡΠ΅ΡΡΠ²Π΅Π½Π½Π°Ρ ΠΏΠΎΠΊΡΠ°ΡΠΊΠ° — ΠΊΡΠ°ΡΠΈΠ²ΡΠ΅ ΡΡΠ΅Π½Ρ Π² ΠΊΠ²Π°ΡΡΠΈΡΠ΅ , ΠΠ΅ΠΊΠΎΡΠΎΡΡΠ΅ Π½ΡΠ°Π½ΡΡ Π²ΡΠ±ΠΎΡΠ° ΠΎΠ±ΠΎΠ΅Π² ΠΏΠΎΠ΄ ΠΏΠΎΠΊΡΠ°ΡΠΊΡ , ΠΡΠ±ΠΈΡΠ°Π΅ΠΌ ΠΎΠ±ΠΎΠΈ Π΄Π»Ρ ΡΡΠ΅Π½ , ΠΠ»Π΅ΠΉΠΊΠ° ΠΎΠ±ΠΎΠ΅Π² ΠΎΡ Π Π΄ΠΎ Π― ) ΠΡΠ΅ ΠΎΠ΄ΠΈΠ½ ΠΏΡΠΎΠ΅ΠΊΡ Π΄ΠΎΠΌΠ° ΠΏΡΡΠΌΠΎΡΠ³ΠΎΠ»ΡΠ½ΠΎΠΉ ΡΠΎΡΠΌΡ ΠΏΠΎΠΊΠ°Π·Π°Π½ Π½Π° ΡΡΠΈΡ
Π΄Π²ΡΡ
ΡΠΎΡΠΎ. Michail RybakovΠΠ»Π°Π³ΠΎΠ΄Π°ΡΡ ΡΡΡΠ°Π½ΠΎΠ²Π»Π΅Π½Π½ΠΎΠΌΡ ΠΎΡΠΎΠΏΠ»Π΅Π½ΠΈΡ ΠΈ Π½Π°Π»ΠΈΡΠΈΡ Π² ΠΊΠΎΠΌΠ½Π°ΡΠ°Ρ ΡΠ°Π΄ΠΈΠ°ΡΠΎΡΠΎΠ² ΠΎΡΠΎΠΏΠ»Π΅Π½ΠΈΡ Π² ΡΠ°ΠΊΠΎΠΌ Π΄ΠΎΠΌΠΈΠΊΠ΅ Π±ΡΠ΄Π΅Ρ ΡΠ΅ΠΏΠ»ΠΎ ΠΈ ΡΡΡΠ½ΠΎ Π² Π»ΡΠ±ΡΡ, Π΄Π°ΠΆΠ΅ ΡΠ°ΠΌΡΡ Π΄ΠΎΠΆΠ΄Π»ΠΈΠ²ΡΡ ΠΈ ΠΏΠ°ΡΠΌΡΡΠ½ΡΡ ΠΏΠΎΠ³ΠΎΠ΄Ρ ( ΠΠΎΡΠΎΠ»ΠΎΠΊ ΠΈΠ· Π³ΠΈΠΏΡΠΎΠΊΠ°ΡΡΠΎΠ½Π° Ρ ΠΏΠΎΠ΄ΡΠ²Π΅ΡΠΊΠΎΠΉ , ΠΠ°ΠΊ ΡΠ΄Π΅Π»Π°ΡΡ ΠΏΠΎΡΠΎΠ»ΠΎΠΊ ΠΈΠ· Π³ΠΈΠΏΡΠΎΠΊΠ°ΡΡΠΎΠ½Π° , ΠΠΎΠΊΡΠ°ΡΠΊΠ° ΠΏΠΎΡΠΎΠ»ΠΊΠ° , ΠΠ°ΡΠ΅ΡΡΠ²Π΅Π½Π½Π°Ρ ΠΏΠΎΠΊΡΠ°ΡΠΊΠ° — ΠΊΡΠ°ΡΠΈΠ²ΡΠ΅ ΡΡΠ΅Π½Ρ Π² ΠΊΠ²Π°ΡΡΠΈΡΠ΅ , ΠΠ΅ΠΊΠΎΡΠΎΡΡΠ΅ Π½ΡΠ°Π½ΡΡ Π²ΡΠ±ΠΎΡΠ° ΠΎΠ±ΠΎΠ΅Π² ΠΏΠΎΠ΄ ΠΏΠΎΠΊΡΠ°ΡΠΊΡ , ΠΡΠ±ΠΈΡΠ°Π΅ΠΌ ΠΎΠ±ΠΎΠΈ Π΄Π»Ρ ΡΡΠ΅Π½ , ΠΠ»Π΅ΠΉΠΊΠ° ΠΎΠ±ΠΎΠ΅Π² ΠΎΡ Π Π΄ΠΎ Π― ) ΠΡΠ΅ ΠΎΠ΄ΠΈΠ½ ΠΏΡΠΎΠ΅ΠΊΡ Π΄ΠΎΠΌΠ° ΠΏΡΡΠΌΠΎΡΠ³ΠΎΠ»ΡΠ½ΠΎΠΉ ΡΠΎΡΠΌΡ ΠΏΠΎΠΊΠ°Π·Π°Π½ Π½Π° ΡΡΠΈΡ Π΄Π²ΡΡ ΡΠΎΡΠΎ
ΠΠΎΠ΄Π²Π΅ΡΠ½ΠΎΠΉ ΠΏΠΎΡΠΎΠ»ΠΎΠΊ ΠΈ Π½Π°ΡΡΠΆΠ½ΡΠΉ ΠΊΠ°ΡΠ½ΠΈΠ· Π·Π΄Π°Π½ΠΈΡ ΡΠ½Π°Π±ΠΆΠ΅Π½ Π±ΠΎΠ»ΡΡΠΈΠΌ ΠΊΠΎΠ»ΠΈΡΠ΅ΡΡΠ²ΠΎΠΌ Π²ΡΡΡΠΎΠ΅Π½Π½ΡΡ
ΡΠΎΡΠ΅ΡΠ½ΡΡ
ΡΠ²Π΅ΡΠΈΠ»ΡΠ½ΠΈΠΊΠΎΠ². ΠΡ
ΠΎΠ΄Π½ΡΠ΅ Π΄Π²Π΅ΡΠΈ ΡΡΠΈΠΏΠ»Π΅ΠΊΡ ΠΈΠΌΠ΅ΡΡ ΡΠΊΠ»Π°Π΄Π½ΡΡ ΠΊΠΎΠ½ΡΡΡΡΠΊΡΠΈΡ Π΄Π²Π΅ΡΠΈ — ΠΊΠ½ΠΈΠΆΠΊΠΈ ( ΠΠ²Π΅ΡΠΈ ΡΡΠΈΠΏΠ»Π΅ΠΊΡ ΠΎΡΠΎΠ±Π΅Π½Π½ΠΎΡΡΠΈ ΠΈ ΠΎΠ±ΡΠ°Π±ΠΎΡΠΊΠ° , ΠΡΠ΄Π΅Π»ΠΊΠ° ΡΠ»ΠΈΡΠ½ΠΎΠ³ΠΎ ΠΊΠ°ΡΠ½ΠΈΠ·Π° Π²ΡΠΏΠΎΠ»Π½Π΅Π½Π° ΠΈΠ· Π΄Π΅ΡΠ΅Π²ΡΠ½Π½ΡΡ
ΡΠ΅Π΅ΡΠ΅ΠΊ Π΄ΠΎΠΏΠΎΠ»Π½ΡΠ΅Ρ Π²Π½Π΅ΡΠ½ΡΡ ΠΎΠ±ΡΠΈΠ²ΠΊΡ ΡΠ΅ΡΡΠ°ΡΡ ΠΈ ΠΏΡΠΎΠ΄ΠΎΠ»ΠΆΠ΅Π½Π° Π² ΠΎΡΠΎΡΠΌΠ»Π΅Π½ΠΈΠΈ Π±ΠΎΠΊΠΎΠ²ΠΎΠΉ ΡΡΠ΅Π½Ρ Π·Π°ΡΠΈΡΠ°ΡΡΠ΅ΠΉ Π²Ρ
ΠΎΠ΄Π½ΡΡ Π΄Π²Π΅ΡΡ. ΠΠ½ΡΡΡΠΈ ΠΏΠΎΡΠΎΠ»ΠΎΠΊ ΠΎΠ±ΡΡΡΡΠΎΠ΅Π½ ΠΎΠ΄Π½ΠΎΡΡΠΎΠ²Π½Π΅Π²ΠΎΠΉ Π³ΠΈΠΏΡΠΎΠΊΠ°ΡΡΠΎΠ½Π½ΠΎΠΉ ΠΏΠΎΠ΄Π²Π΅ΡΠ½ΠΎΠΉ ΠΊΠΎΠ½ΡΡΡΡΠΊΡΠΈΠ΅ΠΉ Ρ Π²ΠΌΠΎΠ½ΡΠΈΡΠΎΠ²Π°Π½Π½ΠΎΠΉ ΠΎΡΠΊΡΡΡΠΎΠΉ ΠΏΠΎΠ΄ΡΠ²Π΅ΡΠΊΠΎΠΉ. ΠΠ»Π°Π³ΠΎΠ΄Π°ΡΡ ΡΡΡΠ°Π½ΠΎΠ²Π»Π΅Π½Π½ΠΎΠΌΡ ΠΎΡΠΎΠΏΠ»Π΅Π½ΠΈΡ ΠΈ Π½Π°Π»ΠΈΡΠΈΡ Π² ΠΊΠΎΠΌΠ½Π°ΡΠ°Ρ
ΡΠ°Π΄ΠΈΠ°ΡΠΎΡΠΎΠ² ΠΎΡΠΎΠΏΠ»Π΅Π½ΠΈΡ Π² ΡΠ°ΠΊΠΎΠΌ Π΄ΠΎΠΌΠΈΠΊΠ΅ Π±ΡΠ΄Π΅Ρ ΡΠ΅ΠΏΠ»ΠΎ ΠΈ ΡΡΡΠ½ΠΎ Π² Π»ΡΠ±ΡΡ, Π΄Π°ΠΆΠ΅ ΡΠ°ΠΌΡΡ Π΄ΠΎΠΆΠ΄Π»ΠΈΠ²ΡΡ ΠΈ ΠΏΠ°ΡΠΌΡΡΠ½ΡΡ ΠΏΠΎΠ³ΠΎΠ΄Ρ ( ΠΠΎΡΠΎΠ»ΠΎΠΊ ΠΈΠ· Π³ΠΈΠΏΡΠΎΠΊΠ°ΡΡΠΎΠ½Π° Ρ ΠΏΠΎΠ΄ΡΠ²Π΅ΡΠΊΠΎΠΉ , ΠΠ°ΠΊ ΡΠ΄Π΅Π»Π°ΡΡ ΠΏΠΎΡΠΎΠ»ΠΎΠΊ ΠΈΠ· Π³ΠΈΠΏΡΠΎΠΊΠ°ΡΡΠΎΠ½Π° , ΠΠΎΠΊΡΠ°ΡΠΊΠ° ΠΏΠΎΡΠΎΠ»ΠΊΠ° , ΠΠ°ΡΠ΅ΡΡΠ²Π΅Π½Π½Π°Ρ ΠΏΠΎΠΊΡΠ°ΡΠΊΠ° — ΠΊΡΠ°ΡΠΈΠ²ΡΠ΅ ΡΡΠ΅Π½Ρ Π² ΠΊΠ²Π°ΡΡΠΈΡΠ΅ , ΠΠ΅ΠΊΠΎΡΠΎΡΡΠ΅ Π½ΡΠ°Π½ΡΡ Π²ΡΠ±ΠΎΡΠ° ΠΎΠ±ΠΎΠ΅Π² ΠΏΠΎΠ΄ ΠΏΠΎΠΊΡΠ°ΡΠΊΡ , ΠΡΠ±ΠΈΡΠ°Π΅ΠΌ ΠΎΠ±ΠΎΠΈ Π΄Π»Ρ ΡΡΠ΅Π½ , ΠΠ»Π΅ΠΉΠΊΠ° ΠΎΠ±ΠΎΠ΅Π² ΠΎΡ Π Π΄ΠΎ Π― ) ΠΡΠ΅ ΠΎΠ΄ΠΈΠ½ ΠΏΡΠΎΠ΅ΠΊΡ Π΄ΠΎΠΌΠ° ΠΏΡΡΠΌΠΎΡΠ³ΠΎΠ»ΡΠ½ΠΎΠΉ ΡΠΎΡΠΌΡ ΠΏΠΎΠΊΠ°Π·Π°Π½ Π½Π° ΡΡΠΈΡ
Π΄Π²ΡΡ
ΡΠΎΡΠΎ. Michail RybakovΠΠ°Π½Π½ΡΠΉ Π΄ΠΎΠΌ ΠΎΠ±Π»ΠΈΡΠΎΠ²Π°Π½ Π΄Π΅ΡΠ΅Π²ΠΎΠΌ ΠΈ ΡΠΎΡΡΠΎΠΈΡ ΠΈΠ· Π΄Π²ΡΡ ΡΡΠ°ΠΆΠ΅ΠΉ ΠΈ ΡΠ΅ΡΡΠ°ΡΡ Ρ Π΄ΠΎΠΌΠ°.
5. Π’ΡΠ΅ΡΠ³ΠΎΠ»ΡΠ½ΡΠΉ Π΄ΠΎΠΌ Ρ ΡΠ΅ΡΡΠ°ΡΠΎΠΉ , Π²Π΅ΡΠ°Π½Π΄ΠΎΠΉ ΠΈ Π±ΠΈΠ±Π»ΠΈΠΎΡΠ΅ΠΊΠΎΠΉ Π² Π³ΡΡΡΠ»ΡΡΠΊΠΎΠΌ ΡΡΠΈΠ»Π΅. (Π ΠΈΡ. 17)
Π’ΡΠ΅ΡΠ³ΠΎΠ»ΡΠ½ΡΠΉ Π΄ΠΎΠΌ Ρ ΡΠ΅ΡΡΠ°ΡΠΎΠΉ , Π²Π΅ΡΠ°Π½Π΄ΠΎΠΉ ΠΈ Π±ΠΈΠ±Π»ΠΈΠΎΡΠ΅ΠΊΠΎΠΉ Π² Π³ΡΡΡΠ»ΡΡΠΊΠΎΠΌ ΡΡΠΈΠ»Π΅
ΠΠ½ΡΡΡΠΈ ΠΏΠΎΡΠΎΠ»ΠΎΠΊ ΠΎΠ±ΡΡΡΡΠΎΠ΅Π½ ΠΎΠ΄Π½ΠΎΡΡΠΎΠ²Π½Π΅Π²ΠΎΠΉ Π³ΠΈΠΏΡΠΎΠΊΠ°ΡΡΠΎΠ½Π½ΠΎΠΉ ΠΏΠΎΠ΄Π²Π΅ΡΠ½ΠΎΠΉ ΠΊΠΎΠ½ΡΡΡΡΠΊΡΠΈΠ΅ΠΉ Ρ Π²ΠΌΠΎΠ½ΡΠΈΡΠΎΠ²Π°Π½Π½ΠΎΠΉ ΠΎΡΠΊΡΡΡΠΎΠΉ ΠΏΠΎΠ΄ΡΠ²Π΅ΡΠΊΠΎΠΉ. ΠΠ»Π°Π³ΠΎΠ΄Π°ΡΡ ΡΡΡΠ°Π½ΠΎΠ²Π»Π΅Π½Π½ΠΎΠΌΡ ΠΎΡΠΎΠΏΠ»Π΅Π½ΠΈΡ ΠΈ Π½Π°Π»ΠΈΡΠΈΡ Π² ΠΊΠΎΠΌΠ½Π°ΡΠ°Ρ
ΡΠ°Π΄ΠΈΠ°ΡΠΎΡΠΎΠ² ΠΎΡΠΎΠΏΠ»Π΅Π½ΠΈΡ Π² ΡΠ°ΠΊΠΎΠΌ Π΄ΠΎΠΌΠΈΠΊΠ΅ Π±ΡΠ΄Π΅Ρ ΡΠ΅ΠΏΠ»ΠΎ ΠΈ ΡΡΡΠ½ΠΎ Π² Π»ΡΠ±ΡΡ, Π΄Π°ΠΆΠ΅ ΡΠ°ΠΌΡΡ Π΄ΠΎΠΆΠ΄Π»ΠΈΠ²ΡΡ ΠΈ ΠΏΠ°ΡΠΌΡΡΠ½ΡΡ ΠΏΠΎΠ³ΠΎΠ΄Ρ ( ΠΠΎΡΠΎΠ»ΠΎΠΊ ΠΈΠ· Π³ΠΈΠΏΡΠΎΠΊΠ°ΡΡΠΎΠ½Π° Ρ ΠΏΠΎΠ΄ΡΠ²Π΅ΡΠΊΠΎΠΉ , ΠΠ°ΠΊ ΡΠ΄Π΅Π»Π°ΡΡ ΠΏΠΎΡΠΎΠ»ΠΎΠΊ ΠΈΠ· Π³ΠΈΠΏΡΠΎΠΊΠ°ΡΡΠΎΠ½Π° , ΠΠΎΠΊΡΠ°ΡΠΊΠ° ΠΏΠΎΡΠΎΠ»ΠΊΠ° , ΠΠ°ΡΠ΅ΡΡΠ²Π΅Π½Π½Π°Ρ ΠΏΠΎΠΊΡΠ°ΡΠΊΠ° — ΠΊΡΠ°ΡΠΈΠ²ΡΠ΅ ΡΡΠ΅Π½Ρ Π² ΠΊΠ²Π°ΡΡΠΈΡΠ΅ , ΠΠ΅ΠΊΠΎΡΠΎΡΡΠ΅ Π½ΡΠ°Π½ΡΡ Π²ΡΠ±ΠΎΡΠ° ΠΎΠ±ΠΎΠ΅Π² ΠΏΠΎΠ΄ ΠΏΠΎΠΊΡΠ°ΡΠΊΡ , ΠΡΠ±ΠΈΡΠ°Π΅ΠΌ ΠΎΠ±ΠΎΠΈ Π΄Π»Ρ ΡΡΠ΅Π½ , ΠΠ»Π΅ΠΉΠΊΠ° ΠΎΠ±ΠΎΠ΅Π² ΠΎΡ Π Π΄ΠΎ Π― ) ΠΡΠ΅ ΠΎΠ΄ΠΈΠ½ ΠΏΡΠΎΠ΅ΠΊΡ Π΄ΠΎΠΌΠ° ΠΏΡΡΠΌΠΎΡΠ³ΠΎΠ»ΡΠ½ΠΎΠΉ ΡΠΎΡΠΌΡ ΠΏΠΎΠΊΠ°Π·Π°Π½ Π½Π° ΡΡΠΈΡ
Π΄Π²ΡΡ
ΡΠΎΡΠΎ. ΠΠ°Π½Π½ΡΠΉ Π΄ΠΎΠΌ ΠΎΠ±Π»ΠΈΡΠΎΠ²Π°Π½ Π΄Π΅ΡΠ΅Π²ΠΎΠΌ ΠΈ ΡΠΎΡΡΠΎΠΈΡ ΠΈΠ· Π΄Π²ΡΡ
ΡΡΠ°ΠΆΠ΅ΠΉ ΠΈ ΡΠ΅ΡΡΠ°ΡΡ Ρ Π΄ΠΎΠΌΠ° 5. Π’ΡΠ΅ΡΠ³ΠΎΠ»ΡΠ½ΡΠΉ Π΄ΠΎΠΌ Ρ ΡΠ΅ΡΡΠ°ΡΠΎΠΉ , Π²Π΅ΡΠ°Π½Π΄ΠΎΠΉ ΠΈ Π±ΠΈΠ±Π»ΠΈΠΎΡΠ΅ΠΊΠΎΠΉ Π² Π³ΡΡΡΠ»ΡΡΠΊΠΎΠΌ ΡΡΠΈΠ»Π΅. Michail RybakovΠΠΎΠ»ΠΎΡΠΈΡΠ½ΡΠΉ Π΄ΠΎΠΌ Ρ ΡΡΠ΅Ρ ΡΠ³ΠΎΠ»ΡΠ½ΠΎΠΉ ΠΎΡΡΡΠΎΠΊΠΎΠ½Π΅ΡΠ½ΠΎΠΉ ΠΊΡΡΡΠ΅ΠΉ ΠΎΡΠ΅Π½Ρ Π½Π°ΠΏΠΎΠΌΠΈΠ½Π°Π΅Ρ Π³ΡΡΡΠ»ΡΡΠΊΠΈΠ΅ ΡΡΡΠ±Ρ ΡΠ°ΡΠΏΠΎΠ»ΠΎΠΆΠ΅Π½Π½ΡΠ΅ Π½Π° Π²ΡΡΠΎΠΊΠΎΠ³ΠΎΡΠ½ΡΡ ΠΏΠΎΠ»ΡΠ½Π°Ρ ΠΠ°ΡΠΏΠ°Ρ. ΠΠΎΠ½ΡΡΠ°ΡΡ ΡΠ²Π΅ΡΠΎΠ²ΠΎΠΉ Π³Π°ΠΌΠΌΡ Π²Π½ΡΡΡΠ΅Π½Π½Π΅ΠΉ ΠΈ Π½Π°ΡΡΠΆΠ½ΠΎΠΉ ΠΎΡΠ΄Π΅Π»ΠΊΠΈ Π΄ΠΎΠΌΠ° ΠΏΠΎΠ΄ΡΠ΅ΡΠΊΠΈΠ²Π°Π΅Ρ ΡΠ°ΠΌΠΎΠ±ΡΡΠ½ΠΎΡΡΡ Π΅Π³ΠΎ Π²Π»Π°Π΄Π΅Π»ΡΡΠ΅Π². ΠΠ½ΡΡΡΠ΅Π½Π½ΠΈΠ΅ ΠΏΠΎΠ²Π΅ΡΡ Π½ΠΎΡΡΠΈ ΡΠ°ΠΊ ΠΆΠ΅ ΠΊΠ°ΠΊ ΠΈ Π² ΠΏΡΠ΅Π΄ΡΠ΄ΡΡΠ΅ΠΌ Π²Π°ΡΠΈΠ°Π½ΡΠ΅ Π΄ΠΎΠΌΠ° ΡΡΠ΅ΠΏΠ»Π΅Π½Ρ ΠΈ Π·Π°ΡΠΈΡΡ Π³ΠΈΠΏΡΠΎΠΊΠ°ΡΡΠΎΠ½Π½ΠΎΠΌ. ΠΠ· ΠΏΠ»ΠΈΡ Π³ΠΈΠΏΡΠΎΠΊΠ°ΡΡΠΎΠ½Π° ΠΈΠ·Π³ΠΎΡΠΎΠ²Π»Π΅Π½Ρ ΠΈ Π²ΡΡΡΠΎΠ΅Π½Π½ΡΠ΅ ΠΊΠ½ΠΈΠΆΠ½ΡΠ΅ ΡΡΠ΅Π»Π»Π°ΠΆΠΈ Π±ΠΈΠ±Π»ΠΈΠΎΡΠ΅ΠΊΠΈ. ΠΠΎΡΠΎΠ»ΠΎΠΊ ΠΈ ΡΡΠ΅Π½Ρ Π²ΡΠΊΡΠ°ΡΠ΅Π½Ρ Π² Π±Π΅Π»ΡΠΉ ΡΠ²Π΅Ρ. ΠΠΎΠ» ΠΏΠΎΠΊΡΡΡ Π±Π΅Π»ΠΎΡΠ½Π΅ΠΆΠ½ΡΠΌ Π»ΠΈΠ½ΠΎΠ»Π΅ΡΠΌΠΎΠΌ. («ΠΠΎΠΊΡΠ°ΡΠΊΠ° ΡΡΠ΅Π½ Π²ΠΎΠ΄ΠΎΡΠΌΡΠ»ΡΡΠΈΠΎΠ½Π½ΠΎΠΉ ΠΊΡΠ°ΡΠΊΠΎΠΉ» , «ΠΊΡΠ°ΡΠΊΠ° Π΄Π»Ρ ΡΡΠ΅Π½» , «ΠΠ°ΠΊ ΡΡΠ΅Π»ΠΈΡΡ Π»ΠΈΠ½ΠΎΠ»Π΅ΡΠΌ» , «ΠΠ°ΠΊ Π²ΡΠ±ΡΠ°ΡΡ Π»ΠΈΠ½ΠΎΠ»Π΅ΡΠΌ. ΠΠΈΠ΄Ρ ΠΈ ΠΎΡΠΎΠ±Π΅Π½Π½ΠΎΡΡΠΈ Π»ΠΈΠ½ΠΎΠ»Π΅ΡΠΌΠ°. » , «ΠΠ»Π΅ΠΉ Π΄Π»Ρ Π»ΠΈΠ½ΠΎΠ»Π΅ΡΠΌΠ°» , «ΠΠ°Π»ΡΡΠ½ΡΠ΅ ΠΈΠ½ΡΡΡΡΠΌΠ΅Π½ΡΡ, ΠΊΠΈΡΡΠΈ, Π²Π°Π»ΠΈΠΊΠΈ» , «Π¨ΠΏΠ°ΡΠ΅Π»Ρ ΠΈ Π΄ΠΎΠΏΠΎΠ»Π½ΠΈΡΠ΅Π»ΡΠ½ΡΠ΅ ΠΈΠ½ΡΡΡΡΠΌΠ΅Π½ΡΡ Π΄Π»Ρ ΠΌΠ°Π»ΡΡΠ½ΡΡ ΡΠ°Π±ΠΎΡ» ). (Π ΠΈΡ. 18)
ΠΠΈΠ΄Ρ ΠΈ ΠΎΡΠΎΠ±Π΅Π½Π½ΠΎΡΡΠΈ Π»ΠΈΠ½ΠΎΠ»Π΅ΡΠΌΠ° , ΠΠ»Π΅ΠΉ Π΄Π»Ρ Π»ΠΈΠ½ΠΎΠ»Π΅ΡΠΌΠ° , ΠΠ°Π»ΡΡΠ½ΡΠ΅ ΠΈΠ½ΡΡΡΡΠΌΠ΅Π½ΡΡ, ΠΊΠΈΡΡΠΈ, Π²Π°Π»ΠΈΠΊΠΈ , Π¨ΠΏΠ°ΡΠ΅Π»Ρ ΠΈ Π΄ΠΎΠΏΠΎΠ»Π½ΠΈΡΠ΅Π»ΡΠ½ΡΠ΅ ΠΈΠ½ΡΡΡΡΠΌΠ΅Π½ΡΡ Π΄Π»Ρ ΠΌΠ°Π»ΡΡΠ½ΡΡ ΡΠ°Π±ΠΎΡ )
ΠΠ· ΠΏΠ»ΠΈΡ Π³ΠΈΠΏΡΠΎΠΊΠ°ΡΡΠΎΠ½Π° ΠΈΠ·Π³ΠΎΡΠΎΠ²Π»Π΅Π½Ρ ΠΈ Π²ΡΡΡΠΎΠ΅Π½Π½ΡΠ΅ ΠΊΠ½ΠΈΠΆΠ½ΡΠ΅ ΡΡΠ΅Π»Π»Π°ΠΆΠΈ Π±ΠΈΠ±Π»ΠΈΠΎΡΠ΅ΠΊΠΈ. ΠΠΎΡΠΎΠ»ΠΎΠΊ ΠΈ ΡΡΠ΅Π½Ρ Π²ΡΠΊΡΠ°ΡΠ΅Π½Ρ Π² Π±Π΅Π»ΡΠΉ ΡΠ²Π΅Ρ. ΠΠΎΠ» ΠΏΠΎΠΊΡΡΡ Π±Π΅Π»ΠΎΡΠ½Π΅ΠΆΠ½ΡΠΌ Π»ΠΈΠ½ΠΎΠ»Π΅ΡΠΌΠΎΠΌ ( ΠΠΎΠΊΡΠ°ΡΠΊΠ° ΡΡΠ΅Π½ Π²ΠΎΠ΄ΠΎΡΠΌΡΠ»ΡΡΠΈΠΎΠ½Π½ΠΎΠΉ ΠΊΡΠ°ΡΠΊΠΎΠΉ , ΠΊΡΠ°ΡΠΊΠ° Π΄Π»Ρ ΡΡΠ΅Π½ , ΠΠ°ΠΊ ΡΡΠ΅Π»ΠΈΡΡ Π»ΠΈΠ½ΠΎΠ»Π΅ΡΠΌ , ΠΠ°ΠΊ Π²ΡΠ±ΡΠ°ΡΡ Π»ΠΈΠ½ΠΎΠ»Π΅ΡΠΌ. ΠΠΈΠ΄Ρ ΠΈ ΠΎΡΠΎΠ±Π΅Π½Π½ΠΎΡΡΠΈ Π»ΠΈΠ½ΠΎΠ»Π΅ΡΠΌΠ° , ΠΠ»Π΅ΠΉ Π΄Π»Ρ Π»ΠΈΠ½ΠΎΠ»Π΅ΡΠΌΠ° , ΠΠ°Π»ΡΡΠ½ΡΠ΅ ΠΈΠ½ΡΡΡΡΠΌΠ΅Π½ΡΡ, ΠΊΠΈΡΡΠΈ, Π²Π°Π»ΠΈΠΊΠΈ , Π¨ΠΏΠ°ΡΠ΅Π»Ρ ΠΈ Π΄ΠΎΠΏΠΎΠ»Π½ΠΈΡΠ΅Π»ΡΠ½ΡΠ΅ ΠΈΠ½ΡΡΡΡΠΌΠ΅Π½ΡΡ Π΄Π»Ρ ΠΌΠ°Π»ΡΡΠ½ΡΡ
ΡΠ°Π±ΠΎΡ ). Michail RybakovΠΠΎΡΠΎΠ»ΠΎΠΊ ΠΎΠ±ΠΎΡΡΠ΄ΠΎΠ²Π°Π½ Π½Π΅ ΡΠΎΠ»ΡΠΊΠΎ ΡΠΎΡΠ΅ΡΠ½ΡΠΌΠΈ ΡΠ²Π΅ΡΠΈΠ»ΡΠ½ΠΈΠΊΠ°ΠΌΠΈ, Π½ΠΎ Π΄ΠΎΠΏΠΎΠ»Π½ΠΈΡΠ΅Π»ΡΠ½ΠΎ ΠΏΠΎΠ΄Π²Π΅ΡΠ½ΡΠΌΠΈ Π»ΡΡΡΡΠ°ΠΌΠΈ. ΠΠ΅Π»ΠΎΡΠ½Π΅ΠΆΠ½ΡΠ΅ Π³Π»ΡΠ½ΡΠ΅Π²ΡΠ΅ ΠΏΠΎΠ²Π΅ΡΡ Π½ΠΎΡΡΠΈ ΠΏΠΎΠΌΠ΅ΡΠ΅Π½ΠΈΡ Π½Π°ΠΏΠΎΠ»Π½Π΅Π½Ρ ΡΠ²Π΅ΡΠΎΠΌ Π½Π°ΠΏΠΎΠ»Π½ΡΡΡΠΈΠΌ ΠΏΡΠΎΡΡΡΠ°Π½ΡΡΠ²ΠΎ ΠΊΠΎΠΌΠ½Π°Ρ ΡΠ΅ΡΠ΅Π· ΡΠΈΡΠΎΠΊΠΈΠ΅ ΠΎΠ±Π·ΠΎΡΠ½ΡΠ΅ ΠΎΠΊΠ½Π° . ΠΡΠΊΡΡΡΠ°Ρ ΠΏΠ»ΠΎΡΠ°Π΄ΠΊΠ° ΠΏΠ΅ΡΠ΅Π΄ Π΄ΠΎΠΌΠΎΠΌ ΠΏΠΎΠΊΡΡΡΠ° ΠΊΡΠ΅ΠΏΠΊΠΎΠΉ ΡΠ΅ΡΡΠ°ΡΠ½ΠΎΠΉ Π΄ΠΎΡΠΊΠΎΠΉ. ΠΠ° ΠΎΠ±ΡΡΡΡΠΎΠ΅Π½Π½ΠΎΠΉ ΡΠ΅ΡΡΠ°ΡΠ΅ ΠΎΡΠ»ΠΈΡΠ½ΠΎ ΡΠ°Π·ΠΌΠ΅ΡΡΠΈΠ»ΠΈΡΡ Π±Π°ΡΠ±Π΅ΠΊΡ ΠΈ Π½Π°Π±ΠΎΡ ΡΠ°Π΄ΠΎΠ²ΠΎΠΉ ΠΌΠ΅Π±Π΅Π»ΠΈ. (Π ΠΈΡ. 19)
ΠΠ° ΠΎΠ±ΡΡΡΡΠΎΠ΅Π½Π½ΠΎΠΉ ΡΠ΅ΡΡΠ°ΡΠ΅ ΠΎΡΠ»ΠΈΡΠ½ΠΎ ΡΠ°Π·ΠΌΠ΅ΡΡΠΈΠ»ΠΈΡΡ Π±Π°ΡΠ±Π΅ΠΊΡ ΠΈ Π½Π°Π±ΠΎΡ ΡΠ°Π΄ΠΎΠ²ΠΎΠΉ ΠΌΠ΅Π±Π΅Π»ΠΈ
ΠΠΎΡΠΎΠ»ΠΎΠΊ ΠΎΠ±ΠΎΡΡΠ΄ΠΎΠ²Π°Π½ Π½Π΅ ΡΠΎΠ»ΡΠΊΠΎ ΡΠΎΡΠ΅ΡΠ½ΡΠΌΠΈ ΡΠ²Π΅ΡΠΈΠ»ΡΠ½ΠΈΠΊΠ°ΠΌΠΈ, Π½ΠΎ Π΄ΠΎΠΏΠΎΠ»Π½ΠΈΡΠ΅Π»ΡΠ½ΠΎ ΠΏΠΎΠ΄Π²Π΅ΡΠ½ΡΠΌΠΈ Π»ΡΡΡΡΠ°ΠΌΠΈ. ΠΠ΅Π»ΠΎΡΠ½Π΅ΠΆΠ½ΡΠ΅ Π³Π»ΡΠ½ΡΠ΅Π²ΡΠ΅ ΠΏΠΎΠ²Π΅ΡΡ
Π½ΠΎΡΡΠΈ ΠΏΠΎΠΌΠ΅ΡΠ΅Π½ΠΈΡ Π½Π°ΠΏΠΎΠ»Π½Π΅Π½Ρ ΡΠ²Π΅ΡΠΎΠΌ Π½Π°ΠΏΠΎΠ»Π½ΡΡΡΠΈΠΌ ΠΏΡΠΎΡΡΡΠ°Π½ΡΡΠ²ΠΎ ΠΊΠΎΠΌΠ½Π°Ρ ΡΠ΅ΡΠ΅Π· ΡΠΈΡΠΎΠΊΠΈΠ΅ ΠΎΠ±Π·ΠΎΡΠ½ΡΠ΅ ΠΎΠΊΠ½Π°. ΠΡΠΊΡΡΡΠ°Ρ ΠΏΠ»ΠΎΡΠ°Π΄ΠΊΠ° ΠΏΠ΅ΡΠ΅Π΄ Π΄ΠΎΠΌΠΎΠΌ ΠΏΠΎΠΊΡΡΡΠ° ΠΊΡΠ΅ΠΏΠΊΠΎΠΉ ΡΠ΅ΡΡΠ°ΡΠ½ΠΎΠΉ Π΄ΠΎΡΠΊΠΎΠΉ. ΠΠ° ΠΎΠ±ΡΡΡΡΠΎΠ΅Π½Π½ΠΎΠΉ ΡΠ΅ΡΡΠ°ΡΠ΅ ΠΎΡΠ»ΠΈΡΠ½ΠΎ ΡΠ°Π·ΠΌΠ΅ΡΡΠΈΠ»ΠΈΡΡ Π±Π°ΡΠ±Π΅ΠΊΡ ΠΈ Π½Π°Π±ΠΎΡ ΡΠ°Π΄ΠΎΠ²ΠΎΠΉ ΠΌΠ΅Π±Π΅Π»ΠΈ. Michail RybakovΠΡΠ΄Π΅Π»ΠΊΠ° Π΄ΠΎΠΌΠ° Π²ΡΠΏΠΎΠ»Π½Π΅Π½Π° ΠΈΠ· Π΄Π΅ΡΠ΅Π²ΡΠ½Π½ΠΎΠΉ Π²Π°Π³ΠΎΠ½ΠΊΠΈ Π²ΡΠΊΡΠ°ΡΠ΅Π½Π½ΠΎΠΉ Π² ΡΠ΅ΠΌΠ½ΡΠΉ ΡΠ²Π΅Ρ. Π ΡΠΎΠΆΠ΅ ΠΆΠ΅ Π²ΡΠ΅ΠΌΡ ΡΠ΅ΡΡΠ°ΡΠ΅ Ρ Π΄ΠΎΠΌΠ° ΡΠΎΡ ΡΠ°Π½ΠΈΠ»ΠΈ Π΅Π΅ ΠΏΡΠΈΡΠΎΠ΄Π½ΡΠΉ Π΅ΡΡΠ΅ΡΡΠ²Π΅Π½Π½ΡΠΉ ΡΠ²Π΅Ρ. («ΠΠΎΡΠΎΠ»ΠΎΠΊ Π² Π΄Π΅ΡΠ΅Π²ΡΠ½Π½ΠΎΠΌ Π΄ΠΎΠΌΠ΅» , «Π‘ΡΠ΅Π½Ρ ΠΈΠ· Π³ΠΈΠΏΡΠΎΠΊΠ°ΡΡΠΎΠ½Π°» , «ΠΠΎΠΊΡΡΡΠΈΠΈ Π΄Π»Ρ ΡΠ΅ΡΡΠ°Ρ ΠΈΠ· Π΄ΡΠ΅Π²Π΅ΡΠΈΠ½Ρ» , «Π£ΡΡΠ°Π½Π°Π²Π»ΠΈΠ²Π°Π΅ΠΌ Π΄Π²Π΅ΡΡ ΠΊΠ½ΠΈΠΆΠΊΡ» , «Π‘ΡΠ΅Π½Ρ Ρ Π½ΠΈΡΠ°ΠΌΠΈ ΠΈ ΠΏΠΎΠ»ΠΊΠ°ΠΌΠΈ ΠΈΠ· Π³ΠΈΠΏΡΠΎΠΊΠ°ΡΡΠΎΠ½Π°» , «ΠΡΠ΅Π»Ρ ΠΈ ΡΡΡΠΎΠΏΠΎΠ²Π΅ΡΡ «. )
6. ΠΠΎΠΌ — ΡΠ°ΠΊΡΡΠΊΠ° ΠΈΠ· ΡΠ²Π΅ΡΠ»ΠΎΠΉ Π΄ΡΠ΅Π²Π΅ΡΠΈΠ½Ρ. (Π ΠΈΡ. 20)
ΠΠΎΠΌ — ΡΠ°ΠΊΡΡΠΊΠ° ΠΈΠ· ΡΠ²Π΅ΡΠ»ΠΎΠΉ Π΄ΡΠ΅Π²Π΅ΡΠΈΠ½Ρ
ΠΠ° ΠΎΠ±ΡΡΡΡΠΎΠ΅Π½Π½ΠΎΠΉ ΡΠ΅ΡΡΠ°ΡΠ΅ ΠΎΡΠ»ΠΈΡΠ½ΠΎ ΡΠ°Π·ΠΌΠ΅ΡΡΠΈΠ»ΠΈΡΡ Π±Π°ΡΠ±Π΅ΠΊΡ ΠΈ Π½Π°Π±ΠΎΡ ΡΠ°Π΄ΠΎΠ²ΠΎΠΉ ΠΌΠ΅Π±Π΅Π»ΠΈ. ΠΡΠ΄Π΅Π»ΠΊΠ° Π΄ΠΎΠΌΠ° Π²ΡΠΏΠΎΠ»Π½Π΅Π½Π° ΠΈΠ· Π΄Π΅ΡΠ΅Π²ΡΠ½Π½ΠΎΠΉ Π²Π°Π³ΠΎΠ½ΠΊΠΈ Π²ΡΠΊΡΠ°ΡΠ΅Π½Π½ΠΎΠΉ Π² ΡΠ΅ΠΌΠ½ΡΠΉ ΡΠ²Π΅Ρ. Π ΡΠΎΠΆΠ΅ ΠΆΠ΅ Π²ΡΠ΅ΠΌΡ ΡΠ΅ΡΡΠ°ΡΠ΅ Ρ Π΄ΠΎΠΌΠ° ΡΠΎΡ
ΡΠ°Π½ΠΈΠ»ΠΈ Π΅Π΅ ΠΏΡΠΈΡΠΎΠ΄Π½ΡΠΉ Π΅ΡΡΠ΅ΡΡΠ²Π΅Π½Π½ΡΠΉ ΡΠ²Π΅Ρ ( ΠΠΎΡΠΎΠ»ΠΎΠΊ Π² Π΄Π΅ΡΠ΅Π²ΡΠ½Π½ΠΎΠΌ Π΄ΠΎΠΌΠ΅ , Π‘ΡΠ΅Π½Ρ ΠΈΠ· Π³ΠΈΠΏΡΠΎΠΊΠ°ΡΡΠΎΠ½Π° , ΠΠΎΠΊΡΡΡΠΈΠΈ Π΄Π»Ρ ΡΠ΅ΡΡΠ°Ρ ΠΈΠ· Π΄ΡΠ΅Π²Π΅ΡΠΈΠ½Ρ , Π£ΡΡΠ°Π½Π°Π²Π»ΠΈΠ²Π°Π΅ΠΌ Π΄Π²Π΅ΡΡ ΠΊΠ½ΠΈΠΆΠΊΡ , Π‘ΡΠ΅Π½Ρ Ρ Π½ΠΈΡΠ°ΠΌΠΈ ΠΈ ΠΏΠΎΠ»ΠΊΠ°ΠΌΠΈ ΠΈΠ· Π³ΠΈΠΏΡΠΎΠΊΠ°ΡΡΠΎΠ½Π° , ΠΡΠ΅Π»Ρ ΠΈ ΡΡΡΠΎΠΏΠΎΠ²Π΅ΡΡ ) 6. ΠΠΎΠΌ — ΡΠ°ΠΊΡΡΠΊΠ° ΠΈΠ· ΡΠ²Π΅ΡΠ»ΠΎΠΉ Π΄ΡΠ΅Π²Π΅ΡΠΈΠ½Ρ. Michail RybakovΠΠ΅Π²Π΅ΡΠΎΡΡΠ½ΡΡ ΠΊΠΎΠ½ΡΡΡΡΠΊΡΠΈΡ Π΄ΠΎΠΌΠ° ΠΈΠ· Π΄Π΅ΡΠ΅Π²ΡΠ½Π½ΡΡ Π΄ΠΎΡΠΎΠΊ ΠΌΠΎΠΆΠ½ΠΎ ΠΈΠ·ΡΡΠΈΡΡ ΠΏΠΎ ΡΠΎΡΠΎ. ΠΠ΅ΡΠΈΠΏΠΈΡΠ½Π°Ρ ΡΠΎΡΠΌΠ° Π΄ΠΎΠΌΠ° Π±ΡΠ΄Π΅Ρ ΠΈΠ΄Π΅Π°Π»ΡΠ½ΠΎ Π΄ΠΎΠΏΠΎΠ»Π½ΡΡΡ Π°Π½ΡΠ°ΠΌΠ±Π»Ρ ΡΡΠ°ΡΡΠΊΠ° Π½Π° ΠΊΠΎΡΠΎΡΠΎΠΌ ΠΈ Π²ΡΠ΅ ΠΎΡΡΠ°Π»ΡΠ½ΡΠ΅ ΠΏΡΠ΅Π΄ΠΌΠ΅ΡΡ Π±ΡΠ΄ΡΡ ΠΏΠΎΠ΄ΠΎΠ±ΡΠ°Π½Ρ Π² ΡΠ°ΠΊΠΎΠΌ Π½Π΅Π²Π΅ΡΠΎΡΡΠ½ΠΎΠΌ Π΄ΠΈΠ·Π°ΠΉΠ½Π΅. (Π ΠΈΡ. 21)
ΠΠ΅ΡΠΈΠΏΠΈΡΠ½Π°Ρ ΡΠΎΡΠΌΠ° Π΄ΠΎΠΌΠ° Π±ΡΠ΄Π΅Ρ ΠΈΠ΄Π΅Π°Π»ΡΠ½ΠΎ Π΄ΠΎΠΏΠΎΠ»Π½ΡΡΡ Π°Π½ΡΠ°ΠΌΠ±Π»Ρ ΡΡΠ°ΡΡΠΊΠ° Π½Π° ΠΊΠΎΡΠΎΡΠΎΠΌ ΠΈ Π²ΡΠ΅ ΠΎΡΡΠ°Π»ΡΠ½ΡΠ΅ ΠΏΡΠ΅Π΄ΠΌΠ΅ΡΡ Π±ΡΠ΄ΡΡ ΠΏΠΎΠ΄ΠΎΠ±ΡΠ°Π½Ρ Π² ΡΠ°ΠΊΠΎΠΌ Π½Π΅Π²Π΅ΡΠΎΡΡΠ½ΠΎΠΌ Π΄ΠΈΠ·Π°ΠΉΠ½Π΅
Π ΡΠΎΠΆΠ΅ ΠΆΠ΅ Π²ΡΠ΅ΠΌΡ ΡΠ΅ΡΡΠ°ΡΠ΅ Ρ Π΄ΠΎΠΌΠ° ΡΠΎΡ
ΡΠ°Π½ΠΈΠ»ΠΈ Π΅Π΅ ΠΏΡΠΈΡΠΎΠ΄Π½ΡΠΉ Π΅ΡΡΠ΅ΡΡΠ²Π΅Π½Π½ΡΠΉ ΡΠ²Π΅Ρ ( ΠΠΎΡΠΎΠ»ΠΎΠΊ Π² Π΄Π΅ΡΠ΅Π²ΡΠ½Π½ΠΎΠΌ Π΄ΠΎΠΌΠ΅ , Π‘ΡΠ΅Π½Ρ ΠΈΠ· Π³ΠΈΠΏΡΠΎΠΊΠ°ΡΡΠΎΠ½Π° , ΠΠΎΠΊΡΡΡΠΈΠΈ Π΄Π»Ρ ΡΠ΅ΡΡΠ°Ρ ΠΈΠ· Π΄ΡΠ΅Π²Π΅ΡΠΈΠ½Ρ , Π£ΡΡΠ°Π½Π°Π²Π»ΠΈΠ²Π°Π΅ΠΌ Π΄Π²Π΅ΡΡ ΠΊΠ½ΠΈΠΆΠΊΡ , Π‘ΡΠ΅Π½Ρ Ρ Π½ΠΈΡΠ°ΠΌΠΈ ΠΈ ΠΏΠΎΠ»ΠΊΠ°ΠΌΠΈ ΠΈΠ· Π³ΠΈΠΏΡΠΎΠΊΠ°ΡΡΠΎΠ½Π° , ΠΡΠ΅Π»Ρ ΠΈ ΡΡΡΠΎΠΏΠΎΠ²Π΅ΡΡ ) 6. ΠΠΎΠΌ — ΡΠ°ΠΊΡΡΠΊΠ° ΠΈΠ· ΡΠ²Π΅ΡΠ»ΠΎΠΉ Π΄ΡΠ΅Π²Π΅ΡΠΈΠ½Ρ. ΠΠ΅Π²Π΅ΡΠΎΡΡΠ½ΡΡ ΠΊΠΎΠ½ΡΡΡΡΠΊΡΠΈΡ Π΄ΠΎΠΌΠ° ΠΈΠ· Π΄Π΅ΡΠ΅Π²ΡΠ½Π½ΡΡ
Π΄ΠΎΡΠΎΠΊ ΠΌΠΎΠΆΠ½ΠΎ ΠΈΠ·ΡΡΠΈΡΡ ΠΏΠΎ ΡΠΎΡΠΎ. ΠΠ΅ΡΠΈΠΏΠΈΡΠ½Π°Ρ ΡΠΎΡΠΌΠ° Π΄ΠΎΠΌΠ° Π±ΡΠ΄Π΅Ρ ΠΈΠ΄Π΅Π°Π»ΡΠ½ΠΎ Π΄ΠΎΠΏΠΎΠ»Π½ΡΡΡ Π°Π½ΡΠ°ΠΌΠ±Π»Ρ ΡΡΠ°ΡΡΠΊΠ° Π½Π° ΠΊΠΎΡΠΎΡΠΎΠΌ ΠΈ Π²ΡΠ΅ ΠΎΡΡΠ°Π»ΡΠ½ΡΠ΅ ΠΏΡΠ΅Π΄ΠΌΠ΅ΡΡ Π±ΡΠ΄ΡΡ ΠΏΠΎΠ΄ΠΎΠ±ΡΠ°Π½Ρ Π² ΡΠ°ΠΊΠΎΠΌ Π½Π΅Π²Π΅ΡΠΎΡΡΠ½ΠΎΠΌ Π΄ΠΈΠ·Π°ΠΉΠ½Π΅. Michail RybakovΠΠΎΠΌ Π²ΡΠΏΠΎΠ»Π½Π΅Π½Π½ΡΠΉ ΠΏΠΎΠ»Π½ΠΎΡΡΡΡ ΠΈΠ· Π΄ΡΠ΅Π²Π΅ΡΠΈΠ½Ρ ΠΊΠ°ΠΊ ΠΏΡΠΈΡΡΡΠΎΠ΅Π½Π½Π°Ρ Π²Π΅ΡΠ°Π½Π΄Π° ΠΊ Π΄ΠΎΠΌΡ , Π° ΡΠΎΡΠ½Π΅Π΅ ΠΏΠΎΡΡΡΠΎΠ΅Π½Π½Π°Ρ Π² Π΅Π΄ΠΈΠ½ΠΎΠΌ ΡΠ±ΠΎΡΠ΅. ΠΡΠΆΠ½ΠΎ Π±ΡΠ΄Π΅Ρ ΠΎΡΠΎΠ±ΠΎ ΠΏΠΎΡΡΠ°ΡΠ°ΡΡΡΡ, ΡΡΠΎΠ±Ρ Π²ΠΎΠΏΠ»ΠΎΡΠΈΡΡ Π² ΠΆΠΈΠ·Π½Ρ ΡΠ°ΠΊΠΎΠ΅ ΡΠΎΠΎΡΡΠΆΠ΅Π½ΠΈΠ΅ ΡΠ²ΠΎΠΈΠΌΠΈ ΡΡΠΊΠ°ΠΌΠΈ. ΠΠ»Ρ ΠΏΠΎΡΡΡΠΎΠΉΠΊΠΈ ΡΠ°ΠΊΠΎΠ³ΠΎ Π·Π΄Π°Π½ΠΈΡ ΠΌΠ°Π»ΠΎ ΠΎΠ±Π»Π°Π΄Π°ΡΡ Π»ΠΈΡΡ Π½Π°ΡΠ°Π»ΡΠ½ΡΠΌΠΈ Π½Π°Π²ΡΠΊΠ°ΠΌΠΈ Π²Π»Π°Π΄Π΅Π½ΠΈΡ ΠΈΠ½ΡΡΡΡΠΌΠ΅Π½ΡΠΎΠΌ. Π’ΡΠ°ΡΠ΅Π»ΡΠ½Π°Ρ ΠΏΠΎΠ΄Π³ΠΎΠ½ΠΊΠ° ΠΊΠ°ΠΆΠ΄ΠΎΠΉ Π΄ΠΎΡΠ΅ΡΠΊΠΈ ΠΏΠΎΡΡΠ΅Π±ΡΠ΅Ρ ΠΌΠ°ΡΡΡ Π²ΡΠ΅ΠΌΠ΅Π½ΠΈ ΠΈ ΡΠΌΠ΅Π½ΠΈΡ. (Π ΠΈΡ. 22)
Π’ΡΠ°ΡΠ΅Π»ΡΠ½Π°Ρ ΠΏΠΎΠ΄Π³ΠΎΠ½ΠΊΠ° ΠΊΠ°ΠΆΠ΄ΠΎΠΉ Π΄ΠΎΡΠ΅ΡΠΊΠΈ ΠΏΠΎΡΡΠ΅Π±ΡΠ΅Ρ ΠΌΠ°ΡΡΡ Π²ΡΠ΅ΠΌΠ΅Π½ΠΈ ΠΈ ΡΠΌΠ΅Π½ΠΈΡ
ΠΠΎΠΌ Π²ΡΠΏΠΎΠ»Π½Π΅Π½Π½ΡΠΉ ΠΏΠΎΠ»Π½ΠΎΡΡΡΡ ΠΈΠ· Π΄ΡΠ΅Π²Π΅ΡΠΈΠ½Ρ ΠΊΠ°ΠΊ ΠΏΡΠΈΡΡΡΠΎΠ΅Π½Π½Π°Ρ Π²Π΅ΡΠ°Π½Π΄Π° ΠΊ Π΄ΠΎΠΌΡ , Π° ΡΠΎΡΠ½Π΅Π΅ ΠΏΠΎΡΡΡΠΎΠ΅Π½Π½Π°Ρ Π² Π΅Π΄ΠΈΠ½ΠΎΠΌ ΡΠ±ΠΎΡΠ΅. ΠΡΠΆΠ½ΠΎ Π±ΡΠ΄Π΅Ρ ΠΎΡΠΎΠ±ΠΎ ΠΏΠΎΡΡΠ°ΡΠ°ΡΡΡΡ, ΡΡΠΎΠ±Ρ Π²ΠΎΠΏΠ»ΠΎΡΠΈΡΡ Π² ΠΆΠΈΠ·Π½Ρ ΡΠ°ΠΊΠΎΠ΅ ΡΠΎΠΎΡΡΠΆΠ΅Π½ΠΈΠ΅ ΡΠ²ΠΎΠΈΠΌΠΈ ΡΡΠΊΠ°ΠΌΠΈ. ΠΠ»Ρ ΠΏΠΎΡΡΡΠΎΠΉΠΊΠΈ ΡΠ°ΠΊΠΎΠ³ΠΎ Π·Π΄Π°Π½ΠΈΡ ΠΌΠ°Π»ΠΎ ΠΎΠ±Π»Π°Π΄Π°ΡΡ Π»ΠΈΡΡ Π½Π°ΡΠ°Π»ΡΠ½ΡΠΌΠΈ Π½Π°Π²ΡΠΊΠ°ΠΌΠΈ Π²Π»Π°Π΄Π΅Π½ΠΈΡ ΠΈΠ½ΡΡΡΡΠΌΠ΅Π½ΡΠΎΠΌ. Π’ΡΠ°ΡΠ΅Π»ΡΠ½Π°Ρ ΠΏΠΎΠ΄Π³ΠΎΠ½ΠΊΠ° ΠΊΠ°ΠΆΠ΄ΠΎΠΉ Π΄ΠΎΡΠ΅ΡΠΊΠΈ ΠΏΠΎΡΡΠ΅Π±ΡΠ΅Ρ ΠΌΠ°ΡΡΡ Π²ΡΠ΅ΠΌΠ΅Π½ΠΈ ΠΈ ΡΠΌΠ΅Π½ΠΈΡ. Michail Rybakov7. ΠΠΎΠΌΠ° — ΡΡΠ΅ΠΉΠ»Π΅ΡΡ. ΠΠ½ΡΠ΅ΡΡΠ΅Ρ ΠΈ ΠΏΡΠΈΠΌΠ΅Π½Π΅Π½ΠΈΠ΅. (Π ΠΈΡ. 23)
ΠΠ½ΡΠ΅ΡΡΠ΅Ρ ΠΈ ΠΏΡΠΈΠΌΠ΅Π½Π΅Π½ΠΈΠ΅
Π’ΡΠ°ΡΠ΅Π»ΡΠ½Π°Ρ ΠΏΠΎΠ΄Π³ΠΎΠ½ΠΊΠ° ΠΊΠ°ΠΆΠ΄ΠΎΠΉ Π΄ΠΎΡΠ΅ΡΠΊΠΈ ΠΏΠΎΡΡΠ΅Π±ΡΠ΅Ρ ΠΌΠ°ΡΡΡ Π²ΡΠ΅ΠΌΠ΅Π½ΠΈ ΠΈ ΡΠΌΠ΅Π½ΠΈΡ. 7. ΠΠΎΠΌΠ° — ΡΡΠ΅ΠΉΠ»Π΅ΡΡ. ΠΠ½ΡΠ΅ΡΡΠ΅Ρ ΠΈ ΠΏΡΠΈΠΌΠ΅Π½Π΅Π½ΠΈΠ΅. Michail RybakovΠΠΎΠΌΠ° ΠΏΡΠΈΡΠ΅Π΄ΡΠΈΠ΅ ΠΊ Π½Π°ΠΌ ΠΈΠ· Π·Π°ΡΡΠ±Π΅ΠΆΠ½ΡΡ ΡΠΈΠ»ΡΠΌΠΎΠ² — ΠΏΠ΅ΡΠ΅ΠΎΠ±ΠΎΡΡΠ΄ΠΎΠ²Π°Π½Π½ΡΠ΅ ΡΡΠ΅ΠΉΠ»Π΅ΡΡ. Π’Π°ΠΊΠΈΠ΅ Π΄ΠΎΠΌΠ° ΠΊΠ°ΠΊ ΠΈ ΠΌΠΎΠ±ΠΈΠ»ΡΠ½ΡΠ΅ ΡΡΠ΅ΠΉΠ»Π΅ΡΡ ΠΈΠΌΠ΅ΡΡ Π±ΠΎΠ»ΡΡΠΎΠ΅ ΠΊΠΎΠ»ΠΈΡΠ΅ΡΡΠ²ΠΎ ΡΠΎΡΠΌ. (Π ΠΈΡ. 24, 25, 26, 27)
Π’Π°ΠΊΠΈΠ΅ Π΄ΠΎΠΌΠ° ΠΊΠ°ΠΊ ΠΈ ΠΌΠΎΠ±ΠΈΠ»ΡΠ½ΡΠ΅ ΡΡΠ΅ΠΉΠ»Π΅ΡΡ ΠΈΠΌΠ΅ΡΡ Π±ΠΎΠ»ΡΡΠΎΠ΅ ΠΊΠΎΠ»ΠΈΡΠ΅ΡΡΠ²ΠΎ ΡΠΎΡΠΌ
ΠΠΎΠΌΠ° — ΡΡΠ΅ΠΉΠ»Π΅ΡΡ. ΠΠ½ΡΠ΅ΡΡΠ΅Ρ ΠΈ ΠΏΡΠΈΠΌΠ΅Π½Π΅Π½ΠΈΠ΅. ΠΠΎΠΌΠ° ΠΏΡΠΈΡΠ΅Π΄ΡΠΈΠ΅ ΠΊ Π½Π°ΠΌ ΠΈΠ· Π·Π°ΡΡΠ±Π΅ΠΆΠ½ΡΡ
ΡΠΈΠ»ΡΠΌΠΎΠ² — ΠΏΠ΅ΡΠ΅ΠΎΠ±ΠΎΡΡΠ΄ΠΎΠ²Π°Π½Π½ΡΠ΅ ΡΡΠ΅ΠΉΠ»Π΅ΡΡ. Π’Π°ΠΊΠΈΠ΅ Π΄ΠΎΠΌΠ° ΠΊΠ°ΠΊ ΠΈ ΠΌΠΎΠ±ΠΈΠ»ΡΠ½ΡΠ΅ ΡΡΠ΅ΠΉΠ»Π΅ΡΡ ΠΈΠΌΠ΅ΡΡ Π±ΠΎΠ»ΡΡΠΎΠ΅ ΠΊΠΎΠ»ΠΈΡΠ΅ΡΡΠ²ΠΎ ΡΠΎΡΠΌ. 24, 25, 26, 27) Michail RybakovΠ’Π°ΠΊΠΈΠ΅ Π΄ΠΎΠΌΠ° ΠΊΠ°ΠΊ ΠΈ ΠΌΠΎΠ±ΠΈΠ»ΡΠ½ΡΠ΅ ΡΡΠ΅ΠΉΠ»Π΅ΡΡ ΠΈΠΌΠ΅ΡΡ Π±ΠΎΠ»ΡΡΠΎΠ΅ ΠΊΠΎΠ»ΠΈΡΠ΅ΡΡΠ²ΠΎ ΡΠΎΡΠΌ
ΠΠΎΠΌΠ° — ΡΡΠ΅ΠΉΠ»Π΅ΡΡ. ΠΠ½ΡΠ΅ΡΡΠ΅Ρ ΠΈ ΠΏΡΠΈΠΌΠ΅Π½Π΅Π½ΠΈΠ΅. ΠΠΎΠΌΠ° ΠΏΡΠΈΡΠ΅Π΄ΡΠΈΠ΅ ΠΊ Π½Π°ΠΌ ΠΈΠ· Π·Π°ΡΡΠ±Π΅ΠΆΠ½ΡΡ
ΡΠΈΠ»ΡΠΌΠΎΠ² — ΠΏΠ΅ΡΠ΅ΠΎΠ±ΠΎΡΡΠ΄ΠΎΠ²Π°Π½Π½ΡΠ΅ ΡΡΠ΅ΠΉΠ»Π΅ΡΡ. Π’Π°ΠΊΠΈΠ΅ Π΄ΠΎΠΌΠ° ΠΊΠ°ΠΊ ΠΈ ΠΌΠΎΠ±ΠΈΠ»ΡΠ½ΡΠ΅ ΡΡΠ΅ΠΉΠ»Π΅ΡΡ ΠΈΠΌΠ΅ΡΡ Π±ΠΎΠ»ΡΡΠΎΠ΅ ΠΊΠΎΠ»ΠΈΡΠ΅ΡΡΠ²ΠΎ ΡΠΎΡΠΌ. Michail RybakovΠ’Π°ΠΊΠΈΠ΅ Π΄ΠΎΠΌΠ° ΠΊΠ°ΠΊ ΠΈ ΠΌΠΎΠ±ΠΈΠ»ΡΠ½ΡΠ΅ ΡΡΠ΅ΠΉΠ»Π΅ΡΡ ΠΈΠΌΠ΅ΡΡ Π±ΠΎΠ»ΡΡΠΎΠ΅ ΠΊΠΎΠ»ΠΈΡΠ΅ΡΡΠ²ΠΎ ΡΠΎΡΠΌ
ΠΠΎΠΌΠ° — ΡΡΠ΅ΠΉΠ»Π΅ΡΡ. ΠΠ½ΡΠ΅ΡΡΠ΅Ρ ΠΈ ΠΏΡΠΈΠΌΠ΅Π½Π΅Π½ΠΈΠ΅. ΠΠΎΠΌΠ° ΠΏΡΠΈΡΠ΅Π΄ΡΠΈΠ΅ ΠΊ Π½Π°ΠΌ ΠΈΠ· Π·Π°ΡΡΠ±Π΅ΠΆΠ½ΡΡ
ΡΠΈΠ»ΡΠΌΠΎΠ² — ΠΏΠ΅ΡΠ΅ΠΎΠ±ΠΎΡΡΠ΄ΠΎΠ²Π°Π½Π½ΡΠ΅ ΡΡΠ΅ΠΉΠ»Π΅ΡΡ. Π’Π°ΠΊΠΈΠ΅ Π΄ΠΎΠΌΠ° ΠΊΠ°ΠΊ ΠΈ ΠΌΠΎΠ±ΠΈΠ»ΡΠ½ΡΠ΅ ΡΡΠ΅ΠΉΠ»Π΅ΡΡ ΠΈΠΌΠ΅ΡΡ Π±ΠΎΠ»ΡΡΠΎΠ΅ ΠΊΠΎΠ»ΠΈΡΠ΅ΡΡΠ²ΠΎ ΡΠΎΡΠΌ. Michail RybakovΠ’Π°ΠΊΠΈΠ΅ Π΄ΠΎΠΌΠ° ΠΊΠ°ΠΊ ΠΈ ΠΌΠΎΠ±ΠΈΠ»ΡΠ½ΡΠ΅ ΡΡΠ΅ΠΉΠ»Π΅ΡΡ ΠΈΠΌΠ΅ΡΡ Π±ΠΎΠ»ΡΡΠΎΠ΅ ΠΊΠΎΠ»ΠΈΡΠ΅ΡΡΠ²ΠΎ ΡΠΎΡΠΌ
ΠΠΎΠΌΠ° — ΡΡΠ΅ΠΉΠ»Π΅ΡΡ. ΠΠ½ΡΠ΅ΡΡΠ΅Ρ ΠΈ ΠΏΡΠΈΠΌΠ΅Π½Π΅Π½ΠΈΠ΅. ΠΠΎΠΌΠ° ΠΏΡΠΈΡΠ΅Π΄ΡΠΈΠ΅ ΠΊ Π½Π°ΠΌ ΠΈΠ· Π·Π°ΡΡΠ±Π΅ΠΆΠ½ΡΡ
ΡΠΈΠ»ΡΠΌΠΎΠ² — ΠΏΠ΅ΡΠ΅ΠΎΠ±ΠΎΡΡΠ΄ΠΎΠ²Π°Π½Π½ΡΠ΅ ΡΡΠ΅ΠΉΠ»Π΅ΡΡ. Π’Π°ΠΊΠΈΠ΅ Π΄ΠΎΠΌΠ° ΠΊΠ°ΠΊ ΠΈ ΠΌΠΎΠ±ΠΈΠ»ΡΠ½ΡΠ΅ ΡΡΠ΅ΠΉΠ»Π΅ΡΡ ΠΈΠΌΠ΅ΡΡ Π±ΠΎΠ»ΡΡΠΎΠ΅ ΠΊΠΎΠ»ΠΈΡΠ΅ΡΡΠ²ΠΎ ΡΠΎΡΠΌ. Michail Rybakov Π’Π°ΠΊΠΈΠ΅ Π΄ΠΎΠΌΠΈΠΊΠΈ Π΄Π»Ρ Π΄ΠΎΠΌΠΈΠΊΠ° ΡΠ΄ΠΎΠ±Π½Ρ ΡΠ΅ΠΌ, ΡΡΠΎ Π½Π΅ ΡΠ²ΡΠ·Π°Π½Π½ΡΠΉ Π½ΠΈΠΊΠ°ΠΊΠΈΠΌΠΈ ΠΎΠ±ΡΠ·Π°ΡΠ΅Π»ΡΡΡΠ²Π°ΠΌΠΈ ΡΠ΅Π»ΠΎΠ²Π΅ΠΊ ΡΠ²ΠΎΠ±ΠΎΠ΄Π½ΠΎ ΠΌΠΎΠΆΠ΅Ρ Π·Π°ΠΊΡΠ΅ΠΏΠΈΡΡ ΠΈΠ»ΠΈ Π·Π°Π³ΡΡΠ·ΠΈΡΡ Π»ΡΠ±ΡΡ ΡΠ°ΠΊΡΡ ΠΊΠΎΠ½ΡΡΡΡΠΊΡΠΈΡ ΠΌΠΎΠΆΠ΅Ρ Π»Π΅Π³ΠΊΠΎ ΠΎΡΠΏΡΠ°Π²ΠΈΡΡΡΡ Π² ΠΏΡΡΡ. ΠΠΎ ΡΡΡΠ΅ΡΡΠ²ΡΡΡ ΠΈ ΠΏΠΎΠ»Π½ΠΎΡΡΡΡ ΠΏΠ΅ΡΠ΅Π΄Π΅Π»Π°Π½Π½ΡΠ΅ Π²Π°Π³ΠΎΠ½ΡΠΈΠΊΠΈ, Π°Π΄Π°ΠΏΡΠΈΡΠΎΠ²Π°Π½Π½ΡΠ΅ ΠΏΠΎΠ΄ ΠΆΠΈΠ»ΡΠ΅. Π‘ΡΡΠΎΡΡ ΠΈ ΠΏΠΎΠ»Π½ΠΎΡΡΡΡ Π½ΠΎΠ²ΡΠ΅ Π΄ΠΎΠΌΠ° Π² ΡΠΎΡΠΌΠ΅ ΡΡΠ΅ΠΉΠ»Π΅ΡΠΎΠ². ΠΡ , ΠΊΠΎΡΠ΅ Π²ΡΠ΅Π³ΠΎ Π½Π΅ ΠΏΠΎΠ»ΡΡΠΈΡΡΡ ΡΡΠ°Π½ΡΠΏΠΎΡΡΠΈΡΠΎΠ²Π°ΡΡ, ΡΠ°ΠΊ ΠΎΠ½ΠΈ ΠΈΠ·Π³ΠΎΡΠΎΠ²Π»Π΅Π½Ρ ΠΏΠΎΠ»Π½ΠΎΡΡΡΡ ΠΈΠ· Π΄Π΅ΡΠ΅Π²Π° ΠΈ ΡΡΠ΅ΠΊΠ»Π° Π·Π°ΡΠΎ ΡΠ°ΠΊΠΈΠ΅ Π΄ΠΎΠΌΠ° ΡΠ΅ΠΏΠ»ΡΠ΅ ΠΈ ΠΎΡΠ΅Π½Ρ ΡΡΠ½ΠΊΡΠΈΠΎΠ½Π°Π»ΡΠ½ΡΠ΅. (Π ΠΈΡ. 28, 29, 30, 31, 32, 33, 34).
ΠΡ , ΠΊΠΎΡΠ΅ Π²ΡΠ΅Π³ΠΎ Π½Π΅ ΠΏΠΎΠ»ΡΡΠΈΡΡΡ ΡΡΠ°Π½ΡΠΏΠΎΡΡΠΈΡΠΎΠ²Π°ΡΡ, ΡΠ°ΠΊ ΠΎΠ½ΠΈ ΠΈΠ·Π³ΠΎΡΠΎΠ²Π»Π΅Π½Ρ ΠΏΠΎΠ»Π½ΠΎΡΡΡΡ ΠΈΠ· Π΄Π΅ΡΠ΅Π²Π° ΠΈ ΡΡΠ΅ΠΊΠ»Π° Π·Π°ΡΠΎ ΡΠ°ΠΊΠΈΠ΅ Π΄ΠΎΠΌΠ° ΡΠ΅ΠΏΠ»ΡΠ΅ ΠΈ ΠΎΡΠ΅Π½Ρ ΡΡΠ½ΠΊΡΠΈΠΎΠ½Π°Π»ΡΠ½ΡΠ΅
Π’Π°ΠΊΠΈΠ΅ Π΄ΠΎΠΌΠΈΠΊΠΈ Π΄Π»Ρ Π΄ΠΎΠΌΠΈΠΊΠ° ΡΠ΄ΠΎΠ±Π½Ρ ΡΠ΅ΠΌ, ΡΡΠΎ Π½Π΅ ΡΠ²ΡΠ·Π°Π½Π½ΡΠΉ Π½ΠΈΠΊΠ°ΠΊΠΈΠΌΠΈ ΠΎΠ±ΡΠ·Π°ΡΠ΅Π»ΡΡΡΠ²Π°ΠΌΠΈ ΡΠ΅Π»ΠΎΠ²Π΅ΠΊ ΡΠ²ΠΎΠ±ΠΎΠ΄Π½ΠΎ ΠΌΠΎΠΆΠ΅Ρ Π·Π°ΠΊΡΠ΅ΠΏΠΈΡΡ ΠΈΠ»ΠΈ Π·Π°Π³ΡΡΠ·ΠΈΡΡ Π»ΡΠ±ΡΡ ΡΠ°ΠΊΡΡ ΠΊΠΎΠ½ΡΡΡΡΠΊΡΠΈΡ ΠΌΠΎΠΆΠ΅Ρ Π»Π΅Π³ΠΊΠΎ ΠΎΡΠΏΡΠ°Π²ΠΈΡΡΡΡ Π² ΠΏΡΡΡ. ΠΠΎ ΡΡΡΠ΅ΡΡΠ²ΡΡΡ ΠΈ ΠΏΠΎΠ»Π½ΠΎΡΡΡΡ ΠΏΠ΅ΡΠ΅Π΄Π΅Π»Π°Π½Π½ΡΠ΅ Π²Π°Π³ΠΎΠ½ΡΠΈΠΊΠΈ, Π°Π΄Π°ΠΏΡΠΈΡΠΎΠ²Π°Π½Π½ΡΠ΅ ΠΏΠΎΠ΄ ΠΆΠΈΠ»ΡΠ΅. Π‘ΡΡΠΎΡΡ ΠΈ ΠΏΠΎΠ»Π½ΠΎΡΡΡΡ Π½ΠΎΠ²ΡΠ΅ Π΄ΠΎΠΌΠ° Π² ΡΠΎΡΠΌΠ΅ ΡΡΠ΅ΠΉΠ»Π΅ΡΠΎΠ². ΠΡ
, ΠΊΠΎΡΠ΅ Π²ΡΠ΅Π³ΠΎ Π½Π΅ ΠΏΠΎΠ»ΡΡΠΈΡΡΡ ΡΡΠ°Π½ΡΠΏΠΎΡΡΠΈΡΠΎΠ²Π°ΡΡ, ΡΠ°ΠΊ ΠΎΠ½ΠΈ ΠΈΠ·Π³ΠΎΡΠΎΠ²Π»Π΅Π½Ρ ΠΏΠΎΠ»Π½ΠΎΡΡΡΡ ΠΈΠ· Π΄Π΅ΡΠ΅Π²Π° ΠΈ ΡΡΠ΅ΠΊΠ»Π° Π·Π°ΡΠΎ ΡΠ°ΠΊΠΈΠ΅ Π΄ΠΎΠΌΠ° ΡΠ΅ΠΏΠ»ΡΠ΅ ΠΈ ΠΎΡΠ΅Π½Ρ ΡΡΠ½ΠΊΡΠΈΠΎΠ½Π°Π»ΡΠ½ΡΠ΅. 28, 29, 30, 31, 32, 33, 34). Michail RybakovΠΡ , ΠΊΠΎΡΠ΅ Π²ΡΠ΅Π³ΠΎ Π½Π΅ ΠΏΠΎΠ»ΡΡΠΈΡΡΡ ΡΡΠ°Π½ΡΠΏΠΎΡΡΠΈΡΠΎΠ²Π°ΡΡ, ΡΠ°ΠΊ ΠΎΠ½ΠΈ ΠΈΠ·Π³ΠΎΡΠΎΠ²Π»Π΅Π½Ρ ΠΏΠΎΠ»Π½ΠΎΡΡΡΡ ΠΈΠ· Π΄Π΅ΡΠ΅Π²Π° ΠΈ ΡΡΠ΅ΠΊΠ»Π° Π·Π°ΡΠΎ ΡΠ°ΠΊΠΈΠ΅ Π΄ΠΎΠΌΠ° ΡΠ΅ΠΏΠ»ΡΠ΅ ΠΈ ΠΎΡΠ΅Π½Ρ ΡΡΠ½ΠΊΡΠΈΠΎΠ½Π°Π»ΡΠ½ΡΠ΅
Π’Π°ΠΊΠΈΠ΅ Π΄ΠΎΠΌΠΈΠΊΠΈ Π΄Π»Ρ Π΄ΠΎΠΌΠΈΠΊΠ° ΡΠ΄ΠΎΠ±Π½Ρ ΡΠ΅ΠΌ, ΡΡΠΎ Π½Π΅ ΡΠ²ΡΠ·Π°Π½Π½ΡΠΉ Π½ΠΈΠΊΠ°ΠΊΠΈΠΌΠΈ ΠΎΠ±ΡΠ·Π°ΡΠ΅Π»ΡΡΡΠ²Π°ΠΌΠΈ ΡΠ΅Π»ΠΎΠ²Π΅ΠΊ ΡΠ²ΠΎΠ±ΠΎΠ΄Π½ΠΎ ΠΌΠΎΠΆΠ΅Ρ Π·Π°ΠΊΡΠ΅ΠΏΠΈΡΡ ΠΈΠ»ΠΈ Π·Π°Π³ΡΡΠ·ΠΈΡΡ Π»ΡΠ±ΡΡ ΡΠ°ΠΊΡΡ ΠΊΠΎΠ½ΡΡΡΡΠΊΡΠΈΡ ΠΌΠΎΠΆΠ΅Ρ Π»Π΅Π³ΠΊΠΎ ΠΎΡΠΏΡΠ°Π²ΠΈΡΡΡΡ Π² ΠΏΡΡΡ. ΠΠΎ ΡΡΡΠ΅ΡΡΠ²ΡΡΡ ΠΈ ΠΏΠΎΠ»Π½ΠΎΡΡΡΡ ΠΏΠ΅ΡΠ΅Π΄Π΅Π»Π°Π½Π½ΡΠ΅ Π²Π°Π³ΠΎΠ½ΡΠΈΠΊΠΈ, Π°Π΄Π°ΠΏΡΠΈΡΠΎΠ²Π°Π½Π½ΡΠ΅ ΠΏΠΎΠ΄ ΠΆΠΈΠ»ΡΠ΅. Π‘ΡΡΠΎΡΡ ΠΈ ΠΏΠΎΠ»Π½ΠΎΡΡΡΡ Π½ΠΎΠ²ΡΠ΅ Π΄ΠΎΠΌΠ° Π² ΡΠΎΡΠΌΠ΅ ΡΡΠ΅ΠΉΠ»Π΅ΡΠΎΠ². ΠΡ
, ΠΊΠΎΡΠ΅ Π²ΡΠ΅Π³ΠΎ Π½Π΅ ΠΏΠΎΠ»ΡΡΠΈΡΡΡ ΡΡΠ°Π½ΡΠΏΠΎΡΡΠΈΡΠΎΠ²Π°ΡΡ, ΡΠ°ΠΊ ΠΎΠ½ΠΈ ΠΈΠ·Π³ΠΎΡΠΎΠ²Π»Π΅Π½Ρ ΠΏΠΎΠ»Π½ΠΎΡΡΡΡ ΠΈΠ· Π΄Π΅ΡΠ΅Π²Π° ΠΈ ΡΡΠ΅ΠΊΠ»Π° Π·Π°ΡΠΎ ΡΠ°ΠΊΠΈΠ΅ Π΄ΠΎΠΌΠ° ΡΠ΅ΠΏΠ»ΡΠ΅ ΠΈ ΠΎΡΠ΅Π½Ρ ΡΡΠ½ΠΊΡΠΈΠΎΠ½Π°Π»ΡΠ½ΡΠ΅. Michail RybakovΠΡ , ΠΊΠΎΡΠ΅ Π²ΡΠ΅Π³ΠΎ Π½Π΅ ΠΏΠΎΠ»ΡΡΠΈΡΡΡ ΡΡΠ°Π½ΡΠΏΠΎΡΡΠΈΡΠΎΠ²Π°ΡΡ, ΡΠ°ΠΊ ΠΎΠ½ΠΈ ΠΈΠ·Π³ΠΎΡΠΎΠ²Π»Π΅Π½Ρ ΠΏΠΎΠ»Π½ΠΎΡΡΡΡ ΠΈΠ· Π΄Π΅ΡΠ΅Π²Π° ΠΈ ΡΡΠ΅ΠΊΠ»Π° Π·Π°ΡΠΎ ΡΠ°ΠΊΠΈΠ΅ Π΄ΠΎΠΌΠ° ΡΠ΅ΠΏΠ»ΡΠ΅ ΠΈ ΠΎΡΠ΅Π½Ρ ΡΡΠ½ΠΊΡΠΈΠΎΠ½Π°Π»ΡΠ½ΡΠ΅
Π’Π°ΠΊΠΈΠ΅ Π΄ΠΎΠΌΠΈΠΊΠΈ Π΄Π»Ρ Π΄ΠΎΠΌΠΈΠΊΠ° ΡΠ΄ΠΎΠ±Π½Ρ ΡΠ΅ΠΌ, ΡΡΠΎ Π½Π΅ ΡΠ²ΡΠ·Π°Π½Π½ΡΠΉ Π½ΠΈΠΊΠ°ΠΊΠΈΠΌΠΈ ΠΎΠ±ΡΠ·Π°ΡΠ΅Π»ΡΡΡΠ²Π°ΠΌΠΈ ΡΠ΅Π»ΠΎΠ²Π΅ΠΊ ΡΠ²ΠΎΠ±ΠΎΠ΄Π½ΠΎ ΠΌΠΎΠΆΠ΅Ρ Π·Π°ΠΊΡΠ΅ΠΏΠΈΡΡ ΠΈΠ»ΠΈ Π·Π°Π³ΡΡΠ·ΠΈΡΡ Π»ΡΠ±ΡΡ ΡΠ°ΠΊΡΡ ΠΊΠΎΠ½ΡΡΡΡΠΊΡΠΈΡ ΠΌΠΎΠΆΠ΅Ρ Π»Π΅Π³ΠΊΠΎ ΠΎΡΠΏΡΠ°Π²ΠΈΡΡΡΡ Π² ΠΏΡΡΡ. ΠΠΎ ΡΡΡΠ΅ΡΡΠ²ΡΡΡ ΠΈ ΠΏΠΎΠ»Π½ΠΎΡΡΡΡ ΠΏΠ΅ΡΠ΅Π΄Π΅Π»Π°Π½Π½ΡΠ΅ Π²Π°Π³ΠΎΠ½ΡΠΈΠΊΠΈ, Π°Π΄Π°ΠΏΡΠΈΡΠΎΠ²Π°Π½Π½ΡΠ΅ ΠΏΠΎΠ΄ ΠΆΠΈΠ»ΡΠ΅. Π‘ΡΡΠΎΡΡ ΠΈ ΠΏΠΎΠ»Π½ΠΎΡΡΡΡ Π½ΠΎΠ²ΡΠ΅ Π΄ΠΎΠΌΠ° Π² ΡΠΎΡΠΌΠ΅ ΡΡΠ΅ΠΉΠ»Π΅ΡΠΎΠ². ΠΡ
, ΠΊΠΎΡΠ΅ Π²ΡΠ΅Π³ΠΎ Π½Π΅ ΠΏΠΎΠ»ΡΡΠΈΡΡΡ ΡΡΠ°Π½ΡΠΏΠΎΡΡΠΈΡΠΎΠ²Π°ΡΡ, ΡΠ°ΠΊ ΠΎΠ½ΠΈ ΠΈΠ·Π³ΠΎΡΠΎΠ²Π»Π΅Π½Ρ ΠΏΠΎΠ»Π½ΠΎΡΡΡΡ ΠΈΠ· Π΄Π΅ΡΠ΅Π²Π° ΠΈ ΡΡΠ΅ΠΊΠ»Π° Π·Π°ΡΠΎ ΡΠ°ΠΊΠΈΠ΅ Π΄ΠΎΠΌΠ° ΡΠ΅ΠΏΠ»ΡΠ΅ ΠΈ ΠΎΡΠ΅Π½Ρ ΡΡΠ½ΠΊΡΠΈΠΎΠ½Π°Π»ΡΠ½ΡΠ΅. Michail RybakovΠΡ , ΠΊΠΎΡΠ΅ Π²ΡΠ΅Π³ΠΎ Π½Π΅ ΠΏΠΎΠ»ΡΡΠΈΡΡΡ ΡΡΠ°Π½ΡΠΏΠΎΡΡΠΈΡΠΎΠ²Π°ΡΡ, ΡΠ°ΠΊ ΠΎΠ½ΠΈ ΠΈΠ·Π³ΠΎΡΠΎΠ²Π»Π΅Π½Ρ ΠΏΠΎΠ»Π½ΠΎΡΡΡΡ ΠΈΠ· Π΄Π΅ΡΠ΅Π²Π° ΠΈ ΡΡΠ΅ΠΊΠ»Π° Π·Π°ΡΠΎ ΡΠ°ΠΊΠΈΠ΅ Π΄ΠΎΠΌΠ° ΡΠ΅ΠΏΠ»ΡΠ΅ ΠΈ ΠΎΡΠ΅Π½Ρ ΡΡΠ½ΠΊΡΠΈΠΎΠ½Π°Π»ΡΠ½ΡΠ΅
Π’Π°ΠΊΠΈΠ΅ Π΄ΠΎΠΌΠΈΠΊΠΈ Π΄Π»Ρ Π΄ΠΎΠΌΠΈΠΊΠ° ΡΠ΄ΠΎΠ±Π½Ρ ΡΠ΅ΠΌ, ΡΡΠΎ Π½Π΅ ΡΠ²ΡΠ·Π°Π½Π½ΡΠΉ Π½ΠΈΠΊΠ°ΠΊΠΈΠΌΠΈ ΠΎΠ±ΡΠ·Π°ΡΠ΅Π»ΡΡΡΠ²Π°ΠΌΠΈ ΡΠ΅Π»ΠΎΠ²Π΅ΠΊ ΡΠ²ΠΎΠ±ΠΎΠ΄Π½ΠΎ ΠΌΠΎΠΆΠ΅Ρ Π·Π°ΠΊΡΠ΅ΠΏΠΈΡΡ ΠΈΠ»ΠΈ Π·Π°Π³ΡΡΠ·ΠΈΡΡ Π»ΡΠ±ΡΡ ΡΠ°ΠΊΡΡ ΠΊΠΎΠ½ΡΡΡΡΠΊΡΠΈΡ ΠΌΠΎΠΆΠ΅Ρ Π»Π΅Π³ΠΊΠΎ ΠΎΡΠΏΡΠ°Π²ΠΈΡΡΡΡ Π² ΠΏΡΡΡ. ΠΠΎ ΡΡΡΠ΅ΡΡΠ²ΡΡΡ ΠΈ ΠΏΠΎΠ»Π½ΠΎΡΡΡΡ ΠΏΠ΅ΡΠ΅Π΄Π΅Π»Π°Π½Π½ΡΠ΅ Π²Π°Π³ΠΎΠ½ΡΠΈΠΊΠΈ, Π°Π΄Π°ΠΏΡΠΈΡΠΎΠ²Π°Π½Π½ΡΠ΅ ΠΏΠΎΠ΄ ΠΆΠΈΠ»ΡΠ΅. Π‘ΡΡΠΎΡΡ ΠΈ ΠΏΠΎΠ»Π½ΠΎΡΡΡΡ Π½ΠΎΠ²ΡΠ΅ Π΄ΠΎΠΌΠ° Π² ΡΠΎΡΠΌΠ΅ ΡΡΠ΅ΠΉΠ»Π΅ΡΠΎΠ². ΠΡ
, ΠΊΠΎΡΠ΅ Π²ΡΠ΅Π³ΠΎ Π½Π΅ ΠΏΠΎΠ»ΡΡΠΈΡΡΡ ΡΡΠ°Π½ΡΠΏΠΎΡΡΠΈΡΠΎΠ²Π°ΡΡ, ΡΠ°ΠΊ ΠΎΠ½ΠΈ ΠΈΠ·Π³ΠΎΡΠΎΠ²Π»Π΅Π½Ρ ΠΏΠΎΠ»Π½ΠΎΡΡΡΡ ΠΈΠ· Π΄Π΅ΡΠ΅Π²Π° ΠΈ ΡΡΠ΅ΠΊΠ»Π° Π·Π°ΡΠΎ ΡΠ°ΠΊΠΈΠ΅ Π΄ΠΎΠΌΠ° ΡΠ΅ΠΏΠ»ΡΠ΅ ΠΈ ΠΎΡΠ΅Π½Ρ ΡΡΠ½ΠΊΡΠΈΠΎΠ½Π°Π»ΡΠ½ΡΠ΅. Michail RybakovΠΡ , ΠΊΠΎΡΠ΅ Π²ΡΠ΅Π³ΠΎ Π½Π΅ ΠΏΠΎΠ»ΡΡΠΈΡΡΡ ΡΡΠ°Π½ΡΠΏΠΎΡΡΠΈΡΠΎΠ²Π°ΡΡ, ΡΠ°ΠΊ ΠΎΠ½ΠΈ ΠΈΠ·Π³ΠΎΡΠΎΠ²Π»Π΅Π½Ρ ΠΏΠΎΠ»Π½ΠΎΡΡΡΡ ΠΈΠ· Π΄Π΅ΡΠ΅Π²Π° ΠΈ ΡΡΠ΅ΠΊΠ»Π° Π·Π°ΡΠΎ ΡΠ°ΠΊΠΈΠ΅ Π΄ΠΎΠΌΠ° ΡΠ΅ΠΏΠ»ΡΠ΅ ΠΈ ΠΎΡΠ΅Π½Ρ ΡΡΠ½ΠΊΡΠΈΠΎΠ½Π°Π»ΡΠ½ΡΠ΅
Π’Π°ΠΊΠΈΠ΅ Π΄ΠΎΠΌΠΈΠΊΠΈ Π΄Π»Ρ Π΄ΠΎΠΌΠΈΠΊΠ° ΡΠ΄ΠΎΠ±Π½Ρ ΡΠ΅ΠΌ, ΡΡΠΎ Π½Π΅ ΡΠ²ΡΠ·Π°Π½Π½ΡΠΉ Π½ΠΈΠΊΠ°ΠΊΠΈΠΌΠΈ ΠΎΠ±ΡΠ·Π°ΡΠ΅Π»ΡΡΡΠ²Π°ΠΌΠΈ ΡΠ΅Π»ΠΎΠ²Π΅ΠΊ ΡΠ²ΠΎΠ±ΠΎΠ΄Π½ΠΎ ΠΌΠΎΠΆΠ΅Ρ Π·Π°ΠΊΡΠ΅ΠΏΠΈΡΡ ΠΈΠ»ΠΈ Π·Π°Π³ΡΡΠ·ΠΈΡΡ Π»ΡΠ±ΡΡ ΡΠ°ΠΊΡΡ ΠΊΠΎΠ½ΡΡΡΡΠΊΡΠΈΡ ΠΌΠΎΠΆΠ΅Ρ Π»Π΅Π³ΠΊΠΎ ΠΎΡΠΏΡΠ°Π²ΠΈΡΡΡΡ Π² ΠΏΡΡΡ. ΠΠΎ ΡΡΡΠ΅ΡΡΠ²ΡΡΡ ΠΈ ΠΏΠΎΠ»Π½ΠΎΡΡΡΡ ΠΏΠ΅ΡΠ΅Π΄Π΅Π»Π°Π½Π½ΡΠ΅ Π²Π°Π³ΠΎΠ½ΡΠΈΠΊΠΈ, Π°Π΄Π°ΠΏΡΠΈΡΠΎΠ²Π°Π½Π½ΡΠ΅ ΠΏΠΎΠ΄ ΠΆΠΈΠ»ΡΠ΅. Π‘ΡΡΠΎΡΡ ΠΈ ΠΏΠΎΠ»Π½ΠΎΡΡΡΡ Π½ΠΎΠ²ΡΠ΅ Π΄ΠΎΠΌΠ° Π² ΡΠΎΡΠΌΠ΅ ΡΡΠ΅ΠΉΠ»Π΅ΡΠΎΠ². ΠΡ
, ΠΊΠΎΡΠ΅ Π²ΡΠ΅Π³ΠΎ Π½Π΅ ΠΏΠΎΠ»ΡΡΠΈΡΡΡ ΡΡΠ°Π½ΡΠΏΠΎΡΡΠΈΡΠΎΠ²Π°ΡΡ, ΡΠ°ΠΊ ΠΎΠ½ΠΈ ΠΈΠ·Π³ΠΎΡΠΎΠ²Π»Π΅Π½Ρ ΠΏΠΎΠ»Π½ΠΎΡΡΡΡ ΠΈΠ· Π΄Π΅ΡΠ΅Π²Π° ΠΈ ΡΡΠ΅ΠΊΠ»Π° Π·Π°ΡΠΎ ΡΠ°ΠΊΠΈΠ΅ Π΄ΠΎΠΌΠ° ΡΠ΅ΠΏΠ»ΡΠ΅ ΠΈ ΠΎΡΠ΅Π½Ρ ΡΡΠ½ΠΊΡΠΈΠΎΠ½Π°Π»ΡΠ½ΡΠ΅. Michail RybakovΠΡ , ΠΊΠΎΡΠ΅ Π²ΡΠ΅Π³ΠΎ Π½Π΅ ΠΏΠΎΠ»ΡΡΠΈΡΡΡ ΡΡΠ°Π½ΡΠΏΠΎΡΡΠΈΡΠΎΠ²Π°ΡΡ, ΡΠ°ΠΊ ΠΎΠ½ΠΈ ΠΈΠ·Π³ΠΎΡΠΎΠ²Π»Π΅Π½Ρ ΠΏΠΎΠ»Π½ΠΎΡΡΡΡ ΠΈΠ· Π΄Π΅ΡΠ΅Π²Π° ΠΈ ΡΡΠ΅ΠΊΠ»Π° Π·Π°ΡΠΎ ΡΠ°ΠΊΠΈΠ΅ Π΄ΠΎΠΌΠ° ΡΠ΅ΠΏΠ»ΡΠ΅ ΠΈ ΠΎΡΠ΅Π½Ρ ΡΡΠ½ΠΊΡΠΈΠΎΠ½Π°Π»ΡΠ½ΡΠ΅
Π’Π°ΠΊΠΈΠ΅ Π΄ΠΎΠΌΠΈΠΊΠΈ Π΄Π»Ρ Π΄ΠΎΠΌΠΈΠΊΠ° ΡΠ΄ΠΎΠ±Π½Ρ ΡΠ΅ΠΌ, ΡΡΠΎ Π½Π΅ ΡΠ²ΡΠ·Π°Π½Π½ΡΠΉ Π½ΠΈΠΊΠ°ΠΊΠΈΠΌΠΈ ΠΎΠ±ΡΠ·Π°ΡΠ΅Π»ΡΡΡΠ²Π°ΠΌΠΈ ΡΠ΅Π»ΠΎΠ²Π΅ΠΊ ΡΠ²ΠΎΠ±ΠΎΠ΄Π½ΠΎ ΠΌΠΎΠΆΠ΅Ρ Π·Π°ΠΊΡΠ΅ΠΏΠΈΡΡ ΠΈΠ»ΠΈ Π·Π°Π³ΡΡΠ·ΠΈΡΡ Π»ΡΠ±ΡΡ ΡΠ°ΠΊΡΡ ΠΊΠΎΠ½ΡΡΡΡΠΊΡΠΈΡ ΠΌΠΎΠΆΠ΅Ρ Π»Π΅Π³ΠΊΠΎ ΠΎΡΠΏΡΠ°Π²ΠΈΡΡΡΡ Π² ΠΏΡΡΡ. ΠΠΎ ΡΡΡΠ΅ΡΡΠ²ΡΡΡ ΠΈ ΠΏΠΎΠ»Π½ΠΎΡΡΡΡ ΠΏΠ΅ΡΠ΅Π΄Π΅Π»Π°Π½Π½ΡΠ΅ Π²Π°Π³ΠΎΠ½ΡΠΈΠΊΠΈ, Π°Π΄Π°ΠΏΡΠΈΡΠΎΠ²Π°Π½Π½ΡΠ΅ ΠΏΠΎΠ΄ ΠΆΠΈΠ»ΡΠ΅. Π‘ΡΡΠΎΡΡ ΠΈ ΠΏΠΎΠ»Π½ΠΎΡΡΡΡ Π½ΠΎΠ²ΡΠ΅ Π΄ΠΎΠΌΠ° Π² ΡΠΎΡΠΌΠ΅ ΡΡΠ΅ΠΉΠ»Π΅ΡΠΎΠ². ΠΡ
, ΠΊΠΎΡΠ΅ Π²ΡΠ΅Π³ΠΎ Π½Π΅ ΠΏΠΎΠ»ΡΡΠΈΡΡΡ ΡΡΠ°Π½ΡΠΏΠΎΡΡΠΈΡΠΎΠ²Π°ΡΡ, ΡΠ°ΠΊ ΠΎΠ½ΠΈ ΠΈΠ·Π³ΠΎΡΠΎΠ²Π»Π΅Π½Ρ ΠΏΠΎΠ»Π½ΠΎΡΡΡΡ ΠΈΠ· Π΄Π΅ΡΠ΅Π²Π° ΠΈ ΡΡΠ΅ΠΊΠ»Π° Π·Π°ΡΠΎ ΡΠ°ΠΊΠΈΠ΅ Π΄ΠΎΠΌΠ° ΡΠ΅ΠΏΠ»ΡΠ΅ ΠΈ ΠΎΡΠ΅Π½Ρ ΡΡΠ½ΠΊΡΠΈΠΎΠ½Π°Π»ΡΠ½ΡΠ΅. Michail RybakovΠΡ , ΠΊΠΎΡΠ΅ Π²ΡΠ΅Π³ΠΎ Π½Π΅ ΠΏΠΎΠ»ΡΡΠΈΡΡΡ ΡΡΠ°Π½ΡΠΏΠΎΡΡΠΈΡΠΎΠ²Π°ΡΡ, ΡΠ°ΠΊ ΠΎΠ½ΠΈ ΠΈΠ·Π³ΠΎΡΠΎΠ²Π»Π΅Π½Ρ ΠΏΠΎΠ»Π½ΠΎΡΡΡΡ ΠΈΠ· Π΄Π΅ΡΠ΅Π²Π° ΠΈ ΡΡΠ΅ΠΊΠ»Π° Π·Π°ΡΠΎ ΡΠ°ΠΊΠΈΠ΅ Π΄ΠΎΠΌΠ° ΡΠ΅ΠΏΠ»ΡΠ΅ ΠΈ ΠΎΡΠ΅Π½Ρ ΡΡΠ½ΠΊΡΠΈΠΎΠ½Π°Π»ΡΠ½ΡΠ΅
Π’Π°ΠΊΠΈΠ΅ Π΄ΠΎΠΌΠΈΠΊΠΈ Π΄Π»Ρ Π΄ΠΎΠΌΠΈΠΊΠ° ΡΠ΄ΠΎΠ±Π½Ρ ΡΠ΅ΠΌ, ΡΡΠΎ Π½Π΅ ΡΠ²ΡΠ·Π°Π½Π½ΡΠΉ Π½ΠΈΠΊΠ°ΠΊΠΈΠΌΠΈ ΠΎΠ±ΡΠ·Π°ΡΠ΅Π»ΡΡΡΠ²Π°ΠΌΠΈ ΡΠ΅Π»ΠΎΠ²Π΅ΠΊ ΡΠ²ΠΎΠ±ΠΎΠ΄Π½ΠΎ ΠΌΠΎΠΆΠ΅Ρ Π·Π°ΠΊΡΠ΅ΠΏΠΈΡΡ ΠΈΠ»ΠΈ Π·Π°Π³ΡΡΠ·ΠΈΡΡ Π»ΡΠ±ΡΡ ΡΠ°ΠΊΡΡ ΠΊΠΎΠ½ΡΡΡΡΠΊΡΠΈΡ ΠΌΠΎΠΆΠ΅Ρ Π»Π΅Π³ΠΊΠΎ ΠΎΡΠΏΡΠ°Π²ΠΈΡΡΡΡ Π² ΠΏΡΡΡ. ΠΠΎ ΡΡΡΠ΅ΡΡΠ²ΡΡΡ ΠΈ ΠΏΠΎΠ»Π½ΠΎΡΡΡΡ ΠΏΠ΅ΡΠ΅Π΄Π΅Π»Π°Π½Π½ΡΠ΅ Π²Π°Π³ΠΎΠ½ΡΠΈΠΊΠΈ, Π°Π΄Π°ΠΏΡΠΈΡΠΎΠ²Π°Π½Π½ΡΠ΅ ΠΏΠΎΠ΄ ΠΆΠΈΠ»ΡΠ΅. Π‘ΡΡΠΎΡΡ ΠΈ ΠΏΠΎΠ»Π½ΠΎΡΡΡΡ Π½ΠΎΠ²ΡΠ΅ Π΄ΠΎΠΌΠ° Π² ΡΠΎΡΠΌΠ΅ ΡΡΠ΅ΠΉΠ»Π΅ΡΠΎΠ². ΠΡ
, ΠΊΠΎΡΠ΅ Π²ΡΠ΅Π³ΠΎ Π½Π΅ ΠΏΠΎΠ»ΡΡΠΈΡΡΡ ΡΡΠ°Π½ΡΠΏΠΎΡΡΠΈΡΠΎΠ²Π°ΡΡ, ΡΠ°ΠΊ ΠΎΠ½ΠΈ ΠΈΠ·Π³ΠΎΡΠΎΠ²Π»Π΅Π½Ρ ΠΏΠΎΠ»Π½ΠΎΡΡΡΡ ΠΈΠ· Π΄Π΅ΡΠ΅Π²Π° ΠΈ ΡΡΠ΅ΠΊΠ»Π° Π·Π°ΡΠΎ ΡΠ°ΠΊΠΈΠ΅ Π΄ΠΎΠΌΠ° ΡΠ΅ΠΏΠ»ΡΠ΅ ΠΈ ΠΎΡΠ΅Π½Ρ ΡΡΠ½ΠΊΡΠΈΠΎΠ½Π°Π»ΡΠ½ΡΠ΅. Michail Rybakov8. ΠΠ΅Π»ΠΎΠ΅ ΠΌΠ΅ΡΠ°Π»Π»ΠΎΠΏΠ»Π°ΡΡΠΈΠΊΠΎΠ²ΠΎΠ΅ Π΄ΠΈΠ²ΠΎ Π΄Π»Ρ Π²Π°ΡΠΈΡ ΡΡΠ°ΡΡΠΊΠΎΠ² Π² Π΄Π²ΡΡ Π²Π°ΡΠΈΠ°ΡΠΈΡΡ . (Π ΠΈΡ. 35, 36)
ΠΠ΅Π»ΠΎΠ΅ ΠΌΠ΅ΡΠ°Π»Π»ΠΎΠΏΠ»Π°ΡΡΠΈΠΊΠΎΠ²ΠΎΠ΅ Π΄ΠΈΠ²ΠΎ Π΄Π»Ρ Π²Π°ΡΠΈΡ ΡΡΠ°ΡΡΠΊΠΎΠ² Π² Π΄Π²ΡΡ Π²Π°ΡΠΈΠ°ΡΠΈΡΡ
Π‘ΡΡΠΎΡΡ ΠΈ ΠΏΠΎΠ»Π½ΠΎΡΡΡΡ Π½ΠΎΠ²ΡΠ΅ Π΄ΠΎΠΌΠ° Π² ΡΠΎΡΠΌΠ΅ ΡΡΠ΅ΠΉΠ»Π΅ΡΠΎΠ². ΠΡ
, ΠΊΠΎΡΠ΅ Π²ΡΠ΅Π³ΠΎ Π½Π΅ ΠΏΠΎΠ»ΡΡΠΈΡΡΡ ΡΡΠ°Π½ΡΠΏΠΎΡΡΠΈΡΠΎΠ²Π°ΡΡ, ΡΠ°ΠΊ ΠΎΠ½ΠΈ ΠΈΠ·Π³ΠΎΡΠΎΠ²Π»Π΅Π½Ρ ΠΏΠΎΠ»Π½ΠΎΡΡΡΡ ΠΈΠ· Π΄Π΅ΡΠ΅Π²Π° ΠΈ ΡΡΠ΅ΠΊΠ»Π° Π·Π°ΡΠΎ ΡΠ°ΠΊΠΈΠ΅ Π΄ΠΎΠΌΠ° ΡΠ΅ΠΏΠ»ΡΠ΅ ΠΈ ΠΎΡΠ΅Π½Ρ ΡΡΠ½ΠΊΡΠΈΠΎΠ½Π°Π»ΡΠ½ΡΠ΅. 8. ΠΠ΅Π»ΠΎΠ΅ ΠΌΠ΅ΡΠ°Π»Π»ΠΎΠΏΠ»Π°ΡΡΠΈΠΊΠΎΠ²ΠΎΠ΅ Π΄ΠΈΠ²ΠΎ Π΄Π»Ρ Π²Π°ΡΠΈΡ
ΡΡΠ°ΡΡΠΊΠΎΠ² Π² Π΄Π²ΡΡ
Π²Π°ΡΠΈΠ°ΡΠΈΡΡ
. Michail RybakovΠΠ΅Π»ΠΎΠ΅ ΠΌΠ΅ΡΠ°Π»Π»ΠΎΠΏΠ»Π°ΡΡΠΈΠΊΠΎΠ²ΠΎΠ΅ Π΄ΠΈΠ²ΠΎ Π΄Π»Ρ Π²Π°ΡΠΈΡ ΡΡΠ°ΡΡΠΊΠΎΠ² Π² Π΄Π²ΡΡ Π²Π°ΡΠΈΠ°ΡΠΈΡΡ
Π‘ΡΡΠΎΡΡ ΠΈ ΠΏΠΎΠ»Π½ΠΎΡΡΡΡ Π½ΠΎΠ²ΡΠ΅ Π΄ΠΎΠΌΠ° Π² ΡΠΎΡΠΌΠ΅ ΡΡΠ΅ΠΉΠ»Π΅ΡΠΎΠ². ΠΡ
, ΠΊΠΎΡΠ΅ Π²ΡΠ΅Π³ΠΎ Π½Π΅ ΠΏΠΎΠ»ΡΡΠΈΡΡΡ ΡΡΠ°Π½ΡΠΏΠΎΡΡΠΈΡΠΎΠ²Π°ΡΡ, ΡΠ°ΠΊ ΠΎΠ½ΠΈ ΠΈΠ·Π³ΠΎΡΠΎΠ²Π»Π΅Π½Ρ ΠΏΠΎΠ»Π½ΠΎΡΡΡΡ ΠΈΠ· Π΄Π΅ΡΠ΅Π²Π° ΠΈ ΡΡΠ΅ΠΊΠ»Π° Π·Π°ΡΠΎ ΡΠ°ΠΊΠΈΠ΅ Π΄ΠΎΠΌΠ° ΡΠ΅ΠΏΠ»ΡΠ΅ ΠΈ ΠΎΡΠ΅Π½Ρ ΡΡΠ½ΠΊΡΠΈΠΎΠ½Π°Π»ΡΠ½ΡΠ΅. 8. ΠΠ΅Π»ΠΎΠ΅ ΠΌΠ΅ΡΠ°Π»Π»ΠΎΠΏΠ»Π°ΡΡΠΈΠΊΠΎΠ²ΠΎΠ΅ Π΄ΠΈΠ²ΠΎ Π΄Π»Ρ Π²Π°ΡΠΈΡ
ΡΡΠ°ΡΡΠΊΠΎΠ² Π² Π΄Π²ΡΡ
Π²Π°ΡΠΈΠ°ΡΠΈΡΡ
. Michail RybakovΠΡΠ΅ Π±ΠΎΠ»Π΅Π΅ ΡΠΊΡΡΡΠ°Π²Π°Π³Π°Π½ΡΠ½ΡΠ΅ Π²Π°ΡΠΈΠ°Π½ΡΡ ΡΡΡΡΠΎΠΉΡΡΠ² Π΄ΠΎΠΌΠΎΠ² Π½Π° ΡΡΠ°Π΄ΡΠ±Π΅ ΠΏΠΎΠΊΠ°Π·Π°Π½Ρ Π½Π° ΡΡΠΈΡ ΡΠΎΡΠΎ. ΠΡΠ΅Π΄ΡΠ³Π°Π΄ΡΠ²Π°Ρ Π²Π°Ρ Π²ΠΎΠΏΡΠΎΡ, ΡΠΎΠ³Π»Π°ΡΡΡΡ Ρ ΡΠ΅ΠΌ, ΡΡΠΎ ΠΏΠΎΡΡΡΠΎΠΈΡΡ ΡΠ°ΠΊΠΈΠ΅ ΡΠΎΠΎΡΡΠΆΠ΅Π½ΠΈΡ ΡΠ°ΠΌΠΎΡΡΠΎΡΡΠ΅Π»ΡΠ½ΠΎ ΠΈ Π² Π΄ΠΎΠΌΠ°ΡΠ½ΠΈΡ Π½Π°Π²ΡΡΠ΄ Π»ΠΈ ΡΠ΄Π°ΡΡΡΡ. ΠΠΎ ΠΎΠ½ΠΈ Π½Π°ΡΡΠΎΠ»ΡΠΊΠΎ Π½Π΅Π²Π΅ΡΠΎΡΡΠ½Ρ ΠΈ Π½Π΅ΠΎΠ±ΡΡΠ½Ρ, ΡΡΠΎ ΠΏΡΠΎΠΈΠ³Π½ΠΎΡΠΈΡΠΎΠ²Π°ΡΡ ΠΈΡ Π±ΡΠ»ΠΎ ΠΏΡΠΎΡΡΠΎ Π½Π΅Π²ΠΎΠ·ΠΌΠΎΠΆΠ½ΠΎ ΠΈ Ρ ΠΎΡΠ΅Π»ΠΎΡΡ Ρ ΠΎΡΡ Π±Ρ ΠΏΡΠΎΡΡΠΎ ΠΏΡΠΎΠ΄Π΅ΠΌΠΎΠ½ΡΡΡΠΈΡΠΎΠ²Π°ΡΡ ΠΈΠ΄Π΅ΠΈ Π΄ΠΈΠ·Π°ΠΉΠ½Π΅ΡΠΎΠ².
(Π ΠΈΡ. 37, 38)
ΠΠΎ ΠΎΠ½ΠΈ Π½Π°ΡΡΠΎΠ»ΡΠΊΠΎ Π½Π΅Π²Π΅ΡΠΎΡΡΠ½Ρ ΠΈ Π½Π΅ΠΎΠ±ΡΡΠ½Ρ, ΡΡΠΎ ΠΏΡΠΎΠΈΠ³Π½ΠΎΡΠΈΡΠΎΠ²Π°ΡΡ ΠΈΡ Π±ΡΠ»ΠΎ ΠΏΡΠΎΡΡΠΎ Π½Π΅Π²ΠΎΠ·ΠΌΠΎΠΆΠ½ΠΎ ΠΈ Ρ ΠΎΡΠ΅Π»ΠΎΡΡ Ρ ΠΎΡΡ Π±Ρ ΠΏΡΠΎΡΡΠΎ ΠΏΡΠΎΠ΄Π΅ΠΌΠΎΠ½ΡΡΡΠΈΡΠΎΠ²Π°ΡΡ ΠΈΠ΄Π΅ΠΈ Π΄ΠΈΠ·Π°ΠΉΠ½Π΅ΡΠΎΠ². 37, 38)
8. ΠΠ΅Π»ΠΎΠ΅ ΠΌΠ΅ΡΠ°Π»Π»ΠΎΠΏΠ»Π°ΡΡΠΈΠΊΠΎΠ²ΠΎΠ΅ Π΄ΠΈΠ²ΠΎ Π΄Π»Ρ Π²Π°ΡΠΈΡ
ΡΡΠ°ΡΡΠΊΠΎΠ² Π² Π΄Π²ΡΡ
Π²Π°ΡΠΈΠ°ΡΠΈΡΡ
. ΠΡΠ΅ Π±ΠΎΠ»Π΅Π΅ ΡΠΊΡΡΡΠ°Π²Π°Π³Π°Π½ΡΠ½ΡΠ΅ Π²Π°ΡΠΈΠ°Π½ΡΡ ΡΡΡΡΠΎΠΉΡΡΠ² Π΄ΠΎΠΌΠΎΠ² Π½Π° ΡΡΠ°Π΄ΡΠ±Π΅ ΠΏΠΎΠΊΠ°Π·Π°Π½Ρ Π½Π° ΡΡΠΈΡ
ΡΠΎΡΠΎ. ΠΡΠ΅Π΄ΡΠ³Π°Π΄ΡΠ²Π°Ρ Π²Π°Ρ Π²ΠΎΠΏΡΠΎΡ, ΡΠΎΠ³Π»Π°ΡΡΡΡ Ρ ΡΠ΅ΠΌ, ΡΡΠΎ ΠΏΠΎΡΡΡΠΎΠΈΡΡ ΡΠ°ΠΊΠΈΠ΅ ΡΠΎΠΎΡΡΠΆΠ΅Π½ΠΈΡ ΡΠ°ΠΌΠΎΡΡΠΎΡΡΠ΅Π»ΡΠ½ΠΎ ΠΈ Π² Π΄ΠΎΠΌΠ°ΡΠ½ΠΈΡ
Π½Π°Π²ΡΡΠ΄ Π»ΠΈ ΡΠ΄Π°ΡΡΡΡ. ΠΠΎ ΠΎΠ½ΠΈ Π½Π°ΡΡΠΎΠ»ΡΠΊΠΎ Π½Π΅Π²Π΅ΡΠΎΡΡΠ½Ρ ΠΈ Π½Π΅ΠΎΠ±ΡΡΠ½Ρ, ΡΡΠΎ ΠΏΡΠΎΠΈΠ³Π½ΠΎΡΠΈΡΠΎΠ²Π°ΡΡ ΠΈΡ
Π±ΡΠ»ΠΎ ΠΏΡΠΎΡΡΠΎ Π½Π΅Π²ΠΎΠ·ΠΌΠΎΠΆΠ½ΠΎ ΠΈ Ρ
ΠΎΡΠ΅Π»ΠΎΡΡ Ρ
ΠΎΡΡ Π±Ρ ΠΏΡΠΎΡΡΠΎ ΠΏΡΠΎΠ΄Π΅ΠΌΠΎΠ½ΡΡΡΠΈΡΠΎΠ²Π°ΡΡ ΠΈΠ΄Π΅ΠΈ Π΄ΠΈΠ·Π°ΠΉΠ½Π΅ΡΠΎΠ². 37, 38) Michail RybakovΠΡΠ΅Π΄ΡΠ³Π°Π΄ΡΠ²Π°Ρ Π²Π°Ρ Π²ΠΎΠΏΡΠΎΡ, ΡΠΎΠ³Π»Π°ΡΡΡΡ Ρ ΡΠ΅ΠΌ, ΡΡΠΎ ΠΏΠΎΡΡΡΠΎΠΈΡΡ ΡΠ°ΠΊΠΈΠ΅ ΡΠΎΠΎΡΡΠΆΠ΅Π½ΠΈΡ ΡΠ°ΠΌΠΎΡΡΠΎΡΡΠ΅Π»ΡΠ½ΠΎ ΠΈ Π² Π΄ΠΎΠΌΠ°ΡΠ½ΠΈΡ Π½Π°Π²ΡΡΠ΄ Π»ΠΈ ΡΠ΄Π°ΡΡΡΡ
8. ΠΠ΅Π»ΠΎΠ΅ ΠΌΠ΅ΡΠ°Π»Π»ΠΎΠΏΠ»Π°ΡΡΠΈΠΊΠΎΠ²ΠΎΠ΅ Π΄ΠΈΠ²ΠΎ Π΄Π»Ρ Π²Π°ΡΠΈΡ
ΡΡΠ°ΡΡΠΊΠΎΠ² Π² Π΄Π²ΡΡ
Π²Π°ΡΠΈΠ°ΡΠΈΡΡ
. ΠΡΠ΅ Π±ΠΎΠ»Π΅Π΅ ΡΠΊΡΡΡΠ°Π²Π°Π³Π°Π½ΡΠ½ΡΠ΅ Π²Π°ΡΠΈΠ°Π½ΡΡ ΡΡΡΡΠΎΠΉΡΡΠ² Π΄ΠΎΠΌΠΎΠ² Π½Π° ΡΡΠ°Π΄ΡΠ±Π΅ ΠΏΠΎΠΊΠ°Π·Π°Π½Ρ Π½Π° ΡΡΠΈΡ
ΡΠΎΡΠΎ. ΠΡΠ΅Π΄ΡΠ³Π°Π΄ΡΠ²Π°Ρ Π²Π°Ρ Π²ΠΎΠΏΡΠΎΡ, ΡΠΎΠ³Π»Π°ΡΡΡΡ Ρ ΡΠ΅ΠΌ, ΡΡΠΎ ΠΏΠΎΡΡΡΠΎΠΈΡΡ ΡΠ°ΠΊΠΈΠ΅ ΡΠΎΠΎΡΡΠΆΠ΅Π½ΠΈΡ ΡΠ°ΠΌΠΎΡΡΠΎΡΡΠ΅Π»ΡΠ½ΠΎ ΠΈ Π² Π΄ΠΎΠΌΠ°ΡΠ½ΠΈΡ
Π½Π°Π²ΡΡΠ΄ Π»ΠΈ ΡΠ΄Π°ΡΡΡΡ. Michail RybakovΠΠ΅Π»Π°Ρ ΠΌΠ΅ΡΠ°Π»Π»ΠΎΠΏΠ»Π°ΡΡΠΈΠΊΠΎΠ²Π°Ρ ΠΊΠΎΠ½ΡΡΡΡΠΊΡΠΈΡ Ρ ΠΏΠΎΠ»Π½ΠΎΡΡΡΡ ΡΡΠ΅ΠΊΠ»ΡΠ½Π½ΡΠΌΠΈ ΠΏΡΠΎΠ·ΡΠ°ΡΠ½ΡΠΌΠΈ ΡΡΠ΅Π½Π°ΠΌΠΈ Π·Π°ΠΊΡΡΠ²Π°ΡΡΠΈΠΌΠΈΡΡ Π²ΡΡΡΠΎΠ΅Π½Π½ΡΠΌΠΈ ΠΆΠ°Π»ΡΠ·ΠΈ ΠΈ ΡΠ°ΠΊΠΎΠΉ ΠΆΠ΅ Π±Π΅Π»ΠΎΡΠ½Π΅ΠΆΠ½ΠΎΠΉ ΠΌΠ΅Π±Π΅Π»ΡΡ Π²Π½ΡΡΡΠΈ ΠΎΡΠ΅Π½Ρ ΠΏΠΎΡ ΠΎΠΆΠ° Π½Π° Π΄Π΅ΠΊΠΎΡΠ°ΡΠΈΡ ΡΠ°Π½ΡΠ°ΡΡΠΈΡΠ΅ΡΠΊΠΎΠ³ΠΎ ΡΠΈΠ»ΡΠΌΠ°. ΠΡΠΎΠΌΠ΅ ΡΡΠ½ΠΊΡΠΈΠΈ ΡΡΠΎΡ, ΠΆΠ°Π»ΡΠ·ΠΈ Π² Π΄Π°Π½Π½ΠΎΠΌ ΠΏΡΠΎΠ΅ΠΊΡΠ΅ ΡΠ²Π»ΡΡΡΡΡ ΡΡΠ°Π·Ρ Π½Π°Π΄Π΅ΠΆΠ½ΡΠΌ ΡΠΏΠΎΡΠΎΠ±ΠΎΠΌ Π·Π°ΡΠΈΡΠΈΡΡ ΡΡΠ΅Π½Ρ Π΄ΠΎΠΌΠ° ΠΎΡ Π²Π·Π»ΠΎΠΌΠ° ΠΈ ΠΏΠΎΠ²ΡΠ΅ΠΆΠ΄Π΅Π½ΠΈΡ.
Π ΡΠΆ ΡΠΎΠ²ΡΠ΅ΠΌ Π½Π΅Π²Π΅ΡΠΎΡΡΠ½Π° ΠΈ ΡΠ°Π½ΡΠ°ΡΡΠΈΡΠ½Π° ΠΊΠΎΠ½ΡΡΡΡΠΊΡΠΈΡ Π΄ΠΎΠΌΠ° Π² Π²ΠΈΠ΄Π΅ ΡΠΉΡΠ°. (Π ΠΈΡ. 39, 40)
ΠΡΠΎΠΌΠ΅ ΡΡΠ½ΠΊΡΠΈΠΈ ΡΡΠΎΡ, ΠΆΠ°Π»ΡΠ·ΠΈ Π² Π΄Π°Π½Π½ΠΎΠΌ ΠΏΡΠΎΠ΅ΠΊΡΠ΅ ΡΠ²Π»ΡΡΡΡΡ ΡΡΠ°Π·Ρ Π½Π°Π΄Π΅ΠΆΠ½ΡΠΌ ΡΠΏΠΎΡΠΎΠ±ΠΎΠΌ Π·Π°ΡΠΈΡΠΈΡΡ ΡΡΠ΅Π½Ρ Π΄ΠΎΠΌΠ° ΠΎΡ Π²Π·Π»ΠΎΠΌΠ° ΠΈ ΠΏΠΎΠ²ΡΠ΅ΠΆΠ΄Π΅Π½ΠΈΡ Π ΡΠΆ ΡΠΎΠ²ΡΠ΅ΠΌ Π½Π΅Π²Π΅ΡΠΎΡΡΠ½Π° ΠΈ ΡΠ°Π½ΡΠ°ΡΡΠΈΡΠ½Π° ΠΊΠΎΠ½ΡΡΡΡΠΊΡΠΈΡ Π΄ΠΎΠΌΠ° Π² Π²ΠΈΠ΄Π΅ ΡΠΉΡΠ°
ΠΡΠ΅ Π±ΠΎΠ»Π΅Π΅ ΡΠΊΡΡΡΠ°Π²Π°Π³Π°Π½ΡΠ½ΡΠ΅ Π²Π°ΡΠΈΠ°Π½ΡΡ ΡΡΡΡΠΎΠΉΡΡΠ² Π΄ΠΎΠΌΠΎΠ² Π½Π° ΡΡΠ°Π΄ΡΠ±Π΅ ΠΏΠΎΠΊΠ°Π·Π°Π½Ρ Π½Π° ΡΡΠΈΡ
ΡΠΎΡΠΎ. ΠΡΠ΅Π΄ΡΠ³Π°Π΄ΡΠ²Π°Ρ Π²Π°Ρ Π²ΠΎΠΏΡΠΎΡ, ΡΠΎΠ³Π»Π°ΡΡΡΡ Ρ ΡΠ΅ΠΌ, ΡΡΠΎ ΠΏΠΎΡΡΡΠΎΠΈΡΡ ΡΠ°ΠΊΠΈΠ΅ ΡΠΎΠΎΡΡΠΆΠ΅Π½ΠΈΡ ΡΠ°ΠΌΠΎΡΡΠΎΡΡΠ΅Π»ΡΠ½ΠΎ ΠΈ Π² Π΄ΠΎΠΌΠ°ΡΠ½ΠΈΡ
Π½Π°Π²ΡΡΠ΄ Π»ΠΈ ΡΠ΄Π°ΡΡΡΡ. ΠΠ΅Π»Π°Ρ ΠΌΠ΅ΡΠ°Π»Π»ΠΎΠΏΠ»Π°ΡΡΠΈΠΊΠΎΠ²Π°Ρ ΠΊΠΎΠ½ΡΡΡΡΠΊΡΠΈΡ Ρ ΠΏΠΎΠ»Π½ΠΎΡΡΡΡ ΡΡΠ΅ΠΊΠ»ΡΠ½Π½ΡΠΌΠΈ ΠΏΡΠΎΠ·ΡΠ°ΡΠ½ΡΠΌΠΈ ΡΡΠ΅Π½Π°ΠΌΠΈ Π·Π°ΠΊΡΡΠ²Π°ΡΡΠΈΠΌΠΈΡΡ Π²ΡΡΡΠΎΠ΅Π½Π½ΡΠΌΠΈ ΠΆΠ°Π»ΡΠ·ΠΈ ΠΈ ΡΠ°ΠΊΠΎΠΉ ΠΆΠ΅ Π±Π΅Π»ΠΎΡΠ½Π΅ΠΆΠ½ΠΎΠΉ ΠΌΠ΅Π±Π΅Π»ΡΡ Π²Π½ΡΡΡΠΈ ΠΎΡΠ΅Π½Ρ ΠΏΠΎΡ
ΠΎΠΆΠ° Π½Π° Π΄Π΅ΠΊΠΎΡΠ°ΡΠΈΡ ΡΠ°Π½ΡΠ°ΡΡΠΈΡΠ΅ΡΠΊΠΎΠ³ΠΎ ΡΠΈΠ»ΡΠΌΠ°. ΠΡΠΎΠΌΠ΅ ΡΡΠ½ΠΊΡΠΈΠΈ ΡΡΠΎΡ, ΠΆΠ°Π»ΡΠ·ΠΈ Π² Π΄Π°Π½Π½ΠΎΠΌ ΠΏΡΠΎΠ΅ΠΊΡΠ΅ ΡΠ²Π»ΡΡΡΡΡ ΡΡΠ°Π·Ρ Π½Π°Π΄Π΅ΠΆΠ½ΡΠΌ ΡΠΏΠΎΡΠΎΠ±ΠΎΠΌ Π·Π°ΡΠΈΡΠΈΡΡ ΡΡΠ΅Π½Ρ Π΄ΠΎΠΌΠ° ΠΎΡ Π²Π·Π»ΠΎΠΌΠ° ΠΈ ΠΏΠΎΠ²ΡΠ΅ΠΆΠ΄Π΅Π½ΠΈΡ Π ΡΠΆ ΡΠΎΠ²ΡΠ΅ΠΌ Π½Π΅Π²Π΅ΡΠΎΡΡΠ½Π° ΠΈ ΡΠ°Π½ΡΠ°ΡΡΠΈΡΠ½Π° ΠΊΠΎΠ½ΡΡΡΡΠΊΡΠΈΡ Π΄ΠΎΠΌΠ° Π² Π²ΠΈΠ΄Π΅ ΡΠΉΡΠ°. Michail RybakovΠΡΠΎΠΌΠ΅ ΡΡΠ½ΠΊΡΠΈΠΈ ΡΡΠΎΡ, ΠΆΠ°Π»ΡΠ·ΠΈ Π² Π΄Π°Π½Π½ΠΎΠΌ ΠΏΡΠΎΠ΅ΠΊΡΠ΅ ΡΠ²Π»ΡΡΡΡΡ ΡΡΠ°Π·Ρ Π½Π°Π΄Π΅ΠΆΠ½ΡΠΌ ΡΠΏΠΎΡΠΎΠ±ΠΎΠΌ Π·Π°ΡΠΈΡΠΈΡΡ ΡΡΠ΅Π½Ρ Π΄ΠΎΠΌΠ° ΠΎΡ Π²Π·Π»ΠΎΠΌΠ° ΠΈ ΠΏΠΎΠ²ΡΠ΅ΠΆΠ΄Π΅Π½ΠΈΡ Π ΡΠΆ ΡΠΎΠ²ΡΠ΅ΠΌ Π½Π΅Π²Π΅ΡΠΎΡΡΠ½Π° ΠΈ ΡΠ°Π½ΡΠ°ΡΡΠΈΡΠ½Π° ΠΊΠΎΠ½ΡΡΡΡΠΊΡΠΈΡ Π΄ΠΎΠΌΠ° Π² Π²ΠΈΠ΄Π΅ ΡΠΉΡΠ°
ΠΡΠ΅ Π±ΠΎΠ»Π΅Π΅ ΡΠΊΡΡΡΠ°Π²Π°Π³Π°Π½ΡΠ½ΡΠ΅ Π²Π°ΡΠΈΠ°Π½ΡΡ ΡΡΡΡΠΎΠΉΡΡΠ² Π΄ΠΎΠΌΠΎΠ² Π½Π° ΡΡΠ°Π΄ΡΠ±Π΅ ΠΏΠΎΠΊΠ°Π·Π°Π½Ρ Π½Π° ΡΡΠΈΡ
ΡΠΎΡΠΎ. ΠΡΠ΅Π΄ΡΠ³Π°Π΄ΡΠ²Π°Ρ Π²Π°Ρ Π²ΠΎΠΏΡΠΎΡ, ΡΠΎΠ³Π»Π°ΡΡΡΡ Ρ ΡΠ΅ΠΌ, ΡΡΠΎ ΠΏΠΎΡΡΡΠΎΠΈΡΡ ΡΠ°ΠΊΠΈΠ΅ ΡΠΎΠΎΡΡΠΆΠ΅Π½ΠΈΡ ΡΠ°ΠΌΠΎΡΡΠΎΡΡΠ΅Π»ΡΠ½ΠΎ ΠΈ Π² Π΄ΠΎΠΌΠ°ΡΠ½ΠΈΡ
Π½Π°Π²ΡΡΠ΄ Π»ΠΈ ΡΠ΄Π°ΡΡΡΡ. ΠΠ΅Π»Π°Ρ ΠΌΠ΅ΡΠ°Π»Π»ΠΎΠΏΠ»Π°ΡΡΠΈΠΊΠΎΠ²Π°Ρ ΠΊΠΎΠ½ΡΡΡΡΠΊΡΠΈΡ Ρ ΠΏΠΎΠ»Π½ΠΎΡΡΡΡ ΡΡΠ΅ΠΊΠ»ΡΠ½Π½ΡΠΌΠΈ ΠΏΡΠΎΠ·ΡΠ°ΡΠ½ΡΠΌΠΈ ΡΡΠ΅Π½Π°ΠΌΠΈ Π·Π°ΠΊΡΡΠ²Π°ΡΡΠΈΠΌΠΈΡΡ Π²ΡΡΡΠΎΠ΅Π½Π½ΡΠΌΠΈ ΠΆΠ°Π»ΡΠ·ΠΈ ΠΈ ΡΠ°ΠΊΠΎΠΉ ΠΆΠ΅ Π±Π΅Π»ΠΎΡΠ½Π΅ΠΆΠ½ΠΎΠΉ ΠΌΠ΅Π±Π΅Π»ΡΡ Π²Π½ΡΡΡΠΈ ΠΎΡΠ΅Π½Ρ ΠΏΠΎΡ
ΠΎΠΆΠ° Π½Π° Π΄Π΅ΠΊΠΎΡΠ°ΡΠΈΡ ΡΠ°Π½ΡΠ°ΡΡΠΈΡΠ΅ΡΠΊΠΎΠ³ΠΎ ΡΠΈΠ»ΡΠΌΠ°. ΠΡΠΎΠΌΠ΅ ΡΡΠ½ΠΊΡΠΈΠΈ ΡΡΠΎΡ, ΠΆΠ°Π»ΡΠ·ΠΈ Π² Π΄Π°Π½Π½ΠΎΠΌ ΠΏΡΠΎΠ΅ΠΊΡΠ΅ ΡΠ²Π»ΡΡΡΡΡ ΡΡΠ°Π·Ρ Π½Π°Π΄Π΅ΠΆΠ½ΡΠΌ ΡΠΏΠΎΡΠΎΠ±ΠΎΠΌ Π·Π°ΡΠΈΡΠΈΡΡ ΡΡΠ΅Π½Ρ Π΄ΠΎΠΌΠ° ΠΎΡ Π²Π·Π»ΠΎΠΌΠ° ΠΈ ΠΏΠΎΠ²ΡΠ΅ΠΆΠ΄Π΅Π½ΠΈΡ Π ΡΠΆ ΡΠΎΠ²ΡΠ΅ΠΌ Π½Π΅Π²Π΅ΡΠΎΡΡΠ½Π° ΠΈ ΡΠ°Π½ΡΠ°ΡΡΠΈΡΠ½Π° ΠΊΠΎΠ½ΡΡΡΡΠΊΡΠΈΡ Π΄ΠΎΠΌΠ° Π² Π²ΠΈΠ΄Π΅ ΡΠΉΡΠ°. Michail RybakovΠΠ΅Π±ΠΎΠ»ΡΡΠΎΠ΅ Ρ Π²ΠΈΠ΄Ρ ΡΠΎΠΎΡΡΠΆΠ΅Π½ΠΈΠ΅ Π²ΠΌΠ΅ΡΡΠΈΠ»ΠΎ Π²ΡΠ΅ Π½Π΅ΠΎΠ±Ρ ΠΎΠ΄ΠΈΠΌΠΎΠ΅ Π΄Π»Ρ ΠΊΠΎΠΌΡΠΎΡΡΠ°Π±Π΅Π»ΡΠ½ΠΎΠ³ΠΎ ΠΎΡΠ΄ΡΡ Π°. Π Π±ΠΎΠΊΠΎΠ²ΡΡ ΡΡΠ΅Π»Π»Π°ΠΆΠ°Ρ ΡΠ°ΡΠΏΠΎΠ»ΠΎΠΆΠΈΠ»ΠΈΡΡ ΡΠΏΠ°Π»ΡΠ½ΡΠ΅ Π»Π΅ΠΆΠ°ΠΊΠΈ, ΠΏΠΎΠ»ΠΊΠΈ Π΄Π»Ρ ΠΎΡΠ³Π°Π½ΠΈΠ·ΠΎΠ²Π°Π½Π½ΠΎΠ³ΠΎ Ρ ΡΠ°Π½Π΅Π½ΠΈΡ Π²Π΅ΡΠ΅ΠΉ ΠΈ Π΄Π°ΠΆΠ΅ ΠΏΠ»ΠΈΡΠ° Π΄Π»Ρ ΠΏΡΠΈΠ³ΠΎΡΠΎΠ²Π»Π΅Π½ΠΈΡ ΠΏΠΈΡΠΈ. Π ΡΠΎΡΡΠ΅Π²ΠΎΠΉ ΡΠ°ΡΡΠΈ Π΄ΠΎΠΌΠΈΠΊΠ°, Π·Π° ΡΡΠ΅ΠΊΠ»ΡΠ½Π½ΠΎΠΉ Π²ΡΠ΄Π²ΠΈΠΆΠ½ΠΎΠΉ ΡΡΠ΅Π½ΠΎΠΉ ΡΠ΄ΠΎΠ±Π½ΠΎ ΠΎΠ±ΠΎΡΡΠ΄ΠΎΠ²Π°Π½ ΡΠ°Π½ΡΠ·Π΅Π» Ρ Π΄ΡΡΠ΅ΠΌ.
Π‘ΡΠ°ΡΡΡ Ρ ΡΠ°ΠΉΡΠ° ΠΠ½ΠΈΠ³Π° ΡΡΡΠΎΠΈΡΠ΅Π»Ρhttps://kniga-stroitelia.ru/
kniga-stroitelia.ru
Π£ΡΡΠ½ΡΠΉ Π΄Π°ΡΠ½ΡΠΉ Π΄ΠΎΠΌΠΈΠΊ Ρ Π²Π΅ΡΠ°Π½Π΄ΠΎΠΉ
ΠΠΈΠ»ΡΠΉ ΠΈ ΡΡΡΠ½ΡΠΉ Π΄Π°ΡΠ½ΡΠΉ Π΄ΠΎΠΌΠΈΠΊ Ρ ΠΌΠ°Π»Π΅Π½ΡΠΊΠΎΠΉ Π²Π΅ΡΠ°Π½Π΄ΠΎΠΉ ΠΏΡΠΈΠ³Π»Π°ΡΠ°Π΅Ρ Π½Π°Ρ Π·Π°ΠΉΡΠΈ ΠΈ Π½Π°ΡΠ»Π°Π΄ΠΈΡΡΡΡ Π²ΡΠ΅ΠΌΠΈ ΡΠ°Π΄ΠΎΡΡΡΠΌΠΈ Π΄Π°ΡΠ½ΠΎΠΉ ΠΆΠΈΠ·Π½ΠΈ.
Π ΡΡΠΎΠΌ Π΄ΠΎΠΌΠ΅ Π΄Π²Π° Π²Ρ
ΠΎΠ΄Π°, Ρ.Π΅.Β Π²Ρ
ΠΎΠ΄ Π½Π° Π²Π΅ΡΠ°Π½Π΄Ρ Π½Π΅ ΠΏΠ΅ΡΠ΅Ρ
ΠΎΠ΄ΠΈΡ Π²ΠΎ Π²Ρ
ΠΎΠ΄ Π² Π΄ΠΎΠΌ, Π° Π½Π°Ρ
ΠΎΠ΄ΠΈΡΡΡ Ρ ΡΡΠ»ΡΠ½ΠΎΠΉ ΡΡΠΎΡΠΎΠ½Ρ Π΄ΠΎΠΌΠ°, ΡΠ° ΡΡΠΎ ΠΎΠ±ΡΠ°ΡΠ΅Π½Π° ΠΊ ΠΌΠΎΡΡ.
Π€Π°ΠΊΡΠΈΡΠ΅ΡΠΊΠΈ Π²Π΅ΡΠ°Π½Π΄Π° ΠΈΡΠΏΠΎΠ»ΡΠ·ΡΠ΅ΡΡΡ ΠΊΠ°ΠΊ Π»Π΅ΡΠ½ΡΡ ΠΊΡΡ
Π½Ρ Π½Π° Π΄Π°ΡΠ΅. ΠΠ΄Π΅ΡΡ ΡΠ°ΠΊ ΠΏΡΠΈΡΡΠ½ΠΎ Π·Π°Π²ΡΡΠ°ΠΊΠ°ΡΡ ΠΏΠΎ ΡΡΡΠ°ΠΌ ΡΠ°ΡΡΠ»Π°Π±ΠΈΠ²ΡΠΈΡΡ Π² ΡΠ΄ΠΎΠ±Π½ΠΎΠΌ ΠΊΡΠ΅ΡΠ»Π΅.
Π Ρ
ΠΎΡΡ ΡΡΠΎΡ Π΄Π°ΡΠ½ΡΠΉ Π΄ΠΎΠΌΠΈΠΊΒ Π΄Π°Π»Π΅ΠΊΠΎ Π½Π΅ Π½ΠΎΠ²ΡΠΉ , Π½ΠΎ ΡΠ²Π΅ΠΆΠ°Ρ ΡΠ²Π΅ΡΠ»ΠΎ-Π³ΠΎΠ»ΡΠ±Π°Ρ ΠΊΡΠ°ΡΠΊΠ° Π½Π° Π²Π΅ΡΠ°Π½Π΄Π΅ Π΄Π΅Π»Π°Π΅Ρ Π΅Π³ΠΎ ΡΠΈΡΡΡΠΌ, Π»Π΅Π³ΠΊΠΈΠΌ ΠΈ Π±ΠΎΠ»Π΅Π΅ ΠΏΡΠΎΡΡΠΎΡΠ½ΡΠΌ.
ΠΠΈΡΠ½ΡΠ΅ ΡΠΏΠΎΠΊΠΎΠΉΠ½ΡΠ΅ Π΄Π΅ΡΠ°Π»ΠΈ Π² ΠΈΠ½ΡΠ΅ΡΡΠ΅ΡΠ΅ ΡΡΠΎΠΉ Π²Π΅ΡΠ°Π½Π΄ΡΒ ΡΠ»ΡΠΆΠ°Ρ Π³Π°ΡΠΌΠΎΠ½ΠΈΡΠ½ΡΠΌ Π΄ΠΎΠΏΠΎΠ»Π½Π΅Π½ΠΈΠ΅ΠΌ Π±ΡΠΉΡΡΠ²Ρ ΠΊΡΠ°ΡΠΎΠΊ Π·Π΅Π»Π΅Π½ΠΈ ΠΈ ΠΌΠΎΡΡ Π·Π° ΠΎΠΊΠ½ΠΎΠΌ.
Π‘ ΠΎΠ±ΡΠ°ΡΠ½ΠΎΠΉ ΡΡΠΎΡΠΎΠ½Ρ Π΄ΠΎΠΌΠ° ΠΌΡ ΠΌΠΎΠΆΠ΅ΠΌ ΠΏΡΠΎΠΉΡΠΈ Π² ΠΊΡΡ
Π½Ρ- ΡΡΠΎΠ»ΠΎΠ²ΡΡ, ΠΊΠΎΡΠΎΡΠ°Ρ ΡΠ°ΠΊΠΆΠ΅ ΠΎΡΠΎΡΠΌΠ»Π΅Π½Π° Π² ΠΏΡΠΎΡΡΠΎΠΌ ΡΠ²Π΅ΡΠ»ΠΎΠΌΒ ΡΡΠΈΠ»Π΅.
Π Π·Π°Π²ΠΈΡΠΈΠΌΠΎΡΡΠΈ ΠΎΡ Π²ΡΠ΅ΠΌΠ΅Π½ΠΈ Π΄Π½Ρ, Π²Ρ ΠΌΠΎΠΆΠ΅ΡΠ΅ ΡΡΡΠΎΠΌ ΡΠΏΡΡΡΠ°ΡΡΡΡ ΠΎΡ ΠΆΠ°ΡΡ Π½Π° Π³Π»Π°Π²Π½ΠΎΠΉ ΠΏΠΎΠ»ΠΎΠ²ΠΈΠ½Π΅ Π΄ΠΎΠΌΠ°, Π° ΠΏΠΎΡΠ»Π΅ ΠΎΠ±Π΅Π΄Π° ΡΠ΅Π½Ρ Π±ΡΠ΄Π΅Ρ Π½Π° Π²Π΅ΡΠ°Π½Π΄Π΅, Π³Π΄Π΅ ΠΎΠ±Π΄ΡΠ²Π°Π΅ΠΌΡΠ΅ Π»Π΅Π³ΠΊΠΈΠΌ Π²Π΅ΡΠ΅ΡΠΊΠΎΠΌ, Π²Ρ ΡΠΌΠΎΠΆΠ΅ΡΠ΅ ΠΏΡΠΈΡΡΠ½ΠΎ ΠΎΡΠ΄ΠΎΡ
Π½ΡΡΡ ΠΏΠΎΡΠ»Π΅ ΠΎΠ±Π΅Π΄Π°.
Π Π΄Π°ΡΠ½ΠΎΠΌ Π΄ΠΎΠΌΠΈΠΊΠ΅ Π΅ΡΡΡ Π½Π΅Π±ΠΎΠ»ΡΡΠ°Ρ Π²Π°Π½Π½Π°Ρ ΠΊΠΎΠΌΠ½Π°ΡΠ°, ΠΊΠΎΡΠΎΡΠ°Ρ ΡΠ΅ΡΠ΅Π½Π° Π² ΠΎΠ±ΡΠ΅ΠΌ ΠΌΠΈΡΠ½ΠΎΠΌ Π±Π΅Π»ΠΎ-Π³ΠΎΠ»ΡΠ±ΠΎΠΌ ΡΠΎΠ½Π΅.
ΠΠ΅Π±ΠΎΠ»ΡΡΠ°Ρ ΡΠΏΠ°Π»ΡΠ½Ρ ΡΠΎ ΡΡΠΎΡΠ°ΠΌΠΈ ΠΏΡΠΎΡ
Π»Π°Π΄Π½ΠΎΠ³ΠΎ ΡΠΈΠ½Π΅Π³ΠΎ ΡΠ²Π΅ΡΠ° Π·Π°Π²Π΅ΡΡΠ°Π΅Ρ ΠΎΠ±ΡΠ΅Π΅ Π²ΠΏΠ΅ΡΠ°ΡΠ»Π΅Π½ΠΈΠ΅ ΠΎΡ ΡΡΠΎΠ³ΠΎ ΠΌΠΈΠ»ΠΎΠ³ΠΎ Π΄Π°ΡΠ½ΠΎΠ³ΠΎ Π΄ΠΎΠΌΠΈΠΊΠ° Ρ ΠΊΡΠ°ΡΠΈΠ²ΠΎΠΉ Π²Π΅ΡΠ°Π½Π΄ΠΎΠΉ.
ΠΠ°ΠΊΠΈΠΌ Π±Ρ ΠΌΠ°Π»Π΅Π½ΡΠΊΠΈΠΌ Π½Π΅ Π±ΡΠ» Π²Π°Ρ Π΄Π°ΡΠ½ΡΠΉ Π΄ΠΎΠΌΠΈΠΊ, Π²Ρ Π²ΡΠ΅Π³Π΄Π° ΡΠΌΠΎΠΆΠ΅ΡΠ΅ ΠΎΡΠΎΡΠΌΠΈΡΡ Π΅Π³ΠΎ Ρ ΡΠ°ΠΊΠΎΠΉ ΠΆΠ΅ Π»ΡΠ±ΠΎΠ²ΡΡ ΠΈ Π³Π°ΡΠΌΠΎΠ½ΠΈΠ΅ΠΉ.
idealsad.com
ΠΠ°ΡΠ½ΡΠ΅ Π΄ΠΎΠΌΠ° (27 ΡΠΎΡΠΎ)
ΠΠ°ΡΠ½ΡΠΉ Π΄ΠΎΠΌ β ΡΠ±Π΅ΠΆΠΈΡΠ΅ ΠΎΡ Π³ΠΎΡΠΎΠ΄ΡΠΊΠΎΠΉ ΡΡΠ΅ΡΡ ΠΈ ΡΡΠΌΠ°, ΠΏΡΠ»ΠΈ ΠΈ ΡΠΌΠΎΠ³Π°. ΠΠ΄Π΅ΡΡ ΡΠ΅Π»ΠΎΠ²Π΅ΠΊ ΠΎΡΠ΄ΡΡ Π°Π΅Ρ Π΄ΡΡΠΎΠΉ ΠΈ ΡΠ΅Π»ΠΎΠΌ, ΡΠ°ΡΡΠ»Π°Π±Π»ΡΠ΅ΡΡΡ, Π½Π°Π±ΠΈΡΠ°Π΅ΡΡΡ ΡΠΈΠ», Π·Π°ΡΡΠΆΠ°Π΅ΡΡΡ ΡΠ½Π΅ΡΠ³ΠΈΠ΅ΠΉ.
Β
ΠΠ΅Π»Π°Ρ Π΄Π°ΡΠ°Β
ΠΠ°ΡΠ½ΡΠΉ Π΄ΠΎΠΌ Ρ ΠΏΠΎΠ΄Π²Π΅ΡΠ½ΡΠΌ ΠΌΠΎΡΡΠΎΠΌΒ
ΠΠ°ΡΠ° Π² ΡΠΎΡΠ½ΠΎΠ²ΠΎΠΌ Π»Π΅ΡΡΒ
ΠΠ΅ΠΎΠ±ΡΡΠ½ΡΠΉ Π΄Π°ΡΠ½ΡΠΉ Π΄ΠΎΠΌΒ
ΠΠ²ΡΡ ΡΡΠ°ΠΆΠ½ΡΠΉ Π΄Π°ΡΠ½ΡΠΉ Π΄ΠΎΠΌΒ
Π’ΡΠ΅ΡΠ³ΠΎΠ»ΡΠ½ΡΠΉ Π΄ΠΎΠΌΒ
ΠΠ°Π»Π΅Π½ΡΠΊΠΈΠΉ Π΄ΠΎΠΌΠΈΠΊΒ
Π ΠΎΠΌΠ°Π½ΡΠΈΡΠ½ΡΠΉ Π΄ΠΎΠΌΠΈΠΊ Ρ ΠΎΠ·Π΅ΡΠ°Β
Π‘ΡΠΈΠ»ΡΠ½ΡΠΉ Π΄ΠΎΠΌΠΈΠΊΒ
Π‘ΡΠΈΠ»ΡΠ½ΡΠΉ Π΄Π°ΡΠ½ΡΠΉ Π΄ΠΎΠΌΒ
ΠΠ°ΡΠ° Π² ΡΡΡΡΠΊΠΎΠΌ ΡΡΠΈΠ»Π΅Β
ΠΠ°ΡΠ½ΡΠΉ Π΄ΠΎΠΌ Π² ΡΡΠΈΠ»Π΅ ΠΌΠΈΠ½ΠΈΠΌΠ°Π»ΠΈΠ·ΠΌΒ
ΠΠ°ΡΠ½ΡΠΉ Π΄ΠΎΠΌ Π½Π° ΠΎΠ·Π΅ΡΠ΅Β
ΠΠ°ΡΠ½ΡΠΉ Π΄ΠΎΠΌ Π² ΡΠΊΠ°Π½Π΄ΠΈΠ½Π°Π²ΡΠΊΠΎΠΌ ΡΡΠΈΠ»Π΅Β
ΠΠ°ΡΠ½ΡΠΉ Π΄ΠΎΠΌ Ρ ΠΏΠΎΠ΄ΡΠ²Π΅ΡΠΊΠΎΠΉΒ
ΠΠ°ΡΠ½ΡΠΉ Π΄ΠΎΠΌ Π½Π° ΠΌΠΎΡΠ΅Β
ΠΠΊΠ·ΠΎΡΠΈΡΠ΅ΡΠΊΠΈΠΉ Π΄ΠΎΠΌΠΈΠΊ Π΄Π»Ρ ΠΎΡΠ΄ΡΡ Π°Β
ΠΠ°ΡΠ° Ρ Π±Π΅Π»ΡΠΌΠΈ ΠΊΠΎΠ»ΠΎΠ½Π½Π°ΠΌΠΈΒ
ΠΠ°ΡΠ½ΡΠΉ Π΄ΠΎΠΌΠΈΠΊ Ρ ΡΠ΅ΡΡΠ°ΡΠΎΠΉΒ
ΠΠ°ΡΠ½ΡΠΉ Π΄ΠΎΠΌΠΈΠΊ ΡΡΠ΄ΠΎΠΌ Ρ Π»Π΅ΡΠΎΠΌΒ
ΠΠ°ΡΠ½ΡΠΉ Π΄ΠΎΠΌ ΠΈΠ· Π±ΡΡΡΠ°Β
ΠΠ°ΡΠ° Ρ ΠΏΠ°Π½ΠΎΡΠ°ΠΌΠ½ΡΠΌ ΠΎΡΡΠ΅ΠΊΠ»Π΅Π½ΠΈΠ΅ΠΌΒ
ΠΠ°ΡΠ° Π² ΡΠ²Π΅ΡΠ°ΡΒ
ΠΠ»Π°ΡΡΠΈΡΠ΅ΡΠΊΠ°Ρ Π΄Π°ΡΠ°Β
ΠΠΈΡΠΏΠΈΡΠ½Π°Ρ Π΄Π°ΡΠ°Β
ΠΡΠ°ΡΠΈΠ²ΡΠΉ Π³Π°Π·ΠΎΠ½ ΠΏΠ΅ΡΠ΅Π΄ Π΄Π°ΡΠ½ΡΠΌ Π΄ΠΎΠΌΠΎΠΌΒ
ΠΡΠ°ΡΠΈΠ²ΡΠΉ Π΄ΠΎΠΌ ΠΈΠ· Π±ΡΡΡΠ°Β
ΠΠ°ΠΊΠΎΠ΅ Π±Ρ Π°ΡΡ ΠΈΡΠ΅ΠΊΡΡΡΠ½ΠΎΠ΅ ΡΠ΅ΡΠ΅Π½ΠΈΠ΅ Ρ ΠΎΠ·ΡΠ΅Π²Π° Π½Π΅ Π²ΡΠ±ΡΠ°Π»ΠΈ, Π²Π°ΠΆΠ½ΠΎ, ΡΡΠΎΠ±Ρ Π΄Π°ΡΠ½ΡΠΉ Π΄ΠΎΠΌΠΈΠΊ Π½Π°Ρ ΠΎΠ΄ΠΈΠ»ΡΡ Π² ΠΎΠΊΡΡΠΆΠ΅Π½ΠΈΠΈ ΠΊΡΠ°ΡΠΈΠ²ΠΎΠΉ ΠΏΡΠΈΡΠΎΠ΄Ρ. Π ΡΠΎΠ³Π΄Π° ΠΎΠ½ Π΄Π΅ΠΉΡΡΠ²ΠΈΡΠ΅Π»ΡΠ½ΠΎ Π±ΡΠ΄Π΅Ρ Π»ΡΡΡΠΈΠΌ ΠΌΠ΅ΡΡΠΎΠΌ Π΄Π»Ρ ΠΎΡΠ΄ΡΡ Π°.
ΠΠ΅ Π·Π°Π±ΡΠ΄ΡΡΠ΅ ΡΠ°ΡΡΠΊΠ°Π·Π°ΡΡ ΠΎ Π΄Π°ΡΠ½ΡΡ Π΄ΠΎΠΌΠ°Ρ ΡΠ²ΠΎΠΈΠΌ Π΄ΡΡΠ·ΡΡΠΌ!
Β
classpic.ru
