Дом 6на 6 фото – Планировка двухэтажного дома 6 на 6 м: организация пространства
Двухэтажный дома 6 на 6 кв.м. Фото плана и общего вида.
Когда речь заходит о строительстве собственного дома, то совершенно естественным желанием становится сделать его светлым и просторным. Вместе с тем, возникает проблема с необходимой площадью участка, ведь большой дом может занять весь надел целиком, не оставив места даже под небольшой дворик с детской песочницей. Да и обслуживать такое строение не всегда легко и выгодно. Приходится заранее решать и эту задачу.
В этом плане двухэтажное строение будет куда более практичным, ведь проекты двухэтажных домов предполагают фактически в 2 раза больше полезной площади в доме. Так, например, проект двухэтажного дома 6 на 6 дает только на первом этаже 36 квадратных метров, и почти столько же на втором. Почему «почти»? Дело в том, что определенный метраж «съест» лестница. В остальном же, на первом этаже можно разместить просторную светлую кухню – мечту любой хозяйки, ванную, кладовую, парадную и общую гостиную. Второй этаж будет «личной» зоной, то есть местом, где будут размещаться спальни домочадцев. Это функциональнее чем, например, одноэтажный дом 8 на 8, который занимает аж 64 квадрата земли под свое строительство.
Еще одним преимуществом двухэтажных домов является то, что их экономически выгоднее обслуживать. Разумеется, подвод и разводка коммуникаций будет сложнее и займет больше времени, однако, например, отапливать такой дом будет проще, ведь первый этаж будет словно греть второй, то есть расходы будут меньше, да и нагрузка на систему снизится.
Из чего строить? Здесь каждый решает для себя сам – что кому ближе. Выбор же строительных материалов велик:
- вы можете выбрать проект двухэтажного кирпичного дома — традиционный классический вариант;
- можно возвести каменный дом – так сказать, вариант на века, однако не дешевый, да и протопить дом сложно, хоть он потом и тепло «держит хорошо»;
- к быстро реализуемым и экономичным вариантам относится пенобетон;
- двухэтажные дома возводятся и из энергоэффективных и легких sip-панелей;
- однако если хочется чего-то натурального, энергоэффективного, безопасного для здоровья, привлекательного и недорогого, тогда проект двухэтажного дома из бруса может оказаться оптимальным решением.
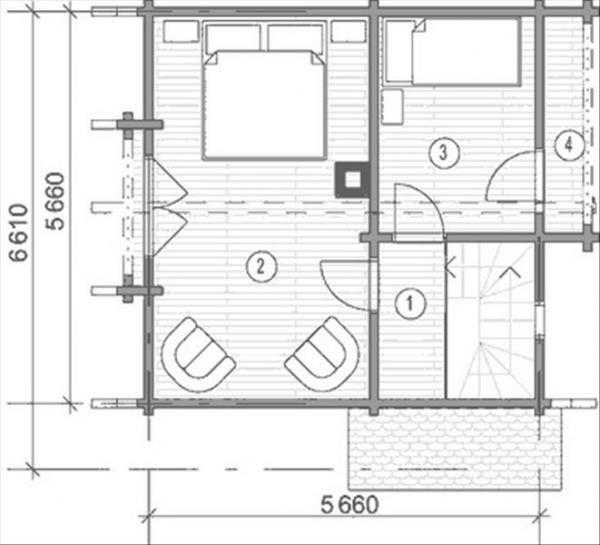
План двухэтажного дома 6 на 6 метров
Двухэтажный дом – это море возможностей для дизайна и планировки. Казалось бы, небольшой квадрат земли 6 на 6 метров можно использовать очень рационально. При этом план одного дома может отличаться от плана другого, а потому ваше жилье будет индивидуальным и «только вашим».
План первого этажа

План второго этажа

Фасады

| Общая площадь | 48,5 кв.м |
| Фундамент | ленточный ж/б |
| Наружные стены | бревно |
| Перекрытия | по деревянным балкам |
| Кровля | мансардная |
| Покрытие | металлочерепица |
| Наружная отделка | тонировка |
| Цоколь | природный камень |
Двухэтажный дом 6 на 6 план может иметь как стандартный типовой, так и скорректированный с учетом пожеланий заказчика, его потребностей, специфики эксплуатации здания. План является неотъемлемой частью проекта, который согласовывается и утверждается в компетентных органах перед запуском с работу, то есть началом строительства.
Сегодня на специализированном портале можно найти всю необходимую информацию о строительстве домов из тех или иных материалов по самым различным проектам. В том числе в одном месте собрано немало вариантов планировки двухэтажных домов различной площади, а потому если вы еще не определились с тем, что же хотите видеть в итоге, просто запаситесь капелькой терпения, и решение вскоре придет.
Также на специальном ресурсе «Проекты домов» всегда можно поделиться своими мыслями, задать вопрос уже «бывалым» или специалистам (строители, архитекторы, дизайнеры) по поводу всего, что касается проектирования, строительства, обустройства и эксплуатации двухэтажных домов из тех или других материалов.
proecty-domov.ru
Дом 6 на 6 — 90 фото лучших проектов домов 6×6 из разных материалов: кирпич, пеноблок, дерево и т.п.
Коттедж, представляющий собой в плане сравнительно небольшой квадрат со стороной 6 метров, является простым и практичным вариантом жилища для всей семьи. «Простым» его можно назвать потому, что его строительство, как правило, проходит по типовой схеме. Прямоугольную форму без выступов, эркеров и закруглений возводить обычно легче, чем объекты более сложных очертаний.

Можно сказать, что вся строительная отрасль заточена именно под прямоугольник и параллелепипед. Стандартные конструктивные элементы соответствуют именно им — прямоугольные железобетонные плиты перекрытия, практически любая облицовочная плитка, окна, двери и так далее.

Отчасти именно поэтому строительство дома 6 на 6 считается относительно привлекательным с точки зрения расхода средств и материалов. Другой причиной его экономичности является приближенное к оптимальному соотношению полезной площади к площади застройки.









В этом смысле данная компактная форма тоже представляется идеальной. А еще она обеспечивает минимальные теплопотери, из чего следует, что и отапливать такой коттедж в дальнейшем будет проще. Так что жилище данного типа сэкономит Ваши средства не только на этапе возведения объекта, но и в процессе его эксплуатации.

Впрочем, иногда люди предпочитают строить жилище именно таких габаритов не из желания потратить как можно меньше, а основываясь на требованиях, которые диктует их земельный участок. Действительно, квадратный в плане коттедж небольшого размера в пространство со сложным рельефом интегрировать проще всего.

Планировочные особенности такого коттеджа
В квадрат со стороной 6 метров можно вписать 2 полноценные комнаты с соотношением сторон 3 к 4. Данная пропорция считается оптимальной с точки зрения психологического комфорта находящихся в помещении людей. Плюс холл, санузел, кладовые и лестничная клетка, в случае, если проект Вашего частного дома предполагает более одного этажа.

При этом пространство холлов сокращается до необходимого минимума, а коридоры вовсе не обязательны. В здании с продолговатым прямоугольным планом этого добиться существенно сложнее. Как и в сооружении большего размера.

Чаще всего при этом на первом этаже обустраиваются комнаты для активного времяпровождения: кухня, столовая, гостиная и тому подобное. А на втором этаже оказываются более личные помещения, куда открывается доступ не каждому гостю дома. В частности, спальни практически всегда находятся на втором этаже. Впрочем, такое распределение комнат является очень распространенным и в коттеджах с другими геометрическими параметрами.

В некоторых случаях при решении внутреннего пространства данного типа домов делается выбор в пользу максимального объединения разных функций. Например, те же самые гостиная, кухня, столовая способны представлять из себя общий блок без внутренних перегородок.

Так значение полезной площади максимально возрастает. Кроме того, лестница тоже в состоянии стать частью этой единой зоны. В современных дизайнерских проектах можно найти много примеров того, как это чрезвычайно эффектно обыгрывается.






Объединение внутреннего пространства такого коттеджа возможно еще и потому, что его габариты не требуют внутренних перегородок по конструктивным соображениям. Там нет необходимости возводить массивные несущие стены. Внешних для восприятия веса перекрытий вполне достаточно.

Конструкция и материалы: что выбрать
Делать дом 6 х 6 из бруса, кирпича, газобетонных блоков или железобетонного каркаса — решать Вам. Каждый из этих вариантов обладает своими достоинствами и недостатками.

Быстрее всего возведение каркасного дома, который впоследствии можно облицевать и под кирпич, и под дерево, и даже под декоративный камень. Современные отделочные материалы это позволяют. Технологичным и быстрым решением выступают и газобетонные блоки. Оба этих варианта так же замечательны тем, что не требуют большого фундамента.

Однако очень часто люди все же отдают предпочтение дереву и кирпичу. Они немного сложнее в работе, однако позволяют получить в результате более уютный дом с хорошим микроклиматом внутри. Считается, что жить в таких приятнее. Еще брус и кирпич не обязательно облицовывать — оба материала привлекательны сами по себе.

Среди принципиальных отличий этих двух вариантов стоит отметить, то, что кирпич долговечнее и устойчивее к температурным нагрузкам, но требует более основательного фундамента. А брус, напротив, считается относительно слабым перед различными разрушающими факторами, но существенно более прост в работе.






Эстетический аспект: как это может выглядеть
Есть два основных варианта, как красивые домики размером 6 на 6 метров могут быть сделаны. Первый, более традиционный, выглядит как здание со скатной кровлей.

Именно таким и представляется среднему человеку собственный небольшой уютный дом, предпочтительно, кирпичный или деревянный. Так сделаны терема из сказок, на детских рисунках тоже часто можно найти что-то похожее.
Дом 100 кв. м. — лучшие проекты частных домов. 110 фотографий эксклюзивного дизайна и удачной планировки
Дом 5 на 8 метров — обзор лучших проектов для частных домов. 100 фото новинок дизайна и планировки
Дом 6 на 9 — идеи безупречной планировки. 100 фото готовых проектов, а также рекомендации правильного зонирования

Что же, коттедж с наклонной крышей не только привлекательно выглядит, он так же остается весьма практичным выбором. Особенно в регионах с обильными осадками. Да и с точки зрения интерьера помещения с наклонным потолком при грамотном подходе решаются очень интересно.

Тем не менее хочется остановиться и на втором варианте, представляющим собой дом с плоской кровлей. Дело в том, что есть целое архитектурное течение, считающее куб идеальной, наиболее выразительной формой. А учитывая то, что высота этажа в жилых зданиях в среднем равна примерно 3 метрам, то двухэтажный коттедж 6 на 6 метров в плане с плоской кровлей имеет именно форму куба.

Можно, конечно, относиться к заявлению об особенных свойствах этой геометрической фигуры скептически. Однако то, что современные кубические коттеджи могут выглядеть очень эффектно, сложно оспорить. Достаточно просто взглянуть на фото домов 6 на 6 метров, выполненных по проектам профессиональных архитекторов, чтобы убедиться в этом.

Используя окна, двери, плоскости стен, облицованные контрастными материалами, как средства художественной выразительности, творцы создают по-настоящему интересные архитектурные объекты.

Фото домов 6 на 6

-
Дом 150 кв. м. — готовые проекты. Обзор лучших идей планировки и оформления дизайна (120 фото) -
Дом 6 на 10 метров — красивые проекты. 95 фото лучших дизайнерских решений по оформлению и планировке -
Двор частного дома — красивые идеи обустройства. 110 реальных фото современного ландшафтного дизайна










-
Большой частный дом — особенности современного проектирования и планировки. 150 фото современного дизайна -
Дом 8 на 9 — лучшие варианты практичного дизайна. ТОП-100 фото проектов частных домов, а также инструкции для новичков! -
Дом 8 на 10 — оформляем стильный и практичный дизайн. 99 фото достойных проектов и рекомендаций от профи!

























thewalls.ru
Дома из бруса 6 на 6: проекты и планировка
Небольшие дома с одной либо несколькими компактными спальнями пользуются большой популярностью среди одиноких людей и небольших семей. Компактное строение из бруса замечательно впишется в экстерьер любого дачного участка.
Представленные проекты отличаются сравнительно невысокими затратами и короткими сроками на их воплощение в зависимости от особенностей участка и пожеланий клиента. Небольшие двухэтажные коттеджи сегодня активно возводят любители загородного отдыха, поскольку провести время в экологичном загородном доме из дерева всегда приятно. Также помещения из бруса пригодны и для круглогодичного проживания.
Особенно интересным решением для любителей отдыха за городом являются проекты, в которых жилой дом объединен с баней либо сауной. Благодаря особенностям проектирования баня и жилые комнаты могут замечательно функционировать в одном помещении, а печкой или котлом для бани можно отапливать весь коттедж в холодное время года.
Двухэтажный дом
Небольшой домик из бруса, построенный по представленному проекту отличается своей необычной уютной внешней отделкой, которая придает строению особого шарма. Двухэтажный коттедж выкрашен в приятные светлые тона, а особым украшением служит небольшое уютное крыльцо.

Внутри дом состоит из четырех разных по площади комнат. Отдельно выделен холл, лестница из которого ведет на второй этаж в самую просторную комнату. Характерной особенностью дома является то, что кухня и гостиная здесь объединены в одной комнате, что дает возможность визуально расширить пространство благодаря правильно подобранной отделке помещения.

Солнечная дача
Дом из сруба по представленному проекту выделяется своей довольно вместительной террасой и балконом на втором этаже. Здесь можно укрыться от палящих лучей солнца летом и проливных дождей в осеннюю пору.

На первом этаже дома оборудована парилка, санузел, холл и небольшая гостиная либо комната отдыха. На втором этаже находится просторное помещение, которое может служить как спальней, так и дополнительной гостиной. По вашему усмотрению в комнате также можно оборудовать кухонную зону.

Дом с террасой
Данный проект особенно интересен своей просторной закрытой террасой, благодаря которой дом имеет довольно необычную привлекательную форму. Следует обратить внимание также на интересный способ укладки фундамента.

На каждом из двух этажей строения имеется небольшой холл, который позволяет отделить жилые комнаты. В доме имеются две просторные комнаты, использовать которые можно по собственному усмотрению. В оригинальной планировке на первом этаже размещается небольшая кухонная зона и гостиная, а на втором этаже можно оборудовать жилую комнату.

Семейное гнездышко
Замечательный проект двухэтажного жилья из бруса с просторной террасой и небольшим балконом на втором этаже. Дом достаточно компактный, чтобы разместиться на небольшом участке земли и может быть построен в сравнительно короткие сроки.

На первом этаже размещены холл, просторная кухня, объединенная со столовой и небольшая комната, которая может послужить маленькой спальней либо просторным санузлом.

Второй этаж вмещают в себя холл и две жилых комнаты, одна из которых является достаточно просторной для размещения в ней большой компании гостей. Здесь можно оборудовать зону отдыха и библиотеку. Таким образом, в доме можно оборудовать три жилых комнаты и, несмотря на свою компактность, он подходит для проживания большой семьи из более, чем трех человек.

Дом с мансардой
Красивый дачный домик из бруса для небольшой семьи. Снаружи проект выглядит очень привлекательно. Благодаря особой форме крыши возможно построить второй мансардный этаж с выходом на балкон.

Планировка предусматривает вход с улицы на кухню дома, которая удачно совмещена с холлом. На просторной террасе также можно устраивать барбекю и отдыхать в теплый период года.

На мансардном этаже находится просторная комната, которая может послужить мастерской офисом либо спальней по усмотрению хозяев.

Дом из бруса
Представленный проект дома из бруса примечателен своей угловатостью. Современное архитектурное решение непременно будет привлекать взоры ваших соседей и прохожих. Благодаря большому количеству просторных окон в доме всегда будет светло и уютно в светлую пору суток.

Внутри оборудована закрытая веранда, в которой можно оборудовать зимний сад, совмещенная с холлом кухня и просторная жилая комната.

На втором этаже размещена мансарда, которую можно использовать в качестве спальни либо комнаты для гостей.

Дача с балконом
Уютный деревянный домик включает в себя два этажа, террасу и небольшой балкон.

Фасад дома выглядит довольно живописно благодаря использование натуральных материалов и проверенных дизайнерских решений.

Внутри расположены две комнаты, которые можно использовать как жилые, а также объединенная с холлом кухня. Особую уютность строению придают терраса и балкончик на втором этаже.

Уютный домик
Небольшой уютный двухэтажный коттедж снаружи выглядит как настоящий деревенский домик. Интересная треугольная форма крыши создает иллюзию наличия просторного чердака.

Фасад выкрашен в натуральные бежевые и коричневые цвета для придания строение натуралистичного вида.

Дом рассчитан на небольшую семью из 1-2 человек, которые часто любят принимать гостей. Внутри можно обустроить одну спальню и две просторные гостиные на первом и втором этаже. Отдельно размещены также кухня и небольшой холл.

Коттедж с большой спальней
Представленный дом из бруса включает в себя два этажа и небольшое крыльцо.

В оригинальном проекте использованы только натуральные материалы, в том числе поставлены деревянные окна из бруса.

Из просторного холла можно войти во все комнаты строения. На первом этаже располагается компактная кухня и комната, которую можно использовать для приема гостей либо в качестве спальни. На втором этаже также размещена просторная жилая комната.

Гостевой домик
Интересный проект дачного домика примечателен интересно треугольной крышей и отсутствием крыльца, благодаря чему на строительство затрачивается меньше строительных материалов и времени.

Фасад имеет очень натуральный вид. Подобные деревянные строения можно встретить повсеместно, поэтому они очень органично будут смотреться и на вашем участке.

Дом поделен на три отдельных жилых комнаты, в одной из которых можно разместить кухню и гостиную.

www.dom-brus.com
Дома из бруса 6 на 6 — проекты с фото и ценами, строительство под ключ и под усадку
Одноэтажный дом из бруса 6 на 6 метров – это классика малоэтажного строительства: огромное количество проектов поможет каждому покупателю подобрать оптимальный вариант для своего участка. Такие сооружения считаются идеальными в качестве дачи или летнего домика, используемого в тёплое время года.
В данном разделе также представлены дома 6 на 6 двухэтажные из бруса, которые можно заказать с установкой «под ключ». Проекты различаются по планировке, форме кровли, наличию террасы. Древесина, используемая для строительства – экологический и безопасный материал, главное преимущество которого – доступная цена.
Несколько аргументов «ЗА» представленные типовые проекты:
- Точный расчёт нагрузок. Моделирование эксплуатации здания позволило определить, каким образом должны располагаться несущие конструкции, что поможет сохранить форму строения во время его использования.
- Грамотная планировки. Площадь и расположение комнат обеспечат максимальное удобство каждому жильцу: дом 6 на 6 двухэтажный из бруса подходит как для молодых пар, которые ещё не успели обзавестись детьми, так и для семейного проживания.
- Минимальная стоимость. Типовой проект, который производится в заводских условиях, исключает непредвиденные расходы: все затраты уже включены в его стоимость.
- Полная комплектация. Заказчику не придётся дополнительно приобретать стройматериалы или оборудование, тратить своё время на доставку продукции на объект.
Представленные проекты – экологически безопасны, надёжны и долговечны: срок их эксплуатации исчисляется десятилетиями. При необходимости, двухэтажный или одноэтажный дом из бруса 6 на 6 метров может быть утеплён и использоваться для круглогодичного проживания.
Сомневаетесь в выборе?
Для нас важен каждый клиент!
Оставьте свой номер телефона —
и мы сделаем предложение, от которого Вы не сможете отказаться!
Попробуйте удивить меня!
www.postroeczka.ru
Дома из бруса 6х6 под ключ, проекты и цены домов 6х6
Главная » Дома 6х6
Если вы заинтересовались этой статьей, смеем предположить, что вы точно знаете размер своего идеального дома. Сегодня мы обсудим дома 6х6, а также проекты, фото и цены. Без дальнейшего промедления, приступим!
Дом из бруса 6х6 под ключ — отличное соотношение просторного жилища и быстроты выполнения. Заселиться в такой дом вы сможете сразу по окончанию строительства, не тратя дополнительное время и ресурсы на отделку и косметический ремонт. План дома из бруса 6х6 может быть крайне вариативным: идеальное количество рабочего пространства в обустройстве дает волю даже самой бурной фантазии. Раздумывая над постройкой садового дома из бруса, смело решайтесь на размер 6х6. Дома такого размера быстро нагреваются летним солнцем и дольше сохраняют внутреннее тепло, а к тому же, после садовых процессов убирать такую площадь значительно легче.
Этажность домов:
Площади домов:
Популярные размеры:
Дом из бруса 6х6: проекты и фото
Тщательно ознакомьтесь с визуальной информацией, представленной на нашем сайте. Здесь вы найдете оптимальный проект дома из бруса 6х6 и рассмотрите живые фотографии и дизайнерские концепт-арты. Сотрудничая с нами, вам не придется соглашаться на «кота в мешке» — чтобы составить реальное впечатление о внешнем виде будущего дома вам потребуется пара минут.
Заметьте, что помимо стандартных дизайнерских проектов мы предлагаем вам проекты домов из бруса с террасой. Такое решение не только облагораживает внешний вид постройки, но и добавляет дополнительный функционал: теплыми вечерами на летней террасе можно устраивать семейные ужины, а во время сбора урожая крытая веранда позволит уберечь просыхающие овощи от внезапных осадков.
Купить дом из бруса 6х6 под ключ
Цена на дом из бруса размером 6х6 начинается от 400т.р., но мы стараемся идти навстречу каждому заказчику, составляя подходящую, индивидуальную финансовую смету. Вы можете купить свой идеальный дом из бруса 6х6 под ключ уже сейчас. Откройте дверь в новую жизнь!

domrs.ru
Планировка дома 6 на 6 с мансардой

На этой странице представлена планировка дома 6 на 6 с мансардой, которая позволяет расширить жилое пространство и создать дополнительные площади.
Также будет полезно посмотреть, как на такой небольшой площади можно разместить все необходимое для жизни – от маленькой котельной до уютной гостиной.
Зачем нужна мансарда в небольшом доме
Если вы построили дом со сторонами 6 на 6 метров, то в итоге вы имеете около 35 квадратных метров жилой площади. Вроде бы неплохо, ведь это площадь стандартной городской двухкомнатной квартиры.

Однако, если вам этого мало, вы можете исправить положение, возводя жилое здание с мансардным этажом. Посмотрите, планировка дома 6 на 6 с мансардой дает нам уже не 35, а 60 квадратных метров полезной площади.
А на 60 квадратных метрах можно уже разместить все необходимые для семьи помещения – спальни, санузел, кухню, гостиную, котельную, кладовые.

Какие помещения планировать на мансарде
Какие помещения лучше всего размещать на мансардном этаже? Когда у вас площадь мансардного этажа составляет 25-30 квадратных метров, вы сможете разместить там 2-3 небольшие спальни и санузел.
Если у вас двое детей, то каждому можно там обустроить по комнате и еще останется место на уютную родительскую спальню. А вот санузел на мансардном этаже придется делать общий, на отдельные санузлы для детей и родителей не хватит места.

Что разместить на 1 этаже
Поскольку спальни можно разместить на мансардном этаже, то все площади на 1 этаже можно отвести под общественные помещения – кухню, гостиную и холл. А также оставить место под технические и подсобные помещения – тамбур, котельную, кладовые и прачечную.

Не забудьте выделить хотя бы небольшое место под санузел на первом этаже. А также запланируйте площадь под обустройство лестницы на мансардный этаж.
Как видите, эффективная планировка дома 6 на 6 с мансардой позволяет разместить все необходимые помещения даже на самой небольшой площади.
dompraktika.ru
Каркасный дом 6×6: проекты и материалы
Уже много лет на современном рынке строительства развивается и завоевывают популярность каркасные дома, пришедшие к нам из Канады и Европы. За пару месяцев при грамотном подходе, зная все плюсы и минусы каркасных домов и их строительства, можно отпраздновать новоселье.
Но скорость не всегда на руку, поэтому не стоит забывать про необходимость составления проекта каркасного дома 6х6 м. Проект составляется своими руками или с помощью архитекторов-проектировщиков.
Профессиональный проект
- Схема фундамента;
- Разворот перекрытий и стен каркасного дома;
- План установки стоек и стропил;
- Схема местоположения оконных и дверных проемов;
- Мансарда или план второго этажа;
- Схема разводки электричества, систем водоснабжения, канализации, вентиляции и отопления во всем доме.

Планировка каркасника 6×6 с террасой.
Планировка дома 6 на 6 метров может быть как свободной с дополнительными стойками укрепления, так и покомнатной. Оптимальным считается создание на первом этаже дома помещений гаража в дополнительной пристройке или полуподвальном помещении, большой кухни-столовой и гостиной зоны.
Можно предусмотреть санузлы на первом или мансардном этажах, скрытые системы хранения — кладовые, гостевые комнаты. Второй этаж или мансарда дома 6 на 6 зачастую используется как спальная зона из одной или двух комнат.
На заметку
Каркасный дом 6×6 с мансардой
Каркасная мансарда на дом 6 на 6 метров — оптимальное решение для тех, кто не хочет тратиться на строительство второго этажа:
- Дополнительная площадь позволит организовать дополнительные комнаты;
- Предусмотренный оригинальный скат крыши сделает внутреннюю отделку более оригинальной — можно убедиться по фото каркасных домов 6 на 6.

Каркасник с мансардой 6 на 6.
Мансарда может послужить как дополнительной спальней, так и комнатой отдыха или санузлом. Потребуются дополнительные расходы на стропила и окна, но расходы эти не сопоставимы со стоимостью возведения второго этажа.
Существует множество компьютерных программ, которые используя проект каркасного дома 6х6 могут воссоздать 3D-макет дома для большей наглядности. Это позволит своевременно внести изменения в проект будущего дома.

Двухэтажная каркасная постройка в разрезе.
Плюсы каркасных построек
- Кратчайшие сроки возведения — даже без опыта срок строительства может достигать 1-2 месяца;
- Достаточно простая технология возведения каркасного дома — обучающие видео-уроки и фото домов из каркаса можно найти в интернете;
- Плюсы каркасных домов в том, что можно обойтись минимальными затратами в сравнении с покупкой готового жилья;
- Легкость возводимой конструкции обеспечит экономию средств на материалах фундамента и стойках опоры;
- Неплохим подспорьем будет покупка готового комплекта каркасного дома или самостоятельная закупка материалов.

Каркасное строительство в проекции.
Минусы каркасных построек
- Частые проблемы с утеплителем — порча или износ, из-за поселения насекомых или грызунов, сложности решаются с помощью специальной обработки;
- Низкая шумоизоляция при неправильном монтаже систем вентиляции;
- Минусы домов-каркасников — высокая пожароопасность при использовании дерева и легковоспламеняющихся утеплителей;
- Не долговечность конструкции, небольшой срок эксплуатации;
- Относительная устойчивость конструкции — излишние вибрации, как например от стиральной машины, могут нарушить устойчивый баланс.
Свести риски к минимуму поможет правильный подбор качественных строительных материалов и грамотная противопожарная обработка.
На заметку Очень часто к минусам домов из каркаса относят холод и продуваемость в зимний период, поэтому стоит заложить в проект утепление внешнего фасада с помощью кирпича или каменных панелей, это позволит сохранить тепло и быстро прогреваться дому.
Порядок строительства каркасного дома 6х6
Возведение фундамента
В зависимости от болотистости почвы, выбранного проекта дома 6х6 м, стоит подбирать тот или иной вид фундамента:
- столбчатый — подойдет для одноэтажного каркасного дома на не проблемной почве;
- ленточный и свайно-ростверковый — для многоэтажного строительства или проекта дома с мансардой.

Столбчатый фундамент с нижней обвязкой.
Рекомендуется дать высохнуть залитому фундаменту — 2-3 недели в летний период или несколько месяцев в осенне-зимний, предварительно накрыв фундамент каркасного дома 6х6 полиэтиленом. Глубина залегания фундамента будет зависеть от климатических характеристик, болотистости почвы, этажности строительства или наличия мансарды из каркаса, будущей нагрузки на пол и фундамент.
Гидроизоляция фундамента
С помощью жидкого битума и рубероида и установка первого венца, на который будут крепиться стойки опоры. Грамотно подобранный материал не позволит сгнить венцам обвязки и предотвратит трещины фундамента.
Установка обвязки и утепление пола
По проекту дома 6 на 6 м устанавливаются с соответствующим шагом доски обвязки будущего дома. Закладывается выбранный утеплитель — экономичный пенопласт или пожаростойкая эковата. Поверх утеплителя стелится пол каркасного дома, из досок или фанеры.

Пирог стены каркасной постройки.
Установка стоек и стен
Длина стоек будет зависеть от высоты помещения, этажности и наличия мансарды по проекту каркасного дома. Оптимальная величина потолков в комнате — 2,5 м. Стены каркасного дома устанавливаются либо из плит ОСП, либо готовыми модулями с элементами утепления и отделки.
Установка перекрытий
При возведении второго этажа или мансарды, требуется дополнительное утепление и укрепление потолка первого этажа. Возведение дополнительных перекрытий или их утолщение, чтобы дом выдержал повышенную нагрузку.
Монтаж кровли каркасного дома 6х6
Установка стоек и стропил зависит от выбранного варианта крыши — двухскатной или сложно-скатной. Если мансарда будет жилой, необходимо и ее дополнительное утепление. Выбор материала для крыши целиком и полностью зависит от финансовых возможностей заказчика. Может быть предусмотрен как недорогой вариант, так и материал, соответствующий оригинальному проекту будущего каркасника. Фото домов 6х6 в интернете покажет все разнообразие не только кровельных материалов, но и всевозможных проектов по устройству крыши.

Базальтовая вата в утеплении.
Общее утепление и наружная обшивка
Внутреннее утепление в доме из каркаса 6 на 6 проводят с помощью выбранного утеплителя — минеральной ваты, пенопласта или эковата, с обязательным монтажом слоя влаго и парозащитного материала.
Внутренняя и внешняя отделка
Может так же проводиться — по заранее утвержденному проекту. Чаще — самостоятельный выбор отделочных материалов проводится в соответствии с индивидуальными вкусами и средствами владельцев.
1karkasnydom.ru

Дом 100 кв. м. — лучшие проекты частных домов. 110 фотографий эксклюзивного дизайна и удачной планировки
Дом 5 на 8 метров — обзор лучших проектов для частных домов. 100 фото новинок дизайна и планировки
Дом 6 на 9 — идеи безупречной планировки. 100 фото готовых проектов, а также рекомендации правильного зонирования