ΠΠΎΠΌ Π² ΡΡΠΈΠ»Π΅ Π»ΠΎΡΡ ΠΏΡΠΎΠ΅ΠΊΡ β ΠΏΡΠΎΠ΅ΠΊΡΡ ΠΈ ΠΈΠ½ΡΠ΅ΡΡΠ΅ΡΡ Π·Π°Π³ΠΎΡΠΎΠ΄Π½ΡΡ Π΄Π΅ΡΠ΅Π²ΡΠ½Π½ΡΡ Π΄ΠΎΠΌΠΎΠ², Π΄ΠΈΠ·Π°ΠΉΠ½, ΡΠΎΡΠΎ
ΠΏΡΠΎΡΠΊΡΡ, ΠΈΠ½ΡΠ΅ΡΡΠ΅Ρ, 35 ΠΈΠ½ΡΠ΅ΡΠ΅ΡΠ½ΡΡ ΠΈΠ΄Π΅ΠΉ
16 ΠΠΊΡΡΠ±ΡΡ 2018 2018-10-16
3262
ΠΡΠ΅ΠΌΡ ΡΡΠ΅Π½ΠΈΡ 17 ΠΌΠΈΠ½ΡΡ
ΠΡΠΎΡΠΈΡΠ°ΡΡ ΠΏΠΎΠ·ΠΆΠ΅ΠΡΠΏΡΠ°Π²ΠΈΠΌ ΠΌΠ°ΡΠ΅ΡΠΈΠ°Π» Π½Π° ΠΏΠΎΡΡΡ

ΠΡΠΈ ΡΡΡΠΎΠΈΡΠ΅Π»ΡΡΡΠ²Π΅ ΠΈ ΠΎΡΠΎΡΠΌΠ»Π΅Π½ΠΈΠΈ Π·Π°Π³ΠΎΡΠΎΠ΄Π½ΠΎΠ³ΠΎ ΠΊΠΎΡΡΠ΅Π΄ΠΆΠ° ΠΎΡΠ΅Π½Ρ Π²Π°ΠΆΠ½ΠΎ ΠΏΡΠ°Π²ΠΈΠ»ΡΠ½ΠΎ ΠΎΠΏΡΠ΅Π΄Π΅Π»ΠΈΡΡΡΡ Ρ Π°ΡΡ ΠΈΡΠ΅ΠΊΡΡΡΠ½ΡΠΌ ΡΡΠΈΠ»Π΅ΠΌ. ΠΠ½ΠΎΠ³ΠΈΠ΅ Π΄ΠΎΠΌΠΎΠ²Π»Π°Π΄Π΅Π»ΡΡΡ Π²ΡΠ±ΠΈΡΠ°ΡΡ ΡΠΏΠΎΠΊΠΎΠΉΠ½ΡΡ ΠΈ ΡΠ΄Π΅ΡΠΆΠ°Π½Π½ΡΡ ΠΊΠ»Π°ΡΡΠΈΠΊΡ. ΠΠ΅ΠΊΠΎΡΠΎΡΡΠΌ Π±Π»ΠΈΠΆΠ΅ ΡΡΠ½ΠΈΡΠ΅ΡΠΊΠΈΠ΅ Π½Π°ΠΏΡΠ°Π²Π»Π΅Π½ΠΈΡ. ΠΠΎ Π² ΠΏΠΎΡΠ»Π΅Π΄Π½Π΅Π΅ Π²ΡΠ΅ΠΌΡ Π²ΡΠ΅ ΡΠ°ΡΠ΅ ΠΏΡΠ΅Π΄ΠΏΠΎΡΡΠ΅Π½ΠΈΠ΅ ΠΎΡΠ΄Π°Π΅ΡΡΡ ΡΡΠ½ΠΊΡΠΈΠΎΠ½Π°Π»ΡΠ½ΡΠΌ ΡΠΎΠ²ΡΠ΅ΠΌΠ΅Π½Π½ΡΠΌ ΡΡΠΈΠ»ΡΠΌ, ΠΈ, ΠΏΠΎΠΆΠ°Π»ΡΠΉ, ΡΠ°ΠΌΡΠΉ ΡΠΌΠ΅Π»ΡΠΉ ΠΈ Π²ΡΡΠ°Π·ΠΈΡΠ΅Π»ΡΠ½ΡΠΉ ΠΈΠ· Π½ΠΈΡ β ΡΡΠΎ Π»ΠΎΡΡ. Π Π½Π΅ΠΌ ΡΠΎΡΠ΅ΡΠ°Π΅ΡΡΡ ΡΠΎΠ²ΡΠ΅ΠΌΠ΅Π½Π½ΡΠΉ Π΄ΠΈΠ·Π°ΠΉΠ½ ΠΈ ΠΈΠ½ΡΠ΅ΡΡΠ΅Ρ ΠΏΡΠΎΠΌΡΡΠ»Π΅Π½Π½ΡΡ ΠΏΠΎΠΌΠ΅ΡΠ΅Π½ΠΈΠΉ. Π ΡΡΠΎΠΉ ΡΡΠ°ΡΡΠ΅ ΠΌΡ ΠΏΠΎΠ³ΠΎΠ²ΠΎΡΠΈΠΌ ΠΎ ΡΠΎΠΌ, ΠΊΠ°ΠΊ Π·Π°ΠΏΡΠΎΠ΅ΠΊΡΠΈΡΠΎΠ²Π°ΡΡ Π΄ΠΎΠΌ Π² ΡΡΠΈΠ»Π΅ Π»ΠΎΡΡ, ΠΊΠ°ΠΊ Π΅Π³ΠΎ ΠΎΠ±Π»ΠΈΡΠ΅Π²Π°ΡΡ ΡΠ½Π°ΡΡΠΆΠΈ ΠΈ ΠΊΠ°ΠΊ Π·Π°Π΄Π΅ΠΊΠΎΡΠΈΡΠΎΠ²Π°ΡΡ Π²Π½ΡΡΡΠΈ.

Π§ΡΠΎ ΡΠ°ΠΊΠΎΠ΅ ΡΡΠΈΠ»Ρ Π»ΠΎΡΡ
ΠΠ΅ΡΠΌΠΎΡΡΡ Π½Π° ΡΠΎ, ΡΡΠΎ Π΄Π°Π½Π½ΠΎΠ΅ Π½Π°ΠΏΡΠ°Π²Π»Π΅Π½ΠΈΠ΅ Π²ΠΎΠ·Π½ΠΈΠΊΠ»ΠΎ Π² ΠΏΠ΅ΡΠ²ΠΎΠΉ ΠΏΠΎΠ»ΠΎΠ²ΠΈΠ½Π΅ ΠΏΡΠΎΡΠ»ΠΎΠ³ΠΎ Π²Π΅ΠΊΠ°, ΠΏΠΎΠΏΡΠ»ΡΡΠ½ΡΠΌ Π² ΠΎΡΠ΅ΡΠ΅ΡΡΠ²Π΅Π½Π½ΠΎΠΌ Π·Π°Π³ΠΎΡΠΎΠ΄Π½ΠΎΠΌ ΡΡΡΠΎΠΈΡΠ΅Π»ΡΡΡΠ²Π΅ ΠΎΠ½ ΡΡΠ°Π» ΡΠΎΠ»ΡΠΊΠΎ Π² ΠΏΠΎΡΠ»Π΅Π΄Π½ΠΈΠ΅ Π³ΠΎΠ΄Ρ. Π§ΡΠΎΠ±Ρ ΠΏΠΎΠ½ΡΡΡ ΡΡΡΡ Π»ΠΎΡΡΠ°, Π½ΡΠΆΠ½ΠΎ Π·Π½Π°ΡΡ ΠΈΡΡΠΎΡΠΈΡ Π΅Π³ΠΎ ΠΏΠΎΡΠ²Π»Π΅Π½ΠΈΡ. ΠΡΠ΅ Π½Π°ΡΠ°Π»ΠΎΡΡ Π² ΠΡΡ-ΠΠΎΡΠΊΠ΅, ΠΊΠΎΠ³Π΄Π° ΡΠΊΠ°ΡΠ΅ΠΊ ΡΠ΅Π½ Π½Π° Π½Π΅Π΄Π²ΠΈΠΆΠΈΠΌΠΎΡΡΡ Π²ΡΠ½ΡΠ΄ΠΈΠ» ΠΏΡΠ΅Π΄ΠΏΡΠΈΠ½ΠΈΠΌΠ°ΡΠ΅Π»Π΅ΠΉ Π²ΡΠ²Π΅ΡΡΠΈ ΡΠ²ΠΎΠΈ ΠΏΡΠΎΠΈΠ·Π²ΠΎΠ΄ΡΡΠ²Π° ΠΈΠ· ΡΠ΅Π½ΡΡΠ° Π³ΠΎΡΠΎΠ΄Π° Π½Π° ΠΎΠΊΡΠ°ΠΈΠ½Ρ ΠΈ ΠΎΡΠ²ΠΎΠ±ΠΎΠ΄ΠΈΡΡ ΠΏΡΠΎΠΌΡΡΠ»Π΅Π½Π½ΡΠ΅ Π·Π΄Π°Π½ΠΈΡ. ΠΠΎΠΌΠ΅ΡΠ΅Π½ΠΈΡ Π² Π·Π°Π²ΠΎΠ΄ΡΠΊΠΈΡ ΠΈ ΡΠ°Π±ΡΠΈΡΠ½ΡΡ Π·Π΄Π°Π½ΠΈΡΡ , Π° ΠΎΡΠΎΠ±Π΅Π½Π½ΠΎ ΠΈΡ Π²Π΅ΡΡ Π½ΠΈΠ΅ ΡΡΠ°ΠΆΠΈ ΠΏΡΠΈΠ²Π»Π΅ΠΊΠ»ΠΈ Π½ΡΡ-ΠΉΠΎΡΠΊΡΠΊΡΡ Π±ΠΎΠ³Π΅ΠΌΡ. ΠΠ»Π°Π³ΠΎΠ΄Π°ΡΡ Π±ΠΎΠ»ΡΡΠΈΠΌ ΡΠ°Π·ΠΌΠ΅ΡΠ°ΠΌ, Π²ΡΡΠΎΠΊΠΈΠΌ ΠΏΠΎΡΠΎΠ»ΠΊΠ°ΠΌ ΠΈ Ρ ΠΎΡΠΎΡΠ΅ΠΌΡ ΠΎΡΠ²Π΅ΡΠ΅Π½ΠΈΡ ΡΡΠΈ ΠΏΠΎΠΌΠ΅ΡΠ΅Π½ΠΈΡ ΠΏΡΠ΅Π²ΡΠ°ΡΠ°Π»ΠΈΡΡ Π² ΠΎΡΠ»ΠΈΡΠ½ΡΠ΅ ΠΌΠ°ΡΡΠ΅ΡΡΠΊΠΈΠ΅.
ΠΠΎΡΡΠ΅ΠΏΠ΅Π½Π½ΠΎ ΠΌΠ°ΡΡΠ΅ΡΡΠΊΠΈΠ΅ Π² ΠΏΡΠΎΠΌΡΡΠ»Π΅Π½Π½ΡΡ Π·Π΄Π°Π½ΠΈΡΡ ΠΎΠ±ΠΆΠΈΠ²Π°Π»ΠΈΡΡ ΠΈ ΡΡΠ°Π½ΠΎΠ²ΠΈΠ»ΠΈΡΡ ΡΠ΅ΠΌ-ΡΠΎ ΡΡΠ΅Π΄Π½ΠΈΠΌ ΠΌΠ΅ΠΆΠ΄Ρ ΠΆΠΈΠ»ΡΠ΅ΠΌ ΠΈ ΠΌΠΎΠ΄Π½ΠΎΠΉ Ρ ΡΠ΄ΠΎΠΆΠ΅ΡΡΠ²Π΅Π½Π½ΠΎΠΉ ΡΡΡΠ΄ΠΈΠ΅ΠΉ. Π Π½Π°ΡΡΠΎΡΡΠ΅Π΅ Π²ΡΠ΅ΠΌΡ ΠΏΠ΅ΡΠ²ΡΠ΅ ΠΊΠ²Π°ΡΡΠΈΡΡ-Π»ΠΎΡΡΡ ΡΡΠ°Π»ΠΈ Π½Π°ΡΡΠΎΠ»ΡΠΊΠΎ Π»Π΅Π³Π΅Π½Π΄Π°ΡΠ½ΡΠΌΠΈ ΠΈ ΡΠ»ΠΈΡΠ½ΡΠΌΠΈ, ΡΡΠΎ Π΄Π»Ρ ΡΠ²ΠΎΡΡΠ΅ΡΠΊΠΎΠΉ Π±ΠΎΠ³Π΅ΠΌΡ ΠΎΠ½ΠΈ ΡΠΆΠ΅ Π½Π΅ Π΄ΠΎΡΡΡΠΏΠ½Ρ. Π‘Π΅ΠΉΡΠ°Ρ Π² Π½ΠΈΡ ΠΆΠΈΠ²ΡΡ ΡΡΠΏΠ΅ΡΠ½ΡΠ΅ ΡΡΠΈΡΡΡ ΠΈ ΡΠΈΠ½Π°Π½ΡΠΈΡΡΡ. Π ΡΠ°ΠΌ ΡΡΠΈΠ»Ρ ΠΏΠΎΠ»ΡΡΠΈΠ» ΡΠΈΡΠΎΠΊΠΎΠ΅ ΡΠ°ΡΠΏΡΠΎΡΡΡΠ°Π½Π΅Π½ΠΈΠ΅ ΠΊΠ°ΠΊ Π΄Π΅ΡΠ·ΠΊΠ°Ρ Π°Π»ΡΡΠ΅ΡΠ½Π°ΡΠΈΠ²Π° ΠΏΡΠ°Π²ΠΈΠ»ΡΠ½ΠΎΠΉ ΠΈ ΡΠΊΡΡΠ½ΠΎΠΉ ΠΊΠ»Π°ΡΡΠΈΠΊΠ΅.

Π₯Π°ΡΠ°ΠΊΡΠ΅ΡΠΈΡΡΠΈΠΊΠΈ ΡΡΠΈΠ»Ρ
ΠΠΎΡΡ (ΠΈΠ½Π΄ΡΡΡΡΠΈΠ°Π»ΡΠ½ΡΠΉ ΡΡΠΈΠ»Ρ) Ρ Π°ΡΠ°ΠΊΡΠ΅ΡΠΈΠ·ΡΠ΅ΡΡΡ ΡΠΎΡΠ΅ΡΠ°Π½ΠΈΠ΅ΠΌ ΠΏΡΠΎΡΠΈΠ²ΠΎΠΏΠΎΠ»ΠΎΠΆΠ½ΠΎΡΡΠ΅ΠΉ β Π΄ΠΎΡΠΎΠ³ΠΎΠΉ ΠΎΡΠ΄Π΅Π»ΠΊΠΈ ΠΈ Π³ΡΡΠ±ΡΡ ΠΏΡΠΎΠΈΠ·Π²ΠΎΠ΄ΡΡΠ²Π΅Π½Π½ΡΡ ΠΌΠ°ΡΠ΅ΡΠΈΠ°Π»ΠΎΠ², Π²ΡΡΠΎΠΊΠΎΠΉ Ρ ΡΠ΄ΠΎΠΆΠ΅ΡΡΠ²Π΅Π½Π½ΠΎΡΡΠΈ ΠΈ ΠΏΠΎΠ»Π½ΠΎΠ³ΠΎ ΠΏΡΠ΅Π½Π΅Π±ΡΠ΅ΠΆΠ΅Π½ΠΈΡ Π΅ΠΉ, ΡΡΠ±Π°Π½ΠΈΡΡΠΈΡΠ΅ΡΠΊΠΈΡ ΡΠ»Π΅ΠΌΠ΅Π½ΡΠΎΠ² ΠΈ Π½ΠΎΠ²Π΅ΠΉΡΠΈΡ ΡΠ΅Ρ Π½ΠΎΠ»ΠΎΠ³ΠΈΠΉ. Π‘ΡΡΠ΅ΡΡΠ²ΡΠ΅Ρ Π½Π΅ΡΠΊΠΎΠ»ΡΠΊΠΎ Π³Π»Π°Π²Π½ΡΡ ΠΎΡΠΎΠ±Π΅Π½Π½ΠΎΡΡΠ΅ΠΉ Π΄Π°Π½Π½ΠΎΠ³ΠΎ ΡΡΠΈΠ»Ρ, ΠΊΠΎΡΠΎΡΡΠ΅ Π½ΡΠΆΠ½ΠΎ ΡΡΠΈΡΡΠ²Π°ΡΡ ΠΏΡΠΈ Π΅Π³ΠΎ ΠΈΡΠΏΠΎΠ»ΡΠ·ΠΎΠ²Π°Π½ΠΈΠΈ.
ΠΠ° Π½Π°ΡΠ΅ΠΌ ΡΠ°ΠΉΡΠ΅ ΠΡ ΠΌΠΎΠΆΠ΅ΡΠ΅ Π½Π°ΠΉΡΠΈ ΠΊΠΎΠ½ΡΠ°ΠΊΡΡ ΡΡΡΠΎΠΈΡΠ΅Π»ΡΠ½ΡΡ ΠΊΠΎΠΌΠΏΠ°Π½ΠΈΠΉ, ΠΊΠΎΡΠΎΡΡΠ΅ ΠΏΡΠ΅Π΄Π»Π°Π³Π°ΡΡ ΡΡΠ»ΡΠ³ΠΈ ΠΏΠΎ ΠΏΡΠΎΠ΅ΠΊΡΠΈΡΠΎΠ²Π°Π½ΠΈΡ Π·Π°Π³ΠΎΡΠΎΠ΄Π½ΡΡ Π΄ΠΎΠΌΠΎΠ². ΠΠ°ΠΏΡΡΠΌΡΡ ΠΏΠΎΠΎΠ±ΡΠ°ΡΡΡΡ Ρ ΠΏΡΠ΅Π΄ΡΡΠ°Π²ΠΈΡΠ΅Π»ΡΠΌΠΈ ΠΌΠΎΠΆΠ½ΠΎ ΠΏΠΎΡΠ΅ΡΠΈΠ² Π²ΡΡΡΠ°Π²ΠΊΡ Π΄ΠΎΠΌΠΎΠ² Β«ΠΠ°Π»ΠΎΡΡΠ°ΠΆΠ½Π°Ρ Π‘ΡΡΠ°Π½Π°Β».
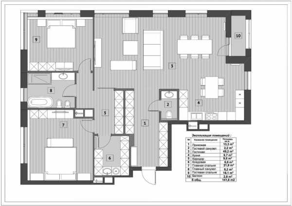
ΠΠ»Π°Π½ΠΈΡΠΎΠ²ΠΊΠ°
ΠΠΎΠΌΠ° Π² ΡΡΠΈΠ»Π΅ Π»ΠΎΡΡ ΠΏΡΠΎΠ΅ΠΊΡΠΈΡΡΡΡΡΡ Ρ ΠΌΠΈΠ½ΠΈΠΌΠ°Π»ΡΠ½ΡΠΌ ΠΊΠΎΠ»ΠΈΡΠ΅ΡΡΠ²ΠΎΠΌ ΠΏΠ΅ΡΠ΅Π³ΠΎΡΠΎΠ΄ΠΎΠΊ. ΠΡΠ΅ ΠΏΠΎΠΌΠ΅ΡΠ΅Π½ΠΈΡ, ΠΊΠΎΡΠΎΡΡΠ΅ ΠΌΠΎΠ³ΡΡ Π±ΡΡΡ ΠΎΠ±ΡΠ΅Π΄ΠΈΠ½Π΅Π½Ρ β ΡΠΎΠ²ΠΌΠ΅ΡΠ°ΡΡΡΡ. Π ΠΏΠ΅ΡΠ²ΡΡ ΠΎΡΠ΅ΡΠ΅Π΄Ρ ΡΡΠΎ ΠΊΠ°ΡΠ°Π΅ΡΡΡ Π΄Π½Π΅Π²Π½ΠΎΠΉ Π³ΡΡΠΏΠΏΡ ΠΏΠΎΠΌΠ΅ΡΠ΅Π½ΠΈΠΉ, Π²ΠΊΠ»ΡΡΠ°ΡΡΠ΅ΠΉ ΠΏΡΠΈΡ ΠΎΠΆΡΡ, Π³ΠΎΡΡΠΈΠ½ΡΡ, ΡΡΠΎΠ»ΠΎΠ²ΡΡ ΠΈ ΠΊΡΡ Π½Ρ. Π§Π°ΡΡΠΎ Π·Π΄Π΅ΡΡ ΠΆΠ΅ ΠΎΠ±ΡΡΡΡΠ°ΠΈΠ²Π°Π΅ΡΡΡ ΠΊΠ°Π±ΠΈΠ½Π΅Ρ ΠΈΠ»ΠΈ ΠΌΠ°ΡΡΠ΅ΡΡΠΊΠ°Ρ.
Π‘ΠΏΠ°Π»ΡΠ½ΡΠ΅ ΠΏΠΎΠΌΠ΅ΡΠ΅Π½ΠΈΡ ΡΠΎΠΆΠ΅ ΠΌΠΎΠ³ΡΡ ΡΠΎΠ²ΠΌΠ΅ΡΠ°ΡΡΡΡ Ρ ΠΊΠΎΠΌΠ½Π°ΡΠ°ΠΌΠΈ Π΄ΡΡΠ³ΠΎΠ³ΠΎ Π½Π°Π·Π½Π°ΡΠ΅Π½ΠΈΡ. ΠΠ°ΠΏΡΠΈΠΌΠ΅Ρ, ΡΠ°ΡΡΡ ΠΏΡΠΎΡΡΠΎΡΠ½ΠΎΠΉ ΡΠΏΠ°Π»ΡΠ½ΠΈ ΠΌΠΎΠΆΠ΅Ρ Π±ΡΡΡ ΠΎΡΠ²Π΅Π΄Π΅Π½Π° ΠΏΠΎΠ΄ ΠΊΠ°Π±ΠΈΠ½Π΅Ρ, Π±ΠΈΠ±Π»ΠΈΠΎΡΠ΅ΠΊΡ ΠΈΠ»ΠΈ Π³Π°ΡΠ΄Π΅ΡΠΎΠ±Π½ΡΡ.

ΠΠΎΠ½ΠΈΡΠΎΠ²Π°Π½ΠΈΠ΅
ΠΡΠΎΡΡΠΎΡΠ½ΡΠ΅ ΠΏΠΎΠΌΠ΅ΡΠ΅Π½ΠΈΡ ΠΎΠ±ΡΡΠ½ΠΎ Π΄Π΅Π»ΡΡΡΡ Π½Π° ΡΡΠ½ΠΊΡΠΈΠΎΠ½Π°Π»ΡΠ½ΡΠ΅ Π·ΠΎΠ½Ρ ΠΏΡΠΈ ΠΏΠΎΠΌΠΎΡΠΈ ΠΊΠΎΠ½ΡΡΠ°ΡΡΠ½ΠΎΠ³ΠΎ ΡΠΎΡΠ΅ΡΠ°Π½ΠΈΡ ΡΠ²Π΅ΡΠΎΠ² ΠΈ ΡΠ°ΠΊΡΡΡ ΠΎΡΠ΄Π΅Π»ΠΊΠΈ, Π° ΡΠ°ΠΊΠΆΠ΅ ΠΏΠ΅ΡΠ΅ΠΏΠ°Π΄Π°ΠΌΠΈ ΡΡΠΎΠ²Π½Ρ ΠΏΠΎΠ»Π° ΠΈΠ»ΠΈ ΠΏΠΎΡΠΎΠ»ΠΊΠ°. ΠΠ΄Π½Π°ΠΊΠΎ Π΄Π»Ρ ΠΈΠ½ΡΠ΅ΡΡΠ΅ΡΠ° Π΄ΠΎΠΌΠ° Π² ΡΡΠΈΠ»Π΅ Π»ΠΎΡΡ Ρ Π°ΡΠ°ΠΊΡΠ΅ΡΠ½ΠΎ ΠΎΡΡΡΡΡΡΠ²ΠΈΠ΅ ΠΊΠ°ΠΊΠΎΠ³ΠΎ-Π»ΠΈΠ±ΠΎ Π·ΠΎΠ½ΠΈΡΠΎΠ²Π°Π½ΠΈΡ. ΠΡΠ΄Π΅Π»ΡΠ½ΡΠ΅ Π·ΠΎΠ½Ρ ΠΏΡΠΎΡΡΠΎ ΡΡΡΠ΅ΡΡΠ²ΡΡΡ Π² Π΅Π΄ΠΈΠ½ΠΎΠΌ ΠΏΡΠΎΡΡΡΠ°Π½ΡΡΠ²Π΅ Π±Π΅Π· ΡΠ°Π·Π³ΡΠ°Π½ΠΈΡΠ΅Π½ΠΈΡ. ΠΠ΄Π΅ΡΡ Π²Π°ΠΆΠ½ΠΎ Π½Π΅ Β«ΡΠ΅Π·Π°ΡΡΒ» ΠΏΡΠΎΡΡΡΠ°Π½ΡΡΠ²ΠΎ, Π° ΡΠΎΡ ΡΠ°Π½ΡΡΡ Π΅Π³ΠΎ.
ΠΡΡΠΎΠΊΠΈΠ΅ ΠΏΠΎΡΠΎΠ»ΠΊΠΈ ΠΏΠΎΠ·Π²ΠΎΠ»ΡΡΡ Π΄Π΅Π»ΠΈΡΡ ΠΏΠΎΠΌΠ΅ΡΠ΅Π½ΠΈΠ΅ ΠΏΠΎ Π²Π΅ΡΡΠΈΠΊΠ°Π»ΠΈ ΠΈ ΠΎΠ±ΡΡΡΡΠ°ΠΈΠ²Π°ΡΡ Π²ΡΠΎΡΠΎΠΉ ΡΡΠΎΠ²Π΅Π½Ρ (Π°Π½ΡΡΠ΅ΡΠΎΠ»Ρ). ΠΠ΅ΡΡ Π½ΠΈΠΉ ΡΡΠΎΠ²Π΅Π½Ρ ΠΎΡΠ²ΠΎΠ΄ΠΈΡΡΡ ΠΏΠΎΠ΄ ΡΠ°Π·ΠΌΠ΅ΡΠ΅Π½ΠΈΠ΅ ΡΡΡΠ½ΡΡ ΡΠΏΠ°Π»Π΅Π½. ΠΠΎΠΆΠ½ΠΎ ΡΠ΄Π΅Π»Π°ΡΡ ΠΌΠ°Π»Π΅Π½ΡΠΊΡΡ Π±ΠΈΠ±Π»ΠΈΠΎΡΠ΅ΠΊΡ ΠΈΠ»ΠΈ ΠΏΡΠΎΡΡΠΎ ΠΌΠ΅ΡΡΠΎ Π΄Π»Ρ ΠΎΡΠ΄ΡΡ Π°.

ΠΡΠ»ΠΈ Π·ΠΎΠ½ΠΈΡΠΎΠ²Π°Π½ΠΈΠ΅ ΠΎΡΡΡΠ΅ΡΡΠ²Π»ΡΠ΅ΡΡΡ ΠΏΡΠΈ ΠΏΠΎΠΌΠΎΡΠΈ ΠΏΠ΅ΡΠ΅Π³ΠΎΡΠΎΠ΄ΠΎΠΊ, ΡΠΎ Π΄Π»Ρ Π½ΠΈΡ ΠΎΠ±ΡΡΠ½ΠΎ Π²ΡΠ±ΠΈΡΠ°ΡΡ ΠΌΠ°ΡΠ΅ΡΠΈΠ°Π», ΠΊΠΎΡΠΎΡΡΠΉ Π½Π΅ Β«ΡΡΠ΅Π΄Π°Π΅ΡΒ» ΠΏΡΠΎΡΡΡΠ°Π½ΡΡΠ²ΠΎ. ΠΡΠΎ Π² ΠΏΠ΅ΡΠ²ΡΡ ΠΎΡΠ΅ΡΠ΅Π΄Ρ ΡΡΠ΅ΠΊΠ»ΠΎ (ΠΏΡΠΎΠ·ΡΠ°ΡΠ½ΠΎΠ΅ ΠΈΠ»ΠΈ ΠΌΠ°ΡΠΎΠ²ΠΎΠ΅), Π° ΡΠ°ΠΊΠΆΠ΅ ΠΌΠ΅ΡΠ°Π»Π» ΠΈ Π·Π΅ΡΠΊΠ°Π»Π°.
ΠΡΠΎΠ·ΡΠ°ΡΠ½Π°Ρ ΡΠ°Π·Π΄Π²ΠΈΠΆΠ½Π°Ρ ΠΏΠ΅ΡΠ΅Π³ΠΎΡΠΎΠ΄ΠΊΠ°ΠΡΠ²Π΅ΡΠ΅Π½ΠΈΠ΅
ΠΠ»Ρ Π΄ΠΎΠΌΠΎΠ² Π² ΡΡΠΈΠ»Π΅ Π»ΠΎΡΡ Ρ Π°ΡΠ°ΠΊΡΠ΅ΡΠ½Ρ Π±ΠΎΠ»ΡΡΠΈΠ΅ ΠΏΠ°Π½ΠΎΡΠ°ΠΌΠ½ΡΠ΅ ΠΎΠΊΠ½Π° Π±Π΅Π· Π΄ΡΠ°ΠΏΠΈΡΠΎΠ²ΠΊΠΈ, Π° ΠΎΡΠΊΡΡΡΠ°Ρ ΠΏΠ»Π°Π½ΠΈΡΠΎΠ²ΠΊΠ° ΠΎΠ±Π΅ΡΠΏΠ΅ΡΠΈΠ²Π°Π΅Ρ Π΅ΡΡΠ΅ΡΡΠ²Π΅Π½Π½ΠΎΠ΅ ΠΎΡΠ²Π΅ΡΠ΅Π½ΠΈΠ΅ Ρ Π΄Π²ΡΡ ΠΈΠ»ΠΈ ΡΡΠ΅Ρ ΡΡΠΎΡΠΎΠ½. Π Π½Π΅ΠΊΠΎΡΠΎΡΡΡ ΡΠ»ΡΡΠ°ΡΡ ΠΏΡΠΎΠ΅ΠΊΡΠΈΡΡΡΡΡΡ Π³ΠΎΡΡΠ΅Π²ΡΠ΅ Π·ΠΎΠ½Ρ, ΠΎΡΠ²Π΅ΡΠ΅Π½Π½ΡΠ΅ ΡΠΎ Π²ΡΠ΅Ρ ΡΠ΅ΡΡΡΠ΅Ρ ΡΡΠΎΡΠΎΠ½. ΠΡΡΠΎΡΠ° ΠΏΠΎΠΌΠ΅ΡΠ΅Π½ΠΈΠΉ Π΄Π°Π΅Ρ Π²ΠΎΠ·ΠΌΠΎΠΆΠ½ΠΎΡΡΡ Π΄Π΅Π»Π°ΡΡ Π³ΠΎΡΡΠΈΠ½ΡΠ΅ ΠΈ ΡΡΡΠ΄ΠΈΠΈ ΡΠΎ Π²ΡΠΎΡΡΠΌ Π²Π΅ΡΡ Π½ΠΈΠΌ ΡΠ²Π΅ΡΠΎΠΌ.
ΠΡΠΊΡΡΡΡΠ²Π΅Π½Π½ΠΎΠ΅ ΠΎΡΠ²Π΅ΡΠ΅Π½ΠΈΠ΅ ΠΏΠΎΠ΄Π±ΠΈΡΠ°Π΅ΡΡΡ ΡΠ°ΠΊΠΈΠΌ ΠΎΠ±ΡΠ°Π·ΠΎΠΌ, ΡΡΠΎΠ±Ρ ΡΠ΄Π΅Π»Π°ΡΡ ΠΏΠΎΠΌΠ΅ΡΠ΅Π½ΠΈΡ Π΅ΡΠ΅ ΠΎΠ±ΡΠ΅ΠΌΠ½Π΅Π΅. ΠΡΠΏΠΎΠ»ΡΠ·ΡΡΡΡΡ ΠΏΡΠ΅ΠΈΠΌΡΡΠ΅ΡΡΠ²Π΅Π½Π½ΠΎ ΠΏΠΎΡΠΎΠ»ΠΎΡΠ½ΡΠ΅ ΡΠ²Π΅ΡΠΈΠ»ΡΠ½ΠΈΠΊΠΈ, ΠΈ Π΄ΠΎΡΡΠ°ΡΠΎΡΠ½ΠΎ ΡΠ΅Π΄ΠΊΠΎ β Π½Π°ΡΡΠ΅Π½Π½ΡΠ΅. ΠΠ°ΠΌΠΏΡ ΡΡΡΠ°Π½Π°Π²Π»ΠΈΠ²Π°ΡΡ Ρ ΡΡΠΊΠΈΠΌ, Π½ΠΎ ΡΠ°ΡΡΠ΅ΡΠ½Π½ΡΠΌ Π±Π΅Π»ΡΠΌ ΡΠ²Π΅ΡΠΎΠΌ. ΠΡΠΊΠ»ΡΡΠ΅Π½ΠΈΠ΅ ΡΠΎΡΡΠ°Π²Π»ΡΡΡ ΡΠΏΠ°Π»ΡΠ½ΠΈ, Π³Π΄Π΅ ΠΌΠΎΠ³ΡΡ Π±ΡΡΡ ΠΏΡΠΈΠΌΠ΅Π½Π΅Π½Ρ ΡΠ²Π΅ΡΠΈΠ»ΡΠ½ΠΈΠΊΠΈ Ρ ΠΏΡΠΈΠ³Π»ΡΡΠ΅Π½Π½ΡΠΌ ΡΠ²Π΅ΡΠ΅Π½ΠΈΠ΅ΠΌ.
ΠΡΠ²Π΅ΡΠΈΡΠ΅Π»ΡΠ½ΡΠ΅ ΠΏΡΠΈΠ±ΠΎΡΡ Π² ΠΎΡΠ½ΠΎΠ²Π½ΠΎΠΌ ΠΈΠΌΠ΅ΡΡ ΡΠΎΠ²ΡΠ΅ΠΌΠ΅Π½Π½ΡΠΉ Π΄ΠΈΠ·Π°ΠΉΠ½ ΠΈ ΡΡΡΠ°Π½Π°Π²Π»ΠΈΠ²Π°ΡΡΡΡ ΡΠ΅Π»ΡΠΌΠΈ Π»ΠΈΠ½ΠΈΡΠΌΠΈ. ΠΡΠΊΠ»ΡΡΠ΅Π½ΠΈΠ΅ ΡΠΎΡΡΠ°Π²Π»ΡΡΡ ΠΎΡΠ΄Π΅Π»ΡΠ½ΡΠ΅ ΠΎΡΠΈΠ³ΠΈΠ½Π°Π»ΡΠ½ΡΠ΅ ΡΠ²Π΅ΡΠΈΠ»ΡΠ½ΠΈΠΊΠΈ, Π²ΡΠΏΠΎΠ»Π½ΡΡΡΠΈΠ΅ ΡΡΠ½ΠΊΡΠΈΡ Π°ΠΊΡΠ΅Π½ΡΠ° Π² ΠΈΠ½ΡΠ΅ΡΡΠ΅ΡΠ΅.

ΠΡΠΎ ΠΌΠΎΠΆΠ΅Ρ Π±ΡΡΡ ΠΈΠ½ΡΠ΅ΡΠ΅ΡΠ½ΠΎ! Π ΡΡΠ°ΡΡΠ΅ ΠΏΠΎ ΡΠ»Π΅Π΄ΡΡΡΠ΅ΠΉ ΡΡΡΠ»ΠΊΠ΅ ΡΠΈΡΠ°ΠΉΡΠ΅ ΠΏΡΠΎ Π°Π²ΡΡΡΠΈΠΉΡΠΊΠΈΠΉ Π°ΡΡ ΠΈΡΠ΅ΠΊΡΡΡΠ½ΡΠΉ ΡΡΠΈΠ»Ρ.
ΠΡΠ΄Π΅Π»ΠΊΠ°
Π‘ΡΠ΅Π½Ρ Π² ΠΈΠ½ΡΠ΅ΡΡΠ΅ΡΠ΅ Π»ΠΎΡΡ ΠΏΡΠ΅Π΄ΡΡΠ°Π²Π»ΡΡΡ ΡΠΎΠ±ΠΎΠΉ ΠΏΠΎΠ²Π΅ΡΡ Π½ΠΎΡΡΠΈ Π±Π΅Π· ΡΠΈΡΡΠΎΠ²ΠΎΠΉ ΠΎΡΠ΄Π΅Π»ΠΊΠΈ. Π ΡΠΎΠ²ΡΠ΅ΠΌΠ΅Π½Π½ΡΡ Π΄ΠΎΠΌΠ°Ρ Π»ΠΈΡΠ΅Π²Π°Ρ ΠΎΡΠ΄Π΅Π»ΠΊΠ° ΠΈΡΠΏΠΎΠ»ΡΠ·ΡΠ΅ΡΡΡ, Π½ΠΎ ΠΎΠ½Π° Π·Π°ΡΠ°ΡΡΡΡ ΠΈΠΌΠΈΡΠΈΡΡΠ΅Ρ Π³ΡΡΠ±ΡΡ ΠΊΠΈΡΠΏΠΈΡΠ½ΡΡ ΠΊΠ»Π°Π΄ΠΊΡ ΠΈΠ»ΠΈ Π±Π΅ΡΠΎΠ½Π½ΡΡ ΡΡΠ΅Π½Ρ ΠΏΠΎΠΊΡΡΡΡΡ ΠΏΡΠΎΡΡΠΎΠΉ ΠΏΠΎΠ±Π΅Π»ΠΊΠΎΠΉ ΠΈΠ»ΠΈ ΠΊΡΠ°ΡΠΊΠΎΠΉ.
ΠΠΎΠ»Ρ Π² ΠΏΠ΅ΡΠ²ΠΎΠ·Π΄Π°Π½Π½ΠΎΠΌ Π²Π°ΡΠΈΠ°Π½ΡΠ΅ Π»ΠΎΡΡΠ° Π±ΡΠ»ΠΈ ΠΏΡΠ΅ΠΈΠΌΡΡΠ΅ΡΡΠ²Π΅Π½Π½ΠΎ Π±Π΅ΡΠΎΠ½Π½ΡΠ΅. ΠΠΎ ΡΡΠΎ Π½Π΅ ΠΏΡΠ°ΠΊΡΠΈΡΠ½ΠΎ ΠΈ Π½Π΅ΡΠ΄ΠΎΠ±Π½ΠΎ. Π ΡΠΎΠ²ΡΠ΅ΠΌΠ΅Π½Π½ΡΡ Π΄ΠΎΠΌΠ°Ρ , Π²ΡΠ΄Π΅ΡΠΆΠ°Π½Π½ΡΡ Π² ΡΡΠΎΠΌ ΡΡΠΈΠ»Π΅ ΠΏΠΎΠ»Ρ ΠΎΠ±ΡΡΠ½ΠΎ Π΄Π΅ΡΠ΅Π²ΡΠ½Π½ΡΠ΅, Π²ΡΠ»ΠΎΠΆΠ΅Π½Π½ΡΠ΅ Π΄ΠΎΡΠΊΠΎΠΉ. ΠΠ½ΠΎΠ³Π΄Π° ΠΈΡ Π²ΡΠΊΠ»Π°Π΄ΡΠ²Π°ΡΡ ΠΈΠ· ΠΊΠ°ΠΌΠ½Ρ ΠΈΠ»ΠΈ Π΄Π΅Π»Π°ΡΡ Π½Π°Π»ΠΈΠ²Π½ΡΠΌΠΈ.
ΠΠ΄ΠΎΠ»Ρ Π²ΡΡΠΎΠΊΠΈΡ ΠΏΠΎΡΠΎΠ»ΠΊΠΎΠ² ΠΌΠΎΠΆΠ΅Ρ Π±ΡΡΡ ΠΏΡΠΎΠ»ΠΎΠΆΠ΅Π½Π° ΠΏΡΠΎΠ²ΠΎΠ΄ΠΊΠ°, Π²Π΅Π½ΡΠΈΠ»ΡΡΠΈΠΎΠ½Π½Π°Ρ ΡΠΈΡΡΠ΅ΠΌΠ°, Π° ΡΠ°ΠΊΠΆΠ΅ ΡΡΡΠΎΠΏΠΈΠ»Π° ΠΊΡΠΎΠ²Π»ΠΈ. ΠΡΠ΅ ΡΡΠΎ Π½Π΅ ΠΏΡΡΡΠ΅ΡΡΡ Π²Π½ΡΡΡΡ ΡΡΠ΅Π½ ΠΈ ΠΏΠΎΡΠΎΠ»ΠΊΠ°, Π° ΠΎΡΡΠ°Π²Π»ΡΠ΅ΡΡΡ Π² ΠΎΡΠΊΡΡΡΠΎΠΌ Π²ΠΈΠ΄Π΅. ΠΠ΅ΡΠ΅Π΄ΠΊΠΎ ΡΡΡΠ°Π½Π°Π²Π»ΠΈΠ²Π°ΡΡΡΡ Π΄Π΅ΠΊΠΎΡΠ°ΡΠΈΠ²Π½ΡΠ΅ ΠΏΠΎΡΠΎΠ»ΠΎΡΠ½ΡΠ΅ Π±Π°Π»ΠΊΠΈ ΠΈ ΡΠ»Π΅ΠΌΠ΅Π½ΡΡ Π²Π΅Π½ΡΠΈΠ»ΡΡΠΈΠΎΠ½Π½ΡΡ ΡΡΡΠ± ΡΡΠΎΠ±Ρ ΠΏΡΠΈΠ΄Π°ΡΡ ΠΈΠ½ΡΠ΅ΡΡΠ΅ΡΡ ΡΡΠ±Π°Π½ΠΈΡΡΠΈΡΠ½ΡΠΉ Ρ Π°ΡΠ°ΠΊΡΠ΅Ρ.

ΠΠ»Ρ ΠΈΠ½Π΄ΡΡΡΡΠΈΠ°Π»ΡΠ½ΠΎΠ³ΠΎ ΡΡΠΈΠ»Ρ Π²ΠΏΠΎΠ»Π½Π΅ ΠΏΠΎΠ΄ΠΎΠΉΠ΄Π΅Ρ ΠΎΡΠ΄Π΅Π»ΠΊΠ° Π΄Π΅ΡΠ΅Π²ΠΎΠΌ. ΠΡΠΎΠ±Π΅Π½Π½ΠΎ ΠΎΠ½Π° ΡΠΌΠ΅ΡΡΠ½Π° ΠΏΡΠΈ ΠΈΡΠΏΠΎΠ»ΡΠ·ΠΎΠ²Π°Π½ΠΈΠΈ Π΄ΠΈΠ·Π°ΠΉΠ½Π° Π»ΠΎΡΡ Π² Π΄Π΅ΡΠ΅Π²ΡΠ½Π½ΠΎΠΌ Π΄ΠΎΠΌΠ΅. ΠΠΎ ΠΏΠΎΠ»Π½ΠΎΡΡΡΡ Π²ΡΠ΅ ΡΡΠ΅Π½Ρ ΠΎΡΠ΄Π΅Π»ΡΠ²Π°ΡΡ ΠΏΠ°Π½Π΅Π»ΡΠΌΠΈ ΠΈΠ»ΠΈ Π΄ΠΎΡΠΊΠΎΠΉ Π½Π΅ ΡΡΠΎΠΈΡ, Π² ΠΈΠ½Π΄ΡΡΡΡΠΈΠ°Π»ΡΠ½ΠΎΠΌ ΠΈΠ½ΡΠ΅ΡΡΠ΅ΡΠ΅ ΠΎΠ±ΡΠ·Π°ΡΠ΅Π»ΡΠ½ΠΎ Π΄ΠΎΠ»ΠΆΠ½Ρ ΠΏΡΠΈΡΡΡΡΡΠ²ΠΎΠ²Π°ΡΡ ΠΊΠΈΡΠΏΠΈΡΠ½ΡΠ΅ ΠΈΠ»ΠΈ Π±Π΅ΡΠΎΠ½Π½ΡΠ΅ ΠΏΠΎΠ²Π΅ΡΡ Π½ΠΎΡΡΠΈ.
ΠΠ΅ΠΊΠΎΡ
Π‘ΡΠΈΠ»Ρ Π»ΠΎΡΡ Π½Π΅ ΠΏΡΠΈΠ΅ΠΌΠ»Π΅Ρ ΡΠΊΡΠ°ΡΠ°ΡΠ΅Π»ΡΡΡΠ². ΠΠ½ ΠΌΠΈΠ½ΠΈΠΌΠ°Π»ΠΈΡΡΠΈΡΠ΅Π½ ΠΈ ΡΡΠ½ΠΊΡΠΈΠΎΠ½Π°Π»Π΅Π½. ΠΠ³ΠΎ ΡΠ°Π·Π½ΠΎΠΎΠ±ΡΠ°Π·ΠΈΠ΅ Π²ΠΎΠ·Π½ΠΈΠΊΠ°Π΅Ρ Π±Π»Π°Π³ΠΎΠ΄Π°ΡΡ ΠΏΡΠΈΠΌΠ΅Π½Π΅Π½ΠΈΡ Π½Π΅ΡΡΠ°Π½Π΄Π°ΡΡΠ½ΡΡ ΡΠ΅ΡΠ΅Π½ΠΈΠΉ. Π’Π°ΠΊ, Π½Π°ΠΏΡΠΈΠΌΠ΅Ρ, ΠΎΡΡΡΠ»ΠΊΠΎΠΉ ΠΊ ΠΈΠ·Π½Π°ΡΠ°Π»ΡΠ½ΠΎΠΌΡ ΠΎΠ±Π»ΠΈΠΊΡ ΠΎΠ±ΠΆΠΈΡΡΡ ΡΠ°Π±ΡΠΈΡΠ½ΡΡ ΡΠ΅ΡΠ΄Π°ΠΊΠΎΠ² ΡΠ»ΡΠΆΠ°Ρ Π²ΡΠ΅Π²ΠΎΠ·ΠΌΠΎΠΆΠ½ΡΠ΅ ΠΎΠ±ΠΎΠ³ΡΠ΅Π²Π°ΡΠ΅Π»ΠΈ, ΡΠΏΡΠΎΡΠ΅Π½Π½ΡΠ΅ ΠΏΠΎ ΡΠΎΡΠΌΠ΅ ΠΊΠ°ΠΌΠΈΠ½Ρ, ΠΈ Π΄Π°ΠΆΠ΅ Π±ΠΎΡΠΊΠΈ Ρ ΠΎΠ³Π½Π΅ΠΌ. ΠΠΌΠ΅Π½Π½ΠΎ ΡΠ°ΠΊΠΈΠ΅ ΡΠ»Π΅ΠΌΠ΅Π½ΡΡ Π΄Π΅ΠΊΠΎΡΠ° ΠΈ ΡΠ»ΡΠΆΠ°Ρ Π΄Π»Ρ ΠΎΡΠΎΡΠΌΠ»Π΅Π½ΠΈΡ Π΄ΠΈΠ·Π°ΠΉΠ½Π° ΠΏΠΎΠΌΠ΅ΡΠ΅Π½ΠΈΠΉ.
ΠΠ»Ρ Π»ΠΎΡΡΠ° ΠΎΡΠ΅Π½Ρ Π²Π°ΠΆΠ½Π° ΠΎΡΠΈΠ³ΠΈΠ½Π°Π»ΡΠ½ΠΎΡΡΡ. ΠΠΎΡΡΠΎΠΌΡ ΠΆΠ΅Π»Π°ΡΠ΅Π»ΡΠ½ΠΎ ΠΏΡΠΈΠ΄ΡΠΌΠ°ΡΡ Π΄Π»Ρ ΠΈΠ½ΡΠ΅ΡΡΠ΅ΡΠ° ΡΠ²ΠΎΡ ΠΎΡΠΎΠ±Π΅Π½Π½ΡΡ Β«ΠΈΠ·ΡΠΌΠΈΠ½ΠΊΡΒ», ΡΡΠΎ-ΡΠΎ ΡΠ°ΠΊΠΎΠ΅, ΡΡΠΎ ΡΡΠ°Π½Π΅Ρ ΠΈΠ½Π΄ΠΈΠ²ΠΈΠ΄ΡΠ°Π»ΡΠ½ΠΎΠΉ ΠΎΡΠ»ΠΈΡΠΈΡΠ΅Π»ΡΠ½ΠΎΠΉ ΡΠ΅ΡΡΠΎΠΉ ΠΈΠΌΠ΅Π½Π½ΠΎ ΡΡΠΎΠ³ΠΎ Π΄ΠΎΠΌΠ°. ΠΠ°ΠΏΡΠΈΠΌΠ΅Ρ, Π½Π° ΡΡΠ΅Π½Π΅ ΠΌΠΎΠΆΠ΅Ρ Π±ΡΡΡ Π³ΡΠ°ΡΠΈΡΠ΅ΡΠΊΠΈΠΉ Π°Π²ΡΠΎΡΡΠΊΠΈΠΉ ΡΠΈΡΡΠ½ΠΎΠΊ ΡΠ³Π»Π΅ΠΌ ΠΈΠ»ΠΈ ΠΌΠ΅Π»ΠΎΠΌ. Π ΡΠ³Π»Ρ Π³ΠΎΡΡΠΈΠ½ΠΎΠΉ ΠΌΠΎΠΆΠ΅Ρ ΡΡΠΎΡΡΡ ΡΠ»ΠΈΡΠ½ΡΠΉ ΡΠΎΠ½Π°ΡΡ ΠΈΠ»ΠΈ ΡΡΠ°ΡΠ°Ρ ΡΠ΅Π»Π΅ΡΠΎΠ½Π½Π°Ρ Π±ΡΠ΄ΠΊΠ°. ΠΠΎΠ΄ΠΎΠΉΠ΄ΡΡ Π½Π°ΡΡΠΎΡΡΠΈΠ΅ Π΄ΠΎΡΠΎΠΆΠ½ΡΠ΅ Π·Π½Π°ΠΊΠΈ, Π° ΡΠ°ΠΊΠΆΠ΅ ΡΠ°Π΄ΠΎΠ²ΡΠ΅ Π»Π°Π²ΠΊΠΈ, ΡΠ΅Π·Π»ΠΎΠ½Π³ΠΈ, ΡΠ΅ΠΏΠ½ΡΠ΅ ΠΊΠ°ΡΠ΅Π»ΠΈ.

Π¦Π²Π΅Ρ
ΠΠ°Π½Π½ΡΠΉ ΡΡΠΈΠ»Ρ ΡΡΠ΅Π±ΡΠ΅Ρ ΠΏΡΠΈΠΌΠ΅Π½Π΅Π½ΠΈΡ ΡΡΡΠΎΠ³ΠΎ Π²ΡΠ΄Π΅ΡΠΆΠ°Π½Π½ΠΎΠΉ ΠΈ ΠΎΠ³ΡΠ°Π½ΠΈΡΠ΅Π½Π½ΠΎΠΉ ΡΠ²Π΅ΡΠΎΠ²ΠΎΠΉ Π³Π°ΠΌΠΌΡ. ΠΠ±ΡΡΠ½ΠΎ Π²ΡΠ±ΠΈΡΠ°ΡΡ Π΄Π²Π° ΠΈΠ»ΠΈ ΡΡΠΈ ΠΊΠΎΠ½ΡΡΠ°ΡΡΠ½ΡΡ ΡΠ²Π΅ΡΠ° ΠΈ ΠΎΠ±ΡΠ³ΡΡΠ²Π°ΡΡ ΠΈΡ . ΠΠ»Π°Π²Π½ΡΠ΅ ΡΠ²Π΅ΡΠ° β ΡΠ΅ΡΡΠΉ, ΡΠ΅ΡΠ½ΡΠΉ, Π±Π΅Π»ΡΠΉ, ΠΊΠΈΡΠΏΠΈΡΠ½ΡΠΉ.

ΠΠ΅Π±Π΅Π»Ρ
ΠΡΠΈ Π²ΡΠ±ΠΎΡΠ΅ ΠΌΠ΅Π±Π΅Π»ΠΈ ΠΈΡΠΏΠΎΠ»ΡΠ·ΡΠ΅ΡΡΡ ΠΎΠ΄ΠΈΠ½ ΠΈΠ· Π΄Π²ΡΡ ΠΏΡΠΈΠ½ΡΠΈΠΏΠΈΠ°Π»ΡΠ½ΠΎ ΡΠ°Π·Π½ΡΡ ΠΏΠΎΠ΄Ρ ΠΎΠ΄ΠΎΠ². ΠΠ΅ΡΠ²ΡΠΉ ΠΈΠ· Π½ΠΈΡ β ΡΡΠΎ ΠΏΠΎΠ΄Π±ΠΎΡ ΠΌΠΈΠ½ΠΈΠΌΠ°Π»ΡΠ½ΠΎΠ³ΠΎ ΠΊΠΎΠΌΠΏΠ»Π΅ΠΊΡΠ° ΠΏΡΠ΅Π΄ΠΌΠ΅ΡΠΎΠ² ΠΈΠ½ΡΠ΅ΡΡΠ΅ΡΠ° Ρ ΡΠ°ΠΌΡΠΌ ΡΠΎΠ²ΡΠ΅ΠΌΠ΅Π½Π½ΡΠΌ Π΄ΠΈΠ·Π°ΠΉΠ½ΠΎΠΌ. ΠΡΠΈΡΠ΅ΠΌ ΠΌΠ΅Π±Π΅Π»Ρ Π΄ΠΎΠ»ΠΆΠ½Π° Π±ΡΡΡ ΡΠ΄Π΅ΡΠΆΠ°Π½Π½ΠΎΠΉ ΠΏΠΎ Π΄ΠΈΠ·Π°ΠΉΠ½Ρ ΠΈ ΠΌΠ½ΠΎΠ³ΠΎΡΡΠ½ΠΊΡΠΈΠΎΠ½Π°Π»ΡΠ½ΠΎΠΉ.
ΠΡΡΠ³ΠΎΠΉ ΠΏΠΎΠ΄Ρ ΠΎΠ΄ ΠΏΡΠ΅Π΄ΠΏΠΎΠ»Π°Π³Π°Π΅Ρ Π²ΡΠ±ΠΎΡ ΠΌΠ΅Π±Π΅Π»ΠΈ Ρ ΠΏΠΎΠ΄ΡΠ΅ΡΠΊΠ½ΡΡΠΎ ΡΡΡΠ°ΡΠ΅Π²ΡΠΈΠΌ Π΄ΠΈΠ·Π°ΠΉΠ½ΠΎΠΌ, ΠΊΠΎΡΠΎΡΠ°Ρ Π°ΡΡΠΎΡΠΈΠΈΡΡΠ΅ΡΡΡ Ρ ΠΏΡΠΎΡΠ΅Π΄ΡΠΈΠΌΠΈ ΠΊΡΠ»ΡΡΡΡΠ½ΡΠΌΠΈ ΡΠΏΠΎΡ Π°ΠΌΠΈ. ΠΡΠΎ ΠΌΠΎΠ³ΡΡ Π±ΡΡΡ ΠΏΡΠ΅Π΄ΠΌΠ΅ΡΡ Ρ ΠΏΠΎΡΠ΅ΡΡΠΎΠΉ ΠΏΠΎΠ²Π΅ΡΡ Π½ΠΎΡΡΡΡ, ΠΎΠ±Π»ΡΠΏΠ»Π΅Π½Π½ΠΎΠΉ ΠΊΡΠ°ΡΠΊΠΎΠΉ, Π½Π΅Π΄ΠΎΡΡΠ°ΡΡΠΈΠΌΠΈ Π΄Π΅ΡΠ°Π»ΡΠΌΠΈ.

ΠΡΠΎ ΠΌΠΎΠΆΠ΅Ρ Π±ΡΡΡ ΠΈΠ½ΡΠ΅ΡΠ΅ΡΠ½ΠΎ! Π ΡΡΠ°ΡΡΠ΅ ΠΏΠΎ ΡΠ»Π΅Π΄ΡΡΡΠ΅ΠΉ ΡΡΡΠ»ΠΊΠ΅ ΡΠΈΡΠ°ΠΉΡΠ΅ ΠΏΡΠΎ Π°Π½Π³Π»ΠΈΠΉΡΠΊΠΈΠΉ ΡΡΠΈΠ»Ρ.
ΠΡΠ½ΠΎΠ²Π½ΡΠ΅ Π½Π°ΠΏΡΠ°Π²Π»Π΅Π½ΠΈΡ
Π ΠΏΡΠΎΡΠ΅ΡΡΠ΅ ΡΠ²ΠΎΠ΅Π³ΠΎ ΡΠ°Π·Π²ΠΈΡΠΈΡ Π΄Π°Π½Π½ΡΠΉ ΡΡΠΈΠ»Ρ ΡΠ°Π·Π΄Π΅Π»ΠΈΠ»ΡΡ Π½Π° Π½Π΅ΡΠΊΠΎΠ»ΡΠΊΠΎ Π½Π°ΠΏΡΠ°Π²Π»Π΅Π½ΠΈΠΉ. ΠΡΠ½ΠΎΠ²Π½ΡΠ΅ ΠΈΠ· Π½ΠΈΡ :
ΠΡΠΎΠΌΡΡΠ»Π΅Π½Π½ΠΎΠ΅ Π½Π°ΠΏΡΠ°Π²Π»Π΅Π½ΠΈΠ΅
Π’ΡΠ΅Π±ΡΠ΅Ρ Π΄Π»Ρ Π²ΠΎΡΡΠΎΠ·Π΄Π°Π½ΠΈΡ ΠΌΠΈΠ½ΠΈΠΌΡΠΌ ΡΡΠ΅Π΄ΡΡΠ² ΠΈ ΡΡΠΈΠ»ΠΈΠΉ. Π§ΡΠΎΠ±Ρ ΠΏΠΎΠ»ΡΡΠΈΡΡ ΠΈΠ½ΡΠ΅ΡΡΠ΅Ρ Π² ΡΡΠΈΠ»Π΅ ΠΏΡΠΎΠΌΡΡΠ»Π΅Π½Π½ΠΎΠ³ΠΎ Π»ΠΎΡΡΠ° Π΄ΠΎΡΡΠ°ΡΠΎΡΠ½ΠΎ ΠΏΠΎΠΌΠ΅ΡΠ΅Π½ΠΈΠ΅ Ρ Π²ΡΡΠΎΠΊΠΈΠΌΠΈ ΠΏΠΎΡΠΎΠ»ΠΊΠ°ΠΌΠΈ ΠΈ Π±Π΅Π· Π΄Π΅ΠΊΠΎΡΠ°ΡΠΈΠ²Π½ΠΎΠΉ ΠΎΡΠ΄Π΅Π»ΠΊΠΈ ΠΎΠ±ΡΡΠ°Π²ΠΈΡΡ ΠΏΡΠΎΡΡΠΎΠΉ Π³Π΅ΡΠΌΠ΅ΡΠΈΡΠ½ΠΎΠΉ ΠΌΠ΅Π±Π΅Π»ΡΡ Π±Π΅Π· ΠΈΠ·Π»ΠΈΡΠ΅ΡΡΠ² ΠΈ Π½Π°ΠΏΠΎΠ»Π½ΠΈΡΡ ΠΏΡΠΎΡΡΡΠ°Π½ΡΡΠ²ΠΎ Π½Π΅ΠΊΠΎΡΠΎΡΡΠΌΠΈ ΡΠ»Π΅ΠΌΠ΅Π½ΡΠ°ΠΌΠΈ, ΡΠΎΠ·Π΄Π°ΡΡΠΈΠΌΠΈ Π°ΡΠΌΠΎΡΡΠ΅ΡΡ ΠΏΡΠΎΠΌΡΡΠ»Π΅Π½Π½ΠΎΠ³ΠΎ Π·Π΄Π°Π½ΠΈΡ.
Π ΠΊΠ°ΡΠ΅ΡΡΠ²Π΅ Π΄Π΅ΠΊΠΎΡΠ° ΠΏΠΎΠ΄ΠΎΠΉΠ΄ΡΡ ΡΠ²ΡΠ·Π°Π½Π½ΡΠ΅ Π² ΡΠ·Π»Ρ ΠΏΡΠΎΠ²ΠΎΠ΄Π°, ΡΠ΅ΠΏΠΈ, Π΄Π΅ΡΠ΅Π²ΡΠ½Π½ΡΠ΅ ΡΠ΅ΡΠΌΡ, Π²Π΅Π½ΡΠΈΠ»ΠΈ ΠΈ ΡΡΡΠ±Ρ. ΠΡΠ΅ ΡΡΠΎ ΠΏΡΠΈ ΠΏΡΠ°Π²ΠΈΠ»ΡΠ½ΠΎΠΌ ΠΏΡΠΈΠΌΠ΅Π½Π΅Π½ΠΈΠΈ ΡΠΎΠ·Π΄Π°Π΅Ρ Π΄ΠΎΠ²ΠΎΠ»ΡΠ½ΠΎ ΠΌΠΎΡΠ½ΡΠΉ ΠΊΠΎΠ»ΠΎΡΠΈΡ. ΠΠΌΠ΅ΡΡΠΎ ΡΠΊΠ°ΡΠ° Π΄Π»Ρ ΠΎΠ΄Π΅ΠΆΠ΄Ρ ΡΠ΅ΠΊΠΎΠΌΠ΅Π½Π΄ΡΠ΅ΡΡΡ ΡΡΡΠ°Π½Π°Π²Π»ΠΈΠ²Π°ΡΡ ΠΎΡΠΊΡΡΡΡΠ΅ Π²Π΅ΡΠ°Π»ΠΊΠΈ ΠΈ ΡΡΠ΅Π»Π»Π°ΠΆΠΈ. ΠΠ΄Π½Π°ΠΊΠΎ, ΡΡΠΎΠ±Ρ ΠΎΡΡΡΠ°ΡΡ ΡΠ΅Π±Ρ ΠΊΠΎΠΌΡΠΎΡΡΠ½ΠΎ ΠΈ ΡΠ²Π΅ΡΠ΅Π½Π½ΠΎ Π² ΡΠ°ΠΊΠΎΠΉ ΠΎΠ±ΡΡΠ°Π½ΠΎΠ²ΠΊΠ΅ Π½ΡΠΆΠ½ΠΎ ΠΈΠΌΠ΅ΡΡ ΠΎΠΏΡΠ΅Π΄Π΅Π»Π΅Π½Π½ΡΠΉ ΡΠΊΠ»Π°Π΄ Ρ Π°ΡΠ°ΠΊΡΠ΅ΡΠ° ΠΈΠ»ΠΈ Π±ΠΎΠ»ΡΡΡΡ Π»ΡΠ±ΠΎΠ²Ρ ΠΊ ΡΠΎΠ²ΡΠ΅ΠΌΠ΅Π½Π½ΠΎΠΌΡ Π°ΡΡ ΠΈΡΠ΅ΠΊΡΡΡΠ½ΠΎΠΌΡ ΠΈΡΠΊΡΡΡΡΠ²Ρ.

ΠΠ»Π°ΠΌΡΡΠ½ΠΎΠ΅ Π½Π°ΠΏΡΠ°Π²Π»Π΅Π½ΠΈΠ΅
ΠΡΠ»ΠΈΡΠ°Π΅ΡΡΡ ΠΎΡ Π΄ΡΡΠ³ΠΈΡ Π½Π°ΠΏΡΠ°Π²Π»Π΅Π½ΠΈΠΉ ΠΏΡΠΈΠΌΠ΅Π½Π΅Π½ΠΈΠ΅ΠΌ ΠΏΠ°ΡΡΠ΅Π»ΡΠ½ΡΡ ΠΎΡΡΠ΅Π½ΠΊΠΎΠ² Π² ΠΏΠ°Π»ΠΈΡΡΠ΅. ΠΠΈΠ·Π°ΠΉΠ½ Π΄ΠΎΠΌΠ° Π² ΡΡΠΈΠ»Π΅ Π»ΠΎΡΡ, Π² Π³Π»Π°ΠΌΡΡΠ½ΠΎΠΌ Π΅Π³ΠΎ Π²Π°ΡΠΈΠ°Π½ΡΠ΅ ΠΌΠΎΠΆΠ΅Ρ Π±ΡΡΡ Π²ΡΠΏΠΎΠ»Π½Π΅Π½ Π½Π΅ Π² ΡΡΠ°Π΄ΠΈΡΠΈΠΎΠ½Π½ΠΎΠΉ ΡΠ΅ΡΠΎ-Π±Π΅Π»ΠΎΠΉ Π³Π°ΠΌΠΌΠ΅, Π°, Π½Π°ΠΏΡΠΈΠΌΠ΅Ρ, ΠΏΡΠΈ ΡΠΎΡΠ΅ΡΠ°Π½ΠΈΠΈ Π±Π΅Π»ΠΎΠ³ΠΎ ΡΠ²Π΅ΡΠ° Ρ Π±Π΅ΠΆΠ΅Π²ΡΠΌ ΠΈΠ»ΠΈ ΠΎΡΠ°Π½ΠΆΠ΅Π²ΡΠΌ.
Π Π³Π»Π°ΠΌΡΡΠ½ΠΎΠΌ Π»ΠΎΡΡΠ΅ ΠΎΡΠΎΠ±Π΅Π½Π½ΠΎ Π²Π°ΠΆΠ½Ρ Π°ΠΊΡΠ΅Π½ΡΡ Π² Π²ΠΈΠ΄Π΅ ΠΏΠ»Π°ΡΠΎΠ½ΠΎΠ² ΠΈ Π°Π±Π°ΠΆΡΡΠΎΠ². ΠΡ Π΄ΠΎΠ»ΠΆΠ½ΠΎ Π±ΡΡΡ ΠΌΠ½ΠΎΠ³ΠΎ, ΠΈ Π²ΡΠ΅ ΠΎΠ½ΠΈ Π½Π΅ΠΏΡΠ΅ΠΌΠ΅Π½Π½ΠΎ Π΄ΠΎΠ»ΠΆΠ½Ρ Π±ΡΡΡ Π½Π΅ΠΎΠ±ΡΡΠ½ΡΠΌΠΈ ΠΈ Π·Π°ΠΏΠΎΠΌΠΈΠ½Π°ΡΡΠΈΠΌΠΈΡΡ. ΠΠΎΠΆΠ½ΠΎ ΠΈΡΠΏΠΎΠ»ΡΠ·ΠΎΠ²Π°ΡΡ ΠΈ ΠΎΡΠΈΠ³ΠΈΠ½Π°Π»ΡΠ½ΡΡ ΠΌΠ΅Π±Π΅Π»Ρ, Π½Π°ΠΏΡΠΈΠΌΠ΅Ρ, Π² ΡΡΠΈΠ»Π΅ Π±Π°ΡΠΎΠΊΠΊΠΎ, ΠΊΠΎΡΠΎΡΠ°Ρ Π±ΡΠ΄Π΅Ρ ΠΊΠΎΠ½ΡΡΠ°ΡΡΠΈΡΠΎΠ²Π°ΡΡ Ρ Π³ΡΡΠ±ΠΎΠΉ ΠΎΡΠ΄Π΅Π»ΠΊΠΎΠΉ ΠΏΠΎΠΌΠ΅ΡΠ΅Π½ΠΈΡ. ΠΠ°ΠΆΠ½ΠΎ ΡΡΠΎΠ±Ρ ΠΌΠ΅Π±Π΅Π»Ρ Π±ΡΠ»Π° ΠΊΡΠΈΡΠ°ΡΠ΅ Π΄ΠΎΡΠΎΠ³ΠΎΠΉ, ΠΈΠ½Π°ΡΠ΅ Π½Π΅ ΠΏΠΎΠ»ΡΡΠΈΡΡΡ Π΄ΠΎΡΡΠ°ΡΠΎΡΠ½ΠΎ ΡΡΡΠ΅ΠΊΡΠ½ΠΎΠ³ΠΎ ΠΊΠΎΠ½ΡΡΠ°ΡΡΠ° Ρ Π·Π°Π²ΠΎΠ΄ΡΠΊΠΎΠΉ ΠΎΡΠ΄Π΅Π»ΠΊΠΎΠΉ ΡΡΠ΅Π½.
ΠΠ΅ΡΠΌΠΎΡΡΡ Π½Π° ΡΠΎ, ΡΡΠΎ Π³Π»Π°ΠΌΡΡΠ½ΡΠΉ Π»ΠΎΡΡ Π΄ΠΎΠΏΡΡΠΊΠ°Π΅Ρ ΠΏΡΠΈΠΌΠ΅Π½Π΅Π½ΠΈΡ ΠΌΡΠ³ΠΊΠΈΡ ΠΎΡΡΠ΅Π½ΠΊΠΎΠ² ΠΈ Π΄Π΅ΠΊΠΎΡΠ°ΡΠΈΠΉ, ΠΎΠ½, ΠΏΠΎ ΡΡΡΠΈ, Π΅ΡΠ΅ Π±ΠΎΠ»Π΅Π΅ ΡΠΊΡΡΠ΅Π½ΡΡΠΈΡΠ½ΡΠΉ, ΡΠ΅ΠΌ Π΅Π³ΠΎ Π±Π°Π·ΠΎΠ²ΡΠΉ Π²Π°ΡΠΈΠ°Π½Ρ. ΠΡΠ΅ Π΄Π΅Π»ΠΎ Π² Π΅ΡΠ΅ Π±ΠΎΠ»Π΅Π΅ ΡΠΌΠ΅Π»ΡΡ ΡΠΎΡΠ΅ΡΠ°Π½ΠΈΡΡ Π½Π΅ΡΠΎΡΠ΅ΡΠ°Π΅ΠΌΠΎΠ³ΠΎ. ΠΡΠΈΠΌΠ΅ΡΡ ΡΠ°ΠΊΠΎΠΉ ΡΡΠΈΠ»Ρ, Π½Π΅ ΠΈΠΌΠ΅Ρ ΠΊΠ²Π°Π»ΠΈΡΠΈΠΊΠ°ΡΠΈΠΈ Π΄ΠΈΠ·Π°ΠΉΠ½Π΅ΡΠ°, Π΄ΠΎΡΡΠ°ΡΠΎΡΠ½ΠΎ ΡΠ»ΠΎΠΆΠ½ΠΎ. ΠΡΡΡ ΡΠΈΡΠΊ ΠΏΠΎΠ»ΡΡΠΈΡΡ Π½Π΅ΡΡΡΠ΅ΡΠΈΡΠ½ΡΠΉ ΠΈΠ½ΡΠ΅ΡΡΠ΅ΡΠ½ΡΠΉ Β«Π²ΠΈΠ½Π΅Π³ΡΠ΅ΡΒ». ΠΠ°ΡΠΎ Π΄Π»Ρ ΠΏΡΠΎΡΠ΅ΡΡΠΈΠΎΠ½Π°Π»ΡΠ½ΡΡ Π°ΡΡ ΠΈΡΠ΅ΠΊΡΠΎΡΠΎΠ² ΠΎΠ½ ΡΠ°ΡΠΊΡΡΠ²Π°Π΅Ρ ΡΠΈΡΠΎΠΊΠΈΠ΅ Π²ΠΎΠ·ΠΌΠΎΠΆΠ½ΠΎΡΡΠΈ Π² ΡΠΎΠ·Π΄Π°Π½ΠΈΠΈ Π½Π΅ΠΏΠΎΠ²ΡΠΎΡΠΈΠΌΡΡ Ρ ΡΠ΄ΠΎΠΆΠ΅ΡΡΠ²Π΅Π½Π½ΡΡ ΡΠ΅ΡΠ΅Π½ΠΈΠΉ.

ΠΠΎΡ ΠΎ-Π»ΠΎΡΡ (Π±ΠΎΠ³Π΅ΠΌΠ½ΡΠΉ ΡΡΠΈΠ»Ρ)
ΠΡ ΠΏΡΠΎΡΡΠΎΠ³ΠΎ Π»ΠΎΡΡΠ° Π±ΠΎΠ³Π΅ΠΌΠ½ΡΠΉ ΡΡΠΈΠ»Ρ ΠΎΡΠ»ΠΈΡΠ°Π΅ΡΡΡ Π½Π°Π»ΠΈΡΠΈΠ΅ΠΌ ΠΏΡΠ΅Π΄ΠΌΠ΅ΡΠΎΠ² ΠΈΡΠΊΡΡΡΡΠ²Π° Π² ΠΈΠ½ΡΠ΅ΡΡΠ΅ΡΠ΅. Π ΠΎΡΠ½ΠΎΠ²Π½ΠΎΠΌ ΡΡΠΎ ΠΊΠ°ΡΡΠΈΠ½Ρ, ΡΠΊΡΠ»ΡΠΏΡΡΡΡ ΠΈ ΡΠΎΡΠΎ Π½Π΅ΠΈΠ·Π²Π΅ΡΡΠ½ΡΡ , Π½ΠΎ ΡΠ°Π»Π°Π½ΡΠ»ΠΈΠ²ΡΡ Π°Π²ΡΠΎΡΠΎΠ² ΡΠΎΠ²ΡΠ΅ΠΌΠ΅Π½Π½ΠΎΡΡΠΈ. ΠΡΠ΅ ΡΡΠΈ ΡΠ»Π΅ΠΌΠ΅Π½ΡΡ Π΄ΠΎΠ»ΠΆΠ½Ρ Π±ΡΡΡ ΠΏΠΎΠ΄ΠΎΠ±ΡΠ°Π½Ρ Ρ Ρ ΡΠ΄ΠΎΠΆΠ΅ΡΡΠ²Π΅Π½Π½ΡΠΌ Π²ΠΊΡΡΠΎΠΌ. ΠΡΠΎΠΌΠ΅ ΡΡΠΎΠ³ΠΎ Π½Π° ΡΡΠ΅Π½Ρ Π²Π΅ΡΠ°ΡΡ Π°ΡΠΈΡΠΈ Π²ΡΡΡΠ°Π²ΠΎΠΊ, ΡΠΊΡΠΏΠ΅ΡΠΈΠΌΠ΅Π½ΡΠ°Π»ΡΠ½ΡΡ ΠΈΠ»ΠΈ Π°Π½Π΄Π΅Π³ΡΠ°ΡΠ½Π΄Ρ ΡΠ΅Π°ΡΡΠΎΠ², ΠΏΠ»Π°ΠΊΠ°ΡΡ Π² ΡΡΠΈΠ»Π΅ ΠΏΠΎΠΏ-Π°ΡΡ ΠΈ Ρ. Π΄.
ΠΠ»Π°Π²Π½ΠΎΠ΅ ΠΏΡΠ°Π²ΠΈΠ»ΠΎ Π·Π΄Π΅ΡΡ β Π½ΠΈΠΊΠ°ΠΊΠΈΡ Π»ΠΈΡΠ½ΠΈΡ ΠΏΡΠ΅Π΄ΠΌΠ΅ΡΠΎΠ² ΠΈ Π½ΠΈΠΊΠ°ΠΊΠΎΠ³ΠΎ Β«ΡΠΈΡΠΏΠΎΡΡΠ΅Π±Π°Β». ΠΡΡΡΠ΅ ΠΏΡΡΡΡ ΠΊΠΎΠΌΠ½Π°ΡΡ Π±ΡΠ΄ΡΡ Π²ΡΠ³Π»ΡΠ΄Π΅ΡΡ ΠΏΡΡΡΠΎ ΠΈ Π°ΡΠΊΠ΅ΡΠΈΡΠ½ΠΎ, ΡΠ΅ΠΌ ΠΎΠ±ΡΡΠ°Π²Π»ΡΡΡ ΠΌΠ΅Π±Π΅Π»ΡΡ ΠΈ Π΄Π΅ΠΊΠΎΡΠΎΠΌ Π±Π΅Π· ΠΎΡΠΎΠ±ΠΎΠΉ Ρ ΡΠ΄ΠΎΠΆΠ΅ΡΡΠ²Π΅Π½Π½ΠΎΠΉ ΠΈΠ΄Π΅ΠΈ. ΠΠ΅Π±Π΅Π»Ρ ΠΈ Π΄Π΅ΠΊΠΎΡ ΠΏΡΠΈΠΎΠ±ΡΠ΅ΡΠ°ΡΡ Π² Π°Π½ΡΠΈΠΊΠ²Π°ΡΠ½ΡΡ ΠΌΠ°Π³Π°Π·ΠΈΠ½Π°Ρ ΠΈΠ»ΠΈ Π½Π° Π±Π»ΠΎΡΠΈΠ½ΡΡ ΡΡΠ½ΠΊΠ°Ρ . ΠΠΎΠ΄ΠΎΠΉΠ΄Π΅Ρ ΠΏΠΎΡΠ΅ΡΡΠ°Ρ ΠΌΠ΅Π±Π΅Π»Ρ ΠΈΠ· Π΄ΠΎΡΠΎΠ³ΠΎ Π΄Π΅ΡΠ΅Π²Π° ΠΈ ΠΊΠΎΠΆΠΈ, Π° ΡΠ°ΠΊΠΆΠ΅ ΠΏΡΠ΅Π΄ΠΌΠ΅ΡΡ Ρ ΡΠ»Π΅ΠΌΠ΅Π½ΡΠ°ΠΌΠΈ ΠΊΠΎΠ²ΠΊΠΈ.

ΠΡΠΎ ΠΌΠΎΠΆΠ΅Ρ Π±ΡΡΡ ΠΈΠ½ΡΠ΅ΡΠ΅ΡΠ½ΠΎ! Π ΡΡΠ°ΡΡΠ΅ ΠΏΠΎ ΡΠ»Π΅Π΄ΡΡΡΠ΅ΠΉ ΡΡΡΠ»ΠΊΠ΅ ΡΠΈΡΠ°ΠΉΡΠ΅ ΠΏΡΠΎ ΡΡΠΈΠ»Ρ ΠΏΡΠΎΠ²Π°Π½Ρ Π½Π° Π΄Π°ΡΠ΅.
ΠΠΎΡΡΠΈΠ½Π°Ρ
Π Π΄ΠΎΠΌΠ΅, Π²ΡΠΏΠΎΠ»Π½Π΅Π½Π½ΠΎΠΌ Π² ΡΡΠΈΠ»Π΅ Π»ΠΎΡΡ Π³ΠΎΡΡΠΈΠ½Π°Ρ β ΡΡΠΎ Π΅Π΄ΠΈΠ½ΠΎΠ΅ ΠΏΠΎΠΌΠ΅ΡΠ΅Π½ΠΈΠ΅, Π²ΠΌΠ΅ΡΠ°ΡΡΠ΅Π΅ ΠΏΡΠΈΡ ΠΎΠΆΡΡ, ΡΡΠΎΠ»ΠΎΠ²ΡΡ, ΠΊΡΡ Π½Ρ ΠΈ Π½Π΅ΠΏΠΎΡΡΠ΅Π΄ΡΡΠ²Π΅Π½Π½ΠΎ ΡΠ°ΠΌΡ Π³ΠΎΡΡΠΈΠ½ΡΡ. Π Π½Π΅ΠΌ Π΄ΠΎΠ»ΠΆΠ½Ρ Π±ΡΡΡ Π±ΠΎΠ»ΡΡΠΈΠ΅ ΠΎΠΊΠ½Π° ΠΈ Π²ΡΡΠΎΠΊΠΈΠ΅ ΠΏΠΎΡΠΎΠ»ΠΊΠΈ. ΠΡΡ ΡΡΡ Π·ΠΎΠ½Ρ ΠΌΠΎΠΆΠ½ΠΎ ΠΎΡΠΎΡΠΌΠ»ΡΡΡ ΡΠ°ΠΌΡΠΌ ΡΠΌΠ΅Π»ΡΠΌ ΠΎΠ±ΡΠ°Π·ΠΎΠΌ, ΡΠ°ΠΊ ΠΊΠ°ΠΊ ΠΎΠ½Π° ΠΏΡΠ΅Π΄Π½Π°Π·Π½Π°ΡΠ΅Π½Π° Π΄Π»Ρ Π΄Π½Π΅Π²Π½ΠΎΠ³ΠΎ ΠΏΡΠ΅Π±ΡΠ²Π°Π½ΠΈΡ ΠΈ Π½Π΅ ΠΈΠΌΠ΅Π΅Ρ ΠΎΡΠΎΠ±ΡΡ ΠΏΡΠ°Π²ΠΈΠ» Π΄ΠΈΠ·Π°ΠΉΠ½Π° ΠΊΠ°ΠΊ, Π½Π°ΠΏΡΠΈΠΌΠ΅Ρ, ΡΠΏΠ°Π»ΡΠ½Ρ ΠΈΠ»ΠΈ Π΄Π΅ΡΡΠΊΠ°Ρ.
ΠΠ΅Π·Π°Π²ΠΈΡΠΈΠΌΠΎ ΠΎΡ ΡΠΎΠ³ΠΎ, ΠΊΠ°ΠΊΠΈΠ΅ ΠΏΡΠΈΠ΅ΠΌΡ Π²ΡΠ±ΡΠ°Π½Ρ Π΄Π»Ρ Π΄ΠΈΠ·Π°ΠΉΠ½Π° Π³ΠΎΡΡΠΈΠ½ΠΎΠΉ, ΠΎΠ΄Π½Π° ΠΈΠ· Π΅Π΅ ΡΡΠ΅Π½, Π΄ΠΎΠ»ΠΆΠ½Π° Π±ΡΡΡ Π·Π°Π΄Π΅ΠΊΠΎΡΠΈΡΠΎΠ²Π°Π½Π° ΠΏΠΎΠ΄ ΠΊΠΈΡΠΏΠΈΡΠ½ΡΡ ΠΊΠ»Π°Π΄ΠΊΡ. ΠΠΈΡΠΏΠΈΡΠ½Π°Ρ ΡΡΠ΅Π½Π° β ΡΡΠΎ Π²ΠΈΠ·ΠΈΡΠ½Π°Ρ ΠΊΠ°ΡΡΠΎΡΠΊΠ° Π»ΠΎΡΡΠ°. ΠΡΠΈΡΠ΅ΠΌ Π² ΠΏΠΎΡΠ»Π΅Π΄Π½Π΅Π΅ Π²ΡΠ΅ΠΌΡ Π΄Π°Π½Π½ΡΠΉ ΡΡΠΈΠ»Ρ ΡΡΠ°Π» Π½Π°ΡΡΠΎΠ»ΡΠΊΠΎ ΠΏΠΎΠΏΡΠ»ΡΡΠ½ΡΠΌ ΠΈ ΡΠ·Π½Π°Π²Π°Π΅ΠΌΡΠΌ, ΡΡΠΎ ΡΠ΅ΠΏΠ΅ΡΡ Π΄Π»Ρ ΡΠΎΠ³ΠΎ, ΡΡΠΎ Π±Ρ Π΅Π³ΠΎ ΠΎΠ±ΠΎΠ·Π½Π°ΡΠΈΡΡ Π΄ΠΎΡΡΠ°ΡΠΎΡΠ½ΠΎ Π΄Π°ΠΆΠ΅ Π½Π΅Π±ΠΎΠ»ΡΡΠΎΠ³ΠΎ ΡΡΠ°Π³ΠΌΠ΅Π½ΡΠ° ΠΊΠΈΡΠΏΠΈΡΠ½ΠΎΠΉ ΡΡΠ΅Π½Ρ.

ΠΠΎΡΠΊΠΎΠ»ΡΠΊΡ ΡΡΠ°Π½Π΄Π°ΡΡΠ½ΡΠ΅ ΠΏΡΠΈΠ΅ΠΌΡ Π΄Π»Ρ ΡΠ°Π·Π³ΡΠ°Π½ΠΈΡΠ΅Π½ΠΈΡ Π·ΠΎΠ½ Π² Π»ΠΎΡΡΠ΅ ΠΏΠΎΡΡΠΈ Π½Π΅ ΠΏΡΠΈΠΌΠ΅Π½ΡΡΡΡΡ, Π·ΠΎΠ½ΠΈΡΠΎΠ²Π°Π½ΠΈΠ΅ ΠΎΡΡΡΠ΅ΡΡΠ²Π»ΡΠ΅ΡΡΡ Π² ΠΎΡΠ½ΠΎΠ²Π½ΠΎΠΌ ΠΏΡΠΈ ΠΏΠΎΠΌΠΎΡΠΈ ΠΏΡΠ°Π²ΠΈΠ»ΡΠ½ΠΎΠΉ ΡΠ°ΡΡΡΠ°Π½ΠΎΠ²ΠΊΠΈ ΠΌΠ΅Π±Π΅Π»ΠΈ. Π‘Π΄Π΅Π»Π°ΡΡ ΡΡΠΎ ΡΠΎΠ²ΡΠ΅ΠΌ Π½Π΅ ΡΠ»ΠΎΠΆΠ½ΠΎ. Π’Π°ΠΊ, ΡΠ΅ΡΡΠΈΡΠΎΡΠΈΡ ΠΊΡΡ Π½ΠΈ ΠΎΠ³ΡΠ°Π½ΠΈΡΠΈΠ²Π°Π΅ΡΡΡ Π΅Π΅ ΡΠ°Π±ΠΎΡΠ΅ΠΉ Π·ΠΎΠ½ΠΎΠΉ. Π‘ΡΠΎΠ»ΠΎΠ²Π°Ρ Π·ΠΎΠ½Π°, Π² Π²ΠΈΠ΄Π΅ ΠΎΠ±Π΅Π΄Π΅Π½Π½ΠΎΠ³ΠΎ ΡΡΠΎΠ»Π° ΠΈ ΠΊΠΎΠΌΠΏΠ»Π΅ΠΊΡΠ° ΡΡΡΠ»ΡΠ΅Π² ΡΠ°Π·ΠΌΠ΅ΡΠ°Π΅ΡΡΡ ΡΡΠ΄ΠΎΠΌ Ρ ΠΊΡΡ Π½Π΅ΠΉ. ΠΠ΅ΡΡΠΎ Π³ΠΎΡΡΠΈΠ½ΠΎΠΉ β Ρ ΠΎΠΊΠ½Π° ΠΈΠ»ΠΈ Π²ΡΡ ΠΎΠ΄Π° Π½Π° ΡΠ΅ΡΡΠ°ΡΡ.
ΠΠ»Ρ ΠΎΠ±ΡΡΡΡΠΎΠΉΡΡΠ²Π° Π³ΠΎΡΡΠ΅Π²ΠΎΠΉ Π·ΠΎΠ½Ρ ΠΏΠΎΠ΄ΠΎΠΉΠ΄Π΅Ρ ΠΌΠ°ΡΡΠΈΠ²Π½ΡΠΉ Π΄ΠΈΠ²Π°Π½ Ρ ΡΠΈΡΠΎΠΊΠΈΠΌ, Π½ΠΎ ΠΏΡΠΈΠ·Π΅ΠΌΠΈΡΡΡΠΌ ΡΡΠΎΠ»ΠΎΠΌ. ΠΠΎΠΎΠ±ΡΠ΅ Π²ΡΡ ΠΌΠ΅Π±Π΅Π»Ρ Π² ΡΡΠΎΠΉ ΡΠ°ΡΡΠΈ Π΄ΠΎΠΌΠ° Π΄ΠΎΠ»ΠΆΠ½Π° Π±ΡΡΡ Π΄ΠΎΡΡΠ°ΡΠΎΡΠ½ΠΎ Π³Π°Π±Π°ΡΠΈΡΠ½ΠΎΠΉ, ΠΈΠ½Π°ΡΠ΅ ΠΎΠ½Π° Π±ΡΠ΄Π΅Ρ ΠΏΠ»ΠΎΡ ΠΎ ΡΠΌΠΎΡΡΠ΅ΡΡΡΡ Π½Π° ΡΠΎΠ½Π΅ ΠΏΡΠΎΡΡΠΎΡΠ½ΠΎΠ³ΠΎ ΠΏΠΎΠΌΠ΅ΡΠ΅Π½ΠΈΡ Ρ ΡΠΈΡΠΎΠΊΠΈΠΌ ΠΎΡΡΠ΅ΠΊΠ»Π΅Π½ΠΈΠ΅ΠΌ. ΠΠΈΠ·Π°ΠΉΠ½ ΠΈΠ½ΡΠ΅ΡΡΠ΅ΡΠ° Π·Π°Π³ΠΎΡΠΎΠ΄Π½ΠΎΠ³ΠΎ Π΄ΠΎΠΌΠ° Π² ΡΡΠΈΠ»Π΅ Π»ΠΎΡΡ ΡΡΠ΅Π±ΡΠ΅Ρ Π½Π΅ΡΡΠ°Π½Π΄Π°ΡΡΠ½ΡΡ ΡΠ΅ΡΠ΅Π½ΠΈΠΉ. Π ΠΎΡΠΎΠ±Π΅Π½Π½ΠΎ ΡΡΠΎ ΠΊΠ°ΡΠ°Π΅ΡΡΡ Β«ΡΠ΅ΡΠ΄ΡΠ°Β» ΠΆΠΈΠ»ΠΈΡΠ° β Π³ΠΎΡΡΠΈΠ½ΠΎΠΉ.

ΠΠ΄Π½ΠΈΠΌ ΠΈΠ· Ρ Π°ΡΠ°ΠΊΡΠ΅ΡΠ½ΡΡ ΡΠ»Π΅ΠΌΠ΅Π½ΡΠΎΠ² ΠΈΠ½ΡΠ΅ΡΡΠ΅ΡΠ° Π³ΠΎΡΡΠΈΠ½ΠΎΠΉ Π² ΡΡΠΈΠ»Π΅ Π»ΠΎΡΡ ΡΠ²Π»ΡΠ΅ΡΡΡ ΠΎΡΠΊΡΡΡΡΠΉ ΠΊΠ°ΠΌΠΈΠ½. ΠΠ½ Π΄ΠΎΠ»ΠΆΠ΅Π½ Π»ΠΈΠ±ΠΎ Π½Π°ΠΏΠΎΠΌΠΈΠ½Π°ΡΡ ΠΏΡΠΈΠΌΠΈΡΠΈΠ²Π½ΡΠ΅ ΠΏΡΠΈΡΠΏΠΎΡΠΎΠ±Π»Π΅Π½ΠΈΡ Π΄Π»Ρ ΠΎΠ±ΠΎΠ³ΡΠ΅Π²Π° ΡΠ°Π±ΡΠΈΡΠ½ΡΡ ΠΏΠΎΠΌΠ΅ΡΠ΅Π½ΠΈΠΉ, Π»ΠΈΠ±ΠΎ ΠΈΠΌΠ΅ΡΡ Π½Π΅ΠΎΠ±ΡΡΠ½ΡΠΉ ΠΎΡΠΈΠ³ΠΈΠ½Π°Π»ΡΠ½ΡΠΉ Π΄ΠΈΠ·Π°ΠΉΠ½.

Π‘ΠΏΠ°Π»ΡΠ½Ρ
Π ΡΠΏΠ°Π»ΡΠ½Π΅ Π½ΡΠΆΠ½ΠΎ ΡΠΎΠ·Π΄Π°ΡΡ ΡΡΠΏΠΎΠΊΠ°ΠΈΠ²Π°ΡΡΠΈΠΉ ΠΈ ΡΡΡΠ½ΡΠΉ ΠΈΠ½ΡΠ΅ΡΡΠ΅Ρ. ΠΠ°ΠΆΠ΅ Π΅ΡΠ»ΠΈ ΡΡΠΎ ΡΠΏΠ°Π»ΡΠ½Ρ Π² ΡΡΠΈΠ»Π΅ Π»ΠΎΡΡ. ΠΡΠ»ΠΈ Π² Π΄ΠΈΠ·Π°ΠΉΠ½Π΅ Π³ΠΎΡΡΠΈΠ½ΠΎΠΉ Π΄ΠΎΡΡΠ°ΡΠΎΡΠ½ΠΎ ΡΡΠΊΠΎ Π²ΡΡΠ°ΠΆΠ΅Π½Ρ ΡΠ΅ΡΡΡ ΡΡΠΈΠ»Ρ, ΡΠΎ Π² ΡΠΏΠ°Π»ΡΠ½Π΅ ΠΌΠΎΠΆΠ½ΠΎ ΠΏΡΠΈΠΌΠ΅Π½ΠΈΡΡ ΡΠΎΠ»ΡΠΊΠΎ Π»Π΅Π³ΠΊΠΈΠΉ Π½Π°ΠΌΠ΅ΠΊ Π½Π° Π½Π΅Π³ΠΎ. Π‘ΡΠ΅Π½Ρ ΠΌΠΎΠ³ΡΡ Π±ΡΡΡ ΠΏΡΠΎΡΡΠΎ ΠΎΡΡΡΠΊΠ°ΡΡΡΠ΅Π½Ρ. ΠΠ΄Π΅Π°Π»ΡΠ½ΡΠΉ Π²Π°ΡΠΈΠ°Π½Ρ β ΠΈΡΠΊΡΡΡΡΠ²Π΅Π½Π½ΠΎ ΡΠΎΡΡΠ°ΡΠ΅Π½Π½Π°Ρ ΠΈ ΠΏΠΎΡΠ΅ΡΡΠ°Ρ ΡΡΡΠΊΠ°ΡΡΡΠΊΠ°. ΠΠΎΠ» Π² ΡΠΏΠ°Π»ΡΠ½Π΅, ΠΊΠΎΠ½Π΅ΡΠ½ΠΎ, Π½Π΅ Π΄ΠΎΠ»ΠΆΠ΅Π½ Π±ΡΡΡ Π±Π΅ΡΠΎΠ½Π½ΡΠΌ ΠΈΠ»ΠΈ Π½Π°Π»ΠΈΠ²Π½ΡΠΌ. ΠΠ³ΠΎ ΡΠ»Π΅Π΄ΡΠ΅Ρ ΠΏΠΎΠΊΡΡΡΡ ΠΏΠ°ΡΠΊΠ΅ΡΠ½ΠΎΠΉ Π΄ΠΎΡΠΊΠΎΠΉ Π»ΡΠ±ΠΎΠ³ΠΎ Π΅ΡΡΠ΅ΡΡΠ²Π΅Π½Π½ΠΎΠ³ΠΎ ΠΎΡΡΠ΅Π½ΠΊΠ°.

ΠΠ΅Π±Π΅Π»ΠΈ Π² ΡΠΏΠ°Π»ΡΠ½Π΅ Π΄ΠΎΠ»ΠΆΠ½ΠΎ Π±ΡΡΡ ΠΌΠΈΠ½ΠΈΠΌΡΠΌ. ΠΡΠΈ ΡΡΠΎΠΌ ΠΎΠ½Π° Π΄ΠΎΠ»ΠΆΠ½Π° Π±ΡΡΡ Π΄ΠΎΠ²ΠΎΠ»ΡΠ½ΠΎ ΠΌΠ°ΡΡΠΈΠ²Π½Π°Ρ. Π₯ΠΎΡΠΎΡΠΎ Π±ΡΠ΄Π΅Ρ ΡΠΌΠΎΡΡΠ΅ΡΡΡΡ Π±ΠΎΠ»ΡΡΠ°Ρ ΠΊΡΠΎΠ²Π°ΡΡ Ρ Π²ΡΡΠΎΠΊΠΈΠΌ ΠΈΠ·Π³ΠΎΠ»ΠΎΠ²ΡΠ΅ΠΌ. ΠΠΎΠ΄ΠΎΠΉΠ΄ΡΡ ΠΏΡΠΎΡΡΡΠ΅ ΠΏΠΎ ΡΠΎΡΠΌΠ΅ ΡΡΠΌΠ±Ρ ΠΈΠ· Π½Π°ΡΡΡΠ°Π»ΡΠ½ΠΎΠ³ΠΎ Π΄Π΅ΡΠ΅Π²Π°. ΠΠΌΠ΅ΡΡΠΎ ΡΠΊΠ°ΡΠ° Π»ΡΡΡΠ΅ ΡΡΡΠ°Π½ΠΎΠ²ΠΈΡΡ ΠΎΡΠΊΡΡΡΡΡ ΡΠΈΡΡΠ΅ΠΌΡ Π΄Π»Ρ Ρ ΡΠ°Π½Π΅Π½ΠΈΡ Π²Π΅ΡΠ΅ΠΉ.
ΠΠ°ΠΆΠ½ΠΎ ΡΡΠΎΠ±Ρ ΠΌΠ΅ΠΆΠ΄Ρ ΠΏΡΠ΅Π΄ΠΌΠ΅ΡΠ°ΠΌΠΈ ΠΌΠ΅Π±Π΅Π»ΠΈ ΡΠΎΡ ΡΠ°Π½ΡΠ»ΠΈΡΡ ΡΠΈΡΠΎΠΊΠΈΠ΅ ΠΏΡΠΎΡ ΠΎΠ΄Ρ. ΠΡΠ»ΠΈ ΠΏΠΎΡΡΠ°Π²ΠΈΡΡ ΠΈΡ Π²ΠΏΠ»ΠΎΡΠ½ΡΡ, Π³Π»Π°Π²Π½ΡΠΉ ΡΡΡΠ΅ΠΊΡ Π»ΠΎΡΡΠ° Π±ΡΠ΄Π΅Ρ ΡΡΡΠ°ΡΠ΅Π½. ΠΠ΄Π½Π°ΠΊΠΎ ΡΡΠΎ Π½Π΅ ΠΊΠ°ΡΠ°Π΅ΡΡΡ ΡΠΏΠ°Π»Π΅Π½, ΠΎΠ±ΡΡΡΡΠΎΠ΅Π½Π½ΡΡ Π½Π° Π²Π΅ΡΡ Π½Π΅ΠΌ ΡΡΠΎΠ²Π½Π΅ Π³ΠΎΡΡΠΈΠ½ΠΎΠΉ.
Π‘ΠΏΠ°Π»ΡΠ½Ρ β ΡΡΠΎ Π»ΠΈΡΠ½Π°Ρ ΠΊΠΎΠΌΠ½Π°ΡΠ°, ΠΈΠ½ΡΠΈΠΌΠ½Π°Ρ Π·ΠΎΠ½Π° Ρ ΠΎΠ·ΡΠ΅Π². ΠΠ΄Π½Π°ΠΊΠΎ Π² Π»ΠΎΡΡΠ΅ ΠΎΠ½Π° ΠΌΠΎΠΆΠ΅Ρ Π±ΡΡΡ ΠΎΠ±ΡΠ΅Π΄ΠΈΠ½Π΅Π½Π° Π² ΠΎΠ±ΡΠ΅Π΅ ΠΏΡΠΎΡΡΡΠ°Π½ΡΡΠ²ΠΎ Π΄ΠΎΠΌΠ° ΡΠ°ΠΊ ΠΆΠ΅ ΠΊΠ°ΠΊ ΠΊΡΡ Π½Ρ ΠΈΠ»ΠΈ ΡΡΠΎΠ»ΠΎΠ²Π°Ρ. ΠΠΎΠ½Π΅ΡΠ½ΠΎ, ΡΠ°ΠΊΠΎΠΉ Π²Π°ΡΠΈΠ°Π½Ρ Π΄Π°Π»Π΅ΠΊΠΎ Π½Π΅ Π²ΡΠ΅ΠΌ ΠΏΠΎΠ΄Ρ ΠΎΠ΄ΠΈΡ. ΠΠΎ ΠΏΡΠΈ Π³ΡΠ°ΠΌΠΎΡΠ½ΠΎΠΌ Π·ΠΎΠ½ΠΈΡΠΎΠ²Π°Π½ΠΈΠΈ ΠΈ ΠΊΠ°ΡΠ΅ΡΡΠ²Π΅Π½Π½ΠΎΠΌ ΠΎΡΠΎΠΏΠ»Π΅Π½ΠΈΠΈ ΠΎΠ±ΡΠ΅Π΄ΠΈΠ½Π΅Π½Π½Π°Ρ ΡΠΏΠ°Π»ΡΠ½Ρ ΠΌΠΎΠΆΠ΅Ρ Π±ΡΡΡ ΠΎΡΠ΅Π½Ρ Π΄Π°ΠΆΠ΅ ΡΠ΄ΠΎΠ±Π½ΠΎΠΉ ΠΈ ΠΊΠΎΠΌΡΠΎΡΡΠ½ΠΎΠΉ.
Π‘ΠΏΠ°Π»ΡΠ½Ρ Π² ΡΡΠΈΠ»Π΅ Π»ΠΎΡΡ
ΠΡΡ Π½Ρ
ΠΡΠΈ ΠΎΡΠ΄Π΅Π»ΠΊΠ΅ ΠΊΡΡ Π½ΠΈ ΠΌΠΎΠΆΠ½ΠΎ ΡΠΌΠ΅Π»ΠΎ ΠΏΡΠΈΠΌΠ΅Π½ΡΡΡ ΡΠ°ΠΌΡΠ΅ ΠΏΡΠ°ΠΊΡΠΈΡΠ½ΡΠ΅ ΠΌΠ°ΡΠ΅ΡΠΈΠ°Π»Ρ β ΠΊΠ°ΠΌΠ΅Π½Ρ, ΠΊΠ΅ΡΠ°ΠΌΠΈΠΊΡ, ΡΡΠ΅ΠΊΠ»ΠΎ, ΠΌΠ΅ΡΠ°Π»Π». ΠΠ΄Π΅Π°Π»ΡΠ½ΠΎ ΠΏΠΎΠ΄ΠΎΠΉΠ΄Π΅Ρ Ρ ΡΠΎΠΌΠΈΡΠΎΠ²Π°Π½Π½ΠΎΠ΅ ΠΊΡΡ ΠΎΠ½Π½ΠΎΠ΅ ΠΎΠ±ΠΎΡΡΠ΄ΠΎΠ²Π°Π½ΠΈΠ΅. ΠΡΡ ΠΏΠΎΡΡΠ΄Π° Π΄ΠΎΠ»ΠΆΠ½Π° Π±ΡΡΡ ΡΠΏΡΡΡΠ°Π½Π° Π² ΡΠΊΠ°ΡΡ. ΠΠ° Π²ΠΈΠ΄Ρ ΠΌΠΎΠΆΠ½ΠΎ ΠΎΡΡΠ°Π²ΠΈΡΡ ΠΏΠ°ΡΡ ΠΏΡΠ΅Π΄ΠΌΠ΅ΡΠΎΠ², ΠΏΠΎΠ΄ΡΠ΅ΡΠΊΠΈΠ²Π°ΡΡΠΈΡ Π²ΡΠ±ΡΠ°Π½Π½ΡΠΉ Π°ΡΡ ΠΈΡΠ΅ΠΊΡΡΡΠ½ΡΠΉ ΡΡΠΈΠ»Ρ.
ΠΡΡ Π½Ρ Π² ΡΡΠΈΠ»Π΅ Π»ΠΎΡΡ
Π‘ΡΠΎΠ»ΠΎΠ²Π°Ρ
ΠΠ»Ρ ΠΎΡΠΎΡΠΌΠ»Π΅Π½ΠΈΡ ΡΡΠΎΠ»ΠΎΠ²ΠΎΠΉ Π½ΡΠΆΠ½ΠΎ ΠΏΡΠΎΡΡΠΎ ΡΡΠ΄ΠΎΠΌ Ρ ΠΊΡΡ Π½Π΅ΠΉ ΠΏΠΎΡΡΠ°Π²ΠΈΡΡ ΡΠΈΡΠΎΠΊΠΈΠΉ ΠΎΠ±Π΅Π΄Π΅Π½Π½ΡΠΉ ΡΡΠΎΠ» ΠΈ ΡΡΡΠ»ΡΡ. ΠΠ±Π΅Π΄Π΅Π½Π½Π°Ρ Π·ΠΎΠ½Π° Π΄Π»Ρ ΠΎΡΡΡΠ»ΠΊΠΈ ΠΊ ΠΈΠ½ΡΠ΅ΡΡΠ΅ΡΡ Π·Π°Π²ΠΎΠ΄ΡΠΊΠΈΡ ΡΡΠΎΠ»ΠΎΠ²ΡΡ Π΄ΠΎΠ»ΠΆΠ½Π° Π±ΡΡΡ ΡΠ°ΡΡΡΠΈΡΠ°Π½Π° Π½Π° Π±ΠΎΠ»ΡΡΠΎΠ΅ ΠΊΠΎΠ»ΠΈΡΠ΅ΡΡΠ²ΠΎ ΠΏΠΎΡΠ°Π΄ΠΎΡΠ½ΡΡ ΠΌΠ΅ΡΡ (Π½Π΅ ΠΌΠ΅Π½Π΅Π΅ 6).
ΠΠΎΠΆΠ½ΠΎ ΠΎΠ±ΠΎΠ·Π½Π°ΡΠΈΡΡ Π·ΠΎΠ½Ρ ΡΡΠΎΠ»ΠΎΠ²ΠΎΠΉ ΠΎΡΠ΄Π΅Π»ΡΠ½ΡΠΌ ΠΎΡΠ²Π΅ΡΠ΅Π½ΠΈΠ΅ΠΌ. Π ΡΡΠΎΠΉ ΡΠ°ΡΡΠΈ Π΄ΠΎΠΌΠ° ΠΎΡΠΎΠ±Π΅Π½Π½ΠΎ ΡΠΌΠ΅ΡΡΠ½ΡΠΌΠΈ Π±ΡΠ΄ΡΡ ΠΊΡΡΠ³Π»ΡΠ΅ ΡΠ²Π΅ΡΠΈΠ»ΡΠ½ΠΈΠΊΠΈ Π½Π° Π΄Π»ΠΈΠ½Π½ΡΡ ΡΠ΅ΠΏΡΡ . ΠΡ Π΄ΠΎΠ»ΠΆΠ½ΠΎ Π±ΡΡΡ Π½Π΅ΡΠΊΠΎΠ»ΡΠΊΠΎ.
ΠΡΠΎ ΠΌΠΎΠΆΠ΅Ρ Π±ΡΡΡ ΠΈΠ½ΡΠ΅ΡΠ΅ΡΠ½ΠΎ! Π ΡΡΠ°ΡΡΠ΅ ΠΏΠΎ ΡΠ»Π΅Π΄ΡΡΡΠ΅ΠΉ ΡΡΡΠ»ΠΊΠ΅ ΡΠΈΡΠ°ΠΉΡΠ΅ ΠΏΡΠΎ ΠΏΠ΅ΠΉΠ·Π°ΠΆΠ½ΡΠΉ ΡΡΠΈΠ»Ρ Π² Π»Π°Π½Π΄ΡΠ°ΡΡΠ½ΠΎΠΌ Π΄ΠΈΠ·Π°ΠΉΠ½Π΅.
ΠΠ΅ΡΡΠΊΠ°Ρ
Π‘ΡΠΈΠ»Ρ Π»ΠΎΡΡ ΡΡΠΈΡΠ°Π΅ΡΡΡ ΡΠ»ΠΈΡΠΊΠΎΠΌ Π½Π΅ΡΠΎΡΠΌΠ°Π»ΡΠ½ΡΠΌ ΠΈ ΡΠΊΡΡΡΠ΅ΠΌΠ°Π»ΡΠ½ΡΠΌ Π΄Π»Ρ ΠΎΡΠΎΡΠΌΠ»Π΅Π½ΠΈΡ Π΄Π΅ΡΡΠΊΠΈΡ ΠΊΠΎΠΌΠ½Π°Ρ. ΠΠ° ΡΠΎΠΌΠΎΠΌ ΠΆΠ΅ Π΄Π΅Π»Π΅ Π΅Π³ΠΎ ΠΌΠΎΠΆΠ½ΠΎ ΠΎΡΠ΅Π½Ρ ΠΈΠ½ΡΠ΅ΡΠ΅ΡΠ½ΠΎ ΠΎΠ±ΡΠ³ΡΠ°ΡΡ, ΡΠΌΡΠ³ΡΠΈΡΡ ΠΈ ΡΡΠΈΠ»ΠΈΠ·ΠΎΠ²Π°ΡΡ. Π ΡΠ΅Π·ΡΠ»ΡΡΠ°ΡΠ΅ ΠΏΠΎΠ»ΡΡΠΈΡΡΡ ΠΎΡΠ΅Π½Ρ ΡΡΠΈΠ»ΡΠ½Π°Ρ ΠΈ ΡΡΡΠ½Π°Ρ Π΄Π΅ΡΡΠΊΠ°Ρ. ΠΠ°ΠΌΠ΅ΠΊΠΎΠΌ Π½Π° Π»ΠΎΡΡ ΠΌΠΎΠΆΠ΅Ρ ΡΡΠ°ΡΡ Π·Π°Π΄Π΅ΠΊΠΎΡΠΈΡΠΎΠ²Π°Π½Π½Π°Ρ ΠΏΠΎΠ΄ ΠΊΠΈΡΠΏΠΈΡΠ½ΡΡ ΠΊΠ»Π°Π΄ΠΊΡ ΡΡΠ΅Π½Π° ΠΈ ΡΠ²Π΅ΡΠΈΠ»ΡΠ½ΠΈΠΊΠΈ, ΠΏΠΎΡ ΠΎΠΆΠΈΠ΅ Π½Π° ΡΠ»ΠΈΡΠ½ΡΠ΅. ΠΠΎ ΡΠ°ΠΌΠΎΠ΅ Π³Π»Π°Π²Π½ΠΎΠ΅ β Π΄Π°Π½Π½ΡΠΉ ΡΡΠΈΠ»Ρ ΠΏΠΎΠ·Π²ΠΎΠ»ΡΠ΅Ρ ΠΈΡΠΏΠΎΠ»ΡΠ·ΠΎΠ²Π°ΡΡ ΡΠ΅Π½ΡΡ ΠΊΠΎΠΌΠ½Π°ΡΡ Π΄Π»Ρ ΡΠ°Π·ΠΌΠ΅ΡΠ΅Π½ΠΈΡ Π½Π΅ΠΏΡΠΈΠ½ΡΡΡΡ Π² Π΄ΡΡΠ³ΠΈΡ ΡΡΠΈΠ»ΡΡ ΠΏΡΠ΅Π΄ΠΌΠ΅ΡΠΎΠ² ΠΈΠ½ΡΠ΅ΡΡΠ΅ΡΠ° β ΠΊΠ°ΡΠ΅Π»ΠΈ, ΡΠΏΠΎΡΡΠΈΠ²Π½ΡΠ΅ ΡΠ½Π°ΡΡΠ΄Ρ ΠΈ Ρ. Π΄.
ΠΠ΅ΡΡΠΊΠ°Ρ Π² ΡΡΠΈΠ»Π΅ Π»ΠΎΡΡ
ΠΠ°Π½Π½Π°Ρ
Π Π²Π°Π½Π½ΠΎΠΉ ΠΊΠΎΠΌΠ½Π°ΡΠ΅ Π½ΡΠΆΠ½ΠΎ ΠΏΡΠΈΠΌΠ΅Π½ΠΈΡΡ ΠΎΡΠ΄Π΅Π»ΠΊΡ ΠΈΠ· ΠΊΠ΅ΡΠ°ΠΌΠΈΠΊΠΈ, Π²ΡΠΏΠΎΠ»Π½Π΅Π½Π½ΠΎΠΉ ΠΏΠΎΠ΄ ΡΡΠ°ΡΡΡ ΠΏΠΎΡΠ΅ΡΡΡΡ ΠΏΠ»ΠΈΡΠΊΡ. ΠΠ΄Π΅ΡΡ ΡΠΎΠΆΠ΅ ΡΠΌΠ΅ΡΡΠ½ΠΎΠΉ Π±ΡΠ΄Π΅Ρ ΠΊΠΈΡΠΏΠΈΡΠ½Π°Ρ ΡΡΠ΅Π½Π°. ΠΠ΅Π»Π°ΡΠ΅Π»ΡΠ½ΠΎ ΠΈΠ·Π±Π΅Π³Π°ΡΡ ΠΏΠ»Π°ΡΡΠΈΠΊΠΎΠ²ΡΡ Π΄Π΅ΡΠ°Π»Π΅ΠΉ, Π²ΠΌΠ΅ΡΡΠΎ ΡΡΠΎΠ³ΠΎ Π½ΡΠΆΠ½ΠΎ ΠΈΡΠΏΠΎΠ»ΡΠ·ΠΎΠ²Π°ΡΡ ΠΊΠ°ΠΊ ΠΌΠΎΠΆΠ½ΠΎ Π±ΠΎΠ»ΡΡΠ΅ Π±Π»Π΅ΡΡΡΡΠΈΡ ΠΌΠ΅ΡΠ°Π»Π»ΠΈΡΠ΅ΡΠΊΠΈΡ ΡΠ»Π΅ΠΌΠ΅Π½ΡΠΎΠ².
ΠΠ°Π½Π½ΡΡ, ΠΏΡΠΈ Π½Π°Π»ΠΈΡΠΈΠΈ Π΄ΠΎΡΡΠ°ΡΠΎΡΠ½ΠΎΠ³ΠΎ ΠΏΡΠΎΡΡΡΠ°Π½ΡΡΠ²Π°, ΠΌΠΎΠΆΠ½ΠΎ ΠΏΠΎΡΡΠ°Π²ΠΈΡΡ ΠΏΠΎ ΡΠ΅Π½ΡΡΡ ΠΏΠΎΠΌΠ΅ΡΠ΅Π½ΠΈΡ, ΠΏΡΠΈΠΏΠΎΠ΄Π½ΡΠ² Π΅Π΅ ΠΏΡΠΈ ΠΏΠΎΠΌΠΎΡΠΈ Π½Π΅Π±ΠΎΠ»ΡΡΠΎΠ³ΠΎ ΠΏΠΎΠ΄ΠΈΡΠΌΠ°. ΠΡΠΈ ΡΡΠΎΠΌ ΠΎΠ½Π° Π΄ΠΎΠ»ΠΆΠ½Π° Π±ΡΡΡ ΠΊΡΡΠ³Π»ΠΎΠΉ ΠΈΠ»ΠΈ ΠΎΠ²Π°Π»ΡΠ½ΠΎΠΉ. ΠΠΎΠ½ΡΡΠ°ΡΡ Π³ΡΡΠ±ΠΎΠΉ ΠΎΡΠ΄Π΅Π»ΠΊΠΈ ΡΡΠ΅Π½ ΠΈ ΠΏΠ»Π°Π²Π½ΠΎΠΉ ΠΎΠΊΡΡΠ³Π»ΠΎΠΉ ΡΠΎΡΠΌΡ Π²Π°Π½Π½ΠΎΠΉ Π²ΡΠ΅Π³Π΄Π° ΠΎΡΠ»ΠΈΡΠ½ΠΎ ΡΠΌΠΎΡΡΠΈΡΡΡ.
ΠΠ°Π½Π½Π°Ρ Π² ΡΡΠΈΠ»Π΅ Π»ΠΎΡΡ
ΠΡΠΎΠ΅ΠΊΡΠΈΡΠΎΠ²Π°Π½ΠΈΠ΅
ΠΠΎΠΌΠ° Π² ΡΡΠΈΠ»Π΅ Π»ΠΎΡΡ ΠΏΡΠΎΠ΅ΠΊΡΠΈΡΡΡΡΡΡ ΠΏΡΠΎΡΡΠΎΠΉ ΠΏΡΡΠΌΠΎΡΠ³ΠΎΠ»ΡΠ½ΠΎΠΉ ΡΠΎΡΠΌΡ, Ρ ΡΠΈΡΠΎΠΊΠΈΠΌ ΠΎΡΡΠ΅ΠΊΠ»Π΅Π½ΠΈΠ΅ΠΌ, Π·Π°ΡΠ°ΡΡΡΡ ΠΎΠ΄Π½ΠΎΡΡΠ°ΠΆΠ½ΡΠΌΠΈ ΠΈ Ρ ΠΏΠ»ΠΎΡΠΊΠΎΠΉ ΠΊΡΠΎΠ²Π»Π΅ΠΉ. ΠΠΎ Π΄Π»Ρ ΡΠ΅Ρ ΡΠ»ΡΡΠ°Π΅Π², ΠΊΠΎΠ³Π΄Π° Π½ΡΠΆΠ½ΠΎ ΠΏΠΎΡΡΡΠΎΠΈΡΡ Π½Π΅Π±ΠΎΠ»ΡΡΡΡ Π΄Π°ΡΡ Π² ΡΡΠΈΠ»Π΅ Π»ΠΎΡΡ ΠΈΠ»ΠΈ Π±ΠΎΠ»ΡΡΠΎΠΉ Π΄ΠΎΠΌ Π½Π° ΠΊΠΎΠΌΠΏΠ°ΠΊΡΠ½ΠΎΠΌ ΡΡΠ°ΡΡΠΊΠ΅, ΡΡΡΠ΅ΡΡΠ²ΡΡΡ ΠΏΡΠΎΠ΅ΠΊΡΡ Π΄Π²ΡΡ ΡΡΠ°ΠΆΠ½ΡΡ ΠΈΠ»ΠΈ ΠΌΠ°Π½ΡΠ°ΡΠ΄Π½ΡΡ Π·Π΄Π°Π½ΠΈΠΉ.

ΠΡΠ»ΠΈ Π΄ΠΎΠΌ-Π»ΠΎΡΡ ΠΏΡΠΎΠ΅ΠΊΡΠΈΡΡΠ΅ΡΡΡ Ρ ΠΌΠ°Π½ΡΠ°ΡΠ΄ΠΎΠΉ, ΡΠΎ Ρ Π½Π΅Π³ΠΎ Π΄ΠΎΠ»ΠΆΠ½Π° Π±ΡΡΡ ΠΏΡΠΎΡΡΠ°Ρ ΠΏΠΎ ΡΠΎΡΠΌΠ΅ Π΄Π²ΡΡΠΊΠ°ΡΠ½Π°Ρ ΠΊΡΠΎΠ²Π»Ρ. ΠΡΠΈ ΡΡΠΎΠΌ Π² Π³ΠΎΡΡΠ΅Π²ΠΎΠΉ Π·ΠΎΠ½Π΅ ΡΠ°ΡΡΠΎ ΠΏΠ»Π°Π½ΠΈΡΡΠ΅ΡΡΡ Π΄Π²ΠΎΠΉΠ½ΠΎΠΉ ΡΠ²Π΅Ρ.

Π Π΄ΠΎΠΌΠ°Ρ Ρ ΠΏΠ»ΠΎΡΠΊΠΎΠΉ ΠΊΡΠΎΠ²Π»Π΅ΠΉ Π½Π΅ΡΠ΅Π΄ΠΊΠΎ ΠΏΡΠ΅Π΄ΡΡΠΌΠ°ΡΡΠΈΠ²Π°Π΅ΡΡΡ ΡΠ΅ΡΡΠ°ΡΠ° Π½Π° ΠΊΡΡΡΠ΅ Ρ ΠΎΠ³ΡΠ°ΠΆΠ΄Π΅Π½ΠΈΡΠΌΠΈ ΠΈΠ· ΠΌΠ΅ΡΠ°Π»Π»Π° ΠΈΠ»ΠΈ ΡΡΠ΅ΠΊΠ»Π°.

ΠΠ»Ρ Π²ΠΎΠΏΠ»ΠΎΡΠ΅Π½ΠΈΡ Π΄Π΅ΡΠ·ΠΊΠΎΠ³ΠΎ ΠΈ Π±ΡΡΡΠ°Π»ΡΠ½ΠΎΠ³ΠΎ Π»ΠΎΡΡΠ° ΠΈΡΠΏΠΎΠ»ΡΠ·ΡΡΡΡΡ ΡΠ°ΠΊΠΈΠ΅ ΠΌΠ°ΡΠ΅ΡΠΈΠ°Π»Π° ΠΊΠ°ΠΊ ΠΎΠ±ΠΎΠΆΠΆΠ΅Π½Π½ΡΠΉ ΠΊΠΈΡΠΏΠΈΡ, Π±Π΅ΡΠΎΠ½ ΠΈ Π΄Π°ΠΆΠ΅ ΠΌΠ΅ΡΠ°Π»Π». ΠΡΠΈ ΡΡΠ΅Π½ΠΎΠ²ΡΠ΅ ΠΌΠ°ΡΠ΅ΡΠΈΠ°Π»Ρ ΠΏΠΎ Π²ΠΎΠ·ΠΌΠΎΠΆΠ½ΠΎΡΡΠΈ ΠΎΡΡΠ°Π²Π»ΡΡΡ Π±Π΅Π· Π½Π°ΡΡΠΆΠ½ΠΎΠΉ ΠΎΡΠ΄Π΅Π»ΠΊΠΈ. ΠΡΠ»ΠΈ ΠΆΠ΅ Π·Π΄Π°Π½ΠΈΠ΅ Π½ΡΠΆΠ½ΠΎ Π΄ΠΎΠΏΠΎΠ»Π½ΠΈΡΠ΅Π»ΡΠ½ΠΎ ΡΡΠ΅ΠΏΠ»ΠΈΡΡ ΠΈ Π·Π°ΡΠΈΡΠΈΡΡ ΠΎΡ Π²Π½Π΅ΡΠ½Π΅Π³ΠΎ Π²ΠΎΠ·Π΄Π΅ΠΉΡΡΠ²ΠΈΡ, Π²ΡΠ±ΠΈΡΠ°Π΅ΡΡΡ ΡΠ°ΠΌΠ°Ρ ΠΏΡΠΎΡΡΠ°Ρ ΠΎΠ±Π»ΠΈΡΠΎΠ²ΠΊΠ°.
ΠΡΠ»ΠΈΡΠ½ΠΎ ΠΏΠ΅ΡΠ΅Π΄Π°ΡΡ Π½Π°ΡΡΡΠΎΠ΅Π½ΠΈΠ΅ ΡΡΠΈΠ»Ρ ΠΏΠΎΡΡΡΠΎΠΉΠΊΠΈ, Π² ΠΊΠΎΡΠΎΡΡΡ ΡΠΎΠ²ΠΌΠ΅ΡΠ°ΡΡΡΡ ΡΠ°Π·Π½ΡΠ΅ ΡΡΠ΅Π½ΠΎΠ²ΡΠ΅ ΠΌΠ°ΡΠ΅ΡΠΈΠ°Π»Ρ, Π½Π°ΠΏΡΠΈΠΌΠ΅Ρ, ΠΊΠΈΡΠΏΠΈΡ, Π±Π΅ΡΠΎΠ½ ΠΈ ΠΌΠ΅ΡΠ°Π»Π».

ΠΡΠ΅Π½Ρ Π²ΡΡΠ°Π·ΠΈΡΠ΅Π»ΡΠ½ΡΠΌΠΈ ΠΏΠΎΠ»ΡΡΠ°ΡΡΡΡ Π΄ΠΎΠΌΠ° Π² ΡΡΠΈΠ»Π΅ Π»ΠΎΡΡ, ΡΠΎΠΎΡΡΠΆΠ΅Π½Π½ΡΠ΅ ΠΏΠΎΠ»Π½ΠΎΡΡΡΡ ΠΈΠ»ΠΈ ΡΠ°ΡΡΠΈΡΠ½ΠΎ ΠΈΠ· ΠΌΠΎΡΡΠΊΠΈΡ ΠΊΠΎΠ½ΡΠ΅ΠΉΠ½Π΅ΡΠΎΠ².

Π‘ΡΡΠ΅ΡΡΠ²ΡΠ΅Ρ Π±ΠΎΠ»Π΅Π΅ ΠΌΡΠ³ΠΊΠΈΠΉ Π²Π°ΡΠΈΠ°Π½Ρ Π»ΠΎΡΡΠ° ΠΊΠ°ΠΊ ΡΠΎΠ²ΡΠ΅ΠΌΠ΅Π½Π½ΠΎΠ³ΠΎ Π°ΡΡ ΠΈΡΠ΅ΠΊΡΡΡΠ½ΠΎΠ³ΠΎ ΡΡΠΈΠ»Ρ. Π Π½Π΅ΠΌ Π΄ΠΎΠΏΡΡΠΊΠ°Π΅ΡΡΡ Π°ΡΠΈΠΌΠΌΠ΅ΡΡΠΈΡΠ½ΠΎΡΡΡ ΡΠΈΠ»ΡΡΡΠ° Π·Π΄Π°Π½ΠΈΡ, ΠΎΡΠ΄Π΅Π»ΠΊΠ° ΡΠ²Π΅ΡΠ»ΠΎΠΉ ΡΡΡΠΊΠ°ΡΡΡΠΊΠΎΠΉ ΠΈΠ»ΠΈ ΡΠ°ΡΠ°Π΄Π½ΠΎΠΉ Π΄ΠΎΡΠΊΠΎΠΉ, ΠΏΡΠΈΠΌΠ΅Π½Π΅Π½ΠΈΠ΅ ΡΠΎΠ²ΡΠ΅ΠΌΠ΅Π½Π½ΡΡ ΠΈ ΡΡΡΠ΅ΡΠΈΡΠ½ΡΡ ΠΎΡΠ΄Π΅Π»ΠΎΡΠ½ΡΡ ΠΌΠ°ΡΠ΅ΡΠΈΠ°Π»ΠΎΠ².

ΠΡΠΎΠ΅ΠΊΡ Π½Π΅Π±ΠΎΠ»ΡΡΠΎΠ³ΠΎ ΠΎΠ΄Π½ΠΎΡΡΠ°ΠΆΠ½ΠΎΠ³ΠΎ Π΄ΠΎΠΌΠ°
ΠΠΈΠΆΠ΅ ΠΏΡΠ΅Π΄ΡΡΠ°Π²Π»Π΅Π½ Π²Π°ΡΠΈΠ°Π½Ρ ΠΏΡΠΎΠ΅ΠΊΡΠ° Π½Π΅Π±ΠΎΠ»ΡΡΠΎΠ³ΠΎ ΠΎΠ΄Π½ΠΎΡΡΠ°ΠΆΠ½ΠΎΠ³ΠΎ Π΄ΠΎΠΌΠ° Π² ΡΡΠΈΠ»Π΅ Π»ΠΎΡΡ. ΠΠ° ΡΡΠΎΠΌ ΠΏΡΠΈΠΌΠ΅ΡΠ΅ Π²ΠΈΠ΄Π½ΠΎ, ΠΊΠ°ΠΊ Π²ΡΠ΅ ΠΏΠΎΠΌΠ΅ΡΠ΅Π½ΠΈΡ Π³ΠΎΡΡΠ΅Π²ΠΎΠΉ Π·ΠΎΠ½Ρ ΠΌΠΎΠ³ΡΡ Π±ΡΡΡ ΠΎΠ±ΡΠ΅Π΄ΠΈΠ½Π΅Π½Ρ. ΠΠ΄Π½Π°ΠΊΠΎ ΡΠΏΠ°Π»ΡΠ½Π°Ρ Π·ΠΎΠ½Π° Π·Π΄Π΅ΡΡ Π²ΡΠ½Π΅ΡΠ΅Π½Π° Π² ΠΎΡΠ΄Π΅Π»ΡΠ½ΠΎΠ΅ ΠΊΡΡΠ»ΠΎ ΠΈ Π·Π°ΠΏΡΠΎΠ΅ΠΊΡΠΈΡΠΎΠ²Π°Π½Π° ΠΏΠΎ ΠΎΠ±ΡΡΠ½ΡΠΌ ΠΏΡΠ°Π²ΠΈΠ»Π°ΠΌ ΠΏΡΠΎΠ΅ΠΊΡΠΈΡΠΎΠ²Π°Π½ΠΈΡ. ΠΡΠΎΡΠ°Ρ ΡΠΏΠ°Π»ΡΠ½Ρ ΠΏΡΠ΅Π΄Π½Π°Π·Π½Π°ΡΠ΅Π½Π° Π΄Π»Ρ Π³ΠΎΡΡΠ΅ΠΉ Π΄ΠΎΠΌΠ°, Π½ΠΎ Π΅Π΅ ΠΌΠΎΠΆΠ½ΠΎ ΠΎΠ±ΡΡΡΡΠΎΠΈΡΡ ΠΊΠ°ΠΊ Π΄Π΅ΡΡΠΊΡΡ.

ΠΡΠΎΠ΅ΠΊΡ Π±ΠΎΠ»ΡΡΠΎΠ³ΠΎ Π΄Π²ΡΡ ΡΡΠ°ΠΆΠ½ΠΎΠ³ΠΎ Π΄ΠΎΠΌΠ°
Π‘Π»Π΅Π΄ΡΡΡΠΈΠΉ ΠΏΡΠΎΠ΅ΠΊΡ Π±ΡΠ» ΡΠ°ΡΡΡΠΈΡΠ°Π½ Π½Π° ΠΏΡΠΎΠΆΠΈΠ²Π°Π½ΠΈΠ΅ ΡΠ΅ΠΌΡΠΈ ΠΈΠ· Π½Π΅ΡΠΊΠΎΠ»ΡΠΊΠΈΡ ΡΠ΅Π»ΠΎΠ²Π΅ΠΊ. Π ΠΏΠ»Π°Π½ΠΈΡΠΎΠ²ΠΊΠ΅ ΠΏΡΠ΅Π΄ΡΡΠΌΠΎΡΡΠ΅Π½ΠΎ Π²ΡΠ΅ Π΄Π»Ρ ΡΠ°Π±ΠΎΡΡ Π½Π° Π΄ΠΎΠΌΡ β Π΅ΡΡΡ Π½Π΅Π±ΠΎΠ»ΡΡΠ°Ρ ΠΏΡΠΈΠ΅ΠΌΠ½Π°Ρ Ρ Π²Ρ ΠΎΠ΄Π½ΠΎΠΉ Π³ΡΡΠΏΠΏΡ ΠΈ ΠΊΠ°Π±ΠΈΠ½Π΅Ρ Π² Π³Π»ΡΠ±ΠΈΠ½Π΅ ΠΏΠ΅ΡΠ²ΠΎΠ³ΠΎ ΡΡΠ°ΠΆΠ°.
Π‘Π°ΠΌΡΠΉ Π³Π»Π°Π²Π½ΡΠΉ ΡΠ»Π΅ΠΌΠ΅Π½Ρ Π΄Π°Π½Π½ΠΎΠΉ ΠΏΠ»Π°Π½ΠΈΡΠΎΠ²ΠΊΠΈ β ΡΡΠΎ ΠΏΡΠΎΡΡΠΎΡΠ½Π°Ρ Π³ΠΎΡΡΠΈΠ½Π°Ρ Ρ Π΄Π²ΠΎΠΉΠ½ΡΠΌ ΡΠ²Π΅ΡΠΎΠΌ, ΡΠΈΡΠΎΠΊΠΈΠΌ ΠΎΡΡΠ΅ΠΊΠ»Π΅Π½ΠΈΠ΅ΠΌ ΠΈ Π²ΡΡ ΠΎΠ΄ΠΎΠΌ Π½Π° ΡΠ΅ΡΡΠ°ΡΡ. ΠΠ° Π²ΡΠΎΡΠΎΠΌ ΡΡΠ°ΠΆΠ΅ Π΅ΡΡΡ Π΄Π²Π΅ ΠΊΠΎΠΌΠ½Π°ΡΡ, ΠΊΠΎΡΠΎΡΡΠ΅ ΠΏΠΎ ΡΡΡΠΈ ΡΠ²Π»ΡΡΡΡΡ ΠΏΠΎΠ»Π½ΠΎΡΡΡΡ ΡΠΊΠΎΠΌΠΏΠ»Π΅ΠΊΡΠΎΠ²Π°Π½Π½ΡΠΌΠΈ ΠΎΡΠ΄Π΅Π»ΡΠ½ΡΠΌΠΈ ΠΊΠ²Π°ΡΡΠΈΡΠ°ΠΌΠΈ.

ΠΡΠΎΠ΅ΠΊΡ ΠΊΠΎΠΌΠΏΠ°ΠΊΡΠ½ΠΎΠ³ΠΎ ΠΊΠ²Π°Π΄ΡΠ°ΡΠ½ΠΎΠ³ΠΎ Π΄ΠΎΠΌΠ°
ΠΠΈΠΆΠ΅ ΠΏΡΠ΅Π΄Π»ΠΎΠΆΠ΅Π½ Π²Π°ΡΠΈΠ°Π½Ρ ΠΏΡΠΎΠ΅ΠΊΡΠ°, ΠΊΠΎΡΠΎΡΡΠΉ ΠΏΠΎΠ»Π½ΠΎΡΡΡΡ ΡΠΎΠΎΡΠ²Π΅ΡΡΡΠ²ΡΠ΅Ρ ΠΎΡΠ½ΠΎΠ²Π½ΡΠΌ ΠΏΡΠ°Π²ΠΈΠ»Π°ΠΌ Π»ΠΎΡΡΠ°. ΠΠ°ΠΏΡΠΎΠ΅ΠΊΡΠΈΡΠΎΠ²Π°Π½Π½ΡΠΉ Π΄ΠΎΠΌ ΠΈΠΌΠ΅Π΅Ρ ΡΠ°ΡΠΈΠΎΠ½Π°Π»ΡΠ½ΡΡ ΠΊΠ²Π°Π΄ΡΠ°ΡΠ½ΡΡ ΡΠΎΡΠΌΡ, Π² Π½Π΅ΠΌ Π΅ΡΡΡ Π±ΠΎΠ»ΡΡΠ°Ρ Π³ΠΎΡΡΠΈΠ½Π°Ρ ΡΠΎ Π²ΡΠΎΡΡΠΌ ΡΠ²Π΅ΡΠΎΠΌ, ΠΏΠ΅ΡΠ΅ΡΠ΅ΠΊΠ°ΡΡΠ°Ρ Π² ΠΊΡΡ Π½Ρ-ΡΡΠΎΠ»ΠΎΠ²ΡΡ. Π ΠΏΠ»Π°Π½ΠΈΡΠΎΠ²ΠΊΠ΅ Ρ ΠΌΠ°ΠΊΡΠΈΠΌΠ°Π»ΡΠ½ΠΎΠΉ ΠΏΠΎΠ»ΡΠ·ΠΎΠΉ ΡΠ°ΡΠΏΡΠ΅Π΄Π΅Π»Π΅Π½ΠΎ Π²ΡΠ΅ Π²Π½ΡΡΡΠ΅Π½Π½Π΅Π΅ ΠΏΡΠΎΡΡΡΠ°Π½ΡΡΠ²ΠΎ Π΄ΠΎΠΌΠ°. ΠΠΎΠΌΠ° Π² ΡΡΠΈΠ»Π΅ Π»ΠΎΡΡ, ΠΏΡΠΎΠ΅ΠΊΡΡ ΠΊΠΎΡΠΎΡΡΡ ΡΠ°Π·ΡΠ°Π±ΠΎΡΠ°Π½Ρ ΡΠΏΠ΅ΡΠΈΠ°Π»ΡΠ½ΠΎ Π΄Π»Ρ Π²ΠΎΠΏΠ»ΠΎΡΠ΅Π½ΠΈΡ ΡΡΠΎΠ³ΠΎ ΡΡΠΈΠ»Ρ, ΠΎΠ±ΡΡΠ½ΠΎ ΠΎΡΠ΅Π½Ρ ΠΏΡΠΎΡΡΡ ΠΈ Π»Π°ΠΊΠΎΠ½ΠΈΡΠ½Ρ.

ΠΡΠΈΠΌΠ΅ΡΡ ΠΈΠ½ΡΠ΅ΡΡΠ΅ΡΠ°










ΠΡΠΎ ΠΌΠΎΠΆΠ΅Ρ Π±ΡΡΡ ΠΈΠ½ΡΠ΅ΡΠ΅ΡΠ½ΠΎ! Π ΡΡΠ°ΡΡΠ΅ ΠΏΠΎ ΡΠ»Π΅Π΄ΡΡΡΠ΅ΠΉ ΡΡΡΠ»ΠΊΠ΅ ΡΠΈΡΠ°ΠΉΡΠ΅ ΠΏΡΠΎ Π½Π°ΡΡΠΆΠ½ΡΡ Π»Π΅ΡΡΠ½ΠΈΡΡ ΠΈ ΡΠ°Π΄ΠΎΠ²ΡΡ Π΄ΠΎΡΠΎΠΆΠΊΡ Π²ΠΈΡΡΡΡΡ Π² Π²ΠΎΠ·Π΄ΡΡ Π΅.
ΠΠ°ΠΊΠ»ΡΡΠ΅Π½ΠΈΠ΅
Π‘ΡΠΈΠ»Ρ Π»ΠΎΡΡ ΠΎΡΠ»ΠΈΡΠ°Π΅ΡΡΡ ΠΎΡ Π±ΠΎΠ»ΡΡΠΈΠ½ΡΡΠ²Π° Π΄ΡΡΠ³ΠΈΡ ΡΡΠΈΠ»Π΅ΠΉ, ΠΏΡΠΈΠΌΠ΅Π½ΡΠ΅ΠΌΡΡ Π² ΡΡΡΠΎΠΈΡΠ΅Π»ΡΡΡΠ²Π΅ ΠΈ Π΄Π΅ΠΊΠΎΡΠΈΡΠΎΠ²Π°Π½ΠΈΠΈ Π·Π°Π³ΠΎΡΠΎΠ΄Π½ΡΡ Π΄ΠΎΠΌΠΎΠ² ΡΠΌΠ΅Π»ΡΠΌΠΈ ΡΠ΅ΡΠ΅Π½ΠΈΡΠΌΠΈ ΠΈ ΠΊΠΎΠ½ΡΡΠ°ΡΡΠ½ΡΠΌΠΈ ΡΠΎΡΠ΅ΡΠ°Π½ΠΈΡΠΌΠΈ. ΠΠΌΠ΅Π½Π½ΠΎ ΡΡΠΈΠΌ ΠΎΠ½ ΠΈ ΠΏΡΠΈΠ²Π»Π΅ΠΊΠ°Π΅Ρ Π»ΡΠ΄Π΅ΠΉ, ΠΆΠ΅Π»Π°ΡΡΠΈΡ ΠΈΠΌΠ΅ΡΡ ΠΆΠΈΠ»ΡΠ΅ Ρ ΠΈΠ½Π΄ΠΈΠ²ΠΈΠ΄ΡΠ°Π»ΡΠ½ΡΠΌ ΠΈ Π½Π΅ΠΏΠΎΠ²ΡΠΎΡΠΈΠΌΡΠΌ ΠΎΡΠΎΡΠΌΠ»Π΅Π½ΠΈΠ΅ΠΌ.
ΠΡΠΎΡΠΈΡΠ°ΡΡ ΠΏΠΎΠ·ΠΆΠ΅ΠΡΠΏΡΠ°Π²ΠΈΠΌ ΠΌΠ°ΡΠ΅ΡΠΈΠ°Π» Π½Π° ΠΏΠΎΡΡΡ
m-strana.ru
ΠΡΠΎΠ΅ΠΊΡ ΠΠΎΠΌΠ° «ΠΠΎΡΡ 90» — : ΡΠΎΡΠΎ, Ρ Π°ΡΠ°ΠΊΡΠ΅ΡΠΈΡΡΠΈΠΊΠΈ, ΡΡΡΠΎΠΈΡΠ΅Π»ΡΡΡΠ²ΠΎ ΠΏΠΎΠ΄ ΠΊΠ»ΡΡ
Π’Π΅Ρ
Π½ΠΎΠ»ΠΎΠ³ΠΈΠΈ ΠΈ ΠΌΠ°ΡΠ΅ΡΠΈΠ°Π»Ρ
ΠΠΎΠΌ Π² ΡΡΠΈΠ»Π΅ ΡΠ°Ρ
Π²Π΅ΡΠΊ: Π΄ΠΎΠ»Π³ΠΎ ΠΈ ΡΡΠ°ΡΡΠ»ΠΈΠ²ΠΎΠΡΡ ΠΈΡΠ΅ΠΊΡΡΡΠ½ΡΠ΅ ΡΡΠΈΠ»ΠΈ ΠΏΠΎΡΡΠΎΡΠ½Π½ΠΎ ΡΠ°Π·Π²ΠΈΠ²Π°ΡΡΡΡ, ΠΏΡΠΈΡΠ΅ΠΌ ΠΌΠ΅Π½ΡΡΡΡΡ Π΄Π°ΠΆΠ΅ Π½Π°ΡΡΠΎΠ»ΡΠΊΠΎ, ΠΊΠ°Π·Π°Π»ΠΎΡΡ Π±Ρ, ΡΡΠ°Π΄ΠΈΡΠΈΠΎΠ½Π½ΡΠ΅ ΡΡΠΈΠ»ΠΈ, ΠΈΠ·ΠΌΠ΅Π½ΠΈΡΡ Π² ΠΊΠΎΡΠΎΡΡΡ ΡΡΠΎ-Π»ΠΈΠ±ΠΎ ΠΏΡΠΎΡΡΠΎ Π½Π΅Π²ΠΎΠ·ΠΌΠΎΠΆΠ½ΠΎ. ΠΠΎΡ, Π½Π°ΠΏΡΠΈΠΌΠ΅Ρ, ΡΠ°Ρ Π²Π΅ΡΠΊ…
Π’Π΅Ρ
Π½ΠΎΠ»ΠΎΠ³ΠΈΠΈ ΠΈ ΠΌΠ°ΡΠ΅ΡΠΈΠ°Π»Ρ
ΠΠ°ΠΊ Π²ΡΠ±ΡΠ°ΡΡ ΡΠ²ΠΎΠΉ Π΄ΠΎΠΌ: ΠΏΠΎΠ΄Π±ΠΎΡ ΠΌΠ°ΡΠ΅ΡΠΈΠ°Π»Π° ΠΈ ΡΠ΅Ρ
Π½ΠΎΠ»ΠΎΠ³ΠΈΠΈ ΡΡΡΠΎΠΈΡΠ΅Π»ΡΡΡΠ²Π°ΠΠ»Π°Π½ΠΈΡΡΡ ΠΏΠΎΠΊΡΠΏΠΊΡ ΡΠΎΠ±ΡΡΠ²Π΅Π½Π½ΠΎΠ³ΠΎ Π΄ΠΎΠΌΠ° Ρ ΠΊΠΎΠΌΠΏΠ°Π½ΠΈΠΈ-ΠΏΡΠΎΠΈΠ·Π²ΠΎΠ΄ΠΈΡΠ΅Π»Ρ, ΡΠ»Π΅Π΄ΡΠ΅Ρ Π² ΠΏΠ΅ΡΠ²ΡΡ ΠΎΡΠ΅ΡΠ΅Π΄Ρ ΠΎΠΏΡΠ΅Π΄Π΅Π»ΠΈΡΡΡΡ, ΡΡΠΎ ΠΈΠΌΠ΅Π½Π½ΠΎ Π²Π°ΠΌ Π½ΡΠΆΠ½ΠΎ. ΠΠ΅Π΄Ρ ΠΊΠ°ΠΆΠ΄ΡΠΉ Π΄ΠΎΠΌ Π²ΡΠ΅Π³Π΄Π° ΡΠ½ΠΈΠΊΠ°Π»Π΅Π½, Π° Ρ ΡΡΠ΅ΡΠΎΠΌ ΡΠ°Π·Π½ΠΎΠΎΠ±ΡΠ°Π·ΠΈΡ ΡΠΎΠ²ΡΠ΅ΠΌΠ΅Π½Π½ΡΡ ΡΠ΅Ρ Π½ΠΎΠ»ΠΎΠ³ΠΈΠΉ ΡΡΡΠΎΠΈΡΠ΅Π»ΡΡΡΠ²Π° ΠΏΡΠΎΡΡΠ°Ρ Π·Π°Π΄Π°ΡΠ° Π²ΡΠ±ΠΎΡΠ° ΠΌΠΎΠΆΠ΅Ρ ΠΎΠΊΠ°Π·Π°ΡΡΡΡ Π½Π΅ΠΏΠΎΠ΄ΡΠ΅ΠΌΠ½ΠΎΠΉ. ΠΡΠΎΠ±Π΅Π½Π½ΠΎ Π΅ΡΠ»ΠΈ Π²Ρ Π½Π΅ Π·Π½Π°Π΅ΡΠ΅, ΠΊΠ°ΠΊ Π²ΡΠ±ΠΈΡΠ°ΡΡ…
Π’Π΅Ρ
Π½ΠΎΠ»ΠΎΠ³ΠΈΠΈ ΠΈ ΠΌΠ°ΡΠ΅ΡΠΈΠ°Π»Ρ
ΠΠ°ΡΠΊΠ°ΡΠ½ΠΎΠ΅ ΡΡΡΠΎΠΈΡΠ΅Π»ΡΡΡΠ²ΠΎ: ΠΏΡΠΎΠ²Π΅ΡΠ΅Π½Π½ΡΠΉ Π²Π΅ΠΊΠ°ΠΌΠΈ ΡΠ°Ρ
Π²Π΅ΡΠΊΠ€ΡΠ°Π½ΡΡΠ·Ρ Π½Π°Π·ΡΠ²Π°ΡΡ Π΅Π³ΠΎ Colombage, Π°Π½Π³Π»ΠΈΡΠ°Π½Π΅ β Half-timber, Π½Π΅ΠΌΡΡ β Fachwerkhaus, Π° Π² Π ΠΎΡΡΠΈΠΈ β Β«ΡΠ°Ρ Π²Π΅ΡΠΊΠΎΠ²ΡΠΉ Π΄ΠΎΠΌΒ». ΠΡΠΊΡΠ΄Π° ΠΏΡΠΈΡΠ»Π° ΠΊ Π½Π°ΠΌ ΡΡΠ° ΡΠ΅Ρ Π½ΠΎΠ»ΠΎΠ³ΠΈΡ, ΠΊΠ°ΠΊ ΡΡΡΠΎΡΡ ΡΠΎΠ²ΡΠ΅ΠΌΠ΅Π½Π½ΡΠΉ ΡΠ°Ρ Π²Π΅ΡΠΊ ΠΈ ΠΏΠΎΡΠ΅ΠΌΡ ΠΎΠ½ ΡΡΠ°Π» ΠΎΡΠ΅Π½Ρ ΠΏΠΎΠΏΡΠ»ΡΡΠ½ΡΠΌ ΠΏΠΎ Π²ΡΠ΅ΠΌΡ ΠΌΠΈΡΡ β Π² ΡΡΠΎΠΉ ΡΡΠ°ΡΡΠ΅β¦
Π’Π΅Ρ
Π½ΠΎΠ»ΠΎΠ³ΠΈΠΈ ΠΈ ΠΌΠ°ΡΠ΅ΡΠΈΠ°Π»Ρ
ΠΠΎΠ½ΡΡΡΡΠΊΡΠΎΡ Π΄Π»Ρ Π²Π·ΡΠΎΡΠ»ΡΡ
β ΠΊΠ°ΡΠΊΠ°ΡΠ½ΡΠΉ Π΄ΠΎΠΌΒ«Π§ΡΠΎ Π½Π°ΠΌ ΡΡΠΎΠΈΡ Π΄ΠΎΠΌ ΠΏΠΎΡΡΡΠΎΠΈΡΡ?Β» ΠΡΠΎ ΠΏΡΡΠΌΠΎ Π΄Π΅Π²ΠΈΠ· ΡΡΡΠΎΠΈΡΠ΅Π»Π΅ΠΉ, ΠΏΡΠΈΠ΄ΡΠΌΠ°Π²ΡΠΈΡ ΠΏΡΠΎΠ΅ΠΊΡΡ ΠΊΠ°ΡΠΊΠ°ΡΠ½ΡΡ Π΄ΠΎΠΌΠΎΠ². ΠΡΡΡΡΠΎΠ²ΠΎΠ·Π²ΠΎΠ΄ΠΈΠΌΡΠ΅, ΡΡΠΈΠ»ΡΠ½ΡΠ΅, Π΄ΠΎΠ»Π³ΠΎΠ²Π΅ΡΠ½ΡΠ΅ ΠΈ ΠΏΡΠ°ΠΊΡΠΈΡΠ½ΡΠ΅ β ΡΠ°ΠΊΠΎΠ²Ρ ΠΊΠΎΡΡΠ΅Π΄ΠΆΠΈ, ΠΊΠΎΡΠΎΡΡΠ΅ ΠΌΠΎΠΆΠ½ΠΎ ΡΠΎΠ±ΡΠ°ΡΡ, ΠΊΠ°ΠΊ ΠΊΠΎΠ½ΡΡΡΡΠΊΡΠΎΡ, Π·Π° ΠΌΠ΅ΡΡΡ Ρ Π½Π΅Π±ΠΎΠ»ΡΡΠΈΠΌ…
Π’Π΅Ρ
Π½ΠΎΠ»ΠΎΠ³ΠΈΠΈ ΠΈ ΠΌΠ°ΡΠ΅ΡΠΈΠ°Π»Ρ
ΠΠ° ΡΡΠΎ ΠΎΠ±ΡΠ°ΡΠΈΡΡ Π²Π½ΠΈΠΌΠ°Π½ΠΈΠ΅, ΠΏΡΠΈΠΎΠ±ΡΠ΅ΡΠ°Ρ ΠΊΠ°ΡΠΊΠ°ΡΠ½ΠΎ-ΡΠΈΡΠΎΠ²ΠΎΠΉ Π΄ΠΎΠΌ Β«ΠΏΠΎΠ΄ ΠΊΠ»ΡΡΒ»?Π‘Π°ΠΌΠΎΡΡΠΎΡΡΠ΅Π»ΡΠ½ΠΎ ΠΏΠΎΡΡΡΠΎΠΈΡΡ ΠΊΠ°ΡΠΊΠ°ΡΠ½ΠΎ-ΡΠΈΡΠΎΠ²ΠΎΠΉ Π΄ΠΎΠΌ ΡΠ»ΠΎΠΆΠ½ΠΎ ΠΈ Ρ Π»ΠΎΠΏΠΎΡΠ½ΠΎ, ΠΏΠΎΡΡΠΎΠΌΡ Π΄Π»Ρ ΡΠ΅Ρ ΠΊΡΠΎ ΠΌΠ΅ΡΡΠ°Π΅Ρ ΠΎ ΡΠ²ΠΎΠ΅ΠΌ Π·Π°Π³ΠΎΡΠΎΠ΄Π½ΠΎΠΌ ΠΆΠΈΠ»ΡΠ΅ ΡΡΠΎΠΈΡ ΠΎΠ±ΡΠ°ΡΠΈΡΡ Π²Π½ΠΈΠΌΠ°Π½ΠΈΠ΅ Π½Π° Π²ΠΎΠ·ΠΌΠΎΠΆΠ½ΠΎΡΡΠΈ ΠΏΡΠΈΠΎΠ±ΡΠ΅ΡΠ΅Π½ΠΈΡ ΠΊΠ°ΡΠΊΠ°ΡΠ½ΠΎ-ΡΠΈΡΠΎΠ²ΠΎΠ³ΠΎ Π΄ΠΎΠΌΠ° «ΠΏΠΎΠ΄ ΠΊΠ»ΡΡ». Π ΡΠ°ΠΊΠΎΠΉ ΡΠΈΡΡΠ°ΡΠΈΠΈ Π±ΠΎΠ»ΡΡΠΈΠ½ΡΡΠ²ΠΎ Ρ Π»ΠΎΠΏΠΎΡ Π²ΠΎΠ·ΡΠΌΠ΅Ρ Π½Π° ΡΠ΅Π±Ρ ΠΊΠΎΠΌΠΏΠ°Π½ΠΈΡ-Π·Π°ΡΡΡΠΎΠΉΡΠΈΠΊ.
ΠΡΠΎΠ΅ΠΊΡΡ Π΄ΠΎΠΌΠΎΠ²
ΠΡΠΎΡΠΎΠΉ ΡΠ²Π΅Ρ Π² ΡΠ°ΡΡΠ½ΡΡ
Π΄ΠΎΠΌΠ°Ρ
β ΡΡΠΎ ΡΡΠΎ ΡΠ°ΠΊΠΎΠ΅, ΠΎΡΠΎΠ±Π΅Π½Π½ΠΎΡΡΠΈ ΠΈ ΠΏΡΠΈΠΌΠ΅ΡΡ ΠΏΡΠΎΠ΅ΠΊΡΠΎΠ²ΠΠΎΠΌ ΡΠΎ Π²ΡΠΎΡΡΠΌ ΡΠ²Π΅ΡΠΎΠΌ ΡΡΠΎ Π½Π΅ ΡΠΎΠ»ΡΠΊΠΎ ΡΠ²Π΅ΡΠ»ΠΎΠ΅, Π½ΠΎ ΠΈ Π΅ΡΠ΅ Π΄ΠΎΡΡΠ°ΡΠΎΡΠ½ΠΎ Π±ΠΎΠ»ΡΡΠΎΠ΅ ΠΆΠΈΠ»ΡΠ΅. ΠΠ΄Π°Π½ΠΈΠ΅, ΡΠΏΡΠΎΠ΅ΠΊΡΠΈΡΠΎΠ²Π°Π½Π½ΠΎΠ΅ Ρ ΠΈΡΠΏΠΎΠ»ΡΠ·ΠΎΠ²Π°Π½ΠΈΠ΅ΠΌ ΡΠ°ΠΊΠΎΠΉ ΡΠ΅Ρ Π½ΠΎΠ»ΠΎΠ³ΠΈΠΈ, ΡΠ°ΠΌΠΎ ΠΏΠΎ ΡΠ΅Π±Π΅ Π²ΡΠ³Π»ΡΠ΄ΠΈΡ ΠΏΡΠΎΡΡΠΎΡΠ½ΡΠΌ ΠΈ Β«Π²ΠΎΠ·Π΄ΡΡΠ½ΡΠΌΒ», ΠΏΠ»ΡΡ, ΠΏΡΠΎΡΡΡΠ°Π½ΡΡΠ²Π΅Π½Π½ΡΠΉ ΡΡΡΠ΅ΠΊΡ ΡΡΠΈΠ»ΠΈΠ²Π°Π΅ΡΡΡ Π·Π° ΡΡΠ΅Ρ ΡΠ²ΠΎΠ±ΠΎΠ΄Π½ΠΎ ΠΏΡΠΎΠ½ΠΈΠΊΠ°ΡΡΠ΅Π³ΠΎ ΡΠ΅ΡΠ΅Π· ΠΎΠΊΠ½Π° ΡΠΎΠ»Π½Π΅ΡΠ½ΠΎΠ³ΠΎ ΡΠ²Π΅ΡΠ°.
Π’Π΅Ρ
Π½ΠΎΠ»ΠΎΠ³ΠΈΠΈ ΠΈ ΠΌΠ°ΡΠ΅ΡΠΈΠ°Π»Ρ
ΠΡΠ±ΠΎΡ Π΄Π²Π΅ΡΠΈ Π² ΡΠ°ΡΡΠ½ΡΠΉ Π΄ΠΎΠΌ: ΠΌΠ°ΡΠ΅ΡΠΈΠ°Π»Ρ, Π΄Π΅ΡΠ°Π»ΠΈ ΠΊΠΎΠ½ΡΡΡΡΠΊΡΠΈΠΈ ΠΈ Π΄ΠΈΠ·Π°ΠΉΠ½ΠΡΠ±ΠΎΡ Π΄Π²Π΅ΡΠΈ Π² ΡΠ°ΡΡΠ½ΡΠΉ Π΄ΠΎΠΌ Π½Π΅Π»ΡΠ·Ρ Π΄Π΅Π»Π°ΡΡ ΡΠΎΠ»ΡΠΊΠΎ ΠΎΡΠ½ΠΎΠ²ΡΠ²Π°ΡΡΡ Π½Π° Π΅Ρ Π²Π½Π΅ΡΠ½ΠΈΡ Π΄Π°Π½Π½ΡΡ ΠΈ ΡΡΠΎΠΈΠΌΠΎΡΡΠΈ. ΠΠ°ΠΊ ΠΌΠΈΠ½ΠΈΠΌΡΠΌ Π΅ΡΡ Π½Π°Π΄ΠΎ ΠΎΡΠ΅Π½ΠΈΠ²Π°ΡΡ Π΅Π΅ ΡΠ΅ΠΏΠ»ΠΎΠΈΠ·ΠΎΠ»ΡΡΠΈΡ, ΠΈΠ·Π½ΠΎΡΠΎΡΡΠΎΠΉΠΊΠΎΡΡΡ ΠΏΠΎΠ²Π΅ΡΡ Π½ΠΎΡΡΠΈ, ΠΈ ΡΡΠΎΠ²Π΅Π½Ρ Π±Π΅Π·ΠΎΠΏΠ°ΡΠ½ΠΎΡΡΠΈ β ΠΊΠ°ΠΊΠΎΠ΅ Π²ΡΠ΅ΠΌΡ Π΄Π²Π΅ΡΡ ΠΈ Π·Π°ΠΌΠΎΠΊ Π³Π°ΡΠ°Π½ΡΠΈΡΠΎΠ²Π°Π½Π½ΠΎ ΡΠΌΠΎΠ³ΡΡ ΡΠΎΠΏΡΠΎΡΠΈΠ²Π»ΡΡΡΡΡ Π²ΡΠΊΡΡΡΠΈΡβ¦
Π’Π΅Ρ
Π½ΠΎΠ»ΠΎΠ³ΠΈΠΈ ΠΈ ΠΌΠ°ΡΠ΅ΡΠΈΠ°Π»Ρ
ΠΡΠ΄Π΅Π»ΠΊΠ° ΠΊΠ°ΡΠΊΠ°ΡΠ½ΠΎΠ³ΠΎ Π΄ΠΎΠΌΠ°: Π½ΡΠ°Π½ΡΡ ΠΈ Π²ΡΠ±ΠΎΡ ΠΌΠ°ΡΠ΅ΡΠΈΠ°Π»Π°ΠΡΠ΄Π΅Π»ΠΊΠ° ΠΊΠ°ΡΠΊΠ°ΡΠ½ΠΎΠ³ΠΎ Π΄ΠΎΠΌΠ° ΡΠ½Π°ΡΡΠΆΠΈ, ΠΏΠΎΠΌΠΈΠΌΠΎ ΡΡΡΠ΅ΡΠΈΡΠ΅ΡΠΊΠΈΡ ΡΠ²ΠΎΠΉΡΡΠ², Π² Π·Π½Π°ΡΠΈΡΠ΅Π»ΡΠ½ΠΎΠΉ ΡΡΠ΅ΠΏΠ΅Π½ΠΈ ΡΠ²Π΅Π»ΠΈΡΠΈΠ²Π°Π΅Ρ ΠΈ ΡΠ΅ΠΏΠ»ΠΎΠ·Π°ΡΠΈΡΠ½ΡΠ΅ ΠΊΠ°ΡΠ΅ΡΡΠ²Π° ΠΊΠΎΠ½ΡΡΡΡΠΊΡΠΈΠΉ. ΠΡΠΎΠΌΠ΅ ΡΡΠΎΠ³ΠΎ, ΠΎΠ±Π»ΠΈΡΠΎΠ²ΠΊΠ° ΡΠ°ΡΠ°Π΄Π° ΡΠ°ΠΊΠΆΠ΅ Π·Π°ΡΠΈΡΠ°Π΅Ρ ΠΈΡ ΠΎΡ Π½Π΅Π³Π°ΡΠΈΠ²Π½ΠΎΠ³ΠΎ Π²ΠΎΠ·Π΄Π΅ΠΉΡΡΠ²ΠΈΡ Π²Π½Π΅ΡΠ½ΠΈΡ ΡΠ°ΠΊΡΠΎΡΠΎΠ².
m-strana.ru
ΡΠ΅ΡΡΠ΅ΠΆΠΈ ΠΏΠΎΠΌΠ΅ΡΠ΅Π½ΠΈΠΉ, ΡΠΊΡΡΠ΅ΡΡΠ΅Ρ, ΠΈΠ½ΡΠ΅ΡΡΠ΅Ρ, Π΄ΠΈΠ·Π°ΠΉΠ½ ΠΊΠΎΠΌΠ½Π°Ρ
ΠΠΎΠΌ ΠΌΠ½ΠΎΠ³ΠΎΠ΅ ΠΌΠΎΠΆΠ΅Ρ ΡΠ°ΡΡΠΊΠ°Π·Π°ΡΡ ΠΎ ΡΠ²ΠΎΠ΅ΠΌ Ρ ΠΎΠ·ΡΠΈΠ½Π΅. ΠΠ°Ρ ΠΎΠ΄ΡΡ ΠΎΠ½ΠΈ Π΄ΡΡΠ³ Π΄ΡΡΠ³Π° ΠΏΠΎ- ΡΠ°Π·Π½ΠΎΠΌΡ. ΠΠ½ΠΎΠ³Π΄Π° ΡΠ΅Π»ΠΎΠ²Π΅ΠΊ ΠΏΡΠΎΡΡΠΎ ΠΏΠΎΠΊΡΠΏΠ°Π΅Ρ ΡΠΎ, ΡΡΠΎ ΠΎΠ½ ΠΌΠΎΠΆΠ΅Ρ. ΠΠΎ ΡΠ°ΡΠ΅ ΡΡΠΎ β Π²ΠΎΠΏΠ»ΠΎΡΠ΅Π½Π½Π°Ρ ΠΌΠ΅ΡΡΠ° ΠΎ Ρ ΠΎΡΠΎΡΠ΅ΠΌ ΠΆΠΈΠ»ΠΈΡΠ΅, ΠΊΠΎΡΠΎΡΠΎΠ΅ ΠΎΡΠ²Π΅ΡΠ°Π΅Ρ Ρ Π°ΡΠ°ΠΊΡΠ΅ΡΡ ΠΈ ΠΏΡΠΈΠ²ΡΡΠΊΠ°ΠΌ Π²Π»Π°Π΄Π΅Π»ΡΡΠ°.
ΠΡΠΎΠ΅ΠΊΡΡ Π΄ΠΎΠΌΠΎΠ² Π² ΡΡΠΈΠ»Π΅ Π»ΠΎΡΡ Π²ΡΠ±ΠΈΡΠ°ΡΡ Π΄Π»Ρ ΡΠ΅Π±Ρ Π»ΡΠ΄ΠΈ ΠΊΡΠ΅Π°ΡΠΈΠ²Π½ΡΠ΅, ΡΠ²ΠΎΡΡΠ΅ΡΠΊΠΈΠ΅, Π½Π΅ ΡΠ²ΡΠ·Π°Π½Π½ΡΠ΅ Π½ΠΈΠΊΠ°ΠΊΠΈΠΌΠΈ ΡΡΠ»ΠΎΠ²Π½ΠΎΡΡΡΠΌΠΈ. ΠΠ½ΠΈ Π»ΡΠ±ΡΡ ΠΎΡΠΊΡΡΡΠΎΠ΅ ΠΏΡΠΎΡΡΡΠ°Π½ΡΡΠ²ΠΎ ΠΈ ΡΡΠΆΠ΄Ρ Π²ΡΡΡΡΠ½ΠΎΡΡΠΈ ΠΈ ΠΈΠ·ΡΡΠΊΠΎΠ².
ΠΡΡ ΠΈΡΠ΅ΠΊΡΡΡΠ°
ΠΡΠΎΠ±Π΅Π½Π½ΠΎΡΡΡΡ ΡΡΠΈΠ»Ρ Π»ΠΎΡΡ ΡΠ²Π»ΡΠ΅ΡΡΡ ΠΌΠ½ΠΎΠ³ΠΎΡΡΠ½ΠΊΡΠΈΠΎΠ½Π°Π»ΡΠ½ΠΎΡΡΡ Π±ΠΎΠ»ΡΡΠΎΠ³ΠΎ ΠΏΠΎΠΌΠ΅ΡΠ΅Π½ΠΈΡ Ρ Π²ΡΡΠΎΠΊΠΈΠΌ ΠΏΠΎΡΠΎΠ»ΠΊΠΎΠΌ, Π½Π΅ ΡΠ°Π·Π΄Π΅Π»Π΅Π½Π½ΠΎΠ³ΠΎ ΠΏΠ΅ΡΠ΅Π³ΠΎΡΠΎΠ΄ΠΊΠ°ΠΌΠΈ. ΠΠ° Π·Π°ΡΠ΅ Π΅Π³ΠΎ Π²ΠΎΠ·Π½ΠΈΠΊΠ½ΠΎΠ²Π΅Π½ΠΈΡ ΠΎ ΠΏΠΎΠ»Π½ΠΎΡΠ΅Π½Π½ΡΡ Π΄ΠΎΠΌΠ°Ρ ΡΠ΅ΡΠΈ Π½Π΅ ΡΠ»ΠΎ: ΠΏΠΎΠ΄ ΠΆΠΈΠ»ΡΠ΅ ΠΏΠ΅ΡΠ΅Π΄Π΅Π»ΡΠ²Π°Π»ΠΎΡΡ Π΄Π΅ΡΠ΅Π²ΠΎΠ΅ ΠΏΠΎΠΌΠ΅ΡΠ΅Π½ΠΈΠ΅, ΡΠ°ΡΡΠΎ ΡΠ΅Ρ Π½ΠΈΡΠ΅ΡΠΊΠΎΠ΅. ΠΠ½ΠΎΠ³Π΄Π° ΡΡΠΎ Π±ΡΠ» ΠΎΠ±ΡΡΠ½ΡΠΉ ΡΠ΅ΡΠ΄Π°ΠΊ, ΠΏΠΎΡΡΠΎΠΌΡ ΡΡΠΈΠ»Ρ Π»ΠΎΡΡ (Π² ΠΏΠ΅ΡΠ΅Π²ΠΎΠ΄Π΅ Ρ Π°Π½Π³Π»ΠΈΠΉΡΠΊΠΎΠ³ΠΎ β ΡΠ΅ΡΠ΄Π°ΠΊ) Π½Π°Π·ΡΠ²Π°ΡΡ ΡΠ΅ΡΠ΄Π°ΡΠ½ΡΠΌ.

Π¨Π»ΠΎ Π²ΡΠ΅ΠΌΡ, ΡΡΠΈΠ»Ρ ΠΏΠΎΠ»Π½ΠΎΡΡΡΡ ΡΠ»ΠΎΠΆΠΈΠ»ΡΡ ΠΈ ΡΠ΅ΠΏΠ΅ΡΡ ΠΌΠ½ΠΎΠ³ΠΈΠ΅ ΠΏΡΠΎΡΠ΅ΡΡΠΈΠΎΠ½Π°Π»ΡΠ½ΡΠ΅ Π°ΡΡ ΠΈΡΠ΅ΠΊΡΠΎΡΡ ΠΈΠΌΠ΅ΡΡ Π² ΡΠ²ΠΎΠ΅ΠΌ ΠΊΠ°ΡΠ°Π»ΠΎΠ³Π΅ ΠΏΡΠΎΠ΅ΠΊΡ ΡΠ°ΠΊΠΎΠ³ΠΎ Π΄ΠΎΠΌΠ°, Π° ΠΈΠ½ΠΎΠ³Π΄Π° ΠΈ Π½Π΅ ΠΎΠ΄ΠΈΠ½.
ΠΡΠ»ΠΈ Π΄Π»Ρ Π°ΠΌΠ΅ΡΠΈΠΊΠ°Π½ΡΠ΅Π² Π»ΠΎΡΡ β ΡΡΠΎ ΡΠΊΠΎΡΠ΅Π΅ ΠΈΡΡΠΎΡΠΈΡ ΠΈΡΠΏΠΎΠ»ΡΠ·ΠΎΠ²Π°Π½ΠΈΡ Π½Π΅Π΄Π²ΠΈΠΆΠΈΠΌΠΎΠ³ΠΎ ΠΈΠΌΡΡΠ΅ΡΡΠ²Π°: ΠΏΡΠΎΠΌΡΡΠ»Π΅Π½Π½ΡΠΉ ΡΠ΅Ρ ΠΈΠ»ΠΈ ΡΠΊΠ»Π°Π΄, ΠΏΠ΅ΡΠ΅ΠΎΠ±ΠΎΡΡΠ΄ΠΎΠ²Π°Π½Π½ΡΠΉ Π² ΡΠ΅ΡΡΠΎΡΠ°Π½ Π»ΠΈΠ±ΠΎ ΠΆΠΈΠ»ΡΠ΅ Π°ΠΏΠ°ΡΡΠ°ΠΌΠ΅Π½ΡΡ, ΡΠΎ Π² ΠΠ²ΡΠΎΠΏΠ΅ Π² ΡΡΠΎΠΌ ΡΡΠΈΠ»Π΅ Π²ΡΠ΅ ΡΠ°ΡΠ΅ ΠΎΡΠΎΡΠΌΠ»ΡΡΡ Π½ΠΎΠ²ΡΠΉ ΡΠ°ΡΡΠ½ΡΠΉ Π΄ΠΎΠΌ.
ΠΡΠΎΠ΅ΠΊΡ ΠΌΠΈΠ½ΠΈ Π΄ΠΎΠΌΠ° Π² ΡΡΠΈΠ»Π΅ Π»ΠΎΡΡ ΡΠΎΠ·Π΄Π°ΡΡ Π½Π΅ΠΏΡΠΎΡΡΠΎ: Π΄ΠΈΠ·Π°ΠΉΠ½Π΅ΡΡ ΠΏΡΠΈΠ΄Π΅ΡΡΡ Π½Π΅ΠΌΠ°Π»ΠΎ ΠΏΠΎΡΡΡΠ΄ΠΈΡΡΡΡ Π½Π°Π΄ ΠΈΠ½ΡΠ΅ΡΡΠ΅ΡΠΎΠΌ, ΡΡΠΎΠ±Ρ Π·ΡΠΈΡΠ΅Π»ΡΠ½ΠΎ ΡΠ°ΡΡΠΈΡΠΈΡΡ ΠΏΡΠΎΡΡΡΠ°Π½ΡΡΠ²ΠΎ. Π§Π΅ΡΡΠ΅ΠΆ ΡΠ°ΠΊΠΎΠ³ΠΎ Π΄ΠΎΠΌΠ° Π² ΠΏΠ»Π°Π½Π΅ β ΠΊΠ²Π°Π΄ΡΠ°Ρ ΠΈΠ»ΠΈ ΠΏΡΡΠΌΠΎΡΠ³ΠΎΠ»ΡΠ½ΠΈΠΊ.
ΠΡΡΠΌΡΠ΅ ΡΡΡΠΎΠ³ΠΈΠ΅ Π»ΠΈΠ½ΠΈΠΈ, Π·Π΄Π°Π½ΠΈΠ΅, ΡΠΎΡΡΠΎΡΡΠ΅Π΅ ΠΈΠ· ΠΎΠ΄Π½ΠΎΠ³ΠΎ ΠΈΠ»ΠΈ Π½Π΅ΡΠΊΠΎΠ»ΡΠΊΠΈΡ ΠΊΡΠ±ΠΈΠΊΠΎΠ² ΠΈΠ»ΠΈ ΠΏΠ°ΡΠ°Π»Π»Π΅Π»Π΅ΠΏΠΈΠΏΠ΅Π΄ΠΎΠ², Π±ΠΎΠ»ΡΡΠ°Ρ ΠΏΠ»ΠΎΡΠ°Π΄Ρ ΠΎΠΊΠΎΠ½ β Π²ΡΠ΅ ΡΡΠΎ ΠΏΡΠΈΡΡΡΡΡΠ²ΡΠ΅Ρ Ρ ΠΌΠΈΠ½ΠΈ Π΄ΠΎΠΌΠ° Π² ΡΡΠΈΠ»Π΅ Π»ΠΎΡΡ. Π£ Π½Π΅Π³ΠΎ ΠΎΡΠΈΠ³ΠΈΠ½Π°Π»ΡΠ½ΠΎΠ΅ Π½Π°Π·Π²Π°Π½ΠΈΠ΅ β Β«Π΄ΠΎΠΌΠΈΠ»ΡΠΎΠ½Β» ΠΈ ΡΠ²ΠΎΡ Π½ΠΈΡΠ° Π½Π° ΡΡΠ½ΠΊΠ΅ Π½Π΅Π΄Π²ΠΈΠΆΠΈΠΌΠΎΡΡΠΈ.

ΠΠΊΡΡΠ΅ΡΡΠ΅Ρ ΠΈ ΠΈΠ½ΡΠ΅ΡΡΠ΅Ρ
ΠΠ°Π²Π΅ΡΠ½ΠΎΠ΅, Π½Π΅Ρ Π΄ΡΡΠ³ΠΎΠ³ΠΎ Π΄ΠΎΠΌΠ°, ΡΡΠΈΠ»Ρ ΠΊΠΎΡΠΎΡΠΎΠ³ΠΎ Π±ΡΠ» Π±Ρ Π½Π°ΡΡΠΎΠ»ΡΠΊΠΎ ΡΠ·Π½Π°Π²Π°Π΅ΠΌ. Π ΡΡΠΎΠΌ ΠΏΠ»Π°Π½Π΅ ΡΠΎΠΏΠ΅ΡΠ½ΠΈΡΠ°ΡΡ Ρ Π½ΠΈΠΌ ΠΌΠΎΠ³ΡΡ ΡΠΎΠ»ΡΠΊΠΎ Π³ΠΎΡΠΈΡΠ΅ΡΠΊΠΈΠ΅ Π·Π΄Π°Π½ΠΈΡ ΠΈΠ»ΠΈ ΡΠ°Ρ Π²Π΅ΡΠΊΠΈ.
Π ΠΏΠ΅ΡΠ²ΡΡ ΠΎΡΠ΅ΡΠ΅Π΄Ρ Π±ΡΠΎΡΠ°Π΅ΡΡΡ Π² Π³Π»Π°Π·Π° ΡΠΊΡΡΠ΅ΡΡΠ΅Ρ:
- ΠΏΡΠΎΡΡΠΎΡΠ° ΠΈ ΡΠ΅ΡΠΊΠΈΠ΅ Π³Π΅ΠΎΠΌΠ΅ΡΡΠΈΡΠ΅ΡΠΊΠΈΠ΅ Π»ΠΈΠ½ΠΈΠΈ;
- ΠΏΠ»ΠΎΡΠΊΠ°Ρ ΠΈΠ»ΠΈ ΠΎΠ΄Π½ΠΎΡΠΊΠ°ΡΠ½Π°Ρ ΠΊΡΡΡΠ° Ρ Π½Π΅Π±ΠΎΠ»ΡΡΠΈΠΌ ΡΠΊΠ»ΠΎΠ½ΠΎΠΌ; Π΅ΡΠ»ΠΈ ΠΏΡΠΎΠ΅ΠΊΡ ΠΏΡΠ΅Π΄ΡΡΠΌΠ°ΡΡΠΈΠ²Π°Π΅Ρ Π΄Π²ΡΡΠΊΠ°ΡΠ½ΡΡ ΠΊΠΎΠ½ΡΡΡΡΠΊΡΠΈΡ, ΠΎΠ½Π° Π½Π΅ Π΄ΠΎΠ»ΠΆΠ½Π° Π±ΡΡΡ ΠΊΡΡΡΠΎΠΉ;
- ΠΌΠ½ΠΎΠ³ΠΎ ΠΎΠΊΠΎΠ½ Π±ΠΎΠ»ΡΡΠΎΠΉ ΠΏΠ»ΠΎΡΠ°Π΄ΠΈ Ρ ΡΠ°ΡΡΡΠΌΠΈ ΠΏΠ΅ΡΠ΅ΠΏΠ»Π΅ΡΠ°ΠΌΠΈ Π»ΠΈΠ±ΠΎ Π²ΠΎ Π²ΡΡ Π²ΡΡΠΎΡΡ ΡΡΠ°ΠΆΠ° β ΠΏΠ°Π½ΠΎΡΠ°ΠΌΠ½ΡΠ΅;
- 2 ΡΡΠ°ΠΆΠ° β ΠΏΡΠ΅Π΄Π΅Π» Π²ΡΡΠΎΡΡ Π·Π΄Π°Π½ΠΈΡ Π² ΡΡΠΈΠ»Π΅ Π»ΠΎΡΡ;
- Π²Ρ ΠΎΠ΄ Π½Π΅ Π²ΡΠ΅Π³Π΄Π° ΡΠΎ ΡΡΠΎΡΠΎΠ½Ρ ΡΠ°ΡΠ°Π΄Π°;
- Π·Π΄Π°Π½ΠΈΠ΅, ΠΏΠΎΡΡΡΠΎΠ΅Π½Π½ΠΎΠ΅ ΠΈΠ· ΠΈΡΠΊΡΡΡΡΠ²Π΅Π½Π½ΠΎ ΡΠΎΡΡΠ°ΡΠ΅Π½Π½ΠΎΠ³ΠΎ ΠΊΠΈΡΠΏΠΈΡΠ°, Π½Π΅ ΡΡΠ΅Π±ΡΠ΅Ρ ΠΎΡΠ΄Π΅Π»ΠΊΠΈ; Π΄ΠΎΠΏΡΡΠΊΠ°Π΅ΡΡΡ ΠΈΡΠΏΠΎΠ»ΡΠ·ΠΎΠ²Π°Π½ΠΈΠ΅ ΡΡΡΠΊΠ°ΡΡΡΠΊΠΈ Ρ Π³ΡΡΠ±ΠΎΠΉ ΡΠ΅ΠΊΡΡΡΡΠΎΠΉ, ΡΠ΅ΡΠ΅ΡΠΎΠΊ ΠΈΠ· Π΄ΡΠ΅Π²Π΅ΡΠΈΠ½Ρ, ΠΎΠ±ΡΠ°Π±ΠΎΡΠ°Π½Π½ΡΡ ΡΠΏΠ΅ΡΠΈΠ°Π»ΡΠ½ΡΠΌ ΡΠΎΡΡΠ°Π²ΠΎΠΌ, ΠΏΠΎΠ΄ΡΠ΅ΡΠΊΠΈΠ²Π°ΡΡΠΈΠΌ ΠΈΡ Π½Π°ΡΡΡΠ°Π»ΡΠ½ΡΡ ΠΊΡΠ°ΡΠΎΡΡ, Π½ΠΎ Π±Π΅Π· ΠΏΡΠΈΠΌΠ΅Π½Π΅Π½ΠΈΡ ΠΊΡΠ°ΡΠΊΠΈ; ΠΈΠ½ΠΎΠ³Π΄Π° ΡΠ°ΡΠ°Π΄ ΠΎΡΠ΄Π΅Π»ΡΠ²Π°ΡΡ ΠΌΠ΅ΡΠ°Π»Π»ΠΈΡΠ΅ΡΠΊΠΈΠΌΠΈ ΠΏΠ°Π½Π΅Π»ΡΠΌΠΈ Ρ ΠΌΠ°ΡΠΎΠ²ΠΎΠΉ ΠΏΠΎΠ²Π΅ΡΡ Π½ΠΎΡΡΡΡ;
- Π² Π²Π΅ΡΠ΅ΡΠ½Π΅Π΅ Π²ΡΠ΅ΠΌΡ Π·Π΄Π°Π½ΠΈΡ Π½ΡΠΆΠ½ΠΎ ΡΡΠΊΠΎΠ΅ ΠΎΡΠ²Π΅ΡΠ΅Π½ΠΈΠ΅, ΡΡΠΎ ΡΡΠΈΡΡΠ²Π°Π΅ΡΡΡ ΠΏΡΠΈ ΡΠ°ΡΠΏΠΎΠ»ΠΎΠΆΠ΅Π½ΠΈΠΈ Π²Π½Π΅ΡΠ½ΠΈΡ ΠΈΡΡΠΎΡΠ½ΠΈΠΊΠΎΠ² ΡΠ²Π΅ΡΠ°; ΠΈΠ½ΠΎΠ³Π΄Π° ΡΠΊΡΡΠ΅ΡΡΠ΅Ρ ΡΡΠ΅Π±ΡΠ΅Ρ Π»Π°ΠΌΠΏ Ρ ΡΠ²Π΅ΡΠ½ΡΠΌΠΈ ΡΡΠ΅ΠΊΠ»Π°ΠΌΠΈ Π² ΡΠ°Π·Π»ΠΈΡΠ½ΠΎΠΌ ΠΈΡ ΡΠΎΡΠ΅ΡΠ°Π½ΠΈΠΈ;
- ΠΏΠ°Π»ΠΈΡΡΠ° ΡΠ²Π΅ΡΠΎΠ² Π΄Π»Ρ ΠΎΡΠ΄Π΅Π»ΠΊΠΈ ΡΠ΄Π΅ΡΠΆΠ°Π½Π½Π°Ρ: ΡΠ΅ΡΡΠΉ, ΡΠ΅ΡΠ½ΡΠΉ, ΠΊΠΎΡΠΈΡΠ½Π΅Π²ΡΠΉ, Π±Π΅Π»ΡΠΉ, ΠΏΡΠΈΠ³Π»ΡΡΠ΅Π½Π½ΡΡ ΠΎΡΡΠ΅Π½ΠΊΠΎΠ².
ΠΠ΄ΠΈΠ½ΡΡΠ²Π΅Π½Π½ΠΎΠ΅ ΡΡΠΊΠΎΠ΅ ΡΠ²Π΅ΡΠΎΠ²ΠΎΠ΅ ΠΏΡΡΠ½ΠΎ, ΠΊΠΎΡΠΎΡΠΎΠ΅ Π΄ΠΎΠΏΡΡΠΊΠ°Π΅ΡΡΡ Π² ΡΠΊΡΡΠ΅ΡΡΠ΅ΡΠ΅ β Π³ΡΠ°ΡΡΠΈΡΠΈ.

ΠΡΠ»ΠΈ ΠΈΡΡΠΎΡΠ½ΠΈΠΊΠΈ ΡΠ²Π΅ΡΠ° Π½Π΅ Π΄ΠΎΠ»ΠΆΠ½Ρ Π±ΡΠΎΡΠ°ΡΡΡΡ Π² Π³Π»Π°Π·Π° ΠΈ ΠΈΡ Π»ΡΡΡΠ΅ Π·Π°ΠΌΠ°ΡΠΊΠΈΡΠΎΠ²Π°ΡΡ ΠΈΠ»ΠΈ Π²ΡΠ±ΡΠ°ΡΡ Π²Π°ΡΠΈΠ°Π½Ρ Ρ Π½Π΅ΠΉΡΡΠ°Π»ΡΠ½ΠΎΠΉ ΠΎΠΊΡΠ°ΡΠΊΠΎΠΉ ΠΎΡΠ²Π΅ΡΠΈΡΠ΅Π»ΡΠ½ΡΡ ΠΏΡΠΈΠ±ΠΎΡΠΎΠ², ΡΠΎ Π²ΡΠ΅, ΡΡΠΎ ΠΌΠΎΠΆΠ½ΠΎ ΠΎΡΠ½Π΅ΡΡΠΈ ΠΊ ΠΏΡΠΎΠΈΠ·Π²ΠΎΠ΄ΡΡΠ²Π΅Π½Π½ΠΎΠΉ Π°ΡΡΠΈΠ±ΡΡΠΈΠΊΠ΅ β Π²Π½Π΅ΡΠ½ΠΈΠ΅ ΠΌΠ΅ΡΠ°Π»Π»ΠΈΡΠ΅ΡΠΊΠΈΠ΅ Π»Π΅ΡΡΠ½ΠΈΡΡ, ΡΡΡΠ±Ρ, Π²Π΅Π½ΡΠΈΠ»ΡΡΠΈΠΎΠ½Π½ΡΠ΅ ΡΠΈΡΡΠ΅ΠΌΡ, Π΄ΠΎΠ»ΠΆΠ½ΠΎ ΠΏΡΠΈΠ²Π»Π΅ΠΊΠ°ΡΡ Π²Π·Π³Π»ΡΠ΄, ΠΏΠΎΠ΄ΡΠ΅ΡΠΊΠΈΠ²Π°Ρ ΠΎΡΠΎΠ±Π΅Π½Π½ΠΎΡΡΠΈ Β«ΡΠ΅ΡΠ΄Π°ΡΠ½ΠΎΠ³ΠΎΒ» ΡΡΠΈΠ»Ρ.
ΠΠ½ΡΡΡΠ΅Π½Π½ΡΡ ΠΏΠ»Π°Π½ΠΈΡΠΎΠ²ΠΊΠ° Π΄ΠΎΠΌΠ° Π² ΡΡΠΈΠ»Π΅ Π»ΠΎΡΡ Π½Π΅ΠΎΠ±ΡΡΠ½Π°. ΠΡΠΎΠ΅ΠΊΡ ΡΡΠ°ΠΆΠ°, ΠΏΡΠ΅Π΄Π½Π°Π·Π½Π°ΡΠ΅Π½Π½ΠΎΠ³ΠΎ Π΄Π»Ρ ΠΎΠ±ΡΠ΅Π³ΠΎ ΠΏΠΎΠ»ΡΠ·ΠΎΠ²Π°Π½ΠΈΡ, Π½Π΅ ΠΏΡΠ΅Π΄ΡΡΠΌΠ°ΡΡΠΈΠ²Π°Π΅Ρ ΠΏΠ΅ΡΠ΅Π³ΠΎΡΠΎΠ΄ΠΎΠΊ. ΠΡΠΊΠ»ΡΡΠ΅Π½ΠΈΠ΅ ΡΠ΄Π΅Π»Π°Π½ΠΎ Π»ΠΈΡΡ Π΄Π»Ρ Π²Π°Π½Π½ΠΎΠΉ ΠΊΠΎΠΌΠ½Π°ΡΡ ΠΈ ΡΠ°Π½ΡΠ·Π»Π°. ΠΡΠ΄Π΅Π»ΡΠ½ΠΎΠ΅ ΠΏΠΎΠΌΠ΅ΡΠ΅Π½ΠΈΠ΅ Π²ΡΠ΄Π΅Π»Π΅Π½ΠΎ ΠΈ Π΄Π»Ρ ΡΠΏΠ°Π»ΡΠ½ΠΈ, Π΅ΡΠ»ΠΈ Π΄ΠΎΠΌ ΠΎΠ΄Π½ΠΎΡΡΠ°ΠΆΠ½ΡΠΉ. Π’Π°ΠΊΠ°Ρ ΠΏΠ»Π°Π½ΠΈΡΠΎΠ²ΠΊΠ° Π²ΠΊΡΠΏΠ΅ Ρ Π²ΡΡΠΎΠΊΠΈΠΌΠΈ ΠΏΠΎΡΠΎΠ»ΠΊΠ°ΠΌΠΈ ΡΠΎΠ·Π΄Π°Π΅Ρ ΠΎΡΡΡΠ΅Π½ΠΈΠ΅ ΠΏΡΠΎΡΡΠΎΡΠ°, Π° Π±ΠΎΠ»ΡΡΠΈΠ΅ ΠΎΠΊΠ½Π° Π΄Π°ΡΡ ΠΌΠ½ΠΎΠ³ΠΎ ΡΠ²Π΅ΡΠ°. Π ΠΎΡΠΎΡΠΌΠ»Π΅Π½ΠΈΠΈ ΠΈΠ½ΡΠ΅ΡΡΠ΅ΡΠ° Π΄ΠΎΠΌΠ° Π² ΡΡΠΈΠ»Π΅ Π»ΠΎΡΡ Π½Π΅Ρ ΠΎΠ³ΡΠ°Π½ΠΈΡΠ΅Π½ΠΈΠΉ Π½Π° ΡΡΠΊΠΈΠ΅ ΡΠ²Π΅ΡΠΎΠ²ΡΠ΅ ΠΏΡΡΠ½Π°. ΠΠ°ΠΎΠ±ΠΎΡΠΎΡ, ΠΎΠ½ΠΈ ΠΏΠΎΠΌΠΎΠ³Π°ΡΡ ΠΎΠΆΠΈΠ²ΠΈΡΡ Π±ΡΡΡΠ°Π»ΡΠ½ΡΡ ΠΎΡΠ΄Π΅Π»ΠΊΡ ΠΏΠΎΠΌΠ΅ΡΠ΅Π½ΠΈΡ, ΡΠ΄Π΅Π»Π°ΡΡ Π΅Π΅ Π²ΡΡΠ°Π·ΠΈΡΠ΅Π»ΡΠ½Π΅Π΅.

Π§Π΅ΡΡΡ, ΠΎΡΠ»ΠΈΡΠ°ΡΡΠΈΠ΅ ΡΡΠΈΠ»Ρ Π»ΠΎΡΡ ΠΎΡ Π΄ΡΡΠ³ΠΈΡ Π½Π°ΠΏΡΠ°Π²Π»Π΅Π½ΠΈΠΉ
Π‘ΡΠΈΠ»Ρ Π»ΠΎΡΡ Π² Π°ΡΡ ΠΈΡΠ΅ΠΊΡΡΡΠ΅ ΠΈ Π΄ΠΈΠ·Π°ΠΉΠ½Π΅ ΡΡΡΠ΅ΡΡΠ²ΡΠ΅Ρ Π½Π΅ ΡΠ°ΠΊ Π΄Π°Π²Π½ΠΎ, Π½ΠΎ ΡΠΆΠ΅ ΠΈΠΌΠ΅Π΅Ρ Π½Π΅ΡΠΊΠΎΠ»ΡΠΊΠΎ Π½Π°ΠΏΡΠ°Π²Π»Π΅Π½ΠΈΠΉ, ΠΎΠ±Π»Π°Π΄Π°ΡΡΠΈΡ ΡΠ²ΠΎΠ΅ΠΉ ΡΠΏΠ΅ΡΠΈΡΠΈΠΊΠΎΠΉ:
- Commercial Lofts β ΠΈΡΠΏΠΎΠ»ΡΠ·ΡΠ΅ΡΡΡ ΠΏΡΠΈ ΠΏΠ΅ΡΠ΅ΡΡΡΠΎΠΉΠΊΠ΅ ΠΏΡΠΎΠΌΡΡΠ»Π΅Π½Π½ΡΡ Π·Π΄Π°Π½ΠΈΠΉ Π² ΡΠΎΡΠ³ΠΎΠ²ΡΡ ΡΠ΅Π»ΡΡ ;
- Hard Lofts β ΠΈΡΠΏΠΎΠ»ΡΠ·ΡΠ΅Ρ ΡΠ΅ ΠΆΠ΅ ΡΡΡΠΎΠ΅Π½ΠΈΡ, Π½ΠΎ ΠΏΠΎΠ΄ ΠΈΠ½Π΄ΠΈΠ²ΠΈΠ΄ΡΠ°Π»ΡΠ½ΠΎΠ΅ ΠΆΠΈΠ»ΡΠ΅;
- Living Lofts β ΠΈΠ· ΠΏΡΠΎΠΌΡΡΠ»Π΅Π½Π½ΡΡ Π·Π΄Π°Π½ΠΈΠΉ ΡΠΎΠ·Π΄Π°ΡΡ ΠΌΠ½ΠΎΠ³ΠΎΠΊΠ²Π°ΡΡΠΈΡΠ½ΡΠΉ ΠΆΠΈΠ»ΠΎΠΉ Π΄ΠΎΠΌ;
- Soft Lofts β Π½ΠΎΠ²Π°Ρ ΠΏΠΎΡΡΡΠΎΠΉΠΊΠ° Π² Β«ΡΠ΅ΡΠ΄Π°ΡΠ½ΠΎΠΌΒ» ΡΡΠΈΠ»Π΅, ΡΡΠΎ Π²ΡΠ΅Π³Π΄Π° ΠΈΠΌΠΈΡΠ°ΡΠΈΡ, ΡΠ°ΠΊ ΠΊΠ°ΠΊ ΠΈΠ·Π½Π°ΡΠ°Π»ΡΠ½ΠΎ Π»ΠΎΡΡ β ΡΡΠΎ ΠΏΠ΅ΡΠ΅Π΄Π΅Π»Π°Π½Π½ΠΎΠ΅ ΠΏΡΠΎΠΌΡΡΠ»Π΅Π½Π½ΠΎΠ΅ ΠΏΠΎΠΌΠ΅ΡΠ΅Π½ΠΈΠ΅.
- ΠΠΎ Π² ΠΊΠ°ΠΆΠ΄ΠΎΠΌ ΠΈΠ· ΡΡΠΈΡ ΡΠ»ΡΡΠ°Π΅Π² Π΄ΠΎΠΌΠ° Π² ΡΡΠΈΠ»Π΅ Π»ΠΎΡΡ ΠΈΠΌΠ΅ΡΡ ΡΠ²ΠΎΠΈ ΡΠ΅ΡΡΡ, ΠΊΠΎΡΠΎΡΡΠ΅ ΠΏΠΎΠ·Π²ΠΎΠ»ΡΡΡ ΠΈΡ ΠΎΡΠ»ΠΈΡΠΈΡΡ.
- ΠΠ»ΠΈΠΆΠ΅ Π²ΡΠ΅Π³ΠΎ Π»ΠΎΡΡ ΠΊ ΠΌΠΈΠ½ΠΈΠΌΠ°Π»ΠΈΠ·ΠΌΡ ΠΈ ΠΏΠΎ ΡΡΠΈΠ»Ρ ΠΎΡΠ΄Π΅Π»ΠΊΠΈ Π·Π΄Π°Π½ΠΈΠΉ ΠΈ ΠΏΠΎ Π°ΡΡ ΠΈΡΠ΅ΠΊΡΡΡΠ½ΠΎΠΉ ΡΠΎΡΠΌΠ΅, ΡΠΎ ΠΆΠ΅ ΠΎΠ±ΠΈΠ»ΠΈΠ΅ ΡΠ²Π΅ΡΠ° ΠΈ Π±ΠΎΠ»ΡΡΠΎΠ΅ ΠΏΡΠΎΡΡΡΠ°Π½ΡΡΠ²ΠΎ. ΠΠΎ ΠΎΠ½ Π±ΠΎΠ»Π΅Π΅ ΡΠΊΠ»Π΅ΠΊΡΠΈΡΠ΅Π½. ΠΠΎΠ΄Ρ ΠΎΠ΄ ΠΊ ΠΎΡΠΎΡΠΌΠ»Π΅Π½ΠΈΡ ΠΈΠ½ΡΠ΅ΡΡΠ΅ΡΠ° Π΄ΠΎΠΏΡΡΠΊΠ°Π΅Ρ Π±ΠΎΠ»ΡΡΠ΅ ΡΠ²ΠΎΠ±ΠΎΠ΄Ρ. Π Π·Π΄Π°Π½ΠΈΡΡ Π² ΡΡΠΈΠ»Π΅ Π»ΠΎΡΡ ΡΠ°ΡΡΠΎ ΠΏΡΠΈΡΡΡΡΡΠ²ΡΠ΅Ρ ΠΏΠΎΠ»ΡΡΡΠ°ΠΆ Π² Π²ΠΈΠ΄Π΅ Π³Π°Π»Π΅ΡΠ΅ΠΈ β Π²ΡΡΠΎΡΠ° ΠΏΠΎΡΠΎΠ»ΠΊΠΎΠ² ΠΏΠΎΠ·Π²ΠΎΠ»ΡΠ΅Ρ Π΅Π³ΠΎ ΡΠ΄Π΅Π»Π°ΡΡ.
- ΠΡ Ρ Π°ΠΉ-ΡΠ΅ΠΊΠ° Π»ΠΎΡΡ ΠΎΡΠ»ΠΈΡΠΈΡΡ Π»Π΅Π³ΠΊΠΎ. ΠΠ΅ΡΠ²ΡΠΉ Π½Π΅ Π½Π΅ΡΠ΅Ρ ΠΎΡΠΏΠ΅ΡΠ°ΡΠΊΠ° ΠΈΠ½Π΄ΠΈΠ²ΠΈΠ΄ΡΠ°Π»ΡΠ½ΠΎΡΡΠΈ Ρ ΠΎΠ·ΡΠ΅Π², Π² ΡΠΎ Π²ΡΠ΅ΠΌΡ ΠΊΠ°ΠΊ Π²ΡΠΎΡΠΎΠΉ ΠΈΠΌΠ΅Π΅Ρ ΠΌΠ½ΠΎΠΆΠ΅ΡΡΠ²ΠΎ Π΄Π΅ΡΠ°Π»Π΅ΠΉ ΠΈΠ½ΡΠ΅ΡΡΠ΅ΡΠ°, Π³ΠΎΠ²ΠΎΡΡΡΠΈΡ ΠΎ ΠΏΡΠΎΡΠ΅ΡΡΠΈΠΈ ΠΈΠ»ΠΈ Ρ ΠΎΠ±Π±ΠΈ ΠΎΠ±ΠΈΡΠ°ΡΠ΅Π»Π΅ΠΉ. Π₯Π°ΠΉ-ΡΠ΅ΠΊ β ΡΡΡΡΠ΅ΠΌΠ»Π΅Π½ Π² Π±ΡΠ΄ΡΡΠ΅Π΅, ΡΠΎΠ³Π΄Π° ΠΊΠ°ΠΊ Π² Π»ΠΎΡΡΠ΅ ΠΌΠ½ΠΎΠ³ΠΎΠ΅ ΠΈΠ· ΠΏΡΠΎΡΠ»ΠΎΠ³ΠΎ.
- ΠΠΎΡ ΠΎΠΆ Π½Π° Π»ΠΎΡΡ ΠΈ ΡΡΠΈΠ»Ρ Π³ΡΠ°Π½ΠΆ, Π½ΠΎ Π² Π΅Π³ΠΎ ΠΈΠ½ΡΠ΅ΡΡΠ΅ΡΠ΅ ΠΎΠ±ΡΠ·Π°ΡΠ΅Π»ΡΠ½ΠΎ Π½Π°ΠΉΠ΄Π΅ΡΡΡ ΠΌΠ΅ΡΡΠΎ Π²ΠΈΠ½ΡΠ°ΠΆΠ½ΡΠΌ Π²Π΅ΡΠ°ΠΌ Π² Π΄ΡΡ Π΅ ΡΡΠ°Π½ΡΡΠ·ΡΠΊΠΎΠΉ ΠΏΡΠΎΠ²ΠΈΠ½ΡΠΈΠΈ, Π² ΡΠΎ Π²ΡΠ΅ΠΌΡ ΠΊΠ°ΠΊ Β«ΡΠ΅ΡΠ΄Π°ΡΠ½ΡΠΉΒ» ΡΡΠΈΠ»Ρ β Π²ΠΎΠΏΠ»ΠΎΡΠ΅Π½Π½Π°Ρ ΡΠΎΠ²ΡΠ΅ΠΌΠ΅Π½Π½ΠΎΡΡΡ, Π½ΠΎ Ρ Π»Π΅Π³ΠΊΠΈΠΌ Π½Π°Π»Π΅ΡΠΎΠΌ ΠΏΡΠΎΡΠ»ΠΎΠ³ΠΎ Π²Π΅ΠΊΠ°.
- ΠΠ»ΠΈΠ·ΠΎΠΊ ΠΊ Π»ΠΎΡΡΡ ΠΈ ΠΈΠ½Π΄ΡΡΡΡΠΈΠ°Π»ΡΠ½ΡΠΉ ΡΡΠΈΠ»Ρ, ΠΎΠ΄Π½Π°ΠΊΠΎ, ΠΎΠ½ Π½Π°ΠΌΠ½ΠΎΠ³ΠΎ Π±ΡΡΡΠ°Π»ΡΠ½Π΅Π΅. ΠΡΠ΅ΡΠ΅ΡΠΏΠ΅Π² Π·Π° Π²ΡΠ΅ΠΌΡ ΡΠ²ΠΎΠ΅Π³ΠΎ ΡΡΡΠ΅ΡΡΠ²ΠΎΠ²Π°Π½ΠΈΡ ΡΡΠ΄ ΠΈΠ·ΠΌΠ΅Π½Π΅Π½ΠΈΠΉ, Π»ΠΎΡΡ ΠΏΡΠΈΠΎΠ±ΡΠ΅Π» Π½Π΅ΠΊΠΎΡΠΎΡΡΡ ΠΈΠ·ΡΡΠΊΠ°Π½Π½ΠΎΡΡΡ, ΡΡΠ°Π» ΠΌΠ΅Π½Π΅Π΅ Π½Π°ΡΠΎΡΠΈΡΡΠΌ, ΡΠΎΡ ΡΠ°Π½ΠΈΠ² Π²ΡΠ΅ ΡΠ΅ΡΡΡ Π±ΡΠ²ΡΠ΅Π³ΠΎ ΡΠ΅ΡΠ΄Π°ΡΠ½ΠΎΠ³ΠΎ ΠΏΠΎΠΌΠ΅ΡΠ΅Π½ΠΈΡ.
ΠΡΠΈ ΡΠ°Π·ΡΠ°Π±ΠΎΡΠΊΠ΅ ΠΈΠ½ΡΠ΅ΡΡΠ΅ΡΠ° Π² ΡΡΠΈΠ»Π΅ Π»ΠΎΡΡ Π΄ΠΈΠ·Π°ΠΉΠ½Π΅ΡΡ ΠΈΡΠΏΠΎΠ»ΡΠ·ΡΡΡ ΠΎΡΠΎΠ±Π΅Π½Π½ΠΎΡΡΠΈ Π΄ΡΡΠ³ΠΈΡ ΡΡΠΈΠ»Π΅ΠΉ, ΡΠ΄Π°ΡΠ½ΠΎ ΡΡΠ°Π½ΡΡΠΎΡΠΌΠΈΡΡΡ ΠΈΡ ΠΏΠΎΠ΄ ΡΠ²ΠΎΠΈ ΠΈΠ½ΡΠ΅ΡΠ΅ΡΡ.
ΠΡΠΎΠ±Π΅Π½Π½ΠΎΡΡΠΈ ΠΏΠΎΠΌΠ΅ΡΠ΅Π½ΠΈΠΉ
ΠΡΠΎΠ±Π΅Π½Π½ΠΎΡΡΡ Π»ΠΎΡΡΠ° β ΠΎΠ΄Π½ΠΎ Π±ΠΎΠ»ΡΡΠΎΠ΅ ΠΏΠΎΠΌΠ΅ΡΠ΅Π½ΠΈΠ΅, ΡΠ°Π·Π΄Π΅Π»Π΅Π½Π½ΠΎΠ΅ Π½Π° ΡΠ°Π·Π½ΡΠ΅ ΠΏΠΎ ΡΡΠ½ΠΊΡΠΈΡΠΌ Π·ΠΎΠ½Ρ, Π½ΠΎ Π½Π΅ Ρ ΠΏΠΎΠΌΠΎΡΡΡ ΠΏΠ΅ΡΠ΅Π³ΠΎΡΠΎΠ΄ΠΎΠΊ. ΠΠ»Ρ Π·ΠΎΠ½ΠΈΡΠΎΠ²Π°Π½ΠΈΡ ΠΈΡΠΏΠΎΠ»ΡΠ·ΡΡΡ ΡΠ°Π·Π»ΠΈΡΠ½ΠΎΠ΅ ΠΎΡΠΎΡΠΌΠ»Π΅Π½ΠΈΠ΅ ΡΡΠ΅Π½: Π½Π΅ΠΎΡΠ΄Π΅Π»Π°Π½Π½ΡΠΉ ΠΊΠΈΡΠΏΠΈΡ, Π±Π΅ΡΠΎΠ½, Π³ΡΡΠ±Π°Ρ ΡΡΡΠΊΠ°ΡΡΡΠΊΠ°. ΠΡΠ΄Π΅Π»ΠΊΠ° ΠΊΠ°ΠΆΠ΄ΠΎΠΉ ΡΡΠ΅Π½Ρ ΠΈΠΌΠ΅Π΅Ρ ΡΠ²ΠΎΠ΅ Β«Π»ΠΈΡΠΎΒ». ΠΠΌΠ΅ΡΡΠΎ ΠΏΠ΅ΡΠ΅Π³ΠΎΡΠΎΠ΄ΠΎΠΊ ΠΌΠΎΠ³ΡΡ ΡΠ»ΡΠΆΠΈΡΡ ΠΏΡΠ΅Π΄ΠΌΠ΅ΡΡ ΠΌΠ΅Π±Π΅Π»ΠΈ.
ΠΠ°Π½ΠΎΡΠ°ΠΌΠ½ΠΎΠ΅ ΠΎΡΡΠ΅ΠΊΠ»Π΅Π½ΠΈΠ΅ ΠΎΠ±Π΅ΡΠΏΠ΅ΡΠΈΠ²Π°Π΅Ρ ΠΏΠΎΡΡΡΠΏΠ»Π΅Π½ΠΈΠ΅ ΡΠ²Π΅ΡΠ°, Π° ΠΎΡΡΡΡΡΡΠ²ΠΈΠ΅ ΡΡΠΎΡ Π½Π° ΠΎΠΊΠ½Π°Ρ ΡΡΠΎΠΌΡ Π½Π΅ ΠΏΡΠ΅ΠΏΡΡΡΡΠ²ΡΠ΅Ρ. ΠΠ»Ρ ΡΠ΅Ρ , ΠΊΡΠΎ Π½Π΅ Π»ΡΠ±ΠΈΡ ΡΡΠΆΠΈΡ Π²Π·Π³Π»ΡΠ΄ΠΎΠ², Π΄ΠΎΠΏΡΡΡΠΈΠΌ ΠΊΠΎΠΌΠΏΡΠΎΠΌΠΈΡΡ β ΠΆΠ°Π»ΡΠ·ΠΈ. ΠΠΎΠΌ Π² ΡΡΠΈΠ»Π΅ Π»ΠΎΡΡ Π½Π°ΠΏΠΎΠ»Π½Π΅Π½ ΡΠ²Π΅ΡΠΎΠΌ Π² Π»ΡΠ±ΠΎΠ΅ Π²ΡΠ΅ΠΌΡ ΡΡΡΠΎΠΊ. ΠΠ½Π΅ΠΌ ΡΡΠΎ β Π»ΡΡΠΈ ΡΠΎΠ»Π½ΡΠ°. ΠΠΎ Π²Π΅ΡΠ΅ΡΠ°ΠΌ ΡΠ²Π΅Ρ ΠΎΠ±Π΅ΡΠΏΠ΅ΡΠΈΠ²Π°ΡΡ ΡΠ²Π΅ΡΠΈΠ»ΡΠ½ΠΈΠΊΠΈ, ΠΈΠΌΠ΅ΡΡΠΈΠ΅ Π±ΠΎΠΊΠΎΠ²ΠΎΠ΅ ΡΠ°ΡΠΏΠΎΠ»ΠΎΠΆΠ΅Π½ΠΈΠ΅. ΠΡΡΡΡΡ, ΡΠ²ΠΈΡΠ°ΡΡΡΡ ΠΈΠ· ΡΠ΅Π½ΡΡΠ° ΠΏΠΎΡΠΎΠ»ΠΊΠ°, Π·Π΄Π΅ΡΡ ΠΎΠ±ΡΡΠ½ΠΎ Π½Π΅ Π²ΡΡΡΠ΅ΡΠΈΡΡ.
ΠΠΎΠ» Π² ΠΏΠΎΠΌΠ΅ΡΠ΅Π½ΠΈΠΈ ΠΎΠ±ΡΡΠ½ΠΎ Π΄Π΅ΡΠ΅Π²ΡΠ½Π½ΡΠΉ, Π΄ΠΎΠΏΡΡΠΊΠ°Π΅ΡΡΡ ΠΈ Π΅Π³ΠΎ Π΄Π΅ΡΡΠ²Π°Ρ Π²Π΅ΡΡΠΈΡ ΠΈΠ· Π»Π°ΠΌΠΈΠ½Π°ΡΠ°. ΠΠΎ ΠΎΠ±ΠΎΠΈ Π½Π΅ ΠΏΡΠΈΠ²Π΅ΡΡΡΠ²ΡΡΡΡΡ, ΡΠ°Π·Π²Π΅ ΡΡΠΎ ΠΎΠ½ΠΈ ΠΈΠΌΠΈΡΠΈΡΡΡΡ ΠΊΠΈΡΠΏΠΈΡΠ½ΡΡ ΠΊΠ»Π°Π΄ΠΊΡ.
ΠΠΎΡΡΠΈΠ½Π°Ρ
ΠΠ΅ΡΡ Π½ΠΈΠΆΠ½ΠΈΠΉ, Π° ΠΈΠ½ΠΎΠ³Π΄Π° ΠΈ Π΅Π΄ΠΈΠ½ΡΡΠ²Π΅Π½Π½ΡΠΉ, ΡΡΠ°ΠΆ Π΄ΠΎΠΌΠ° Π² ΡΡΠΈΠ»Π΅ Π»ΠΎΡΡ ΠΏΡΠ΅Π΄Π½Π°Π·Π½Π°ΡΠ΅Π½ Π΄Π»Ρ ΠΎΠ±ΡΠ΅Π³ΠΎ ΠΏΠΎΠ»ΡΠ·ΠΎΠ²Π°Π½ΠΈΡ. Π ΠΏΠ΅ΡΠ²ΡΡ ΠΎΡΠ΅ΡΠ΅Π΄Ρ ΡΡΠΎ β Π³ΠΎΡΡΠΈΠ½Π°Ρ. ΠΠΎΠ½ΠΈΡΠΎΠ²Π°Π½ΠΈΠ΅ ΠΏΡΠ΅Π΄Π½Π°Π·Π½Π°ΡΠ°Π΅Ρ Π΅ΠΉ ΠΌΠ΅ΡΡΠΎ Π² ΡΠ΅Π½ΡΡΠ΅, Π½ΠΎ ΠΈΠ½ΠΎΠ³Π΄Π° ΡΠΎΠ½ΠΎΠΌ Π΄Π»Ρ ΠΌΠ΅Π±Π΅Π»ΠΈ ΠΌΠΎΠΆΠ΅Ρ ΡΠ»ΡΠΆΠΈΡΡ Π±Π΅ΡΠΎΠ½Π½Π°Ρ ΡΡΠ΅Π½Π°. ΠΠ°ΡΡΡΠ°Π±Ρ ΠΏΠΎΠΌΠ΅ΡΠ΅Π½ΠΈΡ ΡΡΠ΅Π±ΡΡΡ ΡΠ°ΡΡΡΠ°Π²ΠΈΡΡ Π² Π½Π΅ΠΌ ΠΌΠ΅Π±Π΅Π»Ρ Π±ΠΎΠ»ΡΡΠΈΡ ΡΠ°Π·ΠΌΠ΅ΡΠΎΠ², Π΄ΡΡΠ³Π°Ρ Π² Π½Π΅ΠΌ ΠΏΡΠΎΡΡΠΎ ΠΏΠΎΡΠ΅ΡΡΠ΅ΡΡΡ. ΠΠΎΡΡΠΎΠΌΡ Π΄ΠΈΠ²Π°Π½Ρ Π²ΡΠ΅Π³Π΄Π° ΠΌΠ½ΠΎΠ³ΠΎΠΌΠ΅ΡΡΠ½ΡΠ΅, ΡΠ°ΡΡΠΎ ΠΈΠΌΠ΅ΡΡ ΠΏΠΎΠ»ΡΠΊΡΡΠ³Π»ΡΡ ΡΠΎΡΠΌΡ. ΠΠ°ΡΠ΅ΡΠΈΠ°Π» ΠΎΠ±ΠΈΠ²ΠΊΠΈ β ΡΠΊΠ°Π½Ρ ΠΈΠ»ΠΈ ΠΊΠΎΠΆΠ°, ΠΈΠ½ΠΎΠ³Π΄Π° Π·Π°ΠΌΡΠ°. Π¦Π²Π΅Ρ ΠΌΠΎΠΆΠ΅Ρ Π±ΡΡΡ ΠΊΠ°ΠΊ Π½Π΅ΠΉΡΡΠ°Π»ΡΠ½ΡΠΌ (Π±Π΅ΠΆΠ΅Π²ΡΠΌ, ΡΠ΅ΡΡΠΌ, ΠΊΠΎΡΠΈΡΠ½Π΅Π²ΡΠΌ), ΡΠ°ΠΊ ΠΈ ΡΡΠΊΠΈΠΌ (ΡΠΈΠ½ΠΈΠΌ, ΠΊΡΠ°ΡΠ½ΡΠΌ). ΠΠ³ΡΠ° Π½Π° ΠΊΠΎΠ½ΡΡΠ°ΡΡΠ΅ Π³ΡΡΠ±ΡΡ Π±Π΅ΡΠΎΠ½Π½ΡΡ ΡΡΠ΅Π½ ΠΈ ΡΠΎΡΠ½ΡΡ ΡΠ²Π΅ΡΠΎΠ² ΠΌΠ΅Π±Π΅Π»ΠΈ ΠΏΡΠΈΠ΄Π°ΡΡ ΠΈΠ½ΡΠ΅ΡΡΠ΅ΡΡ ΠΈΠ½Π΄ΠΈΠ²ΠΈΠ΄ΡΠ°Π»ΡΠ½ΠΎΡΡΡ.

Π ΡΠ΄ΠΎΠΌ Ρ Π΄ΠΈΠ²Π°Π½ΠΎΠΌ β ΠΆΡΡΠ½Π°Π»ΡΠ½ΡΠΉ ΡΡΠΎΠ»ΠΈΠΊ Π»ΡΠ±ΠΎΠΉ ΡΠΎΡΠΌΡ ΠΈ ΡΠ°Π·ΠΌΠ΅ΡΠ°, Π½ΠΎ ΠΎΠ±ΡΠ·Π°ΡΠ΅Π»ΡΠ½ΠΎ ΠΈΠ· Π½Π°ΡΡΡΠ°Π»ΡΠ½ΡΡ ΠΌΠ°ΡΠ΅ΡΠΈΠ°Π»ΠΎΠ²: ΡΡΠ΅ΠΊΠ»Π°, Π΄Π΅ΡΠ΅Π²Π°, ΠΌΠ΅ΡΠ°Π»Π»Π°. ΠΠ° Π·Π°ΡΠ΅ ΡΡΠ°Π½ΠΎΠ²Π»Π΅Π½ΠΈΡ ΡΡΠΈΠ»Ρ Π΅Π³ΠΎ ΡΠΊΠΎΠ»Π°ΡΠΈΠ²Π°Π»ΠΈ ΠΈΠ· ΠΎΠ±ΡΡΠ½ΡΡ Π΄Π΅ΡΠ΅Π²ΡΠ½Π½ΡΡ ΠΏΠΎΠ΄Π΄ΠΎΠ½ΠΎΠ². ΠΠ΅ΠΊΠΎΡΠΎΡΡΠ΅ Π΄ΠΈΠ·Π°ΠΉΠ½Π΅ΡΡ ΡΠΊΡΠ°ΡΠ°ΡΡ ΠΈΠΌΠΈ Π³ΠΎΡΡΠΈΠ½ΡΡ ΠΈ ΡΠ΅ΠΏΠ΅ΡΡ. ΠΠ΅ΠΎΠ±Ρ ΠΎΠ΄ΠΈΠΌΡΠΉ Π°ΡΡΠΈΠ±ΡΡ β Π΄ΠΎΠΌΠ°ΡΠ½ΠΈΠΉ ΠΊΠΈΠ½ΠΎΡΠ΅Π°ΡΡ ΡΠ°ΠΌΠΎΠΉ ΠΏΠΎΡΠ»Π΅Π΄Π½Π΅ΠΉ ΠΌΠΎΠ΄Π΅Π»ΠΈ.

ΠΡΠΈΡ ΠΎΠΆΠ°Ρ
ΠΡΠΎ ΠΏΡΠΎΡΡΠΎ ΡΠ°ΡΡΡ ΠΏΠΎΠΌΠ΅ΡΠ΅Π½ΠΈΡ, Π² ΠΊΠΎΡΠΎΡΠΎΠΉ ΠΏΡΠΈ Π²Ρ ΠΎΠ΄Π΅ ΠΎΡΡΠ°Π²Π»ΡΡΡ Π²Π΅ΡΡ Π½ΡΡ ΠΎΠ΄Π΅ΠΆΠ΄Ρ ΠΈ ΡΠ»ΠΈΡΠ½ΡΡ ΠΎΠ±ΡΠ²Ρ. Π ΠΎΡΠΎΡΠΌΠ»Π΅Π½ΠΈΠΈ ΠΏΡΠΈΠ²Π΅ΡΡΡΠ²ΡΡΡΡΡ ΡΠ²Π΅ΡΠ»ΡΠ΅ ΡΠΊΠ°ΡΡ ΠΈ ΡΡΠΊΠΈΠ΅ ΡΠ²Π΅ΡΠ½ΡΠ΅ Π°ΠΊΡΠ΅ΡΡΡΠ°ΡΡ. ΠΡΡΠΎΠΊΠΈΠΉ ΠΏΠΎΡΠΎΠ»ΠΎΠΊ ΠΏΠΎΠ·Π²ΠΎΠ»ΡΠ΅Ρ ΡΠ΄Π΅Π»Π°ΡΡ Π² Π΄ΠΎΠΌΠ΅ ΠΏΠΎΠ»ΡΡΡΠ°ΠΆ, Π»Π΅ΡΡΠ½ΠΈΡΠ° Π½Π° ΠΊΠΎΡΠΎΡΡΠΉ ΡΠ°ΡΡΠΎ Π½Π°Ρ ΠΎΠ΄ΠΈΡΡΡ ΡΡΠ΄ΠΎΠΌ Ρ Π²Ρ ΠΎΠ΄Π½ΠΎΠΉ Π·ΠΎΠ½ΠΎΠΉ.

Π‘ΠΏΠ°Π»ΡΠ½Ρ
ΠΠΎΡΠΎΠ»ΠΎΠΊ Π² Π½Π΅ΠΉ ΠΌΠΎΠΆΠ΅Ρ Π±ΡΡΡ ΡΠΊΠΎΡΠ΅Π½, ΠΊΠ°ΠΊ Π½Π° ΡΠ΅ΡΠ΄Π°ΠΊΠ΅. ΠΡΠΎΡ ΠΎΠ΄ΡΡΠΈΠ΅ ΠΏΠΎ Π½Π΅ΠΌΡ Π±Π°Π»ΠΊΠΈ ΡΠΎΠ»ΡΠΊΠΎ ΡΡΠΈΠ»ΠΈΠ²Π°ΡΡ ΡΡ ΠΎΠ΄ΡΡΠ²ΠΎ. ΠΡΠ»ΠΈ ΡΡΠ΅Π½Ρ ΠΎΡΠ΄Π΅Π»Π°ΡΡ ΠΏΠ»ΠΈΡΠΊΠΎΠΉ Β«ΠΏΠΎΠ΄ ΠΊΠΈΡΠΏΠΈΡΒ», Π° ΠΏΠΎΠ» ΡΠ΄Π΅Π»Π°ΡΡ ΠΈΠ· Π΄Π΅ΡΠ΅Π²Π°, ΠΏΡΠΈΡΠΎΠ²ΠΎΠΊΡΠΏΠΈΡΡ Π±ΠΎΠ»ΡΡΠΎΠ΅ ΠΎΠΊΠ½ΠΎ, ΠΎΠ³ΡΠΎΠΌΠ½ΡΡ ΠΊΡΠΎΠ²Π°ΡΡ Ρ ΠΏΠΎΠΊΡΡΠ²Π°Π»ΠΎΠΌ Π² ΡΠ΅ΠΌΠ½ΡΡ ΡΠΎΠ½Π°Ρ , ΡΠΎ Π²ΡΠ΅ Π°ΡΡΠΈΠ±ΡΡΡ Π»ΠΎΡΡΠ° Π±ΡΠ΄ΡΡ ΡΠΎΠ±Π»ΡΠ΄Π΅Π½Ρ. Π£ΠΊΡΠ°ΡΡΡ ΠΊΠΎΠΌΠ½Π°ΡΡ Π·Π΅ΡΠΊΠ°Π»ΡΠ½ΡΠΉ ΡΠΊΠ°Ρ-ΠΊΡΠΏΠ΅ Π½Π΅Π±ΠΎΠ»ΡΡΠΎΠ³ΠΎ ΡΠ°Π·ΠΌΠ΅ΡΠ°, Π½Π°ΡΡΠ΅Π½Π½ΡΠ΅ ΡΠ²Π΅ΡΠΈΠ»ΡΠ½ΠΈΠΊΠΈ ΠΈ ΠΊΠ°ΡΡΠΈΠ½Ρ Π² Π΄ΡΡ Π΅ Π°Π±ΡΡΡΠ°ΠΊΡΠΈΠΎΠ½ΠΈΠ·ΠΌΠ°. ΠΠ±ΡΠ·Π°ΡΠ΅Π»ΡΠ½ΠΎ Π΄ΠΎΠ»ΠΆΠ½ΠΎ Π±ΡΡΡ Π·Π΅ΡΠΊΠ°Π»ΠΎ Π² ΠΏΡΠΎΡΡΠΎΠΉ Π΄Π΅ΡΠ΅Π²ΡΠ½Π½ΠΎΠΉ ΠΈΠ»ΠΈ ΠΌΠ΅ΡΠ°Π»Π»ΠΈΡΠ΅ΡΠΊΠΎΠΉ ΡΠ°ΠΌΠ΅.

ΠΠ°Π½Π½Π°Ρ
ΠΡΠΎ ΡΠ°ΡΡΡ Π΄ΠΎΠΌΠ°, Π½Π΅ ΠΏΡΠ΅Π΄Π½Π°Π·Π½Π°ΡΠ΅Π½Π½Π°Ρ Π΄Π»Ρ ΡΡΠΆΠΈΡ Π³Π»Π°Π·. ΠΠ»Ρ Π΅Π΅ ΠΈΠ½ΡΠ΅ΡΡΠ΅ΡΠ° ΠΈΡΠΏΠΎΠ»ΡΠ·ΡΡΡ ΠΌΠΎΠ·Π°ΠΈΠΊΡ ΠΈΠ· ΠΏΠ»ΠΈΡΠΊΠΈ Π΄Π²ΡΡ ΠΈΠ»ΠΈ Π½Π΅ΡΠΊΠΎΠ»ΡΠΊΠΈΡ Π½Π΅ΡΡΠΊΠΈΡ ΡΠΎΠ½ΠΎΠ² Π½Π° ΠΏΠΎΠ»Ρ ΠΈ ΡΡΠ΅Π½Π°Ρ . ΠΠ΅Π±Π΅Π»Ρ ΠΎΠ±ΡΡΠ½ΠΎ Π΄Π΅ΡΠ΅Π²ΡΠ½Π½Π°Ρ. Π‘Π°ΠΌΠ° Π²Π°Π½Π½Π° ΠΌΠΎΠΆΠ΅Ρ Π±ΡΡΡ ΠΊΠ°ΠΊ ΡΠΎΠ²ΡΠ΅ΠΌΠ΅Π½Π½ΠΎΠΉ, ΡΠ°ΠΊ ΠΈ ΡΠΎΠ²Π΅ΡΡΠ΅Π½Π½ΠΎ ΡΡΠ°ΡΠΎΠΉ ΠΈ ΠΎΡΡΠ΅ΡΡΠ°Π²ΡΠΈΡΠΎΠ²Π°Π½Π½ΠΎΠΉ.

ΠΡΡ Π½Ρ
ΠΠ΅ ΠΌΠ΅ΡΡΠΎ β ΡΡΠ΄ΠΎΠΌ Ρ Π³ΠΎΡΡΠΈΠ½ΠΎΠΉ. Π§ΡΠΎΠ±Ρ ΠΎΡΠ΄Π΅Π»ΠΈΡΡ ΠΎΠ΄Π½ΠΎ ΠΎΡ Π΄ΡΡΠ³ΠΎΠ³ΠΎ, ΡΡΡΠ°Π½Π°Π²Π»ΠΈΠ²Π°ΡΡ Π±Π°ΡΠ½ΡΡ ΡΡΠΎΠΉΠΊΡ ΡΠΎ ΡΡΠΎΠ»Π΅ΡΠ½ΠΈΡΠ΅ΠΉ ΠΈΠ· Π΄Π΅ΡΠ΅Π²Π°, ΡΠ°ΡΡΠΎ ΡΠΏΠ΅ΡΠΈΠ°Π»ΡΠ½ΠΎ ΡΠΎΡΡΠ°ΡΠ΅Π½Π½ΠΎΠ³ΠΎ, Π½Π° ΠΌΠ΅ΡΠ°Π»Π»ΠΈΡΠ΅ΡΠΊΠΎΠΌ ΠΊΠ°ΡΠΊΠ°ΡΠ΅. ΠΠ»Π°Π½ΠΈΡΠΎΠ²ΠΊΠ° ΠΊΡΡ Π½ΠΈ ΠΏΠΎΠ΄ΡΠ°Π·ΡΠΌΠ΅Π²Π°Π΅Ρ ΠΌΠ½ΠΎΠΆΠ΅ΡΡΠ²ΠΎ Π½Π°Π²Π΅ΡΠ½ΡΡ ΠΈ Π²ΡΡΡΠΎΠ΅Π½Π½ΡΡ ΡΠΊΠ°ΡΡΠΈΠΊΠΎΠ² ΠΈ ΡΠ°Π±ΠΎΡΠΈΠΉ ΡΡΠΎΠ» Ρ Π΄Π΅ΡΠ΅Π²ΡΠ½Π½ΠΎΠΉ ΠΏΠΎΠ²Π΅ΡΡ Π½ΠΎΡΡΡΡ.

ΠΠΎΠ» β ΠΈΠ· ΠΏΠ»ΠΈΡΠΊΠΈ ΠΎΠ΄Π½ΠΎΠ³ΠΎ ΠΈΠ»ΠΈ Π½Π΅ΡΠΊΠΎΠ»ΡΠΊΠΈΡ ΡΠ²Π΅ΡΠΎΠ², ΡΡΠ΅Π½Ρ β ΡΠΎΠΆΠ΅ ΠΈΠ· Π½Π΅Π΅. ΠΠ±ΡΠ·Π°ΡΠ΅Π»ΡΠ½ΠΎ Π½Π°Π»ΠΈΡΠΈΠ΅ ΡΠ°ΠΌΠΎΠΉ ΡΠΎΠ²ΡΠ΅ΠΌΠ΅Π½Π½ΠΎΠΉ Π±ΡΡΠΎΠ²ΠΎΠΉ ΡΠ΅Ρ Π½ΠΈΠΊΠΈ. ΠΠΆΠΈΠ²ΠΈΡ ΠΈΠ½ΡΠ΅ΡΡΠ΅Ρ Π±ΡΡΠΎΠ²ΠΎΠΉ ΠΏΡΠΈΠ±ΠΎΡ ΠΈΠ· ΠΏΡΠΎΡΠ»ΠΎΠ³ΠΎ. ΠΡΠ΅ ΠΊΠΎΠΌΠΌΡΠ½ΠΈΠΊΠ°ΡΠΈΠΈ Π½Π΅ ΠΏΡΡΡΡΡ, Π° Π²ΡΠ΄Π΅Π»ΡΡΡ ΠΊΠΎΠ½ΡΡΠ°ΡΡΠ½ΠΎΠΉ ΠΎΠΊΡΠ°ΡΠΊΠΎΠΉ ΠΏΠΎΠ²Π΅ΡΡ Π½ΠΎΡΡΠ΅ΠΉ.
Π‘ΠΎΠ²Π΅ΡΡ ΠΏΠΎ Π΄Π΅ΠΊΠΎΡΠΈΡΠΎΠ²Π°Π½ΠΈΡ
ΠΡΠΎΠ΅ΠΊΡ Π΄ΠΎΠΌΠ° Ρ Π»ΠΎΡΡΠΎΠΌ ΠΈΠΌΠ΅Π΅Ρ ΡΠΎΠ²ΡΠ΅ΠΌΠ΅Π½Π½ΡΠΉ Π΄ΠΈΠ·Π°ΠΉΠ½, Π² ΠΊΠΎΡΠΎΡΠΎΠΌ ΠΎΡΡΠ΅ΡΠ»ΠΈΠ²ΠΎ ΠΏΡΠΎΡΠ»Π΅ΠΆΠΈΠ²Π°Π΅ΡΡΡ Π½ΠΎΡΡΠ°Π»ΡΠ³ΠΈΡ ΠΏΠΎ ΠΏΠ΅ΡΠΈΠΎΠ΄Ρ Π²Π΅Π»ΠΈΠΊΠΎΠΉ Π΄Π΅ΠΏΡΠ΅ΡΡΠΈΠΈ, ΠΊΠΎΠ³Π΄Π° ΠΆΠΈΠ»ΡΠ΅ΠΌ ΡΠ»ΡΠΆΠΈΠ»ΠΈ Π½Π°ΡΡΠΎΡΡΠΈΠ΅ ΠΏΠ΅ΡΠ΅Π΄Π΅Π»Π°Π½Π½ΡΠ΅ ΠΏΡΠΎΠΌΡΡΠ»Π΅Π½Π½ΡΠ΅ ΡΠ΅Ρ Π°. Π§ΡΠΎ Π½ΡΠΆΠ½ΠΎ Π·Π½Π°ΡΡ ΡΠ΅ΠΌ, ΠΊΡΠΎ Ρ ΠΎΡΠ΅Ρ ΠΎΡΠΎΡΠΌΠΈΡΡ Π΄ΠΎΠΌ ΠΈΠ»ΠΈ ΠΊΠΎΡΡΠ΅Π΄ΠΆ Π² ΡΡΠΈΠ»Π΅ ΡΠ΅ΡΠ΄Π°ΡΠ½ΠΎΠ³ΠΎ ΠΏΠΎΠΌΠ΅ΡΠ΅Π½ΠΈΡ?
- ΡΡΠΎ Π΄ΠΎΠ»ΠΆΠ΅Π½ Π±ΡΡΡ ΠΏΡΠΎΠ΅ΠΊΡ Π΄ΠΎΠΌΠ° ΡΠΎ ΡΡΡΠΎΠ³ΠΈΠΌΠΈ Π³Π΅ΠΎΠΌΠ΅ΡΡΠΈΡΠ΅ΡΠΊΠΈΠΌΠΈ ΡΠΎΡΠΌΠ°ΠΌΠΈ;
- Π΄Π΅ΠΊΠΎΡ ΡΠ°ΡΠ°Π΄Π° β Π² ΡΠ΄Π΅ΡΠΆΠ°Π½Π½ΡΡ ΡΠΎΠ½Π°Ρ Ρ ΠΈΡΠΏΠΎΠ»ΡΠ·ΠΎΠ²Π°Π½ΠΈΠ΅ΠΌ ΠΊΠ°ΠΌΠ½Ρ, Π±Π΅ΡΠΎΠ½Π°, ΠΊΠΈΡΠΏΠΈΡΠ°, Π³ΡΡΠ±ΠΎΠΉ ΡΡΡΠΊΠ°ΡΡΡΠΊΠΈ;
- ΠΎΡΠΎΡΠΌΠ»Π΅Π½ΠΈΠ΅ ΠΈΠ½ΡΠ΅ΡΡΠ΅ΡΠ° β Π³ΡΠ°ΠΌΠΎΡΠ½ΠΎΠ΅ ΡΠΎΠ΅Π΄ΠΈΠ½Π΅Π½ΠΈΠ΅ Π½Π°ΡΡΡΠ°Π»ΡΠ½ΡΡ ΠΌΠ°ΡΠ΅ΡΠΈΠ°Π»ΠΎΠ² Π² ΠΎΡΠ΄Π΅Π»ΠΊΠ΅, ΡΠ°ΡΡΠΎ ΡΠΏΠ΅ΡΠΈΠ°Π»ΡΠ½ΠΎ ΡΠΎΡΡΠ°ΡΠ΅Π½Π½ΡΡ , ΡΠΎΠ²ΡΠ΅ΠΌΠ΅Π½Π½ΡΡ Π±ΡΡΠΎΠ²ΡΡ ΠΏΡΠΈΠ±ΠΎΡΠΎΠ² ΠΈ ΡΠ΅Ρ Π½ΠΈΠΊΠΈ Ρ ΠΊΠΎΠΌΡΠΎΡΡΠ½ΠΎΠΉ ΠΌΠ΅Π±Π΅Π»ΡΡ ΠΈ ΠΏΡΠ΅Π΄ΠΌΠ΅ΡΠ°ΠΌΠΈ ΠΈΠ· ΠΏΡΠΎΡΠ»ΠΎΠ³ΠΎ;
- Π°Π±ΡΡΡΠ°ΠΊΡΠ½ΡΠ΅ ΠΊΠ°ΡΡΠΈΠ½Ρ, ΠΏΠΎΡΡΠ΅ΡΡ ΠΈ Π³ΡΠ°ΡΡΠΈΡΠΈ;
- Π·ΠΎΠ½ΠΈΡΠΎΠ²Π°Π½ΠΈΠ΅ ΠΏΠΎΠΌΠ΅ΡΠ΅Π½ΠΈΡ, ΠΊΠΎΡΠΎΡΠΎΠ΅ Π½Π΅ ΠΏΠ΅ΡΠ΅Π³ΡΡΠΆΠ΅Π½ΠΎ ΠΌΠ΅Π±Π΅Π»ΡΡ, ΠΈ Ρ ΠΎΡΠΎΡΠ΅Π΅ ΠΎΡΠ²Π΅ΡΠ΅Π½ΠΈΠ΅.
ΠΠΎΠΌ Π² ΡΡΠΈΠ»Π΅ Π»ΠΎΡΡ Π½Π°Ρ ΠΎΠ΄ΠΈΡΡΡ Π½Π° ΠΏΠΈΠΊΠ΅ ΠΌΠΎΠ΄Ρ.
skedraft.ru
ΠΠ΅ΡΠ΅Π²ΡΠ½Π½ΡΠΉ Π΄ΠΎΠΌ Π² ΡΡΠΈΠ»Π΅ Π»ΠΎΡΡ
Π‘Π΅Π³ΠΎΠ΄Π½Ρ ΠΏΡΠΎΠ΅ΠΊΡΡ Π·Π°Π³ΠΎΡΠΎΠ΄Π½ΠΎΠ³ΠΎ Π΄ΠΎΠΌΠ° Π² ΡΡΠΈΠ»Π΅ Π»ΠΎΡΡ ΠΏΡΠΈΠΎΠ±ΡΠ΅ΡΠ°ΡΡ Π±ΠΎΠ»ΡΡΡΡ ΠΏΠΎΠΏΡΠ»ΡΡΠ½ΠΎΡΡΡ. Π’Π°ΠΊΠΈΠ΅ ΠΊΠΎΡΡΠ΅Π΄ΠΆΠΈ Π²ΡΠ³Π»ΡΠ΄ΡΡ ΡΡΠΈΠ»ΡΠ½ΠΎ ΠΈ ΠΈΠ·ΡΡΠΊΠ°Π½Π½ΠΎ. ΠΠ½ΠΈ ΡΠΎΠ·Π΄Π°ΡΡ ΠΏΠΎΡΡΡΡΠ°ΡΡΠΈΠΉ Π²ΠΈΠ·ΡΠ°Π»ΡΠ½ΡΠΉ ΡΡΡΠ΅ΠΊΡ. ΠΠ½ΡΡΡΠΈ ΠΏΠΎΠΌΠ΅ΡΠ΅Π½ΠΈΡ Π²Ρ Π½Π°ΠΉΠ΄Π΅ΡΠ΅ Π±Π΅Π·Π³ΡΠ°Π½ΠΈΡΠ½ΠΎΠ΅ ΠΏΡΠΎΡΡΡΠ°Π½ΡΡΠ²ΠΎ, Π±ΠΎΠ»ΡΡΠΎΠ΅ ΠΊΠΎΠ»ΠΈΡΠ΅ΡΡΠ²ΠΎ ΠΌΠ΅ΡΡΠ° ΠΈ ΡΠ²Π΅ΡΠ°. Π ΡΠ°ΠΊΠΎΠΌ Π΄ΠΎΠΌΠ΅ ΠΊΠΎΠΌΡΠΎΡΡΠ½ΠΎ ΠΆΠΈΡΡ, Π²Π΅Π΄Ρ Π·Π΄Π΅ΡΡ ΡΠ°ΡΠΈΡ Π»Π΅Π³ΠΊΠ°Ρ ΠΈ Π²ΠΎΠ·Π΄ΡΡΠ½Π°Ρ Π°ΡΠΌΠΎΡΡΠ΅ΡΠ°. Π‘ΠΎΠ²ΡΠ΅ΠΌΠ΅Π½Π½ΡΠ΅ ΡΠ΅Ρ Π½ΠΎΠ»ΠΎΠ³ΠΈΠΈ ΠΏΠΎΠ·Π²ΠΎΠ»ΡΡΡ Π»Π΅Π³ΠΊΠΎ ΠΏΡΠΈΠΌΠ΅Π½ΡΡΡ Π΄Π°Π½Π½ΡΠΉ ΡΡΠΈΠ»Ρ ΠΈ Π΄Π»Ρ Π΄Π΅ΡΠ΅Π²ΡΠ½Π½ΡΡ Π΄ΠΎΠΌΠΎΠ² ΠΈΠ· Π±ΡΡΡΠ° ΠΈΠ»ΠΈ Π±ΡΠ΅Π²Π½Π°.




Π₯Π°ΡΠ°ΠΊΡΠ΅ΡΠΈΡΡΠΈΠΊΠ° ΡΡΠΈΠ»Ρ Π»ΠΎΡΡ
Π‘ Π°Π½Π³Π»ΠΈΠΉΡΠΊΠΎΠ³ΠΎ ΡΠ»ΠΎΠ²ΠΎ Loft ΠΏΠ΅ΡΠ΅Π²ΠΎΠ΄ΠΈΡΡΡ, ΠΊΠ°ΠΊ ΡΠ΅ΡΠ΄Π°ΠΊ ΠΈΠ»ΠΈ Π½Π΅ΠΆΠΈΠ»ΡΠ΅ ΠΏΠΎΠΌΠ΅ΡΠ΅Π½ΠΈΡ. ΠΠ·Π½Π°ΡΠ°Π»ΡΠ½ΠΎ ΡΠ°ΠΊΠΎΠΉ ΡΡΠΈΠ»Ρ ΠΏΠΎΠ΄ΡΠ°Π·ΡΠΌΠ΅Π²Π°Π» ΡΡΠ°ΡΡΠΉ ΡΠ΅Ρ , Π·Π°Π±ΡΠΎΡΠ΅Π½Π½ΠΎΠ΅ ΠΏΠΎΠΌΠ΅ΡΠ΅Π½ΠΈΠ΅ ΠΈΠ»ΠΈ ΡΠ΅ΡΠ΄Π°ΠΊ, ΠΊΠΎΡΠΎΡΡΠ΅ ΠΏΠ΅ΡΠ΅ΠΎΠ±ΠΎΡΡΠ΄ΠΎΠ²Π°Π»ΠΈ Π΄Π»Ρ ΠΆΠΈΠ·Π½ΠΈ. ΠΠ΄Π½Π°ΠΊΠΎ ΡΠ΅Π³ΠΎΠ΄Π½Ρ Π·Π°Π³ΠΎΡΠΎΠ΄Π½ΡΠ΅ ΠΊΠΎΡΡΠ΅Π΄ΠΆΠΈ Π² ΡΠ°ΠΊΠΎΠΌ ΡΡΠΈΠ»Π΅ ΠΌΠΎΠΆΠ½ΠΎ ΡΠΏΠ΅ΡΠΈΠ°Π»ΡΠ½ΠΎ ΠΏΠΎΡΡΡΠΎΠΈΡΡ Ρ Π½ΡΠ»Ρ.
ΠΡΠΊΡΡΡΠΎΠ΅ ΠΈ Π²ΠΎΠ·Π΄ΡΡΠ½ΠΎΠ΅ ΠΏΡΠΎΡΡΡΠ°Π½ΡΡΠ²ΠΎ, Π²ΡΡΠΎΠΊΠΈΠ΅ ΠΏΠΎΡΠΎΠ»ΠΊΠΈ, ΠΏΠ°Π½ΠΎΡΠ°ΠΌΠ½ΡΠ΅ ΠΎΠΊΠ½Π° β Π²ΡΠ΅ ΡΡΠΎ Ρ Π°ΡΠ°ΠΊΡΠ΅ΡΠΈΠ·ΡΠ΅Ρ ΡΡΠΈΠ»Ρ Π»ΠΎΡΡ Π² ΠΈΠ½ΡΠ΅ΡΡΠ΅ΡΠ΅ ΠΈ ΡΡΡΠΎΠΈΡΠ΅Π»ΡΡΡΠ²Π΅. ΠΠ°Π½Π½ΡΠΉ Π΄ΠΈΠ·Π°ΠΉΠ½ Π³Π°ΡΠΌΠΎΠ½ΠΈΡΠ½ΠΎ ΡΠΎΡΠ΅ΡΠ°Π΅Ρ ΡΡΠ°ΡΡΠ΅ ΠΈ Π½ΠΎΠ²ΡΠ΅ ΡΠ»Π΅ΠΌΠ΅Π½ΡΡ. ΠΠ΄Π΅ΡΡ Π²Ρ Π½Π°ΠΉΠ΄Π΅ΡΠ΅ Π΄ΠΎΡΠ°ΡΡΠ΅ ΠΏΠΎΠ»Ρ, ΠΏΠΎΡΠΎΠ»ΠΎΠΊ ΡΠΎ ΡΡΡΠΊΠ°ΡΡΡΠΊΠΎΠΉ ΠΈΠ»ΠΈ Π±ΡΠ΅Π²Π΅Π½ΡΠ°ΡΡΠ΅ ΡΡΠ΅Π½Ρ, ΡΠΌΠ΅Π»ΠΎ ΡΠΎΠ²ΠΌΠ΅ΡΠ΅Π½Π½ΡΠ΅ Ρ ΡΠ»ΡΡΡΠ°ΡΠΎΠ²ΡΠ΅ΠΌΠ΅Π½Π½ΠΎΠΉ ΡΠ΅Ρ Π½ΠΈΠΊΠΎΠΉ ΠΈ ΡΠΎΠ²ΡΠ΅ΠΌΠ΅Π½Π½ΡΠΌΠΈ ΠΌΠ°ΡΠ΅ΡΠΈΠ°Π»Π°ΠΌΠΈ, ΡΡΠ΅Π΄ΠΈ ΠΊΠΎΡΠΎΡΡΡ ΡΡΠ΅ΠΊΠ»ΠΎ ΠΈ ΠΌΠ΅ΡΠ°Π»Π».
ΠΠ½ΡΡΡΠ΅Π½Π½Π΅Π΅ ΠΏΡΠΎΡΡΡΠ°Π½ΡΡΠ²ΠΎ Π΄ΠΎΠΌΠ° Π² ΡΡΠΈΠ»Π΅ Π»ΠΎΡΡ Π² Π±ΠΎΠ»ΡΡΠΈΠ½ΡΡΠ²Π΅ ΠΏΡΠΎΡΠΌΠ°ΡΡΠΈΠ²Π°Π΅ΡΡΡ ΡΠ΅ΡΠ΅Π· ΠΏΠ°Π½ΠΎΡΠ°ΠΌΠ½ΠΎΠ΅ ΠΎΡΡΠ΅ΠΊΠ»Π΅Π½ΠΈΠ΅. ΠΠ·ΠΎΠ»ΠΈΡΡΡΡ ΡΠΎΠ»ΡΠΊΠΎ ΡΠ°Π½ΡΠ·Π»Ρ, Π²Π°Π½Π½ΡΠ΅ ΠΊΠΎΠΌΠ½Π°ΡΡ ΠΈ ΡΠΏΠ°Π»ΡΠ½ΠΈ. ΠΠ»Π°Π²Π½ΡΠ΅ ΠΎΡΠ»ΠΈΡΠΈΡΠ΅Π»ΡΠ½ΡΠ΅ ΡΠ΅ΡΡΡ β ΠΌΠ°ΠΊΡΠΈΠΌΡΠΌ ΡΠ²Π΅ΡΠ° ΠΈ ΠΌΠΈΠ½ΠΈΠΌΡΠΌ ΠΏΠ΅ΡΠ΅Π³ΠΎΡΠΎΠ΄ΠΎΠΊ. Π Π΄Π°Π½Π½ΠΎΠΌ ΡΡΠΈΠ»Π΅ ΠΎΡΠΎΡΠΌΠ»ΡΡΡ Π½Π΅ ΡΠΎΠ»ΡΠΊΠΎ ΠΈΠ½ΡΠ΅ΡΡΠ΅Ρ, Π½ΠΎ ΠΈ ΡΠ°ΡΠ°Π΄ Π΄ΠΎΠΌΠ°. ΠΠ»Ρ ΡΡΠΎΠ³ΠΎ ΡΠ»ΡΡΠ°Ρ ΠΏΠΎΠ΄Ρ ΠΎΠ΄ΠΈΡ Π²Π½Π΅ΡΠ½ΡΡ ΠΎΡΠ΄Π΅Π»ΠΊΠ° ΡΡΠ΅Π½ βΠΏΠΎΠ΄ Π½ΠΎΠ»Ρβ ΠΈ ΠΊΡΠΎΠ²Π»Ρ ΡΠ΅ΠΌΠ½ΠΎΠ³ΠΎ ΡΠ²Π΅ΡΠ°.
ΠΡΠ΅ΠΈΠΌΡΡΠ΅ΡΡΠ²ΠΎ Π΄ΠΎΠΌΠ° Π² ΡΡΠΈΠ»Π΅ Π»ΠΎΡΡ Π² ΡΠΎΠΌ, ΡΡΠΎ ΠΏΡΠΈ ΡΡΡΠΎΠΈΡΠ΅Π»ΡΡΡΠ²Π΅ ΡΡΡΠ±Π° ΡΡΠ΅Π±ΡΠ΅ΡΡΡ ΠΌΠΈΠ½ΠΈΠΌΠ°Π»ΡΠ½ΠΎΠ΅ ΠΊΠΎΠ»ΠΈΡΠ΅ΡΡΠ²ΠΎ Π΄Π΅ΡΠ΅Π²ΡΠ½Π½ΡΡ ΠΌΠ°ΡΠ΅ΡΠΈΠ°Π»ΠΎΠ², ΠΌΠΈΠ½ΠΈΠΌΠ°Π»ΡΠ½Π°Ρ Π²Π½Π΅ΡΠ½ΡΡ ΠΈ Π²Π½ΡΡΡΠ΅Π½Π½ΡΡ ΠΎΡΠ΄Π΅Π»ΠΊΠ°. ΠΡΠΎ ΡΠΎΠΊΡΠ°ΡΠ°Π΅Ρ ΡΠ°ΡΡ ΠΎΠ΄Ρ Π½Π° ΡΡΡΠΎΠΈΡΠ΅Π»ΡΠ½ΡΠ΅ ΠΈ ΠΎΡΠ΄Π΅Π»ΠΎΡΠ½ΡΠ΅ ΠΌΠ°ΡΠ΅ΡΠΈΠ°Π»Ρ, ΡΠΌΠ΅Π½ΡΡΠ°Π΅Ρ ΡΡΠΎΠΊΠΈ Π²ΠΎΠ·Π²Π΅Π΄Π΅Π½ΠΈΡ ΠΈ ΠΎΡΠ΄Π΅Π»ΠΊΠΈ ΡΡΡΠ±Π°. Π¦Π΅Π½Ρ Π½Π° Π±ΡΡΡ ΠΈ Π±ΡΠ΅Π²Π½ΠΎ Π΄Π»Ρ ΡΡΡΠΎΠΈΡΠ΅Π»ΡΡΡΠ²Π° Π΄Π΅ΡΠ΅Π²ΡΠ½Π½ΠΎΠ³ΠΎ Π΄ΠΎΠΌΠ° Π²Ρ Π½Π°ΠΉΠ΄Π΅ΡΠ΅ Π·Π΄Π΅ΡΡ.

ΠΡΠ»ΠΈΡΠΈΡΠ΅Π»ΡΠ½ΡΠ΅ ΡΠ΅ΡΡΡ Π΄ΠΎΠΌΠΎΠ² Π»ΠΎΡΡ
- Π‘Π²ΠΎΠ±ΠΎΠ΄Π½Π°Ρ ΠΈ ΡΠ°ΡΠΈΠΎΠ½Π°Π»ΡΠ½Π°Ρ ΠΏΠ»Π°Π½ΠΈΡΠΎΠ²ΠΊΠ°, ΠΎΡΡΡΡΡΡΠ²ΠΈΠ΅ ΡΡΠ΅Π½ ΠΈ ΠΏΠ΅ΡΠ΅Π³ΠΎΡΠΎΠ΄ΠΎΠΊ;
- Π Π°Π·Π΄Π΅Π»Π΅Π½ΠΈΠ΅ ΠΏΡΠΎΡΡΡΠ°Π½ΡΡΠ²Π° Π½Π° ΡΡΠ½ΠΊΡΠΈΠΎΠ½Π°Π»ΡΠ½ΡΠ΅ Π·ΠΎΠ½Ρ Π΄Π΅Π»Π°ΡΡ ΠΏΡΠΈ ΠΏΠΎΠΌΠΎΡΠΈ ΡΠ²Π΅ΡΠ° ΠΈΠ»ΠΈ ΠΎΡΠ΄Π΅Π»ΠΊΠΈ;
- ΠΠΎΠ»ΡΡΠ°Ρ ΠΏΠ»ΠΎΡΠ°Π΄Ρ ΠΏΠΎΠΌΠ΅ΡΠ΅Π½ΠΈΠΉ ΠΈ Π²ΡΡΠΎΠΊΠΈΠ΅ ΠΏΠΎΡΠΎΠ»ΠΊΠΈ, ΠΌΠΎΠΆΠ΅Ρ ΠΏΡΠΈΠΌΠ΅Π½ΡΡΡΡΡ Π²ΡΠΎΡΠΎΠΉ ΡΠ²Π΅Ρ;
- Π¨ΠΈΡΠΎΠΊΠΈΠ΅ ΠΎΠΊΠ½Π° ΠΈ ΠΏΠ°Π½ΠΎΡΠ°ΠΌΠ½ΠΎΠ΅ ΠΎΡΡΠ΅ΠΊΠ»Π΅Π½ΠΈΠ΅;
- ΠΡΠ³ΠΊΠΈΠΉ ΡΠ°ΡΡΠ΅ΡΠ½Π½ΡΠΉ ΡΠ²Π΅Ρ Π²Π½ΡΡΡΠΈ ΠΏΠΎΠΌΠ΅ΡΠ΅Π½ΠΈΠΉ;
- ΠΡΠΏΠΎΠ»ΡΠ·ΠΎΠ²Π°Π½ΠΈΠ΅ Π² ΠΈΠ½ΡΠ΅ΡΡΠ΅ΡΠ΅ ΠΏΡΠΎΡΡΠΎΠΉ ΠΈ ΡΡΠ½ΠΊΡΠΈΠΎΠ½Π°Π»ΡΠ½ΠΎΠΉ ΠΌΠ΅Π±Π΅Π»ΠΈ;
- ΠΠΈΠ½ΠΈΠΌΡΠΌ ΠΈΠ»ΠΈ ΠΎΡΡΡΡΡΡΠ²ΠΈΠ΅ ΠΎΡΠ΄Π΅Π»ΠΊΠΈ;
- Π‘ΠΊΡΠΎΠΌΠ½ΠΎΡΡΡ Π΄Π΅ΠΊΠΎΡΠ° ΠΈ ΠΏΡΠΎΡΡΠΎΡΠ° ΠΈΠ½ΡΠ΅ΡΡΠ΅ΡΠ°;
- ΠΡΠΊΡΡΡΠΎΠ΅ ΠΈ ΠΏΡΠΎΡΠΌΠ°ΡΡΠΈΠ²Π°Π΅ΠΌΠΎΠ΅ Π²Π½ΡΡΡΠ΅Π½Π½Π΅Π΅ ΠΏΡΠΎΡΡΡΠ°Π½ΡΡΠ²ΠΎ Π΄ΠΎΠΌΠ°;
- ΠΡΠΈΠΌΠ΅Π½Π΅Π½ΠΈΠ΅ Π² ΠΎΡΠΎΡΠΌΠ»Π΅Π½ΠΈΠΈ Π΄ΠΈΠ·Π°ΠΉΠ½Π° Π΄Π΅ΡΠ΅Π²Π°, ΡΡΠ΅ΠΊΠ»Π° ΠΈ ΠΌΠ΅ΡΠ°Π»Π»Π°, ΠΌΡΠ°ΠΌΠΎΡΠ° ΠΈ Π½Π°ΡΡΡΠ°Π»ΡΠ½ΠΎΠΉ ΠΊΠΈΡΠΏΠΈΡΠ½ΠΎΠΉ ΠΊΠ»Π°Π΄ΠΊΠΈ;
- Π‘ΠΌΠ΅ΡΠ΅Π½ΠΈΠ΅ ΡΡΠΈΠ»Π΅ΠΉ Π² ΠΈΠ½ΡΠ΅ΡΡΠ΅ΡΠ΅ (ΡΠΊΠ»Π΅ΠΊΡΠΈΠΊΠ°) Ρ ΠΏΡΠ΅ΠΎΠ±Π»Π°Π΄Π°Π½ΠΈΠ΅ΠΌ Ρ Π°ΠΉ-ΡΠ΅ΠΊΠ° ΠΈ ΠΌΠΈΠ½ΠΈΠΌΠ°Π»ΠΈΠ·ΠΌΠ°;
- ΠΡΠΎΠΏΠΈΡΠ΅Π»ΡΠ½ΡΠ΅ ΡΡΡΠ±Ρ, ΡΠ»Π΅ΠΊΡΡΠΎΠΏΡΠΎΠ²ΠΎΠ΄ΠΊΡ, Π²Π΅Π½ΡΠΈΠ»ΡΡΠΈΡ ΠΈ Π΄ΡΡΠ³ΠΈΠ΅ ΠΈΠ½ΠΆΠ΅Π½Π΅ΡΠ½ΡΠ΅ ΡΠΈΡΡΠ΅ΠΌΡ ΡΠ°ΡΡΠΎ ΠΎΡΡΠ°Π²Π»ΡΡΡ ΠΎΡΠΊΡΡΡΡΠΌΠΈ;
- ΠΠ΅ΡΠ΅Π΄ΠΊΠΎ ΠΏΡΠΎΠ΅ΠΊΡΡ Π΄ΠΎΠΌΠΎΠ² Π² ΡΡΠΈΠ»Π΅ Π»ΠΎΡΡ ΠΏΡΠ΅Π΄ΡΡΠΌΠ°ΡΡΠΈΠ²Π°ΡΡ ΠΌΠ°Π½ΡΠ°ΡΠ΄Ρ. ΠΠΎ Ρ ΠΏΠΎΠΌΠΎΡΡΡ ΡΠ°ΠΊΠΎΠ³ΠΎ ΡΡΠΈΠ»Ρ ΠΌΠΎΠΆΠ½ΠΎ ΡΠ΄Π΅Π»Π°ΡΡ ΠΈΠ½ΡΠ΅ΡΠ΅ΡΠ½ΡΠΉ Π΄ΠΈΠ·Π°ΠΉΠ½ ΠΈ ΠΎΠ΄Π½ΠΎΡΡΠ°ΠΆΠ½ΠΎΠ³ΠΎ ΠΈΠ»ΠΈ Π΄Π²ΡΡ ΡΡΠ°ΠΆΠ½ΠΎΠ³ΠΎ ΡΡΡΠΎΠ΅Π½ΠΈΡ.
ΠΡΠΎΠ΅ΠΊΡΠΈΡΠΎΠ²Π°Π½ΠΈΠ΅ Π΄Π΅ΡΠ΅Π²ΡΠ½Π½ΠΎΠ³ΠΎ Π΄ΠΎΠΌΠ° Π² ΡΡΠΈΠ»Π΅ Π»ΠΎΡΡ
ΠΠΎΠΌΠΏΠ°Π½ΠΈΡ βΠΠ°ΡΠΈΠ‘ΡΡΠ±β ΡΠ°Π·ΡΠ°Π±ΠΎΡΠ°Π΅Ρ ΠΈΠ½Π΄ΠΈΠ²ΠΈΠ΄ΡΠ°Π»ΡΠ½ΡΠΉ ΠΏΡΠΎΠ΅ΠΊΡ Π΄Π΅ΡΠ΅Π²ΡΠ½Π½ΠΎΠ³ΠΎ Π΄ΠΎΠΌΠ° Π² ΡΡΠΈΠ»Π΅ Π»ΠΎΡΡ Ρ ΡΡΠ΅ΡΠΎΠΌ ΠΏΠΎΠΆΠ΅Π»Π°Π½ΠΈΠΉ ΠΊΠ»ΠΈΠ΅Π½ΡΠ°, ΠΎΡΠΎΠ±Π΅Π½Π½ΠΎΡΡΠ΅ΠΉ Π·Π΅ΠΌΠ΅Π»ΡΠ½ΠΎΠ³ΠΎ ΡΡΠ°ΡΡΠΊΠ° ΠΈ ΡΠΈΠΏΠ° ΠΏΠΎΡΠ²Ρ. ΠΠΈΠ±ΠΎ Π²Ρ ΠΌΠΎΠΆΠ΅ΡΠ΅ Π²ΡΠ±ΡΠ°ΡΡ Π³ΠΎΡΠΎΠ²ΡΠΉ Π²Π°ΡΠΈΠ°Π½Ρ Π² ΠΊΠ°ΡΠ°Π»ΠΎΠ³Π΅ ΠΊΠΎΠΌΠΏΠ°Π½ΠΈΠΈ, ΠΈ Π°ΡΡ ΠΈΡΠ΅ΠΊΡΠΎΡ ΡΠΈΡΠΌΡ Π²Π½Π΅ΡΠ΅Ρ Π² ΠΏΡΠΎΠ΅ΠΊΡ Π½ΡΠΆΠ½ΡΠ΅ ΠΈΠ·ΠΌΠ΅Π½Π΅Π½ΠΈΡ.
Π‘ΡΠΈΠ»Ρ Π»ΠΎΡΡ ΠΏΡΠ΅ΠΊΡΠ°ΡΠ½ΠΎ ΠΏΠΎΠ΄Ρ ΠΎΠ΄ΠΈΡ Π΄Π»Ρ Π΄Π΅ΡΠ΅Π²ΡΠ½Π½ΡΡ ΡΠ°ΡΡΠ½ΡΡ Π΄ΠΎΠΌΠΎΠ², ΡΠ°ΠΊ ΠΊΠ°ΠΊ ΠΏΡΠ΅Π΄ΡΡΠΌΠ°ΡΡΠΈΠ²Π°Π΅Ρ Π³ΡΡΠ±ΡΡ Π½ΡΠ»Π΅Π²ΡΡ ΠΎΡΠ΄Π΅Π»ΠΊΡ ΠΈ ΠΈΡΠΏΠΎΠ»ΡΠ·ΠΎΠ²Π°Π½ΠΈΠ΅ Π΄ΠΎΡΠ°ΡΡΡ ΠΏΠΎΠ»ΠΎΠ². ΠΡΠ΅Π²Π½ΠΎ ΠΈ Π±ΡΡΡ Π²ΡΠ³Π»ΡΠ΄ΡΡ ΠΏΡΠΈΠ²Π»Π΅ΠΊΠ°ΡΠ΅Π»ΡΠ½ΠΎ ΠΈ ΡΡΡΠ΅ΡΠΈΡΠ½ΠΎ, ΠΏΠΎΡΡΠΎΠΌΡ Π½Π΅ Π½ΡΠΆΠ΄Π°ΡΡΡΡ Π² Π΄Π΅ΠΊΠΎΡΠ°ΡΠΈΠ²Π½ΠΎΠΉ ΠΈ Π΄ΠΎΠΏΠΎΠ»Π½ΠΈΡΠ΅Π»ΡΠ½ΠΎΠΉ ΠΎΡΠ΄Π΅Π»ΠΊΠ΅. ΠΠΎΡΡΠ°ΡΠΎΡΠ½ΠΎ ΠΎΠ±ΡΠ°Π±ΠΎΡΠ°ΡΡ Π΄ΡΠ΅Π²Π΅ΡΠΈΠ½Ρ Π·Π°ΡΠΈΡΠ½ΡΠΌΠΈ ΡΠΎΡΡΠ°Π²Π°ΠΌΠΈ, ΠΈ Π΄Π΅ΡΠ΅Π²ΡΠ½Π½ΠΎΠ΅ ΠΏΠΎΠΌΠ΅ΡΠ΅Π½ΠΈΠ΅ Π±ΡΠ΄Π΅Ρ Π²ΡΠ³Π»ΡΠ΄Π΅ΡΡ Π³Π°ΡΠΌΠΎΠ½ΠΈΡΠ½ΠΎ.





ΠΡΠΈ ΡΠΎΠ·Π΄Π°Π½ΠΈΠΈ ΠΏΡΠΎΠ΅ΠΊΡΠ° Π²Π°ΠΆΠ½ΠΎ ΡΡΠ΅ΡΡΡ, ΠΊΠ°ΠΊ ΠΈ Π³Π΄Π΅ Π±ΡΠ΄ΡΡ ΠΏΡΠΎΡ ΠΎΠ΄ΠΈΡΡ ΠΈΠ½ΠΆΠ΅Π½Π΅ΡΠ½ΡΠ΅ ΡΠ΅ΡΠΈ. Π’Π°ΠΊ ΠΊΠ°ΠΊ ΠΌΠ½ΠΎΠ³ΠΈΠ΅ ΡΡΡΠ±Ρ ΠΈ ΠΏΡΠΎΠ²ΠΎΠ΄Π° ΠΎΡΡΠ°ΡΡΡΡ ΠΎΡΠΊΡΡΡΡΠΌΠΈ, Π½ΡΠΆΠ½ΠΎ ΠΈΡΠΏΠΎΠ»ΡΠ·ΠΎΠ²Π°ΡΡ ΠΌΠ΅ΡΡ Π±Π΅Π·ΠΎΠΏΠ°ΡΠ½ΠΎΡΡΠΈ ΠΈ ΠΏΡΠΈΡΠΏΠΎΡΠΎΠ±Π»Π΅Π½ΠΈΡ. ΠΡΠ°ΠΌΠΎΡΠ½ΠΎΠ΅ ΠΏΡΠΎΠ΅ΠΊΡΠΈΡΠΎΠ²Π°Π½ΠΈΠ΅ ΠΎΠ±Π΅Π·ΠΎΠΏΠ°ΡΠΈΡ Π΄ΠΎΠΌ, ΠΎΠ±Π΅ΡΠΏΠ΅ΡΠΈΡ ΠΏΡΠ°ΠΊΡΠΈΡΠ½ΠΎΠ΅ ΠΈ ΡΡΠ½ΠΊΡΠΈΠΎΠ½Π°Π»ΡΠ½ΠΎΠ΅ ΠΈΡΠΏΠΎΠ»ΡΠ·ΠΎΠ²Π°Π½ΠΈΠ΅ ΠΊΠΎΠΌΠΌΡΠ½ΠΈΠΊΠ°ΡΠΈΠΉ, ΠΏΠΎΠ·Π²ΠΎΠ»ΠΈΡ ΡΡΠΊΠΎΠ½ΠΎΠΌΠΈΡΡ Π½Π° ΠΎΡΠ²Π΅ΡΠ΅Π½ΠΈΠΈ ΠΈ ΠΎΡΠΎΠΏΠ»Π΅Π½ΠΈΠΈ.
ΠΡΠΎΡΠΌΠ»Π΅Π½ΠΈΠ΅ ΡΡΠΈΠ»Ρ Π»ΠΎΡΡ
ΠΡΡΠ΅ΠΊΡΠ½ΠΎ Π² Π΄Π°Π½Π½ΠΎΠΌ ΡΡΠΈΠ»Π΅ ΡΠΌΠΎΡΡΠΈΡΡΡ ΠΏΠΎΡΠΎΠ»ΠΎΠΊ Ρ ΠΈΡΠΏΠΎΠ»ΡΠ·ΠΎΠ²Π°Π½ΠΈΠ΅ΠΌ ΠΌΠ°ΡΡΠΈΠ²Π½ΡΡ ΡΠ΅ΠΌΠ½ΡΡ Π±Π°Π»ΠΎΠΊ ΠΈΠ· Π±ΡΡΡΠ°. ΠΡΠΈ ΠΎΡΠΎΡΠΌΠ»Π΅Π½ΠΈΠΈ ΠΈΠ½ΡΠ΅ΡΡΠ΅ΡΠ° Π²ΡΠ±ΠΈΡΠ°ΠΉΡΠ΅, ΠΊΠ°ΠΊ ΠΌΠΎΠΆΠ½ΠΎ Π±ΠΎΠ»ΡΡΠ΅ ΡΡΠΆΠ΅Π»ΡΡ ΠΈ Π³ΡΡΠ±ΡΡ ΠΏΡΠ΅Π΄ΠΌΠ΅ΡΠΎΠ², ΡΠ»Π΅ΠΌΠ΅Π½ΡΠΎΠ². ΠΡΠΏΠΎΠ»ΡΠ·ΡΠΉΡΠ΅ Π½Π΅ΡΡΠ°Π½Π΄Π°ΡΡΠ½ΡΠ΅ Π°ΠΊΡΠ΅ΡΡΡΠ°ΡΡ. ΠΡΠΎ ΠΌΠΎΠΆΠ΅Ρ Π±ΡΡΡ ΡΠ΅ΠΊΠ»Π°ΠΌΠ½ΡΠΉ ΠΏΠ»Π°ΠΊΠ°Ρ, Π΄ΠΎΡΠΎΠΆΠ½ΡΠ΅ Π·Π½Π°ΠΊΠΈ ΠΈ ΡΠΊΠ°Π·Π°ΡΠ΅Π»ΠΈ, Π³ΡΠ°ΡΡΠΈΡΠΈ, ΠΌΠ°ΡΡΠΈΠ²Π½ΡΠ΅ Π²Π°Π·Ρ ΠΈ ΠΊΡΡΠΏΠ½ΡΠ΅ ΡΠΎΡΠΎΠ³ΡΠ°ΡΠΈΠΈ. ΠΡΠΈ ΡΡΠΎΠΌ ΡΡΠΈΠ»ΠΈ ΠΏΡΠΈΠΌΠ΅Π½ΡΡΡ Π»ΡΠ±ΡΠ΅! ΠΠ°ΠΏΡΠΈΠΌΠ΅Ρ, ΡΡΠ΄ΠΎΠΌ Ρ ΡΠΎΠ²ΡΠ΅ΠΌΠ΅Π½Π½ΠΎΠΉ ΡΠ΅Ρ Π½ΠΈΠΊΠΎΠΉ ΠΈΠ· ΡΡΠΈΠ»Ρ Ρ Π°ΠΉ-ΡΠ΅ΠΊ Π½Π΅ΠΎΠ±ΡΡΠ½ΠΎ Π±ΡΠ΄Π΅Ρ ΡΠΌΠΎΡΡΠ΅ΡΡΡΡ Π²ΠΈΠ½ΡΠ°ΠΆΠ½ΡΠΉ ΡΠΊΠ°ΡΡΠΈΠΊ Π² Π°Π½Π³Π»ΠΈΠΉΡΠΊΠΎΠΌ ΠΈΠ»ΠΈ ΡΡΠ°Π½ΡΡΠ·ΡΠΊΠΎΠΌ ΡΡΠΈΠ»Π΅.
ΠΠ°ΡΠΌΠΎΠ½ΠΈΡΠ½ΠΎ Π² Π΄ΠΈΠ·Π°ΠΉΠ½ Π²ΠΏΠΈΡΡΡΡΡ ΠΏΡΠΎΠΌΡΡΠ»Π΅Π½Π½Π°Ρ ΠΌΠ΅Π±Π΅Π»Ρ ΠΈ Π΄Π΅ΠΊΠΎΡΠ°ΡΠΈΠΈ. ΠΠ»Ρ Π΄Π΅ΠΊΠΎΡΠ° ΠΈΡΠΏΠΎΠ»ΡΠ·ΡΠΉΡΠ΅ Π²ΡΡΠΎΠΊΠΈΠ΅ ΡΠ°ΡΡΠ΅Π½ΠΈΡ ΠΈ ΠΎΡΠ΄Π΅Π»ΡΠ½ΠΎΠ΅ Π²Π½ΠΈΠΌΠ°Π½ΠΈΠ΅ ΡΠ΄Π΅Π»ΠΈΡΠ΅ ΠΎΠΊΠ½Π°ΠΌ. ΠΠ΅ Π·Π°Π±ΡΠ²Π°ΠΉΡΠ΅, ΡΡΠΎ ΠΎΠ½ΠΈ Π±ΠΎΠ»ΡΡΠΈΠ΅ ΠΈ ΡΠ΅ΡΠ΅Π· Π½ΠΈΡ Ρ ΠΎΡΠΎΡΠΎ ΠΏΡΠΎΡΠΌΠ°ΡΡΠΈΠ²Π°ΡΡΡΡ Π²Π½ΡΡΡΠ΅Π½Π½ΠΈΠ΅ ΠΏΠΎΠΌΠ΅ΡΠ΅Π½ΠΈΡ. Π§ΡΠΎΠ±Ρ ΠΎΠ³ΡΠ°Π΄ΠΈΡΡΡΡ ΠΎΡ ΡΡΠΊΠΎΠ³ΠΎ ΡΠ²Π΅ΡΠ° ΠΈ Π»ΡΠ±ΠΎΠΏΡΡΠ½ΡΡ Π³Π»Π°Π·, ΠΈΡΠΏΠΎΠ»ΡΠ·ΡΠΉΡΠ΅ ΡΠΈΠΌΡΠΊΠΈΠ΅ ΡΡΠΎΡΡ ΠΈΠ»ΠΈ ΠΆΠ°Π»ΡΠ·ΠΈ.
Π Π΄ΠΈΠ·Π°ΠΉΠ½Π΅ Π΄ΠΎΠΌΠΎΠ² Π»ΠΎΡΡ ΠΏΡΠ΅ΠΎΠ±Π»Π°Π΄Π°ΡΡ ΠΊΠΎΡΠΈΡΠ½Π΅Π²ΡΠΉ, Π±Π΅Π»ΡΠΉ ΠΈ ΡΠ΅ΡΡΠΉ ΡΠ²Π΅ΡΠ°, Ρ ΠΎΠ»ΠΎΠ΄Π½ΡΠ΅ ΠΈ ΡΠ΄Π΅ΡΠΆΠ°Π½Π½ΡΠ΅ ΠΎΡΡΠ΅Π½ΠΊΠΈ. ΠΠΎ Π²Ρ ΠΌΠΎΠΆΠ΅ΡΠ΅ ΠΈΡΠΏΠΎΠ»ΡΠ·ΠΎΠ²Π°ΡΡ ΠΈ ΡΡΠΊΠΈΠ΅ ΡΠ²Π΅ΡΠ°. ΠΠ½ΠΈ ΠΏΠΎΠΌΠΎΠ³ΡΡ ΡΠ°Π·Π΄Π΅Π»ΠΈΡΡ ΠΏΠΎΠΌΠ΅ΡΠ΅Π½ΠΈΠ΅ Π½Π° Π·ΠΎΠ½Ρ, ΡΠ΄Π΅Π»Π°ΡΡ Π°ΠΊΡΠ΅Π½ΡΡ Π½Π° Π΄Π΅ΡΠ°Π»ΡΡ ΠΈ ΡΠ°Π·Π±Π°Π²ΠΈΡΡ ΠΈΠ½ΡΠ΅ΡΡΠ΅Ρ. ΠΠΎΠΏΡΠ»ΡΡΠ½ΡΠΌ ΡΠ΅ΡΠ΅Π½ΠΈΠ΅ΠΌ Π² Π΄Π°Π½Π½ΠΎΠΌ ΡΠ»ΡΡΠ°Π΅ ΡΡΠ°Π½Π΅Ρ ΠΈΡΠΏΠΎΠ»ΡΠ·ΠΎΠ²Π°Π½ΠΈΠ΅ ΠΊΠΎΠ½ΡΡΠ°ΡΡΠ½ΡΡ ΡΠ²Π΅ΡΠΎΠ², ΠΎΡΠΎΠ±Π΅Π½Π½ΠΎ ΡΠ΅ΡΠ½ΠΎΠ³ΠΎ ΠΈ Π±Π΅Π»ΠΎΠ³ΠΎ.




Π§ΡΠΎΠ±Ρ ΡΠΎΡ ΡΠ°Π½ΠΈΡΡ ΡΠΊΠΎΠ»ΠΎΠ³ΠΈΡΠ½ΠΎΡΡΡ Π΄Π΅ΡΠ΅Π²ΡΠ½Π½ΠΎΠ³ΠΎ Π΄ΠΎΠΌΠ°, ΠΈΡΠΏΠΎΠ»ΡΠ·ΡΠΉΡΠ΅ ΡΠΎΠ»ΡΠΊΠΎ Π½Π°ΡΡΡΠ°Π»ΡΠ½ΡΠ΅ ΠΌΠ°ΡΠ΅ΡΠΈΠ°Π»Ρ. ΠΡΠΎ ΠΏΡΠΈΡΠΎΠ΄Π½ΡΠΉ ΠΊΠ°ΠΌΠ΅Π½Ρ ΠΈ ΠΌΡΠ°ΠΌΠΎΡ, Π΄Π΅ΡΠ΅Π²ΠΎ ΠΈ ΡΡΠ΅ΠΊΠ»ΠΎ, Π²ΡΠ·Π°Π½ΡΠ΅ ΠΈΠ·Π΄Π΅Π»ΠΈΡ ΠΈ ΠΏΡΠ΅Π΄ΠΌΠ΅ΡΡ ΠΈΠ· Π½Π°ΡΡΡΠ°Π»ΡΠ½ΡΡ ΡΠΊΠ°Π½Π΅ΠΉ. ΠΡΠΊΠ°ΠΆΠΈΡΠ΅ΡΡ ΠΎΡ ΠΏΠ»Π°ΡΡΠΈΠΊΠ°! Π‘ΡΠΈΠ»Ρ Π»ΠΎΡΡ ΠΏΠΎΠ΄Ρ ΠΎΠ΄ΠΈΡ ΡΠ΅ΠΌ, ΠΊΡΠΎ Π»ΡΠ±ΠΈΡ ΠΌΠ°ΡΡΡΠ°Π±Π½ΠΎΡΡΡ, ΡΠ²ΠΎΠ±ΠΎΠ΄Π½ΠΎΠ΅ ΠΏΡΠΎΡΡΡΠ°Π½ΡΡΠ²ΠΎ ΠΈ ΡΠ²Π΅Ρ, Π½Π΅ΡΡΠ°Π½Π΄Π°ΡΡΠ½ΡΠ΅ ΠΈ ΠΈΠ½ΠΎΠ³Π΄Π° ΡΠΎΠΊΠΈΡΡΡΡΠΈΠ΅ ΡΠ΅ΡΠ΅Π½ΠΈΡ.
Π‘ΡΡΠΎΠΈΡΠ΅Π»ΡΡΡΠ²ΠΎ Π΄Π΅ΡΠ΅Π²ΡΠ½Π½ΠΎΠ³ΠΎ Π΄ΠΎΠΌΠ°
ΠΠΎΡΠ»Π΅ ΡΠΎΠ·Π΄Π°Π½ΠΈΡ ΠΏΡΠΎΠ΅ΠΊΡΠ° ΠΏΡΠΈΡΡΡΠΏΠ°ΡΡ ΠΊ ΠΈΠ·Π³ΠΎΡΠΎΠ²Π»Π΅Π½ΠΈΡ ΠΏΠΈΠ»ΠΎΠΌΠ°ΡΠ΅ΡΠΈΠ°Π»ΠΎΠ². ΠΠΎΠΌΠΏΠ°Π½ΠΈΡ βΠΠ°ΡΠΈΠ‘ΡΡΠ±β ΡΠ°ΠΌΠΎΡΡΠΎΡΡΠ΅Π»ΡΠ½ΠΎ Π·Π°Π³ΠΎΡΠ°Π²Π»ΠΈΠ²Π°Π΅Ρ Π΄ΡΠ΅Π²Π΅ΡΠΈΠ½Ρ, Π²ΡΠΏΠΎΠ»Π½ΡΠ΅Ρ ΠΏΡΠΎΠΈΠ·Π²ΠΎΠ΄ΡΡΠ²ΠΎ Π±ΡΡΡΠ° ΠΈ Π±ΡΠ΅Π²Π½Π°. Π‘Π°ΠΌΠΎΡΡΠΎΡΡΠ΅Π»ΡΠ½Π°Ρ Π·Π°Π³ΠΎΡΠΎΠ²ΠΊΠ° Π΄ΡΠ΅Π²Π΅ΡΠΈΠ½Ρ ΠΈ ΠΈΠ·Π³ΠΎΡΠΎΠ²Π»Π΅Π½ΠΈΠ΅ ΠΏΠΈΠ»ΠΎΠΌΠ°ΡΠ΅ΡΠΈΠ°Π»ΠΎΠ² ΠΏΠΎΠ²ΡΡΠ°ΡΡ ΠΊΠ°ΡΠ΅ΡΡΠ²ΠΎ ΠΈΠ·Π΄Π΅Π»ΠΈΠΉ, Π²Π΅Π΄Ρ ΠΌΠ°ΡΡΠ΅ΡΠ° Π»ΠΈΡΠ½ΠΎ ΠΊΠΎΠ½ΡΡΠΎΠ»ΠΈΡΡΡΡ ΡΡΠΈ ΠΏΡΠΎΡΠ΅ΡΡΡ. ΠΡΠΎΠΌΠ΅ ΡΠΎΠ³ΠΎ, ΡΠ°Π±ΠΎΡΠ° Π±Π΅Π· ΠΏΠΎΡΡΠ΅Π΄Π½ΠΈΠΊΠΎΠ² ΠΏΠΎΠ·Π²ΠΎΠ»ΡΠ΅Ρ ΠΏΡΠ΅Π΄Π»Π°Π³Π°ΡΡ ΡΠ°ΠΌΡΠ΅ Π½ΠΈΠ·ΠΊΠΈΠ΅ ΡΠ΅Π½Ρ Π½Π° ΡΡΠ½ΠΊΠ΅ ΡΡΡΠΎΠΈΡΠ΅Π»ΡΡΡΠ²Π° Π΄Π΅ΡΠ΅Π²ΡΠ½Π½ΡΡ Π΄ΠΎΠΌΠΎΠ².
ΠΡΠΈ ΠΈΠ·Π³ΠΎΡΠΎΠ²Π»Π΅Π½ΠΈΠΈ ΠΊΠ°ΠΆΠ΄ΠΎΠ΅ Π±ΡΠ΅Π²Π½ΠΎ ΠΈ Π±ΡΡΡ ΠΏΡΠΎΡ ΠΎΠ΄ΠΈΡ ΡΡΠ°ΡΠ΅Π»ΡΠ½ΡΠΉ ΠΎΡΠ±ΠΎΡ Π½Π° Π±ΡΠ°ΠΊ ΠΈ ΠΎΠ±ΡΠ°Π±ΠΎΡΠΊΡ Π·Π°ΡΠΈΡΠ½ΡΠΌΠΈ ΡΠΎΡΡΠ°Π²Π°ΠΌΠΈ. ΠΡΠΎΠΌΠ΅ ΡΠΎΠ³ΠΎ, Π·Π°ΡΠΈΡΠ½ΠΎΠ΅ ΠΏΠΎΠΊΡΡΡΠΈΠ΅ Π½Π°Π½ΠΎΡΡΡ ΠΏΡΠΈ ΡΡΡΠ°Π½ΠΎΠ²ΠΊΠ΅ ΡΡΡΠ±Π° ΠΈ ΠΏΡΠΈ Π·Π°ΠΊΠ»ΡΡΠΈΡΠ΅Π»ΡΠ½ΠΎΠΉ ΠΎΡΠ΄Π΅Π»ΠΊΠ΅. ΠΡΠΎ ΠΏΠΎΠ·Π²ΠΎΠ»ΠΈΡ ΠΈΠ·Π±Π΅ΠΆΠ°ΡΡ Π½Π΅Π³Π°ΡΠΈΠ²Π½ΠΎΠ³ΠΎ Π²Π»ΠΈΡΠ½ΠΈΡ Π²Π»Π°Π³ΠΈ ΠΈ Π²Π΅ΡΡΠ°, ΠΏΠ΅ΡΠ΅ΠΏΠ°Π΄ΠΎΠ² ΡΠ΅ΠΌΠΏΠ΅ΡΠ°ΡΡΡ ΠΈ ΠΌΠΎΡΠΎΠ·ΠΎΠ², Π½Π°ΡΠ΅ΠΊΠΎΠΌΡΡ Π² Π΄ΡΠ΅Π²Π΅ΡΠΈΠ½Π΅. ΠΡΠ΅Π²Π½Π° ΠΈ Π±ΡΡΡ Π½Π΅ Π΄Π΅ΡΠΎΡΠΌΠΈΡΡΡΡΡΡ ΠΈ Π½Π΅ ΠΏΠΎΡΡΠ΅ΡΠΊΠ°ΡΡΡΡ, Π½Π΅ ΠΏΠΎΠΊΡΠΎΡΡΡΡ ΠΏΠ»Π΅ΡΠ΅Π½ΡΡ ΠΈΠ»ΠΈ Π³Π½ΠΈΠ»ΡΡ, ΠΏΡΠΎΡΠ»ΡΠΆΠ°Ρ ΠΏΡΠΎΠ΄ΠΎΠ»ΠΆΠΈΡΠ΅Π»ΡΠ½ΡΠΉ ΡΡΠΎΠΊ.
ΠΠ°ΡΡΠ΅ΡΠ° ΡΠΈΡΠΌΡ Π²ΡΠΏΠΎΠ»Π½ΡΡΡ ΠΏΠΎΠ»Π½ΡΠΉ ΡΠΏΠ΅ΠΊΡΡ ΡΠ°Π±ΠΎΡ, ΠΊΠΎΡΠΎΡΡΠΉ Π²ΠΊΠ»ΡΡΠ°Π΅Ρ ΠΏΡΠΎΠ΅ΠΊΡΠΈΡΠΎΠ²Π°Π½ΠΈΠ΅, ΡΡΡΠ°Π½ΠΎΠ²ΠΊΡ ΠΈ Π·Π°ΡΠΈΡΠ½ΡΡ ΠΎΠ±ΡΠ°Π±ΠΎΡΠΊΡ ΡΡΡΠ±Π°, Π²ΠΎΠ·Π²Π΅Π΄Π΅Π½ΠΈΠ΅ ΡΡΠ½Π΄Π°ΠΌΠ΅Π½ΡΠ° ΠΈ ΠΊΡΠΎΠ²Π»ΠΈ, ΠΎΡΠ΄Π΅Π»ΠΊΡ Π²Π½ΡΡΡΠΈ ΠΈ ΡΠ½Π°ΡΡΠΆΠΈ Π΄ΠΎΠΌΠ°. ΠΡΠΎΠΊΠ»Π°Π΄ΡΠ²Π°Π΅ΠΌ ΠΈ ΠΏΠΎΠ΄ΠΊΠ»ΡΡΠ°Π΅ΠΌ ΠΊΠΎΠΌΠΌΡΠ½ΠΈΠΊΠ°ΡΠΈΠΈ, ΡΡΡΠ°Π½Π°Π²Π»ΠΈΠ²Π°Π΅ΠΌ ΠΎΠΊΠ½Π°, Π² ΡΠΎΠΌ ΡΠΈΡΠ»Π΅ ΠΏΠ°Π½ΠΎΡΠ°ΠΌΠ½ΠΎΠ΅ ΠΎΡΡΠ΅ΠΊΠ»Π΅Π½ΠΈΠ΅. ΠΠ°ΡΠ°Π½ΡΠΈΡΡΠ΅ΠΌ ΠΊΠ°ΡΠ΅ΡΡΠ²ΠΎ ΠΈ Π½Π°Π΄Π΅ΠΆΠ½ΠΎΡΡΡ ΡΠ°Π±ΠΎΡ, Π²ΡΠΏΠΎΠ»Π½Π΅Π½ΠΈΠ΅ ΡΡΡΠΎΠΈΡΠ΅Π»ΡΡΡΠ²Π° Π² Π½Π°Π·Π½Π°ΡΠ΅Π½Π½ΡΠΉ ΡΡΠΎΠΊ!
blog.marisrub.ru
ΠΠΎΠΌ Π² ΡΡΠΈΠ»Π΅ Π»ΠΎΡΡ + ΡΠΎΡΠΎ
Π ΠΏΡΠΎΡΠ»ΠΎΠΌ Π²Π΅ΠΊΠ΅ ΠΌΠ½ΠΎΠ³ΠΈΠ΅ Ρ ΡΠ΄ΠΎΠΆΠ½ΠΈΠΊΠΈ ΠΈ ΠΏΡΠΎΡΠΈΠ΅ ΡΠ²ΠΎΡΡΠ΅ΡΠΊΠΈΠ΅ Π»ΠΈΡΠ½ΠΎΡΡΠΈ ΡΡΡΡΠ°ΠΈΠ²Π°Π»ΠΈ ΡΠ΅Π±Π΅ ΠΆΠΈΠ»ΡΠ΅ Π½Π° Π½Π΅ΡΠ°Π±ΠΎΡΠ°ΡΡΠΈΡ ΠΏΡΠΎΠΌΡΡΠ»Π΅Π½Π½ΡΡ ΠΎΠ±ΡΠ΅ΠΊΡΠ°Ρ ΠΈ ΠΎΡΠΎΡΠΌΠ»ΡΠ»ΠΈ Π΅Π³ΠΎ ΠΏΠΎ ΡΠ²ΠΎΠ΅ΠΌΡ Π²ΠΊΡΡΡ. Π‘ ΡΠΎΠ³ΠΎ ΠΌΠΎΠΌΠ΅Π½ΡΠ° ΠΈ ΠΏΠΎΡΠ»Π° ΠΈΡΡΠΎΡΠΈΡ ΡΡΠΈΠ»Ρ Π»ΠΎΡΡ Π² ΠΈΠ½ΡΠ΅ΡΡΠ΅ΡΠ΅.

Π‘Π΅ΠΉΡΠ°Ρ Π΄Π°Π½Π½ΠΎΠ΅ Π½Π°ΠΏΡΠ°Π²Π»Π΅Π½ΠΈΠ΅ ΠΎΡΠ΅Π½Ρ ΠΏΠΎΠΏΡΠ»ΡΡΠ½ΠΎ ΡΡΠ΅Π΄ΠΈ ΡΠ΅Ρ , ΠΊΡΠΎ Π½Π΅ ΠΏΡΠΈΠ΅ΠΌΠ»Π΅Ρ ΠΊΠ»Π°ΡΡΠΈΡΠ΅ΡΠΊΠΈΠ΅ ΠΊΠ°Π½ΠΎΠ½Ρ Π² Π΄ΠΈΠ·Π°ΠΉΠ½Π΅ ΠΈ Ρ ΠΎΡΠ΅Ρ ΡΠΎΠ·Π΄Π°ΡΡ Ρ ΡΠ΅Π±Ρ Π² Π΄ΠΎΠΌΠ΅ ΡΡΠΎ-ΡΠΎ ΠΏΠΎΠΈΡΡΠΈΠ½Π΅ ΡΠ½ΠΈΠΊΠ°Π»ΡΠ½ΠΎΠ΅ ΠΈ Π·Π°ΠΏΠΎΠΌΠΈΠ½Π°ΡΡΠ΅Π΅ΡΡ. ΠΡΠ»ΠΈ Π²Π»Π°Π΄Π΅Π»ΡΡΡ Π·Π°Π³ΠΎΡΠΎΠ΄Π½ΠΎΠ³ΠΎ Π΄ΠΎΠΌΠ° ΠΏΡΠΈΡΠ»Π° Π² Π³ΠΎΠ»ΠΎΠ²Ρ ΠΌΡΡΠ»Ρ ΠΎΡΠΎΡΠΌΠΈΡΡ Π΄ΠΎΠΌ Π² ΡΡΠΈΠ»Π΅ Π»ΠΎΡΡ, ΡΠΎ Π½Π΅ΠΎΠ±Ρ ΠΎΠ΄ΠΈΠΌΠΎ ΡΠ½Π°ΡΠ°Π»Π° ΡΠ·Π½Π°ΡΡ ΠΎΡΠ½ΠΎΠ²Π½ΡΠ΅ ΠΎΡΠ»ΠΈΡΠΈΡΠ΅Π»ΡΠ½ΡΠ΅ ΡΠ΅ΡΡΡ Π΄Π°Π½Π½ΠΎΠ³ΠΎ Π½Π°ΠΏΡΠ°Π²Π»Π΅Π½ΠΈΡ. Π Π½ΠΈΡ ΠΌΡ ΠΈ ΠΏΠΎΠ³ΠΎΠ²ΠΎΡΠΈΠΌ Π² ΡΡΠΎΠΉ ΡΡΠ°ΡΡΠ΅.

ΠΠ±ΡΠ°Ρ Ρ Π°ΡΠ°ΠΊΡΠ΅ΡΠΈΡΡΠΈΠΊΠ° ΡΡΠΈΠ»Ρ Π»ΠΎΡΡ
Π‘ΠΎΠ²ΡΠ΅ΠΌΠ΅Π½Π½ΡΠΉ ΡΡΠΈΠ»Ρ Π»ΠΎΡΡ ΡΡΠ΅Π±ΡΠ΅Ρ ΠΏΡΠΎΡΡΡΠ°Π½ΡΡΠ²Π° ΠΈ Π²ΡΡΠΎΠΊΠΈΡ ΠΏΠΎΡΠΎΠ»ΠΊΠΎΠ², Π° ΡΠ°ΠΊΠΆΠ΅ ΠΌΠΈΠ½ΠΈΠΌΡΠΌ ΠΎΡΠ΄Π΅Π»ΠΊΠΈ Π²ΡΠ΅Ρ ΠΏΠΎΠ²Π΅ΡΡ Π½ΠΎΡΡΠ΅ΠΉ. ΠΠΎΠΌΠ½Π°ΡΡ Π΄ΠΎΠ»ΠΆΠ½Ρ Π±ΡΡΡ ΠΌΠ°ΠΊΡΠΈΠΌΠ°Π»ΡΠ½ΠΎ ΠΎΡΠ²Π΅ΡΠ΅Π½Π½ΡΠΌΠΈ ΠΈ Π½Π΅ ΠΈΠΌΠ΅ΡΡΠΈΠΌΠΈ ΠΏΠ΅ΡΠ΅Π³ΠΎΡΠΎΠ΄ΠΎΠΊ, ΡΠ°ΠΊ ΠΊΠ°ΠΊ Π·Π΄Π΅ΡΡ ΡΠ΅Π½ΠΈΡΡΡ ΠΎΠ±ΡΠ°Ρ ΠΏΠ»ΠΎΡΠ°Π΄Ρ, ΠΊΠΎΡΠΎΡΡΡ ΠΌΠΎΠΆΠ½ΠΎ ΠΈΡΠΏΠΎΠ»ΡΠ·ΠΎΠ²Π°ΡΡ Π΄Π»Ρ ΠΏΡΠΎΠΆΠΈΠ²Π°Π½ΠΈΡ.

Π£ΡΡΡΠΎΠΈΡΡ Ρ ΡΠ΅Π±Ρ Π΄ΠΎΠΌΠ° ΡΠ°ΠΊΠΎΠ΅ ΠΎΡΠΎΡΠΌΠ»Π΅Π½ΠΈΠ΅ ΡΠΌΠΎΠΆΠ΅Ρ Π΄Π°ΠΆΠ΅ ΡΠΎΡ, Ρ ΠΊΠΎΠ³ΠΎ Π½Π΅ ΠΎΡΡΠ°Π»ΠΎΡΡ Π±ΠΎΠ»ΡΡΠΎΠ³ΠΎ ΠΊΠΎΠ»ΠΈΡΠ΅ΡΡΠ²Π° ΡΡΠ΅Π΄ΡΡΠ² ΠΏΠΎΡΠ»Π΅ ΠΏΠΎΠΊΡΠΏΠΊΠΈ Π½Π΅Π΄Π²ΠΈΠΆΠΈΠΌΠΎΡΡΠΈ ΠΈ ΠΎΡΠΎΡΠΌΠ»Π΅Π½ΠΈΡ ΠΏΡΠΈΠ΄ΠΎΠΌΠΎΠ²ΠΎΠ³ΠΎ ΡΡΠ°ΡΡΠΊΠ°.

ΠΡΠΎ Π²ΠΎΠ·ΠΌΠΎΠΆΠ½ΠΎ Π·Π° ΡΡΠ΅Ρ ΡΠΎΠ³ΠΎ, ΡΡΠΎ ΡΡΠΎΡ ΡΡΠΈΠ»Ρ Π½Π΅ ΡΡΠ΅Π±ΡΠ΅Ρ ΠΏΠΎΠΊΡΠΏΠΊΠΈ Π΄ΠΎΡΠΎΠ³ΠΎΡΡΠΎΡΡΠ΅ΠΉ ΠΌΠ΅Π±Π΅Π»ΠΈ ΠΈ ΠΏΡΠ΅Π΄ΠΌΠ΅ΡΠΎΠ² ΠΈΠ½ΡΠ΅ΡΡΠ΅ΡΠ°. ΠΠ»Ρ ΠΎΡΠΎΡΠΌΠ»Π΅Π½ΠΈΡ ΠΌΠΎΠΆΠ½ΠΎ ΠΈΡΠΏΠΎΠ»ΡΠ·ΠΎΠ²Π°ΡΡ ΠΎΡΡΠ°ΡΠΊΠΈ ΡΡΡΠΎΠΉΠΌΠ°ΡΠ΅ΡΠΈΠ°Π»ΠΎΠ² ΠΈ Π²ΡΠ΅ ΡΠΎ, ΡΠ΅ΠΌΡ Π΅ΡΠ΅ ΠΌΠΎΠΆΠ½ΠΎ Π΄Π°ΡΡ Π²ΡΠΎΡΡΡ ΠΆΠΈΠ·Π½Ρ.

ΠΡΠΎΠ΅ΠΊΡΡ Π΄ΠΎΠΌΠΎΠ² Π² ΡΡΠΈΠ»Π΅ Π»ΠΎΡΡ Π²ΡΠ΅Π³Π΄Π° ΠΎΡΠ»ΠΈΡΠ°ΡΡΡΡ Π½Π°Π»ΠΈΡΠΈΠ΅ΠΌ ΡΠ°Π·Π½ΠΎΠΎΠ±ΡΠ°Π·Π½ΡΡ Π½ΠΈΡ ΠΈΠ»ΠΈ Π²ΡΡΡΡΠΏΠΎΠ². Π€Π°ΡΠ°Π΄Ρ ΡΠ°ΠΊΠΈΡ Π΄ΠΎΠΌΠΎΠ² ΠΈΠΌΠ΅ΡΡ Π³ΡΡΠ±ΠΎΠ²Π°ΡΡΡ, Π±ΡΡΡΠ°Π»ΡΠ½ΡΡ ΠΎΡΠ΄Π΅Π»ΠΊΡ ΡΡΠ΅Π½ ΠΈ ΠΏΡΠΎΡΡΡΡ ΠΊΡΡΡΡ ΡΠ΅ΡΠΎΠ³ΠΎ ΠΈΠ»ΠΈ ΠΊΠΎΡΠΈΡΠ½Π΅Π²ΠΎΠ³ΠΎ ΠΎΡΡΠ΅Π½ΠΊΠ°. Π ΠΎΡΠΎΡΠΌΠ»Π΅Π½ΠΈΠΈ ΠΌΠ½ΠΎΠ³ΠΎ ΠΏΠ»Π°ΡΡΠΈΠΊΠ° ΠΈΠ»ΠΈ ΡΡΠ΅ΠΊΠ»Π°, ΠΊΠΎΡΠΎΡΡΠ΅ Π΄ΠΎΠΏΠΎΠ»Π½ΡΡΡ ΠΎΠΊΠ½Π° ΠΈ Π΄ΡΡΠ³ΠΈΠ΅ Π΄Π΅ΡΠ°Π»ΠΈ ΡΠ°ΡΠ°Π΄Π° Π΄ΠΎΠΌΠ°. Π’Π°ΠΊΠΎΠ΅ ΠΎΡΠΎΡΠΌΠ»Π΅Π½ΠΈΠ΅ ΠΏΠ΅ΡΠ΅Π΄Π°Π΅Ρ ΡΡΠ²ΡΡΠ²ΠΎ ΡΠ²ΠΎΠ±ΠΎΠ΄Ρ, ΠΊΠΎΡΠΎΡΠΎΠ΅ ΠΎΡΠ΅Π½Ρ Π²Π°ΠΆΠ½ΠΎ Π΄Π»Ρ Π΄Π°Π½Π½ΠΎΠ³ΠΎ ΡΡΠΈΠ»Π΅Π²ΠΎΠ³ΠΎ Π½Π°ΠΏΡΠ°Π²Π»Π΅Π½ΠΈΡ.

ΠΠ±ΡΡΠ½ΠΎ Π²Π½ΡΡΡΠΈ Π΄ΠΎΠΌ ΠΎΡΠ΄Π΅Π»ΡΠ²Π°Π΅ΡΡΡ ΡΠ°ΠΌΡΠΌΠΈ ΠΈΠ½ΡΠ΅ΡΠ΅ΡΠ½ΡΠΌΠΈ ΡΠΎΡΠ΅ΡΠ°Π½ΠΈΡΠΌΠΈ Π½Π°ΡΡΡΠ°Π»ΡΠ½ΠΎΠ³ΠΎ ΠΌΠ°ΡΠ΅ΡΠΈΠ°Π»Π° Ρ ΠΈΡΠΊΡΡΡΡΠ²Π΅Π½Π½ΡΠΌ. ΠΡΠΎ ΠΌΠΎΠΆΠ΅Ρ Π±ΡΡΡ, Π½Π°ΠΏΡΠΈΠΌΠ΅Ρ, ΡΠΎΡΠ΅Π΄ΡΡΠ²ΠΎ ΠΊΠΈΡΠΏΠΈΡΠ½ΠΎΠΉ ΠΊΠ»Π°Π΄ΠΊΠΈ ΡΠΎ ΡΡΠ΅ΠΊΠ»ΠΎΠΌ.

ΠΡΠ΅Π½Ρ Π°ΠΊΡΡΠ°Π»ΡΠ½Π° ΡΠ΅ΠΌΠ° ΡΠ°Π·Π±ΠΈΡΠΈΡ ΠΏΡΠΎΡΡΡΠ°Π½ΡΡΠ²Π° Π»ΠΎΡΡ Π½Π° Π·ΠΎΠ½Ρ. ΠΠ΄Π΅ΡΡ Π½Π΅Ρ ΠΏΡΠΈΠ²ΡΡΠ½ΡΡ Π²ΡΠ΅ΠΌ ΠΏΠ΅ΡΠ΅Π³ΠΎΡΠΎΠ΄ΠΎΠΊ, Π° ΡΡΠ½ΠΊΡΠΈΠΎΠ½Π°Π»ΡΠ½ΡΠ΅ Π·ΠΎΠ½Ρ Π²ΡΠ΄Π΅Π»ΡΡΡΡΡ ΠΏΡΡΠ΅ΠΌ ΡΠ°Π·Π»ΠΈΡΠ½ΠΎΠ³ΠΎ Π΄Π΅ΠΊΠΎΡΠΈΡΠΎΠ²Π°Π½ΠΈΡ, ΡΠΌΠ΅Π½Ρ ΠΎΡΠ²Π΅ΡΠ΅Π½ΠΈΡ, ΡΠΎΠ·Π΄Π°Π½ΠΈΡ ΠΏΠΎΠ΄ΠΈΡΠΌΠΎΠ² ΠΈ ΠΏΡΠΎΡΠΈΡ ΡΠ»Π΅ΠΌΠ΅Π½ΡΠΎΠ². Π§Π°ΡΡΠΎ Π² ΡΡΠΈΠ»Π΅ Π»ΠΎΡΡ ΠΌΠΎΠΆΠ½ΠΎ Π½Π°Π±Π»ΡΠ΄Π°ΡΡ Π½Π°Π»ΠΈΡΠΈΠ΅ ΡΡΡΠ±, ΠΊΠΎΡΠΎΡΡΠ΅ Π½ΠΈΠΊΠΎΠΈΠΌ ΠΎΠ±ΡΠ°Π·ΠΎΠΌ Π½Π΅ Π΄Π΅ΠΊΠΎΡΠΈΡΡΡΡΡΡ. ΠΠ½ΠΈ ΠΌΠΎΠ³ΡΡ Π½Π°Ρ ΠΎΠ΄ΠΈΡΡΡΡ ΠΏΠΎΠ΄ ΠΏΠΎΡΠΎΠ»ΠΊΠΎΠΌ, Π²Π΄ΠΎΠ»Ρ ΡΡΠ΅Π½ ΠΈΠ»ΠΈ ΠΏΠΎΠ»Π°.

ΠΡΠΎΡΠΌΠ»Π΅Π½ΠΈΠ΅ Π² ΡΡΠΈΠ»Π΅ Π»ΠΎΡΡ Π² ΡΠ°Π·Π½ΡΡ ΠΏΠΎΠΌΠ΅ΡΠ΅Π½ΠΈΡΡ
ΠΠ΅Π΄ΡΡΠΈΠ΅ Π΄ΠΈΠ·Π°ΠΉΠ½Π΅ΡΡ ΡΠΆΠ΅ Π΄Π°Π²Π½ΠΎ ΠΏΡΠΈΠ½ΡΠ»ΠΈ ΠΊ ΡΠ²Π΅Π΄Π΅Π½ΠΈΡ ΡΠ°ΠΊΠΎΠΉ ΠΌΠ½ΠΎΠ³ΠΎΠ³ΡΠ°Π½Π½ΡΠΉ ΡΡΠΈΠ»Ρ ΠΈΠ½ΡΠ΅ΡΡΠ΅ΡΠ° ΠΈ ΡΠ°ΡΡΠΎ ΡΠΊΡΠ°ΡΠ°ΡΡ ΠΈΠΌ ΠΊΠ²Π°ΡΡΠΈΡΡ ΠΈ Π·Π°Π³ΠΎΡΠΎΠ΄Π½ΡΠ΅ Π΄ΠΎΠΌΠ°. ΠΠ»Ρ ΡΠΎΠ·Π΄Π°Π½ΠΈΡ ΠΊΠ°ΡΠ΅ΡΡΠ²Π΅Π½Π½ΠΎΠ³ΠΎ ΠΎΡΠΎΡΠΌΠ»Π΅Π½ΠΈΡ Π½Π΅ΠΎΠ±Ρ ΠΎΠ΄ΠΈΠΌΠΎ Π²ΡΠ΄Π΅ΡΠΆΠ°ΡΡ ΠΎΠΏΡΠ΅Π΄Π΅Π»Π΅Π½Π½ΡΡ ΠΊΠΎΠ½ΡΠ΅ΠΏΡΠΈΡ, ΠΊΠΎΡΠΎΡΠ°Ρ Π½Π΅ΠΌΠ½ΠΎΠ³ΠΎ ΠΌΠ΅Π½ΡΠ΅ΡΡΡ Π² Π·Π°Π²ΠΈΡΠΈΠΌΠΎΡΡΠΈ ΠΎΡ ΠΏΠΎΠΌΠ΅ΡΠ΅Π½ΠΈΡ, Π² ΠΊΠΎΡΠΎΡΠΎΠΌ Π²ΡΠΏΠΎΠ»Π½ΡΠ΅ΡΡΡ Π΄ΠΈΠ·Π°ΠΉΠ½-ΠΏΡΠΎΠ΅ΠΊΡ. Π Π°ΡΡΠΌΠΎΡΡΠΈΠΌ Π±ΠΎΠ»Π΅Π΅ ΡΠ°ΡΠΏΡΠΎΡΡΡΠ°Π½Π΅Π½Π½ΡΠ΅ Π²Π°ΡΠΈΠ°Π½ΡΡ ΠΎΡΠΎΡΠΌΠ»Π΅Π½ΠΈΡ ΠΈ ΠΎΡΠΎΠ±Π΅Π½Π½ΠΎΡΡΠΈ ΡΡΠΈΠ»Ρ Π»ΠΎΡΡ Π² ΡΠ°Π·Π»ΠΈΡΠ½ΡΡ ΠΊΠΎΠΌΠ½Π°ΡΠ°Ρ Π΄ΠΎΠΌΠ°.

ΠΠΎΡΡΠΈΠ½Π°Ρ Π² ΡΡΠΈΠ»Π΅ Π»ΠΎΡΡ
ΠΠ±ΡΡΠ½ΠΎ Π² Π»ΡΠ±ΠΎΠΌ Π΄ΠΎΠΌΠ΅ Π³ΠΎΡΡΠΈΠ½Π°Ρ ΡΡΠ°Π½ΠΎΠ²ΠΈΡΡΡ Π³Π»Π°Π²Π½ΡΠΌ ΠΈ ΡΠ°ΠΌΡΠΌ ΠΏΠ΅ΡΠ²ΡΠΌ ΠΌΠ΅ΡΡΠΎΠΌ, ΠΊΡΠ΄Π° ΠΏΡΠΈΠ³Π»Π°ΡΠ°ΡΡ Π³ΠΎΡΡΠ΅ΠΉ. ΠΠ»Ρ ΡΡΠΈΠ»Ρ Π»ΠΎΡΡ ΠΎΠ±ΡΠ·Π°ΡΠ΅Π»ΡΠ½ΠΎ Π½ΡΠΆΠ½ΠΎ ΠΏΡΠΎΡΡΠΎΡΠ½ΠΎΠ΅ ΠΏΠΎΠΌΠ΅ΡΠ΅Π½ΠΈΠ΅ Ρ Π²ΡΡΠΎΠΊΠΈΠΌΠΈ ΠΏΠΎΡΠΎΠ»ΠΊΠ°ΠΌΠΈ. ΠΡΠ΅Π½Ρ ΠΊΡΠ°ΡΠΈΠ²ΠΎ Π²ΡΠ³Π»ΡΠ΄ΡΡ ΡΡΠ΅Π½Ρ Ρ ΠΊΠΈΡΠΏΠΈΡΠ½ΠΎΠΉ ΠΎΡΠ΄Π΅Π»ΠΊΠΎΠΉ. ΠΡΠ»ΠΈ ΡΠ°ΠΌΠΈ ΠΏΠΎ ΡΠ΅Π±Π΅ ΠΎΠ½ΠΈ Π½Π΅ΠΊΠΈΡΠΏΠΈΡΠ½ΡΠ΅, ΡΠΎ Π΅ΡΡΡ Π²Π°ΡΠΈΠ°Π½Ρ ΡΡΡΡΠΎΠΈΡΡ ΠΊΠ»Π°Π΄ΠΊΡ ΠΈΠ»ΠΈ ΠΆΠ΅ ΠΏΠΎΠΊΡΡΡΡ ΠΏΠΎΠ²Π΅ΡΡ Π½ΠΎΡΡΠΈ Π΄Π΅ΠΊΠΎΡΠ°ΡΠΈΠ²Π½ΡΠΌΠΈ ΠΏΠ°Π½Π΅Π»ΡΠΌΠΈ.

ΠΠ»Ρ Π±ΠΎΠ»ΡΡΠ΅Π³ΠΎ ΠΊΠΎΠΌΡΠΎΡΡΠ° ΡΠ°Π·ΠΌΠ΅ΡΠ΅Π½ΠΈΡ, ΠΏΠΎΡΠ΅ΡΠ΅Π΄ΠΈΠ½Π΅ ΠΊΠΎΠΌΠ½Π°ΡΡ ΠΈΠ»ΠΈ Ρ ΡΡΠ΅Π½Ρ Π½ΡΠΆΠ½ΠΎ ΠΏΠΎΡΡΠ°Π²ΠΈΡΡ Π±ΠΎΠ»ΡΡΠΎΠΉ ΠΊΠΎΠΆΠ°Π½ΡΠΉ Π΄ΠΈΠ²Π°Π½, Π»ΡΡΡΠ΅, Π΅ΡΠ»ΠΈ ΠΎΠ½ Π±ΡΠ΄Π΅Ρ ΠΏΠΎΠ»ΡΠΊΡΡΠ³Π»ΡΠΌ. ΠΠ΄Π΅Π°Π»ΡΠ½ΠΎ Π²ΠΏΠΈΡΠ΅ΡΡΡ Π² Π·ΠΎΠ½Ρ ΠΎΡΠ΄ΡΡ Π° Π½Π΅Π±ΠΎΠ»ΡΡΠΎΠΉ ΡΡΠΎΠ»-ΡΡΠ°Π½ΡΡΠΎΡΠΌΠ΅Ρ, ΠΊΠΎΡΠΎΡΡΠΉ ΠΏΡΠΈ Π½Π΅ΠΎΠ±Ρ ΠΎΠ΄ΠΈΠΌΠΎΡΡΠΈ ΠΌΠΎΠΆΠ½ΠΎ ΠΏΡΠ΅Π²ΡΠ°ΡΠΈΡΡ Π² Π±ΠΎΠ»ΡΡΠΎΠΉ ΠΎΠ±Π΅Π΄Π΅Π½Π½ΡΠΉ.

Π ΡΠ°ΡΡΠ½ΡΡ Π΄ΠΎΠΌΠ°Ρ ΡΠ°ΡΠΏΡΠΎΡΡΡΠ°Π½Π΅Π½ΠΎ Π½Π°Π»ΠΈΡΠΈΠ΅ ΠΊΠ°ΠΌΠΈΠ½Π° Π² Π³ΠΎΡΡΠΈΠ½ΠΎΠΉ. Π Π±ΠΎΠ»ΡΡΠΈΠ½ΡΡΠ²Π΅ ΡΠ»ΡΡΠ°Π΅Π² ΠΎΠ½ ΡΠΆΠ΅ ΠΏΠΎ ΡΠΌΠΎΠ»ΡΠ°Π½ΠΈΡ Π·Π°ΠΊΠ»Π°Π΄ΡΠ²Π°Π΅ΡΡΡ Π² ΠΏΡΠΎΠ΅ΠΊΡ Π΄ΠΎΠΌΠ°. ΠΠΎ, Π΅ΡΠ»ΠΈ ΡΠ°ΠΊΠΎΠ²ΠΎΠ³ΠΎ Π½Π΅Ρ Π² ΠΏΠ»Π°Π½Π°Ρ , ΡΠΎ Π½Π΅ΠΎΠ±ΡΠ·Π°ΡΠ΅Π»ΡΠ½ΠΎ ΠΎΡΠΊΠ°Π·ΡΠ²Π°ΡΡ ΡΠ΅Π±Π΅ Π² ΡΡΠΎΠΌ ΡΠ»Π΅ΠΌΠ΅Π½ΡΠ΅ ΠΈΠ½ΡΠ΅ΡΡΠ΅ΡΠ°. ΠΠΎΡΡΠ°ΡΠΎΡΠ½ΠΎ ΠΏΡΠΈΠΎΠ±ΡΠ΅ΡΡΠΈ ΡΠ»Π΅ΠΊΡΡΠΈΡΠ΅ΡΠΊΡΡ ΠΌΠΎΠ΄Π΅Π»Ρ, ΠΊΠΎΡΠΎΡΠ°Ρ ΡΡΠ°Π½Π΅Ρ ΠΈΠ΄Π΅Π°Π»ΡΠ½ΡΠΌ Π΄ΠΎΠΏΠΎΠ»Π½Π΅Π½ΠΈΠ΅ΠΌ Π³ΠΎΡΡΠΈΠ½ΠΎΠΉ Π² ΡΡΠΈΠ»Π΅ Π»ΠΎΡΡ.

ΠΡΠ±ΠΎΠΉ ΠΈΠ½ΡΠ΅ΡΡΠ΅Ρ Π½Π΅ ΡΡΠΈΡΠ°Π΅ΡΡΡ Π·Π°ΠΊΠΎΠ½ΡΠ΅Π½Π½ΡΠΌ, Π΅ΡΠ»ΠΈ Π² Π½Π΅ΠΌ Π½Π΅ Π²ΡΡΡΠ°Π²Π»Π΅Π½Ρ Π½ΡΠΆΠ½ΡΠ΅ Π°ΠΊΡΠ΅Π½ΡΡ ΠΈ Ρ Π²Π°ΡΠ°Π΅Ρ Π΄Π΅ΠΊΠΎΡΠ°ΡΠΈΠ²Π½ΡΡ ΡΠ»Π΅ΠΌΠ΅Π½ΡΠΎΠ². ΠΠ»Ρ ΡΡΠΈΠ»Ρ Π»ΠΎΡΡ ΠΏΠΎΠ½Π°Π΄ΠΎΠ±ΡΡΡΡ ΡΡΠΊΠΈΠ΅ ΠΏΠΎΡΡΠ΅ΡΡ Π΄Π»Ρ ΡΡΠ΅Π½ ΠΈΠ»ΠΈ ΠΈΡ ΡΠΎΡΠΏΠΈΡΡ Π² Π²ΠΈΠ΄Π΅ Π³ΡΠ°ΡΡΠΈΡΠΈ. ΠΠΎΠ» ΡΠ°ΡΠ΅ Π²ΡΠ΅Π³ΠΎ ΡΠΊΡΠ°ΡΠ°Π΅ΡΡΡ ΠΊΠΎΠ²ΡΠΎΠΌ Ρ Π³Π΅ΠΎΠΌΠ΅ΡΡΠΈΡΠ΅ΡΠΊΠΈΠΌ ΡΠΈΡΡΠ½ΠΊΠΎΠΌ, Π½Π° Π½Π΅Π³ΠΎ ΡΡΡΠ°Π½Π°Π²Π»ΠΈΠ²Π°ΡΡΡΡ Π²ΡΡΠΎΠΊΠΈΠ΅ Π²Π°Π·Ρ, Π° Π½Π° ΠΏΠΎΠ»ΠΊΠΈ β ΠΈΠ½ΡΠ΅ΡΠ΅ΡΠ½ΡΠ΅ ΠΏΠΎΠ΄ΡΠ²Π΅ΡΠ½ΠΈΠΊΠΈ, ΡΠ»Π΅ΠΌΠ΅Π½ΡΡ ΠΈΠ½ΡΠ΅ΡΡΠ΅ΡΠ° Π² ΡΠΎΠ²ΡΠ΅ΠΌΠ΅Π½Π½ΠΎΠΌ ΡΡΠΈΠ»Π΅, Π΄ΠΈΠ·Π°ΠΉΠ½Π΅ΡΡΠΊΠΈΠ΅ Π±Π΅Π·Π΄Π΅Π»ΡΡΠΊΠΈ.

Π‘ΠΏΠ°Π»ΡΠ½Ρ Π² ΡΡΠΈΠ»Π΅ Π»ΠΎΡΡ
Π‘ΠΏΠ°Π»ΡΠ½Π°Ρ Π·ΠΎΠ½Π° Π² ΡΡΠΈΠ»Π΅ Π»ΠΎΡΡ Π΄ΠΎΠ»ΠΆΠ½Π° ΠΏΠΎΠ»ΡΡΠΈΡΡΡΡ Π±ΠΎΠ»Π΅Π΅ ΡΠΏΠΎΠΊΠΎΠΉΠ½ΠΎΠΉ, ΡΠ΅ΠΌ Π³ΠΎΡΡΠΈΠ½Π°Ρ, ΠΏΠΎΡΡΠΎΠΌΡ Π΄Π»Ρ ΠΎΡΠΎΡΠΌΠ»Π΅Π½ΠΈΡ ΡΡΠ΅Π½ ΡΡΠΎΠΉ ΠΊΠΎΠΌΠ½Π°ΡΡ ΠΈΡΠΏΠΎΠ»ΡΠ·ΡΠ΅ΡΡΡ ΡΡΡΠΊΠ°ΡΡΡΠΊΠ°.
ΠΠ°ΠΆΠ½ΠΎ! ΠΠ° Π³ΠΎΡΠΎΠ²ΠΎΠΌ ΠΏΠΎΠΊΡΡΡΠΈΠΈ Π½Π΅ΠΎΠ±Ρ ΠΎΠ΄ΠΈΠΌΠΎ ΡΠΎΠ·Π΄Π°ΡΡ ΡΡΡΠ΅ΠΊΡ ΠΏΠΎΡΠ΅ΡΡΠΎΡΡΠΈ, ΠΊΠΎΡΠΎΡΠ°Ρ Π²ΠΎΠ·Π½ΠΈΠΊΠ»Π° ΠΎΡ ΡΡΠ°ΡΠΎΡΡΠΈ.

ΠΠ»Ρ Π½Π°ΠΏΠΎΠ»ΡΠ½ΠΎΠ³ΠΎ ΠΏΠΎΠΊΡΡΡΠΈΡ Π²ΡΠ±ΠΈΡΠ°Π΅ΡΡΡ ΠΏΠ°ΡΠΊΠ΅ΡΠ½Π°Ρ Π΄ΠΎΡΠΊΠ° Π³ΡΡΠ±ΠΎΠΉ ΠΎΡΠ΄Π΅Π»ΠΊΠΈ ΠΈΠ»ΠΈ Π»Π°ΠΌΠΈΠ½Π°Ρ ΡΠ΅ΡΠΎΠ³ΠΎ ΡΠ²Π΅ΡΠ°.

ΠΠ±ΡΠ·Π°ΡΠ΅Π»ΡΠ½ΡΠΌ ΡΠ»Π΅ΠΌΠ΅Π½ΡΠΎΠ² Π² ΡΠΏΠ°Π»ΡΠ½Π΅ ΡΠ²Π»ΡΠ΅ΡΡΡ ΠΊΡΠΎΠ²Π°ΡΡ, ΠΊΠΎΡΠΎΡΠ°Ρ Π΄Π»Ρ ΡΡΠΈΠ»Ρ Π»ΠΎΡΡ ΠΌΠΎΠΆΠ΅Ρ ΡΠΎΠ΄Π΅ΡΠΆΠ°ΡΡ Π² ΡΠ΅Π±Π΅ ΠΈΠ½ΡΠ΅ΡΠ΅ΡΠ½ΠΎ ΠΎΡΠΎΡΠΌΠ»Π΅Π½Π½ΠΎΠ΅ ΠΈΠ·Π³ΠΎΠ»ΠΎΠ²ΡΠ΅. Π‘ Π΄Π²ΡΡ ΡΡΠΎΡΠΎΠ½ ΠΎΡ ΠΊΡΠΎΠ²Π°ΡΠΈ ΡΡΡΠ°Π½Π°Π²Π»ΠΈΠ²Π°ΡΡΡΡ ΡΡΠΌΠ±Ρ, ΠΊΠΎΡΠΎΡΡΠ΅ Π²ΡΠΏΠΎΠ»Π½ΡΡΡΡΡ Π² ΠΌΠ°ΠΊΡΠΈΠΌΠ°Π»ΡΠ½ΠΎ ΠΏΡΠΎΡΡΡΡ ΡΠΎΡΠΌΠ°Ρ ΠΈΠ· ΠΌΠ΅ΡΠ°Π»Π»Π° ΠΈΠ»ΠΈ Π΄Π΅ΡΠ΅Π²Π°. ΠΡΠ»ΠΈ ΠΏΡΠΎΡΡΡΠ°Π½ΡΡΠ²ΠΎ ΠΏΠΎΠ·Π²ΠΎΠ»ΡΠ΅Ρ, ΡΠΎ Π² ΡΠΏΠ°Π»ΡΠ½Π΅ ΠΌΠΎΠΆΠ΅Ρ Π±ΡΡΡ ΡΡΡΠ°Π½ΠΎΠ²Π»Π΅Π½ΠΎ ΠΊΡΠ΅ΡΠ»ΠΎ-ΠΊΠ°ΡΠ°Π»ΠΊΠ° ΠΈΠ»ΠΈ Π²ΡΡΠΎΠΊΠΎΠ΅ Π·Π΅ΡΠΊΠ°Π»ΠΎ Π½Π° ΡΡΠΎΠΉΠΊΠ΅.
ΠΠ»Ρ ΡΠΏΠ°Π»ΡΠ½ΠΈ ΠΈΡΠΏΠΎΠ»ΡΠ·ΡΡΡΡΡ ΡΠ»Π΅Π΄ΡΡΡΠΈΠ΅ Π΄Π΅ΠΊΠΎΡΠ°ΡΠΈΠ²Π½ΡΠ΅ ΡΠ»Π΅ΠΌΠ΅Π½ΡΡ:
- Π’Π΅ΠΌΠ½ΠΎΠ΅ ΠΏΠΎΠΊΡΡΠ²Π°Π»ΠΎ ΠΈΠ»ΠΈ ΠΏΠ»Π΅Π΄ Π΄Π»Ρ ΠΊΡΠΎΠ²Π°ΡΠΈ.
- ΠΠ°ΠΏΠΎΠ»ΡΠ½ΡΠΉ ΠΊΠΎΠ²Π΅Ρ Ρ Π³Π΅ΠΎΠΌΠ΅ΡΡΠΈΡΠ΅ΡΠΊΠΈΠΌ ΡΠΈΡΡΠ½ΠΊΠΎΠΌ.
- ΠΠΎΠ΄ΡΠ»ΡΠ½Π°Ρ ΠΊΠ°ΡΡΠΈΠ½Π° Π² ΡΠΎΠ²ΡΠ΅ΠΌΠ΅Π½Π½ΠΎΠΌ ΡΡΠΈΠ»Π΅.
- Π’ΠΎΡΡΠ΅Ρ ΠΈΠ»ΠΈ ΠΏΡΠΈΠΊΡΠΎΠ²Π°ΡΠ½ΡΠ΅ ΡΡΠΌΠ±Ρ.

ΠΡΡ Π½Ρ Π² ΡΡΠΈΠ»Π΅ Π»ΠΎΡΡ
ΠΠ»Ρ Π·Π°Π³ΠΎΡΠΎΠ΄Π½ΠΎΠ³ΠΎ Π΄ΠΎΠΌΠ° Π² ΡΡΠΈΠ»Π΅ Π»ΠΎΡΡ Π²Π°ΠΆΠ½ΠΎ Π³ΡΠ°ΠΌΠΎΡΠ½ΠΎ ΠΎΠ±ΡΡΡΡΠΎΠΈΡΡ ΠΊΡΡ Π½Ρ ΡΠ°ΠΊ, ΡΡΠΎΠ±Ρ ΠΎΠ½Π° Π±ΡΠ»Π° Π½Π΅ ΡΠΎΠ»ΡΠΊΠΎ ΠΊΡΠ°ΡΠΈΠ²ΠΎΠΉ ΠΈ ΡΠΎΠ²ΡΠ΅ΠΌΠ΅Π½Π½ΠΎΠΉ, Π½ΠΎ ΠΈ ΡΡΠΈΠ»ΡΠ½ΠΎΠΉ. ΠΡΡ Π½ΠΈ Π² ΡΡΠΈΠ»Π΅ Π»ΠΎΡΡ ΡΠΌΠΎΡΡΡΡΡΡ ΠΌΠ°ΠΊΡΠΈΠΌΠ°Π»ΡΠ½ΠΎ ΠΎΡΠ³Π°Π½ΠΈΡΠ½ΠΎ ΠΈΠ·-Π·Π° ΡΠΎΡΠ΅ΡΠ°Π½ΠΈΡ Ρ ΡΠΎΠΌΠΈΡΠΎΠ²Π°Π½Π½ΠΎΠΉ ΡΠ΅Ρ Π½ΠΈΠΊΠΈ ΠΈ ΠΌΠ΅Π±Π΅Π»ΠΈ Ρ ΠΌΠ΅ΡΠ°Π»Π»ΠΈΡΠ΅ΡΠΊΠΈΠΌΠΈ ΡΠ°ΡΠ°Π΄Π°ΠΌΠΈ. Π ΡΠΎΠΌΡ ΠΆΠ΅ ΡΠ°ΠΊΠΈΠ΅ Π΄Π΅ΡΠ°Π»ΠΈ ΠΏΡΠ΅ΠΊΡΠ°ΡΠ½ΠΎ ΡΠΎΡΠ΅ΡΠ°ΡΡΡΡ Ρ ΠΊΠΈΡΠΏΠΈΡΠ½ΠΎΠΉ ΡΡΠ΅Π½ΠΎΠΉ, Π²Π½Π΅ Π·Π°Π²ΠΈΡΠΈΠΌΠΎΡΡΠΈ ΠΎΡ Π΅Π΅ ΡΠ²Π΅ΡΠ°.

ΠΡΠ΅Π½Ρ ΡΠ΄ΠΎΠ±Π½ΠΎ ΠΈ Π² ΡΠΎ ΠΆΠ΅ Π²ΡΠ΅ΠΌΡ ΡΠΎΠΎΡΠ²Π΅ΡΡΡΠ²ΡΡΡΠ΅ ΡΡΠΈΠ»Ρ Π»ΠΎΡΡ ΡΠΎΠ΅Π΄ΠΈΠ½Π΅Π½ΠΈΠ΅ ΠΊΡΡ Π½ΠΈ Ρ Π³ΠΎΡΡΠΈΠ½ΠΎΠΉ. ΠΡΠΈ ΡΡΠΎΠΌ ΠΊΠ°ΠΆΠ΄Π°Ρ Π·ΠΎΠ½Π° Π²ΡΠΏΠΎΠ»Π½ΡΠ΅ΡΡΡ ΡΠ°ΠΊ, ΡΡΠΎΠ±Ρ Π±ΡΠ»ΠΎ ΠΎΡΡΡΠ΅Π½ΠΈΠ΅ ΡΠ°Π·Π΄Π΅Π»ΡΠ½ΠΎΡΡΠΈ. ΠΡΠΎ ΠΌΠΎΠΆΠ΅Ρ Π±ΡΡΡ Π΄Π΅ΠΊΠΎΡΠ°ΡΠΈΠ²Π½Π°Ρ ΠΎΡΠ΄Π΅Π»ΠΊΠ° ΠΈΠ»ΠΈ ΡΠΌΠ΅Π½Π° ΠΎΡΠ²Π΅ΡΠ΅Π½ΠΈΡ.

ΠΡΡ Π½Ρ Π΄Π°Π½Π½ΠΎΠ³ΠΎ ΡΡΠΈΠ»Π΅Π²ΠΎΠ³ΠΎ Π½Π°ΠΏΡΠ°Π²Π»Π΅Π½ΠΈΡ ΠΎΠ±ΠΎΡΡΠ΄ΡΠ΅ΡΡΡ ΠΏΠΎ ΠΏΠΎΡΠ»Π΅Π΄Π½Π΅ΠΌΡ ΡΠ»ΠΎΠ²Ρ ΡΠ΅Ρ Π½ΠΈΠΊΠΈ. ΠΠΊΠ½Π° Π² ΡΡΠΎΠΌ ΠΏΠΎΠΌΠ΅ΡΠ΅Π½ΠΈΠΈ ΠΎΡΠΎΡΠΌΠ»ΡΡΡΡΡ ΡΡΡΠΎΠ³ΠΈΠΌΠΈ ΡΠ΅ΡΡΠΌΠΈ ΠΆΠ°Π»ΡΠ·ΠΈ, Π° Π½Π° ΠΏΠΎΠ»ΠΊΠ°Ρ ΠΌΠΎΠ³ΡΡ ΡΡΠΎΡΡΡ ΠΏΡΠΎΡΡΡΠ΅ ΡΠ²Π΅ΡΠΎΡΠ½ΡΠ΅ Π³ΠΎΡΡΠΊΠΈ Ρ Π°ΡΠΎΠΌΠ°ΡΠ½ΡΠΌΠΈ ΠΏΡΡΠ½ΡΠΌΠΈ ΡΡΠ°Π²Π°ΠΌΠΈ. ΠΠΎ Ρ ΡΠ°ΡΡΠ΅Π½ΠΈΡΠΌΠΈ Π»ΡΡΡΠ΅ Π½Π΅ ΠΏΠ΅ΡΠ΅ΡΡΠ΅ΡΠ΄ΡΡΠ²ΠΎΠ²Π°ΡΡ.

ΠΠ°ΠΊ ΠΏΡΠ°Π²ΠΈΠ»ΠΎ, ΠΌΠ΅Π±Π΅Π»Ρ Π΄Π»Ρ ΠΊΡΡ Π½ΠΈ Π²ΡΠ±ΠΈΡΠ°Π΅ΡΡΡ Π² Π²ΠΈΠ΄Π΅ ΠΊΠΎΠΌΠΏΠ»Π΅ΠΊΡΠ°. ΠΠ΄ΠΎΠ»Ρ ΡΡΠ΅Π½ ΠΎΡΠΎΡΠΌΠ»ΡΠ΅ΡΡΡ ΠΌΠΎΠΉΠΊΠ° ΠΈ ΡΠ°ΡΡΡ ΡΠ°Π±ΠΎΡΠ΅ΠΉ Π·ΠΎΠ½Ρ, Π° ΠΏΠΎΡΠ΅ΡΠ΅Π΄ΠΈΠ½Π΅ ΡΡΡΠ°Π½Π°Π²Π»ΠΈΠ²Π°Π΅ΡΡΡ ΡΡΠΎΠ»-ΠΎΡΡΡΠΎΠ², ΠΊΠΎΡΠΎΡΠΎΠΉ ΡΠ°ΠΊΠΆΠ΅ ΡΡΠ°Π½ΠΎΠ²ΠΈΡΡΡ ΠΏΡΠ΅ΠΊΡΠ°ΡΠ½ΠΎΠΉ Π·ΠΎΠ½ΠΎΠΉ ΠΏΡΠΈΠ³ΠΎΡΠΎΠ²Π»Π΅Π½ΠΈΡ ΠΏΠΈΡΠΈ.
ΠΠ°ΠΊΠ»ΡΡΠ΅Π½ΠΈΠ΅
Π‘ΡΠΈΠ»Ρ Π»ΠΎΡΡ ΡΠΎΠ·Π΄Π°Π½ Π΄Π»Ρ ΡΠ΅Ρ , ΠΊΡΠΎ ΡΡΠΈΡΠ°Π΅Ρ ΡΠ΅Π±Ρ ΠΆΠΈΡΠ΅Π»Π΅ΠΌ ΠΌΠ΅Π³Π°ΠΏΠΎΠ»ΠΈΡΠ° ΠΈ Π΄Π°ΠΆΠ΅ Π·Π° Π³ΠΎΡΠΎΠ΄ΠΎΠΌ Π½Π΅ Ρ ΠΎΡΠ΅Ρ ΡΡ ΠΎΠ΄ΠΈΡΡ ΠΎΡ ΡΡΠΎΠΉ Π°ΡΠΌΠΎΡΡΠ΅ΡΡ. ΠΠ΄Π΅ΡΡ ΡΠ΄Π°ΡΠ½ΠΎ ΡΠΎΡΠ΅ΡΠ°ΡΡΡΡ, ΠΊΠ°Π·Π°Π»ΠΎΡΡ Π±Ρ, ΡΠ°ΠΌΡΠ΅ ΠΏΡΠΎΡΡΡΠ΅ ΠΈΠ΄Π΅ΠΈ, ΠΏΡΠ΅Π²ΡΠ°ΡΠ°Ρ Π²Π½ΡΡΡΠ΅Π½Π½Π΅Π΅ ΠΏΡΠΎΡΡΡΠ°Π½ΡΡΠ²ΠΎ Π² ΡΡΠΈΠ»ΡΠ½ΡΠΉ ΠΈΠ½ΡΠ΅ΡΡΠ΅Ρ.
bouw.ru
ΠΠ΅Π±ΠΎΠ»ΡΡΠΎΠΉ Π΄ΠΎΠΌ Π² ΡΡΠΈΠ»Π΅ Π»ΠΎΡΡ ΠΎΡ ΡΡΡΠ΄ΠΈΠΈ Garza Camisai arquitectos

Π‘ΠΎΠ²ΡΠ΅ΠΌΠ΅Π½Π½ΡΠΉ Π½Π΅Π±ΠΎΠ»ΡΡΠΎΠΉ Π΄ΠΎΠΌ Π² ΡΡΠΈΠ»Π΅ Π»ΠΎΡΡ Π΄Π»Ρ ΠΌΠΎΠ»ΠΎΠ΄ΠΎΠΉ ΡΠ΅ΠΌΡΠΈ, Π²ΡΠΏΠΎΠ»Π½Π΅Π½Π½ΡΠΉ ΠΏΠΎ ΠΏΡΠΎΠ΅ΠΊΡΡ Garza Camisai arquitectos, Π½Π°Ρ ΠΎΠ΄ΠΈΡΡΡ Π² Π³ΠΎΡΠΎΠ΄Π΅ ΠΠΎΠ½ΡΠ΅ΡΡΠ΅ΠΉ, ΠΡΡΠ²ΠΎ-ΠΠ΅ΠΎΠ½, ΠΠ΅ΠΊΡΠΈΠΊΠ°. ΠΠ²ΡΠΎΡΠ°ΠΌ ΠΏΡΠΎΠ΅ΠΊΡΠ° ΡΠ΄Π°Π»ΠΎΡΡ Π½Π° Π½Π΅Π±ΠΎΠ»ΡΡΠΎΠΉ ΠΏΠ»ΠΎΡΠ°Π΄ΠΈ Π² 200 ΠΊΠ²Π°Π΄ΡΠ°ΡΠ½ΡΡ ΠΌΠ΅ΡΡΠΎΠ² ΡΠ°Π·ΠΌΠ΅ΡΡΠΈΡΡ Π΄Π²ΡΡ ΡΡΠ°ΠΆΠ½ΡΠΉ Π΄ΠΎΠΌ Π-ΠΎΠ±ΡΠ°Π·Π½ΠΎΠΉ ΡΠΎΡΠΌΡ ΠΈ ΠΎΠ±ΠΎΡΡΠ΄ΠΎΠ²Π°ΡΡ Π²Π½ΡΡΡΠ΅Π½Π½ΠΈΠΉ Π΄Π²ΠΎΡΠΈΠΊ Π΄Π»Ρ ΠΎΡΠ΄ΡΡ Π°.

ΠΠ°ΡΡΠΎΡΡΠΈΠΌ ΡΠΊΡΠ°ΡΠ΅Π½ΠΈΠ΅ΠΌ Π΄ΠΎΠΌΠ° ΡΠ²Π»ΡΠ΅ΡΡΡ ΡΡΠΈΠ΄ΡΠ°ΡΠΈΠ»Π΅ΡΠ½ΠΈΠΉ Π±Π°ΠΌΠ±ΡΠΊ, ΠΊΠΎΡΠΎΡΡΠΉ Π±ΡΠ» ΠΏΡΠ΅Π΄ΡΡΠΌΠΎΡΡΠΈΡΠ΅Π»ΡΠ½ΠΎ ΡΠΎΡ ΡΠ°Π½Π΅Π½. ΠΡΠΈ ΡΡΡΠΎΠΈΡΠ΅Π»ΡΡΡΠ²Π΅ Π΄ΠΎΠΌΠ° ΠΈ ΠΎΡΠ΄Π΅Π»ΠΊΠ΅ ΠΏΠΎΠΌΠ΅ΡΠ΅Π½ΠΈΠΉ Π±ΡΠ»ΠΈ ΠΈΡΠΏΠΎΠ»ΡΠ·ΠΎΠ²Π°Π½Ρ Π½Π΅Π΄ΠΎΡΠΎΠ³ΠΈΠ΅, Π½ΠΎ ΡΠΊΠΎΠ»ΠΎΠ³ΠΈΡΠ΅ΡΠΊΠΈ ΡΠΈΡΡΡΠ΅ ΡΡΡΠΎΠΈΡΠ΅Π»ΡΠ½ΡΠ΅ ΠΌΠ°ΡΠ΅ΡΠΈΠ°Π»Ρ. ΠΡΡΠΎΠΊΠΈΠ΅ ΠΏΠΎΡΠΎΠ»ΠΊΠΈ, ΠΊΠΈΡΠΏΠΈΡΠ½ΡΠ΅ ΡΡΠ΅Π½Ρ, ΠΏΠΎΠ»ΠΈΡΠΎΠ²Π°Π½Π½ΡΠ΅ Π±Π΅ΡΠΎΠ½Π½ΡΠ΅ ΠΏΠΎΠ»Ρ ΠΏΠΎΠ΄ΡΠ΅ΡΠΊΠΈΠ²Π°ΡΡ Π΅ΡΡΠ΅ΡΡΠ²Π΅Π½Π½ΠΎΡΡΡ ΠΈ ΠΏΡΠΎΡΡΠΎΡΡ ΠΈΠ½ΡΠ΅ΡΡΠ΅ΡΠ°.

Π¦Π΅Π½ΡΡΠΎΠΌ Π΄ΠΎΠΌΠ° ΡΡΠ°Π»Π° Π±ΠΎΠ»ΡΡΠ°Ρ Π³ΠΎΡΡΠΈΠ½Π°Ρ, ΡΠΎΠ΅Π΄ΠΈΠ½Π΅Π½Π½Π°Ρ Ρ ΠΊΡΡ Π½Π΅ΠΉ ΠΈ ΡΡΠΎΠ»ΠΎΠ²ΠΎΠΉ. ΠΠ»Π°Π³ΠΎΠ΄Π°ΡΡ Π³Π°Π»Π΅ΡΠ΅Π΅ ΡΠ΅ΠΌΠ΅ΠΉΠ½ΡΡ ΡΠΎΡΠΎΠ³ΡΠ°ΡΠΈΠΉ ΠΈ ΡΡΠΊΠΈΠΌ ΡΠ»Π΅ΠΌΠ΅Π½ΡΠ°ΠΌ Π΄Π΅ΠΊΠΎΡΠ° β ΠΌΠ½ΠΎΠΆΠ΅ΡΡΠ²Ρ ΠΏΠΎΠ΄ΡΡΠ΅ΠΊ Ρ ΡΡΠΊΠΈΠΌΠΈ ΡΠ²Π΅ΡΠ°ΠΌΠΈ, Π½Π°ΠΏΠΎΠ»ΡΠ½ΡΠΌ ΠΊΠΎΠ²ΡΠ°ΠΌ ΠΈ ΠΎΠ±ΠΈΠ»ΠΈΡ ΠΊΠΎΠΌΠ½Π°ΡΠ½ΡΡ ΡΠ°ΡΡΠ΅Π½ΠΈΠΉ — Π² Π΄ΠΎΠΌΠ΅ ΡΠΎΠ·Π΄Π°Π½Π° Π°ΡΠΌΠΎΡΡΠ΅ΡΠ° Π΄ΠΎΠΌΠ°ΡΠ½Π΅Π³ΠΎ ΡΡΡΠ° ΠΈ ΠΊΠΎΠΌΡΠΎΡΡΠ°.

coolhouses.ru
Π£Π΄ΠΈΠ²ΠΈΡΠ΅Π»ΡΠ½ΡΠΉ ΠΏΡΠΎΠ΅ΠΊΡ Π³ΠΎΡΠΎΠ΄ΡΠΊΠΎΠ³ΠΎ Π΄ΠΎΠΌΠ° Π² ΡΡΠΈΠ»Π΅ Π»ΠΎΡΡ

ΠΡΠΎΡ Π΄ΠΎΠΌ Π² ΡΠ΅Π½ΡΡΠ΅ ΠΠΈΠ½ΠΊΠΎΠ»ΡΠ½-ΠΏΠ°ΡΠΊ Π² Π§ΠΈΠΊΠ°Π³ΠΎ β ΡΡΠΎ ΠΈΡΡΠΎΡΠΈΡΠ΅ΡΠΊΠΈΠΉ ΠΏΡΠΈΠΌΠ΅Ρ Π°ΡΡ ΠΈΡΠ΅ΠΊΡΡΡΡ ΠΈ ΠΈΡΠΊΡΡΡΡΠ²Π° ΠΠΎΡΠΎΠ΄Π° Π²Π΅ΡΡΠΎΠ². ΠΠ³ΠΎ ΠΈΡΡΠΎΡΠΈΡ Π½Π°ΡΠΈΠ½Π°Π΅ΡΡΡ Ρ Π²Π»Π°Π΄Π΅Π»ΡΡΠ°, ΠΊΠΎΡΠΎΡΡΠΉ Π±ΡΠ» Π½Π΅ΡΡΠ°Π½Π΄Π°ΡΡΠ½ΠΎΠΉ Π»ΠΈΡΠ½ΠΎΡΡΡΡ ΠΏΠΎ ΡΠ΅ΠΌ Π²ΡΠ΅ΠΌΠ΅Π½Π°ΠΌ, Π±ΠΎΠ»ΡΡΠΈΠΌ ΠΎΡΠΈΠ³ΠΈΠ½Π°Π»ΠΎΠΌ, ΠΏΡΠΈΠ²Π΅ΡΠΆΠ΅Π½ΡΠ΅ΠΌ Π½Π΅ΡΡΠ°Π΄ΠΈΡΠΈΠΎΠ½Π½ΡΡ ΡΠ΅Ρ Π½ΠΈΠΊ ΠΈ ΠΊΠΎΠ½ΡΡΡΡΠΊΡΠΈΠΉ, ΡΠ΅ΠΌ, ΠΊΠΎΠΌΡ Π½ΡΠ°Π²ΠΈΠ»ΠΎΡΡ Π³ΠΎΠ²ΠΎΡΠΈΡΡ Π²ΡΠ΅, ΡΡΠΎ ΠΎΠ½ Π΄ΡΠΌΠ°Π΅Ρ.
ΠΠ½ Π±ΡΠ» Π²Π»Π°Π΄Π΅Π»ΡΡΠ΅ΠΌ ΡΡΡΠΎΠΈΡΠ΅Π»ΡΠ½ΠΎΠΉ ΡΠΈΡΠΌΡ, ΠΊΠΎΡΠΎΡΠ°Ρ Π±ΡΠ»Π° Π·Π°ΡΡΡΠΎΠΉΡΠΈΠΊΠΎΠΌ ΠΌΠ½ΠΎΠΆΠ΅ΡΡΠ²Π° ΠΊΠΎΠΌΠΌΠ΅ΡΡΠ΅ΡΠΊΠΈΡ Π·Π΄Π°Π½ΠΈΠΉ Π² Π³ΠΎΡΠΎΠ΄Π΅, ΡΡΠ΅Π΄ΠΈ ΠΊΠΎΡΠΎΡΡΡ ΠΌΠ½ΠΎΠ³ΠΎ ΡΠΎΡΠ³ΠΎΠ²ΡΡ ΠΈ Π΄Π΅Π»ΠΎΠ²ΡΡ ΡΠ΅Π½ΡΡΠΎΠ². ΠΠ½ Π²ΡΡΠΎΡ Π² ΠΎΠ΄Π½ΠΎΠΌ ΠΈΠ· ΠΏΡΠΈΠ³ΠΎΡΠΎΠ΄ΠΎΠ², Π½ΠΎ ΠΏΡΠΎΠΆΠΈΠ²Π°Π» Π² ΠΈΠ·ΡΡΠΊΠ°Π½Π½ΠΎΠΌ ΡΠ°ΠΉΠΎΠ½Π΅, ΠΊΠΎΠ³Π΄Π° ΡΠΎΠ±ΡΡΠ²Π΅Π½Π½ΠΎ ΡΠ΅ΡΠΈΠ» ΠΏΡΠΈΠΎΠ±ΡΠ΅ΡΡΠΈ Π΄ΠΎΠΌ Π² Π§ΠΈΠΊΠ°Π³ΠΎ.
ΠΠ΅ΡΡΠΎ, ΠΊΠΎΡΠΎΡΠΎΠ΅ ΠΎΠ½ Π²ΡΠ±ΡΠ°Π», Π±ΡΠ»ΠΎ, ΠΌΡΠ³ΠΊΠΎ Π³ΠΎΠ²ΠΎΡΡ, Π½Π΅ Π±Π΅Π· ΠΏΡΠΎΠ±Π»Π΅ΠΌ. ΠΠΎΠΌΠΎΠ²Π»Π°Π΄Π΅Π½ΠΈΠ΅ Π½Π°Ρ ΠΎΠ΄ΠΈΠ»ΠΎΡΡ Π² Π·Π°ΠΏΡΡΡΠ΅Π½ΠΈΠΈ, ΠΊΡΡΡΠ° ΠΏΡΠΎΡ ΡΠ΄ΠΈΠ»Π°ΡΡ ΠΈ ΠΌΠΎΠ³Π»Π° ΡΠ»ΡΠΆΠΈΡΡ Π»ΠΈΡΡ ΠΏΡΠΈΡΡΠ°Π½ΠΈΡΠ΅ΠΌ Π΄Π»Ρ ΠΌΠ΅ΡΡΠ½ΡΡ Π³ΠΎΠ»ΡΠ±Π΅ΠΉ. Π Π΄ΠΎΠΌΠ΅ Π½ΠΈΠΊΡΠΎ Π½Π΅ ΠΏΡΠΎΠΆΠΈΠ²Π°Π» Π² ΡΠ΅ΡΠ΅Π½ΠΈΠΈ Π΄ΠΎΠ»Π³ΠΎΠ³ΠΎ Π²ΡΠ΅ΠΌΠ΅Π½ΠΈ ΠΈ ΡΡΠΎ Π½Π΅ ΠΌΠΎΠ³Π»ΠΎ Π½Π΅ ΡΠΊΠ°Π·Π°ΡΡΡΡ Π½Π° Π΅Π³ΠΎ ΡΠΎΡΡΠΎΡΠ½ΠΈΠΈ.
ΠΠΎΠ²ΡΠΉ Π²Π»Π°Π΄Π΅Π»Π΅Ρ Π²ΡΠ±ΡΠ°Π» Π² ΠΊΠ°ΡΠ΅ΡΡΠ²Π΅ Π΄ΠΈΠ·Π°ΠΉΠ½Π΅ΡΠΎΠ² ΠΊΠΎΠΌΠΏΠ°Π½ΠΈΡ ΠΠ°ΠΉΠΊΠ»Π° ΠΡΡΠΌΠ°. Π‘ΠΏΠ΅ΡΠΈΠ°Π»ΠΈΡΡ Π³ΠΎΠ²ΠΎΡΠΈΡ, ΡΡΠΎ ΠΏΠ΅ΡΠ΅Π΄ ΠΊΠ°ΠΌΠΏΠ°Π½ΠΈΠ΅ΠΉ Π΅Π³ΠΎ Π΄ΠΈΠ·Π°ΠΉΠ½Π΅ΡΠΎΠ² ΡΡΠΎΡΠ»Π° Π½Π΅ΠΏΡΠΎΡΡΠ°Ρ Π·Π°Π΄Π°ΡΠ° β ΠΎΡΡΠ°Π·ΠΈΡΡ Π² ΡΠΊΡΡΠ΅ΡΡΠ΅ΡΠ΅ ΠΈ ΠΈΠ½ΡΠ΅ΡΡΠ΅ΡΠ΅ Π΄ΠΎΠΌΠ° Π΄ΡΡ ΡΠΎΠ²ΡΠ΅ΠΌΠ΅Π½Π½ΠΎΡΡΠΈ ΠΈ ΠΏΡΠΈ ΡΡΠΎΠΌ ΡΠ°Π·ΠΌΠ΅ΡΡΠΈΡΡ Π²Π½ΡΡΠΈΡΠ΅Π»ΡΠ½ΡΡ ΠΊΠΎΠ»Π»Π΅ΠΊΡΠΈΡ ΠΏΡΠΎΠΈΠ·Π²Π΅Π΄Π΅Π½ΠΈΠΉ ΡΠΎΠ²ΡΠ΅ΠΌΠ΅Π½Π½ΠΎΠ³ΠΎ ΠΈΡΠΊΡΡΡΡΠ²Π° Π½ΠΎΠ²ΠΎΠ³ΠΎ Π²Π»Π°Π΄Π΅Π»ΡΡΠ° Ρ Π½Π°ΠΈΠ±ΠΎΠ»ΡΡΠ΅ΠΉ Π³Π°ΡΠΌΠΎΠ½ΠΈΠ΅ΠΉ.

ΠΠΎΠΌΠΎΠ²Π»Π°Π΄Π΅Π½ΠΈΠ΅, Π½Π°Ρ ΠΎΠ΄ΡΡΠ΅Π΅ΡΡ Π² ΡΠ΅Π½ΡΡΠ΅ Π§ΠΈΠΊΠ°Π³ΠΎ, Π½Π°ΡΡΠΈΡΡΠ²Π°Π΅Ρ 4 ΡΠΏΠ°Π»ΡΠ½ΠΈ, 4 Π²Π°Π½Π½ΡΠ΅ ΠΊΠΎΠΌΠ½Π°ΡΡ Ρ ΡΡΠ°Π»Π΅ΡΠ°ΠΌΠΈ ΠΈ 2 ΡΠ°Π½ΡΠ·Π»Π°. Π ΡΠ΄ΠΎΠΌ Π½Π°Ρ ΠΎΠ΄ΠΈΡΡΡ Π΄ΠΎΠΌΠΈΠΊ ΠΏΡΠΈΠ²ΡΠ°ΡΠ½ΠΈΠΊΠ° Ρ 1 ΡΠΏΠ°Π»ΡΠ½Π΅ΠΉ ΠΈ 1 Π²Π°Π½Π½ΠΎΠΉ ΠΊΠΎΠΌΠ½Π°ΡΠΎΠΉ.
ΠΠ°ΠΆΠ΅ Π±Π΅Π³Π»ΡΠΉ Π²Π·Π³Π»ΡΠ΄ Π½Π° Π½ΠΎΠ²ΡΠΉ ΡΠ°ΡΠ°Π΄ Π΄ΠΎΠΌΠ° ΠΏΠΎΠ·Π²ΠΎΠ»ΡΠ΅Ρ Π½Π°ΠΌ ΡΠ΄Π΅Π»Π°ΡΡ Π²ΡΠ²ΠΎΠ΄ ΠΎ ΡΠΎΠΌ, ΡΡΠΎ Ρ Π½ΠΎΠ²ΠΎΠ³ΠΎ Π²Π»Π°Π΄Π΅Π»ΡΡΠ° Π½Π΅ Π±ΡΠ»ΠΎ ΠΌΡΡΠ»Π΅ΠΉ ΡΠΎΠ·Π΄Π°ΡΡ ΡΠΊΡΡΠ΅ΡΡΠ΅Ρ, ΠΊΠΎΡΠΎΡΡΠΉ Π±Ρ ΡΠ»ΠΈΠ²Π°Π»ΡΡ Ρ Π΄ΡΡΠ³ΠΈΠΌΠΈ Π·Π΄Π°Π½ΠΈΡΠΌΠΈ Π½Π° ΡΠ»ΠΈΡΠ΅. ΠΡΡΠΌ Π³ΠΎΠ²ΠΎΡΠΈΡ, ΡΡΠΎ ΡΡΠΎ Π±ΡΠ» ΠΎΠ΄ΠΈΠ½ ΠΈΠ· ΡΠ°ΠΌΡΡ Π½Π΅ΠΎΠ±ΡΡΠ½ΡΡ ΠΏΡΠΎΠ΅ΠΊΡΠΎΠ², Ρ ΠΊΠΎΡΠΎΡΡΠΌ ΠΏΡΠΈΡ ΠΎΠ΄ΠΈΠ»ΠΎΡΡ ΠΈΠΌΠ΅ΡΡ Π΄Π΅Π»ΠΎ ΠΊΠ°ΠΌΠΏΠ°Π½ΠΈΠΈ Π΅Π³ΠΎ ΠΏΡΠΎΡΠ΅ΡΡΠΈΠΎΠ½Π°Π»ΠΎΠ². ΠΠ΅Π΄Ρ Π½Π΅ ΠΊΠ°ΠΆΠ΄ΡΠΉ Π΄Π΅Π½Ρ ΠΌΠΎΠΆΠ½ΠΎ Π²ΡΡΡΠ΅ΡΠΈΡΡ Π΄ΠΎΠΌΠΎΠ²Π»Π°Π΄Π΅Π»ΡΡΠ°, ΠΊΠΎΡΠΎΡΡΠΉ Π³ΠΎΡΠΎΠ² ΡΠ°Π·ΠΌΠ΅ΡΡΠΈΡΡ Ρ Π³Π»Π°Π²Π½ΠΎΠ³ΠΎ Π²Ρ ΠΎΠ΄Π° Π² ΡΠ²ΠΎΠ΅ ΠΆΠΈΠ»ΠΈΡΠ΅ ΠΎΠ³ΡΠΎΠΌΠ½ΡΡ ΡΠΊΡΠ»ΡΠΏΡΡΡΡ ΡΡΠΊΠΎ-Π³ΠΎΠ»ΡΠ±ΠΎΠ³ΠΎ ΡΠ²Π΅ΡΠ°, ΠΏΡΠ΅Π΄ΡΡΠ°Π²Π»ΡΡΡΡΡ Π°ΡΡ-ΠΎΠ±ΡΠ΅ΠΊΡ ΡΠΎΠ²ΡΠ΅ΠΌΠ΅Π½Π½ΠΎΡΡΠΈ.
Π£Π½ΠΈΠΊΠ°Π»ΡΠ½ΠΎΠ΅ ΠΏΡΠΎΠΈΠ·Π²Π΅Π΄Π΅Π½ΠΈΠ΅ ΠΠΆΠΎΠ½Π° ΠΠ΅Π½ΡΠΈ ΡΠΎΡΠ΅Π΄ΠΈ ΠΏΡΠΎΠ·Π²Π°Π»ΠΈ Β«ΠΠΎΠ»ΡΡΠΎΠΉ ΡΠΈΠ½ΠΈΠΉΒ», Π½ΠΎ Π½Π° ΡΠ°ΠΌΠΎΠΌ Π΄Π΅Π»Π΅ ΡΡΠ° ΡΠΊΡΠ»ΡΠΏΡΡΡΠ° Π½Π°Π·ΡΠ²Π°Π΅ΡΡΡ Β«Π¨Π΅Π²ΡΠΎΠ½Β». ΠΠΎΡΠ²Π»Π΅Π½ΠΈΠ΅ ΡΡΠΎΠ³ΠΎ Π°ΡΡ-ΠΎΠ±ΡΠ΅ΠΊΡΠ° Π²ΡΠ·Π²Π°Π»ΠΎ ΠΆΠΈΠ²ΡΡ ΠΏΠΎΠ»Π΅ΠΌΠΈΠΊΡ Π² ΡΡΠ΄Π°Ρ ΠΎΠ±ΡΠ΅ΡΡΠ²Π΅Π½Π½ΠΎΡΡΠΈ, ΠΎΠ½ Π΄Π°ΠΆΠ΅ ΠΈΠΌΠ΅Π» ΡΠΎΠ±ΡΡΠ²Π΅Π½Π½ΡΡ ΡΡΡΠ°Π½ΠΈΡΠΊΡ Π² ΡΠ΅ΠΉΡΠ±ΡΠΊ.

ΠΠ΅ΡΠΌΠΎΡΡΡ Π½Π° ΡΠΎ, ΡΡΠΎ ΠΏΡΠ΅ΠΆΠ½Π΅Π³ΠΎ Π΄ΠΎΠΌΠ° ΡΠΆΠ΅ Π½Π΅ ΡΡΡΠ΅ΡΡΠ²ΡΠ΅Ρ, ΡΠ΄Π°Π»ΠΎΡΡ ΡΠΎΡ ΡΠ°Π½ΠΈΡΡ Π΅Π³ΠΎ ΠΊΠΈΡΠΏΠΈΡΠ½ΡΡ ΠΊΠ»Π°Π΄ΠΊΡ. ΠΡΠΎ Π±ΡΠ»ΠΎ ΠΏΡΠΈΠ½ΡΠΈΠΏΠΈΠ°Π»ΡΠ½ΡΠΌ ΡΡΠ»ΠΎΠ²ΠΈΠ΅ΠΌ Π΄Π»Ρ ΠΠ°ΠΉΠΊΠ»Π° ΠΡΡΠΌΠ°. ΠΠΎΠ³Π΄Π° Π΅Π³ΠΎ ΡΠΏΡΠ°ΡΠΈΠ²Π°Π»ΠΈ ΡΠ²Π»ΡΠ΅ΡΡΡ Π»ΠΈ Π΅Π³ΠΎ ΠΆΠ΅Π»Π°Π½ΠΈΠ΅ Π°Π»ΡΡΡΡΠΈΡΡΠΈΡΠ΅ΡΠΊΠΈΠΌ ΠΈΠ»ΠΈ ΡΡΡΠ΅ΡΠΈΡΠ΅ΡΠΊΠΈΠΌ, ΠΎΠ½ ΠΎΡΠ²Π΅ΡΠ°Π», ΡΡΠΎ ΠΎΠ±Π° Π²Π°ΡΠΈΠ°Π½ΡΠ° ΡΠΎΠΎΡΠ²Π΅ΡΡΡΠ²ΡΡΡ Π΄Π΅ΠΉΡΡΠ²ΠΈΡΠ΅Π»ΡΠ½ΠΎΡΡΠΈ.
ΠΠΎΠΌΠ°Π½Π΄Π° ΠΡΡΠΌΠ° ΠΈΠ·Π²Π΅ΡΡΠ½Π° ΡΠ΅ΠΌ, ΡΡΠΎ ΡΠΏΠ΅ΡΠΈΠ°Π»ΠΈΠ·ΠΈΡΡΠ΅ΡΡΡ Π½Π° ΠΏΡΠΈΠΌΠ΅Π½Π΅Π½ΠΈΠΈ ΠΌΠ°ΡΠ΅ΡΠΈΠ°Π»ΠΎΠ², ΠΏΠΎΠ»ΡΡΠ΅Π½Π½ΡΡ ΠΈΠ· Π²ΡΠΎΡΠΈΡΠ½ΠΎΠ³ΠΎ ΡΡΡΡΡ, Ρ ΠΏΠΎΠΌΠΎΡΡΡ ΠΏΠ΅ΡΠ΅ΡΠ°Π±ΠΎΡΠΊΠΈ, ΡΠ°ΠΊ ΠΆΠ΅ ΡΠΈΡΠΌΠ° Π·Π°Π±ΠΎΡΠΈΡΡΡ ΠΎ ΡΠΎΡ ΡΠ°Π½Π΅Π½ΠΈΠΈ ΡΠ½Π΅ΡΠ³ΠΈΠΈ ΠΈ ΠΏΡΠΈΠΌΠ΅Π½ΡΠ΅Ρ ΡΠ½Π΅ΡΠ³ΠΎΡΠ±Π΅ΡΠ΅Π³Π°ΡΡΠΈΠ΅ ΠΌΠ°ΡΠ΅ΡΠΈΠ°Π»Ρ, ΠΊΠΎΠ½ΡΡΡΡΠΊΡΠΈΠΈ ΠΈ ΠΏΡΠΈΠ±ΠΎΡΡ.
ΠΠΎ ΠΏΠΎΠΌΠΈΠΌΠΎ ΡΡΠΎΠ³ΠΎ, ΠΡΡΠΌ ΠΈΠΌΠ΅Π΅Ρ ΡΠ»Π°Π±ΠΎΡΡΡ ΠΊ ΡΡΠ°ΡΠΈΠ½Π½ΡΠΌ ΠΊΠΈΡΠΏΠΈΡΠ½ΡΠΌ ΠΊΠ»Π°Π΄ΠΊΠ°ΠΌ, ΠΈΠΌΠΈΡΠ°ΡΠΈΠΈ ΠΌΠ½ΠΎΠ³ΠΎΠ»Π΅ΡΠ½Π΅ΠΉ ΠΏΠ°ΡΠΈΠ½Ρ Π½Π° Π²Π½ΠΎΠ²Ρ Π²ΠΎΠ·Π²Π΅Π΄Π΅Π½Π½ΡΡ ΡΡΠ΅Π½Π°Ρ , Π½Π°Ρ ΠΎΠΆΠ΄Π΅Π½ΠΈΠΈ ΡΠΎΠ²Π΅ΡΡΠ΅Π½Π½ΠΎ ΡΠ½ΠΈΠΊΠ°Π»ΡΠ½ΠΎΠ³ΠΎ ΠΎΡΡΠ΅Π½ΠΊΠ° Π΄Π»Ρ ΡΠΎΠ·Π΄Π°Π½ΠΈΡ Π½Π΅ΠΎΠ±ΡΡΠ½ΡΡ ΠΎΠ±ΡΠ°Π·ΠΎΠ² ΡΠ°ΡΠ°Π΄ΠΎΠ² Π·Π΄Π°Π½ΠΈΠΉ.
Π Π§ΠΈΠΊΠ°Π³ΠΎ Π΅ΡΡΡ Π½Π΅ΠΌΠ°Π»ΠΎ ΡΡΠ°ΡΠΈΠ½Π½ΡΡ Π·Π΄Π°Π½ΠΈΠΉ, ΠΊ ΡΠΏΠ°ΡΠ΅Π½ΠΈΡ Π°ΡΡ ΠΈΡΠ΅ΠΊΡΡΡΡ ΠΊΠΎΡΠΎΡΡΡ ΠΏΡΠΈΡΠ°ΡΡΠ½Ρ ΡΠΎΡΡΡΠ΄Π½ΠΈΠΊΠΈ ΠΊΠΎΠΌΠΏΠ°Π½ΠΈΠΈ ΠΠ°ΠΉΠΊΠ»Π° ΠΡΡΠΌΠ°. Π£Π½ΠΈΠΊΠ°Π»ΡΠ½ΡΠΉ ΡΠΎΠ·ΠΎΠ²ΠΎ-ΠΎΡ ΡΠΈΡΡΡΠΉ ΡΠ²Π΅Ρ ΠΊΠΈΡΠΏΠΈΡΠ½ΠΎΠΉ ΠΊΠ»Π°Π΄ΠΊΠΈ, Π½Π΅ΠΎΠ±ΡΡΠ½Π°Ρ ΡΡΡΡΠΊΡΡΡΠ° Π²ΡΡΠΎΠΊΠΎΠ³ΠΎ ΠΊΠΈΡΠΏΠΈΡΠ½ΠΎΠ³ΠΎ Π·Π°Π±ΠΎΡΠ°, ΠΎΠ³ΡΠ°ΠΆΠ΄Π°ΡΡΠ΅Π³ΠΎ ΡΠ΅ΡΡΠΈΡΠΎΡΠΈΡ ΡΠΈΠΊΠ°Π³ΡΠΊΠΎΠ³ΠΎ Π΄ΠΎΠΌΠΎΠ²Π»Π°Π΄Π΅Π½ΠΈΡ, ΡΠ²Π»ΡΠ΅ΡΡΡ ΠΎΠ΄Π½ΠΈΠΌ ΠΈΠ· Π½ΠΈΡ .
ΠΠ½Π΅ΡΠ½ΠΈΠΉ Π²ΠΈΠ΄ Π·Π°Π±ΠΎΡΠ°, Π² ΠΊΠΎΡΠΎΡΠΎΠΌ Π³Π°ΡΠΌΠΎΠ½ΠΈΡΠ½ΠΎ ΡΠΎΡΠ΅ΡΠ°Π΅ΡΡΡ ΠΊΠΈΡΠΏΠΈΡ, Π½Π°ΡΡΡΠ°Π»ΡΠ½ΠΎΠ΅ Π΄Π΅ΡΠ΅Π²ΠΎ ΠΈ ΠΌΠ΅ΡΠ°Π»Π»ΠΈΡΠ΅ΡΠΊΠΈ ΡΠ»Π΅ΠΌΠ΅Π½ΡΡ Π΄Π°Π΅Ρ Π½Π°ΠΌ ΠΏΡΠ΅Π΄ΡΡΠ°Π²Π»Π΅Π½ΠΈΠ΅ ΠΎ ΡΠΎΠΌ, ΠΊΠ°ΠΊΠΈΠΌ ΠΎΠ±ΡΠ°Π·ΠΎΠΌ ΠΎΡΠΎΡΠΌΠ»Π΅Π½Ρ ΠΈ Π²Π½ΡΡΡΠ΅Π½Π½ΠΈΠ΅ ΠΏΡΠΎΡΡΡΠ°Π½ΡΡΠ²Π° Π΄ΠΎΠΌΠΎΠ²Π»Π°Π΄Π΅Π½ΠΈΡ. ΠΠ°ΠΏΡΠΈΠΌΠ΅Ρ, ΠΌΠΎΡΠΈΠ² ΠΊΡΡΠ³Π°, ΠΈΡΠ»Π°Π½Π΄ΡΠΊΠΎΠ³ΠΎ ΡΠΈΠΌΠ²ΠΎΠ»Π° ΡΠ΄Π°ΡΠΈ, ΡΡΠΎ Π΄Π°Π½Ρ ΠΏΠΎΠ»ΡΡΠΊΠΈΠΌ ΠΊΠΎΡΠ½ΡΠΌ Π΄ΠΎΠΌΠΎΠ²Π»Π°Π΄Π΅Π»ΡΡΠ°.
Π§ΡΠΎ ΠΊΠ°ΡΠ°Π΅ΡΡΡ ΠΌΠ΅ΡΠ°Π»Π»ΠΈΡΠ΅ΡΠΊΠΈΡ ΠΈ ΠΊΠ»Π°Π΄ΠΎΡΠ½ΡΡ ΠΌΠΎΠ΄Π΅Π»Π΅ΠΉ, ΡΠΎ Π½ΠΈ Π΄Π°ΡΡ Π½Π°ΠΌ ΡΡΡΠ»ΠΊΡ Π½Π° ΠΏΡΠΎΠΈΠ·Π²Π΅Π΄Π΅Π½ΠΈΡ ΠΈΠ·Π²Π΅ΡΡΠ½ΠΎΠ³ΠΎ ΡΠΈΠΊΠ°Π³ΡΠΊΠΎΠ³ΠΎ Π΄ΠΈΠ·Π°ΠΉΠ½Π΅ΡΠ° 20-ΠΎΠ³ΠΎ Π²Π΅ΠΊΠ°, ΠΠ΄Π³Π°ΡΠ° ΠΠΈΠ»Π»Π΅ΡΠ°. ΠΡΡΠ³ΠΈ, ΠΊΠΎΡΠΎΡΡΠ΅ Π²Ρ Π·Π°ΠΌΠ΅ΡΠΈΠ»ΠΈ Π½Π° Π²ΠΎΡΠΎΡΠ°Ρ β Π½Π΅ ΠΏΡΠΎΡΡΠΎ Π΄Π΅ΠΊΠΎΡΠ°ΡΠΈΠ²Π½Π°Ρ Π΄Π΅ΡΠ°Π»Ρ, Π° ΠΎΠ΄ΠΈΠ½ ΠΈΠ· ΠΌΠ½ΠΎΠΆΠ΅ΡΡΠ²Π° ΡΠΈΠΌΠ²ΠΎΠ»ΠΎΠ² ΡΠ΄Π°ΡΠΈ, ΠΊΠΎΠΈΡ Π² ΠΈΠ½ΡΠ΅ΡΡΠ΅Ρ Π΄ΠΎΠΌΠ° Π²Ρ ΡΠ²ΠΈΠ΄ΠΈΡΠ΅ Π½Π΅ΠΌΠ°Π»ΠΎ.

ΠΠΎΡΠΌΠΎΡΡΠΈΡΠ΅ Π²Π½ΠΈΠΌΠ°ΡΠ΅Π»ΡΠ½ΠΎ Π½Π° ΠΎΡΠΎΡΠΌΠ»Π΅Π½ΠΈΠ΅ Π±Π°Π»ΠΊΠΎΠ½Π°, Π²ΡΡ ΠΎΠ΄ Π½Π° ΠΊΠΎΡΠΎΡΡΠΉ ΠΌΠΎΠΆΠ½ΠΎ ΠΎΡΡΡΠ΅ΡΡΠ²ΠΈΡΡ ΠΈΠ· Π³ΠΎΡΡΠ΅Π²ΠΎΠΉ ΡΠΏΠ°Π»ΡΠ½ΠΈ Π½Π° Π²ΡΠΎΡΠΎΠΌ ΡΡΠ°ΠΆΠ΅, Π² Π½ΠΈΠΆΠ½Π΅ΠΉ Π΅Π³ΠΎ ΡΠ°ΡΡΠΈ ΠΊΡΡΠ³ΠΈ ΠΈΠ·ΠΎΠ±ΡΠ°ΠΆΠ°ΡΡ ΡΠ°Π·Ρ Π»ΡΠ½Ρ. ΠΠΎ Π²ΡΠ΅ΠΌΡ Π΄ΠΎΠΌΡ ΠΌΡ ΡΠ²ΠΈΠ΄ΠΈΠΌ Π½Π΅ΠΌΠ°Π»ΠΎ ΡΡΡΠ»ΠΎΠΊ Π½Π° Π»ΡΠ½Ρ, ΡΠΎΠ»Π½ΡΠ΅ ΠΈ Π·Π²Π΅Π·Π΄Ρ. ΠΠΎΠ³Π΄Π° Π°ΡΡ ΠΈΡΠ΅ΠΊΡΠΎΡΠ° ΡΠΏΡΠ°ΡΠΈΠ²Π°ΡΡ ΠΎ ΡΠΎΠΌ, ΡΡΠΎ ΠΎΠ½ΠΈ ΠΎΠ·Π½Π°ΡΠ°ΡΡ, ΠΎΠ½ ΠΏΡΠΎΠΈΠ·Π½ΠΎΡΠΈΡ ΠΏΡΠΎΡΡΠΎΠΉ ΠΈ Π»Π°ΠΊΠΎΠ½ΠΈΡΠ½ΡΠΉ ΠΎΡΠ²Π΅Ρ β Β«ΠΡΡΒ».

ΠΡΠΎΠ½ΠΈΠΊΠ½ΡΠ² ΡΠ΅ΡΠ΅Π· ΡΠ΅Π½ΡΡΠ°Π»ΡΠ½ΡΠ΅ Π²ΠΎΡΠΎΡΠ° Π²ΠΎ Π΄Π²ΠΎΡ, Π²Ρ ΠΎΠΊΠ°Π·ΡΠ²Π°Π΅ΡΠ΅ΡΡ ΠΏΠ΅ΡΠ΅Π΄ ΡΠ°ΡΠ°Π΄ΠΎΠΌ Π΄ΠΎΠΌΠ°, ΠΊΠΎΠΈΡ Π½Π΅ΠΌΠ°Π»ΠΎ Π² ΠΏΡΠΈΠ³ΠΎΡΠΎΠ΄Π°Ρ Π§ΠΈΠΊΠ°Π³ΠΎ. ΠΠΎ ΡΡΠΎ Π·Π΄Π°Π½ΠΈΠ΅ Ρ ΡΠ΅ΡΠ½ΡΠΌΠΈ ΠΎΠΊΠΎΠ½Π½ΡΠΌΠΈ ΡΠ°ΠΌΠ°ΠΌΠΈ ΠΈ ΡΠΎΠ²ΡΠ΅ΠΌΠ΅Π½Π½ΡΠΌ ΠΊΠΎΠ·ΡΡΡΠΊΠΎΠΌ Π½Π°Π΄ ΠΊΡΡΠ»ΡΡΠΎΠΌ, Π±ΡΠ΄ΡΠΎ Π°ΠΌΠ΅ΡΠΈΠΊΠ°Π½Π΅Ρ, ΠΊΠΎΡΠΎΡΡΠΉ Π½Π°Π΄Π΅Π» ΡΠ΅ΡΠ½ΡΡ ΠΊΠΎΠΆΠ°Π½ΡΡ ΠΊΡΡΡΠΊΡ Π±Π°ΠΉΠΊΠ΅ΡΠ° Ρ Π·Π°ΠΊΠ»Π΅ΠΏΠΊΠ°ΠΌΠΈ, Π±ΡΠ΄ΡΠΎ ΡΠΈΠΌΠ²ΠΎΠ» Π½Π΅ΠΊΠΎΡΠΎΡΠΎΠ³ΠΎ Π±ΡΠ½ΡΠ°ΡΡΡΠ²Π°, ΡΠΌΠ΅Π»ΠΎΡΡΠΈ ΠΈ Π±ΡΡΡΠ°Π»ΡΠ½ΠΎΡΡΠΈ.

ΠΠ½ΠΈΠΌΠ°ΡΠ΅Π»ΡΠ½ΠΎ ΡΠ°Π·Π³Π»ΡΠ΄ΠΈΡΠ΅ ΡΡΠΎΡ ΡΡΠ΅ΠΊΠ»ΡΠ½Π½ΡΠΉ ΠΊΠΎΠ·ΡΡΠ΅ΠΊ Ρ ΠΌΠ΅ΡΠ°Π»Π»ΠΈΡΠ΅ΡΠΊΠΈΠΌ ΠΊΠ°ΡΠΊΠ°ΡΠΎΠΌ, ΠΈ Π²Ρ ΡΠ²ΠΈΠ΄ΠΈΡΠ΅ ΡΠΎΠ»Π½ΡΠ΅, Π·Π²Π΅6Π·Π΄Ρ ΠΈ Π°ΠΌΠΏΠ΅ΡΡΠ°Π½Π΄ Π½Π° Π΅Π³ΠΎ ΡΠ»Π΅ΠΌΠ΅Π½ΡΠ°Ρ . ΠΠ° Π²ΠΎΠΏΡΠΎΡ ΠΎ ΡΠΈΠΌΠ²ΠΎΠ»ΠΈΡΠ΅ΡΠΊΠΎΠΌ ΠΏΡΠΈΠΌΠ΅Π½Π΅Π½ΠΈΠΈ Π°ΠΌΠΏΠ΅ΡΡΠ°Π½Π΄Π°, ΠΡΡΠΌ ΡΡΡΠ»Π°Π΅ΡΡΡ Π½Π° ΠΈΠ·Π²Π΅ΡΡΠ½ΡΠΉ ΡΠΎΠΌΠ°Π½ Β«ΠΠΎΠΌΠ½Π°ΡΠ° Ρ Π²ΠΈΠ΄ΠΎΠΌΒ».
Π ΡΡΠΎΠΌ ΠΏΡΠΎΠΈΠ·Π²Π΅Π΄Π΅Π½ΠΈΠΈ Π±ΡΠ» ΡΠΏΠΈΠ·ΠΎΠ΄, ΠΊΠΎΠ³Π΄Π° Π² ΠΏΡΡΡΠΎΠΉ ΠΊΠΎΠΌΠ½Π°ΡΠ΅ Π²ΠΌΠ΅ΡΡΠΎ Π²Π΅ΡΠ΅ΠΉ Π±ΡΠ²ΡΠΈΡ ΠΏΠΎΡΡΠΎΡΠ»ΡΡΠ΅Π², ΡΠΈΡΠ°ΡΠ΅Π»Ρ Π½Π°Ρ ΠΎΠ΄ΠΈΡ Π»ΠΈΡΡ Π»ΠΈΡΡΠΎΠΊ Ρ Π½Π°ΡΠΈΡΠΎΠ²Π°Π½Π½ΡΠΌ Π·Π½Π°ΠΊΠΎΠΌ Π²ΠΎΠΏΡΠΎΡΠ°. ΠΡΡΠΌΡ Π±ΠΎΠ»ΡΡΠ΅ ΠΏΠΎΠ½ΡΠ°Π²ΠΈΠ»Π°ΡΡ ΠΈΠ΄Π΅Ρ ΠΈΡΠΏΠΎΠ»ΡΠ·ΠΎΠ²Π°Π½ΠΈΡ Π°ΠΌΠΏΠ΅ΡΡΠ°Π½Π΄Π° Π² ΠΊΠ°ΡΠ΅ΡΡΠ²Π΅ ΡΠ»Π΅ΠΌΠ΅Π½ΡΠ° Π΄Π»Ρ ΡΠ΄ΠΈΠ²Π»Π΅Π½ΠΈΡ Π²ΡΡΠΊΠΎΠ³ΠΎ, ΠΊΡΠΎ Π²Ρ ΠΎΠ΄ΠΈΡ Π² ΡΠΈΠΊΠ°Π³ΡΠΊΠΈΠΉ Π΄ΠΎΠΌ Π²ΠΏΠ΅ΡΠ²ΡΠ΅.

ΠΠ°Π½Π΄ΡΠ°ΡΡΠ½ΡΠΉ Π΄ΠΈΠ·Π°ΠΉΠ½ Π΄Π²ΠΎΡΠ° ΠΏΠΎΡΠ°ΠΆΠ°Π΅Ρ ΡΠ΅ΠΌ ΠΆΠ΅ Π²Π΅Π»ΠΈΠΊΠΎΠ»Π΅ΠΏΠΈΠ΅ΠΌ ΠΈ ΡΡΠΎΠ½ΡΠ΅Π½Π½ΡΠΌ ΠΏΠΎΠ΄Ρ ΠΎΠ΄ΠΎΠΌ, ΠΊΠ°ΠΊ ΠΈ ΡΠ°ΡΠ°Π΄ Π·Π΄Π°Π½ΠΈΡ. Π£ΡΠ°ΠΆΠ΅Π½Π½ΡΠΉ Π΄Π΅ΡΠ΅Π²ΡΡΠΌΠΈ Π΄Π²ΠΎΡ, Π²Π΅ΡΠ½ΠΎΠ·Π΅Π»Π΅Π½ΡΠ΅ ΡΠ°ΡΡΠ΅Π½ΠΈΡ Π² ΠΊΡΠ°ΡΠΈΠ²ΡΡ ΡΠ°Π΄ΠΎΠ²ΡΡ ΠΊΠ°Π΄ΠΊΠ°Ρ , Π°ΠΊΠΊΡΡΠ°ΡΠ½ΡΠ΅ Π΄ΠΎΡΠΎΠΆΠΊΠΈ β Π²ΡΠ΅ ΡΡΠΎ ΡΠΎΡΠΌΠΈΡΡΠ΅Ρ ΠΏΡΠΈΡΡΠ½ΡΠΉ Π²Π½Π΅ΡΠ½Π΅ ΠΈ ΡΠ΄ΠΎΠ±Π½ΡΠΉ Ρ ΡΠΎΡΠΊΠΈ Π·ΡΠ΅Π½ΠΈΡ ΡΠΊΡΠΏΠ»ΡΠ°ΡΠ°ΡΠΈΠΈ ΠΎΠ±ΡΠ°Π· ΠΏΡΠΈΠ΄ΠΎΠΌΠΎΠ²ΠΎΠΉ ΡΠ΅ΡΡΠΈΡΠΎΡΠΈΠΈ.

ΠΠ°ΠΉΠΊΠ» ΠΡΡΠΌ Π³ΠΎΠ²ΠΎΡΠΈΡ, ΡΡΠΎ Π² ΡΡΠ°Π΄ΠΈΡΠΈΠΎΠ½Π½ΡΡ ΠΊΠΎΠ»ΠΎΠ½ΠΈΠ°Π»ΡΠ½ΡΡ Π΄ΠΎΠΌΠ°Ρ Π§ΠΈΠΊΠ°Π³ΠΎ Π²Ρ Π±Ρ Π½ΠΈΠΊΠΎΠ³Π΄Π° Π½Π΅ ΡΠ²ΠΈΠ΄Π΅Π»ΠΈ ΡΡΠΎΠ»ΠΎΠ²ΡΡ ΠΈ Π³ΠΎΡΡΠΈΠ½ΡΡ, ΡΠ°ΡΠΏΠΎΠ»ΠΎΠΆΠ΅Π½Π½ΡΠ΅ Π² ΠΎΠ΄Π½ΠΎΠΌ ΠΏΠΎΠΌΠ΅ΡΠ΅Π½ΠΈΠΈ ΡΡΠ°Π·Ρ Ρ Π²Ρ ΠΎΠ΄Π° Π² ΠΆΠΈΠ»ΠΈΡΠ΅. Π Π² ΡΡΠΈΡ Π³ΠΎΡΠΎΠ΄ΡΠΊΠΈΡ Π°ΠΏΠ°ΡΡΠ°ΠΌΠ΅Π½ΡΠ°Ρ Π²Ρ ΠΌΠΎΠΆΠ΅ΡΠ΅ Π½Π°Π±Π»ΡΠ΄Π°ΡΡ ΡΡΠΎΠ»ΠΎΠ²ΡΠΉ ΡΠ΅Π³ΠΌΠ΅Π½Ρ, Π³ΠΎΡΡΠΈΠ½ΡΡ, ΠΊΡΡ Π½Ρ ΠΈ Π·ΠΎΠ½Ρ ΠΎΡΠ΄ΡΡ Π° ΡΡΠ°Π·Ρ ΠΆΠ΅, ΠΊΠ°ΠΊ ΡΠΎΠ»ΡΠΊΠΎ Π²ΠΎΡΠ»ΠΈ ΡΠ΅ΡΠ΅Π· Π³Π»Π°Π²Π½ΡΠΉ Π²Ρ ΠΎΠ΄.
ΠΡΡΠΎΠΊΠΈΠΉ ΠΏΠΎΡΠΎΠ»ΠΎΠΊ Ρ Π΄Π΅ΡΠ΅Π²ΡΠ½Π½ΡΠΌΠΈ Π±Π°Π»ΠΊΠ°ΠΌΠΈ ΠΈ ΠΊΠΈΡΠΏΠΈΡΠ½ΡΠ΅ ΡΡΠ΅Π½Ρ β ΡΡΠΎ ΠΎΡΠ΅Π½Ρ ΠΏΠΎ-ΡΠΈΠΊΠ°Π³ΡΠΊΠΈ. ΠΡΡΠΌ ΠΈ Π΅Π³ΠΎ ΠΊΠΎΠΌΠ°Π½Π΄Π° ΠΈΡΠΏΠΎΠ»ΡΠ·ΠΎΠ²Π°Π»ΠΈ ΠΏΠ΅ΡΠ΅ΡΠ°Π±ΠΎΡΠ°Π½Π½ΡΠ΅ ΠΌΠ°ΡΠ΅ΡΠΈΠ°Π»Ρ ΠΏΡΠΈ ΠΎΡΠ΄Π΅Π»ΠΊΠ΅ ΠΏΠΎΠ²Π΅ΡΡ Π½ΠΎΡΡΠ΅ΠΉ ΠΈ ΡΠΎΠΎΡΡΠΆΠ΅Π½ΠΈΠΈ Π½Π΅ΠΊΠΎΡΠΎΡΡΡ ΠΊΠΎΠ½ΡΡΡΡΠΊΡΠΈΠΉ. ΠΠΎ ΠΎΡΠ½ΠΎΠ²Π½ΠΎΠΉ Π·Π°ΡΠ»ΡΠ³ΠΎΠΉ ΡΠ²Π»ΡΠ΅ΡΡΡ ΡΠΎ, ΡΡΠΎ ΠΈΠΌ ΡΠ΄Π°Π»ΠΎΡΡ ΡΠΎΡ ΡΠ°Π½ΠΈΡΡ ΠΏΠ΅ΡΠ²ΠΎΠ½Π°ΡΠ°Π»ΡΠ½ΠΎΠ΅ Π½Π°ΠΏΠΎΠ»ΡΠ½ΠΎΠ΅ ΠΏΠΎΠΊΡΡΡΠΈΠ΅ ΠΈΠ· Π½Π°ΡΡΡΠ°Π»ΡΠ½ΠΎΠΉ Π΄ΡΠ΅Π²Π΅ΡΠΈΠ½Ρ.
ΠΠ²ΡΠΎΡΡΠΊΠΈΠΉ ΠΏΡΠΎΠ΅ΠΊΡ Π΄ΠΎΠΌΠ° ΠΎΡΠ½ΠΎΠ²ΡΠ²Π°Π΅ΡΡΡ Π½Π° ΠΏΡΠΈΡΠΈΠ½Π΅Π½ΠΈΠΈ ΠΊΠ°ΠΊ ΠΌΠΎΠΆΠ½ΠΎ ΠΌΠ΅Π½ΡΡΠ΅Π³ΠΎ Π²ΡΠ΅Π΄Π° ΠΎΠΊΡΡΠΆΠ°ΡΡΠ΅ΠΉ ΡΡΠ΅Π΄Π΅ ΠΈ ΠΈΡΠΏΠΎΠ»ΡΠ·ΠΎΠ²Π°Π½ΠΈΠΈ ΡΠΎΠ»ΡΠΊΠΎ Π±Π΅Π·ΠΎΠΏΠ°ΡΠ½ΡΡ ΠΌΠ°ΡΠ΅ΡΠΈΠ°Π»ΠΎΠ² Π΄Π»Ρ ΡΡΡΠΎΠΈΡΠ΅Π»ΡΡΡΠ²Π° ΠΈ ΠΎΡΠ΄Π΅Π»ΠΊΠΈ.

ΠΠ»Π°Π΄Π΅Π»Π΅Ρ Π΄ΠΎΠΌΠ° ΡΠΎΠ²Π΅ΡΡΠ΅Π½Π½ΠΎ Π±Π΅ΡΡΡΡΠ°ΡΠ΅Π½ Π² ΡΠ²ΠΎΠ΅ΠΉ Π»ΡΠ±Π²ΠΈ ΠΊ ΠΈΡΠΊΡΡΡΡΠ²Ρ ΠΈ ΡΡΠΊΠΈΠΌ ΠΊΡΠ°ΡΠΊΠ°ΠΌ. ΠΡΠ»ΠΈ Π΄Π»Ρ ΠΊΠΎΠ³ΠΎ-ΡΠΎ ΠΏΡΠΈΡΡΡΡΡΠ²ΠΈΠ΅ ΠΊΠΎΠ»ΠΎΡΠΈΡΠ½ΠΎΠΉ ΠΊΠ°ΡΡΠΈΠ½Ρ Ρ Π»ΠΎΡΠ°Π΄ΡΡ ΠΈ Π°Π½ΡΠΈΠΊΠ²Π°ΡΠ½ΠΎΠ³ΠΎ ΠΊΠΎΠ²ΡΠ° Ρ ΠΏΠ΅ΡΡΡΡΠΌ ΠΏΡΠΈΠ½ΡΠΎΠΌ Π² ΡΠ°ΠΌΠΊΠ°Ρ ΠΎΠ΄Π½ΠΎΠ³ΠΎ ΠΏΠΎΠΌΠ΅ΡΠ΅Π½ΠΈΡ β ΡΡΠΎ ΡΠ»ΠΈΡΠΊΠΎΠΌ, ΡΠΎ ΡΠΎΠ»ΡΠΊΠΎ Π½Π΅ Π΄Π»Ρ Π½ΠΎΠ²ΠΎΠ³ΠΎ Π²Π»Π°Π΄Π΅Π»ΡΡΠ° ΡΠ½ΠΈΠΊΠ°Π»ΡΠ½ΠΎΠ³ΠΎ ΡΠΈΠΊΠ°Π³ΡΠΊΠΎΠ³ΠΎ Π΄ΠΎΠΌΠ°.
Π―ΡΠΊΠ°Ρ ΠΌΠ΅Π±Π΅Π»Ρ, ΡΠ°ΠΌΠΎΠ±ΡΡΠ½ΡΠ΅ ΠΏΡΠ΅Π΄ΠΌΠ΅ΡΡ Π΄Π΅ΠΊΠΎΡΠ°, ΡΠ½ΠΈΠΊΠ°Π»ΡΠ½ΡΠ΅ Π»ΡΡΡΡΡ, ΠΈΠΌΠΈΡΠΈΡΡΡΡΠΈΠ΅ ΡΡΠ°ΡΠΈΠ½Π½ΡΠ΅ ΠΎΡΠ²Π΅ΡΠΈΡΠ΅Π»ΡΠ½ΡΠ΅ ΠΏΡΠΈΠ±ΠΎΡΡ ΠΈ Π²ΡΠ΅ ΡΡΠΎ Π² ΡΠ°ΠΌΠΊΠ°Ρ ΠΏΡΠΎΠΌΡΡΠ»Π΅Π½Π½ΠΎΠ³ΠΎ ΡΡΠΈΠ»Ρ Π² ΠΈΠ½ΡΠ΅ΡΡΠ΅ΡΠ΅.
ΠΡΠΏΠΎΠ»ΡΠ·ΠΎΠ²Π°Π½ΠΈΠ΅ ΠΏΡΠ΅Π΄ΠΌΠ΅ΡΠΎΠ² ΡΠΎΠ²ΡΠ΅ΠΌΠ΅Π½Π½ΠΎΠ³ΠΎ ΠΈΡΠΊΡΡΡΡΠ²Π° Π΄Π»Ρ Π΄Π΅ΠΊΠΎΡΠΈΡΠΎΠ²Π°Π½ΠΈΡ ΠΏΠΎΠΌΠ΅ΡΠ΅Π½ΠΈΠΉ β Π·Π°Π΄Π°ΡΠ° Π½Π΅ΠΏΡΠΎΡΡΠ°Ρ, ΠΈ Π½Π΅ ΡΠΎΠ»ΡΠΊΠΎ Π² ΡΠΈΠ»Ρ Π±ΠΎΠ»ΡΡΠΈΡ ΠΌΠ°ΡΡΡΠ°Π±ΠΎΠ² Π½Π΅ΠΊΠΎΡΠΎΡΡΡ Π°ΡΡ-ΠΎΠ±ΡΠ΅ΠΊΡΠΎΠ², Π° Π² ΡΠ²ΡΠ·ΠΈ Ρ ΠΊΠΎΠ»ΠΎΡΠΈΡΠ½ΠΎΡΡΡΡ ΠΏΠΎΠ»ΠΎΡΠ΅Π½, ΠΈΡ ΡΠ°ΠΌΠΎΠ±ΡΡΠ½ΡΠΌ Ρ Π°ΡΠ°ΠΊΡΠ΅ΡΠΎΠΌ, ΡΡΠΊΠΈΠΌΠΈ ΠΊΡΠ°ΡΠΊΠ°ΠΌΠΈ ΠΈ Π²ΡΡΠ°Π·ΠΈΡΠ΅Π»ΡΠ½ΡΠΌΠΈ ΡΡΠΆΠ΅ΡΠ°ΠΌΠΈ.

Π Π΄Π΅ΠΊΠΎΡΠΈΡΠΎΠ²Π°Π½ΠΈΠΈ ΠΎΡΠΈΠ³ΠΈΠ½Π°Π»ΡΠ½ΠΎΠΉ Π»Π΅ΡΡΠ½ΠΈΡΡ Π±ΡΠ»Π° ΠΈΡΠΏΠΎΠ»ΡΠ·ΠΎΠ²Π°Π½Π° Π»Π°Π·Π΅ΡΠ½Π°Ρ ΡΠ΅Π·ΠΊΠ° ΠΌΠ΅ΡΠ°Π»Π»Π°. Π¨Π°Π±Π»ΠΎΠ½ ΡΡΠΎΠ³ΠΎ Π½Π΅ΠΎΠ±ΡΡΠ½ΠΎΠ³ΠΎ ΡΠΈΡΡΠ½ΠΊΠ° Π±ΡΠ» ΡΠ°Π·ΡΠ°Π±ΠΎΡΠ°Π½ Π°ΡΡ ΠΈΡΠ΅ΠΊΡΠΎΡΠΎΠΌ ΠΏΠΎ ΡΡΡΠ»ΠΊΠ΅ Π½Π° ΡΠ°Π±ΠΎΡΡ ΠΈΠ·Π²Π΅ΡΡΠ½ΠΎΠ³ΠΎ ΠΌΠ°ΡΡΠ΅ΡΠ° 19-ΠΎΠ³ΠΎ Π²Π΅ΠΊΠ°, ΠΎΡΠΎΡΠΌΠΈΠ²ΡΠ΅Π³ΠΎ Π±ΠΈΠ±Π»ΠΈΠΎΡΠ΅ΠΊΡ Π² Π‘Π΅Π½Ρ-ΠΠ΅Π½Π΅Π²ΡΠ΅Π². ΠΠ°ΠΊ ΠΈΠ·Π²Π΅ΡΡΠ½ΠΎ, ΠΎΡΠ»ΠΈΡΠ½ΡΠΉ Π΄ΠΈΠ·Π°ΠΉΠ½ ΠΏΠΎΡΠΎΠΆΠ΄Π°Π΅Ρ Π½Π΅ ΠΌΠ΅Π½Π΅Π΅ Π²Π΅Π»ΠΈΠΊΠΎΠ»Π΅ΠΏΠ½ΡΠ΅ ΠΏΠΎΠ΄ΡΠ°ΠΆΠ°Π½ΠΈΡ. ΠΡΠΎΡΠΌΠ»Π΅Π½ΠΈΠ΅ Π±ΠΈΠ±Π»ΠΈΠΎΡΠ΅ΠΊΠΈ Π±ΡΠ»ΠΎ Π²Π΄ΠΎΡ Π½ΠΎΠ²Π»Π΅Π½ΠΎ Π΄ΠΈΠ·Π°ΠΉΠ½ΠΎΠΌ ΡΠ°ΠΌΠΎΠ³ΠΎ ΠΏΠ°Π½ΡΠ΅ΠΎΠ½Π° Π² Π ΠΈΠΌΠ΅.

ΠΡΡ Π½Ρ Π½Π°Ρ ΠΎΠ΄ΠΈΡΡΡ ΠΎΠ΄Π½ΠΎΠ²ΡΠ΅ΠΌΠ΅Π½Π½ΠΎ ΡΡΠ΄ΠΎΠΌ Ρ ΠΎΠ΄Π½ΠΈΠΌ ΠΈΠ· ΠΏΡΠΎΠ»Π΅ΡΠΎΠ² Π»Π΅ΡΡΠ½ΠΈΡΡ ΠΈ Π½Π΅ΠΏΠΎΡΡΠ΅Π΄ΡΡΠ²Π΅Π½Π½ΠΎ ΠΏΠΎΠ΄ Π½Π΅Ρ. ΠΠ΅ΡΠ²ΠΎΠ΅, ΡΡΠΎ Π±ΡΠΎΡΠ°Π΅ΡΡΡ Π² Π³Π»Π°Π·Π° Π² ΡΡΠΎΠΌ Π½Π΅ΠΎΠ±ΡΡΠ½ΠΎΠΌ ΠΈΠ½ΡΠ΅ΡΡΠ΅ΡΠ΅ β Π·Π²Π΅Π·Π΄Ρ, Π²ΡΡΠ΅Π·Π°Π½Π½ΡΠ΅ Π² ΠΎΡΠ½ΠΎΠ²Π°Π½ΠΈΠΈ ΠΊΡΡ ΠΎΠ½Π½ΠΎΠ³ΠΎ ΠΎΡΡΡΠΎΠ²Π°.

Π‘ΠΎΠ·Π΄Π°Π²Π°Ρ Π΄ΠΈΠ·Π°ΠΉΠ½ ΠΈΠ½ΡΠ΅ΡΡΠ΅ΡΠ° Π΄Π»Ρ ΡΠΈΠΊΠ°Π³ΡΠΊΠΎΠ³ΠΎ Π΄ΠΎΠΌΠΎΠ²Π»Π°Π΄Π΅Π½ΠΈΡ, ΠΡΡΠΌ ΡΡΠ²Π΅ΡΠΆΠ΄Π°Π΅Ρ, ΡΡΠΎ Π²ΡΠ΅ Π²ΡΠ΅ΠΌΡ ΠΏΡΠ΅Π΄ΡΡΠ°Π²Π»ΡΠ» ΠΏΠ΅ΡΠ΅Π΄ ΡΠΎΠ±ΠΎΠΉ Π΅Π³ΠΎ Π²Π»Π°Π΄Π΅Π»ΡΡΠ° β ΡΡΠΌΠ½ΠΎΠ³ΠΎ ΠΈ Π³ΡΠΎΠΌΠΊΠΎΠ³ΠΎ ΡΠ΅Π»ΠΎΠ²Π΅ΠΊΠ°, Π·Π½Π°ΠΊΠΎΠΌΡΡΠ²ΠΎ Ρ ΠΊΠΎΡΠΎΡΡΠΌ ΠΎΡΠ΅Π½Ρ ΠΌΠ½ΠΎΠ³ΠΈΠΌΠΈ Π²ΠΎΡΠΏΡΠΈΠ½ΠΈΠΌΠ°Π΅ΡΡΡ Π·Π° ΡΡΠ°ΡΡΡΠ΅.
ΠΠΎΡΡΠΎΠΌΡ Π² ΠΈΠ½ΡΠ΅ΡΡΠ΅Ρ ΡΠ°ΠΊ ΠΌΠ½ΠΎΠ³ΠΎ ΠΏΡΠΈΡΠΎΠ΄Π½ΡΡ ΠΌΠ°ΡΠ΅ΡΠΈΠ°Π»ΠΎΠ², ΡΠ΅ΠΏΠ»ΡΡ ΡΠΎΠ½ΠΎΠ² ΠΈ ΡΡΡΠ½ΠΎΠΉ ΠΌΠ΅Π±Π΅Π»ΠΈ, Π½ΠΎ ΡΠ°ΠΊΠΆΠ΅ ΠΌΡ Π²ΠΈΠ΄ΠΈΠΌ ΠΌΠ°ΡΡΡ ΡΡΠΊΠΈΡ , ΠΊΠΎΠ»ΠΎΡΠΈΡΠ½ΡΡ ΠΏΡΠ΅Π΄ΠΌΠ΅ΡΠΎΠ² ΠΈ ΡΠ°ΠΌΠΎΠ³ΠΎ ΡΠ°Π·Π½ΠΎΠΎΠ±ΡΠ°Π·Π½ΠΎΠ³ΠΎ Π΄Π΅ΠΊΠΎΡΠ°, ΠΊΠΎΡΠΎΡΡΠΉ ΠΊΠ°ΠΊ ΡΡΠ΅ΠΊΠ»ΡΡΠΊΠΈ Π² ΠΊΠ°Π»Π΅ΠΉΠ΄ΠΎΡΠΊΠΎΠΏΠ΅ ΠΏΡΠ΅Π΄ΡΡΠ°Π΅Ρ ΠΏΠ΅ΡΠ΅Π΄ Π½Π°ΠΌΠΈ Π² ΡΠ°Π·Π»ΠΈΡΠ½ΡΡ ΠΊΠΎΠΌΠΏΠΎΠ·ΠΈΡΠΈΡΡ .

Π‘ΡΠΎΠ»ΠΎΠ²Π°Ρ Π·ΠΎΠ½Π° Π½Π°Ρ ΠΎΠ΄ΠΈΡΡΡ Π½Π°ΠΏΡΠΎΡΠΈΠ² ΠΊΡΡ Π½ΠΈ. ΠΠ°ΠΉΠΊΠ» ΠΡΡΠΌ Π³ΠΎΠ²ΠΎΡΠΈΡ, ΡΡΠΎ Π΅ΠΌΡ ΠΎΡΠ΅Π½Ρ Π½ΡΠ°Π²ΠΈΡΡΡ ΠΏΡΠΈΠ½Ρ Β«ΠΏΠΎΠ΄ ΠΏΠ»Π΅Π΄Β», ΠΊΠΎΡΠΎΡΡΠΉ ΠΏΡΠ΅Π΄ΡΡΠ°Π΅Ρ Π½Π°ΡΠ΅ΠΌΡ Π²Π·ΠΎΡΡ Π² ΠΎΠ±ΠΈΠ²ΠΊΠ΅ ΠΌΡΠ³ΠΊΠΈΡ ΡΠ°ΡΡΠ΅ΠΉ ΡΡΡΠ»ΡΠ΅Π² ΡΠΎ ΡΠΏΠΈΠ½ΠΊΠ°ΠΌΠΈ. ΠΡΠΎ, ΠΊΠ°ΠΊ ΠΌΠΈΠ½ΠΈΠΌΡΠΌ, ΠΎΡΠ΅Π½Ρ Π½Π΅ΠΎΠΆΠΈΠ΄Π°Π½Π½ΡΠΉ Ρ ΠΎΠ΄ Π΄Π»Ρ ΠΏΠΎΠΌΠ΅ΡΠ΅Π½ΠΈΡ Ρ ΠΏΡΠΎΠΌΡΡΠ»Π΅Π½Π½ΡΠΌΠΈ ΠΌΠΎΡΠΈΠ²Π°ΠΌΠΈ Π² Π΄ΠΈΠ·Π°ΠΉΠ½Π΅. ΠΠΎ ΡΠ»ΠΎΠ²Π°ΠΌ Π°ΡΡ ΠΈΡΠ΅ΠΊΡΠΎΡΠ°, ΡΡΠ° Π·ΠΎΠ½Π° ΡΠ°ΡΡΠΎ ΠΈΡΠΏΠΎΠ»ΡΠ·ΡΠ΅ΡΡΡ β Ρ Π²Π»Π°Π΄Π΅Π»ΡΡΠ° Π΄ΠΎΠΌΠ° ΠΌΠ½ΠΎΠ³ΠΎ Π΄ΡΡΠ·Π΅ΠΉ, ΠΊ ΡΠΎΠΌΡ ΠΆΠ΅ ΡΡΠΎΠ΅ Π΅Π³ΠΎ Π΄Π΅ΡΠ΅ΠΉ ΠΆΠΈΠ²ΡΡ Π½Π΅ΠΏΠΎΠ΄Π°Π»Π΅ΠΊΡ ΠΈ ΠΏΡΠ°ΠΊΡΠΈΡΠ΅ΡΠΊΠΈ ΠΊΠ°ΠΆΠ΄ΡΠΉ Π²Π΅ΡΠ΅Ρ Π·Π° ΡΡΠΈΠΌ ΠΎΠ±Π΅Π΄Π΅Π½Π½ΡΠΌ ΡΡΠΎΠ»ΠΎΠΌ ΡΠΎΠ±ΠΈΡΠ°Π΅ΡΡΡ Π²Π΅ΡΠ΅Π»Π°Ρ ΠΊΠ°ΠΌΠΏΠ°Π½ΠΈΡ.

Π Π²ΠΎΡ ΡΠΊΡΠ»ΡΠΏΡΡΡΠ° ΠΏΠΎ ΠΏΡΠΎΠ·Π²ΠΈΡΡ Β«ΠΠΎΠ»ΡΡΠ°Ρ ΠΌΠ°ΠΌΠ°Β» ΡΠ²Π»ΡΠ΅ΡΡΡ ΠΏΠΎΡΡΠΎΡΠ½Π½ΡΠΌ Π³ΠΎΡΡΠ΅ΠΌ Π² ΡΡΠΎΠ»ΠΎΠ²ΠΎΠΉ Π·ΠΎΠ½Π΅ (Π½Π° ΡΠ°ΠΌΠΎΠΌ Π΄Π΅Π»Π΅ Π°ΡΡ-ΠΎΠ±ΡΠ΅ΠΊΡ Π½Π°Π·ΡΠ²Π°Π΅ΡΡΡ Β«ΠΠΎΠ»ΡΡΠ°Ρ Π»Π΅Π΄ΠΈΒ»). ΠΠΎΠΌΠΎΠ²Π»Π°Π΄Π΅Π»Π΅Ρ ΠΎΠ±ΠΎΠΆΠ°Π΅Ρ ΠΏΡΠΎΠ²ΠΎΠΊΠ°ΡΠΈΠΎΠ½Π½ΡΠ΅ ΠΈ ΡΠΎΠΊΠΈΡΡΡΡΠΈΠ΅ ΠΏΡΠ΅Π΄ΠΌΠ΅ΡΡ ΠΈΡΠΊΡΡΡΡΠ²Π°.

ΠΠ° Β«ΠΠΎΠ»ΡΡΠΎΠΉ ΠΌΠ°ΠΌΠΎΠΉΒ» ΠΌΡ Π²ΠΈΠ΄ΠΈΠΌ Π·ΠΈΠΌΠ½ΠΈΠΉ ΡΠ°Π΄, ΡΠ°ΡΠΏΠΎΠ»ΠΎΠΆΠ΅Π½Π½ΡΠΉ Π² ΠΏΠΎΠΌΠ΅ΡΠ΅Π½ΠΈΠΈ Ρ ΠΎΠ³ΡΠΎΠΌΠ½ΡΠΌΠΈ ΠΏΠ°Π½ΠΎΡΠ°ΠΌΠ½ΡΠΌΠΈ ΠΎΠΊΠ½Π°ΠΌΠΈ. ΠΡΠ° ΠΊΠΎΠΌΠ½Π°ΡΠ° Ρ ΠΊΠ°ΠΌΠΈΠ½ΠΎΠΌ ΠΏΡΠ΅Π΄Π½Π°Π·Π½Π°ΡΠ΅Π½Π° Π΄Π»Ρ ΠΎΡΠ΄ΡΡ Π° Ρ ΡΠ»Π΅Π½Π°ΠΌΠΈ ΡΠ΅ΠΌΡΠΈ ΠΈΠ»ΠΈ Π΄ΡΡΠ·ΡΡΠΌΠΈ Π·Π° Π±ΠΎΠΊΠ°Π»ΠΎΠΌ Π²ΠΈΠ½Π°, Π² ΡΠ΅ΠΏΠ»ΠΎΠΉ ΠΈ ΡΡΡΠ½ΠΎΠΉ ΠΎΠ±ΡΡΠ°Π½ΠΎΠ²ΠΊΠ΅. ΠΠ»Ρ ΡΠΎΠ³ΠΎ, ΡΡΠΎΠ±Ρ Π±ΡΠ»ΠΎ ΠΏΡΠΎΡΠ΅ ΠΏΠΎΠ»ΠΈΠ²Π°ΡΡ ΡΠ²Π΅ΡΡ, ΡΠ°ΡΠΏΠΎΠ»ΠΎΠΆΠ΅Π½Π½ΡΠ΅ Π² Π³ΠΎΡΡΠΊΠ°Ρ , ΠΏΠΎΠ΄Π²Π΅ΡΠ΅Π½Π½ΡΡ ΠΊ ΠΏΠΎΡΠΎΠ»ΠΎΡΠ½ΡΠΌ Π±Π°Π»ΠΊΠ°ΠΌ, Π² Π½ΠΈΠΆΠ½Π΅ΠΉ ΡΠ°ΡΡΠΈ Π±ΡΠ»ΠΈ ΡΡΡΠ°Π½ΠΎΠ²Π»Π΅Π½Ρ ΠΈΠΌΠΏΡΠΎΠ²ΠΈΠ·ΠΈΡΠΎΠ²Π°Π½Π½ΡΠ΅ Π±Π»ΡΠ΄Π°.

Π ΡΡΠΎΠΉ ΠΊΠΎΠΌΠ½Π°ΡΠ΅ Π°ΡΡ ΠΈΡΠ΅ΠΊΡΠΎΡ Π²Π½ΠΎΠ²Ρ ΠΏΡΠΈΠ±Π΅ΡΠ΅Π³ Π½Π΅ΠΌΠ½ΠΎΠ³ΠΎ Π²ΠΎΠ»ΡΠ΅Π±ΡΡΠ²Π° Π΄Π»Ρ ΠΏΠΎΡΠ΅ΡΠΈΡΠ΅Π»Π΅ΠΉ. Π‘ΡΠ΅Π΄ΠΈ ΡΠ²Π΅ΡΠΎΡΠ½ΠΎΠ³ΠΎ ΠΏΡΠΈΠ½ΡΠ° ΠΈ ΠΎΠ±ΡΠ°Π·ΠΎΠ² ΡΠΎΠ»Π½ΡΠ°, ΡΡΠ΅Π΄ΠΈ ΡΠ΅ΡΡΠΈΠΊΠΎΠ½Π΅ΡΠ½ΡΡ Π·Π²Π΅Π·Π΄ (Π²Π·ΡΡΡΡ ΠΈΠ· ΡΠ»Π°Π³Π° Π§ΠΈΠΊΠ°Π³ΠΎ), Π²ΡΡΡΠ΅ΡΠ°ΡΡΡΡ ΡΠΈΠΌΠ²ΠΎΠ»ΠΈΡΠ΅ΡΠΊΠΈΠ΅ ΠΈΠ·ΠΎΠ±ΡΠ°ΠΆΠ΅Π½ΠΈΡ ΡΠ°Π·Π»ΠΈΡΠ½ΡΡ ΡΠ°Π»ΠΈΡΠΌΠ°Π½ΠΎΠ². ΠΡΡ ΠΈΡΠ΅ΠΊΡΠΎΡ β Π±ΠΎΠ»ΡΡΠΎΠΉ ΠΎΠ·ΠΎΡΠ½ΠΈΠΊ, ΠΎΠ½ Π²Π·ΡΠ» ΠΌΠΎΠ΄Π΅Π»ΠΈ ΡΡΠΈΡ ΡΠ°Π»ΠΈΡΠΌΠ°Π½ΠΎΠ² ΠΈΠ· ΠΏΠ°ΡΠ΅ΠΊ Ρ Π΄Π΅ΡΡΠΊΠΈΠΌΠΈ Ρ Π»ΠΎΠΏΡΡΠΌΠΈ Π΄Π»Ρ Π·Π°Π²ΡΡΠ°ΠΊΠΎΠ².

ΠΠ΅ΡΠ΅Π΄ Π²Π°ΠΌΠΈ ΠΎΡΠΈΠ³ΠΈΠ½Π°Π»ΡΠ½Π°Ρ, Π°ΠΆΡΡΠ½Π°Ρ ΠΊΠΎΠ½ΡΡΡΡΠΊΡΠΈΡ Π²ΠΈΠ½ΡΠΎΠ²ΠΎΠΉ Π»Π΅ΡΡΠ½ΠΈΡΡ, Π²Π΅Π΄ΡΡΠ΅ΠΉ Π² Π²ΠΈΠ½Π½ΡΠΉ ΠΏΠΎΠ³ΡΠ΅Π±. Π’Π΅ΠΌΠ½Π°Ρ ΠΎΠΊΡΠ°ΡΠΊΠ° Π»Π΅ΡΡΠ½ΠΈΡΡ ΠΎΡΠ΅Π½Ρ Π²ΡΡΠ°Π·ΠΈΡΠ΅Π»ΡΠ½ΠΎ ΡΠΌΠΎΡΡΠΈΡΡΡ Π½Π° ΡΠΎΠ½Π΅ ΠΊΠΈΡΠΏΠΈΡΠ½ΠΎΠΉ ΠΊΠ»Π°Π΄ΠΊΠΈ, ΠΏΡΠΈΠ²Π½ΠΎΡΡ Π² ΠΈΠ½ΡΠ΅ΡΡΠ΅Ρ Π½Π΅ΠΎΠ±Ρ ΠΎΠ΄ΠΈΠΌΡΠΉ ΠΊΠΎΠ½ΡΡΠ°ΡΡ ΠΈ ΡΡΡΡΠΊΡΡΡΠ½ΠΎΡΡΡ.

ΠΠΈΠ·Π°ΠΉΠ½ ΠΎΠΊΠΎΠ½ ΠΈ Π΄Π²Π΅ΡΠ΅ΠΉ Π² Π²ΠΈΠ½Π½ΠΎΠΌ ΠΏΠΎΠ³ΡΠ΅Π±Π΅ ΠΈΠΌΠΈΡΠΈΡΡΠ΅Ρ ΠΌΠΎΠ΄Π΅Π»ΠΈ ΡΡΠ°Π»ΡΠ½ΡΡ Π²Ρ ΠΎΠ΄Π½ΡΡ Π΄Π²Π΅ΡΠ΅ΠΉ, ΠΊΠΎΡΠΎΡΡΠ΅ ΠΌΡ Π²ΠΈΠ΄Π΅Π»ΠΈ Π² Π½Π°ΡΠ°Π»Π΅ Π½Π°ΡΠ΅ΠΉ ΡΠΊΡΠΊΡΡΡΠΈΠΈ ΠΏΠΎ ΡΠΈΠΊΠ°Π³ΡΠΊΠΎΠΌΡ Π΄ΠΎΠΌΠΎΠ²Π»Π°Π΄Π΅Π½ΠΈΡ Ρ ΠΎΡΠΈΠ³ΠΈΠ½Π°Π»ΡΠ½ΡΠΌ ΠΈΠ½ΡΠ΅ΡΡΠ΅ΡΠΎΠΌ. ΠΡΠΎΡΡΠΎΡΠ½ΠΎΠ΅ ΠΏΠΎΠΌΠ΅ΡΠ΅Π½ΠΈΠ΅ ΠΏΠΎΠ³ΡΠ΅Π±Π° Π΄Π»Ρ Ρ ΡΠ°Π½Π΅Π½ΠΈΡ Π½Π°ΠΏΠΈΡΠΊΠΎΠ² ΡΠ²ΠΎΠΈΠΌ ΠΎΡΠΎΡΠΌΠ»Π΅Π½ΠΈΠ΅ΠΌ Π΄Π°Π΅Ρ Π½Π°ΠΌ ΠΎΡΡΡΠ»ΠΊΡ Π½Π° Π·Π΄Π°Π½ΠΈΡ Π°Π½ΡΠΈΡΠ½ΠΎΠ³ΠΎ ΠΏΠ΅ΡΠΈΠΎΠ΄Π°, Π΄ΡΡ ΡΡΠ°ΡΠΈΠ½Ρ Π²ΠΈΡΠ°Π΅Ρ Π·Π΄Π΅ΡΡ ΠΏΠΎΠ²ΡΡΠ΄Ρ.

Π ΠΏΠΎΠΌΠ΅ΡΠ΅Π½ΠΈΡΡ ΠΌΠ°Π½ΡΠ°ΡΠ΄Ρ ΡΠ°ΡΠΏΠΎΠ»ΠΎΠΆΠ΅Π½Ρ ΡΠΏΠ°Π»ΡΠ½ΠΈ Π΄Π»Ρ Π³ΠΎΡΡΠ΅ΠΉ ΠΈ Π΅ΡΠ΅ ΠΎΠ΄Π½Π° Π·ΠΎΠ½Π° ΠΎΡΠ΄ΡΡ Π° β Π³ΠΎΡΡΠΈΠ½Π°Ρ. ΠΠ½ΡΠ΅ΡΡΠ΅Ρ ΡΡΠΎΠΉ ΠΊΠΎΠΌΠ½Π°ΡΡ ΠΌΠΎΠΆΠ½ΠΎ ΡΠ°ΡΡΠΌΠ°ΡΡΠΈΠ²Π°ΡΡ ΡΠ°ΡΠ°ΠΌΠΈ β Π²ΡΠ΅ Π² Π½Π΅ΠΌ Π½Π΅ΠΎΠ±ΡΡΠ½ΠΎ ΠΈ ΠΈΠ½ΡΠ΅ΡΠ΅ΡΠ½ΠΎ.
ΠΠ°ΠΏΡΠΈΠΌΠ΅Ρ, ΠΊΡΡΠ³Π»ΡΠΉ ΡΡΠΎΠ» Ρ Π΄Π°Π²Π½Π΅ΠΉ ΠΈΡΡΠΎΡΠΈΠ΅ΠΉ Π½Π°Π²Π΅ΡΠ½ΡΠΊΠ° Π²ΠΈΠ΄Π°Π» Π½Π΅ΠΌΠ°Π»ΠΎ ΠΊΠ°ΡΡΠΎΡΠ½ΡΡ ΠΈΠ³Ρ. Π Π°Π½ΡΠΈΠΊΠ²Π°ΡΠ½ΡΠΉ ΠΌΠΎΠ»ΡΠ±Π΅ΡΡ Π±ΡΠ» ΠΏΠ΅ΡΠ΅ΠΎΠ±ΠΎΡΡΠ΄ΠΎΠ²Π°Π½ ΠΏΠΎΠ΄ ΠΏΠΎΠ΄ΡΡΠ°Π²ΠΊΡ Π΄Π»Ρ ΡΠ΅Π»Π΅Π²ΠΈΠ·ΠΎΡΠ° Ρ ΡΠΎΠ½ΠΊΠΈΠΌ ΡΠΊΡΠ°Π½ΠΎΠΌ. ΠΠΌΠ΅ΡΡΠ΅ ΠΎΠ½ΠΈ ΡΠΎΠ·Π΄Π°Π»ΠΈ Π½Π°ΡΡΠΎΠ»ΡΠΊΠΎ ΠΎΡΠ³Π°Π½ΠΈΡΠ½ΡΡ ΠΊΠΎΠΌΠΏΠΎΠ·ΠΈΡΠΈΡ, ΡΡΠΎ ΡΠΆΠ΅ ΡΠ»ΠΎΠΆΠ½ΠΎ ΠΏΡΠ΅Π΄ΡΡΠ°Π²ΠΈΡΡ ΡΡΠΈ Π΄Π²Π° ΠΏΡΠ΅Π΄ΠΌΠ΅ΡΠ° Π΄ΡΡΠ³ Π±Π΅Π· Π΄ΡΡΠ³Π°.
Π Π²Π½ΠΎΠ²Ρ ΡΠΎΡΠ΅ΡΠ°Π½ΠΈΠ΅ Π΄Π΅ΡΠ΅Π²ΡΠ½Π½ΡΡ ΠΏΠΎΠ²Π΅ΡΡ Π½ΠΎΡΡΠ΅ΠΉ, ΠΊΠΎΠ²Π°Π½ΡΡ ΠΈΠ·Π΄Π΅Π»ΠΈΠΉ, ΠΊΠΈΡΠΏΠΈΡΠ½ΠΎΠΉ ΠΊΠ»Π°Π΄ΠΊΠΈ ΠΈ Π½Π΅ΠΎΠ±ΡΡΠ½ΠΎΠΉ ΠΌΠ΅Π±Π»ΠΈΡΠΎΠ²ΠΊΠΈ Ρ ΠΏΡΠΎΠΈΠ·Π²Π΅Π΄Π΅Π½ΠΈΡΠΌΠΈ ΠΈΡΠΊΡΡΡΡΠ²Π°, ΡΠΎΠ·Π΄Π°ΡΡ Π½Π΅ΡΡΠΈΠ²ΠΈΠ°Π»ΡΠ½ΡΠΉ, ΡΠ½ΠΈΠΊΠ°Π»ΡΠ½ΡΠΉ Π°Π»ΡΡΠ½Ρ, ΠΎΡΡΠ°ΠΆΠ΅Π½Π½ΡΠΉ Π² ΡΡΡΠ½ΠΎΠΌ ΠΈΠ½ΡΠ΅ΡΡΠ΅ΡΠ΅ ΠΊΠΎΠΌΠ½Π°ΡΡ Π΄Π»Ρ ΠΎΡΠ΄ΡΡ Π°.

ΠΠ΄Π½Π° ΠΈΠ· ΡΠΏΠ°Π»Π΅Π½ Π² Π³Π»Π°Π²Π½ΠΎΠΌ Π΄ΠΎΠΌΠ΅ ΠΈΠΌΠ΅Π΅Ρ Π°Π½Π°Π»ΠΎΠ³ΠΈΡΠ½ΡΡ ΠΎΡΡΡΠΎΠΊΠΎΠ½Π΅ΡΠ½ΡΡ ΡΠΎΡΠΌΡ ΠΏΠΎΡΠΎΠ»ΠΊΠ°. ΠΠΈΠ·Π°ΠΉΠ½Π΅Ρ ΠΈΡΠΏΠΎΠ»ΡΠ·ΠΎΠ²Π°Π» ΡΠ΅ΠΌΠ½ΠΎ-Π³ΠΎΠ»ΡΠ±ΡΡ ΠΊΠ°ΡΠ΅ΠΌΠΈΡΠΎΠ²ΡΡ ΡΠΊΠ°Π½Ρ Π΄Π»Ρ ΠΎΡΠ΄Π΅Π»ΠΊΠΈ ΡΠ°ΡΠ°Π΄Π° ΠΏΠΎΡΠΎΠ»ΠΊΠ° ΠΈ Π½Π΅ΠΊΠΎΡΠΎΡΡΡ Π²Π΅ΡΡΠΈΠΊΠ°Π»ΡΠ½ΡΡ ΠΏΠΎΠ²Π΅ΡΡ Π½ΠΎΡΡΠ΅ΠΉ. Β«ΠΡΠΎ Π½Π΅ ΡΠΎΠ»ΡΠΊΠΎ ΠΏΡΠΈΠ²Π»Π΅ΠΊΠ°ΡΠ΅Π»ΡΠ½ΡΠΉ Π²Π½Π΅ΡΠ½ΠΈΠΉ Π²ΠΈΠ΄, Π½ΠΎ ΠΈ ΠΎΡΠ»ΠΈΡΠ½Π°Ρ ΡΡΠΌΠΎΠΈΠ·ΠΎΠ»ΡΡΠΈΡΒ» β Π³ΠΎΠ²ΠΎΡΠΈΡ ΡΠΏΠ΅ΡΠΈΠ°Π»ΠΈΡΡ.

ΠΠ΅Π²Π΅ΡΠΎΡΡΠ½ΡΠΉ ΡΠΈΡΡΠ½ΠΎΠΊ ΠΌΡΠ°ΠΌΠΎΡΠ½ΡΡ ΠΏΠΎΠ²Π΅ΡΡ Π½ΠΎΡΡΠ΅ΠΉ ΠΏΠΎΡΠ°ΠΆΠ°Π΅Ρ Π½Π°Ρ Π² ΡΠΎΡΠΊΠΎΡΠ½ΠΎΠΉ Π²Π°Π½Π½ΠΎΠΉ ΠΊΠΎΠΌΠ½Π°ΡΠ΅. ΠΠ΅ΡΠΌΠΎΡΡΡ Π½Π° ΠΎΠ±ΠΈΠ»ΡΠ½ΠΎΠ΅ ΠΈΡΠΏΠΎΠ»ΡΠ·ΠΎΠ²Π°Π½ΠΈΠ΅ ΠΌΡΠ°ΠΌΠΎΡΠ° Π² ΠΎΡΠ΄Π΅Π»ΠΊΠ΅ Π²Π°Π½Π½ΠΎΠΉ, Π΅Π΅ ΠΈΠ½ΡΠ΅ΡΡΠ΅Ρ Π²ΡΠ³Π»ΡΠ΄ΠΈΡ ΡΠ΅ΠΏΠ»ΡΠΌ, Π»ΡΡΠΈΡΡΡΠΌ β Π²ΡΠ΅ Π±Π»Π°Π³ΠΎΠ΄Π°ΡΡ ΠΈΡΠΏΠΎΠ»ΡΠ·ΠΎΠ²Π°Π½ΠΈΡ Π±Π΅ΠΆΠ΅Π²ΠΎβΠΏΠ΅ΡΡΠΈΠΊΠΎΠ²ΠΎΠΉ ΠΏΠ°Π»ΠΈΡΡΡ.
ΠΠΎΠΌΠ΅ΡΠ΅Π½ΠΈΠ΅ Π±ΡΠΊΠ²Π°Π»ΡΠ½ΠΎ ΡΡΠΎΠΏΠ°Π΅Ρ Π² ΠΏΠΎΡΠΎΠΊΠ°Ρ Π΅ΡΡΠ΅ΡΡΠ²Π΅Π½Π½ΠΎΠ³ΠΎ ΡΠ²Π΅ΡΠ°. ΠΠΎΠ»ΡΡΠΈΠ΅ ΠΏΠ°Π½ΠΎΡΠ°ΠΌΠ½ΡΠ΅ ΠΎΠΊΠ½Π° ΠΏΠΎΠ·Π²ΠΎΠ»ΡΡΡ Ρ ΠΎΠ·ΡΠΈΠ½Ρ Π΄ΠΎΠΌΠ° Π»ΡΠ±ΠΎΠ²Π°ΡΡΡΡ ΠΏΠ΅ΠΉΠ·Π°ΠΆΠ°ΠΌΠΈ ΠΠΈΠ½ΠΊΠΎΠ»ΡΠ½-ΠΏΠ°ΡΠΊΠ°. Π’Π΅, ΠΊΡΠΎ Π±ΡΠ» Π² Π§ΠΈΠΊΠ°Π³ΠΎ, ΠΏΠΎΠΉΠΌΡΡ, ΡΡΠΎ ΠΏΠΎΠ΄ΠΎΠ±Π½ΡΠΉ Π²ΠΈΠ΄ ΠΈΠ· ΠΎΠΊΠ½Π° Π΄ΠΎΡΠΎΠ³ΠΎΠ³ΠΎ ΡΡΠΎΠΈΡ.

ΠΠΊΡΡΠ΅ΡΡΠ΅Ρ ΠΈ ΠΈΠ½ΡΠ΅ΡΡΠ΅Ρ ΡΡΠΎΠ³ΠΎ ΡΠ½ΠΈΠΊΠ°Π»ΡΠ½ΠΎΠ³ΠΎ ΡΠΈΠΊΠ°Π³ΡΠΊΠΎΠ³ΠΎ Π΄ΠΎΠΌΠ° ΠΌΠΎΠΆΠ΅Ρ Π½ΡΠ°Π²ΠΈΡΡΡΡ ΠΈΠ»ΠΈ Π½Π΅Ρ, Π½ΠΎ Π°Π±ΡΠΎΠ»ΡΡΠ½ΠΎ ΠΎΡΠ΅Π²ΠΈΠ΄Π½ΠΎ, ΡΡΠΎ Π½ΠΈΠΊΡΠΎ Π½Π΅ ΠΎΡΡΠ°Π½Π΅ΡΡΡ ΡΠ°Π²Π½ΠΎΠ΄ΡΡΠ½ΡΠΌ ΠΊ Π΅Π³ΠΎ ΠΎΡΠΎΡΠΌΠ»Π΅Π½ΠΈΡ. ΠΠ°ΠΉΠΊΠ» ΠΡΡΠΌ ΡΡΠ°Π²Π½ΠΈΠ²Π°Π΅Ρ Π΄ΠΈΠ·Π°ΠΉΠ½ ΡΡΠΎΠ³ΠΎ Π΄ΠΎΠΌΠΎΠ²Π»Π°Π΄Π΅Π½ΠΈΡ Ρ ΠΏΡΠ΅ΡΠ°ΠΌΠΈ Π¨Π΅ΠΊΡΠΏΠΈΡΠ° β ΠΊΡΠΎ-ΡΠΎ ΡΠΌΠ΅Π΅ΡΡΡ Π½Π°Π΄ ΡΡΡΠΊΠ°ΠΌΠΈ, ΠΊΡΠΎ-ΡΠΎ ΡΠ°Π΄ ΡΠ°ΠΌΠΎΠΌΡ ΡΠ°ΠΊΡΡ ΠΏΡΠΎΡΡΠ΅Π½ΠΈΡ, Π° Π΄ΡΡΠ³ΠΈΠ΅ ΡΠΌΠΎΠ³Π»ΠΈ ΡΠ»ΠΎΠ²ΠΈΡΡ ΡΡΡΡ ΠΏΡΠΎΠΈΠ·Π²Π΅Π΄Π΅Π½ΠΈΡ, Π½ΠΎ Π²Π°ΠΆΠ½ΠΎ, ΡΡΠΎ Π² ΠΈΡΠΎΠ³Π΅ Π²ΡΠ΅ ΠΎΠΊΠ°Π·Π°Π»ΠΈΡΡ ΡΠ΄ΠΎΠ²Π»Π΅ΡΠ²ΠΎΡΠ΅Π½Ρ.
designerdreamhomes.ru
