Финский дом одноэтажный проект – Одноэтажные финские деревянные дома: особенности проектов и их стоимость
Проекты финских одноэтажных домов — лучшие идеи и варианты планировки
Содержание статьи
Что представляет собой финский дом
Финские одноэтажные дома рассчитаны на эксплуатацию в суровых погодных условиях. Уже одно это может стать решающим фактором для выбора такой конструкции многими нашими соотечественниками, проживающими в регионах с холодным климатом.

Проекты финских одноэтажных домов
Следует отметить, что внешний вид предлагаемых финских домов немного отличается от привычного нам. Они не поражают воображение роскошью наружной отделки или сложными архитектурными замыслами. Многие проекты, представленные на нашем рынке загородной недвижимости, которые предполагают строительство по другим технологиям, отличаются тяготением именно к внешнему декору фасадов, тогда как внутреннее убранство и планировка подчас отличаются непродуманностью. В результате жить в таких строениях зачастую не слишком комфортно.

Особенности дома по финской технологии
Финское жилое сооружение относится к лучшим решениям для любителей жизни за городом. Основной материал для возведения построек ̶ древесина.

Финские дома из клееного бруса сегодня пользуются особой популярностью у покупателей и высоко ценятся профессионалами рынка деревянного домостроения
Как правило, в Финляндии возводятся каркасные дома высотой в один этаж. Это объясняется желанием оптимизировать затраты на отопление (на создание комфортного микроклимата в двухэтажном сооружении требуется большое количество энергии). Преимуществом такого варианта также является его меньшая стоимость и более низкая нагрузка на фундамент. Кровля домов ̶ двускатная (иногда встречаются проекты с односкатной или шатровой кровлей). Чердак или гараж, встроенный в жилище, как правило, отсутствует. Считается, что они снижают комфорт проживания. Максимум, что допускается для увеличения полезной площади ̶ мансарда (дом с ней считается высотой в полтора этажа). Оконные проемы, как правило, в домах большие. Это позволяет увеличить доступ естественному свету.

Финский проект дома с мансардой
Внешнему виду построек не уделяется столько внимания, как качеству возводимой конструкции, ее энергоэффективности, а также планировке помещений. При любой погоде в таком доме будет тепло и сухо. Технология и материалы, которые применяются при изготовлении объектов, позволяют изменять толщину стен в зависимости от региона, где дом устанавливается.

Помимо второго этажа, классические финские деревянные дома не имеют мансарды, большого подвала и встроенного гаража
Достоинства финских каркасных конструкций
Финские дома неспроста получили широкое распространение во многих странах. Основные их преимущества приведены ниже.
- Большой срок службы строений. Грамотная обработка всех деревянных деталей, хорошо продуманная конструкция позволяют сооружению стать крепким и надежным. В нем сможет жить не одно поколение.
- Безопасность. Применение для строительства натуральной древесины способствует высокой экологичности построек.
- Энергоэффективность. Технология, предусматривающая отсутствие швов между элементами каркаса, качественные материалы помогают уменьшить затраты на электроэнергию, требующуюся для обогрева помещений. Устанавливать сооружения, возведенные по финской технологии, можно даже в Сибири и Заполярье.

Энергоэффективность финских домов
- Высокие темпы строительства. Отработанная технология позволяет возводить строения в короткие сроки.
- Паропропускная способность. Древесина прекрасно пропускает пар, в результате дом «дышит», благодаря чему поддерживается хороший микроклимат (влажность в строении находится в пределах 45…55 %, что оптимально для людей). Биологические повреждения или сырость в нем также исключены.
- Прочность. Конструкция позволяет устанавливать дома даже в сейсмически активных зонах.

Двухэтажный коттедж
- Теплоэффективность. Использование древесины, утеплителя и уникальной системы стыковки элементов позволяет уберечь жилище от проникновения холода и не даст теплу покинуть дом.
- Стойкость к огню. Использование для обработки дерева специальных огнезащитных составов помогает существенно повысить пожаробезопасность строений (установленная стойкость к воздействию открытого пламени ̶ час).
- Шумоизоляция. В финские дома не проникает уличный шум, от звуков из смежных помещений комнаты также достаточно хорошо изолированы.
- Грамотная внутренняя планировка. В доме все продумано до мелочей. Это позволяет эффективно использовать площадь и повышает уровень комфорта для проживающих.

Дом из клееного бруса в скандинавском стиле
- Относительно небольшой вес финских конструкций позволяет снизить требованию к грунту при выборе фундамента. Заливки мощного основания не требуется.
Несмотря на то, что внешне дома выглядят достаточно аскетично, их дизайн можно разнообразить при помощи различных архитектурных элементов: террас, веранд или балконов. Отсутствие лишних деталей и лаконичность построек нравится большинству потребителей.

Внешне финские дома выглядят достаточно аскетично
Что отличает финские конструкции?
- При изготовлении используется пиломатериал только камерной сушки.
- Ригели (вставляющиеся в пазы, сделанные в стойках) располагаются по всему периметру этажа, что не дает прогнуться стойкам и придает всей конструкции прочность.
- Отсутствие хедеров (перемычек над оконными и дверными проемами), которые используются при строительстве домов по канадской технологии.
- Стойки каркаса располагаются на расстоянии, не превышающем 60 см друг от друга.

Каркасный дом в классическом стиле
Финские каркасные дома ̶ более энергоэффективные по сравнению, например, с канадскими конструкциями. В частности, это объясняется отсутствием сдвоенных стоек, щели между которыми могут стать источником холода. Двери в строениях, как правило, двойные. Наличия небольшого тамбура помогает защититься от холода снаружи.
Конечно, финские дома нельзя назвать бюджетными строениями. Но соотношение цена/качество в данном случае представляется оптимальным.

Перед тем как построить финский дом, необходимо создать его проект
Типы финских каркасных строений
Дом может возводиться по нескольким технологиям. Различие состоит в комплекте строительных материалов, поставляемых на объект. Из чего может быть построен финский дом?
- Из отдельных элементов, собираемых непосредственно на месте.
- Из утепленных модулей с отделанным фасадом.
- Из изготовленных уже на заводе стен. В этом случае на строительной площадке остается собрать из них дом, смонтировать перекрытия, установить крышу, перегородки внутри строения и подвести инженерные коммуникации.

Строительство дома по финской технологии
Основной материал для строительства каркасных домов ̶ балки из строганой доски или клееный брус.

Клееный брус
Стена финского строения имеет довольно сложную конструкцию. Основные составные элементы стены здания:
- внешняя облицовка;
- зазор для вентиляции;
- диффузионная мембрана;
- каркас с утеплителем;
- пароизоляционная пленка;
- внутренняя отделка (черновая и облицовочная).

Стена финского строения имеет довольно сложную конструкцию
Варианты финских домиков
Предлагается несколько вариантов конструкций, изготовленных по финской технологии.
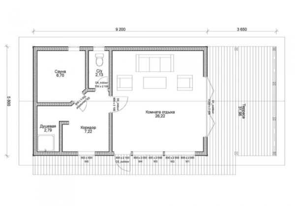
Домик с террасой
Такая постройка относится к наиболее простым решениям в линейке финских домов. Компактное строение, имеющее общую площадь 53 кв. м (жилое пространство — 46 кв. м) имеет двускатную крышу, мансарду и открытую террасу. На первом этаже можно разместить гостиную, совмещенную с кухней или комнату отдыха, а также санузел, душевую и сауну. На втором уровне располагаются уютные спальные комнаты. У дома предусмотрено два выхода на улицу.

Проект финского дома с террасой

Схема первого этажа
Финский дом из двух модулей
Предлагаемый вариант строения интересен тем, что под одной крышей располагаются два модуля:
- жилой, в котором находятся кухня, совмещенная с гостиной и столовой, две спальные комнаты, санузел с душевой кабиной и небольшая прихожая;
- вспомогательный, где размещены комната отдыха, сауна, душевая и техническое помещение.

Финский дом из двух модулей
Этот финский дом отлично подходит для проживания семьи с детьми. Большая терраса вдоль всего строения предназначена для проведения досуга на природе. Недостатком конструкции можно назвать устройство кровли. Отсутствие скатов может привести к скоплению большого количества снега зимой.

План дома из модулей
Строение со вторым светом
Дом очень привлекателен как в плане внешнего дизайна, так и по продуманности планировки.

Финский дом со вторым светом
Проект строения предусматривает устройство всех необходимых для проживания условий: в доме размещены помещения для приготовления пищи, семейных обедов, отдыха. Три санузла, три спальни (одна из них ̶ детская), комната для гостей, вспомогательные помещения, огромная терраса ̶ все это предназначено для комфортной жизни.

Планировка дома очень продумана
Дом из клееного бруса
В строении площадью 120 кв. м очень уютно. Планировка устроена таким образом, что создается ощущение простора и наполненности дома воздухом. Этому способствует наличие огромной гостиной, совмещенной с кухней и столовой, которая занимает большую часть площади, а также большое количество окон. Все изолированные помещения: три спальные комнаты, санузел и технический отсек размещены так, что совершенно не мешают такому восприятию.

Проект дома из клееного бруса
Дом имеет три выхода на улицу. Полностью стеклянная дверь в гостиной открывает вид на сад. Несмотря на кажущуюся простоту отделки, выглядит постройка очень привлекательно. Для проживания трех-пяти человек этот вариант вполне подходит.

Дом имеет три выхода на улицу
Постройка в форме буквы «Г»
В одноэтажном строении площадью 174 кв. м, имеющем угловую форму, распланировано все необходимое: большие столовая и гостиная, огромный холл, функциональная кухня, техническое помещение, гардеробная, достаточно большой санузел и кладовая комната. Для членов семьи предусмотрены три спальни.

Г-образный финский дом
С улицы в дом можно попасть через четыре дверных проема. Перед строением располагается просторная открытая терраса. Вечерами очень приятно будет провести время с домочадцами перед камином. При необходимости гостиную можно отдать под дополнительную спальную комнату. В этом случае есть возможность создать удобные условия для жизни большой семьи.

Планировка Г-образного финского дома
Финский домик с навесом для автомобиля
Жилое строение занимает площадь 9,3 х 10,4 м. В распоряжении семьи из двух-четырех человек: две спальни, большая кухня-столовая, огромная гостиная, санузел, гардеробная, кладовая, техническое помещение и сауна. Для защиты автомобиля от непогоды предусмотрен навес, выполненный из того же материала, что и кровля. Время на свежем воздухе можно провести на двух террасах: большой и маленькой.

Финский домик с навесом для автомобиля
Войти в дом можно с обеих террас. В техническое помещение устроен отдельный вход.

Проект дома с навесом для автомобиля
Здание в современном стиле
Несмотря на то, что в основном финские дома отличают внешняя простота и аскетизм, некоторые проекты можно отнести к произведениям искусств.

Современный финский дом
На создание подобной конструкции архитекторов вдохновила форма лодки. В таком доме лучше всего проживать вблизи воды. Три спальни и сауна, большая столовая и гостиная, несколько вспомогательных помещений уместились в кажущейся небольшой постройке. Хотя площадь ее ̶ целых 155 кв. м. На террасе можно отлично провести время в хорошую погоду. А на веранде ̶ разместить джакузи.
Дом с панорамными окнами
Панорамные окна позволяют насытить просторную гостиную естественным светом. Две небольшие спальни, санузлы, кухня с барбекю, совмещенная со столовой и гостиной, встроенная баня ̶ такого комплекта помещений вполне достаточно для жизни за городом небольшой семьи. В гостиной вполне возможно разместить оставшихся на ночь гостей.

Финский дом с панорамными окнами
Летом стеклянные двери гостиной можно открыть и совместить ее с террасой. На свежем воздухе будет гораздо приятнее трапезничать. Свисающая кровля отлично защищает находящихся на террасе от непогоды. Общая площадь здания ̶ 235 кв. м.

Проект дома с панорамными окнами
Коттедж, построенный по финской технологии
Этот проект можно отнести к элитным. Дом общей площадью 162 кв. м вмещает 4 спальных комнаты, сауну, джакузи, просторные помещения для приготовления пищи, трапезы и отдыха, а также различные вспомогательные отсеки.

Коттедж, построенный по финской технологии
Чтобы имелось представление о порядке цен на строительство подобных коттеджей, предлагается сравнение стоимости полного комплекта (включает отделку, утепление, внутренние перегородки, ограждения террасы, систему водостока, уличную террасную доску и т. д.) в трех различных технологиях.
Таблица. Цена на коттедж в зависимости от используемой технологии.
| Технология | Стоимость, евро |
|---|---|
| Базис: · гипсовая плита 12 мм; · пароизоляция 0,2 мм; · силовые стойки 84 х 150 мм и 42 х 150 мм; · утепление: URSA PURE ONE 150 мм; · ветрозащита: RKL 30 мм; · окна металлопластиковые с двухкамерным стеклопакетом; · стропильная система: поставляется в разобранном виде. | 38714 |
| Оптимум: · гипсовая плита 12 мм; · пароизоляционная пленка 0,2 мм; · силовые стойки 84 х 200 мм и 42 х 200 мм; · утепление: Paroc 200 мм; · ветрозащита: RKL 30 мм; · окна металлопластиковые с двухкамерным стеклопакетом; · стропильная система: поставляется в разобранном виде. | 49606 |
| Премиум: · гипсовая плита 12 мм; · гипсовая плита высокой прочности 13 мм; · пароизоляционная пленка 0,2 мм; · силовые стойки 84 х 250 мм и 42 х 250 мм; · утепление: Paroc 250 мм; · ветрозащита: Toulaljoni 12 мм; · окна SKAALA (дерево с алюминием), установлены на заводе; · стропильная система: поставляется в собранном виде с завода. | 139396 |

Один из проектов коттеджа
Предлагаемые производителем варианты планировок по желанию клиента можно немного видоизменить.
Выбор в качестве варианта для постройки загородного дома именно финской конструкции означает, что человек большое внимание уделяет надежности и комфортабельности своего жилища, а также обладает хорошим вкусом. При всем своем простоватом внешнем виде определенным шармом такие каркасные конструкции обладают. К тому же они отвечают всем современным требованиям, предъявляемым к жилым строениям.
Видео — Проекты финских домов из бруса
remont-book.com
Скандинавские дома. Финские, шведские, норвежские проекты ⋆ Финский Домик

Не случайно люди учатся на архитекторов и проектировщиков. Все не так просто, как кажется. Поэтому на мой взгляд, самый лучший путь — это поиск «донора», готового проекта дома, который максимально подойдет под ваши желания и требования.
Вы наберете в яндексе или гугле что то вроде «готовые проекты» или «типовые проекты» и будете рассматривать множество отечественных проектов. Возможно вы что то найдете, а возможно разочаруетесь.
Почему скандинавские проекты лучше российских?
Если кратко — скандинавские дома намного более продуманы, рациональны и комфортны для проживания, чем подавляющее большинство отечественных.
Российские проекты весьма специфичны. У нас нет большого опыта проектирования частных домов. Деревенские дома всегда строились «своим умом», без «удобств» и прочих буржуазных излишеств, а профессиональных проектировщиков и архитекторов учили строить большие здания и многоквартирные дома.
Отсюда и специфика отечественных проектов — ставка на броский внешний вид, при том что внутренние планировки зачастую не продуманы и сделаны по «квартирному» образцу, не учитывающих специфики загородного дома и проживания в нем.
Пространство используется не эффективно, отсутствуют крайне полезные (а зачастую необходимые) подсобные помещения и т.п. Зато есть множество бесполезных холлов и коридоров. Которые впустую пожирают пространство, за которое вы будете платить при строительстве.
Но за эффектными фасадами — это часто не заметно. Понимание приходит потом, когда дом построен, деньги потрачены, а вы понимаете что надо было сделать по другому.
Однажды мне попался проект дома на 250 кв м, из которых, при ближайшем рассмотрении — около 100м2 составляли холлы и коридоры. То есть фактически — потерянное пространство. А ведь если более рационально подойти к использованию пространства, то вместо дома на 250м2, вполне можно было построить дом на 180 — при том же наборе и площади помещений, несущих какую то полезную функцию. Но для того чтобы сделать планировку рациональной — надо весьма сильно напрячь мозг. Гораздо проще увеличить площадь и воткнуть пару коридоров. Ведь не проектировщик будет платить за эти квадратные метры при строительстве.
Поэтому на мой взгляд — более правильно обратится к зарубежному опыту. И в первую очередь к опыту северной Европы и Скандинавии.
Почему именно они?
Потому что в этих странах умеют считать деньги, любят комфорт, но при этом не любят тратить лишнего. Планировки финских, норвежских, шведских домов — крайне продуманы. А климат и связанные этим особенности домов, ближе к нашему, чем, допустим, испанские или польские дома
Все пространство используется очень рационально. Внешний вид, планировки — все сбалансировано.
Можно ли внести свои изменения в скандинавский проект?
Можно, но очень осторожно. Повторюсь, скандинавские проекты в большинстве своем уже продуманы до мелочей. Поэтому попытка самостоятельной «перепланировки» или изменения одного на другое, может привести к тому, в итоге вы получите совсем другой дом. И не факт что он будет такой же удобный и красивый как на изначальной картинке.
Поэтому в идеале, надо искать проект который вам подойдет с минимальными изменениями. Или же очень хорошо отдавать себе отчет в том, что вы делаете и как это будет выглядеть в реальности.
Приведу небольшой пример. Ниже на фото «донор» и его реализация с некоторыми фасадными изменениями.

Изначальный внешний вид

Убрали широкие белые декоративные элементы, декоративную расстекловку, заменили доску на сайдинг.
Казалось бы всего ничего. Окна без «расстекловки» обшивку фасадной доской заменили на сайдинг, убрали широкие белые декоративные элементы, немного уменьшили крыльцо. Вроде мелочи. Но в итоге получился другой дом. Не плохой — но именно что другой. Не такой как на картинке.
Где найти проект финского или скандинавского дома?
Варианта всего два
Вариант первый – найти в Скандинавии
В Финляндии и Скандинавии весьма распространено типовое строительство, которым занимаются как небольшие фирмы, так и крупные концерны. Такие фирмы обычно имеют каталоги производимых домов.
Собственно ваша задача – изучить сайты этих компаний, посмотреть что они предлагают и выбрать проект скандинавского или финского дома для последующей реализации. Хотя, честно говоря — проектом это назвать нельзя. Скорее это внешний вид и планировка от которой можно оттолкнуться. Так как купить готовый проект со всей документацией за рубежом — достаточно проблематично. Но имея на руках эскизы — планировку и внешний вид дома, уже можно сделать «реплику» этого дома.
Далеко не все сайты имеют русскую или английскую версию. Более того, такая версия, может быть «сокращенной», поэтому для полноты информации, лучше смотреть оригинальный сайт.
Чтобы было проще ориентироваться на сайтах, можете воспользоваться автоматическим переводчиком гугла (translate.google.com) — достаточно вбить адрес сайта в поле перевода.
Или воспользоваться подсказками, приведенными далее по тексту.
Вариант второй – поискать на Финском домике
К этому мы шли долго и наконец сделали наш каталог скандинавских и финских проектов домов. Столкнувшись с тем, что искать подходящий проект по нескольким десяткам зарубежных сайтов, которые к тому же постоянно меняются, мы постепенно стали перетаскивать проекты со скандинавских сайтов к себе. И теперь на финском домике более 2500 финских, норвежских и шведских домов, с удобным поиском по основным критериям. Кстати, при просмотре проекта в нашем каталоге – обратите внимание на вкладку “описание”, там есть полезная информация и ссылка на оригинальный проект.
Вот быстрые ссылки на выборки по самым популярным запросам
Не нашли своего варианта – попробуйте поискать в самом каталоге, воспользовавшись формой поиска в боковой панели.
Если же вы любите работать с первоисточниками – далее вы найдете ссылки на финские и скандинавские сайты, послужившие источником проектов для нашего каталога.
Финские проекты домов



Все что связанно с домами, в финском языке имеет корень talo — что заметно даже по названию компаний. Например Omatalo — один из крупнейших концернов Финляндии и Скандинавии.
Соответственно на сайтах ищите разделы так или иначе связанные с talo — обычно каталог скрывается под словом talot (дома), talomallistomme, talopaketit и т.п. а так же mallistot (коллекции). Подсказки: kerros — этажность, Huoneistoala -жилая площадь, Kerrosala — общая площадь.
Я специально даю ссылки не только на страницы непосредственно с каталогом, но и на «главные» страницы компаний, так как со временем, сайт может быть переделан, и адрес страницы с каталогом изменится.
Причем не важно — строит компания дома из клееного бруса или каркасные, любой проект может быть адаптирован под каркасную технологию.
Особой строкой стоит отметить адрес www.talovertailu.fi — это финский агрегатор предложений от домостроительных компаний, в базе которого свыше 3000 проектов.
Проекты шведских домов



Подсказки — husen ( домa) planritningar (планировка), Vära hus (выбрать дом)
Проекты норвежских домов



Подсказки: Hus, Boliger — дома, Flermannsboliger — дома на несколько семей, Hytter — дачи, у которых травка на крыше растет
Как купить скандинавский или финский проект
Ответ на этот вопрос простой — полный проект в скандинавии вы не купите. Дело в том, что все представленные выше проекты, это проекты домостроительных компаний. Соответственно являются ноу-хау и прилагаются к заводскому домокомплекту. Скандинавы скорее всего откажутся продавать отдельно только проект.
Что же делать? Решение есть!
Когда разбираешься в каркасном строительстве и особенностях именно скандинавского подхода, к строительству каркасных домов, то наличие планировок с размерами и внешнего вида дома уже позволяет сделать на основе этих данных конструктивный проект дома.
И таким образом можно построить «реплику» (точную копию) финского дома — внешне, внутренне и в определенной степени конструктивно.
Причем это будет стоить в 1.5-2 раза дешевле, чем если заказывать оригинальный финский домокомплект.
Степень же конструктивного соответствия будет во многом определяться вашими пожеланиями и финансовыми возможностями.
Другими словами, имея «донора» в виде планировок, фасадов, внешнего вида — можно заказать собственный индивидуальный конструктивный проект и построить копию понравившегося вам скандинавского дома, заплатив за это гораздо дешевле.
(Visited 240 207 times, 73 visits today)
xn--d1ahabdeeoeo2a7a.xn--p1ai
Проект Аскола 100 одноэтажный финский дом в современном стиле
В комплектацию финского дома Аскола 100 входит:
Каркас
- каркас из строганого пиломатериала камерной сушки сечением 190мм*45мм (внешние стены)
90мм*45мм (внутренние не несущие перегородки), с шагом стоек по осям не более 635мм (расстояние между стойками 590мм). - стропильная система из строганой доски камерной сушки сечение 190*45мм или фермы на МЗП, технология MiTek в зависимости от параметров проекта
- оцинкованный крепеж, предусмотренный проектом
Перекрытие
- Балки 190мм*45мм, камерной сушки, с шагом не более 435мм
- Черновой пол, доска 140мм*45мм, камерной сушки с шагом не более 350мм (основание под чистовой пол, монтируется перпендикулярно балкам перекрытия, для скрытого монтажа инженерных коммуникаций)
- Мембрана Juta Ютавек 85/Пароизоляция 0,2мм
Утепление и шумоизоляция
Минимальный слой теплоизоляции:
- внешние стены — 190мм
- перекрытие чердака — 200мм
- цокольное перекрытие — 190мм
Утепление ROCKWOOL/Knauf - опционально 45мм перекрестное утепление
- опционально 25мм ветрозащитная плита МДВП Isoplaat (Изоплаат) по внешним стенам
Окна/Двери
- размеры согласно спецификации, профиль REHAU 60мм, двухкамерный энергосберегающий стеклопакет (i стекло), фурнитура Roto, цвет белый, раскладка в соответствии с проектом
- установка наличников, отливов на фасад
- монтаж окна в теплой зоне стены, с дополнительной гидроизоляцией с внешней стороны.
- утепленная, деревянная входная дверь ST2000U/LC200 Производство Kaskipuu Oy (Финляндия), белая
Кровля и водосточная система
- металлическая черепица, сталь 0,5мм, оцинкованная, Т05, покрытие полиэстер
- подкровельная вентиляция, брусок 45*45мм, обрешетка 90*20мм
- гидро-ветрозащитная мембрана Juta
- подшив свесов крыши/карнизов деревом, устройство лобовой доски
- ПВХ водосточная система
- полный комплект всех монтажных элементов кровли включая планки примыкания, капельники, конек, крепеж, гидроизоляция итд
- устройство снегозадержания
Вентилируемый деревянный фасад
- контр-обрешетка 40*30мм
- отделка фасада имитацией бруса 145*20мм, класс А
- отделка окон и дверей деревянными наличниками
- опционально — Доска UYV 20*145*6000мм, АВ сорт, Ель Поднятый ворс, 1Г (4ст) +2КР (3ст) укрывной окрас цвет по RAL
Входные группы
- предусмотренные проектом веранды, балконы, крыльца, включая ограждения, без чистового покрытия. Пол веранды – лиственница
fin.house
Одноэтажные дома по финской технологии: проекты, цены, фото
Особенности одноэтажных финских коттеджей
Финский стиль предусматривает постройку деревянных домов, идеально гармонирующих с ландшафтом и обеспечивающих комфортные условия жизни. Коттеджи имеют простые архитектурные решения без вычурной отделки и правильную форму. Преобладают планировки с просторными комнатами, большой верандой или террасой, широкими окнами или панорамным остеклением. Также зачастую к дому пристраивается сауна.
Чаще всего по данному методу строятся одноэтажные дома площадью около 150 м2 с широкой двускатной крышей. При возведении стен дома возможно использование одного из трех вариантов технологии:
- Клееный брус. Сборный брус, состоящий из прочно склеенных между собой ламелей (тонкие доски камерной сушки). Материал характеризуется отличными прочностными качествами и высокой жесткостью, имеет строго унифицированную геометрию. Дом возводится в сжатые сроки и не дает усадку.
- Двойной брус. Для постройки используется брус камерной сушки. Стены возводятся в два слоя, которые жестко увязываются друг с другом. Между слоями образуется полость, которую заполняют современным утеплителем.
- Каркасный метод. Основой здания является каркас из бруса камерной сушки, который отличается высокой жесткостью и прочностью. С внутренней и внешней стороны он обшивается строганой доской. Во внутреннее пространство стены закладывается утеплитель.
Преимущества одноэтажных домов по финской технологии от «ОСНОВА»
Одноэтажные коттеджи, возведенные по финской технологии, представляют собой по-настоящему комфортные и красивые дома для постоянного проживания. Они обладают целым рядом преимуществ:
- Удобная и функциональная планировка.
- Отсутствие лестниц, что делает проживание в доме удобным для людей любого возраста.
- Применение для постройки только натуральных, экологически безопасных материалов.
- Оптимальные показатели уровня влажности для здоровья человека. В коттедже поддерживается влажность в диапазоне 45-55 %.
- Отличная теплоизоляция стен, полное отсутствие щелей. Это позволяет поддерживать комфортную температуру даже в холодные зимние месяцы без значительных затрат на отопление.
- Надземные конструкции из дерева имеют небольшой вес. Это позволяет использовать легкий фундамент, что снижает цену строительства здания.
- Простота внутренней и наружной отделки коттеджа.
- Очень красивый и современный внешний вид дома.
Благодаря этим преимуществам проекты финских домов сегодня пользуются высокой популярностью у заказчиков.
Комплектации одноэтажных финских домов
Строительство финских домов нашей компанией предлагается в трех вариантах комплектации:
- Холодный контур. Базовая комплектация, которая предусматривает возведение здания и монтаж всех его основных конструктивных элементов, устройство кровли, подготовку к монтажу водосточной системы. Все пиломатериалы обрабатываются специальными составами для повышения огнестойкости и защиты от гниения и вредителей.
- Теплый контур. Дополнительно к первой комплектация предусматривается утепление стен, кровли, перекрытий, установка двухкамерных стеклопакетов и металлической двери с теплоизоляцией. Производится оформление дверных и оконных проемов, выполняется внешняя отделка, монтируется водосточная система.
- Под ключ. Выполняются все виды работ в рамках первых двух комплектаций. Дополнительно производится подведение и подключение коммуникаций, монтаж системы отопления, выполняется полная внутренняя отделка дома.
Закажите одноэтажный финский дом под ключ в СК «ОСНОВА», и мы построим его быстро и качественно!
osnova.spb.ru
| Фундамент: | не входит в стоимость дома, рассчитывается индивидуально, в зависимости от пожеланий Клиента и планировки проекта. | ||
| Высота помещений | Высота 1 этажа — 2,5 м, высота 2 этажа — 2,4 м | ||
| Толщина каркаса | 150 мм | ||
| Обвязка дома (Двойная) | 1 ряд — брус 150х150 мм, 2 ряд — доска 40х150 мм | ||
| Лаги первого этажа | Доска 40х150 мм (шаг 59 см) | ||
| Черновой пол | Обрезная доска 20х100 | ||
| Чистовой пол | Шпунтованная доска, толщиной 36 мм, принудительной сушки | ||
| Наружные стены дома 1 этажа | Доска 40х150 мм (шаг 59 см) | ||
| Перегородки 1 этажа | Доска 40х100 мм (шаг 59 см) | ||
| Межэтажное перекрытие | Доска 40х150 мм (шаг 59 см) | ||
| Каркас фронтонов | Доска 40х150 мм (шаг 59 см) | ||
| Стропила | Доска 40х200 мм (шаг 59 см) | ||
| Наружные стены 2 этажа (при наличии) | Доска 40х150 мм (шаг 59 см) | ||
| Перегородки 2 этажа | Доска 40х100 мм (шаг 59 см) | ||
| Подкровельная обрешетка | Доска 20х100 мм (шаг не более 30-35 мм) | ||
| Вентиляционная контррейка | Рейка 20х50 мм | ||
| Подкровельная пленка | Мембранная пленка Изоспан АМ | ||
| Вентилируемый фасад дома | Рейка 20х50 мм | ||
| Ветро-влагозащита наружных стен | Мембранная пленка Изоспан А | ||
| Внешняя отделка | Имитация бруса 20х140 мм, сорт В, камерной сушки | ||
| Пароизоляция | Мембранная пленка Изоспан В | ||
| Внутренняя отделка | Стены, перегородки — вагонка; потолок — вагонка (вагонка сорт В, камерной сушки) | ||
| Утепление: Пол 1 этажа | Rockwool Лайтс Баттс 150 мм | ||
| Утепление: Внешний контур дома | Rockwool Лайтс Баттс 150 мм | ||
| Потолок мансардного этажа | Rockwool Лайтс Баттс 200 мм | ||
| Межэтажное перекрытие | Rockwol Лайт Баттс 150 мм | ||
| Перегородки 1 и 2 этажей | Rockwool Лайт Баттс 100 мм | ||
| Кровля | Волнистые листы Ондулин (цвет: красный, коричневый, зеленый) | ||
| Поднебесники | Имитация бруса 20х135 мм, ширина — 40 см | ||
| Окна | Однокамерные окна ПВХ | ||
| Входная дверь | Металлическая, производство Россия | ||
| Межкомнатные двери | Деревянные, филенчатые | ||
| Лестница на второй этаж | Тетива — строганный брус 100х150 мм, ступени — 30х200 мм, поручень — деревянный фигурный, балясины — точеные фигурные. | ||
sk-domostroi.ru
Одноэтажные Финские дома из бруса под ключ
Поэтапная
оплата
Платите по частям вместе с тем, как идет строительство Вашего дома.
Подробнее…
Ипотека икредитование
Есть возможность использовать
кредитные и ипотечные средства.
Подробнее…
Trade-inЗачет стоимости любого имущества в пользу оплаты строительства дома.
Подробнее…
1-этажные финские дома из бруса под ключ
Одноэтажные финские дома из бруса – это недорогое, но уютное и практичное жильё для тех, кто ценит комфорт и экологичность деревянных построек. Такие коттеджи воплощают все лучшие черты финского стиля – живописный экстерьер, естественность и лаконичность, – и являются оптимальным вариантом для семьи с 1-2 детьми. У нас Вы сможете заказать проект и строительство одноэтажного дома из клееного бруса в СПб, Ленинградской области, а также по всей России недорого – по ценам компании, которая выполняет полный цикл работ и использует для производства бруса лучшую древесину алтайской сосны и сибирского кедра.
Особенности
Финские дома невероятно популярны в России благодаря целому ряду очевидных достоинств:
- сдержанный, лаконичный, но не лишенный изящества стиль, который смотрится максимально естественно в любом окружении;
- уют и комфорт, здоровая атмосфера в помещениях;
- простые и надежные конструктивные решения, который обеспечивают продолжительный срок эксплуатации.
Реализовать эти преимущества наиболее полно позволяет применение клееного бруса, который сочетает эстетику и экологичность деревянного домостроения с практичностью, долговечностью и стабильностью форм современных строительных материалов. Специализируясь на использовании клееного бруса, наша компания предлагает привлекательные условия возведения финских домов в Санкт-Петербурге и Ленинградской области, а также гарантии на все виды работ.
1-этажные финские дома из бруса площадью 100-200 кв.м, проекты которых представлены на этой странице каталога, достаточно просторны для проживания семьи, легко впишутся на участок и относительно дешевы в строительстве (по отношению к 2-этажным коттеджам). Важно и то, что планировка жилища максимально безопасна для детей и пожилых людей, а сама постройка гармонично вписывается в окружающий пейзаж.
Уточнить стоимость строительства понравившегося проекта, обсудить комплектацию, сроки и детали заказа Вы всегда сможете у консультантов компании по телефону. Сделайте первый, ни к чему не обязывающий шаг к своей мечте о собственном доме уже сегодня!
Чтобы купить проект одноэтажного Финского дома свяжитесь с отделом продаж по телефону: 8(812) 449-73-26
Обратите внимание, что при заказе строительства дома в компании ГрандЛес проектную документацию Вы получаете абсолютно бесплатно!
www.grandles.pro
Финские дома одноэтажные: проекты, деревянный каркас, фото
Строительство дома – это ответственный и серьезный процесс. В этом случае необходимо предусмотреть все нюансы, продумать планировку и оформление дизайна. Провести все эти работы самостоятельно не получится, так что лучше доверить это дело профессионалам. Сегодня при строительстве одноэтажных домов все чаще задействуют финскую технологию.
Такой выбор не случайный, ведь конструкции имеют привлекательный внешний вид, быстро и просто возводятся, а прослужат такие дома долго. Сегодня можно обратиться в специальную фирму, которая предложит каждому уже готовые проекты одноэтажных домов, построенных по финской технологии.
Проект №1 на 3-5 человек
Этот проект позволит построить загородный дом, в котором можно проживать 3-5 человек. Кроме того, что постройка имеет привлекательный внешний вид, она возведена по всем современным требованиям, благодаря чему создаются комфортные условия для проживания. Из комнат стоит выделить гостиную с треугольным эркером.
Он полностью застеклен, благодаря чему гостиная наполняется солнцем и светом. Также необходимо обратить внимание, что освещение кухни и столовой осуществляется угловыми окнами. Кроме этого, они еще выполняют и эстетическую функцию, придавая общему интерьеру привлекательный вид.
На видео – проект каркасного одноэтажного финского дома на 3-5 человек:
Так как проект такого дома не предполагает наличие подвального помещения, то это снижает затраты на строительство коттеджа. Также это позволяет проводить строительные работы на участках с высоким уровнем подземных вод.
Проект № 2
Этот проект предполагает строительство современного деревянного дома по финской технологии, который будет отлично выглядеть между зеленными деревьями. Так как здание одноэтажное и малогабаритное, то его можно просто расположить на садовом участке. Планировка дома предполагает комфортный отдых и проживание 3-5 человек.
Кухонное помещение и гостиная объединены общей комнатой. Именно от нее и удается проникнуть на просторную террасу. Там летними теплыми веерами со своей семьей или друзьями можно выпивать чай и делится интересными новостями. Возможно вам также будет интересно больше узнать про гамак для дачи с каркасом своими руками.
На видео – проект дома по Финской технологии на 5 человек:
Гостиная очень уютная и отлично подходит для приема гостей или вечернего отдыха семьи. Если вам нужно расположить гостей после празднования, то сделать это можно в специальной спальной комнате. Удивительно, но на первом этаже кроме этой комнаты имеется еще две.
Одна служит спальней для родителей, а второй – для детей. Выбор дерева в рассматриваемом случае не единственный вариант, но ведь оно отличается своей экологической чистотой.
Проект №3
Этот деревянный загородный коттедж, построенный по финской технологии, имеет несложную двускатную кровлю. Она не просто придает зданию привлекательный вид, но и выполняет ряд других функций. Внешняя красота дома обязана выраженному главному фасаду. Он сформирован у входа. На фасаде присутствует большое количество оконных проемов. Часть из них захватывают двухсветные внутренние пространства. Таким образом, удается получить максимальную освещаемость дома днем.

С двухскатной крышей
Что касается планировки, то после входа в дом, вы попадаете в уютный коридорчик, который сразу ведёт в гостиную. Она очень просторная и светлая. Столовая и кухня объединены и находятся сразу за гостиной. Еще в доме имеется 2 комнаты для отдыха. В одной могут находиться родители, а вторая предназначена для детей. Все помещения очень уютные и вместительные. Кроме этого, за счет многообразия окон воздается визуальное расширение пространства.
Читайте также про проекты скандинавских домов.
Как выглядят модульные финские дома для круглогодичного проживания, можно увидеть в данной статье.
А вот какой Финский торфяной туалет для дачи является самым лучшим, поможет разобраться данная информация.
Также будет интересно узнать о том, как выглядит теплый дом из двойного бруса по Финской технологии: https://2gazon.ru/postroiki/zhilye/dvojnoj-brus-po-finskoj-texnologii-teplyj-dom.html
Возможно вам также будет интересно узнать о том, какой каркасный сарай можно построить своими руками.
Проект № 4
Этот проект предполагает строительство скромного одноэтажного дома по финской технологии. Его можно использовать круглогодично. Проживать в нем могут 3-5 человек. И хотя он является одноэтажным, в нем смогли поместиться гостиная с камином, кухня со столовой, 3 спальни и 2 санузла. Одна из имеющихся спален совмещена с ванной комнатой и сауной.
Котельная имеет свой выход. Дом имеет большие оконные проемы, благодаря чему днем он насыщен светом и теплом. В такой постройке будет уютно находиться как детям, так и взрослым в течение всего года. Возможно вам также будет интеерсно узнать о том, какая каркасная беседка для дачи самая популярная среди садоводом, поможет понять данная статья.
На видео – каркасный одноэтажный финский дом для постоянного проживания:
Проект № 5
Если придерживаться этой планировки дома, построенного по финской технологии, то в нем могут комфортно проживать 3-5 человек. Войдя в дом, вы сразу попадаете в небольшой холл, который связан с гостиной. Если двигаться прямо, то вы попадаете на кухню со столовой. Еще в доме имеется 3 комнаты и 2 санузла.
Из кухни есть выход на террасу, где в теплое время года можно выпить чая и насладиться красотой природы. В коттедже запроектирован второй свет в кухни-столовой- гостиной. Таким образом, внутри дома очень просторно и светло, а снаружи его украшают большие окна. Также будет интересно узнать о том, как выглядит и как можно сделать каркасную пристройку, очень подробно изложено из статьи.
На видео – с двумя ванными:
Проект № 6
Согласно этому проекту дом небольшой, одноэтажный. Отличается несложными фасадами и планировкой. Отлично подойдет для тех, кто ценит комфорт и уют, а также функциональное расположение внутренних комнат.
Особенность здания, построенного по финской технологии, заключается в наличие просторного холла. У него имеется двусветный лестничный марш.
Практически все комнаты, расположенные на первом этаже, не имеют дверных проёмов, а их пространства словно перетекают друг в друга. На первом этаже имеется просторная гостиная и еще 3 спальни. Две из них можно использовать хозяевам, а еще одна предназначена для расположения гостей. А вот какие проекты каркасно щитовых бань существуют, поможет понять информация из данной статьи.
На видео -С большим холлом:
Проект №7
Этот коттедж, построенный по каркасной технологии, имеет современный стиль. Особенность здания в выразительных фасадах и невероятно просторных внутренних помещениях. В ходе планировки архитекторы приняли решение о едином пространстве гостиной, кухни и столовой. Их разделяет только камин.
Но этот дом полюбился многим еще и за то, что имеется внутренняя связь с гаражом. Это удовлетворяет требования даже самого требовательного владельца. Дом рассчитан для комфортного проживания 3-5 человек. Так как отсутствует цокольный этаж, то возводить здание можно на участке, где имеется высокий уровень подземных вод. А из данной статьи можно больше узнать про существующие планы каркасных домов с мансардой.
На видео – каркасный одноэтажный финский дом с высоким потолком:
Одноэтажные каркасные дома, построенные по финской технологии, потрясают своей внешней и внутренней красотой. И хотя у них всего один этаж, они очень просторные и вместительные. Выбирая тот или иной проект, необходимо учитывать ряд нюансов, среди которых количество человек, предназначение коттеджа (временное или постоянное проживание), а также климатические условия региона.
2gazon.ru
