Гараж фото к дому – деревянный небольшой гараж с мансардой на 2 машины под одной крышей, кирпичный вариант с подземным въездом
Гаражи фото — 40 тыс, дизайн интерьера гаража, идеи обустройства и организации
Проект гаража – неотъемлемая часть каждого качественного решения для дома или дачи. Дом с гаражом – это не только удобно, но также практично и безопасно, так как парковка машины на открытом воздухе, особенно зимой, может негативно сказаться на состоянии вашего автомобиля. Если вы еще не определились с проектом, просматривайте фото гаражей с примерами организации пространства и оформления интерьера на Houzz.ru — так вы сможете найти идеи и для своего дома.Где расположить гараж?
Если вы только приступили к проектированию дома, у вас есть несколько вариантов расположения гаража. Вы можете построить его на цокольном или первом этаже дома, сделать его пристройкой к коттеджу или же самостоятельным строением. Отличный вариант – гараж в доме: и попасть в него можно прямо из дома, и машина всегда под рукой. Такой вариант хорош тем, что он позволяет решить проблему отопления и сэкономить пространство на участке. Самый простой в реализации вариант, если вы проектируете коттедж с гаражом – построить его на первом этаже дома. Таким образом у вас не будет проблем с гидроизоляцией и отводом воды. Однако специфические запахи могут проникать в дом, поэтому ближайшие помещения лучше сделать техническими.
Металлический гараж в цоколе требует качественной гидроизоляции фундамента. Если уровень грунтовых вод высокий, советуем воздержаться от строительства на цокольном этаже. Если проект дома готов, а место для машины в нем не учтено, можно сделать его отдельной пристройкой. Вход можно сделать из дома, и автомобиль также будет в шаговой доступности. Как самостоятельное строение, гараж также удобен, однако в этом случае его постройке потребуется уделить максимум внимания. Предпочтение часто отдают деревянным гаражам, из бруса или с мансардой.
Какую отделку выбрать для гаража?
Отделать стены и потолок пластиковыми панелями – просто, недорого и надежно. Пол, в то же время, требует большего внимания. В большинстве случаев, на полу оставляют только бетонную стяжку, что не совсем верно, потому, что бетон впитывает в себя все запахи и грязь. Наиболее оптимальный вариант – керамогранитная, керамическая или поливинилхлоридная плитка. Такой пол выглядит опрятно и прост в уходе. Атмосфера гаража сама по себе не так уж уютна, так что постарайтесь придать ему более дружелюбный вид с помощью правильной отделки. Самое простое решение – использовать керамическую плитку и пластиковые или гипсокартонные панели светлых оттенков. Кроме того, дизайнерским ходом могут стать интересные ворота для гаража.
Как обустроить гараж?
Размер помещения играет одну из главных ролей в процессе обустройства гаража. Место для машины и небольшая территория вокруг этой зоны всегда должны быть свободными. Определитесь с тем, в каком количестве и какие инструменты вам нужны в этом помещении, и как лучше их хранить. Расположите на первом плане лишь те, ко
www.houzz.ru
Как правильно сделать гараж в частном жилом доме
Земельные участки, выделяемые или приобретаемые для индивидуального жилищного строительства, часто бывают сравнительно невелики. Экономия полезной площади возможна разными способами, и самый эффективный из них – это гараж в доме. Такой способ размещения технического бокса позволяет решить целый ряд проблем, связанных со значительным снижением издержек на строительство и содержание.

В лучшем варианте загородный дом или коттедж сразу проектируется с гаражом. Тщательная проработка архитектурных решений специалистами позволит создать гармоничное строение. На этапе проектирования и проведения расчётов учитываются особенности земельного участка, геологическая структура, состав почв и рельеф. В серьёзных архитектурных бюро могут предложить очень интересные варианты использования ландшафта.
Содержание материала
Как построить дом с гаражом на склоне или на ровной площадке с минимальным вмешательством в окружающую среду.
В строении, расположенном на скате, имеет смысл предусмотреть технический этаж, где и будет размещаться помещение для автомобиля. Даже при небольшом перепаде высот объёмы земельных работ значительно уменьшатся. Высота загородного дома относительно окружающего ландшафта тоже будет меньше.
Дом с гаражом на склонеПлощадь наружных поверхностей, подлежащих облицовке, значительно сокращается. Грунт, прилегающий к стенам технического этажа, выполняет функцию утеплителя. Поддержание комфортной температуры в таком гараже потребует значительно меньших затрат. Это обстоятельство позитивно сказывается на тепловом балансе всего многоуровневого строения в целом.
При решении вопроса пристройки гаража к дому следует учитывать множество факторов. Описанный выше вариант использования – один из множества вариантов эффективного использования неровностей рельефа. Планировку участка можно произвести самостоятельно или обратиться к специалистам. Ошибки в проекте могут привести к очень неприятным последствиям.

Архитектурные бюро могут предложить своим клиентам типовые проекты, адаптированные к местным условиям. В серьёзных организациях имеется обширная база хорошо проработанных решений для разных случаев. Обычно клиенту предлагается несколько вариантов, из которых клиент может выбрать наиболее подходящий. Специальные программы для проектирования позволяют наглядно и в объёмном изображении продемонстрировать, как строение впишется в окружающую среду.
Гараж в частном жилом доме может быть разработан в виде индивидуального архитектурного проекта. В этом случае специалисты в ходе предварительных переговоров выявляют пожелания заказчика и оформляют их в виде технических требований. Обсуждение начинается с общей концепции и определения объёмно-архитектурных решений. Задание на проектирование формализуется и ложится в основу оригинального проекта загородного дома с гаражом.

Особенности проектно-расчётных работ при малоэтажном строительстве
Встроенный гараж в доме может иметь несколько вариантов компоновки. Условно их можно классифицировать по способу размещения бокса относительно основного строения.
- Вертикальная компоновка предусматривает расположение гаража в подвальном, или цокольном помещении, или на первом техническом этаже.
- Горизонтальное размещение: бокс пристраивается к глухой стене дома с одной из сторон.
- Комбинированный вариант: гараж возводится на уровне земли совместно со служебными помещениями; жилые комнаты строятся над ними.
Проект двухэтажного дома с подземным гаражом в подвале домаВыбор конкретного варианта преимущественно диктуется возможностями бюджета, выделенного на строительные работы.
В некоторых случаях производится пристройка гаража к уже имеющемуся строению – такой вариант используется в основном для снижения затрат. Прорубается дверь из дома в гараж, объединяя строения в единый комплекс. Проход устраивается, как правило, в служебные помещения. В целях предотвращения проникновения запахов из гаража в жилые помещения и дополнительного утепления устанавливаются двойные двери.
Гараж, пристроенный сбоку домаВ технических помещениях нужно сделать вытяжную вентиляцию. В верхней части стены устанавливаются отдушины, которые закрываются декоративными решётками. Установка вытяжки с вертикальным каналом, поднятым выше уровня конька крыши, в значительной мере повышает эффективность естественной вентиляции в доме. В некоторых случаях показана установка принудительной системы воздухообмена с созданием зоны пониженного давления в гараже.
Направление воздушного потока в таком случае будет от жилых и служебных помещений: кухни, ванной и санузла к боксу. Неприятные запахи и выхлопные газы, образующиеся после запуска двигателя, не будут попадать в дом. Расчёт систем вентиляции для гаражных боксов осуществляется в соответствии с требованиями СНиП. При проведении работ без привлечения специалистов подбор сечения каналов производится опытным путём.
Специфика применения разных компоновочных схем
В подавляющем большинстве случаев гараж в цокольном этаже дома – одна из самых широко применяемых компоновочных схем. Основными её достоинствами являются, прежде всего, относительная простота реализации, небольшие объёмы земельных работ на стадии подготовки основания здания и возможность оптимального использования внутреннего пространства.

Пол технического этажа с гаражом, расположенным в цокольном этаже жилого дома, находится на уровне земли. При обустройстве поверхности устраивается бетонная стяжка после отсыпки дренажного слоя и песчаной подушки и гидроизоляционных работ. Наружные стены цоколя строятся, в большинстве случаев, из красного кирпича. Этот строительный материал обеспечивает наилучшие характеристики для указанной конструкции.
Обычно в таких случаях закладывается ленточный фундамент, усиленный двумя и более арматурными поясами. Поверхность основания выводится на уровень земельного участка. Кладка стен технических и служебных помещений начинается с верхней кромки опорной конструкции. Размещение гаража согласуется с расположением несущих перегородок на всех этажах строения, начиная с самого нижнего.

Общая ширина гаража должна быть меньше габаритов здания вдвое или даже втрое. Это обстоятельство позволяет устанавливать одну или две поддерживающие перекрытия перегородки. Гараж при этом может быть размещён к одной из наружных стен или устроен в цоколе в центральной его части. Другие отсеки этого уровня могут быть использованы для размещения служебных и технических помещений: котельной, прачечной и тому подобное.
Служебные помещения цокольного уровня связываются с жилыми этажами внутренними лестницами. Используются в основном прямые лестничные марши – наиболее простые в реализации строительные конструкции. В зависимости от перепада высот лестничные переходы могут иметь промежуточные площадки. Для надёжной изоляции верхних уровней от неприятных запахов двери устанавливаются и наверху и внизу.

Высота цокольного этажа выбирается с учётом габаритных размеров автомобиля, который будет находиться в гаражном боксе. Предусматривается и некоторый запас на случай приобретения более крупной машины: внедорожника, минивэна или микроавтобуса. Соответственно высота въездных ворот должна быть максимальной. Схемы защитного устройства используются самые разные: распашные, откатные и поднимающиеся вверх.
На этом видео можете посмотреть на оригинальный проект постройки гаража на нижнем этаже частного дома
Гаражные боксы ниже уровня земли
При малых размерах земельного участка и ограничениях по общей высоте дома лучшее компоновочное решение – гараж в подвале дома. Реализация такого проекта имеет ряд особенностей и требует предварительных инженерно-геологических изысканий. Основная цель указанных мероприятий – установить глубину залегания грунтовых вод. При близости водоносного слоя к поверхности возможно подтопление нижних уровней.

В любом случае, размещение гаражного бокса ниже уровня земли потребует проведения целого комплекса технических и технологических мероприятий по его защите от влаги. Требования к состоянию атмосферы в помещениях, предназначенных для хранения транспортных средств, достаточно жёсткие. Высокая влажность может повредить металлическим деталям автомобиля, в первую очередь, кузову.
Подземный гараж, а точнее, его стены и полы непосредственно соприкасаются с грунтом, для их надёжной защиты от проникновения воды применяются следующие меры:
- По периметру устраивается дренажная система для отведения воды, попадающей в почву в результате осадков.
- На стены и полы гаражного бокса с наружной стороны накладывается гидроизолирующий слой, препятствующий проникновению влаги в строительные конструкции.
- В помещении устанавливается эффективная вытяжная вентиляция с необходимой кратностью воздухообмена, предусмотренной нормативами.
Только выполнение всего комплекса мероприятий способно обеспечить необходимые условия для хранения автомобиля в подземных сооружениях.
Основная задача дренажной системы состоит в отведении вод, проникающих в грунт с поверхности, в сторону от здания. При проведении земельных работ и выемке почвы для котлована следует учесть необходимость оборудования сточных поверхностей. От верхней части стены с наклоном наружу делается насыпь, поверх которой укладывается гидроизолирующий слой к сточному коллектору.
Правильная схема устройства дренажа подвала или цокольного этажа в домеГидроизоляция наружных поверхностей пола и стен подвального помещения выполняется в строгом соответствии с требованиями нормативной базы. Обычно для этих целей используются такие материалы как толь, рубероид, смолы и полимерные покрытия. При проведении работ следует быть предельно аккуратными и не допускать пропусков в гидроизолирующих слоях. Полотно должно укладываться с необходимым перекрытием между собой.
Наружная гидроизоляция стен гаража, расположенного ниже уровня землиВернуться к оглавлениюГаражи в виде пристроек к основному зданию
Одноуровневые здания и сооружения наиболее просты и по конструкции, и по технологии возведения. Гараж в деревянном доме может быть расположен и в цокольном, и в подвальном этаже, и в виде пристройки к основному зданию. В первых двух случаях резко возрастают затраты на строительство, что приводит к потере одно из самых важных достоинств индивидуальных жилых домов из древесины.
Профилированный брус или оцилиндрованное бревно обладает сравнительно небольшим удельным весом. Это обстоятельство позволяет обходиться лёгким ленточным фундаментом – технологичным и недорогим. Гаражное помещение может быть предусмотрено первоначальным проектом и построено одновременно с жилым. При необходимости, возвести бокс можно и позже, с появлением в распоряжении домовладельца автомобиля.

Общие размеры помещения для автомобиля определяются исходя из его габаритов с учётом возможности приобретения более крупной модели. Стандартным принято считать сооружение длиной не менее шести метров, шириной порядка четырёх метров и высотой свыше двух метров. В такой гараж при достаточных размерах въездных ворот свободно войдёт любой легковой автомобиль. Вокруг останется ещё достаточно пространства для перемещения людей.
Геометрические характеристики гаражного бокса могут быть скорректированы в сторону их увеличения. Обычно сооружения такого рода пристраиваются к одной из стен жилого дома во всю её длину. Таким образом, с одной стороны, сохраняется общая концепция здания, с другой стороны, образуется помещение с запасом по полезной площади. Использование этого излишка может быть разным: это место для второго автомобиля или для домашней мастерской.
Затраты на приобретение строительных материалов и проведение работ можно существенно сократить. Использование каркасной технологии строительства позволит возвести функциональное и удобное строение в кратчайшие сроки. Фактически необходимо смонтировать только кровлю и три стены, большую часть одной из них при этом будут занимать въездные ворота. Каркас собирается из деревянного бруса, а в качестве утеплителя используется минеральная вата.

Строительство гаража в частном доме, не предусмотренного начальным проектом, требует внесения изменений в техническую документацию. Проведение работ такого рода оформляется в виде разрешения на индивидуальное строительство. В органы архитектурного надзора предоставляется пакет документов, в том числе согласования от организаций, что занимаются эксплуатацией подземных инженерных и телекоммуникационных сетей.
По завершении строительства необходимо обратиться в БТИ для внесения изменений в техническую документацию на здание. Организационные вопросы необходимо решать своевременно, несмотря на то, что они занимают много времени. Процесс подготовки документов можно значительно ускорить, если поручить его специалистам из профильных компаний или архитектурных бюро.
Вернуться к оглавлениюПристройка гаража своими силами
Если у вас имеется достаточно места на земельном участке, тогда наилучшее решение – полноценный гараж, пристроенный к частному дому. Одна из стен строения, в которой нет оконных проёмов, служит ограждающей конструкцией для гаражного бокса. Объединение строения в единый комплекс происходит путём создания прохода между жилой и технической зоной. Для этого необходимо вырезать проём и установить дверное полотно, желательно двойное.
Возведение гаражного бокса в загородном доме в виде кирпичной пристройки к основному зданию приводит к образованию трещины в месте стыка. Это происходит в результате оседания фундамента, а вместе с ним и стен нового сооружения. Избежать такого развития событий можно в том случае, если пристройку сделать из лёгких материалов по современной каркасной технологии.
Лёгкая каркасная конструкция для пристройки гаража к частному домуЛенточный или плитный фундамент достаточного сечения обеспечит необходимую прочность конструкции. Основание следует залить заранее и оставить на довольно значительный срок для оседания. Обычно фундамент готовится с осени, а строительные работы выполняются с наступлением тёплого периода года. Практика показывает, что этого срока вполне достаточно, чтобы свести к минимуму все возможные негативные проявления.

Как сделать небольшой дом из гаража
Иногда задача решается в обратном порядке, когда вокруг заранее построенного гаража возводится жилой дом. Ситуация вполне реальная и возможная с учётом нехватки жилья в столице и регионах. Уже не один житель нашей страны построил дом из гаража с сохранением за техническим помещением его основной функции. В большинстве случаях требуется увеличение жилплощади, а размеры земельного участка не позволяют возвести ещё один дом.

С учётом размеров стандартного гаража в таком случае оптимальной будет комбинированная компоновочная схема. Кухня и санузел пристраиваются на одном уровне с уже имеющимся сооружением. Верхняя плоскость получившего здания становится основой для жилых комнат: гостиных и спален. Надстройку в целях снижения нагрузки на нижние уровни можно сделать мансардного типа.

На представленном видео видно, сколь оригинальный жилой дом можно сделать из ничем непримечательного гаражного бокса. Естественно, что перед началом подобного строительства здание следует изучить самым внимательным образом. Исследование должно проводиться специалистами на предмет определения допустимых дополнительных нагрузок. Осмотру и приборному контролю подвергаются стены, фундамент, перекрытия и другие конструкции.
На основании полученных данных делается заключение о заложенном в строении запасе прочности. Заключение о возможности и целесообразности пристройки гаража к дому делают инженеры-проектировщики. Обоснованное решение может быть принято только на основании точного анализа, предварительных расчётов и практического опыта проектировщика.proekt-sam.ru
виды, устройство крыш, варианты постройки, фото гаражей с навесом и хозблоком, а также пристроек из дерева, поликарбоната, профлиста
Навес перед гаражом, фото-примеров будет много в нашей статье, практичная, функциональная зона, позволяющая максимально эффективно задействовать все полезное пространство участка и при этом не выбивающаяся из общей концепции архитектурного ансамбля.
Далее сделаем обзор конструкций и видов пристроек, подскажем, как эргономично обустроить пространство, и приведем подробную инструкцию, как правильно сделать навес перед гаражом своими руками.
Навес гаражный – виды и особенности конструкций
Прежде чем дать пошаговую инструкцию, как пристроить навес к гаражу, разберемся, какие виды пристроек существуют, в чем преимущества и недостатки конструкций.
По способу размещения на участке
Перед строительством важно правильно выбрать место для гаражного навеса. Чтобы автомобиль не проезжал весь участок, целесообразно крытую стоянку устраивать по въезду во двор, сразу за воротами, перед домом либо сбоку забора. Это может быть:
- автономный навес;
- галерея, соединяющая ворота и дом;
- пристройка к зданию: дому, гаражу, бане, хозблоку.

Гараж с навесом, фото арочной опорной металлоконструкции
Конструктивные особенности
Отдельно стоящие навесы представляют собой самостоятельную конструкции на вертикальных опорах, под крышей. Столбы могут быть деревянные или металлические, расположенные друг от друга на расстоянии 1,5-2 м.
Пристроенное сооружение для автомобиля примыкает одной из сторон к какому-либо зданию, чаще это гараж или жилой дом. Такие постройки имеют несколько способов опирания:
- Балочно-опорный – одна сторона держится на горизонтальном брусе, закрепленном на несущей стене основного здания, вторая – на столбах.
- Консольно –опорный – для фиксации навеса в стену, перпендикулярно, монтируются специальные закладные, иногда фермы держатся на уголках или кронштейнах.
- Консольный – этот вид крепления подходит для небольших навесов под легкой крышей.

Гаражи и навесы для автомобилей, фото консольно-опорной пристройки к дому
Для маленьких участков характерны многоярусные постройки. Например, навес над гаражом, который служит беседкой.
Гараж или навес — что лучше
Если говорить о частном коттедже, в котором хозяева проживают круглый год, то здесь будет уместна комбинированная постройка: закрытый гараж и пристроенный навес. Чаще гараж-навес для машины – это крытая площадка, соединяющая ворота и дом. На дачных участках строить капитальный гараж нецелесообразно, поэтому здесь актуальны легкие постройки для временной автостоянки.

Навес между домом и гаражом, фото обустройства маленького двора
Конструкции разделяются по закрытости внутреннего пространства:
- Открытые – вертикальные столбы и крыша. Постройки предназначены для защиты от солнца и осадков, не загромождают участок, но не практичны, так как не защищают от бокового дождя, порывов ветра, пыли.
- Полузакрытые – часть сторон закрыта глухой стеной, зашита листовым материалом: вагонкой, декоративными решетками, панелями, либо предусмотрен парапет. Проемы иногда закрываются плотными занавесями из тента, мягкими стеклами.
- Навесы для гаража закрытого типа – самый практичный вид постройки. Стены закрываются поликарбонатом либо стеклятся, реже обшиваются деревом.

Навес перед гаражом, на фото конструкция соединяющая дом и ворота, комфортное и практичное решение
Материалы
Навесы для автомобиля можно заказать готовые или построить самостоятельно. Для строительства своими руками лучше всего подходит дерево и металл.
Деревянные навесы для гаража
Работа с деревом не требует привлечения дополнительного оборудования, достаточно бытовых инструментов. Вертикальные стойки и обвязку по периметру изготавливают из бруса 150*150, 100*100 мм, оцилиндрованного бревна сечением в диаметре 150-200 мм, стволов деревьев. Стропильную систему устраивают из обрезной доски 150*40 мм, что регламентируется нормативами СНиП.
Дерево плохо переносит сырость, гниет, его поражают грибки, мелкие насекомые, грызуны, поэтому конструкции не считаются долговечными. Продлить срок службы поможет обработка деревянного каркаса антисептиками, противопожарными растворами, грунтовка и нанесение стойкого к атмосферным воздействиям финишного защитного слоя.

Автостоянка из дерева с профилированной поликарбонатной крышей
Металлические навесы для гаража
Для изготовления конструкции потребуется сварочное оборудование и навыки работы на нем. Для каркаса используют круглую, в диаметре 50-150 мм, или профильную трубу с ребром 60*60, 80*80, 100*100 мм – в зависимости от размеров пристройки, выбора кровельного материала и расчета нагрузок на опоры, толщина стенки 2-3 мм. Крыша представляет собой комплекс ферм, сваренных из профтрубы 20*40, 25*50, 40* 60 мм.
Металлические изделия подвержены коррозии, поэтому готовый каркас необходимо зачистить щеткой, абразивами, промыть растворителем, загрунтовать и покрасить.

Арочная ассиметричная постройка возле забора, идея позволяет задействовать с пользой узкое пространство между гаражом и оградой
Нюансы проектирования, размеры
Для постройки своими руками следует подобрать типовой проект или самому сделать чертеж. Каркас навеса для гаража не представляет трудностей, а вот крыша имеет некоторые особенности:
- Односкатная – самый простой вид стропильной системы, подходит для всех регионов, важно рассчитать правильный уклон ската. Оптимально, если угол наклона будет 15-30о, подходит для всех кровельных материалов.
- Двускатная – устраивается преимущественно, если требуется перекрыть большую площадь или необходимо сочетать тип крыши с основным зданием, более массивная, сложнее в изготовлении, но и более практичная относительно односкатной.
- Арочная – актуальна для металлоконструкций разного типа, оптимальная высота от нижней до верхней точки – 600 мм, между верхним и нижним поясом фермы – 300-600 мм.

Гараж с навесом и хозблоком под двускатной крышей
Для кровли рекомендуется использовать легкие и прочные материалы:
- Мягкая черепица, рубероид – недорого, но требует сплошной обрешетки из доски или фанеры.
- Профлист – красиво, бюджетно, надежно, подходит для одно- и двухскатных крыш.
- Навес для гаража из поликарбоната – самый популярный вид постройки, легко, практично, не загромождает архитектурный ансамбль.
- Металлочерепица – применяется редко, целесообразна, если навес требуется сочетать с основной кровлей.

Легкая арочная металлоконструкция, декорированная живыми растениями
Размеры
Размер навеса к гаражу зависит от класса автомобиля, при проектировании целесообразно заложить по ширине – ширина авто +1000 мм в каждого бока, по длине — + 300-800 мм спереди и сзади от длины машины. Если стоянка рассчитывается на 2 машины, то необходимо предусмотреть +800 мм между ними.

Гараж с навесом на две машины, типовая автостоянка с эргономичными размерами
Полезный совет: Если самостоятельное строительство не входит в планы, то прекрасный выход для дачи — тентовые гаражи навесы для автомобилей, конструктор легко и быстро собирается, надежно защищает технику от атмосферных влияний.Как сделать навес перед гаражом – видео и подробная инструкция
Будем строить навес перед гаражом из поликарбоната, фото-пример ниже.

Удобный навес к гаражу, решение позволяет экономить материалы за счет использования под вертикальные опоры столбов забора
Гараж с навесом своими руками начинаем строить с разметки периметра, отмечаем место под столбы, выкапываем ямы глубиной 800 мм. Трамбуем дно, устанавливаем вертикальные опоры, заливаем раствором. Проверяем вертикаль, при необходимости укрепляем временными подпорками до становления бетона.

Варианты бетонирования металлических столбов
В стене гаража делаем закладные или присверливаем менсолы, для привязки пристройки. Подравниваем по верхним оголовкам столбы до нужной высоты. Связываем по верху опоры швеллером, это укрепит конструкцию и позволит сохранить геометрию даже при больших нагрузках.
На земле варим фермы, в нашем случае прямые, с параллельным верхним и нижним поясом, расстояние 300 мм из профтрубы 40*40*2 мм, укосы из профиля 25*25 мм, обязательно в каждой ферме четное количество отделов. Оптимальное расстояние между фермами – 1000 мм. Поднимаем стропильные детали на каркас и крепим элементы болтовым соединением. Перпендикулярно фермам укладываем прогоны-обрешетку, профтруба 20*20 или 20*40 мм, расстояние 600-900 мм, в зависимости от предполагаемых нагрузок на конструкцию.

Стандартные схемы ферм для небольших металлоконструкций
Укладываем на обрешетку кровельный материал, для односкатной постройки лучший вариант — поликарбонат. Вырезаем листы по размеру, обрабатываем края напильником. Крепим на обрешетку резиновую прокладку. Сверху фиксируем соединительный профиль. Вставляем в пазы готовые нарезанные листы поликарбоната, сверху закрываем декоративной крышкой. Края прикручиваем на термошайбы. Внешний торец поликарбоната заклеиваем специальным скотчем и устанавливаем алюминиевую заглушку.

Схема, как правильно крепить сотовый поликарбонат
В заключение посмотрите видео, какие бывают навесы для автомобиля из дерева, в ролике показаны интересные решения для частных домов.
setroom.ru
Как построить гараж на участке: типы конструкций и материалы
Май 18/15
Как человек не может жить без крыши над головой, так и автомобиль не может находиться на открытом пространстве. Некоторые автовладельцы считают, что транспорт можно содержать под навесом, однако даже самый надежный навес не защитит автомобиль от капризов природы, и рано или поздно возникнет вопрос приобретения гаража в кооперативе или строительства гаража на собственном участке. А поскольку он является своеобразным «домом» для авто, поэтому к вопросу «как построить гараж» нужно подойти со всей ответственностью, учитывая важные технические требования и нюансы. Своим читателям «Дом Мечты» поможет во всем этом разобраться.

Как построить гараж
Классификация гаражей по типам конструкций
Профессиональные строители делят гаражи на три большие подгруппы:
- встроенный;
- пристроенный;
- отдельный.
Разберемся подробнее в их особенностях.
Встроенные гаражи
Встроенный гараж, как правило, находится в цокольной части дома, совмещаясь с основной постройкой стенами, крышей и полом. Возвести такой гараж собственноручно очень сложно, т.к. подобная конструкция должна проецироваться еще на стадии планирования строительства дома.
Преимуществом встроенного гаража является экономия занимаемой площади и простота внутреннего обустройства. Поскольку в гараже такого типа используются общие с домом коммуникации, нет необходимости в выполнении трудоемких монтажных работ.
Однако существуют некоторые технические требования, обеспечивающие безопасную эксплуатацию встроенного или спаренного гаража:
- во-первых, согласно строительным нормам, со встроенным гаражом не должны соприкасаться жилые помещения. Это обусловлено тем, что пары бензина небезопасны для здоровья человека и, к тому же, могут спровоцировать взрыв;
- во-вторых, потолок гаража, который чаще всего представляет собой встроенную плиту, должен быть максимально прочным;
- и, в-третьих, в гараже обязательно необходимо оборудовать устройство принудительной вентиляции.

Гараж встроенный в дом

Дом с гаражом фото

Дом со встроенным гаражом фото

Современный коттедж с гаражом
Пристроенные гаражи
Пристроенный гараж отличается от встроенной конструкции тем, что он может быть достроен к дому уже после его возведения. Гараж данного типа имеет собственные наружные стены, пол и крышу, соединяясь с жилым домом только смежной стеной.
Пристроенный гараж позволяет экономично использовать пространство территории. Но учтите, что для более комфортной эксплуатации он должен располагаться перпендикулярно входной части дома, т.к. это обеспечивает максимально короткий объездной путь.
Как и предыдущая конструкция, возведение пристроенного гаража должно согласовываться с важными техническими требованиями:
- если гараж и дом имеют смежную стену, ее необходимо дополнительно уплотнить;
- в помещении, граничащем с гаражом, нельзя обустраивать жилую комнату или проводить важные электрические коммуникации;
- расстояние между гаражом и дверью или окнами дома должно составлять, как минимум, 2,5 метра.
Основная сложность строительства пристроенной конструкции заключается в необходимости возведения сложного фундамента. В идеале, жилой дом и гараж должны основываться на едином фундаменте, т.к. в противном случае из-за возникшего дисбаланса сооружение может «усесть», что приведет к нарушению архитектурной целостности дома. Что касается крыши, то если она не соединена с основным помещением, проще и дешевле всего использовать односкатную кровлю.
Поскольку пристроенный гараж соприкасается с домом, электричество и все необходимые коммуникации можно провести от центральной системы.
Но учтите, что согласно нормам, температура в гараже в зимнее время не должна превышать пяти градусов. Это обусловлено тем, что высокие температуры могут спровоцировать взрывоопасную ситуацию. И, к тому же, значительный контраст между температурой на улице и в помещении плохо сказывается на техническом состоянии автомобиля.

Пристроенный гараж на две машины к дому

Гараж пристроенный к дому фото

Фото дома с гаражом
Отдельно стоящие гаражи
Гараж, стоящий отдельно, представляет собой независимое сооружение, имеющее собственный фундамент, стены, крышу и систему коммуникаций. С одной стороны, отдельный гараж обеспечивает максимально комфортные условия эксплуатации и позволяет выбрать для строительства любые подходящие материалы, но с другой – коммуникации в нем проводятся с нуля, что довольно трудоемко и затратно. К тому же, возвести подобную конструкцию на приусадебной территории возможно только при наличии свободной площади.
Как и к другим типам конструкции, к строительству отдельно стоящего гаража выдвигаются некоторые технические требования:
- если вход в гараж совмещен с оградой, при открытии его ворота не должны препятствовать движению по проезжей части;
- минимальное расстояние от гаража до ближайшего жилого дома составляет 9 метров;
- если ближайший к гаражу дом покрыт полимерными материалами, то возводить его можно не ближе, чем за 15 метров от сооружения;
- отдельный гараж не может располагаться вплотную к соседнему участку. По закону, расстояние между гаражом и началом соседнего участка должно составлять не менее 1-го метра;
- минимальное расстояние между входом в гараж и дверью или окнами соседнего здания составляет 10 метров.
Кроме того, при выборе расположения для гаража необходимо учитывать, что чем дальше он находится от ворот, тем труднее будет организовать подъездные дорожки.
Несмотря на строгие требования при строительстве, отдельно стоящий гараж является самым распространенным типом конструкции для содержания автомобиля, который можно возвести своими руками.

Как построить гараж на участке фото

Строительство гаража на участке

Как построить гараж на участке отдельно от дома

Из чего лучше строить гараж
Из чего можно построить гараж: материалы и их особенности
Если материал для встроенного или пристроенного гаража чаще всего повторяет материал основного сооружения, то отдельно стоящий гараж может быть возведен из кирпича, металла, дерева и т.д. Рассмотрим подробнее плюсы и минусы различных материалов для возведения этой постройки:
1. Кирпичные гаражи
Гараж, созданный из кирпича, отличается практичностью и надежностью. Для его возведения необходим основательный фундамент, тип которого подбирается с учетом особенностей грунта. Кладка стен выполняется в один кирпич при условии их дальнейшего оштукатуривания с двух сторон. Финишное покрытие для стен обязательно должно быть влагостойким. Чаще всего в его качестве выступает фасадная краска или облицовочная плитка.
Для организации пола используется либо бетон, либо цементная стяжка, поверх которой наносится грунтовка. В целях пожарной безопасности поверхность пола дополнительно покрывается керамической плиткой или специальной краской.
Что касается крыши гаража, то она может быть плоской или двускатной. Плоская крыша изготавливается из панели перекрытия, а двускатная может быть выполнена из обрешетки с гидроизоляционным покрытием и кровли.

Кирпичный гараж фото

Как построить гараж из кирпича

Из чего построить гараж
2. Блочные гаражи
Строительные блоки по своим теплоизоляционным качествам практически не уступают кирпичной кладке, однако их стоимость значительно ниже. Кроме того, блоки весят меньше кирпича, соответственно, возведение гаража возможно и при более простом фундаменте.
При выборе шлакоблоков нужно обращать пристальное внимание на их качество. Поскольку этот материал легко подделать, не исключено, что он быстро придет в негодность.

Гараж из блоков фото

Строительство гаража из блоков
3. Деревянные гаражи
Деревянные гаражи чаще всего возводятся на основе каркасных или щитовых панелей. Этот материал привлекателен простотой монтажа и невысокой стоимостью. Поскольку каркасные и щитовые панели очень легкие, нет необходимости в организации сложного фундамента. Но, отдавая предпочтение строительству гаража из дерева, учтите, что его стены нужно будет дополнительно утеплить. Кроме того, этот материал является самым пожароопасным.
Аналогичными характеристиками обладают также и гаражи из бруса.

Красивый деревянный гараж фото

Гараж из дерева на участке фото

Красивые деревянные гаражи фото
4. Металлические гаражи
Металлический гараж очень прост в вопросах строительства. Сейчас в продаже можно найти «наборы» из листовой стали, которые уже готовы к сборке. Вес металлического гаража относительно невелик, поэтому он не нуждается в основательном фундаменте. Однако конструкция из этого материала имеет два весомых недостатка – низкая теплопроводность и подверженность коррозии.

Металлический гараж фото

Металлические гаражи в кооперативе

Как построить гараж из профнастила
Смотровая яма в гараже
Смотровая яма является важным дополнением любого «автодома», т.к. без нее автовладельцу придется отвозить своего «железного коня» на СТО при любой неполадке, даже если проблему можно устранить самостоятельно.
Процесс организации смотровой ямы в гараже лучше всего производить еще на этапе его проектирования:
- В первую очередь, вам необходимо определить габариты ямы. Ширина и длина ямы зависит от размеров автомобиля, а глубина – от высоты водителя. Для удобства глубина ямы должны превышать рост человека на 10-15 сантиметров, иначе вам будет трудно спускаться и подниматься из нее.
- Очень важно, чтобы поверхность пола и стен смотровой ямы была надежно гидроизолированна и укреплена. Для этой цели используется бетонная заливка, сетка-рабица, глина и любые подходящие отделочные материалы.
- Кроме того, для удобства в смотровой яме необходимо продумать вариант спуска (стремянка или отдельные ступеньки), освещение и утепление.

Как сделать смотровую яму в гараже

Смотровая яма обложенная кирпичом фото

Как сделать смотровую яму-погреб в гараже
Ответ на вопрос – как построить гараж, зависит от многих факторов. Если вы решили проектировать и создавать дом для своего автомобиля самостоятельно, в первую очередь определитесь с типом постройки, ее расположением и предпочтительным материалом, после чего внимательно изучите строительные требования к выбранному вами варианту.
www.domechti.ru
Дом-гараж. Как переделать гараж в жилой дом?
Перестроить небольшой гараж в жилой дом – уже не простая задача. Но сделать этот дом при скромной площади еще и просторным – просто высший пилотаж.
На фото:
Как сделать жилой дом из гаража? Главный секрет этого дома-гаража в том, что массу разных функциональных зон (спальню, гостиную, санузел, кабинет, а так же множество шкафов) архитектор вписал в один объем – 10-метровый параллелепипед. За счет чего в домике площадью в 41 кв. м осталось еще много свободного места для жизни. Хоть вечеринку с танцами устраивай!
Информация об объекте:
Место: Бордо, Франция
Метраж: 41 кв. м
Год: 2009-2010
Архитекторы: FABRE/deMARIEN architects
Фото: FABRE/deMARIEN architects
На фото: FABRE/deMARIEN architects
архитекторы
В Бордо схожая со многими крупными старыми городами ситуация: здесь есть центральные места, «элитность» которых на самом деле давно в прошлом, но тут по-прежнему престижно жить. В одном из таких районов находится проезд Буан (Passage Buhan). Уникальность его в том, что это частный проезд — он закрыт для посторонних, тут удивительно тихо, нет никого лишнего и у каждого домовладельца есть своя часть проезжей части. Особенность этого проезда в том, что все дома — это в прошлом конюшни, внизу стояли лошади, наверху жили конюхи. Впрочем, не совсем все, один из них в совсем недалеком прошлом был … автомобильным гаражом. Его-то и купил неожиданно для всех фотограф Джереми Бухгольц, который из-за работы разрывается между Парижем и Бордо и давно мечтал о постоянном «пристанище» в этом городе, но не тянул полноценный дом. Обзаведясь необычной жилплощадью, он обратился к знакомому архитектору Матьё де Марьену из FABRE/deMARIEN architects и тот придумал остроумный проект, как из гаража сделать дом — небольшой, но современный и удобный.

Если старые конюшни в проезде Буан и выглядят несколько романтично, то купленный Джереми Бухгольцем гараж был самым затрапезным: кривоватая постройка с черепичной крышей и распашными воротами из листового металла. А главное — очень мало света внутри, трудно себе представить, как этот гараж переделать в дом, и как Джереми вообще углядел в нем какой-то потенциал.

На смену железным воротам пришли раздвижные деревянные двери-ставни. Внешне довольно непримечательные, они исключительно функциональны: правую часть можно целиком сдвинуть в сторону, открыв патио, а можно просто отодвинуть небольшую створку слева, и откроется окно, ведущее в кухню.

Главное изменение, которое внес Матьё — это создание патио, открытого 12-метрового внутреннего дворика, который не просто замечательно уютное место для отдыха, но и предельно функционален: благодаря ему дом-гараж получает свет и естественную вентиляцию. С остальной частью дома патио соединено огромными застеклёнными створками, которые можно раздвигать.

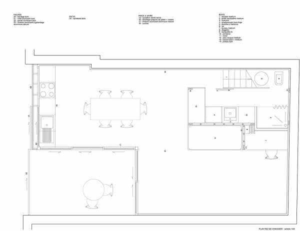
План. Здесь видно, какую значительную часть (целых 12 метров) Матьё решился отвести под патио. В остальном план довольно прост — кухня и пространство с большим многофункциональным мебельным блоком: вверху лофт-кровать, внутри — ванная и многое другое…

Разрез. Здесь видно, что благодаря скошенной кровле высота дома-гаража постепенно увеличивается от улицы к заднему торцу постройки, это позволило вписать туда «двухэтажный» мебельный блок.

К единственной внешней стене пристроена кухня. Современный минималистичный гарнитур выстроился вокруг окна. Благодаря застеклённому патио и белоснежной мебели вся эта часть дома буквально утопает в свете.

Все остальные функциональные зоны дома, не считая кухни, вписаны в большой 10-метровый параллелепипед, выполненный из дерева и мдф. Здесь поместилось абсолютно все, что нужно для комфорта. Во-первых, здесь расположено удобное рабочее место со столом, стереосистемой и массой закрытых полок, где фотограф хранит свои материалы.

Рядом с рабочим столом находится встроенная софа, на которой можно смотреть телевизор (вписанный в небольшую нишу напротив) и которая, при случае, играет роль гостевой кровати. Под диваном — выдвижные ящики, где Джереми хранит коллекцию CD дисков. Над диваном — полки, куда хозяин дома складывает свое профессиональное фотооборудование.

Со стороны кухни в параллелепипед встроены шкафы — от хозяйственного, где хранятся пылесос и инструменты, до гардероба. За ними — лесенка, ведущая наверх, к спальному месту. Рядом с лесенкой почти неприметный вход в санузел.

Наверху — вполне полноценное спальное место: не просто матрас на полке, как это часто бывает со спальнями-лофтами, а нормальная кровать. Внутри бортиков встроены полочки для одежды: белья и футболок. Бортики «спальни» Джереми использует как полки, а встроенные мансардные окна дают прекрасное верхнее освещение и открывают романтичный вид на небо, прямо из кровати. Кроме того, создание мансардного окна позволило немного поднять высоту в месте оконного проема, так что тут можно встать в полный рост (там, где нет окна, приходится пригибаться). Эта хитрость связана с тем, что менять высоту крыши не разрешали правила исторической застройки центра Бордо.

Санузел расположен внутри многофункционального объема. Он довольно компактный, с душевой кабиной, но здесь есть абсолютно все, включая огромное зеркало, стиральную машину и даже спрятанный отопительный котел.
Ролик с архитектором и вальяжным владельцем:
www.4living.ru
Ландшафтный дизайн гаража на участке
Если вы купили или собираетесь строить загородный дом, на участке нужно предусмотреть и место для автомобиля. Гараж можно построить рядом с домом или отдельно, а также в цокольном этаже.
Если вы планируете строительство загородного дома, то гараж необходимо включить в план участка с самого начала. Он может быть выполнен в виде пристройки к дому, отдельно стоящего здания или сделан в цокольном этаже. Если дом уже есть, гараж также можно пристроить к нему или поставить отдельно. Существуют нормы, регулирующие расстояние от него до других построек на вашем или соседнем участке.

Как учесть особенности участка
К строительству гаража нужно подходить не менее ответственно, чем к строительству самого дома. Перед тем как возводить его, необходимо учесть особенности рельефа и характеристики грунта. Если участок относительно ровный, располагать дом для машины можно в любом месте, соблюдая нормы. Если участок имеет сложный рельеф, то нужно иметь в виду, что нельзя ставить гараж в низине, где он может быть подтоплен. Лучше, наоборот, расположить его на возвышении. Если гараж делают в цоколе, нужно позаботиться о хорошей гидроизоляции и дренаже.
Важно! Гараж нужно размещать так, чтобы его нельзя было использовать для проникновения в дом. Также по этой причине не стоит сажать рядом с ним деревья и растения с пышной кроной.
Отдельно стоящий гараж часто размещают в северном углу участка. Эта часть участка меньше нагревается солнцем, кроме того, обычно в северной части не сажают растения.

Нормы расположения гаража на участке
На каком расстоянии можно строить гараж от дома? В зависимости от того, является ли он капитальной постройкой, то есть имеется ли у него фундамент, закон подходит к его размещению по-разному. На размещение построек без фундамента, которые формально относятся к временным, никаких нормативов нет. С капитальными постройками все сложнее. Здесь расстояние зависит от того, из каких материалов выполнены постройки.
- До любой постройки на соседнем участке должно быть не менее 6 м. Сократить это расстояние можно по письменно зафиксированной договоренности.
- Если одна из построек сделана из горючих материалов, то расстояние между ними должно быть не меньше 10 м.
- Если обе постройки из горючих материалов, между ними должно остаться как минимум 15 м.
- Расстояние до забора, отделяющего ваш участок от соседского, должно быть не менее 1 м, при этом расстояние до построек на соседнем участке также не должно быть меньше 6 м. Если постройки расположены ближе, то считать надо от них.
- Если гараж стоит отдельно от жилого дома, расстояние между ним и домом должно быть не меньше 3 м — это зафиксировано в нормах противопожарной безопасности.

При этом нормы, регламентирующие расстояние до соседских построек, можно нарушить, но только по письменной договоренности с соседями. Договоренность действует три года, затем этот документ нужно продлить. Проблемы могут возникнуть, если у соседнего участка сменится владелец. Однако если за 3 года (это срок исковой давности) никаких разногласий не возникло, то строительство даже с нарушением норм будет считаться законным.
Как удобно расположить гараж
Не стоит располагать его слишком далеко от въезда на участок. В таком случае придется делать к нему подъездную дорожку, а это затраты труда и денег, кроме того, будет «съедена» часть полезной площади. Лучше поставить его рядом с красной линией (границей участка, отмеченной в документах). В отдельно стоящем гараже должен быть огнетушитель. Если при строительстве будут соблюдены все нормы противопожарной безопасности, вы получите возможность сократить расстояние до других строений, в том числе и до соседских.
Удобно расположение рядом с домом, но с въездом с улицы. Из дома или с участка можно сделать дополнительный вход. Такое расположение обычно можно встретить в коттеджных поселках. Рядом часто располагают подсобное помещение или мастерскую.

Плюсы такого размещения:
- никакого шума и выхлопных газов в доме,
- можно не проводить отопление, ограничиться хорошим утеплением и установкой калорифера,
- есть место для расположения автомобилей гостей.
Минусы такого размещения:
- если гараж стоит возле дороги и далеко от дома, возникает опасность взлома,
- не очень удобно, если он находится в отдалении, особенно если есть необходимость донести до машины какие-то вещи или в плохую погоду,
- нужно будет сделать подъезд, что заберет некоторую часть площади участка,
- сам гараж тоже будет занимать больше места, чем такой же, но в виде пристройки,
- нужно будет провести электричество, а иногда и отопление и водопровод.

Гараж может быть включен в план дома уже при строительстве. Это тоже удобное расположение, правда, у него есть свои недостатки.
- Шум и выхлопные газа будут проникать в жилые помещения, что вредно и неприятно.
- К минусам также относится нахождение различных легковоспламеняющихся жидкостей прямо в доме.
- Необходимо или проводить отопление, как и в доме, или решать проблемы с появлением на стенах конденсата из-за разницы температур.
Плюс:
- можно поставить одну общую охранную систему,
- можно сэкономить на возведении фундамента и стен, так как даже небольшое капитальное здание будет дороже, чем увеличение дома на ту же площадь,
- удобно, особенно в плохую погоду, что выйти к машине можно прямо из дома, также не нужно будет далеко носить вещи из багажника.
Сверху можно разместить библиотеку, бильярдную, другое помещение, не предназначенное для постоянного нахождения в нем людей. Важно, чтобы перекрытия были прочными и негорючими, должна быть сделана газоизоляция. Это нужно, чтобы при возникновении пожара или другой чрезвычайной ситуации минимизировать повреждения дома.

Расположение в цокольном этаже экономит место на участке. Но для такого его размещения необходимо выполнить хорошую гидроизоляцию, теплоизоляцию и дренаж. Также нужно продумать отдельную канальную вентиляцию для удаления выхлопных газов. Особенно удобно делать гараж в цоколе, если участок с уклоном. Пример такого дизайна показан на фото.

Размер
Для размещения легкового автомобиля обычно достаточно площади 18 кв.м, но желательно отвести для этого больше места: вместе с автомобилем под одной крышей будут находиться инструменты и другие вещи, более широкие проходы вокруг автомобиля также более удобны. Если места мало, то нужно помнить, что помещение должно быть минимум на 0,7 м длиннее машины, на 1,5 м шире и высотой не меньше 2 м.
Дизайн
Обычно гараж строят из тех же материалов, что и дом. Кирпичное строение достаточно надежно и выглядит красиво. Стоимость его довольно высока, но если вы живете на участке постоянно, такое вложение вполне оправдано. Крышу также делают такую же, как у дома, чтобы все строения на участке выглядели как единый ансамбль, особенно если здание выходит на улицу.
На фото показан пример дизайна гаража, выполненного в одном стиле с домом.

Итог
Разместить гараж на участке можно по- разному, но есть определенные нормы, регламентирующие расстояние от него до других объектов. Обычно гараж делают в том же стиле, что и дом.
bouw.ru
Великолепный дизайн-проекты домов с гаражами

Одной из самых больших проблем односемейного дома является гараж: его дизайн, размеры и расположение. Практику, когда строение для нескольких автомобилей часто расположено ближе к улице, чем к парадной двери, нужно менять.
Лучшее решение этой проблемы – удобное гаражное помещение, соединённое с жилым корпусом в единый ансамбль. Как это сделать, можно судить по нашим конкретным примерам.
Полупрозрачные ворота бокса для машин высвечиваются ночью изнутри. И днём, когда свет выключен, они выделяются на общем фоне, словно деревянный экран. А горизонтальные планки продолжаются вдоль фасада дома, создавая прочную связь между ними; они усиливаются на крыше гаража и переходят в террасу перед спальней хозяев.

Здесь использован аналогичный подход. Однородные деревянные планки украшают здание от правого края к левому, где расположен гараж.

Чтобы постройка для четырёх автомашин не казалась такой громоздкой, архитекторы создали проект с четырьмя отдельными воротами вместо двух больших. С этой же целью сделана лёгкая длинная терраса.

Это современное жилище – две коробки со стеклянными проёмами окон – включает в себя помещение для гаража, о глубине которого можно судить по внешней боковой стене.
Уникальный дизайн демонстрирует пример того, как авторские проекты домов могут объединять гаражи с жилыми зданиями, причём не только физически, но и стилистически.

Постройка для машин и дом могут быть автономными. Но в большинстве случаев у них общая крыша или наружная стена. На этом примере их объединяют полупрозрачные двери фасада и гаражного бокса, что подчёркивает современность стиля оформления.

У этого Г-образного строения особый вид. Паркинг, широкий въезд придавали бы ему сходство с офисом, если бы не выступы, покатые крыши на разных уровнях и близко подступающая растительность.

Автогараж слева соединён крытым переходом с жилым корпусом, что находит отражение в общем дизайне этого комплекса.

Сравнение этой огромной усадьбы площадью 3350 кв.м с деревней будет преувеличением. Здесь мы видим бокс для автомашин и арку…

…арку, которая открывает проезд, напоминающий сельскую улицу, между гаражным корпусом и основным домом.

Если внимательно посмотреть за ворота, то слева от этого дома можно распознать новую постройку для автомобилей.

Причудливая дорожка соединяет жилой корпус с гаражным помещением, вход в которое находится за скользящей раздвижной дверью.

Следует помнить, что в городских постройках очень сложно добиться того, чтобы архитектура фасада включала деревенские мотивы. Иногда требуются весьма непростые дизайнерские решения.
На этом фото гаражные ворота имеют некоторое сходство с окнами второго этажа и парадным входом. По крайней мере, всё подчинено общей логике оформления здания.

При таком обустройстве парковки в дальней части усадьбы машина стоит, словно на показе.

В боковой части этого таунхауса находится узкая гаражная пристройка, которая широким окном на втором этаже интегрируется в общий комплекс малоэтажного здания.

Зона перед постройками также важна, как, например, двери гаража. Всё более популярным становится зелёное покрытие перед гаражом, которое создаёт трава, растущая между камнями брусчатки.
Это позволяет воде не задерживаться, а стекать или беспрепятственно впитываться в землю. Здесь трава растёт рядом с гаражом, у начала обычной подъездной аллеи.

Это образец того, как могут быть смешаны покрытия на территории усадьбы.

Тот же рисунок покрытия виден на передней площадке, которая вполне может быть использована для парковки.
А теперь перейдём к следующей группе проектов: навесы для автомобилей.

На фото – удачное сочетание гаража и навеса для машины. Такая конструкция характерна для Южной Каролины.

А это пример более современного дома. По подъездной дорожке автомашина следует от места временной парковки под домом к гаражу в дальнем углу двора.

Здесь стоянка автомобилей связана крышей пристройки с домом. Её опоры разграничивают два парковочных места.

Вот ещё один пример того, какими эффектными могут быть навесы для автомобилей. Рядом едва виден вход в жилище, которое находится справа.

Это необычное жилище имеет отдельно стоящую деревянную конструкцию, которая показана на фото справа; она служит местом стоянки перед домом.

При ближайшем рассмотрении конструкция оказывается набором деталей под полупрозрачной крышей, которая обеспечивает освещение на парковке. Эта своеобразная парковка проста и требует меньшего ухода, чем типичный пригородный гараж.
Материал любезно предоставил John Hill.
interiorsmall.ru

