Интерьер современный деревянного дома – фото внутри гостиной, кухни, спальни, мансарды
Интерьер деревянного дома: лучшие варианты современного дизайна
Организация интерьера деревянного дома всегда остается актуальна для их владельцев. И это не случайно. Ведь не просто подобрать отделочные материалы и внутреннюю мебель для стен и перекрытий, выполненных из древесины. Но существуют нехитрые приемы, благодаря которым дизайн деревянного дома способен преобразиться многократно. Прочитайте нашу статью, и вы узнаете, как сделать из деревянного коттеджа уютное гнездышко вашей мечты.

Дерево создает уникальную атмосферу, располагающую к полному расслаблению и комфортному отдыху
Варианты оформления
Интерьер деревянного дома можно оформить народным стилем. Сюда удачно впишется как американский «Кантри», так и старорусский варианты. Если вы используете коттедж только летним сезоном, интересно будет отделать внутренние помещения в стиле охотничьего домика. При этом вам не обязательно быть охотником.

Материалы для декорирования дома подбирают в зависимости от стиля интерьера
Специалисты области дизайна подобрали несколько советов, учитывая которые получится организовать неповторимый дизайн интерьера деревянного дома:
- Используйте лакокрасочные составы для окраски внутренних элементов строения. Широкий спектр цветов позволяет разнообразно отделать коттедж, оставляя при этом на виду главное достоинство – натуральную древесину.
- При строительстве сооружения из бревен, внутренняя планировка делается нестандартного исполнения. Сводчатые потолки, массивные потолочные балки перекрытия, а также лестница на второй этаж могут быть исполнены из цельного дерева, у которого предварительно удалена кора. Создайте сказочное оформление комнат.
- Чучела лесных животных могут стать прекрасным дополнением деревянных фасадов и панелей.
- Камины, русские печи идеально впишутся в комнатное пространство деревянного коттеджа. Большой выбор строительного и отделочного материала позволит создать поистине уютное помещение, со старорусским уклоном.
- Использование натурально древесины с ее естественными изъянами создаст креативный декор без дополнительных элементов. Правильная отделка поверхности каждой доски и бруса с сохранением природных неровностей – вот на что стоит обращать внимание.

Интерьер в стиле русской избы – это бревенчатые стены, деревянная мебель и печь посередине комнаты, которую в современных домах часто меняют на камин

Максимально приблизить интерьер к старому русскому стилю позволит грубая деревянная мебель

Практичный и оригинальный интерьер со множеством безделушек – это кантри
Благодаря наличию большого выбора специализированных пропиток для дерева, в таком доме обустраивается практически любой интерьерный стиль. Французский «Прованс» для кухни, итальянский «Модерн» для гостиной, «Скандинавский» стиль для уборной комнаты – при правильном выборе оттенка краски или пропитки, вы сможете отделать помещение даже под «Хай-тек».

Модерн подойдет людям, ценящим простор

Классика подчеркивает респектабельность хозяев и их утонченный вкус
Очень красиво будет смотреться высоко потолочная гостиная, в которой сооружен величественный камин, высотой до второго этажа. Его фасад лучше всего отделывать натуральным природным камнем.
Если вы будете оформлять внутренние комнаты в стиле охотничьего домика, делайте акценты на мебели. Например, в спальню обязательно приобретите массивную двуспальную кровать, выполненную из грубо обработанной древесины. Цвета используйте преимущественно темные. Стены такой комнаты отдыха украшаются чучелами животных, оленьими рогами, ружьями и другими уместными элементами.

“Охотничьи угодья” идеально подходят для оформления интерьера дома, в котором проживает одинокий мужчина
Совет. Не обязательно использовать части настоящих зверей. Приобретите в магазине готовые искусственные чучела, и живите в гармонии с природой.
Также уместно будет сделать акценты в виде отделки одной из стен природным камнем. Так ваш охотничий домик получит видовое изменение в сторону средневекового замка.

Для просторного деревянного дома подойдет стиль шале
В нашей стране набирают популярность швейцарские шале. Так называемые «домики пастуха» возводятся чаще всего из клееного бруса или бревна. Внутренняя планировка таких сооружений имеет неординарную архитектуру, благодаря чему шале пользуются большим спросом. Варианты отделки таких коттеджей ничем не отличаются от интерьера деревянного дома внутри. Повсеместное использование природного камня, керамической плитки, а также той же древесины привносят благородный, дорогой вид внутреннему убранству.
Деревянный дом с мужским характером
Очень брутально смотрятся комнаты, отделанные в стиле охотничьего коттеджа. Отличительными чертами данного манера, будет грубая обработка поверхностей древесины, повсеместное использование искусственных чучел животных, а также охотничьи принадлежности (ружья, пистоли).

Нарочито грубо обработанный брус в интерьере коридора загородного дома
Для полноценного эффекта вхождения в охотничий стиль, применяется древесная пропитка темного оттенка, которая создает атмосферу, присущую мужскому бунгало.
Уделяйте особое внимание элементам освещения. Тяжелые, кованые люстры, выполненные под массивные подставки для свечей, здесь будут весьма уместны. На стены дополнительно увешиваются бра под факелы.

Кожаная мягкая мебель, камин, ружья, шкуры животных, светильники из рогов – всё это считается главными элементами охотничьего стиля
Совет. Использование природного камня придаст атмосфере нужной грубости. Оттенки не обязательно должны быть темные. Песчано-серый цвет здесь также уместен.

Зона отдыха традиционно обустраивается перед камином
Мужское бунгало обязательно дополняется камином из булыжников. Красиво будут смотреться оленьи рога, расположенные прямо над топочной.
Потолок украшается массивными ветками, у которых предварительно удаляется кора. Специальная обработка этих декоративных элементов привнесет загадочности интерьеру деревянного дома.

Интерьер в охотничьем стиле – образец надежного и комфортного жилья

Дерево здесь всегда доминирует над другими отделочными материалами
Мягкую мебель лучше всего покупать из натуральной кожи. Но и кожзаменитель подойдет (в силу дороговизны натуральных изделий). Оттенки выбирайте темно-бордовые или бурые. Обязательно наличие на диванах и креслах древесных элементов, пропитанных темным составом. Металлические заклепки, чередой проходящие по краям дерева и кожи, дополнят охотничье бунгало как нельзя кстати.

Текстильные чехлы на мягкой мебели здесь неуместны, а вот шкуры животных придутся как нельзя кстати

Важно не переусердствовать с декорирующими элементами, размещайте только красивые и лучшие артефакты
Напольный текстиль в виде ковров станет удачным акцентом. Узорчатая ткань, расшитая нитями всяческого цвета (бурые, бордовые, темно-зеленые), будет сочетаться с грубыми креслами.
Фигурные вырезы дверных проемов устраиваются повсеместно. Особенно шикарно они смотрятся в коттеджах, построенных из круглого бруса (кругляка).
Уютная мансарда
Опорный брус большого сечения, использующийся в строительстве деревянного дома, а именно для создания многоскатной крыши, очень благородно смотрится. Используйте это знание для красивого оформления мансарды. Здесь получаются очень хорошие комнаты отдыха для больших компаний. В вашем распоряжении практически вся площадь целого этажа без стеновых перегородок.

Мансарду часто выделяют для спальных помещений
Большой размер свободного пространства требует некоторого зонирования. К примеру, место для общения отделывается большим диваном, вмещающим сразу несколько человек. Цвет дивана светло-бежевый, сочетающийся с оттенком натуральной древесины. Сделайте акцент на диванных подушках, расположив их равномерно по всей поверхности.
Косоугольные скаты крыши позволяют вмонтировать большие окна. Их необходимо подбирать разного размера для каждой из зон. Например, если мансарда имеет спальное место, перегороженное от основного помещения, его целесообразно дополнить небольшими оконными проемами. Важно предусматривать жалюзи, чтобы яркий солнечный свет не мешал отдыхать в дневное время.

Вагонка – самый оптимальный материал для отделки стен и потолка мансарды
Но никто не запрещает использовать гипсокартон и другие современные материалы
Для того, чтобы ваше спальное место отличалось большим уютом, нежели зона для общения, обрешетку из досок изнутри окрашивают белым цветом. Человек привык перед сном воспринимать более спокойные картинки. Но можно стены и потолок оставить в тоне натурального дерева. Например, береза отличается особенно светлой фактурой.
Если у вас в семье есть дети, обязательно сделайте их комнаты на мансарде. Интерьер деревянного дома внутри мансарды открывает возможность создания сказочной атмосферы для вашего сына или дочери. Оконные проемы обязательно монтируйте в виде небольших эркеров. Детям это напомнит оформление странных комнат из всем известной книги о «Гарри Поттере».

Уютную спальню можно сделать и в совсем маленькой мансарде
Стены, плавно переходящие в потолок, лучше всего покрасить оливковым оттенком. При выборе внутренней мебели учитывайте высоту до переходов.
Гостиная
Гостиная – место, где собирается много друзей и родственников. Для дома, построенного из дерева, существует оригинальный способ оформить внутреннее убранство данного помещения. При строительстве коттеджа, в проекте предусматривают планировку гостиной с высоким потолком. При наличии второго этажа, перекрытие и вовсе может отсутствовать.

В “двухэтажной” гостиной будет шикарно смотреться камин, размещенный по центру комнаты

При оформлении гостиной важно продумать каждую деталь
Отдавайте предпочтение широким окнам, заменяющим практически всю стену. Такое решение обязательно осуществляется, если за коном у вас чудесный сад, или дизайнерский обустроенный ландшафт участка.
Интересно предусмотреть в гостиной балкон. Опорные балки, выполненные из чистых срубов, или даже нижних частей дерева с корнем, станут уникальным акцентом, который точно не встретиться в сотне ближайших домов.

Приятно будет посидеть на таком балконе после тяжелого трудового дня
Если древесные элементы гостиной обработаны темными маслами, используйте светлые оттенки интерьера. Это выражается в напольном текстиле, а также мебели. Ковер приобретите из искусственной шкуры белого медведя. Сверху него может красоваться стеклянный журнальный столик, как элемент, отражающий современный дизайн. Раскладной диван из мягкой обивки также впишется светлого оттенка, вплоть до белого.

Бревна можно покрыть отбеливающим составом, если хочется добавить в гостиную света и простора

Дерево прекрасно дополняют другие природные материалы – камень, кожа, глина и стекло
К стеклянному журнальному столику прекрасным дополнением будет био-камин. Его фасад отделывается пластиковыми и стеклянными панелями. Такое решение привнесет современности в стиль дома из натурального дерева.
Видео: интересный дизайн большого дома из сруба
Фото интерьеров деревянных домов
dizainvfoto.ru
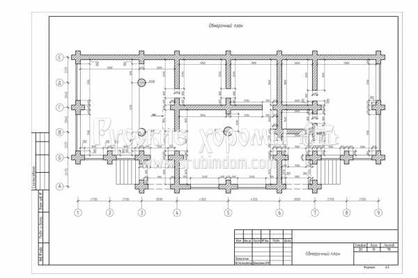
Обмерочный план 1 этажа
|
Обмерочный план 2 этажа
|
План демонтажа перегородок и конструкций
|
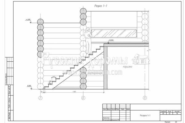
Разрез 1-1
|
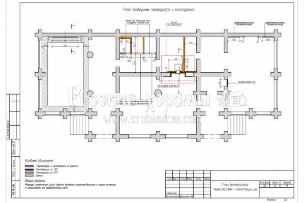
План возводимых перегородок и конструкций
|
Узел 1. Разрез 2-2
|
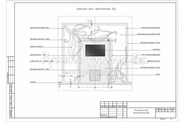
Каминная зона. Фронтальный вид
|
Разрез 3-3
|
План с расстановкой мебели 1 этажа
|
План с расстановкой мебели 2 этажа |
План расстановки мебели и сантехники в раздевалке и душевых |
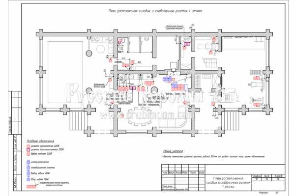
План расположения силовых и слаботочных розеток 1 этажа
|
План расположения силовых и слаботочных розеток 2 этажа
|
План размещения аккустических динамиков 1 этажа |
План размещения аккустических динамиков 2 этажа |
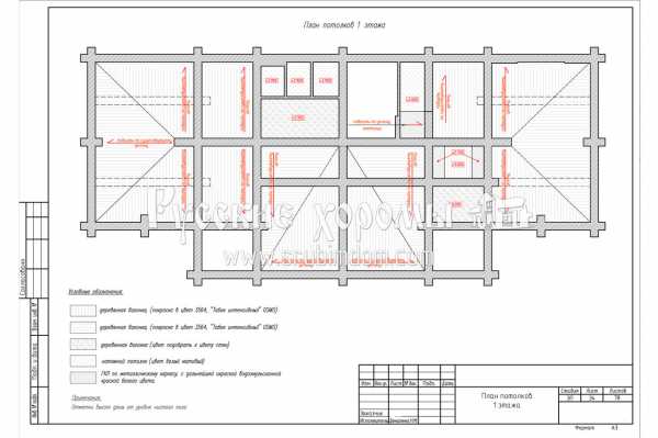
План потолков 1 этажа |
План потолков 2 этажа |
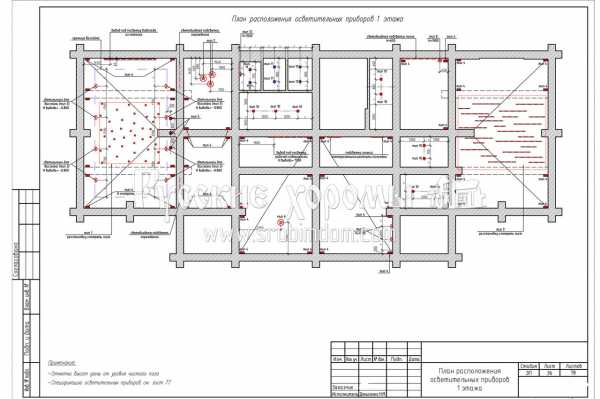
План расположения осветительных приборов 1 этажа |
План расстановки светильников над бассейном (тип 1) |
План расстановки светильник в спортзале (тип 9) |
План расположения осветительных приборов 2 этажа |
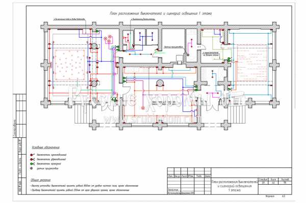
План расположения выключателей и сценарий освещения 1 этажа |
План расположения выключателей и сценарий освещения 2 этажа |
План открывания дверей
|
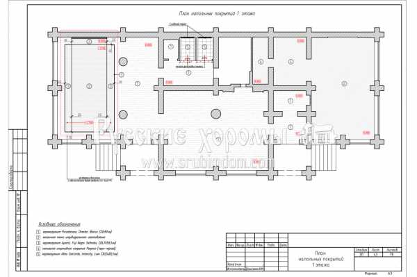
План напольных покрытий 1 этажа
|
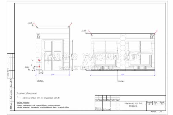
Развертка стен бассейна
|
План напольных покрытий 2 этажа
|
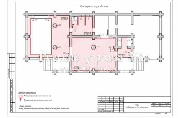
План водяного подогрева пола
|
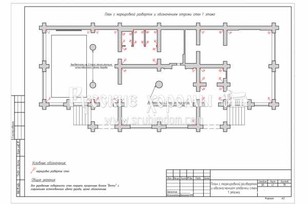
План с маркировкой разверткой и обозначением отделки стен 1 этажа
|
План с маркировкой разверток и обозначением отделки стен 2 этажа
|
Развертки 1-2, 3-4 бассейна
|
Развертка 2-7 бассейна
|
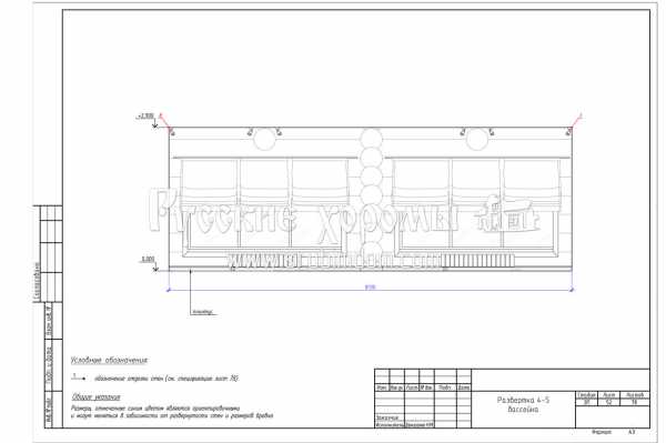
Развертка 4-5 бассейна
|
Развертка 4-5 басейна
|
Развертки 5-6, 7-8 бассейна
|
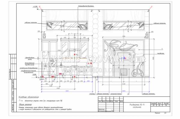
Развертка 9-10 гостиной
|
Развертка 10-11 гостиной
|
Развертка 9-12 гостиной
|
Развертка 11-12 гостиной
|
Развертка 13-16 спортзала
|
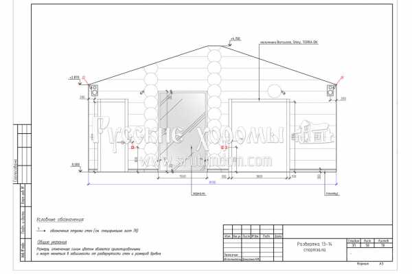
Развертка 13-14 спортзала
|
Развертки 14-15 спортзала
|
Развертка 15-16 спортзала
|
Развертка 17-18 спортзала
|
Развертки 19-20, 20-21 прихожей
|
Развертки 21-22, 19-21 прихожей
|
Развертки 29-30, 27-30 раздевалки
|
Развертки 35-36, 36-37, 37-38 душевой
|
Развертки 39-40, 40-41, 41-42 душевой
|
Развертки 31-32, 32-33, 33-34, 34-31 санузла
|
Развертки 23-24, 24-25, 25-26 гардеробной комнаты
|
Развертка 43-44 2 этажа
|
Развертка 44-45 2 этажа
|
Развертка 45-46 2 этажа
|
Развертка 43-46 2 этажа
|
Ведомость мебели и оборудования (часть 1)
|
Ведомость мебели и оборудования (часть 2)
|
Спецификация осветительных приборов
|
Ведомость отделочный работ
|
srubimdom.com
дизайн и интерьер, фото современных идей
21 Мая 2018 2018-05-21
2286
Время чтения 9 минут
Прочитать позжеОтправим материал на почту
Распечатать
Гостиная считается визитной карточкой и самым посещаемым местом любого дома. Здесь собирается в холодные, зимние вечера вся семья, сюда приглашают гостей и родственников. Дизайн гостиной в деревянном доме имеет свои особенности и нюансы – он подчеркивает натуральную красоту дерева и располагает для приятного отдыха.

Дом, стены которого выполнены из бруса или бревна, а пол из натуральной доски, является отличным материалом для экспериментов. Интерьер гостиной в деревянном доме подразумевает использование мебели и разнообразных элементов декора, выполненных из натуральных материалов. Здесь преобладают неброские, спокойные цвета и оттенки.

Нередко в подобных интерьерах устанавливается эффектный камин. Он становится центральным элементом гостиной и помогает создать душевную обстановку.

Преимущества и недостатки гостиных из дерева
Дерево является уникальным материалом и часто применяется в интерьере гостиных. В дизайн гостиной в деревянном доме отлично вписываются мебель, светильники, многочисленные рамки и другие декоративные элементы из дерева. Несмотря на множество деревянных деталей, они не утяжеляют интерьер и не пресыщают его.
Гостиная в деревянном доме, сохранившая естественную поверхность и выполненная без использования искусственных материалов, имеет множество преимуществ:
-
безопасность и экологичность жилого пространства, ведь дерево является природным материалом и не выделяет вредных веществ в окружающую атмосферу;
-
приятный аромат древесины и особая энергетика позволяют создать уютную, успокаивающую обстановку;
-
множество современных стилей допускает использование деревянных элементов, поэтому разработать индивидуальный проект гостиной с учетом личных предпочтений жильцов не составляет труда;
-
в деревянном доме нет необходимости в применении искусственных отделочных материалов и затратах на них.

Гостиные из дерева имеют незначительные недостатки:
-
Открытые деревянные стены и другие декоративные элементы подвержены образованию гнили и плесени. Нередко здесь поселяются жучки и насекомые.
-
Дерево является легковоспламеняющимся материалом.
-
Поверхность реагирует на любые изменения окружающей среды: разбухает при повышенной влажности, ссыхается в засушливый период. В результате образуются непривлекательные трещинки и изъяны.
Однако все вышеперечисленные недостатки легко решаются периодической обработкой поверхности защитными пропитками и лакокрасочными материалами.
На нашем сайте Вы можете найти контакты строительных компаний, которые предлагают услугу внутренней перепланировки. Напрямую пообщаться с представителями можно посетив выставку домов «Малоэтажная Страна».
Дизайн гостиной в деревянном доме
Особенности интерьера гостиной в деревянном доме, а также его отдельные детали планировать лучше всего при строительстве загородного коттеджа. Так можно не только подобрать оптимальный вариант дизайна гостиной с учетом потребностей каждого члена семьи, но и избежать затратных переделок в процессе реализации готового проекта.

Деревянная поверхность накладывает свой отпечаток на оформление гостиной. Независимо от общего стиля, при обустройстве деревянного дома опытные дизайнеры придерживаются следующих концепций:
-
Деревянные стены покрываются несколькими слоями лака. Они очень эффектно выглядят и не требуют дополнительной отделки.
-
Для чистового покрытия пола в современном доме используют натуральную доску, паркет или ламинат под дерево. Такие полы гармонируют со стенами и помогают создать единую стилистику.
-
В современных гостиных используются открытые балки и высокие потолки.
-
Нередко в качестве декоративной отделки применяется натуральный камень. Отличным вариантом является эффектная отделка камнем каминной зоны. Однако большое количество камня утяжеляет окружающее пространство и отягощает обстановку. Оптимальное сочетание камня и дерева особенно актуально для маленьких помещений.

Разрабатывая индивидуальный проект гостиной, стоит учитывать общие принципы дизайна:
-
мебель и крупные детали интерьера размещают с учетом размера помещения и соотношения его сторон;
-
вне зависимости от размеров гостиной, соблюдение оптимального соотношения свободного пространства к занятому, поможет сформировать гармоничный образ;
-
создание помпезного зрительного центра позволяет не только эффектно объединять различные функциональные зоны гостиной, но и скрыть ее недостатки;
-
важными элементам декора, задающими общий тон и сплоченность интерьера, являются разноплановое освещение и функциональная мягкая мебель.
Зонирование
Максимальный комфорт даже самых маленьких гостиных обеспечивается за счет деления пространства на удобные функциональные зоны.

В зависимости от особенностей помещения, здесь часто выделяют:
-
зону отдыха, обустроенную удобной мягкой мебелью, телевизором и камином;
-
столовую с большим удобным столом, где может комфортно разместиться большая семья и гости;
-
зону для активного времяпровождения, где нередко располагают музыкальные инструменты.
Эффектному зонированию деревянных гостиных способствуют мебель, легкие перегородки, растения, свет и цвет.
Это может быть интересно! В статье по следующей ссылке читайте про дизайн кухни со столовой и гостиной в частном доме.
Гостиная с камином: общий дизайн
Энергичные движения огня завораживают, притягивают взгляд и дарят неимоверное наслаждение. Эффектный камин в деревянной гостиной является незаменимой атрибутикой домашнего очага и станет любимым местом для проведения досуга.
Существует множество вариантов самых разнообразных каминов, отличающихся не только размерами, формой, но и принципами работы. Благодаря этому многообразию каждый владелец загородного коттеджа имеет возможность подобрать идеальный вариант с учетом своих потребностей и условий.

В деревянном доме часто устанавливают камины с дровяной топкой. Такой камин можно использовать не только как декоративный элемент, но в качестве основного источника обогрева в прохладные осенние дни. Дровяной камин является мощной конструкцией и эффектно выглядит в больших помещениях.
Электрические камины в дизайне гостиной также не редкость.

Картины, фотографии, шкатулки, вазочки и сувениры, симметрично расставленные на каминной полке, добавят интерьеру гостиной загородного дома особого шарма.
Идеи дизайна гостиной в деревянном доме: фото и видео
Поддержание единой стилистики в каждом элементе декора и гармоничное сочетание их друг с другом поможет создать уютную обстановку.
Наибольшее распространение в деревянных коттеджах получили такие стили как русский, кантри, винтаж и прованс. Предлагаем посмотреть варианты, как может выглядеть гостиная в деревянном доме, фото примеров приведены в разных стилях.
Русский стиль в деревянном доме
Простые, удобные и функциональные вещи заполняют деревянный дом в русском стиле.
Широкие лавки, сундуки, деревянные столы, льняные покрывала и шторы являются неотъемлемой частью гостиной.

Это может быть интересно! В статье по следующей ссылке читайте про тонкости дизайна гостиной с камином в частном доме.
Кантри
Немногочисленная функциональная мебель, свободно расставленная в гостиной, характерна для стиля кантри. Теплая цветовая палитра, преобладающая в интерьере, помогает создать мягкий, уютный образ.
Комфорт и уют в помещение добавят скатерти, занавески и другие текстильные элементы, гармонирующие между собой по цвету и дизайну. Здесь нет места искусственным материалам, все элементы декора натуральны.

Винтаж
Блеклые, неброские краски, отличающиеся некоторой размытостью, характерны для гостиных в стиле винтаж. Нередко здесь используется мебель грубой обработки с сучками, антикварная мебель, деревянный пол или состаренный паркет.
Большое количество декорирующих элементов, небрежность – вот основные характеристики стиля. Деревянный дом нередко украшает множество пустых рамок без фотографий. Камин с большой фотографией на каминной полке и многочисленные потолочные светильники также являются спутниками стиля.

Прованс
Создание комфортной, уютной обстановки является главной задачей стиля прованс. Нейтральные оттенки мебели и стен характерны для данного стиля. Основной отличительной особенностью гостиных в стиле прованс является использование открытых балок в интерьере. Пол украшают состаренные доски или ламинат.

Мягкая, домашняя атмосфера формируется за счет использования простых вещей. Создать единую стилистику помогают неброские шторы, удобные покрывала, фотографии на стенах. Мебель нередко окрашивают в гармоничные, неброские цвета и старят поверхность. Многочисленные декоративные подушки добавляют тепла и уюта в интерьер.
Как создается уютный интерьер деревянного дома с использованием различных стилистических направлений, смотрите в следующем видеоролике:
Это может быть интересно! В статье по следующей ссылке читайте про спальню в деревянном доме.
Заключение
Разнообразие способов оформления гостиной в деревянном доме – это отличный материал для фантазий и поиска идей интересных дизайн проектов. Но конечный результат должен в полной мере обеспечить комфортное проживание и создать теплую, домашнюю обстановку. Опытные дизайнеры с многолетней практикой за плечами помогут не только грамотно обустроить деревянный интерьер гостиной загородного дома, но и избежать множества ошибок.
Прочитать позжеОтправим материал на почту
Распечататьm-strana.ru
Современный интерьер деревянного дома внутри, фото сопровождение и подробности обустройства
Современный интерьер деревянного дома внутри, фото сопровождение и подробности обустройства 24.01.201618.03.2016 Admin Загородный дом
Содержание:
- Распространенность разнообразия интерьера внутри деревянного дома и особенности внутренней отделки дома
- Характерные особенности и достоинства
- Различные стили интерьера деревянного дома внутри
- Обустройство домашнего окружения в загородном доме и фото новых изменений
- Интерьер из популярных вариантов классического стиля
Нынешний интерьер деревянного дома внутри, фото которого наглядно покажет его особенности и поможет создать соответствующий стиль, представляет собой внутреннее красивое украшение современных жилых строений, позволяющий жить в максимально комфортных и экологически чистых условиях. Что является весьма немаловажным условием в наше время, поскольку всё вокруг имеет высокий уровень загрязнённости и очень низкого уровня экологической чистоты. Условия проживания в деревянном доме позволяют иметь крепкий и здоровый сон, а легкость пространства и чистота воздуха позволяют легко дышать, как-будто жильцы находятся не в собственном доме, а где-нибудь на санаторном курорте рядом с морем, где люди восстанавливают свои жизненные силы и общую энергетику организма.
Распространенность разнообразия интерьера внутри деревянного дома и особенности внутренней отделки дома
Современные деревянные строения благоухают изобилием свежести, уютной чистотой, легкостью пространства помещений и современными новшествами дизайна внутри домов. Которые могут состоять из различных элементов современной бытовой техники, новейшей эксклюзивной мебели, выполненной в стиле деревянных предметов старины или что-то подобное. Интерьеры деревянных домов очень разнообразны по доступности и возможности воплощения их в реальность. Но каждый владелец частного деревянного дома имеет свои личные индивидуальные предпочтения и вкусы, которые позволяют ему формировать интересные воплощения его фантазии и желаний, относительно результатов домашнего обустройства. При создании собственного интерьера деревянного дома внутри, часто могут использоваться фото для реализации различных дизайнерских стилей, для максимально приближенной идентичности
Современное планирование строительства деревянных домов и их дальнейшего обустройства по направлению дизайна, дело весьма хлопотное и требует помощи специалистов. Ведь фантазия любого опытного дизайнера может приятно удивить владельца жилища и очень сильно его порадовать, поскольку воплощенные задумки специалистов по дизайну вызывают восторг у каждого посетителя деревянного дома, где они провели свою качественную работу. Оказывается, создать придуманный план будущего дома и реализовать эксклюзивный дизайн или классический интерьер в недавно построенном деревянном доме внутри, где фото из посторонних источников не всегда могут помочь, достаточно сложно осуществить на практике.
Характерные особенности и достоинства дизайнерского оформления
- придание помещениям особой атмосферы и всепоглощающей таинственности;
- усиление комфорта в доме с последующим его перевоплощением в удовольствие;
- создание целостности общего образа, с красивыми элементами и дополнениями;
- усовершенствование всевозможными разнообразными составляющими частями;
- повышение функциональности и придание изысканной эстетичности жилью;
- придание очертаний окружению из деревянных компонентов;
- выделение личной индивидуальности из всего современного общественного массива проживающих вокруг людей;
- поглощение, устранение и маскирование нежелательных деталей вокруг.

Но, наличие специалистов по дизайнерскому искусству, призванных для плодотворного и результативного перевоплощения внутренней обстановки жилья заказчика, могут совершать великолепную образцовую и уютнейшую домашнюю обстановку, способную заставить навсегда влюбиться в нее каждого, кто хоть раз в ней окажется на некоторое время.
Различные стили интерьера деревянного дома внутри и характерные пошаговые фото дизайнерских воплощений
Каждое поколение королевской знати олицетворяло образ аристократизма, интеллигентности, роскошной жизни и величия, особенно когда речь шла об их королевских дворцах, насыщенных всеми этими элементами. А, ведь деревянные дома имели некоторую идентичность с королевскими дворцами, поскольку качественно построенный дом в те времена, с большим строительным размахом, мог похвастаться проживанием в нем королевских вельмож.

Современная идентичность этому образу, имеет место, но претерпела некоторые изменения в стиле дизайна и трансформировалась в нечто новое, дополненное технологией современности и уровня жизни достойного владельца такого величественного здания. Несколько существующих различных стилистик интерьерного облагораживания, позволят выбрать, отталкиваясь от своих предпочтений наиболее подходящий вариант, для удовлетворения собственных потребностей и желаний.
Обустройство домашнего окружения в загородном доме и фото новых изменений
Весьма солидно смотрятся изделия из камня, как природного, так и искусственных его аналогов, особенно на фоне общего массива деревянного окружения. Подобные варианты внутренней отделки домашнего окружения будут не только эстетически привлекательны, но и обязательно принесут практическую пользу жильцам, ведь любые изделия из камня всегда имеют высокую прочность и долговечность, благодаря чему, многие годы каменные элементы будут приятным дополнением к общей обстановке. А весь теперешний интерьер деревянного дома внутри, фото которого, сделанные после внутренних изменений полной и моментальной трансформации, станут памятным напоминанием для владельцев о прошлом виде частного жилища.
Присутствие камина еще больше усилит эффект от каменных изделий из-за их органичной сочетаемости и эффективности влияния на людей, живущих в их постоянном окружении. Камин согреет зимой, приятно порадует своей активностью осенью и совсем никому не мешает, когда его не используют по назначению. Но для этого необходимо произвести установку камина в полном соответствии со всеми нормами, правилами и стандартами, во избежание ситуаций
Интерьер из популярных вариантов классического стиля
Для полноценного создания интерьера классического стиля в деревянном доме, необходимо создать в нем комфортабельную домашнюю обстановку, с радостными семейными элементами атмосферы комфорта и уюта, богатства и чистоты. Основную цветовую гамму такого направления составляют коричневые, светло-бежевые и кремовые цветовые оттенки. Такая цветовая палитра гарантированно позволит в совершенстве полностью воссоздать красоту стиля такого интерьера деревянного дома внутри, с прекрасными элементами декорирования, очень заметными на фото. Демонстрирующих результат всей полноты и утончённой завершённости этого модного и востребованного дизайнерского направления, в области обустройства домашнего очага и придания ему необычного, завершенного и наполненного индивидуальностью особого нового стиля.

фото-галерея
Фотогалерея (108 фото)
criminalnaya.ru
Гостиная в деревянном доме — 88 фото лучших современных идей интерьера
Обустраивая деревянный дом, необходимо помнить о том, что подобная отделка внутри помещения задает определенный стиль, следовать ему необходимо, чтобы предметы интерьера не выпадали из общего фона.

Если гостиная в доме отделана натуральным деревом, необходимо вносить классические элементы, создать, к примеру, стиль хай-тек, будет неправильно.

Деревянная отделка внутри помещения позволяет дизайнерам экспериментировать, вносить что-то новое. Стены из бруса, натуральный пол, будут являться главным акцентом в комнате.

Отделка из дерева в гостиной может быть не только классических натуральных тонов, материал можно выкрасить в белый, серый или другой цвет.

Стены в комнате, часто заменяют на узкую вагонку, она смотрится легко, современно.

Расстановка мебели в гостиной зависит от того, в какой цвет окрашены деревянные стены, пол, в какой формы деревянные полотна в интерьере.
Варианты отделки гостиной из дерева
Стены небольшой гостиной из дерева рекомендуется выкрасить в белый или светло-серый цвет, таким образом можно значительно расширить пространство, сделать комнату светлой, уютной.

Белый цвет деревянных стен может дать больше вариантов при разработке интересных идей.

Гостиная из дерева может быть в стиле охотничьего домика, при этом рекомендуется проводить отделку всего интерьера в подобном стиле, чтобы комната не выпадала из общей картины вашего дома.

Идеальным решением при отделке пола является укладка паркета, ламината или палубной доски, цвет покрытия должен быть натуральным или совпадать с цветом стен.

Эконом вариантом в отделке комнаты деревом, является использование вагонки или панелей МДФ.

Если в гостиной имеется камин, отделывать его снаружи лучше натуральными материалами, к примеру, кирпичом или плиткой мраморной текстуры.

Окна должны быть деревянными, пластиковые пакеты не станут дополнением интерьера.
Мебель – главный атрибут гостиной
Для того чтобы гостиная стала по-настоящему уютной, полноценной, пребывание в ней было комфортным, необходимо грамотно расставить мебель, правильно подобрать ее по стилю.

Если в комнате главным акцентом является камин, дизайнеры настоятельно рекомендуют ставить мебель вокруг него.

Интересно будет смотреться современная мебель естественного цвета, фактуры, расставленная вокруг кирпичного камина.

Кроме таких предметов приветствуется наличие и классических элементов, например, деревянный резной столик ручной работы. Его можно просто покрыть сверху несколькими слоями лака, чтобы соединить стиль.

Если в гостиной с деревянной отделкой предполагается наличие большого стола, уместно сделать его также из дерева, а вот стулья могут быть мягкие с обшивкой любого тона.

Как правило, в такой комнате именно цветные стулья могут быть ярким акцентом, они прекрасно создают контраст, выглядят интересно.

Интересные акценты в гостиной с деревянной отделкой
В гостиной с серым цветом стен, светлой мебелью, дизайнеры рекомендуют использовать цветной текстиль на окнах, на мебели, также яркие предметы декора.

На светлых диванах интересно смотрятся разноцветные подушки, при этом, текстиль на окнах должен быть похожего цвета.

Материал обивки мебели, штор в таком интерьере, должен быть жаккард или бархат. В качестве освещения, лучше выбирать светильники из металла классической ковки.

Создавая гостиную из дерева, можно фантазировать до бесконечности, необязательно строго соблюдать все принципы создания подобного интерьера, возможно вы сами разработаете интересный проект, который станет примером для дизайнеров.

Фото гостиной в деревянном доме




























dizajn-gostinoj.ru
Интерьер современного деревянного дома | Блог о дизайне интерьера
Древесина в качестве строительного материала для возведения частного дома является отличным решением. Этот строительный материал выигрывает по ряду эксплуатационных характеристик, а также довольно выгодно смотрится в готовом здании. Благодаря огромному количеству готовых проектов строительства и возможности создать оригинальный дом, каждый желающий иметь своё жильё может выбрать один из вариантов.

Единение с природой и дань моде
Деревянные дома сегодня – и дань моде, и возможность настоящего единения с природой, и проживание в красивом, уютном и самое главное тёплом жилье. Не секрет, что древесина – строительный материал со сравнительно низкой теплопроводность, тем не менее идея создания «теплого пола в деревянном доме» обсуждается сегодня достаточно часто. На сайте otepleivode.ru можно узнать об инновационных системах отопления, которые позволят сохранить тепло в доме, подробно описано здесь и несколько вариантов создания «теплого пола» в деревянном жилом строении.
Индивидуальный Хай-тек
Всевозможные интерьеры деревянных домов, которые можно найти сегодня в Сети, довольно нетривиальны, хотя и основаны на исключительно на естественности материала, его натуральности и самобытности слегка разбавленной хай-теком. Ненавязчивый хай-тек можно увидеть в языках пламени на плазменной панели, в современной варочной панели, замаскированной под печку-каменку и так далее, всё зависит только от фантазии хозяина.
Варианты дизайна интерьера спальни-почивальни в доме, построенном из древесины поражают своим разнообразным, однако, как и в любом другом строении, заметно коррелируются с размерами помещения. В домах, площадь которых позволяет, проектируется сразу несколько спален, каждую из которых можно оформить в своём стиле. Поскольку загородный дом всегда ассоциируется с большим количеством гостей и членов большой семьи, спален должно быть много, а каждый гость может выбирать местечко для своего сна, оформленное в более близком для него стиле. Но самой главной в доме всегда остаётся спальня хозяев, над оформлением интерьера которой следует особенно тщательно потрудиться.
Первый этаж деревянного дома практически всегда отдаётся под самую большую комнату – гостиную, под столовую и кухню, которые можно декорировать в одном стиле, а можно и сочетать разные, отличные от интерьера соседнего помещения. Самое главное, о чём нужно помнить – это удобство и тепло, только так дом будет тем местом, куда захочется возвращаться.
Оцените статью: Поделитесь с друзьями!www.v-interere.ru



























































