Крыльцо металлическое для частного дома фото – Наружные металлические лестницы (84 фото): крыльцо из металла в частном доме, уличная конструкция для дачного строения
Крыльцо из металла в частном доме – фото 20 вариантов

Если вы не знаете, какое и как сделать крыльцо из металла в частном доме, фото на этой странице помогут вам выбрать дизайн металлического крыльца. Также все представленные изображения могут послужить основой для вашего собственного дизайна – вы можете, к примеру, взять варианты ступеней от одного крыльца на фото, а дизайн перил – от другого.
Также, конечно же, можно использовать любой вариант в формате «как есть», если он подходит по стилистике к фасаду вашего дома и вашей входной группы.
Конечно, хорошо бы перед началом реализации проекта, основанного на каком-либо стороннем фото, получить консультации архитектора или строительного дизайнера. Которые смогут вам на основании своего опыта указать на возможные огрехи или проблемы.
На что обратить внимание при изготовлении металлического крыльца
Самое первое, на что стоит обратить внимание, это, конечно же, надежность конструкции. Например, самое первое крыльцо из металла в частном доме, фото которого представлено в галерее, выглядит самым массивным и надежным именно из-за использования в его конструкции толстой профильной металлической трубы.

Если вы хотите быть уверены в конструктиве, и у вас нет возможности заказать расчет крыльца в фирме или у специалиста, то самый простой вариант – это заложить несколько избыточную надежность во все составные части.
То есть, если вы видите на фото, использована профильная труба 25х40 мм, то для своей собственной уверенности закладывайте использование профильной трубы следующего сечения – 30х50 мм.
Конечно, подобный подход повлечет перерасход материалов и средств. Однако, во-первых, крыльцо из металла в частном доме, фото которого вы видите, не такой уж большой объект.

Во-вторых, надеюсь, вы согласитесь со мной, что не стоит экономить на безопасности своей собственной семьи.
Крыльцо из металла в частном доме – фото галерея
Вот несколько интересных вариантов, где крылечки из металла в частном доме представлены на фото.
Вы можете использовать сразу готовый вариант. А можете из нескольких вариантов, как из паззлов, составить собственный дизайн, который будет неповторимым и однозначно украсит вашу входную группу и фасад дома в целом.
Как видите, здесь представлены открытые и закрытые крылечки, а также разные варианты навесов, которыми может компоноваться крыльцо.


















dompraktika.ru
Пошаговая инструкция для дома и дачи +Видео
Любой дом нельзя построить без крыльца, ведь без него невозможно войти в помещения дома. Более того такая конструкция способствует защиту входной двери от снега и пыли, так же от дождя.
Крыльцо можно построить из разных материалов, к примеру, из дерева, бетона, металла. Вот про то, как возвести крыльцо из металла своими руками мы и поговорим дальше.
Подготовка строительства крыльца
Эскиз и чертеж крыльца
До начала возведения крыльца из металла, необходимо для начала создать эскиз.
Чтобы создать эскиз необходимо сделать все необходимые замеры, чтобы их сделать нужно, воспользоваться специальными инструментами.
Затем на листе бумаги создают чертёж будущей лестницы.
Может быть, у некоторых возникнет вопрос: зачем необходим чертёж?
Чертёж будет у вас на виду и поэтому процесс возведения лестницы, будет проходить быстрей. И ещё если у вас уже будет чертёж проще, будет просчитать количество необходимых материалов.
Необходимые материалы
Для строительства лестниц в настоящее время используют различные материалы, например, такие как:
- кирпич;
- дерево;
- металл.
Если решили начать строительство крыльца к дому или к бане и решив, что оно будет металлическим, то сделаете правильный выбор. Ведь конструкция из металла выглядит воздушной и стильной, а также её можно легко построить своими руками.
Размеры крыльца
Как выбрать материал для возведения крыльца?
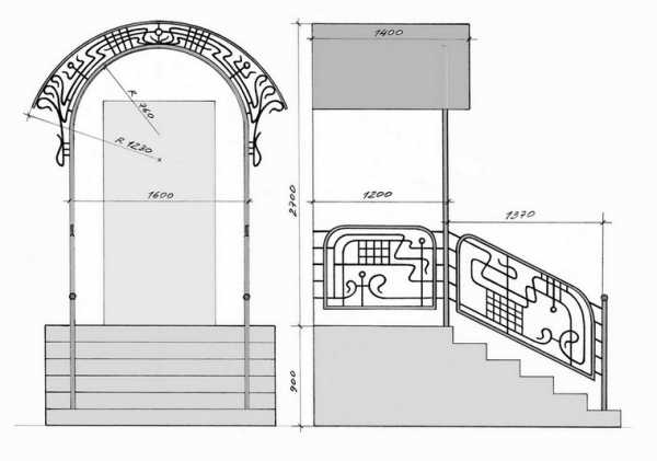
Почти основным элементом крыльца из металла является лестница и если речь идёт об её размерах, то они могут быть от 0,8 метра до 1 метра. Одним из главных деталей крыльца из металла является лестница. Если вы решили возвести крыльцо из металла в 80 см, то комфортно им может пользоваться только один член семьи. Если же вы выбрали лестницу размерами в один метр, то на ней вполне смогут разойтись два человека.
Очень важно учитывать количество ступеней располагающиеся на лестнице крыльца. Профессионалы настоятельно советуют делать количество ступеней нечётным, так как множеству людей удобно начинать и заканчивать движение по лестнице с одной ноги.
Так же важен угол наклона лестницы, оптимальным наклоном лестницы является, наклон не больше 45 градусов. А вот самый маленький наклон лестницы не должен быть ниже 26 градусов.
Размер ступеней крыльца должен быть примерно от двенадцати сантиметров до двадцати сантиметров, а ширина ступеней должна составлять не менее двадцати пяти сантиметров.
Чтобы сделать нужный уклон, ступени делают одинаковой высоты, но могут быть отклонения в обе стороны не более на пять миллиметров.
Ступеньки одна на другую находят на расстоянии не больше чем тридцать миллиметров.
Измерение размеров площадки, расположенной сверху, должно быть тщательным, потому что они должны быть такими, чтобы, когда открывали дверь, не было ни каких препятствий.
Дверь должна располагаться так чтобы нижняя ее часть была на пять сантиметров выше площадки крыльца.
Фундамент под крыльцо из металла своими руками
Металлическое крыльцо так же, как и другие конструкции требует обустройства фундамента.Перед началом обустройства фундамента необходимо определить глубину его размещения. Он должен быть ниже промерзания грунта на тридцать сантиметров.
Если в доме вы будете жить всё время, и температура в нём будет постоянно держаться не менее десяти градусов, то глубину фундамента можно сделать немного меньше.
Этапы работ по обустройству фундамента
Для начала под фундамент копают котлован.
Затем на дне котлована идёт обустройство песчано — щебёночной подушки. Сначала укладывают слой песка и утрамбовывают его и поливают водой. Толщина слоя песка должна быть десять сантиметров. Поверх слоя песка укладывают слой щебня, толщина слоя которого должна составлять пять сантиметров. Подушка из песка и щебня по размеру должна всегда быть больше размеров фундамента на пятнадцать сантиметров.
После того как вы обустроили подушку из песка и щебня, необходимо приступить к монтажу опалубки из дерева. Для её создания берут доски толщиной не меньше двух сантиметров и длинной не больше двадцати сантиметров.
Для сооружения опалубки необходимо брать только сухой материал. По углам фундамента устанавливают колышки и натягивают верёвку. Затем по периметру фундамента вбивают колышки на расстоянии одного метра и к ним прикрепляют доски.
Если высота фундамента является двадцать сантиметров, то в этом случае устанавливают в упор распорки.
Затем, перед тем как залить бетон, в опалубку устанавливают арматуру.
Для армирования фундамента используют арматуру класса А-III и прутья должны быть диаметром двенадцать миллиметров. Арматуру связывают на расстоянии в двести миллиметров, это расстояние выдерживают во всех направлениях.
После того как армирование закончили, фундамент заливают бетонной смесью.
Конструкция лестницы из металла должна быть немного утопленной в бетон.
Когда будете заливать фундамент необходимо оставлять примерно тридцать сантиметров до верха.
Когда вы установите лестницу, то бетон нужно долить до верха.
После того как бетон залили, нужно его избавить от пустот, для этого используют специальный инструмент.
Итак пузырьки воздуха из бетона удалены, и бетон можно накрыть плёнкой до полного высыхания.
На это уходит примерно одна неделя и по истечении этого времени бетон трогать нельзя.
Металлическое крыльцо имеет:
- Лестницу;
- Перила;
- Козырёк.

При изготовлении лестницы используют два швеллера, они и являются её основой.
Затем к ним приваривают прокат, который будет выступать в качестве ступеней.
Конструкция ступенек может быть разной, и одну из них мы разберём дальше.
Чтобы изготовить ступени необходимо взять равнополочный уголок, затем прокат необходимо обрезать в соответствии необходимыми размерами.
Затем уголок приваривают к контуру. Потом берут ещё один обрезанный уголок и приваривают к другому, потом этот уголок приваривают к швеллеру.
Так монтируют уголки к обоим швеллерам.

Затем соединяют готовые ступени.
Далее полученные ступени соединяют. Верх г- образных деталей присоединяют равнополочным уголком, который обварен по контуру.
Их соединяют полками внутрь, а готовые ступени соединяют полками наружу.
Ступени заполняют любым подходящим материалом.
Для того чтобы прикрепить материал к металлической конструкции применяют саморезы и клей на силиконовой основе.
В том случае, если лестница крыльца имеет больше трёх ступеней, лестницу оборудуют перилами с поручнями, они нужны для обеспечения безопасности.
Высота их должна составлять не менее девяноста сантиметров. Для их изготовления берут различный прокат.
Достоинства крыльца из металла
Крыльцо является важным элементом дома:
Крыльцо из металла способно защитить входную дверь от грязи, пыли и влаги, поэтому считается лучшим вариантом.- Возведение крыльца из металла является не тяжёлым и поэтому сделать, его своими руками не составит труда.
- Материалы для изготовления крыльца считаются, недорогими и времени для создания металлической лестницы потребуется немного.
- При применении качественных материалов по завершению работ получается красивое, качественное изделие, которое будет выделять ваш дом.
В том случае, если вы не уверены в своих силах, воспользуйтесь помощью профессионалов.
Надеемся, что данная статья была вам полезной. Желаем успехов и терпения.
ТОП 9 магазинов, где я выгодно закупаюсь
ТОП 7 по товарам и мебели для дома:
7 лучших строительных и мебельных магазинов!
- Akson.ru- это интернет-гипермаркет строительных и отделочных материалов!
- homex.ru- HomeX.ru предлагает большой выбор качественных отделочных, материалов, света и сантехники от лучших производителей с быстрой доставкой по Москве и России.
- Instrumtorg.ru – это интернет – магазин строительного, автомобильного, крепежного, режущего и другого инструмента, необходимого каждому мастеру.
- Qpstol.ru — «Купистол» стремится предоставить лучший сервис своим клиентам. 5 звёзд на ЯндексМаркет.
- Lifemebel.ru- гипермаркет мебели с оборотом более 50 000 000 в месяц!
- Ezakaz.ru- Представленная на сайте мебель изготавливается на собственной фабрике в Москве, а так же проверенными производителями из Китая, Индонезии, Малайзии и Тайваня.»
- Mebelion.ru- – крупнейший интернет-магазин по продаже мебели, светильников, интерьерного декора и других товаров для красивого и уютного дома.
domsdelat.ru
Металлическое крыльцо частного дома: 20 фото и идей
Крыльцо частного дома — это практически его лицо, и к выбору его дизайна надо подойти ответственно. Если в качестве основного материала вы выбрали металл, то наша подборка поможет вам выбрать дизайн металлического крыльца — самого красивого, стильного и функционального.

Особенности выбора крыльца дома
Без преувеличения можно сказать, что крыльцо — это один из важнейших элементов внешнего облика дома. Крыльцо может быть изготовлено из разных материалов и их комбинаций, представлять различные стили и модные течения. Но одним из самых оригинальных всегда было металлическое крыльцо. Его можно выполнить в классическом стиле, с кованой крышей и перилами, а можно сделать что-то ультрасовременное и необычное с замысловатыми переплетениями балок и навесов. Выбор всегда за вами, но обязательно учитывайте, что крыльцо должно совпадать с оформлением всего дома и выглядеть гармонично.

Нельзя забывать про то, что крыльцо имеет огромную функциональную составляющую. Оно может защитить от непогоды, стать местом отдыха или же быть просто скромным элегантным навесом перед входной дверью. Его создание лучше всего учесть на этапе планирования, перед постройкой дома. Так вы добьётесь наилучшего результата, крыльцо гармонично впишется в дизайн всего дома, и в полной мере будет исполнять возложенные на него функции.
20 фото и идей металлических крылец
Кованое металлическое крыльцо с красивым цветочным узором и кручёными колоннами в сочетании с кирпичным фасадом — это классика. Эта комбинация, проверенная столетиями, и поныне не утратила ни капли своей привлекательности и аристократичного блеска.

Очень красиво выглядят ступени, «распахнутые» навстречу гостям, с коваными перилами и тонкие изящные металлические столбы с узорами под крышей.

И снова кирпич и металл, но уже в более скромном исполнении. Такое оформление выглядит сдержанно и консервативно. Никто с полной уверенностью не сможет сказать, кто хозяин дома с таким крыльцом — герцог или просто человек с хорошим вкусом.

Простое и ненавязчивое, но удобное и просторное крыльцо, выполненное в средиземноморском стиле. В тени этого крыльца приятно будет посидеть под полуденным солнцем.

Ковка прекрасно сочетается с деревом. Она дополняет и оживляет деревянный фасад дома, делает его интересным.

Сегодня можно себе позволить ковку любой сложности. Мастера овладели этим искусством в совершенстве и выполнят любое пожелание. Роскошное кованое крыльцо можно дополнить не менее роскошной аркой.

Металлическое крыльцо может навевать сказочные и волшебные мотивы. Даже небольшое крыльцо может стать настоящим шедевром.

Но не всегда бывают уместны кричащая роскошь и шик. Порой нужны всего лишь две красивые изящные опоры под покатой железной крышей. Тем более если хозяин дома сдержанный и скромный человек, или это просто крыльцо для заднего двора.

Если сделать ваше металлическое крыльцо светлым, то оно будет выглядеть прозрачным и невесомым. Оно не будет нависать своим грузом металла, но будет давать ту необходимую защиту от солнца, дождя и ветра, которую и должно давать крыльцо.

Ещё одним способом облегчить вес металлического крыльца будет накрытие металлического каркаса плетёной крышей. Этот вариант подходит не для всех климатических зон, это, скорее, можно назвать «южным капризом».

Если вы любите проводить на свежем воздухе много времени, да ещё и с компанией, то вам нужно сделать просторное крыльцо без лишних изысков, но с отличным обзором. Это крыльцо с железными опорами, площадью, сравнимой с площадью первого этажа, может заменить уютную комнату или даже зал, при условии хорошей погоды.

Перенесемся в современность вместе с этим шедевром из массивных швеллеров. Такое крыльцо выглядит современно, однако оно также внушает трепет, как ворота средневековых замков.

Ещё один красивый способ оформить свой дом с помощью железных элементов в современном стиле.

Оформление крыльца заднего двора с помощью конструкций из металлических профилей — это отличная идея. С помощью профилей можно изготовить крыльцо любой конфигурации.

Высокое металлическое крыльцо с легким деревянным настилом выглядит современно, аккуратно и легко.

Красиво выглядит полукруглое крыльцо из металла, покрытое прочным стеклом. Под таким навесом вы всегда сможете понежиться под солнцем.

Можно объединить крыльцо у входной двери и застеклённую лоджию одним навесом, таким образом получится целая зона для отдыха и приёма гостей.

Крыльцо, выходящее на задний двор, можно сделать просторным и застеклить, чтобы проводить там время с друзьями и близкими.

Крыльцо, оформленное в виде купола из металла и стекла, шикарно. Такая строгая, смелая и притягательная конструкция будет долго вспоминаться всем, даже тем людям, которые увидят её случайно с улицы.

Такую же куполообразную конструкцию можно сделать на заднем дворе, поставить барбекю и наслаждаться видом ночного неба в звёздную ночь сквозь стеклянную крышу этого замечательного крыльца.

Заключение
Надеемся, собранные для вас идеи и наши небольшие подсказки вдохновили вас, и теперь вы сможете выбрать дизайн крыльца для вашего дома.
dvamolotka.ru
изготовление, фото, видео, как сварить, сделать?
Как бы престижно ни выглядело ваше домостроение, без крыльца оно будет иметь незавершенный вид. Эта конструкция выполняет две основные функции: способствует созданию комфортных и безопасных условий для входа и облагораживает фасад здания.
Крыльцо из металла обладает уникальной особенностью – оно гармонично впишется в любой архитектурный стиль и будет сочетаться как с деревянным домом, так и с кирпичным.
Металлическое крыльцо для частного дома: ажур и прочность
Ажурное крыльцо из металла придаст фасаду легкость и воздушность. Это своеобразная изюминка в общем стилевом решении дома. Создание такой конструкции собственными силами подразумевает наличие навыков в обращении со сварочным аппаратом.
Воплощение замыслов по сооружению долговечного и прочного подхода следует начинать с разработки эскиза, проекта. После первоначальных набросков на бумаге, требуется определить точные размеры. Это необходимо для расчета расходных материалов.
В чертеже обязательному освещению подлежат следующие аспекты:
Формирование несущего фундамента, обладающего прочностью;- Размер лестницы, при расчете не забывайте учитывать рекомендуемые нормативы;
- Расположение пристройки относительно дома. Для подъема на верхние этажи можно разработать винтовую лестницу или спроектировать два марша вдоль стен, не относящихся к фасаду. Невысокий цоколь сочетается с лестничным маршем с боковой стороны площадки.
- Перила, выполненные в виде ажурного узора. Проще будет позаботиться о приобретении уже готовых изделий.
- Стойки навеса, одновременно служащие элементами украшений.
- Для обеспечения освещенности ступеней и замочной скважины рекомендуется предусмотреть светильник, выполненный в одном стиле с коваными перилами.
- Крыша, основное предназначение которой заключается в защите от осадков.
Металл относится к категории долговечных и прочных материалов. Правильный уход за ним обеспечит длительную эксплуатацию, и ажурное крыльцо будет изысканным украшением фасада не одно десятилетие.
Преимущества и недостатки конструкции
Ознакомившись с многочисленными преимуществами и незначительными недостатками крыльца частного дома из металла, вы найдете подтверждение правильности своего решения, сделанного в пользу такой конструкции.
Основные достоинства заключаются в следующем:
- Возможность длительной эксплуатации и высокая прочность. Это сооружение не подвержено деформации, способно выдержать механические нагрузки высокой степени.
- Допустимо производить монтаж без оборудования фундамента.
- Устойчивость к воздействию неблагоприятных внешних факторов: не подвержено гниению, расслоению, влиянию вредоносных насекомых или грибков.
- В процессе проведения работ по созданию крыльца прилежащая территория не подвергается усиленному загрязнению.
- Период создания упрощенных конструкций не занимает длительное время.
- Спектр возможных вариаций неограничен и зависит от профессиональных навыков создателя и финансовых ресурсов владельца. При скромном бюджете в качестве потенциальных материалов подойдут обрезки труб и уголков, уже имеющихся в наличии. Это позволит значительно сэкономить на приобретении строительных материалов и поспособствует освобождению загроможденных участков придомовой территории.
- Металлическую основу допустимо комбинировать с другими материалами и использовать в обшивке дерево или пластик. В дальнейшем преобразовать конструкцию и придать ей усовершенствованный вид, заменив на более дорогостоящую отделку, не составит особого труда.
К минусам крыльца из металла можно отнести следующие нюансы:
- Использование в строительстве только новых металлических изделий и ажурной отделки приведет к серьезным финансовым вложениям.
- Регулярные затраты на средства, предупреждающие коррозию металла.
- Дополнительный шум от козырька при осадках.
- При отсутствии крыши над ступеньками, скользкая поверхность в зимний период.
Определимся с размером лестницы для крыльца
Размеры лестницы варьируются в зависимости от ее предназначения и расположения: будет ли это парадный подъезд или запасной вход сбоку помещения.
Соблюдение определенных нормативов обязательно в любом случае:
- Минимальная длина ступеней составляет 80 см. Это позволит свободно подняться одному человеку. При увеличении на 20 см одновременно пройти смогут уже двое.
- Лучше, если количество ступеней будет нечетным. Удобство эксплуатации предполагает начинать и заканчивать подъем с одной ноги.
- Уклон конструкции варьируется в диапазоне 25 – 45 градусов. Чем больше угол, тем сложнее осуществлять подъем.
- Минимальная высота ступени начинается с 12 см, максимально – 20 см. Чем выше значение, тем тяжелее движение вверх. Ширина конструкции отталкивается от ¼ м. Нависать друг над другом ступени могут в пределах 3 см.
- Для безопасности движения лестница оборудуется перилами высотой 0,7 – 1,2 м, в зависимости от роста проживающих.
При расчете размеров верхней площадки учитывается достаточно места для открытия входных дверей, низ которых должен находиться на 50 мм выше поверхности.
Выбор материала
Закупка материала напрямую зависит от выбранной конструкции и планируемых финансовых затрат, будет конструкция выполнена из металла полностью или предусмотрена комбинация с другими составляющими.
При отсутствии ограничений в денежных средствах предпочтительней приобрести оцинкованный металл. В дальнейшем это окупится экономией по антикоррозийным средствам.
Преимущественно сооружения конструкции останавливаются на следующем металлопрокате:
- круглая и профилированная труба;
- уголки;
- железная арматура.
При необходимости экономии для работы подойдет металлический прут с небольшим сечением, равносторонний уголок и профилированная труба.
Фундамент под крыльцо
Несмотря на относительную легкость конструкции, во избежание процессов деформации, лучше подготовить фундамент.
Тип почвы, на котором он будет располагаться, во многом определяет способ его закладки:
- Твердые скальные слои обязывают заливать ленточный фундамент. Рабочий процесс организовывается в летнее время. Период полного высыхания составляет 1 месяц, после чего занимаются обустройством обрешетки под площадку.
- Для земляного грунта допускается возведение столбчатого основания. Сэкономить на расходах позволит использование свай. Это определенно бюджетный вариант основания крыльца ввиду отсутствия необходимости проведения земляных работ и приобретения дополнительных материалов для строительства.
- Не зависит от сезона работа по закладке фундамента с помощью винтовых свай, расстояние между ними не должно превышать 2 метров.
Размеры фундамента
При заложении фундамента учитывается уровень промерзания почвы, его глубина опускается на 30 см ниже установленной отметки. В оптимальном варианте обустроить основание для крыльца в непосредственной связи с общим фундаментом дома.
В первую очередь это обеспечит надежность и прочность пристройки, немаловажное значение имеет законченная цельная картина внешнего вида здания. Для рытья котлована лучше пригласить рабочих, это ускорит процесс подготовительных работ, сэкономит ваши силы и время.
Этапы монтажа железобетонного фундамента под металлическое крыльцо
Обустройство фундамента – трудоемкий процесс, включающий следующие этапы:
Землеройные работы по подготовке котлована с учетом песчано-щебеночной подушки.- Создание подушки заключается в укладке и утрамбовке 10 сантиметрового слоя песка, периодически смачиваемого водой для обеспечения большей плотности. Сверху насыпается 5 сантиметровый слой щебня. Такая двухслойная подушка превышает размеры фундамента от 10 до 15 см с каждой стороны.
- Для установки деревянной опалубки используют доски, длина которых не превышает 0,2 м, а толщина более 2 см. Сторона, соприкасающаяся с бетоном, подвергается обработке рубанком, при этом материал не должен быть сухим. На колышки, установленные по углам фундамента, натягивается бечевка с дальнейшим забиванием вдоль нее колышек по всему периметру на расстоянии 1 м. После этого прибиваются доски.
- Заливанию бетона предшествует укладка арматуры. Она вяжется проволокой на расстоянии 20 см вдоль и поперек. Нижней и верхней сетки будет достаточно.
- При бетонировании не забудьте один нюанс – конструкция лестницы немного в нем утапливается. Поэтому следует оставить до верха площадки от 10 до 30 см. Высота зависит от размеров крыльца и его конструкции в целом. Когда его установка завершится, бетонная площадка окончательно заливается до верха. Избавлению от пустот в бетоне поможет вибратор, при его отсутствии выручит обыкновенная тяпка. На время, когда бетон будет застывать, его рекомендуется накрыть пленкой.
Работы по металлу
Работы по металлу могут состоять из трех частей – конструирование лестницы, создание перил и оформление козырька.
Из какого проката можно сварить лестницу?
Металлопрокат для лестницы лучше брать с небольшим сечением. Несмотря на долговечность более толстого проката, при работе с ним есть вероятность возникновения непредвиденных трудностей. Для лестничного каркаса применяют элементы из труб и уголков.
- Основу конструкции можно подготовить из двух швеллеров, выставленных на габаритную ширину лестницы. Длину определяют замером между краем площадки и нижней ступенькой.
- Затем нарезают заготовки для ступенек, используя данные об их высоте, длине и ширине. На каждую ступень потребуется 2 детали.
- Для площадки подготавливают уголок или трубы, по 2 штуки на ширину и длину. Не ошибитесь в расчетах, чтобы площадка не препятствовала свободному открытию дверей.
- При сварке заготовок важно строго придерживаться положения деталей перпендикулярно друг другу.
В заключение необходимо произвести зачистку сварочных швов, чтобы исключить их выступы. При необходимости сваренный каркас подвергают обработке антикоррозийными средствами.
Монтаж перил и поручней
Перила предназначены для обеспечения безопасного подъема по ступеням. Их высота может варьироваться с учетом роста проживающих в доме, оптимальной считается 90 см.
Наиболее простой вариант их изготовления заключается в следующем:
- используя прямоугольные трубы, устанавливаем снизу и сверху крыльца стойки;
- соединяем стойки трубами меньшего сечения, которые будут выполнять функцию перил;
- между стойками пространство заполняется согласно предварительным эскизам, шаг конструкций может быть разным. Придуманный декор способен воплотить любые ваши фантазии. Все зависит от умения работы с металлом.
Сварочные работы завершаются обезжириванием металлической конструкции, обработкой ее грунтовкой и нанесением краски в два слоя. Такие меры позволят надолго защитить металл от воздействия процессов коррозии, и продлить срок его эксплуатации.
Крыльцо будет иметь незавершенный вид при отсутствии козырька. Оформить его можно из различных строительных материалов, благо предоставляемый выбор достаточно широк. В завершение выполняются облицовочные работы.
О металлическом прокате и сварных швах
Для облегчения всех расчетов рекомендуется воспользоваться перечнем проката, с квалификацией по его маркам, размерам и профилям. Существует онлайн-калькулятор для расчета необходимого количества материала.
Занимаясь составлением эскиза, соблюдайте масштаб. Это позволит заранее увидеть непропорциональные формы, исправить их и добиться гармоничного внешнего вида.
Выполненные швы конструкции в основном будут нахлесточные и стыковые. Их качество характеризуется следующими показателями:
- поверхность шва гладкая, переход к основному изделию плавный;
- на шве отсутствуют трещины и поры;
- по всей линии шов проварен полностью.
Для проверки их качества используют мел и керосин. С одной стороны на шов наносится мел, с другой, с интервалом в 10 минут 2 раза он смачивается керосином. Если в течение последующих 8 часов мел впитает керосин – требуется доработка швов.
Работа со сварочным аппаратом требует неукоснительного соблюдения норм техники безопасности.
Изготовление металлического крыльца для дома своими руками – достаточно трудоемкий процесс. Однако затраченные усилия в дальнейшем принесут чувство самоудовлетворения и гордости за проделанную работу.
krovlya777.ru

Крыльцо из металла способно защитить входную дверь от грязи, пыли и влаги, поэтому считается лучшим вариантом.
Формирование несущего фундамента, обладающего прочностью;
Землеройные работы по подготовке котлована с учетом песчано-щебеночной подушки.