Планировка фундамента под дом – Проекты фундаментов частных домов: видео-инструкция по монтажу своими руками, особенности проектирования для одноэтажных строений из пеноблоков, цена, фото
Расчет фундамента — подробная инструкция + видео

Доброго времени суток дорогие читатели!
Фундамент – основа вашего дома. Каким вы сделаете фундамент, таким и будет ваш дом. Если вы не правильно рассчитаете фундамент для дома, то соответственно он долго стоять не будет.
В этой статье вы найдете нужную информацию о фундаментах:
— как правильно сделать фундамент под дом,
— на какую глубину его заложить,
— как рассчитать ширину подошвы фундамента,
— какую нагрузку может выдержать фундамент от здания и многое другое.
ВИДЕО НА ЭТУ ТЕМУ ВЫ НАЙДЕТЕ В КОНЦЕ СТАТЬИ.
Самые распространенные фундаменты: ленточные, столбчатые, плитные и их производные.
Цель любого фундамента – выдерживать нагрузку от здания или сооружения, распределять ее и передавать нагрузку на основание (грунт).
Если грунт не выдерживает нагрузку от здания (болотистая местность), то перед началом строительства фундамента, можно сделать частичную замену грунта на более прочный, к примеру, засыпать граншлаком, (который со временем превращается в бетон), или использовать сваи.
Выбор того или иного фундамента в основном зависит от вида грунта и от глубины залегания грунтовых вод.
Подошва фундамента – это нижняя плоскость фундамента, которая опирается на грунт.
Глубина заложения фундамента – определяется как расстояние от поверхности земли (грунта), до подошвы фундамента. В основном глубина заложения фундамента зависит от двух факторов: уровень грунтовых вод и глубина промерзания грунта.
Если все нюансы и тонкости при заложении фундамента учтены, то это отразится на долговечности вышестоящего здания!
Помните, что затраты на заложение фундамента составляют от 15 до 25% и более, в зависимости от вида грунта, его промерзания и глубины грунтовых вод.
Если сэкономить на фундаменте не там где надо, то его переделывание и устранение ошибок будет очень затратно, а в некоторых случаях (как показывает практика) невозможно!
.
.
Подготавливаем участок в том месте, где будет стоять будущий дом. Очищаем участок от кустов, деревьев. Если верхний слой состоит из хорошей плодородной земли, то ее можно снять и перевести в то место, где она не будет мешать.
Желательно отвести поверхностные воды (осадки) в сторону, чтобы не затопляли строительную площадку.
Разметку фундамента начинают с разбивки плана дома в натуре. В проекте (на генплане) обычно указано к чему необходимо привязать дом. Чаще всего дом привязывают к дороге или к соседним зданиям.
В первую очередь размечаем, где будут находиться наружные стены дома. Для разметки лучше всего использовать деревянные или металлические колышки и капроновый шнур.
Итак: размечаем контур здания и забиваем по углам колышки.
Потом необходимо сделать обноску вокруг будущего здания. Обноска невероятно облегчают строительство на ранних стадиях! Если вы не хотите ее ставить, то можете не ставить, вы все равно сделаете все правильно. Но, как показывает практика, обноска значительно экономят время при дальнейшем заложении фундамента и строительстве цоколя.
Обноска – это два колышка к которым прибита ребром доска.

Для удобства забиваем обноску на расстоянии от края будущего котлована, на расстоянии от 2 до 5 м. С таким расчетом, чтобы обноска не мешала работе тяжелой техники:
— экскаватору, который будет копать котлован,
— монтажному крану, который будет монтировать фундаментные блоки и плиты.
— нормальный подъезд миксера и тому подобное.
Иногда обноску делают сплошную – по всему периметру дома, но это не совсем удобно. Самый лучший вариант сделать обноску из небольших элементов похожих на маленькую скамеечку.
Обноску обычно располагают таким образом, чтобы на ней можно было отметить все оси.
Высота обноски – чаще всего делаем выше грунта на 500 – 600 мм. Можно сделать и повыше, к примеру на 100 – 150 мм выше будущего пола первого этажа.
Далее в доски обносок забиваем гвозди и натягиваем капроновый шнур (или тонкую проволоку) по осям стен здания.
Некоторые пренебрегают осями и используют за основу края наружных стен здания (или капитальных стен). Делать так не рекомендую, так как можно легко ошибиться.
Если будете все размечать от ОСЕЙ, то никогда не ошибетесь.
Когда оси пересекаются между собой образуется прямой угол (90 градусов). Если пренебречь прямым углом, то получится кривой дом. Это вылезет при устройстве кровли и полов. Визуально можно заметить, что дом построен не ровно (без прямого угла), в первую очередь это видно на кровле дома!
Как сделать легко прямой угол
Если тяжело проверить прямой угол, то самый лучший вариант померить диагонали. Диагонали должны быть одинаковыми по размеру.
Планировка площадки — желательно “отстрелять” площадку с помощью нивелира и узнать самую низкую и самую высокую точки (планировка площадки) и принять одну из отметок за исходную. Благодаря планировки площадки вы узнаете в каком месте необходимо больше копать, а в каком меньше.
Если нет нивелира, то можно использовать обычный гидроуровень (тонкая, прозрачная шланга, наполненная водой). На доске обноски делаем отметку карандашом (или забиваем гвоздь) и переносим эту отметку с помощью гидроуровня на другие обноски. В результате получается по периметру горизонтальная плоскость от которой можно отмерять глубину котлована или траншеи.
Когда мы будем отмерять глубину котлована (или траншеи) от горизонтальной плоскости, то и сам котлован внизу будет иметь ровную (горизонтальную) поверхность. Другими словами низ котлована будет ровный.
Итак: от осей откладываем параллельно с двух сторон края будущего фундамента. Натягиваем два капроновых шнура по краям фундамента и переносим на грунт с помощью обычного песка. То есть посыпаем руками песок прямо на капроновый шнур и на земле (на грунте) вырисовывается контур наружного и внутреннего края фундамента.
Затем сматываем капроновые шнуры, чтобы не мешали копать.
Полностью обноски убирают только после того, когда строители построят цоколь дома.
.
.
Котлованы (траншеи) чаще всего копают экскаватором. Форма котлована (траншеи) зависит от вида грунта и его глубины. В плотных, не сыпучих, грунтах стенки траншей обычно вертикальные (если траншеи не глубокие и грунтовые воды далеко от подошвы фундамента) и они используются вместо опалубки.

Глубина траншеи без опалубки:
— Максимальная глубина траншеи с ровными вертикальными стенками в гравелистых и песчаных грунтах – 1 м.
— Максимальная глубина траншеи с ровными вертикальными стенками в супесях – 1,25 м.
— Максимальная глубина траншеи с ровными вертикальными стенками в глинах и суглинках – 1,5 м.
Если необходимо выкопать траншею глубже тех размеров, которые указаны выше, тогда необходимо дополнительно ставить опалубку для укрепления стенок траншеи или копать траншеи с откосами.

При заложении столбчатых фундаментов чаще всего выкапывают ямы квадратной или круглой формы. Ямы круглой формы с вертикальными стенками лучше всех устойчивы к обрушению стенок грунта. Даже в более агрессивной среде, когда уровень грунтовых вод высокий, стенки ям круглой формы более устойчивы к обрушению.
Ямы и траншеи для фундамента необходимо защитить от стока поверхностных вод. Если в траншеи (ямы) стекает вода с участка, то основание раскисает, разжижается и теряет несущую способность.
Можно отвести поверхностные воды, сделав канавы, отвалы и тому подобное.
Чтобы откосы траншеи не обваливались и основание не раскисало от атмосферных осадков, необходимо сразу же после выкапывания грунта закладывать фундамент. То есть, если выкопали траншею, то сразу необходимо делать фундамент.
Иногда выкапываем траншеи под половину дома. Заливаем ростверк, монтируем блоки выше уровня земли и засыпаем пазухи между блоками. Затем выкапываем вторую (оставшуюся) половину траншей и доделываем фундамент полностью. Этот способ применяем когда необходимо построить большой дом на маленьком участке.
Так как участок маленький, а будущий дом большой, то землю просто физически некуда деть!
Если вы выкопали траншею (котлован) и решили не сразу закладывать фундамент, а через какое – то время, то лучше всего полностью не докапывать траншею до проектных отметок на 10 – 15 сантиметров. Этот не докопанный грунт защитит дно траншеи от размокания и раскисания несущего грунта (во время осадков).
Непосредственно перед заложением фундамента, не докопанный грунт подчищается на нужные отметки.
Ни в коем случае нельзя досыпать обратно в траншею выкопанный грунт (в места случайного перебора)! Если грунт досыпать, то получиться в этом месте насыпной грунт. Из-за того, что досыпали в траншею грунт, будет неравномерная усадка фундамента и дом может лопнуть.
В местах случайного перебора грунта, яму можно засыпать песком (не более 100 мм), щебенкой, гравием и хорошо уплотнить. Так же в местах перебора грунта, яму в траншее можно заложить кирпичной кладкой или залить бетоном (самый лучший вариант).
.
.
Многие застройщики ошибочно считают, что чем глубже заложить фундамент, тем лучше. Застройщики полагают, что если подошва фундамента ниже уровня промерзания грунта это обеспечит надежную эксплуатацию фундамента.
Действительно, если подошва фундамента находиться ниже уровня промерзания грунта, то силы морозного пучения уже не могут давить на фундамент снизу вверх, то есть поднимать фундамент. Однако, не стоит забывать про боковое касательное морозное пучение грунта, которое действует на боковые поверхности фундамента.
Боковое касательное морозное пучение грунта, может вырвать фундамент из грунта, отделив его верхнюю часть от нижней. Такое бывает, если фундамент сделан из кирпича, камня или небольших блоков, особенно под легкими домами (деревянные дома, облегченные каркасные дома и тому подобное).
Для того чтобы избежать разрушения фундамента (сделанного из кирпича, камня или небольших блоков) на пучинистых грунтах, нужно не только заложить
Для этого можно утеплить отмостку карамзитом, пенопластом или пумпаном.
Если же вы не будете делать утепленную отмостку, тогда можно связать стены фундамента (сделанного из кирпича, камня или небольших блоков) с помощью металлического каркаса. Каркас закладывают на всю высоту фундамента, связывая нижнюю и верхнюю часть между собой.
Можно и не использовать металлический каркас, тогда стены фундамента необходимо выкладывать снизу широкие, а к верху постепенно сужающиеся. Это значительно ослабит силы бокового касательного морозного пучения грунта.

Рисунок 3.1 Ленточные и столбчатые фундаменты, в пучинистых грунтах.
1- наклонные стены бутовой кладки; 2 – кладка из забутовочного кирпича; 3 – сердечник сделанный из железобетона; 4 – бетон; 5 – будущий цоколь; 6 – обратная засыпка грунтом; 7 – плита ж/б, опорная; 8 – плита бетонная; 9 – арматура; У.П.Г. – уровень промерзания грунта.
При возведении зданий и сооружений на крутопадающем рельефе необходимо брать во внимание возможный сдвиг, боковое давление грунта. Величина бокового давления грунта зависит от многих факторов (вид грунта, насколько крутой откос и тому подобное) и поэтому его достаточно сложно рассчитать.
Самый надежный фундамент на крутопадающем рельефе – ленточный, потому что он жестко связан между собой в поперечном направлении и продольном.
Столбчатый фундамент на крутопадающем рельефе необходимо жестко связывать поверху. Для связи лучше использовать железобетонный монолитный пояс, тогда все конструктивные элементы фундамента будут работать как единое целое.
1) Уровень промерзания грунта.
2) Высоту грунтовых вод.
3) Состав (вид) несущего грунта, на котором будет находиться фундамент дома (здания, сооружения).
Если зимой грунтовая вода находится ниже уровня промерзания грунта больше чем на 2 м, то для многих грунтов (мелкие и пылеватые пески, твердые глинистые грунты) глубина заложения фундамента рассчитывается без учета уровня промерзания грунта.
Другими словами – уровень грунтовых вод находится далеко от уровня промерзания грунта (более чем на 2 м), соответственно грунт относительно сухой и пучиниться не будет. Это значительно удешевит строительство фундамента!
А если грунтовая вода находиться близко к уровню промерзания грунта (до 2 м), то грунт (глинистые грунты, пески мелкие и пылеватые) насыщен водой и при морозе будет пучиниться. Поэтому когда грунтовая вода близко, грунт влажный. Фундамент необходимо закладывать с учетом промерзания грунта, то есть подошва фундамента должна находиться не выше (лучше чуть – чуть ниже) уровня промерзания грунта.
Минимальная глубина заложения фундамента.
Минимальная глубина заложения подошвы фундамента в сухих грунтах (мелкие и крупные пески, твердые глины) – 0,7 м.
Минимальная глубина заложения подошвы фундамента во влажных грунтах (мелкие и пылеватые пески, пластичные глинистые грунты, лессовидные суглинки просадочные) – 1,2 м.
Минимальная глубина заложения подошвы фундамента для дома, который имеет подвал. Подошву фундамента закладывают ниже уровня пола в подвале минимум на – 0,4 м.
Таблица 3.1 На какую глубину необходимо закладывать фундамент.
| № п/п | Несущие грунты в пределах глубины промерзания. | Расстояние от глубины промерзания грунта до уровня грунтовых вод. | Глубина заложения подошвы фундаментов для возведения одноэтажных и двухэтажных зданий. |
1 | Скальные и полускальне грунты | Не имеет значения. | Не имеет значения, не зависит от глубины промерзания грунта |
2 | Крупные и средние пески, пески гравелистые, крупнообломочные грунты. | Не имеет значения. | Не зависит от глубины промерзания грунта, но не меньше 0,5 м. |
3 | Пылеватые и мелкие пески, глины (влажные при замерзании становятся пучинистыми грунтами), суглинки, супеси. | Более чем на 2 м. | Не зависит от глубины промерзания грунта, но не меньше 0,5 м. |
| Менее чем на 2 м. | Не менее 3/4 глубины промерзания грунта, но не меньше 0,7 м. | ||
| Уровень грунтовых вод выше уровня промерзания грунта. | Не менее глубины промерзания грунта. |
Для определения уровня промерзания грунта в вашей местности можно воспользоваться картой (смотрите ниже).

Рисунок 2.2. Глубина промерзания грунтов в сантиметрах.
.
Как самостоятельно определить уровень грунтовых вод и состав грунтов.
Определить уровень грунтовых вод достаточно просто: необходимо выкопать на строительном участке (на котором будет стоять будущий дом) шурф – колодец. Размер колодца приблизительно 1 метр на 1 метр и глубиной около 2,5 -3 м.
Шурф-колодец необходимо защитить от стока в него поверхностных вод и осадков. Наиболее достоверную информацию об уровне грунтовых вод, вы сможете получить осенью или весной, когда уровень грунтовых вод самый высокий.
Чтобы уменьшить затраты на выкапывание шурфа, его можно выкопать к примеру в том месте где будет подвал.
Благодаря шурф-колодцу вы узнаете не только уровень грунтовых вод, но и еще состав грунта.
Чаще всего верхний слой – это плодородный слой, его обычно снимают, так как он не равномерно просаживается из-за гниения органических остатков (растения, корни) и дом может лопнуть. Плодородный слой легко узнать, так как он более темный. Толщиной плодородный слой от 100 до 1000 мм и более.
Под плодородным верхним слоем находится естественный подстилающий грунт. Этот грунт (естественный подстилающий) несущий и воспринимает нагрузку от подошвы фундамента и выше стоящего здания.
Если естественные подстилающие грунты – средние и крупные пески, гравелистые, то это надежное основание для вашего дома. Глубина заложения фундамента в таких грунтах минимальная – 0,5 м.
Если естественные подстилающие грунты – пылеватые и мелкие пески, супеси, глины, суглинки, необходимо брать во внимание уровень грунтовых вод. При высоком уровне грунтовых вод у этих грунтов снижается несущая способность.
Если естественные подстилающие грунты – суглинки лессовидные, то при небольшой влажности они могут воспринимать достаточно большие нагрузки. При высоком уровне грунтовых вод, суглинки лессовидные могут проседать даже от своего собственного веса. Как же отличить этот не очень надежный грунт от других?
Довольно просто – его необходимо опустить в воду. В отличии от обычных глинистых грунтов, суглинок лессовидный распадается в воде значительно быстрее.
.
.
Все грунты могут воспринимать нагрузку от выше стоящего частного жилого дома (кроме илов и торфяников). Индивидуальные дома имеют относительно небольшой размер и вес.
Если несущая способность грунта слабая, то необходимо увеличить площадь подошвы фундамента для уменьшения давления на грунт.Чем больше площадь подошвы фундамента, тем меньше давление на грунт.
Чтобы правильно рассчитать ширину подошвы фундамента, необходимо знать два основных показателя – вес дома (с учетом снеговых нагрузок) и вид грунта (несущий грунт), на который будет опираться дом.
а) Вес дома – необходимо рассчитать вес дома полностью с учетом снеговых нагрузок, мебели в доме (на втором этаже). Делается это очень легко, примерно за полчаса вы сможете посчитать полностью вес своего будущего дома.
б) Вид несущего грунта – все грунты разные и имеют разную несущую способность. Когда вы узнаете вид грунта, на котором будет стоять ваш будущий дом, вы сможете определить несущую способность этого грунта по таблице 4.1 (смотрите ниже).
К примеру каменистые грунты имеют самую высокую несущую способность: 5,0 – 6,0 кг/см2, а глины пластичные имеют слабую несущую способность: 1,0 – 3,0 кг/см2.
Таблица 4.1 Расчетные сопротивления грунтов и их виды.
| № п/п | Виды грунтов | кПа | кг/см2 |
| 1 | Крупнообломочные грунты, щебень, гравий | 500 – 600 | 5,0 – 6,0 |
| 2 | Пески гравелистые и крупные | 350 – 450 | 3,5 – 4,5 |
| 3 | Пески средней крупности | 250 – 350 | 2,5 – 3,5 |
| 4 | Пески мелкие и пылеватые плотные | 200 – 300 | 2,0 – 3,0 |
| 5 | Пески мелкие и пылеватые средней плотности | 100 – 200 | 1,0 – 2,0 |
| 6 | Супеси твердые и пластичные | 200 – 300 | 2,0 – 3,0 |
| 7 | Суглинки твердые и пластичные | 100 – 300 | 1,0 – 3,0 |
| 8 | Глины твердые | 300 – 600 | 3,0 – 6,0 |
| 9 | Глины пластичные | 100 – 300 | 1,0 – 3,0 |
Итак: когда известен общий вес здания и какую нагрузку может воспринимать грунт (на сантиметр квадратный), высчитываем площадь подошвы фундамента.
Делается все очень просто и для наглядности давайте рассмотрим пример – как определить ширину подошвы фундамента (площадь подошвы фундамента) для двухэтажного жилого дома.
Пример:
Двухэтажный жилой дом 12 метров на 12 метров. Дом без подвала.
1) Определим общий вес здания, все считаем в сантиметрах и килограммах:
а) Определим вес крыши дома:
— Крыша деревянная, легкая поэтому будет весить относительно не много, около 3 000 кг.
— Кровля металлочерепица, приблизительно весит 800 кг.
— Снеговая и ветровая нагрузка не очень большая и возьмем приблизительно 2000 кг.
Итого: общий вес крыши приблизительно – 5 800 кг
б) Определим вес коробки дома:
— Приблизительно на этот дом пойдет 15 000 лицевого кирпича. Один кирпич весит допустим 4 килограмма.
15 000 шт • 4 кг = 60 000 кг.
— Приблизительно на дом пойдет 2 500 ракушечника. Один блок ракушечника весит приблизительно 15 кг.
2500 шт • 15 кг = 80 700 кг.
— На капитальные стены, перегородки и некратности, приблизительно пойдет 12 000 шт красного одинарного кирпича. Один красный кирпич весит около 3,8 кг.
12 000 шт • 3,8 кг = 45 600 кг.
— Перекрытие дома, первого и второго этажа – круглопустотными ж/б плитами 34 штуки. Размер плиты 6 м на 1,2. Одна плита весит приблизительно 2 200 кг.
34 шт • 2 200 кг = 74 800 кг.
— Раствор для кирпича и ракушечника, стяжка (на втором этаже), отделка (штукатурка) будет приблизительно весить – 63 000 кг.
— Мебель (на втором этаже) и оборудование будет весить приблизительно 5 000 кг.
Итого: общий вес коробки дома будет около – 329 100 кг.
в) Определим вес цоколя и фундамента:
— Приблизительно на цоколь пойдет 6 500 шт кирпича. Один кирпич весит около 3,8 кг.
6 500 шт • 3,8 кг = 24 700 кг.
— Фундаментных блоков (пятерка) пойдет около 20 шт (два ряда блоков). Один блок весит около 1 600 кг.
40 шт • 1 600 кг = 64 000 кг.
— Ростверк из бетона будет весить около 15 840 кг.
— Раствор для кирпича и монтажа блоков необходимо около 0,52 м3. Один м3 раствора весит около 2 000кг.
0,52 м3 • 2000 кг = 1040 кг.
— Арматура в растверке будет весить около 500 кг.
Итого: общий вес цоколя и фундамента будет около – 106 080 кг.
Общий вес здания будет около 440 980 кг. То есть этот вес (441 тонны) будет давить на грунт.
2)Рассчитаем ширину подошвы (площадь подошвы) фундамента.
Допустим ширина подошвы фундамента (ростверка) такая же, как и ширина блока, а именно 50 см. Длина периметра 4 800 см
4 800 см • 50 см = 240 000 см2 (площадь опирания дома на грунт).
К примеру грунт, на который будет опираться дом весом 440 980 кг, глина пластичная. К примеру, глина пластичная может воспринимать 2 кг на один сантиметр квадратный.
240 000 см2 • 2 кг = 480 000 кг/см2 – вес, который может воспринимать грунт (глина пластичная).
Итак: наше здание весом 440 989 кг давит на грунт (глина пластичная). Площадь опирания здания на грунт 240 000 см2. Несущая способность грунта 480 000 кг/см2.
480 000 кг/см2 – 440 989 кг = 39 011 кг – запас прочности.
Ширина подошвы фундамента (ростверка) – 50 см.
.
Ширина подошвы фундамента 500 мм. Данное здание весом 441 тонна с легкостью выдержит грунт (глина пластичная). Запас прочности 39 тонн, то есть на грунт можно еще увеличить нагрузку (если необходимо) 39 тонн.
.
Как построить фундамента дома.
.Подведем итоги. Сегодня благодаря статье вы узнали: как сделать разметку для фундамента, как рассчитать глубину заложения фундамента, какую нагрузку он сможет выдержать, какую необходимо делать ширину подошвы фундамента, как определить уровень грунтовых вод и многое другое.
Вы получили огромное количество полезной и практической информации. Что вы думаете по поводу этой статьи и что бы вы могли еще дополнить?
Самое интересное и полезное на эту же тему:
stroyimdom.com
Проектирование, устройство и чертежи фундамента для дома
Фундаментом называется опорная часть дома, которая должна выдерживать вес всей постройки. От прочности и надёжности основания зависит прочность всего дома в целом. Правильно проведённое проектирование фундамента дома способно защитить здание от проседания, перекашивания, а также всевозможных проблем, связанных с появлением трещин.
Для правильного расчёта и проектирования фундамента, следует учитывать такие характеристики, как особенности климата, рельеф, характер грунта. Например, фундамент дома, который располагается на глинистом или суглинистом грунте, подвергается серьёзному воздействию со стороны грунтовых вод. Грунт такого типа со временем может размыться или осесть.
Пример варианта сложного устройства фундамента на глинистой почве, который часто просто необходимо делать при строительствеКроме этого, стоит принимать во внимание, что влага, которая успела впитаться в основание, при минусовой температуре замерзает, что является причиной образования так называемого «эффекта вздутия». В большинстве случаев это происходит в тех случаях, при которых глубина промерзания в районе возведения фундамента находится несколько ниже уровня грунтовых вод. В результате всего этого фундамент дома в зимнее время года приподнимается, а в летнее время – снова опускается, что влечёт за собой перекос всего строения.
По этой причине возведение фундамент дома желательно доверять только профессиональным специалистам, у которых имеются необходимый опыт и знания, позволяющие создать проект с учетом специфики грунта и всех климатических особенностей.
Только профессионалы могут точно определить, какой тип основания лучше возводить на той или иной местности (ленточный, мелкозаглубленный, столбчатый). Благодаря советам опытных проектировщиков можно избежать многих проблем и затрат, связанных с переделками и устранением ошибок.
Вернуться к оглавлениюСодержание материала
Нюансы, которые нужно учитывать при возведении фундамента
При проектировании фундамента будущего дома нужно учесть ряд моментов:
- При разработке котлована под фундамент дома потребуется дополнительное место под выкапываемый грунт. Объём вынимаемого грунта может быть значительным. Тогда необходимо учесть дополнительные расходы по вывозу грунта, если вторичное его использование не планируется.
- Завоз и складирование материалов необходимо планировать заранее. Желательно материалы располагать вблизи котлована по убыванию его удельной массы. Это позволит сэкономить силы при замесе и заливке бетона.
- Если планируется использование техники, то в сырую погоду потребуется отсыпка дороги щебнем или строительными отходами.
- При заливке бетона в несколько этапов необходимо предусмотреть дополнительное время в конце смены для очистки инструмента от цементных растворов и смесей. Засохший цемент потребует от вас намного больший усилий и времени для очистки.
- Для размещения мешков с цементом потребуется тщательная гидроизоляция площадки. Непроницаемый материал необходимо стелить на грунт и тщательно укрывать штабеля с цементом. Отсыревший цемент очень быстро каменеет и становится непригодным для использования.
- В последнюю очередь на стройплощадку нужно завозить арматуру.
- Правильно рассчитайте необходимый запас воды, если вблизи нет источника. Отдельным пунктом выделите снабжение питьевой водой.
- В стеснённых условия рытьё котлована или траншеи под фундамент начинается с самого труднодоступного края.
- Самый простой способ определения прямых углов при разметке котлована – это сравнение диагоналей. В правильном прямоугольнике диагонали должны быть равны.
Здесь на этом видео Вы можете посмотреть все самые важные моменты проектирования фундамента здания в онлайн режиме.
Среди основных видов фундамента, которые используются в современном строительстве, можно отдельно выделить несколько видов:- ленточный;
- монолитный ленточный;
- столбчатый;
- свайный;
- плитный;
- мелкозаглубленный;
- винтовой;
- плавающий;
- фундамент из подручных материалов для небольших сооружений (баня, забор, теплицы).
Различные виды устройства фундамента для частного жилого домаВернуться к оглавлениюЛенточный фундамент
Ленточный фундамент известен своей массивностью, но, вместе с этим – простотой возведения. Именно этот тип чаще всего используется, когда речь заходит об объектах индивидуального строительства. Ленточное основание представляет собой полосу из железобетона, проходящую по всему периметру возводимого сооружения. Кроме этого, он проходит под всеми стенами здания, в том числе внутренними. Сечение этой полосы остается одинаковым в любом месте основания.
Вот так выглядит ленточный фундамент для домаЛенточный фундамент используют, как правило, при строительстве кирпичных и каменных домов, зданий с тяжёлыми перекрытиями, а также коттеджей, в планировке которых присутствует подвальное помещение.
Устройство ленточного фундамента
Глубина устройства фундамента напрямую зависит от глубины промерзания грунта. Фундамент закладывают на 20 см. глубже уровня промерзания земли, но при этом его глубина не должна быть больше 50-70 см. Толщина фундамента, в свою очередь, напрямую зависит от различных особенностей будущего строения.
Чертежи укладки различных типов ленточного фундамента на разных почвах и для разных строенийМелкозаглубленный и заглубленный ленточные фундаменты
Мелкозаглубленный ленточный фундамент возводят, как правило, при строительстве каменных домов небольших размеров, а также деревянных домов на слабопучинистых грунтах. Он закладывается на глубину порядка 50-70 см.
Чертёж укладки мелкозаглубленного ленточного фундаментаЗаглубленный ленточный фундамент используется при строительстве домов с тяжёлыми перекрытиями или толстыми стенами, в домах с подвалами и гаражами. Такой тип основания закладывается на глубину примерно 20-30 см. ниже уровня глубины промерзания грунта. Строительство такого фундамента требует больших затрат материалов.
Заглубленный ленточный фундамент гораздо прочнее и надежнее, но и требует больших капиталовложенийВернуться к оглавлениюМонолитные фундаменты разных типов
Для строительства деревянных домов лучше всего подойдет монолитный фундамент, который идеален при возведении строений практически любой конфигурации.
Среди монолитных оснований можно выделить несколько типов.
Ленточный монолитный фундамент представляет собой полосу, изготовленную из железобетона и проходящую по всему периметру дома. Используется при строительстве кирпичных зданий, домов с подвалами или гаражами, деревянных строений.
Чертёж укладки ленточного монолитного фундамента для домаСтолбчатый монолитный фундамент представляет собой совокупность столбов, установленных в местах повышенной нагрузки. Между столбами предусматривается засыпка песком или щебнем с дальнейшей заливкой бетоном. Такие основания часто применяются при строительстве легких домов.
Схема укладки столбчатого монолитного фундаментаСплошной монолитный фундамент используется в условиях сильно сжатого грунта и закладывается под всей площадью дома.
Такие типы фундаментов применяются, в большинстве случаев, при строительстве лёгких деревянных домов. Их главным преимуществом является отсутствие ограничений по конфигурации здания, а также необходимости применения дорогостоящей техники. Стоимость возведения монолитного фундамента занимает порядка 15-20% от общей стоимости дома.
Вернуться к оглавлениюСвайный фундамент
Этот тип фундамента способен обеспечить надёжность строительства, если работы ведутся в условиях неустойчивого грунта. Используется при строительстве крупногабаритных и малоэтажных сооружений.

Устройство свайного фундамента, прежде всего, отличается наличием в конструкции свай – столбов, которые вбиваются или вкручиваются в грунт при помощи специального оборудования.
Глубина установки свай напрямую зависит от глубины залегания сильных слоев грунта, на которые приходится вся нагрузка, оказываемая зданием. Каждая из свай по отдельности может выдерживать нагрузку от 2 до 5 тонн. Для соединения свай используют балки, прикрепляемые сверху.
Схема устройства свайного фундаментаСвайные фундаменты, как правило, применяют в тех случаях, если верхний грунтовый слой является подвижным или слабым, а также на грунтах, где наблюдаются плывуны или очень высокий уровень грунтовых вод. В большинстве случаев свайные основания применяют при строительстве крупногабаритных сооружений.
Вернуться к оглавлениюПлитный фундамент
Такой тип фундамента представляет собой монолитную плиту из железобетона, площадь которой должна соответствовать площади всего здания. Плитный фундамент обладает высокой стоимостью, так как его возведение сопровождается значительным объемом земляных работ и большим расходом строительных материалов. Его рекомендуется использовать в тех случаях, когда проект дома не подразумевает возведение высокого цокольного этажа, что позволит дополнительно выступать фундаменту в качестве надёжного основания для пола.
Схема устройства плитного монолитного фундамента для домаНапример, плитный фундамент часто применяют при строительстве каркасных домов.
Плитный фундамент, в виду его высокой надёжности, можно возводить практически на любых грунтах, в том числе сильно сжимаемых, песчаных или пучинистых. Учитывая то, что монолитная плита проходит под всей площадью здания, можно не испытывать никаких беспокойств по поводу смещения грунта. Плитное основание можно применять при строительстве кирпичных или деревянных домов, высота которых достигает 1-2 этажей.
Вернуться к оглавлениюРасчет и проектирование фундаментов
Проект фундамента всегда должен осуществляться с полным учетом различных факторов, в том числе климатических и природных условий той или иной местности. Стоит запомнить, что при проектировании фундамента дома следует отталкиваться от данных по рельефу местности и характеру грунта. Как раз по этой причине проектирование любых фундаментов начинается с тщательного изучения инженерно-геологического расчета.
На этом видео можете посмотреть, как происходит расчет стоимости проекта стобчатого фундамента для дома размером 6×9.
Во многих регионах России преобладают глинистые и суглинистые грунты, влага в которых, при низких температурах, замерзает в самые короткие сроки. В результате этого возникает так называемый эффект «вздутия», что, естественно, неблагоприятно сказывается на состоянии фундамента.
То же можно сказать в тех случаях, когда уровень грунтовых вод заметно превышает глубину промерзания почвы на месте строительства. Этот процесс происходит неравномерно, что становится причиной перекоса фундамента и образования трещин. Итог: через пару лет дом нуждается в проведении ремонта, который значительно увеличивает его изначальную стоимость.
Вернуться к оглавлениюПроектирование ленточного фундамента для деревянного дома
При строительстве деревянных домов можно использовать различные типы оснований, которые отличаются друг от друга технологией и глубиной закладки. В большинстве случаев предпочтение отдают ленточным фундаментам мелкого заглубления, так как деревянные постройки обладают сравнительно небольшим весом.
Ленточный фундамент, применяемый при возведении деревянных домов, обладает необходимым запасом прочности, а его технические и эксплуатационные показатели полностью подходят всем климатическим условиям России.
Кроме этого, стоит обратить внимание на стоимость такого фундамента, которая заметно ниже, чем на другие типы.
В основе фундамента лежит армированная в три пояса железобетонная лента, проходящая по всему периметру будущего дома. Фундамент закладывают под стены первого этажа, как внутренние, так и внешние. Все элементы образуют собой единую систему, за счет чего железобетонная горизонтальная рама становится очень прочной и надёжной.
Толщина фундамента составляет примерно 30см, глубина его укладки – около 80 см., включающие в себя 20 см. песочной подушки. Основание выступает выше уровня земли на 40 см. Гидроизоляцию, в качестве которой используют рубероид, прокладывают под первый венец.
Чертёж примерной укладки ленточного фундментаВернуться к оглавлениюТехнология возведения свайных фундаментов
Технология возведения свайных фундаментов включает в себя несколько этапов:
- Бурение скважин необходимого диаметра;
- Установка арматуры;
- Последующее бетонирование скважины.
Основное преимущество свайного фундамента заключается в возможности применения ручного строительного бура.
Возведение свайных фундаментов всегда начинается с бурения скважин, размер и количество которых зависит от площади и веса будущего здания. Параметры свай определяются нагрузками, созданных перегородками, кровлей и полом. Обратите внимание, что максимальный размер диаметра ручного бура должен находиться в пределах 300мм. В том случае, если требуется пробурить скважины с диаметром 600 мм., следует воспользоваться промышленным буром.
На следующем этапе необходимо выполнять качественную гидроизоляцию фундамента, для чего по диаметру скважины прокладывают рубероид (из материала изготавливают «трубу», которая должна быть больше глубины скважины примерно на 300 мм.). При изготовлении верхней части «трубы» используют три слоя рубероида, которые стягиваются при помощи стальной проволоки (эта часть будет опалубкой).
Технология укладки свайного фундамента для домаЕсли скважина на четверть заполнена водой, то перед заливкой бетона излишки жидкости необходимо откачать. Отказ от использования рубероида может быть чреват неприятными последствиями: при схватывании бетона цемент не наберёт достаточную прочность, а промерзание грунта будет слишком негативно сказываться на состоянии бетона.
Схема устройства свайного фундаментаПосле подготовки скважины наступает очередь выполнения вязки арматуры для фундамента, для чего из арматуры изготавливают каркас, состоящий из трёх вертикальных прутьев диаметром 6мм. Последний этап заключается в заливании скважины бетоном, который необходимо заливать слоями высотой 40-60 см. Во время заливки бетон уплотняют при помощи вибраторов.
proekt-sam.ru
План фундамента, чертежи, фото, видео
План фундамента – основной ориентир при строительстве опоры здания. Поэтому от его точности и информативности зависит качество дальнейших работ.
Условия точного переноса плана на местность
Чтобы чертеж было легко перенести на местность и выполнить разметку участка с достаточной точностью, необходимо выполнение определенных условий.
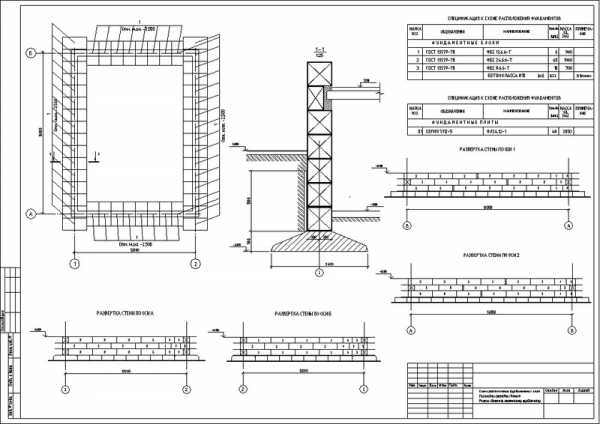
Точное соблюдение масштабирования для каждой части плана. При выполнении укрупненных выносных изображений, их масштаб указывается отдельно. Для общего масштабирования планов фундаментов используются соотношения 1:100, 1:200, 1:300, 1:400.
Значительно упростить перенос схемы на местность поможет осевая разметка. Разбивочные и крайние оси наносятся на общий план и отдельно для выносных видов, а также в местах установки отдельных элементов (колонн и пр.). В обязательном порядке между крайними осями (стен или опорных колонн) и разбивочными указывается расстояние.
Общий план фундамента с указанием размеров, материалов и необходимых отверстий.
Упрощает задачу переноса плана на местность и координатная сетка.
Основные параметры расчетов
Чертеж фундамента должен создаваться на основе расчетов, при выполнении которых принимаются во внимание:
- общий вес возводимого сооружения,
- степень увеличения нагрузки в процессе эксплуатации,
- тип грунта на участке (его плотность, обводненность и пр.).
На основании этих данных учитываются не только геометрические параметры опоры (заглубленность – для всех видов, форма сечения и ширина опоры дома ленточного типа, диаметр и толщина стенок свайных конструкций), но и материалы для изготовления (марка бетона и использование наполнителей, вид армирования, устройство гидроизоляции).
[warnig]Важно: Все расчеты для построения плана выполняются с обязательным запасом прочности.[/warnig]
Спецификация на дополнительные материалы с пояснительными записями для плана фундамента.
Особенности выполнения плана ленточного фундамента
План опоры дома ленточного типа должен показывать:
- конфигурацию сечения,
- тип и устройство подбетонка,
- глубину закладки на каждом участке (при равной глубине всей опоры параметр указывается однажды, при преимущественно равной – однажды с дополнительным указанием мест фундамента с отличным от общего значения заглублением),
- места расположения инженерных коммуникаций (нижняя отметка отверстий и их диаметр могут указываться непосредственно по месту, на выносном виде или в экспликации).
Простой чертеж ленточного фундамента с указанием материалов и дополнительными пояснениями.
При выполнении чертежа сборного ленточного основания с максимальной точностью указываются координаты и параметры отсчетного блока. При монтаже его устанавливают первым, остальные монтируются привязкой к отсчетному блоку.
При изготовлении фундаментов с монолитными и сборными участками, их границы должны быть точно нанесены на план.
Примеры дополнительных схем армирования для планов ленточных фундаментов.
Сечения в плане фундамента
Сечения уточняют план ленточного или свайного фундамента. На них изображаются:
- геометрия (контуры опоры),
- гидроизоляция,
- отмостка (при изображении наружных стен),
- размеры уступов.
Сечение ленточного фундамента с гидроизоляцией и отмосткой.
Для ленточного типа необходимо указание уровней (чтобы чертеж был более наглядным, отметки наносят на план на одном уровне с разворотом полочки в сторону от сечения). Нулевой отметкой считается уровень пола 1 этажа. Кроме нее указываются уровни:
- поверхности земли,
- подошвы фундамента,
- обреза.
Чтобы было легко установить место сечения ленточного типа опоры дома, на общем плане наносится след секущей плоскости – разомкнутые штрихи с указующими направление стрелками.
Общие правила выполнения сечений
- Сечения выполняют в масштабе 1:20, 1:25, 1:50.
- Изображения по сечениям могут располагаться на отдельных листах в качестве приложения к основной схеме или на общем листе (при небольших размерах).
Дополнительная документация
В качестве дополнительной уточняющей документации к общему плану основания дома прилагаются:
- сводная спецификация всех элементов, которые располагаются ниже нулевой отметки (готовые железобетонные и бетонные изделия, металлоконструкции и др.).
- таблица нагрузочных нормативов,
- развертка и монтажный план (для сборных опор),
- примечания и заметки относительно подготовительного этапа строительства, установки гидро- и теплоизоляции, конструктивных особенностях (на отдельных листах или на общем плане).
Чертеж ленточного сборного фундамента с выносным сечением и развертками для монтажа блоков.
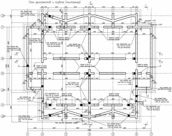
План свайного фундамента
Чертеж свайного фундамента представляет собой разметку свайного поля с привязкой к осям координат. На нем точно указывается положение каждой опоры с учетом основных правил создания фундаментов того типа:
- сваи обязательно должны размещаться под внешними стенами дома (по периметру здания),
- опоры необходимы под внутренними несущими стенами,
- расстояние между соседними опорами свайного основания в любом направлении не должно превышать установленной нормы (для жилого дома – 3 м).
План свайного фундамента с указанием размеров.
Ростверковые фундаменты свайного типа сложнее в исполнении, но их конструкция способствует равномерному распределению веса сооружения на опору. При выборе этого варианта чертеж должен содержать схему монтажа ростверка свайного основания, спецификацию или пояснительные записки о материалах, необходимых для его изготовления.
Чертеж плитного фундамента
Важнейшими элементами чертежа плитного фундамента являются:
- тепло- и гидроизоляция,
- схема армирования.
Выбор схемы армирования выбирается с учетом конструкции опоры:
- для мелкозаглубленных опор возможна установка отдельных армирующих элементов,
- для повышения прочности рекомендуется их связка в единую конструкцию,
- для монолитных опор глубиной более 1 м рекомендуют выполнять армирование нижней и верхних зон,
- сборные фундаменты армируются в стыках между элементами в вертикальном или вертикальном и горизонтальном направлении.
Рис. 8. План плитного фундамента с выносным сечением.
План плитного фундамента с выносным сечением.
При выборе комбинированного типа опоры (сочетание крупногабаритных бетонных блоков с заливными участками или кирпичной кладкой) сектора, отличающиеся от общей структуры, отмечаются на схеме.
Чертеж плитной опоры обязательно должен содержать разметку (указание нижней точки, осевого центра и диаметра) отверстий для подвода инженерных коммуникаций.
Схема армирования для плана плитного фундамента.
Подготовка участка к разметке
Чтобы перенести чертеж свайного основания на местность не требуется выполнения каких-либо подготовительных работ. Разметка выполняется при помощи металлической арматуры.
В остальных случаях (для ленточного и плитного типа) для точности разметки необходимо очистить территорию будущего дома от крупного мусора, кустов и пр., а при неровном рельефе – выровнять участок.
rfund.ru
ширина, глубина, опалубка для разных типов домов
Строительство фундамента начинают с планировки участка. Технология земельных работ выбирается в зависимости от типа грунта и уровня почвенных вод. Также перед тем, как сделать фундамент под дом, нужно определить его разновидность, наиболее подходящую для ваших условий.
Самые распространенные виды оснований
-

Фундаменты на столбах очень популярны для легких домов
Сборный, столбчатый железобетонный. Первый используется на болотистых местностях или с высоким уровнем почвенных вод, второй – в условиях глубокого промерзания грунтов. Такие фундаменты предусматривают рытье котлованов с вертикальными стенками. Используются растворы из бетона повышенной прочности. Несущие столбы делают из раствора (щебень, крупнозернистый песок, цемент) с внутренним армированием толстой проволокой или металлическими стержнями. Можно использовать готовые блоки или заливать столбы непосредственно на стройплощадке.
- Ленточный. Котлован или яму под такое основание роют с учетом допустимого показателя кривизны откосов. Желательно укреплять стенки досками либо другими похожими материалами. На склонах уступы делают высотой не более 50 см. Перед укладкой следует убрать воду из дна траншей.

Устройство фундамента ленточного типа
Ленточный фундамент на сухой почве делают из кирпича, камня или бетона, на влажной – из железобетона либо бетона с армированием сеткой и обустройством гидроизоляции.
- Песчаный. Обустраивается на грунтах с глубоким залеганием почвенных вод. Роют траншею 70-сантиметровой глубины, на дно насыпают крупнозернистый песок 15-сантиметровыми слоями, каждый из которых обильно поливают водой. Верхний слой шириной до 30 см состоит из гравия, кирпичного боя или щебня, скрепленного раствором из песка и цемента.
Как построить фундамент самостоятельно: пошаговое руководство
- Определите глубину залегания почвенных вод и состав грунта. Для этого необходимо выкопать яму однометровой глубины. Отсутствие в ней воды означает, что почвенные воды залегают глубоко. Если грунт представляет собой смесь гравия, камня и песка, можно остановиться на простом ленточном основании, заглубленном на полметра. В случае наличия воды в яме, фундамент нужно заглублять на 0,5-1,2 м.

Перед устройством основание узнайте уровень залегания грунтовых вод
- Разметьте участок, снимите плодородный слой грунта. По периметру будущего здания выройте траншею нужной глубины, дно выровняйте с помощью песка.

Яма для «ленты» может быть разной глубины
- Перед тем, как построить фундамент для дома, сделайте опалубку из фанерных листов или досок. Затем можно приступать к заливке. Для этого используют цементную смесь с подходящим наполнителем. Для ее приготовления берут цемент, щебенку и крупнозернистый песок в пропорции 1:5:3. Компоненты смешивают и заливают водой так, чтобы получилась сметанообразная консистенция. Чем гуще раствор, тем прочнее будет фундамент.

Опалубка для основания дома выполняется из досок
- Кладку основания из камней, блоков или кирпичей делайте на цементный раствор. Начинать ее нужно от песчаной подушки. Ширина на 20 см толще стен дома. Фундамент армируют металлическими стержнями, скрепленными проволокой.
- Сделайте гидроизоляцию основания. На уровне грунта уложите в траншею два рубероидных слоя, затем продолжайте возводить фундамент до нужной высоты. Для улучшения гидроизоляции подземную часть основы промазывают в несколько слоев горячим битумом, после чего траншею засыпают. На данном этапе нужно выровнять фундамент посредством уровня. При необходимости делают вводы для канализации и водопровода.

Для качественного устройства фундамента необходимо сделать гидроизоляцию подземной части основания
- Выше гидроизоляционного слоя укладывайте рядами блоки или кирпичи. Чтобы воспрепятствовать накоплению сырости в подполовом пространстве необходимо в противоположных стенках основы оставить вентиляционные отверстия.

После утепления и гидроизоляции прокладываем несколько цокольных рядов кирпича
- После завершения укладки фундамента снова сделайте гидроизоляцию посредством рубероида либо другого сходного материала.
Также можно посмотреть видео о том, как сделать фундамент под дом. Ниже мы рассмотрим особенности возведения оснований для самых популярных типов зданий.
Как правильно сделать фундамент под деревянный дом

Деревянный дом легче каменного, но основание должно быть крепким и надежным
Фундамент для дома из дерева выполняет две основные функции:
- Придание устойчивости деревянной конструкции.
- Создание барьера для микрофлоры и влаги, которые разрушают древесные стены.
Также плотный толстый фундамент препятствует проникновению холода в подвальные помещения. Если почва на участке сухая и плотная, делают ленточный или плитный столбчатый фундамент. Самым популярным основанием для таких домов является мелкозаглубленный ленточный. Он подходит для легких деревянных зданий.

Конструкция фундамента мелкого заложения
Самым прочным является фундамент из бетонных плит . Правда, дома с бетонным полом не очень уютные. В местности с повышенной влажностью почвы обустраивают свайный. Если вы думаете, как правильно построить фундамент для дома, начните с определения наиболее подходящего типа.
Следует учитывать, что возведение бетонного основания выполняют не раньше, чем за месяц до начала строительства стен, иначе он не успеет осесть, и конструкция может деформироваться. Под деревянные дома обязательно делают отмостку и рубероидную или битумную гидроизоляцию.
Кирпич и бетон защищают не только от влаги, но и от воздействия солнечных лучей, покрывая их устойчивой краской или штукатуркой. Для обеспечения сухости в верхней части основы дома в фундаменте оставляют сквозные отверстия для вентиляции.
Как правильно сделать фундамент под дом из бруса

Основание на столбах — отличный способ экономии для легкого дома
Для брусового дома небольшой массы и габаритов подойдет опорностолбчатый фундамент из квадратных столбов, установленных на расстоянии 2,5±0,5 м. Также можно использовать бетон, камень или кирпич. Чем прочнее материал, тем дольше прослужит основание. В местностях с неоднородной почвой основу для дома из бруса обустраивают на винтовых сваях.
Для больших домов выгодно ставить плиточный фундамент из 25-сантиметровых монолитных плит. Но наиболее часто для зданий из бруса делают железобетонный фундамент ленточного типа. Такую основу можно использовать и для массивных домов. Основное правило – фундамент должен быть на несколько сантиметров толще стен здания.
- Перед тем, как делать фундамент под дом, площадку размечают и роют траншею, глубина которой обычно составляет около 70 см.
- На дно укладывают песок, утрамбовывают его, монтируют деревянную опалубку. Она должна возвышаться над землей максимум на 30 см.
- Также выполняют гидроизоляцию основы.
- После выбора и закладки основы дома устанавливают брусовые стены.
- Чтобы увеличить надежность конструкции, балки крепят к фундаменту с помощью крупных анкерных болтов или ранее залитых в основу шпилек. На последние наворачивают гайки.
- После этого шпильки утапливают в брусе до основания.
Как правильно сделать фундамент под каркасный дом

Для каркасных домов его обычно делают столбчатый или ленточный. Последний используется преимущественно для тяжелых несколькоэтажных зданий. Столбчатый фундамент отлично подходит для одноэтажных домов каркасного типа. Но при выборе основания следует учитывать не только параметры здания. Большое значение имеют свойства грунта, особенного его пучинистость. Чем она выше, тем прочнее понадобится фундамент. В некоторых случаях целесообразно обустраивать плиточную основу для каркасного дома.
Ленточный фундамент обычно делают мелкозаглубленным. Следует учитывать, что на таком основании нетяжелое здание может плавать в периоды повышенной влажности грунтов. Фундамент ленточного типа для каркасных домов делают из бетона либо железобетона, предварительно обустроив подушку из любого непучинистого материала, что уменьшит подвижность конструкции.
Столбчатый фундамент менее затратный, чем ленточный. Сделать его можно из бетона либо кирпича. Хорошим он получается из красного пережженного кирпича. Под опоры копают ямы глубиной 0,5-1,5 м.
Недостатком кирпичного столбчатого фундамента является то, что из-за давления двигающейся почвы он способен сместиться или деформироваться. Бетонный фундамент такого типа считается самым прочным и способен прослужить свыше 150 лет, но стоит он гораздо дороже аналога из кирпича.
- Опоры для фундамента размещают по периметру основы каркасного здания на расстоянии 1,5-2 м.
- Обязательно устанавливают столбики под несущие перегородки и углы дома. Диаметр ям должен быть минимум 40 см, глубина зависит от уровня промерзания и пучинистости грунта.
- Дно устилают песком либо другим материалом, который подходит для обустройства подушки. Выполняют опалубку, вставляют арматурный каркас и заливают яму бетоном при периодической утрамбовке.
- Можно сделать между опорами стяжку из бетона, которая станет основой для цоколя и защитит подвальные помещения каркасного дома от холода, пыли и влаги.
- Стяжку укладывают на подушку, заглубленную на 20 см. Для обустройства стяжки тоже понадобится опалубка и арматура.
Желательно все строительные работы выполнить за один сезон и запустить дом в эксплуатацию. Если отложить строительство на следующий год, фундамент без нагрузки стен и крыши может деформироваться за зимний период. Закладку основы для дома начинают после покупки всех необходимых стройматериалов.
Прочитайте еще:
На какие критерии стоит обращать внимание, чтобы выбрать правильный фундамент под дом из пеноблоков. Характеристики подходящих видов оснований. Как …

Основой любого здания является фундамент. Он несет все нагрузки возведенного объекта, и от правильного выбора опорной конструкции, качества …

То, что крепкий фундамент – залог благополучия и многолетнего беспроблемного проживания в доме – прописная истина, убеждать в которой никого не …
myfundament.ru
Фундамент для жилого дома
Определяющим критерием устойчивости любой жилой постройки является прочность ее несущей конструкции. Во многом, именно она принимает на себе основную массу нагрузок, а не стены, перекрытия и прочие элементы, как думают многие.

Хороший фундамент — надежный дом
Стены всегда можно подвергнуть ремонтным мероприятиям в случае надобности, в свою очередь фундамент нужно обязательно сделать максимально прочным. Конечно, сейчас существует масса технологий и способов укрепить фундамент после допущения ошибок в процессе строительства, но все равно они не могут сравняться с действительно качественно сделанным основанием под дом на нужном этапе возведения строения. Исходя из того, что тематика обустройства фундамента интересует многих и сама по себе довольно обширная, ее нужно рассмотреть в более детальном ракурсе, особенно важны теоретические моменты.
Глубина закладки фундамента
В начале строительства жилого дома после утверждения проекта, всегда предстоит решать проблемы с фундаментом, пожалуй, главным элементом во всей конструкции строения. К сожалению, многие начинают стройку, без соответствующих знаний касающихся правил выбора подходящего фундамента. Первым делом нужно определиться с правильной разновидностью фундамента. В основном для жилой постройки есть смысл использовать ленточный, либо свайный фундамент. Если вы не специалист в подобном вопросе, попробуйте обратиться к таковым людям, дабы потом не жалеть о некомпетентном решении.

Процесс остывания бетона после заливки
Мелкие фундаменты
Когда окончательный выбор остановлен на уместном варианте, тогда пришла пора разработки детального плана возведения. Одним из самых важных нюансов на этом этапе, является глубина заложения. Различают мелкие и глубокие основания для сооружений. Представителям первого вида, свойственный показатель глубины на отметке приблизительно одного метра. При этом на линии фундамента нужно выставить бетонные опоры для дополнительной устойчивости. В качестве альтернативного варианта можно использовать бетонные стенки, которые в процессе эксплуатации дома будут отвечать за равномерное распределение нагрузки воздействующей на грунтовые массы. Немного реже, но все же, применяют плиточные несущие конструкции. В этом случае давление сверху распределяется правильным образом за счет специальных бетонных плит, давящих на грунт. Такое основание удается более эффективно применять при желании устроить в доме теплые полы, а это, несомненно, очень полезно в плане экономии средств.

Фундамент мелкого заложения
Глубокие фундаменты
Если возведение дома проходит на проблемных грунтовых участках не остается другого выхода, чем воспользоваться глубокими основаниями. Проблемными называют те участки, где наблюдается неровная почва, ее плохая несущая способность, а также низкая глубина залегания грунтовых вод. Благодаря подобным углубленным фундаментам, подача нагрузки сверху происходит постепенно и равномерно. Точка отсчета берет начало от слабых грунтовых масс и заканчивается на почве большей устойчивости. Для изготовления основ могут использоваться разные материалы, к числу самых распространенных следует отнести бетон и железо. Также известны случаи с применением древесины.

Фундамент глубокого заложения
Несмотря на то, что глубокие несущие системы могут отличиться рядом неоспоримых преимуществ, все-таки мы остановимся на мелких аналогах в силу их более распространенного применения. Но перед этим нельзя не упомянуть о планировании.
План фундамента постройки
Прежде чем приступить к непосредственному возведению дома необходимо в деталях обдумать план фундамента. На этом этапе следует выделить два значимых нюанса. Первый заключается в том, чтобы не забывать следовать установленным строительным правилам и нормативам. Второй нюанс сводиться к обязательности детального изучения строительного участка. Разрешение на участок должно быть согласовано с органами местной власти.

Траншея для мелкого фундамента (каркасный дом)
В преимущественном большинстве случаев, мелкие фундаменты составляет некое число блоков смонтированных по определенной технологии. Также бывает, когда стенки отдельно выливают из бетонной смеси. В преддверье работ строительный участок разравнивают и вырывают траншеи нужных размеров на основе составленного заранее проекта. По обеим сторонам траншеи, по периметру будущего дома, на расстоянии около 50 см. устанавливают специальную форму для заливки бетонного раствора. В строительных кругах эту форму принято называть опалубкой. Следуя правильному планированию, удастся просчитать все траты, конечно же, в приближенном числе еще до завершения стройки. Исходя из большой вероятности возникновения форс-мажорных обстоятельств в период строительства, что практические всегда имеет место, конечная цифра может сильно варьироваться.
Фундамент своими руками
Монтаж опалубки
К примеру, после определенных расчетов было утверждено, что ширина фундамента должна составлять около 50 см. Тогда при копании траншеи нужно не забыть о допуске на 5-10 см. чтобы иметь возможность установить опалубку. Формовку в основном делают из обычных досок, иногда покупают или берут в аренду готовые сборные металлические конструкции. Тут уже надо самому решать, как поступать в этой ситуации. В любом случае, после застывания раствора, формы легко и безболезненно снимаются. В перечень подготовительных работ на этом этапе входит разметка стенок дома, поэтому надо определиться с местом по периметру дома, откуда дом начнет расти вверх.

Процесс монтажа опалубки
Размеры строения являют тем важным фактором, который напрямую связан с устройством фундамента по высоте. К примеру, для таких сооружения как гараж и бытовка вполне хватит, да и еще с запасом, глубины в 80 см. Если постройка двухэтажная, минимальная глубина должна составлять 100 см. Будет лучше, если перестраховаться и увеличить ее до 120 см.
Заливка бетонной смеси не начинается до тех пор, пока в опалубочную систему не были вмонтированы армирующие элементы. Арматура делает фундамент гораздо прочнее и устойчивее перед внешними нагрузками, такими как вес здания и сейсмологические сдвиги. В процесс заливки нужно обеспечить себя специальным вибрирующим инструментом, который так и называют – вибратор. Он нужен с той целью, чтобы освободить толщу залитой жидкости от воздушных пузырьков. В противном случае, воздушные ячейки останутся в застывшем бетоне и сделают его очень хрупким под давлением веса сооружения.
Армирование и опалубка ленточного фундамента
Прутья арматуры не обязательно должны располагаться у верхней границы траншеи. Здесь, наоборот нужно соблюдать некий запас. Лишь одиночные штыри по периметру здания остаются торчать, чтобы потом связать фундамент со стеновыми конструкциями.
Заливка напольной плиты
После завершения бетонирования фундамента наступает черед обустройства специальной бетонной плиты, служащей неким барьером между почвой или подвалом (если он есть) и первым этажом. Для начала нужно разровнять грунтовый покров и организовать равномерную подушку из песка и гравия. Потом, в процессе эксплуатации дома, эта прослойка становится довольно функциональным элементом, среди основного назначения нужно упомянуть о противостоянии влажности и прочих полезных функциях.
Особенности заливки бетона. Фундамент
За монтажом подушки и ее тщательной утрамбовкой следует устройство бордюрной формы. Пол не получиться жестким и прочным без армирования. Связать арматуру можно самому из металлических прутьев, а можно купить специальную сетку в любом строительном магазине. Далее как обычно, подготовленное основание заливают слоем бетона, и разравнивают его по поверхности.

Заливка бетонной плиты фундамента
Инженерные методы (отводы для воды и системы отопления)
Этот этап необходимо продумывать еще до начала основных строительных работ. Существуют некие правила планировки отводов. К примеру, в гаражах отвод воды стараются организовать по центральной части плиты, что позволяет без всяких проблем мыть машину прямо внутри постройки.
А вот с жилыми домами дела обстоят намного сложнее, здесь нужно предусмотреть целую дренажную систему, действие которой в результате направлено на защиту основания. Вопреки распространенным мнениям, ее прокладка может проходить не только под землей, но и над ее уровнем. Некая роль также отводиться и отдельным элементам самого дома.
Распространенные ошибки при заложении фундамента
Несмотря на примитивность таких сооружений как отливы, они очень важны и должны быть предусмотрены в каждом строении. Они исключают попадание воды на фундаментную область и тем самым не дают позывов к ее преждевременной порче. Вода стекает за пределами дома, попадает в стоки и выводится за периметр участка.
Чтобы сделать отводы поступают следующим образом. Еще до начала заливки бетонного раствора в нужных участках устанавливают металлические, а лучше пластиковые трубы, для отведения влаги или налаживания отопительной системы. Крепление производиться к сетке металла, а конец трубы выводят в любое удачное для стока место. Внутренность изделия перед заливкой нужно чем-то защитить по краям, дабы не дать бетону проникнуть вовнутрь. После затвердения бетона полости очищают и все, они автоматические становятся готовыми к использованию.

Сооружение дренажной системы для фундамента
Точная сума затрат для строительства
Относиться с особым вниманием к информации относительно конечных расходов строительства не нужно. Основная причина этого на сегодняшний день кроется в нестабильной ситуации на рынке. Каждый день актуальность вещей постоянно меняется, сегодня они выгодные для приобретения, завтра совсем наоборот. Поэтому поймите для себя, стоит ли тратить время для выяснения стоимости определенной несущей конструкции через специальные сервисы в Интернете. Гораздо уместнее купить несколько газет с объявлениями и пообщаться с представителями частных фирмы, что специализируются на подобных вопросах.

Глубинный вибратор для фундамента
Специалист приедет к вам на место будущего строительства сделает все расчеты и выведет окончательную сумму. Точность расчетов на порядок выше, чем те, которые проводят в информационных сетях. Как правило, подобная услуга совсем бесплатная, далее только вам решать приступать к предложениям фирмы или отказаться. В любом случае вы узнаете, какими деньгами нужно располагать для решения задачи.
www.xn—-7sbbnce2cdcen9bgn.xn--p1ai
Как составить правильный план фундамента дома
27 Декабрь 2016 Стройэксперт Главная страница » Фундамент » Расчет Просмотров: 3381
План чертеж фундамента
Возведение качественного основания для дома является залогом прочности и надежности здания. Правильно разработанный план фундамента становится отличной основой для производства работ. При его создании анализируется большой объем исходных данных, которые могут оказать влияние на основание.
План фундамента, кроме таблиц, сопровождает чертеж. На этом документе детально прорисованы все геометрические характеристики и привязки к существующему участку и контурам местности.
Классический и популярный ленточный фундамент также имеет чертеж, который является отправной точкой для производства работ.
План ленточного фундамента
Задача правильно составленного плана фундамента заключается в проработанной и обоснованной передаче расчетных характеристик в графической форме. Использование чертежа упрощает и ускоряет работы на объекте и гарантирует достижение запроектированных параметров здания.
На плане ленточного фундамента определяются следующие параметры будущего здания:

План ленточного фундамента
- Конфигурация сечения ленты основания.
- Тип и обустройство слоя «подбетонка».
- Глубина залегания фундаментной ленты на каждом участке строительного объекта.
- Места выхода инженерных коммуникаций.
Разработка чертежа ленточного основания требует особого внимания к отдельным элементам. Так, важно предельно точно указать координаты и параметры отсчетного блока. Именно его устанавливают первым, а последующие блоки уже привязывают к нему. Ошибка в его положении приводит к значительным отклонениям в конфигурации.
При производстве фундаментов, которые имеют монолитные или сборные участки, их границы следует максимально точно наносить на чертеж и передавать на объект в натуре.
К плану фундамента выдвигаются многочисленные требования, среди которых:
- Простая и однозначная читаемость материала.
- Высокая информативность и передача всех ключевых данных на плане.
- Дополнительная информация, не имеющая определяющее значение, передается на прилагаемых схемах и документах, чтобы не перегружать главный план.
- Исчерпывающие данные для начала строительства.
Если план фундамента выполнен по установленным правилам, то строительство не составляет труда и будет точным и надежным.
План ленточного фундамента с чертежом включает в себя детальные горизонтальные и вертикальные сечения основания. Они предназначены для того, чтобы наглядно показать конфигурацию элементов опоры. Самыми популярными и практически полезными масштабами для чертежей являются М1:100 и М1:200. Иногда переходят на более мелкие масштабы.

Разметка местности под ленточный фундамент
На планах в обязательном порядке должны быть нанесены разбивочные оси и оси опор.
План ленточного фундамента всегда имеет прорисованный контур основания. Каждый элемент конструкции должен быть детально обозначен на чертеже. Тут обозначают не только подошву фундамента, но и такие элементы, как подсыпку, подготовки. Всегда указывается вертикальные отметки каждого горизонта основания.
Отдельного внимания заслуживает прокладка коммуникаций для эксплуатации здания. При закладке фундамента следует предусмотреть места расположения выходов инженерных сетей – так вы изначально оборудуете технологические отверстия в фундаменте и избежите последующих работ. Выполнение таких отверстий после возведения основания имеет несколько негативных моментов:
- Высокие трудозатраты.
- Снижение прочности основания.
- Возможность частичного обрушения.
Поэтому уже на стадии проектирования определяются места закладки технологических проходов. Эти места привязывают к осям здания, чтобы в последующем можно было их просто и однозначно вынести в натуру.
Все точки на плане имеют высотную отметку. Также на чертеже обозначается «общий нуль» проекта, относительно которого проводят вынос в натуру вертикального положения всех точек проекта.
Монолитный ленточный фундамент, произведенный строго по чертежу, обладает высокие характеристики прочности и позволяет рационально расходовать средства и время производства работ.
к оглавлению ↑Как сделать план фундамента, основные параметры расчетов
В разработанных и утвержденных профильных ГОСТах определены требования к проектам и правила создания и расчета планов фундаментов различного типа.
Согласно установленной практике, при разработке проектных чертежей выбирается масштаб от 1:100 до 1:400. Эти размеры оптимально отражают необходимую точность.

Основные параметры расчетов ленточного фундамента
Перед построением чертежа обязательно выполняют разметку по основным и вспомогательным осям.
Если основание имеет колонны, то они обязательно детализируются на плане.
Главные линии конструкции прорисовывают линиями, толщиной 0,5 – 0,8 мм.
Технологические отверстия для входа инженерных коммуникаций обозначаются:
- полной детальной схемой,
- с указанием данных по нижней точке,
- с осевым выносом необходимых в производстве работ данных.
Для однозначного определения этих точек на чертеже их обозначают специальными условными знаками.

Схема расчетов фундамента
План фундамента всегда сопровождается подробными таблицами расчетов. При выполнении этих работ учитываются такие параметры, как:
- Общий вес здания.
- Возможное увеличение нагрузки в процессе эксплуатации возведенного строения.
- Характеристики грунтов на участке застройки.
Все эти показатели определяют не только геометрию конструкции, но и технические характеристики строительных материалов, которые будут применяться на различных этапах строительства.
к оглавлению ↑Условия точного переноса плана на местность
Чертеж фундамента является основой для последующего выноса в натуру объекта строительства. Поэтому здесь должны быть переданы все необходимые размеры, но нельзя допускать перенасыщенности материалов данными – лишние цифры только мешают производству работ.
При соблюдении установленного масштаба и правильной привязке конструктивных элементов к осям строения вынос плана на местность осуществляется быстро и точно. Для этого привлекаются геодезисты, имеющие необходимое оборудование. В некоторых условиях, когда точность не так критична (хоз. постройки и т.п.) вынос можно сделать самостоятельно. Важно точно соблюсти геометрические формы строения.
План фундамента жилого дома и чертеж всех геометрических характеристик сооружения определяет качество выполнения монтажных работ, а, следовательно, качество и надежность будущего здания.
stroykarecept.ru
технология, этапы работ, фото и видео
Заливка фундамента это один из первых этапов строительства дома. Теоретически в этом нет ничего сложного – выкопал яму, засыпал дно песком, сверху залил бетоном, и осталось подождать, пока цемент застынет. А на деле, как правильно залить фундамент под дом знают только профессиональные строители; нюансов здесь достаточно много – от монтажа опалубки до правильного вибрирования уже залитого бетона, не говоря уже о том, что работа эта тяжелая и грязная.

Сведения о грунте и находящихся рядом постройках
Начинать что-то делать без предварительной подготовки попросту неразумно. Начало всех начал в строительстве – это составление проектной документации; а делать проект дома и фундамента, в свою очередь, можно только основываясь на результатах геологической экспертизы участка, которая выявит индивидуальные особенности грунта и будет учитывать рельеф.
Нижняя точка промерзания грунта в зимний период позволит определиться с типом фундамента и глубиной его заложения. Подробный анализ почвы и выбор типа фундамента лучше доверить квалифицированным специалистам.
Ландшафтное проектирование поможет выбрать максимально удобное расположение дома, вспомогательных построек, дорожек и беседок. Современные технологии позволяют увидеть будущий дом во всех ракурсах.

Подготовительные работы
Этап подготовительных работ занимает важное место в процессе строительства дома. Прежде всего, необходимо очистить участок от строительного мусора, спилить лишние деревья и выкорчевать пни, убрать сухую траву.
Предварительное зонирование участка позволит в процессе эксплуатации эффективно использовать каждый уголок. Нивелирование прилегающей территории лучше всего выполнить до начала строительных работ и заложения фундамента. Это не только придаст участку привлекательный вид, но значительно облегчит выполнение строительных работ на всех этапах. Рельеф местности с большими перепадами требует ступенчатого выравнивания территории.
Далее определяют точное место расположения дома и выполняют разметку фундамента. Для этого по всем углам будущего строения устанавливают колышки. Если дом стандартной прямоугольной формы, в результате должна получиться фигура с идеально равными углами в 90°. Если угол не выдержан, необходимо добиться этого результата, передвигая ограничительный шнур в ту или иную сторону.
Вдоль будущих стен, на одинаковом расстоянии друг от друга, также устанавливают колышки и натягивают между ними веревку или шнур. Диагонали, проведенные между углами строения, должны точно равняться друг другу.

При выполнении разметки под ленточный фундамент необходимо отступить от стен дома на расстояние, равное ширине фундамента. Чаще всего этот показатель составляет не более 20 см.
Копать траншею можно либо руками, либо с использованием специализированной техники. Ее формируют минимум на 20 см ниже точки промерзания земли, характерной для данной местности в зимний период. Копать траншею необходимо четко придерживаясь разметки и формируя плоское дно.
Методы экономии фундамента дома
-
Копка грунта и заливка фундамента под дом бетонной смесью являются самым дорогостоящим этапом при строительстве загородного дома. Выполнить всю работу самостоятельно или доверить ее профессионалам – каждый решает сам.
-
Формирование мелкозаглубленного фундамента позволит сэкономить значительное количество средств. Однако он подходит лишь для строительства малоэтажных домов из легких материалов. Во всех других случаях используют фундамент глубокого заложения, возведенный ниже точки промерзания земли.
-
Сборка опалубки выполняется из досок, которые впоследствии можно использовать в качестве чернового пола ил для других работ, в которых внешний вид материала будет на второстепенном плане.

На нашем сайте Вы можете найти контакты строительных компаний, которые предлагают услугу строительства и ремонта фундамента. Напрямую пообщаться с представителями можно посетив выставку домов «Малоэтажная Страна».
-
При заливке плитного фундамента можно сэкономить, используя более тонкое основание с формированием ребер жесткости.
-
Возможность использования стеклопластиковой арматуры вместо стальных материалов также позволит незначительно сэкономить.
Особенности заливки плитного фундамента
Плитный фундамент чаще всего используют при строительстве кирпичных, каркасных и каменных загородных домов. При этом плита располагается не только под несущими стенами дома, но и под всем строением и требует формирования идеально ровной поверхности.
Для заливки плитного фундамента засыпается песчаная подушка высотой до 30 см, укладываются железобетонные плиты, формируется армирующий каркас и выполняется бетонная стяжка.
Он является самым дорогостоящим, однако в полной мере обеспечивает прочность и надежность основания в период эксплуатации объекта.

Особенности заливки столбчатого фундамента
Столбчатый фундамент часто путают со свайным, но на самом деле это две совершенно разные технологии. Если сваи обязательно вкручиваются ниже глубины промерзания грунта, то столбчатый представляет собой яму, глубиной около 50-70 см, дно которой засыпано песком, а сверху заливается бетон, вперемешку с какими-нибудь камнями.
На заметку! Для жилого дома столбчатый фундамент не подойдет, так как рассчитан он на сверхлегкие строения – маленькие бани без каменной печи, беседки, сараи и тому подобные хозпостройки.
Столбчатый фундамент не требует дополнительных работ по гидроизоляции, но, как и свайный, исключает возможность обустройства погреба или подвала. Так как закладывается на небольшую глубину, то преимущественно используется на песчаных почвах и супесях, равнодушных к пучению и естественному движению грунта.
Для заливки столбчатого фундамента используются бетонные блоки, скрепленные между собой арматурой и залитые готовой бетонной смесью. Для формирования бетонных блоков подойдет любой материал:
Столбчатый фундамент – неглубокое бюджетное основание для хозпостроек
Столбы устанавливаются во всех углах, а также в местах пересечения стен и точках с повышенной нагрузкой на расстоянии не более 2 метра друг от друга. При этом формируется опалубка, устанавливаются столбы и стягиваются между собой армирующим материалом. Вся конструкция заливается смесью бетона.
Это может быть интересно! В статье по следующей ссылке читайте про укрепление фундамента.
Технология обустройства фундамента под дом
Ленточный фундамент закладывают на глубину ниже точки промерзания грунта. Заливка ленточного фундамента включает в себя следующие этапы:
-
подготовительные работы;
-
формирование траншеи;
-
обустройство песчаной подушки;
-
формирование армирующего каркаса;
-
установка опалубки;
-
замешивание бетонной смеси и заливка каркаса.
Наглядно все работы по подготовке площадки и заливке фундамента смотрите в видео:
Опалубка
Прежде чем залить фундамент под дом, необходимо сформировать крепкую, надежную опалубку. Для формирования съемной опалубки можно использовать:
-
древесину;
-
металл;
-
фанеру;
-
пластик.
Несъемная опалубка становится частью конструкции и позволяет избежать этапа демонтажа. Для ее формирования используют:

Это может быть интересно! В статье по следующей ссылке читайте про армирование плиты фундамента.
Армирование
Для формирования армирующего каркаса по углам устанавливают армирующие прутья. На дно траншеи укладывают продольную арматуру и через каждые 30 см устанавливают вертикальные пруты, высота которых превышает глубину траншеи на высоту фундамента над уровнем земли. Это расстояние должно быть не меньше 25 см.
Горизонтальные армирующие прутья крепят на одинаковом расстоянии друг от друга в несколько уровней до самого верха опалубки. Фрагменты каркаса можно связать между собой с помощью мягкой проволоки.
Дренаж
Необходимым этапом работ при строительстве дома является дренаж. Он позволяет отвести лишнюю влагу от постройки во время сезона дождей или весеннего таяния снега.
Для формирования дренажной системы используют гофротрубы. Их укладывают на глубину до 50 см в предварительно обустроенные траншеи по всему периметру дома на расстоянии не более одного метра от его стен.
Чтобы вода и влага могли самотеком передвигаться по трубам, их укладывают с небольшим уклоном и выполняют геотекстильную обмотку.
Наглядно про дренаж фундамента в видеоролике:
Балласт
Для формирования фундамента обычно используют бетон марки М200 – М400. При замешивании бетонной смеси в качестве наполнителя нередко используют смесь речного песка и гравия. Для строительства загородного дома соотношение этих материалов, взятых в пропорциях 3:1, будет достаточным для замешивания общей смеси.
Заливка фундамента
Подготовка качественной бетонной смеси и заливка фундамента является важным этапом строительных работ загородного дома.
Песчаная подушка
Песчаная подушка является необходимым элементом при строительстве любого строения. Для ее формирования дно траншеи засыпают речным песком на высоту не менее 20 см. Каждый слой песка тщательно проливают водой и утрамбовывают.
Опалубка
Для армирования фундамента используется арматура и армирующие прутья различного диаметра. Вдоль траншеи лучше использовать более толстую арматуру. Соединить армирующие элементы можно с использованием мягкой проволоки.
Ход работ
Если закупить бетон на заводе, то не придется думать, как залить фундамент под загородный дом. Автомиксер равномерно смешает бетонную смесь до равномерной, пластичной консистенции и выгрузит готовый бетон сразу на подготовленную для фундамента площадку.

Работы начинают с углов фундамента, стараясь плотно заполнить все пустоты. Бетон равномерно распределяется по всему периметру с помощью лопаты, лишний воздух и пузыри удаляются.
Готовый фундамент укутывают пленкой и периодически увлажняют поверхность. Это поможет предотвратить образование многочисленных трещин при усушке.
Это может быть интересно! В статье по следующей ссылке читайте про армирование фундамента стеклопластиковой арматурой.
Заключение
Точное соблюдение всех технологических этапов работ и их качественное выполнение в полной мере обеспечит прочность и надежность дома в процессе эксплуатации и позволит избежать неисправимых ошибок, поэтому настоятельно рекомендуется доверить эту работу профессионалам.
m-strana.ru
