Проект дома 10х10 одноэтажный с тремя спальнями – Проект дома 10 на 10 с 3 спальнями. Проекты домов и коттеджей 10 х 10 с тремя спальнями
Готовые проекты домов с тремя спальнями под строительство
Почему особое внимание стоит уделить проектированию
Проекты домов с тремя спальнями, как правило, предназначены для семьи из трех или более человек. Естественно, одна из спален предназначена для хозяев дома, в остальных могут размещаться дети, родители или гости. Проекты одноэтажных домов с тремя спальнями имеют одно преимущество – в них комфортно жить малышам, людям преклонного возраста и тем, кому просто тяжело передвигаться по дому, так как в таком строении нет лестниц, которые являются серьезным препятствием для таких жильцов. В этом причина популярности данных домов. Их планировка должна быть тщательно продумана еще на этапе проектирования или покупки готовой документации, чтобы всем жителям и гостям было удобно и хватало места. Проектирование домов позволяет не только достичь требуемого уровня комфорта, но и сделать проще подбор и покупку стройматериалов, так как вы сможете наглядно увидеть свой дом снаружи и изнутри, и полный список расходных к моменту поездки по магазинам уже будет у вас на руках. Проектирование позволяет прикинуть предварительную смету строительства. В процессе определяется схема водопровода, теплоснабжения и электрификации здания. Так у вас появится не только максимально удобная подводка коммуникаций, но и возможность в дальнейшем использовать ресурсы экономично.
Как рационально использовать площадь дома
В современной архитектуре используется актуальный и удобный способ сделать здание более функциональным. Проекты домов с тремя спальнями продуманы так, чтобы пространства смежных помещений можно было совместить. Но прежде следует рассчитать оптимальную площадь каждой из комнат. Гостиная должна вмещать не только членов семьи, но и всех возможных гостей. Площадь кухни зависит от ее обстановки – размеров гарнитура и набора бытовой техники. Разумеется, готовить в ней должно быть удобно. В жилых комнатах стоит предусмотреть гардероб, для экономии пространства снабженный дверью-купе. В котельной должно схватить места для котла или другого отопительного оборудования. При совмещении помещений необходимо проконсультироваться с профессионалом, чтобы не совершить серьезных ошибок. Если объединенный санузел – это вполне обычное явление, то совмещение котельной и кладовой может оказаться не совсем безопасным. Соединить гостиную со столовой или кухней также нужно грамотно, иначе это нанесет серьезный ущерб комфорту семьи. В любом случае строение, помимо спален, обязательно должно включать гостиную и столовую (пусть даже и объединенные), кухню и кладовку, а также хотя бы один санузел. Проекты одноэтажных домов с тремя спальнями должны отвечать предпочтениям хозяев, но никак не в ущерб техническим нормам и требованиям безопасности.
deutek.ru
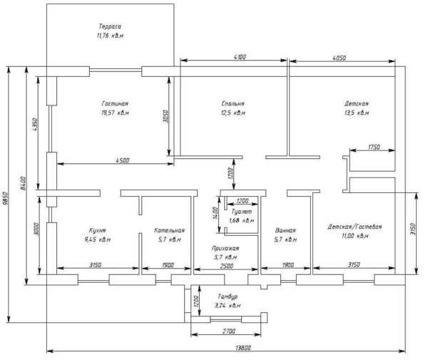
Готовый проект дома 10 на 10 с тремя спальнями.

Планировочная схема дома
Представленная в проекте планировка может быть изменена по желанию заказчика, путем перемещения внутренних самонесущих перегородок. Перегородка выполняется из кирпича 120 мм., либо керамзитобетонного (газосиликатного) полублока толщиной 200 мм.
Проекты загородных домов размерами в плане 10 на 10 метров обладают рядом бесспорных преимуществ, таких как:
- Одноэтажный дом 10х10 метров имеет небольшой вес строительных конструкций, таким образом, классический ленточный фундамент можно заменить на столбчатый ростверковый, это позволит сэкономить порядка 40% бюджета ориентированного на фундамент, к тому же Вы получите уже готовый монолитный цоколь с заданной высотой!
2. Несомненно, отсутствие лестниц на второй этаж, отсутствие потери площадей дома под лестничным пространством. И отсутствие самого второго этажа в принципе.
3. Безграничная возможность дизайнерского решения интерьера дома 10 на 10. Средний показатель площади дома 10 х 10 м. меньше 100 кв.м. из-за того, что толщина внутренних стен и ненесущих перегородок «съедает» часть общей площади дома. При помощи грамотных дизайнерских решений малую площадь дома можно зрительно увеличить – это применение светлых тонов в интерьере и групп зеркал.
4. Возможность надстройки мансардного этажа над существуем одноэтажным домом в будущем, если ваша семья увеличится.
Общая площадь дома 95 кв.м.
Стоимость проекта без внесения изменений 4500 р.
Заказать проект дома
www.belarch.ru
как правильно распределить жилую площадь
На чтение 5 мин.
Одноэтажный дом вполне может быть удобным, функциональным и просторным. Последнее всегда является камнем преткновения при выборе этажности строения. Однако проекты одноэтажных домов с 3 спальнями как раз доказывают, что вне зависимости от этажности, строение может полностью отвечать запросам застройщика.
Планирование собственного дома
В первую очередь необходимо понимать, что одноэтажный дом с тремя спальнями идеально может подходить для небольшой семьи, которая планирует детей. Одна из спален может быть отдана под гостевую, к примеру, то есть здесь может быть несколько вариантов (читайте также статью «Проект 1-этажного дома с 3 спальнями: основные моменты»).
Пример того, как можно распределить комнатыБез чего не обойтись
Любой одноэтажный дом с тремя спальнями — это возможность выбрать быстрое или капитальное строительство из несколько интересных материалов:
- Быстрая сборка по типу «канадской технологии». Отлично подходит как раз для одного этажа, позволяет строить быстро, а само строение будет длительное время находиться в эксплуатации.
- Строительство из пеноблоков. Так же позволяет строить быстро, экономит время, а главное позволяет провести утепление по упрощенной схеме.
- Стандартное строительство с использованием кирпича. Это уже основательная работа, однако, один уровень строить намного легче.
Наиболее распространенный вариант, это строительство из кирпича или пеноблоков, и здесь придется рассмотреть самый простой проект, в котором в план одноэтажного дома с 3 спальнями войдут:
- Ленточный фундамент.
- Железобетонные перекрытия.
- При чердачном варианте потребуются деревянные стропила, при плоской крыше — гидроизоляция железобетонных перекрытий.
Что касается распределения помещений по размеру, здесь придется руководствоваться многими составляющими, ведь проект одноэтажного дома на 3 спальни предполагает, что необходимо разместить:
- Гостиную.
- Кладовку.
- Возможно, небольшое помещение под гардероб.
- Кухню.
- Столовую.
- Санузел общий или раздельный.
Совет! При планировании собственного жилья можно обратить внимание на совмещение некоторых комнат, что позволит увеличить функциональность всего строения и с максимальной пользой использовать всю квадратуру.
Как можно увеличить функциональность
Любой план одноэтажного дома с тремя спальнями показывает площадь каждого помещения.
Соответственно можно рассмотреть полезную площадь для каждой комнаты:
- Гостиная может быть рассчитана с учетом всей семьи и максимально возможного количества гостей.
- Кухня планируется с точки зрения именно функциональности. Здесь учитывается необходимость именно удобного приготовления пищи.
- Площадь под гардеробы можно выделить в каждой из спален, а так же устроить один общий гардероб, и все это можно своими руками сделать.
- Помещение под котельную рассчитывается строго под котел и под его технологические требования
Пример проекта, в котором отдано необходимое помещение для котельнойВажно! Распределение помещений по квадратуре должно учитывать массу нюансов, так что получить проекты одноэтажных домов с тремя спальнями бесплатно не удастся. Рассмотреть примеры, понять основные принципы, все это возможно, но рассчитать все должен только профессиональный проектировщик.
Интересно, что привести все квадратные метры именно к функциональности помогает совмещение нескольких комнат.
Если не говорить о необычном зонировании, а остановиться на самых распространенных объединениях, то получается:
- Совмещенный санузел.
- Гостиная и кухня, или кухня и столовая. В этом варианте в любом случае можно выделить одно помещения под две зоны.
- Котельная и кладовка. Технологически совершенно неправильный вариант, однако он часто встречается в частных домах.
В частном коттедже можно идеально совместить кухню и столовуюЧто интересно, такое совмещение позволяет не просто максимально использовать площадь, но и увеличивает конкретно жилую площадь, которую предоставляет одноэтажный дом с 3 спальнями.
Смысл в том, что каждое совмещение помещения означает минус перегородка или стена, а это плюс к общей площади. Даже несмотря на самые тонкие перегородки, их сечение не может быть меньше 10 см. К примеру, проект одноэтажного каркасного дома с тремя спальнями обязательно рассчитан с учетом материала, и здесь перегородки, по сути, не могут быть широкими.
Кстати, вариант с совмещением помещений дает возможность рассматривать и смету по-другому. Цена такого совмещения естественно ниже, чем при наличии перегородок. Плюс отсутствие дверей между комнатами.
Все намного боле упрощается, если в реализацию идет проект одноэтажного дома 10х10 с тремя спальнями. Такие цифры говорят о том, что для планирования есть 100 квадратных метров, а это уже нормальная возможность организовать любое помещение практически без ущерба для его площади.
Плюс на такой площади можно не совмещать кухню и столовую, спроектировать достаточно большую гостиную, отдать необходимые квадраты под кладовую и сделать раздельными туалет и ванную.
Нельзя сказать, что есть определенная инструкция для проектирования на все случаи жизни, каждый раз, если разговор касается именно частного дома, коттеджа, проектировщик делает план, соизмеряя его с потребностями будущих владельцев.
Проект 10х10 позволяет спокойно планировать все помещенияВывод
Для одноэтажного строения три комнаты под спальни – нормальная планировка (см.также статью «Проект одноэтажного дома с четырьмя спальнями – на что следует обратить внимание при выборе варианта»).
Видео в этой статье поможет понять основные принципы размещения комнат, на которые стоит обратить внимание при рассмотрении проектов.
nashaspalnya.ru
Готовый проект одноэтажного дома 10 на 10 с тремя спальнями
Собираясь строить дом, можно заказать его проектирование специалисту, а можно попытаться переделать один из имеющихся вариантов под свои требования. В любом случае, надо четко представлять чего вы хотите. Очень желательно, чтобы ваши желания были хорошо продуманными. Не все, что кажется привлекательным как идея, удобно в эксплуатации. И такие «мелочи» надо знать. Часть информации разберем, пытаясь найти подходящий проект одноэтажного дома с тремя спальнями. Почему так? Потому что это наиболее распространенный вариант, который подходит для семей из 4 человек. Именно таких большинство.
Общие принципы планировки
Когда вы ищите готовые проекты одноэтажных домов с тремя спальнями или пытаетесь создать на основе найденного свой, важно помнить несколько моментов.
- Для условий климата с холодными зимами наличие тамбура крайне желательно. В этом случае холодный воздух при каждом открывании дверей не будет попадать в жилые помещения. Если тамбур совсем уж не вписывается в пределах стен, его можно вынести и сделать в виде пристройки. Не самое изящное решение, но имеет право на существование.
- Все помещения, где требуется подведение воды/канализации (кухня, ванна, туалет, котельная) располагать лучше рядом. Так инженерные системы будут проще, меньше потребуется материалов, получится значительно дешевле.
При планировании дома надо придерживаться определенных правил
- При проживании в доме 4 и более человек, желательно иметь два санузла. Вы это оцените. Пусть даже один будет совсем небольшой — только унитаз и раковина. Даже если располагаются они через стенку, это очень удобно.
- При размещении в доме котла, необходима котельная. Требования к котельным в частном доме можно посмотреть тут, но основное, что надо помнить — при высоте потолков не менее 3 метров объем помещения должен быть не менее 15 кубов и в помещении обязательно должно быть окно.
- Сразу прорисовывайте расположение крупногабаритной мебели. Во всяком случае, положение кроватей и шкафов в спальнях, расположение мебели и мойки на кухне.
Это те принципы, которых желательно придерживаться. Но и это не догма. Все можно решить (кроме требований к котельным). Решения, действительно существуют разные, под разные запросы и вкусы. Требуется только желание и определенная сумма.
Если все три спальни разместить рядом
Многие проекты одноэтажных домов с тремя спальнями спланированы таким образом, что все спальни находятся в одной стороне дома. С одной стороны это удобно. Относительно шумные помещения — гостиная и кухня оказываются в противоположной стороне. С другой стороны, не всем нравится такое расположение — опасаются что дети могут оказаться свидетелями ненужных сцен.

Пример планировки одноэтажного дома с тремя спальнями на 110 квадратных метров
В приведенном выше проекте именно так планировка и сделана: все три спальни находятся в правой стороне дома и имеют примерно одинаковую площадь. Из положительных моментов — все спальни от гостиной далеко. При таком расположении комнат можно в гостиной спокойно смотреть телевизор, принимать гостей, не боясь помешать отдыху.
Из недостатков — туалет и ванная находятся далеко от кухни и котельной. Не самый удобный вариант для прокладки коммуникаций. Из других особенностей — длинный коридор со множеством дверей. Эту площадь никак не используешь, так как свободные простенки очень маленькие.
Проект одноэтажного дома с тремя спальнями и террасой
При планировании террасы, обращать внимание надо сразу на несколько моментов. Первый — для оптимальной освещенности лучше, если терраса выходит на юг или восток. Второе — из какого помещения будет выход. Чаще всего делают выход на террасу из гостиной. Это самый логичный случай. Второй вариант — выход из коридора, который, как правило, примыкает к гостиной или кухне (гораздо хуже, но возможно). Обратите внимание, что очень удобно, если рядом с входом на террасу находится кухня — заносить/выносить блюда, напитки и т.п. Ведь терраса часто используется именно для посиделок на открытом воздухе.
Эти два момента уже частично определяют планировку вашего дома — гостиная должна иметь выход на южную или восточную сторону. Значит ее положение определено. К гостиной должна примыкать кухня, а еще желательно все помещения, подключаемые к техническим коммуникациям «собирать» в одной зоне … То есть, вы практически решили, где находятся гостиная, кухня, технические помещения. Осталось расположить спальни и организовать удобный проход.

С террасы должен открываться интересный вид
Но это еще не все, что надо учесть при планировании террасы. Есть третий момент — ее размер. Тут подход индивидуальный — кому-то требуется много места, кому-то достаточно поменьше. Интересный вариант — Г-образная терасса, которая охватывает южную и восточную стены строения. Если ее остеклить, можно превратить в летний сад… Если вам это интересно.
И четвертый момент, на который тоже стоит обратить внимание при разработке планировки дома. Терраса интенсивно используется и является любимым местом отдыха, если с нее открывается вид на сад, красиво оформленный задний двор, на речку и т.п. Если же взгляд упирается в забор соседа, никому это не интересно. При таком положении терраса не используется, постепенно превращается в «техническое помещение» — поставить газонокосилку, сушилку, и т.д. Это определяет еще и положение дома на участке. То есть, большую часть задач по планировке дома вы решили.
Вариант 1: с террасой вдоль всей короткой стены
Давайте рассмотрим несколько проектов одноэтажных домов с тремя спальнями и террасами. В представленном варианте выход на террасу сделан из гостиной. Сюда же выходит кухонное окно. Если сделать широкий подоконник, открывающееся полностью окно, можно передавать блюда через окно.
Все технические помещения собраны в одном месте и расположены возле кухни. Спальни находятся в противоположном конце дома, что, в общем-то, удобно — можно принимать гостей или смотреть телевизор в гостиной и не мешать тем, кто решил отдохнуть.

Проект одноэтажного дома с 3 спальнями и террасой
Дополнительная несущая стена в этом проекте одна — почти посередине вдоль длинной стороны дома. Кухня-гостиная едина, но можно установить перегородку и разделить помещения. В этом случае придется выделить часть гостиной, но, при данной площади — почти 17 метров — это не очень критично.
Спальни, в этом проекте, имеют разные размеры: 9, 11, 13 метров. Удобно это или нет — решать вам. При желании, размеры спален можно увеличить за счет уменьшения площади котельной (при 3-х метровых потолках достаточно площади в 5 квадратов, так что ресурс есть). Самую маленькую спальню можно увеличить, если перенести шкаф на другую стену, сдвинув перегородку, отгораживающую гостиную. Кстати, этот проект одноэтажного дома с тремя спальнями имеет еще один плюс — гардеробную при входе. Это действительно удобно.
Вариант 2: с короткой террасой вдоль длиной стороны дома
Рассмотрим еще один вариант планировки одноэтажного дома с тремя спальнями и террасой. Он отличается положением «влажного» блока — кухни/ванной/котельной/туалета. Они перенесены на противоположную сторону. Площади спальных комнат «выровнены» за счет уменьшения площади кухни. Обратите внимание: тамбур сделан выносной. Это тоже внесло свой вклад в то, что при относительно небольших размерах дома — 10*14 метров (площадь 140 квадратных метров) — размеры всех комнат солидные, ширина коридора — 1,7 метра, что тоже неплохо.

Проект одноэтажного дома с тремя спальнями и террасой
Терраса имеет выход из гостиной, занимает только часть длинной стены. Если этот вариант обыграть, получится очень неплохо. Например, рядом можно поставить пруд, установить фонтан, разбить красивую клумбу.
С местом под автонавес или гараж
Если рядом с домом надо разместить навес для машины или гараж, можно изменить планировку так чтобы вход в дом был ближе к месту стоянки. Тогда есть возможность объединить навес стоянки и крыльца. Получится может очень даже интересно.
При планировании навеса лучше найти место под две машины. Даже если машина у вас одна, к вам будут приезжать гости и намного удобнее, если ее можно поставить под крышу. Расходы на обустройство не слишком отличаются, а всегда надо смотреть на перспективу. Может и у вас появится вторая машина.

Проект 1 этажного дома стремя спальнями и навесом для машины
Чем хорош еще навес для машины? Под ним можно оборудовать место для хранения всякого инвентаря: автомобильного, садового. Там же можно отгородить место под дровник или поленницу — чтобы иметь возле дома запас сухих дров. Вообще, использовать эту зону можно по-разному. И оптимальные размеры ее — 8*9 метров или около того. Это, если площадь участка позволяет. Если нет, можно исходить из минимальных габаритов — на 2 метра шире и на 1,5 длиннее вашего авто.
Представленный выше проект одноэтажного дома с тремя спальнями имеет площадь 100 квадратных метров, выполнен в виде прямоугольника со сторонами 8,8*12 метров. Расположение спален все такое-же — одним блоком, все технические помещения также сведены в одном месте. При такой планировке коридор получается совсем небольшим, что многих обрадует, но это будет «проходная» зона, в которой ничего не поставишь.
Если надо спальню родителей разместить отдельно
При выборе планировки многие считают, что спальню родителей надо располагать на некотором расстоянии от детских. В этом случае подход к планировке меняется — оптимальна вытянутая прямоугольная форма дома. Длинную сторону делят на три части две несущие стены.

Такой, дом с Г-образной планировкой по стоимости выходит более дорогим, чем прямоугольный или квадратный
Вариант 1: без коридора
Если разделить дом на три части, есть возможность разработать планировку дома с тремя спальнями без коридора. Одна треть дома делится на две спальни для детей, среднюю часть занимает совмещенная кухня/гостиная, последняя треть делится между входной группой/санузлом и спальней родителей.
Там где расположена спальня для родителей, из кухни/гостиной организован вход в санузел. Насколько удачно такое решение? Плюс тут видится такой — большая кухня/гостиная. Но она — полностью проходная. То есть, уединиться в ней точно не получится. Возможно, вам нравится такая идея. Хотя, чтобы оценить удобство/неудобство, стоит пожить в таком доме. Обычно это далеко не всем нравится, хотя на стадии «идеи» все казалось заманчивым.

Расположение комнат в одноэтажном доме с тремя спальнями — комната родителей расположена отдельно
Обратите внимание, что этот проект одноэтажного дома с тремя спальнями не имеет котельной. Если она необходима, выделить ее можно за счет уменьшения площади кухни/гостиной. Но тогда надо будет продумывать планировку, как организовать вход в нее. Возможный, но не очень удобный вариант — из кухни, если она будет расположена возле ванной. Второй — с улицы. Но тогда уж, можно сделать пристройку к дому. Хотя, это определяется размерами дома.
Вариант 2: с коридором
Планировку с двумя детскими и вынесенной подальше спальней родителей можно реализовать в квадратном доме (на рисунке ниже). Минимально возможные размеры — 12*12 метров. По площади это чуть больше 140 квадратов. В этом случае габариты всех помещения близки к оптимальным (квадратные, имеют площадь более 10 квадратных метров). Гостиная совмещена с кухней но не является проходной.
При возможности/желании можно сделать и в прямоугольном доме, просто квадрат более предпочтителен, так как стоимость квадратного метра жилья получается немного ниже. Надо сказать, что выигрыш совсем небольшой, так что не стоит на этом особо заморачиватсья. Лучше исходить из удобства, ведь проект одноэтажного дома с тремя спальнями выбираете для собственной жизни.

Проект квадратного одноэтажного дома с тремя спальнями
В данном варианте планировки спальня родителей вообще обособлена. Достоинство приведенного варианта — в детских есть место под гардеробные. Есть тут и недостаток — «мокрые» помещения находятся на противоположных краях дома. Устройство инженерных систем будет сложнее (кроме канализации и водопровода придется думать еще и об отдельной вентиляции).
Не всем нравится идея объединения кухни и гостиной. В данном случае можно легко проблему решить, установив перегородку. Вход в кухню может быть как из коридора, так и из гостиной.
Но, если не вносить других изменений, вход в гостиную только через кухню, что неудобно. Решить проблему можно сделав некоторые трансформации. Первая — «утопленная» входная зона становится «нормальной», в площади стен, разделяющая коридор перегородка убирается. Образуется большая входная зона, но без теплого тамбура. Зато получаем дополнительное большое по площади помещение, которое можно неплохо оборудовать. Правда, это уже другой проект одноэтажного дома с тремя спальнями (смотрите ниже).
Из этой зоны можно сделать вход в гостиную. Он получается рядом со входом, что вполне логично. Правда, функциональной остается только часть помещения, но «ущерб» можно минимизировать, приблизив двери.

Один из вариантов
Можно пойти еще дальше — убрать перегородку, отделяющую гостиную от коридора. Стена тут несущая так что потребуется установка колон. Но планировка дома будет в современном стиле — от входа единое пространство, выполняющее роль гостиной и общей комнаты. Для многих это кажется удобным.
Ещё варианты
Имея определенный набор помещений и требования по их расположению, слишком много вариантов не получишь. Приведенные ниже планировки отличаются в некоторых деталях. Может, один из них вам и подойдет.
Одноэтажный дом с тремя спальнями, эркером и террасой
Проект одноэтажного дома с тремя спальнями и террасой (90 кв. м.)
Площадь 130 кв. м, есть кладовка со входом из кухни
Если нужны раздельная кухня и гостиная. Практичное расположение с небольшим коридором
Одноэтажный дом площадью 160 кв. м, с тремя спальнями и кабинетом, котельной и небольшой угловой верандой
Одноэтажный дом площадью 10×10 метров предоставляет некоторую свободу действий. Конечно, это не двухэтажный особняк, где у каждого члена семьи будет своя просторная комната, но и не дом площадью в 50 кв.м, куда вместили не только хозяйственную зону, но и две, а то и три-четыре комнаты.
Количество комнат, их размеры, предназначение гораздо проще варьировать, когда площадь дома составляет 100 квадратов. Да и проектов с такой квадратурой намного больше. Рассмотрите наиболее оптимальные проекты для комфортного проживания большой или маленькой семьи с тем, чтобы вам проще было выбрать подходящий вариант.
Преимущества одноэтажного дома 10×10 м
Одноэтажный дом на участке занимает больше места, чем здание такой же площади, но в два этажа. Однако для семьи с детьми или с родственниками преклонного возраста, инвалидами такой вариант более предпочтителен – он безопасней, удобней.
Да и лестница, которая бы вела на второй этаж, отнимала бы полезную площадь.
Но есть и другие достоинства такого здания.
- Полезной площади достаточно для проживания семьи из 4 или даже 5 человек.
- Снижен уровень травматизма ввиду отсутствия лестницы.
- Облегчается уборка дома.
- Дизайн всех комнат дома можно выполнить в одном стиле.
- Дом быстрей согревается и дольше хранит тепло.
- Дом квадратной формы, количество решений велико.
- Фундамент не нуждается в дополнительном усилении, поскольку должен выдерживать лишь один этаж.
Комфортным и просторным может получиться одноэтажный дом 10×10. Планировка комнат, их расположение зависит от размера семьи. Так что в нем будет всем уютно, в том числе и гостям, которые нет-нет, да и захотят остаться на ночь.
Важно: учтите, что указанная площадь 10×10 не означает, что его жилая или общая площадь будет таковой. 10-20 кв.м заберут под себя внешние стены и межкомнатные перегородки, используемые для зонирования.
Поэтому полезного пространства, коим вы и будете оперировать, останется 80-90 м2. И этого вполне хватит – убедитесь сами.
Проект №1 с тремя спальными комнатами и гостиной
Представленный вариант дома имеет общую площадь в 76,55 кв.м, из которых 48,25 – жилая площадь. И лишь одна комната (гостиная) является проходной.
- 2 детские комнаты по 9,32 кв.м.
- Спальня 11,58 кв.м.
- Зал 18,03 кв.м.
- Кухня 7,32 кв.м.
В оставшуюся площадь удалось вместить котельную, санузел, тамбур или предбанник и холл.
Если вам не нужно 2 детских комнаты, одно помещение можно отвести под кабинет или гостевую комнату. Если дом обогревается двухконтурным котлом и котельная не нужна, санузел можно сделать раздельным или использовать высвободившуюся площадь под гардероб, кладовую, сушилку.
Важно: если хотите научиться создавать планы интерьера, читайте нашу статью: 25 лучших программ, приложений и сервисов для дизайнера интерьера. Этот навык полезен каждому, а не только профессиональному дизайнеру.
Проект № 2 с двумя жилыми комнатами и кухней-студией
Небольшой семье не нужны дополнительные жилые комнаты. А гостей в случае надобности можно разместить в гостиной на ночь.
Заметьте, что у этого дома суммарная площадь включает и площадь внешних стен, перегородок.
- От входа вглубь дома ведет коридор (8 кв.м).
- По левую и правую руку от него располагаются двери в спальни по 16 кв.м.
- Коридор переходит в холл, в конце которого отгорожено помещение для технических и хозяйственных нужд площадью 5,4 кв.м. Площадь просторного холла – 18,6 кв.м.
- В доме имеется просторный совмещенный узел (12 кв.м) и кухня, объединенная с гостиной.
При желании кухню можно перенести в техническое помещение, а из гостиной сделать две зоны: гостевую и зону отдыха или оборудовать классный домашний офис.
Если планировку не трогать, то в отгороженном помещении можно обустроить котельную, сушилку, дополнительный санузел или чулан.
Достоинство этого проекта – каждая из комнат, будь то жилая или хозяйственная, не является проходной.
Проект № 3 на две спальни и гостиную
Комнаты должны располагаться в доме не только так, чтобы всем было просторно и комфортно. Следует учитывать и ориентированность дома по сторонам света. Так, ванная комната, кухня, кладовая, котельная вполне переживет недостаток света. А вот спальни, детские комнаты и гостиная нуждаются в длительном и достаточном естественном освещении.
Данный проект имеет общую площадь почти в 80,96 кв.м, при этом жилая – 53,96 кв.м, и жилая зона состоит из 2-х спален и гостиной.
- Спальня 1 – 14,37 кв.м. Может быть гостевой, кабинетом или детской.
- Спальня 2 – 16,07 кв.м.
- Гостиная – 23,52 кв.м.
- Кухня-столовая – 10,91 кв.м.
- Совмещенный санузел – 6,06 кв.м.
В дом ведет тамбур, в конце которого расположена котельная или кладовка площадью 3,28 кв.м.
Площадь дома выступает за квадратуру 10×10 на 2,3 метра. Этими помещениями можно пожертвовать, если размеры участка не позволяют их оставить. А вход сделать с улицы прямо в холл, отгородив его, к примеру, гипсокартонной стеной с дверью.
Достоинство этого варианта в том, что, вместив в площадь дома 3 жилые комнаты, удалось каждую из них сделать раздельной.
Проект № 4 с террасой или верандой
В доме с площадью в 100 квадратов вполне реально распланировать не только жилую зону и кухонно-технические помещения. Можно устроить и открытую террасу, о которой мечтают все, покупающие загородный частный одноэтажный дом 10×10. Планировка комнат при этом будет практичной и комфортной.
Посмотрите сами на предложенный проект. В нем есть три спальни по 11,9; 12,2 и 12,5 кв.м и гостиная 20,2 кв.м. Помещение между комнатами – это кухня, выполняющая и роль столовой площадью 13,1 кв.м. Туалетная комната совмещенная, расположена рядом со входом в дом.
В гостиной четыре окна и раздвижная дверь. Комната получает достаточно много естественного освещения. Поэтому за ней можно сделать стеклянную веранду. И выходить на нее почти прямиком из дома. Если вам такое решение кажется не удобным, вместо одного окна поставьте дверь. А окно можно перенести на место существующих раздвижных дверей.
Такую же террасу, но меньше размером, можно сделать и перед входом в дом.
Любой из представленных вариантов можно изменить. Например, передвинуть стену, чтобы сделать комнату или террасу больше. Снести межкомнатные перегородки, не являющиеся несущими, чтобы сделать комнаты просторней (в стиле лофт). А уж изменить назначение помещения – тут и вовсе будет не так сложно, как кажется. Ведь это частный дом, а не квартира в многоэтажке.
Одноэтажный дом 10×10: планировка комнат и ее основы
Дом 10×10 считается домом средних размеров. К тому же он однокомнатный. И, несмотря на все его преимущества, его внешние стены не раздвинешь, чтобы выделить одну комнату.
Поэтому стоит изначально решить, какие помещения в доме необходимы, а без каких можно обойтись.
- Гостиная нужна. Это не хозяйская спальня, а место сбора всей семьи. Этим помещением пренебрегать не стоит. Отводим ему наиболее просторную комнату.
- Количество спален зависит от размера семьи. Молодая семья может скоро расшириться, поэтому спален должно быть минимум 2.
- Кухня, если позволяет ее площадь, может быть одновременно и столовой. Даже на площадь в 10-13 кв.м поместятся и зона готовки, и обеденный гарнитур.
- Санузел – одно из самых необходимых технических помещений.
- Кладовка. Если есть место – отлично. В ином случае запасы хранят в хозпостройках во дворе. Но уж выделить место в 1,5-2,5 кв.м под нее уж всяко можно на кухне или в холле.
- Гардероб. Без отдельной комнаты под него можно обойтись. Поставьте шкафы-купе от пола до потолка. Это решит проблему размещения вещей. Полезные идеи и советы можно почерпнуть из нашей статьи об оформлении гардеробной комнаты маленького размера.
- Сушилка не является обязательной.
- Котельная нужна только в том случае, если дома стоит печь, установлено паровое отопление. Но большинство семей пользуется двухконтурными котлами, газовым отоплением и устанавливают теплые полы. Поэтому необходимость в этом помещении отпадает и высвобождается дополнительная квадратура. И как раз под кладовку или санузел.
- Терраса. Можно и отказаться, но так не хочется.
Увеличиваем функциональность, не раздвигая стен
Сделать жилую зону просторней можно, внеся коррективы в планировку:
- Санузел сделать совмещенным.
- Часть комнат сделать смежно-раздельными. И за счет площади холла увеличить любую из них.
- Объединить кухню со столовой и/или гостиной.
- Использовать котельную и как кладовку, и как сушилку.
Кухня не должна быть маленькой или очень большой. В первую очередь подумайте о ее функциональности. Вдохновение можно почерпнуть из дизайн проекта интерьера кухни от Senalee Kapelevich.
Вариантов и возможностей масса. Все зависит от вашего совместного семейного решения.
Напоследок интересное видео о проектировании одноэтажного дома (100 кв. м) на узком участке
(
голосов, оценка:
из 5)
Многие мечтают о строительстве собственного дома. Перед тем, как приступить к данному процессу стоит разработать качественный проект будущего сооружения. Как вариант можно подобрать проекты одноэтажных домов с тремя спальнями, которые подходят для проживания семьи из 3-6 человек. Такая планировка рассчитана на размещение детей и родителей под одной крышей. При этом одна из спален принадлежит родителям, а две другие детские или гостевые.
Одноэтажные постройки выглядят стильно и современно снаружи, а внутри отличаются удобствами и комфортом
Какие существуют проекты одноэтажных домов с тремя спальнями?
Проекты домов с тремя спальнями обладают множеством достоинств. Они подходят для проживания престарелых людей, детей или людей с ограниченными физическими возможностями.
Проект, включающий три спальных комнаты, пользуется популярностью. Даже на небольшой площади данные комнаты могут быть не проходными
Одноэтажная постройка не имеет лестниц, поэтому считается более безопасной. Для возведения таких строений не нужно устанавливать мощный фундамент.
При проживании в доме целой семьи можно родительскую спальню разместить в отдалении от детских комнат
Особенности планировки одноэтажного строения с тремя спальнями
Любое строительство следует начинать с тщательного проекта. Планировка должна быть продуманной и отображенной на чертежах.
При ограниченной площади можно пристроить дополнительные помещения. Это может быть удобная терраса для отдыха и пристроенные хозяйственные блоки
Качественный проект имеет следующие плюсы:
- планировка расписывается до малейших деталей, что способствует созданию комфортных условий;
- позволяет заранее просчитать все необходимые материалы, их количество и предварительную смету;
- определяется схема размещения водопровода, электрических сетей и отопления;
- экономятся денежные средства на приобретении материалов и снижаются незапланированные расходы;
- правильно организуются рабочие процессы.
Для маленькой семьи подойдут строения площадью до 100 кв. м. А для семьей с несколькими детьми разных возрастов стоит выбирать проект одноэтажного дома 12х12 с тремя спальнями.
Если участок не слишком большой, то к основному зданию можно пристроить не только котельную и веранду, но и просторный гараж
Полезная информация! Можно использовать готовые чертежи, проекты и фотографии одноэтажных построек, которые в избытке можно найти в интернете.
Проектирование дома
Постройки в один этаж с тремя спальнями часто возводятся на дачных и загородных участках. Перед тем, как приступить к проектированию, нужно определиться также с дополнительными постройками, которые будут на участке.
Планировка одноэтажного дома с тремя спальнями учитывает геодезические особенности территории и ее уклон. Также имеет значение местоположение двора. Классические варианты проектов включают спальни, большую гостиную и кухню. В некоторых случаях вместо кровли оборудуется площадка, мансарда или в дальнейшем планируется возведение второго этажа.
Постройка с мансардой является отличным способом расширения площади
Подобные дома предполагают возможность обустройства разнообразных дополнительных помещений. Например, кладовой, котельной или гардеробной. Распространенным вариантом считается постройка с гаражом, который позволяет грамотно расположить на участке два основных объекта. Его преимуществом является размещение сооружения даже на маленьком участке.
В пристройке для гаража может также располагаться прачечная или котельная. Также можно разместить маленькую мастерскую
Современные проекты предусматривают обустройство террасы. Такие дома можно обустроить двускатной или односкатной кровлей. Так как дома с тремя спальнями обладают значительной площадью, то чаще всего их выполняют из кирпича, газобетона и пеноблоков.
Из террасы можно сделать утепленный вариант. В этом случае оборудуется зимний сад, летняя кухня или дополнительное пространство для отдыха
Проекты одноэтажных домов значительной площади с тремя спальнями могут быть стандартными и полностью готовыми или индивидуальными. План подобного дома должен включать гостиную, кухню, три спальни, коридор, а также сантехническое помещение. На мансарде можно расположить дополнительную спальню.
Полезная информация! Более простым является проект с равными длинами всех стен, так как вытянутые с одной стороны сложнее в реализации.
В данном проекте отсутствует холл, а пространство кухни и гостиной объединяются. Площадь немного расширяется с помощью террас с двух сторон
Статья по теме:
Фото планировки одноэтажного дома 10 на 10. Все секреты эффективной рационализации площади в специальной публикации нашего портала.
Как выполнить эффективную планировку проекта одноэтажного дома 12х12 с тремя спальнями?
Для эффективного расширения полезной площади нужно объединить некоторые помещения и убрать лишние стены. Интересные планировки выполняются для строений с площадью 12 на 12. Важно предварительно произвести оценку помещений и их площади. При этом можно выделить комнаты, которые могут быть совмещены.
В данном проекте предусмотрены не только три спальни, но и отдельная гостиная, а также котельная
Расчеты полезной площади в доме
При создании плана одноэтажного дома с 3 спальнями нужно учитывать особенности проектирования каждой комнаты:
- размеры гостиной зависят от количества человек, которые проживают в доме. Также стоит учитывать возможных гостей;
- площадь кухни рассчитывается в зависимости от планируемого оснащения. При этом нужно продумать размещение габаритной бытовой техники и кухонной утвари;
- в спальнях должно быть оставлено место для размещения гардеробной;
- котельная планируется с учетом вида и мощности системы отопления и ее технологических особенностей.
Полезная информация! Существует множество интересных проектов в интернете, которые можно найти бесплатно. Но для нестандартной планировки потребуется помощь специалистов.
Если площадь ограничена, то не стоит экономить на площади спален, лучше объединить другие комнаты
Характеристики проектов построек одноэтажного типа до 150 кв м с тремя спальнями без мансарды
Если проекты одноэтажных домов с тремя спальнями имеют площадь до 100 кв. м, то возможно потребуется дополнительное расширение за счет дополнительных конструкций. Если здание площадью до 150 кв. м, то можно не обустраивать цокольный или мансардный этаж.
Пользуются популярностью следующие способы объединения помещений:
- объединение кладовой и котельной;
- совмещение санузла;
- соединение помещений столовой и гостиной, кухни и столовой, а также гостиной и кухни.
Полезный совет! Столовую можно объединить с другой комнатой в одном пространстве. При этом освободится место для дополнительной комнаты.
На схеме изображено объединение столовой с кухней, а также открытое пространство с кухней
Планировки с объединением комнат
Существуют разнообразные планировки с совмещением комнат. Помещения можно соединять с помощью длинного коридора. При этом ни одна из комнат не остается проходной. Спальни должны обладать достаточной площадью, чтобы на их территории можно было разместить гардеробную, спальное место и рабочий уголок.
Стоит рассмотреть следующую планировку с гардеробной:
- прихожая совмещается с гардеробной и хозблоком;
В качестве гардеробной может использоваться вместительный шкаф
- кухня, совмещенная большим проемом с гостиной-столовой;
Эргономичное соединение двух и более комнат позволяет создать воздушный интерьер с ощущением пространства
- объединенный и просторный санузел.
Большое помещение из кухни и гостиной используется как место сбора всей семьи.
Как создаются проекты одноэтажных домов из кирпича?
Подбор проектов одноэтажных домов из кирпича обладает множеством преимуществ. Кирпичная кладка отличается особой надежностью и практичностью.
Кирпичное здание – это прочное, долговечное и эстетически привлекательное сооружение
Процесс строительства состоит из нескольких этапов:
- возведение ленточного основания;
- монтаж перекрытий из железобетона и стен;
- создание стропильной системы и кровельной конструкции.
Планировки с плоскими кровлями требуют дополнительного утепления и защиты от влажности. Проект должен включать столовую, кухню, кладовую, гостиную и санузел. Гардеробная обустраивается как отдельное помещение или включается в состав других комнат.
Правильное планирование позволяет создать комфортный и функциональный дом для проживания. Работая над проектом, не стоит забывать о правилах безопасности, технических требования и индивидуальных вкусах и предпочтениях.
Видео: проект семейного одноэтажного дома на 3 спальни B-222-ТП
Дата публикации:Домdom-steny.ru
