Проект дома 9 на 12 одноэтажный – Проекты домов 9 на 12 в один этаж. Дом 9 на 12 м в 1 этаж. Проекты домов 9х12 одноэтажные
| Обвязочный ряд | Обрезной брус естественной влажности — 150х150мм (1 ряд). Укладывается на фундамент с прокладкой из рубероида. |
| Лаги | Обрезная доска естественной влажности — 150х50мм с шагом 0.58м. К лагам крепятся черепные бруски 40х50мм для монтажа чернового пола. |
| Черновой пол | Обрезная доска естественной влажности — 20х100мм, устанавливается на черепные бруски |
| Каркас дома | для домов с утеплением 100мм — обрезная доска естественной влажности — 100х40мм с шагом 0.58м для домов с утеплением 150мм — обрезная доска естественной влажности — 150х40мм с шагом 0.58м |
| Каркас перегородок | Обрезная доска естественной влажности — 100х40мм с шагом 0.58м |
| Внешняя отделка | Имитатор бруса или блок-хаус камерной сушки |
| Внутренняя отделка | Хвойная евровагонка |
| Балки перекрытия | Обрезная доска естественной влажности — 150х50мм с шагом 0.58м |
| Стропила | Обрезная доска естественной влажности — 150х50мм с шагом 0.58м |
| Высота потолка | 2.45м. |
| Фронтоны | для домов с утеплением 100мм — обрезная доска естественной влажности — 100х40мм с шагом 0.58м для домов с утеплением 150мм — обрезная доска естественной влажности — 150х40мм с шагом 0.58м |
| Карнизы | Карнизы, поднебесники и углы дома — хвойная вагонка |
| Обрешетка | Обрезная доска естественной влажности — 20х150мм с шагом 0.3м |
| Кровля | Ондулин (красный, коричневый, зеленый) |
| Чистовой пол | Шпунтованная половая доска камерной сушки – 36мм |
| Утеплитель | — базальтовая вата «Роквул лайт баттс» |
| Пароизоляция | Ондутис R70 и Ондутис А100 |
| Окна | Деревянные с двойным остеклением (с фурнитурой) |
| Двери | межкомнатные — деревянные филенчатые – 2х0.8м (с фурнитурой) |
| Фундамент | Не входит в базовую стоимостьи |
| Бесплатная доставка | Москва – 100км от МКАД (далее – 65руб/км) Санкт-Петербург – 100км от КАД (далее – 65руб/км) Пестово — 500км (далее – 65руб/км) |
brus-teh.ru
Проект одноэтажного дома 9х12 | Дизайн и архитектура

Проект одноэтажного дома 9х12
Одноэтажный дом из кирпича с навесом для автомобиля прост и удобен. Габаритные размеры дома 9,4 на 12,7 м дают неплохую площадь в 119 кв. м для творчества. В данном проекте творение имеет следующую планировку. Холл, справа от него простирается коридор с четырьмя дверями, ведущими по часовой стрелке в гостевую, детскую, спальную и ванную комнаты. Слева от холла санузел, кухня имеющая выход в гостиную с обеденным столом. Экстерьер дома прост, состоит из двух цветов, белого, которым окрашены стены, и коричневого цвета, крыша и фронтоны.

Светлый одноэтажный дом
Светлые тона не только приятны для глаза, но и позволяют в летнее время года дому нагреваться не очень сильно и сохранять прохладу внутри. Внутренние помещения средних размеров, но при этом позволяют разместить всю необходимую мебель. Так кухня площадью 11,2 кв. м позволяет поставить по периметру все необходимое для комфортной готовке. Обеденный стол находится в гостиной и не стесняет кухню. Два санузла отвечают комфорту проживания в доме. Три комнаты, в которых расположились спальня, детская и игровая комнаты, при желании и в зависимости от нужд, назначение этих комнат можно изменить и перетасовать по принципу удобства проживания.

Одноэтажный дом с большим чердаком
Одноэтажный дом с достаточно большим углом ската крыши предает ощущение жилого чердачного помещения. Но в этом проекте чердачное помещение не является жилым и в лучшем случае может служить своеобразной кладовой для ненужных вещей. Деревянные элементы конструкции, выкрашенные в темно-коричневый цвет, прекрасно вписываются в светло бежевые тона стен. В проекте дома предусмотрена зона отдыха с просторной террасой, частично находящуюся под крышей дома, плавно переходящей в благоустроенный сад с выложенными тротуарной плиткой дорожками и площадками.
Проект зеркального дома
Интересный проект одноэтажного дома представляет собой дом, визуально состоящий из двух частей, которые являются зеркальным отражением друг друга. Создается ощущение двух квартирного дома, но на самом деле это не так. На планировке это прекрасно видно. В левом крыле дома расположились комнаты для общего пользования, гостиная и кухня. В правом крыле комнаты для личного пользования. Эти два крыла имеют общий холл и в каждом из них имеется по санузлу.
f1designe.ru
Проект КД-45 (супер-комфорт), Каркасный дом 9х12 108м2 для строительства своими руками / Каркасный дом своими руками
В каждую цену включено утепление 200-250мм мин. ваты, и монолитный ленточный фундамент (МЗЛФ) в50см х ш40см.
Дом под чистовую отделку с коммуникациями.
Проект каркасного дома 9х12 108м2 для строительства своими руками,
Проект КД-45 (супер-комфорт).
Цена дома с утеплением 200мм мин. ваты и отделкой 538т.р. Цена дома с утеплением 200мм мин. ваты и отделкой + фундамент 639т.р.
Стандартное утепление 200мм базальтовой мин. ваты, цена 250мм +15т.р. к цене выше.
Цена проекта для самостоятельной сборки 14т.р. Смета и читать подробнее…
Если по каким-то причинам, вы не хотите или не можете сами построить дом по нашему проекту, то мы можем сделать всё это за вас, причём не дорого и в кратчайшие сроки, подробнее о наших ценах и преимуществах читайте в разделе, Наши строители.
Новый проект! Большой каркасный дом в один этаж.
Скачать, Проект КД-45 (супер-комфорт) 0.41 Мб (pdf) >>> подробное описание.
Проект каркасного дома 9 х 12м — не большой, но очень комфортный и удобный дом для постоянного проживания.
Отделка дома может быть изменена под ваши предпочтения, по проекту: наружная чистовая ОSB и внутренняя чистовая отделка ГКЛ входят в стоимость проекта. Также в цену проекта включён фундамент, утепление 200мм мин. ваты (возможно до 250мм), электропроводка и установочные изделия, автоматика водоснабжение и канализование с установленной сантехникой.
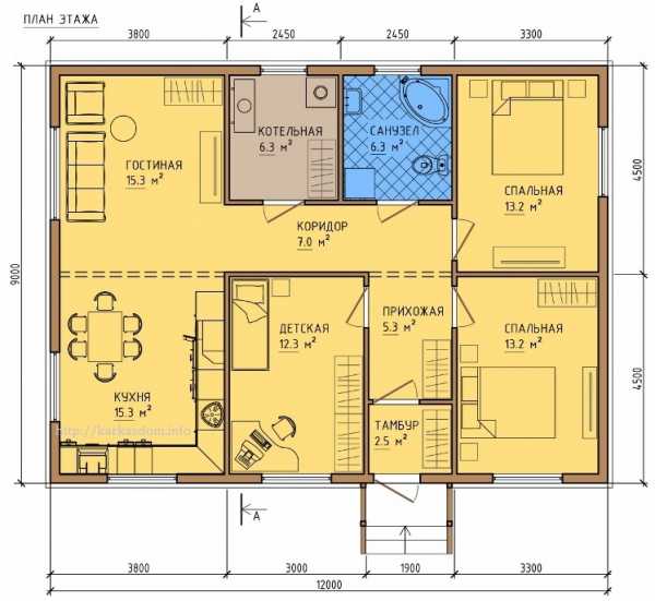
Дом одноэтажный 108м2 : Высота потолков 2,8м, Спальня 13,2м2, Спальня 13,2м2, спальня детская 12,3м2, Кухня 15,3м2 Гостиная 15,3м2, Коридор 7м2, Котельная 6,3м2, с/у 6,3м2, Прихожая 5,3м2, Прихожая 2,52
Похожие проекты: КД-31 и КД-3 или КД-4 и КД-43Для увеличения картинки нажмите на неё.
1. Вариант стандартный. 
План этажа, Вид в 3D.
Варианты внешнего вида:
возможна любая отделка, см. варианты, проект КД-3, КД-33, КД-4 и тд.

Высотные отметки:

Фундамент для этого дома:
по проекту МЗЛФ 50в х 40ш.
возможны винтовые или буронабивные сваи мин. 33 штука, (макс 40шт.). 
Средне рыночная стоимость подобного дома, выше нашей в 4 раз.
Частые вопросы клиентов:
Что делать, если надо что-то поменять в понравившемся проекте?
Незначительную доработку проекта под вас мы сделаем Бесплатно.
Если мне не подходит ни один проект, что делать?
Мы можем сделать индивидуальный проект, но это займёт несколько месяцев и будет несколько дороже стандартного проекта.
Возможно, внести изменения в предложенную комплектацию и смету?
Да, конечно, мы скорректируем смету под ваши требования, а если вы нам пришлёте цены вашего региона, то мы сделаем смету эксклюзивно под вас.
Какие возможны варианты стенового материала и утепления в этой комплектации?
Доска обрезная: стены и часть перегородок 150х50мм, утепление мин. вата базальтовых пород 150мм, плюс 50мм горизонтально, макс. 250мм.
Какую толщину стен выбрать?
Для того чтобы правильно выбрать толщину стен, необходимо определится с целевым использованием дома и региона его строительства.
При условии, когда речь идет о доме для постоянного проживания с газовым отоплением: толщины стены в 150мм будет вполне достаточно, для комфортного проживания и зимой и летом рекомендуем утепление 150мм межу стоек, плюс 50мм горизонтально со стороны дома. Если дом планируется как летний или гостевой: толщины стены и утеплителя в 150мм между стоек вполне достаточно.
Необходимость утепления
Утепление дома в разы повышает его энергосберегающие показатели. Например, утеплив дом 150мм межу стоек, плюс по 50мм горизонтально со стороны улицы и дома, в нем уже можно будет проживать круглый год, и разумно использовать другие источники энергии, в том числе и электричество.
Мы в своих проектах предлагаем различные варианты утепления, в зависимости от заявленных требований к энергосбережению, это может быть утепление, фундамента, отмостки, дополнительное утепление дома с наружи к существующим 150мм ещё плюс 100-150мм.
Назад в раздел, Проекты каркасных домов
karkasdom.ufon.ru
