Проект дома с гаражом и погребом – Проекты домов с гаражом и цокольным этажом, подвалом, погребом
Удобная планировка и проекты дома с подвалом
Сегодня практически в любом частном доме есть подвал или гараж. Нередко требуются оба помещения. Планировка таких сооружений имеет много привлекательных преимуществ:

Планировка подвального этажа в современном доме
- Общая система отопления для всех жилых и нежилых комнат дома. Не требуется покупать дополнительный электрический обогреватель для гаража или подвала.
- Удобный вход в подвал из внутреннего пространства дома. Сходить за маринадами не будет обременительным при любых погодных условиях, и не нужно переобуваться и переодеваться.
- Обустройство подвала и гаража под землёй, если площадь дачного участка невелика.
- Строительство проводится в сжатые сроки.
- Тёплый гараж – зона комфорта для автолюбителя.
Проекты домов с подвалами и гаражами имеют и недостатки:
- Требуется организовать высококачественную систему вентиляции. Только в этом случае выхлопные газы не будут попадать в жилые помещения.
- Фундамент потребует больших капиталовложений по сравнению со строительством одного гаража. Необходимо при его возведении соблюдать определённые правила.
- Если вы выбрали проект с гаражом в подвале, тогда въезд осложняется из-за пандуса.

Проект и планировка дома с подвалом и гаражом
- Двухэтажные дома с мансардой должны иметь хорошую гидроизоляцию фундамента.
- Перед заливкой основания следует организовать смотровую яму.
- Естественного освещения недостаточно, поэтому требуется продумать, как будут освещаться помещения подвала с гаражом.
Содержание материала
Возводим дома с мансардой, гаражом и подвалом
Можно строить дома с одним, двумя и большим количеством этажей. К популярным проектам относятся одноэтажные дома, где есть подвал или гараж. Дома 6 на 6 с мансардой также считаются востребованными.
Нужно ли вам подвальное помещение, требуется решить при заливке фундамента. Такой вариант считается удобным. Обустройство подвала – оптимальное решение для разгрузки территории от различных хозяйственных построек.

Планировка всех этажей коттеджа с подвалом, гаражом и мансардой
Практичный хозяин сможет разместить здесь котельную, кладовую или бойлерную. Если в доме есть подвал, можно обустроить «тёплые полы». Их легко сделать, когда система отопления является автономной. Строительство подвала необходимо начинать при закладке основания будущего сооружения.
Комплексного подхода требует возведение жилого сооружения с мансардой. Помещение мансарды может быть непростым местом для складирования ненужных вещей. Здесь можно оборудовать мастерскую или кабинет. Планировку мансарды нередко используют как комнату для гостей. В процессе строительства мастер должен учитывать, что на фундамент будет оказываться дополнительная нагрузка, поэтому важно хорошо укрепить основание.
Строим подвальное помещение в одноэтажном доме
Начинать строительные работы рекомендуется после того, когда вы уже знаете, на какой глубине залегают подземные воды. Этот показатель влияет на глубину основания под будущее сооружение.
Важно, чтобы вода не появлялась в доме после дождя. Избавиться от неё сложно. Легче избежать проблем, сделав высокий фундамент. Главное, грамотно выполнить расчёты и чертежи.
Этапы работ:
- План должен отображать, где будет располагаться подземный гараж в доме и жилые помещения.
- Определитесь со списком материалов и их количеством. Необходимо рассчитать стоимость будущего строения.
- Подготовьте строительный участок под застройку. Уберите с него растительность. Поверхность необходимо выровнять. Если на месте строительства – болото, то осушите его. Для этого лучше обратиться за помощью специалистов, которые подскажут, какой способ является наиболее эффективным.

Схема устройства подвального этажа
Если фронт работы небольшой, тогда неровности и небольшую траву вы сможете убрать своими руками. Механизированные средства требуются, когда дачный участок является проблемным.
Составление плана жилого дома 10х10 рекомендуется доверить профессионалам из строительной компании. Тогда хозяин может быть уверен, что будут учтены все нюансы при планировании.
При выборе типа фундамента необходимо принимать во внимание структуру грунта. Стены основания не должны быть меньше 30 см.
Выполнив разметку, роют котлован и траншею под фундамент ленточного типа. Подвал может занимать одну часть дома, другую можно отвести под гараж. Подвальное помещение, предназначенное для хранения маринадов и солений, по высоте должно достигать 2 м. Когда его используют в качестве кабинета или мастерской, потребуется углубиться на 2,5 – 3 м.
Для сооружения опалубки мастеру нужны следующие материалы и инструменты:
- доски с брусьями;
- уровень;
- пила;
- саморезы.

Проект и планировки первого этажа и подвала коттеджа
Вместе с установкой деревянной опалубки укладывают для изоляции:
- пенопласт;
- пенополиуретан;
- твёрдые материалы.
Не рекомендуется использовать минеральную вату. Спустя некоторое время она может напитаться влагой.
Для изготовления бетона жилого дома применяют:
- цемент М 400;
- щебень;
- воду;
- песок.
Оптимальным способом приготовления раствора считается использование бетономешалки. Заливать стены подвала и фундамента следует одновременно. Перерывы делать нельзя, чтобы постройка получилась качественной. До заливки основания жилого сооружения нужно засыпать песок со щебнем в котлован.
После этого смесь равномерно распределяют по дну. Бетон должен хорошо просохнуть. На это требуется от 15 до 21 дня.
Вернуться к оглавлениюПроектирование двухэтажных домов с подвалами
Двухэтажная дача по сравнению с одноэтажными строениями больше по размерам и высоте.

Вариант планировки подвального этажа с сауной, комнатой отдыха и котельной
Такие сооружения обычно состоят из 2 этажей и мансарды. Полезная площадь строения увеличивается. Чертежи помогают точно определить нагрузку на фундамент. Подвал в основном предназначается для хранения продуктов питания. Иногда подвальное помещение переоборудуется в сауну.
При этом его нужно изолировать от жилых комнат в доме. Полноценный 2 этаж – это большая нагрузка на фундамент. Конусовидная форма сооружения даёт возможность уменьшить нагрузку на стены подвального помещения. Заказывая чертежи в строительной компании, не забудьте сказать о своём пожелании.
Фундамент с подвальными стенами может быть построен из различных материалов:
- бетона;
- газобетона;
- кирпича;
- широких строительных блоков.
Чтобы строение получилось достаточно прочным, его армируют. Для связки используются специальные крючки, которые выступают над боковой поверхностью основания. Хозяин сам решает, какой вариант наиболее подходящий. При проектировании нужно принимать во внимание размеры и планировка участка, потребности владельца и его финансовые возможности. Современные строительные материалы позволяют сократить сроки строительства и облегчить процесс возведения сооружений.
planvsem.ru
Гараж с подвалом: проект и этапы стройки

Подвал в гараже
Для владельцев автомобилей очень востребованными являются проекты, в которых подвалы расположены в гаражах. В этом случае экономится площадь загородного участка, увеличивается комфортность проживания, что возможно при создании дополнительных помещений, используемых для разных целей.
Какие преимущества имеет гараж с подвалом, проект какого строения выбрать для своего участка, подскажет статья.
Строительство подвала в гараже
Выбирая проект гаража с подвалом, необходимо учитывать некоторые правила сооружения конструкций.

Строительство фундамента под гараж
К ним относятся:
- Глубина погреба должна быть до двух метров.
- Близость грунтовых вод или влажного грунта, предопределяет необходимость возведения стен из монолитного водонепроницаемого бетона или материала с достаточной плотностью.
- При сухом грунте, стены изготавливаются из облегченных стандартных асбестоцементных волнистых шиферных листов, используемых для кровли. Монтируются они в два слоя, затем саморезами или шурупами фиксируются к деревянному каркасу, что делает строение довольно прочным. Склеиваются листы между собой клеем на цементно-казеиновой основе или битумной мастикой.
- Для гидроизоляции помещения используется горячий битум, которым обмазываются ограждающие конструкции в два слоя.

Состав для гидроизоляции
Совет: Перед нанесением любого покрытия должна выполняться обработка поверхности грунтом.

Устройство вентиляции в погребе и гараже
Преимущества строения
Не стоит использовать проект гаража с погребом, для возведения металлической конструкции, которая считается относительно временным строением. Основной причиной этого является довольно высокая цена постройки. Строить в гаражах погреб имеет смысл при его эксплуатации более 20 лет.
Преимущества такой конструкции:
- Возможность использовать подвал для хранения зимних припасов.

Размещение продуктов в подвале
- Помещение достаточно легко переоборудовать и использовать как мастерскую, что очень важно для многих автовладельцев, особенно в кооперативных стандартных гаражах, которые не имеют отдельного места для организации мастерской.

Организация мастерской в подвале
- Такие помещения используется для хранения предметов и вещей, которые жалко выбросить, но они не нужны в данный момент.

Хранение лишних вещей
- При решении построить гараж с погребом, проект, составленный грамотно, позволяет рассматривать сооружение, как выгодно приобретенную долгосрочную инвестицию, предусматривающую вложение средства в строительство один раз.

Проект погреба под гаражом
Дом с подвалом и гаражом
Особого внимания заслуживают проекты домов с подвалом и гаражом.

Подвал и смотровая яма в гараже
Целесообразность их выбора определяется, прежде всего, предварительной сметой расходов. Очень часто проекты одноэтажных домов с гаражом и подвалом увеличивают стоимость строительства всего здания на 15-30%, что является довольно внушительной суммой в денежном выражении. Однако наличие подвала значительно расширяет возможности проекта, позволяет рациональнее и экономнее использовать пространство в самом доме.
Выбирая проект дома с подвалом и гаражом, необходимо определить рациональность такого решения. Особе значение следует придавать геологическим факторам.
К ним относятся:

Гидроизоляция подвала
Например: в доме, где подвал не предусмотрен, достаточно устройство горизонтальной гидроизоляции на уровне цоколя фундамента.
- Вид грунта. При наличии на участке грунтов скалистого типа, для устройства фундамента потребуется привлечение спецтехники.
Преимущества и недостатки, которые имеет проект дома с гаражом и подвалом, представлены в таблице:
| За | Против |
|
|
Варианты исполнения
Проекты гаражей с подвалом могут быть самыми разными.
Некоторые примеры представлены ниже:
- Самый популярный вариант — полностью заглубленный погреб глубиной от 1,5 до 3 метров.

Отдельное расположение погреба и смотровой ямы
Совет: Окончательную глубину погреба следует выбирать в зависимости от глубины размещения грунтовых вод. Источник влаги от основания подвала должен быть на расстоянии минимум 50 сантиметров.
- Вход в гараж и подвал раздельные. Такой вариант обычно используется при сооружении капитальных гаражей.

Капитальный гараж с подвалом
В этом случае погреб может быть полузаглубленным до одного метра глубиной или полностью заглубленным. Несмотря на значительный объем строительных работ, которые требует погреб под гаражом, проект, при правильной разработке, будет очень полезным при строительстве капитального строения.
Составление плана
Составляя проекты одноэтажных домов с подвалом и гаражом, необходимо учитывать такие факторы:
- Нельзя производить строительство в низине. Это место, где строение будет постоянно подвергаться подтапливанию талыми и ливневыми водами.
- Возведение строений не стоит производить рядом с деревьями, их корни могут нанести большой вред зданию.
- Все проекты домов с подвалом, гаражом и мансардой, должны включать вопросы по организации систем электрификации, водоснабжения и канализации.
- Не стоит строить здание над подземными коммуникациями. Они должны иметь всегда свободный доступ.
Документы проекта
В комплект документации при разработке любого проекта входят:
- Схема расположения здания на участке.
- Эскиз сооружения, выполненный в масштабе и цвете.
- План гаража, подвала и жилых помещений с указанием их размеров, отметок по высоте, расположением ворот, дверей, окон и лестниц.
- Описание фундамента.
- Подробные чертежи каркаса здания.
- Спецификация материалов, необходимых для отделки.
- Эскизы крыши и материалы для кровли.
- Схема подвода коммуникаций.

Вентиляция в подвале
- Пояснительная записка.
- Расчет стоимости материалов и работ.
- Набор необходимых инструментов.
Составление проекта
Стоимость в первых двух случаях может быть достаточно высокой, но при этом значительно уменьшается время на разработку документации. Для этого представители агентства обычно выезжают на место строительства, производятся все необходимые замеры и составляют проект под конкретные условия эксплуатации здания и требования заказчика.
Какие бывают проекты двухэтажных домов с подвалом и гаражом, одноэтажных зданий или отдельно стоящих гаражей с подвалом показывает видео.
Совет: При самостоятельной разработке проекта, его необходимо показать специалистам. Они одобрят документацию, скорректируют ее, при необходимости.
Инструкция по самостоятельной разработке проекта состоит из таких этапов:
- Определяется, какое количество автомобилей будет храниться в гараже: одна, две или большее число.
- Рассчитывается площадь гаража. При этом учитывается, размещение в нем лишь машин, или они будут здесь же ремонтироваться, наличие стеллажей для хранения инструмента, необходимость свободного места для удобного перемещения человека, выполняющего ремонт авто.
- Выбираются размеры подвального помещения.

План цокольного этажа дома
- Разрабатываются поэтажные планы здания.

План жилого этажа дома
- Решается функциональное назначение мансардной части, при ее наличии: будет она предназначена для жилья или других целей.
Совет: Составляя план, следует использовать точные мерительные инструменты.
- Разрабатывается план мансарды. Для жилого помещения должно учитываться, где будут спальня, уголок для кухни, санузел.

Проект первого этажа и мансарды
- Выбирается крыша для здания.

Мансардная крыша дома
- Размещается система электроснабжения.

Схема подключения системы электроснабжения дома
- Составляется спецификация материалов для возведения строения. Это влияет на стоимость конструкции, длительность ее строительства, долговечность и надежность здания.
- Оформляется окончательно комплект документации проекта на бумаге, с учетом всех деталей конструкции.
Соблюдая все требования при составлении плана строительства здания, выбрав подходящие проекты двухэтажных домов с гаражом и подвалом, качественно и правильно проводя все работы по их возведению, можно построить дом на любой вкус. При этом строение будет служить уютным жилищем для людей и местом хранения автомобиля долгое время.
1pogarazham.ru
современные решения и идеи для реализации
Свой проект дома с гаражом и подвалом

Проект дома с подвалом и гаражом
Проекты домов с подвалом и гаражом всегда пользовались большой популярностью. Это объясняется удобством и практичностью их эксплуатации.
В любом доме наличие подвала является очень полезным помещением. Его можно использовать как подсобку, склад или под комнату другого технического назначения.Здесь же можно провести разводку всех коммуникаций для дома, а в дальнейшем беспрепятственно иметь к ним доступ во время проведения ремонта.
Какие проекты домов с гаражом и подвалом можно использовать для строительства своего дома предлагает рассмотреть данная статья.
Особенности проектов домов с устройством гаража и подвала
В настоящее время наличие транспорта – это необходимое средство для комфортного передвижения человека, без которого очень сложно обойтись при проживании за городом.
Подвал – часть дома, где хранятся продукты или вина (см.Винный погреб: делаем правильно). Поэтому наличие гаража и подвала в доме является необходимостью, что учитывается когда разрабатываются проекты двухэтажных домов с гаражом и подвалом или домов другой этажности.
Устройство этих помещений в своих домах имеет как положительные так и отрицательные стороны, которые должны учитывать проекты одноэтажных домов с гаражом и подвалом.
Преимуществами таких сооружений являются:
- Совместная разработка системы отопления в доме, гараже и подвале. При этом температура в гараже будет ниже, но достаточной для временного комфортного нахождения в нем, без дополнительного электроподогрева.
- Проход в подвал можно обустроить через внутреннее пространство жилища, что создает дополнительные удобства – не нужно, при плохой погоде, выходить на улицу, а сразу спуститься в подвал (читайте Потайной люк в подвал: какой лучше).
- При ограничении территории земельного участка есть возможность его экономии, при встраивании подвала и гаража под домом.
- Обеспечивается срок выполнения строительства, уменьшается цена сооружения в целом.
- В любое время года можно комфортно провести время в теплом гараже.
К недостаткам, которые могут иметь проекты одноэтажных домов с гаражом с подвалом можно отнести:
- Для отвода выхлопного газа и препятствие их попаданию в дом необходимо устройство качественной системы вентиляции.
- Существуют особенности при возведении фундамента, которые необходимо строго соблюдать.
- При размещении в подвальном помещении гаража заезд в него и выезд усложняет наличие пандуса, особенно зимой.
- Проекты двухэтажных домов с подвалом и гаражом предусматривают проведение качественной гидроизоляции фундамента.
- До заливки фундаментной плиты необходимо выполнить смотровую яму.
- Из-за ограничения естественного освещения, особое внимание нужно уделить системе энергоснабжения гаража и подвала.
Проекты и строительство домов с гаражом и подвалом
Подвал можно встраивать в домах одного, двух и большей этажности. Но в последних — другие функции, отличные от частных домов.
Проекты одноэтажных домов с подвалом и гаражом достаточно разнообразные, размеры подвала не зависят от размеров дома. Еще на этапе заливки под дом фундамента начинается сооружение подвала и гаража.
Благодаря таким помещениям можно разгрузить сооружение от подсобных помещений. Сюда переносятся котельные, кладовые, бойлерные. На фото представлен популярный проект одноэтажного дома с гаражом и подвалом.

Проект одноэтажного дома с гаражом и подвалом
Очень большим преимуществом устройства подвала в доме является создание «теплого пола», особенно при наличии автономной системы отопления. Поднимаемый вверх теплый воздух, всегда будет согревать пол в доме, а помещение делать сухим и теплым.
Здесь не будет высокой влажности воздуха, что вредно для здоровья человека. Не редко в подвале размещаются помещения для работы и игр, бильярд, сауны.
Совет: Строительство подвального помещения своими руками производится при сооружении фундамента под дом.
Как выполняется возведение подвального помещения в одноэтажном д
skalice.ru
Проект дома с подвалом и гаражом




Данный проект одноэтажного жилого дома можно рассматривать как при наличии подвального помещения, так и при его отсутствии. Дайте нам знать о необходимости включения подвального помещения в проект и мы подготовим для Вас вариант проекта отвечающий Вашему пожеланию. Данный проект дома (вариант с подвалом) успешно реализован на территории Белгородской области.
Общая площадь жилого одноэтажного дома с подвалом 205,49 кв. м. Без подвала — 159,72 кв. м.
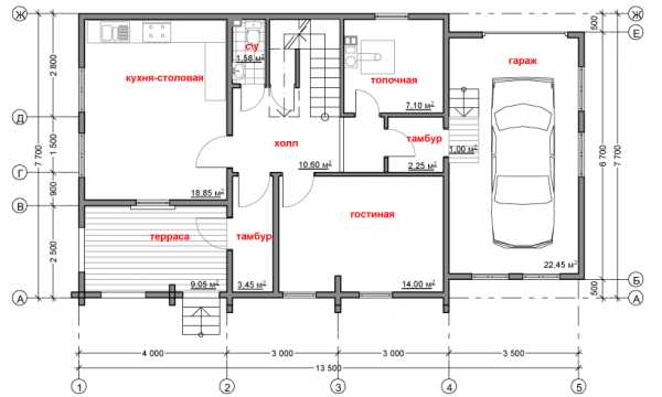
Проект дома состоит из следующего набора помещений — гостиная с выходом в холл, кухня-столовая, две спальни, два санитарных узла, тамбур. Гараж для автомашины заведен под одну крышу с домом. Вместе с гаражом в едином хозяйственном блоке размещена топочная.
Подвал в своём доме.
Свой дом, в умеренном отдалении от городов и промышленных центров, становится явью для многих людей. Задумываются о постройке, вероятно, ещё большее их число. Именно на этой стадии, самого начала составления проекта, необходимо планировать наличие в будущем жилище подвального помещения. Надо сказать, что предприятие это достаточно затратное, во всех смыслах, считается, что обустройство подвального помещения «съедает» около двадцати пяти процентов средств на строительство всего дома. Потому необходимо всё тщательно взвесить и обдумать.
Но, если решение принято, то, вероятно, уже запланировано и использование новой, достаточно просторной площади. Кстати, расположить на ней, действительно, можно практически всё, что душе угодно, от котельной и гаража до сауны и кабинета. Рекомендуем Вам на начальном этапе принять окончательное решение о наличии подвала в доме.
Если участок, на котором будет построен дом, щадят грунтовые воды, все работы по оборудованию подвала проведены чётко, с соблюдением технологий, то это помещение будет отличаться от остальных только меньшей освещённостью. А какая бильярдная или тренажёрный зал может там расположиться.
Стоимость проекта дома в один этаж с подвалом 7500 р.
Заказать проект дома с подвалом и гаражом
www.belarch.ru
Проект одноэтажного дома с подвалом, гаражом и мансардой
Одноэтажные дома сегодня пользуются огромной популярностью среди жителей современных городов. Увы, жизнь в мегаполисах становится все хуже и сложнее, особенно в плане экологии и безопасности. Если вы хотите огородить себя от постоянного шума, назойливых соседей, а также вечных пробок, то обязательно рассмотрите вариант переезда за город. Даже если ваш бюджет ограничен или же вы не желаете строить огромный особняк, то одноэтажные дома – это то, что нужно. Кроме того, вы имеете потрясающую возможность сделать его особенным и действительно уникальным с помощью применения нестандартных архитектурных решений. В этой статье мы рассмотрим преимущества и особенности создания дома с подвалом и гаражом.

Одноэтажные дома – современная и популярная тенденция
Давно уже остались в прошлом массивные дома огромной площади. Такие замки, конечно же, впечатляют своими размерами и изысканностью, но современный человек больше ценит практичность и функциональность каждого квадратного метра своего дома. Кроме того, одноэтажные сооружения могут быть весьма разнообразными. Никто не говорит, что необходимо создавать однотипные «коробки» используя при этом такие же планы и чертежи сооружений, как, к примеру, у соседей. Вы можете проявить свою фантазию и воплотить в жизни заветные мечты, идеи и задумки. Многие владельцы частных домов создают в качестве пристройки гаражи на территории своего участка, компенсируют нехватку полезной площади за счет мансарды, или же просто, чтобы сэкономить пространство, переносят хозяйственные помещения (кладовые и котельные) в подвал. Подвал – это отличное решение, особенно если речь идет об одноэтажном доме. В нем можно хранить ненужные вещи, выдерживать вино и обустраивать полочки для зимней консервации. Кроме того, если у вас есть собственное хозяйство, то урожай овощей и фруктов, собранный за сезон, можно не замораживать в холодильных камерах, а просто перенести в подвал. Так как такие помещения не имеют окон, попадание прямых солнечных лучей исключено, а соответственно, и быстрая порча продуктов питания также.
Одноэтажный дом (с мансардой, а также подвалом)
Особенности создания проектов одноэтажных домов
Разумеется, самым важным и ответственным этапом любых строительных работ является выбор или же создание проекты будущего сооружения. На сегодняшний день в сети можно увидеть огромное море проектов, которые отличаются своим разнообразием. Такие схемы отличаются практичностью и универсальностью, а все, что потребуется от вас – выбрать тот, что подходит вам по внешним характеристикам, по площади участка, а также по своей планировке. Как правило, чертежи, которые выставлены на строительных форумах и порталах создавались профессиональными архитекторами, которые знают все тонкости и нюансы своего дела. Если среди уже готовых проектов вы так и не нашли тот, что вам по душе, то в таком случае вам стоит задуматься о создании индивидуальных чертежей.

Лучше всего доверить эту работу проектировщикам, ведь только они смогут максимально точно провести все расчеты, определить количество необходимого материала, а также дать гарантию результата. Благодаря современному и лицензионному программному обеспечению вы еще задолго до создания фундамента сможете увидеть, как будет выглядеть ваш дом после в итоге. Если вас что-то не устроит, то вы легко сможете внести необходимые правки и коррективы для того, чтобы возвести коттедж своей мечты. Специалисты в строительной отрасли категорически не рекомендуют браться за разработку чертежей самостоятельно. Из-за нехватки опыта и познаний вы, вероятней всего, не сможете получить точных результатов, а ваши повлекут за собой ошибки в планировке или же лишний расход материалов.
План подвала
Подвальное помещение: используем площадь правильно
Многие готовые проекты домов с подвалом подразумевают, что подвальное помещение будет использоваться не только в качестве места для хранения старого хлама, но и как полноценная комната. В ней можно легко обустроить бильярд, сауну, комнату для отдыха с искусственным камином и т.д. Вы можете самостоятельно выбрать, что будет самым лучшим вариантом конкретно в вашем случае, но не забывайте, что наличие или отсутствие подвала в доме определяется задолго до начала строительных работ. Коттеджи с подвальным помещением имеют несколько другой, более сложный и затратный тип фундамента. Также стоит отметить и особенности разметки участка, которые важно учитывать. Если вы занимаетесь возведением дома впервые, то перед проектированием подвальных помещений обязательно проконсультируйтесь предварительно со специалистом.

Одноэтажные дома с мансардой и подвалом
Как известно, одноэтажные дома во многом пользуются популярностью среди наших соотечественников благодаря своей доступности. Но если вы решили отдать предпочтение такому сооружению, но при этом ищете возможность увеличить количество полезной площади, то обязательно посмотрите уже готовые проекты дома с мансардой и обустроенным подвальным помещением. Такое решение позволит вам отказаться от чердака, на котором хранится хлам, в пользу создания дополнительной комнаты. Для строительства мансарды понадобится в два, а то и в три раза меньше средств, нежели на возведение двухэтажного дома. А если в подвальном помещении вы оборудуете зону для отдыха, то ваш одноэтажный дом сможет посоревноваться с двухэтажными коттеджами в плане функциональности и практичности.
Процесс создания фундамента одноэтажного домаПроцесс возведения дома с подвалом
Если вы хотите, чтобы в вашем доме было подвальное помещение, то продумайте этот нюанс еще до начала строительных работ. Все происходит в несколько этапов, а именно:
- разрабатывается чертеж дома с подвалом и мансардой, либо выбираются проекты одноэтажных домов с гаражом и подвалом одновременно;
- выполняется подготовка территории. Для этого на участке делается разметка, расчищается территория, убираются растения, различный мусор и так далее.
- проводится гидроизоляция основания. От того, насколько качественно она будет выполнена, во многом зависит прочность сооружения, а также его долговечность. Это обусловлено тем, что стены подвального помещения будут соприкасаться с фундаментом. Кроме того, специалисты в строительной отрасли рекомендуют вести работы по формированию основания и подвала параллельно.

- после этого вырывается котлован необходимой глубины;
- создается опалубка и основа для стен помещения, которое будет служить своеобразным погребом;
- осуществляется заливка фундамента и стеновых конструкций. На этом этапе нельзя делать никакого перерыва, потому что за считанные дни бетон может застыть и дальнейшие работы несколько усложнятся.
- Для того, чтобы вся эта конструкция полностью застыла, рекомендуется выждать примерно две-три недели. Только после этого можно приступать к формированию напольного основания подвала и стен коттеджа.

Как видите, процесс создания подвального помещения в условиях одноэтажного дома не особо сложный. Главное — учитывать все нюансы и особенности почвы, выполнять все в соответствии с рекомендациями специалистов, и тогда, если проектирование было выполнено правильно, дом с подвальным помещением прослужит вам не один десяток лет, а фундамент не даст трещин.
jsnip.ru
видео-инструкция по монтажу своими руками, особенности одноэтажных домов с подвальным помещением, с мансардой, цена, фото
У многих владельцев автомобилей возникала мысль, что неплохо было бы обзавестись не только смотровой ямой, но и подвалом, в котором дополнительно можно хранить что угодно – начиная от автомобильных запчастей, и заканчивая соленьями на зиму.
Действительно, погреб – это хорошо, но когда гараж примыкает к дому – это уже совсем другое дело. Проекты домов с гаражом и подвалом хороши только в тех случаях, когда речь идет о новом строительстве.

Самая простая схема размещения подвала
Надо сказать, что все подобные конструкции можно разделить на два типа:
- Отапливаемые;
- Неотапливаемые.
Схемы отапливаемых помещений
Конечно, можно бесконечно чертить схемы с размещением гаража, комнат дома, подвала и иных отдельных элементов. Разнообразие всего этого огромно.
Но среди всех их можно выделить некоторые закономерности:
- Помещение для автомобиля, как правило, строится сбоку от дома;
- Заезд в него лучше располагать сразу напротив въездных ворот, чтобы не приходилось каким-то образом разворачиваться во дворе своего дома;
- Мансарды и балконы строятся вне зависимости от того, с какой стороны расположен гараж;
- Погреб делается таким образом, чтобы в него был свободный доступ и с помещения для автомобиля, и с какой-либо комнаты дома.

Проект дома с гаражом и подвалом, где погреб находится под площадкой для автомобиля
Конечно, все эти принципы не обязательны, и каждый сам выбирает, как ему лучше.
Совет!
Чтобы гараж прогревался достаточно быстро, вход в него должен осуществляться из котельной, или же одна из стен котельной должна граничить с помещением для автомобиля.
Обусловлено это требование только тем, что в описанных случаях трубы от нагревательного котла будут достаточно короткими, а значит и прогреваться будут быстрее.
Немаловажную роль в этом вопросе играет и утепление самого помещения.
Утепление гаража
Итак, если рассматриваются проекты одноэтажных домов с гаражом с подвалом, в которых оба помещения являются отапливаемыми, то заранее следует позаботиться об утеплении стен, а особенно тех, которые не соприкасаются со стенами дома.
Утепление может быть сделано следующих видов:
- Наружное;
- Внутреннее.
Внутреннее утепление заключается в следующем:
- Утепляется пол на этапе заливки;
- Утепляются стены;
- Утепляется потолок;
- Утепляются въездные ворота.
Очень часто в домах мансарда расположена над гаражом, то есть фактически находится на его крыше. В таком случае утеплять потолок не обязательно.

Проекты домов с подвалом гаражом и мансардой, которая расположена на крыше гаража, являются достаточно популярными
Утеплять можно вспененным полистиролом или минеральной ватой. Удобнее работать с пенопластом.
Надо сказать, что инструкция в обоих случаях примерно одинаковая:
- Сперва на стены наносится обрешетка, которая выставляется по уровню. Все брусы обрешетки должны быть расположены в одной вертикальной плоскости;
- Далее между брусами обрешетки стелется утеплительный материал так, чтобы даже мелких щелей не было видно;
- Все швы, то есть места соприкосновения брусов и утеплителя, «запенивают», используя обычную монтажную пену;
- Поверх обрешетки настилают пароизоляционный материал;
- Крепится материал чистовой облицовки.
Подобным образом утепляют не только стены, но и потолок. Цена на утеплитель не очень высокая, а вот польза заметна сразу.
Что касается утепления бетонного пола, то тут все намного проще:
- Сперва, еще на стадии его формирования, укладывается слой песка, толщина которого должна быть равна около 20 см;
- Далее на песок укладывается слой щебня или керамзита. Оптимальным вариантом будет использование керамзита, так как этот материал является утеплителем;
- После этого на керамзит заливается слой бетона, не меньше 3 см;
- По истечении некоторого времени, когда бетон немного высохнет, на него укладывается слой гидроизолятора – рубероид, толь и другой;
- На этот гидроизолятор укладывается пенопласт толщиной не меньше 5 см.
- Поверх пенопласта заливается выравнивающая бетонная стяжка, толщина которой не должна быть меньше 5 см. Если она будет меньше, то автомобиль своим весом ее просто продавит.
Совет!
Чтобы избежать продавливания, верхний слой стяжки армируют, используя стальную арматуру сечением 10-12 мм.
Неотапливаемые помещения
Следует сразу отметить то, что очень часто все отапливаемые строения расположены в цокольном помещении здания – это делает их более теплыми.
Если в отоплении нет необходимости, то гараж ставят в стороне от дома, при этом, как правило, есть только одна общая стена.

Проект гаража на 2 машины с подвалом, который имеет только одну общую стенку и отдельный вход
Как видно на фото, гараж действительно имеет всего одну общую стенку с домом, а погреб (он обозначен серым цветом сзади за машинами) вовсе доступен только из гаража. (См. также статью Вентиляция подвала: особенности.)
Такая планировка хороша, когда необходимости в отоплении просто нет.
Совет!
Если планируется сделать неотапливаемое помещение, то оптимальным вариантом будет заглубить его, то есть сделать его в цоколе.

Планы домов с гаражом и подвалом, где последние находятся в цоколе, должны в обязательном порядке содержать лестницу (слева от авто)
Связано такое требование с тепловыми потерями. Поскольку неотапливаемое помещение для автомобиля будет находиться снизу, то оно в меньшей мере будет подвержено воздействию мороза, а значит и тепла от дома забирать будет меньше.
О расположении гаража можно не заботиться, если речь идет о двухэтажном доме, в котором все спальни расположены на втором этаже. Проекты двухэтажных домов с подвалом и гаражом, как правило, всегда имеют два раздельных входа. (См. также статью Пол в подвале: особенности.)

Один из примеров вышеописанных строений
Вывод
Как видно, существует огромное множество различных комбинаций расположения помещений, речь о которых шла немного выше. Каждый выбирает для себя сам. Кроме того, каждый способен своими руками сделать любые проекты одноэтажных домов с гаражом и подвалом, а также с мансардой и другими строениями.
Еще больше информации по данной теме поможет узнать видео в этой статье.
Отличная статья 0
moypodval.ru
Проект Одноэтажного + Двухэтажного Дома С Гаражом И Подвалом: Схемы + Фото + Видео

Проект дома с подвалом и гаражом
Проекты домов с подвалом и гаражом всегда пользовались большой популярностью. Это объясняется удобством и практичностью их эксплуатации.
В любом доме наличие подвала является очень полезным помещением. Его можно использовать как подсобку, склад или под комнату другого технического назначения.
Здесь же можно провести разводку всех коммуникаций для дома, а в дальнейшем беспрепятственно иметь к ним доступ во время проведения ремонта.
Какие проекты домов с гаражом и подвалом можно использовать для строительства своего дома предлагает рассмотреть данная статья.
Особенности проектов домов с устройством гаража и подвала
В настоящее время наличие транспорта – это необходимое средство для комфортного передвижения человека, без которого очень сложно обойтись при проживании за городом.
Подвал – часть дома, где хранятся продукты или вина (см.Винный погреб: делаем правильно). Поэтому наличие гаража и подвала в доме является необходимостью, что учитывается когда разрабатываются проекты двухэтажных домов с гаражом и подвалом или домов другой этажности.
Устройство этих помещений в своих домах имеет как положительные так и отрицательные стороны, которые должны учитывать проекты одноэтажных домов с гаражом и подвалом.
Преимуществами таких сооружений являются:
- Совместная разработка системы отопления в доме, гараже и подвале. При этом температура в гараже будет ниже, но достаточной для временного комфортного нахождения в нем, без дополнительного электроподогрева.
- Проход в подвал можно обустроить через внутреннее пространство жилища, что создает дополнительные удобства – не нужно, при плохой погоде, выходить на улицу, а сразу спуститься в подвал (читайте Потайной люк в подвал: какой лучше).
- При ограничении территории земельного участка есть возможность его экономии, при встраивании подвала и гаража под домом.
- Обеспечивается срок выполнения строительства, уменьшается цена сооружения в целом.
- В любое время года можно комфортно провести время в теплом гараже.
К недостаткам, которые могут иметь проекты одноэтажных домов с гаражом с подвалом можно отнести:
- Для отвода выхлопного газа и препятствие их попаданию в дом необходимо устройство качественной системы вентиляции.
- Существуют особенности при возведении фундамента, которые необходимо строго соблюдать.
- При размещении в подвальном помещении гаража заезд в него и выезд усложняет наличие пандуса, особенно зимой.
- Проекты двухэтажных домов с подвалом и гаражом предусматривают проведение качественной гидроизоляции фундамента.
- До заливки фундаментной плиты необходимо выполнить смотровую яму.
- Из-за ограничения естественного освещения, особое внимание нужно уделить системе энергоснабжения гаража и подвала.
Проекты и строительство домов с гаражом и подвалом
Подвал можно встраивать в домах одного, двух и большей этажности. Но в последних — другие функции, отличные от частных домов.
Проекты одноэтажных домов с подвалом и гаражом достаточно разнообразные, размеры подвала не зависят от размеров дома. Еще на этапе заливки под дом фундамента начинается сооружение подвала и гаража.
Благодаря таким помещениям можно разгрузить сооружение от подсобных помещений. Сюда переносятся котельные, кладовые, бойлерные. На фото представлен популярный проект одноэтажного дома с гаражом и подвалом.

Проект одноэтажного дома с гаражом и подвалом
Очень большим преимуществом устройства подвала в доме является создание «теплого пола», особенно при наличии автономной системы отопления. Поднимаемый вверх теплый воздух, всегда будет согревать пол в доме, а помещение делать сухим и теплым.
Здесь не будет высокой влажности воздуха, что вредно для здоровья человека. Не редко в подвале размещаются помещения для работы и игр, бильярд, сауны.
Совет: Строительство подвального помещения своими руками производится при сооружении фундамента под дом.
Как выполняется возведение подвального помещения в одноэтажном доме
Перед началом строительства необходимо определить, на каком уровне пролегают грунтовые воды. От этого зависит глубина фундамента под дом и подвального помещения.
Это связано с тем, что если происходит поднятие грунтовых вод, в доме может появиться вода от которой трудно избавиться.
Порядок проведения работ:
- Составляется план размещения подвала, гаража и жилых помещений дома.
- Намечается перечень материалов для строительства, их количество, примерная стоимость сооружения.
- Подготавливается участок под застройку: убирается вся растительность, выравнивается поверхность. Это можно делать с помощью подручных средств: лопат, тяпок при незначительных неровностей и небольшой травы, или механизированными средствами (трактором, бульдозером), если на участке много проблем, неровный рельеф.
Совет: Определить способ выравнивания поверхности можно после ее оценки, о возможности размещения строительного оборудования на участке.

Подготовка участка под строительство дома
- От структуры грунта зависит тип фундамента, а значит и процесс сооружения подвала.
- При строительстве фундамента должно учитываться давление на стены подвала грунта. Толщина их обычно от 30 до 40 сантиметров.
- После разметки будущей постройки вырывается котлован и траншея для ленточного фундамента.
- Подвал может располагаться по всему периметру дома или в определенной его части, глубиной не меньше двух метров. Если помещение будет использоваться как рабочий кабинет или мастерская, глубина его должна быть от 2,5 до 3 метров.
- Сооружается опалубка, в которую будет заливаться бетон для фундамента и стен. Для этого нужно приобрести:
- доски и брусья;
- уровень;
- саморезы;
- пилу.
Прокладывается по всему периметру котлована и траншеи деревянная опалубка. Одновременно используются и изоляционные материалы, необходимые для предохранения подвала от воздействия сырости.
Для этого применяется:
- Пенополиуретан.
- Пенопласт.
- Минеральные твердые изоляционные материалы, которые прокладываются между опалубкой и грунтом.
Совет: Не стоит использовать минеральную вату, которая может со временем пропитаться влагой.
Чаще всего глубина подвала и фундамента под дом делаются одинаковыми. Это связано с защитой подвального помещения от большого давления на него грунта и от размывания или затопления.
Для возведения стен подвала и фундамента используются:
- Цемент марки 400.
- Щебенка.
- Песок.
- Вода.
- Для смешивания раствора – бетономешалка.
Заливка стен и фундамента выполняется одновременно, без перерыва, в течение которого бетон может подсохнуть и не получится тот эффект, который необходим для качественного сооружения постройки.
Перед заливкой фундамента на дно котлована и траншеи засыпаются песок и щебень.
После заливки бетонного раствора конструкции должны выстоять от 15 до 21 дня, что зависит от погоды и специальных компонентов, добавленных в бетонный раствор. После этого выгоняются стены дома и выстилается в подвальном помещении пол.
Проекты домов в два этажа с подвальным помещением
Отличие двухэтажных строений от одноэтажных не только по размерам и высоте строения, но массой, оказывающей большое воздействие на фундамент дома и прилегающею к нему территорию, что необходимо учитывать выбирая проект и планируя строительство.
Дома их двух этажей могут состоять из:
- Полноценного второго этажа.

Проект двухэтажного дома с гаражом и подвалом
Это влияет и на тип фундамента, его глубину, определяет возможности использования под домом подвального помещения.
В последнее время все чаще сооружаются дома с мансардой на верхнем этаже, что увеличивает площадь строения, а крыша составляет дополнительное помещение для жилья. Подвальное помещение в таком строении чаще всего используется как подсобки, кладовые для хранения продуктов.
Проект дома с мансардой, гаражом и подвалом
Часто, для экономии участка, здесь оборудуется сауна, но особое внимание в этом случае требует устройство вентиляции и изоляции помещения от других жилых комнат. Дом с полноценным вторым этажом в отличии от мансарды имеет больший вес, оказывающий и увеличенное давление на грунт, а значит и на стены подвала.
Совет: Для предохранения основания от большой нагрузки проекты многоэтажных домов предусматривают устройство стен подвала так, что помещение имеет конусовидную форму. Это позволяет значительно сократить нагрузку на подвальные стены и распределить ее более равномерно.
Инструкция по сооружению двухэтажного дома указывает, что фундамент и подвал должны соединяться между собой, что требует применение монолитного фундамента, способного выдержать достаточно большую нагрузку.
Подвальное помещение можно выполнять не только из бетона. Современная промышленность выпускает материалы, не уступающие по своей прочности монолиту.
Это могут быть:
- Блоки из газобетона или пенобетона.
- Кирпич.
- Широкие строительные блоки.
При изготовлении монолитного фундамента необходимо предусмотреть устройство металлической арматуры, для обеспечения связки материалов. Это по форме своего рода крючки, выступающие над поверхностью фундамента по бокам.
Сюда будут укладываться кирпичи или другой строительный материал.
Совет: При кладке стен подвального помещения необходимо предусмотреть, чтобы арматура располагалась в местах, где будет раствор, между кирпичами.
Пол в подвале сделать достаточно просто:
- Подсыпаются щебень и песок.
- Заливается бетонным раствором. Для его выравнивания устанавливаются специальные маячки, не допускающие при выполнении работы выходить за их пределы. Обычно это деревянные доски.
Потолок подвала выполняется плитами перекрытий, предусмотренные в проекте дома с подвалом и гаражом. Они обладают надежностью и долговечностью.
Как выполнить строительство своего дома с подвалом и гаражом хорошо показывает видео.
pogreb-podval.ru


