Проект одноэтажного дома с террасой и тремя спальнями – Проекты одноэтажных домов с тремя спальнями. Удачные планировки
Проект одноэтажного дома с тремя спальнями 9 на 12
Об одноэтажном частном доме, где гармонично размещены несколько санузлов, спален, ванных комнат, рабочий угол и библиотека, мечтает любой, у кого есть лишь квартира небольших габаритов. И такой проект одноэтажного дома с тремя спальнями всегда актуален благодаря наличию большого количества типовых недорогих архитектурных планировок. Популярностью пользуются каркасные постройки, а также дома из кирпича, бетона или панельных ж/б плит.
Одноэтажный дом особенно подходит жильцам с ограниченными возможностями, пожилым людям и детям. В нем отсутствует лестница, ведущая на другой этаж, а перемещение по комнатам не вызывает затруднений.
С чего начинается строительство
Прежде всего, важно учесть особенные характеристики территории (в частности, ее уклон), наличие двора.
Планировка помещений – это то, что лежит в основе проекта дома. Она создается в виде чертежей.
3D-моделирование возможного варианта жилого дома
Внимание! Для грамотного составления плана здания необходимо вовлекать в работу существующие эскизы проектной документации, схемы и чертежи, фото одноэтажных жилых домов, 3D-моделирование.
Проект дома по индивидуальному заказу подразумевает воплощение в реальность всех идей застройщика. Стоимость такой услуги достаточно высока.
Плюсы формирования проекта:
- Индивидуальная планировка одноэтажного дома с тремя спальнями – это гарантия комфортного проживания, сохранности нервов и полученного результата.
- Проект задает ход строительства, помогает определить объемы закупаемых материалов.
- На первоначальном этапе разработки документа формируются схемы водоснабжения, отопления и электроснабжения для уточнения сметы.
- Проекты одноэтажных домов с тремя спальнями определяют разделение полномочий поэтапного возведения жилого сооружения.
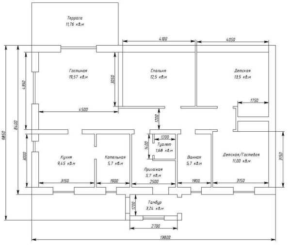
Схема 1. Первый вариант типового проекта одноэтажного домаНебольшой семье из 3-4 человек будет комфортно постоянно находиться в пределах дома 9 на 12, а для большого количества проживающих будет актуален проект одноэтажного дома 12х12 с 3 спальнями – общая площадь 145 м2, а благодаря использованию дополнительных пристроек (веранда, гараж, мансарда) можно повысить коэффициент полезной площади на 40-50%.
На изображенном типовом проекте (схема 1) вход в здание осуществляется через крыльцо. Дополнительные пристройки отсутствуют. В таком доме площадью 127 м2 получится грамотно запроектировать три изолированные спальни, входной тамбур и просторную гостиную. На задней стороне дома имеется терраса, которую при необходимости всегда можно переделать в зимний сад, оснастив ее отоплением. Вход на территорию террасы осуществляется только через гостиную.
На схеме типового плана (схема 2) одноэтажного жилого дома с 3 спальнями отображается санузел, объединенный с ванной, и небольшой коридор, ведущий от помещения гостиной к спальне. Он делает единой зону с двумя спальными комнатами и входом в ванную. Комната родителей изолирована от остальных помещений в противоположной стороне дома. Все спальные комнаты отделены друг от друга.
Схема 2. Второй вариант типового проекта
Просторная гостиная – это центр дома, благодаря этому она самая теплая. В примыкающем тамбуре можно сделать небольшую гардеробную проходного типа, установив вдоль любых стен помещения шкафы с отделениями для обуви и одежды.
Формирование проекта здания из кирпича
Такой дом с тремя спальнями в Москве и других районах пользуется особой популярностью. Его возведение подразумевает:
- установку ленточного основания;
- возведение стен и укладку ж/б перекрытий;
- монтаж кровли и стропильной конструкции.
В проектах одноэтажных кирпичных домов до 150 м2 подразумевается кровля односкатного или двускатного типа. Из-за ее плоского строения ей понадобится усиленная защита от влаги.
Кирпичный одноэтажный жилой дом с тремя спальнями
Гараж в качестве дополнения здания
Проекты одноэтажных домов с тремя спальнями часто предусматривают наличие данной пристройки. При этом навес стоянки для машин объединяют с крыльцом. Если позволяет пространство, участок выделяется сразу под два автомобиля. Его размер в среднем составляет 8х9.
Одноэтажный жилой дом с 3 спальнями и гаражом
Правила и варианты создания террасы
Она может иметь любую форму и должна выходить на восточную или южную сторону с коридора, кухни или гостиной. Существует 2 варианта ее формирования:
- Терраса по короткой стороне. При этом все комнаты технического назначения сгруппированы вместе, а помещения для отдыха – отдельно.
- Укороченная терраса вдоль длинной стороны здания. Кухня, санузел, котельная объединены в один сектор, а спальни и детские размещены по длинной стороне дома площадью 150 м2.
Пример планировки с короткой террасой по длинной сторонеУвеличиваем функциональность проекта
Решить данную задачу можно методом объединения смежных помещений и грамотным подходом к использованию каждого квадратного метра полезной площади. Стоит основываться на следующих нюансах:
- Насколько будет просторна гостиная, зависит от количества жильцов в частном доме и числа вероятных гостей.
- Параметры кухни следует исчислять, ориентируясь на количество бытовых приборов и численность семьи. На плане заранее схематично отображается размещение мебели и специального кухонного оборудования. На это стоит обратить внимание, так как предметы кухонной мебели должны быть не только гармонично вписаны в интерьер, но и не мешать жильцам готовить пищу.
- Во всех комнатах зоны отдыха необходимо предусмотреть место под гардероб.
- Котел отопления в соответствии с данным проектом устанавливается в отдельной пристройке вблизи жилого здания. Делается это с целью предотвращения вероятности попадания грязи в комнаты. Данное техническое помещение формируется в соответствии со всеми необходимыми нормами.
Продумать такой вариант индивидуального проекта своими силами достаточно сложно, поэтому потребуется прибегнуть к помощи специалистов архитектурной компании или сделать заказ на разработку данной документации подходящего функционала.

Проект одноэтажного жилого дома с тремя спальнями, выполненный по индивидуальному заказу
На схеме представлен проект по индивидуальному заказу с отопительным котлом, расположенным внутри дома, и двумя входами в здание – с фасадной и задней части. Чердачное помещение можно переоборудовать в небольшую мансарду.
В предложенной планировке тамбур хоть и имеет небольшие размеры, но отделяет зону c отопительным котлом от остальных комнат, а за счет отдельного входа в данное вспомогательное помещение полностью отсутствует вероятность распространения грязи по жилому зданию. Единственная дверь, ведущая из тамбура в комнаты, способствует сохранению тепла в доме. А постоянное его поддержание обеспечивает встроенный в стену дымоход.
Такие проекты одноэтажных домов до 150 м2 хороши тем, что в них предусмотрены две раздельные ванные различных габаритов и изолированный туалет. Эти помещения располагаются вблизи спален и достаточно удалены от гостиной и кухни.
Проекты одноэтажных жилых домов до 150 м2 (например, дома 9 на 12 или 9 на 15 м) в отличие от малогабаритных вариантов построек допускают объединение помещений в одно с целью повышения уровня комфорта и функциональности. Существует 3 варианта решения данной задачи:
- Объединить туалет с ванной комнатой.
- Совместить кладовку и вспомогательное помещение с размещенным в нем отопительным котлом.
- Для повышения коэффициента функциональности произвести соединение столовой с гостиной, холлом либо кухней.
Планировка с длинным коридором, исключающая проходную систему
Важно! Под объединение помещений для приема пищи определяется одна отдельная комната с целью освобождения полезной площади для другого помещения.
Если применять этажный вариант объединения помещений в здании из одного этажа, то возникнет необходимость в расширении площадных параметров каждого помещения на значение ширины несущей или межкомнатной стены. При этом важно помнить, что расстояние, на которое производится увеличение, должно быть ≥ 10 см.
Пример проекта с объединением пространства
В индивидуальный проект 1, представленный ниже, вошли: три спальни и гардеробная, расположенная в одной из спальных комнат. Парадное крыльцо является центральным входом в дом. С задней части здания предусмотрен черный вход на террасу. С нее можно попасть только в ближайшие две спальни, а третья изолирована и имеет доступ к гардеробному отделу.
Проект, предлагающий совмещение спальной и гардеробной комнат
Длинный коридор, проходящий по центру дома и позволяющий попасть во все жилые и бытовые помещения, очень удобен. Благодаря такой планировке ни одна из комнат не является проходной. При желании заказчика в любой спальне допускается формирование гардероба, рабочего пространства с перегородкой или без нее. Виртуально дом делится на зоны: ночную (спальная) и дневную (гостиная и вспомогательные помещения). Отдельно расположенная котельная находится вблизи центрального входа в здание, и попасть к отопительному котлу можно только пройдя через холл и тамбур.
Зонирование проекта дома с тремя спальнями:
- Входная зона. Сюда относятся тамбур, санузел, помещение с отопительным котлом и холл.
- Кухня с открытым проходом в столовую-гостиную.
- Спальня с гардеробной зоной.
- Застекленная терраса, с которой можно попасть в спальню и гостиную, а выйти из дома – с черного входа.
Объединение кухни и гостиной в составе проекта одноэтажных жилых домов до 150 м2 позволяет сделать пространство столовой в доме практически изолированным. На летний период сюда актуально включить террасу. Вследствие совмещения нескольких помещений образовался небольшой холл – перегородка между спальнями и общими местами. Все зоны отдыха огорожены стенами и дверью с целью исключения вероятности попадания нежелательных ароматов из кухни и санузла.
Проект планировки одноэтажного дома площадью 160 м2Следующий проект достаточно большого одноэтажного дома площадью 160 м2 имеет отличную от первого варианта планировку, подходящую для семей с детьми разных возрастов. Комната отдыха родителей расположена в противоположном конце от спален детей, при этом детские комнаты также максимально изолированы друг от друга. Комфорт и функциональность этого проекта в следующем:
- В спальне родителей есть много места для двуспальной кровати, рабочей зоны и организации небольшого гардеробного уголка. Спальня выходит в гостиную, никаким образом не пересекаясь с личной зоной детей.
- Напротив, через небольшой холл (или участок гостиной), находится детская младших детей. Пространства данной комнаты хватает для организации всех необходимых зон: отдыха, учебной и игровой.
- Комната для детей старшего возраста находится на большем удалении от родительской спальни. Здесь также есть полный функционал.
- Выходы из всех спальных помещений ведут в гостиную – место, где вся семья отдыхает и осуществляет прием пищи.
Вариант объединения ванной комнаты с санузлом
Проекты одноэтажных кирпичных (или любого другого типа) домов с 3 спальнями обязательно должны предусматривать такие комнаты, как:
- Гостевая.
- Кухня или столовая (допускается их совмещение).
- Кладовка и гардеробная.
- Ванная комната и туалет – совмещенный с ванной или раздельный.
Терраса, тамбур, комната с отопительным котлом могут включаться в проект по личному желанию заказчика. Вариантов их формирования достаточно много. Например, постройку котельной можно запроектировать непосредственно вблизи дома, а террасу – как часть общего плана либо пристроить веранду.
jsnip.ru
Классический кирпичный одноэтажный дом с тремя спальнями. Проект одноэтажного дома с тремя спальнями. Что учитывать при проектировании одноэтажного дома с тремя спальнями
Собираясь строить дом, можно заказать его проектирование специалисту, а можно попытаться переделать один из имеющихся вариантов под свои требования. В любом случае, надо четко представлять чего вы хотите. Очень желательно, чтобы ваши желания были хорошо продуманными. Не все, что кажется привлекательным как идея, удобно в эксплуатации. И такие «мелочи» надо знать. Часть информации разберем, пытаясь найти подходящий проект одноэтажного дома с тремя спальнями. Почему так? Потому что это наиболее распространенный вариант, который подходит для семей из 4 человек. Именно таких большинство.
Общие принципы планировки
Когда вы ищите готовые проекты одноэтажных домов с тремя спальнями или пытаетесь создать на основе найденного свой, важно помнить несколько моментов.
Это те принципы, которых желательно придерживаться. Но и это не догма. Все можно решить (кроме требований к котельным). Решения, действительно существуют разные, под разные запросы и вкусы. Требуется только желание и определенная сумма.
Если все три спальни разместить рядом
Многие проекты одноэтажных домов с тремя спальнями спланированы таким образом, что все спальни находятся в одной стороне дома. С одной стороны это удобно. Относительно шумные помещения — гостиная и кухня оказываются в противоположной стороне. С другой стороны, не всем нравится такое расположение — опасаются что дети могут оказаться свидетелями ненужных сцен.

Приведенном выше проекте именно так и поступили. Все три спальни находятся в правой стороне дома и имеют примерно одинаковую площадь. Из положительного все спальни от гостиной далеко, можно спокойно смотреть телевизор, не боясь помешать.
Из недостатков — туалет и ванная находятся далеко от кухни и котельной. Не самый удобный вариант для прокладки коммуникаций. Из других особенностей — длинный коридор со множеством дверей. Эту площадь никак не используешь.
При планировании террасы, обращать внимание надо сразу на несколько моментов. Первый — для оптимальной освещенности лучше, если терраса выходит на юг или восток. Второе — из какого помещения будет выход. Чаще всего делают выход из гостиной. Это самый логичный случай. Второй случай — из коридора, который, как правило, примыкает к гостиной или кухне (гораздо хуже, но возможно). Обратите внимание, что очень удобно, если рядом с входом на террасу находится кухня — заносить/выносить блюда, напитки и т.п. Ведь терраса часто используется именно для посиделок на открытом воздухе.
Эти два момента уже частично определяют планировку вашего дома — гостиная должна иметь выход на южную или восточную сторону. Значит ее положение определено. К гостиной должна примыкать кухня, а еще желательно все помещения, подключаемые к техническим коммуникациям «собирать» в одной зоне … То есть, вы практически решили, где находятся гостиная, кухня, технические помещения. Осталось расположить спальни и организовать удобный проход.

Но это еще не все, что надо учесть при планировании террасы. Есть третий момент — ее размер. Тут подход индивидуальный — кому-то требуется много места, кому-то достаточно поменьше. Интересный вариант — Г-образная, которая охватывает южную и восточную стены строения. Если ее остеклить, Можно превратить в летний сад… Если вам это интересно.
И четвертый момент, без которого не обойтись. Терраса интенсивно используется и является любимым местом отдыха, если с нее открывается вид на сад, красиво оформленный задний двор, на речку и т.п. Если же взгляд упирается в забор соседа, никому это не интересно, терраса не используется, постепенно превращается в «техническое помещение» — поставить газонокосилку, сушилку, и т.д. Это определяет еще и положение дома на участке. То есть, большую часть задач по планировке дома вы решили.
Вариант 1: с террасой вдоль всей короткой стены
Давайте рассмотрим несколько проектов одноэтажных домов с тремя спальнями и террасами. Выход на террасу из гостиной. На нее же выходит кухонное окно. Все технические помещения собраны в одном месте и расположены возле кухни. Спальни находятся в противоположном конце дома, что, в общем-то, удобно — можно принимать гостей или смотреть телевизор в гостиной и не мешать тем, кто решил отдохнуть.

Несущая стена в этом проекте одна — вдоль длинной стороны. Остальные стены — перегородки. Кухня-гостиная едина, но можно установить перегородку и разделить помещения. В этом случае придется выделить часть гостиной, но, при данной площади — почти 17 метров — это не очень критично. Спальни в этом проекте имеют разные размеры: 9, 11, 13 метров. Удобно это или нет — решать вам. При желании, размеры спален можно увеличить за счет уменьшения площади котельной (при 3-х метровых потолках достаточно площади в 5 квадратов, так что ресурс есть. Самую маленькую спальню можно увеличи
mirhat.ru
Планировка 1-этажного дома с тремя спальнями — выбираем проект по вкусу
Собираясь строить дом, можно заказать его проектирование специалисту, а можно попытаться переделать один из имеющихся вариантов под свои требования. В любом случае, надо четко представлять чего вы хотите. Очень желательно, чтобы ваши желания были хорошо продуманными. Не все, что кажется привлекательным как идея, удобно в эксплуатации. И такие «мелочи» надо знать. Часть информации разберем, пытаясь найти подходящий проект одноэтажного дома с тремя спальнями. Почему так? Потому что это наиболее распространенный вариант, который подходит для семей из 4 человек. Именно таких большинство.
Общие принципы планировки
Когда вы ищите готовые проекты одноэтажных домов с тремя спальнями или пытаетесь создать на основе найденного свой, важно помнить несколько моментов.
- Для условий климата с холодными зимами наличие тамбура крайне желательно. В этом случае холодный воздух при каждом открывании дверей не будет попадать в жилые помещения. Если тамбур совсем уж не вписывается в пределах стен, его можно вынести и сделать в виде пристройки. Не самое изящное решение, но имеет право на существование.
- Все помещения, где требуется подведение воды/канализации (кухня, ванна, туалет, котельная) располагать лучше рядом. Так инженерные системы будут проще, меньше потребуется материалов, получится значительно дешевле.

При планировании дома надо придерживаться определенных правил
- При проживании в доме 4 и более человек, желательно иметь два санузла. Вы это оцените. Пусть даже один будет совсем небольшой — только унитаз и раковина. Даже если располагаются они через стенку, это очень удобно.
- При размещении в доме котла, необходима котельная. Требования к котельным в частном доме можно посмотреть тут, но основное, что надо помнить — при высоте потолков не менее 3 метров объем помещения должен быть не менее 15 кубов и в помещении обязательно должно быть окно.
- Сразу прорисовывайте расположение крупногабаритной мебели. Во всяком случае, положение кроватей и шкафов в спальнях, расположение мебели и мойки на кухне.
Это те принципы, которых желательно придерживаться. Но и это не догма. Все можно решить (кроме требований к котельным). Решения, действительно существуют разные, под разные запросы и вкусы. Требуется только желание и определенная сумма.
Если все три спальни разместить рядом
Многие проекты одноэтажных домов с тремя спальнями спланированы таким образом, что все спальни находятся в одной стороне дома. С одной стороны это удобно. Относительно шумные помещения — гостиная и кухня оказываются в противоположной стороне. С другой стороны, не всем нравится такое расположение — опасаются что дети могут оказаться свидетелями ненужных сцен.

Пример планировки одноэтажного дома с тремя спальнями на 110 квадратных метров
Приведенном выше проекте именно так и поступили. Все три спальни находятся в правой стороне дома и имеют примерно одинаковую площадь. Из положительного все спальни от гостиной далеко, можно спокойно смотреть телевизор, не боясь помешать.
Из недостатков — туалет и ванная находятся далеко от кухни и котельной. Не самый удобный вариант для прокладки коммуникаций. Из других особенностей — длинный коридор со множеством дверей. Эту площадь никак не используешь.
Проект одноэтажного дома с тремя спальнями и террасой
При планировании террасы, обращать внимание надо сразу на несколько моментов. Первый — для оптимальной освещенности лучше, если терраса выходит на юг или восток. Второе — из какого помещения будет выход. Чаще всего делают выход из гостиной. Это самый логичный случай. Второй случай — из коридора, который, как правило, примыкает к гостиной или кухне (гораздо хуже, но возможно). Обратите внимание, что очень удобно, если рядом с входом на террасу находится кухня — заносить/выносить блюда, напитки и т.п. Ведь терраса часто используется именно для посиделок на открытом воздухе.
Эти два момента уже частично определяют планировку вашего дома — гостиная должна иметь выход на южную или восточную сторону. Значит ее положение определено. К гостиной должна примыкать кухня, а еще желательно все помещения, подключаемые к техническим коммуникациям «собирать» в одной зоне … То есть, вы практически решили, где находятся гостиная, кухня, технические помещения. Осталось расположить спальни и организовать удобный проход.

С террасы должен открываться интересный вид
Но это еще не все, что надо учесть при планировании террасы. Есть третий момент — ее размер. Тут подход индивидуальный — кому-то требуется много места, кому-то достаточно поменьше. Интересный вариант — Г-образная, которая охватывает южную и восточную стены строения. Если ее остеклить, Можно превратить в летний сад… Если вам это интересно.
И четвертый момент, без которого не обойтись. Терраса интенсивно используется и является любимым местом отдыха, если с нее открывается вид на сад, красиво оформленный задний двор, на речку и т.п. Если же взгляд упирается в забор соседа, никому это не интересно, терраса не используется, постепенно превращается в «техническое помещение» — поставить газонокосилку, сушилку, и т.д. Это определяет еще и положение дома на участке. То есть, большую часть задач по планировке дома вы решили.
Вариант 1: с террасой вдоль всей короткой стены
Давайте рассмотрим несколько проектов одноэтажных домов с тремя спальнями и террасами. Выход на террасу из гостиной. На нее же выходит кухонное окно. Все технические помещения собраны в одном месте и расположены возле кухни. Спальни находятся в противоположном конце дома, что , в общем-то, удобно — можно принимать гостей или смотреть телевизор в гостиной и не мешать тем, кто решил отдохнуть.

Проект одноэтажного дома с 3 спальнями и террасой
Несущая стена в этом проекте одна — вдоль длинной стороны. Остальные стены — перегородки. Кухня-гостиная едина, но можно установить перегородку и разделить помещения. В этом случае придется выделить часть гостиной, но, при данной площади — почти 17 метров — это не очень критично. Спальни в этом проекте имеют разные размеры: 9, 11, 13 метров. Удобно это или нет — решать вам. При желании, размеры спален можно увеличить за счет уменьшения площади котельной (при 3-х метровых потолках достаточно площади в 5 квадратов, так что ресурс есть. Самую маленькую спальню можно увеличить, если перенести шкаф на другую стену, сдвинув перегородку, отгораживающую гостиную. Кстати, этот проект одноэтажного дома с тремя спальнями имеет еще один плюс — гардеробную при входе. Это действительно удобно.
Вариант 2: с короткой террасой вдоль длиной стороны дома
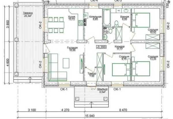
Рассмотрим еще один вариант планировки одноэтажного дома с тремя спальнями и террасой. Он отличается положением «влажного» блока — кухни/ванной/котельной/туалета. Они перенесены на противоположную сторону. Площади спальных комнат «выровнены» за счет уменьшения площади кухни. Обратите внимание, что тамбур сделан выносной. Это тоже внесло свой вклад в то, что при относительно небольших размерах дома — 10*14 метров (площадь 140 квадратных метров) — размеры всех комнат солидные, ширина коридора — 1,7 метра, что тоже неплохо.

Проект одноэтажного дома с тремя спальнями и террасой
Терраса имеет выход из гостиной, занимает только часть длинной стены. Если этот вариант обыграть, получится очень неплохо. Например, рядом можно поставить пруд, установить фонтан, разбить красивую клумбу.
С местом под автонавес или гараж
Если рядом с домом надо разместить навес для машины или гараж, можно поенять планировку так чтобы вход в дом был ближе к месту стоянки. Тогда есть возможность объединить навес стоянки и крыльца. Получится может очень даже интересно.
При планировании навеса лучше найти место под две машины. Даже если машина у вас одна, к вам будут приезжать гости и намного удобнее, если ее можно поставить под крышу. Расходы на обустройство не слишком отличаются, а всегда надо смотреть на перспективу. Может и у вас появится вторая машина.

Проект 1 этажного дома стремя спальнями и навесом для машины
Чем хорош еще навес для машины? Под ним можно оборудовать место для хранения всякого инвентаря: автомобильного, садового. Там же можно отгородить место под дровник или поленницу — чтобы иметь возле дома запас сухих дров. Вообще, использовать эту зону можно по-разному. И оптимальные размеры ее — 8*9 метров или около того. Это, если площадь участка позволяет. Если нет, можно исходить из минимальных габаритов — на 2 метра шире и на 1,5 длиннее вашего авто.
Представленный выше проект одноэтажного дома с тремя спальнями имеет площадь 100 квадратных метров, выполнен в виде прямоугольника со сторонами 8,8*12 метров. Расположение спален все такое-же — одним блоком, все технические помещения также сведены в одном месте. При такой планировке коридор получается совсем небольшим, что многих обрадует, но это будет «проходная» зона, в которой ничего не поставишь.
Если надо спальню родителей разместить отдельно
При выборе планировки многие считают, что спальню родителей надо располагать на некотором расстоянии от детских. В этом случае подход к планировке меняется — оптимальна вытянутая прямоугольная форма дома. Длинную сторону делят на три части две несущие стены (в приведенных выше проектах несущая стена одна, идет вдоль длиной стороны дома).

Такой, дом с Г-образной планировкой по стоимости выходит более дорогим, Чем прямоугольный или квадратный
Вариант 1: без коридора
Одна треть делится на две спальни для детей, среднюю занимает кухня/гостиная. Еще одна треть делится входной группой. С одной стороны от входа расположена спальня для родителей, с другой — ванная и входной санузел. Насколько удачно такое решение? Плюс тут видится такой — большая кухня/гостиная. Но она — полностью проходная. То есть, уединиться в ней точно не получится. но, Возможно, Вам нравится такая идея, хотя, чтобы оценить удобство/неудобство стоит пожить в таком доме. В результате это далеко не всем нравится, хотя на стадии идеи казалось заманчивым.

Расположение комнат в одноэтажном доме с тремя спальнями — комната родителей расположена отдельно
Обратите внимание, что этот проект одноэтажного дома с тремя спальнями не имеет котельной. Если она необходима, выделить ее можно за счет уменьшения площади кухни/гостиной. Но тогда надо будет продумывать планировку, как организовать вход в нее. Возможный, но не очень удобный вариант — из кухни, если она будет расположена возле ванной.
Вариант 2: с коридором
Подобную планировку можно реализовать в квадратном доме (на рисунке ниже). Минимально возможные размеры — 12*12 метров. По площади это чуть больше 140 квадратов. Тогда габариты всех помещения близки к оптимальным и гостиная при этом будет выделена. При возможности/желании можно сделать и в прямоугольном доме, просто квадрат, при равном периметре стен имеет выигрыш по площади. Надо сказать, что выигрыш совсем небольшой, так что не стоит на этом особо заморачиватсья. Лучше исходить из удобства, ведь проект одноэтажного дома с тремя спальнями выбираете для собственной жизни. Квадратный будет дом или прямоугольный — не столь важно. Разница в затратах на строительство минимальна.

Проект квадратного одноэтажного дома с тремя спальнями
В данном варианте планировки спальня родителей вообще обособлена. Достоинство приведенного варианта — в детских есть место под гардеробные. Есть тут и недостаток — «мокрые» помещения находятся на противоположных краях дома. Устройство инженерных систем будет сложнее (кроме канализации и водопровода придется думать еще и об отдельной вентиляции).
Не всем нравится идея объединения кухни и гостиной. В данном случае можно легко проблему решить, установив перегородку. Вход в кухню может быть как из коридора, так и из гостиной.
Но, если не вносить других изменений, вход в гостиную только через кухню, что неудобно. Решить проблему можно сделав некоторые трансформации. Первая — «утопленная» входная зона становится «нормальной», в площади стен, разделяющая коридор перегородка убирается. Образуется большая входная зона, но без теплого тамбура. Зато получаем дополнительное большое по площади помещение, которое можно неплохо оборудовать. Правда, это уже другой проект одноэтажного дома с тремя спальнями.
Из этой зоны можно сделать вход в гостиную. Он получается рядом со входом, что вполне логично. Правда, функциональной остается только часть помещения, но «ущерб» можно минимизировать, приблизив двери.

Один из вариантов
Можно пойти еще дальше — убрать перегородку, отделяющую гостиную от коридора. Стена тут несущая так что потребуется установка колон. Но планировка дома будет в современном стиле — от входа единое пространство, выполняющее роль гостиной и общей комнаты. Для многих это кажется удобным.
Ещё варианты
Имея определенный набор помещений и требования по их расположению, слишком много вариантов не получишь. Приведенные ниже планировки отличаются в некоторых деталях. Может, один из них вам и подойдет.

Одноэтажный дом с тремя спальнями, эркером и террасой

Проект одноэтажного дома с тремя спальнями и террасой (90 кв. м.)

Площадь 130 кв. м, есть кладовка со входом из кухни

Если нужны раздельная кухня и гостиная. Практичное расположение с небольшим коридором

Одноэтажный дом площадью 160 кв. м, с тремя спальнями и кабинетом, котельной и небольшой угловой верандой
dekormyhome.ru
Проекты одноэтажных домов с тремя спальнями
Строительство дома очень важный и ответственный шаг в жизни каждого человека. Неудивительно, что люди подходят к этому вопросу очень тщательно, ведь дом строится не на пару лет, а, в основном, на всю жизнь. С чего начинается строительство дома? Покупка участка, выбор подрядчика? Нет. Строительство дома начинается с выбора проекта. При проектировании дома необходимо учитывать все нормы ГОСТов, СНИПов и других нормативных документов. Так же очень важными являются пожелания будущих жильцов, которые хотят получить максимум уюта и комфорта от своего будущего дома.
В настоящее время получили популярность одноэтажные дома с тремя спальнями. Такие дома обладают рядом несравненных преимуществ по сравнению с двух этажными.
Преимущества:
- Такой дом легко спроектировать, не нужно думать, где устанавливать лестницу. Лестница так же ворует площадь дома.
- Прокладка коммуникаций требует меньше ресурсов, по сравнению с двух или трех этажными. Не нужно учитывать расположение помещений друг над другом, система отопления гораздо проще.
- Фундамент можно удешевить, потому что нагрузка от одноэтажного на порядок меньше.
Если Вы хотите построить качественный одноэтажный дом по приемлемым ценам обращайтесь в компанию «Новация»
Проекты одноэтажных домов компании Новация
Все проекты домов компании Новация Вы можете посмотреть в разделе Проекты
При проектировании дома нужно учитывать количество помещений и их назначение Дом с 3 спальнями — очень удачное решение. Три спальни позволяют с комфортом жить семье из четырех человек. Одна спальня для родителей и две детских. Две детских комнаты помогут избежать ссор и конфликтов между детьми. Хорошее детское настроение один из главных критериев комфорта и уюта в доме. Так же дом с тремя спальнями позволит разместить всех родственников, приехавших к вам погостить. Но проект такого дома лучше доверить архитекторам. Ведь, кто лучше профессионалов знает, как расположить комнаты, чтобы дом получился удобным, и во время его эксплуатации не возникало неприятных мелочей. Наша компания может предложить широкий ассортимент проектов на любой вкус. Так же у нас есть множество проектов одноэтажных домов с тремя спальнями, в которых учтены все нюансы.
Все Проекты Частных Домов
krasnodar.ccnova.ru
Планировка 1-этажного дома с тремя спальнями — выбираем проект по вкусу
Собираясь строить дом, можно заказать его проектирование специалисту, а можно попытаться переделать один из имеющихся вариантов под свои требования. В любом случае, надо четко представлять чего вы хотите. Очень желательно, чтобы ваши желания были хорошо продуманными. Не все, что кажется привлекательным как идея, удобно в эксплуатации. И такие «мелочи» надо знать. Часть информации разберем, пытаясь найти подходящий проект одноэтажного дома с тремя спальнями. Почему так? Потому что это наиболее распространенный вариант, который подходит для семей из 4 человек. Именно таких большинство.
1. Общие принципы планировки
Содержание статьи
- 1 Общие принципы планировки
- 2 Если все три спальни разместить рядом
- 2.1 Проект одноэтажного дома с тремя спальнями и террасой
- 2.1.1 Вариант 1: с террасой вдоль всей короткой стены
- 2.1.2 Вариант 2: с короткой террасой вдоль длиной стороны дома
- 2.2 С местом под автонавес или гараж
- 2.1 Проект одноэтажного дома с тремя спальнями и террасой
- 3 Если надо спальню родителей разместить отдельно
- 3.1 Вариант 1: без коридора
- 3.2 Вариант 2: с коридором
- 4 Ещё варианты
Когда вы ищите готовые проекты одноэтажных домов с тремя спальнями или пытаетесь создать на основе найденного свой, важно помнить несколько моментов.
- Для условий климата с холодными зимами наличие тамбура крайне желательно. В этом случае холодный воздух при каждом открывании дверей не будет попадать в жилые помещения. Если тамбур совсем уж не вписывается в пределах стен, его можно вынести и сделать в виде пристройки. Не самое изящное решение, но имеет право на существование.
- Все помещения, где требуется подведение воды/канализации (кухня, ванна, туалет, котельная) располагать лучше рядом. Так инженерные системы будут проще, меньше потребуется материалов, получится значительно дешевле.

При планировании дома надо придерживаться определенных правил
- При проживании в доме 4 и более человек, желательно иметь два санузла. Вы это оцените. Пусть даже один будет совсем небольшой — только унитаз и раковина. Даже если располагаются они через стенку, это очень удобно.
- При размещении в доме котла, необходима котельная. Требования к котельным в частном доме можно посмотреть тут, но основное, что надо помнить — при высоте потолков не менее 3 метров объем помещения должен быть не менее 15 кубов и в помещении обязательно должно быть окно.
- Сразу прорисовывайте расположение крупногабаритной мебели. Во всяком случае, положение кроватей и шкафов в спальнях, расположение мебели и мойки на кухне.
Это те принципы, которых желательно придерживаться. Но и это не догма. Все можно решить (кроме требований к котельным). Решения, действительно существуют разные, под разные запросы и вкусы. Требуется только желание и определенная сумма.
2. Если все три спальни разместить рядом
Многие проекты одноэтажных домов с тремя спальнями спланированы таким образом, что все спальни находятся в одной стороне дома. С одной стороны это удобно. Относительно шумные помещения — гостиная и кухня оказываются в противоположной стороне. С другой стороны, не всем нравится такое расположение — опасаются что дети могут оказаться свидетелями ненужных сцен.

Пример планировки одноэтажного дома с тремя спальнями на 110 квадратных метров
Приведенном выше проекте именно так и поступили. Все три спальни находятся в правой стороне дома и имеют примерно одинаковую площадь. Из положительного все спальни от гостиной далеко, можно спокойно смотреть телевизор, не боясь помешать.
Из недостатков — туалет и ванная находятся далеко от кухни и котельной. Не самый удобный вариант для прокладки коммуникаций. Из других особенностей — длинный коридор со множеством дверей. Эту площадь никак не используешь.
2.1. Проект одноэтажного дома с тремя спальнями и террасой
При планировании террасы, обращать внимание надо сразу на несколько моментов. Первый — для оптимальной освещенности лучше, если терраса выходит на юг или восток. Второе — из какого помещения будет выход. Чаще всего делают выход из гостиной. Это самый логичный случай. Второй случай — из коридора, который, как правило, примыкает к гостиной или кухне (гораздо хуже, но возможно). Обратите внимание, что очень удобно, если рядом с входом на террасу находится кухня — заносить/выносить блюда, напитки и т.п. Ведь терраса часто используется именно для посиделок на открытом воздухе.
Эти два момента уже частично определяют планировку вашего дома — гостиная должна иметь выход на южную или восточную сторону. Значит ее положение определено. К гостиной должна примыкать кухня, а еще желательно все помещения, подключаемые к техническим коммуникациям «собирать» в одной зоне … То есть, вы практически решили, где находятся гостиная, кухня, технические помещения. Осталось расположить спальни и организовать удобный проход.

С террасы должен открываться интересный вид
Но это еще не все, что надо учесть при планировании террасы. Есть третий момент — ее размер. Тут подход индивидуальный — кому-то требуется много места, кому-то достаточно поменьше. Интересный вариант — Г-образная, которая охватывает южную и восточную стены строения. Если ее остеклить, Можно превратить в летний сад… Если вам это интересно.
И четвертый момент, без которого не обойтись. Терраса интенсивно используется и является любимым местом отдыха, если с нее открывается вид на сад, красиво оформленный задний двор, на речку и т.п. Если же взгляд упирается в забор соседа, никому это не интересно, терраса не используется, постепенно превращается в «техническое помещение» — поставить газонокосилку, сушилку, и т.д. Это определяет еще и положение дома на участке. То есть, большую часть задач по планировке дома вы решили.
2.1.1. Вариант 1: с террасой вдоль всей короткой стены
Давайте рассмотрим несколько проектов одноэтажных домов с тремя спальнями и террасами. Выход на террасу из гостиной. На нее же выходит кухонное окно. Все технические помещения собраны в одном месте и расположены возле кухни. Спальни находятся в противоположном конце дома, что , в общем-то, удобно — можно принимать гостей или смотреть телевизор в гостиной и не мешать тем, кто решил отдохнуть.

Проект одноэтажного дома с 3 спальнями и террасой
Несущая стена в этом проекте одна — вдоль длинной стороны. Остальные стены — перегородки. Кухня-гостиная едина, но можно установить перегородку и разделить помещения. В этом случае придется выделить часть гостиной, но, при данной площади — почти 17 метров — это не очень критично. Спальни в этом проекте имеют разные размеры: 9, 11, 13 метров. Удобно это или нет — решать вам. При желании, размеры спален можно увеличить за счет уменьшения площади котельной (при 3-х метровых потолках достаточно площади в 5 квадратов, так что ресурс есть. Самую маленькую спальню можно увеличить, если перенести шкаф на другую стену, сдвинув перегородку, отгораживающую гостиную. Кстати, этот проект одноэтажного дома с тремя спальнями имеет еще один плюс — гардеробную при входе. Это действительно удобно.
2.1.2. Вариант 2: с короткой террасой вдоль длиной стороны дома
Рассмотрим еще один вариант планировки одноэтажного дома с тремя спальнями и террасой. Он отличается положением «влажного» блока — кухни/ванной/котельной/туалета. Они перенесены на противоположную сторону. Площади спальных комнат «выровнены» за счет уменьшения площади кухни. Обратите внимание, что тамбур сделан выносной. Это тоже внесло свой вклад в то, что при относительно небольших размерах дома — 10*14 метров (площадь 140 квадратных метров) — размеры всех комнат солидные, ширина коридора — 1,7 метра, что тоже неплохо.

Проект одноэтажного дома с тремя спальнями и террасой
Терраса имеет выход из гостиной, занимает только часть длинной стены. Если этот вариант обыграть, получится очень неплохо. Например, рядом можно поставить пруд, установить фонтан, разбить красивую клумбу.
2.2. С местом под автонавес или гараж
Если рядом с домом надо разместить навес для машины или гараж, можно поенять планировку так чтобы вход в дом был ближе к месту стоянки. Тогда есть возможность объединить навес стоянки и крыльца. Получится может очень даже интересно.
При планировании навеса лучше найти место под две машины. Даже если машина у вас одна, к вам будут приезжать гости и намного удобнее, если ее можно поставить под крышу. Расходы на обустройство не слишком отличаются, а всегда надо смотреть на перспективу. Может и у вас появится вторая машина.

Проект 1 этажного дома стремя спальнями и навесом для машины
Чем хорош еще навес для машины? Под ним можно оборудовать место для хранения всякого инвентаря: автомобильного, садового. Там же можно отгородить место под дровник или поленницу — чтобы иметь возле дома запас сухих дров. Вообще, использовать эту зону можно по-разному. И оптимальные размеры ее — 8*9 метров или около того. Это, если площадь участка позволяет. Если нет, можно исходить из минимальных габаритов — на 2 метра шире и на 1,5 длиннее вашего авто.
Представленный выше проект одноэтажного дома с тремя спальнями имеет площадь 100 квадратных метров, выполнен в виде прямоугольника со сторонами 8,8*12 метров. Расположение спален все такое-же — одним блоком, все технические помещения также сведены в одном месте. При такой планировке коридор получается совсем небольшим, что многих обрадует, но это будет «проходная» зона, в которой ничего не поставишь.
3. Если надо спальню родителей разместить отдельно
При выборе планировки многие считают, что спальню родителей надо располагать на некотором расстоянии от детских. В этом случае подход к планировке меняется — оптимальна вытянутая прямоугольная форма дома. Длинную сторону делят на три части две несущие стены (в приведенных выше проектах несущая стена одна, идет вдоль длиной стороны дома).

Такой, дом с Г-образной планировкой по стоимости выходит более дорогим, Чем прямоугольный или квадратный
3.1. Вариант 1: без коридора
Одна треть делится на две спальни для детей, среднюю занимает кухня/гостиная. Еще одна треть делится входной группой. С одной стороны от входа расположена спальня для родителей, с другой — ванная и входной санузел. Насколько удачно такое решение? Плюс тут видится такой — большая кухня/гостиная. Но она — полностью проходная. То есть, уединиться в ней точно не получится. но, Возможно, Вам нравится такая идея, хотя, чтобы оценить удобство/неудобство стоит пожить в таком доме. В результате это далеко не всем нравится, хотя на стадии идеи казалось заманчивым.

Расположение комнат в одноэтажном доме с тремя спальнями — комната родителей расположена отдельно
Обратите внимание, что этот проект одноэтажного дома с тремя спальнями не имеет котельной. Если она необходима, выделить ее можно за счет уменьшения площади кухни/гостиной. Но тогда надо будет продумывать планировку, как организовать вход в нее. Возможный, но не очень удобный вариант — из кухни, если она будет расположена возле ванной.
3.2. Вариант 2: с коридором
Подобную планировку можно реализовать в квадратном доме (на рисунке ниже). Минимально возможные размеры — 12*12 метров. По площади это чуть больше 140 квадратов. Тогда габариты всех помещения близки к оптимальным и гостиная при этом будет выделена. При возможности/желании можно сделать и в прямоугольном доме, просто квадрат, при равном периметре стен имеет выигрыш по площади. Надо сказать, что выигрыш совсем небольшой, так что не стоит на этом особо заморачиватсья. Лучше исходить из удобства, ведь проект одноэтажного дома с тремя спальнями выбираете для собственной жизни. Квадратный будет дом или прямоугольный — не столь важно. Разница в затратах на строительство минимальна.

Проект квадратного одноэтажного дома с тремя спальнями
В данном варианте планировки спальня родителей вообще обособлена. Достоинство приведенного варианта — в детских есть место под гардеробные. Есть тут и недостаток — «мокрые» помещения находятся на противоположных краях дома. Устройство инженерных систем будет сложнее (кроме канализации и водопровода придется думать еще и об отдельной вентиляции).
Не всем нравится идея объединения кухни и гостиной. В данном случае можно легко проблему решить, установив перегородку. Вход в кухню может быть как из коридора, так и из гостиной.
Но, если не вносить других изменений, вход в гостиную только через кухню, что неудобно. Решить проблему можно сделав некоторые трансформации. Первая — «утопленная» входная зона становится «нормальной», в площади стен, разделяющая коридор перегородка убирается. Образуется большая входная зона, но без теплого тамбура. Зато получаем дополнительное большое по площади помещение, которое можно неплохо оборудовать. Правда, это уже другой проект одноэтажного дома с тремя спальнями.
Из этой зоны можно сделать вход в гостиную. Он получается рядом со входом, что вполне логично. Правда, функциональной остается только часть помещения, но «ущерб» можно минимизировать, приблизив двери.

Один из вариантов
Можно пойти еще дальше — убрать перегородку, отделяющую гостиную от коридора. Стена тут несущая так что потребуется установка колон. Но планировка дома будет в современном стиле — от входа единое пространство, выполняющее роль гостиной и общей комнаты. Для многих это кажется удобным.
4. Ещё варианты
Имея определенный набор помещений и требования по их расположению, слишком много вариантов не получишь. Приведенные ниже планировки отличаются в некоторых деталях. Может, один из них вам и подойдет.

Одноэтажный дом с тремя спальнями, эркером и террасой

Проект одноэтажного дома с тремя спальнями и террасой (90 кв. м.)

Площадь 130 кв. м, есть кладовка со входом из кухни

Если нужны раздельная кухня и гостиная. Практичное расположение с небольшим коридором

Одноэтажный дом площадью 160 кв. м, с тремя спальнями и кабинетом, котельной и небольшой угловой верандой
stroitelstvo21.ru
готовые планировки одноэтажных загородных коттеджей
×Много готовых проектов представлены с фото клиентов. Если вы ищите проекты одноэтажных домов до 100 кв .м, то загляните в коллекцию маленьких коттеджей. Если вам нужен дом для дачи — поищите в коллекции «проекты коттеджей для дачи», там вы найдете 300+ проектов без гаража, две трети которых до 150 кв.м.
Опыт жизни семьи в одноэтажном доме
Когда я женился и мы купили двухэтажный коттедж где началась моя «вверх-и-вниз-по- лестнице» жизнь. Эта лестница была удобна, когда родился наш первенец; спуск и подъём по лестнице была одна из немногих вещей, которая позволяла заставить заснуть малыша, а также помогло сбросить жене вес после родов. Я чувствовал себя супергероем, когда мчался наверх, услышав плач после сна. Но таскать грязные вещи со второго этажа на первый в прачечную было … ну , не очень удобно. А ранним утром, чтобы выгулять собаку, спускаться вниз тоже было сложновато, особенно после бурной вечеринки. Я начал понимать , почему так много людей ищут проект одноэтажного дома .
Одноэтажные дома это жизнь без лестниц
Самым большим преимуществом жизни в одноэтажном доме является то , что всё необходимое находится на одном этаже — нет нужды в лестнице. Одноэтажный дом лучше подходит для старения в одном месте (и решать проблемы с артритом в суставах ног), но он также понравится некоторым семьям с маленькими детьми, чтобы не беспокоится о падении с лестницы и игрушках разбросанных наверху и внизу . Во многих одноэтажных зданиях есть подвалы с окнами и выходом во двор, но они используются чаще как дополнительные помещения для старших детей, гостей или для вечеринок. Хозяева вполне довольны комфортом на первом этаже.
Особенность одноэтажных домов
Особенностью одноэтажных коттеджей обычно является более открытое жилое пространство, чем в двухэтажных, с комнатами переходящими одна в другую без лестницы , делящей его пополам. Потолки могут быть выше с возможностью установки окон большего размера и мансардных окон в крыше. Поэтому естественный свет может поступать в комнаты со всех сторон.
1-этажные дома легко убирать
Пылесосы тяжёлые и чистка каждой ступени не является ничьим любимым занятием. Если вся семья живёт на одном этаже , то легче переходить из комнаты в комнату таща за собой в одной руке пылесос, а в другой ведро с тряпкой и средствами для ухода, чтобы быстро и легко убрать в доме, нужно меньше ванных комнат, так как до них легче добираться, и мы все знаем , чтобы убрать ванную комнату нужно гораздо больше усилий.
Планировка одноэтажного коттеджа
Проекты одноэтажных коттеджей в нашем каталоге не только привлекательны, но и отлично спланированы. У нас есть проекты одноэтажных домов и коттеджей в разных стилях: современном, кантри и Прованс. Есть проекты коттеджей с встроенным и отдельным гаражом на две машины. Также наши проэкты 1-этажных коттеджей с подвалом можно легко переделать под строительство на ленточном фундаменте, на плите или на сваях.
Удачного поиска!
eplan.house
Проекты одноэтажных домов с тремя спальнями: 14 вариантов
Собираясь строить дом, можно заказать его проектирование специалисту, а можно попытаться переделать один из имеющихся вариантов под свои требования. В любом случае, надо четко представлять чего вы хотите. Очень желательно, чтобы ваши желания были хорошо продуманными. Не все, что кажется привлекательным как идея, удобно в эксплуатации. И такие «мелочи» надо знать. Часть информации разберем, пытаясь найти подходящий проект одноэтажного дома с тремя спальнями. Почему так? Потому что это наиболее распространенный вариант, который подходит для семей из 4 человек. Именно таких большинство.
Общие принципы планировки
Когда вы ищите готовые проекты одноэтажных домов с тремя спальнями или пытаетесь создать на основе найденного свой, важно помнить несколько моментов.
- Для условий климата с холодными зимами наличие тамбура крайне желательно. В этом случае холодный воздух при каждом открывании дверей не будет попадать в жилые помещения. Если тамбур совсем уж не вписывается в пределах стен, его можно вынести и сделать в виде пристройки. Не самое изящное решение, но имеет право на существование.
- Все помещения, где требуется подведение воды/канализации (кухня, ванна, туалет, котельная) располагать лучше рядом. Так инженерные системы будут проще, меньше потребуется материалов, получится значительно дешевле.
При планировании дома надо придерживаться определенных правил
- При проживании в доме 4 и более человек, желательно иметь два санузла. Вы это оцените. Пусть даже один будет совсем небольшой — только унитаз и раковина. Даже если располагаются они через стенку, это очень удобно.
- При размещении в доме котла, необходима котельная. Требования к котельным в частном доме можно посмотреть тут, но основное, что надо помнить — при высоте потолков не менее 3 метров объем помещения должен быть не менее 15 кубов и в помещении обязательно должно быть окно.
- Сразу прорисовывайте расположение крупногабаритной мебели. Во всяком случае, положение кроватей и шкафов в спальнях, расположение мебели и мойки на кухне.
Это те принципы, которых желательно придерживаться. Но и это не догма. Все можно решить (кроме требований к котельным). Решения, действительно существуют разные, под разные запросы и вкусы. Требуется только желание и определенная сумма.
Если все три спальни разместить рядом
Многие проекты одноэтажных домов с тремя спальнями спланированы таким образом, что все спальни находятся в одной стороне дома. С одной стороны это удобно. Относительно шумные помещения — гостиная и кухня оказываются в противоположной стороне. С другой стороны, не всем нравится такое расположение — опасаются что дети могут оказаться свидетелями ненужных сцен.
Пример планировки одноэтажного дома с тремя спальнями на 110 квадратных метров
Приведенном выше проекте именно так и поступили. Все три спальни находятся в правой стороне дома и имеют примерно одинаковую площадь. Из положительного все спальни от гостиной далеко, можно спокойно смотреть телевизор, не боясь помешать.
Из недостатков — туалет и ванная находятся далеко от кухни и котельной. Не самый удобный вариант для прокладки коммуникаций. Из других особенностей — длинный коридор со множеством дверей. Эту площадь никак не используешь.
Проект одноэтажного дома с тремя спальнями и террасой
При планировании террасы, обращать внимание надо сразу на несколько моментов. Первый — для оптимальной освещенности лучше, если терраса выходит на юг или восток. Второе — из какого помещения будет выход. Чаще всего делают выход из гостиной. Это самый логичный случай. Второй случай — из коридора, который, как правило, примыкает к гостиной или кухне (гораздо хуже, но возможно). Обратите внимание, что очень удобно, если рядом с входом на террасу находится кухня — заносить/выносить блюда, напитки и т.п. Ведь терраса часто используется именно для посиделок на открытом воздухе.
Эти два момента уже частично определяют планировку вашего дома — гостиная должна иметь выход на южную или восточную сторону. Значит ее положение определено. К гостиной должна примыкать кухня, а еще желательно все помещения, подключаемые к техническим коммуникациям «собирать» в одной зоне … То есть, вы практически решили, где находятся гостиная, кухня, технические помещения. Осталось расположить спальни и организовать удобный проход.
С террасы должен открываться интересный вид
Но это еще не все, что надо учесть при планировании террасы. Есть третий момент — ее размер. Тут подход индивидуальный — кому-то требуется много места, кому-то достаточно поменьше. Интересный вариант — Г-образная, которая охватывает южную и восточную стены строения. Если ее остеклить, Можно превратить в летний сад… Если вам это интересно.
И четвертый момент, без которого не обойтись. Терраса интенсивно используется и является любимым местом отдыха, если с нее открывается вид на сад, красиво оформленный задний двор, на речку и т.п. Если же взгляд упирается в забор соседа, никому это не интересно, терраса не используется, постепенно превращается в «техническое помещение» — поставить газонокосилку, сушилку, и т.д. Это определяет еще и положение дома на участке. То есть, большую часть задач по планировке дома вы решили.
Вариант 1: с террасой вдоль всей короткой стены
Давайте рассмотрим несколько проектов одноэтажных домов с тремя спальнями и террасами. Выход на террасу из гостиной. На нее же выходит кухонное окно. Все технические помещения собраны в одном месте и расположены возле кухни. Спальни находятся в противоположном конце дома, что , в общем-то, удобно — можно принимать гостей или смотреть телевизор в гостиной и не мешать тем, кто решил отдохнуть.
Проект одноэтажного дома с 3 спальнями и террасой
Несущая стена в этом проекте одна — вдоль длинной стороны. Остальные стены — перегородки. Кухня-гостиная едина, но можно установить перегородку и разделить помещения. В этом случае придется выделить часть гостиной, но, при данной площади — почти 17 метров — это не очень критично. Спальни в этом проекте имеют разные размеры: 9, 11, 13 метров. Удобно это или нет — решать вам. При желании, размеры спален можно увеличить за счет уменьшения площади котельной (при 3-х метровых потолках достаточно площади в 5 квадратов, так что ресурс есть. Самую маленькую спальню можно увеличить, если перенести шкаф на другую стену, сдвинув перегородку, отгораживающую гостиную. Кстати, этот проект одноэтажного дома с тремя спальнями имеет еще один плюс — гардеробную при входе. Это действительно удобно.
Вариант 2: с короткой террасой вдоль длиной стороны дома
Рассмотрим еще один вариант планировки одноэтажного дома с тремя спальнями и террасой. Он отличается положением «влажного» блока — кухни/ванной/котельной/туалета. Они перенесены на противоположную сторону. Площади спальных комнат «выровнены» за счет уменьшения площади кухни. Обратите внимание, что тамбур сделан выносной. Это тоже внесло свой вклад в то, что при относительно небольших размерах дома — 10*14 метров (площадь 140 квадратных метров) — размеры всех комнат солидные, ширина коридора — 1,7 метра, что тоже неплохо.
Проект одноэтажного дома с тремя спальнями и террасой
Терраса имеет выход из гостиной, занимает только часть длинной стены. Если этот вариант обыграть, получится очень неплохо. Например, рядом можно поставить пруд, установить фонтан, разбить красивую клумбу.
С местом под автонавес или гараж
Если рядом с домом надо разместить навес для машины или гараж, можно поенять планировку так чтобы вход в дом был ближе к месту стоянки. Тогда есть возможность объединить навес стоянки и крыльца. Получится может очень даже интересно.
При планировании навеса лучше найти место под две машины. Даже если машина у вас одна, к вам будут приезжать гости и намного удобнее, если ее можно поставить под крышу. Расходы на обустройство не слишком отличаются, а всегда надо смотреть на перспективу. Может и у вас появится вторая машина.
Проект 1 этажного дома стремя спальнями и навесом для машины
Чем хорош еще навес для машины? Под ним можно оборудовать место для хранения всякого инвентаря: автомобильного, садового. Там же можно отгородить место под дровник или поленницу — чтобы иметь возле дома запас сухих дров. Вообще, использовать эту зону можно по-разному. И оптимальные размеры ее — 8*9 метров или около того. Это, если площадь участка позволяет. Если нет, можно исходить из минимальных габаритов — на 2 метра шире и на 1,5 длиннее вашего авто.
Представленный выше проект одноэтажного дома с тремя спальнями имеет площадь 100 квадратных метров, выполнен в виде прямоугольника со сторонами 8,8*12 метров. Расположение спален все такое-же — одним блоком, все технические помещения также сведены в одном месте. При такой планировке коридор получается совсем небольшим, что многих обрадует, но это будет «проходная» зона, в которой ничего не поставишь.
Если надо спальню родителей разместить отдельно
При выборе планировки многие считают, что спальню родителей надо располагать на некотором расстоянии от детских. В этом случае подход к планировке меняется — оптимальна вытянутая прямоугольная форма дома. Длинную сторону делят на три части две несущие стены (в приведенных выше проектах несущая стена одна, идет вдоль длиной стороны дома).
Такой, дом с Г-образной планировкой по стоимости выходит более дорогим, Чем прямоугольный или квадратный
Вариант 1: без коридора
Одна треть делится на две спальни для детей, среднюю занимает кухня/гостиная. Еще одна треть делится входной группой. С одной стороны от входа расположена спальня для родителей, с другой — ванная и входной санузел. Насколько удачно такое решение? Плюс тут видится такой — большая кухня/гостиная. Но она — полностью проходная. То есть, уединиться в ней точно не получится. но, Возможно, Вам нравится такая идея, хотя, чтобы оценить удобство/неудобство стоит пожить в таком доме. В результате это далеко не всем нравится, хотя на стадии идеи казалось заманчивым.
Расположение комнат в одноэтажном доме с тремя спальнями — комната родителей расположена отдельно
Обратите внимание, что этот проект одноэтажного дома с тремя спальнями не имеет котельной. Если она необходима, выделить ее можно за счет уменьшения площади кухни/гостиной. Но тогда надо будет продумывать планировку, как организовать вход в нее. Возможный, но не очень удобный вариант — из кухни, если она будет расположена возле ванной.
Вариант 2: с коридором
Подобную планировку можно реализовать в квадратном доме (на рисунке ниже). Минимально возможные размеры — 12*12 метров. По площади это чуть больше 140 квадратов. Тогда габариты всех помещения близки к оптимальным и гостиная при этом будет выделена. При возможности/желании можно сделать и в прямоугольном доме, просто квадрат, при равном периметре стен имеет выигрыш по площади. Надо сказать, что выигрыш совсем небольшой, так что не стоит на этом особо заморачиватсья. Лучше исходить из удобства, ведь проект одноэтажного дома с тремя спальнями выбираете для собственной жизни. Квадратный будет дом или прямоугольный — не столь важно. Разница в затратах на строительство минимальна.
Проект квадратного одноэтажного дома с тремя спальнями
В данном варианте планировки спальня родителей вообще обособлена. Достоинство приведенного варианта — в детских есть место под гардеробные. Есть тут и недостаток — «мокрые» помещения находятся на противоположных краях дома. Устройство инженерных систем будет сложнее (кроме канализации и водопровода придется думать еще и об отдельной вентиляции).
Не всем нравится идея объединения кухни и гостиной. В данном случае можно легко проблему решить, установив перегородку. Вход в кухню может быть как из коридора, так и из гостиной.
Но, если не вносить других изменений, вход в гостиную только через кухню, что неудобно. Решить проблему можно сделав некоторые трансформации. Первая — «утопленная» входная зона становится «нормальной», в площади стен, разделяющая коридор перегородка убирается. Образуется большая входная зона, но без теплого тамбура. Зато получаем дополнительное большое по площади помещение, которое можно неплохо оборудовать. Правда, это уже другой проект одноэтажного дома с тремя спальнями.
Из этой зоны можно сделать вход в гостиную. Он получается рядом со входом, что вполне логично. Правда, функциональной остается только часть помещения, но «ущерб» можно минимизировать, приблизив двери.
Один из вариантов
Можно пойти еще дальше — убрать перегородку, отделяющую гостиную от коридора. Стена тут несущая так что потребуется установка колон. Но планировка дома будет в современном стиле — от входа единое пространство, выполняющее роль гостиной и общей комнаты. Для многих это кажется удобным.
Ещё варианты
Имея определенный набор помещений и требования по их расположению, слишком много вариантов не получишь. Приведенные ниже планировки отличаются в некоторых деталях. Может, один из них вам и подойдет.
Одноэтажный дом с тремя спальнями, эркером и террасой
Проект одноэтажного дома с тремя спальнями и террасой (90 кв. м.)
Площадь 130 кв. м, есть кладовка со входом из кухни
Если нужны раздельная кухня и гостиная. Практичное расположение с небольшим коридором
Одноэтажный дом площадью 160 кв. м, с тремя спальнями и кабинетом, котельной и небольшой угловой верандой
- Расчет канвы для вышивки крестом: калькулятор и размер, 16 сколько крестиков в 1 см, разместить количество
- Поделки из фоамирана: для начинающих своими руками, фото цветов, мастер-класс по материалам для детей
- Квиллинг открытки: к 23 февраля и на 9 мая, на День матери, техника на 14 своими руками, подарок стильный
- Крыжовник Уральский изумруд: описание сорта, видео и фото
- Новые идеи в оформлении интерьера маленькой квартиры
- Смеситель для душевой кабины на 2, 3 и 4 положения / Zonavannoi.Ru
- Идея дизайна кухни: как создать уютный интерьер своими руками
- Вышивка крестом розы схемы: бесплатно для начинающих, чайные в вазе, букет в корзине, белую скачать, желтая
openfile.ru
