ΠΡΠΎΠ΅ΠΊΡΡ Π΄ΠΎΠΌΠ° Ρ Π±Π°Π½Π΅ΠΉ β ΠΏΡΠΎΠ΅ΠΊΡΡ Π²ΠΏΠ΅ΡΠ°ΡΠ»ΡΡΡΠΈΡ ΠΈ ΡΡΠΈΠ»ΡΠ½ΡΡ ΡΠ°Π½Π΄Π΅ΠΌΠΎΠ²
ΠΠΎΠΌ Ρ Π±Π°Π½Π΅ΠΉ ΠΏΠΎΠ΄ ΠΎΠ΄Π½ΠΎΠΉ ΠΊΡΡΡΠ΅ΠΉ β ΠΏΠ»ΡΡΡ ΠΈ ΠΌΠΈΠ½ΡΡΡ, ΠΏΡΠΎΠ΅ΠΊΡΡ, ΡΠΎΡΠΎ ΠΈ Π²ΠΈΠ΄Π΅ΠΎ
Π ΡΡΡΠΊΠ°Ρ Π±Π°Π½Ρ ΡΡΠΎ Π½Π΅ ΠΏΡΠΎΡΡΠΎ ΠΌΠ΅ΡΡΠΎ Π΄Π»Ρ Π³ΠΈΠ³ΠΈΠ΅Π½ΠΈΡΠ΅ΡΠΊΠΈΡ ΠΏΡΠΎΡΠ΅Π΄ΡΡ. ΠΠ°Π½Ρ β ΡΡΠΎ Π² ΠΏΠ΅ΡΠ²ΡΡ ΠΎΡΠ΅ΡΠ΅Π΄Ρ ΠΏΠΎΠ»Π½ΠΎΡΠ΅Π½Π½ΡΠΉ ΠΎΡΠ΄ΡΡ Π΄Π»Ρ ΡΠ΅Π»Π° ΠΈ Π΄ΡΡΠΈ, ΠΏΡΠΈΠ²ΠΎΠ΄ΡΡΠΈΠΉ Π² ΠΏΠΎΡΡΠ΄ΠΎΠΊ ΠΌΡΡΠ»ΠΈ, ΠΏΠΎΠ²ΡΡΠ°ΡΡΠΈΠΉ Π½Π°ΡΡΡΠΎΠ΅Π½ΠΈΠ΅ ΠΈ ΡΠΊΡΠ΅ΠΏΠ»ΡΡΡΠΈΠΉ ΠΈΠΌΠΌΡΠ½Π½ΡΡ ΡΠΈΡΡΠ΅ΠΌΡ. ΠΠΎΡΡΠΎΠΌΡ ΠΌΠ½ΠΎΠ³ΠΈΠ΅ ΡΡΠΈΡΠ°ΡΡ, ΡΡΠΎ Π² Π·Π°Π³ΠΎΡΠΎΠ΄Π½ΠΎΠΌ Π΄ΠΎΠΌΠ΅ ΠΌΠΎΠΆΠ½ΠΎ ΠΏΠΎ-Π½Π°ΡΡΠΎΡΡΠ΅ΠΌΡ ΠΎΡΠ΄ΠΎΡ Π½ΡΡΡ, ΡΠΎΠ»ΡΠΊΠΎ Π΅ΡΠ»ΠΈ ΡΡΠ΄ΠΎΠΌ Π²ΡΡΡΡΠΎΠ΅Π½Π° Π±Π°Π½Ρ. ΠΠΎ ΠΌΠΎΠΆΠ½ΠΎ ΠΏΠΎΠΉΡΠΈ Π΄Π°Π»ΡΡΠ΅ ΠΈ Π²ΠΎΠ·Π²Π΅ΡΡΠΈ Π½Π΅ ΠΏΡΠΎΡΡΠΎ ΠΎΡΠ΄Π΅Π»ΡΠ½ΠΎ ΡΡΠΎΡΡΠ΅Π΅ ΡΡΡΠΎΠ΅Π½ΠΈΠ΅, Π° ΡΠ΅Π»ΡΠΉ Π³ΠΎΡΡΠ΅Π²ΠΎΠΉ Π΄ΠΎΠΌ-Π±Π°Π½Ρ, ΡΠΎΠ²ΠΌΠ΅ΡΠ°ΡΡΡΡ Π² ΡΠ΅Π±Π΅ ΠΆΠΈΠ»ΡΠ΅ ΠΏΠΎΠΌΠ΅ΡΠ΅Π½ΠΈΡ, ΠΏΠ°ΡΠ½ΡΡ ΠΈ ΠΌΠΎΠ΅ΡΠ½ΡΡ. Π ΡΠ°ΠΊΠΎΠΌ ΡΠ»ΡΡΠ°Π΅, Π·Π°Π³ΠΎΡΠΎΠ΄Π½ΡΠΉ Π΄ΠΎΠΌ ΡΡΠ°Π½Π΅Ρ ΠΈΠ΄Π΅Π°Π»ΡΠ½ΡΠΌ ΠΌΠ΅ΡΡΠΎΠΌ ΠΎΡΠ΄ΡΡ Π° Π²Π½Π΅ Π·Π°Π²ΠΈΡΠΈΠΌΠΎΡΡΠΈ ΠΎΡ ΡΠ΅Π·ΠΎΠ½Π° Π³ΠΎΠ΄Π° ΠΈ ΠΏΠΎΠ³ΠΎΠ΄Π½ΡΡ ΡΡΠ»ΠΎΠ²ΠΈΠΉ.

Π Π°Π·Π½ΠΎΠ²ΠΈΠ΄Π½ΠΎΡΡΠΈ ΠΊΠΎΠ½ΡΡΡΡΠΊΡΠΈΠΉ Π΄ΠΎΠΌΠ°-Π±Π°Π½ΠΈ
ΠΡΠΎΠ΅ΠΊΡΡ Π΄ΠΎΠΌΠ° Ρ Π±Π°Π½Π΅ΠΉ ΠΎΠ±ΡΡΠ½ΠΎ Π²ΡΠΏΠΎΠ»Π½ΡΡΡ Π² ΡΡΠ΅Ρ ΠΎΡΠ½ΠΎΠ²Π½ΡΡ Π²Π°ΡΠΈΠ°Π½ΡΠ°Ρ , ΠΊΠ°ΠΆΠ΄ΡΠΉ ΠΈΠ· ΠΊΠΎΡΠΎΡΡΡ ΡΠΎΠΎΡΠ²Π΅ΡΡΡΠ²ΡΠ΅Ρ ΠΎΡΠ½ΠΎΠ²Π½ΠΎΠΌΡ ΡΡΠ»ΠΎΠ²ΠΈΡ β ΡΠΎΠ²ΠΌΠ΅ΡΠ΅Π½ΠΈΠ΅ Π΄Π²ΡΡ ΡΡΠ½ΠΊΡΠΈΠΎΠ½Π°Π»ΡΠ½ΡΡ ΡΡΡΠΎΠ΅Π½ΠΈΠΉ Π² ΠΎΠ΄Π½ΠΎΠΌ.
Π ΠΏΠ΅ΡΠ²ΠΎΠΌ ΡΠ»ΡΡΠ°Π΅ ΠΏΠ°ΡΠ½Π°Ρ ΠΈ ΠΌΠΎΠ΅ΡΠ½Π°Ρ ΡΠ²Π»ΡΡΡΡΡ ΠΎΡΠ½ΠΎΠ²Π½ΡΠΌΠΈ ΠΏΠΎΠΌΠ΅ΡΠ΅Π½ΠΈΡΠΌΠΈ, ΠΊΠΎΡΠΎΡΡΠ΅ ΡΠ°ΡΠΏΠΎΠ»Π°Π³Π°ΡΡΡΡ Π½Π° ΠΏΠ΅ΡΠ²ΠΎΠΌ ΡΡΠ°ΠΆΠ΅ ΡΡΡΠΎΠ΅Π½ΠΈΡ, ΠΈ Π΄ΠΎΠΏΠΎΠ»Π½ΡΠ΅ΡΡΡ ΠΊΠΎΠΌΠ½Π°ΡΠΎΠΉ ΠΎΡΠ΄ΡΡ Π° Π½Π° Π²ΡΠΎΡΠΎΠΌ.

ΠΡΠΈ ΠΈΡΠΏΠΎΠ»ΡΠ·ΠΎΠ²Π°Π½ΠΈΠΈ Π²ΡΠΎΡΠΎΠ³ΠΎ Π²Π°ΡΠΈΠ°Π½ΡΠ°, Π±Π°Π½Ρ ΠΏΡΠΈΡΡΡΠ°ΠΈΠ²Π°ΡΡΡΡ ΠΊ Π΄ΠΎΠΌΡ Π² Π²ΠΈΠ΄Π΅ Π΄ΠΎΠΏΠΎΠ»Π½ΠΈΡΠ΅Π»ΡΠ½ΠΎΠ³ΠΎ ΠΏΠΎΠΌΠ΅ΡΠ΅Π½ΠΈΡ. ΠΠ°Π½Ρ ΠΌΠΎΠΆΠ΅Ρ ΡΡΠΎΡΡΡ Π²ΠΏΠ»ΠΎΡΠ½ΡΡ ΠΊ Π΄ΠΎΠΌΡ ΠΈΠ»ΠΈ ΠΌΠ΅ΠΆΠ΄Ρ Π½ΠΈΠΌΠΈ Π΄Π΅Π»Π°Π΅ΡΡΡ ΠΊΠ°ΠΊΠΎΠ΅-ΡΠΎ ΠΏΠΎΠ΄ΠΎΠ±ΠΈΠ΅ ΡΠ°ΠΌΠ±ΡΡΠ°, Π½ΠΎ Π² Π»ΡΠ±ΠΎΠΌ ΡΠ»ΡΡΠ°Π΅ ΠΈ Π΄ΠΎΠΌ ΠΈ Π±Π°Π½Ρ Π½Π°ΠΊΡΡΠ²Π°ΡΡΡΡ ΠΎΠ΄Π½ΠΎΠΉ ΠΊΡΡΡΠ΅ΠΉ.



Π€ΡΠ½ΠΊΡΠΈΠΎΠ½Π°Π»ΡΠ½ΠΎ Π²ΡΠ΅Π³ΠΎ ΡΡΠΈ Π²Π°ΡΠΈΠ°Π½ΡΡ Π΄ΠΎΡΡΠ°ΡΠΎΡΠ½ΠΎ ΡΡ ΠΎΠΆΠΈ ΠΌΠ΅ΠΆΠ΄Ρ ΡΠΎΠ±ΠΎΠΉ ΠΈ ΡΡΡΠ΅ΡΡΠ²Π΅Π½Π½ΡΠΌ ΠΎΡΠ»ΠΈΡΠΈΠ΅ΠΌ ΠΌΠ΅ΠΆΠ΄Ρ Π½ΠΈΠΌΠΈ Π±ΡΠ΄Π΅Ρ Π»ΠΈΡΡ ΡΠ°Π·ΠΌΠ΅Ρ ΡΡΡΠΎΠ΅Π½ΠΈΡ, ΠΊΠΎΡΠΎΡΡΠΉ Π² ΠΏΠΎΠ»Π½ΠΎΡΠ΅Π½Π½ΠΎΠΌ ΠΆΠΈΠ»ΠΎΠΌ Π΄ΠΎΠΌΠ΅ Ρ Π±Π°Π½Π΅ΠΉ Π±ΡΠ΄Π΅Ρ Π·Π½Π°ΡΠΈΡΠ΅Π»ΡΠ½ΠΎ Π±ΠΎΠ»ΡΡΠ΅.
Π Π΅ΡΠ΅Π½ΠΈΠ΅ ΠΏΡΠΎ ΡΡΡΠΎΠΈΡΠ΅Π»ΡΡΡΠ²ΠΎ Π±Π°Π½ΠΈ Π² Π΄ΠΎΠΌΠ΅ ΠΆΠ΅Π»Π°ΡΠ΅Π»ΡΠ½ΠΎ ΠΏΡΠΈΠ½ΠΈΠΌΠ°ΡΡ Π΅ΡΠ΅ Π½Π° ΡΡΠ°Π΄ΠΈΠΈ ΠΏΡΠΎΠ΅ΠΊΡΠΈΡΠΎΠ²Π°Π½ΠΈΡ, ΡΠ°ΠΊ ΠΊΠ°ΠΊ Π² ΠΏΡΠΎΡΠ΅ΡΡΠ΅ Π²ΠΎΠ·Π²Π΅Π΄Π΅Π½ΠΈΡ ΠΊΠΎΠ½ΡΡΡΡΠΊΡΠΈΠΈ Π½Π΅ΠΎΠ±Ρ ΠΎΠ΄ΠΈΠΌΠΎ ΠΈΡΠΏΠΎΠ»ΡΠ·ΠΎΠ²Π°Π½ΠΈΠ΅ Π΄ΠΎΠΏΠΎΠ»Π½ΠΈΡΠ΅Π»ΡΠ½ΠΎΠΉ ΡΠ΅ΠΏΠ»ΠΎ- ΠΈ Π³ΠΈΠ΄ΡΠΎΠΈΠ·ΠΎΠ»ΡΡΠΈΠΈ, Π° ΡΠ°ΠΊ ΠΆΠ΅ Π²ΡΠΏΠΎΠ»Π½ΠΈΡΡ Π²ΡΠ΅ Π½Π΅ΠΎΠ±Ρ ΠΎΠ΄ΠΈΠΌΡΠ΅ ΠΌΠ΅ΡΠΎΠΏΡΠΈΡΡΠΈΡ, Π½Π°ΠΏΡΠ°Π²Π»Π΅Π½Π½ΡΠ΅ Π½Π° Π·Π°ΡΠΈΡΡ ΠΎΡΠ½ΠΎΠ²Π½ΠΎΠ³ΠΎ ΡΡΡΠΎΠ΅Π½ΠΈΡ ΠΎΡ ΠΏΠΎΠ²ΡΡΠ΅Π½Π½ΠΎΠΉ Π²Π»Π°ΠΆΠ½ΠΎΡΡΠΈ ΠΈ Π²ΠΎΠ·Π΄Π΅ΠΉΡΡΠ²ΠΈΡ ΡΠ΅ΠΌΠΏΠ΅ΡΠ°ΡΡΡ.
ΠΠ»ΡΡΡ ΠΈ ΠΌΠΈΠ½ΡΡΡ ΡΠ°Π·ΠΌΠ΅ΡΠ΅Π½ΠΈΡ Π±Π°Π½ΠΈ Π² ΠΆΠΈΠ»ΠΎΠΌ Π΄ΠΎΠΌΠ΅
- Π²ΠΎΠ·ΠΌΠΎΠΆΠ½ΠΎΡΡΡ ΡΠΎΠ·Π΄Π°Π½ΠΈΡ Π΅Π΄ΠΈΠ½ΠΎΠΉ ΡΠΈΡΡΠ΅ΠΌΡ ΠΊΠΎΠΌΠΌΡΠ½ΠΈΠΊΠ°ΡΠΈΠΈ, ΡΡΠΎ ΠΏΠΎΠ·Π²ΠΎΠ»ΠΈΡ ΡΠΊΡΠΏΠ»ΡΠ°ΡΠΈΡΠΎΠ²Π°ΡΡ Π±Π°Π½Ρ ΠΊΡΡΠ³Π»ΠΎΠ³ΠΎΠ΄ΠΈΡΠ½ΠΎ Π±Π΅Π· Π½Π΅ΠΎΠ±Ρ ΠΎΠ΄ΠΈΠΌΠΎΡΡΠΈ ΡΠ°ΡΠΊΠ°ΡΡ Π²ΠΎΠ΄Ρ ΠΈ Π΄ΡΠΎΠ²Π° ΠΈΠ»ΠΈ ΡΡΠ°ΡΠΈΡΡΡΡ Π½Π° ΠΎΡΠ΄Π΅Π»ΡΠ½ΡΠΉ Π²ΠΎΠ΄ΠΎΠΏΡΠΎΠ²ΠΎΠ΄;
- ΡΠ°ΠΊΠΈΠ΅ ΠΏΡΠΎΠ΅ΠΊΡΡ Π³ΠΎΡΠ°Π·Π΄ΠΎ ΡΠ΄ΠΎΠ±Π½Π΅Π΅ Π΄Π»Ρ Π»ΡΠ΄Π΅ΠΉ ΡΠ°Π·Π½ΠΎΠ³ΠΎ Π²ΠΎΠ·ΡΠ°ΡΡΠ° β Π½Π΅ Π²ΡΠ΅ΠΌ ΡΠ΄ΠΎΠ±Π½ΠΎ Ρ ΠΎΠ΄ΠΈΡΡ ΠΈΠ· Π΄ΠΎΠΌΠ° Π² Π±Π°Π½Ρ ΠΏΠΎΠ΄Π²Π΅ΡΠ³Π°ΡΡΡ ΠΏΡΠΈ ΡΡΠΎΠΌ ΡΠ΅Π·ΠΊΠΈΠΌ ΡΠΌΠ΅Π½Π°ΠΌ ΡΠ΅ΠΌΠΏΠ΅ΡΠ°ΡΡΡΡ.

ΠΡΠ±ΡΠ°Π² Π² ΠΊΠ°ΡΠ΅ΡΡΠ²Π΅ ΠΆΠ΅Π»Π°Π΅ΠΌΠΎΠ³ΠΎ ΡΠΎΠΎΡΡΠΆΠ΅Π½ΠΈΡ Π΄Π°ΠΆΠ΅ Π½Π΅Π±ΠΎΠ»ΡΡΠΎΠΉ Π΄ΠΎΠΌΠΈΠΊ Ρ Π±Π°Π½Π΅ΠΉ, Π² ΠΏΡΠΎΡΠ΅ΡΡΠ΅ Π΅Π³ΠΎ ΡΡΡΠΎΠΈΡΠ΅Π»ΡΡΡΠ²Π° ΠΏΡΠΈΠ΄Π΅ΡΡΡ ΡΡΠΎΠ»ΠΊΠ½ΡΡΡΡΡ Ρ ΡΡΠ΄ΠΎΠΌ ΡΡΡΠ΄Π½ΠΎΡΡΠ΅ΠΉ:
-
ΡΠΎΠ±Π»ΡΠ΄Π΅Π½ΠΈΠ΅ Π²ΡΠ΅Ρ Π΄Π΅ΠΉΡΡΠ²ΡΡΡΠΈΡ Π‘ΠΠΈΠΠΎΠ², ΠΊ ΡΠΈΡΠ»Ρ ΠΊΠΎΡΠΎΡΡΡ ΠΎΡΠ½ΠΎΡΠΈΡΡΡ ΡΡΡΡΠΎΠΉΡΡΠ²ΠΎ Π΄ΠΎΠΏΠΎΠ»Π½ΠΈΡΠ΅Π»ΡΠ½ΠΎΠΉ Π³ΠΈΠ΄ΡΠΎ- ΠΈ ΡΠ΅ΠΏΠ»ΠΎΠΈΠ·ΠΎΠ»ΡΡΠΈΠΈ ΡΡΠ΅Π½Ρ ΡΠΌΠ΅ΠΆΠ½ΠΎΠΉ Ρ Π±Π°Π½Π΅ΠΉ, ΠΎΠ±Π΅ΡΠΏΠ΅ΡΠ΅Π½ΠΈΠ΅ ΠΊΠ°ΡΠ΅ΡΡΠ²Π΅Π½Π½ΠΎΠΉ Π²Π΅Π½ΡΠΈΠ»ΡΡΠΈΠΈ ΠΈ ΡΠ΅ΡΠΌΠΎΠΈΠ·ΠΎΠ»ΡΡΠΈΠΈ ΡΠ°ΠΌΠΎΠΉ ΠΏΡΠΈΡΡΡΠΎΠΉΠΊΠΈ;
-
Ρ ΠΎΡΡ Π·Π°ΡΡΠ°ΡΡ Π½Π° ΠΊΠ°Π½Π°Π»ΠΈΠ·Π°ΡΠΈΡ ΠΈ ΡΠ½ΠΈΠΆΠ°ΡΡΡΡ, ΠΏΠΎ ΡΡΠ°Π²Π½Π΅Π½ΠΈΡ Ρ ΠΎΡΠ΄Π΅Π»ΡΠ½ΠΎΠΉ ΡΠ°Π·Π²ΠΎΠ΄ΠΊΠΎΠΉ, Π½ΠΎ ΠΈΠ½ΠΆΠ΅Π½Π΅ΡΠ½ΡΠ΅ ΠΊΠΎΠΌΠΌΡΠ½ΠΈΠΊΠ°ΡΠΈΠΈ Π²ΡΠ΅ ΡΠ°Π²Π½ΠΎ ΡΡΠ΅Π±ΡΡΡ ΡΡΠ°ΡΠ΅Π»ΡΠ½ΡΡ ΡΠ°ΡΡΠ΅ΡΠΎΠ²;
-
Π² ΠΎΠ±ΡΠ·Π°ΡΠ΅Π»ΡΠ½ΠΎΠΌ ΠΏΠΎΡΡΠ΄ΠΊΠ΅ ΠΏΠΎΡΡΠ΅Π±ΡΠ΅ΡΡΡ ΠΎΠ±ΡΠ°Π±ΠΎΡΠΊΠ° ΠΏΠΎΠΌΠ΅ΡΠ΅Π½ΠΈΠΉ Π±Π°Π½ΠΈ ΠΎΠ³Π½Π΅ΡΠΏΠΎΡΠ½ΡΠΌΠΈ ΠΏΡΠΎΠΏΠΈΡΠΊΠ°ΠΌΠΈ ΠΈ Π°Π½ΡΠΈΡΠ΅ΠΏΡΠΈΠΊΠ°ΠΌΠΈ.

ΠΡΠ»ΠΈ Π½Π΅ ΡΠΎΠ±Π»ΡΡΡΠΈ ΡΡΠΈ ΡΠ΅ΠΊΠΎΠΌΠ΅Π½Π΄Π°ΡΠΈΠΈ, ΡΠΎ Π² ΠΏΡΠΎΡΠ΅ΡΡΠ΅ ΡΠ΅Π³ΠΈΡΡΡΠ°ΡΠΈΠΈ ΠΆΠΈΠ»ΠΎΠ³ΠΎ Π΄ΠΎΠΌΠ° ΠΌΠΎΠ³ΡΡ Π²ΠΎΠ·Π½ΠΈΠΊΠ½ΡΡΡ ΠΏΡΠΎΠ±Π»Π΅ΠΌΡ. Π‘Π»Π΅Π΄ΡΠ΅Ρ ΡΠ΄Π΅Π»ΠΈΡΡ ΠΎΡΠΎΠ±ΠΎΠ΅ Π²Π½ΠΈΠΌΠ°Π½ΠΈΠ΅ ΡΠ½Π΅ΡΠ³ΠΎΠΎΠ±Π΅ΡΠΏΠ΅ΡΠ΅Π½ΠΈΡ ΠΈ Π³Π°Π·ΠΈΡΠΈΠΊΠ°ΡΠΈΠΈ, Π΅ΡΠ»ΠΈ ΠΎΠ½Π° ΡΡΠ΅Π±ΡΠ΅ΡΡΡ. ΠΡΠΈ Π½Π΅ΡΠΎΠ±Π»ΡΠ΄Π΅Π½ΠΈΠΈ Π²ΡΠ΅Ρ ΡΡΡΠ΅ΡΡΠ²ΡΡΡΠΈΡ ΠΏΡΠ°Π²ΠΈΠ», ΠΊΠΎΠΌΠΌΡΠ½Π°Π»ΡΠ½ΡΠ΅ ΡΠ»ΡΠΆΠ±Ρ ΠΌΠΎΠ³ΡΡ ΠΎΡΠΊΠ°Π·Π°ΡΡ Π² ΠΏΠΎΠ΄ΠΊΠ»ΡΡΠ΅Π½ΠΈΠΈ ΠΊ ΡΠ΅Π½ΡΡΠ°Π»ΡΠ½ΡΠΌ ΡΠΈΡΡΠ΅ΠΌΠ°ΠΌ. Π‘ΡΡΠ°Ρ ΠΎΠ²ΡΠ΅ ΠΊΠΎΠΌΠΏΠ°Π½ΠΈΠΈ ΡΠ°ΠΊΠΆΠ΅ Ρ Π±ΠΎΠ»ΡΡΠΎΠΉ Π½Π΅ΠΎΡ ΠΎΡΠΎΠΉ Π²ΠΎΠ·ΡΠΌΡΡΡΡ Π·Π° ΠΎΡΠΎΡΠΌΠ»Π΅Π½ΠΈΠ΅ ΡΠ²ΠΎΠ΅Π³ΠΎ ΡΠ΅ΡΡΠΈΡΠΈΠΊΠ°ΡΠ°, ΡΠ°ΠΊ ΠΊΠ°ΠΊ ΡΡΡΠΎΠ΅Π½ΠΈΠ΅ ΠΎΠ±Π»Π°Π΄Π°Π΅Ρ ΠΏΠΎΠ²ΡΡΠ΅Π½Π½ΠΎΠΉ ΠΏΠΎΠΆΠ°ΡΠΎΠΎΠΏΠ°ΡΠ½ΠΎΡΡΡΡ.
ΠΠ°Π·Π½Π°ΡΠ΅Π½ΠΈΠ΅ Π³ΠΎΡΡΠ΅Π²ΠΎΠ³ΠΎ Π΄ΠΎΠΌΠΈΠΊΠ° Ρ Π±Π°Π½Π΅ΠΉ
ΠΡΠΎΠ΅ΠΊΡΡ Π³ΠΎΡΡΠ΅Π²ΡΡ Π΄ΠΎΠΌΠΎΠ² Ρ Π±Π°Π½Π΅ΠΉ ΠΏΡΠ΅Π΄Π½Π°Π·Π½Π°ΡΠ΅Π½Ρ Π² ΠΏΠ΅ΡΠ²ΡΡ ΠΎΡΠ΅ΡΠ΅Π΄Ρ Π΄Π»Ρ ΠΏΡΠΈΠ΅ΠΌΠ° Π³ΠΎΡΡΠ΅ΠΉ, Ρ ΡΠ΅Π»ΡΡ ΠΎΠ±Π΅ΡΠΏΠ΅ΡΠΈΡΡ ΡΠ΅Π±Π΅ ΠΈ ΠΈΠΌ ΠΏΠΎΠ»Π½ΠΎΡΠ΅Π½Π½ΡΠΉ ΠΎΡΠ΄ΡΡ . ΠΡΠΎ Π½Π°ΠΈΠ±ΠΎΠ»Π΅Π΅ ΠΏΠΎΠΏΡΠ»ΡΡΠ½Π°Ρ ΠΊΠΎΠ½ΡΡΡΡΠΊΡΠΈΡ, Π΅ΡΠ»ΠΈ Π±Π°Π½Ρ ΠΏΠ»Π°Π½ΠΈΡΡΠ΅ΡΡΡ ΠΊΠ°ΠΊ ΠΌΠ΅ΡΡΠΎ Π΄Π»Ρ Π΄ΡΡΠΆΠ΅ΡΠΊΠΈΡ ΠΏΠΎΡΠΈΠ΄Π΅Π»ΠΎΠΊ.
ΠΠΎΡΡΠ΅Π²ΠΎΠΉ Π΄ΠΎΠΌ Ρ Π±Π°Π½Π΅ΠΉ ΠΎΡΠ»ΠΈΡΠ°Π΅ΡΡΡ ΠΎΡ ΠΏΠΎΠ»Π½ΠΎΡΠ΅Π½Π½ΠΎΠ³ΠΎ ΠΊΠΎΡΡΠ΅Π΄ΠΆΠ° ΡΠ²ΠΎΠΈΠΌ ΠΊΠΎΠ½ΡΡΡΡΠΊΡΠΈΠ²Π½ΡΠΌ ΠΈΡΠΏΠΎΠ»Π½Π΅Π½ΠΈΠ΅ΠΌ, ΡΠ°ΠΊ ΠΊΠ°ΠΊ Π² ΠΏΠ΅ΡΠ²ΡΡ ΠΎΡΠ΅ΡΠ΅Π΄Ρ ΡΡΠ° ΠΏΠΎΡΡΡΠΎΠΉΠΊΠ° ΠΏΠΎΠ΄ΡΠ°Π·ΡΠΌΠ΅Π²Π°Π΅Ρ ΠΏΠΎΠ΄ ΡΠΎΠ±ΠΎΠΉ Π½Π΅ ΡΡΠΎΠ»ΡΠΊΠΎ ΠΆΠΈΠ»ΡΠ΅, ΡΠΊΠΎΠ»ΡΠΊΠΎ ΠΌΠ΅ΡΡΠΎ Π΄Π»Ρ ΠΎΡΠ΄ΡΡ Π°. ΠΠ΅ΡΠ²ΡΠΉ ΡΡΠ°ΠΆ ΠΏΠΎΡΡΠΈ Π²Π΅ΡΡ ΠΎΡΠ²ΠΎΠ΄ΠΈΡΡΡ ΠΏΠΎΠ΄ Π±Π°Π½Ρ, Π° Π½Π° Π²ΡΠΎΡΠΎΠΌ (ΡΠ°ΡΠ΅ ΠΌΠ°Π½ΡΠ°ΡΠ΄Π½ΠΎΠΌ) ΡΡΠ°ΠΆΠ΅ ΡΠ°Π·ΠΌΠ΅ΡΠ°ΡΡ ΡΠΏΠ°Π»ΡΠ½ΡΡ ΠΊΠΎΠΌΠ½Π°ΡΡ, Π±ΠΈΠ»ΡΡΡΠ΄Π½ΡΡ ΠΈΠ»ΠΈ ΡΠΏΠΎΡΡΠ·Π°Π». ΠΡΠΎ ΠΏΠΎΠ·Π²ΠΎΠ»ΠΈΡ ΠΎΠ±ΡΠ΅Π΄ΠΈΠ½ΠΈΡΡ Π΄Π²Π° ΡΡΠ½ΠΊΡΠΈΠΎΠ½Π°Π»ΡΠ½ΡΡ Π·Π΄Π°Π½ΠΈΡ ΠΎΠ΄Π½ΠΈΠΌ, Π½Π΅ ΡΠ²Π΅Π»ΠΈΡΠΈΠ²Π°Ρ ΠΏΡΠΈ ΡΡΠΎΠΌ Π·Π°Π½ΡΡΡΡ ΠΏΠ»ΠΎΡΠ°Π΄Ρ ΡΡΠ°ΡΡΠΊΠ°.

ΠΡΠ»ΠΈ ΡΠ°ΠΊΠΎΠΉ Π΄ΠΎΠΌ Π±ΡΠ΄Π΅Ρ ΠΈΡΠΏΠΎΠ»ΡΠ·ΠΎΠ²Π°ΡΡΡΡ ΡΠ΅Π΄ΠΊΠΎ, ΡΠΎ Π΄Π»Ρ ΡΠΎΠ³ΠΎ ΡΡΠΎΠ±Ρ ΠΏΠΎΠΌΠ΅ΡΠ΅Π½ΠΈΡ Π½Π΅ Β«ΠΏΡΠΎΡΡΠ°ΠΈΠ²Π°Π»ΠΈΒ» Π΅Π³ΠΎ ΠΌΠΎΠΆΠ½ΠΎ ΡΠ΄Π°Π²Π°ΡΡ Π² Π°ΡΠ΅Π½Π΄Ρ ΠΈ ΡΠΎΠ³Π΄Π° Π²ΡΠ΅ ΡΠΈΠ½Π°Π½ΡΠΎΠ²ΡΠ΅ Π²Π»ΠΎΠΆΠ΅Π½ΠΈΡ Π±ΡΡΡΡΠΎ ΠΎΠΊΡΠΏΡΡΡΡ.
ΠΠ° Π½Π°ΡΠ΅ΠΌ ΡΠ°ΠΉΡΠ΅ ΠΡ ΠΌΠΎΠΆΠ΅ΡΠ΅ ΠΎΠ·Π½Π°ΠΊΠΎΠΌΠΈΡΡΡΡ Ρ ΡΠ°ΠΌΡΠΌΠΈ ΠΏΠΎΠΏΡΠ»ΡΡΠ½ΡΠΌΠΈ ΠΏΡΠΎΠ΅ΠΊΡΠ°ΠΌΠΈ Π΄ΠΎΠΌΠΎΠ²Β ΠΎΡ ΡΡΡΠΎΠΈΡΠ΅Π»ΡΠ½ΡΡ ΠΊΠΎΠΌΠΏΠ°Π½ΠΈΠΉ, ΠΏΡΠ΅Π΄ΡΡΠ°Π²Π»Π΅Π½Π½ΡΡ Π½Π° Π²ΡΡΡΠ°Π²ΠΊΠ΅ Π΄ΠΎΠΌΠΎΠ² Β«ΠΠ°Π»ΠΎΡΡΠ°ΠΆΠ½Π°Ρ Π‘ΡΡΠ°Π½Π°Β».
ΠΡΠΎΠ±Π΅Π½Π½ΠΎΡΡΠΈ ΠΏΡΠΎΠ΅ΠΊΡΠΎΠ² Π³ΠΎΡΡΠ΅Π²ΡΡ Π΄ΠΎΠΌΠΎΠ²
ΠΡΠ½ΠΎΠ²Π½ΡΠΌ ΠΎΡΠ»ΠΈΡΠΈΠ΅ΠΌ Π³ΠΎΡΡΠ΅Π²ΠΎΠ³ΠΎ Π΄ΠΎΠΌΠ° Ρ ΠΏΠ°ΡΠ½ΠΎΠΉ ΠΎΡ ΠΎΠ±ΡΡΠ½ΠΎΠΉ ΠΏΡΠΈΠ²ΡΡΠ½ΠΎΠΉ Π²ΡΠ΅ΠΌ Π±Π°Π½ΠΈ β ΡΡΠΎ Π²ΠΎΠ·ΠΌΠΎΠΆΠ½ΠΎΡΡΡ ΠΆΠΈΡΡ Π² ΡΡΠΎΠΌ ΡΡΡΠΎΠ΅Π½ΠΈΠΈ ΠΊΠ°ΠΊ ΠΏΠ΅ΡΠΈΠΎΠ΄ΠΈΡΠ΅ΡΠΊΠΈ, ΠΏΡΠΈΠ΅Π·ΠΆΠ°Ρ ΡΠΎΠ»ΡΠΊΠΎ Π½Π° ΠΎΡΠ΄ΡΡ , ΡΠ°ΠΊ ΠΈ ΠΏΠΎΡΡΠΎΡΠ½Π½ΠΎ. ΠΠ΄Π΅ΡΡ Π±ΡΠ΄Π΅Ρ Π²ΡΠ΅ Π½Π΅ΠΎΠ±Ρ ΠΎΠ΄ΠΈΠΌΠΎΠ΅ Π΄Π»Ρ ΡΡΠΎΠ³ΠΎ β ΠΊΡΡ Π½Ρ, ΡΠ°Π½ΡΠ·Π΅Π» ΠΈ ΡΠΏΠ°Π»ΡΠ½ΡΠ΅ ΠΊΠΎΠΌΠ½Π°ΡΡ. Π’Π°ΠΊ ΠΆΠ΅ Π²ΡΠ΅ ΡΠΈΡΡΠ΅ΠΌΡ ΠΊΠΎΠΌΠΌΡΠ½ΠΈΠΊΠ°ΡΠΈΠΈ, ΡΠ°ΠΊΠΈΠ΅ ΠΊΠ°ΠΊ ΠΊΠ°Π½Π°Π»ΠΈΠ·Π°ΡΠΈΡ ΠΈ Π²ΠΎΠ΄ΠΎΠΏΡΠΎΠ²ΠΎΠ΄, Π±ΡΠ΄ΡΡ Π΄ΠΎΡΡΡΠΏΠ½Ρ Π΄Π»Ρ ΠΈΡΠΏΠΎΠ»ΡΠ·ΠΎΠ²Π°Π½ΠΈΡ Π² Π»ΡΠ±ΠΎΠ΅ Π²ΡΠ΅ΠΌΡ Π³ΠΎΠ΄Π°.
ΠΠ°ΡΠ΅ΡΠΈΠ°Π» Π΄Π»Ρ ΡΡΡΠΎΠΈΡΠ΅Π»ΡΡΡΠ²Π° Π³ΠΎΡΡΠ΅Π²ΠΎΠ³ΠΎ Π΄ΠΎΠΌΠ° Ρ Π±Π°Π½Π΅ΠΉ Π½Π΅ΠΎΠ±Ρ ΠΎΠ΄ΠΈΠΌΠΎ Π²ΡΠ±ΠΈΡΠ°ΡΡ ΠΌΠ°ΠΊΡΠΈΠΌΠ°Π»ΡΠ½ΠΎ Π±Π΅Π·ΠΎΠΏΠ°ΡΠ½ΡΠΉ Π΄Π»Ρ ΡΠ΅Π»ΠΎΠ²Π΅ΠΊΠ°, Π΄Π°ΠΆΠ΅ ΠΏΡΠΈ ΠΏΠΎΡΡΠΎΡΠ½Π½ΠΎΠΌ Π²ΠΎΠ·Π΄Π΅ΠΉΡΡΠ²ΠΈΠΈ Π½Π° Π½Π΅Π³ΠΎ ΠΏΠΎΠ²ΡΡΠ΅Π½Π½ΠΎΠΉ Π²Π»Π°ΠΆΠ½ΠΎΡΡΠΈ ΠΈ Π²ΡΡΠΎΠΊΠΈΡ ΡΠ΅ΠΌΠΏΠ΅ΡΠ°ΡΡΡ. ΠΡΡΡΠΈΠΌ Π²Π°ΡΠΈΠ°Π½ΡΠΎΠΌ Π±ΡΠ΄Π΅Ρ Π΄Π΅ΡΠ΅Π²ΡΠ½Π½Π°Ρ ΠΏΠΎΡΡΡΠΎΠΉΠΊΠ°, Π²ΡΠ΅ ΠΎΡΠ½ΠΎΠ²Π½ΡΠ΅ ΠΊΠΎΠ½ΡΡΡΡΠΊΡΠΈΠΈ ΠΊΠΎΡΠΎΡΠΎΠΉ Π΄Π»Ρ ΡΠ²Π΅Π»ΠΈΡΠ΅Π½ΠΈΡ ΡΠΊΡΠΏΠ»ΡΠ°ΡΠ°ΡΠΈΠΎΠ½Π½ΠΎΠ³ΠΎ ΡΡΠΎΠΊΠ° ΠΎΠ±ΡΠ°Π±Π°ΡΡΠ²Π°ΡΡΡΡ Π°Π½ΡΠΈΡΠ΅ΠΏΡΠΈΠΊΠ°ΠΌΠΈ ΠΈ ΠΏΡΠΎΠΏΠΈΡΠΊΠ°ΠΌΠΈ ΠΈ Π΄ΡΡΠ³ΠΈΠΌΠΈ Π·Π°ΡΠΈΡΠ½ΡΠΌΠΈ ΡΠΎΡΡΠ°Π²Π°ΠΌΠΈ.

Π Π°Π·ΠΌΠ΅ΡΠ΅Π½ΠΈΠ΅ Π³ΠΎΡΡΠ΅Π²ΠΎΠ³ΠΎ Π΄ΠΎΠΌΠΈΠΊΠ° Π½Π° ΡΡΠ°ΡΡΠΊΠ΅
Π£Π΄ΠΎΠ±ΡΡΠ²ΠΎ ΠΈΡΠΏΠΎΠ»ΡΠ·ΠΎΠ²Π°Π½ΠΈΡ Π³ΠΎΡΡΠ΅Π²ΠΎΠ³ΠΎ Π΄ΠΎΠΌΠ° Ρ Π±Π°Π½Π΅ΠΉ Π·Π°Π²ΠΈΡΠΈΡ Π½Π΅ ΡΠΎΠ»ΡΠΊΠΎ ΠΎΡ Π΅Π³ΠΎ Π²Π½ΡΡΡΠ΅Π½Π½Π΅Π³ΠΎ Π½Π°ΠΏΠΎΠ»Π½Π΅Π½ΠΈΡ, Π½ΠΎ ΠΈ ΠΎΡ ΡΠΎΠ³ΠΎ, Π² ΠΊΠ°ΠΊΠΎΠΌ ΠΈΠΌΠ΅Π½Π½ΠΎ ΠΌΠ΅ΡΡΠ΅ Π½Π° ΡΡΠ°ΡΡΠΊΠ΅ ΠΎΠ½ ΡΠ°ΡΠΏΠΎΠ»ΠΎΠΆΠ΅Π½. Π ΡΠΎΠΎΡΠ²Π΅ΡΡΡΠ²ΠΈΠΈ Ρ ΠΏΡΠ°Π²ΠΈΠ»Π°ΠΌΠΈ ΠΏΠΎΠΆΠ°ΡΠ½ΠΎΠΉ Π±Π΅Π·ΠΎΠΏΠ°ΡΠ½ΠΎΡΡΠΈ Π²ΠΎΠ·Π²Π΅Π΄Π΅Π½ΠΈΠ΅ ΠΏΠΎΡΡΡΠΎΠ΅ΠΊ Π½Π° ΡΡΠ°ΡΡΠΊΠ΅ Π²ΠΎΠ·ΠΌΠΎΠΆΠ½ΠΎ Π½Π΅ Π±Π»ΠΈΠΆΠ΅ ΡΠ΅ΠΌ Π½Π° ΡΠ°ΡΡΡΠΎΡΠ½ΠΈΠΈ 6 ΠΌΠ΅ΡΡΠΎΠ² ΠΎΡ Π΄ΡΡΠ³ΠΈΡ Π·Π΄Π°Π½ΠΈΠΉ. ΠΠΎΠΌΠΈΠΌΠΎ ΡΡΠΎΠ³ΠΎ, ΡΡΠΈΡΡΠ²Π°Ρ Π½Π°Π·Π½Π°ΡΠ΅Π½ΠΈΠ΅ Π³ΠΎΡΡΠ΅Π²ΠΎΠ³ΠΎ Π΄ΠΎΠΌΠΈΠΊΠ°, Π½Π΅ΠΎΠ±Ρ ΠΎΠ΄ΠΈΠΌΠΎ ΠΏΡΠ΅Π΄ΡΡΠΌΠΎΡΡΠ΅ΡΡ Π½Π°Π»ΠΈΡΠΈΠ΅ ΠΏΠ°ΡΠΊΠΎΠ²ΠΎΡΠ½ΡΡ ΠΌΠ΅ΡΡ, Π° ΡΠ°ΠΊ ΠΆΠ΅ Π΄ΠΎΠΏΠΎΠ»Π½ΠΈΡΠ΅Π»ΡΠ½ΠΎΠΉ ΠΏΠ»ΠΎΡΠ°Π΄ΠΊΠΈ Π΄Π»Ρ ΠΎΡΠ΄ΡΡ Π°, ΠΆΠ΅Π»Π°ΡΠ΅Π»ΡΠ½ΠΎ Ρ ΠΌΠ°Π½Π³Π°Π»ΠΎΠΌ ΠΈ Π±Π΅ΡΠ΅Π΄ΠΊΠΎΠΉ.

Π‘ ΡΠ΅Π»ΡΡ ΡΠΈΠ½Π°Π½ΡΠΎΠ²ΠΎΠΉ ΡΠΊΠΎΠ½ΠΎΠΌΠΈΠΈ Π³ΠΎΡΡΠ΅Π²ΠΎΠΉ Π΄ΠΎΠΌ Π½ΡΠΆΠ½ΠΎ ΡΡΡΠΎΠΈΡΡ ΠΌΠ°ΠΊΡΠΈΠΌΠ°Π»ΡΠ½ΠΎ Π±Π»ΠΈΠ·ΠΊΠΎ ΠΊ ΠΎΡΠ½ΠΎΠ²Π½ΠΎΠΌΡ Π΄ΠΎΠΌΡ, Π½ΠΎ ΠΏΡΠΈ ΡΡΠΎΠΌ Π½Π΅ Π½Π°ΡΡΡΠ°Ρ ΠΏΠΎΠΆΠ°ΡΠ½ΠΎΠΉ Π±Π΅Π·ΠΎΠΏΠ°ΡΠ½ΠΎΡΡΠΈ, Π΄Π»Ρ ΡΠΎΠ³ΠΎ ΡΡΠΎΠ±Ρ ΠΏΡΠΎΠΊΠ»Π°Π΄ΠΊΠ° ΡΠΈΡΡΠ΅ΠΌ ΠΊΠΎΠΌΠΌΡΠ½ΠΈΠΊΠ°ΡΠΈΠΈ Π½Π΅ ΠΏΠΎΡΡΠ΅Π±ΠΎΠ²Π°Π»Π° Π±ΠΎΠ»ΡΡΠΈΡ Π²Π»ΠΎΠΆΠ΅Π½ΠΈΠΉ.
ΠΠ°Π³Π»ΡΠ΄Π½ΠΎ ΠΏΡΠΎ Π²ΡΠ±ΠΎΡ ΠΌΠ΅ΡΡΠ° Π΄Π»Ρ Π±Π°Π½ΠΈ ΡΠΌΠΎΡΡΠΈΡΠ΅ Π² Π²ΠΈΠ΄Π΅ΠΎ:
ΠΡΠΎΠ±Π΅Π½Π½ΠΎΡΡΠΈ ΠΎΡΠΎΡΠΌΠ»Π΅Π½ΠΈΡ ΠΈΠ½ΡΠ΅ΡΡΠ΅ΡΠ° Π² Π³ΠΎΡΡΠ΅Π²ΠΎΠΌ Π΄ΠΎΠΌΠΈΠΊΠ΅
Π’Π°ΠΊ ΠΊΠ°ΠΊ ΠΏΠ°ΡΠ½Π°Ρ Π² Π³ΠΎΡΡΠ΅Π²ΠΎΠΌ Π΄ΠΎΠΌΠΈΠΊΠ΅ ΡΠ²Π»ΡΠ΅ΡΡΡ ΠΎΡΠ½ΠΎΠ²Π½ΡΠΌ ΠΏΠΎΠΌΠ΅ΡΠ΅Π½ΠΈΠ΅ΠΌ, ΡΠΎ ΠΈΠ½ΡΠ΅ΡΡΠ΅Ρ Π²ΡΠ΅Ρ ΠΎΡΡΠ°Π»ΡΠ½ΡΡ ΠΏΠΎΠΌΠ΅ΡΠ΅Π½ΠΈΠΉ Π»ΡΡΡΠ΅ Π²ΡΠ΅Π³ΠΎ Π²ΡΠΏΠΎΠ»Π½ΠΈΡΡ Π² ΡΠΎΡΠ½ΠΎ ΡΠ°ΠΊΠΎΠΌ ΠΆΠ΅ ΡΡΠΈΠ»Π΅. ΠΡΠ»ΠΈ ΠΎΠ½ Π±ΡΠ΄Π΅Ρ ΡΠΎΠ·Π΄Π°Π½ Π² Π΄Π΅ΡΠ΅Π²Π΅Π½ΡΠΊΠΎΠΌ ΡΡΠΈΠ»Π΅, ΡΠΎ ΠΈ Π²ΡΠ΅ ΠΎΡΡΠ°Π»ΡΠ½ΡΠ΅ ΠΏΠΎΠΌΠ΅ΡΠ΅Π½ΠΈΡ Π½Π΅ΠΎΠ±Ρ ΠΎΠ΄ΠΈΠΌΠΎ Π²ΡΠ΄Π΅ΡΠΆΠ°ΡΡ Π² Π½Π΅ΠΌ ΠΆΠ΅. ΠΡΠΎ ΠΌΠΎΠΆΠ½ΠΎ ΡΠ΄Π΅Π»Π°ΡΡ Ρ ΠΏΠΎΠΌΠΎΡΡΡ ΡΠΎΠΎΡΠ²Π΅ΡΡΡΠ²ΡΡΡΠ΅ΠΉ Π²Π½ΡΡΡΠ΅Π½Π½Π΅ΠΉ ΠΎΡΠ΄Π΅Π»ΠΊΠΈ ΡΡΠ΅Π½ ΠΈ Π΄ΡΡΠ³ΠΈΡ ΠΏΠΎΠ²Π΅ΡΡ Π½ΠΎΡΡΠ΅ΠΉ, Π° ΡΠ°ΠΊΠΆΠ΅ Π½Π°ΠΏΠΎΠ»Π½Π΅Π½ΠΈΠ΅ΠΌ ΡΡΠΈΡ ΠΏΠΎΠΌΠ΅ΡΠ΅Π½ΠΈΠΉ ΠΎΠΏΡΠ΅Π΄Π΅Π»Π΅Π½Π½ΠΎΠΉ ΠΌΠ΅Π±Π΅Π»ΡΡ.
ΠΠ° Π½Π°ΡΠ΅ΠΌ ΡΠ°ΠΉΡΠ΅ ΠΡ ΠΌΠΎΠΆΠ΅ΡΠ΅ Π½Π°ΠΉΡΠΈ ΠΊΠΎΠ½ΡΠ°ΠΊΡΡ ΡΡΡΠΎΠΈΡΠ΅Π»ΡΠ½ΡΡ ΠΊΠΎΠΌΠΏΠ°Π½ΠΈΠΉ, ΠΊΠΎΡΠΎΡΡΠ΅ ΠΏΡΠ΅Π΄Π»Π°Π³Π°ΡΡ ΡΡΠ»ΡΠ³Ρ ΠΏΡΠΎΠ΅ΠΊΡΠΈΡΠΎΠ²Π°Π½ΠΈΡ Π΄ΠΎΠΌΠΎΠ². ΠΠ°ΠΏΡΡΠΌΡΡ ΠΏΠΎΠΎΠ±ΡΠ°ΡΡΡΡ Ρ ΠΏΡΠ΅Π΄ΡΡΠ°Π²ΠΈΡΠ΅Π»ΡΠΌΠΈ ΠΌΠΎΠΆΠ½ΠΎ ΠΏΠΎΡΠ΅ΡΠΈΠ² Π²ΡΡΡΠ°Π²ΠΊΡ Π΄ΠΎΠΌΠΎΠ² Β«ΠΠ°Π»ΠΎΡΡΠ°ΠΆΠ½Π°Ρ Π‘ΡΡΠ°Π½Π°Β».
ΠΠΎΠΏΡΠ»ΡΡΠ½ΡΠ΅ ΠΏΡΠΎΠ΅ΠΊΡΡ Π΄ΠΎΠΌΠΈΠΊΠΎΠ² Ρ Π±Π°Π½Π΅ΠΉ Π΄Π»Ρ Π³ΠΎΡΡΠ΅ΠΉ

ΠΡΠ΅Π½Ρ ΠΊΠΎΠΌΠΏΠ°ΠΊΡΠ½ΡΠΉ, Π½ΠΎ ΠΏΡΠΈ ΡΡΠΎΠΌ Π²ΠΌΠ΅ΡΡΠΈΡΠ΅Π»ΡΠ½ΡΠΉ Π³ΠΎΡΡΠ΅Π²ΠΎΠΉ Π΄ΠΎΠΌ Ρ Π±Π°Π½Π΅ΠΉ ΠΈ ΠΌΠ°Π½ΡΠ°ΡΠ΄Π½ΡΠΌ ΡΡΠ°ΠΆΠΎΠΌ. ΠΠ΅ΡΠΌΠΎΡΡΡ Π½Π° ΡΠΊΡΠΎΠΌΠ½ΡΠ΅ ΡΠ°Π·ΠΌΠ΅ΡΡ, ΠΏΠΎΠΌΠΈΠΌΠΎ ΠΎΠ±ΡΠ·Π°ΡΠ΅Π»ΡΠ½ΡΡ ΠΏΠ°ΡΠ½ΠΎΠΉ ΠΈ Π΄ΡΡΠ΅Π²ΠΎΠΉ Π·Π΄Π΅ΡΡ Π΅ΡΡΡ Π²ΡΠ΅ Π½Π΅ΠΎΠ±Ρ ΠΎΠ΄ΠΈΠΌΡΠ΅ ΠΏΠΎΠΌΠ΅ΡΠ΅Π½ΠΈΡ Π΄Π»Ρ ΠΏΠΎΠ»Π½ΠΎΡΠ΅Π½Π½ΠΎΠ³ΠΎ ΠΎΡΠ΄ΡΡ Π°: Ρ ΠΎΠ»Π», ΠΊΡΡ Π½Ρ-ΡΡΠΎΠ»ΠΎΠ²Π°Ρ ΠΈ ΡΠΏΠ°Π»ΡΠ½ΠΈ. ΠΠΌΠ΅ΡΡΠΎ ΠΊΡΡΠ»ΡΡΠ° Π½Π° Π²Ρ ΠΎΠ΄Π΅ ΡΠ°ΡΠΏΠΎΠ»ΠΎΠΆΠ΅Π½Π° Π±ΠΎΠ»ΡΡΠ°Ρ ΠΎΡΠΊΡΡΡΠ°Ρ ΡΠ΅ΡΡΠ°ΡΠ°, Π½Π° ΠΊΠΎΡΠΎΡΠΎΠΉ ΠΌΠΎΠΆΠ½ΠΎ ΠΏΡΠΎΠ²Π΅ΡΡΠΈ Π²ΡΠ΅ΠΌΡ Π½Π° ΡΠ²Π΅ΠΆΠ΅ΠΌ Π²ΠΎΠ·Π΄ΡΡ Π΅.


ΠΠ΅ΡΠΌΠΎΡΡΡ Π½Π° Π±ΠΎΜΠ»ΡΡΠΈΠΉ ΠΏΠ΅ΡΠΈΠΌΠ΅ΡΡ ΠΏΠΎΡΡΡΠΎΠΉΠΊΠΈ, ΠΏΠΎΠ»Π΅Π·Π½Π°Ρ ΠΏΠ»ΠΎΡΠ°Π΄Ρ ΡΡΠΎΠ³ΠΎ Π³ΠΎΡΡΠ΅Π²ΠΎΠ³ΠΎ Π΄ΠΎΠΌΠΈΠΊΠ° ΠΎΠ³ΡΠ°Π½ΠΈΡΠ΅Π½Π° ΡΠ°Π·ΠΌΠ΅ΡΠ°ΠΌΠΈ 5,5 Π½Π° 5,5 ΠΌΠ΅ΡΡΠ° Π½Π΅ ΡΡΠΈΡΠ°Ρ ΡΠ΅ΡΡΠ°ΡΡ. ΠΠ°ΠΆΠ΅ ΡΠ°ΠΊΠΈΡ ΡΠ°Π·ΠΌΠ΅ΡΠΎΠ² Π²ΠΏΠΎΠ»Π½Π΅ Π΄ΠΎΡΡΠ°ΡΠΎΡΠ½ΠΎ Π΄Π»Ρ Π²ΡΠ΅ΠΌΠ΅Π½Π½ΠΎΠ³ΠΎ ΠΈΠ»ΠΈ ΠΏΠΎΡΡΠΎΡΠ½Π½ΠΎΠ³ΠΎ ΠΏΡΠΎΠΆΠΈΠ²Π°Π½ΠΈΡ Π½Π΅Π±ΠΎΠ»ΡΡΠΎΠΉ ΡΠ΅ΠΌΡΠ΅ΠΉ ΠΈΠ»ΠΈ ΠΏΠ΅ΡΠΈΠΎΠ΄ΠΈΡΠ΅ΡΠΊΠΈΠΌΠΈ ΠΏΠΎΡΠ΅ΡΠ΅Π½ΠΈΡΠΌΠΈ Π΄ΡΡΠΆΠ΅ΡΠΊΠΎΠΉ ΠΊΠΎΠΌΠΏΠ°Π½ΠΈΠΈ.

Π£Π³Π»ΠΎΠ²ΠΎΠΉ ΠΎΠ΄Π½ΠΎΡΡΠ°ΠΆΠ½ΡΠΉ Π³ΠΎΡΡΠ΅Π²ΠΎΠΉ Π΄ΠΎΠΌΠΈΠΊ Ρ Π±Π°Π½Π΅ΠΉ β ΡΡΠΎ ΠΈΠ½ΡΠ΅ΡΠ΅ΡΠ½ΠΎΠ΅ ΡΠ΅ΡΠ΅Π½ΠΈΠ΅ Π΄Π»Ρ Π½Π΅Π±ΠΎΠ»ΡΡΠΎΠ³ΠΎ ΡΡΠ°ΡΡΠΊΠ°. ΠΠ΄Π΅ΡΡ Π΅ΡΡΡ Π²ΡΠ΅ Π½Π΅ΠΎΠ±Ρ ΠΎΠ΄ΠΈΠΌΠΎΠ΅ Π΄Π»Ρ ΠΎΡΠ΄ΡΡ Π°, Π½ΠΎ ΠΏΠ΅ΡΠ΅Π½ΠΎΡΠ΅Π²Π°ΡΡ, ΠΏΡΠΈ Π½Π΅ΠΎΠ±Ρ ΠΎΠ΄ΠΈΠΌΠΎΡΡΠΈ, ΠΏΠΎΠ»ΡΡΠΈΡΡΡ, ΡΠΎΠ»ΡΠΊΠΎ ΡΠ°Π·ΠΌΠ΅ΡΡΠΈΠ²ΡΠΈΡΡ Π½Π° Π΄ΠΈΠ²Π°Π½Π΅ Π² ΠΊΠΎΠΌΠ½Π°ΡΠ΅ ΠΎΡΠ΄ΡΡ Π° β ΠΎΡΠ΄Π΅Π»ΡΠ½ΡΡ ΡΠΏΠ°Π»Π΅Π½ Π² Π΄ΠΎΠΌΠΈΠΊΠ΅ Π½Π΅ ΠΏΡΠ΅Π΄ΡΡΠΌΠΎΡΡΠ΅Π½ΠΎ.
ΠΡΠΎΠ΅ΠΊΡΡ ΠΆΠΈΠ»ΡΡ Π΄ΠΎΠΌΠΎΠ² Ρ Π±Π°Π½Π΅ΠΉ ΠΏΠΎΠ΄ ΠΎΠ΄Π½ΠΎΠΉ ΠΊΡΡΡΠ΅ΠΉ
ΠΠ°Π³Π»ΡΠ΄Π½ΡΠΉ ΠΎΠ±Π·ΠΎΡ Π΄ΠΎΠΌΠ° Ρ Π±Π°Π½Π΅ΠΉ ΠΈ Π±Π°ΡΡΠ΅ΠΉΠ½ΠΎΠΌ ΡΠΌΠΎΡΡΠΈΡΠ΅ Π² ΡΠ»Π΅Π΄ΡΡΡΠ΅ΠΌ Π²ΠΈΠ΄Π΅ΠΎ:
Π Π΅ΡΠ΅ Π½Π΅ΡΠΊΠΎΠ»ΡΠΊΠΎ ΠΏΡΠΎΠ΅ΠΊΡΠΎΠ² Π½Π° ΡΠΎΡΠΎ

ΠΡΠΎ ΠΌΠΎΠΆΠ΅Ρ Π±ΡΡΡ ΠΈΠ½ΡΠ΅ΡΠ΅ΡΠ½ΠΎ! Π ΡΡΠ°ΡΡΠ΅ ΠΏΠΎ ΡΠ»Π΅Π΄ΡΡΡΠ΅ΠΉ ΡΡΡΠ»ΠΊΠ΅ ΡΠΈΡΠ°ΠΉΡΠ΅ ΠΏΡΠΎ ΡΠ΅ΠΉΡΠΈΠ½Π³ ΠΊΠΎΠΌΠΏΠ°Π½ΠΈΠΉ ΠΏΠΎ ΡΡΡΠΎΠΈΡΠ΅Π»ΡΡΡΠ²Ρ Π΄ΠΎΠΌΠΎΠ².

ΠΠΎΠ»Π½ΠΎΡΠ΅Π½Π½ΡΠΉ Π΄Π²ΡΡ ΡΡΠ°ΠΆΠ½ΡΠΉ Π·Π°Π³ΠΎΡΠΎΠ΄Π½ΡΠΉ Π΄ΠΎΠΌ ΠΈΠ· ΠΎΡΠΈΠ»ΠΈΠ½Π΄ΡΠΎΠ²Π°Π½Π½ΠΎΠ³ΠΎ Π±ΡΠ΅Π²Π½Π° Ρ Π±Π°Π½Π΅ΠΉ. ΠΠ±ΡΠ°Ρ ΠΏΠΎΠ»Π΅Π·Π½Π°Ρ ΠΏΠ»ΠΎΡΠ°Π΄Ρ 115 ΠΊΠ².ΠΌ., ΠΊΠΎΡΠΎΡΠΎΠΉ Ρ ΠΈΠ·Π±ΡΡΠΊΠΎΠΌ Ρ Π²Π°ΡΠΈΡ Π΄Π»Ρ ΡΠ΅Π·ΠΎΠ½Π½ΠΎΠ³ΠΎ ΠΈΠ»ΠΈ ΠΏΠΎΡΡΠΎΡΠ½Π½ΠΎΠ³ΠΎ ΠΏΡΠΎΠΆΠΈΠ²Π°Π½ΠΈΡ ΡΠ΅Π»ΠΎΠΉ ΡΠ΅ΠΌΡΠΈ.

Π’Π°ΠΊΠΎΠΉ ΠΏΡΠΎΠ΅ΠΊΡ Π²ΠΏΠΎΠ»Π½Π΅ ΠΌΠΎΠΆΠ΅Ρ Π·Π°ΠΈΠ½ΡΠ΅ΡΠ΅ΡΠΎΠ²Π°ΡΡ Π²Π»Π°Π΄Π΅Π»ΡΡΠ΅Π² ΠΎΠ±ΡΡΠ½ΡΡ Β«Π»Π΅ΡΠ½ΠΈΡ Β» Π³ΠΎΡΡΠ΅Π²ΡΡ Π΄ΠΎΠΌΠΈΠΊΠΎΠ². ΠΡΠ½ΠΎΡΠΈΡΠ΅Π»ΡΠ½ΠΎ Π½Π΅Π±ΠΎΠ»ΡΡΠ°Ρ ΠΌΠΎΠ΄Π΅ΡΠ½ΠΈΠ·Π°ΡΠΈΡ ΠΏΠΎΠ·Π²ΠΎΠ»ΠΈΡ Ρ ΠΌΠΈΠ½ΠΈΠΌΠ°Π»ΡΠ½ΡΠΌΠΈ Π²Π»ΠΎΠΆΠ΅Π½ΠΈΡΠΌΠΈ Π΄ΠΎΠΏΠΎΠ»Π½ΠΈΡΡ Π΅Π³ΠΎ Π±Π°Π½Π΅ΠΉ ΠΈ ΠΏΡΠ΅Π²ΡΠ°ΡΠΈΡΡ Π² ΠΏΠΎΠ»Π½ΠΎΡΠ΅Π½Π½ΠΎΠ΅ ΠΌΠ΅ΡΡΠΎ Π΄Π»Ρ ΠΎΡΠ΄ΡΡ Π°.
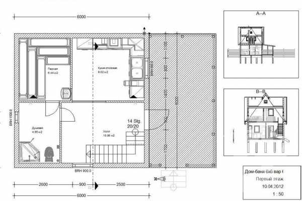
ΠΠ»Π°Π½ΠΈΡΠΎΠ²ΠΊΠ° Π΄ΠΎΠΌΠ° Π½Π΅ ΠΏΡΠ΅Π΄ΡΡΠΌΠ°ΡΡΠΈΠ²Π°Π΅Ρ Π½Π΅ΡΡΡΠΈΡ Π²Π½ΡΡΡΠ΅Π½Π½ΠΈΡ ΡΡΠ΅Π½, ΠΏΠΎΡΡΠΎΠΌΡ ΠΎΠ³ΡΠ°Π½ΠΈΡΠ΅Π½Π° ΡΠΎΠ»ΡΠΊΠΎ ΡΠ°Π½ΡΠ°Π·ΠΈΠ΅ΠΉ Π΄ΠΈΠ·Π°ΠΉΠ½Π΅ΡΠ°.


ΠΡΠΎΠ΅ΠΊΡ ΠΊΠΎΠΌΠΏΠ°ΠΊΡΠ½ΠΎΠ³ΠΎ Π΄ΠΎΠΌΠ° Ρ Π±Π°Π½Π΅ΠΉ ΠΏΠΎΠ΄ ΠΎΠ΄Π½ΠΎΠΉ ΠΊΡΡΡΠ΅ΠΉ. ΠΠ΅ΡΠΌΠΎΡΡΡ Π½Π° ΡΠΊΡΠΎΠΌΠ½ΡΠ΅ ΡΠ°Π·ΠΌΠ΅ΡΡ β 6 Π½Π° 5 ΠΌΠ΅ΡΡΠΎΠ², Π² ΡΠ°ΠΊΠΎΠΌ Π΄ΠΎΠΌΠ΅ Π±ΡΠ΄Π΅Ρ ΠΊΠΎΠΌΡΠΎΡΡΠ½ΠΎ ΠΎΡΡΠ°Π½ΠΎΠ²ΠΈΡΡΡΡ ΡΠ΅ΠΌΡΠ΅ ΡΠΎΡΡΠΎΡΡΠ΅ΠΉ ΠΈΠ· 3-4 ΡΠ΅Π»ΠΎΠ²Π΅ΠΊ. ΠΠ° ΠΌΠ°Π½ΡΠ°ΡΠ΄Π½ΠΎΠΌ ΡΡΠ°ΠΆΠ΅ ΠΏΡΠ΅Π΄ΡΡΠΌΠΎΡΡΠ΅Π½Ρ Π΄Π²Π΅ ΡΠΏΠ°Π»ΡΠ½ΡΠ΅ ΠΊΠΎΠΌΠ½Π°ΡΡ, ΠΎΠ΄Π½Ρ ΠΈΠ· ΠΊΠΎΡΠΎΡΡΡ ΠΌΠΎΠΆΠ½ΠΎ ΠΎΠ±ΡΡΡΡΠΎΠΈΡΡ ΠΏΠΎΠ΄ Π΄Π΅ΡΡΠΊΡΡ.
ΠΡΠΈΠΌΠ΅ΡΡ Π΄ΠΎΠΌΠΎΠ² Ρ Π±Π°Π½ΡΠΌΠΈ ΠΏΠΎΠ΄ ΠΎΠ΄Π½ΠΎΠΉ ΠΊΡΡΡΠ΅ΠΉ Π½Π° ΡΠΎΡΠΎ ΠΈ Π²ΠΈΠ΄Π΅ΠΎ
ΠΠ΅ΡΠΊΠΎΠ»ΡΠΊΠΎ ΠΊΡΠ°ΡΠΈΠ²ΡΡ ΠΈ ΠΎΡΠΈΠ³ΠΈΠ½Π°Π»ΡΠ½ΡΡ ΠΏΡΠΎΠ΅ΠΊΡΠΎΠ² Π² Π²ΠΈΠ΄Π΅ΠΎ:
Π ΠΏΡΠΈΠΌΠ΅ΡΡ Π°ΡΡ ΠΈΡΠ΅ΠΊΡΡΡΠ½ΡΡ ΠΏΡΠΎΠ΅ΠΊΡΠΎΠ² Π½Π° ΡΠΎΡΠΎ:


ΠΠ° Π½Π°ΡΠ΅ΠΌ ΡΠ°ΠΉΡΠ΅ ΠΡ ΠΌΠΎΠΆΠ΅ΡΠ΅ ΠΎΠ·Π½Π°ΠΊΠΎΠΌΠΈΡΡΡΡ Ρ ΡΠ°ΠΌΡΠΌΠΈ ΠΏΠΎΠΏΡΠ»ΡΡΠ½ΡΠΌΠΈ ΠΏΡΠΎΠ΅ΠΊΡΠ°ΠΌΠΈ Π΄ΠΎΠΌΠΎΠ² ΠΎΡ ΡΡΡΠΎΠΈΡΠ΅Π»ΡΠ½ΡΡ ΠΊΠΎΠΌΠΏΠ°Π½ΠΈΠΉ, ΠΏΡΠ΅Π΄ΡΡΠ°Π²Π»Π΅Π½Π½ΡΡ Π½Π° Π²ΡΡΡΠ°Π²ΠΊΠ΅ Π΄ΠΎΠΌΠΎΠ² ΠΠ°Π»ΠΎΡΡΠ°ΠΆΠ½Π°Ρ Π‘ΡΡΠ°Π½Π°.




ΠΡΠΎ ΠΌΠΎΠΆΠ΅Ρ Π±ΡΡΡ ΠΈΠ½ΡΠ΅ΡΠ΅ΡΠ½ΠΎ! Π ΡΡΠ°ΡΡΠ΅ ΠΏΠΎ ΡΠ»Π΅Π΄ΡΡΡΠ΅ΠΉ ΡΡΡΠ»ΠΊΠ΅ ΡΠΈΡΠ°ΠΉΡΠ΅ ΠΏΡΠΎ ΠΌΠ΅ΠΆΡΡΠ°ΠΆΠ½ΡΠ΅ ΠΏΠ΅ΡΠ΅ΠΊΡΡΡΠΈΡ Π΄ΠΎΠΌΠ°.
ΠΠ°ΠΊΠ»ΡΡΠ΅Π½ΠΈΠ΅
ΠΠ΅Π΄ΠΎΡΡΠ°ΡΠΊΠΎΠ² Π΄ΠΎΠΌΠ° Ρ Π±Π°Π½Π΅ΠΉ ΠΏΠΎΠ΄ ΠΎΠ΄Π½ΠΎΠΉ ΠΊΡΡΡΠ΅ΠΉ ΠΏΡΠ°ΠΊΡΠΈΡΠ΅ΡΠΊΠΈ ΡΡΠΎΠ»ΡΠΊΠΎ ΠΆΠ΅, ΡΠΊΠΎΠ»ΡΠΊΠΎ ΠΈ ΠΏΡΠ΅ΠΈΠΌΡΡΠ΅ΡΡΠ². ΠΠΎ Π΅ΡΠ»ΠΈ ΠΏΠΎΠ»ΠΎΠΆΠΈΡΠ΅Π»ΡΠ½ΡΠ΅ ΡΡΠΎΡΠΎΠ½Ρ Π΄Π»Ρ Π²Π°Ρ Π·Π½Π°ΡΠΈΡΠ΅Π»ΡΠ½ΠΎ ΡΡΡΠ΅ΡΡΠ²Π΅Π½Π½Π΅Π΅, ΡΠΎ ΠΎΡΡΠ°Π΅ΡΡΡ ΡΠΎΠ»ΡΠΊΠΎ Π²ΠΎΠΏΠ»ΠΎΡΠΈΡΡ ΡΠ²ΠΎΡ ΠΈΠ΄Π΅Ρ Π² ΠΆΠΈΠ·Π½Ρ. ΠΡΠ±Π°Ρ ΡΡΡΠΎΠΈΡΠ΅Π»ΡΠ½Π°Ρ ΠΊΠΎΠΌΠΏΠ°Π½ΠΈΡ, ΠΏΡΠ΅Π΄ΠΎΡΡΠ°Π²ΠΈΡ Π½Π° Π²ΡΠ±ΠΎΡ ΠΌΠ½ΠΎΠΆΠ΅ΡΡΠ²ΠΎ ΠΏΡΠΎΠ΅ΠΊΡΠΎΠ². ΠΡΠ»ΠΈ Π²Π΄ΡΡΠ³ ΡΡΠ΅Π΄ΠΈ Π½ΠΈΡ Π½Π΅ Π½Π°ΠΉΠ΄Π΅ΡΡΡ ΠΏΠΎΠ»Π½ΠΎΡΡΡΡ ΠΏΠΎΠ΄Ρ ΠΎΠ΄ΡΡΠ΅Π³ΠΎ, ΡΠΎ Π²Π°ΠΌ ΠΏΡΠ΅Π΄Π»ΠΎΠΆΠ°Ρ Π²Π½Π΅ΡΡΠΈ Π½Π΅ΠΎΠ±Ρ ΠΎΠ΄ΠΈΠΌΡΠ΅ ΠΏΡΠ°Π²ΠΊΠΈ ΠΈΠ»ΠΈ ΡΠ°Π·ΡΠ°Π±ΠΎΡΠ°ΡΡ ΠΈΠ½Π΄ΠΈΠ²ΠΈΠ΄ΡΠ°Π»ΡΠ½ΡΠΉ ΠΏΡΠΎΠ΅ΠΊΡ. Π’Π°ΠΊ ΡΡΠΎ Π·Π° Π²Π°ΠΌΠΈ ΡΠΎΠ»ΡΠΊΠΎ Π²ΡΠ±ΠΎΡ Π³ΡΠ°ΠΌΠΎΡΠ½ΠΎΠΉ ΡΡΡΠΎΠΈΡΠ΅Π»ΡΠ½ΠΎΠΉ ΠΊΠΎΠΌΠΏΠ°Π½ΠΈΠΈ, ΡΠΏΠ΅ΡΠΈΠ°Π»ΠΈΡΡΡ ΠΊΠΎΡΠΎΡΠΎΠΉ ΠΏΠΎΡΡΡΠΎΡΡ ΠΊΠ°ΡΠ΅ΡΡΠ²Π΅Π½Π½ΡΠΉ Π΄ΠΎΠΌ Ρ Π±Π°Π½Π΅ΠΉ ΠΏΠΎΠ΄ ΠΎΠ΄Π½ΠΎΠΉ ΠΊΡΡΡΠ΅ΠΉ ΠΏΠΎΠ΄ ΠΊΠ»ΡΡ Π΄Π»Ρ ΠΊΠΎΠΌΡΠΎΡΡΠ½ΠΎΠ³ΠΎ ΠΎΡΠ΄ΡΡ Π°.
m-strana.ru
ΠΏΠ»Π°Π½ΠΈΡΠΎΠ²ΠΊΠ°, ΡΡΡΠΎΠΈΡΠ΅Π»ΡΡΡΠ²ΠΎ, ΠΏΡΠΎΠ΅ΠΊΡΡ ΠΈ ΡΠΎΡΠΎ
ΠΡΠ»ΠΈ Π½Π° Π·Π΅ΠΌΠ΅Π»ΡΠ½ΠΎΠΌ ΡΡΠ°ΡΡΠΊΠ΅ Π½Π΅Ρ Π²ΠΎΠ·ΠΌΠΎΠΆΠ½ΠΎΡΡΠΈ Π²ΡΠ΄Π΅Π»ΠΈΡΡ ΠΌΠ΅ΡΡΠΎ ΠΏΠΎΠ΄ Π²ΠΎΠ·Π²Π΅Π΄Π΅Π½ΠΈΠ΅ ΠΎΡΠ΄Π΅Π»ΡΠ½ΠΎΠΉ ΠΏΠ°ΡΠ½ΠΎΠΉ, Π°Π»ΡΡΠ΅ΡΠ½Π°ΡΠΈΠ²Π½ΡΠΌ Π²Π°ΡΠΈΠ°Π½ΡΠΎΠΌ ΡΡΠ°Π½Π΅Ρ Π΄ΠΎΠΌ Ρ Π±Π°Π½Π΅ΠΉ ΠΏΠΎΠ΄ ΠΎΠ΄Π½ΠΎΠΉ ΠΊΡΡΡΠ΅ΠΉ. ΠΡΠ°ΠΌΠΎΡΠ½Π°Ρ ΡΠ°Π·ΡΠ°Π±ΠΎΡΠΊΠ° ΡΡΡΠΎΠΈΡΠ΅Π»ΡΠ½ΠΎΠ³ΠΎ ΠΏΡΠΎΠ΅ΠΊΡΠ° ΠΏΠΎΠ·Π²ΠΎΠ»ΠΈΡ Π½Π΅ ΡΠΎΠ»ΡΠΊΠΎ ΡΡΡΠ΅ΠΊΡΠΈΠ²Π½ΠΎ ΠΈΡΠΏΠΎΠ»ΡΠ·ΠΎΠ²Π°ΡΡ Π΄ΠΎΡΡΡΠΏΠ½ΡΡ ΠΏΠ»ΠΎΡΠ°Π΄Ρ, Π½ΠΎ ΠΈ ΡΡΡΠ΅ΡΡΠ²Π΅Π½Π½ΠΎ ΡΠΎΠΊΡΠ°ΡΠΈΡΡ ΡΠ°ΡΡ ΠΎΠ΄Ρ Π½Π° ΡΡΡΠΎΠΈΡΠ΅Π»ΡΡΡΠ²ΠΎ Π±Π°Π½ΠΈ ΠΈ ΠΏΡΠΎΠΊΠ»Π°Π΄ΠΊΡ ΠΈΠ½ΠΆΠ΅Π½Π΅ΡΠ½ΡΡ ΡΠ΅ΡΠ΅ΠΉ.

Π‘ΠΎΠ΄Π΅ΡΠΆΠ°Π½ΠΈΠ΅ ΡΡΠ°ΡΡΠΈ
ΠΡΠ΅ΠΈΠΌΡΡΠ΅ΡΡΠ²Π° ΠΈ Π½Π΅Π΄ΠΎΡΡΠ°ΡΠΊΠΈ ΡΠΎΠ²ΠΌΠ΅ΡΠ΅Π½Π½ΠΎΠΉ ΠΊΠΎΠ½ΡΡΡΡΠΊΡΠΈΠΈ Π΄ΠΎΠΌΠ° ΠΈ Π±Π°Π½ΠΈ
Π‘ΠΎΠ²ΡΠ΅ΠΌΠ΅Π½Π½ΡΠ΅ ΠΏΡΠΎΠ΅ΠΊΡΡ ΡΠ°ΡΡΠ½ΡΡ Π±Π°Π½Ρ ΠΏΡΠ΅Π΄ΡΡΠΌΠ°ΡΡΠΈΠ²Π°ΡΡ ΡΠ°Π·Π»ΠΈΡΠ½ΡΡ ΡΠ΅Ρ Π½ΠΎΠ»ΠΎΠ³ΠΈΡ ΡΡΡΠΎΠΈΡΠ΅Π»ΡΡΡΠ²Π°. ΠΠ°ΡΠ½Π°Ρ, ΡΠΎΠ²ΠΌΠ΅ΡΠ΅Π½Π½Π°Ρ Ρ ΠΆΠΈΠ»ΡΠΌ Π΄ΠΎΠΌΠΎΠΌ, β ΠΎΠ΄ΠΈΠ½ ΠΈΠ· Π½Π°ΠΈΠ±ΠΎΠ»Π΅Π΅ Π²ΠΎΡΡΡΠ΅Π±ΠΎΠ²Π°Π½Π½ΡΡ ΡΠΈΠΏΠΎΠ² ΠΏΠΎΡΡΡΠΎΠ΅ΠΊ.
ΠΡΠ΅ΠΈΠΌΡΡΠ΅ΡΡΠ²Π°:
- ΠΠΎΠΏΠΎΠ»Π½ΠΈΡΠ΅Π»ΡΠ½ΡΠΉ ΠΊΠΎΠΌΡΠΎΡΡ ΠΈ ΡΠ΄ΠΎΠ±Π½ΠΎΠ΅ ΠΈΡΠΏΠΎΠ»ΡΠ·ΠΎΠ²Π°Π½ΠΈΠ΅ ΡΠΎΠ²ΠΌΠ΅ΡΠ΅Π½Π½ΠΎΠ³ΠΎ ΡΡΡΠΎΠ΅Π½ΠΈΡ Π΄Π»Ρ ΠΆΠΈΠ»ΡΡΠΎΠ².
- ΠΠΎΠΌΠ°ΡΠ½ΡΡ ΠΏΠ°ΡΠ½Π°Ρ β ΡΡΠΎ Π·Π°ΠΌΠ΅ΡΠ°ΡΠ΅Π»ΡΠ½ΠΎΠ΅ ΠΌΠ΅ΡΡΠΎ Π΄Π»Ρ ΠΎΠ·Π΄ΠΎΡΠΎΠ²Π»Π΅Π½ΠΈΡ ΠΈ ΡΠΊΡΠ΅ΠΏΠ»Π΅Π½ΠΈΡ ΠΎΡΠ³Π°Π½ΠΈΠ·ΠΌΠ°, ΠΊΠΎΠ³Π΄Π° Π²ΡΠ΅ ΠΏΡΠΎΡΠ΅Π΄ΡΡΡ ΠΏΡΠΎΠ²ΠΎΠ΄ΡΡΡΡ Π²Π½ΡΡΡΠΈ Π΄ΠΎΠΌΠ°.
- ΠΠΊΠΎΠ½ΠΎΠΌΠΈΡ ΡΡΡΠΎΠΈΡΠ΅Π»ΡΠ½ΡΡ ΠΌΠ°ΡΠ΅ΡΠΈΠ°Π»ΠΎΠ² ΠΏΡΠΈ Π²ΠΎΠ·Π²Π΅Π΄Π΅Π½ΠΈΠΈ Π΄Π²ΡΡ ΡΡΡΠΎΠ΅Π½ΠΈΠΉ.
- ΠΠΎΠΌΠΏΠ°ΠΊΡΠ½ΠΎΠ΅ ΡΠ°Π·ΠΌΠ΅ΡΠ΅Π½ΠΈΠ΅ ΠΏΠΎΡΡΡΠΎΠΉΠΊΠΈ Π½Π° ΠΌΠ°Π»ΠΎΠ³Π°Π±Π°ΡΠΈΡΠ½ΡΡ ΡΡΠ°ΡΡΠΊΠ°Ρ Ρ Π²ΠΎΠ·ΠΌΠΎΠΆΠ½ΠΎΡΡΡΡ ΠΏΠΎΠ΄ΠΊΠ»ΡΡΠ΅Π½ΠΈΡ ΠΊ Π΄Π΅ΠΉΡΡΠ²ΡΡΡΠΈΠΌ ΠΊΠΎΠΌΠΌΡΠ½ΠΈΠΊΠ°ΡΠΈΡΠΌ.

ΠΠ΅Π΄ΠΎΡΡΠ°ΡΠΊΠΈ:
- ΠΠ΅ΡΠΎΠ±Π»ΡΠ΄Π΅Π½ΠΈΠ΅ ΡΠ΅Ρ Π½ΠΎΠ»ΠΎΠ³ΠΈΠΈ ΡΡΡΠΎΠΈΡΠ΅Π»ΡΡΡΠ²Π°, Π° ΡΠ°ΠΊΠΆΠ΅ Π½Π°ΡΡΡΠ΅Π½ΠΈΠ΅ ΠΏΡΠ°Π²ΠΈΠ» ΠΏΠΎ ΠΌΠΎΠ½ΡΠ°ΠΆΡ Π³ΠΈΠ΄ΡΠΎ-, ΠΏΠ°ΡΠΎ- ΠΈ ΡΠ΅ΠΏΠ»ΠΎΠΈΠ·ΠΎΠ»ΡΡΠΈΠΈ Π² Π±Π°Π½Π΅ ΠΌΠΎΠΆΠ΅Ρ ΠΏΡΠΈΠ²Π΅ΡΡΠΈ ΠΊ ΡΠ°Π·ΡΡΡΠ΅Π½ΠΈΡ ΠΊΠΎΠ½ΡΡΡΡΠΊΡΠΈΠΈ Π΄ΠΎΠΌΠ°.
- Π‘ΠΎΠ²ΠΌΠ΅ΡΠ΅Π½Π½ΡΠ΅ ΡΡΡΠΎΠ΅Π½ΠΈΡ ΡΡΠ΅Π±ΡΡΡ ΠΏΡΠ°Π²ΠΈΠ»ΡΠ½ΠΎΠ³ΠΎ ΠΏΡΠΎΠ΅ΠΊΡΠΈΡΠΎΠ²Π°Π½ΠΈΡ ΠΈ ΠΌΠΎΠ½ΡΠ°ΠΆΠ° ΠΎΡΠΎΠΏΠΈΡΠ΅Π»ΡΠ½ΠΎΠΉ ΡΠΈΡΡΠ΅ΠΌΡ. Π ΡΡΠΎΠΌ ΡΠ»ΡΡΠ°Π΅ Π½Π΅ΠΎΠ±Ρ ΠΎΠ΄ΠΈΠΌΠΎ ΡΡΡΠ°Π½Π°Π²Π»ΠΈΠ²Π°ΡΡ ΠΌΠΎΡΠ½ΠΎΠ΅ ΠΎΡΠΎΠΏΠΈΡΠ΅Π»ΡΠ½ΠΎΠ΅ ΠΎΠ±ΠΎΡΡΠ΄ΠΎΠ²Π°Π½ΠΈΠ΅, ΡΠΏΠΎΡΠΎΠ±Π½ΠΎΠ΅ ΠΎΠ±ΠΎΠ³ΡΠ΅ΡΡ Π΄Π²Π° ΡΡΡΠΎΠ΅Π½ΠΈΡ, ΡΡΠΎ ΠΏΠΎΠ²Π»Π΅ΡΠ΅Ρ Π·Π° ΡΠΎΠ±ΠΎΠΉ ΡΠ²Π΅Π»ΠΈΡΠ΅Π½ΠΈΠ΅ ΡΠ°ΡΡ ΠΎΠ΄ΠΎΠ² Π½Π° ΠΈΡ ΠΎΠ±ΡΠ»ΡΠΆΠΈΠ²Π°Π½ΠΈΠ΅.
- ΠΠΎΠ·Π²Π΅Π΄Π΅Π½ΠΈΠ΅ Π±Π°Π½ΠΈ ΡΡΠ΅Π±ΡΠ΅Ρ ΠΌΠΎΠ½ΡΠ°ΠΆΠ° ΠΎΡΠ΄Π΅Π»ΡΠ½ΠΎΠΉ Π΄ΡΠΌΠΎΠΎΡΠ²ΠΎΠ΄Π½ΠΎΠΉ ΡΡΡΠ±Ρ, Π° ΡΠ»Π΅Π΄ΠΎΠ²Π°ΡΠ΅Π»ΡΠ½ΠΎ Π΄ΠΎΠΏΠΎΠ»Π½ΠΈΡΠ΅Π»ΡΠ½ΠΎΠ³ΠΎ Π²ΡΡ ΠΎΠ΄Π½ΠΎΠ³ΠΎ ΠΎΡΠ²Π΅ΡΡΡΠΈΡ Π½Π° ΠΊΡΠΎΠ²Π»Π΅.
- Π‘Π»Π°Π±Π°Ρ Π²Π΅Π½ΡΠΈΠ»ΡΡΠΈΠΎΠ½Π½Π°Ρ ΡΠΈΡΡΠ΅ΠΌΠ° Π² Π±Π°Π½Π΅ ΠΌΠΎΠΆΠ΅Ρ ΠΏΡΠΈΠ²Π΅ΡΡΠΈ ΠΊ ΡΡΡΠΎΡΡΠΈ ΠΈ ΠΏΠΎΡΠ²Π»Π΅Π½ΠΈΡ ΠΏΠ»Π΅ΡΠ΅Π½ΠΈ ΠΏΠΎ Π²ΡΠ΅ΠΌΡ ΠΏΠ΅ΡΠΈΠΌΠ΅ΡΡΡ Π΄ΠΎΠΌΠ°.

ΠΡΠΎΠ±Π΅Π½Π½ΠΎΡΡΠΈ ΠΏΡΠΎΠ΅ΠΊΡΠΈΡΠΎΠ²Π°Π½ΠΈΡ ΠΈ Π²ΠΎΠ·Π²Π΅Π΄Π΅Π½ΠΈΡ ΡΠΎΠ²ΠΌΠ΅ΡΠ΅Π½Π½ΠΎΠΉ ΠΏΠΎΡΡΡΠΎΠΉΠΊΠΈ
Π‘ΡΡΠΎΠΈΡΠ΅Π»ΡΡΡΠ²ΠΎ Π±Π°Π½ΠΈ ΠΎΠΏΡΠ°Π²Π΄Π°Π½ΠΎ Π² ΡΠ»ΡΡΠ°Π΅, Π΅ΡΠ»ΠΈ ΠΏΡΠΈ ΠΏΠΎΠ΄Π³ΠΎΡΠΎΠ²ΠΊΠ΅ ΡΠ°Π±ΠΎΡΠ΅Π³ΠΎ ΠΏΡΠΎΠ΅ΠΊΡΠ° ΡΡΠΈΡΡΠ²Π°ΡΡΡΡ ΠΎΡΠΎΠ±Π΅Π½Π½ΠΎΡΡΠΈ ΡΠΎΠ²ΠΌΠ΅ΡΠ΅Π½ΠΈΡ Π΄Π²ΡΡ ΡΡΡΠΎΠ΅Π½ΠΈΠΉ.


ΠΡΠΎΠ΅ΠΊΡ Π΄ΠΎΠΌΠ° Ρ Π±Π°Π½Π΅ΠΉ ΠΏΡΠ΅Π΄ΡΡΠΌΠ°ΡΡΠΈΠ²Π°Π΅Ρ ΡΠ»Π΅Π΄ΡΡΡΠ΅Π΅:
- ΠΡΠ³Π°Π½ΠΈΠ·Π°ΡΠΈΡ ΠΏΠ°ΡΠΎΠΈΠ·ΠΎΠ»ΡΡΠΈΠΈ Π΄Π»Ρ Π·Π°ΡΠΈΡΡ ΠΎΡ Π²ΡΡΠΎΠΊΠΎΠΉ Π²Π»Π°ΠΆΠ½ΠΎΡΡΠΈ ΠΈ Π³ΠΎΡΡΡΠ΅Π³ΠΎ ΠΏΠ°ΡΠ°.
- ΠΡΠ±ΠΎΡ ΠΈ ΡΡΡΠ°Π½ΠΎΠ²ΠΊΡ ΠΌΠΎΡΠ½ΠΎΠ³ΠΎ ΠΎΡΠΎΠΏΠΈΡΠ΅Π»ΡΠ½ΠΎΠ³ΠΎ ΡΠ»Π΅ΠΊΡΡΠΈΡΠ΅ΡΠΊΠΎΠ³ΠΎ, Π³Π°Π·ΠΎΠ²ΠΎΠ³ΠΎ ΠΈΠ»ΠΈ ΡΠ²Π΅ΡΠ΄ΠΎΡΠΎΠΏΠ»ΠΈΠ²Π½ΠΎΠ³ΠΎ ΠΎΠ±ΠΎΡΡΠ΄ΠΎΠ²Π°Π½ΠΈΡ.
- Π£ΡΡΠ°Π½ΠΎΠ²ΠΊΡ Π²Π΅Π½ΡΠΈΠ»ΡΡΠΈΠΎΠ½Π½ΠΎΠΉ ΡΠΈΡΡΠ΅ΠΌΡ Π΄Π»Ρ Π·Π°ΡΠΈΡΡ ΠΎΡ Π³Π½ΠΈΠ΅Π½ΠΈΡ ΠΈ ΡΠ°Π·ΡΡΡΠ΅Π½ΠΈΡ Π³ΠΎΡΠΎΠ²ΠΎΠΉ ΠΊΠΎΠ½ΡΡΡΡΠΊΡΠΈΠΈ.
- ΠΡΠΎΠΊΠ»Π°Π΄ΠΊΡ Π΄ΠΎΠΏΠΎΠ»Π½ΠΈΡΠ΅Π»ΡΠ½ΠΎΠΉ Π²ΠΎΠ΄ΠΎΠΎΡΠ²ΠΎΠ΄Π½ΠΎΠΉ ΡΠΈΡΡΠ΅ΠΌΡ.
- ΠΠΎΠ½ΡΠ°ΠΆ Π²Π½ΡΡΡΠ΅Π½Π½Π΅ΠΉ ΠΈ Π½Π°ΡΡΠΆΠ½ΠΎΠΉ Π³ΠΈΠ΄ΡΠΎΠΈΠ·ΠΎΠ»ΡΡΠΈΠΈ.
- ΠΠ±ΡΡΡΡΠΎΠΉΡΡΠ²ΠΎ ΡΠΎΠ²ΠΌΠ΅ΡΠ΅Π½Π½ΠΎΠ³ΠΎ ΡΠ°Π½ΠΈΡΠ°ΡΠ½ΠΎΠ³ΠΎ ΡΠ·Π»Π°.
- ΠΡΠΎΠΊΠ»Π°Π΄ΠΊΡ ΡΡΠΈΠ»Π΅Π½Π½ΠΎΠΉ ΡΠ»Π΅ΠΊΡΡΠΎΠΏΡΠΎΠ²ΠΎΠ΄ΠΊΠΈ ΠΈ ΡΡΡΠ°Π½ΠΎΠ²ΠΊΡ Π΄ΠΎΠΏΠΎΠ»Π½ΠΈΡΠ΅Π»ΡΠ½ΡΡ ΠΏΡΠΈΠ±ΠΎΡΠΎΠ² Π·Π°ΡΠΈΡΡ ΠΎΡ ΡΠΊΠ°ΡΠΊΠΎΠ² Π½Π°ΠΏΡΡΠΆΠ΅Π½ΠΈΡ.

Π‘ΡΡΠ΅ΡΡΠ²ΡΡΡ ΡΠ°ΠΊΡΠΎΡΡ, ΠΊΠΎΡΠΎΡΡΠ΅ ΠΌΠΎΠ³ΡΡ ΠΏΡΠΈΠ²Π΅ΡΡΠΈ ΠΊ Π΄Π΅ΡΠΎΡΠΌΠ°ΡΠΈΠΈ ΠΈ ΡΠ°Π·ΡΡΡΠ΅Π½ΠΈΡ Π΄ΠΎΠΌΠ°:
- ΠΠΎΠ²ΡΡΠ΅Π½Π½Π°Ρ Π²Π»Π°ΠΆΠ½ΠΎΡΡΡ ΠΈ ΠΏΠ΅ΡΠ΅ΠΏΠ°Π΄Ρ ΡΠ΅ΠΌΠΏΠ΅ΡΠ°ΡΡΡ Π² ΠΏΠ°ΡΠ½ΠΎΠΉ.
- ΠΠΎΠΆΠ°ΡΠΎΠΎΠΏΠ°ΡΠ½ΠΎΡΡΡ ΠΏΠΎΡΡΡΠΎΠΉΠΊΠΈ.
- ΠΠ»ΠΈΡΠ½ΠΈΠ΅ ΠΊΠΎΠ½ΡΡΡΡΠΊΡΠΈΠ²Π½ΡΡ ΠΎΡΠΎΠ±Π΅Π½Π½ΠΎΡΡΠ΅ΠΉ Π±Π°Π½ΠΈ Π½Π° ΠΏΡΠΎΠ²Π΅Π΄Π΅Π½ΠΈΠ΅ ΡΠ΅ΠΌΠΎΠ½ΡΠ½ΡΡ ΡΠ°Π±ΠΎΡ Π² Π΄ΠΎΠΌΠ΅.
ΠΠ»Ρ ΠΏΡΠ΅Π΄ΠΎΡΠ²ΡΠ°ΡΠ΅Π½ΠΈΡ Π²ΠΎΠ·Π³ΠΎΡΠ°Π½ΠΈΡ Π±Π°Π½ΠΈ ΡΠ΅ΠΊΠΎΠΌΠ΅Π½Π΄ΡΠ΅ΡΡΡ:
- ΠΠ»Ρ Π²ΠΎΠ·Π²Π΅Π΄Π΅Π½ΠΈΡ ΠΈ Π΄Π΅ΠΊΠΎΡΠ°ΡΠΈΠ²Π½ΠΎΠΉ ΠΎΡΠ΄Π΅Π»ΠΊΠΈ Π±Π°Π½ΠΈ ΠΈΡΠΏΠΎΠ»ΡΠ·ΠΎΠ²Π°ΡΡ Π½Π΅Π³ΠΎΡΡΡΠΈΠ΅ ΠΈ ΠΆΠ°ΡΠΎΡΡΠΎΠΉΠΊΠΈΠ΅ ΠΌΠ°ΡΠ΅ΡΠΈΠ°Π»Ρ.
- ΠΡΠ³Π°Π½ΠΈΠ·ΠΎΠ²Π°ΡΡ ΡΠΈΡΡΠ΅ΠΌΡ ΡΠ΅Π³ΡΠ»ΠΈΡΠΎΠ²ΠΊΠΈ ΡΠ΅ΠΌΠΏΠ΅ΡΠ°ΡΡΡΠ½ΠΎΠ³ΠΎ ΡΠ΅ΠΆΠΈΠΌΠ° Ρ Π°Π²ΡΠΎΠΌΠ°ΡΠΈΡΠ΅ΡΠΊΠΈΠΌ ΠΎΡΠΊΠ»ΡΡΠ΅Π½ΠΈΠ΅ΠΌ Π² ΡΠ»ΡΡΠ°Π΅ ΠΏΠ΅ΡΠ΅Π³ΡΠ΅Π²Π° ΠΏΠΎΠΌΠ΅ΡΠ΅Π½ΠΈΠΉ.
- ΠΠ±Π΅ΡΠΏΠ΅ΡΠΈΡΡ Π½Π°Π΄Π΅ΠΆΠ½ΡΡ ΠΏΡΠΎΡΠΈΠ²ΠΎΠΏΠΎΠΆΠ°ΡΠ½ΡΡ ΡΠΈΡΡΠ΅ΠΌΡ Π΄Π»Ρ Π±Π°Π½ΠΈ.

ΠΠ΅ΡΠ΄ΠΎΠ±ΡΡΠ²Π° ΠΏΡΠΈ ΡΠΎΠ²ΠΌΠ΅ΡΠ΅Π½ΠΈΠΈ Π±Π°Π½ΠΈ ΠΈ Π΄ΠΎΠΌΠ°
ΠΠ°ΠΆΠ΅ ΠΏΡΠΈ ΡΠΎΠ±Π»ΡΠ΄Π΅Π½ΠΈΠΈ ΡΡΡΠΎΠΈΡΠ΅Π»ΡΠ½ΠΎΠΉ ΡΠ΅Ρ Π½ΠΎΠ»ΠΎΠ³ΠΈΠΈ ΠΈ Π½ΠΎΡΠΌ ΠΏΠΎΠΆΠ°ΡΠ½ΠΎΠΉ Π±Π΅Π·ΠΎΠΏΠ°ΡΠ½ΠΎΡΡΠΈ ΠΌΠΎΠ³ΡΡ Π²ΠΎΠ·Π½ΠΈΠΊΠ½ΡΡΡ ΡΠ΅ΡΡΠ΅Π·Π½ΡΠ΅ ΠΏΡΠΎΠ±Π»Π΅ΠΌΡ Ρ ΡΠΎΠ²ΠΌΠ΅ΡΠ΅Π½ΠΈΠ΅ΠΌ Π±Π°Π½Π½ΠΎΠΉ ΠΏΡΠΈΡΡΡΠΎΠΉΠΊΠΈ.
Π‘ΡΡΠ°Ρ ΠΎΠ²ΡΠ΅ ΠΊΠΎΠΌΠΏΠ°Π½ΠΈΠΈ ΠΌΠΎΠ³ΡΡ ΠΎΡΠΊΠ°Π·Π°ΡΡ Π² ΠΎΡΠΎΡΠΌΠ»Π΅Π½ΠΈΠΈ ΡΡΡΠ°Ρ ΠΎΠ²ΠΎΠ³ΠΎ ΠΏΠΎΠ»ΠΈΡΠ° Π½Π° Π΄ΠΎΠΌ, ΠΎΡΠ½ΠΎΡΡΡΠΈΠΉΡΡ ΠΊ ΠΊΠ°ΡΠ΅Π³ΠΎΡΠΈΠΈ ΠΎΠ±ΡΠ΅ΠΊΡΠΎΠ² ΠΏΠΎΠ²ΡΡΠ΅Π½Π½ΠΎΠΉ ΠΎΠΏΠ°ΡΠ½ΠΎΡΡΠΈ. ΠΡΠ»ΠΈ Π±ΡΠ»Π° Π½Π°ΡΡΡΠ΅Π½Π° ΡΠ΅Ρ Π½ΠΎΠ»ΠΎΠ³ΠΈΡ Π²ΠΎΠ·Π²Π΅Π΄Π΅Π½ΠΈΡ Π±Π°Π½ΠΈ, ΠΊΠΎΠΌΠΌΡΠ½Π°Π»ΡΠ½ΡΠ΅ ΡΠ»ΡΠΆΠ±Ρ ΠΌΠΎΠ³ΡΡ ΠΎΡΠΊΠ°Π·Π°ΡΡ Π² ΠΏΠΎΠ΄ΠΊΠ»ΡΡΠ΅Π½ΠΈΠΈ ΠΎΡΠ½ΠΎΠ²Π½ΡΡ ΠΊΠΎΠΌΠΌΡΠ½ΠΈΠΊΠ°ΡΠΈΠΉ.
ΠΡΠΏΠΎΠ»ΡΠ·ΠΎΠ²Π°Π½ΠΈΠ΅ ΡΠ»Π΅ΠΊΡΡΠΈΡΠ΅ΡΠΊΠΎΠ³ΠΎ ΠΎΡΠΎΠΏΠΈΡΠ΅Π»ΡΠ½ΠΎΠ³ΠΎ ΠΎΠ±ΠΎΡΡΠ΄ΠΎΠ²Π°Π½ΠΈΡ Π² Π΄ΠΎΠΌΠ΅ ΠΈ Π±Π°Π½Π΅ ΠΏΡΠΈΠ²Π΅Π΄Π΅Ρ ΠΊ ΡΡΡΠ΅ΡΡΠ²Π΅Π½Π½ΠΎΠΌΡ ΡΠ²Π΅Π»ΠΈΡΠ΅Π½ΠΈΡ ΡΠ°ΡΡ ΠΎΠ΄ΠΎΠ² Π½Π° ΡΠ»Π΅ΠΊΡΡΠΎΡΠ½Π΅ΡΠ³ΠΈΡ. Π’Π°ΠΊΠΆΠ΅ Π²ΠΎΠ·ΡΠ°ΡΡΠ΅Ρ Π½Π°Π³ΡΡΠ·ΠΊΠ° Π½Π° ΡΠΈΡΡΠ΅ΠΌΡ ΠΎΡΠ²ΠΎΠ΄Π° ΠΈ ΠΎΡΠΈΡΡΠΊΠΈ ΡΡΠΎΠΊΠΎΠ².
ΠΡΠΎΠ±ΠΎΠ΅ Π²Π½ΠΈΠΌΠ°Π½ΠΈΠ΅ ΡΡΠΎΠΈΡ ΡΠ΄Π΅Π»ΠΈΡΡ Π½Π°ΠΏΠΎΠ»ΡΠ½ΠΎΠΌΡ ΠΎΡΠ½ΠΎΠ²Π°Π½ΠΈΡ, ΠΎΠ±Π΅ΡΠΏΠ΅ΡΠΈΠ² ΠΊΠ°Π½Π°Π»ΠΈΠ·Π°ΡΠΈΠΎΠ½Π½ΡΠΉ ΡΠ»ΠΈΠ² Π΄Π»Ρ ΡΠ½ΠΈΠΆΠ΅Π½ΠΈΡ ΡΡΠΎΠ²Π½Ρ Π²Π»Π°ΠΆΠ½ΠΎΡΡΠΈ Π² ΠΏΠΎΠΌΠ΅ΡΠ΅Π½ΠΈΡΡ .
ΠΡΠΎΠ²ΡΠ½Π°Ρ ΠΊΠ°ΠΌΠ΅Π½ΠΊΠ° ΡΡΠ΅Π±ΡΠ΅Ρ Π½Π°Π»ΠΈΡΠΈΡ Π½Π°Π΄Π΅ΠΆΠ½ΠΎΠΉ ΡΠΈΡΡΠ΅ΠΌΡ Π΄ΡΠΌΠΎΠΎΡΠ²ΠΎΠ΄Π°, ΠΊΠΎΡΠΎΡΠ°Ρ ΠΏΠΎΠ·Π²ΠΎΠ»ΠΈΡ ΠΏΡΠ΅Π΄ΠΎΡΠ²ΡΠ°ΡΠΈΡΡ Π·Π°Π΄ΡΠΌΠ»Π΅Π½ΠΈΠ΅ ΠΆΠΈΠ»ΡΡ ΠΏΠΎΠΌΠ΅ΡΠ΅Π½ΠΈΠΉ ΠΈ ΠΎΡΠ΅Π΄Π°Π½ΠΈΠ΅ Π½Π°Π»Π΅ΡΠ° ΡΠ°ΠΆΠΈ Π½Π° ΠΏΠΎΡΠΎΠ»ΠΎΡΠ½ΠΎΠΉ ΠΏΠΎΠ²Π΅ΡΡ Π½ΠΎΡΡΠΈ.

Π‘ΠΏΠΎΡΠΎΠ±Ρ ΡΠΎΠ²ΠΌΠ΅ΡΠ΅Π½ΠΈΡ
Π‘ΠΎΠ²ΠΌΠ΅ΡΡΠΈΡΡ Π±Π°Π½Ρ Ρ Π΄ΠΎΠΌΠΎΠΌ ΠΌΠΎΠΆΠ½ΠΎ ΡΠ°Π·Π»ΠΈΡΠ½ΡΠΌΠΈ ΡΠΏΠΎΡΠΎΠ±Π°ΠΌΠΈ:
- ΠΠ±ΡΡΡΡΠΎΠΈΡΡ Π½Π° ΡΠΎΠΊΠΎΠ»ΡΠ½ΠΎΠΌ ΡΡΠ°ΠΆΠ΅, Π΅ΡΠ»ΠΈ Π·Π΄Π°Π½ΠΈΠ΅ ΠΈΠΌΠ΅Π΅Ρ Π½Π΅ΡΠΊΠΎΠ»ΡΠΊΠΎ ΡΡΠΎΠ²Π½Π΅ΠΉ.
- ΠΡΠΎΡΠΌΠΈΡΡ Π΄ΠΎΠΏΠΎΠ»Π½ΠΈΡΠ΅Π»ΡΠ½ΡΠΌ ΠΏΠΎΠΌΠ΅ΡΠ΅Π½ΠΈΠ΅ΠΌ Π½Π° ΠΏΠ΅ΡΠ²ΠΎΠΌ ΡΡΠ°ΠΆΠ΅.
- Π‘ΠΎΠ²ΠΌΠ΅ΡΡΠΈΡΡ Ρ ΡΠ°Π½ΠΈΡΠ°ΡΠ½ΡΠΌ ΡΠ·Π»ΠΎΠΌ.
- ΠΡΠΈΡΡΡΠΎΠΈΡΡ ΠΊ Π·Π΄Π°Π½ΠΈΡ ΡΠ½Π°ΡΡΠΆΠΈ.
ΠΡΠ»ΠΈ ΠΊΠ°ΡΠΊΠ°ΡΠ½ΡΠΉ Π΄ΠΎΠΌ ΠΈ ΠΏΠ°ΡΠ½Π°Ρ ΠΏΠΎΠ΄ Π΅Π΄ΠΈΠ½ΠΎΠΉ ΠΊΡΡΡΠ΅ΠΉ ΠΎΠ±ΠΎΡΡΠ΄ΠΎΠ²Π°Π½Ρ ΡΠ°Π·Π½ΡΠΌΠΈ Π²Ρ ΠΎΠ΄Π°ΠΌΠΈ, ΡΠΎΠ³Π΄Π° Π½Π΅ΠΎΠ±Ρ ΠΎΠ΄ΠΈΠΌΠΎ ΠΏΡΠ΅Π΄ΡΡΠΌΠΎΡΡΠ΅ΡΡ Π΄ΠΎΠΏΠΎΠ»Π½ΠΈΡΠ΅Π»ΡΠ½ΠΎΠ΅ ΡΡΠ΅ΠΏΠ»Π΅Π½ΠΈΠ΅ ΡΡΡΠΎΠ΅Π½ΠΈΡ.
ΠΠΎΡΡΠ°ΡΠΎΡΠ½ΠΎ Π»ΠΈΡΡ ΠΎΠ±ΡΡΡΡΠΎΠΈΡΡ ΠΏΠ°ΡΠ½ΡΡ ΠΈ ΠΏΡΠ΅Π΄Π±Π°Π½Π½ΠΈΠΊ, ΠΎΡΡΠ°Π»ΡΠ½ΡΠ΅ ΡΡΠ½ΠΊΡΠΈΠΎΠ½Π°Π»ΡΠ½ΡΠ΅ ΠΏΠΎΠΌΠ΅ΡΠ΅Π½ΠΈΡ β ΠΌΠΎΠ΅ΡΠ½Π°Ρ ΠΈ ΠΊΠΎΠΌΠ½Π°ΡΠ° Π΄Π»Ρ ΠΎΡΠ΄ΡΡ Π° β ΡΠΆΠ΅ ΠΈΠΌΠ΅ΡΡΡΡ Π² Π΄ΠΎΠΌΠ΅.
Π§ΡΠΎΠ±Ρ ΠΏΠΎΡΡΡΠΎΠΈΡΡ Π±Π°Π½Ρ, ΠΈΡΠΏΠΎΠ»ΡΠ·ΡΠ΅ΡΡΡ ΠΏΠ΅Π½ΠΎΠ±Π»ΠΎΠΊ, Π³Π°Π·ΠΎΠ±Π»ΠΎΠΊ, ΠΊΠΈΡΠΏΠΈΡ ΠΈ Π±ΡΡΡ. ΠΠΈΡΠΏΠΈΡΠ½Π°Ρ ΠΏΠΎΡΡΡΠΎΠΉΠΊΠ° β ΡΠ°ΠΌΠ°Ρ Π½Π°Π΄Π΅ΠΆΠ½Π°Ρ ΠΈ ΠΏΡΠ°ΠΊΡΠΈΡΠ½Π°Ρ, Π΄Π΅ΡΠ΅Π²ΡΠ½Π½Π°Ρ ΠΏΠΎΠ΄Π²Π΅ΡΠΆΠ΅Π½Π° ΠΏΠ΅ΡΠ΅ΠΏΠ°Π΄Π°ΠΌ ΡΠ΅ΠΌΠΏΠ΅ΡΠ°ΡΡΡ ΠΈ Π²Π»Π°Π³Π΅.

ΠΠ°ΡΠΈΠ°Π½ΡΡ ΠΏΡΠΎΠ΅ΠΊΡΠΎΠ² Π±Π°Π½Ρ
ΠΡΠ±ΠΎΡ ΠΏΠΎΠ΄Ρ ΠΎΠ΄ΡΡΠ΅Π³ΠΎ ΠΏΡΠΎΠ΅ΠΊΡΠ° Π΄Π»Ρ ΡΠ°ΡΡΠ½ΠΎΠ³ΠΎ Π΄ΠΎΠΌΠ° Ρ Π±Π°Π½Π΅ΠΉ β ΠΎΡΠ²Π΅ΡΡΡΠ²Π΅Π½Π½Π°Ρ ΠΈ Π²Π°ΠΆΠ½Π°Ρ ΡΠ°ΡΡΡ ΠΏΠ»Π°Π½ΠΈΡΠΎΠ²Π°Π½ΠΈΡ ΠΏΠΎΠ΄ΠΎΠ±Π½ΠΎΠΉ ΠΏΠΎΡΡΡΠΎΠΉΠΊΠΈ. ΠΡΠΈ ΡΡΠΎΠΌ ΡΡΠΎΠΈΡ ΡΡΠΈΡΡΠ²Π°ΡΡ ΡΡΠ½ΠΊΡΠΈΠΎΠ½Π°Π»ΡΠ½ΡΠ΅ ΠΎΡΠΎΠ±Π΅Π½Π½ΠΎΡΡΠΈ ΠΏΠΎΠΌΠ΅ΡΠ΅Π½ΠΈΠΉ, ΡΠ΄ΠΎΠ±ΡΡΠ²ΠΎ ΠΈ ΠΊΠΎΠΌΡΠΎΡΡ ΠΏΡΠΎΠΆΠΈΠ²Π°ΡΡΠΈΡ .

ΠΠΎΠΌ Ρ Π±Π°Π½Π΅ΠΉ, Π±Π΅ΡΠ΅Π΄ΠΊΠΎΠΉ ΠΈ Π³Π°ΡΠ°ΠΆΠΎΠΌ
ΠΡΠ»ΠΈ Π΄Π²ΡΡ ΡΡΠ°ΠΆΠ½ΡΠΉ Π΄ΠΎΠΌ ΠΎΠ±ΠΎΡΡΠ΄ΠΎΠ²Π°Π½ Π±Π°Π½Π΅ΠΉ Π½Π° ΡΠΎΠΊΠΎΠ»ΡΠ½ΠΎΠΌ ΠΈΠ»ΠΈ ΠΏΠ΅ΡΠ²ΠΎΠΌ ΡΡΠ°ΠΆΠ΅, ΡΠΎΠ³Π΄Π° ΠΌΠΎΠΆΠ½ΠΎ ΠΏΡΠ΅Π΄ΡΡΠΌΠΎΡΡΠ΅ΡΡ Π΄ΠΎΠΏΠΎΠ»Π½ΠΈΡΠ΅Π»ΡΠ½ΡΡ ΠΏΡΠΈΡΡΡΠΎΠΉΠΊΡ β Π±ΠΎΠ»ΡΡΡΡ Π±Π΅ΡΠ΅Π΄ΠΊΡ.
Π ΡΡΠΎΠΌ ΡΠ»ΡΡΠ°Π΅ Π±Π΅ΡΠ΅Π΄ΠΊΠ° ΠΌΠΎΠΆΠ΅Ρ ΠΈΡΠΏΠΎΠ»ΡΠ·ΠΎΠ²Π°ΡΡΡΡ Π² ΠΊΠ°ΡΠ΅ΡΡΠ²Π΅ Π·ΠΎΠ½Ρ Π΄Π»Ρ ΠΎΡΠ΄ΡΡ Π° ΠΈ ΠΏΡΠΈΠ½ΡΡΠΈΡ ΠΏΠΈΡΠΈ. ΠΠ΄ΠΈΠ½Π°Ρ ΠΊΡΡΡΠ° ΠΎΠ±Π΅ΡΠΏΠ΅ΡΠΈΠ²Π°Π΅Ρ Π½Π°Π΄Π΅ΠΆΠ½ΡΡ Π·Π°ΡΠΈΡΡ ΠΎΡ Π°ΡΠΌΠΎΡΡΠ΅ΡΠ½ΡΡ ΠΎΡΠ°Π΄ΠΊΠΎΠ², ΠΏΠΎΡΡΠΎΠΌΡ Π±Π°Π½Π½ΡΠ΅ ΠΏΡΠΎΡΠ΅Π΄ΡΡΡ ΠΌΠΎΠ³ΡΡ ΠΏΡΠΎΠ²ΠΎΠ΄ΠΈΡΡΡΡ Π² Π»ΡΠ±ΠΎΠ΅ Π²ΡΠ΅ΠΌΡ Π³ΠΎΠ΄Π°.


ΠΠΎΠΌ Ρ Π±Π°Π½Π΅ΠΉ ΠΈ Π»Π΅ΡΠ½Π΅ΠΉ ΠΊΡΡ Π½Π΅ΠΉ
ΠΡΠ»ΠΈ ΠΎΠ΄Π½ΠΎΡΡΠ°ΠΆΠ½ΡΠΉ Π΄Π°ΡΠ½ΡΠΉ Π΄ΠΎΠΌ ΠΎΠ±ΠΎΡΡΠ΄ΠΎΠ²Π°Π½ Π»Π΅ΡΠ½Π΅ΠΉ ΠΊΡΡ Π½Π΅ΠΉ, ΡΠΎΠ³Π΄Π° Π±Π°Π½Π½ΡΠΉ ΠΊΠΎΠΌΠΏΠ»Π΅ΠΊΡ ΠΌΠΎΠΆΠ΅Ρ Π±ΡΡΡ ΡΠ°ΡΠΏΠΎΠ»ΠΎΠΆΠ΅Π½ Π²ΠΎΠ·Π»Π΅ Π½Π΅Π΅. ΠΠ°ΡΠ½Π°Ρ Ρ ΡΠΎΠ²ΠΌΠ΅ΡΡΠ½ΡΠΌ Π²ΡΡ ΠΎΠ΄ΠΎΠΌ Π² Π»Π΅ΡΠ½ΡΡ ΠΊΡΡ Π½Ρ ΠΎΠ±Π΅ΡΠΏΠ΅ΡΠΈΡ Π΄ΠΎΠΏΠΎΠ»Π½ΠΈΡΠ΅Π»ΡΠ½ΡΠΉ ΠΊΠΎΠΌΡΠΎΡΡ ΠΏΡΠΈ ΠΏΡΠΎΠ²Π΅Π΄Π΅Π½ΠΈΠΈ ΠΎΠ·Π΄ΠΎΡΠΎΠ²ΠΈΡΠ΅Π»ΡΠ½ΡΡ ΠΏΡΠΎΡΠ΅Π΄ΡΡ.



ΠΠΎΠΌ Ρ Π±Π°Π½Π΅ΠΉ, ΠΌΠ°Π½ΡΠ°ΡΠ΄ΠΎΠΉ ΠΈ ΡΠ΅ΡΡΠ°ΡΠΎΠΉ
ΠΠ΅ ΠΌΠ΅Π½Π΅Π΅ Π²ΠΎΡΡΡΠ΅Π±ΠΎΠ²Π°Π½Π½ΡΠΉ Π²Π°ΡΠΈΠ°Π½Ρ β ΡΠ°Π΄ΠΎΠ²ΡΠΉ Π΄ΠΎΠΌΠΈΠΊ, ΠΎΠ±ΠΎΡΡΠ΄ΠΎΠ²Π°Π½Π½ΡΠΉ Π±Π°Π½Π΅ΠΉ ΠΈ ΠΌΠ°Π½ΡΠ°ΡΠ΄ΠΎΠΉ. ΠΠΎΠ΄ΠΎΠ±Π½ΡΠΉ ΠΏΡΠΎΠ΅ΠΊΡ ΠΏΡΠ΅Π΄ΡΡΠΌΠ°ΡΡΠΈΠ²Π°Π΅Ρ ΡΠ°Π·ΠΌΠ΅ΡΠ΅Π½ΠΈΠ΅ Π½Π° ΠΏΠ΅ΡΠ²ΠΎΠΌ ΡΡΠ°ΠΆΠ΅ ΠΏΠΎΠ»Π½ΠΎΡΠ΅Π½Π½ΠΎΠΉ Π±Π°Π½ΠΈ Ρ ΠΏΠ°ΡΠΈΠ»ΠΊΠΎΠΉ, ΠΌΠΎΠ΅ΡΠ½ΠΎΠΉ, ΠΊΠΎΠΌΠ½Π°ΡΠΎΠΉ ΠΎΡΠ΄ΡΡ Π° ΠΈ ΡΠ°Π½ΡΠ·Π»ΠΎΠΌ, Π° ΠΌΠ°Π½ΡΠ°ΡΠ΄Π° Π½Π° Π²ΡΠΎΡΠΎΠΌ ΡΡΠ°ΠΆΠ΅ ΠΌΠΎΠΆΠ΅Ρ ΠΈΡΠΏΠΎΠ»ΡΠ·ΠΎΠ²Π°ΡΡΡΡ Π² ΠΊΠ°ΡΠ΅ΡΡΠ²Π΅ ΡΠΏΠ°Π»ΡΠ½ΠΈ ΠΈΠ»ΠΈ ΡΠ°Π±ΠΎΡΠ΅Π³ΠΎ ΠΊΠ°Π±ΠΈΠ½Π΅ΡΠ°.


ΠΠΎΠΌ Ρ Π±Π°Π½Π΅ΠΉ ΠΈ Π±Π°ΡΡΠ΅ΠΉΠ½ΠΎΠΌ
ΠΠ΅Π±ΠΎΠ»ΡΡΠΎΠΉ Π³ΠΎΡΡΠ΅Π²ΠΎΠΉ Π΄ΠΎΠΌ ΠΈΠ»ΠΈ Π΄Π°ΡΠ°, Π³Π΄Π΅ ΠΏΡΠ΅Π΄ΡΡΠΌΠΎΡΡΠ΅Π½ ΠΊΠΎΠΌΠΏΠ°ΠΊΡΠ½ΡΠΉ Π±Π°Π½Π½ΡΠΉ ΠΊΠΎΠΌΠΏΠ»Π΅ΠΊΡ ΠΈ Π±Π°ΡΡΠ΅ΠΉΠ½. Π‘ΡΡΠΎΠ΅Π½ΠΈΠ΅ ΡΠΎΠ΅Π΄ΠΈΠ½ΡΠ΅Ρ Π² ΡΠ΅Π±Π΅ ΠΆΠΈΠ»ΡΠ΅ ΠΏΠΎΠΌΠ΅ΡΠ΅Π½ΠΈΡ, ΡΠ°Π½ΡΠ·Π΅Π», ΠΊΡΡ Π½Ρ, Π±Π°Π½Ρ ΠΈ Π΄Π°ΠΆΠ΅ Π³Π°ΡΠ°ΠΆ. ΠΡΠΎΠ΅ΠΊΡ ΠΏΠΎΠ΄ΠΎΠΉΠ΄Π΅Ρ Π΄Π»Ρ Π½Π΅Π±ΠΎΠ»ΡΡΠΎΠΉ ΡΠ΅ΠΌΡΠΈ ΠΈΠ»ΠΈ ΡΠ°ΡΡΡΡ Π³ΠΎΡΡΠ΅ΠΉ.


ΠΡΠ½ΠΎΠ²Π½ΡΠ΅ ΡΠ»Π΅ΠΌΠ΅Π½ΡΡ Π±Π°Π½Π½ΠΎΠ³ΠΎ ΠΊΠΎΠΌΠΏΠ»Π΅ΠΊΡΠ°
ΠΠΎΠ·Π²Π΅Π΄Π΅Π½ΠΈΠ΅ ΡΠΎΠ²ΠΌΠ΅ΡΠ΅Π½Π½ΠΎΠΉ Π±Π°Π½ΠΈ Π½Π°ΡΠΈΠ½Π°Π΅ΡΡΡ Ρ Π²ΡΠ±ΠΎΡΠ° ΡΠΈΠΏΠ° ΡΡΡΠΎΠ΅Π½ΠΈΡ β ΠΎΡΠ΄Π΅Π»ΡΠ½Π°Ρ ΠΏΡΠΈΡΡΡΠΎΠΉΠΊΠ° ΠΈΠ»ΠΈ Π·Π°ΠΊΠ»Π°Π΄ΠΊΠ° Ρ ΠΆΠΈΠ»ΡΠΌΠΈ ΠΏΠΎΠΌΠ΅ΡΠ΅Π½ΠΈΡΠΌΠΈ Π΄ΠΎΠΌΠ°. ΠΡΠΎΡΠ½ΠΎΡΡΡ Π³ΠΎΡΠΎΠ²ΠΎΠΉ ΠΊΠΎΠ½ΡΡΡΡΠΊΡΠΈΠΈ ΠΎΠ±Π΅ΡΠΏΠ΅ΡΠΈΠ²Π°Π΅ΡΡΡ Π½Π°Π΄Π΅ΠΆΠ½ΡΠΌ ΠΎΡΠ½ΠΎΠ²Π°Π½ΠΈΠ΅ΠΌ. Π‘ΡΠ΅Π½Ρ Π²ΠΎΠ·Π²ΠΎΠ΄ΡΡΡΡ ΠΈΠ· ΡΠΎΠ³ΠΎ ΠΆΠ΅ ΠΌΠ°ΡΠ΅ΡΠΈΠ°Π»Π°, ΠΊΠΎΡΠΎΡΡΠΉ ΠΈΡΠΏΠΎΠ»ΡΠ·ΠΎΠ²Π°Π»ΡΡ Π΄Π»Ρ ΡΡΡΠΎΠΈΡΠ΅Π»ΡΡΡΠ²Π° Π΄ΠΎΠΌΠ°.

ΠΠ»Π°Π½ΠΈΡΠΎΠ²ΠΊΠ° Π±Π°Π½Π½ΠΎΠ³ΠΎ ΠΊΠΎΠΌΠΏΠ»Π΅ΠΊΡΠ° Π² Π΄ΠΎΠΌΠ΅ ΠΏΡΠ΅Π΄ΡΡΠΌΠ°ΡΡΠΈΠ²Π°Π΅Ρ Π½Π°Π»ΠΈΡΠΈΠ΅ ΡΠ»Π΅Π΄ΡΡΡΠΈΡ ΡΠ»Π΅ΠΌΠ΅Π½ΡΠΎΠ²:
- ΠΏΠ°ΡΠ½ΠΎΠΉ Ρ Π»Π°Π²ΠΊΠ°ΠΌΠΈ Π΄Π»Ρ ΡΠΈΠ΄Π΅Π½ΠΈΡ, Π»Π΅ΠΆΠ°Π½ΠΈΡ, ΠΊΠ°ΠΌΠ΅Π½Π½ΠΎΠΉ ΠΆΠ°ΡΠΎΠ²Π½Π΅ΠΉ, ΠΏΠΎΠ»ΠΊΠ°ΠΌΠΈ Π΄Π»Ρ Π²Π΅Π½ΠΈΠΊΠΎΠ²;
- ΠΊΠΎΠΌΠ½Π°ΡΡ Π΄Π»Ρ ΠΎΡΠ΄ΡΡ Π° Ρ ΠΌΠΈΠ½ΠΈΠΌΠ°Π»ΡΠ½ΡΠΌ Π½Π°Π±ΠΎΡΠΎΠΌ ΠΌΠ΅Π±Π΅Π»ΠΈ;
- ΠΌΠΎΠ΅ΡΠ½ΠΎΠ³ΠΎ ΠΎΡΠ΄Π΅Π»Π΅Π½ΠΈΡ Ρ Π΄ΡΡΠ΅Π²ΠΎΠΉ;
- Π²ΡΡΡΠΎΠ΅Π½Π½ΠΎΠΉ ΡΠΈΡΡΠ΅ΠΌΠΎΠΉ Π²Π΅Π½ΡΠΈΠ»ΡΡΠΈΠΈ Π² ΠΊΠ°ΠΆΠ΄ΠΎΠΌ ΠΏΠΎΠΌΠ΅ΡΠ΅Π½ΠΈΠΈ.

Π’Π΅Ρ Π½ΠΎΠ»ΠΎΠ³ΠΈΡ ΡΡΡΠΎΠΈΡΠ΅Π»ΡΡΡΠ²Π°
ΠΠΎΡΠ»Π΅ ΠΏΠΎΠ΄Π³ΠΎΡΠΎΠ²ΠΊΠΈ ΡΠ°Π±ΠΎΡΠ΅Π³ΠΎ ΠΏΡΠΎΠ΅ΠΊΡΠ°, Π·Π°ΠΊΡΠΏΠΊΠΈ ΡΡΡΠΎΠΈΡΠ΅Π»ΡΠ½ΡΡ ΠΈ ΠΎΡΠ΄Π΅Π»ΠΎΡΠ½ΡΡ ΠΌΠ°ΡΠ΅ΡΠΈΠ°Π»ΠΎΠ² ΠΌΠΎΠΆΠ½ΠΎ ΠΏΡΠΈΡΡΡΠΏΠ°ΡΡ ΠΊ ΡΡΡΠΎΠΈΡΠ΅Π»ΡΠ½ΠΎΠΌΡ ΠΏΡΠΎΡΠ΅ΡΡΡ, ΠΊΠΎΡΠΎΡΡΠΉ ΡΠΎΡΡΠΎΠΈΡ ΠΈΠ· Π½Π΅ΡΠΊΠΎΠ»ΡΠΊΠΈΡ ΡΡΠ°ΠΏΠΎΠ²:
- Π Π°ΡΡΠΈΡΡΠΊΠ° ΡΠ΅ΡΡΠΈΡΠΎΡΠΈΠΈ ΠΏΠΎΠ΄ Π±ΡΠ΄ΡΡΡΡ Π·Π°ΡΡΡΠΎΠΉΠΊΡ β Π²ΡΠ²ΠΎΠ· ΠΌΡΡΠΎΡΠ°, ΡΠ΄Π°Π»Π΅Π½ΠΈΠ΅ Π·Π΅Π»Π΅Π½ΡΡ Π½Π°ΡΠ°ΠΆΠ΄Π΅Π½ΠΈΠΉ.
- Π‘ΡΡΠΎΠΈΡΠ΅Π»ΡΡΡΠ²ΠΎ ΠΎΡΠ½ΠΎΠ²Π°Π½ΠΈΡ. Π’ΠΈΠΏ ΠΎΡΠ½ΠΎΠ²Π°Π½ΠΈΡ ΠΎΠΏΡΠ΅Π΄Π΅Π»ΡΠ΅ΡΡΡ ΠΌΠ°ΡΠ΅ΡΠΈΠ°Π»ΠΎΠΌ, ΠΊΠΎΡΠΎΡΡΠΉ ΠΈΡΠΏΠΎΠ»ΡΠ·ΡΠ΅ΡΡΡ Π΄Π»Ρ Π²ΠΎΠ·Π²Π΅Π΄Π΅Π½ΠΈΡ Π±Π°Π½ΠΈ. ΠΠ»Ρ Π΄Π΅ΡΠ΅Π²ΡΠ½Π½ΠΎΠΉ Π±Π°Π½ΠΈ ΠΏΠΎΠ΄ΠΎΠΉΠ΄Π΅Ρ Π»Π΅Π½ΡΠΎΡΠ½ΡΠΉ ΡΡΠ½Π΄Π°ΠΌΠ΅Π½Ρ, Π΄Π»Ρ ΠΊΠΈΡΠΏΠΈΡΠ½ΠΎΠ³ΠΎ ΡΡΡΠΎΠ΅Π½ΠΈΡ β ΡΠ²Π°ΠΉΠ½ΡΠΉ. ΠΠ° ΡΡΠΎΠΌ ΠΆΠ΅ ΡΡΠ°ΠΏΠ΅ Π²ΡΠΏΠΎΠ»Π½ΡΠ΅ΡΡΡ ΠΏΡΠΎΠΊΠ»Π°Π΄ΠΊΠ° ΡΡΠΎΡΠ½ΠΎΠΉ ΡΠΈΡΡΠ΅ΠΌΡ.
- ΠΠΎΠ·Π²Π΅Π΄Π΅Π½ΠΈΠ΅ ΡΡΠ΅Π½. ΠΠ»Ρ ΡΡΡΠΎΠΈΡΠ΅Π»ΡΡΡΠ²Π° ΡΡΠ΅Π½ΠΎΠ²ΡΡ ΠΊΠΎΠ½ΡΡΡΡΠΊΡΠΈΠΉ ΠΈΡΠΏΠΎΠ»ΡΠ·ΡΡΡΡΡ ΡΠ°ΠΌΡΠ΅ ΡΠ°Π·Π»ΠΈΡΠ½ΡΠ΅ ΠΌΠ°ΡΠ΅ΡΠΈΠ°Π»Ρ. ΠΡΠ»ΠΈ Π±Π°Π½Ρ ΠΏΡΠΈΡΡΡΠ°ΠΈΠ²Π°Π΅ΡΡΡ ΠΊ Π΄ΠΎΠΌΡ, ΡΠΎΠ³Π΄Π° Π²Π°ΠΆΠ½ΠΎ ΠΎΠ±Π΅ΡΠΏΠ΅ΡΠΈΡΡ Π½Π°Π΄Π΅ΠΆΠ½ΡΡ ΡΡΡΠΊΠΎΠ²ΠΊΡ Ρ Π½Π°ΡΡΠΆΠ½ΡΠΌΠΈ ΡΡΠ΅Π½Π°ΠΌΠΈ Π·Π΄Π°Π½ΠΈΡ. ΠΠ»Ρ ΡΡΠΎΠ³ΠΎ ΠΈΡΠΏΠΎΠ»ΡΠ·ΡΠ΅ΡΡΡ ΠΎΠ±Π²ΡΠ·ΠΊΠ° ΠΈΠ· Π°ΡΠΌΠ°ΡΡΡΠ½ΡΡ ΠΏΡΡΡΡΠ΅Π².
- ΠΠΎΠ½ΡΠ°ΠΆ ΠΊΡΠΎΠ²Π»ΠΈ. ΠΠ»Ρ ΡΠΎΠ²ΠΌΠ΅ΡΠ΅Π½Π½ΠΎΠ³ΠΎ Π·Π΄Π°Π½ΠΈΡ Π»ΡΡΡΠ΅ ΠΈΡΠΏΠΎΠ»ΡΠ·ΠΎΠ²Π°ΡΡ ΠΊΡΡΡΡ Ρ Π΄Π²ΡΠΌΡ ΠΈΠ»ΠΈ ΡΠ΅ΡΡΡΡΠΌΡ ΡΠΊΠ°ΡΠ°ΠΌΠΈ. ΠΠΎΠΌ ΠΈ Π±Π°Π½Ρ ΠΎΠ±ΠΎΡΡΠ΄ΡΡΡΡΡ ΠΎΡΠ΄Π΅Π»ΡΠ½ΡΠΌΠΈ Π΄ΡΠΌΠΎΡ ΠΎΠ΄Π°ΠΌΠΈ ΠΈ ΡΠΈΡΡΠ΅ΠΌΠΎΠΉ ΠΎΡΠ²ΠΎΠ΄Π° Π²ΠΎΠ΄Ρ Ρ ΠΊΡΠΎΠ²Π»ΠΈ.
- ΠΠ΅ΠΊΠΎΡΠ°ΡΠΈΠ²Π½Π°Ρ ΠΎΡΠ΄Π΅Π»ΠΊΠ° ΠΏΠΎΠΌΠ΅ΡΠ΅Π½ΠΈΠΉ. Π Π·Π°Π²Π΅ΡΡΠ΅Π½ΠΈΠ΅ Π²ΡΠΏΠΎΠ»Π½ΡΠ΅ΡΡΡ Π³ΠΈΠ΄ΡΠΎ- ΠΈ ΡΠ΅ΠΏΠ»ΠΎΠΈΠ·ΠΎΠ»ΡΡΠΈΡ, Π΄Π΅ΠΊΠΎΡΠ°ΡΠΈΠ²Π½Π°Ρ ΠΎΡΠ΄Π΅Π»ΠΊΠ°. ΠΠΎΠΌΠ½Π°ΡΡ Π² Π±Π°Π½Π΅ ΡΠ΅ΠΊΠΎΠΌΠ΅Π½Π΄ΡΠ΅ΡΡΡ ΠΎΡΠΎΡΠΌΠΈΡΡ Π΄Π΅ΡΠ΅Π²ΡΠ½Π½ΠΎΠΉ Π²Π°Π³ΠΎΠ½ΠΊΠΎΠΉ. Π’Π°ΠΊΠΆΠ΅ ΡΡΡΠ°Π½Π°Π²Π»ΠΈΠ²Π°Π΅ΡΡΡ ΠΎΡΠΎΠΏΠΈΡΠ΅Π»ΡΠ½ΠΎΠ΅ ΠΎΠ±ΠΎΡΡΠ΄ΠΎΠ²Π°Π½ΠΈΠ΅ ΠΈ Π½Π΅ΠΎΠ±Ρ ΠΎΠ΄ΠΈΠΌΠ°Ρ ΠΌΠ΅Π±Π΅Π»Ρ.






ΠΠ°Π½Ρ ΠΈ Π΄ΠΎΠΌ ΠΏΠΎΠ΄ ΠΎΠ±ΡΠ΅ΠΉ ΠΊΡΡΡΠ΅ΠΉ β ΡΡΠΎ ΠΏΡΠ°ΠΊΡΠΈΡΠ½ΠΎΠ΅ ΡΠ΅ΡΠ΅Π½ΠΈΠ΅ Π΄Π»Ρ Π²Π»Π°Π΄Π΅Π»ΡΡΠ΅Π² ΠΌΠ°Π»Π΅Π½ΡΠΊΠΈΡ Π·Π°Π³ΠΎΡΠΎΠ΄Π½ΡΡ ΡΡΠ°ΡΡΠΊΠΎΠ². ΠΡΠΎΠΌΠ΅ ΡΠΎΠ³ΠΎ, ΠΏΠΎΠ΄ΠΎΠ±Π½ΡΠΉ ΠΏΡΠΎΠ΅ΠΊΡ ΠΏΠΎΠ·Π²ΠΎΠ»ΡΠ΅Ρ ΡΠΎΠΊΡΠ°ΡΠΈΡΡ ΡΠΈΠ½Π°Π½ΡΠΈΡΠΎΠ²Π°Π½ΠΈΠ΅ Π½Π° Π²ΠΎΠ·Π²Π΅Π΄Π΅Π½ΠΈΠ΅ ΠΎΡΠ΄Π΅Π»ΡΠ½ΠΎΠ³ΠΎ ΡΡΡΠΎΠ΅Π½ΠΈΡ ΠΈ ΡΠΊΠΎΠ½ΠΎΠΌΠ½ΠΎ ΠΈΡΠΏΠΎΠ»ΡΠ·ΠΎΠ²Π°ΡΡ Π·Π΅ΠΌΠ΅Π»ΡΠ½ΡΠ΅ ΡΠ΅ΡΡΡΡΡ.
sdelatbanyu.ru
ΠΡΠΎΠ΅ΠΊΡ Π±Π°Π½ΠΈ Ρ Π΄ΠΎΠΌΠΎΠΌ ΠΏΠΎΠ΄ ΠΎΠ΄Π½ΠΎΠΉ ΠΊΡΡΡΠ΅ΠΉ: 65 ΠΏΡΠ°ΠΊΡΠΈΡΠ½ΡΡ Π³ΠΎΡΠΎΠ²ΡΡ ΠΈΠ΄Π΅ΠΉ

ΠΡΠΈΡΡΡΠΎΠ΅Π½Π½Π°Ρ ΡΠ»Π΅Π²Π° Π±Π°Π½Ρ ΡΠΌΠΎΡΡΠΈΡΡΡ ΠΎΡΠ΅Π½Ρ Π³Π°ΡΠΌΠΎΠ½ΠΈΡΠ½ΠΎ Ρ Π³ΠΎΡΡΠ΅Π²ΡΠΌ ΠΎΠ΄Π½ΠΎΡΡΠ°ΠΆΠ½ΡΠΌ Π΄ΠΎΠΌΠΎΠΌ
ΠΡΠΎΠ΅ΠΊΡ Π±Π°Π½ΠΈ Ρ Π΄ΠΎΠΌΠΎΠΌ ΠΏΠΎΠ΄ ΠΎΠ΄Π½ΠΎΠΉ ΠΊΡΡΡΠ΅ΠΉ Π½Π° ΡΠ΅Π³ΠΎΠ΄Π½ΡΡΠ½ΠΈΠΉ Π΄Π΅Π½Ρ ΡΠ²Π»ΡΠ΅ΡΡΡ ΠΎΠ΄Π½ΠΈΠΌ ΠΈΠ· Π½Π°ΠΈΠ±ΠΎΠ»Π΅Π΅ ΠΏΠΎΠΏΡΠ»ΡΡΠ½ΡΡ ΡΡΡΠΎΠΈΡΠ΅Π»ΡΠ½ΡΡ ΠΏΡΠΎΠ΅ΠΊΡΠΎΠ². Π‘Π²ΡΠ·Π°Π½ΠΎ ΡΡΠΎ Ρ ΡΡΠ½ΠΊΡΠΈΠΎΠ½Π°Π»ΡΠ½ΠΎΡΡΡΡ ΡΠ°ΠΌΠΎΠ³ΠΎ ΡΠΎΠΎΡΡΠΆΠ΅Π½ΠΈΡ, Π²Π΅Π΄Ρ ΠΊΠΎΠΌΡ ΠΆΠ΅ Π½Π΅ Ρ ΠΎΡΠ΅ΡΡΡ ΠΏΠΎΡΠ»Π΅ ΡΡΡΠ΄Π½ΠΎΠ³ΠΎ Π΄Π½Ρ Π½Π°ΡΠ»Π°Π΄ΠΈΡΡΡΡ ΠΈ ΡΠ°ΡΡΠ»Π°Π±ΠΈΡΡΡΡ Π² ΡΠΎΠ±ΡΡΠ²Π΅Π½Π½ΠΎΠΉ Π±Π°Π½ΡΠΊΠ΅, ΠΏΠΎΡΡΠ²ΡΡΠ²ΠΎΠ²Π°ΡΡ Π½Π΅ΠΆΠ½ΠΎΡΡΡ ΠΏΠ°ΡΠ° ΠΈ Π°ΡΠΎΠΌΠ°Ρ ΡΡΠ°Π². ΠΠ°ΠΊ ΠΏΡΠ°Π²ΠΈΠ»ΠΎ, Π±Π°Π½Ρ Π²ΠΎΠ·Π²ΠΎΠ΄ΡΡ ΠΎΡΠ΄Π΅Π»ΡΠ½ΠΎ ΠΎΡ ΠΆΠΈΠ»ΠΎΠ³ΠΎ Π·Π΄Π°Π½ΠΈΡ, Π²Π΅Π΄Ρ Π΅ΠΉ Π½Π΅ΠΎΠ±Ρ ΠΎΠ΄ΠΈΠΌΠ° ΠΈΠ½Π΄ΠΈΠ²ΠΈΠ΄ΡΠ°Π»ΡΠ½Π°Ρ ΡΠΈΡΡΠ΅ΠΌΠ° ΠΊΠΎΠΌΠΌΡΠ½ΠΈΠΊΠ°ΡΠΈΠΉ. ΠΠΎ ΠΎΡΠ΅Π½Ρ ΡΠ°ΡΡΠΎ Π±ΡΠ²Π°Π΅Ρ ΡΠ°ΠΊ, ΡΡΠΎ Π±Π°Π½Ρ ΠΈΠΌΠ΅ΡΡ ΠΎΡΠ΅Π½Ρ Ρ ΠΎΡΠ΅ΡΡΡ, Π° Π²ΠΎΡ Π·Π΅ΠΌΠ΅Π»ΡΠ½ΡΠΉ ΡΡΠ°ΡΡΠΎΠΊ ΡΡΠΎΠ³ΠΎ Π½Π΅ ΠΏΠΎΠ·Π²ΠΎΠ»ΡΠ΅Ρ. ΠΡΡ ΠΎΠ΄ΠΎΠΌ ΠΈΠ· ΡΠ°ΠΊΠΎΠΉ ΡΠΈΡΡΠ°ΡΠΈΠΈ ΡΡΠ°Π½Π΅Ρ ΡΡΡΠΎΠΈΡΠ΅Π»ΡΡΡΠ²ΠΎ Π±Π°Π½ΠΈ Ρ Π΄ΠΎΠΌΠΎΠΌ ΠΏΠΎΠ΄ ΠΎΠ΄Π½ΠΎΠΉ ΠΊΡΡΡΠ΅ΠΉ.
Π‘ΠΎΠ΄Π΅ΡΠΆΠ°Π½ΠΈΠ΅

ΠΠ°Π½Ρ, ΠΎΠ±ΡΡΡΡΠΎΠ΅Π½Π½Π°Ρ Π½Π° ΠΌΠ°Π½ΡΠ°ΡΠ΄Π½ΠΎΠΌ ΡΡΠ°ΠΆΠ΅ Π±Π°Π½Π½ΠΎΠ³ΠΎ Π΄ΠΎΠΌΠΈΠΊΠ°

ΠΠ΅ΡΠ΅Π²ΡΠ½Π½Π°Ρ ΠΏΡΠΈΡΡΡΠΎΠΉΠΊΠ° Π΄Π»Ρ Π±Π°Π½ΠΈ Π±Π΅Π· ΡΡΠ½Π΄Π°ΠΌΠ΅Π½ΡΠ°

ΠΡΠ°ΡΠΈΠ²Π°Ρ Π²Π½ΡΡΡΠ΅Π½Π½ΡΡ ΠΎΡΠ΄Π΅Π»ΠΊΠ° Π±Π°Π½ΠΈ Π² ΡΠ΅ΠΌΠ½ΡΡ ΡΠΎΠ½Π°Ρ

ΠΠΎΠΌΠΏΠ»Π΅ΠΊΡ ΠΈΠ· Π½Π΅Π±ΠΎΠ»ΡΡΠΈΡ Π΄ΠΎΠΌΠΈΠΊΠΎΠ² ΠΏΠΎΠ΄ ΠΎΠ΄Π½ΠΎΠΉ ΠΊΡΡΡΠ΅ΠΉ
Π’Π°ΠΊΠΎΠΉ ΠΏΠΎΠ΄Ρ ΠΎΠ΄ ΠΈΠΌΠ΅Π΅Ρ ΠΈ ΡΠΊΠΎΠ½ΠΎΠΌΠΈΡΠ΅ΡΠΊΡΡ Π²ΡΠ³ΠΎΠ΄Ρ, Π²Π΅Π΄Ρ Π½Π° ΡΠ°ΠΊΠΎΠΌ ΠΏΡΠΎΠ΅ΠΊΡΠ΅ ΠΌΠΎΠΆΠ½ΠΎ ΡΡΠΊΠΎΠ½ΠΎΠΌΠΈΡΡ Π½Π° ΡΡΡΠΎΠΈΡΠ΅Π»ΡΠ½ΡΡ ΠΌΠ°ΡΠ΅ΡΠΈΠ°Π»Π°Ρ . ΠΡΠ°Π²ΠΈΠ»ΡΠ½ΠΎ ΡΠ°Π·ΡΠ°Π±ΠΎΡΠ°Π½Π½ΡΠΉ ΠΏΡΠΎΠ΅ΠΊΡ Π΅Π΄ΠΈΠ½ΠΎΠ³ΠΎ ΠΊΠΎΠΌΠΏΠ»Π΅ΠΊΡΠ° ΠΏΠΎΠ·Π²ΠΎΠ»ΡΠ΅Ρ ΠΆΠΈΡΡ Π² Π΄ΠΎΠΌΠ΅ Ρ ΠΏΠΎΠ²ΡΡΠ΅Π½Π½ΡΠΌ ΠΊΠΎΠΌΡΠΎΡΡΠΎΠΌ ΠΈ ΠΎΠ΄Π½ΠΎΠ²ΡΠ΅ΠΌΠ΅Π½Π½ΠΎ Π½Π°ΡΠ»Π°ΠΆΠ΄Π°ΡΡΡΡ ΠΎΠ·Π΄ΠΎΡΠΎΠ²ΠΈΡΠ΅Π»ΡΠ½ΡΠΌΠΈ ΠΏΡΠΎΡΠ΅Π΄ΡΡΠ°ΠΌΠΈ Π² Π±Π°Π½Π΅. Π’Π°ΠΊΠΎΠΉ Π΄ΠΎΠΌ ΠΈΠΌΠ΅Π΅Ρ ΠΎΡΠΎΠ±Π΅Π½Π½ΡΠΉ Π΄ΠΈΠ·Π°ΠΉΠ½, ΠΊΠΎΡΠΎΡΡΠΉ ΠΏΡΠ΅ΠΊΡΠ°ΡΠ½ΠΎ Π²ΠΏΠΈΡΡΠ²Π°Π΅ΡΡΡ Π² Π»Π°Π½Π΄ΡΠ°ΡΡ. ΠΠ°ΠΏΠΎΠ»Π½Π΅Π½ ΠΎΠ½ ΠΈ ΡΡΡΠΎΠΌ. Π‘ΠΎΠ·Π΄Π°ΡΡ ΡΠ΅Π»ΠΎΡΡΠ½ΡΠΉ ΠΊΠΎΠΌΠΏΠ»Π΅ΠΊΡ ΠΌΠΎΠ³ΡΡ ΡΠΎΠ»ΡΠΊΠΎ Π½Π°ΡΡΠΎΡΡΠΈΠ΅ ΠΏΡΠΎΡΠ΅ΡΡΠΈΠΎΠ½Π°Π»Ρ, ΠΊΠΎΡΠΎΡΡΠ΅ ΠΏΡΠΈΠΌΡΡ Π²ΠΎ Π²Π½ΠΈΠΌΠ°Π½ΠΈΠ΅ Π²ΡΠ΅ ΡΡΠ΅Π±ΠΎΠ²Π°Π½ΠΈΡ Π²Π»Π°Π΄Π΅Π»ΡΡΠ° ΡΡΠ°ΡΡΠΊΠ°.

ΠΠ°Π²Π΅ΡΠ½Π°Ρ ΠΏΡΠΈΡΡΡΠΎΠΉΠΊΠ° ΠΊ Π±Π°Π½Π½ΠΎΠΌΡ Π΄ΠΎΠΌΠΈΠΊΡ
ΠΠ°ΡΠΈΠ°Π½ΡΡ Π΄ΠΎΠΌΠ° ΠΈ Π±Π°Π½ΠΈ ΠΏΠΎΠ΄ ΠΎΠ΄Π½ΠΎΠΉ ΠΊΡΡΡΠ΅ΠΉ
ΠΠΎΠΌ Ρ Π±Π°Π½Π΅ΠΉ ΠΏΠΎΠ΄ ΠΎΠ΄Π½ΠΎΠΉ ΠΊΡΡΡΠ΅ΠΉ ΠΌΠΎΠΆΠ½ΠΎ Π²ΠΎΠ·Π²Π΅ΡΡΠΈ ΠΏΠΎ Π΄Π²ΡΠΌ Π²Π°ΡΠΈΠ°Π½ΡΠ°ΠΌ: ΠΏΡΠΈ Π½Π°ΡΠ°Π»ΡΠ½ΠΎΠΌ ΡΡΡΠΎΠΈΡΠ΅Π»ΡΡΡΠ²Π΅ Π²ΡΠ΅Π³ΠΎ ΠΊΠΎΠΌΠΏΠ»Π΅ΠΊΡΠ° ΠΈ Π² ΠΊΠ°ΡΠ΅ΡΡΠ²Π΅ ΠΏΡΠΈΡΡΡΠΎΠΉΠΊΠΈ ΠΊ ΡΠΆΠ΅ ΡΡΡΠ΅ΡΡΠ²ΡΡΡΠ΅ΠΌΡ Π·Π΄Π°Π½ΠΈΡ.
ΠΡΠΎΡΠΎΠΉ Π²Π°ΡΠΈΠ°Π½Ρ Π±ΠΎΠ»Π΅Π΅ ΡΠ°ΡΠΏΡΠΎΡΡΡΠ°Π½Π΅Π½, Π²Π΅Π΄Ρ, ΠΊΠ°ΠΊ ΠΏΡΠ°Π²ΠΈΠ»ΠΎ, ΠΌΠ½ΠΎΠ³ΠΈΠ΅ ΡΠ½Π°ΡΠ°Π»Π° ΡΡΡΠΎΡΡ Π΄ΠΎΠΌ ΠΈ ΡΠΎΠ»ΡΠΊΠΎ Π·Π°ΡΠ΅ΠΌ ΡΠ΅ΡΠ°ΡΡΡΡ Π½Π° Π±Π°Π½Ρ. ΠΡΠΈ ΡΠ°ΠΊΠΎΠΌ ΠΏΡΠΎΠ΅ΠΊΡΠΈΡΠΎΠ²Π°Π½ΠΈΠΈ ΠΎΡΠΎΠ±ΠΎΠ΅ Π²Π½ΠΈΠΌΠ°Π½ΠΈΠ΅ ΡΡΠΎΠΈΡ ΡΠ΄Π΅Π»ΡΡΡ:

ΠΠ΅Π±ΠΎΠ»ΡΡΠΎΠΉ Π±Π°Π½Π½ΡΠΉ Π΄ΠΎΠΌΠΈΠΊ Ρ ΠΏΠ°ΡΠΈΠ»ΠΊΠΎΠΉ Π½Π° Π²Ρ ΠΎΠ΄Π΅
- Π²Π΅Π½ΡΠΈΠ»ΡΡΠΈΠΎΠ½Π½ΠΎΠΉ ΡΠΈΡΡΠ΅ΠΌΠ΅. ΠΠ°Π½Ρ β ΡΡΠΎ ΠΏΠΎΠ²ΡΡΠ΅Π½Π½Π°Ρ Π²Π»Π°ΠΆΠ½ΠΎΡΡΡ, ΡΠΏΠΎΡΠΎΠ±ΡΡΠ²ΡΡΡΠ°Ρ ΡΠ°Π·ΡΡΡΠ΅Π½ΠΈΡ ΠΎΠ±ΡΠ΅ΠΊΡΠ° ΡΡΡΠΎΠΈΡΠ΅Π»ΡΡΡΠ²Π°. ΠΡΠ°Π²ΠΈΠ»ΡΠ½ΡΠΉ ΠΏΡΠΎΠ΅ΠΊΡ ΠΏΠΎΠΌΠΎΠΆΠ΅Ρ ΠΈΠ·Π±Π΅ΠΆΠ°ΡΡ ΡΡΠΈΡ Π½Π΅ΠΏΡΠΈΡΡΠ½ΠΎΡΡΠ΅ΠΉ;
- Π³ΠΈΠ΄ΡΠΎΠΈΠ·ΠΎΠ»ΡΡΠΈΠΈ. ΠΠΎΠΌΠ΅ΡΠ΅Π½ΠΈΠ΅ Π΄ΠΎΠ»ΠΆΠ½ΠΎ ΠΈΠΌΠ΅ΡΡ Π²ΠΎΠ·ΠΌΠΎΠΆΠ½ΠΎΡΡΡ ΠΏΡΠΎΡΡΡ Π°ΡΡ ΠΈ ΠΏΡΠΎΠ²Π΅ΡΡΠΈΠ²Π°ΡΡΡΡ. ΠΡΠΎ ΡΡΠΎΠΈΡ ΡΡΠΈΡΡΠ²Π°ΡΡ, ΡΠ°ΠΊ ΠΊΠ°ΠΊ Π² Π±ΡΠ΄ΡΡΠ΅ΠΌ ΠΏΠΎΠ²ΡΡΠ΅Π½Π½Π°Ρ Π²Π»Π°ΠΆΠ½ΠΎΡΡΡ ΠΌΠΎΠΆΠ΅Ρ ΡΡΠ°ΡΡ Π½Π°ΡΡΠΎΡΡΠ΅ΠΉ ΠΊΠ°ΡΠ°ΡΡΡΠΎΡΠΎΠΉ;
- ΠΊ ΠΊΠ°ΠΊΠΎΠΌΡ ΠΌΠ΅ΡΡΡ Π²ΠΎΠ·Π²ΠΎΠ΄ΠΈΡΡ ΠΏΡΠΈΡΡΡΠΎΠΉΠΊΡ. Π‘ΠΏΠ΅ΡΠΈΠ°Π»ΠΈΡΡΡ ΡΠ΅ΠΊΠΎΠΌΠ΅Π½Π΄ΡΡΡ ΠΈΡΠΏΠΎΠ»ΡΠ·ΠΎΠ²Π°ΡΡ Π΄Π»Ρ ΡΡΠΎΠ³ΠΎ ΠΊΡΡ ΠΎΠ½Π½ΡΡ ΡΡΠ΅Π½Ρ. ΠΡΠΈ ΡΠ°ΠΊΠΎΠΌ ΠΏΠΎΠ΄Ρ ΠΎΠ΄Π΅ ΠΌΠΎΠΆΠ½ΠΎ ΡΡΡΠ°Π½ΠΎΠ²ΠΈΡΡ Π΅Π΄ΠΈΠ½ΡΡ ΠΏΠ΅ΡΠΊΡ, Π΄Π° ΠΈ ΠΏΡΠΎΡΡΡ Π°ΡΡ Π±Π°Π½Ρ Π±ΡΠ΄Π΅Ρ Π½Π°ΠΌΠ½ΠΎΠ³ΠΎ Π±ΡΡΡΡΠ΅ΠΉ;
- ΠΏΡΠΎΠ΅ΠΊΡΠΈΡΠΎΠ²Π°Π½ΠΈΡ ΠΏΡΠΎΠ²ΠΎΠ΄ΠΊΠΈ ΠΈ ΡΠΈΡΡΠ΅ΠΌΡ ΠΊΠ°Π½Π°Π»ΠΈΠ·Π°ΡΠΈΠΈ.

ΠΠ°Π½ΠΎΡΠ°ΠΌΠ½ΠΎΠ΅ ΠΏΠΎΠΌΠ΅ΡΠ΅Π½ΠΈΠ΅ ΠΏΠΎΠ΄ ΠΏΠ°ΡΠΈΠ»ΠΊΡ, Ρ Π²ΡΡ ΠΎΠ΄ΠΎΠΌ Π½Π° ΠΎΠ±ΡΡΡ Ρ Π΄ΠΎΠΌΠΎΠΌ ΡΠ΅ΡΡΠ°ΡΡ
ΠΡΠΈ Π²ΠΎΠ·Π²Π΅Π΄Π΅Π½ΠΈΠΈ Π΅Π΄ΠΈΠ½ΠΎΠ³ΠΎ ΠΊΠΎΠΌΠΏΠ»Π΅ΠΊΡΠ° Π½Π΅ΠΎΠ±Ρ ΠΎΠ΄ΠΈΠΌΠΎ ΡΠΎΠ·Π΄Π°Π²Π°ΡΡ ΠΈ Π΅Π΄ΠΈΠ½ΡΠ΅ ΠΊΠΎΠΌΠΌΡΠ½ΠΈΠΊΠ°ΡΠΈΠΈ. ΠΠ»Π΅ΠΊΡΡΠΈΡΠ΅ΡΡΠ²ΠΎ ΠΈ Π²Π΅Π½ΡΠΈΠ»ΡΡΠΈΠΎΠ½Π½ΡΠ΅ ΡΠ°Ρ ΡΡ ΡΠ°ΠΊΠΆΠ΅ ΡΡΠ°Π½ΡΡ ΡΠ°ΡΡΡΡ ΡΠΎΠΎΡΡΠΆΠ΅Π½ΠΈΡ.
Π’ΠΈΠΏΡ ΡΠΎΠ²ΠΌΠ΅ΡΠ΅Π½ΠΈΡ Π±Π°Π½ΠΈ Ρ Π΄ΠΎΠΌΠΎΠΌ
ΠΠ°Π½Ρ Ρ ΠΆΠΈΠ»ΡΠΌ Π·Π΄Π°Π½ΠΈΠ΅ΠΌ ΠΌΠΎΠΆΠ½ΠΎ ΡΠΎΠ²ΠΌΠ΅ΡΠ°ΡΡ ΠΏΠΎ-ΡΠ°Π·Π½ΠΎΠΌΡ. ΠΡΠΈ ΡΠΎΠ·Π΄Π°Π½ΠΈΠΈ ΠΏΠ΅ΡΠ²ΠΎΠ½Π°ΡΠ°Π»ΡΠ½ΠΎΠ³ΠΎ ΠΏΡΠΎΠ΅ΠΊΡΠ° ΠΌΠ½ΠΎΠ³ΠΈΠ΅ ΠΏΡΠ΅Π΄ΡΡΠΌΠ°ΡΡΠΈΠ²Π°ΡΡ Π²ΠΎΠ·Π²Π΅Π΄Π΅Π½ΠΈΠ΅ Π±Π°Π½Π½ΠΎΠ³ΠΎ ΠΊΠΎΠΌΠΏΠ»Π΅ΠΊΡΠ° Π½Π° ΠΏΠ΅ΡΠ²ΠΎΠΌ ΡΡΠ°ΠΆΠ΅. ΠΡΠΎ ΡΠ°ΠΌΠΎΠ΅ ΠΏΡΠΎΡΡΠΎΠ΅ ΡΠ΅ΡΠ΅Π½ΠΈΠ΅, Π½ΠΎ ΠΏΡΠΈΠ½ΠΈΠΌΠ°ΡΡ Π΅Π³ΠΎ ΡΠ»Π΅Π΄ΡΠ΅Ρ Π΅ΡΠ΅ Π½Π° ΡΡΠ°Π΄ΠΈΠΈ ΠΏΡΠΎΠ΅ΠΊΡΠΈΡΠΎΠ²Π°Π½ΠΈΡ Π·Π΄Π°Π½ΠΈΡ. Π’Π°ΠΊΠΆΠ΅ Π²ΠΎΠ·ΠΌΠΎΠΆΠ½Π° ΠΈ ΠΏΡΠΈΡΡΡΠΎΠΉΠΊΠ° ΠΊ Π³ΠΎΡΠΎΠ²ΠΎΠΌΡ ΡΠΎΠΎΡΡΠΆΠ΅Π½ΠΈΡ. ΠΠ°Π½Ρ ΠΏΡΠΎΡΡΠΎ ΠΏΡΠΈΡΡΡΠ°ΠΈΠ²Π°ΡΡ ΠΊ Π΄ΠΎΠΌΡ. Π‘Π°ΠΌ ΠΆΠ΅ ΠΊΠΎΠΌΠΏΠ»Π΅ΠΊΡ ΠΈΠΌΠ΅Π΅Ρ ΡΠ²ΠΎΠΈ ΡΠ΅ΡΡΡΠ΅ ΡΡΠ΅Π½Ρ, Π° Π²ΠΎΡ ΠΊΡΡΡΠ° ΠΏΡΠΎΠ΄Π»Π΅Π²Π°Π΅ΡΡΡ.

ΠΠ°ΡΠ½Π°Ρ ΠΏΠΎΡΡΡΠΎΠΉΠΊΠ° ΠΈΠ· ΡΡΡΠ±Π° Ρ Π±Π°Π½Π΅ΠΉ ΠΏΠΎΠ΄ ΠΎΠ΄Π½ΠΎΠΉ ΠΊΡΡΡΠ΅ΠΉ
Π ΡΠ°ΠΌΡΠΉ ΠΏΡΠΎΡΡΠΎΠΉ ΠΈ Π²ΠΎΡΡΡΠ΅Π±ΠΎΠ²Π°Π½Π½ΡΠΉ Π²Π°ΡΠΈΠ°Π½Ρ ΠΏΡΠΈΡΡΡΠΎΠΉΠΊΠΈ β Π±Π°Π½Ρ Ρ Π΄ΠΎΠΌΠΎΠΌ ΠΈΠΌΠ΅Π΅Ρ ΠΎΠ±ΡΡΡ ΡΡΠ΅Π½Ρ ΠΈ ΠΊΡΡΡΡ. Π’Π°ΠΊΠΎΠ΅ ΡΠ΅ΡΠ΅Π½ΠΈΡ ΡΠ²Π»ΡΠ΅ΡΡΡ ΡΠ°ΠΌΡΠΌ ΠΎΠΏΡΠΈΠΌΠ°Π»ΡΠ½ΡΠΌ Π² ΠΏΠ»Π°Π½Π΅ ΠΌΠΎΠ½ΡΠ°ΠΆΠ°. ΠΠ»Π°Π²Π½ΠΎΠΉ ΠΏΡΠΎΠ±Π»Π΅ΠΌΠΎΠΉ Π² ΡΠ°ΠΊΠΎΠΌ ΡΡΡΠΎΠΈΡΠ΅Π»ΡΡΡΠ²Π΅ ΡΠ²Π»ΡΠ΅ΡΡΡ Π½Π°Π»ΠΈΡΠΈΠ΅ ΡΠ°Π·Π½ΡΡ Π²Ρ ΠΎΠ΄ΠΎΠ² Π² Π΄ΠΎΠΌ ΠΈ Π±Π°Π½Ρ. ΠΠ΅ΡΠΎΠΌ ΡΡΠΎ ΡΠΎΠ²ΡΠ΅ΠΌ Π½Π΅Π·Π°ΠΌΠ΅ΡΠ½ΠΎ, Π° Π²ΠΎΡ Π² Π·ΠΈΠΌΠ½Π΅Π΅ Π²ΡΠ΅ΠΌΡ Π΄Π»Ρ ΠΌΠ½ΠΎΠ³ΠΈΡ ΡΡΠ°Π½ΠΎΠ²ΠΈΡΡΡ Π½Π°ΡΡΠΎΡΡΠ΅ΠΉ ΠΊΠ°ΡΠ°ΡΡΡΠΎΡΠΎΠΉ. Π Π΅ΡΠΈΡΡ ΡΡΡ Π·Π°Π΄Π°ΡΡ ΠΎΡΠ΅Π½Ρ ΠΏΡΠΎΡΡΠΎ. ΠΡΠ΅Π³ΠΎ Π»ΠΈΡΡ Π½Π΅ΠΎΠ±Ρ ΠΎΠ΄ΠΈΠΌΠΎ ΠΊΠΎ Π²Ρ ΠΎΠ΄Ρ Π² Π±Π°Π½Ρ ΠΏΡΠΈΡΡΡΠΎΠΈΡΡ Π±Π΅ΡΠ΅Π΄ΠΊΡ, ΠΊΠΎΡΠΎΡΠ°Ρ ΡΡΠ°Π½Π΅Ρ ΡΠ²ΡΠ·ΡΡΡΠΈΠΌ Π·Π²Π΅Π½ΠΎΠΌ ΠΌΠ΅ΠΆΠ΄Ρ Π΄Π²ΡΠΌΡ ΠΏΠΎΠΌΠ΅ΡΠ΅Π½ΠΈΡΠΌΠΈ.

ΠΡΡΡΡΠΉ Π½Π°Π²Π΅Ρ ΠΌΠ΅ΠΆΠ΄Ρ Π²Ρ ΠΎΠ΄ΠΎΠΌ Π² Π±Π°Π½Ρ ΠΈ Π΄ΠΎΠΌ
Π‘ΡΠΎΠΈΠΌΠΎΡΡΡ ΡΠ°ΠΊΠΎΠ³ΠΎ ΠΏΡΠΎΠ΅ΠΊΡΠ° Π±ΡΠ΄Π΅Ρ Π½Π΅ΡΠΊΠΎΠ»ΡΠΊΠΎ ΠΈΠ½ΠΎΠΉ, Π½ΠΎ Π²ΠΎΡ ΡΠ΄ΠΎΠ±ΡΡΠ²Π° ΠΈ ΠΊΠΎΠΌΡΠΎΡΡ, ΠΊΠΎΡΠΎΡΡΠ΅ ΠΎΠ½ ΠΏΡΠΈΠ½Π΅ΡΠ΅Ρ, ΠΎΡΠ΅Π½ΡΡ Π²ΡΠ΅. ΠΡΠΎΠ΅ΠΊΡΡ Π²ΠΎΠ·Π²Π΅Π΄Π΅Π½ΠΈΡ Π΅Π΄ΠΈΠ½ΠΎΠ³ΠΎ ΠΊΠΎΠΌΠΏΠ»Π΅ΠΊΡΠ° ΡΡΡΠ΅ΡΡΠ²ΡΡΡ ΡΠΈΠΏΠΎΠ²ΡΠ΅. ΠΠΎ ΡΠ°ΠΊΠΆΠ΅ ΠΌΠΎΠΆΠ½ΠΎ ΠΈΠ·Π³ΠΎΡΠΎΠ²ΠΈΡΡ ΠΏΡΠΎΠ΅ΠΊΡ, ΡΠΎΠ±Π»ΡΠ΄Π°Ρ ΠΈΠ½Π΄ΠΈΠ²ΠΈΠ΄ΡΠ°Π»ΡΠ½ΡΠ΅ ΡΡΠ΅Π±ΠΎΠ²Π°Π½ΠΈΡ Π²Π»Π°Π΄Π΅Π»ΡΡΠ° ΡΡΠ°ΡΡΠΊΠ°. Π’ΠΈΠΏΠΎΠ²ΡΠ΅ ΠΏΡΠΎΠ΅ΠΊΡΡ Π½Π° ΡΠ΅Π³ΠΎΠ΄Π½Ρ Π±ΠΎΠ»Π΅Π΅ ΠΏΠΎΠΏΡΠ»ΡΡΠ½Ρ, Π²Π΅Π΄Ρ Π½Π° ΡΠΎΠ·Π΄Π°Π½ΠΈΠ΅ ΠΈΠ½Π΄ΠΈΠ²ΠΈΠ΄ΡΠ°Π»ΡΠ½ΠΎΠ³ΠΎ ΠΏΠ»Π°Π½Π° Π½Π΅ΠΎΠ±Ρ ΠΎΠ΄ΠΈΠΌΡ Π²ΡΠ΅ΠΌΡ ΠΈ Π΄ΠΎΠΏΠΎΠ»Π½ΠΈΡΠ΅Π»ΡΠ½ΡΠ΅ ΡΡΠ΅Π΄ΡΡΠ²Π°.

Π‘ΠΎΠ²ΡΠ΅ΠΌΠ΅Π½Π½Π°Ρ ΠΎΡΠ΄Π΅Π»ΠΊΠ° Π±Π°Π½ΠΈ ΠΊΠΎΠ½ΡΡΠ°ΡΡΠ½ΠΎΠΉ Π²Π°Π³ΠΎΠ½ΠΊΠΎΠΉ
ΠΠ΅ΡΠ²ΠΎΠ½Π°ΡΠ°Π»ΡΠ½ΠΎΠ΅ ΡΡΡΠΎΠΈΡΠ΅Π»ΡΡΡΠ²ΠΎ Π±Π°Π½ΠΈ ΠΈ Π΄ΠΎΠΌΠ° ΠΏΠΎΠ΄ ΠΎΠ΄Π½ΠΎΠΉ ΠΊΡΡΡΠ΅ΠΉ
ΠΡΠΈ Π²ΠΎΠ·Π²Π΅Π΄Π΅Π½ΠΈΠΈ Π±Π°Π½ΠΈ ΠΈ Π΄ΠΎΠΌΠ° ΠΊ Π²ΡΠ±ΠΎΡΡ ΠΏΡΠΎΠ΅ΠΊΡΠ° ΡΡΠΎΠΈΡ ΠΏΠΎΠ΄Ρ ΠΎΠ΄ΠΈΡΡ Ρ ΠΏΠΎΠ»Π½ΠΎΠΉ ΠΎΡΠ²Π΅ΡΡΡΠ²Π΅Π½Π½ΠΎΡΡΡΡ. ΠΡΠ΅ΠΊΡΠ°ΡΠ½ΡΠΌ ΡΠ΅ΡΠ΅Π½ΠΈΠ΅ΠΌ ΡΠ°ΠΊΠΎΠ³ΠΎ Π²ΠΎΠΏΡΠΎΡΠ° Π±ΡΠ΄Π΅Ρ Π΄ΠΎΠ²Π΅ΡΠΈΠ΅ ΠΏΠ»Π°Π½ΠΈΡΠΎΠ²Π°Π½ΠΈΡ Π½Π°ΡΡΠΎΡΡΠΈΠΌ ΠΏΡΠΎΡΠ΅ΡΡΠΈΠΎΠ½Π°Π»Π°ΠΌ, Π²Π΅Π΄Ρ ΠΎΠ½ΠΈ:
- ΠΏΡΠΎΠ²Π΅Π΄ΡΡ ΠΎΡΠΌΠΎΡΡ ΡΡΠ°ΡΡΠΊΠ°, Π½Π° ΠΊΠΎΡΠΎΡΠΎΠΌ ΠΏΠ»Π°Π½ΠΈΡΡΠ΅ΡΡΡ ΡΡΡΠΎΠΈΡΠ΅Π»ΡΡΡΠ²ΠΎ, ΡΠ΄Π΅Π»Π°ΡΡ Π²ΡΠ΅ Π½Π΅ΠΎΠ±Ρ ΠΎΠ΄ΠΈΠΌΡΠ΅ Π·Π°ΠΌΠ΅ΡΡ ΠΈ ΠΈΡΡΠ»Π΅Π΄ΠΎΠ²Π°Π½ΠΈΡ;

ΠΠ΅Π±ΠΎΠ»ΡΡΠ°Ρ ΡΠ°ΡΡΡ ΡΠ΅ΡΡΠ°ΡΡ Π²ΡΠ΄Π΅Π»Π΅Π½Π° ΠΏΠΎΠ΄ Π±Π°Π½Ρ, ΠΊΠΎΡΠΎΡΠ°Ρ ΠΎΡΠ΄Π΅Π»ΡΠ΅ΡΡΡ ΠΏΠ°Π½ΠΎΡΠ°ΠΌΠ½ΠΎΠΉ ΡΡΠ΅Π½ΠΎΠΉ
- ΡΠ°Π·ΡΠ°Π±ΠΎΡΠ°ΡΡ ΠΏΡΠΎΠ΅ΠΊΡ, ΡΠΎΠ±Π»ΡΠ΄Π°Ρ ΠΈ ΡΠ΅Ρ Π½ΠΈΡΠ΅ΡΠΊΠΈΠ΅ Π½ΠΎΡΠΌΡ, ΠΈ ΠΆΠ΅Π»Π°Π½ΠΈΡ Π²Π»Π°Π΄Π΅Π»ΡΡΠ° Π±ΡΠ΄ΡΡΠ΅Π³ΠΎ ΡΠΎΠΎΡΡΠΆΠ΅Π½ΠΈΡ;
- ΠΏΡΠΎΠ²Π΅Π΄ΡΡ Π²ΡΠ΅ Π½Π΅ΠΎΠ±Ρ ΠΎΠ΄ΠΈΠΌΡΠ΅ ΡΠ°ΡΡΠ΅ΡΡ ΠΈ ΠΏΠΎΠΌΠΎΠ³ΡΡ ΠΎΠΏΡΠ΅Π΄Π΅Π»ΠΈΡΡΡΡ ΡΠΎ ΡΡΠΎΠΈΠΌΠΎΡΡΡΡ ΠΏΡΠΎΠ΅ΠΊΡΠ°;
- ΠΏΠΎΠ΄Π±Π΅ΡΡΡ ΡΠ°ΠΌΡΠΉ ΠΏΡΠΈΠ΅ΠΌΠ»Π΅ΠΌΡΠΉ Π²Π°ΡΠΈΠ°Π½Ρ ΠΏΡΠΎΠ΅ΠΊΡΠ°, Π²Π½Π΅ΡΡ Π² Π½Π΅Π³ΠΎ ΠΊΠΎΡΡΠ΅ΠΊΡΠΈΠ²Ρ. ΠΠΎΠΌΠΏΠ»Π΅ΠΊΡ ΠΈΠ΄Π΅Π°Π»ΡΠ½ΠΎ Π²ΠΏΠΈΡΠ΅ΡΡΡ Π² Π»Π°Π½Π΄ΡΠ°ΡΡ ΡΡΠ°ΡΡΠΊΠ°, ΡΡΠ°Π½Π΅Ρ Π΅Π³ΠΎ ΡΠΊΡΠ°ΡΠ΅Π½ΠΈΠ΅ΠΌ;
- ΠΏΡΠΎΠ²Π΅Π΄ΡΡ ΡΡΡΠΎΠΈΡΠ΅Π»ΡΠ½ΡΠ΅ ΡΠ°Π±ΠΎΡΡ Π½Π° Π²ΡΡΠΎΠΊΠΎΠΌ ΡΡΠΎΠ²Π½Π΅, ΡΡΡΠΎΠ³ΠΎ ΡΠΎΠ±Π»ΡΠ΄Π°Ρ Π½ΠΎΡΠΌΠ°ΡΠΈΠ²Π½ΡΠ΅ ΡΡΠ΅Π±ΠΎΠ²Π°Π½ΠΈΡ.

ΠΠ»Π°Π½ΠΈΡΠΎΠ²ΠΊΠ° ΠΏΠ΅ΡΠ²ΠΎΠ³ΠΎ ΡΡΠΎΠ²Π½Ρ Π±Π°Π½Π½ΠΎΠ³ΠΎ Π΄ΠΎΠΌΠΈΠΊΠ°
Π‘ΠΎΠ·Π΄Π°Π½ΠΈΠ΅ ΠΏΡΠΎΠ΅ΠΊΡΠ° Π±Π°Π½ΠΈ ΠΈ Π΄ΠΎΠΌΠ° ΠΏΠΎΠ΄ ΠΎΠ΄Π½ΠΎΠΉ ΠΊΡΡΡΠ΅ΠΉ ΠΏΡΠΎΠ²ΠΎΠ΄ΠΈΡΡΡ ΠΊΠΎΠΌΠ°Π½Π΄Π½ΡΠΌ ΡΠΏΠΎΡΠΎΠ±ΠΎΠΌ. ΠΡΠΈ ΡΠ°ΠΊΠΎΠΉ ΡΠ°Π±ΠΎΡΠ΅ ΡΡΠ°ΡΡΠΈΠ΅ ΠΏΡΠΈΠ½ΠΈΠΌΠ°ΡΡ ΠΈ ΠΏΡΠΎΠ΅ΠΊΡΠ°Π½ΡΡ, ΠΈ Π΄ΠΈΠ·Π°ΠΉΠ½Π΅ΡΡ, ΠΈ ΠΈΠ½ΠΆΠ΅Π½Π΅ΡΡ ΡΡΡΠΎΠΈΡΠ΅Π»ΡΠ½ΠΎΠ³ΠΎ Π½Π°ΠΏΡΠ°Π²Π»Π΅Π½ΠΈΡ. Π’ΠΎΠ»ΡΠΊΠΎ ΡΠ°ΠΊΠΎΠΉ ΠΏΠΎΠ΄Ρ ΠΎΠ΄ ΠΏΠΎΠ·Π²ΠΎΠ»ΡΠ΅Ρ ΡΠΎΠ·Π΄Π°ΡΡ Π³ΡΠ°ΠΌΠΎΡΠ½ΡΠ΅ ΠΏΡΠΎΠ΅ΠΊΡΡ, ΠΊΠΎΡΠΎΡΡΠ΅ Π±ΡΠ΄ΡΡ ΠΌΠ½ΠΎΠ³ΠΈΠ΅ Π³ΠΎΠ΄Ρ ΠΏΡΠΈΡΡΠ½ΠΎ ΡΠ΄ΠΈΠ²Π»ΡΡΡ ΡΠ²ΠΎΠΈΠΌ ΠΊΠΎΠΌΡΠΎΡΡΠΎΠΌ ΠΈ ΡΡΡΠΎΠΌ. Π’ΠΎΡΠ½ΡΠ΅ ΡΠ΅ΡΡΠ΅ΠΆΠΈΒ ΠΏΠΎΠ·Π²ΠΎΠ»ΡΡ Π±ΡΡΡΡΠΎ ΠΈ ΠΊΠ°ΡΠ΅ΡΡΠ²Π΅Π½Π½ΠΎ ΠΏΠΎΡΡΡΠΎΠΈΡΡ Π΄ΠΎΠΌ Π»ΡΠ±ΠΎΠΉ ΡΠ»ΠΎΠΆΠ½ΠΎΡΡΠΈ ΠΈ ΠΏΠΎ Π»ΡΠ±ΡΠΌ Π·Π°ΠΏΡΠΎΡΠ°ΠΌ. ΠΡΠΎΡΠ΅ΡΡΠΈΠΎΠ½Π°Π»ΡΠ½ΠΎ Π²ΠΎΠ·Π²Π΅Π΄Π΅Π½Π½ΡΠΉ ΠΊΠΎΠΌΠΏΠ»Π΅ΠΊΡ ΠΏΡΠΎΡΡΠΎΠΈΡ Π½Π΅ ΠΎΠ΄Π½ΠΎ Π΄Π΅ΡΡΡΠΈΠ»Π΅ΡΠΈΠ΅, Π½Π΅ ΡΠ΅ΡΡΡ ΡΠ²ΠΎΠ΅ΠΉ ΠΏΠ΅ΡΠ²ΠΎΠ·Π΄Π°Π½Π½ΠΎΠΉ ΠΊΡΠ°ΡΠΎΡΡ ΠΈ ΡΡΠ½ΠΊΡΠΈΠΎΠ½Π°Π»ΡΠ½ΠΎΡΡΠΈ Π½Π° ΡΠ°Π΄ΠΎΡΡΡ Π²ΡΠ΅ΠΌ ΠΆΠΈΠ»ΡΡΠ°ΠΌ.

Π£ΡΡΠ½Π°Ρ Π½Π΅Π±ΠΎΠ»ΡΡΠ°Ρ Π±Π°Π½Ρ ΠΈΠ· Π½Π°ΡΡΡΠ°Π»ΡΠ½ΠΎΠ³ΠΎ Π΄Π΅ΡΠ΅Π²Π°
ΠΠ΅ΡΠ²ΠΎΠ΅ Π² ΡΡΡΠΎΠΈΡΠ΅Π»ΡΡΡΠ²Π΅ β ΡΡΠΎ ΡΡΠ½Π΄Π°ΠΌΠ΅Π½Ρ
Π ΠΌΠΎΠΌΠ΅Π½Ρ Π²ΠΎΠ·Π²Π΅Π΄Π΅Π½ΠΈΡ Π»ΡΠ±ΠΎΠ³ΠΎ ΡΠΎΠΎΡΡΠΆΠ΅Π½ΠΈΡ, Π° ΡΠ΅ΠΌ Π±ΠΎΠ»Π΅Π΅ ΠΏΠΎΠ»Π½ΠΎΡΠ΅Π½Π½ΠΎΠ³ΠΎ ΠΊΠΎΠΌΠΏΠ»Π΅ΠΊΡΠ°, ΠΎΡΠΎΠ±ΠΎΠ΅ Π²Π½ΠΈΠΌΠ°Π½ΠΈΠ΅ ΡΡΠΎΠΈΡ ΡΠ΄Π΅Π»ΡΡΡ ΡΡΠ½Π΄Π°ΠΌΠ΅Π½ΡΡ. ΠΠΌΠ΅Π½Π½ΠΎ ΠΎΡ Π½Π΅Π³ΠΎ Π·Π°Π²ΠΈΡΠΈΡ Π²ΡΡ Π½Π°Π΄Π΅ΠΆΠ½ΠΎΡΡΡ ΠΈ Π΄ΠΎΠ»Π³ΠΎΠ»Π΅ΡΠΈΠ΅ Π±ΡΠ΄ΡΡΠ΅Π³ΠΎ ΡΡΡΠΎΠΈΡΠ΅Π»ΡΡΡΠ²Π°. ΠΡΠΈ ΡΡΡΠΎΠΈΡΠ΅Π»ΡΡΡΠ²Π΅ Π±Π°Π½ΠΈ ΠΈ Π΄ΠΎΠΌΠ° Π΅Π΄ΠΈΠ½ΡΠΌ ΠΊΠΎΠΌΠΏΠ»Π΅ΠΊΡΠΎΠΌ ΡΡΡΠ΅ΡΡΠ²ΡΡΡ Π½Π΅ΠΊΠΎΡΠΎΡΡΠ΅ ΠΎΡΠΎΠ±Π΅Π½Π½ΠΎΡΡΠΈ, ΡΠ°ΠΊ ΠΊΠ°ΠΊ ΠΏΠ°ΡΠ½Π°Ρ ΠΈΠΌΠ΅Π΅Ρ ΠΏΠΎΠ²ΡΡΠ΅Π½Π½ΡΡ Π²Π»Π°ΠΆΠ½ΠΎΡΡΡ. ΠΡΠΈ ΡΠ°ΠΊΠΎΠΌ ΠΌΠ΅ΡΠΎΠΏΡΠΈΡΡΠΈΠΈ ΡΡΠ½Π΄Π°ΠΌΠ΅Π½Ρ Π΄ΠΎΠΌΠ° ΠΈ Π±Π°Π½ΠΈ Π·Π°ΠΊΠ»Π°Π΄ΡΠ²Π°Π΅ΡΡΡ ΠΏΠΎΡΠΎΠ·Π½Ρ.

ΠΡΠΎΠ΅ΠΊΡ Π΄ΠΎΠΌΠ° Ρ Π±Π°Π½Π΅ΠΉ Π½Π° ΠΎΠ±ΡΠ΅ΠΌ ΡΡΠ½Π΄Π°ΠΌΠ΅Π½ΡΠ΅
ΠΠ°ΡΠ°ΠΌΠ΅ΡΡΡ ΡΠ°ΠΌΠΎΠ³ΠΎ ΡΡΠ½Π΄Π°ΠΌΠ΅Π½ΡΠ° Π·Π°Π²ΠΈΡΡΡ ΠΎΡ ΠΊΠΎΠ½ΡΡΡΡΠΊΡΠΈΠΈ ΡΡΠ΅Π½, ΠΎΡ ΡΠΈΠΏΠ° ΡΡΡΠΎΠΈΡΠ΅Π»ΡΠ½ΠΎΠ³ΠΎ ΠΌΠ°ΡΠ΅ΡΠΈΠ°Π»Π°, Π½Π΅ΡΡΡΠ΅ΠΉ Π½Π°Π³ΡΡΠ·ΠΊΠΈ. ΠΡΠΈ ΡΡΠ½Π΄Π°ΠΌΠ΅Π½ΡΠ½ΡΡ ΡΠ°Π±ΠΎΡΠ°Ρ ΡΡΠΎΠΈΡ ΠΏΠΎΠ΄ΡΠΌΠ°ΡΡ ΠΈ ΠΎ Π±ΡΠ΄ΡΡΠ΅ΠΉ ΠΊΠ°Π½Π°Π»ΠΈΠ·Π°ΡΠΈΠΈ. ΠΡΠ΅ ΠΏΠ»Π°Π½Ρ ΠΈ ΡΠ°ΡΡΠ΅ΡΡ Π½Π΅ΠΎΠ±Ρ ΠΎΠ΄ΠΈΠΌΠΎ ΠΏΡΠΎΠ²ΠΎΠ΄ΠΈΡΡ ΠΏΠ΅ΡΠ΅Π΄ Π½Π°ΡΠ°Π»ΠΎΠΌ ΡΡΡΠΎΠΈΡΠ΅Π»ΡΡΡΠ²Π°. ΠΡΠΎΡΠ΅ΡΡΠΈΠΎΠ½Π°Π»ΡΠ½ΠΎ ΡΠΎΠ·Π΄Π°Π½Π½ΡΠΉ ΠΏΡΠΎΠ΅ΠΊΡ ΡΡΠΈΡΡΠ²Π°Π΅Ρ Π²ΡΠ΅ ΡΡΠΈ Π½ΡΠ°Π½ΡΡ, ΠΏΠΎΠ·Π²ΠΎΠ»ΡΡ Π²ΠΎΠ·Π²Π΅ΡΡΠΈ ΠΊΡΠ΅ΠΏΠΊΠΎΠ΅ ΡΠΎΠΎΡΡΠΆΠ΅Π½ΠΈΠ΅.

ΠΡΠΈΡΡΡΠΎΠ΅Π½Π½Π°Ρ Π±Π°Π½Ρ Ρ ΠΎΡΠ΄Π΅Π»ΡΠ½ΡΠΌ ΡΡΠ½Π΄Π°ΠΌΠ΅Π½ΡΠΎΠΌ
Π‘ΡΠ΅Π½Ρ β Π΅ΡΠ΅ ΠΎΠ΄ΠΈΠ½ ΡΠ»Π΅ΠΌΠ΅Π½Ρ ΡΡΡΠΎΠΈΡΠ΅Π»ΡΡΡΠ²Π°
ΠΡΠΈΠ½ΡΠΈΠΏ ΡΡΡΠΎΠΈΡΠ΅Π»ΡΡΡΠ²Π° ΡΡΠ΅Π½ Π½Π°ΠΏΡΡΠΌΡΡ Π·Π°Π²ΠΈΡΠΈΡ ΠΎΡ ΡΠΈΠΏΠ° ΠΌΠ°ΡΠ΅ΡΠΈΠ°Π»Π°. ΠΡΠΈ ΠΈΡΠΏΠΎΠ»ΡΠ·ΠΎΠ²Π°Π½ΠΈΠΈ Π² ΠΊΠ°ΡΠ΅ΡΡΠ²Π΅ ΡΡΡΠΎΠΉΠΌΠ°ΡΠ΅ΡΠΈΠ°Π»Π° Π΄Π΅ΡΠ΅Π²ΡΠ½Π½ΠΎΠ³ΠΎ Π±ΡΡΡΠ° Π½Π΅ΠΎΠ±Ρ ΠΎΠ΄ΠΈΠΌΠΎ ΠΏΠΎΠΌΠ½ΠΈΡΡ ΠΎ Π΅Π³ΠΎ ΡΡΠ°Π΄ΠΊΠ΅. ΠΡΠ»ΠΈ Π±Π°Π½Ρ ΠΏΡΠΈΡΡΡΠ°ΠΈΠ²Π°Π΅ΡΡΡ ΠΊ ΠΎΡΠ½ΠΎΠ²Π½ΠΎΠΌΡ Π·Π΄Π°Π½ΠΈΡ, ΡΡΠΎΠΈΡΡ ΠΏΠΎΠΌΠ½ΠΈΡΡ ΠΎ ΠΏΡΠ°Π²ΠΈΠ»ΡΠ½ΠΎΠΉ ΡΡΡΠΊΠΎΠ²ΠΊΠ΅. ΠΠ΅ΠΏΡΠ°Π²ΠΈΠ»ΡΠ½ΡΠΉ ΠΏΠΎΠ΄Ρ ΠΎΠ΄ ΠΏΡΠΈΠ²Π΅Π΄Π΅Ρ ΠΊ ΡΠΎΠΌΡ, ΡΡΠΎ ΡΠΎ Π²ΡΠ΅ΠΌΠ΅Π½Π΅ΠΌ Π±Π°Π½Ρ Β«ΠΎΡΠΎΠΉΠ΄Π΅ΡΒ» ΠΎΡ Π΄ΠΎΠΌΠ° ΠΈ Π±ΡΠ΄Π΅Ρ Π½Π΅ ΡΠΎΠ»ΡΠΊΠΎ Π½Π΅ΡΡΡΠ΅ΡΠΈΡΠ½ΠΎ ΡΠΌΠΎΡΡΠ΅ΡΡΡΡ, Π½ΠΎ ΠΈ ΡΠΎΠ·Π΄Π°Π²Π°ΡΡ ΠΌΠ½ΠΎΠΆΠ΅ΡΡΠ²ΠΎ ΠΏΡΠΎΠ±Π»Π΅ΠΌ. ΠΡΠΈ Π²ΠΎΠ·Π²Π΅Π΄Π΅Π½ΠΈΠΈ ΡΡΠ΅Π½ ΡΡΠΎΠΈΡΡ ΡΠ°ΠΊΠΆΠ΅ ΠΏΠΎΠΌΠ½ΠΈΡΡ ΠΈ ΠΎ Π½Π΅ΠΎΠ±Ρ ΠΎΠ΄ΠΈΠΌΠΎΡΡΠΈ ΠΎΠΊΠΎΠ½, Π²Π΅Π΄Ρ ΠΎΠ½ΠΈ ΡΠ²Π»ΡΡΡΡΡ ΠΈΡΡΠΎΡΠ½ΠΈΠΊΠΎΠΌ ΡΠ²Π΅ΡΠ° ΠΈ ΠΊΠΎΠΌΡΠΎΡΡΠ°. Π’Π°ΠΊΠΆΠ΅ ΠΎΠ±ΡΠ·Π°ΡΠ΅Π»ΡΠ½ΠΎ Π½Π°Π»ΠΈΡΠΈΠ΅ ΡΠΎΡΡΠΎΡΠ΅ΠΊ. ΠΡΠΈ ΠΌΠΎΠ½ΡΠ°ΠΆΠ΅ ΡΡΠ΅Π½ ΠΎΡΠ΅Π½Ρ Π²Π°ΠΆΠ½ΠΎ Π·Π½Π°ΡΡ Π²ΡΠ΅ ΡΠ΅ΠΊΡΠ΅ΡΡ. ΠΡΠΎ ΠΎΠ±Π΅ΡΠΏΠ΅ΡΠΈΡ ΠΊΠ°ΡΠ΅ΡΡΠ²ΠΎ ΡΠ°Π±ΠΎΡ ΠΈ ΡΠΊΠΎΡΠΎΡΡΡ ΠΏΡΠΎΠ΄Π²ΠΈΠΆΠ΅Π½ΠΈΡ ΡΡΡΠΎΠΈΡΠ΅Π»ΡΡΡΠ²Π°.

ΠΠ°Π½Ρ ΠΈΠ· Π±ΡΡΡΠ°, ΠΏΡΠΈΡΡΡΠΎΠ΅Π½Π½Π°Ρ ΠΊ ΠΆΠΈΠ»ΠΎΠΌΡ Π΄ΠΎΠΌΡ
ΠΡΡΡΠ° β ΠΎΡΠ΅Π½Ρ Π²Π°ΠΆΠ½ΡΠΉ Π°ΡΠΏΠ΅ΠΊΡ
ΠΡΠΈ ΡΠΎΠ·Π΄Π°Π½ΠΈΠΈ ΠΊΠΎΠΌΠΏΠ»Π΅ΠΊΡΠ° ΠΊΡΡΡΠ° Π΄ΠΎΠ»ΠΆΠ½Π° Π±ΡΡΡ ΡΠ΅Π»ΠΎΡΡΠ½ΠΎΠΉ. ΠΠ΅ΡΠΎΠ±Π»ΡΠ΄Π΅Π½ΠΈΠ΅ ΡΠ°ΠΊΠΈΡ ΡΡΠ΅Π±ΠΎΠ²Π°Π½ΠΈΠΉ ΠΏΡΠΈΠ²Π΅Π΄Π΅Ρ ΠΊ Π±ΡΡΡΡΠΎΠΌΡ ΡΠ°Π·ΡΡΡΠ΅Π½ΠΈΡ Π²ΡΠ΅ΠΉ ΠΊΠΎΠ½ΡΡΡΡΠΊΡΠΈΠΈ. Π‘ΠΎΠ·Π΄Π°Π²Π°ΡΡ ΠΏΡΠΎΠ΅ΠΊΡ ΠΊΡΡΡΠΈ Π½Π΅ΠΎΠ±Ρ ΠΎΠ΄ΠΈΠΌΠΎ Ρ Π±ΠΎΠ»ΡΡΠΈΠΌ Π²Π½ΠΈΠΌΠ°Π½ΠΈΠ΅ΠΌ, ΡΠ°ΠΊ ΠΊΠ°ΠΊ Π΅Π΅ ΠΏΠΎΠ²Π΅ΡΡ Π½ΠΎΡΡΡ Π±ΡΠ΄Π΅Ρ Π±ΠΎΠ»ΡΡΠΎΠΉ ΠΈ Π½Π΅ΠΎΠ±Ρ ΠΎΠ΄ΠΈΠΌΠΎ ΠΏΡΠ΅Π΄ΡΡΠΌΠΎΡΡΠ΅ΡΡ Π²ΡΠ΅ Π½ΡΠ°Π½ΡΡ. ΠΡΠ΅Π½Ρ Π²Π°ΠΆΠ½ΠΎ ΠΏΡΠΈ ΠΌΠΎΠ½ΡΠ°ΠΆΠ΅ ΠΊΡΡΡΠΈ ΡΠ°ΡΡΡΠΈΡΠ°ΡΡ Π΅Π΅ Π²ΡΡΠΎΡΡ, ΠΏΡΠ°Π²ΠΈΠ»ΡΠ½ΠΎ ΡΠΏΡΠΎΠ΅ΠΊΡΠΈΡΠΎΠ²Π°ΡΡ ΡΠΈΡΡΠ΅ΠΌΡ ΠΎΡΠ»ΠΈΠ²ΠΎΠ², Π²ΡΡΡΠΆΠ΅ΠΊ ΠΈ Π΄ΡΠΌΠΎΡ ΠΎΠ΄ΠΎΠ².

ΠΠ±ΡΠ°Ρ ΠΊΡΡΡΠ° Π½Π° ΠΆΠΈΠ»ΠΎΠΉ Π΄ΠΎΠΌ ΠΈ Π±Π°Π½Ρ
Π£ΡΠ΅ΠΏΠ»Π΅Π½ΠΈΠ΅ Π±Π°Π½ΠΈ ΠΈ Π²Π½ΡΡΡΠ΅Π½Π½ΠΈΠ΅ ΡΠ°Π±ΠΎΡΡ
Π‘ΠΎΠ²ΡΠ΅ΠΌΠ΅Π½Π½ΡΠ΅ ΡΠ΅Ρ Π½ΠΎΠ»ΠΎΠ³ΠΈΠΈ ΠΏΠΎΠ·Π²ΠΎΠ»ΡΡΡ ΠΊΠ°ΡΠ΅ΡΡΠ²Π΅Π½Π½ΠΎ ΠΈ ΠΊΡΠ°ΡΠΈΠ²ΠΎ ΡΡΠ΅ΠΏΠ»ΠΈΡΡ ΠΏΠΎΠΌΠ΅ΡΠ΅Π½ΠΈΠ΅. ΠΠ½ΠΎΠ³ΠΈΠ΅ ΡΡΡΠΎΠΈΡΠ΅Π»ΠΈ ΠΈΡΠΏΠΎΠ»ΡΠ·ΡΡΡ Π΄Π»Ρ ΡΠ°ΠΊΠΈΡ ΡΠ΅Π»Π΅ΠΉ ΠΌΠΈΠ½Π΅ΡΠ°Π»ΡΠ½ΡΡ Π²Π°ΡΡ. ΠΡΠΎΡ ΠΌΠ°ΡΠ΅ΡΠΈΠ°Π» ΠΏΠΎΠΏΡΠ»ΡΡΠ΅Π½ Π±Π»Π°Π³ΠΎΠ΄Π°ΡΡ ΡΠ²ΠΎΠΈΠΌ ΡΠ²ΠΎΠΉΡΡΠ²Π°ΠΌ:

ΠΠΈΠ½Π΅ΡΠ°Π»ΡΠ½Π°Ρ Π²Π°ΡΠ° β ΠΏΡΠ°ΠΊΡΠΈΡΠ½ΡΠΉ ΠΈ Π»Π΅Π³ΠΊΠΈΠΉ Π² ΠΌΠΎΠ½ΡΠ°ΠΆΠ½ΡΡ ΡΠ°Π±ΠΎΡΠ°Ρ ΡΡΠ΅ΠΏΠ»ΠΈΡΠ΅Π»Ρ Π΄Π»Ρ ΠΊΡΡΡ
- ΡΡΡΠΎΠΉΡΠΈΠ² ΠΊ ΠΎΠ³Π½Ρ. Π ΠΏΠΎΠΌΠ΅ΡΠ΅Π½ΠΈΠΈ ΠΎΡΠ΅Π½Ρ Π²Π°ΠΆΠ½ΠΎ ΡΠΎΠ·Π΄Π°ΡΡ ΠΏΠΎΠΆΠ°ΡΠ½ΡΡ Π±Π΅Π·ΠΎΠΏΠ°ΡΠ½ΠΎΡΡΡ;
- ΡΠΊΠΎΠ»ΠΎΠ³ΠΈΡΠ΅ΡΠΊΠΈ ΡΠΈΡΡΡΠΉ ΠΌΠ°ΡΠ΅ΡΠΈΠ°Π», Π½Π΅ Π²ΡΡΡΠΏΠ°ΡΡΠΈΠΉ Π²ΠΎ Π²Π·Π°ΠΈΠΌΠΎΠ΄Π΅ΠΉΡΡΠ²ΠΈΠ΅ Ρ ΠΏΠΎΠ²ΡΡΠ΅Π½Π½ΠΎΠΉ Π²Π»Π°ΠΆΠ½ΠΎΡΡΡΡ;
- Π΄ΠΎΡΡΡΠΏΠ½Π°Ρ ΡΡΠΎΠΈΠΌΠΎΡΡΡ;
- ΠΏΡΠΎΡΡΠΎΠΉ ΠΌΠΎΠ½ΡΠ°ΠΆ.

ΠΠ΅Π»ΠΎΡΠ½Π΅ΠΆΠ½Π°Ρ Π±Π°Π½Ρ Ρ ΠΎΡΠ΄Π΅Π»ΠΊΠΎΠΉ ΠΏΠ°ΡΠ½ΠΎΠΉ Π΄Π΅ΡΠ΅Π²ΠΎΠΌ
Π£ΡΠ΅ΠΏΠ»ΠΈΡΠ΅Π»Π΅ΠΌ Π·Π°ΡΠΈΡΠ°ΡΡ ΡΡΠ΅Π½Ρ ΠΊΠ°ΠΊ Π²Π½ΡΡΡΠΈ, ΡΠ°ΠΊ ΠΈ ΡΠ½Π°ΡΡΠΆΠΈ. ΠΡΠΎ ΡΡΡΠ΅ΡΡΠ²Π΅Π½Π½ΠΎ ΡΠΎΠΊΡΠ°ΡΠ°Π΅Ρ ΠΏΠΎΡΠ΅ΡΡ ΡΠ΅ΠΏΠ»Π°. ΠΡΠΈ ΠΎΡΠ΄Π΅Π»ΠΊΠ΅ Π±Π°Π½ΠΈ ΡΠ»Π΅Π΄ΡΠ΅Ρ ΠΈΡΠΏΠΎΠ»ΡΠ·ΠΎΠ²Π°ΡΡ ΡΠΎΠ»ΡΠΊΠΎ Π½Π°ΡΡΡΠ°Π»ΡΠ½ΡΠ΅ ΠΌΠ°ΡΠ΅ΡΠΈΠ°Π»Ρ. ΠΠ°ΠΊ ΠΏΡΠ°Π²ΠΈΠ»ΠΎ, ΡΡΠΎ Π΄ΡΠ΅Π²Π΅ΡΠΈΠ½Π°. Π‘Π°ΠΌΡΠΌΠΈ Π»ΡΡΡΠΈΠΌΠΈ Π΄Π»Ρ ΡΠ°ΠΊΠΈΡ ΡΠ΅Π»Π΅ΠΉ ΡΡΠΈΡΠ°ΡΡΡΡ ΡΠΎΡΠ½Π° ΠΈΠ»ΠΈ Π΄ΡΠ±, Π½ΠΎ ΠΏΠΎΠ΄ΠΎΠΉΠ΄ΡΡ ΠΈ ΠΈΠ½ΡΠ΅ ΠΏΠΎΡΠΎΠ΄Ρ.

ΠΠ½Π΅ΡΠ½Π΅Π΅ ΡΡΠ΅ΠΏΠ»Π΅Π½ΠΈΠ΅ ΡΡΠ΅Π½ Π±Π°Π½ΠΈ Π΄Π΅ΡΠ΅Π²ΡΠ½Π½ΠΎΠΉ Π΄ΠΎΡΠΊΠΎΠΉ
ΠΠΎΠΌ Ρ Π±Π°Π½Π΅ΠΉ ΠΈ Π³Π°ΡΠ°ΠΆΠΎΠΌ ΠΏΠΎΠ΄ ΠΎΠ΄Π½ΠΎΠΉ ΠΊΡΡΡΠ΅ΠΉ ΡΠ²Π»ΡΠ΅ΡΡΡ Π΅ΡΠ΅ ΠΎΠ΄Π½ΠΈΠΌ Π²Π°ΡΠΈΠ°Π½ΡΠΎΠΌ ΡΡΡΠΎΠΈΡΠ΅Π»ΡΡΡΠ²Π°, ΠΊΠΎΡΠΎΡΠΎΠ΅ ΠΈΠΌΠ΅Π΅Ρ Π±ΠΎΠ»ΡΡΡΡ ΠΏΠΎΠΏΡΠ»ΡΡΠ½ΠΎΡΡΡ. Π’Π°ΠΊΠΎΠΉ ΠΏΠΎΠ΄Ρ ΠΎΠ΄ ΠΈΠΌΠ΅Π΅Ρ ΡΠ΅ ΠΆΠ΅ ΠΏΡΠ΅ΠΈΠΌΡΡΠ΅ΡΡΠ²Π°, ΠΊΠ°ΠΊ ΠΈ ΡΡΡΠΎΠΈΡΠ΅Π»ΡΡΡΠ²ΠΎ Π΅Π΄ΠΈΠ½ΠΎΠ³ΠΎ ΠΆΠΈΠ»ΠΎΠ³ΠΎ ΠΊΠΎΠΌΠΏΠ»Π΅ΠΊΡΠ°.

ΠΠΈΠ·ΡΠ°Π»ΠΈΠ·Π°ΡΠΈΡ ΠΏΡΠΎΠ΅ΠΊΡΠ° Π΄ΠΎΠΌΠ° Ρ Π³Π°ΡΠ°ΠΆΠΎΠΌ ΠΈ Π±Π°Π½Π΅ΠΉ ΠΏΠΎ ΡΠ°Π·Π½ΡΠ΅ ΡΡΠΎΡΠΎΠ½Ρ
ΠΠ°Π½Ρ β ΠΏΡΠΈΡΡΡΠΎΠΉΠΊΠ° ΠΊ Π΄ΠΎΠΌΡ
ΠΡΠΈ Π²ΠΎΠ·Π²Π΅Π΄Π΅Π½ΠΈΠΈ Π±Π°Π½ΠΈ Π² ΠΊΠ°ΡΠ΅ΡΡΠ²Π΅ ΠΏΡΠΈΡΡΡΠΎΠΉΠΊΠΈ Π΄ΠΎΠ»ΠΆΠ½Ρ ΡΠ°ΠΊΠΆΠ΅ ΡΠΎΠ±Π»ΡΠ΄Π°ΡΡΡΡ Π²ΡΠ΅ ΡΡΡΠΎΠΈΡΠ΅Π»ΡΠ½ΡΠ΅ Π½ΠΎΡΠΌΡ, Π½ΠΎ ΡΠ°ΠΊΠΆΠ΅ Π²Π°ΠΆΠ½ΡΠΌ ΠΌΠΎΠΌΠ΅Π½ΡΠΎΠΌ ΡΠ²Π»ΡΠ΅ΡΡΡ ΠΏΡΠΈ ΡΠ°ΠΊΠΈΡ ΡΠ°Π±ΠΎΡΠ°Ρ ΠΎΠ±Π»ΠΈΡΠΎΠ²ΠΊΠ°. ΠΠ°Π½Ρ Π΄ΠΎΠ»ΠΆΠ½Π° ΡΠ»ΠΈΡΡΡΡ Ρ Π΄ΠΎΠΌΠΎΠΌ, Π±ΡΡΡ Π΅Π³ΠΎ ΠΏΡΠΎΠ΄ΠΎΠ»ΠΆΠ΅Π½ΠΈΠ΅ΠΌ. ΠΡΡΡΠΈΠΌ Π²Π°ΡΠΈΠ°Π½ΡΠΎΠΌ Π±ΡΠ΄Π΅Ρ ΠΎΠ±Π»ΠΈΡΠ΅Π²Π°ΡΡ ΠΈ Π΄ΠΎΠΌ, ΠΈ Π±Π°Π½Ρ ΠΎΠ΄Π½ΠΈΠΌ ΠΌΠ°ΡΠ΅ΡΠΈΠ°Π»ΠΎΠΌ, Π½ΠΎ ΠΌΠΎΠΆΠ½ΠΎ ΠΏΠΎΠ΄ΠΎΠΉΡΠΈ ΡΠΎΠ²ΡΠ΅ΠΌ ΠΏΠΎ-ΠΈΠ½ΠΎΠΌΡ. Π‘ΠΎΠ²ΡΠ΅ΠΌΠ΅Π½Π½ΡΠ΅ Π΄ΠΈΠ·Π°ΠΉΠ½Π΅ΡΡ ΠΌΠΎΠ³ΡΡ ΡΠΎΠ·Π΄Π°ΡΡ ΡΠ΄ΠΈΠ²ΠΈΡΠ΅Π»ΡΠ½ΡΠΉ ΠΏΡΠΎΠ΅ΠΊΡ, ΠΏΡΠΈ ΠΊΠΎΡΠΎΡΠΎΠΌ ΠΊΠΎΠΌΠΏΠ»Π΅ΠΊΡ Π±ΡΠ΄Π΅Ρ ΠΈΠΌΠ΅ΡΡ ΡΠ΅Π»ΠΎΡΡΠ½ΡΠΉ Π²ΠΈΠ΄. ΠΠΎΠ±Π΅ΡΠΏΠΎΠΊΠΎΡΡΡΡ ΠΎΠ½ΠΈ ΠΈ ΠΎ ΠΊΠΎΠΌΠΌΡΠ½ΠΈΠΊΠ°ΡΠΈΡΡ . Π‘ΠΎΠ·Π΄Π°Π½ΠΈΠ΅ ΠΊΠ°Π½Π°Π»ΠΈΠ·Π°ΡΠΈΠΎΠ½Π½ΠΎΠΉ ΡΠΈΡΡΠ΅ΠΌΡ ΡΡΠ΅Π±ΡΠ΅Ρ Π·Π½Π°Π½ΠΈΠΉ ΠΈ Π½Π°Π²ΡΠΊΠΎΠ². Π’ΠΎΠ»ΡΠΊΠΎ ΠΏΡΠΈ ΠΏΡΠΎΡΠ΅ΡΡΠΈΠΎΠ½Π°Π»ΡΠ½ΠΎΠΌ ΠΏΠΎΠ΄Ρ ΠΎΠ΄Π΅ ΠΊ ΡΠ΅ΡΠ΅Π½ΠΈΡ Π·Π°Π΄Π°ΡΠΈ ΠΌΠΎΠΆΠ½ΠΎ ΠΏΠΎΠ»ΡΡΠΈΡΡ ΠΆΠ΅Π»Π°Π΅ΠΌΡΠΉ ΡΠ΅Π·ΡΠ»ΡΡΠ°Ρ.

ΠΠ΅Π±ΠΎΠ»ΡΡΠ°Ρ ΠΏΠ°ΡΠΈΠ»ΠΊΠ°, ΠΏΡΠΈΡΡΡΠΎΠ΅Π½Π½Π°Ρ Π½Π° ΡΠ΅ΡΡΠ°ΡΠ΅ ΠΊ Π²Π°Π½Π½ΠΎΠΉ ΠΊΠΎΠΌΠ½Π°ΡΠ΅
ΠΠ΅ΡΠ΅Π²ΡΠ½Π½ΡΠΉ ΡΡΡΠ± ΠΈ Π±Π°Π½Ρ ΠΏΠΎΠ΄ ΠΎΠ΄Π½ΠΎΠΉ ΠΊΡΡΡΠ΅ΠΉ
Π‘Π°ΠΌΡΠΌ ΠΏΡΠΈΠ΅ΠΌΠ»Π΅ΠΌΡΠΌ Π²Π°ΡΠΈΠ°Π½ΡΠΎΠΌ Π·Π°Π³ΠΎΡΠΎΠ΄Π½ΠΎΠ³ΠΎ Π΄ΠΎΠΌΠΈΠΊΠ° ΡΡΠΈΡΠ°Π΅ΡΡΡ ΡΡΡΠ± ΠΈΠ· Π½Π°ΡΡΡΠ°Π»ΡΠ½ΠΎΠ³ΠΎ Π΄Π΅ΡΠ΅Π²Π°, Π²Π΅Π΄Ρ ΠΎΠ½ ΠΈΠΌΠ΅Π΅Ρ ΠΎΡΠΎΠ±Π΅Π½Π½ΡΡ Π°ΡΠΌΠΎΡΡΠ΅ΡΡ, Π½Π°ΠΏΠΎΠ»Π½ΡΠ΅Ρ ΠΏΡΠΈΡΠΎΠ΄Π½ΠΎΠΉ ΡΠ½Π΅ΡΠ³ΠΈΠ΅ΠΉ. Π ΡΠ°ΠΊΠΎΠΉ Π΄ΠΎΠΌ Ρ ΠΎΡΠ΅ΡΡΡ Π²ΠΎΠ·Π²ΡΠ°ΡΠ°ΡΡΡΡ. ΠΠ½ ΠΏΠΎΠ·Π²ΠΎΠ»ΡΠ΅Ρ ΠΎΡΠ²Π»Π΅ΡΡΡΡ ΠΎΡ ΡΡΠΌΠ½ΠΎΠ³ΠΎ Π³ΠΎΡΠΎΠ΄Π° ΠΈ Π½Π°ΡΠ»Π°Π΄ΠΈΡΡΡΡ ΡΠ΅Π΄ΠΈΠ½Π΅Π½ΠΈΠ΅ΠΌ. ΠΡΠ΅ΠΊΡΠ°ΡΠ½ΡΠΌ Π²Π°ΡΠΈΠ°Π½ΡΠΎΠΌ ΡΠ²Π»ΡΠ΅ΡΡΡ Π΄ΠΎΠΌ ΠΈ Π±Π°Π½Ρ ΠΏΠΎΠ΄ ΠΎΠ΄Π½ΠΎΠΉ ΠΊΡΡΡΠ΅ΠΉ. ΠΡΠΎΠ΅ΠΊΡ ΡΠ°ΠΊΠΎΠ³ΠΎ Π³ΠΎΡΠΎΠ²ΠΎΠ³ΠΎ Π΄ΠΎΠΌΠ° ΠΌΠΎΠΆΠ½ΠΎ ΠΏΡΠΈΠΎΠ±ΡΠ΅ΡΡΠΈ Β«ΠΏΠΎΠ΄ ΠΊΠ»ΡΡΒ». ΠΠΎΠΌΠΏΠ»Π΅ΠΊΡΠ°ΡΠΈΡ ΡΠΎΠΎΡΡΠΆΠ΅Π½ΠΈΡ ΠΌΠΎΠΆΠ΅Ρ Π±ΡΡΡ ΡΠ°ΠΌΠΎΠΉ ΡΠ°Π·Π½ΠΎΠΉ, Π½ΠΎ, ΠΊΠ°ΠΊ ΠΏΡΠ°Π²ΠΈΠ»ΠΎ, ΡΡΠΎ ΡΠΆΠ΅ ΠΏΠΎΠ»Π½ΠΎΡΡΡΡ Π³ΠΎΡΠΎΠ²ΡΠΉ ΡΡΡΠ±, ΠΊΠΎΡΠΎΡΡΠΉ Π½ΡΠΆΠ΄Π°Π΅ΡΡΡ ΡΠΎΠ»ΡΠΊΠΎ Π² ΡΡΡΠ°Π½ΠΎΠ²ΠΊΠ΅.

Π£ΡΡΠ½ΡΠΉ ΠΈ ΠΊΠΎΠΌΠΏΠ°ΠΊΡΠ½ΡΠΉ Π»Π΅ΡΠ½ΠΎΠΉ Π΄ΠΎΠΌΠΈΠΊ, Ρ Π½Π°Π»ΠΈΡΠΈΠ΅ΠΌ Π±Π°Π½ΠΈ, Π΄Π»Ρ ΠΏΡΠΈΡΡΠ½ΠΎΠ³ΠΎ ΠΎΡΠ΄ΡΡ Π°
ΠΡΠΈΠΎΠ±ΡΠ΅ΡΠ΅Π½ΠΈΠ΅ ΠΏΡΠΎΠ΅ΠΊΡΠ° Π΄ΠΎΠΌΠ° Ρ Π±Π°Π½Π΅ΠΉ ΠΈΠ· Π±ΡΡΡΠ° β ΡΡΠΎ ΡΠ°ΠΌΡΠΉ Π²ΡΠ³ΠΎΠ΄Π½ΡΠΉ Π²Π°ΡΠΈΠ°Π½Ρ ΡΡΡΠΎΠΈΡΠ΅Π»ΡΡΡΠ²Π° Π½Π° ΡΠ΅Π³ΠΎΠ΄Π½Ρ. ΠΠΎΠΌΠ°Π½Π΄Π° ΠΏΡΠΎΡΠ΅ΡΡΠΈΠΎΠ½Π°Π»ΠΎΠ² ΠΏΠΎΠΌΠΎΠΆΠ΅Ρ ΡΠ΅ΡΠΈΡΡ ΠΏΡΠΎΠ±Π»Π΅ΠΌΡ ΡΠΎ ΡΡΡΠΎΠΈΡΠ΅Π»ΡΡΡΠ²ΠΎΠΌ Π΄Π°ΡΠ½ΠΎΠ³ΠΎ Π΄ΠΎΠΌΠΈΠΊΠ° Π±ΡΡΡΡΠΎ ΠΈ ΠΊΠ°ΡΠ΅ΡΡΠ²Π΅Π½Π½ΠΎ. Π ΡΡΠΈΡΠ°Π½ΡΠ΅ Π½Π΅Π΄Π΅Π»ΠΈ Π΄ΠΎΠΌ Π±ΡΠ΄Π΅Ρ ΡΠΌΠΎΠ½ΡΠΈΡΠΎΠ²Π°Π½ Π½Π° Π²ΡΡΡΠ΅ΠΌ ΡΡΠΎΠ²Π½Π΅. Π ΡΠΆΠ΅ Π² ΡΠΊΠΎΡΠΎΠΌ Π²ΡΠ΅ΠΌΠ΅Π½ΠΈ ΡΡΠ°ΡΡΠ»ΠΈΠ²ΡΠΉ ΠΎΠ±Π»Π°Π΄Π°ΡΠ΅Π»Ρ Π΄Π²ΡΡ ΡΡΠ°ΠΆΠ½ΠΎΠ³ΠΎ Π·Π΄Π°Π½ΠΈΡ ΡΠΌΠΎΠΆΠ΅Ρ Π½Π°ΡΠ»Π°ΠΆΠ΄Π°ΡΡΡΡ ΠΊΠΎΠΌΡΠΎΡΡΠΎΠΌ Π΄ΠΎΠΌΠ° ΠΈ ΠΏΠ°ΡΠΈΡΡΡΡ Π² ΡΠΎΠ±ΡΡΠ²Π΅Π½Π½ΠΎΠΉ Π±Π°Π½Π΅. ΠΡΠΎΠ΅ΠΊΡΡ ΠΎΠ΄Π½ΠΎΡΡΠ°ΠΆΠ½ΡΡ Π΄ΠΎΠΌΠΎΠ² Ρ Π±Π°Π½Π΅ΠΉ ΡΠ°ΠΊΠΆΠ΅ ΡΡΠ½ΠΊΡΠΈΠΎΠ½Π°Π»ΡΠ½Ρ ΠΈ ΡΠ°ΡΠΈΠΎΠ½Π°Π»ΡΠ½Ρ. ΠΠ½ΠΈ ΠΏΠΎΠ·Π²ΠΎΠ»ΡΡΡ ΠΏΠΎΠ»ΡΡΠΈΡΡ ΠΊΠΎΠΌΡΠΎΡΡΠ½ΡΠ΅ ΡΡΠ»ΠΎΠ²ΠΈΡ ΠΏΡΠΈ Π»ΡΠ±ΠΎΠΌ Π΄ΠΈΠ·Π°ΠΉΠ½Π΅ΡΡΠΊΠΎΠΌ ΡΠ΅ΡΠ΅Π½ΠΈΠΈ.

ΠΠ΅Π±ΠΎΠ»ΡΡΠΎΠΉ ΠΊΠΎΠΌΠΏΠ»Π΅ΠΊΡ Π΄ΠΎΠΌΠΎΠ² ΠΈΠ· ΡΡΡΠ±Π°, ΡΠΎΡΡΠΎΡΡΠΈΠΉ ΠΈΠ· Π³ΠΎΡΡΠ΅Π²ΠΎΠ³ΠΎ Π΄ΠΎΠΌΠΈΠΊΠ° Ρ Π±Π°Π½Π΅ΠΉ ΠΈ Π³Π°ΡΠ°ΠΆΠ° Ρ ΠΎΡΠ½ΠΎΠ²Π½ΡΠΌ, ΠΏΡΠΈΡΡΡΠΎΠ΅Π½Π½ΠΎΠ³ΠΎ ΠΊ ΠΎΡΠ½ΠΎΠ²Π½ΠΎΠΌΡ Π΄ΠΎΠΌΡ
Π‘ΠΎΠ²ΠΌΠ΅ΡΠ΅Π½ΠΈΠ΅ Π±Π°Π½ΠΈ ΠΈ Π³ΠΎΡΡΠ΅Π²ΠΎΠ³ΠΎ Π΄ΠΎΠΌΠ°
ΠΠΎΡΠΎΠ²ΡΠΉ ΠΏΡΠΎΠ΅ΠΊΡ Π±Π°Π½ΠΈ Π΄Π»Ρ Π³ΠΎΡΡΠ΅Π²ΠΎΠ³ΠΎ Π΄ΠΎΠΌΠ° ΠΏΠΎΠ·Π²ΠΎΠ»ΡΠ΅Ρ Π±ΡΡΡΡΠΎ Π²ΠΎΠ·Π²Π΅ΡΡΠΈ Π½Π΅ΠΎΠ±Ρ ΠΎΠ΄ΠΈΠΌΠΎΠ΅ Π·Π΄Π°Π½ΠΈΠ΅. Π’Π°ΠΊΠΎΠΉ Π΄ΠΎΠΌ Π±ΡΠ΄Π΅Ρ Π½Π°ΠΏΠΎΠ»Π½Π΅Π½ ΠΎΡΠΎΠ±Π΅Π½Π½ΡΠΌ ΠΊΠΎΠΌΡΠΎΡΡΠΎΠΌ. ΠΠ°ΠΆΠ΅ Π² Π²ΠΎΠ·Π΄ΡΡ Π΅ Π±ΡΠ΄Π΅Ρ ΡΡΠ²ΡΡΠ²ΠΎΠ²Π°ΡΡΡΡ Π΄ΡΡ Π°Π½ΠΈΠ΅ ΠΌΠ°ΡΡΡΠΊΠΈ-ΠΏΡΠΈΡΠΎΠ΄Ρ, Π° Π΄ΠΎΠΏΠΎΠ»Π½Π΅Π½ΠΈΠ΅ Π² Π²ΠΈΠ΄Π΅ Π±Π°Π½ΠΈ ΠΏΠΎΠΌΠΎΠΆΠ΅Ρ ΠΏΠΎΠ»ΡΡΠΈΡΡ ΡΠΊΠ°Π·ΠΎΡΠ½ΡΠ΅ ΠΎΡΡΡΠ΅Π½ΠΈΡ. Π’Π°ΠΊΠΎΠΉ Π΄ΠΎΠΌ ΠΏΡΠΈΠ·Π²Π°Π½ ΠΏΡΠΈΡΡΠ½ΠΎ ΡΠ΄ΠΈΠ²Π»ΡΡΡ Π³ΠΎΡΡΠ΅ΠΉ. ΠΠ½ ΡΡΠ°Π½Π΅Ρ Π³ΠΎΡΠ΄ΠΎΡΡΡΡ Ρ ΠΎΠ·ΡΠ΅Π² ΡΡΠ°ΡΡΠΊΠ°, ΡΠ΄ΠΈΠ²Π»ΡΡ ΡΡΡΠΎΠΌ.

Π ΠΌΠ°Π»Π΅Π½ΡΠΊΠΎΠΌ Π³ΠΎΡΡΠ΅Π²ΠΎΠΌ Π΄ΠΎΠΌΠΈΠΊΠ΅ Π±Π°Π½Ρ ΠΌΠΎΠΆΠ½ΠΎ ΠΎΠ±ΡΡΡΡΠΎΠΈΡΡ ΠΊΠ°ΠΊ Π½Π° ΠΏΠ΅ΡΠ²ΠΎΠΌ, ΡΠ°ΠΊ ΠΈ Π½Π° Π²ΡΠΎΡΠΎΠΌ ΡΡΠ°ΠΆΠ΅
ΠΡΠΎΠ΅ΠΊΡ Π±Π°Π½ΠΈ Ρ Π΄ΠΎΠΌΠΎΠΌ ΠΏΠΎΠ΄ ΠΎΠ΄Π½ΠΎΠΉ ΠΊΡΡΡΠ΅ΠΉ: ΠΏΡΠ΅ΠΈΠΌΡΡΠ΅ΡΡΠ²Π°
ΠΡΠ΅ΠΈΠΌΡΡΠ΅ΡΡΠ² ΡΡΡΠΎΠΈΡΠ΅Π»ΡΡΡΠ²Π° Π΅Π΄ΠΈΠ½ΠΎΠ³ΠΎ ΠΊΠΎΠΌΠΏΠ»Π΅ΠΊΡΠ° ΡΡΡΠ΅ΡΡΠ²ΡΠ΅Ρ ΠΌΠ½ΠΎΠ³ΠΎ:
- ΡΠ°ΡΠΈΠΎΠ½Π°Π»ΡΠ½ΠΎΠ΅ ΠΈΡΠΏΠΎΠ»ΡΠ·ΠΎΠ²Π°Π½ΠΈΠ΅ Π·Π΅ΠΌΠ΅Π»ΡΠ½ΠΎΠ³ΠΎ ΡΡΠ°ΡΡΠΊΠ°. Π’Π°ΠΊΠΎΠΉ ΠΏΡΠΎΠ΅ΠΊΡ ΠΏΠΎΠ·Π²ΠΎΠ»ΡΠ΅Ρ Π±ΠΎΠ»Π΅Π΅ ΡΠΊΠΎΠ½ΠΎΠΌΠ½ΠΎ ΠΈΡΠΏΠΎΠ»ΡΠ·ΠΎΠ²Π°ΡΡ Π΄ΡΠ°Π³ΠΎΡΠ΅Π½Π½ΡΡ Π·Π΅ΠΌΠ»Ρ. ΠΠΎΠΌΠΏΠ»Π΅ΠΊΡ ΠΌΠΎΠΆΠ½ΠΎ Π²ΠΎΠ·Π²Π΅ΡΡΠΈ Π΄Π°ΠΆΠ΅ Π½Π° ΠΌΠ°Π»Π΅Π½ΡΠΊΠΎΠΌ ΡΡΠ°ΡΡΠΊΠ΅;

ΠΠ΅Π±ΠΎΠ»ΡΡΠ°Ρ ΠΏΠ°ΡΠΈΠ»ΠΊΠ°, Π·Π°Π½ΠΈΠΌΠ°ΡΡΠ°Ρ ΠΌΠΈΠ½ΠΈΠΌΡΠΌ ΠΏΠ»ΠΎΡΠ°Π΄ΠΈ Π½Π° ΡΡΠ°ΡΡΠΊΠ΅
- ΡΠΊΠΎΠ½ΠΎΠΌΠΈΡ ΡΡΠ΅Π΄ΡΡΠ². ΠΡΠΈ Π²ΠΎΠ·Π²Π΅Π΄Π΅Π½ΠΈΠΈ Π΅Π΄ΠΈΠ½ΠΎΠ³ΠΎ ΠΊΠΎΠΌΠΏΠ»Π΅ΠΊΡΠ° ΡΡΡΠ΅ΡΡΠ²Π΅Π½Π½ΠΎ ΡΠΊΠΎΠ½ΠΎΠΌΡΡΡΡ ΡΡΡΠΎΠΈΡΠ΅Π»ΡΠ½ΡΠ΅ ΠΌΠ°ΡΠ΅ΡΠΈΠ°Π»Ρ, Π² ΠΎΡΠΎΠ±Π΅Π½Π½ΠΎΡΡΠΈ Π΅ΡΠ»ΠΈ ΡΡΠΎ ΠΏΠ΅ΡΠ²ΠΎΠ½Π°ΡΠ°Π»ΡΠ½ΠΎΠ΅ ΡΡΡΠΎΠΈΡΠ΅Π»ΡΡΡΠ²ΠΎ, Π° ΡΡΠΎ ΠΎΡΠ΅Π½Ρ Π²Π°ΠΆΠ½ΠΎ Π΄Π»Ρ ΠΌΠ½ΠΎΠ³ΠΈΡ Π»ΡΠ΄Π΅ΠΉ;
- ΠΌΠ΅Π½ΡΡΠ°Ρ Π·Π°ΡΡΠ°ΡΠ° Π²ΡΠ΅ΠΌΠ΅Π½ΠΈ Π½Π° Π²ΠΎΠ·Π²Π΅Π΄Π΅Π½ΠΈΠ΅. Π‘ΡΡΠΎΠΈΡΠ΅Π»ΡΡΡΠ²ΠΎ Π΅Π΄ΠΈΠ½ΠΎΠ³ΠΎ ΠΊΠΎΠΌΠΏΠ»Π΅ΠΊΡΠ° ΠΏΠΎΠ·Π²ΠΎΠ»ΡΠ΅Ρ ΡΠΎΠΊΡΠ°ΡΠΈΡΡ Π²ΡΠ΅ΠΌΡ, Π½Π΅ΠΎΠ±Ρ ΠΎΠ΄ΠΈΠΌΠΎΠ΅ Π½Π° Π²ΡΠΏΠΎΠ»Π½Π΅Π½ΠΈΠ΅ ΡΠ°Π±ΠΎΡ;
- Π²ΠΎΠ·ΠΌΠΎΠΆΠ½ΠΎΡΡΡ ΡΠΎΠ·Π΄Π°Π½ΠΈΡ Π΅Π΄ΠΈΠ½ΠΎΠΉ ΠΊΠΎΠΌΠΌΡΠ½ΠΈΠΊΠ°ΡΠΈΠΎΠ½Π½ΠΎΠΉ Π»ΠΈΠ½ΠΈΠΈ, ΠΎΠ±ΠΎΠ³ΡΠ΅Π²Π°;
- Π±ΠΎΠ»Π΅Π΅ ΠΊΠΎΠΌΡΠΎΡΡΠ½ΡΠ΅ ΡΡΠ»ΠΎΠ²ΠΈΡ, ΠΎΡΠΎΠ±Π΅Π½Π½ΠΎ Π² Π·ΠΈΠΌΠ½Π΅Π΅ Π²ΡΠ΅ΠΌΡ.

Π£Π΄ΠΎΠ±Π½ΠΎΠ΅ ΡΠ°ΡΠΏΠΎΠ»ΠΎΠΆΠ΅Π½ΠΈΠ΅ ΠΏΠ°ΡΠΈΠ»ΠΊΠΈ Ρ Π΄ΡΡΠ΅ΠΌ Π²Π½ΡΡΡΠΈ Π΄ΠΎΠΌΠ°
ΠΠ°Π½Ρ ΠΈ Π΄ΠΎΠΌ ΠΏΠΎΠ΄ ΠΎΠ΄Π½ΠΎΠΉ ΠΊΡΡΡΠ΅ΠΉ Π΄Π»Ρ ΠΌΠ½ΠΎΠ³ΠΈΡ ΡΠ²Π»ΡΠ΅ΡΡΡ Π΅Π΄ΠΈΠ½ΡΡΠ²Π΅Π½Π½ΡΠΌ ΡΠ΅ΡΠ΅Π½ΠΈΠ΅ΠΌ. Π‘ΠΎΠ²ΡΠ΅ΠΌΠ΅Π½Π½ΡΠ΅ ΠΏΡΠΎΠ΅ΠΊΡΡ ΠΏΠΎΠ·Π²ΠΎΠ»ΡΡΡ Π²ΠΎΠ·Π²Π΅ΡΡΠΈ ΠΈΠ·ΡΡΠΊΠ°Π½Π½ΡΠΉ ΠΊΠΎΠΌΠΏΠ»Π΅ΠΊΡ Π±ΡΡΡΡΠΎ ΠΈ ΠΊΠ°ΡΠ΅ΡΡΠ²Π΅Π½Π½ΠΎ. ΠΡΠΎΠ΄ΡΠΌΠ°Π½Π½ΠΎΠ΅ ΡΠ΅ΡΠ΅Π½ΠΈΠ΅ ΡΠΏΠΎΡΠΎΠ±ΡΡΠ²ΡΠ΅Ρ ΡΡΡΡ ΠΈ ΠΊΠΎΠΌΡΠΎΡΡΡ. ΠΡΠΎΠ΅ΠΊΡΡ ΠΈ ΡΠ΅Π½Ρ Π½Π° ΡΡΡΠΎΠΈΡΠ΅Π»ΡΡΡΠ²ΠΎ ΠΊΠΎΠΌΠΏΠ»Π΅ΠΊΡΠ° ΡΡΡΠ΅ΡΡΠ²Π΅Π½Π½ΠΎ ΠΎΡΠ»ΠΈΡΠ°ΡΡΡΡ Π² Π·Π°Π²ΠΈΡΠΈΠΌΠΎΡΡΠΈ ΠΎΡ ΡΠ»ΠΎΠΆΠ½ΠΎΡΡΠΈ ΠΈ ΠΈΠ½Π΄ΠΈΠ²ΠΈΠ΄ΡΠ°Π»ΡΠ½ΠΎΡΡΠΈ. ΠΡΠΎΡΠ΅ΡΡΠΈΠΎΠ½Π°Π»Ρ ΡΠΎΠ·Π΄Π°Π΄ΡΡ ΡΠ°ΠΌΡΠΉ ΠΏΡΠΈΠ΅ΠΌΠ»Π΅ΠΌΡΠΉ Π²Π°ΡΠΈΠ°Π½Ρ ΠΏΠ»Π°Π½Π° ΠΈ Π²ΠΎΠΏΠ»ΠΎΡΡΡ Π΅Π³ΠΎ Π² ΡΠ΅Π°Π»ΡΠ½ΠΎΡΡΡ.

ΠΠ°Π½Π½Π°Ρ ΠΏΠ°ΡΠΈΠ»ΠΊΠ° Π² ΡΡΠΈΠ»Π΅ ΠΌΠΎΠ΄Π΅ΡΠ½, Π½Π°Ρ ΠΎΠ΄ΡΡΠ°ΡΡΡ Π² Π²Π°Π½Π½ΠΎΠΉ ΠΊΠΎΠΌΠ½Π°ΡΠ΅ ΠΆΠΈΠ»ΠΎΠ³ΠΎ Π΄ΠΎΠΌΠ°
ΠΡΠΎΠ΅ΠΊΡΡ ΠΏΠΎΠ΄ ΠΊΠ»ΡΡ β ΡΡΠΎ Π²Π΅ΡΠ½ΠΎΠ΅ ΡΠ΅ΡΠ΅Π½ΠΈΠ΅ Π΄Π»Ρ ΡΠ΅Ρ , ΠΊΡΠΎ Ρ ΠΎΡΠ΅Ρ Π±ΡΡΡΡΠΎ ΠΈ ΠΊΠ°ΡΠ΅ΡΡΠ²Π΅Π½Π½ΠΎ ΠΏΠΎΠ»ΡΡΠΈΡΡ ΡΠΎΠ±ΡΡΠ²Π΅Π½Π½ΠΎΠ΅ ΠΊΠΎΠΌΡΠΎΡΡΠ°Π±Π΅Π»ΡΠ½ΠΎΠ΅ ΠΆΠΈΠ»ΡΠ΅. Π‘ΠΎΠ²ΡΠ΅ΠΌΠ΅Π½Π½ΡΠΉ ΠΏΠΎΠ΄Ρ ΠΎΠ΄ ΠΊ Π²ΠΎΠ·Π²Π΅Π΄Π΅Π½ΠΈΡ Π·Π΄Π°Π½ΠΈΠΉ ΠΎΠ±Π΅ΡΠΏΠ΅ΡΠΈΠ²Π°Π΅Ρ Π±ΡΡΡΡΠΎΠ΅ ΡΡΡΠΎΠΈΡΠ΅Π»ΡΡΡΠ²ΠΎ, ΠΏΠΎΠΌΠΎΠ³Π°Π΅Ρ ΡΡΡΠ΅ΡΡΠ²Π΅Π½Π½ΠΎ ΡΡΠΊΠΎΠ½ΠΎΠΌΠΈΡΡ ΡΡΠ΅Π΄ΡΡΠ²Π°. ΠΠ½ΠΎΠ³ΠΈΠ΅ ΡΠΆΠ΅ ΡΡΠ°Π»ΠΈ ΡΡΠ°ΡΡΠ»ΠΈΠ²ΡΠΌΠΈ ΠΎΠ±Π»Π°Π΄Π°ΡΠ΅Π»ΡΠΌΠΈ ΡΠΎΠ±ΡΡΠ²Π΅Π½Π½ΠΎΠ³ΠΎ ΡΠ΅Π»ΠΎΡΡΠ½ΠΎΠ³ΠΎ ΠΊΠΎΠΌΠΏΠ»Π΅ΠΊΡΠ° ΠΈ Ρ Π½Π°ΡΠ»Π°ΠΆΠ΄Π΅Π½ΠΈΠ΅ΠΌ ΠΏΠΎΠ»ΡΠ·ΡΡΡΡΡ Π΅Π³ΠΎ ΡΡΡΠΎΠΌ. ΠΠΎΠ»ΡΡΠ΅ Π½Π΅Ρ Π½Π΅ΠΎΠ±Ρ ΠΎΠ΄ΠΈΠΌΠΎΡΡΠΈ ΠΌΠ΅ΡΡΠ°ΡΡ ΠΎ ΡΠ°ΡΡΠ½ΡΡ Π²Π»Π°Π΄Π΅Π½ΠΈΡΡ . ΠΡΠΈΡΠ»ΠΎ Π²ΡΠ΅ΠΌΡ Π΄Π΅ΠΉΡΡΠ²ΠΎΠ²Π°ΡΡ. ΠΠΎΠΌΠ°Π½Π΄Π° ΠΏΡΠΎΡΠ΅ΡΡΠΈΠΎΠ½Π°Π»ΠΎΠ² ΠΏΠΎΠΌΠΎΠΆΠ΅Ρ Π²ΠΎΠΏΠ»ΠΎΡΠΈΡΡ Π»ΡΠ±ΡΡ ΠΌΠ΅ΡΡΡ Π² ΡΠ΅Π°Π»ΡΠ½ΠΎΡΡΡ, Π±ΡΡΡΡΠΎ ΠΈ ΠΊΠ°ΡΠ΅ΡΡΠ²Π΅Π½Π½ΠΎ ΠΏΠΎΡΡΡΠΎΠΈΡ Π΄ΠΎΠΌ ΠΏΠΎΠ΄ ΠΊΠ»ΡΡ, ΡΠΎΠ±Π»ΡΠ΄Π°Ρ Π²ΡΠ΅ ΡΠ΅Ρ Π½ΠΈΡΠ΅ΡΠΊΠΈΠ΅ Π½ΠΎΡΠΌΠ°ΡΠΈΠ²Ρ ΠΈ ΡΡΠ΅Π±ΠΎΠ²Π°Π½ΠΈΡ Π·Π°ΠΊΠ°Π·ΡΠΈΠΊΠ°.

ΠΠ°Π½ΡΠ°ΡΠ΄Π½ΡΠΉ ΡΡΠ°ΠΆ, Π½Π° ΠΊΠΎΡΠΎΡΠΎΠΌ ΡΠ°ΡΠΏΠΎΠ»ΠΎΠΆΠ΅Π½Π° Π±Π°Π½Π½Π°Ρ ΠΊΠ°Π±ΠΈΠ½Π° Ρ ΠΏΠ°ΡΠΈΠ»ΠΊΠΎΠΉ
happymodern.ru
ΠΡΠΎΠ΅ΠΊΡ Π΄ΠΎΠΌΠ° Ρ Π±Π°Π½Π΅ΠΉ ΠΏΠΎΠ΄ ΠΎΠ΄Π½ΠΎΠΉ ΠΊΡΡΡΠ΅ΠΉ
Π Π½Π°ΡΠ΅ Π²ΡΠ΅ΠΌΡ ΠΌΠ°Π»ΠΎ ΡΠ΅ΠΌ ΠΌΠΎΠΆΠ½ΠΎ ΡΠ΄ΠΈΠ²ΠΈΡΡ ΠΏΠ»Π°Π½Π°ΠΌΠΈ Π½Π° ΡΡΡΠΎΠΈΡΠ΅Π»ΡΠ½ΡΠΉ ΠΏΡΠΎΡΠ΅ΡΡ ΡΠΎΠ±ΡΡΠ²Π΅Π½Π½ΠΎΠ³ΠΎ ΠΆΠΈΠ»ΡΡ. ΠΠΎΠΌΠΈΠΌΠΎ ΡΡΠΎΠ³ΠΎ, Π±ΠΎΠ»ΡΡΠΈΠ½ΡΡΠ²ΠΎ ΡΠΎΠ±ΡΡΠ²Π΅Π½Π½ΠΈΠΊΠΎΠ² Π½Π΅ ΠΆΠ΅Π»Π°Π΅Ρ ΠΎΡΠΊΠ°Π·ΡΠ²Π°ΡΡΡΡ ΠΈ ΠΎΡ ΡΠ°Π·Π»ΠΈΡΠ½ΠΎΠ³ΠΎ ΡΠΎΠ΄Π° Π΄ΠΎΠΏΠΎΠ»Π½Π΅Π½ΠΈΠΉ ΡΠ°ΠΊΠΈΡ , ΠΊΠ°ΠΊ ΡΠΎΠ±ΡΡΠ²Π΅Π½Π½ΠΎΠ΅ Π±Π°Π½Π½ΠΎΠ΅ ΠΏΠΎΠΌΠ΅ΡΠ΅Π½ΠΈΠ΅.
ΠΠΎΠ³Π΄Π° ΠΏΡΠΎΠ΅ΠΊΡ Π΅ΡΠ΅ Π½Π΅ Π³ΠΎΡΠΎΠ² ΠΈ Ρ Π²Π»Π°Π΄Π΅Π»ΡΡΠ΅Π² Π²ΡΡΠ°Π΅Ρ Π²ΠΎΠΏΡΠΎΡ: ΡΡΠΎΠΈΡ Π»ΠΈ ΠΎΠ±ΠΎΡΡΠ΄ΠΎΠ²Π°ΡΡ Π±Π°Π½Ρ ΠΏΠΎΠ΄ ΠΎΠ΄Π½ΠΎΠΉ ΠΊΡΠΎΠ²Π»Π΅ΠΉ ΡΠΎ Π·Π΄Π°Π½ΠΈΠ΅ΠΌ? ΠΠ΄Π½ΠΎΠ·Π½Π°ΡΠ½ΠΎΠ³ΠΎ ΠΎΡΠ²Π΅ΡΠ° Π½Π° Π΄Π°Π½Π½ΡΠΉ Π²ΠΎΠΏΡΠΎΡ Π½Π΅ ΡΡΡΠ΅ΡΡΠ²ΡΠ΅Ρ, ΠΏΠΎΡΠΊΠΎΠ»ΡΠΊΡ ΠΏΠΎΠ΄ΠΎΠ±Π½ΠΎΠ΅ ΡΠ΅ΡΠ΅Π½ΠΈΠ΅ Π±ΡΠ΄Π΅Ρ ΡΠΎΠΏΡΠΎΠ²ΠΎΠΆΠ΄Π°ΡΡΡΡ ΡΠ°Π·Π»ΠΈΡΠ½ΡΠΌΠΈ Π½ΡΠ°Π½ΡΠ°ΠΌΠΈ. ΠΠ»Ρ ΠΏΡΠΈΠ½ΡΡΠΈΡ ΠΎΠΏΡΠΈΠΌΠ°Π»ΡΠ½ΠΎΠ³ΠΎ ΠΈ Π²Π΅ΡΠ½ΠΎΠ³ΠΎ ΡΠ΅ΡΠ΅Π½ΠΈΡ Π½Π΅ΠΎΠ±Ρ ΠΎΠ΄ΠΈΠΌΠΎ ΡΠ°ΡΡΠΌΠΎΡΡΠ΅ΡΡ Π²ΡΠ΅ Ρ Π°ΡΠ°ΠΊΡΠ΅ΡΠΈΡΡΠΈΠΊΠΈ ΠΎΡΠ΄Π΅Π»ΡΠ½ΠΎ.

ΠΠΎΠΌ ΠΈ Π±Π°Π½Ρ ΠΏΠΎΠ΄ ΠΎΠ΄Π½ΠΎΠΉ ΠΊΡΡΡΠ΅ΠΉ
ΠΡΠ΅Π΄Π²Π°ΡΠΈΡΠ΅Π»ΡΠ½ΠΎ, ΠΏΠ΅ΡΠ΅Π΄ ΡΡΡΠΎΠΈΡΠ΅Π»ΡΡΡΠ²ΠΎΠΌ ΡΡΠ΅Π±ΡΠ΅ΡΡΡ ΠΏΡΠΎΠΊΠΎΠ½ΡΡΠ»ΡΡΠΈΡΠΎΠ²Π°ΡΡΡΡ Ρ ΠΊΠ²Π°Π»ΠΈΡΠΈΡΠΈΡΠΎΠ²Π°Π½Π½ΠΎΠ³ΠΎ ΡΠΏΠ΅ΡΠΈΠ°Π»ΠΈΡΡΠ°. ΠΠ° ΡΠ΅Π³ΠΎΠ΄Π½ΡΡΠ½ΠΈΠΉ Π΄Π΅Π½Ρ Π±Π°Π½Ρ Π²ΠΎΠ·Π²ΠΎΠ΄ΠΈΡΡΡ ΠΏΠΎ ΡΠ°ΠΌΡΠΌ ΡΠ°Π·Π½ΠΎΠΎΠ±ΡΠ°Π·Π½ΡΠΌ ΠΏΡΠΎΠ΅ΠΊΡΠ°ΠΌ. Π‘ ΠΊΠ°ΠΆΠ΄ΡΠΌ Π΄Π½Π΅ΠΌ ΠΎΠ½ΠΈ ΡΡΠ°Π½ΠΎΠ²ΡΡΡΡ Π²ΡΠ΅ Π±ΠΎΠ»Π΅Π΅ Π²ΠΎΡΡΡΠ΅Π±ΠΎΠ²Π°Π½Π½ΡΠΌΠΈ. ΠΡΠΎ ΠΎΠ±ΡΡΠ»ΠΎΠ²Π»Π΅Π½ΠΎ Π΅ΡΠ΅ ΠΈ ΡΠ΅ΠΌ, ΡΡΠΎ Π²ΠΎΠ·Π²Π΅Π΄Π΅Π½ΠΈΠ΅ ΠΏΠΎΠ΄ΠΎΠ±Π½ΡΡ ΠΏΠΎΡΡΡΠΎΠ΅ΠΊ ΠΏΠΎΠ·Π²ΠΎΠ»ΡΠ΅Ρ ΡΡΠΊΠΎΠ½ΠΎΠΌΠΈΡΡ ΡΡΠ΅Π΄ΡΡΠ²Π°.
ΠΡΠ΅ΠΈΠΌΡΡΠ΅ΡΡΠ²Π° ΠΈ Π½Π΅Π΄ΠΎΡΡΠ°ΡΠΊΠΈ
ΠΠΎΡΡΠΎΠΈΠ½ΡΡΠ²Π°
ΠΠ»Π°Π²Π½ΡΠΌ Π΄ΠΎΡΡΠΎΠΈΠ½ΡΡΠ²ΠΎΠΌ ΡΠΎΠ²ΠΌΠ΅ΡΡΠ½ΠΎΠ³ΠΎ ΠΌΠ΅ΡΡΠΎΡΠ°ΡΠΏΠΎΠ»ΠΎΠΆΠ΅Π½ΠΈΡ Π΄ΠΎΠΌΠ° ΠΈ Π±Π°Π½ΠΈ ΠΏΠΎΠ΄ Π΅Π΄ΠΈΠ½ΠΎΠΉ ΠΊΡΠΎΠ²Π»Π΅ΠΉ ΡΡΠΈΡΠ°Π΅ΡΡΡ β ΡΡΡ ΠΈ ΠΊΠΎΠΌΡΠΎΡΡ ΠΆΠΈΠ»ΡΡΠΎΠ². ΠΠ°ΠΈΠ±ΠΎΠ»ΡΡΠΈΠΌ ΠΏΠ»ΡΡΠΎΠΌ Π² ΠΏΠΎΠ΄ΠΎΠ±Π½ΠΎΠΉ ΡΠΈΡΡΠ°ΡΠΈΠΈ Π±ΡΠ΄Π΅Ρ Π²Π΅ΡΠΎΡΡΠ½ΠΎΡΡΡ Π½Π΅ Π΄Π΅Π»Π°ΡΡ Π΄Π»ΠΈΠ½Π½ΡΠΉ ΠΏΠ΅ΡΠ΅Ρ ΠΎΠ΄ ΠΏΠΎ ΡΠ»ΠΈΡΠ΅ ΠΈΠ· Π±Π°Π½Π½ΠΎΠ³ΠΎ ΠΏΠΎΠΌΠ΅ΡΠ΅Π½ΠΈΡ Π² Π·Π΄Π°Π½ΠΈΠ΅ ΠΏΠΎΡΠ»Π΅ ΠΏΠ°ΡΠΈΠ»ΠΊΠΈ.
ΠΠ»Ρ ΡΡΠΎΠ³ΠΎ Π²Ρ ΠΎΠ΄ Π² ΠΏΠΎΠ΄ΠΎΠ±Π½ΡΡ ΠΏΡΠΈΡΡΡΠΎΠ΅Π½Π½ΡΡ Π±Π°Π½Ρ ΠΎΡΡΡΠ΅ΡΡΠ²Π»ΡΠ΅ΡΡΡ Π½Π΅ΠΏΠΎΡΡΠ΅Π΄ΡΡΠ²Π΅Π½Π½ΠΎ ΠΈΠ· Π·Π΄Π°Π½ΠΈΡ. Π‘ΡΡΠ΅ΡΡΠ²ΡΡΡ ΡΠ»Π΅Π΄ΡΡΡΠΈΠ΅ Π²Π°ΡΠΈΠ°Π½ΡΡ Π΅Π΅ ΠΌΠ΅ΡΡΠΎΡΠ°ΡΠΏΠΎΠ»ΠΎΠΆΠ΅Π½ΠΈΡ:
- Π Π°Π·ΠΌΠ΅ΡΠ°Π΅ΡΡΡ Π² ΡΠΎΠΊΠΎΠ»ΡΠ½ΠΎΠΌ ΡΡΠ°ΠΆΠ΅ ΠΏΠΎΡΡΡΠΎΠΉΠΊΠΈ, ΠΊΠΎΠ³Π΄Π° ΡΠ°ΠΌΠΎ Π·Π΄Π°Π½ΠΈΠ΅ ΠΌΠ½ΠΎΠ³ΠΎΡΡΠΎΠ²Π½Π΅Π²ΠΎΠ΅.
- ΠΠ°Π½Ρ ΠΊΠ°ΠΊ Π½Π΅ΠΏΠΎΡΡΠ΅Π΄ΡΡΠ²Π΅Π½Π½ΠΎΠ΅ ΠΏΡΠΎΠ΄ΠΎΠ»ΠΆΠ΅Π½ΠΈΠ΅ Π·Π΄Π°Π½ΠΈΡ, ΠΊΠ°ΠΊ Π²ΡΠΏΠΎΠΌΠΎΠ³Π°ΡΠ΅Π»ΡΠ½Π°Ρ ΠΊΠΎΠΌΠ½Π°ΡΠ°.
- Π Π°ΡΠΏΠΎΠ»ΠΎΠΆΠ΅Π½ΠΈΠ΅ Π² ΠΊΠΎΠΌΠΏΠ»Π΅ΠΊΡΠ΅ Ρ Π²Π°Π½Π½ΠΎΠΉ ΠΊΠΎΠΌΠ½Π°ΡΠΎΠΉ ΠΈ ΡΡΠ°Π»Π΅ΡΠΎΠΌ.
ΠΡΠΎ ΡΠ°ΠΌΡΠ΅ ΠΏΠΎΠΏΡΠ»ΡΡΠ½ΡΠ΅ Π²Π°ΡΠΈΠ°Π½ΡΡ ΠΌΠ΅ΡΡΠΎΡΠ°ΡΠΏΠΎΠ»ΠΎΠΆΠ΅Π½ΠΈΡ, ΡΡΠΈΡΡΠ²Π°Ρ ΠΎΡΠΎΠ±Π΅Π½Π½ΠΎΡΡΠΈ ΠΏΡΠΎΠ΅ΠΊΡΠΈΡΠΎΠ²Π°Π½ΠΈΡ Π·Π΄Π°Π½ΠΈΡ ΠΎΠ½ΠΈ ΠΌΠ΅Π½ΡΡΡΡΡ.
Π―Π²Π½ΡΠΌ ΠΏΡΠ΅ΠΈΠΌΡΡΠ΅ΡΡΠ²ΠΎΠΌ Π² Π΄Π°Π½Π½ΠΎΠΌ ΠΏΠΎΠ»ΠΎΠΆΠ΅Π½ΠΈΠΈ ΡΡΠ°Π½Π΅Ρ ΠΈ ΡΠΎ, ΡΡΠΎ ΠΎΡΡΡΡΡΡΠ²ΡΠ΅Ρ Π½Π°Π΄ΠΎΠ±Π½ΠΎΡΡΡ Π² ΡΡΡΠ°Π½ΠΎΠ²ΠΊΠ΅ Π² Π±Π°Π½Π½ΠΎΠΌ ΠΏΠΎΠΌΠ΅ΡΠ΅Π½ΠΈΠΈ ΠΊΠΎΠΌΠ½Π°ΡΡ ΠΎΡΠ΄ΡΡ Π°, Π΄Π»Ρ ΡΡΠΎΠ³ΠΎ ΡΠ΅Π»Π΅ΡΠΎΠΎΠ±ΡΠ°Π·Π½Π΅Π΅ ΠΏΠΎΠΉΡΠΈ Π²Π½ΡΡΡΡ Π΄ΠΎΠΌΠ°, ΠΊ ΠΏΡΠΈΠΌΠ΅ΡΡ, Π² Π³ΠΎΡΡΠΈΠ½ΡΡ ΠΊΠΎΠΌΠ½Π°ΡΡ.
ΠΠΎΡΡΠ°ΡΠΎΡΠ½ΡΠΌ Π±ΡΠ΄Π΅Ρ Π²ΡΠ΄Π΅Π»ΠΈΡΡ ΠΌΠ΅ΡΡΠΎ Π»ΠΈΡΡ Π΄Π»Ρ ΠΏΠ°ΡΠ½ΠΎΠΉ ΠΈ ΠΏΡΠ΅Π΄Π±Π°Π½Π½ΠΈΠΊΠ°, Π΄ΡΡΠ³ΠΈΠ΅ ΠΏΠΎΠΌΠ΅ΡΠ΅Π½ΠΈΡ ΡΠΆΠ΅ Π΅ΡΡΡ Π² Π·Π΄Π°Π½ΠΈΠΈ. ΠΡΠ»ΠΈ ΡΠΎΠ±ΡΡΠ²Π΅Π½Π½ΠΈΠΊ Ρ ΠΎΡΠ΅Ρ ΠΊΠ°ΠΊΠΈΡ -Π»ΠΈΠ±ΠΎ ΠΈΠ·ΡΡΠΊΠΎΠ², ΡΠΎ ΠΌΠΎΠΆΠ΅Ρ ΡΠΎΡΡΠ°Π²ΠΈΡΡ Π½Π΅ΡΡΠ°Π½Π΄Π°ΡΡΠ½ΡΠΉ ΠΈ ΠΈΠ½ΡΠ΅ΡΠ΅ΡΠ½ΡΠΉ ΠΏΡΠΎΠ΅ΠΊΡ.

ΠΠ΅Π΄ΠΎΡΡΠ°ΡΠΊΠΈ
- ΠΠΎΠ³Π΄Π° ΠΎΠ±Π΅ ΠΏΠΎΡΡΡΠΎΠΉΠΊΠΈ ΠΈΠ· Π΄Π΅ΡΠ΅Π²Π°, Π΅ΡΠ»ΠΈ Π½Π΅ΠΏΡΠ°Π²ΠΈΠ»ΡΠ½ΠΎ ΠΏΠΎΠ΄ΠΎΠΉΡΠΈ ΠΊ Π²ΠΎΠ·Π²Π΅Π΄Π΅Π½ΠΈΡ Π±Π°Π½ΠΈ β ΠΊΠΎΠ½ΡΡΡΡΠΊΡΠΈΡ ΠΏΠΎΡΡΡΠ°Π΄Π°Π΅Ρ ΠΎΡ ΡΡΡΠΎΡΡΠΈ ΠΈ ΠΏΠ°ΡΠ°, ΡΡΠΎ ΠΌΠΎΠΆΠ΅Ρ ΠΏΡΠΈΠ²Π΅ΡΡΠΈ ΠΊ ΡΠ°Π½Π½Π΅ΠΌΡ ΡΠ°Π·ΡΡΡΠ΅Π½ΠΈΡ.
- ΠΠΎΠ³Π΄Π° Π·Π΄Π°Π½ΠΈΠ΅ ΠΈ Π±Π°Π½Ρ ΠΎΠ±Π»Π°Π΄Π°ΡΡ Π΄ΠΎΡΡΠ°ΡΠΎΡΠ½ΠΎ Π²Π½ΡΡΠΈΡΠ΅Π»ΡΠ½ΡΠΌΠΈ Π³Π°Π±Π°ΡΠΈΡΠ°ΠΌΠΈ, ΡΠΎ Π½Π΅ΠΎΠ±Ρ ΠΎΠ΄ΠΈΠΌΠΎ Ρ ΠΏΡΠΈΡΡΠ°Π»ΡΠ½ΡΠΌ Π²Π½ΠΈΠΌΠ°Π½ΠΈΠ΅ΠΌ ΠΎΡΠ½ΠΎΡΠΈΡΡΡΡ ΠΊ Π²ΠΎΠ·Π²Π΅Π΄Π΅Π½ΠΈΡ ΡΠΈΡΡΠ΅ΠΌΡ ΠΎΡΠΎΠΏΠ»Π΅Π½ΠΈΡ. ΠΠ°Π·ΠΎΠ²ΡΠΉ ΠΈΠ»ΠΈ ΡΠ»Π΅ΠΊΡΡΠΈΡΠ΅ΡΠΊΠΈΠΉ ΠΊΠΎΡΠ΅Π»Β ΡΠ»Π΅Π΄ΡΠ΅Ρ ΠΏΠΎΠΊΡΠΏΠ°ΡΡ Ρ Π±ΠΎΠ»ΡΡΠΎΠΉ ΠΌΠΎΡΠ½ΠΎΡΡΡΡ, ΡΠΎΠ³Π΄Π° Π΅Π΅ Ρ Π²Π°ΡΠΈΡ Π½Π° 2 ΠΏΠΎΠΌΠ΅ΡΠ΅Π½ΠΈΡ. ΠΡΡΠ΅ΡΡΠ²Π΅Π½Π½ΠΎ Π² ΡΠ²ΡΠ·ΠΈ Ρ ΡΡΠΈΠΌ ΡΠ²Π΅Π»ΠΈΡΠ°ΡΡΡ ΠΈ ΡΠ½Π΅ΡΠ³Π΅ΡΠΈΡΠ΅ΡΠΊΠΈΠ΅ Π·Π°ΡΡΠ°ΡΡ, Π° Π·Π½Π°ΡΠΈΡ ΠΈ ΠΏΠ»Π°ΡΠ°.
- ΠΠ»Ρ ΠΎΠ±ΡΡΡΡΠΎΠΉΡΡΠ²Π° ΠΊΠ°Π½Π°Π»ΠΈΠ·Π°ΡΠΈΠΈΒ Π² ΡΠ°ΠΊΠΎΠΉ ΡΠΈΡΡΠ°ΡΠΈΠΈ ΠΏΠΎΡΡΠ΅Π±ΡΠ΅ΡΡΡ ΠΎΡΠΎΠ±ΠΎΠ΅ Π²Π½ΠΈΠΌΠ°Π½ΠΈΠ΅, ΠΏΠΎΡΠΊΠΎΠ»ΡΠΊΡ ΡΠ»ΠΈΠ²Π°ΡΡ ΠΎΡΡΠ°Π±ΠΎΡΠ°Π½Π½ΡΡ ΠΆΠΈΠ΄ΠΊΠΎΡΡΡ ΠΈΠ· Π±Π°Π½ΠΈ Π² ΠΎΠ±ΡΡΡ ΡΡΡΠ±Ρ Π½Π΅ΡΠ°Π·ΡΠΌΠ½ΠΎ, ΠΎΡΠ΅Π½Ρ Π²Π΅Π»ΠΈΠΊΠ° Π½Π°Π³ΡΡΠ·ΠΊΠ°.
- Π‘ΡΡΠΎΠΈΡΠ΅Π»ΡΡΡΠ²ΠΎ Π΄ΡΠΌΠΎΡ ΠΎΠ΄Π½ΠΎΠΉ ΡΡΡΠ±Ρ ΡΠ°ΠΊΠΆΠ΅ Π½ΡΠΆΠ΄Π°Π΅ΡΡΡ Π² ΠΎΡΠ΄Π΅Π»ΡΠ½ΠΎΠΉ ΡΡΠ΅Π±Π΅. Π ΠΏΠΎΠ΄ΠΎΠ±Π½ΠΎΠΉ ΡΠΈΡΡΠ°ΡΠΈΠΈ Π½Π° ΠΊΡΠΎΠ²Π»Π΅ Π·Π΄Π°Π½ΠΈΡ ΡΡΠ°Π½ΡΡ Π²ΡΠ»Π°Π·ΠΈΡΡ ΠΎΠ΄Π½ΠΎΠ²ΡΠ΅ΠΌΠ΅Π½Π½ΠΎ 2 ΡΡΡΠ±Ρ, ΠΈ Π΅ΡΡΠ΅ΡΡΠ²Π΅Π½Π½ΠΎ ΠΏΠΎΠ»ΡΡΠ°ΡΡΡ 2 ΠΎΡΠ²Π΅ΡΡΡΠΈΡ, Π½Π΅ΠΌΠ°Π»ΠΎ Π²Π»Π°Π΄Π΅Π»ΡΡΠ΅Π² ΠΎΡΡΠ°Π½Π°Π²Π»ΠΈΠ²Π°Π΅Ρ ΡΠ°ΠΊΠΎΠ΅ ΠΏΠΎΠ»ΠΎΠΆΠ΅Π½ΠΈΠ΅ Π΄Π΅Π».
- ΠΡΠ°ΠΌΠΎΡΠ½ΠΎ Π½Π΅ ΠΏΡΠΎΠ΄ΡΠΌΠ°Π² Π²Π΅Π½ΡΠΈΠ»ΡΡΠΈΠΎΠ½Π½ΡΡ ΡΠΈΡΡΠ΅ΠΌΡ ΠΈ Π½Π°Π΄Π»Π΅ΠΆΠ°ΡΠ΅Π΅ ΠΏΡΠΎΠ²Π΅ΡΡΠΈΠ²Π°Π½ΠΈΠ΅ Π² Π±Π°Π½Π΅, ΡΡΡΠΎΡΡΡ ΡΠ°ΡΠΏΡΠΎΡΡΡΠ°Π½ΠΈΡΡΡ Π²Π΄ΠΎΠ»Ρ Π²ΡΠ΅Π³ΠΎ ΠΏΠ΅ΡΠΈΠΌΠ΅ΡΡΠ° Π΄ΠΎΠΌΠ° ΠΈ ΠΎΠ½ ΡΡΠ°Π½Π΅Ρ ΡΡΡΠ΄Π½ΠΎΠ²ΡΠ²ΠΎΠ΄ΠΈΠΌΡΠΌ.
- ΠΡΠ»ΠΈ Π²Π½ΡΡΡΠΈ Π±Π°Π½ΠΈ Π΅ΡΡΡ ΠΏΠ΅ΡΠΊΠ° β ΠΊΠ°ΠΌΠ΅Π½ΠΊΠ°, ΡΠ°ΡΡΠ°ΠΏΠ»ΠΈΠ²Π°Π΅ΠΌΠ°Ρ Π΄ΡΠΎΠ²Π°ΠΌΠΈ, ΡΠΎ ΠΏΠΎΡΡΠ΅Π±ΡΠ΅ΡΡΡ ΠΎΡΠΎΠ±Π΅Π½Π½ΠΎΠ΅, ΠΎΡΠ΅Π½Ρ ΠΏΡΠΈΡΡΠ°Π»ΡΠ½ΠΎΠ΅ Π²Π½ΠΈΠΌΠ°Π½ΠΈΠ΅, ΡΠ΄Π΅Π»ΡΠ΅ΠΌΠΎΠ΅ ΡΡΠ³Π΅. ΠΡΠ»ΠΈ ΠΎΠ½Π° Π±ΡΠ΄Π΅Ρ ΡΠΎΠ·Π΄Π°Π½Π° Π½Π΅ΠΏΡΠ°Π²ΠΈΠ»ΡΠ½ΡΠΌ ΠΎΠ±ΡΠ°Π·ΠΎΠΌ, Π΄ΡΠΌ ΠΏΠΎΠΏΠ°Π΄Π΅Ρ Π²Π½ΡΡΡΡ ΠΏΠΎΠΌΠ΅ΡΠ΅Π½ΠΈΡ, ΠΈ Π½Π° ΠΏΠΎΡΠΎΠ»ΠΊΠ΅ ΡΡΠ°Π½Π΅Ρ ΠΎΠ±ΡΠ°Π·ΠΎΠ²ΡΠ²Π°ΡΡΡΡ ΡΠ°ΠΆΠ°.
ΠΡΠΎΠ±Π΅Π½Π½ΠΎΡΡΠΈ ΡΡΡΠΎΠΈΡΠ΅Π»ΡΡΡΠ²Π°
ΠΡΠΈΡΡΡΠΎΠΉΠΊΠ° Π±Π°Π½ΠΈ ΠΊ Π΄ΠΎΠΌΡΠΠΎΠ·Π²Π΅Π΄Π΅Π½ΠΈΠ΅ ΠΆΠΈΠ»ΡΡ Ρ Π±Π°Π½Π΅ΠΉ ΠΏΠΎΠ΄ ΠΎΠ±ΡΠ΅ΠΉ ΠΊΡΠΎΠ²Π»Π΅ΠΉ ΠΎΠ±Π»Π°Π΄Π°Π΅Ρ ΠΎΠΏΡΠ΅Π΄Π΅Π»Π΅Π½Π½ΡΠΌΠΈ ΠΎΡΠΎΠ±Π΅Π½Π½ΠΎΡΡΡΠΌΠΈ. ΠΠ·Π²Π΅ΡΡΠ½ΠΎ 3 Π²ΠΈΠ΄Π° ΡΠΎΠ²ΠΌΠ΅ΡΠ΅Π½ΠΈΡ Π±Π°Π½ΠΈ ΡΠΎ Π·Π΄Π°Π½ΠΈΠ΅ΠΌ:
- ΠΠ°Π½Ρ ΡΠ°ΡΠΏΠΎΠ»Π°Π³Π°Π΅ΡΡΡ Π½Π° 1 ΡΡΠ°ΠΆΠ΅ ΠΆΠΈΠ»ΠΈΡΠ°, Π² ΡΠ°ΠΊΠΎΠΌ ΡΠ»ΡΡΠ°Π΅ ΠΏΡΠΎΠ΅ΠΊΡΡ ΡΡΡΠ°Π½Π°Π²Π»ΠΈΠ²Π°ΡΡ Π½Π° ΡΡΠ°ΠΏΠ΅ ΠΏΠ»Π°Π½ΠΈΡΠΎΠ²Π°Π½ΠΈΡ;
- ΠΠΎΠ»Π½ΠΎΡΠ΅Π½Π½Π°Ρ ΡΡΡΠ°Π½ΠΎΠ²ΠΊΠ° ΡΡΡΠ±Π°, ΠΏΡΠΈΡΡΡΠ°ΠΈΠ²Π°Π΅ΠΌΠ°Ρ ΠΊ ΡΡΠ΅Π½Π΅. ΠΡΠΈ ΡΡΠΎΠΌ ΠΊΡΠΎΠ²Π»Ρ Π² Π·Π΄Π°Π½ΠΈΠΈ ΡΠ΄Π»ΠΈΠ½ΡΠ΅ΡΡΡ, Π·Π°ΠΊΡΡΠ²Π°Π΅Ρ Π½ΠΎΠ²ΡΡ ΠΏΡΠΈΡΡΡΠΎΠΉΠΊΡ;
- ΠΠ°Π½Ρ ΠΈ ΡΡΡΠΎΠ΅Π½ΠΈΠ΅ ΠΎΠ±Π»Π°Π΄Π°ΡΡ ΠΎΠ±ΡΠ΅ΠΉ ΡΡΠ΅Π½ΠΎΠΉ, ΡΡΠΎ Π² Π·Π½Π°ΡΠΈΡΠ΅Π»ΡΠ½ΠΎΠΉ ΠΌΠ΅ΡΠ΅ ΡΠΏΡΠΎΡΠ°Π΅Ρ ΠΈΡ ΡΠΎΠ΅Π΄ΠΈΠ½Π΅Π½ΠΈΠ΅ ΠΈ ΠΏΠ΅ΡΠ΅Ρ ΠΎΠ΄ ΠΈΠ· ΠΎΠ΄Π½ΠΎΠ³ΠΎ ΠΏΠΎΠΌΠ΅ΡΠ΅Π½ΠΈΡ Π² Π΄ΡΡΠ³ΠΎΠ΅.
ΠΠΎΠ³Π΄Π° Π΄ΠΎΠΌ ΠΈ Π±Π°Π½Ρ ΠΎΠ±ΡΠ΅Π΄ΠΈΠ½Π΅Π½Ρ ΠΏΠΎΠ΄ Π΅Π΄ΠΈΠ½ΠΎΠΉ ΠΊΡΠΎΠ²Π»Π΅ΠΉ ΠΈ Ρ Π½ΠΈΡ ΡΠ°Π·Π½ΡΠ΅ Π²Ρ ΠΎΠ΄Ρ β ΡΡΠΎ ΠΌΠΎΠΆΠ΅Ρ ΡΡΠ°ΡΡ ΡΡΡΠ΄Π½ΠΎΡΡΡΡ, Π² ΡΠ°ΡΡΠ½ΠΎΡΡΠΈ Π·ΠΈΠΌΠΎΠΉ. ΠΠΎ ΠΈΠ·Π±Π΅ΠΆΠ°Π½ΠΈΠ΅ ΠΏΠ΅ΡΠ΅ΠΎΡ Π»Π°ΠΆΠ΄Π΅Π½ΠΈΠΉ ΠΈ ΡΠΎΠ·Π΄Π°Π½ΠΈΡ ΠΊΠΎΠΌΡΠΎΡΡΠ°, ΠΊ Π·Π΄Π°Π½ΠΈΡ, ΠΊ ΠΏΡΠΈΠΌΠ΅ΡΡ, ΠΌΠΎΠΆΠ½ΠΎ Π΄ΠΎΠ±Π°Π²ΠΈΡΡ Π±Π΅ΡΠ΅Π΄ΠΊΡ.
ΠΠ½Π° ΡΠ²Π»ΡΠ΅ΡΡΡ ΡΠ²ΡΠ·ΡΡΡΠΈΠΌ Π·Π²Π΅Π½ΠΎΠΌ ΠΌΠ΅ΠΆΠ΄Ρ ΡΠΊΠ°Π·Π°Π½Π½ΡΠΌΠΈ ΠΏΠΎΡΡΡΠΎΠΉΠΊΠ°ΠΌΠΈ. Π¦Π΅Π½Π° ΡΠ°ΠΊΠΎΠ³ΠΎ ΠΏΡΠΎΠ΅ΠΊΡΠ° Π΄ΠΎΡΡΠ°ΡΠΎΡΠ½ΠΎ Π²Π΅Π»ΠΈΠΊΠ°, Π½ΠΎ ΠΏΠΎ ΡΠ΄ΠΎΠ±ΡΡΠ²Ρ ΠΈΡΠΏΠΎΠ»ΡΠ·ΠΎΠ²Π°Π½ΠΈΡ ΠΎΠ½ Π·Π½Π°ΡΠΈΡΠ΅Π»ΡΠ½ΠΎ ΠΏΡΠ΅Π²ΠΎΡΡ ΠΎΠ΄ΠΈΡ ΠΎΡΡΠ°Π»ΡΠ½ΡΠ΅, Π±ΠΎΠ»Π΅Π΅ ΠΏΡΠΎΡΡΡΠ΅.
ΠΡΠΎΠ΅ΠΊΡ Π±Π°Π½ΠΈ ΠΈ Π΄ΠΎΠΌΠ° ΠΏΠΎΠ΄ ΠΎΠ΄Π½ΠΎΠΉ ΠΊΡΡΡΠ΅ΠΉ
ΠΠ°ΠΈΠ±ΠΎΠ»Π΅Π΅ Π²Π°ΠΆΠ½ΡΠΌ ΡΠ»Π΅ΠΌΠ΅Π½ΡΠΎΠΌ Π² ΡΡΡΠΎΠΈΡΠ΅Π»ΡΠ½ΠΎΠΌ ΠΏΡΠΎΡΠ΅ΡΡΠ΅, ΡΡΠΈΡΠ°Π΅ΡΡΡ ΡΡΠ°Π΄ΠΈΡ ΠΏΡΠΎΠ΅ΠΊΡΠΈΡΠΎΠ²Π°Π½ΠΈΡ. ΠΡ Π½Π΅Π΅ Π·Π°Π²ΠΈΡΠΈΡ Π±ΡΠ΄ΡΡΠ°Ρ ΠΏΡΠ°ΠΊΡΠΈΡΠ½ΠΎΡΡΡ ΠΈ ΠΊΠΎΠΌΡΠΎΡΡ ΠΆΠΈΠ»ΠΈΡΠ°.
ΠΡΠΆΠ½ΠΎ ΠΎΠΏΡΠ΅Π΄Π΅Π»ΠΈΡΡΡΡ Ρ Π²ΠΎΠΏΡΠΎΡΠΎΠΌ ΠΎ ΡΠ°ΡΠΏΠΎΠ»ΠΎΠΆΠ΅Π½ΠΈΠΈ Π±Π°Π½ΠΈ. ΠΠ΅ ΡΠΎΠ²ΠΌΠ΅ΡΠ°ΡΡ Ρ Π²Π°Π½Π½ΠΎΠΉ Π»ΠΈΠ±ΠΎ ΠΎΠ±ΡΡΡΡΠ°ΠΈΠ²Π°ΡΡ ΠΏΠ°ΡΠ½ΡΡ. Π Π΅ΡΡΡ Π²Π°ΡΠΈΠ°Π½Ρ ΡΠΎΠ·Π΄Π°Π½ΠΈΡ ΠΎΡΠ΄Π΅Π»ΡΠ½ΠΎΠ³ΠΎ Π±Π°Π½Π½ΠΎΠ³ΠΎ ΠΏΠΎΠΌΠ΅ΡΠ΅Π½ΠΈΡ Π² Π΄ΠΎΠΌΠ΅, Π³Π΄Π΅ Π±ΡΠ΄ΡΡ Π½Π°Ρ ΠΎΠ΄ΠΈΡΡΡΡ ΠΈ ΠΏΠ°ΡΠ½Π°Ρ, ΠΈ ΠΏΠΎΠΌΡΠ²ΠΎΡΠ½Π°Ρ, ΠΈ ΠΊΠΎΠΌΠ½Π°ΡΠ° Π΄Π»Ρ ΠΎΡΠ΄ΡΡ Π°.
ΠΡΠ±ΠΎΡ Π³ΠΎΡΠΎΠ²ΠΎΠ³ΠΎ ΠΏΡΠΎΠ΅ΠΊΡΠ°
ΠΠΎΠ³Π΄Π° Π²Π»Π°Π΄Π΅Π»Π΅Ρ Π½Π΅ ΡΠΎΠ±ΠΈΡΠ°Π΅ΡΡΡ ΡΡΡΠΎΠΈΡΡ, ΡΡΠΎ-ΡΠΎ Π½Π΅ΡΡΠ°Π½Π΄Π°ΡΡΠ½ΠΎΠ΅, ΡΠΎ, ΠΊΠ°ΠΊ Π²Π°ΡΠΈΠ°Π½Ρ, ΡΡΡΠ°Π½Π°Π²Π»ΠΈΠ²Π°Π΅ΡΡΡ Π² ΠΎΠ±ΠΎΡΠΎΠ±Π»Π΅Π½Π½ΠΎΠΌ ΠΏΠΎΠΌΠ΅ΡΠ΅Π½ΠΈΠΈ Π·Π°ΡΠ°Π½Π΅Π΅ ΠΏΡΠΈΠ³ΠΎΡΠΎΠ²Π»Π΅Π½Π½Π°Ρ ΠΏΠ°ΡΠ½Π°Ρ Π»ΠΈΠ±ΠΎ ΡΠ°ΡΠ½Π°. Π‘Π΅ΠΉΡΠ°Ρ ΠΏΠΎΠ΄ΠΎΠ±Π½ΡΠ΅ ΠΊΠΎΠ½ΡΡΡΡΠΊΡΠΈΠΈ ΠΏΡΠΎΠ΄Π°ΡΡ ΠΏΠΎΠ²ΡΡΠ΄Ρ, ΠΈΡ ΠΌΠΎΠΆΠ½ΠΎ ΠΌΠΎΠ½ΡΠΈΡΠΎΠ²Π°ΡΡ Π΄Π°ΠΆΠ΅ Π² ΠΊΠ²Π°ΡΡΠΈΡΠ΅.
ΠΡ ΠΎΡΠ°ΠΏΠ»ΠΈΠ²Π°ΡΡ ΠΈΡΠΏΠΎΠ»ΡΠ·ΡΡ ΡΠ»Π΅ΠΊΡΡΠΈΡΠ΅ΡΠΊΠΈΠΉ ΠΊΠΎΡΠ΅Π» ΠΈ ΠΎΠ½ΠΈ Π½Π΅ Π½ΡΠΆΠ΄Π°ΡΡΡΡ Π² ΠΈΡΠΏΠΎΠ»ΡΠ·ΠΎΠ²Π°Π½ΠΈΠΈ Π΄ΡΠΎΠ². ΠΡΠΎ Π³Π°ΡΠ°Π½ΡΠΈΡΡΠ΅Ρ Π±Π΅Π·ΠΎΠΏΠ°ΡΠ½ΠΎΠ΅ ΠΈΡΠΏΠΎΠ»ΡΠ·ΠΎΠ²Π°Π½ΠΈΠ΅ ΠΈ ΠΎΡΡΡΡΡΡΠ²ΠΈΠ΅ Π½Π΅Π½ΡΠΆΠ½ΡΡ Ρ Π»ΠΎΠΏΠΎΡ.
Π’Π°ΠΊΠΆΠ΅ ΡΠ΅Π»Π΅ΡΠΎΠΎΠ±ΡΠ°Π·Π½Π΅Π΅ ΠΎΠ±ΠΎΡΡΠ΄ΠΎΠ²Π°ΡΡ Π²ΡΡ ΠΎΠ΄ ΠΈΠ· Π±Π°Π½Π½ΠΎΠ³ΠΎ ΠΏΠΎΠΌΠ΅ΡΠ΅Π½ΠΈΡ ΠΏΡΡΠΌΠΈΠΊΠΎΠΌ Π½Π° ΡΠ»ΠΈΡΡ ΠΈΠ»ΠΈ Π²Π΅ΡΠ°Π½Π΄Ρ. ΠΠ±ΡΡΡΡΠΎΠΉΡΡΠ²ΠΎ Π²Π΅ΡΠ°Π½Π΄Ρ Π±ΡΠ»ΠΎ Π±Ρ ΠΎΠΏΡΠΈΠΌΠ°Π»ΡΠ½ΡΠΌ Π²ΡΡ ΠΎΠ΄ΠΎΠΌ Π΄Π»Ρ Π²ΡΠ±ΡΠ°Π½Π½ΠΎΠ³ΠΎ ΠΏΡΠΎΠ΅ΠΊΡΠ°, ΠΈΠ· Π½Π΅Π΅ Π²ΠΎΠ·ΠΌΠΎΠΆΠ½ΠΎ ΡΠΎΠ·Π΄Π°ΡΡ ΠΎΡΠ΄Π΅Π»ΡΠ½ΡΡ Π΄Π²Π΅ΡΡ Π² ΠΆΠΈΠ»ΠΈΡΠ΅ ΠΈ Π² Π±Π°Π½Ρ.
Π ΡΠ°ΠΊΠΎΠΌ ΡΠ»ΡΡΠ°Π΅, Π±ΡΠ΄Π΅Ρ ΠΏΡΠΎΠΈΡΡ ΠΎΠ΄ΠΈΡΡ ΡΠΊΠΎΠ½ΠΎΠΌΠΈΡ ΡΡΠ΅Π΄ΡΡΠ² Π½Π° ΡΡΡΠΎΠΈΡΠ΅Π»ΡΠ½ΡΠΉ ΠΏΡΠΎΡΠ΅ΡΡ, ΠΏΠΎΡΠΊΠΎΠ»ΡΠΊΡ Ρ Π±Π°Π½ΠΈ ΠΎΠ΄Π½ΠΎΠΉ ΡΡΠ΅Π½ΠΊΠΎΠΉ ΠΌΠ΅Π½ΡΡΠ΅. ΠΠ΄Π½ΠΎΠ²ΡΠ΅ΠΌΠ΅Π½Π½ΠΎ Π±Π°Π½Π½ΠΎΠ΅ ΠΏΠΎΠΌΠ΅ΡΠ΅Π½ΠΈΠ΅ ΡΠ°ΡΠΏΠΎΠ»Π°Π³Π°Π΅ΡΡΡ Π² ΠΎΡΠ΄Π΅Π»ΡΠ½ΠΎΡΡΠΈ ΠΎΡ ΠΎΠ±ΡΠ΅Π³ΠΎ Π·Π΄Π°Π½ΠΈΡ, ΡΡΠΎ Π΄Π°Π΅Ρ Π²ΠΎΠ·ΠΌΠΎΠΆΠ½ΠΎΡΡΡ ΠΏΠΎΠ»ΡΠ·ΠΎΠ²Π°ΡΡΡΡ Π΅ΠΉ Π² ΡΠΎΠΌ ΡΠ»ΡΡΠ°Π΅, ΠΊΠΎΠ³Π΄Π° Π½Π΅ΠΎΠ±Ρ ΠΎΠ΄ΠΈΠΌΠΎ.
ΠΡΠΎΠ΅ΠΊΡ Π΄ΠΎΠΌΠ° Ρ Π±Π°Π½Π΅ΠΉ ΠΏΠΎΠ΄ ΠΎΠ΄Π½ΠΎΠΉ ΠΊΡΡΡΠ΅ΠΉΠ‘ΠΎΡΡΠ°Π²Π»Π΅Π½ΠΈΠ΅ ΠΏΡΠΎΠ΅ΠΊΡΠ° ΡΠ°ΠΌΠΎΡΡΠΎΡΡΠ΅Π»ΡΠ½ΠΎ
Π§ΡΠΎΠ±Ρ ΠΏΠΎΡΡΡΠΎΠΈΡΡ ΡΠ²ΠΎΠΈΠΌΠΈ ΡΡΠΊΠ°ΠΌΠΈ Π΄ΠΎΠΌ Ρ Π±Π°Π½Π΅ΠΉ ΠΏΠΎΠ΄ ΠΎΠ΄Π½ΠΎΠΉ ΠΊΡΡΡΠ΅ΠΉ Π½Π΅ΠΎΠ±Ρ ΠΎΠ΄ΠΈΠΌΠΎ ΡΡΠ°ΡΠ΅Π»ΡΠ½ΠΎ ΠΎΠ·Π½Π°ΠΊΠΎΠΌΠΈΡΡΡΡ Ρ ΡΠ΅Ρ Π½ΠΎΠ»ΠΎΠ³ΠΈΠ΅ΠΉ.
ΠΠ°Π½Π½Π°Ρ ΡΠ΅Ρ Π½ΠΎΠ»ΠΎΠ³ΠΈΡ ΡΡΠ΅Π±ΡΠ΅Ρ ΠΎΡ Π·Π°ΡΡΡΠΎΠΉΡΠΈΠΊΠΎΠ² ΡΡΠ°ΡΠ΅Π»ΡΠ½ΠΎΠ³ΠΎ ΠΈΠ·ΡΡΠ΅Π½ΠΈΡ, Π½ΠΎ, ΡΠ²Ρ, Π½Π΅ Π²ΡΠ΅ ΠΎΡΠ½ΠΎΡΡΡΡΡ ΠΊ Π½Π΅ΠΉ Ρ Π΄ΠΎΠ»ΠΆΠ½ΡΠΌ ΡΡΠΎΠ²Π½Π΅ΠΌ ΠΎΡΠ²Π΅ΡΡΡΠ²Π΅Π½Π½ΠΎΡΡΠΈ ΠΊ ΡΠΎΠ±Π»ΡΠ΄Π΅Π½ΠΈΡ ΡΡΠ΅Π±ΠΎΠ²Π°Π½ΠΈΠΉ ΠΊ Π²ΠΎΠ·Π²Π΅Π΄Π΅Π½ΠΈΡ. ΠΠ½Π° ΡΠ°ΡΡΠΎ Π½Π°ΡΡΡΠ°Π΅ΡΡΡ, ΠΈΠ·-Π·Π° ΡΠΊΠ»ΠΎΠ½Π° Π² ΠΏΠΎΠ»ΡΠ·Ρ ΡΠ΄ΠΎΠ±ΡΡΠ² ΡΡΡΠΎΠΈΡΠ΅Π»Π΅ΠΉ, Π° ΠΈΠ½ΠΎΠ³Π΄Π° ΠΏΠΎΠΏΡΠΎΡΡΡ ΠΈΠ·-Π·Π° ΡΠΎΠ³ΠΎ, ΡΡΠΎ ΠΎΠ½ΠΈ Π½Π΅Π΄ΠΎΡΡΠ°ΡΠΎΡΠ½ΠΎ ΠΈΠ·ΡΡΠΈΠ»ΠΈ Π΅Π΅.
Π‘ΡΡΠΎΠΈΡΠ΅Π»ΡΡΡΠ²ΠΎ Π΄ΠΎΠΌΠ° Ρ Π±Π°Π½Π΅ΠΉ ΠΏΠΎΠ΄ ΠΎΠ΄Π½ΠΎΠΉ ΠΊΡΡΡΠ΅ΠΉ ΡΠ°ΠΌΠΎΡΡΠΎΡΡΠ΅Π»ΡΠ½ΠΎ ΡΠ²Π»ΡΠ΅ΡΡΡ ΠΏΡΠΎΡΡΠΎΠΉ ΠΈ ΡΠΎΠ²ΡΠ΅ΠΌ Π½Π΅Π΄ΠΎΡΠΎΠ³ΠΎΠΉ Π·Π°Π΄Π°ΡΠ΅ΠΉ. ΠΠ΄Π΅ΡΡ Π½Π΅ ΡΡΠ΅Π±ΡΠ΅ΡΡΡ ΠΈΠΌΠ΅ΡΡ ΠΎΡΠΎΠ±ΡΠ΅ Π·Π½Π°Π½ΠΈΡ ΠΈΠ»ΠΈ ΡΠΌΠ΅Π½ΠΈΡ, Π½Π΅ Π½ΡΠΆΠ½ΠΎ Π½Π°Π±ΠΈΡΠ°ΡΡ Π±ΡΠΈΠ³Π°Π΄Ρ ΡΡΡΠΎΠΈΡΠ΅Π»Π΅ΠΉ. ΠΠΎΡΡΠ°ΡΠΎΡΠ½ΡΠΌ Π±ΡΠ΄Π΅Ρ ΠΈΠΌΠ΅ΡΡ ΠΊΠ°ΡΠ΅ΡΡΠ²Π΅Π½Π½ΡΠΉ Π΄Π΅ΡΠ°Π»ΡΠ½ΡΠΉ ΠΏΡΠΎΠ΅ΠΊΡ, 1-2 ΠΏΠΎΠΌΠΎΡΠ½ΠΈΠΊΠΎΠ² ΠΈ Π½Π°Π²ΡΠΊΠΈ ΠΎΠ±ΡΠ°ΡΠ΅Π½ΠΈΡ Ρ ΠΎΠ±ΡΡΠ½ΡΠΌΠΈ ΠΈΠ½ΡΡΡΡΠΌΠ΅Π½ΡΠ°ΠΌΠΈ Π½Π° ΠΎΠ±ΡΠ΅ΠΌ ΡΡΠΎΠ²Π½Π΅.
Π’ΡΠ΅Π±ΠΎΠ²Π°Π½ΠΈΡ ΠΊ ΡΡΡΠΎΠΈΡΠ΅Π»ΡΡΡΠ²Ρ Π±Π°Π½ΠΈ ΠΈ Π΄ΠΎΠΌΠ° ΠΏΠΎΠ΄ ΠΎΠ΄Π½ΠΎΠΉ ΠΊΡΡΡΠ΅ΠΉ
- ΠΡΡΠΎΠΊΠΈΠΉ ΡΡΠΎΠ²Π΅Π½Ρ ΠΏΠΎΠΆΠ°ΡΠΎΠ±Π΅Π·ΠΎΠΏΠ°ΡΠ½ΠΎΡΡΠΈ ΠΈ ΡΡΠ½ΠΊΡΠΈΠΎΠ½ΠΈΡΡΡΡΠ°Ρ Π±Π΅Π· ΡΠ±ΠΎΠ΅Π² Π²Π΅Π½ΡΠΈΠ»ΡΡΠΈΡ.
- Π‘ΠΎΠ·Π΄Π°Π½ΠΈΠ΅ Π³ΡΠ°ΠΌΠΎΡΠ½ΠΎΠΉ ΠΊΠ°Π½Π°Π»ΠΈΠ·Π°ΡΠΈΠΈ, ΠΊΠΎΡΠΎΡΠ°Ρ ΠΎΡΠ²ΠΎΠ΄ΠΈΡ ΠΆΠΈΠ΄ΠΊΠΎΡΡΡ ΠΈΠ· Π±Π°Π½Π½ΠΎΠ³ΠΎ ΠΏΠΎΠΌΠ΅ΡΠ΅Π½ΠΈΡ. ΠΠΎΡΡΠ°ΡΠΎΡΠ½ΡΠΌ Π±ΡΠ΄Π΅Ρ ΡΠΎΠ·Π΄Π°ΡΡ ΠΎΠ΄Π½Ρ Π²ΠΎΠ΄ΠΎΡΡΠΎΡΠ½ΡΡ ΡΠΌΡ ΠΈΠ· ΠΆΠΈΠ»ΠΈΡΠ° ΠΈ Π±Π°Π½ΠΈ.
- ΠΡΠ°ΠΌΠΎΡΠ½ΠΎ ΡΠ΄Π΅Π»Π°Π½Π½Π°Ρ Π³ΠΈΠ΄ΡΠΎΠΈΠ·ΠΎΠ»ΡΡΠΈΡ Π±Π°Π½ΠΈ. ΠΠΎΠΌΠ΅ΡΠ΅Π½ΠΈΠ΅ Π½Π΅ΠΎΠ±Ρ ΠΎΠ΄ΠΈΠΌΠΎ Π½Π°Π΄Π»Π΅ΠΆΠ°ΡΠΈΠΌ ΠΎΠ±ΡΠ°Π·ΠΎΠΌ ΠΏΡΠΎΠ²Π΅ΡΡΠΈΠ²Π°ΡΡΡΡ, ΠΎΠ±Π»Π°Π΄Π°ΡΡ ΠΊΠ°ΡΠ΅ΡΡΠ²Π΅Π½Π½ΠΎΠΉ ΠΈΠ·ΠΎΠ»ΡΡΠΈΠ΅ΠΉ Π²Π½ΡΡΡΠΈ ΡΡΡΡΠΊΡΡΡΡ ΡΡΠ΅Π½, Π·Π°ΡΠΈΡΠ°ΡΡΠΈΠΌ Π·Π΄Π°Π½ΠΈΠ΅ ΠΎΡ Π²Π»Π°Π³ΠΈ.
- ΠΡΠΈΠΌΠ΅Π½Π΅Π½ΠΈΠ΅ ΠΎΠ΄Π½ΠΎΠ³ΠΎ ΠΈ ΡΠΎΠ³ΠΎ ΠΆΠ΅ ΠΌΠ°ΡΠ΅ΡΠΈΠ°Π»Π° Π² ΡΠ΅Π»ΡΡ Π²ΠΎΠ·Π²Π΅Π΄Π΅Π½ΠΈΡ Π²Π½Π΅ΡΠ½Π΅ΠΉ ΠΏΠΎΠ²Π΅ΡΡ Π½ΠΎΡΡΠΈ ΡΡΠ΅Π½Ρ. ΠΡΠΈ Π²ΡΠ±ΠΎΡΠ΅ ΠΊΠΈΡΠΏΠΈΡΠ° Π΄Π»Ρ ΡΡΡΠΎΠ΅Π½ΠΈΡ Π±Π°Π½Ρ ΠΈΠ·Π²Π½Π΅ ΡΠ°ΠΊΠΆΠ΅ ΠΎΠ±ΠΊΠ»Π°Π΄ΡΠ²Π°ΡΡ ΠΊΠΈΡΠΏΠΈΡΠΎΠΌ.
Π‘ΡΡΠ΅ΡΡΠ²ΡΠ΅Ρ 2 ΡΠΈΠΏΠ°, Π΄Π»Ρ Π²ΠΎΠ·Π²Π΅Π΄Π΅Π½ΠΈΡ Π±Π°Π½Π½ΠΎΠ³ΠΎ ΠΏΠΎΠΌΠ΅ΡΠ΅Π½ΠΈΡ ΠΈ Π΄ΠΎΠΌΠ° ΠΏΠΎΠ΄ ΠΎΠ΄Π½ΠΎΠΉ ΠΊΡΡΡΠ΅ΠΉ: ΠΈΡΠΏΠΎΠ»ΡΠ·ΠΎΠ²Π°Π½ΠΈΠ΅ ΠΏΡΠ΅Π΄Π²Π°ΡΠΈΡΠ΅Π»ΡΠ½ΠΎ Π²ΡΠ±ΡΠ°Π½Π½ΠΎΠ³ΠΎ ΠΏΡΠΎΠ΅ΠΊΡΠ° ΠΈ ΡΡΡΠΎΠΈΡΠ΅Π»ΡΡΡΠ²ΠΎ Π·Π΄Π°Π½ΠΈΠΉ ΡΠ½Π°ΡΠ°Π»Π°.

ΠΡΠ°ΠΏΡ ΡΡΡΠΎΠΈΡΠ΅Π»ΡΡΡΠ²Π°
- ΠΠΎΠ·Π²Π΅Π΄Π΅Π½ΠΈΠ΅ ΡΠΎΠ±ΡΡΠ²Π΅Π½Π½ΡΠΌΠΈ ΡΡΠΊΠ°ΠΌΠΈ Π½Π°ΡΠΈΠ½Π°Π΅ΡΡΡ Ρ ΠΎΡΠ½ΠΎΠ²Π°Π½ΠΈΡ. Π ΠΌΠ΅ΡΡΠ΅, Π³Π΄Π΅ ΠΏΠ»Π°Π½ΠΈΡΡΠ΅ΡΡΡ ΠΏΡΠΈΡΡΡΠΎΠΉΠΊΠ°, Π½ΡΠΆΠ½ΠΎ Π²ΡΠΊΡΡΠ²Π°ΡΡ ΡΡΠ½Π΄Π°ΠΌΠ΅Π½Ρ Π΄ΠΎΠΌΠ° ΠΈ Π½Π° ΡΠΎΠΌ ΠΆΠ΅ ΡΡΠΎΠ²Π½Π΅ Π·Π°ΠΊΠ»Π°Π΄ΡΠ²Π°ΡΡ Π½ΠΎΠ²ΠΎΠ΅ ΠΎΡΠ½ΠΎΠ²Π°Π½ΠΈΠ΅. Π£Π½ΠΈΠ²Π΅ΡΡΠ°Π»ΡΠ½ΡΠΌ ΡΠ΅ΡΠ΅Π½ΠΈΠ΅ΠΌ ΡΠ²Π»ΡΠ΅ΡΡΡ ΡΡΡΡΠΎΠΉΡΡΠ²ΠΎ ΠΌΠΎΠ½ΠΎΠ»ΠΈΡΠ½ΠΎΠ³ΠΎ Π»Π΅Π½ΡΠΎΡΠ½ΠΎΠ³ΠΎ ΡΡΠ½Π΄Π°ΠΌΠ΅Π½ΡΠ°.
- Π‘ΡΠ΅Π½Ρ ΠΏΠΎΠ΄Π½ΠΈΠΌΠ°ΡΡΡΡ Ρ ΠΏΡΠΈΠΌΠ΅Π½Π΅Π½ΠΈΠ΅ΠΌ ΡΠΎΠ³ΠΎ ΠΆΠ΅ ΠΌΠ°ΡΠ΅ΡΠΈΠ°Π»Π°, ΠΈΡΠΏΠΎΠ»ΡΠ·ΡΠ΅ΠΌΠΎΠ³ΠΎ ΠΏΡΠΈ ΡΡΡΠΎΠΈΡΠ΅Π»ΡΡΡΠ²Π΅ ΠΎΡΠ½ΠΎΠ²Π½ΠΎΠ³ΠΎ Π΄ΠΎΠΌΠ°. ΠΠΎΠ³Π΄Π° Π΄ΠΎΠΌ ΠΊΠΈΡΠΏΠΈΡΠ½ΡΠΉ, ΡΡΠ΅Π½Ρ ΠΌΠΎΠΆΠ½ΠΎ ΠΏΠΎΠ΄Π½ΠΈΠΌΠ°ΡΡ ΠΊΠ°ΠΊ ΠΈΠ· ΠΊΠΈΡΠΏΠΈΡΠ°, ΡΠ°ΠΊ ΠΈ ΠΈΠ· ΠΏΠ΅Π½ΠΎΠ±Π»ΠΎΠΊΠΎΠ², ΡΡΠΎΠΈΠΌΠΎΡΡΡ ΠΊΠΎΡΠΎΡΡΡ Π·Π½Π°ΡΠΈΡΠ΅Π»ΡΠ½ΠΎ ΠΌΠ΅Π½ΡΡΠ΅. ΠΠ»Ρ ΡΠΎΠ³ΠΎ ΡΡΠΎΠ±Ρ ΡΡΡΠΊΠΎΠ²Π°ΡΡ ΡΡΠ΅Π½Ρ ΠΏΡΠΈΡΡΡΠΎΠΉΠΊΠΈ ΠΈ ΠΎΡΠ½ΠΎΠ²Π½ΠΎΠ³ΠΎ Π·Π΄Π°Π½ΠΈΡ, ΠΌΠΎΠΆΠ½ΠΎ ΠΏΡΠΈΠΌΠ΅Π½ΠΈΡΡ ΡΠ²ΡΠ·ΠΊΡ ΠΈΠ· Π°ΡΠΌΠ°ΡΡΡΠ½ΡΡ ΠΏΡΡΡΡΠ΅Π². Π ΡΡΠ΅Π½Ρ ΠΎΡΠ½ΠΎΠ²Π½ΠΎΠ³ΠΎ Π·Π΄Π°Π½ΠΈΡ Π½Π°ΡΠ²Π΅ΡΠ»ΠΈΠ²Π°ΡΡΡΡ ΠΎΡΠ²Π΅ΡΡΡΠΈΡ ΠΏΠΎΠ΄ ΠΎΡΡΠ΅Π·ΠΊΠΈ Π°ΡΠΌΠ°ΡΡΡΡ. ΠΡΡΡΡΡ Π²Π±ΠΈΠ²Π°ΡΡΡΡ Π² ΠΎΡΠ²Π΅ΡΡΡΠΈΡ ΡΠ°ΠΊΠΈΠΌ ΠΎΠ±ΡΠ°Π·ΠΎΠΌ, ΡΡΠΎΠ±Ρ ΠΈΡ ΠΏΡΠΎΡΠΈΠ²ΠΎΠΏΠΎΠ»ΠΎΠΆΠ½ΡΠΉ ΠΊΠΎΠ½Π΅Ρ Π±ΡΠ» Π·Π°Π΄Π΅Π»Π°Π½ Π² ΠΊΠ»Π°Π΄ΠΊΡ ΡΡΠ΅Π½ ΠΏΡΠΈΡΡΡΠΎΠΉΠΊΠΈ. Π‘ΡΠ΅Π½Ρ ΠΏΡΠΈΡΡΡΠΎΠΉΠΊΠΈ ΠΏΠΎΠ΄Π½ΠΈΠΌΠ°ΡΡΡΡ Π½Π° ΠΏΠ°ΡΡ ΠΊΠΈΡΠΏΠΈΡΠ΅ΠΉ Π½ΠΈΠΆΠ΅ Π²ΡΡΠΎΡΡ ΡΡΠ΅Π½ ΠΎΡΠ½ΠΎΠ²Π½ΠΎΠ³ΠΎ Π·Π΄Π°Π½ΠΈΡ.
- ΠΡΡΡΠ° ΠΏΡΠΈΡΡΡΠΎΠΉΠΊΠΈ Π΄Π΅Π»Π°Π΅ΡΡΡ ΠΎΠ΄Π½ΠΎΡΠΊΠ°ΡΠ½ΠΎΠΉ Ρ ΡΠ΅ΠΌ ΡΠ°ΡΡΡΡΠΎΠΌ, ΡΡΠΎΠ±Ρ Π΅Π΅ Π½Π°ΠΈΠ²ΡΡΡΠ°Ρ ΡΠΎΡΠΊΠ° ΠΏΡΠΈΠΌΡΠΊΠ°Π»Π° ΠΊ ΡΡΠ΅Π½Π΅ Π΄ΠΎΠΌΠ° ΠΈ ΡΠ°ΠΊΠΈΠΌ ΠΎΠ±ΡΠ°Π·ΠΎΠΌ Π·Π°Ρ ΠΎΠ΄ΠΈΠ»Π° ΠΏΠΎΠ΄ ΠΎΡΠ½ΠΎΠ²Π½ΡΡ ΠΊΡΡΡΡ. ΠΠ΅ΡΠ΅ΠΊΡΡΡΠΈΡ ΠΏΠΎΡΠΎΠ»ΠΊΠ° ΡΡΡΠΎΡΡΡΡ ΠΈΠ· Π±ΡΡΡΠ° 100*100 ΠΌΠΌ ΠΈΠ»ΠΈ ΠΈΠ· Π΄ΠΎΡΠΊΠΈ Π°Π½Π°Π»ΠΎΠ³ΠΈΡΠ½ΠΎΠΉ ΡΠΈΡΠΈΠ½Ρ, ΠΏΠΎΠ»ΠΎΠΆΠ΅Π½Π½ΠΎΠΉ Π½Π° ΡΠ΅Π±ΡΠΎ.Π‘Π½ΠΈΠ·Ρ ΠΈ ΡΠ²Π΅ΡΡ Ρ Π±Π°Π»ΠΎΠΊ Π΄Π΅Π»Π°Π΅ΡΡΡ ΠΎΠ±ΡΠ΅ΡΠ΅ΡΠΊΠ°, Π² ΠΊΠΎΡΠΎΡΡΡ Π·Π°ΠΊΠ»Π°Π΄ΡΠ²Π°Π΅ΡΡΡ ΠΏΠ°ΡΠΎ- ΠΈ ΡΠ΅ΠΏΠ»ΠΎΠΈΠ·ΠΎΠ»ΡΡΠΈΡ. Π‘ΡΡΠΎΠΏΠΈΠ»Π° ΠΊΡΠΎΠ²Π»ΠΈ ΠΌΠΎΠ½ΡΠΈΡΡΡΡΡΡ ΡΠ°ΠΊΠΈΠΌ ΠΎΠ±ΡΠ°Π·ΠΎΠΌ, ΡΡΠΎΠ±Ρ ΡΠ³ΠΎΠ» Π½Π°ΠΊΠ»ΠΎΠ½Π° ΡΠΎΡΡΠ°Π²Π»ΡΠ» 20%. Π ΠΊΠ°ΡΠ΅ΡΡΠ²Π΅ ΠΊΡΠΎΠ²Π΅Π»ΡΠ½ΠΎΠ³ΠΎ ΠΌΠ°ΡΠ΅ΡΠΈΠ°Π»Π° ΠΊΠ°ΠΊ Π½Π°ΠΈΠ±ΠΎΠ»Π΅Π΅ Π±ΡΠ΄ΠΆΠ΅ΡΠ½ΠΎΠ΅ ΡΠ΅ΡΠ΅Π½ΠΈΠ΅ ΠΌΠΎΠΆΠ½ΠΎ ΠΏΡΠΈΠΌΠ΅Π½ΠΈΡΡ Π°ΡΠ±Π΅ΡΡΠΎΡΠ΅ΠΌΠ΅Π½ΡΠ½ΡΠΉ ΡΠΈΡΠ΅Ρ.ΠΡΠ΅ ΡΠ΅Π»ΠΈ ΠΈ Π·Π°Π·ΠΎΡΡ Π½Π° ΠΌΠ΅ΡΡΠ΅ ΠΏΡΠΈΠΌΡΠΊΠ°Π½ΠΈΡ ΡΠΈΡΠ΅ΡΠ° ΠΊ ΡΡΠ΅Π½Π΅ ΠΎΡΠ½ΠΎΠ²Π½ΠΎΠ³ΠΎ Π΄ΠΎΠΌΠ° Π·Π°Π΄Π΅Π»ΡΠ²Π°ΡΡΡΡ ΠΌΠΎΠ½ΡΠ°ΠΆΠ½ΠΎΠΉ ΠΏΠ΅Π½ΠΎΠΉ.
- Π‘Π°ΠΌΡΠΌ ΠΏΡΠΎΡΡΡΠΌ ΠΈ ΡΡΡΠ΅ΠΊΡΠΈΠ²Π½ΡΠΌ ΠΌΠ΅ΡΠΎΠ΄ΠΎΠΌ ΠΎΠ±ΡΡΡΡΠΎΠΉΡΡΠ²Π° ΠΏΠΎΠ»Π° ΡΠ²Π»ΡΠ΅ΡΡΡ Π·Π°Π»ΠΈΠ²ΠΊΠ° ΡΡΡΠΆΠΊΠΈ. Π‘ΡΡΠΆΠΊΠ° Π·Π°Π»ΠΈΠ²Π°Π΅ΡΡΡ Ρ Π½Π΅Π·Π½Π°ΡΠΈΡΠ΅Π»ΡΠ½ΡΠΌ ΡΠΊΠ»ΠΎΠ½ΠΎΠΌ Π² Π½Π°ΠΏΡΠ°Π²Π»Π΅Π½ΠΈΠΈ ΡΠ»ΠΈΠ²Π½ΠΎΠΉ ΡΡΡΠ±Ρ Π±Π°Π½ΠΈ. ΠΠ° ΡΡΠΎΠΌ ΠΆΠ΅ ΡΡΠ°ΠΏΠ΅ ΠΌΠΎΠ½ΡΠΈΡΡΠ΅ΡΡΡ ΡΠ»ΠΈΠ²Π½ΠΎΠΉ ΡΡΠ°ΠΏ. Π ΠΊΠ°ΡΠ΅ΡΡΠ²Π΅ Π½Π°ΠΏΠΎΠ»ΡΠ½ΠΎΠ³ΠΎ ΠΏΠΎΠΊΡΡΡΠΈΡ ΡΠ΅ΠΊΠΎΠΌΠ΅Π½Π΄ΠΎΠ²Π°Π½ΠΎ ΠΏΡΠΈΠΌΠ΅Π½Π΅Π½ΠΈΠ΅ ΠΊΠ΅ΡΠ°ΠΌΠΈΡΠ΅ΡΠΊΠΎΠΉ ΠΏΠ»ΠΈΡΠΊΠΈ Ρ ΡΠ΅Π»ΡΠ΅ΡΠ½ΠΎΠΉ Π½Π΅ΡΠΊΠΎΠ»ΡΠ·ΡΡΠ΅ΠΉ ΠΏΠΎΠ²Π΅ΡΡ Π½ΠΎΡΡΡΡ.
- ΠΡΠ΄Π΅Π»ΠΊΠ° ΠΈΠ½ΡΠ΅ΡΡΠ΅ΡΠ° Π·Π°ΠΊΠ»ΡΡΠ°Π΅ΡΡΡ Π² ΠΎΠ±ΡΠΈΠ²ΠΊΠ΅ ΡΡΠ΅Π½ ΠΈ ΠΏΠΎΡΠΎΠ»ΠΎΡΠ½ΠΎΠ³ΠΎ ΠΏΠ΅ΡΠ΅ΠΊΡΡΡΠΈΡ Π±Π°Π½ΠΈ ΠΈ Π΄ΠΎΠΌΠ° Π΄Π΅ΡΠ΅Π²ΡΠ½Π½ΠΎΠΉ Π²Π°Π³ΠΎΠ½ΠΊΠΎΠΉ. Π ΠΊΠ°ΡΠ΅ΡΡΠ²Π΅ Π°Π»ΡΡΠ΅ΡΠ½Π°ΡΠΈΠ²Ρ Π²Π°Π³ΠΎΠ½ΠΊΠ΅, Π΄Π»Ρ ΠΎΠ±Π»ΠΈΡΠΎΠ²ΠΊΠΈ ΡΡΠ΅Π½ ΠΌΠΎΠΆΠ½ΠΎ ΠΏΡΠΈΠΌΠ΅Π½ΠΈΡΡ ΠΏΡΠΎΡΠ½ΡΡ ΠΈ Π΄ΠΎΠ»Π³ΠΎΠ²Π΅ΡΠ½ΡΡ ΠΊΠ΅ΡΠ°ΠΌΠΈΡΠ΅ΡΠΊΡΡ ΠΏΠ»ΠΈΡΠΊΡ. ΠΠ° ΡΡΠΎΠΌ ΠΆΠ΅ ΡΡΠ°ΠΏΠ΅ ΡΡΡΠ°Π½Π°Π²Π»ΠΈΠ²Π°Π΅ΡΡΡ ΠΎΠ±ΠΎΡΡΠ΄ΠΎΠ²Π°Π½ΠΈΠ΅, Π½Π΅ΠΎΠ±Ρ ΠΎΠ΄ΠΈΠΌΠΎΠ΅ Π΄Π»Ρ ΡΠΊΡΠΏΠ»ΡΠ°ΡΠ°ΡΠΈΠΈ Π±Π°Π½ΠΈ, Π²ΠΊΠ»ΡΡΠ°Ρ ΡΠΏΠ΅ΡΠΈΠ°Π»ΡΠ½ΡΡ ΠΌΠ΅Π±Π΅Π»Ρ, ΠΏΠ΅ΡΡ, ΡΠ»Π΅ΠΊΡΡΠΈΡΠ΅ΡΠΊΡΡ ΠΏΡΠΎΠ²ΠΎΠ΄ΠΊΡ ΠΊ ΡΠΎΠ·Π΅ΡΠΊΠ°ΠΌ ΠΈ ΠΎΡΠ²Π΅ΡΠΈΡΠ΅Π»ΡΠ½ΡΠΌ ΠΏΡΠΈΠ±ΠΎΡΠ°ΠΌ ΠΈ Ρ.Π΄.

Π‘ΠΎΠ²Π΅ΡΡ ΠΈ ΡΠ΅ΠΊΠΎΠΌΠ΅Π½Π΄Π°ΡΠΈΠΈ
- Π‘Π»Π΅Π΄ΡΠ΅Ρ ΠΏΡΠΈΠΌΠ΅Π½ΡΡΡ Π»Π΅Π½ΡΠΎΡΠ½ΠΎΠ΅ ΠΎΡΠ½ΠΎΠ²Π°Π½ΠΈΠ΅ Π΄Π»Ρ ΡΡΡΠΎΠΈΡΠ΅Π»ΡΠ½ΡΡ ΡΠ°Π±ΠΎΡ β ΠΎΠ½ΠΎ ΡΠΏΠΎΡΠΎΠ±Π½ΠΎ Π²ΡΠ΄Π΅ΡΠΆΠΈΠ²Π°ΡΡ Π±ΠΎΠ»ΡΡΡΡ Π½Π°Π³ΡΡΠ·ΠΊΡ ΠΈ Π΄Π»ΠΈΡΠ΅Π»ΡΠ½ΡΠΉ ΠΏΠ΅ΡΠΈΠΎΠ΄ Π½Π΅ Π±ΡΠ΄Π΅Ρ ΠΏΡΠΎΡΠ΅Π΄Π°ΡΡ.
- ΠΠ°ΠΊ ΠΌΠ°ΡΠ΅ΡΠΈΠ°Π» Π΄Π»Ρ ΡΡΠ΅Π½ ΠΎΠ±ΡΡΠ½ΠΎ ΠΏΡΠΈΠΌΠ΅Π½ΡΠ΅ΡΡΡ Π΄ΡΠ΅Π²Π΅ΡΠΈΠ½Π°. ΠΠ½Π° ΠΌΠ°ΠΊΡΠΈΠΌΠ°Π»ΡΠ½ΡΠΌ ΠΎΠ±ΡΠ°Π·ΠΎΠΌ ΠΏΡΠΎΠΏΡΡΠΊΠ°Π΅Ρ Π²ΠΎΠ·Π΄ΡΡ , Π½Π΅ ΡΠΎΠ·Π΄Π°Π²Π°Ρ Π²Π½ΡΡΡΠΈ Π±Π°Π½ΠΈ ΠΏΠ°ΡΠ½ΠΈΠΊΠΎΠ²ΡΠΉ ΡΡΡΠ΅ΠΊΡ ΠΈ ΠΏΡΠ΅ΠΏΡΡΡΡΠ²ΡΠ΅Ρ ΡΠ°Π·Π²ΠΈΡΠΈΡ Π³Π½ΠΈΠ»ΠΎΡΡΠ½ΡΡ Π±Π°ΠΊΡΠ΅ΡΠΈΠΉ ΠΌΠΈΠΊΡΠΎΠΊΠ»ΠΈΠΌΠ°ΡΠ°.
- ΠΡΠΈ Π²ΠΎΠ·Π²Π΅Π΄Π΅Π½ΠΈΠΈ ΠΊΡΠΎΠ²Π»ΠΈ Π½Π°Π΄ Π±Π°Π½Π΅ΠΉ, ΡΠ»Π΅Π΄ΡΠ΅Ρ ΠΏΠΎΠΌΠ½ΠΈΡΡ ΠΎ ΡΠΎΠΌ, ΡΡΠΎ Π΅ΠΉ ΡΠ°ΠΊΠΆΠ΅ Π½Π΅ΠΎΠ±Ρ ΠΎΠ΄ΠΈΠΌΠ° ΡΠ΅ΠΏΠ»ΠΎΠΈΠ·ΠΎΠ»ΡΡΠΈΡ. Π’Π΅ΠΌ Π±ΠΎΠ»Π΅Π΅ ΡΡΠΎ ΠΊΠ°ΡΠ°Π΅ΡΡΡ Π±Π°Π½Ρ, ΠΊΠΎΡΠΎΡΡΠ΅ ΡΠΎΠ΅Π΄ΠΈΠ½Π΅Π½Ρ ΠΊΡΡΡΠ΅ΠΉ Ρ ΠΆΠΈΠ»ΡΠΌ Π΄ΠΎΠΌΠΎΠΌ.
- ΠΡΠ»ΠΈ ΠΏΠ°Ρ Π±Π΅ΡΠΏΡΠ΅ΠΏΡΡΡΡΠ²Π΅Π½Π½ΠΎ Π±ΡΠ΄Π΅Ρ ΠΏΡΠΎΠ½ΠΈΠΊΠ°ΡΡ ΠΏΠΎΠ΄ ΠΊΡΠΎΠ²Π»Ρ, Π² ΡΠΊΠΎΡΠΎΠΌ Π²ΡΠ΅ΠΌΠ΅Π½ΠΈ ΠΊΡΡΡΠ΅ ΠΏΠΎΡΡΠ΅Π±ΡΠ΅ΡΡΡ ΠΊΠ°ΠΏΠΈΡΠ°Π»ΡΠ½ΡΠΉ ΡΠ΅ΠΌΠΎΠ½Ρ.
ΠΠ°Π½Ρ β ΠΈΠ·Π»ΡΠ±Π»Π΅Π½Π½ΠΎΠ΅ ΠΌΠ΅ΡΡΠΎ ΠΎΡΠ΄ΡΡ Π° Π΄Π»Ρ ΡΡΡΡΠΊΠΎΠ³ΠΎ ΡΠ΅Π»ΠΎΠ²Π΅ΠΊΠ°, ΡΠ΅Π³ΠΎΠ΄Π½Ρ ΡΡΠΎ Π½Π΅ ΡΠΎΠ»ΡΠΊΠΎ ΡΡΠ΅Π΄ΡΡΠ²ΠΎ Π΄ΠΎΠ±ΠΈΡΡΡΡ ΡΠΈΡΡΠΎΡΡ ΡΠ΅Π»Π°, Π½ΠΎ ΠΈ Π²ΠΎΠ·ΠΌΠΎΠΆΠ½ΠΎΡΡΡ ΠΏΠΎΠ»ΡΡΠΈΡΡ ΠΌΠ°ΡΡΡ ΠΏΡΠΈΡΡΠ½ΡΡ ΡΠΌΠΎΡΠΈΠΉ.
ΠΡΠΈΡΡΡΠΎΠΈΡΡ Π±Π°Π½Ρ ΠΊ Π΄ΠΎΠΌΡ ΠΏΠΎ ΡΠΈΠ»Π°ΠΌ Π±ΠΎΠ»ΡΡΠΈΠ½ΡΡΠ²Ρ ΠΆΠ΅Π»Π°ΡΡΠΈΡ . ΠΠΎ Π΄Π»Ρ ΡΠΎΠ³ΠΎ ΡΡΠΎΠ±Ρ ΡΠΊΡΠΏΠ»ΡΠ°ΡΠ°ΡΠΈΡ ΠΏΡΠΈΡΡΡΠΎΠΉΠΊΠΈ ΠΎΠΏΡΠ°Π²Π΄Π°Π»Π° Π²Π°ΡΠΈ ΠΎΠΆΠΈΠ΄Π°Π½ΠΈΡ,Π½ΡΠΆΠ½ΠΎ ΡΠΎΡΡΠ°Π²ΠΈΡΡ ΠΏΡΠΎΠ΅ΠΊΡ ΠΈ ΡΠ°Π±ΠΎΡΠ°ΡΡ Π² ΡΠΎΠΎΡΠ²Π΅ΡΡΡΠ²ΠΈΠΈ Ρ Π½ΠΈΠΌ. ΠΡΡΠ°ΡΠΈ, ΠΏΡΠΎΡΠ΅ΡΡΠΈΠΎΠ½Π°Π»ΡΠ½ΠΎ ΡΠ°Π·ΡΠ°Π±ΠΎΡΠ°Π½Π½ΡΠΉ ΠΏΡΠΎΠ΅ΠΊΡ ΠΏΡΠΈΡΡΡΠΎΠΉΠΊΠΈ ΠΏΠΎΠ·Π²ΠΎΠ»ΠΈΡ Π±ΡΡΡΡΠ΅Π΅ ΠΈ ΠΏΡΠΎΡΠ΅ ΠΏΠΎΡΡΠ°Π²ΠΈΡΡ Π΅Π΅ Π½Π° ΡΡΡΡ Π² ΠΊΠ°Π΄Π°ΡΡΡΠΎΠ²ΡΡ ΠΎΡΠ³Π°Π½Π°Ρ .
househill.ru
ΠΡΠΎΠ΅ΠΊΡΡ Π΄ΠΎΠΌΠΎΠ² Ρ Π±Π°Π½Π΅ΠΉ ΠΏΠΎΠ΄ ΠΎΠ΄Π½ΠΎΠΉ ΠΊΡΡΡΠ΅ΠΉ

ΠΠ°ΠΊΠΎΠΉ ΠΏΡΠΎΠ΅ΠΊΡ Π΄ΠΎΠΌΠ° Ρ Π±Π°Π½Π΅ΠΉ ΠΏΠΎΠ΄ ΠΎΠ΄Π½ΠΎΠΉ ΠΊΡΡΡΠ΅ΠΉ Π²ΡΠ±ΡΠ°ΡΡ β Π²Π°ΡΠΈΠ°Π½ΡΡ ΠΈ Π²ΠΎΠ·ΠΌΠΎΠΆΠ½ΠΎΡΡΠΈ
Π ΠΎΡΠ½ΠΎΠ²Π½ΠΎΠΌ Π±Π°Π½ΠΈ ΠΏΡΠΈΠ½ΡΡΠΎ ΡΠ°Π·ΠΌΠ΅ΡΠ°ΡΡ Π² ΠΎΡΠ΄Π΅Π»ΡΠ½ΠΎ ΡΡΠΎΡΡΠΈΡ Π·Π΄Π°Π½ΠΈΡΡ , ΠΎΠ±ΠΎΡΡΠ΄ΠΎΠ²Π°Π½Π½ΡΡ ΡΠΈΡΡΠ΅ΠΌΠΎΠΉ ΠΊΠΎΠΌΠΌΡΠ½ΠΈΠΊΠ°ΡΠΈΠΉ, ΠΊΠ°Π½Π°Π»ΠΈΠ·Π°ΡΠΈΠ΅ΠΉ ΠΈ ΠΎΡΠ½Π°ΡΠ΅Π½Π½ΡΡ Π²ΡΠ΅ΠΌ Π½Π΅ΠΎΠ±Ρ ΠΎΠ΄ΠΈΠΌΡΠΌ. ΠΠ΄Π½Π°ΠΊΠΎ Π² Π΄Π°Π½Π½ΠΎΠΌ ΠΌΠ°ΡΠ΅ΡΠΈΠ°Π»Π΅ ΠΌΡ ΡΠ°ΡΡΠΊΠ°ΠΆΠ΅ΠΌ ΠΎ ΡΠΎΠΌ, ΠΊΠ°ΠΊΠΈΠΌ ΠΎΠ±ΡΠ°Π·ΠΎΠΌ ΠΌΠΎΠΆΠ½ΠΎ ΠΏΠΎΡΡΡΠΎΠΈΡΡ Π΄ΠΎΠΌ Ρ Π±Π°Π½Π΅ΠΉ ΠΏΠΎΠ΄ ΠΎΠ΄Π½ΠΎΠΉ ΠΊΡΡΡΠ΅ΠΉ.

ΠΡΠ»ΠΈ ΡΠ°ΡΡΠΌΠ°ΡΡΠΈΠ²Π°ΡΡ ΡΠΈΠ½Π°Π½ΡΠΎΠ²ΡΠΉ Π°ΡΠΏΠ΅ΠΊΡ Π²ΠΎΠΏΡΠΎΡΠ°, ΡΠΎ ΡΠΎΠ²ΠΌΠ΅ΡΠ΅Π½Π½ΡΠΉ Ρ Π±Π°Π½Π΅ΠΉ Π΄ΠΎΠΌ Π±ΡΠ΄Π΅Ρ ΠΏΠΎΡΡΡΠΎΠΈΡΡ Π½Π°ΠΌΠ½ΠΎΠ³ΠΎ ΠΏΡΠΎΡΠ΅ ΠΈ Π΄Π΅ΡΠ΅Π²Π»Π΅. ΠΠ΅Π΄Ρ ΠΏΠΎΡΡΠ΅Π±ΡΠ΅ΡΡΡ Π²ΠΎΠ·Π²Π΅ΡΡΠΈ ΠΎΠ±ΡΡΡ ΠΊΡΠΎΠ²Π»Ρ, ΠΏΡΠΎΠ²Π΅ΡΡΠΈ Π΅Π΄ΠΈΠ½ΡΡ ΡΠΈΡΡΠ΅ΠΌΡ ΠΊΠΎΠΌΠΌΡΠ½ΠΈΠΊΠ°ΡΠΈΠΉ ΠΈ ΡΠ»Π΅ΠΊΡΡΠΎΡΠ½Π°Π±ΠΆΠ΅Π½ΠΈΡ. Π ΠΏΡΠΈ ΡΡΠ»ΠΎΠ²ΠΈΠΈ Π³ΡΠ°ΠΌΠΎΡΠ½ΠΎ ΡΠΎΡΡΠ°Π²Π»Π΅Π½Π½ΠΎΠ³ΠΎ ΠΏΡΠΎΠ΅ΠΊΡΠ° Π²Ρ Π½Π΅ Π±ΡΠ΄Π΅ΡΠ΅ ΠΎΡΡΡΠ°ΡΡ Π½ΠΈΠΊΠ°ΠΊΠΎΠ³ΠΎ Π΄ΠΈΡΠΊΠΎΠΌΡΠΎΡΡΠ° ΠΎΡ ΡΠ°Π·ΠΌΠ΅ΡΠ΅Π½Π½ΠΎΠΉ Π² Π΄ΠΎΠΌΠ΅ Π±Π°Π½ΠΈ.
ΠΡΠΌΠ΅ΡΠΈΠΌ ΡΠ°ΠΊΠΆΠ΅ ΠΈ ΡΠΎΡ ΡΠ°ΠΊΡ, ΡΡΠΎ ΡΡΠ°ΡΠ΅Π»ΡΠ½ΠΎ ΡΠ»ΠΎΠΆΠ΅Π½Π½Π°Ρ ΠΏΠ°ΡΠΎΠΈΠ·ΠΎΠ»ΡΡΠΈΡ ΠΏΠΎΠ·Π²ΠΎΠ»ΠΈΡ Π·Π°ΡΠΈΡΠΈΡΡ Π΄ΠΎΠΌ ΠΎΡ ΠΏΠΎΠ²ΡΡΠ΅Π½Π½ΠΎΠΉ Π²Π»Π°ΠΆΠ½ΠΎΡΡΠΈ, ΠΏΠΎΡΡΡΠΏΠ°ΡΡΠ΅ΠΉ ΠΈΠ· ΠΏΠ°ΡΠΈΠ»ΠΊΠΈ. ΠΠ° ΠΈ ΡΠΎ, Π²ΡΡ Π²Π»Π°Π³Π° ΠΈΡΠΏΠ°ΡΠΈΡΡΡ ΡΠΆΠ΅ ΡΠΏΡΡΡΡ ΠΏΠ°ΡΡ ΡΠ°ΡΠΎΠ². Π§ΡΠΎ ΠΆΠ΅ ΠΊΠ°ΡΠ°Π΅ΡΡΡ ΠΏΠΎΠΆΠ°ΡΠ½ΠΎΠΉ ΠΎΠΏΠ°ΡΠ½ΠΎΡΡΠΈ, ΡΠΎ ΠΎΠ½Π° Π½Π΅ Π²ΡΡΠ΅, ΡΠ΅ΠΌ ΠΏΡΠΈ ΠΎΠ±ΡΡΠ½ΠΎΠΉ ΡΠΊΡΠΏΠ»ΡΠ°ΡΠ°ΡΠΈΠΈ Π»ΡΠ±ΠΎΠ³ΠΎ ΠΆΠΈΠ»ΠΎΠ³ΠΎ ΠΏΠΎΠΌΠ΅ΡΠ΅Π½ΠΈΡ.
ΠΠ΅ΡΠΎΠ΄ΠΈΠΊΠ° ΡΡΡΠΎΠΈΡΠ΅Π»ΡΡΡΠ²Π° Π΄ΠΎΠΌΠ° Ρ Π±Π°Π½Π΅ΠΉ ΠΏΠΎΠ΄ ΠΎΠ΄Π½ΠΎΠΉ ΠΊΡΡΡΠ΅ΠΉ
Π‘ΠΏΠΎΡΠΎΠ±ΠΎΠ² ΡΡΡΠΎΠΈΡΠ΅Π»ΡΡΡΠ²Π° Π±Π°Π½ΠΈ Ρ Π΄ΠΎΠΌΠΎΠΌ ΠΏΠΎΠ΄ ΠΎΠ΄Π½ΠΎΠΉ ΠΊΡΡΡΠ΅ΠΉ ΠΌΠΎΠΆΠ΅Ρ Π±ΡΡΡ Π΄Π²Π°: ΠΏΡΠ΅Π΄ΡΡΠΌΠΎΡΡΠ΅ΡΡ Π²ΡΠ΅ Π½Π° ΡΡΠ°Π΄ΠΈΠΈ ΠΏΠ»Π°Π½ΠΈΡΠΎΠ²Π°Π½ΠΈΡ, Π»ΠΈΠ±ΠΎ ΠΏΡΠΈΡΡΡΠΎΠΈΡΡ Π² ΠΊΠ°ΡΠ΅ΡΡΠ²Π΅ Π΄ΠΎΠΏΠΎΠ»Π½ΠΈΡΠ΅Π»ΡΠ½ΠΎΠ³ΠΎ ΠΊΡΡΠ»Π°.
ΠΠ°ΠΊ ΠΏΡΠ°Π²ΠΈΠ»ΠΎ, ΠΈΡΠΏΠΎΠ»ΡΠ·ΡΡΡ Π²ΡΠΎΡΠΎΠΉ Π²Π°ΡΠΈΠ°Π½Ρ, ΠΏΠΎΡΠΊΠΎΠ»ΡΠΊΡ Π½Π΅ Π²ΡΠ΅ ΠΌΠΎΠΆΠ½ΠΎ ΠΏΡΠ΅Π΄ΡΠ³Π°Π΄Π°ΡΡ Π·Π°ΡΠ°Π½Π΅Π΅, Π½Π°ΠΏΡΠΈΠΌΠ΅Ρ, ΠΈΠ·Π½Π°ΡΠ°Π»ΡΠ½ΠΎ Ρ ΠΎΠ·ΡΠ΅Π²Π° ΠΌΠΎΠ³Π»ΠΈ ΠΈ Π½Π΅ Ρ ΠΎΡΠ΅ΡΡ Π²ΠΎΠ·Π²ΠΎΠ΄ΠΈΡΡ Π±Π°Π½Ρ ΠΏΡΡΠΌΠΎ Π² Π΄ΠΎΠΌΠ΅.
ΠΡΠ°ΠΊ, Π΄Π»Ρ Π½Π°ΡΠ°Π»Π° ΡΡΡΠΎΠΈΡΠ΅Π»ΡΡΡΠ²Π° ΡΠ»Π΅Π΄ΡΠ΅Ρ Π²ΡΡΡΡΡ ΡΠΌΡ ΠΏΠΎΠ΄ Π·Π°Π»ΠΈΠ²ΠΊΡ Π»Π΅Π½ΡΠΎΡΠ½ΠΎΠ³ΠΎ ΡΡΠ½Π΄Π°ΠΌΠ΅Π½ΡΠ°. ΠΡΠΌΠ΅ΡΠΈΠΌ, ΡΡΠΎ ΠΌΠ°ΡΠ΅ΡΠΈΠ°Π» Π΄Π»Ρ Π²ΠΎΠ·Π²Π΅Π΄Π΅Π½ΠΈΡ ΡΡΠ΅Π½ Π±Π°Π½ΠΈ Π³ΠΎΡΡΠ΅Π²ΠΎΠ³ΠΎ Π΄ΠΎΠΌΠ° Π΄ΠΎΠ»ΠΆΠ΅Π½ Π±ΡΡΡ Π°Π½Π°Π»ΠΎΠ³ΠΈΡΠ½ΡΠΌ Π²ΠΎ Π²ΡΠ΅ΠΉ ΠΏΠΎΡΡΡΠΎΠΉΠΊΠ΅. Π’Π°ΠΊΠΎΠΉ ΠΏΠΎΠ΄Ρ ΠΎΠ΄ ΠΏΠΎΠ·Π²ΠΎΠ»ΠΈΡ ΠΈΠ·Π±Π΅ΠΆΠ°ΡΡ ΠΌΠΎΠ½ΡΠ°ΠΆΠ° Π²ΡΠΏΠΎΠΌΠΎΠ³Π°ΡΠ΅Π»ΡΠ½ΡΡ ΠΊΡΠ΅ΠΏΠ΅ΠΆΠ½ΡΡ ΡΠ»Π΅ΠΌΠ΅Π½ΡΠΎΠ².

ΠΠ»Ρ ΡΠ΅Ρ , ΠΊΡΠΎ Ρ ΠΎΡΠ΅Ρ ΡΠΎΠΎΡΡΠ΄ΠΈΡΡ Π°ΡΡΠ΅Π½ΡΠΈΡΠ½ΡΠΉ Π±ΡΠ΅Π²Π΅Π½ΡΠ°ΡΡΠΉ ΡΡΡΠ± Π΄Π»Ρ ΡΡΡΡΠΊΠΎΠΉ Π±Π°Π½ΠΈ, Π½Π΅Ρ Π½ΠΈΠΊΠ°ΠΊΠΈΡ ΠΎΠ³ΡΠ°Π½ΠΈΡΠ΅Π½ΠΈΠΉ. Π§ΡΠΎΠ±Ρ Π΄ΠΎΠ±ΠΈΡΡΡΡ Π΅Π΄ΠΈΠ½ΠΎΠ³ΠΎ Π²Π½Π΅ΡΠ½Π΅Π³ΠΎ Π΄ΠΈΠ·Π°ΠΉΠ½Π°, ΠΌΠΎΠΆΠ½ΠΎ ΠΏΡΠΎΡΡΠΎ ΠΎΠ±ΡΠΈΡΡ Π±ΡΠ΅Π²Π½Π° ΡΠ°ΠΊΠΈΠΌ ΠΆΠ΅ ΠΌΠ°ΡΠ΅ΡΠΈΠ°Π»ΠΎΠΌ, ΠΊΠ°ΠΊ ΠΈ Π²Π΅ΡΡ Π΄ΠΎΠΌ, ΠΏΡΠΈΠΊΡΠ΅ΠΏΠΈΠ² ΡΠ»ΠΎΠΉ ΡΡΠ΅ΠΏΠ»ΠΈΡΠ΅Π»Ρ ΠΈΠ· ΠΌΠΈΠ½Π΅ΡΠ°Π»ΡΠ½ΠΎΠΉ Π²Π°ΡΡ.
Π Π°Π·ΡΠ°Π±Π°ΡΡΠ²Π°Ρ ΠΏΡΠΎΠ΅ΠΊΡ Π³ΠΎΡΡΠ΅Π²ΠΎΠ³ΠΎ Π΄ΠΎΠΌΠ° Ρ Π±Π°Π½Π΅ΠΉ, ΡΡΠΎΠΈΡ ΡΡΠΈΡΡΠ²Π°ΡΡ ΡΠ»Π΅Π΄ΡΡΡΠΈΠ΅ Π½ΡΠ°Π½ΡΡ:
- Π‘ΠΈΡΡΠ΅ΠΌΠ° Π²Π΅Π½ΡΠΈΠ»ΡΡΠΈΠΈ Π΄ΠΎΠ»ΠΆΠ½Π° ΡΡΡΠ΅ΠΊΡΠΈΠ²Π½ΠΎ ΡΠΏΡΠ°Π²Π»ΡΡΡΡΡ Ρ Π²ΡΠ²ΠΎΠ΄ΠΎΠΌ ΠΈΠ·Π»ΠΈΡΠ½Π΅ΠΉ Π²Π»Π°Π³ΠΈ ΠΈΠ· ΠΏΠΎΠΌΠ΅ΡΠ΅Π½ΠΈΡ, ΡΡΠΎΠ±Ρ ΠΏΠ΅ΡΠ΅ΠΊΡΡΡΠΈΡ ΠΈ ΠΊΡΠΎΠ²Π»Ρ Π½Π΅ ΠΏΡΠΈΡΠ»ΠΈ Π² Π½Π΅Π³ΠΎΠ΄Π½ΠΎΡΡΡ ΠΎΡΠ΅Π½Ρ Π±ΡΡΡΡΠΎ.
- Π§ΡΠΎΠ±Ρ Π½Π΅ ΡΠ°Π·ΡΠ°ΡΡΠ°Π»ΠΈΡΡ ΠΏΠ»Π΅ΡΠ΅Π½Ρ ΠΈ Π³ΡΠΈΠ±ΠΎΠΊ, Π±Π°Π½Ρ Π΄ΠΎΠ»ΠΆΠ½Π° Ρ ΠΎΡΠΎΡΠΎ ΠΏΡΠΎΡΡΡ Π°ΡΡ, Π° ΠΊΡΠΎΠΌΠ΅ ΡΠΎΠ³ΠΎ, Π½Π΅ΠΎΠ±Ρ ΠΎΠ΄ΠΈΠΌΠΎ ΠΏΠΎΠ·Π°Π±ΠΎΡΠΈΡΡΡΡ ΠΎ Π³ΠΈΠ΄ΡΠΎΠΈΠ·ΠΎΠ»ΡΡΠΈΠΈ.
- ΠΡΠΈΡΡΡΠ°ΠΈΠ²Π°ΡΡ Π±Π°Π½Ρ Π»ΡΡΡΠ΅ Π²ΡΠ΅Π³ΠΎ ΠΊ ΠΊΡΡ ΠΎΠ½Π½ΠΎΠΉ ΡΡΠ΅Π½Π΅, ΡΡΠΎΠ±Ρ ΠΌΠΎΠΆΠ½ΠΎ Π±ΡΠ»ΠΎ ΠΏΠΎΡΡΡΠΎΠΈΡΡ ΠΎΠ±ΡΡΡ ΠΏΠ΅ΡΠΊΡ, ΠΊΠΎΡΠΎΡΠ°Ρ Π±ΡΠ΄Π΅Ρ Π΄ΠΎΠΏΠΎΠ»Π½ΠΈΡΠ΅Π»ΡΠ½ΠΎ ΠΎΠ±ΠΎΠ³ΡΠ΅Π²Π°ΡΡ ΠΏΠΎΠΌΠ΅ΡΠ΅Π½ΠΈΠ΅ Π±Π°Π½ΠΈ ΠΈ ΡΡΠΊΠΎΡΠΈΡ Π²ΡΠ²Π΅Π΄Π΅Π½ΠΈΠ΅ ΠΈΠ·Π»ΠΈΡΠ½Π΅ΠΉ Π²Π»Π°Π³ΠΈ ΠΈΠ· ΠΏΠΎΠΌΠ΅ΡΠ΅Π½ΠΈΡ.
- ΠΡΠ»ΠΈ ΠΏΠ»Π°Π½ΠΈΡΠΎΠ²ΠΊΠ° Π΄ΠΎΠΌΠ° Ρ Π±Π°Π½Π΅ΠΉ ΠΏΠΎΠ΄ ΠΎΠ΄Π½ΠΎΠΉ ΠΊΡΡΡΠ΅ΠΉ ΠΏΡΠ΅Π΄ΡΡΠΌΠ°ΡΡΠΈΠ²Π°Π΅Ρ Π½Π°Π»ΠΈΡΠΈΠ΅ ΠΊΠ°Π½Π°Π»ΠΈΠ·Π°ΡΠΈΠΈ, Π½Π΅Π²Π°ΠΆΠ½ΠΎ, Π°Π²ΡΠΎΠ½ΠΎΠΌΠ½ΠΎΠΉ ΠΈΠ»ΠΈ ΡΠ΅Π½ΡΡΠ°Π»ΠΈΠ·ΠΎΠ²Π°Π½Π½ΠΎΠΉ, ΡΠΎ ΡΠ΅Π»Π΅ΡΠΎΠΎΠ±ΡΠ°Π·Π½ΠΎ Π±ΡΠ΄Π΅Ρ ΠΎΠ±ΡΠ΅Π΄ΠΈΠ½ΠΈΡΡ Π±Π°Π½Ρ ΠΈ ΡΠ°Π½ΡΠ·Π΅Π», ΡΡΠΎΠ±Ρ Π½Π΅ Π²ΠΎΠ·ΠΈΡΡΡΡ Ρ ΠΎΡΠ³Π°Π½ΠΈΠ·Π°ΡΠΈΠ΅ΠΉ Π΄ΠΎΠΏΠΎΠ»Π½ΠΈΡΠ΅Π»ΡΠ½ΡΡ ΡΡΠΎΠΊΠΎΠ².
- ΡΠ½Π΅ΡΠ³ΠΎΡΠ½Π°Π±ΠΆΠ΅Π½ΠΈΠ΅ Π±Π°Π½Ρ ΠΏΡΠΎΠ΅ΠΊΡΠΎΠΌ ΠΆΠΈΠ»ΠΎΠ³ΠΎ ΠΏΠΎΠΌΠ΅ΡΠ΅Π½ΠΈΡ ΠΏΡΠ΅Π΄ΡΡΠΌΠ°ΡΡΠΈΠ²Π°Π΅ΡΡΡ Π΅Π΄ΠΈΠ½ΠΎΠΉ ΡΠΈΡΡΠ΅ΠΌΠΎΠΉ.
ΠΠ°ΠΊΠΈΠΌ ΠΎΠ±ΡΠ°Π·ΠΎΠΌ Π² ΠΏΡΠΎΠ΅ΠΊΡΠ΅ ΡΠΎΠ²ΠΌΠ΅ΡΡΠΈΡΡ Π΄ΠΎΠΌ Ρ Π±Π°Π½Π΅ΠΉ
Π‘ΠΎΠ²ΠΌΠ΅ΡΠ΅Π½ΠΈΠ΅ Π±Π°Π½ΠΈ Ρ ΠΆΠΈΠ»ΡΠΌ Π΄ΠΎΠΌΠΎΠΌ ΠΌΠΎΠΆΠ΅Ρ Π±ΡΡΡ Π²ΡΠΏΠΎΠ»Π½Π΅Π½ΠΎ ΡΠ°Π·Π»ΠΈΡΠ½ΡΠΌΠΈ ΡΠΏΠΎΡΠΎΠ±Π°ΠΌΠΈ:
- ΠΡΠ»ΠΈ ΡΠ°ΡΠ½Π° Π±ΡΠ΄Π΅Ρ ΡΠ°ΡΠΏΠΎΠ»ΠΎΠΆΠ΅Π½Π° Π½Π° ΠΏΠ΅ΡΠ²ΠΎΠΌ ΡΡΠ°ΠΆΠ΅ Π΄ΠΎΠΌΠ°, ΡΠΎ ΡΡΠΎ Π½ΡΠΆΠ½ΠΎ ΡΡΠ΅ΡΡΡ, ΡΠ°Π·ΡΠ°Π±Π°ΡΡΠ²Π°Ρ ΠΏΡΠΎΠ΅ΠΊΡ Π΄ΠΎΠΌΠ° Ρ Π±Π°Π½Π΅ΠΉ ΠΏΠΎΠ΄ ΠΎΠ΄Π½ΠΎΠΉ ΠΊΡΡΡΠ΅ΠΉ.
- ΠΠ°Π½Ρ ΠΌΠΎΠΆΠ΅Ρ ΡΠ°ΡΠΏΠΎΠ»Π°Π³Π°ΡΡΡΡ Π² ΠΏΠΎΠ»Π½ΠΎΡΠ΅Π½Π½ΠΎΠΉ Π½Π΅Π·Π°Π²ΠΈΡΠΈΠΌΠΎΠΉ ΠΏΡΠΈΡΡΡΠΎΠΉΠΊΠ΅, ΡΠ°ΠΊ ΡΡΠΎ Π²ΡΠ΅ ΠΏΠΎΠΌΠ΅ΡΠ΅Π½ΠΈΡ Π±Π°Π½ΠΈ β ΠΏΠΎΠΌΡΠ²ΠΎΡΠ½Π°Ρ, ΠΏΠ°ΡΠ½Π°Ρ ΠΈ ΠΊΠΎΠΌΠ½Π°ΡΠ° ΠΎΡΠ΄ΡΡ Π° β Π±ΡΠ΄ΡΡ ΠΈΠΌΠ΅ΡΡ ΡΠ²ΠΎΠΈ ΡΠ΅ΡΡΡΠ΅ ΡΡΠ΅Π½Ρ. Π ΡΡΠΎΠΌ ΡΠ»ΡΡΠ°Π΅ ΠΊΡΡΡΡ ΠΎΡΠ½ΠΎΠ²Π½ΠΎΠ³ΠΎ ΡΡΡΠΎΠ΅Π½ΠΈΡ ΠΏΡΠΎΡΡΠΎ ΠΏΡΠΎΠ΄Π»ΡΡΡ, Π·Π°Π²ΠΎΠ΄Ρ Π½Π° Π±Π°Π½Ρ.
- Π ΡΡΠ΅ΡΡΠ΅ΠΌ ΡΠ»ΡΡΠ°Π΅, ΠΊΠΎΠ³Π΄Π° ΠΏΡΠΎΠ΅ΠΊΡΠΎΠΌ Π΄ΠΎΠΌΠ° Π±Π°Π½Ρ Π½Π΅ Π±ΡΠ»Π° ΠΏΡΠ΅Π΄ΡΡΠΌΠΎΡΡΠ΅Π½Π° ΠΈΠ·Π½Π°ΡΠ°Π»ΡΠ½ΠΎ, Π΅Π΅ ΠΌΠΎΠΆΠ½ΠΎ ΠΏΡΠΈΡΡΡΠΎΠΈΡΡ ΠΊ ΠΎΠ΄Π½ΠΎΠΉ ΠΈΠ· ΠΈΠΌΠ΅ΡΡΠΈΡ ΡΡ ΡΡΠ΅Π½, ΡΠ°ΠΊΠΈΠΌ ΠΎΠ±ΡΠ°Π·ΠΎΠΌ, ΡΠΎΡΡΡΠΊΠΎΠ²Π°ΡΡ ΠΏΠΎΠΌΠ΅ΡΠ΅Π½ΠΈΡ ΠΈ ΠΎΡΠ³Π°Π½ΠΈΠ·ΠΎΠ²Π°ΡΡ ΠΏΠ΅ΡΠ΅Ρ ΠΎΠ΄ ΠΌΠ΅ΠΆΠ΄Ρ Π½ΠΈΠΌΠΈ Π±ΡΠ΄Π΅Ρ ΠΏΡΠ΅Π΄Π΅Π»ΡΠ½ΠΎ ΠΏΡΠΎΡΡΠΎ.

Π Π½Π΅ΠΊΠΎΡΠΎΡΡΡ ΡΠ»ΡΡΠ°ΡΡ , ΠΊΠΎΠ³Π΄Π° ΠΌΡ ΡΡΡΠΎΠΈΠΌ Π΄ΠΎΠΌΠ° Π±Π°Π½Ρ, ΠΏΡΠΈΡ ΠΎΠ΄ΠΈΡΡΡ ΠΎΠ±ΠΎΡΡΠ΄ΠΎΠ²Π°ΡΡ Π΄Π»Ρ Π½Π΅Π΅ ΠΎΡΠ΄Π΅Π»ΡΠ½ΡΠΉ Π²Ρ ΠΎΠ΄. ΠΡΠΎ ΡΠΎΠ·Π΄Π°Π΅Ρ Π½Π΅ΠΊΠΎΡΠΎΡΡΠ΅ Π½Π΅ΡΠ΄ΠΎΠ±ΡΡΠ²Π° Π² Π·ΠΈΠΌΠ½Π΅Π΅ Π²ΡΠ΅ΠΌΡ, ΠΏΠΎΡΠΊΠΎΠ»ΡΠΊΡ ΡΡΡΠΎΠ΅Π½ΠΈΠ΅ Π±ΡΡΡΡΠ΅Π΅ ΠΎΡ Π»Π°ΠΆΠ΄Π°Π΅ΡΡΡ. Π£ΡΠ΅ΠΏΠ»Π΅Π½ΠΈΠ΅ ΠΏΠΎΡΠΎΠ»ΠΊΠ° ΠΏΠΎΠ·Π²ΠΎΠ»ΠΈΡ ΡΠ°ΡΡΠΈΡΠ½ΠΎ ΡΠ΅ΡΠΈΡΡ ΡΠ°ΠΊΡΡ ΠΏΡΠΎΠ±Π»Π΅ΠΌΡ. Π Π΅ΡΠ΅ Π»ΡΡΡΠ΅, Π΅ΡΠ»ΠΈ ΠΎΠ±ΠΎΡΡΠ΄ΠΎΠ²Π°ΡΡ ΠΌΠ΅ΠΆΠ΄Ρ Π΄ΠΎΠΌΠΎΠΌ ΠΈ Π±Π°Π½Π΅ΠΉ ΡΠΏΠ΅ΡΠΈΠ°Π»ΡΠ½ΡΡ Π±Π΅ΡΠ΅Π΄ΠΊΡ.
Π’Π°ΠΊΠ°Ρ Π±Π΅ΡΠ΅Π΄ΠΊΠ° ΡΠ²ΡΠΆΠ΅Ρ Π΄ΠΎΠΌ Ρ Π±Π°Π½Π΅ΠΉ, ΠΏΠΎΠΌΠΎΠΆΠ΅Ρ ΡΠΎΡ ΡΠ°Π½ΠΈΡΡ ΡΠ΅ΠΏΠ»ΠΎ ΠΈ ΡΡΠ°Π½Π΅Ρ Π΄ΠΎΠΏΠΎΠ»Π½ΠΈΡΠ΅Π»ΡΠ½ΡΠΌ ΠΌΠ΅ΡΡΠΎΠΌ Π΄Π»Ρ ΠΎΡΠ΄ΡΡ Π° Π² Π»Π΅ΡΠ½ΠΈΠΉ ΠΏΠ΅ΡΠΈΠΎΠ΄. Π₯ΠΎΡΡ ΠΏΡΠΎΠ΅ΠΊΡ Π΄Π΅ΡΠ΅Π²ΡΠ½Π½ΠΎΠ³ΠΎ Π΄ΠΎΠΌΠ° Ρ Π±Π°Π½Π΅ΠΉ ΠΈ Π±Π΅ΡΠ΅Π΄ΠΊΠΎΠΉ ΠΎΠ±ΠΎΠΉΠ΄Π΅ΡΡΡ Π²Π°ΠΌ Π½Π΅ΡΠΊΠΎΠ»ΡΠΊΠΎ Π΄ΠΎΡΠΎΠΆΠ΅, ΡΠ΅Π·ΡΠ»ΡΡΠ°Ρ ΡΡΠΎΠΈΡ ΠΏΠΎΡΡΠ°ΡΠ΅Π½Π½ΡΡ Π΄Π΅Π½Π΅Π³ (ΠΏΡΠΎΡΠΈΡΠ°ΠΉΡΠ΅ ΡΠ°ΠΊΠΆΠ΅: Β«ΠΠ°ΠΊΠΈΠ΅ ΠΏΡΠΎΠ΅ΠΊΡΡ Π±Π°Π½Ρ Ρ Π±Π΅ΡΠ΅Π΄ΠΊΠΎΠΉ ΠΏΠΎΠ΄ ΠΎΠ΄Π½ΠΎΠΉ ΠΊΡΡΡΠ΅ΠΉ ΠΏΠΎΠ΄ΠΎΠΉΠ΄ΡΡ ΠΈΠΌΠ΅Π½Π½ΠΎ Π²Π°ΠΌ Β«).
Π‘ΠΎΠΎΡΡΠΆΠ°Π΅ΠΌ Π±Π΅ΡΠ΅Π΄ΠΊΡ Π΄Π»Ρ Π΄ΠΎΠΌΠ° ΠΈ Π±Π°Π½ΠΈ
Π‘ΠΎΠ·Π΄Π°ΡΡ ΠΏΡΠΎΠ΅ΠΊΡ ΠΈ ΠΏΡΠ°Π²ΠΈΠ»ΡΠ½ΠΎ ΡΠΎΠ²ΠΌΠ΅ΡΡΠΈΡΡ ΠΏΠΎΠ΄ Π΅Π΄ΠΈΠ½ΠΎΠΉ ΠΊΡΠΎΠ²Π»Π΅ΠΉ ΡΠ°ΠΊΠΈΠ΅ ΡΠ°Π·Π»ΠΈΡΠ½ΡΠ΅ ΠΏΠΎ Π½Π°Π·Π½Π°ΡΠ΅Π½ΠΈΡ ΠΏΠΎΠΌΠ΅ΡΠ΅Π½ΠΈΡ, ΠΊΠ°ΠΊ Π±Π°Π½Ρ, Π±Π΅ΡΠ΅Π΄ΠΊΠ° ΠΈ ΠΆΠΈΠ»ΠΎΠΉ Π΄ΠΎΠΌ, ΠΏΠΎΠ΄ ΡΠΈΠ»Ρ ΡΠΎΠ»ΡΠΊΠΎ ΠΎΠΏΡΡΠ½ΠΎΠΌΡ Π·Π½Π°ΡΡΠ΅ΠΌΡ Π°ΡΡ ΠΈΡΠ΅ΠΊΡΠΎΡΡ. ΠΡΠΎΠ±Π΅Π½Π½ΠΎ, Π΅ΡΠ»ΠΈ ΠΈΠ·Π½Π°ΡΠ°Π»ΡΠ½ΠΎ ΡΠ°ΠΊΠΎΠ΅ ΡΠΎΠ²ΠΌΠ΅ΡΠ΅Π½ΠΈΠ΅ Π½Π΅ ΠΏΡΠ΅Π΄ΠΏΠΎΠ»Π°Π³Π°Π»ΠΎΡΡ.
Π§ΡΠΎΠ±Ρ ΡΠ΄Π΅Π»Π°ΡΡ Π±Π΅ΡΠ΅Π΄ΠΊΡ Π½Π΅ ΡΠΎΠ»ΡΠΊΠΎ ΡΡΠ½ΠΊΡΠΈΠΎΠ½Π°Π»ΡΠ½ΠΎΠΉ, Π½ΠΎ ΠΈ ΡΡΡΠ½ΠΎΠΉ, ΡΠ»Π΅Π΄ΡΠ΅Ρ ΠΏΡΠ΅Π΄ΡΡΠΌΠΎΡΡΠ΅ΡΡ ΡΠ»Π΅Π΄ΡΡΡΠΈΠ΅ ΠΌΠΎΠΌΠ΅Π½ΡΡ:
- ΠΠΎΠΌΠ΅ΡΠ΅Π½ΠΈΠ΅ Π±Π΅ΡΠ΅Π΄ΠΊΠΈ Π΄ΠΎΠ»ΠΆΠ½ΠΎ Π±ΡΡΡ ΠΏΠΎΠ»Π½ΠΎΡΡΡΡ Π·Π°ΠΊΡΡΡΡΠΌ, ΠΏΠΎΡΠΊΠΎΠ»ΡΠΊΡ ΠΎΠ½ΠΎ Π±ΡΠ΄Π΅Ρ ΠΏΡΠΎΠΌΠ΅ΠΆΡΡΠΎΡΠ½ΡΠΌ Π·Π²Π΅Π½ΠΎΠΌ ΠΌΠ΅ΠΆΠ΄Ρ Π±Π°Π½Π΅ΠΉ Π² ΡΠ΅ΡΠ΅Π½ΠΈΠ΅ Π²ΡΠ΅Π³ΠΎ Π³ΠΎΠ΄Π°. ΠΠΊΠ½Π° Π»ΡΡΡΠ΅ Π·Π°ΡΡΠ΅ΠΊΠ»ΠΈΡΡ, Π½ΠΎ ΡΠ΄Π΅Π»Π°ΡΡ ΠΈΡ Π±ΠΎΠ»ΡΡΠΈΠΌΠΈ, ΡΡΠΎΠ±Ρ Π²Π½ΡΡΡΡ ΠΏΠΎΠΌΠ΅ΡΠ΅Π½ΠΈΡ ΠΏΠΎΠΏΠ°Π΄Π°Π»ΠΎ ΠΊΠ°ΠΊ ΠΌΠΎΠΆΠ½ΠΎ Π±ΠΎΠ»ΡΡΠ΅ ΡΠ²Π΅ΡΠ°.
- ΠΠΎΠ»Ρ ΡΡΠΎΠΈΡ ΡΠ΄Π΅Π»Π°ΡΡ ΠΈΠ· ΡΠ΅ΠΏΠ»ΠΎΠ³ΠΎ Π½Π΅ΡΠΊΠΎΠ»ΡΠ·ΠΊΠΎΠ³ΠΎ ΠΌΠ°ΡΠ΅ΡΠΈΠ°Π»Π°. ΠΠΏΡΠΈΠΌΠ°Π»ΡΠ½ΠΎ ΠΏΠΎΠ΄ΠΎΠΉΠ΄Π΅Ρ Π΄ΠΎΡΠΊΠ°, Π° Π²ΠΎΡ ΠΏΠ»ΠΈΡΠΊΡ ΠΈΠ»ΠΈ ΠΊΠ°ΠΌΠ΅Π½Ρ Π»ΡΡΡΠ΅ Π½Π΅ ΠΈΡΠΏΠΎΠ»ΡΠ·ΠΎΠ²Π°ΡΡ.
- Π ΡΠ»ΡΡΠ°Π΅ Π΅ΡΠ»ΠΈ Π΅ΡΠ΅ ΠΏΡΠΈ ΠΏΠΎΡΡΡΠΎΠΉΠΊΠ΅ Π΄ΠΎΠΌΠ° ΠΏΠ»Π°Π½ΠΈΡΠΎΠ²Π°Π»ΠΎΡΡ ΡΠΎΠΎΡΡΠΆΠ΅Π½ΠΈΠ΅ Π±Π΅ΡΠ΅Π΄ΠΊΠΈ, ΡΠΎ Π² Π½Π΅Π΅ ΡΡΠΎΠΈΡ ΠΏΠΎΠ΄Π²Π΅ΡΡΠΈ ΡΠ΅Π½ΡΡΠ°Π»ΠΈΠ·ΠΎΠ²Π°Π½Π½ΠΎΠ΅ ΠΎΡΠΎΠΏΠ»Π΅Π½ΠΈΠ΅, ΡΠ²Π΅Ρ ΠΈ Π²ΠΎΠ΄Ρ. Π’ΠΎΠ³Π΄Π° ΠΎΠ½Π° Π±ΡΠ΄Π΅Ρ ΠΏΠΎΠ»Π½ΠΎΡΠ΅Π½Π½ΠΎΠΉ ΡΠ°ΡΡΡΡ ΠΆΠΈΠ»ΠΎΠ³ΠΎ Π΄ΠΎΠΌΠ° ΠΈ ΠΏΡΠΈΠ³ΠΎΠ΄Π½Π° Π² ΠΊΠ°ΡΠ΅ΡΡΠ²Π΅ ΡΡΠΎΠ»ΠΎΠ²ΠΎΠΉ, ΠΊΡΡ Π½ΠΈ ΠΈΠ»ΠΈ Π΄Π°ΠΆΠ΅ Π³ΠΎΡΡΠ΅Π²ΠΎΠΉ ΡΠΏΠ°Π»ΡΠ½ΠΈ. Π ΡΠΎΠΌΡ ΠΆΠ΅, Π±ΡΠ΄Π΅Ρ Π·Π½Π°ΡΠΈΡΠ΅Π»ΡΠ½ΠΎ ΠΌΠ΅Π½ΡΡΠ΅ ΡΠ΅ΠΏΠ»ΠΎΠΏΠΎΡΠ΅ΡΡ ΠΏΡΠΈ ΠΏΠ΅ΡΠ΅Ρ ΠΎΠ΄Π΅ ΠΈΠ· ΠΎΠ΄Π½ΠΎΠ³ΠΎ ΠΏΠΎΠΌΠ΅ΡΠ΅Π½ΠΈΡ Π² Π΄ΡΡΠ³ΠΎΠ΅.
ΠΡΠΌΠ΅ΡΠΈΠΌ, ΡΡΠΎ Π΅ΡΠ»ΠΈ Π²Ρ ΠΏΠ»Π°Π½ΠΈΡΡΠ΅ΡΠ΅ Π²ΠΎΠ·Π²ΠΎΠ΄ΠΈΡΡ ΡΡΠ°Π·Ρ Π½Π΅ΡΠΊΠΎΠ»ΡΠΊΠΎ ΠΏΠΎΡΡΡΠΎΠ΅ΠΊ, ΡΠΎ ΠΆΠ΅Π»Π°ΡΠ΅Π»ΡΠ½ΠΎ Π·Π°Π»ΠΈΠ²Π°ΡΡ ΠΏΠΎΠ΄ Π½ΠΈΡ Π΅Π΄ΠΈΠ½ΡΠΉ ΠΌΠΎΠ½ΠΎΠ»ΠΈΡΠ½ΡΠΉ ΡΡΠ½Π΄Π°ΠΌΠ΅Π½Ρ, ΠΊΠΎΡΠΎΡΡΠΉ Π½Π΅ ΠΏΠΎΠ·Π²ΠΎΠ»ΠΈΡ Π·Π΄Π°Π½ΠΈΡ Π΄Π°Π²Π°ΡΡ ΡΡΠ°Π΄ΠΊΡ. Π‘Π»Π΅Π΄ΠΎΠ²Π°ΡΠ΅Π»ΡΠ½ΠΎ, ΠΈ Π²ΡΠ΅ ΠΏΠΎΡΡΡΠΎΠΉΠΊΠΈ Π»ΡΡΡΠ΅ ΡΠ°Π·ΠΌΠ΅ΡΠ°ΡΡ ΠΏΠΎΠ΄ ΡΠΎΠ²ΠΌΠ΅ΡΡΠ½ΠΎΠΉ ΠΊΡΠΎΠ²Π»Π΅ΠΉ ΠΈ Π²ΡΠΏΠΎΠ»Π½ΡΡΡ Π² Π΅Π΄ΠΈΠ½ΠΎΠΌ ΡΡΠΈΠ»Π΅.

Π‘Π»Π΅Π΄ΡΠ΅Ρ ΠΏΡΠΈΠ΄Π΅ΡΠΆΠΈΠ²Π°ΡΡΡΡ ΠΏΡΠΎΡΡΡΡ ΠΏΡΠ°Π²ΠΈΠ», ΡΡΠΎΠ±Ρ Π±Π°Π½Ρ Ρ Π±Π΅ΡΠ΅Π΄ΠΊΠΎΠΉ Π±ΡΠ»Π° ΡΡΡΠ½ΠΎΠΉ ΠΈ Π±Π΅Π·ΠΎΠΏΠ°ΡΠ½ΠΎΠΉ:
- ΠΠ΅ Π·Π°Π±ΡΠ²Π°ΡΡ ΠΎ ΡΠΈΡΡΠ΅ΠΌΠ΅ Π²Π΅Π½ΡΠΈΠ»ΡΡΠΈΠΈ Π΄Π»Ρ ΡΠ΄Π°Π»Π΅Π½ΠΈΡ ΠΈΠ·Π»ΠΈΡΠ½Π΅ΠΉ Π²Π»Π°Π³ΠΈ.
- ΠΡΠ°ΠΌΠΎΡΠ½ΠΎ ΡΠ°ΡΠΏΠ»Π°Π½ΠΈΡΠΎΠ²Π°ΡΡ ΡΡΠ°ΡΡΠΎΠΊ, ΡΠΎ Π΅ΡΡΡ, ΠΎΡΠ΅Π½ΠΈΡΡ, ΡΡΠΎ Π±ΠΎΠ»Π΅Π΅ ΡΠ°ΡΠΈΠΎΠ½Π°Π»ΡΠ½ΠΎ β ΠΏΡΠΈΡΡΡΠ°ΠΈΠ²Π°ΡΡ Π±Π΅ΡΠ΅Π΄ΠΊΡ ΠΈΠ»ΠΈ ΠΏΡΠΎΡΡΠ±ΠΈΡΡ Π²ΡΡ ΠΎΠ΄ ΠΈΠ· Π΄ΠΎΠΌΠ° Π² Π±Π°Π½Ρ Π²Π½ΡΡΡΠΈ.
- ΠΠΏΡΠΈΠΌΠ°Π»ΡΠ½ΠΎ Π΄Π»Ρ ΠΏΡΠΈΡΡΡΠΎΠΉΠΊΠΈ ΠΊ Π΄ΠΎΠΌΡ ΠΏΠΎΠ΄Ρ ΠΎΠ΄ΡΡ Π±Π°Π½ΠΈ Ρ ΠΎΠ΄Π½ΠΎΡΠΊΠ°ΡΠ½ΠΎΠΉ ΠΊΡΡΡΠ΅ΠΉ, ΠΊ ΠΊΠΎΡΠΎΡΡΠΌ Π²ΠΏΠΎΡΠ»Π΅Π΄ΡΡΠ²ΠΈΠΈ ΠΌΠΎΠΆΠ½ΠΎ Π±Π΅Π· ΡΡΡΠ΄Π° ΠΏΡΠΈΡΡΡΠΎΠΈΡΡ ΠΈ Π±Π΅ΡΠ΅Π΄ΠΊΡ.
Π£ΡΠΈΡΡΠ²Π°Ρ ΡΡΠΈ ΡΠΎΠ½ΠΊΠΎΡΡΠΈ, ΠΌΠΎΠΆΠ½ΠΎ ΠΏΠΎΡΡΡΠΎΠΈΡΡ ΠΎΡΠ΅Π½Ρ ΠΊΡΠ°ΡΠΈΠ²ΡΠΉ, Π° Π³Π»Π°Π²Π½ΠΎΠ΅ β ΡΡΡΠ½ΡΠΉ ΠΊΠΎΠΌΠΏΠ»Π΅ΠΊΡ, ΡΠΎΡΡΠΎΡΡΠΈΠΉ ΠΈΠ· Π΄ΠΎΠΌΠ°, Π±Π°Π½ΠΈ Ρ Π±Π΅ΡΠ΅Π΄ΠΊΠΈ ΠΏΠΎΠ΄ ΠΎΠ΄Π½ΠΎΠΉ ΠΊΡΡΡΠ΅ΠΉ.
Π ΡΡΡΠΊΠ°Ρ Π±Π°Π½Ρ ΠΏΠΎΠ·Π²ΠΎΠ»ΡΠ΅Ρ Π½Π΅ ΡΠΎΠ»ΡΠΊΠΎ ΡΠ°ΡΡΠ»Π°Π±ΠΈΡΡΡΡ ΠΈ ΠΏΡΠΈΡΡΠ½ΠΎ ΠΏΡΠΎΠ²Π΅ΡΡΠΈ Π²ΡΠ΅ΠΌΡ, Π½ΠΎ ΠΈ ΠΎΠ·Π΄ΠΎΡΠΎΠ²ΠΈΡΡΡΡ. ΠΠΎΡ Π·Π° ΡΡΠΎ Π΅Π΅ ΡΠ°ΠΊ Π»ΡΠ±ΡΡ ΡΡΡΡΠΊΠΈΠ΅ Π»ΡΠ΄ΠΈ. Π’Π°ΠΊ ΡΡΠΎ ΡΠ°ΡΠΏΠΎΠ»ΠΎΠΆΠ΅Π½ΠΈΠ΅ Π±Π°Π½Π½ΠΎΠ³ΠΎ ΠΊΠΎΠΌΠΏΠ»Π΅ΠΊΡΠ° ΠΏΡΡΠΌΠΎ Π² ΠΆΠΈΠ»ΠΎΠΌ Π΄ΠΎΠΌΠ΅ ΠΏΡΠΈΠ΄Π΅ΡΡΡ ΠΏΠΎ Π΄ΡΡΠ΅ ΠΎΡΠ΅Π½Ρ ΠΌΠ½ΠΎΠ³ΠΈΠΌ. ΠΠ°Π΄Π΅Π΅ΠΌΡΡ, ΡΡΠΎ Π½Π°ΡΠ° ΡΡΠ°ΡΡΡ ΠΏΠΎΠΌΠΎΠΆΠ΅Ρ ΠΏΡΠ°Π²ΠΈΠ»ΡΠ½ΠΎ ΠΎΡΠ³Π°Π½ΠΈΠ·ΠΎΠ²Π°ΡΡ ΠΏΠΎΡΡΡΠΎΠΉΠΊΡ Π΄ΠΎΠΌΠ°, ΠΎΠ±ΠΎΡΡΠ΄ΠΎΠ²Π°Π½Π½ΠΎΠ³ΠΎ Π±Π°Π½Π΅ΠΉ ΠΈ Π±Π΅ΡΠ΅Π΄ΠΊΠΎΠΉ, ΡΡΠΎΠ±Ρ ΠΊΠ°ΠΆΠ΄ΡΠΉ ΠΌΠΎΠ³ Π½Π°ΡΠ»Π°ΠΆΠ΄Π°ΡΡΡΡ Π±Π°Π½Π½ΡΠΌΠΈ ΠΏΡΠΎΡΠ΅Π΄ΡΡΠ°ΠΌΠΈ, Π½Π΅ ΡΡ ΠΎΠ΄Ρ ΠΏΡΠΈ ΡΡΠΎΠΌ ΠΈΠ· Π΄ΠΎΠΌΡ.
ΠΡΡΠ°Π²Π»ΡΠΉΡΠ΅ ΠΎΡΠ·ΡΠ²Ρ:
ΠΡΠΎΠ΅ΠΊΡΡ Π΄ΠΎΠΌΠΎΠ² Ρ Π±Π°Π½ΡΠΌΠΈ ΠΏΠΎΠ΄ ΠΎΠ΄Π½ΠΎΠΉ ΠΊΡΡΡΠ΅ΠΉ
Π‘ ΡΠ°Π·Π²ΠΈΡΠΈΠ΅ΠΌ Π±Π°Π½Π½ΠΎΠΉ ΠΊΡΠ»ΡΡΡΡΡ ΠΈ ΠΏΠΎΡΠ²Π»Π΅Π½ΠΈΠ΅ΠΌ ΠΏΡΠΎΡΡΠΎΡΠ½ΡΡ ΠΊΠΎΠΌΠ½Π°Ρ Π΄Π»Ρ ΠΎΡΠ΄ΡΡ Π° Π² ΠΏΠΎΠΌΠ΅ΡΠ΅Π½ΠΈΠΈ Ρ ΠΏΠ°ΡΠ½ΠΎΠΉ ΠΏΡΠΈΡΠ»Π° ΠΈΠ΄Π΅Ρ ΠΏΡΠΎΠΆΠΈΠ²Π°Π½ΠΈΡ Π² Π±Π°Π½Π΅. Π’Π°ΠΊΠΎΠΉ ΠΎΠ±ΡΠ°Π· ΠΆΠΈΠ·Π½ΠΈ ΠΏΡΠΈΠ΄Π΅ΡΡΡ ΠΏΠΎ Π΄ΡΡΠ΅ ΠΌΠ½ΠΎΠ³ΠΈΠΌ ΡΠΎΡΡΠΈΠΉΡΠΊΠΈΠΌ ΠΌΡΠΆΡΠΈΠ½Π°ΠΌ, ΠΎΡΠΎΠ±Π΅Π½Π½ΠΎ, Π΅ΡΠ»ΠΈ ΠΎΠ±ΠΎΡΡΠ΄ΠΎΠ²Π°ΡΡ ΠΏΠΎΠΌΠ΅ΡΠ΅Π½ΠΈΠ΅ Π²ΡΠ΅ΠΌ Π½Π΅ΠΎΠ±Ρ ΠΎΠ΄ΠΈΠΌΡΠΌ: Π½Π΅Π±ΠΎΠ»ΡΡΠΈΠΌ Ρ ΠΎΠ»ΠΎΠ΄ΠΈΠ»ΡΠ½ΠΈΠΊΠΎΠΌ ΠΈ Π΄ΠΈΠ²Π°Π½ΠΎΠΌ, Π° ΡΠ°ΠΊΠΆΠ΅ ΠΈΠΌΠ΅Π΅Ρ ΠΏΠΎΠ΄ΠΊΠ»ΡΡΠ΅Π½ΠΈΠ΅ ΠΊ Π²ΠΎΠ΄ΠΎΠΏΡΠΎΠ²ΠΎΠ΄Ρ. Π’Π΅ΠΌ Π½Π΅ ΠΌΠ΅Π½Π΅Π΅, ΠΏΡΠΎΠΆΠΈΠ²Π°ΡΡ Π² ΡΠΏΠ°ΡΡΠ°Π½ΡΠΊΠΈΡ ΡΡΠ»ΠΎΠ²ΠΈΡΡ Π΄Π»Ρ ΡΠΎΠ»ΠΈΠ΄Π½ΠΎΠ³ΠΎ ΡΠ΅ΠΌΠ΅ΠΉΠ½ΠΎΠ³ΠΎ ΡΠ΅Π»ΠΎΠ²Π΅ΠΊΠ° Π½Π΅ ΡΠ»ΠΈΡΠΊΠΎΠΌ ΡΠ΄ΠΎΠ±Π½ΠΎ, ΠΏΠΎΡΡΠΎΠΌΡ Π²ΡΠ΅ Π±ΠΎΠ»Π΅Π΅ ΠΏΠΎΠΏΡΠ»ΡΡΠ½ΡΠΌΠΈ ΡΡΠ°Π½ΠΎΠ²ΡΡΡΡ ΠΏΡΠΎΠ΅ΠΊΡΡ Π΄ΠΎΠΌΠΎΠ² Ρ Π²ΡΡΡΠΎΠ΅Π½Π½ΡΠΌΠΈ Π±Π°Π½ΡΠΌΠΈ.
Π’Π°ΠΊΠΈΠ΅ Π΄ΠΎΠΌΠ° ΡΠ΄ΠΎΠ²Π»Π΅ΡΠ²ΠΎΡΡΡΡ Π²ΡΠ΅ Π±ΡΡΠΎΠ²ΡΠ΅ ΠΏΠΎΡΡΠ΅Π±Π½ΠΎΡΡΠΈ ΡΠ΅Π»ΠΎΠ²Π΅ΠΊΠ°. ΠΠ½ΠΈ ΠΌΠΎΠ³ΡΡ ΠΈΠΌΠ΅ΡΡ Π½Π΅ΡΠΊΠΎΠ»ΡΠΊΠΎ ΡΠΏΠ°Π»Π΅Π½, ΠΏΠΎΠ΄ΠΊΠ»ΡΡΠ΅Π½Π½ΡΠΉ ΠΊ ΠΊΠ°Π½Π°Π»ΠΈΠ·Π°ΡΠΈΠΈ ΡΠ°Π½ΡΠ·Π΅Π», Π³Π°ΡΠ°ΠΆ, Π³ΠΎΡΡΠΈΠ½ΡΡ, ΠΊΡΡ Π½Ρ, Π³Π°ΡΠ΄Π΅ΡΠΎΠ± ΠΈ ΠΏΠΎΡ ΠΎΠ΄ΠΈΡΡ ΡΠΊΠΎΡΠ΅Π΅ Π½Π° ΠΎΠ±ΡΡΠ½ΡΠΉ ΠΆΠΈΠ»ΠΎΠΉ Π΄ΠΎΠΌ, Π½Π΅ΠΆΠ΅Π»ΠΈ Π½Π° Π±Π°Π½Ρ. ΠΠΎ Π½Π°Π»ΠΈΡΠΈΠ΅ ΠΏΠ°ΡΠΈΠ»ΠΊΠΈ ΠΈ ΠΏΠ΅ΡΠΈ Π΄Π»Ρ Π±Π°Π½ΠΈ Π²ΡΠ΅Π³Π΄Π° ΠΏΡΠΈΠ΄Π°Π΅Ρ ΠΏΠΎΠΌΠ΅ΡΠ΅Π½ΠΈΡ Π΄ΠΎΠΏΠΎΠ»Π½ΠΈΡΠ΅Π»ΡΠ½ΠΎΠΉ ΠΏΡΠΈΠ²Π»Π΅ΠΊΠ°ΡΠ΅Π»ΡΠ½ΠΎΡΡΠΈ.
Π‘ΡΡΠ΅ΡΡΠ²ΡΠ΅Ρ ΡΠ°ΠΊΠΆΠ΅ ΠΈ Π΄ΡΡΠ³ΠΎΠΉ, Π±ΠΎΠ»Π΅Π΅ Ρ ΠΎΠ»ΠΎΡΡΡΡΠΊΠΈΠΉ Π²Π°ΡΠΈΠ°Π½Ρ Π΄ΠΎΠΌΠ°-Π±Π°Π½ΠΈ, Π³Π΄Π΅ ΠΎΡΠ½ΠΎΠ²Π½ΠΎΠΉ Π°ΠΊΡΠ΅Π½Ρ ΡΠ΄Π΅Π»Π°Π½ Π½Π° Π½Π΅ΠΎΡΡΠ΅ΠΌΠ»Π΅ΠΌΡΠ΅ Π°ΡΡΠΈΠ±ΡΡΡ Π±Π°Π½ΠΈ (ΠΏΠ°ΡΠ½ΡΡ, Π΄ΡΡΠ΅Π²ΡΡ, ΡΠ°ΠΌΠ±ΡΡ, ΠΊΠΎΠΌΠ½Π°ΡΡ ΠΎΡΠ΄ΡΡ Π°, Π±ΠΈΠ»ΡΡΡΠ΄Π½ΡΡ ΠΈ Π΄Π°ΠΆΠ΅ Π±Π°ΡΡΠ΅ΠΉΠ½) Ρ ΠΆΠΈΠ»ΠΎΠΉ ΠΊΠΎΠΌΠ½Π°ΡΠΎΠΉ, ΠΊΠΎΡΠΎΡΠ°Ρ ΡΠΊΠΎΡΠ΅Π΅ Π½Π°ΠΏΠΎΠΌΠΈΠ½Π°Π΅Ρ ΠΊΠ²Π°ΡΡΠΈΡΡ-ΡΡΡΠ΄ΠΈΡ.
ΠΠ·Π³ΠΎΡΠΎΠ²Π»Π΅Π½Ρ ΡΠ°ΠΊΠΈΠ΅ ΠΏΠΎΠΌΠ΅ΡΠ΅Π½ΠΈΡ ΠΌΠΎΠ³ΡΡ Π±ΡΡΡ ΠΊΠ°ΠΊ Ρ ΡΡΠ°Π΄ΠΈΡΠΈΠΎΠ½Π½ΡΡ Π΄Π»Ρ Π±Π°Π½ΠΈ ΠΌΠ°ΡΠ΅ΡΠΈΠ°Π»ΠΎΠ² β Π΄Π΅ΡΠ΅Π²Π° ΠΈ Π±ΡΡΡΠ°, ΡΠ°ΠΊ ΠΈ ΠΈΠ· ΠΊΠΈΡΠΏΠΈΡΠ° Π»ΠΈΠ±ΠΎ Π΄Π°ΠΆΠ΅ Π½Π°ΡΡΡΠ°Π»ΡΠ½ΠΎΠ³ΠΎ ΠΊΠ°ΠΌΠ½Ρ Π½Π° Π²ΡΠ±ΠΎΡ ΠΊΠ»ΠΈΠ΅Π½ΡΠ°.
ΠΠ°ΡΠ½ΡΠΉ Π΄ΠΎΠΌ ΠΈΠ· ΠΎΡΠΈΠ»ΠΈΠ½Π΄ΡΠΎΠ²Π°Π½Π½ΠΎΠ³ΠΎ Π±ΡΠ΅Π²Π½Π°
ΠΠ²ΡΡ ΡΡΠ°ΠΆΠ½ΡΠΉ Π΄Π°ΡΠ½ΡΠΉ Π΄ΠΎΠΌΠΈΠΊ ΠΈΠ· ΠΎΡΠΈΠ»ΠΈΠ½Π΄ΡΠΎΠ²Π°Π½Π½ΠΎΠ³ΠΎ Π±ΡΠ΅Π²Π½Π° Π²ΡΠ³Π»ΡΠ΄ΠΈΡ ΠΎΡΠ΅Π½Ρ ΠΌΠΈΠ»ΠΎ ΠΈ ΠΏΠΎ-Π΄Π΅ΡΠ΅Π²Π΅Π½ΡΠΊΠΈ. ΠΡΠΎΠΌΠ΅ ΡΠΎΠ³ΠΎ, Π΄ΠΎΠΌ ΠΎΡΠ½Π°ΡΠ΅Π½ Π΄ΠΎΠΏΠΎΠ»Π½ΠΈΡΠ΅Π»ΡΠ½ΡΠΌ Π±ΠΎΠ½ΡΡΠΎΠΌ β ΡΠΎΠ±ΡΡΠ²Π΅Π½Π½ΠΎΠΉ Π±Π°Π½Π΅ΠΉ.
ΠΠ° ΠΏΠ΅ΡΠ²ΠΎΠΌ ΡΡΠ°ΠΆΠ΅ Π·Π΄Π°Π½ΠΈΡ ΡΡΠ°Π½Π΄Π°ΡΡΠ½ΠΎ Π½Π°Ρ ΠΎΠ΄ΡΡΡΡ ΠΏΠ°ΡΠΈΠ»ΠΊΠ°, Π²Π°Π½Π½Π°Ρ ΠΊΠΎΠΌΠ½Π°ΡΠ° ΠΈ Π³ΠΎΡΡΠΈΠ½Π°Ρ, ΠΊΠΎΡΠΎΡΠ°Ρ ΡΠΎΠ²ΠΌΠ΅ΡΠ΅Π½Π° Ρ ΠΊΡΡ Π½Π΅ΠΉ. ΠΡΠΎΡΠΎΠΉ ΡΡΠ°ΠΆ Π²ΠΌΠ΅ΡΠ°Π΅Ρ Π² ΡΠ΅Π±Ρ Π΄Π²Π΅ ΡΡΡΠ½ΡΡ ΡΠΏΠ°Π»ΡΠ½ΠΈ ΡΠ°Π·Π½ΡΡ ΡΠ°Π·ΠΌΠ΅ΡΠΎΠ², ΠΊΠΎΡΠΎΡΡΠ΅ ΡΠΎΠ΅Π΄ΠΈΠ½Π΅Π½Ρ ΠΎΠ±ΡΠΈΠΌ Π±Π°Π»ΠΊΠΎΠ½ΠΎΠΌ ΠΈ Π½Π΅Π±ΠΎΠ»ΡΡΠΎΠΉ ΠΊΠΎΡΠΈΠ΄ΠΎΡ.
ΠΠΎΡΡΠ΅Π²ΠΎΠΉ Π΄ΠΎΠΌ Ρ Π±Π°Π½Π΅ΠΉ ΠΈ Π±ΠΈΠ»ΡΡΡΠ΄Π½ΠΎΠΉ (133,3 ΠΌ2)
ΠΠΈΠ»ΡΠΉ ΠΈ ΠΏΡΠΎΡΡΠΎΡΠ½ΡΠΉ ΡΠ³Π»ΠΎΠ²ΠΎΠΉ Π΄Π΅ΡΠ΅Π²ΡΠ½Π½ΡΠΉ ΠΊΠΎΡΡΠ΅Π΄ΠΆ ΡΠ²Π»ΡΠ΅ΡΡΡ ΠΊΠ»Π°ΡΡΠΈΡΠ΅ΡΠΊΠΈΠΌ ΠΏΡΠΈΡΡΠ°Π½ΠΈΡΠ΅ΠΌ Ρ ΠΎΠ»ΠΎΡΡΡΠΊΠ°. ΠΠ΅ΡΠΌΠΎΡΡΡ Π½Π° ΠΊΠ°ΠΆΡΡΡΡΡΡ Π²Π½Π΅ΡΠ½ΡΡ ΡΡΡΠ½ΠΎΡΡΡ ΠΈ ΠΎΡΠ½ΠΎΠ²Π°ΡΠ΅Π»ΡΠ½ΠΎΡΡΡ ΠΏΠΎΡΡΡΠΎΠΉΠΊΠΈ, ΠΎΡΠ½ΠΎΠ²Π½ΠΎΠΉ Π°ΠΊΡΠ΅Π½Ρ Π² Π΄ΠΎΠΌΠ΅ ΡΠ΄Π΅Π»Π°Π½ ΠΈΠΌΠ΅Π½Π½ΠΎ Π½Π° ΡΠ°Π·Π²Π»Π΅ΠΊΠ°ΡΠ΅Π»ΡΠ½ΡΠ΅ ΡΠ»Π΅ΠΌΠ΅Π½ΡΡ.
Π Π΄ΠΎΠΌΠ΅ ΠΏΡΠΈΡΡΡΡΡΠ²ΡΠ΅Ρ ΠΏΡΠΎΡΡΠΎΡΠ½Π°Ρ ΡΠ΅ΡΡΠ°ΡΠ° Ρ ΠΏΠ΅ΡΡΡ-Π±Π°ΡΠ±Π΅ΠΊΡ, Π±ΠΈΠ»ΡΡΡΠ΄Π½Π°Ρ, ΠΏΠ°ΡΠ½Π°Ρ Ρ Π±Π°ΡΡΠ΅ΠΉΠ½ΠΎΠΌ. ΠΎΠ±ΡΠΈΡΠ½ΡΠΉ Π³Π°ΡΠ΄Π΅ΡΠΎΠ± ΠΈ Π»ΠΈΡΡ Π½Π΅Π±ΠΎΠ»ΡΡΠΎΠ΅ Π²Π½ΠΈΠΌΠ°Π½ΠΈΠ΅ ΡΠ΄Π΅Π»Π΅Π½ΠΎ Π½Π΅ΠΏΠΎΡΡΠ΅Π΄ΡΡΠ²Π΅Π½Π½ΠΎ ΠΆΠΈΠ»ΠΎΠΉ ΠΏΠ»ΠΎΡΠ°Π΄ΠΈ. Π₯ΠΎΠ·ΡΠ΅Π²Π°ΠΌ Π΄ΠΎΠΌΠ° ΠΏΡΠ΅Π΄Π»Π°Π³Π°Π΅ΡΡΡ ΡΠ°Π·ΠΌΠ΅ΡΡΠΈΡΡΡΡ Π² ΠΊΠ²Π°ΡΡΠΈΡΠ΅-ΡΡΡΠ΄ΠΈΠΈ ΠΏΠ»ΠΎΡΠ°Π΄ΡΡ ΡΡΡΡ Π±ΠΎΠ»Π΅Π΅ 20 ΠΌΠ΅ΡΡΠΎΠ² ΠΊΠ²Π°Π΄ΡΠ°ΡΠ½ΡΡ , ΠΊΠΎΡΠΎΡΠ°Ρ Π±ΡΠ΄Π΅Ρ ΠΎΠ΄Π½ΠΎΠ²ΡΠ΅ΠΌΠ΅Π½Π½ΠΎ ΡΠΎΠ²ΠΌΠ΅ΡΠ°ΡΡ Π² ΡΠ΅Π±Π΅ ΠΊΡΡ Π½Ρ, ΡΠΏΠ°Π»ΡΠ½Ρ, ΠΊΠ°Π±ΠΈΠ½Π΅Ρ ΠΈ Π³ΠΎΡΡΠΈΠ½ΡΡ. Π‘ΡΡΠ΅ΡΡΠ²ΡΠ΅Ρ Π²ΠΎΠ·ΠΌΠΎΠΆΠ½ΠΎΡΡΡ ΠΎΠ±ΡΡΡΡΠΎΠΈΡΡ ΡΠ°ΠΊΠΆΠ΅ ΠΌΠ°Π½ΡΠ°ΡΠ΄Π½ΡΡ ΠΊΠΎΠΌΠ½Π°ΡΡ Π½Π° Π²ΡΠΎΡΠΎΠΌ ΡΡΠ°ΠΆΠ΅.
ΠΠ°Π½Ρ ΠΈΠ· Π±ΡΡΡΠ° Ρ ΠΌΠ°Π½ΡΠ°ΡΠ΄ΠΎΠΉ ΠΈ ΡΠ΅ΡΡΠ°ΡΠΎΠΉ
ΠΠ΅ΡΠ²ΡΠΉ ΡΡΠ°ΠΆ Π±Π°Π½ΠΈ ΠΈΠ· Π±ΡΡΡΠ° Ρ ΠΌΠ°Π½ΡΠ°ΡΠ΄Π½ΠΎΠΉ ΠΏΡΠ΅Π΄ΡΡΠ°Π²Π»ΡΠ΅Ρ ΠΈΠ· ΡΠ΅Π±Ρ ΠΊΠ»Π°ΡΡΠΈΡΠ΅ΡΠΊΠΈΠΉ Π²Π°ΡΠΈΠ°Π½Ρ ΡΡΡΡΠΊΠΎΠΉ Π±Π°Π½ΠΈ Ρ ΠΊΠΎΠΌΠ½Π°ΡΠΎΠΉ ΠΎΡΠ΄ΡΡ Π°, ΠΏΠ°ΡΠ½ΠΎΠΉ ΠΈ ΠΏΠΎΠΌΡΠ²ΠΎΡΠ½ΠΎΠΉ.
ΠΠ΄Π½Π°ΠΊΠΎ, Π΅ΡΠ»ΠΈ ΡΡΡΠ°Π½ΠΎΠ²ΠΈΡΡ Π² ΠΊΠΎΠΌΠ½Π°ΡΠ΅ ΠΎΡΠ΄ΡΡ Π° ΠΊΡΡ ΠΎΠ½Π½ΡΡ ΡΠ΅Ρ Π½ΠΈΠΊΡ, Π° ΠΊΠΎΠΌΠ½Π°ΡΡ Π½Π° ΠΌΠ°Π½ΡΠ°ΡΠ΄Π°ΠΌ ΡΡΠ°ΠΆΠ΅ ΠΈΡΠΏΠΎΠ»ΡΠ·ΠΎΠ²Π°ΡΡ Π² ΠΊΠ°ΡΠ΅ΡΡΠ²Π΅ ΡΠΏΠ°Π»ΡΠ½ΠΈ, Π² ΡΠ°ΠΊΠΎΠΌ Π΄ΠΎΠΌΠ΅ Π²ΠΏΠΎΠ»Π½Π΅ ΠΌΠΎΠΆΠ½ΠΎ ΠΆΠΈΡΡ ΠΏΠΎΡΡΠΎΡΠ½Π½ΠΎ.
ΠΠΎΡΠΎΠ²ΡΠΉ ΠΏΡΠΎΠ΅ΠΊΡ ΠΎΠ΄Π½ΠΎΡΡΠ°ΠΆΠ½ΠΎΠ³ΠΎ ΠΆΠΈΠ»ΠΎΠ³ΠΎ Π΄ΠΎΠΌΠ° Ρ Π±Π°Π½Π΅ΠΉ (148,1 ΠΌ2)
ΠΠ°Π½Π½ΡΠΉ ΠΏΡΠΎΠ΅ΠΊΡ ΠΎΠ΄Π½ΠΎΡΡΠ°ΠΆΠ½ΠΎΠ³ΠΎ ΠΆΠΈΠ»ΠΎΠ³ΠΎ Π΄ΠΎΠΌΠ° Ρ Π±Π°Π½Π΅ΠΉ ΠΎΡΠ»ΠΈΡΠ°Π΅ΡΡΡ ΠΎΡ Π΄ΡΡΠ³ΠΈΡ ΠΌΠ°ΡΠ΅ΡΠΈΠ°Π»ΠΎΠΌ ΠΏΠΎΡΡΡΠΎΠΉΠΊΠΈ ΠΈ ΡΠΎΠΎΡΠ²Π΅ΡΡΡΠ²Π΅Π½Π½ΠΎ ΡΡΠ½Π΄Π°ΠΌΠ΅Π½ΡΠ°Π»ΡΠ½ΠΎΡΡΡΡ. ΠΠΎΡΡΡΠΎΠΈΠ² ΡΠ°ΠΊΠΎΠΉ Π΄ΠΎΠΌ ΠΈΠ· ΠΊΠΈΡΠΏΠΈΡΠ° Π½Π° ΡΠ²ΠΎΠ΅ΠΌ ΡΡΠ°ΡΡΠΊΠ΅, Π²Ρ ΠΌΠΎΠΆΠ΅ΡΠ΅ ΡΠ°ΡΡΡΠΈΡΡΠ²Π°ΡΡ, ΡΡΠΎ ΠΎΠ½ Π±ΡΠ΄Π΅Ρ ΡΠ°Π΄ΠΎΠ²Π°ΡΡ Π²Π°Ρ ΠΈ Π²Π°ΡΡ ΡΠ΅ΠΌΡΡ ΡΠ²ΠΎΠ΅ΠΉ ΡΡΡΠ½ΠΎΡΡΡΡ Π΄ΠΎΠ»Π³ΠΈΠ΅ Π΄Π΅ΡΡΡΠΈΠ»Π΅ΡΠΈΡ.
ΠΠΎΠΌ Π²ΠΌΠ΅ΡΠ°Π΅Ρ Π² ΡΠ΅Π±Ρ 3 ΡΠΏΠ°Π»ΡΠ½ΠΈ ΡΠ°Π·Π½ΡΡ ΡΠ°Π·ΠΌΠ΅ΡΠΎΠ², ΠΊΡΡ Π½Ρ, Π³Π°ΡΠ΄Π΅ΡΠΎΠ±, ΠΏΡΠΎΡΡΠΎΡΠ½ΡΡ Π³ΠΎΡΡΠΈΠ½ΡΡ ΠΈ ΡΠ΅ΡΡΠ°ΡΡ, ΠΎΠ΄ΠΈΠ½ ΡΠ°Π½ΡΠ·Π΅Π», Π° ΡΠ°ΠΊΠΆΠ΅ ΡΠΎΠΏΠΎΡΠ½ΡΡ, ΠΏΠ°ΡΠΈΠ»ΠΊΡ ΠΈ ΠΏΠΎΠΌΡΠ²ΠΎΡΠ½ΡΡ ΠΊΠΎΠΌΠ½Π°ΡΡ.
ΠΠΎΡΠΎΠ²ΡΠΉ ΠΏΡΠΎΠ΅ΠΊΡ Π³ΠΎΡΡΠ΅Π²ΠΎΠ³ΠΎ Π΄ΠΎΠΌΠ° Ρ Π±Π°Π½Π΅ΠΉ (229 ΠΌ2)
ΠΡΠ»ΠΈ Π²Ρ Ρ Π΄Π΅ΡΡΡΠ²Π° ΠΌΠ΅ΡΡΠ°Π»ΠΈ ΠΎ ΡΠΎΠ±ΡΡΠ²Π΅Π½Π½ΠΎΠΌ ΡΠΊΠ°Π·ΠΎΡΠ½ΠΎΠΌ Π΄ΠΎΠΌΠΈΠΊΠ΅ ΠΈΠ»ΠΈ ΡΠ²Π»ΡΠ΅ΡΠ΅ΡΡ ΡΠΎΠ΄ΠΈΡΠ΅Π»Π΅ΠΌ ΠΌΠ΅ΡΡΠ°ΡΠ΅Π»ΡΠ½ΠΎΠ³ΠΎ ΡΠ΅Π±Π΅Π½ΠΊΠ°, Π΄Π°Π½Π½ΡΠΉ ΠΏΡΠΎΠ΅ΠΊΡ β ΠΈΠ΄Π΅Π°Π»ΡΠ½ΠΎΠ΅ ΡΠ΅ΡΠ΅Π½ΠΈΠ΅ Π΄Π»Ρ Π²Π°Ρ.
ΠΠ΄ΠΈΠ½ Π΄ΠΎΠΌ ΠΎΠ±ΡΠ΅Π΄ΠΈΠ½ΡΠ΅Ρ Π² ΡΠ΅Π±Π΅ Π±Π°Π½Ρ, ΠΆΠΈΠ»ΠΎΠ΅ ΠΏΠΎΠΌΠ΅ΡΠ΅Π½ΠΈΠ΅ ΠΈ Π³Π°ΡΠ°ΠΆ, ΠΊΡΠΎΠΌΠ΅ ΡΠΎΠ³ΠΎ Π·Π΄Π΅ΡΡ ΠΈΠΌΠ΅Π΅ΡΡΡ Π½Π°ΡΡΠΎΡΡΠ΅Π΅ ΠΏΠΎΠ΄Π·Π΅ΠΌΠ΅Π»ΡΠ΅ (ΠΏΠΎΠ΄Π²Π°Π»ΡΠ½ΡΠΉ ΡΡΠ°ΠΆ).
Π Π΄ΠΎΠΌΠ΅ ΠΏΡΠΈΡΡΡΡΡΠ²ΡΠ΅Ρ Π±ΠΎΠ»ΡΡΠ°Ρ ΡΠ΅ΡΡΠ°ΡΠ°, ΠΎΠ±ΡΠ°Ρ ΠΊΠΎΠΌΠ½Π°ΡΠ°, ΠΏΡΠΈΡ ΠΎΠΆΠ°Ρ, ΡΡΠΈ Π²Π°Π½Π½ΡΡ ΠΊΠΎΠΌΠ½Π°ΡΡ ΠΈ ΡΡΠΈ ΡΠΏΠ°Π»ΡΠ½ΠΈ, ΠΊΡΡ Π½Ρ, ΠΏΠ°ΡΠΈΠ»ΠΊΠ° ΠΈ Π΄ΠΎΠΏΠΎΠ»Π½ΠΈΡΠ΅Π»ΡΠ½Π°Ρ ΠΊΠΎΠΌΠ½Π°ΡΠ° ΠΎΡΠ΄ΡΡ Π°.
ΠΠ°Π½Π½ΡΠΉ ΠΏΡΠΎΠ΅ΠΊΡ ΡΠ°ΡΡΡΠΈΡΠ°Π½ Π½Π° ΠΏΡΠΎΠΆΠΈΠ²Π°Π½ΠΈΠ΅ Π±ΠΎΠ»ΡΡΠΎΠΉ ΡΠ΅ΠΌΡΠΈ, Π° ΡΠ°ΠΊΠΆΠ΅ ΠΏΠΎΠ΄ΠΎΠΉΠ΄Π΅Ρ Π΄Π»Ρ ΡΠ΅Π»ΠΎΠ²Π΅ΠΊΠ°, ΠΊΠΎΡΠΎΡΡΠΉ ΡΠ°ΡΡΠΎ ΠΏΡΠΈΠ³Π»Π°ΡΠ°Π΅Ρ Π³ΠΎΡΡΠ΅ΠΉ.
ΠΠΎΠΌ Ρ Π±Π°Π½Π΅ΠΉ ΠΈΠ· ΠΏΡΠΎΡΠΈΠ»ΠΈΡΠΎΠ²Π°Π½Π½ΠΎΠ³ΠΎ Π±ΡΡΡΠ° 6Ρ 9
ΠΡΠΎΡΠΈΠ»ΠΈΡΠΎΠ²Π°Π½Π½ΡΠΉ Π±ΡΡΡ β ΠΎΠ΄ΠΈΠ½ ΠΈΠ· ΡΠ°ΠΌΡΡ ΠΏΠΎΠΏΡΠ»ΡΡΠ½ΡΡ ΠΌΠ°ΡΠ΅ΡΠΈΠ°Π»ΠΎΠ² Π΄Π»Ρ ΠΈΠ·Π³ΠΎΡΠΎΠ²Π»Π΅Π½ΠΈΡ Π΄ΠΎΠΌΠΎΠ² ΠΈ Π±Π°Π½Ρ ΡΠ΅Π³ΠΎΠ΄Π½Ρ. ΠΠΎΠΌΠΏΠ°ΠΊΡΠ½ΡΠΉ Π΄Π²ΡΡ ΡΡΠ°ΠΆΠ½ΡΠΉ Π΄ΠΎΠΌ Ρ Π±Π°Π½Π΅ΠΉ ΠΈΠ΄Π΅Π°Π»ΡΠ½ΠΎ ΠΏΠΎΠ΄ΠΎΠΉΠ΄Π΅Ρ Π΄Π»Ρ ΡΠ΄ΠΎΠ±Π½ΠΎΠ³ΠΎ ΠΏΡΠΎΠΆΠΈΠ²Π°Π½ΠΈΡ Π½Π΅Π±ΠΎΠ»ΡΡΠΎΠΉ ΡΠ΅ΠΌΡΠΈ ΠΈΠ»ΠΈ ΠΎΠ΄Π½ΠΎΠ³ΠΎ ΡΠ΅Π»ΠΎΠ²Π΅ΠΊΠ°.
ΠΠ΅ΡΠ΅Π²ΡΠ½Π½Π°Ρ Π±Π°Π½Ρ Ρ ΠΌΠ°Π½ΡΠ°ΡΠ΄ΠΎΠΉ, ΡΡΠ΅ΠΌΡ ΡΠΏΠ°Π»ΡΠ½ΡΠΌΠΈ ΠΈ ΡΠ΅ΡΡΠ°ΡΠΎΠΉ β ΠΏΡΠΎΠ΅ΠΊΡ Β«Π‘Π΅Π²Π΅ΡΒ»
ΠΠ΅Π²Π΅ΡΠΎΡΡΠ½ΠΎ ΠΊΡΠ°ΡΠΈΠ²ΡΠΉ Π΄Π΅ΡΠ΅Π²ΡΠ½Π½ΡΠΉ Π΄ΠΎΠΌ Ρ Π±Π°Π½Π΅ΠΉ ΠΈ ΠΌΠ°Π½ΡΠ°ΡΠ΄ΠΎΠΉ, ΠΏΡΠ΅Π΄ΡΡΠ°Π²Π»Π΅Π½Π½ΡΠΉ Π² Π΄Π°Π½Π½ΠΎΠΌ ΠΏΡΠΎΠ΅ΠΊΡΠ΅, Π½Π΅ ΠΌΠΎΠ³ Π±ΡΡΡ ΡΠΏΡΠΎΠ΅ΠΊΡΠΈΡΠΎΠ²Π°Π½ Π½ΠΈ Π² ΠΎΠ΄Π½ΠΎΠΉ Π΄ΡΡΠ³ΠΎΠΉ ΡΡΡΠ°Π½Π΅ ΠΌΠΈΡΠ°, ΠΏΠΎΡΠΊΠΎΠ»ΡΠΊΡ ΠΎΠ½ ΠΈΠΌΠ΅Π΅Ρ ΠΈΡΠΊΠΎΠ½Π½ΠΎ ΡΡΡΡΠΊΠΈΠΉ ΡΠΊΡΡΠ΅ΡΡΠ΅Ρ.
ΠΠ° ΠΏΠ΅ΡΠ²ΠΎΠΌ ΠΎΡΠ½ΠΎΠ² Π½ΠΎΠΌ ΡΡΠ°ΠΆΠ΅ Π΄ΠΎΠΌΠ° ΡΠ°Π·ΠΌΠ΅ΡΠ°Π΅ΡΡΡ ΠΏΠ°ΡΠ½Π°Ρ, Π²Π°Π½Π½Π°Ρ ΠΊΠΎΠΌΠ½Π°ΡΠ°, Π³ΠΎΡΡΠΈΠ½Π°Ρ ΠΈ ΡΠ²ΠΎΠ±ΠΎΠ΄Π½Π°Ρ ΠΊΠΎΠΌΠ½Π°ΡΠ°, ΠΊΠΎΡΠΎΡΠ°Ρ ΠΌΠΎΠΆΠ΅Ρ ΡΠ»ΡΠΆΠΈΡΡ ΠΎΡΠ΄Π΅Π»ΡΠ½ΠΎΠΉ ΠΊΡΡ Π½Π΅ΠΉ, ΡΠΏΠ°Π»ΡΠ½Π΅ΠΉ, ΠΊΠ°Π±ΠΈΠ½Π΅ΡΠΎΠΌ Π»ΠΈΠ±ΠΎ ΠΌΠ°ΡΡΠ΅ΡΡΠΊΠΎΠΉ.
ΠΠ΅ΡΡΠ½ΠΈΡΠ°, ΡΠ°ΡΠΏΠΎΠ»ΠΎΠΆΠ΅Π½Π½Π°Ρ Π² Π³ΠΎΡΡΠΈΠ½ΠΎΠΉ ΠΊΠΎΠΌΠ½Π°ΡΠ΅ Π²Π΅Π΄Π΅Ρ Π² ΠΏΡΠΎΡΡΠΎΡΠ½ΡΠΉ Ρ ΠΎΠ»Π» Π²ΡΠΎΡΠΎΠ³ΠΎ, ΠΌΠ°Π½ΡΠ°ΡΠ΄Π½ΠΎΠ³ΠΎ ΡΡΠ°ΠΆΠ°, Π½Π° ΠΊΠΎΡΠΎΡΠΎΠΌ ΡΠ°ΡΠΏΠΎΠ»ΠΎΠΆΠ΅Π½Ρ Π΄Π²Π΅ ΠΎΠ΄ΠΈΠ½Π°ΠΊΠΎΠ²ΡΡ ΠΏΠΎ ΠΏΠ»ΠΎΡΠ°Π΄ΠΈ ΠΈ ΡΡΡΠΎΠ΅Π½ΠΈΡ ΡΠΏΠ°Π»ΡΠ½ΠΈ.
ΠΡΠΎΠ΅ΠΊΡ Π±Π°Π½ΠΈ ΠΈΠ· ΠΊΠ»Π΅Π΅Π½ΠΎΠ³ΠΎ Π±ΡΡΡΠ° ΠΠΈΠΊΠΎΠ»ΠΎ-ΠΡΠΎΠ·ΠΎΡΠΎΠ²ΠΎ
ΠΠ²ΡΡ ΡΡΠ°ΠΆΠ½Π°Ρ Π±Π°Π½Ρ ΠΈΠ· ΠΊΠ»Π΅Π΅Π½ΠΎΠ³ΠΎ Π±ΡΡΡΠ°, ΠΊΠΎΡΠΎΡΠ°Ρ ΠΎΠΊΡΠ°ΡΠ΅Π½Π° Π² ΡΡΠΊΠΈΠ΅ ΠΏΡΠΈΠ²Π»Π΅ΠΊΠ°ΡΠ΅Π»ΡΠ½ΡΠ΅ ΡΠ²Π΅ΡΠ°, Π²Π½ΡΡΡΠΈ ΡΡΠ»ΠΎΠ²Π½ΠΎ ΡΠ°Π·Π΄Π΅Π»Π΅Π½Π° Π½Π° Π΄Π²Π° Π±Π»ΠΎΠΊΠ°: ΡΠ°Π·Π²Π»Π΅ΠΊΠ°ΡΠ΅Π»ΡΠ½ΡΠΉ ΠΈ ΠΆΠΈΠ»ΠΎΠΉ.
ΠΡΠΎΡ ΠΏΡΠΎΠ΅ΠΊΡ ΠΏΡΠ΅Π΄ΡΡΠ°Π²Π»ΡΠ΅Ρ ΠΎΠ΄ΠΈΠ½ ΠΈΠ· Π½Π΅ΠΌΠ½ΠΎΠ³ΠΈΡ Π΄ΠΎΠΌΠΎΠ² Ρ Π±Π°Π½Π΅ΠΉ, ΠΊΠΎΡΠΎΡΡΠ΅ ΡΠ²Π»ΡΠ΅ΡΡΡ ΠΏΠΎ Π±ΠΎΠ»ΡΡΠ΅ΠΉ ΡΡΠ΅ΠΏΠ΅Π½ΠΈ Π±Π°Π½Π΅ΠΉ, ΡΠ΅ΠΌ Π΄ΠΎΠΌΠΎΠΌ. ΠΠΎΠ»ΡΡΠΎΠΉ Π°ΠΊΡΠ΅Π½Ρ Π² ΠΏΡΠΎΠ΅ΠΊΡΠ΅ ΡΠ΄Π΅Π»Π°Π½ Π½Π° Π²ΠΌΠ΅ΡΡΠΈΡΠ΅Π»ΡΠ½ΡΡ ΠΏΠ°ΡΠΈΠ»ΠΊΡ, ΠΊΠΎΠΌΠ½Π°ΡΡ ΠΎΡΠ΄ΡΡ Π° ΠΈ Π΄ΡΡΠ³ΠΈΠ΅ Π½Π΅ΠΎΠ±Ρ ΠΎΠ΄ΠΈΠΌΡΠ΅ Π΄Π»Ρ ΠΊΠΎΠΌΡΠΎΡΡΠ½ΠΎΠ³ΠΎ Π²ΡΠ΅ΠΌΡΠΏΡΠΎΠ²ΠΎΠΆΠ΄Π΅Π½ΠΈΡ Π² Π±Π°Π½Π΅ ΠΏΠΎΠΌΠ΅ΡΠ΅Π½ΠΈΡ.
ΠΡΠΎΡΠΎΠΉ ΡΡΠ°ΠΆ ΡΠΎΡΡΠΎΠΈΡ ΠΈΠ· ΠΊΠΎΠΌΠ½Π°ΡΡ ΠΎΡΠ΄ΡΡ Π° ΠΈ Π±ΠΈΠ»ΡΡΡΠ΄Π½ΠΎΠΉ, ΠΊΠΎΡΠΎΡΡΠ΅ Π½Π΅ ΡΠ°Π·Π΄Π΅Π»Π΅Π½Ρ ΠΌΠ΅ΠΆΠ΄Ρ ΡΠΎΠ±ΠΎΠΉ ΡΠ΅ΡΠΊΠΎΠΉ Π³ΡΠ°Π½ΠΈΡΠ΅ΠΉ ΠΈ ΠΏΡΠ΅Π΄ΡΡΠ°Π²Π»ΡΡΡΡΡ ΡΠΊΠΎΡΠ΅Π΅ ΠΎΠ΄Π½ΠΎΠΉ Π±ΠΎΠ»ΡΡΠΎΠΉ ΡΠ°Π·Π²Π»Π΅ΠΊΠ°ΡΠ΅Π»ΡΠ½ΠΎΠΉ ΠΊΠΎΠΌΠ½Π°ΡΠΎΠΉ.
ΠΡΠΎΠ΅ΠΊΡΡ Π΄ΠΎΠΌΠ° Ρ Π±Π°Π½Π΅ΠΉ ΠΏΠΎΠ΄ ΠΎΠ΄Π½ΠΎΠΉ ΠΊΡΡΡΠ΅ΠΉ
ΠΡΠΈ ΠΎΠ³ΡΠ°Π½ΠΈΡΠ΅Π½Π½ΠΎΠΌ ΠΏΡΠΎΡΡΡΠ°Π½ΡΡΠ²Π΅ Π½Π° ΡΡΠ°ΡΡΠΊΠ΅ ΠΈΠ»ΠΈ Π½Π΅Π²ΠΎΠ·ΠΌΠΎΠΆΠ½ΠΎΡΡΠΈ Π²ΡΠ΄Π΅Π»ΠΈΡΡ Π½Π΅ΠΎΠ±Ρ ΠΎΠ΄ΠΈΠΌΡΠ΅ ΠΊΠΎΠΌΠΌΡΠ½ΠΈΠΊΠ°ΡΠΈΠΈ Π² ΠΎΡΠ΄Π΅Π»ΡΠ½ΡΡ ΡΠΈΡΡΠ΅ΠΌΡ, Π±Π°Π½Ρ ΠΌΠΎΠΆΠ½ΠΎ ΠΏΠΎΡΡΡΠΎΠΈΡΡ ΠΏΠΎΠ΄ ΠΎΠ΄Π½ΠΎΠΉ ΠΊΡΡΡΠ΅ΠΉ Ρ Π΄ΠΎΠΌΠΎΠΌ. ΠΡΠ°Π²ΠΈΠ»ΡΠ½ΠΎ ΡΠΎΠ·Π΄Π°Π½Π½ΡΠΉ ΠΏΡΠΎΠ΅ΠΊΡ ΡΡΠΊΠΎΠ½ΠΎΠΌΠΈΡ ΠΌΠ΅ΡΡΠΎ ΠΈ Π·Π°ΡΡΠ°ΡΡ Π½Π° Π²ΠΎΠ·Π²Π΅Π΄Π΅Π½ΠΈΠ΅ ΠΏΡΠΈΡΡΡΠΎΠΉΠΊΠΈ. ΠΠ»ΡΡΠΎΠΌ ΡΠ²Π»ΡΠ΅ΡΡΡ ΠΈ ΠΊΠΎΠΌΡΠΎΡΡΠ½ΠΎΠ΅ ΠΏΠ΅ΡΠ΅ΠΌΠ΅ΡΠ΅Π½ΠΈΠ΅ ΠΈΠ· Π±Π°Π½Π½ΠΎΠ³ΠΎ ΠΏΠΎΠΌΠ΅ΡΠ΅Π½ΠΈΡ Π² Π΄ΠΎΠΌ, Π΅ΡΠ»ΠΈ ΡΠ΄Π΅Π»Π°ΡΡ Π²Ρ ΠΎΠ΄ ΠΈΠ· Π΄ΠΎΠΌΠ°.
ΠΡΠΎΠ΅ΠΊΡΡ Π±Π°Π½ΠΈ Π² Π΄ΠΎΠΌΠ΅
ΠΡΠΎΠ΅ΠΊΡΡ Π΄ΠΎΠΌΠ° Ρ Π±Π°Π½Π΅ΠΉ ΠΏΠΎΠ΄ ΠΎΠ΄Π½ΠΎΠΉ ΠΊΡΡΡΠ΅ΠΉ ΠΌΠΎΠ³ΡΡ Π±ΡΡΡ ΠΎΡΠ΅Π½Ρ ΡΠ°Π·Π½ΡΠΌΠΈ. Π ΠΏΡΠΈΠΌΠ΅ΡΡ, Π² Π΄Π²ΡΡ ΡΡΠ°ΠΆΠ½ΠΎΠΌ Π΄ΠΎΠΌΠ΅ 8Ρ 8 ΠΌ, ΠΌΠΎΠΆΠ½ΠΎ ΡΠ°Π·ΠΌΠ΅ΡΡΠΈΡΡ Π½Π° ΠΏΠ΅ΡΠ²ΠΎΠΌ ΡΡΠ°ΠΆΠ΅ Π±Π°Π½Ρ, Π±Π°ΡΡΠ΅ΠΉΠ½, ΠΊΠΎΠΌΠ½Π°ΡΡ ΠΎΡΠ΄ΡΡ Π° ΠΈ Π³ΠΎΡΡΠΈΠ½ΡΡ, Π° Π² ΠΌΠ°Π½ΡΠ°ΡΠ΄Π΅ β ΡΠΏΠ°Π»ΡΠ½ΡΡ (ΠΈΠ»ΠΈ Π΄ΠΎΠΏΠΎΠ»Π½ΠΈΡΠ΅Π»ΡΠ½ΡΡ ΠΊΠΎΠΌΠ½Π°ΡΡ ΠΎΡΠ΄ΡΡ Π°) ΠΈ Π±Π°Π»ΠΊΠΎΠ½.


ΠΡΠΈ Π±ΠΎΠ»ΡΡΠΈΡ Π³Π°Π±Π°ΡΠΈΡΠ°Ρ ΠΊΠΎΠΌΠΏΠ»Π΅ΠΊΡΠ°, Π΄ΠΎΠΌ Π²ΡΠΏΠΎΠ»Π½ΡΠ΅Ρ ΡΡΠ½ΠΊΡΠΈΠΈ Π½Π΅ ΡΠΎΠ»ΡΠΊΠΎ Π΄Π°ΡΠ½ΠΎΠ³ΠΎ ΡΡΡΠΎΠ΅Π½ΠΈΡ, Π½ΠΎ ΠΈ ΠΌΠΎΠΆΠ΅Ρ Π±ΡΡΡ ΠΈΡΠΏΠΎΠ»ΡΠ·ΠΎΠ²Π°Π½, ΠΊΠ°ΠΊ ΠΏΠΎΡΡΠΎΡΠ½Π½ΠΎΠ΅ ΠΆΠΈΠ»ΡΠ΅. ΠΠΎΠ½Π° ΠΎΡΠ΄ΡΡ Π° ΠΈΠ·ΠΎΠ»ΠΈΡΡΠ΅ΡΡΡ ΠΎΡ ΠΎΡΠ½ΠΎΠ²Π½ΠΎΠΉ ΡΠ°ΡΡΠΈ Π΄ΠΎΠΌΠ° ΠΎΡΠ΄Π΅Π»ΡΠ½ΡΠΌ Π²Ρ ΠΎΠ΄ΠΎΠΌ. Π ΠΏΠΎΠΌΠ΅ΡΠ΅Π½ΠΈΠΈ ΠΌΠΎΠ³ΡΡ ΠΆΠΈΡΡ Π΄ΠΎ 6 ΡΠ΅Π»ΠΎΠ²Π΅ΠΊ. ΠΠ° Π²ΡΠΎΡΠΎΠΌ ΡΡΠ°ΠΆΠ΅ ΡΠ°ΡΠΏΠΎΠ»Π°Π³Π°ΡΡ ΡΡΠΈ ΡΠΏΠ°Π»ΡΠ½ΠΈ, ΠΈΠ³ΡΠΎΠ²ΡΡ ΠΈΠ»ΠΈ ΠΊΠ°Π±ΠΈΠ½Π΅Ρ, Π½Π° ΠΏΠ΅ΡΠ²ΠΎΠΌ β Π³ΠΎΡΡΠΈΠ½ΡΡ, Π±Π°Π½Ρ Ρ Π±Π°ΡΡΠ΅ΠΉΠ½ΠΎΠΌ, ΠΊΡΡ Π½Ρ, ΠΏΠΎΠ΄ΡΠΎΠ±ΠΊΡ.

ΠΠ΅Π±ΠΎΠ»ΡΡΠΎΠΉ Π΄Π΅ΡΠ΅Π²ΡΠ½Π½ΡΠΉ Π΄ΠΎΠΌ ΠΌΠΎΠΆΠ½ΠΎ ΡΠ΄Π΅Π»Π°ΡΡ ΡΡΠ½ΠΊΡΠΈΠΎΠ½Π°Π»ΡΠ½ΡΠΌ ΠΈ ΡΡΡΠ΅ΡΠΈΡΠ΅ΡΠΊΠΈ ΠΎΡΠΈΠ³ΠΈΠ½Π°Π»ΡΠ½ΡΠΌ Π·Π° ΡΡΠ΅Ρ Π±Π΅Π·ΠΊΠΎΠ½ΡΠΊΠΎΠ²ΠΎΠΉ, Π΄Π²ΡΡΠΊΠ°ΡΠ½ΠΎΠΉ ΠΊΡΡΡΠΈ. Π§Π°ΡΡΡ, Π³Π΄Π΅ Π²ΡΡΠΎΠΊΠΈΠ΅ ΠΏΠΎΡΠΎΠ»ΠΊΠΈ Π½Π΅ ΡΡΠ΅Π±ΡΡΡΡΡ, Π²ΡΠ΄Π΅Π»ΡΠ΅ΡΡΡ ΠΏΠΎΠ΄ Π±Π°Π½Π½ΡΠΉ ΠΊΠΎΠΌΠΏΠ»Π΅ΠΊΡ, Π° ΠΎΡΡΠ°Π»ΡΠ½Π°Ρ β ΠΏΠΎΠ΄ ΠΆΠΈΠ»ΡΠ΅ ΠΏΠΎΠΌΠ΅ΡΠ΅Π½ΠΈΡ. ΠΠ»Ρ ΠΎΡΠ΄ΡΡ Π° ΠΎΠ±ΡΡΡΡΠ°ΠΈΠ²Π°Π΅ΡΡΡ ΠΏΡΠΎΡΡΠΎΡΠ½Π°Ρ Π²Π΅ΡΠ°Π½Π΄Π°.

ΠΠΎΡΡΡΠΎΠΈΡΡ Π½Π΅Π±ΠΎΠ»ΡΡΠΎΠΉ Π΄Π΅ΡΠ΅Π²ΡΠ½Π½ΡΠΉ Π³ΠΎΡΡΠ΅Π²ΠΎΠΉ Π΄ΠΎΠΌ Ρ Π±Π°Π½Π΅ΠΉ Π²Π½ΡΡΡΠΈ 6Ρ 6 ΠΌ ΡΠ΅ΡΡΠ°ΡΠΎΠΉ ΠΈ Π±Π°Π»ΠΊΠΎΠ½ΠΎΠΌ Π½Π° Π²ΡΠΎΡΠΎΠΌ ΡΡΠ°ΠΆΠ΅ ΠΌΠΎΠΆΠ½ΠΎ ΠΏΠΎ ΡΡ Π΅ΠΌΠ°ΠΌ Π½ΠΈΠΆΠ΅.

Π ΠΎΠ±ΠΎΠΈΡ ΡΠ»ΡΡΠ°ΡΡ ΠΊΠΎΠΌΠ½Π°ΡΡ ΠΎΡΠ΄ΡΡ Π° ΠΌΠΎΠΆΠ½ΠΎ Π² Π»ΡΠ±ΠΎΠΉ ΠΌΠΎΠΌΠ΅Π½Ρ ΠΏΠ΅ΡΠ΅ΠΎΠ±ΠΎΡΡΠ΄ΠΎΠ²Π°ΡΡ Π² Π³ΠΎΡΡΠΈΠ½ΡΡ Ρ Π½Π΅Π±ΠΎΠ»ΡΡΠΎΠΉ ΠΊΡΡ Π½Π΅ΠΉ ΠΈΠ»ΠΈ ΡΠΏΠ°Π»ΡΠ½Ρ, Π° Π±Π°Π»ΠΊΠΎΠ½ ΠΈ ΡΠ΅ΡΡΠ°ΡΡ ΠΈΡΠΏΠΎΠ»ΡΠ·ΠΎΠ²Π°ΡΡ, ΠΊΠ°ΠΊ Π·ΠΎΠ½Ρ Π΄Π»Ρ ΡΠ΅Π»Π°ΠΊΡΠ°ΡΠΈΠΈ.

Π€ΡΠ½Π΄Π°ΠΌΠ΅Π½ΡΡ Π΄Π»Ρ Π±Π°Π½ΠΈ Π²ΡΠ±ΠΈΡΠ°ΡΡΡΡ Π² Π·Π°Π²ΠΈΡΠΈΠΌΠΎΡΡΠΈ ΠΎΡ ΡΠΈΠΏΠ° ΠΌΠ°ΡΠ΅ΡΠΈΠ°Π»Π°: ΠΏΠΎΠ΄ ΡΡΡΠ± ΠΈΠ»ΠΈ ΠΊΠ»Π΅Π΅Π½ΡΠΉ Π±ΡΡΡ ΠΏΠΎΠ΄ΠΎΠΉΠ΄Π΅Ρ Π»Π΅Π½ΡΠΎΡΠ½ΡΠΉ, Π·Π°Π³Π»ΡΠ±Π»Π΅Π½Π½ΡΠΉ Π½Π° 50 ΡΠΌ Ρ ΡΠΈΡΠΈΠ½ΠΎΠΉ Π² 30 ΡΠΌ. ΠΠΈΡΠΏΠΈΡΠ½ΡΠ΅ ΠΈ Π±Π»ΠΎΡΠ½ΡΠ΅ Π΄ΠΎΠΌΠ° ΡΡΠ΅Π±ΡΡΡ ΠΏΠΎΠ»Π½ΠΎΡΠ΅Π½Π½ΠΎΠΉ ΠΎΡΠ½ΠΎΠ²Ρ.

Π§ΡΠΎΠ±Ρ ΠΏΡΠΈΡΡΡΠΎΠΉΠΊΠ° Π±ΡΠ»Π° ΠΏΠΎΠ΄ ΠΎΠ±ΡΠ΅ΠΉ ΠΊΡΡΡΠ΅ΠΉ Ρ Π΄ΠΎΠΌΠΎΠΌ, ΠΊΡΠΎΠ²Π»Ρ ΠΏΡΠΎΠ΄Π»Π΅Π²Π°ΡΡ Π½Π° Π½Π΅ΠΎΠ±Ρ ΠΎΠ΄ΠΈΠΌΠΎΠ΅ ΡΠ°ΡΡΡΠΎΡΠ½ΠΈΠ΅ Π΄Π»Ρ Π·Π°ΠΊΡΡΡΠΈΡ Π±Π°Π½Π½ΡΡ ΠΏΠΎΠΌΠ΅ΡΠ΅Π½ΠΈΠΉ. ΠΠ΄Π½Π°ΠΊΠΎ Π΄Π»Ρ ΡΡΡΠ±ΠΎΠ² ΠΈ Π΄Π΅ΡΠ΅Π²ΡΠ½Π½ΡΡ Π΄ΠΎΠΌΠΎΠ² ΠΏΡΠΎΠ΄ΡΠΌΡΠ²Π°ΡΡ Π½Π°Π»ΠΈΡΠΈΠ΅ Π±Π°Π½ΠΈ Π½Π΅ΠΎΠ±Ρ ΠΎΠ΄ΠΈΠΌΠΎ Π½Π° ΡΡΠ°Π΄ΠΈΠΈ ΠΏΠ»Π°Π½ΠΈΡΠΎΠ²ΠΊΠΈ. ΠΠ΅Π±ΠΎΠ»ΡΡΠΎΠΉ Π΄ΠΎΠΌΠΈΠΊ 7Ρ 8 ΠΌ Ρ Π±Π°Π½Π΅ΠΉ, Π³ΠΎΡΡΠΈΠ½ΠΎΠΉ-ΡΡΠΎΠ»ΠΎΠ²ΠΎΠΉ, ΡΠ΅ΡΡΠ°ΡΠΎΠΉ Π½Π° ΠΏΠ΅ΡΠ²ΠΎΠΌ ΡΡΠ°ΠΆΠ΅, Π΄Π²ΡΠΌΡ ΡΠΏΠ°Π»ΡΠ½ΡΠΌΠΈ ΠΈ Π±Π°Π»ΠΊΠΎΠ½ΠΎΠΌ β Π½Π° Π²ΡΠΎΡΠΎΠΌ ΠΎΡΠ»ΠΈΡΠ½ΠΎΠ΅ ΡΠ΅ΡΠ΅Π½ΠΈΠ΅ Π΄Π»Ρ ΠΎΡΠ΄ΡΡ Π° Π½Π° Π΄Π²ΡΡ -ΡΡΠ΅Ρ ΡΠ΅Π»ΠΎΠ²Π΅ΠΊ.

ΠΡΠ»ΠΈ Π΄ΠΎΠΌ ΠΏΡΠ°Π²ΠΈΠ»ΡΠ½ΠΎ ΡΡΠ΅ΠΏΠ»ΠΈΡΡ ΠΈ Π΄ΠΎΠΏΠΎΠ»Π½ΠΈΡΡ ΠΎΠ±ΠΎΠ³ΡΠ΅Π²Π°ΡΠ΅Π»ΡΠ½ΠΎΠΉ ΡΠΈΡΡΠ΅ΠΌΠΎΠΉ Π² Π·ΠΎΠ½Π°Ρ Ρ ΡΠΌΠ΅ΡΠ΅Π½Π½ΡΠΌ ΠΈ ΡΠ΅ΠΏΠ»ΡΠΌ ΠΊΠ»ΠΈΠΌΠ°ΡΠΎΠΌ β ΡΡΠΎ ΠΌΠΎΠΆΠ΅Ρ ΡΡΠ°ΡΡ ΠΏΠΎΡΡΠΎΡΠ½Π½ΡΠΌ ΠΆΠΈΠ»ΡΠ΅ΠΌ. ΠΠ΄ΠΈΠ½ΡΡΠ²Π΅Π½Π½ΡΠΉ Π½ΡΠ°Π½Ρ: Π±Π°Π»ΠΊΠΎΠ½ ΠΈ ΡΠ΅ΡΡΠ°ΡΡ Π»ΡΡΡΠ΅ Π·Π°ΡΡΠ΅ΠΊΠ»ΠΈΡΡ, ΠΈΠ½Π°ΡΠ΅ Π² Π·ΠΈΠΌΠ½Π΅Π΅ Π²ΡΠ΅ΠΌΡ ΠΈΡ Π²ΡΠ΅ ΡΠ°Π²Π½ΠΎ Π±ΡΠ΄Π΅Ρ Π½Π΅ΠΊΠΎΠΌΡΠΎΡΡΠ½ΠΎ ΠΈΡΠΏΠΎΠ»ΡΠ·ΠΎΠ²Π°ΡΡ Π΄Π»Ρ ΠΎΡΠ΄ΡΡ Π°.
ΠΡΠ΅ ΠΎΠ΄ΠΈΠ½ ΠΌΠΎΠΌΠ΅Π½Ρ, Π½Π° ΡΡΠ°Π΄ΠΈΠΈ ΠΏΡΠΎΠ΅ΠΊΡΠΈΡΠΎΠ²Π°Π½ΠΈΡ, Π½ΡΠΆΠ½ΠΎ ΡΡΠΎΡΠ½ΠΈΡΡ ΠΊΠ°ΠΊΠΎΠ΅ Π²ΡΠ΅ΠΌΡ ΡΠΉΠ΄Π΅Ρ Π½Π° ΡΡΠ°Π΄ΠΊΡ ΠΈ ΠΏΠΎΠ΄ΠΊΠ»ΡΡΠ΅Π½ΠΈΠ΅ Π½Π΅ΠΎΠ±Ρ ΠΎΠ΄ΠΈΠΌΡΡ ΠΊΠΎΠΌΠΌΡΠ½ΠΈΠΊΠ°ΡΠΈΠΉ. ΠΡΠ»ΠΈ Π΄ΠΎΠΌ Ρ Π±Π°Π½Π΅ΠΉ Π²Π½ΡΡΡΠΈ Π±ΡΠ΄Π΅Ρ ΡΠ»ΡΠΆΠΈΡΡ ΠΎΡΠ½ΠΎΠ²Π½ΡΠΌ ΠΆΠΈΠ»ΡΠ΅ΠΌ, Π²ΡΠ΅Ρ Π°ΡΡ Π² Π½Π΅Π³ΠΎ ΡΡΠ°Π·Ρ ΠΏΠΎΡΠ»Π΅ Π²ΠΎΠ·Π²Π΅Π΄Π΅Π½ΠΈΡ Π½Π΅ ΠΏΠΎΠ»ΡΡΠΈΡΡΡ.
ΠΡΠ΅ΠΈΠΌΡΡΠ΅ΡΡΠ²Π° ΡΠ°Π·ΠΌΠ΅ΡΠ΅Π½ΠΈΡ Π±Π°Π½ΠΈ Π² Π΄ΠΎΠΌΠ΅
ΠΠ»ΡΡΠ°ΠΌΠΈ ΡΠ°ΠΊΠΎΠΉ ΠΏΡΠΈΡΡΡΠΎΠΉΠΊΠΈ Π±ΡΠ΄Π΅Ρ Π΅Π΄ΠΈΠ½Π°Ρ ΡΠΈΡΡΠ΅ΠΌΠ° ΠΊΠΎΠΌΠΌΡΠ½ΠΈΠΊΠ°ΡΠΈΠΉ, ΡΡΠΎ ΠΏΠΎΠ·Π²ΠΎΠ»ΠΈΡ ΠΈΡΠΏΠΎΠ»ΡΠ·ΠΎΠ²Π°ΡΡ Π±Π°Π½Ρ ΠΊΡΡΠ³Π»ΡΠΉ Π³ΠΎΠ΄. ΠΡΠΈ Π½Π΅ΠΎΠ±Ρ ΠΎΠ΄ΠΈΠΌΠΎΡΡΠΈ, ΠΈΠ· ΠΏΠΎΠΌΠ΅ΡΠ΅Π½ΠΈΡ Π»Π΅Π³ΠΊΠΎ ΠΏΠ΅ΡΠ΅ΠΉΡΠΈ Π² Π΄ΠΎΠΌ, Π½Π΅ Π·Π°ΠΌΠ΅ΡΠ·Π½ΡΠ² ΠΈΠ»ΠΈ ΠΏΡΠΎΠΌΠΎΠΊΠ½ΡΠ² Π½Π° ΡΠ»ΠΈΡΠ΅. ΠΠ»Ρ Π²ΡΠ΅Ρ ΡΠ΄ΠΎΠ±ΡΡΠ² Π½Π΅ΠΎΠ±Ρ ΠΎΠ΄ΠΈΠΌ ΡΠΎΠ»ΡΠΊΠΎ Π²Ρ ΠΎΠ΄ ΠΈΠ· Π΄ΠΎΠΌΠ°. ΠΡΡ ΠΏΡΠΈΡΡΡΠΎΠΉΠΊΠ° ΠΌΠΎΠΆΠ΅Ρ Π·Π°Π½ΡΡΡ 26,3 ΠΌ 2. ΠΠ»ΠΎΡΠ°Π΄ΠΈ Π΄ΠΎΡΡΠ°ΡΠΎΡΠ½ΠΎ Π΄Π»Ρ Π΄Π²ΡΡ ΡΠ΅Π»ΠΎΠ²Π΅ΠΊ.

ΠΠ°Π½Ρ ΠΌΠΎΠΆΠ½ΠΎ ΠΎΠ±ΠΎΡΡΠ΄ΠΎΠ²Π°ΡΡ ΠΏΠΎ Π½Π΅ΡΠΊΠΎΠ»ΡΠΊΠΈΠΌ ΡΡ Π΅ΠΌΠ°ΠΌ:
- Π·Π°Π΄Π΅ΠΉΡΡΠ²ΠΎΠ²Π°ΡΡ ΡΠΎΠΊΠΎΠ»ΡΠ½ΡΠΉ ΡΡΠ°ΠΆ, Π΅ΡΠ»ΠΈ ΠΎΠ½ ΠΌΠ½ΠΎΠ³ΠΎΡΡΠΎΠ²Π½Π΅Π²ΡΠΉ;
- ΡΠ΄Π΅Π»Π°ΡΡ Π΅ΡΠ΅ ΠΎΠ΄Π½ΠΎΠΉ ΠΊΠΎΠΌΠ½Π°ΡΠΎΠΉ Π½Π° ΠΏΠ΅ΡΠ²ΠΎΠΌ ΡΡΠ°ΠΆΠ΅;
- ΡΠ°Π·ΠΌΠ΅ΡΡΠΈΡΡ ΡΠΎΠ²ΠΌΠ΅ΡΠ΅Π½Π½ΠΎ Ρ ΡΠ°Π½ΡΠ·Π»ΠΎΠΌ;
- ΠΏΡΠΈΡΡΡΠΎΠΈΡΡ ΠΊ Π΄ΠΎΠΌΡ (Π΅ΡΠ»ΠΈ ΠΈΠ·Π½Π°ΡΠ°Π»ΡΠ½ΠΎ Π² ΠΏΡΠΎΠ΅ΠΊΡΠ΅ Π±Π°Π½Ρ Π½Π΅ ΠΏΠ»Π°Π½ΠΈΡΠΎΠ²Π°Π»Π°ΡΡ).
ΠΡΠΈΡΡΡΠΎΠΉΠΊΠ° ΠΌΠΎΠΆΠ΅Ρ Π±ΡΡΡ ΠΊΠ°ΡΠΊΠ°ΡΠ½ΠΎΠΉ, ΠΈΠ· Π±ΡΡΡΠ°, Π±Π»ΠΎΠΊΠΎΠ² ΠΈΠ»ΠΈ ΠΊΠΈΡΠΏΠΈΡΠ°. Π‘Π°ΠΌΡΠΌ Π½Π°Π΄Π΅ΠΆΠ½ΡΠΌ ΠΈ Π΄ΠΎΠ»Π³ΠΎΠ²Π΅ΡΠ½ΡΠΌ Π±ΡΠ΄Π΅Ρ Π΄ΠΎΠΌ ΠΈΠ· ΠΊΠΈΡΠΏΠΈΡΠ°, Π±ΠΎΠ»ΡΡΠ΅ Π²ΡΠ΅Π³ΠΎ ΠΏΠΎΠ΄Π²Π΅ΡΠΆΠ΅Π½ Π²Π»ΠΈΡΠ½ΠΈΡ ΠΏΠΎΠ²ΡΡΠ΅Π½Π½ΠΎΠΉ Π²Π»Π°ΠΆΠ½ΠΎΡΡΠΈ ΠΈ ΠΏΠ΅ΡΠ΅ΠΏΠ°Π΄ΠΎΠ² ΡΠ΅ΠΌΠΏΠ΅ΡΠ°ΡΡΡ β Π΄Π΅ΡΠ΅Π²ΡΠ½Π½ΡΠΉ.
ΠΠΎΠΌ, ΠΏΡΠΈ ΠΆΠ΅Π»Π°Π½ΠΈΠΈ, ΡΠΊΠΎΠΌΠΏΠ»Π΅ΠΊΡΠΎΠ²ΡΠ²Π°Π΅ΡΡΡ Π²ΡΡΡΠΎΠ΅Π½Π½ΡΠΌ Π³Π°ΡΠ°ΠΆΠΎΠΌ, Π±Π°Π»ΠΊΠΎΠ½ΠΎΠΌ. ΠΡΠ±ΠΈΡΠ°Π΅ΡΡΡ ΠΈ ΡΡΠ°ΠΆΠ½ΠΎΡΡΡ: ΠΎΠ΄Π½ΠΎΡΡΠ°ΠΆΠ½ΠΎΠ΅, Ρ ΠΌΠ°Π½ΡΠ°ΡΠ΄ΠΎΠΉ ΠΈΠ»ΠΈ ΠΏΠΎΠ»Π½ΠΎΡΠ΅Π½Π½ΠΎΠ΅ Π΄Π²ΡΡ ΡΡΠ°ΠΆΠ½ΠΎΠ΅ ΡΡΡΠΎΠ΅Π½ΠΈΠ΅. ΠΡΠΈΠΌΠ΅ΡΡ Π½Π° ΡΠΎΡΠΎ Π½ΠΈΠΆΠ΅.




Π‘ ΠΊΠ°ΠΊΠΈΠΌΠΈ Π½Π΅ΡΠ΄ΠΎΠ±ΡΡΠ²Π°ΠΌΠΈ ΠΌΠΎΠΆΠ½ΠΎ ΡΡΠΎΠ»ΠΊΠ½ΡΡΡΡΡ
ΠΠ°ΡΠ½ΡΡ Π½Π΅ΠΎΠ±Ρ ΠΎΠ΄ΠΈΠΌΠΎ ΡΠ°Π·ΠΌΠ΅ΡΠ°ΡΡ Π² ΡΠ°ΠΌΠΎΠΌ Π΄Π°Π»ΡΠ½Π΅ΠΌ ΡΠ³Π»Ρ ΠΏΠΎΡΡΡΠΎΠΉΠΊΠΈ ΠΎΡΠ½ΠΎΡΠΈΡΠ΅Π»ΡΠ½ΠΎ ΠΆΠΈΠ»ΡΡ ΠΏΠΎΠΌΠ΅ΡΠ΅Π½ΠΈΠΉ. ΠΠ΅ΠΆΠ΄Ρ ΠΏΠ°ΡΠ½ΠΎΠΉ ΠΈ ΡΡΠ΅Π½ΠΊΠΎΠΉ Π΄ΠΎΠΌΠ° Π»ΡΡΡΠ΅ Π²ΡΠ΅Π³ΠΎ ΡΠ°Π·ΠΌΠ΅ΡΡΠΈΡΡ ΠΌΠΎΠ΅ΡΠ½ΡΡ ΠΈΠ»ΠΈ ΠΊΠΎΠΌΠ½Π°ΡΡ ΠΎΡΠ΄ΡΡ Π°. ΠΠ°ΠΆΠ½ΠΎ ΠΏΡΠΈΠ΄Π΅ΡΠΆΠΈΠ²Π°ΡΡΡΡ Π΄Π΅ΠΉΡΡΠ²ΡΡΡΠΈΡ Π‘ΠΠΈΠΠΎΠ², ΠΈΠ½Π°ΡΠ΅ ΠΏΡΠΎΠ±Π»Π΅ΠΌ Ρ ΡΠ΅Π³ΠΈΡΡΡΠ°ΡΠΈΠ΅ΠΉ Π½Π΅ ΠΈΠ·Π±Π΅ΠΆΠ°ΡΡ. Π‘ΡΠ΅Π½Ρ, ΡΠΌΠ΅ΠΆΠ½ΡΡ Ρ Π±Π°Π½Π΅ΠΉ Π΄ΠΎΠΏΠΎΠ»Π½ΠΈΡΠ΅Π»ΡΠ½ΠΎ ΡΠ΅ΠΏΠ»ΠΎ- ΠΈ Π³ΠΈΠ΄ΡΠΎΠΈΠ·ΠΎΠ»ΠΈΡΡΡΡ.
ΠΡΠΎΠ΅ΠΊΡΠΈΡΠΎΠ²Π°Π½ΠΈΠ΅ ΠΏΡΠΈΡΡΡΠΎΠΉΠΊΠΈ ΡΡΠ΅Π±ΡΠ΅Ρ Ρ ΠΎΡΠΎΡΠ΅ΠΉ Π²Π΅Π½ΡΠΈΠ»ΡΡΠΈΠΈ, Π³ΠΈΠ΄ΡΠΎΠΈΠ·ΠΎΠ»ΡΡΠΈΠΈ (Π½Π°ΡΡΠΆΠ½ΠΎΠΉ ΠΈ Π²Π½ΡΡΡΠ΅Π½Π½Π΅ΠΉ), ΡΠ΅ΡΠΌΠΎΠΈΠ·ΠΎΠ»ΡΡΠΈΠΈ, Π½Π°Π»ΠΈΡΠΈΡ ΡΠ΅Π½ΡΡΠ°Π»ΠΈΠ·ΠΎΠ²Π°Π½Π½ΠΎΠΉ ΠΈΠ»ΠΈ Π°Π²ΡΠΎΠ½ΠΎΠΌΠ½ΠΎΠΉ ΠΊΠ°Π½Π°Π»ΠΈΠ·Π°ΡΠΈΠΎΠ½Π½ΠΎΠΉ ΡΠΈΡΡΠ΅ΠΌΡ, ΠΎΠ±ΡΠ°Π±ΠΎΡΠΊΠΈ Π°Π½ΡΠΈΡΠ΅ΠΏΡΠΈΠΊΠ°ΠΌΠΈ ΠΈ ΠΎΠ³Π½Π΅ΡΠΏΠΎΡΠ½ΡΠΌΠΈ ΠΏΡΠΎΠΏΠΈΡΠΊΠ°ΠΌΠΈ. ΠΠΎ Π΄Π°ΠΆΠ΅ ΠΏΡΠΈ ΡΠΎΠ±Π»ΡΠ΄Π΅Π½ΠΈΠΈ Π²ΡΠ΅Ρ Π½ΠΎΡΠΌ ΠΏΡΠΎΠ±Π»Π΅ΠΌΡ ΠΌΠΎΠ³ΡΡ Π²ΠΎΠ·Π½ΠΈΠΊΠ½ΡΡΡ.
Π‘ΡΡΠ°Ρ ΠΎΠ²ΡΠΈΠΊΠΈ Π½Π΅ΠΎΡ ΠΎΡΠ½ΠΎ Π±Π΅ΡΡΡΡΡ Π·Π° ΠΎΡΠΎΡΠΌΠ»Π΅Π½ΠΈΠ΅ ΡΡΡΠ°Ρ ΠΎΠ²ΠΊΠΈ Π½Π° Π΄ΠΎΠΌΠ° Ρ ΠΏΠΎΠ²ΡΡΠ΅Π½Π½ΠΎΠΉ ΠΎΠΏΠ°ΡΠ½ΠΎΡΡΡΡ. ΠΡΠΈ Π½Π΅ΡΠΎΠ±Π»ΡΠ΄Π΅Π½ΠΈΠΈ ΡΠ΅Ρ Π½ΠΎΠ»ΠΎΠ³ΠΈΠΈ ΠΏΠΎΡΡΡΠΎΠΉΠΊΠΈ, ΠΊΠΎΠΌΠΌΡΠ½Π°Π»ΡΡΠΈΠΊΠΈ ΡΠ°ΠΊΠΆΠ΅ ΠΌΠΎΠ³ΡΡ ΠΎΡΠΊΠ°Π·Π°ΡΡΡΡ ΠΏΠΎΠ΄ΠΊΠ»ΡΡΠ°ΡΡ Π³Π°Π· ΠΈΠ»ΠΈ ΡΠ²Π΅Ρ, ΠΊΠ°ΠΊ ΠΈ ΠΎΡΠ³Π°Π½Ρ ΠΎΡΠ²Π΅ΡΡΡΠ²Π΅Π½Π½ΡΠ΅ Π·Π° ΡΠ΅Π³ΠΈΡΡΡΠ°ΡΠΈΡ ΡΡΡΠΎΠ΅Π½ΠΈΡ.
ΠΡΠΈ Π²ΠΎΠ·Π²Π΅Π΄Π΅Π½ΠΈΠΈ Π²ΡΠ΅Π³ΠΎ ΠΊΠΎΠΌΠΏΠ»Π΅ΠΊΡΠ° ΠΈΠ· Π΄Π΅ΡΠ΅Π²Π° Π½ΡΠΆΠ½ΠΎ ΠΏΠΎΠ·Π°Π±ΠΎΡΠΈΡΡΡΡ ΠΎΠ±ΠΎ Π²ΡΠ΅Ρ ΡΡΠ΅ΠΏΠ΅Π½ΡΡ Π·Π°ΡΠΈΡΡ, ΠΈΠ½Π°ΡΠ΅ Π² ΠΏΠΎΠΌΠ΅ΡΠ΅Π½ΠΈΠΈ Π±ΡΠ΄Π΅Ρ ΡΡΡΠΎΡΡΡ ΠΈ ΠΏΠ»Π΅ΡΠ΅Π½Ρ. ΠΡΠ»ΠΈ ΠΈ Π΄ΠΎΠΌ, ΠΈ Π±Π°Π½Ρ ΠΈΠΌΠ΅ΡΡ Π±ΠΎΠ»ΡΡΠΈΠ΅ Π³Π°Π±Π°ΡΠΈΡΡ, ΠΏΠΎΡΡΠ΅Π±ΡΠ΅ΡΡΡ ΡΠ»Π΅ΠΊΡΡΠΎ ΠΈΠ»ΠΈ Π³Π°Π·ΠΎΠ²ΡΠΉ ΠΊΠΎΡΠ΅Π» Π²ΡΡΠΎΠΊΠΎΠΉ ΠΌΠΎΡΠ½ΠΎΡΡΠΈ, Π° Π·Π½Π°ΡΠΈΡ, ΡΠ°ΡΡ ΠΎΠ΄Ρ Π½Π° ΠΎΡΠΎΠΏΠ»Π΅Π½ΠΈΠ΅ ΡΡΡΠ΅ΡΡΠ²Π΅Π½Π½ΠΎ ΡΠ²Π΅Π»ΠΈΡΠ°ΡΡΡ. ΠΡΠΈΠ΄Π΅ΡΡΡ ΠΏΠΎΠ²ΠΎΠ·ΠΈΡΡΡΡ ΠΈ ΠΊΠ°Π½Π°Π»ΠΈΠ·Π°ΡΠΈΠ΅ΠΉ, Π½Π°Π³ΡΡΠ·ΠΊΠ° Π½Π° Π½Π΅Π΅ Π²ΠΎΠ·ΡΠ°ΡΡΠ΅Ρ.
ΠΠ»Ρ ΠΎΡΠ²ΠΎΠ΄Π° Π³Π°Π·ΠΎΠ² ΠΏΠΎΡΡΠ΅Π±ΡΠ΅ΡΡΡ Π΄Π²Π΅ ΡΡΡΠ±Ρ, ΡΠΎΠΎΡΠ²Π΅ΡΡΡΠ²Π΅Π½Π½ΠΎ ΠΈ Π΄Π²Π° ΠΏΡΠΎΠ΅ΠΌΠ° Π² ΠΊΡΠΎΠ²Π»Π΅. ΠΠΎΠ΅ΡΠ½ΡΡ Π½ΡΠΆΠ½ΠΎ ΠΎΠ±ΠΎΡΡΠ΄ΠΎΠ²Π°ΡΡ ΠΏΠ»ΠΈΡΠΊΠΎΠΉ. ΠΡΠΎΠ±Π΅Π½Π½ΠΎΠ΅ Π²Π½ΠΈΠΌΠ°Π½ΠΈΠ΅ ΡΠ΄Π΅Π»ΡΡΡ ΠΏΠΎΠ»Π°ΠΌ, ΠΎΠ±Π΅ΡΠΏΠ΅ΡΠΈΠ²Π°Ρ ΠΏΠΎΠ»Π½ΡΠΉ ΡΠ»ΠΈΠ², ΠΈΠ½Π°ΡΠ΅ ΠΏΠΎΠ²ΡΡΠ΅Π½Π½Π°Ρ Π²Π»Π°ΠΆΠ½ΠΎΡΡΡ ΡΠ°ΡΠΏΡΠΎΡΡΡΠ°Π½ΠΈΡΡΡ ΠΏΠΎ Π²ΡΠ΅ΠΌΡ Π΄ΠΎΠΌΡ.
ΠΡΠΈ ΠΈΡΠΏΠΎΠ»ΡΠ·ΠΎΠ²Π°Π½ΠΈΠΈ ΠΊΠ°ΠΌΠ΅Π½ΠΊΠΈ Π½Π° Π΄ΡΠΎΠ²Π°Ρ Π½Π΅ΠΎΠ±Ρ ΠΎΠ΄ΠΈΠΌΠΎ ΠΎΡΠ³Π°Π½ΠΈΠ·ΠΎΠ²Π°ΡΡ Ρ ΠΎΡΠΎΡΡΡ ΡΡΠ³Ρ. ΠΡΠΈ Π½Π΅ΠΏΡΠ°Π²ΠΈΠ»ΡΠ½ΠΎΠΉ ΠΊΠΎΠ½ΡΡΡΡΠΊΡΠΈΠΈ Π΄ΡΠΌ Π±ΡΠ΄Π΅Ρ ΠΏΡΠΎΠ½ΠΈΠΊΠ°ΡΡ Π² ΠΆΠΈΠ»ΡΠ΅ ΠΏΠΎΠΌΠ΅ΡΠ΅Π½ΠΈΡ, ΠΈ ΡΠΎ Π²ΡΠ΅ΠΌΠ΅Π½Π΅ΠΌ, Π½Π° ΠΏΠΎΡΠΎΠ»ΠΊΠ°Ρ ΠΎΠ±ΡΠ°Π·ΡΠ΅ΡΡΡ ΡΠ°ΠΆΠ΅Π²ΡΠΉ Π½Π°Π»Π΅Ρ.
ΠΡΡΠΎΡΠ½ΠΈΠΊΠΈ: http://banyaspec.com/montazh-i-remont/kakoy-proekt-doma-s-baney-pod-odnoy-kryshey-vybrat-varianty-i-vozmozhnosti.html, http://proekt-banya.ru/article/proekty-domov-s-banyami, http://banyagid.com/stroitelstvo/proekty-doma-s-banej-pod-odnoj-kryshej.html
v-banyu.ru
9 Π΄ΠΎΡΡΠΎΠΈΠ½ΡΡΠ² ΠΈ Π½Π΅Π΄ΠΎΡΡΠ°ΡΠΊΠΎΠ² ΠΏΡΠΎΠ΅ΠΊΡΠΎΠ² Π΄ΠΎΠΌΠΎΠ² Ρ Π±Π°Π½Π΅ΠΉ Π²Π½ΡΡΡΠΈ [+8 Π€ΠΠ’Π]
Π’ΡΠ°Π΄ΠΈΡΠΈΠΎΠ½Π½ΠΎ, ΠΊΠΎΠ³Π΄Π° ΠΏΠ»Π°Π½ΠΈΡΡΡΡ ΡΡΡΠΎΠΈΡΠ΅Π»ΡΡΡΠ²ΠΎ Π±Π°Π½ΠΈ Π½Π° Π·Π°Π³ΠΎΡΠΎΠ΄Π½ΠΎΠΌ ΡΡΠ°ΡΡΠΊΠ΅, ΠΏΠΎΠ΄ Π½Π΅Π΅ ΠΎΡΠ²ΠΎΠ΄ΠΈΡΡΡ ΠΎΡΠ΄Π΅Π»ΡΠ½ΠΎΠ΅ ΠΌΠ΅ΡΡΠΎ, ΠΊΠ°ΠΊ ΠΏΡΠ°Π²ΠΈΠ»ΠΎ, ΡΠ°ΡΠΏΠΎΠ»ΠΎΠΆΠ΅Π½Π½ΠΎΠ΅ Π½Π° ΠΏΡΠΈΠ»ΠΈΡΠ½ΠΎΠΌ ΡΠ°ΡΡΡΠΎΡΠ½ΠΈΠΈ ΠΎΡ ΠΆΠΈΠ»ΠΎΠ³ΠΎ ΠΏΠΎΠΌΠ΅ΡΠ΅Π½ΠΈΡ. ΠΠ΄Π½Π°ΠΊΠΎ, Π΄Π°Π»Π΅ΠΊΠΎ Π½Π΅ Π²ΡΠ΅ ΠΌΠΎΠ³ΡΡ ΠΏΠΎΠ·Π²ΠΎΠ»ΠΈΡΡ ΡΠ΅Π±Π΅ ΡΠ°ΠΊΡΡ ΡΠΎΡΠΊΠΎΡΡ, ΡΠ°ΠΊ ΠΊΠ°ΠΊ Ρ ΠΌΠ½ΠΎΠ³ΠΈΡ
ΡΠ°Π·ΠΌΠ΅ΡΡ ΡΡΠ°ΡΡΠΊΠΎΠ² ΠΎΠ³ΡΠ°Π½ΠΈΡΠ΅Π½Ρ. Π ΡΠ°ΠΊΠΎΠΌ ΡΠ»ΡΡΠ°Π΅, Π΅ΡΠ»ΠΈ Π½Π΅ Ρ
ΠΎΡΠ΅ΡΡΡ Π²ΠΎΠ²ΡΠ΅ ΠΎΡΠΊΠ°Π·ΡΠ²Π°ΡΡΡΡ ΠΎΡ ΠΈΠ΄Π΅ΠΈ ΡΡΡΠΎΠΈΡΠ΅Π»ΡΡΡΠ²Π° Π±Π°Π½ΠΈ, ΡΠΎ ΠΏΠ°ΡΠ½ΡΡ ΠΌΠΎΠΆΠ½ΠΎ ΡΠ΄Π΅Π»Π°ΡΡ Π²Π½ΡΡΡΠΈ Π΄ΠΎΠΌΠ°.

ΠΡΠ΅ ΠΏΠΎΠ΄ ΠΎΠ΄Π½ΠΎΠΉ ΠΊΡΡΡΠ΅ΠΉ
ΠΠ°Π»Π΅Π΅ ΠΌΡ ΡΠ°ΡΡΠΌΠΎΡΡΠΈΠΌ ΠΏΡΠΎΠ΅ΠΊΡΡ Π±Π°Π½ΠΈ Π²Π½ΡΡΡΠΈ Π΄ΠΎΠΌΠ°, ΠΈΡ Π²ΠΈΠ΄Ρ, Π° ΡΠ°ΠΊΠΆΠ΅ ΠΎΡΠΎΠ±Π΅Π½Π½ΠΎΡΡΠΈ ΠΈ Π½Π΅Π΄ΠΎΡΡΠ°ΡΠΊΠΈ Π½Π΅ΠΊΠΎΡΠΎΡΡΡ ΠΊΠΎΠ½ΡΡΡΡΠΊΡΠΈΠΉ.
ΠΠΈΠ΄Ρ ΠΏΡΠΎΠ΅ΠΊΡΠΎΠ² Π΄ΠΎΠΌΠΎΠ² ΠΎΠ±ΠΎΡΡΠ΄ΠΎΠ²Π°Π½Π½ΡΡ Π±Π°Π½Π΅ΠΉ
ΠΡΠ΅ ΠΏΡΠΎΠ΅ΠΊΡΡ Π΄ΠΎΠΌΠΎΠ², Π² ΠΊΠΎΡΠΎΡΡΡ ΠΈΠΌΠ΅Π΅ΡΡΡ ΠΏΠ°ΡΠ½Π°Ρ, ΡΡΠ»ΠΎΠ²Π½ΠΎ ΠΌΠΎΠΆΠ½ΠΎ ΠΏΠΎΠ΄Π΅Π»ΠΈΡΡ Π½Π° ΡΡΠΈ ΡΠΈΠΏΠ°:
- ΠΠΎΠΌ ΠΎΠ±ΠΎΡΡΠ΄ΠΎΠ²Π°Π½ ΠΏΠ°ΡΠ½ΠΎΠΉ ΠΏΠΎΡΠ»Π΅ ΠΏΠΎΡΡΡΠΎΠΉΠΊΠΈ;
- ΠΡΠΎΠ΅ΠΊΡ ΠΈΠ·Π½Π°ΡΠ°Π»ΡΠ½ΠΎ ΠΏΠΎΠ΄ΡΠ°Π·ΡΠΌΠ΅Π²Π°Π΅Ρ Π½Π°Π»ΠΈΡΠΈΠ΅ Π±Π°Π½ΠΈ. Π§Π°ΡΠ΅ Π²ΡΠ΅Π³ΠΎ ΡΡΠΎ Π΄Π²ΡΡ ΡΡΠ°ΠΆΠ½ΡΠ΅ ΡΡΡΠΎΠ΅Π½ΠΈΡ ΠΈΠ»ΠΈ Π΄ΠΎΠΌΠ° Ρ ΠΌΠ°Π½ΡΠ°ΡΠ΄ΠΎΠΉ;
- ΠΠΎΠ½ΡΡΡΡΠΊΡΠΈΡ ΠΏΡΠΈΡΡΡΠΎΠ΅Π½Π° ΠΎΡΠ΄Π΅Π»ΡΠ½ΠΎ ΠΊ Π΄ΠΎΠΌΡ, ΠΏΡΠΈ ΡΡΠΎΠΌ Π½Π°Ρ ΠΎΠ΄ΠΈΡΡΡ ΠΏΠΎΠ΄ ΠΎΠ΄Π½ΠΎΠΉ ΠΊΡΡΡΠ΅ΠΉ ΡΠΎ ΡΡΡΠΎΠ΅Π½ΠΈΠ΅ΠΌ ΠΈ Π²Ρ ΠΎΠ΄ Π²ΡΠΏΠΎΠ»Π½Π΅Π½ ΠΈΠ· Π΄ΠΎΠΌΠ°.

ΠΡΠΎΠ΅ΠΊΡ Π΄ΠΎΠΌΠ°-Π±Π°Π½ΠΈ Ρ ΠΌΠ°Π½ΡΠ°ΡΠ΄ΠΎΠΉ
ΠΡΠΎΠ΅ΠΊΡΡ Π΄ΠΎΠΌΠΎΠ² ΠΎΠ±ΠΎΡΡΠ΄ΠΎΠ²Π°Π½Π½ΡΡ Π±Π°Π½Π΅ΠΉ ΠΏΠΎΡΠ»Π΅ ΠΏΠΎΡΡΡΠΎΠΉΠΊΠΈ
ΠΡΠΎΠ±Π΅Π½Π½ΠΎΡΡΠΈ
ΠΡΠΎΠ΅ΠΊΡ Π΄ΠΎΠΌΠ° Ρ ΠΏΠ°ΡΠ½ΠΎΠΉ Π²Π½ΡΡΡΠΈ Π½Π°Π·ΡΠ²Π°Π΅ΡΡΡΒ Β«Π²ΡΡΡΠΎΠ΅Π½Π½ΠΎΠΉ Π±Π°Π½Π΅ΠΉ-ΡΠ°ΡΠ½ΠΎΠΉΒ». ΠΠΎ ΡΡΡΠΈ ΡΡΠΎ Π΄Π΅ΡΠ΅Π²ΡΠ½Π½Π°Ρ ΠΊΠ°Π±ΠΈΠ½Π°, ΠΎΠ±ΠΎΠ³ΡΠ΅Π²Π°ΡΡΠ°ΡΡΡ ΠΏΠ΅ΡΡΡ-ΠΊΠ°ΠΌΠ΅Π½ΠΊΠΎΠΉ. Π Π³ΠΎΡΠΎΠ΄Π΅ ΠΎΠ±ΡΡΠ½ΠΎ ΠΈΡΠΏΠΎΠ»ΡΠ·ΡΡΡ ΡΠ»Π΅ΠΊΡΡΠΈΡΠ΅ΡΠΊΠΈΠΉ ΠΏΠΎΠ΄ΠΎΠ³ΡΠ΅Π², Π° Π² Π·Π°Π³ΠΎΡΠΎΠ΄Π½ΠΎΠΌ Π΄ΠΎΠΌΠ΅ ΠΌΠΎΠΆΠ½ΠΎ ΡΠ΄Π΅Π»Π°ΡΡ ΠΈ Π΄ΡΠΎΠ²ΡΠ½ΡΡ ΠΏΠ΅ΡΡ.

Π‘Π±ΠΎΡΠ½Π°Ρ Π±Π°Π½Ρ, ΡΠ°ΡΠΏΠΎΠ»ΠΎΠΆΠ΅Π½Π½Π°Ρ Π²Π½ΡΡΡΠΈ Π΄ΠΎΠΌΠ°
ΠΡΠ»ΠΈ Π²Ρ ΡΠΆΠ΅ ΡΠ΅ΡΠΈΠ»ΠΈΡΡ ΡΠ΄Π΅Π»Π°ΡΡ Π±Π°Π½Ρ Π²Π½ΡΡΡΠΈ Π΄ΠΎΠΌΠ°, ΡΠΎ ΡΠ»Π΅Π΄ΡΠ΅Ρ ΠΈΠΌΠ΅ΡΡ Π²Π²ΠΈΠ΄Ρ, ΡΡΠΎ ΡΠ΅Π½Π° Π΅Π΅ Π±ΡΠ΄Π΅Ρ Π·Π°Π²ΠΈΡΠ΅ΡΡ ΠΎΡ Π½Π΅ΡΠΊΠΎΠ»ΡΠΊΠΈΡ ΠΌΠΎΠΌΠ΅Π½ΡΠΎΠ²:
- ΠΠΎΠΊΡΠΏΠ°Π΅ΡΡΡ Π»ΠΈ Π³ΠΎΡΠΎΠ²ΠΎΠ΅ ΡΠ±ΠΎΡΠ½ΠΎΠ΅ ΠΈΠ·Π΄Π΅Π»ΠΈΠ΅-ΠΊΠΎΠ½ΡΡΡΡΠΊΡΠΈΡ ΠΈΠ»ΠΈ ΠΎΠ½Π° Π±ΡΠ΄Π΅Ρ ΠΈΠ·Π³ΠΎΡΠΎΠ²Π»Π΅Π½Π° ΡΠ²ΠΎΠΈΠΌΠΈ ΡΡΠΊΠ°ΠΌΠΈ,
- Π‘Π»ΠΎΠΆΠ½ΠΎΡΡΡ ΡΠ΅Π°Π»ΠΈΠ·Π°ΡΠΈΠΈ Π²ΡΠ΅Π³ΠΎ ΠΏΡΠΎΠ΅ΠΊΡΠ°;
- ΠΠ°ΠΊΠΈΠ΅ Π±ΡΠ΄ΡΡ ΠΈΡΠΏΠΎΠ»ΡΠ·ΠΎΠ²Π°Π½Ρ ΠΌΠ°ΡΠ΅ΡΠΈΠ°Π»Ρ;
- ΠΠ°ΠΊΠΎΠ΅ Π±ΡΠ΄Π΅Ρ ΠΊΠΎΠ»ΠΈΡΠ΅ΡΡΠ²ΠΎ ΠΈ ΠΊΠ°ΡΠ΅ΡΡΠ²ΠΎ Π°ΠΊΡΠ΅ΡΡΡΠ°ΡΠΎΠ², ΠΊΠΎΡΠΎΡΡΠΌΠΈ Π±ΡΠ΄Π΅Ρ ΠΎΡΠ½Π°ΡΠ΅Π½Π° ΠΊΠ°Π±ΠΈΠ½Π°.
ΠΠΎΡΡΠΎΠΈΠ½ΡΡΠ²Π°

ΠΡ ΠΎΠ΄ Π² ΠΏΠ°ΡΠΈΠ»ΠΊΡ Π²ΠΎΠ·ΠΌΠΎΠΆΠ΅Π½ ΠΏΡΡΠΌΠΎ ΠΈΠ· Π΄ΠΎΠΌΠ°
ΠΠ°ΡΠ½Π°Ρ Π²Π½ΡΡΡΠΈ Π΄ΠΎΠΌΠ° ΠΎΠ±Π»Π°Π΄Π°Π΅Ρ ΡΡΠ΄ΠΎΠΌ Π΄ΠΎΡΡΠΎΠΈΠ½ΡΡΠ², ΡΡΠ΅Π΄ΠΈ ΠΊΠΎΡΠΎΡΡΡ ΠΌΠΎΠΆΠ½ΠΎ Π²ΡΠ΄Π΅Π»ΠΈΡΡ:
- ΠΠΎΠ·ΠΌΠΎΠΆΠ½ΠΎΡΡΡ Π½Π°ΡΠ»Π°ΠΆΠ΄Π°ΡΡΡΡ ΠΏΡΠΎΡΠ΅ΡΡΠΎΠΌ Π² Π»ΡΠ±ΠΎΠ΅ Π²ΡΠ΅ΠΌΡ Π³ΠΎΠ΄Π° Π±Π΅Π· ΠΎΠΏΠ°ΡΠ΅Π½ΠΈΠΉ Π·Π° ΡΠ²ΠΎΠ΅ Π·Π΄ΠΎΡΠΎΠ²ΡΠ΅.
- ΠΠ»ΠΈΡΠ½ΠΈΠ΅ Π²Π½Π΅ΡΠ½Π΅ΠΉ ΡΠ΅ΠΌΠΏΠ΅ΡΠ°ΡΡΡΡ ΠΎΠ³ΡΠ°Π½ΠΈΡΠ΅Π½ΠΎ.
- ΠΠ΅ ΡΡΠ΅Π±ΡΠ΅ΡΡΡ Π΄ΠΎΠΏΠΎΠ»Π½ΠΈΡΠ΅Π»ΡΠ½ΠΎΠ΅ ΠΌΠ΅ΡΡΠΎ Π½Π° ΡΡΠ°ΡΡΠΊΠ΅.
- ΠΠΎΠ·ΠΌΠΎΠΆΠ½ΠΎΡΡΡ ΠΈΡΠΏΠΎΠ»ΡΠ·ΠΎΠ²Π°ΡΡ ΠΊΠΎΠΌΠΌΡΠ½ΠΈΠΊΠ°ΡΠΈΠΎΠ½Π½ΡΠ΅ ΡΠΈΡΡΠ΅ΠΌΡ Π΄ΠΎΠΌΠ°.
- ΠΠΊΠΎΠ½ΠΎΠΌΠΈΡ Π½Π° ΡΡΡΠΎΠΈΡΠ΅Π»ΡΡΡΠ²Π΅.
ΠΠ΅Π΄ΠΎΡΡΠ°ΡΠΊΠΈ
ΠΠΎΠ½Π΅ΡΠ½ΠΎ ΠΆΠ΅, Π½Π°ΡΡΠ΄Ρ Ρ Π΄ΠΎΡΡΠΎΠΈΠ½ΡΡΠ²Π°ΠΌΠΈ ΠΏΡΠΎΠ΅ΠΊΡ Π΄ΠΎΠΌΠ° Ρ Π±Π°Π½Π΅ΠΉ Π²Π½ΡΡΡΠΈ ΠΎΠ±Π»Π°Π΄Π°Π΅Ρ ΠΈ ΠΌΠ½ΠΎΠΆΠ΅ΡΡΠ²ΠΎΠΌ Π½Π΅Π΄ΠΎΡΡΠ°ΡΠΊΠΎΠ²:
- ΠΡΠ»ΠΈ ΠΈΡΠΏΠΎΠ»ΡΠ·ΠΎΠ²Π°ΡΡ ΠΎΠ΄Π½Ρ ΠΎΡΠΎΠΏΠΈΡΠ΅Π»ΡΠ½ΡΡ ΡΠΈΡΡΠ΅ΠΌΡ, ΡΠΎ Π΄Π»Ρ ΠΏΡΠΎΠ³ΡΠ΅Π²Π° Π±Π°Π½ΠΈ ΠΏΠΎΠ½Π°Π΄ΠΎΠ±ΠΈΡΡΡ ΠΏΡΠΎΡΠ°ΠΏΠ»ΠΈΠ²Π°ΡΡ Π²Π΅ΡΡ Π΄ΠΎΠΌ.
- Π‘ΡΡΠΎΠΈΡΠ΅Π»ΡΡΡΠ²ΠΎ ΠΏΠ΅ΡΠΈ Π²Π½ΡΡΡΠΈ ΠΏΠ°ΡΠ½ΠΎΠΉ ΡΡ ΡΠ΄ΡΠ°Π΅Ρ Π΅Π³ΠΎ ΠΎΠ±ΡΡΡ ΠΏΠΎΠΆΠ°ΡΠ½ΡΡ Π±Π΅Π·ΠΎΠΏΠ°ΡΠ½ΠΎΡΡΡ.
- ΠΠΎΠ²ΡΡΠ΅Π½Π½Π°Ρ Π²Π»Π°ΠΆΠ½ΠΎΡΡΡ Π² ΠΏΠΎΠΌΠ΅ΡΠ΅Π½ΠΈΠΈ, ΠΏΠΎΡΡΠΎΠΌΡ Π±Π°Π½Ρ Π½Π΅ΠΎΠ±Ρ ΠΎΠ΄ΠΈΠΌΠΎ ΠΎΠ±ΠΎΡΡΠ΄ΠΎΠ²Π°ΡΡΒ ΠΏΡΠΈΠ½ΡΠ΄ΠΈΡΠ΅Π»ΡΠ½ΠΎΠΉ Π²Π΅Π½ΡΠΈΠ»ΡΡΠΈΠΎΠ½Π½ΠΎΠΉ ΡΠΈΡΡΠ΅ΠΌΠΎΠΉ.
- ΠΠ΅Π²ΠΎΠ·ΠΌΠΎΠΆΠ½ΠΎ ΡΠ°Π·ΠΌΠ΅ΡΡΠΈΡΡ Π±Π°Π½Ρ Π½Π° Π±Π΅ΡΠ΅Π³Ρ Π²ΠΎΠ΄ΠΎΠ΅ΠΌΠ°.
Π‘ΠΎΠ²Π΅Ρ! ΠΠ·Π½ΡΡΡΠΈ ΡΡΠ΅Π½Ρ ΠΏΠ°ΡΠ½ΠΎΠΉ Π»ΡΡΡΠ΅ Π²ΡΠ΅Π³ΠΎ ΠΎΠ±ΡΠΈΡΡ Π²Π°Π³ΠΎΠ½ΠΊΠΎΠΉ. ΠΠ°ΡΠ΅ΡΠΈΠ°Π» ΠΎΠ±Π»Π°Π΄Π°Π΅Ρ Ρ ΠΎΡΠΎΡΠΈΠΌΠΈ ΡΠΊΡΠΏΠ»ΡΠ°ΡΠ°ΡΠΈΠΎΠ½Π½ΡΠΌΠΈ ΡΠ²ΠΎΠΉΡΡΠ²Π°ΠΌΠΈ, ΠΊΡΠΎΠΌΠ΅ ΡΠΎΠ³ΠΎ, Π±ΡΠ΄Π΅Ρ Π²ΡΠ΄Π΅ΡΠΆΠ°Π½ ΡΡΠΈΠ»Ρ ΡΡΡΡΠΊΠΎΠΉ Π±Π°Π½ΠΈ.

ΠΠ° ΡΠΎΡΠΎ β Π΄ΠΎΠΌ-Π±Π°Π½Ρ ΠΈΠ· Π±ΡΡΡΠ°
ΠΡΠΎΠ΅ΠΊΡ Π΄ΠΎΠΌΠ°-Π±Π°Π½ΠΈ
ΠΠ°ΠΊ ΠΏΡΠ°Π²ΠΈΠ»ΠΎ, ΡΠ°ΠΊΠΈΠ΅ ΠΊΠΎΠ½ΡΡΡΡΠΊΡΠΈΠΈ ΠΈΡΠΏΠΎΠ»ΡΠ·ΡΡΡ Π΄Π»Ρ Π·Π°Π³ΠΎΡΠΎΠ΄Π½ΡΡ Π΄Π°Ρ, ΠΊΠΎΠ³Π΄Π° ΡΡΠ΅Π΄ΡΡΠ²Π° Ρ Π²Π»Π°Π΄Π΅Π»ΡΡΠ° ΠΎΠ³ΡΠ°Π½ΠΈΡΠ΅Π½Ρ. Π ΡΠ°ΠΊΠΎΠΌ ΡΠ»ΡΡΠ°Π΅ ΠΏΠ°ΡΠ½Π°Ρ Ρ ΠΌΠΎΠ΅ΡΠ½ΠΎΠΉ ΠΈ ΡΠ΅Ρ Π½ΠΈΡΠ΅ΡΠΊΠΎΠΉ ΠΊΠΎΠΌΠ½Π°ΡΠΎΠΉ Π΄Π΅Π»Π°Π΅ΡΡΡ Π½Π° ΠΏΠ΅ΡΠ²ΠΎΠΌ ΡΡΠ°ΠΆΠ΅, Π° Π²ΡΠΎΡΠΎΠΉ ΠΈΠ»ΠΈ ΠΌΠ°Π½ΡΠ°ΡΠ΄Π½ΡΠΉ ΡΡΠ°ΠΆ ΠΎΡΠ²ΠΎΠ΄ΡΡΡΡ ΠΏΠΎΠ΄ ΠΆΠΈΠ»ΡΠ΅ ΠΊΠΎΠΌΠ½Π°ΡΡ.
Π’Π°ΠΊΠ°Ρ ΠΏΠΎΡΡΡΠΎΠΉΠΊΠ° ΠΎΠ±Π»Π°Π΄Π°Π΅Ρ ΡΠ΅ΠΌΠΈ ΠΆΠ΅ ΡΠ°ΠΌΡΠΌΠΈ Π΄ΠΎΡΡΠΎΠΈΠ½ΡΡΠ²Π°ΠΌΠΈ ΠΈ Π½Π΅Π΄ΠΎΡΡΠ°ΡΠΊΠ°ΠΌΠΈ, ΡΡΠΎ ΠΈ Π²ΡΡΠ΅ΠΎΠΏΠΈΡΠ°Π½Π½ΡΠΉ ΠΏΡΠΎΠ΅ΠΊΡ, Π·Π° ΠΈΡΠΊΠ»ΡΡΠ΅Π½ΠΈΠ΅ΠΌ ΡΠΎΠ³ΠΎ, ΡΡΠΎ Π±Π°Π½Ρ ΠΌΠΎΠΆΠ½ΠΎ ΠΈΠ·Π½Π°ΡΠ°Π»ΡΠ½ΠΎ ΡΠ΄Π΅Π»Π°ΡΡ Π±ΠΎΠ»Π΅Π΅ ΠΏΡΠΎΡΡΠΎΡΠ½ΠΎΠΉ ΠΈ ΠΊΠΎΠΌΡΠΎΡΡΠ½ΠΎΠΉ.
ΠΡΠΎΠ΅ΠΊΡ ΠΏΡΠΈΡΡΡΠΎΠ΅Π½Π½ΠΎΠΉ Π±Π°Π½ΠΈ
ΠΡΠΎΠ±Π΅Π½Π½ΠΎΡΡΠΈ
Π’Π°ΠΊ ΠΊΠ°ΠΊ Π½Π΅Π΄ΠΎΡΡΠ°ΡΠΊΠΈ ΠΏΠ°ΡΠ½ΠΎΠΉ Π² Π΄ΠΎΠΌΠ΅ Π΄ΠΎΠ²ΠΎΠ»ΡΠ½ΠΎ ΡΠ΅ΡΡΠ΅Π·Π½ΡΠ΅, ΠΏΡΠΎΠ΅ΠΊΡ ΠΌΠΎΠΆΠ½ΠΎ Π½Π΅ΠΌΠ½ΠΎΠΆΠΊΠΎ ΡΡΠ»ΠΎΠΆΠ½ΠΈΡΡ ΠΈ ΡΠ΄Π΅Π»Π°ΡΡ Π±Π°Π½Ρ ΠΏΠΎΠ΄ ΠΎΠ΄Π½ΠΎΠΉ ΠΊΡΡΡΠ΅ΠΉ Ρ Π΄ΠΎΠΌΠΎΠΌ, Π½ΠΎ Π² ΡΠΎ ΠΆΠ΅ Π²ΡΠ΅ΠΌΡ Π·Π° Π΅Π³ΠΎ ΠΏΡΠΈΠ΄Π΅Π»Π°ΠΌΠΈ, Ρ.Π΅. ΠΏΡΠΈΡΡΡΠΎΠΈΡΡ ΠΏΠΎΠΌΠ΅ΡΠ΅Π½ΠΈΠ΅ ΠΊ Π΄ΠΎΠΌΡ.

Π’ΡΠ΅Ρ ΠΌΠ΅ΡΠ½ΡΠΉ ΠΏΡΠΎΠ΅ΠΊΡ Π±Π°Π½ΠΈ, ΠΏΡΠΈΡΡΡΠΎΠ΅Π½Π½ΡΠΉ ΠΊ Π΄ΠΎΠΌΡ
ΠΡΠΎΡ Π²Π°ΡΠΈΠ°Π½Ρ ΠΎΠ±Π»Π°Π΄Π°Π΅Ρ ΡΡΠ΄ΠΎΠΌ ΠΎΡΠ΅Π²ΠΈΠ΄Π½ΡΡ ΠΏΡΠ΅ΠΈΠΌΡΡΠ΅ΡΡΠ², ΡΡΠ΅Π΄ΠΈ ΠΊΠΎΡΠΎΡΡΡ ΠΌΠΎΠΆΠ½ΠΎ Π²ΡΠ΄Π΅Π»ΠΈΡΡ ΡΠ»Π΅Π΄ΡΡΡΠΈΠ΅:
- ΠΠΊΠΎΠ½ΠΎΠΌΠΈΡ Π½Π° ΠΏΠΎΠ΄Π²ΠΎΠ΄ΠΊΠ΅ ΡΠ»Π΅ΠΊΡΡΠΎΠΏΡΠΎΠ²ΠΎΠ΄ΠΊΠΈ ΠΈ Π²ΠΎΠ΄ΠΎΠΏΡΠΎΠ²ΠΎΠ΄Π°.
- ΠΠ΄Π½ΠΎΠΉ ΠΈΠ· ΡΡΠ΅Π½ Π±Π°Π½ΠΈ Π±ΡΠ΄Π΅Ρ Π³ΠΎΡΠΎΠ²Π°Ρ ΡΡΠ΅Π½Π° ΠΆΠΈΠ»ΡΡ, ΡΡΠΎ ΡΠ°ΠΊΠΆΠ΅ ΠΎΠ±Π΅ΡΠΏΠ΅ΡΠΈΠ²Π°Π΅Ρ ΡΠΊΠΎΠ½ΠΎΠΌΠΈΡ ΠΈ Π»ΡΡΡΡΡ ΡΠΎΡ ΡΠ°Π½Π½ΠΎΡΡΡ ΡΠ΅ΠΏΠ»Π°.
- ΠΡΠΈ ΡΠ°ΠΊΠΎΠΌ ΡΠ°ΡΠΏΠΎΠ»ΠΎΠΆΠ΅Π½ΠΈΠΈ Π½Π΅ ΠΏΡΠΈΠ΄Π΅ΡΡΡ ΠΏΡΠΎΠ΄Π΅Π»ΡΠ²Π°ΡΡ Π±ΠΎΠ»ΡΡΠΎΠΉ ΠΏΡΡΡ ΠΎΡ ΠΆΠΈΠ»ΡΡ ΠΊ Π±Π°Π½Π΅, ΡΡΠΎ ΠΎΡΠ΅Π½Ρ ΠΊΠΎΠΌΡΠΎΡΡΠ½ΠΎ Π² Π·ΠΈΠΌΠ½Π΅Π΅ Π²ΡΠ΅ΠΌΡ.
- Π Π°Π·ΠΌΠ΅ΡΡ ΠΏΠ°ΡΠ½ΠΎΠΉ Π½Π΅ ΡΠ°ΠΊ ΠΎΠ³ΡΠ°Π½ΠΈΡΠ΅Π½Ρ, ΠΊΠ°ΠΊ Π² ΡΠ»ΡΡΠ°Π΅ Ρ ΠΎΡΠ³Π°Π½ΠΈΠ·Π°ΡΠΈΠ΅ΠΉ Π²Π½ΡΡΡΠΈ Π΄ΠΎΠΌΠ°.
Π ΡΡΠΎΠΌ ΡΠ»ΡΡΠ°Π΅ ΠΎΡΠΎΠ±ΠΎΠ΅ Π·Π½Π°ΡΠ΅Π½ΠΈΠ΅ ΠΈΠΌΠ΅Π΅Ρ ΠΏΡΠ°Π²ΠΈΠ»ΡΠ½ΠΎΠ΅ ΡΠ°ΡΠΏΠΎΠ»ΠΎΠΆΠ΅Π½ΠΈΠ΅ Π±Π°Π½ΠΈ. ΠΡ ΠΎΠ΄ Π΄ΠΎΠ»ΠΆΠ΅Π½ Π±ΡΡΡ ΡΠ΄Π΅Π»Π°Π½ ΡΠ΅ΡΠ΅Π· ΠΎΡΠ°ΠΏΠ»ΠΈΠ²Π°Π΅ΠΌΠΎΠ΅ ΠΏΠΎΠΌΠ΅ΡΠ΅Π½ΠΈΠ΅, ΡΡΠΎΠ±Ρ Π½Π΅ Π±ΡΠ»ΠΎ ΠΏΠ΅ΡΠ΅ΠΏΠ°Π΄Π° ΡΠ΅ΠΌΠΏΠ΅ΡΠ°ΡΡΡ. Π ΠΏΡΠΎΡΠΈΠ²Π½ΠΎΠΌ ΡΠ»ΡΡΠ°Π΅ ΡΠ΅ΠΏΠ»ΠΎ Π±ΡΠ΄Π΅Ρ Π±ΡΡΡΡΠΎ ΡΡ ΠΎΠ΄ΠΈΡΡ.
ΠΠ΅ΠΊΠΎΡΠΎΡΡΠ΅ ΠΆΠ΅ Π½Π΅Π΄ΠΎΡΡΠ°ΡΠΊΠΈ, ΠΏΡΠΈΡΡΡΠΈΠ΅ Π²ΡΡΠ΅ΠΎΠΏΠΈΡΠ°Π½Π½ΡΠΌ ΠΏΡΠΎΠ΅ΠΊΡΠ°ΠΌ, Π² Π΄Π°Π½Π½ΠΎΠΉ ΠΊΠΎΠ½ΡΡΡΡΠΊΡΠΈΠΈ ΡΠ°ΠΊΠΆΠ΅ ΠΏΡΠΈΡΡΡΡΡΠ²ΡΡΡ. ΠΡΠΎ ΠΊΠ°ΡΠ°Π΅ΡΡΡ Π² ΠΏΠ΅ΡΠ²ΡΡ ΠΎΡΠ΅ΡΠ΅Π΄Ρ ΠΏΠΎΠΆΠ°ΡΠ½ΠΎΠΉ Π±Π΅Π·ΠΎΠΏΠ°ΡΠ½ΠΎΡΡΠΈ ΠΈ Π½Π΅Π²ΠΎΠ·ΠΌΠΎΠΆΠ½ΠΎΡΡΠΈ ΡΠ°Π·ΠΌΠ΅ΡΡΠΈΡΡ ΡΡΡΠΎΠ΅Π½ΠΈΠ΅ Π½Π° Π±Π΅ΡΠ΅Π³Ρ Π²ΠΎΠ΄ΠΎΠ΅ΠΌΠ°.

ΠΠ°Π½Ρ ΠΎΡΠ΄Π΅Π»Π°Π½Π½Π°Ρ Π²Π°Π³ΠΎΠ½ΠΊΠΎΠΉ
Π Π°Π·ΠΌΠ΅ΡΡ ΠΏΡΠΈΡΡΡΠΎΠΉΠΊΠΈ
ΠΡΠ»ΠΈ ΠΏΡΠ°Π²ΠΈΠ»ΡΠ½ΠΎ ΠΎΡΠ³Π°Π½ΠΈΠ·ΠΎΠ²Π°ΡΡ Π²Π½ΡΡΡΠ΅Π½Π½Π΅Π΅ ΠΏΡΠΎΡΡΡΠ°Π½ΡΡΠ²ΠΎ Π±Π°Π½ΠΈ, ΡΠΎ Π΄Π»Ρ Π½Π΅Π΅ Π΄ΠΎΡΡΠ°ΡΠΎΡΠ½ΠΎ Π±ΡΠ΄Π΅Ρ ΠΏΡΠΈΡΡΡΠΎΠΉΠΊΠΈ 2,5ΠΌ Π² ΡΠΈΡΠΈΠ½Ρ ΠΈ 3,5ΠΌ Π² Π΄Π»ΠΈΠ½Ρ. ΠΡΠ°Π²Π΄Π°, ΡΠ°Π΄ΠΈ ΡΠ°ΠΊΠΎΠΉ ΠΊΠΎΠΌΠΏΠ°ΠΊΡΠ½ΠΎΡΡΠΈ Π½Π°Π΄ΠΎ ΠΏΠΎΠΆΠ΅ΡΡΠ²ΠΎΠ²Π°ΡΡ Π½Π΅ΠΊΠΎΡΠΎΡΡΠΌΠΈ ΠΏΠΎΠΌΠ΅ΡΠ΅Π½ΠΈΡΠΌΠΈ, ΠΊΠΎΡΠΎΡΡΠ΅ ΡΠ°ΡΠ΅ Π²ΡΠ΅Π³ΠΎ Π΄Π΅Π»Π°ΡΡ ΠΎΡΠ΅Π»ΡΠ½ΡΠΌΠΈ.
Π ΠΏΡΠΈΠΌΠ΅ΡΡ, ΠΏΠΎΠΌΡΠ²ΠΎΡΠ½ΡΡ ΠΌΠΎΠΆΠ½ΠΎ ΡΠΎΠ²ΠΌΠ΅ΡΡΠΈΡΡ Ρ ΠΏΠ°ΡΠ½ΠΎΠΉ, ΡΠ°Π·Π΄Π΅Π»ΠΈΠ² Π·ΠΎΠ½Ρ ΠΏΡΠΈ ΠΏΠΎΠΌΠΎΡΠΈ ΠΌΠ΅ΠΆΠΊΠΎΠΌΠ½Π°ΡΠ½ΠΎΠΉ ΠΏΠ΅ΡΠ΅Π³ΠΎΡΠΎΠ΄ΠΊΠΈ. ΠΡΡΡΠ΅ Π²ΡΠ΅Π³ΠΎ, Π΅ΡΠ»ΠΈ ΡΡΠ° ΠΏΠ΅ΡΠ΅Π³ΠΎΡΠΎΠ΄ΠΊΠ° Π±ΡΠ΄Π΅Ρ Π²ΡΠΏΠΎΠ»Π½Π΅Π½Π° ΠΈΠ· ΠΊΠΈΡΠΏΠΈΡΠ° ΠΈ ΠΎΡΠ΄Π΅Π»Π°Π½Π° ΠΊΠ°ΡΠ΅Π»Π΅ΠΌ. ΠΡΠΎ ΠΎΠ±Π΅ΡΠΏΠ΅ΡΠΈΡ Π½Π΅ΠΎΠ±Ρ ΠΎΠ΄ΠΈΠΌΡΠΉ ΡΡΠΎΠ²Π΅Π½Ρ ΡΠΎΡ ΡΠ°Π½Π½ΠΎΡΡΠΈ ΡΠ΅ΠΏΠ»Π° ΠΈ Π²Π»Π°Π³ΠΎΠΈΠ·ΠΎΠ»ΡΡΠΈΡ.
Π’Π°ΠΊΠ°Ρ ΠΊΠΎΠΌΠΏΠ°ΠΊΡΠ½ΠΎΡΡΡ ΠΎΠ±Π»Π°Π΄Π°Π΅Ρ Π΅ΡΠ΅ ΠΎΠ΄Π½ΠΈΠΌ ΠΏΠ»ΡΡΠΎΠΌ β Π½Π° ΠΏΡΠΎΠ³ΡΠ΅Π² ΡΡΠΎΠΉ Π±Π°Π½ΠΈ ΡΡ ΠΎΠ΄ΠΈΡ ΠΌΠ΅Π½ΡΡΠ΅ ΡΠΎΠΏΠ»ΠΈΠ²Π°. ΠΡΠΈΡΠ΅ΠΌ, Π΄ΡΠΎΠ²ΡΠ½ΡΡ ΠΏΠ΅ΡΡ ΠΌΠΎΠΆΠ½ΠΎ ΡΡΡΠ°Π½ΠΎΠ²ΠΈΡΡ ΡΠ°ΠΊΠΈΠΌ ΠΎΠ±ΡΠ°Π·ΠΎΠΌ, ΡΡΠΎΠ±ΡΒ ΠΎΠ±ΠΎΠ³ΡΠ΅Π²Π°Π»ΡΡ Π΅ΡΠ΅ ΠΈ ΠΏΡΠ΅Π΄Π±Π°Π½Π½ΠΈΠΊ.
Π€ΡΠ½Π΄Π°ΠΌΠ΅Π½Ρ ΠΈ ΡΡΠ΅Π½Ρ
ΠΠ»Π°Π²Π½ΠΎΠΉ ΡΠ»ΠΎΠΆΠ½ΠΎΡΡΡΡ ΠΏΡΠΎΠ΅ΠΊΡΠ° ΡΠ²Π»ΡΠ΅ΡΡΡ ΡΡΡΡΠΎΠΉΡΡΠ²ΠΎ ΡΡΠ½Π΄Π°ΠΌΠ΅Π½ΡΠ°, ΡΠ°ΠΊ ΠΊΠ°ΠΊ ΠΎΡΠ½ΠΎΠ²Π°Π½ΠΈΠ΅ Π½Π΅ΠΎΠ±Ρ ΠΎΠ΄ΠΈΠΌΠΎ Π·Π°Π³Π»ΡΠ±ΠΈΡΡ Π½Π° Π³Π»ΡΠ±ΠΈΠ½Ρ ΡΡΠ½Π΄Π°ΠΌΠ΅Π½ΡΠ° ΠΎΡΠ½ΠΎΠ²Π½ΠΎΠ³ΠΎ Π΄ΠΎΠΌΠ°. Π§ΡΠΎ ΠΊΠ°ΡΠ°Π΅ΡΡΡ ΠΌΠ°ΡΠ΅ΡΠΈΠ°Π»Π°, ΡΠΎ Π»ΡΡΡΠ΅ Π²ΡΠ΅Π³ΠΎ ΠΈΡΠΏΠΎΠ»ΡΠ·ΠΎΠ²Π°ΡΡ ΡΠΎΡ ΠΆΠ΅, ΠΈΠ· ΠΊΠΎΡΠΎΡΠΎΠ³ΠΎ ΠΏΠΎΡΡΡΠΎΠ΅Π½ ΠΈ ΡΠ°ΠΌ Π΄ΠΎΠΌ. ΠΡΠΎ ΠΏΠΎΠ·Π²ΠΎΠ»ΠΈΡ ΠΎΠ±ΠΎΠΉΡΠΈΡΡ Π±Π΅Π· ΡΡΡΡΠΎΠΉΡΡΠ²Π° ΡΡΡΠΊΠΎΠ²ΠΎΡΠ½ΡΡ ΠΊΠΎΠ½ΡΡΡΡΠΊΡΠΈΠΉ, ΡΡΠΎ ΡΠΏΡΠΎΡΠΈΡ ΡΡΡΠΎΠΈΡΠ΅Π»ΡΡΡΠ²ΠΎ.
Π‘ΠΎΠ²Π΅Ρ! ΠΠ΅ΡΠ΅Π΄ Π½Π°ΡΠ°Π»ΠΎΠΌ Π²ΠΎΠ·Π²Π΅Π΄Π΅Π½ΠΈΡ ΡΡΠ΅Π½ Π½Π΅ΠΎΠ±Ρ ΠΎΠ΄ΠΈΠΌΠΎ ΡΠ»ΠΎΠΆΠΈΡΡ Π³ΠΈΠ΄ΡΠΎΠΈΠ·ΠΎΠ»ΡΡΠΈΡ. ΠΠ»Ρ ΡΡΠΎΠ³ΠΎ ΠΌΠΎΠΆΠ½ΠΎ ΠΈΡΠΏΠΎΠ»ΡΠ·ΠΎΠ²Π°ΡΡ Π½Π΅ΡΠΊΠΎΠ»ΡΠΊΠΎ ΡΠ»ΠΎΠ΅Π² ΡΡΠ±Π΅ΡΠΎΠΈΠ΄Π°.

Π£ΡΠ΅ΠΏΠ»Π΅Π½ΠΈΠ΅ ΡΡΠ΅Π½ ΠΌΠ°ΡΠ°ΠΌΠΈ
Π£ΡΠ΅ΠΏΠ»Π΅Π½ΠΈΠ΅
ΠΡΠ»ΠΈ ΠΏΠ°ΡΠ½Π°Ρ ΠΎΡΠ΄Π΅Π»ΡΠ½ΠΎ ΠΏΡΠΈΡΡΡΠ°ΠΈΠ²Π°Π΅ΡΡΡ ΠΊ Π΄ΠΎΠΌΡ, ΡΠΎ ΠΎΡΠΎΠ±Π΅Π½Π½ΠΎ ΠΎΡΠ²Π΅ΡΡΡΠ²Π΅Π½Π½ΠΎ Π½Π΅ΠΎΠ±Ρ ΠΎΠ΄ΠΈΠΌΠΎ ΠΏΠΎΠ΄ΠΎΠΉΡΠΈΒ ΠΊ ΡΡΠ΅ΠΏΠ»Π΅Π½ΠΈΡ ΠΏΠ°ΡΠ½ΠΎΠΉ. Π‘Π°ΠΌΡΠΌ ΠΎΠΏΡΠΈΠΌΠ°Π»ΡΠ½ΡΠΌ Π²Π°ΡΠΈΠ°Π½ΡΠΎΠΌ ΡΠ²Π»ΡΠ΅ΡΡΡ ΠΎΠ±ΡΠΈΠ²ΠΊΠ° ΡΡΠ΅Π½ ΡΠ½Π°ΡΡΠΆΠΈ ΠΌΠ°ΡΠ°ΠΌΠΈ ΠΈΠ· ΠΌΠΈΠ½Π΅ΡΠ°Π»ΡΠ½ΠΎΠΉ Π²Π°ΡΡ, ΠΏΠΎΠ²Π΅ΡΡ ΠΊΠΎΡΠΎΡΡΡ ΠΊΠΎΠ½ΡΡΡΡΠΊΡΠΈΡ ΠΎΠ±ΡΠΈΠ²Π°Π΅ΡΡΡ ΡΠ°ΠΉΠ΄ΠΈΠ½Π³ΠΎΠΌ. ΠΠ»Π°Π³ΠΎΠ΄Π°ΡΡ ΡΡΠΎΠΌΡ ΠΏΡΠΈΡΡΡΠΎΠΉΠΊΠ° ΠΌΠΎΠΆΠ΅Ρ Π³Π°ΡΠΌΠΎΠ½ΠΈΡΠ½ΠΎ ΡΠΌΠΎΡΡΠ΅ΡΡΡΡ Ρ ΡΠ°ΡΠ°Π΄ΠΎΠΌ Π·Π΄Π°Π½ΠΈΡ.
ΠΠΎΠ» ΠΈ ΠΏΠΎΡΠΎΠ»ΠΎΠΊ ΠΏΠ°ΡΠ½ΠΎΠΉ ΡΠΎΠΆΠ΅ Π½Π΅ΠΎΠ±Ρ ΠΎΠ΄ΠΈΠΌΠΎ ΡΡΠ΅ΠΏΠ»ΠΈΡΡ ΠΌΠΈΠ½Π΅ΡΠ°Π»ΡΠ½ΠΎΠΉ Π²Π°ΡΠΎΠΉ (ΡΠΈΡΠ°ΠΉΡΠ΅ ΡΠ°ΠΊΠΆΠ΅ ΡΡΠ°ΡΡΡ Β«Π£ΡΠ΅ΠΏΠ»Π΅Π½ΠΈΠ΅ ΠΏΠΎΡΠΎΠ»ΠΊΠ° Π±Π°Π½ΠΈ: ΠΈΠ½ΡΡΡΡΠΊΡΠΈΡ ΠΏΠΎ ΠΌΠΎΠ½ΡΠ°ΠΆΡΒ»). ΠΡΠΈ ΡΡΠΎΠΌ ΠΎΡΠ΅Π½Ρ Π²Π°ΠΆΠ½ΠΎ, ΡΡΠΎΠ±Ρ Π² ΠΏΡΠΎΡΠ΅ΡΡΠ΅ ΠΏΠ°ΡΠΎΠΈΠ·ΠΎΠ»ΡΡΠΈΠΈ ΡΠΎΠ±Π»ΡΠ΄Π°Π»Π°ΡΡ ΠΈΠ½ΡΡΡΡΠΊΡΠΈΡ. Π‘ΡΠ΅Π½Ρ ΠΈΠ·Π½ΡΡΡΠΈ Π»ΡΡΡΠ΅ ΠΎΠ±ΡΠΈΡΡ Π²Π»Π°Π³ΠΎΡΡΠΎΠΉΠΊΠΎΠΉ ΠΈΠ·ΠΎΠ»ΡΡΠΈΠ΅ΠΉ, ΠΊ ΠΏΡΠΈΠΌΠ΅ΡΡ, ΠΌΠΎΠΆΠ½ΠΎ ΠΈΡΠΏΠΎΠ»ΡΠ·ΠΎΠ²Π°ΡΡ ΠΠ·ΠΎΠ»ΠΎΠ½ ΠΠΠ.
ΠΡΠ²ΠΎΠ΄
ΠΡ ΡΠ°ΡΡΠΌΠΎΡΡΠ΅Π»ΠΈ ΡΡΠΈ Π²ΠΈΠ΄Π° ΠΏΡΠΎΠ΅ΠΊΡΠΎΠ² ΠΏΠ°ΡΠ½ΡΡ ΡΠ°ΡΠΏΠΎΠ»ΠΎΠΆΠ΅Π½Π½ΡΡ Π²Π½ΡΡΡΠΈ Π΄ΠΎΠΌΠ°. ΠΡΠΈ ΡΡΠΎΠΌ ΠΊΠ°ΠΆΠ΄ΡΠΉ Π²Π°ΡΠΈΠ°Π½Ρ ΡΠ²Π»ΡΠ΅ΡΡΡ ΡΠ²ΠΎΠ΅Π³ΠΎ ΡΠΎΠ΄Π° ΠΊΠΎΠΌΠΏΡΠΎΠΌΠΈΡΡΠΎΠΌ, ΠΏΠΎΡΡΠΎΠΌΡ Π²ΡΠ±ΠΈΡΠ°ΡΡ ΡΠ»Π΅Π΄ΡΠ΅Ρ Π² ΡΠΎΠΎΡΠ²Π΅ΡΡΡΠ²ΠΈΠΈ Ρ ΠΈΠ½Π΄ΠΈΠ²ΠΈΠ΄ΡΠ°Π»ΡΠ½ΡΠΌΠΈ ΡΡΠ»ΠΎΠ²ΠΈΡΠΌΠΈ. ΠΠ°ΠΈΠ±ΠΎΠ»Π΅Π΅ ΠΆΠ΅ ΡΠ½ΠΈΠ²Π΅ΡΡΠ°Π»ΡΠ½ΡΠΌ Π±ΡΠ΄Π΅Ρ ΡΡΠ΅ΡΠΈΠΉ ΡΠΈΠΏ ΠΏΡΠΎΠ΅ΠΊΡΠ°, ΠΊΠΎΡΠΎΡΡΠΉ Π±ΠΎΠ»Π΅Π΅ Π²ΡΠ΅Π³ΠΎ ΠΏΡΠΈΠ±Π»ΠΈΠΆΠ΅Π½ ΠΊ Π±Π°Π½Π΅ ΠΏΠΎΡΡΡΠΎΠ΅Π½Π½ΠΎΠΉ ΠΎΡΠ΄Π΅Π»ΡΠ½ΠΎ, ΠΎΠ΄Π½Π°ΠΊΠΎ ΠΎΠ½ ΡΡΠ΅Π±ΡΠ΅Ρ Π±ΠΎΠ»ΡΡΠΈΡ Π·Π°ΡΡΠ°Ρ (ΡΠΌ.ΡΠ°ΠΊΠΆΠ΅ ΡΡΠ°ΡΡΡ Β«ΠΡΠΎΠ΅ΠΊΡΡ ΠΎΠ΄Π½ΠΎΡΡΠ°ΠΆΠ½ΡΡ Π±Π°Π½Ρ β ΡΡΡΠΎΠΈΠΌ ΡΠ°ΠΌΠΎΡΡΠΎΡΡΠ΅Π»ΡΠ½ΠΎΒ»).
ΠΠΎΠΏΠΎΠ»Π½ΠΈΡΠ΅Π»ΡΠ½ΡΡ ΠΈΠ½ΡΠΎΡΠΌΠ°ΡΠΈΡ ΠΏΠΎ Π΄Π°Π½Π½ΠΎΠΉ ΡΠ΅ΠΌΠ΅ ΠΌΠΎΠΆΠ½ΠΎ ΠΏΠΎΠ»ΡΡΠΈΡΡ ΠΈΠ· Π²ΠΈΠ΄Π΅ΠΎ Π² ΡΡΠΎΠΉ ΡΡΠ°ΡΡΠ΅.
9ban.ru
ΠΡΠΎΠ΅ΠΊΡΡ Π΄ΠΎΠΌΠ° Ρ Π±Π°Π½Π΅ΠΉ ΠΏΠΎΠ΄ ΠΎΠ΄Π½ΠΎΠΉ ΠΊΡΡΡΠ΅ΠΉ
ΠΡΠΈ ΠΎΠ³ΡΠ°Π½ΠΈΡΠ΅Π½Π½ΠΎΠΌ ΠΏΡΠΎΡΡΡΠ°Π½ΡΡΠ²Π΅ Π½Π° ΡΡΠ°ΡΡΠΊΠ΅ ΠΈΠ»ΠΈ Π½Π΅Π²ΠΎΠ·ΠΌΠΎΠΆΠ½ΠΎΡΡΠΈ Π²ΡΠ΄Π΅Π»ΠΈΡΡ Π½Π΅ΠΎΠ±Ρ ΠΎΠ΄ΠΈΠΌΡΠ΅ ΠΊΠΎΠΌΠΌΡΠ½ΠΈΠΊΠ°ΡΠΈΠΈ Π² ΠΎΡΠ΄Π΅Π»ΡΠ½ΡΡ ΡΠΈΡΡΠ΅ΠΌΡ, Π±Π°Π½Ρ ΠΌΠΎΠΆΠ½ΠΎ ΠΏΠΎΡΡΡΠΎΠΈΡΡ ΠΏΠΎΠ΄ ΠΎΠ΄Π½ΠΎΠΉ ΠΊΡΡΡΠ΅ΠΉ Ρ Π΄ΠΎΠΌΠΎΠΌ. ΠΡΠ°Π²ΠΈΠ»ΡΠ½ΠΎ ΡΠΎΠ·Π΄Π°Π½Π½ΡΠΉ ΠΏΡΠΎΠ΅ΠΊΡ ΡΡΠΊΠΎΠ½ΠΎΠΌΠΈΡ ΠΌΠ΅ΡΡΠΎ ΠΈ Π·Π°ΡΡΠ°ΡΡ Π½Π° Π²ΠΎΠ·Π²Π΅Π΄Π΅Π½ΠΈΠ΅ ΠΏΡΠΈΡΡΡΠΎΠΉΠΊΠΈ. ΠΠ»ΡΡΠΎΠΌ ΡΠ²Π»ΡΠ΅ΡΡΡ ΠΈ ΠΊΠΎΠΌΡΠΎΡΡΠ½ΠΎΠ΅ ΠΏΠ΅ΡΠ΅ΠΌΠ΅ΡΠ΅Π½ΠΈΠ΅ ΠΈΠ· Π±Π°Π½Π½ΠΎΠ³ΠΎ ΠΏΠΎΠΌΠ΅ΡΠ΅Π½ΠΈΡ Π² Π΄ΠΎΠΌ, Π΅ΡΠ»ΠΈ ΡΠ΄Π΅Π»Π°ΡΡ Π²Ρ ΠΎΠ΄ ΠΈΠ· Π΄ΠΎΠΌΠ°.
ΠΡΠΎΠ΅ΠΊΡΡ Π±Π°Π½ΠΈ Π² Π΄ΠΎΠΌΠ΅
ΠΡΠΎΠ΅ΠΊΡΡ Π΄ΠΎΠΌΠ° Ρ Π±Π°Π½Π΅ΠΉ ΠΏΠΎΠ΄ ΠΎΠ΄Π½ΠΎΠΉ ΠΊΡΡΡΠ΅ΠΉ ΠΌΠΎΠ³ΡΡ Π±ΡΡΡ ΠΎΡΠ΅Π½Ρ ΡΠ°Π·Π½ΡΠΌΠΈ. Π ΠΏΡΠΈΠΌΠ΅ΡΡ, Π² Π΄Π²ΡΡ ΡΡΠ°ΠΆΠ½ΠΎΠΌ Π΄ΠΎΠΌΠ΅ 8Ρ 8 ΠΌ, ΠΌΠΎΠΆΠ½ΠΎ ΡΠ°Π·ΠΌΠ΅ΡΡΠΈΡΡ Π½Π° ΠΏΠ΅ΡΠ²ΠΎΠΌ ΡΡΠ°ΠΆΠ΅ Π±Π°Π½Ρ, Π±Π°ΡΡΠ΅ΠΉΠ½, ΠΊΠΎΠΌΠ½Π°ΡΡ ΠΎΡΠ΄ΡΡ Π° ΠΈ Π³ΠΎΡΡΠΈΠ½ΡΡ, Π° Π² ΠΌΠ°Π½ΡΠ°ΡΠ΄Π΅ β ΡΠΏΠ°Π»ΡΠ½ΡΡ (ΠΈΠ»ΠΈ Π΄ΠΎΠΏΠΎΠ»Π½ΠΈΡΠ΅Π»ΡΠ½ΡΡ ΠΊΠΎΠΌΠ½Π°ΡΡ ΠΎΡΠ΄ΡΡ Π°) ΠΈ Π±Π°Π»ΠΊΠΎΠ½.


ΠΡΠΈ Π±ΠΎΠ»ΡΡΠΈΡ Π³Π°Π±Π°ΡΠΈΡΠ°Ρ ΠΊΠΎΠΌΠΏΠ»Π΅ΠΊΡΠ°, Π΄ΠΎΠΌ Π²ΡΠΏΠΎΠ»Π½ΡΠ΅Ρ ΡΡΠ½ΠΊΡΠΈΠΈ Π½Π΅ ΡΠΎΠ»ΡΠΊΠΎ Π΄Π°ΡΠ½ΠΎΠ³ΠΎ ΡΡΡΠΎΠ΅Π½ΠΈΡ, Π½ΠΎ ΠΈ ΠΌΠΎΠΆΠ΅Ρ Π±ΡΡΡ ΠΈΡΠΏΠΎΠ»ΡΠ·ΠΎΠ²Π°Π½, ΠΊΠ°ΠΊ ΠΏΠΎΡΡΠΎΡΠ½Π½ΠΎΠ΅ ΠΆΠΈΠ»ΡΠ΅. ΠΠΎΠ½Π° ΠΎΡΠ΄ΡΡ Π° ΠΈΠ·ΠΎΠ»ΠΈΡΡΠ΅ΡΡΡ ΠΎΡ ΠΎΡΠ½ΠΎΠ²Π½ΠΎΠΉ ΡΠ°ΡΡΠΈ Π΄ΠΎΠΌΠ° ΠΎΡΠ΄Π΅Π»ΡΠ½ΡΠΌ Π²Ρ ΠΎΠ΄ΠΎΠΌ. Π ΠΏΠΎΠΌΠ΅ΡΠ΅Π½ΠΈΠΈ ΠΌΠΎΠ³ΡΡ ΠΆΠΈΡΡ Π΄ΠΎ 6 ΡΠ΅Π»ΠΎΠ²Π΅ΠΊ. ΠΠ° Π²ΡΠΎΡΠΎΠΌ ΡΡΠ°ΠΆΠ΅ ΡΠ°ΡΠΏΠΎΠ»Π°Π³Π°ΡΡ ΡΡΠΈ ΡΠΏΠ°Π»ΡΠ½ΠΈ, ΠΈΠ³ΡΠΎΠ²ΡΡ ΠΈΠ»ΠΈ ΠΊΠ°Π±ΠΈΠ½Π΅Ρ, Π½Π° ΠΏΠ΅ΡΠ²ΠΎΠΌ β Π³ΠΎΡΡΠΈΠ½ΡΡ, Π±Π°Π½Ρ Ρ Π±Π°ΡΡΠ΅ΠΉΠ½ΠΎΠΌ, ΠΊΡΡ Π½Ρ, ΠΏΠΎΠ΄ΡΠΎΠ±ΠΊΡ.

ΠΠ΅Π±ΠΎΠ»ΡΡΠΎΠΉ Π΄Π΅ΡΠ΅Π²ΡΠ½Π½ΡΠΉ Π΄ΠΎΠΌ ΠΌΠΎΠΆΠ½ΠΎ ΡΠ΄Π΅Π»Π°ΡΡ ΡΡΠ½ΠΊΡΠΈΠΎΠ½Π°Π»ΡΠ½ΡΠΌ ΠΈ ΡΡΡΠ΅ΡΠΈΡΠ΅ΡΠΊΠΈ ΠΎΡΠΈΠ³ΠΈΠ½Π°Π»ΡΠ½ΡΠΌ Π·Π° ΡΡΠ΅Ρ Π±Π΅Π·ΠΊΠΎΠ½ΡΠΊΠΎΠ²ΠΎΠΉ, Π΄Π²ΡΡΠΊΠ°ΡΠ½ΠΎΠΉ ΠΊΡΡΡΠΈ. Π§Π°ΡΡΡ, Π³Π΄Π΅ Π²ΡΡΠΎΠΊΠΈΠ΅ ΠΏΠΎΡΠΎΠ»ΠΊΠΈ Π½Π΅ ΡΡΠ΅Π±ΡΡΡΡΡ, Π²ΡΠ΄Π΅Π»ΡΠ΅ΡΡΡ ΠΏΠΎΠ΄ Π±Π°Π½Π½ΡΠΉ ΠΊΠΎΠΌΠΏΠ»Π΅ΠΊΡ, Π° ΠΎΡΡΠ°Π»ΡΠ½Π°Ρ β ΠΏΠΎΠ΄ ΠΆΠΈΠ»ΡΠ΅ ΠΏΠΎΠΌΠ΅ΡΠ΅Π½ΠΈΡ. ΠΠ»Ρ ΠΎΡΠ΄ΡΡ Π° ΠΎΠ±ΡΡΡΡΠ°ΠΈΠ²Π°Π΅ΡΡΡ ΠΏΡΠΎΡΡΠΎΡΠ½Π°Ρ Π²Π΅ΡΠ°Π½Π΄Π°.

ΠΠΎΡΡΡΠΎΠΈΡΡ Π½Π΅Π±ΠΎΠ»ΡΡΠΎΠΉ Π΄Π΅ΡΠ΅Π²ΡΠ½Π½ΡΠΉ Π³ΠΎΡΡΠ΅Π²ΠΎΠΉ Π΄ΠΎΠΌ Ρ Π±Π°Π½Π΅ΠΉ Π²Π½ΡΡΡΠΈ 6Ρ 6 ΠΌ ΡΠ΅ΡΡΠ°ΡΠΎΠΉ ΠΈ Π±Π°Π»ΠΊΠΎΠ½ΠΎΠΌ Π½Π° Π²ΡΠΎΡΠΎΠΌ ΡΡΠ°ΠΆΠ΅ ΠΌΠΎΠΆΠ½ΠΎ ΠΏΠΎ ΡΡ Π΅ΠΌΠ°ΠΌ Π½ΠΈΠΆΠ΅.

Π ΠΎΠ±ΠΎΠΈΡ ΡΠ»ΡΡΠ°ΡΡ ΠΊΠΎΠΌΠ½Π°ΡΡ ΠΎΡΠ΄ΡΡ Π° ΠΌΠΎΠΆΠ½ΠΎ Π² Π»ΡΠ±ΠΎΠΉ ΠΌΠΎΠΌΠ΅Π½Ρ ΠΏΠ΅ΡΠ΅ΠΎΠ±ΠΎΡΡΠ΄ΠΎΠ²Π°ΡΡ Π² Π³ΠΎΡΡΠΈΠ½ΡΡ Ρ Π½Π΅Π±ΠΎΠ»ΡΡΠΎΠΉ ΠΊΡΡ Π½Π΅ΠΉ ΠΈΠ»ΠΈ ΡΠΏΠ°Π»ΡΠ½Ρ, Π° Π±Π°Π»ΠΊΠΎΠ½ ΠΈ ΡΠ΅ΡΡΠ°ΡΡ ΠΈΡΠΏΠΎΠ»ΡΠ·ΠΎΠ²Π°ΡΡ, ΠΊΠ°ΠΊ Π·ΠΎΠ½Ρ Π΄Π»Ρ ΡΠ΅Π»Π°ΠΊΡΠ°ΡΠΈΠΈ.

Π€ΡΠ½Π΄Π°ΠΌΠ΅Π½ΡΡ Π΄Π»Ρ Π±Π°Π½ΠΈ Π²ΡΠ±ΠΈΡΠ°ΡΡΡΡ Π² Π·Π°Π²ΠΈΡΠΈΠΌΠΎΡΡΠΈ ΠΎΡ ΡΠΈΠΏΠ° ΠΌΠ°ΡΠ΅ΡΠΈΠ°Π»Π°: ΠΏΠΎΠ΄ ΡΡΡΠ± ΠΈΠ»ΠΈ ΠΊΠ»Π΅Π΅Π½ΡΠΉ Π±ΡΡΡ ΠΏΠΎΠ΄ΠΎΠΉΠ΄Π΅Ρ Π»Π΅Π½ΡΠΎΡΠ½ΡΠΉ, Π·Π°Π³Π»ΡΠ±Π»Π΅Π½Π½ΡΠΉ Π½Π° 50 ΡΠΌ Ρ ΡΠΈΡΠΈΠ½ΠΎΠΉ Π² 30 ΡΠΌ. ΠΠΈΡΠΏΠΈΡΠ½ΡΠ΅ ΠΈ Π±Π»ΠΎΡΠ½ΡΠ΅ Π΄ΠΎΠΌΠ° ΡΡΠ΅Π±ΡΡΡ ΠΏΠΎΠ»Π½ΠΎΡΠ΅Π½Π½ΠΎΠΉ ΠΎΡΠ½ΠΎΠ²Ρ.

Π§ΡΠΎΠ±Ρ ΠΏΡΠΈΡΡΡΠΎΠΉΠΊΠ° Π±ΡΠ»Π° ΠΏΠΎΠ΄ ΠΎΠ±ΡΠ΅ΠΉ ΠΊΡΡΡΠ΅ΠΉ Ρ Π΄ΠΎΠΌΠΎΠΌ, ΠΊΡΠΎΠ²Π»Ρ ΠΏΡΠΎΠ΄Π»Π΅Π²Π°ΡΡ Π½Π° Π½Π΅ΠΎΠ±Ρ ΠΎΠ΄ΠΈΠΌΠΎΠ΅ ΡΠ°ΡΡΡΠΎΡΠ½ΠΈΠ΅ Π΄Π»Ρ Π·Π°ΠΊΡΡΡΠΈΡ Π±Π°Π½Π½ΡΡ ΠΏΠΎΠΌΠ΅ΡΠ΅Π½ΠΈΠΉ. ΠΠ΄Π½Π°ΠΊΠΎ Π΄Π»Ρ ΡΡΡΠ±ΠΎΠ² ΠΈ Π΄Π΅ΡΠ΅Π²ΡΠ½Π½ΡΡ Π΄ΠΎΠΌΠΎΠ² ΠΏΡΠΎΠ΄ΡΠΌΡΠ²Π°ΡΡ Π½Π°Π»ΠΈΡΠΈΠ΅ Π±Π°Π½ΠΈ Π½Π΅ΠΎΠ±Ρ ΠΎΠ΄ΠΈΠΌΠΎ Π½Π° ΡΡΠ°Π΄ΠΈΠΈ ΠΏΠ»Π°Π½ΠΈΡΠΎΠ²ΠΊΠΈ. ΠΠ΅Π±ΠΎΠ»ΡΡΠΎΠΉ Π΄ΠΎΠΌΠΈΠΊ 7Ρ 8 ΠΌ Ρ Π±Π°Π½Π΅ΠΉ, Π³ΠΎΡΡΠΈΠ½ΠΎΠΉ-ΡΡΠΎΠ»ΠΎΠ²ΠΎΠΉ, ΡΠ΅ΡΡΠ°ΡΠΎΠΉ Π½Π° ΠΏΠ΅ΡΠ²ΠΎΠΌ ΡΡΠ°ΠΆΠ΅, Π΄Π²ΡΠΌΡ ΡΠΏΠ°Π»ΡΠ½ΡΠΌΠΈ ΠΈ Π±Π°Π»ΠΊΠΎΠ½ΠΎΠΌ β Π½Π° Π²ΡΠΎΡΠΎΠΌ ΠΎΡΠ»ΠΈΡΠ½ΠΎΠ΅ ΡΠ΅ΡΠ΅Π½ΠΈΠ΅ Π΄Π»Ρ ΠΎΡΠ΄ΡΡ Π° Π½Π° Π΄Π²ΡΡ -ΡΡΠ΅Ρ ΡΠ΅Π»ΠΎΠ²Π΅ΠΊ.

ΠΡΠ»ΠΈ Π΄ΠΎΠΌ ΠΏΡΠ°Π²ΠΈΠ»ΡΠ½ΠΎ ΡΡΠ΅ΠΏΠ»ΠΈΡΡ ΠΈ Π΄ΠΎΠΏΠΎΠ»Π½ΠΈΡΡ ΠΎΠ±ΠΎΠ³ΡΠ΅Π²Π°ΡΠ΅Π»ΡΠ½ΠΎΠΉ ΡΠΈΡΡΠ΅ΠΌΠΎΠΉ Π² Π·ΠΎΠ½Π°Ρ Ρ ΡΠΌΠ΅ΡΠ΅Π½Π½ΡΠΌ ΠΈ ΡΠ΅ΠΏΠ»ΡΠΌ ΠΊΠ»ΠΈΠΌΠ°ΡΠΎΠΌ β ΡΡΠΎ ΠΌΠΎΠΆΠ΅Ρ ΡΡΠ°ΡΡ ΠΏΠΎΡΡΠΎΡΠ½Π½ΡΠΌ ΠΆΠΈΠ»ΡΠ΅ΠΌ. ΠΠ΄ΠΈΠ½ΡΡΠ²Π΅Π½Π½ΡΠΉ Π½ΡΠ°Π½Ρ: Π±Π°Π»ΠΊΠΎΠ½ ΠΈ ΡΠ΅ΡΡΠ°ΡΡ Π»ΡΡΡΠ΅ Π·Π°ΡΡΠ΅ΠΊΠ»ΠΈΡΡ, ΠΈΠ½Π°ΡΠ΅ Π² Π·ΠΈΠΌΠ½Π΅Π΅ Π²ΡΠ΅ΠΌΡ ΠΈΡ Π²ΡΠ΅ ΡΠ°Π²Π½ΠΎ Π±ΡΠ΄Π΅Ρ Π½Π΅ΠΊΠΎΠΌΡΠΎΡΡΠ½ΠΎ ΠΈΡΠΏΠΎΠ»ΡΠ·ΠΎΠ²Π°ΡΡ Π΄Π»Ρ ΠΎΡΠ΄ΡΡ Π°.
ΠΡΠ΅ ΠΎΠ΄ΠΈΠ½ ΠΌΠΎΠΌΠ΅Π½Ρ, Π½Π° ΡΡΠ°Π΄ΠΈΠΈ ΠΏΡΠΎΠ΅ΠΊΡΠΈΡΠΎΠ²Π°Π½ΠΈΡ, Π½ΡΠΆΠ½ΠΎ ΡΡΠΎΡΠ½ΠΈΡΡ ΠΊΠ°ΠΊΠΎΠ΅ Π²ΡΠ΅ΠΌΡ ΡΠΉΠ΄Π΅Ρ Π½Π° ΡΡΠ°Π΄ΠΊΡ ΠΈ ΠΏΠΎΠ΄ΠΊΠ»ΡΡΠ΅Π½ΠΈΠ΅ Π½Π΅ΠΎΠ±Ρ ΠΎΠ΄ΠΈΠΌΡΡ ΠΊΠΎΠΌΠΌΡΠ½ΠΈΠΊΠ°ΡΠΈΠΉ. ΠΡΠ»ΠΈ Π΄ΠΎΠΌ Ρ Π±Π°Π½Π΅ΠΉ Π²Π½ΡΡΡΠΈ Π±ΡΠ΄Π΅Ρ ΡΠ»ΡΠΆΠΈΡΡ ΠΎΡΠ½ΠΎΠ²Π½ΡΠΌ ΠΆΠΈΠ»ΡΠ΅ΠΌ, Π²ΡΠ΅Ρ Π°ΡΡ Π² Π½Π΅Π³ΠΎ ΡΡΠ°Π·Ρ ΠΏΠΎΡΠ»Π΅ Π²ΠΎΠ·Π²Π΅Π΄Π΅Π½ΠΈΡ Π½Π΅ ΠΏΠΎΠ»ΡΡΠΈΡΡΡ.
ΠΡΠ΅ΠΈΠΌΡΡΠ΅ΡΡΠ²Π° ΡΠ°Π·ΠΌΠ΅ΡΠ΅Π½ΠΈΡ Π±Π°Π½ΠΈ Π² Π΄ΠΎΠΌΠ΅
ΠΠ»ΡΡΠ°ΠΌΠΈ ΡΠ°ΠΊΠΎΠΉ ΠΏΡΠΈΡΡΡΠΎΠΉΠΊΠΈ Π±ΡΠ΄Π΅Ρ Π΅Π΄ΠΈΠ½Π°Ρ ΡΠΈΡΡΠ΅ΠΌΠ° ΠΊΠΎΠΌΠΌΡΠ½ΠΈΠΊΠ°ΡΠΈΠΉ, ΡΡΠΎ ΠΏΠΎΠ·Π²ΠΎΠ»ΠΈΡ ΠΈΡΠΏΠΎΠ»ΡΠ·ΠΎΠ²Π°ΡΡ Π±Π°Π½Ρ ΠΊΡΡΠ³Π»ΡΠΉ Π³ΠΎΠ΄. ΠΡΠΈ Π½Π΅ΠΎΠ±Ρ ΠΎΠ΄ΠΈΠΌΠΎΡΡΠΈ, ΠΈΠ· ΠΏΠΎΠΌΠ΅ΡΠ΅Π½ΠΈΡ Π»Π΅Π³ΠΊΠΎ ΠΏΠ΅ΡΠ΅ΠΉΡΠΈ Π² Π΄ΠΎΠΌ, Π½Π΅ Π·Π°ΠΌΠ΅ΡΠ·Π½ΡΠ² ΠΈΠ»ΠΈ ΠΏΡΠΎΠΌΠΎΠΊΠ½ΡΠ² Π½Π° ΡΠ»ΠΈΡΠ΅. ΠΠ»Ρ Π²ΡΠ΅Ρ ΡΠ΄ΠΎΠ±ΡΡΠ² Π½Π΅ΠΎΠ±Ρ ΠΎΠ΄ΠΈΠΌ ΡΠΎΠ»ΡΠΊΠΎ Π²Ρ ΠΎΠ΄ ΠΈΠ· Π΄ΠΎΠΌΠ°. ΠΡΡ ΠΏΡΠΈΡΡΡΠΎΠΉΠΊΠ° ΠΌΠΎΠΆΠ΅Ρ Π·Π°Π½ΡΡΡ 26,3 ΠΌ2. ΠΠ»ΠΎΡΠ°Π΄ΠΈ Π΄ΠΎΡΡΠ°ΡΠΎΡΠ½ΠΎ Π΄Π»Ρ Π΄Π²ΡΡ ΡΠ΅Π»ΠΎΠ²Π΅ΠΊ.

ΠΠ°Π½Ρ ΠΌΠΎΠΆΠ½ΠΎ ΠΎΠ±ΠΎΡΡΠ΄ΠΎΠ²Π°ΡΡ ΠΏΠΎ Π½Π΅ΡΠΊΠΎΠ»ΡΠΊΠΈΠΌ ΡΡ Π΅ΠΌΠ°ΠΌ:
- Π·Π°Π΄Π΅ΠΉΡΡΠ²ΠΎΠ²Π°ΡΡ ΡΠΎΠΊΠΎΠ»ΡΠ½ΡΠΉ ΡΡΠ°ΠΆ, Π΅ΡΠ»ΠΈ ΠΎΠ½ ΠΌΠ½ΠΎΠ³ΠΎΡΡΠΎΠ²Π½Π΅Π²ΡΠΉ;
- ΡΠ΄Π΅Π»Π°ΡΡ Π΅ΡΠ΅ ΠΎΠ΄Π½ΠΎΠΉ ΠΊΠΎΠΌΠ½Π°ΡΠΎΠΉ Π½Π° ΠΏΠ΅ΡΠ²ΠΎΠΌ ΡΡΠ°ΠΆΠ΅;
- ΡΠ°Π·ΠΌΠ΅ΡΡΠΈΡΡ ΡΠΎΠ²ΠΌΠ΅ΡΠ΅Π½Π½ΠΎ Ρ ΡΠ°Π½ΡΠ·Π»ΠΎΠΌ;
- ΠΏΡΠΈΡΡΡΠΎΠΈΡΡ ΠΊ Π΄ΠΎΠΌΡ (Π΅ΡΠ»ΠΈ ΠΈΠ·Π½Π°ΡΠ°Π»ΡΠ½ΠΎ Π² ΠΏΡΠΎΠ΅ΠΊΡΠ΅ Π±Π°Π½Ρ Π½Π΅ ΠΏΠ»Π°Π½ΠΈΡΠΎΠ²Π°Π»Π°ΡΡ).
ΠΡΠΈΡΡΡΠΎΠΉΠΊΠ° ΠΌΠΎΠΆΠ΅Ρ Π±ΡΡΡ ΠΊΠ°ΡΠΊΠ°ΡΠ½ΠΎΠΉ, ΠΈΠ· Π±ΡΡΡΠ°, Π±Π»ΠΎΠΊΠΎΠ² ΠΈΠ»ΠΈ ΠΊΠΈΡΠΏΠΈΡΠ°. Π‘Π°ΠΌΡΠΌ Π½Π°Π΄Π΅ΠΆΠ½ΡΠΌ ΠΈ Π΄ΠΎΠ»Π³ΠΎΠ²Π΅ΡΠ½ΡΠΌ Π±ΡΠ΄Π΅Ρ Π΄ΠΎΠΌ ΠΈΠ· ΠΊΠΈΡΠΏΠΈΡΠ°, Π±ΠΎΠ»ΡΡΠ΅ Π²ΡΠ΅Π³ΠΎ ΠΏΠΎΠ΄Π²Π΅ΡΠΆΠ΅Π½ Π²Π»ΠΈΡΠ½ΠΈΡ ΠΏΠΎΠ²ΡΡΠ΅Π½Π½ΠΎΠΉ Π²Π»Π°ΠΆΠ½ΠΎΡΡΠΈ ΠΈ ΠΏΠ΅ΡΠ΅ΠΏΠ°Π΄ΠΎΠ² ΡΠ΅ΠΌΠΏΠ΅ΡΠ°ΡΡΡ β Π΄Π΅ΡΠ΅Π²ΡΠ½Π½ΡΠΉ.
ΠΠΎΠΌ, ΠΏΡΠΈ ΠΆΠ΅Π»Π°Π½ΠΈΠΈ, ΡΠΊΠΎΠΌΠΏΠ»Π΅ΠΊΡΠΎΠ²ΡΠ²Π°Π΅ΡΡΡ Π²ΡΡΡΠΎΠ΅Π½Π½ΡΠΌ Π³Π°ΡΠ°ΠΆΠΎΠΌ, Π±Π°Π»ΠΊΠΎΠ½ΠΎΠΌ. ΠΡΠ±ΠΈΡΠ°Π΅ΡΡΡ ΠΈ ΡΡΠ°ΠΆΠ½ΠΎΡΡΡ: ΠΎΠ΄Π½ΠΎΡΡΠ°ΠΆΠ½ΠΎΠ΅, Ρ ΠΌΠ°Π½ΡΠ°ΡΠ΄ΠΎΠΉ ΠΈΠ»ΠΈ ΠΏΠΎΠ»Π½ΠΎΡΠ΅Π½Π½ΠΎΠ΅ Π΄Π²ΡΡ ΡΡΠ°ΠΆΠ½ΠΎΠ΅ ΡΡΡΠΎΠ΅Π½ΠΈΠ΅. ΠΡΠΈΠΌΠ΅ΡΡ Π½Π° ΡΠΎΡΠΎ Π½ΠΈΠΆΠ΅.




Π‘ ΠΊΠ°ΠΊΠΈΠΌΠΈ Π½Π΅ΡΠ΄ΠΎΠ±ΡΡΠ²Π°ΠΌΠΈ ΠΌΠΎΠΆΠ½ΠΎ ΡΡΠΎΠ»ΠΊΠ½ΡΡΡΡΡ
ΠΠ°ΡΠ½ΡΡ Π½Π΅ΠΎΠ±Ρ ΠΎΠ΄ΠΈΠΌΠΎ ΡΠ°Π·ΠΌΠ΅ΡΠ°ΡΡ Π² ΡΠ°ΠΌΠΎΠΌ Π΄Π°Π»ΡΠ½Π΅ΠΌ ΡΠ³Π»Ρ ΠΏΠΎΡΡΡΠΎΠΉΠΊΠΈ ΠΎΡΠ½ΠΎΡΠΈΡΠ΅Π»ΡΠ½ΠΎ ΠΆΠΈΠ»ΡΡ ΠΏΠΎΠΌΠ΅ΡΠ΅Π½ΠΈΠΉ. ΠΠ΅ΠΆΠ΄Ρ ΠΏΠ°ΡΠ½ΠΎΠΉ ΠΈ ΡΡΠ΅Π½ΠΊΠΎΠΉ Π΄ΠΎΠΌΠ° Π»ΡΡΡΠ΅ Π²ΡΠ΅Π³ΠΎ ΡΠ°Π·ΠΌΠ΅ΡΡΠΈΡΡ ΠΌΠΎΠ΅ΡΠ½ΡΡ ΠΈΠ»ΠΈ ΠΊΠΎΠΌΠ½Π°ΡΡ ΠΎΡΠ΄ΡΡ Π°. ΠΠ°ΠΆΠ½ΠΎ ΠΏΡΠΈΠ΄Π΅ΡΠΆΠΈΠ²Π°ΡΡΡΡ Π΄Π΅ΠΉΡΡΠ²ΡΡΡΠΈΡ Π‘ΠΠΈΠΠΎΠ², ΠΈΠ½Π°ΡΠ΅ ΠΏΡΠΎΠ±Π»Π΅ΠΌ Ρ ΡΠ΅Π³ΠΈΡΡΡΠ°ΡΠΈΠ΅ΠΉ Π½Π΅ ΠΈΠ·Π±Π΅ΠΆΠ°ΡΡ. Π‘ΡΠ΅Π½Ρ, ΡΠΌΠ΅ΠΆΠ½ΡΡ Ρ Π±Π°Π½Π΅ΠΉ Π΄ΠΎΠΏΠΎΠ»Π½ΠΈΡΠ΅Π»ΡΠ½ΠΎ ΡΠ΅ΠΏΠ»ΠΎ- ΠΈ Π³ΠΈΠ΄ΡΠΎΠΈΠ·ΠΎΠ»ΠΈΡΡΡΡ.
ΠΡΠΎΠ΅ΠΊΡΠΈΡΠΎΠ²Π°Π½ΠΈΠ΅ ΠΏΡΠΈΡΡΡΠΎΠΉΠΊΠΈ ΡΡΠ΅Π±ΡΠ΅Ρ Ρ ΠΎΡΠΎΡΠ΅ΠΉ Π²Π΅Π½ΡΠΈΠ»ΡΡΠΈΠΈ, Π³ΠΈΠ΄ΡΠΎΠΈΠ·ΠΎΠ»ΡΡΠΈΠΈ (Π½Π°ΡΡΠΆΠ½ΠΎΠΉ ΠΈ Π²Π½ΡΡΡΠ΅Π½Π½Π΅ΠΉ), ΡΠ΅ΡΠΌΠΎΠΈΠ·ΠΎΠ»ΡΡΠΈΠΈ, Π½Π°Π»ΠΈΡΠΈΡ ΡΠ΅Π½ΡΡΠ°Π»ΠΈΠ·ΠΎΠ²Π°Π½Π½ΠΎΠΉ ΠΈΠ»ΠΈ Π°Π²ΡΠΎΠ½ΠΎΠΌΠ½ΠΎΠΉ ΠΊΠ°Π½Π°Π»ΠΈΠ·Π°ΡΠΈΠΎΠ½Π½ΠΎΠΉ ΡΠΈΡΡΠ΅ΠΌΡ, ΠΎΠ±ΡΠ°Π±ΠΎΡΠΊΠΈ Π°Π½ΡΠΈΡΠ΅ΠΏΡΠΈΠΊΠ°ΠΌΠΈ ΠΈ ΠΎΠ³Π½Π΅ΡΠΏΠΎΡΠ½ΡΠΌΠΈ ΠΏΡΠΎΠΏΠΈΡΠΊΠ°ΠΌΠΈ. ΠΠΎ Π΄Π°ΠΆΠ΅ ΠΏΡΠΈ ΡΠΎΠ±Π»ΡΠ΄Π΅Π½ΠΈΠΈ Π²ΡΠ΅Ρ Π½ΠΎΡΠΌ ΠΏΡΠΎΠ±Π»Π΅ΠΌΡ ΠΌΠΎΠ³ΡΡ Π²ΠΎΠ·Π½ΠΈΠΊΠ½ΡΡΡ.
Π‘ΡΡΠ°Ρ ΠΎΠ²ΡΠΈΠΊΠΈ Π½Π΅ΠΎΡ ΠΎΡΠ½ΠΎ Π±Π΅ΡΡΡΡΡ Π·Π° ΠΎΡΠΎΡΠΌΠ»Π΅Π½ΠΈΠ΅ ΡΡΡΠ°Ρ ΠΎΠ²ΠΊΠΈ Π½Π° Π΄ΠΎΠΌΠ° Ρ ΠΏΠΎΠ²ΡΡΠ΅Π½Π½ΠΎΠΉ ΠΎΠΏΠ°ΡΠ½ΠΎΡΡΡΡ. ΠΡΠΈ Π½Π΅ΡΠΎΠ±Π»ΡΠ΄Π΅Π½ΠΈΠΈ ΡΠ΅Ρ Π½ΠΎΠ»ΠΎΠ³ΠΈΠΈ ΠΏΠΎΡΡΡΠΎΠΉΠΊΠΈ, ΠΊΠΎΠΌΠΌΡΠ½Π°Π»ΡΡΠΈΠΊΠΈ ΡΠ°ΠΊΠΆΠ΅ ΠΌΠΎΠ³ΡΡ ΠΎΡΠΊΠ°Π·Π°ΡΡΡΡ ΠΏΠΎΠ΄ΠΊΠ»ΡΡΠ°ΡΡ Π³Π°Π· ΠΈΠ»ΠΈ ΡΠ²Π΅Ρ, ΠΊΠ°ΠΊ ΠΈ ΠΎΡΠ³Π°Π½Ρ ΠΎΡΠ²Π΅ΡΡΡΠ²Π΅Π½Π½ΡΠ΅ Π·Π° ΡΠ΅Π³ΠΈΡΡΡΠ°ΡΠΈΡ ΡΡΡΠΎΠ΅Π½ΠΈΡ.
ΠΡΠΈ Π²ΠΎΠ·Π²Π΅Π΄Π΅Π½ΠΈΠΈ Π²ΡΠ΅Π³ΠΎ ΠΊΠΎΠΌΠΏΠ»Π΅ΠΊΡΠ° ΠΈΠ· Π΄Π΅ΡΠ΅Π²Π° Π½ΡΠΆΠ½ΠΎ ΠΏΠΎΠ·Π°Π±ΠΎΡΠΈΡΡΡΡ ΠΎΠ±ΠΎ Π²ΡΠ΅Ρ ΡΡΠ΅ΠΏΠ΅Π½ΡΡ Π·Π°ΡΠΈΡΡ, ΠΈΠ½Π°ΡΠ΅ Π² ΠΏΠΎΠΌΠ΅ΡΠ΅Π½ΠΈΠΈ Π±ΡΠ΄Π΅Ρ ΡΡΡΠΎΡΡΡ ΠΈ ΠΏΠ»Π΅ΡΠ΅Π½Ρ. ΠΡΠ»ΠΈ ΠΈ Π΄ΠΎΠΌ, ΠΈ Π±Π°Π½Ρ ΠΈΠΌΠ΅ΡΡ Π±ΠΎΠ»ΡΡΠΈΠ΅ Π³Π°Π±Π°ΡΠΈΡΡ, ΠΏΠΎΡΡΠ΅Π±ΡΠ΅ΡΡΡ ΡΠ»Π΅ΠΊΡΡΠΎ ΠΈΠ»ΠΈ Π³Π°Π·ΠΎΠ²ΡΠΉ ΠΊΠΎΡΠ΅Π» Π²ΡΡΠΎΠΊΠΎΠΉ ΠΌΠΎΡΠ½ΠΎΡΡΠΈ, Π° Π·Π½Π°ΡΠΈΡ, ΡΠ°ΡΡ ΠΎΠ΄Ρ Π½Π° ΠΎΡΠΎΠΏΠ»Π΅Π½ΠΈΠ΅ ΡΡΡΠ΅ΡΡΠ²Π΅Π½Π½ΠΎ ΡΠ²Π΅Π»ΠΈΡΠ°ΡΡΡ. ΠΡΠΈΠ΄Π΅ΡΡΡ ΠΏΠΎΠ²ΠΎΠ·ΠΈΡΡΡΡ ΠΈ ΠΊΠ°Π½Π°Π»ΠΈΠ·Π°ΡΠΈΠ΅ΠΉ, Π½Π°Π³ΡΡΠ·ΠΊΠ° Π½Π° Π½Π΅Π΅ Π²ΠΎΠ·ΡΠ°ΡΡΠ΅Ρ.
ΠΠ»Ρ ΠΎΡΠ²ΠΎΠ΄Π° Π³Π°Π·ΠΎΠ² ΠΏΠΎΡΡΠ΅Π±ΡΠ΅ΡΡΡ Π΄Π²Π΅ ΡΡΡΠ±Ρ, ΡΠΎΠΎΡΠ²Π΅ΡΡΡΠ²Π΅Π½Π½ΠΎ ΠΈ Π΄Π²Π° ΠΏΡΠΎΠ΅ΠΌΠ° Π² ΠΊΡΠΎΠ²Π»Π΅. ΠΠΎΠ΅ΡΠ½ΡΡ Π½ΡΠΆΠ½ΠΎ ΠΎΠ±ΠΎΡΡΠ΄ΠΎΠ²Π°ΡΡ ΠΏΠ»ΠΈΡΠΊΠΎΠΉ. ΠΡΠΎΠ±Π΅Π½Π½ΠΎΠ΅ Π²Π½ΠΈΠΌΠ°Π½ΠΈΠ΅ ΡΠ΄Π΅Π»ΡΡΡ ΠΏΠΎΠ»Π°ΠΌ, ΠΎΠ±Π΅ΡΠΏΠ΅ΡΠΈΠ²Π°Ρ ΠΏΠΎΠ»Π½ΡΠΉ ΡΠ»ΠΈΠ², ΠΈΠ½Π°ΡΠ΅ ΠΏΠΎΠ²ΡΡΠ΅Π½Π½Π°Ρ Π²Π»Π°ΠΆΠ½ΠΎΡΡΡ ΡΠ°ΡΠΏΡΠΎΡΡΡΠ°Π½ΠΈΡΡΡ ΠΏΠΎ Π²ΡΠ΅ΠΌΡ Π΄ΠΎΠΌΡ.
ΠΡΠΈ ΠΈΡΠΏΠΎΠ»ΡΠ·ΠΎΠ²Π°Π½ΠΈΠΈ ΠΊΠ°ΠΌΠ΅Π½ΠΊΠΈ Π½Π° Π΄ΡΠΎΠ²Π°Ρ Π½Π΅ΠΎΠ±Ρ ΠΎΠ΄ΠΈΠΌΠΎ ΠΎΡΠ³Π°Π½ΠΈΠ·ΠΎΠ²Π°ΡΡ Ρ ΠΎΡΠΎΡΡΡ ΡΡΠ³Ρ. ΠΡΠΈ Π½Π΅ΠΏΡΠ°Π²ΠΈΠ»ΡΠ½ΠΎΠΉ ΠΊΠΎΠ½ΡΡΡΡΠΊΡΠΈΠΈ Π΄ΡΠΌ Π±ΡΠ΄Π΅Ρ ΠΏΡΠΎΠ½ΠΈΠΊΠ°ΡΡ Π² ΠΆΠΈΠ»ΡΠ΅ ΠΏΠΎΠΌΠ΅ΡΠ΅Π½ΠΈΡ, ΠΈ ΡΠΎ Π²ΡΠ΅ΠΌΠ΅Π½Π΅ΠΌ, Π½Π° ΠΏΠΎΡΠΎΠ»ΠΊΠ°Ρ ΠΎΠ±ΡΠ°Π·ΡΠ΅ΡΡΡ ΡΠ°ΠΆΠ΅Π²ΡΠΉ Π½Π°Π»Π΅Ρ.
Π§ΠΈΡΠ°ΠΉΡΠ΅ ΡΠ°ΠΊΠΆΠ΅: ΠΡΠΎΠ΅ΠΊΡ Π³ΠΎΡΡΠ΅Π²ΠΎΠ³ΠΎ Π΄ΠΎΠΌΠ°-Π±Π°Π½ΠΈ
banyagid.com
