Схема водоснабжения частного дома из скважины схема с гидроаккумулятором – Схема водоснабжения частного дома из скважины. Водоснабжение частного дома из скважины с гидроаккумулятором схема. Схема водоснабжения частного дома с гидроаккумулятором
схема с гидроаккумулятором, как сделать своими руками + видео » SanDizain.ru
В наше время некачественная работа или даже полное отсутствие центрального водопровода на участке уже не является проблемой, так как водоснабжение частного дома можно обеспечить из автономного источника – скважины. Причем сделать это реально даже своими руками. В частности, наиболее доступной и одновременно функциональной считается схема водоснабжения с гидроаккумулятором. Ее устройство включает в себя три обязательных стадии: организация источника воды, установка оборудования и разводка трубопровода. Чтобы обеспечить бесперебойную систему автономного водоснабжения, необходимо знать, как грамотно реализовать все три стадии – далее пошагово с видео разбираемся в каждой из них.
Бурение скважины
Первый шаг – создание источника воды, то есть бурение скважины. Ее глубину нужно определять по двум факторам: залегание водной жилы на участке и ваши конкретные потребности в водоснабжении. Существует несколько методов бурения, но самый простой и вместе с тем эффективный вариант – ударно-канатный. Для его реализации вам понадобиться соорудить своеобразную опорную треногу из металлических труб и зафиксировать на ней специальный забивной стакан – он крепится посредством механической лебедки с тросом.
Важно! Высота опорной треноги должна напрямую соотноситься с габаритами стакана: чем объемнее стакан, тем выше тренога. В идеале опора должна превышать стакан по длине на 1,5-2 м.
Непосредственно бурение выполняется по следующей схеме:
- с напором вбиваете стакан в землю;
- стакан забирает грунт;
- поднимаете стакан и удаляете из него грунт;
- вновь вбиваете стакан.
Выполняете аналогичные действия, пока скважина не достигнет нужной глубины. После завершения бурения в скважине нужно установить обсадную трубу – металлическую или пластиковую с резьбовым соединением. Она должна максимально плотно прилегать к грунту.
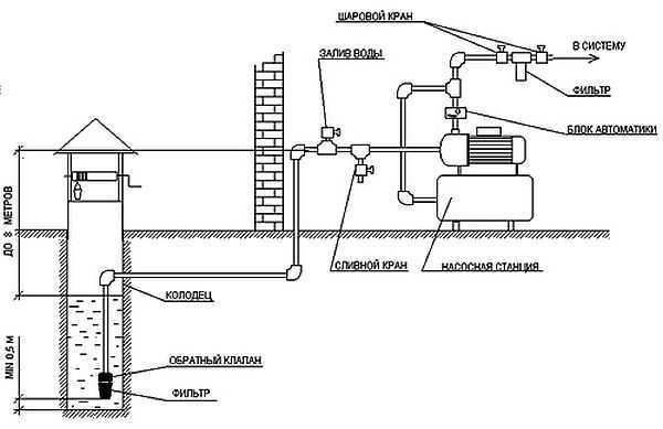
И финальный процесс организации источника воды – прокачка готовой скважины: с помощью насоса из нее необходимо откачать грязную воду с песком и глиной.

Схема: система автономного водоснабжения
Установка кессона
Второй шаг – монтаж кессона, который будет защищать скважину и ее содержимое от таких негативных факторов, как замерзание, заиливание, попадание грязных грунтовых вод. Как правило, кессон представляет собой прочный цилиндр из пластика или металла – его размеры нужно подбирать в зависимости от габаритов скважины. Прибор обязательно должен закрываться герметичной крышкой с отверстиями для труб и другого оборудования.
Совет. Чтобы кессон не деформировался в процессе эксплуатации, его рекомендуется обшить теплоизоляционным, но обязательно негорючим материалом, и дополнительно закрыть пластиковыми листами или обложить кирпичами.
Установка кессона не требует больших усилий. Сначала нужно вырезать в дне емкости отверстие – его диаметр должен быть чуть больше диаметра обсадного ствола. Затем кессон опускается в скважину – он должен подниматься над верхним уровнем грунта не больше, чем на 20 см. После этого обсадной ствол обрезается и приваривается к отверстию емкости.
Монтаж насоса
Третий шаг – установка насоса, выполняющего роль сердца всей водопроводной системы. При выборе прибора следует учитывать несколько важных показателей:
- диаметр обсадного ствола;
- высота и напор подачи воды в скважине;
- ожидаемый объем поступающей воды из скважины;
- планируемый расход воды.
Принимайте во внимание, что мощность оборудования не должна превышать показатели производительности скважины, чтобы избежать «сухого» хода насоса. Также прибор должен быть на 10-15% меньше диаметра обсадной трубы, чтобы сохранялась возможность его обслуживания.
Установка насоса выполняется таким образом:
- На крепежные элементы насоса фиксируется трос – он защищает прибор от аварийного опускания.
- На насос устанавливается обратный клапан – он делает невозможным обратный ход водного потока в скважину.
- К насосному оборудованию присоединяются труба водопровода и кабель электропитания. Параллельно с этим кабель фиксируется к трубе пластиковыми хомутами с шагом в 1,5 м.
- Насос медленно опускается в обсадной ствол, а затем фиксируется тросом на высоте 1 м от дна скважины. Вторым концом трос закрепляется на оголовке скважины.

Схема: подключение автоматики
Далее следует позаботиться об очистных фильтрах – их устанавливают на трубу, которая подает воду от насоса к гидроаккумулятору. В обязательном порядке используется фильтрующий прибор грубой очистки, а приборы тонкой очистки, угольные, умягчители и др. устанавливаются в зависимости от назначения воды из скважины.
Работа с гидроаккумулятором и автоматикой
Четвертый шаг – установка гидроаккумулятора и настройка автоматики. Гидроаккумулятор – обязательный компонент в системе индивидуального водоснабжения. Это обуславливается целым рядом его функций: поддержание постоянного давления воды для бесперебойного функционирования системы, защита насоса от гидроудара при его активации и деактивации, создание резервного объема воды.
По своей сути гидроаккумулятор является накопительным баком, который наполняется водой под давлением насосного оборудования. Он оснащается специальными автоматическими устройствами, которые обеспечивают запуск системы и поддерживают заданные параметры ее работы. Комплект автоматики включает в себя: датчик давления, реле и манометр. Все эти устройства подключаются к гидроаккумулятору посредством штуцера с пятью выходами: три выхода нужны для соединения гидробака с компонентами автоматики, один – для присоединения к насосу и один – для подключения к водопроводной трубе.
Укладка трубопровода
Пятый, финальный шаг – проведение трубопровода от скважины непосредственно в дом. Начинается работа с обустройства траншеи – ее выкапывают ниже глубины промерзания почвы. Траншею утрамбовывают песком и щебнем – на полученную подушку укладываются трубы от скважины.
Для обустройства трубопровода рекомендуется использовать металлопластиковые, ПВХ или полиэтиленовые трубы. Их обязательно утепляют. Для этой цели может применяться или пенопластовая скорлупа, или специальный греющий кабель – второй вариант более эффективен и надежен.
Совет. Выбирайте для трубопровода двухжильный кабель с переменным сопротивлением – он не только удобнее в эксплуатации, но и позволяет уменьшить затраты электроэнергии.
Чтобы обеспечить еще более качественную теплоизоляцию, водопроводные трубы помещают или в гофрированную, или обычную канализационную трубу увеличенного диаметра. В нее же проводят и кабель питания насоса – в последующем его подключают к коробке питания, установленной непосредственно в доме.
Трубы от скважины рекомендуется заводить в жилище через подвал, но если такой возможности нет, можно задействовать наружные стены. Но при этом трубопровод нельзя изгибать – лучше соединять отдельные участки труб с помощью специальных муфт.

Подключение внутри дома
Когда трубопровод будет проведен в дом, следует выполнить разводку труб с последующим их подключением ко всем имеющимся точкам водопотребления.
Как видим, для обеспечения автономного водоснабжения частного дома необходимо позаботиться о трех составляющих системы: скважина, оборудование и трубопровод. Скрупулезно выполнив каждый шаг по обустройству этих компонентов, вы получите индивидуальный водопровод, который будет бесперебойно удовлетворять ваши бытовые и технические потребности в чистой воде.
Система водоснабжения своими руками: видео
Водоснабжение частного дома: фото



sandizain.ru
Как провести воду в дом из колодца или скважины
Водоснабжение частного дома чаще всего делают из колодца и скважины. Для автоматической подачи применяют насосы. Их тип и производительность выбираются в зависимости от расхода воды и того, на какую высоту ее нужно поднимать. Систем частного водоснабжения существует два вида:
- с накопительным баком;
- с гидроаккумулятором.
Для бесперебойного водоснабжение частного дома со стабильным давлением и запасом воды можно поставить и накопительный бак, и гидроаккумулятор. Это — вариант для тех, кто ценит комфорт.
Система с накопительным баком
Содержание статьи
Основа такой системы — емкость для воды, которая устанавливается на значительной высоте. Если есть место, резервуар ставят на чердаке, если нет — можно построить специальную вышку или установить ее на крыше соседнего сооружения. От емкости по дому расходятся трубы, разводящие воду по точкам потребления.

Система водоснабжения частного дома с накопительным баком (из колодца или скважины — неважно)
Работает эта система так:
- Вода из колодца или скважины насосом подается в емкость, ее уровень контролируется поплавковым механизмом. При достижении порогового значения насос отключается.
- За счет того, что накопительная емкость находится выше всех точек раздачи воды, в системе создается некоторое давление. При открывании крана за счет этого давления вода поступает в точку раздачи.
- При снижении уровня воды в емкости ниже определенной отметки, включается насос, добавляя воду.
Система водоснабжения частного дома или дачи с накопительным резервуаром проста и недорога. Но есть целый ряд серьезных недостатков:
- При такой организации водоснабжения давление в системе низкое, да еще и переменное — зависит от уровня воды в емкости и количества открытых кранов. Из-за этого никакая бытовая техника работать не будет (автоматическая стиральная машина, электрический водонагреватель (бойлер), посудомойка, автономная система отопления и т.д.).
- При отказе автоматики есть реальная угроза затопить дом водой, переливающейся через край. Опасность можно уменьшить, если сделать систему аварийного слива воды. Для этого в накопительную емкость чуть выше требуемого уровня воды приваривают трубу, через которую в случае повышения уровня вытекают излишки. Трубу вывести можно в канализацию или дренажную систему, а можно — в огород. Но нужна какая-то индикация того, что воды в баке слишком много (звук льющейся воды — тоже один из сигналов).
- Емкость имеет солидные размеры, и место для нее найти не всегда легко. Как вариант — построить вышку рядом с домом, на которой расположить бак для воды.
Если на даче никакой техники не предвидеться, использовать можно и такую схему снабжения водой. Но в доме мало кого такой вариант устроит. Нужно будет рассмотреть следующий вариант.
Схема с гидроаккумулятором и насосной станцией
Эта система водоснабжение частного дома из колодца и скважины обеспечивает стабильное давление, потому можно подключать любую технику. В ее основе тоже лежит насос, но подает воду он в гидроаккумулятор, а управляется системой автоматики. Если все эти компоненты объединены в одно устройство — оно называется насосной станцией.

Схема водоснабжения частного дома с гидроаккумулятором
Гидроаккумулятор для водопровода — железный бак, разделенный эластичной мембраной (резиновой) на две части. В одной части закачан под определенным давлением газ, во вторую поступает вода. Заполняя бак вода, растягивает мембрану, сжимая газ еще больше, из-за чего в системе и создается давление.
Принцип работы системы водоснабжения с гидроаккумулятором такой:
- Насос включается, качает воду, создавая заданное давление в системе. Оно контролируется датчиками. Их два: верхнего и нижнего порога давления. При достижении верхнего порога датчик отключает насос.
- При открывании крана или расходе воды техникой происходит постепенное снижение давления в системе. При достижении нижнего порога второй датчик дает команду на включение насоса. Вода подается снова, выравнивая его.
Такая система автономного водоснабжения дает более высокий уровень комфорта. Но для ее организации требуется больше средств: насосная станция и гидроаккумулятор достаточно дорогие устройства. Кроме того, это оборудование более требовательно к качеству воды (минимум примесей) для чего должен стоять хороший фильтр. Есть требования и к трубопроводу (гладкие внутренние стенки) и к производительности насоса: вода должна подаваться постоянно, без перебоев. При использовании в качестве источника воды колодца, он должен иметь хороший дебет (вода должна поступать быстро), что не всегда возможно. Потому такие схемы чаще реализуются со скважинами.
Про то, как собирать скважинный насос, смотрите видео.
Водоснабжение частного дома из колодца и скважины: прокладка труб
Любая из описанных схем водоснабжения частного дома реализуется при помощи насоса, подающего воду к дому. При этом должен быть сооружен трубопровод, соединяющий колодец или скважину с насосной станцией или накопительным баком. Существуют два варианта укладки труб — только для летнего использования или для всесезонного (зимнего).

Участок горизонтальной трубы может находится или ниже глубины промерзания грунта или его нужно утеплять
При устройстве летнего водопровода (для дачи) трубы можно укладывать поверху или в неглубокие канавы. При этом нужно не забыть в самой нижней точке сделать кран — сливать воду перед зимой, чтобы в мороз замерзшая вода не разорвала систему. Или сделать систему разборной — из труб, которые можно скатывать на резьбовых фитингах — а это — трубы ПНД. Тогда осенью все можно разобрать, скрутить и уложить на хранения. Весной все вернуть.
Прокладка труб водоснабжения по участку для зимнего использования требует больших затрат времени, сил и денег. Даже в самые сильные морозы они не должны замерзать. И решений два:
- уложить их ниже глубины промерзания грунта;
- закопать неглубоко, но обязательно обогреть или утеплить (а можно и то, и другое).
Глубокое заложение
Глубоко закапывать водопроводные трубы имеет смысл, если он промерзает не более чем на 1,8 м. Копать придется еще на 20 см глубже, а потом на дно насыпать песок, в который укладывать трубы в защитной оболочке: они будут подвергаться солидной нагрузке, ведь сверху почти двухметровый слой грунта. Раньше в качестве защитной оболочки использовали асбестовые трубы. Сегодня есть еще пластиковый гофорорукав. Он дешевле и легче, проще укладывать в него трубы и придавать нужную форму.

При укладке трубопровода ниже глубины промерзания приходится копать глубокую траншею длинной на всю трассу. Зато водоснабжение частного дома из колодца и скважины не будет замеразть зимой
Хоть подобный метод требует больших затрат труда, его используют, потому что он надежен. Во всяком случае, участок водопровода между колодцем или скважиной и домом стараются уложить именно ниже глубины промерзания. Трубу выводят через стенку колодца ниже глубины промерзания грунта и в траншее ведут под дом, там поднимают выше. Самое проблемное место — выход из земли в дом, можно дополнительно подогревать электрическим греющим кабелем. Он работает в автоматическом режиме поддерживая заданную температуру нагрева — работает только в том случае, если температура ниже заданной.
При использовании в качестве источника воды скважины и насосной станции, устанавливают кессон. Его закапывают ниже глубины промерзания грунта, в нем же ставят оборудование — насосную станцию. Обсадную трубу обрезают так, чтобы она была выше дна кессона, и трубопровод выводят через стенку кессона, тоже ниже глубины промерзания.

Прокладка труб водоснабжения в частном доме из скважины при устройстве кессона
Закопанный в земле водопровод сложно ремонтировать: придется окапывать. Потому постарайтесь заложить цельную трубу без стыков и сварных швов: именно они дают больше всего проблем.
Близко к поверхности
При неглубоком заложении земляных работ меньше, но в этом случае имеет смысл сделать полноценную трассу: траншею выложить кирпичом, тонкими бетонными плитами и т.п. На этапе строительства затраты значительные, но эксплуатация удобная, ремонт и модернизация — без проблем.
В этом случае трубы водоснабжения частного дома из колодца и скважины поднимаются до уровня траншеи и там выводятся. Укладываются они в теплоизоляции, предотвращающей их замерзание. Для страховки их можно еще и греть — использовать греющие кабели.
Один практический совет: если от погружного или скважинного насоса к дому идет кабель электропитания, его можно упрятать в защитную оболочку из ПВХ или др. материала, а потом прикрепить к трубе. Крепят через каждый метр куском скотча. Так вы будете уверены, что электрическая часть у вас в безопасности, кабель не перетрется и не порвется: при подвижках грунта нагрузка будет на трубе, а не на кабеле.
Герметизация входа в колодец
При организации водоснабжение частного дома из колодца своими руками, обратите внимание на заделку места выхода водопроводной трубы из шахты. Именно отсюда чаще всего грязная верховодка попадает внутрь.

Важно выход водопроводной трубы их шахты колодца хорошо загерметизировать
Если отверстие в стенке шахты ненамного больше диаметра трубы, щель можно заделать герметиком. Если зазор большой, его замазывают раствором, а после высыхания промазывают гидроизолирующим составом (битумной пропиткой, например или составом на основе цемента). Промазать желательно и снаружи и изнутри.
Из чего состоит
Источник воды и ввод его в дом — далеко не вся система водоснабжения. Нужны еще фильтры. Первая, грубая фильтрация происходит еще в точке всасывания. В таком виде ее можно использовать для технических целей, например, завести в туалет. Но даже для полива неочищенную воду можно подавать далеко не в каждом случае, а в душ или на кухню — тем более. Потому водоснабжение частного дома из колодца и скважины включает в себя еще и систему фильтров.

План водоснабжения частного дома из колодца
Обратите внимание: на рисунке есть три ступени фильтрации:
- на всасывающей трубе — сетчатый фильтр;
- перед входом в насос — фильтр грубой очистки;
- перед подачей в дом — фильтр тонкой очистки.
На каждой из ступеней фильтр (или фильтры) подбирается в зависимости от воды. Ее качество определяется в лаборатории. На основании химического состава и подбирается оборудование для очистки.
Автономное водоснабжение
Всем хороши системы с насосными станциями, кроме того момента, что для их работы требуется электричество. Запас воды есть, но он равен объему гидроаккумулятора, а он не больше 100 литров. Такого количества надолго не хватит. Если вам нужен резервный запас хотя-бы на день или больше, лучше всего закачивать воду сначала в накопительный бак, а из него подавать на вход насосной станции. Такая же система хорошо работает и в случае, если ваш дом подключен к централизованному водопроводу, но в нем давление очень низкое или вода подается по часам.

Как собрать автономное водоснабжение частного дома своими руками
В представленной на фото схеме нет только аварийного перелива. Это трубопровод, выходящий из накопительного бака чуть выше максимального уровня воды. Он выводится в канализацию. По нему стекают излишки воды в случае неполадок с поплавковым механизмом. Если его не установить, можно залить дом.
Если вам необходимо резервное водоснабжение частного дома на случай отключения электроэнергии, накопитель нужно устанавливать наверху, выше всех точек водоразбора. Тогда при отключении электрики вода будет в трубы подаваться самотеком. Душ вы принять не сможете, но в кранах она будет. Это будет бесперебойное водоснабжение частного дома в любых условиях.
stroychik.ru
как сделать и провести систему водоснабжения своими руками. Как правильно выбрать насос и гидроаккумулятор
Одним из главных элементов благоустройства частного дома является водопровод. Независимо от того, когда прокладывается система водоснабжения — на этапе закладки фундамента или во время капитального ремонта здания, к этапу проектирования необходимо подходить с полной ответственностью. Как правильно провести водопровод в доме, с чего начать и какие материалы использовать, давайте разберемся.
Какие бывают скважины
Прежде чем приступить к реализации автономного водоснабжения, нужно выяснить источник подачи воды и методы его обустройства.
Скважина на песок
Скважина на песок считается более финансово экономичным, бюджетным вариантом. Она представляет собой источник, глубина которого достигает первого песчаного слоя. Подобный вид водозабора позволяет получить чистую и прозрачную воду, так как водоносные слои располагаются после суглинистых, фильтрующих водные ресурсы.
Скважина зачастую используется в тех случаях, когда залегание водного слоя достигает 40 м.
К ее основным плюсам можно отнести:
- относительно короткое время бурения. Скважину можно сформировать всего за 1-2 дня в зависимости от используемой техники и необходимой глубины;
- дешевизна. Невысокая стоимость скважины на песок, по сравнению с артезианской, объясняется малой глубиной водозабора;
- отсутствие необходимости оформлять документацию на проведение работ.
Процесс бурения скважины на песок состоит из следующих мероприятий:
- забор водных ресурсов на пробу;
- получение документов о качестве почвы и глубине нахождения воды;
- бурение шахты скважины;
Важно! Рекомендуется бурить шахту вручную, так как механизированный метод предполагает выполнение работ на установленной глубине. Это может привести к тому, что водяной источник останется выше дна скважины.
- укрепление водозабора трубами;
- обустройства фильтра на дне. Для фильтрующего элемента отлично подойдет гравий, который располагают на дне скважины;
- настройка насосного агрегата и систематическое откачивание воды.
Скважина на песок является оптимальным решением при ограниченном бюджете, малой площади земельного участка и небольшом числе точек водоразбора.
Скважина на известняк
Артезианский водозабор (скважина на известняк) считается более дорогим, так как бурение производится на значительных глубинах.
Его ключевым преимуществом является то, что работы можно проводить практически в любых местах, при этом известняковый слой изолирован от грунтовых вод и позволяет получить воду, не нуждающуюся в дополнительном очищении.
Также к ключевым достоинствам артезианской скважины относят:
- длительный срок эксплуатации, около 50 лет;
- отсутствие спецобслуживания;
- отсутствие надобности монтажа спецфильтра;
- возможность обслуживания сразу нескольких жилых объектов;
- практически неограниченные запасы воды.
Что касается минусов, то здесь отмечается высокая стоимость бурения, поскольку технология довольно сложная, требует спецтехники и профессиональных навыков.
Знаете ли вы? Согласно законодательству, артезианская вода является государственным стратегическим запасом. Это обозначает, что на проведение водозабора такого типа необходимо получить соответствующие разрешения.
Бурение артезианской скважины осуществляется механизированным методом: роторным, шнековым, колонковым или ударно-канатным. Способ будет зависеть от условий эксплуатации скважины, типа почвы, местности.
Необходимое оборудование и конструкции
Если в качестве автономного водоснабжения используется скважина, тогда для обустройства водопровода необходимо, кроме труб, специальное оборудование: погружной или поверхностный насос, фильтры для грубой и тонкой очистки, аппараты для раздачи воды.
Насос
Место для установки водоснабжающей техники во многом зависит от характера скважины:
- неглубокая — для нее идеальным вариантом считается поверхностный насос;
- глубокая — используют погружной насос.
Видео: как выбрать насосное оборудование
Поверхностный тип наноса более дешевый, он простой в установке, неприхотлив в обслуживании. Наиболее оптимальным вариантом является насосная станция «3 в 1», в конструкцию которой входит поверхностный насос, мембранный бак и соответствующие автоматические элементы.
В скважину опускается только шланг, всасывающий воду. Это существенно упрощает обустройство водозабора и техобслуживание насоса.
Аналогичные насосные станции обладают одним очень существенным минусом — маленькая высота подъема воды. Помпа устройства способна поднять воду с небольшой глубины до 10 м.
Из-за этого насосные станции приходится располагать как можно ближе к самой скважине. В противном случае придется использовать дополнительные агрегаты, чтобы преодолеть гидросопротивление от источника.
Для того чтобы выбрать поверхностный насос, учитывают следующие параметры:
- глубина залегания вод;
- высота водных ресурсов в шахте;
- высота точки водоразбора;
- объем потребляемых ресурсов.
Погружной насос применяется, когда необходимо поднимать воду с глубины более 10 м. Он оснащен специальной автоматикой, посредством которой обеспечивается подача воды из дома. В данном случае нет ограничений по месту установки техники. Бак и устройство управления станцией разрешается монтировать в любом месте от устья скважины. Специалисты рекомендуют выбирать сухое, чистое техпомещение в доме или подвале. 
Гидроаккумулятор
Несмотря на то что гидроаккумулятор не является обязательным элементом при организации водопровода, его используют практически повсеместно. Агрегат дает возможность постоянно поддерживать давление в системе на необходимом уровне, при том что насосное оборудование функционирует не постоянно.
Гидроаккумулятор — это бак, который разделен на две части мембраной. Основная задача агрегата заключается в поддержании и плавном изменении давления воды в системе. В одной части бака находится воздух, во второй — определенный запас воды, в зависимости от объема (10-1000 л).
Когда объем жидкости падает до установленного минимального значения, автоматически включается насос, который восполняет нехватку воды.
Можно гидроаккумулятор не устанавливать, в таком случае накопительный бак следует расположить в самой высокой точке объекта. Но нужно понимать, что подобная конструкция не способна обеспечить постоянное давление в системе, и вода будет подаваться без желаемого напора, самотеком.
Кроме этого, отсутствие гидроаккумулятора не сможет обеспечить полноценную работу другой технике, к примеру, стиральной или посудомоечной машине.
Система фильтров
Система фильтрации также не является обязательным атрибутом водоснабжения. Однако, с практической стороны и с точки зрения безопасности водных ресурсов домовладельцы не отказываются устанавливать такое оборудование.
В большинстве случаев вода, поступающая из скважины, загрязнена различными механическими примесями и нуждается хотя бы в минимальной очистке. В таких случаях профессионалы рекомендуют воспользоваться фильтрами грубого очищения.
Чтобы максимально повысить уровень защищенности бытовых приборов и системы водоснабжения, следует выяснить состав и характер примесей в жидкости. Для этого осуществляют забор воды, которую относят и проверяют в лабораториях. Развернутый анализ показывает, какие фильтры необходимы для данного водопровода.
Видео-обзор системы фильтров для очистки воды из скважины
Система водоочистки представляет собой комплект фильтров, которые специально подобраны согласно результатам исследований состава воды. Система фильтрации монтируется после установки гидроаккумулятора. Используют два вида фильтров:
- первый монтируется на краю трубы, которая помещена в скважину. Он позволяет очистить жидкость от грубых механических загрязнений;
- второй устанавливается в доме. Он представляет собой набор специализированных фильтров с многоступенчатой фильтрацией.
Устанавливать фильтры тонкой очистки или систему обратный осмос в подобных случаях нецелесообразно. Такие агрегаты монтируются на кухнях, где необходимо получить хорошую, качественную питьевую воду.
Знаете ли вы? Вода является переносчиком 85% всех заболеваний в мире. Ежегодно 25 млн человек умирает от этих заболеваний.
Кессон
Если нет места или возможности устанавливать узел водоснабжения в помещении, используют кессон — подземный колодец (специальная емкость) из надежного материала, который монтируют над скважиной.
Кессон не загромождает участок, не занимает полезную площадь, он позволяет защитить водозабор от проникновения паводковых вод или его затопления после обильных атмосферных осадков.
Традиционный кессон имеет простую конструкцию. В продаже есть заводские емкости, полностью готовые к работе. Нужно только отрыть котлован и опустить емкость на необходимую глубину.
Кессон оборудован всеми нужными отверстиями для коммуникаций, требуется через герметичные манжеты вывести в них трубы, кабель и т. п. Магазинные кессоны производят из пластика либо из стали.
Можно построить подземный колодец своими силами. Он обойдется намного дешевле, но потребует немало физических усилий и времени. Самым простым вариантом является использование колец для колодца, которые вкапываются в землю и накрываются сверху люком.
Дно резервуара необходимо забетонировать, а самой конструкции обеспечить надежную гидроизоляцию, используя специальную мастику или битумный материал.
Сформировать кессон своими руками также можно из кирпича, блоков, бетона. Отлично подойдет в качестве колодца стальная бочка.
Необходимые материалы и инструменты
Монтаж водопровода невозможно представить без применения специальных материалов: труб и фитингов (соединительных частей). Для разводки могут применяться такие виды труб:
- медные — долговечные, очень надежные, не боятся коррозии, устойчивы к ультрафиолетовым излучениям, антибактериальные, равнодушны к перепадам температур и высоким нагрузкам. Их единственным существенным недостатком считается высокая стоимость;

- стальные — прочные, надежные, долговечные, но при длительном воздействии воды ржавеют. Кроме этого, такой водопровод требует немалых усилий при организации;

- пластиковые (полипропиленовые) — долговечны, просты в установке, обладают небольшим весом, не протекают, не поддаются коррозии, сравнительно дешевые;

- металлопластиковые — просты в монтаже, препятствуют скапливанию отложений и появлению ржавчины, но достаточно чувствительны к высоким и низким температурам, ломаются при сгибании.

Пластиковые трубы не боятся коррозии, не протекают, легко поддаются нужной форме, стоят намного дешевле металлопластиковых или медных. Срок эксплуатации такого водопровода составляет около 50 лет.
Для герметичного и прочного соединения элементов системы потребуется специальная запорная арматура: вентили, фитинги, сантехнические аксессуары. Фитинги — соединительные уголки, тройники, переходники, следует выбирать из того же материала, что и труба.
Важно! Запорная арматура должна быть высочайшего качества, проверенных и надежных производителей. Не стоит экономить на ней, так как хорошая арматура предотвратит разрыв системы и ее протекание.
К сантехнике относят сливные бачки, смесители (краны), сифоны. Профессионалы также не советуют экономить на данных приборах.
Из инструментов при установке водопровода понадобится паяльник или утюг, с помощью которого выполняется спайка пластиковых изделий. Купить его можно в любом строительном магазине, стоит он недорого.
Технология создания водопроводной системы
Перед тем как непосредственно приступить к созданию водопроводной системы, рекомендуется продумать схему водоснабжения, в которой отметить основные узлы, водозаборные точки и другие отдельные элементы.
Прокладка водопровода «дом — скважина»
Прокладка системы водопровода начинается с разводки труб, которые необходимо подвести ко всем требуемым местам, то есть потребителям. Движение начинается с источника, в роли которого выступает скважина.
Видео: как обустроить скважину и ввод водопровода в дом
Подводка труб осуществляется ниже уровня промерзания почвы, по песчаному основанию.
Важно! Если трубопровод прокладывается на границе промерзания грунта, тогда следует обернуть трубы утеплительным материалом, чтобы избежать замерзания водных ресурсов в зимний период.
В качестве труб отлично подойдут изделия из полипропилена, с внутренним диаметром от 3 см. В том случае если водопровод длинный, трубы соединяют раструбными хомутами подходящей формы: угловыми, прямыми, треугольными и т. п.
Трубу посредством хомута или переходника на резьбу, нужно присоединить к насосу. Далее от источника проводится прокладка труб к дому, до гидроаккумулятора.
Схема проведения труб выполняется одним из методов:
- Последовательное соединение. Такой метод отлично подходит для небольших домов с количеством жильцов 2-3 человека. Принцип работы схемы простой: водные ресурсы поступают по основной трубе в дом, а рядом с каждой водоразборной точкой (краном, смесителем) устанавливается тройник, который направляет воду к потребителю. Существенным минусом такого монтажа является очень низкое давление воды при открытии сразу нескольких кранов.
- Коллекторное присоединение. Его суть заключается в том, что трубы прокладываются от коллектора к каждой отдельной точке. В таком случае давление воды для кранов будет практически одинаковым.
Оптимальным вариантом разводки труб считается второй. Несмотря на то что обойдется он немного дороже, однако позволит получить хороший, качественный поток водных ресурсов нужного напора.При выполнении разводки труб рекомендуется придерживаться несколько основных правил:
- Трубы проводятся, минуя все стройконструкции. Если совершить это невозможно, тогда они должны проходить через стену по специальному стакану.
- Все детали системы в доме нужно проводить таким образом, чтобы они находились на некотором расстоянии от стен. Это даст возможность при необходимости облегчить процедуру ремонта.
- Если осуществляется обход наружных углов, тогда трубу следует проводить на расстоянии 1,5 см от него, при обходе внутренних углов — на расстоянии 4 см.
- Фиксировать элементы трубопровода рекомендуется при помощи специальных одинарных или двойных клипс.
Видео: достоинства и недостатки разводки труб тройниками или коллектором
Как говорилось выше, соединение полипропиленовых труб водопровода проводится при помощи паяльника.
Монтаж кессона
Для монтажа кессона следует предварительно приготовить углубление. Для этого вокруг скважины выкапывают яму до 2 м глубиной и шириной приблизительно 1,5 м, в зависимости от габаритов используемой емкости. Если во время земляных работ яма наполняется водой, то ее углубляют еще на несколько сантиметров и параллельно с этим выкачивают жидкость.
В результате должна получиться яма, внутри которой расположена обсадная труба. На дне кессона нужно вырезать отверстие, диаметр которого равняется диаметру трубы.
Затем емкость следует опустить в яму, придерживаясь центра, после чего обсадную трубу можно обрезать и приварить к дну кессона с помощью электрической сварки.
Видео: как проводится монтаж кессона
К получившейся конструкции рекомендуется вмонтировать трубу для выведения водных ресурсов и установить электрокабель насоса.
Кессон следует засыпать грунтом, оставив на поверхности только люк, требуемый для входа в середину конструкции.
Подключение насоса
Следующим этапом проведения водопровода является установка и подключение насоса. Они происходят по такому алгоритму:
- перед монтажом насоса нужно тщательно прочистить скважину, пока вода не перестанет давать осадок;
- в скважину приблизительно на расстоянии 1 м от дна источника нужно разместить насос, при этом он должен находиться целиком в воде;
- вместе с этим необходимо осуществить установку ПВХ трубы, по которой вода подается наверх, и кабеля, требуемого для управления работой насоса;
- после монтажа насоса следует осуществить установку пускозащитного прибора и обратного клапана;
- завершающим этапом является регулировка давления в баке. Показатель давления должен равняться 0,9 от давления при включении.
Видео: выбор, обвязка и установка насоса в скважину своими руками
Осуществив установку насоса, можно производить монтаж оголовка, функцией которого является защита устья источника от попадания инородных предметов.
Установка гидроаккумулятора
Установка гидроаккумулятора позволяет гарантировать бесперебойную подачу водных ресурсов в водопроводе. Принцип функционирования системы несложный: после включения насоса пустой бак начинает наполняться водой.
При открывании крана в доме вода поступает не из скважины напрямую, а из бака гидроаккумулятора.
По мере того как будут расходоваться водные ресурсы, насос автоматически включается и пополняет нехватку воды.
Установку агрегата следует осуществлять таким образом, чтобы в будущем можно было легко до него добраться, провести ремонт или замену элементов.
Видео о том, как установить гидроаккумулятор
В месте монтажа гидроаккумулятора, по направлению движения воды, нужно установить обратный клапан. Кроме этого, до и после проведения установки рекомендуется вмонтировать дренажный кран, требуемый для слива воды.
В конце работ нужно прочно закрепить аккумулятор посредством резинового уплотнителя. Это защитит его, а также снизит уровень вибрации.
Тестирование системы
После окончания всех строительных работ необходимо провести тестирование системы на прочность, целостность и герметичность. Для этого необходимо систему наполнить водой и выдержать около двух часов.
По истечении заданного времени следует на протяжении 30 минут дважды, с интервалом в 10 минут, повысить рабочее давление в полтора раза.
При этом рабочее давление составляет 0,6 МПа (для измерения показателя давления используют манометр). Далее воду необходимо слить из системы и произвести тщательный осмотр труб на целостность, наличие протечек и т. п.
Видео: тестирование системы водопровода
Если трубопровод находится в идеальном состоянии, его можно допускать к эксплуатации.
Проведение системы водопровода своими руками — процесс сложный, ответственный, но вполне под силу каждому, кто наберется минимальных знаний и навыков в данной сфере. В процессе работы главное — придерживаться всех инструкций и соблюдать меры осторожности. А если возникают сомнения в своей квалификации, тогда организацию водопровода лучше поручить профессионалам.
Была ли эта статья полезна?
Спасибо за Ваше мнение!Напишите в комментариях, на какие вопросы Вы не получили ответа, мы обязательно отреагируем!
Вы можете посоветовать статью своим друзьям!
Вы можете посоветовать статью своим друзьям!
Да
Нет
12
раз уже
помогла
agronomu.com
Водоснабжение частного дома: схема с гидроаккумулятором
Создание для пользователя максимально комфортного окружения – основная цель любого жилищного обустройства. Если говорить о частных домах, то главная сложность в достижении этой цели – отсутствие централизованной подачи воды. В таких случаях отлично подойдет схема водоснабжения частного дома с гидроаккумулятором из колодца или скважины.
Краткое содержание статьи:
Назначение и виды гидроаккумуляторов
Гидроаккумулятор (гидропневмобак) выступает важнейшей частью автономного водопровода. Прибор, зачастую, для своей работы использует энергию сжатого воздуха. Существуют также пружинные и механические модели, но в автономных системах дач или частных домов они практически не встречаются.

Конструктивно гидроаккумулятор предоставляет собой герметичную металлическую емкость (бак), разделенную на две части: эластичную камеру (грушу) для воды и окружающую ее воздушную прослойку. Таким образом, вода внутри гидрокамеры не контактирует со стенками бака, что позволяет избежать коррозии его стальной оболочки. Применяемый для изготовления груши высокопрочный бутил отвечает санитарным требованиям по хранению питьевой воды. Закачка/отбор жидкости осуществляется через резьбовой патрубок, сообщающийся с рабочим объемом эластичной гидрокамеры.
Воздушное отделение гидроаккумулятора оснащено пневмоклапаном, позволяющим регулировать давление (нормальный показатель – 1,5-2 атм.). Гидробаки от 100 л оснащаются еще одним клапаном для отвода выделяющегося из воды воздуха.
Не путайте с расширительным баком
Внешне гидроаккумулятор напоминает расширительный бак для систем отопления, устанавливаемый в контурах закрытого типа. Он нивелирует изменение объема нагревающейся/охлаждающейся жидкости. Основные отличия между этими устройствами – материал изготовления мембраны и специфика устройства внутренних камер.

В отличии от гидроаккумулятора, в котором резиновая «груша» помещена в емкость с водой, расширительный бак разделен на две части эластичной перегородкой. Одна часть заполняется теплоносителем, другая – воздухом. Если включить расширительный бак в водопроводный контур, то на выходе из крана потребитель будет получать ржавую воду, из-за её непосредственного контакта с металлическими стенками. Различаются также характеристики внутренних мембран. В расширительном баке они рассчитаны на нагрев до +900С и выше при небольшом колебании давления. Гидроаккумуляторная мембрана способна переносить регулярные перепады давления, но при температуре жидкости не выше +300С.
Читайте также: Проектирование сетей водоснабжения и канализации
Классификация гидроаккумуляторов
Она осуществляется по следующим критериям:
- Тип установки. Различают вертикальные и горизонтальные приборы: они работают по идентичному принципу. Отличает их только способ отвода воздуха из водяной камеры. В моделях вертикальной ориентации газ скапливается в верхней части мембраны. Его стравливают посредством дополнительного клапана. Горизонтальные устройства для этого оснащены дополнительным модулем (слив, ниппель и шаровой кран). При выборе установочного типа гидробака ориентируются на особенности помещения, в котором планируется его размещение.

- Внутренняя конструкция. Различают поршневые, балонные и мембранные устройства.

- Объем бака. На рынке сантехнического оборудования представлены модели объемом 2-500 л. Для квартиры достаточно 24-50 л. Обширную дачу или загородный дом рекомендуется оснащать емкостями на 80-100 л.

Преимущества использования гидроаккумуляторов в схемах водоснабжения
Гидропневмобак решает ряд проблем:
- Защищает насос от износа. Он не включается для поддержания давления в системе при каждом открытии водяного крана, так как вода расходуется из запасов гидробака. Это значительно увеличивает продолжительность безремонтной эксплуатации насоса.
- Обеспечивает стабильность давления в трубах. Для автономных систем это крайне важно, т.к. напор в них постоянно колеблется при одновременном открытии нескольких кранов. Помимо нагрузок на трубы, это приводит к перепадам температуры воды. Например, принимать душ в таких условиях не очень комфортно.
- Предохраняет от гидроударов. Без промежуточной емкости между точкой водозабора и домовой системой каждое включение насоса провоцирует гидроудар (основная причина порывов труб).
- Создает стратегический запас воды на случай перебоев с подачей электроэнергии. Это особенно актуально для домовладельцев, проживающих в отдаленных местностях.
Как работает гидроаккумуляторный узел
Цикл работы схемы водоснабжения с накопительным мембранным баком выглядит так:
- Вода из скважины или колодца посредством насоса нагнетается внутрь эластичной гидрокамеры. Увеличиваясь в размерах, груша давит на воздух внутри бака – его объем уменьшается, а давление увеличивается.
- По достижению давлением пороговой величины происходит срабатывание специального реле. Оно прерывает подачу электроэнергии, отключая питание насоса.
- По мере отбора воды, реле вновь активирует работу насоса, когда достигается нижняя пороговая установка по давлению. Далее цикл повторяется.
В работе гидроаккумуляторного узла участвуют следующие элементы:
- Насос (поверхностный или погружной). Поверхностные устройства монтируются возле точки водозабора, с отбором жидкости через всасывающую магистраль (шланг или стационарную трубу). Создаваемого поверхностной помпой давления 1,5-3 атм. хватает для работы посудомоечной или стиральной машины. Центробежные поверхностные насосы в состоянии поднимать воду с глубины до 8-9 м. Если зеркало водозабора находится дальше, то используются погружное (глубинное) водоподъемное оборудование.

- Реле. Контролирует комфортный для людей и бытовой техники диапазон давления в системе – 1,4-2,8 атм. Реле давления бывают механическими или электронными. Бытовые схемы часто комплектуют недорогими механическими моделями отличающиеся простотой и надежностью. Там же, где важна точность срабатывания, применяют электронные приборы.
- Манометр. Служит для визуального контроля давления. Обычно манометр устанавливают рядом с реле.
- Запорная арматура. Краны или вентили используются для отсечек входящих/исходящих от насоса водопроводных линий, а также самого гидроаккумулятора во время проведения ремонтов или профилактик узла.
Читайте также: Водоснабжение частного дома
Схема водоснабжения частного дома из колодца с гидроаккумулятором
Если на приусадебном участке есть колодец, воду отбирают из него. Главное, чтобы гидросооружение имело достаточный запас воды и располагалось в удалении от источников загрязнений. Преимущество колодца перед скважиной в том, что в случае перебоев с электроснабжением на помощь домовладельцу приходят «классические» ведро и веревка.
Схему водоснабжения на даче с гидроаккумулятором из колодца можно разделить на четыре условные части:

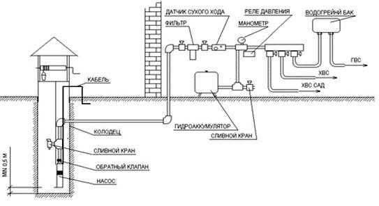
- Насос. В колодцах глубиной свыше 9 м используют погружные насосы. Их подвешивают на тросах с таким расчетом, чтобы до дна оставалось не менее 50 см. Кроме манометра и реле давления, для обеспечения безопасности работы насоса рекомендуется использовать датчик сухого хода.
- Труба для подачи воды в дом. Присоединяется к насосу. Траншею под трубу выкапывают ниже уровня промерзания почвы.
- Гидроаккумулятор. Объем бака рассчитывают исходя из количества потребителей.
- Домовая разводка. Распределяет подачу воды в нужные точки жилища. Центром системы может выступать, например котельная, в которой также размещают гидроаккумулятор и водонагреватель. Отсюда трубы разводки уходят в другие помещения – ванную, санузлы, кухню и т.п.
Комплектация системы внутри дома зависит от нужд семьи. Так, если дача эксплуатируется в зимнее время, то в схему включают отопительный котел. Готовый проект системы облегчает составление сметы монтажных работ и определение стоимости комплектующих.
Сборка схемы водопровода из колодца
Перед установкой насоса колодец желательно отремонтировать и утеплить. Работы предусматривают герметизацию швов, обустройство донного фильтра и внешней защиты (дренажа и теплоизоляции). Линию от насоса к дому обустраивают из полипропиленовых или полиэтиленовых труб для наружной эксплуатации диаметром не менее 32 мм.
Схема водоснабжения внутри дачи бывает последовательной и параллельной. Первый вариант подойдет для построек с 2-3 точками водозабора. В других случаях лучше выбирать параллельную разводку с коллектором. Она обеспечивает равное давление во всех точках водопотребления. Вместо стальных труб для внутренней разводки сейчас используют металлопластиковые или пропиленовые изделия. Диаметр труб для домовой разводки 16-25 мм. Он зависит от длины их участков, а также интенсивности водоразбора.

После захода в дом подающую трубу коммутируют к гидроаккумулятору (реле давления врезается перед накопительным баком). За ним ставиться тройник с запорной арматурой и манометром. Один из патрубков тройника служит подачей на котел, второй – на коллектор холодной воды.
Система может комплектоваться фильтрами:
- грубой очистки (обязательно) – после ввода подающей магистрали в дом;
- тонкой очистки – после гидроаккумулятора до раздачи на системы холодной и горячей воды;
- углубленной очистки в зависимости от специфики местных условий (угольные, ионообменные, обратного осмоса) – перед точками питьевого водоразбора или бытовой техникой (стиральной машиной, котлом и т.д.).
Читайте также: Водоснабжение из колодца
Схема водоснабжения частного дома от скважины с гидроаккумулятором
Данная система похожа на предыдущую. Состоит из точки водозабора, подающей трубы, гидроаккумулятора и внутренней разводки. Однако есть некоторые отличия. Устье скважины для защиты от замерзания часто оснащают пластиковым либо стальным кессоном. В нем же допускается установка гидроаккумулятора (если скважина расположена недалеко от дома). Насосы в данном случае используются погружные (лучше выбирать модели со встроенной защитой против холостого хода).
Современные схемы водоснабжения из скважины обязательно содержат комплект автоматики. Он позволяет корректировать и наблюдать за работой водозаборного узла.
Минимальный комплект включат в себя:
- Реле давления с манометром – поддерживает нужное давление в гидроаккумуляторе.
- Выключатель поплавкового типа – прекращает подачу электричества на насос, если скважина обмелеет.
- Защиту от сухого хода – отключает мотор при отсутствии воды в помпе.
На рынке автоматика представлена в нескольких разновидностях. Для самостоятельного монтажа удобнее использовать устройства первого поколения, как наиболее простые и с доступной ценой. Практическая схема водоснабжения дома из скважины с гидроаккумулятором указана на фото ниже.

Как настраивать и обслуживать гидроаккумулятор
Чтобы гидроаккумулятор работал нормально, он нуждается в правильной настройке. Оптимальной считается ситуация, когда давление в воздушной полости на 10% уступает нижнему порогу реле (порогу запуска насоса). Признаком того, что пороговая установка нуждается в корректировке, служит сокращение цикла заполнения гидробака водой.
Подкачку или стравливание воздуха осуществляют через соответствующий ниппель на корпусе гидропневмобака. Перед началом настройки из мембраны спускают воду и обесточивают насос. Процесс обезвоживания контролируют по манометру системы. Для подкачки воздуха внутрь пневматической полости используют компрессор со специальной насадкой либо автомобильный насос (ручной, электрический).
Обслуживание гидроаккумулятора включает в себя следующие периодические операции:
- Проверку и восстановление нормативного давления (оно указано на баке). Согласно с рекомендациями производителей делать это нужно 2-3 раза в год. В противном случае, нагрузки на резиновую мембрану со стороны жидкости вырастут, и она выйдет из строя (порвется).
- Определение участков утечки воздуха. Для этого места соединений обмазывают мыльным раствором, пузыри которого указывают на места пропусков. Особое внимание уделяется ниппелю и фланцу.
- Ежемесячное тестирование нижнего и верхнего порога реле, корректируемые при необходимости.
- Визуальный осмотр корпуса на предмет механических повреждений и следов коррозии.
- Проверку целостности эластичной мембраны. При необходимости, ее заменяют.
В заключение
Водоснабжение частного дома с гидроаккумулятором и реле давления демонстрирует эффективность и практичность. В системе поддерживается стабильная температура и напор воды, что есть залогом удобства и безопасности. Кроме того, увеличивается срок службы насоса: он включается не так часто, как в контурах без гидроаккумулятора.
www.project-home.ru
Водоснабжение частного дома из колодца и скважины, с накопительным баком, гидроаккумулятором, автономное, резервное, схемы
Водоснабжение частного дома чаще всего делают из колодца и скважины. Для автоматической подачи применяют насосы. Их тип и производительность выбираются в зависимости от расхода воды и того, на какую высоту ее нужно поднимать. Систем частного водоснабжения существует два вида:
- с накопительным баком;
- с гидроаккумулятором.
Для бесперебойного водоснабжение частного дома со стабильным давлением и запасом воды можно поставить и накопительный бак, и гидроаккумулятор. Это — вариант для тех, кто ценит комфорт.
Система с накопительным баком
Основа такой системы — емкость для воды, которая устанавливается на значительной высоте. Если есть место, резервуар ставят на чердаке, если нет — можно построить специальную вышку или установить ее на крыше соседнего сооружения. От емкости по дому расходятся трубы, разводящие воду по точкам потребления.
Система водоснабжения частного дома с накопительным баком (из колодца или скважины — неважно)
Работает эта система так:
- Вода из колодца или скважины насосом подается в емкость, ее уровень контролируется поплавковым механизмом. При достижении порогового значения насос отключается.
- За счет того, что накопительная емкость находится выше всех точек раздачи воды, в системе создается некоторое давление. При открывании крана за счет этого давления вода поступает в точку раздачи.
- При снижении уровня воды в емкости ниже определенной отметки, включается насос, добавляя воду.
Система водоснабжения частного дома или дачи с накопительным резервуаром проста и недорога. Но есть целый ряд серьезных недостатков:
- При такой организации водоснабжения давление в системе низкое, да еще и переменное — зависит от уровня воды в емкости и количества открытых кранов. Из-за этого никакая бытовая техника работать не будет (автоматическая стиральная машина, электрический водонагреватель (бойлер), посудомойка, автономная система отопления и т.д.).
- При отказе автоматики есть реальная угроза затопить дом водой, переливающейся через край. Опасность можно уменьшить, если сделать систему аварийного слива воды. Для этого в накопительную емкость чуть выше требуемого уровня воды приваривают трубу, через которую в случае повышения уровня вытекают излишки. Трубу вывести можно в канализацию или дренажную систему, а можно — в огород. Но нужна какая-то индикация того, что воды в баке слишком много (звук льющейся воды — тоже один из сигналов).
- Емкость имеет солидные размеры, и место для нее найти не всегда легко. Как вариант — построить вышку рядом с домом, на которой расположить бак для воды.
Если на даче никакой техники не предвидеться, использовать можно и такую схему снабжения водой. Но в доме мало кого такой вариант устроит. Нужно будет рассмотреть следующий вариант.
Схема с гидроаккумулятором и насосной станцией
Эта система водоснабжение частного дома из колодца и скважины обеспечивает стабильное давление, потому можно подключать любую технику. В ее основе тоже лежит насос, но подает воду он в гидроаккумулятор, а управляется системой автоматики. Если все эти компоненты объединены в одно устройство — оно называется насосной станцией.
Схема водоснабжения частного дома с гидроаккумулятором
Гидроаккумулятор для водопровода — железный бак, разделенный эластичной мембраной (резиновой) на две части. В одной части закачан под определенным давлением газ, во вторую поступает вода. Заполняя бак вода, растягивает мембрану, сжимая газ еще больше, из-за чего в системе и создается давление.
Принцип работы системы водоснабжения с гидроаккумулятором такой:
- Насос включается, качает воду, создавая заданное давление в системе. Оно контролируется датчиками. Их два: верхнего и нижнего порога давления. При достижении верхнего порога датчик отключает насос.
- При открывании крана или расходе воды техникой происходит постепенное снижение давления в системе. При достижении нижнего порога второй датчик дает команду на включение насоса. Вода подается снова, выравнивая его.
Такая система автономного водоснабжения дает более высокий уровень комфорта. Но для ее организации требуется больше средств: насосная станция и гидроаккумулятор достаточно дорогие устройства. Кроме того, это оборудование более требовательно к качеству воды (минимум примесей) для чего должен стоять хороший фильтр. Есть требования и к трубопроводу (гладкие внутренние стенки) и к производительности насоса: вода должна подаваться постоянно, без перебоев. При использовании в качестве источника воды колодца, он должен иметь хороший дебет (вода должна поступать быстро), что не всегда возможно. Потому такие схемы чаще реализуются со скважинами.
Про то, как собирать скважинный насос, смотрите видео.
Водоснабжение частного дома из колодца и скважины: прокладка труб
Любая из описанных схем водоснабжения частного дома реализуется при помощи насоса, подающего воду к дому. При этом должен быть сооружен трубопровод, соединяющий колодец или скважину с насосной станцией или накопительным баком. Существуют два варианта укладки труб — только для летнего использования или для всесезонного (зимнего).
Участок горизонтальной трубы может находится или ниже глубины промерзания грунта или его нужно утеплять
При устройстве летнего водопровода (для дачи) трубы можно укладывать поверху или в неглубокие канавы. При этом нужно не забыть в самой нижней точке сделать кран — сливать воду перед зимой, чтобы в мороз замерзшая вода не разорвала систему. Или сделать систему разборной — из труб, которые можно скатывать на резьбовых фитингах — а это — трубы ПНД. Тогда осенью все можно разобрать, скрутить и уложить на хранения. Весной все вернуть.
Прокладка труб водоснабжения по участку для зимнего использования требует больших затрат времени, сил и денег. Даже в самые сильные морозы они не должны замерзать. И решений два:
- уложить их ниже глубины промерзания грунта;
- закопать неглубоко, но обязательно обогреть или утеплить (а можно и то, и другое).
Глубокое заложение
Глубоко закапывать водопроводные трубы имеет смысл, если он промерзает не более чем на 1,8 м. Копать придется еще на 20 см глубже, а потом на дно насыпать песок, в который укладывать трубы в защитной оболочке: они будут подвергаться солидной нагрузке, ведь сверху почти двухметровый слой грунта. Раньше в качестве защитной оболочки использовали асбестовые трубы. Сегодня есть еще пластиковый гофорорукав. Он дешевле и легче, проще укладывать в него трубы и придавать нужную форму.
При укладке трубопровода ниже глубины промерзания приходится копать глубокую траншею длинной на всю трассу. Зато водоснабжение частного дома из колодца и скважины не будет замеразть зимой
Хоть подобный метод требует больших затрат труда, его используют, потому что он надежен. Во всяком случае, участок водопровода между колодцем или скважиной и домом стараются уложить именно ниже глубины промерзания. Трубу выводят через стенку колодца ниже глубины промерзания грунта и в траншее ведут под дом, там поднимают выше. Самое проблемное место — выход из земли в дом, можно дополнительно подогревать электрическим греющим кабелем. Он работает в автоматическом режиме поддерживая заданную температуру нагрева — работает только в том случае, если температура ниже заданной.
При использовании в качестве источника воды скважины и насосной станции, устанавливают кессон. Его закапывают ниже глубины промерзания грунта, в нем же ставят оборудование — насосную станцию. Обсадную трубу обрезают так, чтобы она была выше дна кессона, и трубопровод выводят через стенку кессона, тоже ниже глубины промерзания.
Прокладка труб водоснабжения в частном доме из скважины при устройстве кессона
Закопанный в земле водопровод сложно ремонтировать: придется окапывать. Потому постарайтесь заложить цельную трубу без стыков и сварных швов: именно они дают больше всего проблем.
Близко к поверхности
При неглубоком заложении земляных работ меньше, но в этом случае имеет смысл сделать полноценную трассу: траншею выложить кирпичом, тонкими бетонными плитами и т.п. На этапе строительства затраты значительные, но эксплуатация удобная, ремонт и модернизация — без проблем.
В этом случае трубы водоснабжения частного дома из колодца и скважины поднимаются до уровня траншеи и там выводятся. Укладываются они в теплоизоляции, предотвращающей их замерзание. Для страховки их можно еще и греть — использовать греющие кабели.
Один практический совет: если от погружного или скважинного насоса к дому идет кабель электропитания, его можно упрятать в защитную оболочку из ПВХ или др. материала, а потом прикрепить к трубе. Крепят через каждый метр куском скотча. Так вы будете уверены, что электрическая часть у вас в безопасности, кабель не перетрется и не порвется: при подвижках грунта нагрузка будет на трубе, а не на кабеле.
Герметизация входа в колодец
При организации водоснабжение частного дома из колодца своими руками, обратите внимание на заделку места выхода водопроводной трубы из шахты. Именно отсюда чаще всего грязная верховодка попадает внутрь.
Важно выход водопроводной трубы их шахты колодца хорошо загерметизировать
Если отверстие в стенке шахты ненамного больше диаметра трубы, щель можно заделать герметиком. Если зазор большой, его замазывают раствором, а после высыхания промазывают гидроизолирующим составом (битумной пропиткой, например или составом на основе цемента). Промазать желательно и снаружи и изнутри.
Из чего состоит
Источник воды и ввод его в дом — далеко не вся система водоснабжения. Нужны еще фильтры. Первая, грубая фильтрация происходит еще в точке всасывания. В таком виде ее можно использовать для технических целей, например, завести в туалет. Но даже для полива неочищенную воду можно подавать далеко не в каждом случае, а в душ или на кухню — тем более. Потому водоснабжение частного дома из колодца и скважины включает в себя еще и систему фильтров.
План водоснабжения частного дома из колодца
Обратите внимание: на рисунке есть три ступени фильтрации:
- на всасывающей трубе — сетчатый фильтр;
- перед входом в насос — фильтр грубой очистки;
- перед подачей в дом — фильтр тонкой очистки.
На каждой из ступеней фильтр (или фильтры) подбирается в зависимости от воды. Ее качество определяется в лаборатории. На основании химического состава и подбирается оборудование для очистки.
Автономное водоснабжение
Всем хороши системы с насосными станциями, кроме того момента, что для их работы требуется электричество. Запас воды есть, но он равен объему гидроаккумулятора, а он не больше 100 литров. Такого количества надолго не хватит. Если вам нужен резервный запас хотя-бы на день или больше, лучше всего закачивать воду сначала в накопительный бак, а из него подавать на вход насосной станции. Такая же система хорошо работает и в случае, если ваш дом подключен к централизованному водопроводу, но в нем давление очень низкое или вода подается по часам.
Как собрать автономное водоснабжение частного дома своими руками
В представленной на фото схеме нет только аварийного перелива. Это трубопровод, выходящий из накопительного бака чуть выше максимального уровня воды. Он выводится в канализацию. По нему стекают излишки воды в случае неполадок с поплавковым механизмом. Если его не установить, можно залить дом.
Если вам необходимо резервное водоснабжение частного дома на случай отключения электроэнергии, накопитель нужно устанавливать наверху, выше всех точек водоразбора. Тогда при отключении электрики вода будет в трубы подаваться самотеком. Душ вы принять не сможете, но в кранах она будет. Это будет бесперебойное водоснабжение частного дома в любых условиях.
- Стиль рустик в интерьере кухни, спальни, гостиной дома, 15 фото, 3 видео
- Как сделать домашний комнатный фонтан для квартиры или дома своими руками, 4 видео, 10 фото
- Дизайн интерьера в стиле альпийского шале: 23 фото и 3 видео современных примеров
- Ремонт отпаривателя для одежды своими руками: как почистить парогенератор от накипи, какую воду заливать для одежды
- Замена насоса в стиральной машине: сливной в Самсунг, как поменять на LG и Bosch, где находится помпа
- Английский стиль в интерьере — 16 фото и 2 видео
- Марокканские светильники — обязательный атрибут одноименного стиля
- Стиральная машина не сливает воду: что делать и почему, не работает слив и гудит, причина в стиралке LG
openfile.ru
Водоснабжение частного дома из скважины схема с гидроаккумулятором
Пользование благами цивилизации необходимо для комфортного проживания в доме, или находясь на даче. Речь о водопроводе – без него не обходятся насущные нужды и обработка собственного сада-огорода. К сожалению, даже централизованное подключение не дает преимуществ – слабый напор, перебои, некачественный состав воды, дороговизна.

Все чаще собственники участков с домами или дачами переходят на автономное водоснабжение, обустраивая скважины или колодцы. Домашние мастера, задавшиеся подобным вопросом, должны предусмотреть все нюансы домашней сети.
Преимущества и недостатки водоснабжения из скважины
Существующие недостатки центральной водопроводной сети превращаются в достоинства автономной системы – самоокупаемость и получение бесплатного ресурса, бесперебойное питание дома и участка, возможность получения качественной питьевой воды за счет дополнительных устройств – фильтров, умягчителей и прочего.
Тем не менее важно рассмотреть и минусы домашнего водопровода – они есть и могут создавать проблемы в будущем:
- Высокая стоимость бурения. Оно не является неподъемным по цене, однако, по оценкам специалистов лучше сразу проводить комплекс работ под ключ, иначе в мифических целях экономии – в один сезон провести бурение, во второй обсадку скважины и так далее – себестоимость возрастет. Например, уйдет водоносный горизонт из-за движения пластов грунта, обвалится шахта и прочее.
- Риск размывки почвы и проседания фундамента или участка. Обычно такой недостаток присущ самостоятельному обустройству – дилетант не знает всех нюансов бурения, капризов и состава грунта. А качественная установка позволит эксплуатировать себя долгие годы.
- Требуется специальный отведенный участок под скважину. Ее нередко делают в подвалах дома, но учитывая предыдущий пункт – есть риск испортить помещение, которое придется отстраивать заново. Для лучшей работы устраивается кессон – отдельное помещение со всем оборудованием и оголовком скважины.
- Строительство, естественно, потребует трат, так как помещение должно быть соответствующим образом утеплено и гидроизолировано.
Несмотря на минусы, и тем более в отсутствие государственного водопровода – скважины остаются в приоритете домовладельцев, учитывая все перечисленные плюсы.
Схема водоснабжения частного дома из скважины
Три главных узла конструкции – скважина, разводка, слив – представляют собой сложные инженерные сооружения. Для их нормальной эксплуатации требуются знания по обустройству.

Опишем подробно:
До момента бурения или копки, важно наверняка знать о наличие воды в местности. Для этого за оценкой обращаются к геодезистам. Расспросы соседей могут не соответствовать действительности – ситуации, когда один участок «утопает» а другой пересыхает – нередки. Все дело в уровне залегания водоносных пластов – на расстоянии нескольких метров глубина может разниться.
Существуют и самостоятельные методы определения скопления воды – лоза, силикатный кирпич, закопанный на участке, наличие крупных древесных стволов.
Когда оценка дана, выбирают вид скважины:
- На песок. В этом случае шахта неглубокая – до 40 м, но вода в ней не отличатся кристальностью – требуется постоянная прокачка. Небольшая эксплуатация – 5–15 лет. Вид скважины идеален под дачные нужды, где сезонность работ позволяет оставаться горизонту без изменений долгое время.
- На известняк. Артезианские скважины отличаются чистотой воды, долговременной эксплуатацией – до 50 лет. Однако, качество питьевой воды не всегда удовлетворяет – в ней много солей и железа, для чего требуются специальные очистители и смягчители. Скважина отличается большой глубиной – от 50 до 230 м, это отразится на увеличении трат, но окажет благотворное влияние на придомовую территорию – ее вряд ли размоет.
Виды бурения – ручное, канатно-ударное, гидродинамическое – выбирается собственником исходя из финансовых возможностей и особенностей участка. Также важно учитывать и совместимость основного оборудования, необходимого для доставки воды в дом.
Монтаж оборудования и подача воды
Домашняя сеть должна быть смонтирована в строгой последовательности. Агрегаты, доставляющие воду и контролирующие процесс – многочисленны. В их числе:

- Насос. Погружной или поверхностный – выбирают в зависимости от типа скважины, ее дебета и расхода воды в целом. Модели многочисленны, оптимальный выбор помогут сделать специалисты. Важно снабдить агрегат обратным клапаном, исключающим утечку воды в момент нерабочего состояния насоса.
- Гидроаккумулятор. Компенсирует гидроудары при резком пуске насосного агрегата, кратковременную потерю давления в сети из-за ухода горизонта или потери электроэнергии, дает возможность пользоваться водой даже в момент нерабочей системы.
- Реле давления. Контроль над напором – важный аспект всего водопровода. Тот случай, когда кран требуется лишь открыть или закрыть – аппарат обеспечивает комфорт эксплуатации, сам включает и выключает насос.
- Защитная автоматика. Устройства предохранят насос от холостого хода, перегревания, перепадов напряжения. Без них срок эксплуатации оборудования снижен в разы.
- Фильтры. В их числе: грубой очистки – для задержания глубинных частиц от попадания в систему, для снижения уровня железа, для умягчения – очистка от солей, тонкий фильтр – непосредственная подача питьевой воды в дом. Все устройства также продлевают срок службы всего водопровода.
- Водонагреватель или бойлер. Дом с постоянным проживанием требует системы ГВС – горячего водоснабжения. Естественно, накопительные устройства должны соотноситься с выбранным насосным оборудованием. Лучше это сделать на стадии проектирования всего водопровода в целом.
Система трубной разводки предусматривает не только подачу воды к точкам – кранам, санузлам, но и подключение котла, радиаторов отопления. Следовательно, для водопровода имеет смысл использовать трубы из различного материала – за домашним контуром и непосредственно внутри.
В их числе – металлопластик, асбоцемент, полиэтилен, ПВХ, сталь.Важно учесть глубину промерзания грунта и использовать то сырье, где гарантированно не случится ледяного затора. В противном случае придется устраивать систему кабельного обогрева.
Любые трубы для скважин должны быть маркированы как пищевые, ведь речь идет о питьевой воде, где примеси от строительного сырья – недопустимы.

Слив или канализация
Он имеет огромное значение для жилого дома. Поступающая в большом объеме вода должна иметь возможность уходить после отработки. Для этого системой предусматриваются накопительные септики, канализация, система дренажа и стоков. В зависимости от количества проживающих или «инфраструктуры» дома система канализации может разниться и представлять собой несколько устройств (например, фекальный насос с измельчителем для выгребных ям). Они сократят число обращений в организации для откачки – массы перерабатываются в биологические отходы, выводимые в толщу грунта без загрязнения водоносных горизонтов.
Виды домашнего водопровода
Схема подключения домашнего водопровода может быть реализована в двух вариантах: насосная станция и накопительный бак. Рассмотрим подробно:
С насосной станцией
Насосная станция предусматривает следующий процесс: вся работа автоматизирована – вода подается в гидробак и оттуда к потребителям. Вместимость зависит от модели – 100–500 литров. Такое устройство характерно для жилого дома – вода подается из скважины или колодца, а насосная станция располагается в кессоне – отдельном утепленном и гидроизолированном помещений или в подвале.
Преимущество способа – комфортное потребление без перебоев, полностью контролируемый процесс.

Накопительный бак и глубинный насос
Особенностью схемы становится установка накопительной емкости на возвышенной точке дома – чердаке, мансарде. Обязательно утепление самого помещения и бака. Процесс заключается в закачивании массы воды – до 1500 литров в бак и расходования ее по собственному усмотрению.
Достоинство системы в работе даже во время отключения электричества – вода самотеком распределяется по точкам потребления. Кроме того, нет риска заморозить систему, находящуюся в доме.
В любом варианте наружный трубопровод качественно утепляют и/или оснащают нагревательным кабелем. В первом варианте, замерзание чревато выводом из строя насосной станции, без возможности ремонта.
До принятия решения о собственном водопроводе, важно решить все вопросы, могущие возникнуть в процессе эксплуатации уже готового водопровода. Полный объем необходимых знаний есть только у компаний, непосредственно занимающихся проблемами водоснабжения частных домов. С их участием комфортное и долговременное потребление – гарантировано.
Видео по обустройству водоснабжения из скважины
teplonasos-ptz.ru
с гидроаккумулятором и накопительным баком, разводка
От того, насколько грамотно спроектирована и надежно смонтирована схема водоснабжения частного дома, зависит комфорт всех, кто в нем проживает. Во многих случаях у владельца существует выбор между несколькими альтернативными вариантами. Для того, чтобы не отдавать предпочтение одному из них вслепую, важно тщательно изучить все особенности, преимущества и недостатки.
Типы водоснабжения
Выбор типа водоснабжения дома или, говоря проще, определение, откуда, собственно, будет поступать вода к дому, зависит от индивидуальных условий.
Центральное водоснабжение дома
Техническое исполнение такой системы проще всех остальных вариантов. По сути, необходима установки врезки в общий трубопровод и схема разводки водоснабжения в доме, составленная с соблюдением размеров и с указанием всех точек водопотребления. В соответствии с ней монтируется трубопровод внутри помещения. От общего трубопровода можно завести на свой участок горячую и холодную или только холодную воду. Во втором случае в схеме следует предусмотреть водонагревательное оборудование.
Все перечисленные выше варианты возможны только в одном случае – если в относительной близости к дому находится водопроводная магистраль.
Несмотря на легкость, схема водоснабжения от центрального водопровода имеет и свои недостатки:
- периодически наблюдающееся снижение напора вплоть до полного прекращения подачи воды в часы пикового потребления,
- зависимость от работы оборудования коммунальных служб (воду отключают из-за аварий или во время опрессовки),
- необходимость ежемесячной оплаты и контроля расхода жидкости.
К плюсам такого варианта кроме легкости монтажа следует отнести невысокую стоимость реализации проекта (минимум необходимого оборудования), а также независимость подачи воды от электроснабжения. Ну а к его минусам относится необходимость получить на врезку в магистральную трубу соответствующее разрешение.
Автономное водоснабжение дома
Автономная схема водоснабжения в доме предусматривает использование отдельного источника, находящегося на территории участка или недалеко от него. В качестве такого источника могу выступать:
- колодец,
- скважина на песок (в том числе, так называемый абиссинский колодец или скважина-игла),
- артезианская скважина, добывающая жидкость из известкового водоносного слоя.
Виды источников водозабора и их глубинаКаждый из этих вариантов с его преимуществами и недостатками заслуживает отдельного пристального внимания.
Колодцы
Для того, чтобы вода в колодце была высокого качества, важно соблюсти определенные требования:
- найти оптимально подходящее для рытья колодца место (высокое содержание жидкости в водоносном слое, удаленность от дома, позволяющая исключить вероятность разрушения, отсутствие в радиусе 50 метров возможных источников загрязнения, включая свалки, выгребные ямы, септики и пр.),
- установить надежные и защищающие от попадания в воду верховодки, большого количества песка и глины стены,
- обеспечить защиту зеркала от пыли и мусора, установив плотно закрывающуюся крышку.
В то же время даже при условии соблюдения этих требований перед тем, как использовать дома воду для приготовления пищи и питья, лучше сделать лабораторный анализ. Его результаты не только станут гарантией соответствия качества воды санитарным требованиям и нормам, но и помогут правильно подобрать элементы системы очистки.
Качество воды в колодце при прочих равных условиях обычно ниже, чем в скважине. Кроме того, не всегда колодец обладает требуемой производительностью. Для того, чтобы не возникало дефицита воды, рекомендуется при рытье добиваться наличия на дне трех ключей.
Преимуществом колодцев является совмещение автоматической подачи воды и возможность при отсутствии электричества достать жидкость вручную с помощью ведра. Даже при длительном перерыве в электроснабжении дом не останется вовсе без воды.
Скважины на песок
Скважина на песокСкважина на песок отличается небольшой глубиной по сравнению с артезианской. Благодаря этой особенности ее несложно сделать на участке самостоятельно. Эта возможность является существенным преимуществом, поскольку позволяет сэкономить средства на реализацию проекта.
Недостатками скважины на песок являются:
- недолговечность (срок службы обычно составляет немногим более 6-7 лет),
- возможность заиливания,
- не слишком высокая производительность.
Артезианские скважины
Бурение таких скважин осуществляется на глубину 50-150 метров и даже более, поэтому должно осуществляться профессионалами с применением спецтехники и с предварительным получением разрешения на работы. Привлечение специалистов потребует вложения средств, однако такой источник будет служить до полувека и более, поэтому все траты можно читать долгосрочной инвестицией.
Артезианская скважина высокопроизводительна. Известковый слой, из которого она поднимает воду, расположен глубоко, поэтому в него не попадают токсичные вещества с поверхности. К особенностям следует отнести обычно повышенную жесткость воды из артезианской скважины, однако этот недостаток легко исправляется при включении в схему фильтра-умягчителя.
Для тех, кто хочет знать больше о том, что это такое, артезианская скважина, у нас есть отдельная статья на сайте.
Как происходит бурение скважин на песок и какими способами это делается, описано на этой странице.
О видах насосов для частного дома и дачи мы рассказали тут.
Оборудование для автономных систем водоснабжения частных домов
Насосы
Любая схема автономного водоснабжения включает в себя насосное оборудование.
Оборудование для водоснабжения частных домов — насосные станции и глубинные погружные насосы- Для колодца могут использоваться в зависимости от его глубины, как погружные, так и поверхностные насосы. При выборе следует помнить о необходимости защиты поверхностного оборудования от промерзания, если планируется использовать автономный водопровод загородного дома в холодное время года.
- Скважины-иглы из-за небольшого диаметра обсадной трубы могут оснащаться только поверхностными насосами.
- Глубина артезианских скважин требует применения только погружного перекачивающего оборудования.
- Насосные станции представляют собой комплекс оборудования (перекачивающий агрегат, гидроаккумулятор, манометр, реле давления и реле «сухого» хода), однако, они могут применяться лишь для неглубоких источников.
Приспособления для корректировки работы систем водоснабжения
Для получения запаса воды в доме на случай аварии и для корректировки работы системы (предотвращение частого включения насоса, обеспечение оптимального напора) может использоваться схема водоснабжения дома с накопительным баком или с гидроаккумулятором.
На фото автономная система водоснабжения загородного дома в двух вариантах- Накопительный бак работает по принципу напорной башни и представляет собой емкость (для дома с постоянным проживанием подойдет объем около 200 литров) с соответствующим оснащением:
— входящий трубопровод,
— трубопровод подачи воды в дом,
— слой утеплителя,
— обогревающие ТЭНы,
— трубопровод слива при аварийном переполнении емкости,
— поплавковый контроллер уровня.
Схема водоснабжения дома с накопительным баком предусматривает установки емкости выше всех точек водопотребления, например, на чердаке или ином возвышении.
Система водоснабжения частного дома с накопительным баком- Гидроаккумулятор – более совершенное устройство, позволяющее устанавливать оптимальный режим работы, в том числе, настройку реле давления в соответствии с особенностями системы и требуемыми параметрами (необходимый напор воды). Схема водоснабжения частного дома с гидроаккумулятором не требует подъема накопителя на высоту, избыточное давление обеспечивается сжатым воздухом. Гидроаккумулятор устанавливается в отдельном отапливаемом помещении рядом со скважиной, в подвале дома или в кессоне.
Схема водоснабжения для дома из скважины с гидроаккумуляторомЕсли вы также планируете монтаж отопительной системы, то не забудьте про расширительный бачок для отопления закрытого типа.
У нас есть дополнительный материал на тему, как реализуются схемы подключения гидроаккумулятора.
А о том, какими способами может проводиться очистка воды из скважины, читайте в отдельной статье сайта.
Кессоны
Кессон представляет собой пластиковую «камеру», устанавливаемую в устье скважины и защищающую его и установленное перекачивающее и накопительное оборудование системы от внешнего воздействия, в первую очередь – от замерзания. Кессон является надежной альтернативой отдельно стоящей отапливаемой насосной.
КессонСистема фильтров
Система водоснабжения частного дома с накопительным баком или гидроаккумулятором в обязательном порядке включает в себя очистительный (фильтрующий) комплекс. Даже при отличном качестве воды, подтвержденном лабораторно, потребуются механические фильтры, задерживающие нерастворимые частицы песка или глины. Обычно последовательно устанавливаются фильтр грубой и тонкой очистки. Обезжелезивающие и снижающие жесткость воды фильтры устанавливаются в зависимости от необходимости.
Трубы
Для системы водоснабжения выбираются трубы из металлопластика, сшитого полиэтилена, ПНД или полипропилена в соответствии с особенностями схемы (поверхностное или подземное пролегание, вероятность температурных перепадов и пр.).
Важно: При подземной прокладке трубы располагаются ниже уровня промерзания почвы, при поверхностной — с обязательным утеплением.
Монтаж, обслуживание и ремонт системы водообеспечения
Для того, чтобы ремонт системы водоснабжения частного дома своими руками или с помощью специалистов требовался как можно реже, важно выполнять монтаж и обслуживание в полном соответствии с требованиями.
Монтаж трубопроводов может осуществляться путем последовательного или коллекторного подключения точек водозабора. Первый вариант подходит только для небольшого их количества, в противном случае в последнем из подключенных потребителей периодически будет снижаться напор ниже допустимого значения.
Работы по обслуживанию системы зависят от типа установленного оборудования. Например, гидроаккумуляторы большого объема требуют периодического «стравливания» воздуха.
Вне зависимости от типа схемы, периодического осмотра требуют места соединений элементов, колодцам необходима периодическая прочистка, а артезианские скважины при ухудшении качества воды или снижении производительности прокачивают.
Видео
Монтаж схемы водоснабжения загородного дома своими руками с гидроаккумулятором показан на видео.
okanalizacii.ru




