Барная стойка своими руками из гипсокартона фото – своими руками фото, как сделать для кухни, арочная перегородка, в гостиной потолок
Как сделать барную стойку из гипсокартона своими руками: фото
Часто маленькие жилые помещения, хозяева стараются сделать экономичными и практичными, особенно это касается «хрущёвок». Обычно объединяют два пространства – кухню и прилегающую комнату. В итоге получается большая и просторная студия, которую нужно разграничить, применяя для этого разные конструкции. Идеальным вариантом будет барная стойка из гипсокартона, сделанная своими руками, которую соорудить несложно, если придерживаться пошаговой инструкции.
Дизайн и оформления барной стойки из гипсокартонаРассмотрим, как правильно соорудить подобную конструкцию не прибегая к помощи профессиональных строителей.
Полное содержание материала
Барные стойки из гипсокартона в интерьере
Барные стойки из гипсокартона становятся все популярнее у обывателей, обладающих квартирами-студиями. Конечно, можно заказать барную стойку на кухню вместе с гарнитуром, но стоить такое удовольствие будет не дешёво. Наиболее экономичнее будет соорудить конструкцию из гипсокартона самостоятельно. При этом можно сделать необычную конструкцию, которая станет ярким пятном в общем интерьере помещения.
Готовый проект и дизайн барной стойки из гипсокартона
Виды барных стоек
- Прямая или островная – конструкция наиболее применима в помещениях, благодаря простоте выполнения. Обычно устанавливается конструкция посередине комнаты, зонируя пространства. При этом функциональность помещения увеличивается.
- Г-образная конструкция отлично впишется в любое помещение, но эту барную стойку выполнить сложнее.

- Геометрические барные стойки из гипсокартона – являются самыми сложными, и лучше для их монтажа пригласить профессионалов. Они могут быть круглыми, квадратными, овальными.
Пошаговая инструкция сборки и установки барной стойки
Перед началом монтажа тщательно подбирается место установки барной стойки. Оцените, как она будет смотреться в интерьере. Определиться будет ли конструкция глухой, или в нижней её части под столешницей будут расположены полочки для хранения. Нужна ли вам подсветка над барной стойкой, или она будет украшена декором.
Оформление барной стойки с подсветкой на кухнеСоставьте план, на котором вы не только прорисуете форму конструкции, но и обозначите места креплений и соединений. Продумайте, будут ли подходить к этой конструкции коммуникации, так как их нужно будет скрыть. Благодаря этому плану вам будет легко просчитать количество материала.
Монтаж стойки из гипсокартона производится поэтапно:
- Подготовка места установки и поверхности;
- Желательно очистить помещение от ненужных предметов, чтобы ничего не мешало сборке.
Видео рассказывается об установки барной стойки из гипсокартона.
Необходимый материал
Вам потребуются:
Что касается отделки, то вам придется определиться со стилистикой помещения и интерьером. Это может быть керамическая плитка или обои, покраска гипсокартона или декоративная штукатурка.
Подготовка инструмента
Для монтажных работ обычно используют стандартный набор инструментов, как правило, он не меняется:
- рулетка;
- ножницы по железу;
- карандаш;
- строительный нож;
- перфоратор;
- строительный уровень и отвес;
- шуруповёрт;
- шпатели;
- фреза.
Чертеж с размерами для установки барной стойкиСтарайтесь заранее все продумать и приготовить, чтобы не было задержки во время монтажа.
Разметка
Наносится на потолок, пол и стену, согласно ранее составленному проекту. Намечаются места прохождения профилей и крепежей. На стене делается отметка высоты столешницы. Если планируется короб с подсветкой на потолке, то наносятся соответствующие линии на потолок, с обозначением мест под светильники.
Сбор каркаса
На нанесённые на полу линии устанавливаются стоечные профиля и фиксируются дюбелями. Далее, нам нужно сформировать основание барной стойки.
Для этого отрезаем куски стоечного профиля по нужному размеру и вставляем их в направляющий элемент, прикрученный к полу.
Устанавливаем нужное количество отрезков – два по углам будущего основания, два возле стенки, и между ними на расстоянии 40 см друг от друга остальные.
Сколько их будет, зависит от длины стойки. Все элементы прикручиваются к направляющему профилю маленькими саморезами «семечками». Теперь нужно сформировать верхнюю часть конструкции. Для этого берем направляющий профиль, отрезаем элемент нужного размера и вставляем его в С-образный профиль сверху, затем прикручиваем. То же самое делаем со второй стороны. В последнюю очередь прикручиваем поперечный отрезок, соединяя углы. В результате должна получиться высокая прямоугольная конструкция.
Теперь нужно ее укрепить, сделать более жёсткой. Для этого устанавливаем поперечины из отрезков С-образного профиля, на расстоянии 40 см друг от друга. Такие же поперечины нужно установить сверху, соединяя между собой направляющий профиль с обеих сторон. Каркас готов.
Схема монтажа поперечинЕсли предполагается сделать барную стойку с подсветкой сверху, то на потолке по тому же принципу монтируется каркас под небольшой короб, в котором будет проходить электропроводка и устанавливаться точечные светильники.
На этом этапе проводится кабель под гипсокартоном для подсветки.
Монтаж гипсокартона
Листы ГКЛ расчерчивают и раскраивают по рисунку, затем их монтируют на каркас саморезами чёрного цвета. Шляпки крепежей должны войти в гипсокартон заподлицо или оказаться чуть глубже, чем поверхность материала. Только следите, чтобы крепежи не прорвали картонную прослойку, иначе материал будет испорчен. На этом обшивку гипсокартоном можно считать законченной.
Подсветка
Если планируется сборка точечных светильников, выключателей и розеток в гипсокартоне, то на этом этапе устанавливаются подрозетники и проверяется наличие электричества.
Схема с размерами барной стойки из гипсокартона с размерамиТакже в гипсокартоне специальной коронкой проделываются отверстия под светильники. Есть несколько вариантов, которые можно применить при освещении барной стойки:
До начала крепления гипсокартона нужно определиться, какую подсветку установить на барной стойке.
Отделка готовой стойки
Есть два вида отделки готовой конструкции:
- черновая;
- декоративная.
Перед тем как начать черновую отделку нужно хорошо загрунтовать конструкцию из гипсокартона. Затем расшить все существующие швы между листами материала. После этого готовится стартовая шпаклёвка и забиваются швы шпателем. На нанесённый раствор наклеивается серпянка, чтобы в процессе эксплуатации по конструкции барной стойки не пошли трещины. Затем стойку хорошо шпаклюют в два слоя. После её высыхания можно приступать к декорированию.
Пример финальной отделки барной стойкиДекоративная отделка может быть любой. Самым практичным материалом во влажном кухонном пространстве считается керамическая плитка или пластиковая панель, но можно применить влагостойкие обои для гипсокартона или краску, стойкую к влажной среде. После этого устанавливаются светильники, розетки и различные декоративные элементы, если они были предусмотрены заранее. Что касается столешницы, то ее можно сделать из керамики самостоятельно или на заказ.
Фото подборка оформления барной стойки из гипсокартона
gipsokarton-blog.ru
Барная стойка из гипсокартона своими руками
Кухня с барной стойкой выглядит современно и динамично. Это не просто украшение интерьера, а полезный и функциональный предмет обстановки. При заказе кухонного гарнитура изготовление дополнительного модуля можно оговорить отдельно. Но если вся мебель уже расставлена и просто хочется освежить интерьер, выручит барная стойка из гипсокартона, сделанная своими руками. Сложного в этом ничего нет – просто начните.
Что понадобится для работы?
В первую очередь нужно закупить материалы и подготовить инструмент. Но для начала стоит составить эскиз будущей конструкции со всеми размерами, чтобы не набрать лишнего или не забыть о важных мелочах.
Гипсокартон для создания барной стойки подойдет практически любой. Хотя для лучшего результата советуем разобраться в его разновидностях и свойствах:
- Толстые стеновые листы ГКЛ (12,5 мм) используют для создания ровных и прочных поверхностей, которые можно будет облицевать даже тяжелой керамической плиткой.
- Если вы планируете сделать радиальное основание стойки, приобретите гипсокартон потоньше (9,5 мм) – его проще изогнуть для получения эффектных округлых стенок, но он тоже достаточно надежен.
- Барная стойка, которая будет располагаться рядом с рабочей зоной (например, при островной расстановке мебели) может быть выполнена из влаго- или даже огнестойкого гипсокартона. На такой кухне вы будете чувствовать себя в полной безопасности.
Кроме ГКЛ для работы понадобятся металлические профили (направляющие, стоечные, угловые) или просто ровные деревянные рейки, плюс брусья для создания надежной опоры столешницы. Из метизов будет достаточно саморезов и болтов. Но если вы планируете усовершенствовать барную стойку конструкцией из хромированных труб, придется поискать дополнительные держатели и тройники для их соединения.
Столешницу выбирайте на свой вкус – она будет украшением стойки и всей кухни, а также сможет играть роль дополнительной рабочей поверхности. Поэтому руководствуйтесь соображениями эстетичности и практичности. Возможные варианты:
- Массив дерева, покрытый защитными пропитками и стойким лаком – прекрасно дополнит интерьер кухни в классическом или кантри- стиле.
- Ламинированный ДСП или МДФ – бюджетный, но не менее эффектный вариант с имитацией рисунка гранита, мрамора или все того же дерева. Такую столешницу лучше заказать специалистам, которые не только раскроят плиту по вашим размерам, но и смогут правильно закрыть кромки.
- Композит – искусственный камень может принимать любую форму, что позволит наиболее гармонично вписать барную стойку в обстановку кухни и сделать ее действительно практичной и удобной. Такую столешницу нужно заказывать индивидуально.
- Закаленное стекло – дорогой, но эффектный способ обыграть современный дизайн помещения. Лучше, если поверхность будет рифленой. В противном случае вам придется постоянно следить за чистотой столешницы, убирая разводы и отпечатки пальцев.
Облицовочные материалы для барной стойки подбирайте с учетом основной отделки кухни. С гипсокартоном отлично ладят: штукатурка под покраску, обои, ПВХ-панели и кафельная плитка. Для оформления также могут понадобиться потолочные молдинги, пластиковые плинтусы или любые другие декоративные планки.
Инструмент и вспомогательные материалы:
- Для работы с ГКЛ понадобится острый нож, а также дрель или шуруповерт. Возможно, потребуется игольчатый валик, если вам захочется сделать полукруглое основание стойки.
- Для нарезки и сборки перфорированного профиля – ножницы по металлу и просекатель отверстий.
- Для отделочных работ – серпянка (армированная лента), шпатлевка и сами шпатели разной ширины, наждачная шкурка или специальная терка, чтобы загладить верхний слой штукатурки.
Карандаш, линейка и уровень – обязательный набор, без которого не стоит и браться за работу.
Создание каркаса
Для начала следует сделать разметку на полу, где будет устанавливаться стойка, и ответную – на стене. По этим линиям монтируется основание каркаса из деревянных брусьев или направляющего профиля. Второй вариант предпочтительнее, так как металлические П-образные планки обеспечивают конструкции большую устойчивость. Монтажные рейки жестко фиксируются в полу дюбелями.
К сформированному контуру крепятся отрезки горизонтальных перемычек и вертикальные стоечные профили. Они обязательно должны находиться в каждом углу будущей конструкции, а также на длинном прямом участке – в качестве дополнительных ребер жесткости. Оптимальным шагом установки реек считается 60 см. Но поскольку барная стойка вряд ли будет очень большой, на прямой стенке можно сделать всего одно промежуточное ребро – посередине.
Вертикальный каркас собирается с внешней и внутренней стороны. При этом шурупы сначала просто наживляются – окончательно их закрепить можно будет после того, как вы все выставите по уровню. Крайние рейки, примыкающие к стене, закрепляются на ней дюбелями. Здесь же монтируется короткий отрезок П-образного профиля – он сыграет роль полки, обеспечивающей дополнительную опору консольным планкам под столешницу.
Следующий этап работ – соединение двух периметров стенок барной стойки поперечными перемычками. Их также нарезают из профиля и следят за точным совпадением размеров. После этого готовые планки устанавливаются в верхней и центральной частях каркаса между вертикальными стойками и после проверки уровнем прикручиваются к обрешетке.
Сверху на подготовленную раму укладываются продольные П-образные профили или бруски. Для надежности их концы, примыкающие к стене, заводятся внутрь смонтированной полки и там фиксируются саморезами.
Если планируете сделать эффектную барную стойку с внутренней подсветкой, проводку нужно проложить внутри каркаса до начала работ с ГКЛ.
Обшивка стойки гипсокартоном
Листы размечаются карандашом и нарезаются на отдельные элементы в соответствии с чертежом. После этого каждый из них прикручивается к готовой реечной обрешетке. Точки крепления лучше располагать с коротким шагом около 20 см.
Ровно зафиксированный лист придется еще раз «пройти» шуруповертом, чтобы утопить шляпки метизов на миллиметр в картоне.
После обшивки каркаса барной стойки со всех сторон стыки между ГКЛ проклеиваются лентой-серпянкой. Внешние и внутренние уголки можно укрепить дополнительными пластиковыми накладками – но это уже по желанию. Все углубления в точках крепления замазывают густой шпатлевкой. Как только она застынет, неровности убираются шкуркой, после чего гипсокартон можно грунтовать и переходить к облицовочным работам.
Отделка барной стойки
Здесь порядок работ будет отличаться в зависимости от выбора отделочных материалов:
- Штукатурка
Поверхность гипсокартонных стенок покрывается тонким слоем гипсовой штукатурки, затирается и после высыхания шпатлюется смесью для тонкого выравнивания. Застывшая шпатлевка выглаживается специальной теркой, смоченной в воде или широким стальным шпателем до идеальной гладкости.
Поверх готовой штукатурки на барную стойку наносится 2-3 тонких слоя интерьерной краски, подходящей для применения в кухне. Можно облегчить себе работу и использовать декоративную структурную смесь, которая не требует особого выравнивания и может наноситься прямо на прогрунтованный гипсокартон.
- Облицовка плиткой
Для работ по ГКЛ лучше выбрать самый тонкий кафель или мозаичную плитку небольших размеров. Клеить ее нужно от стены, примыкающей к стойке, начиная с самого нижнего ряда. Он будет создавать опору для всех последующих ярусов облицовки.
Плитка сажается на специальный клей с применением пластиковых крестиков для выдерживания постоянной ширины швов. Каждый элемент в процессе укладки проверяется уровнем не только по горизонтали, но и по отношению к вертикальной плоскости стенки. Через сутки крестики вынимаются, а все промежутки заполняются затирочной смесью. Поверхность облицовки очищается от остатков раствора. Установите столешницу – и ваша новая барная стойка готова.
Когда все основные работы закончены, стык столешницы с боковой стеной обрабатывают герметиком и на него сажают декоративный бордюр подходящей ширины. Это упростит уход за рабочей поверхностью и позволит уберечь отделку от загрязнений. Нижнюю часть основания стойки можно обклеить плинтусом или прикрутить его на саморезы, закрыв головки винтов пластиковыми декоративными накладками.
openfile.ru
Барная стойка из гипсокартона своими руками (поэтапно)
Если еще каких-то 10 лет назад барная стойка
ассоциировалась именно с баром, то сейчас это вполне уместная, красивая ,а также удобная деталь любой домашней кухни.С каждым днем популярность увеличивается. Можно, конечно, купить или заказать стойку. Но, согласитесь, барная стойка из гипсокартона обойдется не только дешевле, но будет абсолютно эксклюзивной.
В чем ее особенности?
За данный предмет мебели нам нужно благодарить предприимчивых владельцев баров Северной Америки. Ведь именно они в 18 веке оснастили свои заведения подобным интерьерным решение.
Чтобы барная стойка из гипсокартона порадовала вас, начните работы по ней с планировке , а также составлению чертежа. Почему мы выбрали данный материал за основу?
Тут все просто, во-первых, с ним легче работать, чем с тем же деревом, себестоимость стойки будет в разы меньше, при это она будет достаточно крепкой.Если раньше данный предмет мебели делился на две основных зоны — бармена и посетителей, то при домашних условиях вы можете выполнить ее аналогичным путем или ориентировать под стол.
Все будет зависеть от того, чем вы будет за ней заниматься.
Если она нужна для вечеринок, то барный дизайн, а если кушать или готовить что-то — стол. А можно спроектировать ее так, чтобы было несколько зон.Чертеж готов, все спланировано, материалы рассчитаны , закуплены — все можно приступать к основным работам.
Ее преимущества
Конечно же, ваша большая и дружная семья не сможет использовать данный предмет мебели для проведения ужина всем составом. Но вот для перекусов или быстрых завтраков стойка вполне подойдет,также принимать гостей с ней очень удобно.
Немаловажно то, что с ее помощью зонирование помещения выполнить очень легко, при этом не потеряв эксклюзивного дизайна.
Особенно эффективно стойка смотрится находящаяся квартире-студии. Материал из которого делается конструкция, может воплотить практически любым ваши дизайнерские фантазии.С разнообразным цветовым решение. Что нам понадобится для изготовления барной стойки из гипсокартона? Помимо основного материала из которого будет сделан наш предмет мебели нам понадобится:
- Металлический профиль;
- Саморезы и дюбеля различной длинны;
- Шпаклевочный материал;
- Герметик;
- Банка краски с понравившимся вам цветом;
- Ударная дрель;
- Шуруповерт;
- Лобзик или канцелярский нож;
- Уровень;
- Просекатель;
- Валик для гипсокартона;
- Кисточка или валик для краски, а также лоток для нее.
Материал из которого мы будем делать барную стойку, может воплотить практически любые ваши дизайнерские фантазии. С разнообразным цветовым решение. Поэтапное изготовление стойки:
- Внести данные в чертеж;
- Сформировать каркас;
- Выкраиваем детали;
- Фиксация выкроек;
- Зачищаем торцы теркой.
Этап 1. В имеющий чертеж и проект нужно внести четкие данные о габаритам предмета. Подобрать их так, чтобы она была не просто красивой, но удобной в эксплуатации.
Этап 2. Формируем каркас с помощью металлического профиля. Для того чтобы сделать угол, нужно применять целый кусок профиля, а не лепить из кусочков.Нужно надрезать профиль по краям , затем согнуть его. Усиливайте каркас с помощью саморезов ,а также просекателей, это позволит добиться максимальной прочности.
Этап 3. Выкраиваем детали барной стойки из гипсокартона. Тут вам в помощь лобзик или канцелярский нож. Не забывайте оставлять запасы, там где они необходимы.Оставляем места для ламп, при этом желательно сразу провести проводку.Этап 4. Полученные выкройки нужно зафиксировать на каркасе, который тщательно соединяем со стенами и полом, в некоторых случаях и потолком.Не забудьте делать установку поперечного профиля, это еще одна степень повышения крепости конструкции.
Соблюдаем одинаковый шаг , обязательно закрепляем просекателями и не забываем пользоваться уровнем.
Посмотрите видео, похожее на тему статьи:
Этап 5. Торцы готовой конструкции зачистить теркой. Все места стыков и саморезов зашпаклевать. А после высыхания выровнять наждачной бумагой , позже покрыть слоем грунтовки. Стыки со стеной и полом, заливаем герметиком, для большей прочности и качественной их состыковки. Конструкция готова!
Позаботимся об освещении
Правильно подобранное освещение сделает вашу барную стойку еще прекраснее. Для этого продумайте этот момент еще на стадии планирования. Лучшим решение для освещения тут будут светодиодные или галогенные лампы.
Их можно разместить в балке, которую вы протяните на столешницей или внизу шкафов, если они предусмотрены. А возможно, вы решите это вопрос большой люстрой, сымитировав бильярдную. Розетки на барной стойке неотъемлемая часть конструкции.Поэтому не забудьте позаботится о них , желательно, таких, которые имеют встроенные удлинители. Вы увидите, как это облегчит вам жизнь.
Особенно это актуально для вечеринок, где нужно будет блендер, включить музыкальный центр, а может другу срочно понадобиться зарядить телефон, да не где-нибудь,а именно за барной стойкойОбустраиваем правильно
Не забываем купить стулья на высоких ножках, максимально подходящие к интерьеру, а главное удобные. Очень красиво будут смотреть подвесная полочка для бокалов.
Безусловно. Можно пойти по пути наименьшего сопротивления и просто покрасить ее, но если есть желание и ресурсы — воспользуйтесь керамической плиткой. Это может быть и стандартная кладка, а возможно и мозаичная или с имитацией камня.
А элементы декора то, как картины фотографии в рамках посуда, поможет сделать дизайн завершенным. Возможно вы найдете удивительное текстильное решение.
Нередко, можно увидеть драпированное полотно на ее задней стенке. Особенно популярна в этом вопросе мешковина в тандеме с отделкой под камень или кирпич.Все в ваших руках , в полете вашей фантазии. Вот так, легко вы сможете своими руками сделать такой интересный и стильный предмет мебели. Возможно вы вдохнете новую жизнь уже в установившийся интерьер, а может быть сделаете его совершенно новым.
Когда соберутся ваши друзья и гости, то вы сможете удивить их творением рук своих. А ведь так приятно будет слышать хвалебные оды вашему мастерству.domunit.ru
Барная стойка из гипсокартона — как сделать своими руками
С появлением новых материалов и технологий отпала необходимость покупать или заказывать мебель, подчеркивающую индивидуальность вашего жилья. Сейчас создавать различные интерьерные конструкции можно самостоятельно, не пользуясь посторонней помощью.
Современные интерьерные решения позволяют интересно обыграть любое помещение. Можно разнообразить не только большое пространство в квартире-студии, но и придать уникальные черты малогабаритной кухне. Один из таких элементов – это барная стойка из гипсокартона своими руками.
Назначение и преимущества
Барная стойка в интерьере совмещает в себе декоративное и функциональное назначение.
Ее используют в следующих целях:
- Для зонирования пространства в квартире-студии.
- В качестве обеденного стола.

- Как рабочую зону, для приготовления пищи.
Делают барные стойки из гипсокартона, дерева или пластика. Для самостоятельного изготовления такого интерьерного элемента лучше всего использовать гипсокартон. С таким материалом работать достаточно просто – он пластичен и легко поддается обработке. Гипсокартонная барная стойка имеет еще одно преимущество – невысокая стоимость материалов, из которых возводится конструкция.
Виды конструкции
Чем барная стойка отличается от обычного стола или тумбы? Это два основных признака – высота и ширина конструкции. Вертикальный корпус и столешница достаточно узкие (до 60 см), а высота стойки несколько больше, чем высота обычного обеденного стола (около 130 см).
Формы барной стойки бывают следующие:
- прямоугольная;
- овальная;
- С- или Г-образная.
Расположение конструкции зависит от ее функционального назначения, и от размеров помещения.
Разместить барную стойку из гипсокартона в помещении можно таким образом:
- Островная конструкция, которая располагается в центре кухни.
- Полуостровная, опирается на элемент кухонного гарнитура или подоконник.
- Пристенная, примыкающая к стене.
- Мобильная, складная или передвигающаяся конструкция.

Внешний вид барной стойки зависит от вашей фантазии. Она может быть оснащена полками, ящиками, иметь несколько уровней или дополнительных аксессуаров, закрепленных на столешнице.
Этапы работ
Как сделать барную стойку из ГКЛ самостоятельно? Для этого необходимо создать чертеж будущей конструкции, приготовить все материалы и инструменты. Приступать к работе можно в том случае, если все подготовительные мероприятия выполнены правильно.
СОВЕТ ! Приобретать материалы для постройки конструкции, лучше после составления проекта. Руководствуясь размерами, указанными в чертеже, легко посчитать нужное количество всех расходников .

Для работы приготовьте следующие материалы и оборудование:
- Деревянный брус или металлопрофиль для каркаса.
- Гипсокартон.
- Саморезы, дюбеля, крепления для металлопрофиля.
- Отделочные материалы.
- Шуруповерт.
- Болгарка или электролобзик.
- Нож для гипсокартона.
- Измерительный инструмент (рулетка, уровень).
Проектирование и подготовка
Создать проект барной стойки можно самостоятельно, или воспользоваться готовым эскизом, взятым из интернета. Прежде, чем приступать к выполнению чертежа, учтите, что выбор модели зависит от площади, и других характеристик помещения:
- Островная, полуостровная или С-образная стойка устанавливается в больших помещениях.
- В маленькой кухне рекомендуется пристенный или мобильный вариант, который располагают вдоль стены или подоконника.
- В квартире-студии барная стойка помогает разграничить пространство. Специалисты советуют выбрать Г-образную модель или пристенную, примыкающую к стене узкой частью.
Чертеж конструкции выполняется с учетом всех особенностей выбранной модели. Затем следует раскрой материала и подготовка поверхности, на которой будет смонтирована барная стойка своими руками.
Сборка каркаса
Каркас может быть жестко зафиксирован на поверхности или не закреплен совсем. Это зависит от конструкционных особенностей стойки. Классический прямоугольный каркас, жестко закрепленный на полу, делается в несколько приемов.
Шаг 1 . Поверхность, на которой будет закреплен каркас, очищается от мусора. Наносится разметка, в соответствии с чертежом. Часть напольного покрытия удаляют, строго следуя разметке.
Шаг 2 . На пол прикрепляют металлические направляющие или деревянные бруски – зависит от материала, выбранного для каркаса. Для крепления стоит использовать как дюбели, так и саморезы. К направляющим фиксируют вертикальные стойки, на расстоянии 20-25 см. Верхняя часть стоек закрепляется по периметру горизонтальными направляющими. Получается первоначальный короб стойки. Чтобы предотвратить перекос конструкции при монтаже, обязательно проверяют вертикальность и горизонтальность деталей с помощью уровня.

Если конструкция каркаса имеет овальную форму, боковые стенки направляющего профиля надрезаются, на расстоянии около 5 см друг от друга. Такая мера позволяет придать металлопрофилю изогнутые формы .
Шаг 3 . Для придания конструкции жесткости, вертикальные стойки крепят горизонтальными перемычками. Если в конструкции предусмотрены ниши или полки, каркас монтируется в соответствии с чертежом. Все горизонтальные поверхности (рамы для столешницы, нижние части полок или ниш) дополнительно укрепляются перемычками.
Шаг 4 . На внутренней части каркаса закрепляются провода для розеток и подсветки. Провода должны быть упакованы в кабель-каналы, и закреплены так, чтобы не повредить их при монтаже гипсокартона.
Для барной стойки необходимо выбрать самый прочный металлопрофиль . Если для каркаса применяются деревянные бруски, предварительно их нужно обработать противогрибковым антисептическим составом. Все части конструкции скрепляются очень тщательно, во избежание деформации каркаса при нагрузках. По окончании сборки каркаса его промеряют и корректируют размеры гипсокартона на чертеже.
Обшивка и отделочные работы
На готовый каркас закрепляются гипсокартонные листы, предварительно раскроенные в соответствии с исправленными проектными размерами. Гипсокартон крепят потайными саморезами, заглубляя шляпки. Шаг между саморезами должен быть около 10-15 см.
Поскольку на кухне производится много работ, связанных с водой, для возведения барной стойки рекомендуется использовать влагостойкий гипсокартон.

Готовую гипсокартонную конструкцию грунтуют. Все стыки должны быть укреплены и тщательно обработаны. Для этого применяют специальный пластиковый уголок, серпянку (монтажную ленту) и шпаклевку. Полностью шпаклевать и выравнивать поверхность нужно только в том случае, если, в качестве финишного слоя планируется окрашивание поверхности.
Барная стойка, сделанная из гипсокартона смотрится гораздо эффектнее, если отделать ее декоративным материалом.
Финишная отделка может быть сделана из таких материалов, как :
- Краска.
- Мозаичная плитка.
- Искусственный камень.
- Обои.

После нанесения декоративного покрытия, барная стойка из гипсокартона почти готова. Остается смонтировать подсветку, если она предусмотрена, и установить столешницу. К качеству столешницы предъявляются особые требования. Она должна быть выполнена из влагостойкого материала, не поддающегося деформации в процессе эксплуатации. На столешнице можно закрепить стойки и дополнительные полочки.
Видеоstroitelstvo.guru
Барная стойка из гипсокартона-Обучение гипсокартонным работам
Строительство и ремонт
Автор: Administrator 18.02.2015 15:51
Барная стойка в квартире — это яркая деталь в квартире, которая впишется в любой интерьер. Многие могут подумать, что барная стойка служит лишь для распития спиртных напитков, нет — это многофункциональная деталь.
В малогабаритной квартире дизайнеры советуют совмещать кухню и гостиную в одну комнату, и в этом случае, стойка поможет разделить пространство на: зону для приготовления блюд и зону для отдыха и приёма гостей.
Барные стойки из гипсокартона фото

Барная стойка может быть укомплектована с закрытыми полками и открытыми. Закрытые полки будут находиться под столешницей. Полки могут открываться в сторону гостиной или в сторону кухни, как удобнее хозяйке. Чем они удобны?в них можно хранить кухонные принадлежности.
Стойку проще всего сооружать из гипсокартонной конструкции, с последующей отделкой декоративными материалами, такими как натуральный или искусственный камень, фактурная штукатурка и прочее.

Поэтому-то, стойку может выбрать себе любой человек «по карману» и по дизайну.


Классическая стойка — это столешница, которая крепится на ножках. Это может быть и стеллаж, невысокого размера, сверху накрытый столешницей.
Если помещение небольшое, то, к барной стойке можно подобрать и барные высокие стулья, которые потом могут храниться на балконе или на антресолях.
Выбирая барную стойку, надо помнить, что столешница должна быть крепкой, устойчивой к сколам и грязи, а для хозяйки главное, чтобы легко мылась.


Хорошо, если ко всем преимуществам, стойка будет вписываться в общий дизайн, то есть, столешница того же цвета и материала, что и поверхности буфетов и шкафов.
После чего, можно подумать и о оборудовании, включающей в себя конструкции: подсветка, электроприборы и т.п. При этом, все провода должны быть скрыты.


Барная стойка, отличная «полка» для кофеварки, электрочайника, тостера. Или же она будет служить дополнительным местом, для хранения фужеров, сервиза, можно поставить вазу с цветами.
Оборудовать стойку можно как угодно, но, всё же, надо помнить, что есть атрибуты, присущие только бару. И первое, что к таким атрибутам относится — вытянутые стулья, достаточно пары штук.


Далее, стойка для бокалов. Это может быть тонкая дощечка с рюмочными отверстиями. Обязательно потребуется оборудовать навесной шкафчик, в нём можно хранить кофейный набор.
Выполняя изготовление стойки, важно помнить, что, главный элемент — это каркас. И, если стойка делается из гипсокартона, то, лучше воспользоваться металлическим профилем, из которого и делается каркас, крепящийся к полу и стене.


Выровнять надо по уровню и проверить всю конструкцию на прочность.
Как каркас установится, делается сверху столешница из материала, который выберет хозяйка по дизайну и цвету, крепится она надлежащим образом. Далее, производится обшивка стенок гипсокартоном. Технология аналогична тому варианту, которым обшивают стены и потолки.


Стенки стойки можно окрасить, обклеить, но, сначала швы должны быть зашпаклёваны.
Читайте также…
gipsari.com
Барная стойка – своими руками выбираем материал и осуществляем монтаж
Барная стойка – универсальный элемент декора, который может выполнять сразу 3 функции: быть заменой стандартному обеденному столу, разграничивать зоны в кухне-студии и быть важнейшим акцентом стильного интерьера. Она станет удачным дополнением как на небольшой кухоньке, так и на достаточно просторной площади. Но сегодня я не буду расписывать все преимущества и особенности этого аксессуара, в этой статье хочу рассказать, как создается барная стойка своими руками и предложить интересный мастер-класс по ее монтажу.

Барная стойка – определенно не лишний аксессуар на кухне
Материалы
Создание барной стойки начинается с правильного подбора материалов. Спешу вас обрадовать – поскольку аксессуар для кухни выполняется в формате «мини», много сырья не потребуется, так что особо больших финансовых затрат не предвидится.

Выбор материалов для конструкции разнообразен
Итак, какие материалы можно использовать в этом творческом процессе?
- Пластик. То, о чем можно сказать «дешево и сердито». Легкий, дешевый и представленный в широком цветовом ассортименте, к тому же легкий в обработке.
Но есть у пластика один внушительный минус – его недостаточная прочность. Так что вам либо потребуется быть предельно осторожными, либо искать альтернативу.

Пластиковая стойка – красиво, но не особо прочно
- Ламинированный ДСП. Этот вариант подороже первого, да и процесс его обработки гораздо сложнее. В противовес этому можно поставить большую долговечность в сравнении с пластиком и еще большее разнообразие расцветок, способных имитировать любую поверхность – от благородной древесины до холодного мрамора.

Листы ДСП могут имитировать практически любую поверхность

Один из самых простых вариантов стойки из ДСП
- Гипсокартон. Главное преимущество данного вида материала – возможность с его помощью создавать конструкции любой формы. Покраска гипсокартона также не составит труда, цвет по желанию.

Гипсокартон выглядит вполне презентабельно

Любая конфигурация
- Дерево. Причем здесь подойдет не каждая обычная деревянная доска, уместными будут только ценные породы. Выглядеть барная стойка из дерева будет потрясающе, вот только есть у нее два недостатка: цена, которая некоторым окажется непомерной, сложность обработки, требующая хотя бы элементарных столярных навыков.

Дорогие породы дерева не могут выглядеть простецки

Натуральные материалы – солидно
- Кирпич. Обойдется дороже пластика или гипсокартона, но и эффект будет несравним. Кирпичные стойки вписываются практически во многие направления интерьера, выглядят интересно и основательно.

Кирпичная стойка прочна

Главный элемент интерьера
Разнообразие конструкций

Вариантов барных стоек масса, их выбор зависит от вашего вкуса, декора и бюджета

Перед закупкой материалов вы должны четко представлять, как в итоге будет выглядеть конструкция
С материалами все предельно понятно. Выберите что-то по своему вкусу и финансовым возможностям. Перед тем как барная стойка для кухни своими руками появится у вас в квартире, неплохо было бы определиться с ее внешним видом.
Чтобы немного помочь вам в этом деле, предлагаю ознакомиться с наиболее популярными вариантами стоек:
- Классический. Стандартная конструкция, основанная на высоких консолях. Чаще всего имеет высоту в 1,1 либо 1,15 м. Особенно хорошо такая стойка будет смотреться с высокими барными стульями.

Самый простой, но от этого не менее интересный вариант барной стойки

Практичное решение
- Комбинированный. Это не полноценная отдельная стойка, она комбинирована и как бы является продолжением обеденной зоны. Высота такой конструкции будет соответствовать высоте рабочей поверхности, к которой прилегает (примерно 0,9 м).
Наиболее удобными стульями в этом случае считаются модели с высотой в 0,6 м.

Стойка может быть продолжением рабочей зоны

Еще пример: продолжение подоконника
- Двухуровневый. Подразумевает создание стойки с двумя разными уровнями (что логично), один из которой будет играть роль непосредственно самой барной стойки, а другой – обеденного стола.

Двухуровневая стойка – вариант для тех, кто не испытывает ограничения в квадратных метрах
Такой вариант хорошо впишется в кухню-столовую. Достаточно разместить половину, выступающую в роли стойки, ближе к гостиной, а обеденной зоной развернуть конструкцию в сторону кухни.

Двухуровневая конструкция – когда есть где развернуться
- Стойка-остров. В таком случае стойку устанавливают непосредственно в центре кухни (если площадь позволяет, конечно же). Там же можно разместить рабочую и варочную панель и даже мойку.

Одинокая стойка хорошо смотрится лишь на просторной кухне
Этапы монтажа барной стойки
Барная стойка на кухне своими руками создается в несколько этапов. Начать рекомендую со столешницы как главного интерьерного акцента.
Столешница

Столешница

Материал для столешницы должен быть не только прочным, но и визуально привлекательным
Для изготовления столешницы часто используют ДСП или шпон. Но вы вольны выбирать что угодно, лишь бы материал был прочным, невосприимчивым к износу и, конечно же, визуально привлекательным.
Далее схема действий достаточно проста:
- Определиться с желаемой формой столешницы.
- Тщательно прикинуть и провести все необходимые замеры.
- Вырезать из материала нужную форму (желательно электролобзиком).
- Места срезов и кромку зачистить и оклеить специальной лентой.

Зачем покупать готовую столешницу, если ее можно делать по собственному проекту?
Есть и куда более простой вариант – купить готовую столешницу. Но согласитесь, если уж делать барную стойку самостоятельно, то делать ее следует целиком.
Технология монтажа
Основа – еще один важный элемент, без которого ваша барная стойка будет, мягко говоря, неполноценной. И если с созданием столешницы все предельно просто, то на этом этапе может появиться множество нюансов, которые я бы хотела озвучить подробней. В нижних разделах будет содержаться более подробная инструкция по изготовлению основы из разных материалов.

Монтировать барную стойку своими руками не так сложно, как могло показаться
Гипсокартон
Барная стойка из гипсокартона своими руками делается так. Вначале вам потребуется собрать весь необходимый инструментарий. В него входят:

Без нужных инструментов не обойтись
- непосредственно сам гипсокартон;
- строительный уровень;
- дюбеля и металлические профили;
- шпатель и шпаклевка;
- перфоратор;
- нож, краска и лоток для нее;
- герметик, кисти, валик;
- шуруповерт и просекатель.
Когда все собрано и перепроверено, самое время приступать непосредственно к работе.
Придерживайтесь следующих инструкций.

Каркас для ГКЛ
- Просчитайте необходимые размеры основы – высоту, ширину и длину будущей стойки. Не спешите, помните, что высота конструкции во многом определяет удобство ее использования.
- Далее необходимо создать прочный каркас. Чтобы придать ему жесткость, углы для крепления необходимо вырезать ножницами по металлу из цельного профиля и загнуть их под углом в 90 градусов.
- Направляющий профиль закрепите к полу или стенке с помощью дюбелей.
- При помощи металлических профилей создайте два каркаса-стенки. Соедините их между собой поперечными профилями. Закрепите с помощью просекателей.

Подсветку, как и прочие кабеля, необходимо проводить еще на этапе обустройства каркаса
- Если желаете обладать стильной подсветкой бара, самое время на этом этапе подвести к конструкции провода.
- Проверьте каркас на устойчивость. Если все в порядке, можно приступать к его облицовке.
- Листы гипсокартона крепятся к основе саморезами.

Саморезы зашпаклюйте
Чтобы максимально удачно скрыть шляпки саморезов, их следует немного «утопить» в гипсокартоне. После останется лишь зашпаклевать поверхность и выкрасить ее в желаемый цвет.
- После установки гипсокартоновых листов, хорошенько зашпаклюйте каждый стык монтажной сеткой. Это в дальнейшем предотвратит появление трещин.
- Если по завершению монтажа конструкции какие-то ее места неплотно прилегают к стене, пустоты можно заделать герметиком.

В итоге можно получить весьма интересную конструкцию
Дерево
Не скажу, что монтаж основы из дерева сильно отличается от аналогичных работ с гипсокартоном, но нюансы все же присутствуют.
Начинать необходимо все с того же подбора инструментов:

И опять без каркаса не обойтись
- брус 5х10 см;
- МДФ листы с толщиной в 18 мм;
- обрезанная доска 2,5х30 см;
- плинтус;
- саморезы;
- краска и герметик;
- лак.

Вариант стойки из поддонов – дешево, но сердито
Все необходимые инструменты под рукой?
Тогда можно смело переходить к делу:
- Отталкиваясь от задуманного дизайна конструкции, отмерьте его необходимую длину, высоту и ширину.
- На полу и стенке начертите разметку будущего каркаса. По намеченным линиям начните крепить корпус.

Не ошибитесь в размерах, тщательно отмерьте, только потом отрежьте
- Установите стойки опоры, закрепите их поперечными балками. Высоту стоек необходимо подбирать равную высоте рабочей поверхности на кухне. Это не только удобно, но и выглядит более эстетично. Кстати, поперечные стойки следует проверять согласно строительному уровню.
- Между собой стойки необходимо соединять поперечными брусьями. При желании закрепить конструкцию помогут мебельные уголки.
- Готовый каркас отделайте деревянными панелями.
Каждую образовавшуюся щель заполните акриловым герметиком, а торцы столешницы обработайте молдингом.

И даже такую стойку вы можете соорудить самостоятельно
Кирпич
Барная стойка из кирпича – достаточно внушительное и основательное сооружение, чья прочность не вызывает сомнений. Для подобной конструкции я бы рекомендовала использовать красный кирпич – он сам по себе выглядит роскошно и не требует дополнительного декора. В качестве столешницы в таком случае стоит подбирать варианты из мрамора, МДФ-плит или плотной древесины.

Один из простейших вариантов барной стойки под кирпичную кладку

Кирпич прочен и невероятно привлекателен с точки зрения дизайна
Поскольку кирпичная конструкция достаточно тяжела, для ее основания понадобиться бетонная стяжка. Если на кухне деревянные полы, от идеи лучше отказаться.
Все что потребуется для подобной стойки – кирпичи и цементный раствор. Просто ряд за рядом выкладывайте кирпичики по необходимой форме и скрепляйте их приготовленным раствором.
В заключение
Теперь вы точно знаете, как сделать барную стойку своими руками, и уже можете что-то планировать для обновления собственного интерьера. Учтите, монтирование стойки – далеко не финальный этап ремонтных работ; поверьте, после вам захочется оборудовать ее дополнительными навесными шкафчиками и полками, но это уже совсем другая история.

Вариантов для выполнения масса, а какой выберете вы?
В дополнение к полученной информации вы можете просмотреть видео в этой статье. В комментариях ниже задавайте свои вопросы по теме, рассказывайте о своем опыте обустройства кухни барной стойкой или делитесь секретам того, что же вы в ней храните.
Отличная статья 0
Статьи по теме
Все материалы по темеjkuhnya.ru
изготовление барной стойки из гипсокартона, дерева и кирпича — фото и видео
Сама идея установки барных стоек в квартирах и домах пришла в Россию из Европы и Америки, где зачастую эти элементы используются в качестве обеденных столов. Для традиционных русских семейных обедов и ужинов такое маленькое и неудобное пространство, конечно же, не подходит. Однако многие холостяки, живущие в быстром ритме и лишь завтракающие в квартире, уже давно оценили практичность барных стоек.
Существует множество разных моделей этого необычного и многофункционально предмета интерьера. И первоначальная роль стола для приема пищи уже давно не является единственной. Барные стойки быстро полюбили дизайнеры, использующие их с целью легкого и практичного зонирования пространства. В открытых квартирах-студиях барная стойка — это идеальный способ отделить кухню от гостиной. Если пространства очень мало, то сама стойка может стать двухуровневой, чтобы выполнять функции стола и рабочей зоны.
Помимо этого в нижней (а иногда и в верхней) части стойки располагаются системы хранения. Классическое наполнение верха: бокалы и декоративные элементы, внизу обычно располагается бар. Владельцы маленьких квартир-студий стараются оптимально использовать пространство, поэтому часто заполняют внутреннюю часть барной стойки посудой или иной кухонной утварью.
Барная стойка из гипсокартона своими руками
Гипсокартон — материал достаточно хрупкий и тяжелый, но с ним очень легко и просто работать, именно поэтому он пользуется огромной популярностью у «домашних мастеров». Сделать простую барную стойку из гипсокартона несложно. С чего же начать?

Прежде всего стоит определиться с местом расположения стойки и её размерами. После этого под нужные габариты закупают материалы для создания каркаса. Чаще всего для гипсокартона используют каркас из профиля. С ним также легко работать, он достаточно пластичен и в это же время очень прочен. Сама конструкция должна получиться максимально жесткой. Лучше всего монтировать углы из целого профиля, сделав небольшие надрезы по бокам. Не забывайте про ребра жесткости, которые позволят сделать конструкцию устойчивой и надежной. Только полностью убедившись в качестве каркаса можно приступать к обшивке гипсокартоном. Куски нужно отрезать под размеры самого каркаса. А вот прикручивать стоит так, чтобы шляпки саморезов слегка «уходили» в гипсокартон. Тогда они будут незаметны после проведения отделочных работ.
После завершения основных работ можно приступать к «чистовым». Стыки заделывают, места, где находятся саморезы шпатлюют. После высыхания, их можно шкурить до идеального состояния. Торцы также рекомендуют обработать шлифовальной бумагой.

Затем всю поверхность барной стойки грунтуют. Слой должен полностью высохнуть, тогда краска ляжет ровно и красиво. Осталось установить столешницу.
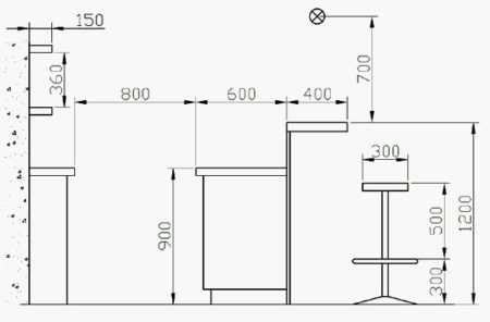
Барная стойка из дерева своими руками
Эксклюзивная стойка, сделанная из дерева, станет настоящим украшением квартиры или дома. Для работы над ней понадобится пила, дрель, лобзик и рубанок. Для начала нужно определиться с размерами самой барной стойки. От этих габаритов, разумеется, будут зависеть размеры всех деталей.

Так, например, для стойки с размерами один 1000 миллиметров длиной, 300 миллиметров шириной и 1200 миллиметров высотой.
Для этого потребуется:
- 1 основание 1000х300 миллиметров;
- 1 столешница 1000х300 миллиметров;
- 1 внутренняя полка 950х250 миллиметров;
- 2 боковые стенки 1200х300 миллиметров;
- 1 задняя стенка 1200х1000 миллиметров.
Боковые стенки нужно соединить с задней так, чтобы на стыке образовались прямые углы. Специалисты по сборке мебели рекомендуют использовать не только шурупы, но и мебельный клей, чтобы повысить прочность изделия.
Затем данную конструкцию крепят к столешнице (сверху) и основанию (снизу) также клеем и шурупами. Увеличить жесткость конструкции можно с помощью внутренних стоек, которые изготавливаются из обычных деревянных брусков. После этого внутри барной стойки крепится полка.
Вы можете оставить конструкцию в таком «первозданном» виде или вскрыть её лаком.
Барная стойка из кирпича своими руками
Если вы хотите сделать по-настоящему основательную барную стойку, то обратите внимание на тяжелый, но очень прочный материал. Кирпич идеально подходит для стоек типа «остров», которые стоят отдельно от стены. Они могут находиться в любой части квартиры и выполнять роль разделителя.

Для установки такой конструкции вам потребуется кирпич и цементный раствор. Основа выполняется, как правило, в виде параллелепипеда. Аккуратно выкладывайте кирпич друг на друга, сцепляя элементы раствором.
Мастера рекомендуют использовать красный облицовочный кирпич, который не требует дополнительной обработки. Но вы также можете воспользоваться и любым другим видом строительного кирпича. В этом случае конструкция заметно прибавит в весе. Этот фактор нужно учитывать, предварительно рассчитав прочность полов и общий вес конструкции. Не забывайте и о том, что на самой барной стойке могут стоять тяжелые предметы, так что рассчитывать предельный вес нужно, исходя из максимальной нагрузки. Во многих квартирах «старого фонда» полы могут не выдержать подобной нагрузки. Рекомендуем вам подумать об этой проблеме заранее. Интересная барная стойка своими руками фото может получиться, если вы «впишете» её в интерьер помещения.
К тому же кирпич любого другого вида нужно будет дополнительно штукатурить, чтобы он не «сыпался». Этот процесс также потребует мастерства и времени. Из достоинств этого материала можно выделить высокую устойчивость итоговой конструкции. На неё можно поставить столешницу из натурального или искусственного камня, кирпичное основание вынесет такую массу. Впрочем, толстая деревянная плита будет смотреться не хуже.
Барная стойка своими руками: фото и видео








home-ideas.ru
