Гипсокартон подвесной потолок – Потолок из гипсокартона своими руками
гипсокартон и натяжной, потолок из гипсокартона, натяжной потолок с гипсокартоном по периметру своими руками, подвесные потолки из ГКЛ, сочетание с натяжным
Содержание:
Стильно и оригинально на потолочной поверхности смотрится сочетание гипсокартонной конструкции и натяжного полотна. Комбинированные потолки причудливой конфигурации с подсветкой способны подчеркнуть уникальность интерьера любого помещения.

Сочетание натяжного потолка и гипсокартона
Потолочные комбинированные системы выглядят интересно и современно. Покрытие данного вида придает внешнему виду комнаты эксклюзивность. Главным отличием подобного потолка является оригинальное сочетание матовой гипсокартонной поверхности и глянцевого полотна. Различная комбинация фактур позволяет интересным образом задействовать осветительное оборудование.
На сегодняшний день популярностью пользуются подвесные гипсокартонные системы с «натяжными» вставками. Многие дизайнеры пользуются данным приемом, чтобы получить невероятные оптические эффекты.

Роскошно выглядит в зале или прихожей натяжной потолок с гипсокартонным коробом, смонтированным по периметру. Создание сложных потолочных конструкций желательно поручить профессионалам, которые проведут точные измерения, составят проект, подберут лучшее сочетание материалов между собой и качественно выполнят монтаж.
Обустройство надежного и красивого потолка возможно благодаря наличию у опытных мастеров многолетнего опыта работы и соответствующих навыков и знаний.
Особенности комбинированного потолка
Комбинированные потолки из натяжного и гипсокартонного материалов имеют ряд неоспоримых преимуществ:
- Возможность зонирования. Визуальное разграничение пространства можно обеспечить путем соединения разнообразных форм, фактур и цветового оформления. Важным этапом процесса зонирования является проектирование создания освещения. Благодаря установке точечных приборов и светодиодных лент имеется возможность разграничить помещение на несколько функциональных зон.
- Превосходные технико-эксплуатационные характеристики. Такие потолочные конструкции отличаются износоустойчивостью, простым обслуживанием, стойкостью к механическим повреждениям и ультрафиолетовым излучениям.
- Использование осветительного оборудования разного типа. Кроме этого, в нише из ГКЛ можно скрывать разные инженерные коммуникации.
- Продолжительный эксплуатационный срок без ремонта.
- Дополнительная тепло- и звукоизоляция.
- Сочетание гипсокартонных плит и натяжного полотна предоставляет неограниченные возможности при создании дизайна комнаты.
- Установить данные конструкции можно в помещениях, имеющих любую площадь. При этом многоуровневые системы не стоит монтировать в малогабаритных комнатах.

В процессе создания потолка из гипсокартона и натяжного полотна возможно возникновение следующих сложностей:
- На монтаже сэкономить невозможно. Без опыта проведения подобных работ приниматься за их реализацию не нужно. Несоблюдение технологического процесса приводит к тому, что гипсокартон сместится или треснет.
- Нельзя приступать к созданию комбинированной конструкции без проекта и чертежа.
- Натяжные полотна в не отапливаемых комнатах не устанавливают.
Варианты создания комбинированных потолков
Чаще всего сочетание подвесной гипсокартонной конструкции с натяжным полотном выполняют в следующих вариациях:
- Короб из гипсокартонных плит размещают по периметру. Внутри него фиксируют натяжное полотно. Параметры обрешетки из ГКЛ зависят от размеров помещения. Когда нужно приподнять конструкцию и сделать заметной красоту натяжного потолка, тогда для боковых панелей задействуют тонкие гипсокартонные изделия. Эффектно смотрится конструкция, если внутри короба размещена скрытая подсветка.
- Основа имеет круглую или овальную форму, а по ее центру смонтирован натяжной потолок. Данная композиция применяется дизайнерами при создании ночного звездного неба.

- В центре потолочной плоскости из гипсокартона монтируют элемент в форме таблетки. Обычно в этом же месте прикрепляют люстру. Все остальное пространство покрывают натяжным полотном. Имеющая сходство с «таблеткой» конструкция «круг в круге» позволяет обустраивать объемную конструкцию.
- Гипсокартонная основа имеет оригинальные формы и изгибы. Монтировать натяжное полотнище в этом случае довольно трудно и без точных измерений тут не обойтись. Для проведения расчета фигур неправильной формы задействуют специальные технологии.
Выбор цветового решения
При сочетании гипсокартона с натяжным потолком для создания потолочной конструкции особое внимание необходимо уделить подбору цветового оформления и совместимости разных тонов между собой.
При решении данной задачи не будут лишними несколько рекомендаций профессионалов:
- При необходимости создать спокойную обстановку, которая не будет отвлекать, применимо монохромное сочетание. При этом предпочтительнее пастельные тона. Для достижения визуального эффекта задействуют скрытую подсветку, разнообразные формы и установку нескольких ярусов. Монохромные и светлые тона больше всего подойдут для небольших помещений.
- Для детской или гостиной актуальными являются сочетания контрастных оттенков. Чтобы с этим не перестараться, цвета смешивать следует аккуратно, прислушиваясь к советам профессионалов.
- При выборе цветовой палитры необходимо помнить, что каждый колер способен вызвать определенные ассоциации и влиять на настроение.

К оформлению каждого помещения в зависимости от его назначения следует подходить индивидуально:
- Кухня. Должна быть уютной и тем самым располагать членов семьи к общению. Здесь уместно использовать глянцевое потолочное покрытие, поскольку оно зрительно расширяет окружающее пространство.
- Прихожая. Это помещение создает первое впечатление о владельцах дома, поэтому оттенок поверхности потолка лучше делать светлее на 3-4 тона по сравнению с цветом обоев и мебели.
- Детская. Для такой комнаты, по мнению психологов, желательно использовать зеленый, оранжевый, светло-синий и бежевый цвета. Изображения героев сказок и мультиков хорошо подойдут для самых маленьких. Для школьников нужно подбирать другую тематику потолочной поверхности, поскольку они быстро растут и также быстро меняют свои предпочтения. При выборе рисунка для печати на натяжное полотно этот нюанс нужно учитывать.
- Спальня. Так как она предназначается для спокойного отдыха, ее не следует делать темной и мрачной. Для нее хорошо подойдет обустройство «звездного неба», а также персиковый, бежевый или сиреневый оттенки. Натяжной потолок с гипсокартоном по периметру белого цвета будет эффектным решением.
- Гостиная. Цвет потолочного покрытия зависит от стилистики интерьера. Для хай-тека подходят холодные оттенки, для прованса и кантри – оливковый, нежно-лиловый и светло-желтый, а для классической обстановки – бежевый, серый, белый. Когда гостиная имеет большую площадь, тогда отличным решением станет обустройство многоярусной конструкции с комбинацией контрастных колеров.
- Ванная и санузел. Чтобы нивелировать контрасты между стальными изделиями и керамической сантехникой при отделке потолка предпочтительнее использование серого или бежевого цвета.
Благодаря грамотно подобранной гамме цветов в комнате можно создать гармоничную атмосферу и обстановку, благоприятную для самочувствия.
Подготовка к монтажу
Одним из простых способов совмещения натяжных потолков с ГКЛ является обустройство короба из гипсокартона по периметру помещения. До начала работ его освобождают от мебели и предметов интерьера. Осветительные приборы снимают с потолка и изолируют концы проводов. Напольное покрытие застилают полиэтиленовой пленкой или газетой.
Подготовку перекрытия под монтаж выполняют, как и в случае с установкой потолочной гипсокартонной конструкции или натяжного полотна:
- удаляют отслужившие свой срок краску, штукатурку, побелку или снимают старые обои;
- неровности, трещины или щели замазывают шпаклевкой, изготовленной на цементной основе;
- поверхность грунтуют и тем самым повышают ее гидро- и пароизоляционные свойства и уменьшают образование пыли.

К подготовительным работам также относится приобретение нужных материалов:
- Чтобы собрать каркас под гипсокартонную конструкцию, используют направляющий профиль – UD, несущий профиль – CD, развальцованные дюбеля и саморезы и одноуровневые соединители.
- Для отделки применяют гипсокартонные листы 9-миллиметровой толщины. В жилых комнатах задействуют обычные изделия, а во влажных помещениях — влагостойкие ГКЛ, содержащие силиконовые гранулы и антигрибковые компоненты.
- Чтобы смонтировать «французский потолок» потребуется багет, лучше, если он будет алюминиевым, саморезы и специальная лопатка для заправки полотнища.
- Для натягивания ПВХ полотна необходима тепловая пушка. При создании комбинированного потолка натяжного и гипсокартонного своими руками ее намного выгоднее арендовать, а не приобретать.
- При обустройстве натяжной системы используют тканевое или пленочное полотнище. Первый вид полотна не боится перепада температур, а второй – отличается влагоустойчивостью, широким выбором фактур и цветовых решений.
Составление чертежной документации
Качественное выполнение монтажных работ возможно только при наличии чертежа, который составляют в определенной последовательности:
- Измеряют протяженность стен, высоту углов и определяют центр потолочной плоскости.
- Отмечают на бумаге высоту первого уровня короба и промежуток между полотном и перекрытием.
- Прорисовывают контуры границ обоих ярусов.
- Наносят линии расположения профилей двух видов — несущего и направляющего с промежутком 40 сантиметров поперек и 60 сантиметров вдоль.
- Далее отмечают места укладки инженерных коммуникаций и прикрепления подвесов.

Все данные переносят с чертежа на потолочную поверхность. Согласно нанесенной разметке гораздо легче устанавливать комбинированный потолок, а от этого напрямую зависит качество и скорость исполнения работы.
Чтобы перенести отметки пользуются:
- отбивочным малярным шнуром:
- рулеткой;
- уровнем – водяным или лазерным.
Если границы ГКЛ запроектированы в виде окружности, то их переносят при помощи прикрепленного в центр перекрытия самореза с мягкой проволокой и карандашом. Для создания изогнутых линий применяют лекало, сделанное из плотного картона. Его прикладывают к потолку и обводят по контуру.
Монтаж каркаса
Приступая к фиксации направляющих профилей надо убедиться, что в них имеются отверстия под крепежные изделия. Если они отсутствуют, их нужно собственноручно просверлить. Оптимальный шаг крепления равен 30-40 сантиметров.

Поэтапная сборка каркаса:
- Согласно нанесенной разметке крепят UD профиль, применяя дюбель-гвозди 6/40 миллиметров. Первый и завершающий крепежи фиксируют на расстоянии 10 сантиметров от края, а следующие – через 40 сантиметров.
- В UD профиль помещают CD изделия и закрепляют саморезами по металлу. Если нужно сделать изгиб, с противоположного края направляющего профиля производят надрезы и сгибают его в требуемом направлении. Чем угол сгиба круче, тем больше их потребуется сделать.
- При помощи натянутого капронового шнура осуществляют контроль над горизонтальным расположением конструкции.
- Между направляющими профилями с целью придания каркасу большей прочности и жесткости монтируют поперечные изделия на расстоянии 40 сантиметров друг от друга. Для обрезки металлопрофиля пользуются ножницами. Его прикрепляют к CD направляющим, применяя крестовые соединения.
- В месте, где натяжное полотно примыкает к гипсокартону, дополнительно устанавливают закладной профиль.

После завершения монтажа каркаса приступают к укладке коммуникаций. Всю проводку укладывают в гофро-трубы и прикрепляют к потолочному перекрытию. В точках размещения светильников обустраивают выводы проводки. Электромонтажные работы осуществляют после того, как помещение полностью обесточено.
Обшивка ГКЛ
Когда создается комбинированный потолок натяжной и гипсокартонный, перед использованием гипсокартона в течение некоторого времени материалу дают адаптироваться к температуре и влажности окружающего пространства. Листы раскладывают на полу и оставляют на несколько дней.

Обшивку каркаса осуществляют в таком порядке:
- Первую плиту фиксируют саморезами в углу помещения. Когда ее размер больше площади обрешетки, тогда контуры конструкции переносят на гипсокартон и вырезают деталь нужной конфигурации. Шляпки саморезов при их вкручивании необходимо углубить в материал.
- На остальную часть профиля прикрепляют следующий лист. Между стенами и ГКЛ оставляют зазор, равный примерно 0,5 сантиметров. Саморезы вкручивают с 30-сантиметровым промежутком.
- Аналогично обшивают всю горизонтальную часть каркаса.
- Далее занимаются обшивкой вертикальных участков короба. Для установки на криволинейных участках изделия сгибают, для чего на них с тыльной стороны делают неглубокие надрезы. Можно поступить иначе: немного увлажнить гипсокартон и пройтись игольчатым валиком по его поверхности. Изогнутый фрагмент перед установкой высушивают.
- Места стыка ГКЛ со стеной и полотном оклеивают лентой-серпянкой.
- Углубления в материале от саморезов и зазоры шпаклюют маленьким шпателем.
- Отмечают места расположения приборов освещения и вырезают соответствующие отверстия сверлом с коронкой.
- Все поверхности из гипсокартона оклеивают стекловолокном и обрабатывают слоем финишной шпаклевки толщиной 1,5 сантиметра.
- Зашпаклеванный короб затирают мелкозернистой наждачной бумагой.
- С поверхностей удаляют пыль.
- Гипсокартонное покрытие грунтуют.
- Выполняют финишную отделку короба, обычно это нанесение акриловой краски.

Монтаж натяжного полотна
Когда работают над созданием комбинированных натяжных потолков, полотно устанавливают после высыхания крашенных гипсокартонных элементов. Для монтажа ПВХ полотнища потребуется тепловая пушка. При выборе способа установки натяжной пленки желательно использовать гарпунное крепление, отличающееся надежностью и возможностью сделать повторную установку.

Последовательность фиксации пленочного ПВХ полотна следующая:
- На вертикальную часть короба наносят отметку уровня установки полотна.
- Согласно отмеченной линии крепят багет с шагом 7 сантиметров. Для строительства криволинейной конструкции делают на профиле надрезы, шлифуют их напильником или наждачкой и загибают в нужную сторону.
- Помещение прогревают тепловой пушкой до 40 градусов и разворачивают пленку. Чтобы на ней не появились темные пятна, прибор не следует подносить к полотну близко.
- Когда температура в комнате достигнет 60 градусов, можно заправить в багет гарпун базового угла. Затем фиксируют противоположный угол материала и два боковых.
- Если углы закреплены, гарпун можно помещать в багет вдоль периметра короба. Складки на полотне устраняют повторным прогревом.

Тканевое полотно монтируют иначе:
- Профиль для клипсового крепления ткани располагают вдоль периметра короба.
- Текстильное полотнище закрепляют по центру каждой стороны.
- Ткань от центра подтягивают к краям и закрепляют в багете.
- Материал фиксируют в углах.
- Остатки полотнища обрезают.
- Места со складками прогревают строительным феном и разглаживают. Расстояние между прибором и тканью должно составлять около 20 сантиметров.
pod-potol.com
установка гипсокартона на потолок своими руками, технология укладки ГКЛ, гипрока
Содержание:
Применение гипсокартонных потолочных конструкций широко распространено как в оформлении общественных, так и жилых помещений. Несмотря на видимую сложность, отделку данного типа вполне по силам реализовать самостоятельно.

Общая информация
Под гипсокартонным листом (ГКЛ) понимается жесткая облицовочная плита, с помощью которой можно организовывать межкомнатные перегородки и выравнивать черновое основание на потолках, стенах, внутри оконных и дверных проемов и т.п. ГКЛ еще называют «гипроком» или «сухой штукатуркой». Структура листов напоминает пирог, где между двумя внешними слоями плотного картона небольшой толщины размещена однородная прослойка твердого раствора гипса.

Гипсокартонные листы обладают целым рядом специфических характеристик, которые необходимо учесть во время работы:
- Наличие однородной матовой поверхности. Это заметно облегчает финишную отделку созданного таким образом основания с помощью шпаклевки, краски, кафеля, обоев, декоративной штукатурки и т.п.
- Дешевизна. Стоимость ГКЛ на порядок ниже, чем у других стеновых материалов – кирпича, монолитного бетона, газобетона.
- Легкость. Небольшой вес материала дает возможность избежать значительного увеличения нагрузки на фундамент здания и упрощает процедуру крепления во время монтажа гипсокартонного потолка. Это объясняет широкую популярность ГКЛ в интерьерном строительстве.
- Пожарная безопасность. Минеральная прослойка является полностью негорючим материалом. Входящие в ее состав компоненты не содержат вредных для здоровья токсичных веществ, что позволяет без опаски применять гипсокартонную обшивку в детских комнатах и спальнях.
- Хорошая жесткость, благодаря использованию композитной структуры плит. При этом для них характерна некоторая гибкость и упругость. Комбинация этих качеств дает возможность обшивать с помощью ГКЛ обширные прямолинейные основания и создавать интерьерные композиции с криволинейной конфигурацией. Речь идет об декоративных эркерах, карнизах, контр ажурном освещении и т.п.
- Наличие определенного расстояния между гипсокартонной поверхностью и черновым основанием. Внутри образовавшейся пустоты зачастую прокладывают электрические кабели, вентиляционные каналы, телевизионную разводку и т.п. Со стороны эти коммуникации полностью незаметны.
- Уменьшение площади помещения. Потолочные и стеновые гипсокартонные конструкции обустраиваются на несущем металлическом каркасе, обладающем некоторой толщиной. Это приводит к уменьшению жилого пространства (от 5 см по каждой поверхности), что следует учесть при отделке малометражных помещений.
- Боязнь влаги. Гипсокартонные плиты не являются влагостойким материалом: под ее воздействием материал размокает и постепенно разрушается. Следует удерживаться от использования ГКЛ в сырых помещениях, типа бани, ванной или душевой.
Для изготовления картонного покрытия листов используется натуральное целлюлозное вещество. Как результат, в условиях холода, плохой вентиляции и высокой влажности оно становится идеальной средой для размножения и роста грибка и плесени. Во избежание подобных явлений необходимо позаботиться об подходящих условиях эксплуатации обшивки, с обязательной вентиляцией межпотолочного пространства.
Как рассчитать материал
При закупке необходимых комплектующих для установки гипсокартона на потолок обычно не возникает никаких сложностей, т.к. любой современный гипермаркет строительных материалов в состоянии предоставить весь необходимый перечень:
- Гипсокартонные плиты. В продаже есть изделия толщиной 9,5 и 12,5 мм. Первый вариант из-за своего меньшего веса чаще всего используют для обшивания потолков. Чтобы определиться с точным количеством листов, необходимо подсчитать площадь потолка, и взять запас 5%.
- Оцинкованный металлический профиль «UD». Имеет сечение 28х27 мм и служит для фиксации плит ГКЛ на стены по всему периметру. При расчете метража профиля к общей длине периметра добавляют 5 %.
- Металлический оцинкованный профиль «CD» (60х27 мм). Используется для обустройства потолочной обшивки. Для расчета точного количества этого профиля необходимо иметь на руках предварительный чертеж подвесного каркаса. Направляющие устанавливают на дистанции 60 см друг от друга. Добавка на подрезание традиционная (5% длины).
- Дополнительные крепежи. Дают возможность увеличивать промежуток между основным и декоративным основанием. Подвесы бывают двух типов – П-образные дистанционные и пружинные проволочные. П-образный элементы подходят в ситуациях, когда высота запотолочного пространства предполагается в пределах 12 см. Если гипсокартонные плиты необходимо опустить ниже (до 100 см), используют пружинные подвесы.

- Дистанционные подвесы должны располагаться по всей площади потолка на расстоянии до 100 см при поперечных и продольных замерах.
- Металлические соединители. С их помощью можно сращивать между собой направляющие профильные планки.
- Крабы. Используются для плоскостного сращивания двух перпендикулярных планок. Для расчета числа крабов общую длину потолочного профиля необходимо разделить на 0,6.

- Оцинкованные саморезы и дюбели из пластика. Обеспечивают надежное крепление профильного каркаса на бетонное перекрытие. Гипсокартонные плиты крепятся к каркасу посредством фосфатированных саморезов 3,5х25 мм.
- Армирующая сетка серпянка и финишная шпаклевка. Эти материалы предназначены для заделки стыковочных участков гипсокартонной поверхности и точек посадки саморезов. Шпаклевка может быть гипсовой (в сухом виде) и акриловой (готовая для использования).
Если монтаж гипсокартона на потолок своими руками проводится на кухне или в ванной комнате, рекомендуется применять специальные влагостойкие ГКЛ зеленого цвета.
Инструменты
Обустройство потолочной гипсокартонной конструкции не потребует использования специальных приспособлений.
Для работы необходимы следующие инструменты, которые зачастую имеются в коллекции любого домашнего мастера:
- Электрический перфоратор и набор буров. С его помощью несущий каркас фиксируется на черновое бетонное перекрытие. Вполне сгодится мощная ударная дрель.
- Шуруповерт. Учитывая тот факт, что по ходу работы саморезов придется закручивать очень много, одной отверткой управиться будет проблематично.
- Болгарка и диск по металлу. Для нарезания кусков металлический профиль необходимого размера. Также должна быть под рукой ручная ножовка и ножницы по металлу.
- Строительный нож и набор лезвий. Для прямолинейного разрезания плит ГКЛ. Фигурные вырезы обычно производят электрическим лобзиком с насадкой по дереву или металлу.
- Измерительные приспособления. Речь идет об угольнике, рулетке, строительном уровне, водном или лазерном уровне, отвесе, шнуре для отбивки.
- Молоток и рубанок. Чтобы подравнивать места разреза гипсокартонных листов.
- Набор шпателей (с узким и широким лезвием). Как правило, поверх готовой обшивки проводятся шпаклевочные работы.
- Терка и малярная наждачная бумага. После высыхания шпаклевку шлифуют для последующей покраски или поклейки обоев.

Работу с гипсокартоном своими руками на потолке удобнее всего реализовывать с удобного строительного козла. Также для этих целей сгодится старый надежный стол подходящих размеров (желательно, что он смог перекрыть ширину комнаты).
Подготовка
Помещение, потолок которого предполагается зашивать листами ГКЛ, необходимо полностью освободить от мебели и предметов декора. Если на перекрытии имеется старые подвесные системы, их необходимо полностью демонтировать. Такую отделку, как обои, покраску или шпаклевку можно оставить (при условии, что она держится крепко и не осыпается). Если на потолке необходимо проложить какие-либо коммуникации (кабели, вентиляционные каналы, провода), то это нужно сделать до начала сооружения каркаса. При этом следует проявить особую тщательность, т.к. снимать декоративную обшивку для ремонта проводки довольно проблематично.

Горизонтальность монтажа гипсокартонных плит обеспечивает предварительно нанесенная разметка:
- Важно понимать, что плиты перекрытие в многоэтажных зданиях не всегда уложены ровно, поэтому при обустройстве разметки не следуют от них отталкиваться.
- Горизонтальные направляющие удобнее всего наносить лазерным уровнем. Для этого его фиксируют на требуемой высоте, после чего по линии лазерному лучу проводят горизонтальные линии на все стены.
- Учитывая дороговизну лазерного уровня, вместо него довольно часто применяют более дешевый гидравлический прибор, в работе которого используется идея сообщающихся сосудов.
- Избрав произвольное место, там наносят горизонтальную метку: она должна возвышаться на 1 см выше уровня будущей декоративной поверхности.
- Далее один работник прикладывает по этой метке один прозрачный конец водного уровня. При этом нужно добиться того, чтобы уровень в трубке совпал с линией на стене.
- Второй работник, работая со стремянки, наносит подобную линию в двух точках каждой стены. Ориентиром служит уровень жидкости во второй прозрачной трубке. Кроме того, подобным образом размечают каждый из углов в помещении.
- Ориентируясь на готовые метки, нужно провести сплошную линию: по ней будет ориентироваться нижний срез профильного несущего каркаса. Так как дистанция между метками может быть большой, линию отбивают строительным шнуром.

Для удобства установки потолочного профиля при монтаже потолка гкл, кроме стен, необходимо разметить также плиту перекрытия:
- Потолок оснащается направляющей линией вдоль длинных стен строго по центру: на основании должны образоваться две одинаковых сектора.
- Отталкиваясь от оси, отбивают боковые отрезки длиной 60 см в каждую сторону по направлению к боковым длинным стенам. После этого их концы нужно соединить параллельными линиями. Крайние поперечины по каждому из торцов могут иметь любую длину до 60 см.
- Подобная процедура проводится по отношению к коротким стенам. Здесь также потребуется отбивка осевой линии, а от нее с шагом 60 см ставятся метки, соединяемые между собой. В результате разметки весь потолок должен быть разбит на квадратные секторы с размером стороны 60 см.
Для самостоятельного изготовления водного уровня потребуется:
- Две прозрачные трубки длиной 20-30 см и сечением 8-12 мм.
- Гибкий шланг из резины или силикона длиной 5-8 метров.
Средину каждой из трубок необходимо отметить двумя линиями, соединив посредством гибкого шланга. Далее в готовую конструкцию заливают воду: ее объем должен быть таким, чтобы трубки были заполнены от метки до метки. Читайте также: «Технология монтажа потолка из гипсокартона – пошаговое руководство с фото, правила крепления».
Несущий каркас
Ориентируясь на готовую разметку, периметр помещения отделывают сплошной линией направляющего профиля «UD». Делают это с помощью саморезов и пластиковых дюбелей, погруженных в предварительно просверленные отверстия. Шаг установки крепежей – 400-600 мм. При наличии ровной плиты перекрытия и отсутствии планов на обустройство запотолочного пространства монтаж направляющего профиля разрешается производить напрямую к черновому основанию. В других случаях приходится использовать одну из двух разновидностей дистанционных подвесов.

Порядок работы с П-образными подвесами:
- Используя саморезы и дюбели из пластика, на потолочное основание устанавливают дистанционные П-образные подвесы. В качестве ориентира используют квадратную разметку: каждая из ее прямых направляющих оформляется таким числом крепежей, чтобы дистанция между отдельными элементами не превышала 100 см.
- Далее проводится монтаж продольных профильных планок. В процессе работы один конец профиля «CD» вставляют в П-образные крепежи, используя для временной фиксации длинный гвоздь.
- После этого конец нужно просунуть в стеновой профиль, скрепив двумя шурупами. Необходимо добиться строгой горизонтальности потолочного профиля: положение элемента проверяют по уровню. Профиль должен быть привязан к лапкам каждого из подвесов саморезами.
- Если отрезок окажется коротковатым, его наращивают, используя идентичный профиль. Прикрепив его ко всем дистанционным подвесам, проводят погружение свободного конца внутрь стенового профиля на другой стене. Для крепления также используются саморезы.
- По этой схеме производится крепление всех продольных профилей. По ходу монтажа важно добиваться сохранения дистанции между линиями в 60 см (допустимый сдвиг в любую из сторон – не более 1-го см).
- Монтаж поперечных перемычек проводится с тем же шагом 60 см, с идентичной фиксацией на стеновой профиль и П-образные подвесы.
- Единственная разница – в этом случае для крепления внутренних перемычек на продольный профиль используют специальные крабы. Таким образом удается добиться скрепления профилей друг с другом под углом 90 градусов, без выхода за пределы одной плоскости.

Чтобы несущий каркас не провисал по центру помещения, желательно применять временные контрольные диагонали. Для этого каждый из углов стенового направляющего профиля оснащается одним шурупом. Далее от него натягивается в диагональном направлении комнаты тонкая капроновая нитка.
Обустройство обшивки
По окончанию обустройства несущего каркаса рекомендуется убедиться в правильности его геометрических размеров и соответствии горизонтального позиционирования. Только после этого можно переходить к установке потолка из гипсокартона, изначально разобравшись, как подшить потолок гипсокартоном правильно. Размеры листов толщиной 9,5 мм бывают 120х250 см или 120х300 см, при весе 22 или 27 кг. Чтобы по ходу работы не возникло проблем, лучше заручиться помощью напарника.

Технология монтажа ГКЛ на потолок имеет следующий вид:
- Началом установки является продольная ось. Каждый из листов должен позиционироваться параллельно длинной стене.
- Первую плиту прикладывают снизу к несущему каркасу так, чтобы между его короткой стороной и стеной оставался зазор в 2 мм, а его длинный край оказался строго по центру центрального профиля.
- Добившись правильно позиционирования первой плиты, её прижимают к металлическому каркасу и фиксируют саморезами при помощи шуруповерта.
- Саморезы устанавливают на одинаковом расстоянии друг от друга (15-20 см) вдоль всего периметра. В качестве основы должны выступать и продольные и в поперечные профили. При закручивании шурупов необходимо добиваться утапливании шляпки внутрь гипсокартонной поверхности на глубину 1 мм.
- Вторую плиту также прикладывают к несущему каркасу, стыкуя его короткий торец с соответствующей стороной первого элемента. В дальнейшем вначале устанавливают ряд плит по одной стороны от оси.
- Важно избегать совпадения стыковых участков между отдельными листами в первом и втором ряду. Как правило, последняя плита в первом ряду всегда нуждается в подрезании по размеру. Получить шахматный порядок намного проще, начав размещения листов второго ряда с противоположной стороны помещения.
- Аналогичная технология используется для установки всех остальных гипсокартонных плит. От стены их должен отделять небольшой зазор в 2 мм, а стыковые участки располагают точно по центру продольного профиля.
- Прежде чем крепить последние плиты вдоль длинных стен, проводят их подрезания по ширине. При этом обрезанные края желательно размещать как можно ближе к стене, а целые, с заводской выемкой – впритык к расположенному рядом листу.

Чтобы избавить помощника от постоянного поддерживания листов руками, изготовляют специальные подпорки из дерева в виде буквы «Т». В качестве материала обычно используется деревянный брус 50х50 мм: с виду эти конструкции напоминают большие швабры. Оптимальная длина верхней перемычки подпора – 60-80 см, а стойка должна уступать по длине высоте несущего каркаса 10-12 мм.
Черновая отделка гипсокартонного потолка
По завершению монтажа гипрока на потолок обычно остаются небольшие зазоры и щели между отдельными плитами. Кроме того, на поверхности виднеются множество шляпок от саморезов. Перед финишным оформлением гипсокартонной конструкции проводят ее черновую отделку.

Удобнее всего для этих целей применить готовую шпаклевку на основании акрила:
- Голые гипсокартонные плиты на потолке необходимо тщательно пропитать акриловой грунтовкой. Особенное внимание при этом уделяется местам срезов, где видна гипсовая прослойка: именно на этих участках чаще всего появляются трещины на готовой поверхности. Грунтовка закрепляет гипс, обеспечивая качественную адгезию с шпаклевочной смесью.
- Шпаклевку обычно укладывают в два захода. Первым делом проводят заделку всего видимого крепежа, шляпок шурупов, продольных и поперечных швов и т.п.
- Как правило, по длинной стороне гипсокартонных плит заранее снимают фаску или делают небольшую канавку. Во избежание растрескивания швов в процессе эксплуатации по ходу заделки на стыковые участки нужно приклеить армирующую стеклянную сетку (серпянку).
- После высыхания первого слоя проводится его шлифование малярной наждачной бумагой № 80-100.
- Если в дальнейшем предполагается поклейка плотных виниловых или стеклоообоев, дальнейшую подготовку можно не проводить.
- Под интерьерную акриловую краску необходимо более качественное основание. Для этого проводят еще одно шпаклевание, на этот раз всплошную, добиваясь равномерности покрытия всей площади потолка. Высохшую отделку шлифуют более мелкой шкуркой №120-150.
- Чтобы удалить с поверхности пыль, ее протирают при помощи влажной тряпки или мягкой широкой щетки. Завершающим этапом черновой подготовки является грунтование основания пропиткой глубокого проникновения. Эту процедуру также желательно провести в два захода.

Во время шлифования вместо обычно ручной терки при возможности можно применить электрическую виброшлифовальную машинку с набором запасных зернистых насадок на липучке. Как правило, такой инструмент есть смысл покупать только для профессиональной деятельности.
Чистовая отделка
Для финишного оформления зашпаклеванных гипсокартонных потолков чаще всего применяют водоэмульсионную или акриловую краску. Для ее нанесения используют широкий матерчатый валик и телескопический удлинитель. Покраску осуществляют обычно в два слоя: второй слой накладывают под углом 90 градусов по отношении к первому, дождавшись его полного высыхания. Перед тем, как красить всплошную, необходимо пройти щеткой потолочные багета и накладки под светильники.

Еще один распространенный вариант декорирования гипсокартонной потолочной системы – поклейка обоев под покраску. Обычно речь идет о стеклообоях, которые обеспечивают дополнительное армирование поверхности и предохраняют стыковые участки от появления трещин. Отделку такого типа необходимо реализовывать вдвоем, предварительно изготовив специальные платформы для работы на высоте. Поклейку полос удобнее осуществлять параллельно коротким стенам: соединять обои с коротких торцов категорически не рекомендуется.

По завершению поклейки обоев необходимо дождаться их полного высыхания, и лишь после этого переходить к покраске. Как правило, обычно делают паузу на сутки, позаботившись об отсутствии сквозняка в помещении. Нанесение краски на обои в целом повторяет аналогичную процедуру непосредственно на шпаклевку: отличие касается лишь в том, что приходится делать более существенный перерыв между двумя покрасками.
Монтаж потолочного освещения
Закрытое помещение любого типа нуждается в установке дополнительных осветительных приборов, даже если уровень естественного освещения достаточно хорош. Исходя из небольшой толщины потолочного гипсокартона (9,5 мм), новое декоративное основание не в состоянии выдерживать большие нагрузки. Габариты и масса современных люстр бывает разной. Легкие осветительные приборы небольших размеров разрешается устанавливать напрямую на гипсокартонный лист или направляющий профиль.
Массивные габаритные люстры нуждаются в специальном подходе. Существует два достаточно простых в реализации варианта установки люстры на подвесную систему из гипсокартона. Первый способ – обустройство закладной плиты во время сооружения каркаса, что позволяет в дальнейшем подвесить осветительный прибор массой до 20 кг.
Порядок работы следующий:
- Участки, где будут размещены светильники или люстры, оснащаются платформой из фанеры в форме круга или квадрата 25х25 см толщиной от 20 мм.
- После укладки гипсокартона на потолок и проведения его финишной отделки, прибор монтируют на шурупы к закладной сквозь гипсокартон. Для этого сгодятся простые саморезы по дереву 4,5х50 мм;
- В тех случаях, когда в качестве крепежа люстры используется крюк, его заворачивают в древесину, используя крупную винтовую нарезку (она обычно продается в комплекте с пластиковыми дюбелями).
Во втором случае осветительный прибор напрямую крепят к бетонной плите перекрытия, что дает возможность не ограничивать себя в выборе люстры по весу или размерам:
- Если дистанция между черновой и декоративной поверхностью превышает 20 см, участок под крепление светильника необходимо обустроить до того, как ставить гипсокартон на потолок.
- В других случаях крепежный крюк можно устанавливать после проведения финишной отделки подвесной поверхности. Все что нужно для этого – сделать в плите круглые вырез диаметром 50 мм, а потом, используя перфоратор и сверло на 10 мм, через вырез просверлить в бетоне отверстие глубиной от 80 мм.
- Далее проводится установка рым-болта или резьбовой шпильки нужно длины, где на конце имеется крюком диаметром 8 мм. Закручивание разжимного анкера производится вручную.
- Вставляя рым-болт в анкер, используют легкое пристукивание, пока не произойдет характерный металлический щелчок. Данный вариант установки светильников позволяет заполучить потайное место для прокладки различных коммуникаций.
Во время установки светильника или люстры небольшого веса на гипсокартонную плиту допускается применение складывающегося пружинного анкера. Перед этим в листе проделывают отверстие диаметром 8 мм, и, удерживая пальцами подпружиненные лапки анкера, погружают его внутрь выреза. Дождавшись разжимания лапок внутри конструкции, необходимо завинтить внешнюю прижимную гайку.
Итог
Современные дизайнерские решения нередко предполагают обустройство многоуровневых потолочных конструкций. В таком случае порядок работы в целом сохраняется. Главное, вначале обустроить сплошную гипсокартонную обшивку на всю площадь потолка, а потом перейти к сооружению локальных декоративных конструкций. В дальнейшем на них устанавливают контр ажурную подсветку.
pod-potol.com
Подвесные потолки из гипсокартона своими руками: инструкция по монтажу каркаса
Потолки из гипсокартона можно сделать с наименьшими потерями высоты помещения в 10 см, если использовать специальные металлические профили. При этом есть возможность утеплить потолок, если квартира находится на верхнем этаже здания, а так же усилить звукоизоляцию. Ещё большая экономия места возможна, если крепить ГКЛ не к профилю, а к обрешетке, сделанной из прочных деревянных реек. Делая подвесные потолки из гипсокартона своими руками, необходимо заранее подготовить материалы и инструменты.
Чтобы точно знать расход ГКЛ, подвесов, поперечных элементов, надо провести разметку потолка. Этот подготовительный момент позволит не ошибиться в расчетах.
Разметка потолка и приобретение расходных материалов
Разметка начинается с расположения продольных подвесных элементов. Для того чтобы каркас не уходил в сторону, необходимо измерить длину противоположных стен. Если их длина у потолка одинакова, то с очерёдность проведения продольно разметки проблем нет. Её можно начать, отступив см 20-30 от стены.
Совет! Если разница есть, тогда надо найти середину комнаты. Для этого потребуется отметить середину на противоположных стенах и соединить их прямыми линиями. На пересечении отрезков будет середина помещения.
Относительно середины в обе стороны по долевой откладываются отрезки по 60 см + ширина профиля. Подобным образом размечаются места поперечных элементов каркаса. Шаг между ними 50 см. Соответственно, расстояние между профилями должно быть строго 60 см. Возможны и другие варианты размеров ячеек.
Гипсокартон материал не лёгкий, поэтому размер ячеек не может быть большим. Частота пересечений металлических подвесов влияет и на жёсткость каркаса.
Подвесные профили лучше взять с запасом, чтобы не кроить продольные элементы из обрезков. Большие остатки пойдут на поперечные элементы. Замеры длины стен позволят определиться с размерами направляющих.
Потребуются для работы саморезы, болты и гипсокартон. Расход основного материала рассчитывается по площади необходимого покрытия. Чем меньше маленьких элементов, тем аккуратнее получится плоскость, значит, отделочные работы позволят создать видимость монолитной плиты потолка.
Инструменты для проведения работ
Большинство рабочих инструментов взаимозаменяемы. Составляя список необходимого, лучше исходить из имеющегося дома, собственного инструмента:
- Для разметки потолка потребуются рулетка, маркер, длинная ровная палка, строительный уровень.
- В подготовке отверстий под крепежи каркаса требуется перфоратор. В крайнем случае, можно использовать ударную дрель. Свёрла по бетону с победитовыми наконечниками (нужного диаметра) необходимо иметь в запасе.
- В работе будут использоваться шурупы для металла и для гипсокартона. Не обязательно их головки будут совпадать. Потребуется шуруповёрт с набором бит.
- Для резки гипсокартона потребуется ножовка с мелким зубом и строительный нож.
- Для обработки срезов пригодятся обычная мелкая тёрка и мелкая наждачная бумага.
- Для проведения отделочных работ придётся запастись гипсовой шпаклёвкой и малярной лентой.

Совет! Чтобы своими руками сделать потолки из гипсокартона, нужно запастись терпением и заручиться помощью друга или родственника. В одиночку провести все работы невозможно.
Инструкция по монтажу каркаса
Самый необходимый элемент каркаса – направляющие, крепятся они на стене. К их монтажу необходимо подойти с особой ответственностью. Они должны располагаться строго горизонтально, это обязательное требование, чтобы установить подвесной потолок без перекосов. Для этого разметка стен производится при помощи лазерного уровня.
Можно произвести разметку и при помощи обычного строительного уровня и отвесов, но это будет дольше и сложнее для неопытного мастера. Поэтому, если вы беретесь за данную процедуру не имея практики, то для верности действий стоит не только прочесть информацию по теме, но и не лишней станет пошаговая инструкция с видео уроками.
Закрепив на стене металлические направляющие, можно приступать к монтажу подвесов. Это могут быть «П»-образные металлические скобы с несколькими уровнями крепёжных отверстий, спицы с резьбой на концах или прочная металлическая проволока, закрепляемая на крюках, вкрученных в потолок.
Последний вариант относится, к самодельной конструкции гипсокартонного потолка, как нельзя лучше. В процессе работы эта конструкция смотрится жутковато, но именно проволока даёт лучшие результаты по подгонке высоты профиля для подвесного потолка из гипсокартона. Главное, чтобы скрутка была надёжной.
Конечно, сделанные в заводских условиях специальные крепления для профилей смотрятся привлекательнее, но они хороши для потолков, не имеющих больших перепадов по высоте. А если дом дал неравномерную осадку, то о ровной плоскости потолка и речи быть не может. Жёсткие крепления не помогут скрыть перекос. Резьбовая спица даёт лучший эффект.
Как установить на свой потолок подвесы, и какого вида они должны быть каждый решает самостоятельно. Интересный вариант с двумя вариантами регулировки высоты состоит из резьбовых крюков с дюбелями, к которым крепится толстая алюминиевая проволока.
После закрепления в подвесах всех элементов продольного профиля, наступает черёд крепления коротких поперечных элементов. Выравнивание профилей по высоте производится при помощи строительного уровня.
Важно! Если при измерении на всех направлениях капля уровня остаётся на середине, значит, каркас установлен максимально точно. Можно приступать к следующему этапу – обшивке гипсокартоном.
Как сделать потолки тёплыми
Утепление гипсокартонных потолков производится после закладки каркаса, до финишной обшивки. Лучшим материалом для проведения этого этапа работ служит минеральная вата. Особенность укладки состоит в том, чтобы максимально заполнить ею ячейки каркаса, но избежать деформации. Для этого нужно очень точно раскроить материал. Крепится минвата к бетонной плите зонтичными гвоздями. Проще резать и крепить пенопласт, но он не глушит ударных звуков, которые появляются при падении предметов, ходьбе в шлёпанцах.
Чаще всего в многоэтажных домах хорошая слышимость. Часть звуков поможет заглушить минеральный утеплитель, в дополнение к ней можно использовать специальный фольгированный материал, который будет отражать тепло внутрь помещения и глушить ударные звуки от соседей сверху. Этот материал устанавливается в момент крепления подвесов. Условие, при котором материал даст максимальный эффект – это отсутствие накладных швов. Он должен стыковаться вплотную, но без нахлёста. Его крепление на шве производится специальным звукоизолирующим скотчем.
Двухъярусный подвесной потолок из гипсокартона
Двухъярусный потолок из гипсокартона своими руками предполагает выполнение начальных этапов по той же технологии, по которой собирается одноярусный. Но в этом случае без специальных «П»-образных подвесов обойтись трудно. Они служат не только для удерживания профилей, но и для крепления подвесов второго яруса.
На видео: инструкция по монтажу двухуровневого потолка с переходом на стену.
Если вторым ярусом должен стать выступ с округлым выступом, тогда потребуется внешний профиль, имеющий соответствующий изгиб. Он так же крепится на подвесах, служит для удержания боковой стенки яруса.
Внутренние срезы листов крышки и боковой стенки производятся под углом 45°, это нужно для того чтобы проще можно было скрыть место стыка. Руководство по ремонту любого потолка предполагает установку потолочного плинтуса. Устанавливая плинтуса из пенопласта, можно скрыть неровности стыков линии потолка и стен. Их так же просто покрыть водоэмульсионной краской, как сам гипсокартон.
Обшивка каркаса
Для подвесных потолков из гипсокартона своими руками лучше все элементы вырезать сразу. Это позволит вынести из комнаты стол, на котором производилась разметка листов, вымести ненужные в работе остатки материала, удалить гипсовую пыль.
Гипсокартон режется в три приёма:
- Разметка производится с одной стороны листа. По этой линии делается глубокий надрез. Основная задача состоит в том, чтобы прорезать картон насквозь.
- Теперь та же процедура проводится на второй стороне листа.
- Если резка производилась на большом столе, а надрез получился глубоким, то лист можно сломать по разметке сильным резким нажимом на край. В противном случае лучше использовать ножовку. Так дефектов по краю будет значительно меньше.
Совет! От небольших сколов гипсовой начинки не избавит никакой инструмент. Чтобы придать срезу округлую форму потребуется мелкая тёрка. Для шлифовки используется мелкая наждачка. Надфили, рашпили, напильники использовать не рекомендуется, их рабочая часть быстро забьётся гипсовой пылью.

Теперь остаётся закрепить ГКЛ на каркасе. Для этого потребуются два помоста, расставленных на расстоянии равном длине листа. Наиболее удобно работать шуруповёртом. Можно по-старинке, крутить саморезы ручной отвёрткой. Неудобно только удерживать тяжёлый лист. Начинать обшивку лучше от угла стены с окном.
Технические характеристики гипсокартона таковы, что при перемене погоды, соответственно, и влажности внутри помещения, материал впитывает влагу и расширяется.
Такая гигроскопичность приводит к тому, что соседние листы могут выдавить друг друга, либо под давлением боковых элементов потолка средний получит повреждения, которые невозможно скрыть косметическим ремонтом. Его можно будет только заменить.
Чтобы такого не происходило, следует помнить одно простейшее правило – между стеной и ГКЛ должен быть зазор 5-6 мм. Между соседними листами расстояние не может быть меньше 2-5 мм. Изготовление потолочного полотна с равномерным швом по всей длине помогут сделать обыкновенные спички, вставленные между соседними листами.
Как скрыть зазоры на потолке
Для того чтобы потолок казался монолитным, потребуется шпаклёвка, шпатель, малярная лента с мелкими ячейками. При её отсутствии можно воспользоваться бинтом. Зазоры у стены шпаклевать не нужно. Заполняются гипсовым раствором только швы между листами. Излишки гипса убираются шпателем вдоль шва. Поверх тонкого слоя шпаклёвки накладывается лента. Она необходима для того, чтобы хрупкий гипс не получил трещин. Так потолок дольше не потребует ремонта.
Заключительный тонкий слой шпаклёвки накладывается поверх малярной сетки. После его окончательного высыхания можно приступать к отделочным работам. На установленный гипсокартонный потолок можно нанести слой водоэмульсионной краски. Так же гипсокартонная основа подходит для установки натяжного потолка.
Совет! Оставшиеся у стен зазоры скроет потолочный плинтус. Технология установки потолочного плинтуса зависит от материала, из которого он изготовлен, ширины, необходимости сделать комнату выше или шире (визуально) и многих других факторов.
Монтаж гипсокартона на потолок. Первый уровень — 1 видео
Разновидности подвесных потолков из гипсокартона — 37 фото
Скорее всего вам будут интересны статьи:
antkachev.ru
Виды подвесных потолков из гипсокартона, характеристики, свойства
Современный ремонт почти немыслим без сооружения оригинальных и поражающих своей эстетичностью потолочных конструкций. К их числу относятся и все виды подвесных потолков из гипсокартона. Гипсокартонные потолки отличаются не только рядом привлекательных свойств, но и уникальными техническими параметрами, что позволяет им завоевывать все больший процент потребительских предпочтений.
Свойства и характеристики потолков из гипсокартона
Гипсокартонный лист полностью экологичен, так как в его основе лежит гипс, защищенный с двух сторон плотной бумагой. Кроме защитной, она выполняет еще и функцию минимизации внутреннего гипсового напряжения, возникающего при непосредственной работе с материалом и последующей его эксплуатации.
По классификации гипсокартон делится на отдельные группы, обладающие определенными свойствами:
ГКЛ – гипсокартон, предназначенный для отделки потолочных или других оснований в сухих помещениях;
ГКВЛ – листы влагостойкие со структурой, пропитанной водоотталкивающими и антисептическими пропитками. Монтаж возможен и в помещениях, характеризующихся избытком влаги;
ГКЛО – гипсокартон огнеупорный, в его внутренней части содержится минеральное волокно и специальные добавки, способствующие увеличению степени огнестойкости материала.
ГКЛВО – листы, комбинирующие в себе отличную водо- и огнестойкость;
ГВЛВ – гипсокартон ультравлагостойкий.
Технические характеристики
- длина листа – 2500 и 3000 мм;
- ширина – 1200 мм;
- толщина – 6, 9 или 12,5 мм;
Нестандартные размеры:
- длина – 1500–4000 мм;
- ширина – 600–1500 мм;
- толщина – 6,5–24 мм.
Дизайн и виды
Уникальный подвесной потолок из гипсокартона по праву можно назвать универсальной конструкцией, способной слиться с любым интерьерным решением, будь то правильность и четкость линий классического стиля, плавность и многофункциональность форм направления модерн или же оригинальный и сверкающий блеском металла хай-тек.
Соорудить подвесные потолки из гипсокартона своими руками можно в любом желаемом виде:
Одноуровневые
Особенно уместны для потолочных поверхностей, где выравнивание обычными штукатурными или шпаклевочными смесями нерационально из-за значительных огрехов. Одноуровневый потолок – идеальный вариант для ценителей простого, консервативного интерьера.
Но это не значит, что конструкция будет выглядеть скучно и неоригинально. Ведь можно сделать подвесной потолок из гипсокартона с подсветкой, за счет игры света придающей сооружению многогранности и креатива.
Двухуровневые
Визуально добавляют пространству объем в результате сложности сооружения. Чем затейливее двухуровневый потолок, тем объемнее получается помещение. Именно монтаж подвесного потолка из гипсокартона такого типа, в буквальном смысле, поможет изменить интерьер до неузнаваемости.
Окрасив его в необычный цвет, добавив плавно перетекающие одна в другую линии, а также встроив интересный сценарий освещения, можно получить уникальный шедевр, который по праву станет арт-объектом всей комнаты.
Посредством грамотно распределенного освещения, игры цвета и перепадов в высоте можно добиться зонирования пространства.
Трехуровневые
Конструктивно трехуровневые подвесные потолки из гипсокартона своими руками сделать очень сложно, однако смотрятся они вдвойне эстетичнее и роскошнее.
Дизайнерская подсветка для гипсокартонных потолков
Фантазийный подвесной потолок из гипсокартона с подсветкой имеет несколько главных функций:
- непосредственное освещение помещения;
- создание нужной атмосферы и уюта.
Рынок осветительных приборов настолько велик, что предлагает широчайший ассортимент самых разнообразных подсветок, начиная от простых точечных или подвесных светильников и заканчивая выполняющими только декоративную функцию светодиодными лентами с самыми разнообразными оттенками.
Виды освещения:
1). Стандартное, отличающееся простотой сооружения, поскольку задействуются только обычные ламповые потолочные шины, а также оригинальные подвесные лампы.
2). Целевое, предназначенное для разбивки помещения на зоны. То есть имеется в виду комбинированное освещение, включающее в себя яркие лампы в зоне активного отдыха и более мягкие – в спальных зонах.
3). Декоративное, его основная цель – выигрышное подчеркивание ярких акцентов интерьера, предполагающее подбор подсветки, гармонирующей с элементами интерьера и декора.
Выбор стиля для конкретного помещения
Кухня – помещение, где семья проводит немалую часть времени, поэтому конструкция должна быть легкой для визуального восприятия и не перегружающей интерьер. Как вариант, подвесной потолок из гипсокартона в кухне можно оформить в виде правильной геометрической фигуры.
Таким образом удастся скорректировать помещение в случае недостаточно большого кухонного пространства, зрительно «раздвигая» стены.
Листы гипсокартона, наделенные влаго- или огнестойкостью – отличное решение для влажных помещений, к которым как раз и относится кухня.
Декор потолка с помощью ГКЛ – не только хороший дизайнерский, но и достаточно практичный ход. К тому же это прекрасная возможность попутно звукоизолировать комнату.
Если планируется соорудить подвесной потолок из гипсокартона для невысокой кухни, то его лучше смонтировать в один, максимум в два уровня, окрасив конструкцию в светлые тона.
Для интерьера спальных комнат и гостиных монтаж подвесного потолка из ГКЛ может быть ограничен лишь финансовыми возможностями. Неправильные и ломаные линии, затейливые изгибы и волнообразные переходы сделают пространство интереснее и роскошнее.
Грамотно подобранная цветовая палитра, встроенная подсветка наполнят комнату простором и светом. В случае с очень высокими потолками целесообразно окрасить их в темные цвета, чтобы визуально приблизить к полу.
Рекомендации по монтажу
Грамотный монтаж подвесного потолка из гипсокартона может быть осуществлен и собственными силами. Для этого достаточно запастись арсеналом необходимых составляющих, инструментов (шуруповерт, перфоратор, саморезы, дюбель-гвоздь, металлопрофили и др.), и приступать к работе.
Сооружение профильного каркаса начинается с разметки потолочного пространства и непосредственного крепления профилей, на которые в дальнейшем посредством шуруповерта прикрепляется гипсокартонный лист.
Размещение осветительных приборов нужно распланировать заранее и вырезать отверстия в гипсокартоне под конкретный размер светильника. Готовую конструкцию следует тщательно зашпаклевать, предварительно уложив строительную сетку, чтобы избежать появления трещин в местах стыков, а затем задекорировать.
Гипсокартон по праву можно назвать универсальным и пластичным материалом. Имея в запасе достаточное количество листов, можно воплотить в жизнь любую, даже самую оригинальную дизайнерскую идею, тем самым добавив помещения уникальности и изысканности. Все, что нужно — выбрать подходящие виды подвесных потолков из гипсокартона для каждой комнаты.
otdelkadom-surgut.ru
Подвесной потолок из гипсокартона: правила выбора и монтажа.
Не одно десятилетие подвесные потолки из гипсокартона устанавливают в спальнях, залах и на кухнях. Несмотря на свою простоту, материал является прочным и доступным. Подчас владельцы квартир сталкиваются с такими проблемами, как неровное плиточное покрытие, разные углы и уровни перекрытия. Установите подвесные гипсокартонные потолки – и вы сможете решить их быстро и эффективно.

7 объективных причин выбрать гипсокартон
- На выравнивание абсолютно любой поверхности уйдет гораздо меньше времени. Даже штукатурка не позволяет добиться идеального покрытия. Вспомните, сколько раз вам приходилось наносить ее, а неровности все равно оставались.
- Разнообразие форм и оттенков превращает устройство подвесного потолка из гипсокартона в увлекательное мероприятие. Вы начинаете подбирать цвета, экспериментировать с оттенками и подсветкой.
- Кстати, о подсветке. Особенности конструкции позволяют соорудить практически любой тип освещения и разместить светильники там, где нравится.
- За потолком легко скрыть любые коммуникации, начиная от торчащих во все стороны проводов и заканчивая несуразными трубами.
- При наличии изолирующей прослойки подвесной потолок из гипсокартона на кухне скрывает любые посторонние шумы. Оценить преимущества шумоизоляции вы сможете в спальне, когда соседи сверху начнут выяснять отношения.
- Раствор? Клей? Забудьте об этом раз и навсегда. Комплексная установка потолочного покрытия исключает использование растворов в любом виде. Все работы выполняются «насухо».
- Доступная цена. Данный пункт даже не нуждается в комментариях. Достаточно зайти в любой строительный магазин и сравнить стоимость.
Мы не станем утверждать, что если навесные потолки из гипсокартона сделаны своими руками, то они идеальны. Например, их практически невозможно установить в одиночку – без напарника вам точно не обойтись. Рано или поздно стыки листов могут треснуть, особенно если попался некачественный материал. Без наличия шуруповерта и перфоратора за дело лучше не браться.

Закупка материала, подготовка инструментов
Прочитать о том, как делать подвесной потолок из гипсокартона, сможете чуть позже. Для начала подготовьте необходимые инструменты, запаситесь материалами:
- Обыкновенный уровень. Поможет с разметкой мест, где нужно установить направляющий профиль. Когда позволяют финансы, можно приобрести в магазине лазерный. Его стоимость составляет 50-60 у.е.
- 2-х метровый уровень. Необходим, чтобы определить, насколько ровным является монтаж подвесного потолка из гипсокартона.
- Перфоратором вы будете проделывать отверстия под дюбеля, шуруповерт поможет закрепить профиль с ГКЛ.
- Рулетка длиной 3, а лучше 5 метров, карандаш, монтерский нож.
- Ножницы по металлу, «болгарка». В принципе, ее может заменить ручная ножовка.
Инструмент собран и готов к использованию. Однако инсталлировать навесной потолок из гипсокартона невозможно без следующих материалов.
Профиль
В магазине вам предложат профиль нескольких типов: потолочный (похож на букву С) и направляющий. Второй тип крепится по периметру. Нет смысла называть какие-то конкретные фирмы или производителей.
Главное, чтобы профили принадлежали одному поставщику.
Рассчитать объемы направляющей конструкции несложно. В качестве примера возьмем помещение 20 кв. м. Его стены имеют длину пять и четыре метра. Следовательно, закупаем профиль на 3 и 4 м. Трехметрового берем 8 штук (один про запас, если что-то испортите). Или подойдет 4-метровый – тогда 5 штук + 1 запасной. Естественно, бывают одно- и многоуровневые виды подвесных потолков из гипсокартона. Во втором случае к полученной длине нужно добавить длину дополнительной конструкции.

Теперь давайте вместе с вами выясним, как правильно сделать подвесной потолок из гипсокартона, когда возникла необходимость рассчитать профиль С-образной формы. 125 см – ширина стандартного листа, крепим с шагом в 60 сантиметров. Это объясняет, почему в нашем случае берется четырехметровый. Отходов однозначно будет меньше. Разделив 5 метров на 60, получим 8 профилей. Это типичная схема расчета, которая будет идентична для всех без исключения комнат.
Гипсокартон
Подвесной потолок из гипсокартона бывает традиционным (классическим), устойчивым к воздействию влаги и огнеупорным. Если предполагается монтировать покрытие в обычной квартире (спальня, зал), переплачивать за дополнительные возможности не стоит. Толщины в 0,8-1 см вполне достаточно. Практической пользы не будет, зато суммарный вес существенно увеличится.
Чтобы отделка была выполнена успешно, расчеты проводятся так. Площадь потолка необходимо разделить на площадь одного листа. Вы получите точное количество ГКЛ, которое нужно приобрести. В нашем примере общая площадь составляет 20 кв. метров, для гипсокартона этот показатель равен 3 кв. м. Выполнив нужные расчеты, получаем 6,6 или 7 листов. Для надежности возьмите 8 – лишним не будет.
Крепление
Крепятся навесные потолки прямым подвесом. Его стоимость вполне по карману каждому. Точное количество можете не высчитывать. Для помещения площадью 20 квадратных метров понадобится от 40 до 50 подвесов. Примерное расстояние – 60-70 см.
Бывает и такое, что конструкция не предполагает использование огромного количества соединений. В этом случае можно не покупать «крабы» и смонтировать соединения, используя потолочный подвес. Есть и третий вариант – продольные соединители. Также покупаются дюбеля размером 8 х 10, пачка саморезов для крепления профиля, саморезы длиной 2,5 см. Последние нужны, чтобы прикрутить листы.

Наглядный пример монтажа
- Используя уровень, вы намечаете линию для профиля. Расстояние от полотка – от 10 до 20 см, позволит спрятать провода, трубы и пр. Поставив уровень на возвышение, отмечаете контур на стене. Направляющие крепятся исключительно по периметру.
- Проводите параллельные линии на половину листа гипсокартона (125 см или больше). Отделка предусматривает крепление листов с небольшими зазорами. Это необходимо, чтобы при шпаклевке вы могли заделать швы гипсовой смесью.
- Вставьте направляющие в каркас. При обустройстве подвесного потолка из гипсокартона своими руками возле стены оставляете зазор.
- После этого вы закрепляете направляющие саморезами, по 2 с каждой стороны, проверяете сделанный каркас на горизонтальность лазером.
- На очереди – изготовление и вставка продольных профилей. Самый простой способ – собрать каркас при помощи поперечного крепления. Профиля нарезаются ножницами по металлу, вставляются в направляющие с шагом 50 см. Вариант, когда два отрезка крепятся к несущему профилю, считается одним из самых надежных.
Отделка невозможна, так как сделать подвесной потолок из гипсокартона своими руками без обработки каждого листа грунтовкой нежелательно. Речь идет о специальном материале, улучшающем гидроизоляцию. Для гипсокартона первый лист всегда крепится от стены, все последующие – с первого продольного профиля.
Не утапливайте саморезы слишком глубоко в материал. Зазор между листами составляет 0,2 см, в дальнейшем швы заполняются смесью.
На этом отделка практически завершена. Стыки между листами замазываются. По возможности, избегайте разводов. Надеемся, что собрать его было не так сложно, как казалось на первый взгляд? Как выглядит дальнейшее устройство подвесных потолков? Оно включает в себя покраску, оклейку обоями. В любом случае, если отделка выполнена корректно, свой вариант потолочного покрытия прослужит вам достаточно долго.
znatokpotolka.ru
Потолок гипсокартон или натяжной: какой лучше выбрать?
Все познается в сравнении, не так ли? Это объясняет, почему люди начинают сравнивать потолок гипсокартон или натяжной, ведь у каждого вида есть свои весомые преимущества. Выбрать чемпиона и аутсайдера непросто, но мы попытаемся это сделать в данной статье. Рассмотрим особенности каждого материала, его плюсы и минусы.

Знакомьтесь, гипсокартон!
Те, кто уже успел опробовать потолок натяжной и из гипсокартона, знают, что последний представляет собой композитный материал. В его состав входят два основных «ингредиента» – картон и гипс. Использование современных технологий помогло объединить их и сделать одним целым.
Изначально гипсокартон использовался для создания небольших перегородок. Он позволял изменить пространство до неузнаваемости. Позже дизайнеры заметили, что использование материала для отделочных работ существенно сокращает время ремонта.
Современные гипсокартонные листы – это возможность отделать потолок в минимальные сроки, чтобы получить настоящее произведение искусства. Поверхность получается гладкой и ровной, можно создавать сложнейшие конструкции, визуально выделять конкретные зоны помещения.
Казалось бы, все так заманчиво и хорошо, согласны? Прежде чем решить, что лучше гипсокартон или натяжные потолки, перечислим очевидные достоинства, недостатки материала.
Преимущества

- Подвесной способ установки поможет скрыть практически любые недостатки потолочных плит.
- Установить гипсокартонный потолок можно самостоятельно, не прибегая к помощи специалистов. А значит, вы экономите денежные средства.
- Возможность спрятать трубы и провода, смонтировать точечный тип освещения.
- Пластичность – еще один плюс в копилку гипсокартонных плит. Благодаря данному свойству, дизайнеры могут воплотить в жизнь самые смелые идеи.
- Решение множества задач – от визуального поднятия потолка до расширения помещения.
- Возвращаясь к вопросу экологичности, отметим, что материал не горит, не выделяет едкие запахи. Следовательно, его можно использовать в жилых помещениях, спальнях и даже детских комнатах.
Недостатки
Несмотря на свою универсальность, определенные минусы у гипсокартона тоже есть:
- Плохая влагостойкость. Если соседи сверху зальют потолки из гипсокартона и натяжные потолки, первый вариант набухнет и потеряет форму. Решить проблему поможет только полный демонтаж и установка нового покрытия.
- Сложные многоуровневые конструкции сильно «съедают» высоту – вплоть до 20 сантиметров. Данный фактор может оказаться критичным, если у вас малогабаритная квартира с низким потолком.
- А еще потолок из гипсокартона нежелательно монтировать в новостройках. Первое время сданная в эксплуатацию квартира будет давать усадку, а это чревато трещинами.
- Со временем такое потолочное покрытие теряет белизну, покрывается трещинками. Хотя если подкрашивать его и правильно ухаживать, хороший ГКЛ прослужит еще несколько лет.
В ногу со временем — натяжной вариант
Преимущества
Чтобы определиться, какой потолок лучше гипсокартон или натяжной, рассмотрим особенности второго типа.
По традиции, начинаем с плюсов:
- Огромные декораторские возможности. Полотно способно имитировать ткань и дерево, мрамор и глянец, даже кожу. Впечатляет своим убранством и цветовая палитра. Более того, технология цифровой печати позволяет нанести на материал любое изображение. Стандартные потолки из пенопластовых плит или из гипсокартона лишены такой возможности.
- Отменная влагоустойчивость натяжных потолков. Если монтаж выполнен корректно, вы сможете спасти от неожиданного потопа любую комнату. Увы, гипсокартонные плиты не способны выдержать такую нагрузку.
- Элементарный уход. Как вы думаете, натяжные или гипсокартонные потолки обрабатывают специальными грязе- и пылеотталкивающими пропитками? ГКЛ обрабатывать пропитками нельзя, а еще его нельзя мыть мокрой тряпкой.
- Многие производители дают гарантию, что их материал прослужит вам верой и правдой 25 лет. За это время полотно не выгорит на солнце, не потускнеет, привлекательный внешний вид также не будет потерян. Гипсокартон может прослужить 10-15 лет. Какие потолки лучше, если долговечность для вас на первом месте? Ответ очевиден.
Недостатки
Естественно, все не так радужно и лучезарно, как хотелось бы. И у таких конструкций имеются свои «темные» стороны.
- Среди всех разновидностей отделки этот считается самым дорогим.
- Проблематичная установка. Стоимость увеличивается еще и потому, что установить натяжное полотно самостоятельно весьма проблематично. Для этого необходимо иметь спецоборудование.
- Невысокая прочность. Именно в прочности «натяжка» существенно уступает гипсокартонным плитам. Вот почему ее установка не рекомендована на кухне и в детской комнате.
- Из-за особенностей материала мощность обычных лампочек накаливания должна составлять не более 60 Ватт, а галогеновых – 35 Ватт.
Полезная информация: «Установка натяжного потолка без нагрева«
Выводы по теме
Пришло время подвести итог и понять, что лучше натяжной потолок или гипсокартон. Можно сделать вывод, что каждый из перечисленных материалов имеет существенные преимущества, но не лишен недостатков. Окончательный выбор будет зависеть от помещения, в котором вы собираетесь использовать тот или иной вид отделки.
Тем, кто заинтересован в экологически чистом покрытии, хороших звуко- и теплоизоляционных характеристиках, оптимальном микроклимате, можно посоветовать гипсокартонные плиты. Конструкция получится прочной и надежной, идеально ровной. Вам вряд ли удастся найти на ней хотя бы один шов, выбоину, любой другой дефект.
Хотите сделать ремонт в новостройке? В этом случае, применение ГКЛ противопоказано. Лучше отдать предпочтение натяжному своду.
Также его выбирают те, кто на первое место ставить не практичность, а оригинальность, применяет творческий подход при обустройстве комнаты. Таким образом, заядлые мастера часто выбирают первый вариант, тогда как натяжное полотно остается прерогативой тех, кто хочет получить необычный потолок и готов заплатить за него более высокую цену.
znatokpotolka.ru
Варианты отделки потолка из гипсокартона своими руками на примерах фото и видео
Идеальным отделочным материалом для оформления потолочных перекрытий можно смело назвать гипсокартон. Он недорогой по стоимости, универсальный по функционалу, с его помощью отремонтировать потолок можно быстро и без привлечения профессионалов. В торговой сети это изделие продается в виде листов, упакованных в пачки. Отделка стен и потолка гипсокартоном позволяет не только скрыть дефекты, которые могут быть изначально на их поверхности, но и преобразить интерьер помещения в лучшую сторону за счет создания многоуровневых систем и многообразия фигурных решений (как на фото).

Достоинства гипсокартона
К положительным характеристикам этого отделочного материала относится:
- безопасность для окружающей среды и здоровья людей;
- наличие макропористой основы, которая позволяет материалу при влажном воздухе в помещении частично впитывать влагу, а затем, когда микроклимат становится суше, отдавать ее;
- превосходные звукоизоляционные показатели, особенно это, как показала практика, радует жителей многоэтажных домов;
- обладание небольшой теплопроводностью. Если поверх обшивки уложить утеплитель, то тепло не будет исчезать через небольшие щели. Кроме этого уменьшается объем отапливаемого помещения за счет понижения высоты – подвесной потолок забирает около 10 сантиметров;
- неспособность воспламеняться;
- возможность прикреплять к гипсокартонным плитам различные нетяжелые предметы;
- использование этого материала в отделке помещений различного назначения.
Недостатки гипсокартона
Отрицательных характеристик у этого материала не так и много:
- недостаточная прочность – при транспортировке необходимо соблюдать осторожность;
- гипсокартон неустойчив к непосредственному воздействию воды, в результате чего после контакта с нею он приходит в негодность;
- он плохо переносит низкие температуры.
Подготовка к проведению монтажа
Благодаря наличию полезной информации в сети Интернет и возможности приобрести соответствующую литературу, отделка потолков гипсокартоном своими руками при желании для владельца недвижимости является задачей вполне выполнимой. Если комната имеет немаленькую площадь, то ГКЛ нужны большие, а поскольку каждый лист имеет вес, с которым при монтаже справиться в одиночку непросто, то для их дополнительной поддержки потребуются помощники.
Монтажные работы, связанные с установкой каркаса потолочной конструкции и отделкой гипсокартонными плитами выполняется быстро – в итоге все недостатки базового основания становятся незаметны. Если площадь помещения позволяет, то создать можно многоуровневую систему с переходами, колоннами, арками, выступами и декоративной оригинальной подсветкой. Варианты отделки потолка гипсокартоном позволяют, в том числе, визуально разделить комнату на несколько функциональных зон – таким образом, стандартное помещение становится стильным, а его интерьер вызывает восхищение.
Многообразие решений сборки подвесной конструкции во многом зависит от конструкции базового перекрытия, высоты помещения, дизайнерских задумок. Чтобы рассчитать, на каком расстоянии от потолка можно установить каркас, потребуется учесть ряд факторов, в том числе характеристики теплоизоляционного материала и наличие осветительных приборов.
Несмотря на то, что на гипсокартонный потолок разрешается прикреплять предметы, специалисты не рекомендуют его сильно перегружать дополнительным весом – для каждого большого осветительного прибора, кондиционера и прочего требуется обустройство самостоятельной конструкции. С этой точки зрения оптимальным выбором считаются точечные, небольшие по размеру светильники – им не нужен специальный крепеж, их подсоединяют к потолку через отверстия, проделанные в гипсокартонной облицовке при помощи электродрели. Держится источник света на поверхности конструкции за счет собственного зажима.
Итак, решение о выполнении работ собственными силами принято и до того, как приступить к монтажу, надо убедиться, что в наличии имеется весь инструмент, необходимые приспособления и стройматериалы.
Для создания каркаса из инструментов потребуются:
- строительный уровень;
- обивочный шнур;
- шуруповерт;
- дрель электрическая;
- перфоратор;
- молоток;
- ножницы по металлу.
Если дизайн будущего подвесного потолка предполагает создание разноуровневой конструкции со всевозможными переходами, изгибами и арками, то для этих целей гипсокартон является лучшим выбором. Приобретать материал лучше влагоустойчивый, если отделка гипсокартонного потолка связана с влажными штукатурными работами. Также не рекомендуется долго хранить ГКЛ и ставить их на ребро, идеальными считаются условия, когда плиты помещают на брусья горизонтально – таким образом, лучше всего сохраняется их форма и уменьшается возможность их деформации.

Каркас подвесной конструкции
Конструкционное решение подвесного потолка выглядит следующим образом: на каркас нашиваются гипсокартонные плиты. Как правило, для монтажа системы используется металлический (алюминиевый) профиль, а в некоторых случаях — деревянные рейки, а уже потом выполняется отделка потолка гипсокартоном. Подвесные конструкции представляют собой модульную обрешетку из отдельных элементов, соединенных между собой.
Принято считать, что данная система способна выдержать вес около 14 килограммов на один «квадрат» площади. С целью обеспечения необходимой жесткости и надежности к каркасу конструкции крепятся дополнительные подвесы, которые фиксируют его в одном положении и позволяют избежать колебаний. Если не предусмотреть дополнительное крепление или выполнить работы неаккуратно, обрешетка провиснет и потолок придет в непригодность.
Каркас состоит из профилей – основных и направляющих. С помощью подвесов (обычных или с зажимом) они крепятся на базовое перекрытие. Чтобы привинтить прямые подвесы к потолочным рейкам, потребуются саморезы и шуруповерт.
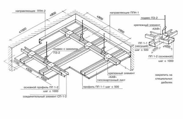
Существует два варианта создания каркаса:
Вариант первый. Основной профиль при помощи подвесов монтируется к базовому перекрытию, а профили для установки гипсокартонных плит размещаются на разных уровнях. В данном случае расстояние между подвесами должно составлять 90 сантиметров, а между соседними профилями — 100 см. Дистанция между двумя несущими профилями не может быть менее 50 сантиметров. Несущие и основные рейки объединяют между собой с применением двухуровневого соединителя. Такой вариант обустройства каркаса чаще всего используют при создании подвесной конструкции в небольших комнатах.
Вариант второй. Отделка подвесного потолка из гипсокартона своими руками в данном случае предполагает, что разные виды профилей будут располагаться на одном уровне. До базового перекрытия от мест крепления подвесов остается около 100 сантиметров, а между профилями расстояние достигает 120 сантиметров. Остальные параметры аналогичны первому варианту подвесных потолков. Крепится обрешетка каркаса при помощи так называемых «крабов» только к стенам или одновременно к основанию перекрытия. Второй вариант используют при установке подвесных потолков в помещениях, имеющих большую площадь или при выполнении масштабного ремонта.Монтаж каркаса самостоятельно
Шаг первый. Требуется выполнить разметку и проложить электропроводку, а также определиться с инженерными коммуникациями, если они проходят под потолком. С использованием уровня и обивочного шнура делается разметка стен по периметру комнаты. Начало и конец горизонтальной линии должны совпасть. Относительно горизонтальной разметки проводятся перпендикулярные линии. Заранее делается электропроводка для источников освещения. После завершения создания подвесной конструкции все провода будут находиться в межпотолочном пространстве.
Шаг второй. По намеченной горизонтальной линии на стенах крепят направляющие профили с 50-сантиметровыми промежутками.
Шаг третий. Из потолочного профиля с жесткими ребрами ножницами по металлу нарезают несущие и продольные элементы каркаса. Когда длина помещения превышает 4 метра (стандартный размер для профилей), используют специальные удлинители. Расстояние между двумя профилями каркаса должно быть 120 сантиметров по длине и 60 сантиметров по ширине (согласно параметрам листа). Друг с другом элементы каркаса соединяются «крабами», а к профилям их крепят шурупами-саморезами. В местах установки соединений необходимо обращать внимание на степень нагрузки на конструкцию, так как при необходимости ее можно усилить дополнительными подвесами и таким образом вес будет распределяться равномернее. После того, как прочная фиксация каркаса обеспечена, начинается монтаж гипсокартона.
Отделка кухонного потолка гипсокартоном
Отделка потолка на кухне гипсокартоном имеет особенности. Поскольку в жилых многоэтажных зданиях кухни не отличаются приличной высотой и площадью, многоуровневая система из этого отделочного материала ее визуально уменьшит. Хорошим вариантом является карниз, расположенный по периметру помещения, также зрительно расширит его изготовление свода. (см. также: Деревянные потолочные карнизы для штор устанавливаем сами) Зонирование кухни можно добиться при помощи отделки потолка гипсокартонными плитами. Потолочный тонкий ГКЛ для создания подвесной конструкции на кухне не подойдет по причине повышенной влажности в этом помещении. Специалисты советуют остановить выбор на влагостойком гипсокартоне. Но тут возникает необходимость создания более мощного каркаса, поскольку такие листы тяжелее потолочных изделий, но гипсокартонные потолки своими руками выполнить вполне реально..Завершающий этап отделки потолка
Завершаются работы по созданию потолка обшивкой каркаса листами гипсокартона, места стыков между которыми заделываются шпатлевкой и тем самым обеспечивается герметизация и изоляция швов. Облицовка каркаса ГКЛ листами производится с помощью саморезов через каждые 10 сантиметров, но если масса листа большая расстояние между ними лучше сократить. Шурупы при этом надо «утопить» в плите гипсокартона.

Как доказала практика, перед монтажом желательно заранее нарезать листы на отдельные части нужного размера. Для этого потребуется строительный или канцелярский нож. С его помощью верхний слой, которым является картон, и гипсовую середину разрезают по намеченной линии. Затем кладут лист гипсокартона на край стола, слегка нажимают на него и переламывают, после чего второе основание из картона дорезают. На торцах разрезанных листов имеются заусенцы, их убирают с помощью наждачной бумаги.
Специалисты советуют располагать отделочные материалы таким образом, чтобы при наличии длинных продольных швов они совпадали с направлением естественного освещения. Если оконных проемов несколько и имеются они на разных стенах, тогда крепление листов выполняется по длине комнаты.
Пример отделки потолка из гипсокартона на видео:
После завершения монтажа гипсокартонных плит приступают к шпатлевке стыков, особенно это касается мест между стенами и ГКЛ. Поверхность очищают от пыли и грунтуют для улучшения адгезии. Для чего часто используется бинт-серпянка, чтобы предотвратить появление трещин в результате температурной деформации листов. После этого швы вновь шпаклюют и поверхность тщательно шлифуют.
Финишная отделка потолка из гипсокартона необходима, когда предстоит покраска поверхности или оклейка обоями. Финишную шпаклевку накладывают на тщательно подготовленный слой: стеклохолст или обычную шпаклевку (читайте: Стеклохолст на потолок: клеим правильно сами). В розничной сети продаются готовые к применению смеси в специальных банках.Поскольку электропроводка выполнена и заранее сделаны отверстия для точечных светильников, после завершения создания потолочной подвесной конструкции их устанавливают на место.
pod-potol.com

