Крыша веранды к дому своими руками проекты фото – Веранда к дому — проекты, фото и как пристроить своими руками
100+ фото стильных и современных идей
Содержание
- Веранда и терраса: общие и отличительные черты
- Предназначение террасы
- Особенности крыши
- Выбор кровельного материала
Прекрасный вид на ландшафтный дизайн, окружающий частный дом открывается из огромных панорамных окон. В то же время здесь каждый будет чувствовать себя безопасно, ведь пристройка защищена не только от воздействия внешних факторов в виде дождя или снега, но и от ультрафиолетовых солнечных лучей.
Оригинальная пристройка к дому с крышей может иметь различные виды и формы, а оригинальные дизайнерские решения позволят полноценно наслаждаться отдыхом на свежем воздухе. Для того чтобы крыша террасы или веранды сочеталась с крышей дома необходимо приложить немного усилий, ведь дом и пристройка должны гармонично сочетаться.
В общем понятии веранда – это неотпаливаемое помещение застекленного типа, которое пристраивается к частному дому или является его частью. Терраса – летняя пристройка к дому без стен, может быть застекленной или же иметь небольшие ограждения.

Веранда и терраса: общие и отличительные черты
В целом терраса и веранда имеют много схожих качеств:
- Обе пристройки могут использоваться как зона активного отдыха, здесь можно собираться за одним столом всей семье или же просто любоваться природой.
- В большинстве случаев они не имеют отопления, для этого используют переносные обогреватели.
- Оба варианта увеличивают полезную площадь, гарантируют своему собственнику отдых на природе, не выходя за пределы комфортных условий.
Разница же между ними заключается в том, что веранда может быть, как строенной к дому, так и пристраиваться к одной из его сторон. Терраса, в свою очередь, может быть построена только за пределами частного дома, не обязательно пристраивается именно к дому, можно пристроить к бане или иной хозяйственной постройке. Согласно строительным нормам терраса называется открытой летней площадкой с небольшим ограждением. Терраса должна быть немного приподнятой относительно уровня земли, а вот террасу приподнимать не обязательно. 


Предназначение террасы
Основные задачи пристройки открытого типа:
- Место для активного отдыха собственника дома, его друзей и родственников. Здесь открывается прекрасный вид на окружающий ландшафтный дизайн. Если застеклить окна и утеплить помещение, то можно использовать как столовую зону или же зимний сад.
- Защита фасада здания от внешних влияний в виде дождя, ветра и снега.
- Повышение теплосбережения, с помощью этого помещения можно сохранить комфортные условия внутри дома.

Особенности крыши
Главная особенность террасы – она должна иметь такой элемент как крыша. Терраса строиться отдельно или же совмещается с крышей дома, в этом случае используется аналогичный кровельный материал.
Пристройка выполняется:
- С торца дома, место стыка дома и террасы накрывают стальным фартуком.
- Со стороны ската, соединение идет несколькими способами: общая крыша для дома и террасы, верх ската располагается на уровне свеса жилой постройки, скаты соединяются по всей ширине или длине.
В большинстве случаев терраса имеет односкатную крышу, где разница между высотами двух стен определяет угол наклона ската. Специалисты рекомендуют, чтобы крыша постройки была более пологой, в сравнении с крышей частного дома. Стропила закрепляют под скатом, а низ стропильных ног опирают на внешнюю стену террасы, потолочные перекрытия в этом случае оставляют как открытыми, так и закрытыми.

Выбор кровельного материала
В большинстве случаев крыша пристройки является продолжением крыши жилого здания, поэтому для ее кровли используется аналогичный кровельный материал. Надежная конструкция крыши поможет терраса быть не только комфортной и уютной, но и защищенной от внешних факторов в виде снега, дождя и ультрафиолетовых лучей солнца. Здесь в любую погоду можно собраться всей семьей за одним обеденным столом или же спокойно расслабиться за чашечкой кофе, любуясь при этом прелестями природы. Внутри пристройки нужно сделать качественный и водонепроницаемый пол, иначе он быстро может испортиться.
Гибкая черепица – эстетически привлекательный материал, монтаж которого прост, а теплоустойчивость гарантирует комфортные условия. Благодаря этому материалу можно покрыть любую крышу в независимости от ее сложности. Металлочерепица – надежная защита на долгие годы, провести монтаж сможет даже собственник жилья, не имеющий специальных навыков. 








krov-torg.ru
проекты, фото, чертежи, пошаговая инструкция
Для небольшого загородного домика или дачи оптимальным вариантом террасы является постройка из дерева. Чаще всего терраса располагается перед фронтальной частью, реже — вдоль боковых стен или вокруг всего здания.
Руководствуясь готовыми проектами и чертежами, террасу можно сделать своими руками, если точно следовать пошаговой инструкции. В статье вы узнаете, как выбрать качественные материалы и сделать террасу.

Какую террасу выбрать
Дерево — самый распространенный материал для постройки террас. К его преимуществам относятся легкость самой конструкции и простота монтажа, относительно невысокая стоимость и экологичность. Среди минусов можно выделить необходимость периодического ухода и подверженность гниению. Но плюсы конструкции с лихвой перекрывают ее возможные недостатки.

Терраса может быть как пристроенной к дому, так и отдельно стоящей (садовой). В первом случае конструкция возводится одновременно со строительством дома и стоит на общем фундаменте со зданием. Второй вариант считается временным сооружением — он не требует капитального основания и согласования проекта в надзорных органах. Если у вас нет профессиональных навыков в области строительства, лучше начать с открытой садовой террасы на отдельном облегченном фундаменте.
Этап первый. Фундамент из бордюрного камня

- Обозначьте границы террасы при помощи деревянных колышков. По периметру натяните бечевку — она пригодится для контроля. Пример разметки смотрите на фото.
- По углам будущего основания установите временные опоры из кирпича. Оптимальная высота — 40 см.
- Уложите на временные опоры лаги с уклоном на 2-3 градуса в сторону улицы. Для большей точности используйте строительный уровень. Затем натяните бечевку, отмечающую линию пола, и уберите лаги.
- На месте временных опор установите столбики из бетона. Между ними выкопайте траншеи по размеру бордюрного камня, залейте их бетонной смесью.
- Уложите бордюрные камни и засыпьте основание керамзитом для тепло- и гидроизоляции.
Этап второй. Деревянный настил
- Установите лаги на фундамент и пометьте места для последующего крепления бруса. Зафиксируйте лаги металлическими уголками.
- Обработайте доски для настила защитными пропитками, дайте им просохнуть и уложите пол с небольшими зазорами. Это необходимо для хорошей вентиляции и компенсации разбухания древесины при температурных перепадах.

Если вам нужна сезонная открытая терраса, достаточно будет отшлифовать доски и покрыть их лаком. Также можно использовать лессирующие составы, краски на водной или алкидной основе. Пример обработки — на фото выше. Если же вы планируете пользоваться террасой в непогоду, следуйте дальнейшим пошаговым инструкциям.
Этап третий. Стеновой каркас
- Подготовьте брусья сечением 10*10 см: зачистите их наждачной бумагой, обработайте фунгицидной и водоотталкивающей пропитками.
- Уложите на настил брусья нижней обвязки, соедините их между собой при помощи металлических уголков и прикрепите к основанию.
- По углам установите опорные стойки, затем поделите каждую сторону на участки длиной 70-100 см и поставьте остальные элементы каркаса. Для этого вырубите в нижней обвязке пазы, вставьте в них брусья и зафиксируйте каждый из них двумя уголками.
- Соберите и закрепите верхнюю обвязку. После этого можно приступать к возведению крыши. Оптимальный вариант — односкатный.

Этап четвертый. Обустройство крыши
- Закрепите горизонтальную балку (прогон) к стене дома, возле которой располагается терраса. Для фиксации используйте анкерные болты.
- После этого уложите стропила, фиксируя одну сторону к прогону, а вторую — к верхней обвязке.
- На стропилах смонтируйте сплошную либо разреженную обрешетку. Первая необходима при использовании рулонных покрытий и черепицы, вторая — при применении листовой кровли (например, Ондулина).
- Уложите кровельный материал в соответствии с инструкцией производителя.

Для финишной отделки террасы можно использовать любые лакокрасочные материалы — от лессирующих пропиток на водной основе до алкидных колерованных красок.
Еще один вариант открытой террасы представлен в следующем видео:
Какую кровлю выбрать для террасы
Выбирая кровлю для террасы, нужно ориентироваться на общий дизайн участка и стиль отделки дома или дачи. Чаще всего крыша пристройки из дерева перекрывается теми же материалами, что и основное здание.
Но некоторые домовладельцы придерживаются нестандартного подхода и комбинируют несколько видов кровли. Если вы строите террасу своими руками, то оптимальным решением станет кровля Ондулин. Листы отличаются небольшим весом, простотой монтажа и длительным сроком эксплуатации. Укладывать их можно даже в одиночку.
Для заказа Ондулина не нужно ездить по строительным рынкам и базам — достаточно зайти на сайт shop.onduline.ru и выбрать свой регион.
После этого вы увидите актуальные цены, сможете рассчитать необходимое количество листов Ондулина и комплектующих, а также оформить заказ с доставкой на дом.
Удачных вам покупок и приятного отдыха на новой террасе!
www.onduline.ru
Веранда своими руками из дерева
Многие владельцы частных домов, желая увеличить полезную площадь строения, стремятся пристроить к нему различные сооружения. Одним из наиболее распространенных является открытая веранда. Рассмотрим, как изготавливается терраса из дерева – наиболее доступного строительного материала в нашей стране.

Составляем проект пристройки
Прежде чем приступить к строительству веранды из дерева и любых других материалов, стоит тщательно проработать проектную документацию. Что позволит предварительно рассчитать все необходимые материалы, определиться с формой будущего строения, избежать возможных ошибок при строительстве. Даже если вы не обладаете необходимым уровнем черчения или подобными инструментами, рекомендуем выполнить простейшие эскизы будущей постройки с указанием ее размеров.
Во время составления проекта следует продумать всю последовательность работ, наиболее оптимальные приемы для ее выполнения. Аналогично следует определиться, с необходимым для строительства террасы, оборудованием и инструментами.
Этап первый — закладка фундамента
После определения последовательности строительства — веранда своими руками из дерева возводится пошагово. Начать необходимо с основания террасы, которое представляет собой ленточный мелкозаглубленный или столбчатый фундамент.

Как правило, оба вида имеют достаточно широкое распространение при выполнении самостоятельного изготовления домовых пристроек. Рассмотрим особенности данных типов фундамента для будущей террасы.
Столбик за столбиком
Простым и менее затратным с точки зрения материалов и физических усилий является столбчатый фундамент веранды. Он представляет собой несколько отдельных опор прямоугольного сечения в горизонтальной плоскости. Для изготовления используют следующие материалы:
- кирпич керамический красный;
- блоки фундаментные бетонные;
- блоки строительные бетонные;
- кладочный песчано-цементный раствор.
Перед установкой под будущие столбики выкапывают ямы 0,6-1м. Глубина заглубления под опоры террасы зависит от качества почвы и массы будущего строения. Дно ям отсыпают песком и щебнем с промежуточным утрамбовыванием. Поверх отсыпки под основание террасы заливают бетонную подушку для выравнивания.
Деревянная веранда должна равномерно опираться на все элементы фундамента. Для этого столбы выводят на общий уровень по высоте. С этой целью можно использовать частично обрезанные блоки или кирпич, а также различную толщину швов. После установки всех опор для террасы их необходимо защитить от влаги. В этом случае используют готовую битумную мастику и рулонный гидроизолятор. Аналогично осуществляется и гидроизоляция оголовков столбиков под веранду.

Лента под террасу – плюсы и минусы
Ленточный вид фундаментов для террасы требует больших усилий при строительстве. Основные этапы:
- разметка ленты по периметру стен террасы;
- копка траншеи на глубину не менее 0,6 метра шириной около 30 см;
- установка опалубки для подъема ленты над уровнем почвы до брусовой обвязки веранды;
- выполнение отсыпки дна траншеи песком и щебнем;
- изготовление и установка армирующего каркаса из стальных прутьев;
- приготовление бетонного раствора в достаточном объеме, заливка ленты до верхнего края опалубки;
- гидроизоляция застывшей ленты с помощью готовых составов;
- засыпка траншеи грунтом.

Как видно из описания процесса, технология установки ленточного фундамента под террасу из дерева – процесс достаточно трудоемкий и длительный, требует более высокой квалификации, чем при монтаже столбчатого основания. В случае неправильного возведения или высокой подвижности грунта ленту может порвать и выгнуть, что обязательно отразится на всей конструкции.
Этап второй — сооружение каркаса строения
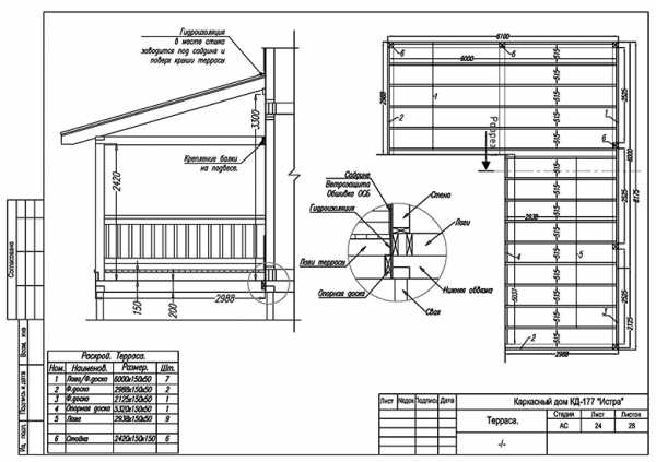
На готовый фундамент выполняется монтаж каркаса сооружения. Деревянная терраса своими руками изготавливается достаточно быстро даже в одиночку. Для работы потребуется строительный брус сечением 150х150 и 100х100 мм. Первый брус подойдет на нижнюю обвязку – основание пола веранды, второй – на стойки и опоры для перил.
Укладываем нижнюю обвязку
Брус сечением 150х150 укладываем на предварительно выстеленный рубероидом фундамент для террасы. Если размеры пристройки превышают 6 метров – стандартная длина пиломатериалов в нашей стране, придется сращивать элементы обвязки. Технология углового и продольного соединения бруса следующая:
- Отберите наиболее ровные, не поведенные пиломатериалы.
- На торцах разметьте запилы на половину толщины бруса. Длина будущего паза равна в нашем случае 150 мм.
- Пропилите брус по разметке с помощью ручного или механического инструмента – столярная ножевка, циркулярная или цепная пилы.
- Соедините детали паз в паз под углом или вдоль.
- Дополнительно усильте соединение, вбив по 2-3 гвоздя №150.
Во избежание возможного смещения каркаса террасы относительно основания (об этом стоит подумать на этапе возведения фундамента) в верхней части столбов или ленты оставляют несколько обрезков стальной арматуры диаметром 8 или 10 мм и длиной свободного конца 200-250 мм. Перед укладкой обвязки в точках выхода стальных стержней сверлятся отверстия большего диаметра, и брус укладывается на штыри, которые затем загибаются заподлицо.
После выполнения брусовой обвязки пола террасы по периметру, уложите аналогичным образом несколько поперечных брусков того же сечения, устанавливая в заранее размеченные и выпиленные пазы с шагом около 1 метра, скрепив их длинными гвоздями.
Устанавливаем стойки
Для опоры крыши веранды из дерева необходимо установить по внешним углам и вдоль длинной стороны, параллельной стене дома, несколько вертикальных брусков. Длина которых выбирается таким образом, чтобы высота крыши террасы от пола составляла не менее 2 метров, и соблюдался уклон кровли от основного строения.

Схема соединения обвязки и стоек
Если брус обвязки террасы разрешается не строгать, то стойки обязательно должны быть предварительно простроганы электрорубанком. Это позволит придать им более эстетичный вид и упростит дальнейшую отделку и обработку веранды. Крепить стойки к обвязке следует саморезами с использованием усиленных стальных уголков. В верхней части торцы бруса крепят к обвязке террасы, которая представляет собой элемент каркаса, служащий для увеличения прочности конструкции веранды.
Верхнюю обвязку лучше сделать из строганого бруса 100х100. Сборка осуществляется на земле подетально, после чего устанавливается на торцы стоек и крепится к ним. При этом необходимо убедиться в перпендикулярности вертикальных деталей в двух плоскостях. Для этого используют отвес или строительный уровень.

Этап третий — монтаж пола террасы
Поэтапный процесс монтажа террасы из дерева продолжается изготовлением пола пристройки. Особое внимание следует уделить правильному подбору материала, это — условия эксплуатации, сопряженные с постоянным воздействием влаги и резким перепадов температур.
Стандартная половая доска из сосны или ели худшее что можно подобрать для веранды. Если вы решитесь ее использовать, необходимо обязательно двукратно обработать пиломатериал антисептическими составами, защищающими дерево от гниения и поражения различными микроорганизмами. Особое внимание уделите обработке досок с торца.
Лучшим выбором для пола веранды является половая доска из лиственницы. Ее плюсы:
- устойчива к воздействию влаги и поражению грибками, плесенью, насекомыми;
- имеет красивую древесную структуру;
- хорошо поддается дополнительной обработке защитно-декоративными составами.
Вместо лиственницы для уличных террас часто используют искусственный напольный материал – декинг.

Для повышения декоративных свойств всего изделия в целом настилать половое покрытие можно не только традиционно вдоль одной из сторон террасы, но и под углом к ним. При этом способе расход половой доски на веранде будет увеличен процентов на 20, но оно того стоит. Так же осуществляют укладку пола террасы от центра по диагоналям, что требует выполнения точных угловых резов, которые можно сделать на торцовочной циркулярной пиле.
Этап 4 — монтаж крыши
Защитить посетителей веранды и напольное покрытие от дождя и солнечного зноя поможет качественная крыша. Каркас ее изготавливают из дерева, используя вертикальную обвязку террасы и горизонтальный брус-основу, закрепленный на стене дома. При возведении кровли веранды необходимо предусмотреть уклон к по отношению к горизонту не менее 15-20о во избежание скопления больших масс снега.

В качестве кровельных материалов для террас используют как традиционные металлические листы или мягкую кровлю, так и менее распространенные стекло или цветной сотовый поликарбонат. Благодаря применению последнего — крыша веранды может иметь радиусное закругление или куполообразную форму. Конечно, это потребует изготовления более сложной стропильной системы, зато придаст внешнему виду террасы неповторимости.
Этап 5 — установка перил, отделка
Ограничить внутреннее пространство веранды и защитить посетителей от падения помогут перила из дерева. Изготавливают которые из профилированного металла или строганого бруса. Балясины придадут изюминку внешнему интерьеру.
Закончив монтаж ограждения следует обработать древесину с помощью морилок, протрав или красок на масляной основе, иными словами защитить и подготовить к эксплуатации.
Тематический материал:
В данной статье мы разобрали вопрос – как построить веранду, как оказалось это совсем не сложно. Главное следовать рекомендациям и пошаговому алгоритму.
besedkibest.ru
Летняя веранда — терраса на крыше частного дома: проекты, дизайн
Одним из новых веяний в современной архитектуре как многоэтажных, так и малоэтажных домов – эксплуатируемые кровли. Каких только проектов использования верхней части строений не появляется в наши дни – это и открытые или закрытые бассейны, корты, натуральные или искусственные газоны, летние веранды. Сегодня речь пойдет о том, что собой представляет терраса на крыше, ее особенности и технология изготовления.

Особенности строительства террасы
Изготовить эксплуатируемую кровлю можно не только в частном доме, но и вместо крыши гаража, бани, хозблока. Таким образом, здания утилитарного назначения получают большие возможности для эксплуатации и увеличения полезной площади. Не зависимо от места расположения, терраса на крыше требует особого внимания уже на этапе составления проекта.
Особенность летней веранды, изготовленной вместо привычной многим крыши, заключается в особом устройстве самого верхнего перекрытия. На его долю выпадает максимальная нагрузка от атмосферных осадков сверху и от испарения влаги изнутри помещений дома или другого строения. Изготовление гидроизоляционного пирога и настила веранды для удобства использования эксплуатируемой кровли может наложить отпечаток даже на расчет параметров фундамента.
Для предотвращения скопления влаги пол веранды должен иметь небольшой уклон в ту или другую сторону. Как правило, его величина не превышает 1-3 о и практически не заметна тем, кто будет отдыхать наверху выбранного строения.
Направление уклона пола террасы должно предполагать наличие на более низкой стороне системы водосбора и водостоков. Иногда с этой целью предусматривают устройство водосливных воронок непосредственно в полу веранды.

Следующий аспект, на который следует обратить внимание еще на этапе составления проекта террасы – наличие и способ организации навеса, защищающего посетителей веранды на крыше дома или гаража от лишнего зноя или дождей. Вариантов устройства легкой крыши над верхним перекрытием и ее дизайна множество. Условно их можно разделить на следующие виды:
- рамные конструкции с остеклением;
- простой стационарный навес над террасой из влагостойких тканей и других рулонных материалов;
- раздвижной навес с электроприводом, расправляющийся над определенной частью площадки летней веранды по мере необходимости.
Особое внимание следует уделить безопасности отдыхающих на террасе. Это актуально не только при наличии в доме детей и домашних животных, но и для защиты взрослых. Главная задача при составлении проекта и обустройстве открытой террасы – изготовление прочного ограждения, препятствующего падению. С этой целью можно воспользоваться следующими способами:
- нарастить стены дома или другого строения дополнительно на 1-1,5 метра выше уровня пола летней веранды;
- установить дополнительное ограждение веранды в виде стального, деревянного или бетонного парапета;
- установить стойки в виде стальных труб круглого или прямоугольного сечения, деревянных или железобетонных столбиков и обтянуть их прочной металлической или капроновой сеткой согласно общему дизайну пространства;
- изготовить прозрачные стены веранды из застекленных рам.
Делаем террасу своими руками
Если проектом вашего дома предусмотрена терраса на крыше, рассмотрим основные этапы ее изготовления более подробно. Начинать описание технологии изготовления следует с организации верхнего перекрытия дома, ограничивающего пространство второго этажа и отделяющего террасу на крыше. Оно может быть изготовлено в двух вариантах в зависимости от материала стен дома.
Установка деревянных перекрытий
Если ваш дом изготовлен из деревянных строительных материалов – бруса или круглого бревна, то перекрытие под летнюю веранду также целесообразно обустроить из них. Балки в этом случае устанавливают, врубая в детали верхнего венца. При необходимости, стены можно поднять выше перекрытия на метр-полтора для организации ограждения. Красивый дизайн будет иметь ограда веранды, изготовленная из точеных или выпиленных деревянных балясин.
К нижним сторонам балок перекрытий выполняется подшивка чернового потолка. После крепления слоя пароизоляции можно установить и чистовою обшивку из строганых обрезных досок или вагонки. Между балками выполняется укладка теплоизоляционного материала того или иного вида в форме плит или рулонов. Это необходимо для снижения теплопотерь при устройстве террасы на крыше.

Поверх балок перекрытия так же стелиться черновая обшивка. Выполняется монтаж гидроизоляционного слоя пола террасы. Для этого применяют следующее устройство пирога:
- непосредственно на черновой пол наносится битумная мастика отдельными полосами;
- на вязкий первый слой выполняют монтаж рубероида, прогревая его и основание газовой горелкой для надёжного соединения. Для улучшения гидроизоляционных свойств покрытия рубероид частично напускают на ограждающие стены террасы, как бы создавая неглубокую ванну.
- после застывания первого слоя приступают к укладке второго в перпендикулярном направлении;
- для этого аналогично наносят слой мастики с последующим монтажом рубероида. При такой организации верхнего перекрытия гарантируется сохранность подкровельного пространства. Дополнительно не лишним будет выполнить бетонную стяжку пола террасы поверх гидроизоляционного слоя. Она станет хорошей основой для укладки напольного покрытия и позволит получить необходимый угол уклона веранды.
Монтаж бетонных перекрытий
При изготовлении террасы на доме, в соответствии с проектом, гараже хозяйственных постройках из кирпича, бетонных блоков, лучший вариант монтажа перекрытий – железобетонные плиты.
Они позволяют получить надежное прочное основание для летней веранды. Для установки данного вида перекрытий не обойтись без помощи специализированной строительной техники, что не сможет не отразиться на бюджете строительства.
После возведения стен веранды на необходимый уровень выполняется укладка плит на цементно-песчаный раствор. Укладывают их максимально плотно, как можно ближе друг к другу. На плитам заливается стяжка из бетона. С помощью которой, необходимо выполнить нужный уклон пола террасы в выбранном направлении водослива. Бетонное перекрытие также необходимо утеплять.

Для этого на застывшую стяжку веранды расстилают пароизоляционную мембрану сплошным слоем. На нее укладывают два слоя плитного теплоизоляционного материала, используя специальные клеевые составы для его фиксации друг с другом и к основанию пола. Поверх утеплителя так же заливается бетонная стяжка толщиной не менее 4-5 см. На застывший раствор осуществляется монтаж гидроизоляционного слоя, устройство которого было описано в предыдущем пункте.
Выбираем и укладываем напольное покрытие
Наличие напольного покрытия летней веранды на крыше частного дома или гаража необходимо для придания пространству законченного вида и соответствующего назначению террасы дизайна. Особая сложность заключается в выборе материала, наиболее стойкого к воздействию повышенной влажности, которая всегда будет присутствовать на открытой площадке террасы.
Среди наиболее распространенных и доступных для покупателя можно выделить следующие виды покрытий:
- Керамическая или тротуарная плитка. Обладая всеми требуемыми качествами, она имеет один существенный недостаток – высокую массу, которую необходимо учитывать на этапе составления проекта дома для расчета параметров фундамента.

- Террасная доска из натурального дерева, дополнительно обработанная тем или иным образом. Лучшим вариантом является покрытие из лиственницы, отличающейся высокой стойкостью к воздействию влаги. Кроме нее можно использовать ценные породы древесины, но это удовольствие обойдется в копеечку.

- Покрытие из термодерева также обладает высокой стойкостью к гниению и перепадам температур. Связано это с особой обработкой начального материала, осуществляющейся при высоких, около 200оС, температурах и давлении. После этого древесина приобретает высокие механические свойства и сопротивление атмосферному воздействию.
- Хорошим дизайном и высокими эксплуатационными характеристиками обладает новый вид напольных покрытий для террас и веранд – доска из древесно-полимерного композитного материала. Она представляет собой высокопрочные искусственные изделия, не боящиеся воздействия мороза и влаги. Полая структура доски позволяет при составлении проекта террасы снизить нагрузку на основание и стены дома.

Монтируем ограждение террасы
В случае изготовления ограждения летней веранды на крыше дома в виде отдельных элементов можно порекомендовать следующие возможные варианты:
- бетонные ограждения веранды в виде перилл и балясин хорошо подойдут к дизайну террасы кирпичного или блочного дома;
- ограждения из деревянных перилл и точеных или плоских балясин чаще всего прерогатива домов из натурального дерева – бруса, дикого или оцилиндрованного бревна;

- Кроме этого возможно изготовить ограждение террасы в виде деревянных решеток из брусков или досок. Для внутреннего дизайна пространства можно пустить по ним какие-либо вьющиеся растения.
- Металлические кованые ограждения веранды подчеркнут статусность владельца дома. Хорошо, если такое ограждение будет гармонировать с имеющимся ограждением участка дома, изготовленным по аналогичной технологии.
- Менее затратные проекты ограждений летней веранды на крыше, представленные металлическими решетками на стальных опорах из круглой или прямоугольной трубы. Материал доступен по цене и прост в монтаже.
При самостоятельной установке любого из описанных выше видов ограждений особое внимание следует обратить на качество установки элементов. Что должно обеспечивать устойчивость под нагрузкой во избежание несчастных случаев.
Выбор материала для навеса
Как уже отмечалось, комфортное пребывание на террасе в жаркий летний полдень или пасмурный осенний день не возможно без легкой крыши, изготовленной на постоянной основе или устанавливаемой по мере необходимости. С точки зрения дизайна веранды возможно накрыть не всю поверхность крыши, а отдельный ее уголок, расположив там зону отдыха или обеденную зону.
В этом случае удобно будет установить по периметру несколько стационарных опор и закрепить на них какой-либо влагоизоляционный материал.

Оригинальный дизайн террасы можно получить, используя легкую кровлю из соломы или тростника. Неплохо будет смотреться крыша из цветного поликарбоната на металлическом или деревянном каркасе.
Более дорогие варианты установки навеса – раздвижные электрифицированные конструкции, которые могут работать по принципу пляжного зонтика или плоского выдвижного тента. Для монтажа последнего, как правило, необходимо наличие двух вертикальных стен веранды, расположенных параллельно или перпендикулярно друг другу.
besedkibest.ru
Как правильно пристроить веранду к дому под общую крышу
Даже в большом доме со временем становится тесно. Основное пространство занимает мебель, а на улицу можно взглянуть разве что из открытого окна. Если пристроить веранду, вариантов разнообразить досуг прибавится: под общей крышей можно разместить удобную зону отдыха.
Веранда — летнее помещение, поэтому при ее возведении не обязательно обустраивать термозащиту и проводить тепловые коммуникации.
Планировка и проектирование веранды

На чертежах дом и веранда должны представлять единую композицию. И, если здание было изначально возведено без пристройки, то сделать это самостоятельно можно всегда — менее чем за один сезон.
Обычная планировка расположения веранды параллельно фасаду должна иметь дверной проем, из которого можно беспрепятственно попасть внутрь помещения.
Для веранды загородного дома оптимальный размер составляет 2-3 м в ширину и 3-7 м в длину.
Конструкция меньших размеров будет похожа на крыльцо и основного предназначения не оправдает. Чтобы построить веранду своими руками, нужно соблюдать рекомендации:
Выбор строительных материалов. Для экономии финансов самый оптимальный вариант — основа на металлическом каркасе, имеющая холодную, открытую террасу.
Правильная обшивка. Конструкцию можно обшить толстой фанерой или вагонкой. Такой вариант не потребует больших затрат и вложений. Главное, чтобы оттенок веранды соответствовал общей цветовой гамме дома.
У веранды и дома должен быть общий фундамент. Это невозможно реализовать, если постройка выполнена после возведения дома, но необходимо сделать так, чтобы фундаменты прилегали максимально плотно.
Нужна вся законодательная документация на веранду. Чтобы не было проблем при продаже недвижимости, любые изменения необходимо подкреплять бумагами из официальных структур.
Когда проект и чертежи будут готовы, следует получить разрешение на проведение строительных работ. Для этого требуется:
Отправить проектную документацию архитекторам. Специалисты рассмотрят чертежи и решат, одобрить их или вернуть на доработку.
Подать заявление с приложенными документами, подтверждающими право собственности на земельный участок.
Когда строительные работы будут завершены, обязательно нужно идти в БТИ для внесения изменений в технический паспорт дома.
Как пристроить веранду к частному дому

Планировка веранды в одном стиле с домом необходима. Если здание деревянное или кирпичное, то и пристройка должна быть из аналогичного материала. Нелепо будет выглядеть конструкция из металлического каркаса или пенобетона рядом с бревенчатыми стенами.
Строим фундамент

В частном доме веранда делается на столбчатом кирпичном фундаменте, на который будет опираться каркас. Под углы каркасных стоек закладываются столбы из кирпича и, если пристройка длинная, устанавливаются промежуточные опоры.
Сначала намечаются места для столбов, затем выкапываются ямки глубиной 1 метр, дно которых устилается песчаной подушкой слоем 15—20 см. Если почва богата кварцем, то вместо песка засыпается 10 см гравия, а сверху заливается слой битума для гидроизоляции.
Следующий этап строительства — в лунки закладывают бетон слоем 10—15 см. После застывания массы выкладывается кирпичный столб до необходимой высоты. Его высота рассчитывается таким образом, чтобы пол веранды был ниже уровня пола дома на 20—25 см.
Устройство кирпичного столбчатого фундамента

После возведения кирпичных столбов, их обмазывают битумом, а пустоту внутри кладки засыпают щебнем, гравием, бетоном, битым кирпичом или песком.
Кирпичный фундамент под веранду не рекомендуется сильно заглублять в землю — ориентировочная глубина и ширина траншеи около 0,5 метра. Дно ямы застилается щебнем.
Надземная часть фундамента веранды и дома должна быть одинакова по высоте. При перепаде высот придется обустраивать дополнительные ступени. Подробная информация о фундаменте на видео:
Для пола на веранде необходима качественная опора, поэтому через 1,5 метра по длине фундамента бетонируются опорные столбы, а концы лаг опираются на фундамент.
Стены для веранды: как правильно строить

Веранда с крыльцом строится из кирпича или деревянных брусьев — в зависимости от запланированного дизайна. Для лучшей гидроизоляции между обшивкой и стеной укладывается слой любого утеплителя.
Если стены будут деревянными, то место стыка следует выложить теплоизоляционным материалом для предотвращения гниения дерева. Кирпичные стены можно сложить тоньше, чем в основном здании.
Для утепления каркас изнутри обшивается вагонкой, а снаружи декорируется сайдингом или ПВХ-панелями. Стены веранды и дома обязательно соединяются жесткими закладными.
Советы по строительству крыши и монтажу окон

Кровля из рубероида настилается по доскам, прикрепленным к стропилам. Материал обязательно нужно прибивать шиферными оцинкованными гвоздями, шляпки которых утапливаются. Для фиксации набивают деревянные тонкие рейки, обернутые в рубероид. Кровля по нижнему краю загибается под обрешетку на 10 см и закрепляется гвоздями.
Металлическая кровля укладывается на редкую обрешетку. Вальцевыми швами листы соединяются и прибиваются к основанию.
Кровля из асбестоцементных листов монтируется внахлест — верхний лист должен перекрывать нижний на 120—150 мм. Асбестоцемент закрепляют шурупами.
Для монтажа окон на веранде на расстоянии 50—60 см от пола устанавливается подоконная доска. Поэтому подоконники будут ниже, чем в доме. Между подоконной доской и обвязкой вставляются рамы.
Рекомендуется чередовать глухие и открывающиеся окна, а также устанавливать рамы с одинарным стеклом. Зазоры между рамой и стеной заполняются с улицы на 3/4 сухой паклей, а со стороны веранды на 1/4 паклей в гипсовом растворе. Все зазоры закрываются деревянными наличниками.
В завершении материала предлагаем посмотреть видео с пошаговым планом возведением веранды:
Распродажа (-55%):
bydom.ru
инструкция и идеи для проектов для дачи
Уютная и свободная веранда, которую сегодня также принято называть терраса, всегда была и остается одним из самых привлекательных мест летом, где можно спокойно уединиться после работы вечером или провести веселый уикенд вместе с семьей или друзьями. Помимо времяпрепровождения, хорошо спроектированная веранда способна сильно разнообразить стандартный дизайн загородного дома, выгодно дополнив фасад постройки, став настоящим украшением или даже изюминкой загородного коттеджа и дачи.
Разумеется, продумывать внешний вид веранды лучше всего еще на этапе составления проектной документации, но даже, если вы этого не сделали своевременно – расстраиваться не стоит! Терраса относится к типу строений, которые в любой момент можно пристроить самостоятельно к основной постройке без каких-либо сложностей.

Сегодня мы постараемся подробно рассмотреть процесс строительства веранды к дому своими руками, выделив все важные нюансы, которые могут возникнуть во время работы, а также разобрав поэтапно каждый элемент готовой конструкции. Также мы расскажем о преимуществах и особенностях монтажа открытой террасы и пристройки, выполненной из поликарбоната, предложим множество фото и видео к каждой инструкции, попутно представив фотогалерею с лучшими идеями. Поехали!
Где размещать?
Как и с любым другим новым объектов на даче, строительство веранды начинается с выбора местоположения. Обычно новая конструкция размещается перед главным фасадом. Тем не менее не исключены варианты, когда терраса строится и возле бокового фасада. Самое главное при определении с местоположением, чтобы пристройка была видна с калитки. Другими словами, она должна хорошо просматриваться с главного входа на территорию, чтобы ее не пришлось искать. Кроме этого, веранда должна оснащаться проходом внутрь дома!
Длина конструкции во многом зависит от размеров самого здания — длины фасада, возле которого и планируется строительство. Что касается ширины, то здесь все проще: как правило, ширина пристроя делается около 2,5 метров.
Перед началом работ стоит тщательно подготовить рабочее пространство, а именно освободить место строительства, разобрать козырек и крыльцо у входа.
Фундамент своими руками
Для возведения деревянной и каркасной веранды, как правило, используют столбчатый фундамент. В этом случае под угловыми стойками конструкции укладывается кирпичная кладка в виде небольших по высоте столбиков. При этом углубление под фундамент стоит вырывать не менее одного метра – только так можно рассчитывать на повышенную надежность постройки.

Важный момент! Для строительства небольшой маловесной веранды достаточно будет угловых столбиков, однако, если вы собираетесь обустроить более просторную и крупную террасу, то уже не обойтись без промежуточных стоек с шагом в пол метра.

Порядок работ при создании фундамента:
- Первым делом, разумеется, вырываются углубления не меньше 1 метра глубиной.
- После дно каждой ямы засыпается вначале 20-сантиметровым слоем песка, а после еще 10-сантиметровым слоем гравия.
- Производится заливка бетонной смеси (порядка 15 сантиметров слой), после чего дается время на схватывание цемента.
- Далее выкладываются кирпичные столбики. При этом над уровнем земли столбы должны находиться чуть ниже отметки основного фундамента или на уровне с ним так, чтобы уровень чистого пола в доме был приблизительно на 30 сантиметров выше.
- Готовые столбики обрабатываются при помощи горячего битума.
- Внутренние полые части заполнятся гравием или осколками битого кирпича.
- Промежутки между почвой и новым основанием засыпаются и утрамбовываются песком.

Возведение каркаса
В большинстве случаев каркас веранды сооружается из деревянных брусьев. В нашем случае наиболее оптимальным сечением брусков будет 100 на 200 либо 120 на 80 миллиметров. Стоит отметить, что иногда для пристроя террасы к дому используются бревна сечением 12 сантиметров.

Создание каркаса из дерева начинается с нижней обвязки, обычно двойной. Фиксация брусков выполняется прямым замком. На высоте двух бревен вертикальные стойки с шипами и лагами врезаются в обвязку. Крепление осуществляется при помощи гвоздей, в дополнении к которым применяются также и скобы, обеспечивающие большую прочность конструкции.
Оптимальным шагом между несущими элементами является пол метра, однако на практике этот показатель бывает намного больше.
Верхняя обвязка веранды со стропильной системой делаются на стойках. В качестве последних может выступать пара досок с прокладкой или цельные бруски. Фиксация стропил достигается благодаря горизонтально расположенной балке под скатом крыши. Крепление стоек с балками осуществляется анкерными болтами.
При сборке каркаса веранды смотрите, чтобы кровля пристройки точно подходила к кровле основного здания.
Установка кровли
Лучше всего, если крыша веранды станет зрительным продолжением кровли дома. Исходя из этого покрывать крышу террасы следует из аналогичного кровельного материала. Тем не менее не исключены варианты с применением и другого изделия. Кровлю следует закреплять за деревянную обрешетку, которая в свою очередь выполняется либо вплотную, либо с небольшими промежутками. Последнее во многом зависит от вида кровли:
- Листы асбестоцемента следует крепить шурупами или гвоздями в заранее подготовленные отверстия внахлест таким образом, чтобы перекрытие составляло не менее 14 сантиметров;
- Стальная кровля стыкуется между собой при помощи «фальцевого» шва. Фиксация обеспечивается за счет гвоздей;

- При желании использовать рулонный материал доски следует размещать вплотную. В процессе крепления настила к стропилам нельзя оставлять шляпки гвоздей выступающими – их нужно утапливать в досках! Бока рулонного материала прибиваются гвоздями, где дополнительная прочность достигается за счет реек. При этом выступающие боковые участки важно подгибать под низ, прибивая сгиб гвоздями.
Стены и пол
Как правило, пол веранды выкладывается из дерева, где в качестве материала выступают доски, обработанные антисептиком.

Для создания стен обычно применяется вагонка или деревянные щитки. Важно продумать размещение окон в новом помещении. При желании террасу можно выполнить и открытой.
Не нужно сильно утеплять стены пристройки к дому, все-таки веранда всегда была летним помещением!
Терраса из поликарбоната
После выполнения фундамента, каркаса, пола и стен своими руками стоит перейти к обшивке стен листами поликарбоната. Этот материал позволит получить в итоге легкую и светлую веранду, отлично подходящую для летнего времяпрепровождения.
Сам по себе поликарбонат является светопрозрачным строительным материалом, создаваемым на базе полиэфиров угольной кислоты. Он изготавливается многими компаниями в виде монолитных и сотовых панелей. Во втором случае между ребрами жесткости имеются специальные полоски, позволяющие в дальнейшем крепить несколько листов между собой.
Отличным дополнением для террасы станут раздвижные окна, которые не только способны обеспечить хорошую защиту от непогоды, но и создадут приятный панорамный вид. Ознакомиться с особенностями выбора можно на нашем сайте. |

Благодаря немалому числу положительных характеристик поликарбонат часто применяется вместо стекла при строительстве веранд.
Достоинства материала
Несмотря на относительно недавнее появление материала на строительном рынке, поликарбонат уже успел обзавестись немалой популярностью среди многих дачников. Связано это с уникальными характеристиками этого удивительного материала, аналогов для которого на сегодняшний день по нет. Среди основных преимуществ:
- Увеличенный температурный диапазон, который находится в пределах от минус 40 до плюс 120 градусов, делая материал устойчивым как к сильным морозам, так и к знойным летним дням;

- Отличные прочностные показатели, превышающие характеристики стекла более, чем в 20 раз. Даже, если поликарбонат и сломается, то при разрушении целостности он не образует мелких осколков, как это бывает у стекла. При разрыве материала появляются небольшие фрагменты без острых углов, снижая риск повреждения к минимуму;

- Полимерные листы выделяются неплохой гибкостью, что позволяет создавать в доме различные криволинейные конструкции. При этом поликарбонат поддается сгибу без какого-то особого оборудования, так что провести все работы можно прямо на месте своими руками;
- Сквозь прозрачные листы
prostrouky.ru
особенности летних, открытых построек, чертежи, фото
Различные по типу и размерам, назначению и внешнему виду веранды стали привычным дополнением к дачному дому, местом отдыха в жару и застолий летними вечерами. Как сделать веранду на даче, мы расскажем в статье, а также рассмотрим некоторые особенности юридического, технического и архитектурного характера.

Строим веранду на даче своими руками – это просто и недорого.
Строительство веранды
Выбор вида и расположения

Летняя конструкция обойдется дешевле.
Прежде всего, вы должны решить для себя, какую именно конструкцию вы хотите.
Для этого следует определить такие моменты:
- Расположение постройки относительно дома. Как известно, веранда пристраивается к лицевой части фасада там, где расположен вход или сбоку от него, но не на задней стене или где-то еще;
- Размеры постройки. Веранда на дачном участке должна удачно вписаться в общий стиль сооружения и не стать слишком громоздкой, при этом тесной она также быть не должна. Обычно длину делают от 4 до 7 метров, а ширину – от 2.5 – 3.5 метров;
- Материалы постройки. Здесь все предельно просто: материал веранды должен совпадать с материалом дома, или хотя бы включать их в свою конструкцию. Пристраивать пластиковые конструкции к камню или металлические к дереву недопустимо из-за очевидного несоответствия, если не сказать уродства;
- Открытая или закрытая это будет конструкция, будет ли она отапливаться в зимний период или служить лишь летним помещением. Сразу решается вопрос: «Чем закрыть веранду на даче?» — это может быть дерево или кирпич, каркасная конструкция, стекло и прочие материалы, гармонирующие с домом и окружающими объектами участка;
- Цена вопроса. От этого будет зависеть, какие именно материалы и технологии вы сможете себе позволить, а также насколько надежным и долговечным получится сооружение.

На фото пример построенной самостоятельно закрытой веранды.
Как правило, делают чертежи веранды на даче своими руками, поэтому здесь предстоит процесс не только трудоемкий, но и творческий.
Конечно, если вы человек состоятельный и рисковать не хотите, вы можете нанять опытного архитектора или заказать строительство «под ключ», но свое всегда дороже и милее, уж поверьте.

Достаточно учесть основные моменты и расположение узлов.
Открытый или закрытый тип также определить легко – это зависит от периодичности или постоянства вашего пребывания в загородном доме. Если оно постоянно или по принципу «туда-сюда зимой и летом», тогда лучше строить закрытую и теплую комнату, если же вы видите участок только летом – тогда остановитесь на летнем открытом варианте.
Важно!
Перед началом строительства любую пристройку лучше согласовать с компетентными органами и перерегистрировать дом.
Юридический аспект

Необходимо решить вопрос регистрации.
Конечно, к вам не придет зондер-команда на следующий день и не потребуют аусвайс, но если вы со временем захотите сдать в аренду, передать кому-либо в собственность, продать или подарить свой дом, пристройку придется регистрировать обязательно, только уже через штраф и менее приемлемым способом.
В первую очередь с готовыми эскизами обращаются в проектную организацию, которая составляет план-проект и утверждает его возможность.

Даже небольшие домики или дачные дома из блок контейнеров требуют множества согласований.
Далее следует написать заявление о желании построить конструкцию, взять паспорт, документы на право собственности на дом и участок, а также утвержденный ранее проект и посетить ряд организаций, которые занимаются в вашем регионе регистрацией недвижимости.
Важно!
Ваше заявление рассмотрят, и только после вынесения положительной резолюции можно спокойно приступать к строительству.
Кто, как и из чего это будет делать — на документы не влияет, важен сам факт.
Строительство деревянной веранды

На начальном этапе может понадобиться аренда дизель генератора для дачи, если собственная сеть не налажена должным образом.
Далее последует поэтапная инструкция, которая поможет вам справиться со строительством уютной и недорогой веранды на даче:
- Фундамент под веранду на даче делаем столбчатый. Для этого в углах конструкции, а также на расстоянии 1.5 м выкапываем ямы глубиной 70 – 100 см, делаем опалубку, ставим арматуру и бетонируем столбы, высота которых должна быть примерно на 30 см ниже фундамента самого дома. Не забываем про гидроизоляцию бетона;
Строим столбчатый фундамент согласно расчетам и чертежу.
- Из бруса 100х100 или 150х150 см делаем нижнюю обвязку столбов по периметру, а если длина и ширина велики – то можно сделать и внутреннюю балку, и две, скрестив их посередине. Крепление к бетону через рубероид в полдерева на анкерные болты;
Выполняем нижнюю обвязку. Древесину обязательно пропитываем антисептиком и фунгицидом.
- Из бруса 100х100 см выставляем угловые стойки, стойки около дверного проема, а также на расстоянии 1.5 метра по всему периметру конструкции, высота столбов такая, чтобы край крыши веранды был ниже края крыши дома на несколько сантиметров для угла ската. Крепим стальными уголками и саморезами, можно делать вруб и «садить» на гвозди;

Выставляем вертикальные стойки по уровню, чтобы он не сбивался, укрепляем их временными укосинами.
- Затем из того же бруса делаем верхнюю обвязку, которая соединит внешний периметр пристройки в одну линию и сделает каркас крепким и монолитным;

Строим верхнюю обвязку с учетом возможной перегородки. Соединять лучше врубкой в полдерева.
- Зашиваем вагонкой стены с учетом оконных проемов, изнутри утепляем стены дачной вернады ватой или пенопластом и также зашиваем вагонкой. Монтируем стеклопакеты и навешиваем дверь;

Утеплитель располагаем между элементами каркаса и запениваем все щели.
- По верхней обвязке набиваем систему лаг из доски 150х50, делаем обрешетку и укладываем кровельный пирог;

Монтируем стропильную систему односкатной крыши и укладываем кровельный пирог.
- Решаем, чем покрыть пол на веранде на даче (террасная доска, бетонная стяжка и т.д.) и выполняем его монтаж. Далее приступаем к отделке и покраске.

Приводим в порядок пол из террасной доски или обычной качественной шпунтованной доски.
Вывод
Дача без веранды – как осень без дождя, вроде все хорошо, но чего-то не хватает.
Добавить в избранное Версия для печатиОтличная статья 0
9dach.ru
