Полукруглые арки из гипсокартона фото – Арки из гипсокартона в интерьере: 70 фото, идеи дизайна
60+ фото в интерьере, дизайнерские идеи оформления
Виды арок
Разновидности арочных конструкций.
Межкомнатные (в дверном проеме)
Могут отличаться самой различной формой, четко обозначающей дверной проем. Оригинальные архитектурные проемные сооружения на дверь, будут не только украшать комнату, но и станут ее функциональным элементом.



На фото межкомнатная арка из гипсокартона в интерьере коридора.
На стене
Данные настенные конструкции, обладающие безграничным количеством конфигураций, очень часто применяют в оформлении помещений. Они кардинально меняют планировку пространства и придают ему очень красивый и оригинальный облик.


На окне
Представляет собой настоящую интерьерную изюминку, которая способна стать украшением, как для современного, так и более консервативного дизайна. Арочные оконные проемы, несомненно привлекают к себе внимание и добавляют в обстановку некого шарма, торжественности и загадочности.

На фото окно, оформленное аркой из гипсокартона в интерьере небольшого зала.
Формы гипсокартонных арок
Благодаря огромному множеству геометрических форм и гибкости гипсокартона, получается подобрать идеальное решение для любого интерьера.
Квадратная
Самая простая и широко распространенная конструкция. Квадратная прямая арка, может иметь обычный и лаконичный вид без лишних дополнений или быть декорированной с помощью различных полок, ниш, подсветки, встроенных светильников, штор, мобильных перегородок или ширм.


Круглая
Такие полуциркульные или подковообразные проемы в виде дуги, представляют собой достаточно распространенный и часто используемый интерьерный элемент. Круглая модель считается классической и по другому называется римская.


Полуарка
Обладают геометрически четким радиусом и лучше всего подходят для оформления больших помещений с высокими потолками. Полуарки могут иметь однотонное цветовое решение или быть украшенными стилизованными колоннадами, лепниной и другим декором.



На фото гостиная и тайская односторонняя арка из гипсокартона, облицованная декоративным камнем.
Трапеция
Отличается нестандартным исполнением, которое достаточно сложно обыграть в интерьере. Однако такие подчеркнуто ломанные линии иногда могут стать настоящей дизайнерской находкой.

Фигурная
Фантазийные криволинейные формы, становятся ярким и самым заметным акцентом всей комнаты. Фигурная арка отлично декорирует дверные проходы или используется в качестве рамки для углубления, расположенного в стене.


Косая
Такой доминантный элемент, как арочная конструкция наискосок, формирует вокруг себя единую и цельную интерьерную композицию.

Восточные/мусульманские
Восточная арка, может иметь форму остроконечного купола, быть дополненной зубчатыми и волнистыми рельефами или украшенной сложными миниатюрными насыщенными узорными орнаментами.

На фото спальня с дверным проходом и стеной, декорированными восточными арками из гипсокартона.
Примеры в интерьере комнат
Фото оформительских примеров для различных комнат.
Зал или гостиная
Арочные модели из гипсокартона, отлично вписываются в общий дизайн зала и придают дверному проходу, по-настоящему привлекательный вид. В гостиной довольно часто применяют прямоугольные, эллиптические, овальные или трапециевидные конструкции.


Кухня и столовая
В дизайне кухне особенно будут уместны классические арки аккуратной и симметричной формы или модели из гипсокартона, которые иногда декорируют лепным декором, деревом или вставками из стекла. Для небольшого кухонного пространства подойдут трапециевидные арочные модели.


Коридор и прихожая
Оформление прихожей, должно быть выполнено очень грамотно, чтобы выгодно подчеркнуть всю красоту данного пространства. Для небольшого коридора чаще всего выбирают прямоугольные проемы из гипсокартона, а для более просторного, арку в виде широкого эллипса или трапеции.


Спальня
Арочную конструкцию, расположенную на стене над кроватью, можно дополнить искусственным освещением, книжными полками или прикроватными нишами для всевозможного декора. Форма проема, в целом соответствующая единому стилю спальни, позволяет сформировать сбалансированный и очень уютный дизайн.


Балкон
Если объединять балкон с комнатным пространством, гипсокартонная арка будет являться отличным дизайнерским решением, значительно гармонизирующим общую обстановку.

На фото п-образная белая арка из гипсокартона, расположенная между балконом и гостиной.
Детская
Арочные изделия из гипрока с запоминающимся, сказочным и немного таинственным дизайном, создадут в детской яркий и по-настоящему уникальный интерьер, в который хочется бесконечно возвращаться.


Варианты отделки арок в квартире
Внешний вид сводчатого прохода можно значительно преобразить с помощью различных вариантов отделки:
- Обои. Бюджетный вариант оформления, который несмотря на это всегда выглядит очень выигрышно.
- Покраска. Благодаря покраске получается создать различные эффекты, например применяя водоэмульсионную краску можно добиться матовой поверхности, а за счет покрытия алкидной эмалью глянцевой.
- Декоративный камень/кирпич. Данные отделочные материалы вне зависимости от того, натуральны они или искусственны, превосходно обрамляют проход и придают ему завершенности и роскоши.
- Дерево. За счет неповторимого древесного рисунка, любое даже самое простое интерьерное пространство приобретает элитный облик.
- Декоративная штукатурка. Позволяет придать арочной конструкции разную текстурную поверхность, тем самым задавая обстановке определенное настроение и характер.
- Пробка. Экологически чистая, натуральная и приятная на ощупь отделка, придает сводчатому проходу своеобразное звучание.

На фото кухня-гостиная с декоративной аркой из гипсокартона, оформленной обоями с рисунком.


За счет декорирования различными отделочными материалами или с помощью их сочетания, имеющего свои определенные преимущества, получается придать арке очень эффектный внешний облик.


Идеи дизайна арок из ГКЛ
Оригинальные дизайнерские решения.
С подсветкой
Встроенная подсветка представляет собой очень интересный интерьерный элемент. Например, с помощью точечных светильников, включающихся отдельно от общего комнатного освещения, можно, не только украсить арку, но и сформировать очень приятную обстановку в вечернее время суток.



На фото арка из гипрока, декорированная точечными светильниками в прихожей.
Узкие арки
Данные узкие модели за счет своего вытянутого вида станут отличным решением для помещений, в которых нужно визуально приподнять потолок.

На фото интерьер спальни и узкая арка из гипсокартона с обрамлением белого цвета.
С полками
Различные боковые полочки и проемы с окошками самой разнообразной формы, дополненные точечной подсветкой, имеют целостный вид и придают сводчатой конструкции необычности и своеобразности.


Угловые
Данная угловая арка является самым простым и творческим способом, придающим обстановке креативности, определенного настроя и вместе с тем особой аристократической притягательности.

Необычные арки
Необычные конфигурации пользуются особым успехом в дизайне комнат. За счет пластичности ГКЛ получается добиться самых оригинальных и уникальных форм, например, это могут быть двойные, тройные, выгнутые проходы или даже модели, выполненные ромбом.


На фото стрельчатые арки в интерьере.
Большие
Добротная большая арка, отличается габаритностью и позволяет привнести в пространство дополнительного простора и свободы.

На фото большая арка, выполненная из гипсокартона в интерьере просторной спальни.
С барной стойкой
Представляет собой очень популярное дизайнерское решение для зонирования любого жилого помещения или квартиры-студии. Широкая асимметричная или симметричная арка с барной стойкой, сделает интерьер престижнее и интереснее.

На фото кухня-столовая и арка из гипсокартона, дополненная барной стойкой.
Резные
Привносят в атмосферу дополнительной изысканности и роскошности. Резная ажурная арка, несомненно станет самым значимым декором всего пространства.

С нишами
Благодаря такому простому и вместе с тем элегантному дополнению, как углубление, получается превратить арку в настоящий фаворит. В глубоких нишах можно удобно разместить дорогие, ценные или просто красивые предметы, например вазы, статуэтки или различные сувениры.

С окантовкой
Такой проход смотрится более завершенно и основательно. Окантовка способствует улучшению зрительного восприятия арочной модели, делая ее вид особо привлекательным.

С колоннами и полуколоннами
Сводчатый проем, дополненный колоннами или полуколоннами, формирует в пространстве творческую и живую атмосферу, лишая обстановку однообразности. Такое оформление будет особенно уместно в более просторных комнатах.

Примеры гипсокартонных конструкций в различных стилях
Варианты декорирования в разных стилевых направлениях:
- Классический. Для классики предпочтительны изысканные и элегантные формы. Например прекрасным решением станет римская полукруглая конструкция или сводчатый проем, украшенный объемными лепными элементами или колоннами, придающий дизайну еще больше торжественности и выразительности.
- Современный. Лаконичная арка с продуманным оформлением, в виде однотонных ярких или нейтральных покрытий, гармонично впишется в современный стиль.
- Прованс. Французский прованс предполагает отделать проемы деревянной окантовкой, украсить резьбой или натуральной каменной кладкой, которая будет смотреться особенно убедительно.
- Лофт. Арочные проходы, декорированные натуральным или искусственным камнем, кирпичной, плиточной кладкой или проемы с немного неряшливой и грубоватой отделкой, позволят еще больше углубиться в урбанистическую стилистику.
- Хай-тек. Для данного стиля характерно применение гладких, четких линий и сдержанного оформления. Необычная и неправильная арка, выкрашенная в тон с общим оформлением, как нельзя лучше впишется в хай-тек.

На фото квадратная арка из гипсокартона с деревянной отделкой в интерьере кухни-столовой в стиле прованс.


За счет красивых сводчатых проходов и дополнительных атрибутов декорирования, получается еще больше поддержать определенный стилистический настрой.

На фото спальня в классическом стиле и арка из гипсокартона, расположенная возле окна.


Фотогалерея
Арки из гипсокартона могут отличаться самой необычной формой и дизайном, с помощью которого получается дополнить стилистику любого помещения. Данные проемы считаются по-настоящему уникальными и становятся изюминкой всего интерьерного пространства.
design-homes.ru
Арки в квартире из гипсокартона: фото, формы, дизайн
Особое место в декорировании жилища занимают арки в квартире из гипсокартона. Сводчатые и криволинейные конструкции придают квартире изысканность, простор, уют и необычность. Чтобы арка смотрелась в интерьере гармонично, нужно правильно подобрать вид свода. Межкомнатная арка – это современное, стильное решение для каждого интерьера, выполнить который можно своими руками.
Дизайн классической арки в интерьере квартирыМногие квартиры с небольшой площадью только выигрывают от отсутствия межкомнатных дверей, например, можно объединить маленькую кухню с комнатой, разграничив пространство красивой аркой. Кроме этого, можно убрать перегородки, между комнатами заменив их арками, произведя визуальное расширение пространства, в котором каждое функциональное помещение будет выделено и оставлено на своем месте.
Вернуться к оглавлениюПолное содержание материала
Дизайн арок
Абсолютно все арки, возможно, соорудить из гипсокартона, в зависимости от предпочтений и дизайна. Они бывают активными и пассивными. Активные конструкции – преображают помещение, через них видны все помещения в квартире. Эти элементы применяют для украшения квартиры и возводятся они в большинстве случаев в комнатах, для разделения пространства.
Вариант дизайна арки из гипсокартона в старинном стилеВ зависимости от особенностей интерьера, эти конструкции могут быть простыми или сложными. Пассивные арки применяют в маленьких помещениях, часто они выполняют практическую функцию.
Вернуться к оглавлениюВиды арок из гипсокартона
- Конструкции в стиле классика – в форме полукруга, посмотреть на фото. Этот вариант самый популярный и востребованный, и впишется в любой интерьер. Этот вариант идеально подойдет для квартиры с маленькой площадью, но не стоит забывать, что эта конструкция заберет высоту проема;
- Арки модерн, с разными сегментами. Гармонично будет смотреться в больших залах, в которых проем двери располагается напротив окна. Гармонирует с рельефными стенами и натяжными потолками. Можно обустроить своими руками широкую арку с деревянной отделкой, которая подчеркнет красоту конструкции;
Пример арки с деревянной отделкой - Арки-порталы, своими руками, обустраивают в помещениях, где двери неактуальны, простые, но в то же время оригинальные конструкции, благодаря простой конструкции соорудить их своими руками не сложно, и многие домашние умельцы используют именно эти арки в своих помещениях;
- Конструкция в стиле романтика, у которой закруглены только углы, простая в изготовлении, которую актуально украсить нежным кружевом из дерева или ПВХ;
- Полуарки с одним закругленным углом, но можно придумать и воплотить в жизнь другие варианты своими руками. Этот вид арочных проемов используют в случаях, когда высота помещения не очень большая, и дверной проем составляет не больше двух метров. Хорошо смотрятся подобные конструкции и в качестве разделения пространства на зоны. Интересно! Применить для обустройства арки в квартире можно любой вариант. Не можете принять решение – посмотрите фото дизайна комнат с арками;
Оригинальный дизайн полуарки в интерьере - Стрельчатая конструкция – в готическом стиле. Две плоскости арки сходятся под небольшим углом в верхней точке, находящейся на середине проема. Этот вид арок иногда применяют в дуэте с дверями такого же вида в зал;
- Ажурные конструкции, которые великолепно смотрятся в проемах между прихожей и комнатой;
- Многоуровневые арки с замысловатой формой. Выполнить такую конструкцию может только специалист, который имеет большой опыт работы по гипсокартону. Такие конструкции применяют, когда в квартире нужно выделить нишу из гипсокартона.
Важно! Если проемы в вашей квартире меньше двух метров, то использовать арку не рекомендуется, они забирают высоту в квартире.
Вернуться к оглавлениюСамые популярные конструкции — фото
Конструкций арок очень много, но есть самые востребованные, которые встречаются в помещении чаще всего:
- Сегментные.

- Прямоугольные.
- Правильные.
- Криволинейные.
- Круглые.
- Прямоугольные.
- Овальные.
Многие дизайнеры применяют нестандартные арки, которые оживляют интерьер помещения. Если арка монтируется в кухне студии, то ее можно дополнить барной стойкой или декоративной перегородкой с сегментами. Если помещение нестандартное, то и арку можно соорудить неправильной формы. Арки правильной формы часто применяются, потому что ни подойдут для любого интерьера.
Многие, при создании зон в большой квартире применяют арки со смещением, это помогает отделить зону отдыха, где спальное место спрятано за импровизированной перегородкой.
Для более оригинального решения можно соорудить на арочной конструкции выпуклые элементы из гипсокартона, оснастить ее подсветкой.
Оригинальный дизайн арки с подсветкойДекорировать арки можно трафаретами, различными предметами декора, например, искусственные вьющиеся цветы.
Вернуться к оглавлениюОсобенности использования арочных конструкций
Есть несколько традиционных способов применения арок в жилом пространстве:
Важно! Для арки в санузле нужно брать влагостойкий гипсокартон. Листы ГКЛ зеленого цвета можно применять даже под керамическую плитку, так как они обработаны специальными составами.
Вернуться к оглавлениюКак смонтировать арку самостоятельно
Конструкция простая, но и она потребует от вас внимательности и усидчивости. Для получения положительного результата, стоит придерживаться инструкции, описанной ниже.
Последовательность работы
- Первое, что нужно сделать – решить, где будет находиться конструкция, какую функцию она будет нести. Будет это простая арка для красоты, например разделяющая комнату на зоны. Или это будет специальная перегородка с полками для гостиной или прихожей. А может, вы захотите соорудить нишу, обрамлением которой будет служить арочная криволинейная конструкции. Почему с этим нужно определиться еще до начала работы? Все просто, так вы не допустите нежелательных ошибок, и перерасхода материала.
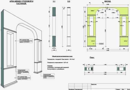
- Далее, конструкцию стоит начертить на бумаге, с определением всех размеров. Это необязательно должен быть профессиональный чертеж, достаточно сделать схематический набросок, по которому вы будете равняться при монтаже.
Подробный чертеж с размерами гипсокартонной арки - Следующим этапом будет сборка каркаса перегородки из гипсокартона. Если конструкция криволинейная, то собирается она из металлического профиля, который можно изогнуть в любом направлении, сделав разрезы на боковых стенках.
- Как только каркас будет готов, на него прикручивают вырезанный по рисунку ГКЛ: вначале прямые полосы, затем изогнутые.

- Последним этапом будет финишная отделка уже готовой конструкции из гипсокартона: штукатурка, шпаклевка гипсокартона, окрашивание стенки, или отделка другим финишным материалом.
Финишная отделка
На этом этапе можно остановиться подробнее, так как вариантов облицовки арочных конструкций множество в зависимости от дизайна помещения. Рассмотрим несколько вариантов:
Другими словами, нет определенных правил в оформлении арочных конструкций, все зависит от ваших предпочтений. На видео можно увидеть фото интерьеров квартир с арками, все разнообразие оформления помещений, дизайнерских решений и стилей оформления гипсокартонных арок.
Вернуться к оглавлениюСтильные арки
Гипсокартон, очень податливый материал, поэтому из него можно сделать арку в квартире любой конструкции, которая преобразит помещение, сделав его необычным и оригинальным. Большое значение в популярности этого материала играет его невысокая стоимость.
Арки классического дизайна можно встретить в любом помещении, так как они просты в исполнении и уместны при любом дизайне. Стильные и оригинальные конструкции применяются в студиях, или комнатах большой площади. Часто можно встретить криволинейные конструкции в офисах, где нужно разбить площадь помещения на зоны.
Подборка дизайнов арок из гипсокартона в различных стиляхКрасиво смотрится арка в форме капельки, которая отделяет пространство комнаты или кухни от лоджии. Можно установить арочную конструкцию в стиле хай-тек с полками и подсветкой. Стильные арки из гипсокартона в квартире, часто украшают различными элементами и декором, например, можно установить полиуретановые панели, декорированные сусальным золотом. Такое оформление будет выглядеть роскошно в любом интерьере. На самом деле выбор велик, об этом можно судить, посмотрев фото интерьеров с арками.
Вернуться к оглавлениюФото примеры оформления арки из гипсокартона в интерьере квартиры
gipsokarton-blog.ru
Арки из гипсокартона в дизайне интерьера, разновидности, проекты, фото
Арки могут сделать вашу гостиную роскошной и загадочной. Они достаточно часто служат для дизайнера уникальным элементом, чтобы создать неповторимый, запоминающийся интерьер в квартире.
Использовать межкомнатные двери можно только в том случае, если вы хотите оградить свое частное пространство от постороннего взгляда.
Арки из гипсокартона прекрасно делят помещение на несколько частей, и при этом все смотрится гармонично.

Арки из гипсокартона прекрасно делят помещение на несколько частей
Этот вид материала стал достаточно популярным, так как небольшая его стоимость привлекает многих покупателей.
Преимущество гипсокартона
- достаточно легкий материал, который не отягощает стены;
- легкость при монтаже;
- дешевый материал. Не требует больших финансовых вложений.

Гипсокартон достаточно легкий материал
Виды арок
Чтобы почувствовать красоту и многоликость арочных конструкций из гипсокартона, посмотрите на фото ниже, которое демонстрирует дизайн интерьера гостиной в его роскоши и загадочности.

Виды арок из гипсокартона
Однако есть еще один вид арки – фантазия, которую сложно поставить в этот ряд. Она подразумевает собой необычный вымысел дизайнера и не вписывается в стандарты.
Вот, кстати, и одна из необычных форм арки из гипсокартона, представленных на фото выше в интерьере дизайна гостиной.

Гипсокартон является дешевым материалом
Особенности конструкции арки
Когда работаешь с данным видом материала, необходимо учесть достаточно много нюансов. Это может выражаться и в необходимости поставить арку в уже сделанный проем.

При работе с гипсокартоном нужно учесть множество нюансов
Чтобы оформление проема не было обременительным, задачей строителей является подборка такого вида арки, чтобы при монтаже ее боковые детали занимали минимальное место на проходе мимо данной конструкции.

В наше время можно осуществить любую фантазию при изготовлении арки
Что касается декоративных свойств арки, то достаточно квалифицированные специалисты с помощью современных отделочных материалов могут воплотить в реальность любую фантазию.

Разметка деталей арки
Достаточно привлекательными являются работы дизайнеров, когда можно буквально с нуля начать работу с арками и при этом соединять их с полками, нишами, межкомнатными окнами, стойками, предназначенными для домашнего мини бара.

Арки из гипсокартона достаточно привлекательны
С помощью гипсокартона можно выполнить плавную форму конструкции и создать эффект перехода одного элемента в другой.

С помощью гипсокартона можно выполнить любую форму арки
Интерьер, в котором присутствуют арочные конструкции
В дизайне, где есть наличие арочных форм в интерьере, обычно используют изогнутые формы проходов. Они хорошо сочетаются с окнами в виде арок, различными декоративными элементами, переплетающиеся с разнообразными вариантами в гарнитуре.

Арки из гипсокартона создают потрясающий эффект в интерьере
На фото ниже видно, как гипсокартонная арка прекрасно вписалась в дизайн интерьера и при этом переплелась с кухонным гарнитуром.
Достаточно концептуальным решением является плавное соединение линий потолка, проходящей сквозь арку на барную стойку. Благодаря этому приему можно создать динамичный интерьер, где каждая отдельная деталь будет связана в единый элемент.

Межкомнатная арка из гипсокартона с подсветкой выглядит очаровательно
Чтобы создать данный проект, необходимо профессиональное видение отдельных частей, которые соединяются в одну общую и целостную структуру.
Когда заказчик предоставляет всю площадь помещения для творения, тогда дизайнер проекта не может отказать себе в удовольствии продемонстрировать свое знание и умение в создании необычных интерьеров.

Сейчас многие делают арки необычной формы для разнообразия
В данном случае на фото дизайн интерьера гостиной, где арка из гипсокартона перевернута на перегородке. Это достаточно смелый прием.
Потрясающе смотрится вариант со световой аркой в виде капли, которая перетекает из одной стороны проема в другой. Она является некой визуализацией арки, которую дизайнер представил именно в таком виде.

Межкомнатные арки могут объединить два помещения
Если использовать в интерьере элемент, повторяющийся в разных его вариантах, то успех и гарантия того, что это понравится заказчику, будет 100%. К примеру, на фото выше видно, что овал, расположенный на потолке, в дизайне интерьера плавно перетекает на дверные арки из гипсокартона. Необычное решение, не правда ли?

Арки из гипсокартона визуально увеличивают помещение
Благодаря высоким потолкам, можно реализовать любую фантазию, и в этом вам помогут колонны и арочный свод, особенно, если это комбинируется с минимализмом и мебельным гарнитуром, создавая неповторимые образы разных эпох.

Если потолки высокие, можно установить колонны
Виды отделки арок
Достаточно разнообразной может быть отделка арки из гипсокартона:
- декоративный камень;
- обои;
- декоративная смесь.

Монтаж арки из гипсокартона
Очень респектабельно смотрится декоративный камень. Он придает интерьеру благородный стиль и красоту.
Благодаря такому материалу, как камень, можно создать отделку без дополнительных подготовительных мероприятий.

Чтобы арка была уникальной, можно покрасить ее в разные цвета
Как правильно сделать арку своими руками?
Для начала необходимо определиться, между какими частями интерьера вы будете возводить арку. Это может быть между гостиной и кухней или прихожей и кухней. Затем нужно подобрать конструкцию арки, выполнить замер проема, где будет установлена конструкция, определиться с высотой и радиусом арки.

Для экономии пространства, в перегородке можно сделать полки
Если арку выполнить в стандартном виде, то по диаметру она будет равна ширине проема. Чтобы ее создать, вырежьте из гипсокартонного листа кусок прямоугольной формы, а затем на нем начертите циркулем полукруг нужной вам конфигурации. Затем с помощью лобзика вырежьте полуокружность. Установите профили из гипсокартонного материала согласно замерам. После всех этих мероприятий закрепите боковые детали арки на заготовленные профили, которые идут вдоль изгибающей конструкции.

Арку можно украсить декоративным камнем
Завершающей ступенью в отделке проема будет вырезание торцевой части конструкции. Выполнить такую работу можно на гипсокартонном листе ножом либо игольчатым валиком. При этом пропитайте полоску водой, чтобы придать ей нужную вам конфигурацию.

Арку необходимо зашпатлевать не менее двух раз
В конце работы конструкцию необходимо зашпатлевать не менее двух раз.
Далее вы можете ее красить либо клеить обои.

Гипсокартон пластичен, поэтому можно создавать арку любой формы
В заключении отметим, что гипсокартонную арку можно сделать практически любой формы. Она пластична. Из нее можно творить все, что душе угодно. Она принимает любую форму и может служить достаточно практичным материалом, который зонирует пространство и дарит ощущение роскоши и красоты.
comfortoria.ru
фото дизайна интерьера, виды квартир, конструкция и формы полок, ГКЛ красивый над кроватью
Арка, выполненная из гипсокартона – очень стильный и оригинальный элемент, который вполне реально выполнить своими руками. Изначально нужно выбрать место для обустройства арки. Арку можно соорудить не только в дверном проеме, но и в совершенно любом месте. Необходимо измерить размеры выбранной области для сооружения арки. Затем на листе гипсокартона необходимо нарисовать будущую арку поэлементно. После того как арка будет полностью нарисована, необходимо очень аккуратно вырезать каждый элемент с помощью специальных инструментов. Затем необходимо сделать специальный каркас из металлического профиля, прикрепить его к стене, а потом монтировать элементы гипсокартона. Завершающим этапом будет проведение отделки арки, выполненной из гипсокартона и окраска ее в желаемый цвет или оклейка ее обоями.
Современный дизайн арки из гипсокартона: фото
Если грамотно подобрать требуемые материалы, то можно буквально за несколько дней соорудить неповторимую конструкцию.
Для создания арок потребуется:
- Гипсокартон;
- Саморезы;
- Профили;
- Шпатлевка;
- Стекловолоконная сетка.
Дизайн арки в квартире может быть совершенно любой, все зависит от собственных предпочтений. Интересные идеи смотрите здесь: https://homeli.ru/remont-i-otdelka/dveri/arki-v-zal-iz-gipsokartona-foto.
В частности могут быть такие виды арок, как:
- Ассиметричная;
- Классическая;
- Симметричная;
- Выполненная в восточном стиле.
Арки не только служат в качестве оригинально оформленного проема между двумя комнатами, но также она выступает в качестве декоративного элемента, служащего дополнительным украшением.
Классическим вариантом арки, выполненной из гипсокартона, считается определенная конструкция, которая расположена между комнатами и поддерживается колоннами. Симметричная арка смотрится достаточно необычно и оригинально, благодаря специальным нишам и проемам. Полки являются достаточно довольно интересным дизайнерским приемом, и помимо этого они выполняют еще и функциональную роль. На полках можно поставить различные сувениры и разместить книги.
Арочные проемы можно выполнить и достаточно оригинально и неповторимо. Гипсокартон является довольно удобным для работы материалом, который помогает создавать просто невероятные конструкции, которые поражают своей изысканностью.
В частности можно создать арку в форме оригинального завитка, который дополнительно можно оформить красивой подсветкой. Грамотно оформить подсветку поможет материал: https://homeli.ru/remont-i-otdelka/nisha-iz-gipsokartona-s-podsvetkoj.
Как подобрать арочный гипсокартон
Существуют самые различные отделочные материалы для проведения ремонтных и отделочных работ, среди которых стоит выделить гипсокартон арочный. С помощью листов ГКЛ можно проводить отделку стен, потолка, делать различные перегородки или арки. Арки могут быть как межкомнатные, так, и выполнены в комнате, например, в спальне, могут создаваться арки за кроватью, в результате чего получаются специальные ниши. Чтобы создать достаточно качественную и прочную конструкцию, необходимо знать, как правильно подобрать листы гипсокартона.
Гипсокартон считается довольно хорошим материалом и имеет массу плюсов, в частности таких как:
- Экологичность;
- Небольшой вес;
- Хорошие показатели огнеупорности и шумоизоляции;
- Возможность придать конструкции различную форму.
Существуют самые различные виды гипсокартона, однако, для создания арки необходимо применять пластичные листы гипсокартона, которые будут очень легко гнуться, так как им можно будет придать совершенно любую форму. Стоит отметить, что толщина такого листа достаточно небольшая, однако, он имеет гораздо большую стоимость, чем гипсокартон, который применяется для отделки стен.
Какие бывают виды арок из гипсокартона в квартире: фото
Конструкции, выполненные из гипсокартона, просто поражают своей изысканностью и изяществом. Из гипсокартона можно соорудить самые различные варианты арок.
В частности можно выделить такие виды арок, в частности такие как:
- Модерн;
- Портал;
- Полуарка и многие другие.
Декоративные арки в стиле модерн имеют достаточно оригинальный и неповторимый дизайн. Она отлично подойдет для оформления широкого дверного проема. Лучше всего располагать такую арку напротив окна. Она хорошо сочетается с рельефной отделкой стен и потолка. Арка портал может быть одновременно оригинальной и простой в исполнении. Создается такая арка на базе стены или перегородки, чтобы можно было красиво задекорировать дверной проем. Дополнительно можно украсить такую арку различными декоративными элементами и осветительными приборами.
Можно создать довольно необычные полуарки из ГКЛ, так как это довольно стильный и довольно востребованный вариант. Они отличаются тем, что могут иметь красивую округлую форму или закругленной может быть только одна сторона.
Для тех, кто предпочитает готический стиль, отлично подойдет стрельчатая арка, которая характеризуется тем, что плоскости арки сходятся под углом, образовывая верхнюю точку подобной конструкции.
Популярные формы арок из гипсокартона: фото
Арки, выполненные из гипсокартона, помогают довольно интересно и необычно зонировать квартиру. Гипсокартонные арки устанавливают преимущественно в дверных проемах и имеют такие конструкции самые различные формы.
В частности они могут быть:
- Правильные;
- Сегментарные;
- Круглые;
- Полукруглые;
- Прямоугольные.
Кроме того, могут быть достаточно нестандартные варианты межкомнатных арок, все зависит от собственных предпочтений и фантазии дизайнера. Арка правильной формы отлично вписывается в совершенно любой дизайн интерьера. Если арка используется в квартире-гостиной, то ее можно дополнить барной стойкой. В таком случае получится превосходный вариант зонирования.
Довольно интересные могут быть арки сегментарной формы. Это очень красивые фигурные элементы, которые помогают оригинально дополнить интерьер комнаты. Арки могут смещаться в одну или другую сторону, и при этом получается довольно оригинальная форма. В таком случае, чтобы конструкция получилась более интересной, стоит использовать специальные дополнительные накладки, выполненные из гипсокартона. Чтобы гипсокартонные арки выглядели более стильно и изысканно, можно использовать дополнительные декоративные элементы, а также дополнить конструкцию осветительными приборами.
Важно! Декорировать арку из гипсокартона можно самыми различными способами, в частности использовать специальные трафареты, выполнить покраску или применять декоративный камень.
Стильные арки из гипсокартона с полками
На сегодняшний день наиболее современным и модным материалом для проведения отделки стен считается гипсокартон. С помощью такого материала можно создать просто неповторимые арочные конструкции. Подобная конструкция помогает придать квартире особое изящество, оригинальность, а также сделать ее более комфортной. Довольно оригинальными являются модели гипсокартонных арок с полками. Кроме того, в перегородках иногда делают специальные ниши.
Конструкции из гипсокартона с полками и нишами могут быть различных видов, в частности таких как:
- Радиусные;
- Двойные;
- Классические;
- Эллипсоидные;
- Модерновые.
Радиусные арки характеризуются тем, что они могут иметь самый различный радиус кривизны. Двойные арки формируются из двух небольших перегородкой. Очень часто такие арки служат своего рода разграничением на отдельные зоны. Наиболее часто они снабжены специальными нишами и полками.
Эллипсоидные конструкции имеют довольно интересный эллипсоидный вид. Наиболее популярными считаются модерновые конструкции из гипсокартона. Они отлично подходят для проведения зонирования квартиры. Подробнее о зонировании читайте в статье: https://homeli.ru/remont-i-otdelka/peregorodka-dlya-zonirovaniya-komnaty-iz-gipsokartona.
Классическая арка из гипсокартона: конструкция
Довольно интересным вариантом считаются классические арки, выполненные из гипсокартона. Арки, выполнены из гипсокартона, могут иметь самые различные варианты.
В частности они могут быть:
- Межкомнатные;
- Декоративные;
- Зонирующие.
Межкомнатные арки монтируются в дверном проеме. Их конструкция максимально простая. Зонирующие конструкции применяются в комнате для разграничения свободного пространства. Очень часто такие арки содержат специальные ниши и проемы. Декоративные арки носят исключительно декоративный характер и могут содержать неглубокие полки и ниши. Они применяются преимущественно для акцентирования внимания на определенных элементах интерьера.
Стоит отметить, что совершенно любая арка занимает определенное место, что приводит к уменьшению площади комнаты. Именно поэтому, в небольших по размеру комнатам лучше не применять арки.
Арка из гипсокартона своими руками (видео)
Прежде чем создать арку из гипсокартона, необходимо разработать и создать проект будущей конструкции. Это позволит полностью оценить сложность возводимой арки. Гипсокартонные арки могут стать самым настоящим украшение совершенно любой квартиры, так как это просто неповторимые и оригинальные декоративные элементы.
Дизайн арки из гипсокартона (фото интерьера)
homeli.ru
Арки из гипсокартона межкомнатные, фото
Сделать дизайн интерьера современной квартиры изысканным и элегантным достаточно просто. Нужно всего лишь вместо скучных дверных проёмов установит гипсокартонные арки необычного уникального дизайна. Возможно, арки станут толчком для более решительных изменений в планировке, а может и выходом из многих затруднительных ситуаций, связанных с перепланированием квартиры.
Содержание:
- Обычные и необычные фигурные арки из ГКЛ
- Оформляем арку
- Как сделать арку из ГКЛ, подготовка материалов
- Как гнуть гипсокартон
Обычные и необычные фигурные арки из ГКЛ

Конструкций арок ровно столько, сколько мы сами сможем придумать, однако есть некоторые ограничения. Арки из гипсокартона межкомнатные фото которых представлены на страничке, могут различаться как по форме, так и по функциям, поскольку могут иметь дополнительные ниши, а это продиктует и особенности монтажа. В первую очередь, стоит рассмотреть основные формы, которые применяются чаще всего.

- Классическая арка. Ничего сверхъестественного. Эта конструкция самая простая и представляет собой ровный и правильный полукруг в верхней части дверного проёма. Отлично подходит для небольших помещений, а также хорошо смотрится в прихожей. Ещё их называют римскими. Отличительная особенность таких арок в том, что диаметр окружности свода равен ширине проёма.
- Арка в стиле модерн. Характерная особенность такой арки в том, что она имеет более плавный свод с усечённым радиусом. Такие арки хорошо выглядят в любых помещениях, но в квартирах с низкими потолками помогут визуально увеличить их высоту, а также увеличить ширину проёма. Тоже визуально.
- Славянская арка. Простая незамысловатая конструкция со слегка сглаженными углами. Применяется в широких дверных проёмах, а также вместо простенков.
- Арка в восточном стиле. Довольно сложная форма, но она способна оживить даже самый хмурый интерьер. Достаточно добавить несколько деталей и получим простой, но яркий марокканский стиль.

- Тайская арка. Тоже довольно распространённая конструкция, несмотря на экзотическое название. Суть её сводится к тому, что одна сторона проёма имеет острый угол, а вторая — плавный скошенный. Хорошо смотрится в небольших квартирах и в узких проемах.
- Трапециевидная арка. Это явный посыл в сторону английского классического дизайна и такую форму желательно декорировать деревом. Поэтому в городской квартире применяется редко, чаще — в частных домах с классическим английским интерьером.
- Портальная арка. Если не нужно ничего менять в восприятии дверного проёма — это идеальный вариант. Проем просто зашивается гипсокартоном без изменения формы. Хорошо подходит под строгие стили, также уместна в некоторых современных стилях.

- Фигурные арки. Если фантазия позволяет — можно выполнить арку любой нестандартной формы. Только нужно учесть пластические возможности ГКЛ.
- Круглая арка. Прекрасно выглядит в стилях ар-нуво, но впишется и в любой современный интерьер, если правильно поработать с пропорциями.

Оформляем арку

Декорировать арку можно по-разному в зависимости от выбранной стилистики интерьера в целом, а также от возможностей и уровня мастерства. Если полистать каталоги дизайнерских ателье, можно найти массу вариантов оформления, практически недоступных для выполнения своими руками или подходящих только для вилл на Канарах или в других офшорных зонах. У нас такие просто не прижились. Лепнина из гипса или полиуретана, колонны и прочие архитектурные излишества предполагают наличие совсем другого интерьера. Одно дело видеть лепнину в оформлении арки в холле пятизвездочного отеля в Ницце, а совсем другое — жить с этой лепниной в спальном районе Таганрога.

Простые варианты оформления предполагают лёгкие и ненавязчивые декоративные элементы, подсветку в виде точечных светильников, а также книжные полки или полки для комнатных растений, интегрированные в арку. Если уж совсем невмоготу и хочется жить почти в средневековом замке, можно обложить арку плиткой под натуральный камень, но стоит учесть, что в маленьком помещении камень будет съедать много воздуха.

Как сделать арку из ГКЛ, подготовка материалов

В принципе, если есть опыт работы с гипсокартонными конструкциями, то и арка никаких сложностей не вызовет. Единственное, в чем можно испытывать затруднения, это изготовление криволинейных поверхностей. Но для этого существует специальная и довольно несложная технология. Для начала необходимо смонтировать профиль, на который после будет фиксироваться ГКЛ. Профиль размеряется по проёму, после чего его нужно изогнуть в соответствии с эскизом.

Для этого по ребру профиля делаются надрезы ножницами по металлу с частотой, необходимой для получения максимально плавной кривой. Форма кривой, естественно, зависит от дизайна арки. После надрезания профиля он гнётся по всем направлениям. Остаётся только закрепить его к несущим вертикальным профилям саморезами.

Как гнуть гипсокартон

Его можно выгнуть двумя способами, но для этого подбирается лист минимальной толщины. Можно гнуть гипсокартон, используя свойства гипса впитывать воду. Для этого хорошо бы пройтись по одной из сторон уже вырезанной детали игольчатым валиком, который проколет бумагу, и увлажнить эту сторону. Через некоторое время, когда вода впитается, можно придать детали любую форму либо вручную, либо с помощью шаблона и оставить в таком виде до полного высыхания.

Немного сложнее другой метод, который не требует увлажнения. Вырезанную по выкройке деталь надрезают строительным ножом вдоль оси гиба со стороны наружного радиуса. В зависимости от радиуса, частота надрезов может быть разной, надо экспериментировать.

После этого остаётся просто согнуть деталь, а неповреждённая сторона будет армировать конструкцию во время монтажа на каркас. Так можно своими руками сделать любую арку из ГКЛ. Удачной всем работы!
Читайте также Ниша из гипсокартона под телевизор, фото
nashprorab.com
Арки из гипсокартона фото дизайн интерьера
Строители любят гипсокартон за его невероятную гибкость и эластичность. Он отлично подходит для изготовления конструкций повышенной сложности, в том числе и арок.
Красивые арки из гипсокартона фото
Какие только причудливые и нестандартные формы из гипсокартона в дизайне арок можно увидеть! И по цене такое удовольствие вполне бюджетное – из-за экономичности материала и его лёгкости.
Читайте также:
Арки на кухню вместо двери
Как отделать арку в квартире
Арки из гипсокартона в зал
Использовать для оформления помещения арки сейчас очень популярно. Ведь это не только привлекательно внешне, но ещё и:
– облегчает монтаж и позволяет быстро возвести конструкцию из пеноблока;
– такая арка очень мало весит и вполне может быть установлена в квартире с тонкими стенами;
– можно поэкспериментировать и придумать интересную геометрическую конструкцию;
– подходит для маскировки элементов коммуникации, а также для их защиты.
Дверные арки из гипсокартона фото
Правильно сконструированная в квартире арка – это та, которая гармонично вписалась в интерьер, и чтобы так получилось, над её созданием должны усердно поработать дизайнеры и монтажники.
Дверные арки из гипсокартона фото дизайн интерьера – это и классический вид, и авангардный, и трапециевидный, и эллиптический.
Классика – проверенный стиль для межкомнатной арки, с любым интерьером помещения. Здесь все линии правильные, а какие-либо излишества или искажения – отсутствуют.
Авангардный вид арки – там, где урезан её радиус. Арка получается, как бы приземлённой и широкой. Здесь допускается использование дополнительных элементов для декора – колонны. Но интерьер в данном случае подходит не любой, так что совет специалиста будет просто необходим.
Арку по типу эллипса смело можно делать для межкомнатного проёма в коттедже или в частном доме. Это очень красивые арки изогнутой формы, способные подчеркнуть собой особенность стиля. Декорировать такую арку лучше всего элементами, изготовленными из древесины.
При выборе монтажа вашей арки основным правилом должно быть соответствие стиля её изготовления с тем дизайном, который был использован в интерьере всего помещения. По сути, арка – это дополнительное украшение вашей квартиры, благодаря чему он должна выглядеть ещё более привлекательно и уютно.
Советы от мастера
Множество фотографий арок различных типов и различных оттенков, можно найти на большом количестве сайтов, в различных каталогах и многочисленных журналах по дизайну.
prof-kirpich.ru
Арки из гипсокартона (50 фото): особенности дизайна и виды
Гипсокартон — это строительный материал, отдирающийся невероятной гибкостью и пластичностью. Его можно с легкостью использовать при изготовлении сложных по форме конструкций, в том числе и оригинального арочного проема.

Дизайн арок из гипсокартона поражает глаз многообразием причудливых и нестандартных форм, декоративных элементов. При этом цена самой конструкции будет вполне бюджетной, ведь гипсокартон — экономичный и легкий материал, стоимость которого в несколько раз ниже стоимости аналогов. Фото изысканной арки в интерьере вы сможете увидеть на сайте нашей компании.

В чем преимущества арки из гипсокартона
Оформление помещений арками сейчас весьма популярно. При этом важно понять как оформить арку таким образом, чтобы она стала настоящим украшением интерьера вашей квартиры. Помимо привлекательного внешнего вида, межкомнатные арки, фото которых вы сможете найти на страницах нашего сайта, имеют множество других преимуществ:
- облегченный монтаж, быстрое возведение конструкций из пеноблока;
- арки из гипсокартона имеют небольшой вес, что позволяет устанавливать их в малометражные квартиры с не очень прочными стенами;
- высокое качество материала, возможность экспериментировать с формой, создавать причудливые герметичные конструкции;
- используя гипсокартонные конструкции можно эффектно скрыть элементы коммуникации (трубы, проводку и др.), а также защитить их от повреждения.
Не стоит бояться устанавливать гипсокартонные арки в квартиры с небольшим метражом. При правильном монтаже конструкций, они совсем не выглядят громоздко и не “воруют” свободное пространство визуально.

Особенности дизайна и виды арок
Арки в интерьере современной и благоустроенной квартиры могут смотреться совершенно по-разному. Многое здесь зависит как от дизайна конструкции, так и от интерьера помещения.
Важно добиться гармоничного вписывания арок в интерьер квартиры, что осуществимо только при тщательной и усердной работе дизайнеров и монтажников.

Арки в интерьере могут быть следующих видов:
- классические;
- авангардные;
- трапецивидные;
- в форме эллипса;
- оформление в стиле романтики или выполненные по типу портала.

Классические арки
Классические межкомнатные арки, фото которых в большом количестве представлены в каталоге, одинаково хорошо подходят для оформления любого интерьера. Их отличает правильная форма, без излишеств и искажений.
Авангардные конструкции
Авангардные арки имеют форму урезанного радиуса. Визуально такая конструкция выглядит как несколько приземленная и широкая. Она может иметь дополнительные декоративные элементы, хорошо сочетаться с колоннами. Фото авангардных арок представлены на страницах нашего сайта. Далеко не каждый интерьер примет арку, выполненную в авангардном стиле. Поэтому перед тем как осуществлять монтаж вам лучше заручиться советом специалиста.

Арки по типу эллипса
Такие конструкции хорошо смотрятся в межкомнатных проемах частных домов и коттеджей. Они имеют изящную изогнутую форму и подчеркивают особый стиль. Такая арка может быть декорирована при помощи элементов из дерева.
Арка “Романтика”
Арки, выполненные в романтическом стиле — это несложные прямоугольные конструкции с закругленными краями. Их можно использовать в помещениях, оформленных в любых современных стилях. Такие арки украсят интерьер и придадут ему особый романтический лоск.

Если нет желания проводить демонтажные работы, затрагивающие стены комнат, то можно использовать альтернативный вариант — арку выполненную в стиле портала. Здесь проемы имеют прямоугольную форму и подходят для любых стилей оформления. Монтаж такой конструкции займет минимум времени, а результат порадует глаз.

Какую бы арку вы ни выбрали для монтажа — главное, чтобы она гармонично смотрелась и хорошо сочеталась с дизайном помещения в целом. Ведь главная задача такой конструкции — это украсить вашу квартиру и сделать ее еще более уютной и привлекательной.

Фото арок различных видов, форм и цветов представлены в большом количестве на многочисленных ресурсах: сайтах, каталогах, журналах о дизайне.
Видеогалерея
Фотогалерея
dekormyhome.ru
