Баня 5 на 4 планировка внутри фото – планировка интерьера внутри помещения площадью 5х4, план помещения метражом 4х5, мойка и парилка отдельно
Баня 5 на 4 планировка
Планировка бани 4х5 – основные особенности и правила
Баня – отличное место для отдыха. Неудивительно, что многие владельцы собственного земельного участка помимо дома и подсобных помещений желают построить там и парилку.

Фото бани 4 на 5
В данной статье, проиллюстрированной фото, мы рассмотрим, как своими руками возвести баню, предварительно все распланировав. Уверены, наша подробная инструкция будет полезна вам и планировка бани 4 на 5 станет для вас легкой задачей (см.также статью «Баня 4 на 5 на 4 на 5 – приятная банька во всех отношениях»).
Купить проект или распланировать самостоятельно?
Конечно, проще всего приобрести проект, созданный с учетом ваших индивидуальных требований касательно следующих составляющих:
- количества комнат;
- размеров комнат;
- особенностей обустройства полок;
- наличия второго этажа;
- возможности обустройства комнаты отдыха и т.д.
Однако цена такого проекта будет достаточно высокой, что в итоге повысит общую смету строительства и тогда парилка будет уже не такой долгожданной.
Совет. Можно воспользоваться типовыми проектами, которые в изобилии представлены на нашем тематическом ресурсе. Здесь вы найдете чертежи, которые уже проверены другими любителями водных процедур. В любой проект, взятый за основу, легко внести изменения, которые удовлетворят все ваши требования и желания.

Схема-чертеж бани
Если вы решили спланировать парилку самостоятельно, то вам необходимо в обязательном порядке предусмотреть следующее:
- раздевалку;
- парную;
- моечную;
- размещение печи;
- вентиляцию.
Если вы хотите соорудить помещение для своей семьи, то в таком случае вам необходимо разработать план бани 4 на 5, что позволит в ней комфортно находиться как минимум небольшой компании.
Основные особенности планирования бани для всей семьи
Строить функциональные парилки, в которых может поместиться семья из четырех-пяти человек – это не только выгодно, но и практично, ведь вы всегда сможете пригласить к себе друзей.
Ниже приведена подробная схема бани 5х4 с описанием всех помещений, которые в нее входят:
- предбанника;
- моечной;
- парной.
superbany.ru
Варианты проекта по строительству бани 4 на 5, описание с фото и видео
Проект бани 4 на 5 м является одним из оптимальных проектов банных сооружений для размещения на небольшом дачном участке. При разработке проекта бани 4 на 5 м с мансардой имеется возможность разместить не только помещения, предназначенные для принятия процедур в бане, но и помещения, предназначенные для отдыха после бани.
Широкое распространение проекты бань 4 на 5 м с мансардой получили благодаря тому, что они не занимают большой площади участка и при этом обладают высоким уровнем функциональности и комфорта при эксплуатации. Благодаря небольшой площади сооружения оно имеет невысокую стоимость строительства.
Проект бани 4 на 5 м в своем составе может иметь, помимо мансардного помещения, еще и цокольный этаж. В цокольном этаже могут располагаться хозяйственные и технические помещения, такие как гараж, подвал и топочная. При разработке проекта комплекса его следует адаптировать под условия, в которых планируется эксплуатация здания.
В процессе составления проекта требуется учитывать тип грунта, на котором планируется строительство банного комплекса, помимо этого, нужно учитывать особенности климатических условий.
При наличии у владельца дачного участка дополнительных финансовых средств можно разработать проект двухэтажной бани 4 на 5 м. Наличие полноценных двух этажей дает возможность оборудовать комнату для того, чтобы разместить гостей, и помещение для полноценного активного отдыха, в котором, например, можно расположить бильярдный или теннисный стол.
Стоимость строительства таких комплексов является невысокой, что позволяет возводить такие сооружения даже владельцу участка, имеющему небольшой финансовый доход.
Для возведения банного комплекса с размерами 4 на 5 м можно использовать различные стройматериалы. Наиболее распространенными и популярными материалами при возведении небольшого комплекса являются:
- обычное бревно;
- оцилиндрованное бревно;
- деревянный брус;
- клееный брус;
- шлакоблок;
- пеноблок и др.
Среди перечисленных стройматериалов наиболее оптимальным является использование в процессе строительства бруса и бревна различного типа. Эти материалы отличаются высокими теплоизоляционными показателями. Такие свойства материала позволяют в процессе строительства получить качественно возведенное и теплое здание. Использование дерева в качестве стройматериала позволит сэкономить некоторый объем финансовых средств на стройматериалах для утепления здания и его отделки.
Выбор проекта для строительства банного комплекса
Разработать проект банного сооружения небольшого размера можно самостоятельно, если владелец участка обладает навыками проведения работ по проектированию и строительству подобных сооружений. При отсутствии необходимого для проектирования объема знаний и умений рекомендуется обратиться в специальную фирму и приобрести готовую проектную документацию, которую специалисты разработают с учетом всех пожеланий заказчика.
Существует несколько наиболее популярных проектов небольших комплексов банных помещений, которые обладают максимальной практичностью и эффективностью эксплуатации сооружения.
Небольшая баня с мансардой, имеющая размеры 5x 4 м, имеет в своем составе целый комплекс помещений, обеспечивающих комфортное проведение банных процедур. Такими помещениями, расположенными на первом этаже, являются парная, моечная, совмещенная с парилкой и санузел. На первом этаже также имеется помещение, в котором можно оборудовать небольшую кухню, оснащенную всем необходимым для комфортного использования.
В помещении мансарды располагается комната для отдыха и комната-спальня для размещения гостей на ночлег. В соответствии с этим проектом парилка и моечная не имеют оконных проемов, что значительно упрощает процесс строительства и позволяет сэкономить на материалах, необходимых для утепления оконных проемов. Вход в банный комплекс осуществляется через тамбур, позволяющий максимально сберечь тепло в помещениях банного комплекса.
Еще одним популярным проектом является одноэтажная баня с мансардным помещением и размерами 4x 5 м. Несмотря на небольшой размер банного комплекса, в нем предусмотрены все необходимые помещения для проведения гигиенических процедур и отдыха после их проведения. В состав внутренних помещений входят туалет, моечная и парилка. Вход в банное помещение осуществляется через небольшой тамбур, за которым следует предбанник, в котором можно снять одежду и отдохнуть в перерывах между приемами банных процедур. В предбаннике располагается лицевая сторона печи с дверкой топки, что позволяет обслуживать печь, не покидая помещений банного комплекса.
В мансардной надстройке такого комплекса располагаются 2 комнаты для размещения гостей.
Душевая и туалет разделяются общей стенкой, что упрощает проведение коммуникаций в помещениях здания.
Преимущества и недостатки возведения банного комплекса с мансардной настройкой
Возведение банного комплекса с надстроенной мансардой дает возможность получить дополнительное пространство, которое можно использовать с максимальной пользой. Использование мансардной надстройки позволяет практически вдвое увеличить полезную площадь сооружения, не увеличивая занимаемую зданием на участке площадь.
Строительство мансардной надстройки является более выгодным, нежели возведение полноценного второго этажа.
При возведении мансардной надстройки экономическая выгода составляет порядка 30% по сравнению со строительством второго этажа. При соблюдении всех строительных норм и правил удается возвести практически полноценный второй этаж.
Пространство мансардной надстройки представляет собой универсальное помещение, которое можно использовать по усмотрению владельца банного комплекса. В таком помещении можно разместить тренажерный зал или полноценную комнату для отдыха. Помимо этого, в помещении мансардной надстройки можно возвести стены, и оборудовать несколько комнат для размещения гостей.
Мансардную надстройку можно при желании владельца использовать также в качестве складского помещения или кладовки.
Помимо преимуществ, строительство банного комплекса с мансардной надстройкой имеет и свои недостатки.
При возведении банного комплекса с мансардной надстройкой следует особое внимание уделить монтажу качественной паро-, гидро- и теплоизоляции. Особое внимание следует уделить паро- и гидроизоляции перекрытий между первым этажом и мансардной надстройкой, так как банные помещения характеризуются повышенным уровнем влажности.
Микроклимат, который характерен для помещений банного комплекса, не должен оказывать влияния на конструктивные элементы мансарды, иначе появятся грибок и плесень. При проведении строительных работ требуется использовать исключительно качественные изоляционные материалы.
Мансардное помещение обязательно требуется утеплять со стороны кровли, что в какой-то мере способствует удорожанию строительных работ. Однако эта операция требуется только в том случае, если планируется использование мансардного помещения в течение круглого года.
Проведение монтажных работ по сборке кровельной конструкции является более затратным, нежели при строительстве здания с классической кровельной конструкцией.
Для эксплуатации мансарды в летний период потребуется установка кондиционера.
Особенности возведения небольшого банного комплекса
Так как банный комплекс имеет небольшой размер и, соответственно, небольшую общую массу, то для его возведения можно возвести столбчатый, мелкозаглубленный ленточный или свайный фундамент. В случае возведения такого сооружения на грунтах с пониженным показателем устойчивости можно использовать фундаментное основание в виде цельной железобетонной плиты.
При использовании в качестве строительного материала для стен бревен они могут укладываться различными способами укладки. При возведении стен из бревен потребуется проведение качественной конопатки межвенцовых стыков. Конопатка межвенцовых щелей проводится в 2 этапа – на этапе монтажа проводится первичная конопатка, и после усадки сруба – окончательная. Для проведения этой операции применяют льняную паклю, войлок или мох.
В случае использования для проведения строительных работ бруса естественной сушки возведение стен здания значительно упрощается, так как не требуется проведение плотницких работ, за исключением мест стыковки бруса.
Укладка уплотнительного материала при использовании бруса значительно упрощается. Уплотнитель укладывается таким образом, чтобы венцы бруса плотно прилегали друг к другу. Плотное прилегание венцов и качественное уплотнение между венцами позволяет избежать появления мостиков холода в межвенцовом пространстве.
При выполнении всех требований и норм строительства владелец участка может получить качественно возведенное здание, которое будет отвечать всем его требованиям.
banyabest.ru
3 этапа строительства бани 4 на 5 на 4 на 5 [+8 ФОТО]
Если у вас есть загородный дом или дача, то выходные, проведенные на природе, станут запоминающимися для всех членов семьи. А разве можно назвать отдых хорошим, если в нем отсутствует баня. Из данной статьи вы узнаете, тонкости и проблемы при постройке своими руками бани 4 на 5 на 4 на 5.

Распространенный проект
Проект бани 4 на 5
Если вы не хотите испытывать неудобства во время нахождения в бане, то должны хорошо продумать планировку своего строения. Планировка бани 5 на 5 на 4 предусматривает размещение не более 3-4 человек.
Совет! Чтобы планировка строения вас устраивала в полной мере, вы должны продумать все до мелочей, не забывая при этом учитывать эстетически приятный вид постройки.

На фото планировка бани
Составленный правильно проект бани позволит вам не только с комфортом проводить время в данном строении, но и выполнять в нем все банные процедуры. А также даст возможность разместить внутри помещения все необходимое оборудование.

Оборудование для бани
Разработка проекта бани – это не очень уж простое занятие. Опыт, точность и профессионализм в данном деле имеет очень важное значение. Однако, воспользовавшись услугами профессионалов, вы придете к лишним тратам, вполне возможно все сделать самостоятельно.
Если средства позволяют, то у специализированных компаний вы можете заказать любой проект своего строения, даже если вами планируется баня 5 на 4 5. Профессионалы своего дела помогут вам составить проект, учитывая при этом ваши требования и пожелания.
Баня 5 на 4, приближение к идеалу
Будущий владелец бани должен помнить, что для проведения строительных работ по обустройству данного строения, самое главное – это правильное выполнение всех этапов.

Внешний вид строения
Совет! Самостоятельно построить баню можно, однако инструкция требований безопасности должна выполняться в полном объеме. Это позволит не только правильно возвести конструкцию, но и не получить травму при этом.
Вот несколько советов по поводу того, как строится баня из бруса 5 на 5 на 4.
Итак, с чего начать строительство:
- постарайтесь еще на начальном этапе по максимуму облегчить себе фазу строительства, то есть выбрать более удобный и недорогой вид фундамента, в зависимости от типа грунта на вашем участке;
- беря в расчет свои финансовые возможности, вы должны определить, из какого материала вы будете возводить стены своего строения. Цена строительных материалов, которые могут быть использованы в строительных работах, имеет важное значение, но также вы должны выбрать именно тот материал, при помощи которого вы сможете сами возвести баню;

Хороший вариант из бревна
- после того, как вы совместно с членами своей семьи решите какого размера вы хотите соорудить на своем участке помещение для банных процедур, определитесь сразу, будете ли вы устанавливать в нем ванну или душ;
Обратите внимание! Хотелось бы вас сразу предупредить, что при самостоятельном строительстве деревянной конструкции, вы должны пригласить в свою бригаду хотя бы одного профессионального специалиста – плотника.
Так, как только профессионалу своего дела получится осуществить рубку «в лапу» или «в обло».
- еще одной проблемой при строительстве бани может стать выбор подходящего для этого дела места. Планируя разместить на своем участке банный комплекс, вы должны в первую очередь предусмотреть, чтобы баня не примыкала к жилому дому;
- строительством на участке нужно также заниматься с учетом его рельефа. Так, к примеру, если у вас на участке имеется небольшой уклон, то в этом месте лучше всего и расположить баню, так как таким образом вы сможете обеспечить естественный сток воды;

Монтаж водостока
- если вы не планируете подводить канализацию к своей бане, то позаботьтесь о том, чтобы дренажная яма не располагалась в непосредственной близости от источника питьевой воды;
- одновременно с этим вы также должны учесть и интересы ваших соседей по земельному участку, так чтобы своими действиями вы не смогли доставить им неудобства;
- если вы хотите возвести конструкцию для принятия банных процедур «по-черному», то расстояние ее от остальных строений на вашем участке не должно быть ближе, чем на 12-14 м;
- также вы должны учесть и направление ветра, чтобы во время топки искры не смогли попасть на прилегающие к банному комплексу строения;
- требования к расположению бани «по белому» ни такие жесткие, поэтому если вы задумали возвести именно ее, то сделать это вы можете на расстоянии не более чем 5-6 м от иных построек на вашем участке.

Удачный вариант с летней кухней
Банный комплекс можно совместить с летней кухней, если она у вас стоит отдельно на участке. И этот вариант является более предпочтительным.
Когда баня 4 на 5 на 5 возводится самостоятельно, вы должные учесть еще очень много различных нюансов. Так, к примеру, если вы хотите чтобы лучи солнца заходили в ваше строение, создавая в нем уютное и мягкое освещение, то окна в нем вы должны будете расположить на юго-западе или западе.
Постройку с такими небольшими размерами лучше всего возводить с верандой или террасой, на которой в теплое время года вы сможете по вечерам отдыхать всей семьей или небольшой группой друзей. Идеальным вариантом для расположения комплекса для принятия водных процедур является его размещение вблизи речки или пруда, если у вас нет такой возможности, то разместите рядом с данным комплексом бассейн, в него вы сможете окунуться после посещения парной.

Пруд возле бани
Вывод
Теперь вы знаете, какие нюансы вы должны учесть, прежде чем начинать заниматься самостоятельным возведением комплекса для принятия водных процедур (см.также статью «Проект бани 3 на 5 на 3 на 5 – описание и цены»).
Более подробную информацию о данной теме вы сможете получить из видео в этой статье.
Понравилась статья? Подписывайтесь на наш канал Яндекс.Дзен9ban.ru
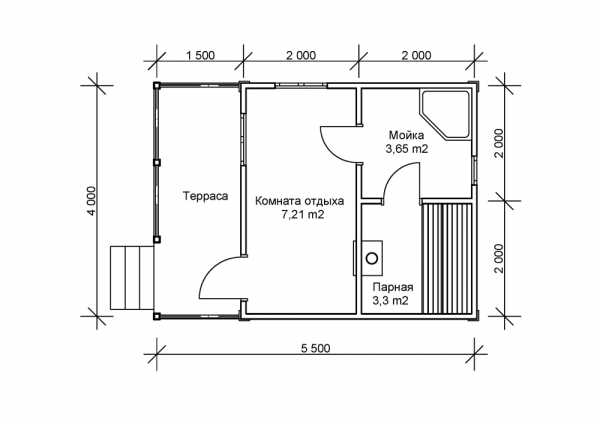
Планировка бани 5х4 мойка и парилка отдельно: фото
Бани размером 5х4 м будет вполне достаточно для небольшой семьи. Это довольно просторное и большое помещение, планировка которого позволяет разместить отдельно мойку и парилку.
Такой размер и планировка бани позволяют удобно и комфортно отдыхать, поэтому используются очень часто.



Здесь одновременно могут находиться несколько человек, и каждый из них, не мешая другим, сможет посещать парную и моечную.


То, что мойка и парилка разделены, позволяет создавать в каждой комнате свой микроклимат.


Если в парной должна быть высокая температура, то для моечной достаточно 23–27 градусов.

Недостаток такого расположения будет лишь в том, что при создании отдельных комнат придётся делать дополнительные перегородки, а это приведёт к увеличению стоимости строительства.


Необязательно делать парную и моечную с одинаковой площадью. Всё зависит от выбранного проекта и желания владельца.
Оцените статью: Поделитесь с друзьями!stroy-banya.com
Баня 4х5 планировка фото
Планировка бани 4х5 – основные особенности и правила
Баня – отличное место для отдыха. Неудивительно, что многие владельцы собственного земельного участка помимо дома и подсобных помещений желают построить там и парилку.

Фото бани 4 на 5
В данной статье, проиллюстрированной фото, мы рассмотрим, как своими руками возвести баню, предварительно все распланировав. Уверены, наша подробная инструкция будет полезна вам и планировка бани 4 на 5 станет для вас легкой задачей (см.также статью «Баня 4 на 5 на 4 на 5 – приятная банька во всех отношениях»).
Купить проект или распланировать самостоятельно?
Конечно, проще всего приобрести проект, созданный с учетом ваших индивидуальных требований касательно следующих составляющих:
- количества комнат;
- размеров комнат;
- особенностей обустройства полок;
- наличия второго этажа;
- возможности обустройства комнаты отдыха и т.д.
Однако цена такого проекта будет достаточно высокой, что в итоге повысит общую смету строительства и тогда парилка будет уже не такой долгожданной.
Совет. Можно воспользоваться типовыми проектами, которые в изобилии представлены на нашем тематическом ресурсе. Здесь вы найдете чертежи, которые уже проверены другими любителями водных процедур. В любой проект, взятый за основу, легко внести изменения, которые удовлетворят все ваши требования и желания.

Схема-чертеж бани
Если вы решили спланировать парилку самостоятельно, то вам необходимо в обязательном порядке предусмотреть следующее:
- раздевалку;
- парную;
- моечную;
- размещение печи;
- вентиляцию.
Если вы хотите соорудить помещение для своей семьи, то в таком случае вам необходимо разработать план бани 4 на 5, что позволит в ней комфортно находиться как минимум небольшой компании.
Основные особенности планирования бани для всей семьи
Строить функциональные парилки, в которых может поместиться семья из четырех-пяти человек – это не только выгодно, но и практично, ведь вы всегда сможете пригласить к себе друзей.
Ниже приведена подробная схема бани 5х4 с описанием всех помещений, которые в нее входят:
- предбанника;
- моечной;
- парной.
superbany.ru
Баня 4 на 5, проекты и планировки сруба
Предлагаем вашему вниманию проект сруба бани 4х5. Эта конструкция будет идеальным вариантом для возведения русской бани на вашем загородном дачном участке. Итак, что же это за конструкция бани, и какими достоинствами она обладает.

Невзирая на относительно маленький размер проекта, в этой бане были предусмотрены все главные помещения, а именно: туалет, моечное отделение и парилка. Вход в конструкцию расположен таким образом, что входящий в нее человек сразу оказывается в предбаннике, где он может спокойно снять обувь и верхнюю одежду. В этом же помещении можно также спокойно отдохнуть после банных процедур, либо между посещением парной.
С одной стороны в предбаннике есть возможность обслуживать печку-камин, а с противоположной стороны располагается вход в туалет. Душевая и туалет разделены с помощью общей стенки, что является несомненным плюсом при проводке в баню водоснабжения и системы канализации.
Строительство бани с теплым бассейном
Проекты бань с мансардой
После внимательного рассмотрения данной планировки, вы можете сделать такие выводы в ее пользу, как:
- парилка представляет собой достаточно просторное помещение, в котором одновременно имеют возможность париться от трех до четырех человек. После выхода из парной у отдыхающего имеется возможность сразу принять водные процедуры;
- в моечном отделении присутствует разделенная стенкой душевая кабинка;
- удобное расположение санузла;
- предбанник одновременно выступает в качестве комнаты отдыха, а также удобного места, в котором производится обслуживание печки-каменки;
- предбанник представляет собой надежный барьер, защищающий от попадания внутрь бани холодного воздуха с наступлением зимы;
- при строительстве бани, простота ее конструкции не сможет доставить особых трудностей, как при самостоятельном возведении, так и при строительстве строительной компании;
- подобная планировка бани может быть использована почти на любом дачном или земельном участке, как в качестве самостоятельной постройки, так и в виде пристройки к уже имеющимся строениям.
К недостаткам такого проекта бани 4х5 можно причислить, пожалуй, лишь то, что строение не имеет полноценной комнаты отдыха. Однако все преимущества, перечисленные выше, способны с лихвой перевесить этот один недостаток. Поэтому мы рекомендуем проект бани 4х5, как простое и функциональное строение.
Ознакомьтесь с некоторыми проектами


banyamsk.ru
Планировка бани 4х5 метров, где мойка и парилка отдельно: фото обзор
Баня всегда пользовалась в нашей стране особым почетом. Банные процедуры способны излечить тело и душу, придать сил и энергии. Бани размером 4 х 5 метров считаются проектом средних масштабов. Грамотная планировка способна обеспечить достаточный комфорт владельцу и его семье. Основные достоинства бань средних размеров заключаются в том, что:
- у них достаточно просторная парилка, в которой могут поместиться до четырех человек;
- мойка и душевая расположены в отдельной комнате;
- удобное расположение санузла;
- предбанник можно использовать как комнату отдыха;
- площадь 4 х 5 позволяет организовать небольшой тамбур;
- габариты бани не требуют большой территории, что позволяет построить ее практически на любом земельном участке;
- она имеет простую конструкцию и при желании ее можно возвести своими руками;
- такая баня может располагаться как отдельное строение или как пристройка к уже существующим сооружениям.
Читайте также: Строительство бани из бруса 4х6
Однако к процессу строительства бани 4 х 5 нужно подойти с умом. Необходимо выбрать качественные строительные материалы, правильно расположить баню относительно сторон света, тут должна быть детально продумана планировка.
Читайте также: Планировка бани 4х4 метра
Основные этапы строительства бани 4 х 5
От предков к нам дошло немало советов по возведению конструкций из дерева, которые помогают сохранить материал на долгие годы. Появление новых стройматериалов внесло дополнительные коррективы и еще более упростило жизнь строителя. Поговорим о возведении бани подробнее. Если расписывать процесс пошагово, то можно без проблем самостоятельно спроектировать и построить деревянную баню:
- Выберите точное место для строительства. Желательно, чтобы оконные проемы смотрели на запад. Так в помещение будет попадать больше света, а в вечернее время мягкие солнечные лучи добавят уюта банным посиделкам.
- Все проекты бань в обязательном порядке предусматривают наличие фундамента. Он должен быть не менее полуметра в высоту и 30 см в ширину. Есть вариант поставить строение на сваи.
- Отступив около 2-х метров от фундамента, выройте сливную яму (в нее будет помещен конец канализационной трубы).
- Саму трубу укладывают в траншею под углом к яме (для обеспечения полноценного слива).
- Для сруба лучше использовать бревно диаметром 180 мм. Важно соблюдать чередование толстого и тонкого бревна при укладке. Ближе к фундаменту располагают бревна лиственных деревьев, а ближе к крыше – хвойные. Считается, что наиболее «полезная» кедровая баня.
- Для обеспечения герметичности конструкции между бревнами закладывают веревку из джута или льноволокно.
- Кровлю покрывают либо черепицей, либо шифером.
- Планировка бани имеет ряд особенностей. Наибольшую популярность получило деление помещения на тамбур и четыре комнаты. Входная дверь должна обеспечивать максимальное сохранение тепла внутри бани. Для предотвращения сквозняков многие строители выбирают установку тамбура с площадью около 0,4 кв. м. За ним идет комната отдыха приблизительно в 7,6-8,8 кв. м. Для того чтобы войти в парную, нужно пересечь душевую (4,0 кв. м). В душевой перегородками отделяют санузел. Желательно, чтобы парная (4,0 кв. м) имела 2 ряда полок и нижнюю скамью. Причем верхняя полка располагалась на расстоянии 1 метра от потолка.
- Внутреннюю обшивку банного помещения следует делать из хвойных сортов деревьев.
- Высота потолка должна быть минимум 2,3 м.
- Также необходимо обеспечить тепло- и гидроизоляцию.
- Нужно организовать систему вентиляции помещения, которая может быть выполнена в виде отдушины.
Читайте также: Планировка бани 4х4 метра
Основополагающим параметром при выборе проекта бани 4 х 5 станет размер свободной для строительства территории. Нужно, чтобы баня максимально гармонировала с уже имеющимися постройками. Зону релаксации нужно планировать таким образом, чтобы диван находился в самом дальнем углу от двери. Обычно для обогрева используются каменные печи и дополнительное газовое или паровое отопления.
banyaprofi.ru

Преимущества и недостатки возведения банного комплекса с мансардной настройкой