Баня бочка своими руками – Баня – бочка своими руками: чертежи, изготовление, видео
Баня бочка своими руками — инструкция по постройке + Фотографии, видео
Строительство бани на небольшом участке – дело хлопотное: нужно возвести фундамент, поставить сруб, обустроить крышу. Куда проще и экономичнее изобретение наших северных соседей финнов – баня-бочка. Построить ее можно своими руками, без лишних затрат на оплату труда строителей.

Баня бочка своими руками
Преимущества бани-бочки
- Не требует массивного капитального фундамента, для установки достаточно ровной площадки с твердым покрытием;
- Благодаря компактным размерам баня-бочка может быть размещена на небольшом участке;
- Баня-бочка имеет разборную конструкцию, поэтому монтаж и демонтаж, а также замену элементов можно проводить без привлечения тяжелой техники;
- Мобильность конструкции и небольшой вес позволяет перевозить баню и устанавливать ее в местах временного проживания: в лагере, на летней даче;
- Оптимальное использование внутреннего пространства достигается за счет исключения из конструкции углов. Прогрев бани происходит очень быстро;
- Универсальность конструкции – в бане-бочке можно установить как дровяную печь, так и электрическую каменку, что позволяет получить влажный или сухой пар на выбор.
- Оригинальный дизайн позволит бане стать украшением любого участка.
Мобильность бани бочки
У бани-бочки есть и недостатки. Главный из них – необходимость утепления конструкции для использования ее в зимнее время. В качестве утеплителя используют рулонные материалы: они не гниют, обладают хорошей термоизоляцией, но удорожают стоимость бани и увеличивают трудоемкость.
Конструкция бани-бочки
Баня-бочка представляет собой помещение в форме цилиндра, уложенного на бок. Диаметр, а значит, и высота бани составляет от 2 до 3 метров, а длина может быть любой, обычно от 3 до 6 метров по стандартной длине доски. Баня-бочка может состоять из одной парилки или включать в себя дополнительно помывочное отделение или душевую, комнату отдыха и веранду. Конструкция бани при этом изменяется только за счет количества внутренних перегородок. К помывочному отделению и парилке можно подвести воду и канализацию.
Планировка бани бочки
Материалы и инструмент
Для установки бани-бочки на участке понадобятся:
- Профилированная шпунтованная доска толщиной 45 мм и шириной 90 мм. Длина зависит от размера бани. Брать шпунтованную доску с большей шириной не рекомендуется – ее сложно будет стыковать при укладке по окружности;
- Обрезная доска 50 мм шириной 200 мм;
- Металлические обручи-стяжки;
- Дверные и оконные блоки;
- Полог;
- Печь-каменка, дровяная или электрическая.
Производители пиломатериала предлагают готовые комплекты для возведения бани-бочки, имеющие различный размер. Для экономии материала, времени и сил можно купить готовый комплект и установить его самостоятельно.
Из сортов древесины для бани-бочки подходят как хвойные: ель, сосна, лиственница, так и лиственные породы. При этом из хвойной древесины лучше выполнять каркас, а лиственные сорта использовать для отделки бани – они не смолят и не вызывают ожогов.
Миниатюрный образец бани-бочки
Устройство фундамента или площадки под баню
Фундамент для бани-бочки не обязателен. Ее можно установить на любой ровной площадке, исключающей контакт древесины с почвой. Это может быть площадка, выложенная тротуарной плиткой, залитая бетоном или засыпанная гравием. При отсутствии такой площадки можно выполнить бетонное основание: снять слой грунта на глубину 15-20 см, установить опалубку, сделать десятисантиметровую песчаную подушку, уложить арматуру и залить бетоном. После затвердевания бетона, которое длится до 3 недель, можно собирать баню.
Сборка бани-бочки
Если вы приобрели готовый комплект, вам потребуется только собрать его в соответствии с инструкцией. В противном случае потребуется предварительно обработать пиломатериал.
Пошаговая технология изготовления бани-бочки
Технология изготовления
- Необходимо подготовить основание бани. Доску 50х200 мм распиливают на части, равные диаметру бани. Опорные доски нужно устанавливать на расстоянии не более 1,5 метра, поэтому их количество будет зависеть от длины бани. В верхней части досок выпиливают паз, повторяющий форму окружности бани. Ширина оставшейся части доски должна быть не менее 10 см.
- Торцевые стенки и внутренние перегородки собирают из шпунтованной доски, скрепляя их поперечными брусками. Бруски нужно крепить так, чтобы они впоследствии не помешали установке дверных и оконных проемов. В готовых комплектах торцевые части поставляются клееные в сборе.
- Нарезают шпунтованную доску по длине бани, торцы шлифуют. Обрабатывают доски антисептиком для бани.
- Устанавливают опорные доски на равном расстоянии друг от друга. Выкладывают на них дно бани-бочки из нескольких досок, соединяя их способом «шип в паз». Когда доски образуют сектор круга, достаточный для установки торцевых стенок, ставят их в соответствующее место и продолжают укладывать вокруг них доски, завершая окружность.
- После сборки бани скрепляют ее металлическими обручами и устанавливают дверные и оконные блоки.
- Крышу бани-бочки можно выполнить как на стропильной системе, так и покрыть ее слоем гидроизоляции и мягким кровельным материалом. Для устройства стропильной системы используют брусок 50 мм, а в качестве кровельного покрытия можно использовать металлочерепицу или профнастил, уложенный на обрешетку из досок.
- Если баня-бочка будет использоваться только летом, утеплять ее не обязательно. Благодаря эргономичному дизайну, она прогревается за полчаса и держит жар в течении двух-трех часов, что вполне достаточно, чтобы попариться небольшой компанией.
- Собранную баню с внешней стороны обрабатывают огнебиозащитным составом, а изнутри – натуральным льняным маслом.
Установка печки
В бане-бочке можно установить как электрокаменку, так и обычную металлическую дровяную печь. Модель печи должна соответствовать объему парилки. При установке нужно соблюдать противопожарные меры: изолировать деревянные конструкции от нагревающихся элементов с помощью специальных листов, а трубную проходку выполнять с применением базальтовых изолирующих матов.
Установка печи в бане бочке
Кстати советуем вам прочитать интересную статью на тему: как выбрать камни для бани.
Полы и внутренняя отделка
Внутреннюю обшивку бани и полы лучше выполнять из доски лиственных пород: они не так сильно нагреваются и делают пар в бане легким, а воздух – душистым. Пол выполняют с уклоном в сторону стока воды, при этом достаточно наклона в 1 градус на метр длины пола. Для улучшения циркуляции на пол кладут решетку из досок с зазорами между ними не менее 1 см. Это обеспечит прогрев пола. Полог и скамейки устанавливают вдоль стен. Электропроводку проводят при сборке бани, при этом используют кабель в негорючей изоляции и осветительные приборы герметичного исполнения.
Баня-бочка собирается за несколько дней, а радовать вас легким паром будет на протяжении долгих лет. Уход и обслуживание за баней несложные – ее нужно проветривать после использования и раз в один-два года покрывать защитными составами изнутри и снаружи. Конечно же вам советуем прочитать про: баню на колесах своими руками, а также про баню из бревна своими руками.
stroyvopros.net
Баня-бочка своими руками | САМОДЕЛКИН ДРУГ
Уважаемые посетители сайта «Самоделкин» из представленного автором материала вы узнаете как самостоятельно можно построить «Баню-бочку» на своем дачном участке. На сегодняшний день полным ходом идет загородное строительство, в первую очередь строят дома и дачи, а так же бани. Как же так, загородный дом да без баньки) Многие городские жители уезжают жить в деревню по той причине, что очень любят парится в бани, а свою баньку когда захотел тогда и протопил, как душа желает)
Строительство бани это довольно сложный и затратный проект, но с недавнего времени нашему вниманию представлена неплохая альтернатива капитальной бане-это «Баня-бочка». На сегодняшний день данная банька пользуется хорошим спросом, в меру своей компактности и аргономичности, так же такую баню с легкостью можно переставить на любое другое место на вашем участке, или же вообще перевести в другое место.
И так, давайте рассмотрим, что понадобится для строительства бани? А так же все этапы строительства более подробно.
Материалы
- доска 40 мм
- вагонка (липа)
- брус
- банная печь
- минвата
- фольга
- пароизоляция
- мягкая черепица
- оцинкованная лента
- печная труба с колпаком
Инструменты
- электролобзик
- дрель
- молоток
- рубанок
- шуруповерт
- рулетка
- ножовка
- топор
Процесс строительства бани-бочки своими руками.
Первым делом следует ознакомится непосредственно со схемой и чертежом данной бани.Как видно из предложенной схемы весь процесс постройки проходит на стапелях из бруса, они же в конечном результате служат и опорой поставленной на фундамент. Сначала изготавливаются торцевые внутренние стенки круглой формы, а уже на них нашивается доска (обязательно с пазом). Доска наилучшим образом подойдет толщиной 40 мм.
Кровлю в основном кроют мягкой черепицей, потому как она принимает любую форму и хорошо подходит для круглой поверхности крыши.
Внутренняя отделка по устоявшемуся обыкновению простая-это мин вата, пароизоляция и фольга, а поверх всего этого слоя нашивается вагонка (желательно лиственной породы) потому как если обшить к примеру сосновой доской-то при повышенных температурах древесина будет выделять смолу. После отделки вагонкой мастер переходит к установке осветительных приборов, а так же разводке электропроводки и розеток с выключателями. В помещение парилки устанавливается банная печь-каменка с баком под горячую воду. Ручка заливной горловины выполнена исключительно из дерева. Труба обязательно защищена кожухом, во избежании пожароопасных ситуаций. Труба выведенная на крышу обязательно должна иметь колпак-искрагоситель. Внутри помещения парилки так же желательно установить термометр. Все ручки на дверях так же должны быть сделаны из дерева, потому как металлические элементы быстро нагреваются и даже могут обжечь мягкие части тела при неосторожных действиях. Вот такая замечательная баня-бочка получилась у нашего автора, как видите процесс строительства довольно прост и понятен, а так же довольно легок в отличие от бань капитальной постройки. Такая банька прослужит долгое время и будет радовать и обогревать своих хозяев даря счастье, радость и здоровье.Спасибо за внимание!
www.samodelkindrug.ru
Баня-бочка своими руками, чертежи
Почему бы не построить баню на своем участке? Все бы хорошо, только многих останавливает то, что сам процесс строительства занимает уйму времени, на проект бани и постройку уходит море денег и еще столько же уходит на внутреннюю отделку и оборудование. Да и участок не резиновый, мало-мальски приличная баня — это уже 10-15 квадратов как минимум. Так что же, так и жить без бани всю жизнь?
Содержание:
- Если жизни нет без бани
- Японская и финская баня-бочка. В чем разница?
- Мобильная баня-бочка
- Материалы для бани-бочки
- Формы и конструкции
Если жизни нет без бани

Нечего подобного. Если уж совсем без бани никак, а с местом или с деньгами напряженка, тогда можно рассмотреть довольно оригинальный, недорогой, компактный и интересный вариант — баня-бочка своими руками Чертежи и фото мы приложим к тексту, а остальное постараемся рассказать на словах. Вначале — что это вообще такое, баня-бочка? Откровенно говоря, никто толком не может сказать, откуда появились такие конструкции, но некоторые предположения все же есть.

Дело в том, что в Японии их традиционная баня, сенто, не совсем похожа на нашу. Они не парятся в нашем понимании в парилке, а принимают горячую ванну, причем со строго контролируемой температурой — 55 градусов. Сенто — это коллективная баня и выглядит она, как огромный глубокий таз или бочка. Публика, предварительно вымывшись, забирается в такую бочку-купель для бани и парится, параллельно беседуя на отвлеченные японские темы.

Японская и финская баня-бочка. В чем разница?

Но все японцы имеют время посещать общественную баню. Те, кто жить не может без хорошего пропаривания, устанавливают миниатюрный аналог сенто, который называется фуро, прямо у себя дома. А это уже настоящая бочка с крышкой, в которую просовывают голову, предварительно заполнив бочку водой с температурой 55 градусов.

Вероятно, финны подсмотрели эту конструкцию и решили, что было бы неплохо для экономии времени и средств построить такую же бочку, только установить ее горизонтально и раз в пять увеличить в размерах. Тогда купель для бани превратится в настоящую баню, с парилкой, тамбуром и зоной отдыха, а выглядит финская баня-бочка примерно так.
Мобильная баня-бочка

Соорудить такую конструкцию своими руками сможет человек, абсолютно далекий от деревянного зодчества, да и в готовом виде стоит баня-бочка тысяч триста-четыреста. Нет трехсот тысяч, чтобы иметь собственную мобильную баню с парилкой? Не страшно, тогда ее можно собрать своими руками, причем быстро и без особенных временных затрат и особенных инструментов.

Поскольку баня-бочка целиком собирается из хорошего дерева, то все целебные свойства традиционной бани в полной мере сохраняются. С точки зрения технологии — это прочная конструкция, которая не занимает много места, она может быть транспортирована в любое место на земном шаре на обычном прицепе для легкового автомобиля или в крайнем случае, в кузове полуторатонного грузовичка. Какие перспективы открываются перед владельцем такого чуда, объяснять, надеемся, не нужно.

Материалы для бани-бочки

Интерьер бани-бочки — спартанская роскошь. То есть там есть все, что необходимо для принятия банных процедур и даже немного больше:
- одна или две круглых перегородки или овальных, если планируется овальная баня-бочка;
- столик со скамейками в помещении для отдыха;
- несколько окон;
- полноценная печка;
- раздевалка;
- полки, чтобы всласть попариться;
- естественно, двери.

Кроме того, интерьер такой бани может впитать любые дизайнерские фантазии, поскольку сам подход к конструкции и оформлению постройки нетрадиционный. Но только в том случае, если материалы, используемые для оформления интерьера — все то же дерево: кедр, липа, береза, сосна или ель. К плюсам бани-бочки также относят отсутствие углов, как таковых и очень равномерный прогрев, чему способствует круглое или овальное сечение кедровой бани бочки или бани бочки из другого дерева.

Формы и конструкции

Конструкция такой бани продумана до мелочей, это хорошо видно на чертежах. Нет никакой необходимости возводить дорогостоящий фундамент, поскольку баня прекрасно себя чувствует на ровной утрамбованной площадке, в крайнем случае, на монолитной бетонной плите перекрытия, достать которую не проблема. На основание устанавливаются балки-полозья, на которые и опирается основная конструкция бани-бочки. Эти балки нужны не только для надежной фиксации конструкции, но и для того, чтобы у поверхности бани не было контакта с почвой.

Из плохих и некачественных материалов баню-бочку не построишь. Зато хороших лесоматериалов нужно будет самый минимум. Доски должны иметь либо специальный радиальный профиль, либо профиль, рассчитанный на соединение шип-паз. Как правило, пользуются доской толщиной 4,5 и шириной 9 см. для монтажа бочки будут необходимы стальные обручи, которые стягивают и прочно фиксируют всю конструкцию.

Собственно, вот и все хитрости, которые необходимо знать о бане-бочке, а хорошая древесина и правильно сделанная печка сами позаботятся об оптимальном микроклимате в вашей новой бане. Удачных экспериментов!
nashprorab.com
Баня бочка своими руками — инструкция, схема и видео
Для любителей попариться предлагается оригинальный вариант изготовления бани, компактной, несложной в сборке и высокоэффективной по конструкции. Собранная баня бочка своими руками, займет не так много места на дворовом или садовом участке, и будет украшать его своим уникальным видом.
Можно построить такую баню с предбанником или без него. Основанием под такую легкую конструкцию может быть утрамбованная земля, песок или щебень. Наиболее подходящий вариант — укладка двух дорожных плит, которые позволяют получить ровную и твердую площадку.

Видео демонстрация — внешний вид и внутренняя отделка бани бочки
Изготовление опорной части бани
Для защиты от влажной почвы основной конструкции, ее опорную часть можно выполнить из металлических составляющих.
- Из двух швеллеров шириной 15-20 см изготавливаются полозья по длине равные длине будущей бани.
- Концы швеллеров на 30 см с обеих сторон, с использованием металлорежущего инструмента и сварки, подгибаются вверх под углом 30-35 градусов. На таких полозьях-лыжах в дальнейшем будет перемещаться в нужное место вся конструкция.
- Из металлической трубы или профиля, сечением 100 мм, отрезать болгаркой 4 конца (поперечины), длиной 1.5 метра.
- Эти заготовки прикрепить сваркой на грани швеллеров с равным расстоянием друг от друга. За счет высоты граней достигается нужный просвет. Это позволит не задевать поперечинами до земли при перемещении бани.
- Из того же материала, что и поперечины, изготовить 8 стоек, высотой 60 см. Приварить их строго вертикально к швеллерам, по четыре штуки с каждой стороны, на равном расстоянии.
- Противостоящие стойки соединяются между собой дугообразным элементом из профиля. Радиус прогиба этой части металлического основания бани бочки своими руками выполняется в соответствии с окружностью собираемой постройки.
- Для увеличения жесткости конструкции стойки в верхней части связываются между собой металлическим профилем с помощью сварки.
Самостоятельная сборка бани
Чтобы приступить к сборке нужно купить или изготовить самостоятельно деревянные элементы стен. Рекомендуется для этого применять материалы из хвойных деревьев. Оптимальная ширина бруса должна быть 100 мм, а толщина заготовок — не менее 45 мм.
Плотность прилегания элементов стен между собой достигается выполнением на их стыковых гранях сферической поверхности или соединения типа шип-паз. При этом необходимо достичь идеально ровной поверхности граней.

Если баня бочка своими руками изготавливается с двумя торцовыми стенами. Сборка стен производится в следующем порядке.
- При варианте с предбанником, изготавливаются 3 вертикальные стены, длиной 4 метра. Все стеновые бруски отрезаются этой длины.
- Для лучшей укладки стен, необходимо на концах бруса вырезать пазы глубиной 1,5 см и шириной 45 мм, соответствующей толщине торцовых стен. Они будут препятствовать сдвигу отдельных элементов стены и образуют более плотное соединение стыков деревянной конструкции.
- В зависимости от высоты собираемой конструкции, на ровной площадке из готового бруса нужно собрать щиты для этих стен. Брусовой материал подгоняется очень плотно, и полученный щит фиксируется стяжкой.
- Далее, определив центр на щите, на его наружной поверхности вычерчивается окружность нужного диаметра, соответствующей высоте бани. Лишние концы материала отрезаются электропилой. На торцевой поверхности полученного диска не допускаются сколы и неровности.
- Собранная в единое целое бочка баня, по окружности стягивается в 3-4 местах металлической нержавеющей лентой. Плотное затягивание ленты выполняется специальными винтами.
- В нужном месте электропилой вырезаются проемы для дверей и окошек. Вся конструкция обрабатывается водостойким средством.

Внутренняя отделка бани бочки
Для защиты от осадков, над ней можно сделать шатровую крышу, с небольшим козырьком над входной дверью.

На пол укладывается горизонтальный деревянный настил. Для стока воды на полу оборудуются специальные отверстия. Она будет уходить в локальную канализацию или в грунт под баней. Внутри бани бочки изготавливаются скамейки и полати, деревянные кадки для воды. Также можно применить купленные пластмассовые емкости и скамейки.

При выборе для отопления дровяной печки, необходимо оборудовать дымоход и вентиляционные отверстия.

При варианте применения электрической печи, нужно рассчитать сечение применяемой электропроводки и установить отдельное защитное устройство. Мощность печи должна быть не менее 6 кВт.

Основные преимущества
- Прочность и надежность конструкции.
- При необходимости она легко перевозится на другой участок.
- Небольшая по объему баня бочка нагревается за очень короткое время.
- Возможность оборудования душа от накопительной емкости на даче или от централизованного водоснабжения.
- Небольшие энергетические затраты на ее отопление, дающие возможность париться хозяевам почти ежедневно.
- Компактность.
Наглядная схема бани бочки

Видео демонстрирующее сборку бани бочки своими руками
boldproject.ru
Баня бочка своими руками: инструкция по строительству

Оригинальная конструкция – баня бочка занимает на участке очень мало места. При этом поместиться в ней может достаточно большое количество людей одновременно. Помимо всего прочего она наверняка станет и настоящим украшением участка. При необходимости это сооружение можно легко разобрать и собрать уже в другом месте. В этой стать я расскажу вам, как баня бочка строится своими руками. Итак, давайте обо всем по порядку.
Составление проекта
Представляет собой такая банька цилиндрическую конструкцию, собранную из досок и скрепленную металлическими обручами. Размеры ее могут быть самыми разными.
Чертежей, по которым сделать баню бочку можно своими руками, в сети существует достаточно много. Возьмите готовый или составьте свой.

Из каких элементов состоит баня бочка можно узнать из таблицы приведенной ниже.
| Конструктивный элемент бани | Материал | Особенности сборки |
| Балки основания. | Брус 50*150. | Обязательно пропитывается противогнилостными составами. |
| Сборные элементы | Доски 45*90мм. Длина зависит от размеров бани | Имеют соединение шип/паз либо скругленное/выпуклое |
| Торцевые элементы | Доски 45*90мм, брус 50*50мм | |
| Железные хомуты | Металлическая лента и элементы стягивания | Устанавливаются с двух сторон |
| Кровельный материал | Мягкая черепица или рубероид | |
| Конопатка | Пакля | Используется только в том случае, если доски не имеют конструкции шип/паз |
Подготовительные работы
Баня бочка своими силами – это не сложно хотя бы потому, что фундамент под нее устраивать не нужно. Просто тщательно выровняйте грунт на выбранном под конструкцию месте участка. Поставить сооружение можно и прямо на траву, однако, советую ее все же убрать вместе с дерном и засыпать освободившееся место гравием. Иначе балки основания могут со временем начать подгнивать.

Важно: Все элементы конструкции бани бочки раскроите и приготовьте заранее. В этом случае сборка будет произведена быстрее, так как не придется отвлекаться на переделки и исправление случайных ошибок.
Установка опорных балок:
В балках основания сделайте посадочные гнезда под бочку полукруглой формы. Длина оставшихся прямыми краев должна быть не менее 20см. Шаг между опорами — не более 1.5м. Для скрепления балок в единую конструкцию, используйте две доски. Зафиксируйте их по торцам раскроенного бруса оцинкованными уголками.
Сборка бани бочки
На следующем этапе собираем собственно саму баню бочку. Своими руками это делается в несколько шагов:
Paste a VALID AdSense code in Ads Elite Plugin options before activating it.
class=»eliad»>- Собирается нижняя часть бочки (пол достаточный для установки торцевых элементов ширины). Соединение производится по принципу шип/паз;
- Устанавливаются торцевые элементы. Их сбивают из досок и скрепляют тремя поперечными брусками;
- Корпус бочки собирается до конца.
Совет: После сборки пола бочки, проделайте в местах установки торцевых элементов пазы шириной 45мм и глубиной 15мм. Это позволит закрепить сбитые из древесины круги более надежно и предотвратит их сдвиги в процессе эксплуатации бани.

Заключительный этап:
Если вы собираете баню бочку исключительно своими руками, то есть с нуля, далее нужно будет вырезать окна и двери в выбранных местах электропилой. Затем бочка обтягивается металлическими лентами. При этом стоит использовать стягивающие элементы. Со временем доска бочки немного усохнет, в результате чего появятся щели. Исправить ситуацию можно будет, стянув обручи потуже.
Крыша для бани бочки:
Для защиты бани бочки от дождя накройте ее сверху крышей. Ее можно сделать двухскатной, сбив каркас из нескольких пар соединенных под углом брусьев и обшив его доской. Наклейте сверху рубероид или мягкую черепицу. Установите крышу на бочку.

Ну вот и все. Баня бочка собрана. Сделать это своими руками, как видите, не сложно. В особенности, если конструкция монтируется из уже готовых купленных элементов. Собрать бочку с нуля будет проблематичнее. К примеру, для выполнения шипов и пазов на досках используются специальные инструменты, которых у вас попросту может не оказаться под рукой.
Видео по теме «сборка бани бочки»:
Paste a VALID AdSense code in Ads Elite Plugin options before activating it.
class=»eliad»>postroju-dom.ru
Баня бочка своими руками
Баня-бочка – это поистине уникальное в своем роде изобретение, в котором органично объединяются оздоровительные свойства обычной бани, полезные качества натуральной древесины, мобильность и максимальное удобство сборно-разборной конструкции.

Баня бочка своими руками
При условии грамотной сборки, баня в виде бочки получается очень надежной и максимально прочной. Такую конструкцию можно безо всяких проблем прицепить к автомобилю и отвезти в любое желаемое место.

Баня бочка своими руками
Баня имеет небольшой объем и прогревается за максимально короткое время. Несмотря на скромные размеры, такую парную можно оборудовать всеми необходимыми приспособлениями для полноценного и максимально комфортного отдыха. При этом со сборкой бочки можно справиться собственными силами.

Баня бочка внутри
Достоинства бани-бочки

Баня-бочка
Мобильность
Баню можно перевезти или даже перекатить (перенести) вручную, заручившись помощью нескольких друзей. Вес бани-бочки составляет в среднем 1,5 тонны, поэтому с транспортировкой конструкции на небольшие расстояния можно будет справиться и вручную, да и потянуть такой вес способна практически любая машина.
Для сравнения – одна лишь кирпичная печь для обыкновенной бани может весить гораздо больше, чем 1500 кг.

Мобильная Баня-бочка
Высокая скорость прогрева
В теплую погоду в такой бане уже через полчаса будет очень жарко.
Компактность

Баня-бочка компактна
Средняя площадь, занимаемая баней в виде бочки, не превышает 10 м2, поэтому подобная конструкция идеально подойдет для размещения на небольших участках.
Оригинальный дизайн
Баня имеет привлекательный и очень приятный внешний вид. Психологи всего мира утверждают, что созерцание округлых форм помогает человеку расслабиться, а это очень кстати при посещении бани.
Экономность
На сборку бани в виде бочки вы потратите гораздо меньше денег по сравнению со строительством капитальной парной аналогичной площади.
Также к числу преимуществ рассматриваемой конструкции следует отнести отсутствие необходимости обустройства фундамента. Для стационарной установки будет достаточно заготовить пару прочных балок, жестко и надежно соединенных друг с другом, и установить бочку на них.
Предельная простота обслуживания и эксплуатации
Меньше углов – меньше грязи в труднодоступных местах, меньше площадь – меньше хлопот с уборкой.
Эргономика
Даже при скромной площади внутри такой бани можно обустроить душ, предбанник и все необходимое оборудование. В среднем баня-бочка способна вместить 4-8 человек.

В такую баню можно установить бак для горячей воды и даже сделать помывочную комнату с самым настоящим душем

В такую баню можно установить бак для горячей воды и даже сделать помывочную комнату с самым настоящим душем
Благодаря качественной теплоизоляции и многослойности бочки внутри такой бани создается эффект термоса, что позволяет существенно сократить расходы на топливо и электроэнергию.
Усредненные данные многочисленных расчетов свидетельствуют, что благодаря одной лишь круглой форме на эксплуатацию бани-бочки будет тратиться на 20-30% меньше денег, чем на обслуживание обыкновенной парилки.
Какие материалы использовать для изготовления бани-бочки?
Со сборкой и дальнейшей эксплуатацией бочки не возникнет никаких проблем и затруднений, если вы изначально уделите должное внимание выбору подходящих материалов.
Для сборки бани используйте только качественно высушенную и правильно распиленную на заготовки подходящего размера древесину. Породу дерева выбирайте в соответствии со своими предпочтениями и материальными возможностями. Предпочтение рекомендуется отдавать в пользу дуба, липы, сосны, ели, а также кедра.
Оптимальная ширина досок – 9 см, толщина – 4-5 см. Желательно, чтобы деревянные доски изначально имели соединение типа «шип-паз» — это позволит вам собрать конструкцию с наименьшими затратами времени и сил.
Но даже если такие шипы и пазы отсутствуют изначально, сделайте самостоятельно именно упомянутое соединение. Оно позволяет получать долговечные, надежные, устойчивые и прочные сборные системы, которые при необходимости можно многократно разбирать и собирать без ухудшения эксплуатационных свойств конструкции.
Дополнительно вам необходимо приобрести либо же сделать собственноручно несколько крепких стальных обручей. Эти изделия будут обеспечивать дополнительную фиксацию бочки по всему периметру.
Все требуемые приспособления безо всяких проблем приобретаются в специализированных магазинах, занимающихся реализацией различных товаров для бань и саун.
Необходимое количество металлических обручей и деревянных досок рассчитывайте индивидуально в соответствии с размерами вашей будущей парной. Обычно длина такой бочки варьируется от 250 до 500 см. Дополнительно такую конструкцию можно укомплектовывать различными пристройками.
Баня в виде бочки, если ее планируется использовать в течение всего года, нуждается в обустройстве качественной теплоизоляции. Традиционно для утепления используются минераловатные материалы.

Проект бани-бочки

Баня бочка своими руками, чертеж
Верх такой парильни можно оформить на свое усмотрение. Здесь ориентируйтесь на личные предпочтения. Главное, чтобы крыша надежно защищала баню от неблагоприятных атмосферных явлений и обеспечивала эффективное и своевременное отведение влаги.
Руководство по сборке бани-бочки

Баня-бочка своими руками
В продаже доступны готовые комплекты для сборки бочки. Сборные элементы имеют разнообразный размер, так что вы сможете безо всяких проблем выбрать и купить подходящий материал. Это позволит сэкономить силы и время.
Также все необходимые элементы конструкции можно сделать своими руками. Сборка бочки выполняется в следующей последовательности.

Основание для бани-бочки скрепляют при помощи шурупов и шуруповерта
Первый шаг. Сделайте основание парной. Распилите доску размерами 5х20 см на части по диаметру бочки. Опоры размещайте с шагом до 150 см. Конкретное количество опор определяйте индивидуально в соответствии с длиной конструкции.
Для соединения выпилите в верхних торцах досок пазы. Форма таких пазов должна повторять окружность бочки. Габариты пазов определяйте так, чтобы оставшаяся не выпиленной часть доски имела ширину от 100 мм.

Баня бочка длинной 3,2 м с предбанником
Второй шаг. Соберите необходимое количество внутренних перегородок, а также торцевых стенок будущей бани. Для сборки используйте шпунтованную доску. Соединение деревянных досок выполняйте при помощи поперечных брусков. Сами поперечные бруски фиксируйте таким образом, чтобы в дальнейшем они не препятствовали монтажу окон и дверей.
В готовых комплектах необходимые торцевые элементы продаются в сборке, что очень удобно.
Третий шаг. Нарежьте шпунтованную доску в соответствии с длиной бочки. Зашлифуйте торцы элементов, а затем обработайте доски антисептической пропиткой.
Четвертый шаг. Установите опоры с одинаковым шагом. Выложите на них дно бани-бочки из нескольких деревянных досок, соединенных по методу «шип-паз». Как только будет образован сектор круга, размера которого было бы достаточно для монтажа торцевых стенок, поместите эти стенки в соответствующих местах и продолжите выкладку досок до завершения окружности.

Оббивание досками каркаса
Пятый шаг. Скрепите собранную бочку при помощи металлических обручей.
Шестой шаг. Установите окна и двери.
Седьмой шаг. Обустройте крышу. Надежный вариант – кровля на стропилах. Для создания стропил используйте брус сечением 5 см. Покрыть такую крышу можно профнастилом, металлочерепицей или другим подобным материалом. Финишное покрытие крепите к предварительно смонтированной дощатой обрешетке.

Крыша
Если баня будет посещаться только в теплую погоду, от утепления можно отказаться. Конструкция парной такова, что она сможет достаточно прогреваться примерно за полчаса и удерживать тепло на протяжении 2-3 часов, а такого времени достаточно для большинства посетителей парилки.

Баня бочка своими руками
В завершение останется обработать внешние поверхности стен антипиреном, а внутренние – антисептиком, затем можно переходить к внутреннему обустройству парильни.
Внутреннее обустройство мобильной бани

Неотъемлемые атрибуты бани
Внутри такую баню можно оборудовать, как и любую другую парную. В ней даже хватит места для небольшого предбанника и компактной душевой кабины.
При выборе печки ориентируйтесь на современные электрические модели. Такие агрегаты не занимают много места и не нуждаются в дымоходе. Для бани-бочки будет более чем достаточно электрокаменки мощностью в 6 кВт. Однако такие печи способны давать исключительно сухой пар.

Внутри бани бочки
Если вас это не устраивает, отдайте предпочтение небольшой металлической дровяной печи. Конкретную модель и габариты конструкции выбирайте с ориентиром на объем парилки. Не забывайте о мерах противопожарной безопасности: деревянные конструкции обязательно защищаются от всех нагревающихся элементов при помощи листовых негорючих материалов, а места прохождения дымоотводящей трубы изолируются огнестойким утеплителем.

Печная труба может выводиться непосредственно через крышу
При обустройстве пола обязательно сделайте уклон в направлении водостока. На 1 м длины поверхности должен приходиться наклон примерно в 1 градус.
Для внутренней отделки полов, стен и лавок лучше всего использовать лиственницу. Такая древесина не станет обжигать кожу. Лавки размещайте вдоль стены, противоположной по отношению к печке. Также можете установить лавки и у боковых стенок.
Электропровода прокладывайте в огнестойкой изоляции. Розетки, выключатели, светильники – все это должно иметь соответствующий класс защиты.
Ухаживать за такой баней очень просто – достаточно регулярно проветривать парную и хотя бы ежегодно обрабатывать стены качественными защитными средствами.
Таким образом, всего за пару дней вы можете самостоятельно собрать баню-бочку, которая будет долгие годы радовать вас и ваших гостей своим легким паром. Следуйте инструкции и все обязательно получится.
Удачной работы!
Читайте также на нашем сайте статью — баня на колесах своими руками.
Видео – Баня бочка своими руками
tolkostroyka.ru
как сделать своими руками, чертежи, видео
Как легко и быстро построить баню-бочку своими силами. Преимущества и недостатки необычной конструкции, необходимый инструмент, материалы.
Тяга к комфорту и возможности новых технологий привели к тому, что жилье строится с полным набором удобств. Ванная комната или душевая кабинка имеется почти в каждом доме, только настоящей возможности расслабиться они не дают. Праздник души и тела – баня. Самый быстрый способ постройки – баня-бочка своими руками.
Из чего состоит баня-бочка
Особенности конструкции
Модель бани, построенной в виде бочки, это не дань модным веяниям. Обладая интересным дизайном, она полностью соответствует всем стандартам настоящей бани. Снаружи она кажется меньше, чем внутри. Необычная форма позволяет не только сэкономить пространство, но и использовать его наиболее рационально.
Состоит она из отдельных модулей, которые собираются по принципу конструктора. При условии полностью готовой комплектации монтаж на месте займет немного времени – даже один человек может справиться с этим в течение одного — двух дней.
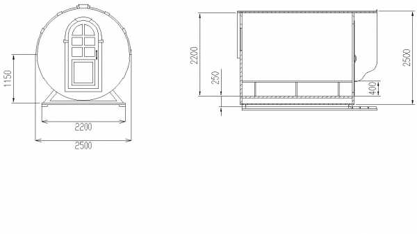
Материалом для строительства такой бани служат доски толщиной не меньше 45, лучше 50 мм, при их ширине до 90-100 мм. Меньшая ширина позволяет достичь наиболее плотного прилегания стеновых модулей к перегородкам. Длину досок выбирают от желаемого размера строения, а их количество – от радиуса окружности торцевых стен и перегородок, которые выполняются в виде круга. Чтобы свободно перемещаться внутри «бочки», достаточно диаметра 2200-2500 мм. Больший размер значительно увеличивает вес конструкции и расход материалов.
Баня, которая снаружи похожа на большую пивную бочку, внутри может быть устроена по принципу сауны или русской бани. Здесь каждый волен выбирать сам.
Преимущества и недостатки бани-бочки
Положительные моменты:
- Для установки не требуется строительство фундамента;
- Занимает на участке немного места;
- Интересный яркий дизайн, который впишется в любой ландшафт;
- Мобильность. При желании легко перевезти на другое место. Иногда такую баню сразу монтируют на полозья или передвижную платформу;
- Возможность быстрого возведения;
- Отсутствие углов позволяет получить быстрый нагрев;
- Доступная стоимость.
Недостатки: для использования в суровых климатических условиях понадобится дополнительное устройство теплоизоляции и внутренней обшивки помещения.

Этапы строительства бани-бочки
Взвесьте свои возможности в финансовом плане и приступайте к составлению проекта. Чтобы уложиться в бюджет, распределите работу на этапы:
- Посвятите время изучению предлагаемых стройматериалов – сравните цены, качество, возможность доставки. Лес для бани-бочки должен быть высушен по специальной технологии, кромочная часть обработана по типу паз – шип или овальный -вогнутый профиль. Лучшие материалы — кедр, лиственница, дуб или граб. Бюджетный вариант – сосна, ель. Для внутренней отделки лучше использовать лиственные породы. В этом плане вне конкуренции липа или осина.
- Составьте схематические чертежи, чтобы легче было подсчитать нужное количество материалов.
- Подготовьте инструмент. Понадобятся пила, рубанок, шуруповерт, дрель, молоток, топор. Для пропитки досок защитными составами запаситесь кистями.
- Подберите банную печь. Здесь есть два варианта – электрическая или дровяная.
Для тех, кто выбрал вариант баня-бочка своими руками, чертежи станут отправной точкой строительства.
Готовим материалы
Само строительство из готовых модулей не потребует много времени. А вот процесс изготовления стеновых и перегородочных модулей – процесс ответственный и сложный. Он потребует много терпения и тщательного выполнения каждой операции.

Подготовка досок для обшивки
Обшивочную доску лучше приобрести с готовыми соединительными элементами кромок, овально-вогнутым или паз в шип. Теперь, согласно чертежам, необходимо распилить их на заготовки нужной длины. В каждой из них по схеме делаем пазы для вставки перегородок и торцевых стен строения. Ширина паза должна быть равной толщине перегородки и иметь дугообразный контур – согласно чертежам. Окончательный штрих – пропитка специальными средствами защиты древесины от грибка. Применять какие-либо лаки для декоративной отделки не рекомендуется.
Изготовление торцевых стен и перегородок
Из досок собирают щит квадратной формы и скрепляют его брусками. Чертят окружность нужного диаметра и аккуратно выпиливают заготовку. Размечают местоположение дверной коробки и оконных проемов, выпиливают и, при необходимости, укрепляют конструкцию дополнительными брусками.
Изготовление опор для установки готовой бани
Круглая форма бани требует изготовления специальной опорной конструкции. Это совсем несложно. Расстояние между опорами не должно превышать полутора метров, поэтому рассчитайте их количество, отталкиваясь от общей длины сооружения. Обычно достаточно 3-4 опорных элементов.
Самый надежный материал, для изготовления опорных пластин – лиственная доска, толщина которой 40-50 мм, а ширина не меньше 200 мм.
На заготовке размечаем контур пропила, который должен повторять форму торцевой стены и выпиливаем. При разметке необходимо следить за тем, чтобы в нижней части доски оставался нетронутый участок шириной около 10 см. По краям доски также должны остаться свободные участки не менее 100 мм длиной.
На ровной площадке выставляем опорные доски и с помощью продольных брусков или досок соединяем их в цельный каркас.
Двери и окна
Специфика банного помещения требует наличия надежных дверей и окон, исключающих набухание и усушку. Лучше всего заказать готовые двери и окна по нужным размерам.

Печь в баню, освещение и проводка
Для любителей русской бани лучше выбрать дровяную печь, которую можно изготовить самостоятельно или купить в магазине. Режим «сауна» проще поддерживать с помощью электричества –выбор предлагаемых каменок велик.
Для освещения подберите специальные лампы и проводку с усиленной изоляцией.
Ну вот, кажется, все готово. Осталось подготовить место для установки бани и приступить к сборке.
Сборка бани-бочки
Подготовка площадки для бани-бочки
Для установки бани-бочки подойдет любая ровная площадка с твердым покрытием и возможностью обустройства слива. Если участок неровный, предпочтение для размещения бани следует отдать более возвышенной его части. Так легче обеспечить хороший сток воды. На ровном месте можно выкопать неглубокую яму, по площади слегка превышающую размер опорного каркаса, и засыпать ее дренажным материалом, уплотнить и выровнять.
Иногда, для повышения мобильности, баню устанавливают на специальные металлические каркасы с полозьями. В случае необходимости легко поменять расположение ее внутри участка либо взять с собой на отдых, к примеру, на зимнюю рыбалку.
Юлия Петриченко, эксперт

Окончательная сборка
Настал желанный час финишной сборки. Монтаж начинают с нижней части. На опорном каркасе отмечают центр и первую доску укладывают строго по разметке. В обе стороны от центральной доски плотно, замок в замок, укладывают стеновые заготовки до тех пор, пока на них можно будет установить торцевые стены и перегородки.
При укладке необходимо тщательно следить за совмещением пазовых пропилов.
В подготовленные пазы аккуратно вставляем торцевые стены и перегородки. Теперь последовательно, как в конструкторе, собираем стены нашей бочки. При сборке следует добиваться плотного вхождения шипов в паз по всей длине доски. Когда все собрано, стягиваем всю нашу конструкцию металлическими обручами с регулируемым зажимом. Такой зажим позволит дополнительно уплотнить или ослабить нашу бочку при необходимости. Вставляем двери, окна – помещение готово. Поможет понять, как собирается баня-бочка своими руками, видео.

Внутренняя отделка
Внутри помещения на пол нужно настелить решетки, обеспечивающие ровную и удобную поверхность для ходьбы и не задерживающие воду. Лавочки и скамьи делаем из лиственных пород дерева, желательно из липы или осины. Пространство вокруг печи должно иметь надежную изоляцию для предупреждения возгорания.
При должном уходе баня-бочка будет радовать своих хозяев долгие годы.Одним из моментов правильного ухода, является система вентиляции помещения. Для бани бочки лучше всего предусмотреть устройство многоуровневой вентиляции – отверстия в нижней части двери, в средней части стены и на потолке.
А у вас есть на даче баня-бочка? Делитесь своими впечатлениями и дельными советами по усовершенствованию конструкции.
grassia.ru
