Баня с большой террасой – двухэтажное современное строение размером 5х6 с барбекю в зоне отдыха и баня под одной крышей, варианты с открытой угловой верандой
Баня с большой террасой и барбекю
Проекты бань с террасой и барбекю, фото, строительство своими руками
Баня — это не только очищающая и оздоровительная процедура, но и клуб по интересам, место встречи друзей. И кроме посиделок в комнате отдыха иногда приятно провести время на улице. Для таких посиделок пристраивают к дому террасы. Они бывают открытые — если посиделки планируются только в теплое время года, или закрытыми — если иногда будете отдыхать там и зимой.
Проекты бань с террасой и барбекю
Встреча друзей, беседа и отдых у нас накрепко связаны с шашлыками. Где шашлык — там мангал. А лучше переносного мангала может быть только стационарный барбекю. Вот и планируют часто бани с террасой и барбекю.

Большая терраса и вынесенная площадка для барбекю
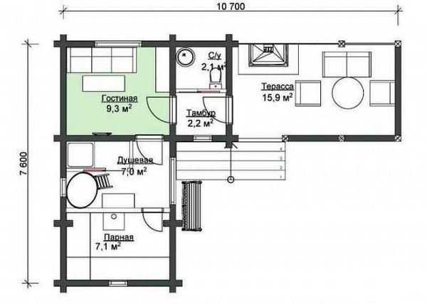
В этом проекте бани терраса охватывает баню с трех сторон. Приличная площадь позволит расположиться с комфортом любой кампании. При желании часть террасы можно сделать закрытой. В ней можно будет отдыхать в прохладные дни. На отдельном выносе можно установить барбекю или сделать это в одном из глухих углов.
По внутренней планировке проекта бани. Обратите внимание на то, как установлена печь. Она греет сразу четыре примыкающих комнаты. Если планируется помещение бани и в зимнее время, придется предусмотреть еще отопление для комнаты отдыха, так что мощность потребуется большая. Но комната отдыха потребует отдельного источника тепла: она имеет приличные размеры, а банной печью не отапливается.
О том, как выбрать дровяную банную печь читайте тут.
В случае всесезонной бани необходимо будет часть комнаты отдыха выгородить под тамбур или прихожую. Чтобы холодный воздух не мешал отдыхать после бани.

Баня с барбекю и террасой
В этом проекте бани есть два входа — один с крыльца, второй с террасы. В здании предусмотрен отдельный санузел и довольно просторная кухня, но и площадь, занимаемая всем строением с пристройками немалая: 14*7 м. При входе с крыльца есть отдельный тамбур. Этот вход планировался как зимний. Летом можно открыть широкие раздвижные двери, сделав террасу еще больше.

Проект угл
superbany.ru
Проекты бани с террасой и домов
Содержание [скрыть]
В России бани существовали издревле. И если раньше на Руси задачей бани была поддержка чистоты, то сейчас это не только сооружение для гигиенических целей, но и замечательное место для отдыха, а также способ подчеркнуть свою состоятельность, так как баню может позволить себе не каждый человек. Это строение в наши дни возводят добротно из качественных материалов, чтобы оно было надежным, теплым и практичным. Современная баня может быть целым комплексом, содержащим в себе все, что может находиться в обычном доме: это и бассейн, и комната отдыха, и открытая веранда, и сама парилка.

Стандартный проект одноэтажной бани с жилым помещением
В наши дни баня может иметь жилой этаж, который существенно экономит пространство, если участок небольшой. Там также может быть веранда, которую можно защитить от назойливых насекомых и проводить там летние вечера в прохладном уютном месте. На террасе для бани есть возможность поставить печь для барбекю. Такая площадка станет отличным местом для отдыха и приема гостей. Размеры подобной пристройки, конечно, зависят от возможностей участка, однако можно сделать ее как максимально большой, так и миниатюрной, и, выбирая проект бани с террасой, следует ориентироваться именно на размеры территории и расположение на ней других объектов.


Баня с большой террасой из клееного бруса с отделкой блок-хаус
Если вы хотите выгодно распределить пространство, то баня или дом с террасой – наиболее грамотное решение. У вас появится дополнительная площадь для отдыха, защищенная от дождя и солнца, при этом наполненная свежим воздухом. По расходам на строительство она не обходится сильно дорого. Наиболее популярные проекты террас – конструкции под одной крышей с домом, а также под открытым небом или со стеклянными стенами. Если вы решили строить баню с террасой, то это правильный выбор, так как такое строительство обойдется намного дешевле, чем отдельное возведение бани и отдельное – беседки.

Баня со стеклянной верандой
Баня с крытой верандой
Классические варианты
Если вы только собираетесь строить баню, и у вас достаточно большой участок, то вы можете выбрать проект бани 6х9 с террасой: такая баня будет очень удобна для большой компании или семьи, а терраса будет иметь общий фундамент с баней. Само здание позволит разместить внутри не только парилку, но и другие атрибуты домашнего уюта и комфорта, а на втором этаже бани можно устроить комнату для гостей, которая будет иметь большую площадь. Баня 6×9 может быть сделана из сруба, оцилиндрованного бревна или клееного бруса, а также каменных материалов. Лучше всего строить ее из рубленого бревна, которое более долговечно и лучше удерживает тепло. Такие проекты домов с террасой, фото одного из которых размещено ниже, довольно популярны, хотя и стоят дороже. Посмотреть обзор бани из бруса можно здесь:
Строительство сруба бани 6×9 с верандой
Если вы хотите расширить жилую площадь дома, то можно достроить баню, которая может быть как отдельным строением, так и примыкающим к дому.
Для такого случая отлично подойдет проект бани 6х6 с террасой, который оптимально увеличит ваш дом и добавит уютную площадку для летнего отдыха. Теперь в жару вы сможете находиться на улице и наслаждаться свежим воздухом и пением птиц. Увеличение пространства дома будет сделано довольно грамотно, поскольку подобный размер бани аккуратно впишется на любом участке и хорошо сочетается с любым коттеджем.
Проект бани с террасой 6×6
Угловые строения
Помимо типовых строений, весьма распространенным становится проект угловой бани с террасой, который считается довольно новой находкой в строительстве. Данное строение отличается уникальной формой. Такая баня будет занимать гораздо меньше места на участке, при этом за счет своей угловой формы она будет достаточно просторной внутри. Такую баню нужно строить с террасой, тогда она гармонично вписывается в дизайн всего строения в целом. Ее можно возводить практически из любых материалов: выбор в основном обусловлен финансовыми возможностями владельца, а также сочетаемостью готового вида бани с другими постройками и домом.


Модель и проект угловой бани
Угловые бани часто возводятся в случае, когда нужно, чтобы строение находилось вплотную к коттеджу. Террасы, примыкающие к дому, могут быть и стандартной формы – прямоугольной, квадратной. Однако именно угловая конструкция отличается, прежде всего, удобным и эргономичным размещением, благодаря чему планировка участка становится наиболее логичной и красивой. Кроме того, такое решение поможет не только грамотно распределить свободную площадь на участке, но и привести в порядок примыкающую к дому территорию. На террасе приятно отдыхать в теплую погоду, и теперь и дождь не помешает вам насладиться теплыми летними днями. Существуют проекты террас углового типа разной стоимости и размеров, так что выбрать подходящий не составит труда.
Баня, примыкающая к дому
Современные проекты веранд и террас подходят не только для загородных домов и бань, но и для магазинов, дач и других объектов, к которым технически возможно присоединить террасу.
Двухэтажные варианты с жилым помещением
Все актуальнее становится рациональное использование территории земельного участка, на котором находится жилое строение. Участки, как правило, небольшие, а хозяевам часто хочется не только жить в уютном большом доме, но и разместить у себя во дворе дачу, беседку и по возможности еще какие-нибудь объекты для своего удобства. Особенно это актуально, если строительство только начинается.
Если на участке пока еще нет дома, но вы в дальнейшем планируете возвести жилое строение, то умнее всего начинать строительство с бани, так как она послужит и после завершения строительных работ. На первых порах баня может служить как летний домик, и ее можно использовать по прямому назначению или даже хранить в ней какие-то инструменты. После того как дом будет достроен, баня прекрасно впишется в дизайн участка и станет прекрасным местом для вашего отдыха с друзьями или семьей. Если начинать строительство с возведения или доставки готового строительного вагончика, то после того, как он станет не нужен, возникнет вопрос, как убрать его с участка, а это лишняя и совершенно не нужная проблема. Поэтому лучше, если на участке сначала появится баня. Двухэтажные проекты с террасой являются наиболее актуальными; если вы планируете дальнейшее строительство, хотите получить еще одну дополнительную комнату, в которой можно будет отдыхать или размещать гостей, желаете сэкономить полезное пространство участка, то такая конструкция подойдет идеально.

Деревянная двухэтажная баня
Банные коттеджи с террасами
Коттедж с большой террасой и обустроенными внутри помещениями для бани – это не только красиво, но и удобно. На террасе вы сможете организовать беседку, мангал для приготовления шашлыков и прочих блюд, которые требуют открытого воздуха для приготовления. Данная пристройка в доме может быть и площадкой для игр ребенка, и отличным местом для танцев, и сбора гостей. Вы можете читать или отдыхать там даже в плохую погоду, так как терраса обычно защищена от дождя и солнца. Можно повесить сетки от комаров или сделать декоративные занавески, которые будут защищать от ветра и мух.
Дом-баня с террасой
Недорогие варианты
Каркасные дома с террасой являются наиболее недорогими по сравнению остальными. Преимуществами каркасных домов является то, что дом обходится по цене значительно дешевле аналога из блока или кирпича, при этом не уступает ему по качеству. Важным достоинством каркасного строительства является и то, что такой дом возводится в крайне сжатые сроки, что очень актуально, например, для дачного участка или тех людей, которые не хотят затягивать строительство надолго. Преимуществом такого строительства можно считать и то, что после строительства каркасного дома остается мало мусора. Популярным считается проект дома с большой террасой: такая конструкция визуально увеличит пространство дома, но при этом не очень много украдет места у двора.

Каркасный дом с террасой
Если вы любите классику, вас наверняка заинтересуют проекты деревянных домов с террасой. Деревянные дома не только имеют привлекательный внешний вид и не нуждаются во внутренней и наружной отделке, что значительно экономит средства заказчика, но и прекрасно вписываются в пейзаж загородной местности. Такой дом будет великолепно смотреться рядом с баней из сруба. Как правило, деревянные дома возводятся достаточно быстро, при этом они неприхотливы в эксплуатации, не требуют для своего строительства тяжелой техники и возводятся достаточно быстро.
Современные дома-проекты с террасами могут быть использованы не только для частного строительства. Например, популярностью уже давно пользуются проекты кафе с террасой. Фото можно увидеть ниже. Они эксплуатируются в основном летом, и пристройка позволяет расширить площадь и вынести часть столиков наружу.

Терраса летнего типа, пристроенная к кафе
Нормы строительства частного дома от забора
Нормы строительства гаража на участке
Двускатные крыши одноэтажных частных домов
Дом в японском стиле
dtk-m.ru
| БАЗОВАЯ КОМПЛЕКТАЦИЯ БАНИ ПОД КЛЮЧ | |
|---|---|
| Фундамент: | не входит в стоимость бани, рассчитывается индивидуально, в зависимости от пожеланий Клиента и планировки проекта. |
| Основание: | Двойное: первый ряд обрезной брус 150х100 мм, второй ряд обрезной брус 150х150 мм. |
| Половые лаги: | доска 40х150 мм, устанавливаются с шагом 0,7-0,8 м, череповые бруски 40х50 мм, черновой пол из обрезной доски, толщиной 20-25 мм. |
| Чистовой пол: | шпунтованная доска, толщиной 36 мм, принудительной сушки. |
| Стены 1 этажа: | профилированный брус, сечением 90х145 мм или 145х145 мм, в зависимости от выбранной толщины. Между венцами бруса прокладывается льноджутовое волокно. Вид бруса с наружной стороны в двух видах: прямой или овал (на стоимость не влияет). |
| Перегородки: | профилированный брус, сечением 90х145 мм. Впиливаются в основные стены. |
| Сборка угла: | в стоимость входит сборка в Теплый угол. |
| Сборка сруба: | сруб собирается на металлические нагеля (гвозди 200 мм). |
| Утепление: | пол, потолок и мансарда дома утпеляются минеральной ватой Изовер (или ее аналогами) в толщину 100 мм. |
| Пароизоляция: | изоспан или его аналоги. |
| Высота помещений: | 1 этаж 2,0-2,1 м (16 венцов бруса), 2 этаж — 2,3 м. |
| Балки межэтажного перекрытия: | доска 40х150 мм, устанавливаются с шагом не более 0,8 м. |
| Потолки дома: | подшиваются вагонкой хвойных пород дерева, толщиной 12-18 мм, принудительной сушки. |
| Мансарда: | при ее наличии, полностью обшиваются вагонкой хвойных пород дерева, толщиной 12-18 мм, принудительной сушки. |
| Окна: | деревянные, с двойным остеклением, распашные, размеры в соотвествии с техническим заданием строительства бани. Впиливаются ройки в подарок! |
| Двери: | деревянные каркасные, размером в соответствии с техническим заданием строительства дома. Впиливаются ройки в подарок! |
| Кровля: | волнистые листы ондулин, с возможностью выбора цвета (красный, коричневый, зеленый), укладка паровлагоизоляции. |
| Стропила и обрешетка: | стропила изготавливаются из доски 40х150 мм, с шагом не более 0,8 м обрешетка из обрезной доски, толщиной 20-25 мм. |
| Лестница: | при ее наличии, деревянная, тетива изготавливается из бруса, ступени из шпунтованной доски, толщиной 36 мм, с перилами и резными балясинами. |
| Внутренняя и наружняя отделка | выполняется оцинкованными гвоздями. |
| Углы и поднебесники: | исполняются из вагонки хвойных пород дерева, толщиной 12-18 мм. |
| Фронтоны: | изготавливаются из доски 40х100 мм обшиваются вагонкой хвойных пород дерева, толщиной 12-18 мм, с прокладкой ветрозащитной пленки. |
| Крыльцо: | деревянные ступени из доски 40х150 мм. |
| Помещение парной | обшиваются осиновой вагонкой класса В, под вагонку укладывается фольга для саун. |
| В помещении парной | изготавливаются пологи из осиновой доски. |
| Оборудование бани: | душевой поддон со сливным шлангом, размеров 0,8х0,8 м. |
mir-ban.ru
