Баня своими руками проекты фото – Баня своими руками. Проекты, фото, чертежи и видео
Маленькая баня своими руками: проект с фото
Баня считается маленькой, если общая полезная площадь внутри постройки не превышает 20 квадратных метров. Обычно, если приходит желание построить на участке небольшую баню, то за минимальные комфортные размеры принимаются габариты 6х4 метра, что составляет 24 м². В такую площадь вполне реально вместить все три банных помещения — парилку, моечную и комнату отдыха. В маленьких банях, как правило, отсутствует комната отдыха, а взамен ей удаётся разместить только небольшой предбанник.
Баня 4х4. Сруб из оцилиндрованного бревна
В пространстве 16 м² особенно не развернёшься и при планировке дорог каждый квадратный метр. Главная комната в бане — парилка и при её проектировке об экономии лучше всего думать в последнюю очередь. Нередко встречаются проекты, где парная ограничена площадью менее чем 2х2, что значительно снижает комфорт от банных процедур. В первую очередь потому, что минимальная длина полока составляет 2,2 метра: нужно чтобы человек смог лечь в позе с поднятыми над головой руками, согнутыми в локтях.

Но в этом проекте парильное отделение спроектировано с умом и отведенные под него 2200х2250 мм вполне удовлетворяют минимально необходимым условиям для комфортного пребывания в парилке.

Предбанник 4х1,35 м в какой-то степени может взять на себя функции комнаты отдыха, но удобным его можно назвать только в качестве временного места пребывания одного человека. Моечная ограничивается ещё меньшими размерами 2,2х1,35 метра.
Пол будет выполнен по лагам и утеплен экструдированным пенополистиролом (ЭППС). Он в проекте имеет примерно следующую конструкцию.

Крыша имеет стандартную двухскатную форму, а дополнительная внешняя отделка для такого сруба не требуется: дерево само по себе смотрится прекрасно.

В собранном виде сруб выглядит следующим образом.

Такая бревенчатая банька станет отличным вариантом для регулярного посещения в частном порядке. На 2-3 человека даже такого небольшого пространства вполне достаточно, если баня располагается на участке невдалеке от дома.
Каркасная баня 4,8х2,6 своими руками
Эта миниатюрная постройка является чем-то средним между маленькой баней и мобильной баней, которую в любой момент можно погрузить на автомобиль и поехать с ней в дорогу, чтобы установить потом на новом постоянном месте.

Согласно проекту строение, несмотря на свои очевидно критически маленькие размеры, тем не менее разделено на три помещения.

На схеме размещено два плана. Первый (который сверху) показывает вид на постройку сбоку, а второй (нижний) — это план помещений или вид сверху.
Попадая через входную дверь в предбанник размером 2,1х1 м, в нём можно оставить вещи и одежду и через дверь пройти в моечное отделение. Помывочная чуть больших габаритов 2,1х1,5 м выполняет также функции топочной и снабжена удобной скамейкой, а также баком для воды.
Строительство выполняется по каркасной технологии. Фундамент из металлической рамы на основе швеллера 65 мм.

Пол из балок сечением 150х50 мм для защиты от гниения обработан антисептиком Сенеж.

Металлическая рама фундамента объединена с деревянным ростверком специальными скобами.

Крыша выполнена с соблюдением техники пожарной безопасности.

Конструкция кровли двухскатная, материал внешнего покрытия — шифер.
Стены утеплены плитами минеральной ваты Роквул толщиной 50 мм. Для теплозащиты потолка использован более толстый слой — 100 мм. Теплоизоляция в полу не проводилась.
Стена со стороны парилки покрыта слоем ветрозащиты и окрашена три раза, так как постоянно подвергается сильному воздействию ветра и осадков.

Моечное отделение снабжено удобной скамейкой длиной 1,5 метра. На стенах смонтирован бак для воды и также мини-бак для паровой пушки.

Парилка обогревается печью Малютка от Ферингера с отделкой ламелью. Полок имеет ширину 1,2 и длину 2,2 метра для удобного принятия парильных процедур в режиме русской бани.

Особое внимание уделено качественно теплозащите дымохода в месте его прохождения через деревянные конструкции.

В качестве места для хранения дров изготовлен дровяник.

Конструкция дровника максимально простая, но в то же время достаточно вместительная. На землю был постелен рубероид, поверх которого уложены четыре поддона. Крыша простая, односкатная покрыта шифером.
banyagid.com
Баня на даче своими руками — советы, примеры, фото и видео
Баня считается исконно русским изобретением. Такое мнение распространено, по причине большой популярности бани на территории нашей страны. Но тем не менее, на сегодняшний день очень сложно сказать кто именно и когда придумал такое приспособление как баня.

Есть версия, что изобретателями сего чуда были египтяне. Эта нация очень трепетно относилась к чистоте собственного тела. Они ценили водные процедуры, и баня была для них чуть ли не святыней. Но, как бы там ни было, за такое изобретение все человечество готово сказать спасибо изобретателю. Ведь настоящие кедровые бани популярны не только в России, но и по всему миру.
Именно благодаря высокой функциональности бани, многие хотят иметь её в собственном распоряжении. Благодаря современным возможностям и великому количеству строительных материалов осуществить своё желание не составит труда.
Проектирование бани
Самым первым шагом на пути к осуществлению мечты, станет проект бани на даче. Проектирование – это важный этап, который требует ответственного подхода. Здесь будут учтены все нюансы, и вы сможете точно знать, как будет выглядеть постройка на заключительном этапе, её размеры и где наиболее удобно её установить. Саму баню вы имеете возможность построить и собственными руками, но за разработкой проекта лучше обратиться к специалисту, который поможет все организовать наилучшим образом. Вот некоторые проекты бань популярных размеров.




Какой именно размер выбрать на прямую зависит от того, в каком месте дачного участка будет располагаться дача. Этот момент может быть решён с учётом правил дачного товарищества, либо с учётом основных норм безопасности. К примеру, баня должна располагаться на противоположенной стороне участка относительно дома. Этого требует пожарная безопасность. Ну и также смотрите, что бы она не стояла слишком близко к бане соседей. Очень интересным и практичным решением станет возведение бани на берегу речки или любого другого водоёма.
Выбор материала
Строительство бани на даче — это занятие хлопотное, как и любые строительные работы. Но это не является неразрешимой задачей. После того как вы определились с проектом и местом расположения будущей бани, следует определиться со строительными материалами.
Если вы стеснены в средствах, но все же хотите стать владельцем бани, вы можете выбрать экономичный вариант и построить баню на даче из достаточно недорогих материалов: блоков или кирпича.

Баня, выполненная из таких материалов, имеет свои достоинства, но также обладает и недостатками. Она проще в уходе, обслуживании, имеет долгий срок эксплуатации, но тепло держит не достаточно эффективно и не создаёт определённой атмосферы внутри помещения. Именно поэтому, многие считают, что настоящая русская баня должна быть построена из натурального материала – дерева или сруба.
Этот строительный материал является экологически чистым и очень практичным. Каждый любитель бани подтвердит, что в деревянной бане пахнет по-другому – он полон ароматов древесных смол и благотворно воздействует на дыхательные пути.

Такая баня является не просто удовольствием, она способна оздоровить ваш организм и стать прекрасным украшением вашего дачного участка. С учётом всего вышесказанного вопрос как построить баню на даче правильно и эффективно станет более приоритетным, чем вопрос экономии. Ведь, как известно, на здоровье и удовольствии экономить нельзя, живём лишь раз.
Полезные советы
Баня на даче своими руками – это благородная и похвальная цель. И чтобы процесс не казался чем – то не реальным, следует составить план строительства бани. Это облегчит проведение работ, а поэтапное выполнение сделает работу слаженной и простой. Какие этапы предусматривает эта работа:
- закладка фундамента;
- возведение стен
- возведение межэтажных перекрытий если баня не одноэтажная;
- кровельные работы;
- утепление стен и пола;
- внешние работы;
- установка печи и выбор дымохода;
- установка настилов полов, окон и дверей;
- оборудование душа;
- внутренняя отделка;
- подбор мебели.
Следуйте своему плану, и работа будет выполняться быстро и аккуратно.
Строительство фундамента
Фундамент – это очень важный, если не сказать основной этап работы в возведении бани.

От того, насколько качественно будет выполнен этот этап, будет зависеть качество всей бани. То, какой вид фундамента выбрать зависит от типа почвы, на которой будет строиться баня на даче, уровня грунтовых вод, размера постройки и материала. Фундамент бывает:
- ленточный фундамент – самый простой тип для несложных, нетяжёлых построек;
- столбчатый фундамент – для небольших построек и плотной почвы;
- винтовой фундамент – для построек на склоне и нестабильной почвы;
- свайно-ростверковый фундамент – для почвы с плывунами;
- монолитный фундамент – универсальный тип, подходит для многих видов почв и для любых построек.
Возведение сруба
Не стоит пугаться возведения сруба. По сути дела, эти работы ничем не отличаются от любых других строительных работ. Просто на этапе подбора брёвен, будьте внимательны и выбирайте наиболее качественный материал.

Это необходимо для того, чтобы ваша баня качественно выполняла все возложенные на неё функции и прослужила вам достаточно длительный срок. Обращайте внимание на качество рубки. Этот момент играет важную роль в герметичности бани. Ведь главное её назначение – это эффективное сохранение тепла.
Дверные и оконные проёмы
Планировать оконные и дверные проёмы следует заранее. Хорошо продумайте их местоположение в процессе создания проекта. Это очень важно для правильной организации строительных работ. Оконные и дверные проёмы выравнивают электро-бензопилой, на торцах брёвен выбирают шип для окосячивания проёма.

Косяки устанавливают в проёмы без жёсткого крепления к стенам сруба. При необходимости бревна сруба у края проёмов подтёсывают для того, чтобы их горбы не мешали установке наличников. Теперь можно устанавливать окна и двери. Они могут быть изготовлены из любого материала, который вам по душе.
Вывод
Баня – это уникальное сооружение и решение вопроса как построить баню на даче бесспорно заслуживает внимания и решения. В бане вы сможете прекрасно расслабиться после трудового дня или хорошо провести время с родными или друзьями. Это универсальное сооружение станет незаменимым, стоит вам один раз воспользоваться им. Доставьте себе ни с чем несравнимое удовольствие.
Фотографии бани на даче

























Посмотрите видео, о том как правильно построить баню на даче
home-ideas.ru
фото, видео, проекты, чертежи, пошаговая инструкция
Баня своими руками: фото, видео, проекты, чертежи, пошаговая инструкция. Для осуществления таких планов как строительство бани своими руками, нужно четко знать, какими качествами должно обладать это простое на первый взгляд, сооружение. Ведь кажется, что все так понятно, но иногда, несмотря на старания хозяев, баня не выполняет своих главных функций. То невозможно протопить до нужной температуры, то потолок низкий, а то и вовсе помещение невозможно тесное.
Есть множество качеств, которые по разным причинам важны:
- пожаро без опасность;
- быстрота нагрева помещения парилки;
- естественная самотечная канализация;
- эргономичность помещения;
- безопасность и удобство каменки;
- безопасность и удобство пользования горячей и холодной водой.
Можно дополнять этот список качествами, важными только для вас. А мы постараемся выделить основные этапы сооружения бани своими руками и подчеркнуть их особенности.
Выбор места для строительства бани
Идеальным местом для строительства бани является берег какого-либо водоема: реки, озера или пруда. Но располагать ее у самой воды не стоит, т.к. всегда существует опасность затопления в период весеннего паводка.

Закладывать баню лучше всего на расстоянии 15-30 м от воды, но так, чтобы использованная вода не попадала в водоем и не загрязняла его. Выбранное место должно находиться как можно дальше от дороги и быть отгорожено забором или какими-либо хозяйственными постройками от соседних участков. Вход в баню желательно сделать с юга, т.к. зимой с южной стороны меньше сугробов, а весной они тают быстрее.
Самая удобная баня состоит из трех комнат:
- парной;
- моечной;
- раздевалки (предбанника).
Их размеры и конфигурация могут меняться по желанию, но наиболее приемлемое соотношение — 1:1,5:2 (парная, моечная, раздевалка). Кроме трех основных комнат, можно устроить душевую, комнату для отдыха, или тамбур, который будет предохранять предбанник от проникновения холодного воздуха зимой.
Как театр начинается с вешалки, так и баня с предбанника, где можно раздеться, отдохнуть, остудиться. Предбанник предохраняет основные помещения от холода и ветра, поэтому должен быть хорошо утеплен, Но если вы собираетесь пользоваться баней только летом, вместо предбанника можно построить террасу или широкое крыльцо с навесом. Освещение в предбаннике может быть как искусственным, так и естественным. Поскольку окна в нем, как правило, не зашториваются, высота подоконников должна быть не менее 140 см от пола.
Чертеж бани Размеры предбанника рассчитываются, исходя из того, что на одного человека должно приходиться не менее 1,3 м2, причем обратите внимание на то, что ширина предбанника должна быть не менее 1 м2.
Для вычисления размеров моечной также существует определенный стандарт — не менее 1 м2 на одного человека. Кроме того, в моечной должно быть достаточно места для размещения ёмкостей с холодной и горячей водой, скамеек, а при необходимости — и душа. Если вы намерены проводить сеансы оздоровительного массажа в моечной, то ее размер должен быть не менее 2 м2, чтобы установить тан лежак. Полок делают деревянным, чаще всего из липы, так как липа не оставляет заноз, Доски для полка следует укладывать не вплотную, а с небольшим зазором, чтобы во время парения пот мог стекать, не задерживаясь на досках. В современной парной полки находятся на различной высоте, в зависимости от индивидуальной переносимости.
Наряду с правильной планировкой банных помещений, большое значение имеет грамотная организация отопления, способствующая поддержанию оптимального температурного режима. В каждом помещении во время купания должна постоянно и без особых усилий поддерживаться строго определенная температура:
- в парной — 50-55°С,
- в моечной, так же как и в душевой, — около 40°С,
- в раздевалке — не ниже 21°С.
Только при таких условиях банная процедура действительно будет полезной для здоровья.
Чертежи бани своими руками: проекты для строительства
Проекты дачных бань весьма популярны в России. Связано это с тем, что многие жители нашей страны могут позволить себе возвести это строение на даче. Кроме того, такая баня стоит недорого, и может быть построена своими руками, без привлечения к этому процессу профессиональных строителей.
Вариантов строительства бани на даче имеется несколько. Самый распространённый из них – отдельно стоящее здание. Такие дачные бани, их фото и проекты часто предлагаются многочисленными строительными фирмами в качестве готового варианта строительства. К их плюсам можно отнести простоту конструкции и возможность их использования вне зависимости от использования других зданий на участке.
Второй вариант бани – возведение сооружений в комплексе, например, можно выбрать проект дачного дома с баней внутри. Этот вариант строительства хорош тем, что вы используете одни инженерные коммуникации и разрабатываете единый план строительства на несколько сооружений одновременно. Не придётся выделять под строительство земельный участок большой площади, что имеет большое значение в том случае, если ваша дача имеет стандартные размеры. В результате можно добиться значительной экономии.
Используя подобный вариант строительства, вы сможете воплотить в жизнь, например, проект дачной бани с мастерской. Кроме того, можно построить совместно с ней гостевой домик или же летнюю веранду под приготовление барбекю. Часто подобные варианты строительства можно увидеть по телевидению — весьма популярны проекты бань, показанных в «Дачном ответе».
Дом-баня с верандой и мансардой. Небольшая дом-баня с верандой снаружи выглядит как маленький, аккуратный деревенский домик и вполне может сгодиться для временного обитания в ней, проживания молодой семьи либо использоваться дополнительно как гостевой домик.
Дом-баня с верандой и мансардой.
К помещению дополнительно пристроена закрытая веранда с большими окнами. Внутри бани находятся коридор, где удобно оставлять верхнюю одежду, парилка, ванная комната (помывочная) и отдельный санузел. Также предусмотрено наличие двух разных по размеру комнат отдыха, которые можно использовать в качестве кухни, гостиной, бильярдной или даже спальни.
Схема бани 6х8
Лестница, расположенная в холе ведет на второй этаж дома – мансарду. Потолки этого помещения достаточно высокие, так как крыша бани имеет острую форму. Мансардная комната – самое обширное по площади помещение в доме, поэтому здесь можно спокойно установить аудиотехнику и проводить многолюдные вечеринки либо оборудовать уютную спальню.
Помещение мансарды в бане
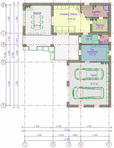
Готовый проект бани с гаражом и верандой (87,8 м2). Баня с гаражом и верандой – очень практичное решение для заядлых автомобилистов и просто любителей бани у которых есть персональный транспорт. Если в вашем дворе еще не построен гараж, но вы уже задумались о строительстве бани, можно удачно совместить оба эти помещения в одной проекте, потратив при этом меньше времени, денег и усилий.
Проект бани с гаражом и верандой (87,8 м2).
Данный проект бани занимает довольно обширную площадь, ведь баня здесь оборудована всеми необходимыми для комфортного отдыха помещениями (просторной открытой верандой и гостиной, отдельным санузлом, парилкой, помывочной, тамбуром), а гараж расчитан минимально на два автомобиля размещение двоих автомобилей. Также предусмотрена хозяйственная комната, куда можно складывать инструменты, автозапчасти и приспособления для работы во дворе. Таким образом, построив данное помещение у себя во дворе вам больше не придется беспокоится о необходимости размещения дополнительных хозяйственных пристроек.
Чертеж проекта бани с гаражом и верандой (87,8 м2).
Баня из клееного бруса 62,6 кв.м. Достоинства построек из клейкого бруса в их долговечности, экологичности и эстетичности. Кроме того, помещение из клейкого бруса строиться совсем непродолжительное время и очень скоро после осуществления заказа вы сможете попариться в собственной бане.
Баня из клееного бруса 62,6 кв.м.
Данный проект разработан специально для людей, которые владеют обширным земельным участком и любят просторные постройки. Баня имеет все необходимые составляющие: крыльцо, вместительную веранду, отдельный санузел, парилку, помывочную, комнату отдыха и даже дровник.
Чертеж баня из клееного бруса 62,6 кв.м.
Баня с верандой. Данный проект бани с просторной открытой верандой послужит идеальным местом для отдыха для любителей барбекю и вечеринок с мангалом. На подобной веранде можно поставить небольшие столики для сада, организовывать семейные праздники и торжества и просто хорошо проводить время длительными летними днями.
Баня с верандой: схема
Проект просторной бани с верандой. Деревенская баня с просторными верандой и комнатой отдыха станет замечательным центром для проведения досуга, который расположен прямо в вашем дворе. Проект имеет довольно миловидный дизайн, оснащен раздельными парной и душевой комнатами.
Проект просторной бани с верандой.
Проект бани 6х4 типа трамвай. Баня «трамвай» — очень интересное и удобное архитектурное решение. Среди достоинств данного проекта можно выделить его необычность, компактность и наличие просторной веранды.
Проект бани 6х4 типа трамвай.
Проект бани 5х9 с крытой верандой. Особенность проекта с крытой верандой состоит в том, что здесь веранда не расположена на отдельном поддоне, а просто огорожена от остальной территории деревянным заборчиком. В участке земли, который находится в укрытии крыши веранды можно выложить тротуарную плитку, резиновое антискользящее покрытие либо любой другой приемлемый для вас материал.
Проект бани 5х9 с крытой верандой
Двухэтажный небольшой домик с верандой, который дополнительно вмещает в себе баню идеально подойдет людям, которые владеют небольшим земельным участком, а также жителям пригорода, еще не закончившим строительство основного дома.
Схема бани 6х4
Дом баня 6х4 с верандой и мансардой под двускатной крышей. Согласно с проектом, в помещении планируется расположение небольшой парной, полноценной ванной комнаты, кухни, совмещенной с гостиной, коридора и спальни на втором этаже.
Дом баня 6х4 с верандой и мансардой под двускатной крышей.
Хотя представленное помещение и занимает немного места, оно является достаточно просторным и способно уместить в себя все необходимые для жизни бытовые элементы.
Проект бани 6х4
Проект бани 6х4 с верандой и мансардой под ломаной крышей. Баня с верандой и дополнительной комнатой, расположенной на втором этаже фактически умещает в себе 2 комнаты для отдыха, помывочное и парное помещения.
Проект бани 6х4 с верандой и мансардой: фото
Благодаря особенному ломаному строению крыши, которое обеспечивает достаточную высоту потолков, хозяева и гости дома могут свободно перемещаться по второму этажу.
Схема бани 6х4 с верандой и мансардой: фото
Минус таких бань – необходимость выделения немаленького по площади земельного участка. Кроме того, что сама баня займет какую-то площадь, существуют еще противопожарные нормы, которые требуют соблюдения значительного расстояния между баней и иными зданиями, возведёнными на загородном участке. К тому же, отдельно стоящая баня требует подведения отдельных инженерных коммуникаций, таких как водопровод и канализация, а это дополнительные расходы.
openfile.ru
Баня своими руками. фото проект и инструкция (16 фото)
Как построить небольшую баню из бруса своими руками – конструкция и технология возведения маленькой бани из бруса своими руками. Фото проект. Если вы являетесь владельцем загородного дома, а обустройство участка ещё не завершено, как раз время подумать над постройкой ещё чего-нибудь полезного, Первой постройкой на участке как правило является построенная баня своими руками. Строить мы будем баню из бруса! Данная инструкция поможет вам в этом, детально рассказав о процессе строительства и наглядно показав каждый из этапов на специально подготовленных картинках. Здесь же вы узнаете о преимуществах данного вида материала, о его превосходстве над другими, о секретах, которыми поделится не каждый профессионал, а также будут даны советы, что стоит делать в процессе строительства, дабы достичь идеального конечного результата. Почему именно брус, спросите вы? Потому что это чуть ли не один из лучших строительных материалов, которые не просто обеспечивают легкую работу с ним, но и гарантируют долговечность, добротность и красоту будущего строения. Кроме того, брус — это материал, с которым сможет совладать не только профессионал, но и любитель. Эта статья и расскажет вам о том, как построить баню своими руками, существенно экономя деньги и не теряя в качестве конечного результата.

И так сегодня рассмотрим проект баньки из бруса. В данном проекте моечное отделение отсутствует, так как это по сути это парная и моечная два в одном. Во многих регионах такие бани далеко не редкость.
Шаг 1 Возведение фундамента бани.
Все мы знаем, что качественно выполненный фундамент — залог долговечности постройки в целом. И к строительству данного вида фундамента нужно отнестись со всей долей ответственности, чтобы избежать серьёзных проблем в будущем которые могут возникнуть при неправильной закладке фундамента,таких как:
– появление трещин
– неравномерное проседание
– нарушение гидроизоляции.
В данном проекте в качестве фундамента, будет использоваться монолитная армированная плита в форме корыта. Как делать плиту мы сегодня рассматривать не будем, такой информации полно. Хочу только отметить, что при заливке данного фундамента нужно сразу сделать слив и вентиляцию подпольного пространства.
Шаг 2 Лаги для пола.
Укладываем по всей длине плиты лаги пола предварительно хорошо их пропитав антисептиком.
Шаг 3 Укладка пола.
Поверх лаг для пола, которые покрывают антисептиком, чтобы избежать образования плесени и грибка вследствие повышения уровня сырости, будут установлены доски, непосредственно образующие деревянный пол.
Шаг 4 Основа под первый венец.
На параллельные длинные стороны прямоугольного фундамента устанавливаются направляющие (подкладные доски) толщиной в 5 см.
Шаг 5 Первый венец.
Для начала на обоих концах каждого из брусьев необходимо вырезать пазы, которые послужат соединительным замком. Первая пара брусьев устанавливается на стороны перпендикулярные тем, на которые уже уложены направляющие. На одном из брусьев нужно сделать вырубки, в которые потом будет вставлен косяк двери. Обычно для утепления между каждым брусом нужно использовать джутовую ленту.
Укладываем ещё два бруса как показано на фото.
Наш первый венец готов.
Шаг 6 Возведение стен бани
Далее по тому же принципу, необходимо уложить второй, третий и последующие пары брусьев до последнего. Не забывайте, о расположении в бане оконных и дверных проемов, о них стоит позаботиться заранее, оставляя небольшие промежутки в венцах. В принципе проёмы в окнах можно сделать и потом при помощи бензопилы, но не будет так качественно.
Шаг 7 Внутренние перегородки для бани
Перегородки для бани из сруба могут быть каркасными, а также из бруса или бревна. Наиболее простым вариантом станут каркасный тип, учитывая то, что данная статья написана для тех, кто желает, чтобы была сделана баня своими руками и без помощи профессионалов.
Сперва собирается каркас из деревянных брусков, укладывается теплоизоляция и при необходимости и оббивается сухой обрезной доской, толщина которой должна составлять не менее 20 мм. В качестве декоративной отделки может послужить вагонка из осины или липы, которая крепится на кляймеры.
В данном случае, мы сделали перегородку из бруса сечением 100х100 мм.
Шаг 8 Установка банной печи
Баня своими руками печьПол под печь делаем из красного кирпича.Это предотвратит возгорание (при вылете из топки случайной искры). Вокруг печь ограждаем кирпичным экраном так же из облицовочного красного кирпича, для красоты и безопасности.
Шаг 9 Сооружение банного полока
Для того чтобы сделать полоки, необходим каркас из бруса 50х50, которые соединяют поперечными досками. Настилом обычно служат отшлифованные доски липовых или осиновых пород дерева.
После установки печи и изготовления полок, наружу нужно вывести трубу, через специально подготовленный дымоход. Как правило используется специальная двойная труба с утеплителем внутри.
Делаем обрешётку потолка, и подшиваем потолок.
Шаг 10 Строительство крыши бани
Далее устанавливается коньковый прогон с проделанными пазами под стропила.
Следующим этапом идут непосредственно стропила.
стропильная системаДалее крышу обшиваем обрешеткой, рубероидом, пароизоляцией, минеральным утеплителем, ветрозащитной мембраной, а также гидроизоляцией.
баня своими руками строительство крышиВ завершение крышу устилаем осб, затем битумной черепицей или шифером, устанавливаем двери и окна.Баня своими руками готова.
баня своими рукамиКак можно заметить, на самом деле возведение бани из сруба своими руками — задача не из простых, и на фотках показаны только ключевые моменты строительства, но, все же, это возможно. Главное иметь небольшой опыт работы с деревом, обзавестись нужным инструментарием и обладать хорошей выдержкой, упорством и большим желанием.
Как сделать перегородку в бане из бруса
proektlife.ru
Баня – своими руками. Проект бани
В первую очередь при проектировании бани нужно определиться с ее местоположением на участке, а также с размерами бани.
Где построить баню – эту задачу вы и сами должны решить, но стоит учитывать ее расположение относительно границ соседнего участка.
Размер
В зависимости от устава или от норм (строительных, законодательных, пожарных и т.д.), постройки должны находится минимум 1-3 метров от границы соседнего участка.
Размер бани в первую очередь зависит от габаритов основных помещений – раздевалки, моечной, парильни и от количества людей, которые будут пользоваться баней. Во вторую очередь размер бани зависит и от финансовых возможностей. Пример размера обычной бани:
- Строительный объем — 58 м2
- Площадь застройки — 34 м2
- Полезная площадь — 28 м2
- Помещение бани — 24 м2
- Тамбур — 4 м2
Размеры раздевалки
Размер раздевалки (предбанника, прихожей-тамбура) – можно рассчитать из того, сколько людей ее будет пользоваться. На 1 человека принято брать минимум 1.3-1.5 м2. Кроме того, раздевалка должна быть утеплена, это для того, чтобы не поступали холодные потоки воздуха внутрь парилки. Также стоит установить широкое окно.
В раздевалке должно быть все необходимое: вешалки (шкафчики) для одежды, место для дров и угля. Если пользоваться баней только в летнее время, то можно вместо раздевалки сделать террасу, либо уменьшив площадь до минимума.
Совет: Дверь из парилки должна открываться в раздевалку, а не наоборот. Иначе одежда будет увлажнятся от пара.
Для снижения потерь пара, дверь устанавливают с высоким порогом и низкой коробкой.
Обычно размер раздевалки для бани выбирается площадью в 4-6 м2
Размеры парильни
За раздевалкой идет моечная и парилка. Иногда эти два помещения совмещают в одно. На каждого человека в парилке должно приходится минимум 1 м2 площади. Выполнить ее лучше квадратной. Вдоль глухой стены размещают деревянные скамьи в 2-3 яруса. Печь-каменку для бани обычно ставят в угол возле двери.
Парильня должна быть площадью минимум от 5-9 м2. Моечная комната от 5-6 м2.
Материал
Самый оптимальный вариант для бани – дерево, а точнее бревно. Цельные бревна как-бы «дышат», а значит дополнительная вентиляция не понадобится, хотя и нужно вентиляционное отверстие, чтобы быстро охладить баню после использования. Также бревна помогают регулировать в бане влажность. Рубленные стены при частом использовании бани сохраняют свежий запах древесины.
Традиционно для строительства бани используют хвойные и лиственные породы. Дуб используют для лагов, фундаментных столбов, венцов стен. Сосну (или доску лиственных пород) применяют для пола и матицы потолка. В фундаменте – лиственные породы. Стены и потолок обшивают елью или липой, которые хорошо поглощают влагу и звук. Скамейки, полки и другую мебель в бане – из липы.

Лесоматериал и пиломатериал применяемый при строительстве бани:
а — пластина; б — двухкантный брус; в — необрезная доска; г — четвертина; д — четырехкантный брус с облозом; е — полуобрезная доска с обзолом; ж — чистообрезной брус; з — горбыль; и — обрезная доска;
1, 2 — обзол; 3 — пласт; 4 — ребро.
Расходные материалы при строительстве бани
- Доска (30×160 мм) (шпунт) — 16,5 М3
- Стропила (50×160 мм) — 0,6 м3
- Риштовка (50×50 мм) — 0,5 м3
- Стойки под прогон — 0,1 м3
- Доска (40×160 мм) — 12 м3
- Прогон диаметром 18 см — 0,3 м3
- Балки потолка (100×160 мм) — 0,8 м3
- Доска обшивания (25×120 мм) — 0,7 м3
- Балки для пола (100×160 мм) — 0,8 м3
- Шифер (1200x670x5, 5 мм) — 85 лист.
- Двери (80×2000 мм) — 2 шт.
- Окна (570×1600 мм) — 5 шт.
Проекты бани из деревянного бруса
Проекты бани из деревянного бруса (79 шт.) >>>
Проекты бань из оцилиндрованного бревна
Проекты бань из оцилиндрованного бревна (254 шт.) >>>
Баня из бревен
Бревна для бани нужно брать прямые, выдержанные, для того, чтобы после обработки получить наиболее плотное сочленение. Лучше брать сосну или ель, дерево должно иметь приятный запах и иметь как можно меньше сучков и смоленый прослоек.
Торцы бревен от комля стесывают с внутренней стороны до толщины, равной верхнему диаметру. Теску выполняют от вершины к комлю, чтобы не было задирин. В процессе рубки сруба на толстый конец бревен кладут тонкий.
Бревна на углах можно соединить многими способами, дабы обеспечивалась прочность бани. Чаще всего выбирают – сруб «в обло» (другое название «в чашку») или «в лапу» (другое название «в зуб»). Есть и более экзотические – «в канадскую чашку» или «в норвежскую чашку». Техническая сторона соединения довольно сложна и тема для отдельной статьи.

Сруб бревна «в обло»:
1 — цоколь, 2 — гидроизоляция, 3 — слив, 4 — антисептированная доска, 5 — шип.

Сруб бани «в лапу»:
1 — слив, 2 — антисептированная доска, 3 — нагель.

Рубка бревна: 1 — норвежская чашка, 2 — канадская чашка.
Внутренняя обшивка
Внутреннюю обшивку бани можно оставить без обработки, но доски или брусья должны быть гладкими.
Если решили обложить стены из кирпича, то можно брать обычный или дырчатый кирпич. Щелевой или силикатный кирпич использовать для кладки в бане нельзя. Кирпичные стены лучше обшивать деревянной вагонкой. Но пространство между досками и стеной должно быть 3-4 см для вентиляции внутренней стороны. Подробно об обшивке бани будет чуть позже.
Подобрать современный, красивый интерьер и дизайн бани поможет небольшая подборка в 100 фото тут:
Интерьер бани внутри (100 фото) >>>
Фундамент бани
От качества и конструкции фундамента зависит долговечность сооружения.
Фундамент может быть ленточный, столбчатый, бутобетонный или с бетонных блоков, закладывают их на 15-20 см глубже промерзания земли. Также можно применить песчаный фундамент, его лучше использовать для небольших одноэтажных деревянных бань, которые не создают значительную нагрузку на грунт, а сама земля не разбухает и имеет малый уровень грунтовых вод. Например, торфяной грунт сильно сжимается при значительных нагрузках, а глинистый – разбухает. В таких случаях нужно осушить грунт и произвести замену.
Материалом для фундамента бани может стать бутобетон, монолитный бетон, бутовый камень, бетонные блоки, кирпич-железняк и т.д.
Ленточный фундамент
Ленточный фундамент наиболее простой по технологии, но требует больше места и материала. Данный вид фундамента используют для деревянных и кирпичных стен.
Для кладки ленточного фундамента в вырытую траншею заливают раствор с применением пароизоляции в виде нескольких слове рубероида. Можно брать гравий, бутовый камень, отходы кирпича. Кладку скрепляют цементно-песчаным раствором или цементно-известковым. Для защиты фундамента делается отмостка с уклоном шириной в 1 метр.

Ленточный фундамент:
а — из бутового камня, б — на песчаной подушке.
1- цоколь, 2 — гидроизоляция, 3 — отмостка, 4 — стена, 5 — доски пола, 6 — засыпка, 7 цементная стяжка, 8 — подошва фундамента, 9 — уплотненная глина, 10 — песок, 11 — уплотненный грунт, 12 — песчаная подушка.
Столбчатый фундамент
Столбчатый фундамент для бани применяют для легких конструкций. Он дешевле и быстрее по времени укладки, чем ленточный. Брусчатые и рубленые бани, где нет необходимости ставить перемычки между столбами, чаще всего применяют столбчатый фундамент.

Столбчатый фундамент:
1 — асбестоцементный лист, 2 — бетон, 3 — подшивка фундамента, 4 — асбестоцементная труба, залитая бетоном.
Таблица. Глубина заложения фундаментов в зависимости от гидрогеологических условий
|
Тип основы |
Высота грунтовых вод |
Глубина заполнения подошвы фундамента, м |
|
Невыветренные скальные грунты |
Независимо от уровня грунтовых вод |
0,5 м (независимо от глубины промерзания) |
|
Щебень, галька, дресва, щебень, песок крупный и средний |
Тоже самое |
Не менее 0,5 м (независимо от глубины промерзания) |
|
Песок, мелкий и пылеватый, супесь, суглинки и глины |
Уровень грунтовых вод расположен на расчетной глубине промерзания или выше ее |
Не меньше расчетной глубины промерзания |
Пароизоляция и теплоизоляция в бане
Фольга со стекловатой, фольга из алюминия, полиэтиленовая пленка, пергамин и т.д. Не стоит путать, как многие, пароизоляцию и теплоизоляцию и как следствие неправильный выбор материала.
Сперва идет внутренняя обшивка бани, пространство для вентиляции 2-3 см, пароизоляционный материал и только потом теплоизоляция.
Способ крепления вагонки в бане к бревенчатой стене:
1 — сруб, 2 — рейка обрешетки, 3 — скоба крепления вагонки, 4 — гвоздь крепления скобы, 5 — паз (прорезь) в рейке обрешетки, 6 — гвоздь крепления рейки обрешетки.
Теплоизоляция парильни:
1 — фундамент, 2 — гидроизоляция, 3 вентиляция в кирпичной стене, 4 — кирпичная кладка, 5 — скоба крепления стены к срубу, 6 — гвоздь крепления скобы, 7 — сруб, 8 — уплотнитель, 9 — стеклоткань, 10 — теплоизоляция в 50 мм толщиной, 11 — фольга или фольмоткань, 12 — вагонка, 13, 14 — движение воздуха по вентиляции, 15 — шов раствора между кирпичами и место установки скобы.
Крыша для бани
При строительстве крыши для бани нужно чтобы она выдерживала нагрузку от ветра и при сильном выпадении снега. Чтобы избежать накопление снега, крышу делают плоской с уклоном.
Если баня находится на открытом месте, то сильные порывы ветра могут повредить крышу. В таком случае крышу для бани делают односкатной или двускатной с небольшим уклоном, без чердака. В качестве материала можно использовать рубероид, металочерепицу, профнастил, битумную черепицу. Привычные асбоцементные волнистые листы для небольших уклонов не подойдут, иначе крыша начнет протекать.
Для шифера угол наклона должен быть не менее 30°. Однако, на крышах с углом в 30-45° собирается больше всего снега и если снегопад был обильный, то это может создать опасную нагрузку. К слову, крыша называется плоской, если угол наклона от 0 до 2.5°, скатной – если более 2.5°.
Чтобы определить высоту конька математически, нужно ширину пролета бани умножить на относительную величину, эти данные указаны в таблице для каждого угла наклона кровли.
|
Угол наклона, град. |
5 |
10 |
15 |
20 |
25 |
30 |
40 |
45 |
50 |
60 |
|
Относительная величина |
0,08 |
0,17 |
0,26 |
0,36 |
0,47 |
0,59 |
0,86 |
1,0 |
1,22 |
1,78 |
Приведем понятный пример. Ширина бани – 8 м. Нужно узнать высоту поднятия стропил при наклоне крыши в 25°. Половину ширины пролета (4 м.) умножаем на относительную величину 0.47 и выходит 1.88м, а значит стропила нужно поднять на высоту 1.88 м.
Печи-каменки для бани
В русской бане, а именно в парильне, нет открытого огня, а значит нет сжигания кислорода. Нагреваются стены печи и камни для печи. Ну а для обильного пара на нагретые камни выливают воду, пар действует значительно быстрее за сухую как в сауне. Чтобы раскалить и нагреть камни, их помещают в печь-каменку, которая одновременно применяется для обогрева бани и для подогрева горячей воды. О камнях для печи писали тут, так что нет смысла повторяться, а перейдем непосредственно к печи.
Главные требования к печи-каменке:
Прогреть воздух в парилке до температуры от 45 у пола и от 95 под потолком.
Получить необходимое количество пара при поливе камней водой.
Печь не должна выделять газ или дым.
Быть экономичной в пользовании.
От способа размещения выделяют печи с закрытой и открытой каменкой.
В печах с закрытой каменкой на уровне верхнего ряда камней установлены паровые дверцы. При сжигании дров или угля дверцу закрывают, и дым не попадает в парилку. Перед посещением парилки дверцу открывают и тем самым прогревают помещение до нужной температуры, в пределах 50-60 градусов. Печь нужно топить за 2-3 часа до посещения бани.
Открытая каменка лучше тем, что если в день в бани парится несколько посетителей, то она быстрее нагревает парильню, однако при поливе воды она быстрее остывает. На печи с открытой каменкой камни укладывают над топливником.
В русской бани чаще всего используют печь с закрытой каменкой. Печи чаще всего делают кирпичными (из огнеупорного кирпича) или металлическими, они надежны и просты. Кирпичная кладка возле печи защитит наружную стену от нагрева.
Дефлекторы для дымовых труб
Сильный ветер может задувать в трубу, давя на выходные горячие газы. При этом тяга снижается, часть дыма не попадает из печи в трубу. Если же на пути ветра около трубы установить преграду, то тяга восстановится.
Природными усилителями тяги являются бетонные насадки к дымовой (вытяжной) трубе, а также всасывающие оголовки и дефлекторы.
Благодаря усилию тяги, КПД трубы можно увеличить на 10 — 20%. Кроме того, такой усилитель заменяет колпак, прикрывающий трубу, и предотвращает уменьшению тяги.
Дефлектор — от латинского слова deflectere — «отклонить». Именно на принципе отклонения потоков воздуха основана работа этого устройства. Струя воздуха, ударившись о стенки верхнего стакана, огибает его с боков. Другая часть воздушных потоков, скользя по поверхности, движется вверх, вытягивая дым, исходящий, как снизу, так и сверху. При этом движение в трубе становится более интенсивным, увеличивается тяга в печи. Если же ветер дует не горизонтально, а под углом, сверху вниз или, наоборот, снизу вверх, то он также способствует усилению тяги. Дуя наискосок, он проникает снизу в верхний стакан через зазоры и подсасывает дым, поступающий в трубу.

Когда дует низовой ветер, проявляется один недостаток, присущий всем видам дымников: под сводом крыши возникают вихри, которые замедляют выход дыма. Поэтому, в более совершенных дефлекторах снизу под зонтиком устанавливают конус, который отражает потоки воздуха с дымом, рассекая их и выводя сразу же наружу.
niola-td.ru
Маленькая баня своими руками проекты фото
Небольшая баня: особенности планировки
Занимаясь проектированиями бань, следует учесть множество факторов – от места расположения до площади. Немалую роль играют и финансовые возможности, если баня планируется в первую очередь как место для семейного отдыха, то строить дворец не обязательно.
Для полноценного функционирования достаточно 2-3 помещений – предбанника, парилки и моечной. Последние две комнаты иногда соединяют в одну в целях экономии места.

Планировка маленькой баньки
Стремясь уменьшить занимаемую баней площадь, не стоит слишком усердствовать – есть определенные нормы. Так в парной должно свободно помещаться два человека, с учетом того, что они пользуются вениками. Если будет очень тесно, то удовольствие от похода в баню вряд ли удастся получить.
Особенности планировки бани с маленькой площадью

Небольшая срубовая баня
Планировка небольшой бани начинается с выбора материала для ее строительства – это может быть бревно, брус, кирпич или пеноблоки. Деревянная конструкция наиболее предпочтительная, так как в ней легко и свободно дышится, естественным способом поддерживается баланс между влажностью и высокой температурой воздуха.
Чему особенно следует уделить внимание:
- Фундамент – вес сооружения не требует возведения мощного основания, лучший вариант – ленточный или опорно-свайный фундамент. Под них не придется проводить значительные земляные работы;
- Удобное расположение комнат внутри – это обл
superbany.ru
