Беседка из дерева с чертежами – прямоугольных, шестигранных и восьмигранных, 46 ФОТО примера, а также советы как сделать схему беседки с мангалом, барбекю, камином
Беседка своими руками из дерева (+схемы, фото)
Практически для каждого человека дача — это второй дом или любимое место отдыха. Уход за садом и огородом, а также выполнение строительных работ в доме — трудоемкие процессы, требующие вложения финансов и физического труда. Беседка является не только красивым дополнением к участку, но и служит прекрасным местом для отдыха. При выборе материалов для строительства беседки большинство отдает предпочтение дереву. Самостоятельное изготовление беседки позволит существенно сэкономить денежные средства.
Преимущества и недостатки

Основные преимущества деревянных беседок:
- Красота. Бесспорно, творческие способности простых людей иногда приятно удивляют.
- Экологичность. Древесина не содержит вредных веществ.
- Адекватная цена. Древесину можно легко приобрести в строительных магазинах по приемлемой цене.
- Простота в использовании. Древесина достаточно удобна в работе и не требует особых профессиональных навыков.
- При высоких температурах, особенно летом, беседки из дерева не нагреваются.
К недостаткам можно отнести:
- Недолговечность. Дерево может подвергаться гниению и вероятность от повреждения жуками-древоточцами велика. Для продления срока эксплуатации нужно по окончании дачного сезона удалять опавшие листья с пола, чтобы избежать гниения. Также необходима обработка поверхностей из дерева специальными антисептическими составами, делается это сразу по завершении строительства, но перед покраской/лакировкой деревянных конструкций. Появившиеся со временем трещины нужно зашпаклевать. В зимний период для сохранности беседки, крыша должна быть укрыта стрейч-пленкой и все лишние предметы желательно перенести в закрытое помещение.
- Высокая возгораемость. Из-за высокого риска пожара небезопасно устанавливать мангалы и жаровни в беседке. Вероятность возникновения пожара уменьшается при обработке древесины особыми составами, которые минимизируют риски подобного бедствия.
Выбор места

На подготовительном этапе необходимо выбрать место, размер и тип сооружения, стиль постройки и стройматериалы. Выбор размера беседки зависит от основной цели сооружения конструкции. Для семейных или дружеских посиделок необходима большая беседка, для личных нужд хватит и маленькой.
Выбор места является ответственным процессом. От этого фактора зависит долговечность конструкции. Если сооружение построить в низине, то из-за частых осадков оно может сгнить. Также важен фактор защиты от ветра. Бесконечные сквозняки вряд ли доставят удовольствие от посиделок в беседке. С точки зрения ландшафтного дизайна, вид из предполагаемой беседки должен быть хорошим. Идеальным вариантом считается постройка конструкции в глубине сада.
Для полной гармонии необходимо, чтобы беседка была выдержана в стиле построения дома, иначе подобный диссонанс будет сильно выделяться на участке.
Разновидности

Беседки можно классифицировать по таким критериям:
- по типу конструкции;
- по форме.
Распространенными формами являются: прямоугольные, шестиугольные и круглые.
По типу беседки можно разделить на открытые, полузакрытые и закрытые. Закрытые навесы универсальны для эксплуатации в любую пору года. Полузакрытые беседки напоминают маленький дом.
Выбор стиля

Важным нюансом является учет стиля постройки в соответствии с ландшафтным дизайном. К наиболее распространенными стилям беседок можно отнести классический, викторианский, деревенский, восточный и собственный.
Для классического стиля постройки характерно четкие линии. В основе конструкции превалируют шестиугольные и четырехугольные основания.
Викторианскому стилю присущи декоративные и обычные растения, поэтому при постройке с учетом этого нюанса основа беседки строится вместе со специальной решеткой.
Восточный стиль отличается от других формой крыши и неординарными орнаментами.
Особенности деревянных беседок
Чертежи и схемы

Определившись со стилем и видом предполагаемой беседки, необходимо составить чертежи. Благодаря им, вы сможете понять, как сделать необходимую постройку. Правильно составленный проект поможет сэкономить время при постройке сооружения, рассчитать точное количество необходимых стройматериалов, учесть все нюансы до начала стройки с целью получения качественной и долговечной конструкции.
Схема проекта должна включать в себя вид предполагаемой конструкции со всех сторон с указанием размеров.
Подготовка материалов/инструментов

В соответствии с планируемым проектом деревянной конструкции процесс строительства предполагает наличие таких материалов:
- деревянные бруски;
- сваи;
- доски;
- цемент;
- щебень;
- песок;
- гвозди или саморезы;
- уголки из металла;
- материалы для перекрытия крыши;
- арматура;
- кирпич;
- рубероид.
Набор инструментов
Ель, береза, сосна, лиственница или кедр — самые распространенные виды древесины, используемые для постройки таких конструкций. Перед началом работы древесину нужно просушить обработать специальными средствами, которые защитят постройку от паразитов и гниения.
Необходимыми инструментами являются:
- молоток;
- стамеска;
- дрель/шуруповерт;
- гаечные ключи;
- электрический рубанок;
- дисковая пила.
Этапы работ

После подготовительного этапа следует процесс выполнения строительных работ, который включает в себя последовательное выполнение шагов:
- Расчистка и выравнивание строительной площадки. На этом этапе нужно очистить территорию от мусора, срубить деревья и кусты при надобности, выровнять участок.
- Выбор фундамента. Правильно заложенный фундамент — основа успеха и долговечности постройки. Существуют такие варианты основания – ленточный, плитный и столбчатый. Самый простой и не требующих больших финансовых вложений — столбчатый. Для этого необходимо отметить территорию будущей беседки деревянными столбиками и натянутыми между ними веревками. Затем у выделенной площади снять верхний земельный слой глубиной не менее, чем 0,5 м. После этого последовательно слоями укладывать песок (10 см), щебень (10 см), бетонный раствор (30 см). Такой раствор изготавливают из песка, щебня и цемента. Далее на бетонный слой уложить слой из рубероида. Потом нужно сделать столбики из кирпича в три или четыре ряда с целью создания пространства между землей и беседкой во избежание гниения древесины. На заключительном этапе создания фундамента нужно повторно положить слой рубероида.
- Монтаж пола. Для выполнения этой задачи необходимо выбрать вариант установки пола: на основании сооружения либо с учетом упора в пол стен. Второй вариант достаточно прост. Для обустройства пола используют деревянные брусья, обработанные слоями медного купороса во избежание их гниения и поедания насекомыми.
- Построение каркаса и крыши. При выполнении такой работы важно акцентировать внимание на несущие балки, потому что они отвечают за устойчивость беседки. При сборке каркаса применяют деревянные доски и брусья. Несущие опоры монтируются из деревянных брусков. Основу каркаса составляют специальные брусья, которые кладут на бетонные блоки. К основе конструкции прикрепляются лаги пола и вертикальные стойки. К каркасу – вертикальные столбы, используя металлические уголки и саморезы. Для вертикального расположения основы необходимо использовать специальные подпорки. При постройке каркаса используют так называемые верхние обвязки (специальные горизонтальные брусья). Самым простым способом при постройке крыши является использование деревянных лаг, создающих геометрические очертания для постройки.
- Обшивка стен. На этом строительном этапе важен выбор материала: листовой металл, доски, шифер и другие. Основным недостатком при выборе листового материала является отсутствие шумоизоляции, особенно это проявляется при дождливой погоде. Самым простым вариантом является использование обшивки стен с помощью деревянных досок. В зависимости от стиля и проекта планируемой конструкции можно сделать сплошные или решетчатые стены.
- Благоустройство беседки. Заключительным этапом является заполнение и создание необходимого интерьера полученного сооружения.
Выбор мебели и наличие электричества уже зависят от желания и фантазии хозяина.
Видео
Фото: оригинальные беседки
Беседка из сруба
Необычная форма
Прямоугольная



Основание
Крыша из соломы
Необычная конструкция беседки
Беседка с мангалом

Изготовление каркаса
Простая конструкция
Традиционная русская беседка

Вариант закрытой беседки

Схемы
Схемы помогут вам сконструировать собственную беседку из дерева:
Чертеж беседки-гриль
Форма 3 на 3
Чертеж беседки в восточном стиле
С четырехскатной крышей
Прямоугольный вариант с односкатной крышей

Шестигранная беседка
Стандартный дачный вариант
С мангалом
Многослойная кровля
Схема узлов
Соединение узлов крыши
kakpravilnosdelat.ru
Проект беседки: чертежи, размеры, схемы

Чертежи беседки с размерами. Как построить беседку из дерева своими руками: схемы, чертежи, размеры. Проект простой беседки.
Если у вас есть приусадебный участок и вам нужно уютное место для времяпровождения с семьёй и друзьями – беседка идеально подойдёт для ваших нужд.
В этой статье мы рассмотрим проект простой открытой беседки из древесины с покрытием крыши из битумной черепицы.
Как построить беседку своими руками проект.
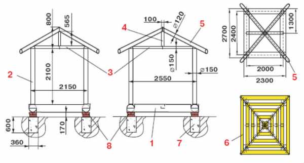
Здесь представлен проект простой беседки для дачи, на рисунке предоставлена подробная схема беседки.
Беседка схема.

Чтобы построить беседку вам понадобятся следующие материалы:
- A – 4 бетонных столбика под фундамент с анкерными креплениями.
- B – Основа беседки, нижняя обвязка.
- С – Вертикальные опоры.
- D – Балки 16 шт.
- E – Бруски 18 шт.
- F – Опоры (длиной 2,3 м) — 9 шт.
- G – Горизонтальные балки для верхней обвязки (длиной 2,55 м) – 4 шт.
- H – Стропила (длиной 2,6 м) — 4 шт.
- I – Стропила (длиной 2,07 м) – 4 шт.
- J – Короткие стропила (длиной 1,067 м) – 8 шт.
- K – Фанера.
- L – Подкладочный рубероид.
- M – Битумная черепица.
- N – Доска для настила пола.
- O – Балясины.
Дополнительные материалы:
Для фундамента (цемент, гравий, песок).
Крепёжные элементы (винты, кровельные гвозди)
Проект беседки своими руками чертежи и размеры.
На рисунках предоставлены чертежи беседки с размерами для пошагового строительства беседки.
Измеряем точки для заливки столбчатого фундамента под беседку.

В столбики при застывании цементного раствора вставляем закладные крепления для бруса.

Фундамент обязательно нужно покрыть гидроизоляцией, например рубероидом.
Устанавливаем и крепим вертикальные опоры беседки из бруса.


Делаем нижнюю обвязку из досок, используем для крепления металлические уголки и винты.


Устанавливаем боковые вертикальные опоры.

Делаем полы для беседки.

Устанавливаем верхнюю обвязку беседки.


Приступаем к изготовлению крыши нашей беседки, устанавливаем стропила как показано на схеме беседки.


Обшиваем каркас крыши беседки фанерой или OSB.

Покрываем фанеру рубероидом и укрываем декоративной битумной черепицей.

Устанавливаем в беседке балясины и вертикальные рейки.


Покрываем древесину защитной антибактериальной пропиткой и прозрачным лаком.
Беседка готова, это самый простой проект деревянной беседки на изготовление такой беседки понадобится примерно 3 дня.
Популярные самоделки из этой рубрики
Беседка из камыша: схема укладки камыша…
Как сделать деревянную беседку…
Варианты беседок для дачи
Беседка своими руками: размеры, фото…
Навес на даче своими руками: пошаговое строительст…
Беседка из поддонов своими руками: фото…
Плетеные беседки из прутьев…
Беседка своими руками из дерева 20 фото…
Беседка своими руками пошагово: 37 фото…
Фундамент для беседки своими руками…
Беседка своими руками: фото постройки с описанием…
sam-stroitel.com
пошагово, с фото, видео, размерами, чертежами
Вероятно, вы уже столкнулись с тем, что в интернете очень мало хороших статей и видео на тему возведения деревянной беседки своими руками. В данной публикации я постараюсь охватить максимальное число вопросов, связанных со строительством беседки из дерева.
Готовый вариант беседки
В ходе пошаговой инструкции вам будут предложены картинки и видеоматериалы, которые помогут разобраться в данном процессе.
Все вопросы вы сможете задать в комментариях ниже под статьей.
Данная публикация появилась благодаря видео человеку с сайта youtube.com под псевдонимом «Лазурный». Он снял 25-минутное видео с очень понятными комментариями, которые я буду также использовать в данной статье.
Заранее я прошу прощение за качество фотографий. Так как видео довольно низкого качества, то и фотографии будут соответствующими. В то же самое время всё будет довольно понятно и структурировано.
Подготовка площадки и фундамента
Предложенная деревянная беседка имеет размеры 3 на 3 метра. Соответственно, площадка должна быть заранее вычищена от высокой травы и прочего мусора. В идеале должен быть ровный и твердый грунт.
Для экономии материала и времени было решено отказаться от серьезного ленточного фундамента, так как пользы от него практически бы не было — сооружение и так будет стоять устойчиво.
Несмотря на то что беседка квадратная 3 на 3 метра, используется 12 столбиков фундамента, а не 9.
- Площадка
- Фундамент
- Брус для обвязки
- Готовые столбы
Фундамент был выбран столбчатый. Состоит он из 12 бордюрных камней, уложенных ровно по уровню. Вместо бордюрного камня, можно использовать любой твёрдый материал, например, кирпич, плитку или газобетон. Перед креплением нижней обвязки необходимо положить гидроизоляцию на столбики, в нашем случае мы будем использовать листы рубероида.
Нижняя обвязка делается из бруса 100 на 100 мм. Перед укладкой на фундамент брус красится, делается это для защиты дерева и эстетической красоты. Важный момент — концы брусков выпиливаются под углом, чтобы в них могли вставиться столбы будущей беседки. Все это представлено на фотографиях ниже.
- Вставка столба в обвязку
- Обвязка, скрепленная под углом
- Выпиливание обвязки под углом
Возведение стен и установка каркаса
Как уже было сказано, в нижнюю обвязку вставляются столбы, которые составляют основу всей конструкции.
Важно заранее подготовить каждую из четырёх стен, после чего каждая из них по очереди укладывается на основание беседки, поднимается и закрепляется. Мастер в данном случае решил начать с передней стороны, затем с задней, после чего приступил к боковым.
- Нижняя обвязка с рубероидом
- Затем поднимается и крепится к обвязке
- Передняя часть беседки укладывается на основание
- Подняв боковые стенки, получаем готовый каркас беседки
Все работы по креплению стенок и их соединению между собой показаны в видеозаписи, которая будет прикреплена ближе к концу данной статьи. Вы можете найти его через содержание статьи, либо прокрутив всю публикацию до конца и увидев его там.
Так или иначе, объяснить на словах, как возводится каркас сооружения довольно трудно, рекомендую лучше вам посмотреть видео.
Подготовка и сборка крыши
Крыша в данном случае была собрана заранее. Она представляет из себя двускатное сооружение, используется стропильная система. Для крыши нам понадобится следующий материал:
- 2 несущих бруса 100 на 100 мм.
- 2 поперечных бруса 100 на 50 мм.
- 8 стропил.
Для того чтобы правильно собрать крышу, необходимо сделать разрезы в стропилах и четырёх брусках, причем в брусках 100 на 100 мм разрезы нужно делать с двух сторон.
Делается это для того, чтобы весь материал лежал ровно в своих пазах и не отклонялся в сторону. На фотографиях, помимо собранной крыши, представлены места, где необходимо сделать разрезы.
Установка стропил
После того как вы установите все четыре стены, и каркас вашей беседки будет готов, можно приступать к установке крыши.
Вашей задачей будет установка двускатной крыши, состоящей из восьми стропил. Если вы установите все стропила точно в заранее выпиленные пазы, то она будет ровной и, с технической точки зрения, верной.
- Готовый каркас
- Обрешетка с шагами 35 см (первый — 25 см)
- Установка стропил
После установки стропил необходимо сделать обрешётку на крыше с шагом 35 см, на которую будет укладываться металлочерепица. Важный момент — первый шаг необходимо сделать 25 см, чтобы концы вашей металлочерепицы не прогнулись.
Укладка металлочерепицы
Листы металлочерепицы укладываются внахлест друг на друга. Если вы правильно сделали шаг в 35 см, тогда ребра ваших листов будут находиться точно над досками. Это позволит правильно прикрепить саморезами металлочерепицу к крыше.
Саморез вкручивается под ребром, делается это для создания эффекта отсутствия саморезов — если смотреть со стороны, то их практически не видно.
Конёк изготавливается из остатков металлочерепицы — дешево и эффективно.
Конёк для беседки мы будем делать из обрезков, которые остались от листов металлочерепицы с крыши. Изначально обрезки нужно максимально выровнять, после чего немного загнуть и прикрепить к беседке. Получится прекрасная экономия денег, вам не нужно будет докупать лишний материал для кровли.
Застилаем пол
Для того чтобы ровно и аккуратно застелить пол, недостаточно просто бросить доски и закрепить их. В тех местах, где доски будут упираться столбы и балки, необходимо делать запилы, чтобы доска проходила сквозь эти условные препятствия.
В зависимости от того, насколько ровно вы сможете сделать вырезы в досках, тем меньше щелей будет в завершение. Работа довольно деликатная, но даже если что-то пойдет не так, это не будет серьезной проблемой. Можно вставить в щель дополнительный брусок, если уж совсем всё плохо будет.
В вопросе пола всегда важно ровно закрепить первую доску. Если у вас это получилось, то все остальное пойдёт значительно проще. Если у вас что-то пошло не так и появился угол, то лучше сразу же всё вытащить и сделать заново. Это будет быстрее и красивее, нежели что-то подкладывать и ровнять в процессе.
Обшивка стен и фронтонов вагонкой
Для украшения и частичной закрытия от атмосферных воздействий мы обшиваем беседку вагонкой. Это небольшие доски, которые крепятся к беседке на гвозди с маленькой шапкой (её почти не видно). Вагонка идет внахлест друг к другу.
Последняя дощечка чаще всего нормально не влезает, поэтому её необходимо будет подрезать, сделать более узкой. При установке вагонки на фронтоны используется тот же принцип.
Подготовительные работы до установки вагонки наглядно показаны в видео. Их необходимо сделать, чтобы всё получилось ровно и надежно.
- Обшивка фронтона
- Обшивка первой стенки
- Обшивка всех четырёх стенок
Данный процесс только выглядит простым. Чтобы все было ровно и без щелей, необходимо изначально провести некоторые работы, чтобы вагонка ложилась ровно в те места, в которые вы запланировали. В видео этот процесс объясняется в течение 3-4 минут, поэтому вопросов у вас возникнуть не должно.
Установка декоративной решётки
В нашем случае декоративная решётка изготавливается из доски, которая у нас осталась. В первую очередь изготавливается рамка для решётки, а затем уже выпиливаются небольшие рейки. Рейки закрепляются крест-накрест, после чего со второй стороны также закрываются рамкой. Для крепления используем гвозди.
Ссылка на полную статью по изготовлению и установке декоративной решётки — Декоративная решётка из дерева для беседки своими руками: варианты, фото, видео.
Так как у нас имеется большая статья на тему декоративных решёток, то я не буду сильно заострять внимание на этом вопросе. Да и в видео пояснения присутствуют. Фотографии процесса изготовления представлены в слайдере ниже.
Строительный материал
Для возведения беседки используется довольно большое количество материала. Общий список того, что вам необходимо, представлен ниже.
- Брус 100x100x3000 —10шт (нижняя обвязка, столбы, крыша).
- Брус 50x150x3000 — 24 штуки (пол и скамейки).
- Брус 50x100x3000 — 18 штук.
- Доска 25x100x4000 (решётки, обрешётка на крыше и т. п.).
- Вагонка 14 квадратных метров.
- Металлочерепица 6 листов по 1,8 метров.
- Конёк 3,5 метра.
- Рубероид.
- Саморезы, краска.
Помимо материала вам понадобится инструмент — лобзик, наждачная бумага, уровень и тому подобное. Можно по старинке на гвозди всё посадить, но давайте без самодеятельности :).
Схема и чертёж
К сожалению, я не смог найти чертеж данной беседки, размеры которой составляют 3 на 3 метра. Однако, я нашёл очень похожую схему, которая наглядно показывает размеры предполагаемой беседки. Так как технология строительства беседки одинаковая, вы вполне можете использовать чертёж, который предложен вам ниже.

Схема чертёж беседки 3,3 на 3,3 метра из дерева
Видео процесса строительства
Как и обещал, прикладываю к публикации видео по возведению беседки своими руками. В течение нескольких дней автор своими руками выполнял все виды работ от установки бордюрных камней фундамента до установки конька на крышу. Очень доступное и понятное объяснение, рекомендую к просмотру.
Другие варианты деревянных беседок своими руками
На сайте мы часто пишем про строительство именно деревянной беседки, так как она является очень популярной. Мы стараемся использовать в наших статьях разные по размерам и форме строения. Я бы хотел привести вам несколько ссылок, по которым вы найдете другие варианты строительства беседок из дерева так же своими руками, как и была сделана вышеописанная постройка.

Размеры предполагаемой постройки
В процессе публикации статей мы добавим сюда ещё больше ссылок, чтобы вы не ограничивались всего лишь несколькими вариантами беседок из дерева.
Если у вас есть какие-то свои примеры, где качественно и интересно показывается стройка подобных беседок — оставляйте свой комментарий, мы обязательно его рассмотрим и прокомментируем.
besedkis.ru
Деревянная беседка своими руками — инструкция, чертежи и размеры

Зачем нужна беседка на территории – личное дело собственника. Для кратковременного отдыха, установки барбекю – беседки используются по-разному. Соответственно, и выбор материалов для их строительства производится индивидуально. Применительно к небольшому дачному или придомовому участку, пожалуй, лучшим вариантом является древесина.
Она идеально сочетается с общим дизайном сада, легка в обработке, не дефицит, стоит недорого – преимуществ такого решения достаточно. Эта статья поможет читателю разобраться с нюансами возведения деревянной беседки без посторонней помощи, своими руками, а также подобрать ее оптимальные размеры и ознакомиться с типовыми чертежами.
Если нет достаточно опыта в строительстве габаритных конструкций из дерева, то начинать следует с небольших беседок, простой конфигурации. Это справедливо и для дачных или типовых придомовых территорий в частном секторе. На нескольких сотках массивная постройка вряд ли будет уместна, особенно если собственники по максимуму используют землю для выращивания с/х культур.
Типовые схемные решения для деревянных беседок
Указанные размеры – ориентировочные.
Форма беседки
Квадрат. 


Для дачного участка таких схем вполне достаточно. Есть и иные типы деревянных беседок. Например, исполненных в восточном стиле. Но трудность монтажа крыши, имеющей оригинальное закругление в нижней части, а также обязательное наличие множества резных элементов делают эту и ряд других конструкций сложными в изготовлении своими руками.
Каркас беседки
Вариантов достаточно. Беседки открытые и закрытые; со стационарным остеклением или съемным; комбинированные, у которых сплошной является или какая-то часть стены, или отдельные сектора. Собственно, как составлен чертеж, такая беседка и будет на участке.
Пол
Здесь выбор небольшой – деревянный настил монтируется или он отсутствует. В последнем случае роль пола может играть грунт с травой, бетонированная площадка, тротуарная плитка и так далее.
Рекомендации по этапам строительства беседки
Исходим из того, что размеры беседки уже определены и составлены чертежи всех конструктивных частей.
Выбор пиломатериалов
Рекомендации по использованию бревна вряд ли заслуживают внимания, особенно если практического опыта недостаточно. Целесообразнее брать такие заготовки, как брус (бруски, рейки) и доска. В приведенных выше чертежах основные размеры указаны. Главное, чтобы была обеспечена достаточная прочность всех элементов.
Сложнее с породой древесины. Хвойные деревья устойчивы к грибку и гниению, но если беседка располагается на освещенном месте, то при нагреве материала он будет выделять смолы + соответствующий аромат. Кстати, не все его могут выдержать, тем более, если беседка закрытого типа и на сегменте территории, который защищен от ветра.

Необходимо принять во внимание и пористость древесины. К примеру, ель приобретать не стоит – возникнут проблемы с надежностью фиксации крепежных деталей. Оптимально – сосна или лиственница. Последняя предпочтительнее, так как, впитывая влагу, становится лишь прочнее. Эту особенность дерева и нужно использовать с учетом того, что беседка располагается на территории.
Из деревьев лиственных (если ориентироваться на приемлемую цену древесины) можно рекомендовать дуб, клен, березу. Липа так же, как и ель, не подходит. При всех ее достоинствах, плотностью структуры она не отличается.
О том, что заготовки должны быть сухими, без видимых дефектов и качественно обработаны спецсредствами (антипирены, антисептики) упоминать не имеет смысла. Это азы любой работы с деревом. А вот о двух моментах сказать следует.
Предварительная пропитка грунтом
При работе с древесиной более чем рационально. Во-первых, препарат заполнит поры и частично снизит способность дерева к впитыванию влаги. Во-вторых, повысит его адгезию. В-третьих, обеспечит более экономное расходование состава для «финишной» обработки (лака или краски).
Шлифовка
Этим придется заниматься, и чтобы занос избежать, и для последующего оформления дерева. Если бы речь шла об одной малогабаритной реечке, то ее своими руками, рубанком и наждачной бумагой, обработать несложно. Возводя беседку, придется готовить большой объем древесины. Следовательно необходимо почитать, как выбрать шлифмашинку. Достаточно арендовать, если приобретать для домашнего хозяйства по какой-то причине нецелесообразно.
Фундамент
«Больной» вопрос для любого дачника, так как перспектива вести на участке объемные земляные работы никого не устраивает. Какое основание выбрать?
Свайное
Если приобрести винтовые сваи, ничего особо сложного в их установке нет. Единственное, что нужно учесть – глубину промерзания. Менее чем на 1,75 м сваи вкручивать не рекомендуется. Но если попадется камень, придется начинать сначала и уже в другом месте. А так как выбор сегмента под деревянную беседку на даче небольшой, то свайное основание – не лучшее решение.

Столбчатое
Отличие в монтаже состоит в том, что придется копать (бурить) лунки. Проблемы те же самые – глубина и валуны в толще грунта. Кого это не останавливает, может в качестве опор использовать трубы (металл, асбестоцемент), бревно или брус.
Автор рекомендует выбрать более простой вариант фундамента. Для его монтажа не придется делать выемку грунта в большом количестве и заглубляться почти на 2 метра.
В чем состоит технология?
- По периметру беседки отрывается небольшая траншея, в которую будут заложен брус. Ее глубину рассчитать несложно – половина сечения заготовки + по 100 мм на подсыпку и «песчаную подушку). Итого – не более 30 – 35 мм. Дно траншеи обязательно уплотняется.
- Следом засыпается жирная глина и также трамбуется. Во-первых, она частично компенсирует подвижки почвы, во-вторых, станет первым слоем гидроизоляции.
- Сверху – ПГС. Для деревянной беседки – оптимальный вариант, учитывая небольшой вес конструкции.
- Вторым слоем гидроизоляции станет пленка (п/э, толстая), которой накрывается дно траншеи с перехлестом на края. Рубероид, так распространенный в частном секторе, использовать нежелательно. В таких условиях он не продержится и 2-х лет, сгниет.
- Далее укладывается брус с таким расчетом, чтобы каждый элемент был заглублен примерно на ⅓. Если глубина траншеи определена неточно, можно подсыпать ПГС. Это еще одно преимущество такого фундамента дополнительно к тому, что его возведение не требует профессиональных навыков, много времени и существенных материальных вложений.

Что учесть
- Брус желательно дополнительно защитить от влаги. Кстати, вместо антисептика магазинного можно использовать «народный» – машинное масло. Специально покупать не нужно; достаточно отработки. После его впитывания неплохо сверху обмазать расплавленным гудроном, со всех сторон. Если брус из хвойного дерева, то еще лучше – обкурить. Старинная технология обработки, основанная на том, что при значительном повышении температуры обильно выступает смола и покрывает заготовку непроницаемым прочным слоем. Такой брус пролежит в земле десятки лет.
- Необходимо предотвратить осевые смещения элементов фундамента. Для этого в каждом брусе еще до монтажа буром проделывается по 2 – 3 отверстия.
- Выравнивание всех элементов. Насколько тщательно оно сделано, настолько удобнее будет работать дальше. Да и беседка получится симметричной с любой стороны, без перекосов, даже незначительных.
- Забивка штырей. Их несложно изготовить из арматурного прутка. После сборки фундамента штыри устанавливаются в подготовленные отверстия и вгоняются в грунт.

Еще один плюс такого основания – простота монтажа каркаса. Для беседки используется дерево, и скрепить вертикальные стойки с брусом намного проще, чем с металлом или бетоном. Плюс к этому – не придется устанавливать опорную раму. Ее функцию выполняет деревянный фундамент.
Сборка каркаса беседки
По данному пункту всего несколько рекомендаций.
- В качестве крепежных деталей использовать гвозди не стоит. Они нередко раскалывают дерево, да и заменить при необходимости отдельный элемент каркаса или крыши довольно сложно. Только длинные саморезы или шурупы.
- Учитывая нагрузки на конструкцию, в том числе, ветровые, надеяться лишь на такой крепеж не стоит. Необходимо предусмотреть усиление всех соединений металлическими планками, треугольниками, уголками, скобами.

- Для придания стойкам надежности они фиксируются укосинами. Чтобы их установить в строго вертикальном положении, желательно пользоваться отвесом (нитка + грузик). Уровень строительный дает погрешность, поэтому не исключены искривления отдельных элементов каркаса.
Пол
После укладки настила его стоит сразу же окрасить. Иначе в процессе строительства он будет испачкан, и придется поверхностную обработку досок проводить повторно. Специалисты рекомендуют использовать составы тонирующие. Они на основе масла, поэтому фактура дерева останется видна.
Крыша
Ее нужно делать с небольшим свесом. Оптимальное решение – двускатная крыша. Один из простейших вариантов с несложной стропильной системой. Чтобы была соблюдена симметрия, для ног делается шаблон, по которому они и изготавливаются. На фото – пример.

Стропила монтируются на элементах верхней обвязки каркаса беседки.

Что использовать для кровли
Учитывая, что беседка деревянная, стоит выбирать из следующих материалов:
- шифер;
- профлист;
- черепица (металлическая или мягкая).
Они лучше остальных кровельных материалов сочетаются с деревом.
Автор надеется, что приведенные в статье рекомендации помогут читателю выбрать оптимальные размеры и форму деревянной беседки. Если внимательно разобраться со всеми нюансами, то ничего сложного в ее возведении своими руками нет. Удачи в строительстве!
woodguide.ru
прямоугольных, шестигранных и восьмигранных, 46 ФОТО примера, а также советы как сделать схему беседки с мангалом, барбекю, камином
Беседка – непременный атрибут приусадебного участка. Интернет пестрит предложениями купить готовые чертежи беседок для самостоятельного строительства, или доверить возведение малой архитектурной формы профессионалам. Но зачастую, существующие предложения по каким-либо причинам не соответствуют запросам владельцев участков, то размер не подходит, то форма и дизайн не устраивает, то просто дорого. Да и само по себе строительство беседки — процесс не сложный и вполне осуществимый своими руками.
Это статья посвящена тому, как составить план, чертеж и схемы узлов беседки, как определиться с размерами в зависимости от предназначения постройки, как правильно разместить мангал, место для отдыха, кухню и т.д. И конечно мы подобрали для вас готовые схемы и чертежи беседок.

На фото планировка пространства с мангалом, угловые конструкции экономят место
Схема размещения
Первое, с чем необходимо определиться: где будет стоять постройка. Для этого вам потребуется план участка в удобном для вас масштабе, на котором обозначены: основное строение (дом), хозяйственные постройки (баня, сараи), схемы садовых дорожек, деревья.
Совет: Многолетники лучше не вырубать, они еще послужат для тени и создания ландшафтного дизайна.
Чертежи беседки садовой сделанной своими руками, на схеме прямоугольная постройка из бруса

Беседки своими руками с чертежами, фото навеса из бревна нестандартной простой формы с угловым мангалом
Внимательно изучите план приусадебного участка, с учетом совокупности обстоятельств, и отметьте на схеме, где, на ваш взгляд, беседка будет уместна более всего. Лучше ее разместить в глубине сада, в конце дорожки, между деревьев. Расстояние от основного дома 3-5 м. Если постройка планируется с мангалом, камином или печью, то ее желательно отдалить от основного жилого строения больше чем на 8 м.

План беседки для дачи, самостоятельный чертеж с размерами
При составлении чертежа не забудьте про фундамент. Для дачных беседок оптимально устраивать столбчатое основание. Расстояние между столбами 1500-2000 мм, под каждую вертикальную опору. Сечение столба 300*300, 400*400 мм. При разметке схемы фундамента на местности следует с каждой стороны прибавить по 100 мм, чтобы основание было больше габаритов постройки.

Приблизительная схема размещения мебели 8 ми угловой постройке
Функционал и размеры – что надо знать
Беседки, прежде всего, строят для комфортного отдыха на открытом воздухе, а это значит, что они должны быть удобными, прочными, надежными, все должно быть под рукой, ничего не должно мешать, раздражать. А для этого следует знать некоторые правила эргономики.

Типовой чертеж прямоугольной конструкции

Как правило, прямоугольные постройки имеют двух- (как на схеме выше) или четырехскатную крышу

Деревянные беседки, чертежи квадратной постройки с четырехскатной крышей
Стандартная ширина стола 600-800 мм, длина 800 мм — для размещения 4, 1200 мм — для 6 человек. Удобный размер сидушки стула или лавки – 400-450 мм. Таким образом, минимальная ширина беседки 1500 (600+450+450) мм, длина 1500-2000 мм.

Дачные беседки своими руками, чертежи мини конструкции из бревна
Примечание: При необходимости габариты беседки можно уменьшить, в таком случае лучше остановить свой выбор на маленькой, каркасной постройке-навесе, пример смотрите на схеме ниже.
Схема беседки для маленького участка

Изделие на металлокаркасе, размеры схематично, длину и ширину беседки можно изменять под ваши потребности
Для комфортного размещения одного человека необходима площадь по полу – 2 м2, следовательно, оптимальный размер беседки для компании 4-8 человек – 3*4 м, 4*4 м (12-16 м2).

Беседки шестигранные своими руками, чертежи стандартной деревянной конструкции
Если планируется не только место для посиделок, но и зона для отдыха, с креслами и шезлонгами, тогда площадь беседки вычисляется из расчета 4 м2 на 1 человека.
Чтобы правильно сделать чертеж беседки с мангалом или камином, при расчете площади необходимо учесть габариты печи. Оптимальная глубина кирпичного мангала 750-1000 мм (3-4 длины кирпича), ширина – 1200 мм (10 ширин кирпича).

Чертеж стандартного мангала
Кроме мангала или барбекю, сбоку от него, для удобства следует предусмотреть рабочий стол шириной 600-800 мм, к нему, желательно, мойку – ширина 600-800 мм, а с другой стороны место для хранения дров, для симметрии такое же расстояние. Исходя из этого, минимальная длина кухни, включая печь, 2400-3400 мм.

Схема мангала с рабочей зоной
Перед мангалом необходимо предусмотреть свободное место 1000-1200 мм, чтобы свободно передвигаться во время готовки, и жар не мешал сидящим за столом. Таким образом, при составлении чертежа беседки, кроме места для посиделок 8-12 м2, под мангал следует выделить дополнительную площадь: минимум — 2400*1750 мм, с комфортом – 3400*2200 мм.

Беседка с мангалом, чертеж размещения мебели

Схема постройки с мангалом, деревянные конструкции следует обработать огнестойким составом
Для экономии места печь можно установить в углу беседки, или сделать отдельный навес на площадке возле постройки.

Чертежи беседок с мангалом, такая форма постройки способствует удобному зонированию кухонной и столовой зоны
Форма и конструктивные особенности
Помимо того что беседки бывают открытые и закрытые, они еще разнятся и по форме: прямоугольные, многогранные, круглые, комбинированные и т.д.

Схема сборки закрытого квадратного садового летнего домика под четырехскатной крышей

Схема большой беседки из дерева под вальмовой крышей, по фундаменту 4*6 м
Проще всего сделать чертеж прямоугольной беседки, но и здесь подстерегают подводные камни: при переносе схемы на участок, следите, чтобы углы были строго 90о, диагонали одинаковые, или воспользуйтесь правилом египетского треугольника.

Разметка участка под беседку
Отмерьте по одной стороне 3,0 м, по другой 4,0 м, соедините точки по прямой, проверьте геометрию, если соединительная линия равна 5,0 м, то угол 90о
Простые правила для построения схем
Чертежи многорганных конструкций при самостоятельном проектировании вызывают некоторые затруднения. Но напомним вам всего несколько правил из школьного курса. Так, например, шестиугольник с равными сторонами всегда состоит из 6 равносторонних (все стороны равны, а углы = 60о) треугольников. Либо из двух равных трапеций.
Схема, как просто начертить основание шестигранной беседки
Если требуется изменить форму беседки, например, увеличить какие-то стороны, то сначала рисуется прямоугольник (на схеме ниже зеленой линией), затем чертятся его диагонали, находится середина. От точки пересечения диагоналей, перпендикулярно длинным сторонам прямоугольника, откладываю одинаковые отрезки (на схеме желтая линия), далее точки соединяются. Или все так же можно начертить 2 равные трапеции с общим основанием, высота трапеции должна равняться половине стороны беседки.

Шестиугольная беседка своими руками чертежи, если требуется изменить длину сторон
Чтобы начертить восьмиугольную беседку, ее основание так же нужно разложить на простые фигуры, как показано на схеме ниже.

Чертятся 2 перпендикулярно пересекающиеся линии, равные длине и ширине конструкции, строится прямоугольник, одна сторона которого равна боку постройки, другая — ширине

Далее строится второй прямоугольник (на схеме зеленый)

Чертеж беседки 8 гранной, на схеме желтым цветом отмечено, как соединять стороны многоугольника

Чтобы увеличить количество сторон в многоугольнике, достаточно начертить еще один прямоугольник и соединить вершины по контуру, как показано на схеме
Проекты беседок – строим своими руками

Чертеж беседки из дерева, 6 гранная конструкция

Схема основание и крыша 6 угольной постройки

Чертежи 8 угольной вытянутой конструкции
Садовые конструкции в виде многоугольника немного сложнее в строительстве относительно простых прямоугольных построек, но выглядят они более оригинально и эффектно. Чтобы беседка была не просто функциональной, но и стала украшением садового участка, декорируйте ее красивой деревянной решеткой или изящной ковкой, растениями, подберите сценарий освещения.

Схема, как построить беседку в японском стиле

Схема сборки деревянного домика гриль

Беседка своими руками чертежи, фото конструкции из металла

Беседка металлическая из профильной трубы, украшенная декоративными элементами ковки, схема каркаса

Чертеж, как сделать беседку на даче своими руками
Обратите внимание, на многих чертежах и схемах пол в привычном виде отсутствует, вместо него выложена ровная площадка из тротуарной плитки или залита монолитно бетонная плита.

Чертеж беседки из металла, фото простой конструкции с элементами ковки
Изготавливая конструкцию из поликарбоната, старайтесь подогнать размер беседки под стандартный лист 2100*6000 мм.

Шестиугольная конструкция из металлопрофиля
Для того чтобы разместить больше народу, лавочки устанавливаются по периметру, желательно в такую постройку предусмотреть круглый стол.

Чертеж сварной переносной конструкции с поликарбонатной крышей

Большой квадратный навес из металлопроката и поликарбоната, схема каркаса с размерами
Даже большие постройки из металла и поликарбоната выглядят легко и воздушно. Для защиты от бокового дождя и ветра бока можно закрыть прозрачным монолитным поликарбонатом, экранами из специального прочного полиэтилена или шторами из водонепроницаемой ткани.

Чертеж деревянной беседки, поперечный разрез восьмигранной конструкции

Летняя конструкция из поликарбоната, схема как сварить каркас из металла

Чертеж деревянной постройки из бруса, украшенной деревянной решеткой

Закрытая конструкция с решеткой, проект шестигранной постройки

Схема бревенчатой постройки в русском стиле
Мы представили вашему вниманию самые востребованные проекты беседок. Если вы не нашли подходящий вариант, то воспользуйтесь нашими советами, как самому выполнить чертеж постройки.

Чертеж односкатной постройки из бруса

Чертеж комбинированной летней постройки с мангалом, размещение основных зон
Если вы не обладаете профессиональными навыками строителя, старайтесь выбирать простые конструкции, без сложных линий и архитектурных излишеств.

Летнее помещение для большой компании с мангалом и санузлом, чертеж зонирования пространства
setroom.ru
Беседка из дерева своими руками пошагово
простая беседка своими рукамиЕсли есть свой сад, огород, значит, вам нужна беседка, это без вариантов! Сегодня все можно купить, но даже простая беседка может стоить значительных денег, не буду называть цены, в интернете море рекламы на эту тему. Зато помимо рекламы готовых конструкций, в сети также можно найти множество инструкций и мастер классов, как сделать беседку своими руками. Из множества вариантов мы рассмотрим только беседки из дерева, как самые популярные.
Из этой статьи вы узнаете:
4 модели квадратных (с пошаговыми фото) 
6 моделей Прямоугольных беседок(+чертежи)
Восьмиугольные и шестигранные
Разборная
(пошаговые фото) 
Пристенная
(с пошаговыми фото)
Открытая
(с пошаговыми фото)
70 чертежей и макетов Квадратных беседок
90 чертежей и макетов восьми- и шестиугольных беседок
В конце статьи огромные фото подборки самых необычных и красивых беседок (более 150 отборных моделей) 
В статье представлены в основном схемы, чертежи, есть также пошаговые фотографии и инструкции, все что удалось найти интересного в интернете. Под каждой галереей размещена ссылка на сайт, откуда взята информация, так что если заинтересуют подробности, всегда можете зайти на сайт первоисточника.
Как сделать простую беседку своими руками
Известный сайт wikiHow как всегда предлагает просто решение для сложных задач. Если, конечно, для вас это проблема. Не знаете, как сделать беседку своими руками, следуйте этому руководству. Конечно, фото инструкция не очень подробная, но зато картинки красочные и понятные. Так вы сможете сэкономить деньги и сделать уникальную беседку классного дизайна, которая наверняка произведет впечатление на вашу семью и соседей, и все это за треть цены!
Источник фото www.wikihow.com/Make-a-Gazebo
Квадратная беседка своими руками
Здесь представлены подробные схемы-инструкции по строительству квадратной беседки.
Простой дизайн и конструкция этой беседки, возможно, вас заинтересует. Размеры на чертежах в дюймах и футах (1 дюйм – 2,54 см, 1 фут – 30,48 см), вы, конечно, можете установить свои размеры, сохраняя пропорции. Строительство начинается с разметки, вымерите диагонали, чтобы они были совершенно одинаковыми.
- Выкопайте ямки под столбы и установите формы в отверстия.
- Заполните формы трубы бетоном и дайте высохнуть в течение нескольких дней.
- Установите горизонтальные балки и зафиксируйте шурупами к столбам. Используйте спиртовой уровень, чтобы убедиться, что балки расположены строго горизонтально.
- Далее нужно установить средние лаги к полу беседки.
- Совместите края и убедитесь, что углы получились квадратными.
- Затем установите промежуточные балки на пол беседки. Настелите пол, зафиксировав доски винтами.
- Используя уровень, установите верхние балки.
- Совместите края и используйте угловые разъемы, чтобы зафиксировать верхний гребень.
- Не оставляйте никаких зазоров между деталями.
- Чтобы защитить беседку от сырости и улучшить внешний вид, покройте ее лаком или покрасьте.
Источник фото myoutdoorplans.com/pergola/wood-gazebo-plans
Пошаговая инструкция в схемах по созданию двускатной крыши для квадратной беседки.
- Первый этап проекта заключается в изготовлении стропил. Обрежьте оба конца под углом 60 градусов, как показано в планах. Сделайте бороздки в нижней части стропил, чтобы они подходили к опорным балкам. Отметьте линии и обрежьте циркулярной пилой. Края обработайте наждачной бумагой.
- Установите стропила в верхней части беседке. Убедитесь, что они расположены равномерно Сделайте отверстия и вставьте винты, чтобы зафиксировать стропила к раме.
- Для сборки фронтонов нарежьте листы фанеры по форме и размеру и обработайте края наждачной бумаги. Установите листы на двускатные концы беседки. Совместите края и прибейте гвоздями не оставляя никаких зазоров между листами.
- При монтаже кровельных листов приложите листы фанеры к стропилам, используя шаблон, показанный на диаграмме. Дрелью просверлите направляющие отверстия и вставьте винты вдоль стропил, не оставляя зазоров.
- Покройте крышу рубероидом, убедившись, что полосы перекрываются, по крайней мере, на 5 см. Закрепите рубероид на листы фанеры кровельными скобами. Кроме того, необходимо вырезать кусок для верхнего гребня.
- Прикрепите балясины с грунтозацепами, убедившись, что вы поместили их на одинаковом расстоянии. Дрелью сделайте отверстия и закрепите балясины к рейкам с помощью винтов.
- И последнее, прикрепите поручни в верхней части компонентов. Просверлите отверстия и вставьте винты для фиксации ламели на место. Заполните отверстия деревянной замазкой и выровняйте поверхность наждачной бумагой.
- Покройте древесину краской или морилкой, чтобы защитить от порчи и улучшить внешний вид беседки. Необходимые материалы для строительство здесь не указаны, их очень много, если интересует, посмотрите на сайте, ссылка под галереей.
Источник фото myoutdoorplans.com/pergola/wooden-gazebo-roof-plans
Прямоугольная беседка своими руками
Построить прямоугольную беседку своими руками не так уж и сложно, и она, несомненно, украсит ваш участок, но это немного сложней, чем конструкция квадратной формы. Всегда планируйте все сформировать в самом начале, если вы хотите, чтобы получить хороший результат. Кроме того, надлежащее планирование может предотвратить много дорогостоящих ошибок. Выбирайте материалы с большой осторожностью, убедившись в том, что все детали прямые и в хорошем состоянии. Строительство прямоугольной беседки немного отличается от строительства квадратной, но любой человек со средними навыками в столярном деле легко справиться с этой задачей. Подробно описывать процесс не будем, все шаги показаны на схемах, более детальную информацию можно получить на сайте, ссылка под фото с чертежами.
Источник фото myoutdoorplans.com/pergola/rectangular-gazebo-plans
Во второй части показано, как сделать крышу для прямоугольной беседки. Строительство крыши для прямоугольной беседки задача сложная, так как включает в себя множество порезов и измерений. Кроме того, вам обязательно понадобится помощник. Чтобы все получилось красиво и надежно, соблюдайте строительные нормы и подбирайте качественные материалы. Также необходимо использовать атмосферостойкие пиломатериалы хорошего качества и без дефектов. Последовательность работ показана на картинках в галерее, подробности этапов строительства можно прочитать на сайте источника.
Источник фото myoutdoorplans.com/pergola/how-to-build-a-gazebo-roof
Еще один вариант, как сделать прямоугольную беседку своими руками. Если есть финансовые возможности, то конечно лучше купить качественную древесину, типа кедр, сосна или красное дерево. Также убедитесь, что используемый материал соответствует климатическим условиям. По данному проекту, при наличии всем материалов беседку можно построить за один день. Этапы, которые вы видите на пошаговых схемах, включают в себя:
- Разметку, где необходимо проверить углы, используя столярный квадрат и измерения диагоналей прямоугольника.
- Монтаж столбов.
- Установка внешних балок.
- Установка промежуточных балок.
- Следующий шаг монтаж средних балок, где вам нужно прикрепить лаги к середине столбов и зафиксировать оцинкованными винтами.
- Установка промежуточных стропил, здесь очень важно выровнять лаги, чтобы распределить правильно вес.
- Монтаж настила, где важно правильно забить гвозди между планками, чтобы был естественный стек, это защитит компоненты от лишней влаги. Монтаж верхних перекладин, при этом используйте уровень, чтобы убедиться, что верхние пластины в горизонтальном положении.
- Установка перил, это не сложно, но основная задача состоит в том, чтобы выбрать дизайн, который соответствует стилю вашего дома и сада.
- Установка балясин.
Источник фото howtospecialist.com/outdoor/gazebo/how-to-make-a-gazebo
Здесь показано, как построить двускатную крышу для прямоугольной беседки. Первый этап это изготовление и установка верхнего гребня и стропил. Как видите на картинке, необходимо отрезать концы стропил нужного размера и закрепить на верхние перекладины шурупами. Убедитесь, что верхний гребень расположен горизонтально, иначе крыша не будет симметричной. Следующий этап установка стропил с обеих сторон крыши. Вы должны поместить балки по центру. Обрежьте стропила до необходимого размера ( 45 °) и формы и установите их на место. Просверлите отверстия и закрепить их оцинкованными винтами. Прикрепите стропила к передним и задним граням прямоугольной беседки. Установите боковые стропила. Закрепите кровельные листы. Для того, чтобы защитить беседку от осадков, рекомендуется покрыть кровельные листы толем. Закрепите планки к стропилам, при этом очень важно отрезать концы планок под углом 45º, если хотите, чтобы крыша выглядела красиво.
Источник фото howtospecialist.com/outdoor/gazebo/how-to-build-a-gazebo-roof/
Беседка с четырехскатной крышей своими руками
Строительство квадратной беседки своими руками дело не простое, нужно учитывать навыки, которые вы должны освоить, а также инструменты и материалы, необходимые для выполнения работ. Тем не менее, если правильно составить план, который будет соответствовать вкусам и потребностям, и конечно бюджету, а также использовать правильные методы деревообработки, можно построить вполне приличную беседку. Купить готовый комплект или нанять профессионала, тоже вариант, но если бюджет ограничен, пожалуй, сделать беседку своими руками будет лучшим решением. Выбор правильных планов и дизайна является реальной проблемой, так как альтернатив масса. Поэтому вы с самого начала должны записать необходимые функции и бюджет на бумаге. Потом необходимо разработать план с учетом нужных материалов и инструментов. Купить правильные материалы для наружных конструкций, чтобы беседка через месяц не рассыпалась. В общем, пошаговые схемы в галерее, описание каждого шага можете прочитать на сайте.
Источник фото howtospecialist.com/outdoor/gazebo/wooden-gazebo-plans
Еще один пример, как сделать квадратную беседку с четырехскатной крышей. В принципе, это то же, что и предыдущая, только более подробно показано, как сделать крышу для беседки и перила. Вам необходимо правильно спроектировать открытую беседку. Нужно решить, какие будут размеры и если, например, захотите добавить барбекю или мангал, это нужно учесть при планировании. Варианты практически безграничны, но вы должны помнить, что каждая добавочная функция подразумевает дополнительные расходы, поэтому надо держать баланс между выгодами и затратами. Выбор правильного дизайна для беседки является жестким решением, так как есть много потенциальных альтернатив: с одной стороны, можете построить восьмиугольную беседку, прямоугольную конструкцию или просто квадратную. В этом статьей показано, как построить квадратную беседку за пару выходных, при этом значительно сэкономив. Все это не так сложно, при условии, что умеете держать в руках молоток и пользоваться ручной пилой.
Источник фото howtospecialist.com/outdoor/gazebo/how-to-build-a-gazebo
Беседка для дачи своими руками из дерева
Здесь показано, как сделать квадратную садовую беседку с четырехскатной крышей уже не в схемах, а в наглядных пошаговых фото. Для постройки использовался стандартный материал – доска, брус, рубероид. Нестандартным было только решения использовать канализационную трубу диаметром 125 мм для строительства фундамента под опорные столбы. На фото показаны все этапы работы, от разметки и заливки столбчатого фундамента до крепления кровли. По-моему, отличный вариант для дачи, легкая и простая конструкция без особых претензий.
Источник фото usamodelkina.ru/8593-legkaya-sadovaya-besedka-svoimi-rukami.html
Красивая беседка из дерева своими руками
Простая конструкция прямоугольной формы с двускатной крышей и красиво оформленными боковыми стенами. Беседка собрана из готовых форм, все детали проекта были сделаны на заказ по личным чертежам автора. На третьем фото показаны изготовленные в мастерской модули. Конструкция установлена на точечном фундаменте из красного кирпича. Порядок сборки смотрите на пошаговых фотографиях. Из-за неровности рельефа местности беседка немного приподнята, лестница по видимому не входила в планы автора, поэтому сделан временный вариант.
Источник фото fishki.net/52871-besedka-svoimi-rukami-25-foto.html
Автор forester86
Садовая беседка своими руками
Этот проект, конечно, более масштабный. Чтобы построить садовую беседку своими руками не обязательно быть столяром высокого разряда или мастером на все руки, хотя не помешало бы. Здесь показаны все этапы строительства.
- Работы начинаются с разметки. Для обеспечения надлежащего дренажа и предотвращения роста травы и сорняков снимите дерн и около 10 см грунта.
- Затем засыпьте подготовленный участок гравием.
- Затем установите формы для точечного фундамента и залейте их бетоном наполовину.
- Используйте уровень, чтобы убедиться, что вершина каждой формы находятся на одинаковой высоте.
- В данном случае рельеф слегка наклонный, поэтому высота форм для каждого отверстия другая.
- На втором фото вы видите прибор, лазерный уровень, который использовался для разметки.
Дальше все подробности описывать не буду, на фотографиях все показано довольно хорошо, а детальные инструкции можно прочитать на сайте, ссылка под галереей.
Источник фото www.scout.com/home/build/story/1386859-build-a-hip-roof-gazebo
Восьмиугольная беседка своими руками
Здесь показаны три этапа строительства – основной части, крыши и перил. Восьмиугольная беседка это более сложная конструкция по сравнению с прямоугольной или квадратной формой, так как требует больше материалов и более сложных операций с древесиной. Тем не менее, это не повод, чтобы отказываться от строительства, если использовать правильные чертежи для работы и планировать каждый аспект проекта. По представленным планам можно построить восьмиугольную беседку своими руками за 2 – 3 дня. Подробные инструкции писать не буду, вы их можете прочитать на сайте, но несколько советов.
- Первый шаг, это разметка. Самый простой способ выложить восьмиугольник – сделать квадрат и обрезать углы, пока не получите нужную форму.
- Средние балки устанавливайте с использованием шаблона, показанного на картинках.
- Используйте хорошую пилу, чтобы сделать порезы углов, это необходимо для создания жестких швов.
- Используйте водостойкий клей для соединений, чтобы укрепить связь.
- Проверьте, чтобы основные балки были перпендикулярными с помощью столярного угольника.
- При установке настила не забудьте про зенковку винтов и про небольшой зазор между досками для дренажа.
- При установке верхних перекладин обрежьте концы верхних планок под углом 67.5º. Установите деревянную планку между стойками и зафиксируйте оцинкованными винтами.
- При установке нового компонента на место проверти отвесом каждую опору.
Источник фото myoutdoorplans.com/pergola/free-gazebo-plans
Как сделать крышу на беседке
Установки крыши, это следующий этап строительства восьмиугольной беседки своими руками. Представленные схемы поэтапного строительства дадут вам лучшее представление о процессе. Если планировать каждый аспект как можно более подробно, вы сможете, во-первых, предотвратить возможные ошибки, и во-вторых, сделать крышу даже с минимальным опытом. Как установить столбы и накрыть настил пола вы уже знаете, для строительства крыша, конечно, надо больше навыков, так что если есть возможность, обратитесь к друзьям, у которых, возможно больше опыта в этом деле. Строительство крыши для восьмиугольной беседки на первый взгляд кажется сложным, но все не так страшно, главное, внимание и точный расчет.
- Начинайте со стропил, необходимо обрезать оба конца на 63.5 градуса с помощью торцовочной пилы. Один конец закрепляете к столбам, а второй должен быть зафиксирован в центре стропил. Убедитесь, что вы идеально все выровняли, иначе крыша не будет симметричной.
- В общем, крепление стропил и крепление кровельных реек, но не забывайте, что все лучше фиксировать оцинкованными винтами. В качестве альтернативы, вы можете вырезать треугольники из фанеры и закрепить их гвоздями.
- Независимо от выбора, необходимы точные измерения и делать соответствующие разрезы циркулярной пилой.
- Затем накройте всю поверхность крыши толем, начиная с нижней до верхней части. Убедитесь, что полоски толя перекрываются по меньшей мере на 5 см, чтобы создать водонепроницаемую крышку для обрамления крыши.
- После того, как покроете всю поверхность, закройте края полосками рубероида и зафиксируйте их с помощью скоб.
- Одним из последних этапов является установка черепицы. Для этого лучше почитать инструкцию, если нет опыта в этой области.
Источник фото myoutdoorplans.com/gazebo/gazebo-roof-framing
Перила для беседки
Перила, это завершающий этап. Есть много планов, по которым можно сделать перила для восьмигранной беседки, поэтому убедитесь, чтобы их внешний вид соответствовал стилю беседки и вашим вкусам. Первый шаг заключается в создании нижних и верхних направляющих. Используйте фрезер, чтобы сделать широкий и глубокий канал в рейках, как показано на схеме. Эти каналы будут плотно фиксировать балясины. Затем идет установка нижних поперечин, проверьте уровнем, чтобы они лежали строго горизонтально. Повторите процесс на остальных 6-ти сторонах беседки. И последний шаг установка перил. Перед сверлением направляющих отверстий и затяжки винтов убедитесь, что они равномерно распределены. Поместите деревянный блок между планками, чтобы получились последовательные пробелы. Очень важно зафиксировать планку с помощью винтов перед установкой верхней перекладины. Проверьте, чтобы все детали плотно прилегали, винты находились на одном уровне с деревянной поверхностью.
Источник фото myoutdoorplans.com/gazebo/how-to-build-gazebo-railings
Как сделать деревянную беседку
Здесь показано, как построить восьмиугольную деревянную беседку своими руками с шатровой крышей. Это не является исчерпывающим трактатом всего процесса, хотя на пошаговых фото автор постарался отобразить все этапы довольно подробно. Примечание: неизбежные изменения в процессе строительства потребуют изменить некоторые детали. Все размеры приведены для этой конкретной беседки, вы же можете изменять их по своему усмотрению. Все пиломатериалы рассчитаны для внешнего использования, а крепежные детали оцинкованы. Крыша изготовлена из фанеры «CDX», что по рейтингу означает низкое качество, но, безусловно, это самый сильный вид фанеры в строительной области. Теперь о планировании, схема довольно проста. Восьмиугольник это просто квадрат со срезанными углами. Начните с создания квадрата. Для этого с помощью рулетки, колышков и шнура размечается квадрат, делится на 8 частей и с помощью строительного уровня и шнура срезаются углы. В результате получим правильный восьмиугольник. Дальше порядок работы смотрите на пошаговых фото, если что-то непонятно, очень подробные инструкции вы найдете на сайте, ссылка под галереей.
Источник фото homefixated.com/build-your-own-gazebo
Как построить беседку своими руками 3 проекта
Здесь представлено три проекта с пошаговыми фото, как построить деревянную шестиугольную беседку своими руками. Все этапы строительства уже описывались выше, они простые и понятные. Вариантов для строительства, как и видов деревянных беседок, естественно, очень много, у каждого проекта есть свои нюансы. Эти три проекта особой сложностью не отличаются, но если заинтересует более подробное описание каждого этапа, ссылки на сайты находятся под галереями. Вот первый проект, шестиугольная беседка с «крыльцом».
novamett.ru
Беседки из дерева — фото лучших видов беседок на даче
Кто не видел на первый взгляд самую обычную беседку, выполненную из дерева, и тот, кто никогда не имел удовольствия ей пользоваться, считает, что дерево самый не практичный материал для ее создания.

Садовые беседки из дерева, кроме чисто эстетической, объективной красоты, при условии применения древесины высокого качества, лучших лакокрасочных покрытий, прослужат вашей семье не один год. При этом, вполне реально самостоятельно построить такую на первый взгляд не простую конструкцию.

Беседка своими руками из дерева
Насколько просто построить деревянную беседку? Само собой, немаловажную роль играет доступность материалов для работы. Все что необходимо – просто нужно посетить любой крупный или не очень строительный маркет и сравнить стоимость бруса, самого обычного кирпича, разного диаметра труб, балок, и тогда со сметой все будет предельно понятно. В экономии важную роль играет и экономия на строительном инструменте, что пригодится для работы.

Приняв к сведению, что многий инструмент прокатный на нужное для работы время, все равно накладно использовать его для выполнения работ по металлу из-за расходных материалов, плюс возникает необходимость использования сварочного аппарата. Деревянная беседка собирается без использования электрического инструмента.

И последняя, но не менее важная причина, которая поможет с выбором беседки именно из дерева — чертежи беседок из дерева в свободном доступе можно найти на многочисленных строительных сайтах, форумах и порталах. Но это не главное, основное то, что фундамент потребуется облегченный, даже примитивный, который не может быть использован при постройке беседки из кирпича.

На столбчатом фундаменте производится возведение типичной садовой веранды на кирпичных столбах. Если не нужно бетонное основание или пол, не нужно основание, можно сэкономить бюджет.

Перед тем как говорить о тонкостях строительства, стоит определиться с окончательной конфигурацией постройки. Дело в том, что данное понятие весьма широкое. По многочисленным фото беседок из дерева можно сделать вывод, что может быть выполнена опора, что украшена лианами, а может быть выполнена нарядная, красочная и легкая, но при этом не менее модная опора. И это еще не говоря о роскошных срубах, что внешне напоминают гостевой дом.

Чем конструкция по своему весу легче, примитивнее, тем быстрее будет возведение. Проблематичность возведения видно при длительном изучении чертежа деревянной беседки.

Имеется очень много всевозможных деталей, подразумеваются стыки, соединения, вырезания, и в таком случае неразрешаемой задачей может показаться павильон для малоопытного строителя. Если на чертеже несколько стен, односкатная крыша, почти нет ничего внутри – чертеж легкий и его можно использовать для реализации задуманного.

Среди самых простых конструкций стоит выделить самые примитивные, элементарные, но чаще всего их функционала достаточна для всей конструкции. Чаще всего это конструкция, включающая столик, пару лавок, сверху покрытие — крыша. Готовый результат – стол с навесом.

Такие беседки складываются как конструктор – доски по размеру крепятся в узлах фурнитурой.

Пергола – модный элемент дизайна беседки. Пергола – стенки, которые внешне выглядят как перекрещенные досточки. Внутрь такой беседки попадает свежий воздух, но при этом в ней уютно.

Деревянная беседка
При выборе конкретной модели беседки играет важную роль напольное покрытие. В некоторых вариантах беседок пол – неотъемлемая конструкция, и потому сначала производится монтаж пола, а потом уже всего прочего.

Плюс такой беседки в том, что павильончик может быть перемещен в полном составе куда нужно, потому как выходит монолитная конструкция.

Для такой беседки важно на участке грамотно и даже безупречно подобрать место – подготовленная изначально площадка обязательно должна быть идеально ровной, обязательно должна быть гидроизоляция, чтобы пол не прогнил спустя годы.

Все мы привыкшие к тому, что в беседке должен быть стол, несколько стульев, чтобы можно было принимать гостей. Но не все хотят на участке видеть такую большую беседку, широкую, а хотят небольшую, для отдыха и уединения. В таких беседках нет стульев, а есть топчаны, лавки, украшенные мягкими подушками.

Фото превосходных идей деревянных беседок на участке
























landshaftportal.ru

