Чертежи гнезда для кур несушек своими руками – Гнездо для кур несушек своими руками: чертежи и пошаговая инструкция по изготовлению!
3 лучших варианта, пошаговые инструкции, способы приучения кур к гнезду
Наличие гнезд для кур-несушек обязательно для каждого курятника. В первую очередь, это вопрос качества яиц. Чтобы яйца были чистыми и курицы их не заклевывали, нужны грамотно сконструированные гнезда желательно с яйцесборником. В противном случае курицы устраивают гнезда самостоятельно, и понравившимся им местом может оказаться любой угол курятника.

Гнезда для кур несушек своими руками

Два яйца в поддоне гнезда
Поэтому сбор «урожая» дополнительно осложняется необходимостью выискивать яйца по всему курятнику, что весьма неудобно и нежелательно. Также проблемы возникают с уборкой. Так что гнезда действительно необходимы. А если вы хоть раз держали в руках молоток и гвозди или отвёртку и саморезы, то проблем с самостоятельным изготовлением гнезд не возникнет.

Наседка сидит в гнезде
О чём важно знать
Сделать гнездо для кур своими руками несложно. Самое простое в исполнении гнездо выглядит как небольшой ящик, застеленный сухими опилками или соломой.

Самые простые гнезда из ведер

Простые гнезда — ящики
Но нужно учитывать, что куры достаточно привередливы. Если гнездо будет изготовлено неправильно и не подойдет курам, то яйца в нем они нести не будут и приучить их не получится. Чтобы не возникло проблем с заселением кур, следует помнить об общих для любого типа домика правилах изготовления и размещения.

Курам должно быть комфортно в гнезде
В первую очередь домик должен быть уютным и казаться курам безопасным, поэтому располагать его следует дальше от входа. Это нужно также и для того, чтобы уберечь кур от сквозняков и сырости и предупредить заболевания, которые негативно сказываются на качестве яиц. С этой же целью гнёзда нужно располагать примерно на 30 см над полом, но никак не прямо на полу. Также гнездо должно располагаться по возможности в затемнённом углу и быть защищённым от света.

Оптимальное расположение гнезд
Заметка: Лучше заранее решить, где именно будет располагаться гнездо, чтобы можно было подогнать размеры домика под место, а не пришлось делать наоборот.
Теперь что касается самого гнезда. При выборе материалов ни в коем случае не берите длинные гвозди и саморезы, которые будут выступать из стенок гнезда. Птицы могут пораниться об них! Следует проверять готовое гнездо на наличие выступов или трещин, которые также могут представлять опасность для курочек. Ещё один важный пункт — высота стенок гнезда. Они должны быть достаточно высокими, чтобы из-за толстого слоя опилок яйца не выкатывались из гнезда, то есть порожек должен быть немного выше самого гнезда.

Гнездо для кур несушек

Три домашние курицы в гнездах
В погоне за удобствами для кур не стоит забывать о том, что гнездо должно быть удобным и для вас. Домик нужно изготавливать и размещать так, чтобы при его чистке и сборе яиц не возникали каких-либо затруднения. Также нужно выбрать подходящий именно вам тип домика.

Помещение для содержания несушек
Гнездо-будка
Самое простое гнездо — это гнездо-будка. Для его создания не нужны ни серьёзные навыки, ни большие затраты времени, в чём его преимущество. Обычное гнездо также удобно в размещении. Но из-за отсутствия яйцесборника могут возникнуть проблемы, так как иногда курицы склёвывают яйца, а гнездо-будка как раз таки оставляет доступ к яйцам. Тем не менее такой тип гнезда достаточно популярен.

Гнездо-будка
Для его изготовления вам потребуется:
- лист дерева толщиной около сантиметра;
- 4 деревянных бруска;
- лобзик;
- напильник;
- саморезы;
- шуруповёрт.
Размер листа дерева следует определить, исходя из предполагаемых размеров гнезда. Среднее гнездо для курицы-несушки — 35?35?35 см. Главное, чтобы габариты были не меньше 30 и не больше 40 см. Точный размер зависит от размера несушки. Также нужно решить, сколько именно будет гнезд. На 10 кур обычно делается 2-3 гнезда.

Оптимальные размеры гнезда

Гнезда для несения яиц
Инструкция по изготовлению.
- Лист дерева обработать напильником или же наждачной бумагой.
- Из листа вырезать 4 квадрата примерно 35?35 см. Это будущие стены гнезда.
- В одном из квадратов вырезать отверстие, которое будет служить входом. Не забудьте про порожек внизу входа!
- Затем подготовить четыре бруска такой же высоты, как и стены.
- Соорудить из вырезанных квадратов коробку, соединяя листы в углах брусками и вкручивая саморезы. На крайний случай можно воспользоваться гвоздями, но саморезы лучше держат конструкцию. Проверить, что саморезы не торчат из брусков.
- Осмотреть конструкцию на наличие сколов и острых углов, при необходимости исправить.
- Вырезать еще 2 листа — пол и потолок, скрепить со стенами.
Гнезда для кур

Гнезда своими руками
Самый простой домик для кур готов. Остается застелить гнездо соломой или опилками, поднять его над полом и приставить лесенку.

Гнездовье для кур

Гнезда для кур-несушек из деревянных ящиков и фанеры
Гнездо с яйцесборником
Наиболее удобное и безопасное гнездо для кур-несушек — это гнездо с яйцесборником. Делается оно немногим сложнее обычного, а преимуществ имеет куда больше. Самое главное — это сохранность яиц, к которым куры не будут иметь доступ, а следовательно, не смогут склевать. И собирать яйца из яйцесборников проще.

Гнездо с яйцесборником
Основное отличие такого гнезда от обычного — дно, которое делается с небольшим уклоном. По наклонному дну яйцо скатывается вниз и выкатывается из гнезда в специальный лоток через щель в стенке. В остальном гнездо изготавливается по принципу гнезда-будки.

Гнезда для кур в сборе

Изготовление гнезда для кур с яйцесборником (источник — fermagid.ru)
Инструкция
- Приготовить и обработать необходимые материалы.
- Сборка гнезда начинается со сборки основы (1). Нужно вырезать из листа дерева боковые стены-прямоугольники примерно 65?90 см и переднюю стенку около 65?40 см со входом для кур на высоте примерно 35 см. При помощи деревянных брусков соединить переднюю и боковые стенки. Заднюю пока не трогать.
Делаем боковые стенки. Не забываем при этом учитывать размеры
- Вырезать пол и потолок размером около 40?90 см и при помощи тех же брусков скрепить со стенами.

Из фанеры или досок сбиваем поддон

Поддон покрываем нескользким мягким материалом, ставим перемычку

Соединяем поддон с боковыми стенками

Теперь нужно поставить заднюю стенку и крышу
- Затем вырезать пол-скат (5), который будет располагаться над полом под наклоном примерно в 10—15°. Размеры ската — примерно 40?95 см.

Почти готовое гнездо
- Засыпать дно гнезда опилками (6), положить сверху скат, как на иллюстрации, и для надежности закрепить саморезами.
- Теперь следует изготовить заднюю стенку размером около 45?40 см. Задняя стенка делается короче, чтобы получилось отверстие, куда будут выкатываться яйца по дну-скату.
- Прикрепить заднюю стенку и закрыть отверстие занавеской (4), которую можно изготовить или из ткани, или из мягкого пластика.
- Затем нужно приспособить к гнезду ящик для сбора яиц (2). Ящиком может послужить любая подходящая пластиковая ёмкость, но его можно сделать и самостоятельно из дерева.
Застилать такое гнездо нужно тонким слоем соломы или опилок, чтобы яйцо легко скатывалось и нигде не застревало. В ящик для сбора яиц, наоборот, следует положить побольше мягкого настила (3), чтобы яйца не повреждались.
Гнездо для кур несушек с яйцесборником

Гнездо для кур с яйцесборником
Видео — Гнездо для кур с яйцесборником
Гнездо с двойным дном
Ещё один «хитрый» вариант гнезда, когда курица практически не соприкасается с яйцом — гнездо с двойным скатом. В таком гнезде под наклонённым дном, в центре которого имеется щель, находится выдвижной лоток, куда и падают снесённые яйца. Такое гнездо больше устроит кур, так как оно удобнее.

Гнездо с двойным дном
Инструкция
- Подготовить и обработать материалы.
- Сделать домик, как в инструкции для гнезда-будки, но немного выше стандартного — размером примерно 60?35?35 см. Переднюю стенку со входом пока крепить не нужно.
- Вырезать два прямоугольника — половинки наклонного пола размером примерно 35?15 см каждый. После закрепления между ними должна остаться щель шириной около 10 см, чтобы свободно проскальзывали снесённые яйца.
- Закрепить одну из половинок на задней стенке на высоте 20 см под небольшим наклоном — около 15°.
- Вместо передней стенки со входом крепятся две перегородки. Первая — нижняя перегородка размером примерно 10?35 см — крепится на высоте наклонного дна, и к ней предварительно прибивается его вторая половинка. Между нижней перегородкой и дном ящика остается щель, куда и вставляется лоток.
- Вторая перегородка — верхняя, её размер примерно 15?35 см. Она крепится на верхней части гнезда для того, чтобы прикрыть излишне широкий вход. С этой же целью можно дополнительно прибить боковые перегородки.
- После изготовления самого гнезда остаётся придумать, из чего будет лоток. Лоток должен действовать по принципу выдвижного ящика. Можно изготовить его самостоятельно, можно приспособить любой подходящий ящик.
Остается выстелить гнездо соломой или опилками. Дно-скат выстилается тонким слоем, лоток, опять же, — толстым, чтобы яйцо при падении не треснуло.

Гнезда для кур с яйцесборником

Деревянное гнездо
Заметка. Обычные гнёзда или гнёзда с яйцесборниками можно делать не отдельными, а общими. Для этого понадобится смастерить длинный ящик и поделить его перегородками. Так изготовление гнезда займёт меньше времени.
«Быстрое» гнездо

Гнезда для несушек
Если случилось так, что времени или возможностей обустроить курятник не оказалось, то можно смастерить самые простые гнезда на скорую руку. Для этого понадобится ящик из-под овощей или другой подобный ящик. Главное требование — он должен быть достаточно просторным. Ящик наполняется сеном или опилками и закрывается занавеской.

Гнездо в виде деревянного ящика
Такие гнёзда обычно используются недолгое время, пока их не заменят более серьёзные. Но если курятник достаточно просторный, а куры не очень привередливы и несутся и в таких гнёздах, то ничто не мешает пользоваться этим вариантом и более длительный срок.

Гнездо из покрышки
Полезные советы
Обычно, если гнезда сделаны правильно и удовлетворяют всем условиям, куры самостоятельно начинают в них нестись. Но бывает и так, что по неизвестным причинам несушки все так же продолжают откладывать яйца где попало. В таком случае не стоит сразу переделывать гнездо, стоит сначала попытаться приучить кур.

Изменение яйценоскости птицы с возрастом
- Чтобы курица «признала» гнездо, бывает достаточно закрыть её в нём на одну-две ночи.
- Если курица все равно не желает нестись в гнезде, то можно попробовать подложить туда ранее снесённое другой курочкой яйцо или круглый кусочек мела.
- Если и эти меры не помогли, то остается подумать, что именно может не устраивать кур и поменять место расположения гнезда или же в крайнем случае само гнездо.

Сбор и хранение яиц

Ящик с гнездом, из которого вдвойне удобней забирать яйца
Также можно воспользоваться некоторыми хитростями, которые сделают уход за курами удобнее:
- Чтобы куры не склёвывали собственные яйца, в гнездо насыпают мелкий гравий. Некоторые используют вместо гравия скорлупу, однако это делать категорически запрещается. Привычка клевать скорлупу приведет к обратному от желаемого эффекту.
- Недалеко от гнезд полезно оборудовать места, где будут купаться куры — ёмкости с золой. Они нужны, чтобы избежать появления паразитов.
Емкости с золой
Полноценное и грамотное оборудование курятника, а в особенности гнёзд, стоит потраченных усилий и времени. Это необходимо, чтобы создать надлежащие условия содержания кур-несушек. А следовательно — не иметь проблем с их здоровьем и в итоге добиться соответствующей конкретной породе кур яйценоскости, а также высокого качества яиц.
Видео — Гнездо-ловушка
tolkostroyka.ru
Гнёзда для кур-несушек своими руками: фото, размеры, полезные советы
ПОДЕЛИТЕСЬ
В СОЦСЕТЯХ
Содержание кур очень удобно и прибыльно, так как, не требуя больших усилий по уходу, птицы исправно обеспечивают всю семью свежими яйцами. Кроме того, яйца можно продавать, получая при этом дополнительный доход. Однако, чтобы куры были здоровы и хорошо неслись, важно позаботиться об их комфорте. В этом поможет инструкция о том, как сделать гнёзда для кур-несушек своими руками: фото, размеры и полезные советы позволят справиться с задачей даже без соответствующего опыта.

Грамотно обустроенные гнезда будут комфортными не только для птиц, но и для хозяина, что позволит легко ухаживать за птичником и получать больше яиц
Как обустроить гнездо для кур: основные правила
Правильно обустроенное гнездо увеличит количество приносимых курицей яиц. Кроме того, их качество станет лучше, а скорлупа будет надежно защищена от повреждений. Важно устроить все так, чтобы курица неслась в специально отведенном для этого месте. А значит, устраивая гнезда для кур-несушек своими руками, необходимо обеспечить птицам максимальный комфорт.
Для этого придерживайтесь следующих правил:
- разместите гнезда в тени как можно дальше от солнечных лучей;
- выбирайте сухое и теплое место;

Гнезда для кур-несушек, построенные своими руками из дерева
Полезный совет! Чтобы обеспечить курам комфортные условия, постелите на пол сено или опилки. Опилки в данном случае предпочтительней, так как сено куры с легкостью выбрасывают из гнезда. Чтобы яйца не выкатывались, настил должен быть на пару сантиметров ниже, чем бортик гнезда.
- чтобы настил проветривался, а гнездо оставалось сухим, позаботьтесь о вентиляции или сделайте дно гнезда сетчатым;
- на земле или на входе в курятник всегда более холодно и влажно – там птица легко может простудиться и из-за этого стать менее активной, поэтому размещайте гнезда повыше и подальше от входа;
- не крепите гнезда прямо к стене: зимой это некомфортно для кур, кроме того, такое расположение заметно уменьшает срок службы всей конструкции;
- делая гнезда для кур своими руками, убедитесь, что в конструкции нет длинных гвоздей и сколов, которые могут стать причиной травмы птицы;
- количество гнезд зависит от количества птиц: на 5 кур должно приходиться 1 место.

Обустраивая птичник, важно создать для птиц оптимальные жизненные условия
Основные разновидности гнезд для кур-несушек
Вы не готовы вникать в тонкости того, как сделать гнездо для кур? Купите готовый вариант или соорудите гнездо из подручных средств. Для этой цели подойдут пластмассовые и деревянные ящики, старые корзины и картонные коробки. Главное – выбрать затененное укромное место.
Если же вы решили обустроить полноценное гнездо самостоятельно, прежде всего определитесь с типом конструкции.
Различают два основных типа:
- Конструкция в виде ящиков. Устройство такого гнезда предельно простое и дает возможность сделать целый ряд ячеек для всех птиц. Кроме того, приучить курицу к такому гнезду не составит труда: чтобы она привыкла нестись там, достаточно надолго запереть птицу внутри.
- Гнездо для кур с яйцесборником. Данный тип гнезд подразумевает различные конструкции, но принцип у всех один: яйца практически сразу попадают в специально предназначенный для этих целей лоток и курица почти не касается их. Данный вариант особенно актуален при большом хозяйстве, когда количество кур высоко.

Пример собственноручно изготовленных гнезд для кур с оригинальным декором
Гнёзда для кур-несушек своими руками: фото, размеры, расчет параметров
Одним из важнейших факторов, влияющих на комфорт птиц, является размер гнезда для кур-несушек. Важно понимать, что вы не сможете приучить курицу нестись в гнезде, если ей неудобно в нем сидеть.
Прежде всего размеры гнезда для кур зависят от породы птицы.
Таблица соответствия породы птицы и размеров гнезда для кур:
| Порода птицы | Ширина гнезда, см | Глубина гнезда, см | Высота гнезда, см |
| Курица-несушка | 25 | 35 | 35 |
| Мясо-яичная курица | 30 | 40 | 45 |
Вне зависимости от породы птиц, высота порожка должна быть не менее 5 см. Также позаботьтесь о наличии перед входом специальной полочки для взлета. Расположите ее на расстоянии не менее 10 см от входа. Сечение полочки должно составлять 5х2 см.
По возможности наклон крыши должен составлять 45° – это исключит стремление птиц сидеть сверху.
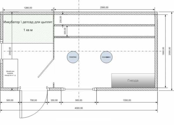
Ставьте гнезда прежде, чем запускать в птичник кур: это даст им возможность привыкнуть к новым убежищам и освоиться. Поэтому заранее включайте в план гнезда поилки, а также построенные своими руками насесты для кур-несушек: чертежи помогут не забыть ничего важного и разместить все объекты оптимальным образом.

Гнезда для несушек из дерева и пластиковых контейнеров
Полезный совет! Простейший вариант гнезда для кур – «будка» из пластикового ящика для овощей и фанерных листов. Однако, лучше обустраивать более сложные гнезда, так как данная конструкция выходит излишне громоздкой, а главное – не очень комфортной, зимой и вовсе – опасной для здоровья птиц.
Как сделать гнездо для кур-несушек: конструкция в виде ящиков
Немного усилий с вашей стороны и у птиц будет настоящий домик, где они смогут чувствовать себя комфортно, а значит радовать вас активностью и большим количеством яиц.
Чтобы изготовить конструкцию в виде ящиков, вам понадобятся следующие материалы и инструменты:
- доски, фанера;
- наждачная бумага;
- крепежи;
- брус;
- отвертка;
- молоток;
- электролобзик.

Процесс строительства птичника своими руками, обустройства гнезд и насеста
Как сделать гнезда для кур-несушек своими руками: чертежи и порядок действий
Создать комфортное гнездо несложно. Следуйте инструкции и все получится даже без большого опыта в постройке подобных сооружений:
- Если вы используете для строительства доски, тщательно обработайте их при помощи наждачки.
- Далее необходимо вырезать заготовки. Важно произвести точные расчеты параметров необходимых вам деталей. Прежде всего посчитайте необходимое количество ячеек. Затем умножьте получившееся число на ширину одной ячейки – она должна быть минимум 25 см. По той же формуле рассчитывается высота короба. Если птиц в вашем хозяйстве много, сделайте несколько этажей.
- Сколотите между собой вырезанные детали.
- Чтобы придать конструкции прочность, с внутренней стороны полученного короба по углам закрепите брус.
- Вход можно оставить открытым. Или вырежьте круглые отверстия, соответствующие количеству мест для кур-несушек, и обшейте короб.
- Сделайте порожек. Для этого возьмите планку шириной 10 см и закрепите ее снизу вдоль всей длины разделенной на ячейки конструкции.
- Отступите 10 см от входа в гнездо и закрепите взлетный помост.
- Если у вас получилась конструкция в несколько ярусов, сделайте лестницы. На каждый ярус должно приходиться по одной лестнице.

Схема с монтажными размерами гнезд для домашней птицы (размеры для кур указаны в скобках)
Полезный совет! Если в конструкции горизонтальная крыша, покройте поверхность стизолом, чтобы предотвратить ее порчу от птичьего помета.
Гнезда для кур-несушек с яйцесборником: советы по устройству
Если в течение дня вы заняты и не можете постоянно следить за курами, можно сделать более сложный вариант гнезда. Существует два типа конструкций, предусматривающих наличие яйцесборника.
Вариант гнезда для кур-несушек, чтобы не клевали яйца: конструкция с двойным дном
Для сооружения такого гнезда вам потребуются следующие материалы и инструменты:
- тонкие фанерные доски;
- крепежи;
- материал, подходящий для обивки поддона;
- наждачка;

Один из вариантов гнезда для несушек с сетчатым полом и яйцесборником
- отвертка;
- ножовка;
- молоток;
- нож;
- ножницы.
Основные правила просты:
- не берите длинные гвозди: торчащие с внешней стороны, они легко могут поранить птиц;
- после сооружения гнезда тщательно осмотрите его на предмет зазубрин, сколов, удостоверьтесь в прочности конструкции, чтобы обезопасить птиц от получения травм;
- для обеспечения комфорта птиц, постелите на пол опилки, солому или сено. Регулярно меняйте наполнение и очищайте гнездо от помета;
- для того чтобы куры чувствовали себя комфортно, большое значение имеет микроклимат. Размещайте гнезда в сухом месте, защищенном от сквозняков.

Яйцеприемник позволит сохранить яйца в целости, что особенно актуально при высоком поголовье кур
Инструкция как сделать своими руками гнездо для кур-несушек с яйцесборником (фото, размеры и чертежи легко найти в сети):
- Сделайте конструкцию по принципу собачьей будки. Обратите особое внимание на дно: в данном варианте гнезда оно должно иметь небольшой (около 5°) наклон к задней стене сооружения. Между стенкой и дном оставьте зазор по размеру яйца.
- Сделайте поддон. Для обивки выбирайте мягкий нескользкий материал: ткань, войлок, изнаночную часть линолеума, резину. Длина поддона должна на 10 см превышать глубину гнезда – это необходимо, чтобы обеспечить простоту доставания яиц снаружи.
- Прикрепите планку, чтобы обезопасить яйца от падения.
- Прикрепите поддон к основной части гнезда, выдерживая уклон в 5°. В результате яйцо будет скатываться, попадать в нижний поддон и находиться там в безопасности, пока вы его не заберете.
Полезный совет! Пол в таком гнезде следует делать сетчатым. Такое решение способствует проветриванию настила. Хорошим материалом для изготовления пола является проволока: сплетите ее, оставляя промежутки 4х5 мм, а сверху расположите материал подстилки.

Конструкция гнезд для кур с двойным дном отличается удобством и практичностью
Как сделать гнездо с контейнером для яиц
Чтобы изготовить деревянное гнездо с яйцесборником, вам потребуются следующие материалы и инструменты:
- ножовка;
- гвозди;
- молоток;
- мягкий материал;
- ДСП и фанера;
- яичный контейнер.
Порядок работ следующий:
- Соорудите короб, скрепите боковые стенки, дно закрепите под углом 10°, сделайте крышу.
- Вырежьте отверстие для входа и закройте переднюю часть гнезда.
- На задней стене внизу вырежьте отверстие, по размеру немного превышающее куриное яйцо.
- Под дном разместите контейнер с мягким материалом. Теперь, когда яйца скатятся и попадут в поддон, они будут надежно защищены от повреждений.
Статья по теме:
Зимний курятник своими руками на 20 кур: особенности и советы по изготовлению. Назначение, особенности, характеристики данной постройки. Пошаговая инструкция по изготовлению курятника своими руками.
Предусмотрите, чтобы, при условии наклонного дна, в гнезде всегда было минимальное количество настила, иначе он может стать препятствием и затруднить скатывание яиц в лоток.
После того как вы построили гнезда и насесты для кур своими руками, можно перейти к не менее важному аспекту обустройства курятника – насестам для птиц.
Насесты для кур-несушек своими руками: фото, размеры, советы по сооружению
Любой хозяин знает, что все куры предпочитают отдыхать и спать на насесте. Данная перекладина может быть круглой или квадратной в сечении и принадлежать к одному из множества видов. Выбирать подходящий тип следует исходя из наличествующего пространства и количества птиц в хозяйстве.

Обустройство насеста является одним из самых важных этапов при строительстве птичника
Типы насестов для кур
Насесты, предназначенные для кур, бывают различной конструкции:
- расположенные на разных уровнях жердочки. Такой вариант актуален, когда кур в хозяйстве много, а площадь курятника невелика. Главный недостаток подобной конструкции заключается в том, что в таком курятнике птицы постоянно будут ссориться из-за места повыше, а сидящие сверху куры будут пачкать пометом тех, которые расположились ниже них;
- несколько перекладин, закрепленных на одном уровне на стене или по периметру птичника. Идеальный для несушек вариант, позволяющий им выбирать наиболее комфортную позицию, не мешая при этом другим птицам;
- жердочки, которые закрепляются на вертикальных столбах. Удобная для птиц конструкция, отличающаяся простотой сооружения. Оптимальный вариант для желающих сконструировать насест для кур своими руками;
- стол, оснащенный перекладинами. Эта конструкция удобна своей мобильностью. Стол легко переносить, удобно дезинфицировать, чистить;
- короб с жердочками. Также отличается мобильностью – при необходимости его легко переместить с места на место. Основной минус данного решения – малое количество мест для размещения птиц. Таким образом, этот вариант актуален лишь для небольшого хозяйства.
Полезный совет! Понять как сделать насесты для кур совсем несложно, как и изготовить данный элемент курятника самостоятельно. В этом случае вы можете быть уверены, что насест соответствует всем вашим нуждам и особенностям вашего хозяйства.

Схема обустройства курятника с оптимальными размерами для расположения насестов и гнезд
Как самостоятельно сделать насест для кур: подробный алгоритм действий
Пошаговая инструкция по созданию насеста для кур-несушек:
- Приготовьте рубанок, гвозди, молоток, наждачку и деревянные брусья. В сечении брусья должны составлять 40х60 см.
- Рассчитайте размеры насеста исходя из числа куриц в вашем хозяйстве и соображений их комфортного размещения. Например, 10 несушкам яичной породы требуется 2,4 м перекладины. Оптимальным решением будет разделение насеста на 2 части – 2 перекладины (длина каждой – 1,2 м).
- Возьмите 2 планки для опоры. Их длина должна составлять 0,6 м. Установите их на противоположных стенах на высоте 0,9 м от пола и расстоянии 0,3 см от стены, на которой планируете расположить насест.
- Возьмите брус, из которого будете делать перекладину. Обработайте его так, чтобы на поверхности не осталось заусенец и сколов. Острые края отсеките рубанком, а для шлифовки примените наждачку.
- Прибейте концы перекладины к планкам для опоры на расстоянии 30 см от стены.
- Отступите еще столько же. Вбейте вторую перекладину.
- Отступите от пола 0,4 м. Прибейте бруски к боковым стенкам.
- Закрепите на брусках несколько досок – они послужат основой для поддона.
- Установите поддон, в который будет попадать помет. Для его изготовления можно использовать листовой металл. Также для этих целей хорошо подойдет обычный щит из дерева.
- Из оставшихся брусков сделайте лестницу.

Строя курятник своими руками, вы получаете конструкцию, идеально подходящую под условия именно вашего хозяйства
Где оптимально расположить насест
Насест должен находиться подальше от двери – так вы защитите птиц от сквозняков и, как следствие, возможных проблем со здоровьем. Выберите самое теплое место в помещении. Также необходимо, чтобы там было побольше света, поэтому хорошей идеей будет поставить насест возле окна.
Удобно, когда под насестом находится щит, в который попадает помет. Это обеспечивает более комфортный процесс уборки в курятнике. Чтобы помет меньше лип к доскам, присыпьте поддон опилками или песком. Изготавливая поддон, предусмотрите его легкое разбирание – так ухаживать за птичником будет максимально просто.
Насест располагайте на высоте не менее 0,6 м и не более 1 м от пола. В сечении используемая для насеста перекладина должна составлять 5-7 см. Расчет исходит из половины длины раскрытой куриной лапки, измеренной с начала среднего пальца до конца большого. Чтобы не терять равновесие, курице необходимо плотно обхватывать перекладину лапами.
Следите, чтобы на каждую птицу приходилось не менее 18 см на жердочке, если курица яичной породы, и не менее 25 см для птиц мясо-яичной породы.
Построить гнездо и насест для кур своими руками не так уж сложно. Самостоятельный выбор устройства, материалов, размеров и других параметров позволит вам получить конструкцию, идеально подходящую под условия именно вашего хозяйства.
remoo.ru
Гнезда для кур несушек своими руками: фото, размеры
Кур яйценоских пород все чаще можно встретить на домашнем подворье, потому что они не требуют особого ухода, а расходы на содержание и питание вполне окупаются количеством снесенных яиц, которые можно продавать. А после того, как продуктивность этих птиц резко уменьшается, их можно отправить на убой и получить около 2 кг вкусного нежного диетического мяса.
Обустройство гнезд для кладки яиц – одно из важных дел при строительстве и внутренней отделке птичника. Их правильное расположение и изготовление позволяет сохранять в целости скорлупу, куры лучше несутся в правильно обустроенных гнездах, а качество яиц становится лучше.
Правила обустройства гнезд

При обустройстве гнезд для кур-несушек следует придерживаться основных правил:
гнезда следует размещать в темных местах, куда не попадают солнечные лучи, ведь отсутствие яркого освещения является одним из требований для кладки кур-несушек;
- место должно быть сухим, теплым, защищенным от сквозняков;
- подстилка в гнезде должна проветриваться, а само гнездо – оставаться теплым и сухим, для этого либо обеспечивают хорошую вентиляцию в местах, где обустроены гнезда, либо дно у гнезд делается из мелкой арматурной сетки;
- нельзя место для гнезд обустраивать на земле или рядом с входом – там всегда холоднее и больше сырости. В таких условиях куры могут простудиться, поэтому у них резко снижается аппетит, активность, набор веса и продуктивность. Поэтому высота, на которой устанавливаются гнезда, должна быть не менее 30-40 см от уровня пола, а размещать их лучше в глубине курятника;
- лучше крепить гнезда на вертикальных опорах на расстоянии от стены. В зимний период привинченные к стене гнезда создают дискомфорт для кур – несушек, а такая конструкция не отличается высокой прочностью;
- при изготовлении этих конструкций своими руками, нужно убедиться, что в гнездах нет никаких дефектов, которые могут навредить несушкам при откладывании яиц;
- при установке гнезд следует помнить, что 1 место предназначено для 5 кур.
Важно знать! Для подстилки в гнездах лучше использовать древесные опилки, чем обычную солому или сено. Дело в том, что куры могут рыться в гнезде, при этом легко разбрасывая солому вокруг, поэтому в птичнике быстро становится грязно. А вот опилки так легко разбрасывать им не удается. Чтобы снесенные яйца не выпадали из конструкций, дно гнезда должно быть ниже верха бортиков на 2-3 см.
Виды гнезд для несушек

Если нет желания или возможностей обустроить гнезда для самок-несушек своими руками, то можно приобрести уже готовые. Но многие птицеводы обустраивают курам места для откладывания яиц из подручных материалов: в ход идут ящики из дерева и пластмассы, отслужившие свой срок корзины любых размеров, коробки из картона. Следующий пункт подготовки гнезд – выбрать в курятнике подходящее место, где нет света и тихо.
Решились ли птицеводы приобрести готовые конструкции или сделать их самостоятельно, но прежде надо определиться с тем, какого типа будут такие гнезда.
Существует два вида таких конструкций:
- Гнездо в виде ящиков. Обустроить подобную конструкцию легко, причем внешние данные ящиков позволяют устроить в одном месте много ячеек для кладки яиц. В таких гнездах проще обучать кур-несушек откладывать яйца – самок запирают в гнезде на несколько дней, вырабатывая у них привычку производить кладку в определенном месте.
- Конструкции с яйцесборниками. Такие гнезда по своей форме могут быть разными, но одинаков принцип их обустройства – снесенное яйцо сразу же по приспособлениям скатывается в специальный лоток, поэтому несушка его не касается и не может повредить. Такие гнезда обычно обустраиваются на птицефабриках или в больших фермерских хозяйствах, где занимаются разведением кур-несушек в больших количествах для массового сбора яичной продукции.
Оборудование курятника – что нужно иметь

В летний период о многих вещах, необходимых для комфортного проживания кур-несушек, можно не вспоминать. Дело касается освещения и обогрева. Дополнительное освещение устанавливается в осенне-зимнее время. Многие фермеры, особенно в небольших курятниках устанавливают обычный патрон, в который вкручивают лампочки разной мощности. Однако куры могут перелетать по курятнику и задевать шнур с лампочкой. Такое поведение птиц может стать причиной короткого замыкания.
Такое освещение – без выключателей – горит в птичнике сутками, заставляя кур – несушек нервничать. В идеале этим яйценоским самкам следует зимой обеспечивать световой день продолжительностью не более 15 часов, а все остальное время в курятнике свет следует выключать, чтобы птицы имели возможность отдохнуть до утра. В этом случае даже в холодное время птицы не меняют ритм своей жизни и откладывают яйца с такой же регулярностью, как и летом.
Обычно для зимнего освещения используют люминесцентные лампы, оборудованные выключателями.
Правильно установленная вентиляция позволяет удалять все неприятные ароматы из птичника, в этом случае воздух в помещении постоянно будет свежим, но без сквозняков, вредных домашним птицам.
Кроме освещения и вентиляции зимой следует позаботиться об обогреве курятника. И хотя считается, что при большом количестве кур в зимнем небольшом помещении не стоит устанавливать дополнительные электрические обогревательные приборы, так как птицы обогреют себя сами, но это не совсем так. Даже при хороших утеплительных материалах, которыми обшиты стены «птичьего домика», зимой термометр не поднимается в нем выше, чем до +7+8⸰С.
Поэтому рачительные фермеры обязательно устанавливают в птичниках на зиму масляные обогреватели, обшитые деревянным коробом, в котором проделаны круглые дырки для вентиляции теплого воздуха. Такой короб нужен для того, чтобы птицы не получали ожогов при соприкосновении с обогревателем, а также не роняли его.
Поддержание определенной температуры и влажности в помещении, а также дополнительного освещения – важные мероприятия для комфорта и нормальной продуктивности в зимний период. Но кроме этого надо обустраивать места, где куры будут нести яйца, а также насесты.
Клетки

Если нет возможности построить большой курятник, а хочется разводить больше кур яичных и мясояичных пород, можно размещать в помещении клетки. В этом случае появится возможность иметь этих птиц в два-три раза больше, чем позволяет размер птичника. Устанавливая клетки, нужно представлять, чем должны быть оборудованы клетки для содержания кур:
- для кур-несушек размер клетки должен быть около 0,6 м2, для мясояичных птиц – 0,8 м2, так как такие особи больше размером, чем несушки;
- в каждой клетке устанавливаются индивидуальные кормушки и поилки;
- стенки клеток делаются из стекла или металлической сетки, глухих стен не делают;
- пол должен быть крепким, чтобы не прогибался под массой птиц;
- также должно обустраиваться место, где куры будут нестись;
- клетки не должны размещаться на полу или вблизи двери, где может быть сыро и холодно.
Гнезда

Обустройство гнезд – важная деталь при разведении кур яичных и мясояичных пород. Хотя куры являются достаточно неприхотливыми в разведении птицами, но по своей физиологии для кладки им нужно затененное теплое и сухое место. Поэтому для нормальной яйценоскости этим особям требуется установить гнезда правильно. О размерах и изготовлении мест для кладки своими руками будет рассказано ниже.
Насесты

Насест обычно изготавливается из закругленных заготовок или брусков и предназначен для ночного отдыха этих птиц. Сами насесты заводчики птиц изготавливают по-разному, так как вариантов много:
- в маленьких курятниках, где количество несушек небольшое, можно просто расположить насесты вдоль стен помещения;
- также в небольших помещениях насесты закрепляют на разной высоте, расстояние между ними должно быть не менее 0,3 м, чтобы птицы не пачкали друг друга своим пометом;
- некоторые птицеводы делают переносные насесты, которые практичны в маленьких курятниках – проще чистить пол, а конструкции можно перемещать в любое место внутри помещения.
Следует знать основные размеры насестов: для куриц мясояичного направления для одной особи достаточно 0,3 м перекладины, в высоту эта конструкция должна быть не более 0,6 м, а ее сечение – 5 на 6 см. расстояние между перекладинами – около 0,4 м.
Для птиц меньше 5-6 месяцев размеры насестов должны быть следующими: длина перекладины рассчитывается исходя из того, что для одной особи нужно не более 0,15 м, перекладины размещаются на высоте от пола не более 0,2 м. сечение бруска должно быть около 5 см, а расстояние между перекладинами – не более 0,2 м.
Как сделать своими руками
Многие птицеводы предпочитают покупать уже готовые конструкции под гнезда, однако при наличии стройматериалов можно сделать гнезда и своими руками. Главное – соблюдать размеры и обустраивать конструкции так, чтобы курицы не могли пораниться о выступающие гвозди.
Размеры

Для кур — несушек размеры гнезда должны быть следующими:
- в длину – 0,35 м;
- в ширину – 0,25 м;
- в высоту — 0,35 м.
А вот птицам мясояичного направления гнезда изготавливают побольше:
- в ширину – 0,3 м;
- в длину – 0,4 м;
- в высоту – 0,45 м.
У гнезда следует сделать порожек высотой 5-7 см, а перед конструкцией устраивается дощечка для взлета размером 4,5 на 2,5 см. Помещают ее перед входом за 0,1 м.
Крыши у гнезд не делаются прямыми, чтобы птицы не сидели на них, лучше делать их под углом в 45⸰.
Обустраивать птичник гнездами и насестами следует до того, какиграть в пасьянс паук в него помещают домашнюю птицу.
Материалы
Для изготовления гнезд можно использовать уже готовые ящики, картонные коробки и т. д., дно которых застилается сеном или древесными опилками. А для изготовления любых конструкций можно использовать листы фанеры, ДСП или ДВП.
Простые гнезда

Самой простой конструкцией будет изготовление гнезда из ящика (пластмассового или деревянного), в котором хранят овощи, и фанеры, используемой в качестве затемнения. Главный минус конструкции – сравнительно большие размеры, немного комфорта для самок, а также то, что конструкцию можно разместить только на полу, где в осенне-зимнее время бывает холодно и достаточно сыро.
Можно строить многоярусные домики для откладывания курами яиц. Строят их обычно из досок или ДСП. Доски перед началом работ следует обработать, чтобы не было сколов, и проделать в них несколько отверстий. Предварительно нужно нарисовать чертеж и строить конструкцию по нему. К многоярусным домикам следует сделать лестницы.
С яйцесборником

Гнезда с яйцесборником необходимы в тех хозяйствах, где количество кур-несушек слишком большое, и нет возможности постоянно собирать снесенные яйца. Существуют следующие подобные конструкции:
- с двойным дном;
- со специальными контейнерами, в которые скатываются яйца.
Чтобы изготовить гнезда с двойным дном, потребуются следующие материалы и инструменты:
- фанера или тонкие доски;
- крупный наждак;
- крепеж;
- ножовка по дереву;
- молоток;
- отвертки;
- обивочный материал для поддона;
- ножницы;
- клей.
Из фанеры или досок по чертежам сколачивается домик, дно которого выполнено под небольшим наклоном. Между стенкой и полом оставляют отверстие, в которое и скатываются снесенные яйца. Вторым дном является поддон, который оббивают мягким материалом. Такой поддон длиннее основного пола на 9-11 см, чтобы удобнее было собирать яйца.
Пошаговая инструкция по изготовлению

- Фанерные листы обрабатываются напильником или наждаком;
- затем следует вырезать квадраты размерами 35 на 35 см – это стены домика;
- в одном квадрате проделывают отверстие, в которое будут заходить курочки. Перед отверстием следует сделать порожек;
- отдельно готовят брусья такого же размера, как и стенки;
- из квадратов сооружают короб, в углах прикрепляя стенки к брускам саморезами. Саморезы не должны торчать из брусьев, иначе они будут ранить птиц;
- также следует проверить домик на наличие сколов и других возможных повреждений;
- затем из фанеры вырезается еще пара листов – для пола и потолка, которые прикрепляют к основному коробу;
- дно застилается соломой (или опилками;
- гнезда приподнимают над полом и приставляют лесенку.
Как сделать гнезда для кур с ловушкой, своими руками: видео
Делаем гнезда для кур за 5 минут, своими руками: видео
Гнезда, как и насесты, легко сделать своими руками, особенно в тех случаях, когда нет финансовой возможности приобрести такое оборудование в специализированных магазинах.
А каждый фермер может самостоятельно выбрать ту конструкцию, которая будет наиболее удобна для своего птичника.
dom-dacha-sad.ru
чертежи, хитрости и полезные советы
Внимание, в конце этой статьи я настоятельно буду рекомендовать вам делать гнезда для кур несушек из металлических листов (или металлолома), вам обязательно нужно дочитать эту статью до конца, чтобы узнать почему нужно отказаться от дерева, конкретно об этом я написал в пункте 1 раздела «Четыре главных критерия хорошего гнезда».
Размер, многообразие и расположение гнезд в курятнике всегда будут варьироваться в зависимости от ваших потребностей. Основная идея заключается в том, чтобы иметь чистую и сухую область, где ваши несушки чувствуя себя в безопасности, могли бы отложить яйца.
Вы можете приобрести полностью готовые гнезда для несушек, либо сэкономить и сделать их из подручных материалов. Именно для тех, кто заинтересован построить гнезда для курятника своими руками предназначена эта статья.
Общие советы, для создания гнезд для кур несушек
- Обычно для 2-3 кур достаточно одного гнезда;
- Гнездо для кур должно быть достаточно большим, чтобы ваша несушка могла встать не касаясь потолка коробки. Идеальный размер ящика 35*35*35 см; Высоту в идеале подбирают экспериментально, основываясь по наблюдениям за несушками (интенсивность яйцекладки, раскидывание соломы, количество помета), она может варьироваться от 22 до 40 см.
- В гнездах хорошо бы использовать в качестве подстилки мягкую солому или древесную стружку;
- Добавление насеста перед гнездом, дает курам место для шага вперед перед входом в гнездовую коробку;
- Чтобы яйца не выпадали из гнезд, а также для безопасности курицы, лучше сделать порожек (бортик) у каждого гнезда. Кроме того гнезда с меньшим входом придают тусклое, пещерное ощущение.
- Лучше, когда гнездовья находятся на расстоянии от земли.
Типовые чертежи гнезд для кур несушек с размерами
-

- Чертеж гнезд Вариант 1
-

- Чертеж гнезд Вариант 2
Чертеж гнезда с уличным доступом
Все размеры указаны на рисунках 2-6
Четыре главных критерия: как сделать хорошее гнездо
Ящики должны быть самой чистой частью нашего курятника, поскольку в нем хранится “пищевой продукт”. Из-за этого у меня есть строгие критерии, того как сделать хорошую гнездовую коробку для несушек.
Дизайн коробки играет большую роль в сохранении яиц чистыми и здоровыми.
Если вы хотите купить гнезда для курятника или планируете сделать их самостоятельно, убедитесь что они соответствуют этим 4 критериям.
- Легкость очистки.
Ящики для кур несушек должны быть легкими в чистке. Если гнезда тяжело убирать, то возникнет тенденция постоянно проводить тяжелую хозяйственную работу.
Кроме того, куры-несушки видя грязные коробки начнут нестись в другом месте, например на полу или в углу, где яйца можно легко раздавить. Грязь и помет — это источник бактерий и паразитов, которые могут вызвать болезнь у кур.Замечательное решение для содержания гнездовья в чистоте — отказаться от деревянных коробок. Например мы изготовили ящики из металлолома (у нас было достаточно больше количество металлических листов ) — их легко обслуживать. Дерево трудно очищать, а паразиты и бактерии могут глубоко проникать в трещины и поры, кроме того дерево долго сохраняет влагу, а значит в коробках может быть сырость.
Для того чтобы сделать гнездо-коробку из металла понадобятся болгарка (или ножовка по металлу) и дрель (шуруповёрт) - Как высоко над полом?
Мы монтируем ящики обычно на высоте 60 — 120 см над полом. Это облегчает сбор яиц. Если вы держите породы, которые плохо летают, например, силки, лучше установить гнезда пониже, и не забудьте построить перед гнездами насест (рампу).
- Постельные принадлежности.
В коробке должна быть достаточно толстая подстилка, чтобы яйца не разбились во время кладки. Если курица случайно разобьет яйцо, инстинкт подскажет, что надо его съесть — курицы так делают, чтобы спрятать улики от потенциальных хищников. Проблема состоит в том, что как только несушки узнают, насколько вкусны их собственные яйца, в дальнейшем они будут нарочно их разбивать и вы окажетесь с пустой корзиной.Я предпочитаю сосновые опилки из-за их приятного соснового аромата, но солома тоже будет работать.

- Откажитесь от плоской крыши гнезд.
Проблема со многими гнездами состоит в том, что они имеют плоскую крышу. Для несушек это отличное место для сна. Через несколько ночей, верх ваших гнезд-коробок будет отвратительным. Для решения проблемы делайте крышу гнезд под крутым уклоном и из скользкого материала (например пластика)
Как сделать гнезда для курятника из того, что есть — 14 нестандартных решений
Куры любят откладывать яйца чувствуя себя в безопасности, поэтому птицеводы делают гнезда. Однако, отсутствие стандартных (правильных) гнезд совершенно не означает, что куры не буду нести яйца. Куры могу нестись где угодно — проверено птицеводами!
Если вы пытаетесь сократить расходы на строительство курятника, вот некоторые замечательные хитрости.
- Пластиковый таз в качестве гнезд — коробок.
Это простая конструкция коробки, где собственно ящики для вложенности сделаны из пластиковых тазов с вырезом спереди. - Гнездовья из ящиков для молока.
Очень хорошо подходит для пространства несушек пластмассовый ящик для транспортировки молока. - Еще один пластиковый контейнер.
Использование еще один контейнеров, но уже в вертикальном исполнении. - Геометрические гнездовья в курятнике.
Представьте, насколько классно это выглядело бы при использовании яркой красивой краски. - Деревянная бочка-платформа.
Винный бочонок — идеальное место для яйценоски. - Гнезда на полу.
Простое и недорогое решение для размещения гнезд-коробок прямо на полу. - Гнезда из вентиляционных коробов.
Очень хитроумный план использовать круглый металлический воздуховод. - Лоток для котят.
Простой, легкий и почти уже собранный ящик для ваших кур сделанный из лотка для котят. - Контейнер для мусора.
Гениальная версия гнезд сделанная из мусорных пластиковых баков. - Мебель под заказ.
Ящики сделаны из мебели, которая больше не нужна. - Хитрость: гнезда для несушек с яйцесборником.
Когда я наткнулся на эту фотографию, я подумал это гениально! Если построить коробки гнезда, где каждый этаж будет установлен под небольшим углом, вы можете помочь своим яйцам выкатится к переднему ящику. Но тут возникает целый вопрос — хотите ли Вы, чтобы ваши курицы лежали под углом на искусственном (синтетическом) покрытии. - Пластиковое ведро как гнездо для курятника.
- Гнездо сделанное из шины трактора.
Идея для любого из вас, старые шины можно приспособить для гнезд в курятнике. - Ящики для хранения вина.
Не хотите ли испробовать вина с яйцами?













- 5
- 4
- 3
- 2
- 1
Не нашли ответа на свой вопрос?
Воспользуйтесь поиском:
o-terrasah.ru
Гнездо для кур несушек своими руками чертежи размеры условия
Каждый уважаемый себя фермер, при своем желании держит кур. В наше время-это распространено не только среди фермеров, но и в кругу начинающих любителей домашней птицы. Этот вид скотоводства завлекает тем, что это не трудоемкая работа, не надо прикладывать особых усилий. Ферма также является отличным источником доходов. Все реже нам хочется покупать куриное мясо в магазинах и на рынках. Мы часто слышим разговоры о том, что куры которые были выращены на предприятии имеют не очень хороший химический состав.
Все чаще хочется употреблять в пищу мясо, выкормленное на нормальных кормах, растительного происхождения. В деревнях, селах и небольших городках набирает популярность разведение птицы в домашних условиях. Намного приятней зажарить курочку в духовке и с удовольствием ее съесть, зная что в ней нет сторонних примесей, что она выращена на зерне и травке, что мы получим необходимое количества белка, витамин, микро и макроэлементов.
Для того, чтобы держать кур у себя дома или на даче, необходимо построить курятник и знать как сделать гнездо и создать все необходимые условия для их жизни. Подберите для себя сразу проект для постройки курятника. Если вы собираетесь брать птицу на круглый год, то выгоднее всего сделать теплый курятник с переход на летний курятник.
Чтобы построить курятник на даче своими руками, необходимо определиться со следующим:
- Место где будет располагаться сооружение
- Время года
- Конструкция постройки
- Температурный фактор
- Площадь
Идеальным расположением птичника будет постройка с востока на запад. В помещение должно проникать солнце как можно дольше. Это влияет на продолжительность яйценоскости кур. Эта птица не переносит жару и сильные морозы. Все это влияет на то, как курица будет нестись. В период зимы, оптимальной температурой считается примерно 10−12 градусов. Узнать, какие габариты постройки вам необходимы, можно из расчета 1 курица на 0.5 кв. м. Так как куры не любят влажную почву, постройка должна защищать от сильных дождей, ветров и от хищного зверя.
Какие необходимы материалы, чтобы построить курятник и гнездо для кур несушек
Изначально с чего бы вы ни решили строить птичник, вам понадобится стандартный набор строителя в который входит:
- Гвозди
- Молоток
- Пила
- Саморезы
- Уровень
- Лопата
- Шуруповерт
- Фанера
- Брусочки
- Наждачка
После того как вы убедились, что имеете все выше перечисленное можно подумать о материалах, из которых вы собираетесь строить курятник. В качестве материалов обычно используют доски, брус, кирпичи, шлакоблок и даже пластик.
Чтобы сооружение простояла много лет и могла достаться по наследству вашим детям и внукам, нужно сделать его крепким. Для это сначала делают фундамент, который будет держать стены и который позволит избежать попадания хищников к птицам. Фундамент обычно заливается раствором из цемента, песка, щебня. Но также можно соорудить столбичный фундамент. Главное, чтобы пол был устелен досками, чтобы куры зимой не мерзли, это может привести к заболеванию.
Следующий этап в постройке летнего курятника это возведение стен. Материалом для этого может послужить как брус так, и пенобетон так, и обычные кирпичи. Ставить ставку надо на то, чтобы стены могли удерживать тепло зимой. Самым лучшим энергосберегающим материалом является брус. Существует специальная технология укладывания брусья, которой нужно придерживаться. В конце, когда брусья выложены необходимо их скрепить досками с двух сторон для лучшей фиксации. Также сразу накладывается утеплительный слой. Примером утепления служит вата, опилки или другой материал. Нельзя забывать про окна и двери на птичнике. Чем больше будет света попадать в курятник, тем выше производительность кур.
Крышу на курятнике можно сделать несколькими вариантами:
- Односкатная
- Двускатная
При постройке двускатной крыши есть преимущество, на такой крыше удобно хранить зерно. На крыше сухо и это считается хорошим местом для хранения.
Потолок строиться из балок и одновременно утепляется. Что бы при дожде вода не попадала на чердак, его устилают рубероидом, и сверху кладут шифер ли что-то подобное. При этом стоить помнить, что в курятнике должна быть вентиляция.
Обустройство курятника на даче изнутри. Гнездо для кур несушек своими руками, чертежи
Этому разделу стоит уделить немалое значение. Куры-несушки сами по себе неприхотливые в уходе. заводят такую птицу в основном для яиц. Если хотите максимально получить от курицы яиц, необходимо соорудить комфортные гнезда.
Гнезда для кур несушек
Если обустроить гнездо максимально комфортно, то курица принесет по максимуму яиц. От того какое гнездо вы соорудите своими руками, зависит качество яиц и прочность скорлупы. Важным аспектом является место самого гнезда, которое вы сделаете своими руками. Стоит придерживаться основных условий:
- Место гнезда. Оно должно быть сухим, теплым и не шумным и защищено от солнца и от дождя.
- Помещение должно проветриваться, но без особых сквозняков.
- При конструировании гнезда своими руками убедитесь, что не торчит гвоздь или шуруп.
- Правильно рассчитать количество гнезд исходя от несушек. Считается 1 гнездо на 5−6 несушек.
При сооружении гнезда, сначала определитесь какого вида вы хотите их сделать. В домашних курятниках делают гнезда в виде ящиков. Это самая простая схема гнезда, не требующая особых усилий и технологий. Птица быстро привыкает к такому гнезду и это становится ее основным местом для несения яиц.
Размеры гнезда для кур несушек
Немаловажным является размер гнезда. Сделать правильный расчет гнезда можно исходя из того, какого вида кур вы заводите. Если это обычная несушка, то гнездо следует сделать своими руками со следующими размерами:
- Ширина гнезда 25 см
- Глубина 25 см
- Высота 35 см
Если вы обзавелись мясо-яичной породой то сделать гнездо следует следующим образом:
- Ширина 30 см
- Глубина 40 см
- Высота 45 см
Для полной уверенности в своих действиях, набросайте чертеж курятника вместе с гнездами. Это вам поможет в работе.
Материал для постройки гнезда для кур несушек
Материалом может служить любое подручное средство, от пластика до фанеры. Своими руками вы можете сделать гнездо из чего угодно. Для простоты работы берут фанеру, или листы каркаса. Если вы решили построить гнездо из доски, то сначала ее необходимо зачистить наждачной бумагой. Из расчета вашего чертежа вырезаете досточки нужной длины и ширины и сколачиваете из вместе. Если вы ставите несколько гнезд, одно над одним, то вам необходимо позаботиться о лестнице.
Гнезда должны быть заполнены сеном или опилками для комфорта кур.
Также важным аспектом для несения яиц является еда и питье для кур. Вода должна находится в птичнике круглосуточно. Поилки должны быть чистыми и вода должна меняться хотя бы 2 раза в день. Если вы хотите чтобы ваши птички быстро набирали вес, значит кормушка должна быть наполнена всегда. От вида кур зависит чем вы их будете кормить. Если же вы взяли бройлеров, то вам понадобиться специальный корм с добавками для скорого их роста. Причем мы знаем, что траву не всем можно давать. В основном все породы кур питаются перемолотым зерном в составе:
- Ячмень
- Пшеница
- Кукуруза
- Овес
- Добавляют даже дерть.
Пол в курятнике должен быть теплый. При постройке курятника на даче часто утепляют его либо соломой, либо опилками. Также это поможет ускорить процесс уборки.
Летний курятник своими руками на даче с постройкой гнезд
Летний курятник обычно строят для держания птицы на летний переходящий в осенний период. Весной берут цыплят, держат их под особым контролем и в тепле. несколько месяцев и они превращаются в молодняк, для которого необходимо пространство.
Летний курятник должен быть с навесом, для защиты от дождя и солнца.
Для летнего курятника используется каркас, который делается либо металлический, либо деревянный. По каркасу натягивается металлотканая ячейка размером примерно 3Х3 см. Высота сетки должна быть не ниже 2 метра во избежание прелета птицы через ограждение. Стены должны быть хорошо зафиксированы у самого основания. Можно по периметру вкопать листы шифера и это точно защитит от подкопов и мелких хищников. Так как куры любят грестись и могут невольно сделать подкоп, что приведет кучу проблем впоследствии.
По площади летний курятник должен превышать основной. Для выгула птицы, необходимо достаточное количество места. Для такой породы, как несушка, чем меньше территория, тем хуже они несутся.
Гнезда при необходимости, делаются в дальних уголках курятнику, где курица — несушка сможет спокойно и с чувством безопасности высидеть яйцо. Гнезда строятся по такому же чертежу, как и для основного курятника.
Желательно чтобы место было возвышенным, для избежания застоя воды при дожде.
Курятники можно сделать разной формы, разных размеров по величине. все что угодно можно сделать, но что бы вы не построили, курятник должен содержать все себе все условия для птицы:
- Способы кормления
- Насест
- Гнезда для несушек
- Защита от дождя, солнца и морозов
Соблюдая все эти условия, ваше хозяйство принесет вам пользу в виде качественного мяса и яиц.
ferma.guru
Быстрые и простые варианты сооружения гнезд для кур несушек своими руками
Обустройство любого курятника предполагает наличие в нем гнезд для кур. От качества таких гнезд зависит и качество, и количество целых яиц, которые сносят куры. Для обеспечения максимально комфортных условий, можно заняться конструированием гнезд своими руками и разобраться как сделать гнездо правильно, продумав каждую деталь.
Содержание статьи
Правила обустройства гнезд в курятнике
Первостепенно стоит ознакомиться с некоторыми правилами, которые помогут в дальнейшем процессе обустройства:
В том месте, где происходит кладка яиц, должно быть сухо и тепло.- Располагать гнезда рекомендуется в месте с преобладанием тени, где не достают солнечные лучи.
- В том месте, где происходит кладка яиц, должно быть сухо и тепло, что можно обеспечить за счет настила соломы или опилок. Опираясь на практический опыт фермеров, лучше применять опилки, потому как такая разновидность подстилки не выбрасывается птицами из гнезда.
- Уровень опилок или соломы не должен превышать края бортов, чтобы яйца не выкатывались и не падали.
- Рекомендуется при конструировании гнезд делать дно из сетки. Благодаря этому будет обеспечено проветривание подстилки на протяжении длительного времени.
- Место установки стоит выбирать, отталкиваясь от обратного: места, в которых преобладает влажность и проходит холодный воздух, не подойдут.
- Прикреплять гнезда не рекомендуется на стены, так есть риск птицам простудиться, а гнезда придется чаще менять или реконструировать.
- Завершенная конструкции гнезда не должна иметь никаких шероховатых поверхностей, торчащих гвоздей или иных острых элементов, ведь птица может пораниться.
- Расчет количества гнезд проводят, основываясь на пропорции 5:1, т.е. 5 кур на 1 гнездо.
Какие виды гнезд существуют
Кроме правил, стоит понять, какие гнезда сделать лучше всего.
Существует три различных конструкции гнезд для кур.Характеристики трех возможных видов гнезд следующие:
| Вид гнезда | Характеристика |
| Гнезда-ящики | Конструкция такой разновидности гнезда очень проста – это обычный ящик, в котором проделано отверстие для свободного прохода птицы внутрь. Количество ячеек в этой установке может варьировать. Хорошим плюсом гнезд-ящиков является легкая обучаемость куриц нестись в гнезде, стоит лишь закрыть на короткий промежуток времени птицу в таком гнезде, и проблем в дальнейшем не возникнет. |
| Из подручных материалов | Данная разновидность в основном используется птицеводами-новичками, которые еще не оборудовали курятник полностью. Также это хороший вариант для тех, кто держит небольшое количество птиц, ведь гнезда выходят недолговечные. Но в некоторых случаях ничего не остается, как сделать гнездо для кур несушек из обычных коробок или корзин. Главное условие при этом – выбирать элементы без дефектов, предварительно вычистив их от мусора и пыли. Также стоит помнить, что пространство с таким видом гнезд рационально использовать не получится. |
| Гнезда-яйцесборники | Самая оптимальная разновидность гнезд, хоть и трудоемкая. В этом случае понадобится внимательно ознакомиться с процессом и понять, как сделать гнезда самому, ведь конструкция предполагает самопроизвольное выкатывание яиц, чтобы птицы их не клевали. Для сооружения необходимы специальные поддоны, в которые будут скатываться яйца. Кроме этого сделать гнездо можно с оснащением его воронковидным отверстием по центру, либо наклонной поверхностью пола. |
Оптимальные размеры гнезд для курочек
Основываясь на том, какого размера куры, подбирают параметры гнезд. Главная задача при этом – обеспечить птицам свободное проникновение в гнездо и размещение внутри него. Размер для кур-несушек составляет 25х35х35 см.
Размер одного гнезда для кур-несушек составляет 25х35х35 см.Лучше всего предварительно сделать чертежи, на которых отмечают все необходимые параметры сооружения. Кроме указанных выше, стоит учесть высоту порожка, которая должна быть не менее 5 см, и полочку для взлета с оптимальным сечением 5х2 см, располагается она на отдалении 10 см относительно входа.
Важно. Крышка гнезда устанавливается на угол в 45 градусов для исключения возможности сидения птиц на гнезде.
Особенности устройства простейшего гнезда для несушек
Для самого простого гнезда подойдет любой ящик, например, овощной из пластика и лист фанеры. Последний можно заменить на иной материал, который необходим для сооружения занавески. Постелив немного настила и обеспечив затемнение, можно получить простую конструкцию гнезда.
Самый простой вариант гнезда для кур несушек — деревянные или пластиковые ящики.Стоит понимать, что качество подобных гнезд не слишком хорошее. Кроме этого, размещать их придется на земле, что негативно повлияет на здоровье птиц и уменьшит уровень их производительности.
Важно. В некомфортном гнезде птица не станет нести яйца. Это стоит помнить, решая вопрос о разновидности конструкции.
Изготовление гнезд в виде ящиков
Для сооружения таких гнезд нужно воспользоваться:
- фанерой или доской;
- брусом;
- крепежом;
- наждачкой;
- электролобзиком;
- отверткой;
- молотком.
На фото чертеж двухъярусных гнезд для кур несушек.Пошаговая инструкция для конструирования выглядит следующим образом:
- Изначально деревянный материал необходимо зашкурить.
- Далее проводят вырезку всех заготовок, отталкиваясь от необходимых размеров. Для вычисления нужного количества ячеек необходимо разделить длину всей конструкции на ширину одной из ячеек. Высота (ярусность) определяется аналогично.
- Следующим шагом является соединение всех заготовок при помощи гвоздей.
- Внутреннюю сторону коробов нужно укрепить при помощи бруса. Крепление проводят по углам.
- После этого сооружается входное отверстие, которое можно вырезать.
- Далее делают порожек, по ширине который не должен быть менее 10 см. Соединение этого элемента проводят с нижней частью коробов по всей длине.
- Помост для взлета закрепляется на расстоянии 10 см от входного отверстия.
- Если гнезда сооружаются в несколько ярусов, то стоит позаботиться о сооружении лестницы к каждому из них.
Внутренние стенки гнезд укрепляют с помощью брусков.Изготовление гнезд с яйцесборником
При желании соорудить такую разновидность гнезда, стоит определиться с вариантом такой конструкции. Выполнить изготовление такой разновидности гнезда будет немного сложнее, но это обеспечит больше свободного времени фермеру и сохранит целостность куриных яиц.
Двойное дно
К материалам, которые указаны в предыдущем варианте, следует добавить для процесса сооружения:
- обивочный материал на поддон;
- нож;
- ножницы.
Процесс монтажа гнезд заключается в следующем:
Глубина поддона делается больше глубины гнезд на 10 см.- Первым делом сооружают обычное гнездо, как в предыдущем случае, учитывая все нюансы такого процесса.
- Особенностью такой конструкции является дно, которое должно быть присоединено с учетом угла наклона относительно задней стенки в 5 градусов. При этом расстояние от стенки до дна оставляют таким, чтобы яйца свободно скатывались, проходя через нее.
- Далее сооружают поддон, который сразу оббивается обивочным материалом. Для этого можно воспользоваться войлоком, резиной или линолеумом, вывернутым на изнанку.
- Глубина поддона делается больше глубины гнезд на 10 см, это позволит собирать яйца снаружи.
- Поддон крепят также под наклоном, равным 5 градусам.
Контейнер для яиц
При помощи, указанной ниже схемы можно соорудить свою собственную конструкцию.
Материал для изготовления аналогичный, а процесс монтажа следующий:
- Изначально собирается короб, в котором располагают дно с наклоном в 10 градусов.
- Передняя часть конструкции закрывается, предварительно в ней вырезают входное отверстие.
- На нижней части задней стенки вырезается отверстие, размер которого немного превышает яйцо.
- Далее проводят установку контейнера для яиц, который покрыт мягким материалом с внутренней стороны для обеспечения целостности яиц во время скатывания.
На фото гнездо для курочки несушки с яйцесборником в виде контейнера.Важно. Обивочного материала не должно быть много, он может стать препятствием для скатывания яиц в поддон.
Как прикрепить гнезда
Прикрепление гнезд можно проводить двумя способами:
- на специальные опоры, которые изготавливают заблаговременно;
- к стенам, исключая их контакт с гнездами.
Если с креплением на специальные опоры вопросов не возникнет, то как прикрепить гнездо к стене, стоит разобраться более подробно:
Гнезда крепят к стене или на специальные опоры.- На стену прикрепляют доску с параметрами 30х4х2 см. Она будет служить основанием и опорой для дальнейшего закрепления конструкции.
- Вторую доску с аналогичными размерами закрепляют, соблюдая угол в 45 градусов. При этом расстояние от одной доски до другой должно быть не менее 40 см. Расходятся доски книзу.
- Далее с отступом в 45 см крепят аналогичную конструкцию, только схождение досок будет сверху.
- В получившиеся основы, в которых есть отсеки, прикрепляют гнезда. Закреплять их нужно при помощи шурупов к планке, расположенной под углом.
Навесные гнезда своими руками
Вариантом обустройства курятника можно выбрать сооружение гнезд навесного типа. Преимуществом такого сооружения является его доступность для фермера, ведь ходить за яйцами необходимость пропадает. Единственный нюанс — это необходимость в утеплении.
Важно. Делать такую разновидность гнезд можно только в случае с деревянным курятником.
Соорудить навесное гнездо можно следующим способом:
- Изначально следует нарисовать чертеж в соответствии с размерами птичника.
- Используя брус с размерами 5х5 см сооружают стенки и по одной стороне прикрепляют фанеру.
С помощью бруска формируют каркас и крепят на него фанеру. - Далее проводят сооружение днища, в процессе которого применяют этот же брус.
- После присоединяют обшивочный материал и поверх него укладывают утеплитель. Лучше всего использовать для такой цели пенопласт, ведь минеральную вату легко повреждают насекомые.
- При помощи болтов все элементы гнезда скрепляются вместе обшитой стороной внутрь. На этом этапе можно проделать отверстия в задних брусьях для дальнейшего их прикрепления к стенкам.
- Чтобы обеспечить свободный доступ к яйцам, в передней части гнезда сооружают дверцу. Этот элемент также нуждается в утеплении.
- После этого прикрепляют крышу, которая представлена листом фанеры.
- Далее фольгой устилают поверхность крыши и прикрепляют металлочерепицу.
- Последними сооружают перегородки, располагающиеся во внутренней части гнезда. Врезают лист необходимого размера и скрепляют его при помощи планок к дну.
Как приучить несушку к гнезду
Такой процесс на первый взгляд может показаться сложным, но на самом деле особых усилий для этого прилагать не нужно. Стоит лишь обеспечить необходимые условия для курицы, и она сама разместится в гнезде.
Если для курочки созданы все условия, она сама пойдет в гнездо для яйцекладки.При конструировании гнезд стоит внимательно следить как за размером отверстий для входа в гнездо, так и за параметрами самого гнезда, а именно обеспечить свободный доступ и размещение птицы в нем. Кроме того, стоит поддерживать температуру на уровне 10-12 градусов и обеспечить чистоту гнезда.
Также стоит заносить гнезда еще до размещения кур в птичнике. Очень важно обеспечить гнезда сухой подстилкой и разместить их в комфортном месте. Лучше всего поставить гнезда вдоль боковой стены, коротая расположена со стороны петель дверного проема. Это позволит избежать сквозняков и сохранить оптимальную температуру, и, соответственно, состояние здоровья птиц.
Предлагаем к просмотру видеоинструкцию по сборке гнезд для курочек несушек. Желаем приятного просмотра!
ferma-nasele.ru
3 лучших варианта + пошаговые инструкции!
Наличие гнезд для кур-несушек обязательно для каждого курятника. В первую очередь, это вопрос качества яиц. Чтобы яйца были чистыми и курицы их не заклевывали, нужны грамотно сконструированные гнезда желательно с яйцесборником. В противном случае курицы устраивают гнезда самостоятельно, и понравившимся им местом может оказаться любой угол курятника.

Гнезда для кур несушек своими руками

Два яйца в поддоне гнезда
Поэтому сбор «урожая» дополнительно осложняется необходимостью выискивать яйца по всему курятнику, что весьма неудобно и нежелательно. Также проблемы возникают с уборкой. Так что гнезда действительно необходимы. А если вы хоть раз держали в руках молоток и гвозди или отвёртку и саморезы, то проблем с самостоятельным изготовлением гнезд не возникнет.

Наседка сидит в гнезде
Содержание пошаговой инструкции:
О чём важно знать
Сделать гнездо для кур своими руками несложно. Самое простое в исполнении гнездо выглядит как небольшой ящик, застеленный сухими опилками или соломой.

Самые простые гнезда из ведер

Простые гнезда — ящики
Но нужно учитывать, что куры достаточно привередливы. Если гнездо будет изготовлено неправильно и не подойдет курам, то яйца в нем они нести не будут и приучить их не получится. Чтобы не возникло проблем с заселением кур, следует помнить об общих для любого типа домика правилах изготовления и размещения.

Курам должно быть комфортно в гнезде
В первую очередь домик должен быть уютным и казаться курам безопасным, поэтому располагать его следует дальше от входа. Это нужно также и для того, чтобы уберечь кур от сквозняков и сырости и предупредить заболевания, которые негативно сказываются на качестве яиц. С этой же целью гнёзда нужно располагать примерно на 30 см над полом, но никак не прямо на полу. Также гнездо должно располагаться по возможности в затемнённом углу и быть защищённым от света.

Оптимальное расположение гнезд
Заметка: Лучше заранее решить, где именно будет располагаться гнездо, чтобы можно было подогнать размеры домика под место, а не пришлось делать наоборот.
Теперь что касается самого гнезда. При выборе материалов ни в коем случае не берите длинные гвозди и саморезы, которые будут выступать из стенок гнезда. Птицы могут пораниться об них! Следует проверять готовое гнездо на наличие выступов или трещин, которые также могут представлять опасность для курочек. Ещё один важный пункт — высота стенок гнезда. Они должны быть достаточно высокими, чтобы из-за толстого слоя опилок яйца не выкатывались из гнезда, то есть порожек должен быть немного выше самого гнезда.

Гнездо для кур несушек

Три домашние курицы в гнездах
В погоне за удобствами для кур не стоит забывать о том, что гнездо должно быть удобным и для вас. Домик нужно изготавливать и размещать так, чтобы при его чистке и сборе яиц не возникали каких-либо затруднения. Также нужно выбрать подходящий именно вам тип домика.

Помещение для содержания несушек
Гнездо-будка
Самое простое гнездо — это гнездо-будка. Для его создания не нужны ни серьёзные навыки, ни большие затраты времени, в чём его преимущество. Обычное гнездо также удобно в размещении. Но из-за отсутствия яйцесборника могут возникнуть проблемы, так как иногда курицы склёвывают яйца, а гнездо-будка как раз таки оставляет доступ к яйцам. Тем не менее такой тип гнезда достаточно популярен.

Гнездо-будка
Для его изготовления вам потребуется:
- лист дерева толщиной около сантиметра;
- 4 деревянных бруска;
- лобзик;
- напильник;
- саморезы;
- шуруповёрт.
Размер листа дерева следует определить, исходя из предполагаемых размеров гнезда. Среднее гнездо для курицы-несушки — 35×35×35 см. Главное, чтобы габариты были не меньше 30 и не больше 40 см. Точный размер зависит от размера несушки. Также нужно решить, сколько именно будет гнезд. На 10 кур обычно делается 2-3 гнезда.

Оптимальные размеры гнезда

Гнезда для несения яиц
Инструкция по изготовлению.
- Лист дерева обработать напильником или же наждачной бумагой.
- Из листа вырезать 4 квадрата примерно 35×35 см. Это будущие стены гнезда.
- В одном из квадратов вырезать отверстие, которое будет служить входом. Не забудьте про порожек внизу входа!
- Затем подготовить четыре бруска такой же высоты, как и стены.
- Соорудить из вырезанных квадратов коробку, соединяя листы в углах брусками и вкручивая саморезы. На крайний случай можно воспользоваться гвоздями, но саморезы лучше держат конструкцию. Проверить, что саморезы не торчат из брусков.
- Осмотреть конструкцию на наличие сколов и острых углов, при необходимости исправить.
- Вырезать еще 2 листа — пол и потолок, скрепить со стенами.

Гнезда для кур

Гнезда своими руками
Самый простой домик для кур готов. Остается застелить гнездо соломой или опилками, поднять его над полом и приставить лесенку.

Гнездовье для кур

Гнезда для кур-несушек из деревянных ящиков и фанеры
Гнездо с яйцесборником
Наиболее удобное и безопасное гнездо для кур-несушек — это гнездо с яйцесборником. Делается оно немногим сложнее обычного, а преимуществ имеет куда больше. Самое главное — это сохранность яиц, к которым куры не будут иметь доступ, а следовательно, не смогут склевать. И собирать яйца из яйцесборников проще.

Гнездо с яйцесборником
Основное отличие такого гнезда от обычного — дно, которое делается с небольшим уклоном. По наклонному дну яйцо скатывается вниз и выкатывается из гнезда в специальный лоток через щель в стенке. В остальном гнездо изготавливается по принципу гнезда-будки.

Гнезда для кур в сборе

Изготовление гнезда для кур с яйцесборником (источник — fermagid.ru)
Инструкция
- Приготовить и обработать необходимые материалы.
- Сборка гнезда начинается со сборки основы (1). Нужно вырезать из листа дерева боковые стены-прямоугольники примерно 65×90 см и переднюю стенку около 65×40 см со входом для кур на высоте примерно 35 см. При помощи деревянных брусков соединить переднюю и боковые стенки. Заднюю пока не трогать.

Делаем боковые стенки. Не забываем при этом учитывать размеры
- Вырезать пол и потолок размером около 40×90 см и при помощи тех же брусков скрепить со стенами.

Из фанеры или досок сбиваем поддон

Поддон покрываем нескользким мягким материалом, ставим перемычку

Соединяем поддон с боковыми стенками

Теперь нужно поставить заднюю стенку и крышу
- Затем вырезать пол-скат (5), который будет располагаться над полом под наклоном примерно в 10—15°. Размеры ската — примерно 40×95 см.

Почти готовое гнездо
- Засыпать дно гнезда опилками (6), положить сверху скат, как на иллюстрации, и для надежности закрепить саморезами.
- Теперь следует изготовить заднюю стенку размером около 45×40 см. Задняя стенка делается короче, чтобы получилось отверстие, куда будут выкатываться яйца по дну-скату.
- Прикрепить заднюю стенку и закрыть отверстие занавеской (4), которую можно изготовить или из ткани, или из мягкого пластика.
- Затем нужно приспособить к гнезду ящик для сбора яиц (2). Ящиком может послужить любая подходящая пластиковая ёмкость, но его можно сделать и самостоятельно из дерева.
Застилать такое гнездо нужно тонким слоем соломы или опилок, чтобы яйцо легко скатывалось и нигде не застревало. В ящик для сбора яиц, наоборот, следует положить побольше мягкого настила (3), чтобы яйца не повреждались.

Гнездо для кур несушек с яйцесборником

Гнездо для кур с яйцесборником
Видео — Гнездо для кур с яйцесборником
Гнездо с двойным дном
Ещё один «хитрый» вариант гнезда, когда курица практически не соприкасается с яйцом — гнездо с двойным скатом. В таком гнезде под наклонённым дном, в центре которого имеется щель, находится выдвижной лоток, куда и падают снесённые яйца. Такое гнездо больше устроит кур, так как оно удобнее.

Гнездо с двойным дном
Инструкция
- Подготовить и обработать материалы.
- Сделать домик, как в инструкции для гнезда-будки, но немного выше стандартного — размером примерно 60×35×35 см. Переднюю стенку со входом пока крепить не нужно.
- Вырезать два прямоугольника — половинки наклонного пола размером примерно 35×15 см каждый. После закрепления между ними должна остаться щель шириной около 10 см, чтобы свободно проскальзывали снесённые яйца.
- Закрепить одну из половинок на задней стенке на высоте 20 см под небольшим наклоном — около 15°.
- Вместо передней стенки со входом крепятся две перегородки. Первая — нижняя перегородка размером примерно 10×35 см — крепится на высоте наклонного дна, и к ней предварительно прибивается его вторая половинка. Между нижней перегородкой и дном ящика остается щель, куда и вставляется лоток.
- Вторая перегородка — верхняя, её размер примерно 15×35 см. Она крепится на верхней части гнезда для того, чтобы прикрыть излишне широкий вход. С этой же целью можно дополнительно прибить боковые перегородки.
- После изготовления самого гнезда остаётся придумать, из чего будет лоток. Лоток должен действовать по принципу выдвижного ящика. Можно изготовить его самостоятельно, можно приспособить любой подходящий ящик.
Остается выстелить гнездо соломой или опилками. Дно-скат выстилается тонким слоем, лоток, опять же, — толстым, чтобы яйцо при падении не треснуло.

Гнезда для кур с яйцесборником

Деревянное гнездо
Заметка. Обычные гнёзда или гнёзда с яйцесборниками можно делать не отдельными, а общими. Для этого понадобится смастерить длинный ящик и поделить его перегородками. Так изготовление гнезда займёт меньше времени.
«Быстрое» гнездо

Гнезда для несушек
Если случилось так, что времени или возможностей обустроить курятник не оказалось, то можно смастерить самые простые гнезда на скорую руку. Для этого понадобится ящик из-под овощей или другой подобный ящик. Главное требование — он должен быть достаточно просторным. Ящик наполняется сеном или опилками и закрывается занавеской.

Гнездо в виде деревянного ящика
Такие гнёзда обычно используются недолгое время, пока их не заменят более серьёзные. Но если курятник достаточно просторный, а куры не очень привередливы и несутся и в таких гнёздах, то ничто не мешает пользоваться этим вариантом и более длительный срок.

Гнездо из покрышки
Полезные советы
Обычно, если гнезда сделаны правильно и удовлетворяют всем условиям, куры самостоятельно начинают в них нестись. Но бывает и так, что по неизвестным причинам несушки все так же продолжают откладывать яйца где попало. В таком случае не стоит сразу переделывать гнездо, стоит сначала попытаться приучить кур.

Изменение яйценоскости птицы с возрастом
- Чтобы курица «признала» гнездо, бывает достаточно закрыть её в нём на одну-две ночи.
- Если курица все равно не желает нестись в гнезде, то можно попробовать подложить туда ранее снесённое другой курочкой яйцо или круглый кусочек мела.
- Если и эти меры не помогли, то остается подумать, что именно может не устраивать кур и поменять место расположения гнезда или же в крайнем случае само гнездо.

Сбор и хранение яиц

Ящик с гнездом, из которого вдвойне удобней забирать яйца
Также можно воспользоваться некоторыми хитростями, которые сделают уход за курами удобнее:
- Чтобы куры не склёвывали собственные яйца, в гнездо насыпают мелкий гравий. Некоторые используют вместо гравия скорлупу, однако это делать категорически запрещается. Привычка клевать скорлупу приведет к обратному от желаемого эффекту.
- Недалеко от гнезд полезно оборудовать места, где будут купаться куры — ёмкости с золой. Они нужны, чтобы избежать появления паразитов.
Емкости с золой
Полноценное и грамотное оборудование курятника, а в особенности гнёзд, стоит потраченных усилий и времени. Это необходимо, чтобы создать надлежащие условия содержания кур-несушек. А следовательно — не иметь проблем с их здоровьем и в итоге добиться соответствующей конкретной породе кур яйценоскости, а также высокого качества яиц.
Видео — Гнездо-ловушка
svoimi-rykami.ru

Зимний курятник своими руками на 20 кур: особенности и советы по изготовлению. Назначение, особенности, характеристики данной постройки. Пошаговая инструкция по изготовлению курятника своими руками.