Дизайн маленькой студии комнаты – Дизайн маленькой квартиры-студии: 75 фото реальных интерьеров
Оригинальный дизайн небольшой узкой студии

Не всем по карману дорогое, просторное жильё, и зачастую владельцы небольших квартир задаются вопросом, как максимально комфортно и рационально обустроить свою жилплощадь. О том, как оформить маленькое помещение, расскажет сегодня наш сайт.
Дизайнеры постарались на славу смогли создать и из студии создать и из студии двухкомнатную квартиру!

Для того чтобы расширить коридор и организовать две комнаты, было решено перенести внутренние перегородки.

Узкое помещение крохотной студии разделили практически пополам, и в результате получилась двухкомнатная квартира. В комнате для сна осталось окно, а холл стал значительно шире: здесь разместился современный шкаф-купе и комната для гардероба.

Недалеко от входа находится санузел. Рядом – дверь в кухню, которая является одновременно зоной для приёма гостей. Этот вариант – демонстрация рационального использования полезного пространства квартиры площадью 36 кв. м.

Зона отдыха обозначена комфортным диваном и двумя креслами. Напротив неё – красивый угловой гарнитур для маленькой кухни с барной стойкой, которая выполняет функцию стола.

Оригинальное решение – вместо плотной перегородки установить раздвигающиеся стеклянные двери. Они пропускают достаточно света и создают ощущение простора и уюта.

Для оформления квартиры дизайнеры использовали светлые тона: молочно-бежевый, кофейный и зелёный. Благодаря им, все предметы интерьера и декора смотрятся гармонично и слажено.

interiorsmall.ru
Правильный дизайн для маленькой квартиры-студии: практичные советы
Дизайнеры компании M16 Group дают советы всем обладателям эргономичных студий, как правильно обставить свое жилье, чтобы наслаждаться максимально комфортной и счастливой жизнью!
Даем советы, какой дизайн для маленькой студии (18 – 25 кв. м) поможет сделать ее визуально шире или выше, какой мебели стоит отдать предпочтение, как визуально увеличить площадь и многое другое!
«Играем» с площадью
Начнем с общего оформления интерьера. Наша задача – сделать квартиру визуально просторнее, чтобы пребывание в ней было комфортным, а стены не «давили».
О темных цветах и модной графитовой палитре придется забыть. Вместо этого отдайте предпочтение классическим оттенкам: бежевый, цвет «капучино» и т. д. Чем светлее оттенок, тем больше кажется квартира. Можно сделать квартиру полностью белой, но такое цветовое решение обяжет вас к определенному образу жизни.
Светлая палитра сделает комнату визуально просторнее и больше, а темные цвета сократят площадь
К примеру, в белом интерьере недопустим даже легкий творческий беспорядок. А в компактной квартире это будет подчеркнуто вдвойне. Так что выберите более нейтральный оттенок, если не готовы к ежедневным уборкам.
Также обратите особое внимание на узор обоев: горизонтальная картинка сделает комнату визуально шире, а вертикальная – выше. С другой стороны, при невысоких потолках искусственно «расширенная» комната будет казаться еще нише, в то время как маленькая по ширине комната, оформленная обоями с вертикальным рисунком, будет смотреться еще уже.
Объективно оцените конфигурации вашей квартиры-студии. Возможно, нейтральный дизайн с однотонными обоями окажется единственным правильным решением.
Не забывайте про зеркала: чем больше отражающих поверхностей, тем больше комната кажется визуально. Повесьте на стену широкое зеркало, чтобы добиться нужного результата.
Выбираем стиль
Идеальным решением станет современный дизайн. Маленькая студия – это не место, где стоит устанавливать массивную мебель, развешивать по стенам картины в широких рамах, а для освещения выбирать громоздкие люстры из хрусталя (и не только).
Максимально простой, лаконичный и в то же время функциональный интерьер – вам нужно именно это. И лучше всего для такой задачи подходит именно современный стиль. Его основные черты были продиктованы быстрым ритмом сегодняшней жизни, что созвучно с появлением студийного формата жилья.

Современный стиль станет лучшим решением для студии
Прямые формы, сдержанная палитра, простота в общем оформлении, а также нестандартный подход к световому решению – вот основополагающие черты современного интерьера.
Современный стиль вашей студии добавит квартире флер европейского интерьера, а вас сделает новатором и человеком с отличным вкусом в глазах окружающих.
Ищем мебель
Наверное, не нужно уточнять, что в маленькой студии мебели должно быть по минимуму. Но это в теории. На практике это, как минимум, неудобно, как максимум – невозможно.
С решением подобной задачи отлично справиться мебель-трансформер! Благо, сегодня на рынке действительно есть, из чего выбрать. А один предмет мебели может нести функции двух, а то и сразу трех предметов!
К примеру, трансформер, который несет в себе одновременно функции кровати, дивана и шкафа! Или шкаф со встроенной кроватью. Благодаря такой мебели вы максимально решите вопрос с нехваткой свободного места, ведь на время «бодрствования» кровать убирается в шкаф, а комната остается свободной. В то же время вы всегда можете разложить диван, если пришли гости.

Выбирайте максимально функциональную мебель с дополнительными зонами хранения
Правда, и стоит такой предмет мебели недешево. Зато решает сразу множество проблем.
Есть более доступный, но не менее полезный вариант – кровать, оснащенная выдвижными ящиками. Это необходимо для того, чтобы максимально освободить жилое пространство от вещей.
Что касается визуальной составляющей, то неплохим решением станет выбор мебели с единым оформлением фасадов. Пусть кухонная мебель плавно перетекает в TV-зону, то есть телевизионную тумбу. В противном случае есть риск, что площадь квартиры вы визуально «порежете».
С другой стороны, акцент вы можете сделать именно на зонировании. Ранее мы советовали вам, как обустроить кухню в квартире-студии. Одним из советов было предложение отказаться от обеденного стола в пользу барной стойки. Это не только поможет сэкономить место, но и визуально отделит кухню от жилой части комнаты.
Переходим в санузел. В современных студиях, как правило, места под стиральную машину достаточно для того, чтобы разместить данную технику в небольшом, но очень вместительном шкафу.

Система хранения в санузле решит вопрос с размещением бытовой химии
Даже в очень маленькой квартире-студии, уверяют специалисты по дизайну, можно найти оптимальное решение, а именно разместить подвесные ящики над стиральной машиной. Здесь вы сможете хранить, как минимум, бытовую химию.
В прихожей постарайтесь разместить максимально большой шкаф.
Решаем вопрос со светом
Различные светильники дополнят правильное зонирование: пусть каждая конкретная зона – кухонная, столовая, гостиная, спальная, рабочая – будут освещаться по-разному. При этом объединять их будет общий светильник, расположенный в середине комнаты.
Возле спального места обязательно должны размещаться бра. В кухонной зоне стоит выделить общее освещение (как правило, это точечные потолочные светильники), а также дополнительное освещение рабочей поверхности. А над барной стойкой следует разместить компактный подвесной светильник.
Доверьте оформление вашей студии дизайнерам из M16 Group и вы убедитесь, что комфорт – не в квадратных метрах!
Рейтинг статьи:
Остались вопросы? Оставьте контактные данные, и наши специалисты вам перезвонят.
Дизайн интерьера маленькой квартиры
Текст: С.К.
Помещение должно быть комфортным и уютным независимо от размера. Даже если квартира или комната по габаритам не вполне отвечает своему назначению, всегда можно найти красивый и интересный выход из положения. Давайте рассмотрим правила и отличные идеи для обустройства небольших помещений.
Маленькая квартира-студия – дизайн интерьера

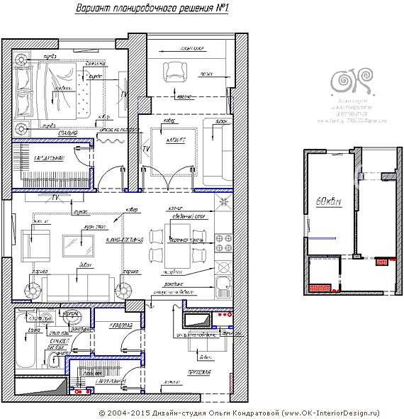
На чертеже: Планировочное решение квартиры с объединенной кухней-гостиной
Главное и основополагающее, конечно же, — правильная планировка. Чем лучше вы распределите метры в квартире изначально, тем проще и комфортнее вам будет обустраивать квартиру и жить в ней. В маленькой квартире старайтесь избавляться от коридоров, которые всегда съедают полезные метры. Хорошим вариантом избавления от коридора является проходная кухня-гостиная. А в маленькой квартире особенно важно совмещать кухню и место для отдыха. Ведь в противном случае, чтобы добраться от той же гостиной в кухонную зону, вам опять-таки потребуются коридоры. Квартира с совмещенной кухней-гостиной зрительно кажется больше. Благодаря объединению кухонной и диванной зон у вас есть шанс получить в маленькой квартире хотя бы одно относительно просторное помещение. Если квартира совсем маленькая (35-45 метров) и в ней нет возможности обустроить отдельную комнату для сна, то вам стоит перенести спальню в кухню-гостиную. Для этого вам необходимо знать основные правила зонирования помещений.

На чертеже: Планировка современной квартиры с детской и спальней

На чертеже: Даже в маленькой квартире можно найти место для двух гардеробных, которые существенно экономят пространство
Цветовые решения для маленьких квартир

На рисунке: Для интерьеров маленьких квартир предпочтительны натуральные светлые оттенки
А теперь о том, какие цвета лучше выбрать для маленькой квартиры. Стены и потолок, двери, а может быть даже и пол (если вы не боитесь ощущения прохлады в помещении) лучше всего сделать светлыми. Это могут быть слегка бежеватые и желтоватые, теплые тона, нейтральные молочные или же белый с легким, почти незаметным, сероватым или голубым оттенком. Здесь все зависит от ваших предпочтений и расположения окон в квартире. Не бойтесь, что белый вам наскучит. Ведь белую квартиру всегда можно с легкостью изменить: новые торшеры, яркий текстиль и декор, столик или кресло. Главное, что, несмотря на все эксперименты, квартира останется светлой и просторной. Очень важно, чтобы цвет стен и пол во всех помещениях квартиры, включая кухню, были одинаковыми. В некоторых случаях исключениями из этого правила могут быть прихожая и ванная.

На фото: Дворцовая люстра и встроенные шкафы помогают визуально приподнять уровень потолка
Чтобы визуально увеличить помещение, расширить его или придать высоту потолкам, используйте зеркала, длинные шторы, высокие двери, лепнину, заходящую на потолок, светильники, люстры с вертикальными украшениями и т.д.
Кухня-гостиная

На фото: В маленьких квартирах принято объединять кухню и гостиную
Небольшая кухня-гостиная (15-25 метров) должна совмещать в себе и кухню, и обеденную зону, и зону для приема гостей, места для хранения кухонной утвари (если в квартире нет кладовки), иногда еще и кабинет, игровую зону для детей и библиотеку. Чтобы уместить все это в столь небольшой метраж и, при этом, не загромоздить пространство, нужно очень внимательно подбирать все предметы интерьера. Расставляя мебель, спланируйте маршруты, по которым будет удобно передвигаться по комнате, не испытывая дискомфорта. Оцените, так ли много ли вы готовите, и нужны ли вам широкие холодильники и изобилие бытовой техники.
Для кухонной зоны отлично подойдет сочетание короткой стенки и маленького острова или барной стойки. В гостиной зоне на полу — большой квадратный ковер, который должен закрывать практически всю поверхность пола, открывая лишь узкую полоску шириной 15-20 см. Лучше поставить один достаточно крупный диван нежели маленький. Отдавайте предпочтение диванам, креслам и столикам на ножках. Под мебелью должен проходить свет, так она выглядит легче, а само помещение — свободнее. И побольше дополнительных светильников: торшеры, бра и настольные лампы. Даже пара книжных полок добавит уюта гостиной.
Особенности спален в маленьких квартирах

На фото: В небольшой квартире можно обойтись и маленькой спальней
В маленькой квартире спальней может стать комната в 8-10 метров, и, поверьте, этого вполне достаточно, так как в этом помещении мы действительно проводим только ночное время суток и очень редко заглядываем туда днем. То, что нужно в спальне, — это двуспальная кровать шириной в 160-189 см, шкаф или комод для белья и вещей (на тот случай, если не хватает места для маленькой гардеробной), стул, кресло, тумбочка, необычная табуретка или столик возле кровати. В спальне вы также можете разместить небольшой туалетный или рабочий стол, пуфик, ковер и полку за спинкой кровати для книг, лампочек и тому подобных вещей. Лучше всего будет исполнить спальню в тех цветах и материалах, что и остальную квартиру.

На фото: В небольших квартирах можно объединить спальню и гостиную
Детская

На фото: Даже в маленькой квартире необходимо найти возможность создать для ребенка свой уголок
Здесь все зависит от возраста ребенка. Для малыша можно обустроить совсем небольшую детскую, ведь пока в этой комнате требуется установить лишь кроватку, комод или шкафчик. Для ребенка постарше обязательно нужно устроить рабочее место. Поэтому вы можете оставить комнату побольше для себя, а когда малыш подрастет, поменять местами детскую и спальню взрослых. Даже в маленькой квартире не размещайте двух или нескольких детей в одной комнате, ведь у каждого должно быть свое личное пространство. Если нет возможности расселить детей, то стоит уделить особое внимание зонированию детской комнаты, чтобы дети могли отдохнуть друг от друга.
Не обязательно выкрашивать стены комнаты в разные цвета или клеить яркие обои. Ведь броские оттенки быстро надоедают. Вы можете с самого раннего возраста прививать ребенку чувство стиля и уюта, тогда он быстро к этому привыкнет.
Рисунки и фото интерьеров квартир. Планировочные решения











www.ok-interiordesign.ru
Дизайн маленькой квартиры-студии
Дизайн интерьера маленькой квартиры-студии — не самая простая задача. Создавая проект, нужно постараться и приложить максимум усилий, чтобы оставить пространство максимально свободным, но при этом сделать комнату функциональной и комфортной.
Особенности квартиры студии
Основная черта всех небольших квартир-студий — это свободная планировка, предполагающая отсутствие капитальных стен и тяжёлых перегородок. Как правило, площадь помещения составляет порядка 30-40 кв. м., но может быть менее 20 м2. Но даже такая маленькая квартира вполне может быть комфортной и уютной, если рационально использовать пространство и грамотно обустроить интерьер.
Основные черты небольших студий:
- Основная черта планировки интерьера — отсутствие любых капитальных перегородок, перегружающих интерьер. Для зонирования используются другие приёмы, но квартира-студия в любом случае должна оставаться свободной и максимально просторной.
- Преобладание спокойных светлых тонов, позволяющих визуально расширять границы пространства и делать квартиру более уютной.
- Отсутствие многочисленных мелких деталей. Они будут перегружать и загромождать интерьер, поэтому от них лучше отказаться.
- Функциональность интерьера. В одну комнату будет входить несколько зон, поэтому она должна быть многофункциональной, но не перегруженной.
- Много света. Небольшая студия должна быть максимально светлой, ведь если освещение будет недостаточным, то помещение покажется не просто тёмным, но и тесным и неуютным. Причём распределение света по пространству надо тщательно продумать.

Дизайн интерьера квартиры-студии уместен далеко не всегда и подходит не всем. Так, если в ней проживает несколько человек, то каждому потребуются личное пространство для уединения. Если же владелец жилья единственный, то ему этот вариант придётся по вкусу, ведь в его распоряжении окажется просторное помещение. Также в маленькой студии сможет чувствовать себя вполне комфортно молодая пара.
Планировка и зонирование
В маленькой квартире, имеющей всего одну комнату, придётся уместить сразу несколько зон, и это весьма непросто, особенно если владелец разносторонне развитый и активный человек. Планировка будет зависеть от его образа жизни, а также от назначения жилья. Самый простой вариант — это выделение спальной зоны и столовой, но это уместно только в том случае, если человек дома только спит и ест, а рабочие и другие вопросы решает за пределами жилища. Но если хозяин квартиры в своих владениях работает, отдыхает и принимает гостей, то обязательно выделение участков для продуктивного труда, расслабления, а также посиделок с друзьями и родными.
Но ситуация усложняется, если жильцов больше: каждому захочется получить лишний уголок или выделить место для любимых занятий. Но перегружать помещение всё же не стоит, поэтому придётся оставить лишь необходимые и самые важные зоны.

Отдельно стоит написать о столовой зоне, ведь кухня необходима в любой в квартире, пусть даже небольшая, но всё же минимальный набор мебели и техники обязателен. Планировка студии не приветствует изоляцию данного участка, но отделить её от основной площади можно. Поможет в этом современная барная стойка, которая обозначит границу, но не займёт много места. Также при желании можно соорудить небольшую перегородку из гипсокартона, которая будет закрывать рабочую зону, но оставлять открытой обеденную. Местом расположения стола может стать гостиная.
Зонирование осуществляется без капитальных перегородок, но для условного изолирования можно использовать мобильные, например, ширмы или шторки. Таким способом может быть отделена спальная зона или рабочая. Также приветствуется условное разделение с помощью разных цветов или отделочных материалов. Отдельные участки можно обозначать посредством рельефных фактур, а также ярких или насыщенных тонов. Игра на контрастах допускается и вносит в дизайн интерьера нотки свежести, но таких сочетаний не должно быть слишком много, это создаст эффект пестроты и перегруженности.
Совет: попробуйте использовать для зонирования разные уровни, например, выступы на потолке, подиумы на полу, ниши в стенах.

Стилистическое оформление
Дизайн квартиры-студии — это не конкретный стиль, а вариант современной свободной планировки. И если вы хотите, чтобы пространство интерьера выглядело упорядоченным, гармоничным и единым, то остановитесь на одном стилистическом направлении. Рассматривать лучше простые варианты, не перенасыщенные декором и мелкими деталями.
Самым очевидным и оптимальным вариантом является минимализм. Этот стиль предельно прост и лаконичен, полностью освобождён от лишних деталей, поэтому позволит использовать полезную площадь рационально. Но есть и другие подходящие направления. Первое — это индустриальный и немного грубоватый лофт, который абсолютно точно оценят мужчины.
Он предполагает сочетание современных и старых предметов, необработанные поверхности, неожиданные аксессуары в виде автомобильных запчастей или дорожных знаков. Более мягкий стиль — скандинавский. В нём преобладают молочные и древесные или шоколадные тона, простая мебель, несложный и несколько грубый текстиль, лаконичная отделка и преимущественно натуральные материалы. А творческие личности оценят современный и оригинальный модерн, в котором сдержанность сочетается с креативностью, что выражается в игре с фактурами, необычных формах предметов и стильных элементах декора.

Отделка
При отделке небольшой студии нужно стремиться к сохранению свободного пространства и его визуальному расширению, поэтому откажитесь от сложных, рельефных и объёмных материалов, предпочтя им простые. Например, стены можно отделать обоями, панелями или краской. Допускается покрытие штукатуркой, но желательно мелкозернистой, наносимой классическим способом — с помощью обычного шпателя.
Пол можно покрыть ламинатом или же паркетом, но лучше из светлых пород дерева. Вполне подойдёт и плитка, но при таком способе оформления желательно предусмотреть дополнительный обогрев, так как поверхность может быть холодной. Более современный вариант — наливные полы, и они могут быть не только однотонными, но и декорированными необычными эффектами, что подчеркнёт современный стиль.
Потолок может играть роль акцента, но создавать его лучше не с помощью ярких тонов, а посредством уровней, которые могут не просто менять пространство, но и использоваться для зонирования. Такой приём предполагает обустройство натяжной или подвесной конструкции. Но не стоит создавать многоступенчатые композиции, они займут немало места и уменьшат не только высоту потолков, но и общее пространство.

Отдельно стоит написать о цветах, так как они задают основной фон, непосредственно влияют на восприятие интерьера, а иногда устраняют дефекты. Небольшие студии лучше всего оформлять в светлых и спокойных оттенках. Уместной будет пастельная или мягкая природная цветовая гамма. Рассмотрите такие тона как молочный, бледно-жёлтый, светло-голубой, песочный, кремовый, сиреневый и другие похожие.
Интересно смотрятся монохромные композиции, включающие несколько полутонов одного цвета. Не менее актуальны и контрастные тандемы, особенно классический, но при этом яркий чёрно-белый.
Совет: принты уместны, но неброские, некрупные и не слишком яркие. Кроме того, рисунки желательно применять для акцентирования.
Выбор мебели и аксессуаров
Обстановка маленькой студии должна создавать впечатление простора и свободы, поэтому, во-первых, откажитесь от лишней мебели и используйте только самую необходимую. Во-вторых, выбирайте компактные предметы, например, встраиваемые, которые идеально впишутся в пространство и не займут много места. В-третьих, обращайте внимание на модели, выполняющие несколько функций. Так, кровать может быть дополнена вместительными ящиками, а стол-трансформер заменит небольшой журнальный и полноценный обеденный.
Если в квартире нет места для полноценной кровати, выберите удобный раскладной диван. Массивную стенку заменят полки или небольшой стеллаж.
Выбирая шкаф, обратите внимание на модели типа купе, так как корпусные зачастую громоздки. От комода и тумб можно отказаться без ущерба, если предусмотреть основную просторную зону хранения. Популярностью пользуются модульные системы, которые могут комбинироваться разными способами, что упростит обновление дизайна и сделает любые перестановки простыми.
Для декора интерьера используйте стильные и неброские аксессуары, например, цветы, картины или фото в рамках или без них. Также для украшения могут использоваться функциональные предметы: подставки, светильники, вешалки, органайзеры.

Естественное и искусственное освещение
Освещение должно быть более чем достаточным, причём как искусственное, так и естественное. И начать стоит с последнего, затронув тему окна. Через него в пространство комнаты должны беспрепятственно проникать солнечные лучи, поэтому чем больше будет проём, тем лучше. А если в квартире два окна, это просто замечательно!
Ещё одно правило: не нужно препятствовать наполнению жилья светом, закрывая проём тяжёлыми и плотными шторами, они неуместны. Их лучше заменить современными тканевыми или пластиковыми жалюзи, невесомыми занавесками или лёгкими рулонными шторами.
К организации искусственного освещения интерьера нужно подойти серьёзно. От мысли о громоздкой люстре в центре потолка сразу откажитесь, она неуместно сделает акцент на центре квартиры и сосредоточит внимание в этом месте, зрительно приблизив стены. Рассейте свет, оборудовав точечные светильники в потолке (если он подвесной или натяжной, то идеальным решением станут встраиваемые приборы с функцией изменения направления луча).
Их можно расположить зигзагообразно или группами над отдельными зонами, что позволит дополнительно их обозначить. Другие плоскости тоже следует затрагивать, используя настольные лампы, напольные торшеры, бра. Но все эти приборы должны быть компактными и не сильно выделяющимися на общем фоне, хотя оригинальный дизайн только приветствуется, ведь он позволит преобразить и освежить интерьер.
Сделайте квартиру-студию уютной, стильной и просторной!
www.diy.ru
