Электрика в однокомнатной квартире схема – схемы электропроводки + как провести самому
Электропроводка в однокомнатной квартире
Электропроводка в однокомнатной квартире- Подробности
- Просмотров: 3893
Написать данную статью меня породили постоянные вопросы клиентов, которые спрашивают, на чем можно сэкономить при электромонтаже в квартире. Сегодня электромонтажные работы, как и другие виды строительных работ, стали стоить очень дорого и поэтому люди ищут пути экономии. Периодически приходится объяснять и предлагать разные варианты, как это можно сделать, не теряя в электробезопасности и в качестве выполнения работ. Ниже вы можете узнать мои соображения, где можно ужаться, а где не стоит этого делать. Здесь будет много слов и мало фото.
- Подробности
- Просмотров: 9459
Продолжаю публикацию материалов об организации электропроводки в однокомнатной квартире. В этой статье поговорим о прокладке всех кабелей. Существует несколько способов как это сделать. Тут опишу каждый из них и подробно с фотографиями остановлюсь только на одном, который считаю самым быстрым, менее трудозатратным и более дешевым.
В квартире или частном доме существует всего всего три плоскости, по которым может проходить трасса проводов. Это по стенам, по потолку и по полу. По стенам кабели обязательно будут прокладываться, так как им необходимо придти к розеткам и выключателям. По потолку тоже самое, так как надо же как-то подключить люстру и все светильники. Вот по полу кабели прокладываются не всегда, а только в исключительных случаях. Итак, теперь об этом поподробнее…
- Подробности
- Просмотров: 18364
Сборка распределительного щита особых сложностей не составляет. Это может сделать практически любой человек самостоятельно если у него есть желание это сделать, умеет мыслить и хочет поработать руками. В продолжении серии статей про организацию электропроводки в однокомнатной квартире публикую материал с наглядными пошаговыми фотографиями сборки простого распределительного щита. Здесь вы узнаете как собрать щиток в квартиру с защитой от перегрузки, токов короткого замыкания и с защитой от случайного прикосновения человека к токоведущим частям. Для этого будут применяться автоматические выключатели и УЗО. Я расскажу как все это сделать без применения дополнительного специального инструмента электрика, такого как, обжимные клещи и т.д. Итак, преступим к сборке…
- Подробности
- Просмотров: 23107
В продолжении серии статей по организации электропитания в однокомнатной квартире перехожу к составлению схемы распределительного щита. Для этого сначала нам необходимо определиться с начинкой щитка. Здесь могут находится автоматические выключатели, УЗО, дифавтоматы, электросчетчик, реле напряжения и другие модульные устройства. Поэтому для одной и той же квартиры можно составить несколько разных схем, которые будут состоять из разных устройств защиты, то есть иметь разные уровни защиты.
- Подробности
- Просмотров: 5477
Всю электропроводку необходимо тщательно продумывать, когда еще не начали штукатурить стены и тем более клеить обои. Очень часто, когда уже ремонт закончен многие люди вспоминают, например, что хотели пустить кабель на лоджию для освещения, но стало уже делать это поздно. В данной статье вы найдете списки, т.е определенные шпаргалки, которые могут вам помочь не забыть заранее заложить нужный кабель. С ними я общаюсь с людьми, которые хотят организовать электропитание в своей квартире. Мы пробегаемся по всем пунктам, лишние вычеркиваем, а нужные берем на заметку. Если вы думаете, что это ерунда, то скорее всего вы не делали капитальный ремонт электропроводки дома или не монтировали новую. Поверьте, что многие умные мысли очень часто приходят поздно.
- Подробности
- Просмотров: 5626
Нарисовать на плане освещение однокомнатной квартиры не составляет большого труда. Здесь сложнее будет разобраться с соединением жил кабелей в распределительных коробках. Об этом мы поговорим немного позже.
Итак, освещение нам необходимо во всех помещениях квартиры. Это кухня, комната, ванная, СУ, также не забывайте про лоджию и кладовку. Следовательно, нам необходимо во все комнаты протянуть кабели, правильно разместить выключатели и распределительные коробки.
- Подробности
- Просмотров: 8051
После составления плана размещения бытовой техники и мебели в однокомнатной квартире предлагаю нарисовать все розетки. Когда они лягут на лист бумаги будет намного проще определиться с количеством линий (кабелей) и их последовательностью соединения. Не будете же вы к каждой розетке тянуть от щитка свой кабель. Их стоит объединять в небольшие группы согласно места размещения и мощности потребителей. Ниже подробно рассмотрим как это сделать и как не забыть про все розетки.
- Подробности
- Просмотров: 8158
С данного материала начинаю публиковать серию статей на тему организации электропитания в однокомнатной квартире. В них вы узнаете ответы на все вопросы, касающиеся этой темы – это от планирования начинки распределительного щита и заканчивая установкой розеток. Здесь рассмотрим вопрос, с которого необходимо начинать этот интереснейший процесс.
На первом этапе вам нужно нарисовать один раз план квартиры и …
Читать обязательно!
- Выбор автоматического выключателя по номиналу
Вот здесь нужно быть очень внимательным. Неправильный выбор автоматического выключателя по номиналу может привести к возгоранию проводки или автомат будет срабатывать на отключение по пять раз…
- Правильный расчет сечения кабеля
Кабели и провода играют одну из самых важных ролей в электропитании вашего дома. Не правильный выбор сечения может привести к перегреву изоляции, ее пробою, короткому замыканию и к серьезным п…
Друзья, уважайте чужой труд и при копировании материалов, пожалуйста, ставьте открытую ссылку на источник sam-sebe-electric.ru, а то свет отключу… |
sam-sebe-electric.ru
Электрика в однокомнатной квартире
В этой статье мы рассмотрим один из типовых проектов — электрика в однокомнатной квартире. Как реализовать электромонтаж от проекта до розеток при минимальных затратах и в короткие сроки.
Что же мы имеем в наличии:- Площадь квартиры около 30 квадратных метров
- Старая алюминиевая проводка, находящаяся в плачевном состоянии
- Желание произвести качественный электромонтаж за адекватные качеству деньги
Давайте начнем. Первое и единожды правильное решение — проект. Садимся поудобнее за рабочий стол, напротив себя располагаем план БТИ и начинаем рисовать. В однокомнатной квартире эта работа не займет у вас много времени и вы наглядно сможете себе представить где и что вам нужно расположить. Можете заранее нарисовать диван, журнальный столик, шкаф, телевизор, мебель на кухне. Все это облегчит ваш труд и вам станет на много понятнее, где же должны быть розетки, выключатели, освещение, в каком количестве.
Теперь идем в коридор и смотрим, есть ли у вас в квартире распределительный щиток? Если нет — думаем, хотим ли мы его видеть внутри квартиры. Если да, то нам потребуется перенести его с площадки. Ничего сложного в этом нет. Если же щиток в квартире имеется, то скорее всего он был свидетелем постройки этого дома и требует однозначной замены на новый. Грамотнее всего будет сделать встроенный щит, для которого понадобится изготовление ниши. Вводной щит — сердце вашей электрики, его изготовление и установка это работа для профессионалов своего дела. В результате вы получите готовый продукт с гарантией!
Следующим этапом будет разделение на группы. Для чего это делается — чтобы в случае короткого замыкания или других неисправностей мы не остались без электричества во всей квартире. Площадь у нас небольшая, групп будет не много.
- Стиральная машинка — для нее мы всегда выделяем отдельный кабель. Если она расположена в ванной, то к ней же можем добавить дополнительную розетку около зеркала.
- Духовой шкаф или плита. Если газовые — вычеркиваем, если электрические — необходимо провести свой кабель строго для них.
- Розетки на кухне. Эта группа будет служить исключительно для кухни. Приборов на кухне достаточно много и потребляют они много. Именно поэтому для них выделяется своя линия.
- Розетки в прихожей и комнате. Все остальное электрооборудование мы разместим на этой группе, так как потребителей у нас остается не так уж и много.
- При наличии кондиционера мы так же закладываем отдельный кабель для него.
- Освещение — проще всего выделить его в одну группу на всю квартиру. Но при желании и для большего удобства групп можно сделать две.
В недорогом варианте без электрической плиты и кондиционера, с одной линией освещения мы получаем 4 группы в щите. Значит электрический щит будет состоять из:
- Вводной автомат
- Счетчик
- УЗО
- Автомат стиральной машины
- Автомат розеток для кухни
- Автомат розеток для комнаты
- Автомат освещения
Выключателей в усредненном варианте тоже не наберется заоблачных цифр. Для электрики в однокомнатной квартире достаточно будет 4 выключателей.- Прихожая
- Ванная — туалет
- Кухня
- Комната
С розетками так же все очень просто. В стандартном варианте их будет 12-14 штук на всю однокомнатную квартиру.
- Стиральная машина плюс еще одна дополнительная для бытовых нужд в ванной комнате
- На кухне будет достаточно 3 — 4 розеток
- Одну в прихожей для пылесоса, что бы не таскать удлинители
- Остается зал. Для среднего варианта достаточно 5 — 6 розеток.
Последним осталось освещение. Для комфортного проживания расположим 5-6 светильников.
Дополнительно необходимо провести кабель для интернета и телевидения. Добавляем к нашему списку звонок. На этом проект мы можем завершать.
Вариантов монтажа существует несколько. Кабельные трассы прокладываются в полу — под стяжкой, по потолку и закрываются гипсокартонным или натяжным потолком, в штробах по стенам. Немаловажно подключение кабеля в распределительных коробках, но мы рекомендуем вам проводку без распределительных коробок. Этот способ хорош тем, что у вас не будет скрытых распределительных коробок и все распайки будут находится в подрозетниках. Это упростит дальнейшее обслуживание.
Останется подобрать качественную фурнитуру, и наслаждаться новым ремонтом и работающей электропроводкой. Хорошо когда работу выполняют профессионалы в соответствии с нормами и при наличии необходимого инструмента. В этом случае электрика в однокомнатной квартире будет выполнена быстро и качественно.
www.glhouse.ru
Схема электрики в однокомнатной квартире
Contents
Схемы электропроводки квартир(69 схем и 15 электропроектов)
Схемы электропроводки квартир(69 схем и 15 электропроектов)
В этом списке собраны самые разнообразные схемы электропроводки квартир и комнат .Отмечу,что в этих схемах нет никакого определенного подбора. Схемы собраны без системы и их объединяет только одно,все они относятся к электропроводке квартир и комнат,включая схемы освещения,схемы разводки розеток,схемы уравнивания потенциалов и схемы квартирных электрических щитков.Также замечу,что схемы не являются инструкцией к исполнению,а всего лишь пример работ различных авторов.
Схемы электропроводки квартир дают представление о электропроводке квартиры и являются основанием для выполнения электромонтажных работ. По назначению и по исполнению схемы электропроводки квартир деляться на принципиальные и монтажные. Принципиальные схемы электропроводки квартир дают самое общее представление об электропроводке квартиры. Монтажные схемы электропроводки показывают технологичесие особенности электромонтажных работ, содержат описание материалов, способы электропроводки, расположение розеток, выключателей и т.п.
Схема электрики в однокомнатной квартире
Квартира 40кв.м. Расписал, что, куда и сколько будет подведено. Прошу указать на явные ошибки, если таковые есть. Буду благодарен любым советам и замечаниям. В электрике знаний у меня практически ноль, советовался с приятелем. Очень нужны дельные советы и корректировки, чтобы когда начну делать ремонт, четко представлять, что нужно купить, что и куда мне нужно тащить и подключать.
Комната и лоджия (нижние розетки):
На все нижние розетки комнаты необходимы две разные группы(линии) проводов.
Сечение каждого провода 3×2.5(медь) автомат 16А на каждый провод.
Нижнюю розетку балкона подвесить на одну из линий комнаты.
Комната и лоджия (верхний свет):
На верхний свет комнаты и балкона необходима одна группа (линия) проводов.
Сечение провода 3х1.5(медь) автомат 10А.
Комната, или лоджия (кондиционер):
На кондиционер который будет установлен в комнате, или балконе необходима одна группа (линия) проводов.
Сечение провода 3х1.5(медь) автомат 10А.
Коридор (нижние розетки):
На нижние розетки коридора необходима одна группа (линия) проводов.
Сечение провода 3х2.5(медь) автомат 16А.
Коридор, кухня, ванная ( верхний свет)
На верхний свет коридора, кухни и ванной комнаты с вентиляцией в ванной
Сечение провода 3х1.5(медь) автомат 10А.
Ванная комната (нижние розетки, стиральная машина, теплый пол.)
На нижние розетки ванной комнаты необходима одна группа (линия) проводов:
Схема и разводка электрики в квартире – советы и отзывы

Схема и разводка электрики в квартире – советы и отзывы
Содержание
Знание месторасположения всех элементов электрической системы и пролегания проводки в вашей квартире крайне желательно, особенно вам может это пригодиться при проведении ремонта или поиска возникшей неисправности с электричеством. Большой минус в том, что при заселении в новую квартиру, жильцам не выдают на руки схематический план проложенной в стенах электропроводки, В то время как у владельцев частных домов такие документы имеются (они являются составной частью проектной документации, без которой разрешительные документы на постройку дома не выдаются). Ну и как быть в этом случае? Как вариант, можно обратиться в РЭУ или ЖЭУ, но намного проще, когда схема электрической системы квартиры составлена непосредственно вами или с помощью соответствующих специалистов.
Эта статья посвящена вариантам обустройства электроснабжения в различных квартирах и правильному составлению схемы электрической сети.
Варианты соединения элементов в электрических цепях ↑
Для того чтобы грамотно составить схему квартирной электропроводки, необходимо обладать некоторым багажом знаний в вопросе основ электротехники. В случае отсутствия определенного количества знаний, не советуем браться за такую довольно сложную работу, ваши безграмотные потуги могут привести к печальным последствиям. Идеальный вариант – доверить составление схемы профессиональному электрику, который быстро и качественно не только составит детальный план с учетом всех особенностей квартиры, но при необходимости устранит неисправность или заменит старую проводку.
Людям, могущим себе представить хотя бы в некоторой мере, с чем им придется столкнуться в процессе проектирования (или составления схемы) и выполнения непосредственно работ по обустройству электрической системы в своей квартире, хотим напомнить, что существует несколько способов соединения электрических цепей:
Последовательный. Каждый элемент электрической цепи следует за предыдущим, при таком способе узловые соединения отсутствуют. Примером последовательного включения является елочная гирлянда, в ней все лампочки или светодиоды расположены на одном проводе. Главный недостаток этого способа – при повреждении одного из элементов все остальные элементы перестают работать.
Параллельный способ. При этом включении элементы между собой не соединены, но они сгруппированы в два узла. Электрическая цепь будет продолжать работать независимо от вышедших из строя потребителей.
Смешанный способ. В этом случае на одном участке электрической цепи применяют оба типа соединений – последовательный и параллельный.
Точки 1,2,3 – параллельное соединение, 4,5,6 — последовательное, а весь вместе взятый участок считают комбинированным.
Как правильно выполнить разводку электрической проводки ↑
К выбору способа разводки электрической проводки в квартире необходимо подходить продуманно и скрупулезно, потому что она полностью отвечает за всю схему. Существует три основных типа разводки:
Наиболее популярный и часто встречающийся – подключение элементов сети посредством распределительных коробок. При таком включении электрический щиток монтируют на лестничной площадке в специальной нише, а не в жилой части помещения, и устанавливают в нем счетчик и от одного до трех выключателей. От щитка кабелем определенного сечения выполняют ввод в помещение и делают разводку через распределительные коробки по всей квартире. Коробки устанавливают для каждой отдельной комнаты (на входе в комнату), и через них осуществляют энергоснабжение всех необходимых электроприборов в комнате.
“Звезда”. При таком соединении каждый электроприбор (люстра или розетка) имеют свою отдельную кабельную линию, включенную непосредственно в электрический щиток и, зачастую, имеющую отдельный автоматический выключатель. Разводка такого типа ведет к значительному, увеличению количества электрической проводки, трудозатрат по ее обустройству и, естественно, удорожанию проекта. Однако, если взвесить все за и против, видно, что потраченные деньги стоят того (сюда же включите стоимость более емкого электрического щитка), потому что эта система дает возможность полного контроля над каждым элементом в электрической цепи.
“Шлейф”. В этом варианте имеется некоторое сходство с разводкой типа “Звезда” с тем отличием, что на один кабель может быть включено несколько потребителей. Естественно, что такое проектное решение будет несколько дешевле предыдущего.
При обустройстве электрической системы в квартире, редко какой потребитель использует один из способов разводки в чистом виде. Чаще всего они смешиваются, но делается это продуманно для достижения наиболее эффективного результата и обеспечения максимальной безопасности жильцов квартиры от рисков.
Классика составления схемы электропроводки ↑
Любые замыслы по обустройству электрической системы до начала работ необходимо воплотить в детальную схему, наложенную на точный план всех помещений квартиры с точным указанием каждой распределительной группы и всех элементов электроснабжения. Схема будет легко читаема, если ее выполнить на отдельных листах, каждый из которых будет предназначен только для одной группы.
Практика показывает, что наибольшего эффекта можно добиться, если разбить источники потребления на несколько групп, каждую из которых подключают на отдельный автомат. Такое техническое решение позволяет выполнять ремонт проводки или электрических приборов без отключения электроэнергии во всей квартире, а только в той ее части, где вы намерены выполнять работы. К тому же, если нагрузить все электрические приборы на одну линию, потребуется кабель большой мощности, способный выдержать очень высокие нагрузки, которые неизбежно возникнут, если включить все электрические потребители квартиры в сеть одновременно.
Если электрический щиток расположить непосредственно в квартире, то можно каждый электроприбор подсоединить к отдельному автомату. Этим значительно повысится удобство и безопасность эксплуатации электросети. Так почему же мы этого не делаем? Все просто – такой способ разделения приборов влечет за собой значительное удорожание проекта. Поэтому вариант подключения по группам наиболее рациональный и практически полностью решает требования безопасной эксплуатации электросети.
Чаще всего приборы разделяют по группам по такому принципу:

Освещение #8212; жилые комнаты, кухня и коридоры;
Электроснабжение #8212; жилые комнаты;
Электроснабжение #8212; кухня и коридоры;
Освещение и электроснабжение #8212; санузел и ванная. Эту группу помещений следует выделить отдельно, потому что в санузле и ванной всегда повышенная влажность и, соответственно, к электропроводке в этих помещениях предъявляются повышенные требования;

При наличии в квартире электроплиты, ее также следует обособить от других.
Более высокую степень безопасности вам обеспечит установка на каждую группу УЗО #8212; защитного устройства, так называемого выключателя дифференциального тока. Также обязательно этими приборами необходимо защитить электропроводку санузла и кухни.
После того, как группы будут сформированы, следует определить места для подключения основных электрических потребителей. К ним относят стиральную машину, электроплиту, кондиционер, водонагреватель, духовку и посудомоечную машину. После этого определяются с местами, где будут установлены выключатели, светильники, распределительные коробки и розетки и наносят их на черновую схему электрики квартиры. Далее следует внимательно соединить все цепи и проставить длины проводов.
Необходимо обязательно сделать план электрической схемы помещения в двух экземплярах и один из них сохранить для себя – он в любое время может понадобиться. После выполнения этой нелегкой черновой работы, можно переходить к чистовой схеме, которая выполняется на точном плане всех помещений квартиры. Все точки электрических приборов необходимо проставлять с помощью существующей системы обозначений и соединить линиями, обозначающими кабель. Для облегчения простоты работы со схемой желательно обозначать провода различных групп (освещение, заземление и силовые кабели) разными цветами.
На схеме обязательно должны быть отмечены все размеры (всех комнат, расстояния от проводки до стен, потолка и пола, а также до отопительных систем). Такая схема не только позволит в более короткие сроки качественно выполнить монтажные работы, но также выполнить все необходимые расчеты по материалам и затратам.
Соблюдение требований, условий и норм ↑
Составляя схему, не следует забывать, что существуют некоторые важные требования к обустройству электрической системы в квартире:
В ванной комнате нельзя устанавливать розетки напряжением 220 вольт, за исключением розетки для подключения электробритвы, эту розетку следует подсоединять через понижающий трансформатор;
Подключение заземляющих контактов розеток к нулевым проводникам, а также к трубам водоснабжения или отопительной системы категорически запрещено, потому что это крайне опасно для человека. Заземление необходимо выполнять только через специальный провод защитного заземления;
Электрическая плита, которая установлена в квартире взамен газовой плиты, должна быть защищена автоматическим выключателем величиной не меньше 63А.
Проводку прокладывают по стенам только вертикально или горизонтально и под прямым углом. Этого следует строго придерживаться, потому что изменение их траектории проводки в дальнейшем может привести к неприятным последствиям – вполне вероятна возможность пробоя проводки гвоздем или каким-то инструментом при больших или малых ремонтных работах;
Постарайтесь не допускать пересечение проводов. Если все-таки обстоятельства вынуждают это сделать, то обеспечьте расстояние между ними как минимум 3 мм;
Необходимо строго придерживаться расстояния от кабеля до других элементов квартиры: до уровня пола или потолка не меньше 150 мм, а до оконных рам и косяков дверей и углов – не меньше 100 мм;
Выключатели и розетки следует устанавливать на одинаковой высоте, также следует учитывать, что выключатели располагают слева от входной двери на высоте 800-900 мм, розетки #8212; 250-300 мм. Хотя возможны и исключения, так, расстояние на кухне может изменяться.
Зазор между электрической проводкой и трубами отопления не должен быть меньше 30 мм;
Проводку к розеткам подводят снизу, а к электрическим выключателям сверху.
Базисные варианты обустройства в квартире электрической системы ↑
Эта часть статьи будет посвящена типовым схемам обустройства электрической системы в квартирах, разных по размеру. Конечно, мы приведем базисные варианты, а каждая предложенная схема применительно к конкретной квартире, всецело будет зависеть от предпочтений и пожеланий пользователя. Но в любом случае владельцу квартиры не обойтись без розеток, выключателей, источников освещения и распределительного щита. Поэтому, выбрав один из предложенных вариантов, вы сможете дополнить схему необходимыми электрическими элементами по своему усмотрению.

Две группы электропроводки однокомнатной квартиры
Электрическую проводку однокомнатной квартиры чаще всего делят на две группы. Первая это кухня и санузел с наибольшим количеством электроприборов и вторая – жилая комната.
Такое техническое решение позволяет получить хороший запас мощности посредством перераспределения общей нагрузки квартиры на две цепи. Также благодаря этому при замыкании или обрыве цепи какой-то из групп, одна линия будет оставаться в рабочем состоянии.
Рекомендуемая схема разводки электрики в многокомнатной квартире
На примере стандартной двухкомнатной квартиры мы покажем наиболее практичную схему разводки электрической проводки (см. схему ниже).
При таком варианте обустройства системы предполагается размещение электрического щита возле входной двери квартиры. А за общую основу взяты основные осветительные приборы (люстры), простые одноклавишные выключатели и розетки скрытого типа с контактом для защитного заземления.
При наличии в квартире большого количества комнат схему разводки электрики выполняют аналогично приведенной двухкомнатной квартиры. Тщательно разобравшись в предлагаемых схемах, вы, вероятнее всего, пришли к выводу, что выполнение такого рода работы вам вполне по силам, тем более при наличии некоторых знаний основ электротехники. Но прежде чем приступить к монтажным работам еще раз тщательно взвесьте свои возможности, ведь вы берете на себя большую ответственность, тем более за дальнейшую безопасность, как самого себя, так и членов своей семьи. Поэтому
Наиболее предпочтительно будет, если работу по разводке электрики в квартире выполнят опытные квалифицированные специалисты, которые выполнят ее на профессиональном уровне и с гарантией, и тем самым избавят вас от ошибок и рисков.
Видео урок: самостоятельное выполнение электрической разводки в квартире ↑
Итак, вы составили схему электрической разводки в собственной квартире и желаете приступить к реализации выстраданного проекта!
Но не спешите, несмотря на опыт самостоятельного выполнения разного рода работ и наличие разнообразного инструмента, вначале просмотрите видео урок как правильно выполнить такую сложную работу. Это поможет вам избежать больших и малых ошибок и, главное, неоправданных рисков.
Схема электропроводки в квартире
kazap.ru
Схема проводки в однокомнатной квартире
Схема проводки в однокомнатной квартире (однушке)
План электропроводки однокомнатной квартиры
Однокомнатная квартира сегодня встречается нередко. Многие россияне, например, в Москве, позволить себе приобрести жилье с большой площадью не могут. Приходится ограничиваться 1-комнатными квартирами. Данный типовой вариант квартир отличается собственной электросетью, состоящей из определенного количества электрических проводов. Узнаем из статьи подробно о схеме «однушки».
Как устроено электросопровождение в однушке
Большая часть современных 1-комнатных квартир – это наследие советского прошлого. Такие квартиры строились либо двадцать или тридцать лет назад, либо остались еще со времен более далеких. В те времена на меди нещадно экономили, а сеть электричества формировалась посредством алюминиевой проводки. Сегодня такой материал считается полностью непригодным для применения.
Схема электропроводки в однокомнатной квартире
В итоге, собственники 1-комнатных жилищ оказываются перед сложной проблемой замены всей электрической проводки в доме. Чтобы грамотно, а самое главное безопасно осуществить замену, приходится искать схему прокладки.
Для начала отметим, что все «однушки» возводились в различных типовых зданиях. Это могли быть панельные дома, кирпичные, каменные и т.д. По этой причине каждая из таких квартир обосабливалось отличием планировки. Но, как ни крути, схема у всех жилых помещений практически одинакова.
Разница может заключаться только в количестве источников электропитания и лампочек. А данная особенность зависит, соответственно, от квартирной площади, классифицируемой, как 1-комнатная.
Большой минус классической схемы
Стандартной схемой электрической проводки «однушки» является классическая. Она состоит и 2-х ветвей, подающих электропитание в прихожую и гостиную, а также в санузел и кухню. Каждая из линий, что очень интересно, может использоваться и для освещения, и для снабжения током электроприборов.
Схема электропроводки в квартире однокомнатной
Минус такой схемы налицо. При появлении КЗ в розетке или лампочке, обесточивается вся квартира. Понятно, что благоприятной и идеальной такую схему считать нельзя.
В некоторых случаях вышеприведенная схема из 2-х ветвей дополнялась еще одной веткой, питающей электроплиту. Последняя, как известно, является чересчур мощной, требует намного больше тока.
Отдельный кабель дополнительного свойства используется в этом случае, как единственный вариант для повышения уровня безопасности и минимизации нагрузки на контур. Но такую схему лучше полностью заменить, и не пользоваться ею вообще.
Наиболее эффективная схема
Намного целесообразнее применять в «однушке» схему, подразумевающую отдельные линии для каждой из электрогрупп. Другими словами, одна из линий должна подавать электричество к розеткам, другая – к лампочкам, третья – к приборам с мощным потреблением тока.
Схема электропроводки однокомнатной квартиры
Изначально, чтобы построить такую схему, надо разделить квартиру на 4 части. Первую из частей будет представлять жилая комната, вторую кухня, третью санузел, а последнюю – коридор.
Практически в любой схеме электрическая проводка обозначается цветом. Это либо красные, либо черные линии. Они подведены к распредкоробке. Каждая из линий – это отдельная ветка, подающая ток.
Примечание. Как правило, один цвет указывает на то, что линия отвечает за подачу тока на розетки, другой цвет – на линию, подающую ток на элементы освещения.
Силовой щит и его функции
Распредсиловой элемент или щит, это центр, содержащий фиксированное число автовыключателей. В электрике принято различать УЗО и АБ выключатели. И одна ветка линий должна интегрироваться к обоим устройствам. Но сила тока не должна быть более 2-х кВт. И еще важно соблюдать правило: сколько линий электричества заходит в жилое помещение, столько выключателей и должно использоваться.
Силовой щит непосредственно связан с общим щитком, расположенным на лестничной площадки. Между ними ставится электросчетчик, а перед ним монтируются еще комнатные выключатели.
Примечание. Важно соблюдать еще одно правило: теххарактеристики выключателей должны зависеть от общемощностных показателей электрических приборов, имеющихся в квартире.
Полезно будет также знать одно исключение. Если в «однушке» размещено фиксированное число установок, с пропускной способностью 6-8 кВт, то по правилам надо использовать выключатели, минимум рассчитанные на 37А.
Электропроводка в однокомнатной квартире и схема
Однако монтаж таких выключателей считается нецелесообразным ввиду того, что большинство «однушек» используют советскую схему проводки.
Если у вас возникнут какие-либо вопросы, связанные с заменой старой схемы на новую, обращайтесь к нам. Профессиональная команда электриков окажет услуги в городе Хабаровск и его окрестностях всем желающим.
Электропроводка в однокомнатной квартире. Примеры схем
Планируя замену электропроводки своими руками в однокомнатной квартире, или с помощью услуг профессионального электрика, необходимо составить схему подключения всех линий проводки, розеток, выключателей, распределительных коробок, различных стационарно устанавливаемых электроприборов (вентилятора, кондиционера, электроплиты), автоматических выключателей и устройств защитного отключения (УЗО).

В плане электропроводки, помимо приведения электрических соединений, также желательно указывать точное местоположение точки подключения каждого электроприемника в квартире.
Пример плана схемы электропроводки комннаты
В отношении однокомнатных квартир, из-за кажущейся простоты разводки кабелей, многие начинающие мастера игнорируют планировку электропроводки, сразу приступая к работам, смутно представляя себе схему и конечный результат.
В итоге, при таком подходе, можно столкнуться с непредвиденными трудностями и проблемами. К тому же, неправильно проложенная своими руками электрическая проводка, без знания правил и требований, может стать причиной несчастного случая.

несчастный случай. сгоревшая розетка и электропроводка
Поэтапное формирование общей схемы электропроводки
Составляя план разводки кабелей, необходимо разделить черчение схемы проводки на четыре этапа, по одному для каждого помещения типичной однокомнатной квартиры (жилая комната, прихожая, кухня,санузел).

Пример схемы разводки электропроводки в однокомнатной квартире
Независимо от плана жилища, продумывать электропроводку необходимо для каждого помещения в отдельности, исходя из специфики предназначения каждой комнаты.
Под спецификой следует понимать использование электроприборов и оборудования, а также расположение розеток, выключателей, органов управления. Необходимо ознакомиться (информация имеется на данном ресурсе) со спецификой устройства электропроводки в каждом помещении квартиры, составляя своими руками общую схему.
Расчёт кабелей исходя из нагрузки
При составлении схемы разводки проводов для каждого помещения необходимо придерживаться основополагающей последовательности действий, которые исходят из логической цепочки понятий, объяснение которых выходит за рамки данной статьи:
- Каждый электроприбор потребляет ток, на который должна быть рассчитана электропроводка.
- При подключении на один кабель несколько электроприемников, их токи суммируются, а значит, поперечное сечение проводов должно быть рассчитано на данную сумму.
Таблица выбора сечения провода по току и мощности
Поэтому необходимо правильно рассчитать сечение предполагаемых к установке проводов, и указать их на план схеме. Методику самостоятельного расчёта сечений по току или потребляемой мощности, можно найти на данном ресурсе, или взять у других заслуживающих доверия источников.

Пример схемы коммутационных аппаратов разделенных на группы и сечения кабелей для однокомнатной квартиры
Там же можно найти описание видов электропроводок, способы их укладки и типы используемых кабелей.
Разделение электропроводки на отдельные линии
Ещё один принцип, которого стоит придерживаться, независимо от предназначения помещения однокомнатной квартиры, составляя своими руками схему её электропроводки – это разделение потребителей на группы.
Пример схемы электропроводки в квартире
Минимальный вариант – группа розеток и освещения. Это означает, что от квартирного щитка должны идти отдельные защищённые автоматами кабели для розеток и электроосветительных приборов.
Помимо электробезопасности, такой подход выгодно отличается в плане удобства замены своими руками выключателя или розетки – будет возможность пользоваться электроосветительными приборами, не отключая электричество в квартире целиком.
Схема для ванной
Для мощных потребителей электроэнергии, таких как бойлер, электроплита, кондиционер, холодильник, необходимо прокладывать отдельную линию.
Схема электропроводки на кухне
Данное требование обосновано тем, что сечение проводов, обеспечивающих питание данных электроприборов должно быть большим, чем для кабелей, питающих менее мощное оборудование.
Соответственно, защитный автомат, рассчитанный под данное сечение, может не сработать, если в подключенном последовательно кабеле с более тонкими жилами появится сверхток, приводящий к перегреву, оплавлению и возгоранию изоляции.
Защита от поражения
Все группы розеток необходимо снабдить УЗО, реагирующими на утечки тока через тело человека или изоляцию. Таким способом реализуется защита от поражения при появлении опасного напряжения на корпусе электроприборов, и обеспечивается противопожарная безопасность. В отношении ванной комнаты, наличие УЗО является обязательным условием при установке розеток .
Желательно установить УЗО и на линию освещения тоже, особенно для ванной комнаты. Например, металлические части настенных светильников могут оказаться под напряжением и стать причиной поражения при их касании.
К тому же, в распределительной коробке, выключателе или клеммнике люстры может оказаться вода по вине соседей сверху. Попадание воды на токопроводящие поверхности не вызовет короткого замыкания и не заставит сработать автомат, но может стать причиной утечки, приводящей к порче изоляции и осветительного оборудования.
УЗО должны подключаться последовательно с защитным автоматом, причём номинальный ток УЗО должен быть на одно значение выше.
Схему УЗО + автомат можно заменить дифавтоматом, сочетающим в себе оба эти устройства, которые устанавливаются в квартирном распределительном щитке.
Сам щиток должен находиться в доступном месте на высоте, недосягаемой для маленьких детей.

Высота установки Распредщита в коридоре
Необходимость соблюдения правил и нормативов
При составлении схемы электропроводки, для того, чтобы не случайно не повредить при установке проводов другие коммуникации, необходимо иметь под рукой план их разводки в квартире.
Сверившись с расположением трубопроводов и различных кабельных линий, нужно провести электропроводку. по возможности избегая её пересечения с данными коммуникациями, придерживаясь правил прокладки электропроводки. которые детально описаны на данном ресурсе.

пример расположения проводки в комнате
Для удобства в данной статье выложены цитаты из правил устройства электроустановок (ПУЭ) и строительных норм и правил (СНиП).

Данные нормативы также включают расположение электропроводок, розеток и выключателей относительно дверей, стен, пола и потолка. Определяют точное местоположение проводки и электрических точек в квартире, указывая на плане расстояния в метрах или миллиметрах.

Поскольку к распределительным коробкам должен обеспечиваться доступ, то их количество можно уменьшить — планируя разводку проводов под розетки и выключатели, стоит планировать таким образом, чтобы осуществлять необходимые подключения в подрозетниках выключателей и розеток.
Условные обозначения на плане
Если для документации на квартиру нужен профессиональный чертёж схемы электропроводки, то лучше обратиться в соответствующие организации, обладающими квалифицированными специалистами. и имеющими право на составление подобных документов.
Но составляя монтажную схему для мастера, или планируя своими руками сделать все электромонтажные работы, нужно выучить минимальный набор условных обозначений различных часто встречающихся в квартире электрических точек и электроприемников.
условное обозначение выключателей и розеток на схеме

На плане электропроводки все три провода, необходимые для подключения розеток (фаза, ноль, заземление) можно обозначать одной линией для упрощения чтения схемы, а линии электропроводок для отдельных групп потребителей следует указывать различными цветами.

чертеж схемы квартиры от руки
Чертёж может быть начерчен от руки, главное соблюдать аккуратность и точность в обозначениях.
В сети интернет существует множество схем квартирных электропроводок, их можно использовать как шаблон, добавляя и изменяя по необходимости.
Похожие статьи
Ремонт проводки в квартире
Главная » Проводка » В квартире » Составляем и выбираем правильные схемы разводки электропроводки в квартире
Составляем и выбираем правильные схемы разводки электропроводки в квартире
Современная квартира оснащается большим количеством разнообразной бытовой техники. Микроволновые печи, электрические водонагреватели, холодильники, камины, кондиционеры, электроплиты – все эти приборы создают серьезную нагрузку на электросеть.
И если дом, в котором находится ваша квартира, был построен несколько десятилетий назад, когда набор домашней техники ограничивался телевизором, холодильником и иногда пылесосом, имеющиеся провода могут такую нагрузку попросту не выдержать. Чтобы избежать связанных с этим проблем, необходимо своевременно выполнить замену электропроводки квартире.
С выполнением всех сопутствующих мероприятий можно справиться собственными силами. Нужно лишь подробно изучить особенности существующих схем эл. проводки в квартире, разобраться в порядке проведения работы и сделать все с соблюдением требований техники безопасности.
Типовые схемы электропроводки в квартире
Существует несколько схем разводки проводки в квартире. Каждая из них создается для выполнения ряда задач.
Структурная
Такая схема электрической проводки в квартире создается в первую очередь. На этом чертеже схематически отображается взаимосвязь между щитком, вводом в квартиру и запланированными к установке электроприборами.
Все электрические взаимосвязи должны быть отображены максимально полно. Для отображения связей на структурной схеме обычно используются стрелки.
На каждом элементе схемы указывается его номинал: напряжение. мощность, а также сила тока. Все эти моменты необходимо указать для успешного составления функциональной схемы прокладки электропроводки в квартире.
Функциональная
На этом чертеже приводятся элементы электропроводки и иллюстрируются электрические связи между ними. Для этого применяются специальные обозначения.
С упомянутыми обозначениями вы можете ознакомиться на изображении. Здесь показан пример функциональной схемы подключения проводки в квартире с двумя устройствами защитного отключения и заземлением.
Принципиальная
Является наиболее полной и подробной схемой. На чертеже указываются все элементы электросистемы (светильники, выключатели и пр.), а также бытовые устройства (теплый пол, плита, кондиционеры и т.д.).
На схеме максимально точно показываются линии прокладки проводов, места установки распаячных коробок, шин соединения и прочих элементов.
Одна из важнейших схем подключения электропроводки в квартире. Создается для электрощитков. На схеме отображаются вводные автоматы, защитные автоматические выключатели для отдельных групп проводки. При составлении используются специальные условные обозначения. Также на чертеже отображаются все провода и группы потребителей электричества.
Каждый элемент схемы сопровождается необходимыми номинальными характеристиками.
К примеру, для электрокабелей указывается количество, сечение и марка жил, а для автоматов приводится значение тока срабатывания.
После составления покупаются необходимые материалы для прокладки либо замены электропроводки. Также расчетная схема позволяет разбить квартирную электропроводку на группы.
На монтажной схеме отображаются электрические соединения в обслуживаемой квартире. Чертежный план имеет вид подробной таблицы с указанием следующих моментов:
- места выхода и направления прокладки каждого кабеля;
- клемм подсоединения кабелей;
- характеристик проводов.
Монтажные схемы электропроводки квартиры составляются достаточно редко, т.к. практически любой квалифицированный электрик может сделать монтаж электрощитка на основе расчетной схемы. В остальном же обычно ориентируются по ситуации.
Этапы монтажа и замены электрических проводов
При желании с заменой электропроводки в квартире можно справиться собственными силами.
Однако важно помнить, что это потенциально опасная работа, т.к. электричество при неправильном и неосторожном обращении может нанести непоправимые повреждения.
В остальном же следуйте приведенному руководству и все обязательно получится.
Составление плана электрообеспечения
В первую очередь вы должны составить подробный план своей квартиры и указать на нем места установки электророзеток, выключателей и осветительных приборов.
Для большего удобства разбейте всех потребителей на следующие основные группы:
- электророзетки;
- освещение;
- санузел;
- электрическая плита (кухня).

К каждой такой группе прокладывается свой кабель от распределительного щита. При подобной схеме монтажа электропроводки в квартире поломка одной из групп не отразится на работоспособности остальных потребителей.
Необходимо сделать оптимальный расчет сечения кабеля по мощности. по току. Чем толще будут используемые жилы, тем больше денег вы потратите на обустройство электропроводки. Слишком экономить на этом не стоит, но обязательно запомните следующий важный нюанс: в случае прокладки одного толстого кабеля ответвления нужно будет выполнять в электрических распределительных коробках.
При этом обустройство слишком большого количества соединений неизбежно приводит к уменьшению надежности электропроводки.
Не подключайте всю электропроводку к одной группе. Санузел лучше всего подсоединять отдельной линией, т.к. подобные помещения требуют соблюдения особых мер предосторожности. Эту линию рекомендуется оснастить УЗО или дифавтоматом .
Демонтаж старой проводки
Приступайте к демонтажу элементов имеющейся электропроводки. Обесточьте квартиру при помощи пакетного выключателя в щитке.
Демонтаж проводов начинайте от распределительных коробов. Крышки этих элементов, как правило, располагаются под потолком. Порядок действий следующий:
- открывается крышка распределительного короба;
- обрезается и изолируется вводный провод;
- удаляются все провода.
Если удаление провода невозможно, его необходимо обрезать и максимально качественно изолировать.
Прокладка новых электрических кабелей
После демонтажа старых кабелей приступайте к укладке новых в соответствии с выбранной схемой проводки в квартире и предварительно составленными чертежами.
Владельцы квартир чаще всего отдают предпочтение скрытой проводке. Для прокладки проводов по такой схеме в стенах нужно предварительно подготовить штробы. Для этого удобно использовать перфоратор, а ещё лучше — самостоятельно изготовленный штроборез .
Штробы прокладываются строго перпендикулярно либо параллельно поверхности пола – диагональная прокладка проводов запрещена техникой безопасности.
Далее выполняется установка электророзеток, выключателей и распределительных коробов. Для этого в стенах предварительно создаются соответствующие углубления.
Высоту установки розеток и выключателей подбирайте на свое усмотрение. Делайте все так, чтобы в дальнейшем вам было удобно. Единственное важное замечание: розетки следует устанавливать на расстоянии не менее 300 мм от поверхности пола.
Проверка качества работы
После укладки и закрепления всех проводов в подготовленных каналах, вы должны удостовериться в отсутствии коротких замыканий на смонтированной линии. Такая проверка выполняется при помощи тестера.
Убедившись в отсутствии короткого замыкания, подключите линию к напряжению. Далее нужно проверить работоспособность розеток и осветительных приборов фазовым индикатором или тестером.
В завершение останется лишь заделать каналы при помощи штукатурки. На этом работы по замене электропроводки завершаются. Чтобы они прошли максимально успешно, надо помнить простые рекомендации по технике безопасности и придерживаться их в процессе выполнения запланированных мероприятий.
Рекомендации по безопасному выполнению установки
Перед началом работы обязательно обесточьте квартиру и дополнительно убедитесь в отсутствии напряжения с помощью специально предназначенного для этого прибора.
Ручки всех подручных инструментов обязательно должны быть изолированы. При отсутствии изоляции на них сделайте ее самостоятельно.
В случае, если распределительный щит находится на лестничной площадке или в другом месте общего доступа, обязательно повесьте табличку с предупреждением о выполнении работ на линии.
Помните. пренебрежительное отношение к рекомендациям техники безопасности может привести не только к скорейшей поломке электрической цепи, но и к гораздо более страшным и непоправимым последствиям, как для квартиры, так и для проживающих в ней людей.
Следуйте инструкции, относитесь к электричеству с должным уважением, и все обязательно получится.
Пример монтажа электропроводки в квартире на видео
Источники: http://elektrik-dv.ru/stati/sxema-provodki-v-odnokomnatnoj-kvartire-odnushke, http://infoelectrik.ru/elektroprovodka/sxema-elektroprovodki-v-odnokomnatnoj-kvartire.html, http://elektrik24.net/provodka/v-kvartire/sxema-razvodki.html
electricremont.ru
Схема однокомнатной квартиры — Всё о электрике в доме
Схема проводки в однокомнатной квартире (однушке)
План электропроводки однокомнатной квартиры
Однокомнатная квартира сегодня встречается нередко. Многие россияне, например, в Москве, позволить себе приобрести жилье с большой площадью не могут. Приходится ограничиваться 1-комнатными квартирами. Данный типовой вариант квартир отличается собственной электросетью, состоящей из определенного количества электрических проводов. Узнаем из статьи подробно о схеме «однушки».
Как устроено электросопровождение в однушке
Большая часть современных 1-комнатных квартир – это наследие советского прошлого. Такие квартиры строились либо двадцать или тридцать лет назад, либо остались еще со времен более далеких. В те времена на меди нещадно экономили, а сеть электричества формировалась посредством алюминиевой проводки. Сегодня такой материал считается полностью непригодным для применения.
Схема электропроводки в однокомнатной квартире
В итоге, собственники 1-комнатных жилищ оказываются перед сложной проблемой замены всей электрической проводки в доме. Чтобы грамотно, а самое главное безопасно осуществить замену, приходится искать схему прокладки.
Для начала отметим, что все «однушки» возводились в различных типовых зданиях. Это могли быть панельные дома, кирпичные, каменные и т.д. По этой причине каждая из таких квартир обосабливалось отличием планировки. Но, как ни крути, схема у всех жилых помещений практически одинакова.
Разница может заключаться только в количестве источников электропитания и лампочек. А данная особенность зависит, соответственно, от квартирной площади, классифицируемой, как 1-комнатная.
Большой минус классической схемы
Стандартной схемой электрической проводки «однушки» является классическая. Она состоит и 2-х ветвей, подающих электропитание в прихожую и гостиную, а также в санузел и кухню. Каждая из линий, что очень интересно, может использоваться и для освещения, и для снабжения током электроприборов.
Схема электропроводки в квартире однокомнатной
Минус такой схемы налицо. При появлении КЗ в розетке или лампочке, обесточивается вся квартира. Понятно, что благоприятной и идеальной такую схему считать нельзя.
В некоторых случаях вышеприведенная схема из 2-х ветвей дополнялась еще одной веткой, питающей электроплиту. Последняя, как известно, является чересчур мощной, требует намного больше тока.
Отдельный кабель дополнительного свойства используется в этом случае, как единственный вариант для повышения уровня безопасности и минимизации нагрузки на контур. Но такую схему лучше полностью заменить, и не пользоваться ею вообще.
Наиболее эффективная схема
Намного целесообразнее применять в «однушке» схему, подразумевающую отдельные линии для каждой из электрогрупп. Другими словами, одна из линий должна подавать электричество к розеткам, другая – к лампочкам, третья – к приборам с мощным потреблением тока.
Схема электропроводки однокомнатной квартиры
Изначально, чтобы построить такую схему, надо разделить квартиру на 4 части. Первую из частей будет представлять жилая комната, вторую кухня, третью санузел, а последнюю – коридор.
Практически в любой схеме электрическая проводка обозначается цветом. Это либо красные, либо черные линии. Они подведены к распредкоробке. Каждая из линий – это отдельная ветка, подающая ток.
Примечание. Как правило, один цвет указывает на то, что линия отвечает за подачу тока на розетки, другой цвет – на линию, подающую ток на элементы освещения.
Силовой щит и его функции
Распредсиловой элемент или щит, это центр, содержащий фиксированное число автовыключателей. В электрике принято различать УЗО и АБ выключатели. И одна ветка линий должна интегрироваться к обоим устройствам. Но сила тока не должна быть более 2-х кВт. И еще важно соблюдать правило: сколько линий электричества заходит в жилое помещение, столько выключателей и должно использоваться.
Силовой щит непосредственно связан с общим щитком, расположенным на лестничной площадки. Между ними ставится электросчетчик, а перед ним монтируются еще комнатные выключатели.
Примечание. Важно соблюдать еще одно правило: теххарактеристики выключателей должны зависеть от общемощностных показателей электрических приборов, имеющихся в квартире.
Полезно будет также знать одно исключение. Если в «однушке» размещено фиксированное число установок, с пропускной способностью 6-8 кВт, то по правилам надо использовать выключатели, минимум рассчитанные на 37А.
Электропроводка в однокомнатной квартире и схема
Однако монтаж таких выключателей считается нецелесообразным ввиду того, что большинство «однушек» используют советскую схему проводки.
Если у вас возникнут какие-либо вопросы, связанные с заменой старой схемы на новую, обращайтесь к нам. Профессиональная команда электриков окажет услуги в городе Хабаровск и его окрестностях всем желающим.
Электропроводка в однокомнатной квартире. Примеры схем
Планируя замену электропроводки своими руками в однокомнатной квартире, или с помощью услуг профессионального электрика, необходимо составить схему подключения всех линий проводки, розеток, выключателей, распределительных коробок, различных стационарно устанавливаемых электроприборов (вентилятора, кондиционера, электроплиты), автоматических выключателей и устройств защитного отключения (УЗО).

В плане электропроводки, помимо приведения электрических соединений, также желательно указывать точное местоположение точки подключения каждого электроприемника в квартире.
Пример плана схемы электропроводки комннаты
В отношении однокомнатных квартир, из-за кажущейся простоты разводки кабелей, многие начинающие мастера игнорируют планировку электропроводки, сразу приступая к работам, смутно представляя себе схему и конечный результат.
В итоге, при таком подходе, можно столкнуться с непредвиденными трудностями и проблемами. К тому же, неправильно проложенная своими руками электрическая проводка, без знания правил и требований, может стать причиной несчастного случая.

несчастный случай. сгоревшая розетка и электропроводка
Поэтапное формирование общей схемы электропроводки
Составляя план разводки кабелей, необходимо разделить черчение схемы проводки на четыре этапа, по одному для каждого помещения типичной однокомнатной квартиры (жилая комната, прихожая, кухня,санузел).

Пример схемы разводки электропроводки в однокомнатной квартире
Независимо от плана жилища, продумывать электропроводку необходимо для каждого помещения в отдельности, исходя из специфики предназначения каждой комнаты.
Под спецификой следует понимать использование электроприборов и оборудования, а также расположение розеток, выключателей, органов управления. Необходимо ознакомиться (информация имеется на данном ресурсе) со спецификой устройства электропроводки в каждом помещении квартиры, составляя своими руками общую схему.
Расчёт кабелей исходя из нагрузки
При составлении схемы разводки проводов для каждого помещения необходимо придерживаться основополагающей последовательности действий, которые исходят из логической цепочки понятий, объяснение которых выходит за рамки данной статьи:
- Каждый электроприбор потребляет ток, на который должна быть рассчитана электропроводка.
- При подключении на один кабель несколько электроприемников, их токи суммируются, а значит, поперечное сечение проводов должно быть рассчитано на данную сумму.
Таблица выбора сечения провода по току и мощности
Поэтому необходимо правильно рассчитать сечение предполагаемых к установке проводов, и указать их на план схеме. Методику самостоятельного расчёта сечений по току или потребляемой мощности, можно найти на данном ресурсе, или взять у других заслуживающих доверия источников.

Пример схемы коммутационных аппаратов разделенных на группы и сечения кабелей для однокомнатной квартиры
Там же можно найти описание видов электропроводок, способы их укладки и типы используемых кабелей.
Разделение электропроводки на отдельные линии
Ещё один принцип, которого стоит придерживаться, независимо от предназначения помещения однокомнатной квартиры, составляя своими руками схему её электропроводки – это разделение потребителей на группы.
Пример схемы электропроводки в квартире
Минимальный вариант – группа розеток и освещения. Это означает, что от квартирного щитка должны идти отдельные защищённые автоматами кабели для розеток и электроосветительных приборов.
Помимо электробезопасности, такой подход выгодно отличается в плане удобства замены своими руками выключателя или розетки – будет возможность пользоваться электроосветительными приборами, не отключая электричество в квартире целиком.
Схема для ванной
Для мощных потребителей электроэнергии, таких как бойлер, электроплита, кондиционер, холодильник, необходимо прокладывать отдельную линию.
Схема электропроводки на кухне
Данное требование обосновано тем, что сечение проводов, обеспечивающих питание данных электроприборов должно быть большим, чем для кабелей, питающих менее мощное оборудование.
Соответственно, защитный автомат, рассчитанный под данное сечение, может не сработать, если в подключенном последовательно кабеле с более тонкими жилами появится сверхток, приводящий к перегреву, оплавлению и возгоранию изоляции.
Защита от поражения
Все группы розеток необходимо снабдить УЗО, реагирующими на утечки тока через тело человека или изоляцию. Таким способом реализуется защита от поражения при появлении опасного напряжения на корпусе электроприборов, и обеспечивается противопожарная безопасность. В отношении ванной комнаты, наличие УЗО является обязательным условием при установке розеток .
Желательно установить УЗО и на линию освещения тоже, особенно для ванной комнаты. Например, металлические части настенных светильников могут оказаться под напряжением и стать причиной поражения при их касании.
К тому же, в распределительной коробке, выключателе или клеммнике люстры может оказаться вода по вине соседей сверху. Попадание воды на токопроводящие поверхности не вызовет короткого замыкания и не заставит сработать автомат, но может стать причиной утечки, приводящей к порче изоляции и осветительного оборудования.
УЗО должны подключаться последовательно с защитным автоматом, причём номинальный ток УЗО должен быть на одно значение выше.
Схему УЗО + автомат можно заменить дифавтоматом, сочетающим в себе оба эти устройства, которые устанавливаются в квартирном распределительном щитке.
Сам щиток должен находиться в доступном месте на высоте, недосягаемой для маленьких детей.

Высота установки Распредщита в коридоре
Необходимость соблюдения правил и нормативов
При составлении схемы электропроводки, для того, чтобы не случайно не повредить при установке проводов другие коммуникации, необходимо иметь под рукой план их разводки в квартире.
Сверившись с расположением трубопроводов и различных кабельных линий, нужно провести электропроводку. по возможности избегая её пересечения с данными коммуникациями, придерживаясь правил прокладки электропроводки. которые детально описаны на данном ресурсе.

пример расположения проводки в комнате
Для удобства в данной статье выложены цитаты из правил устройства электроустановок (ПУЭ) и строительных норм и правил (СНиП).

Данные нормативы также включают расположение электропроводок, розеток и выключателей относительно дверей, стен, пола и потолка. Определяют точное местоположение проводки и электрических точек в квартире, указывая на плане расстояния в метрах или миллиметрах.

Поскольку к распределительным коробкам должен обеспечиваться доступ, то их количество можно уменьшить — планируя разводку проводов под розетки и выключатели, стоит планировать таким образом, чтобы осуществлять необходимые подключения в подрозетниках выключателей и розеток.
Условные обозначения на плане
Если для документации на квартиру нужен профессиональный чертёж схемы электропроводки, то лучше обратиться в соответствующие организации, обладающими квалифицированными специалистами. и имеющими право на составление подобных документов.
Но составляя монтажную схему для мастера, или планируя своими руками сделать все электромонтажные работы, нужно выучить минимальный набор условных обозначений различных часто встречающихся в квартире электрических точек и электроприемников.
условное обозначение выключателей и розеток на схеме

На плане электропроводки все три провода, необходимые для подключения розеток (фаза, ноль, заземление) можно обозначать одной линией для упрощения чтения схемы, а линии электропроводок для отдельных групп потребителей следует указывать различными цветами.

чертеж схемы квартиры от руки
Чертёж может быть начерчен от руки, главное соблюдать аккуратность и точность в обозначениях.
В сети интернет существует множество схем квартирных электропроводок, их можно использовать как шаблон, добавляя и изменяя по необходимости.
Похожие статьи
Ремонт проводки в квартире
Схема электрического щитка для однокомнатной квартиры
Казалось бы, что может быть проще, но и тут нужно соблюдать определенные правила.
Рассмотрим несколько примеров:

Перед вами схема щитка, которая встречается в большинстве домов, построенных еще в Советское время. Гениальная простота – два автомата или две пробки, с распределенной пополам нагрузкой. Такой вид щитка чаще встречается в газифицированных домах.

Такой щиток обычно встречается в домах с электрическими плитами, вместо газовых. На лестничной клетке устанавливается общий пакетный выключатель, иногда рубильник, а все остальное внутри квартиры. Отдельный автомат для питания электроплиты, два других для остальных потребителей. Может применяться в разных вариациях: по половине квартиры на каждый автомат, или один автомат на освещение, а второй на розетки.

Современное видение схемы квартирного щитка для однокомнатной квартиры требует обязательного применения устройств защитного отключения (УЗО). Перед вами пример такой схемы. На входе установлено УЗО, которое оберегает в большей степени от пожара, чем от поражения электрическим током. Далее вполне предсказуемая схема. Данная конфигурация удовлетворяет предъявляемым требованиям безопасности и ее можно брать на вооружение в таком виде. Это необходимый минимум, но, как известно, нет предела совершенству.
Современный квартирный щиток для однокомнатной квартиры
В настоящее время однокомнатные квартиры занимают не какие-нибудь старенькие бабушки и дедушки, как раньше. Сейчас молодежь в качестве первого собственного жилья имеет возможность приобрести именно однокомнатную квартиру. Поэтому однокомнатная квартира начинает вмещать много техники, для которой ранее спроектированные помещения были не предназначены.
Еще одно проявление современного мира – это квартиры-студии или однокомнатные квартиры со свободной планировкой. Вот тут уже полностью развязаны руки, как у дизайнеров с их технически перенасыщенными фантазиями, так и у строителей, которые готовы предложить однокомнатные квартиры площадью куда более 40 квадратных метров.
Это означает лишь одно – современный электрический щиток для однокомнатной квартиры должен быть максимально гибким и удобным, имея все средства безопасности, оговоренные стандартами.

Эта схема лишь один из вариантов того, как можно расширить функциональность электрощитка. Введена дополнительная группа, которую можно, например, использовать для освещения, и на санузел установлено УЗО. Для уменьшения места при сохранении уровня безопасности, можно использовать дифференциальные автоматические выключатели. Ведь часто приходится проводить переоснащение квартирного щитка на весьма скромных площадях. Правда, цена таких устройств выше, чем классических УЗО. Как видите, предлагаемая схема щитка уже не так проста, как раньше. Но удобства, которые она предлагает, будут еще не раз оценены в будущем.
Новое на сайте
- Какие трубы выбрать для водопровода в современной квартире или доме Подробный ответ на вопрос выбора водопроводных труб в квартиру, частный дом или коттедж с точки зрения надежности, простоты монтажа и долговечности
- Когда менять электропроводку? Оценка состояния существующей проводки Как оценить состояние электропроводки и принять решение о ремонте электропроводки, а также ее полной или частичной замене
- Интерьер детской своими руками – шторы, аксессуары Продолжаем обустраивать интерьер детской своими руками
- Какие обои выбрать для детской – расцветка, текстура, материал Подробно о том, какие обои выбирать в комнату своих детей
- Интерьер спальни своими руками – пошаговый план Первый этап обустройства интерьера спальни своими руками в квартире без отделки
- Как подобрать шторы в спальню Заключительный этап работы над интерьером своей спальни
- Дизайн детской – полезные советы и правила Как задумать и осуществить дизайн детской комнаты своими руками для двух девочек.
Ремонт квартиры своими руками на основе собственного опыта
УРА!ремонту © Копирование информации на другие ресурсы разрешается только при наличии активной ссылки на первоисточник.
Находясь на страницах сайта Вы принимаете со своей стороны Пользовательское соглашение и обязуетесь его соблюдать.
MySQL: 0.0014 s, 2 request(s), PHP: 0.0044 s, total: 0.0058 s, document retrieved from cache.
Источники: http://elektrik-dv.ru/stati/sxema-provodki-v-odnokomnatnoj-kvartire-odnushke, http://infoelectrik.ru/elektroprovodka/sxema-elektroprovodki-v-odnokomnatnoj-kvartire.html, http://ura-remontu.ru/skhema-shhitka-odnokomnatnojj-kvartiry.html
electricremont.ru
Электропроводка в однокомнатной квартире ч.1
С данного материала начинаю публиковать серию статей на тему организации электропитания в однокомнатной квартире. В них вы узнаете ответы на все вопросы, касающиеся этой темы – это от планирования начинки распределительного щита и заканчивая установкой розеток. Здесь рассмотрим вопрос, с которого необходимо начинать этот интереснейший процесс.
На первом этапе организации электропроводки в однокомнатной квартире вам необходимо очень много думать. Нужно «не слазить» с супруги и добиться, чтобы она определилась с тем, что и где у нее будет стоять на кухне, в комнатах, в коридоре и т.д. Это очень важно, так как от этого будет зависеть место установки розеток, длина и трасса прокладки кабелей. Также это потом сбережет вам огромное количество нервов. Поверьте мне — это так.
Еще рекомендую походить кругами по квартире, периодически посматривая на ее бумажный вариант планировки. Это часто рождает новые и правильные мысли, по поводу того что я хочу и где это поставлю. Необходимо решить, какая бытовая техника вам нужна и где она будет установлена.
Также не забывайте и про другую мебель. Нужно решить какой длины и ширины будут шкафы, столы, тумбочки и где они будут стоять. Неудобно же будет включать пылесос в розетку за диваном или за столом?
На первом этапе вам нужно нарисовать один раз план квартиры и размножить его. С десяток листов все равно пойдут в мусор – вдруг завтра супруга решит в другой угол поставить холодильник. Данный план должен быть большим, чтобы на нем можно было нарисовать мебель, и все это было хорошо видно.
Для примера возьму план простой однокомнатной квартиры, где в ближайшее время мне придется помогать делать электропроводку. Ждем когда дом сдастся. Как всегда указанные сроки сдачи уже прошли.
Рисовать план можно в любом графическом редакторе или на бумаге с помощью карандаша и линейки. Лично я привык рисовать все планы и схемы в программе Microsoft Visio. Она очень удобна для этих целей и в ней уже есть готовые обозначения всех узлов электросхем, предметов мебели, бытовой техники, стен, дверей, окон и т.д.
Ниже представлен мой план однокомнатной квартиры. Вы старайтесь делать все по аналогии, так как принцип работы будет один и тот же. Я его нарисовал в Visio за 10 минут.
На плане обязательно стоит показать двери и куда они будут открываться, чтобы по ошибке не разместить выключатели за ними.

Затем вместе с супругой необходимо на плане нарисовать всю мебель и бытовую технику, которую планируете размещать дома. В программе Visio есть все необходимые обозначения, которые просто нужно выбирать и перетаскивать мышкой в нужный угол. Причем все эти обозначения имеют реальные размеры, но уменьшенные по масштабу, например, можно выбрать стандартную ванну 700х1500 или 700х1600 и т.д. Если все комнаты вы нарисуете по реальным размерам, то сразу будет видно поместится ли такая ванна и как ее лучше разместить. Данная программа сама отображает все рисунки по выбранному масштабу. Это очень удобно и экономит уйму времени.
На картинке ниже я пофантазировал и наполнил 1-но комнатную квартиру разной мебелью и бытовой техникой.

Теперь выделяем все нарисованные потребители электроэнергии каким-нибудь другим цветом. Я выделил красным. У меня это: стиральная машина (3), духовой шкаф (4), холодильник (6), телевизоры (7) и кондиционер (15). У вас может немного отличаться. Про печи СВЧ, электрочайники и подобную утварь мы поговорим в следующих статьях.
Данный этап плана нам необходим, чтобы понять где будут находиться большинство розеток. На нем трудно изобразить все электроприборы, так как это его просто «захломит». Поэтому как не забыть про оставшиеся розетки я расскажу в следующих статьях. По данному плану сразу становится наглядно понятным куда необходимо «тащить» большинство проводов.

Вот мы и нарисовали план квартиры с мебелью и бытовой техникой.
Как говорят по телевизору: «Не переключайтесь! Через несколько минут Вас ждут интересные новости!». Честно сказать, я за несколько минут не умею писать и рисовать схемы, поэтому ждите их в течении следующих пары дней. Думаю, Вам будет интересно. В следующей статье мы нарисуем все розетки, определимся с количеством линий (кабелей) и подумаем как ничего не забыть.
Для того чтобы вы не скучали в ожидании выхода новых статей, можете попробовать разгадать кроссворд. Его составлял я лично и предлагаю опять вам поучаствовать в КОНКУРСЕ. Я буду периодически в конце статей публиковать новые кроссворды. Все они будут пронумерованы начиная с номера №1. Пока всего их будет 10 штук.
Вам необходимо следить за выходом новых статей на сайте Сам себе электрик, находить в них кроссворды и разгадывать их. Затем вам нужно будет переписать буквы, которые найдете в выделенных клетках и составить из них ключевое слово. Это слово будет обязательно на тему электрики. Из одного кроссворда должно получиться одно ключевое слово, итого 10 штук. Все разгаданные ключевые слова присылайте мне через форму обратной связи. О том, что я получил от вас ключевое слово и проверил его вы узнаете в ответном письме. С публикацией самого последнего 10-го кроссворда я опубликую список все участников. Победители будут определяться с помощью генератора случайных чисел. Что это такое можете спросить у Яндекса.
Разыгрываться будут три призовых места. Что будут за призы пока не решил. Опубликую их в следующих статях. Скажу точно, что это будут хорошие и качественные инструменты для электромонтажных работ, с помощью которых вы сможете решать «электрические» дела у себя дома.
Кстати, у вас еще есть шанс принять участие в другом конкурсе и выиграть новый набор диэлектрических отверток, который обязательно пригодится вам в личном хозяйстве. Подробности смотрите тут.
Вот ниже сам кроссворд №1. Для того чтобы начать его разгадывать нажмите ниже на ссылку <<<НАЧАТЬ РАЗГАДЫВАТЬ КРОССВОРД №1>>>. Откроется новое окно. Там вы увидите задания и поле для ввода слов. Приятного мышления!
<<< НАЧАТЬ РАЗГАДЫВАТЬ КРОССВОРД №1>>>

<<< ОТПРАВИТЬ ОТВЕТ >>>
На этом у меня все. Желаю вам удачи и отличного настроения! Жду ваши ответы.
sam-sebe-electric.ru
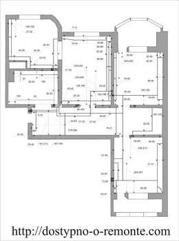
Схема электропроводки в трехкомнатной квартире + фото
Главная » Схемы » Схема электропроводки в трехкомнатной квартиреВ этой статье вашему вниманию будет представлен достаточно сложный проект. Мы предоставили вашему вниманию схему разводки проводки для трехкомнатного жилья с лоджией. Схема электропроводки в трехкомнатной квартире считается достаточно сложной. Ее выполнением должны заниматься только профессионалы.
Мы также предупреждаем, что это только пример чертежа. Выполнить проводку вы легко сможете и по другой схеме. Ваша проектная схема электропроводки в трехкомнатной квартире может включать другое количество розеток и выключателей.
Схема электропроводки в трехкомнатной квартире
Сначала мы представим вашему вниманию готовую схему электропроводки в трехкомнатной квартире. Затем мы постараемся ответить на распространенные вопросы, которые достаточно часто возникают у начинающих электриков. Если вам будет интересно, тогда можете прочесть про схему подключения двойной розетки. На сегодняшний день современный проект разводки провода по комнатам выглядит следующим образом:
Этот проект, который изображен выше предназначается для трехкомнатного жилья. Естественно он считается достаточно сложным для понимания, и поэтому мы рассмотрим его основные моменты:
- Каждая комната обязательно должна иметь отдельную распределительную коробку. Именно от нее будут выводиться провода к светильникам и розеткам. Если вы планируете установить распределительную коробку в ванной, тогда ее необходимо будет перенести в коридор. Или вы можете приобрести специальную влагозащищенную распределительную коробку. Увидеть ее можно на фото ниже.
- На кухне вам обязательно необходимо разместить три розетки над столешницей. Они предназначаются для подключения варочной панели, микроволновки или электрического чайника. Собственная схема электрической проводки в трехкомнатной квартире может включать больше розеток. Дополнительные розетки могут потребоваться, если вы планируете подключить вытяжку или посудомоечную машину. На фото, которое размещено ниже вы можете увидеть вариант размещения розеток над столешницей.
- На схеме вы не увидите вывода электрики на лоджию. Не каждый хозяин желает проводить дополнительные розетки и выключатели. Если вам необходимо вывести свет на балкон, тогда следует изучить схему вывода электрики на балкон.
- Высота установки розеток в хрущевке обязательно должна регламентироваться гостами. Если вы этого не знаете, тогда можете прочесть нашу статью про высоту установки розеток и выключателей. Конечно, если у вас есть желание, тогда размещать эти устройства можно, так как вам угодно.
- Перед прокладкой электропроводки мы рекомендуем вам составить чертеж плана своего жилья. В этом документе вы сможете найти все чертежи своих комнат. Также благодаря этому вы сможете сделать разметку стен для прокладки будущей проводки.
- Для освещения и розеток постарайтесь выводить несколько групп проводов из распределительного щитка. Например, одна группа проводов для освещения может отвечать за свет в гостиной и ванной. Вторая группа проводов может обслуживать спальню и детскую. Также вам потребуется разбить нагрузку на розетки. Этот вариант схемы электропроводки в квартире позволяет оставлять свет включенным во время ремонта.
Это все что мы хотели сказать о том как сделать электрическую схему квартирной проводки. Мы надеемся, что этот типовой проект электропроводки в 3-х комнатной квартире панельного дома серии п-44 был для вас полезным.
Рекомендуем прочесть: схема электропроводки в гараже.
vse-elektrichestvo.ru
