Электроразводка в квартире своими руками – Проводка в квартире своими руками
Электропроводка в квартире своими руками
Расчеты и схема

Однолинейная схема по ГОСТу
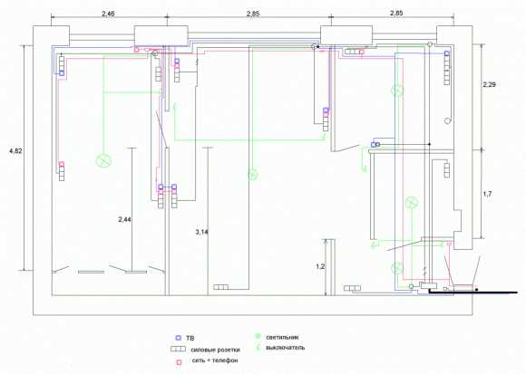
Для начала вам необходимо нарисовать схему электропроводки вашей квартиры. Для этого не нужно быть инженером, ведь вам не нужна замудрённая линейная схема по ГОСТу. Достаточно нарисовать схематический рисунок «от руки». Схема электропроводки нужна для того, чтобы правильно раскидать кабель по квартире, и посчитать его примерное количество, а также определить нагрузку на каждую будущую линию.

Схема электропроводки
Нарисуйте где у Вас будут находиться розетки и выключатели. При этом учтите какие бытовые электроприборы вы будете в них включать, сколько и каких светильников вы будете использовать.
Не рекомендуется вешать на одну линию больше 8-10 розеток. Так как все розетки в линии проходные, то с каждой последующей розеткой есть вероятность ослабления контакта. Особенно не делайте много розеток на одной загруженной линии например на кухне, лучше не экономьте и протяните на кухню две линии.
Определите необходимое количество линий и предполагаемую нагрузку на них. Лучше разделить линии по зонам, например: розетки кухня, розетки коридор, розетки ванна, розетки комната 1, освещение и т.д.
Выбор кабеля
Чтобы электроприборы работали не перегружая сеть, кабель каждой линии должен быть соответствующего сечения. И если, на одной линии (например на кухню), будет находится несколько потребителей (а так и будет), то необходимо посчитать их суммарную мощность и оставить запас «прочности» кабеля, то есть подобрать нужное сечение (толщину провода). Мощность всех бытовых приборов всегда указывается производителем. Например: лампа накаливания 40W, а варочная панель 6000W и т.д.
Чтобы не заморачиваться с расчетами, следуйте одному простому правилу. — Для розеточных линий используйте медный кабель с сечением 2,5 кв.мм., для всего освещения 1,5 кв.мм, а для варочной панели или проточного водонагревателя 4 кв.мм — и все будет у вас хорошо!
| Сечение провода (кв.мм) | Сила тока (А) | Мощность (Вт) | Номинал автомата |
| 1,5 | 15 | 3300 | 16 |
| 2,5 | 21 | 4600 | 20 |
| 4 | 27 | 5900 | 25 |
| 6 | 34 | 7400 | 32 |
У каждого прибора (потребителя) есть своя заявленная максимальная мощность, измеряемая в Ваттах.

Упрощенная формула мощности

Кабель должен быть трех жильным (фаза, ноль, земля).

Для замены электропроводки лучше всего использовать кабель ВВГ-нг. Можно конечно использовать NYM или ПВС, но преимущества кабеля ВВГ перед другими очевидны. Во-первых, ВВГ не нужно обжимать гильзами (мягкий нужно обжать). А во-вторых, он меньше и он плоский, что позволяет делать штробы меньшего размера, и есть возможность просунуть кабель в тонкую щель (3мм для трехжильного кабеля с сечением 1,5 мм)

Необжатый провод с гильзой
Всегда берите только кабель по ГОСТу! Например отличный кабель это гостовский ВВГ нг. Это очень важный момент в подготовке к замене проводки! Вы можете сэкономить на автоматике или розетках (их всегда можно поменять), но не экономьте на кабеле — берите хороший.
Разметка
Определите на какой высоте будут находится розетки и выключатели, проще всего отмерять линии розеток и выключателей от потолка, потому что полы в квартирах чаще всего кривые. Например, если высота от пола до потолка после ремонта будет 250 см, а розетки вы хотите поднять на 30 см, отмеряйте от потолка 220 см. Если в одной группе будет несколько розеток и выключателей, начертите горизонтальную линию по уровню и поставьте через каждые 7см метку (размер подрозетника 71мм), тоже самое касается и вертикальных групп.
Для любителей стандартов, чтобы было «как у всех» или «как делают», — запомните их не существует! Есть требования для детских учреждений, садиков и школ, где розетки и выключатели устанавливаются на высоте

Подготовка к штроблению
Обычно укладка проводки в квартирах, осуществляется либо по полу, либо по потолку. Существуют и другие варианты, например прокладка кабеля под плинтусами или коробах.
Линии освещения, в любом случае прокладываются за натяжным или подвесным потолком, если таковые делать не планируется, то необходимо штробление потолка. А так как, монолит потолков штробить категорически запрещено, нужно нанести на потолок слой штукатурки, который позволит спрятать кабель без порчи монолита. Самостоятельно штробить потолок мы крайне не рекомендуем, так как необходимо знать технологию правильного штробления, чтобы потом весь дом когда-нибудь не рухнул.
В случаях когда штукатурка потолка не планируется, опытные мастера находят пустоты в плите монолита со старым кабелем, и на его место затягивают новый.
Коронкой по бетону на 70мм или 68мм (насадка на перфоратор), просверливаются отверстия для подрозетников. Штроборезом или болгаркой выпиливаются штробы для укладки кабеля. Штробы в стенах должны быть строго вертикальными, а не горизонтальными или по диагонали. Линии от розеток к щитку укладываются в стяжке пола или по потолку.
Если потолки не деревянные, то по ПУЭ (библии электрика), разрешается укладка кабеля без гофры! В стяжке пола в гофре также нет необходимости, самое главное это качественный кабель с хорошей изоляцией по ГОСТу! Сэкономьте на гофре, если у вас не гипсокартон и не дерево (или не другие легковоспламеняющиеся материалы) — то гофра не нужна!
Подробное описание правильного штробления лунок под подрозетники.
Почему можно укладывать кабель без гофры
Шумные работы
Когда начнете долбить стены — не забывайте о законе. Шуметь перфоратором в многоквартирных домах можно только в строго определенное время, в каждом регионе РФ свои порядки. Например, в Дагестане необходимо получить разрешение старейшины, в Москве без разговоров просто вызывают полицию, а в Таганроге начинают долбить в ответ. Лучше начинать работы в будни с 9 и до 19, с перерывом на обед с 13 до 15.
Штробление
Перед тем как начать штробить, очень желательно чтобы стены и потолки были отштукатурены выравнивающим слоем штукатурки. Во-первых, у Вас не возникнет дальнейших проблем с завершающим монтажом розеток, так как все подрозетнички будут заподлицо со стеной, а не утоплены в ней (что бывает когда их устанавливают раньше, чем штукатурят стены). И во-вторых, штробление будет происходить гораздо быстрее, так как в некоторых местах не нужно будет пилить монолит.

Заранее проверьте места где будете штробить, чтобы не задеть коммуникации, — старую проводку и сантехнические трубы. Если не можете определить где идет старая проводка, вызовите электрика, или просто отключите ее в щите (если собираетесь менять её всю). Для удобства работы — сделайте себе временную переноску (удлинитель).
Отверстие под подрозетники штробятся на полную глубину коронки. Чтобы быстрее проштробить отверстие в бетоне, наметьте коронкой окружность, после чего любым буром, длиною не менее глубины коронки, просверлите максимально возможное количество отверстий по окружности. После чего штробление коронкой пойдет заметно быстрее, можно сказать – как по маслу пойдет. При попадании на арматуру, лучше всего использовать другую коронку, в крайнем случае, можно сбить ей лопаткой. Лучше использовать перфоратор помощьнее (не забываем про соседей и полицию).
Работа с штроборезом или болгаркой
Штробы для укладки кабеля, идут от подрозетника до пола или потолка. Спускать штробу вниз нужно так, чтобы кабель спокойно лег в стяжку и не торчал в углу, поэтому нужно знать толщину будущей стяжки, тоже самое и с потолками. Лучше всего для этих дел иметь штроборез с пылесосом, но в крайних случаях можно обойтись и болгаркой, с алмазным диском по камню. В случае с болгаркой — позаботьтесь о своем здоровье, наденьте респиратор и очки. Закройте все окна и двери, чтобы изолировать попадание пыли в соседние помещения.

Укладк
xn--e1agfbb6an8f.org
Проводка и развод электрики в квартире своими руками
Менять старую внутриквартирную проводку на новую принято при капремонте жилья. Этот электромонтаж сопряжен со штроблением стен и обилием строительной грязи. После него все равно приходится полностью обновлять интерьерную отделку. Проложить электропроводку в квартире своими руками при наличии даже минимальных навыков в обращении с обычным инструментом не составит особого труда. Главное при монтаже проводов соблюдать меры безопасности, а при разработке проекта разводки четко придерживаться норм ПУЭ.
Содержание
- Особенности
- Планирование и схема
- Группировка
Особенности современной электрической разводки
Раньше электропроводка в городских квартирах прокладывалась по упрощенной двухжильной схеме TN-C из алюминиевых проводов. Этот вариант был дешев и прост в исполнении, поэтому в советское время применялся практически повсеместно. Однако при такой разводке УЗО и автоматы функционируют не всегда корректно. Они нередко просто не срабатывают в аварийных ситуациях.

В панельных домах чаще всего проводку прокладывают по диагонали в специальных каналах
Сейчас принято использовать схему с заземлением TN-S либо TN-C-S и медные провода. Такую электропроводку отличает большая безопасность. Плюс она рассчитана на более высокие мощности потребления и стабильней работает при сбоях в электросети.
Планирование и схема
Прежде чем отправляться в магазин за электропроводами и иными расходными материалами, следует правильно распланировать схему разводку внутриквартирной электросети. Необходимо сделать план жилища с потребителями электроэнергии и разбивкой их на группы (каждая со своей выделенной мощностью). Сегодня на квартиру выделяется лимит порядка 5–10 кВт, в старых домах он и того ниже – от 1,3 до 2,5 кВт. И вот эти киловатты надо грамотно разделить на освещение и бытовые электроприборы, чтобы всем хватало энергии.

Как рассчитать количество потребляемой электроэнергии в квартире
Группировка потребителей
Группировать потребителей рекомендуется по комнатам и типу потребления. Если квартира большая (трехкомнатная и более), то освещение стоит разбивать на пару групп с раздельными устройствами защиты. Однако чаще всего все осветительные приборы запитываются от одной линии со щитка, а вот комнатные розетки уже разделяются на несколько веток. Плюс еще две обычно формируют для электроплиты на кухне и на санузел.

Группировка потребителей электроэнергии в квартире
Линия для стационарной домашней техники и розетки
В отдельную группу также принято выделять стиральную и посудомоечную машины. Если они сломаются или перегорят идущие на них провода, то эту линию электропроводки можно будет отключить на время ремонта без обесточивания всей квартиры.
Варианты группировки осветительных приборов
По освещению группирование следует производить исходя из мощностей осветительных приборов. Большую зальную люстру на 5–7 лампочек лучше подключить через отдельный провод. Также выделить в свой контур можно настенные бра и освещение ванной комнаты с туалетом. А вот светодиодную подсветку стоит запитать от розеток. В проекте квартирной электропроводки выделять ее отдельно не рекомендуется, так как такие приборы потребляют сравнительно мало электроэнергии.
Линия для кухни
Особый момент – кухня, в нее отдельно должны идти линии проводки на:
- электрическую плиту;
- освещение;
- розетки для чайника, миксеров и другой бытовой техники;
- розетки для посудомойки и стиральной машинки.
Объединять эти электроприборы в одну общую кухонную группу нельзя. Включенные одновременно они будут потреблять слишком много электричества. Если в кухню прокладывать один провод, то его придется подбирать с большим сечением. А это приведет к совершенно ненужному удорожанию электропроводки в квартире и сложностям в ее монтаже.

Основные потребители электроэнергии на кухне
Специальные линии электропроводки
Отдельно делать линии в проекте электрики рекомендуется также для:
- системы теплого пола;
- электрического полотенцесушителя;
- водонагревателя с ТЭНом и т.п.
Для этих электроприборов характерно высокое энергопотребление, поэтому их лучше подключать через специальную выделенную ветку и собственное УЗО. Причем выбирать в квартиру провод по сечению здесь придется с особым вниманием. Жилы кабеля должны будут выдерживать длительный по времени и повышенный в амперах электроток.
Электропроводка в помещениях с повышенной влажностью
Ванную и туалет либо совмещенный санузел также следует выделять на схеме в отдельную группу. Эти помещения отличает повышенная влажность. Электропроводку, розетки и освещение в них необходимо подбирать в исполнении с защитой по IP 44 или 54. Экономить здесь не рекомендуется.

Группы потребителей и разметка электропроводки в ванной комнате
Жилые помещения
В каждую жилую комнату в проекте внутриквартирной электрики рекомендуется закладывать три линии – основную и дополнительную с розетками на разных стенах плюс еще одну на освещение. Чтобы сэкономить, дополнительную ветку можно подцепить на основную в соседнем за перегородкой помещении. Не зря отверстия для смежных подрозетников обычно в стенах делают сквозными. Так пару розеток в разных комнатах удается без проблем подключить на общий провод от одной группы.
Главное здесь с нагрузкой потом подключаемых электроприборов не прогадать.
В качестве примера неправильно спроектированной схемы можно привести достаточно распространенную ситуацию с включением кондиционера в существующую старую розетку. Так делать нельзя, для сплит-систем следует прокладывать от щитка в квартиру отдельную обособленную линию электропитания.
Способы прокладки
Прокладку своими руками электрических проводов в помещениях можно осуществить открытым либо закрытым способом. Но если проводку в деревянном доме рекомендуется монтировать по первому варианту, то в квартире практически всегда используется второй. Для этого стены в комнатах придется штробить перфоратором либо прорезать каналы для кабелей в бетоне или кирпиче болгаркой. Зато потом вся электропроводка оказывается укрытой от глаз отделкой, что выглядит даже на фото более эстетично.
Варианты прокладки проводки в квартире по потолку и по полу
Открытый
У наружного способа преимущества следующие:
- Дешевизна монтажных работ.
- Простота самостоятельного монтажа.
- Упрощенная возможность переделки разводки и формирования новых линий.
Но при таком варианте электромонтажа провода остаются на виду и могут быть по неосторожности повреждены. В квартире разводку электропроводки открытым вариантом рекомендуется делать только в крайнем случае. Лучше потратить время и силы на штробление бетонных и кирпичных стен, но сделать все более красиво и безопасно.
Скрытый
Среди достоинств скрытого электромонтажа проводов числятся:
- Более высокая безопасность и долговечность проводки.
- Меньший риск возникновения пожара при перегреве и оплавлении проводов.
- Эстетичный вид интерьера.
Однако за эти плюсы приходится платить большой трудоемкостью и увеличением цены монтажа электропроводки, а также сложностями при ремонте.

Размер сечения проводов для открытого и закрытого монтажа электропроводки
План работ
Независимо от сложности схемы электропроводку в квартире практически всегда можно выполнить самостоятельно. Провода проложить в стенах или по ним в состоянии любой хозяин, обладающий минимальными навыками строительно-отделочных работ. Однако проектирование электрики с расчетами и подбором материалов и устройств защиты лучше доверить профессионалу.
Общая пошаговая инструкция монтажа электропроводки выглядит следующим образом:
- Выполняется разметка с указанием на стенах линий укладки проводов и мест установки выключателей с розетками.
- В созданные каналы (штробы) укладываются электрические кабели.
- Устанавливаются и подключаются электротехнические изделия (розетки, распределительные коробки для электропроводки, выключатели).
- Производится монтаж защитных устройств в этажном электрощите и подсоединение к ним проводов из квартиры.
- Осуществляется проверка электросети на предмет коротких замыканий.
Разметка, подготовка стен
При разметке на стенах мест укладки проводов штробы и кабель-каналы следует делать прямыми и с изгибами только под прямым углом. Это облегчает поиск электропроводки в квартире впоследствии при необходимости выполнения ремонта, а также позволяет избежать по ошибке пробоя жил гвоздями или саморезами во время последующей отделки.

Правила разметки электропроводки в квартире
Монтаж и прокладка проводов
Соединять жилы рекомендуется при помощи клемм. Паять их долго и сложно. А скрутку использовать следует только в крайнем случае, это самый ненадежный способ монтажа. При этом места таких соединений должны располагаться в распределительных коробках для электропроводки, чтобы до них можно было легко добраться при необходимости.
Подключение автоматов и УЗО
При наличии грамотно разработанной схемы электропроводки автоматы и УЗО по ней смонтировать в щитке можно без привлечения электрика. Однако для проверки, насколько правильной получилась в итоге сборка, все же стоит привлечь профессионала.
По правилам окончательное подсоединение вводного кабеля должен производить электромонтер обслуживающей дом организации или сотрудник энергокомпании. А они при выявлении несоответствия защитной автоматики в электрощитке на этаже нормам ПУЭ подсоединять квартиру к электросети просто откажутся. И придется все заново переделывать.

Как распределить УЗО в квартире по группам
Подключение осветительных приборов и фурнитуры
Самым простым этапом электромонтажа является подключение приборов освещения и фурнитуры. Для этого на каждом электротехническом устройстве имеются винтовые либо пружинные зажимы. Достаточно вставить в них оголенную жилу и зажать ее в такой клемме.
Меры безопасности
И главное – меры безопасности. Не стоит брать пример с горе-мастеров, которые начиная прокладывать проводку в доме своими руками, забыли проверить наличие напряжения в электросети и получили удар током. Лучше перед началом работ все несколько раз перепроверить, чем потом оказаться в больнице. И использовать при электромонтаже инструмент следует только тот, что имеет защитные резиновые ручки.
Варианты схем для квартиры
Многое при выборе схемы разводки проводов по квартире зависит от ее площади и количества комнат. Однако разбивку на группы потребителей осуществлять следует в любом случае. Даже для небольшой студии надо делать минимум три линии – одна на освещение, вторая на розетки, третья для санузла.

Примерная схема электропроводки для однокомнатной квартиры
В двух- и трехкомнатных квартирах групп придется выделять гораздо больше. Здесь электроприборов в разы будет больше. И запитывать их лучше всего по отдельным линиям, чтобы гарантировать себе безопасность и стабильности работы внутриквартирной электросети.
Заключение
При наличии опыта электромонтажа самостоятельно проложить в своей квартире электрические провода не составит проблем. На этом можно немало сэкономить при ремонте. Однако если навыков подобных работ нет, то лучше пригласить профессионального электрика. От правильности выполнения расчетов в проекте электрики и последующего ее монтажа зависит не только комфортность проживания в доме, но и общая электробезопасность. Ошибки здесь недопустимы.
Смотрите также видео как сделать электропроводку в квартире:
Читайте про другие наши материалы:
Проводка и развод электрики в квартире своими руками
5 (100%) 4 vote[s]sdelat-dom.ru
электропроводка в квартире своими руками
В большинстве случаев ремонт квартиры не обходится без изменения электропроводки, обусловленной перепланировкой жилья, физическим и моральным износом кабелей, повышением нагрузки на сеть и другими факторами.
Объём работ по реконструкции электропроводки зависит как от размеров жилья, так и от планируемой степени оснащения бытовым оборудованием и техникой каждого помещения. К электричеству сегодня все привыкли, но от этого последствия от поражения человека электротоком не стали легче – ток в 5-10 А бытовой сети напряжением 220 В смертельно опасен. Следовательно, при устройстве электропроводки мелочей не бывает.
Монтаж электросети квартиры состоит из следующих этапов:
- Разработка проекта/схемы.
- Расчёт потребности в материалах и фурнитуре.
- Разметка под штробление и устройство штроб.
- Укладка кабелей и монтаж распределительных коробок, розеток, выключателей.
- Сборка распределительного щитка и «прозвонка» электропроводки.

Проект электропроводки
Произвести грамотный монтаж электропроводки современной квартиры без заранее разработанной схемы электроснабжения, руководствуясь только сиюминутными решениями возникающих вопросов, невозможно. Реконструкция или установка новой электропроводки должна выполняться лишь после детальной проработки всех требований к новой электросети. Пренебрежение этими рекомендациями не только чревато выходом из строя оборудования, но и опасно для жильцов дома в целом. Поэтому до начала электромонтажных работ необходимо разработать проект электроснабжения квартиры, и решать этот вопрос лучше силами профессионалов.
Обязательность разработки проекта электроснабжения квартиры не закреплена законодательно, но процедура подключения смонтированной электропроводки к силовой линии здания регламентирована жёсткими правилами, включающими и необходимость согласования.
Профессионально выполненный проект электроснабжения по окончании ремонта станет важным приложением к техпаспорту квартиры и облегчит прохождение согласования. Согласно ПУЭ, система электропроводки квартиры является электрической установкой, а потому её подключение к домовой линии и эксплуатация должны производиться в соответствии с общими для такого оборудования требованиями:
- внутренняя проводка жилья должна быть совместима с внешней электросетью по мощности;
- электропроводка квартиры не должна представлять опасность (пожарную электротехническую) для проживающих в доме людей.
Читайте также: Электрика в домах серии П-44Т: особенности, проект, схема, установка в новых домах
Согласование проекта внутреннего электроснабжения квартиры выполняется в Ростехнадзоре и обязательно в следующих случаях:
- при монтаже электропроводки в новостройке «с нуля»;
- при реконструкции во вторичном жилье имеющейся сети с повышением выделяемой на квартиру мощности.
Контролирующие инстанции при визитах на объект по заявке на подключение его к домовой сети требуют выполненный по всем стандартам проект электропроводки квартиры, и грамотность этого документа — аргумент в пользу соответствия системы электроснабжения всем необходимым требованиям.
Общие правила монтажа электропроводки
Документом, определяющим требования к монтажу электропроводки и любого другого электрооборудования, является ПУЭ — «Правила Устройства Электроустановок».
Основные правила устройства внутренней электросети в квартире:
- Разводка и соединение кабелей производятся внутри распределительных коробок с тщательным изолированием мест соединения.
Прямое соединение разнородных проводов (медь, алюминий, сталь) запрещено.
- Счётчики, распределительные коробки, розетки и выключатели должны быть легкодоступны.
- Выключатели монтируются на участке стены, не закрываемом дверным полотном в открытом положении (со стороны ручки двери).
- Существует 2 стандарта высоты расположения выключателя от пола – «советский» (160 см) и «европейский» (90 см), к применению допустимы оба.
- Розетки при подводе провода снизу устанавливаются на высоте не более 1 м, ориентируясь на удобство использования, при подключении к сети сверху – от 1 до 1,5 м. В детских комнатах квартир в целях обеспечения безопасности допускается располагать розетки выше — на высоте 1,8 м, исходя из стандарта для помещений учреждений с пребыванием детей.
- Розетки и выключатели размещают не ближе 50 см от газопровода.
- Расположение участков проводки на стенах должно быть ортогональным (вертикальным или горизонтальным) – это облегчит отслеживание кабелей при выполнении мелкого ремонта (сверление отверстий, штробление).
- Электропроводка не должна контактировать с металлическими элементами строительных конструкций (арматура, закладные детали).
- При монтаже в одну штробу нескольких кабелей с однослойным изолированием каждый из проводов должен быть помещён в гофрочехол.
- Вертикальные участки проводки должны располагаться от дверных и оконных проёмов на расстоянии не менее 10 см.
- Горизонтальные участки проводки располагают не ближе 15 см от плит перекрытия.
- Расстояние от кабеля до труб газопровода должно быть не менее 0,4 м.
Расчёт потребности в материалах и фурнитуре
Необходимое количество материала определяется двумя способами:
- по схеме электропроводки – наиболее точный;
- по общей площади квартиры — приблизительный.
При расчёте кабеля по схеме замеряется суммарная длина разметки электропроводки, к которой добавляется 10%, плюс по 20 см на каждую розетку или выключатель, плюс 50 см на каждый светильник и 50 см на распределительный щиток.
Чтобы рассчитать потребность в кабеле по площади квартиры, числовую величину площади жилья умножают на 4, и получают общий метраж провода всех сечений. 40% от полученного значения – это длина кабеля для освещение, оставшиеся 60% — метраж силового кабеля.
Сечения кабелей участков проводки рассчитывают с привязкой к материалу провода, способу укладки и максимальной нагрузке на линию. Для удобства подбора необходимого провода величины сечения сведены в таблицу зависимости от указанных факторов:
| Сечение кабеля (мм2) | Монтаж открытым способом | Монтаж в трубе | ||||||||||
|---|---|---|---|---|---|---|---|---|---|---|---|---|
| Медная | Алюминиевая | Медная | Алюминиевая | |||||||||
| Ток (A) | Мощность (кВт) | Ток (A) | Мощность (кВт) | Ток (A) | Мощность (кВт) | Ток (A) | Мощность | |||||
| 220 В | 380 В | 220 В | 380 В | 220 В | 380 В | 220 В | 380 В | |||||
| 0,5 | 11 | 2,4 | — | — | — | — | — | — | — | — | — | — |
| 0,75 | 15 | 3,3 | — | — | — | — | — | — | — | — | — | — |
| 1,0 | 17 | 3,7 | 6,4 | — | — | — | 14 | 3 | 5,3 | — | — | — |
| 1,5 | 23 | 5 | 8,7 | — | — | — | 15 | 3,3 | 5,7 | — | — | — |
| 2,0 | 26 | 5,7 | 9,8 | 21 | 4,6 | 7,9 | 19 | 4,1 | 7,2 | 14 | 3 | 5,3 |
| 2,5 | 30 | 6,6 | 11 | 24 | 5,2 | 9,1 | 21 | 4,6 | 7,9 | 16 | 3,5 | 6 |
| 4,0 | 41 | 9 | 15 | 32 | 7 | 12 | 27 | 5,9 | 10 | 21 | 4,6 | 7,9 |
| 6,0 | 50 | 11 | 19 | 39 | 8,5 | 14 | 34 | 7,4 | 12 | 26 | 5,7 | 9,8 |
| 10,0 | 80 | 17 | 30 | 60 | 13 | 22 | 50 | 11 | 19 | 38 | 8,3 | 14 |
| 16,0 | 100 | 22 | 38 | 75 | 16 | 28 | 80 | 17 | 30 | 55 | 12 | 20 |
| 25,0 | 140 | 30 | 53 | 105 | 23 | 39 | 100 | 22 | 38 | 65 | 14 | 24 |
| 35,0 | 170 | 37 | 64 | 130 | 28 | 49 | 135 | 29 | 51 | 75 | 16 | 28 |
Называя в обиходе проводник кабелем или проводом, следует знать, что это не синонимы:
- провод – это многожильный или одно- или многожильный проводник с лёгкой трубчатой изоляцией или без неё;
- кабель – это система изолированных проводников, объединённых в единую конструкцию, которая дополнительно изолируется и, в зависимости от модели, защищается броневым кожухом.
При выборе материала для электропроводки квартиры следует отдавать предпочтение кабелю – более надёжному и долговечному материалу.
Что касается материала изготовления жил, то нормативные документы чётко определяют следующее:
ПЭУ 1.7.34
«… В зданиях следует применять кабели и провода с медными жилами … »
СП 31-110-2003, п. 14.3
«Внутренние электрические сети должны быть не распространяющими горение и выполняться кабелями и проводами с медными жилами в соответствии с требованиями 2.1 и 7.1 ПУЭ.»
К оборудованию мощностью более 2,0 кВт рекомендуется подводить отдельную линию питания с автоматом, номинал которого можно определить по следующей таблице:
| Сечение кабеля (кв. мм) | Сила тока (A) | Мощность (Вт) | Номинал автомата (A) |
|---|---|---|---|
| 1,5 | 15 | 3300 | 16 |
| 2,5 | 21 | 4600 | 20 |
| 4 | 27 | 5900 | 25 |
| 6 | 34 | 7400 | 32 |
Устройство штроб
В современном жилье проводка открытым способом используется очень редко, а внутренний монтаж имеет особенности, зависящие от материала строительных конструкций.
На кирпичные стены кабели монтируют до оштукатуривания, фиксируя проводку хомутами. Если такая стена уже оштукатурена, то по штукатурке выполняют штробы нужного сечения с предварительным надрезом поверхности болгаркой.
Штробление стен в панельных домах следует выполнять с осторожностью – не глубже штатного штукатурного слоя панели и не повреждая арматуру конструкций.
В монолитных домах проводку либо крепят на «чёрные» стены до оштукатуривания, либо укладывают в штробы, выполненные в старой штукатурке.
Помните: штробить монолитные ограждающие конструкции запрещено!
Проводка кабелей сквозь стену между смежными помещениями выполняется в жёсткий стальной канал-гильзу, предварительно вмонтированный в конструкцию с обязательным отражением в проекте).
Гнёзда под монтажные и распределительные коробки выполняются дрелью с корончатым сверлом.
Укладка кабелей и монтаж распределительных коробок, розеток, выключателей
Кабели в штробах до оштукатуривания временно фиксируют гипсовым раствором. Гнёзда под монтажные и распределительные коробки очищаются от пыли и смачиваются. На конец кабеля надевается коробка, после чего она также временно фиксируется в гнезде – небольшим количеством гипсового раствора, заподлицо поверхности стены. При заделывании кабелей в штробах зазоры вокруг коробок окончательно заполняются и затираются цементным раствором. Подключение каждой розетки следует производить непосредственно от распределительной коробки, не формируя один шлейф для нескольких розеток. При очищении одножильных концов кабеля от изоляции для подключения к контакторам следует избегать надреза медных жил – в месте такой насечки проводник становится ломким.
Установку лицевых накладок розеток и выключателей выполняют по окончании финишной отделки стен.
Сборку узлов в распределительных коробках выполняют с помощью специальных клеммных шин — применение скруток кабелей нежелательно из-за необходимости тщательного изолирования и неудобства разборки.
Читайте также: Всё о разводке электрики на кухне
Сборка распределительного щитка и «прозвонка» электропроводки
Прежде всего приобретается сам щиток:
- наружного исполнения – простой в монтаже, но требующий места;
- внутреннего типа – более эстетичный и компактный, но устанавливаемый в нишу.
Затем щиток устанавливается в квартире, чаще всего в прихожей, после чего в нём компонуются и монтируются все защитные автоматы линий проводки в квартире. Располагать на одном автомате более одной линии не рекомендуется.
Все линии электропроводки «прозваниваются» от узла к узлу, после чего подводятся к щитку и соединяются с автоматами.
По окончании соединения с автоматами всех линий от распределительного щитка к подъездному щиту отводится один общий кабель сечением не менее 6 мм2.
Заключение
Смонтировать электропроводку в квартире самостоятельно – реально. Особенно, если есть выполненная профессионалом схема и навыки электромонтажных работ. Однако следует помнить, что учиться электромонтажу на своих ошибках опасно для жизни. Если выполнять эту работу ранее не приходилось, лучше обратиться к профессионалам, как минимум – для поэтапной консультации, в том числе, по подсчёту мощности потребителей и выбору сечения кабеля.
votetoremont.ru
Электропроводка в квартире своими руками
Разводка электрики в квартире – важнейший момент, с которого начинается любой капитальный ремонт. Проложенные провода чаще всего располагаются под многослойным «пирогом» из штукатурки и декоративной отделки, и если не предусмотреть все нюансы заранее, неполадки в работе сети или подключение мощного прибора могут привести к новому ремонту. Поэтому рассмотрим поэтапно, как сделать проводку в квартире, а вот своими руками проводить работы или довериться профессиональному электрику – решать вам.
Составляем схему электропроводки в квартире
Главная ошибка начинающих мастеров – неправильное планирование предстоящей работы. При составлении схемы сети нельзя прикидывать «на глазок» расположение ламп и выключателей, необходимо предусмотреть каждую мелочь, чтобы квартире не пришлось обрастать тройниками и удлинителями. Поэтому без чертежей и расчетов никак не обойтись.
Электропроводка в квартире своими руками: пошаговая инструкция составления схемы:
1. Чертим общий план квартиры, помечаем расположение окон и дверей.
2. Схематически расставляем мебель, сантехнику и бытовую технику. Не забываем и про крупные аксессуары, чтобы зеркало или картина не оказалась на месте запланированной розетки или выключателя. Для большей наглядности, потребители электроэнергии можно выделить красным цветом. Например, так.
3. Упрощаем чертеж: убираем мебель и другие предметы, не нуждающиеся в подключении к сети, а на месте расположения электроприборов помечаем розетки (одинарные, двойные – все зависит от количества потребителей).
4. Для удобства, рекомендуем продумать схематическое обозначение для всех элементов сети или воспользоваться подсказкой.
5. В итоге мы получили силовую часть схемы электрики в квартире.
6. Теперь примемся за расстановку осветительных приборов. Обычно, люстры располагают в центре комнаты. Чтобы определить место вывода проводов для них, необходимо измерить и разделить пополам длину и ширину комнаты и отметить на схеме пересечение линий из этих точек. В помещениях с неправильной геометрией (Г или П-образных), нужно поделить комнату на 2 или 3 части и найти центр на каждом участке. Если предусмотрено дополнительное освещение с подключением к сети без использования розеток, обозначьте на схеме и эти приборы.
7. Осталось продумать расположение выключателей. Понятно, что они будут находиться при входе в комнату или около приборов зонального освещения, здесь главное – учесть, в какую сторону будет открываться дверь, чтобы зажжение света не превратилось в игру на ощупь в полной темноте. Выключатели удобно располагать по внутренней стенке помещения (исключение – ванная и туалет).
Результатом подготовительных работ станет общий рисунок, на котором будет совмещен план силовой линии, схема размещения выключателей и осветительных приборов.
Кстати, если вы не дружны с черчением, зато на «ты» с компьютером – можно все расчеты и планирование произвести в специальных программах, например «Электрик», «DIA», «sPlan», «AutoCAD», «Visio».
Нормы и стандарты, которые нужно учесть при прокладке проводов
По современным нормативам, разводка электроснабжения должна включать минимум 2 автономные линии – осветительную и силовую (розеточную). Причем к одной осветительной линии можно подключать не более 5-ти приборов, а розеточной – максимум 4 (для мощных потребителей типа микроволновки, электроплиты или стиральной машины рекомендуется выделить дополнительный провод).
Составляя схему проводки в квартире, не забывайте о стандартах:
Кабель должен проходить от потолка, оконных, дверных проемов и углов с отступом не меньше 10 см, от пола – минимум 15 см.
Провода следует прокладывать по горизонтали и вертикали под прямым углом друг к дружке, соблюдая параллельность линий. Избегайте всевозможных переплетений и пересечений (зазор между проводами – от 3 мм). Также не стоит экономить, проложив провод по диагонали – слишком велика вероятность впоследствии забыть его точную дислокацию и нарушить целостность проводки банальным гвоздем.
Расстояние между отопительными коммуникациями и электропроводами должен быть больше 3 см.
Выключатели и розетки удобно располагать на одной высоте. Определенных требований по стандартам здесь нет, но выключатели, обычно, размещают на расстоянии опущенной руки, а розетки – около 30 см от пола (исключение – высоко подвешенные приборы).
Провода к выключателям ведутся сверху, а к розеткам – снизу.
Заземляющие контакты розеток ни в коем случае нельзя подключать к водным или отопительным коммуникациям или нулевому проводу – это опасно для жизни.
В идеале, в ванной не должно быть розеток, но если без них не обойтись, позаботьтесь о влагозащите.
Чтобы провести электропроводку в квартире своими руками, необходимо определиться с типом разводки.
Существует 3 наиболее распространенные схемы:
1. С использованием распаечных коробок – самый экономичный вариант. Щиток со счетчиком и автоматическим выключателем находится на лестничной клетке, а от него в квартиру заводится кабель питания. В этом случае проводка в квартире своими руками от щитка осуществляется через распределительные коробки, располагающиеся у входа в каждую комнату.
2. Бескоробочный способ или «звезда» – каждый электроприбор имеют выделенный провод (в идеале – и автоматический выключатель), который заводится в квартирный электрощиток. Этот вид разводки считается самым безопасным, не требует монтажа распределительных коробок и позволяет контролировать каждый элемент электросети. Но на практике он встречается редко, так как значительно увеличивает стоимость проекта (потребуется габаритный щит и втройне большее количество проводов, чем при коробочном подключении).
3. «Шлейф» – экономичный вариант «звезды» предусматривает последовательное подключение нескольких электроточек к общему проводнику, который заводится либо в распределительную коробку, либо сразу в щиток.
Наиболее часто используются комбинированные варианты, которые подбираются индивидуально для каждого проекта, исходя из особенностей планировки и энергоресурсов дома. Например, для маломощных приборов можно использовать подключение по типу «шлейфа», а для требующих больших энергозатрат – задействовать «звезду».
Чтобы было легче определиться с типом подключения, рекомендуется сгруппировать все электроприборы по мощности, специфике работы (освещение/электроснабжение) и месту установки.
Например, можно выделить в отдельные линии:
1) освещение жилых комнат;
2) освещение кухни и коридора;
3) электроснабжение кухни и коридора;
4) электроплиту, бойлер и другие мощные приборы;
5) электроснабжение жилых комнат;
6)электроснабжение и освещение санузла.
Это поможет избежать перегрузки сети и полного обесточивания всего помещения, если потребуется произвести частичный ремонт электрики в квартире. Для безопасности, на группу освещения и электроснабжения санузлов и кухни необходимо установить УЗО – выключатели дифференциального тока (а в идеале, нужно обеспечить ними все линии). В итоге должна получиться приблизительно такая схема проводки электрики в квартире.
Выбор проводов и фурнитуры
Если вы решили сделать электрику в квартире своими руками, обратите внимание на марку провода и его сечение. Для розеток понадобится провод 2,5-4 мм, а для выключателей – 1,5 мм.
Наиболее востребованы на сегодня два типа:
1) ВВГ – кабель с медными жилами, каждая из которых защищена отдельной поливинилхлоридной изоляцией.
Плюсы: разнообразие форм (бывает плоским, треугольным, круглым, секторным, квадратным), есть огнеупорная модификация (ВВГнг).
Минусы: высокая цена.
2) ПУНП (ПУГНП, АПУНП) – провода с медными изолированными жилами, заключенными в оболочку из ПВХ.
Плюсы: доступная стоимость
Минусы: материалы могут выйти из строя при нагреве, а форма провода – только плоская.
А вот провода с жилами из алюминия (АПВ, АППВ, АПРТО) не стоит использовать при обустройстве домашней электропроводки – они быстро выходят из строя от попадания влаги и со временем теряют прочность, что становятся причиной замыканий.
Помимо проводов, понадобится и фурнитура:
• Розетки и выключатели (оптимальный вариант – скрытого типа).
• Клеммные колодки.
• Распределительные коробки с защитой от возгорания.
• Автоматы с УЗО (для осветительной линии подойдет 10А или 16А, для электропитания – 25А или 32А, для электроплиты – 40А).
Как провести проводку в квартире своими руками
Чтобы знать, как правильно сделать проводку в квартире, необходимо учесть следующие моменты:
• Обустройство пола и потолков — подвесные или натяжные конструкции, напольные ниши и короба могут стать отличной маскировкой для части коммуникаций, позволят сэкономить на длине проводов и время на прокладку штроб.
• Отделка стен (толщина штукатурного слоя или выравнивание с помощью гипсокартона).
• Местонахождение плит – в панельных домах можно использовать пустоты в перекрытиях. Правда, состояние каналов в них может быть плачевное – придется проводить зачистку.
• Несущие стены – нарушать их целостность запрещается. Да и бетонные перекрытия, особенно в участках над дверными и оконными проемами, штробить проблематично, к после есть риск попасть в проводку при установке карнизов.
В зависимости от этих нюансов, работы можно выполнить скрытым, открытым или комбинированным способом. Скрытый монтаж проводится в новостройках или при капитальном ремонте квартиры, ведь он предусматривает штробление стен с последующим их оштукатуриванием и выравниванием.
Алгоритм работ для проведения электрики в квартире своими руками выглядит так:
1. На составленной схеме электропроводки разносится трасса прокладки штроб.
2. С помощью разметочного шнура, отвеса и строительного уровня делается разметка.
3. По разметке проводятся штробы с использованием перфоратора, болгарки или зубила с молотком. Стандартная ширина и глубина выемки для проводов – 2 см.
4. В канавках прокладываются провода, фиксируясь на стене специальными дюбель-хомутами или алебастром с промежутками в 25-30 см.
5. Устанавливаются подрозетники и коробки, подключаются розетки и выключатели.
6. Производится сборка вводного щитка: линии оснащаются УЗО, подключаются автоматические выключатели.
7. На финальном этапе рекомендуется сделать «прозвонку» проведенной электрики в квартире мультиметром. Если не возникнет проблем – можно включать автомат и испытывать собранную сеть.
Открытым способом электропроводку можно провести, спрятав провода в гофротрубы или закрыть в специальные кабель-каналы. Этот метод считается самым простым по трудозатратам, но наиболее сложным в планировании – ведь спрятать или красиво оформить маскировочные конструкции довольно проблематично. Поэтому чаще всего проводка в квартире своими руками производится комбинированным способом.
И последний совет: закончив разводку электропроводки в квартире, обязательно сохраните ее схему в архиве с документами – она еще не раз пригодится во время ремонта и не только.
samsmogy-remont.ru
Электропроводка своими руками в квартире
Необходимость замены электропроводки в квартире возникает практически у каждого владельца. В особенности, если квартира находится в доме, построенном более 20-30 лет назад. В те времена не существовало большинства из ныне использующихся предметов бытовой техники и электроники, поэтому проводка изначально не проектировалась под такую нагрузку и делалась преимущественно из алюминия.

Электропроводка своими руками в квартире
Со временем характеристики подобной проводки существенно ухудшаются. Если вы подадите на подобную проводку чрезмерную нагрузку, она попросту не выдержит и сгорит.

Старая проводка
Специалисты настоятельно рекомендуют поручать выполнение любых электромонтажных работ профессионалам. Однако при желании все необходимые мероприятия можно выполнить самостоятельно. Нужно лишь ознакомиться с общей информацией о предстоящей работе, запомнить положения техники безопасности и осуществить монтаж в соответствии с инструкцией.

Все необходимые мероприятия можно выполнить самостоятельно
Общие рекомендации по замене проводки
Запомните: выполнять частичную замену проводки бессмысленно. Если вы и решились пойти на такие меры, то меняйте все и полностью: щиток, выключатели, электророзетки и пр.
Предварительно узнайте схему прокладки старой проводки. В отдельных ситуациях схема организована так, что выполнить замену имеющихся составляющих новыми невозможно, и единственным доступным решением остается демонтаж магистралей и обустройство разводки по-новому.

Прокладка проводки в квартире
К примеру, встречаются ситуации, в которых разводка выполнена в штробах, размещенных под напольным покрытием. Если в планы владельца не входит полная замена покрытия, единственный возможный вариант в такой ситуации – отключение старых проводов и прокладка новых магистралей иным методом.

Прокладка проводки в квартире
Если кабели изначально проложены в штробах, с заменой не возникнет особых проблем, но настенное покрытие существенно пострадает.
Проще всего выполняется замена электропроводки, проложенной по открытой схеме. При такой схеме кабели прокладываются в специальных каналах (коробах). Если изначально коробы не были замаскированы отделкой, к примеру, гипсокартоном, то ремонтные работы пройдут с наименьшими потерями.

Открытая проводка в квартире
Перед началом работы вам нужно будет составить новую схему разводки проводов. Выберите метод обустройства проводки. От открытого способа настоятельно рекомендуется отказываться – в квартире это попросту не эстетично смотрится. Отдавайте предпочтение либо закрытому монтажу, либо обустройству проводки в кабель-каналах.
Набросайте на бумаге план жилья с указанием мест размещения выключателей, розеток и прочих составляющих.

Разводка скрытой электропроводки в квартире
Удобнее, если розетки будут размещены в местах установки мощной бытовой техники. Рассчитайте оптимальное количество розеток. Удобнее, когда на каждые 5-6 м2 пространства приходится одна розетка. В кухне на 6 м2 должно быть как минимум три розетки.

Электрика на кухне
В случае установки в квартире электроплиты, для нее необходимо смонтировать отдельную розетку. При этом силовой кабель такой розетки должен иметь сечение не менее 4 мм2, а то и все 6 мм2. Конкретное значение подбирается индивидуально в соответствии с мощностью техники.

Электроплита
Строгих требований в отношении высоты размещения розеток нет. Главное, чтобы ими было удобно пользоваться.
Единственная рекомендация: не размещайте розетки чересчур близко к полу. В городских квартирах не исключен риск затопления. Если вода попадет в розетку, это приведет к крайне неблагоприятным последствиям.
Выключатели удобнее всего монтировать сразу после входа в комнату. Оптимальное расстояние между выключателем и дверью – не менее 150 мм. Выключатель размещайте сбоку от притвора. Возле петель им будет не очень удобно пользоваться. Строгих рекомендаций в отношении высоты установки выключателей также нет – делайте, как вам удобно.

Выключатели и розетки
Предварительно определите общую мощность электрических приборов для каждой отдельной комнаты. Если в пределах одного помещения будет устанавливаться большое количество мощных приборов, к такой комнате подводятся отдельные магистрали с индивидуальными автоматами защитного отключения.
В соответствии с выбранными местами монтажа выключателей и розеток подберите удобные участки для монтажа распределительных коробок. Укажите места их размещения в плане.

Распределительная коробка
Укажите в плане тип, материал изготовления и сечение кабелей для каждого помещения.
Еще раз проверьте схему электропроводки. Подумайте, все ли вас устраивает, удобно ли вам будет в дальнейшем пользоваться розетками и выключателями, смонтированными по такой схеме. Если результат вас устраивает, выполните базовые подготовительные мероприятия.
Прежде всего, нанесите на стены места размещения выключателей и электророзеток. Если проводка будет выполняться по скрытому методу, избавьтесь от всех отделочных материалов, а затем начертите на стенах линии прохождения проводов и места монтажа элементов новой системы.
При желании можете избавиться от старой проводки. Сначала избавляйтесь от выключателей и розеток, после – от распределительных коробов и кабелей. Но это довольно пыльная и затяжная работа. Гораздо проще попросту отключить старые провода, демонтировать выключатели и розетки, заделать места их установки и проложить новые кабели в соответствии с составленной схемой.

Демонтаж проводки
Техника безопасности
Все работы по демонтажу и монтажу электрокабелей должны выполняться в строгом соответствии с техникой безопасности. Перед выполнением любых манипуляций отключите главный автомат, т. е. обесточьте квартиру.

Тёмно-красной стрелкой указан дифференциальный автомат, отключивший электроснабжение квартиры
При помощи индикатора убедитесь в отсутствии напряжения в люстрах, электророзетках, выключателях. Все это делайте в резиновых перчатках. Ручки рабочего инструмента обязательно должны быть изолированы.
Монтаж щитка

Монтаж щитка
Замену проводки следует начинать с монтажа нового распределительного щитка. В новых домах обычно присутствуют ниши для таких щитков с предварительно проложенным силовым электрокабелем. В подобной ситуации остается лишь разместить в щитке устройства защитного отключения и автоматы, зафиксировать устройство в предназначенной для этого нише и подсоединить к нему силовой электрокабель.

Монтаж щитка
В домах же старой постройки щитки делаются навесными. Выберите место для установки щитка со свободным доступом. Закрепите щиток на стене с помощью дюбелей.
Пробурите в стене подходящее отверстие для подведения силового электрокабеля. Протяните провод и подсоедините его к щитку на подъездной площадке.

Трассировка силового трехжильного кабеля от квартиры до этажного щита в кабель-канале
Зачистьте вводной провод и выполните следующее подключение:
- синий кабель – на ноль;
- белый провод – на верхний контакт;
- кабель желтого цвета – к «земле».
В случае применения устройств аварийного отключения, сначала подсоедините провода ноля и фазы к такому устройству и лишь после этого подведите их к автомату и на нулевую клемму.
Приступайте к прокладке электропроводки. Вашему вниманию предлагается два метода. Ознакомьтесь с порядком выполнения каждого из них и приступайте к работе.
Скрытый монтаж новой проводки
Прокладка скрытой электропроводки выполняется в штробах, под финишной отделкой пола, в пустотах перекрытий, под слоем штукатурки либо же за гипсокартонной отделкой.
Обустройство проводки под штукатурным слоем и в штробах – наиболее «грязный» и трудозатратный вариант. Некоторые владельцы выполняют прокладку кабелей по полу. Это позволяет не огибать имеющиеся стены, но требует полного демонтажа покрытия и укладки вместо него нового материала.
Первый шаг

Сделайте штробы
Сделайте штробы. Для их обустройства используйте штроборез либо хотя бы болгарку и перфоратор. Помните о безопасности – обязательно наденьте защитные очки и респиратор.

Сделайте штробы
При выборе глубины штроб помните: толщина уложенного поверх них штукатурного слоя должна быть не больше 1 см. Ограничений по ширине нет.
При наличии возможности прокладки проводов в пустотах перекрытий, отдавайте предпочтение именно этому способу.
Второй шаг
Вырежьте при помощи специальной коронки места для установки розеток и распределительных коробок.

Вырежьте при помощи специальной коронки места для установки розеток и распределительных коробок
Третий шаг
После подготовки всех штроб, уложите провода в соответствии с предварительно составленной схемой.

После подготовки всех штроб, уложите провода в соответствии с предварительно составленной схемой
Для этого разрежьте кабели на отрезки требуемой длины. В некоторых ситуациях для большего удобства может использоваться гофра. С ее помощью в дальнейшем будет проще заменить участок кабеля без нарушения целостности отделочного материала стен.
Также иногда используется метод, в соответствии с которым пучок кабелей стягивается при помощи специальных хомутов и прикрепляется к стене с использованием подходящих для этого крепежей.
Четвертый шаг
Соедините кабели в распределительных коробках. Для этого используйте СиЗ. Закройте соединенные кабели крышкой.

Разветвительная коробка
Пятый шаг
Установите выключатели и электрические розетки в выбранных местах. Подключите кабели к контактам. Убедитесь в работоспособности обустроенной системы при помощи специального тестера.

Установите выключатели и электрические розетки
В завершение вам останется включить подачу электричества от силового щитка и заделать штробы при помощи штукатурки.
В случае если выбран метод монтажа проводки под гипсокартонной отделкой, технология выполнения работы будет несколько иной. В такой ситуации провода обязательно прячутся в гофрах, а гофры крепятся к стенам с использованием клипс.
Монтаж проводки в кабель-каналах

Монтаж проводки в кабель-каналах
Данная методика гораздо более простая и менее пыльная по сравнению с предыдущим способом, однако ее эстетичность оставляет желать лучшего. Подключение щитка выполняется в аналогичной последовательности.
Первый шаг
Закрепите плинтус к поверхности пола в соответствии с предварительно составленной схемой.

Монтаж электропроводки
Второй шаг
Проведите от плинтуса к выключателям и электророзеткам распределительные короба.

Короб для прокладки кабеля
Третий шаг
Уложите в короба кабели.
Четвертый шаг
Установите внешние распределительные коробки в случае необходимости выполнения их установки. Для соединения проводов внутри таких коробок используйте СиЗ.
Пятый шаг
Установите розетки и выключатели, заведите внутрь провода, соедините.

Установите розетки и выключатели
В завершение останется проверить напряжение при помощи тестера и закрыть короба с плинтусами.
Также желательно пригласить квалифицированного электрика для проверки правильности выполнения мероприятий.

Открытая электропроводка
Удачной работы!
Видео – Электропроводка своими руками в квартире
tolkostroyka.ru
Категория: «Электропроводка в квартире своими руками»
Главная | Электропроводка в квартире своими руками
Часть 7. Электропроводка в квартире своими руками пошаговая инструкцияЭтап 1. Часть 7. Расчет освещения квартиры. В 6 части инструкции электропроводка в квартире своими руками мы говорили о том, каким образом розетки разбиваться на группы. Прежде чем мы начнем аналогичный разбор осветительной части, нужно выполнить такую важную подготовительную часть как расчет освещенности. Данный расчет является фундаментом осветительной части жилого помещения, полагаясь …
Узнать больше » Часть 6. Электропроводка в квартире своими руками пошаговая инструкцияЭтап 1. Часть 6. Деление розеток квартиры на группы. Для того, что бы 6 часть руководства электропроводка в квартире своими руками пошаговая инструкция была максимально простой и понятной, забежим немного вперед. Поверхностно затронем темы, которые будут детально разбираться в следующих частях. Прежде чаем начать, отвечу на главный вопрос, логично возникающий у многих читателей. Зачем …
Узнать больше » Часть 5. Электропроводка в квартире своими руками пошаговая инструкцияЭтап 1. Часть 5. План расположение отдельных розеток и электрических выводов для электробытовой техники. В третьей части инструкции мы говорили о розетках и их расположении в квартире, но как вы помните не все из них мы рассмотрели. Некоторые бытовые устройства были отнесены к отдельной группе электроприборов, именно этой группе и будет посвящена 5 часть руководства электропроводка …
Узнать больше » Часть 4. Электропроводка в квартире своими руками пошаговая инструкцияЭтап 1. Часть 4. План расположения элементов освещения. В предыдущих частях руководства электропроводка в квартире своими руками пошаговая инструкция мы подробно разобрали темы: Что такое схема электропроводки и зачем она нужна? 1 часть. С чего начинается грамотная электропроводка. Как и зачем делать план расстановки мебели? 2 часть. Как самостоятельно сделать грамотное распределение …
Узнать больше » Часть 3. Электропроводка в квартире своими руками пошаговая инструкция.Этап 1. Часть 3. План расположение розеток. Во второй части руководства электропроводка в квартире своими руками пошаговая инструкция мы разобрали стандартную расстановку мебели и бытовой техники на примере жилой однокомнатной квартиры. В третьей части опираясь на вышеупомянутый (в 1 и 2 частях) пример мы разберем в каких местах следует располагать розетки и сколько штук в каждом …
Узнать больше » Часть 2. Электропроводка в квартире своими руками пошаговая инструкцияЭтап 1. Часть 2. Планируем расстановку мебели и бытовой техники. В первой части руководства электропроводка своими руками пошаговая инструкция, мы поговорили о том, что такое схема электропроводки квартиры и для чего она нужна. На этом этапе, добавим в наш пример мебель, а также различного рода бытовую технику и электронику стандартную для каждой квартиры. Если вы хотите выполнить …
Узнать больше » Часть 1. Электропроводка в квартире своими руками пошаговая инструкцияЭтап 1. Часть 1. Схема электропроводки квартиры. Реально ли в принципе обычному не подготовленному человеку выполнить электропроводку квартиры своими руками под ключ? Отвечаю. Если вы не патологический лентяй, то однозначно да. В данной статье представлена одна из частей практического пособия к выполнению, электропроводка в квартире своими руками пошаговая инструкция, с детальными …
Узнать больше »elektrika-svoimi-rykami.com
Электропроводка в квартире своими руками: пошаговая инструкция, монтаж
Для внушительного количества людей домашний ремонт является большой проблемой и тяжелым стрессом, но не бойтесь, в данной статье опытные мастера с удовольствием поделятся знаниями и подробно, пошагово, расскажут, как собственноручно провести электропроводку в квартиру своими руками. Это не сложно, будьте уверены в себе и своих силах, следуйте инструкциям, а так же помните о соблюдении техники безопасности при работе с электричеством.

Если впоследствии у вас возникнут неразрешимые сложности или непонятен какой-либо из описанных ниже шагов, то тогда разумнее обратиться за помощью к командам профессиональных электриков — ремонтников, поскольку они, используя опыт и наработанные умения, выполнят работу самостоятельно и избавят вас от терзающей неуверенности. В противном случае, Ваше подспорье — данная статья.
План — схема
Прежде чем приступить к воплощению желаемого в действительное, следует, как и во время любой другой работы, разработать план — схему, по которой вам важно ориентироваться впоследствии. В первую очередь нужно на листе изобразить план жилого помещения, а так же учесть местонахождение бытовой техники, осветительных приборов, выключателей, розеток, дверного звонка, телефонов и электрического щитка. Выполняйте эту работу в пошаговом режиме, чтобы добиться максимального качества, и помните, что ко всем проводимой вами мероприятиям нужно отнестись с должной ответственностью, не торопиться, но и не переусердствовать. Ошибки во время составления план — схемы на этапе строительства могут дорого обойтись.
Полезный совет:Для понятного понимания положения дел рекомендуется осветительную, и розеточную схемы рисовать на сторонних листах одного чертежа. Продумайте количество розеток и ламп, а так же местонахождение распределительного щитка, исходя из индивидуальных особенностей жилой площади.
Уделите требуемое внимание помещению с ванной, туалетом и раковиной, так как в данных комнатах присутствует повышенная влажность, соответственно, проводка в подобных местах должна быть хорошо защищенной от воздействия воды. Не лишним будет подвести к ванной комнате устройство защитного отключения, которое, в случае утечки электричества, обесточит всю комнату и спасет от внезапно нагрянувшей катастрофы.

Полезный совет:Розетки в ванной, для большей безопасности и спокойствия жителей квартиры, должны быть обязательно заземлены.
Так же, готовя план — схемы учтите мощность подключаемых в сеть электроприборов, особенно габаритных, таких как холодильник или электрическая плита. Вы рискуете пережечь слабую электропроводку и вызвать пожар, если будете использовать ее там, где требуется более качественная. Не забудьте определиться с выбором автоматического выключателя, устанавливаемого в электрический щит.
Методы монтажа.
Строители предоставляют на выбор два метода монтажа электропроводки – закрытую и открытую.
Открытой называют сеть проводов, располагаемых вдоль полов и стен с помощью специальных пластиковых трубок, а так же под плинтусами. При выборе такого типа проводки внимательно оцените факт того, что нельзя тянуть осветительные и силовые кабели в одном месте, а плинтуса лучше сделать устойчивыми к огню, чтобы, в случае неполадок в электросети, не возникло дополнительных сложностей.

Закрытой электропроводкой именуют кабели, пущенные внутрь стен, потолков и прочих ограждений. Учтите, что при выборе проводки закрытого типа вам понадобятся упрочненные кабели, устойчивые к горению, влажности и физическим повреждениям, поскольку провода, замурованные в стенах, должны безотказно работать в течение крайне обширного периода времени, и экономия денежных средств на кабелях вполне способна вылиться в новый, никому не нужный и совершенно неуместный ремонт.
Полезный совет:Еще на этапе создания план — схемы составьте список необходимых материалов и подсчитайте необходимую длину проводов, учитывая все особенности креплений и подвода контактов.
Забудьте о мысли сэкономить во время ремонта на кабелях, розетках и пластиковых трубах, поскольку Ваша задача — провести в родной дом добротную электропроводку, которая прослужит годы. Установка сомнительной продукции глубинок китайских провинций в будущем зачтется вам дополнительными расходами и растраченными впустую силами и нервами. И помните, что кабели следует располагать в вертикальной или горизонтальной плоскости, но никак не косо, за исключением прямого угла, поскольку косое расположение электропроводки создает риск разрыва кабеля и создания внештатных ситуаций.
После того, как вы определились в выборе типа электропроводки, приготовьте все необходимые инструменты и следуйте пошаговой инструкции.

Шаг первый: Штробление стен.
- Штробление – это процесс вырезания в стене небольшого канала, в котором будут располагаться электрические провода. Для выполнения данной задачи вам понадобятся соответствующие инструменты, как, например, зубило или перфоратор со сверлом по бетону. Что касается размеров канала, то он не должен превышать двух сантиметров в ширину и глубину, но исходить следует из размеров используемого кабеля.
Полезный совет:Существует множество способов вырезания каналов в бетонных стенах. Исходите из своих возможностей и наличия рабочих инструментов. Не имея болгарки с диском работы по бетону, можно использовать дрель или зубило и молоток.
Шаг второй: Прокладка трассы
- Готовясь прокладывать кабель, учтите, что проводник должен иметь запас длины, поскольку подключение проводов к розеткам, электрическому щитку и осветительным приборам, требует контакта оголенными жилами, поэтому прибавляйте к планируемой длине кабеля плюс 7-8 сантиметров. Не забудьте предварительно обесточить дом, отключив главный автомат или иными способами, а так же действуйте крайне осторожно, чтобы исключить возможность поражения электрическим током во время проведения работ.
- Установленный кабель должен прочно прилегать к стене, поэтому определитесь со способом фиксирования электропроводки в штробе. Запомните положение проводов в стене, поскольку во время будущих ремонтов эта информация будет для вас невероятной полезной.
Интересный факт:В советское время во время прокладки трасс активно использовался разведенный алебастр, который очень быстро застывал и «захватывал» провод, присоединяя его к стене. При работе с этим материалом учитывайте тот факт, что алебастр схватывается очень быстро, поэтому максимально сократите время работы с данным материалом.

Шаг третий: Фурнитура и отделка.
- Подключение фурнитуры — не требующий серьезных усилий процесс, целью которого является присоединение выключателей и розеток к протянутым по штробам проводам. Для этой цели используются специальные подрозетники и коробы.
Полезный совет:Для монтажа электросетей лучше использовать одножильный медный провод, поскольку при дальнейшем соединении проводов скрутка с одножильными проводами значительно жестче. Подключение розеток одножильным проводом так же будет надежнее альтернативных.
- Выбирая подходящую фурнитуру обращайте внимание на материал и сопроводительные бумаги, которые могли бы подтвердить их качество. И не забывайте, что электрические розетки являются устройствами повышенной пожарной опасности, поэтому не размещайте их рядом с раковинами, газовыми или электрическими плитами и ванной. Так же не подсоединяйте розетки вблизи пола, поскольку, в случае затопления последнего, может возникнуть короткое замыкание и разгореться пожар.
Полезный совет:Помните о технике безопасности при работе с электроприборами и постарайтесь учитывать все возможные ситуации, способные произойти в вашей квартире и за пределами. Помните: Вы строите на годы вперед!
- По завершению установки розеток, выключателей и прочей фурнитуры, следует заштукатурить стены, скрывая проделанную работу и приводя жилое пространство в более презентабельный вид.

Шаг четвертый: Электрический щит
- Сборка и установка электрического щита – это заключительный шаг монтажа электропроводки в квартире. Сопоставьте электрические кабели с устройствами автоматического выключения и УЗО с помощью составленной вами план — схемы. Помните, в аппаратах УЗО вводной провод подключается к верхней части, а отходящий – к распределительной коробке в нижней. С успешным выполнением данного шага монтаж электропроводки в квартире завершен, остается только подключить ее к внешнему энергоносителю, расположенному в самом жилом доме.
Интересный факт:Наличие УЗО в электрической сети не спасает от короткого замыкания и энергетических перегрузок, поэтому обязательно дополняйте цепь автоматическим выключателем.

Шаг пятый: Внешний энергоноситель.
- Подключение электричества от главного носителя в квартиру является весьма трудоемким процессом, поскольку для осуществления данной задачи Вам потребуется согласование ответственных организаций и перечень документов, разрешающих вам проводить данные операции. Нотариально заверенная схема проводки является одним из ключевых документов для получения разрешения на подключение вашей энергосети к главному носителю. «Бумажная волокита», связанная с подключением вашей квартиры к внешнему источнику электропитания может занять столько же времени, сколько занял монтаж электропроводки.
Полезный совет:Подключение вашей домашней электрической сети к внешнему энергоносителю лучше предоставить ответственным за жилое здание лицам, поскольку только им доподлинно известны все тонкости устройства подачи электропитания в доме.
couo.ru
