Гаражные деревянные ворота своими руками – Гаражные ворота своими руками. Технология монтажа гаражных ворот. Монтаж распашных гаражных ворот своими руками. Способы установки ворот для гаража.Информационный строительный сайт |
Гаражные ворота из дерева своими руками
Если вы — владелец загородного дома с участком, без гаража для машины не обойтись. Важная часть гаража — это ворота. Они должны быть не только крепкими, но и радовать глаз и вписываться в общий стиль дома и гаража. Самый простой вариант — это распашные деревянные гаражные ворота. Их можно сделать своими руками. Деревянные ворота красивы и достаточно надежны.

Дерево — плюсы и минусы
Дерево как материал имеет свои достоинства и недостатки.
- Дерево — экологически чистый материал.
- Хорошо пропускает воздух и пар, в гараже не будет сыро.
- Выглядит эстетично, такие ворота — идеальный вариант для деревянного дома.
- Легко обрабатывается.
Однако оно имеет свои минусы.
- Подвержено гниению, может поражаться различными насекомыми, грибком.
- Горит.
- Со временем деревянная конструкция может ссохнуться или разбухнуть.
Деревянные ворота, по подсчетам специалистов, служат от 5 до 7 лет. Можно сделать и металлические ворота с деревянной декоративной обшивкой.

Из чего делать ворота
Раму, или коробку, ворот обычно делают из бруса 90*50 или 100*50 мм. Каркас делается из более тонкого бруса, 50*50 мм. Для обшивки используют доски толщиной 25 мм и шириной 10- 20 см.
Также с наружной стороны ворот для красоты или для защиты от взлома можно закрепить металлические листы. Каркас ворот можно изготовить и из металлического профиля или профильной трубы, тогда и раму делают металлической.
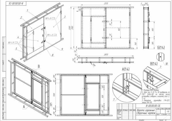
Чертежи и расчеты
Чтобы нарисовать чертеж деревянных ворот, прежде всего, необходимо точно измерить проем — его высоту и ширину.
Чертежи каркаса деревянных гаражных ворот может выглядеть так, как на рисунке. Можно составить его как на бумаге, так и в компьютерной программе.

При составлении чертежа нужно иметь в виду следующее.
- Учите, что опорные стойки и вертикальная перемычка между ними находятся внутри проема.
- Между створками и стойками должно оставаться около 1 см. Это расстояние необходимо для того, чтобы ворота могли свободно открываться и закрываться, даже если они разбухнут от влаги в сырую погоду. Такое же расстояние необходимо оставить между двумя створками.
- Каркас должен обязательно включать диагональные балки. Они защитят от перекосов, ведь, как известно, треугольник — самая жесткая фигура.
- Обшивка может выступать за края каркаса на 10- 30 см, но это не обязательно — этот момент зависит от ваших предпочтений.
- При составлении чертежа важно точно соблюдать все размеры, исправить ошибки позже будет сложнее.

Конструкция ворот
Конструкция ворот включает в себя раму, каркас и обшивку. Весь вес створок не должен приходиться только на боковые части проема: они могут разрушиться. Для распределения нагрузки используется рама и опорные столбы. Коробку жестко скрепляют со стенами проема.
Опорные столбы делают из металлических труб или дубовых брусьев толщиной не меньше 15 см. Их вкапывают в землю, причем глубина ям должна быть не менее 1 м, а ширина — на 15 см больше, чем толщина столба. На дно ям насыпают небольшой слой щебня и утрамбовывают его. Деревянные столбы перед установкой обмазывают битумной мастикой или смолой, чтобы уберечь их от гниения. После установки яму засыпают щебнем или заливают цементным раствором, второй вариант лучше.
Створки вешают на металлические петли. Лучше купить стреловидные петли, они могут выдержать большую нагрузку.
Чтобы сделать своими руками каркас деревянных ворот в гараж, бруски распиливают на части нужной длины в соответствии с чертежом и обрабатывают рубанком. Диагональные части спиливают под нужным углом. Если диагональные балки планируется крепить крест-накрест, одну из них необходимо распилить на две части.

Схема каркаса может выглядеть, как на рисунке. Скрепить части каркаса можно несколькими способами.
- Проще всего скрепить части каркаса саморезами и уголками.
- Можно просверлить в деталях глухие отверстия и вставить в них нагели, смазанные эпоксидным клеем.
- Если у вас есть опыт в плотницком деле, можно собрать их в потайной шип. Для этого вырезают ¼ толщины бруска, на другой детали делают подходящего размера шип и соединяют. Такое соединение более надежно и уменьшает деформацию конструкции в будущем.
Важно! Собирать ворота из дерева своими руками необходимо на ровной поверхности, чтобы избежать перекосов. В процессе контролируйте правильность сборки, измеряя диагонали.

Наружную сторону собранной рамы окрашивают краской, лучше пентафталевой (ПФ), которая имеет хорошие водоотталкивающие свойства и достаточно клейкая. На раму укладывают фанеру и закрепляют саморезами, пока краска не высохла. Таким образом лист фанеры сразу же будет приклеен к раме.
Заготовку створки переворачивают, окрашивают с внутренней стороны и сразу же в промежутки между брусками каркаса укладывают утеплитель. Краска сразу же приклеит его. Далее покрывают краской сам каркас и также прикрепляют лист фанеры или оргалита. Оргалит лучше выбрать, если ворота планируется покрывать сверху другим материалом, например, металлом. На наружную сторону створки можно прикрепить вагонку или другой декоративный материал.
Можно сделать из досок мебельный щит. Для этого боковые поверхности досок смазывают клеем ПВА и плотно подгоняют друг к другу с помощью струбцин и киянки. Также можно сделать в досках шипы и пазы. Такое соединение позволит получить гаражные ворота из дерева без щелей, следовательно, в гараже не будет сквозняков.
Когда створки будут готовы, их устанавливают на петли. Для этого нужно два человека, так как ворота достаточно тяжелые. Рама должна быть хорошо выровнена, чтобы ворота не распахивались сами, а открывать и закрывать их можно было без особых усилий.

Если опорные столбы металлические, то петли к ним приваривают, если деревянные, то прикручивают болтами. Болты после этого должны быть углублены в дерево и зашпатлеваны сверху, чтобы их нельзя было открутить. Так вы в некоторой степени обезопасите свой гараж от взломщиков. Готовые ворота обрабатывают защитной грунтовкой, а сверху покрывают морилкой или краской. Украсить деревянные ворота для гаража своими руками можно коваными деталями.
Если каркас ворот делают металлическим, используют профильную трубу или металлический профиль. Их соединяют с помощью сварки, для этого элементы каркаса так же раскладывают на ровной поверхности.
Сварные швы на готовом каркасе зашлифовывают болгаркой, чтобы обшивка плотно прилегала к нему. Далее каркас помещают внутрь рамы ворот, располагая их на ровной поверхности. Необходимо расположить их таким образом, чтобы между створками и между створками и рамой оставался зазор в 1 см. После этого к каркасу створок и раме привариваются петли. Чтобы в процессе сварки ничего не сдвинулось, используют вкладыши.

Обшивку из дерева прикрепляют к металлическому каркасу, просверлив в последнем отверстия в нужных местах. Доски крепят к каркасу болтами. После этого створки обрабатывают так же, как и в случае с деревянным каркасом.
Замки и засовы
Важные детали ворот — замки и засовы. Это могут быть вертикальные запоры, для которых необходимо сделать отверстия в полу, засов-вертушка, засов-шлагбаум или сдвижной. Такие запоры можно также изготовить самостоятельно. В зависимости от того, как предполагается входить в гараж, засов делается с наружной или с внутренней стороны. На засов типа «вертушка» или «шлагбаум» можно дополнительно повесить навесной замок.
Простой сдвижной завов делают из металлической пластины и скоб, которые прикрепляются на ворота болтами. Шпингалеты также можно сделать своими руками из металлической трубки и Т-образного стержня.

Также в ворота можно установить врезной замок. Для надежности должны быть установлены и врезные, и навесные замки, но для этого в гараж должна быть еще одна дверь или калитка.
Подъемно- поворотные ворота
Можно сделать подъемно-поворотные гаражные ворота своими руками. Это сложнее, так как требуется правильная установка механизма, зато такие ворота автоматизированы.
- Для подъемно-поворотной конструкции коробку делают из металлического швеллера, так как такие ворота довольно тяжелые. Коробку устанавливают в проем.
- После замеров сваривают каркас и обшивают досками или фанерой.
- Далее делают опору для механизма. В полках сверлят отверстия, в одной из них закрепляют продольные стойки, в другой — крепления пружинного механизма.
- Шарнирный узел делают из уголка.
- Изготавливают полозья, по которым будет двигаться полотно. Их крепят с помощью анкеров к стенам.
- После установки механизма все металлические части окрашивают, чтобы они не подвергались коррозии из-за внешних воздействий.
Подъемно-поворотные ворота также можно утеплить.
Заключение
Деревянные ворота для гаража на загородном участке можно сделать своими руками. Для этого важно правильно произвести замеры, а при сборке конструкции соблюдать технологию.
bouw.ru
Схема сборки и чертежи +Фото и Видео
Как сделать деревянные ворота в гараж своими руками? Многие мужчины, которые являются владельцами частного дома, уделяет достаточно внимания тому, как обустроить дом изнутри, а также придомовую территорию и обеспечить защиту. Такие люди склоняются к тому, что самое лучшее – это сделанное своими руками.
Одной из вещей, которые тоже можно не покупать, а сделать самому, являются деревянные ворота для гаража.
Это самый простой вариант вместо того, чтобы покупать такую конструкцию за баснословные суммы.
Общие сведения о дереве
Дерево – идеальный материал в плане стоимости, который замечательно поддается обработке и при надлежащем уходе прослужить очень долго.
Основными преимуществами являются:
Высокая популярность и низкая себестоимость материала. Купить деревянные брусья и доски определенного размера вы сможете на строительном рынке или же в специализированном магазине. По сравнению с другими материалами, которые используют для изготовления ворот, цена на дерево вас удивит в приятном смысле.- Удобство обработки. Вы без проблем сможете даже своими руками подготовить дерево для будущих ворот лучшим образом. В отличие от металла, дерево всегда можно подкорректировать даже простыми инструментами для обработки древесины, которые есть у каждого домашнего мастера. А вот для обработки изделий из металла используют более серьезные электрические приборы и инструменты, например, шлифовальную машинку или электроножовку.
- Практичность и надежность. При надлежащем уходе деревянные гаражные ворота прослужат вам долго. Оно, в отличие от металла, не будет ржаветь, но все же может износиться спустя какой-то промежуток времени. По этой причине вам нужно будет иногда обрабатывать изделие определенными жидкостями для укрепления, а также иногда подкрашивать в нужных местах. С практической точки зрения при повреждении какой-то стороны полотна вы сможете заменить его другими досками, и не менять всю конструкцию целиком.
В зависимости от того, какие у вас предпочтения, вы можете сделать ворота для гаража своими руками любого вида. Это могут быть откатные ворота из древесины, а может быть модель, оснащенная подъемным механизмом – все зависит от вашей фантазии, умений и желания!
Обратите внимание, что универсальным вариантом считают именно распашные ворота. Это настолько простая деревянная конструкция, что ее сможет сделать даже тот человек, который не имеет лишь базовые навыки в строительстве.
Главное, чтобы при работе в одиночку вы обращали внимание на все нюансы, например, провести точные замеры и должным образом подготовить весь необходимый материал.
Деревянные ворота своими руками
Подготовка инструментов и материалов к работе
Перед тем, как начать подготавливать все нужные инструменты и материалы, следует составить чертеж ваших ворот и провести замеры мест, где вы будете их устанавливать. Когда вы пройдете эти две важнейшие стадии планирования, вы сами поймете, как сделать ворота для гаража своими руками, и не будете прибегать к помощи профессиональных работников.
Если вы хотите сделать воротами сами, то нужно измерить входной проем, а если такие же ворота вы захотите установить еще и во дворе, следует определить точную длину между проймами в заборе. А теперь можно начать создавать эскиз. Для удобства рекомендуем использовать стандартный рисунок, который будет понятным для вас.
Исходя из найденного изображения, вы сможете проставить все данные измерения на нем. При создании такого эскиза вам будет проще сориентироваться и купить необходимое количество элементов.
Для изготовления деревянных ворот для гаража вам потребуются следующие материалы и приспособления:
- Доски деревянные, толщина которых равно 2,5 см , а ширина 10 см.
- Деревянные брусочки в диаметре не меньше 5*5 см, можно использовать металлические трубы или профили с диаметром в 5 см.
- Ножовка по дереву.
- Металлические петли.
- Ряд измерительных приборов – рулетка, строительный уровень и уголок, метр.
- Ножовка по металлу (можно заменить электрическим лобзиком).
- Механическая или электрическая дрель и набор сверл.
- Стамеска.
- Рубанок.
- Нагели и саморезы.
- Шуруповерт.
- Бумага для шлифовки.
- Грунтовка.
- Анкера или дюбеля.
- Сварочный аппарат (при необходимости).
- Кисти.
- Лак для дерева/масляная краска.
При изготовлении помимо гаражных деревянных ворот еще и дворовых вы должны предусмотреть наличии специальных опорных столбов. Но если у вас таковых не имеется, можно сделать их своими руками. Для этого используйте две металлических трубы или дубовые бруски с диаметром в 15 см.
Их нужно обрезать до определенной длины, а далее выкопать две ямки на выделенном для них месте, и придерживаясь нужного расстояния, причем глубина должна быть примерно 1 м, а диаметр больше 15 см, чем исходное сечение стоек. Здесь работает правило «чем глубже опоры, тем более устойчивая и прочная конструкция будет на выходе». Чтобы обеспечить максимальную прочность, на дно углубления нужно засыпать еще и немного щебня, а после утрамбовать дно.
Совет: если вы пользуетесь деревянными балками, вам следует позаботиться о предотвращении процесса гниения. Для этого следует обработать ту часть, которая будет находиться под землей, специальной битумной мастикой (можно использовать жидкую смолу).
После того, как опоры будут установлены, вертикаль следует зафиксировать по уровню и засыпать щебнем яму. В идеале можно еще и забетонировать ее цементным раствором. Для надежности воспользуйтесь кирпичами, чтобы обложить опору и сделать ее прочнее и красивее.
Чертежи деревянных ворот

Изготовление ворот
Когда вы окончите подготовку материалов и элементов, можно начать делать сами ворота. Так как вы приняли решение сделать деревянные ворота для гаража, раму нужно будет собирать своими руками. Для этого вы используете замеры входного проема, обрежете деревянные бруски до нужного размера и разложите на идеально ровной поверхности, чтобы у вас получился прямоугольник или квадрат.
Далее нужно проверить ровность диагоналей и укрепить углы саморезами и металлическими уголками. В роли рамы можно использовать еще и угловатые профили или металлические трубы, но для закрепления вам в этом случае потребуется сварочный аппарат. Готовую раму нужно закрепить в проеме при помощи анкеров или больших дюбелей.
- Теперь сделаем своими руками каркас для будущих створок. Для этого нужно распилить деревянные балки на несколько частей нужных размеров, поверхность обработать рубанком и разложит в соответствии чертежу. Следует учесть, что лицевая сторона ворот должна выступать за каркасный предел примерно на 15 см. Чтобы защитить их от внешней среды и ее негативного воздействия, детали покрываем антисептической жидкостью.
- Теперь нужно проверить, чтобы все диагонали были равны, места стыков закрепить саморезами или сделать отверстия при помощи электродрели и вставить туда нагели, которые сделают изделие прочным и долговечным. Далее в центре полученной конструкции устанавливаем поперечные балки, которые в идеале должны быть размещены накрест. На кончиках брусьев делаем укосы в 45 градусов. На концах детали нужно закрепить саморезами.
- Теперь полученные створки можно установить на каркас. Деревянные ворота для гаража на металлическом каркасе сделать несложно, нужно лишь проделать те же действия, что и с брусьями и дерева, но в качестве крепления в этот раз используйте сварку.
- Четвертый этап – подготовка и обработка обшивочных элементов для лицевой стороны наших створок. Требуется взять достаточное количество досок и подрезать их при помощи электролобзика до нужного размера. В идеале нужно использовать детали, выполненные из сосны, так как она обладает малым весом и отлично защищена от негативного влияния окружающей среды. Доски нужно вплотную расположить друг к другу и укрепит места соприкосновения саморезов с каркасом. По окончанию следует подрезать неровности и отшлифовать поверхность плотной наждачкой.
- Когда ворота практически готовы, остается лишь установить металлические петли. Чтобы прикрепить их на гаражные ворота из дерева, следует приварить их к особым местам рамы, но для дворовых ворот их крепят на столбы. Теперь возьмите створки и можете посадить ворота на петли.
- В конце, вам понадобиться собственноручно прогрунтовать поверхность ворот полностью и использованием защитной жидкости , а после окрасить. Если вы не хотите пользоваться краской, для придания интересного оттенка можно использовать морилку. Когда она высохнет, ворота покрываем лаком для дерева в несколько слоев. Чтобы украсить свое творение, используйте кованные детали необычного вида – их можно прикрепить на лицевую часть.
- Далее на уже готовые вороты крепим ручки, засовы и замки. В роли засова можно использовать стержни из металла, который будут фиксировать створки. В земле нужно будет вырыть желобки для закрепления.
Обратите внимание, что на основание этой статьи вы без труда сможете сделать ворота для гаража своими руками. Главное, чтобы все замеры были точными, вы делали все в четкой последовательности, использовали качественные материалы и ухаживали за творением рук своих.
Итоги
Уход за деревом – это очень важно, поэтому не ленитесь время от времени прокрашивать застарелые места, а если будут скрипеть петли, смазывайте их солидолом.
9 лучших строительных и мебельных магазинов!
- Parket-sale.ru- Огромный ассортимент ламината, паркета, линолеума, ковролина и сопутствующих материалов!
- Akson.ru- это интернет-гипермаркет строительных и отделочных материалов!
- homex.ru- HomeX.ru предлагает большой выбор качественных отделочных, материалов, света и сантехники от лучших производителей с быстрой доставкой по Москве и России.
- Instrumtorg.ru – это интернет – магазин строительного, автомобильного, крепежного, режущего и другого инструмента, необходимого каждому мастеру.
- Qpstol.ru — «Купистол» стремится предоставить лучший сервис своим клиентам. 5 звёзд на ЯндексМаркет.
- Lifemebel.ru- гипермаркет мебели с оборотом более 50 000 000 в месяц!
- Ezakaz.ru- Представленная на сайте мебель изготавливается на собственной фабрике в Москве, а так же проверенными производителями из Китая, Индонезии, Малайзии и Тайваня.»
- Mebelion.ru- – крупнейший интернет-магазин по продаже мебели, светильников, интерьерного декора и других товаров для красивого и уютного дома.
domsdelat.ru
чертежи и изготовление каркаса своими руками
На протяжении многих лет деревянные ворота служили верой и правдой, но сейчас найти конструкции только из дерева уже сложно. Во-первых, в погоне за наибольшей безопасностью стали использовать более надежные материалы, а во-вторых деревянная структура сама по себе через пару лет начитает провисать.
Вторая проблема решается обычно с помощью металлической рамы, на которую монтируются деревянные доски. Еще на этапе планирования стоит узнать, как возможно построить надежные и удобные гаражные ворота из дерева.
Особенности ворот для гаража из дерева
Со времен первых гаражей используются ворота из дерева и, несмотря на новые материалы и технологии, дерево не утратило своей популярности и наши дни.
Основные преимущества деревянных ворот:
- легкость монтажа;
- доступная цена;
- надежность;
- отсутствие коррозии;
- устойчивость к температурному перепаду;
- не несут опасности для авто;
- не нагреваются на солнце, как металлические;
- хранят тепло.
Но дерево очень легко воспламеняется и это его самый основной недостаток. Однако, данный изъян легко устранить, обработав материал специальными противопожарными пропитками.
Деревянных гаражных ворот существует несколько типов:
- Распашные.
Самый простой тип, состоящий из двух створок. Конструкция предусматривает наличие свободного пространства перед гаражом, что не всегда удобно, особенно зимой во время снегопадов. - Секционные.
Складываются из нескольких секций, соединенных петлями и открывающиеся вверх либо в сторону. Монтировать такой тип ворот не совсем удобно. - Раздвижные.
Достаточно распространенный тип, пользующийся популярностью, очень часто встречается с автоматической системой открывания-закрывания. Открываются в сторону от проема, но иногда состоят из двух створок, разъезжающихся в стороны. - Рулонные.
Довольно удобная конструкция. Ворота открываются вверх и наматываются на приводной вал. Встречаются автоматические и ручные системы. - Подъёмно-поворотные с потолочными направляющими.
Сплошное полотно поднимается вверх по направляющим и фиксируется под потолком. Система всегда автоматическая, но при отсутствии электричества, конструкцию возможно легко поднять вручную. Неплохой тип ворот, самый устойчивый к взломам.
Подъёмно-поворотные ворота с потолочными направляющими являются наилучшим вариантом для обустройства гаража. Конструкция надежна и не занимает много места.
Как изготовить распашные гаражные ворота из дерева
Перед началом работ следует составить план, в котором прописать все необходимые инструменты и материалы, начертить чертежи и произвести замеры проема, где будут устанавливаться будущие ворота. На этапе проектирования уже будет понятно, каким образом построить работу так, чтобы не обращаться за помощью к специалистам.
Дверной проем должен быть тщательно измерен, а если это въезд на приусадебный участок, то мерить следует расстояние между опорами, на которые будут вешаться ворота.
Подготовка инструмента и материалов
Закончив проект, можно приступать к заготовке материалов и инструментов для работы. Эти данные возможно посчитать и найти в самом проекте.
Итак, для работы над распашными воротами понадобятся следующие материалы:
- брусья из дерева или металлические трубы, диаметром не меньше 5 сантиметров;
- металлический профиль диаметром около 5 сантиметров;
- обработанные доски из дерева толщиной 2-3 сантиметра и шириной 10 сантиметров;
- навесы;
- замок или засов.
Работы будут проводиться при помощи таких инструментов:
- дрель;
- машинка для шлифования;
- сварочный аппарат;
- измерительная рулетка;
- молоток;
- стамеска;
- карандаш;
- ножовка;
- гаечные ключи;
- отвертка;
- строительный уровень.
Установка распашных ворот
Алгоритм установки распашных ворот прост и лишен каких-либо хитростей. Для начала следует поработать над крепежной рамой.
Крепежная рама
Для изготовления можно использовать брус из дерева, но с целью получения надежного и долговечного продукта, советуем раму сделать из металла. Делаем замеры, высоту и ширину проема и отрезаем металлический уголок нужной длины.
Элементы каркаса выкладываем на ровную поверхность, обрезаем, выверяем и свариваем между собой с помощью сварочного аппарата. Повысить жесткость поможет приварка остатков уголка по диагонали каждого угла конструкции.
Поверхность каркаса, а в особенности сварочные швы, следует тщательно обработать шлифовальной машинкой, чтобы доски плотнее прилегали ко всем поверхностям, не было зазоров и, соответственно, качество ворот было выше. Закончив с рамой, приступаем непосредственно к сварке каркаса.
Сварка каркаса
Следующим шагом станет монтаж металлической обрешетки на раму каркаса из пары распашных створок. В работу потребуются прутки металлического профиля. Готовая рама кладется на ровную площадку лицевой стороной вверх.
В нее следует положить профиль и рассчитать размеры таким образом, чтобы между рамой и прутками оставалось расстояние не менее 10 сантиметров, во избежание заклинивания ворот. Точно произведя разметку, возможно приступить к сварке прутков между собой.
Дальше следует приварить петли на обрешетку и саму раму. Обрешетку может повести в процессе работы, поэтому следует пользоваться вкладышами. Изготовленный каркас следует обшить деревом.
Обшивка каркаса
Следующий этап также без проблем делается своими руками. Полученный каркас следует хорошо обмерить и, следуя замерам, разметить доску, с учетом того, что она перекрывает раму каркаса с двух сторон. На каркасе необходимо пробить отверстия под крепеж. Доски прикручиваются болтами именно через эти отверстия.
Важным моментом является соединение досок. Лучше если на них будут шипы и пазы, тогда вы добьетесь идеально ровной и прочно скрепленной поверхности.
Изготовление подъемно поворотных ворот
Подъёмно-поворотные ворота очень практичные, а сделать их комфортными и чуть ли не идеальными в использовании поможет автоматика подъёма и опускания. Хоть этот вариант и существенно дороже, но вы по достоинству оцените удобство пользования подобной конструкцией. К тому же, они отлично впишутся в небольшой гараж, где ограничено место.
Собираем коробку
Коробку собираем из деревянного бруса, но лучше всего использовать металлический швеллер из-за массы воротного полотна. Собранную коробку необходимо установить в проем гаража. Потом, по размерам необходимо сварить каркас, вварить его в коробку и обшить деревянными досками заподлицо с рамой.
Делаем опору
Потом следует изготовить опору механизма. Для этого в двух полках необходимо просверлить отверстия. В первой следует закрепить продольные стойки, а во второй – крепления пружинного кронштейна. Между собой эти элементы крепятся с помощью металлической регулировочной пластины.
Собираем шарнирный узел
Для сборки шарнирного узла необходимо взять металлический уголок, приварить его в зоне между отверстием рычага подъёмного механизма и ребром внизу конструкции. Чтобы была возможность открывать и закрывать конструкцию вручную, следует монтировать полозья, прикрепленные к стене гаража посредством анкеров.
Окончательные работы
Сборка закончена и теперь самое время приступить к работе над внешним видом ворот. Их необходимо прогрунтовать и покрасить, чтобы защитить материал от трещин и негативного воздействия вредителей, желающих поселиться в ваших деревянных воротах.
И неважно, какой тип ворот вы решили установить в свой гараж, главное то, что дерево является практичным, универсальным, выносливым, экологичным и очень эстетичным материалом. Любые ворота из дерева, выполненные качественно и добротно, будут подчеркивать индивидуальность своего хозяина.
Итог
Деревянные ворота – это нестареющая классика, актуальная и в наше время. Их красота и экологичность не сравнится с конструкциями из других, более современных материалов. Из дерева отлично получаются стандартные распашные ворота, но для них необходимо много места перед гаражом.
Если же таковое отсутствует, то советуем построить подъёмно-поворотные с потолочными направляющими. Их возможно автоматизировать и приводить в действие, не выходя из автомобиля. Также подъёмная конструкция из дерева очень прочная и сможет надежно защитить ваше имущество от злоумышленников.
vseprogarazh.ru
распашные, откатные, гаражные, видео-инструкция, чертежи, расчет лестницы с поворотной площадкой, фото и цена
Все фото из статьи
Для многих владельцев загородных участков вопрос, как сделать деревянные ворота своими руками в гараже, является загадкой, но поспешим обрадовать читателей, что это вовсе не так – при желании возможно очень многое.

Распашные деревянные ворота для гаража своими руками
Большинство хозяев имеют в запасе такие столярные инструменты, как ножовка, молоток, рулетка и даже электрическая дрель, дисковая пила по дереву (ручная или стационарная) и тому подобное. Так что давайте узнаем, что можно сделать без посторонней помощи(а это очень приличная конструкция) и в дополнение посмотрим по теме видео в этой статье.
Ворота из дерева
Особенности монтажа

Принцип монтажа ворот
- Начнём с того, что смонтировать гаражные ворота из пиломатериалов, это не расчет деревянной лестницы с поворотной площадкой, поэтому здесь всё гораздо проще – здесь не придётся прибегать к каким-либо таблицам и формулам. Основным требованием здесь можно назвать прочность и плотность запорной конструкции и, по возможности, её декоративные качества – для лицевой отделки можно применять самые разные материалы.
- Обратите внимание, что чертежи деревянных ворот для гаража своими руками указывают на наличие опорных столбов и без этого вам не обойтись, так как не рекомендуется всю нагрузку от створки перекладывать на боковину проёма – она может просто разрушится со временем.
- Но если вы по краям вкопаете стояки, закрепив их к стене или даже соединив вверху перемычкой, то эта нагрузка значительно понизится, так как несущим элементом будет вертикальный профиль.

Здесь предусмотрена дверь на одной из створок
- Кроме того, обратите внимание на конструкцию створок – они смонтированы по системе соединённых между собой треугольников, а, как известно, это самая жёсткая фигура, благодаря которой вы избежите сбоя диагоналей. В данном случае вы видите усиленный вариант, то есть, каждая из створок разделена на четыре треугольника, но даже если это будет всего два треугольника (разделение по диагонали), то диагональная деформация щита вам не грозит.
Примечание. Если вы будете делать распашные или деревянные откатные ворота своими руками, то вас, безусловно, никак не устроят щели, которые могут образоваться между досками при усыхании пиломатериалов. Поэтому, вам лучше всего использовать шпунтованную доску, но также это можно делать и в «гладкую фугу», только здесь уже сборка производится по принципу мебельного щита.
Делаем ворота

Проём для створок
Начнём с проёма – безусловно, вы оставили его при строительстве помещения, но теперь вам нужно сделать коробку, которая будет рамой для ваших деревянных ворот, так что вы можете делать её из бруса.
Для стоек по сторонам b1 и b2 вам придётся использовать профиль с поперечным сечением не менее 100×100 мм, так как на эти части коробки ляжет основная нагрузка, а вот перемычку между ними можно будет сделать из бруса сечением 100×50 мм.
Комли опор нужно вкопать в грунт и залить бетоном, но кроме этого их ещё нужно будет зафиксировать к участкам стены b1 и b2 для создания дополнительной жёсткости. Точно так же вам нужно будет зафиксировать перемычку к притолоке – для этого можно использовать длинные болты сечением 14 мм с пластиковыми дюбелями (для кирпичных или блочных сооружений) или длинные саморезы.
Буква П, которая получается для коробки, должна быть установлена строго по уровню – вертикальному и горизонтальному, чтобы створки ворот точно подходили при закрывании. По периметру коробки нужно будет прикрутить притворную планку – для этого можно использовать брусок 40×40 мм или 50×50 мм – он перекроет зазор, который непременно будет оставаться в закрытом положении.

Подборка досок для щита
Готовый проём, с установленной там коробкой, нужно замерить — деревянные распашные ворота своими руками должны получиться меньше на 10 мм в каждую сторону – этот зазор будет служить деформационным швом, так как древесина будет набухать при сырой погоде.
Точно такой же зазор нужно будет оставлять между створками, а чтобы там не было щели. На одну из половинок прикручивают притворную планку. Как мы уже говорили, сборку щита лучше всего производить из шпунтованной доски, но при этом его лучше делать на 50-60 мм больше в каждую сторону, а лишнее обрезать ручной дисковой пилой или, в крайнем случае, ножовкой.
Толщина доски здесь будет зависеть только от вашего выбора, так как сделать ворота из дерева своими руками можно любой толщины, но при этом, лучше не использовать материал менее 25 мм, чтобы створка не прогибалась, но и не более 40-50 мм, иначе они будут слишком тяжёлыми.
Доски между собой сгоняйте киянкой, чтобы при вхождении шипа в паз не оставалось зазора, но вы также можете использовать доску с односторонним шипом, но при их сборке вам понадобится ровная площадка. Для создания ровной площадки вы можете задействовать такие же доски или брус, сделав из них раму, которая по периметру будет меньше створки, так вы сможете делать щит на ровном месте.
Примечание. В тех случаях, когда используется стыковка в «гладкую фугу», делаете из досок мебельный щит, склеивая их между собой ПВА. Но здесь основной проблемой будут струбцины, так как створки достаточно широкие. Но эти приспособления можно сделать своими руками из обычной верёвки, используя для стягивания петли какой-либо металлический стержень или брусок.

Окантовка щита
После сборки щита разметьте его периметр, чтобы все углы получились точно 90⁰ удобнее всего для этого использовать длинный строительный угольник – отклонений от прямого угла на створке не должно быть вообще.
После расчерчивания, для того чтобы убедиться в непогрешимости своих расчётов, замеряйте диагонали – максимально допустимая разница ±2 мм, но и таких отклонений лучше всего избегать.
Если с периметром всё в порядке, то прикрутите саморезами окантовку, как это показано на верхнем фото – для таких рёбер жёсткости можно использовать ту же доску, из которой сделан щит, только предварительно распустить её по ширине на полосы по 70-80 мм.

Треугольники придадут створке жёсткость
Теперь перейдём к треугольникам и будем делать их из тех же планок, из которых было сделано обрамление, а как это осуществить на практике – хорошо видно на верхней фотографии. Сначала прикладываете одну диагональ и размечаете места среза, затем подрезаете лишнее и прикручиваете её саморезами.
После этого поверх первой, прикладываете вторую диагональ и отмечаете место пересечения, потом разрезаете эту планку пополам и делаете пересекающее ребро жёсткости из двух половинок, прикручивая их по отдельности.
Примечание. Если вы хотите как-то раскрасить створки, то лучше покрасьте щит отдельно, а планки отдельно. Только рейки сначала подрежьте по размерам, чтобы они точно подходили к месту установки.

На створках использованы петли типа «стрела»
Даже если вы производили сборку щитов из дюймовой доски, они всё равно будут тяжёлыми и обычные навесы здесь не подойдут – слишком велика нагрузка на отрыв и нужна большая площадь для фиксации.
Поэтому, лучше всего использовать петли типа «стрела», которые вы видите на гаражных воротах на верхней фотографии. Они не только надёжно будут удерживать массу створок, но и изменят эстетичный вид гаража в лучшую сторону, хотя их цена не так уж и велика.
Заключение
Мы рассказали вам, как правильно сделать деревянные ворота, но это не означает, что перед вами единственно верный вариант их изготовления и навешивания – существуют более сложные конструкции. Но для подъёмных или откатных вариантов лучше использовать материалы, не поддающиеся деформации от влаги – металлический уголок, оцинкованный металл или пластик.
rubankom.com
Деревянные гаражные ворота своими руками
Качественный и надежный гараж способен обеспечить сохранность транспортного средства и предотвратить несанкционированное попадание внутрь. Для каждого автомобилиста наличие собственного гаража является огромным преимуществом, особенно в больших городах, где практически каждая вторая машины ночует на улице круглый год.
[sam id=»1″ codes=»true»]
Для владельцев домов или дач строительство и обустройство гаража стоит чуть ли не на первом месте. Стоимость возведения такого гаража достаточно высокая. Именно поэтому очень часто возникают ситуации, когда на покупку и установку ворот для гаража просто не остается средств. Но выход есть, ведь можно своими руками возвести деревянные ворота.
Для того чтобы своими руками соорудить такую конструкцию нужно запастись необходимым материалом, а именно нужно иметь:
- пилу;
- карандаш;
- долбежный станок;
- рулетку;
- клей ПВА;
- шлифмашинку;
- фуговальный станок;
- молоток;
- сухую сосновую доску;
- фанеру для вставки около 10 мм.
Не нужно сразу же бежать в строительный магазин и покупать недешевое оборудование. В большинстве случаев его можно найти в друзей, знакомых или, в крайнем случае, взять в прокат.
А вот, выбирая материал, нужно быть очень внимательным. Ведь качественная доска обеспечит длительный срок службы и такие гаражные ворота будут крепкими и плотно прилегать к основанию гаража при любой погоде.
Также внимательно стоит выбирать и фанеру для вставки. Слишком тонкий лист может просто раскрошиться под напором шуруповерта. А вот чересчур толстую фанеру будет очень сложно установить своими руками.
Процесс сооружения деревянных ворот
Для того чтобы все правильно сделать с первого раза нужно внимательно изучить инструкцию и следовать каждому пункту. Даже небольшая ошибка в расчетах, чертежах и прочем может испортить уже заготовленный материал, и придется заново искать все необходимые элементы и начинать процесс сначала. Таким образом, возведение гаража своими руками может затянуться надолго. Итак, вся работа подразделяется на несколько этапов.
Подготовительный этап
Необходимо сделать правильный чертеж будущей конструкции. Для этого нужно провести точные измерения. Также очень важно выбрать качественный материал. Идеальным вариантом для ворот является сухое дерево.
Гаражные ворота из некачественного дерева могут за короткое время начать гнить либо же рассохнуться и не будут плотно прилегать к основанию гаража. А вот вид дерева в принципе подойдет любой, все зависит от материальных возможностей. Безусловно, самым лучшим видом дерева для такой цели считается сосна. Во-первых, она очень податливая, и ее легко обрабатывать различными инструментами. Во-вторых, она прочная и надежная, поэтому ворота из сосновых досок могут служить долго, не теряя свой первоначальный вид и свои свойства.
Заготовительный этап
Уже нарисованный макет нужно внимательно и аккуратно перенести на деревянное полотно. Такие черновые заготовки нужно осторожно торцевать пилой, при этом не забывать делать припуск в несколько сантиметров. Это необходимо для того, чтобы в случае неправильных измерений, была возможность подкорректировать и исправить, а не выбрасывать испорченный материал.
[sam id=»2″ codes=»true»]
После этого на фуговальном станке нужно обработать кромку одной из сторон деревянных ворот. Когда это уже сделано, можно посмотреть заготовку и определиться с неровностями и уже с помощью пилы подогнать под нужный размер.
Такое действие необходимо провести и со второй стороной ворот. Очень важно, чтобы они были одинаковыми и имели правильную форму.
Сбор обвязки на деревянные ворота
Для того чтобы правильно подготовить и собрать обвязку на деревянные ворота нужно на специальном станке сделать долбежку под шип. Для этого можно взять небольшое сверло на 20 мм. Глубина на четырех вертикальных длинных заготовках будет составлять около 75 мм. Стойка под дверь, а также три оставшиеся горизонтальные заготовки, имеют размеры в 55 мм. Важно знать, что шипы на абсолютно всех заготовках нужно закруглять резаком.
После этого нужно своими руками постараться собрать сухую обвязку. Это следует сделать для того, чтобы определиться с точностью проведенных этапов и посмотреть предварительный вариант гаражных ворот.
Если это получилось легко – значит, все сделано правильно, и можно приступать к следующему этапу. Если вдруг возникли какие-то сложности, то нужно разобрать конструкцию и подкорректировать створки, заготовки и собрать заново.
Сборка ворот для гаража из дерева
На этом этапе нужно пользоваться клеем ПВА. С его помощью такие гаражные ворота необходимо стянуть клиньями по полу. Клей поможет на время зафиксировать ворота, чтобы можно было их правильно вставить.

Очень важно соблюдать при сборке расстояние между углами и придерживаться угла в 90 градусов, что также нужно и при стяжке. Готовые гаражные ворота можно сделать более жесткими. Для этого нужно на каждом соединении просверлить своими руками два отверстия в 10 мм и забить туда деревянные шканты.
Внешние работы
Для того чтобы гаражные ворота выглядели привлекательно и презентабельно используют специальные фанерные вставки. Их можно сделать абсолютно разных размеров – на все ворота, частями, только снизу и только сверху – все зависит от воображения владельца гаража. Придавать форму таким вставкам можно с помощью обычной пилы.
Также такую фанеру можно с легкостью покрасить в абсолютно разные цвета, тем самым сделав внешний вид гаража привлекательным и необычным. Для еще большего разнообразия можно вырезать фанеру в виде различных животных или мультяшных героев. Такое решение будет особенно интересно маленьких жильцам дома.
Устанавливать фанеру своими руками также очень просто, достаточно прикрутить ее шурупами. Между деревом и фанерой можно также устанавливать дополнительный слой утеплителя. Это дает возможность сделать гараж теплым, даже в самую лютую зиму.
Таким образом, процесс сооружения и возведения деревянных ворот для гаража своими руками является не таким уж и сложным, и доступен практически каждому человеку, не имеющему особенных знаний в области строительства. Самое главное не спешить и все делать аккуратно и, конечно же, следовать всем перечисленным выше инструкциям. И только тогда красивые деревянные ворота, сделанные своими руками, будут стоять долго, и радовать глаз своему владельцу.
[sam id=»3″ codes=»true»]
vorotagate.ru
Как сделать деревянные ворота для гаража своими руками

Гаражные деревянные ворота своими руками
Деревянные гаражные ворота своими руками интересуют многих. Размеры конструкций владелец своего гаража определяет сам. Проезд для машины должен быть как можно шире.
Створки, которые его закрывают, удобны в использовании. Для частных владений изготовленные своими руками деревянные гаражные ворота пользуется достаточно большой популярностью. Как это сделать правильно подскажет статья.
Особенности ворот для гаража из дерева
Такие конструкции используются с момента появления первых автомобилей. Несмотря на наличие многофункциональных и усовершенствованных моделей, ворота для гаража из досок не утратили своей популярности.
Основные их преимущества:
- Легкий самостоятельный монтаж.
- Доступная стоимость.
- Надежность при эксплуатации.
- Не подвержены действию коррозии.
- Высокая устойчивость к перепадам температур. При ее колебаниях они не создают условий для появления конденсата, приводящего к порче содержимого помещения.
- Они абсолютно безопасны для авто.
- В жаркую погоду не нагреваются как металл.
- Не требуют специального ухода.
- В гараже сохраняется тепло.
К недостаткам деревянных ворот относится возможность возгорания. Дерево достаточно легко может воспламениться, что опасно для человека и его автомобиля, особенно если в помещении хранится большое количество горючих смесей.
В гараже можно установить такие типы деревянных ворот как:
- Распашные. Они состоят из двух створок, как показано на фото. Самый простой тип деревянных ворот – двустворчатые. Но необходимость наличия свободного пространства перед гаражом является их недостатком. Особенно неудобна такая конструкции в зимнее время, когда появляется лед и выпадает много снега.

Распашные гаражные ворота из дерева
- Секционные (см. Гаражные подъемно секционные ворота и правила выбора автоматики). Устанавливаются такие конструкции при ограниченном пространстве возле гаража. В их состав входят несколько горизонтальных секций, которые соединены петлями. Открываться полотна могут в любую сторону или вверх. Размеры ворот зависят от параметров проема. Конструкции монтировать не совсем легко.

Секционные ворота для гаража
- Раздвижные или откатные (см. Гаражные откатные ворота своими руками: особенности и установка). Пользуются довольно большим признанием. При монтаже требуют много пространства. Открываются они параллельно лицевой стене гаража в любую сторону, чаще автоматическим устройством. Раздвижные ворота могут состоять из двух створок, откатывающихся в разные стороны. Навешиваются они на стационарную балку или крепятся на консоли.

Раздвижные гаражные ворота
- Рулонные (см. Рулонные ворота для гаража: правильный монтаж). Для ворот гаража это достаточно удобный вариант. Открывание устройства основано на роллерах. При этом ворота наматываются вверх на приводной вал. Конструкция открывается вручную или автоматически.
- Подъемно-поворотные с потолочными направляющими. Изготавливаются из одного полотна, открывающегося вверх с укладкой под потолком. Такие устройства тяжело поддаются взлому. Работают лишь в автоматическом режиме, но их легко при необходимости открыть механическим устройством. Работают ворота бесшумно.

Подъемно-поворотные ворота
Совет: Для гаража устройство подъемно-поворотных ворот – отличный вариант. Они не займут много места, складываясь вдоль потолка, открываются вверх.
Как изготовить распашные гаражные ворота из дерева
Прежде, чем приступить к изготовлению устройства, следует приобрести:
- Рулетку для измерений.
- Грифельный карандаш.
- Ножовку.
- Электрическую дрель.
- Шлифовальную машинку.
- Стамеску.
- Молоток.
Инструкция по строительству гаражных ворот состоит в следующем:
- Делаются замеры проема.
- Определяется вид ворот, оптимально подходящих к этому проему, с учетом наличия пространства возле конструкции, их безопасность, функциональность и цена.
- Решается, какой материал понадобится для обшивки каркаса, устройство теплоизоляции ворот.
- Разрабатывается эскиз или чертеж конструкции со всеми размерами и деталями.
- Выбирается материал. Это может быть любое дерево – сухое и чистое. Чаще всего для гаражных ворот используется простая и доступная сосна.
- Подготавливаются заготовки для устройства обвязки ворот. Элементы делаются с припуском до двух сантиметров.
- Кромка детали и одна из ее сторон пропускается через фуговальный станок.
- На рейсмусе прогоняется до нужной толщины и пилой отпиливается в размер по чертежу.
- Изготавливается каркас для ворот из обычного деревянного бруса. Соединяются и надежно закрепляются отдельные элементы каркаса на шипах и пазах. В стандартных секциях ворот устанавливаются ребра жесткости, которые размещаются вертикально и горизонтально.
Совет: Для сборки каркаса необходимо использовать ровную поверхность, оптимальный вариант — обычный пол, что обеспечит отсутствие перекосов и прочих неровностей. При сборке обязательно выполнять контроль размеров.
- Обшивка каркаса. Для этого используется доступный материал:
- фанера;
- натуральная древесина;
- ДВП.
- На каждой створке устанавливаются навесы и крепятся болтами.
- Выполняется разметка проема, намечаются места положения автоматики и петель.
- Створки ворот навешиваются на стойки. При выполнении этой операции следует стараться избежать любых перекосов, конструкция ворот громоздкая и достаточно тяжелая, а угол на створках должен быть строго 90 градусов.
Совет: Для удаления просветов и щелей, к обеим створкам ворот следует прикрутить горизонтальные рейки, а на стыке двух половинок одну вертикальную, что позволит избежать наличия просветов, когда ворота будут закрыты.
- Устанавливаются затворы, замки и остальная фурнитура.
- Утепляются все щели минеральной ватой.
- Ворота покрываются лаком или другой тонировкой, что делает их привлекательными и необычными.
Изготовление подъемно-поворотных ворот
Для выполнения работ понадобятся:
- Бруски деревянные.
- Металлические пластины.
- Профильный уголок.
- Полозья.
- Направляющие.
- Кронштейны.
- Полотно.
- Для утепления ворот — пенопласт или другие материалы.
Порядок проведение монтажных работ:
- Выполняются подготовительные работы в гараже, которые заключаются в оформлении проема. Покрытие пола можно выполнить после калибровки механизма.
- Изготавливается каркасная рама из трех брусков, скрепленных между собой металлическими уголками или пластинами. Два из них укладываются продольно, а один поперечно.
- Рама приставляется к проему, и выполняются точные замеры.
- Подготовленная коробка закрепляется анкерами к стенам.

Устройство подъемных ворот
- Отмечаются места под установку элементов соединяющих полозья и стены.
- В этих точках сверлятся отверстия.
Совет: Чтобы избежать проблем при открытии ворот, добиться отсутствия трения и заклинивания деталей, верхний кронштейн следует немного вынести вперед относительно остальной конструкции.
- После выравнивания и укрепления рамы, все щели, при их наличии, заполняются монтажной пеной.
- Изготавливается каркас для полотна ворот.
- Зашивается каркас деревом.
- Монтируются направляющие профили.
- Устанавливается собранное полотно.
- Конструкция соединяется с рычагами и пружинами.
- Для предохранения устройства от коррозии, попадания в узлы осадков или различных предметов, от возможных механических повреждений, кромки створки закрываются металлической полосой.
- Чтобы не разрушалась монтажная пена, и в гараже не было сквозняков, все стыки рамы и стен оштукатуриваются и зашиваются накладками.
Несколько советов по установке подъемно-поворотных ворот:
- Для обеспечения минимального трения при перемещении створки, шарнирные системы следует монтировать сразу.
- При установке направляющих элементов необходимо учитывать, чтобы они размещались строго горизонтально, что предотвратит заклинивание ворот.
- Выравнивание направляющих можно выполнять установкой шайб.
- Для безопасности работы системы на короб монтируются страховочные опоры.
- Подъемно поворотные механизмы ворот регулируются с помощью натяжения пружины, что позволит створке в любом положении устойчиво держаться.
- Для регулировки натяжения пружины, следует использовать натяжные гайки.
Подробно об изготовлении и монтаже гаражных ворот любой конструкции из дерева показывает видео.
1pogarazham.ru
Деревянные ворота гаража своими руками: проектирование и монтаж
Компания «Русская Ограда». Мы занимаемся установкой заборов, ворот (в том числе автоматических), установкой столбов и линий ЛЭП по всей Москве и Московской области. Звоните: +7 (495) 762-97-99 c 09:00 до 21:00 ежедневно.
Для гаражей устройство распашных ворот из дерева получило распространение, вероятно, с появлением первых автомобилей. Они сохраняются, несмотря на появление множества усовершенствованных и многофункциональных моделей. Основным преимуществом такой модели гаражных «дверей» – это доступная стоимость, и возможность изготовить и установить распашные деревянные ворота гаража своими руками, имея только начальные навыки в строительстве. Такие ворота имеют простую и универсальную конструкцию, которая легко модифицируется для любого типа помещения, но все-таки для установки ворот собственными руками потребуется терпение, время, и строительные материалы.
Распашные ворота популярных моделей

Традиционные гаражные створки из дерева
Гаражные ворота любого типа представляют собой широкий проезд для машины, который одновременно является передней стеной помещения. Проезд всегда закрывается створками, а всё сооружение должно быть удобными при эксплуатации.
Современные стандартные распашные ворота – это не только две распахивающиеся створки, но и другие модифицированные модели с комфортными для владельца дополнениями, такими, как входная дверь в створке ворот, утепление, уплотнение, и другие различные аксессуары для въездного проема частного автодомика.

Гаражные ворота со встроенной дверью
Гаражные порталы промышленного производства имеют некоторые преимущества перед сделанными самостоятельно, это:
- высокая прочность;
- крепкая фурнитура;
- соответствие жесткому режиму эксплуатации;
- конструкция соответствует нормам ГОСТа.
Варианты существующих гаражных ворот

Гараж с металлическими воротами
Металлические гаражные ворота распашного типа обладают множеством преимуществ: длительность эксплуатации, пожаробезопасность, механическая прочность и устойчивость к повреждениям при сильном внешнем воздействии. При качественной обработке специальными веществами, металл будет устойчив к коррозии, и ворота прослужат многие годы без хлопот и расходов на ремонт.

Гаражные ворота из профнастила
Гаражные распашные ворота из профнастила обладают почти такими же качествами, как и металлические. Они практичны, долговечны, пожаробезопасны, но главное — они выигрывают по цене и внешнему виду.

Простые деревянные ворота для гаража
Деревянные распашные ворота для гаража выигрывают тем, что дёшевы и довольно просты в установке на место эксплуатации. Главным недостатком является высокая способность возгорания древесины даже при современных средствах защиты от огня. Это приводит к тому, что гаражи с дверями из древесины в противопожарных правилах относятся к «группе риска» так как в них хранятся огнеопасные смеси.
Деревянные ворота специалисты ППО воспринимают, как временный вариант при постройке гаражей на срок от 5 до7 лет, что соответствует сроку эксплуатации древесины.
Практичные мастера часто используют древесину при декорировании пожаробезопасных воротных конструкций в качестве облицовки, или как резные дизайнерские вставки из ценных пород.
Основные правила при установке
- Тщательно выровнять раму, для устранения возможности створкам самопроизвольно раскрываться, а также и для открывания без особых физических усилий
- Запорный механизм в оптимальном варианте должен иметь как врезной, так и навесной замки.
- Использовать для запирания гаража вертикальные штыревые стопоры в каждой из половинок ворот, а также прочный засов посередине стыка створок.
Условием использования такой системы запорных механизмов является наличие входа в помещение через отдельную дверь.
Гаражные петли крепят на брусе створки, прикручивая болтами.
Важно при этом, чтобы резьба имела направление в сторону гаража.
При закреплении гаражных петель болты снаружи не должны быть заметны. Головки болтов углубляются в дерево створок и сверху их шпатлюют. Потом эти места тщательно закрашивают. Также в центре затвора ворот закрепляют петли под навесной или врезной замок.
Процесс сборки гаражных ворот
Начинается работа с выполнения точных измерений места, где будет сооружаться въезд в гараж. Составляете чертеж, представляющий будущую конструкцию. Затем подбираете материал. Древесина должна быть сухой и качественной.
Следующим этапом работы будет подготовка заготовок для рам или обвязок. Чтобы избежать ошибок, черновые заготовки нарезаете пилой, оставляя припуск в один-два сантиметра. Одну кромку и сторону обрабатываете на фуговальном станке. После фугования осматриваете базу и угол заготовки. На рейсмусе достигаете необходимой толщины, и пилой отпиливаете до нужного размера.

Каркас ворот
Производите разметку, и делаете под шип долбежку на долбежном станке. Для работы подойдёт сверло на 20 мм, глубина на вертикальных длинных заготовках – 75 мм (их 4 шт.), а на горизонтальных брусках – 55 мм. Шипы на заготовках закругляете резаком, по длине они короче, чем долбежка, приблизительно на 5 мм. Перед окончательной сборкой нужно попробовать собрать обвязку, и если все совпадает, приступайте к сборке створок.
Деревянные ворота стягиваете клиньями, желательно на деревянном полу. Для надежности места соединений проклеиваем клеем ПВА. При сборке придерживайтесь размера углов в 90 градусов, и сохраняйте расстояние между углами. Следует соблюдать угол в 90 градусов и при стяжке. Обязательно контролируйте расстояние крест-накрест на противоположных углах обвязки. Для придания дополнительной жесткости воротам в каждом соединении сверлите по два отверстия диаметром 10 мм, и забиваете в них деревянные шканты.
При необходимости измеряете и выпиливаете пилой вставки из фанеры. С одной стороны, крепите фанеру шурупами, прокладываете утеплитель, придерживаете его с другой стороны фанерой, и завершаете крепление шурупами.
Установка ворот

Распашные гаражные ворота изнутри
Болтами закрепляете на половинках ворот навесы. Навесы бывают декоративные кованные, или простые, соответственно, и закрепляются одни на наружной стороне, а другие скрыты, и их почти не видно. Затем навешиваете створки на стойки. Для этого вам будет нужен помощник, одному навешивать половинки очень тяжело и неудобно.
При навешивании ворот гаражные петли устанавливают с таким расчетом, чтобы не только предупредить перекос створок при открывании, но и предотвратить появление щелей между гаражным полом и нижним краем закрытых ворот. Прикрутите рейки к створкам ворот и одну вертикальную на стыке половинок. Это позволит вам избавиться от щелей при закрытых воротах. Вертикальная рейка к тому же будет служить упором при запирании. После навешивания крепите ручки и устанавливаете шпингалеты.
Важно! Утеплив гараж и ворота, не забывайте о качественной вентиляции.
Напоследок запеньте все щели, и покройте ворота тонировкой. Теперь вы можете гордиться своими теплыми и красивыми воротами из дерева, украшающими ваш гараж.
Самодельный гаражный замок
rusograda.ru

Высокая популярность и низкая себестоимость материала.