Гардеробная вместо туалета – Гардеробная вместо туалета | Идеи для ремонта
5 вещей, которые не запрещено менять в планировке санузла — INMYROOM
Если вы решили сделать перепланировку санузла, важно подобрать вариант, который будет соответствовать как вашим представлениям об удобстве и комфорте, так и действующим строительным и санитарным нормам. Дизайнер и руководитель студии «Уютная Квартира» Наталья Преображенская рассказала, что законно в перепланировке санузлов.

Наталья Преображенская
эксперт
Постоянный автор INMYROOM, директор интерьерной студии «Уютная Квартира». Воспринимает дизайн интерьера как образ жизни, поэтому в работе не ограничивается рамками и стереотипами.
1. Расширение санузла
Самое очевидное решение для маленького санузла — расширение помещения за счет смежной территории, например, кладовки, коридора или встроенного шкафа. Однако санузлы, как и кухни — это так называемые мокрые зоны квартиры, которые считаются нежилой площадью, что ограничивает возможности их расширения. Например, недопустимо увеличивать санузлы за счет кухни.
Также не допускается проводить перепланировку санузла, при которой он будет находиться над жилой комнатой или кухней соседей снизу. Исключение сделано только для квартир на первых этажах и для вторых уровней двухэтажных апартаментов. Эти требования регламентируются СаНПиН 2.1.2.2645-10 и СНиП 01.31.2003.

Дизайн: «Уютная квартира»
2. Объединение ванной и туалета
Такой вариант перепланировки – один из самых популярных. Объединение осуществляется либо путем демонтажа перегородки между ними, либо посредством демонтажа сантехкабины, если конструкция дома предусматривает последнюю. Часто при объединении туалета и ванной планируется и их расширение за счет коридора или кладовки. Как и в первом случае, при этом придется учитывать запреты и исключения соответствующих СНиПов и СаНПинов.
Совет: обратите внимание, что, согласно СНиП «Полы», при выполнении таких работ в полах объединенного и расширенного санузла обязательно должна быть предусмотрена гидроизоляция.

Дизайн: «Уютная квартира»
3. Перенос ванной комнаты
Санузел можно перенести в другую локацию, с одним «но»: осуществлять его необходимо в пределах нежилой зоны квартиры. Иными словами, вы можете смело перенести ванную комнату в кладовую или организовать дополнительный гостевой санузел в большом холле. Но не забывайте, что такие работы потребуют утверждения и согласования.
Однако если вы счастливый обладатель собственности на первом этаже или над нежилым помещением (магазином, например), вас этот запрет не касается. Хотя и здесь есть сложность: провести инженерные коммуникации будет проблематично по техническим причинам.

Дизайн: «Уютная квартира»
4. Замена ванны на душевую кабину
Казалось бы, в чем здесь перепланировка, ведь нужно просто поменять одно на другое в рамках площади ванной комнаты. Однако зачастую душевую кабину устанавливают не на месте старой ванны, а по правилам это значит, что если переносимый сантехнический прибор отмечается на планах БТИ квартиры, то изменение его положения влечет необходимость изменить его и в этих планах БТИ, а это осуществляется согласно Приложению 1 Постановления Правительства Москвы №508 по согласованию на основании эскиза.На планах БТИ отмечается расположение раковины, душа, унитаза, гигиенического душа и ванной. Таким образом, перенос раковины в ванной, перенос ванны в ванной комнате, замена ванной на душевую кабину требуют согласования.

Дизайн: «Уютная квартира»
5. Ванная с выходом в спальню
В кино вы наверняка частенько видите, как герои, проснувшись, прямиком из кровати направляются в душ, который находится прямо за дверью. Такую планировку можно устроить и в вашей квартире, но только если у вас имеются два помещения, оборудованных унитазом (в контексте СаНПиНа «спальни»).Если же у вас дома только один санузел, то такая планировка со входом из кухни или комнаты, к сожалению, невозможна.

Вам будет интересно:
www.inmyroom.ru
Устройство гардеробной при перепланировке квартиры
Большинству граждан, привыкших жить в малогабаритных квартирах, может показаться, что трата драгоценных квадратных метров на устройство гардеробной при перепланировке жилья – непозволительная роскошь. Тем более, что типовые многоэтажки, построенные в советскую эпоху, редко снабжались второстепенными помещениями – встроенными шкафами и кладовками. А уж о гардеробных и речи никакой не шло.
Но времена меняются, и сегодня все больше московских квартир при перепланировке обзаводятся отдельными помещениями для хранения одежды и обуви. Причем устройство гардеробных практикуют владельцы не только многокомнатных квартир, но и однокомнатных жилых помещений.
И это не должно удивлять. Как бы это не звучало парадоксально, но устройство гардеробной комнаты даже небольшой площади не забирает, а наоборот, экономит пространство жилья, создавая больше свободы в других помещениях.
Правильно оборудованная гардеробная защищает одежду от пыли и солнечных лучей, губительных для вещей. Оборудованная стеллажами и полками она лучше сохраняет одежду, головные уборы и обувь и существенно экономит время поиска нужной вещи.
Гардеробные в доме: история появления
Первые гардеробные появились в незапамятные времена, когда в роскошных жилищах египетских фараонов и римской знати устраивались специальные помещения для размещения нарядов.
В период средневековья представители привилегированных сословий стран Европы, проживавшие в фамильных замках и дворцах, предпочитали хранить свою одежду в отдельных помещениях. Правда, тогда они выглядели несколько иначе, чем теперь, и являлись обязательным атрибутом любого приличного дома, придававшему жилищу изящный стиль и высокий статус.
Активное развитие моды вкупе с швейной индустрией привели к росту спроса на одежду и обувь не только у женщин, но и у мужчин. Увеличение сезонных вещей разных моделей у взрослых и детей постепенно привело к необходимости их централизованного хранения и устройства для этих целей отдельного места в квартире.
Важно не забывать, что устройство гардеробной в квартире в качестве отдельного помещения является перепланировкой, отмечаемой на планах БТИ, которую по закону нужно предварительно согласовать с надзорными органами.
В отличие от давних времен, сегодня организовать помещение для хранения вещей может позволить себе любой человек – было бы желание. При этом устройство гардеробной в квартире должно начинаться с ответов на следующие вопросы: сколько человек будут пользоваться гардеробной, какие вещи будут в ней храниться? От этого будет зависеть место расположения гардеробной и ее размер.
Особенности перепланировки гардеробной
Как мы рассказывали в других наших статьях, перепланировка кухонь и санузлов ограничивается строительными и санитарными требованиями, которые затрудняют хозяевам квартир в полной мере реализовать все свои идеи по изменению интерьера.
Гардеробные также являются нежилыми помещениями, но размещать их можно практически в любом месте квартиры. То есть ограничения, характерные для мокрых зон, на них не распространяются.
Варианты устройства гардеробной
Устройство гардеробной в коридоре. Такой способ практикуется в широких прихожиях, коридорах или холлах, в которых можно выделить достаточно места для организации помещения, где будет храниться одежда. Подобное размещение удобно не только в повседневной жизни, но и при приеме гостей, для которых она будет служить раздевалкой.
Устройство гардеробной в спальне. Если гардеробная рассматривается не как хранилище повседневной одежды для всех членов семьи, а предусматривает размещение определенных вещей (например, только для мужчины или только для женщины, для взрослых или детей и т.д.), то ее будет уместно устроить в спальной комнате.
Устройство гардеробной (2а) в жилой комнате (2) трекомнатной квартиры в доме серии II-57:



Устройство гардеробной вместо санузла. Если в квартире имеется два санузла, а большой необходимости члены семьи в них не испытывают, то один из них расширяют за счет площади коридора, а вместо другого устраивают просторную гардеробную комнату.
Устройство гардеробной на месте кладовки. Частый случай, когда при перепланировке гардеробной квартира лишается кладовки или подсобки, а на этой площади устраивают маленькую гардеробную.
Также на практике в типовых квартирах гардеробные комнаты формируют в пространстве, ранее занимаемого смежными встроенными шкафчиками.
Такие варианты переоборудования уже имеющихся помещений под склад одежды можно назвать оптимальными для тех, кто не хочет уменьшать жилую площадь квартиры, что придется делать при устройстве гардеробной в спальне.
Технология перепланировки гардеробной
Под гардеробную выделяется подходящее пространство в квартире и для обозначения границ помещения возводятся легкие перегородки, не создающих критической нагрузки на межэтажные перекрытия. Подобрать нужный строительный материал для перегородки сегодня – не проблема. Чаще всего для этих целей используют пазогребневые блоки.
Согласование устройства гардеробной
Несмотря на то, что с точки зрения ремонта устройство гардеробной нельзя отнести к категории сложных мероприятий, согласовывать такую перепланировку придется по проекту, разработанному специализированной компанией с лицензией СРО.
Будем рады оказать вам такую услугу. Может разработать для вас проект перепланировки гардеробной, который вы будете согласовывать самостоятельно. Либо не только подготовим вам проектную документацию, но и сами же ее согласуем.
В случае согласования «под ключ» без вашего активного участия сформируем пакет документов, передадим его в жилищную инспекцию, получим разрешение на перепланировку гардеробной, вызовем инспектора, получим акт о завершении работ и закажем новый технический паспорт квартиры в БТИ.
Все вопросы о возможности и вариантах устройства гардеробной в вашей квартире можно задавать нашим специалистам по телефону или в системе онлайн.
www.pereplanirovkamos.ru
Кладовая -гардеробная или второй туалет? что нужнее? — Елена Козырева (user_1460152009)

Продолжаем наш ремонт! То, о чем я писала ранее уже мы в своей квартире сделали. Но, к сожалению, по ремонту еще много чего не доделано, а именно одна комната, наша спальня и еще одно маленькое помещение…. Вот по поводу него и вопрос. Мы все еще думаем что сделать из него.
На самом деле это второй санузел. Сейчас по нормам так положено, что если в квартире больше чем сколько то метром (точно не помню сколько) В квартирах делают 2 туалета, а точнее 2 места для туалета. Один туалет мы уже сделали, а точнее это душевая и туалет вместе.
Когда я узнала, что у нас будут 2 туалета, мне это очень понравилось, потому что у нас в хрущевке всегда была очередь в туалет, хоть нас всего то там было 3 человека..но почему то всегда все вместе туда планировали отправляться… Вообщем эта мысль мне очень понравилась и сильно грела. Но потом многие наши знакомые и друзья стали нас отговаривать от второго туалета, обосновывая тем, что намного полезнее и нужнее будет маленькая кладовая или гардеробная.

И действительно идея заманчивая и хорошая, но тогда не будет второго туалета…И что же важнее гардеробная или еще один туалет?
Места для шкафов купе не особо много, только в спальнях, но там они не будут очень большие. Еще можно использовать часть лоджии, она у нас тоже не маленькая. С другой стороны в плане ремонта намного экономнее сделать гардеробную, чем санузел, так как и сантехника очень дорогая, да и плитка тоже, и ее укладка, а для гардеробной все это не нужно, а значит намного дешевле получится. Но все же вопрос не в деньгах, хоть конечно сэкономить всегда хочется. Но вопрос в том, что же функциональнее?

Так что же все таки лучше выбрать? Может у кого то 2 туалета и вы мне скажете, что в этом нет смысла? Я не имею ввиду двух и трехэтажных частные дома…там без этого никуда. У меня просто двухкомнатная квартира.. А может кто то действительно порекомендовал бы гардеробную? А вы что бы больше хотели себе сделать?
detstrana.ru
А если совместить гардеробную и санузел? — «Фобос Мебель»
Сотрудники компании «Фобос Мебель» предлагают вам рассмотреть совершенно удивительный на первый взгляд вариант – ванная комната+гардеробная.
Необычный дизайн-проект
Во многих европейских странах, где люди стремятся сделать удобным каждый миллиметр жилого пространства, часто можно увидеть столь необычное воплощение дизайнерской фантазии. Да, для такого смелого поступка не подойдет стандартная ванная комната типовой квартиры, но владельцы частных домов (особенно тех, что выстраиваются по проектам самих заказчиков) могут смело позволить себе совместить комнату для купания и хранилище для вещей.
Такое решение позволит выполнить обеим комнатам еще больше полезных функций. Дизайн гардеробной комнаты, выполненный с умом грамотным специалистом, позволит сделать помещение уютным, функциональным и привлекательным. Владельцам жилья можно будет неспешно выполнять все гигиенические процедуры и сразу же выбирать себе образ на день грядущий.
Как разделить санузел и гардеробную?
Вариант 1
Парадная двустворчатая дверь станет отличным способом разделить две комнаты, оставив между ними достаточно пространства для передвижения владельцев. При этом можно отгородить дверями лишь тот уголок, где будут происходить банные процедуры. Это позволит уберечь вещи от проникновения сырости и влаги. Можно поступить иначе: отделить сам гардеробный шкаф плотными филенчатыми дверками, сделав его чем-то похожим на шкаф-купе или встроенную гардеробную.
Вариант 2
Отделять два помещения друг от друга можно с помощью «недостены». В одних случаях для этого придется разрушить уже существующую стену между комнатами (если дом уже давно спроектирован и теперь в нем проводится ремонт и перепланировка). Или просто создать часть стены, причем не ровной, как принято делать по стандартам, а будто специально разрушенной. Границу двух зон можно обособить большой раковиной на красивой тумбе, да так, чтобы умываться можно было не «носом в стену», а глядя на красиво обустроенный гардеробный шкаф. Если же владельцы жилья не могут избавиться от привычки разглядывать себя в зеркале при чистке зубов или мытье рук, можно установить зеркало прямо на пол, совсем рядом с раковиной (а не над ней, как это обычно бывает).
Вариант 3
Если ванная комната достаточно просторная, а вентиляция в ней работает, как положено, можно и вовсе обойтись без всяких там перегородок. Открытые полки, удобные стеллажи и вешала, корзины и коробки – все это может стать отличным украшением пространства. И зачем прятать всю эту красоту, если можно выбирать наряд, нежась в теплой ванне?
Вариант 4
Портьеры – еще один способ обособить две комнаты и сделать их дизайн оригинальным. Полноценные роскошные занавески придадут пространству комфортный жилой вид.
Не бойтесь экспериментировать, ведь классическая гардеробная – это отличная идея, но если проявить фантазию и креативное мышление, можно обустроить хранилище для вещей самым невероятным и диковинным образом.
fobosmeb.ru
Гардеробная комната — идеи, планировки
Разместить гардеробную можно даже в квартире площадью 30 м²!…Давайте рассмотрим реальные примеры.

• Гардеробная комната позволит отказаться от лишней мебели в квартире и избавит от общей захламленности. Визуально площадь от этого только выиграет!
• Все вещи наконец-то будут лежать на своих местах. Правильное хранение позволит надолго сохранить первоначальный вид одежды.
• Кроме одежды и обуви в гардеробной найдется место для бытовых принадлежностей: пылесоса, гладильной доски и т.д. Также в ней можно организовать небольшой туалетный столик.
Когда организовать гардеробную можно и даже нужно:
• Большой холл. Нередко в квартирах с типовой планировкой коридоры и холлы площадью 15-20 кв.м. могут поспорить размером с жилыми комнатами.
• Кладовка, гостевой санузел. Иногда в новостройках в небольших квартирах делают два санузла. Один из них можно использовать как гардеробную
Примеры размещения гардеробной в прихожей:
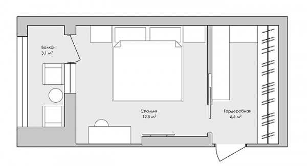
Однокомнатная квартира площадью 44 кв.м, в ЖК Богородский. На месте основного санузла сделана спальня-альков, предусмотрена звукоизоляция. Из кладовки с туалетом справа получился комфортный санузел с большой душевой.

.
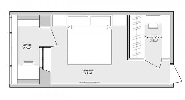
Однокомнатная квартира площадью 30,7 кв.м, в ЖК Берзарина 12.
Главными пожеланиями заказчиков была полноценная кровать и много места для хранения.

.Двухкомнатная квартира площадью 64 кв.м. При совмещении санузла получилось разместить полноценную гардеробную в холле.

Примеры размещения гардеробной в спальне
П-образная гардеробная в спальне 19 кв.м.

.
Г-образная гардеробная в спальне 19 кв.м.

.
Проходная гардеробная в спальне 19 кв.м.

.


.
.
Гардеробная с туалетным столиком в спальне 16 кв.м.



.
Пример размещения гардеробной в кабинете.
До бъединения с балконом площадь комнаты была всего 11,5 кв.м. В будущем в кабинете планируется оборудовать детскую. На месте рабочего стола будет располагаться кровать.
.

.


Стоит отметить, что далеко не во всех квартирах следует делать гардеробную. В некоторых случаях более практичным будет встроенный шкаф. Необходимо помнить, что минимальная ширина Г-образной гардеробной около 140 см, а П-образной — 190 см. Нет смысла в узких и длинных гардеробных, например, 100х200 см.
Не советуем делать угловые и радиальные гардеробные. Во-первых, это не добавит ни красоты ни функциональности. Во-вторых, это будет выглядеть в интерьере очень странно. Криволинейные линии должны чем-то поддерживаться. А для примера со спальней ниже нужны огромные площади, при которых такие решения странные вдвойне. К тому же, если помещение прямоугольной формы, то кровать будет смотреть в угол.


Тэги: маленькая гардеробная, гардеробная своими руками фото, гардеробные комнаты дизайн проекты фото, гардеробные комнаты дизайн проекты, дизайн гардеробной комнаты, планировка гардеробной 4 3,5 3 5 кв.м., идеи для гардеробной, как разместить гардеробную, гардеробная вместо туалета, как сделать гардеробную комнату, гардеробная раздвижная, угловая гардеробная, круглая гардеробная, ошибки в дизайне гардеробной, размеры гардеробной, как спланировать гардеробную, гардеробная в спальне 12 15 16 18 19 кв.м, гардеробная в коридоре, гардеробная в прихожей, дизайн квартиры в ЖК Life, дизайн квартиры в ЖК Берзарина, дизайн квартиры в ЖК Богородский, дизайн квартиры в ЖК Гусарская Баллада
variatika.livejournal.com
2 способа превратить туалет в гардеробную
В 75-метровой квартире есть две ванные комнаты и туалет. Хозяева посчитали, что одну из ванных можно переделать, а туалет превратить в гардероб. Архитекторы предлагают два способа переделки.
Решение 1: стена с небольшим скосом
Планировка основных комнат не была изменена — это связано с тем, что капитальная стена, разделяющая гостиную и спальни, которую нельзя трогать, осталась на месте. Архитектор немного увеличил меньшую ванную комнату за счет родительской спальни, которая по-прежнему достаточно просторна. В увеличенную ванную комнату из спальни родителей, вошло все необходимое оборудование. Согласно пожеланиям, в ней душевая кабина (90 х 90 см), унитаз, биде и столешница с двумя умывальниками. Стиральную машину архитектор разместил в бывшем туалете, которая теперь отведена под гардеробную-постирочную. Вторая меньшая ванная комната имеет асимметричную угловую ванну (140 х 80 см), унитаз и раковину. В обеих ванных комнатах установлены раздвижные двери. Детская комната теперь немного больше благодаря сужению холла. В них есть две полноразмерные кровати (сейчас вместо одной из них детская кроватка), а также письменный стол, шкаф и полки. Кухня оставалась открытой для гостиной.
Решение 2. объединение двух туалетных
Ванные комнаты теперь соединены с маленьким туалетом, закрытым с обеих сторон раздвижной дверью. В бывшем туалете, как планировалось, была создана гардеробная. В общей ванной комнате, с выходом из холла, есть ванна (170 х 80 см) и раковина. Во втором, предназначенном для родителей, есть душевая кабина (90 х 90 см), а также умывальник (только один, но 120 см длиной с двумя раковинами). Стиральная машина спрятана между кухонными шкафами. Кухонное оборудование имеет форму U, поэтому оно может вписаться в шкаф, благодаря чему будет больше места в гардеробе. У детей есть отдельные комнаты. На мой взгляд, из-за разницы в возрасте это лучшее решение. Архитектор отделил комнату старшего ребенка от гостиной, младший пока находится рядом с родителями. Чтобы было легче ухаживать за малышом, архитектор сделал проход между спальней и детской комнатой, закрытой раздвижной дверью. Они будут легко удалены, когда ребенок вырастет и станет более независимым.
Источник: ladnydom.pl/
archidea.com.ua
Перепланировка ванной комнаты и туалета. Все нюансы.
Перепланировка ванной и туалета — это одно из самых часто встречающихся видов перепланировки. Однако данный тип перепланировки обладает довольно значительным количеством нюансов, предусмотренных СНиПами и нормами РФ. Рассмотрим их подробнее.
Переделка ванной комнаты — согласование.
Чтобы узнать, можно ли согласовать Вашу перепланировку ванной и сколько это будет стоить, пришлите, пожалуйста, нам на [email protected] фото или скан плана квартиры до и после перепланировки (планируемые или произведенные изменения можно схематично отметить рукой или в любом графическом редакторе). Либо заполните форму обратного звонка или позвоните нам по телефону +7 (495) 507-74-67.
Перепланировка ванной комнаты и туалета- законы и нюансы.
Перепланировка ванной комнаты и туалета. Разрешение.
1. Увеличение ванной комнаты за счет комнаты.
Согласно п.3.8. СаНПиН2.1.2.2645-10 и п.9.25 СП 54.13330.2016 в квартирах не допускается такая перепланировка ванны и туалета, при которой они окажутся над жилой комнатой или кухней соседей снизу, за исключением двухуровневых квартир, в которых допускается устройство ванной комнаты и туалета непосредственно над кухней первого уровня.
Иначе говоря, согласно вышеизложенным нормам расширение или перенос ванной за счет жилой комнаты или кухни запрещено и невозможно. Это относится и к туалету, душевой, уборной и так далее. Данная норма не распространяется только на постирочную (подсобное помещение со стиральной машиной), так как сама стиральная машина никак не указывается на планах БТИ.
Следовательно, из вышеизложенного с точки зрения строительных норм также запрещены и не согласуемы такие работы, как перенос ванны в кухню, перенос туалета на кухню, устройство дополнительной ванной комнаты на территории комнаты или кухни и так далее.
Перепланировка ванны и туалета с расширением на жилую комнату возможен лишь при условии нахождения под Вашей квартирой нежилого помещения (в подвале или на первом этаже), ведь тогда ванная комната и туалет не оказываются над жилыми комнатами соседей снизу и никакие нормы не нарушаются.
2. Увеличение ванной комнаты за счет коридора.
Однако, не существует никаких норм, которые бы запрещали перенос или расширение ванной комнаты и туалета на нежилые помещения (коридор, кладовая, встроенный шкаф, подсобное помещение и т.д.). Поэтому выполнить и согласовать такую перепланировку возможно. Также на территории нежилых помещений разрешается устройство дополнительного туалета или ванной комнаты.
Часто при переносе или устройстве дополнительной ванной комнаты не удается провести канализацию вдоль стен с нужным уклоном, так как при любом проводимом маршруте от канализационного стояка получается пересечение с дверным проемом. В таких случаях в ванных и туалетах устанавливают специальные насосы (наиболее часто встречающиеся- sololift), которые позволяют отвести канализацию практически из любого места.
Комментарий к видео:
Изменился пункт: согласование расширения санузла по проекту требуется не по пунтку 2.2.6 Приложения 1 к Постановлению Правительства Москвы №508 (изменение конструкции полов), а по пункту 2.2.1 Приложения 1 того же постановления (после выхода ППМ №1104 от 29.12.2017 и ППМ №1572 от 17.12.2018).
3. Устройство гидроизоляции в ванной комнате и туалете.
В соответствии с СНиП 2.03.13-88 «Полы» ванные комнаты или туалеты после перепланировки обязаны в конструкции пола иметь гидроизоляцию. Таким образом, при увеличении ванной комнаты или туалета Вы должны демонтировать старые полы в расширенной зоне и устроить на их месте уже новые с гидроизоляцией. Укладка гидроизоляции оформляется актом на скрытые работы, которые подписывают представитель авторского надзора и строитель, либо представитель ДЕЗ (управляющей компании), если Вы делаете ремонт самостоятельно.
На данный момент существует два основных вида гидроизоляции полов: рулонная и обмазочная. В последнее время всё большее распространение получает именно обмазочная. Дело в том, что рулонную гидроизоляцию необходимо укладывать на выравнивающий слой стяжки. Если укладывать её непосредственно на перекрытие, то под нагрузкой от верхних слоёв пола она может порваться о незначительные выступы неровного перекрытия и в этом месте при заливе смогут происходить протечки. Обмазочная гидроизоляция ввиду своей технологии не требует устройства дополнительного слоя такой выравнивающей стяжки.
4. Устройство пола в ванной комнате и туалете.
Разрешение на расширение ванной комнаты за счет коридора
Ремонт ванной комнаты с перепланировкой согласно пункту 4.11 «Технического требования и правил проектирования, устройства, приемки, эксплуатации и ремонта (в развитие СНиП 2.03.13-88 «Полы») должен быть выполнен так, чтобы уровень пола в ней был выполнен на 15 — 20 мм ниже уровня чистого пола в смежных комнатах либо был установлен разделяющий порожек.
Таким образом, необходимо либо делать уровень пола в ванных и туалетах ниже уровня пола остальных комнат, либо устанавливать при входе в него порожек (хотя бы на время прихода комиссии жилищной инспекции).
5. Устройство ванной комнаты с выходом в спальню.
Перепланировка туалета и ванной в квартире часто становится незаконной и из-за следующего фактора, описанного в п. 3.9 СанПиНа 2.1.2.2645-10, который говорит о том, что запрещено делать вход в помещение, оборудованное унитазом, из жилых комнат и кухонь, за исключением входа из спальни в такое помещение, при условии наличия в квартире второго помещения, оборудованного унитазом с входом из коридора.
Таким образом, если у Вас в квартире имеется лишь одно помещение, оборудованное унитазом (ванная комната, уборная, туалет), то нельзя выполнять такую перепланировку, при которой вход в него будет производиться из кухни или комнаты.
Если у Вас в квартире имеются два помещения, оборудованных унитазом, то вход в один из него допускается сделать из жилой комнаты (в контексте СаНПиНа «спальни»).
Вход в помещение, не оборудованное унитазом (душевая, ванная, умывальная и т.д.), допускается делать из любой комнаты.
6. Замена ванной на душевую кабину- это перепланировка или нет?
У многих людей, обращающихся к нам, возникает вопрос: если мы не трогаем стены ванной комнаты и туалета, а хотим только передвинуть в их пределах сантехнические приборы, то относится ли это к перепланировке и требует ли согласования? Постараемся кратко ответить на этот вопрос. Если переносимый сантехнический прибор отмечается на планах БТИ квартиры, то изменение его положения влечёт необходимость изменить его и в этих планах БТИ, а это осуществляется согласно Приложению 1 Постановления Правительства Москвы №508 по согласованию на основании эскиза. На планах БТИ отмечается расположение раковины, душа, унитаза, гигиенического душа и ванной. Таким образом, такие работы, как перенос раковины в ванной, перенос ванны в ванной комнате, замена ванной на душевую кабину и т.д. требуют согласования. С другой стороны, на планах БТИ никак не указывают полотенцесушитель и стиральная машина. Поэтому, к примеру, перенос полотенцесушителя в ванной не требует соответствующего согласования.
7. Перепланировка туалета или ванной с затрагиванием шахт.
Часто в ванных и туалетах располагаются вентиляционные и канализационные шахты с соответствующими вентиляционными каналами и трубами. Часто в них имеется достаточно много свободного пространства, которое хочется присоединить к внутренним помещениям при перепланировке ванной комнаты и санузла. В законах (п. 10.5 Приложения 1 постановления № 508 Правительства Москвы) сказано лишь, что запрещено демонтировать или уменьшать каналы естественной вентиляции, а про уменьшение шахт без затрагивания каналов ничего не говорится. Однако всё не так просто. Площадь данных шахт не входит в площадь квартиры (не фиксируется в её планах БТИ), а значит не покупалась собственником и ему не принадлежит. На практике согласующие органы относят данную площадь к общедомовому имуществу, ссылаясь на статью 36 Жилищного кодекса РФ (хотя явно это там не прописано), где перечисляются объекты многоквартирного дома, относящиеся к общему имуществу. А чтобы присоединить общедомовое имущество к квартире (взять в аренду или безвозмездное пользование) согласно п. 2.5.1.1.1.9 Приложения 2 того же постановления, необходимо организовать собрание жильцов дома, где они дадут такое согласие.
Иными словами, присоединение десятых частей квадратных метров от вентшахты при перепланировке санузла или ванной комнаты зачастую не стоят таких высоких трудозатрат по организации общедомового собрания, и легче оставить габариты вентшахты и сантехической шахты нетронутыми в соответствии с планами БТИ.
8. Устройство туалета и ванной или их расширение осуществляется по проекту перепланировки.
Если мы хотим осуществить перенос, расширение или устройство ванной комнаты и туалета, то пункт 2.2.1 1-ого Приложения к уже упомянутому 508-ому Постановлению Правительства Москвы четко говорит, что такие работы необходимо выполнять по полученному разрешению на перепланировку на основе соответствующего проекта перепланировки, выполненному проектной организацией, имеющей соответствующий допуск СРО.
Подробнее о проектах перепланировки квартиры можно прочесть здесь.
Как видно из вышеизложенного текста ремонт ванной комнаты с перепланировкой может привести к множеству противоречий с законом. Надеемся эта статья поможет Вам их избежать, но иногда проще доверить согласование перепланировки санузла или мокрых помещений профессионалам.
В заключение данной статьи мы бы хотели привести несколько примеров согласованных перепланировок ванных комнат и туалетов. Кстати, рекомендуем ам прочесть отдельную статью о том, как согласовать перепланировку квартиры.
Согласованные варианты перепланировки ванной комнаты и туалета.
Перепланировка ванной в доме п-44т.
демонтируемые-возводимые конструкции
план квартиры после перепланировки
Выше представлена типичная перепланировка ванной комнаты в п-44т с её объединением и расширением за счет коридора и устройством отдельного входа в кухню через комнату. В большинстве домов ванная комната и уборная выполнены с помощью сантехнических кабин типа «стакан» или «колпак». Они являются не несущими и их демонтаж безболезнен. Главное, как уже говорилось выше, не затрагивать вентшахты.
Переделка ванной в хрущевке.
На иллюстрации приведена не стандартная для хрущевки многокомнатная квартира. Была проведена перепланировка хрущевки с маленькой ванной и расширением её за счет коридора.
Перепланировка ванной комнаты в панельном доме.
до перепланировки
после перепланировки
На данных иллюстрациях приведена перепланировка туалета с ванной в панельном доме. Во многом здесь были произведены схожие мероприятия с уже рассмотренным переустройством, только на этот раз на площади коридора разместили дополнительный туалет, расширив при этом саму ванную комнату.
Перепланировка ванной в хрущевке.
А вот этот вариант уже наиболее типичен для хрущевок и сталинок. Коридор, ведущий в газифицированную кухню стал частью объединенной и расширенной ванной комнаты, а сама кухня через рольставни объединилась с комнатой.
Перепланировка ванной комнаты и туалета в новостройке.
Часто перепланировкам подвергаются маленькие ванные не только панельных домов и кирпичных хрущевок, но и современных новостроек. В таких квартирах вариантов по преобразованию ванных встречается довольно много, хотя наиболее распространенным остается, по-прежнему, её расширение за счет коридора.
С этой статьёй читают
resog.ru
