Как построить баню своими руками из бруса – Строить баню из бруса своими руками пошагово
Баня из бруса своими руками
Баня, сделанная из бруса значительно легче бревна, а соответственно, и процесс монтажа будет проще. В отличие от оцилиндрованного бревна брус имеет доступную цену. В статье мы расскажем как построить баню из бруса своими руками, дадим пошаговую инструкцию, чертежи, фото и видео материалы.
Создание проекта
Первым этапом в строительстве является проектирование. Должно быть принято решение, связанное с конструктивными особенностями бани. Это может быть простейший одноэтажный проект или домик с мансардой, также баня может обустраиваться совместно с уютной верандой. Уделите также внимание выбору бруса, так как он бывает профилированным, строганым или клееным.
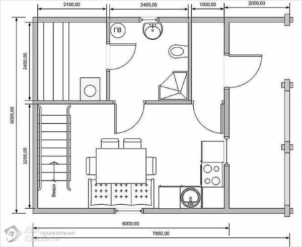
План бани с мансардой
В процессе проектирования определяется, сколько будет помещений в строении, и каков должен быть их размер. Главным показателем долговечности бани является качественный фундамент. Поэтому еще на этапе проектирования необходимо создать схему основания конструкции.
Русская баня состоит из парилки, предбанника и тамбура.
План одноэтажной бани
На каждого человека в парилке должно быть предусмотрено около 4 м2.
Также стоит определить место печи. Ее фундамент должен быть заложен одновременно с основным фундаментом.
Из какой породы древесины лучше строить баню
От качества бруса будет зависеть долговечность бани. Вам следует обращать внимание не только на качество самой древесины, но также и на период года, когда она заготавливалась. Брус, используемый в процессе строительства, должен заготавливаться зимой. Затем дерево откладывают, чтобы у него был период отлеживания. Его продолжительность составляет 1 месяц. Только после этого материал может быть обработан в согласии со всеми требованиями.
Для бани следует использовать брус, не имеющий даже микротрещин. Все дело в том, что в процессе усадки сруба они могут быть причиной распада древесины. Строительный материал с синеватыми пятнами и червоточиной не может применяться для возведения бани.
Порода дерева тоже играет немаловажную роль.
Нижний ряд рекомендуется выкладывать из лиственницы, а остальные ряды можно заменить брусом из любой хвойной породы. Это объясняется просто: лиственница не гниет. С годами она только улучшает свои характеристики, становясь прочнее и тверже.
Закладка фундамента под баню – основные варианты, технологии возведения
Столбчатый фундамент из блоков
Этапы строительства фундамента:
- Для изготовления столбчатого фундамента первоначально следует выставить по периметру и углам столбы. Расстояние между ними должно быть около 2 м. Его обыкновенно делают из кирпича. Под каждый столб необходимо залить подушку из бетона.
- Для обустройства ленточного фундамента следует залить бетон по периметру будущего строения, в соответствии с показателями промерзания почвы. Глубина ямы может колебаться от 55 до 70 см. Следует дополнительно утеплить фундамент со всех сторон.
Какой бы вид фундамента вы ни выбрали, следует выполнить настил двух слоев гидроизоляционного материала. В этой роли может выступать рубероид. Часть фундамента, которая выступает над отмосткой, должна быть не менее 15 см, а ширина должна превышать ширину бруса на 10 см. При заливке фундамента нельзя забывать о закладных из арматуры. Это необходимо для последующего крепления фундамента с первым окладом.
Про строительство фундамента для бани мы рекомендуем прочитать в статье: http://kakpravilnosdelat.ru/fundament-dlya-bani-svoimi-rukami/
Закладка венцов сруба — основные моменты
При сборке бани у вас не должно возникнуть трудностей, пусть даже конструкция полностью импровизированная. Секрет успеха заключается в точности проведения работ. Не стоит спешить окончательно закреплять венцы. Предварительно проверьте ровность бруса по горизонтали. Для этого вам нужно использовать уровень.
На первый ряд брусьев будет ложиться тяжесть стен и крыши, поэтому они должны быть самыми толстыми, в сравнении с последующими. Рекомендуемое сечение первого ряда брусьев – 20×20 см. Последующие же могут составлять 15×15 см. Длина же их должна быть полностью одинаковой.
Укладка первого оклада сруба начинается с размещения тонких реек из дерева по цоколю. Предварительно все они должны обрабатываться антисептическим средством. Их толщина составляет около 1,5 см, а расстояние может колебаться от 25 до 30 см. Проведение этого мероприятия защищает брусья от гниения и проникновения влаги. Так, увеличится срок эксплуатации вашего строения. Межреечное пространство должно быть заполнено или утеплителем, или монтажной пеной.

Брус не стоит укладывать слишком плотно, потому что со временем баня даст необходимую усадку. Для обработки первого ряда можно использовать машинное масло или современный антисептический препарат.
Способы возведения стен
Сборка сруба
При строительстве стен, для начала уложите венцы, которые следует выровнять, а затем скрепить нагелями либо штырями из металла. Предварительно проделайте для них отверстия диаметром, идеально совпадающим с диаметром крепежных штырей. Расстояние между крепежными элементами должно составлять 1,5 м. Отверстие должно проходить сквозь брус, находящийся сверху и захватывать половину, лежащего ниже. В отверстия вбейте нагели длиной, которая равна высоте двух брусьев. Теперь проведите укладку утеплителя. Уложите верхний слой на место.
Таким способом должны быть уложены все венцы, за исключением последних двух верхних. Последние же скреплять не следует. В конце строительства их нужно будет временно снять, чтобы установить потолочные балки.
Скрепление бруса можно проводить и другим способом, например, используя притопленные гвозди – не имеющие шляпок. Обычными гвоздями этот процесс выполнять нельзя, потому как со временем они портят древесину ржавчиной.
Крепление нагелями
Деревянные шканты также могут служить элементами скрепления бруса, их сечение должно составлять 18×18 мм. Длина же во многом зависит от размера бруса, но не должна превышать 25 см. Предварительно просверлите отверстия в брусьях, равные диаметру в 21 мм, а после загоните в них шканты. Их необходимо устанавливать в шахматном порядке. Брус просверливайте насквозь.
Прижимной узел
Во избежание малейшей деформации и образования трещин в брусьях в качестве скрепления элементов конструкции стен используйте пружинный узел «Сила». Он по виду напоминает шуруп со встроенной внутрь сжимающей пружиной. Система крепления не допускает появления зазоров, за счет сильного прижатия брусьев одного к другому.
Устройство пружинного узла
В качестве межвенцового утеплителя может выступать джут, пакля или мох. Эти материалы хорошо справляются со своими теплоизоляционными задачами.
Благодаря тому, что джут разматывается постепенно в процессе укладки, с ним удобно работать. Его легко закрепить к брусьям, для этого вы можете использовать степлер или гвозди.
Джутовая теплоизоляция
При утеплении межвенцового пространства джутом нет необходимости по окончании срока усадки конопатить (забивать утеплителем щели в стенах бани) конструкцию. Однако если баня утеплялась мхом или паклей, то законопатить придется все образовавшиеся щели. Для этого используется конопатка, молоток и деревянная лопатка.
Проемы для окон и дверей
Изготовление оконного проема
Вы можете заняться установкой оконных и дверных коробок либо в процессе возведения стен или после завершения строительства. Оставляйте промежутки между брусьями в тех местах, где впоследствии будут оконные и дверные проемы. Когда стены будут готовы, вы сможете пропилить проем необходимого размера. Для этого вам потребуется бензопила.
Монтаж коробок в процессе строительства стен может быть рискованным, так как со временем деревянное строение даст усадку.
Схема обсадной коробки
Теперь следует подготовить стены к усадочному периоду. Сверху последних венцов стен уложите ряд досок, имеющих толщину до 5,5 см. Затем покройте их рубероидом либо шифером. Так, баня должна быть оставлена на полгода.
Какие из изложенных советов вы считаете важными? Может, вы готовы поделиться своим опытом? Тогда пишите комментарии к статье.
Важно знать:
Видео: строительства бани из бруса с нуля
Фото
Строительство бани из бруса
Баня 100×150
Баня 100×150 с верандой
Крошечная баня из бруса

Небольшая баня из бруса на винтовых сваях
Большая баня
Чертежи
Баня 6×2,3
Проект бани 4×4 из бруса
Баня 4×4
Из строганого бруса 4×4
Баня из бруса 5,5×4 м
Проект 6×3

Проект бани из бруса 4×6
Баня 6×4 с террасой
4×6
Баня 6×4
6×6
Из строганного бруса 6×6 с террасой
8,53×7,51
Баня размером 4×9 с террасой
Вариант двухэтажной бани из бруса
Мобильная баня 5.3×2.2 из проф. бруса со входом с торца
Еще пример 5.6×2.2 из проф. бруса
Варианты планировки сруба 5×3
План с мансардой
Гостевой дом-баня
Планировка 6×3 с жилой мансардой
Проект 7×6 с верандой
Проект планировки первого этажа двухэтажной бани из бруса
Чертеж бани из бруса
Еще один чертеж
Готовый проект
kakpravilnosdelat.ru
Баня из бруса 150х150, 100х100 своими руками пошагово
Баня на даче или на участке загородного дома – уже не мечта, а необходимость. Хозяева частных домостроений разрабатывают проект строительства таким образом, чтобы в него входили все необходимые постройки – гараж, сарай, баня, павильон. Поэтому строительство бани из бруса в последнее время стремительно развивается и популяризуется. Но так как земельные участки в основном небольшие, то и проекты бань хозяева выбирают поменьше, например, баня 100 х 100 (сечение бруса) размером 3 х 3 м с высотой потолков 2 м. Даже в такой маленькой постройке уместится и парилка, и душевая комната, и комната отдыха. Все операции должны регламентироваться СНиП 31-02-2001. В более габаритных проектах строится баня из бруса 150 х 150 с дополнительными помещениями, улучшающими комфортность и функциональность пользования постройкой.
Малоразмерная брусовая баня – подбираем стройматериалы
Эконом-проект бани из бруса 3 х 3 м
Вам потребуется
Также необходимо заранее заготовить утеплитель, гвозди, электропроводку и ее комплектующие, саморезы разной длины и диаметра, уголки для сборки стропильной конструкции, арматуру, пластиковые или деревянные окна и входные, а также внутренние двери. Кроме того, если планируется подключение водопровода к бане, то нужно подумать и об организации канализации. Для нашего проекта бани из бруса своими руками водопровод и канализация не разрабатывались.
Видеоинструкция
Как укладывать брус и поднимать стены бани:
Заготовка стройматериалов, стоимость и смета:
Строим брусовую баню самостоятельно – шаги от основания до кровельных работ:
Любое строительство бани из бруса можно условно поделить на конкретные этапы:
- Заливка фундамента.
- Возведение брусового сруба.
- Монтаж стропил и кровли.
- Настил дощатых полов.
- Установка окон и дверей.
- Прокладка электропроводки, установка светильников и монтаж другого электрооборудования.
- Декорирование внутренних стен, финишные работы на наружных стенах.
Этап 1. Заливка фундамента
Оптимальный вариант, чтобы построить баню из бруса своими руками, – бетонное основание.
Заливка основания
Инструмент, который вам понадобится
- Шанцевый инструмент.
- Деревянные колья или арматура, шнур, рулетка, уровень.
- Стройматериал для сборки опалубки.
- Прутья арматуры и вязальная проволока для армирования бетона.
- Заводской бетон или бетономешалка, лопата, емкость для приготовления раствора, цемент, щебень, вода, песок.
- Гидроизоляционные материалы.
Участок следует разровнять и разметить периметр фундамента при помощи колышков и шнура. Если мы строим баню из бруса небольших размеров, то фундамент будет мелкозаглубленным, и траншею для него можно вырыть лопатой. Глубина траншеи – до 50 см.
Далее монтируется опалубка, вяжется армокаркас, готовится бетон по стандартному рецепту, раствор заливается в опалубку. На время затвердевания смеси (около 2 недель) фундамент накрывают рубероидом.
Этап 2. Обвязка и стены брусовой бани
Брусья будут соединяться так: торцы – в полдерева, углы – в лапу.
- Рекомендуется пропитать первых два ряда брусьев антисептиками и антипиренами, а затем уложить их на рубероид, настеленный в два-три слоя. Нижний брус должен иметь разметку под окна и двери еще не построенной бани. Угловые соединения бруса скрепляются дополнительно, можно нагелями или уголками. При возведении бани 3 х 3 м промежуточные нагели не понадобятся.
- Далее укладываются балки перекрытия для настила полов. Расстояние между балками – 1,3-1,5 м.
- Щели между брусом утепляются паклей, льном, джутом или более современными теплоизоляционными материалами, например, лентой.
- Если все же возникла необходимость установки промежуточных нагелей, то их крепят через 1 м. Нагели могут быть деревянными или металлическими. По углам окон и дверей нагели крепятся на расстоянии 0,2 м от края проема.
- После набора стен монтируется потолочное перекрытие. Балки для него монтируются в двух рядах от верхнего края стены, примерная высота потолка, которую будет иметь баня из бруса своими руками, – 2 м. Балки необходимо запилить в полдерева, для маленькой бани в нашем проекте хватит и двух брусьев на потолочное перекрытие.
- На балки потолка укладываются два оставшихся ряда стенового бруса. Эти два ряда следует закрепить особенно прочно, так как последний брус будет служить мауэрлатом в стропильной системе.
- Перед обустройством кровли нужно сделать хотя бы временный потолок – его можно застелить любыми досками, так как по окончании кровельных работ их снимут, и будет обустраиваться потолок постоянный.
Основная проблема, когда ведется строительство бани из бруса своими руками, – подвести остов бани под кровлю, чтобы остальные работы можно было проводить не под дождем и ветром, а в защищенном помещении.
Этап 3. Крыша
Схемы обустройства бывают для одно- или двухскатных крыш. Если мы строим баню из бруса своими руками небольших размеров (три на три метра), то односкатный наклонный вариант крыши подойдет лучше.
Конструкция односкатной крыши на бане
Под односкатную крышу потолок сразу делается постоянным, утепляется пенопластом. Характеристики теплоизолятора приведены ниже в таблице:
| Марка пенопластовых плит | Плотность, кг/м3 | Прочность по сжатию при 10 % деформации, ≥ МПа | Прочность на изгиб, ≥ МПа | Теплопроводность сухого пенопласта при 25±50С, ≤ Вт/(м•К) | Влажность пенопласта, ≤ %, | Время горения, ≤ секунд | Влагопоглощение в сутки, ≤ % | Срок службы, лет (минимальный – максимальный) |
| ПСБ – С 15 | 10-11 | 0,05 | 0:07 | 0,037 | 1 | 3 | 1 | 20-50 |
| ПСБ – С 25 | 15-16 | 0,1 | 0,18 | 0,035 | 1 | 3 | 1 | 20-50 |
| ПСБ – С 25 Ф | 16-17 | 0,12 | 0,2 | 0,037 | 1 | 3 | 1 | 20-50 |
| ПСБ – С 35 | 25-27 | 0,16 | 0,25 | 0,033 | 1 | 3 | 1 | 20-50 |
| ПСБ – С 50 | 35-37 | 0,16 | 0,3 | 0,041 | 1 | 3 | 1 | 20-50 |
Утепляется потолок пошагово следующим образом:
- Снизу на балки крепятся доски толщиной до 20 мм.
- На доски крепится пенопласт.
- На балки сверху также настилаются доски.
При строительстве двухскатной крыши можно оборудовать временный потолок, а утеплить постоянную конструкцию можно потом. Набирать стены, строить стропильную систему и настилать кровлю необходимо до начала морозов. За зиму постройка усядется, влажность материалов остановится на постоянном уровне.
Видеоинструкция
Утепление потолка пенопластом:
Этап 4. Настил полов
Если вы используете проекты бань из профилированного бруса, лаги для пола можно и не монтировать. Балки укладываются с шагом 1 м, на них настилается обрезная доска толщиной 30-40 мм. Рекомендуется сделать уклон на полу в сторону стока воды в 2-30. Сточную канализацию можно не обустраивать, так как:
- Мелкозаглубленный фундамент позволит стокам быстро впитаться в грунт.
- Маленький сруб из бруса своими руками – это минимальный расход воды.
Схема настила пола в бане
Видеоинструкция
Как положить доски на пол бани:
Этап 5. Прокладка электропроводки
- После расчета суммарной мощности всех электроприборов нужно добавить запас в 2-3 кВт.
- Электрический кабель разделяют на категории по сечению жил. Например, 0,5 мм2 может выдержать ≈ 2,5 кВт нагрузки. Покупать лучше проверенную лицензионную продукцию, так как подделка может иметь большой разброс в показателях мощности и сечения. Для полного спокойствия лучше купить кабель с запасом по этим параметрам, например, сечением не 0,75 мм2, а 1 мм2.
- Обязательно нужно обустроить общее заземление – повышенная влажность и высокая температура представляют опасность для эксплуатации бани. Заземление делается просто и быстро: нужно вбить в грунт стальной стержень диаметром 16-20 мм, глубина погружения – 1 м. На стержень наваривается болт, к нему подсоединяется кабель заземления.
- Все электрические кабели в бане должны быть защищены кожухом из металла – гофрированным или цельным. Кожух поможет избежать возгорания, а также будет служить защитой от грызунов.
- Перед прокладкой кабеля оформите для себя небольшое пособие в виде схемы или плана расположения розеток, осветительных приборов, другого электрооборудования.
- После этого на стенах рисуется разметка, сверлятся отверстия под крепления, монтируется проводка.
Безопасное заземление
Видеоинструкция
Самостоятельная прокладка проводки в бане:
Этап 6. Подробнее об окнах и дверях
Самому непросто сделать двери и окна для бани – потребуется деревообрабатывающий станок, опыт работы на нем, чертежи конструкций с точными размерами. Проще приобрести заводские изделия, и окна ПВХ тоже будут уместны в бане. Двери могут быть деревянными, МДФ или ПВХ. Шаги по монтажу конструкций:
- И дверные, и оконные проемы выравниваются – подпиливаются, строгаются и т.д.
- Перед установкой изделий необходимо собрать для них специальные дощатые коробки – понадобятся доски 5 х 15 см. Собираются каркасы на гвоздях, вставив его в проем, нужно оставить зазор в 30-40 мм сверху – сруб может начать усаживаться.
- В проемах дверей или окон дощатые коробки также крепятся на гвозди или на саморезы. Верхняя щель утепляется монтажной пеной или традиционными теплоизоляционными материалами.
Видеоинструкция
Как установить окна в бане из дерева:
Монтаж металлопластиковых окон
Этап 7. Набор каркаса и крепление полос вагонки
Для декорирования стен парного помещения и душевой комнаты традиционно используется вагонка. Для помещения отдыха разрешается работать с любыми стройматериалами – фанерой, OSB, ДВП, ДСП, пластиком или МДФ. С вагонкой работать сложнее, поэтому рассмотрим этот шаг подробнее:
- Для несущего каркаса понадобятся рейки сечением 20 х 50 мм.
- Сначала на стену крепятся крайние рейки, между ними натягивается шнур, по нему крепятся рейки каркаса с шагом 400-500 мм.
- Разница по высоте между потолком и поверхностью пола в углах бани убирается. Расхождения нивелируются подгонкой полос вагонки снизу и сверху. Между полосами вагонки и полом, потолком необходимо оставлять зазоры размером в 10-20 мм. Впоследствии зазоры закроют плинтуса. Плинтуса потолка следует крепить к вагонке, а не к доскам потолка, иначе при усадке бани обшивка может искривиться.
- Для монтажа полос подойдут гвозди длиной 150 мм, они загоняются в пазы полос.
Схема каркаса для набора полос вагонки
Для наружного декорирования подойдут любые стройматериалы. Если вы возводите дешевую и маленькую баню, то использовать дорогостоящую обшивку не имеет смысла. Оконные и дверные проемы, а также проемы внутренних дверей нужно закрыть наличниками. Наличие на рынке дешевых и красивых материалов позволяет выбирать любую отделку.
Видеоинструкция
Внутренняя теплоизоляция бани, внутренняя отделка и защита стен:
jsnip.ru
Строительство бани – как построить баню из бруса своими руками, видео
Баня своими руками из бруса – многосложный процесс, требующий соблюдение условий пожаробезопасности, а также грамотный подбор материалов. Тем, кто хочет возвести на своём приусадебном участке добротную баню, нужно знать этапы строительства помещения, грамотное выполнение гидро-и- теплоизоляции, правильную обработку пиломатериала.
Какой брус выбрать для постройки?

Прежде чем, как начать строительство бани из бруса своими руками, важно грамотно подойти к выбору пиломатериала, который должен отвечать всем требованиям, отличаться качеством и природной чистотой.
Брус, как вариант для сооружения бани, имеет свои особенности и отличительные свойства. Почему многие строители выбирают именно этот материал? Все гениальное просто: этот древесный материал наиболее универсальный, безопасный и цена на него абсолютно снисходительная.
Отличительные черты, которыми он может похвастаться:

- Хорошие теплоизоляционные данные.
- Высокая гигиеничность.
- Экологическое превосходство.
- Лёгкость монтажа.
- Привлекательность внешнего вида.
Конечно, более качественной будет баня, выполненная из натуральных брёвен, но не каждый сможет себе позволить такое удовольствие, ведь цены на эти два варианта материала значительно разняться. Но было бы неправильным утверждать, что бревно намного лучше бруса, так как оба претендента – носители приблизительно одинаковых свойств и эксплуатационных характеристик. Поэтому единственным отличием здесь будут являться внешние данные и цена.
От того, насколько рационально и правильно выбран материал, зависит конечный результат строительства, в особенности рабочие характеристики парилки, которая является, пожалуй, главной виновницей торжества на празднике бани.
При покупке бруса нужно заострять внимание на целостность поверхности материала. Брус будет непригодным, если имеет трещины и дефекты структуры. Конечно, его тоже можно использовать, но баня из такого бруса прослужит недолго, так как скоропостижно испортится и загниёт. А также не нужно выбирать материал, имеющий неприятные тёмные следы, которые обычно появляются в результате естественных процессов гниения изнутри дерева.
Придя в магазин, не спешите бросаться на низкую цену, так как это показатель очень низкого качества. Возможно, такую древесину уже изрядно попортил короед. В заключение, при выборе бруса, отдайте должное внимание тому, какого размера должны быть отдельные элементы. Так как данный пиломатериал производится в различных размерных вариациях, в этом вопросе вам нужно опираться на планируемые параметры помещения.
Рассчитываем количество бруса

Правильный расчёт материала позволит не только наполнить работу качеством, но и ускорит весь технологический процесс монтажа. Первым делом необходимо проконсультироваться, какую толщину должен иметь каждый древесный элемент в соответствии с планируемой квадратурой и площадью участка. Во-вторых, как показывает строительная практика, покупать материал для бани нужно с тем учётом, что его какая-то часть уйдёт в утиль в связи с браком.
Для вычисления количества бруса на 1 кубический метр нужно посчитать периметр помещения. Полученный результат умножить на число высоты и толщину одного бруса.
Производим действие по формуле V = h*b*l, где h – показатель высоты, b – ширины, l – длины.
Итак, V=0,15*0,15*6; Полученный результат составит число 0,135 м3
Теперь посчитаем, сколько бруса нужно приобрести на один куба метр: 1/0,135=7,40 шт.
Обязательным в постройке бани являются вычисления того, сколько единиц материала уйдёт на внутреннюю отделку. Возьмём условные цифры ширина-5 метров, длина-10 метров и высота-3 метра. Определим условный размер одной единицы пиломатериала, возьмём 1,5 см*1,5 см.
Периметр бани: (5+10) *2=30 метров.
Площадь стен: 30*3(высота)=90 кв. метров.
Для коробки из бруса: 90*0,15= 13,5 куба метров.
Полученный результат, а именно число 13,5 будет являться количеством используемого бруса в кубических метрах.
Строим баню из бруса своими руками шаг за шагом

Чтобы каждый этап строительства обеспечить правильность выполнения, нужно соблюсти порядок монтажа конструкции.
- Возвести фундамент.
- Выгон стен.
- Монтаж крыши.
- Сооружение окон, проёмов и перегородок.
- Внутренние отделочные работы.
Для того чтобы возвести конструкцию, нужно выкопать углублённый ров в плоскости всего периметра. После важно подготовить подушки из бетона по углам для монтажа кирпичных столбов. Вывести несущие столбы с шагом в 1,5 метров.
Второй этап возведения основы под баню включает:
- Сооружение опалубки на 50 см выше плоскости земли.
- Внутри фундаментального каркаса сделать настил из песка с щебёнкой.
- Весь периметр залить бетонной стяжкой.
- После высыхания бетона выполнить гидроизоляцию битумом и слоем рубероида.
Выгон стен

Прежде чем сооружать стены бани из бруса, нужно запомнить главную вещь: отдельные элементы пиломатериала нельзя подгонять друг к другу стык встык, так как дерево по своим отличительным особенностям имеет свойство расширяться или сжиматься под воздействием изменённых показателей влажности и температуры. Чтобы при соблюдении такого условия, полученные стыки и зазоры между брусками были плотно за герметизированы, можно использовать джут, полностью удовлетворяющий требования для сооружений из дерева. Не рекомендуется в качестве уплотнителя использовать монтажную пену, так как здесь она будет не только неуместна, но и непригодна для обеспечения крепости конструкции. Более того, она очень плохо переживает повышение влаги и воздействие солнечных лучей.
Первый вариант крепления бруса для выгона стен. Такое решение подразумевает последовательность шагов:
- Подгон элементов пиломатериала укладкой на монтажную область.
- С шагом 150 см производится сверление отверстий, проходящих насквозь поверху, и понизу на половину толщины.
- Верхний брус вбивается в нижний нагель на два метра высоты.
- Производится монтаж уплотнителя по всему периметру.
- Верхний брус полностью усаживается путём совмещения отверстий и нагелей.
- Повторение вышеописанных действий с поднятием на высоту остальных рядов.
Существует второй вариант крепления брусьев, требующий соединения элементов крепежом (гвоздями) с отрезанными шляпками. Обработанные таким способом гвозди намного реже и медленнее подвергаются коррозии.
По третьему способу можно также просто и легко соединить между собой детали пиломатериала для стен. В этом случае в качестве крепежа используют шканты. Брус просверливается насквозь, и каждая деталь соединяется путём загона шканта в порядке шахматного расположения.
И, наконец, заключительный, не менее удобный в исполнении метод с применением системы под пруженных зажимов. Этот способ может вылиться в копеечку, но его главное преимущество – это способность не оставлять за собой зазоров и стыков, а также невероятная прочность соединения брусков.
Важной деталью в выгонке стен, является соблюдение правил обработки дверных или оконных коробок. Укладывая деревянные ряды над проёмами обязательно нужно оставлять запас, примерно равный 6 см, на случай усадки дерева.
Естественная усадка бани
После выгонки стен, бане нужно создать условия, в которых она сможет приобрести свою окончательную форму. Без этого этапа внутренняя отделка будет ошибкой и не приведёт к должному результату.
Для естественной усадки помещения, его следует подготовить, а именно на верхние ряды уложить доски толщиной 4-5 см. Монтаж кровли производится с помощью шифера. После таких строительных манипуляций, баню нужно оставить «отдыхать» на полгода. Естественная усадка постройки позволит спасти отделочные материалы от порчи и деформации.
Как в бане сделать окна и двери, а также возвести крышу?

Чтобы полностью построить баню из бруса своими руками, нужно правильно выполнить следующие действия. Соблюдать их нужно ещё на этапе выгонки стен. Так, во время того, как укладываются ряды брусьев, на некоторых делаются зазоры для оконных и дверных проёмов. Уже после естественной усадки, нужно с помощью бензопилы их выпилить.
Конечно, можно пойти и другим путём: приобрести специальные пазы и элементы бруса с торцевой врубкой. Такой метод менее актуальный и приемлемый, так как оставляет за собой возможность деформации окон и дверей после усадки.
Крыша – главный элемент после стен. Самый недорогой и не хлопотный вариант – монтаж односкатной конструкции. Такое сооружение состоит из поперечно расположенных лаг, собранных воедино под определённым углом наклона. Основное достоинство односкатной крыши – это то, что выпавшие дожди не будут оседать на её поверхности, а благополучно стекать вниз по периметру кровли.
Имеет право на существование и двускатное решение монтажа кровельной конструкции. Этот вариант особенно хорош в тех постройках, планировка которых подразумевает обустройство мансарды. Чтобы изготовить такую крышу, нужно осуществить монтаж стропил и настила из обрешёток на земле. Полученную конструкцию водружают на сруб бани. Кровлю составит металлочерепица, ондулин или рубероид.
Баня своими руками из бруса – внутренняя отделка

Если обращаться к помощи специалистов, то внутренняя отделка построенной бани выйдет по цене больше, чем сумма всех затрат на её возведение. Поэтому, если уж вы смогли выполнить монтаж такой нелёгкой конструкции, то произвести облицовочные работы не составит особого труда.
В этом деле главными являются знания технологии, а также правильный подбор материала.
По всем нормативам, настоящая баня, как и сауна, требует хорошей теплоизоляции и гидроизоляции. Эти действия по максимуму продлят срок службы строения и сохранят нагретую поверхность стен от воспламенения.
При выборе отделочного материала также нужно учитывать его экологическую чистоту и целебность. Так, некоторые породы дерева, при нагревании начинают нести испарения, благотворно влияющие на организм человека, при этом выполняя своё декоративное предназначение.
Все материалы для отделки бани должны иметь следующие свойства:
- Гигиеничность.
- Пожаробезопасность.
- Гипоаллергенность.
- Износостойкость.
- Прочность.
- Долговечность.
- Эстетическую привлекательность.
Наиболее подходящим под эти качества материалом, пожалуй, является дерево.
Но успех внутренней отделки зависит не только оттого, что она выполнена из природного сырья. Важны также эксплуатационные характеристики самой вагонки. Она должна быть предельно качественной и не дефектной. Если такой материал приобрести пересушенным и не предоставить ему возможности привыкнуть к климату бани, то во время отделочных работ он непременно начнёт менять свою структуру и вспучиваться.
Как сделать парную в бане?

Пожалуй, самая главная комната такого рода помещения – это парилка. Поэтому её внутренняя облицовка должна производиться на высоком уровне. Так как, эта комната является эпицентром максимальной температуры, то и для её отделки нужно применять такие материалы, которые под воздействием жара не начнут испарять вредные продукты химии. Традиционными элементами обрамления стен парилки являются лиственные породы дерева. Это может быть берёзовая вагонка, липовая или осиновая. Главное преимущество этих кандидатов – это неспособность под действием высокой температуры выделять смолу. А также лиственные варианты не накаливаются и быстро сохнут, что не позволит образовываться грибку и плесени на поверхности стен.
Отделка ясенем – не менее достойное решение, так как данный вид дерева обладает невероятной прочностью и внешней привлекательностью. Ещё древнерусские столяры возводили добротные бани из такой древесины. Ясень ценился своей долговечностью и неуязвимостью перед процессами гниения.
А также приемлема внутренняя облицовка стен пеноблоком и другим ольховым материалом. Такое решение обеспечит бане прочность, неуязвимость и отсутствие посторонних запахов. Более того, древесина этого типа имеет приятный светлый оттенок с примесью розовинки, она ровная по своей структуре и часто используется европейскими строителями в обшивке саун.
Внутренняя отделка моечной комнаты

В этом решении благоприятно использование хвойных пород дерева. Из-за высокого порога нагревания, облицовочный материал прекрасно подходит для предбанников и комнат отдыха. Более того, хвоя при умеренном температурном режиме выделяет не смолы, а приятный запах дерева. Кстати, для изготовления мебели для таких помещений, лавок или столов, например, данные породы все так же благоприятны и универсальны.
Природные испарения от облицовки непременным образом оказывают оздоравливающее действие на нервную систему и дыхательных путей, что благотворно влияет на самочувствие человека, а фитонциды, содержащиеся в хвое, повышают и укрепляют иммунитет. Опытные строители любят использовать в обшивке стен бани именно еловую доску, так как она обладает влагоотталкивающими свойствами и имеет красивый, с желтоватым отливом цвет.
При внутренних работах в бане разрешено использование не только такого вида материала. Так, стены моечной можно обшить, применив гипсоволоконные изделия, гипсокартон, реечную гальку, кафель и даже пластиковые плиты. При использовании ГКЛ листов нужно выбирать материал, окрашенный в зелёный цвет. Такое обозначение говорит о влагостойкости гипсокартона.
Варианты отделки предбанника

Для данного рода помещения важным качеством является уют, красота и гигиеничность. Материал вагонки из сосны – наиболее популярное решение, принимаемое многими столярами-строителями. Кроме того, закупка такой доски не обойдётся дорого из-за её экономичности.
Сосновая вагонка выпускается в различных цветовых вариациях, от слегка желтоватого до красного оттенка. Среди её главных преимуществ стоят качества прочности, лёгкости монтажа и доступности, а смолы, которые выделяются из дерева под воздействием жара и пара, теперь уже несут практическую пользу, таким образом, препятствуя процессам гниения. Как вариант облицовки стен предбанника, сосновая вагонка ещё хороша тем, что её в любой момент можно перекрасить или подвергнуть последующей декоративной отделке. Хотя, из-за привлекательного рисунка, мало кто соглашается на изменение натурального цвета сосны.
Среди хвойных пород, подходящих для обшивки стен комнаты отдыха в бане, не менее популярной является ель. Она такая же привлекательная и доступная по цене. Выделяя приятно пахнущее испарение, еловая доска кружит головы гостей бани. Как у каждого строительного материала, у этого существуют свои отрицательные особенности. Это небольшое содержание смол, сложность в обработке, меньшая влагостойкость.
Заключение

Как видите, возведение бани не требует особых знаний в строительстве. Так, вооружившись несколькими парами рук-помощников, можно довольно быстро выполнить монтаж конструкции. При этом постройка не предполагает использования каких-либо труднодоступных инструментов и материалов. Единственная загвоздка состоит в том, что требуется дополнительное время на усадку стен и кровли. Но без этого не прийти к положительному результату, и баня потеряет возможность верой и правдой служить своим хозяевам.
Для закрепления информации советуем посмотреть видео о том, как построить баню из бруса своими руками:
Загрузка…pochtidoma.ru
Как построить баню из бруса с нуля своими руками: технология
Для постройки бани можно использовать различные виды строительного материала. Наиболее массовым является строительство по самой древнейшей технологии – из древесины. Можно построить баню из брёвен, а можно из бруса.
Как построить правильную баню из бруса своими руками
Брус отлично ложится в ряды, выглядит красиво, практически не даёт усадку, очень хорошо держит тепло. Стены из бруса легче возводить, чем из брёвен. Их можно устанавливать сразу на готовый фундамент, в отличие от брёвен, которые сначала подгоняют на земле, а затем переносят на фундамент и строят из них стены.

Данный вид строительства является самым экономически выгодным. Построить баню из бруса своими руками, может практически любой человек имеющий опыт работы с электроинструментом и чуточку желания.
Я не хочу расписывать недостатки или преимущества строительства из тех или иных материалов. Каждый материал имеет и минусы и плюсы. Рассмотрим поподробнее, как строить баню из бруса.
Технология строительства бани из бруса. Подбор материала
Чтобы построить баню из бруса своими руками понадобится профилированный брус.
При укладке первых нескольких венцов (венцом считается законченный ряд бруса по периметру) лучше всего применять брус из лиственницы, ввиду того, что она меньше гниет во влажной среде.

Для последующих венцов, начиная со 2-3 можно брать хвойные породы древесины (кедр, ель, сосна), поскольку они более теплые и обладают водоотталкивающими свойствами, благодаря присутствию смол.
Оптимальным размером бруса для наружной коробки считается размер – 150х150 мм, а оптимальный размер внутренних перегородок – 150х100 мм.
В качестве антисептика по-прежнему лучшим считается старый дедовский способ. Согласно ему каждый брус, тщательно обрабатывается моторным маслом, причем самый первый венец (оклад) следует обработать со всех сторон, а все последующие обрабатывают с трех внутренних сторон.

Подготовка строительства бани
По мнению экспертов, фундамент для бани рекомендуется делать следующими наиболее распространенными способами:
- Ленточный фундамент – бетон заливают по периметру строения на глубину промерзания, или на глубину 55-70 см, грунт вокруг затем дополнительно утепляют.
- Столбчатый фундамент – выставляют по углам и по периметру столбы, на расстоянии приблизительно 1,5-2 м. друг от друга. Обычно он выполняется из кирпича, и под каждый столб заливают бетонную «подушку».

В обоих случаях гидроизоляция между первым венцом и фундаментом выполняется из двух слоев гидроизоляционного материала, например – рубероида.
Высота части фундамента, которая выступает над отмосткой, не должна быть меньше 150 мм, а ширина должна быть больше толщины бруса на 100 мм.
Заливая фундамент, помним про «закладные» из арматуры, чтобы затем осуществить крепление с первым венцом (окладом).
Уплотнители венцов
Иногда «лихие мастера» советуют использовать монтажную пену как уплотнитель. Хочу заметить, во-первых, это выльется в немалую денежную сумму. Во-вторых, монтажная пена быстро желтеет и разрушается от внешнего воздействия ультрафиолетовых лучей и внутреннего воздействия влаги.
Пену используют руководствуясь определенной технологии, прокладывая рейки, но это долго и обременительно, поэтому надежнее приобрести для сруба обычные уплотнители.

В продаже имеется большой ассортимент различных утеплителей для деревянных строений. Проще всего использовать – джут (ленточный утеплитель). Его раскатывают по всей длине бруса и скрепляют маленькими гвоздями или строительным степлером.
Стены
Приступим к сборке конструктора из бруса. Важно помнить, что собирая стены из бруса делать плотную подгонку недопустимо. Дерево, высыхая, сядет по толщине, а длина останется всегда неизменной. Пространство необходимо неплотно заполнить утеплителем.

Количество и длина бруса для каждой стены, определяется исходя из плана помещения бани, при этом учитываются нахлесты на углы и врубы для установки внутренних стен. Шаблон по длине готовим из доски или рейки, используя электропилу, по шаблону приготовим брус для 2-3 венцов. Разметку шаблона произведем так, как нам удобно и понятно.

Крепление бруса между собой производят по следующей схеме:
- укладываем новый брус и по месту подгоняем;
- высверливаем отверстия с шагом 1,25-1,50 м, просверливая вновь положенный брус и наполовину нижележащий;
- убираем новый брус, а в отверстие нижнего вгоняем деревянный нагель (шкант), длина которого равняется двум высотам бруса;
- по длине укладываем утеплитель;
- ставим брус на место, проверяем горизонтальность, совмещаем отверстия и нагели и забиваем его на место до плотной посадки.

Дверные блоки будем ставить на ряд обвязки, который расположен в моечном отделении над уровнем пола, а оконный блок на требуемом нам уровне. Блоки выставляем обязательно по отвесам, потом крепим. Над коробками окон и дверей нужно оставить зазор порядка 80 мм для усадки, затем его необходимо заполнить утеплителем.
Подготовка конструкции к периоду усадки, является последним шагом в вопросе как построить баню из бруса своими руками. Он длится от 6 месяцев и более. По завершении этого срока можно начинать отделочные работы внутри постройки и обустройство бани.
P.S. А на десерт предлагаю посмотреть видео-ролик: Строительство бани из бруса
stroyusnulya.ru
видео и инструкция как построить + проекты » SanDizain.ru
Одним из вариантов релаксации на даче или собственном доме является посещение бани. Но что делать, если ее нет? Конечно, построить с нуля своими руками. Вам потребуется место для постройки, строительные материалы и инструменты, а также проекты, из которых нужно выбрать подходящий именно вам. Строительство бани из бруса осуществляется поэтапно. В статье вы найдете основные моменты, шаги и инструкцию работы, а также обучающее видео. Пошаговая инструкция предназначена для новичков, которые не знают с чего начать.
Разработка проекта
Готовые проекты можно найти в интернете или обратиться к специалисту за помощью. Но стоимость таких услуг довольно высока. Поэтому первый вариант является более привлекательным и бюджетным. Но не стоит забывать, что готовые чертежи не всегда и всем подходят. Необходимо учесть следующие особенности:
- климатическую зону;
- температурные колебания;
- тип грунта;
- осадки;
- и много других факторов.

Баня из бруса
Так, фундамент из неглубоких бетонных столбов подойдет для грунтов с хорошими несущими характеристиками. На заболоченных же территориях понадобятся винтовые сваи либо монолитная плита из бетона, которая имеет хорошую опору.
Что касается крыши, то следует учитывать среднестатистические показатели ветровой и снеговой нагрузки. Осадки могут привести в негодность кровлю всего за одну зиму. Поэтому прежде чем приступать к строительству, нужно взвесить все плюсы и минусы, особенности будущей постройки и, конечно, дополнительные функции.
Внимание! Игнорирование погодного фактора может привести к деформации кровли в зимнее время.
От температурного режима зависит и качество стен. Их важным параметром является термоизоляция. Ведь теплоизоляция в южных регионах и средних широтах значительно отличается. Недостаточный показатель может привести к быстрому остыванию бани.
Совет. Выбирая проект, нужно проконсультироваться со специалистом в этой области.
Выбор древесины
Профессионалы рекомендуют приобретать готовый сруб. Так легче оценить состояние материала на отсутствие гнили и трухи. Но это необязательно.
Внимание! Наличие небольших трещин на брусе не является критичным. Причина их наличия – неправильная технология высушивания древесины.
К популярным сортам дерева, которые используют для строительства бани, относят:
- ель;
- сосна;
- кедр.
Ель и сосна отличаются долговечностью и с ними легко работать. К тому же сосна не подлежит деформации по время сушки. Кедр имеет красивую текстуру и оригинальный рисунок, а также обладает массой целительных свойств, которые передаются человеку. Не стоит использовать лиственницу в качестве материала для изготовления бани. Она обладает твердой структурой.

Брус
В южных регионах страны можно выбрать брус с сечением 15*15 см, в местах, где климат более суровый, нужно использовать древесину с параметрами 20*20 см.
Выбор и закладка фундамента
Существует несколько вариантов закладки фундамента для бани. Рассмотрим их более детально:
- Столбчатый фундамент. Для этого по всей длине будущей бани, а также углам, выставляются столбики. Расстояние между ними не превышает 2 м. Такой фундамент обычно делают из кирпича, а вкопанные столбы заливают бетонным раствором.
- Ленточный фундамент. В этом случае бетон заливают по периметру бани. Делается это в соответствии с величиной замерзания почвы. Глубина фундамента варьируется от 0,55 до 0,7 м.
Совет. Не забудьте утеплить фундамент со всех его сторон.
Независимо от того, какой фундамент будет выбран, нужно выполнить двойной настил гидроизоляции. В качестве гидроизоляции может выступать рубероид. Закладка арматуры – обязательное условие укладки фундамента.

Ленточный фундамент
Закладка венцов и соединение бруса в углах
Сборка готовой конструкции не составит особого труда. Главное – точность при проведении работ! Не спешите фиксировать венцы полностью. Проверьте сначала брус на ровность поверхности. Для этого понадобится использование строительного уровня.
Укладку начинают с первого ряда брусьев, т. к. на них ложится основная тяжесть кровли и стен. Поэтому их лучше выбирать толще, нежели остальные материалы. Так, сечение бруса первого ряда должно быть 20*20 см, а последующие – 15*15 см. Итак, приступим.
- Закладка первого оклада будущей бани начинается с расположения тонких реек по всему цоколю. Обязательно обработайте материал антисептическим раствором.
- После укладки венцов их следует зафиксировать металлическими штырями. Но предварительно в них нужно проделать отверстия для крепежей. Расстояние между крепежами в среднем составляет 1,5 м.
- Отверстие проходит через весь брус и прихватывает часть нижнего.
- Следующий шаг – укладка утеплителя.

Возведение корпуса бани
- Таким образом нужно произвести укладку всех венцов. Исключение составляют два последних верхних венца. Их не нужно фиксировать. По окончании работ их придется снять, чтобы установить балки на потолке.
- Еще вариантом крепления бруса является использование безшляпных гвоздей. Простые гвозди не подойдут, т. к. они ржавеют и это негативно сказывается на состоянии древесины. Поэтому просверлите в брусе отверстия и вбейте шканты. Установка производится в шахматном порядке.
Совет. Пружинный узел «Сила» поможет избежать деформации и появления трещин в брусе. Эта система не допускает появления щелей, т. к. происходит сильное сжатие бруса друг к другу. Если все же щели между брусьями образовались, то их можно заделать джутом, паклей, другим утеплителем или строительной пеной.
Оконные и дверные проемы
Монтаж окон и дверей производится во время возведения стен или после того, как будет завершен строительный процесс. Между брусьями нужно оставлять расстояния в тех местах, где планируется монтаж окон и дверей.
Когда стены готовы, воспользовавшись бензопилой, можно выпилить необходимые параметры проемов. Монтаж дверных и оконных коробок в процессе строительства может оказаться очень рискованным. Объясняется это тем, что дерево обычно дает усадку. Чтобы подготовить баню из бруса к усадке, нужно сверху венцов положить несколько досок, толщина которых не менее 6 см. А затем уложить рубероид или шифер.

Окна и двери бани устанавливаются, когда стены уже готовы
На этом строительство бани завершено. В таком состоянии она должна простоять не меньше 6 месяцев. Только после этого можно заняться установкой печи, полок, внутренней отделкой и обустройством.
Баня из бруса – то место, где можно релаксировать, устроить себе СПА-процедуры или отдохнуть в компании семьи или друзей. Поход в баню для некоторых настоящий ритуал. Так почему же не доставить себе удовольствие и не построить ее на своем дачном участке? Всего лишь нужно определиться с проектом, подготовить материал, внимательно изучить все тонкости строительства и приступить к делу! Весь процесс строительства делится на несколько этапов: выбор места под строительство и материала, закладка фундамента, установка венцов и монтаж стен.
Проект бани из бруса: видео
Строим баню из бруса: фото




sandizain.ru
Как быстро построить баню из бруса своими руками
Если у вас уже есть дача или загородный дом, то вы, наверное, не раз задумывались о строительстве собственной бани. Что может быть лучше, чем попариться в веселой компании или просто снять напряжение после тяжелой трудовой недели, не говоря о том, что регулярное посещение парилки благоприятным образом отразится на вашем здоровье и самочувствии. Однако баня, построенная на заказ под ключ, – удовольствие не из дешевых. Чтобы построить баню своими руками необходимо иметь минимальные плотницкие навыки, много свободного времени и огромное желание. Конечно, процесс строительства бани на практике сложен и не может быть точно передан в рамках одной статьи. Но мы, авторы строительного портала Бест-строй, надеемся, что описанные ниже этапы строительства бани своими руками дадут вам общее представление о предстоящих строительных подвигах.
Прежде чем преступить к работе, выберите подходящее место, продумайте конструкцию бани, а также определитесь с типом материала, из которых она будет строиться. Проект будущей бани можно скачать в интернете либо найти в одном из строительных журналов.
Как построить баню своими руками. Выбор места
Первое, что нужно сделать, — это правильно выбрать место для будущей бани. Здесь важную роль играют многие факторы, среди которых особенности рельефа, тип грунта, наличие водопровода, колодца, канализации или дренажной системы, а также расположение близлежащих хозяйственных построек. Вот основные рекомендации по выбору подходящей площадки:
- Для того чтобы обеспечить хороший отток сбрасываемых вод, баня должна быть расположена в месте, которое имеет естественный уклон с одной стороны. Здесь можно будет соорудить аэрационное поле или коллектор.
- Позаботьтесь о том, чтобы со стороны стока не было никаких построек, сооружений или колодцев.
- Если по соседству с вами расположены другие дачи или частные дома, сточные воды от бани не должны доставлять им никаких неудобств.
- Расстояние от бани до ближайших жилых построек должно быть не менее 6 метров.
- Если поблизости имеется пруд или искусственный водоем, в котором можно скупаться, то целесообразно будет построить баню вблизи него.
Как правильно построить баню. Выбираем материалы
Перед тем как начать строительство, определитесь с типом материала. Лучше всего использовать дерево. Построить баню из бруса будет намного проще и дешевле, чем из камня или кирпича. К тому же, по традиции, настоящая русская баня должна быть деревянной. Следует помнить, что помещение бани эксплуатируется в условиях повышенной температуры и влажности, поэтому к качеству древесины предъявляются особые требования. Бревна должны быть хорошо просушены. Лучше использовать хвойные породы древесины, поскольку в них содержится большое количество смолы, которая обладает водоотталкивающими свойствами. К тому же аромат смолы ели или сосны оказывает расслабляющее воздействие, способствует снятию усталости и повышению иммунитета.
Первый этап строительства бани. Фундамент.
Тип фундамента зависит от таких факторов, как тип почвы и уровень грунтовых вод. Вместе с тем он должен быть простым в изготовлении, экономичным и надежным. В тех случаях, когда грунтовые воды расположены на достаточной глубине, а сам грунт имеет каменистую или глинистую природу, проще всего будет использовать фундамент столбчатого типа. В качестве опорных столбов можно использовать бетонные блоки, кирпичную кладку или асбестовые тубы, заполненные цементом.

Столбы заглубляются в землю на 50-60 сантиметров и бетонируются. После этого необходимо обеспечить их гидроизоляцию с помощью битума или рубероида. Расстояние между столбами — не более одного метра, при этом все они должны возвышаться над землей на 20-30см, образуя ровную плоскость.
В тех случаях, когда грунт состоит из мягкой земли либо подземные воды расположены достаточно близко к поверхности, лучше всего использовать бетонный фундамент, который делается так же, как и при строительстве дома: вначале копаются траншеи, в них устанавливается опалубка из дерева, после чего заливается бетон.

На фундамент ложится обвязка, которую можно сделать из бруса размером 25х20. Также допускается использование пропитанных креозотом железнодорожных шпал.

Как построить баню из бруса
Изготовление пола и стен бани
Приступая к сборке пола, не забывайте, что он должен иметь уклон в 3-4 градуса для того, чтобы вода не скапливалась на его поверхности, а уходила самотеком за пределы помещения. Вначале на фундамент устанавливаются лаги, к которым будут крепиться половые доски. Лаги делаются из бруса 10х25см и прикручиваются к нижней обвязке. Они должны быть пропитаны гудроном или другим антисептиком. Полы стелятся из сухих сосновых досок толщиной 19 или 22мм. Перед тем как установить лаги, продумайте и оставьте место для печки, а также системы отвода воды.

Стены бани можно изготовить из бруса квадратного сечения. Брус должен быть прямым, хорошо высушенным, без трещин и сучков. Как правило, используются брусья сечением 150х150мм. В них делаются специальные пазы прямоугольной или трапециевидной формы. Для того чтобы повысить прочность соединения, используются нагели, которые обеспечивают надежную фиксацию элементов конструкции.

При возведении стен бани брусья укладываются друг на друга. Для теплоизоляции между ними прокладывается войлок. Чтобы нижние бревна не гнили и не разрушались, их кладут на широкую доску, обработанную антисептиком или пропитанную слоем битума. Высота стен должна быть достаточной, чтобы человек среднего роста мог комфортно расположиться внутри помещения. Слишком высокие стены делать нежелательно, поскольку, чем больше объем бани, тем сложнее будет ее прогреть

Кровля
После того как стены готовы, можно заняться сооружением кровли. Крыша может быть односкатной и двухскатной. Первый тип намного проще и дешевле в изготовлении. Он отлично подходит для бани небольшого размера. Второй тип выглядит намного привлекательнее и имеет более сложную конструкцию, которую можно использовать для сооружения более крупного размера.
Односкатная крыша делается из поперечных лагов. Они крепятся под небольшим углом, чтобы вода могла стекать вниз. К лагам прикручиваются доски, на которые потом кладется шифер, рубероид или профнастил.

Конструкция двускатной крыши собирается на земле, после чего поднимается и устанавливается на бане. Она состоит из стропил и обрешетки. В качестве кровельного материала можно использовать шифер или металлочерепицу.

В помещении бани также можно установить скамьи, лежанки и другие необходимые предметы мебели и интерьера.

Как построить печь для бани
После того как баня готова, самое время подумать об обустройстве печи. Вы можете приобрести готовые решения, однако сделать печь для бани своими руками будет намного дешевле. Наилучшим вариантом будет печь, выложенная из кирпича. Она обеспечит низкую теплопроводность (длительное остывание), а также приемлемую пожарную безопасность.
Первым делом выберите место для будущей печи, она должна быть расположена на расстоянии не менее 40см от деревянных стен. При желании это расстояние можно сократить, однако на стены придется наклеить покрытый фольгой асбокартон. В качестве строительного материала используется обожженный кирпич, который не должен иметь трещин, сколов и других дефектов. Кладка производится с использованием глинопесчаного раствора, при этом оптимальная толщина швов составляет пол сантиметра. Раствор наносится ровным слоем на предполагаемое место укладки. Каждый кирпич на 15 минут опускается в воду, после чего укладывается и осаживается, излишки раствора убираются. Обязательно проконсультируйтесь со специалистами относительно пожарной безопасности и правильного вывода из помещения продуктов горения!

Таким же способом укладываются все последующие ряды. Дверцы топки, а также другие элементы печи устанавливаются непосредственно в процессе ее сооружения.
Готовая печь должна сохнуть в течение 3-4 дней, после чего ее нужно растопить сухими поленьями для того, чтобы избавится от влаги, которая могла остаться в кирпичах. Для того чтобы избежать растрескивания кирпича, в первое время не следует слишком сильно растапливать печь.

Процесс изготовления бани несложен, особенно если у вас имеются базовые строительные навыки. Перед началом работ хорошо продумайте каждый этап сооружения, заранее приобретите все необходимые материалы, а также запаситесь терпением. Построенная своими руками баня доставит массу удовольствия вам, а также всем членам вашей семьи.
best-stroy.ru
Как правильно построить баню из бруса своими руками?

Построенная баня из бруса своими руками станет гордостью любого владельца загородного участка. Дерево является самым лучшим стройматериалом для русской парной. Брус наиболее простой вид стройматериалов. Построить из него сруб сможет даже неподготовленный в строительном деле человек.
Такой вид строительной древесины сохраняет все природные свойства, не требует сложных технологий укладки сруба, как оцилиндрованное или простое бревно. Баня, построенная из бруса, обеспечит хороший пар и позволит расслабляться в конце трудовой недели в хорошо протопленной парной.
Преимущества применения бруса
Брус имеет все характеристики натуральной древесины. Это экологически безопасный природный строительный материал, который позволяет в короткие сроки возвести сруб бани. Даже человек без большого строительного опыта сможет построить баню из бруса своими руками, просмотренное специальное видео показывает, как это можно быстро сделать, соблюдая технологию укладки этого типа строительного материала. Для работы с этим стройматериалом не потребуется большого количества строителей и специальных столярных инструментов. К преимуществам такого стройматериала можно отнести:
- доступную цену;
- простоту укладки;
- минимальную усадку сруба;
- укладку на фундамент.
Если бревна сначала складывают в сруб на земле, а потом переносят на фундамент, то брус позволяет сразу начать возведение несущих конструкций на готовом фундаменте, что обеспечивает экономию времени и удешевление строительства. Баня из такого материала получается красивой, долговечной и надежной.
Это самый экономный вид строительной древесины, который позволяет возвести баню с минимальными трудовыми и финансовыми затратами. Даже новичок в строительном деле может точно рассчитать количество бруса, необходимого для конструкции определенного размера. Такой пиломатериал имеет определенные размеры, позволяющие точно составить строительную смету.
Для того чтобы баня имела надежную и долговечную конструкцию, нужно правильно подобрать брус.

Как правильно выбрать брус для строительных работ?
Чтобы построить баню из бруса своими руками согласно действующим строительным нормативам, требуется использовать качественные пиломатериалы. При покупке материала необходимо следить за тем, чтобы на нем не было:
- глубоких трещин;
- гнили и плесени;
- неровностей;
- следов от вредителей;
- брака, допущенного при обработке.
Брус должен быть гладким и прямым, только в этом случае его укладка не вызовет затруднений. Качественный материал обеспечит постройку долговечной и экономной бани, в которой будет держаться пар, и которая не подвергнется гниению и разрушению в ходе эксплуатации.

Поверхность материала должна быть светлой. Если на торцах и на поверхности есть синева, нужно сразу отбраковать такой брус. Это признаки гниения древесины. Такой материал не подходит для строительства бани.
Не подходит материал, который имеет слишком глубокие трещины. Строение не будет отличаться герметичностью, если использовать брус.
При выборе стройматериалов нужно обращать внимание на древесину, из которой сделан брус. Для бани потребуется лиственница и древесина хвойных пород. Брус из лиственницы кладется в основание сруба, прямо на фундамент. Это обеспечит прочность строения и защиту от влаги. Брус из лиственницы имеет следующие преимущества: не боится влаги и гнили;
- хорошо защищает сруб от потери тепла;
- не дает влаге оказывать пагубное воздействие на верхние венцы сруба.
Лиственница позволяет создать прочные и долговечные бани из бруса своими руками.

Где построить и какой выбрать фундамент?
Прежде чем начать строительство бани из бруса своими руками, следует определиться с местом, где будет стоять такая постройка. На выбор места оказывает влияние целый ряд факторов:
- особенности ландшафта участка;
- тип грунта и рельеф;
- близость залегания грунтовых вод;
- наличие водопровода и канализации на участке;
- плотность застройки и пр.
Для бани подходит участок с небольшим уклоном, что обеспечит хороший сток воды. Необходимо следить за тем, чтобы на пути стекающей воды не было других построек. Удачным вариантом станет место, расположенное неподалеку от естественного или искусственного водоема. После парной можно будет окунуться в прохладной воде.

Для строительства оптимальным типом основания будет ленточная или столбчатая конструкция. Столбчатую конструкцию используют чаще всего на грунтах с камнями в почве или где слишком близко к поверхности находятся грунтовые водяные слои. На мягких почвах следует возводить ленточное основание для бани, которое позволит создать надежное основание для сруба
При строительстве столбчатого фундамента необходимо по периметру в углах установить опорные столбы, которые станут основанием для несущих стен. Под каждый столб делается бетонная подушка. Такой столбчатый фундамент будет наиболее экономичным вариантом. Если строится баня из бруса 150х150 своими руками, специальное видео позволяет изучить, как нужно проводить установку кирпичных столбов и заливку их основания под укладку венцов сруба. Это самая быстрая и недорогая технология возведения фундамента для бани на затопляемых и каменистых почвах.
Для ленточного фундамента нужно будет сделать котлован по периметру строения и установить опалубку, в которую заливается бетонный раствор на высоту не менее 50 см от уровня земли. Это позволит защитить нижние венцы сруба от влаги и промерзания. Для укрепления основания бани можно провести армирование фундамента. Это можно делать как для ленточных, так и для столбчатых фундаментов. Армирование фундамента позволит создать прочное основание для нижних венцов сруба бани и продлит срок эксплуатации такого строения.

Укладку венцов следует начинать только после полного отвердения залитого основания. У ленточного фундамента на полное отвердение бетонной конструкции требуется не менее двух-трех недель. При укладке нижние венцы следует обработать антисептической пропиткой, которая защитит их от разрушения.
Укладка бруса в сруб
Установка первых венцов на основание фундамента должна проводится после его утепления и укладки гидроизоляции. Только в этом случае долго прослужит баня из бруса 150х150, которая собрана своими руками, специальное видео показывает как, проводится укладка защитных материалов на фундамент. Такое основание станет гарантией долговечности всей конструкции сруба. Правильное проведение гидроизоляционных работ обеспечит длительный срок эксплуатации бани и позволит экономно расходовать дрова при топке печи.

После того как будет проведена защита фундамента от влаги, можно приступать к укладке нижних венцов конструкции. Для этого следует по всей поверхности цоколя провести укладку тонких реек, обработанных защитной пропиткой. Если вы хотите знать, как построить баню из бруса своими руками на века, то обязательно выполните эту операцию. Это будет дополнительная защита нижних венцов от сырости и гнили. Между рейками нужно уложить защитный слой. Для этого можно использовать любую теплоизоляцию. Подойдет и монтажная пена. При выполнении этих работ следует следить за тем, чтобы поверхность фундамента оставалась идеально ровной. От этого будет зависеть качество всей конструкции сруба. Проверять ровность поверхности нужно с помощью уровня
Укладывая первый ряд бруса, следует использовать самый толстый, сечение которого составляет не менее 200х200 мм. Затем укладывается более тонкий брус. При возведении сруба не следует слишком плотно укладывать материал, так как деревянная конструкция даст усадку, и промежутки исчезнут за счет естественного уплотнения.
Нижний брус, который укладывают на фундамент, не нужно закреплять. Надежность конструкции обеспечит тяжесть верхних венцов, которые прижмут нижний брус. При укладке материала нужно использовать брус одинаковой длины. Для этого перед началом работ нужно тщательно подогнать все бревна. На торцах венцов делаются специальные отверстия, которые называются врубками. При выполнении этих работ следует соблюдать точность и быть аккуратным.

После укладки всех нижних венцов их соединяют друг с другом. Пространство, образовавшееся между брусом и фундаментом, заполняется утеплителем. Только в этом случае в парной будет держаться долго тепло и удастся добиться долговечности бани из бруса, изготовленной своими руками, фото, представленные на многих специальных сайтах, показывают как, нужно правильно проводить укладку теплоизоляционного материала и только потом продолжать укладку верхних венцов.
Возведение стен, укладка пола, усадка, возведение кровли и отделка
Пол в бане должен иметь небольшой уклон. Это позволяет добиваться быстрого стекания воды с его поверхности. Это нужно учесть при укладке дощатого настила в бане. Для этого производится установка лаг на фундамент, затем на них укладываются доски. Уклон пола должен составлять не более 4 градусов.
При возведении стен нужно помнить, что брус нужно укладывать в определенной последовательности. Если мы строим баню из бруса своими руками на века, то нужно тщательно выровнять все бревна по горизонтали, а затем скрепить их специальными штырями из металла или дерева. Их вставляют в заготовленные отверстия того же размера, что и сами штыри.

Полости между брусом утепляют специальным материалом. Для древесины лучше использовать натуральный утеплитель типа мха или пакли. Чтобы баня хорошо протапливалась без лишних затрат на дрова, не нужно делать слишком высокие стены. Как только пол и стены будут сделаны, можно начинать делать отверстия для дверей и окон.
Проемы для окон и дверей нужно делать после усадки сруба. Для конструкции из сруба усадка должна проходить на протяжении шести месяцев. В сравнении, для бревенчатого сруба потребуется ждать более года, пока он даст усадку.
Возведенный сруб должен дать усадку. Для этого его нужно подготовить соответственно. Готовую конструкцию покрывают досками и рубероидом, защитив ее от попадания внутрь влаги. Когда конструкция через 6 месяцев уплотниться, можно будет делать отверстия в ней для окон и дверей и устанавливать на срубе крышу.
Печка в деревянной бане должна быть каменной или кирпичной. Она будет идеально сочетаться с натуральной древесиной. Для отделки пространства парной можно использовать деревянные лавки и полки, на которых можно будет париться.

Для бани обычно делают односкатную или двускатную крышу. Односкатная крыша устанавливается на баню небольшого размера. Для сооружения большой площади делается двускатная кровля, в которой потом можно соорудить мансарду. В таком помещении устраивают кабинет, или комнату отдыха.
При наличии определенного строительного опыта и достаточного количества финансов можно построить самому двухэтажную баню из бруса, которая станет местом отдыха на загородном участке. На втором этаже организуют помещения для спортзала или гостевые комнаты.
koffkindom.ru
