Как правильно сварить ворота гаражные – Как сварить ворота для гаража своими руками
как правильно сделать из уголка и профильной трубы
Стоимость готовой магазинной продукции на современном рынке очень высока, готовые ворота для гаража – не исключение. Как следствие – все чаще автолюбители ищут способы, как сварить гаражные ворота самому.
Выбор вполне логичный, ведь стоимость самостоятельного изготовления намного ниже, а при некоторых навыках владения сварочным аппаратом времени на этот процесс понадобится не так уж и много.
Виды ворот для гаража
Рассмотрим подробно, как сварить гаражные ворота. Первое, с чем стоит определиться – конструкция ворот. Гаражи разнятся между собой, у одних владельцев перед постройкой мало места, у других он небольшой.

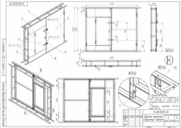
Чертеж распашных ворот.
Основных конструкций гаражных ворот существует несколько:
- Откатные.
По механизму действия схожи со шкафами-купе. Удобный и практичный вариант, но есть важный нюанс – в сторону открытия ворот необходимо предусмотреть место, причем той же длины, что и полотно ворот. - Роллетные.
Под потолком гаража устанавливается специальный короб, в который убираются пластины полотна. Стоит сразу отметить, что несмотря на высокое удобство, данная конструкция ворот от проникновения защищена хуже всего, поэтому устанавливать стоит только на охраняемых участках. - Секционные.
Конструкция состоит из полотна, разделенного на секции. При складывании створки ворот преломляются, и при помощи специального пружинного механизма и профильной системы поднимаются к потолку. Основной плюс подобной конструкции – хорошая герметичность и экономия пространства. - Подъемно-поворотные.
При открытии полотно ворот поднимается к потолку вертикально при помощи рычажно-шарнирного механизма. Ворота данного типа достаточно практичны, отличаются удобством в использовании и экономят место как внутри гаража, так и перед ним. - Распашные.
Самый старый и популярный тип ворот. Пользуются повышенной популярностью за счет удобной и простой конструкции, состоящей из двух створок, а также невысокой стоимости. Своими руками сварить поворотные распашные гаражные ворота сможет даже начинающий сварщик.
Распашные ворота – оптимальный по стоимости и простоте изготовления вариант, поэтому в статье мы рассмотрим именно эту технологию.
Требования
Перед тем как сварить ворота на гараж из уголка или профиля, необходимо ознакомиться с требованиями, предъявляемыми к качественным воротам:
- размер ворот должен быть оптимальным относительно габаритов автомобиля, и обеспечивать беспрепятственный, простой выезд;
- минимальное расстояние от бока автомобиля до створки ворот с каждой стороны – минимум 30 сантиметров. Если автомобиль небольшой, все равно постарайтесь сделать расстояние максимально большим – вдруг решите позже приобрести внедорожник;
- для легковых автомобилей оптимальная высота ворот составляет не менее двух метров;
- размеры проемов отличаются в зависимости от размеров самой постройки, здесь все подбирается индивидуально;
- важнейшая функция гаражных ворот – защита от взлома. Лучше всего использовать для обшивки оцинкованные листы стали толщиной не менее 3-5 миллиметров. Для дополнительного укрепления можно использовать запоры, предназначенные для внешних колодок. Если есть возможность, нелишними будут и бронированные накладки;
- еще один важный параметр – защита от негативных атмосферных воздействий, которая лежит на креплении ворот. Для обеспечения надежного прилегания полотна стоит использовать вертикальные запоры, препятствующие перекосу. Также нелишним будет и уплотнитель – он обеспечит створкам и раме хороший контакт.
Инструменты и материалы
Первое что необходимо сделать – приобрести инструменты и материалы для изготовления ворот.
В данный список входят:
- Уровень.
- Сварочный аппарат.
- Рулетка.
- Угловая шлифовальная машина с зачистными и отрезными кругами.
- Угольник.
- Профиль для изготовления створок. Оптимальный выбор – 25.
- Задвижка.
Существуют различные системы, выбирайте оптимальную для себя. - Петли.
Здесь стоит выбирать, опираясь на два основных параметра – практичность и безопасность. Хороший выбор – внутренние петли на подшипниках, так как с ними не возникнет проблем в холодное время года. - Обшивка.
Здесь все зависит от вкуса владельца – профнастил, дерево, металлический лист – выбор достаточно обширен. Обычно используют листы металла толщиной от 2 миллиметров. - Стальные уголки.
Будут нужны для изготовления крепежной рамы. Советуем выбирать минимум 75 уголок, так как именно от уголка зависит прочность крепления створок, поэтому обвязка должна быть крепкой.
Сразу стоит определиться с местом, где будут свариваться ворота. Идеальный вариант – сварочный стол, но если к нему нет доступа, достаточно будет и ровной площадки. На ней укладывается швеллер, периметр которого должен быть не меньше самих ворот.
Важно! Выбирая сварочное место, все плоскости нужно сразу проверять уровнем на соосность. В противном случае результатом сварочных работ станут не качественные гаражные ворота, а ни на что не годный пропеллер, что недопустимо.
Выбор труб и профиля
Оптимальная толщина профиля для ворот – не менее 20 миллиметров. Можно остановиться и на более толстых трубах, они обеспечат конструкции дополнительную надежность и устойчивость, но нельзя забывать, что чем толще материал – тем труднее будет его прожечь во время сварочных работ.
Определиться с выбором труб и тем, как правильно сварить ворота в гараж поможет рисунок ниже:
Электроды подбираются в зависимости от толщины выбранных труб, хорошо себя показывают АНО-21. При наличии опыта работы оптимально использовать электроды толщиной до трех миллиметров.
Изготовление несущей рамы
Все необходимое собрано, место подготовлено – можно разбираться, как сварить ворота для гаража. Первое, что необходимо сделать – обвязку по проему, или несущую раму. Она состоит из двух основных частей – внутреннего и внешнего каркаса.
- Измеряем высоту и ширину проема.
Измерения должны быть максимально точными, так как именно от них полностью зависит монтаж готовой рамы. - Из уголка отмеряются и болгаркой отрезаются заготовки для будущей рамы.
- Готовые заготовки раскладываются на подготовленной поверхности, при помощи подкладок выставляются четко по уровню, все углы выравниваются.
Полученный результат должен полностью повторять будущую раму. - Свариваем раму.
Для обеспечения наилучшего прилегания в дальнейшем ее внешняя сторона должна быть ровной и гладкой, без шероховатостей и бугров, поэтому все сварочные косяки тщательно зашлифовываются. - В углы ввариваются рычаги (можно использовать куски уголка).
Они обеспечат готовой раме пространственную жесткость, и ее не будет вести. - Все элементы раскладываем на плоскости, выставляем по уровню и прихватываем сваркой.
- Примеряем.
Все несовпадения исправляем при помощи молотка, полноценно свариваем - Делаем вторую раму аналогично первой.
- Внутренняя и верхняя часть рамы устанавливаются на свои места.
Для крепления к откосам проема удобно использовать 15-20 сантиметровые металлические штыри. - Все выступающие наружу концы срезаются, качественно обвариваются и тщательно зашлифовываются.
- Для крепления рам друг с другом используются пластины металла, которые привариваются на расстоянии примерно 50-60 сантиметров одна от другой.
- Завершает данный этап навешивание створки.
При желании распашные ворота можно оснастить автоматикой, но для этого необходимо еще на этапе изготовления предусмотреть место для короба и привода.
Сварка створок
Каркас необходим для пары распахивающихся створок, к которым в дальнейшем будет прикрепляться полотно из металла. Для изготовления каркаса хорошо подходит профиль.
Суть изготовления сводится к тому, что первоначально в проеме устанавливается одна сплошная створка, и с двух сторон крепится на шарниры. В результате получаем вставленную в обрамление раму, которую необходимо просто разрезать пополам.
Чтобы в будущем с открытием ворот не возникало проблем, между рамами необходимо соблюдать зазоры:
- над порогом снизу – 2 см;
- между каркасом створки и потолочной балкой – 1 см;
- между тем же каркасом и боковой стойкой – 5см.
Процесс монтажа начинается с установки боковых стоек каркаса, и производится в следующем порядке:
- Кусок уголка, отрезанный с учетом необходимых зазоров снизу и сверху, приставляется к боковому обрамлению.
Оставляется просвет пол сантиметра, после чего при помощи куска металла прихватывается. Аналогичную операцию повторяем на другом торце. - Подрезанные должным образом горизонтальные уголки сверху и снизу привариваются к вертикальным стойкам.
Предварительно нужно прорезать одну полку точно по центру каждой перемычки. - Устанавливаются навесы, после чего их верхняя часть приваривается к каркасу створки, а нижняя – к обрамлению.
Шарнир должен находиться напротив связи, соединяющей наружную и внутреннюю часть обрамления ворот. - Посередине проема устанавливаем две вертикальные стойки, прикрепляя сваркой к каркасу.
- Ровно по центру каждой створки делаем две горизонтальные перемычки.
В итоге получаем встроенную в обрамление проема раму, которую остается просто разрезать на две части, каждая из которых благодаря шарнирам открывается самостоятельно. Су четом того, что полки нижнего и верхнего уголка уже подрезаны, их достаточно просто разрезать с лицевой стороны.
Чтобы под собственным весом ворота без полотен сразу не просели, изнутри необходимо установить временные раскосы, и при помощи сварочного аппарата прихватить их. Далее болгаркой срезаем временные прихваты, что держат боковые уголки. Все, ворота можно открывать.
Обшивка ворот
Обшивка ворот – этап работ, во время которого важно все делать качественно, так как от этого будет напрямую зависеть не только внешний вид конструкции, но и ее функциональность.

- По размеру створок обрезаем листы оцинкованного железа.
Не забываем учитывать, что полотно левой створки должно быть на несколько сантиметров шире, и идти внахлест на профиль правой створки. - Лист металла сразу приваривается к каркасу в нескольких точках.
- Обшивка правой части конструкции обрезается с учетом двух сантиметров, указанных выше.
То есть – край металлического полотна не доходит до края профиля на указанное расстояние. - Приступаем к сварочным работам.
Лист металла важно сразу прихватить по углам и в центре, чтобы он никуда не съехал, так как в противном случае один из углов может выгнуться наружу. Это не смертельно, и исправляется при помощи кувалды, но проще сразу сделать все качественно. - Проварка производится не одним сплошным швом, а точечно.
В противном случае створки ворот может повести. Если же вы хотите варить сплошным, то при помощи струбцин рамы необходимо плотно прижать струбцинами к швеллеру, и варить этапами примерно по 10 сантиметров. Важно – каждый раз с другой стороны, чтобы избежать перегрева металла.
Верхняя и нижняя часть петель
Устанавливаем заблаговременно подготовленные петли:
- верхняя часть петли приваривается к наружной створке конструкции, нижняя – к раме;
- для усиления соединения можно использовать изогнутые металлические полоски (5-7 см). Их необходимо приложить к створке ворот и верхней части петли.
Для дополнительной прочности и надежности петель можно изнутри приделать к ним вкладки из арматуры.
Установка замков и запоров
Чаще всего при сварке ворот своими руками на этапе установки замка используется два его типа – врезной или навесной. Чтобы в зимнее время избежать проблем с открытием замка, и не играться с горящими бумажками для его открытия, рекомендуем использовать замки сувальдного типа, с жесткими пружинами.
Для обеспечения дополнительной безопасности можно дополнительно установить мощный засов и штыревые стопоры. Это позволит при необходимости закрывать ворота изнутри, но потребуется установка еще одной двери в стене.
Покраска
Покраска ворот производится для защиты от коррозии и губительных для открытого металла разрушающих атмосферных воздействий:
- вся поверхность тщательно зачищается и обезжиривается при помощи растворителя.
- поверхность грунтуется. Лучше всего использовать грунтовку глубокого проникновения с антиржавчиной.
- Поверхность окрашивается в финальный цвет. Для обеспечения надлежащего качества лучше использовать валик или пульвелизатор.
Утепление
Завершающий этап работ – утепление. Благодаря ему в зимнее время можно будет сохранить более 60 процентов тепла внутри помещения.
Для утепления на внутреннюю поверхность створок устанавливаем деревянную обрешетку, внутрь которой закладывается слой утеплителя. Для качественного утепления хорошо подходят минеральная вата, стекловата, пенополистирол ПСБ-С.
Особенно важно не допускать присутствия воздушных мешков, и тщательно заполнять все промежутки. Для нормального сохранения тепла достаточно слоя около 5 сантиметров. Поверх обрешетки устанавливается облицовочные плиты или вагонка. Также при желании с внутренней стороны можно повесить пластиковый или брезентовый навес.
Итог
Самостоятельная установка ворот при должном умении, сноровке и соблюдении всех этапов поможет не только сэкономить, и сварить красивые пи прочные гаражные ворота самостоятельно, но и получить моральное удовлетворение от полученного результата.
vseprogarazh.ru
Ворота гаражные: как сварить без проблем

Сварка ворот гаражных
Сварка ворот гаражных занятие довольно распространенное на сегодняшний день. Ведь цена изготовления будет значительно ниже от покупки готовой продукции. Сегодня мы расскажем, как правильно сварить ворота на гараж.
Этот процесс не сложные, если вы умеете пользоваться сварочным аппаратом. Так же сварка гаражных ворот видео поможет вам все сделать правильно, ведь увидев весь процесс наглядно гораздо проще сделать всю работу.
Виды гаражных ворот
Теперь рассмотрим в деталях, как сварить ворота для гаража.В самом начале стоит определиться и остановить собственный выбор на определенном типе конструкции.
Ведь есть разные гаражи, где то мало места перед гаражом, а у некоторых и не большой гараж на 1 машину (см. Размер гаража на одну машину). Поэтому надо сначала определится с конструкцией.
Их можно выделить несколько:
| Распашные | Это самый старый вид ворот. Свою популярность они заработали за счет простоты и удобства конструкции, которая состоит из пары створок, а также благодаря не высокой цене. Изготовить такой вариант своими силами достаточно просто. |
| Подъемно-поворотные | Полотно во время открывания поднимается вертикально под потолок. Они основаны на шарнирно-рычажном механизме. Такие ворота достаточно удобны и практичны, не занимают много места ни внутри гаража, ни перед ним. |
| Секционные | Конструкцией предусмотрено полотно, которое состоит из секций. Секционные ворота при открывании преломляются, поднимаясь к потолку с помощью особого пружинного механизма, а также профильной системы. Важный плюс у таких ворот – экономия пространства и отличная герметичность. |
| Роллетные | Пластины полотна убираются под самый потолок в специальный короб. Здесь следует сразу заметить, что данная конструкция наименее защищена от проникновения. Поэтому ее можно ставит на охраняемых участках. |
| Откатные | Механизм действия схож со шкафом-купе. Но в этой конструкции надо предусмотреть место в сторону от гаража, причем расстояние должно быт не менее длинны полотна. |
Как говорилось выше – сделать распашные ворота не только проще, но и дешевле, поэтому мы будем рассматривать именно эту технологию, как наиболее приемлемую для большинства людей. Сложнее (но все-таки возможно) изготовить откатные и подъемно-поворотные ворота.
В этом случае вам потребуется приобретать механизмы для подъема, что обойдется в кругленькую сумму. Как сварить ворота на гараж любого из перечисленных видов вы можете найти на страницах нашего сайта. Инструкция по изготовлению и установке есть на все виды.
Изготовление гаражных ворот
Думая, как сварить ворота гаражные, надо сразу задуматься о комплектующих. В продаже можно найти комплекты, предназначенные для самостоятельной сборки подобной конструкции с подробной инструкцией. Рулонные (см. Рулонные ворота для гаража: правильный монтаж) и секционные виды гаражных ворот лучше всего покупать заводские и заказывать работы по установке у профессионалов.
Требования к воротам
Если вы решили сделать все самостоятельно, необходимо помнить, что качественные ворота должны соответствовать некоторым требованиям:
- Обеспечение легкого и беспрепятственного выезда. Их размеры должны быть оптимальными по отношению к габаритам автомобиля;
- От стойки ворот до бока транспортного средства расстояние не должно быть меньше тридцати сантиметров. Если транспортное средство небольшое, то постарайтесь расширить эту область на тот случай, если вы решитесь покупать внедорожник;
- Для простых легковых автомобилей оптимальная высота составляет два метра;
- Стандартные размеры проемов: от 2,4х2,1 до 5,4х2,4 метра;
- Ворота должны защищать помещение от взломов (см. Как укрепить ворота гаража и защитить помещение). Самыми прочными являются те, которые сделаны из оцинкованных стальных листов не тоньше двух – пяти миллиметров. Укрепить ворота можно с помощью запоров. Они предназначаются для внешних колодок, можно использовать и бронированные накладки;
- Важно защитить строение от негативного влияния окружающей среды. Защиту от осадков и ветра призвано обеспечивать крепление ворот. Чтобы полотно держалось крепко необходимо применять вертикальные запоры, способные предотвращать перекос. Рекомендуется также использовать уплотнитель (он обеспечивает лучший контакт рамы и створок).
Готовим материал и инструмент
Для начала следует купить материалы и инструменты.
К этому списку относят следующее:
- Стальные уголки. Они понадобятся для изготовления крепежной рамы. Здесь стоит применить не менее 75-го уголка. Ведь здесь будет крепление створок и обвязка должна быть в норме и выдержать;
- Обшивка (металлический лист, дерево или профнастил – здесь все зависит от вашего желания). В большинстве случаев выбирается просто листовой металл, его не стоит брат менее 1,5 мм;
- Петли. Тут надо подходить с точки зрения безопасности и практичности. Пели лучше брать внутренние и на подшипниках. Тогда она будет без проблем работать в зимнее время;
- Задвижка. Все их системы во можете посмотреть на видео.
- Профиль. От потребуется для изготовления створок, самым оптимальным вариантом будет 25-й.
- Угольник;
- Болгарка с отрезными и зачистными кругами;
- Рулетка;
- Аппарат для сварки;
- Уровень.
Сразу нужно определиться и с местом сварки. Лучшим образом подойдет сварочный стол. Если его нет, тогда надо найти ровную площадку и на ней положить швеллер. Причем по периметру не менее самих ворот.

Готовим место для сварки
Внимание: Плоскости сварочного места надо сразу проверить уровнем. Она должна быть в одной оси. Иначе после сварки мы получим пропеллер, а этого допустить нельзя.
Готовим несущую раму
Теперь можно непосредственно переходить к работе и разбираться, как сварить гаражные ворота своими руками. Сначала делаем несущую раму. Это обвязка по проему. Состоит она из двух частей – внешнего, а также внутреннего каркаса.

Фото крепления обвязки к проему при помощи шины
Итак:
- Для начала измеряем ширину и высоту проема. Важно провести эти измерения точно, так как этого полностью зависит монтаж готовой рамы;
- После этого из уголка отмеряем и нарезаем нужные элементы заготовки для рамы. Для этого используем болгарку с отрезным кругом;
- Раскладываем их по ровной поверхности, выставляем горизонтально по уровню (ее регулируют подкладками) и выравниваем все углы. Регулируем прямые угла, вымерив диагональ. На ровной поверхности, таким образом, выкладываются заготовки в точной форме рамы;
- Свариваем раму. Чтобы к раме ворота в дальнейшем прилегали достаточно плотно, ее внешняя стороны должна быть идеально гладкой, а также ровной. Для этого все сварочные швы зашлифовываются с помощью болгарки;
- Затем в углы нужно вварить так называемые рычаги (можно использовать для этих целей обрезки уголка). Это необходимо для обеспечения пространственной жесткости рамы. Уголок в данном случае не поведет.
- Все элементы конструкции ворот для гаража раскладываем на плоскости и выставляем по уровню. Прихватываем сваркой.
- Теперь примеряем. Если не совпадает сразу подгоняем при помощи молотка.
- Делаем вторую такую же раму.
- Приступаем к установке наружной и внутренней части рамы. Крепят к откосам проема с применением 15-18 сантиметровыми штырями из металла;
- После чего выступающие концы удаляются, обвариваются, хорошенько зашлифовываются болгаркой (чтобы ничего не мешало нормальному процессу закрывания дверей), закрашиваются;
- Рамы скрепляют друг с другом пластинами. Перемычки приваривают через каждые шестьдесят сантиметров;
- Данный этап заканчивается навешиванием створки.
Внимание: Распашную конструкцию, если есть желание, можно оснастить автоматикой. Только для этого надо предварительно предусмотреть место для привода и короба.
Делаем створки
Каркас важен для двух распахивающихся створок. В дальнейшем к ним будут закреплять металлическое полотно. Во время изготовления каркаса вы можете использовать профиль.

Общий вид створок ворот
Итак:
- Раму трубы выкладываем на ровную плоскость вверх лицевой стороной;
- В раму вставляются направляющие, при этом каждую сторону выравниваем тщательным образом;
- Оставляем небольшой зазор между рамой и каркасом, применяя вкладыши. Это необходимо, чтобы все створки двигались свободно;
- Теперь тщательным образом проверяем прямые углы каркаса и прихватываем сваркой.
- После этого нам надо примерять обе створки вместе. Если все нормально, тогда полностью привариваем.
- Теперь нам надо сделать ребра жескости . Здесь вы уже сами определитесь от плоскости сколько их надо в вашей конструкции. Привариваем створки
- Теперь полностью зачищаем наплывы сварки при помощи болгарки.

Зачищаем стыки от сварки фото
Внимание: Приварить петли на гаражных воротах надо до установки створок. При окончательной сварке надо проверить, чтобы ничего не мешало движению ворот.
Ответственный этап работ – обшивка ворот
Это очень ответственный и важный момент, и именно от качественного исполнения будет во много зависеть функциональность и внешний вид конструкции. Здесь крайне важно знать, как правильно провести сварку ворот.
Итак, в своих действиях соблюдаем следующую последовательность:
- Обрезаем оцинкованное полотно из железа по размеру створок. Учитывайте, что левая створка должна на несколько сантиметров идти внахлест на профиль второй створки;
- Лист приваривается сразу же в нескольких местах (так он закрепляется на каркасе;;
- Обрезается обшивка правой створки, которая уже будет на левой на 2 см (это значит, что железный лист не будет доходить до края профиля на данное расстояние).
- Варим. Чтобы во время работы лист не передвигался, его привариваем по углам каждой стороны и в середине. Эти точки после завершения сварки срезают.
- Один из углов полотна в противном случае может выгнуться наружу. Этот недостаток можно будет исправить, но достаточно проблематично, с использованием кувалды.
- Проваривать не нужно сплошным швом. Это делается точечно. Ели вы будете проваривать полностью, тогда створки поведет. Но если вы решили все таки проварить полностью. Тогда надо будет рамы довольно плотно надо прижать к швеллеру струбцинами и варить поэтапно. По десять см. Причем каждый раз с противоположной стороны. Чтобы металл не перегрелся.
Нижняя и верхняя части петель
Важно подготовить петли (см. Петли для гаражных ворот: их виды и особенности выбора) заблаговременно.
- Нижняя область петли приваривается к раме, а верхняя – к наружной створке.
- Можно нарезать и изогнуть металлическую полоску (пять – семь миллиметров), что в итоге позволит усилить соединение.
- Ее прикладывают к верхней части петли и к створке ворот.
Внимание: Чтобы усилить прочность петель можно с внутренней стороны приделать вкладку из арматуры.
Устанавливаем запоры и замки
Чаще всего на гаражные вороты монтируется либо замок навесной, либо врезной.
Внимание: Для большей безопасности, можно взять штыревые стопоры и мощный засов. Они позволяют закрываться изнутри, но в створке ворот при этом потребуется еще одна дверь (также ее можно сделать в стенке).
- За такими замками необходимо своевременно и тщательно ухаживать. Они должны быть защищены от воздействия влаги (особенно это важно в зимний период времени). Влага при замерзании будет мешать попаданию ключа в замочную скважину.
- Замерзанию, больше остальных, подвержены замки с цилиндровым механизмом. Специалисты советуют брать замки, оснащенные трубчатым ключом.
- Также их обязательно смазывают, хотя бы простым графитным порошком от карандаша, трансформаторным и веретенным маслом. Если вы решили использовать порошок, то стержень вынимается из карандаша, растирается и после этого отправляется в замочную скважину.
Красим ворота для гаража
Такая работа, главным образом, проводится для того, чтобы полотно было защищено от разрушающих воздействий: коррозии и различных повреждений.
- Для вся поверхность обезжиривается. Для этого подойдет любой растворитель;
- После этого нам надо прогрунтовать. Для этого лучше всего применить грунт глубокого проникновения с функцией антиржавчины.
- После этого делается покраска (см. Как покрасить гаражные ворота).
Внимание; Наносит краситель лучше пульверизатором. Тогда вы избежите потеков. Если его нет, тогда стоит воспользоваться валиком.
Утепляем гаражные распашные ворота
Если не проводить утепления, то из теплого помещения через них будет уходить примерно шестьдесят процентов всего тепла. Поэтому это очень важный момент. Для утепления на внутреннюю поверхность створок устанавливают обрешетку из дерева.
В ее закладывают утеплитель – пенополистирол ПСБ-С, стекловату, минеральную вату. Важно, чтобы не оставалось воздушных мешков, а все промежутки были заполнены.
Вполне достаточно слоя утеплителя в 5 см. Сверху обрешетка закрывается вагонокой или же облицовочными плитами. Изнутри можно также повесить навес, выполненный из пластика или брезента.
Модернизация и ремонт
Во время эксплуатации может произойти так, что потребуется коррекция расположения ворот.
- К примеру, если закрытие/открытие створок затруднено из-за того, что они расположены слишком низко. В данном случае самым простым методом решения сложившейся проблемы – подрезать болгаркой низ створок.
- Может произойти и так, что для габаритов нового транспортного средства не будет подходить высота проема. В этом случае придется потратить немного больше сил, нежели при решении предыдущей проблемы.
- Следующий способ можно брать во внимание только для гаражей из кирпича: над проемом выбивается несколько рядов кладки, после чего усиливаем появившийся откос, после чего поднимаем на новую нужную высоту раму.
Как вы смогли понять из написанного выше, сделать своими руками гаражные ворота – задача вполне по силам даже не виртуозам в строительном деле. Но не стоит забывать о том о том, что знаний и сил нужно будет приложить достаточно.
Человек обязан обладать хотя бы минимальным набором строительных умений, а также навыков, чтобы вороты были действительно качественными, отвечали всем характеристикам и служили не один год. Не забывайте о том, что за гаражом необходимо следить, смазывать, подкрашивать, чистить – тогда не потребуется заниматься ремонтом.
Ворота гаражные как сварить, я думаю, вы уже поняли.
1pogarazham.ru
Как самостоятельно сварить ворота на гараж: рабочий процесс!
Автолюбители, которые обустраивают свой загородный участок, часто интересуются, как сварить ворота на гараж, и что вообще для этого требуется. Самодельные ворота обойдутся гораздо дешевле, если есть инструмент, необходимый для работы с металлом. Кроме того, понадобятся некоторые навыки в работе со сварочным аппаратом. Как итог, можно получить приличные самодельные ворота для гаража. Как же это сделать?
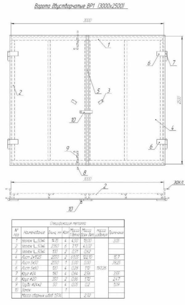
Чертеж ворот
Проект начинается с задумки, которую изображают на бумаге. Проще всего сварить обычные распашные ворота, они наименее затратные и довольно практичные в использовании. Можно взять эту идею за основу.

Первое, что стоит сделать, так это создать чертеж ворот, чтобы не работать вслепую. Если навыков в работе с графическими редакторами и специальным софтом нет, а с черчением все очень плохо, можно поискать знакомого, который поможет выполнить такую работу, или же заказать чертеж у специалиста.
Как правило, это будет немного затратно, но есть еще 1 вариант — найти подходящий чертеж. Это гораздо сложнее, но все же возможно. Тем более, если гараж еще на стадии сборки, то ворота для него можно сделать произвольных размеров, а затем закончить постройку.
Конечно, можно работать и вслепую, но появляется высокий риск ошибок, поэтому стоит нарисовать хотя бы примитивный рисунок, который будет схематически отображать план мероприятий и примерные габариты будущего изделия. На рисунке нужно примерно изобразить будущие ворота, а затем отметить размеры каждой из сторон полотна, а еще детали конструкции. Это поможет не только быстрее выполнять отдельные задачи, но и правильнее рассчитать количество материала для работ.
Лучше всего делать симметричные створки, чтобы не возникало никаких сложностей.
Что должно быть на рисунке или чертеже:
- Фронтальный вид с размерами полотна. Здесь также должны быть изображены петли, защелки и замок.
- В виде сверху показывают толщину изделия, количество уголков и прочие детали, которые применяются для каркасов.
- Необходимо провести замеры проема и отметить полученные размеры на рисунке. Минимальная рекомендуемая высота ворот — 2 м для легковушки и 2,5 м для микроавтобуса. В расчетах для более габаритных машин понадобится взять высоту транспортного средства и добавить к ней 30 см запаса. Типовая ширина может колебаться от 2,4 до 5 м, но для большинства случаев подходит 3 м. Этот размер нужно подбирать под свои запросы, учесть ширину транспортного средства + расстояние прохода, по которому человеку будет удобно пройти между машиной и стеной гаража.
Эскиз облегчит работу с готовыми деталями и заготовками, затем следует приступить к выбору материалов.
Материалы и элементы конструкции
Сварка гаражных ворот требует подбора правильного материала. Наиболее доступный вариант — стальные уголки и листы металла. Что нужно брать? Если владелец будет рассчитывать на обычные распашные ворота. Вот такой набор оптимальный:
- Уголки 75 мм шириной — основа будущего каркаса. Из них будут собирать опорную часть конструкции.
- Профиля квадратного сечения для сборки каркаса, они будут привариваться к уголкам. Минимально лучше брать от 25 мм шириной.
- Раскосы для жесткости конструкции делаются из профиля от 50 мм шириной.
- В качестве обшивки лучше всего взять обычный металлический лист, но есть еще варианты с профнастилом. С последним работать сложнее, поэтому от этой идеи новичку стоит отказаться сразу. Минимальная толщина листа для ворот 2 мм.

С основным материалом все понятно, теперь нужно обеспечить ворота системой фиксации. Требуется взять стандартные задвижки или защелки для гаражных ворот, которые и на морозе не будут заедать. Сразу стоит сказать, что петли не стоит варить самостоятельно, их лучше купить. Есть такие внутренние подшипниковые петли, они удобно открываются и легко выдерживают вес даже тяжелой конструкции. А еще данные петли не заклинит на морозе, вот будет лучше их использовать. Нужно в магазине 4 шт. купить.
Инструмент и место работы
Поскольку ворота гаражные будут делать из металла, потребуется соответствующий инструмент для работы. Вот что понадобится в ходе сборки ворот:
- Набор для замеров — угольник, строительный уровень, рулетка.
- Подравнивать металл лучше всего болгаркой. Следует запастись кругами как для резки, так и шлифовки.
- В ходе работы могут пригодиться молоток, струбцины, дрель, а также крепления — метизы.
- Для сварки нужно взять инвертор со сварочными электродами на 3 мм.
- Кисть для малярных работ. После того как установят полотно ворот на место, его нужно будет прогрунтовать и окрасить. Тут подойдет ГФ 021 и пентафталевая эмаль.
Теперь о рабочем месте. Владельцу понадобится большая ровная площадка, на которой можно сварить каркас, и приварить листы металла. Работы можно проводить и в гараже, если позволяют размеры.
А еще понадобится минимум 1 помощник для перемещения листов металла и собранного каркаса.
Начало рабочего процесса
Теперь, как сварить гаражные ворота. 1 этап — сборка каркаса, для этого необходимо сварить уголки 75 мм и профиля в единую конструкцию, затем на нее будет закреплена рама и наварено полотно. Работы стоит начинать с порога в следующем порядке:
- Отрезать 2 уголка по ширине проема будущих ворот, расположить их вдоль порога с внутренней и внешней сторон. Сварить их между собой стальными полосками или арматурой с шагом 50–75 см. Полоски размещаются с внутренней стороны уголка. Итак, есть порог.
- Отрезать еще 4 заготовки, они пойдут на боковую часть каркаса. Следует разместить их плотно к уголкам порога, подрезать изделия так, чтобы они плотно подходили друг к другу.
- Поставить все 4 стойки к торцам стены. Свариваем связями, как и нижнюю часть каркаса до этого. Шаг размещения связей — по 40 см от порога и потолка, а средняя — на равном удалении от верхней и нижней планок.
- Приварить порог к стойкам.
- Требуется установить верхнюю часть каркаса, подкорректировать, где нужно, приваривать связи, потом сварить с боковыми стойками. Каркас готов.
- Если какой-то из элементов повело, его можно подправить, наварив рычаг.
Сборка внутренней рамы
Сварить гаражные ворота своими руками не так просто, если спешить. Чем небрежнее сварка, тем больше шанс, что каркас и рама будут кривыми. Если хозяин никогда не занимался сваркой металла, стоит попросить знакомого специалиста помочь в этом. Итак, нужно приступить к сборке рамы:
- В готовом каркасе понадобится установить створки и закрепить их на петли. Нужно выдержать зазоры для рамы — сверху 10 мм, сбоку — 5 мм, нижний зазор от порога — 20 мм.
- Отрезать уголок по длине боковой части каркаса, подрезать еще 30 мм и поставить в соответствии с зазорами к внешней боковой части каркаса. Куском метала нужно прихватить заготовку на этом расстоянии к внешней стойке каркаса, можно прихватить 2 элементами, чтобы зафиксировать наверняка. С противоположной стороной повторить процедуру.
- Снизу и сверху сварить уголки горизонтально, подрезать в соответствии с размерами рамы.
- Прикрепить к каркасу петли и приварить их к частям рамы. После этого можно подрезать сварныекрепления, которыми часть рамы была зафиксирована на каркасе.
- Установить посередине 2 стойки, приварить их.
- Приварить по 1–2 перемычки для каждой двери.
- Чтобы ворота без полотна не просели, стоит сразу поставить раскосы.
- Теперь нужно проверить и открыть ворота.
- Осталось только наварить полотно.

Это основная часть того, как сварить ворота в гараж. Далее остается закрепить полотно. Листы можно наваривать как целиком, так и по частям. Лист нужно прихватывать сначала по углам, потом по центру, а затем уже пройтись по всему периметру, иначе его в процессе работ поведет.
Остается поставить замки, задвижки, покрасить полотно и ворота готовы!
Заключение по теме
Самостоятельно без особого опыта работы с металлом можно выполнить распашные металлические ворота для гаража. Перечень инструментов и материалов описан, примерная схема работ также дана. Главное — во время приваривания деталей не спешить, иначе конструкцию поведет, и придется все исправлять, на что уйдет немало времени.
ovorotah.com
Как сварить гаражные ворота
При строительстве гаража важным элементом являются ворота. Чтобы хранение автомобиля было безопасным, лучше сделать их из металла. Сразу стоит отметить, что сварка гаражных ворот требует особых навыков. В противном случае вам никак не обойтись без дополнительной помощи специалистов. Более того, даже если вы имеете опыт подобных работ, то без наличия сварочного оборудования сделать гаражные ворота будет нереально. Поэтому если у вас имеется необходимое оборудование, то вам будет интересна эта статья. В ней будет рассказано о том, как все работы выполнить своими руками. Также предлагаем вам для ознакомления схемы и фотографии, на которых изображаются основные этапы работ.

Важные требования к гаражным воротам
Гаражные ворота должны соответствовать ряду важных требований, среди которых:
- Ворота не должны препятствовать свободному въезду и выезду автомобиля. Учитывая это, ворота должны соответствовать размеру машины.
- От крайних откосов сваренных гаражных ворот к автомобилю необходимо расстояние с двух сторон не менее 300 мм. Но лучше иметь небольшой запас, так как вдруг вы поменяете машину.
- Если автомобиль легковой, то высота ворот должна быть не менее 2 м.
- Проем по стандарту может быть таким 2400×2100 мм и до 5400×2400 мм.
- Сварка гаражных ворот должна быть выполнена так, чтобы была исключена вероятность взлома.
- Гаражные ворота следует надежно защитить от негативного влияния окружающей среды. Например, установить небольшой козырек.
Методы изготовления ворот

Можно выделить три метода изготовления ворот для гаража:
- Свариваются отдельно по мере строительства гаража, а после доставляются к гаражу.
- Сваривать можно уже по готовому проему, а после привезти.
- Все работы можно выполнять непосредственно на месте.
Последний вариант будет оптимальным для тех, кто делает такую работу впервые. Ведь придется не раз выполнять измерения.
Необходимые материалы
Чтобы сварить самодельные ворота на гараж своими руками требуется подготовить необходимые материалы, среди всего прочего вам потребуется:
- Облицовочный материал, подойдет листовой металл, толщиной не меньше 1,5 мм.
- Профильная труба, металлический уголок для изготовления каркаса.
- Материал для изготовления ребер жесткости.
- Жидкость для обезжиривания поверхности.
- Грунтовка и краска.
- Замки, засовы и навесы.
Важно! При покупке исходного материала, обращайте особое внимание на его качество. Ведь сварные гаражные ворота делаются на долгое время.

Помимо материала также необходим следующий инструмент:
- Сварочный автомат, подойдет мощностью 220 Вт.
- Капроновая нить.
- Болгарка.
- Отрезной и шлифовальный круг.
- Строительный уровень.
Это основной набор инструментов, который необходим для работы. Теперь приступим непосредственно к процессу изготовления ворот.
Изготовление рамы гаражных ворот
Ворота гаражные необходимо начинать делать с рамы. Для этого используется уголок. Итак, необходимо отрезать уголок на части, которые соответствуют раме. При этом вертикальные и горизонтальные элементы по длине должны полностью совпадать. После, на ровной горизонтальной поверхности выложите все отрезанные элементы. Ниткой или рулеткой проверьте диагонали, чтобы все стороны были равными. Теперь можно уголки сварить между собой.

Совет! В процессе сварки гаражной калитки обязательно контролируйте ровность изделия. Это важное условие, так как исправить после сварки будет проблематично.
Итак, у вас должен получиться готовый каркас из металлического уголка. Эта рама будет устанавливаться непосредственно в гаражный проем, а на него будет крепиться калитка.
Створки ворот и их монтаж
На следующем этапе требуется изготовить каркас створок. Они должны быть по размеру немного меньше изготовленной рамы. И при этом легко входить в проем. Гаражные ворота своими руками свариваются по такому же принципу что и рама. Отрезаете металлический уголок или профильную трубу по размерам. У вас должно получиться две створки. Выкладываете все элементы на ровной поверхности, проверяете диагонали и свариваете между собой.

Когда каркас створок готов, необходимо приварить петли. На каждую створку гаража необходимо приварить по два навеса. После, используя листовой материал, обшиваете каркас створок. Прикладываете лист металла к каркасу из трубы или уголка и закрепляете прихватками сварочного аппарата или болтами. Первый вариант более надежный.
Важно! Если листовой металл вы решили закрепить при помощи сварочных прихваток, то будьте осторожны чтобы не проварить дырку в листе металла. Важно контролировать силу сварочной дуги.

На следующем этапе выполняется монтаж ворот. Для начала строго по уровню монтируете раму с уже готовыми навесами. Закрепив раму анкерами к проему гаражных ворот, остается повесить створки на свои места. На этом этапе есть возможность произвести последние подгонки. Обратите внимание на тот факт, что обшивка на одной створке должна быть больше на несколько сантиметров. То есть при закрытии ворот должен быть небольшой нахлест. Если так не получиться сделать, то после наваривается металлическая полоса на стык двух створок ворот.
Дополнительно о том, как сварить гаражные ворота своими руками, без помощи специалистов смотрите в видеоролике:
Монтаж запорных элементов и другая отделка
Мы рассмотрели с вами вопрос о том, как сварить гаражные ворота. Теперь уделим внимание их благоустройству. Для полной безопасности необходимо смонтировать замок. Он должен быть надежным и проверенным. По этой причине купите замок у проверенной компании. Если говорить за типы замков, то предпочтение лучше отдавать штыревым стопорам и мощным засовам. Ими изнутри вы будете закрывать ворота. Однако, дополнительно в одной из створок потребуется сделать небольшую калитку.

В этом случае в створке вырезаете проем, который по периметру усиливается профильной трубой с внутренней стороны. Далее привариваете навесы. Из отрезанного листа изготавливаете небольшую калитку. Процесс этой работы требует точности. Поэтому действуйте по правилу, семь раз отмерь, один раз отрежь.
Замок обычно монтируется изнутри гаража. Для его установки рекомендуется сварить небольшой каркас. Это позволит надежно его зафиксировать в створке гаражных ворот. Это обеспечит высокую надежность и безопасное хранение автомобиля.
Важно время от времени ухаживать за запорной арматурой. Исключите полную вероятность того, чтобы замок имел прямой контакт с атмосферными явлениями. Дождь, снег и другие осадку могут негативно сказываться на работоспособности замка. Более того, существует риск, что скважина может замерзнуть и вам не получится вставить ключ. По этой причине на гаражных дверях можно сварить небольшой козырек.

Итак, мы рассмотрели с вами основные особенности того, как правильно сварить гаражные створки. Работа эта не из легких, так как металл сам по себе имеет большой вес. По этой причине вам никак не обойтись без посторонней помощи. Сваренный каркас и раму необходимо будет устанавливать строго по уровню, а самостоятельно сделать это будет крайне сложно.
Учитывая тот факт, что всех тонкостей и особенностей процесса сваривания гаражных ворот не опишешь, предлагаем вам ознакомиться с подготовленным видеоматериалом в этой статье. Это позволит вам закрепить теорию наглядно. Если у вас остались вопросы или вы имеете уже свой опыт в этой работе, то обязательно оставляйте комментарии в конце этой статьи. Ваш опыт будет неоценим для всех наших читателей. Ведь так, можно изрядно сэкономить немалую сумму денег.
bouw.ru
Как сварить гаражные ворота — подготовка и ход работы

Общий вид выполняемых ворот
Сейчас есть множество видов ворот для гаража. Различных модификаций, с электроприводами и без. Но в этом сегменте лидируют все равно гаражные ворота сварные. О них и пойдет речь в этой статье.
Если вы решили выполнить своими руками гаражные ворота, сварить их не доставит большого труда и не потребует много затрат.
Зато в конечном итоге вы получите довольно прочную и долговечную конструкцию. Которую можно обустроить и электроприводом, который следует приобрести заранее и это предусмотреть при проведении монтажных работ.
Подготовка к работе
Все следует начать с эскиза. Который надо отобразить на листе бумаги. Для начала придумайте тип конструкции, будет она монтироваться из уголка или профиля, какие размеры, какой орнамент применим в облицовке изделия. Когда этот вопрос решен и начерчен чертеж, следует закупить нужный материал
Материалы
Когда придумана конструкция, которая подходит именно к вашему строению, следует просчитать материал, чтобы сделать ворота гаражные, как сварить мы расскажем немного позже.
- Для облицовки потребуется листовой металл, с толщиной не меньше 1,5 мм. Размер вы возьмете из выполненного чертежа. Однако следует учесть, что облицовочный материал следует брать как минимум на 20 см больше по длине и высоте изделия;
- В зависимости от выбора конструкции следует купить профильную трубу, или уголок. Однако и тот и другой материал меньше 2,5 см брать не стоит. Тонкая рама не даст нужной жесткости всей конструкции;
- При монтаже потребуются ребра жесткости, которые можно приобрести в отдельности, или использовать обрезки из материала. Однако тогда этот размер следует учесть при закупках;
- Для обезжиривания металлических поверхностей потребуется антикоррозийная жидкость или обычный бензин;
- Грунтовка;
- Краска для металлических поверхностей;
- Приобретите нужный засов для ворот и замок для калитки (см. Врезной замок в калитку – выбираем и устанавливаем).
- Материалы старайтесь закупать качественные. Изготовленная конструкция рассчитана не на один год службы. Металл старайтесь брать с большим содержанием углерода, он дольше прослужит и менее подвержен коррозии.
Инструмент
Для любой работы потребуется инструмент, заготовить его надо заранее.
Нам потребуется:
- Полуавтомат или сварочный аппарат мощностью 220Вт;
- Для измерения диагоналей приготовьте капроновую нить;
- Болгаркой с зачистным и отрезными кругами мы будем обрабатывать металл;
- Следует взять ножницы по металлу;
- Для замера диагонали потребуется нить;
- Строительный уровень.
Изготовление гаражных ворот
Когда приготовлено оборудование и закуплен нужный материал. Следует приступить к работе. Обязательно правильно проведите все замеры будущей конструкции. Можно сделать подъемные ворота либо сварить их своими руками.
Внимание: При измерении общих габаритов конструкции предусмотрите вес металла. Учтите момент открытия и закрытия движущихся элементов. Чем больше пролет, тем более мощной должна быть конструкция. Не должно быть провисаний.
Изготовление рамы
Ворота гаражные сварные крепятся на раме. Которая должна быть достаточно жесткой. От качества ее изготовления, будет зависеть и работа всего изделия.
Следует исключить малейшие провисания. При изготовлении рамы лучше применит 63-й уголок.
Итак:
- Для начала следует определиться с местом. Это должна быть ровная плоскость. Если у вас есть стол для проведения сварочных работ, тем лучше. Если его нет, придется его сделать . Это не так сложно, но крайне нужно;
- Следует взять два швеллера и разместить их на плоскости, с таким расчетом, что бы готовое изделие было на 20-ть см. больше от плоскости сварочной площадки. При укладке элементов обязательно следует применять строительный уровень. Рабочая плоскость должна быть идеально выполнена. На ней будут производится сварочные работы и в результате неправильного расположения элементов может получиться «пропеллер» по всей плоскости готового изделия. И исправить это будет невозможно. Поэтому поверхность для сварки следует сделать идеально ровной;
- Отрезаем от уголка элементы конструкции, размеры берем из чертежа. У нас получается две верхние и две боковые стойки рамы;
- Сейчас мы будем выполнять сварку конструкции. Некоторые предлагают это делать полуавтоматом, однако это не правильно. Полуавтомат не способен качественно проварить шов такого мощного уголка. Его можно использовать при креплении 25-го уголка. Но мощного, он не проварит. Поэтому для изготовления рамы лучше пользоваться электросваркой;
- Раскладываем уголок. Смотрим, если все нормально, делаем зарезы для проведения сварки под прямым углом. Опять раскладываем элементы и прихватываем их при помощи сварки;
- Смотрим, что бы не было пропеллера. Примеряем диагональ. Если этого не сделать, после выполнения работы может получиться неправильная конфигурация изделия. Все должно плотно прилегать и иметь правильную геометрическую форму. Примеряем к месту установки;
Если вы делаете ворота в уже готовый гараж, или другое строение, тогда работа выполняется немного по другому плану:
- Сначала вы промеряете место для установки ворот. Проверяете правильность базы крепления. Замеряете диагональ;
- Если что то не правильно в плоскости крепежа, следует исправить. Для этого следует применить болгарку и круг. Подрежьте места укладки рамы для плотного прилегания;
- После изготовления элементов рамы их можно приложить к контуру крепежа и прихватить. Для этого можете взять в помощь членов семьи;
- После того как элементы прихвачены, их следует уложить на плоскость для проведения сварки и проварить окончательно;
Далее работа проводится одинаково для обоих видов монтажа.
- Проваренные швы обрабатываем при помощи болгарки и зачистного круга. Снимаем все наплывы. Проверяем надежность крепления швов при помощи молотка;
- Теперь изготавливаем такую же раму и на обратную сторону стенки. Некоторые предлагают делать ворота с одной рамы. Конечно можно и так, закрепив каркас на анкера к стенке. Однако такая конструкция довольно не надежная и в процессе времени сильно разбиваются отверстия крепежа. А мы делаем для себя и халтурить не будем. Поэтому делаем вторую раму, это не намного увеличит затраты;
- Две готовые рамы прикладываем с обеих сторон стенок проема и прижимаем их к стенке при помощи больших струбцин. Соединяем их при помощи шинки, толщина которой должна быть не менее 3-хмм, а лучше 5 мм. Привариваем. Снимаем струбцины и смотрим. Все получилось жестко и качественно.
В вопросе установки рамы есть один небольшой вопрос. Все дело в нижней части проема, который расположен по земле. Нижняя плоскость должна быть пригодна для крепежа уголка, то есть должна быть жестко выполнена. Для этого по длине нижней части проема следует выкопать небольшую ямку и сделать заливку бетоном для фундамента (см. Фундамент под ворота: делаем самостоятельно).
После энного надо положить туда бетон и вдавить в него швеллер, который надо подготовит заранее. Когда полностью конструкция застынет, это будет прекрасная база для крепежа.
Делаем створки ворот
После изготовления каркаса приступаем к выполнению створок ворот. Сейчас будет рассказано, как сварить ворота для гаража с применением профильной трубы. Этот материал довольно практичен в проведении такого вида работ. Он достаточно легкий, но при его применении конструкция не теряет своей жесткости.
- Делаем замер установленного каркаса. Все размеры снимаем точно. От этого будет зависеть качество монтируемых деталей, которые должны подходить к уже установленной конструкции;
- Проводим резку профиля, по размерам, которые уже сняты. При помощи болгарки и зачистного круга убираем заусенцы с заготовок;
Внимание: Отнеситесь со всей внимательностью к выставлению диагонали конструкции. При неправильности замеров может образоваться «пропеллер» в изделии. Прижимайте все элементы при помощи струбцин и снимайте их только после остывания сварки.
- Производим раскладку заготовок на рабочем месте, прихватываем все соединения. После этого еще раз сверяем, как выдержан размер. Если все верно делаем окончательную сварку;
- Отрезаем металл для калитки. Прикладываем. Делаем прямой угол при проведении стыковки. Прихватываем. Проверяем. Если все правильно и углы выдержанны, привариваем окончательно;
- Вырезаем элементы калитки и выполняем их изготовление и крепление, так, как описано ранее;
Внимание: Если вы планируете установку внутреннего замка, тогда базу для крепления и отверстия, лучше выполнить до установки листа. После выполнения этой операции, сделать данную работу будет затруднительно.
- Производим установку распорок. Это требуется для придание нужной жесткости конструкции, на них будут крепиться металлические листы. Выкладываем профиль таким образом, что соединяем верх и низ конструкции, или боковые стойки. Расстояние между ними не должно быть менее 50-ти см;
Внимание: Обратите особое внимание, чтобы распорки не находились выше стойки. Здесь будет крепиться лист и все детали, размещенные на неровной поверхности, будут сильно выделяться.
- Для сокращения времени работы и расходов, когда мы делаем гаражные ворота, сварка может выполняться точечным методом;
- Болгаркой и зачистным круга обрабатываем швы соединений и наплывы металла. Обезжириваем полученную конструкцию бензином или антикоррозийной жидкостью. Ждем полного высыхания и при помощи ветоши стираем образовавшийся белый налет.
Крепеж металлического листа к раме створок
Этот вид работ проводится в рукавицах, для предотвращения травм рук об острые края листовой стали. Это уже будет завершающим этапом монтажа.
- С использованием болгарки и отрезного круга производим обрезку листа металла в размер, который указан в чертеже;
- Зачистным кругом снимаем заусенцы в местах обрезки металла;
- Раскладываем листы на каркасе, на лицевой стороне элементы листа кладем в стык при соединении торцов;
- Лист металла проваривается на стыке сплошным швом, после чего, производится зачистка потеков при помощи болгарки и зачистного круга;
- Таким же образом привариваем и лист к калитке. Применяем правильные завесы;

Вид завеса для ворот с применением подшипника
- Металлические элементы обезжириваем и покрываем грунтовкой. Красим обработанные детали;
Установка замков и засовов
Для надежной охраны строения, требуется качественно его защитить. Для этого требуется установить замки и засовы.
Итак:
- В одной створке двери (см. Металлические двери), та, что закрывается первой, требуется установить засовы в рамы и пол строения. После того, как ворота установлены, следует по месту выполнить отверстия в верхней и нижней части конструкции, между рамой створки и рамой ворот. Это делается в сборе, что бы была полная соосность отверстий и не было люфта задвижки. После этого пруток сгибается в виде буквы «Г» и задвижка готова. Когда вы ее вставите и задвинете, отметьте место установки ограничителя, чтобы засов фиксировался. На этом месте приварите любой пруток, который будет служить фиксатором;
- Раньше были выполнены базы для установки и замков. Теперь не будет составлять труда их поставить. Единственное, не пытайтесь приспосабливать крепеж с наружной части конструкции. Приложите замок и сделайте отметки точек крепления на поверхности металла. После этого обрежьте шляпки на болтах и приварите их в точках крепления. Сварку зачистите и крепите замок на это место.
Мы рассказали, как правильно сварить гаражные ворота. Если было принято решение об подключении электропривода воротам, не забывайте в верхней части конструкции прикрепить трубу для проводки. Сделайте это сразу. Не забудьте предусмотреть каналы в стене для провода.
На внутренней стороне конструкции, должно быть так же предусмотрено место для установки двигателя. После окончания работ это выполнить будет затруднительно. Если для работы вы выбрали качественный материал, изготовленное изделие будет служить довольно долго.
sdelaidver.com
Как сварить гаражные ворота своими руками? (с видео)
Многие автолюбители очень часто задаются вопросом, как сварить гаражные ворота только своими руками, ведь в этом случае можно избежать лишних финансовых затрат.
Как известно, гараж является одним из условий сохранности автомобиля, и должен максимально обезопасить его от посторонних лиц.
Его конструкция может быть самой разной, однако основным элементом безопасности в этом случае выступают именно ворота.
Они могут различаться между собой по многим параметрам и характеристикам, в том числе и по конструкции, типу используемого материала, а также способу открывания.
Конечно, наиболее простой способ решить проблему с воротами — это купить уже готовое изделие у тех фирм, которые специализируются на их производстве и продаже.
Однако в этом случае нельзя быть в точности уверенным в их надежности и практичности, а кроме этого не всегда будут в максимальной степени учтены особенности самого гаража.
Следует отметить, что и стоить ворота, произведенные на заказ, будут достаточно дорого, и не каждый водитель сможет себе их позволить.
Если есть небольшой опыт работы со сваркой и металлом, изготовить правильно надежные и практичные ворота можно своими руками с учетом не только особенностей гаража, но и своих предпочтений.
Виды и типы ворот для гаража
В настоящее время для защиты гаража от проникновения посторонних лиц существует несколько типов самых разных ворот.
Следует отметить, что наиболее популярными и надежными считаются именно сварные распашные ворота, которые к тому же можно сделать своими руками.
Видео:
Достаточно редко на гаражах встречаются ворота откатного типа, схема работы которых подразумевает наличие дополнительно места под двигающуюся створку.
Несмотря на кажущуюся простоту их конструкции, все же сделать их своими руками достаточно сложно, так как требуется установка дополнительных элементов, которые будут обеспечивать их ход.
Такой тип ворот больше подходит для больший ангаров и загородных участков, а использование в качестве защиты пространства гаража нецелесообразно.
В последнее время достаточно часто на гаражах можно встретить ворота, оснащенные специальным подъемно-поворотным механизмом.
Конечно, они удобны в использовании, а кроме этого не занимают лишнего места, однако сделать их своими руками без специального оборудования и знаний не получится.
Также в качестве ворот для гаража некоторые водители используют подъемно-секционные и ролетные изделия.
Несмотря на свою простоту и удобство в использовании, такие ворота не всегда отличаются высокой практичностью и надежностью.
Если попытаться собрать их своими руками, то нельзя гарантировать, что они будут работать правильно и смогут обеспечить надежную защиту автомобилю.
Видео:
Если принято решение сделать ворота на гараж своими руками, то лучше всего остановить свой выбор на сварной металлической конструкции распашного типа.
В этом случае удастся самостоятельно спланировать не только их особенности конструкции, но и учесть размерные характеристики гаражного пространства.
Кроме этого, можно будет спланировать как ход работы, так и финансовые затраты на необходимый материал.
Предварительный этап работ
Перед тем, как приступить к непосредственной сборке сварных ворот для гаража своими руками, следует все тщательно спланировать и составить подробный чертеж каждого элемента конструкции.
Для начала необходимо провести замеры самого проема, на основании которых составить небольшой эскиз.
Также на этом этапе следует правильно рассчитать все необходимые материалы и подготовить весь инструмент, который может потребоваться в процессе сборки.

Важным моментом на данном этапе является правильный расчет высоты и ширины створок.
В этом случае следует учитывать то, что минимально допустимая ширина конструкции готового изделия должна находиться как с правой, так и с левой стороны на расстоянии от машины не менее чем в тридцати сантиметрах.
В свою очередь следует учитывать, что оптимальный размер обеих створок считается равным пяти метрам.
Также необходимо помнить, что расстояние от самой воротной рамы непосредственно до перпендикуляра стены должно составлять не менее восьмидесяти сантиметров.
Высоту ворот под обычный легковой автомобиль лучше всего взять со значением не менее двух метров. Под микроавтобус она должна составлять уже не менее двух с половиной метров.
Одним из основных элементов ворот для гаража является рама, которую рекомендуется сварить из стального уголка.
Видео:
Под каркас створок, помимо уголка, можно также использовать и профиль прямоугольной формы, который затем зашиваются листами металла.
Петли под створки рекомендуется выбирать усиленные с наружным открыванием.
Проведя все предварительные расчеты и подготовив необходимый материал с инструментом, можно приступать к сборке сварных ворот своими руками.
Сборка рамы
Рама под гаражные ворота сваривается из металлического уголка. Для ее закрепления в проеме потребуется арматура. Как правило, она состоит из наружной и внутренней частей.
Для начала — при помощи болгарки нарезаем стальной уголок на необходимые части. Должно получиться четыре отрезка, совпадающие по своим размерам с шириной проема и четыре части, равные его высоте.
Далее все отрезки раскладываются на максимально ровной поверхности, при этом контролируется ровность каждого угла и планки.
Видео:
После этого можно приступать к непосредственной сварке каркаса, стараясь делать шов максимально аккуратным.
В процессе сварки следует постоянно контролировать ровность изделия и прямоту каждого угла. При необходимости каждый шов дополнительно шлифуется болгаркой.
Таким образом, должен получиться цельный каркас ровной формы.
В том случае, если в процессе работы какой-либо из уголков немного поведет, то исправить дефект можно будет при помощи дополнительно приваренного металлического рычага.
На завещающем этапе сборки каркаса следует еще раз все тщательно проверить по месту.
Более подробно о том, как своими руками сварить каркас под металлические ворота в гараж, рассказано на видео в разделе.
Видео:
Изготовление створок и установка ворот
После сборки основного каркаса ворот можно приступать к изготовлению каркаса под створки.
Сама рама под створки должна получиться по своим размерам немного меньше основного каркаса и легко входить в проем.
Его сварка производится по вышеописанной аналогии, при этом точно так же осуществляется строгий контроль за ровностью каждого угла.
После сборки каркаса створок, их следует зашить листовым металлом. Полотна створок должны немного выступать в верхней и нижней части основного каркаса.
Далее при помощи сварки навариваются петли, после чего готовые ворота устанавливаются по своему основному месту, как показано на видео, размещенном ниже.
Видео:
Устанавливать сварные ворота в проем гаража следует с максимальной ровностью, как по горизонтали, так и по вертикали.
Крепятся к стенам ворота при помощи кусков арматуры, которые предварительно вбиваются в их поверхность.
После того как ворота будут надежно укреплены в проеме и проверенны на работоспособность, можно приступать к врезке замков и запоров.
Делается это в соответствии с типом выбранного замка и лучше, если одна из створок будет закрываться с внутренней стороны пространства гаража.
Таким образом, правильно собранные ворота обеспечат максимальную сохранность автомобиля в гараже.
Видео:
stroyremned.ru
Как сварить гаражные ворота — сварка гаражных ворот
Большинство автовладельцев стараются построить гараж попросторнее для того, чтобы кроме автомобиля там можно было разместить все инструменты, запчасти и расходные материалы. Но при этом не задумываются о том, какого размера должны быть ворота и в итоге оказывается, что проем не стандартный. После этого они начинают искать производителей ворот под заказ и понимают, что их стоимость значительно превышает бюджет. Приходится выбирать из двух вариантов: сужать или расширять гаражный проем, либо тратить значительные финансовые средства. Существует еще и третий вариант — самостоятельно сварить ворота на гараж.
Какие требования предъявляются к воротам
Надежная конструкцияВорота должны:
- легко открываться хозяином гаража и иметь высокую степень защиты от взлома;
- обеспечивать достаточное пространство для беспрепятственного въезда машины;
- быть защищенными от коррозии и других отрицательных воздействий внешней среды;
- не создавать помех для других лиц и объектов при открытии;
- иметь простую, но прочную конструкцию.
Подготовительные работы
Чертеж ворот распашного типаНа начальном этапе рассчитывается количество требуемого материала, так как правильно составленная смета позволит избежать лишних трат и нехватки материала. Сначала нужно определиться с типом ворот среди следующих:
- Распашные, состоящие из двух открывающихся створок, длина которых составляет полширины проема. На одной из них должна располагаться дверь для входа в гараж. Двери крепятся к створке при помощи петель. Такой тип ворот самый распространенный и простой в изготовлении.
- Подъемно-поворотные представляют собой одну створку, которая открывается при помощи подъемного механизма вверх с задвижкой под потолок, либо без нее, но с предохранительным механизмом от падения. Могут оснащаться дверью для входа.
- Роллетные состоят из нескольких секций, которые складываются в потолочную часть автоматическим или ручным способом. Обычно они имеют электронные замки и открываются радиопультом. Для самостоятельной сборки такие ворота достаточно сложны, так как потребуют много времени на подгонку роллетов и настройку работы механизмов.
Обратите внимание! Для самостоятельного изготовления наиболее разумно делать первые два типа ворот. Их можно сделать только путем сварки металлических профилей и стальных листов.
Однако сначала делаются соответствующие замеры: меряется проем для ворот после чего делается чертеж, по которому составляется смета. В список необходимых материалов входят:
- металлопрофильный прокат с квадратным сечением для удобства сварки с толщиной стенок от 3 мм и размерами от 30 х 20 и больше в зависимости от того, какая ширина каркаса, чтобы обеспечить прочность конструкции;
- листовой металл по размеру створок толщиной от 2 мм для обеспечения антивандальной защиты и дополнительной прочности;
- уголки, чтобы сварить каркас ворот;
- четыре петли для створок и две для двери;
- замок и засов.
При расчетах следует иметь в виду, что основной каркас должен быть не только по периметру створок, а и по диагоналям, Рама для крепления состоит из креплений к стенке с внутренней и внешней стороны. На одной из створок создается дополнительное усиление каркаса в месте крепления двери и замков. При выборе стали следует выбирать низкоуглеродистую отожженную сталь, легированную никелем или хромом, либо оцинкованные листы. Если покупается обычный стальной лист, то понадобится грунтовка, краска и растворитель.
Изготовление рамы

Перед тем как сварить гаражные ворота необходимо изготовить раму. Для этого:
- Нарезаются по размерам профильные уголки с высокой точностью, чтобы не было перекосов при сварке. Причем отрезать лучше под углом 450, чтобы обеспечить максимальную прочность и длину шва, хотя можно делать и встык. На всякий случай оставляется напуск около 200 мм. В качестве инструмента нужно использовать болгарку (угловую шлифмашину), чтобы получить ровную поверхность и работы проводить с минимальными затратами времени.
- После этого, части каркаса укладываются на ровную поверхность и производится сварка электродуговым методом, так как каркасная конструкция требует высокой проварки металла. Правильность ровной плоской поверхности проверяется при помощи уровня. Любое отклонение должно быть устранено на начальном этапе, так как впоследствии эти ошибки исправить не удастся.
- Для того чтобы раму плотно закрепить в проеме гаража, необходимо наварить по несколько кусков арматуры (не менее 2-3) с диаметром более 10 мм и длиной около 15–20 см с каждой стороны.
- Высверлить в стенах отверстия, вставить раму, а затем проводить бетонирование.
- Если конструкция гаража не позволяет сделать такие углубления, то сваривается вторая рама, которая устанавливается с внутренней стороны гаража и при помощи арматуры привариваются эти две части непосредственно в месте установки.
- Одну из рам следует забетонировать, а другую оставить для крепления створок. Раму также можно закрепить при помощи анкеров. Другим вариантом крепления может быть формирование паза в стене и монтирование туда рамы. Все варианты обладают достаточной прочностью и могут применяться в зависимости от основного материала стен.
Створки для ворот
Сварка створокИзготовление створок должно быть не менее точным, чем изготовление рамы. Сначала делается каркас для створок по высоте рамы и в пол ширины проёма. Берутся профильные трубы с необходимыми размерами, укладываются на ровной поверхности и прихватываются электросваркой. После этого на месте проверяется правильность их размера, а затем делают полную сварку, либо производят дополнительную подгонку размеров. Если планируется установка двери, то на одной створке ворот приваривается дополнительная стойка, к которой затем будут привариваться петли.
Дверь для воротСледующим этапом станет приваривание петель к раме. Удобнее пользоваться точечной сваркой, чтобы сильно не переплавить металл хотя можно и электродуговой, но придется варить очень аккуратно. Затем меряется положение петель на створках, и петли на месте также привариваются.
Закладная арматура в петлеПосле готовности каркаса ворот необходимо порезать листовой металл с учетом того, что одна створка должна закрывать другую с нахлестом около 10 см, а также с расчетом двери, если ее установка заложена в конструкции. Кромки листа при помощи болгарки зачищаются от заусенцев, после чего сплошным швом привариваются к корпусу створок. При образовании потеков металла производится шлифовка внешней поверхности.
Устанавливаем замки и дополнительные засовы
Установка замковЗамки необходимо установить на двери и на створки. Для этого на них наваривается специальный фланец для замка, и держатели для засовов на воротах с внутренней стороны. Но перед сваркой замок крепится к нему, чтобы крепеж не был доступен с внешней стороны гаража. Далее, в раме делается отверстие для замка.
Обратите внимание! Засовы могут быть выполнены в виде задвижек Г-образной формы, закрепленных при помощи специальных петель на одной из створок для обеспечения дополнительного крепления к раме, либо в виде засова на уровне середины ворот.
Утепление стен и отделка
Утепление конструкцииТеплый гараж легко сделать путем утепления ворот, через которые уходит основная часть тепла. Поэтому на внутренней поверхности укладывается утеплитель, а затем обшивается внутренним отделочным материалом. Для этого лучше выбрать полистирол, так как он просто монтируется и легко обрабатывается. Его можно посадить на клеевую основу, а зазоры минимизировать и замазать герметиком, чтобы снизить теплопотери. Обшить с внутренней стороны облицовочными плитами или пластиком. После завершения всех работ необходимо покрасить металлические части ворот в подходящий цвет.
Заключение
Сварка гаражных ворот мероприятие достаточно трудоемкое, но вполне осуществимое, поскольку не требует особых навыков, а только лишь терпения и внимательности. При отсутствии сварочного аппарата можно привлечь к работам опытного сварщика, либо взять инструмент в аренду. Экономия получается существенной.
Видео
Рекомендуем посмотреть видеоматериал об изготовлении гаражных ворот:
Последняя редакция: 04.02.2015 Автор: Тихий Владислав Алексеевич
kaksdelatgarazh.ru
