ΠΠ°ΠΊ ΡΠ΄Π΅Π»Π°ΡΡ Π΄Π²Π΅ΡΠ½ΠΎΠΉ ΠΎΡΠΊΠΎΡ ΡΠ²ΠΎΠΈΠΌΠΈ ΡΡΠΊΠ°ΠΌΠΈ β ΠΊΠ°ΠΊ ΡΠ΄Π΅Π»Π°ΡΡ ΠΎΡΠ΄Π΅Π»ΠΊΡ Π΄Π²Π΅ΡΠ΅ΠΉ ΡΠ²ΠΎΠΈΠΌΠΈ ΡΡΠΊΠ°ΠΌΠΈ, ΡΠΎΠ½ΠΊΠΎΡΡΠΈ ΠΌΠΎΠ½ΡΠ°ΠΆΠ°, ΡΡΡΠ°Π½ΠΎΠ²ΠΊΠ° Π²Π°ΡΠΈΠ°Π½ΡΠ° ΠΈΠ· Π»Π°ΠΌΠΈΠ½Π°ΡΠ°
ΠΌΠ°ΡΠ΅ΡΠΈΠ°Π»Ρ ΠΈ ΠΈΠ½ΡΡΡΡΠΌΠ΅Π½ΡΡ (Π²ΠΈΠ΄Π΅ΠΎ ΠΈ ΡΠΎΡΠΎ)
Π£ΡΡΠ°Π½ΠΎΠ²ΠΊΠ° Π΄Π²Π΅ΡΠΈ β Π΄ΠΎΡΡΠ°ΡΠΎΡΠ½ΠΎ ΡΠ»ΠΎΠΆΠ½ΡΠΉ Π²ΠΈΠ΄ ΡΠ°Π±ΠΎΡΡ, ΠΊΠΎΡΠΎΡΡΠΉ Π½Π΅ΠΎΠ±Ρ ΠΎΠ΄ΠΈΠΌΠΎ Π²ΡΠΏΠΎΠ»Π½ΡΡΡ ΡΠΊΡΡΠΏΡΠ»Π΅Π·Π½ΠΎ ΠΈ ΡΡΠ°ΡΠ΅Π»ΡΠ½ΠΎ. Π£ΡΡΠ°Π½ΠΎΠ²ΠΊΠ° Π΄Π²Π΅ΡΠ½ΡΡ ΠΎΡΠΊΠΎΡΠΎΠ² ΠΏΡΠΈΠ΄Π°ΡΡ Π·Π°Π²Π΅ΡΡΠ΅Π½Π½ΠΎΡΡΠΈ. ΠΡΠΎΠΌΠ΅ ΡΠΎΠ³ΠΎ, ΠΎΠ½ΠΈ ΠΌΠΎΠ³ΡΡ ΡΠ»ΡΠΆΠΈΡΡ ΠΈ ΡΠΊΡΠ°ΡΠ΅Π½ΠΈΠ΅ΠΌ Π΄Π²Π΅ΡΠ½ΠΎΠ³ΠΎ ΠΏΡΠΎΠ΅ΠΌΠ°, ΠΏΡΠΈ ΡΡΠΎΠΌ Π²ΡΠΏΠΎΠ»Π½ΡΡ ΡΡΠ½ΠΊΡΠΈΠΈ Π΄ΠΎΠΏΠΎΠ»Π½ΠΈΡΠ΅Π»ΡΠ½ΠΎΠ³ΠΎ ΡΡΠ΅ΠΏΠ»Π΅Π½ΠΈΡ ΠΊΠΎΠΌΠ½Π°ΡΡ. ΠΠΎΡΡΠΎΠΌΡ ΠΊ Π²ΠΎΠΏΡΠΎΡΡ, ΠΊΠ°ΠΊ ΡΠ΄Π΅Π»Π°ΡΡ Π΄Π²Π΅ΡΠ½ΡΠ΅ ΠΎΡΠΊΠΎΡΡ, ΡΠ»Π΅Π΄ΡΠ΅Ρ ΠΏΠΎΠ΄Ρ ΠΎΠ΄ΠΈΡΡ ΠΎΡΠ²Π΅ΡΡΡΠ²Π΅Π½Π½ΠΎ.

ΠΠ±ΡΠ°Ρ ΡΡ Π΅ΠΌΠ° Π΄Π²Π΅ΡΠΈ ΠΈ ΠΎΡΠΊΠΎΡΠ°.
ΠΠ°ΡΠ΅ΡΠΈΠ°Π»Ρ Π΄Π»Ρ Π΄Π²Π΅ΡΠ½ΡΡ ΠΎΡΠΊΠΎΡΠΎΠ²
ΠΠ°ΡΠ΅ΡΠΈΠ°Π» Π΄Π»Ρ Π²ΡΠΏΠΎΠ»Π½Π΅Π½ΠΈΡ ΠΎΡΠ΄Π΅Π»ΠΊΠΈ Π΄Π²Π΅ΡΠ½ΡΡ ΠΎΡΠΊΠΎΡΠΎΠ² ΡΠ»Π΅Π΄ΡΠ΅Ρ Π²ΡΠ±ΠΈΡΠ°ΡΡ ΠΈΡΡ ΠΎΠ΄Ρ ΠΈΠ· Π½Π°Π΄Π΅ΠΆΠ½ΠΎΡΡΠΈ ΠΈ ΠΊΡΠ°ΡΠΎΡΡ Π²ΡΠ΅ΠΉ ΠΊΠΎΠ½ΡΡΡΡΠΊΡΠΈΠΈ Π΄Π²Π΅ΡΠ½ΠΎΠ³ΠΎ ΠΏΡΠΎΠ΅ΠΌΠ° ΠΏΠΎΡΠ»Π΅ ΠΎΠΊΠΎΠ½ΡΠ°Π½ΠΈΡ ΡΠ°Π±ΠΎΡ. ΠΡΠΎΠΌΠ΅ ΡΠΎΠ³ΠΎ, ΠΏΡΠΈ Π²ΡΠ±ΠΎΡΠ΅ ΠΌΠ°ΡΠ΅ΡΠΈΠ°Π»ΠΎΠ² ΡΠ»Π΅Π΄ΡΠ΅Ρ ΠΎΠ±ΡΠ°ΡΠΈΡΡ Π²Π½ΠΈΠΌΠ°Π½ΠΈΠ΅ ΠΈ Π½Π° ΡΠΎ, ΡΡΠΎ ΠΎΡΠΊΠΎΡΡ ΠΈ Π΄Π²Π΅ΡΡ Π΄ΠΎΠ»ΠΆΠ½Ρ Π±ΡΡΡ ΡΡΡΡΠΊΡΡΡΠΈΡΠΎΠ²Π°Π½Π½ΠΎ ΡΠΎΠ³Π»Π°ΡΠΎΠ²Π°Π½Ρ.
Π‘ΡΠ΅Π΄ΠΈ ΠΌΠ°ΡΠ΅ΡΠΈΠ°Π»ΠΎΠ² Π΄Π»Ρ Π΄Π²Π΅ΡΠ½ΡΡ ΠΎΡΠΊΠΎΡΠΎΠ² ΠΌΠΎΠΆΠ½ΠΎ Π²ΡΠ΄Π΅Π»ΠΈΡΡ ΡΠ»Π΅Π΄ΡΡΡΠΈΠ΅:

Π‘Ρ Π΅ΠΌΠ° ΡΡΡΡΠΎΠΉΡΡΠ²Π° ΠΎΠ±Ρ Π²Π°ΡΠ½ΠΎΠΉ ΠΊΠΎΡΠΎΠ±ΠΊΠΈ.
- ΠΠΎΠ±ΠΎΡΡ. ΠΡΠΎ ΡΠΏΠ΅ΡΠΈΠ°Π»ΡΠ½ΡΠ΅ Π΄ΠΎΡΠΊΠΈ, ΠΊΠΎΡΠΎΡΡΠ΅ ΡΡΡΠ°Π½Π°Π²Π»ΠΈΠ²Π°ΡΡΡΡ Π² ΠΊΠ°ΡΠ΅ΡΡΠ²Π΅ ΠΎΠ±ΡΠ°ΠΌΠ»Π΅Π½ΠΈΡ Π΄Π²Π΅ΡΠΈ, ΠΏΡΠΈ ΡΡΠΎΠΌ ΡΠΈΡΠΈΠ½Π° Π΄Π²Π΅ΡΠ½ΠΎΠΉ Π»ΡΡΠΊΠΈ Π΄ΠΎΠ»ΠΆΠ½Π° Π±ΡΡΡ ΠΌΠ΅Π½ΡΡΠ΅ ΡΠΎΠ»ΡΠΈΠ½Ρ ΡΡΠ΅Π½Ρ. ΠΠΎΠ±ΠΎΡΡ ΡΠ°ΡΠ΅ Π²ΡΠ΅Π³ΠΎ ΡΡΡΠ°Π½Π°Π²Π»ΠΈΠ²Π°ΡΡΡΡ, Π΅ΡΠ»ΠΈ ΡΠ°ΠΌΠΎ ΠΏΠΎΠ»ΠΎΡΠ½ΠΎ Π΄Π΅ΡΠ΅Π²ΡΠ½Π½ΠΎΠ΅, ΠΈ ΠΏΠΎΠ΄Π±ΠΈΡΠ°ΡΡ ΠΈΡ Π΅ΠΌΡ Π² ΡΠΎΠ½ ΠΈΠ»ΠΈ Π΄Π΅Π»Π°ΡΡ ΠΈΠ· ΡΠΎΠΉ ΠΆΠ΅ Π΄ΡΠ΅Π²Π΅ΡΠΈΠ½Ρ, ΡΡΠΎ ΠΈ Π΄Π²Π΅ΡΡ. Π’Π΅Π»Π΅ΡΠΊΠΎΠΏΠΈΡΠ΅ΡΠΊΠ°Ρ ΠΊΠΎΠ½ΡΡΡΡΠΊΡΠΈΡ Π΄ΠΎΠ±ΠΎΡΠΎΠ² ΠΏΡΠ΅Π΄ΠΏΠΎΡΡΠΈΡΠ΅Π»ΡΠ½Π°Ρ, ΡΡΠΎ Π²ΠΎ ΠΌΠ½ΠΎΠ³ΠΎΠΌ ΠΎΠ±Π»Π΅Π³ΡΠΈΡ ΠΏΡΠΎΡΠ΅ΡΡ ΠΌΠΎΠ½ΡΠ°ΠΆΠ° Π½Π°Π»ΠΈΡΠ½ΠΈΠΊΠ°.
- ΠΠΈΠΏΡΠΎΠΊΠ°ΡΡΠΎΠ½Π½ΡΠ΅ ΠΏΠ»ΠΈΡΡ, Π»Π°ΠΌΠΈΠ½Π°ΡΠ½ΡΠ΅ ΠΏΠ°Π½Π΅Π»ΠΈ, Π»ΠΈΡΡΡ ΠΠΠ€. ΠΡΠΎ ΡΠ½ΠΈΠ²Π΅ΡΡΠ°Π»ΡΠ½ΡΠ΅ ΡΡΡΠΎΠΈΡΠ΅Π»ΡΠ½ΡΠ΅ ΠΌΠ°ΡΠ΅ΡΠΈΠ°Π»Ρ, ΠΊΠΎΡΠΎΡΡΠ΅ ΠΏΡΠΈ ΠΌΠΎΠ½ΡΠ°ΠΆΠ΅ ΡΡΠ΅Π±ΡΡΡ ΡΡΡΠ°Π½ΠΎΠ²ΠΊΠΈ ΠΊΠ°ΡΠΊΠ°ΡΠ°. ΠΠ΄Π½Π°ΠΊΠΎ ΠΏΠΎΡΠ»Π΅ ΠΎΠΊΠΎΠ½ΡΠ°Π½ΠΈΡ ΡΠ°Π±ΠΎΡ Π΄Π²Π΅ΡΠ½ΡΠ΅ ΠΎΡΠΊΠΎΡΡ Π±ΡΠ΄ΡΡ ΠΈΠ΄Π΅Π°Π»ΡΠ½ΠΎ ΡΠΎΠ²Π½ΡΠΌΠΈ. ΠΡΠΎΠΌΠ΅ ΡΠΎΠ³ΠΎ, ΠΈΡΠΏΠΎΠ»ΡΠ·ΠΎΠ²Π°Π½ΠΈΠ΅ ΡΡΠΈΡ ΠΌΠ°ΡΠ΅ΡΠΈΠ°Π»ΠΎΠ² Π΄Π»Ρ ΠΎΡΠ΄Π΅Π»ΠΊΠΈ ΠΎΡΠΊΠΎΡΠΎΠ² ΠΏΠΎΠ·Π²ΠΎΠ»ΠΈΡ Π²ΡΠΏΠΎΠ»Π½ΠΈΡΡ ΡΡΠΎΡ ΠΎΠ±ΡΠ΅ΠΌ ΡΠ°Π±ΠΎΡ ΡΠ°ΠΌΠΎΡΡΠΎΡΡΠ΅Π»ΡΠ½ΠΎ, Π½Π΅ ΠΏΡΠΈΠ±Π΅Π³Π°Ρ ΠΊ ΠΏΠΎΠΌΠΎΡΠΈ ΡΡΡΠΎΠΈΡΠ΅Π»ΡΠ½ΠΎΠΉ Π±ΡΠΈΠ³Π°Π΄Ρ.
- Π¨ΡΡΠΊΠ°ΡΡΡΠΊΠ°. ΠΡΠΎΠΌΠ΅ ΡΠ²ΠΎΠ΅ΠΉ Π΄ΠΎΡΡΡΠΏΠ½ΠΎΡΡΠΈ, ΡΡΠΎΡ ΠΌΠ°ΡΠ΅ΡΠΈΠ°Π» ΠΎΠ±Π»Π°Π΄Π°Π΅Ρ Π΄ΠΎΡΡΠ°ΡΠΎΡΠ½ΠΎΠΉ Π½Π°Π΄Π΅ΠΆΠ½ΠΎΡΡΡΡ ΠΈ ΠΏΡΠΎΡΠ½ΠΎΡΡΡΡ. ΠΠ΄Π½Π°ΠΊΠΎ ΠΎΡΠ΅Π½Ρ ΡΠΎΠ»ΡΡΡΠΉ ΡΠ»ΠΎΠΉ ΡΡΡΠΊΠ°ΡΡΡΠΊΠΈ ΠΌΠ΅ΠΆΠ΄Ρ Π΄Π²Π΅ΡΠ½ΠΎΠΉ ΠΊΠΎΡΠΎΠ±ΠΊΠΎΠΉ ΠΈ ΡΡΠ΅Π½ΠΎΠΉ Π½Π΅ ΠΆΠ΅Π»Π°ΡΠ΅Π»Π΅Π½, ΡΠΎ Π²ΡΠ΅ΠΌΠ΅Π½Π΅ΠΌ Π²ΠΎΠ·ΠΌΠΎΠΆΠ½Ρ Π΅Π³ΠΎ ΡΠ°Π·ΡΡΡΠ΅Π½ΠΈΡ, ΡΡΠΎ ΠΏΡΠΈΠ²Π΅Π΄Π΅Ρ ΠΊ Π½Π°ΡΡΡΠ΅Π½ΠΈΡ ΡΠ΅Π»ΠΎΡΡΠ½ΠΎΡΡΠΈ Π²ΡΠ΅ΠΉ ΠΊΠΎΠ½ΡΡΡΡΠΊΡΠΈΠΈ Π΄Π²Π΅ΡΠΈ. Π¨ΡΡΠΊΠ°ΡΡΡΠΊΡ ΡΠ°ΠΊΠΆΠ΅ ΠΌΠΎΠΆΠ½ΠΎ Π½Π°Π½ΠΎΡΠΈΡΡ ΡΠ°ΠΌΠΎΡΡΠΎΡΡΠ΅Π»ΡΠ½ΠΎ, ΠΎΠ΄Π½Π°ΠΊΠΎ Π΄Π»Ρ ΠΎΠΊΠΎΠ½ΡΠ°ΡΠ΅Π»ΡΠ½ΠΎΠ³ΠΎ Π²ΡΡΠ°Π²Π½ΠΈΠ²Π°Π½ΠΈΡ ΠΏΠΎΠ²Π΅ΡΡ Π½ΠΎΡΡΠΈ Π½Π΅ΠΎΠ±Ρ ΠΎΠ΄ΠΈΠΌΡ ΠΎΠΏΡΠ΅Π΄Π΅Π»Π΅Π½Π½ΡΠ΅ Π½Π°Π²ΡΠΊΠΈ. ΠΡΠ»ΠΈ ΠΏΠΎΠ»ΡΠ·ΠΎΠ²Π°ΡΡΡΡ Π³ΠΎΡΠΎΠ²ΠΎΠΉ ΡΡΡΠΊΠ°ΡΡΡΠ½ΠΎΠΉ ΡΠΌΠ΅ΡΡΡ, ΡΠΎ Π½Π΅ΠΎΠ±Ρ ΠΎΠ΄ΠΈΠΌΠΎ ΡΡΠΈΡΡΠ²Π°ΡΡ, Π΄Π»Ρ ΠΊΠ°ΠΊΠΎΠ³ΠΎ Π²ΠΈΠ΄Π° ΡΠ°Π±ΠΎΡ ΠΎΠ½Π° ΠΏΡΠ΅Π΄ΡΡΠΌΠ°ΡΡΠΈΠ²Π°Π΅ΡΡΡ, Π½Π°ΡΡΠΆΠ½ΡΡ ΠΈΠ»ΠΈ Π²Π½ΡΡΡΠ΅Π½Π½ΠΈΡ . ΠΡΠ»ΠΈ Π½Π΅ΠΎΠ±Ρ ΠΎΠ΄ΠΈΠΌΠΎ ΡΠ΄Π΅Π»Π°ΡΡ Π΄Π²Π΅ΡΠ½ΠΎΠΉ ΠΎΡΠΊΠΎΡ Π²Ρ ΠΎΠ΄Π½ΠΎΠΉ Π΄Π²Π΅ΡΠΈ, ΡΠΎ Π΄Π»Ρ ΡΡΠΎΠΉ ΡΠ°Π±ΠΎΡΡ Π½Π΅ ΠΏΠΎΠ΄ΠΎΠΉΠ΄Π΅Ρ ΡΠΌΠ΅ΡΡ Π΄Π»Ρ Π²Π½ΡΡΡΠ΅Π½Π½ΠΈΡ ΡΠ°Π±ΠΎΡ, ΡΠ°ΠΊ ΠΊΠ°ΠΊ Ρ Π°ΡΠ°ΠΊΡΠ΅ΡΠΈΡΡΠΈΠΊΠΈ Π²Π»Π°Π³ΠΎΡΡΠΎΠΉΠΊΠΎΡΡΠΈ, ΠΏΡΠΎΡΠ½ΠΎΡΡΠΈ Ρ Π½ΠΈΡ ΡΠ°Π·Π½ΡΡΡΡ Π·Π½Π°ΡΠΈΡΠ΅Π»ΡΠ½ΠΎ.
- ΠΠ΅ΠΊΠΎΡΠ°ΡΠΈΠ²Π½ΡΠΉ ΠΊΠ°ΠΌΠ΅Π½Ρ, ΠΊΠ΅ΡΠ°ΠΌΠΈΡΠ΅ΡΠΊΠ°Ρ ΠΏΠ»ΠΈΡΠΊΠ°, ΠΌΠΎΠ·Π°ΠΈΠΊΠ°. ΠΡΠΏΠΎΠ»ΡΠ·ΠΎΠ²Π°Π½ΠΈΠ΅ ΡΡΠΈΡ ΠΌΠ°ΡΠ΅ΡΠΈΠ°Π»ΠΎΠ² ΠΏΠΎΠ²ΡΡΠ°Π΅Ρ ΠΏΡΠΎΡΠ½ΠΎΡΡΡ ΠΎΡΠΊΠΎΡΠΎΠ². ΠΠ΄Π½Π°ΠΊΠΎ ΠΈΡ ΠΈΡΠΏΠΎΠ»ΡΠ·ΠΎΠ²Π°Π½ΠΈΠ΅ Π΄ΠΎΠ»ΠΆΠ½ΠΎ ΡΠΎΠΎΡΠ²Π΅ΡΡΡΠ²ΠΎΠ²Π°ΡΡ ΠΈΠ½ΡΠ΅ΡΡΠ΅ΡΡ ΠΏΡΠΈΠ»Π΅Π³Π°ΡΡΠΈΡ ΠΊΠΎΠΌΠ½Π°Ρ. ΠΠ°ΠΈΠ±ΠΎΠ»Π΅Π΅ ΡΠΌΠ΅ΡΡΠ½Π° ΡΠ°ΠΊΠ°Ρ ΠΎΡΠ΄Π΅Π»ΠΊΠ° ΠΏΡΠΈ ΠΎΡΠΎΡΠΌΠ»Π΅Π½ΠΈΠΈ ΠΈΠ½ΡΠ΅ΡΡΠ΅ΡΠ° Π² ΡΡΠ½ΠΈΡΠ΅ΡΠΊΠΎΠΌ ΠΈΠ»ΠΈ Π΄Π΅ΡΠ΅Π²Π΅Π½ΡΠΊΠΎΠΌ ΡΡΠΈΠ»Π΅.
ΠΡΠΎΠΌΠ΅ ΡΠΎΠ³ΠΎ, ΡΠ΅Ρ Π½ΠΎΠ»ΠΎΠ³ΠΈΡ Π²ΡΠΏΠΎΠ»Π½Π΅Π½ΠΈΡ ΠΎΡΠΊΠΎΡΠΎΠ² ΡΠ°Π·Π΄Π΅Π»ΡΠ΅ΡΡΡ Π½Π° ΠΊΠ°ΡΠΊΠ°ΡΠ½ΡΡ ΠΈ Π±Π΅ΡΠΊΠ°ΡΠΊΠ°ΡΠ½ΡΡ. ΠΠΎ ΠΊΠ°ΡΠΊΠ°ΡΠ½ΠΎΠΉ ΡΠ΅Ρ Π½ΠΎΠ»ΠΎΠ³ΠΈΠΈ ΠΏΡΠΎΠΈΠ·Π²ΠΎΠ΄ΠΈΡΡΡ ΠΌΠΎΠ½ΡΠ°ΠΆ Ρ ΠΈΡΠΏΠΎΠ»ΡΠ·ΠΎΠ²Π°Π½ΠΈΠ΅ΠΌ Π³ΠΈΠΏΡΠΎΠΊΠ°ΡΡΠΎΠ½Π½ΡΡ Π»ΠΈΡΡΠΎΠ², Π»Π°ΠΌΠΈΠ½Π°ΡΠ° ΠΈ ΠΏΠ°Π½Π΅Π»Π΅ΠΉ ΠΠΠ€. ΠΡΠ΅ ΠΎΡΡΠ°Π»ΡΠ½ΡΠ΅ ΠΌΠ°ΡΠ΅ΡΠΈΠ°Π»Ρ ΠΌΠΎΠΆΠ½ΠΎ ΠΈΡΠΏΠΎΠ»ΡΠ·ΠΎΠ²Π°ΡΡ Π±Π΅Π· ΠΏΡΠ΅Π΄Π²Π°ΡΠΈΡΠ΅Π»ΡΠ½ΠΎΠ³ΠΎ ΡΠΎΠΎΡΡΠΆΠ΅Π½ΠΈΡ ΠΊΠ°ΡΠΊΠ°ΡΠ°.
ΠΠ΅ΠΎΠ±Ρ ΠΎΠ΄ΠΈΠΌΡΠ΅ ΠΈΠ½ΡΡΡΡΠΌΠ΅Π½ΡΡ
Π Π·Π°Π²ΠΈΡΠΈΠΌΠΎΡΡΠΈ ΠΎΡ Π²Π°ΡΠΈΠ°Π½ΡΠ° ΠΎΠ±ΡΡΡΡΠΎΠΉΡΡΠ²Π°, ΠΌΠΎΠ³ΡΡ ΠΏΡΠΈΠ³ΠΎΠ΄ΠΈΡΡΡΡ:

Π Π°Π·ΠΌΠ΅ΡΡ Π΄Π΅ΡΠ΅Π²ΡΠ½Π½ΠΎΠ³ΠΎ Π΄ΠΎΠ±ΠΎΡΠ°.
- ΡΠΏΠ°ΡΠ΅Π»ΠΈ;
- ΡΡΠ»Π΅ΡΠΊΠ°;
- ΡΡΡΡΠΏΠΎΠ²Π΅ΡΡ;
- Π±ΠΎΠ»Π³Π°ΡΠΊΠ°;
- Π½ΠΎΠΆΠΎΠ²ΠΊΠ°;
- ΠΏΠ΅ΡΡΠΎΡΠ°ΡΠΎΡ;
- ΠΏΡΡΡΡΠ΅ Π΅ΠΌΠΊΠΎΡΡΠΈ;
- ΠΌΠΎΠ»ΠΎΡΠΎΠΊ;
- ΡΡΡΠΎΠΈΡΠ΅Π»ΡΠ½ΡΠΉ Π½ΠΎΠΆ;
- ΠΌΠ°ΡΠΊΠ΅Ρ Π»ΠΈΠ±ΠΎ ΠΊΠ°ΡΠ°Π½Π΄Π°Ρ;
- ΡΡΠΎΠ²Π΅Π½Ρ ΠΈ Π΄ΡΡΠ³ΠΈΠ΅.
ΠΡΡΡΠΊΠ°ΡΡΡΠ΅Π½Π½ΡΠ΅ Π΄Π²Π΅ΡΠ½ΡΠ΅ ΠΎΡΠΊΠΎΡΡ

ΠΡΠΊΠΎΡ ΠΈΠ· ΡΡΡΠΊΠ°ΡΡΡΠΊΠΈ ΡΠ΄Π΅Π»Π°ΡΡ Π½Π΅ ΡΡΡΠ΄Π½ΠΎ ΠΈ Π±ΡΡΡΡΠΎ, ΠΊΡΠΎΠΌΠ΅ ΡΠΎΠ³ΠΎ, ΡΡΠΎ ΠΎΡΠ΅Π½Ρ Π½Π΅ Π΄ΠΎΡΠΎΠ³ΠΎΠΉ ΡΠΏΠΎΡΠΎΠ± ΠΎΡΠ΄Π΅Π»ΠΊΠΈ.
ΠΠ°ΠΈΠ±ΠΎΠ»Π΅Π΅ ΠΏΡΠΈΠ΅ΠΌΠ»Π΅ΠΌΡΠΌ Π²Π°ΡΠΈΠ°Π½ΡΠΎΠΌ Π΄Π»Ρ ΠΏΠΎΠ²ΡΡΠ΅Π½ΠΈΡ Π·Π²ΡΠΊΠΎΠΈΠ·ΠΎΠ»ΡΡΠΈΠΈ ΠΏΠΎΠΌΠ΅ΡΠ΅Π½ΠΈΡ ΡΠ²Π»ΡΠ΅ΡΡΡ ΠΈΡΠΏΠΎΠ»ΡΠ·ΠΎΠ²Π°Π½ΠΈΠ΅ Π² ΠΊΠ°ΡΠ΅ΡΡΠ²Π΅ ΠΌΠ°ΡΠ΅ΡΠΈΠ°Π»Π° Π΄Π»Ρ ΠΎΡΠ΄Π΅Π»ΠΊΠΈ ΠΎΡΠΊΠΎΡΠΎΠ² ΡΡΡΠΊΠ°ΡΡΡΠΊΠΈ. Π ΡΠ΅Π·ΡΠ»ΡΡΠ°ΡΠ΅ ΡΡΡΠΊΠ°ΡΡΡΠ½ΡΡ ΡΠ°Π±ΠΎΡ Π΄Π²Π΅ΡΠ½ΡΠ΅ ΠΎΡΠΊΠΎΡΡ Π±ΡΠ΄ΡΡ Π»ΠΈΡΠ΅Π½Ρ ΠΏΡΡΡΠΎΡ, Π° ΡΠ°ΠΊΠΆΠ΅ ΡΡΠ°Π½ΡΡ ΡΡΡΠΎΠΉΡΠΈΠ²Ρ ΠΊ ΠΌΠ΅Ρ Π°Π½ΠΈΡΠ΅ΡΠΊΠΈΠΌ Π²ΠΎΠ·Π΄Π΅ΠΉΡΡΠ²ΠΈΡΠΌ. ΠΡΠΈ ΡΡΠΎΠΌ ΠΈΠ΄Π΅Π°Π»ΡΠ½ΠΎ Π²ΡΡΠΎΠ²Π½Π΅Π½Π½Π°Ρ ΠΏΠΎΠ²Π΅ΡΡ Π½ΠΎΡΡΡ ΠΎΡΠΊΠΎΡΠ° ΠΏΠΎΠ·Π²ΠΎΠ»ΠΈΡ Π² Π΄Π°Π»ΡΠ½Π΅ΠΉΡΠ΅ΠΌ Π²ΡΠΏΠΎΠ»Π½ΠΈΡΡ Π΅Π³ΠΎ Π΄Π΅ΠΊΠΎΡΠΈΡΠΎΠ²Π°Π½ΠΈΠ΅.
ΠΠ»Ρ Π²ΡΠΏΠΎΠ»Π½Π΅Π½ΠΈΡ ΡΠ°Π±ΠΎΡ ΠΌΠΎΠΆΠ½ΠΎ ΠΈΡΠΏΠΎΠ»ΡΠ·ΠΎΠ²Π°ΡΡ Π³ΠΎΡΠΎΠ²ΡΠ΅ ΡΠΌΠ΅ΡΠΈ Π΄Π»Ρ ΡΡΡΠΊΠ°ΡΡΡΠ½ΡΡ ΡΠ°Π±ΠΎΡ. ΠΠ½ΠΈ ΠΏΡΠΎΠ΄Π°ΡΡΡΡ Π² ΡΡΡ ΠΎΠΌ Π²ΠΈΠ΄Π΅ ΠΌΠ΅ΡΠΊΠ°ΠΌΠΈ ΠΈ ΡΠ°Π·Π²ΠΎΠ΄ΡΡΡΡ Π²ΠΎΠ΄ΠΎΠΉ Π² ΠΏΡΠΎΠΏΠΎΡΡΠΈΡΡ , ΠΊΠΎΡΠΎΡΡΠ΅ ΠΎΠΏΠΈΡΠ°Π½Ρ Π½Π° ΡΠΏΠ°ΠΊΠΎΠ²ΠΊΠ΅. ΠΠ΄Π½Π°ΠΊΠΎ ΡΠ°ΡΡΠ²ΠΎΡ ΠΌΠΎΠΆΠ½ΠΎ ΠΏΡΠΈΠ³ΠΎΡΠΎΠ²ΠΈΡΡ ΡΠ°ΠΌΠΎΡΡΠΎΡΡΠ΅Π»ΡΠ½ΠΎ, ΠΈΡΠΏΠΎΠ»ΡΠ·ΡΡ ΡΠ΅ΠΌΠ΅Π½Ρ ΠΈ ΠΏΠ΅ΡΠΎΠΊ. ΠΠ»Ρ ΡΠ°ΠΊΠΎΠ³ΠΎ ΡΠ°ΡΡΠ²ΠΎΡΠ° Π±Π΅ΡΠ΅ΡΡΡ 1 ΡΠ°ΡΡΡ ΡΠ΅ΠΌΠ΅Π½ΡΠ° ΠΈ 3 ΡΠ°ΡΡΠΈ ΠΏΠ΅ΡΠΊΠ°. ΠΠΎΠ΄Ρ Π½Π΅ΠΎΠ±Ρ ΠΎΠ΄ΠΈΠΌΠΎ Π΄ΠΎΠ±Π°Π²ΠΈΡΡ ΡΡΠΎΠ»ΡΠΊΠΎ, ΡΡΠΎΠ±Ρ Π³ΠΎΡΠΎΠ²ΡΠΉ ΡΠ°ΡΡΠ²ΠΎΡ Π½Π΅ ΡΡΠ΅ΠΊΠ°Π» Ρ ΠΏΠΎΠ²Π΅ΡΡ Π½ΠΎΡΡΠΈ ΠΏΡΠΈ ΡΠ°Π±ΠΎΡΠ΅.
ΠΠ΅ΠΎΠ±Ρ ΠΎΠ΄ΠΈΠΌΠΎ Π²ΡΠΏΠΎΠ»Π½ΠΈΡΡ ΠΏΠΎΠ΄Π³ΠΎΡΠΎΠ²ΠΊΡ ΠΏΠΎΠ²Π΅ΡΡ Π½ΠΎΡΡΠΈ Π΄Π²Π΅ΡΠ½ΠΎΠ³ΠΎ ΠΎΡΠΊΠΎΡΠ° ΠΏΠ΅ΡΠ΅Π΄ Π½Π°Π½Π΅ΡΠ΅Π½ΠΈΠ΅ΠΌ ΡΠ°ΡΡΠ²ΠΎΡΠ°. ΠΠ°Π·ΠΎΡΡ ΠΌΠ΅ΠΆΠ΄Ρ ΡΡΠ΅Π½ΠΎΠΉ ΠΈ Π΄Π²Π΅ΡΠ½ΠΎΠΉ ΠΊΠΎΡΠΎΠ±ΠΊΠΎΠΉ Π·Π°Π΄Π΅Π»ΡΠ²Π°ΡΡ ΠΏΡΠΈ ΠΏΠΎΠΌΠΎΡΠΈ Π²ΠΎΠΉΠ»ΠΎΠΊΠ° (ΠΏΠ°ΠΊΠ»ΠΈ), Π·Π°Π±ΠΈΠ²Π°Ρ Π΅Π³ΠΎ Π΄Π΅ΡΠ΅Π²ΡΠ½Π½ΠΎΠΉ ΠΏΠ°Π»ΠΎΡΠΊΠΎΠΉ, ΠΈΠ»ΠΈ ΠΌΠΎΠ½ΡΠ°ΠΆΠ½ΠΎΠΉ ΠΏΠ΅Π½ΠΎΠΉ Ρ ΠΈΡΠΏΠΎΠ»ΡΠ·ΠΎΠ²Π°Π½ΠΈΠ΅ΠΌ ΡΡΡΠΎΠΈΡΠ΅Π»ΡΠ½ΠΎΠ³ΠΎ ΠΏΠΈΡΡΠΎΠ»Π΅ΡΠ°. ΠΠ°Π΄Π΅Π»ΠΊΠ° ΠΏΠ΅Π½ΠΎΠΉ ΡΠ²Π»ΡΠ΅ΡΡΡ ΡΡΡΠ΅ΠΊΡΠΈΠ²Π½ΡΠΌ ΠΈ ΡΠΎΠ²ΡΠ΅ΠΌΠ΅Π½Π½ΡΠΌ ΡΠΏΠΎΡΠΎΠ±ΠΎΠΌ. ΠΠ΄Π½Π°ΠΊΠΎ ΠΏΡΠΈ Π΅Π΅ ΠΈΡΠΏΠΎΠ»ΡΠ·ΠΎΠ²Π°Π½ΠΈΠΈ Π½Π΅ΠΎΠ±Ρ ΠΎΠ΄ΠΈΠΌΠΎ ΡΡΠ΅ΡΡΡ, ΡΡΠΎ ΠΎΠ½Π° ΡΠ²Π΅Π»ΠΈΡΠΈΡΡΡ Π² ΠΎΠ±ΡΠ΅ΠΌΠ΅ Π² ΡΠ΅Π·ΡΠ»ΡΡΠ°ΡΠ΅ Π·Π°ΡΡΡΠ²Π°Π½ΠΈΡ, ΠΈ ΠΏΠΎΡΡΠΎΠΌΡ Π½Π΅ ΡΡΠΎΠΈΡ Π·Π°ΠΏΠΎΠ»Π½ΡΡΡ ΠΏΡΡΡΠΎΡΡ Π΄ΠΎ ΠΈΡ Π³ΡΠ°Π½ΠΈΡ, Π° ΡΠ°ΠΊΠΆΠ΅ ΠΏΡΠΈ ΡΠ°Π±ΠΎΡΠ΅ Ρ ΠΏΠ΅Π½ΠΎΠΉ Π»ΡΡΡΠ΅ ΠΏΠΎΠ»ΡΠ·ΠΎΠ²Π°ΡΡΡΡ ΠΏΠ΅ΡΡΠ°ΡΠΊΠ°ΠΌΠΈ, ΠΈΠ½Π°ΡΠ΅ ΠΏΡΠΈΠ»ΠΈΠΏΡΠΈΠ΅ ΡΠ°ΡΡΠΈΡΠΊΠΈ Π±ΡΠ΄Π΅Ρ ΡΠ΄Π°Π»ΠΈΡΡ Π·Π°ΡΡΡΠ΄Π½ΠΈΡΠ΅Π»ΡΠ½ΠΎ.
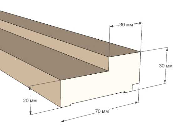
Π‘Ρ Π΅ΠΌΠ° Π½Π°Π»ΠΈΡΠ½ΠΈΠΊΠ° Ρ ΡΠ°Π·ΠΌΠ΅ΡΠ°ΠΌΠΈ.
ΠΡΡ ΠΏΠΎΠ²Π΅ΡΡ Π½ΠΎΡΡΡ ΡΡΠ΅Π½Ρ, ΠΊΠΎΡΠΎΡΡΡ Π½Π΅ΠΎΠ±Ρ ΠΎΠ΄ΠΈΠΌΠΎ ΠΎΡΡΡΠΊΠ°ΡΡΡΠΈΡΡ, Π½ΡΠΆΠ½ΠΎ ΡΡΠ°ΡΠ΅Π»ΡΠ½ΠΎ ΠΎΡΠΈΡΡΠΈΡΡ ΠΎΡ ΠΌΡΡΠΎΡΠ°: ΠΏΡΠ»ΠΈ, Π³ΡΡΠ·ΠΈ Π»ΡΠ±ΠΎΠ³ΠΎ ΠΏΡΠΎΠΈΡΡ ΠΎΠΆΠ΄Π΅Π½ΠΈΡ, ΠΏΡΡΠ΅Π½ Π»ΡΠ±ΠΎΠΉ ΠΏΡΠΈΡΠΎΠ΄Ρ. ΠΡΠ»ΠΈ ΠΏΠΎΠ²Π΅ΡΡ Π½ΠΎΡΡΡ Π³Π»Π°Π΄ΠΊΠ°Ρ, ΡΠΎ Π΄Π»Ρ ΡΠ»ΡΡΡΠ΅Π½ΠΈΡ ΡΡΠ΅ΠΏΠΊΠΈ ΡΡΡΠΊΠ°ΡΡΡΠΊΠΈ ΡΠΎ ΡΡΠ΅Π½ΠΎΠΉ Π½Π΅ΠΎΠ±Ρ ΠΎΠ΄ΠΈΠΌΠΎ ΡΠ΄Π΅Π»Π°ΡΡ Π½Π΅Π³Π»ΡΠ±ΠΎΠΊΠΈΠ΅ Π½Π°ΡΠ΅ΡΠΊΠΈ ΡΠΎΠΏΠΎΡΠΎΠΌ (ΠΎΡΡΡΠΎΠΉ ΡΠ°ΡΡΡΡ ΡΡΡΠΎΠΈΡΠ΅Π»ΡΠ½ΠΎΠΉ ΠΊΠΈΡΠΊΠΈ) ΠΈΠ»ΠΈ ΠΏΠ΅ΡΡΠΎΡΠ°ΡΠΎΡΠΎΠΌ, ΠΈΡΠΏΠΎΠ»ΡΠ·ΡΡ Π½Π΅ΠΎΠ±Ρ ΠΎΠ΄ΠΈΠΌΡΡ Π½Π°ΡΠ°Π΄ΠΊΡ.
ΠΡΠ»ΠΈ ΠΏΡΠ΅Π΄ΠΏΠΎΠ»Π°Π³Π°Π΅ΡΡΡ ΠΏΠΎΠ»ΠΎΠΆΠΈΡΡ ΡΠΎΠ»ΡΡΡΠΉ ΡΠ»ΠΎΠΉ ΡΡΡΠΊΠ°ΡΡΡΠΊΠΈ, ΡΡΠΎΠ±Ρ Π΄ΠΎΠ±ΠΈΡΡΡΡ ΠΈΠ΄Π΅Π°Π»ΡΠ½ΠΎ ΡΠΎΠ²Π½ΠΎΠ³ΠΎ Π΄Π²Π΅ΡΠ½ΠΎΠ³ΠΎ ΠΎΡΠΊΠΎΡΠ°, ΡΠΎ ΠΏΠΎΠ²Π΅ΡΡ Π½ΠΎΡΡΡ Π½Π΅ΠΎΠ±Ρ ΠΎΠ΄ΠΈΠΌΠΎ Π°ΡΠΌΠΈΡΠΎΠ²Π°ΡΡ. ΠΠ»Ρ Π°ΡΠΌΠΈΡΠΎΠ²Π°Π½ΠΈΡ, Π² Π΄Π°Π½Π½ΠΎΠΌ ΡΠ»ΡΡΠ°Π΅, ΠΏΡΠΈΠΌΠ΅Π½ΡΡΡ ΡΡΡΠΊΠ°ΡΡΡΠ½ΡΡ ΡΠ΅ΡΠΊΡ, ΠΊΠΎΡΠΎΡΠ°Ρ Π·Π°ΠΊΡΠ΅ΠΏΠ»ΡΠ΅ΡΡΡ ΠΊ ΡΡΠ΅Π½Π΅ ΠΏΠΎΡΡΠ΅Π΄ΡΡΠ²ΠΎΠΌ ΠΏΠ»Π°ΡΡΠΌΠ°ΡΡΠΎΠ²ΡΡ Π΄ΡΠ±Π΅Π»Π΅ΠΉ. ΠΠ΅ΡΠ΅Π΄ ΡΠ°ΠΌΠΎΠΉ ΡΠ°Π±ΠΎΡΠΎΠΉ ΠΏΠΎ ΠΎΡΡΡΠΊΠ°ΡΡΡΠΈΠ²Π°Π½ΠΈΡ Π΄Π²Π΅ΡΠ½ΡΡ ΠΎΡΠΊΠΎΡΠΎΠ² ΡΡΠ΅Π½Ρ ΠΈΠ»ΠΈ ΡΠ΅ΡΠ½ΠΎΠ²ΡΠ΅ ΠΎΡΠΊΠΎΡΡ Π½Π°Π΄ΠΎ ΡΠ²Π»Π°ΠΆΠ½ΠΈΡΡ. ΠΡΠΎ Π΄Π΅Π»Π°Π΅ΡΡΡ ΠΊΠΈΡΡΠΎΡΠΊΠΎΠΉ ΠΈ Π²ΠΎΠ΄ΠΎΠΉ.

ΠΡΠ΄Π΅Π»ΠΊΠ° Π΄Π΅ΠΊΠΎΡΠ°ΡΠΈΠ²Π½ΡΠΌ ΠΊΠ°ΠΌΠ½Π΅ΠΌ ΠΏΡΠΈΠΌΠ΅Π½ΡΠ΅ΡΡΡ Π² ΠΈΠ½ΡΠ΅ΡΡΠ΅ΡΠ΅ ΠΎΡΠΎΡΠΌΠ»Π΅Π½Π½ΠΎΠΌ Π² ΡΠΊΠΎ ΡΡΠΈΠ»Π΅.
Π§ΡΠΎΠ±Ρ ΠΏΠΎΠ²Π΅ΡΡ Π½ΠΎΡΡΡ Π΄Π²Π΅ΡΠ½ΠΎΠ³ΠΎ ΠΎΡΠΊΠΎΡΠ° ΠΏΠΎΡΠ»Π΅ ΠΎΡΠ΄Π΅Π»ΠΊΠΈ ΡΡΡΠΊΠ°ΡΡΡΠΊΠΎΠΉ Π±ΡΠ»Π° ΠΈΠ΄Π΅Π°Π»ΡΠ½ΠΎ ΡΠΎΠ²Π½ΠΎΠΉ, Π½Π΅ΠΎΠ±Ρ ΠΎΠ΄ΠΈΠΌΠΎ ΠΏΡΠΈΠΌΠ΅Π½ΡΡΡ ΠΌΠ°ΡΡΠΊΠΈ. ΠΠ½ΠΈ ΠΌΠΎΠ³ΡΡ Π±ΡΡΡ ΠΊΠ°ΠΊ ΠΌΠ΅ΡΠ°Π»Π»ΠΈΡΠ΅ΡΠΊΠΈΠ΅, ΡΠ°ΠΊ ΠΈ Π΄Π΅ΡΠ΅Π²ΡΠ½Π½ΡΠ΅ ΠΈΠ»ΠΈ ΠΈΠ· ΠΏΠΎΠ΄ΡΡΡΠ½ΡΡ ΠΌΠ°ΡΠ΅ΡΠΈΠ°Π»ΠΎΠ², Π½Π°ΠΏΡΠΈΠΌΠ΅Ρ, ΡΠΎΠ³ΠΎ ΠΆΠ΅ ΡΠ°ΡΡΠ²ΠΎΡΠ° Ρ Π΄ΠΎΠ±Π°Π²Π»Π΅Π½ΠΈΠ΅ΠΌ Π² Π½Π΅Π³ΠΎ Π³ΠΈΠΏΡΠ°. ΠΠ΄Π½Π°ΠΊΠΎ Π½Π°ΠΈΠ±ΠΎΠ»Π΅Π΅ Π½Π°Π΄Π΅ΠΆΠ½ΡΠΌΠΈ ΠΌΠ°ΡΠΊΠ°ΠΌΠΈ Π±ΡΠ΄ΡΡ ΠΌΠ΅ΡΠ°Π»Π»ΠΈΡΠ΅ΡΠΊΠΈΠ΅. ΠΠ°ΡΠΊΠΈ Π²ΡΡΡΠ°Π²Π»ΡΡΡΡΡ ΡΡΡΠΎΠ³ΠΎ ΠΏΠΎ ΡΡΠΎΠ²Π½Ρ Ρ ΠΈΡΠΏΠΎΠ»ΡΠ·ΠΎΠ²Π°Π½ΠΈΠ΅ΠΌ ΡΠ³ΠΎΠ»ΠΊΠ°.
ΠΠΎΡΠ»Π΅ ΡΡΡΠ°Π½ΠΎΠ²ΠΊΠΈ ΠΌΠ°ΡΠΊΠΎΠ² Π½Π°Π½ΠΎΡΡΡ ΡΡΡΠΊΠ°ΡΡΡΠΊΡ Π·Π° 3-4 ΠΏΠΎΠ΄Ρ ΠΎΠ΄Π°, Π² Π·Π°Π²ΠΈΡΠΈΠΌΠΎΡΡΠΈ ΠΎΡ ΡΡΠ΅Π±ΡΠ΅ΠΌΠΎΠΉ ΡΠΎΠ»ΡΠΈΠ½Ρ. ΠΡΠΈ ΡΡΠΎΠΌ Π²ΠΎΠ΄ΠΎΠΉ Π½Π΅ΠΎΠ±Ρ ΠΎΠ΄ΠΈΠΌΠΎ ΠΏΡΠ΅Π΄Π²Π°ΡΠΈΡΠ΅Π»ΡΠ½ΠΎ ΠΎΠ±ΡΠ°Π±Π°ΡΡΠ²Π°ΡΡ ΠΏΠ΅ΡΠ΅Π΄ ΠΊΠ°ΠΆΠ΄ΡΠΌ ΡΠ»ΠΎΠ΅ΠΌ ΡΡΡΠΊΠ°ΡΡΡΠΊΠΈ.
Π’ΡΠ΅ΡΠΈΠ½Ρ, ΠΊΠΎΡΠΎΡΡΠ΅ ΠΌΠΎΠ³ΡΡ ΠΎΠ±ΡΠ°Π·ΠΎΠ²Π°ΡΡΡΡ Π² ΠΌΠ΅ΡΡΠ°Ρ ΡΠΎΠΏΡΠΈΠΊΠΎΡΠ½ΠΎΠ²Π΅Π½ΠΈΡ Π΄Π²Π΅ΡΠ½ΠΎΠΉ ΠΊΠΎΡΠΎΠ±ΠΊΠΈ Ρ ΠΎΡΡΡΠΊΠ°ΡΡΡΠ΅Π½Π½ΠΎΠΉ ΠΏΠΎΠ²Π΅ΡΡ Π½ΠΎΡΡΡΡ, ΠΌΠΎΠΆΠ½ΠΎ Π·Π°ΠΊΡΡΡΡ Π°ΠΊΡΠΈΠ»ΠΎΠΌ ΠΈΠ»ΠΈ Π³Π΅ΡΠΌΠ΅ΡΠΈΠΊΠΎΠΌ. ΠΡΡΠ°Π²Π½ΠΈΠ²Π°Π½ΠΈΠ΅ Π½Π°Π½Π΅ΡΠ΅Π½Π½ΠΎΠ³ΠΎ Π³Π΅ΡΠΌΠ΅ΡΠΈΠΊΠ° Ρ ΠΈΡΠΏΠΎΠ»ΡΠ·ΠΎΠ²Π°Π½ΠΈΠ΅ΠΌ ΠΌΠΎΠ½ΡΠ°ΠΆΠ½ΠΎΠ³ΠΎ ΠΏΠΈΡΡΠΎΠ»Π΅ΡΠ° ΠΎΡΡΡΠ΅ΡΡΠ²Π»ΡΠ΅ΡΡΡ Ρ ΠΏΠΎΠΌΠΎΡΡΡ ΡΠ΅Π·ΠΈΠ½ΠΎΠ²ΠΎΠ³ΠΎ ΠΌΡΠ³ΠΊΠΎΠ³ΠΎ ΡΠΏΠ°ΡΠ΅Π»Ρ. ΠΠΎΡΠ»Π΅ Π²ΡΡΡΡ Π°Π½ΠΈΡ ΠΎΡΡΡΠΊΠ°ΡΡΡΠ΅Π½Π½Π°Ρ ΠΏΠΎΠ²Π΅ΡΡ Π½ΠΎΡΡΡ Π³ΠΎΡΠΎΠ²Π° Π΄Π»Ρ Π΄Π°Π»ΡΠ½Π΅ΠΉΡΠ΅Π³ΠΎ Π΄Π΅ΠΊΠΎΡΠΈΡΠΎΠ²Π°Π½ΠΈΡ.
ΠΡΠ΄Π΅Π»ΠΊΠ° Π³ΠΈΠΏΡΠΎΠΊΠ°ΡΡΠΎΠ½Π½ΡΠΌΠΈ Π»ΠΈΡΡΠ°ΠΌΠΈ
Π’Π°ΠΊ ΠΊΠ°ΠΊ ΡΡΠ° ΡΠ΅Ρ Π½ΠΎΠ»ΠΎΠ³ΠΈΡ ΡΠ²Π»ΡΠ΅ΡΡΡ ΠΊΠ°ΡΠΊΠ°ΡΠ½ΠΎΠΉ, ΡΠΎ Π½Π΅ΠΎΠ±Ρ ΠΎΠ΄ΠΈΠΌΠΎ ΠΏΡΠ΅ΠΆΠ΄Π΅ Π²ΡΠ΅Π³ΠΎ ΡΠΎΠΎΡΡΠ΄ΠΈΡΡ ΠΊΠ°ΡΠΊΠ°Ρ ΠΈΠ· ΠΌΠ΅ΡΠ°Π»Π»ΠΈΡΠ΅ΡΠΊΠΎΠ³ΠΎ ΠΏΡΠΎΡΠΈΠ»Ρ. ΠΠ»Ρ Π΄Π°Π½Π½ΠΎΠ³ΠΎ Π²ΠΈΠ΄Π° ΡΠ°Π±ΠΎΡ ΠΏΡΠΈΠΌΠ΅Π½ΡΡΡΡΡ ΡΠ°ΠΊΠΈΠ΅ ΠΆΠ΅ ΠΏΡΠΎΡΠΈΠ»ΠΈ, ΡΡΠΎ ΠΈ Π΄Π»Ρ ΡΡΡΠΎΠΈΡΠ΅Π»ΡΡΡΠ²Π° Π»ΡΠ±ΡΡ Π΄ΡΡΠ³ΠΈΡ ΠΊΠΎΠ½ΡΡΡΡΠΊΡΠΈΠΉ ΠΈΠ· Π³ΠΈΠΏΡΠΎΠΊΠ°ΡΡΠΎΠ½Π°.
Π‘ΡΠ΅Π½Ρ, ΠΊΠΎΡΠΎΡΡΠ΅ ΠΏΡΠΈΠ»Π΅Π³Π°ΡΡ ΠΊ Π΄Π²Π΅ΡΠ½ΠΎΠΌΡ ΠΏΡΠΎΠ΅ΠΌΡ, Π΄ΠΎΠ»ΠΆΠ½Ρ Π±ΡΡΡ Π·Π°ΡΠ°Π½Π΅Π΅ Π²ΡΡΠΎΠ²Π½Π΅Π½Ρ.

ΠΠ°ΡΠΈΠ°Π½ΡΡ ΠΎΡΠ΄Π΅Π»ΠΊΠΈ ΠΎΡΠΊΠΎΡΠΎΠ².
ΠΡΠΎΡΠΈΠ»ΠΈ ΠΊ ΠΊΠ°ΡΠΊΠ°ΡΡ ΠΊΡΠ΅ΠΏΡΡΡΡ ΠΏΡΠΈ ΠΏΠΎΠΌΠΎΡΠΈ Π΄ΡΠ±Π΅Π»Π΅ΠΉ ΠΏΠΎ ΠΏΠ΅ΡΠΈΠΌΠ΅ΡΡΡ Π΄Π²Π΅ΡΠ½ΠΎΠ³ΠΎ ΠΎΡΠΊΠΎΡΠ°. ΠΠ»Ρ ΡΠΎΠ³ΠΎ ΡΡΠΎΠ±Ρ ΡΡΠΈΠ»ΠΈΡΡ ΠΊΠΎΠ½ΡΡΡΡΠΊΡΠΈΡ ΠΊΠ°ΡΠΊΠ°ΡΠ°, ΠΏΡΠΎΡΠΈΠ»ΠΈ ΠΌΠ΅ΠΆΠ΄Ρ ΡΠΎΠ±ΠΎΠΉ ΡΠΎΠ΅Π΄ΠΈΠ½ΡΡΡΡΡ ΠΏΠ΅ΡΠ΅ΠΌΡΡΠΊΠ°ΠΌΠΈ. ΠΡΠΎΠΌΠ΅ ΡΠΎΠ³ΠΎ, Π΅ΡΠ»ΠΈ Π±ΡΠ΄ΡΡΠ°Ρ ΡΠΈΡΡΠΎΠ²Π°Ρ ΠΎΠ±Π»ΠΈΡΠΎΠ²ΠΊΠ° Π΄Π²Π΅ΡΠ½ΠΎΠ³ΠΎ ΠΎΡΠΊΠΎΡΠ° ΠΏΡΠ΅Π΄ΡΡΠΌΠ°ΡΡΠΈΠ²Π°Π΅Ρ ΠΎΡΠ²Π΅ΡΠ΅Π½ΠΈΠ΅ ΠΈΠ»ΠΈ Π½Π΅ΠΎΠ±Ρ ΠΎΠ΄ΠΈΠΌΠΎ ΠΏΡΠΎΠ»ΠΎΠΆΠΈΡΡ ΠΊΠ°Π±Π΅Π»Ρ Π΄Π»Ρ Π½ΡΠΆΠ΄ ΠΏΠΎΠΌΠ΅ΡΠ΅Π½ΠΈΡ, Π½Π°ΠΏΡΠΈΠΌΠ΅Ρ, ΠΌΠΎΠ½ΡΠ°ΠΆ Π²ΡΠΊΠ»ΡΡΠ°ΡΠ΅Π»Π΅ΠΉ, ΠΊΠΎΡΠΎΡΡΠ΅ ΡΠ°Π·Π΄Π΅Π»ΡΠ΅Ρ Π΄Π²Π΅ΡΠ½ΠΎΠΉ ΠΏΡΠΎΠ΅ΠΌ, ΡΠΎ ΠΏΡΠΎΠΊΠ»Π°Π΄ΠΊΡ Π²ΡΠ΅Ρ ΠΈΠ½ΠΆΠ΅Π½Π΅ΡΠ½ΡΡ ΡΠ»Π΅ΠΌΠ΅Π½ΡΠΎΠ² ΡΠ»Π΅Π΄ΡΠ΅Ρ Π²ΡΠΏΠΎΠ»Π½ΡΡΡ Π½Π° Π΄Π°Π½Π½ΠΎΠΌ ΡΡΠ°ΠΏΠ΅.
ΠΠΎΡΠ»Π΅ ΠΌΠΎΠ½ΡΠ°ΠΆΠ° ΠΊΠ°ΡΠΊΠ°ΡΠ° Π½Π΅ΠΎΠ±Ρ ΠΎΠ΄ΠΈΠΌΠΎ ΡΠ°Π·ΡΠ΅Π·Π°ΡΡ Π³ΠΈΠΏΡΠΎΠΊΠ°ΡΡΠΎΠ½Π½ΡΠΉ Π»ΠΈΡΡ ΠΏΠΎ ΡΡΠ΅Π±ΡΠ΅ΠΌΡΠΌ ΡΠ°Π·ΠΌΠ΅ΡΠ°ΠΌ. ΠΠ»Ρ ΡΡΠΎΠ³ΠΎ ΡΡΠ°ΡΠ΅Π»ΡΠ½ΠΎ ΠΈΠ·ΠΌΠ΅ΡΡΡΡΡΡ Π³Π°Π±Π°ΡΠΈΡΠ½ΡΠ΅ ΡΠ°Π·ΠΌΠ΅ΡΡ Π΄Π²Π΅ΡΠ½ΠΎΠ³ΠΎ ΠΎΡΠΊΠΎΡΠ°, Π½Π° Π»ΠΈΡΡΠ΅ Π³ΠΈΠΏΡΠΎΠΊΠ°ΡΡΠΎΠ½Π° ΠΏΠΎ Π½Π°Π½Π΅ΡΠ΅Π½Π½ΡΠΌ ΡΠ°Π·ΠΌΠ΅ΡΠ°ΠΌ Π΄Π΅Π»Π°Π΅ΡΡΡ ΡΠ°Π·ΡΠ΅Π· ΡΡΡΠΎΠΈΡΠ΅Π»ΡΠ½ΡΠΌ Π½ΠΎΠΆΠΎΠΌ, Π΄Π°Π»Π΅Π΅ Π½Π° ΡΠΎΠ²Π½ΠΎΠΉ ΠΏΠΎΠ²Π΅ΡΡ Π½ΠΎΡΡΠΈ ΠΏΠΎ ΡΡΠΎΠΌΡ ΡΠ°Π·ΠΌΠ΅ΡΡ ΠΎΡΠ»Π°ΠΌΡΠ²Π°Π΅ΡΡΡ Π»ΠΈΡΡ. ΠΡΠΈ ΡΡΠΎΠΌ Π·Π°ΠΌΠ΅ΡΡ Π΄ΠΎΠ»ΠΆΠ½Ρ ΡΡΠΈΡΡΠ²Π°ΡΡ Π±ΡΠ΄ΡΡΠΈΠ΅ ΡΡΡΠΊΠΈ Π·Π°Π³ΠΎΡΠΎΠ²ΠΎΠΊ Π² Π²Π΅ΡΡ Π½ΠΈΡ ΡΠ³Π»Π°Ρ ΠΎΡΠΊΠΎΡΠ°. ΠΡΠ΅Π³ΠΎ Π²ΡΡΠ΅Π·Π°ΡΡ 3 Π·Π°Π³ΠΎΡΠΎΠ²ΠΊΠΈ.
ΠΠ°ΠΆΠ΄ΡΡ ΠΈΠ· Π½ΠΈΡ ΠΊΡΠ΅ΠΏΡΡ ΠΊ ΠΊΠ°ΡΠΊΠ°ΡΡ ΡΠ°ΠΌΠΎΡΠ΅Π·Π°ΠΌΠΈ. ΠΠ°Π·ΠΎΡ, ΠΊΠΎΡΠΎΡΡΠΉ ΠΎΠ±ΡΠ°Π·ΡΠ΅ΡΡΡ ΠΌΠ΅ΠΆΠ΄Ρ Π³ΠΈΠΏΡΠΎΠΊΠ°ΡΡΠΎΠ½Π½ΠΎΠΉ ΠΊΠΎΠ½ΡΡΡΡΠΊΡΠΈΠ΅ΠΉ ΠΎΡΠΊΠΎΡΠ° ΠΈ ΡΡΡΠ΅ΡΡΠ²ΡΡΡΠ΅ΠΉ ΡΡΠ΅Π½ΠΎΠΉ, Π΄ΠΎΠ»ΠΆΠ΅Π½ Π±ΡΡΡ ΠΌΠΈΠ½ΠΈΠΌΠ°Π»ΡΠ½ΡΠΌ. ΠΠ°ΠΏΠΎΠ»Π½ΡΡΡ Π΅Π³ΠΎ ΠΌΠΎΠ½ΡΠ°ΠΆΠ½ΠΎΠΉ ΠΏΠ΅Π½ΠΎΠΉ. ΠΠ°Π»Π΅Π΅ ΠΏΠΎΡΠ»Π΅ Π΅Π΅ Π·Π°ΡΡΡΠ²Π°Π½ΠΈΡ Π²ΡΡΡΡΠΏΠ°ΡΡΠΈΠ΅ ΠΈΠ·Π»ΠΈΡΠΊΠΈ ΡΠ»Π΅Π΄ΡΠ΅Ρ Π°ΠΊΠΊΡΡΠ°ΡΠ½ΠΎ ΡΠ΄Π°Π»ΠΈΡΡ ΠΎΡΡΡΡΠΌ Π½ΠΎΠΆΠΎΠΌ. ΠΡΠ»ΠΈ Π·Π°Π·ΠΎΡ Π΄ΠΎΡΡΠ°ΡΠΎΡΠ½ΠΎ Π±ΠΎΠ»ΡΡΠΎΠΉ, Π² ΠΊΠ°ΡΠ΅ΡΡΠ²Π΅ ΠΎΠΊΠΎΠ½ΡΠ°ΡΠ΅Π»ΡΠ½ΠΎΠΉ ΠΎΠ±Π»ΠΈΡΠΎΠ²ΠΊΠΈ ΠΌΠΎΠΆΠ½ΠΎ ΠΈΡΠΏΠΎΠ»ΡΠ·ΠΎΠ²Π°ΡΡ ΡΠΈΡΠΎΠΊΠΈΠΉ Π½Π°Π»ΠΈΡΠ½ΠΈΠΊ.
ΠΠ°Π½Π΅ΡΠ΅Π½ΠΈΠ΅ ΡΠΏΠ°ΠΊΠ»Π΅Π²ΠΊΠΈ Π½Π° Π³ΠΎΡΠΎΠ²ΡΡ ΠΏΠΎΠ²Π΅ΡΡ Π½ΠΎΡΡΡ Π΄Π²Π΅ΡΠ½ΠΎΠ³ΠΎ ΠΎΡΠΊΠΎΡΠ° Π΄Π΅Π»Π°ΡΡ ΡΠΆΠ΅ ΠΏΠΎΡΠ»Π΅ ΠΌΠΎΠ½ΡΠ°ΠΆΠ° Π²ΡΠ΅ΠΉ ΠΊΠΎΠ½ΡΡΡΡΠΊΡΠΈΠΈ. Π Π΄Π°Π»Π΅Π΅ Π·Π°Π½ΠΈΠΌΠ°ΡΡΡΡ ΠΎΠΊΠΎΠ½ΡΠ°ΡΠ΅Π»ΡΠ½ΡΠΌΠΈ ΠΎΡΠ΄Π΅Π»ΠΎΡΠ½ΡΠΌΠΈ ΡΠ°Π±ΠΎΡΠ°ΠΌΠΈ: ΠΏΠΎΠΊΡΠ°ΡΠΊΠΎΠΉ ΠΈΠ»ΠΈ ΠΎΠΊΠ»Π΅ΠΈΠ²Π°Π½ΠΈΠ΅ΠΌ ΠΎΠ±ΠΎΠ΅Π².
ΠΡΠ΄Π΅Π»ΠΊΠ° ΠΎΡΠΊΠΎΡΠΎΠ² Ρ ΠΏΠΎΠΌΠΎΡΡΡ ΠΠΠ€
ΠΠ±ΡΠ°Π±ΠΎΡΠΊΠ° Π΄Π²Π΅ΡΠ½ΡΡ ΠΎΡΠΊΠΎΡΠΎΠ² Π»ΠΈΡΡΠ°ΠΌΠΈ ΠΠΠ€ ΠΏΡΠΎΠΈΠ·Π²ΠΎΠ΄ΠΈΡΡΡ Π½Π° Π·Π°ΡΠ°Π½Π΅Π΅ Π²ΡΡΡΡΠΎΠ΅Π½Π½ΡΠΉ ΠΊΠ°ΡΠΊΠ°Ρ. ΠΠ°ΡΠΊΠ°ΡΠ½Π°Ρ ΠΊΠΎΠ½ΡΡΡΡΠΊΡΠΈΡ ΡΠΎΠΎΡΡΠΆΠ°Π΅ΡΡΡ Π°Π½Π°Π»ΠΎΠ³ΠΈΡΠ½ΠΎ ΡΠΎΠΉ, ΠΊΠΎΡΠΎΡΠ°Ρ ΡΡΡΠΎΠΈΡΡΡ ΠΏΡΠΈ Π²ΡΠΏΠΎΠ»Π½Π΅Π½ΠΈΠΈ ΡΠ°Π±ΠΎΡ ΠΏΠΎ ΠΎΡΠ΄Π΅Π»ΠΊΠ΅ ΠΎΡΠΊΠΎΡΠΎΠ² Π³ΠΈΠΏΡΠΎΠΊΠ°ΡΡΠΎΠ½Π½ΡΠΌΠΈ Π»ΠΈΡΡΠ°ΠΌΠΈ. ΠΠ»Π΅ΠΌΠ΅Π½ΡΡ ΠΎΡΠΊΠΎΡΠ° ΠΊΡΠ΅ΠΏΡΡΡΡ ΠΊΠ»ΡΠΌΠΌΠ΅ΡΠ°ΠΌΠΈ ΠΈ ΡΠ°ΠΌΠΎΡΠ΅Π·Π°ΠΌΠΈ. ΠΠ΄Π½Π°ΠΊΠΎ Π½Π°Π»ΠΈΡΠ½ΠΈΠΊΠΈ ΠΈΠ»ΠΈ Π΄Π΅ΠΊΠΎΡΠ°ΡΠΈΠ²Π½ΡΠ΅ ΠΏΠ»Π°Π½ΠΊΠΈ, ΠΊΠΎΡΠΎΡΡΠ΅ Π·Π°ΠΊΡΡΠ²Π°ΡΡ Π·Π°Π·ΠΎΡ ΠΌΠ΅ΠΆΠ΄Ρ ΠΎΡΠΊΠΎΡΠΎΠΌ ΠΈ ΡΡΠ΅Π½ΠΎΠΉ, Π·Π°ΠΊΡΠ΅ΠΏΠ»ΡΡΡΡΡ ΠΆΠΈΠ΄ΠΊΠΈΠΌΠΈ Π³Π²ΠΎΠ·Π΄ΡΠΌΠΈ.
Β
ΠΡΠ±ΠΈΡΠ°ΠΉΡΠ΅ Π»ΡΠ±ΠΎΠΉ Π²Π°ΡΠΈΠ°Π½Ρ ΠΈ ΡΠΌΠ΅Π»ΠΎ ΠΏΡΠΈΡΡΡΠΏΠ°ΠΉΡΠ΅ ΠΊ ΡΠ°Π±ΠΎΡΠ΅. Π£Π΄Π°ΡΠΈ!
dekormyhome.ru
ΠΠ²Π΅ΡΠ½ΡΠ΅ ΠΎΡΠΊΠΎΡΡ, Π²ΠΈΠ΄Ρ Π΄Π²Π΅ΡΠ½ΡΡ ΠΎΡΠΊΠΎΡΠΎΠ², ΠΊΠ°ΠΊ ΠΏΡΠ°Π²ΠΈΠ»ΡΠ½ΠΎ ΡΠ΄Π΅Π»Π°ΡΡ Π΄Π²Π΅ΡΠ½ΡΠ΅ ΠΎΡΠΊΠΎΡΡ ΡΠ²ΠΎΠΈΠΌΠΈ ΡΡΠΊΠ°ΠΌΠΈ.
Π‘ΠΎΠ³Π»Π°ΡΠΈΡΠ΅ΡΡ, ΡΡΠΎ Π΄Π²Π΅ΡΠ½ΡΠ΅ ΠΎΡΠΊΠΎΡΡ Π½Π΅ ΡΠΎΠ»ΡΠΊΠΎ ΡΠΊΡΠ°ΡΠ°ΡΡ ΠΎΠ±ΡΠΊΠ½ΠΎΠ²Π΅Π½Π½ΡΡ Π΄Π²Π΅ΡΡ, Π½ΠΎ ΠΈ ΠΏΠΎΠ·Π²ΠΎΠ»ΡΡΡ ΡΠΎΡ ΡΠ°Π½ΡΡΡ ΡΠ΅ΠΏΠ»ΠΎ Π² ΠΊΠ²Π°ΡΡΠΈΡΠ΅. ΠΠ· ΠΊΠ°ΠΊΠΈΡ ΠΌΠ°ΡΠ΅ΡΠΈΠ°Π»ΠΎΠ² ΠΏΡΠ΅Π΄ΠΏΠΎΡΡΠΈΡΠ΅Π»ΡΠ½Π΅Π΅ ΡΡΡΡΠ°ΠΈΠ²Π°ΡΡ Π΄Π²Π΅ΡΠ½ΡΠ΅ ΠΎΡΠΊΠΎΡΡ ΠΈ ΠΊΠ°ΠΊ ΠΈΡ Π²ΠΎΠ·Π²ΠΎΠ΄ΠΈΡΡ?
Π‘ΠΏΠΎΡΠΎΠ±Ρ Π²ΡΠΏΠΎΠ»Π½Π΅Π½ΠΈΡ Π΄Π²Π΅ΡΠ½ΡΡ ΠΎΡΠΊΠΎΡΠΎΠ²
ΠΠΎΡΠ»Π΅ ΠΎΠΊΠΎΠ½ΡΠ°Π½ΠΈΡ ΠΏΡΠΎΡΠ΅ΡΡΠ° ΡΡΡΠ°Π½ΠΎΠ²ΠΊΠΈ Π΄Π²Π΅ΡΠ΅ΠΉ, Π·Π°Π²Π΅ΡΡΠ°ΡΡΠΈΠΌ ΡΡΠ°ΠΏΠΎΠΌ ΡΠ²Π»ΡΠ΅ΡΡΡ ΡΡΡΡΠΎΠΉΡΡΠ²ΠΎ ΠΎΡΠΊΠΎΡΠΎΠ².

ΠΠ²Π΅ΡΠ½ΡΠ΅ ΠΎΡΠΊΠΎΡΡ ΠΏΡΠ΅Π΄ΡΡΠ°Π²Π»ΡΡΡ ΡΠΎΠ±ΠΎΠΉ Π΄Π΅ΠΊΠΎΡΠ°ΡΠΈΠ²Π½ΡΡ ΠΎΠ±Π»ΠΈΡΠΎΠ²ΠΊΡ, ΠΊΠΎΡΠΎΡΠ°Ρ ΠΎΠ±Π΅ΡΠΏΠ΅ΡΠΈΠ²Π°Π΅Ρ ΡΡΡΠ΅ΡΠΈΡΠ΅ΡΠΊΡΡ ΡΡΠ½ΠΊΡΠΈΡ ΠΈ ΠΎΠ΄Π½ΠΎΠ²ΡΠ΅ΠΌΠ΅Π½Π½ΠΎ ΡΡΠ΅ΠΏΠ»ΡΠ΅Ρ Π΄Π²Π΅ΡΠΈ. Π’Π΅Ρ
Π½ΠΎΠ»ΠΎΠ³ΠΈΡ Π²ΡΠΏΠΎΠ»Π½Π΅Π½ΠΈΡ ΠΎΡΠΊΠΎΡΠΎΠ² ΠΏΡΠ΅Π΄ΡΡΠΌΠ°ΡΡΠΈΠ²Π°Π΅Ρ Π΄Π²Π΅ ΡΡΠ°Π΄ΠΈΠΈ:
β’ ΡΠ΅ΡΠ½ΠΎΠ²ΡΡ ΠΎΡΠ΄Π΅Π»ΠΊΡ
β’ Π΄Π΅ΠΊΠΎΡΠ°ΡΠΈΠ²Π½ΡΡ ΠΎΠ±Π»ΠΈΡΠΎΠ²ΠΊΡ.
ΠΠΎΡΡΠΎΠΌΡ Π²ΠΈΠ΄Ρ Π΄Π²Π΅ΡΠ½ΡΡ
ΠΎΡΠΊΠΎΡΠΎΠ² Π·Π°Π²ΠΈΡΡΡ ΠΎΡ ΠΌΠ°ΡΠ΅ΡΠΈΠ°Π»Π°, ΠΊΠΎΡΠΎΡΡΠΉ Π±ΡΠ΄Π΅Ρ ΠΏΡΠΈΠΌΠ΅Π½Π΅Π½ ΠΏΡΠΈ ΠΌΠΎΠ½ΡΠ°ΠΆΠ΅ ΠΈ ΠΎΠ±Π»ΠΈΡΠΎΠ²ΠΊΠ΅. Π’Π°ΠΊΠΎΠ΅ ΡΠ°Π·Π΄Π΅Π»Π΅Π½ΠΈΠ΅ ΠΎΠ±ΡΡΠ»ΠΎΠ²Π»Π΅Π½ΠΎ ΡΠΏΠΎΡΠΎΠ±ΠΎΠΌ ΡΠΎΡΠΌΠΈΡΠΎΠ²Π°Π½ΠΈΡ ΠΎΡΠΊΠΎΡΠ°.

ΠΠ°ΡΠ΅ΡΠΈΠ°Π»Π°ΠΌΠΈ Π΄Π»Ρ ΡΠΎΡΠΌΠΈΡΠΎΠ²Π°Π½ΠΈΡ Π΄Π²Π΅ΡΠ½ΠΎΠ³ΠΎ ΠΎΡΠΊΠΎΡΠ° ΡΠ°ΠΌΠΎΡΡΠΎΡΡΠ΅Π»ΡΠ½ΠΎ ΡΠ²Π»ΡΡΡΡΡ:
β’ ΠΏΠ»Π°ΡΡΠΈΠΊΠΎΠ²ΡΠ΅ ΠΏΠ°Π½Π΅Π»ΠΈ
β’ Π΄Π΅ΡΠ΅Π²ΡΠ½Π½ΡΠ΅ Π»Π°ΠΌΠ΅Π»ΠΈ
β’ Π³ΠΈΠΏΡΠΎΠΊΠ°ΡΡΠΎΠ½
β’ Π»Π°ΠΌΠΈΠ½Π°Ρ
β’ ΠΠΠ€.
Π‘ΠΏΠΎΡΠΎΠ±Ρ Π²ΡΠΏΠΎΠ»Π½Π΅Π½ΠΈΡ ΠΎΡΠΊΠΎΡΠΎΠ² ΠΏΡΠ΅Π΄ΠΏΠΎΠ»Π°Π³Π°ΡΡ Π·Π°Π΄Π΅Π»ΠΊΡ Π½Π΅ΠΎΠ±Ρ
ΠΎΠ΄ΠΈΠΌΡΠΌ ΡΠ°ΡΡΠ²ΠΎΡΠΎΠΌ ΠΈ ΠΏΠΎΡΠ»Π΅Π΄ΡΡΡΠ΅Π΅ ΠΎΡΡΡΠΊΠ°ΡΡΡΠΈΠ²Π°Π½ΠΈΠ΅; ΠΊΠ°ΡΠΊΠ°ΡΠ½ΡΡ ΠΎΠ±ΡΠΈΠ²ΠΊΡ ΠΏΡΠ΅Π΄ΠΏΠΎΠ»Π°Π³Π°Π΅ΠΌΡΠΌ ΠΎΡΠ΄Π΅Π»ΠΎΡΠ½ΡΠΌ ΠΌΠ°ΡΠ΅ΡΠΈΠ°Π»ΠΎΠΌ ΠΈΠ»ΠΈ Π΅Π³ΠΎ ΠΏΡΠΈΠΊΠ»Π΅ΠΈΠ²Π°Π½ΠΈΠ΅.

ΠΠ°ΠΊ Π²ΠΎΠ·Π²Π΅ΡΡΠΈ Π΄Π²Π΅ΡΠ½ΡΠ΅ ΠΎΡΠΊΠΎΡΡ ΡΠ²ΠΎΠΈΠΌΠΈ ΡΡΠΊΠ°ΠΌΠΈ
ΠΠΎ ΡΠ΅Ρ
Π½ΠΎΠ»ΠΎΠ³ΠΈΠΈ ΠΏΡΠΎΠ²Π΅Π΄Π΅Π½ΠΈΡ ΡΠ°Π±ΠΎΡ ΡΡΡΡΠΎΠΉΡΡΠ²ΠΎ Π΄Π²Π΅ΡΠ½ΡΡ
ΠΎΡΠΊΠΎΡΠΎΠ² ΡΠ°Π·Π΄Π΅Π»Π΅Π½ΠΎ Π½Π°:
β’ Π±Π΅ΡΠΊΠ°ΡΠΊΠ°ΡΠ½ΡΠ΅
β’ ΠΊΠ°ΡΠΊΠ°ΡΠ½ΡΠ΅.
ΠΠ·Π³ΠΎΡΠΎΠ²Π»Π΅Π½ΠΈΠ΅ ΠΎΡΠΊΠΎΡΠΎΠ² Π΄Π²Π΅ΡΠ½ΡΡ ΠΎΡΡΡΠΊΠ°ΡΡΡΠΈΠ²Π°Π½ΠΈΠ΅ΠΌ
ΠΠ°ΠΈΠ±ΠΎΠ»Π΅Π΅ ΠΏΠΎΠ΄Ρ
ΠΎΠ΄ΡΡΠΈΠΌ, Ρ ΡΠΎΡΠΊΠΈ Π·ΡΠ΅Π½ΠΈΡ Π·Π²ΡΠΊΠΎΠΈΠ·ΠΎΠ»ΡΡΠΈΠΈ ΠΈ Π²Π·Π»ΠΎΠΌΠΎΡΡΡΠΎΠΉΡΠΈΠ²ΠΎΡΡΠΈ, ΡΠ²Π»ΡΠ΅ΡΡΡ Π²Π°ΡΠΈΠ°Π½Ρ Π·Π°Π΄Π΅Π»ΠΊΠΈ ΠΎΡΠΊΠΎΡΠ° ΡΠ°ΡΡΠ²ΠΎΡΠΎΠΌ. ΠΠΎΠ»ΡΡΠ°Π΅ΠΌΡΠΉ Π² ΡΠ΅Π·ΡΠ»ΡΡΠ°ΡΠ΅ Π·Π°Π΄Π΅Π»ΠΊΠΈ ΡΠ°ΡΡΠ²ΠΎΡΠΎΠΌ ΠΎΡΠΊΠΎΡ Π½Π΅ ΠΈΠΌΠ΅Π΅Ρ Π²Π½ΡΡΡΠ΅Π½Π½ΠΈΡ
ΠΏΡΡΡΠΎΡ ΠΈ Π½Π΅ ΠΏΡΠΎΠ³ΠΈΠ±Π°Π΅ΡΡΡ ΠΎΡ ΠΌΠ΅Ρ
Π°Π½ΠΈΡΠ΅ΡΠΊΠΎΠ³ΠΎ Π²ΠΎΠ·Π΄Π΅ΠΉΡΡΠ²ΠΈΡ. ΠΠΎΠΏΠΎΠ»Π½ΠΈΡΠ΅Π»ΡΠ½ΠΎΠ΅ ΠΎΡΠΎΡΠΌΠ»Π΅Π½ΠΈΠ΅ Ρ ΠΏΠΎΠΌΠΎΡΡΡ
ΠΎΡΡΡΠΊΠ°ΡΡΡΠΈΠ²Π°Π½ΠΈΡ Π΄Π²Π΅ΡΠ½ΡΡ
ΠΎΡΠΊΠΎΡΠΎΠ² ΡΠΎΠ·Π΄Π°ΡΡ ΠΏΠΎΠ»Π½ΠΎΡΠ΅Π½Π½ΠΎΠ΅ ΠΈ ΠΊΠ°ΡΠ΅ΡΡΠ²Π΅Π½Π½ΠΎΠ΅ ΠΈΡΠΏΠΎΠ»Π½Π΅Π½ΠΈΠ΅.

ΠΠ»Ρ ΠΎΡΡΡΠΊΠ°ΡΡΡΠΈΠ²Π°Π½ΠΈΡ Π΄Π²Π΅ΡΠ½ΡΡ ΠΎΡΠΊΠΎΡΠΎΠ² ΡΠ΅ΠΊΠΎΠΌΠ΅Π½Π΄ΡΠ΅ΡΡΡ ΠΈΡΠΏΠΎΠ»ΡΠ·ΠΎΠ²Π°ΡΡ ΡΡΡ ΡΡ ΡΡΡΠΊΠ°ΡΡΡΠ½ΡΡ ΡΠΌΠ΅ΡΡ ROTBAND. ΠΠ°ΠΏΠΎΠΌΠ½ΠΈΠΌ, ΡΡΠΎ Π²ΡΠ΅ Π²ΠΈΠ΄Ρ ΡΠ°Π±ΠΎΡ ΠΏΠΎ ΡΡΡΡΠΎΠΉΡΡΠ²Ρ ΠΎΡΠΊΠΎΡΠΎΠ² Π΄Π²Π΅ΡΠ½ΡΡ ΠΏΡΠΎΠΈΠ·Π²ΠΎΠ΄ΡΡΡΡ ΠΏΠΎΡΠ»Π΅ Π·Π°Π΄Π΅Π»ΠΊΠΈ ΡΠ΅Π»Π΅ΠΉ ΠΌΠΎΠ½ΡΠ°ΠΆΠ½ΠΎΠΉ ΠΏΠ΅Π½ΠΎΠΉ. ΠΠ»Ρ ΡΠ°Π±ΠΎΡΡ ΠΏΠΎΠ½Π°Π΄ΠΎΠ±ΡΡΡΡ ΡΡΠΎΠ²Π΅Π½Ρ, ΡΠΈΡΠΎΠΊΠΈΠΉ ΡΠΏΠ°ΡΠ΅Π»Ρ ΠΈΠ»ΠΈ Β«ΡΠΎΠΊΠΎΠ»Β» ΠΈ ΠΏΠ΅ΡΡΠΎΡΠΈΡΠΎΠ²Π°Π½Π½ΡΠΉ ΡΠ³ΠΎΠ»ΠΎΠΊ Π΄Π»Ρ ΠΎΠ±ΡΠ°ΠΌΠ»Π΅Π½ΠΈΡ ΠΏΠ΅ΡΠΈΠΌΠ΅ΡΡΠ° ΠΎΡΠΊΠΎΡΠ°. ΠΠ΅ΡΠ²ΠΎΠ½Π°ΡΠ°Π»ΡΠ½Π°Ρ ΡΠ΅ΡΠ½ΠΎΠ²Π°Ρ ΠΎΡΠ΄Π΅Π»ΠΊΠ° Π·Π°ΠΊΠ»ΡΡΠ°Π΅ΡΡΡ Π² Π³ΡΡΠ½ΡΠΎΠ²ΠΊΠ΅ ΠΎΡΠΊΠΎΡΠ° ΠΈ Π½Π°Π»ΠΎΠΆΠ΅Π½ΠΈΠΈ ΡΠ»ΠΎΡ ΡΡΡΠΊΠ°ΡΡΡΠ½ΠΎΠΉ ΡΠΌΠ΅ΡΠΈ.

ΠΠΎΡΡΠΎΠΌΡ Π½Π° ΠΎΡΠ½ΠΎΠ²Π°Π½ΠΈΠ΅ ΠΎΡΠΊΠΎΡΠ° ΡΡΡΠ°Π½Π°Π²Π»ΠΈΠ²Π°ΡΡ ΠΏΠ΅ΡΡΠΎΡΠΈΡΠΎΠ²Π°Π½Π½ΡΠΉ ΡΠ³ΠΎΠ»ΠΎΠΊ. Π¨ΡΡΠΊΠ°ΡΡΡΠ½Π°Ρ ΡΠΌΠ΅ΡΡ Π½Π°Π½ΠΎΡΠΈΡΡΡ Π² Π΄Π²Π° ΡΠ»ΠΎΡ. ΠΠ΅ΡΠ²ΡΠΉ ΡΠ»ΠΎΠΉ ΡΡΡΠΊΠ°ΡΡΡΠ½ΠΎΠΉ ΡΠΌΠ΅ΡΠΈ Π±ΠΎΠ»Π΅Π΅ Π³Π»ΡΠ±ΠΎΠΊΠΈΠΉ, Π° Π²ΡΠΎΡΠΎΠΉ β ΡΠΎΠ½ΠΊΠΈΠΉ. ΠΠΎΡΠ»Π΅ ΠΏΡΠΎΠ²Π΅Π΄Π΅Π½ΠΈΡ ΡΠ΅ΡΠ½ΠΎΠ²ΠΎΠΉ ΠΎΡΠ΄Π΅Π»ΠΊΠΈ ΠΈ ΠΏΠΎΠ»Π½ΠΎΠ³ΠΎ Π²ΡΡΡΡ Π°Π½ΠΈΡ ΡΡΡΠΊΠ°ΡΡΡΠ½ΠΎΠ³ΠΎ ΡΠ»ΠΎΡ ΠΏΡΠΎΠΈΠ·Π²ΠΎΠ΄ΠΈΡΡΡ ΡΠΈΠ½ΠΈΡΠ½Π°Ρ ΠΎΡΠ΄Π΅Π»ΠΊΠ°. ΠΠ²Π΅ΡΠ½ΠΎΠΉ ΠΎΡΠΊΠΎΡ ΡΠ½ΠΎΠ²Π° Π³ΡΡΠ½ΡΡΠ΅ΠΌ ΠΈ Π½Π°Π½ΠΎΡΠΈΠΌ ΡΠΈΠ½ΠΈΡΠ½ΡΡ ΡΠΏΠ°ΠΊΠ»Π΅Π²ΠΊΡ.

ΠΠΎΡΠ»Π΅ Π²ΡΡΡΡ
Π°Π½ΠΈΡ ΠΎΡΠ΄Π΅Π»ΠΎΡΠ½ΠΎΠ³ΠΎ ΡΠ»ΠΎΡ ΠΏΡΠΎΠΈΠ·Π²ΠΎΠ΄ΠΈΠΌ Π·Π°ΡΠΈΡΠΊΡ ΠΈ ΡΠ»ΠΈΡΠΎΠ²ΠΊΡ ΡΠ»ΠΎΡ. Π’Π°ΠΊΡΡ ΠΊΡΠΎΠΏΠΎΡΠ»ΠΈΠ²ΡΡ ΠΈ ΡΡΡΠ΄ΠΎΠ΅ΠΌΠΊΡΡ ΠΎΡΠ΄Π΅Π»ΠΊΡ Π΄Π²Π΅ΡΠ½ΡΡ
ΠΎΡΠΊΠΎΡΠΎΠ² ΠΌΠΎΠΆΠ½ΠΎ ΡΡΠΈΡΠ°ΡΡ ΠΈΠ΄Π΅Π°Π»ΡΠ½ΡΠΌ Π²Π°ΡΠΈΠ°Π½ΡΠΎΠΌ.
ΠΠΎΠ»Π΅Π΅ Π΄Π΅ΡΠ°Π»ΡΠ½Π°Ρ ΠΈΠ½ΡΠΎΡΠΌΠ°ΡΠΈΡ ΠΎΠ± ΠΎΡΡΡΠΊΠ°ΡΡΡΠΈΠ²Π°Π½ΠΈΠΈ ΠΎΡΠΊΠΎΡΠΎΠ² Π΄Π²Π΅ΡΠ½ΡΡ
ΠΏΡΠ΅Π΄ΡΡΠ°Π²Π»Π΅Π½Π° Π² Π²ΠΈΠ΄Π΅ΠΎ.
ΠΠ΄Π΅Π°Π»ΡΠ½ΡΠΌ Π²Π°ΡΠΈΠ°Π½ΡΠΎΠΌ ΠΏΡΠΈ ΡΠΎΡΠΌΠΈΡΠΎΠ²Π°Π½ΠΈΠΈ ΠΎΡΠΊΠΎΡΠΎΠ² Π΄ΡΡΠ³ΠΈΠΌΠΈ ΡΠΏΠΎΡΠΎΠ±Π°ΠΌΠΈ ΠΌΠΎΠΆΠ½ΠΎ Π½Π°Π·Π²Π°ΡΡ ΡΠΏΠΎΡΠΎΠ± ΠΌΠΎΠ½ΡΠ°ΠΆΠ° ΠΎΡΠ΄Π΅Π»ΠΎΡΠ½ΡΡ ΠΌΠ°ΡΠ΅ΡΠΈΠ°Π»ΠΎΠ² Π½Π° ΠΊΠ°ΡΠΊΠ°Ρ. ΠΡΠ΅Π΄Π²Π°ΡΠΈΡΠ΅Π»ΡΠ½ΠΎ ΡΠΎΠΎΡΡΠΆΠ΅Π½Π½ΡΠΉ ΠΊΠ°ΡΠΊΠ°Ρ ΠΈΠ· ΠΌΠ΅ΡΠ°Π»Π»ΠΈΡΠ΅ΡΠΊΠΎΠ³ΠΎ ΠΏΡΠΎΡΠΈΠ»Ρ ΠΈΠ»ΠΈ Π±ΡΡΡΠΊΠΎΠ² Ρ ΠΏΠΎΡΠ»Π΅Π΄ΡΡΡΠΈΠΌ ΠΌΠΎΠ½ΡΠ°ΠΆΠΎΠΌ Π³ΠΈΠΏΡΠΎΠΊΠ°ΡΡΠΎΠ½Π°, ΠΏΠ»Π°ΡΡΠΈΠΊΠ°, Π»Π°ΠΌΠΈΠ½Π°ΡΠ° ΠΈΠ»ΠΈ ΠΠΠ€ ΠΏΠΎΠ·Π²ΠΎΠ»ΠΈΡ ΡΡΠΊΠΎΠ½ΠΎΠΌΠΈΡΡ ΠΌΠ°ΡΠ΅ΡΠΈΠ°Π»ΡΠ½ΡΠ΅ Π·Π°ΡΡΠ°ΡΡ.
ΠΠ°ΡΠΊΠ°Ρ Π΄Π»Ρ ΡΡΡΠ°Π½ΠΎΠ²ΠΊΠΈ Π΄Π²Π΅ΡΠ½ΡΡ ΠΎΡΠΊΠΎΡΠΎΠ²
ΠΠ»Ρ ΠΌΠΎΠ½ΡΠ°ΠΆΠ° ΠΊΠ°ΡΠΊΠ°ΡΠ° ΠΈΡΠΏΠΎΠ»ΡΠ·ΡΠ΅ΡΡΡ ΠΌΠ΅ΡΠ°Π»Π»ΠΈΡΠ΅ΡΠΊΠΈΠΉ ΠΏΡΠΎΡΠΈΠ»Ρ, ΠΏΡΠΈΠΌΠ΅Π½ΡΠ΅ΠΌΡΠΉ ΠΏΡΠΈ Π²ΠΎΠ·Π²Π΅Π΄Π΅Π½ΠΈΠΈ Π³ΠΈΠΏΡΠΎΠΊΠ°ΡΡΠΎΠ½Π½ΡΡ ΠΏΠΎΡΠΎΠ»ΠΊΠΎΠ² ΠΈΠ»ΠΈ ΡΡΠ΅Π½.

ΠΠ½Π°ΠΊΠΎΠΌΠ°Ρ Π΄ΠΎ ΡΠ»Π΅Π· ΡΠ΅Ρ Π½ΠΎΠ»ΠΎΠ³ΠΈΡ Π²ΠΎΠ·Π²Π΅Π΄Π΅Π½ΠΈΡ ΠΊΠ°ΡΠΊΠ°ΡΠΎΠ² Π΄ΠΎΠ»ΠΆΠ½Π° ΡΡΠΈΡΡΠ²Π°ΡΡ ΡΠΎΠ»ΡΠΈΠ½Ρ ΠΌΠ°ΡΠ΅ΡΠΈΠ°Π»Π° ΠΎΡΠΊΠΎΡΠ°. ΠΠΎΡΡΠΎΠΌΡ ΡΠ΅ΠΊΠΎΠΌΠ΅Π½Π΄ΡΠ΅ΡΡΡ Π΄ΠΎ Π²ΠΎΠ·Π²Π΅Π΄Π΅Π½ΠΈΡ ΠΊΠ°ΡΠΊΠ°ΡΠ½ΠΎΠ³ΠΎ ΡΠ»Π΅ΠΌΠ΅Π½ΡΠ° ΠΏΡΠΎΠΈΠ·Π²Π΅ΡΡΠΈ Π²ΡΡΠ°Π²Π½ΠΈΠ²Π°Π½ΠΈΠ΅ ΡΡΠ΅Π½, ΠΏΡΠΈΠ»Π΅Π³Π°ΡΡΠΈΡ ΠΊ Π΄Π²Π΅ΡΠΈ. ΠΡΠ΅ ΡΠ»Π΅ΠΌΠ΅Π½ΡΡ ΠΊΠ°ΡΠΊΠ°ΡΠ° Π½Π΅ΠΎΠ±Ρ ΠΎΠ΄ΠΈΠΌΠΎ Π·Π°ΠΊΡΠ΅ΠΏΠ»ΡΡΡ Ρ ΠΈΡΠΏΠΎΠ»ΡΠ·ΠΎΠ²Π°Π½ΠΈΠ΅ΠΌ ΡΠ΄Π°ΡΠ½ΡΡ ΡΡΡΡΠΏΠΎΠ² ΠΈ ΠΏΠ»Π°ΡΡΠΈΠΊΠΎΠ²ΡΡ Π΄ΡΠ±Π΅Π»Π΅ΠΉ. ΠΠΎ ΠΏΠ΅ΡΠΈΠΌΠ΅ΡΡΡ Π±ΡΠ΄ΡΡΠ΅Π³ΠΎ ΠΎΡΠΊΠΎΡΠ° Π½Π° Π΄Π²Π΅ΡΠ½ΠΎΠΌ ΠΏΡΠΎΠ΅ΠΌΠ΅ ΠΊΡΠ΅ΠΏΡΡ ΠΏΡΠΎΡΠΈΠ»Ρ ΠΈΠ»ΠΈ Π΄Π΅ΡΠ΅Π²ΡΠ½Π½ΡΠ΅ ΡΠ΅ΠΉΠΊΠΈ.

ΠΠ»Ρ ΡΡΠΈΠ»Π΅Π½ΠΈΡ ΠΊΠΎΠ½ΡΡΡΡΠΊΡΠΈΠΈ ΠΊΠ°ΡΠΊΠ°ΡΠ° ΠΌΠ΅ΠΆΠ΄Ρ Π½Π΅ΡΡΡΠΈΠΌΠΈ ΡΠ»Π΅ΠΌΠ΅Π½ΡΠ°ΠΌΠΈ ΡΠ΅ΠΊΠΎΠΌΠ΅Π½Π΄ΡΠ΅ΡΡΡ ΡΡΡΠ°Π½ΠΎΠ²ΠΈΡΡ ΠΌΠ΅ΡΠ°Π»Π»ΠΈΡΠ΅ΡΠΊΠΈΠ΅ ΠΏΠ΅ΡΠ΅ΠΌΡΡΠΊΠΈ. ΠΠ°ΠΆΠ½ΠΎ ΡΡΠΈΠ»ΠΈΡΡ ΡΠ³Π»Ρ ΠΌΠ΅ΠΆΠ΄Ρ Π±ΠΎΠΊΠΎΠ²ΡΠΌΠΈ ΡΡΠΎΡΠΎΠ½Π°ΠΌΠΈ ΠΏΡΠΎΠ΅ΠΌΠ°, ΡΠ°ΡΠΏΠΎΠ»ΠΎΠΆΠ΅Π½Π½ΡΠ΅ Π² Π²Π΅ΡΡ Π½Π΅ΠΉ ΡΠ°ΡΡΠΈ. ΠΠ° ΡΡΠ°Π΄ΠΈΠΈ ΡΠΎΡΠΌΠΈΡΠΎΠ²Π°Π½ΠΈΡ ΠΊΠ°ΡΠΊΠ°ΡΠ° Π΄Π»Ρ ΠΏΠΎΡΠ»Π΅Π΄ΡΡΡΠ΅ΠΉ ΡΡΡΠ°Π½ΠΎΠ²ΠΊΠΈ Π΄Π΅ΠΊΠΎΡΠ°ΡΠΈΠ²Π½ΠΎΠΉ ΠΎΠ±Π»ΠΈΡΠΎΠ²ΠΊΠΈ ΠΏΡΠΎΠΈΠ·Π²ΠΎΠ΄ΠΈΡΡΡ Π½Π΅ΠΎΠ±Ρ ΠΎΠ΄ΠΈΠΌΠ°Ρ ΠΏΡΠΎΠΊΠ»Π°Π΄ΠΊΠ° ΠΊΠ°Π±Π΅Π»Ρ ΠΈ ΡΡΡΠ°Π½ΠΎΠ²ΠΊΠ° Π²ΡΠΊΠ»ΡΡΠ°ΡΠ΅Π»Ρ.
ΠΠ²Π΅ΡΠ½ΡΠ΅ ΠΎΡΠΊΠΎΡΡ ΠΈΠ· Π³ΠΈΠΏΡΠΎΠΊΠ°ΡΡΠΎΠ½Π°
ΠΡΠΊΠΎΡΡ Π΄Π²Π΅ΡΠ½ΡΠ΅ ΠΈ ΠΎΠΊΠΎΠ½Π½ΡΠ΅ ΠΌΠΎΠΆΠ½ΠΎ ΡΡΠΈΡΠ°ΡΡ Π½Π°ΠΈΠ±ΠΎΠ»Π΅Π΅ Π²ΡΠ³ΠΎΠ΄Π½ΡΠΌ Π²Π°ΡΠΈΠ°Π½ΡΠΎΠΌ ΠΏΠΎ ΠΌΠ°ΡΠ΅ΡΠΈΠ°Π»ΡΠ½ΡΠΌ Π·Π°ΡΡΠ°ΡΠ°ΠΌ ΠΈ ΡΡΡΠ΄ΠΎΠ΅ΠΌΠΊΠΎΡΡΠΈ ΠΏΡΠΎΠ²Π΅Π΄Π΅Π½ΠΈΡ ΡΠ°Π±ΠΎΡ.
ΠΠ²Π΅ΡΠ½ΡΠ΅ ΠΎΡΠΊΠΎΡΡ ΠΈΠ· Π³ΠΈΠΏΡΠΎΠΊΠ°ΡΡΠΎΠ½Π° ΠΌΠΎΠ½ΡΠΈΡΡΡΡ Π½Π° ΠΏΠΎΠ΄Π³ΠΎΡΠΎΠ²Π»Π΅Π½Π½ΡΠΉ ΠΊΠ°ΡΠΊΠ°Ρ. Π’ΡΠ°ΡΠ΅Π»ΡΠ½ΠΎ ΠΈΠ·ΠΌΠ΅ΡΠΈΠ², Π³Π°Π±Π°ΡΠΈΡΠ½ΡΠ΅ ΡΠ°Π·ΠΌΠ΅ΡΡ ΠΎΡΠΊΠΎΡΠ° Π½Π° ΠΊΠ°ΡΠΊΠ°ΡΠ΅, Π²ΡΡΠ΅Π·Π°Π΅ΠΌ ΠΈΠ· Π»ΠΈΡΡΠ° Π³ΠΈΠΏΡΠΎΠΊΠ°ΡΡΠΎΠ½Π° Π·Π°Π³ΠΎΡΠΎΠ²ΠΊΠΈ. ΠΠ°Π³ΠΎΡΠΎΠ²ΠΎΠΊ Π±ΡΠ΄Π΅Ρ ΡΡΠΈ ΡΡΡΠΊΠΈ.

Π Π΅ΠΊΠΎΠΌΠ΅Π½Π΄ΡΠ΅ΡΡΡ Π²ΡΡΠ΅Π·Π°ΡΡ Π·Π°Π³ΠΎΡΠΎΠ²ΠΊΠΈ ΡΠ΅Π»ΡΠΌΠΈ ΠΏΠΎ ΡΠ°Π·ΠΌΠ΅ΡΡ, ΠΈΡΠΊΠ»ΡΡΠ°Ρ Π΄ΠΎΠΏΠΎΠ»Π½ΠΈΡΠ΅Π»ΡΠ½ΡΠ΅ ΡΠ°Π±ΠΎΡΡ ΠΏΠΎ Π·Π°Π΄Π΅Π»ΠΊΠ΅ ΡΡΡΠΊΠΎΠ². ΠΠ°ΡΠ΅ΠΌ ΠΊΠ°ΠΆΠ΄ΡΡ ΠΎΡΠ΄Π΅Π»ΡΠ½ΡΡ Π·Π°Π³ΠΎΡΠΎΠ²ΠΊΡ Π·Π°ΠΊΡΠ΅ΠΏΠ»ΡΡΡ ΡΠ°ΠΌΠΎΡΠ΅Π·Π°ΠΌΠΈ ΠΏΠΎ ΠΏΠ΅ΡΠΈΠΌΠ΅ΡΡΡ ΠΎΡΠΊΠΎΡΠ° Π½Π° ΠΊΠ°ΡΠΊΠ°ΡΠ΅. ΠΠ΅Π»Π°ΡΠ΅Π»ΡΠ½ΠΎ, ΡΡΠΎΠ±Ρ ΠΌΠ΅ΠΆΠ΄Ρ Π³ΠΈΠΏΡΠΎΠΊΠ°ΡΡΠΎΠ½Π½ΠΎΠΉ Π·Π°Π³ΠΎΡΠΎΠ²ΠΊΠΎΠΉ ΠΈ ΡΡΠ΅Π½ΠΎΠΉ ΠΎΡΡΠ°Π²Π°Π»ΡΡ ΠΌΠΈΠ½ΠΈΠΌΠ°Π»ΡΠ½ΡΠΉ Π·Π°Π·ΠΎΡ. ΠΠ°Π·ΠΎΡ Π·Π°ΠΏΠΎΠ»Π½ΡΡΡ Ρ ΠΏΠΎΠΌΠΎΡΡΡ ΡΠ°ΡΡΠ²ΠΎΡΠ° ΠΈΠ»ΠΈ ΠΌΠΎΠ½ΡΠ°ΠΆΠ½ΠΎΠΉ ΠΏΠ΅Π½Ρ.

ΠΠΎΠ·ΠΌΠΎΠΆΠ΅Π½ Π²Π°ΡΠΈΠ°Π½Ρ ΡΠΈΡΠΎΠΊΠΈΡ Π½Π°Π»ΠΈΡΠ½ΠΈΠΊΠΎΠ², Π·Π°ΠΊΡΡΠ²Π°ΡΡΠΈΡ ΠΎΠ±ΡΠ°Π·ΠΎΠ²Π°Π²ΡΠΈΠΉΡΡ Π² ΠΏΡΠΎΡΠ΅ΡΡΠ΅ ΠΌΠΎΠ½ΡΠ°ΠΆΠ° Π·Π°Π·ΠΎΡ. ΠΠΎΡΠ»Π΅ ΠΌΠΎΠ½ΡΠ°ΠΆΠ° ΠΎΡΠΊΠΎΡΠΎΠ² ΠΈΠ· Π³ΠΈΠΏΡΠΎΠΊΠ°ΡΡΠΎΠ½Π° ΠΏΡΠΎΠΈΠ·Π²ΠΎΠ΄ΠΈΡΡΡ ΡΠΏΠ°ΡΠ»Π΅Π²Π°Π½ΠΈΠ΅ ΠΏΠΎΠ²Π΅ΡΡ Π½ΠΎΡΡΠΈ Ρ ΠΏΠΎΡΠ»Π΅Π΄ΡΡΡΠ΅ΠΉ ΠΏΠΎΠΊΡΠ°ΡΠΊΠΎΠΉ ΠΈΠ»ΠΈ ΠΎΠΊΠ»Π΅ΠΉΠΊΠΎΠΉ.

ΠΠ΅ΠΎΠ±Ρ ΠΎΠ΄ΠΈΠΌΠΎ ΠΏΡΠΈΠ½ΠΈΠΌΠ°ΡΡ Π²ΠΎ Π²Π½ΠΈΠΌΠ°Π½ΠΈΠ΅, ΡΡΠΎ ΡΠ°Π±ΠΎΡΡ ΠΏΠΎ ΡΡΡΠ°Π½ΠΎΠ²ΠΊΠ΅ Π΄Π²Π΅ΡΠ½ΡΡ ΠΎΡΠΊΠΎΡΠΎΠ² Π΄ΠΎΠ»ΠΆΠ½Ρ Π±ΡΡΡ ΡΠΎΠ³Π»Π°ΡΠΎΠ²Π°Π½Ρ Π² ΡΠ²Π΅ΡΠΎΠ²ΠΎΠΌ ΠΈ ΡΡΡΡΠΊΡΡΡΠ½ΠΎΠΌ ΡΠ΅ΡΠ΅Π½ΠΈΠΈ Ρ ΠΎΡΠ΄Π΅Π»ΠΊΠΎΠΉ ΡΡΡΠ°Π½ΠΎΠ²Π»Π΅Π½Π½ΠΎΠΉ Π΄Π²Π΅ΡΠΈ. Π’Π°ΠΊΠΎΠ΅ ΠΏΠΎΠΆΠ΅Π»Π°Π½ΠΈΠ΅ ΠΌΠΎΠΆΠ½ΠΎ ΠΎΡΠ½Π΅ΡΡΠΈ ΠΊ Π²ΠΎΠ·Π²Π΅Π΄Π΅Π½ΠΈΡ ΠΈ ΡΡΡΠ°Π½ΠΎΠ²ΠΊΠ΅ Π΄Π²Π΅ΡΠ½ΡΡ ΠΎΡΠΊΠΎΡΠΎΠ² ΠΈΠ· ΠΏΠ»Π°ΡΡΠΈΠΊΠ°, Π»Π°ΠΌΠΈΠ½Π°ΡΠ° ΠΈ ΠΠΠ€.
ΠΠ²Π΅ΡΠ½ΡΠ΅ ΠΎΡΠΊΠΎΡΡ ΠΈΠ· ΠΠΠ€
ΠΠ½Π°Π»ΠΎΠ³ΠΈΡΠ½ΠΎ ΠΎΡΠΊΠΎΡΠ°ΠΌ Π΄Π²Π΅ΡΠ½ΡΠΌ ΠΈΠ· Π³ΠΈΠΏΡΠΎΠΊΠ°ΡΡΠΎΠ½Π°, ΠΎΡΠΊΠΎΡΡ ΠΈΠ· ΠΠΠ€ ΠΌΠΎΠ½ΡΠΈΡΡΡΡ Π½Π° ΠΏΠΎΠ΄Π³ΠΎΡΠΎΠ²Π»Π΅Π½Π½ΡΠΉ ΠΈ ΡΠΎΠ±ΡΠ°Π½Π½ΡΠΉ ΠΊΠ°ΡΠΊΠ°Ρ. ΠΠ°ΠΊΡΠ΅ΠΏΠ»Π΅Π½ΠΈΠ΅ ΡΠ»Π΅ΠΌΠ΅Π½ΡΠΎΠ² ΠΎΡΠΊΠΎΡΠ° ΠΏΡΠΎΠΈΠ·Π²ΠΎΠ΄ΠΈΡΡΡ Ρ ΠΈΡΠΏΠΎΠ»ΡΠ·ΠΎΠ²Π°Π½ΠΈΠ΅ΠΌ ΠΊΠ»ΡΠΌΠΌΠ΅ΡΠΎΠ² ΠΈ ΡΠ°ΠΌΠΎΡΠ΅Π·ΠΎΠ².

ΠΡΠΈ ΡΡΡΠ°Π½ΠΎΠ²ΠΊΠ΅ ΠΊΡΠ΅ΠΏΠ»Π΅Π½ΠΈΡ Π½Π΅ΠΎΠ±Ρ ΠΎΠ΄ΠΈΠΌΠΎ Π±ΡΠ°ΡΡ Π²ΠΎ Π²Π½ΠΈΠΌΠ°Π½ΠΈΠ΅ ΡΠ°ΡΠΏΠΎΠ»ΠΎΠΆΠ΅Π½ΠΈΠ΅ ΡΠ»Π΅Π΄ΡΡΡΠΈΡ ΡΠ»Π΅ΠΌΠ΅Π½ΡΠΎΠ² Π΄Π²Π΅ΡΠ½ΠΎΠ³ΠΎ ΠΎΡΠΊΠΎΡΠ°. ΠΠΈΠ΄ΠΈΠΌΡΠ΅ ΠΌΠ΅ΡΡΠ° ΠΊΡΠ΅ΠΏΠ»Π΅Π½ΠΈΡ ΠΈ ΡΠ³Π»Ρ Π΄Π²Π΅ΡΠ½ΡΡ ΠΎΡΠΊΠΎΡΠΎΠ² ΠΈΠ· ΠΠΠ€ Π·Π°ΠΊΡΡΠ²Π°ΡΡ Π΄Π΅ΠΊΠΎΡΠ°ΡΠΈΠ²Π½ΡΠΌΠΈ ΠΏΠ»Π°Π½ΠΊΠ°ΠΌΠΈ ΠΈΠ»ΠΈ Π½Π°Π»ΠΈΡΠ½ΠΈΠΊΠ°ΠΌΠΈ, ΠΊΠΎΡΠΎΡΡΠ΅ ΠΊΡΠ΅ΠΏΡΡ Ρ ΠΏΡΠΈΠΌΠ΅Π½Π΅Π½ΠΈΠ΅ΠΌ Β«ΠΆΠΈΠ΄ΠΊΠΈΡ Π³Π²ΠΎΠ·Π΄Π΅ΠΉΒ».
ΠΡΠΊΠΎΡΡ Π΄Π²Π΅ΡΠ½ΡΠ΅ ΠΈΠ· Π»Π°ΠΌΠΈΠ½Π°ΡΠ°
ΠΠ²Π΅ΡΠ½ΡΠ΅ ΠΎΡΠΊΠΎΡΡ ΠΈΠ· Π»Π°ΠΌΠΈΠ½Π°ΡΠ° ΠΌΠΎΠΆΠ½ΠΎ Π½Π°Π·Π²Π°ΡΡ ΡΠ°ΠΌΡΠΌ Β«ΠΏΡΠΎΠ»Π΅ΡΠ°ΡΡΠΊΠΈΠΌΒ» Π²Π°ΡΠΈΠ°Π½ΡΠΎΠΌ ΠΎΡΠΎΡΠΌΠ»Π΅Π½ΠΈΡ. ΠΡΠΎΠ±Π΅Π½Π½ΠΎΡΡΡ ΠΊΠΎΠ½ΡΡΡΡΠΊΡΠΈΠΈ Π»Π°ΠΌΠΈΠ½Π°ΡΠ° ΠΏΠΎΠ·Π²ΠΎΠ»ΡΠ΅Ρ ΠΎΡΡΡΠ΅ΡΡΠ²Π»ΡΡΡ Π΄Π΅ΠΊΠΎΡΠ°ΡΠΈΠ²Π½ΠΎΠ΅ ΠΎΡΠΎΡΠΌΠ»Π΅Π½ΠΈΠ΅ ΠΎΡΠΊΠΎΡΠΎΠ² Π²Π΄ΠΎΠ»Ρ ΠΈ ΠΏΠΎΠΏΠ΅ΡΠ΅ΠΊ ΡΠΎΡΡΠΎΠ² Π΄Π²Π΅ΡΠ½ΠΎΠ³ΠΎ ΠΏΡΠΎΠ΅ΠΌΠ°. ΠΡΠ½ΠΎΠ²Π½ΠΎΠΉ ΠΌΠΎΠΆΠ½ΠΎ Π½Π°Π·Π²Π°ΡΡ ΠΏΠ΅ΡΠ²ΡΡ Π»Π°ΠΌΠ΅Π»Ρ, ΡΡΡΠ°Π½Π°Π²Π»ΠΈΠ²Π°Π΅ΠΌΡΡ Π½Π° ΠΎΡΠΊΠΎΡ.

ΠΡΠ΅ ΠΏΠΎΡΠ»Π΅Π΄ΡΡΡΠΈΠ΅ ΡΠ»Π΅ΠΌΠ΅Π½ΡΡ ΠΎΡΠΊΠΎΡΠ° Π±ΡΠ΄ΡΡ ΡΡΡΠ°Π½Π°Π²Π»ΠΈΠ²Π°ΡΡΡΡ ΡΡΠ°Π΄ΠΈΡΠΈΠΎΠ½Π½ΡΠΌ ΠΏΡΡΠ΅ΠΌ: Ρ Π·Π°ΡΠ΅Π»ΠΊΠΈΠ²Π°Π½ΠΈΠ΅ΠΌ Π·Π°ΠΌΠΊΠ°. ΠΠ΄ΠΈΠ½ΡΡΠ²Π΅Π½Π½ΠΎΠ΅ ΡΡΠ»ΠΎΠ²ΠΈΠ΅, ΠΏΡΠΈ ΠΊΠΎΡΠΎΡΠΎΠΌ ΠΎΡΠΊΠΎΡΡ Π΄Π²Π΅ΡΠ½ΡΠ΅ ΠΈΠ· Π»Π°ΠΌΠΈΠ½Π°ΡΠ° ΠΏΡΠΎΡΠ»ΡΠΆΠ°Ρ Π΄ΠΎΠ»Π³ΠΎ, ΡΡΠΎ ΠΎΠ±ΡΠ·Π°ΡΠ΅Π»ΡΠ½ΠΎΠ΅ Π·Π°ΠΊΡΠ΅ΠΏΠ»Π΅Π½ΠΈΠ΅ ΠΏΠΎΠ»ΠΎΡ ΠΏΠΎ ΠΊΡΠ°ΡΠΌ. ΠΠ»Ρ ΠΏΡΠΎΠ΄ΠΎΠ»ΡΠ½ΠΎΠΉ ΠΎΡΠΈΠ΅Π½ΡΠ°ΡΠΈΠΈ ΠΊΡΠ΅ΠΏΠ»Π΅Π½ΠΈΠ΅ ΠΏΠΎΠ»ΠΎΡ Π»Π°ΠΌΠΈΠ½Π°ΡΠ° Π΄ΠΎΠ»ΠΆΠ½ΠΎ ΠΎΡΡΡΠ΅ΡΡΠ²Π»ΡΡΡΡΡ Π² Π½Π΅ΡΠΊΠΎΠ»ΡΠΊΠΈΡ ΠΌΠ΅ΡΡΠ°Ρ : Π² ΡΠ΅Π½ΡΡΠ΅ Π»Π°ΠΌΠ΅Π»ΠΈ ΠΈ ΠΏΠΎ ΠΊΡΠ°ΡΠΌ.
Π‘Π°ΠΌΡΠΌ ΡΡΠΈΠ»ΡΠ½ΡΠΌ ΠΈ ΡΡΡΠ΅ΠΊΡΠ½ΡΠΌ ΠΎΡΠΎΡΠΌΠ»Π΅Π½ΠΈΠ΅ΠΌ ΡΡΠΈΡΠ°Π΅ΡΡΡ ΠΎΡΠ΄Π΅Π»ΠΊΠ° Π΄Π²Π΅ΡΠ½ΡΡ ΠΎΡΠΊΠΎΡΠΎΠ² ΠΊΠ°ΠΌΠ½Π΅ΠΌ. ΠΡΠ΄Π΅Π»ΠΊΠ° ΠΈΠ· ΠΈΡΠΊΡΡΡΡΠ²Π΅Π½Π½ΠΎΠ³ΠΎ ΠΊΠ°ΠΌΠ½Ρ Π»ΡΠ±ΡΡ Π΄Π²Π΅ΡΡ ΠΏΡΠ΅Π΄ΡΡΠ°Π²ΠΈΡ Π² ΡΠΎΠ²Π΅ΡΡΠ΅Π½Π½ΠΎ ΠΈΠ½ΠΎΠΌ ΡΠ°ΠΊΡΡΡΠ΅. ΠΠ·ΡΡΠΈΠ² ΠΎΡΠ½ΠΎΠ²Π½ΡΠ΅ ΠΏΡΠΈΠ΅ΠΌΡ ΠΈ ΡΠΏΠΎΡΠΎΠ±Ρ Π²ΠΎΠ·Π²Π΅Π΄Π΅Π½ΠΈΡ Π΄Π²Π΅ΡΠ½ΡΡ ΠΎΡΠΊΠΎΡΠΎΠ² ΠΌΠΎΠΆΠ½ΠΎ ΡΠΌΠ΅Π»ΠΎ ΠΏΡΠΈΡΡΡΠΏΠ°ΡΡ ΠΊ ΡΠ°Π±ΠΎΡΠ΅.

svouimirukami.ru
ΠΠ°ΠΊ ΡΠ΄Π΅Π»Π°ΡΡ ΠΎΡΠΊΠΎΡΡ Π½Π° Π΄Π²Π΅ΡΠΈ ΡΠ²ΠΎΠΈΠΌΠΈ ΡΡΠΊΠ°ΠΌΠΈ ΠΈΠ· Π³ΠΈΠΏΡΠΎΠΊΠ°ΡΡΠΎΠ½Π° β 2 Π΄ΠΎΡΡΡΠΏΠ½ΡΡ Π²Π°ΡΠΈΠ°Π½ΡΠ°
ΠΡ ΡΡΡΠ°Π½ΠΎΠ²ΠΈΠ»ΠΈ ΠΊΡΠ°ΡΠΈΠ²ΡΡ Π΄Π²Π΅ΡΡ ΠΈ ΡΠ΅ΠΏΠ΅ΡΡ, Π²Π°ΠΌ Π½ΡΠΆΠ½ΠΎ ΡΠ΄Π΅Π»Π°ΡΡ ΠΎΡΠΊΠΎΡΡ Π½Π° Π½ΠΈΡ ? ΠΠΎΠ²Π΅ΡΡΡΠ΅ ΠΌΠΎΠ΅ΠΌΡ ΠΎΠΏΡΡΡ, Π΅ΡΠ»ΠΈ Π²Ρ ΡΠΏΡΠ°Π²Π»ΡΠ΅ΡΠ΅ΡΡ Ρ ΠΌΠ΅Π»ΠΊΠΈΠΌ ΡΠ΅ΠΌΠΎΠ½ΡΠΎΠΌ, Π²Ρ ΡΠΌΠΎΠΆΠ΅ΡΠ΅ ΡΠ΄Π΅Π»Π°ΡΡ ΡΠ²ΠΎΠΈΠΌΠΈ ΡΡΠΊΠ°ΠΌΠΈ ΠΈ Π΄Π²Π΅ΡΠ½ΠΎΠΉ ΠΎΡΠΊΠΎΡ ΠΈΠ· Π³ΠΈΠΏΡΠΎΠΊΠ°ΡΡΠΎΠ½Π°. ΠΠ°Π»Π΅Π΅ ΠΌΡ ΠΏΠΎΠ³ΠΎΠ²ΠΎΡΠΈΠΌ, ΠΊΠ°ΠΊ ΡΠ΄Π΅Π»Π°ΡΡ ΠΎΡΠΊΠΎΡΡ Π½Π° Π΄Π²Π΅ΡΠΈ Π±ΡΡΡΡΠΎ ΠΈ ΠΏΡΠΎΡΡΠΎ.

Π‘Π΄Π΅Π»Π°ΡΡ Π΄Π²Π΅ΡΠ½ΡΠ΅ ΠΎΡΠΊΠΎΡΡ ΠΈΠ· Π³ΠΈΠΏΡΠΎΠΊΠ°ΡΡΠΎΠ½Π° ΡΠ²ΠΎΠΈΠΌΠΈ ΡΡΠΊΠ°ΠΌΠΈ Π²ΠΏΠΎΠ»Π½Π΅ ΡΠ΅Π°Π»ΡΠ½ΠΎ.
ΠΠΎΠ·ΠΌΠΎΠΆΠ½ΡΠ΅ Π²Π°ΡΠΈΠ°Π½ΡΡ
Π‘Π΄Π΅Π»Π°ΡΡ ΠΎΡΠΊΠΎΡΡ Π½Π° Π΄Π²Π΅ΡΠΈ ΠΌΠΎΠΆΠ½ΠΎ ΠΏΠΎ-ΡΠ°Π·Π½ΠΎΠΌΡ:
- ΠΡΡΡΠΊΠ°ΡΡΡΠΈΠ²Π°Π½ΠΈΠ΅ β ΡΠΏΠΎΡΠΎΠ± Ρ ΠΎΡΠΎΡΠΈΠΉ, Π½Π°Π΄Π΅ΠΆΠ½ΡΠΉ, Π½ΠΎ ΡΡΠ΅Π±ΡΠ΅Ρ ΠΏΡΠΎΡΠ΅ΡΡΠΈΠΎΠ½Π°Π»ΠΈΠ·ΠΌΠ°;
- Π‘Π΄Π΅Π»Π°ΡΡ ΠΏΠ»Π°ΡΡΠΈΠΊΠΎΠ²ΡΠ΅ ΠΎΡΠΊΠΎΡΡ Π½Π° ΠΊΠ°ΡΠΊΠ°ΡΠ΅, Π±ΡΡΡΡΠΎ, Π½Π΅ Π΄ΠΎΡΠΎΠ³ΠΎ, Π½ΠΎ ΠΏΠ»Π°ΡΡΠΈΠΊ Π½Π΅ ΠΏΡΠΎΡΠ½ΡΠΉ Π΅Π³ΠΎ Π»Π΅Π³ΠΊΠΎ ΠΏΠΎΠ²ΡΠ΅Π΄ΠΈΡΡ;
- ΠΡΠΊΠΎΡΡ ΠΈΠ· Π³ΠΈΠΏΡΠΎΠΊΠ°ΡΡΠΎΠ½Π° ΡΠΌΠΎΠ½ΡΠΈΡΠΎΠ²Π°Π½Π½ΡΠ΅ Π½Π° ΠΊΠ°ΡΠΊΠ°ΡΠ΅ β ΠΏΡΠ΅ΠΊΡΠ°ΡΠ½ΡΠΉ Π²Π°ΡΠΈΠ°Π½Ρ, Π΅ΡΠ»ΠΈ ΡΡΠ΄ΠΎΠΌ Ρ Π΄Π²Π΅ΡΡΠΌΠΈ ΠΎΡΡΠ°Π»ΠΎΡΡ ΠΌΠ΅ΡΡΠΎ Π΄Π»Ρ ΡΠ±ΠΎΡΠΊΠΈ ΠΊΠ°ΡΠΊΠ°ΡΠ°, ΡΡΠΎ Π±ΡΠ²Π°Π΅Ρ Π½Π΅ ΡΠ°ΡΡΠΎ;
- ΠΡΠΊΠΎΡΡ ΠΈΠ· Π³ΠΈΠΏΡΠΎΠΊΠ°ΡΡΠΎΠ½Π° ΠΏΡΠΈΠΊΠ»Π΅Π΅Π½Π½ΡΠ΅ Π½Π° Π³ΠΈΠΏΡ ΠΈΠ»ΠΈ ΠΌΠΎΠ½ΡΠ°ΠΆΠ½ΡΡ ΠΏΠ΅Π½Ρ β ΡΡΠΎ ΡΠ°ΠΌΡΠΉ Π±ΡΡΡΡΡΠΉ, ΠΎΡΠ½ΠΎΡΠΈΡΠ΅Π»ΡΠ½ΠΎ Π½Π΅ Π΄ΠΎΡΠΎΠ³ΠΎΠΉ ΠΈ Π΄ΠΎΠ²ΠΎΠ»ΡΠ½ΠΎ ΠΏΡΠΎΡΡΠΎΠΉ ΡΠΏΠΎΡΠΎΠ± ΠΎΠ±ΡΡΡΡΠΎΠΉΡΡΠ²Π°.

ΠΠ»Π°ΡΡΠΈΠΊΠΎΠ²ΡΠ΅ ΠΎΡΠΊΠΎΡΡ ΡΠΌΠΎΡΡΡΡΡΡ Ρ ΠΎΡΠΎΡΠΎ, Π½ΠΎ ΠΎΠ½ΠΈ Π½Π΅ Π½Π°Π΄Π΅ΠΆΠ½ΡΠ΅.
Π‘Π°ΠΌΠΎΠ΅ ΠΎΠΏΡΠΈΠΌΠ°Π»ΡΠ½ΠΎΠ΅, Π½Π° ΠΌΠΎΠΉ Π²Π·Π³Π»ΡΠ΄, Π΄Π΅Π»Π°ΡΡ ΠΈΠ· Π³ΠΈΠΏΡΠΎΠΊΠ°ΡΡΠΎΠ½Π°. ΠΡΠ»ΠΈ ΡΠ³ΠΎΠ» ΡΡΠ΅Π½Ρ ΠΎΡΠ½ΠΎΡΠΈΡΠ΅Π»ΡΠ½ΠΎ ΡΠΎΠ²Π½ΡΠΉ, ΡΠΎ Π½Π°ΠΈΠ±ΠΎΠ»Π΅Π΅ Π΄ΠΎΡΡΡΠΏΠ½ΡΠΌ, Π΄Π»Ρ Π»ΡΠ±ΠΈΡΠ΅Π»Ρ, Π±ΡΠ΄Π΅Ρ ΠΊΠ»Π΅ΠΈΡΡ Π³ΠΈΠΏΡΠΎΠΊΠ°ΡΡΠΎΠ½ Π½Π° Π³ΠΈΠΏΡ ΠΈΠ»ΠΈ ΠΌΠΎΠ½ΡΠ°ΠΆΠ½ΡΡ ΠΏΠ΅Π½Ρ.
ΠΠ½ΡΡΡΡΠΌΠ΅Π½ΡΡ ΠΈ ΠΌΠ°ΡΠ΅ΡΠΈΠ°Π»Ρ
Π§ΡΠΎΠ±Ρ ΡΠ΄Π΅Π»Π°ΡΡ ΠΎΡΠΊΠΎΡΡ Π²Ρ ΠΎΠ΄Π½ΠΎΠΉ Π΄Π²Π΅ΡΠΈ ΡΠ²ΠΎΠΈΠΌΠΈ ΡΡΠΊΠ°ΠΌΠΈ ΠΈΠ· Π³ΠΈΠΏΡΠΎΠΊΠ°ΡΡΠΎΠ½Π°, Π½Π°ΠΌ ΠΊΠ°ΠΊ ΠΌΠΈΠ½ΠΈΠΌΡΠΌ Π½ΡΠΆΠ΅Π½ ΡΠ°ΠΌ Π³ΠΈΠΏΡΠΎΠΊΠ°ΡΡΠΎΠ½.
- ΠΠΠ β ΡΠ°ΠΌΡΠΉ ΠΏΡΠΎΡΡΠΎΠΉ ΠΈ Π΄Π΅ΡΠ΅Π²ΡΠΉ Π²Π°ΡΠΈΠ°Π½Ρ, Π½ΠΎ ΠΎΠ½ Π½Π°ΠΌ Π½Π΅ ΠΏΠΎΠ΄Ρ ΠΎΠ΄ΠΈΡ, ΡΠ°ΠΊΠΈΠ΅ Π»ΠΈΡΡΡ Π±ΠΎΡΡΡΡ Π²Π»Π°ΠΆΠ½ΠΎΡΡΠΈ ΠΈ ΡΠ΅ΠΌΠΏΠ΅ΡΠ°ΡΡΡΠ½ΡΡ ΠΏΠ΅ΡΠ΅ΠΏΠ°Π΄ΠΎΠ²;
- ΠΠΠΠ β ΡΡΠΎ ΠΎΠ³Π½Π΅ΡΡΠΎΠΉΠΊΠΈΠ΅ Π»ΠΈΡΡΡ ΠΈ Π·Π΄Π΅ΡΡ ΠΎΠ½ΠΈ ΡΠ°ΠΊΠΆΠ΅ Π±ΡΠ΄ΡΡ Π»ΠΈΡΠ½ΠΈΠΌΠΈ;
- ΠΠΠΠ β ΡΡΠΎ ΠΈΠΌΠ΅Π½Π½ΠΎ ΡΠΎ, ΡΡΠΎ Π½ΡΠΆΠ½ΠΎ, Π²Π»Π°Π³ΠΎΡΡΠΎΠΉΠΊΠΈΠΉ Π»ΠΈΡΡ Π²ΡΠ΄Π΅ΡΠΆΠΈΡ Π»ΡΠ±ΡΠ΅ ΠΏΠ΅ΡΠ΅ΠΏΠ°Π΄Ρ ΡΠ΅ΠΌΠΏΠ΅ΡΠ°ΡΡΡ ΠΈ Π²Π»Π°ΠΆΠ½ΠΎΡΡΠΈ.

ΠΠ»Ρ Π΄Π²Π΅ΡΠ½ΡΡ ΠΎΡΠΊΠΎΡΠΎΠ² Π»ΡΡΡΠ΅ Π²ΡΠ΅Π³ΠΎ ΠΏΠΎΠ΄Ρ ΠΎΠ΄ΡΡ Π»ΠΈΡΡΡ ΠΠΠΠ.
ΠΡΡΡ Π΅ΡΠ΅ ΠΠΠΠΠ β ΠΌΠ°ΡΠ΅ΡΠΈΠ°Π» Ρ ΠΎΡΠΎΡΠΈΠΉ, Π²Π»Π°Π³ΠΎ ΠΈ ΠΎΠ³Π½Π΅ΡΡΠΎΠΉΠΊΠΈΠ΅ Π»ΠΈΡΡΡ ΡΠΎΠ΅Π΄ΠΈΠ½ΠΈΠ»ΠΈ Π² ΡΠ΅Π±Π΅ Π²ΡΠ΅ Π»ΡΡΡΠΈΠ΅ Ρ Π°ΡΠ°ΠΊΡΠ΅ΡΠΈΡΡΠΈΠΊΠΈ ΠΊΠ°ΡΠ΅ΡΡΠ²Π°, Π½ΠΎ ΡΠ΅Π½Π° Π½Π° Π½ΠΈΡ Π½Π° ΠΏΠΎΡΡΠ΄ΠΎΠΊ Π²ΡΡΠ΅ ΠΈ Π² Π΄Π°Π½Π½ΠΎΠΌ ΡΠ»ΡΡΠ°Π΅ Ρ Π½Π΅ Π²ΠΈΠΆΡ ΡΠΌΡΡΠ»Π° ΠΏΠ»Π°ΡΠΈΡΡ Π±ΠΎΠ»ΡΡΠ΅.
ΠΠΎ ΡΠΎΠ»ΡΠΈΠ½Π΅ Π³ΠΈΠΏΡΠΎΠΊΠ°ΡΡΠΎΠ½ Π±ΡΠ²Π°Π΅Ρ ΡΡΠ΅Π½ΠΎΠ²ΡΠΌ 12,5 ΠΌΠΌ, ΠΏΠΎΡΠΎΠ»ΠΎΡΠ½ΡΠΌ 9,5 ΠΌΠΌ ΠΈ Π°ΡΠΎΡΠ½ΡΠΌ 8 ΠΌΠΌ. ΠΠ»Ρ ΠΎΡΠΊΠΎΡΠΎΠ² Π² ΠΏΡΠΈΠ½ΡΠΈΠΏΠ΅ ΠΌΠΎΠΆΠ½ΠΎ Π±ΡΠ°ΡΡ Π»ΡΠ±ΠΎΠΉ, ΡΠ°ΠΌ Π½Π°Π³ΡΡΠ·ΠΊΠΈ Π½Π΅Ρ, Π½ΠΎ Ρ ΡΠ΅ΠΊΠΎΠΌΠ΅Π½Π΄ΡΡ ΠΈΡΠΏΠΎΠ»ΡΠ·ΠΎΠ²Π°ΡΡ ΡΡΠ΅Π½ΠΎΠ²ΡΠ΅ Π»ΠΈΡΡΡ.
ΠΡΠΎΠΌΠ΅ Π³ΠΈΠΏΡΠΎΠΊΠ°ΡΡΠΎΠ½Π° Π΅ΡΠ΅ Π½ΡΠΆΠ½ΠΎ ΠΊΡΠΏΠΈΡΡ ΡΡΠ°ΡΡΠΎΠ²ΡΡ ΠΈ ΡΠΈΠ½ΠΈΡΠ½ΡΡ ΡΠΏΠ°ΠΊΠ»Π΅Π²ΠΊΡ, Π° ΡΠ°ΠΊΠΆΠ΅ ΡΠ³ΠΎΠ»ΠΎΠΊ Ρ Π°ΡΠΌΠΈΡΡΡΡΠ΅ΠΉ ΡΠ΅ΡΠΎΡΠΊΠΎΠΉ Π΄Π»Ρ ΠΎΠ±ΡΡΡΡΠΎΠΉΡΡΠ²Π° Π½Π°ΡΡΠΆΠ½ΠΎΠ³ΠΎ ΡΠ³Π»Π° ΠΏΠΎ ΠΏΠ΅ΡΠΈΠΌΠ΅ΡΡΡ Π΄Π²Π΅ΡΠΈ.
Π§ΡΠΎ ΠΆΠ΅ ΠΊΠ°ΡΠ°Π΅ΡΡΡ ΠΈΠ½ΡΡΡΡΠΌΠ΅Π½ΡΠ°, ΡΠΎ ΡΡΠ°Π½Π΄Π°ΡΡΠ½ΠΎΠ³ΠΎ Π½Π°Π±ΠΎΡΠ° Π΄ΠΎΠΌΠ°ΡΠ½Π΅Π³ΠΎ ΠΌΠ°ΡΡΠ΅ΡΠ° Π²ΠΏΠΎΠ»Π½Π΅ Π΄ΠΎΡΡΠ°ΡΠΎΡΠ½ΠΎ:
- ΠΠΎΠ»ΠΎΡΠΎΠΊ;
- Π¨ΡΡΡΠΏΠΎΠ²Π΅ΡΡ ΠΈΠ»ΠΈ Π½Π°Π±ΠΎΡ ΠΎΡΠ²Π΅ΡΡΠΎΠΊ;
- ΠΠ»Π΅ΠΊΡΡΠΎΠ΄ΡΠ΅Π»Ρ;
- Π£ΡΠΎΠ²Π΅Π½Ρ;
- ΠΠ°ΡΠ° ΡΠΏΠ°ΡΠ΅Π»Π΅ΠΉ Ρ ΡΠ·ΠΊΠΈΠΌ ΠΈ ΡΠΈΡΠΎΠΊΠΈΠΌ Π»Π΅Π·Π²ΠΈΠ΅ΠΌ;
- ΠΠΎΠΆΠ΅Ρ Π΅ΡΠ΅ ΠΏΠΎΠ½Π°Π΄ΠΎΠ±ΠΈΡΡΡ Π±ΠΎΠ»Π³Π°ΡΠΊΠ°.

ΠΠ»Ρ ΠΌΠΎΠ½ΡΠ°ΠΆΠ° Π³ΠΈΠΏΡΠΎΠΊΠ°ΡΡΠΎΠ½Π° Π½ΡΠΆΠ΅Π½ ΠΌΠΈΠ½ΠΈΠΌΠ°Π»ΡΠ½ΡΠΉ Π½Π°Π±ΠΎΡ ΠΈΠ½ΡΡΡΡΠΌΠ΅Π½ΡΠ°.
ΠΡΠΈΡΡΡΠΏΠ°Π΅ΠΌ ΠΊ ΡΠ°Π±ΠΎΡΠ΅
ΠΠ° Π²Π°ΠΆΠ½ΠΎ ΡΠ΅ΡΠΈΡΠ΅ Π²Ρ ΡΠ°ΠΆΠ°ΡΡ Π³ΠΈΠΏΡΠΎΠΊΠ°ΡΡΠΎΠ½ Π½Π° ΡΠ°ΡΡΠ²ΠΎΡ ΠΈΠ»ΠΈ ΠΎΡΠ΄Π°Π΄ΠΈΡΠ΅ ΠΏΡΠ΅Π΄ΠΏΠΎΡΡΠ΅Π½ΠΈΠ΅ ΠΌΠΎΠ½ΡΠ°ΠΆΠ½ΠΎΠΉ ΠΏΠ΅Π½Π΅, Π² Π»ΡΠ±ΠΎΠΌ ΡΠ»ΡΡΠ°Π΅ Π΅ΡΡΡ Π½Π΅ΡΠΊΠΎΠ»ΡΠΊΠΎ Π΄Π΅ΠΉΡΡΠ²ΠΈΠΉ ΠΊΠΎΡΠΎΡΡΠ΅ Π½ΡΠΆΠ½ΠΎ Π²ΡΠΏΠΎΠ»Π½ΠΈΡΡ Π΄ΠΎ ΡΠΎΠ³ΠΎ ΠΊΠ°ΠΊ ΡΠ΄Π΅Π»Π°ΡΡ ΠΎΡΠΊΠΎΡΡ Π½Π° Π΄Π²Π΅ΡΡΡ :
- Π‘ΡΠ΅ΠΆΡΡΠ΅ ΡΡΡΠΎΠΈΡΠ΅Π»ΡΠ½ΡΠΌ Π½ΠΎΠΆΠΎΠΌ ΠΌΠΎΠ½ΡΠ°ΠΆΠ½ΡΡ ΠΏΠ΅Π½Ρ, ΠΎΡΡΠ°Π²ΡΡΡΡΡ ΠΏΠΎΡΠ»Π΅ ΡΡΡΠ°Π½ΠΎΠ²ΠΊΠΈ Π΄Π²Π΅ΡΠΈ;
- ΠΡΠ»ΠΈ Π½ΡΠΆΠ½ΠΎ ΡΡΡΠ±ΠΈΡΠ΅ ΠΈΠ·Π»ΠΈΡΠ½Π΅ Π²ΡΠΏΠΈΡΠ°ΡΡΠΈΠ΅ ΡΠ°ΡΡΠΈ ΡΡΠ°ΡΠΎΠ³ΠΎ ΠΎΡΠΊΠΎΡΠ°;
- ΠΡΠ»ΠΈ ΡΡΠ°ΡΡΠΉ ΠΎΡΠΊΠΎΡ ΠΎΠΊΡΠ°ΡΠ΅Π½ ΠΌΠ°ΡΠ»ΡΠ½ΠΎΠΉ ΠΊΡΠ°ΡΠΊΠΎΠΉ ΠΈ ΠΎΠ½Π° ΠΊΡΠ΅ΠΏΠΊΠΎ Π΄Π΅ΡΠΆΠΈΡΡΡ, Π½Π΅ Π½Π°ΠΏΡΡΠ³Π°ΠΉΡΠ΅ΡΡ, ΠΏΡΠΎΡΡΠΎ Π·Π°ΡΠΈΡΡΠΈΡΠ΅ ΠΊΡΠ°ΡΠΊΡ ΠΌΠ΅ΡΠ°Π»Π»ΠΈΡΠ΅ΡΠΊΠΎΠΉ ΠΊΠΎΡΠ΄ ΡΠ΅ΡΠΊΠΎΠΉ, ΡΡΠΎΠ±Ρ ΠΊΡΠ°ΡΠΊΠ° ΡΡΠ°Π»Π° ΡΠ΅ΡΡΠ°Π²ΠΎΠΉ. Π’Π΅ΡΠ΅ΡΡ ΡΠ²ΠΎΠΈΠΌΠΈ ΡΡΠΊΠ°ΠΌΠΈ ΡΡΠΆΠ΅Π»ΠΎ, Π»ΡΡΡΠ΅ ΠΊΡΠΏΠΈΡΠ΅ Π½Π°ΡΠ°Π΄ΠΊΡ ΠΏΠΎΠ΄ ΡΠ»Π΅ΠΊΡΡΠΎΠ΄ΡΠ΅Π»Ρ ΠΈΠ»ΠΈ Π±ΠΎΠ»Π³Π°ΡΠΊΡ;
- ΠΠ±ΡΠ°Π±ΠΎΡΠ°ΠΉΡΠ΅ ΠΎΡΠ½ΠΎΠ²Ρ ΠΊΠΎΠΌΠΏΠ»Π΅ΠΊΡΠ½ΠΎΠΉ Π³ΡΡΠ½ΡΠΎΠ²ΠΊΠΎΠΉ Π³Π»ΡΠ±ΠΎΠΊΠΎΠ³ΠΎ ΠΏΡΠΎΠ½ΠΈΠΊΠ½ΠΎΠ²Π΅Π½ΠΈΡ.

ΠΠ΅ΡΠΈΠΌΠ΅ΡΡ Π΄Π²Π΅ΡΠΈ ΠΆΠ΅Π»Π°ΡΠ΅Π»ΡΠ½ΠΎ Π·Π°ΡΠΈΡΡΠΈΡΡ.
ΠΠ°ΡΠΈΠ°Π½Ρ β 1. Π‘Π°ΠΆΠ°Π΅ΠΌ Π³ΠΈΠΏΡΠΎΠΊΠ°ΡΡΠΎΠ½ Π½Π° ΡΠ°ΡΡΠ²ΠΎΡ
- ΠΡΠ»ΠΈ ΠΌΠ΅ΡΡΠ° ΡΡΠ΄ΠΎΠΌ Ρ Π»ΡΡΠΊΠΎΠΉ Π΄ΠΎΡΡΠ°ΡΠΎΡΠ½ΠΎ, ΡΠΎ Π½Π΅ΠΏΠΎΡΡΠ΅Π΄ΡΡΠ²Π΅Π½Π½ΠΎ Π²ΠΎΠ·Π»Π΅ ΡΠ°ΠΌΠΎΠΉ Π΄Π²Π΅ΡΠΈ ΡΡΡΠ°Π½Π°Π²Π»ΠΈΠ²Π°Π΅ΡΡΡ Π΄Π΅ΡΠ΅Π²ΡΠ½Π½ΡΠΉ Π±ΡΡΡΠΎΠΊ, ΡΠΎΠ»ΡΠΈΠ½Π° Π±ΡΡΡΠΊΠ° ΠΏΠΎΠ΄Π±ΠΈΡΠ°Π΅ΡΡΡ ΠΏΠ΅ΡΡΠΎΠ½Π°Π»ΡΠ½ΠΎ;
- ΠΡΠ΅ ΠΎΠ΄ΠΈΠ½ Π±ΡΡΡΠΎΠΊ ΡΡΡΠ°Π½Π°Π²Π»ΠΈΠ²Π°Π΅ΠΌ ΠΏΠΎ Π½Π°ΡΡΠΆΠ½ΠΎΠΉ ΠΊΡΠΎΠΌΠΊΠ΅ Π΄Π²Π΅ΡΠ½ΠΎΠ³ΠΎ ΠΎΡΠΊΠΎΡΠ°, ΡΠΎΠ»ΡΠΈΠ½Π° ΡΡΠΎΠ³ΠΎ Π±ΡΡΡΠΊΠ° ΠΏΠΎΡΡΠ΄ΠΊΠ° 25 ΠΌΠΌ;
- ΠΠ° ΡΡΠΈ Π±ΡΡΡΠΊΠΈ ΠΏΠΎΡΠΎΠΌ Π±ΡΠ΄ΡΡ ΠΎΠΏΠΈΡΠ°ΡΡΡΡ Π»ΠΈΡΡΡ Π³ΠΈΠΏΡΠΎΠΊΠ°ΡΡΠΎΠ½Π°. Π‘Π°ΠΌΠΈ ΠΆΠ΅ Π±ΡΡΡΠΊΠΈ ΠΊΡΠ΅ΠΏΡΡΡΡ Π΄ΡΠ±Π΅Π»Ρ-Π³Π²ΠΎΠ·Π΄ΡΠΌΠΈ ΠΊ ΡΡΠ΅Π½Π΅ Ρ ΡΠ°Π³ΠΎΠΌ ΠΏΠΎΡΡΠ΄ΠΊΠ° 30 ΡΠΌ;
- Π’Π΅ΠΏΠ΅ΡΡ Π·Π°ΠΌΠ΅ΡΡΠ΅ΠΌ ΠΈ Π²ΡΡΠ΅Π·Π°Π΅ΠΌ ΠΎΡΠΊΠΎΡΡ, ΡΠ΅Ρ Π½ΠΎΠ»ΠΎΠ³ΠΈΡ ΡΠ΅Π·ΠΊΠΈ ΠΏΠΎΠΊΠ°Π·Π°Π½Π° Π½Π° ΡΠΈΡΡΠ½ΠΊΠ΅ Π½ΠΈΠΆΠ΅.

ΠΠ°ΠΊ ΡΠ΅Π·Π°ΡΡ Π³ΠΈΠΏΡΠΎΠΊΠ°ΡΡΠΎΠ½.
ΠΠ°Π»ΡΡΠ΅ Π΄Π΅Π»Π°Π΅ΠΌ ΡΠ°ΡΡΠ²ΠΎΡ. ΠΡΠ»ΠΈ ΠΏΠΎΠΌΠ΅ΡΠ΅Π½ΠΈΠ΅ ΠΎΡΠ°ΠΏΠ»ΠΈΠ²Π°Π΅ΠΌΠΎΠ΅, ΡΠΎ Π²ΠΏΠΎΠ»Π½Π΅ ΠΏΠΎΠ΄ΠΎΠΉΠ΄Π΅Ρ ΠΎΠ±ΡΡΠ½ΡΠΉ Π³ΠΈΠΏΡ. ΠΠΈΠΏΡΠΎΠΊΠ°ΡΡΠΎΠ½ Π½Π° Π½Π°ΡΡΠΆΠ½ΡΠ΅ ΠΎΡΠΊΠΎΡΡ Π΄Π»Ρ Π²Ρ ΠΎΠ΄Π½ΠΎΠΉ Π΄Π²Π΅ΡΠΈ Π»ΡΡΡΠ΅ ΠΊΡΠ΅ΠΏΠΈΡΡ Π½Π° ΠΏΠ»ΠΈΡΠΎΡΠ½ΡΠΉ ΠΊΠ»Π΅ΠΉ, ΡΠ΅ΠΌΠ΅Π½ΡΠ½ΠΎ-ΠΏΠ΅ΡΡΠ°Π½ΡΠΉ ΡΠ°ΡΡΠ²ΠΎΡ ΡΠ°ΠΊΠΆΠ΅ ΠΏΠΎΠ΄ΠΎΠΉΠ΄Π΅Ρ, Π½ΠΎ ΠΎΠ½ ΡΡ Π²Π°ΡΡΠ²Π°Π΅ΡΡΡ Π½Π΅ΠΌΠ½ΠΎΠ³ΠΎ Π΄ΠΎΠ»ΡΡΠ΅.
ΠΠ»Ρ Π·Π°ΠΌΠ΅ΡΠΈΠ²Π°Π½ΠΈΡ ΡΠ°ΡΡΠ²ΠΎΡΠ° Π»ΡΡΡΠ΅ ΠΊΡΠΏΠΈΡΡ ΠΌΠΈΠΊΡΠ΅ΡΠ½ΡΡ Π½Π°ΡΠ°Π΄ΠΊΡ Π½Π° ΡΠ»Π΅ΠΊΡΡΠΎΠ΄ΡΠ΅Π»Ρ, ΠΏΠΎΡΠΎΠΌΡ ΠΊΠ°ΠΊ ΡΠΏΠ°ΡΠ΅Π»Π΅ΠΌ ΡΠ°ΠΊΡΡ ΡΠ°Π±ΠΎΡΡ Π²Ρ Π±ΡΠ΄Π΅ΡΠ΅ Π΄Π΅Π»Π°ΡΡ Π΄ΠΎΠ»Π³ΠΎ.
- ΠΠ»Ρ ΡΡΡΠ°Π½ΠΎΠ²ΠΊΠΈ Π²Π΅ΡΡΠΈΠΊΠ°Π»ΡΠ½ΡΡ ΠΎΡΠΊΠΎΡΠΎΠ² ΠΎΡΡΡΠΎΠ²ΠΊΠ°ΠΌΠΈ Π½Π°ΠΊΠΈΠ΄ΡΠ²Π°Π΅ΡΠ΅ ΡΠ°ΡΡΠ²ΠΎΡ ΠΏΡΡΠΌΠΎ Π½Π° ΡΡΠ΅Π½Ρ, Ρ ΡΠ°Π³ΠΎΠΌ ΠΏΠΎΡΡΠ΄ΠΊΠ° 100 β 150 ΠΌΠΌ;
- ΠΠ»Ρ ΡΡΡΠ°Π½ΠΎΠ²ΠΊΠΈ Π²Π΅ΡΡ Π½Π΅ΠΉ ΠΏΠ»ΠΎΡΠΊΠΎΡΡΠΈ Π½Π°ΠΊΠΈΠ΄ΡΠ²Π°Π΅ΡΠ΅ ΡΠ°ΠΊΠΈΠ΅ ΠΆΠ΅ ΠΎΡΡΡΠΎΠ²ΠΊΠΈ ΡΠ°ΡΡΠ²ΠΎΡΠ° Π½Π° ΡΠ°ΠΌΡ ΠΏΠ»Π°Π½ΠΊΡ;
- Π Π°ΡΡΠ²ΠΎΡ Π΄ΠΎΠ»ΠΆΠ΅Π½ Π²ΡΡΡΡΠΏΠ°ΡΡ Π½Π°Π΄ ΠΎΠΏΠΎΡΠ½ΡΠΌΠΈ ΠΏΠ»Π°Π½ΠΊΠ°ΠΌΠΈ ΠΏΠ΅ΡΠΈΠΌΠ΅ΡΡΠ° ΠΈ ΡΠ»Π΅Π³ΠΊΠ° Π²ΡΠ΄Π°Π²Π»ΠΈΠ²Π°ΡΡΡΡ ΠΈΠ·-ΠΏΠΎΠ΄ Π»ΠΈΡΡΠ° ΠΏΡΠΈ ΠΌΠΎΠ½ΡΠ°ΠΆΠ΅;
- Π’Π΅ΠΏΠ΅ΡΡ ΠΏΡΠΈΠΊΠ»Π°Π΄ΡΠ²Π°Π΅ΡΠ΅ Π»ΠΈΡΡΡ Π³ΠΈΠΏΡΠΎΠΊΠ°ΡΡΠΎΠ½Π° ΠΊ ΠΏΠ»Π°Π½ΠΊΠ°ΠΌ ΠΈ ΠΏΡΠΈΠΊΡΡΡΠΈΠ²Π°Π΅ΡΠ΅ ΠΈΡ ΡΠ°ΠΌΠΎΡΠ΅Π·Π°ΠΌΠΈ Ρ ΡΠ°Π³ΠΎΠΌ 100 ΠΌΠΌ. Π¨Π»ΡΠΏΠΊΠΈ ΡΠ°ΠΌΠΎΡΠ΅Π·ΠΎΠ² Π΄ΠΎΠ»ΠΆΠ½Ρ Π²ΠΎΠΉΡΠΈ Π² Π»ΠΈΡΡ Π½Π΅ Π±ΠΎΠ»Π΅Π΅ ΡΠ΅ΠΌ Π½Π° 1 ΠΌΠΌ.

ΠΠΎΠ½ΡΠ°ΠΆ Π²Π΅ΡΡ Π½Π΅ΠΉ ΠΏΠ»Π°Π½ΠΊΠΈ Π½Π° ΡΠ°ΡΡΠ²ΠΎΡ.
Β ΠΠ°ΡΠΈΠ°Π½Ρ β 2. Π‘Π°ΠΆΠ°Π΅ΠΌ Π³ΠΈΠΏΡΠΎΠΊΠ°ΡΡΠΎΠ½ Π½Π° ΠΌΠΎΠ½ΡΠ°ΠΆΠ½ΡΡ ΠΏΠ΅Π½Ρ
ΠΡΠΎΡ Π²Π°ΡΠΈΠ°Π½Ρ Ρ ΠΎΡΠΎΡΠΎ ΠΏΠΎΠ΄Ρ ΠΎΠ΄ΠΈΡ, Π΅ΡΠ»ΠΈ ΠΌΠ΅ΡΡΠ° Π²ΠΎΠ·Π»Π΅ Π΄Π²Π΅ΡΠ½ΠΎΠΉ Π»ΡΡΠΊΠΈ ΠΏΡΠ°ΠΊΡΠΈΡΠ΅ΡΠΊΠΈ Π½Π΅Ρ ΠΈ Π»ΠΈΡΡ ΠΏΡΠΈΡ ΠΎΠ΄ΠΈΡΡΡ ΠΌΠΎΠ½ΡΠΈΡΠΎΠ²Π°ΡΡ ΠΏΡΠ°ΠΊΡΠΈΡΠ΅ΡΠΊΠΈ Π½Π° ΡΡΠ΅Π½Ρ, ΡΠΎ Π΅ΡΡΡ Ρ ΠΌΠΈΠ½ΠΈΠΌΠ°Π»ΡΠ½ΡΠΌ Π·Π°Π·ΠΎΡΠΎΠΌ.

ΠΠ°ΡΠΈΠ°Π½Ρ ΠΌΠΎΠ½ΡΠ°ΠΆΠ° ΠΎΡΠΊΠΎΡΠ° Ρ ΠΈΡΠΏΠΎΠ»ΡΠ·ΠΎΠ²Π°Π½ΠΈΠ΅ΠΌ L-ΠΏΡΠΎΡΠΈΠ»Ρ.
- Π’ΠΎΡΠ½ΠΎ ΡΠ°ΠΊΠΆΠ΅ ΠΏΠΎΠ΄Π³ΠΎΡΠ°Π²Π»ΠΈΠ²Π°Π΅ΡΠ΅ ΡΡΠ΅Π½Ρ ΠΈ Π΅ΡΠ»ΠΈ Π²ΠΎΠ·Π»Π΅ Π»ΡΡΠΊΠΈ Π΅ΡΡΡ Ρ ΠΎΡΡ Π±Ρ 50 ΠΌΠΌ, ΡΠΎ ΠΊΡΠ΅ΠΏΠΈΡΠ΅ ΡΠ°ΠΌ Π±ΡΡΡΠΎΠΊ Π½Π° Π΄ΡΠ±Π΅Π»Ρ-Π³Π²ΠΎΠ·Π΄ΠΈ. ΠΡΠ»ΠΈ ΡΡΠΎΠ³ΠΎ ΠΌΠ΅ΡΡΠ° Π½Π΅Ρ, ΡΠΎ ΠΊΡΠ΅ΠΏΠΈΡΠ΅ Π½Π΅ΠΏΠΎΡΡΠ΅Π΄ΡΡΠ²Π΅Π½Π½ΠΎ Π½Π° Π»ΡΡΠΊΡ L-ΠΏΡΠΎΡΠΈΠ»Ρ, ΠΊΠ°ΠΊ Π½Π° ΡΡ Π΅ΠΌΠ΅ Π²ΡΡΠ΅;
- ΠΠ°Π»ΡΡΠ΅ ΠΏΡΠΎΠΈΠ·Π²ΠΎΠ»ΡΠ½ΡΠΌ ΡΠΈΡΡΠ½ΠΊΠΎΠΌ Π½Π°Π½ΠΎΡΠΈΡΠ΅ ΠΏΠ΅Π½Ρ Π½Π° Π²ΡΡΠ΅Π·Π°Π½Π½ΡΠ΅ ΡΠ°Π½Π΅Π΅ Π»ΠΈΡΡΡ Π΄Π»Ρ ΠΎΡΠΊΠΎΡΠΎΠ² ΠΈ ΠΏΡΠΈΠΊΠ»Π°Π΄ΡΠ²Π°Π΅ΡΠ΅ ΡΡΠΈ Π»ΠΈΡΡΡ Π½Π° ΡΠ²ΠΎΠ΅ ΠΌΠ΅ΡΡΠΎ;
- Π‘ΡΠ°Π·Ρ Π³ΠΈΠΏΡΠΎΠΊΠ°ΡΡΠΎΠ½ ΠΏΡΠΈΠΊΡΡΡΠΈΠ²Π°ΡΡ ΠΊ ΡΡΠ΅Π½Π΅ Π½Π΅Π»ΡΠ·Ρ, ΠΏΠ΅Π½Π° Π½Π°ΡΠ½Π΅Ρ ΡΠ°ΡΡΠΈΡΡΡΡΡΡ ΠΈ Π²ΡΠ΄Π°Π²ΠΈΡ ΠΈΠ»ΠΈ ΠΊΠ°ΠΊ ΠΌΠΈΠ½ΠΈΠΌΡΠΌ ΡΠΈΠ»ΡΠ½ΠΎ Π΄Π΅ΡΠΎΡΠΌΠΈΡΡΠ΅Ρ ΠΏΠ»Π°Π½ΠΊΡ;
- ΠΠ΅Π½Π° Π°ΠΊΡΠΈΠ²Π½ΠΎ ΡΠ°ΡΡΠΈΡΡΠ΅ΡΡΡ ΠΎΠΊΠΎΠ»ΠΎ ΠΏΠΎΠ»ΡΡΠ°ΡΠ°, Π²ΡΠ΅ ΡΡΠΎ Π²ΡΠ΅ΠΌΡ, ΠΊΠ°ΠΆΠ΄ΡΠ΅ 5 ΠΌΠΈΠ½ΡΡ Π»ΠΈΡΡ Π½ΡΠΆΠ½ΠΎ Π°ΠΊΠΊΡΡΠ°ΡΠ½ΠΎ ΠΏΡΠΈΠΆΠΈΠΌΠ°ΡΡ. ΠΡΡΠ°ΡΠΈ ΡΡΠ°Π·Ρ ΠΏΠΎΡΡΠ°Π²ΡΡΠ΅ Π½Π° ΡΡΠ΅Π½Π΅ ΠΌΠ΅ΡΠΊΠΈ, ΡΡΠΎΠ±Ρ ΠΏΡΠΈΠΆΠΈΠΌΠ°Ρ Π»ΠΈΡΡ Π½Π΅ ΠΏΠ΅ΡΠ΅ΡΡΠ΅ΡΠ΄ΡΡΠ²ΠΎΠ²Π°ΡΡ;
- ΠΠΎΡΠ»Π΅ ΡΠΎΠ³ΠΎ ΠΊΠ°ΠΊ ΡΠ²ΠΈΠ΄ΠΈΡΠ΅, ΡΡΠΎ ΠΏΠ΅Π½Π° Β«ΡΡΠΏΠΎΠΊΠΎΠΈΠ»Π°ΡΡΒ», ΠΏΡΠΈΠΊΡΡΡΠΈΠ²Π°Π΅ΡΠ΅ Π»ΠΈΡΡΡ ΠΏΠΎ ΠΏΠ΅ΡΠΈΠΌΠ΅ΡΡΡ. Π Π΄Π΅ΡΠ΅Π²ΠΎ ΡΠ°ΠΌΠΎΡΠ΅Π·Ρ Π²ΠΎΠΉΠ΄ΡΡ Π»Π΅Π³ΠΊΠΎ, Π° ΠΊ ΡΡΠ΅Π½Π΅ Π»ΠΈΡΡΡ Π»ΡΡΡΠ΅ ΠΊΡΠ΅ΠΏΠΈΡΡ Π΄ΡΠ±Π΅Π»Ρ-Π³Π²ΠΎΠ·Π΄ΡΠΌΠΈ;
- Π‘Π½Π°ΡΠ°Π»Π° ΠΊΡΠ΅ΠΏΠΈΡΠ΅ Π΄Π²Π΅ Π²Π΅ΡΡΠΈΠΊΠ°Π»ΡΠ½ΡΡ ΠΏΠ»Π°Π½ΠΊΠΈ, Π° ΠΊΠΎΠ³Π΄Π° ΠΎΠ½ΠΈ Π·Π°ΠΉΠΌΡΡ ΡΠ²ΠΎΠ΅ ΠΌΠ΅ΡΡΠΎ ΠΏΠ΅ΡΠ΅Ρ ΠΎΠ΄ΠΈΡΠ΅ ΠΊ Π²Π΅ΡΡ Π½Π΅ΠΉ.
ΠΠ°Π»ΠΈΠ²Π°Π΅ΠΌ ΠΏΠΎΠ΄ Π»ΠΈΡΡ ΠΌΠΎΠ½ΡΠ°ΠΆΠ½ΡΡ ΠΏΠ΅Π½Ρ.
ΠΡΠ΄Π΅Π»ΠΊΠ° Π³ΠΈΠΏΡΠΎΠΊΠ°ΡΡΠΎΠ½Π°
Π― ΡΠ΅ΠΊΠΎΠΌΠ΅Π½Π΄ΡΡ ΡΡΠ°Π·Ρ ΠΊΡΠΏΠΈΡΡ ΠΌΠ΅ΡΠ°Π»Π»ΠΈΡΠ΅ΡΠΊΠΈΠΉ Π½Π°ΡΡΠΆΠ½ΡΠΉ ΡΠ³ΠΎΠ»ΠΎΠΊ Ρ Π°ΡΠΌΠΈΡΡΡΡΠΈΠΌΠΈ ΡΠ΅ΡΠΊΠ°ΠΌΠΈ, ΠΊΠ°ΠΊ Π½Π° ΡΠΎΡΠΎ ΡΠ½ΠΈΠ·Ρ. Π Π³ΠΈΠΏΡΠΎΠΊΠ°ΡΡΠΎΠ½Ρ ΡΠ°ΠΊΠΎΠΉ ΡΠ³ΠΎΠ»ΠΎΠΊ ΠΌΠΎΠΆΠ½ΠΎ ΠΊΡΠ΅ΠΏΠΈΡΡ Π΄Π²ΡΠΌΡ ΡΠΏΠΎΡΠΎΠ±Π°ΠΌΠΈ: ΠΏΡΠΎΡΠ΅ Β«ΠΏΡΠΈΡΡΡΠ΅Π»ΡΡΡΒ» ΡΡΠΈΠΏΠ»Π΅ΡΠΎΠΌ, Π° Π½Π°Π΄Π΅ΠΆΠ½Π΅ΠΉ Π½Π°Π½Π΅ΡΡΠΈ 3 β 4 ΠΌΠΌ ΡΡΠ°ΡΡΠΎΠ²ΠΎΠΉ ΡΠΏΠ°ΠΊΠ»Π΅Π²ΠΊΠΈ Π½Π° ΡΠ³ΠΎΠ» ΠΈ ΠΏΡΠΈΡΠΎΠΏΠΈΡΡ ΡΠ³ΠΎΠ»ΠΎΠΊ Π² ΡΠΏΠ°ΠΊΠ»Π΅Π²ΠΊΡ.

ΠΠ°ΡΡΠΆΠ½ΡΠΉ ΡΠ³ΠΎΠ»ΠΎΠΊ Ρ Π°ΡΠΌΠΈΡΡΡΡΠ΅ΠΉ ΡΠ΅ΡΠΎΡΠΊΠΎΠΉ.
ΠΠ°Π»Π΅Π΅ ΡΠΈΡΠΎΠΊΠΈΠΌ ΡΠΏΠ°ΡΠ΅Π»Π΅ΠΌ Π½Π°Π½ΠΎΡΠΈΡΠ΅ 2 β 3 ΠΌΠΌ ΡΡΠ°ΡΡΠΎΠ²ΠΎΠΉ ΡΠΏΠ°ΠΊΠ»Π΅Π²ΠΊΠΈ. ΠΠ»Ρ ΡΠ»ΠΈΡΡ Π½ΡΠΆΠ½Π° ΡΠ΅ΠΌΠ΅Π½ΡΠ½Π°Ρ ΡΠΏΠ°ΠΊΠ»Π΅Π²ΠΊΠ°, Π΄Π»Ρ ΠΊΠΎΠΌΠ½Π°ΡΡ ΠΏΠΎΠ΄ΠΎΠΉΠ΄Π΅Ρ Π³ΠΈΠΏΡΠΎΠ²Π°Ρ. ΠΠ· ΠΏΡΠΎΠΈΠ·Π²ΠΎΠ΄ΠΈΡΠ΅Π»Π΅ΠΉ Π»ΡΡΡΠ΅ Π²ΡΠ΅Π³ΠΎ Π²ΡΠ±ΠΈΡΠ°ΡΡ ΠΌΠ΅ΠΆΠ΄Ρ ΠΠ½Π°ΡΡ, Π¨ΠΈΡΡΠΎΠΊ ΠΈ ΠΠΎΠ»ΠΌΠΎΠΉ, Π½Π°ΡΠΈ ΡΠΏΠ°ΠΊΠ»Π΅Π²ΠΊΠΈ Β«Π‘ΡΠ°ΡΠ°ΡΠ΅Π»ΠΈΒ» ΡΠ°ΠΊΠΆΠ΅ Ρ ΠΎΡΠΎΡΠΈ.
ΠΠΎΠ³Π΄Π° ΡΡΠ°ΡΡΠΎΠ²Π°Ρ ΡΠΏΠ°ΠΊΠ»Π΅Π²ΠΊΠ° Π·Π°ΡΡΡΠ½Π΅Ρ Π΅Π΅ Π½ΡΠΆΠ½ΠΎ Π·Π°ΡΠ»ΠΈΡΠΎΠ²Π°ΡΡ ΡΠΏΠ΅ΡΠΈΠ°Π»ΡΠ½ΠΎΠΉ ΠΌΠ΅ΡΠ°Π»Π»ΠΈΡΠ΅ΡΠΊΠΎΠΉ ΡΠ»ΠΈΡΠΎΠ²Π°Π»ΡΠ½ΠΎΠΉ ΡΠ΅ΡΠΊΠΎΠΉ, ΠΌΠΎΠΆΠ½ΠΎ ΠΈΡΠΏΠΎΠ»ΡΠ·ΠΎΠ²Π°ΡΡ Π½Π°ΠΆΠ΄Π°ΠΊ, Π½ΠΎ ΠΎΠ½ Π±ΡΡΡΡΠΎ Π·Π°Π±ΠΈΠ²Π°Π΅ΡΡΡ.
ΠΠΎΡΠ»Π΅ ΡΡΠΎΠ³ΠΎ ΡΠΌΠ°Ρ ΠΈΠ²Π°Π΅ΡΠ΅, ΠΏΡΠ»Ρ ΠΈ Π΅ΡΠ΅ ΡΠ°Π· ΠΏΠΎΠΊΡΡΠ²Π°Π΅ΡΠ΅ ΠΎΡΠΊΠΎΡΡ Π³ΡΡΠ½ΡΠΎΠΌ. ΠΠΎΠ³Π΄Π° Π³ΡΡΠ½Ρ Π²ΡΡΠΎΡ Π½Π΅Ρ, Π½Π°Π½ΠΎΡΠΈΡΠ΅ ΠΏΠ°ΡΡ ΠΌΠΈΠ»Π»ΠΈΠΌΠ΅ΡΡΠΎΠ² ΡΠΈΠ½ΠΈΡΠ½ΠΎΠΉ ΡΠΏΠ°ΠΊΠ»Π΅Π²ΠΊΠΈ, Π΄ΠΎΠΆΠΈΠ΄Π°Π΅ΡΠ΅ΡΡ ΠΏΠΎΠΊΠ° ΠΎΠ½Π° Π²ΡΡΠΎΡ Π½Π΅Ρ ΠΈ ΡΠ»ΠΈΡΡΠ΅ΡΠ΅ Π½Π°ΡΠΈΡΡΠΎ. Π ΠΏΡΠΈΠ½ΡΠΈΠΏΠ΅ Π²ΡΠ΅, Π΄Π°Π»ΡΡΠ΅ ΠΌΠΎΠΆΠ½ΠΎ ΠΊΡΠ°ΡΠΈΡΡ.
ΠΡΠ»ΠΈ ΠΈΠ· ΡΠ΅Π»ΡΠ½ΠΎΠ³ΠΎ Π»ΠΈΡΡΠ° ΠΎΡΠΊΠΎΡ Π²ΡΡΠ΅Π·Π°ΡΡ Π½Π΅ ΠΏΠΎΠ»ΡΡΠΈΠ»ΠΎΡΡ, ΡΠΎ ΡΡΡΠΊ ΠΌΠ΅ΠΆΠ΄Ρ Π»ΠΈΡΡΠ°ΠΌΠΈ ΠΏΠΎΠ΄ΡΠ΅Π·Π°Π΅ΡΡΡ Π½Π° ΠΏΠΎΠ»ΠΎΠ²ΠΈΠ½Ρ Π³Π»ΡΠ±ΠΈΠ½Ρ Π»ΠΈΡΡΠ°, ΠΏΠΎΡΠ»Π΅ ΡΡΠΎΠ³ΠΎ Π½Π°Π½ΠΎΡΠΈΡΡΡ ΡΡΠ°ΡΡΠΎΠ²Π°Ρ ΡΠΏΠ°ΠΊΠ»Π΅Π²ΠΊΠ°, Π² ΡΠΏΠ°ΠΊΠ»Π΅Π²ΠΊΡ ΠΏΡΠΈΡΠ°ΠΏΠ»ΠΈΠ²Π°Π΅ΡΡΡ ΡΡΠ΅ΠΊΠ»ΠΎΠ²ΠΎΠ»ΠΎΠΊΠΎΠ½Π½Π°Ρ ΡΠ΅ΡΠΊΠ° ΡΠ΅ΡΠΏΡΠ½ΠΊΠ° ΠΈ ΠΊΠΎΠ³Π΄Π° Π²ΡΡΠΎΡ Π½Π΅Ρ, Π·Π°ΡΠ»ΠΈΡΠΎΠ²ΡΠ²Π°Π΅ΡΠ΅ ΠΈ ΡΠΏΠ°ΠΊΠ»ΡΠ΅ΡΠ΅ ΡΠΈΠ½ΠΈΡΠ΅ΠΌ, Π½Π° Π²ΠΈΠ΄Π΅ΠΎ Π² ΡΡΠΎΠΉ ΡΡΠ°ΡΡΠ΅ Π΅ΡΡΡ ΡΡΠ° ΡΠ΅Ρ Π½ΠΈΠΊΠ°.

Π¨ΠΏΠ°ΠΊΠ»Π΅Π²ΠΊΠ° ΡΡΡΠΊΠΎΠ² Π³ΠΈΠΏΡΠΎΠΊΠ°ΡΡΠΎΠ½Π°.
ΠΠ°ΠΊ ΡΠ΄Π΅Π»Π°ΡΡ ΠΎΡΠΊΠΎΡ Π΄Π²Π΅ΡΠΈ Π²ΠΈΠ΄Π΅ΠΎ
ΠΡΠ²ΠΎΠ΄
ΠΠ°ΠΊ Π²ΠΈΠ΄ΠΈΡΠ΅ ΡΠ΄Π΅Π»Π°ΡΡ ΠΎΡΠΊΠΎΡΡ ΠΈΠ· Π³ΠΈΠΏΡΠΎΠΊΠ°ΡΡΠΎΠ½Π° ΡΠ²ΠΎΠΈΠΌΠΈ ΡΡΠΊΠ°ΠΌΠΈ Π½Π΅ ΡΠ°ΠΊ ΡΠ»ΠΎΠΆΠ½ΠΎ, Π΅ΡΠ»ΠΈ ΠΎΡΡΠ°Π»ΠΈΡΡ ΠΊΠ°ΠΊΠΈΠ΅-Π»ΠΈΠ±ΠΎ Π²ΠΎΠΏΡΠΎΡΡ, Π΄ΠΎΠ±ΡΠΎ ΠΏΠΎΠΆΠ°Π»ΠΎΠ²Π°ΡΡ Π² ΠΊΠΎΠΌΠΌΠ΅Π½ΡΠ°ΡΠΈΠΈ, ΠΏΠΎΡΡΠ°ΡΠ°ΡΡΡ ΠΏΠΎΠΌΠΎΡΡ.

ΠΠ²Π΅ΡΠ½ΡΠ΅ ΠΎΡΠΊΠΎΡΡ ΠΈΠ· Π³ΠΈΠΏΡΠΎΠΊΠ°ΡΡΠΎΠ½Π° ΡΡΠΎ Ρ ΠΎΡΠΎΡΠ΅Π΅ ΡΠ΅ΡΠ΅Π½ΠΈΠ΅.
ΠΠ°ΠΌ ΡΠ°ΠΊΠΆΠ΅ Π±ΡΠ΄Π΅Ρ ΠΈΠ½ΡΠ΅ΡΠ΅ΡΠ½ΠΎ ΠΏΠΎΡΠΈΡΠ°ΡΡ
proekt-remonta.ru
ΠΌΠΎΠ½ΡΠ°ΠΆ ΠΎΡΠΊΠΎΡΠΎΠ² ΠΈΠ· ΠΠΠ€, Π³ΠΈΠΏΡΠΎΠΊΠ°ΡΡΠΎΠ½Π° ΠΈ ΡΡΡΠΊΠ°ΡΡΡΠΊΠΈ (Π²ΠΈΠ΄Π΅ΠΎ)
ΠΡΠ°ΠΊΡΠΈΡΠ΅ΡΠΊΠΈ Π²ΡΠ΅ ΡΠΈΡΠΌΡ, ΠΎΡΠ²Π΅ΡΠ°ΡΡΠΈΠ΅ Π·Π° Π΄ΠΎΡΡΠ°Π²ΠΊΡ ΠΈ ΠΌΠΎΠ½ΡΠ°ΠΆ Π΄Π²Π΅ΡΠ΅ΠΉ, Π·Π°Π±ΠΎΡΡΡΡΡ ΡΠΎΠ»ΡΠΊΠΎ ΠΎ Π²Π½Π΅ΡΠ½Π΅ΠΉ ΡΡΠΎΡΠΎΠ½Π΅ Π²ΠΎΠΏΡΠΎΡΠ°. ΠΠ½ΠΎ ΠΈ ΠΏΠΎΠ½ΡΡΠ½ΠΎ, ΠΏΠΎΡΠΎΠΌΡ ΡΡΠΎ ΡΡΡΠ°Π½ΠΎΠ²ΠΈΡΡ Π΄Π²Π΅ΡΡ ΠΈ ΠΎΡΠ΄Π΅Π»Π°ΡΡ Π»ΠΈΡΠ΅Π²ΡΡ ΡΡΠΎΡΠΎΠ½Ρ Π½Π°Π»ΠΈΡΠ½ΠΈΠΊΠ°ΠΌΠΈ ΠΌΠΎΠΆΠ½ΠΎ Π·Π° Π½Π΅ΡΠΊΠΎΠ»ΡΠΊΠΎ ΡΠ°ΡΠΎΠ², Π° Π²ΠΎΡ Ρ ΠΎΡΠΊΠΎΡΠ°ΠΌΠΈ Ρ Π²Π½ΡΡΡΠ΅Π½Π½Π΅ΠΉ ΡΡΠΎΡΠΎΠ½Ρ ΠΌΠΎΠΆΠ½ΠΎ ΠΏΡΠΎΠ²ΠΎΠ·ΠΈΡΡΡΡ Π½Π΅ ΠΎΠ΄ΠΈΠ½ Π΄Π΅Π½Ρ. ΠΠ³ΡΠΎΠΌΠ½ΠΎΠ΅ ΠΈΠ·ΠΎΠ±ΠΈΠ»ΠΈΠ΅ ΠΎΡΠ΄Π΅Π»ΠΎΡΠ½ΠΎΠ³ΠΎ ΠΌΠ°ΡΠ΅ΡΠΈΠ°Π»Π° ΠΏΠΎΠ·Π²ΠΎΠ»ΡΠ΅Ρ ΠΎΡΠΎΡΠΌΠΈΡΡ Π΄Π²Π΅ΡΠ½ΡΠ΅ ΠΎΡΠΊΠΎΡΡ ΠΏΠΎ ΡΠ²ΠΎΠ΅ΠΌΡ Π²ΠΊΡΡΡ. ΠΠ»Π°Π²Π½ΠΎΠ΅ β ΠΏΡΠΈΠ΄Π΅ΡΠΆΠΈΠ²Π°ΡΡΡΡ ΡΡΡΠ°Π½ΠΎΠ²Π»Π΅Π½Π½ΡΡ Π½ΠΎΡΠΌ ΠΈ ΠΏΡΠ°Π²ΠΈΠ». ΠΠΎΡΡΠΎΠΌΡ Π΄Π°Π»Π΅Π΅ Π±ΡΠ΄Π΅Ρ ΡΠ°ΡΡΠΌΠΎΡΡΠ΅Π½ΠΎ, ΠΊΠ°ΠΊ ΡΠ΄Π΅Π»Π°ΡΡ Π΄Π²Π΅ΡΠ½ΡΠ΅ ΠΎΡΠΊΠΎΡΡ ΡΠ²ΠΎΠΈΠΌΠΈ ΡΡΠΊΠ°ΠΌΠΈ.

ΠΠ²Π΅ΡΠ½ΡΠ΅ ΠΎΡΠΊΠΎΡΡ Π½Π΅ΠΎΠ±Ρ ΠΎΠ΄ΠΈΠΌΡ Π΄Π»Ρ ΠΏΡΠΈΠ΄Π°Π½ΠΈΡ ΡΡΡΠ°Π½ΠΎΠ²Π»Π΅Π½Π½ΠΎΠΉ Π΄Π²Π΅ΡΠΈ Π·Π°Π²Π΅ΡΡΠ΅Π½Π½ΠΎΠ³ΠΎ Π²ΠΈΠ΄Π°.
ΠΠ°ΡΠΈΠ°Π½ΡΡ ΠΎΡΠΎΡΠΌΠ»Π΅Π½ΠΈΡ Π΄Π²Π΅ΡΠ½ΡΡ ΠΎΡΠΊΠΎΡΠΎΠ²
ΠΡΠΊΠΎΡΡ Π΄Π»Ρ Π΄Π²Π΅ΡΠ΅ΠΉ Π±ΡΠ²Π°ΡΡ ΡΠ°Π·Π»ΠΈΡΠ½ΡΡ Π²ΠΈΠ΄ΠΎΠ², ΠΎΠ½ΠΈ ΠΌΠΎΠ³ΡΡ ΠΎΡΠ»ΠΈΡΠ°ΡΡΡΡ ΠΊΠ°ΠΊ ΠΏΠΎ ΡΠ°ΠΊΡΡΡΠ΅, ΡΠ²Π΅ΡΡ, ΡΠ°ΠΊ ΠΈ ΠΏΠΎ ΠΌΠ°ΡΠ΅ΡΠΈΠ°Π»Ρ ΠΈΠ·Π³ΠΎΡΠΎΠ²Π»Π΅Π½ΠΈΡ. ΠΠ° ΡΠ΅Π³ΠΎΠ΄Π½ΡΡΠ½ΠΈΠΉ Π΄Π΅Π½Ρ Π½Π°ΠΈΠ±ΠΎΠ»Π΅Π΅ ΠΏΠΎΠΏΡΠ»ΡΡΠ½ΡΠΌ ΠΌΠ°ΡΠ΅ΡΠΈΠ°Π»ΠΎΠΌ Π΄Π»Ρ ΠΌΠΎΠ½ΡΠ°ΠΆΠ° ΠΎΡΠΊΠΎΡΠΎΠ² ΡΠ²Π»ΡΠ΅ΡΡΡ:
- ΠΠΠ€;
- ΡΡΡΠΊΠ°ΡΡΡΠΊΠ°;
- Π³ΠΈΠΏΡΠΎΠΊΠ°ΡΡΠΎΠ½.
Π£ΡΠΈΡΡΠ²Π°Ρ ΡΠΎΡ ΡΠ°ΠΊΡ, ΡΡΠΎ ΠΎΡΠ΅Π½Ρ ΡΠ°ΡΡΠΎ Π΄Π²Π΅ΡΠΈ ΠΊΠΎΠ½ΡΡΡΡΠΈΡΡΡΡΡΡ ΠΈΠ· Π΄Π΅ΡΠ΅Π²Π° Π»ΠΈΠ±ΠΎ ΠΈΠΌΠ΅ΡΡ Π½Π°ΡΡΠΆΠ½ΡΡ ΠΎΡΠ΄Π΅Π»ΠΊΡ ΠΏΠΎΠ΄ Π΄ΡΠ΅Π²Π΅ΡΠΈΠ½Ρ, ΠΌΠ½ΠΎΠ³ΠΈΠ΅ ΡΠ΅ΠΊΠΎΠΌΠ΅Π½Π΄ΡΡΡ ΡΡΡΠ°Π½Π°Π²Π»ΠΈΠ²Π°ΡΡ ΠΎΡΠΊΠΎΡΡ ΠΈΠ· ΠΠΠ€ ΠΈΠ»ΠΈ Π»Π°ΠΌΠΈΠ½ΠΈΡΠΎΠ²Π°Π½Π½ΡΡ Π΄ΡΠ΅Π²Π΅ΡΠ½ΠΎΠ²ΠΎΠ»ΠΎΠΊΠ½ΠΈΡΡΡΡ ΠΏΠ»ΠΈΡ. Π’Π°ΠΊΠΎΠΉ ΠΌΠ°ΡΠ΅ΡΠΈΠ°Π» ΠΈΠΌΠ΅Π΅Ρ ΠΊΡΠ°ΡΠΈΠ²ΡΠΉ Π²Π½Π΅ΡΠ½ΠΈΠΉ Π²ΠΈΠ΄, Π΄Π° ΠΈ ΡΠ°Π±ΠΎΡΠ°ΡΡ Ρ Π½ΠΈΠΌ Π΄ΠΎΡΡΠ°ΡΠΎΡΠ½ΠΎ Π»Π΅Π³ΠΊΠΎ. ΠΠΈΡΡΡ ΠΠΠ€ ΠΈ ΠΠΠ ΠΎΠ±Π»Π°Π΄Π°ΡΡ Π²ΡΡΠΎΠΊΠΎΠΉ ΠΏΡΠΎΡΠ½ΠΎΡΡΡΡ, Π½Π΅ ΠΏΠΎΠ΄Π²Π΅ΡΠ³Π°ΡΡΡΡ Π²ΡΠ΅ΠΌΠ΅Π½Π½ΠΎΠΉ Π΄Π΅ΡΠΎΡΠΌΠ°ΡΠΈΠΈ ΠΈ ΡΠ²Π»ΡΡΡΡΡ ΠΏΡΠ°ΠΊΡΠΈΡΠ΅ΡΠΊΠΈ Π±Π΅Π·Π²ΡΠ΅Π΄Π½ΡΠΌΠΈ Π΄Π»Ρ ΡΠ΅Π»ΠΎΠ²Π΅ΡΠ΅ΡΠΊΠΎΠ³ΠΎ ΠΎΡΠ³Π°Π½ΠΈΠ·ΠΌΠ°. ΠΠΌΠ΅Π½Π½ΠΎ ΠΏΠΎΡΡΠΎΠΌΡ ΠΠΠ€ β Π½Π°ΠΈΠ±ΠΎΠ»Π΅Π΅ ΠΏΠΎΠΏΡΠ»ΡΡΠ½ΡΠΉ ΠΌΠ°ΡΠ΅ΡΠΈΠ°Π» Π΄Π»Ρ ΠΎΡΠΎΡΠΌΠ»Π΅Π½ΠΈΡ Π΄Π²Π΅ΡΠ½ΡΡ ΠΎΡΠΊΠΎΡΠΎΠ². ΠΠ΄ΠΈΠ½ΡΡΠ²Π΅Π½Π½ΡΠΌ Π½Π΅Π΄ΠΎΡΡΠ°ΡΠΊΠΎΠΌ ΠΠΠ€ ΡΠ²Π»ΡΠ΅ΡΡΡ Π½Π΅Π±ΠΎΠ»ΡΡΠΎΠΉ Π²ΡΠ±ΠΎΡ ΡΠ²Π΅ΡΠ°, ΠΏΠΎΡΡΠΎΠΌΡ Π½Π΅ Π²ΡΠ΅Π³Π΄Π° ΡΠ΄Π°Π΅ΡΡΡ ΠΏΠΎΠ΄ΠΎΠ±ΡΠ°ΡΡ Π½Π°ΠΈΠ»ΡΡΡΠ΅Π΅ ΡΠ²Π΅ΡΠΎΠ²ΠΎΠ΅ ΡΠ΅ΡΠ΅Π½ΠΈΠ΅ Π΄Π»Ρ Π²ΡΠ±ΡΠ°Π½Π½ΠΎΠΉ Π΄Π²Π΅ΡΠΈ.
ΠΠΠ€ ΡΠ²Π»ΡΡΡΡΡ Π½Π΅Π΄ΠΎΡΠΎΠ³ΠΈΠΌ Π²Π°ΡΠΈΠ°Π½ΡΠΎΠΌ Π΄Π»Ρ ΠΎΡΠ΄Π΅Π»ΠΊΠΈ ΠΎΡΠΊΠΎΡΠΎΠ².
ΠΡΠΏΠΎΠ»ΡΠ·ΠΎΠ²Π°Π½ΠΈΠ΅ ΠΏΡΠΈ ΠΊΠΎΠ½ΡΡΡΡΠΈΡΠΎΠ²Π°Π½ΠΈΠΈ ΠΎΡΠΊΠΎΡΠΎΠ² ΡΡΡΠΊΠ°ΡΡΡΠΊΠΈ β ΠΊΠ»Π°ΡΡΠΈΡΠ΅ΡΠΊΠΈΠΉ ΠΌΠ΅ΡΠΎΠ΄ ΠΎΡΠ΄Π΅Π»ΠΊΠΈ Π΄Π²Π΅ΡΠ½ΠΎΠ³ΠΎ ΠΏΡΠΎΠ΅ΠΌΠ°. ΠΡΡΡΠ΅ Π²ΡΠ΅Π³ΠΎ ΠΎΡΡΡΠΊΠ°ΡΡΡΠΈΠ²Π°Π½ΠΈΠ΅ ΠΏΠΎΠ΄Ρ ΠΎΠ΄ΠΈΡ Π΄Π»Ρ Π²Ρ ΠΎΠ΄Π½ΡΡ Π΄Π²Π΅ΡΠ΅ΠΉ. ΠΡΠΎ ΡΠ²ΡΠ·Π°Π½ΠΎ Ρ ΡΠ΅ΠΌ, ΡΡΠΎ ΡΡΡΠΊΠ°ΡΡΡΠΊΠ° Π²ΡΡΡΡΠΏΠ°Π΅Ρ Π½Π΅ΠΏΠ»ΠΎΡ ΠΈΠΌ ΡΡΠ΅ΠΏΠ»ΠΈΡΠ΅Π»Π΅ΠΌ. Π’Π°ΠΊΠΈΠ΅ ΠΎΡΠΊΠΎΡΡ ΠΈΠΌΠ΅ΡΡ Ρ ΠΎΡΠΎΡΡΡ ΠΌΠ΅Ρ Π°Π½ΠΈΡΠ΅ΡΠΊΡΡ ΠΏΡΠΎΡΠ½ΠΎΡΡΡ ΠΈ ΠΏΡΠΎΡΡΡ Π² ΠΎΠ±ΡΠ»ΡΠΆΠΈΠ²Π°Π½ΠΈΠΈ, Π° ΠΈΡ ΠΌΠΎΠ½ΡΠ°ΠΆ Π½Π΅ Π²ΡΠ·ΠΎΠ²Π΅Ρ Ρ Π²Π°Ρ ΠΎΡΠΎΠ±ΡΡ ΡΡΡΠ΄Π½ΠΎΡΡΠ΅ΠΉ. ΠΠ΄ΠΈΠ½ΡΡΠ²Π΅Π½Π½ΡΠΌ Π½Π΅Π΄ΠΎΡΡΠ°ΡΠΊΠΎΠΌ ΡΡΡΠΊΠ°ΡΡΡΠΊΠΈ ΡΠ²Π»ΡΠ΅ΡΡΡ ΡΠΎ, ΡΡΠΎ ΠΎΠ½Π° Π΄ΠΎΡΡΠ°ΡΠΎΡΠ½ΠΎ Π΄ΠΎΠ»Π³ΠΎ ΡΠΎΡ Π½Π΅Ρ, ΡΡΠΎ ΡΠ²Π΅Π»ΠΈΡΠΈΠ²Π°Π΅Ρ Π²ΡΠ΅ΠΌΡ ΠΎΡΠ΄Π΅Π»ΠΊΠΈ ΠΎΡΠΊΠΎΡΠΎΠ² Π΄ΠΎ Π½Π΅ΡΠΊΠΎΠ»ΡΠΊΠΈΡ Π΄Π½Π΅ΠΉ.
ΠΠ²Π΅ΡΠ½ΡΠ΅ ΠΎΡΠΊΠΎΡΡ ΠΈΠ· Π³ΠΈΠΏΡΠΎΠΊΠ°ΡΡΠΎΠ½Π° ΠΏΠΎ Π²Π½Π΅ΡΠ½Π΅ΠΌΡ Π²ΠΈΠ΄Ρ Π½Π°ΠΏΠΎΠΌΠΈΠ½Π°ΡΡ ΡΡΡΠΊΠ°ΡΡΡΠΊΡ, ΠΎΠ΄Π½Π°ΠΊΠΎ, Π² ΠΎΡΠ»ΠΈΡΠΈΠ΅ ΠΎΡ ΠΏΡΠ΅Π΄ΡΠ΄ΡΡΠ΅Π³ΠΎ ΡΠΈΠΏΠ°, ΠΏΡΠΈ ΠΈΡ ΠΌΠΎΠ½ΡΠ°ΠΆΠ΅ Π½Π΅ ΠΎΠ±ΡΠ°Π·ΡΠ΅ΡΡΡ ΠΌΠ½ΠΎΠ³ΠΎ Π³ΡΡΠ·ΠΈ ΠΈ ΠΏΡΠ»ΠΈ. ΠΠΈΠΏΡΠΎΠΊΠ°ΡΡΠΎΠ½ ΡΠ΄ΠΎΠ±Π΅Π½ Π² ΡΠ°Π±ΠΎΡΠ΅, ΠΏΠΎΠ΄ Π½Π΅Π³ΠΎ ΠΌΠΎΠΆΠ½ΠΎ ΡΠ»ΠΎΠΆΠΈΡΡ ΡΠ΅ΠΏΠ»ΠΎΠΈΠ·ΠΎΠ»ΡΡΠΈΠΎΠ½Π½ΡΠΉ ΠΌΠ°ΡΠ΅ΡΠΈΠ°Π», ΡΡΠΎ ΡΠ²Π»ΡΠ΅ΡΡΡ Π²Π°ΠΆΠ½ΡΠΌ ΡΡΠ»ΠΎΠ²ΠΈΠ΅ΠΌ Π΄Π»Ρ ΠΊΠ°ΡΠ΅ΡΡΠ²Π΅Π½Π½ΠΎΠΉ ΡΡΡΠ°Π½ΠΎΠ²ΠΊΠΈ Π²Ρ ΠΎΠ΄Π½ΡΡ Π΄Π²Π΅ΡΠ΅ΠΉ.
ΠΠΎΠ΄Π³ΠΎΡΠΎΠ²ΠΈΡΠ΅Π»ΡΠ½ΡΠ΅ ΡΠ°Π±ΠΎΡΡ
Π Π·Π°Π²ΠΈΡΠΈΠΌΠΎΡΡΠΈ ΠΎΡ Π²ΡΠ±ΡΠ°Π½Π½ΠΎΠ³ΠΎ Π²Π°ΡΠΈΠ°Π½ΡΠ° ΠΎΡΠ΄Π΅Π»ΠΊΠΈ Π΄Π²Π΅ΡΠ½ΡΡ ΠΎΡΠΊΠΎΡΠΎΠ² Π²Π°ΠΌ ΠΌΠΎΠ³ΡΡ ΠΏΠΎΠ½Π°Π΄ΠΎΠ±ΠΈΡΡΡΡ ΡΠ°ΠΊΠΈΠ΅ ΠΈΠ½ΡΡΡΡΠΌΠ΅Π½ΡΡ ΠΈ ΠΌΠ°ΡΠ΅ΡΠΈΠ°Π»Ρ:
ΠΠ²Π΅ΡΠ½ΡΠ΅ ΠΎΡΠΊΠΎΡΡ ΠΌΠΎΠΆΠ½ΠΎ Π²ΡΠΏΠΎΠ»Π½ΠΈΡΡ ΠΈΠ· ΠΏΠ»Π°ΡΡΠΈΠΊΠ°.
- Π±ΠΎΠ»Π³Π°ΡΠΊΠ°;
- Π΄ΡΠ΅Π»Ρ;
- ΠΏΠ΅ΡΡΠΎΡΠ°ΡΠΎΡ;
- Π½ΠΎΠΆΠΎΠ²ΠΊΠ°;
- ΡΠΏΠ°ΡΠ΅Π»ΠΈ;
- ΠΌΠΎΠ»ΠΎΡΠΎΠΊ;
- ΡΡΡΠΎΠΈΡΠ΅Π»ΡΠ½ΡΠΉ ΡΡΠΎΠ²Π΅Π½Ρ;
- ΡΡΠ»Π΅ΡΠΊΠ°;
- Π½ΠΎΠΆ;
- ΡΠ΅ΡΠΊΠ°;
- Π²ΡΠ±ΡΠ°Π½Π½ΡΠΉ ΠΎΡΠ΄Π΅Π»ΠΎΡΠ½ΡΠΉ ΠΌΠ°ΡΠ΅ΡΠΈΠ°Π»;
- ΠΌΠΎΠ½ΡΠ°ΠΆΠ½Π°Ρ ΠΏΠ΅Π½Π°;
- ΠΊΠ»Π΅ΠΉ;
- ΠΏΠΎΠ»ΠΈΡΡΠΈΠ»Π΅Π½ΠΎΠ²Π°Ρ ΠΏΠ»Π΅Π½ΠΊΠ°;
- ΡΠΊΠΎΡΡ;
- Π³Π΅ΡΠΌΠ΅ΡΠΈΠΊ;
- Π³ΡΡΠ½ΡΠΎΠ²ΠΊΠ° Π³Π»ΡΠ±ΠΎΠΊΠΎΠ³ΠΎ ΠΏΡΠΎΠ½ΠΈΠΊΠ½ΠΎΠ²Π΅Π½ΠΈΡ;
- ΡΠΏΠ°ΠΊΠ»Π΅Π²ΠΊΠ°;
- ΠΊΡΠ΅ΠΏΠ΅ΠΆΠ½ΡΠ΅ ΡΠ»Π΅ΠΌΠ΅Π½ΡΡ.
ΠΠΎΠ½ΡΠ°ΠΆ ΠΎΡΠΊΠΎΡΠΎΠ² Π»ΡΠ±ΠΎΠ³ΠΎ Π²ΠΈΠ΄Π° Π½Π°ΡΠΈΠ½Π°Π΅ΡΡΡ Ρ ΠΏΠΎΠ΄Π³ΠΎΡΠΎΠ²ΠΊΠΈ ΠΏΡΠΎΠ΅ΠΌΠ°, Π΄Π²Π΅ΡΠΈ ΠΈ ΠΎΠΊΡΡΠΆΠ°ΡΡΠ΅Π³ΠΎ ΠΏΡΠΎΡΡΡΠ°Π½ΡΡΠ²Π°. ΠΠ²Π΅ΡΠΈ ΠΈ ΠΏΡΠΈΠ»Π΅Π³Π°ΡΡΡΡ ΡΡΠ΅Π½Ρ Π»ΡΡΡΠ΅ ΡΠΊΡΡΡΡ ΠΏΠΎΠ»ΠΈΡΡΠΈΠ»Π΅Π½ΠΎΠ²ΠΎΠΉ ΠΏΠ»Π΅Π½ΠΊΠΎΠΉ, ΠΏΡΠΈΠΊΠ»Π΅ΠΈΠ² Π΅Π΅ Π½Π° ΡΠΊΠΎΡΡ, Π° ΠΏΠΎΠ» ΠΌΠΎΠΆΠ½ΠΎ Π·Π°ΡΡΠ΅Π»ΠΈΡΡ ΠΊΠ°ΡΡΠΎΠ½ΠΎΠΌ. ΠΡΠΈΠΌ Π²Ρ Π·Π°ΡΠΈΡΠΈΡΠ΅ Π²ΡΠ΅ ΠΏΠΎΠ²Π΅ΡΡ Π½ΠΎΡΡΠΈ ΠΎΡ Π²ΠΎΠ·ΠΌΠΎΠΆΠ½ΡΡ ΠΏΠΎΠ²ΡΠ΅ΠΆΠ΄Π΅Π½ΠΈΠΉ ΠΈ Π·Π°Π³ΡΡΠ·Π½Π΅Π½ΠΈΠΉ ΠΏΡΠΈ Π²ΡΠΏΠΎΠ»Π½Π΅Π½ΠΈΠΈ ΠΌΠΎΠ½ΡΠ°ΠΆΠ½ΡΡ ΡΠ°Π±ΠΎΡ. Π‘ Π΄Π²Π΅ΡΠ½ΠΎΠ³ΠΎ ΠΏΠΎΠ»ΠΎΡΠ½Π° Π½Π΅ΠΎΠ±Ρ ΠΎΠ΄ΠΈΠΌΠΎ ΡΠ±ΡΠ°ΡΡ Π²ΡΠ΅ Π²ΡΡΡΡΠΏΠ°ΡΡΠΈΠ΅ ΡΠ»Π΅ΠΌΠ΅Π½ΡΡ, ΠΊΠΎΡΠΎΡΡΠ΅ ΠΌΠΎΠ³ΡΡ Π²Π°ΠΌ ΠΌΠ΅ΡΠ°ΡΡ Π² ΠΏΡΠΎΡΠ΅ΡΡΠ΅ ΡΠ°Π±ΠΎΡ: Π·Π°ΠΏΠΎΡΡ, ΡΡΡΠΊΠΈ, ΡΠ΅ΠΏΠΎΡΠΊΠΈ.
Π‘ΡΠ°ΡΡΠΉ ΠΎΠ±Π»ΠΈΡΠΎΠ²ΠΎΡΠ½ΡΠΉ ΠΌΠ°ΡΠ΅ΡΠΈΠ°Π» Ρ ΠΏΠ»ΠΎΡ ΠΈΠΌ ΡΡΠ΅ΠΏΠ»Π΅Π½ΠΈΠ΅ΠΌ Π½ΡΠΆΠ½ΠΎ ΡΠ΄Π°Π»ΠΈΡΡ, ΠΏΠΎΡΠ»Π΅ ΡΠ΅Π³ΠΎ ΡΡΠ°ΡΠ΅Π»ΡΠ½ΠΎ ΠΎΡΠΈΡΡΠΈΡΡ ΠΎΡΠ½ΠΎΠ²Π°Π½ΠΈΠ΅ ΠΎΡ Π³ΡΡΠ·ΠΈ ΠΈ ΠΏΡΠ»ΠΈ. ΠΡΠ΅ ΠΌΠΎΠ½ΡΠ°ΠΆΠ½ΡΠ΅ ΡΠ΅Π»ΠΈ ΡΠ»Π΅Π΄ΡΠ΅Ρ Π·Π°ΠΏΠ΅Π½ΠΈΡΡ ΠΌΠΎΠ½ΡΠ°ΠΆΠ½ΠΎΠΉ ΠΏΠ΅Π½ΠΎΠΉ, ΡΡΠΎ, Π² ΡΠ»ΡΡΠ°Π΅ Ρ Π²Ρ ΠΎΠ΄Π½ΡΠΌΠΈ Π΄Π²Π΅ΡΡΠΌΠΈ, ΡΠ»ΡΡΡΠΈΡ ΠΈΡ ΡΠ΅ΠΏΠ»ΠΎ- ΠΈ Π·Π²ΡΠΊΠΎΠΈΠ·ΠΎΠ»ΡΡΠΈΠΎΠ½Π½ΡΠ΅ ΡΠ²ΠΎΠΉΡΡΠ²Π°. ΠΠ»Ρ Π»ΡΡΡΠ΅Π³ΠΎ ΡΡ Π²Π°ΡΡΠ²Π°Π½ΠΈΡ ΠΏΠ΅Π½Ρ ΡΠ΅Π»ΠΈ Π½ΡΠΆΠ½ΠΎ ΡΠΌΠΎΡΠΈΡΡ ΠΎΠ±ΡΡΠ½ΠΎΠΉ Π²ΠΎΠ΄ΠΎΠΉ. ΠΠΎΡΠ»Π΅ ΡΠΎΠ³ΠΎ ΠΊΠ°ΠΊ ΠΏΠ΅Π½Π° Π·Π°ΡΡΡΠ½Π΅Ρ (ΠΎΠΊΠΎΠ»ΠΎ ΡΡΡΠΎΠΊ), Π΅Π΅ ΠΈΠ·Π»ΠΈΡΠΊΠΈ Π½Π΅ΠΎΠ±Ρ ΠΎΠ΄ΠΈΠΌΠΎ ΡΠ΄Π°Π»ΠΈΡΡ Π½ΠΎΠΆΠΎΠΌ.
ΠΠ²Π΅ΡΠ½ΡΠ΅ ΠΎΡΠΊΠΎΡΡ ΠΈΠ· ΡΡΡΠΊΠ°ΡΡΡΠΊΠΈ
ΠΠ»Ρ Π²ΡΠΏΠΎΠ»Π½Π΅Π½ΠΈΡ ΠΌΠΎΠ½ΡΠ°ΠΆΠ½ΡΡ ΡΠ°Π±ΠΎΡ ΡΠ΅ΠΊΠΎΠΌΠ΅Π½Π΄ΡΠ΅ΡΡΡ ΠΈΡΠΏΠΎΠ»ΡΠ·ΠΎΠ²Π°ΡΡ Π³ΠΎΡΠΎΠ²ΡΠ΅ ΡΠΌΠ΅ΡΠΈ, ΠΊΠΎΡΠΎΡΡΠ΅ ΠΌΠΎΠΆΠ½ΠΎ ΠΏΡΠΈΠΎΠ±ΡΠ΅ΡΡΠΈ Π² Π»ΡΠ±ΠΎΠΌ ΡΡΡΠΎΠΈΡΠ΅Π»ΡΠ½ΠΎΠΌ ΠΌΠ°Π³Π°Π·ΠΈΠ½Π΅. ΠΠ΅ΡΠ΅Π΄ ΠΈΡΠΏΠΎΠ»ΡΠ·ΠΎΠ²Π°Π½ΠΈΠ΅ΠΌ ΠΎΠ½ΠΈ ΡΠ°Π·Π²ΠΎΠ΄ΡΡΡΡ Π²ΠΎΠ΄ΠΎΠΉ Π² ΡΠΎΠΎΡΠ½ΠΎΡΠ΅Π½ΠΈΠΈ, ΡΠΊΠ°Π·Π°Π½Π½ΠΎΠΌ Π½Π° ΡΠΏΠ°ΠΊΠΎΠ²ΠΊΠ΅ ΠΈΠ·-ΠΏΠΎΠ΄ ΡΡΡ ΠΎΠΉ ΡΠΌΠ΅ΡΠΈ. ΠΡΠ»ΠΈ ΠΎΡΠ½ΠΎΠ²Π°Π½ΠΈΠ΅ ΠΎΡΠΊΠΎΡΠΎΠ² ΡΠ»ΠΈΡΠΊΠΎΠΌ Π³Π»Π°Π΄ΠΊΠΎΠ΅, ΡΠΎ Π΄Π»Ρ Π»ΡΡΡΠ΅Π³ΠΎ ΡΡΠ΅ΠΏΠ»Π΅Π½ΠΈΡ ΡΡΡΠΊΠ°ΡΡΡΠΊΠΈ Π½Π° Π½Π΅ΠΌ Π½ΡΠΆΠ½ΠΎ ΡΠ΄Π΅Π»Π°ΡΡ Π½Π΅Π³Π»ΡΠ±ΠΎΠΊΠΈΠ΅ Π½Π°ΡΠ΅ΡΠΊΠΈ ΠΊΠ°ΠΊΠΈΠΌ-Π»ΠΈΠ±ΠΎ ΠΎΡΡΡΡΠΌ ΠΏΡΠ΅Π΄ΠΌΠ΅ΡΠΎΠΌ ΠΈΠ»ΠΈ ΠΏΠ΅ΡΡΠΎΡΠ°ΡΠΎΡΠΎΠΌ.
ΠΡΠ»ΠΈ Π΄Π»Ρ ΡΠΎΠ·Π΄Π°Π½ΠΈΡ ΡΠΎΠ²Π½ΠΎΠΉ ΠΏΠΎΠ²Π΅ΡΡ Π½ΠΎΡΡΠΈ ΡΡΠ΅Π±ΡΠ΅ΡΡΡ ΠΏΠΎΠ»ΠΎΠΆΠΈΡΡ ΡΠΎΠ»ΡΡΡΠΉ ΡΠ»ΠΎΠΉ ΡΡΡΠΊΠ°ΡΡΡΠΊΠΈ, ΡΠΎ ΠΎΡΠ½ΠΎΠ²Π°Π½ΠΈΠ΅ ΠΏΡΠ΅Π΄Π²Π°ΡΠΈΡΠ΅Π»ΡΠ½ΠΎ ΡΠ»Π΅Π΄ΡΠ΅Ρ Π°ΡΠΌΠΈΡΠΎΠ²Π°ΡΡ Ρ ΠΏΠΎΠΌΠΎΡΡΡ ΡΡΡΠΊΠ°ΡΡΡΠ½ΠΎΠΉ ΡΠ΅ΡΠΊΠΈ, ΠΊΠΎΡΠΎΡΠ°Ρ ΡΠΈΠΊΡΠΈΡΡΠ΅ΡΡΡ Π½Π° ΡΡΠ΅Π½Π΅ Π΄ΡΠ±Π΅Π»ΡΠΌΠΈ.
ΠΠ΅ΡΠ΅Π΄ ΠΌΠΎΠ½ΡΠ°ΠΆΠΎΠΌ ΠΎΡΠΊΠΎΡΠΎΠ² ΡΡΠ΅Π½Ρ Π½ΡΠΆΠ½ΠΎ ΡΠ²Π»Π°ΠΆΠ½ΠΈΡΡ Π²ΠΎΠ΄ΠΎΠΉ. ΠΡΠΎ ΠΏΠΎΠ·Π²ΠΎΠ»ΠΈΡ ΡΠ²Π΅Π»ΠΈΡΠΈΡΡ Π°Π΄Π³Π΅Π·ΠΈΡ ΡΡΡΠΊΠ°ΡΡΡΠΊΠΈ.
Π§ΡΠΎΠ±Ρ Π΄ΠΎΠ±ΠΈΡΡΡΡ ΠΈΠ΄Π΅Π°Π»ΡΠ½ΠΎ ΡΠΎΠ²Π½ΠΎΠΉ ΠΏΠΎΠ²Π΅ΡΡ Π½ΠΎΡΡΠΈ Π΄Π²Π΅ΡΠ½ΠΎΠ³ΠΎ ΠΎΡΠΊΠΎΡΠ°, Π½Π΅ΠΎΠ±Ρ ΠΎΠ΄ΠΈΠΌΠΎ ΠΈΡΠΏΠΎΠ»ΡΠ·ΠΎΠ²Π°ΡΡ ΠΌΠ°ΡΡΠΊΠΈ. ΠΠ½ΠΈ ΡΡΡΠ°Π½Π°Π²Π»ΠΈΠ²Π°ΡΡΡΡ ΡΡΡΠΎΠ³ΠΎ ΠΏΠΎ ΡΡΠΎΠ²Π½Ρ Ρ ΠΏΡΠΈΠΌΠ΅Π½Π΅Π½ΠΈΠ΅ΠΌ ΡΠ³ΠΎΠ»ΠΊΠ°. ΠΠΎΡΠ»Π΅ ΡΡΠΎΠ³ΠΎ Π² Π½Π΅ΡΠΊΠΎΠ»ΡΠΊΠΎ ΡΠ»ΠΎΠ΅Π² Π½Π°Π½ΠΎΡΠΈΡΡΡ ΡΠ°ΠΌΠ° ΡΡΡΠΊΠ°ΡΡΡΠΊΠ°. ΠΠΎΠ»ΠΈΡΠ΅ΡΡΠ²ΠΎ ΡΠ»ΠΎΠ΅Π² Π±ΡΠ΄Π΅Ρ Π·Π°Π²ΠΈΡΠ΅ΡΡ ΠΎΡ ΡΡΠ΅Π±ΡΠ΅ΠΌΠΎΠΉ ΡΠΎΠ»ΡΠΈΠ½Ρ ΠΎΡΠΊΠΎΡΠΎΠ². ΠΠΎΡΠ»Π΅Π΄ΡΡΡΠΈΠΉ ΡΠ»ΠΎΠΉ Π½Π°Π½ΠΎΡΠΈΡΡΡ ΠΏΠΎΡΠ»Π΅ Π²ΡΡΡΡ Π°Π½ΠΈΡ ΠΏΡΠ΅Π΄ΡΠ΄ΡΡΠ΅Π³ΠΎ, ΠΏΡΠΈ ΡΡΠΎΠΌ Π²ΠΎΠ΄ΠΎΠΉ ΠΎΠ±ΡΠ°Π±Π°ΡΡΠ²Π°Π΅ΡΡΡ ΠΊΠ°ΠΆΠ΄ΡΠΉ ΡΠ»ΠΎΠΉ, ΠΊΡΠΎΠΌΠ΅ ΡΠΈΠ½ΠΈΡΠ½ΠΎΠ³ΠΎ. Π’ΡΠ΅ΡΠΈΠ½Ρ, ΠΊΠΎΡΠΎΡΡΠ΅ ΠΌΠΎΠ³ΡΡ Π²ΠΎΠ·Π½ΠΈΠΊΠ½ΡΡΡ Π² ΠΌΠ΅ΡΡΠ°Ρ ΡΠΎΡΡΡΠΊΠΎΠ²ΠΊΠΈ ΠΎΡΠΊΠΎΡΠΎΠ² Ρ Π΄Π²Π΅ΡΠ½ΠΎΠΉ ΠΊΠΎΡΠΎΠ±ΠΊΠΎΠΉ, ΠΌΠΎΠΆΠ½ΠΎ ΠΎΠ±ΡΠ°Π±ΠΎΡΠ°ΡΡ Π³Π΅ΡΠΌΠ΅ΡΠΈΠΊΠΎΠΌ ΠΈΠ»ΠΈ Π°ΠΊΡΠΈΠ»ΠΎΠΌ.
Π£ΡΡΠ°Π½ΠΎΠ²ΠΊΠ° Π΄Π²Π΅ΡΠ½ΡΡ ΠΎΡΠΊΠΎΡΠΎΠ² ΠΈΠ· ΠΠΠ€
Π¨ΡΡΠΊΠ°ΡΡΡΠΊΠ° Π΄Π²Π΅ΡΠ½ΡΡ ΠΎΡΠΊΠΎΡΠΎΠ².
ΠΠΎΡΠ»Π΅ ΠΏΠΎΠ΄Π³ΠΎΡΠΎΠ²ΠΊΠΈ ΠΎΡΠ½ΠΎΠ²Π°Π½ΠΈΡ ΠΈ Π²ΡΡΠ°Π²Π½ΠΈΠ²Π°Π½ΠΈΡ Π΅Π³ΠΎ Ρ ΠΏΠΎΠΌΠΎΡΡΡ ΡΠ΅ΠΌΠ΅Π½ΡΠ½ΠΎ-ΠΈΠ·Π²Π΅ΡΡΠΊΠΎΠ²ΠΎΠΉ ΡΠΌΠ΅ΡΠΈ ΠΌΠΎΠΆΠ½ΠΎ ΠΏΠ΅ΡΠ΅Ρ ΠΎΠ΄ΠΈΡΡ Π½Π΅ΠΏΠΎΡΡΠ΅Π΄ΡΡΠ²Π΅Π½Π½ΠΎ ΠΊ ΠΌΠΎΠ½ΡΠ°ΠΆΡ ΠΎΡΠΊΠΎΡΠΎΠ². ΠΠ· ΠΠΠ€ ΠΏΠ°Π½Π΅Π»Π΅ΠΉ Π²ΡΠΏΠΈΠ»ΠΈΠ²Π°Π΅ΡΡΡ 2 Π±ΠΎΠΊΠΎΠ²ΡΡ ΠΈ 1 Π²Π΅ΡΡ Π½ΡΡ Π΄Π΅ΡΠ°Π»Ρ. ΠΠΎΡΠ»Π΅ ΡΡΠΎΠ³ΠΎ Ρ ΠΏΠΎΠΌΠΎΡΡΡ ΡΠΏΠ°ΡΠ΅Π»Ρ Π½Π° Π²Π΅ΡΡ Π½ΠΈΠΉ ΠΎΡΠΊΠΎΡ Π½Π°Π½ΠΎΡΠΈΡΡΡ ΠΊΠ»Π΅Π΅Π²ΠΎΠΉ ΡΠΎΡΡΠ°Π², ΠΈ ΠΏΡΠΈΠΆΠΈΠΌΠ°Π΅ΡΡΡ Π²ΡΡΠ΅Π·Π°Π½Π½Π°Ρ Π΄Π΅ΡΠ°Π»Ρ. ΠΠ΅ Π½Π΅ΠΎΠ±Ρ ΠΎΠ΄ΠΈΠΌΠΎ ΠΏΠ»ΠΎΡΠ½ΠΎ Π΄Π΅ΡΠΆΠ°ΡΡ Π΄ΠΎ ΠΏΠΎΠ»Π½ΠΎΠ³ΠΎ ΡΡ Π²Π°ΡΡΠ²Π°Π½ΠΈΡ ΠΊΠ»Π΅Ρ.
Π’Π°ΠΊΠΈΠΌ ΠΆΠ΅ ΡΠΏΠΎΡΠΎΠ±ΠΎΠΌ ΠΏΡΠΎΠΈΠ·Π²ΠΎΠ΄ΠΈΡΡΡ ΠΌΠΎΠ½ΡΠ°ΠΆ Π±ΠΎΠΊΠΎΠ²ΡΡ ΡΠ»Π΅ΠΌΠ΅Π½ΡΠΎΠ². Π§ΡΠΎΠ±Ρ ΠΎΠ±Π΅ΡΠΏΠ΅ΡΠΈΡΡ Π±ΠΎΠ»Π΅Π΅ ΠΊΠ°ΡΠ΅ΡΡΠ²Π΅Π½Π½ΡΡ ΡΠΈΠΊΡΠ°ΡΠΈΡ, ΠΌΠΎΠΆΠ½ΠΎ Π²ΠΎΡΠΏΠΎΠ»ΡΠ·ΠΎΠ²Π°ΡΡΡΡ ΡΠ°ΡΠΏΠΎΡΠΊΠ°ΠΌΠΈ. Π©Π΅Π»ΠΈ, ΠΊΠΎΡΠΎΡΡΠ΅ Π²ΠΎΠ·Π½ΠΈΠΊΠ»ΠΈ ΠΌΠ΅ΠΆΠ΄Ρ ΡΡΠ΅Π½ΠΎΠΉ ΠΈ ΠΏΠ°Π½Π΅Π»ΡΠΌΠΈ ΠΠΠ€, Π·Π°Π΄Π΅Π»ΡΠ²Π°ΡΡΡΡ Π΄Π΅ΠΊΠΎΡΠ°ΡΠΈΠ²Π½ΡΠΌ ΡΠ³ΠΎΠ»ΠΊΠΎΠΌ, ΠΊΠΎΡΠΎΡΡΠΉ ΡΠΈΠΊΡΠΈΡΡΠ΅ΡΡΡ Ρ ΠΏΠΎΠΌΠΎΡΡΡ ΠΆΠΈΠ΄ΠΊΠΈΡ Π³Π²ΠΎΠ·Π΄Π΅ΠΉ.
ΠΠΎΠ½ΡΠ°ΠΆ ΠΎΡΠΊΠΎΡΠ° ΠΈΠ· Π³ΠΈΠΏΡΠΎΠΊΠ°ΡΡΠΎΠ½Π°
ΠΡΠ»ΠΈ ΠΎΡΠ½ΠΎΠ²Π°Π½ΠΈΠ΅ ΠΎΡΠΊΠΎΡΠΎΠ² ΠΏΠΎΠ²ΡΠ΅ΠΆΠ΄Π΅Π½ΠΎ Π½Π΅ΡΠΈΠ»ΡΠ½ΠΎ, ΡΠΎ Π³ΠΈΠΏΡΠΎΠΊΠ°ΡΡΠΎΠ½ ΠΌΠΎΠΆΠ½ΠΎ ΡΠΈΠΊΡΠΈΡΠΎΠ²Π°ΡΡ Ρ ΠΏΠΎΠΌΠΎΡΡΡ Π³ΠΈΠΏΡΠΎΠ²ΠΎΠ³ΠΎ ΠΊΠ»Π΅Ρ. ΠΠ»Ρ ΡΡΠΎΠ³ΠΎ ΠΏΠΎΠ²Π΅ΡΡ Π½ΠΎΡΡΡ ΠΏΠΎΡΠ»Π΅ ΠΏΠΎΠ΄Π³ΠΎΡΠΎΠ²ΠΊΠΈ Π½ΡΠΆΠ½ΠΎ ΠΎΠ±ΡΠ°Π±ΠΎΡΠ°ΡΡ Π³ΡΡΠ½ΡΠΎΠ²ΠΊΠΎΠΉ Π³Π»ΡΠ±ΠΎΠΊΠΎΠ³ΠΎ ΠΏΡΠΎΠ½ΠΈΠΊΠ½ΠΎΠ²Π΅Π½ΠΈΡ. ΠΠΎΡΠ»Π΅ ΡΡΠΎΠ³ΠΎ ΠΌΠΎΠΆΠ½ΠΎ ΠΏΠ΅ΡΠ΅Ρ ΠΎΠ΄ΠΈΡΡ ΠΊ ΠΈΠ·ΠΌΠ΅ΡΠ΅Π½ΠΈΡ Π΄Π²Π΅ΡΠ½ΡΡ ΠΎΡΠΊΠΎΡΠΎΠ² ΠΈ Π²ΡΡΠ΅Π·Π°Π½ΠΈΡ Π΄Π΅ΡΠ°Π»Π΅ΠΉ ΠΏΠΎΠ΄ Π½ΠΈΡ . ΠΠ°Π½Π½ΡΠ΅ ΡΠ°Π±ΠΎΡΡ ΡΠ»Π΅Π΄ΡΠ΅Ρ ΠΏΡΠΎΠ²ΠΎΠ΄ΠΈΡΡ ΠΎΡΠ΅Π½Ρ Π²Π½ΠΈΠΌΠ°ΡΠ΅Π»ΡΠ½ΠΎ, Π° Π²ΡΠ΅ Π·Π°ΠΌΠ΅ΡΡ ΠΎΡΡΡΠ΅ΡΡΠ²Π»ΡΡΡ ΠΌΠ°ΠΊΡΠΈΠΌΠ°Π»ΡΠ½ΠΎ ΡΠΎΡΠ½ΠΎ.
ΠΡΠΊΠΎΡΡ ΠΈΠ· Π³ΠΈΠΏΡΠΎΠΊΠ°ΡΡΠΎΠ½Π° ΠΏΠΎΡΠ»Π΅ ΡΡΡΠ°Π½ΠΎΠ²ΠΊΠΈ ΠΈ ΡΡΡΠΊΠ°ΡΡΡΠΊΠΈ ΠΌΠΎΠΆΠ½ΠΎ ΠΏΠΎΠΊΡΠ°ΡΠΈΡΡ Π² Π»ΡΠ±ΠΎΠΉ ΡΠ²Π΅Ρ, ΠΊΠΎΡΠΎΡΡΠΉ ΠΏΠΎΠ΄Ρ ΠΎΠ΄ΠΈΡ ΠΏΠΎΠ΄ ΠΈΠ½ΡΠ΅ΡΡΠ΅Ρ ΠΏΠΎΠΌΠ΅ΡΠ΅Π½ΠΈΡ.
ΠΡΠΈΠΎΠ±ΡΠ΅ΡΠ΅Π½Π½Π°Ρ ΡΡΡ Π°Ρ ΠΊΠ»Π΅Π΅Π²Π°Ρ ΡΠΌΠ΅ΡΡ ΡΠ°Π·Π²ΠΎΠ΄ΠΈΡΡΡ Π²ΠΎΠ΄ΠΎΠΉ Π² ΡΡΠ΅Π±ΡΠ΅ΠΌΠΎΠΌ ΡΠΎΠΎΡΠ½ΠΎΡΠ΅Π½ΠΈΠΈ, ΠΏΠΎΡΠ»Π΅ ΡΠ΅Π³ΠΎ ΠΎΠ½Π° Π½Π°Π½ΠΎΡΠΈΡΡΡ ΡΠΏΠ»ΠΎΡΠ½ΡΠΌ ΡΠ»ΠΎΠ΅ΠΌ Π½Π° Π΄Π΅ΡΠ°Π»Ρ ΠΈΠ· Π³ΠΈΠΏΡΠΎΠΊΠ°ΡΡΠΎΠ½Π°, ΠΊΠΎΡΠΎΡΠ°Ρ ΠΏΡΠΈΠΆΠΈΠΌΠ°Π΅ΡΡΡ ΠΊ ΡΡΠ΅Π½Π΅. ΠΠΎΠ³Π΄Π° Π²ΡΠ΅ ΠΏΠ°Π½Π΅Π»ΠΈ Π±ΡΠ΄ΡΡ ΠΏΡΠΈΠΊΠ»Π΅Π΅Π½Ρ, ΠΈΡ ΡΠ»Π΅Π΄ΡΠ΅Ρ Π΄ΠΎΠΏΠΎΠ»Π½ΠΈΡΠ΅Π»ΡΠ½ΠΎ Π·Π°ΡΠΈΠΊΡΠΈΡΠΎΠ²Π°ΡΡ ΠΌΠ°Π»ΡΡΠ½ΡΠΌ ΡΠΊΠΎΡΡΠ΅ΠΌ ΠΈ ΠΎΡΡΠ°Π²ΠΈΡΡ Π² ΠΏΠΎΠΊΠΎΠ΅ Π΄ΠΎ ΠΏΠΎΠ»Π½ΠΎΠ³ΠΎ Π²ΡΡΡΡ Π°Π½ΠΈΡ ΠΊΠ»Π΅Ρ. ΠΠΎΡΠ»Π΅ ΡΡΠΎΠ³ΠΎ Π²ΡΠ΅ ΠΎΠ±ΡΠ°Π·ΠΎΠ²Π°Π²ΡΠΈΠ΅ΡΡ ΡΠ²Ρ Π½Π΅ΠΎΠ±Ρ ΠΎΠ΄ΠΈΠΌΠΎ Π·Π°ΡΠΏΠ°ΠΊΠ»Π΅Π²Π°ΡΡ ΠΈ Π·Π°ΡΠΈΡΡΠΈΡΡ Π½Π°ΠΆΠ΄Π°ΡΠ½ΠΎΠΉ Π±ΡΠΌΠ°Π³ΠΎΠΉ.
ΠΠ²Π΅ΡΠ½ΡΠ΅ ΠΎΡΠΊΠΎΡΡ ΡΠ²ΠΎΠΈΠΌΠΈ ΡΡΠΊΠ°ΠΌΠΈ ΠΈΠ· Π³ΠΈΠΏΡΠΎΠΊΠ°ΡΡΠΎΠ½Π° ΠΌΠΎΠ³ΡΡ ΠΎΡΠ΄Π΅Π»ΡΠ²Π°ΡΡΡΡ Π΅ΡΠ΅ ΠΎΠ΄Π½ΠΈΠΌ ΡΠΏΠΎΡΠΎΠ±ΠΎΠΌ β ΠΌΠΎΠ½ΡΠ°ΠΆ Π³ΠΈΠΏΡΠΎΠΊΠ°ΡΡΠΎΠ½Π½ΡΡ Π»ΠΈΡΡΠΎΠ² Π½Π° ΠΊΠ°ΡΠΊΠ°Ρ ΠΈΠ· Π°Π»ΡΠΌΠΈΠ½ΠΈΠ΅Π²ΠΎΠ³ΠΎ ΠΏΡΠΎΡΠΈΠ»Ρ. ΠΠ°Π½Π½ΡΠΉ ΠΌΠ΅ΡΠΎΠ΄ ΠΌΠΎΠ½ΡΠ°ΠΆΠ° ΡΠ²Π»ΡΠ΅ΡΡΡ Π±ΠΎΠ»Π΅Π΅ ΡΠ»ΠΎΠΆΠ½ΡΠΌ ΠΈ ΠΈΡΠΏΠΎΠ»ΡΠ·ΡΠ΅ΡΡΡ ΠΏΡΠΈ ΠΊΠ°ΡΠΊΠ°ΡΠ½ΠΎΠΉ ΠΎΡΠ΄Π΅Π»ΠΊΠ΅ ΡΡΠ΅Π½ ΠΏΠΎΠΌΠ΅ΡΠ΅Π½ΠΈΡ, ΠΏΡΠΈ ΠΊΠΎΡΠΎΡΠΎΠΉ Π³Π»ΡΠ±ΠΈΠ½Π° ΠΎΡΠΊΠΎΡΠΎΠ² Π·Π½Π°ΡΠΈΡΠ΅Π»ΡΠ½ΠΎ Π²ΠΎΠ·ΡΠ°ΡΡΠ°Π΅Ρ.
ΠΡΠΈΠ³ΠΈΠ½Π°Π»ΡΠ½ΡΠ΅ ΠΈΠ΄Π΅ΠΈ ΠΎΡΠ΄Π΅Π»ΠΊΠΈ Π΄Π²Π΅ΡΠ½ΡΡ ΠΎΡΠΊΠΎΡΠΎΠ²
Π‘ΡΡΠ΅ΡΡΠ²ΡΠ΅Ρ Π±ΠΎΠ»ΡΡΠΎΠ΅ ΠΊΠΎΠ»ΠΈΡΠ΅ΡΡΠ²ΠΎ ΠΎΡΠΈΠ³ΠΈΠ½Π°Π»ΡΠ½ΡΡ ΡΠ΅ΡΠ΅Π½ΠΈΠΉ, ΠΏΠΎΠ·Π²ΠΎΠ»ΡΡΡΠΈΡ ΠΎΡΠ΄Π΅Π»Π°ΡΡ Π΄Π²Π΅ΡΠ½ΡΠ΅ ΠΎΡΠΊΠΎΡΡ ΡΠ°Π·Π»ΠΈΡΠ½ΡΠΌΠΈ ΠΌΠ°ΡΠ΅ΡΠΈΠ°Π»Π°ΠΌΠΈ ΠΏΠΎ Π²Π°ΡΠ΅ΠΌΡ Π²ΠΊΡΡΡ:
- ΠΡΠΊΠΎΡΡ ΠΈΠ· ΠΏΠ°ΡΠΊΠ΅ΡΠ½ΠΎΠΉ Π΄ΠΎΡΠΊΠΈ ΠΈΠ»ΠΈ Π»Π°ΠΌΠΈΠ½Π°ΡΠ° ΠΌΠΎΠ½ΡΠΈΡΡΡΡΡΡ Π΄ΠΎΡΡΠ°ΡΠΎΡΠ½ΠΎ ΠΏΡΠΎΡΡΠΎ ΠΈ Π±ΡΡΡΡΠΎ. ΠΠ°Π½Π½ΡΠΉ ΡΠΏΠΎΡΠΎΠ± ΡΠ²Π»ΡΠ΅ΡΡΡ ΠΎΡΠ΅Π½Ρ ΠΏΡΠ°ΠΊΡΠΈΡΠ½ΡΠΌ: Π·Π° Π»Π°ΠΌΠΈΠ½Π°ΡΠΎΠΌ Π»Π΅Π³ΠΊΠΎ ΡΡ Π°ΠΆΠΈΠ²Π°ΡΡ, ΠΎΠ½ Π½Π΅ Π²ΡΠ³ΠΎΡΠ°Π΅Ρ Π½Π° ΡΠΎΠ»Π½ΡΠ΅, Π½Π΅ Π±ΠΎΠΈΡΡΡ ΠΌΠ΅Ρ Π°Π½ΠΈΡΠ΅ΡΠΊΠΈΡ Π²ΠΎΠ·Π΄Π΅ΠΉΡΡΠ²ΠΈΠΉ ΠΈ ΠΈΠΌΠ΅Π΅Ρ Π±ΠΎΠ»ΡΡΠΎΠΉ ΡΠΊΡΠΏΠ»ΡΠ°ΡΠ°ΡΠΈΠΎΠ½Π½ΡΠΉ ΡΡΠΎΠΊ.
- ΠΡΠ»ΠΈ Ρ Π²Π°Ρ ΠΏΠΎΡΠ»Π΅ ΡΠ΅ΠΌΠΎΠ½ΡΠ° ΠΎΡΡΠ°Π»ΠΈΡΡ ΠΎΠ±ΠΎΠΈ, ΡΠΎ ΠΈΡ ΠΌΠΎΠΆΠ½ΠΎ ΠΈΡΠΏΠΎΠ»ΡΠ·ΠΎΠ²Π°ΡΡ Π΄Π»Ρ ΠΎΡΠ΄Π΅Π»ΠΊΠΈ Π΄Π²Π΅ΡΠ½ΡΡ ΠΎΡΠΊΠΎΡΠΎΠ². Π’Π°ΠΊΠΎΠΉ ΡΠΏΠΎΡΠΎΠ± ΠΎΡΠ΅Π½Ρ ΠΏΡΠ°ΠΊΡΠΈΡΠ΅Π½, ΠΎΡΠΎΠ±Π΅Π½Π½ΠΎ Π΅ΡΠ»ΠΈ ΠΈΡΠΏΠΎΠ»ΡΠ·ΠΎΠ²Π°ΡΡ ΠΌΠΎΡΡΠΈΠΉΡΡ ΠΌΠ°ΡΠ΅ΡΠΈΠ°Π», ΠΏΠΎΡΠΎΠΌΡ ΡΡΠΎ Π΄Π²Π΅ΡΠ½ΠΎΠΉ ΠΏΡΠΎΠ΅ΠΌ Π΄ΠΎΡΡΠ°ΡΠΎΡΠ½ΠΎ ΡΠ°ΡΡΠΎ ΠΏΠ°ΡΠΊΠ°Π΅ΡΡΡ.
- ΠΡΠΊΠΎΡΡ ΠΈΠ· Π΄Π΅ΠΊΠΎΡΠ°ΡΠΈΠ²Π½ΠΎΠ³ΠΎ ΠΊΠ°ΠΌΠ½Ρ. Π Π·Π°Π²ΠΈΡΠΈΠΌΠΎΡΡΠΈ ΠΎΡ Π²Π½Π΅ΡΠ½Π΅Π³ΠΎ Π²ΠΈΠ΄Π° ΠΎΡΠ΄Π΅Π»ΠΎΡΠ½ΠΎΠ³ΠΎ ΠΌΠ°ΡΠ΅ΡΠΈΠ°Π»Π° ΠΌΠΎΠΆΠ½ΠΎ Π΄ΠΎΠ±ΠΈΡΡΡΡ ΡΡΡΠ΅ΠΊΡΠ° ΡΡΠ°ΡΠΈΠ½Ρ ΠΈΠ»ΠΈ ΡΠΊΡΠ°ΡΠΈΡΡ ΡΡΠ΅Π½Ρ Π² ΡΡΠΈΠ»Π΅ ΠΌΠΎΠ΄Π΅ΡΠ½. Π Π±ΠΎΠ»ΡΡΠΈΠ½ΡΡΠ²Π΅ ΡΠ»ΡΡΠ°Π΅Π² Π΄Π»Ρ ΠΌΠΎΠ½ΡΠ°ΠΆΠ° ΠΊΠ°ΠΌΠ½Ρ ΠΈΡΠΏΠΎΠ»ΡΠ·ΡΡΡΡΡ ΡΠΏΠ΅ΡΠΈΠ°Π»ΡΠ½ΡΠ΅ ΠΊΠ»Π΅Π΅Π²ΡΠ΅ ΡΠΌΠ΅ΡΠΈ. ΠΠ»Ρ ΠΏΡΠΈΠ΄Π°Π½ΠΈΡ ΡΡΡΠ΅ΠΊΡΠ° ΠΌΠΎΠΊΡΠΎΠ³ΠΎ ΠΊΠ°ΠΌΠ½Ρ ΠΏΠΎΠ²Π΅ΡΡ Π½ΠΎΡΡΡ ΠΎΠ±Π»ΠΈΡΠΎΠ²ΠΎΡΠ½ΠΎΠ³ΠΎ ΠΌΠ°ΡΠ΅ΡΠΈΠ°Π»Π° ΠΌΠΎΠΆΠ½ΠΎ ΠΎΠ±ΡΠ°Π±ΠΎΡΠ°ΡΡ ΠΏΠΎΠ»ΠΈΠΌΠ΅ΡΠ½ΡΠΌ Π»Π°ΠΊΠΎΠΌ.
- ΠΡΠ΅Π½Ρ ΠΊΡΠ°ΡΠΈΠ²ΠΎ Π² Π΄Π²Π΅ΡΠ½ΠΎΠΌ ΠΏΡΠΎΠ΅ΠΌΠ΅ Π±ΡΠ΄Π΅Ρ ΡΠΌΠΎΡΡΠ΅ΡΡΡΡ ΠΊΠ΅ΡΠ°ΠΌΠΈΡΠ΅ΡΠΊΠ°Ρ ΠΏΠ»ΠΈΡΠΊΠ°, ΠΎΡΠΎΠ±Π΅Π½Π½ΠΎ Π΅ΡΠ»ΠΈ ΠΏΡΠ°Π²ΠΈΠ»ΡΠ½ΠΎ Π²ΡΠ±ΡΠ°ΡΡ ΡΠ²Π΅ΡΠΎΠ²ΡΡ ΡΡ Π΅ΠΌΡ.
- ΠΠΎΠ½ΡΠ°ΠΆ ΠΏΡΠΎΠ±ΠΊΠΎΠ²ΡΡ ΠΏΠ°Π½Π΅Π»Π΅ΠΉ ΠΏΠΎΠ·Π²ΠΎΠ»ΠΈΡ Π²Π°ΠΌ ΡΠΎΠ·Π΄Π°ΡΡ ΠΏΠΎΠΈΡΡΠΈΠ½Π΅ ΡΠ½ΠΈΠΊΠ°Π»ΡΠ½ΡΡ ΠΎΡΠ΄Π΅Π»ΠΊΡ ΠΎΡΠΊΠΎΡΠΎΠ². ΠΡΠΎΠ±Π΅Π½Π½ΠΎ ΡΡΠΎ Π°ΠΊΡΡΠ°Π»ΡΠ½ΠΎ, Π΅ΡΠ»ΠΈ ΠΏΠΎΠ» Π² ΠΏΡΠΈΡ ΠΎΠΆΠ΅ΠΉ ΡΠ»ΠΎΠΆΠ΅Π½ ΠΏΠ°ΡΠΊΠ΅ΡΠΎΠΌ ΠΈΠ»ΠΈ Π»Π°ΠΌΠΈΠ½Π°ΡΠΎΠΌ.
ΠΡΠ±ΠΎΡ ΠΌΠ°ΡΠ΅ΡΠΈΠ°Π»ΠΎΠ² Π΄Π»Ρ ΠΎΡΠ΄Π΅Π»ΠΊΠΈ Π΄Π²Π΅ΡΠ½ΡΡ ΠΎΡΠΊΠΎΡΠΎΠ² ΠΏΠΎΠΈΡΡΠΈΠ½Π΅ ΠΎΠ³ΡΠΎΠΌΠ΅Π½. ΠΠ΄Π΅ΡΡ Π²ΡΠ΅ Π·Π°Π²ΠΈΡΠΈΡ ΠΎΡ Π²Π°ΡΠΈΡ ΠΏΡΠ΅Π΄ΠΏΠΎΡΡΠ΅Π½ΠΈΠΉ, ΠΏΡΠΎΡΠ΅ΡΡΠΈΠΎΠ½Π°Π»ΠΈΠ·ΠΌΠ° ΠΈ ΡΠΈΠ½Π°Π½ΡΠΎΠ²ΡΡ Π²ΠΎΠ·ΠΌΠΎΠΆΠ½ΠΎΡΡΠ΅ΠΉ.
1podveryam.ru
