План этажа – План этажа чертеж
План этажа чертеж
Вернуться на страницу «Оформление чертежей»
Чертеж плана этажа
План – это изображение разреза здания, рассеченного мнимой горизонтальной плоскостью, проходящей на уровне оконных и дверных проемов каждого этажа (рис. 1).

Рис.1. Понятие — план этажа.
План здания дает представление о конфигурации и размерах здания, выявляет форму и расположение отдельных помещений, оконных и дверных проемов, простенков, капитальных стен, колонн, лестниц, перегородок.
Следует обратить внимание на различие в присоединении наружных и внутренних капитальных стен и капитальных стен и перегородок (рис. 2).

Рис. 2. Присоединении наружных и внутренних капитальных стен и капитальных стен и перегородок
При выборе толщины линий обводки, следует учесть, что несущие конструкции, в частности, конструкции перегородок, чертят линиями меньшей толщины, чем несущие капитальные стены и колонны.
Условное обозначение оконных и дверных проемов с заполнением и без него изображают согласно ГОСТ 21.501-2011.
При вычерчивании плана в масштабе 1:50 или 1: 100 при наличии в проемах четвертей их условное изображение показывают на чертеже.
Четверть – это выступ в верхних и боковых частях проемов кирпичных стен, уменьшающий продуваемость и облегчающий крепление оконных коробок (рис. 3).

Рис. 3. Четверть в дверных и оконных проемах.
На планах этажей наносят и указывают:
– координационные оси здания с указанием маркировки;
– отметки чистых полов, расположенных на разных уровнях;
– направление и величину уклона полов;
– толщину стен и перегородок и их привязку; размерные цепочки: внешние и внутренние, проводят;
– все (независимо от размеров) проемы, отверстия, ниши в стенах и перегородках с необходимыми размерами и привязками, за исключением предусмотренных в других чертежах. Для проемов с четвертями размеры показывают по наименьшей стороне проема. Размеры дверных проемов в перегородках на планах не показывают;
– номера помещений в кружках диаметром 6–8 мм, соответствующие номерам наименования помещений и приводят их в экспликации;
– конструкции (например, площадки, антресоли), расположенные выше секущей плоскости, изображают схематично штрихпунктирной линией с двумя точками.
План этажа здания рекомендуется вычерчивать в следующей последовательности (рис. 4):
а) наносят сетку координационных осей;
б) вычерчивают наружные и внутренние стены здания, перегородки и колонны, если они имеются;
в) показывают оконные и дверные проемы, направление открывания дверей, лестничные марши, санитарно-технические приборы и т. п.;
д) проставляют размеры и марки осей, делают все необходимые надписи;
г) после проверки и доработки обводят контуры сечений – сплошной основной линией, остальные – сплошной тонкой линией.


Рис. 4. Последовательность оформления плана этажа.
Как правило, невидимые конструктивные элементы на планах не показывают. Но если на других чертежах невозможно показать данный элемент как видимый, на плане его изображают штрихами. При этом изображаемый элемент может быть расположен как ниже секущей плоскости (ниша для батарей отопления), так и выше ее (антресоли).
В названиях плана здания указывают отметку чистого пола этажа или номер этажа, например: « План на отм. 0.000», « План 1 этажа», или, если ряд этажей имеет одинаковую планировку, то «План 2,3 этажей». Надпись не подчеркивают. Пример заполнения плана приведен на рис. 5.

Рис. 5. Пример оформления плана чертежа.
saitinpro.ru
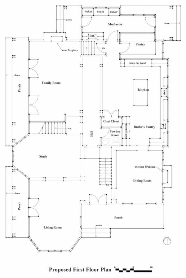
Как читать архитектурный план этажа
Самый популярный чертёж – это этажный план. Он в доступной форме повествует нам о размерах, расположении комнат, лестниц, коммуникациях, жилых площадях, лоджиях, лифтовых шахтах и многом другом. Но все же нужно иметь в виду, что чертёж одного уровня не расскажет полностью обо всём доме, для более детальной информации нужно будет воспользоваться дополнительными документами.
Клиент обращаясь в строительную фирму, обычно уже имеет представление о доме либо (квартире) который он хочет. Насколько его идеи полно реализованы архитектором может показать лишь архитектурный план.

Чертеж 6 этаж-Модель
Таким образом, архитектурный план этажа — это горизонтальное сечение здания, которое выполнено на уровне нижней части оконного проема. На этом плане отображаются помещения этажа и их связь между собой, толщина стен, расположение и размеры дверных и оконных проемов, направление открытия дверей, расположение лестничных клеток, санузлов, а иногда — мебели или оборудования.
Каждое помещение помечено в соответствии со своим функциональным назначением. Благодаря этому мы сможем чётко себе спланировать пути, по которым мы будем переходить из комнаты в комнату.
Самый действенным способом окончательно разобраться в чертеже – это мысленно отправится на прогулку по изображённым лабиринтам, а в реале записывать, что вы видите вокруг себя.
Каждый план должен включать в себя помимо схем и очертаний спецификацию или штамп, в котором будет указываться, что именно изображено, масштаб чертежа, отношение к северу, возможно, имена владельцев, архитекторов, проектировщиков и даты завершения проекта.

Как найти север?
Согласно ГОСТ 21.508-93 ориентация чертежа по местности обозначается в левом верхнем углу плана при помощи вертикальной стрелки. У ее острия проставляют большую букву «С». Юг обозначают большой буквой «Ю». Соответственно, запад и восток будут по левую и по правую сторону от этой вертикальной стрелки. Как правило, ориентацию здания на север в чертеже планируют исходя из того, что север находится вверху листа плана. Однако, допускается отклонение ориентации на север на 90 градусов влево или вправо.
Итак «изучим» язык чтения архитектурного плана этажа.
Конструктивные элементы плана этажа
Стены отображают на плане двумя параллельными линиями. В зависимости от толщины используемого материала расстояние между линиями будет меняться. Так, кирпичная стена будет более толстой по отношению к стене из деревянных досок.
Окна обозначают на плане тремя параллельными линиями. То есть, если в стене есть оконный проем, то между линиями, обозначающими границы стены, рисуют еще одну линию. Естественно, в планировке этажей окна, как правило, отображаются на наружных стенах. Хотя существуют и проекты с внутренними окнами.
Двери обозначают на плане одной линией, между дверным проемом в стене, развернутой от петель на 30 градусов. Также двери обозначают тремя параллельными линиями. Однако, в отличие от оконного проема, третья линия рисуется не между линиями стены, а вне их с той стороны, с которой они будут открываться. Направление открытия двери обозначается дугой, которая рисуется от линии двери. Это позволяет уже исходя из плана этажа проектировать размещение мебели в доме или квартире.
Лестница на плане этажа изображается при помощи двух параллельных линий, между которыми одна за другой вычерчены перпендикулярные им линии. То есть, чертежное обозначение по факту похоже на изображение лестницы. Направление движения по лестнице указывается стрелкой. Хотя движение по лестнице возможно как вверх, так и вниз, обычно понимают, что лестница ведет наверх. Поэтому и при планировке этажа ее обозначают стрелкой «Вверх».
Архитектурные элементы плана этажа
Поскольку план этажа — это основание для ведения строительных работ, он должен содержать отображение всех конструктивных элементов этажа. Так, архитектурные элементы на планировке этажа отображаются следующим образом:
Ванна. Изображается на чертеже в виде прямоугольника с маленьким кружком, смещенным к одному из краев прямоугольника.
Санузел. Показывается при планировке этажа в виде прямоугольника, который закруглён с одной из сторон (т. е. не имеет углов). Внутри этого закругления рисуют маленький кружок.
Мойка кухонная. Изображается в виде двух квадратов: один из них немного меньше и вписан в другой квадрат. Концы одной из сторон внешнего квадрата выходит на пару миллиметров за его периметры.
Умывальник. Изображается в виде прямоугольника, концы одной из сторон которого выходит за его периметры. С этой же стороны внутри прямоугольника параллельно ей чертят прямую линию.
Газовая плита. Чертится в виде прямоугольника с двумя кружочками внутри, напоминающими конфорки.
Камин. Этот архитектурный элемент отображается в виде двух прямоугольников в стене, вписанных друг в друга. Наружный прямоугольник обозначает стену вокруг камина, а внутренний — его топливник.
Масштабы и размеры
Масштабы, используемые при планировке этажей, бывают такими: 1:50, 1:100, 1:200, 1:400.
Размеры на архитектурных планах этажей указываются в миллиметрах без указания аббревиатуры «мм». В случае необходимости могут быть использованы сантиметры или метры. Однако в этом случае прописывают, соответственно, обозначения «см» и «м».
Размеры конструктивных элементов обозначают при помощи выносных и размерных линий. Выносные линии исходят от краев элемента, размер которого нужно указать, а поверх тонкой размерной линии пишется необходимое число размера.
Размерные линии выносят параллельными цепочками вокруг плана. Первую размерную линию располагают на расстоянии от 15 до 20 мм, последующие — от 8 до 10 мм начиная от первой линии и между собой.
Первая цепочка обозначает размеры проемов в стенах и простенков, вторая — расстояние между осями капитальных стен и колонн, а третья — дистанцию между крайними осями дома.
Зная все тонкости и секреты чтения архитектурного плана вы легко сможете сами прогуляться из комнаты в комнату и внести изменения либо оставить все как есть.
mastgrad.ru
Экспликация и поэтажный план помещений многоквартирного и частного дома
Все, кто когда-нибудь производил какие-либо действия со своей недвижимостью, будь то внутренняя планировка частного дома или одной из квартир в многоквартирном доме, сталкивался с необходимостью подготовки или получения такого документа, как поэтажный план дома. Что это за документ?
Поэтажный план — это графическое изображение всех жилых и нежилых помещений, которые расположены на одном отдельно взятом уровне дома.

Планировка всех этажей двухэтажного коттеджа
Этот документ включает в себя все квартиры, находящиеся на заданном уровне, с отмеченными на нем несущими стенами, проемами (оконными и дверными), перегородками и др. Поэтажный план может составляться как для жилого, так и для нежилого помещения.
Поэтажный план входит в папку документов, сопровождающих любую недвижимость, и являет собой продолжение кадастрового паспорта и одну из частей технического паспорта.
Вернуться к оглавлениюСодержание материала
Когда может понадобиться поэтажный план здания
Во-первых, без поэтажного плана здания или проекта частного дома не обойтись при оформлении приватизации или права собственности на тот или иной вид недвижимости.
Во-вторых, поэтажный план обязателен при осуществлении любых сделок с недвижимостью, будь то оформление договора купли-продажи или мены, оформлении наследства, дарственной или завещания на эту недвижимость, т. е. при любых нотариально заверяемых операциях.
В этом случае поэтажный план здания или дома позволит четко определить долевое владение каждого участника сделки с присвоением ему конкретной доли из общей площади недвижимости.В-третьих, поэтажный план жилого помещения может потребоваться при изменении его целевого назначения, например, в случае, когда площадь жилой недвижимости планируется в дальнейшем использовать под нежилое коммерческое помещение. На поэтажном плане четко выделены все коммуникации, проемы оконные и дверные, перегородки и конструкции, а потому легко будет изменить планировку помещения, отвечающую новому целевому назначению.
В случае если планируется магазин, то поэтажный план позволит спланировать комнаты под кладовку, под торговый зал, и даже спроектировать расположение витрин, холодильников и т. д. Немаловажно в таком случае, согласно правилам пожарной безопасности, обеспечить план эвакуации при пожаре. И в этом случае вновь не обойтись без поэтажного плана.

Так выглядит планировка этажа многоэтажного здания
В-четвертых, при заказе услуг дизайнера помещений и интерьеров у вас вновь спросят поэтажный план дома, на основании которого и будут создаваться эскизы будущего интерьера квартиры или частного дома.
Вернуться к оглавлениюКак и где получить поэтажный план здания (дома)
Если вам необходимо получить поэтажный план здания или дома нужно придерживаться четкой инструкции, и тогда никакие бюрократические машины вам не страшны.
Но прежде чем начать заниматься процессом получения поэтажного плана, убедитесь, что у вас достаточно средств на уплату госпошлины (размер госпошлины вам сообщат в БТИ, и он будет зависеть от площади помещения), и у вас в порядке документы на недвижимость (ордер на квартиру, свидетельство собственника и др.).
Если все в порядке, то приступайте к получению поэтажного плана. Итак, с чего начать?
Во-первых, необходимо определиться с координатами и контактами организации, которая в вашем городе выдает поэтажный план.
Этим ведает Бюро технической инвентаризации (всем знакомое БТИ). Но там, где вы проживаете, оно может носить название «Ростехинвентаризация».Во-вторых, по телефону, указанному в справочнике для БТИ, записаться на получение технического паспорта. Не всегда в БТИ производят предварительную запись, в связи с чем будьте готовы к тому, что вам предстоит отсидеть в живой очереди какое-то время, прежде, чем вы попадете к нужному вам инспектору.
В-третьих, подготовьте все документы по недвижимости, которые подтверждают ваше право на это жилье и отправляйтесь в БТИ. В случае когда по тем или иным причинам собственник не может лично обратиться за получением технического паспорта квартиры (или дома), он может оформить нотариально заверенную доверенность на третье лицо, которое при наличии документов на недвижимость, доверенности и своего паспорта сможет полноправно представлять интересы собственника в БТИ и получить технический паспорт за него.

Так выглядит технический паспорт здания
У инспектора необходимо будет заполнить заявление определенного образца, а также оплатить госпошлину, размер которой вам назовет инспектор. После произведенных процедур в БТИ необходимо дождаться уведомления о времени, когда инспекторы посетят вашу квартиру или дом для составления поэтажного плана. Вы обязаны будете в указанное время находиться дома, чтобы позволить инспектору беспрепятственно попасть в вашу квартиру.
После этого вам останется только ждать готовности ваших документов. В среднем на их подготовку в БТИ уходит около одного-двух месяцев. По истечении срока подготовки технического паспорта вам нужно будет вновь появиться в БТИ с паспортом (или с паспортом и доверенностью, если вы являетесь доверенным лицом) и в указанном окошке получить заветный документ.

Вариант планировки многоквартирного жилого здания
Как видите, процедура получения поэтажного плана несложная, и с ней вполне можно справиться самостоятельно, не обращаясь в фирмы-посредники, которые за свои услуги запросят достаточно большие деньги.
Вернуться к оглавлениюЭкспликация квартиры или дома
Одним из дополнений к поэтажному плану здания (дома) является его экспликация. По сути, экспликация — это графическое изображение всех помещений недвижимости с кратким описанием и характеристикой каждого из них. В описание входят площадь помещения, его целевое назначение, наличие коммуникаций и др. Кроме вышеуказанного, в этом документе указывают юридический адрес помещения, а также дату, когда экспликация была выдана.
Вернуться к оглавлениюДля чего нужна экспликация
Экспликация, как и поэтажный план дома (здания), является важной составляющей технического паспорта недвижимости.
- На основании экспликации появляется возможность спланировать будущий ремонт с расчетом количества необходимых материалов, спроектировать расстановку мебели в комнатах, продумать элементы перепланировки помещения и многое другое.
- Данные, внесенные в экспликацию, являются теми отправными цифрами, которые ложатся в основу расчета коммунальных платежей за вашу квартиру. Иногда заказ уточненной экспликации и предоставление ее в управляющую жилищную компанию позволяет пересчитать размер коммунальных платежей и существенно сэкономить на этом.

- Именно экспликация является основанием для постановки на учет, чтобы улучшить свои жилищные условия. Это возможно в том случае, если размер площади вашей квартиры (общей или жилой) существенно отличается от нормы в меньшую сторону.
Как видите, уточненная экспликация так же важна, как и поэтажный план, а потому не поленитесь обновить ее для своей недвижимости. Процедура получения экспликации аналогична той, которая была описана выше для получения поэтажного плана. Срок изготовления уточненной экспликации в среднем составляет от десяти до четырнадцати дней, в зависимости от загруженности БТИ.
И напоследок хотелось бы дать один совет. Если вы хотите ускорить процесс получения поэтажного плана и экспликации вашей недвижимости, заявите о своем желании в БТИ. Чаще всего у них существует такая услуга, как срочность оформления документов, но будьте готовы к тому, что это обойдется вам несколько дороже, чем обычная процедура.
planvsem.ru
Изготовитель плана этажа — Создать план этажа просто
Производит разнообразные планы этажей
Изготовитель плана этажа — это комплексная программа, содержащая более 13 типов планов этажей. Его используют для проектирования плана этажа, домашнего плана, офисной планировки, плана электросвязи и телекоммуникаций, плана посадочных мест, плана безопасности и доступа, дизайна сада, пожара и чрезвычайной ситуации, отраженного потолка ОВК, плана водопровода и трубопроводов, высоты и шкафа. Один производитель для 13 видов диаграмм. Попробуйте бесплатно прямо сейчас.
Бесплатные примеры планов этажей
Получите обильные шаблоны и примеры планов этажей онлайн. Все эти примеры хорошо отформатированы. Пользователям просто нужно внести небольшие изменения, например изменить тему. Таким образом, даже новичок может сделать профессиональные планы этажей.
Поддерживает различные форматы для вывода
Все будет готово всего за несколько минут. Затем вы можете распечатать или экспортировать диаграмму в многие форматы, включая Visio, Office и графические форматы и так далее. Эта бесшовная совместимость с другими программами позволяет вам легко сотрудничать с другими.
Ссылки планов этажей для огромных ресурсов
Мгновенно превратите любой план этажа в шлюз информации путем вставки гиперссылок, вложений и других объектов. Это интерактивная инфографика, которую каждый может создать. В одной диаграмме вы можете легко перемещаться многие ресурсы.
Мощные и профессиональные функции
Полотно для рисования имеет линии сетки и линейки, которые обеспечивают точный дизайн. Входящие в комплект являются умными фигурами с полным диапазоном стен, фигурами помещения и вариантами мебели. Некоторые прикреплены со шкалой, которая будет изменяться автоматически при изменении фигур. Группа профессиональных функций облегчит и улучшит процесс проектирования.
Идеальная альтернатива Visio для изготовления плана этажа на Mac, Windows и Linux
Изготовитель плана этажа Pro — Ваша лучшая программа для создания плана этажа.
Получите удовольствие от создания плана этажа с полнофункциональной программой. Вы будете удивлены её изобильными символами и шаблонами! Вы будете изумлены её лёгкой работой! Вы будете довольны её услугой и ценой! Попробуйте её именно сегодня!
www.edrawsoft.com
План — этаж — Большая Энциклопедия Нефти и Газа, статья, страница 1
План — этаж
Cтраница 1
План этажа ( план 1-го этажа, план 2-го этажа) — соответствует понятию горизонтальный разрез, плоскости которого, как правило, проходят на уровне оконных и дверных проемов. [1]
Планом этажа называют горизонтальный разрез здания, по которому судят о форме и размерах здания, расположений комнат, дверных и оконных проемов, толщине стен и перегородок, размещении лестниц, санитарно-бытового и технологического оборудования. [2]
Планом этажа здания называют разрез здания горизонтальной плоскостью на уровне оконных и дверных проемов, несколько выше подоконника. [3]
Если планы этажей многоэтажного здания имеют небольшие отличия друг от друга, то полностью выполняют план одного из этажей, для других этажей выполняют только те части плана, которые необходимы для показа отличия от плана, изображенного полностью. [4]
Если планы различных этажей здания отличаются от типового только устройством отдельных участков стен, то по периметру плана типового этажа вычерчивают планы ( ленточки) этих участков. Например, на рис. 347 показаны план типового этажа и ленточка стены 1-го этажа по оси А. [6]
Если планы этажей многоэтажного здания симметричны, но план одного этажа отличается от плана другого, допускается объединять их по половинам. Такой чертеж можно рассматривать как горизонтальный ступенчатый разрез, образованный двумя секущими плоскостями, из которых одна расположена выше подоконников одного этажа, вторая — выше подоконников другого. Совмещенные планы разделяются штрих-пунктирной линией. [7]
Окно плана этажей наиболее важное и всегда открывается первым по умолчанию при загрузке существующего файла или при создании файла нового проекта. Вы можете создать любое число этажей и легко переключаться между ними в окне плана. [8]
Выполнение плана этажа ( рис. 4) начинают с нанесения сетки разбивочных осей стен и колонн, откладывая по ним толщину стен и колонн, вычерчивая план этажа тонкими линиями. [9]
Выполнение плана этажа ( рис. 4) начинают с нанесения сетки раз-бивочных осей стен и колонн, откладывая по ним толщину стен и колонн, вычерчивая план этажа тонкими линиями. [10]
Кроме планов этажей, в состав проекта входят планы балок, стропил, фундаментов. На плане балок чердачного или междуэтажного перекрытия ( рис. 356) изображаются не только балки и прогоны или плиты, но стены 356 и колонны. Проемы предыдущего этажа, если это необходимо, могут быть показаны штриховыми линиями. План балок — это горизонтальный разрез, образованный секущей плоскостью, расположенной в уровне верхней грани балок. Настил, пол и все, что расположено выше и ниже балок, не показывают на чертеже. [11]
По плану этажей судят о размерах и расположении помещений, дверей, окон, толщине стен и других конструктивных элементах. [12]
На планах этажей, чердака и подвала горячие и обратные стояки системы отопления должны быть пронумерованы, а на аксонометрической схеме кроме стояков нумеруются и все расчетные участки циркуляционных колец — участки труб, в которых протекает неизменное количество воды. [13]
На планах этажей показывают отопительные приборы ( для радиаторов — количество секций; для ребристых труб и регистров — длины и количество труб; для отопительных агрегатов — их тип и номер) и стояки трубопроводов с указанием их номеров. [14]
На планах этажей изображают водопроводные стояки с нумерацией по каждой системе в отдельности, разводящие магистрали водоснабжения, пожарные краны, вентили и прочую арматуру. [15]
Страницы: 1 2 3 4
www.ngpedia.ru
Как правильно читать поэтажный план

Самый популярный чертёж – это этажный план. Он в доступной форме повествует нам о размерах, расположении комнат, лестниц, коммуникациях, жилых площадях, лоджиях, лифтовых шахтах и многом другом. Но все же нужно иметь в виду, что чертёж одного уровня не расскажет полностью обо всём доме, для более детальной информации нужно будет воспользоваться дополнительными документами.
Итак, посмотрев на искомый графический рисунок, мы видим на нём абсолютно все в двухмерном пространстве на уровне пола, что должно располагаться в комнате от окон до сантехники и мебели.
Каждое помещение помечено в соответствии со своим функциональным назначением. Благодаря этому мы сможем чётко себе спланировать пути, по которым мы будем переходить из комнаты в комнату.
Самый действенным способом окончательно разобраться в чертеже – это мысленно отправится на прогулку по изображённым лабиринтам, а в реале записывать, что вы видите вокруг себя.

Каждый план должен включать в себя помимо схем и очертаний спецификацию или штамп, в котором будет указываться, что именно изображено, масштаб чертежа, отношение к северу, возможно, имена владельцев, архитекторов, проектировщиков и даты завершения проекта.

Стены как самый важный архитектурный элемент должны быть обязательно показаны на любом плане. Особенно важна их толщина, например, более тонкая, как в деревянном каркасном доме или более основательная в кирпичном или монолитном строении. Стены изображаются в виде двух параллельных линий с разрывами на тех местах, где находятся окна и двери.
Более важное значение имеют эти обозначения в чертежах реконструкции или достройки здания с новыми ограждающими конструкциями, изображённых с определённым рисунком или более толстыми линиями.

В большем масштабе, нежели остальные комнаты, как правило, изображаются ванные и кухни, так как они являются наиболее сложными в плане проектирования. Приборы, установленные в помещении вертикально более ясно можно рассмотреть именно на увеличенном чертеже.
Благодаря вертикальным предметам интерьера можно узнать их высоту и высоту потолка, так как они расположены прямо напротив противоположной стены, помогающей узнать истинные размеры искомых вещей.

Двери и окна также представляют собой важные элементы любого чертежа. Так, они изображаются в стене тремя линями, а двери одной линей параллельной стене, а дуга показывает, в какую сторону она открываются. Посмотрите внимательно на этот план, насколько грамотно спроектированы двери, составляя не только эстетичный графический рисунок на формате, но и удобное их использование в жизни.

Французская или двойная дверь обозначаются двумя дугами, словно они собраны из двух обычных дверей. Зная, в какую сторону они открываются, можно заранее подобрать мебель и спланировать её расположение ещё в строящемся доме.

Камин также чертится на плане. Выглядит он как два прямоугольника, внешний – это лицевые его стенки, а внутренний иллюстрирует топливник.

Не менее важно изображение лестницы. Она обозначается в виде группы параллельных линий со стрелками, показывающих её направление. Сегодняшние нормы и правила чётко регламентируют размеры всех элементов лестницы: от ширины и высоты подступенника до параметров перил.

Единственное на плане не показан потолок. Но пунктирные линии как на этом чертеже информируют нас о том, что с ним были произведены изменения. Какие именно мы ни сможем определить, пока не посмотрим на другие графические рисунки строения, например, вертикальный или горизонтальный разрез здания.

designerdreamhomes.ru
Поэтажный план
На основное строение на основании данных абриса составляется поэтажный план. Он вычерчивается в масштабе 1:100 или 1:200 в условных обозначениях, принятых для технического учета основных фондов жилищно-коммунального хозяйства [17]. Составление плана должно быть произведено с точностью до ±0,5 мм.
Составление поэтажного плана начинается с вычерчивания плана первого этажа.
Первоначально по данным натурных измерений вычерчивается наружный, затем с учетом толщины стен – внутренний контур строения. Далее строятся внутренние стены и перегородки и после увязки – другая имеющаяся ситуация.
На плане по размерам вычерчиваются:
• наружные колонны, пилястры и т. п., выступающие более 10 см; все внутренние выступы стен и перегородок; арки и отдельно расположенные столбы;
• стены и перегородки, окна и двери, лестницы, крыльца, лазы подвалов и полуподвалов, балконы;
• ниши в стенах, опускающиеся или не доходящие до пола, за исключением ниш, предназначенных для навески радиаторов отопления;
• печи, газовые плиты, котлы центрального отопления, ванны, раковины, унитазы и пр.
На поэтажных планах не показываются:
• трубопроводы холодной и горячей воды, канализации, центрального отопления, газа;
• радиаторы центрального отопления.
Построение плана начинается с проведения фасадной линии. Затем по увязанным измерениям в угловых комнатах строятся боковые линии здания, последовательно наносятся все капитальные стены с одновременной проверкой их расположения по взятым в натуре контрольным измерениям.
После этого необходимо нанести вторую линию – внутреннюю линию капитальных стен. Затем наносятся перегородки, отопительные приборы и вентиляционные каналы, ванны, унитазы, раковины, умывальники и т. д. в соответствии с принятыми условными обозначениями.
Количество ступенек и ширина марша лестниц на плане должны соответствовать натуре.
Перегородки толщиной более 5 см вычерчиваются двумя линиями в масштабе поэтажного плана.
Линейные промеры с абриса переносятся на поэтажный план параллельно направлению соответствующих стен и перегородок.
Закрытые веранды, тамбуры, сени обмеряются и указываются на поэтажном плане, а открытые обозначаются в виде контура.
После вычерчивания плана первого этажа производится перенакладка остальных этажей в соответствии с расположением капитальных стен на чертеже первого этажа, считающегося контрольным. Каждый этаж многоэтажного строения обмеривается по отдельности для предоставления уточненных сведений и предотвращения имущественных претензий при долевом строительстве.
При вычерчивании помещений с выступающими в стенах панелями необходимо показывать на плане линии панелей и стен. Перегородки, не доходящие до потолка, показываются пунктиром.
Планы этажей располагаются на формате один над другим, начиная с подвального.
Поэтажные планы подвалов под небольшой по площади частью здания и поэтажные планы небольших по площади антресолей можно вычерчивать, не делая контура всего здания, располагая их на чертеже против того места поэтажного плана соответствующего этажа, под которым или над которым они непосредственно находятся. При этом необходимо показать ближайшие капитальные стены.
Все шифры на чертеже должны быть одинакового шрифта и размера и своей нижней частью обращены или к нижнему обрезу формата, или к его правой стороне.
Сверху на поэтажном плане посередине формата ставится штамп (или надпись) с указанием этажа (подвал, цокольный этаж, 1-й этаж и т. д.).
Литеры присваиваются каждому зданию и сооружению и наносятся на плане расположения объектов инвентаризации на земельном участке. Литеры зданий на поэтажных планах должны соответствовать литерам на плане расположения объектов инвентаризации на земельном участке.
Основное строение, если у него имеется пристройка, литеруется заглавной буквой русского алфавита А. Основные пристройки к строению, подвал, цокольный этаж, мансарда и светелка основного строения литеруются заглавной буквой русского алфавита основного строения с добавлением цифрового значения номера по порядку описи: А1, А2 и т. д., вспомогательные – строчными буквами русского алфавита соответственно литеру основного строения: а1, а2 и т. д.
Несоответствие чертежа масштабу, в котором он исполнен, не должно превышать 0,5 мм.
На поэтажном плане подвала, цокольного и первого этажей следует проставлять наружные размеры по периметру стен.
Внутренняя высота помещения, заглубление пола (в подвалах или цокольных этажах) показывается на плане в метрах в тех помещениях, где она была измерена.
Основное строение, его отдельные части и пристройки литеруются согласно условным обозначениям, совпадающим с приведенными на плане земельного участка. Под литером указывается его наружная высота.
На поэтажном плане показываются номера квартир и помещений. Номер квартиры проставляется на плане красным цветом, арабскими цифрами у главного входа в эту квартиру, номера помещений в центре плана этого помещения. Нумерация отдельных комнат в помещении (квартире) осуществляется по ходу часовой стрелки, начиная от входа.
Одновременно с этим под номером помещения в знаменателе через подчеркнутую линию приводятся сведения о площади помещения. Эти характеристики должны располагаться на плане комнат посередине.
Для помещений общего пользования (коридоров, лифтовых холлов, вестибюлей, лестничных клеток, а также межквартирных помещений) единых правил нумерации не разработано. Нумерация этих помещений должна отличаться от нумерации квартир, а их площади показываются в экспликации за итогом общей площади по зданию.
Лестничные клетки и коридоры общего пользования (в том числе и межквартирные коридоры) также нумеруются, но римскими цифрами.
Размеры на планах приводятся в метрах с двумя десятичными знаками. Необходимо проставить следующие размеры:
• на плане первого этажа – размеры по наружному периметру стен основного здания и пристроек;
• на плане всех этажей, подвала, мансарды – размеры всех помещений (длина и ширина), а в помещениях непрямоугольной формы – размеры по всему периметру стен;
• внутренние высоты – на всех планах;
• заглубление подвалов и цокольных этажей.
Размеры печей, ниш, арок, колонн, выступов, а также дополнительные измерения – диагонали, засечки на поэтажном плане не проставляются.
Составленный поэтажный план подлежит строгому контролю.
При основной технической инвентаризации он вычерчивается только черным цветом. Законченный поэтажный план должен быть оформлен штампом ОТИ, подписан исполнителем и проверяющим.
На поэтажном плане должны быть следующие надписи:
• при наличии в здании нескольких этажей над планом подписывается наименование каждого этажа, подвала, цокольного этажа, мезонина, мансарды;
• площадь (S) помещений, комнат, выраженная в квадратных метрах (м2), с одним десятичным знаком;
• нумерация квартир и отдельных комнат.
studfiles.net
