Как своими руками сделать качалку – Кресло качалка своими руками. Чертежи, 188 фото, размеры
Кресло качалка своими руками. Чертежи, 188 фото, размеры
Кресло качалка своими руками простоВ этой статье мы рассмотрим пошаговые мастер классы о том, как сделать кресло качалку своими руками из дерева, металла, фанеры, катушки для проводов. К креслу качалке, изготовление, чертежи, макеты и схемы сборки, которого мы будем рассматривать ниже, будем относить так же и качающийся стул и шезлонг для дачи.
Кресло качалка без гвоздей своими руками
Посмотрите по пошаговым фото ниже как сделать кресло-качалку без единого гвоздя самостоятельно. Автор купил лист фанеры, вырезал из него детали данного качающегося стула и склеил детали между собой. На фото в галереи приведены чертежи сделанные автором от руки для трех основных деталей, которые вы сами можете перенести в любой масштаб.
Мастер класс с пошаговыми фото изготовления
Источник фото: www.instructables.com/id/Childs-Rocking-Chair-Without-any-nails-or-screws. Автор: paracordbraider
Чертежи из фанеры кресло-качалки

Простое кресло качалка своими руками
Автор этого качающего стула нашел на улице деревянное основание от кровати и сделал из него креслок качалку. Как он это сделал вы можете посмотреть на пошаговых фото ниже.
Источник фото: www.instructables.com/id/Childs-Rocking-Chair-Without-any-nails-or-screws. Автор: paracordbraider
Кресло качалка для сада из фанеры. Чертежи

Кресло качалка из клена с плетенной спинкой и сиденьем.
Довольно сложный по изготовлению стул. Некоторые части автор вырезал на ЧПУ станке по самостоятельно нарисованным чертежам, а некоторые приходилось допиливать в ручную. Автор использовал клен, это довольно твердое дерево, поэтому для придания необходимых форм приходилось подолгу замачивать некоторые части в кипятке. Особой работы требует обмотка спинки и сиденья, как это сделать смотрите на пошаговых фото и в этом видео на ютубе
Источник фото: www.instructables.com/id/Grandpys-Rocking-Chair. Автор: Wood Crow
Чертежи простого кресла-качалки

Качающийся стул из металлических стержней
Своими руками
Качающийся стул из металлических труб, ещё можно назвать этот предмет мебели качающийся шезлонг или гамак (тут уж кому, что больше видится в этом предмете). Автор сделал это кресло из 20 мм стержней, конечно проще бы было использовать трубы, в таком случае конструкция получилась бы намного легче. Но автор учел свой сварочный опыт и пришел к выводу, что трубы у него не удастся так крепко сварить, и он решил обезопаситься металлическими стержнями в 22 мм. (к тому же сгибание труб тоже требует определенного навыка и инструмента). Особую трудность представляет сгибание столь прочных и толстых стержней, для этого он использовал дерево во дворе и рычаг в виде насаженной на стержень дополнительной трубы. Постепенно сгибая и перемещая стержень между деревьями удается добиться необходимой дуги.
Как же сделать такую металлическое кресло качалку вы можете посмотреть из пошаговых фото ниже. Автор отмечает, что следует лучше продумать чертеж, что бы сделать центр тяжести так, что бы кресло не так сильно отклонялось назад (на последнем фото, для лучшего вида кресло подпёрто сзади)
Источник фото: www.instructables.com/id/Minimalist-Steel-Rocking-Chair. Автор: Henri.Lacoste
Чертеж. Кресло-качалка своими руками (из дерева, фанеры)

Кресло качалка из кабельной катушки
Если у вас есть никому кроме вас не принадлежащая катушка из под кабеля, то вы можете сделать из неё вот такое кресло качалку. Ниже вы можете посмотреть подробный пошаговый мастер класс как делается такое кресло качалка.
Как видите из фото, катушка разбирается, в кругах вырезается паз для досок, переставляются стержни вниз, под будущее сиденье и все скрепляется. Получается не очень сложно и довольно симпатичное кресло.
Источник фото: www.instructables.com/id/DIY-Cable-Drum-Rocking-Chair. Автор: libskie
Деревянный стул качалка Адирондак
Здесь мы видим качающися стул (или кресло качалку) в стиле Адирондак, что является давольно необычным сочетанием. Обратите внимание на высоту спинки, которая сделана достаточной длины, что бы на неё можно было отклонить голову для отдыха.
Очень важно изготовить правильной формы коромысло, которое обеспечивает качание. При изготовлении такого стула внимательно изучите его форму.
Скачать более подробные инструкции по изготовлению со схемой сборки вы можете по этой ссылке
Источник фото: www.instructables.com/id/Adirondack-Rocking-Chair Автор: plansinwood
Схемы и чертежи кресло качалки
300 фото стул качалка своими руками
novamett.ru
Делаем кресло-качалку своими руками: варианты изготовления, фото
Жизнь и окружающие события летят со стремительной скоростью. Часто мы не успеваем оглянуться, как уже закончилась неделя, пролетели выходные, и пора снова приступать к забегу. Как часто в такие моменты мы мечтаем об уютном месте, в котором можно уединиться и помечтать о вечном? А может быть Вам необходимо просто поспать и почитать любимую книгу, укрывшись теплым пледом, при этом ощутить покачивания как на качелях или гамаке?
Кресло-качалка – это оригинальная и красивая часть домашнего интерьера.
Идеальным вариантом для этого послужит кресло качалка. Оно будет отличным дополнением в саду или на крыльце дома, в нем можно погреться под теплыми лучами солнца и послушать пение птиц. Также кресло может отлично вписаться в городской интерьер квартиры – на нем можно отдыхать после трудовых будней и заниматься любимым делом: вязанием, чтением, просмотром фильмов.

В нем удивительно комфортно отдыхать, почитать книжку или предаться сладкой, затягивающей и обволакивающей лени.
Если в вашем доме появился ребенок – любая мама будет мечтать о месте, где она с легкостью сможет укачать малыша и отдохнуть самостоятельно. Такие кресла качалки в магазинах стоят недешево, к тому же не всегда возможно найти мебель, идеально подходящую к интерьеру помещения.

Кресло-качалка — идеальный способ создать атмосферу уюта и спокойствия.
Отличным вариантом будет сделать такое кресло своими руками. Преимущества в этом случае неоспоримы: вы сможете подобрать нужный размер, дизайн, материал и ощутите огромное чувство гордости за то, что смогли создать такую красоту своими руками.

Безусловный плюс самодельного кресла-качалки — его соответствие именно Вашим вкусам.
Если вы приняли решение сделать кресло-качалку своими руками необходимо в первую очередь рассмотреть виды и конструкции изделий, ознакомиться с различными материалами, из которых такой процесс как изготовление кресла, будет приносить удовольствие, и особенностями работы с этими материалами.

Простое плетеное кресло-качалка добавит много комфорта Вашему дому.
Разновидности кресел качалок
Рассмотрим основные виды изделия:
- Классические качалки на обычных полозьях — гармонируют и в стиле модерн, и в классике. Технология изготовления не требует огромного опыта производства мебели, но основы практики должны присутствовать. Полозья плавно раскачиваются при небольшом радиусе, при сильной раскачке существует риск опрокидывания.

Такие кресла изготавливают с низкой посадкой с целью более устойчивого положения.
- Качалки на полозьях с отбойниками. Если классическое кресло необходимо сделать со средней (нормальной) высотой посадки – рекомендуется дуги оснастить отбойниками – полозья конструируются так, что концы выгнуты в противоположную сторону.

В этом варианте дуги предотвращают от переворачивания, но подъем с кресла некомфортный и жесткий из-за наличия этих отбойников.
- Качалки с эллипсными дугами – кресла гарантируют мягкое нежное покачивание, но при большой раскачке существует риск опрокидывания, из-за этого рекомендовано оборудовать их отбойниками, как в предыдущем варианте. Для садовых участков предлагается вариант эллипсных качалок с тентом, с ним опрокидывание исключено.

Кресло-качалка может быть небольшим и аккуратным.
- Многофункциональные качалки 3 в 1 – при посадке выглядит как стандартное кресло для ровного сидения, во время откидывания назад полозья переходят в режим качалки, при дальнейшем откидывании – кресло превращается в лежак.

Однако визуально такое кресло выглядит громоздким и процесс перехода с одной функции на другую неудобен, необходимы резкие рывки тела.
Рассмотрев основные варианты кресел, при отсутствии опыта производства мебели, рекомендуем присмотреться к классическому варианту, сделать кресло – качалку не так сложно, как может показаться.

Определившись с моделью – важно принять решение по материалам.
Материалы для кресел качалок
Существует множество материалов, из которых можно осуществить изготовление кресла. Есть популярные модели, наиболее часто используемые при изготовлении качалок.

Рассмотрим все возможные варианты и остановимся на самых популярных подробнее.
- Ивовая лоза – легкий в производстве материал, красиво смотрится на готовом изделии, основной недостаток – непереносимость влаги, т.е. на улице устанавливать не рекомендуется.
- Ротанг – лиана родом из Юго-Восточной Азии, по красоте не уступают ивовым материалам, но не прочные. При работе с ротангом используется клей и особая вязка – нельзя применять гвозди, шурупы.
- Кованый металл – долговечный и прочный материал, кованые изделия оформляют разнообразным металлическим рисунком. Исключительно уличный вариант кресла-качалки.
- Мягкие (кожаные) детали – существуют качалки из фанеры, покрытые другим материалом, например, кожей – их можно отнести к строгим офисным вариантам;

Некоторые кресла могут легко трансформироваться.
Итак, самыми популярными материалами считаются ротанг и ива. Попытаемся разобраться в их свойствах.
Ротанг – лиана из семейства пальмовых, произрастающая во влажном регионе, ее структура пористая и влагоустойчивая. Ротангу не страшны дожди и мебель из него часто устанавливают в садовых участках и во дворах. Мебель из данного материала выходит экологичная, красивая и комфортная. Однако материал из-за пористости может быстро выйти из строя, и ремонт такой мебели обойдется в половину стоимости изделия.

Его древесина очень гибкая и хорошо поддается обработке.
Ива – это всем нам известное дерево, структура однородная, соответственно такой материал в сравнении с ротангом менее гибкий. Также не рекомендуется оставлять кресло из ивовой лозы под дождем, так как структура древесины может набухнуть и испортиться. У ротанга же пористая структура не позволяет пользоваться ничем кроме клея, поэтому приходится фиксировать плети специальными узлами. Также стоит отметить, что ивовый материал выйдет значительно дешевле ротанга.

При изготовлении мебели из ивы мастера пользуются саморезами и специальным клеем.
Теперь, зная основные показатели разных пород древесины, вы сможете решить для себя – какой из материалов Вам ближе и подойдет именно для вас.

Разнообразие материалов позволяет создать большое количество отличных экземпляров.
Сделать кресло-качалку своими руками, особенно если это Ваша первая подобная работа, проще всего из фанер. В качестве первого опыта рекомендуем использовать фанеру из клена, так как это очень твердый материал, имеющий большую плотность и красивый по фактуре – рисунку.

При этом виде материала изготовление кресла принесет Вам одно удовольствие.
Рассмотрим особенности работы с фанерой. Для прочности конструкции используют три слоя фанеры, причем средний должен быть в два раза толще крайних, например, если нам необходима общая толщина 20 мм, то склеиваем 5-10-5 мм, клеить нужно специальным водостойким клеем и можно дополнительно укреплять мелкими гвоздями.

При соединении деталей можно пользоваться помимо клея саморезами.
Также структура фанеры позволяет разрабатывать необычные формы. Достаточно нарисовать нужную заготовку и вырезать ее лобзиком. Также при работе с фанерой важно учесть то, что ее необходимо пропитать водно-полимерной эмульсией и лаком минимум два раза.

Такое изделие будет гораздо прочнее и более устойчивое к внешним воздействиям.
Ниже предлагаем к рассмотрению пошаговую инструкцию как сделать кресло качалку своими руками. Рассмотрим 2 варианта кресел, для обоих будем использовать фанеру в качестве основного материала. Перед тем как приступить к производству, важно определиться с необходимым оборудованием, чтобы Ваша работа не остановилась на середине цикла из-за отсутствия каких-то материалов или инструментов. Итак, вам потребуются:
- Шаблоны для частей каркаса;
- Фанерные доски и бруски;
- Лобзик;
- Тростниковые нити;
- Шлифовальная машина;
- Шурупы, мелкие гвозди, саморезы;
- Наждачная бумага;
- Дрель – для просверливания боковых отверстий;
- Водоотталкивающие пропитки, лаки.

Инструменты для создания кресла-качалки своими руками.
Процесс изготовления кресла качалки
Кресло-качалка, изготовленное своими руками в классическом стиле с изогнутыми полозьями, станет отличным вариантом для первого опыта изготовления мебели. Также будут использованы плетеные элементы из тростника, который создаст красивые узоры и комфортность при посадке.

Кресло-качалка легко может быть изготовлено в домашних условиях.
Итак, нам необходима 3-слойная фанера клена, на которую мы будем накладывать предварительно созданные шаблоны, и делать каркас изделия. Чертеж кресла-качалки можно создать самостоятельно или поискать в интернете готовые варианты формы.

Все элементы вырезаем при помощи лобзика и шлифовальной машины.
Очень важно тщательно обработать поверхность всех деревянных элементов, они должны получиться гладкими, без заусениц и грубых участков, поэтому для того, чтобы шаблоны приняли необходимый вид их нужно также зачистить наждачной бумагой.

Детали соединяем посредством шурупов.
Не забываем, что спинка и сидение нашего кресла будут оформлены с помощью узоров из тростника, поэтому центральную их часть оставляем пустой. То есть из фанеры мы создаем только раму. По всему периметру полученного каркаса делаем небольшие одинаковые отверстия на расстоянии 1,5-2 см друг от друга.

В отверстиях в дальнейшем будем закреплять тростниковые нити.
После того, как наша основа готова приступаем к работе с тростником. Переплетаем его нитями по вертикали и горизонтали всю поверхность сиденья по типу ткацкого производства и закрепляем крепкими узлами в просверленных ранее отверстиях.

Аналогичные действия производим со спинкой изделия.
Когда изделие сформировано, все деревянные элементы нужно обработать защитным покрытием как минимум 2 раза.

После просушки закрепляем двойным слоем лака.
Рассмотрим еще один простой вариант оригинального кресла-качалки из фанеры. Кресло состоит из двух боковин в форме бумеранга и поперечных направляющих от стенки к стенке в количестве 14 штук.

Кресло изготавливается из фанеры толщиной 15 мм.
Для начала по шаблону расчертим 2 боковины кресла и аккуратно выпилим их по разметкам электролобзиком. Все края боковины необходимо прошлифовать наждачной бумагой.

Должны получиться 2 больших «бумеранга».
Далее из той же фанеры толщиной 15 мм изготавливаем 14 прямоугольных полосок длиной 59 см и толщиной 6 см. Также распилим небольшие брусочки в качестве опор, их длина должна составлять по 5 см.

Опоры приклеим к стенкам боковин столярным клеем и для надежности закрепим каждый из брусков саморезом.

Наши направляющие прикрепляем к этим опорам также саморезами.
После завершения всех вышеуказанных действий у нас будет готов каркас нашего кресла качалки. Боковины кресла обрабатываем морилкой в два слоя, приступать ко второму слою можно только после полного высыхания первого.

Торцы боковин после этого можно покрыть лаком или покрасить глянцевой краской.

Наше кресло готово.
Осталось его задекорировать. Для этого берем мягкие подушки необходимой расцветки или небольшой гибкий матрас и крепим с помощью завязок его к каркасу. Мягкие элементы можно как приобрести в магазине, так и сделать самостоятельно. Для этого лучше взять натуральную ткань в качестве обивки и поролон толщиной 5 см.

Вырезаем из поролона необходимую нам по размеру деталь и надеваем на нее предварительно сшитый чехол.
Мы уверены, что изготовление одного кресла-качалки своими руками подвигнет вас на покорение новых вершин, и вы захотите произвести подобное или другое кресло-качалку своими руками для всех членов семьи, чтобы можно было собраться вместе тихими уютными вечерами и поговорить о произошедших событиях и планах на будущее, неспешно покачиваясь на собственно изготовленных креслах.

Кресло качалка поможет быстро и полноценно расслабиться.
Такую мебель вы можете делать по индивидуальным размерам, в том числе детские размеры для самых маленьких членов семьи. Такие вечерние или утренние укачивания создают расслабляющий успокаивающий эффект, который так необходим человеку в современном мире. Такие кресла экологически безопасные, так как выполнены из натуральных материалов.

Они красивы и смогут украсить Ваш интерьер в квартире, на балконе или во дворе дома.
Большинство качалок не требуют специального ухода, они легко переносят холодную температуру. Некоторые материалы не терпят сильной влаги, поэтому оставлять на зиму на улице такую мебель нельзя.

Уверены, что каждый обладатель кресла качалки будет считать его своим любимым местом препровождения.
Сделать качалку своими руками совсем не сложно, достаточно минимального набора инструментов и большое желание.
ВИДЕО: Кресло-качалка своими руками – 44 идеи.
Кресло-качалка в интерьере – 50 фото-идей:
‘; blockSettingArray[7][«setting_type»] = 1; blockSettingArray[7][«element»] = «h3»; blockSettingArray[7][«elementPosition»] = 1; blockSettingArray[7][«elementPlace»] = 6; blockSettingArray[8] = []; blockSettingArray[8][«minSymbols»] = 0; blockSettingArray[8][«minHeaders»] = 0; blockSettingArray[8][«text»] = ‘
‘; blockSettingArray[8][«setting_type»] = 1; blockSettingArray[8][«element»] = «h3»; blockSettingArray[8][«elementPosition»] = 1; blockSettingArray[8][«elementPlace»] = 7; blockSettingArray[9] = []; blockSettingArray[9][«minSymbols»] = 0; blockSettingArray[9][«minHeaders»] = 0; blockSettingArray[9][«text»] = ‘
‘; blockSettingArray[9][«setting_type»] = 1; blockSettingArray[9][«element»] = «h3»; blockSettingArray[9][«elementPosition»] = 1; blockSettingArray[9][«elementPlace»] = 8; blockSettingArray[10] = []; blockSettingArray[10][«minSymbols»] = 0; blockSettingArray[10][«minHeaders»] = 0; blockSettingArray[10][«text»] = ‘
‘; blockSettingArray[10][«setting_type»] = 1; blockSettingArray[10][«element»] = «h3»; blockSettingArray[10][«elementPosition»] = 1; blockSettingArray[10][«elementPlace»] = 9; blockSettingArray[11] = []; blockSettingArray[11][«minSymbols»] = 0; blockSettingArray[11][«minHeaders»] = 0; blockSettingArray[11][«text»] = ‘
‘; blockSettingArray[11][«setting_type»] = 1; blockSettingArray[11][«element»] = «h3»; blockSettingArray[11][«elementPosition»] = 1; blockSettingArray[11][«elementPlace»] = 10; blockSettingArray[12] = []; blockSettingArray[12][«minSymbols»] = 0; blockSettingArray[12][«minHeaders»] = 0; blockSettingArray[12][«text»] = ‘
‘; blockSettingArray[12][«setting_type»] = 1; blockSettingArray[12][«element»] = «h3»; blockSettingArray[12][«elementPosition»] = 1; blockSettingArray[12][«elementPlace»] = 11; blockSettingArray[13] = []; blockSettingArray[13][«minSymbols»] = 0; blockSettingArray[13][«minHeaders»] = 0; blockSettingArray[13][«text»] = ‘
‘; blockSettingArray[13][«setting_type»] = 1; blockSettingArray[13][«element»] = «h3»; blockSettingArray[13][«elementPosition»] = 1; blockSettingArray[13][«elementPlace»] = 12; blockSettingArray[14] = []; blockSettingArray[14][«minSymbols»] = 0; blockSettingArray[14][«minHeaders»] = 0; blockSettingArray[14][«text»] = ‘
‘; blockSettingArray[14][«setting_type»] = 1; blockSettingArray[14][«element»] = «h4»; blockSettingArray[14][«elementPosition»] = 1; blockSettingArray[14][«elementPlace»] = 1; blockSettingArray[15] = []; blockSettingArray[15][«minSymbols»] = 0; blockSettingArray[15][«minHeaders»] = 0; blockSettingArray[15][«text»] = ‘
‘; blockSettingArray[15][«setting_type»] = 1; blockSettingArray[15][«element»] = «h4»; blockSettingArray[15][«elementPosition»] = 1; blockSettingArray[15][«elementPlace»] = 2; blockSettingArray[16] = []; blockSettingArray[16][«minSymbols»] = 0; blockSettingArray[16][«minHeaders»] = 0; blockSettingArray[16][«text»] = ‘
‘; blockSettingArray[16][«setting_type»] = 1; blockSettingArray[16][«element»] = «h4»; blockSettingArray[16][«elementPosition»] = 1; blockSettingArray[16][«elementPlace»] = 3; blockSettingArray[17] = []; blockSettingArray[17][«minSymbols»] = 0; blockSettingArray[17][«minHeaders»] = 0; blockSettingArray[17][«text»] = ‘
‘; blockSettingArray[17][«setting_type»] = 1; blockSettingArray[17][«element»] = «h4»; blockSettingArray[17][«elementPosition»] = 1; blockSettingArray[17][«elementPlace»] = 4; blockSettingArray[18] = []; blockSettingArray[18][«minSymbols»] = 0; blockSettingArray[18][«minHeaders»] = 0; blockSettingArray[18][«text»] = ‘
‘; blockSettingArray[18][«setting_type»] = 1; blockSettingArray[18][«element»] = «h4»; blockSettingArray[18][«elementPosition»] = 1; blockSettingArray[18][«elementPlace»] = 5; blockSettingArray[19] = []; blockSettingArray[19][«minSymbols»] = 0; blockSettingArray[19][«minHeaders»] = 0; blockSettingArray[19][«text»] = ‘
‘; blockSettingArray[19][«setting_type»] = 1; blockSettingArray[19][«element»] = «h4»; blockSettingArray[19][«elementPosition»] = 1; blockSettingArray[19][«elementPlace»] = 6; blockSettingArray[20] = []; blockSettingArray[20][«minSymbols»] = 0; blockSettingArray[20][«minHeaders»] = 0; blockSettingArray[20][«text»] = ‘
‘; blockSettingArray[20][«setting_type»] = 1; blockSettingArray[20][«element»] = «h2»; blockSettingArray[20][«elementPosition»] = 1; blockSettingArray[20][«elementPlace»] = 1; blockSettingArray[21] = []; blockSettingArray[21][«minSymbols»] = 0; blockSettingArray[21][«minHeaders»] = 0; blockSettingArray[21][«text»] = ‘
‘; blockSettingArray[21][«setting_type»] = 3; blockSettingArray[21][«element»] = «p»; blockSettingArray[21][«directElement»] = «#toc_container»; blockSettingArray[21][«elementPosition»] = 0; blockSettingArray[21][«elementPlace»] = 1; blockSettingArray[22] = []; blockSettingArray[22][«minSymbols»] = 0; blockSettingArray[22][«minHeaders»] = 0; blockSettingArray[22][«text»] = ‘
‘; blockSettingArray[22][«setting_type»] = 3; blockSettingArray[22][«element»] = «p»; blockSettingArray[22][«directElement»] = «social»; blockSettingArray[22][«elementPosition»] = 0; blockSettingArray[22][«elementPlace»] = 1; blockSettingArray[23] = []; blockSettingArray[23][«minSymbols»] = 0; blockSettingArray[23][«minHeaders»] = 0; blockSettingArray[23][«text»] = ‘
‘; blockSettingArray[23][«setting_type»] = 3; blockSettingArray[23][«element»] = «p»; blockSettingArray[23][«directElement»] = «social»; blockSettingArray[23][«elementPosition»] = 0; blockSettingArray[23][«elementPlace»] = 2; blockSettingArray[25] = []; blockSettingArray[25][«minSymbols»] = 0; blockSettingArray[25][«minHeaders»] = 0; blockSettingArray[25][«text»] = ‘
‘; blockSettingArray[25][«setting_type»] = 3; blockSettingArray[25][«element»] = «p»; blockSettingArray[25][«directElement»] = «#nav_menu-2»; blockSettingArray[25][«elementPosition»] = 1; blockSettingArray[25][«elementPlace»] = 1; blockSettingArray[26] = []; blockSettingArray[26][«minSymbols»] = 0; blockSettingArray[26][«minHeaders»] = 0; blockSettingArray[26][«text»] = ‘
‘; blockSettingArray[26][«setting_type»] = 3; blockSettingArray[26][«element»] = «p»; blockSettingArray[26][«directElement»] = «widget_construct»; blockSettingArray[26][«elementPosition»] = 1; blockSettingArray[26][«elementPlace»] = 1; blockSettingArray[27] = []; blockSettingArray[27][«minSymbols»] = 0; blockSettingArray[27][«minHeaders»] = 0; blockSettingArray[27][«text»] = ‘
‘; blockSettingArray[27][«setting_type»] = 1; blockSettingArray[27][«element»] = «h2»; blockSettingArray[27][«elementPosition»] = 1; blockSettingArray[27][«elementPlace»] = 1; var jsInputerLaunch = 15;
berkem.ru
Кресло-качалка своими руками из дерева: чертежи с размерами, фото
Кресло-качалка по праву является одним из наиболее популярных элементов мебели. Еще большей популярности она набирает при наличии загородного дома. Это могут быть разные модели, выполненные из разных материалов. Но больше предпочтение отдается деревянным изделиям. Можно приобрести готовое, а можно изготовить его самостоятельно. Как сделать кресло-качалку своими руками и каким материалам отдать предпочтение, читайте далее в статье.

Преимущества и недостатки деревянных конструкций
Древесина является самым распространенным материалом для изготовления мебели. Деревянное кресло-качалка не является исключением, благодаря многочисленным преимуществам:
- Экологически чистый материал, выделяющий приятный лесной запах.
- Значительная прочность.
- Длительный период эксплуатации.
- Возможность воплощения дизайнерских решений.
- Простота в обработке, в том числе и ручной.
- Широкий выбор древесины любой марки и в любом месте.
- Большой цветовой спектр материала.
Готовое кресло-качалка хорошо вписывается в любой архитектурный ансамбль строения. Оно может устанавливаться в любое время в удобном месте: на поляне, у бассейна, у камина, возле мангала и т.д. Покачивание в кресле расслабляет, создает комфорт для тела и приносит пользу организму. Это удобные и безопасные качели для детей.

Фото: кресло-качалка в дизайн интерьере
На ряду с многочисленными плюсами существует ряд недостатков, основным из которых является значительная стоимость любой качалки. Кроме этого, конструкции характерны потеря своих качеств и характеристик, если на нее будут воздействовать дождь, туман, другие осадки. Нежелательным будет и длительное нахождение качающегося кресла под воздействием солнца.

Материал и его характеристики
Для изготовления кресла-качалки из массива дерева предпочтительно выбираются хвойных пород. Это может быть сосна, ель, ольха или лиственница. Эти породы отличаются небольшой массой и невысокой плотностью. Самодельные конструкции со значительной массой будет неудобно перемещать. Высокая плотность материала создаст трудности в работе.

Хвойные породы деревьев имеют структуру светлого серого оттенка. Легко поддаются обработке. Значительным недостатком такой древесины является то, что при повышении уровня влажности она увеличивается в размерах. Несмотря на это, хвойные породы являются бюджетным вариантом, широко распространены в торговой сети и имеют незначительную стоимость.
Изготовление кресла возможно из более дорогих сортов дерева. Это может быть дуб, ясень или бук. Эти сорта дерева почти не имеют пор, в результате чего высоким уровнем прочности. Готовые конструкции надежны и долговечны, но имеют высокую стоимость. Древесные породы имеют светлый или светло-желтый цвет.

Фото: резное кресло-качалка из дуба
Для изготовления кресла, которое качается, используют качественные деревянные заготовки первого сорта. Влажность этих заготовок к началу работ не должна превышать 10 %. Если этот показатель выше, то древесину использовать не рекомендуется. Лучше дать ей просохнуть, так как конструкция, выполненная из влажного дерева, впоследствии будет высыхать и подвергаться деформации. Последствием станет ее невзрачный вид или полное разрушение.
Чертежи
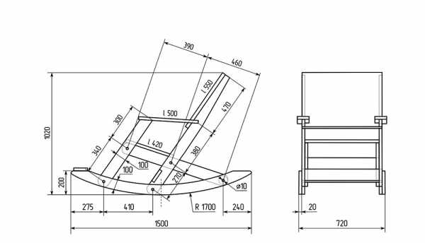
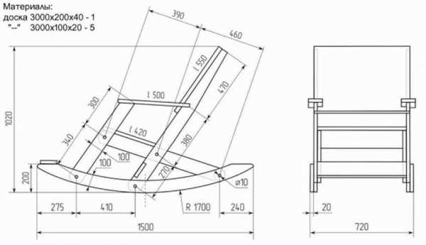
Для изготовления деревянной качающейся конструкции необходимо составить чертеж кресла. Лучше его выполнить на миллиметровой бумаге, нарисовав все элементы конструкции с размерами. Чтобы изготовить простое кресло-качалку своими руками из дерева, рекомендуется взять за основу обыкновенный стул.

Чертеж кресла-качалки из дерева
Простота конструкции заключается в том, что все элементы крепятся под прямым углом и нет необходимости нарезать дополнительные детали. Основанием для всей конструкции служит размер сиденья и высота ножек. Под эти размеры будут нарезаться соединительные элементы. Следующим этапом изготовления кресла-качалки, согласно чертежу и требуемых размеров, нарезаем детали из дерева.
Сиденье квадратной формы с длиной сторон 53-56 см может быть выполнено из фанеры или цельного куска древесины. Толщина сиденья должны быть 1.0-1.5 см. Для задних и передних ножек используется брус с сечением 4.5х4.5 см. Задние ножки нарезаются высотой 105-110 см, передние — 55-60 см. Для соединения всей конструкции используются поперечные рейки, с размером длины, высоты и толщины 57х4х1.5 см соответственно.
Данная конструкция и размеры не являются догмой. Исходя из предпочтений, форма и размеры деталей могут меняться.

Ещё один пример чертежа
Инструмент
Изготовление кресла предполагает наличие инструмента. Для выполнения работ понадобится:
- мелкозубчатая ножовка по дереву или электрический лобзик для нарезания заготовок;
- простой или электрический рубанок для обработки деталей конструкции;
- шлифовальная или ленточная машинка для шлифовки деталей;
- ручная фрезеровальная машинка для выполнения пазов и обработки соединительных реек;
- прямой угол или строительный отвес;
- шуруповерт;
- молоток;
- рулетка и карандаш;
- струбцина или резиновый жгут;
- кисточка или шпатель для заполнения крепежных отверстий.
Учитывая, что элементы конструкции не будут крепиться на гвоздях, молоток будет необходим для подгонки деталей друг к другу.
Соединение деталей
Для крепления сиденья и ножек между собой, можно использовать два варианта:
- крепление в шип;
- соединение при помощи клея.
При креплении в шип на деревянные элементы кресла-качалки наносится разметка. Согласно ее в ножках вырезаются пазы, размером 2.0х1.5 см, глубиной 2 см. Под пазы подготавливается форма соединительных реек. Перед креплением деталей, паз и концы реек обрабатываются строительным клеем.
Тематический материал:
Во втором варианте места крепления обрабатываются клеем и соединяются между собой. Для надежности чаще применяют эпоксидный клей. Места соединения усиливаются саморезами. Сиденье монтируется на поперечные рейки и также фиксируется саморезами.
В обоих вариантах для окончательного скрепления всех элементов качалки из дерева используется струбцина и прокладки. Прокладочный материал устанавливается между струбциной и качалкой. После установки струбцина затягивается и качающийся стул в течении 24 часов оставляется для полного застывания клея. При отсутствии струбцины стяжку проводят при помощи жесткого резинового жгута.
Монтаж полозьев
Изготовление и монтаж полозьев можно выполнить двумя способами.

Фото: заготовки для кресла готовы
Первый способ
Отличается простотой и быстротой выполнения. Он заключается в следующем:
- Для изготовления полозьев используют лист фанеры, толщиной 1.5 см.
- По лекалу из фанеры вырезают две одинаковые по кривизне заготовки, длиной около 1 м.
- В ножках кресла выполняются прорези, шириной 1.5 см под толщину фанерных полозьев. Глубина прорезей может быть 7-10 см.
- Полозья шлифуются по краю и устанавливаются в прорези. При монтаже необходимо добиться максимально одинакового уровня их установки.
- В местах посадки полозьев выполняется сквозное отверстие, диаметром 2 см.
- Отверстие обрабатывается клеем и в него вставляется деревянный шип.
Второй способ
Более трудоемкий. В качестве лыжи используется брусок древесины. Для оборудования качалки лыжами необходимо:
- В деревянном бруске, сечением 4.5х4.5 см и длиной около 1 метра, вырезать пазы.
- Концы ножек стульев обработать под посадку в пазы полозьев.
- Бруски для полозьев поместить в кипящую или горячую воду до тех пор, пока древесина не станет податливой.
- При помощи инструмента выгнуть лыжи на определенный радиус и оставить в таком состоянии, до полного высыхания.
- Высохшие полозья установить на ножки, предварительно обработав пазы клеем.
Для того, чтобы полозья служили долго необходимо использовать древесину с высокой износостойкостью.
Проверка равновесия
Кресло-качалка из дерева, может доставлять неудобство при посадке или вставании. Это возникает в результате разности веса элементов конструкции, которые находятся в его передней и задней частях. Чтобы избежать дискомфорта необходимо сбалансировать качающуюся конструкцию.
При значительном наклоне конструкции вперед, на полозья за спинкой можно смонтировать поперечные планки. При необходимости вес на планках можно увеличить за счет установки декоративных элементов.

Сбалансированное кресло-качалка
При наклоне назад, такой же противовес надо оборудовать в передней части качалки. Это может быть дополнительная полка для ног. Если этого веса будет недостаточно, то можно под полкой оборудовать нишу для дополнительного противовеса.
Обработка
Готовая конструкция будет использоваться в разных местах при разных температурах. Эксплуатация зимой и летом, под солнцем и в холоде, в доме и на улице может привести к быстрому старению дерева и различным болезням. От этого спасет обработка материала.
Перед сборкой конструкции дерево можно обработать морилкой. За счет ее концентрации качалка может принимать любой оттенок.

Кресло покрыто лаком в 3 слоя
Для предотвращения заболеваний дерево должно быть покрыто специальной противогрибковой жидкостью, а также средством против древесных насекомых и вредителей.
Чтобы обезопасить древесину от намокания, рекомендуется обработать ее специальной водоотталкивающей жидкостью.
Пользователи часто ищут:
В завершении всю конструкцию необходимо покрыть двумя слоями лака.
Вывод
Представленный вариант изготовления качающегося кресла является самым простым и быстрым. Если соблюдать правила и технологию работ, то можно изготовить кресло любой сложности и конструкции.

Готовое кресло послужит не только предметом мебели, но и отдельным дизайнерским элементом, который всегда будет привлекать всеобщее внимание.
besedkibest.ru
Кресло-качалка своими руками (44 фото): чертежи, варианты, советы
Содержание
Кресло – качалка совмещает в себе три несомненных преимущества. Во-первых, это оригинальная и красивая часть домашнего интерьера. Во-вторых, простой и одновременно эффективный тренажер для здоровья. В-третьих, в нем удивительно комфортно отдыхать, почитать книжку или предаться сладкой, затягивающей и обволакивающей лени.

Кресло-качалка — идеальный способ создать атмосферу уюта и спокойствия

Кресло-качалка из натурального дерева

Самодельное кресло-качалка из металлического каркаса
Поскольку утверждение, что все болезни проистекают от нервов во многом верно, то кресло-качалка может стать уникальной таблеткой, чудо-средством от многих болезней.

Горизонтальное кресло-кресло качалка поможет быстро и полноценно расслабиться

Безусловный плюс самодельного кресла-качалки — его соответствие именно Вашим вкусам
Ритмичное, равномерное и спокойное покачивание переводит нервную систему человека в некоторое подобие транса – организм успокаивается, расслабляется, а вот парасимпатическая нервная система как раз наоборот – активизируется.

Простое плетенное кресло-качалка добавит много комфорта Вашему дому

Некоторые кресла могут легко трансформироваться

Кресло-качалка может быть небольшим и аккуратными
Человек расслабляется, отвлекаясь от ежедневной рутины и навязчивых мыслей. Расслабленный ум «ленится» контролировать тело, мышцы расслабляются, начиная полноценно отдыхать и восстанавливаться, накапливая запас сил.

Правильно соединенные простые панели могут превратиться в отличное кресло-качалку, а также уютную лежаночку для кота

Монолитность и гибкость линий сделают такое кресло-качалку желанным гостем во многих современных интерьерах
Кресло-качалка поможет побороть проблемы со сном, ведь мерное покачивание – это те же манипуляции, что проводит, мать, укачивая ребенка в колыбели. Всего полчаса в кресле-качалке – и глубокий здоровый сон примет вас в свои объятия.

Разнообразие материалов позволяет создать большое количество отличных экземпляров

Простое и стильное кресло-качалка подойдет и для посиделок с друзьями и для спокойного отдыха
Кресло-качалка поможет больным тахикардией – покачивание как бы задает определенный равномерный темп, под который подстраивается сердце. Оно тренирует вестибулярный аппарат – после него легче переносить длительные поездки в авто, поезде или самолете.

Глубокое и мягкое кресло-качалка не позволит Вам утонуть в повседневных заботах

Металл и немного дерева будут прекрасно смотреться в интерьере в стиле лофт
Сегодня кресла-качалки изготавливаются из разных материалов, но у нас наиболее популярны изделия из ротанга и лозы.

Кресло-качалка из лозы — бесспорная классика

Благодаря современным технологиям можно добиться максимального сходства с натуральными материалами
Из чего сделать кресло-качалку: подбираем материалы
Чтобы изготовить надежное, крепкое и долговечное кресло-качалку, надо использовать качественную древесину – хвойные сорта, дуб или лиственницу. Часто для упрощения работы задействуют фанеру – её листы не только легко распилить, чтобы получить деталь необходимой формы, но она и достаточно пластична и хорошо поддается дальнейшей обработке (ошкуривание, покраска).

При наличии материалов, инструментов и нескольких часов Вы сможете стать обладателем добротного кресла-качалки

Грамотно сконструированный каркас будет прекрасным компаньоном для любого чехла

Дерево темных сортов и немного кожи сделают кресло-качалку интересным элементом интерьера
Выбор материала практически полностью определяется местом, где разместить кресло-качалку. Уличное кресло-качалка должно иметь дополнительную защиту и обработано антисептическими средствами, которые минимизируют воздействие неблагоприятных агрессивных природных факторов (мороз, дождь, снег) и позволят как можно дольше сохранять эстетическую привлекательность.

Кресло-качалка и свежий воздух — именно то, что нужно для полноценного отдыха
Совет! Кресло-качалку для дачи не следует обшивать тканью или поролоном – после попадания под дождь его придется тщательно просушить, в противном случае ткань будет преть и распадаться. Лучше использовать плед или съемные подушки.

Сменные чехлы имеют неоспоримое преимущество благодаря своей мобильности

Небольшая подушечка сделает Ваше кресло удобнее и позволит избежать хлопот, вызванных пребыванием кресла-качалки на улице
Для дачи оптимальным вариантом выглядит совмещение металла и дерева – основу (каркас) получают из кованного металла, а уже сидения делают из древесины. А в магазинах все чаще предлагают пластиковые кресла-качалки, имеющих два несомненных преимущества: небольшая цена и высокий иммунитет ко всем природным влияниям.

Немного дерева и металла и Вы обладатель хорошего и устойчивого кресла-качалки

Пластиковый стул и деревянные полозья дадут в комбинации стильное и удобное кресло-качалку
Как сделать кресло-качалку своими руками: самые доступные варианты
Основная часть конструкции кресла качалки – это двое полозьев (лыжи), имеющих дугообразную форму, за счет чего, собственно, кресло и может качаться. Эти полозья могут быть короткими и длинными. У кресел с длинными полозьями глубина и амплитуда качения достаточно большая, человек из сидячего положения переходит в полулежачее. Кресла-качалки с короткими полозьями обеспечивают спокойное и степенное качение, поэтому они особенно популярны у пожилых людей.

Короткие полозья, и Вы мерно и спокойно покачиваетесь вдали от всех забот
Чтобы изготовить простейшее кресло-качалку, вам даже не потребуется подробный чертеж кресла-качалки. Достаточно взять готовое, например старое, кресло (1) с деревянными ножками. Изготовим две опоры (2), для этого из брусков изготавливаем два элемента, которые будут иметь одинаковое выгнутое основание. Так же выпиливаем щечки (3), которые используем в дальнейшем как дно для ножек кресла.

Схема простого кресла-качалки
Для каждой ножки исходного кресла выпиливаем по два ограничительных бруска (4) – итого восемь. Соответствующие ограничители прибиваем на требуемом расстоянии для каждой опоры для всех ножек. У обоих опор с внешней стороны вкручиваем по три (6) мебельных болта – это придаст креслу устойчивости и обеспечит безопасное качание. Подготовим замыкающую пластину (7) на каждый ограничительный брус. Вставив ножки кресла в подготовленные пазы с ограничителями, замыкающими пластинами накрываем ограничители и фиксируем их с помощью перфоратора. Для удобства, спереди можно добавить подножку (8).

Чертеж-схема кресла-качалки
Аналогично можно модернизировать и кресло с металлическими ножками, изготовив специальные крепежные петли из металла

Образец кресла-качалки из обычного стула и самодельных полозьев
Кресло-качалка из фанеры

Для пластического моделирования фанера – наиболее благоприятный материал. Воспользовавшись электролобзиком, можно получить конструкцию, которая значительно упростит процесс, ведь конструктивно она объединяет два самых главных (и самых сложных для изготовления) элемента кресла-качалки – полозья и боковины. Кроме того, отсутствие соединений значительно увеличивает прочность конструкции.
Для изготовления нам понадобятся:
- электролобзик
- шуруповерт
- фанера – лист толщиной не менее 15 мм
- дубовые (сосновые) рейки сечением 10х50 мм – порядка 20-35 штук, длина зависит варианта изготовления – одно- или двухместное кресло. Для одноместно кресла длина рейки – 1200 мм.
- брус (сосна, лучше дуб) – 30х50 мм, 3 шт, по длине равный рейкам
- саморезы
На миллиметровой бумаге вычерчиваем лекало, переносим рисунок на фанеру и вырезаем боковину электролобзиком.

После этого ошкуриваем все детали и снимаем небольшие фаски. Если кресло-качалка предназначено для дачи, особое внимание потребуют торцы – они требуют максимальной защиты от сырости. Поэтому торцы всех деталей пропитывают горячей олифой, после чего молотком слегка сплющивают волокна древесины – так влага будет впитываться значительно меньше. До начала общей сборки процедура обработки-лакировки для торцов должна быть проведена дважды.
Отверстия под соединительные бруски (царги) размечаем в изножье, средней части и в изголовье. Чтобы добиться максимальной точности, после предврительной разметки боковины совмещают и просверливают отверстие. Царги закрепляют евровинтами и дополнительно фиксируют с помощью столярного клея. После этого на уже собранный каркас саморезами равномерно закрепляем рейки. После окончания сборки необходимо зашпаклевать отверстия над саморезами, еще раз мелкой наждачкой отшлифовать все детали, обработать антисептиком, покрыть морилкой (если нравится темные тона дерева) и покрыть полученное кресло водостойким лаком.

Если есть возможность задействовать болгарку и сварочный аппарат, можно собрать металлический каркас. Для этого понадобится стальной уголок (20х20х3 мм) и стальная полоса (толщина 4 мм, ширина 40 мм). После сборки каркас окрашивают, после чего по всей длине сиденья и спинки высверливают отверстия для саморезов, которыми будут крепиться деревянные облицовочные планки.
Совет! Перед сборкой обязательно обработайте металлические части антикоррозийным составом.
happymodern.ru
Кресло качалка своими руками. Чертежи, 188 фото, размеры
Кресло качалка своими руками простоВ этой статье мы рассмотрим пошаговые мастер классы о том, как сделать кресло качалку своими руками из дерева, металла, фанеры, катушки для проводов. К креслу качалке, изготовление, чертежи, макеты и схемы сборки, которого мы будем рассматривать ниже, будем относить так же и качающийся стул и шезлонг для дачи.
Кресло качалка без гвоздей своими руками
Посмотрите по пошаговым фото ниже как сделать кресло-качалку без единого гвоздя самостоятельно. Автор купил лист фанеры, вырезал из него детали данного качающегося стула и склеил детали между собой. На фото в галереи приведены чертежи сделанные автором от руки для трех основных деталей, которые вы сами можете перенести в любой масштаб.
Мастер класс с пошаговыми фото изготовления
Источник фото: www.instructables.com/id/Childs-Rocking-Chair-Without-any-nails-or-screws. Автор: paracordbraider
Чертежи из фанеры кресло-качалки

Простое кресло качалка своими руками
Автор этого качающего стула нашел на улице деревянное основание от кровати и сделал из него креслок качалку. Как он это сделал вы можете посмотреть на пошаговых фото ниже.
Источник фото: www.instructables.com/id/Childs-Rocking-Chair-Without-any-nails-or-screws. Автор: paracordbraider
Кресло качалка для сада из фанеры. Чертежи

Кресло качалка из клена с плетенной спинкой и сиденьем.
Довольно сложный по изготовлению стул. Некоторые части автор вырезал на ЧПУ станке по самостоятельно нарисованным чертежам, а некоторые приходилось допиливать в ручную. Автор использовал клен, это довольно твердое дерево, поэтому для придания необходимых форм приходилось подолгу замачивать некоторые части в кипятке. Особой работы требует обмотка спинки и сиденья, как это сделать смотрите на пошаговых фото и в этом видео на ютубе
Источник фото: www.instructables.com/id/Grandpys-Rocking-Chair. Автор: Wood Crow
Чертежи простого кресла-качалки

Качающийся стул из металлических стержней
Своими руками
Качающийся стул из металлических труб, ещё можно назвать этот предмет мебели качающийся шезлонг или гамак (тут уж кому, что больше видится в этом предмете). Автор сделал это кресло из 20 мм стержней, конечно проще бы было использовать трубы, в таком случае конструкция получилась бы намного легче. Но автор учел свой сварочный опыт и пришел к выводу, что трубы у него не удастся так крепко сварить, и он решил обезопаситься металлическими стержнями в 22 мм. (к тому же сгибание труб тоже требует определенного навыка и инструмента). Особую трудность представляет сгибание столь прочных и толстых стержней, для этого он использовал дерево во дворе и рычаг в виде насаженной на стержень дополнительной трубы. Постепенно сгибая и перемещая стержень между деревьями удается добиться необходимой дуги.
Как же сделать такую металлическое кресло качалку вы можете посмотреть из пошаговых фото ниже. Автор отмечает, что следует лучше продумать чертеж, что бы сделать центр тяжести так, что бы кресло не так сильно отклонялось назад (на последнем фото, для лучшего вида кресло подпёрто сзади)
Источник фото: www.instructables.com/id/Minimalist-Steel-Rocking-Chair. Автор: Henri.Lacoste
Чертеж. Кресло-качалка своими руками (из дерева, фанеры)

Кресло качалка из кабельной катушки
Если у вас есть никому кроме вас не принадлежащая катушка из под кабеля, то вы можете сделать из неё вот такое кресло качалку. Ниже вы можете посмотреть подробный пошаговый мастер класс как делается такое кресло качалка.
Как видите из фото, катушка разбирается, в кругах вырезается паз для досок, переставляются стержни вниз, под будущее сиденье и все скрепляется. Получается не очень сложно и довольно симпатичное кресло.
Источник фото: www.instructables.com/id/DIY-Cable-Drum-Rocking-Chair. Автор: libskie
Деревянный стул качалка Адирондак
Здесь мы видим качающися стул (или кресло качалку) в стиле Адирондак, что является давольно необычным сочетанием. Обратите внимание на высоту спинки, которая сделана достаточной длины, что бы на неё можно было отклонить голову для отдыха.
Очень важно изготовить правильной формы коромысло, которое обеспечивает качание. При изготовлении такого стула внимательно изучите его форму.
Скачать более подробные инструкции по изготовлению со схемой сборки вы можете по этой ссылке
Источник фото: www.instructables.com/id/Adirondack-Rocking-Chair Автор: plansinwood
Схемы и чертежи кресло качалки
300 фото стул качалка своими руками
www.novamett.ru
виды изделия и варианты изготовления
Изготовленное кресло-качалка своими руками многим умельцам обойдется дешевле, чем магазинное изделие. Изготовленная самостоятельно мебель будет качественней и экологичней, можно продумать свой дизайн и концепцию конструкции. Кресло-качалка станет удачным дополнением к дизайну интерьера помещения, приспособлением, которое успокоит, даст настрой в работе, расслабит. Такое изделие станет незаменимым и при укачивании ребенка. Для самого малыша такое кресло представляет собой настоящие качели.
Виды изделия
Если человек не имеет отношения к плотническому делу, то возникает естественный вопрос: как сделать кресло-качалку своими руками? Изначально стоит определиться с видом кресла-качалки, их существует несколько. Различают виды относительно особенностей конструкции:
- Кресло-качалка, которая имеет радиусные полозья. Эта модель является классической и наиболее популярной. Имеет низкую посадку, так как на округлых «радиусах» очень тяжело держать равновесие при раскачивании.

- Кресло с полозьями переменной кривизны. В этом случае «радиусы» не представляют часть округлости, а значит раскачивание может иметь большую амплитуду. В данном случае использование будет более безопасным и комфортным.

- Кресло-нирвана. Существует два подтипа: эллипсное и рессорное. Первый считается небезопасным, так как часто происходит опрокидывание, но качание является мягким и плавным. Рессорные модели более приспособлены к широкому использованию, но изготовление кресла-качалки своими руками такой модернизации требует умений и опыта.

- Качалки 3 в 1. Здесь представлено все три режима: кресло, качалка, лежак. В зависимости от степени откидывания на спинку конструкции и определяется положение корпуса. Многофункциональная мебель, но многогабаритная.

Представленные варианты конструкции могут быть сделаны практически из любого материала: дерева, метала, лозы, ротанга. Сидение может быть твердым, мягким или комбинированным. Материалы можно комбинировать, а в некоторых моделях даже нужно. Благодаря фото в интернете можно подобрать понравившуюся модель изделия.
Плетенная модель
Сделать своими руками мебель из лозы или ротанга достаточно сложно. Ротанг – это дорогостоящий материал, но изделие из него имеет большие сроки эксплуатации, а корпус выносливее к механическим воздействиям. То же сказать про лозу нельзя, но она более доступна и податлива в работе.
Чтобы создать оригинальную плетенную мебель, можно просмотреть мастер-класс. Такой инструкции будет вполне достаточно для воплощения проекта. Сначала производится подготовка материала:
1. Ротанг собрать самостоятельно не получится – это жесткая лиана, произрастающая в определенных районах Америки. Лозу заготавливают самостоятельно: ветки собирают в течении всего года. Длина, толщина может быть разной. Когда лоза будет собрана, ее устанавливают на улице вертикально, чтобы она просохла.
2. Обработка прутьев заключается в отпарке. Ветки укладываются в ванну с теплой водой, где материал должен провести около 12 часов. Ветки станут эластичными. Когда каждый прутик станет хорошо гнуться, то с них можно снять кору.
3. Чтобы продолжить работу, нужно придать каждому элементу соответствующей формы. Толстые ветки фиксируются в зажимах в соответствующем положении, а тонкие с помощью колунка разделяются на несколько частей, которые называются шинками.
4. Каждую шинку нужно пропустить через пресс, чтобы они стали плоскими и приспособленными для плетения.
5. Подготовленная лоза укладывается на трое суток в сушилку, где остаточно фиксируется форма каждого элемента будущего изделия. Только из такой лозы можно изготовить кресло-качалку.
Следующим этапом станет само изготовление:
1. Сначала изготовляется каркас из толстых веток или деревянных планок. Размеры определяются самостоятельно. Все части фиксируются гвоздями или проволокой. Предмет помещается в сушилку на несколько дней.
Изготавливается каркас2. Оплетка заключается в оклеивании спинки и сидения шинками. На корпус наноситься мебельный клей, который будет служить дополнительным соединением. Сами шинки оплетают прутья обрешетки в шахматном порядке.
Обплетаем спинку и сидение3. Когда корпус будет готов прикрепляются полозья и производится тестирование изделия. Кресло нужно слегка раскачать, если этот процесс протекает легко, а само оно не опрокидывается при раскачке, то центр тяжести определен правильно.
4. Последний шаг – вскрытие лозы лаком для мебели.
Сделанное кресло-качалку можно использовать на даче, веранде, балконе, саду, прихожей. Кроме положительных ощущений во время использования данного предмета мебели, этот элемент станет замечательным аутентичным дизайнерским оформлением.
На видео: изготовление полностью плетеного кресла-качалки
Кресло-качалка из дерева
Сделать кресло-качалку своими руками из дерева достаточно просто, главное произвести соответствующую подготовку. Если такая работа производится впервые, то поможет в этом мастер-класс. Сначала готовим инструменты:
- ножовки по дереву, лобзик;
- шлифмашинка или наждачная бумага;
- шуруповерт;
- набор сверл;
- измерительная лента;
- молоток;
- шпатель;
- уровень;
- строительный угол;
- кисти, карандаш.
Подготовка материала также важна. Деревянная кресло-качалка изготовляется частично из фанеры. Остальные деревянные части лучше подобрать из эластичного материала. Замечательно, если это будут фланели.

После сбора инструментов и материала можно приступать к работе. Изначально выполняется чертеж кресла-качалки, выполняемый в соответствии с параметрами будущего изделия. Схема является точной копией, но в уменьшенном масштабе:
1. Из фанеры своими руками нужно выпилить боковые элементы, которые представляют собой полукруглые основы с пазами под фланели. Здесь пригодится лобзик, пилки по дереву и шлифмашинка.
Делаем боковины2. Подготавливаются фланели, можно их изготовить из фанеры своими руками, но при условии, что фанера толщиной не меньше 30 миллиметров и гибкая по своей основе.
Изготавливаем фланели3. Боковые детали из фанеры соединяются между собой при помощи брусков 30х50х600 мм. Сверху к каркасу с помощью шуруповерта прикрепляются перекладины (фланели) на расстоянии между собой в 2-3 см.
Собираем конструкцию4. К каркасу прикрепляем фланели, для этого используем шуруповерт.
Прикручиваем фланели к каркасу5. Качалку из фанеры ждет финишная обработка. Шпатлевкой замазываются места, где есть присоединение фланелей к боковинам. Когда шпатлевка высохнет, можно покрыть изделие лаком по дереву.
Финишная обработкаКресло качалка из фанеры может дополнительно обустраиваться и другими элементами. Например, можно сделать сидение мягким. Для этого на деревянную основу укладывается поролоновая основа, поверх которой укладывается ткань.
Наиболее опытные умельцы часто упрощают процесс изготовления с помощью использования старого кресла, к которому крепятся изогнутые «лыжи». Это один из самых простых вариантов.

На видео: как сделать кресло-качалку из дерева.
Металлическое кресло
Существует еще один класс изделия – это металлические кресла-качалки. Не всякий мастер сможет изготовить такую конструкцию, так как для этого необходимо более серьезное оборудование и мастерство. Хотя, стоит попробовать изготовить кресло-качалку из металла своими руками. Это можно сделать, ориентируясь по фоткам, или просмотрев мастер-класс.
Для работы нам понадобятся следующие составляющие:
- стальные прутья;
- оцинковка;
- стальные уголки;
- аппарат для сварки;
- дрель со специальными сверлами;
- болгарка.
Зачастую дуги для полозьев изготовляют из профильной трубы, а из самого профиля вырезаются уголки, которые будут служить креплениями. Из профилированного металлического листа можно изготовить все необходимые элементы для создания такой конструкции:
1. Сначала делаются чертежи в соответствии с дизайном изделия. Для этого можно взять готовый стул и перенести этот эскиз, но кроме этого продумать способ крепления закругленных полозьев.
2. Стальные прутья нарезаются длиной в 1 метр. После этого сваривается каркас, к которому и будут привариваться прутья. Расстояние между ними около 1 сантиметра. Металл скручивается в овал.
3. После этого мастер, должен прикрепить сидение к овальной основе. Само сидение изготавливается из оцинковки. Крепление осуществляется с помощью болтов, а отверстия для них делают с помощью дрели.
4. Конечным этапом будет покраска и шлифовка острых деталей.

Часто сидение делают из дерева или плетут из лозы. В любом случае такой класс мебели является очень износостойким и крепким. Основа металлического стула-качалки долговечна, а сидение при необходимости можно менять.
Часто каркас делают кованным. Такой элемент мебели смотрится богато и эстетически привлекательно.

Если сравнивать условия эксплуатации плетенной, металлической и деревянной мебели, то наиболее универсальным вариантом является именно плетенная. Она не портит напольную поверхность, легко перемещается, может использоваться в любом помещении и на улице.
Украсить такой элемент мебели можно текстилем, в частности декоративными подушками, стеганными покрывалами, теплыми пледами. Таким образом вноситься нота комфорта и уюта в общую задумку.
Интересные идеи (1 видео)
Разные модели кресел (35 фото)
Вам также будут полезны эти статьи:
russianstartuprating.ru
Как сделать кресло-качалку своими руками: пошаговый мастер-класс
Собственный сад – отличное место и для работы, и для отдыха. Для полноценного дачного отдыха люди придумали самые разные приспособления от качелей до гамака. Классическим предметом комфортной мебели считаются кресла. Но кто-то гениальный умудрился внести в его конструкцию дополнение, сделавшее его ещё удобнее: родилось кресло-качалка. Такая модель позволяет отлично расслабить все мышцы, а неспешное и ритмичное раскачивание располагает к приятным размышлениям, успокаивает, убаюкивает. Кресло-качалка оказалось популярным настолько, что за время с его изобретения появилось множество вариаций и модификаций. Более того, выяснилось, что кресло-качалка своими руками сделанное из разных материалов – это не миф.
Для создания классической модели кресла-качалки нужна ивовая лоза. Ажурная и легкая конструкция отлично смотрится на фоне дачной зелени и удачно сочетается с интерьером садового домика или беседки. Недостаток у этого легкого и прочного изделия один – боязнь избыточной влажности.

Сделать легкое и, казалось бы, незатейливое кресло из ивовой лозы нет так-то просто. Нужно уметь подготовить материал, да и техника плетения требует специальных навыков
Ротанг – гибкая лиана, которая произрастает в Юго-Восточной Азии. Из ротанга тоже плетут чудесные и очень красивые кресла. По красоте они не уступают ивовым, что никак нельзя сказать о прочности. Ни шурупов, ни гвоздей при создании ротанговой мебели не применяется. Все соединения держаться только благодаря клею и искусной вязке.

Ротанг в качестве сырья в наших магазинах не продаётся. Такое кресло-качалка для владельца дачи – это удачная покупка, а не изделие, в изготовлении которого он может проявить свои творческие способности
Если говорить о прочности и долговечности изделия, то примером надежной мебели может случить вот эта модель, созданная из кованого металла. Изящное кружевное сооружение украсит собой любой сад.

Основным достоинством этой модели является её долговечность. Основным, но не единственным. Согласитесь, что эта вещь похожа на изящное серебряное украшение
Качалки используются не только в качестве дачной мебели. Отличительной особенностью офисного кресла-качалки являются его респектабельность и солидность.

Офисные работники тоже ценят качественные кресла-качалки как аксессуары, помогающие полноценно отдохнуть от деловой суеты. Конечно, офисные модели отличаются от дачного варианта
Есть и дизайнерские модели кресел-качалок, выполненные в стиле хай-тек.

Очень интересная и, что самое важное, достаточно функциональная модель. Совмещает в себя удобное кресло-качалку и направленный светильник
Некоторые суперсовременные конструкции кресел-качалок поистине уникальны. Как и более простые модели, они гарантируют своем владельцу комфорт, но, кроме этого, независимость от источников энергии. Такое изделие, снабженное солнечными батареями, позволяет проводить время с комфортом и пользой.

Для основания такой конструкции можно использовать толстую фанеру, а для её верхней части – поликарбонат. Найти в сети солнечные батареи сегодня тоже не проблема.
Двухместное кресло-качалка больше похоже на диван. Если на это удобное сооружение положить несколько подушек или накинуть плед, ничего лучше для дачного отдыха просто не найти. Мы расскажем вам, как изготовить такое кресло качалку своими руками.

Кто сказал, что наслаждаться комфортом кресла-качалки можно только в одиночку? Вот эта модель хороша и для двоих
Этап #1 — подготовка инструментов
Сделать качественное кресло-качалку не так сложно, как кажется. Имея все необходимые инструменты и запасаясь качественными материалами, можно неспеша всё сделать самостоятельно. Какие же именно инструменты понадобятся нам для этой работы?
- Электрический лобзик в комплекте с пилками по дереву.
- Дисковая шлифмашинка. К ней нужны будут насадки с разной зернистостью. Вообще-то ручной фрезер тоже может понадобиться, но при наличии большого количества крупнозернистой наждачной бумаги и при условии достаточной мощности у шлифмашинки, можно обойтись и без него.
- Шуруповерт с набором сверл по дереву и бит.
- Прямой угол, имеющий длинную мерную линейку.
- Рулетка.
- Молоток.
- Шпатель.
- Кисти и карандаш.
Правильная организация работы предполагает, что все перечисленные инструменты будут находиться буквально под рукой.
Этап #2 — рисуем чертеж
Любая ответственная работа начинается с изготовления чертежа. Он необходим для того, чтобы правильно рассчитать потребность в материалах. Впрочем, чертеж уже есть. На метрической сетке, шаг которой составляет 100мм, размещен шаблон боковой части кресла. Лучше всего перенести чертеж на бумагу и вырезать лекало, с помощью которого легче будет наносить контур на фанеру.

Чертеж отличного кресла-качалки, который можно сделать своими умелыми руками, выполнен на метрической сетке, шаг которой составляет 100 мм
Небольшие неточности допустимы, важно не ошибиться в главном: боковины обязательно должны быть идентичны, на катающей, нижней их стороне не должно быть никаких выступающих углов.
Этап #3 — вырезка заготовок из фанеры и бруса
Для изготовления стяжек-царг и боковин потребуется еврофанера, толщина которой составляет 30 мм. Боковины, как уже было сказано, выпиливаются лобзиком строго по лекалу. Размеры каждой из трех царг – 800х120 мм.
Теперь необходимо нарезать заготовки брусков, которые в дальнейшем составят поверхность сидения и спинки кресла-качалки. Для этого нужен брус размером 50х25 мм, из которого мы будем отрезать 35 заготовок по 1200 мм каждый. Прежде чем закупать необходимый для этого материал, узнайте, какова стандартная длина одного такого бруска в ваших магазинах.

На основании предложенного чертежа нужно сделать лекало, с помощью которого следует нанести контур боковины кресла на фанеру
Общий погонаж, который вам необходим, вы без труда рассчитаете самостоятельно. Соблюдайте кратность, чтобы при нарезке заготовок не было большого объёма остатков. Пусть лучше ваша качалка окажется чуть уже, чем изначально планировалось. Например, при стандартной длине в 2,4 метра длина одной заготовки составит 1195 мм (вычитается толщина распила и последующая обработка).
С крепежом все просто. Нужны:
- конфирматы (евровинты) 12 штук, размер 5х120мм;
- саморезы 140 штук, размер 4х45.
По сути, начальная часть работы уже позади, но ещё придется основательно потрудиться, чтобы получить нужный результат. В процессе этой работы понадобятся олифа, лак по дереву, шпатлёвка, антисептик, которые тоже нужно купить заранее.
Этап #4 — предварительная обработка деталей
Приступаем к ошкуриванию всех деталей и снятию небольших фасок. Если ваша шлифовальная машинка достаточно мощная, и вы умеете с ней обращаться, такая процедура не займёт у вас много времени. С учетом того, что кресло-качалка будет находиться на улице, особое внимание необходимо уделить торцам всех элементов, чтобы максимально защитить их от сырости, воздействию которой они, несомненно, будут подвергаться.
Предварительная обработка деталей состоит не только в их ошкуривании и снятии фаски. Нужно предпринять все меры для того, чтобы защитить торцевые части элементов от гниения
Торцы деталей необходимо пропитать горячей олифой, а волокна древесины на них слегка сплющить молотком. Так влага будет меньше впитываться. Для торцов процедура обработки-лакировки-обработки должна проводиться дважды ещё до общей сборки конструкции.
Этап #5 — сборка конструкции
Никаких определенных стандартов в изготовлении этого предмета садовой мебели не предусмотрено. Отверстия под царги размечены так, как того требует логика: изголовье, средняя часть внешней дуги боковины и изножье. Царги будут притянуты к боковинам при помощи конфирматов. Для этого на боковинах делают предварительную разметку, после чего две боковины совмещаются, и в их плоскостях просверливается сквозное отверстие сверлом 8 мм. Для отверстия в торце царг используется сверло в 5 мм. Теперь можно стягивать каркас кресла при помощи евровинтов.
Отверстия под царги нужно предварительно разметить, после чего обе боковины складывают вместе и просверливают аккуратные сквозные отверстия
Теперь поговорим о том, как сверлить бруски, образующие сиденье и спинку кресла. Их у нас ровно 35 штук. Необходимо просверлить в каждом бруске по 4 отверстия (по два с каждой стороны). А это 140 симметричных отверстий.
Для упрощения задачи используем «кондуктор» — приспособление для разметки большого количества однородных деталей. Изготавливаем его очень просто: берём обрезок такого же бруса, не короче 250 мм, сверлим в нем отверстия для шаблона, диаметр которых должен быть такой же, как у карандаша для разметки. С торцовой и одной из боковых частей «кондуктора» прибиваем обрезки фанеры, которые послужат ограничителем, не дающим промахиваться в процессе разметки. «Кондуктор» готов.
Сборка – самая длительная и трудоёмкая часть создания кресла-качалки. Впрочем, «кондуктор» поможет вам облегчить процедуру сверления симметричных отверстий

Вот так выглядит кресло на завершающей стадии работы. Конечно, в таком виде его ещё нельзя эксплуатировать. Нужно принять меры к его защите от непогоды
«Кондуктор» будет применяться для разметки отверстий, сверлить сквозь него нельзя, потому что сверлом можно разбить шаблонные отверстия и детали придется отдельно зенковать. Если же взять сверло 3,5х30 с зенкером, можно будет по готовой разметке делать отверстие таким, какое необходимо.
Согласно чертежу, между брусками должен быть пробел в 15 мм. Во избежание перекосов необходимо отметить на боковой части кресла расстояние, которое будет соответствовать шести брускам вместе с промежуточными интервалами, и проверить совпадение шаблонных вкладышей по толщине. Если совпадают, можно продолжать крепить. В противном случае следует произвести корректировку. Четырехмиллиметровый саморез по дереву отлично держится в еврофанере. Но с учетом того, что частота крепления высока, лучше использовать трехмиллиметровое сверло.
Этап #6 — финишная обработка готового изделия
Отверстия над саморезами необходимо аккуратно зашпатлевать. Следующими на очереди будут обработка антисептиком и трехразовое покрытие изделия водостойким лаком. Работать необходимо очень старательно. Вспомните, сколько в это кресло уже вложено вашего труда. Ведь вы же хотите, чтобы оно прослужило как можно дольше? Тогда старайтесь!
Если у вас есть маленькие дети, можно привлечь их к работе по шпатлёвке отверстий над саморезами, а вот тщательно осмотреть модель на предмет поиска повреждений для их устранения вам придется самостоятельно
Вы наверняка обратили внимание на то, что все представленные выше модели имеют общий принцип работы. Весь фокус в том, что в качестве основания у этих качалок используются загнутые полозья. Как сделать кресло-качалку без полозьев? Оказывается, такая возможность тоже имеется. Посмотрите это видео, и вы получите представление о том, как именно это делается.
diz-cafe.com

Простое кресло качалка своими руками
Простое кресло качалка своими руками