Как установить вытяжку встроенную – Установка встроенной вытяжки: советы и секреты
советы по монтажу и креплению
Трудно представить современную кухню без вытяжки. Этот кухонный агрегат выполняет важную функцию. Разнообразие моделей для удаления и очистки воздуха позволяет сделать выбор оборудования желаемой формы и конструкции.
Установка встраиваемой техники в навесном шкафу поможет не только в очистке воздуха от запахов и жира, но и сэкономит пространство. Компактность расположения такого оборудования занимает малую часть кухонной мебели, что сохраняет функциональность и эстетику интерьера. Расскажем, как врезать вытяжку своими руками.
Требования к встраиваемой вытяжке и ее размещению
Содержание статьи
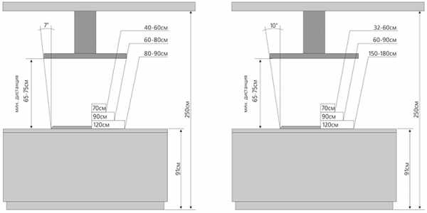
На основании правил и норм по установке электробытовых приборов, вытяжка крепится непосредственно над плитой.
Монтаж производят на высоте 60-80 см от печки, что соответствует требованиям пожарной безопасности.
В зависимости от площади помещения подбирают мощность вентиляционного оборудования
Размеры устройства должны соответствовать требуемым параметрам навесного шкафа.
ВАЖНО! Конструкция вытяжки должна быть встраиваемой внутрь навесного шкафа. Купольные, подстраиваемые, подвесные и подобные, которые можно встроить, потребуют переделки мебели, а впоследствии изменения интерьера кухни.
Технические параметры встраиваемой вытяжки
Чтобы правильно подобрать необходимое вентиляционное оборудование для кухни, нужно разобраться в конструктивных особенностях предлагаемых моделей.
Принцип работы
Агрегаты разделяются на несколько видов.
- Проточные, с помощью воздуховодов соединяют с домовой системой вентиляции.
- Рециркуляционные (автономные), очищают воздух с помощью сменных фильтров.
- Комбинированные, используют два метода очистки воздуха.
Форма и конструкция
Различают следующие виды вытяжек.
- Подвесные. Такие агрегаты устанавливают отдельно или под кухонным шкафом. Могут работать при подключении к центральной вентиляционной системе или автономно.
- Купольные. Мощное, относительно других конструкций вентиляционное оборудование, предназначено для больших кухонь. Работает только при наличии центральной вентсистемы.
- Островные. Т-образные вытяжки, обычно большой мощности, требуют подключения к домовой системе вентиляции.
- Встраиваемые. Популярный вид оборудования, имеет варианты исполнения с различной мощностью. Установка внутрь мебели позволяет вписать агрегат в интерьер кухни.
ВАЖНО! Большинство моделей подключаются к центральной вентиляции.
По мощности обработки воздуха
Вентиляционное оборудование разделяют следующим образом.
- Маломощные установки – до 700 куб.м/час.
- Средней производительности – до 1500 куб.м/час.
- Мощные – свыше 1500 куб.м/час.
Точные цифры разделения мощности не регламентируются нормативными документами, поэтому значение производительности взято условно.
Расположение
Встраиваемые агрегаты бывают горизонтального и вертикального расположения.
Более востребованным для эксплуатации и монтажа на кухне является горизонтальное исполнение.
Размер
Важный критерий, который учитывают при выборе вентиляционного оборудования — это его габарит.
Встраиваемые вытяжки имеют ширину 45, 60 или 90 см. Такие значения соответствуют стандартным размерам подвесных шкафов. При этом фактическая ширина наружной части агрегата выполнена на несколько миллиметров меньше для удобства монтажа с соседними полками.
ВАЖНО! При покупке оборудования, размер встраиваемых плоскостей необходимо проверять. Современные импортные агрегаты часто не соответствуют стандартам.
Некоторые модели встраиваемых вытяжек имеют телескопическую выдвижную плоскость забора воздуха. Такое исполнение позволяет увеличить нижнюю рабочую площадь оборудования в процессе приготовления пищи. Комфортность использования такой конструкции рассматривается потребителем индивидуально.
Правила расположения встраиваемой вытяжки на кухне
Место установки вентиляционной техники удобнее планировать при выполнении проекта по обустройству интерьера кухни.
В этом случае можно откорректировать расположение плиты. Оно должно быть максимально приближено к отверстию домовой вентиляционной системы. Удаление в сторону, даже на несколько десятков сантиметров, повлечет за собой усложнение конструкции воздухоотводящего канала, который будет занимать внутреннее пространство подвесных полок.
Отсутствие центральной вентиляции дома позволяет перемещать печь и встраиваемую вытяжку в удобное место.
Основным требованием вытяжки является
Высота монтажа зависит от вида плиты и имеет предельные минимально допустимые значения:
- для газовой плиты 75 см;
- для электрической – 65 см.
Чтобы подключить к электрической сети, рядом с местом установки вытяжки должна устанавливаться розетка на 220 В с заземлением. Всевозможные удлинители, клеммники или скрутки необходимо исключить для безопасного подключения вентиляционного оборудования. Розетку монтируют внутри кухонного шкафа или рядом с ним.
Как установить вытяжку в шкаф
Монтаж вентиляционного агрегата внутрь навесного шкафчика потребует определенных столярных навыков работы.
Если установка будет производиться в новую мебель, то желательно приобрести вытяжку на стадии проектирования навесных полок для корректирования размеров.
А при монтаже в существующую кухонную мебель
, важно соответствие наружных габаритов корпуса вытяжки и внутренней части подвесного шкафчика.Материалы и инструменты, необходимые для работы
Для выполнения работ потребуются следующий инструмент:
- рулетка, строительный уголок;
- карандаш;
- отвертка или шуруповерт;
- ножовка по дереву;
- лобзик: простой или электрический;
- струбцины;
- шило.
Подготовка шкафа к встраиванию вытяжки
Будет ли это новая кухонная мебель или проводится врезка в старый шкаф, требуется подготовить внутреннее пространство для установки вытяжки.
Рассмотрим пошагово все этапы выполнения работ для используемой мебели.

- Прежде всего, необходимо открутить фасады с модуля, в котором планируется установка вытяжки, а также с соседних полок.
- Снять требуемый шкафчик со стены. Для этого нужно открутить все крепежные соединения,
предварительно скрепив демонтируемый модуль струбцинами с вертикальными стенками смежных полок.
ВАЖНО! Если не фиксировать шкаф с помощью приспособлений с соседними модулями, то кто-то должен его поддерживать при демонтаже. В противном случае возможно падение и повреждение мебели.
- Открутить нижнюю корпусную полку и снять ее. Теперь можно убедиться в правильности выбора встраиваемой техники и определить необходимость подрезки боковых стен шкафчика. Если видимая часть вытяжки с кнопками управления небольшой толщины, то лучше ничего не подрезать.
ВНИМАНИЕ. Подрезка боковых стен повлечет за собой необходимость подрезки фасада. А это зачастую не входит в план работ.
- После определения посадки к боковым поверхностям нужно приложить снятую нижнюю полку шкафчика к верхней плоскости вытяжки и обрисовать контур воздушного канала и места для заведения шнура с вилкой .
- По намеченным контурам вырезать лишние части.
- Далее необходимо разметить глубину размещения вентиляционного агрегата внутри шкафа. Для этого заводят вытяжку в необходимое место и намечают карандашом верхние линии корпуса.
- По намеченным линиям требуется прикрепить нижнюю полку шкафчика внутрь. Переднюю часть корпуса вытяжки часто зашивают декоративной панелью. Учитывая место расположения – за фасадом, такие работы выполнять необязательно.
- Кроме вырезов под воздуховод и электрошнур, перед установкой сверлят четыре отверстия, в местах крепления вытяжки к горизонтальной полке.
ВАЖНО! Для точности совпадения отверстий в полке с точками крепежа оборудования желательно использовать бумажный трафарет.
После крепления полки на требуемом уровне шкаф устанавливают на прежнее место.
Установка вытяжки
В прикрепленный к стене шкафчик требуется завести электричество.
Наружную прокладку электросети выполняют в пожаробезопасной оплетке и устанавливают розетку.
На этапе строительства стен прокладку проводят безопасным скрытым методом.
ВАЖНО! При проведении электромонтажных работ использовать провод сечением не менее 1,5 кв. мм, а розетку крепить к стенкам мебели через диэлектрическую пластину! Выполнение этих требований сделает подключение безопасным.
Монтаж и крепление устройства
- По окончании подготовительных работ вытяжка встраивается в требуемое место.
- Для жесткости крепежа вентиляционного оборудования используют саморезы, которые входят в комплектацию поставки. При отсутствии такого комплекта, необходимо просверлить в верхней части корпуса четыре отверстия. Встроенную вытяжку прикручивают через подготовленные отверстия в полке.
- Внутри шкафа прокладывают воздуховод, соединяют его с агрегатом и системой вентиляции дома.
- Затем устанавливают промежуточные полки.
- Проверяют работу оборудования. При обнаружении недостатков – устраняют.
- Последнее, что остается сделать, это установить фасады.
При установке вентиляционного агрегата в новую кухонную стенку затрачивается меньшее количество времени и сил. Внешний вид вновь установленной мебели со встроенной техникой отличается ровностью линий и свежестью изготовления.
Встраиваемая вытяжка позволяет сохранить желаемый интерьер кухни, а грамотный подбор размеров и мощности обеспечит требуемый обмен воздуха.
Как установить встраиваемую вытяжку самостоятельно?

В полезности кухонной вытяжки, наверное, уже никто не сомневается. Устройство избавляет от неприятных запахов, гари и жира, очищает и фильтрует воздух.
Причём совсем необязательно этот агрегат должен выглядеть, как огромный унылый колпак, нависающий над плитой!
Множество устройств имеют стильный дизайн, или вовсе прячутся в подвесную мебель. Если выбор пал именно на такую модель и Вы стали её счастливым обладателем, осталось только выяснить, как установить встраиваемую вытяжку, не прибегая к посторонней помощи. Этим и займёмся.
Особенности конструкции
Встраиваемая техника стоит дороже обычной, но на это есть причины:- Она компактна.
- Не портит интерьер.
- При малых размерах, обладает всеми теми же преимуществами, что и обычные вытяжки (фильтрует воздух, достаточно мощная и так далее).
Размер вытяжки должен точно совпадать с коробом, в который она будет устанавливаться.
Поскольку короб не входит в комплект (его роль исполняет мебель), то о соответствии размеров стоит позаботиться заранее. К тому же ширина и глубина вытяжного купола не должны быть меньше, чем размеры плиты. Если пренебречь этим требованием, пар и дым не будут засасываться, а попадут в помещение.
Как и любая другая, встраиваемая техника может быть двух типов конструкции (монтаж которых очень сильно отличается):
- Циркуляционная или бесканальная.
- Канальная или с воздуховодом.
Первый вид работает с одним и тем же объёмом воздуха, просто фильтруя его, поэтому для монтажа такой вытяжки не требуется делать вывод на улицу. Канальный же вариант более предпочтителен, поскольку очищает воздух, выводя отработанный за пределы дома, и заменяя его на свежий.
Вытяжную систему на кухне желательно иметь, ведь во время приготовления пищи в воздух попадают нежелательные компоненты. Традиционные вытяжки, безусловно, эффективны, но дороги и затруднительны в установке. Вытяжка на кухню без воздуховода – неплохая альтернатива для экономии времени и средств.
Какой материал труб для вентиляции предпочтительнее, читайте тут.
Планируете приобрести вытяжку на кухню? Тогда следующая статья будет полезной для вас: https://microklimat.pro/sistemy-ventilyacii/kak-vybrat-vytyazhku-dlya-kuxni.html. Все о критериях выбора вытяжки – типы, модели, характеристики, стоимость.
Схема установки встраиваемой вытяжки на кухне своими руками
Разберемся, как установить встроенную вытяжку. Ориентироваться в работах по установке будет проще, если заранее разделить их на этапы:
- Расчёт и разметка места крепления.
- Вырезание отверстий.
- Крепление вытяжки.
- Монтаж воздуховода.
- Подключение к сети.
Самостоятельная установка
Итак, имеется вытяжка встраиваемая в шкаф – как ее установить правильно?
Высота над плитой не должна быть слишком большой, чтобы не снижалась эффективность всасывания, но в то же время, достаточной, чтобы хозяйке не задевать за шкафчик головой.
Рекомендуемые расстояния:
- Для электроплиты: от 60 до 80 см, оптимально – 75 см.
- Для газовой: от 65 до 80, оптимально – 75 см.
Зачастую шнуры от вытяжных устройств делаются короткими. Поэтому может понадобиться отдельная розетка, расположенная вблизи прибора. При этом шнур должен располагаться так, чтобы быть как можно дальше от горячей поверхности плитки. Провода с заземлением подключаются в точном соответствии со схемой (заземление, фаза, ноль).

Шкаф для вытяжки
Продумывается расположение воздуховода. Его нужно провести от вытяжки до вытяжного отверстия так, чтобы максимально сократить количество поворотов и углов.
До начала монтажных работ нужно проверить исправность устройства. Если что-то пойдет не так, демонтировать вытяжку можно, но в мебели уже будут повреждения.
Как правильно сделать монтаж
После подготовительного этапа, разметки и расчетов, переходят к вырезанию подходящих по размеру отверстий в мебели.В нижней горизонтальной стенке вырезается деталь по размеру прибора. Либо нижняя стенка убирается вовсе.
В верхней стенке вырезается отверстие под воздуховод. Здесь нужно учитывать, какой формы он будет.
Поскольку шкафчик «ослаблен» вырезанными элементами, его можно дополнительно укрепить изнутри при помощи небольших уголков.
Крепление вытяжки в шкаф осуществляется двумя способами:
- Можно закрепить прибор в мебели, а уже ее повесить на стену.
- Либо прорезать еще одно отверстие в задней стенке, и закрепить шкаф и вытяжку независимо друг от друга.
Крепление осуществляется на саморезы, а для стены используют дюбеля. Бывают ситуации, когда трубы газового снабжения мешают плотной установке вытяжки на стену. В таком случае, можно приобрести длинные шпильки, у которых с одной стороны есть резьба, а на другом конце они выглядят, как обычные саморезы. Они позволят закрепить прибор на некотором расстоянии от стены.
Если в шкафчике имеется полка, то крепить вытяжку лучше к ней. Преимущество в том, что наружные стенки не повреждаются лишними отверстиями. Однако потребуется проделать еще одно отверстие под воздуховод.
Если в вытяжке имеется выдвижная панель, нужно убедиться, что детали шкафчика не препятствуют ее свободному ходу. В противном случае, делается подгонка – немного спиливается мешающий край дверцы, например.

Схема монтажа вытяжки
Теперь соединяется корпус с воздуховодом. Соединение должно делаться так, чтобы при необходимости его можно было разобрать и прочистить засоряющиеся детали. С другой стороны, все должно быть выполнено максимально герметично (используется силиконовый герметик).
Прямоугольные металлические и пластиковые воздуховоды обладают наилучшими показателями. Однако гофрированный воздуховод проще в установке. Его требуется максимально растянуть, чтобы уменьшить складки, а излишек отрезать.
На выходном отверстии устанавливается клапан, предотвращающий обратную тягу. По желанию владельца, гофрированный воздуховод прячется в эстетичный короб.
Гофрированный вариант воздуховода производит шум во время работы. Современные пластиковые аналоги лишены этих недостатков. Их внутренняя поверхность гладкая, а внешний вид не бросается в глаза. Но придется подбирать угловые стыковочные детали и все швы прорабатывать герметиком.

Вытяжная система после установки
Зачастую проблему отведения грязного воздуха, хозяева решают, направив конец воздуховода в шахту общедомовой вентиляции. Делать этого не советуется по нескольким причинам:
- Перекрытие канала лишает кухню всякого проветривания, пока вытяжка выключена. Получается что, либо придётся открывать окно (что неудобно зимой), либо держать вытяжку постоянно включенной.
- Через вытяжку может происходить обратное задувание в комнату, а содержимое шахты полно посторонних запахов и пыли.
- И наконец, чтобы вытяжка хорошо работала, канал должен быть чистым. Часто ли производится очистка вентиляционных шахт в вашем доме?
Идеальным решением будет монтаж дополнительного отверстия непосредственно на улицу.
Итак, если все сделано правильно, вытяжное устройство сможет эффективно очищать кухню не только от посторонних запахов и гари, но и поддерживать комфортную температуру, удаляя душный жаркий воздух. При этом о существовании встраиваемой модели будет напоминать только слабый звук от работы.
Для того чтобы воздух в ванной не был слишком переувлажненным (ведь влага – предпосылка появления плесени), можно установить вытяжку. Вытяжка в ванную комнату – советы по выбору и монтажу.
Виды приточно-вытяжных установок для квартир разберем в этом материале.
Видео на тему
microklimat.pro
Как установить вытяжку, встраиваемую в шкаф 60 см: видео, фото
Кухня – объект повышенного риска загрязнения атмосферы её внутреннего пространства. Приготовление пищи на плите наполняет помещение испарениями блюд. Это неблагоприятно сказывается на здоровье окружающих и чистоте поверхности стен, потолка и мебели. Установка вытяжки в шкаф – один из эффективных вариантов очистки воздуха в кухне. Расскажем о видах устройств, продающихся в магазинах, принципах работы и монтажа воздуховодов. Ответим на популярные вопросы читателей.

Вытяжка, встроенная в кухонный шкаф
Принцип работы
Главное и единственное назначение кухонной вытяжки – очистка атмосферы помещения от вредных испарений варочной панели. Конструкция любой модели содержит вентилятор и основана на двух принципах работы:
- Рециркуляционный.
- Проточный.

Рециркуляционный
Вытяжное оборудование предназначено для работы без установки воздуховода. Оно функционирует без соединения с вентиляционным каналом. Очистка загрязнённого воздуха происходит за счёт его прохождения через систему фильтров без отвода в вентиляцию, и он не выходит наружу, оставаясь внутри кухни.

Благодаря автономной системе очистки, установка печи и вытяжки не привязана к месту положения вентиляционной шахты. Недостатком рециркуляционного метода считается отсутствие свежести очищенного воздуха.
Проточный
Проточные воздухоочистители сбрасывают загрязнённый поток в отводную трубу, подсоединённую к вентиляционной шахте. Отток воздушных масс восполняется за счёт проветривания помещения. Перепад давления создаёт свежий приток с улицы.

Вставка в шахту может иметь, помимо монтажного отверстия под отводной патрубок, узкие пазы. Через щели происходит забор воздуха из нижних этажей. Его качество может быть не очень хорошим. В этом случае пазы лучше закупорить или поставить глухой щиток только с одним пропускным отверстием.
Фильтры
Все устройства для очищения кухонной атмосферы снабжены фильтрами. Используются одноразовые и многоразовые фильтры, которые исполняют роль барьера на пути мелких жировых и шлаковых частичек.
Одноразовые
Очистные элементы одноразового использования выглядят в виде рамок с заполнением из синтепона, флизелина или гранул активированного угля. Со временем содержимое кассет обильно заполняется отходами испарений от варочного стола. Тогда их меняют на новые элементы.

Угольные кассеты для кухни
Многоразовые
Фильтры многоразового пользования представляют собой металлические сетки. Их изготавливают из стали и алюминия. Внутри обрамления находится перфорированная фольга. Периодически их промывают тёплой водой с шампунем. Практически срок службы таких фильтрующих изделий равняется продолжительности эксплуатации самой вытяжки.

Сетка металлическая фильтрующая
Многоразовые фильтры состоят из двух или трёх рамок, скреплённых клипсами, легко снимаются и быстро моются.
Мнение эксперта
Башир Рабаданов
Технолог мебельной компании Woodband
Важно. При покупке вытяжки учитывайте тип фильтра. Многоразовые элементы не нуждаются в дополнительных расходах. Одноразовые фильтры предусматривают регулярную замену и увеличивают стоимость обслуживания.
Виды вытяжных модулей
Воздухоочистительные модули различают по форме и способу крепления. Это купольные, настенные, островные и полновстраиваемые вытяжки.
Купольные
Устройства купольного вида представляют собой отдельную от кухонного гарнитура шатровую конструкцию, которая нависает над печью. Проём купола может намного превышать площадь варочной панели. Такие вытяжки целесообразно устанавливать в кухнях большой площади, квартирах-студиях или в помещениях, совмещающих оборудование для готовки пищи и столовый набор мебели. По форме они напоминают усечённую пирамиду или полусферу, плавно переходящую вверху в воздуховод.
Шведский холдинг Ikea поставляет на рынок России кухонные вытяжки от «эконом» до «преимум» класса. Купольные системы для очистки воздуха на кухнях отличаются высококлассным дизайном, простотой в управлении и обслуживании.

Купольный модуль Ikea
Настенные
Устройства крепят непосредственно к стене над печкой. Они не выступают вперёд, а имеют более плоскую конфигурацию. Настенные модули обладают мощной приточной вентиляцией. Из-за простой конструкции такие вытяжки выпускаются в разном стиле – вы подберете модель под любой дизайн.
Кухонные вытяжки британской фирмы Maunfeld представляют собой высококачественные очистные устройства производительностью до 520 м3/час. Настенные устройства отличаются изысканным дизайном, выдержанным в строгих линиях и тёмной цветовой гамме.

Настенные вытяжки Maunfeld
Островные
Потолочные вытяжки предназначены для кухонь с печкой, установленной посреди помещения. Такие устройства встречаются в основном в престижных жилищах с повышенными условиями комфорта. Монтаж островных моделей осуществляется работниками специализированных фирм.

Островная вытяжка
Встраиваемые
Порой хозяева жилья обзаводятся кухонными гарнитурами, в которых не хотят разделять сплошной фасад из навесных шкафов. Для этого предназначены встраиваемые очистные модули. Вытяжные устройства изготавливают таких габаритов, чтобы они могли свободно помещаться внутри навесных шкафчиков над плитами. Наличие такого оборудования скрыто дверцей навесного шкафа.
Встраиваемые устройства бывают стационарными и с выдвижным экраном. Встроенный телескопический воздухоочиститель отличается тем, что при его использовании выдвижная панель увеличивает всасывающую площадь, которая захватывает не только пространство над плитой, но и забирает воздух перед печкой. Это значительно влияет на производительность аппарата.

Встраиваемая вытяжка Körting с выдвижной частью
Немецкая фирма по производству бытовой техники Körting представляет широкую линейку воздухоочистительных устройств на рынке России. Продукция имеет привлекательный дизайн. Некоторые модели могут работать, как в проточном, так и в рециркуляционном режиме.
Поэтапная установка купольной вытяжки
Перед установкой каминной вытяжки вам нужно точно сориентировать положение печки относительно выходного отверстия вентиляционного канала. Обычно плиту устанавливают точно по оси вентиляционного люка. После этого приступают к установке оборудования.

- Проводим на стене осевую вертикальную линию от центра варочной панели вверх до проёма канала, используя карандаш, уровень, рулетку или линейку.
- Делаем отметку высоты нижнего края купола, и проводим горизонтальную линию.
- На куполе замеряем расстояния от монтажных отверстий до нижнего края вытяжки. Переносим разметку точек креплений на стену.
- Перфоратором сверлим гнёзда под дюбели. Вставляем в них полимерные элементы.
- Для установки купола понадобится стремянка и дополнительные рабочие руки. Прислонив тыльную часть вытяжки, совмещаем монтажные отверстия с дюбельными гнёздами, и забиваем в них шурупы.
- На стене делаем отметку нижнего края воздуховода.
- Лишнюю часть трубы отрезаем. Делать это ножовкой ни в коем случае нельзя. Зубья пилы оставят рваные края и повредят эмаль. Обрезайте угловой машинкой, электролобзиком или циркулярной пилой.
- В комплекте вытяжки обычно поставляется монтажная рамка. Отверстие канала или расширяем перфоратором, или сужаем цементным раствором под размер рамки.
- Надо закрепить рамку в канале дюбелями, герметиком или клеем.
- Вставляем воздуховод в вытяжку, а верхний его конец крепим в рамке.
- Все соединения обрабатываем герметиком.
- Перед монтажом воздухопровода нужно установить точку электропитания. Мы вам рекомендуем это сделать в двух вариантах:
- по оси трубы над куполом коронкой высверливаем посадочное место под коробку и устанавливаем её на цементном растворе. К коробке перфоратором пробиваем штробу, в которую укладываем электропровод. При отключённом электросчётчике соединяем через колодку провод питания вытяжки с сетевым кабелем. Штробу заделываем шпаклёвкой. Коробку закрываем крышкой. Восстанавливаем финишное покрытие стены;
- во втором случае стараемся скрытно провести провод за корпусом купола в прилегающий навесной шкаф. На нижней полке или на боковой стенке крепим розетку. На конце кабеля вытяжки крепим вилку. Розетку соединяем с сетевым проводом, который пролегает от коробки за стенками шкафов.
В обоих случаях вы нигде не увидите со стороны ни проводов, ни коробки, что способствует хорошему эстетическому восприятию смонтированного оборудования.
Руководство по установке встроенной вытяжки в шкаф
Если вы уже имели дело с такими инструментами, как электролобзик, перфоратор и другими, то установить вытяжку в кухонный шкаф не составит вам особого труда. Кухонные гарнитуры для небольших помещений имеют в своём комплекте навесной шкафчик, предназначенный именно для встроенной вытяжки. Монтаж производим в несколько этапов.
Внимание. Встраиваемые модули выпускают, рассчитанные на 45, 50, 60 и 70 см расстояния между боковыми стенками навесного шкафа. Оперируя этими данными, вы всегда можете подобрать нужную модель очистного устройства.
- Прежде всего, приобретаем вытяжное устройство, которое по размерам (ширине и глубине) должно плотно помещаться в проём шкафа.
- При установке кухонной стенки вытяжной ящик помещаем ровно над плитой.
- Шкаф снимаем со стены и переворачиваем его вверх дном. Снимаем дверцу и среднюю полку.
- На днище ставим вытяжку, и карандашом обводим устройство по периметру.
- В середине контура разметки высверливаем отверстие такого размера, чтобы в него можно было ввести пилку электролобзика.
- Выпил, производим от отверстия, плавно входя в линию разметки. Вынимаем сердцевину.
- На полку ставим вытяжку вентиляционным отверстием, соблюдая совпадение внешних контуров обоих предметов.
- Сопло обводим на полке карандашом.
- Вырезаем лобзиком монтажное отверстие.
- То же проделываем и с верхней плоскостью шкафа.
- Вставляем оборудование внутрь шкафа. Крепим его винтами к вытяжному проёму.
- На сопло одеваем полку и закрепляем её на боковых стенках ящика.
- Шкаф с вытяжкой возвращаем на прежнее место.
- Продеваем гофру через полки и одеваем её конец на сопло. Крепим воздуховод хомутом. Верхнее окончание воздуховода вводим в вентиляционный канал. Также поступают с полимерной и металлической трубой.
- Все стыки заполняем герметиком.
- Правильно подключаем питание к оборудованию аналогично способам, описанным в предыдущей главе.
Мнение эксперта
Александр Диденко
Сборщик мебели в компании Мабакс
Совет: если выводы вытяжки и вентиляционного канала имеют круглое или прямоугольное сечение, а воздуховод наоборот, то для этого существуют переходники. Поэтому заранее запаситесь этими изделиями.
Особенности монтажа воздуховодов
Трубы могут быть в виде гофрированного шланга, пластиковых цилиндров или металлических коробов.
Существуют конструкции, представляющие собой широкие сплюснутые полимерные камеры. Их секции удобно собирать в один трубопроводов для укладки воздуховода поверх навесных шкафов. Сегменты соединяют клеем и герметиком.
Если круглые и коробчатые трубопроводы будут иметь длинную изогнутую линию прокладки, их крепят на стенах с помощью дюбелей Г-образной формы.
Как сделать ящик под вытяжку на кухне своими руками
При отсутствии в кухонном гарнитуре навесного шкафа для вытяжного устройства, его легко изготовить дома самостоятельно.
- Делаем чертёж деталей шкафа и схему его сборки.
- Готовим исходный материал – лист ламинированного ДСП или МДФ. Для небольшого шкафа понадобится не больше 2 м2 материала.
- Днище можно не делать, а вместо него установите рамку из металлических уголков. В них просверливайте отверстия соответственно расположению монтажных проёмов в основании вытяжки.
- В полках вырезают проёмы под воздуховод (см. предыдущую главу).
- С помощью шуруповёрта и метизов собираем корпус ящика
- Устанавливаем вытяжку в готовый шкаф. Винтами крепим устройство к металлической рамке. Можно врезать устройство в днище ящика (см. предыдущую главу).
- Дверцу шкафчика лучше всего закрепить на газлифтах. Вертикально поднимающаяся плоскость, не будет мешать смежным навесным шкафам. Не забудьте прочитать, как делается .
- Мебельный бокс с вытяжным оборудованием навешиваем на стену над варочной панелью. Если стена сделана из гипсокартона, посмотрите статью .
Мнение эксперта
Александр Диденко
Сборщик мебели в компании Мабакс
Совет. Воспользуйтесь услугами специализированной мастерской или отдела строительного супермаркета по продаже ДСП или МДФ для изготовления шкафа. Мастера найдут для вас детали нужных размеров из складских обрезков. Там же закажите торцовку элементов корпуса ящика.
Ответы на популярные вопросы
На наш сайт приходит от читателей много вопросов, касающихся изготовления, сборки мебели и установки кухонного оборудования. На некоторые из них мы постараемся исчерпывающе ответить.
Целесообразна ли установка встраиваемой вытяжки в шкаф без воздуховода?
Конечно, монтаж воздуховода – это дополнительная, порой трудоёмкая работа. Вы сами должны оценить нужность устройства отвода воздушного потока напрямую в вентиляционный канал. Объём помещения, частота пользования кухонной плитой, условия притока наружного воздуха – всё это факторы, влияющие на выбор проточного или рециркуляционного режима работы вытяжки.

Если вам достаточно обойтись возвратом через фильтрационную систему вытяжки очищенного потока воздушной массы, то воздуховод вам не нужен.
Как установить встроенную вытяжку с выдвижной частью?
Установка очистного оборудования с выдвижной частью ничем не отличается от монтажа стационарного оборудования. Нужно проследить за тем, чтобы развёрнутая всасывающая панель полностью нависала над варочной площадью плиты.

Как установить встраиваемую вытяжку в шкаф большого размера?
Это делают точно так же, как и при монтаже оборудования, плотно входящего между стенками шкафа. Единственное отличие в том, что нужно соблюсти точное положение вытяжки ровно над плитой. На фотографиях показаны примеры дополнительных перегородок внутри шкафа, которые укрепляют конструкцию.
Что делать если мощности недостаточно?
Компактные вытяжные устройства часто обладают таким недостатком, как малая мощность установки. Для повышения производительности очистного оборудования применяют канальные вентиляторы. Их врезают в воздуховод с помощью переходников в любом доступном месте.
Монтаж канального механизма делается с целью наращивания мощности воздушного потока. То есть работают одновременно (параллельно) канальный и вытяжной вентиляторы. Можно откорректировать режимы работы вытяжки установкой дополнительного тумблера для отдельного включения канального вентилятора.

В некоторых случаях корпус вытяжки используют только в качестве части воздухопровода. Устанавливают мощный наружный вентилятор, который резко увеличивает производительность оборудования с 800 – 1000 м3/ч до 1500 – 2000 м3/ч.
Как сделать, чтобы вытяжка не мешала естественной вентиляции?
Для решения данной проблемы применяют тройник с антивозвратным клапаном. Устройство выглядит так, как если бы в воздуховод в месте входа в вентканал был бы врезан дополнительный патрубок с открытым отверстием.

В патрубке установлен лючок, который отрегулирован так, что при включённом вентиляторе закрывает собой входное отверстие. При отключённой вытяжке запорный диск возвращается в исходное состояние и открывает доступ воздуха из вентиляции.
Заключение
Мы надеемся, что в этой статье вы нашли всё, что интересовало вас по поводу установки вытяжки для своей кухни. Широкий ассортимент кухонного оборудования существенно расширяет выбор нужной вам модели вытяжки.
made-box.ru
Как установить вытяжку над плитой: газовой, электрической
Главная » Кухня » Установка и подключение кухонной вытяжки
Чтобы в квартире или доме был свежий и чистый воздух, на кухне должна быть очень хорошая вентиляция. С задачей своевременного удаления запахов при приготовлении пищи естественная вентиляция не справляется, потому над плитой вешают специальное устройство принудительной вентиляции — кухонную вытяжку. Как установить вытяжку правильно, как ее закрепить и вывести в систему вентиляции — об этом дальше.

Установить на кухне вытяжку — мудрое решение
Как повесить вытяжку над плитой
Содержание статьи
При правильно подобранном размере она по ширине равна или даже чуть больше ширины плиты. Чтобы правильно установить вытяжку надо ее правильно разместить и закрепить. Располагается электровытяжка точно над плитой. Высота установки зависит от типа варочной поверхности:
- Над газовой плитой минимально допустимая высота навешивания вытяжки — 75 см.
- Над электрической значение чуть меньше — 65 см минимум.
Точную высоту определяете самостоятельно — по росту хозяйки, которая будет готовить. Нижний край вытяжки должен быть чуть выше ее головы. Ниже чем минимальное расстояние вешать не стоит, а выше можно. Но если вам необходимо повесить оборудование выше чем на 90 см от уровня плиты, необходим агрегат с повышенной мощностью — чтобы загрязненный воздух удалялся эффективно.

Минимальная высота для установки вытяжек над газовой и электрической плитой
Крепится вытяжка в зависимости от типа. Встроенные — к специально заказанному по размерам шкафу. Навесные (плоские) и купольные (каминные) — к стене. Сами каминные вытяжки могут состоять из двух частей — агрегата с мотором и фильтрами и купола. Обе части крепятся независимо друг от друга, но так, чтобы выходы их совпадали.
Отдельно стоит сказать об островных вытяжках. Их прикрепляют к потолку. В комплекте идет система подвеса и четкие рекомендации о том, что и как делать.
Этапы монтажа
Весь процесс установки и подключения можно разбить на несколько этапов:
- Сначала надо установить вытяжку в нужное место. Это предполагает физическое ее крепление к стене или потолку.
- Второй этап — подключение к электропитанию. Если есть неподалеку розетка, сложностей быть не должно. В противном случае придется тянуть провод от ближайшего источника, в качестве временной меры можно использовать переноску (удлиннитель).
- Последний этап актуален только для моделей с выводом отработанного воздуха в систему вентиляции. На этом этапе происходит подключение воздуховода и его вывод в вентканал.

Правильно повесить вытяжку на кухне своими руками несложно
Если поблизости есть розетка, проблем с подключением к электричеству не предвидится. Другие этапы тоже не очень сложные, но рассмотрим их более подробно.
Крепление к стене навесной или купольной модели
Хоть внешне эти две модели отличаются, крепятся они к стене. На задней стенке корпуса у них есть четыре отверстия — два слева, два — справа. Многие производители снабжают свои изделия монтажным шаблоном, на котором отмечены места расположения крепежа. Все что необходимо — прислонить шаблон к стене, перенести отметки. Если шаблона нет, измеряете расстояние между отверстиями, переносите на стену. Если есть помощник, можно попросить подержать на выбранной высоте, а самому сделать отметки.

Крепить вытяжку к стене надо через штатные отверстия в корпусе
Дальше все просто: при помощи дрели делаем отверстия подходящего размера, вставляем пластиковые заглушки дюбелей, затем навешиваем вытяжку на дюбель-гвозди. Естественно, проверяем горизонтальность установленного оборудования.
Этот способ хорош, если стена ровная и ничего не мешает. Часто рядом с плитой проходит газовая труба, которая не дает возможности навесить вытяжку вплотную к стене. В этом случае можно на стену прибить деревянные бруски, а к брускам уже крепить вытяжку. Это простой вариант, но не очень хороший — бруски покрываются копотью и мыть их сложно.
Второй вариант установить вытяжку за трубами — использовать шуруп-шпильку (второе название шпилька сантехническая). Они имеет резьбу для вкручивания в стену, гладкую часть, которая дает возможность отнести вытяжку на некоторое расстояние от стены и более мелкую резьбу с двумя гайками, которыми и будем фиксировать корпус. Есть эти шпильки разных размеров, выбирайте какой вам нужен, но все гайки сделаны под биту или восьмигранный ключ.

Как установить вытяжку на стену, если мешает газовая труба или стена неровная
Этот вариант крепления вытяжки универсален, прост в исполнении, надежен. Также он более удобен в уходе — металл обычно нержавеющий, мыть его от отложений несложно.
Установка встроенной вытяжки в шкаф
Встраиваемая вытяжка практически полностью прячется в сделанном для нее шкафу. Крепится она точно также как описанные выше — на шурупы, только вкручиваются они в стенки. Только предварительно в расположенных выше полочках необходимо проделать отверстия под воздуховод. Это делают уже после того как вытяжка куплена, так как расположение выхода для воздуха зависит от фирмы и модели.

Пример установки встроенной вытяжки
Если шкафчик висит, его лучше снять. В снятом шкафу установить вытяжку на место, отметить на нижней полке место расположения выхода воздуха, вырезать его. Для этого проще использовать электролобзик и пилку с мелкими зубцами. Почти не оставляет сколов пилка для ламината. При желании заделать место среза можно пластиковым С-образным мебельным профилем. Они есть жесткие и гибкие. Гибким пользоваться просто — он изгибается под любым углом, жесткие перед монтажом придется разогревать строительным феном. Эти профиля «садят» на клей, чаще всего используют «жидкие гвозди». После установки на место, убирают остатки клея (влажной чистой тряпкой), фиксируют малярным скотчем к полке. Излишки профиля обрезаем пилкой с мелким зубом, срез зачищаем наждачной бумагой с мелким зерном.

Процесс подготовки шкафчика к установке вытяжки
Таким же образом проделываем отверстия в других полках. Они, кстати, уже могут быть не круглыми, а прямоугольными — зависит от сечения выбранного вами воздуховода.
После этого все полки устанавливаются на место, шкаф навешивается и закрепляется. К нему шурупами через отверстия в корпусе крепится встроенная вытяжка. Далее — процесс подключения воздуховода.
Как подключить вытяжку к электричеству
Так как потребляемая мощность кухонных вытяжек редко когда превышает 1 кВт, их можно подключать в обычные розетки. Желательно чтобы они были с заземлением. Это требование обязательно должно выполняться если вы хотите чтобы гарантийные обязательства были действительны.
Если проводка в квартире старая, можно провод заземления или зануления кинуть самостоятельно. Только не надо крепить его к трубам водопровода или отопления. Это грозит возможностью электротравмы или даже летальным исходом для вас, членов ваших сечей или соседей.
Чтобы дотянуть провод заземления, на щитке найдите шину с прикрепленными к ней проводами или трубу, к которой приварен/прикручен многожильный провод. К этим устройствам можно подключать и собственный многожильный провод (не откидывая те, которые уже есть). Чтобы он нормально работал сечение должно быть 2,5 мм, проводник — многожильный медный, желательна негорючая оболочка.

Подключить вытяжку через клеммники Ваго
Часть вытяжек идет с вилкой на конце. С подключением таких моделей никаких вопросов — в розетку и все. Но есть модели, у которых шнур заканчивается проводами. Это не от жадности производителя, а для того чтобы потребитель сам решил, как ему лучше подключать оборудование. Если хотите — можно подключить вилку. Не подходит этот вариант — берите клеммную колодку и подключайте через нее. Еще один вариант — клеммники Wago. Их надо взять три штуки — по числу проводов. В одном клеммнике соединяют одинаковые провода от вытяжки и от щитка — фаза с фазой (тут цвета могут быть разные), ноль (голубой или синий) с нулем, заземление (желто-зеленое) с заземлением.
Воздуховод для кухонной вытяжки
Один из этапов установки вытяжки — выбор и монтаж воздуховодов. Из кухни отводится воздух комнатной температуры, потому особых требований к воздуховодам нет и использовать можно любые. Обычно используют три типа:
- Алюминиевый гофрированный рукав. Он хорош тем что ему легко придать желаемую форму — он легко изгибается под любым углом. Просто берут кусок нужной длины и придают ему желаемую форму. Недостаток: работа вытяжки будет шумной, так как поток воздуха вызывает шумы и резонанс. Второй отрицательный момент — поверхность ребристая, что создает дополнительные трудности для потока воздуха. Ну и еще один недостаток — тяжело ухаживать: в бороздки забивается копоть с пылью, вычищать тяжело.
- Пластиковый (ПВХ) круглый воздуховод. Удобные в эксплуатации круглые полимерные трубы. Воздуховод нужной конфигурации собирается из фасонных элементов — закруглений, отводов, переходников, муфт. С трубой они соединяются за счет наличия расширений на фасонных элементах. Чтобы в процессе эксплуатации элементы не разъединились, стыки можно промазать клеем (жидкими гвоздями или Моментом). Еще один вариант — скрепить саморезами — три-четыре штуки на каждое соединение. Достоинство ПВХ воздуховодов для вытяжки — они «тихие», гладкие внутренние стенки не создают препятствий движению воздуха, наружные легко мыть. Недостаток — более сложный процесс сборки (по сравнению с алюминиевой гофрой).

Виды воздуховодов для кухонных вытяжек
- Пластиковый квадратный воздуховод. Также производится из поливинилхлорида (ПВХ), но имеет прямоугольное сечение. Все остальные характеристики такие же. Применяют прямоугольные воздуховоды если необходимо сэкономить место — они хорошо прячутся за гипсокартонными перегородками, за натяжными или подвесными потолками.
Есть еще разница между пластиковым и гофрированным воздуховодом — цена. Полимерные стоят дороже. Несмотря на это, если есть у вас возможность установить вытяжку с использованием ПВХ, ставьте их. При равном сечении они обеспечивают более эффективный отвод воздуха, а также меньше шумят.
Сечение труб для воздуховода определяется размером выходного отверстия на вытяжке. В случае с прямоугольными трубами используют переходник.
Размеры воздуховодов для вытяжек
Круглые воздуховоды есть трех размеров: 100 мм, 125 мм и 150 мм. Это диаметр пластиковых труб и гофрированных рукавов. Сечений плоских воздуховодов больше и они представлены в таблице.

Размеры плоских ПВХ воздуховодов для вытяжек
Как выбрать размер? В случае с круглыми трубами их диаметр должен совпадать с диаметром выходного отверстия вытяжки. Очень нежелательно на выход ставить переходник, а затем использовать воздуховод меньшего диаметра — это снизит скорость очищения воздуха. И если даже вытяжка будет очень мощной, она тогда с очищением воздуха не справится.
С выбором сечения прямоугольного воздуховода — площадь его сечения не должна быть меньше площади сечения выходного патрубка. А подключение происходит через подходящий переходник.
Как крепить гофру к вытяжке и вентиляции
Если вы решили установить вытяжку и использовать для воздуховода алюминиевую гофру, вам надо будет подумать о том, как ее крепить к корпусу и к вентиляции. Для этого понадобятся хомуты подходящего размера. Они могут быть металлическими или пластиковыми.
Для подключения вытяжки к системе вентиляции также потребуется специальная вентиляционная решетка. Она в верхней части имеет отверстие для подключения трубы воздуховода. В нижней части есть отверстия для удаления из кухни воздуха при помощи естественной циркуляции в то время, когда вытяжка не работает.

Крепление гофры к решетке на стене
Для крепления гофры подходит решетка с выступом — вокруг отверстия имеется бортик в несколько сантиметров, на который надевается гофра, после чего она крепится при помощи хомута подходящего размера.
По тому же принципу крепится гофрированный воздуховод к вытяжке. На ней есть выступ, на который надевается гофра. Стягивается соединение при помощи хомута.
Как крепить воздуховод к стенам
Для пластиковых воздуховодов есть специальные крепления в виде защелок. Они сначала монтируются на стену с использованием дюбелей. Шаг установки зависит от кривизны трассы, но в среднем достаточно 1 крепление на 50-60 см. В эти защелки во время монтажа с небольшим усилием вставляются трубы.
Если воздуховод необходимо закрепить на потолке, можно использовать те же крепления. Но если необходимо выдержать какое-то определенное расстояние от потолка, такой вид монтажа не подойдет. В таких случаях берут перфорированные подвесы для гипсокартона, крепят их к потолку, затем к ним небольшими шурупами ПВХ воздуховод для вытяжки.

Способы крепления гофры
Гофрированные воздуховоды к стенам крепятся при помощи хомутов или пластиковых затяжек большого размера. К потолку при необходимости они тоже монтируются при помощи перфорированных алюминиевых подвесов.
Куда и как выводить воздуховод
Чаще всего воздуховод от вытяжки на кухне подсоединяют в вентиляционное отверстие, через которое идет естественная вентиляция (за счет тяги). Это неправильно, так как при этом большая часть решетки оказывается закрытой воздуховодом, а через оставшиеся доступными отверстия обмен воздуха будет явно недостаточен.

Значительная часть вентиляционной решетки закрыта и вентиляция в квартире будет недостаточной
Правильно подключать воздуховод в отдельный вентканал. В этом случае на отверстие устанавливается такая же решетка, как на фото выше.
Если отдельного вентканала нет, но рядом расположена наружная стена, можно вывести трубу на улицу, поставив снаружи решетку. Это два способа иметь нормальную вентиляцию и обеспечить нормальную работоспособность вытяжке.
Как вывести на улицу
Чтобы установить вытяжку и вывести воздуховод в стену, необходимо проделать в ней отверстие. И это единственная сложность. Далее в это отверстие вставляется воздуховод, заделывается раствором. Снаружи отверстие закрывается решеткой — чтобы не попадал мусор, не селились птицы и мелкие животные.

Один из примеров установки вытяжки не кухне с выводом воздуха через стену
Чтобы в помещение не задувал воздух с улицы, устанавливают обратный клапан (на рисунке выше он обозначен косой линией). Его, кстати желательно ставить и при подключении воздуховода к системе вентиляции — чтобы запахи из труб не попадали в помещение.

Так выглядит обратный или антивозвратный клапан для воздуховодов
Обратный или антивозвратный воздушный клапан представляет собой легкую пластиковую или металлическую пластину. Она подвижно крепится в двух местах к трубе — вверху и внизу, лепестки подпираются несильной пружиной. Пока вытяжка не работает, клапан перекрывает доступ воздуху снаружи. Когда вытяжка включается, поток воздуха отгибает пластину вперед, отжимая пружину. Как только вытяжка выключена, пластина при помощи пружин возвращается на место. Если установить вытяжку без этого клапана, зимой в кухне может быть слишком холодно — наружный воздух будет без проблем попадать в помещение.
Чтобы вытяжка не мешала естественной вентиляции в кухне
При помощи тройника и обратного клапана можно, кстати, установить вытяжку так, чтобы она не мешала естественной вентиляции в кухне. Понадобится специальная вентиляционная решетка для подключения вытяжек, обратный клапан и тройник. К вентрешетке крепится тройник, к его нижнему входу подключается воздухвод от вытяжки, а на свободный выход ставится обратный клапан, то только так, чтобы лепестки запирались при прохождении воздуха из трубы (на фото ниже).

Антивозвратный клапан для нормальной естественной вентиляции в кухне
Как работает такая система? Когда вытяжка выключена, лепестки обратного клапана отогнуты, воздух из кухни в вентканал попадает через решетку и открытый выход тройника. Когда вытяжка включается, поток воздуха от нее разворачивает пластину клапана, и воздух идет в систему вентиляции. При отключении вытяжки, пружины снова открывают доступ воздуху через тройник.
Внешне такая системы выглядит не очень привлекательно и ее придется каким-то образом маскировать. Но это единственный способ подключить вытяжку к единственному существующему выходу вентиляции и не снизить воздухообмен.
stroychik.ru
Установка встраиваемой вытяжки в шкафу: правила монтажа
Установка встраиваемой вытяжки необходима, чтобы на кухне поглощались запахи от процесса готовки пищи. При современном подходе к обустройству кухни наличие этого элемента даже не обсуждается – он планируется по умолчанию. Оптимально стоит выбирать воздухоочистное устройство, подключаемое к вентканалу. Современны вытяжки можно использовать в двух режимах: включив на рециркуляцию воздуха, а можно полностью выводить его за пределы дома. Встраиваемые вытяжки в шкаф пользуются большой популярностью, особенно телескопические модели.
Преимущества встраиваемых вытяжек

Встраиваемые вытяжки практически незаметны в общем интерьерном решении кухни
Чтобы способствовать максимальной эффективности работы встраиваемой вытяжки необходимо ее размещать прямо над варочной поверхностью или над духовкой, если она стоит отдельно. Отвод воздуха будет осуществляться быстрее.
Встроенные устройства по выводу загрязненного воздуха из кухни имеют преимущества с точки зрения декоративного решения. Их практически не видно. Визуально определяется только втягивающая поверхность. Тогда как островные и купольные вытяжки сложно не заметить в общем интерьере кухни.
Внимание! Необходимо позаботиться о том, чтобы воздух не только выводился, но и поступал из приточной вентиляции. Зимой лучше использовать режим рециркуляции, что способствует уменьшению теплопотерь. У большинства моделей имеется функция автоматического отключения. Это обеспечивает высокую энергоэффективность оборудования.
Телескопические кухонные вытяжки встраиваемые в шкаф
Телескопические модели представлены с одним мотором и с двумя. Такие воздухоочистители имеют турбину. Максимальная производительность телескопических вытяжек может достигать 1000 м3/час.
Независимо от производительности любая установка этого типа компактна, а благодаря выдвижной панели можно расширять рабочую площадь. При необходимости створки легко задвигаются на место. Фронтальная панель – эта та часть, которую можно увидеть, все остальное прячется в шкаф. Подсветка также встроенная.
Помимо двух режимов работы, воздухоочистители в своей комплектации имеют два фильтра – угольный и жироулавливающий. Именно они задерживают жир и очищают «отработанный воздух» от копоти и запаха.
Важным параметром установок является уровень шума при работе. Ширина таких воздухоочистителей может быть 500 мм, 60 0мм, 900 мм.
По цветовой гамме ограничений нет. Чаще пользуются успехом модели, у которых корпус сделан из нержавейки. Такие вытяжки за счет возможности замены фильтров, прослужат долго.

Телескопическая вытяжка предполагает регулирование полезной площади устройства
Фильтры меняются довольно часто – 4 раза в год. Это основной недостаток, а также высокая цена. Современные телескопические вытяжки управляются сенсорно или с помощью пульта ДУ.
Для некоторых покупателей важны также дополнительные функции, которые встречаются в более дорогих моделях:
- управление с помощью голоса;
- яркость света во встроенной подсветке можно регулировать;
- в автоматическом режиме может производиться смена режимов работы;
- функция включения и выключения вытяжки производится по таймеру;
- специальные датчики, которые реагируют на загрязнение фильтров.
При покупке вытяжки необходимо смотреть гарантийный срок. У высококачественных моделей он составляет минимум 3 года. Также рекомендуем прямо в магазине проверить насколько громко она работает.
Как правильно установить встраиваемую вытяжку
Итак, такие модели устанавливаются в навесные шкафы без дна. Размер встраиваемой техники и шкафа должен совпадать. Необходимо заранее позаботиться о вентканалах ведущих в вентшахту, по ним воздух, выводимый воздухоочистителем, отправляется на улицу.

Схема монтажа встраиваемой вытяжки
Важно! Расстояние от вытяжки до газовой плиты должна быть от 75 см. Для электрической плиты этот параметр равен 70 см и выше.
Корпус встраиваемого воздухоочистителя монтируется прямо в подвесном шкафу кухонного гарнитура или на настенном кронштейне. Но монтаж стоит начать с заземления. Розетка должна располагаться на безопасном расстоянии от плиты и мойки.
Необходимо примерить воздухоочистительное устройство к стене и к шкафу, сделав при этом разметку. В шкафу с помощью лобзика вырезается дно. Через него будет легко вставить вытяжку. В верхней части делается отверстие, через которое будет проходить воздуховод. Диаметры трубы и отверстия должны совпадать.
Необходимые инструменты
- Длинное сверло.
- Лобзик.
- Деревянные подкладки.
- Дрель.
- Крепежные шурупы.
- Молоток.
- Рулетка.
- Отвертка.
Установка встроенной вытяжки
- Гофрированную трубу необходимо поместить в шкаф с небольшим запасом приблизительно 15 см.
- Монтировать встроенную часть мебели или кронштейн с воздухоочистителем на запланированное место.
- Закрепить воздуховод к выходу вытяжки с помощью герметика и хомутов.
- Соединить другой конец воздуховодной трубы к участку стены вентшахты.
Устанавливая воздуховодные каналы своими руками необходимо избегать лишних изгибов. Это понижает мощность системы в целом. Необходимо также установить обратные клапаны в воздуховоде, чтобы препятствовать обратному оттоку воздуха. Пробный запуск можно осуществлять после подключения к заземленной розетке. Вытяжка должна выводить воздух негромко, без треска.
Общие советы по конструкции шкафа под вытяжку
Монтаж встраиваемой вытяжки всегда следует начинать со сборки короба. Чтобы изготовить короб можно использовать дерево, МДФ. Для телескопических воздухоочистителей он собирается по такому же принципу, что и для обычных вытяжек. Верхняя часть шкафа и боковые части скрепляются сразу. После стягивания, необходимо сравнить с размером телескопической вытяжки.

Отверстие под воздуховод выполняется заранее
Затем монтируется нижняя часть шкафа с отверстием для воздуховода. После монтажа шкафа, выпилить это отверстие будет сложно. Чтобы вентиляция работала бесшумно, лучше использовать не гофрированные трубы, а пластиковые воздуховоды.
Специальные рекомендации по монтажу гофры
- Если вентиляционное отверстие расположено над плитой, то для соединения вытяжки и вентиляционной системы понадобится переходник.
- Если расстояние большое, необходим воздуховод в виде пластиковой трубы, желательно с круглым сечением. Часто используют гофрированную. Возможно, для соединения понадобятся колена и переходник.
- При монтаже гофру необходимо растянуть, чтобы не было лишних складок. Они повышают шум при работе воздухоочистителя.
- На патрубке гофру фиксируют с помощью хомутов.
- Вывод воздуха можно производить необязательно в вентшахту. Часто хозяева домов делают отверстие с помощью перфоратора в стене и выводят трубу на улицу.
Важно! Нельзя выполнять монтаж вытяжки при не отключенном электропитании.
Для того чтобы сделать правильного размера отверстие в стене необходимо измерить диаметр отдушины сзади вытяжки. С помощью пилы придается ровное округление отверстия. Удаляется внутренняя изоляция и крепится заглушка воздуховода.
В принципе, вот и все советы, как установить встраиваемую вытяжку. Естественно монтаж удобно выполнять одновременно с установкой нового кухонного гарнитура.
ventkam.ru
Как установить вытяжку на кухне своими руками: монтаж вытяжной вентиляции
При приготовлении еды воздух на кухне требует постоянной рециркуляции. Пар от плиты, подгоревшее молоко, запахи пищи или просто запотевшие окна не приносят радости, даже если вы сделали отличный ремонт. Сегодня мы расскажем, как установить вытяжку на кухне, чтобы избавиться от этих проблем. Подключить её по силам каждому, если знать правила заземления и крепления на стену. Также стоит заранее определиться, какой вид кухонной вытяжки подходит именно вам, и какой должна быть мощность устройства. С этого и начнем.
Виды кухонных вытяжек
Монтаж вытяжки на кухне будет зависеть от типа выбранной модели. Различают следующие виды:
- подвесные (также их называют плоские и стандартные) – крепятся под шкаф над плитой;
- встраиваемые – устанавливаются внутрь навесного шкафа, поэтому отлично вписываются в любой дизайн;
- настенные – крепятся на стену над плитой, могут иметь различный дизайн корпуса;
- угловые – устанавливаются в угол;
- островные вытяжки – предназначены для кухни с островком (можно закрепить её в любом месте, подвесив к потолку).
Совет! Вне зависимости от вида, установка кухонной вытяжки над варочной поверхностью возможна только на высоте 70 см, а над газовой плитой нужно отступать 80 см.
Режим работы вытяжки
Кроме вида крепления, вытяжки различаются режимами вентиляции.
- Проточные – вытягивают загрязненный воздух из кухни в вентиляционную шахту. Этот способ вентиляции называют отвод воздуха (вытяжной режим). Он наиболее эффективен и производителен.
- Циркуляционные вытяжки – пропускают воздух сквозь угольные фильтры в корпусе, на выходе получая свежий воздух. Для такой модели не требуется вентиляция на кухне в квартире, поэтому её установку можно назвать более простой, но менее эффективной в плане очистки.
Виды режимов работы вентиляцииНеобходимая мощность
Важным параметром при покупке вытяжки является её производительность очистки, которая измеряется в кубических метрах в час. Как вы могли догадаться, это значение показывает, сколько кубометров воздуха вытяжка пропустит через себя за час работы.
По установленным в России нормам, воздух в кухне должен обновляться 12 раз в час. Поэтому вы можете запросто посчитать, какая мощность вам потребуется по этой простой формуле:
Площадь кухни * Высоту потолка * 12 раз
Также стоит учесть запас на потерю мощности из-за изгибов воздуховода, длину вентиляционной шахты и другие параметры. Для этого к полученному результату прибавьте 30%.
Например, если ваша кухня имеет площадь 6 кв. м. и высоту потолка 2,5 м., то расчет будет выглядеть следующим образом:
6 * 2.5 * 12 * 1.3 = 234 м3
Совет! Также при покупке следует учитывать издаваемый шум при включенной вентиляции, который производители указывают в децибелах. Не покупайте модели, которые издают шум свыше 50 Дб. Существуют практически бесшумные вытяжки с двумя вентиляторами или одним внешним. Кроме того, некоторые модели снабжены звукопоглощающим корпусом.
Заземление и зануление
Прежде чем рассказать, как сделать вытяжку на кухне, стоит упомянуть об электробезопасности. Так как внутрь корпуса попадает множество брызг жира и скапливается влага, возрастает риск удара током при неправильном подключении вытяжки к электросети.
Поэтому вытяжка для кухни, установленная своими руками, должна быть подключена к сети тремя проводами: фаза, земля и ноль. Провод заземления по стандарту имеет желтый цвет с зеленой полоской. Перед установкой обеспечьте заземление для безопасного использования электроприбора.
Если в доме предусмотрен контур заземления и установлены розетки евро-типа, проблем не появится: при подключении провод подсоединяется к клемме заземления, которая обозначена полосками разной длины или словом Ground (GND). Если на технике не предусмотрено разъема под заземление, то его можно сделать самому, прикрутив провод к металлической части корпуса.
Евророзетка с подключенным заземлением в России встречается только в новых квартирах
Но многие могут не обнаружить у себя евро-розетки, и зададутся вопросом: как подключить вытяжку на кухне, если нет заземления? В этом случае зануление можно сделать своими руками, но ни в коем случае не подключайте нулевой провод на трубы и батареи. Нужно подключать его к глухой нейтрали.
Для этого откройте электрический щиток со счетчиками и найдите там замурованную трубу в стене, откуда идут провода (будьте осторожны, провода под напряжением 220В!), либо специальную шину, как показано на фото. Скорее всего, вы найдете на ней готовый штырь и уже накинутые нулевые провода. Это и есть глухая нейтраль, труба отлично заземлена. Нужно провести от неё на кухню многожильный провод сечением не менее 2,5 мм2, а вытяжку подключить через автомат-разделитель на 6.3А.
Нулевая шина на щитке в подъезде
Обратите внимание! Если уже имеются подключенные провода к занулению, то ни в коем случае не отключайте их! Это может грозить ударом тока. Накиньте свой провод поверх чужих и затяните гайку. Если проводов нет и труба гладкая, зачистите её и закрепите контакт провода на хомут. Если вы не разбираетесь в этом деле, лучше всего обратиться к профессиональному электрику.
Вентиляция в квартире
Схема самодельного антивозвратного короба с клапаномМонтаж вытяжной вентиляции на кухне практически всегда нарушает штатную вентиляцию квартиры. Зачастую для её установки рекомендуют пробить дополнительное отверстие для отвода воздуха, но это не решит все проблемы. Дело в том, что если увеличить окно вентиляционной шахты, то её сечение останется таким же, поэтому качество воздухообмена не улучшится.
Выход из этой ситуации достаточно прост: это установка дополнительного короба с клапаном-хлопушкой, устройство которого показано на фото.
Как видите, на коробе есть 2 отверстия. Клапан отмечен красным цветом. Когда он закрыт (в горизонтальном положении), воздух спокойно может выходить через окно, осуществляя естественную вентиляцию кухни.
Когда возникает давление при работе вентилятора, клапан меняет свое положение и закрывает первое окно, тем самым осуществляя вентиляцию с помощью вытяжки.
Главный плюс такой схемы подключения – отсутствие обратной тяги и сохранение естественной вентиляции при выключенной вытяжке.
Клапан регулируется с помощью слабой и тонкой пружины. На схеме она показана ломаной линией. Для крышки клапана лучше всего подойдет легкий материал, например, алюминий, или пластик.
Выбор воздуховода
Существует несколько видов кухонных воздуховодов для устройства бытовой вентиляции:
Пластиковый воздуховод более компактный и незаметный
- Пластиковые воздуховоды из ПВХ – прочные, легкие и бесшумные, так как почти не создают сопротивления воздуху из-за своей гладкой поверхности. Бывают как жесткие узкие коробы из пластика, так и эластичные трубы.
- Гофрированная труба из алюминия – достаточно простой материал для монтажа своими руками, его можно свободно согнуть под нужный размер. Еще одно качество гофры – отсутствие гула или вибрации, в отличие от жестких коробов. Однако важный недостаток такого воздуховода – некрасивый внешний вид, поэтому придумайте, куда скрывать вентиляцию, например, в потолок из гипсокартона.
Процесс монтажа вытяжки
Конечно же, монтаж кухонной вытяжки своими руками зависит от её вида и расположения вентиляционной шахты. Вначале мы рассмотрим установку на примере встроенного устройства в шкаф.
Антивозвратный механизм
- Если вы решили сделать все на совесть, то начинайте с изготовления короба для хлопушки. Корпус можно изготовить из алюминия, оцинкованного листа или жести по схеме, которая была приведена выше. Либо, чтобы не мучиться, просто купите антивозвратный клапан, который открывается, как бабочка. Он ставится перед вентиляционной шахтой.
- Для удобства установите корпус на настенный шкаф над плитой. Потом закрепите его более плотно, заделав все щели монтажной пеной и приклеив к шкафу, во избежание резонанса.
- Вначале только примерьте корпус хлопушки и сделайте разметку на шкафу для отверстия. После этого можно снимать шкаф со стены и вырезать в нижней стенке электролобзиком отверстие под обрамление. Для этого просверлите отверстие внутри области разметки большим сверлом, а затем вставьте в него пилку лобзика и начинайте вырезать нужную вам форму в шкафу.
- Далее, таким же образом сделайте отверстия во внутренних полках (если они есть) под воздуховод. В верхней стенке нужно сделать квадратное отверстие с запасом 3-5 мм под хлопушку.
Антивозвратный клапан не даст воздуху возвращаться обратно на кухнюПодключение воздуховода
Совет! При монтаже вентиляции старайтесь максимально снизить количество изгибов трубы, чтобы тяга воздуха оставалась достаточно хорошей. При каждом повороте мощность теряется примерно на 10%.
Крепление на стену без шкафа
- Далеко не все над плитой располагают настенные шкафы, опасаясь их быстрой порчи от пара и высокой влажности. Тем более, настенные шкафы обычно узкие, что не позволяет крепить широкие вытяжки внутрь. Если встроенного крепления нет, то для этого к стене крепится П-образная рама из уголков на дюбели. Такое крепление выступает в качестве опоры для корпуса.
- А как установить кухонную вытяжку, если обычными дюбелями к стене её закрепить не получается? Такие проблемы часто возникают у владельцев газовых плит, когда труба мешает нормальному креплению.
- В этом случае можно купить длинные сантехнические саморезы-шпильки, которые, с одной стороны, выглядят как саморез, а с другой, имеют резьбу с гайкой. Вы просто вкручиваете их в стену как дюбели, и к ним прикрепляете корпус вытяжки на необходимом отступе от стены.
- И в конце остается только подключить вытяжку к сети, через розетку, либо постоянным подключением через предохраняющий автомат. Не забудьте в первую очередь подсоединить зануление, оно уведет возможное напряжение с корпуса при работе вентиляторов.
- Если все работает, можно надевать декоративный колпак и радоваться свежему воздуху при приготовлении пищи!
Крепление вытяжки рядом с газовой трубой
Установка вытяжки на кухне – видео-инструкция:
Заключение
Примерно 2 раза в год нужно чистить вытяжку от гари, чтобы исключить возгорание. Теперь вы знаете, как производится крепление вытяжки для кухни и сможете без проблем сделать это самостоятельно. При этом не забывайте соблюдать правила безопасности при электрических работах, и если вы не сильны в них, лучше пригласите электрика.
remboo.ru
Как установить встраиваемую вытяжку в шкаф: видео

С каждым годом увеличивается количество и разнообразность бытовой техники, а также способы их установки. Одни предметы берут на себя большую часть работы, экономя при этом наше время, другие же, позволяют обеспечить комфортное существование, очищают или увлажняют воздух в помещении, устраняют неприятные ароматы. К вторым бытовым приборам можно отнести кухонную вытяжку.
Зачем нужна вытяжка?
Вытяжка-незаменимая техника на кухне
Такое приспособление требуется тем, кому наскучило часто открывать окно, вымывать кухонный гарнитур и стенки от гари и жирных пятен, которые оседают при приготовлении еды.
Если вы относитесь к таким людям, кухонная вытяжка – ваше спасение. Существует много различных магазинов, которые предлагают широкий ассортимент бытового оборудования. Там вы сможете найти технику, которая будет отвечать всем вашим запросам, а именно, с требуемой мощностью, радиусом поглощения и ценовой политике.
Конечно, при выборе кухонной вытяжки, этих требований недостаточно, ведь важную роль играет тип и форма устройства, габариты, особенность эксплуатации, комфортность и общая стилистика. Как установить встраиваемую вытяжку на домашней кухне, вы узнаете из этой статьи.
Какие разновидности кухонных вытяжек существуют
- Плоская
- Купол
- Встроенная
Прежде чем приобретать устройство, определитесь с месторасположением техники. Важно устанавливать вытяжку именно над плитой, в противном случае эффективности не будет. В зависимости от расположения, вытяжки делят на виды:
- Плоскость. Имеет небольшой размер, за счет чего, занимает мало места на кухне. Установка специального воздуховода не нужна. В устройстве имеются несколько встроенных фильтров, которые очищают поглощаемый воздух. Главным минусом приспособления является своевременная смена этих фильтров, а срок их эксплуатации полностью зависит от того, насколько активно вы пользуетесь плиткой. Такой вариант обладает низкой ценой.
- Купол. Устройства из этой категории подключаются к вентиляции, чем обеспечивают высокий уровень производительности. Корпус имеет крупный размер, что позволяет устанавливать большие фильтры. Такие приспособления пользуются спросом в больших помещениях, где требуется фильтровать воздух в большом количестве. Такую вытяжку называют каминной, ее стоимость немного выше, чем у плоской. Это обусловлено повешенным уровнем аэродинамики и бесшумной работой.
- Встраиваемая. Самый распространенный вид. Основным преимуществом устройства считается тот факт, что она устанавливается в специальный короб, вливаясь в общую стилистику помещения. Это лучшее решение для владельцев небольших помещений. Для установки такого устройства не обязательно вызывать специалиста. Монтаж настолько простой, что сделать это можно самостоятельно.
Как правильно это сделать – смотрите видео.
Выбор вытяжки зависит от размеров вашего кухонного помещения. Для миниатюрной подойдет и плоская вытяжка. Каминную (купольную) лучше применять в кухнях, которые имеют отдельный кухонный «остров». А в стандартные «хрущевки» идеальным вариантом считается встраиваемая конструкция, которую можно поставить в шкафу.
Что касается размеров
Прежде чем переходит к выбору устройства и его монтажа, необходимо произвести замеры самой плиты и короба, где будет размещен прибор. Без учета этих деталей, есть вероятность значительной разницы между шкафчиком и габаритами вытяжки. В этой статье рассмотрим способы установки встраиваемых вытяжек в шкаф.
Если замеры не будут совпадать, придется делать много дополнительных «телодвижений», а именно – замену стенок рядом стоящих шкафов или создавать новый, под габариты приспособления. Если модель выбрана правильно, проблем с тем, как встроить вытяжку в кухонный шкафчик своими руками – не будет.
Большинство встроенных вытяжек обладает прямоугольной формой, что делает установку гораздо проще. Касательно ширины, существуют разные размеры, которые подойдут под любой кухонный шкаф.
Немаловажную роль играет расстояние между плитой и вытяжкой
Стоит отметить еще один фактор, которого следует придерживаться – дистанция между плитой и вытяжкой. Важно, чтобы детали устройства располагались на безопасной дистанции друг от друга. Если вытяжка будет расположена слишком близко, детали будут портиться значительно быстрее, и существует вероятность, что пластиковые детали (копки или покрытия) расплавятся. Если размещать на большом расстоянии, производительность будет снижена, прибор не будет нормально впитывать запахи, что делает ее абсолютно бесполезной.
Каждый прибор имеет свои особенности установки, внимательно ознакомьтесь с инструкцией, прежде чем размещать на какой-либо высоте. Следует выделить средние показатели расстояния:
- Электроплита и вытяжка должны располагаться на расстоянии 60-70 сантиметров.
- Если плита газовая, держим дистанцию 75-85 сантиметров.
Габариты плиты тоже играют важную роль. Идеально, ели поверхность совпадает с вытяжкой или имеет на несколько сантиметров меньше. Таким образом установка позволяет максимально эффективно ее применять. В противном случае некая часть запахов не будет поглощаться, снижая эффективность работы устройства.
Как установить вытяжку самостоятельно?
Если вы решили не изготавливать шкаф, а реконструировать имеющийся. Прежде чем это проделать, выберите материал, который будет применяться для вентиляционного канала и подготовьте инструменты, которые понадобятся вам для работы.
Тип материала воздуховода
- Воздуховод из гофры
- Пластиковый воздуховод
- Пластик. Может иметь прямоугольную или круглую форму, разный размер и диаметр. Такая система имеет гладкие стенки, за счет которых увеличивается уровень отвода воздуха, и грязь меньше оседает на стенках. Одним из минусов является наличие дополнительных колен, стыковые места которых, нужно заделать герметиком.
- Из гофры. Может принять любой угол, не требует установки дополнительных колен. Резкий угол снизит эффективность работы, поэтому он не должен превышать 80 градусов. Загрязнения липнут на стенках в большем количестве.
Выбор того или иного материала происходит из параметра устройства, габаритов шкафа и личных предпочтений.
Как это сделать?
При установке и подключении встроенной вытяжки в шкаф можно заказать готовую конструкцию, которая не имеет дна, или же сделать шкафчик из имеющегося самостоятельно.
Рассмотрим фото вытяжек с имеющимися шкафами.
Если вы решили выбрать второй вариант, разбирать конструкцию не нужно.
- Удалите дно и сделайте специальные отверстия для воздуховода. Производя это действие стоит делать так, чтобы корпус плотно прилегал к передней стене. Делайте отверстия только после того, как наметили маркером.
- Чтобы закрепить полку к боковине, надо использовать специальные крепежные уголки из пластика. Крепим 4 устройства к полке, отмечаем ее расположение и только поле этого закрепляем со всех сторон.
- Делаем небольшие отверстия для шнура.
- Соединяем все части между собой. Подвижная сторона должна встраиваться, непосредственно, над плитой, чтобы фильтр, который находится в этой части, работал максимально эффективно.
- И последним, заключительным этапом, является установка вытяжного устройства вентиляции. Она ставится в верхнюю часть, именно в то отверстие, которое мы готовили заранее. Все стыки смазываем клеем или герметиком и применяя хомуты, закрепляем наш воздуховод.
Важно! Так как вытяжка – это электрически прибор, расположите рядом розетку, которая обеспечит заземление. Если все делать постепенно, вы сможете самостоятельно правильно установить прибор, сэкономив при этом свои средства и потратив совсем немного времени.
infomebli.ru
