Каркас ворот откатных – Каркас откатных ворот. Что учесть до заказа каркаса откатных ворот
изготовление и сборка своими руками

Откатные ворота считаются одной из самых востребованных конструкций, более популярные за счет невысокой стоимости распашные. У откатных ворот нет нижних и верхних направляющих, что позволяет заезжать любому автомобилю.
Открываются и закрываются ворота на роликах по направляющей, каркас которой приварен к нижней части основания, тем самым защищая подвижную часть от погодных условий и грязи. Зашиваются ворота любым материалом от профнастила до ковки.
Для удобства эксплуатации конструкцию можно снабдить электроприводом для автоматического открытия.
В установке ворот нужно определиться с размером проема для въезда. От этого зависит дельнейшая конструкция.
Установка опорных столбов и заливка фундамента
Материалы для фундамента:
- бетон;
- кирпич;
- квадратная труба;
- уголки для закладных;
- швеллер;
- арматура.
Для опорных столбов вырываются две ямы глубиной по одному метру и шириной 40х40 сантиметров. В каждую яму вставляется квадратная труба ровно по центру и заливается бетоном по уровню земли. После того как бетон застыл укладывается кирпич вокруг трубы. При производстве столбов необходимо установить закладные, которые вкладываются в шов кирпича. Три штуки равномерно на длину столба. Далее, на этом месте приваривается труба для крепления улавливателей.
Для фундамента ворот понадобится арматура и швеллер шириной двадцать сантиментов. Вырывается яма от края проема шириной сантиметров сорок и глубиной до полутора метров. Длина ямы должна быть равна половине ширины проема ворот. К швеллеру (его нижним полкам) привариваются 6–8 ножек из арматуры равные по глубине ямы, и помещается вся эта конструкция в яму. Важно! Верх швеллера должен быть заподлицо дороге. А также необходимо учесть монтаж электропроводки, и затем заливать бетон.
Технология изготовления откатных ворот
Фурнитура:
- направляющая;
- две роликовые каретки;
- концевой ролик;
- верхние поддерживающие ролики;
- нижний и верхний улавливатели;
- две резиновые заглушки.
Для вертикального монтажа рамы необходимо приварить к направляющей временные ножки. На всю длину направляющей приваривается профильная труба. Затем привариваем вертикальные стойки, одна с краю, вторая – с отступом от другого края в 2 раза меньше проема ворот и сверху. Получается прямоугольник. Дальше приварить трубу от второго края снизу и к верхней части прямоугольника. Получается треугольник.
Затем во внутренней части прямоугольника нужно изготовить обрешетку – внутренний каркас из профильной трубы, но меньше по диаметру. К ней будет крепиться обшивка. Внутренний каркас нужно варить либо посередине наружного каркаса, либо по уровню наружной части. Смотря, как будут обшиваться, только с наружной стороны или с обеих. Все конструкцию приваривать в шахматном порядке, чтобы в будущем не повело.
Далее, вся конструкция зачищается, обезжиривается и грунтуется. Крепеж обшивки производится саморезами по внутреннему каркасу ворот.
Основные этапы сборки откатных ворот
На швеллере по краям выставляются роликовые каретки. Здесь желательно использовать платформу со шпильками для регулировки высоты каретки. Направляющий рельс надевается на роликовые каретки, выставляется по уровню и проверяется ход ворот. Если все нормально – приварить платформы роликов, прикрепить накатный ролик к рельсу с другой стороны. На опорном столбе приварить нижний, а потом верхний улавливатели. Закрыть ворота и посмотреть, чтобы концевой ролик, находящийся в нижнем улавливателе, снимал нагрузку с роликов.
Поделитесь с друзьями и оцените публикацию.
Вам не трудно, а автору приятно.
Спасибо.
manbe.ru
Каркас для ворот из профиля своими руками
Современный дачный участок или загородный дом невозможно представить без красивого забора, калитки и ворот. Материалов, из которых их можно изготовить, бесчисленное множество, а процесс сборки не такой сложный, как может показаться на первый взгляд.
- Откатная конструкция
- Распашная конструкция
Сегодня все чаще встречаются ворота из профиля. Они просты в изготовлении и установке. В продаже имеется много готовых вариантов. Однако если вы предпочитаете высокое качество и надежность, тогда лучше собрать их самостоятельно. И в отличие от магазинных изделий, их размеры и форма ограничены только вашей фантазией.
Разновидности ворот и их каркасы
Обшивать их исключительно профнастилом необязательно. Существует и масса других, не менее практичных и оригинальных материалов начиная от древесины и заканчивая сэндвич панелями. Но основой любых ворот является их каркас. Именно ему будет посвящена большая часть материалов этой статьи.
Наиболее распространены два вида конструкций: распашные и откатные. Самостоятельно проще собирать распашные ворота, так как они имеют более простую конструкцию, состоящую из двух половинок (в большинстве случаев) или из одной створки. Но в последнем варианте конструкции на петли воздействует большее усилие, и поэтому они должны быть гораздо массивнее.
Распашные ворота

Схема с размерами распашных конструкций
Материалом для изготовления их створок может быть: деревянный брус, металлический уголок, металлическая труба круглого сечения или профиль квадратного сечения. Самым лучшим вариантом можно считать профилированную прямоугольную трубу.
По сравнению с деревянным брусом такой профиль имеет значительно большую прочность и стойкость к атмосферному воздействию, а по сравнению с металлическим уголком – большее количество ребер жесткости при значительно меньшем весе.
Необходимые материалы для сборки каркаса
Для изготовления каркаса понадобятся:
- профильные трубы 40 Х 20 мм;
- профильные трубы 20 Х 20 мм;
- 2 мм сталь для заглушек;
- шариковые петли для створок.
Инструменты для проведения работ
- болгарка;
- отрезной и шлифовальный круг для болгарки;
- сварочный аппарат;
- электроды, толщиной 3 − 4 мм;
- рулетка;
- угольник;
- чертилка по металлу.
Собираем каркас
Элементы распашной конструкции
Металлические составляющие конструкции лучше всего отрезать болгаркой, кругом диаметром 230 мм. С таким кругом время отрезания деталей сокращается, и используется меньше усилий.
Сварочные работы удобнее всего производить инверторным сварочным аппаратом, так как он имеет небольшие размеры и обеспечивает хорошее качество сварки.
Для сборки конструкции, конечно же, лучше воспользоваться готовыми чертежами. Когда все инструменты и материалы подготовлены, можно приступить к непосредственной сборке конструкции. Процесс сборки состоит из следующих этапов:
- В соответствии с чертежом нужно разметить заготовки из профиля, нарезать их и зачистить заусеницы.
- Расположив на поверхности металлические детали в форме прямоугольника, необходимо их закрепить струбцинами и проверить правильность углов при помощи угольника.
- После прихватки сваркой по четырем сторонам, нужно дополнительно проверить правильность углов и размеры диагоналей. Если замечены небольшие отклонения в конструкции, их можно исправить легким постукиванием молотка.
- Для придания дополнительной жесткости конструкции привариваются поперечные перекладины, имеющие длину на 40 мм меньше ширины створки.
- Окончательно проварить швы изделия. Оптимальный ток сварки металла толщиной в 2 мм будет в районе 50 − 60 А.
- Освободить швы от окалины, зачистить их, обработать всю конструкцию антикоррозийным средством и краской.
Высокого качества собираемой конструкции можно достичь, проводя работы на сварочном столе или ровной поверхности. Если пренебречь этим, то собранная конструкция может быть весьма неточной.
Откатные ворота

Схема каркаса откатной конструкции
Такие ворота изготовить значительно сложнее. Их сборка и установка требует намного больше усилий и средств. Однако сейчас такая модель пользуется повышенным спросом. Это не удивительно, ведь их можно оснастить электроприводом, что позволяет открывать и закрывать створку при помощи пульта, не выходя из машины.
После предварительной подготовки места для сборки, инструментов и материалов, можно приступать к изготовлению каркаса:
- Подготовить профиль (понадобятся трубы прямоугольного сечения 50 Х 50 мм или 60 Х 40 мм толщиной стенок 2 мм). Их необходимо очистить от грязи, ржавчины или окалины. После, обезжирить и обработать антикоррозийным грунтом.
- Сборку металлоконструкции можно производить либо на горизонтальной поверхности, либо методом «снизу вверх», последний способ более простой и требует меньших усилий. К нижней направляющей нужно приварить две трубы 30 Х 20 длиной 60 − 80 сантиметров. Это так называемые временные ножки. На этих трубках конструкция будет стоять в процессе сборки, потом их нужно будет удалить.
- Далее, нужно приварить нижнюю горизонтальную трубу нашей металлоконструкции. Варить нужно по 1,5 − 2 сантиметра через каждые 60−70 сантиметров в «шахматном порядке», когда конец шва с одной стороны заканчивается в том месте, где начинается шов с другой. Такой метод сваривания применяется для того, чтобы металлоконструкцию не повело относительно оси.
- Потом приваривают две вертикальные трубы наружного каркаса, а сверху приставляют вторую горизонтальную трубу, и также приваривают. Теперь есть возможность приставить косую для конструкции над противовесом. Приставляя ее по месту, можно тут же ее подрезать по размерам.
- После сборки наружного каркаса, производится подготовка внутренней рамы, для крепления обшивки (в большинстве случаев это профнастил). Обшивка собирается из профиля 40 Х 20 мм.
- Размещать нужно трубу меньшего сечения (40х20 мм) на трубе большего сечения (50 Х 50). Если створка будет обшиваться с одной стороны, тогда трубы нужно сдвигать к тому краю, с которого будет производиться обшивка. Если обшивка будет производиться с двух сторон, тогда трубы нужно размещать по центру. Их тоже нужно приваривать в шахматном порядке, чтобы конструкцию не вело.
- Все швы нужно зачистить болгаркой, а всю раму – обработать грунтовкой и покрасить.
Элементы откатной конструкции
Хоть конструкция откатных ворот и сложнее распашных, но ее сборка под силу почти любому человеку, имеющему хоть какое-то представление о слесарных работах.
Очень важно при сборке каркаса, вне зависимости от его конструкции соблюдать размерность, и чаще сверяться с чертежами. Это позволит вам собрать его без грубых ошибок и постоянных переделок.
moyaograda.ru
Откатные ворота своими руками
Откатные ворота уже перестали быть экзотикой на участках. Благодаря большому выбору фурнитуры и стройматериалов в продаже, построить откатные ворота может каждый человек, обладающий строительными навыками. Как сделать откатные ворота своими руками?
Типы ворот
Основные типы — это:
- консольные,
- рельсовые,
- подвесные.
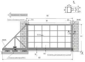
Консольные разновидности можно встретить чаще всего. Они имеют массивный фундамент, расположенный за пределами проема, на нем установлены роликовые каретки, по которым двигается направляющий рельс, закрепленный в нижней части полотна. Длина таких ворот намного больше, чем ширина из-за противовеса, который удерживает закрытые ворота в ровном положении.
Фундамент может быть в виде швеллера, сваренного буквой П и забетонированного в земле, также можно установить закладную на винтовых сваях. В этой статье будет рассмотрено сооружение ворот именно консольного типа. Выглядят они как на фото.

Рельсовые модели имеют рельс, проложенный на всем пути движения створки, поэтому не требуют противовеса, а значит, им нужно меньше места для откатывания. Также на полотно потребуется меньше материала. Однако рельс необходимо постоянно поддерживать в чистоте.
Подвесные ворота двигаются по балке, расположенной в верхней части. Они не требуют сооружения мощного фундамента, как консольная разновидность, но горизонтальная балка вверху ограничивает высоты въезжающего транспорта.
Также перед сооружением ворот следует определиться с тем, будут они автоматическими или механическими. Автоматические разновидности, естественно, стоят дороже.

На видео показано, как сделать откатные ворота для участка своими руками.
Размер ворот
Прежде чем строить откатные ворота своими руками, необходимо понять две вещи:
- какие машины будут въезжать,
- под каким углом будет происходить въезд.
Исходя из этого определяется ширина створа — расстояния между столбами. Ширина самого полотна делается несколько больше — минимум на 20 см — чтобы при закрытии ворот не оставалось щели.
Лучше всего, чтобы между зеркалами въезжающего автомобиля и столбами оставалось 0,5 м, минимум — 0,3. Исходя из этого и нужно строить чертеж для откатных ворот своими руками.
Даже если в данный момент стройка на участке не идет, стоит предусмотреть возможность въезда грузовых машин — неизвестно, что будет через несколько лет. Ширина «Камаза» составляет примерно 2,9 м, а если он будет въезжать под углом, например, 45 градусов, то ширину проема нужно делать не менее 4,5 м, чтобы между столбами и въезжающей машиной остался зазор. Меньше проем делать не рекомендуется.

Что касается высоты ворот, то, если нет горизонтальной балки вверху, в принципе можно делать ее любой. Однако следует помнить, что высота ворот не равна высоте забора. Ворота откатные всегда находятся на некотором расстоянии от земли — 10- 15 см. Это следует помнить при заказе или изготовлении полотна. Кроме того, фундамент и направляющая балка ворот также добавляют им высоты. Также следует учесть ширину каркаса полотна.
При проектировании размера ворот также следует учесть размер материалов, представленных на рынке. Если металлический профиль для каркаса легко сварить, то с профлистом это сделать сложнее, кроме того, сваренный лист выглядит некрасиво.
Схема устройства ворот
Откатные ворота консольного типа представляют собой полотно, в нижней части которого находится направляющий рельс, движущийся на роликовых каретках. Ролики находятся за пределами проема. Схемы представлены ниже.

Конструкция довольно простая, для создания таких откатных ворот своими руками можно обойтись и без сложных чертежей.

Чтобы створки легко двигались, необходим противовес. Он может быть треугольным или прямоугольным и быть равным 1/3 — ½ длины полотна. Рекомендуется делать его равным половине полотна, особенно если противовес решено сделать облегченным, треугольным. Если он будет слишком маленьким, то ворота при закрывании будут перекашиваться, «клевать».
Фундамент
Для ворот консольного типа необходим массивный фундамент. Как его рассчитать и сделать?
Закладную обычно делают длиной в 0,5 длины полотна. Для нее нужен швеллер соответствующей длины, к которому приваривают еще 2 швеллера в виде буквы П или прутья арматуры длиной 1 м и толщиной 10-14 мм.

Под фундамент выкапывают яму глубиной примерно метр и шириной около 30 см, помещают туда конструкцию и заливают бетоном. Раствор готовят из цемента, песка и мелкого щебня в соотношении 1:3:3. Застывает бетон 7 дней.
Важно! Закладная должна оказаться на одном уровне с бетонным основанием, чтобы вокруг нее не скапливалась вода.
Комплектующие
Что включает конструкция откатных ворот? В продаже есть как отдельные комплектующие, так и готовые наборы для конструкций различной длины и массы. Например, российская фирма «Ролтэк» предлагает наборы МИКРО для ворот массой до 350 кг, ЭКО для конструкций массой до 500 кг, ЕВРО — до 800 кг. Бытовые модели, которые ставят на участках, обычно весят до 300 кг. Створка с размером каркаса 4*2 м весит примерно 200 кг.

Для консольного типа вам понадобятся:
- несущая балка (направляющий рельс) — приваривается к нижней части полотна, он двигается по роликам, его длина должна быть в 1,5 раза больше, чем ширина проема; в отдельных случаях (вес ворот меньше 200 кг) можно сделать его длиной в 1,3 ширины проема;
- роликовые каретки — устанавливаются на закладную, по ним ездит рельс, могут быть из пластика и из металла, по долговечности они примерно одинаковые, но пластиковые издают меньше шума;
- уловители, верхний и нижний;
- поддерживающие ролики (также называются «направляющее устройство») — удерживают полотно в вертикальном положении;
- резиновые заглушки на направляющий рельс — препятствуют попаданию в него мусора, снега.
При выборе кареток имейте в виду, что они должны выдерживать примерно на 30% больший вес, чем вес полотна. На срок службы кареток больше всего влияет расстояние между их центрами — чем оно больше, тем быстрее каретки выработают свой ресурс.

Внимание! У «самоделкина» может возникнуть вопрос, а не дешевле ли будет изготовить все эти детали самостоятельно. Фурнитура должна быть сделана качественно и хорошо собрана, чего невозможно добиться при кустарном производстве. В конце концов, с учетом всех доделок и переделок, такие ворота обойдутся дороже, чем ворота с готовым набором комплектующих.
Также при покупке фурнитуры обратите внимание на качество ее изготовления и упаковке. Если детали кривые, а упаковка плохо запаяна, видно, что она нефирменная, лучше от покупки таких комплектующих отказаться.
Установка фурнитуры
Верхние и нижние улавливатели и направляющие (поддерживающие) ролики удобно устанавливать на вертикальную профильную трубу, которую ставят по всей высоте столба. Трубу можно забетонировать вместе с закладной, а можно при установке закладной оставить несколько выступающих прутков арматуры и приварить трубу к ним. Первый вариант надежнее, второй более удобен.

Сборка каркаса
Каркас для ворот сваривают из профильной трубы 5*5*0,2 см. Перед сборкой нужно подготовить место — ровную площадку, и сами трубы. Их необходимо очистить от ржавчины, если она есть, и покрыть грунтовкой с помощью пульверизатора или кисти. Когда грунтовка высохнет, каркас сваривают.
Важно! В местах сварке не должно остаться отверстий, через которые вода может попасть внутрь каркаса.
Внутреннюю обрешетку каркаса делают из трубы размером 4*2*0,2 см. Приваривают их с шагом в 40 см и в шахматном порядке. Посередине делают перекладину. Если каркас будут обшивать с обеих сторон, то трубы приваривают посередине внешней рамы, а если с одной стороны — то со сдвигом в противоположную сторону. Если вы планируете сделать в полотне калитку, то для нее предусматривают отдельную раму.

После окончания сварочных работ все швы зачищают болгаркой и промазывают грунтовкой. Когда грунтовка высохнет, каркас покрывают алкидной эмалью для наружных работ в 2-3 слоя.
Установка
Ролики продевают в направляющий рельс, затем с помощью уровня проверяют ровность конструкции. Установка откатных ворот своими руками рекомендуется именно с использованием сварки, так как такое крепление получится более надежным и не расшатается со временем, в отличие от болтов.
Установка автоматики
Автоматику ставят в последнюю очередь, когда вы добились того, что ворота двигаются плавно и без рывков.

Для этого вам понадобится:
- электропривод,
- сигнальная лампа,
- зубчатая рейка,
- пульт дистанционного управления,
- фотоэлементы;
а для монтажа:
- сварочный аппарат,
- дрель,
- сверла по металлу.
Схема монтажа привода, лампы и фотоэлементов показана на рисунке. Устанавливать привод нужно согласно инструкции.

Заключение
Сделать откатные ворота самостоятельно — вполне реальная задача. Важно купить качественные комплектующие, сделать хороший фундамент и качественно смонтировать конструкцию. Проще всего в устройстве и эксплуатации ворота консольного типа.
bouw.ru
Каркас ворот
Преимущества использования готового каркаса ворот
1. Низкая стоимость приобретения. Это основное объективное преимущество, заставляющее покупать готовые каркасы. Особенно выгодно покупать каркас ворот для дальнейшей его отделки деревом. Не все компании производящие ворота берутся за производство ворот с деревянной отделкой, а кто это делает, предлагает достаточно высокую цену.
2. Сокращение сроков. При самостоятельном монтаже и отделке готовых каркасов ворот вы экономите не только деньги, но и время. Даже под заказ каркас ворот изготавливается быстрее, чем если бы вы ждали выполнения всего цикла работ по производству, доставке и монтажу стандартных ворот специализированной организацией. При этом проблема со сроками обостряется в сезон, когда и на производстве вам не смогут обеспечить достаточно быстрых сроков, и свободных монтажников придется ждать не один день.
3. Свобода декорирования. Если вы умеете работать с металлом, то сделать уникальный декор железных ворот вам не составит труда. Достаточно приварить кованые или штампованные элементы на решетчатый каркас и получить прекрасные кованые ворота.
Минусы использования готовых каркасов
Не будем скрывать, что применение готовых каркасов железных ворот влечет за собой ряд объективных трудностей.
1. Переоценка собственных сил. Будьте готовы к тому, что монтаж и отделка каркаса ворот отнимут довольно много вашего времени. При этом если вы неверно рассчитаете свои возможности и не справитесь с монтажом и отделкой, то потребуется заказ профессиональных монтажников. И наверняка он окажется дороже, ведь давать скидку на монтаж при покупке ворот это обычная практика работы компаний.
2. Несоответствие технического задания реальному положению вещей. Надо помнить, что каркас ворот – это изделие, которое требует высокой точности изготовления. Причем при его производстве учитываются не только размеры проема, но и вес будущей отделки и навесного оборудования. Поэтому обязательно согласуйте чертежи с исполнителем, чтобы избежать дорогостоящих переделок.
3. Ошибки при установке. Есть монтажом автоматических ворот занимается непрофессионал, то велик риск всевозможных неточностей и серьезных ошибок. Работы по установке надо выполнять по определенной технологии, иначе можно повредить какой-либо узел, что затруднит или вовсе сделает невозможной дальнейшую эксплуатацию всей конструкции.
4. Необходимость дополнительной балансировки.
Такая балансировка обязательна для подъемно поворотных ворот после того, как на установленный вами готовый каркас будет смонтирована обшивка, автоматические приводы и прочие элементы.
Покупка готового каркаса ворот с дальнейшим самостоятельным его монтажом может помочь вам сэкономить время и деньги, но только в том случае, если вы сможете выполнить ряд специфических работ. Со своей стороны компания «АМВ» всегда готова предложить удобные варианты сотрудничества и помощь в решении любых вопросов.
www.vorota-vam.ru
Откатные подвесные ворота — готовые и сделанные своими руками
Откатные подвесные ворота ранее чаще устанавливались для промышленных объектов, складов, ангаров, автопарков. Сегодня не исключается их использование на частных территориях. Любая постройка предполагает ограждение будь это дом, загородный участок, гараж. Для удобства и безопасности монтаж ворот исключить не получится. Самыми простыми в использовании являются подвесные ворота. Это современный и удобный вид открытия ворот, пришедший на смену классическим двустворчатым распашным воротам. Иногда их называют навесные.
Откатные подвесные ворота в заборе из кирпичаПреимущества откатных ворот
Плюсами откатных ворот можно назвать:
- экономию пространства перед въездом и за ним за счет конструкции, которая занимает очень мало места и не требует дополнительного пространства как, например, распашные ворота;
- их можно сделать своими руками, даже если вы не являетесь профессионалом. Хватит начальных навыков обращения со сварочным аппаратом и металлом или профлистом;
- удобное использование и возможность полной автоматизации. Нет особых сложностей в процессе эксплуатации. Изредка может потребоваться мойка створки или смазывание роликов;
- устойчивость при ветряной погоде, что особенно важно в местности с частыми бурями или ураганами;
- в зимнее время нет необходимости убирать перед ними снег, чтобы открыть. Достаточно будет расчистить дорогу.
Размеры откатных ворот
Стандартная ширина при использовании ворот для легкового вида транспорта не превышает 3 метров, но если на участок будут заезжать грузовые автомобили и специальная техника, тогда оптимально сделать проезд в 4 метра и более. Когда есть необходимость сделать ворота шире и облегчить саму конструкцию, можно выполнить их из двух частей, которые будут раздвигаться в разные стороны. В таком случае не забудьте учесть то, что пространство с обеих сторон должно быть свободно. Также важно рассчитать массу с учётом материала, из которого они будут выполнены, так как от веса ворот зависит качество и стоимость фурнитуры.
С целью облегчить ворота используйте стеновой профнастил класса «С» или легкие сэндвич панели. Выбор ворот из профнастила предусматривает дополнительное армирование металлическим уголком рамы, а сам профилированный лист лучше подобрать с высотой волны не более 20 мм, чтобы избежать выступа за пределы каркаса. Под сэндвич панели можно смонтировать более легкий каркас.
Вариант каркаса откатных ворот подвесного типаМатериалы и комплектующие для откатных ворот
Залогом хорошо сделанных ворот являются грамотные чертежи и соответствующее им исполнение. Понадобятся такие комплектующие для подвесных ворот:
- Направляющая. Она должна быть в 2 раза шире проезда.
- Материалы для облицовки дверной створки.
- Металлические трубы для каркасов 40х40 мм и 20х20 мм.
- Труба для монтажа верхней балки 120х120х4 мм.
- Комплект необходимой фурнитуры для откатных ворот.
- Врезной замок и ручка.
- Комплект автоматики, если нет желания постоянно открывать и закрывать ворота вручную. В случае когда ворота будут состоять из двух частей и раздвигаться в разные стороны, нужно приобрести двойной комплект фурнитуры и рассчитать все комплектующие с учётом двойных створок.
Не делайте своими руками откатные ворота с двумя створками, если вам не помогает в этом профессионал!
Изготовление каркаса откатных ворот
Конструкцию каркаса можно сделать своими руками:
- Сперва необходимо сделать рамку для створки ворот. Для этого согласно со схемой порежьте трубы 40х40 для внешней рамы каркаса. Их следует резать под углом в 450 и закреплять сваркой. Будьте предельно аккуратны, делая это! Эти сварочные швы должны быть без щелей. Они недопустимы, так как там не должна просачиваться вода.
- После сварки основной рамки каркаса ворот, проверьте углы и размеры и приступайте к следующему этапу изготовления каркаса откатных ворот своими руками – привариванию труб меньшего диаметра 20х20 в середине каркаса створки.
- Последний этап подготовки каркаса – зачистка швов, антикоррозийное покрытие, наносимое на все части труб, покраска.
Каркас своими руками готов. После этого необходимо дать ему несколько дней на высыхание и прикрепить обшивочный материал (профнастил, листы металла, сэндвич панели и т.п.). Это делается при помощи саморезов или заклепок.
Саморезы и заклепки, которые использовались для закрепления обшивки створки, следует покрасить под цвет ворот. Сделать это проще и быстрее при помощи краски из баллончика.
С целью экономии времени изготовление створки ворот лучше перенести на время ожидания застывания бетона после установки столбов и пластины для привода.
Установка направляющей и других элементов откатных ворот
Подвесная откатная конструкция устроена с использованием направляющей, которая крепится к верхней балке или стене при помощи кронштейнов. Она будет в 2 раза шире длины створки и при открытии параллельна забору.
Направляющая для крепления воротРоликовые опоры тележки крепятся к верхней части конструкции на направляющую раму. При подвешивании опоры тележки заводятся внутрь направляющей и регулируются. Одновременно с этим следует установить заглушки из комплекта, фурнитура которого приобреталась ранее. Возможно использование регулировочных пластин. В случае погрешности расчёта это будет легко исправить. Немаловажным элементом в установке является верхний улавливатель, он служит для фиксации ворот в закрытом положении и поможет избежать раскачивания. Ту же функцию дополнительно выполняет ограничитель из комплекта. Правильно установить всю фурнитуру поможет инструкция из комплекта.
Обратите свое внимание на правильное крепление верхней направляющей! Ее рабочая часть должна смотреть вниз.
Опорные столбы откатных ворот должны быть забетонированы на глубине не меньше 1,5 метров. Тут неприменимы расчеты, которые применяются в монтаже распашных ворот!
Внимание! Предусмотрите проведение электрического кабеля к приводу! Если автоматизация не планируется, тогда монтаж пластины не требуется.
Дальнейшие работы по установке створки или створок ворот своими руками производятся после окончательного застывания бетона, то есть через 5-10 дней. В этом вопросе лучше переждать, чем поторопиться!
Установка откатных ворот
Установка створки ворот своими руками пройдет быстрей, если позовете друга или соседа на помощь. Для того чтобы поставить ворота выставите по уровню их створку и ролики на направляющей и сварите их между собой. Именно для этого вам потребуется помощник, который сможет придержать или сварить пока вы держите. Одному такую работу выполнить можно при помощи лебедки, но это крайне неудобно.
Прикрепить ролики можно гайками и шпильками, но это очень сложно для новичка и может потребовать нескольких дней для правильной установки. Лучше использовать сварочный аппарат. Если приварите неправильно, легко можно это исправить при помощи болгарки и сварить заново.
Ничего слишком сложного в установке откатных ворот своими руками нет и это сэкономит вам приличную сумму. Но если у вас совсем нет опыта в работе с металлом и сварочным аппаратам, вы не умеете делать цементный раствор и бетонировать, лучше за подобную работу не браться и сразу заплатить профессионалам, чтобы не тратить зря нервы и время.
Ворота откатные подвесные своими руками — видео
sdelayzabor.ru
Сварить и установить откатные ворота из профильных труб
Если вы планируете установить ворота, в первую очередь необходимо подумать об их эксплуатационных качествах и прочности конструкции. Учитывая все эти нюансы можно избежать проникновения злоумышленников на ваш участок. Помимо этого не стоит забывать о комфортабельности. Поэтому лучшим вариантом в этом случае являются откатные ворота.

Откатные ворота из профильных труб
Их прочная конструкция из профильных труб не только обеспечивает настоящую защиту, но и способна сэкономить пространство. Причем сварить и установить такие ворота можно самостоятельно, необходимо лишь иметь навыки сварщика.
Устройство фундамента
Перед тем как сварить каркас, нужно установить опорные столбы и основание ворот. Опоры лучше всего сделать из профтрубы диаметром 100х100 мм, так как в дальнейшем на них будут крепиться ворота, вес которых они должны выдержать.
В первую очередь под столбы из профильных труб необходимо выкопать две ямы. Их глубина зависит от региона вашего проживания и не должна быть меньше глубины промерзания.
На дне ям стелется подушка из мелкофракционного щебня и песка высотой около 20 см. Затем в ямы вертикально вставляются трубы, для чего используется уровень.
Когда все замеры будут выполнены, трубы можно заливать раствором, не забывая его тщательно утрамбовывать, чтобы не оставался воздух. После установки необходимо сделать повторные замеры и оставить столбы до полного схватывания раствора.
Дальше нужно приступить к устройству основания для ворот. Для этого необходимо сделать закладной элемент из швеллера и арматурных прутьев. Длинна закладной должна соответствовать половине проема ворот.

Армирование бетонного фундамента
Чтобы изготовить закладную, арматурные прутья нужно нарезать по 1 м и вертикально сварить со швеллером. Варить необходимо так, чтобы с каждой стороны закладной было по 4 прута. Потом подготавливаются поперечные прутья, соответствующие длине швеллера. Их также нужно сварить между стойками в верхней части закладной.
Далее нужно подготовить яму глубиной 1,2 м и шириной около 50 см. Ее дно также засыпается песком и щебнем, а затем вставляется уже готовая закладная. Швеллер выставляется строго по уровню и все заливается заранее подготовленным раствором. Стоит учитывать, что швеллер обязательно должен быть вровень с дворовым покрытием (плиткой, асфальтом).
После заливки фундамента снова проверяется уровень поверхности швеллера. Это очень важно, так как на него устанавливаются роликовые тележки, отвечающие за работоспособность ворот. Фундаменту нужно выстоять пару недель, а потом уже можно устанавливать ворота.
Сборка каркаса
Варить каркас лучше из профильной трубы 60х30 мм. Прежде чем приступить к его сборке, нужно очистить материал от ржавчины при помощи болгарки, а также вскрыть грунтом.
Для начала необходимо подготовить площадку, где будет производиться сварка конструкции. Она должна быть ровной и превышать размеры каркаса ворот на 2 м: тогда варить конструкцию будет удобней.
Затем из профильных труб делаются заготовки. В первую очередь нужно сделать несущую раму. Для этого заготовки выкладываются на площадке согласно заранее подготовленной схемы. Сварить их между собой нужно точечной сваркой, чтобы можно было исправить погрешности. Потом проверяются все размеры, вертикальность и горизонтальность, а после этого швы полностью обвариваются.
После изготовления несущей рамы нужно приступить к монтажу внутренней рамы ворот. Она изготавливается из профильных труб 40х20 мм. Внутренняя рама имеет большое значение, так как отвечает за усиление конструкции ворот, к ней будет крепиться обшивочный материал.

Сборка конструкции ворот
Как и в первом случае, вначале делаются заготовки. Варить их намертво также сразу не стоит, это нужно сделать, когда все размеры будут подогнаны и проверены уровнем.
Если ворота будут обшиваться с двух сторон, то обрешетку необходимо варить с внутренней части несущей рамы. Если же с одной, то трубы можно приварить по краю. Лучше всего трубы приваривать в шахматном порядке, тогда можно быть уверенным, что конструкцию не поведет.
Когда каркас ворот будет полностью готов, можно приступать к его обшивке. В качестве материала лучше всего использовать профнастил, тогда ворота получаться не слишком тяжелыми и будут иметь привлекательный вид.
Установка ворот
Когда полотно будет полностью готово и фундамент достигнет окончательной прочности, можно устанавливать откатные ворота.
Вначале берутся ролики и устанавливаются на основании. Они должны располагаться как можно дальше друг от друга.
Далее приваривается задняя тележка, а за ней и передняя, но для начала выставляется ее точное месторасположение. Не забывайте, что все швы должны быть тщательно зачищены и обработаны грунтом.
Чтобы ворота не имели перекосов, необходимо провести регулировку роликовых тележек. Конструкция должна легко двигаться, в противном случае необходимо повторить регулировку.
На опорные столбы устанавливается кронштейн с роликами, при этом полотно должно легко проходить между ними. При закрытом положении полотна в нижней части опоры монтируется уловитель (иначе вы не определите его точное место установки).
После этого можно приступить к монтажу автоматики. Чтобы правильно подобрать привод, нужно знать приблизительный вес конструкции, от этого зависит выбор его мощности. Установить привод будет несложно, ведь к нему прилагается руководство по эксплуатации и схема.
svoivorota.ru
Каркас откатных ворот своими руками
Откатные ворота – это наиболее практичный и удобный вариант ограждения частной собственности, поэтому на сегодняшний день существует немало вариантов такой системы и ее отделки. Как правило, каркас откатных ворот сваривается из металлической профилированной трубы размером 50х50х2мм, 60х30х2мм или 60х40х2мм. Единых стандартов для откатных ворот нет, поэтому каждый решает сам, опираясь на свои убеждения.

[sam id=»1″ codes=»true»]
Главное помнить об одном: если в воротах большой проем, то лучше использовать более толстую трубу, т.к. нагрузка при таких конструкциях увеличена в несколько раз и любое отклонение от норм может деформировать изделие. Для проемов от 4 метров и более часто используется специальный омега-профиль, который дает необходимую жесткость конструкции и надежность на долгие годы эксплуатации.
Не забывать про обработку
Перед изготовлением каркаса своими руками проводится тщательная обработка всего металла, чтобы предотвратить коррозию и сохранить важные свойства прочной конструкции. Для этого поверхность будущих ворот обязательно обрабатывается растворителем, затем наносится сама грунтовка. Защитным слоем антикоррозийного средства лучше покрывать из пульверизатора, чтобы краска попала в каждую щель профилированной трубы и обезвредила возможную ржавчину.
Каркас для ворот
После высыхания плотного слоя антикоррозийного покрытия необходимо подготовить каркас для откатных ворот. Эту работу можно сделать своими руками и не привлекать наемный труд. Важно только отметить, что сварка должна быть качественной и без каких-либо отверстий на стыке, в которые в процессе эксплуатации может попасть дождь или растаявший снег.

В дальнейшем будет готовиться наполнение самого каркаса откатных ворот. Внутренняя рама конструкции собирается своими руками и сваривается из профилированной трубы, но немного меньше основной конструкции из каркаса. Размеры такой рамы будут 40х20х2 мм, что позволит соединить две комплектующие в одно целое.
Варианты отделки
Следует также помнить, что впоследствии к этой составляющей откатных ворот будет крепиться обшивка конструкции, поэтому заранее необходимо продумать наполнение и высчитать его толщину. Выбор отделки из металла велик, и разные производители предлагают использовать подготовленные гофрированные листы, уже покрытые цветной краской. Заводская отделка надолго сохранит цвет и прекрасный вид всего изделия.
Существует несколько видов отделки откатных ворот:
- из профнастила;
- из сендвич-панелей;
- филенчатые.
[sam id=»2″ codes=»true»]
Каркас откатных ворот соединяется внутренней меньшей по размеру рамой и большей, заваривая точечной сваркой по 2 см через каждые 20-30 см. Такой способ не даст в конструкции перекоса при смене температур и выдержит любой вес готового изделия. После каждого сваривания швы зачищаются и обрабатываются антикоррозийным средством, не давая впоследствии разрушить структуру металлоизделия. При сваривании своими руками заранее необходимо решить, как будут обшиты ворота и каким материалом.

Если только с внешней стороны, то вся рама внутреннего каркаса будет свариваться, сдвигаясь к краю, оставляя место для отделки только с одной стороны. В случае когда профнастил закрепляется с обеих сторон, каркас размещается посередине всей металлоконструкции. После сваривания изделия своими руками все швы необходимо обработать болгаркой и нанести антикоррозийное средство для увеличения срока эксплуатации металлического изделия.
Следует заметить, что внутренний каркас обеспечивает не только жесткость всей конструкции, но и служит для закрепления на нем отделки, поэтому здесь необходимо четко рассчитать и оставить места для заклепок или саморезов.
Заключительный этап
Когда рама и каркас откатных ворот будут готовы, всю конструкцию из металла нужно покрасить, используя обычную эмалированную краску или импортную алкидную эмаль. Это можно сделать очень быстро своими руками, используя пульверизатор или обычную кисть. Обычно такой краской покрывают весь каркас металлоконструкции, используя подряд несколько слоев. Такой подход исключит любые повреждения и разрушение основы, сохраняя ее первоначальный вид и свойства металлического изделия.
[sam id=»3″ codes=»true»]
vorotagate.ru
