Кухни для студий квартир фото – Дизайн кухни студии — полный гид и 100 реальных фото
Новые идеи для кухни в студии

Кухня в квартире студии
Кухня в квартире студии — Функциональность и уют
Специалисты в области дизайна и архитектуры помещений предлагают огромное количество разнообразных стилей оформления квартир-студий. Наиболее распространенным является решение логического продолжения гостиной или кухни. В данном случае предполагается использование одной цветовой гаммы и стиля. Оборудование кухни необходимой бытовой техникой зависит только от вашего желания и возможностей. Наиболее рациональным является оборудование кухни встроенной бытовой техникой, так вы сохраните стиль, функциональность и уют помещения. Важная деталь кухни в квартире без перегородок — это вытяжка, чтобы вы не готовили, данный девайс должен быть включен, так вы защитите мебель, шторы, покрывала и подушки от запаха приготавливаемой еды.

Благодаря современным материалам и технологиям производства мебели, также без труда воплощаются в жизнь самые смелые и неординарные дизайнерские решения, однако и в этом случае необходимо помнить о гармоничном сочетании стилей.
Немаловажную роль играет, кто проживает в квартире. Одно дело, когда это одинокий молодой человек или юная девушка и совсем другое, когда это молодая семья. В последнем случае дизайнеры советуют использовать метод зонирования помещения.
Наиболее оптимальный вариант – это создание разных уровней пола и потолка, а также использование отличных по текстуре и цвету настенных и напольных покрытий. Правильно подобранные материалы позволят создать элегантную и комфортную обстановку, где будет приятно провести романтический вечер или организовать вечеринку с друзьями.
Зонировать помещение можно и с помощью мебели. Так, прекрасным решением станет установка барной стойки на границе кухни и гостиной, к тому же такая стойка может использоваться в качестве обеденного стола, что дает возможность сэкономить необходимое для кулинарного творчества пространства.

Кухня в квартире студии — Комфорт и удобство
Создать комфортную обстановку поможет грамотно продуманное освещение, с помощью которого также можно подчеркнуть достоинства помещения и скрыть возможные недостатки. В большинстве случаев такие квартиры имеют 1-2 окна, что не дает возможность полноценного освещения даже в светлое время суток.
При решении вопроса освещения квартиры-студии, и кухни в том числе, следует помнить, что визуально увеличить помещение поможет рассеянный мягкий свет, в то время как резкий полумрак и тени сделают вашу квартиру еще меньше.
Что касается освещения непосредственно рабочей зоны, то в данном случае дизайнеры рекомендуют использовать встроенные светодиодные светильники и ленты, которые размещаются под навесными шкафчиками. Таким образом, вы обеспечиваете необходимое для приготовления пищи освещение, а также в случае необходимости можете создать полумрак для романтического вечера с любимым человеком.

Немаловажную роль играет и расположение кухни. Так, если зона кухни расположена напротив стены с окном, выбирайте лампы, максимально приближенные к дневному освещению (белого спектра).
Для комфортного нахождения на кухне и в гостиной специалисты рекомендуют оборудовать квартиру-студию бесшумной техникой. Особенно это касается крупной бытовой техники (холодильников, стиральных машин и кухонной вытяжки). Оптимальный вариант — это техника с уровнем шума не более 40 дБ.

Каждый сантиметр помещения необходимо продумать до мелочей. Нужно предусмотреть места для хранения мелкой бытовой техники, продуктов и посуды. Для таких квартир хорошим решением является установка мебели до самого потолка. Если же вы планируете использовать стандартные кухонные гарнитуры, то поверх навесных шкафов можно разместить оригинальные корзины и емкости для хранения продуктов или малоиспользуемого инвентаря. Можно также собственноручно изготовить дополнительные полки, которые размещаются над навесными шкафами, главное условие – это соблюдение цветовой гаммы.

Предложенная ранее барная стойка также может служить местом для хранения кухонной утвари, спиртных напитков или продуктов. Для этого выбирайте модели, оснащенные нишами или шкафчиками, где также можно разместить косметические средства, рабочие принадлежности и пр.

Кухня в квартире студии — Варианты зонирования квартиры
Создание разных уровней потолка и пола потребует лишних финансовых затрат, избежать которые поможет зонирование помещения с помощью разной цветовой гаммы. Гармонично подобранные оттенки не только разделят помещение на зону отдыха и приготовления пищи, но и помогут визуально увеличить площадь. Главное условие, о котором необходимо помнить – это пропорции, они должны быть разными. Избегайте темных оттенков, так как они зрительно уменьшают итак не большое помещение квартиры-студии.
Также для отделения зоны кухни от гостиной или спальни используются мебельные перегородки. Такие конструкции выполняют не только декоративную функцию, но и служат в качестве книжных шкафов, где вы сможете разместить любимые бестселлеры, милые сердцу безделушки, рамки с фотографиями, сувенирами с отдыха и пр. Такое решение подойдет тем, кто хочет хотя бы частично изолировать кухню от жилого помещения. Для этих целей можно также использовать гипсокартон или раздвижные системы.
Менее практичным является зонирование с помощью занавесок или текстильных ширм. Такой прием актуален для изоляции спальни, а вот для отгораживания кухни мало подходит, так как ткань очень хорошо впитывает запахи от приготовления пищи.

Кухня в квартире студии — фото


































































uutvdome.ru
дизайн интерьера маленьких и просторных помещений, видео и фото
Кухня студия – понятие, которое еще десяток лет назад было известно жителям постсоветского пространства лишь по красивым картинкам в журналах. Сейчас же – это невероятно распространенное явление, которое все чаще встречается на небольших жилплощадях. О том, как эффектно оформить кухню-студию даже в ограниченном пространстве, читайте ниже.

С кухней-студией помещение выглядит совершенно иначе
О преимуществах и недостатках
Для начала хочу уточнить, что под студией чаще всего подразумевают однокомнатную квартиру, особенность которой заключается в объединении кухни с гостиной. Как таковая спальня в ней отсутствует, кровать может просто располагаться в отведенной зоне. Порой студией может стать и двухкомнатная квартира, где основой выступает объединение нескольких зон, а спальня или детская являются отдельной комнатой.

Квартиры-студии пользуются популярностью уже много лет

Кухни-студии уместны не только в новостройках, но и хрущевках
Вам интересно, почему такой тип планировки с каждым годом завоевывает все больше поклонников по всему миру?
Все достаточно просто.
- Главное преимущество – дополнительный простор и большое количество света, которые редко встретишь в стандартных хрущевских квартирах.

Мини-кухня для студии – идеальное решение для малогабаритных жилищ
- Образование дополнительной обеденной зоны, в которой легко поместятся не только домочадцы, но и гости. Больше нет необходимости метушиться и перемешать праздничные блюда с кухни в гостиную, теперь все необходимое у вас просто под боком.

С такой планировкой больше нет нужды ютиться всем на тесной кухне
- Ощутимое преимущество кухни-студии могут принести и домохозяйкам с маленькими детьми. Они позволяют удобно наблюдать за чадом даже в процессе приготовления пищи.
Но, как вы хорошо знаете, ни одна бочка меда не обходится без ложки дегтя. Так и кухни-студии имеют парочку ощутимых недостатков.
О них я и поговорю.

Несмотря на ощутимые плюсы, есть у кухни-студии и свои недостатки
- Как мне кажется, главным минусом объединенной с комнатой кухни является факт распространения в процессе готовки грязи и жира на мебель или шторы в комнате. Согласитесь, это может доставить определенные неудобства.

Постоянно распространяемый по квартире запах готовящейся пищи может надоедать
- Не забывайте, что всевозможные ароматы с кухни будут распространяться по всей квартире. В теории это может и хорошо, если вы отлично готовите. Но не стоит откидывать различные форс-мажорные ситуации, будь то пригоревшая яичница или забытый на включенной плите чайник.

Преимущества планировки квартиры-студии перекрывают ее недостатки
Не могу сказать, что все эти недостатки перебивают очевидные преимущества, тем более, когда дизайн кухни-студии выполнен стильно и оригинально, но решила, что вы должны о них помнить.

Все же в подобной планировке есть свое непередаваемое обаяние

С наличием кухни-студии телевизор можно смотреть из любой точки в квартире

Стильную кухню можно вместить даже на 18 кв. м
О чем необходимо помнить в первую очередь
Если все плюсы подобной планировки для вас важнее парочки минусов, и вы все же решили поэкспериментировать с пространством, то этот раздел точно для вас.
Благодаря указанным ниже принципам обустройства кухни-студии вы получите роскошное помещение, даже если его площадь не превышает 18 квадратных метров.
- Когда у вас после сноса стены появилось дополнительное пространство, не стоит тут же захламлять его. Интерьер кухни-студии только выиграет, если он будет полон ощущения простора и свободы.

Даже просторное помещение следует использовать с умом
- Пространство кухни и комнаты должно гармонировать друг с другом, резким переходом между зонами подобного не добиться. Поэкспериментируйте с контрастной отделкой, перепадами между уровнями пола или установите барную стойку на границе комнат.

Удачное разделение двух зон делает дизайн кухни в квартире-студии более органичным
- Встроенная техника – лучший друг кухни для маленьких студий. Она многофункциональна и значительно экономит пространство.

Посмотрите, как удачно, а главное практично встроена микроволновка в представленном варианте
- Всегда помните о важности использования каждого сантиметра площади. К примеру, не ставьте микроволновку на стол, лучше отведите ей специальную подвесную полочку в углу. Смотрится это органично, а вы тем временем получаете дополнительную рабочую зону.

Научитесь использовать каждый сантиметр имеющегося пространства
Пространство над верхними шкафчиками глупо оставлять пустым. Расставьте на нем удобные корзинки или коробки для хранения бутылок или продуктов.
- Смело используйте модульную или складную мебель. Как по мне – это одно из самых практичных изобретений человечества.
- Наиболее оптимальные стили для кухни студии: минимализм, модерн, скандинавский.

Минимализм: стильно и ничего лишнего

Скандинавский стиль как нельзя лучше подходит для обрамления студий
Пять идей для зонирования
Если вы все еще не определились с тем, как лучше всего декорировать кухню студию, возможно, мои рекомендации станут для вас полезными.

Без правильного зонирования пространство будет выглядеть скомкано
В первую очередь вам необходимо будет отталкиваться от того, что в кухне, которая совмещена с другой комнатой должно быть как минимум 3 зоны:
- рабочая;
- обеденная;
- зона отдыха.

В процессе создания декора необходимо разделить помещение на три сектора
Ниже я рассмотрю основные варианты для правильного зонирования пространства, которые могут вам пригодиться.
Идея 1. Игра цвета
Один из самых простых способов разграничения двух пространств – выделение их цветом.
Наиболее уместно и уютно на кухне смотрятся:

Кухню лучше оформлять в светлых тонах, делая акценты за счет яркого текстиля или аксессуаров
- кремовый;
- желтый;
- белый;
- светло-оранжевый;
- оливковый;
- песочный.

Светлые стены в гостиной и плитка на кухне из той же цветовой гамы составляют удачный тандем
Для остальной части помещения используйте более насыщенные оттенки той же цветовой гаммы, что и на кухне. Или же поступите с точностью до наоборот. Отделку гостиной сделайте более контрастной, от этого интерьер только выиграет.
Идея 2. Да будет свет
Разделение зон при помощи освещения – вариант, цена которого доступна каждому. К примеру, вы можете установить центральную люстру в зоне отдыха, а по периметру кухни расположить точечное освещение.

Сочетание нескольких видов освещения приведет к поразительному результату
Идея 3. Два сапога пара
Отличным способом для разделения пространства является совмещение двух видов отделки потолка, стен или пола.
Причем такое решение привлекательно как минимум по двум причинам.

Плитка на полу кухни будет куда практичней паркета

Комбинирование разных видов отделки – всегда удачное решение
- С декоративной точки зрения подобных подход выглядит свежо и оригинально.
- С практической, плитка на кухне будет куда уместнее ламината или паркета, идеально подходящего для гостиных.
Если вас вполне устраивает идентичное напольное покрытие по всему пространству, поэкспериментировать можно с отделкой стен.
Благо, вариантов здесь масса:

Инструкция по зонированию пространства за счет отделки стен проста: воспользуйтесь одним из предложенных ниже вариантов
- Используйте обои с разной фактурой. Или же можно попробовать сочетать обои с одинаковым оттенком, но различным узором.
- Комбинируйте отделанные краской стены с обоями, похожими по тональности.
- Совмещайте разные виды отделки. Необычно смотрятся стеновые панели по соседству с декоративной штукатуркой в обеденной зоне.
Идея 4. Ты не пройдешь!
Порой в квартирах-студиях не хватает личного пространства, где можно было бы уединиться хотя бы на часок. Перегородки и ширмы из дерева, ткани или бамбука помогут решить подобную проблему.

Ширма или тканевая занавеска помогут добиться столь необходимого порой уединения
Отделив ими зону отдыха от зоны приготовления пищи, вы получите немного места для себя.
Идея 5. Убить двух зайцев за раз
Отделить кухню от основного пространства своими руками можно за счет некоторой мебели. Вы сможете одновременно использовать ее по назначению и в качестве стильной перегородки.

На фото представлено сразу несколько вариантов зонирования: использование разных видов отделки, цветовой гаммы и наличие барной стойки
Что же можно использовать в таких целях?
- Барная стойка. С поставленной задачей отлично справится как мобильная, так и стационарная модель (зависит от площади квартиры).
- Диван. Обычно для зонирования используют достаточно массивный, чаще всего угловой диван. Такой подход обеспечит пространству ощущения уюта.

Диван – удобный и практичный способ разделения пространства
Будьте аккуратны, диван с маркой обивкой лучше не ставить в непосредственной близости от кухни, он достаточно быстро потеряет свой изначальный вид.
- Шкаф. Вот уж какой предмет мебели справится с задачей на ура. Заднюю стенку шкафа, повернутую в сторону кухни можно замаскировать обоями или украсить семейными фотографиями в рамках.

Вместо массивного шкафа можно использовать стеллаж
В заключение

Удачное зонирование и расстановка акцентов могут сделать интерьер по-настоящему сказочным
Благодаря кухне-студии вы изящно решите проблему тесной жилплощади и приобретете стильный интерьер. Вариантов для ее обрамления масса, многие из них вы найдете на видео в этой статье.
Надеюсь, что мой материал поможет вам решиться на столь глобальные изменения или подскажет несколько удачных идей для обрамления кухни совмещенной с комнатой. Любые вопросы, касающиеся обсуждаемой теме вы сможете задать в комментариях к материалу – с превеликой радостью отвечу всем.
Галерея
Понравилась статья? Подписывайтесь на наш канал Яндекс.ДзенОтличная статья 0
Статьи по теме
Все материалы по темеjkuhnya.ru
дизайн интерьера кухни в квартире, совмещенной с гостиной

Кухня-студия — это лучшее решение для небольших квартир
Часто молодые семьи сталкиваются с необходимостью организации небольшого жилого пространства. Это может быть, например, однокомнатная квартира. В этом случае одним из актуальных решений является кухня-студия. Дизайн интерьера при таком подходе должен сочетать грамотные и стильные решения с учетом ограниченного количества квадратных метров.
Основные правила
В сфере дизайна интерьера успели появиться актуальные решения, способные преобразить как собственный дом, так и небольшую квартиру.
Первая идея, на которую стоит обратить внимание, формируя дизайн кухни-студии, — это единство стиля. Суть сводится к тому, что элементы гостиной и кухонного пространства должны гармонично сочетаться как в рамках стиля, так и в цветовых решениях.
Примечание. Разрабатывая дизайн кухни-студии, нельзя использовать откровенно разные стилевые направления.
Следующее, на что нужно обратить внимание, — это зонирование. Именно такой подход позволяет «выжать» из квадратных метров весь доступный потенциал.

Для зонирования может использоваться как барная стойка, так и различная отделка
Важно! При помощи зонирования можно сформировать неповторимый стиль интерьера, оптимизировать пространство в небольшой квартире, изменить визуальные размеры помещения и осуществить функциональное перераспределение жилой площади.
В рамках такого подхода к дизайну кухни в квартире-студии можно выделить несколько важных принципов:
- Частично отделить кухню и зону отдыха помогут арочные проходы или перегородки. Последние часто выполнены из стекла, гипсокартона, или оформлены в стиле французского окна. Раздвижные двери позволят разделить пространство в любой нужный момент.
- Визуально обозначить отдельные зоны помогут разные цветовые гаммы. Например, для зоны отдыха используются светлые, спокойные цвета, а кухня оформляется в ярких и темных тонах или наоборот.
- Занавески и ширмы также являются важной частью интерьера кухни-студии. С их помощью можно легко отделить кухонное пространство, а при необходимости — и спальное место.
- Еще один способ зонирования — это грамотное использование мебели. Яркий пример — это разделение пространства посредством стеллажа, дивана или барной стойки. Последняя, к слову, стремительно набирает популярность.
- Для грамотного и ненавязчивого обозначения отдельных зон в квартире-студии подойдет использование разной отделки. Это может быть оригинальное оформление потолка, пола и стен, которое визуально распределит пространство на кухонную зону и гостиную.

Разделять квартиру-студию на зоны можно и при помощи мебели
Примечание. Выступающие несущие балки на потолке также можно использовать как инструмент зонирования.
Полезные решения
Создавая дизайн комнаты-студии с кухней, есть смысл обратить внимание на определенные хитрости и несложные, но практичные решения, позволяющие получить максимум эффекта на доступной площади.

Встроенная бытовая техника позволяет визуально увеличить размеры кухни и создает однородный стиль
Вот некоторые из них:
- В небольшом помещении актуальна встроенная бытовая техника. Когда вытяжка, холодильник и посудомоечная машина скрыты за гарнитуром, кухня смотрится более однородно и уютно.
- Распределение света должно быть равномерным. Освещение — это один из ключевых элементов, формирующих восприятие помещения. Чем меньше темных участков в кухне, тем больше она будет казаться визуально. По этой причине дизайн небольшой кухни-студии включает работу с освещением, которое должно быть равномерным, мягким и рассеянным. Это позволит зрительно увеличить пространство. Чтобы получить такой эффект, точки света лучше распределить под верхними шкафчиками гарнитура, внутри них и над барной стойкой или столом.

Хорошее освещение также визуально увеличивает кухонное пространство
- Использовать потенциал подоконника. Эту часть интерьера можно превратить в обеденное или небольшое рабочее место. Такой подход особенно актуален, если дело приходится иметь с небольшой студией кухней-гостиной (18 кв. м). Дизайн в этом случае может включать в себя подоконник, выполняющий роль места для отдыха или для хранения вещей. В итоге функциональность пространства на кухне ощутимо повышается.
- Грамотная организация места для хранения вещей. В качестве примера можно привести кухонный гарнитур, равный высоте стены. Таким образом все пространство от пола до потолка будет активно использоваться, что очень актуально при небольшой кухне. Если шкаф уже есть, и он имеет стандартную высоту, то интерьер кухни-студии можно обогатить оригинальными корзинами, которые помещаются на верхнюю часть шкафа. Использовать можно и пространство над обеденным столом или барной стойкой, закрепив там оригинальную полку.

Светлые тона — это идеальный вариант для маленькой кухни
- Предпочтение нужно отдавать светлой цветовой гамме. Имея дело с маленькими кухнями, которые еще и плохо освещены, акцент необходимо делать на белом и других светлых цветах. Темная расцветка допустима только в том случае, если в помещении очень большие окна. Достойной альтернативой белой расцветке являются светло-зеленые, бежевые, серые и светло-голубые оттенки.
Как создать подходящий образ
Визуальное расширение пространства — это одна из ключевых целей, для которых разрабатывается дизайн квартиры-студии. Кухня-гостиная к тому же дает возможность пользоваться теми квадратными метрами, которые раньше были недоступны. Достигается это за счет сноса стены, отделяющей кухонное пространство от гостиной.

Одним из удобных и эффективных элементов зонирования является барная стойка
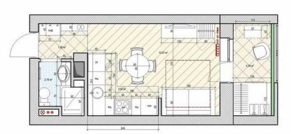
Следующая задача — это грамотное зонирование. В большинстве случаев квартиры площадью 18-20 кв. м делят на три ключевых зоны: столовая, так называемый кухонный островок и гостиная.
Работая с небольшими квартирами, стоит знать, что есть два основных формата работы с пространством: горизонтальный и вертикальный.
Горизонтальное объединение
На постсоветском пространстве часто можно встретить квартиры с горизонтальным расположением комнат: гостиная и кухня уходят в стороны от входа. В этом случае слишком светлая кухня — это не лучший вариант, для стен и мебели нужно подобрать неяркие тона.
Важно! Уделить внимание нужно и грамотному расположению очистителей воздуха и вытяжек. Если этого не сделать, в гостиной будут чувствоваться запахи из кухни.

Нужный эффект в горизонтальном зонировании достигается за счет грамотного использования материалов отделки и расцветок
Вертикальное объединение
При такой планировке дизайн кухни-студии часто включает этап сноса стен. Когда кухня расположена ко входу ближе, чем гостиная, распределять площадь на отдельные зоны намного проще. Обозначить границу между кухонным пространством и гостиной можно при помощи барной стойки. Для подобных квартир это один из лучших вариантов. К тому же стойка может заменить зону столовой, что позволит получить дополнительное свободное пространство и много посадочных мест.

Барная стойка не только разделяет пространство, но и создает дополнительные места в кухне
Внимание нужно уделить еще одному элементу дизайна кухни в студии 30 кв. м — кухонному островку. Его основная ценность заключается в удобстве и функциональности.
Есть несколько моментов, которые стоит учитывать, устанавливая островок в небольшом помещении:
- повысить функциональность кухонного островка можно, разместив на нем рабочую и обеденную зону, а также обустроив место, где можно будет хранить кухонную утварь;
- если сделать столешницы складными, то можно получить дополнительное свободное место;
- чтобы работать на кухне было удобно, расстояние между островком и другой мебелью должно составлять не менее метра.

Кухонный островок — это прекрасный инструмент зонирования, но использовать его лучше на кухне более 20 кв. м.
Примечание. Кухня для студии 20 кв. м и менее должна обладать мощной вытяжкой, которая позволит удалять различные запахи очень быстро.
Актуальные стили
Восприятие внутреннего пространства квартиры во многом зависит от удачного стилистического решения. Современный дизайн интерьера предлагает несколько стилей, актуальных для комнаты-студии. Планировка кухни может иметь следующий формат:
- Скандинавский. Минимум элементов, деревянный пол и мебель белого цвета.
- Минимализм. Много свободного места, четкие линии в оформлении, хорошее освещение и лаконичность в подборе мебели, допускается использование темных тонов.

Минимализм — это стиль, в котором прекрасно смотрятся темные тона
- Классический. Дорогая мебель, в оформлении стен присутствует растительный орнамент, отделка сочетает элитные породы дерева, арки и колонны. Расцветка преимущественно светлая.
- Хай-тек. Здесь акцент ставится на функциональности, современных материалах отделки и встроенной, максимально спрятанной от глаз технике. Это высокотехнологичная кухня с преобладанием зеркальных поверхностей.

Стиль хай-тек позволяет сделать кухню просторной и современной
Для кухни квартиры-студии 20 кв. м подойдут, пожалуй, все стили, за исключением классического — слишком мало места для потенциала этого формата.
Что нужно знать о мебели
Кухню трудно представить без мебели, гармонично сочетающейся с общим стилем. И ключевым элементом в данном случае будет гарнитур. Есть несколько полезных советов, позволяющих по максимуму использовать эту часть интерьера:
- Гарнитур дает возможность сделать технику незаметной. Встроить все кухонные девайсы в мебель — это одна из ключевых задач, если дело приходится иметь с дизайном кухни в студии 25 кв. м и меньше. Холодильник можно поместить в высокий шкаф, а посудомоечную машину — в тумбу, расположенную под столешницей.

Чтобы холодильник не занимал место в небольшой кухне, его можно спрятать в гарнитур
- Минимум деталей. Чтобы добиться визуальной целостности гарнитура, нужно свести к минимуму количество элементов, которые он сочетает. Например, вместо 4-5 модулей можно разместить два крупных, а узким предпочесть широкие. Актуальными будут и гладкие поверхности без ручек, открывающиеся при помощи легкого нажатия.
- Общее сочетание. Важно подобрать гарнитур с таким фасадом, который будет гармонично сочетаться с другой мебелью. Здесь лучше все позиции выбирать у одного производителя.
- Если поставить гарнитур высотой до линии потолка, то кухня в целом будет казаться выше, а места внутри окажется ощутимо больше. Более того, такой прием поможет избежать скопления пыли на верхней части мебели.
Совет. Интерьер кухни-студии в доме небольших размеров должен включать мобильную и трансформирующуюся мебель. Яркий пример — это стол-трансформер, складные стулья и передвижное кресло на колесиках.

На маленькой кухне очень актуален будет стол-трансформер, который в любой момент складывается до весьма скромных размеров
Что касается телевизора, то его размещать нужно таким образом, чтобы экран был хорошо виден как на кухне, так и в гостиной. В этом случае уместной будет большая диагональ.
Итоги
Для гармоничного восприятия студии «кухня-гостиная» дизайн должен грамотно сочетать ключевые элементы: мебель, освещение, зонирование и цвет.
kuhniprof.ru
Кухни для квартиры-студии (48 фото): видео-инструкция по оформлению дизайна интерьера своими руками, квартирный вопрос
Все большую популярность в настоящее время набирает дизайн кухни студии в квартире, позволяющий объединять в единое пространство несколько комнат. В основном соединяется кухня со столовой, гостиной, коридором, прихожей или лоджией.
А чтобы подобное соединение было функциональным и комфортным, стоит продумать в мельчайших деталях интерьер кухни-студии.

Объединяем помещения
Продумываем обустройство помещения
Для того чтобы решить квартирный вопрос по объединению кухни с гостиной, необходима довольно-таки масштабная перепланировка. Для этого изначально нужно узнать, возможна ли она в вашей квартире. Так как потребуется, как правило, сносить частично или же полностью как минимум одну стену.
А для этого необходимо разрешение соответствующей инстанции. Однако если вы планируете перенести кухню в другую комнату, это вам все же не позволят, так как по нормам обустройство «мокрой» зоны кухни не допускается над соседским жилым помещением.
Главное в обустройстве кухни для квартир студий – не допуская захламленности и беспорядка в объединенном пространстве разместить все необходимое.
Для этого следует хорошо продумать следующие моменты:
- Какие функции должно выполнять появившееся пространство?
- Какое количество времени вы уделяете приготовлению пищи?
- Сколько членов семьи и родственников будут находиться в нем ежедневно?
- Какое количество гостей вы собираетесь принимать и как часто?
- Что является приоритетным для вас: быстрые перекусы или семейные обеды, работа за компьютером или просмотр телевизора, дополнительное спальное место?

Деревянная кухня для квартиры-студии
От всех этих вопросов зависит вариант зонирования пространства, выбор материалов для отделки потолка и пола, стен, выбор техники и мебели, а также планировка освещения.
Совет!
Как бы там ни было, пространство кухни в квартире-студии должно быть единым целым, в противном случае ваши переделки просто потеряют свой смысл.
Однако отметить границы основных функциональных зон будет не лишним.
Это позволит их упорядочить и внесет динамику в студийный интерьер.
Варианты отделения кухни
Итак, давайте рассмотрим несколько основных вариантов, как отделить кухню в квартире студии.
Комбинирование отделочных материалов
При визуальном зонировании кухни и гостиной пространства, лучше всего взять несколько видов материалов для отделки и скомбинировать их. К примеру, для кухонной зоны прекрасно подойдет на пол керамическая плитка, в то время как в гостиную и столовую можно положить паркет, ламинат или же ковролин.

Фото комбинирования различных отделочных материалов
Разный уровень
Прекрасно выделить кухню можно при помощи разного уровня пола:
- Над основным уровнем делаем подиум, на котором размещаем обеденную группу и кухонный гарнитур для квартиры-студии.
- В подиум можно упрятать трубы, систему теплого пола и другие коммуникации.
- Замечательно будут смотреться в сочетании с ним ступеньки, встроенные точечные светильники, декоративные кованные либо же металлические перила.

Кухня в квартиру студию – разноуровневый потолок и пол
Однако разный уровень может иметь не только пол, но и также потолок – натяжные или навесные потолки, конструкции из гипсокартона и прочее.
При помощи мебели
Этот способ считается самым распространенным. Визуально сделать границу кухни студии в квартире можно просто поставив красивый обеденный стол либо же благодаря кухонному «острову» и «полуострову». А в торце такой конструкции эффектно будет смотреться шкаф-витрина с посудой и встроенной подсветкой.
Барная стойка
Еще один вид удачного зонирования пространства – барная стойка. Причем, в маленьком помещении лучше всего поставить легкую минималистичную модель, например, из закаленного стекла. Тогда как в просторной кухне-студии чудесно будет смотреться полноценная барная стойка, которую можно совместить с напольными шкафчиками.

Кухня для квартиры студии с барной стойкой
Фальшь-стена, перегородки
Если же вы разрушаете стену не полностью, можно сохранить перегородку или же сделать фальшь – стену. Прекрасным решением могут быть открытые двусторонние стеллажи. А вот иллюзорные стеклянные перегородки не только не нарушат единство пространства, но они еще и прекрасно пропускают свет и замечательно предохраняют от запахов.
При помощи освещения
При использовании различных вариантов освещения, можно создать для каждой зоны свой своеобразный световой сценарий.
Наша меленькая инструкция поможет вам в его создании.

Различное световое освещение в кухне-студии
- Над рабочей поверхностью помещаем точечные светильники, которые еще и приготовление пищи сделают комфортным и приятным.
- Над обеденным столом можно разместить подвесные светильники с плафонами, лучше всего на длинных шнурах, которые можно регулировать. Благодаря этому обстановка станет торжественной или же интимной.
- А вот в гостиную замечательно подойдут бра, торшеры, разнообразные потолочные светильники или же оригинальные настольные лампы.
Подбираем цветовую гамму
Какой вариант зонирования помещения вы не выбрали, очень важно, чтобы стилистическое единство пола, потолка, стен, мебели, штор было соблюдено.
Поэтому выбор цвета – немаловажный вопрос.

Кухня в квартире студии в бежевых оттенках
- Лучше всего в студийном помещении использовать оттенки спокойные. Которые не будут раздражать, надоедать, и подарят ощущение уюта и спокойствия.
- Яркие акценты оживят скучную обстановку. К тому же, их легко можно сменить.
- Для того, чтобы возник эффект взаимопроникновения пространства, цветовое решение в отделке стен в гостиной и кухонной зоне оптимально выбирать в однотонной, либо же близкой к этому цветовой гамме.
- А выдержанная в едином цвете, стиле корпусная мебель кухни в квартиру студию и гостиной станет объединяющим фактором.
Скрываем минусы
Помимо очевидных плюсов, в подобной планировке имеются и свои минусы.
- Сильные запахи и ароматы. Ведь они не только не приятны, но чаще всего даже просто неуместны. В этом случае вам необходимо поставить мощную систему кухонной вытяжки, которая, помимо того, что должна быть бесшумна, воздух из помещения обязана выводить на улицу. Конечно, цена на декор и стильный дизайн будет существенно выше, но зато вам не придется ломать голову, куда бы ее спрятать за кухонным гарнитуром.
- Бытовая техника должна быть также бесшумной. В противном случае вам не видать покоя, тишины и спокойного отдыха. Прекрасной альтернативой в данной ситуации может служить встраиваемая техника. Так как в этом случае фасад кухонного гарнитура будет еще и дополнительной звукоизоляцией.
- Чистота и порядок. В подобных кухнях-студиях уборка проходит в режиме нон-стоп. Так как малейшее пятнышко, гора посуды или же бардак не даст ни вам спокойно отдохнуть, ни вашим близким, да и перед нежданными гостями будет неудобно.
А чтобы каждый раз не чистить поверхности своими руками, воспользуйтесь нехитрыми советами:- Используйте удобную систему для хранения продуктов, а также для кухонной утвари.
- Бытовую технику выбирайте встроенную.
- Поверхности лучше всего использовать из закаленного стекла, искусственного камня, пластика со специальным покрытием или же любые материалы с грязеотталкивающими свойствами. На них не так сильно будут заметны обязательные отпечатки пальцев.
Предлагаем вам также посмотреть видео на нашем сайте, как можно оформить кухню.
Галерея
Понравилась статья? Подписывайтесь на наш канал Яндекс.ДзенОтличная статья 0
Статьи по теме
Все материалы по темеjkuhnya.ru
дизайн и интерьер в фото примерах
В последнее время все большую популярность приобретает студийная планировка квартир, объединяющая несколько комнат в единое пространство. Чаще всего соединяют кухню с гостиной, столовой, прихожей, коридором, а иногда и с лоджией. Чтобы в результате подобного слияния получилось функциональное и комфортное жилое пространство, интерьер кухни студии должен быть продуман до мельчайших деталей.

Интерьер кухни студии разрабатывается в соответствии с общей концепцией дизайна квартиры
Кухни-студии пришли к нам с Запада, где очень распространены малогабаритные апартаменты-студии, в которых для кухни и столовой отводится не отдельная комната, а небольшое пространство в гостиной. Такая планировка исполнена света и воздуха, благодаря отсутствию глухих стен и преград она дарит ощущение простора и перспективы. Выдержанный в едином стиле интерьер студии выглядит завершенным и гармоничным, а за счет правильной организации пространства каждый сантиметр площади несет на себе определенную функциональную нагрузку.
Объединение кухни и гостиной в основном происходит в трехкомнатных квартирах со свободной планировкой, что позволяет создать максимально комфортное пространство для полноценного семейного общения, при этом остаются две независимые комнаты, где при желании можно уединиться. Оправдано создание кухни-студии и в малогабаритной однокомнатной квартире, особенно если не планируется использовать кухню в качества круглосуточно работающего «горячего цеха». Такой вариант оптимален для семейных пар без детей, которые особо не вникают в быт и редко засиживаются дома, а также для холостяков.

К дизайну кухни-студии предъявляются более высокие требования, ведь создать единый образ достаточно сложно
Чтобы совместить кухню с гостиной, потребуется масштабная перепланировка, которая предусматривает полный или частичный снос одной или нескольких стен. Поэтому, прежде чем взяться за разработку дизайна интерьера, следует выяснить, возможна ли перепланировка квартиры, и получить все необходимые официальные разрешения. В основном вся перепланировка сводится к сносу стены, рассчитывать на какие-то радикальные изменения (например, перенос кухни в другую часть квартиры) не стоит, поскольку по нормам не допускается обустройство над жилым помещением соседей «мокрой» зоны кухни-студии.

Яркая картина с кухне-студии оживляет простую и практичную обстановку
При обустройстве кухни-студии главное – разместить в объединенном пространстве все самое необходимое, но при этом избежать ощущения захламленности и беспорядка. Для этого стоит основательно продумать, как использовать появившееся пространство наилучшим образом, какие функции оно будет выполнять, как много времени будет уделяться приготовлению пищи, сколько людей там будут ежедневно находится, как часто вы собираетесь принимать гостей, что для вас является приоритетным: семейные обеды за общим столом, быстрые перекусы, работа за компьютером, просмотр телепередач и кинофильмов, наличие дополнительного спального места для одного из членов семьи или гостей? От ответа на эти вопросы зависит способ зонирования пространства, выбор мебели и техники, материалов для отделки стен, пола и потолка, планировка освещения.
Все пространство кухни-студии должно восприниматься как единое целое, иначе все переделки теряют всякий смысл. Однако наметить границы функциональных зон будет совсем не лишним. Это внесет в студийный интерьер упорядоченность и динамику.
- Комбинирование нескольких видов отделочных материалов
Для визуального зонирования пространства дизайнеры рекомендуют комбинировать несколько видов отделочных материалов. Например, для кухонной зоны в качестве напольного покрытия идеально подойдет керамическая плитка, а для столовой и гостиной лучше использовать ламинат, паркет или ковролин.

Использование разных материалов для отделки пола позволяет оригинально воплотить идею зонирования пространства
- Разный уровень пола и потолка
Отделить гостиную от зоны кухни и столовой можно за счет разного уровня пола: кухонный гарнитур и обеденную группу размещаем на подиуме, возвышающемся над основным уровнем пола. Весьма декоративно в сочетании с подиумом смотрятся ступеньки, металлические и кованые перила, встроенные в подиум точечные светильники. В подиуме также можно спрятать систему теплого пола, трубы и прочие коммуникации. Разноуровневым может быть не только пол, но и потолок: навесные, натяжные потолки, потолочные конструкции из гипсокартона.

Выполнить зонирование можно, используя разноуровневый потолок над обеденной и рабочей зонами
- Разделение функциональных зон с помощью мебели
Пожалуй, самый распространенный способ зонирования кухонного пространства – с помощью мебели. Провести визуальную границу между кухней и гостиной поможет кухонный «остров», «полуостров» или красивый обеденный стол. В торце кухонного полуострова можно разместить удобный и эффектный шкаф-витрину для посуды со встроенной подсветкой.

Кухонный остров в интерьере кухни-студии удачно вписывается в окружающую обстановку, разделяя помещение на две зоны
- Барная стойка
Удачно зонирует пространство барная стойка. Для небольшого помещения лучше выбрать легкую минималистичную модель из закаленного стекла, а в интерьер просторной кухни-студии отлично впишется полноценная барная стойка, совмещенная с напольными шкафчиками.

Стильная кухня-студия смотрится еще привлекательнее с изящной барной стойкой
- Фальш-стена, стеллажи, перегородки
Размежевать функциональные зоны можно, частично сохранив перегородку на месте бывшей стены или соорудив фальш-стену. Удачным и очень красивым решением станут открытые двусторонние стеллажи. Когда возникает необходимость временно полностью отделить кухню от столовой, пригодятся прозрачные или матовые раздвижные и складные перегородки. Наиболее органично в интерьер кухни-столовой вписываются иллюзорные стеклянные перегородки: они отлично пропускают свет, не нарушают единства пространства, но при этом служат прекрасной преградой для запахов.

Разделение зон в кухни-студии может быть и более явным, например, с использованием такой стены
- Зонирование пространства при помощи освещения
Используя различные варианты освещения, можно создать уникальный световой сценарий для каждой зоны: точечные светильники над рабочей поверхностью сделают приготовление пищи приятным и комфортным, подвесные светильники с плафонами на длинных регулируемых шнурах над обеденным столом помогут создать торжественную или интимную обстановку, а для гостиной подойдут различные виды потолочных светильников, торшеры, бра и оригинальные настольные лампы.

Индивидуальный режим освещения для каждой зоны кухни-студии не только удобен в использовании, но и привлекателен в плане дизайна
Какому бы варианту зонирования вы не отдали предпочтение, важно соблюсти стилистическое единство стен, пола, кухонного гарнитура, декоративной обивки мебели, штор. В студийных помещениях желательно использовать спокойные нейтральные оттенки, которые не надоедают, не раздражают, дарят ощущение спокойствия и уюта. Оживить обстановку помогут яркие акценты, которые при желании легко можно заменить. Добиться эффекта взаимопроникновения одного пространства в другое призвано единое цветовое решение кухни студии с однородной или близкой к однородной отделкой стен в кухонной зоне и в гостиной. Объединяющим фактором также может стать корпусная мебель для гостиной и кухонный гарнитур, выдержанные в едином стиле, единой цветовой гамме, либо изготовленные из одинаковых материалов.
У кухни-студии есть не только масса достоинств, но и недостатков. Если для вас важны чистота и порядок, да и перед гостями краснеть за бардак особого желания нет, будьте готовы к уборкам в режиме нон-стоп, особенно, если вы выбрали кухонный гарнитур в стиле хай-тек или минимализм, где малейшее пятнышко сразу же бросается в глаза. Вряд ли вам удастся расслабиться и полноценно отдохнуть, если перед глазами будут «маячить» горы немытой посуды и крошки на столе. Помимо аккуратности, привычки убирать за собой и дисциплинирования членов семьи, сделать кухню опрятной и облегчить жизнь хозяйке помогут современные материалы с грязеотталкивающими свойствами, пригодные для мытья и чистки отделочные материалы, удобная система хранения продуктов и кухонной утвари, встроенная бытовая техника, поверхности из искусственного камня, закаленного стекла или пластика со специальным покрытием, на котором не так заметны отпечатки пальцев.

Строгие сдержанные линии и цвета этого интерьера делают его респектабельным и элегентным
Бесспорный минус кухни-студии – сильные ароматы и запахи, которые не всегда неприятны, но часто просто неуместны. Если вы любите готовить и посвящаете кулинарному творчеству много времени, не забудьте установить мощную, но максимально малошумную вытяжку. Учтите, она должна выводить воздух на улицу, а не фильтровать и возвращать в комнату. Доплатив за стильный дизайн и декор вытяжки, вам не придется прятать ее за фасадами кухонного гарнитура.
Если хочется тишины, покоя и безмятежного отдыха, раскошелиться придется и на бесшумную бытовую технику: холодильник, микроволновку, стиральную машину. Достойной альтернативой дорогим бесшумным моделям может стать встроенная техника, дополнительной звукоизоляцией для которой служат фасады кухонного гарнитура.

Эта кухня-студия может похвастаться тщательно продуманным интерьером, к котором учтены все детали и нюансы

Интерьер кухни-студии в стиле минимализм — один из наиболее распространенных стилей оформления

Интерьер, оформленный в классическом стиле с использованием современных отделочных материалов, выглядит безупречно

В этой просторной, залитой солнечным светом кухне-студии каждый предмет обстановки занял подходящее место

В этом помещении кухне отводится немного места, большая часть пространства занята гостевой зоной

Оригинальный пример оформления кухни-студии демонстрирует широкие возможности современных отделочных материалов
kitchenguide.su
