Лестница из профильной трубы своими руками на второй этаж – Лестница из профильной трубы своими руками: чертежи и пошаговый монтаж
виды, чертежи, этапы изготовления, пошаговая инструкция
Профильные трубы часто используются при изготовлении лестниц различного назначения. Из них делают стремянки, приставные и внутренние межэтажные лестницы. Такая конструкция обладает надежностью и прочностью, органично вписывается в стиль любого дома. Они получаются не слишком тяжелыми, в интерьере жилого дома им удается придать даже некоторую воздушность за счет особенностей монтажа. Чтобы сварить лестницу из профильной трубы своими руками, необходимы чертежи, наличие инженерных знаний для произведения необходимых расчетов, навыков монтажа и сварки, кроме того, необходим качественный рабочий инструмент.
В этом случае лестница из профильной трубы, изготовленная своими руками, – вполне реальная возможность получить интересное интерьерное решение или нужный хозяйственный инструмент и значительно сэкономить семейный бюджет.
Из данного материала можно сделать лестницуПреимущества таких лестниц
Обычно из трубы выполняется только каркас сооружения. Полностью выполненная из профиля конструкция будет слишком громоздкой и тяжелой. Несомненные преимущества такой лестницы очевидны:
- легкость и простота сборки каркаса;
- вполне комфортная себестоимость;
- прочность и долговечность конструкции, она не подвержена воздействию плесени и грибка;
- приставная лестница или стремянка из профильных труб прослужит хозяину длительный срок, при необходимости ее можно сдать на металлолом или продать;
- каркас из металлической профтрубы позволяет совмещать при изготовлении самые разные материалы: дерево, камень, пластик и даже стекло;
- ее легко обработать защитными составами и окрасить;
- она может сооружаться внутри и снаружи помещения на любом этапе строительства и даже в полностью готовом доме.
При правильном исполнении она способна поражать легкостью и воздушностью конструкции или, наоборот, создать впечатление массивности и основательности.
В данном видео вы узнаете, как сделать лестницу из профильной трубы:
Разновидности
Лестницы из профильной трубы могут иметь различное назначение.
Маршевая лестница из профильной трубы
Конструкция может состоять из одного или нескольких пролетов (маршей), для их соединения между собой монтируются забежные ступени или горизонтальные переходные площадки. Переходные площадки, используемые при монтаже лестницы из нескольких маршей, обеспечивают дополнительную прочность каркаса, а забежные ступени позволяют сэкономить площадь, но увеличивают вероятность травматизма.
Одномаршевые конструкции обычно монтируются при возведении крыльца, внутри помещения для обустройства таких конструкций необходима большая площадь. Небольшая одномаршевая лестница внутри дома дает возможность обустройства под ней помещения хозяйственного назначения или шкафа, иногда там монтируют санузел или устраивают уголок для домашнего питомца. Чтобы уменьшить необходимую площадь, ее можно сделать более крутой, однако, это не всегда удобно для обитателей дома.
Винтовая
Это, конечно, интересное интерьерное решение, позволяющее сэкономить площадь в помещении, однако по ней практически невозможно поднять мебель и не очень удобно подниматься или спускаться с занятыми руками. Винтовая лестница изготавливается с использованием трубы в качестве опоры. Ступени вокруг опорного столба монтируются веером. Расчет такой конструкции несколько сложнее, чем маршевой.
Очень красиво смотрится в доме поворотная лестница.
Она отличается большим радиусом поворота и сочетает лучшие качества маршевых и винтовых конструкций, кроме того, такая конструкция значительно более удобна в эксплуатации. Однако самостоятельно изготовить и выполнить ее практически невозможно без специальных знаний и навыков.
Приставная лестница
Это самая простая в изготовлении конструкция из профильной трубы, которая обязательно найдет применение в частном доме. Такая лестница тяжелее деревянной, но гораздо прочнее и долговечнее. Ее не следует делать слишком длинной, смонтировав 2,5-3-метровую конструкцию и надев на ножки лестницы резиновые или пластиковые наконечники, можно получить устойчивую конструкцию, необходимую в саду или при проведении ремонтных работ.
Для данной лестницы хватит 2 опорыОна изготавливается из двух металлических опор, к которым на расстоянии около 35 см привариваются поперечные ступеньки. Оптимальной является ширина в 40-60 сантиметров.
Стремянка
Устойчивая и прочная лестница-стремянка из профильной трубы позволяет произвести огромное количество хозяйственных работ. Ее легко сделать своими руками. Кроме профильной трубы, в этом случае необходимо наличие специального шарнирного механизма. Стремянку дополнительно можно оборудовать откидной площадкой. В случае монтажа поперечной планки между опорами ее элементов конструкция приобретает форму буквы А и становится более безопасной.
Расчеты основных параметров лестницы
Высота межэтажной лестницы рассчитывается от пола первого этажа до пола второго этажа. Для правильного расчета необходимо учитывать межэтажные перекрытия. Чтобы узнать, сколько ступеней необходимо сделать, нужно расстояние между этажами разделить на высоту ступенек. Учитывают целое число, остаток нивелируется высотой нижней ступеньки. Она может быть чуть ниже или выше остальных.
Количество ступеней и их ширина в лестничных маршах первого, второго и последующих этажей должны быть одинаковыми, это значительно снижает вероятность травматизма. Ширина конструкции – не менее 90 см, если в доме большое количество жильцов, то ширина марша должна быть такой, чтобы на ней могли разойтись 2 взрослых человека средней комплекции.
Угол наклона не должен превышать 40°, более крутые лестницы неудобны при эксплуатации, а количество ступеней на каждом пролете составляет до 16 штук.
Высота ступеней может колебаться в диапазоне от 130 до 170 мм. Ширина проступи (горизонтальная площадка ступени, на которую встает нога при подъеме по лестнице) рассчитывается так, чтобы на ней полностью умещалась стопа взрослого человека: от 280 до 350 мм. Эти параметры нужно знать при расчете любой лестницы. Размер и конфигурация лестничных площадок зависит от конструктивных особенностей лестницы. Конструкция состоит из нескольких элементов:
- лестничные косоуры или тетива – это несущие опорные балки ступеней;
- проступь – это горизонтальное основание ступени, на которое ставится нога;
- подступенок у лестницы – это высота между соседними проступями;
- балясины лестницы – невысокие столбики, поддерживающие перила лестниц;
- подперильник – это планка, к которой крепятся балясины, подперильник является скрытым элементом и закрывается перилами.
Если самостоятельно рассчитывать лестничные пролеты никогда не приходилось, следует доверить эту работу специалистам и возводить лестницу по уже готовым чертежам.
Сборка лестницы своими руками
Она состоит из нескольких этапов, начиная от подготовки необходимого для монтажа инвентаря и заканчивая процессом покраски и установки перил.
Подготовка материала и инструмента
Для обустройства понадобятся:
- профильная труба в необходимом количестве;
- сварочный аппарат и электроды;
- болгарка и специальные круги;
- уголок металлический;
- основа для ступеней (проступь), она делается из камня, дерева, пластика;
- молоток;
- перфоратор и сверла.
Не следует забывать о технике безопасности: сварочные очки и защитный костюм – обязательные элементы сварочных работ.
Не забываем подготовить инструментСборка системы
Разбираясь, как сварить и собрать лестницу из металлического профиля, следует учитывать разные конструктивные решения.
Конструкция из металлического профиля может состоять из тетивы (двух несущих балок с закрепленными между ними ступенями, она может сооружаться с применением одного или двух косоуров). Это зависит от предпочтений хозяев дома. Центральный ломанный косоур изготавливается из отдельных деталей методом сварки. Два отрезка металлического профиля свариваются под прямым углом.
Часто используют центральную балку из стальной профильной трубы, к ней сверху привариваются специальные подставки, на которые устанавливаются проступи. Следует учитывать, что конструкция с центральным косоуром должна выдерживать большие нагрузки, соответственно, необходимо использовать трубу с толщиной стенок не менее 6 мм.
Лестница из металлического профиля на двух косоурах, расположенных по краям, более прочна и надежна. При изготовлении необходимо следить, чтобы два косоура для лестничного марша полностью совпадали между собой. Поэтому детали для сварки должны располагаться на идеально ровной поверхности. Лучше всего использовать стол. Расположенные под прямым углом элементы косоура прихватываются сваркой, сначала с одной, потом с другой стороны, а после – качественно проваривается. Правильное изготовление косоура – залог безопасности и красоты всей конструкции.
Обычно используют металлический профиль 40×60 см, он обеспечивает оптимальное соотношение легкости и надежности конструкции. Если планируется тяжелый материал для проступей, к косоурам приваривается металлический уголок, образующий рамку.
Нижний край лестницы приваривается к платформе или площадке в полу, верхний – к платформе 2 этажа. Часто производят дополнительное ее крепление анкерами к несущей стене дома.
Установка ступеней
Для установки ступеней в косоурах предварительно просверливаются сквозные отверстия. Проступи можно крепить с обратной стороны при помощи саморезов. Между косоуром и проступью необходимо установить небольшую подложку из фанеры, кусочка линолеума или нанести полоску силиконового герметика, это избавит ступени от скрипа. Часто они крепятся с внешней стороны с помощью болтов с декоративными головками. Через некоторое время после начала эксплуатации следует дополнительно подтянуть крепежные элементы.
В качестве элемента крепления ступеней лестницы можно использовать металлическую футорку, дополнительно закрепленную в деревянной проступи при помощи клея. Такое крепление позволяет несколько раз перемонтировать ступени при необходимости.
Покраска конструкции
Аккуратно изготовленные и отшлифованные элементы лестницы из металлического профиля легко покрываются антикоррозийным составом, грунтовкой и окрашиваются. Для окраски часто используют молотковые краски или автомобильные эмали. Чтобы окраска была качественной, пользуются краскопультом. Именно поэтому она выполняется до установки проступи и подступенков. Можно использовать для окраски маленький валик.
Монтирование ограждений
Ограждение лестницы может быть различным: кованые элементы, металлические или деревянные балясины, прозрачные или цветные пластины из стекла или пластика – фантазии есть, где разгуляться. Следует помнить, что если в доме есть маленькие дети, ограждение лестницы должно быть особенно продуманным – малыш не должен пролезть между элементами ограждения или застрять между балясинами. Высота перил должна быть не менее 90 см, в доме с детьми, престарелыми людьми и инвалидами — 120 см.
Не забываем про огражденияОграждения могут крепиться к ступеням или привариваться к тетивам лестницы. Часто дополнительно монтируются опорные столбики по краям маршевого пролета. Это делается для повышения безопасности. Для крепления деревянных деталей к ступеням используют специальные шпильки. Балясины закрепляются на подперильник шурупами, а сверху монтируются перила. Их чаще всего делают деревянными или пластиковыми. Дерево хорошо обрабатывают и покрывают несколькими слоями лака.
В заключение
Следует помнить, что лестница в доме притягивает взоры всех посетителей, она служит украшением интерьера и при этом должна быть удобной и безопасной для каждого из жильцов. Именно поэтому при отсутствии твердой уверенности в собственных силах лучше заказать изготовление и монтаж конструкции у профессионалов.
prolestnici.com
Лестница из профильной трубы своими руками: чертежи, советы
Лестницы из металла широко распространены не только в сфере частного использования, но и на промышленных и коммерческих объектах.
Использование в таких случаях профильной трубы позволяет облегчить конструкцию с сохранением показателей прочности относительно аналогичных изделий из швеллера.
Разновидности каркасов из профильной трубы
Рассмотрим варианты, как сделать лестницу из профильной трубы. Тип конструкции во всех случаях — это косоур. Вид лестницы может быть совершенно любым: прямая, поворотная или винтовая. Это зависит от проекта вашего дома и внутреннего дизайна.
Возможные каркасы из профильной трубы:
Перед началом изготовления рекомендуется предварительно подготовить шаблон, в котором будет фиксироваться каждый элемент для ровной и правильной сварки.

Преимущества лестниц из профильной трубы
У любой конструкции, не важно, из какого материала она выполнена, есть свои плюсы и минусы.
Плюсы каркасов из профильной трубы:
- надежность и долгий срок службы;
- возможность реализации конструкции любой формы, при наличии определенного навыка;
- возможность сочетания с другими материалами, что дает возможность вписать такой каркас в любой интерьер;
- благодаря высокой стойкости к механическому воздействию есть возможность установить лестницу на начальном этапе строительства, не переживая за ее внешний вид; по завершению стройки при необходимости можно выполнить повторный окрас;
- такую лестницу можно устанавливать как внутри помещения для доступа на второй этаж, так и на улице.
Основным минусом любой металлической конструкции является возможная коррозия, воздействие которой можно минимизировать или исключить при правильной подготовке и обработке изделия.
Какой вид профтрубы выбрать для лестницы
Определение и подбор профильной трубы для будущей конструкции — важный этап, от которого будет зависеть, насколько надежным получится каркас.
Для лестницы используется квадратная или прямоугольная труба.

Ниже мы привели для вас размеры труб для различных каркасов, которых будет достаточно при стандартных нагрузках на конструкцию.
В том случае если планируются повышенные нагрузки на лестницу, рекомендуем произвести дополнительные расчеты. Возможно, будет достаточно увеличить толщину стенки такого же профиля или увеличить размер профиля.
Лестница из профиля монтаж
Своими руками возможно сделать любой каркас, все зависит лишь от ваших навыков.
Если вы не уверены в своих силах, отказываться от реализации сложной винтовой или поворотной конструкции, конечно же, не стоит. В таком случае советуем обратиться к профессионалам, которые помогут вам с монтажом и сваркой лестницы из профильной трубы.
Необходимые инструменты:
- болгарка с отрезными дисками по металлу;
- дрель со сверлами;
- сварочный аппарат;
- шуруповерт.
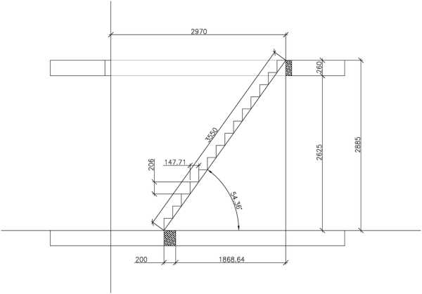
Подготовка чертежа и особенности расчетов
Для того чтобы наглядно понять, как сварить лестницу из профильной трубы, необходимо подготовить чертеж и произвести все расчеты по размерам.

На этапе проектирования определяются:
Определение данных параметров поможет наглядно представить и понять, как будет выглядеть готовая конструкция в вашем интерьере. В зависимости от выбранного типа лестницы вы сможете оборудовать нишу под ней по вашим потребностям.
Подготовка каркаса сварочные работы
Начиная монтаж лестницы из профильной трубы своими руками, вы уже должны иметь все чертежи, согласно которым будете вести работы.
Рассмотрим упрощенный вариант сварки ломаного косоура.
Секрет в том, что нет необходимости нарезать трубу на мелкие куски, а можно за раз делать ступень:
- отмеряем место, в котором должен быть прямой угол, и вырезаем равнобедренный треугольник таким образом, чтобы не повредить одну сторону профильной трубы;
- сгибаем трубу и получаем ступень с прямым углом;
- провариваем получившийся стык и переходим к следующему;
- получив ломаный косоур, на каждую проступь привариваем металлическую пластину, на которой в дальнейшем будут устанавливаться ступени.

Каждый сваренный стык необходимо зачистить, отшлифовать, обезжирить и перейти к покраске.
Отделка
Варианты покраски конструкции:
- в домашних условиях при помощи грунтовки и эмали:
- порошковая покраска возможна на специализированном оборудовании.
Металлический каркас лестницы в большинстве случаев оставляют просто окрашенным с закрепленными ступенями.

Можно также зашить каркас деревом, что придаст конструкции вид деревянной лестницы.

gidlestnic.ru
чертежи своими руками, как сварить каркас, фото на второй этаж, расчеты
Лестница из профильной трубы (не из круглой) отличается долговечностью и хорошей износостойкостью. В отличие от деревянной лестницы, металлическая более прочная, хотя может быть и более тяжелой. Сами по себе профильные трубы уже тяжёлые, поэтому за весом лестницы нужно следить по ходу работы и стараться не утяжелить, а лучше и уменьшить её вес. Сделать это можно, воспользовавшись советами, которые можно найти в данной статье.
Надежная лестница из профильной трубы своими руками: подготовка
Прежде чем приступить к работе, необходимо сделать замеры, по которым в дальнейшем и будет строиться лестница.
Что необходимо знать перед работой:
- Размеры лестничного проёма;
- Расчет необходимого количества материала;
- Поворот лестницы;
- Количество ступеней.
Лестничный проём — это свободное пространство в перекрытии между первым и вторым этажом. Самое первое что нужно сделать — рассчитать размеры этого проёма.
Металлический каркас для лестницы отличается хорошими эксплуатационными качествами и длительным сроком службы. Подробнее о правильном изготовлении лестницы читайте на нашем сайте: https://homeli.ru/remont-i-otdelka/lestnitsy/izgotovlenie-lestnits-na-metallicheskom-karkase.
Количество материала определяется после всех замеров, на основе уже составленного чертежа.
Поворот лестницы необходим, когда размеры или другие особенности помещения не позволяют поставить лестницу прямо, без изгибов под углом.
Также важно определить количество ступенек на будущей лестнице. Делать это удобно, зная, что по длине одна ступень должна составлять примерно 30 сантиметров, по ширине от 90 до 125, а комфортное для человека расстояние между ступенями по высоте составляет 15 сантиметров. В особых случаях ширина ступени может достигать 180 сантиметров, но для таких огромных лестниц понадобится и дополнительное крепление.
Также при расчётах помните, что средний шаг человека составляет 60 — 64 сантиметра.
Монтаж лестницы из профильной трубы: чертеж и необходимые инструменты
Без хорошего чертежа вы не сможете сделать качественную лестницу. Если раньше вы никогда не имели дела со схемами, то лучше обратиться за помощью к профессионалу.
Что учитывается при составлении чертежа:
- Размер лестничного проёма;
- Поворот, ширина и высота лестницы;
- Количество ступенек.
Сюда же можно добавить будущую художественную отделку лестницы, если вы планируете немного приукрасить её.
Расчет наклона ступеней лестницы позволит спроектировать удобную и безопасную конструкцию. О том, как подобрать угол наклона ступеней наш следующий материал: https://homeli.ru/remont-i-otdelka/lestnitsy/naklon-stupenej-lestnitsy.
После того, как вы сделали чертёж и купили все материалы, нужно подготовить все необходимые инструменты, которые понадобятся в процессе работы.
Инструменты, которые пригодятся при создании лестницы:
- Сварка и электроды к ней;
- Пила-болгарка и диски для работы с металлом;
- Перфоратор, свёрла;
- Молоток.
Для того чтобы в процессе создания лестницы не запутаться в большом количестве различных деталей, мы советуем вам пронумеровать их.
Готовим каркас лестницы из профильной трубы: советы
Каркас — это основа будущей лестницы, поэтому необходимо продумать его до конца, а затем качественно сварить.
Помните, что при изготовлении каркаса в любом случае понадобится сварка. А значит, и умение обращаться с нею. Если таковых навыков у вас нет — то придётся прибегнуть к помощи мастера по сварочным работам.
Каркасным основанием чаще всего является труба, диаметром около 60 миллиметров.
Этапы изготовления каркаса:
- Просчитайте количество ступенек, их высоту и ширину;
- Приступайте к монтажу профильной трубы. Крепиться она будет на настенных анкерах, которые предварительно необходимо установить. Дополнительно лестницу нужно закрепить и с другой стороны, при помощи закладок.
- Приваривайте к трубе уголки. Следите, чтобы их замеры точно совпадали с заданными по чертежу, иначе конечный результат получится некачественным, а лестница — кривой и небезопасной.
- Если необходимо, к концу работы также можно установить перила.
Как сварить лестницу из профильной трубы: дальнейшая отделка
После того, как вы закончили делать каркас лестницы нужно переходить к её дальнейшей отделке.
Что нужно сделать после установки каркаса:
- Изготовить ступени;
- Установить перила;
- Если требуется, украсить лестницу.
Заметьте, что лестница из профильной трубы — сама по себе тяжёлая конструкция. Поэтому вы можете немного облегчить вес, сделав ступени не из тяжёлого металла, а из лёгкого дерево.
При должном подходе, сочетание металлического каркаса и деревянных ступенек создаст дополнительный эффект дороговизны.
Перила также можно изготовить из дерева, но не забывайте, что дерево должно быть качественным. Как правило, при изготовлении лестниц используют породы дуба, бука или ясеня.
Украсить лестницу можно уже на конечном этапе. Например, если вы выбрали вариант с деревянными перилами, то можно прибегнуть к художественной резьбе или выжиганию.
Одним из вариантом конструкции может быть лестница на косоурах, её вид отлично дополнит дизайн современного помещения. Рекомендации по созданию такой лестницы читайте в статье: https://homeli.ru/remont-i-otdelka/lestnitsy/lestnitsa-na-metallicheskikh-kosourakh.
Лестница на второй этаж из профильной трубы: преимущества и недостатки
После того, как вы ознакомились с процессом создания лестницы из профильной трубы, стоит подумать над преимуществами и недостатками такой конструкции.
Преимущества лестницы из профильной трубы:
- Хорошая прочность и износостойкость;
- Большой срок эксплуатации;
- Относительно быстрый срок изготовления;
- Создать лестницу из профильной трубы можно в одиночку, не прибегая к помощи мастеров;
- Возможность создать лестницу любой формы;
- Цена на необходимые материалы невысока.
Как видите, плюсов у такой лестницы действительно немало. Срок её эксплуатации заметно выше, чем у деревянной, и она не так тяжела, как каменная. Однако есть и недостатки.
Недостатки лестницы из профильной трубы:
- Металлический каркас весит довольно много, особенно, если лестница большая. Из-за этого при отделке лестницы приходится использовать такие материалы как дерево и пластик.
- Для того чтобы создать такую лестницу нужны умения и опыт работы со сварочным аппаратом.
Не забывайте, что лестницу необходимо периодически обрабатывать антикоррозийным покрытием.
Как монтируется лестница из профильной трубы собственноручно (видео)
Лестница из профильной трубы тяжела и требует дополнительной периодической обработки. Зато цена на её изготовление заметно ниже, чем на другие виды лестниц, а срок эксплуатации выше. Правильно изготовленные самодельные конструкции будут служить долгое время.
Надежная лестница из профильной трубы (фото конструкций)
homeli.ru
как сварить своими руками, чертежи, расчет лестницы на второй этаж, сварка приставной лестницы из квадратной профтрубы
Содержание:
В отличие от давних времен, когда любые металлические изделия изготавливались только методом ковки, сейчас активно пользуются сваркой для соединения отдельных компонентов, как, например, уголки, швеллеры и профилированные трубы. О том, как сварить лестницу из профильной трубы, а также, какие разновидности этих изделий могут быть, расскажет в данном материале.

Безусловно, не стоит сбрасывать со счетов профессиональных кузнецов, работы которых отличаются высоким качеством и эстетической красотой. Однако это изделия, скорее, штучные, да и стоят они достаточно дорого. А вот создать лестницу из профтрубы сможет практически каждый, если только он умеет обращаться со сварочным аппаратом и заготовил все необходимые материалы.
Внешний вид лестницы
Поскольку изделия из профиля становятся все более популярны, в сети можно найти любые модификации лестниц из профильной трубы. Не обошли вниманием даже довольно смелые решения в виде стеклянных сооружений без перил или «утиный шаг», то есть практически вертикальный лестничный пролет с шириной ступени для одной ноги. Однако проще всего для начинающих строителей изготовить маршевую лестницу из профтрубы своими руками, которая пользуется наибольшей популярностью среди хозяев домов.
Чтобы правильно подобрать параметры данной конструкции, можно изготовить чертежи лестницы из профильной трубы своими руками, взяв за основу один из наиболее подходящих проектов и адаптировав его под конкретные размеры.
Маршем именуется конструкция, которая находится между поворотными площадками. Различают прямые, двух- и многомаршевые сооружения. Если речь идет о винтовой лестнице, то все ступени в ней расположены вокруг одной оси. Их используют для подъема внутри здания – между этажами или до входной двери, а также для пересечения неровностей ландшафта.
Наиболее крепкими и надежными считаются стационарные лестницы из квадратной трубы. Однако в случае необходимости можно пользоваться складными портативными изделиями.

Для сборки лестничного пролета используют такие материалы:
- металлические элементы – уголки, сварные детали, профильные трубы;
- древесина;
- железобетон;
- композитные материалы.
Способов монтажа деталей для лестничного пролета может быть несколько, однако, самым надежным считается сварка металлических конструкций.
Крепление ступеней лестницы может быть:
- на больцах;
- на косоурах;
- на тетиве.
От способа крепления ступеней будет зависеть набор материалов, которые понадобятся для сооружения лестницы из профильной трубы своими руками. Чтобы было легче выбрать тип конструкции под конкретное помещение или местность, можно просмотреть ряд фотографий.

Некоторые опытные мастера рекомендуют выполнять из профильной трубы только косоуры или основу конструкции, а для ступеней использовать материалы с меньшей массой. Наилучшим выбором для основы лестницы будет профиль с размерами 60×40 мм.
Стоит отметить, что у конструкций из профиля есть ряд несомненных достоинств:
- Хорошая сопротивляемость образованию плесени и коррозии, что делает их приемлемыми в местах с постоянными перепадами температуры и без отопления.
- Приставная лестница из профильной трубы может прослужить довольно долго, а в случае ее разборки, металл за ненадобностью можно продать или сдать в качестве лома.
- Сборка и монтаж металлического модульного или сварного каркаса производится достаточно быстро и легко.
- Поскольку внешний вид лестницы из профиля является довольно лаконичным, не составит большого труда совместить ее с имеющимся в помещении интерьером.
- Профильные трубы будут вполне доступны для большинства покупателей, поэтому себестоимость проекта будет невысокой. Да многим и работать с металлом проще, чем с древесиной.
- Металлический каркас из профилей превосходит по прочности любые другие аналогичные сооружения.
- Срок монтажа лестницы на второй этаж из профильной трубы намного меньше, чем при работе с деревом, если, конечно, у вас есть сварочный аппарат и навыки работы с ним.
- Немаловажен тот факт, что благодаря наличию металлической основы, в такой лестнице можно совмещать самые различные материалы – стекло, мрамор, плитку и даже пластик.

Обратите внимание, что если предполагается сборка легкой конструкции, то и профиль лучше выбирать с тонкими стенками. Оптимально использование трубы с диаметром 5-7,4 мм, которая будет достаточно прочной и выдержит вибрацию от нагрузки.
Конструкционные элементы
Во время пользования лестницей человек становится на ступеньки, ширина которых может достигать полной ширины стопы, либо доходить до каблука обуви.
Для того чтобы конструкция держалась, используются косоуры – боковые планки со срезанными участками, на которые кладут ступени. Кроме того, для соединения проступей и фиксации всей конструкции могут использоваться больцы. Тетивами называют торцевые и нижние балки, поддерживающие ступени. Вертикальные отрезки лестницы, которые подпирают ступени, называют подступенками. Они нужны для усиления всей конструкции.

Как правило, один лестничный марш в сооружении из профильной трубы имеет 18-20 ступенек, уложенных на косоуры. Устанавливают ее вдоль стен и угла, либо на весу между двух этажей, и состоит она из двух маршевых пролетов. Зачастую количество ступеней делают нечетным, чтобы начинать и заканчивать подъем на каждый следующий марш с одной и той же ноги. Данным правилом пользуются и в небольших коттеджах, и в больших офисных зданиях.
Перед началом сварки лестницы из профильной трубы все одинаковые металлические элементы укладывают попарно, а сверху прикрепляют проступи и подступенки. Сами ступени можно изготовить из легких материалов, помещенных в металлический каркас, например, они могут быть из ламината или из древесины.

Стандартный расчет лестницы из профильной трубы выглядит так:
- промежуток между соседними ступенями (высота подступенка) должен составлять порядка 14-22 см;
- угол наклона лестничного пролета делают в 30-40º, что равно соотношению 1:2 или 1:2,5 длины к высоте;
- ширина ступенек составляет 20-30 см, а если выбран небольшой угол уклона, то она немного шире места упора.
Порядок проведения работ и заготовка материалов
У внутренних и приставных лестниц конструкция совершенно разная, а наиболее простой считается одномаршевая на косоурах для крыльца. Самой сложной считается металлическая винтовая лестница.
Последовательность работ по сборке каркаса из профиля для одномаршевой лестницы такова:
- проектирование и составление чертежа;
- проведение разметки;
- разделение профиля на отрезки нужной длины;
- сборка основного каркаса для установки ступеней;
- приваривание подступенков и ступенек;
- установка конструкции на место и заливка бетона на площадке;
- монтаж перил;
- укладка древесины в рамы для ступеней;
- окончательное декорирование.
Выполнить сборку каркаса для лестницы из профиля можно несколькими способами. Его можно изготовить из парных профильных труб или стальных косоуров, либо воспользоваться швеллером, в котором ступеньки будут приварены сверху на основу или внутри рамы.

Если речь идет о конструкции внутренней лестницы с деревянными ступенями, то крепление марша производится сначала в верхней точке, а уж потом ее фиксируют внизу. При этом лестницу фиксируют к анкерам в стенах и платформе, служащей первой ступенью.

Отметим, что не стоит забывать о контроле горизонтальности расположения ступеней. Когда все основные работы будут закончены, можно приступать к сварке перил.
Процесс сборки винтовой лестницы из трубы и профилей
Винтовую лестницу предпочитают устанавливать с целью экономии места. Для ее создания нужна основная опорная труба и заготовки из профиля для ступеней. Для работы потребуется две трубы, одна из них с меньшим диаметром станет опорной, а другая с чуть большим сечением будет разрезана на заготовки по 20-22 см. К этим гильзам будут приварены одинаковые отрезки профиля для ступеней. Получившиеся заготовки будут установлены друг на друга и развернуты веером, пока не заполнят всю высоту лестницы.

Перила для винтовой лестницы должны быть спиральными. Из стального профиля выполняют основание и консоль, они привариваются вместе. Обратите внимание, чтобы гильзы сидели плотно и не болтались – люфты можно скомпенсировать уплотнительными кольцами. Собранный каркас нужно будет приварить и покрыть слоем грунтовки.
Для перил лучше использовать изящные воздушные металлоконструкции, а поручни могут быть из пластика или дерева.
Закреплять винтовую лестницу можно в двух местах между этажами или к стенке с помощью кронштейнов. Однако существуют и другие методы фиксации. Для декорирования металлической лестницы лучше воспользоваться специальной краской – наиболее актуальные цвета – черный, коричневый, металлик.
Любая установленная лестница должна быть не только красивой внешне, но и безопасной для пользователей. Поэтому если вы не уверены в своих силах, то сборку и проектирование таких изделий лучше поручить специалистам.
trubaspec.com
| Иллюстрация | Описание |
![]() Материал для работы | Для работы нам понадобится следующее:
|
![]() Разметка материала | С помощью рулетки и маркера производится разметка стоек. В нашем случае они будут иметь длину 470 см. Чтобы получить два идеально ровных элемента, труба выравнивается по нижнему краю и укладывается вплотную. Вы размечаете сразу два элемента — получается и быстро, и точно. |
![]() Резка металла | Стойки режутся с помощью обычной болгарки или специальной установки, если таковая есть под рукой. Тут все просто, главное — резать элементы перпендикулярно, без перекосов. |
![]() Разметка положения ступеней | С помощью маркера помечаются места будущего расположения ступенек. Метки ставятся по центру будущих элементов. Ставьте линии через каждые 40 см. Лучше, если кто-то будет придерживать рулетку в процессе работы. |
![]() Разметка центра профиля | Далее нужно напротив ранее нанесенных меток поставить точки по центру элементов. Так как ширина заготовок 40 мм, то точки ставятся на 20 мм. Опять же лучше делать это сразу на двух трубах, которые выровнены по нижней части. |
![]() Метки под сверление | В месте расположения точек ставятся крестики, чтобы метки были лучше видны, и вы не искали их в процессе работы. |
![]() Коронка по металлу | Для сверления профильной трубы нам нужна специальная коронка по металлу диаметром 30 мм. Купить такую оснастку можно в любом магазине электроинструмента. |
![]() Установка коронки | Коронка ставится на электродрель. Хвостовик следует очень хорошо зажать в патроне с использованием специального ключа.
|
![]() Сверление отверстия | Дрель ставится так, чтобы центровочное сверло коронки располагалось точно посередине метки. Далее электроинструмент запускается и производится сверление: вначале в металл входит центровочное сверло, а затем зубья коронки выбирают идеально ровную окружность. |
![]() Готовое отверстие | Когда вы пройдете через стенку профильной трубы — сразу вынимайте коронку, чтобы не повредить наружную стенку, она должна быть цельной. |
![]() Готовые стойки | Таким же образом работа продолжается до самого конца. Когда стойки просверлены, поднимите их, чтобы куски металла высыпались изнутри. Пока эту часть можно отложить и приступать к изготовлению ступенек. |
![]() Разметка трубы | Труба размечается по 40 см. Именно такие куски нужны для ступеней. С учетом того, что они уйдут почти на 20 мм в профтрубу с каждой стороны, ориентировочная ширина конструкции составит 360-370 мм. При желании вы можете сделать конструкцию с расширением книзу, но тут придется высчитывать ширину ступеней, а это сложно. |
![]() Резка трубы | Труба нарезается на куски необходимого нам размера. Важно делать ее ровной, чтобы торцы не были перекошены. В процессе распиловки следует хорошо держать трубу, чтобы она не болталась. |
![]() Шлифовка торцов | Торцы трубы слегка шлифуются, нужно убрать все заусенцы, которые образовываются при резке и могут мешать вставить элемент в стойку. |
![]() Заготовки ступеней | В нашем случае понадобилось 11 заготовок под ступени. Все они тщательно обработаны на торцах. Использование круглых труб позволяет добиться большей прочности, так как мы не просто привариваем элементы к поверхности, а вставляем их внутрь. В этом случае даже если сварка лопнет, ступенька не вывалится — безопасность конструкции намного лучше, чем при применении ступеней из профильной трубы. |
![]() Трубы отлично вставляются в отверстия | Вначале нужно положить одну из стоек на землю отверстиями вверх, а затем вставить в них трубы по всей длине. Тут все просто и понятно, а вот на следующий этап лучше привлечь помощника. |
![]() Поставили вторую стойку | На верхние торцы ступенек надевается вторая стойка. Не перепутайте концы и поставьте ее правильной стороной. Главное — совместить все торцы по отверстиям. |
![]() Фиксация элементов | Чтобы зафиксировать лестницу в неподвижном положении, ее надо стянуть в трех местах веревкой или пластиковой стяжкой. |
![]() Клемма сварочного аппарата | Клемму нужно поставить на ступеньку, которую вы будете приваривать. Так как металл у нас свежий, то ничего дополнительно очищать не надо. |
![]() Сварочные работы | Ступеньки привариваются по периметру. Тут не важна аккуратность и красота, главное — хорошо проварить шов, чтобы он был прочным и надежным. |
![]() Удаление окалины | Окалину и рыхлые части стоит аккуратно сбить с помощью молотка. Просто пройдитесь вокруг, постукивая молоточком, вы сами увидите, где нужно тщательнее поработать, а где и так все хорошо. |
![]() Крепление шлифовочного диска | На болгарку устанавливается шлифовочный диск. Ни в коем случае не пользуйтесь отрезным вариантом при зачистке поверхности, это очень опасно, так как элемент может лопнуть под нагрузкой. |
![]() Зачистка соединений | Все наплывы и кривые участки аккуратно шлифуются. Нужно просто сгладить поверхность, не усердствуйте слишком сильно, чтобы не убрать много металла и не ослабить сварочный шов. |
![]() Установка проволочного диска | Чтобы окончательно зачистить поверхность и убрать мелкие шероховатости, нужно использовать специальную проволочную чашку. Она ставится на болгарку вместо шлифовочного диска. |
![]() Окончательная зачистка | Проволочной чашкой поверхность зачищается до конца. Этим же приспособлением можно убрать следы коррозии с поверхности трубы, если таковые на ней есть. |
![]() Грунтовка стыков | Места сварки нуждаются в дополнительной защите, поэтому их со всех сторон следует обработать грунтовкой. Удобнее всего это делать аэрозольным баллоном. |
![]() Готовая лестница | После высыхания грунтовки конструкция окрашивается. Так собирается приставная лестница своими руками из профильной трубы. |
olestnicah.ru
Лестница из профильной трубы своими руками: расчеты, монтаж и видео
Лестница из профильной трубы своими руками создается сварным и сборным способом. Для ее изготовления рассматривают приставные, стационарные и другие варианты. Для наглядного примера, ниже рассмотрены варианты установки сооружения в виде прямой, винтовой и мобильной конструкции.

Лестница из профиля для внутреннего размещения
Важные детали
- Для уменьшения веса профильной конструкции применяют вставки из дерева, стекла, камня и керамики.
- Приставная лестница из профильной трубы своими руками производится в качестве дополнения крыльца, наружного подъема на чердак и установки внутри помещений.
- Для создания ступенек используются профилированные трубы сечением 5-7,4 см. исключить дрожание и вибрацию можно путем сокращения длины стоек в пролетах.
- Наклон ступеней – 1:2 или 1:2,5, что соответствует углу подъема от 30 до 40 гр.
- Правильно разработанная лестница из профильной трубы своими руками на чертежах имеет не более 18 ступеней. При наличии высоких потолков, сооружается площадка между маршами.
- Для удобства создается нечетное количество ступенек в марше. Это позволяет начинать и заканчивать шаг с одинаковой ноги.
- Высота ступенек составляет 15 – 21 см.
- Ширина ступенек равна 30 см. Чем меньше угол наклона, тем шире проступи.

Лестничный марш из профильных элементов
Металлическая лестница из профильной трубы своими руками может иметь альтернативу в виде двух швеллеров. Изначально сваривают опорную раму, затем каркас для ступенек. Он размещается двумя способами:
- Поверх швеллера;
- Внутри рамы.
В первом варианте уголки привариваются к верхней полке швеллера. А во втором случае создается предварительное крепление уголков к наклонным балкам внутри. К ним приваривают оставшиеся детали каркаса ступенек. Ниже отображена лестница из профильной трубы своими руками на фото.
Подготовка материалов
- Швеллер 16 (высотой 16 см, шириной полки 6,4 см) длиной, соизмеримой с маршем. Потребуется 2 балки.
- Профиль толстостенный 4х4 см. Его количество определяется числом ступеней. Для создания небольшого марша потребуется 20 м погонных.
Инструменты для возведения марша:
- Пила для металлоконструкций (маятниковый вариант).
- Станок для сверления.
- Сварка.
- Электродрель.

Лестница из профиля для установки внутри здания
Этапы монтажа:
- Межэтажная лестница из профильной трубы своими руками начинается с обрезки косоуров до нужных параметров так, чтобы после монтажа они образовывали упор на пол плоской стороной среза.
- Для более прочной фиксации на перекрытиях первого и второго этажа к бетонной основе под напольной поверхностью закладывают балки из металла (можно применить швеллер с параметрами 22 см). Длина балок должна быть больше ширины лестницы.
- Производится крепление несущих швеллеров к закладным балкам. Для этого применяется сварка.

Ступени из профиля для установки в здании
Здесь можно узнать в подробностях, как производится лестница из профильной трубы своими руками на видео:
Из профиля создаются заготовки для ступенек прямоугольной формы.
- Заготовки монтируют на направляющих и приваривают к ним. Для создания усиления сооружения применяют вертикальные опорные части из той же трубы.
- Для облегчения устройства вместо трубы можно использовать стальные уголки.
- Каркас зачищается и окрашивается для исключения порчи конструкции.
- На основу из металла укладываются проступи из массива с дальнейшим креплением с помощью саморезов. Для этого предварительно сверлятся зазоры.
- С боковых сторон направляющих швеллеров привариваются опоры в виде столбов, поверх размещаются поручни.
- На ступеньках монтируются вертикальные стойки. Вместо балясин могут послужить горизонтальные прутки или листовые плиты типа плексигласа, пластиката, шпона, триплекса и пр.

Ступени из профиля для внутреннего монтажа
Металлокаркас для маршевой лестницы
План работ:
- Разметка и нарезка профиля, соединение рам под ступенями.
- Бетонирование конструкции.
- Монтаж косоуров;
- Оснащение уголками тыльную часть ступеней.
- Сварка ступенек между собой.
Инструкция по монтажу:
- Рассчитывается число ступенек, их параметры.
- Для создания каркаса применяется профиль 10х10 см и уголки 4х4 см. В данном случае труба применяется вместо швеллера, так как характеризуется большой жесткостью.
- Создают постамент для пологой конструкции. На краю платформы размещается нижняя отправная точка начала ступенек.

Ступени из профиля между первым и вторым этажом
Внимание! в случае установки прямого сооружения, постамент не потребуется, так как важно учитывать отправные точки между напольными поверхностями перекрытий
- Так монтируется профильная труба, привариваемая к нижней платформе, а вверху с помощью анкеров производится фиксация к стеновой поверхности. Затем привариваются уголки, нарезанные предварительно.
- Вертикальные параметры уголков должны иметь точные параметры, а горизонтальная часть изделий может выступать за профиль.
- Между ступенями и стеновой поверхностью создается зазор для поклейки обоев.
- С боковой стороны к профилю приваривают перила. Обычно установка перил проводится с отступом от края в 10 см. однако это повлияет на сужение лестницы.

Ступени из профиля между перекрытиями
Винтовые конструкции
Труба для создания ступенек разрезается на гильзы по 22 см.
Для определения количества элементов, высота помещения делится на 22 см, то есть размеры подступенка.
Из стальной заготовки нарезается прокладка и консоль. Приваривается прокладка к консоли, затем образовавшиеся элементы присоединяют к частям трубы (толщина 10 см).
На прокладке размещаются ступени с помощью саморезов. Плотность прилегания гильз, размещенных на трубе должна быть повышенной. Исключено образование перекосов и люфтов. Если образуются отверстия при неточном диаметре, создаются кольца-уплотнители.

Стальной каркас для установки лестницы в здании
Затем производится разметка и собираются ступени. Важно предусмотреть наличие нахлеста близко 5 см. Длина круга не менее, чем более широкая часть ступеней. Остается лишь собрать единую конструкцию. Сразу же просверливаются зазоры для фиксации будущих поступей. Конструкция грунтуется.
Внимание! Перила лестницы можно создать из железа, для стоек применяется профильная труба 4х 4 см, а на поручни создаются из трубы 2х2 см.
Потом поверх металла можно соорудить деревянные поручни. В перилах обычно применяют элементы ковки. Для покраски лестницы применяется молотковая краска.
После ее просыхания ставятся временные ступени. Для этого потребуются щиты из клееной сосны. Их необходимо обработать лаком. Для крепления ступенек потребуются саморезы по дереву 32мм.

Стальной профильный каркас для лестницы внутреннего монтажа
Приставная лестница
Конструктивно изделие выглядит достаточно просто. Она образует упор тетивами в стеновую и напольную поверхность. Наклон сооружения составляет 60-75 гр. Ступени размещаются друг от друга на одном промежутке, равном 35 см. Для исключения скользящих свойств, на её опоры надевают наконечники из пластика или резины.
Материалы для изготовления:
- Профиль прямоугольного или круглого сечения длиной 2 м. Один прямоугольный профиль длиной в 165 см (для ступенек). Обычно применяются дюралевые трубы толщиной 2 мм.
- Гайки, болты М8х70, шайбы.
- В идеальном случае применяется сварка. В таком случае винтовые соединения не нужны.
- 4 пластмассовых или резиновых защиты для нижней части опор.

Металлический профильный каркас для внутренней лестницы
Для создания приставной конструкции необходимо сделать заготовку ступенек. Профиль, длина которого равна 165 см, разрезается на 5 одинаковых изделий длиной 33 см. Делается разметка на двух профилях длиной 2 м. Ставятся отметки так, чтобы между ними был промежуток по 35 см.
При условии, что для фиксации ступенек к основе применяются болты, важно из тонких полос металла создать хомуты, предусмотренные для загибания симметрично по форме труб и просверливания в них зазоров. При этом делается отступ от края 1,5 см. Зазоры делаются в трубах по 2 м. Этому способствует предварительная разметка. Если для фиксации применяется сварка, этот аспект пропускают.

В готовом виде
Крепятся ступеньки. Надеваются на ножки пластиковые или резиновые наконечники.
Вконтакте
Google+
lestnitsahouse.ru
Особенности изготовления лестницы из профильной трубы своими руками: виды, материалы, монтаж
За многие годы человек не смог придумать ничего более крепкого и долговечного, чем лестницы из металла. Большую популярность они приобрели в том числе и потому, что с помощью этих конструкций можно создавать поистине уникальные композиции, которые могут включать затейливые повороты, большие пролеты и другие нестандартные дизайнерские решения.
Лестницы из металла универсальны, ведь они могут легко вписаться в любой интерьер. И если у вас тоже возник интерес к подобным изделиям и вы даже хотите установить одно из них в свой дом, то вам не помешает узнать о преимуществах этих конструкций, разновидностях лестниц, которые могут быть выполнены из профильной трубы, а также о том, как изготовить такое изделие своими руками.
Преимущества и недостатки
Не так уж сложно понять, почему лестницы из профильной трубы с деревянными перилами пользуются большой популярностью среди наших соотечественников. Достаточно ознакомиться с их достоинствами, которые будут приведены ниже:
- низкие цены на строительные материалы;
- возможность создать изделие любой конфигурации за счёт использования всевозможных элементов крепления;
- минимальное время, необходимое на изготовление лестничного каркаса из профильной трубы;
- длительный срок службы;
- высокая прочность.
Но собираясь установить подобное изделие в свой дом, владельцу следует узнать и о недостатках, которые имеются у лестниц из металла с перилами:
- чтобы изготовить действительно надежную и привлекательную лестницу, основные соединения должны быть выполнены с помощью сварочного аппарата, а это означает, что у владельца должен быть опыт работы с ним;
- поскольку лестницы из металла представляются довольно громоздкими изделиями, для максимального облегчения конструкции в них приходится использовать более лёгкие и менее прочные материалы — стекло, пластмасса и дерево.
Разновидности
Металлические приставные лестницы являются не единственным вариантом подобных конструкций, которые могут быть установлены в частном доме. По желанию можно заказать изготовление маршевых, больцевых и винтовых лестниц. Причём у каждого из этих изделий имеются свои особенности:
самым простым вариантом является приставная лестница, в конструкции которой используются две параллельные опоры, под прямым углом к которым между ними размещены ступеньки.- маршевые. Имеют более сложную конструкцию, в которой ступени крепятся на установленных под определенным углом балках. Это самый популярный вариант у владельцев частных домов. В качестве опорных элементов здесь могут использоваться тетивы либо косоуры.
- Винтовые. У лестниц этого типа ступеньки выполнены в виде треугольника или сектора круга. Они монтируются к каркасу в двух местах – в месте примыкания к центральной опорной балке и к перилам. Но встретить лестницы такого типа можно нечасто, поскольку они не только имеют очень неудобную в эксплуатации крутую конструкцию, но и отличаются сложностью изготовления.
- Больцевые. В конструкции лестниц этого типа ступеньки монтируются при помощи усиленных болтов непосредственно к стене. С тыльной стороны торцы крепятся к балясинам и перилам. Чтобы установить такое изделие, в выбранном месте должна присутствовать надежная стена. При отсутствии таковой имеет смысл рассмотреть в качестве альтернативы другие виды лестниц.
Рассмотрев основные виды лестниц, можно сделать вывод, что самым подходящим из них вариантом для изготовления своими руками является приставная и маршевая.
Лестница из профильной трубы своими руками: чертежи, материалы и инструменты
Прежде чем приступить к изготовлению лестницы из профильной трубы с деревянными перилами, вам необходимо подготовить необходимые инструменты и материалы. Кроме того, вы должны выполнить ряд несложных расчетов для определения характеристик, которыми будет обладать будущая лестница.
Расчёт конструкции
Чтобы определить количество ступенек, необходимо разделить высоту каркаса на высоту подступенка.- Для расчёта длины косоура используется теорема Пифагора. Применив ее к нашей ситуации, получим, что конечным результатом будет сумма вертикальной и горизонтальной проекции изделия.
- Чтобы рассчитать правильно высоту перил, необходимо учитывать возраст тех, кто будет пользоваться изделием. Так, для взрослых оптимальным значением будет 95 см, а для детей — 60 см.
- При расчёте высоты ступеней необходимо исходить из того, что она не должна быть менее 12 см и более 20 см. Проступь должна иметь глубину 30 см.
- Угол наклона лестницы определяем с позиции наибольшего удобства использования, то есть, он должен составлять 45 градусов.
- Рассчитывая ширину лестницы. нужно исходить из ее средних размеров, которые варьируются в диапазоне от 80 до 120 см.
- Чтобы рассчитать сечение профиля, используем формулу: S=5,2*a*G*L/E, где E – модуль упругости материала; L – длина косоура; a – ширина ступени; S – сечение профиля.
- Для определения нагрузки на опорные балки нам понадобится следующая формула: G=1,1*mс+1,4*mл, где mл – масса всех людей, которые могут одновременно находиться на лестнице; mс – вес ступеней; G – предельная нагрузка на косоур.
Материалы и инструменты
Если вы решили своими руками сделать приставную лестницу из профильной трубы с перилами, то вам первым делом придется подготовить необходимые материалы и инструменты:
металлические трубы (2 шт.) квадратного сечения длиной 40 мм. Настоятельно рекомендуется не брать на роль стоек профили длиной более 2,5 м, поскольку в этом случае у вас получится очень непрочная конструкция;- отрезки профильной трубы длиной 30 см. Если вы решили делать лестницу небольших размеров, то допускается уменьшить длину перекладины. При расчете количества элементов обращайте внимание на длину лестницы, не забывая о том, что расстояние между ступеньками должно быть не менее 20-25 см;
- саморезы по металлу;
- заготовки для ступеней. По желанию вы можете изготовить их самостоятельно, используя в качестве материала деревянные доски. Если же вы не хотите этим заниматься, то можете просто приобрести готовые изделия;
- профиль для каркаса под ступени;
- рулетка и маркер;
- стальные уголки;
- угловая шлифовальная машинка, а к ней диск по металлу;
- болгарка;
- шуруповерт;
- пластины квадратного сечения 160 мм2;
- строительный уровень и металлический уголок;
- профиль, из которого будут сделаны косоуры;
- лак или краска для металла;
- сварочный аппарат;
- грунтовка для обработки металлических поверхностей;
- наждачка;
- грунтовка и краска для металлических заготовок.
- усиленные анкерные болты;
- бетонный раствор.
Как сварить лестницу из профильной трубы?
После того как вы подготовите всё необходимое для изготовления лестницы из профильной трубы с перилами своими руками, можно начинать сборку.
Лучше всего этим заниматься на ровной поверхности. Тогда вам не придется использовать стремянку и вы будете уверены, что конструкция получится максимально ровной и устойчивой.
Алгоритм действий:
берем металлические опоры и укладываем на ровную поверхность. Они должны располагаться параллельно друг другу, а расстояние между ними должно составлять 30 см;- наносим на стойки отметки с учетом выбранного шага расположения ступенек. Особенно важно, чтобы крайние отметки располагались с отступом от концов опор 15-20 см;
- в местах, соответствующих расположению меток, под прямым углом привариваем уголки к ножкам лестницы. Это будут опоры для перекладин;
- нужно взять два куска трубы длиной 30 см и приварить их к уголкам. Причём это нужно сделать правильно — один прихватить сверху, а второй снизу изделия. По завершении работ должна получиться прямоугольная рама;
- Также поступаем и с другими перекладинами, которые необходимо закрепить на конструкции по всей длине;
- Чтобы внутрь конструкции не попала влага, к концам лестницы нужно приварить пластину;
- Теперь можно обработать все металлические соединения шлифмашинкой и наждачкой, зачистив с их помощью наиболее травматичные места;
- На завершающем этапе нам понадобится стремянка, чтобы покрыть нашу лестницу грунтовкой, а затем лаком или краской;
- После того как вы дождетесь высыхания краски, наденьте на ножки резиновые насадки. Так вы сможете увеличить сцепление изделия с поверхностью.
Установка
Не менее важным этапом изготовления лестницы из профильной трубы своими руками является монтаж, для которого вам потребуется стремянка. Проводится эта работа по следующему алгоритму:
Начинается процесс монтажа с нарезки труб для опорных балок. Здесь необходимо выдержать необходимые размеры, которые должны соответствовать расчетным данным;- Теперь можно заняться установкой опорных балок в заранее выбранном месте. В верхней и нижней части их нужно зафиксировать анкерными болтами. В нижней части, где будет начинаться лестница, рекомендуется забетонировать конструкцию. Обращаем ваше внимание на то, что балки должны быть установлены строго параллельно друг к другу;
- Теперь начинаем работу с профилями для каркаса под ступеньки. Их нужно разрезать на одинаковые куски, из которых мы впоследствии будем делать гребень;
- Далее отрезки труб нужно приварить к опорным балкам, в результате должен получиться гребнеобразный каркас для ступенек. Учтите, что во время установки очередного элемента вы должны проверить угол наклона строительным уровнем. Также обращайте внимание на то, чтобы все элементы конструкции располагались строго параллельно друг другу;
- Когда вы приварите к конструкции все элементы, места их соединения необходимо зачистить наждачкой;
- Теперь можно нанести на каркас лестницы из профильной трубы слой грунтовки и краски;
- Дождавшись, когда лестница высохнет, устанавливаем на неё заготовки для ступеней к косоурам. Для обеспечения надежности соединения следует использовать саморезы по металлу и шуруповёрт. Для выполнения этой работы вам понадобится стремянка.
Если вы имеете хотя бы минимальный опыт работы с основными строительными инструментами и вас есть все необходимое, в том числе и стремянка, то сварить и установить правильно лестницу из профильной трубы по чертежу для вас не составит особого труда. Только придерживайтесь вышеописанных правил и рекомендаций, и тогда вы без особых проблем сможете изготовить прочную и долговечную лестницу.
Заключение
Часто владельцы при устройстве своего частного дома или коттеджа задумываются об изготовлении лестницы своими руками. В принципе эта задача по силам любому, кто имеет минимальный опыт работы с основными строительными инструментами и уже самостоятельно проводил несложные работы.
Сама по себе задача по созданию лестницы своими руками не является такой уж невыполнимой. Нужно лишь просто хорошенько подготовиться к ней, изучив алгоритм выполнения основных этапов. Нужно только выбирать простой чертеж лестницы, иначе вы можете столкнуться с большими трудностями и напрасно потратите время, деньги и силы.
Лестница из профильной трубы
remontoni.guru



























