Снип плита монолитная плита – ГОСТ 26434-2015 Плиты перекрытий железобетонные для жилых зданий. Типы и основные параметры
Фундамент плита технология строительства снип. Монолитный ленточный фундамент для дома
Строительство дома всегда очень ответственное мероприятие, в особенности, если решено обойтись без привлечения специалистов. В этом случае велика вероятность ошибок из-за отсутствия опыта, и поэтому перед началом работ необходимо изучить все тонкости каждого этапа.
Любое строительство начинается с фундамента, и потому следует в первую очередь заняться освоением процесса его создания. Самым надежным из всех оснований является плитный фундамент, однако, технология его возведения не самая простая. В том случае если принято решение обустроить именно его своими силами, необходимо максимально полно ознакомиться с процессом и заранее выяснить, какие ошибки чаще всего допускают при строительстве такого основания.
Без этого, при отсутствии нужного строительного опыта, велик риск изготовить фундамент, который не сможет выдержать вес постройки, от чего потребуется срочный ремонт или замена основания.
Классический плитный фундамент
Когда строится монолитный плитный фундамент, важно выполнять работы в строгой последовательности, не пропуская ни одного этапа. Любая неточность при строительстве приведет к плачевным последствиям. Если разделить весь процесс на этапы, то их будет несколько:
- . разметка участка;
- . земляные работы;
- . подготовка к заливке;
- . заливка бетона.
Самой трудоемкой частью в этом деле является подготовка к заливке. Технология плитного фундамента требует проведения на этом этапе различных работ.
В самом начале участок размечают, ориентируясь на составленный заранее план. После чего выкапывают котлован. Делать это быстрее и легче с привлечением экскаватора, но если такой возможности нет, то выкопать котлован можно и самостоятельно, но только, конечно же, не в одиночку. После того как он вырыт, можно переходить к этапу подготовки к заливке.
Для начала на дне обустраивается песчаная подушка, которая тщательно утрамбовывается. Обычно достаточно ее толщины в двадцать сантиметров. Оптимальным же вариантом является песчано-гравийная подушка. Ее поверхность заливают бетонной стяжкой толщиной в десять сантиметров. Дальнейшие работы продолжаются только после полного затвердевания бетона.
Далее проводят гидроизоляцию, для чего применяют рулонный материал. Когда он расстелен, переходят к укладке арматуры. Технология строительства плитного фундамента требует использования прутьев с диаметром в десять — двенадцать миллиметров. Для арматурного каркаса в этом случае применять вязальную проволоку необязательно и можно воспользоваться сваркой.

После того как работы по армированию завершены, монтируют опалубку. Ее тип выбирают по собственному желанию. Когда опалубка готова — заливают бетон. В это время важно не допустить образование пустот, которые в дальнейшем будут снижать качество основания дома.
Ленточный фундамент и плита
Не всегда можно и нужно возводить классическое основание монолитную плиту. В ряде случаев более удобным вариантом является ленточно-плитный фундамент, технологию строительства которого также требуется знать.
Первый вариант такого основания — заливка монолитной плиты внутри ленточного фундамента. В этом случае проведение работ ничем практически не будет отличаться от заливки классической плиты.
Другой же вариант — это тот, когда ленточный фундамент строится с применением железобетонных плит. При этом основание получается не монолитное, а сборное. Применяют для ленточного фундамента в таком случае чаще всего железобетонные плиты, соответствующие ГОСТу 13580 85. Произведенные в заводских условиях они не преподнесут в процессе эксплуатации неприятных сюрпризов.
Достоинство подобного основания в том, что не придется ожидать затвердевания бетона, и следовательно перейти к строительству дома можно будет значительно быстрее. Главное при строительстве не экономить на плитах и не приобретать материал ненадлежащего качества.
Как рассчитать толщину?
Приступая к строительству монолитного фундамента плиты, необходимо не только грамотно провести все работы, но и правильно рассчитать его толщину. Если это не будет сделано, то основание, не справившись с весом постройки, будет повреждено, что приведет к порче всей постройки. Без расчета толщины плиты фундамента можно строить только в том случае, если ее заведомо сделать очень мощной, но это обойдется достаточно дорого, так как строительные материалы не дешевы.

Для того чтобы точно знать, какой должна быть плита, удобно обратиться к специалистам, которые, применяя все необходимые для этого и сложные для не занимающегося подобными расчетами человека формулы, подберут оптимальный вариант. Конечно, эти услуги потребуют дополнительных затрат.
Однако можно произвести все расчеты толщины фундамента плиты и самостоятельно при помощи специального калькулятора. При таком варианте результат не будет абсолютно точным, но достаточным для строительства загородного дома из не самых тяжелых материалов. Учитывая это, проводить расчет толщины фундамента монолитной плиты самостоятельно при возведении очень тяжелой постройки нежелательно. В этой ситуации обращение к специалистам обязательно.
Качественно изготовленный плитный фундамент обеспечит постройке надежное основание на долгие годы, без необходимости в ремонте и тем более замене. Учитывая это, в процессе строительства фундамента недопустимо экономить на материалах и помощи профессионалов. Дело в том, что сбереженные неправильными действиями или применением некачественных материалов деньги в дальнейшем потребуются на ремонт, который окажется значительно дороже добросовестного строительства.
Монолитные фундаменты – это такой тип конструкций, изготовление которой происходит с помощью заливки бетонной смеси в опалубку, предварительно укрепленную арматурой. Результатом является прочная конструкция, способная выдерживать нагрузки как на сжатие, так и на растяжение. За счет этого монолитный железобетонный фундамент позволяет постройку двухэтажного и даже многоэтажного дома.
Монолитный фундамент заливается непосредственно на строительной площадке своими руками, представляя собой целостную структуру. Он не имеет швов, если взять как пример — сборный фундамент ФБС. За счет этого достигается значительная долговечность фундаментной плиты .
Достоинства и недостатки монолитных фундаментов
Монолитный фундамент имеет свои плюсы и минусы, что позволит вам лучше ориентироваться на строительном рынке, а главное – выбрать, какой железобетонный фундамент лучше подходит для ваших целей.
- монолитный фундамент отличается повышенной прочностью и возможностью выдерживать разные виды нагрузок. Эти плюсы позволяют вести строительство дома на пучинистых г
Толщина монолитной плиты фундамента: порядок расчета, минимальная толщина
От правильно выбранного типа фундамента, от типа его конструкции и общей надежности, зависит успешность эксплуатации будущего дома. Поэтому, многие задаются вопросом о том, какой тип фундамента выбрать, как правильно его рассчитать и применить ту или иную технологию во время строительства. На сегодняшний день известны различные варианты, такие как свайный фундамент, ленточный, а также монолитный, где последний вариант считается наиболее надежным и долговечным. Монолитная плита представляет собой мощную армированную основу. Чем больше толщина монолитной плиты фундамента, тем выше способность выдерживать тяжелую конструкцию домов, которые могут быть перекрыты плитами не только между первым и вторым этажом, и последующими этажами.

Виды монолитного фундамента
Что касается видов, то здесь можно выделить два основных варианта, которые используются в строительстве:
- Применение ЖБИ изделий. Здесь, в качестве основы используются плиты и железобетонные блоки. Они свариваются между собой, укладываются на подготовленную, ровную поверхность. Кроме того, все пустоты между этими блоками рекомендовано заполнять бетоном. Изначально большинство ЖБИ-изделий армировано и изготовлено с использованием технологии вибропрессования, что позволяет добиться максимальной прочности. Подобный метод несколько дороже своего прямого конкурента.
- Монолитная плита. Этот вариант представляет собой наиболее востребованный способ. Он требует предварительной подготовки поверхности, углубления котлована на величину будущей плиты, армирование и последующее высыхание плиты.
Время, за которое бетон полностью высохнет и будет готов к эксплуатации, составляет 28 проектных дней. В этот интервал времени рекомендовано поливать бетон обильным количеством воды и накрывать от пересыхания, используя полиэтиленовую пленку. Армирование будущей плиты является важным этапом, что позволит защитить основание от излома во время весеннего пучения грунта.
Этапы подготовки

Все этапы, включая подготовительный процесс, должны проходить под контролем сертифицированного специалиста. Очень важно соблюсти все расчеты, включая расчет подушки. Подушку, как правило, изготавливают из песка, предварительно оборудуя углубление в земле. Глубина, на которой будет залегать песчаная подушка, индивидуальна, и в основном упирается в климатические условия, а также зависит от типа грунта.
Расчету подвергается и обоснование будущего фундамента. Здесь важно определить зависимость от нагрузки, марку используемого бетона, а также понять диаметр арматуры, шаг, количество используемых прутьев. Все это необходимо сделать еще на этапе проектирования будущего дома, поскольку на расчет будет влиять не только тип почвы и климатические условия эксплуатации, но и этажность, а также тип используемого строительного материала.
Определение нагрузок на основание
Итак, на раннем этапе проектирования, важно произвести расчет нагрузки будущего дома. Для этого необходимо обладать рядом познаний, включающих в себя следующие аспекты:
- Тип грунта. Этот момент важно выяснить опытным путем. Для этого копается яма на глубину, примерно, до 2 м, изучается структура породы земли, состав, плотность и другие физические данные. Все это производится в соответствующей организации путем лабораторных исследований.
- Материал, из которого планируется построить дом. Нужно понимать, что если перекрытие у вашего дома будет из плит, сам материал будет блок, пеноблок, газобетон, керамзитоблок, а также другие тяжелые варианты, то и фундамент должен выдерживать соответствующие нагрузки. В случае с использованием дерева и перекрытием из дерева, малоэтажных строений, нагрузка на фундамент будет снижена, что позволит неплохо сэкономить на обустройстве основания.
- Учесть динамические и статические нагрузки. Что касается статических нагрузок, то сюда относятся давление стен, действующее давление крыши, цоколя, общей нагрузки мебели и прочей составляющей внутри дома. Что касается динамических нагрузок, то сюда определяют ту величину давления на фундамент, которая может либо понижаться с течением времени, либо возрастать. Например, к динамическим нагрузкам можно отнести давление снега на крышу.
- Марка бетона. Очень важно определить марку бетона, что будет влиять и на прочность основания и на возможность эксплуатировать дом в разных условиях. Важно учесть, какая толщина монолитной плиты фундамента подойдет для вашего проекта.
Вычисляя общую нагрузку на будущий фундамент, суммируют все, начиная от межкомнатных перегородок, несущих стен, крыши, перекрытий, окон, дверей, сезонного снега на крыше, а также других элементов в доме, которые давят на основание. Но, какой бы критерий давления массы на один квадратный метр у нас не получился, важно учесть запас. Это запас зачастую называют коэффициентом надежности. Этот критерий рассчитывается для разных групп строительного материала индивидуально, где, например, для плиты перекрытия из бетона, рекомендуется использовать запас, равный 1,3.
Порядок расчета

Итак, расчет монолитной плиты фундамента начинается с детального расчета величины подушки из песка. Именно это является важным этапом, поскольку позволяет создать надежную основу для заливки бетона. Что касается песка, то обычно здесь используют мелкозернистый горный песок, поскольку он недорогой и приемлем для подсыпки. Что касается толщины подушки из песка для монолитной плиты фундамента дома, то она варьируется в значении от 20, до 60 см.
Важным моментом укладки подложки из песка является то, что ее необходимо утрамбовать. Для этого используют специализированный инструмент, такой как виброплита. Специалисты рекомендуют поливать песок, что по итогам позволит ему еще лучше уплотниться. Это увеличит несущую способность основания. Но, последнее может отнять вплоть до 1 см толщины, что является абсолютно нормальным явлением.
Важным этапом является то, что поверх подушки рекомендуют засыпать щебень. Величина подушки из щебня равна значению от 5 до 10 см. Фракция щебня может быть небольшой, где идеально подойдет фракция 5-20. Основание после засыпки должно получиться идеально ровным относительно горизонтальной плоскости. Подушку из щебня тоже рекомендовано уплотнить.
Что касается глубины, то этот критерий зависит от типа грунта. Если недалеко от поверхности земли располагается грунтовая вода, которая может навредить бетонному основанию, то в глубину, подушку стоит делать не менее 60 см. Если грунтовые воды далеко, грунт сам по себе плотный, то достаточно разместить подушку на величину до 20 см, включительно. Толщина каждого слоя монолитной плиты фундамента рассчитывается индивидуально.

Следующим этапом можно считать расчет арматуры. Здесь определяется не только общее количество металла, но и диаметр прута, шаг между прутьями, решается возможность использования сетки. Арматуру рекомендовано связывать минимум в два слоя, где первый проходит на расстоянии 5 см от подушки из песка, а второй не доходит до верхней точки основания будущей монолитной плиты, также на 5 сантиметров. По итогу заливки у нас получится то, что арматура будет находиться внутри монолитной плиты. Каркас арматуры вяжут из прута при помощи сварочного аппарата или вязальной проволоки, с шагом не более 50 мм.
Специалисты больше склоняются к использованию вязальной проволоки, потому что ее применение позволяет арматуре немного «играть» во время пучения грунта, что исключит ее разрыв, как это бывает в случае со сварочным соединением.
Далее приступают к расчету самой плиты. Здесь крайне важно выдержать высоту ее подъема, которая не должна быть меньше 150 мм. Такая плита подойдет для легких, ненагруженных домов из каркасного материала или бревна. Что касается двухэтажных домов с плитными перекрытиями, то здесь величина плиты должна быть не менее 25 см. Редко основание заглубляют на величину промерзания, поскольку это чревато излишним вложением денежных средств в проект. Предлагаем рассмотреть калькулятор расчета толщины монолитной плиты фундамента в рамках отдельного заголовка.
Расчет толщины плиты при обустройстве дома, площадью 10 на 10 метров
Предположим, что мы строим нетяжелый дом, общей площадью основания 10 на 10 метров. Сама плита должна чуть-чуть выходить за эти рамки, а потому, необходимо добавить запас каждой страны по 10 сантиметров. Чтобы наш дом в 2 этажа с учетом перекрытий из плит 16 см толщиной, стоял долго, не имел трещин и не разрушался от времени, следует обустроить подушку из песка равную 20 см. Затем следует залить монолитную плиту, равную тоже 20 сантиметров. При этом мы условимся, что грунтовые воды находятся на большом расстоянии от поверхности, да и сам грунт представляют собой глину, с небольшим слоем чернозема.
Необходимо рассчитать количество бетона, который пойдет для плиты. Соответственно, считаем площадь основания, которая в нашем случае равняется: 10,2*10,2 = 104 квадрантных метра. Далее необходимо посчитать объем бетона, который следует завести на участок. Он будет равен значению: 104*0,25=26 кубический метр. Если в процессе расчета мы получили не целое число, как это было сейчас, где реально значение равнялось 25,89 кубических метра, то округлять всегда нужно в большую сторону, поскольку погрешность в расчетах всегда присутствует и нам нужно учесть «запас».
Далее необходимо посчитать арматуру. На этом материале экономить не стоит. Поэтому, необходимо заручиться дополнительной надежностью фундамента и использовать арматуру 14 мм. Это значение касается сечения прута. Исходя из того, что наш дом имеет 10,2 м по габаритам, мы знаем, что длина одного прута составит 10200 мм. Беря в расчет, что шаг между двумя рядом лежащими рутам будем делать 20 см, можно посчитать, что на один слой арматуры пойдет: 10200/200=51 прут. Это касается только одного направления. Соответственно, таких направлений будет 2, поскольку должен быть перехлест ячейки. Итого, на один слой пойдет 102 прута арматуры. Таких слоев у нас будет 2, поэтому нам потребуется 204 отрезка арматуры длинной по 10,2 метра.

Теперь давайте посчитаем общий метраж арматуры, которая пойдет на подготовку основания. Соответственно, мы имеем 10,2 метра длины одного прута. Умножаем это значение на количество прутов, что в нашем случае составило 204 единицы. Итого, получаем, 2080 метров. Лучше взять с запасом, примерно, 2100 метров.
Известно, что масса одного килограмма арматуры, диаметр которой 14 мм, равен, 1,2 кг. Итого, умножаем 2100 на 1,2 кг, что позволит рассчитать общую массу металла (2500 кг).
Чтобы связать между собой верхнюю и нижнюю плоскость арматуры, потребуется вертикальный стержень. Чтобы его рассчитать, необходимо вычесть из максимальной толщины монолитного фундамента, значение, которое будет равняться расстоянию от песчаной подушки до первого слоя арматуры. В нашем случае это равняется разнице: 25-6 = 19 см. Стандартный шаг, который используется при армировании, равен 40 см. Исходя из этого значения, мы получаем, что на один пруток пойдет порядка 26 опорных точек. Это значение следует перемножить на 26 и получить 676 прутков, которые потребуются в качестве опоры для слоев арматуры.
Теперь посчитаем массу и метраж. Соответственно 676 штук умножаем на 0,19 метров одного прутка. Это составит 128 метров общей длины. Далее необходимо умножить метраж на вес одного метра, что составит: 128*1,2 = 153 кг. Суммируем значения массы, прибавляем небольшой запас и получаем, что для армирования нашего основания нам потребуется порядка 2700 кг арматуры. Подробный расчет выполнен не случайно, поскольку брать металл на вес, зачастую дешевле, чем брать поштучно. В нашем случае у нас получилось металла более 2,5 тонн, на что можно получить хорошую скидку.

Перед заливкой бетона важно положить гидроизоляцию. В качестве гидроизоляции может выступать геотекстиль, либо полиэтиленовая пленка, расчет которой считается по площади основания. В нашем случае нам необходимо 104 квадратных метра пленки, с учетом запаса.
Пленка будет защищать от влаги со стороны грунта, а также на время высыхания позволит сохранить влагу внутри бетона, равномерно выпаривая ее через поверхность. В таком случае бетон сможет достигнуть максимальной прочности, что, отразится на качестве эксплуатации здания в целом.
Далее необходимо подготовить подъезд к месту заливки, и желательно, чтобы подъезды были со всех четырех сторон будущего здания. Что касается кубатуры бетона, то ее мы уже посчитали, когда рассчитывали объем будущего основания. В нашем случае он составил порядка 26 кубического метра. Что касается самого бетона, то специалисты рекомендуют использовать марку не ниже м250-м300. Бетон более высокой марки тоже использовать не стоит, поскольку его назначение имеет специфический характер, ведь при использовании в частных сферах он может принести больше минусов, чем плюсов.
Что касается песчаной подушки, о которой мы говорили на ранних этапах, то она должна выходить на величину до 1 метра больше, чем площадь основания будущего дома. Поэтому, рассчитывая объем песка, учитывают длину, равную 11,2 метра. При толщине подушки, равной 30 см, нам потребуется: 11,2*11,2*0,3 = 37 кубических метров песка.
В заключение: полезные советы специалистов

Если вы усвоили, как рассчитать толщину фундамента, то все равно важно не забывать о почве. Если почва имеет пучинистую структуру, то она способна опуститься и подняться до 5 см за год. Это чревато последствиями, поскольку фундамент будет играть, что может привести к образованию трещин в основании.
Что касается арматуры, то лучше всего связывать ее между собой проволокой. Как мы и говорили раньше, даже в полностью застывшем бетоне, связанная арматура может немного «играть», что делает ее подвижной. Это сохранит общую структуру основания, и не позволит появиться трещинам. Не экономьте на материале, особенно на бетоне и на количестве арматуры. Помните, что снижая диаметр арматуры на 1 порядок, вы теряете до 5-8% несущей способности основания.
Заливать бетон на землю без песка тоже нельзя. Не забывайте утрамбовать подушку. Постарайтесь залить бетон за один день, поскольку это позволит добиться большей прочности конструкции. Учитывайте, что минимальная толщина фундамента в виде монолитной плиты не может быть менее 15 см.
betonov.com
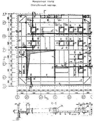
Монолитная плита перекрытия. Определение причин появления трещин, метод их устранения. Классификация повреждения плиты перекрытия
Монолитная плита перекрытия. Определение причин появления трещин, метод их устранения. Классификация повреждения плиты перекрытияПроведено обследование монолитной плиты перекрытия, на предмет определения причин появления трещин в здании инженерно-административного корпуса.
Для исследовательнных работ заказчиком был предоставлен комплект рабочей документации, в составе:
- План монолитной плиты на отм. +10.743
- Монтажная схема несущих элементов каркаса на отм. +10.743
- Конструкция кровли
- Журнал бетонных работ
В процессе инженерно-технического обследования, использовалось контрольно-измерительное оборудование, для определения физико-механических свойств материалов и деформаций конструкций.
Перечень оборудования строительной лаборатороии, использованной при обследовании:
- УКС-МГ4 – ультразвуковой дефектоскоп, для определения прочности бетона и измерения глубины трещин в конструкциях
- Оникс 2.5 – ударно-импульсный прибор, для определения прочности бетона
- Нивелир оптический
- Трещиномер щуп
- Рулетки механические
- Рулетки лазерные
- Металодетектор «BOSH»
- Штангенциркуль
На все приборы, использованные при обследовании, имеется свидетельства о Госповерке (См. в приложении к техническому отчёту).
При проведении обследования, использовалось дополнительной оборудование:
- Перфоратор
- Фотоаппарат
При проведении обследования эксперт руководствовался нормативной и справочной документацией
- СНиП 3.03.01-87 «Несущие и ограждающие конструкции»
- СНиП 3.04.01-87 «Изоляционные и отделочные покрытия»
- СНиП 2.03.II-85 «Защита строительных конструкций от коррозии»
- ГОСТ 22690-88 «Бетоны. Определение прочности механическими методами неразрушающего контроля»
- СНиП 2.03.01-84 «Бетонные и железобетонные конструкции»
- ГОСТ 17624-87 «Ультразвуковой метод определения прочности»
В результате обследования, составлена картограмма дефектов, выполнены обмеры созданы чертежи узлов, планов и разрезов монолитной плиты, определена констривная схема покрытия, выполнена фотофиксация дефектов и этапов обследования.
1.Конструктивная схема покрытия
1.1 Монолитная плита предназначена для устройства по ней кровли.
1.2 Плита проектной прочности В25.
1.3 Плита, толщиной 80мм, армирована дорожной сеткой, с ячейками — 10х10см, Ø4мм.
1.4 Монолитная плита смонтирована по каркасу здания, с сеткой колон 900х900см. По металлическим двутавровым балкам — I 55Б1, которые опираются на квадратные колонны сечением — 200х25, 250х25см., уложены дополнительные двутавровые балки- I 35Б2, с шагом — 450см, по ним, в продольном и поперечном направлении, с шагом — 150см уложены двутавровые балки — I23Б1 и швеллера — №14.
1.5 Конструкция кровли – пирог, состоящий из
- 1 слоя — пароизоляции, керамзитового гравия, толщиной слоя 30-150мм,
- цементно-песчаной стяжки — М100, толщиной 30мм, армированной сеткой с ячейками — 150х150мм,
- теплоизоляции из 2х слоёв минплиты, толщиной 110см,
- цементно-песчаной стяжки, толщиной 20мм,
- 3 слоя — изопласта и
- слоя гравия, толщиной 50мм.
Конструктивная схема плиты покрытия



2. Результаты проверки прочности плиты
2.1 Прочность монолитной плиты, в возрасте 14 суток, составляет 27.7МПа, что составляет 75% от проектной прочности бетона.
3. Классификация повреждений, выявленных при обследовании
При осмотре монолитной плиты установлено:
3.1 Трещины обнаружены по осям Г/1-Е/3-7.
3.2 Трещины распространены по плите, в продольном, поперечном и диагональном направлениях.
3.3 Трещины сетчатого характера, с различной величиной разветвления, длинной — до 6м и с шириной раскрытия — до 1.2мм.
3.4 Трещины в основной своей массе — поверхностные, и сконцентрированы на верхней поверхности плиты, глубиной до 0.1-3мм.
3.5 Дата появления трещин — в период набора прочности бетона.
3.6 По результатам исследования контрольно-измерительной аппаратурой, произведена классификация трещин, как — поверхностные усадочные.
4.Проверка выявленных повреждений на соответствие СНиП 2.03.01-84* БЕТОННЫЕ И ЖЕЛЕЗОБЕТОННЫЕ КОНСТРУКЦИИ из условия допустимой ширины раскрытия трещин в железобетонных конструкциях.
Проверка монолитной плиты по раскрытию трещин, нормальных к продольной оси элемента произведено в соответствии с п. 4.13.4.14. СНиП 2.03.01-84*БЕТОННЫЕ И ЖЕЛЕЗОБЕТОННЫЕ КОНСТРУКЦИИ
Допустимая ширина раскрытия трещин, нормальных к продольной оси элемента acrc, мм*, определена по формуле
(144)
где d — коэффициент, принимаемый равным для элементов:
изгибаемых и внецентренно сжатых 1,0
растянутых 1,2
jl — коэффициент, принимаемый равным при учете:
кратковременных нагрузок и непродолжительного действияпостоянных и длительных нагрузок 1,00,
многократно повторяющейся нагрузки, а также продолжительного действия постоянных и длительных нагрузок, для конструкций из бетона тяжелого:
естественной влажности jl = 1,60 — 15m
в водонасыщенном состоянии — 1,20
при попеременном водонасыщении и высушивании — 1,75
мелкозернистого групп:
А 1,75
Б 2,00
В 1,50
легкого и поризованного не менее 1,50
ячеистого — 2,50
значение jl для мелкозернистого, легкого, поризованного и ячеистого бетонов в водонасыщенном состоянии умножают на коэффициент 0,8, а при попеременном водонасыщении и высушивании — на коэффициент 1,2;
h — коэффициент, принимаемый равным:
при стержневой арматуре периодического профиля — 1,0
при стержневой арматуре гладкой — 1,3
при проволочной арматуре периодического профиля и канатах — 1,2
при гладкой арматуре — 1,4
ss — напряжение в стержнях крайнего ряда арматуры S или (при наличии предварительного напряжения) приращение напряжений от действия внешней нагрузки, определяемое согласно указаниям п. 4.15;
m — коэффициент армирования сечения, принимаемый равным отношению площади сечения арматуры S к площади сечения бетона (при рабочей высоте h0 и без учета сжатых свесов полок), но не более 0,02;
d — диаметр арматуры, мм.
Для элементов, к трещиностойкости которых предъявляются требования 2-й категории, ширина раскрытия трещин определяется от суммарного действия постоянных, длительных и кратковременных нагрузок, при коэффициенте jl = 1,0.
Перекрытия относятся к 3-й категории трещиностойкости, при которой допускается ограниченное по ширине непродолжительное acrc1=0.3
и продолжительное acrc2 раскрытие трещин=0.2;
Фактическая величина раскрытия сквозной трещины равна 1.2 мм, что значительно превосходит нормы СНиП 2.03.01-84*БЕТОННЫЕ И ЖЕЛЕЗОБЕТОННЫЕ КОНСТРУКЦИИ.
5. Заключение по результатам обследования монолитного покрытия
5.1 Трещины, обнаруженные в монолитной плите – усадочные, образование трещин связано с температурным воздействием на бетон.
5.2 Появление трещин в плите, обусловлено недостаточным уходом за бетоном, в период набора прочности.
6. Рекомендации:
Учитывая работу перекрытия на изгиб, рекомендуется:
6.1. Заделать трещины полимерцементными составами.
6.2. Осуществить наращивание плиты перекрытия сверху, без изменения расчетной схемы. Толщина наращивания — 20 мм. Бетон наращивания не ниже В20. Армирование наращивания выполнить стекой — 100х100, стали, класса АI∅5
sklerometr.ru
Опирание плиты перекрытия на стену: допустимые пределы, СНиП
Опирание перекрытия плиты на стену — один из показателей надежности, безопасности и долговременности срока службы здания. От грамотной установки плит зависит многое, поэтому все нормы и правила регламентируются государственными органами. Существует специальный документ — СНиП, собравший свод этих стандартов.
Назначение перекрытий
ЖБ плиты перекрытия являются одной из основных несущих конструкций здания, поэтому им уделяется достаточно внимания при строительстве. Главная функция железобетонных перекрытий — перенос и распределение нагрузки на собственный вес, а затем на другие элементы здания.
По месту расположения данные строительные конструкции делятся на междуэтажные, надподвальные и чердачные. Плиты изготавливаются в заводских условиях и бывают нескольких видов:
- сборно-монолитные;
- многопустотные;
- изготовленные из тяжелых марок бетона.
Главными требованиями, которыми должны обладать качественные перекрытия, считаются прочность, жесткость, несгораемость, звуко- и водонепроницаемость.
Большинство плит для перекрытия изготавливают с пустотами, такая конструкция считается наиболее оптимальной по параметрам веса и качества. Укладка происходит на несущие стены строения, шаг которых может составлять до 9 м.

Параметры для величины опирания
Максимальное и минимальное опирание перекрытия плиты на стену обуславливается следующими факторами:
- Назначением здания — жилое, производственное, административное.
- Материалом, из которого изготовлены несущие стены и их толщина.
- Размером перекрываемого пролета между стенами.
- Размером ЖБ плиты перекрытия и ее веса.
- Будущими нагрузками на перекрытия.
- Сейсмическими показателями местонахождения здания.
В соответствии с данными СНиП, опирание плит перекрытия на стены составляет от 9 до 12 см, в зависимости от описанных выше факторов. Окончательный размер определяется инженерами при проектировании здания. Важно правильно рассчитать величину нахлеста, иначе давление перекрытий может привести к постепенному растрескиванию и разрушению здания.
Узел опирания плиты на кирпичную стену
При строительстве зданий из кирпича кладка ведется вплотную до будущего потолка, при этом важно оставить небольшие ниши для установки перекрытий. Узел опирания плиты перекрытия на стену создается с учетом следующих условий:
- торцы плит не должны опираться на кирпичную кладку. Например, при нахлесте в 12 см ширина ниши должна составлять 13 см;
- состав раствора для кладки и фиксации перекрытий должен быть идентичным;
- пустоты, образуемые в каналах, следует заполнять бетонными вкладышами. Они изготавливаются на заводе вместе с плитами.
Минимальное опирание плит перекрытия на кирпичную стену не нормируется в случае, если на торцевые стенки ЖБ-изделие ложится одной боковой стороной. Монтаж выполняется так, чтобы кладка, которая будет выше перекрытия, не ложилась на образованные крайние пустоты.

Монтаж перекрытий
Работы по установке перекрытий осуществляются бригадой строителей из четырех человек:
- машинист крана, который подает плиту,
- такелажник, выполняющий стропление плит,
- два монтажника, занимающиеся координацией плиты и помещением ее в заданное место.
Опирание плит перекрытия на кирпичную стену при этом является одной из наиболее важных процедур, требующей строгого соблюдения нормативов.
Перед проведением монтажных работ обязательно нужно выровнять гребень кирпичной кладки. Если этого не сделать, плита будет неустойчива. Промежутки, возникающие между плитами, заделываются цементным раствором.

Особенности монтажа перекрытий для зданий из газобетона
Опирание перекрытия плиты на стену производится на кольцевой армированный пояс, который монтируется по ее периметру. Такая монолитная бетонная лента, охватывающая все здание, обязательна, если величина опирания составляет менее 12 см. Рекомендуются следующие параметры для армопояса:
- толщина 12 см;
- ширина 25 см;
- глубина опирания такая же, как и для железобетонных перекрытий.
В сочетании с прочными железобетонными плитами армированный пояс создает жесткую конструкцию, которая оказывает достаточное сопротивление строения аварийным воздействиям, температурным перепадам и усадочным деформациям.
Если величина опирания перекрытия на стену составляет более 12 см, то здание в дополнительном армированной поясе не нуждается. В таких случаях достаточно соорудить армированный пояс из кольцевого анкера по внешнему периметру плит.
Расчет параметра опирания
Регламентирует величину опирания плит перекрытия на стены СНиП (иначе, свод норм и правил), выделяющий следующие разновидности размеров плиты:
- модульный — ширина пролета, в который устанавливается конструкция;
- конструктивный — реальный размер потолочной плиты от одного торца до другого.
К примеру, если модульная длина перекрытия составляет 6,0 м, то реальная — 5,98 м. Для получения размера комнаты в 5,7 м следует устанавливать плиту с опиранием в 12 см. Оптимальный расчет опирания плиты перекрытия на стену важен также для сохранения теплоты в комнате. При слишком большой близости торца к наружной поверхности стены имеет будет наблюдаться проникновение холодного воздуха внутрь. Такая конструкция дает холодный пол в зимнее время.

Перекрытие цокольного этажа
Монтаж плит перекрытия для цокольного этажа является самым простым. Для того чтобы добиться ровной поверхности для укладки железобетонных конструкций, следует выровнять верхний край фундамента. Затем по верхней кромке залитого фундамента выставляются доски опалубки. Данная конструкция заливается бетонным раствором. Таким образом, получается идеально ровная подушка для установки плит.
Установленные на гладкую поверхность плиты образуют ровный потолок, в котором следует лишь заделать швы, после чего он готов к отделке.

Заделка швов между перекрытиями
После того как оптимальный размер опирания плит перекрытия на стены был определен, а сами железобетонные конструкции установлены, следует заняться заделыванием швов между ними.
Для этого используется песчано-цементный раствор, если щели незначительны. При наличии больших промежутков следует воспользоваться следующими способами:- Из деревянных досок обустраивается опалубка, в которую происходит последующая заливка раствора.
- Большие щели могут быть заделаны обломками арматуры, осколками кирпичей и других материалов. Они утрамбовываются в щели, которые затем замазываются бетонным раствором.
Образованные пустоты при установке плит важно заделать сразу. Это значительно упрощает отделочные работы, которые будут производиться по окончанию строительства.
От правильного расчета величины опирания перекрытия на стену зависит будущая прочность и долговечность строения. Поэтому данный процесс регламентируется правилами СНиП и выполняется опытными проектировщиками.
fb.ru
Толщина плитного фундамент
Плитный фундамент – сплошное основание из армированного бетона, которое укладывается под всей площадью здания. Фундаменты данного типа очень прочные и оказывают наименьшее давление на грунт. Но указанными преимуществами может обладать только тот плитный фундамент, толщина которого рассчитана с учетом характера грунта, глубины закладки и нагрузок, которые будет нести само основание во время его эксплуатации.
Плитный фундамент – сплошное основание из армированного бетона, которое укладывается под всей площадью здания. Фундаменты данного типа очень прочные и оказывают наименьшее давление на грунт. Но указанными преимуществами может обладать только тот плитный фундамент, толщина которого рассчитана с учетом характера грунта, глубины закладки и нагрузок, которые будет нести само основание во время его эксплуатации.
Особенности расчета толщины плитного фундамента
При проведении расчета толщины монолитной фундаментной плиты необходимо учитывать следующие величины:
- промежуток между арматурными сетками;
- толщина бетонного слоя над верхней и под нижней арматурной сеткой;
- толщина арматуры.
Самый простой расчет толщины плитного фундамента осуществляется путем суммирования всех этих показателей, при этом оптимальным значением принято считать толщину плиты в 20-30 см. Конечный результат расчета во многом определяется составом грунта и равномерностью залегания пород.
Помимо габаритов плиты основания при обустройстве фундамента необходимо учитывать ширину дренажного слоя и песчаной подушки. Для установки плитного фундамента снимается верхний слой грунта и роется котлован глубиной около 0,5 м. Данная величина определяется с учетом того, что щебень укладывается слоем примерно в 20 см, песок – около 30 см.

В итоге простого суммирования получается, что минимальная толщина всего плитного фундамента не может быть меньше 60 см. Но этот показатель может значительно варьироваться в зависимости от изменений характеристик грунта и веса всей будущей постройки, под которую данное основание сооружается.
Так, плитный фундамент для кирпичного здания должен быть на 5 см толще такого же основания для постройки из пенобетона. При этом при наличии второго этажа в кирпичном доме толщина монолитной фундаментной плиты возрастает до 40 см (или больше — в зависимости от веса и конфигурации строения), а при строительстве двухэтажной постройки из пенобетона – как минимум до 35 см. Данные цифры приведены в качестве примера для понимания того, насколько толщина плитного основания зависит от типа постройки, под которую оно закладывается. Точные показатели для конкретного здания определяются путем расчетов, которые рекомендуется поручать специалистам.
Зачем измерять толщину плитного фундамента
Все указанные расчеты должны выполнятся в соответствии с нормами соответствующих СНиП и ГОСТ. Зная, какая толщина плитного фундамента наиболее подходит для сооружаемой постройки, можно не только обеспечить прочное основание под строящееся здание, но и определить количество необходимых материалов для его закладки.
Помимо толщины для расчета плитного фундамента нужно определить:
- периметр (длину всех сторон) основания;
- площадь плиты, включая термо- и гидроизоляцию;
- площадь боковой поверхности;
- количество бетона;
- вес бетона;
- нагрузку на почву;
- диаметр арматуры в сетке;
- диаметр вертикальных прутьев арматуры;
- размер ячейки сетки;
- нахлест арматуры;
- общую длину арматурных прутьев;
- общий вес арматуры.
Для расчета количества бетона, необходимого для заливки плитного фундамента, из общего объема вычитается объем закладываемой термоизоляции.
Подушка под плитный фундамент: определяем толщину
Подушка под плитное основание укладывается по всей площади. Она состоит из слоя щебня и слоя песка, которые наносятся на предварительно выровненное дно котлована. Сначала насыпается щебень, как правило, слоем в 20 см, а затем песок – слоем в 30 см. Таким образом, наиболее распространенная толщина подушки под плитный фундамент составляет примерно 0,5 м.
Следует учитывать, что толщина каждого из двух слоев песчано-щебеночной подушки может варьироваться в довольно значительных пределах. Данный показатель зависит от нескольких факторов, среди которых основными являются характеристики грунта и вес постройки. Например, для легких деревянных строений будет достаточно подушки толщиной 15 см, для гаража – 25 см, а полуметровый слой лучше всего подойдет для больших кирпичных зданий.
Щебень в данном случае компенсирует пучинистость и невысокую плотность грунта, а также является отличным дренажом, особенно на глинистых почвах с высоким уровнем грунтовых вод. Песок при этом обеспечивает равномерность нагрузки на грунт.
Пример расчета толщины и объема плитного фундамента
Расчет плитного фундамента выполняют для определения количества бетона, необходимого для его заливки. Для этого площадь подошвы следует умножить на ее толщину (высоту).
Проще всего разобраться с расчетом на конкретном примере, который можно использовать для других случаев, поменяв соответствующие цифры. Допустим, будет возводиться дом размером 10х10 метров и монолитный плитный фундамент, толщина которого составляет 0,25 м. Объем плиты в данном случае составит 25 кубических метров (10х10х0,25). Столько же бетона потребуется для заливки фундамента. Необходимо учесть и установку ребер жесткости, служащих для повышения устойчивости к деформациям. Они располагаются с шагом в три метра вдоль и поперек плиты, создавая в ней квадраты.

Для расчета плитного фундамента следует определиться с длиной и высотой ребер жесткости. Первый показатель устанавливается в соответствии с длиной каждой стороны основания и в рассматриваемом примере составляет 10 метров. Всего потребуется 8 ребер, поэтому общая длина составит 80 метров.
Поперечное сечение выполняется в форме трапеции или прямоугольника. По стандарту, ширина ребра должна составлять 0,8 от высоты. Для прямоугольных ребер общий объем составит 0,25х0,8х80 = 16 кубометров. У трапециевидных ребер нижнее основание равно 1,5 толщины фундамента, верхнее – 0,8. В рассматриваемом примере площадь трапециевидного поперечного сечения будет равна (0,8+1,5)/2х0,25=0,15 квадратных метров, а объем всех ребер составит 0,15х80=12 кубических метров.
Из рассмотренного примера видно, что для заливки монолитного плитного фундамента толщиной 25 см и размером 10х10 метров потребуется 25 кубических метров бетона. Эту величину совсем несложно рассчитать самостоятельно, чтобы определиться с затратами, которые потребуются для обустройства фундамента.
Толщина плитного фундамента – очень важный показатель, обеспечивающий его прочность и надежность. Она зависит от многих факторов и может изменяться на разных грунтах или для разных построек. Поэтому, чтобы возвести действительно крепкий дом, необходимо с повышенным вниманием отнестись к расчету толщины его плитного основания.
Читайте также:
fundamentprofi.ru
Расчет плиты перекрытия по формулам
Расчет железобетонной монолитной плиты перекрытия
Железобетонные монолитные плиты перекрытия, несмотря на то, что имеется достаточно большое количество готовых плит, по-прежнему востребованы. Особенно если это собственный частный дом с неповторимой планировкой, в котором абсолютно все комнаты имеют разные размеры либо процесс строительства ведется без использования подъемных кранов.

Монолитные плиты достаточно востребованы, особенно в строительстве загородных домов с индивидуальным дизайном.
В подобном случае устройство монолитной железобетонной плиты перекрытия дает возможность значительно сократить затраты денежных средств на приобретение всех необходимых материалов, их доставку либо монтаж. Однако в данном случае большее количество времени может уйти на выполнение подготовительных работ, в числе которых будет и устройство опалубки. Стоит знать, что людей, которые затевают бетонирование перекрытия, отпугивает вовсе не это.
Заказать арматуру, бетон и сделать опалубку на сегодняшний день несложно. Проблема заключается в том, что не каждый человек может определить, какая именно арматура и бетон понадобятся для того, чтобы выполнить подобные работы.
Данный материал не является руководством к действию, а несет чисто информационный характер и содержит исключительно пример расчета. Все тонкости расчетов конструкций из железобетона строго нормированы в СНиП 52-01-2003 «Железобетонные и бетонные конструкции. Основные положения», а также в своде правил СП 52-1001-2003 «Железобетонные и бетонные конструкции без предварительного напряжения арматуры».

Монолитная плита перекрытия представляет собой армированную по всей площади опалубку, которая заливается бетоном.
Касательно всех вопросов, которые могут возникать в процессе расчета железобетонных конструкций, следует обращаться именно к данным документам. В данном материале будет содержаться пример расчета монолитного железобетонного перекрытия согласно тем рекомендациям, которые содержатся в данных правилах и нормах.
Пример расчета железобетонной плиты и любой строительной конструкции в целом будет состоять из нескольких этапов. Их суть — подбор геометрических параметров нормального (поперечного) сечения, класса арматуры и класса бетона, чтобы плита, которая проектируется, не разрушилась под воздействием максимально возможной нагрузки.
Пример расчета будет производиться для сечения, которое перпендикулярно оси х. На местное сжатие, на действие поперечных сил, продавливание, на кручение (предельные состояния 1 группы), на раскрытие трещин и расчет по деформациям (предельные состояния 2 группы) производиться не будут. Заранее стоит предположить, что для обыкновенной плоской плиты перекрытия в жилом частном доме подобных расчетов не требуется. Как правило, так оно и есть на самом деле.
Следует ограничиться лишь расчетом нормального (поперечного) сечения на действия изгибающего момента. Те люди, которым не нужно давать пояснения касательно определения геометрических параметров, выбора расчетных схем, сбор нагрузок и расчетных предпосылок, могут сразу перейти к разделу, в котором содержится пример расчета.
Вернуться к оглавлению
Первый этап: определение расчетной длины плиты

Плита перекрытия может быть абсолютно любой длины, а вот длину пролета балки уже необходимо высчитывать отдельно.
Реальная длина может быть абсолютно любой, а вот расчетная длина, выражаясь другими словами, пролет балки (в данном случае плиты перекрытия) — совсем другое дело. Пролетом является расстояние между несущими стенами в свету. Это длина и ширина помещения от стенки до стенки, следовательно, определить пролет железобетонного монолитного перекрытия довольно просто. Следует измерить рулеткой либо другими подручными средствами данное расстояние. Реальная длина во всех случаях будет большей.
Железобетонная монолитная плита перекрытия может опираться на несущие стенки, которые выкладываются из кирпича, камня, шлакоблоков, керамзитобетона, пено- либо газобетона. В подобном случае это не очень важно, однако в случае, если несущие стенки выкладываются из материалов, которые имеют недостаточную прочность (газобетон, пенобетон, шлакоблок, керамзитобетон), также необходимо будет выполнить сбор некоторых дополнительных нагрузок.
Данный пример содержит расчет для однопролетной плиты перекрытия, которая опирается на 2 несущих стенки. Расчет плиты из железобетона, которая опирается по контуру, то есть на 4 несущих стенки, или для многопролетных плит рассматриваться в данном материале не будет.
Чтобы то, что было сказано выше, усваивалось лучше, следует принять значение расчетной длины плиты l = 4 м.
Вернуться к оглавлению
Определение геометрических параметров железобетонного монолитного перекрытия

Расчет нагрузок на плиту перекрытия считается отдельно для каждого конкретного случая строительства.
Данные параметры пока не известны, однако есть смысл их задать для того, чтобы была возможность произвести расчет.
Высота плиты задается как h = 10 см, условная ширина — b = 100 см. Условность в подобном случае означает то, что плита бетонного перекрытия будет рассматриваться как балка, которая имеет высоту 10 см и ширину 100 см. Следовательно, результаты, которые будут получены, могут применяться для всех оставшихся сантиметров ширины плиты. То есть, если планируется изготавливать плиту перекрытия, которая имеет расчетную длину 4 м и ширину 6 м, для каждого из данных 6 м необходимо применять параметры, определенные для расчетного 1 м.
Класс бетона будет принят B20, а класс арматуры — A400.
Далее происходит определение опор. В зависимости от ширины опирания плит перекрытия на стенки, от материала и веса несущих стенок плита перекрытия может рассматриваться как шарнирно опертая бесконсольная балка. Это является наиболее распространенным случаем.
Далее происходит сбор нагрузки на плиту. Они могут быть самыми разнообразными. Если смотреть с точки зрения строительной механики, все, что будет неподвижно лежать на балке, приклеено, прибито либо подвешено на плиту перекрытия — это статистическая и достаточно часто постоянная нагрузка. Все что ползает, ходит, ездит, бегает и падает на балку — динамические нагрузки. Подобные нагрузки чаще всего являются временными. Однако в рассматриваемом примере никакой разницы между постоянными и временными нагрузками делаться не будет.
Вернуться к оглавлению
Существующие виды нагрузок, сбор которых следует выполнить
Сбор нагрузок сосредоточен на том, что нагрузка может быть равномерно распределенной, сосредоточенной, неравномерно распределенной и другой. Однако нет смысла так сильно углубляться во все существующие варианты сочетания нагрузки, сбор которой производится. В данном примере будет равномерно распределенная нагрузка, потому как подобный случай загрузки для плит перекрытия в жилых частных домах является наиболее распространенным.
Сосредоточенная нагрузка должна измеряться в кг-силах (КГС) или в Ньютонах. Распределенная же нагрузка — в кгс/м.

Нагрузки на плиту перекрытия могут быть самыми разными, сосредоточенными, равномерно распределенными, неравномерно распределенными и т. д.
Чаще всего плиты перекрытия в частных домах рассчитываются на определенную нагрузку: q1 = 400 кг на 1 кв.м. При высоте плиты, которая равняется 10 см, вес плиты добавит к данной нагрузки еще порядка 250 кг на 1 кв.м. Керамическая плитка и стяжка — еще до 100 кг на 1 кв.м.
Подобная распределенная нагрузка будет учитывать практически все сочетания нагрузок на перекрытия в жилом доме, которые возможны. Однако стоит знать, что никто не запрещает рассчитывать конструкцию на большие нагрузки. В данном материале будет принято такое значение и, на всякий случай, следует умножить его на коэффициент надежности: y = 1.2.
q = (400 + 250 + 100) * 1.2 = 900 кг на 1 кв.м.
Будут рассчитываться параметры плиты, которая имеет ширину 100 см. Следовательно, данная распределенная нагрузка будет рассматриваться как плоская, которая действует по оси y на плиту перекрытия. Измеряется в кг/м.
Вернуться к оглавлению
Определения максимального изгибающего момента для нормального (поперечного) сечения балки
Для бесконсольной балки на двух шарнирных опорах (в данном случае — плита перекрытия, опирающаяся на стены, на которую действуют равномерно распределенные нагрузки) максимальный изгибающий момент будет посредине балки. Mmax = (q * l^2) / 8 (149:5.1)
Для пролета l = 4 м, Mmax = (900 * 4^2) / 8 = 1800 кг/м.
Необходимо знать, что расчет железобетонной арматуры по предельным усилиям согласно СП 52-101-2003 и СНиП 52-01-2003 основывается на следующих расчетных предпосылках:

Схема пустотелой армированной плиты перекрытия
- Сопротивление бетона растяжению следует принять равным 0. Подобное допущение производится на том основании, что сопротивление бетона растяжению гораздо меньше сопротивления растяжению арматуры (ориентировочно в 100 раз), следовательно, в растянутой зоне конструкции из железобетона могут образовываться трещины из-за разрыва бетона. Таким образом на растяжение в нормальном сечении работает только арматура.
- Сопротивление бетона сжатию следует принять равномерно распределенным по зоне сжатия. Оно принимается не более расчетного сопротивления Rb.
- Растягивающие максимальные напряжения арматуры следует принимать не более, чем расчетное сопротивление Rs.
Чтобы не допускать эффект образования пластического шарнира и обрушения конструкции, которое возможно при этом, соотношение E высоты сжатой зоны бетона у к расстоянию от центра тяжести арматуры к верху балки h0, E = y/h0, должно быть не более, чем предельное значение ER. Предельное значение должно определяться по следующей формуле:
ER = 0.8 / (1 + Rs / 700).
Это эмпирическая формула, которая основывается на опыте проектирования конструкций из железобетона. Rs — расчетное сопротивление арматуры в МПа. Однако стоит знать, что на данном этапе с легкостью можно обойтись и таблицей граничных значений относительной высоты сжатой зоны бетона.
Вернуться к оглавлению
Некоторые нюансы
Есть примечание к значениям в таблице, пример которой содержится в материале. Если сбор нагрузок для расчета выполняется не профессиональными проектировщиками, рекомендуется занижать значения сжатой зоны ER приблизительно в 1,5 раза.
Дальнейший расчет будет производиться с учетом a = 2 см, где a — расстояние от низа балки до центра поперечного сечения арматуры.
При E меньше/равно ER и отсутствии арматуры в сжатой зоне бетонную прочность следует проверять согласно следующей формуле:
B < Rb*b*y (h0 — 0.5y).
Физический смысл данной формулы несложен. Любой момент может быть представлен в виде действующей силы с некоторым плечом, следовательно, для бетона понадобится соблюдать вышеприведенное условие.
Проверка прочности прямоугольных сечений с одиночной арматурой с учетом E меньше/равно ER производится согласно формуле: M < RsAs (h0 — 0.5y).
Суть данной формулы следующая: по расчетам арматура должна выдержать нагрузку такую же, как и бетон, потому как на арматуру будет действовать такая же сила с таким же плечом, как и на бетон.

Плиты перекрытия с разными несущими способностями, от 400 кг/м2 до 2300 кг/м2.
Примечание по этому поводу. Подобная расчетная схема, которая предполагает плечо действия силы (h0 — 0.5y), дает возможность довольно легко и просто определить основные параметры поперечного сечения согласно формулам, которые будут приведены ниже. Однако стоит понимать, что подобная расчетная схема вовсе не единственная.
Расчет может быть произведен относительно центра тяжести сечения, которое было приведено. В отличие от металлических и деревянных балок, рассчитывать железобетон по предельным растягивающим либо сжимающим напряжениям, которые возникают в нормальном (поперечном) сечении балки из железобетона несколько сложно.
Железобетон является композитным и очень неоднородным материалом. Однако и это еще не все. Многочисленные экспериментальные данные сообщают о том, что предел прочности, текучести, модуль упругости и другие различные механические характеристики имеют несколько значительный разброс. К примеру, при определении бетонного предела прочности на сжатие одинаковые результаты не будут получаться даже тогда, когда образцы изготавливаются из смеси бетона одного замеса.
Связано это с тем, что прочность бетона будет зависеть от большого количества различных факторов: качества (степени загрязненности в том числе) и крупности заполнителя, способа уплотнения смеси, активности цемента, различных технологических факторов и так далее. Обращая внимание на случайную природу данных факторов, естественно считать предел бетонной прочности случайной величиной.
Высота сжатой зоны бетона при отсутствии в ней арматуры может определяться по следующей формуле:
y = Rs*As / Rb*b.
Для того, чтобы определить сечение арматуры, прежде всего необходимо определить коэффициент am:
am = M / Rb*b*h0^2.
Арматура в сжатой зоне не требуется при am < aR. Значение aR определяется по таблице.
В случае, если арматура в сжатой зоне отсутствует, сечение арматуры необходимо определять согласно следующей формуле:
As = Rb * b * h0 (1 — корень кв.(1 — 2am)) * l * Rs.
Вернуться к оглавлению
Подбор сечения арматуры
Расчетное сопротивление растяжению для арматуры A400 будет: Rs = 3600 кгс/см кв. (355 МПа). Расчетное сопротивление бетонному сжатию (класс B20) будет: Rb = 117 кгс/см кв. (11.5 МПа). Все остальные нагрузки и параметры для имеющейся плиты были определены ранее. Прежде всего с помощью формулы будет определено значение коэффициента am:
am = 1800 / (1 * 0.08^2 * 1170000) = 0.24038.

Арматуры имеет два размера, условный и реальный размеры.
В связи с тем, что момент был определен в кг/м и размер поперечного сечения удобно подставлять в метрах тоже, значение расчетного сопротивления будет приведено кг/м кв. для того, чтобы соблюдалась размерность.
Подобное значение меньше предельного для такого класса арматуры согласно таблице (0.24038 < 0.39). Соответственно, арматура в сжатой зоне по расчетам не нужна. Следовательно, по формуле площадь сечения арматуры, которая требуется:
As = 117 * 100 * 8 (1 — корень кв. (1 — 2 * 0.24038)) / 3600 = 7.265 кв.см.
В подобном случае использовались размеры поперечного сечения в сантиметрах. Значение расчетных сопротивлений при этом было в кг/см кв. для того, чтобы упростить вычисления.
Для армирования 1 п.м имеющейся плиты перекрытия следует использовать 5 стержней, которые имеют диаметр 14 мм с шагом 200 мм. Площадь сечения арматуры будет 7.69 кв.см. Подбор арматуры достаточно удобно производится согласно следующей таблице.
Вернуться к оглавлению
Количество стержней для армирования монолитной железобетонной плиты перекрытия
Для того чтобы армировать плиту, есть возможность использовать 7 стержней, которые имеют диаметр 12 мм с шагом 140 мм. Есть и другой вариант — 10 стержней, которые имеют диаметр 10 мм и шаг 100 мм.
Прочность бетона проверяется согласно следующей формуле:
y = 3600 * 7.69 / (117 * 100) = 2.366 см.
E = 2.366 / 8 = 0.29575. Данное значение меньше, чем граничное 0.531 согласно формулам и таблице, помимо того, оно меньше рекомендуемого 0.531/1.5 = 0.354, то есть удовлетворяет всем имеющимся требованиям.
117 * 100 * 2.366 (8 — 0.5 * 2.366) = 188709 кг на см > M = 180000 кг на см, согласно формуле. 36
3600 * 7.69 (8 — 0.5 * 2.366) = 188721 кг на см > M = 180000 кг на см, согласно формуле.

Устройство пола поверх монолитной армированной плиты перекрытия
Все необходимые требования таким образом соблюдаются.
В случае, если класс бетона будет увеличен до B25, арматуры при этом будет необходимо меньшее количество, потому как для B25 Rb = 148 кгс/см кв. (14.5 МПа).
am = 1800 / (1 * 0.08^2 * 1480000) = 0.19003.
As = 148 * 100 * 10 (1 — корень кв. (1 — 2 * 0.19)) / 3600 = 6.99 кв.см.
Таким образом, для того, чтобы армировать 1 п.м имеющейся плиты перекрытия, все равно понадобится использовать 5 стержней, которые имеют диаметр 14 мм с шагом 200 мм либо продолжать подбирать сечение.
Стоит сделать вывод, что сами расчеты достаточно просты, помимо того, они не займут большое количество времени. Однако при этом формулы понятнее не становятся. Совершенно любую железобетонную конструкцию теоретически можно рассчитать, исходя из классических, то есть предельно простых и наглядных формул.
Вернуться к оглавлению
Сбор нагрузок — некоторый дополнительный расчет
Сбор нагрузок и расчет прочности монолитных плит перекрытия часто сводится к сравнению двух факторов между собой:
- усилий, которые действуют в плитах;
- прочностью армированных ее сечений.
Первое в обязательном порядке должно быть меньше, чем второе.
Определение в нагруженных сечениях моментных усилий. Моментных, потому что изгибающие моменты будут определять на 95% армирование изгибных плит. Нагруженные сечения — середина пролета или, выражаясь другими словами, центр плиты.
Изгибающие моменты в квадратной плите, которая не защемлена по контуру (пример — на кирпичные стены) по каждому направлению X и Y могут определяться: Mx = My = ql^2 / 23.
Для частных случаев можно получить некоторые определенные значения:
- Плита в плане 6х6 м — Mx = My = 1.9тм.
- Плита в плане 5х5 м — Mx = My = 1.3тм.
- Плита в плане 4х4 м — Mx = My = 0.8тм.
При проверке прочности считается, что в сечении имеется сжатый бетон сверху, а также растянутая арматура снизу. Они способны образовать силовую пару, которая воспринимает моментное усилие, приходящее на нее.
1popotolku.ru
Минимальное и максимальное опирание плиты перекрытия на кирпичную стену
Каким должно быть минимальное опирание плиты перекрытия на кирпичную стену, чтобы обеспечить надежность и долговечность конструкции? Вопрос серьезный, от его решения зависит устойчивость здания к нагрузкам и безопасность находящихся в нем людей. Вот почему глубина наложения плоских железобетонных изделий на кладку из кирпича регламентируется строительными нормативными документами (СНиП).
От качества монтажа плит перекрытия зависит прочность всей конструкции дома.О пустотных железобетонных изделиях
Ошибки в укладке перекрытия.
Разобраться в вопросе сложно, если не знать, что собой представляют плиты перекрытия. Это конструктивные элементы капитальных зданий, изготавливаемые из железобетона, для устройства перекрытий между этажами. Внутри вдоль всей плиты есть пустоты различной формы, чаще — круглой.
Изделия производятся по типовым проектам — сериям чертежей, где указаны конструктивные особенности и размеры. Длина элементов — 1,5-12 м. Современные технологии производства позволяют отрезать плиты нужной длины с шагом 100 мм. По ширине изделия изготавливаются 4 типов: 1000, 1200, 1500 и 1800 мм.
Стандартная распределенная нагрузка, на которую рассчитан каждый элемент — 800 кг/м2. Плита может иметь толщину 16-33 см в зависимости от конструкции и длины, наиболее распространенный размер — 22 см.
Плиты перекрытия — это практически незаменимые изделия. Альтернатива — перекрытие из деревянных балок либо монолитного железобетона. Дерево проигрывает армированному бетону по несущей способности, а сооружение монолитной конструкции — процесс сложный и дорогой.
От чего зависит минимальное расстояние для опоры
Нормативными документами установлена минимальная длина опирания торцевой части пустотной плиты на стену, сложенную из кирпича — 9 см. Подобное решение принимается инженерами-проектировщиками с обоснованием и расчетами. Факторы, влияющие на глубину наложения перекрытия:
Параметры опирания плиты зависят от типа будущего строения.- габаритный размер пролета и длина железобетонного изделия;
- величина распределенной и точечной нагрузки на бетонное перекрытие;
- разновидности нагрузок — статические, динамические;
- толщина несущей стены из кирпича;
- тип здания — жилое, административное либо производственное.
Все перечисленные факторы должны учитываться в расчете надежности конструкции. В соответствии с нормативами, конец железобетонной пустотной плиты накладывается на стену так, чтобы размер нахлеста оказался 9-12 см, точные данные получают расчетным путем.
Если изучить серии, по которым производятся элементы перекрытий, то в них указаны 2 вида размеров:
Таблица расчета сечения балок перекрытий.- Модульный. Это теоретическая ширина пролета, куда должен ставиться элемент.
- Конструктивный. Это чистая длина потолочной плиты от одного торца до другого.
Например, бетонное изделие с модульной длиной 6 м имеет реальный габарит 5,98 м, что необходимо учитывать при проектировании. Чтобы получить чистую ширину комнаты 5,7 м, надо уложить плиту на кирпичную стену на глубину 120 мм, для отделки штукатуркой останется по 20 мм с каждой стороны, также есть кирпичное перекрытие.
Возникает вопрос — почему размер опоры такой маленький, ведь плиту можно уложить и на 20-30 см, лишь бы ширина ограждения позволяла. Но это будет не опирание, а защемление железобетонного элемента, поскольку его торец тоже несет часть нагрузки от стены, построенной выше. В подобной ситуации как плита, так и несущая перегородка будут работать неправильно, что приведет к медленному разрушению и растрескиванию кирпичной кладки.
И наоборот, из-за слишком маленького нахлеста тяжелая плита вместе со всей нагрузкой начнет воздействовать на край кладки и со временем обрушит его.
Поэтому минимальное опирание 9 см используется на практике редко, обычно принимают 10-12 см.
Существует еще одна причина, по которой нельзя слишком заглублять край перекрытия внутрь ограждающей конструкции. Чем ближе торец плиты к наружной поверхности, тем больше тепла теряется в подобном конструктивном узле, потому что бетон хорошо проводит тепло. В результате получится мостик холода, от которого в доме будут холодные полы.
Конструкция опорного узла
При строительстве кирпичного здания с перекрытиями из плоских бетонных элементов кладку в полную толщину ограждения ведут до проектной отметки низа потолка. Затем кирпич кладут только с наружной части таким образом, чтобы образовалась ниша, куда ляжет плита. Процесс сопровождается следующим:
- Если глубина опирания составляет 12 см (ровно полкирпича), то ниша выполняется шириной не менее 13 см, чтобы торцевая часть плиты не упиралась в кирпичную кладку.
- Перед монтажом перекрытия на основание укладывается слой цементно-песчаного раствора той же марки, что применялась при возведении кладки.
- Поскольку краевые зоны плит будут воспринимать часть нагрузки от возведенной выше стены, пустоты с торца наглухо заделываются бетонными вкладышами, дабы изделие не разрушилось от сдавливания.
//www.youtube.com/watch?v=-Ol8NGMGQGc
Как правило, вкладыши из бетона производители железобетонных изделий предусматривают еще на заводе. Если этого не было сделано, пустоты обязательно заполняются бетонной смесью марки М200 в условиях строительной площадки.
В торцевых стенах здания плиты перекрытия ложатся на внешние ограждения не только торцами, но и одной боковой частью. Здесь глубина опирания не нормируется, но для надежности следует запроектировать данный узел таким образом, чтобы нагрузка от кирпичной кладки не легла на первую пустоту изделия. Иначе от сдавливания пустотной части может произойти ее разрушение. Плечо опоры должно быть минимальным, его величина зависит от конструкции плиты.
kubkirpich.ru
