Лестница на второй этаж своими руками из металла с поворотом – чертежи конструкций с забежными ступенями на второй этаж, варианты с поворотом на 90 градусов
Расчет металлического каркаса лестницы своими руками
Содержание
Введение
Какие лестницы можно будет рассчитать по этой методике?
Три самых важных размера при расчете конструкции лестницы
Высота
Длина
Ширина
Четыре основных шага при расчете металлического каркаса лестницы
Шаг первый
Шаг второй
Шаг третий
Шаг четвертый
Бонус
Эта статья будет полезна тем, кто хочет рассчитать лестницу с 1 на 2 этаж в таунхаусе и коттедже. Не важно, сами Вы будете изготавливать и устанавливать лестницу или заказывать в компании, но очень важно, чтобы Вы могли быть уверены, что это самая идеальная и удобная лестница.
В конце статьи Вы узнаете какое количество ступеней Вам нужно, какие размеры у ступеней будут, какая будет Высота каждой ступени, межэтажная площадка у вас будет или забежные ступени. Этот расчет будет являться техническим заданием по лестнице.
Кстати, отвечу на вопрос: «Кто я такой, чтобы вас учить расчету лестниц?»
Я тот человек, который за 2017 год установил 410 лестниц. Конечно, я не делаю все своими руками и у меня есть своя команда. Но, думаю, что факта изготовления и установки 410 лестниц достаточно, чтобы Вы смогли дочитать эту статью до конца.

Почему я решил сделать эту статью? Когда я только начал заниматься лестницами на металлическом каркасе, я весь интернет перерыл в поисках полезного контента по расчету лестниц, но его чертовски мало. А тот, что полезен, имеет существенный минус в том, что он сложнодоступный для обычного человека и понятен только для строителя. Я же не обладал строительным образованием, поэтому приходилось учиться на своих ошибках. Спустя два года, когда начал писать эту статью, я опять перерыл весь интернет, ну может быть не весь русскоязычный контент в поисковиках, но точно весь контент на ютубе на эту тему. Убедившись, что действительно полезного видео и статей нет, настолько полезного, чтобы обычный человек мог воспользоваться этим, я решил его создать.
Перейдем к делу!
Все лестницы (бетонные, деревянные, на металлическом каркасе) рассчитываются одинаково.
Конечно, есть очень много технических нюансов в каждом виде лестниц, но они не влияют на расчет лестницы.
Для того, чтобы мы с Вами разговаривали на одном языке и об одном и том же, посмотрите фотографии тех лестниц, которые можно рассчитать после прочтения данной статьи.



А теперь, чтобы укрепить Ваше понимание, что этот расчет подходит для Вашего дома или дачи, посмотрите фото домов, куда можно устанавливать такие лестницы.

Забегу вперед и скажу, что не каждый после прочтения статьи сможет провести расчет каркаса лестницы. Если Вы уже подозреваете, что я говорю сейчас про Вас, то не переживайте, у меня для вас будет хорошая новость: если Вы сможете рассчитать себе лестницу, но у Вас останутся сомнения в правильности расчета, я с удовольствием проверю Ваш расчет и внесу правки. В конце статьи я расскажу подробнее об этом.
Я помогу вам расчитать лестницу или проверить правильность Вашего расчета!
Итак, перейдем непосредственно к расчету!
Мы будем делать расчет на П-образной лестнице, если у вас Г-образная, то не вешайте нос. Действия одинаковые.
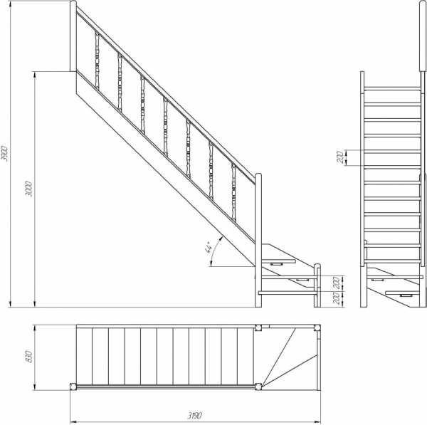
Для того чтобы рассчитать лестницу нам понадобится 3 размера:
✔ Высота ✔ Длина ✔ Ширина
Чтобы проще было понимать расчет лестницы, мы возьмем 1 конкретный объект, где будет стандартная П-образная лестница.
Посмотрите фото и видео с объекта,где мы установили такую лестницу:

✔ Расчет высоты каркаса лестницы
Нам нужна высота от пола первого этажа до пола второго этажа.
Обратите внимание, что размер не от пола первого этажа до потолка, а именно от пола до пола. Очень важно чтобы этот размер был от чистого пола 1 этажа и чистового пола 2 этажа, если у Вас идет период строительства и стяжка еще не залита или стяжка есть, но нет еще напольного покрытия, то прикиньте приблизительно, на сколько миллиметров у Вас поднимется пол.

Очень важно чтобы размер был от чистого пола 1 этажа и чистового пола 2 этажа!
✔ Оптимальная длина металлической лестницы на второй этаж
Нам нужна длина от стены, где будет поворот лестницы, до края торца перекрытия

Используйте для рассчета минимальный размер от стены, где будет поворот лестницы, до края торца перекрытия.
✔ Расчет ширины металлического каркаса лестницы
Нам нужен размер от левой стены до правой стены.
Замерьте этот размер около торца перекрытия и около стены, которая идет параллельно перекрытию. Если размеры не сходятся берите из них минимальный размер.

Шахты могут быть разными, но принцип расчета одинаковый во всех случаях

*на фото представлена Г-образная шахта
Мы получили 3 размера
Зафиксируйте в таком формате свои размеры
Чуть позже, я напишу, почему именно в таком формате необходимо зафиксировать эти размеры.
Перед тем как погрузиться в детали расчета металлической лестницы на второй этаж, я вкратце расскажу Вам о том, что мы будем делать:
Четыре основных действия при расчете каркаса лестницы
- Рассчитываем приблизительное количество ступеней. Простая арифметика.
-
Подгоняем межэтажную площадку
☆ Если площадка не подойдет, то рассчитываем забежные ступени

и подгоняем количество ступеней на маршах лестниц

-
Производим более точный расчет количества ступеней, но не окончательный
-
Делаем окончальный расчет лестницы.
Повторите пункты 2, 3, 4, если нужно сравнить несколько вариантов.
Сложно?

Сейчас поясню расчет металлического каркаса лестницы на образном примере:
Представьте себе дорогу на автомобиле от Москвы до Санкт-Петербурга.
Нам не нужно заранее знать всю дорогу от точки А до точки Б, мы знаем, что нужно ехать по Ленинградскому шоссе и этого достаточно чтобы начать движение. А после, уже в процессе движения, мы корректируем путь.
Так же и с лестницей, мы не знаем, какая в конечном итоге получится лестница, но мы двигаемся от самого простого расчета лестницы к сложному.
Итак, едем дальше!

➤Первый шаг
Нам нужно понять примерное количество ступеней на Вашу лестницу.
Для этого нам нужно Вашу высоту разделить на стандартные высоты ступеней

и далее я этот параметр лестницы буду называть подступенком.
В нашем случаев высота составила 2800 мм.
Вот мой расчет

Формула: Высота/подступенок=количество ступеней
Это действие нам нужно повторить 5 раз.
2800/150=18,6
2800/160=17,5
2800/170=16,4
2800/180=15,5
2800/190=14,7
Перед тем как делать выводы, я прокомментирую чтобы Вы не запутались:
Мы берем высоту от пола 1 этажа до пола 2 этажа

2800 делим на 5 стандартных размеров подступенка.
Результатом вычисления будет примерное количество ступеней.
Чтобы Вы сейчас не утонули в сомнениях, что стандартный подступенок 150 мм, а я рассматриваю вариант априори неудобной лестницы, я сразу скажу, что все верно. Всё дело в том, что по стандарту шаговая часть (проступь) 300 мм, а высота подступенка 150 мм, но на деле такое возможно в очень редких случаях. Это связано с тем, что для таких размеров нужно в 1.5 раза больше пространства для лестницы, чем обычно закладывают в малоэтажном строительстве. Другими словами, чтобы такую удобную лестницу сделать, у Вас должен быть проем для лестницы как в подъезде.

Когда заказчик строит частный дом, чаще всего он вообще не думает о лестнице и, когда я прихожу к нему на объект, он хватается за голову от удивления, какая у него неудобная лестница будет и что нужно, чтобы сделать хоть мало-мальски удобный вариант.
Или возьмем другой пример, таунхаусы в
xn——6kcbbzebu2aiajid3drj2e.xn--p1ai
Лестница поворотная на второй этаж: виды и варианты изготовления
В зданиях высотой выше одного этажа, наличие лестницы для межэтажных перемещений является непременным условием проживания. Вариантов разновидностей сооружений и их размещения в помещении ̶ множество.
Наиболее комфортными и безопасными, являются поворотные маршевые системы. В этой статье мы познакомимся с типами конструкций, и рассмотрим в деталях, как устроена конструкция.

Поворотная
Содержание статьи
Виды лестниц
Они являются не только необходимым и функциональным, но и украшающим дом предметом интерьера и экстерьера.
По расположению бывают:

Уличная

внутри помещения
По способу использования разделяются на: стационарные, приставные и складные (раздвижные).
По способу крепления ступенек конструкции делятся на:
- На косоурах.
- Ступени в этом случае крепятся к несущим балкам, которые называются косоурами, сверху, в специально устроенные выступы. Они как бы лежат на направляющих.
- Таких балок, в зависимости от характеристик, может быть одна, две или три. Более трех косоуров при изготовлении конструкций практически не используется.
- Направляющие-косоуры, в зависимости от геометрии, могут быть прямыми, ломаными и криволинейными.
- На одном, центральном косоуре, обычно делают лестницу шириной не более 1 м.
- Лестница на косоурах может выполняться с подступенками. Если такой элемент отсутствует, конструкция кажется более изящной и невесомой.
- Косоуры чаще всего изготавливают из металла, дерева и бетона. Материал как несущих балок, так и ступеней и ограждений, зависит от стилистики помещения и требований, предъявляемых к конструкции.

На косоурах
- На тетивах.
В таких системах ступени крепятся между направляющими-тетивами. Крепление осуществляется с помощью установки торцов ступеней в специально подготовленные пазы в боковых гранях опор.
Тетивы, также как и косоуры, могут иметь разные формы, позволяющие осуществить размещение лестницы максимально красиво и функционально.

На тетивах
- На больцах.
В этой конструкции ступени крепятся к стене и между собой с помощью специальных болтов — больцев. В случае, если стена не слишком прочная, в нее устанавливаются укрепляющие закладные.
Такой вид кажется наиболее привлекательным из-за скрытых креплений. Они производят впечатление легкости, изящества и хрупкости, хотя на самом деле эта конструкция не менее прочная, чем все остальные виды.

На больцах
- На вертикальной опоре.
Крепление ступеней осуществляется с помощью вертикальной стойки, на которую они монтируются под разными углами, в виде веера. С использованием опорного столба обычно устраиваются винтовые конструкции.

На опорном столбе
- Комбинированные. Они могут совмещать в себе элементы всех выше перечисленных типов.

На косоуре и вертикальной опоре
По конструкции разделяются на: маршевые и винтовые.
Рассмотрим их подробнее:

Винтовая
Очень функциональная конструкция для размещения в местах с дефицитом площади. Она занимает мало места, всего 1,5-2 м2.
Ступени винтовых типов выполняются не в форме прямоугольника. Они заужены с одной стороны. Именно этой частью ступенька и прикрепляется к вертикальному столбу-опоре.
Она из-за своих габаритов и геометрии не подойдет для транспортировки объемных предметов. Пользоваться ею детям и пожилым людям следует с большой осторожностью, так как безопасной ее не назовешь.
В винтовых и больцевых конструкциях интереснее всего обыгрываются сочетания самых разных материалов: дерева, стекла, металла.

Маршевая
Эти конструкции являются наиболее комфортными и безопасными. Они представляют собой один или несколько пролетов (маршей), соединенных между собой площадкой. Возможна установка с двух сторон ограждений и перил.
- Вместо площадки также могут использоваться забежные поворотные ступени. Они добавляют этой массивной конструкции изящества, и позволяют немного сэкономить площадь.
- Маршевые занимают довольно много места, однако подлестничное пространство также можно использовать с пользой.
- Конструкция очень массивная, основательная, однако для ее изготовления требуется много строительных материалов, соответственно и цена изделия будет приличной.
- По таким сооружениям можно передвигаться даже на большой скорости, и не бояться свернуть себе шею.
- Если нужно поднять или спустить крупные и тяжелые предметы, по маршевой это не вызовет никаких трудностей.
- В свою очередь, маршевые подразделяются на: прямые и поворотные. Прямые маршевые системы, как правило, устанавливаются в просторных помещениях.

Маршевая
Рассмотрим подробнее поворотные маршевые типы как наиболее популярные и часто используемые конструкции для подъема. Чтобы лучше изучить поворотные, видео на эту тему будет представлено в дополнение к теоретической информации.
Поворотная маршевая лестница: виды, особенности изготовления
Они могут иметь один, два, три пролета. Крепление ступеней поворотных лестниц может осуществляться и на косоурах, и на тетивах, и на больцах, и на столбе.
Все поворотные могут быть выполнены с поворотом в правую или левую сторону, на 90 или 180 градусов. Конструкции с поворотом на 90 градусов (г-образные) проще всего вписываются в интерьер любого помещения и занимают минимум площади.
Лестница с поворотными ступенями, у которой вместо межмаршевой площадки используются забежные ступени, является симбиозом маршевой и винтовой конструкции. От винтовой конструкции ей досталась небольшая экономия пространства и эстетическая привлекательность, от маршевой ̶ удобство, безопасность и комфортность передвижения.

С забежными ступенями

Лестница на второй этаж с двумя поворотами
Материалы, из которых может быть выполнена конструкция поворотной разновидности.
Лестница из металла
Такие конструкции очень популярны, как для установки внутри помещения, так и для наружного размещения. Из металла могут быть выполнены входные группы, пожарные лестницы, для перемещения между этажами.

Уличные металлические
Железные поворотные виды можно прибрести в готовом виде. Также лестница металлическая с поворотом может быть изготовлена своими руками — при наличии у мастера минимального опыта работы со сварочным аппаратом.
Готовые поворотные типы не всегда полностью удовлетворяют запросам конечного потребителя, однако под заказ производитель может изготовить конструкцию в соответствии с требуемыми размерами.
Металлическая поворотная разновидность своими руками изготавливается из швеллеров, уголков, профильной трубы. Требования к ним сформулированы в ГОСТ 23120-2016 «Лестницы маршевые, площадки и ограждения стальные».
Этапы изготовления:
- Снятие размеров площадки, составление проекта и точного чертежа конструкции.
- Изготовление каркаса.

Каркас металлической
- Шлифовка мест сварки и участков, пораженных ржавчиной.
- Обработка металла от коррозии.
- Изготовление ступеней. Они могут быть выполнены из дерева, бетона или металла.
- Сборка поворотной лестницы.
- При необходимости ̶ монтаж ограждений и элементов декора.
Их отличают:
- прочность;
- отсутствие скрипа ступеней;
- долговечность;
- необходимость периодической обработки от коррозии.
Лестница из дерева
Дерево всегда являлось наиболее комфортным, внешне привлекательным материалом, Конструкции из него сочетают в себе традиционность, надежность и уют.
Изготовление лестницы с поворотными ступенями из дерева можно выполнить самостоятельно, в соответствии с условиями размещения, вкусом хозяина и стилем строения. Перед тем, как сделать поворотную лестницу на второй этаж своими руками, первым делом следует составить грамотный чертеж конструкции, точно сняв все размеры, и рассчитав параметры.
Вариант расчета габаритов конструкции приведен на фото:

Габариты поворотной лестницы
- Ширину лестницы для комфортного передвижения следует делать не менее 90 см.
- Ширина ступеней: от 20 см.
- Высота подступенков: 15-20 см.
- Толщина ступени: 2 см.
- Высота ограждения и перил: 90 см.
- Угол наклона лестницы: 35 ± 5 градусов.
Все размеры подбираются с учетом удобства передвижения всех членов семьи.
Для изготовления лестницы для дома с поворотом, нам понадобятся следующие инструменты:
Готовятся материалы: брус для направляющих, обрезные доски для ступеней, мебельный щит для забежных ступеней, балясины, перила для ограждений, клей и метизы. Материалом для изготовления лестницы могут служить лиственница, дуб, клен, бук, но можно изготовить лестничную конструкцию и из более доступной по цене сосны.
Важно! Перед началом работ все деревянные детали следует высушить и обработать защитными составами. Недопустимо наличие в древесине сучков.
Строим лестницу на второй этаж с поворотом из деревянных деталей:
- Из бруса готовим два косоура. Выпиливаем выступы для установки ступеней. Проще всего это делать c помощью треугольного шаблона. Все детали сразу подлежат шлифовке.

Изготовление мест крепления ступеней
- Производится крепление косоуров к потолочной балке и полу с помощью уголков и саморезов. Для прочности конструкции, должен быть установлен опорный столб. Он монтируется с помощью стальных уголков. Внизу косоуры крепятся к опорной балке, в сделанные предварительно пазы. Лучше всего параллельно с крепежом для фиксации использовать клей.
- Под забежные ступени выкладываются опорные бруски толщиной 50 мм.
- Сначала устанавливаются подступенки.

Монтаж подступенков
- Монтируются ступени.

Установленные проступи, ступени поворотные и подступенки
- Устанавливаются ограждения.

Готовая лестница с поворотом
Монтаж поворотной лестницы из дерева закончен. Конструкцию можно покрыть лаком или краской, в зависимости от стиля оформления помещения.
Лестница из бетона
Такую конструкцию изготовить несколько труднее, чем деревянную, однако у нее есть свои плюсы.
Бетонная лестница обладает следующими качествами:
- Долговечность.
- Прочность.
- Негорючесть.
- Отсутствие звуков при ходьбе.
Самое сложное в устройстве бетонной лестницы ̶ сбор опалубки, точно повторяющей геометрию конструкции.
Важно! Если лестница монтируется внутри здания, следует учесть, что конструкция из бетона достаточно тяжелая и под нее необходимо предусмотреть отдельный фундамент.
Для устройства опалубки понадобится брус 10х10 см, доски или фанера. Если лестница одним боком будет соприкасаться со стеной здания, это несколько упрощает процесс строительства.
Изготовление поворотной лестницы из бетона:
- Монтируется каркас площадки.
- Устанавливаются косоуры, выполненные из досок толщиной не менее 30 мм. Один надежно крепится к стене (если позволяет конструкция), другой устанавливается на опоры.
- Все элементы фиксируются с помощью саморезов. Следует следить, чтобы не было щелей.
- Снизу к косоурам прикрепляются фанерные листы толщиной не менее 20 мм.
- Внутрь опалубки лучше положить полиэтилен или смазать внутренние стенки машинным маслом, чтобы проще было размонтировать опалубочную систему.
- По всей конструкции следует установить двойной каркас из переплетенной с шагом 150 мм арматуры диаметром 8-10 мм. Арматурная сетка должна соединяться с несущими балками.
- Если одним боком лестница соприкасается со стеной, концы прутьев арматуры нужно с помощью просверленных отверстий заложить и в нее. Сетка должна быть в толще бетона, поэтому ее нужно выкладывать на подставки высотой 20-30 мм.
- Из ровных досок формируем опалубку для ступеней.

Установленная опалубка с арматурой
- Перед заливкой бетона можно установить деревянные или металлические закладные, которые упростят крепление ограждений.
- Конструкция заливается бетоном. Раствор готовится, исходя из следующих пропорций: 1 часть цемента, 2 части песка, 3 части щебня, плюс вода. Все ингредиенты тщательно перемешиваются, лучше это делать в бетономешалке. Заливка всей конструкции проводится в один этап. Работы начинаются снизу.
- Бетонную массу следует уплотнять с помощью штыкования или глубинным вибратором.
- Поверхность выравнивается, излишки раствора убираются.
- Конструкция накрывается полиэтиленом до полного высыхания (28 дней). Периодически ее следует поливать водой.
- Опалубка снимается (со ступеней можно снять опалубочные доски уже через три дня, полный демонтаж осуществляется не ранее, чем через две недели после заливки).

бетонная лестница перед отделкой
- Бетонная поверхность шлифуется.
- Устанавливаются элементы ограждения.
- Для облицовки бетонной конструкции можно использовать дерево, природный камень, мозаику или плитку.

Отделка бетонной лестницы деревом
- Если облицовка бетона не предусмотрена, можно придать конструкции привлекательный вид с помощью добавления при замешивании раствора в бетонную массу пигментов и наполнителей.
Залог сооружения прочной, безопасной и красивой лестницы — точный расчет системы и качественная установка опалубки. Результатом трудов станет добротное, простое в эксплуатации бетонное сооружение, являющееся к тому же украшением интерьера.
Можно посмотреть видео в этой статье:
Если перед вами встал вопрос, как сделать поворотную лестницу, следует изучить возможные варианты ее изготовления, подобрать готовый проект или сделать его самостоятельно. Затратив немного времени и сил на сооружение и отделку, можно получить в результате радующую глаз, эргономичную и долговечную конструкцию.
olestnicah.ru
Поворотные лестницы на второй этаж своими руками
Поворотная лестница: проектирование, выбор материала и подсветки
Строительство дома и его облагораживание – это любимое занятие многих мужчин. Частный дом является признаком достатка, уюта и независимости. Если к созданию его дизайна подойти оригинально, то можно сделать настоящий шедевр.
Не лишним элементом интерьера будет лестница. Построенная поворотная лестница на второй этаж своими руками будет нести большой заряд положительной энергии и эмоций.

Фото лестницы на 90 градусов
Как правильно её соорудить и какими элементами украсить, мы рассмотрим в этой статье.
Выбираем тип конструкции
Что касается видов, то их в наличии есть множество. Так криволинейный тип дизайна является воплощением обязательной ширины конца (узкого) с размером не менее 100 мм, а изогнутый будет выгоден для пространства, но имеет вид не столь изящный, а более монументальный.
Существуют и поворотные лестницы на второй этаж с задвижными ступенями. По той причине, что при перемещении по ним нет чувства опоры, они в последние годы мало применяются.
Есть также еще одна градация таких конструкций:
Секреты проектирования
Очень много людей задаётся вопросом, как рассчитать поворотную лестницу на второй этаж? В нынешнее время можно и не быть специалистом по проектированию, для этого необходим всего лишь иметь выход в интернет. Во всемирной паутине есть много различных сервисов по расчету лестниц.
Инструкция к этим сервисам предостерегает пользователей о том, что нужно знать некоторые данные:
- Длину и высоту проема;
- Ширину будущей лестницы частного дома ;
- Необходимое количество ступеней;
- Количество доповоротных и поворотных ступенек;
- Толщину последних;
- Выступ краев.
Такие сервисы имеют одно большое преимущество – помимо возможности проектирования и создания обычного чертежа, можно сделать цветной эскиз и посмотреть, как этот элемент будет вписываться в цветовую гамму помещения.

Лестница с поворотной площадкой в углу помещения
Важно. Пользуясь онлайн сервисами, у вас также появляется возможность оснастить их специальными поручнями для детей, пожилых людей или для жильцов с ограниченными физическими возможностями.
Расчет полуоборотных лестниц
Любой квалифицированный дизайнер скажет, что при наличии в доме лестницы с поворотными ступенями будет экономия пространства в помещении без потери функциональности и комфорта.
Выполняя расчет поворотной лестницы, обратите внимание на следующие важные моменты:
- Нужно выбирать оптимальное количество ступеней – на 80 см ширины должно приходиться три ступени. Если взять большее количество, то мастеру или вам придется изготавливать более узкие ступеньки, такой шаг приведет к тому, что жителям дома будет некомфортно перемещаться между этажами;
- Если вы захотели сделать проем лишь над верхней частью конструкции, то нужно учитывать высоту в области поворота до перекрытия. Минимальная высота должна быть не менее двух метров, иначе будет большая вероятность травмировать голову;
- Важным шагом является выбор ширины лестничного проема. Чем больше будет её ширина, тем большее количество ступеней поместится. Наиболее удобны конструкции, в которых чертежи поворотных лестниц обладают соотношением: сумма двух высот ступеней и одной их глубины равняются шестидесяти сантиметрам (плюс минус пять). Идеальным считается наклон от тридцати до сорока градусов с глубиной ступеней 300 мм и высотой 250 мм.
Материал для конструкции
Мы думаем, что все согласятся, что дерево будет идеальным материалом для отделки домов. Металл и пластик не имеют столько антуража при реализации их в дизайне частных коттеджей.
Применение древесины позволяет реализовывать разнообразные формы, которые очень хорошо впишутся в интерьер дома с его деревянными покрытиями и мебелью. К тому же на дерево можно нанести любой рисунок или резьбу. Еще одно преимущество – это его цена.

Поворотная деревянная лестница, расположенная в конце прихожей
Совет. Для того чтобы ваши деревянные ступни прослужили как можно дольше применяйте только специальные тонировки и лаки устойчивые к стиранию.
Наиболее частные рекомендации
- Опытные мастера и дизайнеры при проектировании советуют рассмотреть возможность сооружения под лестницами кладовок. Выполняя разработку конструкции, вы можете воплотить в неё самые креативные и смелые идеи;
- Нужно определиться с видом древесины для вашей конструкции. Доски из ели имеют доступную стоимость и цену. Они обладают светлой однородной структурой и долговечностью. Еловые доски – это идеальный вариант.
Доски из бука имеют сероватый или красноватый оттенок и слабовыраженную структуру. По своей прочности заметно уступают ели.

Светло-желтый дуб устойчив по отношению к внешним факторам и тоже пригоден для постройки. Сейчас представлен большой выбор дерева для создания ступеней и каркасов, поэтому каждый мастер может выбрать материалы на своё усмотрение и финансовые возможности;
- Если вы действительно захотите научиться строить поворотные лестницы своими руками, то для этого вам понадобиться специальная обучающая литература и видео уроки, благо, что их можно найти без проблем на нашем портале;
- Большая ошибка устанавливать деревянную лестницу на этапе строительства дома. Такая конструкция рассматривается как временная, но затем становится постоянно эксплуатируемой;
- Будьте внимательны так как недобросовестные мастера могут обшить металлический каркас деревом, а сэкономленные средства оставить себе;
- Не нужно придумывать сложную конструкцию лестницы, так как это может усложнить перемещение по ней и транспортировку мебели. Необычной конструкцией вы мало кого удивите, а вот проблем себе создадите множество.

Важно. Не пренебрегайте правилами техники безопасности.
В последнее время стало популярным не устанавливать перила, но такие шаги могут привести к тяжелым последствиям, ведь вам придется по ним передвигаться и ночью, когда освещение минимально.
Вполне возможно, что в таких случаях вам поможет онлайн расчет поворотных лестниц.
Для того чтобы придать комфорт подъему и индивидуальности дизайну можно взять к установке такой элемент как подсветку лестницы в доме. Нужно сразу сказать, что монтаж этих элементов является трудоемким процессом и без навыков в электрике ничего не получиться.
Вмонтированные в ступеньки неоновые лампы
Освещение светильниками
Лестница должна иметь хорошее освещение. Оно должно быть не ярким, но при этом удобным для передвижения. При сообщении лестницы со стеной можно применять для этих целей настенные бра и светильники.
Помимо своих прямых функций эти элементы будут выполнять ещё и декоративные задачи, что придаст атмосфере больше уюта.
Поворотные деревянные лестницы могут снабжаться такими видами светильников:
- Вмонтированными в перила или балясины;
- Внешними;
- Вмонтированными в ступеньки.
Галогенные и неоновые лампы
Несомненным преимуществом такого освещения будет мягкий свет, который не будет содержать всяческих теней. Это придаст больший комфорт при спуске, к тому же неоновые лампы наиболее долговечны и их хватит на длительный срок.
Важно. Такой вид лампочек очень хрупок, поэтому от повреждений их нужно защищать, например, декорированными плафонами.
Эти лампочки боятся скачков напряжения, при них они перегорают. Следовательно, нужно продумать стабилизацию напряжения, возможно, придется применять специальное стабилизирующее оборудование. Помимо этого они сильно нагреваются, нужно проследить за тем, чтобы не было их контакта с легко возгораемыми материалами.

Для большего комфорта и экономии электрической энергии можно сделать автоматическое освещение. Оно будет включаться только тогда, когда жильцы будут пользоваться лестницей.
Светодиодные лампы
Это наиболее востребованный вид подсветки. Для монтажа таких лампочек сооружают специальные ниши в балясинах или ступенях. Большим преимуществом является большой цветовой выбор диодов.
Для того чтобы ускорить работы можно купить светодиодную ленту для подсветки лестницы. она может быть самоклеющейся. Их можно наклеить по краям лестницы, чтобы четко видеть её границы.Нужно отметить, что лампочки такого типа долговечны, имеют яркий свет и низкое потребление электроэнергии, а также не нагреваются.
Преимущества таких лампочек:
- Отпадает необходимость в отделочных работах;
- Большое разнообразие цветовых вариантов и дизайнерских решений;
- Возможность работы от батареек.
Единственное что следует обеспечить, так это исключить попадание воды на подсветку и своевременную замену сгоревших ламп.

Поворотная конструкция с освещением
Лестница с поворотными ступенями – это наиболее востребованная конструкция. Рассмотренные в этой статье рекомендации значительно вам помогут при собственноручном создании таких элементов.
Советуем вам не пренебрегать техникой безопасности при их строительстве и монтаже. В представленном видео в этой статье вы найдете дополнительную информацию по данной теме.
Самые востребованные чертежи лестницы на второй этаж с поворотами
Если в доме нельзя поместить прямую лестницу с одним пролетом, для которой необходимо много места, приходится изготавливать лестницы с несколькими пролетами. За счет того, что пролеты лестниц расположены под углом друг к другу места для нее потребуется меньше. Изготовить лестницу с поворотом без ошибок сложно и дело не в том, что это требует больше времени. Точно рассчитать чертежи лестницы на второй этаж с поворотами, можно только учитывая множество параметров.
Какими могут быть лестницы с поворотами
В зависимости от того под каким углом друг к другу расположены пролеты и от способа перехода между ними лестницы бывают нескольких видов, которые можно считать основными.
Типы лестниц с поворотами:
- Лестницы с площадкой между пролетами и поворотом пролетов на 90 о С или на 180 о С;
- Лестницы с поворотными ступенями и поворотом пролетов на 90 о С или на 180 о С
При одинаковых величинах проема и ширине лестницы, каждая из них отличается количеством ступеней и их габаритными размерами.
Лестницы с поворотом на 90 о С между пролетами
Лестницы такого типа располагают в небольших домах, например, на даче в угловой части комнаты, где они занимают меньше места. Для дач, как правило, используют самый практичный и более простой в изготовлении вариант с промежуточной площадкой.

Чертеж с площадкой и поворотом на 90 оС
Поворотные лестницы с тем же углом поворота без площадки имеют большее количество ступеней за счет дополнительных забежных ступеней, которые имеют особую клинообразную форму и за счет которых выполняется поворот.

Чертеж с забежными ступенями и поворотом на 90 оС
Лестницы с поворотом на 180 о С между пролетами
Такой вид поворотной лестницы с площадкой между пролетами обычно можно увидеть в офисах, школах и в подъездах жилых домов. В этом случае два пролета расположены рядом и лестница в результате выглядит достаточно компактной. Это позволяет экономить место в помещении. Кроме того, место под верхним пролетом удобно использовать как дополнительное помещение для хранения. Можно оборудовать закрытый шкаф.

Чертеж с площадкой и поворотом на 180 оС
Лестницы поворотные на 180 о С в загородных домах могут быть и без ровной площадки между пролетами. В этом случае потребуется больше забежных ступеней, чем при повороте на 90 о С.

Чертеж с забежными ступенями и поворотом на 180 оС
Отличия в характеристиках поворотных лестниц
Надо отметить, что есть особенности, которые отличают лестницы поворотные с забежными ступенями от лестниц с теми же параметрами с площадкой – это меньший угол наклона при отсутствии площадки. За счет того, что пролеты не имеют ограничений, переход между ними получается плавным, а крутизна лестницы меньше. Например, при повороте на 180 о С при высоте три метра и длине проема второго этажа в три с половиной метра, угол наклона лестниц отличается на 8 о .
Обратите внимание! Лестницы с меньшим углом наклона потребуют большего количества ступеней, высота которых будет меньше. Это делает подъем более комфортным для детей и пожилых людей. Пологая лестница удобна и при подъеме тяжестей.
Преимущества типовых чертежей лестниц
Типовые чертежи лестниц дают общее представление о конструкции не содержат ошибок и могут быть использованы как база для изготовления лестницы с любым оформлением. Кроме того типовой чертеж поворотной лестницы помогает правильно рассчитать количество необходимого материала для изготовления, не допуская лишних затрат на приобретение «с запасом», когда точные размеры окончательно не определены и корректируются в процессе строительства.
Лестница на второй этаж своими руками из дерева с поворотом на 90
Деревянная лестница является отличным украшением загородного дома. Для рационального использования пространства часто устанавливают Г-образную лестничную конструкцию с забежными ступенями или промежуточной площадкой. Поворотная лестница имеет достаточно сложную конструкцию, а ее изготовление требует точных расчетов основных параметров и грамотного монтажа.
Выбор оптимального вида лестницы для дома
К выбору типа лестничной конструкции следует подойти взвешенно, учитывая планировку и габариты дома, возраст жильцов и дизайн помещения. Необходимо заранее определить материал изготовления, габариты конструкции и то, как будет использоваться пространство под лестницей.

Каждый тип лестничного сооружения имеет свои особенности в плане установки и использования. К числу наиболее популярных лестниц для дома относятся следующие конструкции.
Маршевая лестница проста в изготовлении и монтаже, но занимает большую площадь в комнате. Такую конструкцию можно разместить вдоль стены или установить посредине помещения. Прямая конструкция не подходит для маленьких домов, где на счету каждый квадратный метр. Ее удачной альтернативой является поворотная лестница на второй этаж. Своими руками создать такой подъем не сложно, главное – выполнить правильные расчеты.
Поворотные лестницы обладают рядом достоинств:
- компактность – занимают немного места, при этом оптимальные параметры конструкции сохраняются;
- удобство эксплуатации – безопасны для ходьбы детей и людей пожилого возраста;
- эстетичность – поворотные лестницы красиво смотрятся в интерьерах разного стилевого направления.

Важно! Лестница поворотной конфигурации на 90° обычно размещается в углу. Вывести поворот можно на любом участке. Направление движения для идущего человека практически незаметно и не снижает удобство передвижения.
Поворотные лестницы бывают двух типов: с площадкой или забежными ступенями. При выборе надо учесть, что чем меньше число поворотных ступеней, тем удобнее перемещение по ним.
Винтовые лестницы незаменимы при обустройстве ограниченного пространства. Минусы конструкции: низкая пропускная способность и сложности в подъеме крупных предметов.
Интересный вариант – комбинированная лестница с элементами маршевой и винтовой конструкции. Смотрится очень красиво и изысканно.
Основные требования к лестницам
Угловые лестницы проектируются с учетом общих требований:
- Рекомендуемая высота просвета от лестницы до потолка составляет 2 м. Если габариты помещения не позволяют, то расстояние от ступеней до потолка рассчитывается так: рост самого высокого члена семьи плюс 10 см.
- Ширина лестницы во многом определяет комфортность передвижения:

- 1,5 м – высокий уровень комфортна, возможность подъема по лестнице сразу нескольких человек;
- 1-1,2 м – средняя степень комфортности;
- 0,8-1 м – допустимо только для маршевых конструкций, установленных вдоль стены;
- 1,1 м – минимально возможная ширина для маршевых лестниц.
- менее 0,8 м – уместно для вспомогательных лестниц.
- Угол наклона лестницы в жилых помещениях должен составлять от 20° до 45°. Наиболее комфортным считает подъем под углом в диапазоне 24-37°.
- Оптимальная высота ступеней – 12-22 см.
- Край проступи не должен быть меньше 4-х см.
- Требования к забежным ступеням:
- максимальная глубина в широкой части – 40 см;
- минимальная глубина в узкой части – 10 см;
- глубина всех ступеней в середине должна быть одинаковой, минимальная ширина – 20 см.
- При разработке чертежа лестницы на второй этаж своими руками необходимо контролировать выполнение трех важных правил (h – высота подступенька, s – глубина ступени):
- формула безопасности: h + s = 46 см;
- формула удобства: s – h = 12 см;
- формула шага: 2h + s = 62 см (допустимо 60-64 см).
Кроме существующих нормативов, при планировании и расчете лестницы желательно учитывать советы профессионалов:

- В жилой комнате лестницу лучше не размещать – это создаст определенные неудобства. Оптимальный вариант – непроходное место, которое задействовано меньше всего.
- К лестничной конструкции необходимо обеспечить свободный подступ.
- При самостоятельном строительстве предпочтение лучше отдать простому сооружению с площадкой, а не забежными ступенями.
- Сразу надо предусмотреть возможность заноса по лестнице крупной техники и мебели.
- Практичное решение для коридора – закрытая лестничная конструкция, пространство под которой можно использовать для хранения вещей. В небольшой комнате лучше размещать открытую лестницу – визуально пространство будет казаться больше.
- Заранее надо выяснить материал перекрытия (потолка), где будет выполняться проем под выход на чердак или мансарду. Работа с монолитной плитой создает существенные сложности.
- Металлическую лестницу на второй этаж своими руками в деревянном доме можно возводить только тогда, когда дом дал усадку. Как правило, это через 1-1,5 года после постройки. В противном случае, конструкция деформируется.
Конструкция поворотной лестницы
Все конструктивные элементы лестницы можно разделить на три группы:
- несущие компоненты;
- ступени и площадки;
- ограждающие элементы.

К несущим составляющим относят:
- косоуры – опоры, на которые монтируются ступени;
- тетива – боковой элемент для поддержания ступеней с торцов и снизу; балка устанавливается под наклоном;
- больцы – металлические болты для фиксации ступеней к стенам дома.
Несущая конструкция – основа лестницы, которая принимает на себя вес остальных элементов и нагрузку от передвижения по ней людей.
Ступени состоят из проступи и подступенька. В поворотных лестницах на 90° используются забежные ступени или промежуточная площадка.
Ограждающие элементы обеспечивают безопасность передвижения. Система ограждения включает:
- балясины – вертикальные стойки, на которые опираются перила;
- перила – используются для ограждения маршей и промежуточных площадок;
- поручень – устанавливается на балясины или крепится к стене.
Важно! Согласно строительным нормам высота перил должна быть в диапазоне 86-110 см.
Расчет лестницы на второй этаж своими руками
Выполнить расчет и создать схему лестницы на второй этаж своими руками можно разными способами:

- Математические формулы. Сложный метод, для реализации которого необходимы знания сопромата.
- Онлайн-калькулятор. Для вычисления достаточно в программу ввести основные параметры лестницы: высоту ступеней, ширину/длину проема, размер выступа ступеней и толщину косоура.
- Графический способ. Наиболее простой вариант, который подходит для самостоятельного расчета.
Для создания чертежа необходимо подготовить лист миллиметровки, простой карандаш и линейку. На бумаги будет отображен подробный план лестничной конструкции в проекции. С помощью схемы можно будет точно установить нужные размеры.
Чтобы сделать расчет лестницы руками дачи второго этажа надо определиться с основными параметрами:
- Средняя линия марша. Эта линия проходит на прямых отрезках марша по центру. На криволинейных отрезках линия проводится на расстояние равном ½ ширины ступени параллельно внутреннему краю лестничной конструкции.
- Радиус закругления линии забежных ступеней. Эта величина напрямую зависит от диаметра окружности между двумя перпендикулярными маршами лестницами.
- Угол поворота проецируется между внешними гранями ступеней.
- Ширина ступеней определяется по средней линии.
Для построения чертежа понадобятся базовые параметры лестницы:
- L – длина проекции лестничного марша в горизонтальной плоскости на расстоянии от вершины угла поворота до последней ступени;
- S – ширина марша;
- R – радиус закругления;
- B – ширина проступей.

- Начертить окружность с радиусом L/2.
- Разделить круг напополам – провести линию под углом 45°. Дорисовать к окружности две линии – это будет центр лестничного марша.
- В среднюю линию вписать отрезки, длина которых равна ширине ступеней.
- На средней линии вычертить прямые лестничные марши.
- По границам ступеней начертить две перпендикулярные линии AC и AB.
- От точки А провести две линии к краям центральной забежной ступени. Размер полученного отрезка «е» должен быть не менее 100 мм, а отрезка «d» – не больше 400 мм.
Делаем лестницу на второй этаж своими руками: подробная инструкция
Подготовка необходимых материалов и инструментов
Древесина не утрачивает популярность в производстве лестниц и сегодня, несмотря на появление большого количества современных строительных материалов. Для изготовления лестничной конструкции рекомендуется использовать твердые породы древесины:
- клен – отличается прочностью на изгиб и устойчивостью, однако предрасположен к появлению трещин;
- бук – рекомендован для помещений, где нет повышенной влажности;
- дуб – достаточно тяжелый материал, обладающий твердостью и прочностью;
- лиственница – устойчива к гниению.

Совет. Сделать лестницу на второй этаж своими руками можно из недорогой древесины, например, сосны. Главное выбрать качественный материал без сучков. Со временем из-за температурного колебания может произойти незначительная деформация лестничной конструкции. В результате сучки могут выпасть, что повлечет за собой ослабление конструкции.
Итак, из материалов понадобятся:
- доска обрезная – толщина 40-50 мм;
- несущий брус сечением 100*100 мм;
- перила, поручни, балясины;
- клей столярный для заделки зазоров и стыковочных линий.
Чтоб построить лестницу на второй этаж своими руками надо подготовит следующие инструменты:
- ножовка по дереву, стамеска, напильник и комплект сверл;
- перфоратор, электролобзик, дрель и шуруповерт;
- молоток и топор;
- строительный уровень, линейка,угольник;
- боковые кусачки и газовый ключ;
- уголки, анкера, саморезы и шурупы.
Важно! Работа с электроинструментом требует строго соблюдения техники безопасности. Необходимо пользоваться защитными средствами, не держать работающий инструмент за шнур и следить за положением провода.
Изготовление и монтаж простой лестницы на второй этаж своими руками
Этап 1. Изготовление косоуров. Работы выполняются в следующей последовательности:

- Изготовить шаблон в форме прямоугольного треугольника. Катеты фигуры равны глубине и высоте ступени. Для удобства пользования заготовку лучше зафиксировать на направляющей рейке.
- С помощью шаблона нанести разметку на деревянную балку и вырезать электролобзиком или ножовкой по дереву. Нельзя забывать, что наименьшая по ширине часть косоура должна быть не менее 15 см.
Этап 2. Установка косоуров. Порядок выполнения работы:
- В опорном столбе выдолбить паз для установки косоура.
- Установить опору, а в углу смонтировать основу для забежных ступеней.
- С верхней стороны прикрепить косоуры металлическими уголками к потолочной балке, а с нижней – к опорным балкам. При монтаже косоуров надо контролировать, чтоб пазы под ступени находились четко друг напротив друга. В противном случае ступени получаться перекошенными. При выравнивании ориентироваться надо не на поверхность пола, а на уровень.
Этап 3. Вырезание забежных ступеней. Для поворотной конструкции на 90° можно использовать три ступени. Изготовить эти элементы можно из доски размером 90*90 см, толщина – 4 см.

- Деревянное полотно разделить линиями на три сектора. Все линии должны идти из одного угла.
- Ступени вырезать по линиям и подкоректировать их длину.
- Ступени вскрыть лаком.
Этап 4. Сборка лестничной конструкции. Алгоритм действий:
- Для фиксации поворотных ступеней в столбе вырезать пазы.
- Со стороны стены из досок выложить опоры под забежные ступени.
- Внутреннюю сторону поворотных ступеней обработать клеем ПВА и вставить в распилы. Внешнюю часть ступеней прикрепить к основе на стене и зафиксировать саморезами.
- Обычные ступени (прямые) закрепить длинными саморезами. Чтобы скрыть выступающий угол поворотной ступени нижний лестничный марш желательно изготовить на тетиве, конец которой обрезается под углом 90°.

Этап 5. Установка перил выполняется в такой последовательности:
- Крепление балясин иногда выполняют при помощи саморезов. Но более надежный способ – применение шкантов (деревянных стержней).
- В ступенях высверлить отверстия – размер диаметра должен быть немного меньше сечения шканта. Такое же отверстие сделать в центре балясин. В прямоугольных балясинах центр определяется как пересечение его диагоналей. Отверстие должно быть строго вертикальным.
- Заполнить отверстия клеем ПВА, установить шкант и зафиксировать балясины.
- Натянуть веревку между первым и последним столбом. На балясинах отметить угол наклона перил и согласно нанесенной разметке срезать верхушки стоек.
- Закрепить поручень саморезами впотай. Места крепления зашпаклевать.
Совет. Для безопасной ходьбы по лестнице рекомендуется устанавливать балясины на каждой ступени. Это особенно актуально, если в доме есть дети.
Статьи по теме
Источники: http://sdelai-lestnicu.ru/osobennosty/157-povorotnaya-lestnica, http://lestnitsahouse.ru/samyie-vostrebovannyie-chertezhi-lestnitsyi-na-vtoroy-etazh-s-povorotami.html, http://strport.ru/lestnitsa/lestnitsa-na-vtoroi-etazh-svoimi-rukami-iz-dereva-s-povorotom-na-90
lestnica-mpl.ru
Лестница из профильной трубы своими руками: чертеж, расчет, фото
Когда необходимо сделать надежное и долговечное изделие всегда идёт речь о металле. Несмотря на то, что прочность металла зависит от его толщины, создавая и собирая лестницу, стоит знать, что чересчур большие размеры могут навредить конструкции.
При использовании очень толстого металла лестница получится громоздкой и не подъёмной с большими углами. Тогда придётся потратить немалую сумму дополнительных средств, на приведение лестницы в изящную и прочную конструкцию. Чтобы конструкция получилась красивой, и не пришлось тратить лишние деньги и силы, нужно знать какой профиль лучше всего подходит для лестницы и как произвести монтаж.
Выбираем профиль
Делать лестницы из металла стали давно, и это совсем не новая идея. При выборе такой конструкции особое внимание уделяли металлическому уголку и швеллеру.
Принцип сборки, который применялся годами:
- Параллельно один к другому ставили два швеллера;
- С помощью металлического уголка приваривались контуры между швеллерами;
- Крепилась ступенька из дерева, или же металлическая рельефная конструкция.
Лестница на второй этаж своими руками из профильной трубыСудя по многолетней практике, можно сказать, что использование металлического уголка недолговечное, поскольку под воздействием нагрузок он деформируется. Металлическому уголку нашли альтернативу, и это металлический профиль.
Подсказка: Лучше всего для лестниц использовать квадратную металлическую трубу с сечением 40*60, это самый подходящий вариант. Если использовать трубу с меньшим сечением, то результат получится таким же, как и в случае с уголком, а если выбрать очень большие, то они будут выглядеть некрасиво и грубо.
лестница на второй этаж из профильной трубыДостоинства лестницы, сделанной из металлопрофиля:
- С таким профилем можно сделать стационарную лестницу, приставную и даже винтовую. Повороты у лестницы могут быть под каким угодно углом;
- С ним можно комбинировать какие угодно материалы, красиво смотрится дерево и стекло, и даже пластик. Комбинируя металл с такими материалами, можно сделать лестницу уникальной и абсолютно в любом цвете;
- Можно использовать и один только профиль, поскольку его легко покрасить современным порошковым методом. Популярностью пользуются золотой и серебряный цвет, а также насыщенный чёрный с блестящим металликом в некоторых местах;
- Такая лестница прочная и красивая, может прослужить несколько десятков лет;
- Даже если каркас делается сложной формы, то собрать лестницу можно и самому, главное — это правильно сделать заготовки;
- Установить её можно как на этапе строительства самого дома, так и во время проведения ремонта;
- Цена изделия невысока и доступна каждому;
- Собрать её можно и самому с использование обычного бытового сварочного аппарата.

Каким бы прочным и долговечным ни был материал, у него обязательно есть свои особенности, знание которых значительно упростит работу и поможет избежать неприятностей.

- Поскольку металл достаточно тяжёлый материал необходимо постараться не утяжелять конструкцию, при возможности лучше подумать о том, как её облегчить. К примеру, если планируется установка деревянных ступенек, то лучше использовать лёгкие породы, это может быть даже берёзовая фанера;
- Где бы ни устанавливалась лестница, в доме или на улице, железо обязательно нужно обработать антикоррозийным средством и покрасить. Разница заключается только в том, что обновлять уличную лестницу нужно чаще;
- Чтобы самому произвести монтаж нужно уметь пользоваться сварочным аппаратом, иначе стоит воспользоваться услугами профессионального сварщика, или же для крепежа использовать болты. Но использование болтов не рекомендуется, лучше вообще не делать самому лестницу;
- Если лестница делается со стороны улицы как эвакуационная, стоит учитывать нагрузку и вибрацию, которые неизбежны во время использования. Чтобы укрепить конструкцию стойки пролетов лучше уменьшить до разумных пределов.

Подготовительные работы
лестница из профильной трубы на косоурахНи одно дело не начинается без предварительных расчётов и чертежа. С их помощью можно точно определить количество материала, которое понадобиться. Чтобы работать было комфортно и не пришлось отвлекаться стоит приготовить нужный инструмент заранее, вам понадобится:
- Электроды и сварочный аппарат;
- Болгарка и круги для работы с металлом;
- Перфоратор с набором сверл;
- Молоток.
Во время подготовки стоит сделать разметку и разрезать материал в соответствии с необходимыми размерами.
металлические лестницы из профильной трубыРекомендация: Чтобы процесс сборки сложной по конструкции лестницы не стал головоломкой, детали стоит на этапе резки труб пронумеровать, от нижней к верхней.
лестница из профильной трубы
Ступени из профиля для установки в зданииСборка лестницы
Во время сборки стоит особое внимание уделить несущим балкам, поскольку самая большая нагрузка приходится именно на них. Чтобы собрать обыкновенную лестницу понадобиться:
- Обварить контур, тогда получится прямоугольник для установки ступенек. Сам по себе контур также можно использовать как ступеньку, если делается наружная лестница, но тогда на него лучше наварить прутья;
- Для основания лестницы стоит использовать швеллер 10 см, или профильную трубу 10/10 см. Лучше, конечно использовать трубу, она дает меньшую вибрацию во время эксплуатации. Если же вы предпочитаете швеллер, то дополнительные крепления на земле исправят ситуацию;
модули для сборки лестницы из профильной трубы - Трубу стоит подрезать так, чтобы срез на детали плотно стыковался с опорой, при этом второй конец должен прилегать к верхней опоре. К нижнему и верхнему краю необходимо приварить платформы, они и будут выступать фиксаторами. Если сделать всё правильно, то нижняя платформа будет прилегать к полу, а верхняя к платформе перекрытия;
- После работы с направляющими стоит между опорами наварить опорные рамы, соблюдая при этом нужный шаг;
размер профильной трубы для лестницы - Перила и декорирующие атрибуты стоит устанавливать в последнюю очередь, уже после покраски основной конструкции. Если они делаются из других материалов, то место под их установку стоит также подготовить заранее.
Очень часто между лестницей и стеной оставляют щель, чтобы можно было покрасить стену или поклеить обои. В таком случае стоит конструкцию дополнительно укрепить костылями, которые вбиваются в стенку, крепят их под основной внутренней трубой и подваривают ко всей конструкции.
Винтовая конструкция из профильной трубыИспользуя металлопрофиль можно сделать лестницу любой конструкции своими руками, разница будет только в затраченный силах, времени и финансах. Такие лестницы практичные и долговечные, не требуют особого ухода и выглядят красиво.
o-trubah.com
Чертежи лестницы на второй этаж с поворотами: основные нюансы

Правильно спроектированная поворотная лестница отлично дополнит интерьер.
Любой частный дом, имеющий больше одного этажа, вынуждает его владельца возводить межэтажную лестницу. Опытному в строительных делах хозяину вполне реально сделать ее своими руками. Но следует иметь в виду, что о постройке лестницы на верхний этаж лучше подумать заранее – еще до строительства дома, на этапе его проектирования.
Сложными лестничные конструкции получаются по причине элементарной нехватки пространства. Хозяева в таких случаях делают выбор в пользу винтовой лестницы или маршевой с поворотом. Добиться успеха в сооружении межэтажной лестницы своими руками можно, если грамотно рассчитать всю лестничную конструкцию и спланировать процесс ее возведения. Но проконсультироваться у специалиста, например, насчет допустимой нагрузки на лестницу, конечно, стоит.
Какой тип конструкции выбрать
Прежде всего, нужно определиться с назначением и частотой ее использования. В некоторых случаях предпочтительным вариантом является легкая складная конструкция, не имеющая поворотов и не предназначенная для больших нагрузок. Например, когда 2-й этаж является мансардой (или даже чердаком), то вряд ли возникнет необходимость перемещать туда большие и тяжелые предметы. Количество людей, регулярно поднимающихся на такой этаж, тоже будет невелико.

В некоторых случаях именно такая лестница будет уместной.
Самая распространенная и наиболее простая в изготовлении конструкция, соединяющая второй этаж с первым, – это маршевая лестница. Она является не только удобной, но и безопасной, а это важно, если пользоваться лестницей будут дети и люди преклонного возраста. Кроме того, по качественно сделанной маршевой лестнице без проблем можно поднимать на верхний этаж и спускать обратно крупногабаритные предметы – мебель, например, или стройматериалы. Возвести своими руками проще именно маршевую лестницу. Строят ее обычно из дерева или металла.

Маршевая лестница не только очень удобна, ее еще и весьма просто сконструировать своими силами.
Лестницу на второй этаж часто делают в несколько маршей. Причиной такого решения является необходимость вписать конструкцию в ограниченное пространство, сохраняя правильный угол наклона.
Важно!
Если лестницу сделать слишком крутой, пользоваться ею будет некомфортно.

Поворотная лестница с удобным углом наклона маршей.
Какая польза от чертежа
Собственник жилья имеет полное право делать все по своему усмотрению – выбирать высоту и ширину конструкции, строить ее из дерева или металлических деталей, производить все работы своими руками или нанимать специалистов, делать выбор в пользу той или иной конфигурации. Но все-таки стоит внимательно отнестись к соблюдению определенных параметров лестницы. Чтобы она получилась безопасной и удобной следует, прежде всего, выдерживать правильные соотношения высоты и глубины ступеней, потому что именно эти размеры определяют уклон всей конструкции.

Нестандартные ступени может и придадут вашей лестнице оригинальный вид, но пользоваться ей будет не очень комфортно.
В любом случае составление чертежа будущей лестницы позволит учесть все тонкости сооружения, соединяющего первый этаж со вторым, что значительно снизит вероятность ошибок. Даже подгонка деталей, скорее всего, не понадобится, если чертеж выполнен должным образом (что, кстати, не так уж и сложно). Другой положительный момент – возможность точно рассчитать количество материала, требующегося для изготовления лестничной конструкции.

Даже такой незамысловатый чертеж позволит вам избежать массы ошибок.
Основные параметры
Чертеж должен начинаться с составления плана помещения. В него включаются двери, окна, элементы мебели и другие возможные препятствия. Дальнейшие шаги по проектированию желательно делать только после ознакомления с существующими строительными нормами, касающимися лестничных построек. Вот список самых основных:
- Наклон лестницы не должен превышать 45°.
- Минимум ширины марша – 0,9 м.
- Максимальная высота подступенка – 20 см.
- Глубина ступеньки – не меньше 25 см.
- Ограждение (высота перил) – 0,9 м.
Кроме того, все ступени должны быть одинаковыми по высоте, иначе ходить по лестнице будет некомфортно. Исключением могут быть лишь первая и последняя ступени. Иногда так требуют расчеты, а иногда первую ступень делают в виде площадки перед лестницей.

Примечательно, что различная ширина марша в пределах одной лестницы допускается.
Средний шаг человека
Удобство лестницы будет зависеть еще от того, какой принимается величина шага человека при расчетах. Средний человеческий рост находится в диапазоне 160–180 см, соответствующий этому росту шаг: 60–64 см.
Учитывается также длина стопы. Здесь исходят из того, что шагающий чувствует себя безопасно, когда 70% его стопы находится на опорной поверхности. Опять же, опираясь на средние значения, глубину ступени выбирают из диапазона 25–30 см. Существует формула, связывающая три параметра: 2h + d ≈ 60–64 см, где 2h – удвоенная высота подступенка, d – глубина проступи, а сумма этих чисел должна давать величину среднего человеческого шага. Стоит отметить, что данная формула не является “панацеей”, поэтом не следует воспринимать ее, как обязательное условие.
Альтернативный способ расчета лестницы Часть 1
Альтернативный способ расчета лестницы Часть 2
Насколько сложно черчение
Чтобы начертить схему прямого марша, достаточно будет школьных знаний из курса геометрии. Сделать это можно своими руками. Но перед тем, как наносить чертеж будущей лестницы на план помещения, необходимо вычислить все ее параметры. Для этого можно воспользоваться следующей инструкцией:
- Рассчитывается число ступенек – высота помещения делится на высоту одной ступеньки. При этом должно учитываться перекрытие, то есть берется расстояние от пола 1-го этажа до пола 2-го.
- Затем нужно определить длину конструкции, для этого глубина проступи умножается на количество ступеней. Если длина известна или есть серьезные ограничения на ее величину, тогда делают наоборот – вычисляют глубину проступи, исходя из длины марша: делят предполагаемую длину на количество ступеней.
- Вносят необходимые коррективы, чтобы конструкция получилась удобной и вписалась в интерьер помещения.
- Вычисляется площадь лестничной конструкции: значение ширины марша умножается на его длину.
- Необходимы также длины опорных балок (тетив или косоуров). Для вычисления пользуются теоремой Пифагора – в качестве катетов выступают высота лестничной конструкции и ее проекция на горизонтальную ось. Квадратный корень из суммы квадратов этих размеров даст гипотенузу – искомую длину.
- Полученные значения вносятся в чертеж.
Лестничный поворот
Теперь самое главное – сначала рассчитывают параметры поворотной части, а уж потом берутся за марши. Тут знаний нужно побольше, чем в случае с простыми лестницами и без грамотно построенного чертежа сложно будет разобраться. Чертежи, выполненные профессионалами, могут послужить хорошим примером для новичков. Следует также иметь в виду, что расчеты часто являются процессом последовательного приближения, то есть, сразу попасть в те самые размеры получается далеко не всегда, приходится шаг за шагом уточнять отдельные параметры.

Чертеж должен отображать лестницу в трех проекциях.
Как делается поворот? Возможны два варианта – межпролетная площадка или забежные ступени. Первый вариант проще, его по силам сделать своими руками. Кроме того, пользоваться площадкой удобнее, но нужен простор.

Отличаются конструкции удобством пользования и сложностью проектирования.
Второй вариант используется при нехватке пространства. Расчеты в этом случае сложнее – придется постараться, чтобы лестница получилась удобной и безопасной. Для расчета забежных ступеней используются следующие методы:
- пропорциональный;
- датский;
- метод поворота линий;
- метод развертки.

Чертим забежные ступени.
Важно!
При использовании забежных ступеней необходимо контролировать их глубину на линии движения — она не должна быть меньше 20 см.
Глубину проступи забежных ступенек, как правило, увеличивают созданием напуска в 3–4 см. Нежелательно превышать эту величину, так как спуск может стать неудобным и даже опасным. Когда недостаточно места для полноценной постановки стопы, человек может поскользнуться, что приведет к травмам. Подниматься по таким ступеням тоже неудобно – носок будет постоянно цепляться за чересчур большой напуск.
Поворотная конструкция на 180° требует соблюдения определенного расстояния между маршами. Значение равное 75 мм является минимально допустимым для этого зазора.
Создание забежных ступеней для поворотной лестницы
Готовые варианты
Не у всех владельцев частных домов есть желание и время делать чертежи и выполнять строительные работы своими руками. Тем более, когда существуют очень неплохие варианты готовых лестничных конструкций, собираемых из модулей. Доступны самые разные модификации – прямые, винтовые, криволинейные. Одни собираются из деревянных элементов, другие – из металлических. И все это не сложнее детского конструктора – на самостоятельную сборку модульной лестницы тратятся считанные часы. Высота и ширина частей легко регулируется, давая возможность вписать лестницу в интерьер и предоставить доступ на верхний этаж в кратчайшие сроки. Многообразие стилевых решений позволит найти подходящий вариант для любой обстановки.

Современные модульные лестницы могут быть очень стильными и, при этом, просто собираться.
Стоит также обратить внимание на специализированное ПО, предназначенное для расчетов различных параметров, – SolidWorks, StairDesigner и другие. С такими инструментами строительство сложной конструкции своими руками станет возможным даже для того, кто не имел дело с чертежами. Кроме того, для проектирования несложных конструкций существуют бесплатные онлайн-сервисы, то есть любой желающий может пробовать свои силы в проектировании без установки на свой компьютер дополнительного софта.
Проектирование лестницы в программе «Компас» (простой вариант)
Проектирование лестницы в программе AutoCAD (сложный вариант)
metasold.com
Металлическая лестница на второй этаж: как сделать своими руками
Для того чтобы сделать металлическую лестницу на второй этаж своими руками, вам понадобятся определенные навыки обращения с болгаркой и сварочным аппаратом. На самом деле спроектировать и смонтировать подобную конструкцию не так уж и сложно. Главное — придерживаться основных рекомендаций.
Особенности конструкции
Прежде всего, следует разобраться в устройстве такой конструкции. Как уже ясно из названия, в основе такой лестницы находится металлокаркас. Все несущие элементы этих лестниц выполняются из прочных сплавов. В этом случае удается создать невероятно прочную конструкцию. Дополнительные опоры позволяют улучшить устойчивость массивных лестниц и увеличивают пределы их габаритов.
Для того чтобы построить надежную металлическую лестницу своими руками, необходимо тщательно проработать чертежи. Следует вычислить основные параметры для проекта и определиться с концепцией изделия в целом. Лестница из металла может быть спроектирована следующим образом:
- прямая;
- поворотная с забежными ступенями;
- с площадкой;
- винтовая.
Методика изготовления металлических лестниц своими руками позволяет создавать конструкции любой сложности.
Конструктивные разновидности металлических лестниц
Подбор материалов и инструментов
Далеко не каждый металл подойдет для изготовления лестницы на металлокаркасе. Для этой цели нужно подобрать сплавы, обладающие достаточной прочностью и устойчивостью к растяжению. Хрупкий материал может не выдержать нагрузки, особенно если говорить о сварочных швах.
Так как вам предстоит сделать безопасную и прочную лестницу на второй этаж своими руками именно из металла, обратите внимание, прежде всего, на такие материалы, как чугун и перфорированная сталь. В качестве каркаса можно использовать швеллера. Также подойдут трубы и уголки. Для ступеней лучше использовать рифленые листы, чтобы предотвратить скольжение.
Для прочности при изготовлении лестницы в качестве каркаса использую швеллера
Чтобы сделать своими руками ступени для лестницы из швеллера, можно скомбинировать металлический каркас с деревом. То же самое касается и поручней.
Крепить детали на металлокаркас между собой можно разными способами. Самый простой и доступный — использование болтов с гайками. Однако такое соединение может негативно сказаться на металлокаркасе. Оптимальный вариант — комбинирование со сваркой. Чтобы сварить между собой детали лестницы своими руками, необходимо знать принципы выполнения различных швов и технику безопасности.
Таким образом, чтобы произвести монтаж, вам понадобятся следующие инструменты:
- болгарка;
- рулетка;
- сварочный аппарат;
- дрель;
- уровень;
- наждачная бумага;
- гаечный ключ.
Изготовление опор
Первый этап основан на том, как сделать металлокаркас металлической лестницы на второй этаж. Так как вся работа ведется своими руками, вам необходимо рассчитать и разметить параметры для опорных и вспомогательных деталей. При изготовлении лестниц на металлокаркасе своими руками для составления проекта можно рассмотреть несколько вариантов:
- Металлические косоуры листовые — вырезаются по принципу деревянных; требуется прочный лист металла, чтобы сделать каркас.
- Ступенчатая тетива — швеллера из металла свариваются между собой, образуя ступенчатую тетиву.
- С кобылками — с помощью прямого швеллера выполняют каркас, а к нему дополнительно приваривают кобылки для ступеней.
- Центральная опора — для такого металлокаркаса лучше всего использовать трубу. Для прямого марша опору располагают по центру, а для винтовой лестницы смещают в бок, чтобы к оси можно было приварить поворотные ступени.
Сварка, выполняемая своими руками, позволяет создать любую конфигурацию изделия, в основе которого находится металлокаркас. Если конструкция довольно массивная, используйте дополнительные опоры.
Разновидности каркаса для металлических лестниц
Ступени
После того как вы изготовили своими руками из швеллера или трубы металлический каркас лестницы, на него можно производить монтаж непосредственно самих ступеней. Для уличных вариантов лестниц, спуска на хозяйственный этаж, подвалов и производственных помещений можно сделать полностью сварную лестницу своими руками. В таком случае роль ступеней будет выполнять металлический лист, который служит продолжением каркаса.
Для жилых помещений наиболее подходящим вариантом является монтаж деревянных ступеней. Их укладывают на подготовленную основу. В её роли могут выступать приваренные на кобылки пластины или же каркас из уголковых профилей. Доски крепятся саморезами.
Монтаж деревянных ступеней на металлический каркас выполняется при помощи саморезов
Крепление ограждений
Обязательное условие как для железных лестниц на второй этаж, так и для любых других, сделанных своими руками, — монтаж устойчивых ограждений и перил. Для конструкций на металлокаркасе отлично подходят сварные поручни. Великолепно смотрится сочетание кованых балясин с резными деревянными перилами. Для простых изделий можно использовать швеллера, уголки, трубы и прутья арматуры.
Требования относительно высоты остаются стандартными для всех типов ограждений. Их высота должна быть не менее 90 см. Производить монтаж конструкции можно с помощью болтов или использовать всё тот же метод сварки.
Если вы планируете полностью обшивать металлокаркас деревом, можно сделать деревянные ограждения.
Крепление элементов ограждения к металлической лестнице производится с помощью болтов или методом сварки
Декоративная отделка
Для того чтобы изготовление и монтаж металлической лестницы непосредственно на этаж прошли успешно, необходимо провести дополнительную защитную и декоративную обработку. В своем большинстве материал, используемый для создания лестниц, а именно металлокаркас, поддается воздействию со стороны внешних факторов, может со временем покрываться ржавчиной, что негативно сказывается на его состоянии. Поэтому важно предотвратить подобные явления.
Оптимальным вариантом является использование деталей, заранее покрытых молотковой краской. После того как будет произведен монтаж, можно дополнительно покрыть их краской уже необходимого вам цвета.
Если вы используете деревянные детали, также следует позаботиться и об их защите. Древесину обрабатывают противогрибковыми и водоотталкивающими пропитками. Затем можно покрыть их морилкой и лаком либо же просто обработать в несколько слоев краской. Желательно использовать масляные, акриловые или латексные составы, так как у них большая сопротивляемость износу и влаге.
Обработка древесины противогрибковыми и водоотталкивающими пропитками обязательна
Если монтаж и обработку сделать правильно, лестница на металлическом каркасе прослужит вам невероятно долго. Тщательно составляйте план проекта, так как в дальнейшем исправить ошибки или изменить конфигурацию конструкции будет практически невозможно.
vseolestnicah.ru





модули для сборки лестницы из профильной трубы
размер профильной трубы для лестницы