Металлическая печь для бани своими руками – чертежи металлической печки, схема и размеры железной конструкции
железные печи для бани своими руками, размеры конструкции, схема металлической самодельной печки, изготовление
Содержание:
Сейчас баня стала не только местом, где можно помыться, здесь посетители получают оздоровительные процедуры, исцеляющие тело и душу. Часто любители попариться в собственной банной постройке предпочитают своими руками собрать отопительный агрегат для нее. Для этого им могут понадобиться чертежи печки для бани.

Использование банных печей из металла
Уже на протяжении многих лет металлические печи составляют конкуренцию традиционным отопительным конструкциям, выложенным из кирпичей. Их устанавливают как в частных домовладениях, так и в банных постройках.
Востребованность агрегатов из металла объясняется наличием у них важных достоинств:
- нагрев в течение короткого времени;
- доступная стоимость;
- высокая теплопроводность;
- нет необходимости возводить высокопрочный фундамент;
- несложный процесс установки.

Последнее преимущество является особенно важным для тех, кто планирует такой прибор изготовить самостоятельно. Но для этого нужно уметь читать чертежи банной печи из металла. Также следует знать, что в случае нерационального применения такого агрегата или несоблюдения технологии его изготовления велика вероятность возникновения пожара.
Конструкционные особенности современных металлических печей
Самым простым примером конструкции банных печей из металла своими руками считается буржуйка. Она состоит из оборудованного трубой и дверцей ящика. Ее главный недостаток – это незначительная теплоотдача при большом расходе топлива. Поэтому сейчас буржуйку используют крайне редко.
Современные агрегаты из металла имеют более высокий класс пожаробезопасности. Их производят из листового материала, толщина которого не превышает 4-5 миллиметров. У них имеется тепловая камера для засыпки камней (прочитайте: «Как уложить камни в банную печь правильно, какие камни лучше использовать»). Часто их конструкционное решение предусматривает возможность обустройства дополнительного водяного бака объемом до 70 литров.

С целью обеспечения равномерного прогревания воздуха в агрегате и снижения его пожароопасности делают облицовку огнеупорным кирпичом. При отсутствии необходимости создавать особо прочный фундамент под печь достаточно будет наличия крупногабаритного основания, которым может стать цементная плита с покрытием из кафельной плитки, либо металлический лист, либо огнеупорный кирпич.
Устройство печей из металла
Если внимательно рассмотреть чертежи банных печей из металла с размерами, то их по конструкционному решению можно разделить на несколько разновидностей:
- Агрегаты закрытого типа. Компактные размеры этих печей позволяют устанавливать их в небольших по площади банных постройках, которыми пользуются члены семьи. Чтобы повысить теплоемкость, конструкции с наружной стороны и изнутри выкладывают огнеупорным кирпичом, применяя металлических скреп. В их средней части помещают решетку для камней. Читайте также: «Какие конструкции печей для бани бывают, какие лучше подойдут».
- Агрегаты открытого типа. Они отличаются наличием бака для воды, имеющего небольшой объем. У них есть открытая каменка. При установке их в бане обеспечивается быстрый прогрев парилки. Для увеличения теплоемкости такого отопительного прибора, камни в печи нужно накрыть крышкой из оцинкованного металла.
- Комбинированные агрегаты. Если посмотреть на чертеж печки для бани из металла такой конструкции, то можно увидеть, что она имеет топливник и две задвижки, поддувало, решетку, два патрубка диаметром 10 и 14 сантиметров и 4 отверстия, предназначенных для трубы и обводного колена. Чтобы их изготовить, используют стальные листы толщиной 3-5 миллиметров.
Виды топлива и типы печей
Приборы для бань отличаются по виду топлива, применяемого для их функционирования:
- Дровяные агрегаты. Появились раньше других типов металлических печей. Им для выделения тепловой энергии требуется немалое количество дров, а также они нуждаются в уходе постоянно. Обычно ими предпочитают пользоваться те посетители бань, которые могут подождать, пока помещение прогреется и потом не спеша наслаждаются ароматным паром и теплом, идущим от натуральной древесины.
- Электрические приборы. В данном случае схема банной печи из металла состоит из нескольких основных узлов: корпуса, оснащенного ТЭНом, и особых теплоизоляционных элементов.
- Газовые агрегаты из металла. По праву считаются наиболее современными и надежными в эксплуатации конструкциями, их оснащают термостатом для регулировки мощности. Безопасность газовых приборов обеспечивает предохранительное устройство, моментально срабатывающее при отключении или снижении подачи газа.
Преимущества и недостатки печек из металла
Чтобы разобраться с характеристиками металлических агрегатов, нужно проанализировать их преимущества перед стационарно устанавливаемыми кирпичными конструкциями.
В отличие от печей, выложенных из кирпичей, металлические отопительные агрегаты отличаются своей мобильностью и компактностью и поэтому являются оптимальным решением для небольших по площади банных построек. Изготовление печи для бани из металла осуществлять можно в любом месте и потом переместить ее для монтажа в нужное помещение.

Существует два основных конструкционных решения агрегатов из металла:
- Печи горячего типа. Эти приборы идеально подходят для применения в банях, которые посещаются не регулярно, например, на дачном участке. Несмотря на быстрый нагрев, их не рекомендуется обустраивать в постоянно используемых банных помещениях. Дело в том, что при применении такого отопительного агрегата можно перегреть воздух в помещении по причине невозможности контролировать температуру его нагрева.
- Печи холодного типа. Они считаются лучшим выбором для монтажа в отапливаемых помещениях. Данные агрегаты прогреваются быстро, но их в отличие от предыдущего варианта оснащают системой, контролирующей температуру. Обжечься при прикосновении к ним сложно, поскольку стенки у них редко нагреваются более чем до 50 градусной отметки.
Если подвести итог, то к достоинствам агрегатов из металла для бань относятся:
- Небольшие размеры, что наглядно подтверждает чертеж металлической печи для бани. Они незаменимы для маленьких банных строений.
- Отсутствие необходимости в предварительном строительстве массивного основания. Будет достаточно обустройства облегченного варианта фундамента, что позволяет ускорить возведение бани и запуск ее в эксплуатацию.
- Доступная цена. Отличается металлический агрегат простотой самостоятельного изготовления, он не требует дополнительных затрат. Отыскать чертежи банной печи из металла своими руками нетрудно. Большое их количество можно найти в специализированной литературе и в Интернете.

Нельзя не отметить недостатки металлических отопительных конструкций:
- Неспособность аккумулировать тепловую энергию и как следствие, быстрое остывание. В данных приборах следует поддерживать процесс горения постоянно.
- Невозможность отапливать большие по площади помещения.
- Необходимость монтажа двойных стенок с воздушной прослойкой между ними. Это требуется для предотвращения получения теплового удара во время нахождения в бане.
- Пожаробезопасность у металлических агрегатов ниже, чем у кирпичных печей, и поэтому следует усиливать защиту их обшивки изнутри.
Значение формы банной печи
Именно от данного параметра зависит производительность агрегата и то, насколько он удобен в эксплуатации. Как показывает практика, повышенным спросом пользуются печи, имеющие цилиндрическую форму и фигурную или горизонтальную конструкцию.
Но самыми удобными в эксплуатации являются прямоугольные агрегаты. Причиной этого является наличие у них угловых зон, которые редко накаляются максимально. В результате бытует мнение, что такой каркас способствует сохранению формы печи. Кроме этого от данного параметра зависит равномерность прогрева агрегата.

Правильный разогрев также влияет на устойчивость отопительной конструкции из металла. Подтверждением этому является то, что стенки печей круглой и цилиндрической формы делают усиленными. И хотя высокая степень устойчивости прямоугольной конструкции объясняется наличием у нее холодных углов, она все равно со временем теряет свою первоначальную форму.
Разновидности металлических печей
Одним из простых способов создания агрегата считается изготовление печи-каменки, когда используют железную бочку. Для этого у нее убирают днище и снимают крышку, в результате чего получается заготовка цилиндрической формы. Половину имеющегося цилиндра наполняют кирпичами, которые помещают на ребро. На них потом устанавливают колосниковую решетку. Читайте также: «Какую сделать печь для бани своими руками – виды и способы изготовления».
Образовавшееся пустое пространство засыпают на две трети камнями, затем монтируют дымоход. В завершение работы самодельная печь для бани из металла должна накрываться крышкой. Но даже с учетом простоты изготовления подобный вариант агрегата является в использовании одним из самых неудобных.
Если банная постройка имеет небольшую площадь, можно установить в ней печь-каменку компактного размера, применив для ее изготовления листовую сталь. Внутреннюю поверхность прибора выкладывают кирпичами. Размеры такого банного агрегата из металла будут небольшими, и при этом соответствовать отапливаемой площади.

Нужно только выложить стенки топочного отделения в полкирпича, а дымохода — в четверть кирпича. Такой отопительный агрегат отличается простотой и удобной эксплуатацией. Для его функционирования не требуется много топлива, а прогревается он достаточно быстро.
Имеется еще один способ, как можно устроить печь-каменку, но без использования кирпичей. Этот вариант не только прост в реализации, но и является недорогим. При этом печка обладает эстетичным внешним видом. Такая отопительная конструкция без проблем обогреет предбанник, моечную и парилку.
Самостоятельное конструирование металлической печи
Этап 1. Изготавливаемая конструкция из металла будет иметь закрытую каменку и чтобы использовать воду и получить пар необходимо приоткрывать дверцу. Чтобы сделать печь для бани из трубы, сначала подготавливают материалы и инструменты. Чтобы упростить процесс изготовления, потребуется схема печки для бани из металла.
Нужно иметь в своем распоряжении:
- лист стали толщиной не менее 8 миллиметров;
- колосник;
- металлическую трубу диаметром 50-60 сантиметров с толщиной стенок около 10 миллиметров;
- 10-миллиметровый пруток;
- дверцы и щеколды для обустройства поддувала, каменки и топки;
- водный кран;
- примерно 2 метра трубы, из которых 90 сантиметров потребуются для топки, 60 – для бака, а 50 сантиметров- для изготовления нужных деталей.
Из инструментов надо подготовить сварочный аппарат и болгарку.

Этап 2. Для дальнейшей работы потребуется длинный отрезок трубы. Прежде всего, в нем вырезают поддувало, имеющее параметры 50х200 миллиметров. Над отверстием, расположенным с внутренней стороны трубы, нужно приварить крепление, предназначенное для колосника. Для этого требуется взять металлическую пластину, которая снабжена проушинами. Колосники всегда есть в наличии в специализированных магазинах.
Этап 3. Теперь приступают к созданию топки. Сначала делают отверстие с параметрами 250х200 миллиметров. Сверху следует приварить крепления, которые требуются для установки прутов печки-каменки, диаметром не менее 10 миллиметров. Их можно поменять на колосниковые решетки для агрегатов круглой формы. Купить такие изделия можно в том же месте.
Этап 4. С противоположной стороны конструкции создают отверстие. В него наливают воду. Далее в каменку укладывают камни. Используют, к примеру, диабаз, талькохлорит. Нельзя задействовать кремень, гранит и слюдосодержащие камни.
Этап 5. В предназначенной для отопительного агрегата крышке создают отверстие под монтаж дымоходной трубы, которую затем помещают на место. Далее рекомендуется дополнительно установить емкость для воды. Для этого следует на каменку приварить последний кусок трубы и в его нижней части закрепить кран. При эксплуатации агрегата дым начнет продвигаться по трубе и нагревать воду, не доводя ее до точки кипения.
Этап 6. В завершение для нагревательного бака изготавливают крышку. Ее делают в соответствии с сечением трубы и разрезают пополам. В первой части для дымоходной трубы делают отверстие и потом приваривают ее к баку. Вторую половину оснащают петлями и ручкой и поэтому свободную часть крышки можно при необходимости снимать. Читайте также: «Как сделать печь для бани своими руками – подробности от мастера».
Особенности процесса установки банного агрегата
Об установке печи в бане следует позаботиться во время возведения здания. В месте ее будущего обустройства нужно заложить фундамент, вид которого зависит от выбора отопительной конструкции. Потом на основание укладывают два ряда кирпичей и только потом устанавливают печь.

С целью повышения пожаробезопасности при обустройстве самодельного металлического агрегата нужно неукоснительно соблюдать правила его монтажа, которые заключаются в следующем:
- Расстояние между стеной и печью должно составлять не менее 100 сантиметров.
- Необходимо обустроить дополнительную защиту и с этой целью поместить на ближайшую к отопительной конструкции стену фольгу, имеющую слой утеплителя. Эти меры позволяют своевременно не допустить перегрев деревянных элементов и их последующее возгорание.
- Чтобы изолировать дымоход, его лучше изготавливать из сэндвич-трубы. Она состоит из двух труб разного диаметра, между которыми имеется теплоизоляционный слой.
- Когда продукты сгорания планируется выводиться по трубе из металла, в месте соприкосновения потолка с дымоходом устраивают специальный проходной узел.
Когда процесс монтажа агрегата завершен, можно сделать отделку кирпичом, что предотвратит возможность получения ожогов и придаст внешнему виду эстетичность. В данном случае печь разрешается расположить ближе к стене.
Вышеописанная конструкция считается одной из несложных для монтажа и удобных в эксплуатации.
Следует отметить, что изготовление отопительного агрегата из металла нельзя назвать слишком сложным процессом. Чтобы правильно выполнить сборку и последующую установку, до начала работы желательно найти и просмотреть примерные чертежи железных печей для бани своими руками и выбрать наиболее подходящий вариант.
Воспользовавшись одним из них, можно будет избежать проблем при изготовлении агрегата.
banyaspec.com
Металлические банные печи своими руками
Металлическая печь для бани своими руками
Металлические печи имеют высокий коэффициент теплоотдачи, не требуют мощного фундамента и прогреваются значительно быстрей кирпичных, поэтому именно их чаще устанавливают в банях. Сделать их своими руками несложно – для этого достаточно обладать навыками сварки и иметь под рукой толстостенный металл.
Металлическая печь в форме сапога
Рассмотрим порядок сварки печи из металла 5 мм в форме сапога с баком для воды и внутренней каменкой. Такая конструкция в состоянии прогреть достаточно большую парилку размером до 24 кв. м. Так как печь получится достаточно тяжелой, лучше предусмотреть ее сборно-разборный вариант.
Прямой выход дыма резко снижает КПД печи, именно поэтому в нашей конструкции предусмотрена внутренняя каменка. задерживающая прямой выход продуктов сгорания и аккумулирующая тепло. Это позволяет обеспечить максимальный прогрев помещения за достаточно короткий срок и существенно сократит расходы на топливо.

Этапы изготовления
Резка заготовок из достаточно толстого металла ножовкой или болгаркой в домашних условиях – процесс достаточно трудоемкий. Гильотина, которой пользуются предприятия, ведущие приемку металла, позволит нарубить листы по вашим эскизам с большей точностью, без деформации и дефектах на срезах.
1. Для получения печи в форме сапога с каменкой нам понадобится четыре металлических короба. Первый и второй короб будут стыковываться между собой с помощью разъемного соединения и образовывать саму печь. В первом из них будет располагаться топка, во втором («голенище» сапога) – отверстие для дымохода. Третий короб с камнями будет находиться внутри печи. Четвертый съемный короб для воды из нержавейки устанавливается отдельно.
2. Чтобы избежать ошибок при сборке, листы металла вначале прихватываются между собой, начиная с нижней части листов. Окончательная сварка производится лишь после полной сборки изделия и его проверки. Во избежание проникновения дыма внутрь помещения соединение элементов должно быть очень качественным.

3. Собираем короб для камней размером 50×50 см. Чтобы верхний лист при сварке не съезжал, его лучше установить на треногу с закрепленным на ней магнитом.


4. Для того, чтобы прихватить крышку и дно, для обеспечения их устойчивости можно подложить под них тонкий металлический угольник.


5. Дно короба для камней, на которое будет идти вся ударная нагрузка огня, изготавливается из листа толщиной не менее 10 мм .

6. С помощью болгарки в верхней части короба вырезается дверка для каменки. Размер ее должен быть достаточным для выхода пара.

7. В нижней части третьего короба, в котором будут находиться камни, вырезаются 2-4 отверстия под трубы (количество труб может быть произвольным) на расстоянии не менее 5 см от нижней части куба для улучшения тяги. На них будет устанавливаться куб с тяжелыми камнями.


8. Вырезаем отверстие для топки размером 28×28 см.

9. В верхней части первого короба делаем отверстие для вставки второго куба. Нарезаем и привариваем по периметру этого отверстия с трех сторон по две пластины размером 4 см для усиления места разреза и уголок в левой, четвертой части. Первые три полосы крепятся к внутренней поверхности, вторые – к внешней части разреза с небольшим смешением. Между пластинами оставляется небольшая щель для вставки второго короба.


10. По одной пластине приваривается и к дверкам топки и каменки для их усиления. Топка от зольника отделяется решеткой из стальных прутков 10-12 см. Для обеспечения полного сгорания топлива необходимо обеспечить лучший притока воздуха, поэтому колосники привариваются вдоль поддувального канала.

11. Во второй короб на приваренные в нижней его части трубы вставляется третий куб. в котором будут находиться камни.

12. Для усиления внутреннего куба для камней к нему привариваются небольшие косынки .

13. Для прочистки сажи над дверкой делается небольшое отверстие, рядом с которым с 4-х сторон привариваются болты для установки дверки. Перед ее монтажом для герметичности она обматывается асбестовой нитью и прикручивается латунными гайками. предохраняющими металл от закисания.

14. К верхней части каменки приваривается крышка с отверстием для дымоходной трубы 12×12 см (размером в полкирпича). Для ее установки к отверстию приваривается «юбка» из металла. Куб с установленным коробом для камней вставляется в первый.


Конструкция печи может быть разной. Порядок раскроя заготовок печи с открытой каменкой и встроенным баком для воды показан на следующем рисунке:

Установка металлической печи
Металлическая конструкция весит гораздо меньше, чем кирпичная печь, поэтому не требует отдельного фундамента. Достаточно предусмотреть прочное огнеупорное основание площадью, в два раза превышающую площадь самой печи. Оно может состоять из следующих слоев:
• асбестового картона;
• листа нержавеющей стали для отражения теплового излучения;
• прослойки из шамотного кирпича толщиной около 6 см;
• огнеупорной плиты из магнезита толщиной не менее 9 мм или бетонной стяжки.
Для предохранения металла от быстрого прогорания и повышения теплоотдачи печи ее футеруют. облицовывают низ и бока конструкции огнеупорным (шамотным) кирпичом. Металлическая конструкция при интенсивной топке способна накалиться докрасна, поэтому ее располагают на расстоянии не менее 1 м. от легковоспламеняющихся предметов. Смежные стены оштукатуривают, облицовывают кирпичом или обшивают листовым железом.
Перерезать балки перекрытия для создания отверстия под дымовую трубу нежелательно, поэтому его необходимо предусмотреть в процессе возведения здания. Наличие колен в дымоходе может привести к образованию значительного слоя сажи в горизонтальных участках трубы. Если по какой-то причине создание колена все же необходимо, его делают сборно-разборным, что значительно облегчает процесс прочистки дымохода.
Видео по теме: Печь для бани из металла своими руками
Часть 1
Часть 2
Часть 3
Часть 4
Как сделать металлическую печь для бани
Металлических печей для бани в продаже много, но хорошие стоят немалых денег. Если есть достаточный опыт сварки металла, можно изготовить печь самому, по своим размерам. О том, как сделать печь для бани из металла (листового), чертежи и фото — дальше.
Печь из металла для бани и сауны — в чем разница
Между режимами парения в бане и сауне есть существенная разница. В сауне температура воздуха очень высокая — от 85C и намного выше. При такой температуре влажность высокой быть просто не может — сразу получите ожог, а веник осыпется за пять минут. И она действительно небольшая, порядка 5-15%. В русской же парной температура держится в пределах 55-65°C, изредка поднимаясь до 70°C. При таких температурах влажность «нагоняют» большую — 50-60%.

Один из вариантов сварной печи для сауны
Для обеспечения таких разных задач требуются разные подходы для построения печи. В сауну требуется наибольшая площадь соприкосновения корпуса печи с окружающим воздухом и ускорение прохождения воздушных потоков вдоль стенок. Все подчинено задаче как можно скорее нагреть воздух в парилке. Каменка есть, но она небольшая, открытая, находится, как правило, над топкой. Камни в ней прогреваются максимум до 200-250°C, так как много тепла отдают окружающему воздуху. С такой каменки получить можно немного пара. Но в сауне много и не надо — один/два ковшика дадут 15% влажности. Больше просто не вытерпеть.
В русской парной задача другая — не перегреть помещение и добиться большого количества пара. Причем пар должен быть определенной кондиции — он должен состоять из очень мелких капелек. Его еще называют «сухим» и имеет он высокую температуру — порядка 130-150°C. При таком условии после парения в теле ощущается легкость и прилив сил. Такой пар получают только с раскаленных камней, температура которых не менее 500°C. Чтобы достичь ее камни «упаковывают» внутрь топки — в ней размещают ящик — закрытую каменку.

Тут каменка расположена внутри а сверху приделан бак
Как видите, есть солидные конструктивные отличия. Их надо иметь в виду.
Самодельные печи для русской бани
Что еще надо иметь ввиду при конструировании печи для режима русской парной? То, что имея нагретые металлические стенки удержать температуру в пределах требуемых 60-65°C нереально. Обязательно перетопите. При этом от стенок печи идет жесткое ИК излучение и рядом находится тяжело. Проблема решается двумя способами:
- Футеровкой топки. Внутри топка обкладывается жаростойким кирпичом (шамотным на шамотный раствор). Положить его можно на ребро, тогда толщина футеровки 6 см, а можно найти узкий шамот с ребром 3 см. В любом случае металлические стенки греются незначительно, основная энергия направлена на обогрев каменки. В этом случае надо сразу проектировать топку увеличенных размеров, учитывая, что значительный объем ее занят футеровкой. Минус этого варианта — очень высокая температура дыма, а следовательно — высокая пожарная опасность. Выход — отобрать у дыма большую часть энергии. Самый простой вариант — каменка или бак для воды на трубе. Вариант сложнее — отопительный щиток, в который подается дым непосредственно из печи, а остыв в лабиринте щитка, на выходе он имеет не более 80-120°C.

Футеровка — обложить топку изнутри жаропрочным кирпичом

Снаружи закрыть корпус кирпичным экраном
Еще стоит поговорить о швах. В самодельных печах из металла (в заводских, в принципе, тоже) часто прогорание начинается именно со швов. На производстве данную проблему обходят при помощи гнутых конструкций. В верхней части стараются швов вообще избежать. При изготовлении печи для бани своими руками вы вряд ли сможете согнуть лист металла толщиной 6-10 мм, так что остается только одно — делать швы как можно качественнее.
Каменка: какого размера и где
Необходимое количество камней зависит от объема парной (при условии, что утеплена баня нормально). В разных источниках есть разные рекомендации с большим или меньшим количеством — от 20 до 40 кг на 1 м 3. В принципе, чем больше камней, тем легче получить требуемое количество пара, но при условии, что у печи хватит мощности их нагреть.
Проблема в том, что камни разной породы имеют разную плотность, и, следовательно, одна и та же масса занимает разный объем. В принципе, для средней парилки объемом 12-14 м 3. размеры каменки примерно такие: 30*40*30 мм. Параметры можно немного изменять, делать шире/уже/выше — смотрите по конструктиву печи.

Каменка может быть разной формы и размера
Соотношение объема топки к объему каменки — сложный теплотехнический расчет, который даже не всякий теплотехник осилить в состоянии. Намного проще воспользоваться готовыми чертежами или экспериментально определенными пропорциями. Как минимум, объем «свободной» от каменки топки не должен быть меньше. Лучше, если даже больше примерно на 30-50%.
Немного о том, в какой части топки лучше всего располагать ящик для камней. Все давно пришли к выводу, что самая высокая температура — в верхней части и у задней стенки. Вот в этом месте и имеет смысл расположить емкость. Во-первых, часть термической нагрузки со свода топки снимется, а во-вторых, камни хорошо нагреются.
Не за бывайте об обслуживании каменки и о том, что туда каким-то образом должна попадать вода. Лючок для обслуживания надо располагать таким образом, чтобы вы могли без особых проблем достать рукой до самого дальнего края. А подачу воды вглубь каменки надо организовать так, чтобы не обжечься. Обычно вставляют трубку или систему трубок, которые расходятся по всей плоскости емкости для камней. Со стороны помещения эта трубка заканчивается воронкой. Трубку обкладывают камнями. При подаче в нее воды, она распределяется по поверхности каменки/камней и испаряется.
Чертежи самодельных банных печей из металла
Эта печь разработана для парной 2*3*2,3 м. Варилась из листового металла толщиной 3 мм.

Печь из металла для бани с закрытой каменкой
Для активизации горения предусмотрено подключение дополнительного воздуховода, проложенного с улицы. Из других решений — ребра жесткости (уголки) приваренные к бокам топки в верхней части топки для того, чтобы при сильном нагреве металл не выгибало.
Следующая схема металлической печи для бани сделана с подачей воздуха в верхнюю часть топки. Это так называемые печи с дожиганием газов. На задней стене приварена пластина из металла. В щель между этой пластиной и задней стенкой топки при помощи трубок-воздуховодов подается воздух из-под колосников. Это нехитрое, вроде, устройство решает сразу две задачи. Во-первых, охлаждает заднюю стенку, снижая вероятность ее прогорания. Во-вторых, воздух подается в верхнюю часть разогретым. Там сосредоточены разогретые до высоких температур дымовые газы, большая часть которых горючая (до 80%). Когда эти газы смешиваются с подогретым воздухом, горючие вещества воспламеняются, температура в верхней части топки становится еще выше, камни нагреваются до более высоких температур. При этом (при использовании сухих дров) топлива требуется намного меньше. На этом принципе построены многие печи длительного горения, но в банных печах он стал использоваться недавно.

Печь с подачей вторичного воздуха
Примерно та же модель, но без дожига, выполнена в другом формате. Тут размеры не указаны, зато проще понять пропорции и расположение различных элементов.

Объемная модель самодельной печи-каменки из металла
В данном случае объем топки составляет около 130% от объема каменки. Нормальное соотношение. Дымоход смещен назад, что не всегда хорошо — могут возникнуть сложности при устройстве дымохода — он может упереться в потолочную балку — придется дымоход изгибать, что нежелательно. Так что насчет расположения трубы — подумайте.
Еще в среде любителей бани постоянно ведутся споры: бак для нагрева воды в парилке — это хорошо или плохо… Одни регулируют влажность открывая/закрывая крышку бака. Их такой вариант устраивает. Другие говорят, что этот пар «тяжелый», и выносят бак в моечное отделение, а воду в нем греют, встроив в топку теплообменник и соединив его с баком трубами. Следующая схема — печь в баню из металла с баком для воды.

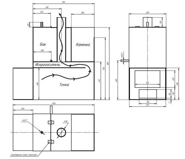
Чертеж печи для бани с баком для воды
Конструкция грамотная — при помощи «искрогасителя» путь прохождения дымовых газов длиннее, дольше он остается в топке, лучше нагревает стенки. Если вы не хотите бак, на его место можно уложить камни.
Интересный вариант с баком, который находится в задней части печи. Дымоход сдвинут назад, и проходит через бак. Высота бака большая, теплосъем будет эффективным — температура дымохода на выходе из бака большой не будет точно.

Вариант небольшой печи с большим баком
Интересно устроена каменка. Она не очень большая, но для небольших и средних парилок ее объема хватит. Закрывается она крышкой, что с одной стороны не очень удобно: закрывать крышку после подачи воды на камни будет проблематично. С другой стороны, это удобно в обслуживании.

Разрезы печи и размеры
Как сделать печь для сауны
Как уже говорилось, основная задача этого типа отопительных приборов — быстро «нагнать» требуемую температуру и иметь возможность ее поддерживать. Есть простое решение — поставит вентилятор, который будет обдувать стенки печи, ускоряя нагрев.
Примерно такую же функцию выполняет кожух-конвектор. Это кожух вокруг корпуса печи. Между ним и стенкой топки остается зазор в 1,5-2 см. В эту щель снизу засасывается воздух. Он проходит вдоль стенок, нагревается, заодно остужая стенки. Далее поднимается вверх, разнося тепло по парилке.

Принцип работы конвекционного кожуха
Если корпус печи делают из толстого металла, то кожух можно и из тонкого. Он редко нагревается до больших температур, и перегорание ему не угрожает. Если в печи для сауны каменка будет находится вверху, над топкой, как на фото, то в корпусе можно сделать отверстия для вентилирования каменки. Тогда часть воздуха, который поднимается вдоль стенок, будет попадать в каменку, обдувать камни и нагреваться еще сильнее. Такая каменка называется вентилируемой. Она хороша именно для суховоздушных саун.
Чертежи и схемы
Конструкция печей для сауны проще. Нужна топка нормального размера, в которую помещаются большие поленья. В верхней части, над верхней частью топки привариваются борта каменки, объем которой обычно 20-25 литров. Вариации могут быть по ширине/высоте/глубине, но особых каких-то хитростей нет.

Схемы металлических печей для сауны
Установка бака для нагрева воды в парилке сауны — идея не самая лучшая. Вы не сможете контролировать влажность, а при высоких температурах легко получить ожог. Тем не менее, несколько вариантов установки баков на фото выше.
Другой тип каменки — внутри топки. При желании можно сделать на нее крышку и такую печь можно использовать в двух режимах — с открытой крышкой для сухого парения, с открытой — для получения большего количества пара.

Каменка внутри корпуса
Как сделать банную печь из металла
Хорошая банька в своем доме давно стала проверенным средством сохранять здоровье, снимать напряжение и накопленную усталость. В домашних условиях выгодно и удобно использовать банную печь с электронагревом. В доме на природе или на даче лучшим вариантом признана банная печь из металла, работающая на твердом топливе. Сегодня банные печи из металла легко купить, заказать в слесарной мастерской практически на любой вкус, любое топливо и мощность нагрева. Но при наличии смекалки, инструмента и подходящего материала проще и дешевле изготовить банную печь из металла своими руками.

Преимущества такой банной металлической печи неоспоримы:
- Есть возможность «вписать» печь в банное помещение по собственным представлениям об удобстве;
- Малый вес и прочная конструкция банной печи позволяют легко транспортировать даже в собственном автомобиле;
- Конструкция печи позволяет достаточно просто вносить изменения и усовершенствования с минимальными затратами труда и материалов.
Приступая к изготовлению банной печи, стоит определить ее расположение в парной, основные геометрические параметры, исходя из потребностей в нагреве. Чертежи наиболее удачных банных печей из металла можно скачать в интернете, при необходимости сделать свои поправки. Выбирают печь, прежде всего, исходя из удобства использования печью, мощность нагрева принимаем – 1 кг дров на 1 м 3 помещения парилки.

Один из наиболее удачных вариантов печки
Для изготовления банной печи не потребуются специальные марки металла, используются доступные сорта листового металла и трубы. Благодаря продуманности конструкции приведенный вариант банной печи из металла реально собрать своими руками, изучив чертежи. Изготовленная по размерам на приведенном чертеже, печь из металла легко прогревает помещение парилки в 15 кубов.
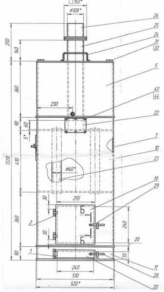
Банная печь разделена на несколько секций, расположенных в одном корпусе – отрезке трубы диаметром 500мм и длиной 1300-1350мм:
- Топочная камера, объемом загрузки до 10 кг дров, находится в нижней части корпуса.
- Каменка, имеющая отдельное отверстие для закладки парного камня и набрызгивания воды.
- Бак с подогреваемой водой. Нагрев происходит через стенку трубы дымохода. Благодаря съемной верхней крышке достаточно просто чистить и обслуживать емкость. Воду можно забирать как через верх, так и используя дополнительный штуцер или кран, вмонтированный в стенку бака.
Кроме основных секций, в конструкции печи использована разделительная камера между каменкой и водяным баком. В этой полости будет интенсивно накапливаться сажа, поэтому через специальное окно, закрытое накладкой, следует периодически ее удалять.

К сведению! Указанная конструкция является самой безопасной и практичной в использовании, требует минимального количества раскройных и сварных работ.
Прежде чем начинать постройку печи, убедитесь в прочности трубной заготовки, отсутствии трещин или локальной деформации металла.
До начала раскройки трубы под банную печь предварительно удалим слой ржавчины и окислов, присутствующих на поверхности металла, с помощью ручного пескоструйного аппарата или щетки для чистки металла. Использовать химические составы на основе фосфорной кислоты не рекомендуется.
Для изготовления банной печки нам будет необходимо:
- Сварочное оборудование и материалы,
- Лист металла толщиной 5мм и размерами 60х350см,
- Фурнитура для изготовления навесов дверок, штуцер или отвод для горячей воды,
- Металлические трубы для выведения газов из топки диаметром 108мм – отрезок в 100см, трубы обогрева каменки диаметром 60мм – четыре отрезка.
Учитывая тот факт, что максимальную опасность для человека представляет угроза отравления угарными газами, разработчиками данной конструкции банной печки были предприняты меры для уменьшения количества сварных швов в топочной части
Последовательность изготовления печи для бани
Размечаем трубу по размерам на чертеже. Из листа металла с помощью газовой сварки или угловой шлифовальной машины вырезаем 6 кругов диаметром 500мм.

Из вырезанных круглых заготовок отбираем две, которые входят внутрь трубы с минимальными зазорами между краями плоских блинов и внутренней стенкой трубы. Эти две пойдут на верхнее и нижнее днище топки.
Размечаем положение верхней крышки топочной камеры на расстоянии 450мм от среза трубы, с помощью мела делаем риски на внутренней поверхности трубной заготовки. Размечаем месторасположение дверцы топочной камеры, поддувала и каменки. Аккуратно вырезаем окошки с помощью «болгарки» – угловой шлифовальной машинки. Вырезанные прямоугольные фрагменты используем для изготовления дверок. Для этого привариваем с помощью электросварки петли навесов в местах крепления дверок.

В круглой заготовке верхней стенки топочной камеры вырезаем четыре круглых отверстия диаметром 60мм и с помощью электросварки ввариваем отрезки жаровых труб, используемых для нагрева каменки. На свободные торцы приваренных труб устанавливаем заготовку верхней стенки каменки и привариваем. В итоге получаем две плоских блина, соединенных между собой четырьмя трубами.

Устанавливаем корпус банной печки в вертикальном положении и помещаем полученный узел из четырех жаровых труб и двух круглых днищ внутрь трубной заготовки. С помощью электросварки привариваем круглую верхнюю стенку топочной камеры на свое место, согласно чертежу.

1, 2, 19, 20, 28,29 – дверцы и элементы топки, поддувала; 3 – задвижка; 7, 8, 9, 10 11, 12, 13 – секции топки и каменки – стенки поддувала; 14, 16, 18– днище; 15 – колосниковая решетка; 17 – отверстие для пополнения воды; 21, 24 – люк для загрузки каменки; 23 – трубы разогрева каменки; 25, 26 – основная труба для отвода газов; 27 – кран отбора горячей воды;
Внимание. Сварку верхнего днища топки следует производить в несколько проходов с максимальным качеством.
Переворачиваем корпус банной печки, устанавливаем вертикально, аналогичным способом привариваем верхнее днище промежуточной камеры. Далее необходимо установить в корпус и приварить круглый блин самодельных колосников, днище печки и днище водяного бака. Для изготовления колосников можно выбрать из двух путей:
- Можно использовать один из блинов-заготовок, предварительно высверлив в центральной части сетку сквозных отверстий диаметром 10мм, отстоящих на расстоянии друг от друга на 15-20 мм. Для этого лучше выбрать самую «прослабленную» в размерах заготовку – ту, у которой самые большие щели между внутренней поверхностью корпуса банной печки и наружным диаметром «блина».
- Более предпочтительным вариантом считается использование готовых чугунных колосников, подходящих по размеру. Для их установки в «блине» болгаркой вырезается окно по размерам колосника, который крепится с помощью четырех болтов и пары полосок металла.
После установки колосников приваривается днище печки – ее нижняя стенка. В корпусе печки металлическая заготовка устанавливается с отступом от края на 10-15мм.

Не менее ответственным этапом является установка днища водяного бака в верхнюю часть банной печи. Конструкцией банной печи из металла предусмотрено, что через центральную часть бака проходит труба отвода продуктов сгорания, и расположена она не соосно с цилиндрическим корпусом печи.
Важно. Приварить дымоход к нижнему основанию бака необходимо с дополнительным контролем геометрии взаимного расположения трубы и днища.
Сварочный шов проваривается минимум дважды, только после этого нижняя стенка с дымоходом устанавливается в корпус банной печи и приваривается по контуру.
Верхняя крышка водяного бака выполняется легкосъемной, для ее крепления на корпусе печки можно использовать пару обычных фиксаторов или же просто придавить сверху тяжелым предметом. На дымоход можно одеть кольцо для уплотнения щели между отверстием в крышке и трубой.
На завершающем этапе навешиваются дверки топочной камеры, поддувала и каменки. Окошко для очистки промежуточной камеры между каменкой и водяным баком лучше закрепить с помощью болтов, с использованием уплотнительной прокладки.
Декоративная отделка
Современные лакокрасочные материалы позволяют защитить даже сильно нагреваемые части печи из металла. Высокая влажность и горячий воздух неизбежно приведут к интенсивному ржавлению поверхности металла, даже закрытой теплоизоляцией или облицованной кирпичом.

Наиболее оптимальным вариантом для обработки поверхности металла будут кремнийорганические краски, выдерживающие нагрев до 250 о С. Для стенок топочной секции лучше применить специальные порошковые краски из термореагирующих составов или на основе порошкового алюминия. Испытать стойкость защитного покрытия лучше на отдельных обрезках металла. Поверхность металла банной печи обезжиривается и покрывается в несколько слоев с промежуточным прогревом конструкции.
Установка банной печи из металла
Наиболее предпочтительным вариантом считается установка печи из металла, с выходом загрузочного окна топки и поддувала в помещение предбанника. Для этого к корпусу могут быть добавлены специальные загрузочные короба.
Некоторое усложнение конструкции с лихвой компенсируется преимуществами:
- Протапливать печь и прогревать баню удобнее из предбанника;
- Помещение предбанника будет достаточно прогрето, что тоже добавляет комфорта и удобства пользования баней;
- При неправильной работе печи или проблемах с дымоходом угарные газы не попадут в помещение парилки.

Для установки банной печи из металла необходимо вблизи от корпуса выполнить облицовку стен несгораемыми материалами, допускается применение легкосъемного кожуха – теплоизолятора, закрывающего стенки топочной секции печи. Такое устройство предохранит от ожогов и поможет регулировать температуру в парилке без вмешательства в работу печки. Аналогично следует поступить с трубой дымохода.
Банная печь из металла должна устанавливаться на фундамент, лучше с термостойкой изоляцией и металлической основой.
Обсудить статью на форуме
Источники: http://svoimi-rukamy.net/13-pech-dlya-bani-iz-metalla.html, http://baniwood.ru/kak-sdelat-metallicheskuyu-pech-dlya-bani.html, http://bouw.ru/article/kak-sdelaty-bannuyu-pechy-iz-metalla
teplosten24.ru
как сделать своими руками, чертежи, размеры и схема установки
Эргономичные металлические печи являются отличной альтернативой громоздким кирпичным каменкам, которые подходят для обогрева частной бани.
Устройства отличаются быстрым нагревом, высокой теплопроводностью, простотой монтажа, минимальным уходом и долговечностью. А при желании простую печь из металла, которая бы полностью соответствовала всем потребностям владельца, можно сконструировать самостоятельно из подручных средств.

Содержание статьи
Основные требования к металлическим печам
К современным конструкциям металлических банных печей предъявляются высокие технические и эксплуатационные требования, к которым относят следующее:
- Широкий функционал. Возможность выбора различных температурных режимов для быстрого нагрева воздуха и поддержания оптимального микроклимата в помещениях.
- Высокий КПД. Эффективное использование топливного материала с возможностью длительной аккумуляции тепла. При этом увеличение объема топки обеспечивает полное сгорание топлива и повышение КПД.
- Эргономичность. Железные каменки должны оставаться компактными, чтобы занимать небольшую площадь помещения. В малогабаритных парных рациональнее устанавливать вертикальный тип конструкции с топкой, вынесенной в техническое помещение.
- Пожарная безопасность. Отопительное оборудование должно быть безопасным для посетителей и помещения. Чтобы избежать ожогов и травматизма, корпус устройства закрывается металлическим конвекционным кожухом, а поверхности вблизи печи обшиваются жаропрочным материалом.
- Комплектация. Более совершенные модели устройств могут комплектоваться водонагревателями, которые обеспечивают горячее водоснабжение в бане.
- Эстетичность. Металлические каменки могут иметь различные варианты исполнений с оформлением коваными и стеклянными декоративными элементами.

Достоинства и недостатки металлических конструкций
Можно выделить основные положительные характеристики, которыми наделена металлическая печь для бани:
- Быстрый нагрев корпуса – к основным процедурам можно приступать уже через 2-3 часа после начала прогрева печи.
- Эргономичный корпус – компактные габариты позволяют устанавливать печь даже в маленьких помещениях.
- Отсутствие фундамента – оборудование не требует возведения прочного фундамента, достаточно ограничиться облегченным основанием.
- Поддержание постоянного процесса горения – конструкция позволяет поддерживать оптимальный температурный режим на протяжении всего времени проведения оздоровительных процедур.
- Образование мягкого и чистого пара и аккумуляция тепла внутри помещения.
- Доступная стоимость материалов для самостоятельного изготовления конструкции.
- Большой срок эксплуатации готового устройства, который может составить от 6 до 26 лет.
- Надежная эксплуатация, если в процессе сборки и монтажа конструкции были соблюдены основные требования пожарной безопасности.
Наряду с положительными моментами, банная печь из металла обладает существенными недостатками:
- Быстрое остывание металла после завершения процесса горения.
- Не подходит для обогрева больших площадей.
- Требуется обеспечение противопожарной защиты конструкции и прилегающих к ней поверхностей.


Выбор готовой металлической печи
Чтобы правильно выбрать готовую печь для бани из металла, рекомендуется учитывать ряд важных параметров, как:
- Диапазон рабочих температур.
- Скорость обогрева помещений.
- Общие габариты оборудования и объем топочной камеры.
- Материал для изготовления корпуса.
- Тип компоновки конструктивных элементов.
- Тип используемого топлива.
- Особенности эксплуатации и технического обслуживания.

Современный рынок представлен металлическими отопительными печами для бани следующих типоразмеров:
- Мини-устройства для обогрева помещений площадью от 10 до 12 кв. м.
- Стандартные печки для помещений площадью от 12 до 25 кв. м.
- Габаритные агрегаты для нагрева воздуха в помещениях площадью от 25 кв. м.
Многие модели печей оборудуются водонагревателем, установленным на задней панели конструкции.

В качестве декоративной отделки металлического корпуса используются жаростойкие и долговечные материалы – керамическая плитка, кирпич, изразцы и камень.
Изучив все эксплуатационные параметры печей для бани, можно легко подобрать подходящую модель устройства, учитывая конструктивные особенности строения, технические требования к отопительному оборудованию и финансовые возможности владельца.


Виды металлических банных печей
В соответствии с конструктивными особенностями различают следующие виды металлических печей:
- Закрытый тип. Агрегаты имеют компактные размеры и небольшой вес, предназначены для малогабаритных семейных бань. Чтобы увеличить тепловую отдачу, металлический корпус печки обкладывается жаростойким кирпичом с внутренней и наружной стороны. Для фиксации кирпича используются железные скобы. Средняя часть конструкции оборудована решеткой для камней.
- Открытый тип. Устройства представлены габаритными конструкциями, оборудованными открытой каменкой и водяным нагревательным баком. Они способны обеспечить быстрый прогрев помещений за короткий промежуток времени. Для повышения тепловой емкости подобные печи оснащаются защитной оцинкованной пластиной для каменки.
- Комбинированный тип. Подобные печи оборудованы топливником с задвижными механизмами, каменкой, поддувалом и патрубками (диаметром от 11 до 14 см). Для изготовления конструкций используется листовая сталь толщиной до 5 мм.

Типы топливного материала
Универсальное отопительное оборудование для бани может работать на различном типе топливного материала. Выделяют следующие категории печей:
- Дровяные. Самые практичные и надежные устройства. Они просты в эксплуатации и техническом обслуживании, работают на доступном типе топлива – дровах, пеллетах, опилках. Печи способствуют быстрому нагреву помещений, но при этом требуют большого количества топлива при каждой загрузке и обустройства дымоходов для вывода продуктов горения.
- Газовые. Более надежные и долговечные отопительные агрегаты, оборудованные термостатом и встроенной защитой, которая срабатывает при возникновении аварийных ситуаций. Отопительные печи достаточно экономичны, могут работать на природном газе и сжиженной газовой смеси.
- Электрические. Еще один вид банных печей, представляющих собой железный корпус, внутри которого расположен нагревательный элемент и встроенная система термозащиты. Дополнительно они могут оснащаться сенсорной панелью для выбора температурного режима и пультом дистанционного управления. Требуют постоянного источника электропитания, поэтому для бесперебойной работы рекомендуется дополнительно установить автономный генератор.
- Комбинированные. Подобные агрегаты могут работать на альтернативных видах топлива – мазуте, солярке, дистиллированном составе. Они отличаются безопасностью, надежностью и экономичностью. Многие модели устройств оснащены специальным переключателем для выбора нужного типа топлива.

Технология сборки железной банной печи своими руками
В малогабаритной бане можно использовать самодельный вариант железной каменки, размеры которой бы полностью соответствовали обогреваемой площади. В качестве примера рассмотрена технология сборки печи-каменки диаметром 70 см и высотой 150 см. Подобное отопительное устройство характеризуется простотой изготовления, удобством эксплуатации, при этом требует небольшого количества топливного материала для быстрого прогрева бани.
Материалы для печи
Для самостоятельной сборки печи подходит черный металл, толщина которого составляет 0,5 см. Срок службы такого материала составляет от 6 до 10 лет. Чтобы сделать топку и бак для воды, можно использовать сантиметровый лист железа.

Для работы необходимо подготовить следующие материалы:
- Листовой металл толщиной 1 см.
- Металлическую трубу с толщиной стенок 1 см, длиной 160 см.
- Трубу для дымоотвода с толщиной стенок 0,5 см, диаметром 10 см.
- Металлический прут толщиной 1 см.
- Решетку для колосника.
- Дверные петли.
- Дверные щеколды.
- Водяной кран с закрывающим вентилем.

Рабочие инструменты
Для работы с металлической конструкцией потребуется соответствующий набор инструментов:
- Оборудование для горячей сварки.
- Ножовка по металлу.
- Болгарка.
- Рулетка.
Также потребуются средства для индивидуальной защиты при проведении сварочных работ:
- Маска.
- Спецформа и обувь.
- Перчатки из диэлектрического материала.
- Очки.

Пошаговая инструкция по сборке банной печи
Чтобы самостоятельно сделать компактную металлическую печь для частной бани необходимо соблюдать следующую последовательность действий:
- Труба разрезается на две части – 70 и 90 см.
- Поддувальную камеру стоит расположить в нижней части трубы для удобства очистки от золы. В трубе проделывается отверстие размером 22×6 см. Металлический отрезок можно использовать для изготовления дверцы для поддувальной камеры. Выше проделывается еще одно отверстие для закладки топлива.
- С наружной стороны трубы привариваются дверные петли и планки для щеколд, а сами щеколды монтируются на дверки. Далее устанавливаются дверки для поддувальной камеры и загрузочного отсека.
- Из металла вырезается круг диаметром 70 см и соответствующее отверстие по центру для колосника. Заготовка приваривается внутри печной конструкции над поддувальной камерой.
- На обратной стороне трубы готовится отверстие для полива каменки и монтируется защитная дверка.
- Из арматуры изготавливается решетка для выкладки камней. Габариты решетки следует определять с учетом размеров камней, которые будут использованы для печи.
- Из металла вырезается еще одна круглая заготовка диаметром 70 см, в ней проделывается отверстие для дымоходной трубы так, чтобы оно было смещено к задней стенке печи. Далее приваривается дымоход и круг под него сверху на конструкции.
- Изготавливается водяной бак из меньшего отрезка трубы, который приваривается к печке. В емкости проделывается отверстие для фиксации крана при помощи сварки.
- Готовится еще одна круглая заготовка из металла и разрезается на две части – большую и меньшую. В элементе большего размера проделывается отверстие для дымоходной трубы. После этого он надевается сверху на дымоход и приваривается вокруг отверстия.
- Полукруглый элемент меньшего размера используется в качестве крышки для водяного бака. Фиксация к трубе при помощи дверных петель.
Важно! Размер самодельной печи из металла для бани зависит от общего объема парной. Подобный агрегат может обеспечить обогрев помещения объемом до 25 куб. м.



Особенности монтажа печи по правилам пожарной безопасности
Чтобы железная печь для бани исправно работала долгие годы, необходимо соблюсти основные правила монтажа:
- Отопительное оборудование устанавливают на предварительно подготовленную площадку диаметром 70 см, высотой 18 см. Дополнительно обустраивается 30-сантиметровое фундаментное основание из жаростойких кирпичей. Расстояние от корпуса печи до стены должно составлять 100 см. Стены рекомендуется изолировать теплоотражающей фольгой, чтобы исключить возгорание поверхностей.
- Минимальное расстояние от верхней части корпуса устройства до потолочной поверхности составляет 120 см, а от дверки топочного отделения до противоположной стены – 135 см.
- Дымоходная труба также изолируется. Для этого предусмотрена установка внутреннего и наружного защитного кожуха с прослойкой из теплоизолирующего материала.
- При выведении дымоходной трубы через крышу на стыке с потолочным перекрытием устанавливается защитный короб из оцинкованной стали, заполненный базальтовым утеплителем.
- Дверки в топочное отделение должны быть направлены в сторону входной двери, а каменки – к ближнему углу.
- Полки в парилке фиксируются вдоль стены, противоположной той, где установлено отопительное оборудование. Лучший вариант – многоярусная конструкция.
- Светильники в парной монтируются над входной дверью или по периметру помещения, за исключением стены за печью. Чтобы избежать возможного замыкания, не рекомендуется устанавливать осветительное оборудование на потолке.
- Если печь для бани из металла используется в деревянном строении, потребуется облицовка корпуса жаростойким кирпичом. Оптимальная высота конструкции составляет 125 см, а длина – 85 см.
- Тестовый запуск оборудования выполняется до начала эксплуатации парной для выявления возможных дефектов конструкции или ошибок в ее монтаже.

Чертежи и схемы металлических печей
Чтобы самостоятельно изготовить простые конструкции банных печей из металла, потребуются рабочие схемы и чертежи, которые можно найти на специализированных ресурсах или заказать у специалистов. Ниже представлены доступные чертежи и проекты по созданию металлических печей.






Конечно же, самостоятельное изготовление металлической каменки для бани – сложное и ответственное мероприятие, особенно для новичков. Но, обладая минимальными навыками раскроя металла и проведения сварочных работ, можно по доступному чертежу собрать практичную и надежную конструкцию отопительной печи.
sdelatbanyu.ru
Изготовление банной печи из металла своими руками: варианты чертежей, изготовление, монтаж
Многие люди при обустройстве загородного участка наряду с домом возводят и баню. Чтобы она быстро прогревалась, а пар был высокого качества, не обойтись без печи. В эти сооружения устанавливаются специальные печи, отличающиеся от тех, которые размещают в домах. Многие выбирают металлические печи. Они обеспечивают довольно быстрый прогрев помещения и легко устанавливаются.Если вы строите баню и сделали выбор в пользу металлической печи, то необязательно покупать её. Вы вполне можете построить её своими руками. Технология создания печи своими руками довольно простая, а материалы, применяемые при её сооружении, доступны для каждого.
Металлические печи для бани: конструкция
Многие владельцы устанавливают печи для бани своими руками из металла. Самые простые — буржуйки. Если говорить о конструкции таких печек, то они представляют собой ящик, снабженный дверцей и имеющий трубу. Такие конструкции имеют определенные недостатки. Один из них – невысокая тепловая отдача. Кроме этого при их использовании возникают большие затраты на топливо. Поэтому в современных банях такие печи можно встретить крайне редко.Если говорить о современных моделях металлических печек для бань, то они являются изделиями, относящимися к высокому классу безопасности. При изготовлении в качестве основного материала используется листовое железо. Обычно применяют металл толщиной не менее 4 мм. В своем оснащении эти печи имеют тепловую камеру, которая используется для каменной засыпки. Большинство моделей имеют возможность для установки дополнительного бака для воды. Его объем может доходить до 70 литров.
При установке металлическая печь для бани своими руками владельцы часто обкладывают конструкцию огнеупорным кирпичом. Это необходимо для обеспечения равномерного прогрева воздуха в помещении и безопасной эксплуатации изделия.
Банные печки могут иметь разную конструкцию, которая изначально должна быть определена чертежом. На основании этого признака выделяют несколько их видов.
- Банные печи закрытой конструкции. Размеры печей для бань такого типа очень компактные , поэтому чаще всего их установку производят в банях семейного типа. В целях повышения показателей теплоемкости при установке таких печей снаружи и внутри их обкладывают красным огнеупорным кирпичом. Металлические скрепы используются для фиксации кирпичей. Решетка для камней устанавливается в средней части печи.
- Банные печи открытой конструкции. Главной их особенностью является наличие бака небольшого объема. Каменка у таких печек открытая. В связи с этим при установке в парном отделении такой печи можно обеспечить быстрый прогрев помещения. Для увеличения теплоемкости печи необходимо накрыть камни оцинкованной крышкой.
- Банные печи комбинированной конструкции. Их главная особенность заключается в наличии топливника, который снабжен двумя задвижками. Также в конструкции присутствует решетка, поддувало и два патрубка. Последние различаются между собой по своему диаметру. У первого его размер составляет 10 см, а другого – 14 см. В них выделяют четыре отверстия, предназначенные для подвода трубы и обводного колена. Для изготовления печей такой конструкции в качестве основного материала используются стальные листы толщиной 5 мм.
Банная печь своими руками: инструкция
Чтобы правильно изготовить печи для бани своими руками, которая будет обеспечивать достаточную теплоотдачу и быстрый прогрев помещений бани, необходимо все выполнять по инструкции. Во время работ следует использовать качественные материалы и применять необходимые инструменты.
Материалы:
- листовая сталь 8 мм;
- металлическая труба. У нее толщина стенок должна быть не менее 10 мм, а величина диаметра — 600 мм;
- пруток — 10 мм;
- колосник;
- щеколды и дверцы для топочной камеры, поддувала и каменки. Если дверцы будут изготавливаться самостоятельно, то необходимо будет приобрести только щеколды;
- труба длиной 2 метра. Из них 90 см пойдут для топочной камеры, 60 см — для бака, а оставшиеся 50 см будут использоваться для изготовления второстепенных деталей;
- из инструментов при проведении работ потребуются сварочные аппараты и болгарка.
Этапы работ по изготовлению железной печи для бани
Все начинается с того, что берут отрезок трубы, в котором вырезают поддувало. Отверстие должно иметь размер 50 х 200 мм. Далее над отверстием с внутренней стороны трубы необходимо приварить крепление для колосника. Чтобы сделать его, необходимо взять металлическую пластину с проушинами. Колосник можно приобрести в любом строительном магазине.После этого можно переходить к изготовлению топки. Для этого следует сделать отверстие размером 250 х 200 см. Сверху выполняется приваривание, посредством которого будет выполняться закрепление прутков каменки. Вместо них можно использовать колосниковые решетки, применяемые в печках круглой формы. Приобрести их также можно без проблем в любом магазине.
Когда эта работа выполнена, проделывают отверстие с противоположной стороны каменки. В него при эксплуатации печки будет заливаться вода. После этого выполняют заполнение каменку камнями. В качестве материала можно использовать диабаз или талькохлорит. Не следует применять для заполнения каменки гранит и другие слюдосодержащие камни.
После этого необходимо проделать отверстие в крышке, предназначенной для печки. Она будет использоваться для установки дымоходной трубы. Когда отверстие сделано, выполняют установку трубы. Хотя на этом монтаж печи для бани своими руками и можно считать завершенным, тем не менее, специалисты рекомендуют выполнять установку бака для воды.
Необходимо приварить к каменке оставшийся кусок трубы. На его нижнюю часть вваривают кран для воды. При использовании печки дым, проходя по трубе, будет постепенно нагревать её, при этом закипание воды будет исключено.
В завершение работ необходимо изготовить крышку, которой будет закрываться нагревательный бак. Она должна быть сделана в соответствии с диаметром, используемым в конструкции печки трубы. Готовая крышка разрезается пополам. Далее в первой половине необходимо вырезать отверстие под дымоход. После этого необходимо приварить его к баку. Вторую половину необходимо оснастить ручкой и петлями. Благодаря этому при эксплуатации печки она будет съемной, её легко можно будет открыть.
Форма железной печи для бани
Многим может показаться, что форма печки является несущественным параметром. Однако это не так. Ведь именно от неё зависит производительность печки. А кроме этого правильно подобранная форма обеспечивает удобство эксплуатации конструкции. Если говорить о наиболее распространенных формах печей, то выделим следующие:- цилиндрические;
- горизонтальные;
- фигурные;
- прямоугольные.
Наибольшее удобство при использовании обеспечивают агрегаты прямоугольной формы. Комфорт обеспечивается наличием углов в конструкции таких печек. Они при эксплуатации печки никогда не раскаляются докрасна. С этим связано распространенное мнение, что именно такой каркас сохраняет форму в течение длительного времени. Кроме этого, форма печки влияет на равномерность прогрева, поскольку максимальный разогрев одного элемента приводит к уменьшению нагрева расположенной рядом с печью стены. А это положительно влияет на равномерный прогрев всего помещения и обеспечения баланса тепловых потоков.
При правильном разогреве конструкция может служить долго, поскольку она в этом случае будет иметь высокую механическую устойчивость. Обратив внимание на существующие формы печек, это нетрудно заметить. Менее устойчивыми к нагреву являются банные печки круглой и цилиндрической формы. По этой причине при изготовлении их стенки делают плотными и усиленными. А вот прямоугольная печь более устойчива к нагреву по той причине, что у нее углы всегда холодные. Однако следует знать, что в процессе длительной эксплуатации таким печкам потери формы тоже не избежать.
Установка печи в бане: важные моменты
Оптимально, если об установке банной печки владелец позаботился уже на этапе строительства сооружения. В этом случае процесс монтажа конструкции станет более простой задачей. На месте расположения печки закладывается мелкозаглубленный фундамент. После этого выполняется укладка на него двойного ряда кирпичей, а потом на них устанавливается печь. Чтобы сделать сооружение пожаробезопасным, необходимо при установке придерживаться определенных правил. Они сводятся к следующему:
- расстояние от печки из металла до стены должно быть не меньше одного метра. Помимо этого для специальной защиты поверхности дома от возгорания специалисты рекомендуют близко расположенные к изделию стены обернуть фольгой, дополненную слоем теплоизоляционного материала. Это исключит перегрев дерева и его возгорание;
- при установке печи из металла необходимо подумать и об изоляции дымохода. Специалисты рекомендуют использовать так называемые сэндвич трубы. Их особенность состоит в том, что между внешним и внутренним корпусом имеется прослойка из теплоизоляционного материала. Если конструкция печи предполагает вывод по трубе продуктов сгорания, то потолочно-проходной узел необходимо оборудовать в месте стыка потолка и трубы;
- обкладка печи кирпичом. В этом случае будет обеспечена дополнительная безопасность эксплуатации печки, и она приобретет более эстетичный вид. Если печь из металла расположена близко к стене, то создание кладки из кирпича – обязательное условие.
Заключение
Печь – главный элемент любой бани. Если печь подобрана правильно, то будет обеспечен быстрый прогрев сооружения, а создаваемый пар будет качественным.
Необязательно покупать печь в магазине, ведь можно изготовить её своими руками. Материалы, используемые для ее изготовления, вполне доступные, поэтому с изготовлением металлической печи для бани не возникнет сложностей. Инструменты тоже требуются самые простые. Приложив определенные усилия, у вас появится полноценная банная печь, которая сделает приём парных процедур в бане приятным занятием.
Самодельные металлические банные печи
Оцените статью: Поделитесь с друзьями!kotel.guru
Печь для бани своими руками из металла

Металл – податливый обработке материал. В отличие от кирпича, его можно сверлить, резать, ковать, гнуть и т.д.
Печь из металла не боится длительных простоев, не отсыревает. Конструкция цельная, ее можно переставлять и транспортировать.
Кроме того, у металла высокая теплопроводность. Обогревательный прибор быстро отдает тепло помещению, в котором находится.
Этим же объясняется более высокий КПД, ведь кирпичные аналоги, пока не прогреются, теряют большую часть жара через трубу. Все это объясняет, почему печь для бани своими руками из металла считается наилучшим решением.
Какие есть варианты конструкций, как самостоятельно соорудить такую печь, нужно ли ее экранировать, как установить и чем покрасить.
Материалы для строительства
Лить чугунный каркас в домашних условиях не получится, поэтому материалом будет сталь.Разработано несколько вариантов конструкций стальных банных печей это:
- Сварной каркас из листового металла;
- Из трубы;
- Из дисков от автомобильных колес.
Выбирается обычно тот материал, который проще всего приобрести.
Если это будут листы, они должны быть толщиной не менее 8 мм. Если труба – диаметром около 50 – 60 см.
Также понадобятся:
- Колосниковая решетка (это может быть готовое изделие или арматура, из которой решетка сварится вручную)
- Дверца для топки, для поддувала (можно сделать и самостоятельно).
- Щеколды на все дверцы.
- Кран.
- Труба для дымохода, высотой около 2 м, диаметром 12 – 15 см.
На финальном этапе нужен будет кирпич для экрана, камни для каменки и специальная краска.
Необходимые инструменты
Инструментарий зависит от выбранных технологий, но скорее всего, пригодятся:
- Измерительный инструмент.
- Болгарка.
- Сварочный аппарат.
Для финишных работ понадобятся мастерок, отвес и другие инструменты для кладки кирпича. Пульверизатор для окрашивания.
Металлическая печь для бани своими руками из трубы вертикальная
Преимущество модели в минимальном количестве швов. Кроме трубы, нужно будет немного листового металла на перегородки (толщина от 8 мм.).
Подготовительные работы
Заливается бетонный участок – фундамент. Его ширина должна быть чуть больше, чем диаметр будущего корпуса. Выставляется опалубка, выравнивается и утрамбовывается дно, засыпается слой щебня, заливается часть бетона. Затем укладывается арматура и заливается второй слой. Общая толщина основания = 20 см.
Изготовление печи
Роль дна может исполнять бетонное основание. Нижний край трубы хорошо выравнивается, чтобы конструкция не шаталась. В нижней части устанавливается дверца поддувала 7 х 20 см.
Дальше крепится дно топочной камеры. Это может быть блин, с вставленной в него колосниковой решеткой, или сплошные ряды арматуры. Металл для этого участка стоит брать потолще – не менее 12 мм.

Пример банной печи из металла
Над поддувалом располагается дверца топки. Размеры отверстия 25 х 30 см. Если дверца будет выходить в соседнее помещение, приваривается прямоугольный короб такой толщины, которую подскажут стены в бане. Общая высота топки и поддувала = 90 см.
Если сделать колосник из уголка, расположив его канавкой кверху, он долго не прогорит.
Как делается каменка – чертеж
Далее идет каменка и о ней стоит сказать отдельно. Есть два варианта:
- Проточная каменка.
- Открытая.
Проточная предоставляет возможность камням греться от дымовых газов, которые, прежде чем попасть в трубу, омывают их.
Такой вариант подгоняется под помещение опытным путем. Поддавать пару можно будет только в очень хорошо разогретую печь, где выгорела сажа и только после полной протопки, когда закрыли задвижку.
В открытой каменке нужно точнее рассчитывать контакт поверхности с камнями, иначе его может не хватать, и жар будет оседать окалиной на внутренностях агрегата. Можно пропустить по каменке систему труб, то есть сделать теплообменник, но такой способ усложняет этап создания.
Еще один вариант – открытая каменка располагается над топкой, а над каменкой водяной бак. Но вода в таком баке будет греться дольше, да и высота конструкции будет не малой – забор воды на большой высоте не всегда удобен.
Для самостоятельного изготовления рекомендуется параллельная схема, когда над топкой располагается емкость, разделенная вертикальной перегородкой. В одной половинке располагаются камни, а другая – это водяной бак.

Чертеж металлической печи-каменки
Минус такой схемы в том, что камни соприкасаются с холодной стенкой водяного бака и охлаждаются об нее. Поэтому видоизменим половинку с камнями, сделав ее в виде балкончика. Камней в такой балкончик поместится меньше, да и к стенке плотно прилегать они не будут.
Если выбран последний вариант, над топкой делается глухая перегородка, в центре которой вырезается отверстие для установки дымовой трубы. В нижней части той половины, где будет вода, вваривается кран. Спиливается половина – каменка. На ее месте декорируется балкон из металлических полос. Здесь есть возможность придать изделию оригинальный вид.
Корпус печи из колесных дисков
Привлекательность этого материала в его доступности и прочности. Прогорают печи из толстостенных дисков очень не скоро (сталь используется высокого качества). Для банной печи больше подойдут диски от грузовых автомобилей (ЗИЛ, КамАЗ, тракторные и т. д.)
Самое сложно на начальном этапе – это вырезать из каждого диска внутреннюю часть. Болгаркой это конечно, можно сделать, но удобнее использовать газовый резак.
Существуют модели комбинированных отопительных приборов, в которых топка и поддувало выкладываются из кирпича, а верхняя часть топки, каменка и бак металлические. Но мы рассмотрим вариант печи, полностью собранной из дисков.

Печь из колесных дисков
Понадобится:
- 3 диска.
- Дверцы для зольника и топки.
- Листовой металл.
- Дымоходная труба.
- Арматура.
Бак для воды. Его можно сделать, как и печь, из дисков, а можно использовать листовой металл или любую подходящую емкость. Температуры здесь не экстремальные, поэтому требования к толщине и качеству металла ниже.
Изготовление емкости для воды, топки и каменки
На зольник, топку и каменку используются три диска. Их освобождают от средней части и сваривают вместе. В нижней части устраивается зольник. Вырезается отверстие, в дальнейшем сюда приварится дверца.
Над зольником делается отверстие для топочной дверцы. Теперь перегородка с колосниковой решеткой. По диаметру вырезается блин из металла, а в центре делается вырез, который заваривается прутьями арматуры. После того, как перегородка приварена на положенное место, время устанавливать дверцы и щеколды.
Теперь каменка. Она будет располагаться в верхней части сваренных вместе дисков. Топку закрывают еще одним листом металла, в котором вырезано отверстие для трубы (соотносится с отверстием в баке, делается немного смещенным в одну из сторон).

Водяной бак и дымовая труба
Приваривается небольшой патрубок, на который одевается водяной бак. Между верхним краем каменки и дном бака оставляется небольшое пространство (каменка получается открытой, можно прибавлять и убавлять камни, поддавать жару).
Чтобы укрепить конструкцию, в этом промежутке устанавливаются подпорки – перемычки. Дымовая труба будет немного возвышаться над баком, но так, чтобы оставалась возможность транспортировать агрегат, поместить его в баню на положенное место.
Бак можно сделать съемным из нержавейки. И состыковать дымовую трубу посредством асбестового шнура.
Установка металлической печи в баню и пожарная безопасность
Удачный вариант установки своими руками, когда топочная дверка и поддувало выходят в предбанник.
Во-первых, так удобнее топить, во-вторых, тепло достанется и предбаннику, а в-третьих, если в плохую погоду печка задымит, газ попадет не в парилку.
Перед топкой обязательна установка защиты для пола – небольшого листа металла.
Экранирование кирпичной кладкой не только улучшает свойства печи, но и повышает безопасность ее использования.
Там, где труба проходит через кровлю и потолок, ее обкладывают кирпичом. Чтобы это осуществить, в верхней части трубы приваривается металлическая площадка, на которой будет возводиться кладка.
Покраска печи
Жестяная конструкция со следами сварки, плохо выглядит даже в гараже, не то что в бане. Кроме того, некрашеные поверхности более подвержены коррозии. Чем покрасить металлическую банную печь? Простые краски с пределом огнестойкости в 160°С не подходят.
Нужно подыскать:
- Органосиликатную эмаль (до 350°С).
- Кремнийорганическую эмаль (до 800°С).
Килограмм более жаростойкой краски, обычно стоит дороже, к тому же вторая эмаль тяжелее и расходуется ее больше.
Помещение во время покраски должно быть теплым и сухим. Поверхность обезжиренная. Использовать желательно пульверизатор, а не кисть или валик.
Наносить нужно 2 слоя. Второй, после полного высыхания первого. Ни в коем случае нельзя ускорять сушку искусственно (феном, или подтопкой). Полное высыхание достигается через 7 дней.
Опытным путем мастера пришли к выводу, что саму печь лучше красить кремнийорганической краской, а экран органосиликатной.
Заключение
Чтобы каменка давала достаточно пара, а не понижала температуру печи, она должна быть тщательно рассчитана специалистами.Современные фабричные металлические печи отлично выверены.
Если делать печь по размерам и чертежам готового агрегата, успех гарантирован.
Если же такой возможности нет, и все делается своими руками и на глазок, можно будет немного скорректировать количество камней и время прогрева по ходу экспериментальных топок. Легкого пара!
Казалось бы, что может быть проще, чем установить в доме печь на газу. Газ – топливо дешевое и эффективное. Однако печи для дома на дровах длительного горения все еще остаются популярными. Смотрите обзор моделей и видов.
Критерии выбора чугунных дровяных печей для дачи разберем в этой теме.
Видео на тему
microklimat.pro
Печь для бани из металла своими руками
Преимуществ у металлической печи для бани по сравнению с аналогом из кирпича достаточно. Быстрый нагрев, несложная технология и возможность сборки печи в любом месте с последующей установкой в бане – все это определяет популярность металлических печей для частного сектора.
Однако есть и некоторые специфические нюансы в их конструировании и монтаже, и в первую очередь, необходимость строгого соблюдения инструкции. Главным образом, в плане пожарной безопасности, так как поверхности таких устройств разогреваются до очень высоких температур. Эта статья поможет разработать индивидуальный чертеж металлической банной печи и разобраться во всех тонкостях ее изготовления своими руками.
Вариантов подобных отопительных приборов много. Они делаются из листового железа, металлических труб и бочек. Различия и в форме, геометрии, компоновке (горизонтальная или вертикальная).

Но если вникнуть в принцип их функционирования, то становится ясно, что для всех модификаций металлических печей он один и тот же. Следовательно, поняв в общем технологию сборки и особенности работы даже одного образца, несложно своими руками сделать печь из металла по любому чертежу — даже из газового баллона. Рассмотрим порядок изготовления печи из трубы большого диаметра. Это одна из самых простых технологий, главное преимущество которой – в минимуме сварочных работ.

Линейные размеры в мм.
Инструкция по проектированию печи
Своими руками ее несложно изготовить из металлической трубы. Печь представляет собой корпус, в верхней части которого (над топкой) расположена каменка закрытого типа. Над ней – емкость для нагрева воды. Рисунок хорошо поясняет все конструктивные особенности модели.

Что понадобится для сборки печи
- Толстостенная (10, не менее) металлическая труба для корпуса печи. Длина – в пределах 1550±50, сечение – 550±50.
- Стальной лист толщиной 8 – 10.
- Пруток «десятка».
- Отрезок уголка на 150 или 200.
- Кран слива воды, петли, щеколды для дверок.
- Труба для канала дымоудаления.
Металлические заготовки толщиной менее 8 мм ограничивают эксплуатационный срок печи при средней интенсивности ее использования. Агрегата хватит от силы лет на 5 – 6, после чего придется заниматься его капитальным ремонтом по причине образования дефектов в железе – прогары, деформации и так далее.
Кроме обычного бытового инструмента, который есть в каждом доме, в процессе изготовления печи из металла понадобятся сварочный аппарат и УШМ («болгарка»). Сборку агрегата, как уже сказано, можно вести где угодно – в сарае, гараже, на придомовой территории. Если все заранее подготовлено, то работа много времени не займет. От силы 2 – 3 часа.

Инструкция по изготовлению печи
Отопительный агрегат является конструкцией сборной, поэтому труба разрезается на 2 неравные части, длиной примерно по 900 (топка + каменка) и 600 (нагревательный бак).
Собственно печь:
- В большем куске трубы обустраивается поддувало. Достаточно размером 200 х 50. Оно располагается в нижней части печи.
- Несколько выше привариваются отрезки уголка. Они будут играть роль опорной рамы для колосника.
- Над ним вырезается топочное отверстие (250 х 200).
- При сооружении каменки нужно учесть размеры твердых фракций, которые будут закладываться сверху печи. Исходя из этого, и выбираются расстояния между прутками колосника.
- Точные размеры отверстия в крышке приводить бессмысленно. Оно должно быть таким, чтобы было удобно заливать внутрь воду. Вот на это и следует ориентироваться, так как данный параметр выбирается произвольно. Для удобства эксплуатации печи его располагают с противоположной от дверок (загрузки и поддувала) стороне.
- Установка дымохода делается так, чтобы нижний срез канала находился над колосником, по центру трубы печи. Вывод производится через крышку, для чего предварительно в ней вырезается отверстие соответствующего профиля и размеров.
Остается добавить, что все сварочные швы должны быть однородными, без «отбеленных» участков, пор и трещин. В противном случае при розжиге печи баня быстро заполнится дымом.

Нагревательный бак
Под него можно использовать любую металлическую емкость подходящих габаритов и вместимости. Как вариант, сварить из листового железа короб. В данной конструкции баком служит вторая часть трубы.
Кран вваривается в нижней части с расчетом, чтобы при необходимости можно было полностью слить воду. Так как он буквально насаживается на трубу контура дымоудаления, в крышке и днище вырезаются отверстия по ее диаметру. Для исключения взаимного смещения конструктивных частей печи в месте соприкосновения их кромок нужно сделать прочные соединения. Лучше «прихватить» сваркой в нескольких точках. Сплошной шов нежелателен, так как ремонтопригодность такой печи будет снижена.

Канал дымохода
Схема его прокладки ничем не отличается от всех известных для котельного оборудования. Главное – обеспечить надежную термоизоляцию отводных секций. Один из несложных вариантов – использование в качестве кожуха (внешней оболочки) трубы большего сечения, внутри которой закладывается мягкий утеплитель (например, вата каменная).

Рекомендации по установке металлической печи в бане
- Минимальное отстояние от стен (если не предусмотрен монтаж теплоотражающего экрана) – 1 м.
- Металлическая печь ставится не на пол, а на специально подготовленный пьедестал. Требований к такому основанию немного: оно выполняется из невоспламеняющихся материалов (кирпич огнеупорный, бетонная заливка) и не должен жестко скрепляться с фундаментом строения. Если пьедестал обустраивается на этапе строительства, то целесообразно использовать раствор. При установке печи из металла в уже эксплуатируемой бане лучше выбрать кирпичное основание. В этом случае не придется ждать несколько недель, пока бетон окончательно не отвердеет.
- Так как печь будет нагреваться до высокой температуры, все ручки следует сделать из древесины или с накладками из нее (или иных материалов, характеризующихся низкой теплопроводностью) для удобства и безопасности пользования.

Выполнение работы своими руками подразумевает полный простор для фантазии. Это касается в основном отделочных мероприятий. Металлическую стационарную печь в бане целесообразно обложить природным камнем или кирпичом. Во-первых, неизбежные дефекты, возникшие в процессе любительской сварки, будут надежно укрыты под слоем облицовки. Во-вторых, такая печь станет медленнее остывать. Как результат – ощутимое снижение расхода топлива.
ismith.ru
Металлическая печь в баню своими руками
Печи для хорошей русской бани изготавливаются, как правило, из кирпича или металла. Металлические печи свободно продаются сегодня в большинстве специализированных магазинов, предлагающих клиентам большой выбор моделей. Вниманию людей, предпочитающих всё делать самостоятельно, мы предлагаем эту статью о том, как сделать металлическую печь в баню своими руками.
Изготовление топки и каменки
Схема металлической печи в разрезе
Самодельная металлическая печьОсобенностью классической русской бани является то, что она оборудуется не газовой и не электрической, а именно дровяной печью. При этом только грамотный подход к её конструированию позволит вам получить характерный для таких печей режим (влажность воздуха в парилке 60% при температуре 70-80 градусов). При самостоятельном изготовлении русской печи возможен выбор из следующих двух вариантов:
- вертикальная печь из трубы выбранного вами диаметра;
- горизонтальная конструкция на основе металлической бочки.
В данной статье нами будет рассмотрен вариант изготовления печи вертикального типа.
Основная задача, которую необходимо решить в этом случае, состоит в том, чтобы найти трубу подходящего диаметра (0,5-0,6 метра) с толщиной стенки от 5 до 10 мм и высотой 1,6 метра. Эта труба делится на три части, причём секция длиной 0,6 метра предназначается для водяного бака, а две секции по 0,8 метра пойдут на топку и каменку. Из оставшихся заготовок можно будет сделать дверцы для топки и поддувала. Все эти элементы печи и их размеры указаны на приводимом здесь чертеже.
Колосниковая решетка для металлической печиВ части трубы, предназначенной для топки, вам нужно будет проделать вырезы определённых размеров. Для поддувала делается отверстие размером 200х60 мм. Прямо над ним следует приварить перегородку с четырьмя проушинами, служащую для установки колосника. Сам колосник, подобранный по размеру печи, можно приобрести в магазине печного литья. Толщина пластины для навески решётки не должна быть менее 12 мм.
Чуть выше колосника делается отверстие под дверцу топки (вырез размером 250 х180 мм), а сверху к трубе приваривается вторая перегородка с вырезанным центром, на которой можно будет смонтировать поддон каменки. В качестве поддона можно использовать ещё одну колосниковую решетку, при этом по высоте каменка должна занимать не менее 0,8 метра. В этом отделении металлической печи также вырезается отверстие для дверцы размером 250х300 мм. Затем каменка заполняется на треть высоты небольшими по размеру камнями округлой формы, имеющими мелкокристаллическую структуру тёмного цвета (серого или чёрного).
Бачок для воды
Схема металлической печи для баниВ печах вертикального типа секция для горячей воды обустраивается прямо над каменкой. С этой целью устанавливается еще одна перегородка толщиной 8 мм с отверстием под трубу дымохода (120 мм в диаметре), являющаяся дном данной секции.
Обратите внимание! Отверстие под дымоходную трубу должно быть несколько смещено к задней стенке. Сверху приваривается пластина с отверстием под дымоход, закрывающая лишь половину верхней окружности бака. Оставшаяся незакрытой часть используется для заливки воды и закрывается во время её нагрева специальной крышкой с ручкой.
В том случае, если вы решили вывести трубу из кирпича на крышу бани – вам необходимо будет к дымовой трубе приварить небольшую площадку (300х300 мм) на расстоянии примерно 300 мм от крышки. К стенке бачка со стороны крышки и как можно ближе ко дну приваривается кусок трубы соответствующего диаметра, в который позднее устанавливается вентиль.
Установка печи
Печь, обложенная кирпичомОбустройство металлической печи в баню своими руками начинается с подготовки фундамента под неё. Но ещё до начала его устройства вам нужно определиться с тем, будете ли вы обкладывать свою печь кирпичом или нет. В парилках небольшого размера, рассчитанных на один заход, обкладку печи кирпичом можно и не производить. Если же вы рассчитываете париться в несколько «заходов» и хотите, чтобы тепло как можно дольше держалось в парилке – без такой обкладки никак не обойтись.
Для обустройства фундамента вам потребуется огнеупорный кирпич, который выкладывается в два ряда и заливается сверху готовым бетонным раствором. Размеры такого фундамента составляют обычно величину около 700х700 мм; при этом он должен располагаться на следующих удалениях от стен парилки:
- не менее 20 см для печей с обкладкой кирпичом;
- не менее одного метра для «голых» металлических печей.
Обратите внимание! В целях безопасности стены парилки в районе размещения металлической печи закрываются специальной фольгой с утеплителем (из материала типа «Изовер»). Для печей, обкладываемых кирпичом, такая защита стен не требуется.
Кирпичная дымоходная труба выводится, как правило, через крышу бани на высоту чуть более полуметра. Она обязательно оштукатуривается, а расположенные в местах её прокладки деревянные конструкции изолируются листами асбеста.
Видео
В следующем видеоматериале вы увидите печь, изготовленную по описанной в статье технологии:
Еще один вариант металлической печи:
Фото
Установленная металлическая печь
Печь металлическая
Печь для бани из металла
Обкладка печи кирпичомstroysvoimirukami.ru
