Мини бани на даче своими руками – Мини-баня для дачи: достоинства, готовые модели, строительство
Мини баня своими руками — Всё о бане

Мини баня для дачи
Традиционно бани принято устанавливать на собственных приусадебных участках или на дачах в виде отдельно стоящих строений. Однако, не все имеют достаточное количество территории для того, чтобы смонтировать такой полноценный банный комплекс. В этом случае на помощь приходит мини баня для дачи.
Соорудить это чудо можно самостоятельно, исходя из выделенного под нее пространства. При этом понадобится составить полноценный проект с проведением скрупулезных геометрических расчетов. Также данный этап легко перепоручается профессионалам, которые за определенную стоимость (она может быть достаточно большой) в кратчайшие сроки предоставят результат. В некоторых случаях уместно воспользоваться готовыми типовыми предложениями.
Габаритные параметры
Мини баня для дачи, построенная своими руками, принесет больше радости владельцу и позволит существенно сэкономить на проекте и на оплате сторонних строителей. На стадии проектирования придется обратить внимание, что в проектах мини бань для дачи, как правило, включены не все традиционные помещения, имеющиеся в классических банных комплексах.
Проект мини бани
В большинстве случаев такие постройки лишены комнаты отдыха и прочих излишеств. Остаются лишь функционально важные элементы:
- парилка, совмещающая в себе функции моечной;
- предбанник, в котором раздеваются и оставляют вещи.
Ширину не рекомендуется заужать меньше двух метров, чтобы обеспечить комфортное перемещение внутри. Для высоты подбирается значение, примерно на 10-15 см больше, чем самый высокий предполагаемый посетитель.
Заливка фундамента
Реализация проекта мини бани для дачи своими руками начинается с возведения фундамента. Так как конструкция предполагается с небольшой нагрузкой, то в большинстве случаев обходятся опорно-столбчатыми сваями или неглубоким ленточным фундаментом.
Для небольшой конструкции подойдет ленточное основание
Второй вариант актуальный для рыхлых мягких грунтов. Сваи используют в тех случаях, когда почва достаточно твердая, и копать глубокую траншею не целесообразно. Когда мини баня на даче (видео представлено на странице) будет монтироваться на твердой и сухой почве, то обходятся заливкой облегченного варианта фундамента. Для его формирования укладывают близко друг к другу слой камней по всей площади будущей постройки. Поверх него наносится слой глины и проводится утрамбовывание. После проведения таких работ необходимо выровнять поверхность и далее на нее укладывают гидроизоляционный слой.
Если мини бани для дачи (фото есть на нашем сайте) предполагает наличие ленточного фундамента, то проводят следующие действия:
- в траншею засыпают песчаную подушку до 150 мм;
- укладывают рубероид для гидроизоляции;
- монтируется деревянная опалубка;
- в полость опалубки заливают подготовленный бетон.
Чтобы сделать столбчатый фундамент мини бани для дачи, нужно купить бетонные столбы и закопать их на примерно равном расстоянии друг с другом 0,8-1,0 м. Этот тип основы будет актуальным для каркасной постройки.
Также стоит уделить внимание и свайно-винтовому фундаменту, который гораздо проще монтируется, чем бетонные столбы, но при этом является более прочным основанием.
Расстояние между сваями не должно превышать двух метров по периметру здания. Сваи могут быть ввинчены вручную или с использованием специальной техники (ямобура), при этом они всегда погружаются на глубину ниже уровня промерзания грунта (150-200 см).
Сваи для одного дома площадью до 60 кв.м. два человека могут сделать за 1 день.
Монтаж стен
Облегчить возведение основы для себя можно с использованием каркасного метода строительства. Данный вариант является наиболее экономным в этой ситуации.
Внутренняя сторона установленного деревянного каркаса обшивается брусом. На следующем этапе формируется слой теплоизоляции. Чтобы обеспечить эффективное функционирование бюджетной мини баня на даче, смонтированной своими руками, необходимо правильно подобрать слой утеплителя. В его качестве выступают следующие материалы:
- минеральная вата;
- опилки с глиной;
- керамзит.
Обшивка снаружи блок-хаусом придаст элегантный внешний вид конструкции. Можно подобрать отделку строения в едином стиле с расположенным домиком на территории участка.
При выборе материалов необходимо учитывать их пожаробезопасные свойства.
Водоснабжение и водоотвод
Чтобы мини баня для дачи обошлась недорого, необходимо установить эффективный, но компактный водоотвод. Для него выкапывается невдалеке яма с полезным объемом около 100 л. Этого хватит для 1-2 человек. Внутрь нее можно поставить бочку без дна, чтобы не обваливались стенки. Проводить трубопровод из парилки необходимо с учетом времени эксплуатации мини бани. Для зимнего периода пластиковую канализационную трубу углубляют ниже 0,8-1,0 м, чтобы она не промерзала.
Чтобы обеспечить мини баню на даче горячей водой, нужно недорого купить электрический тэн. Он быстро нагреет небольшой объем воды, что позволит сократить время на растопку печки. Емкости с водой располагают повыше, чтобы пользоваться ею без дополнительной подкачки, а она стекала самотеком. В некоторых случаях монтируют смеситель.
Слив воды также можно подключить к общей домашней канализационной системе. Этот вариант сократит расходы на дополнительное обустройство автономной системы водоотведения.
Сливные коммуникации прокладываются под небольшим углом наклона, чтобы вода не задерживалась в полостях. Для автономной ямы предусмотрен слой керамзита или крупного щебня на дне полости. Сверху необходимо надежно утеплить ее от промерзания. Достаточно укладывать слой грунта или глины.
Монтаж вентиляции
Чтобы мини баня на даче своими руками собранная долго выглядела как на фото, необходимо обеспечить ей качественную вентиляцию. Если этого не сделать, то внутри сформируется неприятный запах, от которого будет тяжело избавиться. При хорошем проветривании внутренняя деревянная основа длительное время будет обладать лечебно-профилактическими свойствами.
Для небольшой баньки подойдет застекленное окошко, которое будет располагаться напротив входной двери. Его также смогут заметить простые отверстия с заслонкой в стене. Если позволяет бюджет, то покупают вытяжное или приточное отверстие необходимых габаритов.
Даже при строительстве каркасной бани нужно уделять внимание теплоизоляции. Не имеет значение, какой будет температура внутри помещения и парилки, если через стены и потолок будет уходить более 50% тепла. Основные точки потери тепла – стены, пол и потолок. Для их утепления используют стандартные теплоизоляторы, но с обязательной гидроизоляцией.
Одноместная конструкция
Наиболее простым вариантом является каркасная мини баня на даче установленная своими руками. Минимальное сооружение по габаритам часто ограничивается длиной в 2 метра. Ширина его редко превышает 1,3-1,5 м. Наружный слой составляет вагонка, а гидроизоляцей является рубероид. Нагрев помещения можно осуществлять мощным калорифером до 4 кВт. Он располагается рядом с каменкой из осколков талькохлорита или базальта.
В качестве нагревательных камней для каменки нельзя использовать известняк, кремний или слоистые песчаники.
Если позволяет пространство, то его можно заполнить печкой на дровах. Небольшое помещение она прогреет очень быстро.
ВИДЕО: Мини-баня. Мечта всех дачников! Сруб 2х3 и предбанник из вагонки
Мини-баня своими руками
Если вы хотите наслаждаться посещением парной, обустроенной прямо в вашем дворе, следует задуматься, какой вы видите будущую конструкцию. Она может быть большой, но тогда потребует солидных материальных вложений – работа трудоемкая.
Альтернативой такому строению является мини-баня каркасного типа, достаточно экономичная модификация парной, которая помогает сократить объем работы, никаких специальных знаний для изготовления не нужно, поэтому со строительством справится даже новичок.
Среди преимуществ каркасных бань – помещения совершенно не проседают в грунт, чего не скажешь о русских деревянных парных. Применение современного и высококачественного изоляционного материала позволит сохранить строение легким и одновременно устойчивым.
Важный минус мини-бань на каркасной основе – влага проникает в пустоты и забивается в щели конструкции. Таким образом, все дожди и снегопады придется прочувствовать на себе и постоянно бороться с излишней влажностью внутри самодельной комнаты.
Пароизоляция и теплоизоляция
Из чего бы ни была сделана баня, какие бы материалы ни использовались при строительстве, каждая парная имеет ряд слабых и сильных сторон. От качества пароизоляции в каркасной бане зависит образование конденсата при принятии банных процедур в морозную погоду.
Конденсат – враг многих строительных материалов, накапливаясь, он разрушает целостность поверхностей и способствует появлению грибков и плесени. В некоторых случаях стены буквально «цветут» зеленоватым мхом, находиться в такой бане опасно для здоровья, если это уже произошло, необходимо как следует высушить комнату и посоветоваться со специалистами, как избавиться от плесени. Чаще всего строители рекомендуют вскрыть внутренний слой отделки, тщательно зашпаклевать все щели, устранить течь в крыше, по углам, и только после этого приниматься за новую обработку стен своими руками.
Чтобы вам не пришлось столкнуться с подобными неприятностями, следует предварительно позаботиться о хорошем уровне пароизоляции:
- Каркасная мини-баня своими руками может обрабатываться пергамином или рубероидом, в продаже также имеются специальные изоляционные пленки. Материалы продаются в рулонах, рулон пергамина весит до 15 кг, поэтому учтите этот момент при транспортировке. Пергамин фиксируется между внутренним слоем обшивочного материала и непосредственно утеплителем.
- Построенная мини-баня своими руками невозможна без качественного теплоизоляционного материала, который позволит удержать высокую температуру внутри парной и обеспечит высокий уровень герметичности.
Строители рекомендуют присмотреться к минеральной вате и стекловолокну, совершенно безопасным для здоровья человека. Они отличаются высокими свойствами теплопроводности, которая в 3 раза меньше, чем у дерева.
Какое дерево лучше выбрать
Во-первых, древесина должна быть хорошо просушенной, выбирайте высшие сорта. Чаще всего для парной заготавливают ароматную липу, благотворно действующую на органы дыхания, осину, или лиственницу. Сосна считается привилегированным материалом, испокон веков дерево славится целебными свойствами, которые способствуют излечиванию множества заболеваний и расслабляют нервную систему.
Те, у кого мини-баня построена из перечисленных типов древесины, оставляют хвалебные отзывы на форумах и разных тематических сайтах, собственными примером убеждая других в износостойкости каркаса и низких показателях теплопроводности.
Для обустройства стен парной предпочтительно использовать доски, толщина которых варьируется в пределах 20-30 мм. Обшивка внешней стороны конструкции предусматривает применение лиственных и сосновых досок, к внутренней обшивке никаких ограничений не предъявляется.
Перед тем как обшивать баню, следует аккуратно разместить пергамин, фольгированную бумагу или пароизоляционный пленочный лист. Не удивляйтесь, если при укладке рубероида он начнет источать неприятный запах – это нормально, после проветрите помещение, и запах уйдет. Делайте акцент на обшивке внутренней плоскости в вертикальном направлении, обрезайте и подгоняйте доски по размерам, выбирайте паз или четверть.
Пошаговая инструкция по сборке мини-бани
Каркас мини-бани должен быть жестким и крепким, ведь именно такое основание – гарантия долгой службы парной на радость владельцу. Добротный каркас способен выдержать обшивку досками, от этого он еще больше укрепится. Сборка каркаса состоит из последовательного соединения стоек, ригелей и обвязок.
- Начните с цокольной обвязки. Подготовьте доски с сечением 50 × 100 мм, покройте тонким слоем качественного антисептического состава, который препятствует образованию на поверхности древесины грибка, плесени, а также станет защитным барьером перед возможным попаданием влаги на материал.
- Любой монтаж подразумевает предварительную разметку линий конструкции, и мини-баня, сделанная своими руками, не исключение. Ориентируясь на проект и подробные чертежи, наметьте, где будут размещаться лавки, котел, каменка, печь. Выложите доски по внешнему периметру настенной плоскости, а по углам зафиксируйте поверхность при помощи гвоздей. Соединять цокольную обвязку необходимо, концентрируя внимание на опорах.
- Теперь, используя строительный уровень, сверьтесь с горизонтальностью укладки материала. Если видны какие-то недочеты, избавьтесь от них, разместив на нужных участках прокладки, полученные из совмещенных слоев толя или некрупных кусков уже обработанной доски.
- Что касается сборки стен для мини-бани, вся работа происходит на ровной поверхности. Между осями отступайте шаг 0,6 м, если в стене размещается проем, зазор увеличивается еще на 0,4 м.
- Приступайте к образованию добавочной стойки в месте, где рама настенной конструкции соприкасается с перемычками или остальными стенами. Сборка фиксируется гвоздями. Когда рама уже готова, проверьте ее прямоугольность, это важно.
- Соедините две стены в 1 угол, сверьтесь с вертикальностью устройства и зафиксируйте временными подкосами. Другие рамы устанавливаются с учетом прямого угла и тоже обрабатываются подкосами. Надежность и хорошую устойчивость обеспечит скрепление досками нижних и верхних обвязок. Покройте штукатуркой внешние стены.
Чем отделать мини-баню внутри
Не наносите на внутреннюю обшивку мини-парной олифу, при повышении температуры вредные пары выделяются в воздух. Потолок обейте досками, уложите пароизоляционный и утеплительный материал.
Когда помещение уже готово, желательно разделить его на несколько комнат, каждая из которых может отличаться своей функциональностью.
Мини-баня для дачи: как своими руками построить маленькую парную
Хотите обзавестись баней, но ваш дачный участок настолько мал, что не позволяет соорудить парную стандартных габаритов? Лучший выход из ситуации – мини-баня. По уровню функциональности и комфорта она ничуть не уступает традиционным сооружениям, а вот места занимает намного меньше и не требует серьезных затрат. К тому же, маленькую парную для дачи без проблем можно сделать своими руками – далее мы расскажем, как воплотить такую задумку в жизнь.
Проектирование и фундамент
Даже маленькую баню невозможно построить без хотя бы простейшего проекта, поэтому первая стадия работы – составление план-схемы. Здесь нужно обозначить расположение основных объектов и их габариты.
Как правило, в бане выделяют четыре зоны:
- предбанник – достаточно пространства площадью 1,5 х 2 м;
- комната отдыха – около 2 х 2 м;
- душевая – не менее 1 х 1 м;
- парилка – не более 1,5 х 2 м.

План маленькой бани для дачи
Таким образом, получаем минимальные габариты бани: длина – 6 м, высота – 2 м, ширина – 2,5 м. Этого вполне хватит для обустройства комфортной и практичной парной.
Вторая стадия работы – заливка фундамента. Определяясь с типом основания, ориентируйтесь на тип грунта участка.
Если мини-баня возводится на твердом и сухом грунте, можно ограничиться облегченным фундаментом: по всей площади будущей бани уложите плоские камни, покройте их глиной, утрамбуйте, а сверху обустройте плотный слой деревянных брусьев и обработайте их гидроизоляционным битумом.
Если же на вашем участке мягкий грунт, закладывайте ленточный фундамент: выкопайте траншею, поочередно заполните ее слоями песка и щебня, утрамбуйте основание и закрепите сверху армирующую сетку, а затем залейте котлован цементным раствором.
Важно! Ленточный фундамент обязательно нужно покрывать слоем гидроизоляции. Самый простой вариант – листы рубероида.
На почве с большим содержанием песка под миниатюрную баню можно уложить фундамент из бетонных блоков. Для облегченной конструкции хватит 10 блоков стандартных габаритов 20 х 20 х 40 см.
Сооружение каркаса бани
Лучший метод возведения мини-бани – каркасный. Он легкий, быстрый и экономичный. Для сооружения каркаса вам понадобится:
- бруски 5 х 5 см;
- доски толщиной 2,5 см;
- гидроизоляционная пленка или фольга;
- теплоизоляционный материал.

Сначала из брусьев собирается каркас, соответствующий своими габаритами и конфигурацией ранее разработанному проекту. Изнутри каркас обшивается досками. Для соединения элементов между собой используйте всевозможные анкеры и разноформатные саморезы. Поверх досок монтируются изолирующие материалы: в качестве теплоизоляции можно использовать минвату, керамзит или опилки, а в качестве гидроизоляции – битумные или полимерные мастики. Изолировать нужно не только стены, но и пол, и потолок.
Совет. Тепло- и гидроизоляцию потолка желательно дополнительно закрыть щитами наката – рядом деревянных досок.
После изоляционных процедур нужно позаботиться о кровле. В качестве покрытия можно использовать профнастил. шифер или металлочерепицу: сначала монтируйте на каркас стропильную систему, а уже на ней саморезами закрепляйте кровлю. Сооружая крышу, оставьте проем для дымохода.
Снаружи мини-баню можно обшить блок-хаусом или вагонкой – эти материалы придадут конструкции эстетичный вид.
Обустройство коммуникаций
Финальная стадия работы над мини-баней – обустройство необходимых коммуникационных систем.
Подача и слив воды. Подачу можно сделать самотечной:
- Подготовьте два бака по 50 л, шланг и трубу со смесителем.
- Бак для горячей воды установите на 0,5 м ниже, чем бак для холодной.
- Шлангом соедините между собой баки: один конец зафиксируйте в нижней зоне «холодного» резервуара, второй – в верхней зоне «горячего».
- Дополнительно соедините резервуары трубой со смесителем на конце.
Для обеспечения слива воды понадобится дренажная система:
- Выкопайте около парной дренажный колодец.
- Сделайте в полу бани отверстия для слива.
- Подведите к отверстиям трубы, монтируя их с небольшим уклоном.
- Направьте трубу в дренажный колодец.

Система нагрева воды. Для нагрева воды можно использовать мини-печку или ТЭНы. В первом случае нужно сначала установить прибор, а затем в его самом горячем месте, обогнув основание дымохода, монтировать U-образную металлическую трубу: подающий конец трубы следует расположить на корпусе, а выходящий – на 5 см выше. Во втором случае необходимо установить ТЭНы под «холодным» баком и соединить их с системой подачи воды шлангами и трубами.
Вентиляционная система. Для обеспечения вентиляции в маленькой бане достаточно в стене напротив входа выполнить отверстия с заслонкой.
Мини-баня – выбор тех, кто не хочет из-за скромных габаритов своего дачного участка отказываться от полноценной парной. Как видим, построить ее своими руками не составляет труда: фундамент, каркас, коммуникации – вы успешно справитесь с этими задачами, если будете следовать простым рекомендациям и правилам.
Мини-баня своими руками: видео
Мини-баня для дачи: фото










Источники: http://www.portaltepla.ru/banya-i-sauna/mini-banya-dlya-dachi-svoimi-rukami/, http://banyaprofi.ru/planirovki/mini-banya-svoimi-rukami.html, http://dachadizain.ru/postrojki/banya/mini-banya-dlya-dachi.html
v-banyu.ru
преимущества и недостатки, проекты, как построить маленькую парную самому
Желание иметь собственную баню возникает у многих людей. Однако не всегда их возможности соизмеримы с планами. Зачастую помехой для постройки является нехватка свободного пространства на дачном участке. Альтернативой в таких случаях выступают малогабаритные помещения. Строить мини-баню своими руками – несложное занятие.

Такие бани ничем не хуже аналогов с большой площадью. Плюсом их применения будет экономия места на участке. И денежных затрат уйдет намного меньше, чем на возведение традиционных бань. Немалое преимущество – легкость строительства таких конструкций. Мини-парную по силам возвести одному человеку, даже если он новичок. Главное – соблюдать правильную последовательность.
Проекты мини-бань
Предварительно спланированная документация позволяет выбрать удобное место для расположения мини-помещения. Сегодня наиболее востребованными проектами маленьких банных помещений являются следующие варианты:
- Проект 3х4. Он самый экономичный в плане затрат. Прекрасно подходит для участка небольшой площади. Такую малогабаритную баню можно построить за 3-4 дня. В ней предусмотрены парилка, моечная и комната отдыха. В моечной есть место для монтажа душа с поддоном. При небольших размерах такое помещение достаточно вместительно. Его плюс – возможность перепланировки. Можно менять назначение комнат по своему усмотрению.

- Проект 3х6. Согласно ему, помещение делится на три комнаты. Все они одинаковы по параметрам. Перед такой баней можно соорудить просторную террасу. В качестве строительного материала применяется брус. На возведение банного помещения уйдет примерно 9 дней. В такой бане предусмотрен теплый пол из двух слоев. Кровельная система монтируется с применением ондулина.

- Проект 4х4. Состоит из 3 частей. Для комнаты отдыха отведена площадь 2х4 м. Несмотря на это, она выглядит просторно. В комнате предусмотрены 2 окна с двойными стеклопакетами. На парилку и моечную отведено по 2х2 м от общей площади. В таких помещениях могут разместиться несколько человек.

В мойке можно установить душ. В этой комнате лишь одно окно размером 0,5х0,5 м. При желании хозяева помещения могут внести изменения в проект, поменяв расположение дверей и окон. Помещение возводится высотой 2 м. Данный проект можно назвать наиболее популярным среди всех имеющихся. Построить такую баню реально за неделю. В соответствии с ним сначала возводится фундамент.
Что необходимо для возведения
При строительстве мини-бани заранее подготавливаются инструменты. Желательно предварительно составить список того, что потребуется вам в течение рабочего процесса. Между ручными и электрическими аналогами одного инструмента лучше выбрать последние. Понадобятся:
- бетономешалка;
- уровень;
- лопата;
- кельма;
- ведра;
- тачка;
- столярный инструмент для опалубки.
При возведении стен и кровельной системы необходимы:
- бензо- или электропила;
- дрель либо перфоратор;
- шуруповерт;
- электрический лобзик;
- топор;
- электрорубанок;
- молоток;
- добойник;
- зажимы и струбцины;
- степлер строительный;
- напильник.
Издавна было принято строить бани из дерева. Но сегодня основной материал может быть и другим. Технологии строительства:
- каркасно-щитовая;
- каркасная;
- из оцилиндрованного бревна или бруса;
- из профилированного бруса;
- из кирпича;
- баня-бочка.
Для расчета материалов можно взять для примера конструкцию 3х2,5 высотой 2,1 метра. Строение состоит из предбанника и парилки. Для его строительства потребуются:
- брусья с сечением 10х10 см, длина – 3 м – 25 шт;
- обрезные доски толщиной 2 см – 1,5 куб. м;
- обрезные доски для пола толщиной 4 см – 0,3 куб. м;
- пенопласт толщиной 10 см – 33 кв. м;
- брусья для стропил 10х5 см, 2 м в длину – 8 шт;
- 2 баллона монтажной пены;
- цемент на фундамент – 4 мешка по 50 кг;
- шифер, рубероид или черепица – 15 кв. м;
- вагонка для обшивки – 0,37 куб. м;
- алюминиевая фольга для пароизоляции – 20 кв. м;
- сайдинг – 23 кв. м;
- кирпичи для печи – 250 шт. либо ТЭН;
- дверка, которая закроет печь – 1 шт.
Мини-бани из досок строят аналогично каркасным, за исключением одного обстоятельства: для обшивки наружных стен применяется доска, а не ОСП.
Мини-бочка – это тот вид бани, который легче приобрести, нежели строить. Внешне простая, но на самом деле это очень сложная конструкция.
Строительство мини-бани своими руками
На каком бы проекте ни остановился выбор хозяев будущей мини-бани, претворение его в реальность требует последовательности и продуманности выполняемых действий. В зависимости от того, из какого материала будет возводиться помещение, каждый из этапов строительства может иметь свою специфику выполнения.
Подготовка места и фундамент
Поскольку мини-бани отличаются незначительным весом, то можно для них выбрать фундамент легкого образца. Вполне подойдет столбчатый тип либо винтовые сваи.

Выбор места для возведения банного помещения и типа фундамента – задачи, тесно взаимосвязанные. Основание должно быть подходящим для грунта того участка, на котором планируется строительство.
Если почва твердая и сухая, можно ограничиться облегченным фундаментом, уложив по всей отведенной под баню площади плоские камни. Затем следует покрыть их слоем глины, утрамбовать. Сверху уложить деревянные брусья и обработать их битумом для гидроизоляции.
При мягком грунте предпочтителен ленточный фундамент. Для него выкапывается траншея, поочередно заполняется слоями песка и щебня. Затем нужно утрамбовать фундамент и зафиксировать сверху армирующую сетку. Следующий этап – заливка цементным раствором. Важно не забывать о необходимости гидроизоляции. Для этого можно использовать листы рубероида.
Утепление стен
Для утепления строения хорошо подходит пенопласт. Также необходимы пароизоляционные материалы.
Для строительства бань применяется любое сырье: кирпичи (к примеру, пеноблоковые), доски, брус. Наиболее легкой считается каркасная технология. Она строится за считаные дни. Для ее возведения необходимы брусья размером 5х5 см, доски толщиной 2,5 см, гидроизоляционная пленка или фольга, материал для теплоизоляции.

Сначала осуществляется сборка каркаса соответственно установленным в проекте параметрам. Для соединения отдельных его частей применяются анкеры и саморезы разных размеров. Сверху накладываются изолирующие материалы. В качестве утеплителя применяется минеральная вата, керамзит. Также можно использовать опилки. Для гидроизоляции подойдут битумные или полимерные мастики.
Кровля
Для покрытия крыши мини-бани применяют профнастил, шифер или металлочерепицу. Первым делом монтируется стропильная система, а затем на ней фиксируется с помощью саморезов кровельный материал. В процессе возведения крыши необходимо оставить проем для дымохода.
Потолок мини-бани
При строительстве каркасной конструкции потолочной поверхности следует уделять внимание не меньше, чем стенам. Применять для потолка рекомендуется те же изоляционные материалы, что и для стен.
Подведение коммуникаций
Подачу воды можно сделать самодельной. Для этого необходимы два бака по 50 л, шланг и труба со смесителем. Бак для горячей воды располагается на 0,5 м ниже, чем для холодной. Обе емкости соединяются между собой при помощи шланга. Один его конец фиксируется в нижней части бака для холодной воды, а второй – в верхней части резервуара для горячей. Емкости соединяются трубой со смесителем.
Проблема слива требует решения независимо от размеров помещения. Водоотведение является обязательным этапом рабочего процесса при строительстве помещений такого рода. Для слива воды необходима дренажная система. Баня не является часто посещаемым помещением, поэтому и расход воды в ней незначителен. Установка дренажной системы не потребует больших финансовых затрат, она проста в эксплуатации и уходе. Ее сооружают путем выкапывания около парной колодца. Затем в полу бани делается отверстие для слива. К нему подводятся трубы, которые монтируются с небольшим уклоном. Затем трубу направляют в дренажный колодец.
Также необходимо устройство приямка для сбора воды и гидрозатвора для защиты от запахов. Для дренажного колодца обычно применяются такие строительные материалы, как щебень, гравий, песок и керамзит. Это сырье является своего рода фильтром. В почву вода будет попадать очищенная от различных загрязнений.
Эксплуатация бани без дренажного колодца, когда водоотвод направлен прямо в канаву за пределы участка, запрещена законом!
Желательно применение септика для слива воды в бане. Благодаря его устройству можно будет одновременно пользоваться водой в моечной, кухне и санузле. Однако это требует немалых финансовых затрат. Расходы бывают оправданными лишь в том случае, если на участке хозяева живут круглый год.
Септик – это система, состоящая из трех колодцев, у каждого из которых свои определенные функции. Первый очищает воду за счет ее брожения. Во втором колодце она фильтруется от различных частиц со специфическим запахом. В третьем вода проходит завершающую стадию очистки. Уже после она попадает в грунт. Все три составляющие септика соединяются между собой чугунными или пластиковыми трубами. В процессе водоотведения обязательна установка водяного затвора. Септик – это настоящая канализационная система.
Для нагрева воды можно применять печку или ТЭНы. В первом случае потребуется установка прибора, а затем монтаж в его самой горячей точке U-образной металлической трубы. Подающий конец ее должен быть на корпусе, а выходящий – на 5 см выше. Если же для нагрева используются ТЭНы, их устанавливают под баком для холодной воды и соединяют с системой подачи шлангами и трубами.
Отделка мини-бани
Маленькие бани так же, как и помещения с большой площадью, требуют внешней и внутренней отделки. Изнутри их обшивают досками или вагонкой. Для внешней отделки каркасной конструкции применяется блок-хаус, доска либо ОСП.

Окна и двери в мини-бане
Мини-бани ничем уступают просторным помещениям кроме размеров, в них также необходимы окна и двери. Проемы для них делаются в соответствии с разработанным проектом.
Мини-баня является отличным вариантом для людей, не имеющих достаточно свободного пространства или средств для возведения большого помещения. Компактность конструкции никак не отражается на ее функциональности. А построить маленькую баню своими руками можно быстро и легко, следуя рекомендациям специалистов и установленным правилам.
poparimsya.online
Мини-баня для дачи своими руками: как сделать маленькую баньку
С чего начать строительство дачи своими руками?Изготовление фундамента под парилку
Сооружение каркаса мини-бани для дачи своими руками
Обустройство коммуникаций
Отделочные работы
Наличие собственного дачного или приусадебного участка, свой дом позволяют не только обзавестись огородом, но и побаловать себя парилочкой после тяжелой физической работы. Из-за занятости участков под постройки или по причине его малой квадратуры не все владельцы могут позволить себе полноценную парную. Наиболее актуальным выходом, в подобных случаях, является мини-баня для дачи своими руками.
С чего начать строительство дачи своими руками?

Любое строительство начинается с составления проекта, даже если он составляется самим владельцем без базовых знаний в проектировании. План-схема будущей постройки должна включать в себя изображение помещений с планируемыми размерами, сумма которых должна укладываться в отведенном пространстве. Рекомендуется оснащать мини-баню для дачи такими помещениями:
- Предбанником – место, где посетители переодеваются и оставляют одежду с габаритами не менее 1,5 х 2м;
- Комнатой отдыха – габаритами не менее 2 х 2м для комфортного размещения;
- Душевой комнатой для принятия душа после парной с размерами не меньше 1 х 1м;
- Парной с размерами не более 1,5 х 2м.
Исходя из вышеизложенных размеров, параметры участка под небольшую баню для дачи будет составлять 6м в длину и 2,5м в ширину. Высоту потолка подбирают из расчета роста самого высокого предполагаемого посетителя с добавлением 10 – 15см. Какая бы ни была дача, ширину постройки не следует делать менее 2м, иначе в ней будет неудобно перемещаться.
Изготовление фундамента под парилку

Любая дача характеризуется определенным типом грунта, на котором вы планируете своими руками возводить здание. Для плотных сухих грунтов достаточно сформировать облегченный фундамент из слоя камней, поверх которых засыпается слой глины и утрамбовывается. Устанавливается гидроизоляция и деревянное основание.
В мягких и рыхлых грунтах целесообразно изготавливать ленточный фундамент своими руками, при этом выполняется такая последовательность действий:
- На даче разрабатывается траншея необходимой глубины;
- На дно укладывается подушка из песка;
- Формируют слой гидроизоляции у стен;
- Устанавливают опалубку из досок или других материалов;
- Заливают в траншею подготовленный бетон.
Еще одним видом основания под парилку своими руками может стать столбчатое основание, для которого подойдут бетонные или деревянные столбики, устанавливаемые на даче. Деревянные подойдут для легких конструкций, а бетонные для более тяжелых. Устанавливают столбцы на расстоянии от 0,8 до 1м, глубина закапывания или заливки составляет от 0,5 до 2,5м, в зависимости от типа грунта.
Актуальной заменой столбикам может стать свайный фундамент, формируемый металлическими сваями, которые ввинчиваться и вручную, и при помощи спецтехники.
Сооружение каркаса мини-бани для дачи своими руками

Из-за удаления от города, дача предопределяет использование каркасного метода для строительства бани своими руками как наиболее подходящий вариант. Так как он не требует большого количества материалов и достаточно быстро реализуется. Для каркаса и самой постройки вам понадобятся такие материалы:
- Гидро- и термоизоляционные материалы для мини-бани для дачи своими руками;
- Брус размером 5 х 5см;
- Доска толщиной не менее 2,5см;
- Шифер, профнастил или профиль для крыши;
- Крепежные и фиксирующие элементы.
Свой процесс строительство начинает с каркаса, предварительно дача в соответствующем месте очищается от поросли, мусора и прочих мешающих элементов. Размеры каркаса подбираются в соответствии с проектом. Его внутренняя часть зашивается досками, поверх которых укладывается слой термоизоляционного материала и гидроизоляции. Для повышения КПД бани защита от потери тепла и попадания влаги должна охватывать не только стены, а и пол с потолком. Для изготовления крыши, к каркасу монтируются стропила, на которые укладывается кровельный материал.
Обустройство коммуникаций
Для нормального функционирования бани дача должна оснащаться системой водоотведения для этого владелец выкапывает свой сливной колодец и прокладывает к нему сливную систему. Для удобства дренажный колодец располагается недалеко от парной. В полу бани разрабатываются отверстия для сливов. Отверстия и колодец соединяются трубами под уклоном для формирования естественного стока.
Систему подачи воды лучше сделать самоточной. Для этого понадобится два бака, емкостью около 50л каждый. Для горячей воды бак устанавливается на 0,5м ниже и оснащается тэном или печкой для подогрева. От каждого бака отводится труба к смесителю, расстояние до которого должно быть таким, чтобы рука посетителя свободно доставала без необходимости тянуться.
Электроснабжение парной обустраивается в соответствии с требованиями ПУЭ — закрытыми герметичными светильниками с целью предотвращения травмирования посетителей электротоком.
Вентиляция в мини-бане для дачи может выполняться посредством отверстия с заслонкой в стене напротив входа или застекленным окошком.
Отделочные работы

На даче вы сможете выполнить отделку своими руками, для этого необходимо подобрать наиболее подходящий материал – доска, профиль, вагонка, пластик (может пострадать от высоких температур) и т.д. Главная цель отделочных работ – добавить завершенности готовой конструкции, облагородить парилку, а также создать защитный слой от агрессивных воздействий, разрушающих конструкцию.
Для отделки внутренней части самой парилки используются лиственные породы древесины, что позволяет предотвратить выделение смол при нагревании и делает процесс более полезным. Применение клеенного бруса в парной также не рекомендуется, так как клей при нагреве будет выделяться и попадать в воздух. Предбанник или моечная может отделываться и хвойными породами.
Для отделки печи лучше использовать керамогранит или камень, который закрывается деревянным щитом, чтобы рука или другая часть тела случайно не коснулась раскаленных элементов.
Монтаж деревянной вагонки выполняется на обрешетку, в которую можно помещать дополнительный слой утеплителя, если это необходимо в соответствующем климатическом поясе. Для водостока направление реек лучше устанавливать в вертикальное положение.
ru-stroyka.com
Мини-баня для дачи: как сделать маленькую баню своими руками: фото + видео
Хотите обзавестись баней, но ваш дачный участок настолько мал, что не позволяет соорудить парную стандартных габаритов? Лучший выход из ситуации – мини-баня. По уровню функциональности и комфорта она ничуть не уступает традиционным сооружениям, а вот места занимает намного меньше и не требует серьезных затрат. К тому же, маленькую парную для дачи без проблем можно сделать своими руками – далее мы расскажем, как воплотить такую задумку в жизнь.
Проектирование и фундамент
Даже маленькую баню невозможно построить без хотя бы простейшего проекта, поэтому первая стадия работы – составление план-схемы. Здесь нужно обозначить расположение основных объектов и их габариты.
Как правило, в бане выделяют четыре зоны:
- предбанник – достаточно пространства площадью 1,5 х 2 м;
- комната отдыха – около 2 х 2 м;
- душевая – не менее 1 х 1 м;
- парилка – не более 1,5 х 2 м.

План маленькой бани для дачи
Таким образом, получаем минимальные габариты бани: длина – 6 м, высота – 2 м, ширина – 2,5 м. Этого вполне хватит для обустройства комфортной и практичной парной.
Вторая стадия работы – заливка фундамента. Определяясь с типом основания, ориентируйтесь на тип грунта участка.
Если мини-баня возводится на твердом и сухом грунте, можно ограничиться облегченным фундаментом: по всей площади будущей бани уложите плоские камни, покройте их глиной, утрамбуйте, а сверху обустройте плотный слой деревянных брусьев и обработайте их гидроизоляционным битумом.
Если же на вашем участке мягкий грунт, закладывайте ленточный фундамент: выкопайте траншею, поочередно заполните ее слоями песка и щебня, утрамбуйте основание и закрепите сверху армирующую сетку, а затем залейте котлован цементным раствором.
Важно! Ленточный фундамент обязательно нужно покрывать слоем гидроизоляции. Самый простой вариант – листы рубероида.
На почве с большим содержанием песка под миниатюрную баню можно уложить фундамент из бетонных блоков. Для облегченной конструкции хватит 10 блоков стандартных габаритов 20 х 20 х 40 см.
Сооружение каркаса бани
Лучший метод возведения мини-бани – каркасный. Он легкий, быстрый и экономичный. Для сооружения каркаса вам понадобится:
- бруски 5 х 5 см;
- доски толщиной 2,5 см;
- гидроизоляционная пленка или фольга;
- теплоизоляционный материал.

Возведение бани
Сначала из брусьев собирается каркас, соответствующий своими габаритами и конфигурацией ранее разработанному проекту. Изнутри каркас обшивается досками. Для соединения элементов между собой используйте всевозможные анкеры и разноформатные саморезы. Поверх досок монтируются изолирующие материалы: в качестве теплоизоляции можно использовать минвату, керамзит или опилки, а в качестве гидроизоляции – битумные или полимерные мастики. Изолировать нужно не только стены, но и пол, и потолок.
Совет. Тепло- и гидроизоляцию потолка желательно дополнительно закрыть щитами наката – рядом деревянных досок.
После изоляционных процедур нужно позаботиться о кровле. В качестве покрытия можно использовать профнастил, шифер или металлочерепицу: сначала монтируйте на каркас стропильную систему, а уже на ней саморезами закрепляйте кровлю. Сооружая крышу, оставьте проем для дымохода.
Снаружи мини-баню можно обшить блок-хаусом или вагонкой – эти материалы придадут конструкции эстетичный вид.
Обустройство коммуникаций
Финальная стадия работы над мини-баней – обустройство необходимых коммуникационных систем.
Подача и слив воды. Подачу можно сделать самотечной:
- Подготовьте два бака по 50 л, шланг и трубу со смесителем.
- Бак для горячей воды установите на 0,5 м ниже, чем бак для холодной.
- Шлангом соедините между собой баки: один конец зафиксируйте в нижней зоне «холодного» резервуара, второй – в верхней зоне «горячего».
- Дополнительно соедините резервуары трубой со смесителем на конце.
Для обеспечения слива воды понадобится дренажная система:
- Выкопайте около парной дренажный колодец.
- Сделайте в полу бани отверстия для слива.
- Подведите к отверстиям трубы, монтируя их с небольшим уклоном.
- Направьте трубу в дренажный колодец.

Обустройство помывочной
Система нагрева воды. Для нагрева воды можно использовать мини-печку или ТЭНы. В первом случае нужно сначала установить прибор, а затем в его самом горячем месте, обогнув основание дымохода, монтировать U-образную металлическую трубу: подающий конец трубы следует расположить на корпусе, а выходящий – на 5 см выше. Во втором случае необходимо установить ТЭНы под «холодным» баком и соединить их с системой подачи воды шлангами и трубами.
Вентиляционная система. Для обеспечения вентиляции в маленькой бане достаточно в стене напротив входа выполнить отверстия с заслонкой.
Мини-баня – выбор тех, кто не хочет из-за скромных габаритов своего дачного участка отказываться от полноценной парной. Как видим, построить ее своими руками не составляет труда: фундамент, каркас, коммуникации – вы успешно справитесь с этими задачами, если будете следовать простым рекомендациям и правилам.
Мини-баня своими руками: видео
Мини-баня для дачи: фото




sad24.ru
Мини-бани для дачи своими руками
>
>
Мини-бани для дачи своими руками
Из чего и как построить простую баню на даче? ДачаСадовода

Фото мини бани своими руками

Мини бани схема
Строительство каркасной бани

Мини баня своими руками проекты — Баня Дизайн интерьера
#image.jpg
Фото мини бани своими руками

Мини баня своими руками фото
#image.jpg
Мини бани для дачи своими руками фото

Мини-баня своими руками: проекты каркасного типа

Простая баня своими руками фото

Баня своими руками на даче (фото) Своими руками — Как сделать самому

Мини-баня своими руками — постройка мини-бани

Мини баня — оптимальный выбор дачников

Мини бани для дачи своими руками фото

Как построить баню своими руками — Страница 5 из 7 — 2ru2.ru

Мини баня своими руками: закладка фундамента, обвязка, возведения стен, отделка (фото, видео)

Маленькие бани для дачи

Баня на даче своими руками: фото, проекты, разновидности и строительство; из чего и как построить баню на даче?

Мини бани для дачи своими руками
Мини баня своими руками фото

sqezo.ru
6 особенностей планировки мини-бани для дачи [+7 ФОТО]
Стандартная банная постройка имеет габариты 6 на 6 метров. Естественно, далеко не каждый приусадебный участок обладает достаточными размерами для размещения такой бани.
Поэтому единственным выходом из ситуации является уменьшение габаритов. И если при этом учесть все особенности банного строительства, то результат может оправдать все ваши ожидания.
В данной статье мы рассмотрим основные аспекты планирования и возведения мини-бань.

Мини-баня в форме бочки – самый популярный проект таких построек.
О мини-банях
Мини баня для дачи может возводиться по нескольким причинам:
- При недостатке свободного пространства.
- В целях экономии, ведь цена таких построек будет значительно ниже, нежели стандартных.
- Исходя из практичности. Миниатюрные строения оказывают меньшую нагрузку на фундамент, более просты в уходе. Да и для небольшой семьи или одиноких людей нет необходимости в возведении большой постройки.
Мини баня на даче должна обладать функционалом полноценной банной постройки.
Поэтому, приступая к планировке, вам следует учесть несколько нюансов:
- Если вы планируете использование бани в зимний период времени, то здесь следует предусмотреть помещение для раздевалки.

На фото – миниатюрная постройка, включающая парную и моечную комнаты.
- Если же планируется сезонное использование постройки, а места на участке совсем мало, то можно возвести однокомнатную парную, которая будет включать только парилку. Это отличный вариант в том случае, если невдалеке находится естественный водоем, где можно ополоснуться в прохладной воде после парных процедур.
- Если водоема поблизости нет, то желательно предусмотреть в бане минимум два помещения: парную и моечную, где устанавливается купель.
Планировка строения
Любой проект должен начинаться с плана постройки.
Рассмотрим, какие нюансы должно учитывать планирование мини-бани:
- В первую очередь вам нужно знать об особенностях планировки традиционных русских бань.
Они включают в себя такие помещения:
- Предбанник, который выполняет функцию раздевалки и места для хранения дров.
- Комната отдыха, где устанавливается стол со стульями для проведения чаепитий.
Совет! Мебель в комнате отдыха должна быть деревянной и лишенной какой-либо обивки. В противном случае, под воздействием повышенной влажности мягкая мебель быстро потеряет свой привлекательный внешний вид.

Размеры парной в миниатюрной бане.
- Парная, которая является основным банным помещением, включая печь и лавку для принятия процедур.
- Моечная, где проводится контрастный душ.
- Чаще проекты бань предусматривают объединение прихожей и комнаты отдыха.
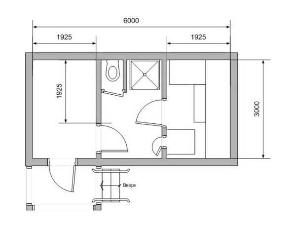
К примеру, планировка строения 2,5 на 6 метров предусматривает наличие таких комнат:
- Комната отдыха – 2,5 на 2,5 метров, чего вполне достаточно для размещения небольшого столика на четверых.
- Их комнаты отдыха вдоль левой стены строения идет узкий коридор, шириной 0,5 метра. Из него можно войти в парную и моечную комнаты.
- Парная занимает 2 на 2 метра, чего вполне достаточно для принятия процедур одним человеком.
- Моечная, соответственно, имеет площадь 1,5 на 2 метра. Здесь устанавливается деревянная бочка с водой для принятия охлаждающих процедур.
- Если отказаться от прихожей в бане такой планировки, то получится строение, площадью 3,5 на 2,5 метра, которое является весьма компактным и обладает при этом полной функциональностью банной постройки.

План постройки 6 на 3 метра.
Совет! Бани без комнат отдыха – это отличный вариант для пристройки к дому. Тогда чаепития и посиделки можно проводить в гостиной.
Фундамент
Для любой, даже миниатюрной постройки, необходим надежный фундамент.
Он может быть двух видов:
- Столбчатый.
- Ленточный.
Поскольку наша постройка является миниатюрной, то можно смело возводить её на столбчатом фундаменте.
Совет! Столбчатые основания нельзя возводить на неустойчивых грунтах. Поэтому, перед началом работ закажите анализ почв в специализированной конторе.
Инструкция по установке столбчатого основания своими руками:
- Размечаем территорию, чтобы опоры находились под внешними стенами и печью постройки.
- Бурим скважины, глубиной около полутора метров.
- Засыпаем в каждую из скважин смесь песка и гравия (1:1), слоем 15 см.
- Устанавливаем асбестоцементные трубы.

Устанавливаем трубу.
- Вставляем в каждую трубу по 2-4 арматурных прутка для усиления прочности.
- Заливаем трубы и сами скважины бетоном (цемент, гравий, песок – 1:3:5).
- Спустя неделю после заливки устанавливаем на трубы деревянную опалубку для формирования ростверка.
- Вяжем каркас из арматурных прутьев и укладываем его в опалубку.
- Заливаем ростверк бетонным раствором.

Столбчатый фундамент с монолитным бетонным ростверком.
Возведение бани
Наиболее экологичным, дешевым и традиционным материалом для возведения бань является древесина. Готовые проекты мини-бань чаще всего бывают деревянными.
Такие постройки возводятся из бревна или бруса. Брус является более простым в работе, потому его мы и будем использовать для нашего проекта.
Итак, возводим брусовые стены:
- Спустя месяц после заливки ростверка укладываем поверх него два слоя рубероида.
- Укладываем первый брус, проверяя его вертикальность по уровню.
- Раскатываем по поверхности бруса межвенцовый утеплитель для бани (джут, лен, мох).
- Укладываем второй брус.
- Далее строительство происходит по той же схеме.

Укладка межвенцового утеплителя.
Заключение
Мы рассмотрели особенности планирования и строительства миниатюрных банных построек. Как видите, сам процесс создания таких строений не сложен, главное – правильно рассчитать планировку (см.также статью «Дачная баня: строим сами по всем правилам»). Больше информации относительно данной темы можно узнать из видео в этой статье.
Понравилась статья? Подписывайтесь на наш канал Яндекс.Дзен9ban.ru
Садовая мини баня своими руками | Своими руками
Решила рассказать, как можно легко и без особых затрат соорудить садовую мини-баньку – как сейчас говорят, бюджетный вариант.
В ход можно пустить досочки от овощных ящичков. У нас летом 2012 года в тайге бушевал пожар, многие охотничьи избы были уничтожены огнем.
Один наш знакомый рыбак соорудил у себя мини-баньку из обструганных и аккуратно подогнанных досочек от овощных ящиков. Подойдут и обрезки, горбыли.
Два каркаса с расстоянием в 20 см между внутренней и внешней плоскостями -картонные коробки в несколько слоев. Внутренние Размеры – 1,5×1,8 м, высота – 1,9 м. Хозяин говорит, что габариты можно изменять по своему желанию.
Дневной свет проникает через небольшое двойное стекло в крыше. Маленькая печурка сварена из листов железа (3 мм), обложена с боков в четверть кирпича, а на верхнюю железную плоскость положены камни для образования пара.
Топка расположена с улицы. Дымовая труба диаметром 100 мм проходит через бачок (можно цилиндрический, можно квадратный) вместимостью около 3 ведер.
Нижний конец трубы оставлен на патрубок, вваренный в верхнюю плоскость печки. Тепло выходящего дыма одновременно нагревает воду в баке, в нижней части которого установлен кран, а сверху имеется воронка для залива воды.
Бачок верхней своей частью выступает наружу за крышу-потолок и служит противопожарной изоляцией между трубой и деревянными элементами строения. Для холодной воды с улицы у двери также поставлена емкость. Дверь находится в торце удлиненной части. Внутри на разных уровнях устроены две откидные лавки (нижняя – поуже, верхняя – пошире), чтобы посидеть и попариться. Предбанник-раздевалка отделяется раздвижными полиэтиленовыми шторками.
Банька очень скорая, жаркая, а дров требует самую малость. Ее можно где-нибудь на заимке построить, как и сделал наш знакомый рыбак, да и в огороде она хороша будет летом.
Вообще, мы гордимся нашими мастерами. Когда сибиряки уезжают в теплые края, они первым делом строят бани. Местное население по этому признаку и определяет, что новоселы прибыли из Сибири.
Читайте также: Баня своими руками (ФОТО + ЧЕРТЕЖИ) – поэтапное строительство
Садовая мини-баня: чертеж

Альтернативный вариант бани
С вашего позволения приведу альтернативный вариант бани – очевидно, несколько более затратный, но, по моему мнению, заслуживающий внимания. Еще в 80-х годах устроил я небольшую парилку прямо в дачном доме, правда, мыльного отделения не планировал: ведро воды или сугроб во дворе – вот самый дешевый вариант.
Потом пришлось отказаться в пользу мини-спальни. Но уже накопился некоторый опыт, уже ознакомился с разными проектами и,
посетив несколько готовых бань, определился со своей версией. Шесть лет назад я воплотил идею в жизнь, и вот что получилось. Рубленные из бруса или бревен стены – прекрасная классика, но в моем случае проще и дешевле каркасные стены, так как частично используются 6/у материалы, а современные утеплители и пароизоляция вполне могут поднять качество до уровня классики.
Достаток я имею весьма умеренный, поэтому отдаю отчет, что строительство бани, в которой париться придется сезонно, да и то нерегулярно, – удовольствие не из дешевых. Но я даже пошел на некоторые дополнительные расходы, чтобы не ютиться в тесном пред баннике, а кайфовать в просторной комнате отдыха, где есть большой стол для общения с компанией (не только по банному поводу). А еще пусть б/у, но холодильник, телевизор и даже мойка для посуды, а спальное место -само собой.
Такое дополнительное гостевое помещение бывает не лишним, да и просто в жару отдохнуть после обеда в уединенном месте, ощущая легкий аромат березового веника, так хорошо!
Дешево и удобно
Парную не стал делать большой: отдыхаем-то дольше, чем паримся, можно и не всем сразу. Первую печь я делал по чертежам солидного журнала «Наука и жизнь»: камни в дымовой камере, сначала надо натопить, потом только заходить.
Так и мирился с неудобствами, пока не посетил однажды, еще в начале века, баню одного грамотного человека. И настолько она мне понравилась своим совершенством, что я сразу свою переделал по его эскизам и до настоящего времени пользуюсь ею.
Камни сверху, в обогреваемом по бокам и снизу ложе (часть камней заменил роликовыми изоляторами от ЛЭП), а дверки сквозь перегородку из красного кирпича выведены в комнату отдыха с зазорами 10-15 мм. Воздух поступает в горячую зону, ведь обмен необходим, так как в контакте с раскаленными поверхностями выгорает кислород.
Солидарен с Д. Ерофеевым – нужна вентиляция. У меня из-под полка деревянный короб отводит прохладный влажный воздух через потолок, а рядом в потолке отверстие для выхода верхнего воздуха после парения.
Управляются шибером, на чердаке воздух трубой отводится наружу, чтобы конденсат, иней, сосульки не образовались на стропилах. Печь имеет экран вокруг корпуса, защищающий от жесткого излучения, ведь стенки бывают красными и образуются восходящие потоки воздуха, позволяющие снизить разницу температур внизу и вверху.
Топить печь можно в процессе парения, а первый заход лучше делать при не самых высоких температурах, постепенно доводя их до 90-100°.
Не призываю делать самоделки: пожарная инспекция это не приветствует – много пожаров. В торговой сети в основном продаются печи, сделанные по аналогичному принципу. Но они недешевы, так что, если интересует моя конструкция, готов поделиться информацией.
Читайте также: Баня по черному – чертежи и порядовки печки
Душ в кабине
Д. Ерофеев стены в парилке оставил незащищенными, их сушит от конденсата. Я предпочел обшить узкими досками с подложкой из фольги на бумажной основе, соблюдая по возможности герметичность.
Над печью облицевал стены и потолок листами гипсоволокна (не путать с гипсокартоном и не применять асбест!). Этот материал прекрасно подходит для подобных температур и легко обрабатывается. При малом объеме моей парной расход материалов невелик, и о заоблачных ценах речи не идет.
Можно ли водить в баню детей? Нужно! Только в парилке малыши должны находиться недолго: в 5 лет – 5 мин. при температуре 65-70°; после 7 лет – 5 мин., но при более высокой температуре, с 10 лет – до 10 мин. при температуре 80-85°. После парилки нельзя погружать ребенка в холодный бассейн – достаточно просто ополоснуть его тело. Следите за состоянием ребенка, ему должно быть комфортно. Если не нравится – не заставляйте.
Совсем не нравится идея бетонного пола с деревянными, требующими просушки щитами. Гигиеничнее и удобнее установить стандартный душевой поддон, к соединенный пластиковой трубой с септиком, который я устроил, закопав вверх дном худую металлическую 200-литровую бочку.
Стенки кабинки облицевал пластиковыми панелями. Сверху небольшой проем в парилку для вентиляции. Если душевые кабины находят место в квартирах, то и в банях они вполне уместны, если не предполагается, конечно, помыв сразу нескольких человек одновременно.
Судя по предложенной автором статьи схеме, бак горячей воды у него находится на полу. Я баки холодной и горячей воды разместил на чердаке, утеплив и соединив между собой, чтобы упростить их наполнение через поплавковый клапан от сливного бачка. В верхней части бачка горячей воды предусмотрена трубка для отвода образующегося пара и случайного перелива воды.
Оказалось при эксплуатации, что вода перегревается, поэтому я к системе подсоединил дополнительный калорифер, установив его в комнате отдыха (см. схему). Логичным стало и наличие душевого смесителя. Прав- да, в морозы приходится или заполнять систему ведрами, или отказаться от душа. Для слива воды из системы предусмотрен внизу кран.
Я аргументировал свои конструктивные решения. Все, кто посещал мою баню, не находили серьезных недостатков, поэтому я и решил предложить вниманию читателей свое детище в надежде, что кому-то это может помочь разобраться в большом выборе проектов и предложений.
Чертеж калорифера для комнаты отдыха в бане

Альтернативный вариант бани своими руками – трехсекционнный
Я же хочу обратить внимание на то, что баня обязательно должна быть трехсекционной. Перегородки достаточно в полкирпича. Если баню сразу не построить трехсекционной, переделывать потом будет сложно. Если раздевалка, моечная и парная в одном помещении, вы толком не попаритесь, не помоетесь и не оденетесь. У меня баня 3×5 м, летняя, из трех секций. В моечной постоянно горячий душ. В парной поставил пропановый баллон, под ним слабенький тэн – вода горячая и в парилке тепло.
Есть дистанционный указатель температуры. Датчик установлен в парной, а шкала – в предбаннике. Здесь же и топка: очень удобно. Если паримся вдвоем – топлю до 70-80°, а когда приезжают родственники или друзья -до 90-100° (баня-сауна).
Слив пробурил ямобуром – диаметр 1 м, глубина 3 м – и обсадил бетонными кольцами. Печь у меня тоже собственной конструкции. Размер печи зависит от площади и парной. У меня она длиной 50 см, шириной и высотой 35 см. Толщина листа 8 мм. Торцевые листы 35×35 см. Передняя поверхность с вырезом. По бокам, сзади и сверху печь обложена камнями размером примерно с гусиное яйцо. С этой целью приварен короб на общем листе с печью (толщина листа 5-6 см). Промежуток от короба до стен печи 10 см. Размеры листов короба: боковые (2 шт.) – 60×45 см, задний лист – 55×45 см, нижний -60×55 см, толщина 8 мм.
Выход дыма в самом конце печи диаметром 10 см. К выходу приварены два отвода диаметром 100 мм, сваренных между собой. К отводам приварена вытяжная труба (также 100 мм) длиной примерно 5 м. Труба выходит прямо в потолок. Печь устанавливается так, чтобы между полом и печью оставалось расстояние не менее 10 см. Это для того, чтобы жар отдавался парной.
Спереди печь ложится на стену, а задняя часть лежит на подпорке длиной 10 см. Сквозь стену выходит творило. Размеры творила зависят от размера дверки и толщины стены (листы 5-7 мм). Творило нужно обкладывать только красным или огнеупорным кирпичом. Если топить печь дровами, то поддувало и колосник не нужны.
Если топить баню часто, надо раз в год чистить трубу (дымоход). Длина поленьев не должна превышать 25 см. Укладывать дрова надо чуть дальше от дверки, чтобы они полностью прогорали и печь не дымила, это очень важно!
Достоинство моей печи – очень экономична, поскольку вся нагреваемая поверхность обложена камнем, а низ не касается пола.
Баней мы пользуемся более 19 лет и очень довольны.

© Автор: Раиса Александровна г. Стрежевой Томской обл, В.В. Баушев, Р. Ахметов г. Оренбург
ИНСТРУМЕНТ ДЛЯ МАСТЕРОВ И МАСТЕРИЦ, И ТОВАРЫ ДЛЯ ДОМА ОЧЕНЬ ДЕШЕВО. БЕСПЛАТНАЯ ДОСТАВКА. РЕКОМЕНДУЕМ — ПРОВЕРЕНО 100% ЕСТЬ ОТЗЫВЫ.

Ниже другие записи по теме «Как сделать своими руками — домохозяину!»
Подпишитесь на обновления в наших группах.
Будем друзьями!
kak-svoimi-rukami.com






