На чердак люк размеры – Чердачная лестница с люком: Размеры
Утепленный люк на чердак своими руками: чертежи, установка, размеры
Чердак в частном доме необходим как воздух. Это прекрасное хозяйственное помещение, где можно хранить старые или сезонные вещи, пустую тару, банки для консервирования. Не найти лучшего места для сушки трав, грибов, ягод. Комната на чердаке прекрасный вариант летнего отдыха, глубокого сна под аккомпанемент дождя, если чердак оборудован удобным функциональным доступом.
Люк, обеспечивающий проход наверх, должен быть объемным, удобным, но не только. Лестница, по которой осуществляется подъем на чердак, должна украшать комнату, в потолке которой обустроен люк. Очевидно, что банальная стремянка не может считаться таким украшением.
Каким может быть чердачный люк
Чердачное отверстие или люк – дыра в потолке может быть разной, различаться по материалам, из которых изготовлен и особенностям конструкции. Люк на чердак изготавливают из металла или дерева.
Люк из металла отличается надежностью. Но большой вес неподъемной крышки сводит преимущества к минимуму, к тому, же такой люк нужно утеплять, значит увеличивать его вес. Устанавливая металлический люк, следует помнить, что при закрывании его трудно удержать, он может нанести травму, захлопываясь. Добротный металлический вход на чердак должен оснащаться гидроцилиндрами, пружинами, крепиться на прочную основу.
Предпочтительнее деревянный люк. Несмотря на то, что по крепости дерево с металлом не сравнится, деревянный чердачный люк обладает несомненными преимуществами.
Даже не утепленный, он не пропускает сверху холод и препятствует утечке тепла из помещения. Деревянный люк легкий и внешне привлекательный. На чердак с такой дверью может подняться кто угодно без усилий. Да и сконструировать и установить деревянный люк намного проще.
Люк на чердак может иметь разные размеры, по-разному откидываться вверх, опускаться вниз и может раздвигаться. Откидной люк нужно открывать с усилием, что не очень комфортно, то же можно сказать и о падающем вниз люке. К тому же, если люк открывается вниз – как ставить лестницу. Люк для чердак с нижним открыванием предполагает установку раздвижной чердачной лестницы, это конструкция удобная, оригинальная. Наиболее интересен вариант раздвижного входа на чердак, но изготовить его своими руками довольно проблематично.
Какой может быть лестница для чердачного люка
Все лестницы конструктивно одинаковы, но все, же есть различия. Лестница для чердачного люка может быть:
- приставной;
- выдвижной;
- раскладной;
- телескопической.
Приставная лестница это примитивная конструкция, состоящая из ступеней на стойках, выдвижная может складываться как гармошка, раскладная лестница для чердака имеет несколько секций на шарнирах, которые складываются в «книжку». У телескопической детали при складывании входят друг в друга.
Можно использовать откидные конструкции, они не фиксируются на люке, при необходимости их можно сдвинуть в сторону.
Важно! Особое внимание следует уделять не только креплению лестницы, но и упору её ног, чтобы не скользил. Важно планировать комфортный уклон для подъема и спуска.
Устройство чердачного люка
Лаз на чердак состоит из двух элементов, коробки и двери. Конструкция выхода на чердак может оснащаться задвижкой и петлями.
Коробка, является несущим элементом, к ней крепится дверь или люк. Делают коробку из прочного дерева, дуба, березы, осины, лиственницы.
Важно! Изготовление короба из бруса по сути самое надёжное и удобное для монтажа. Брус имеет небольшую остаточную влажность, четкую геометрию, работа с ним не требует сложных столярных инструментов и навыков.
В верхней части бруса по периметру вырезают посадочное место для люка в четверть ширины. Некоторые советуют не делать выемку в брусе, а набивать доски для опоры люка, как лучше – решать мастеру. Коробка состоит из четырех частей, торцы при сборке можно склеивать, если соединение предполагает угол в 45°, но лучше производить сборку, соединяя бруски под углом 90° по системе шип-паз. Места стыковки проклеивают столярным клеем или используют крепеж саморезами, гвоздями. И коробку, и крышку, сделанную своими руками, следует обработать специальной противопожарной пропиткой.
Важно! Начинать надо с тщательных измерений чердачного проема. Правильно посаженный короб – гарантия безопасности.
Короб должен быть не только прочным и надежным. Чтобы человек мог на него облокотиться он должен быть хорошо обработан, облагорожен. Это не банальный лаз в чердачное помещение, это дверь, соответствующая интерьеру помещения в котором расположена.
Те же требования и к люку. Нужно делать так, чтобы через чердачную дверь или люк удобно было не только проходить, но и проносить предметы, вещи, важны правильные размеры. Его конструкция должна изготавливаться с учетом таких требований. Крышка чердачного люка в виде открывающейся створки самой простой конструкции представляет собой раму из бруска сечением 20х40мм, обитая досками или тонкой деревянной рейкой, внутри которой может быть проложен утеплитель. Возможны более сложные конструкции.
Проход на чердак
Где в доме оборудовать место входа на чердак – частный вопрос, который решает каждый в соответствии с планировкой, назначением комнат и собственными потребностями. В деревянном частном доме сделать отверстие в потолочном перекрытии проще. Специалисты рекомендуют выпиливать выход с чердачного помещения между балками. Если размеры не позволяют сделать квадрат, люк можно вытянуть в длину, сделать прямоугольным.
Обустраивать проем в бетонном строении нужно в месте стыковки бетонных плит, чтобы сохранить прочность перекрытия. Сначала рисуют схему на бетоне, коробка люка должна помещаться в проеме, значит должна быть меньше. Затем в углах квадрата при помощи перфоратора высверливают сквозные отверстия, далее режут бетон болгаркой по начерченным линиям периметра, как бы наживляя срез.
Важно! Работать болгаркой следует аккуратно и осторожно, при попадании диска на арматуру велика вероятность его деформации и порчи.
Затем перфоратором сверлят отверстия через 10-15см, разрушая плиту, сбивают бетон, срезают арматуру. Обязательна зачистка неровностей. Просмотр поможет сделать все точно и аккуратно.
Важно! Покупая люк или сколачивая его своими руками, помните, что необходимо сделать небольшой проем (1см) между стенкой и коробом для утепления. Это расстояние нужно заложить в чертежи на предварительной стадии.
Монтаж люка на чердак
Монтаж люка на чердак сводится к закреплению короба в вырезанном проеме. Понятно, что крепить его нужно надежно. Установка люка аналогична установке любой двери.
Сначала крепят коробку, соединяя её стороны с торцами проема забивными анкерами с гайкой, стальными прутами, вбитыми в предварительно проделанные технологические отверстия. Такое крепление необходимо, если дом с бетонным перекрытием.
Важно! Чтобы «примерка» короба к проему была эффективной, положите его на две доски, которые закреплены к потолку, не держать же тяжелую конструкцию на руках. Зафиксировать люк на время его установки, можно устроив его на специальных подпорках, что не вполне надежно.
В деревянном доме можно обойтись без анкеров, использовать для крепежа большие саморезы, гвозди. Важно, чтобы коробка была установлена, ровно посередине проема.
Монтаж петлей на коробку и люк чердака лучше производить при сборке. Сделать своими руками расчет места их установки, в деревянной крышке прорезать углубления, прикрутить навесы. После того, как произведена установка люка на чердак, вернее его коробки, остается на петли надеть крышку от люка.
Видео по теме:
Утепление люка
Следующим этапом следует утеплить люк на чердаке. Это необходимо, чтобы не выстуживать дом в зимнее время года, чтобы не снижать уровень звукоизоляции дома. Для утепления лучше использовать минеральную вату, это натуральный природный утеплитель, экологически безопасный, надежный. Чтобы он служил долго, следует проложить слой пароизоляции. Подробнее читайте в статье: инструкция по утеплению чердака минватой.
Далее утепленный чердачный люк надлежит отделать, придать ему эстетически приятный вид, оснастить механизмом открывания. К примеру, гидроцилиндрами, которые можно приобрести в магазинах. Их использование добавляет комфорта, нужно просто толкнуть крышку и дальше она откроется сама. Конечно, как сделать люк на чердак удобным, какие отделочные материалы выбрать решение остается за собственником, но все, же если уж сделать люк на чердак своими руками, то сделать на пять баллов. В любом случае необходимо не забыть поставить ручку для открывания/закрывания.
Советы и рекомендации
Сделать люк на чердак своими руками в принципе не сложно, хотя можно купить готовую конструкцию и установить ее в доме. Рекомендуемые размеры конструкций, квадрат – 1000х1000мм, прямоугольник 1200х600мм, хотя рекомендации не носят характер обязательных.
Придерживайтесь следующих рекомендаций:
- Если дом деревянный, то прорезать люк на чердак и утеплять его можно прямо в древесине чердачного перекрытия, используя его как коробку.
Навешивать петли можно с любой стороны, как удобно учитывая строение кровли.
- Увеличить прочность крышки изготовленной своими руками можно диагональной распоркой.
- Если чердак теплый, мощного утепления не требуется.
- Выбор лестницы на чердак зависит от конструкции, отделки, главное, чтобы было удобно и красиво.
Видео по теме:
Посмотрите еще статьи:
kryshagid.ru
Люк на чердак и его размеры: разновидности люков и материалы
В домах, где нет мансарды, нередко используют чердачное помещение в бытовых целях. Там можно хранить полезные вещи, выводить коммуникации. Чтобы удобно было попадать на верх необходимо сделать люк для чердака и лучше если он будет внутри дома. Какое оформить и подобрать размеры люка на чердак расскажем в этой статье.
Особенности чердачных лестниц

Какой бы формы и разновидности вы ни выбрали лаз, без лестницы будет сложно обойтись. Если люк из металла или дерева можно легко спрятать в потолке, то при выборе лестницы нужно задумать о планировке помещения. Есть несколько вариантов конструкций:
- Стационарные. Устанавливаются во время строительства дом. Их невозможно перенести или сложить, поэтому особое внимание уделяется конструкции и внешнему виду.
- Переносные. Такая лестница обычно хранится в кладовой и доставляет дополнительные хлопоты. Она не только занимает полезное пространство, но и когда нужно подняться на чердак ее приходится переносить.
- Раскладные. Это самый удобный вариант для эксплуатации в жилом доме. Экономится жилое пространство, не нужно прилагать особых усилий, для того чтобы использовать ее. Единственным недостатком можно считать сложность сборки раскладной лестницы.
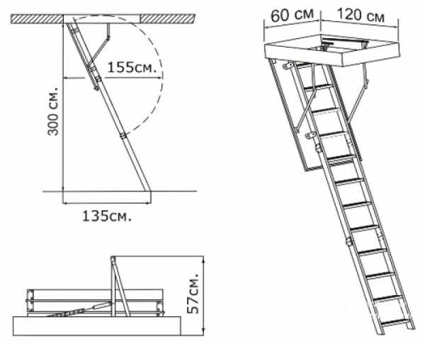
В зависимости от того какой вариант лестницы был выбран и под каким углом ее установите определяют размер люка на чердак. Допустимая ширина колеблется в пределах от 0,7 до 1 метра. Практичный уклон подъемника равен 65°, а удобный — 45°. В первом случае конструкция не займет много места, а во втором вы без труда сможете подняться на чердак.
Для большинства лестниц достаточно 10—15 ступеней без подступенков. Удобной шириной ступеней считается размер 250—300 мм. Чтобы сэкономить материал и не потерять в практичности расстояние между ступенями делают равным 190 мм. Выбирают прочные породы древесины, толщиной 20 мм. Такая толщина способна выдержать вес более 150 кг.
Разновидности люков

В зависимости от проектного решения дома, выбранной лестницы и эксплуатации чердачного помещения применяют различные виды люков. Самыми распространенными конструктивными решениями считаются следующие варианты:
- Горизонтальный. Применяется в тех ситуациях, когда приходится часто поднимать на чердак. Можно сделать самостоятельно, врезав в потолок и установив лестницу.
- Вертикальный. Подходит для зданий с разноуровневыми помещениями. Если одна из комнат не имеет чердачного перекрытия, а совмещена с кровлей. Такой люк встраивают в стену, которая отделяет жилое и нежилое помещение. Редко применяется в частном строительстве.
- Мансардный. Люк совмещается с выходом на крышу. Сложный в реализации проект, который обычно отдают в специализированные студии. Функциональное и красивое решение для домов с мансардами.
- Ревизионный. При небольших уклонах скатов крыши попасть на чердак сложно. Если все же нужно проверять пространство над комнатами делают небольшой люк. Обычно для него применяют либо раскладную, либо переносную лестницу.
В классическом варианте лаз на чердак делают квадратным с белой створкой. При желании можно изготовить или заказать конструкцию, подходящую по цвету к интерьеру дома. Большие лазы оснащают двумя створками, и в некоторых случаях для проникновения на чердак достаточно откинуть одну половину люка.
Рекомендуем к прочтению:
Если чердачное помещение не отапливается необходимо позаботиться о достаточном утеплении лаза. В магазинах реализуют готовые варианты, поэтому рассчитывать толщину утеплителя и собирать люк необязательно.
Популярные материалы для люка

Как уже упоминалось выше для люков на чердак используют два основных материала: дерево и металл. У каждого из них свои достоинства и недостатки, а также тонкости при монтаже.
Металлические конструкции с одной стороны, надежны, а с другой — имеют большой вес. Габариты и масса изделия отталкивает многих домовладельцев. Дело в том, что тяжелая крышка при закрывании может больно ударить и нанести травму. Кроме того, в одиночку установить изделие довольно сложно.
Металл отлично проводит тепло, поэтому, если чердак неотапливаемый, приходится делать толстый слой утеплителя. Это увеличивает общий вес конструкции, из-за чего приходится усиливать конструкцию чердачного перекрытия. Чтобы облегчить эксплуатацию такого люка производители встраивают гидравлическую систему.
Более простой и дешевый вариант — деревянные люки на чердак. Хотя прочность уступает металлу, но дерево имеет свои преимущества. Например, этот материал является отличным теплоизолятором и не пропускает холод зимой. Небольшой вес створок делает вариант безопаснее в эксплуатации. Простая конструкция и доступность материалов позволяет изготовить люк своими руками.
Помимо материала чердачные люки различаются и способом открывания. Некоторые конструкции сделаны так, чтобы створки откидывались вверх. Для таких вариантов необходимо иметь хорошую физическую силу. Зато с ними можно использовать переставные и стационарные лестницы.
Лазы, у которых люки открываются вниз, обычно оснащены раздвижными лестницами. Из-за сложности конструкции такие варианты сделать самостоятельно сложно. Поэтому обычно такие люки покупают в специализированных магазинах. Все же, этот вариант предпочтительнее, так как он экономит пространство в доме и делает чердачный лаз незаметным.
Подготавливаем место для установки

Рекомендуем к прочтению:
Нельзя просто наобум наметить места прорези для монтажа чердачного лаза. В перекрытии имеются несущие балки и если их повредить будут неприятные последствия. То же самое касается и стропильной системы. Специалисты выделили несколько рекомендаций для размещения прохода:
- Если у вас раскладная или переносная лестница, тогда для нее должно быть достаточно места. При расчете обращайте внимание как на высоту конструкции, так и на ширину. Правильно подобранная габариты сделают эксплуатацию подъемника более удобным.
- Чердачный люк устанавливают между балками перекрытия. При правильной сборке крыши вырезать отверстие в потолке не составит труда.
- Выбирайте такое место, чтобы при подъеме на чердак не задевать головой стропила.
- Размеры люка и отверстия в перекрытии должны точно совпадать, иначе появятся щели, мостики холода. Со временем появится угроза разрушения конструкции.
Как правило, чердачные люки продаются уже готовыми к монтажу. В их конструкции часто предустановлена раскладная лестница, и наружные планки сверху и снизу. Помните что монтировать будете вместе с наружным кожухом и от него зависит способ крепления.
После того как приобрели люк снимите с него все размеры и перенесите их на перекрытие. Удобнее всего сделать это со стороны чердака. Просверлите электродрелью контрольные отверстия по углам. Далее, как только была сделана точная разметка, при помощи электролобзика вырежьте отверстие в потолке.
При установке люка не повредите изоляционные слои утепления. При необходимости аккуратно отрезайте необходимое количество пленки, а не рвите ее.
Когда отверстие было сделано работы перемещаются внутрь дома. Снимите кожух с люка и примерьте его к получившемуся проемы. Если ширины или длины недостаточно для установки, вырежьте необходимые размеры. При этом будьте внимательны, чтобы зазоры между перекрытием и люком были минимальными.
Монтаж люка
Удобнее начинать установку с чердака, и для начала нужно закрепить наружную планку. После этого вставьте люк в отверстие и зафиксируйте его. Теперь перейдите в дом и установите нижнюю планку, зафиксировав ее на потолке. Сделайте все так, чтобы люк для чердака был заподлицо с потолком. Осталось только закрепить крышку и вся работа закончена.
Прежде чем начать использовать лестницу проверьте ее несущую способность. Она рассчитана на 150—250 кг нагрузки. Постепенно увеличивайте вес, пока не достигнете максимального значения.
Теперь осталось выполнить декорирование люка для чердака или скрыть его, применив материалы отделки потолка. Если у вас деревянная конструкция, достаточно внутреннюю часть оббить рейками, а если металлическая — покрасьте створки в нужный цвет.
Выполняйте монтаж в согласии с инструкциями, приложенными к купленному люку для чердака. Простое описание поможет вам установить конструкцию самостоятельно. После того как все было сделано вы сможете свободно подниматься на чердак в любое время года.
build-experts.ru
Противопожарные люки на чердак | Чердачные люки
Зачем нужны противопожарные люки с выходом на чердак? При пожаре образуется большое количество горячего воздуха и дыма. Огонь может перекрыть путь эвакуации, и зачастую чердак – единственное место, где можно укрыться. В проем чердака монтируют огнеупорный люк. От огнестойкой двери противопожарный люк отличается лишь размерами. У люка размеры 0,6 на 0,8 м. Чаще всего люк имеет квадратную форму. Через отверстие на чердаке с помощью лестницы можно быстро выбраться на мансарду.
Монтаж чердачного люка
Огнеупорные люки устанавливаются в зданиях с чердаками выше 9 м. В более низких зданиях их установка желательна для пожарной безопасности. Люки могут монтироваться в горизонтальных и вертикальных плоскостях либо для того, чтобы перекрыть доступ к вентиляции и лифтовым шахтам. Люки устанавливают петлями вверх, створка открывается тоже вверх. Установку выполняют с минимальными зазорами, заполняя щели монтажной пеной.

Основу изделия составляет рама, согнутая из листовой стали в профиль. Створка производится также из металлических листов. Во внутренней полости находится негорючий материал. При высоких температурах он не разрушается длительное время и не пропускает горячий воздух в соседнее помещение. В обычное время наполнитель служит в качестве теплоизоляции, не давая помещениям охладиться. По периметру люка прокладывается уплотнитель. Кроме того, люк оснащают термоактивной лентой. При нагревании она выделит пену, которая заполнит собой щели конструкции. Створка закрывается герметично. Люк будет служить преградой для дыма и огня. Предел его огнестойкости должен составлять не менее 30 минут.
В компании «СТРОЙСТАЛЬИНВЕСТ» можно купить противопожарные люки с огнестойкостью 60 минут.
Закажите чердачные люки напрямую от производителя – предлагаем изготовление по индивидуальным размерам, профессиональный монтаж по нормам СНиП.
Модели противопожарных люков от «СТРОЙСТАЛЬИНВЕСТ»
Места установки люков:
Здания с постоянным пребыванием людей: детские сады, дома для престарелых, дома-интернаты, больницы;- Гостиницы, общежития, санатории, пансионаты;
- Многоквартирные дома;
- Учреждения культуры: театры, кинотеатры, музеи, выставки;
- Предприятия торговли: магазины, торговые комплексы;
- Спортивные учреждения;
- Учебные заведения;
- Пожарные депо;
- Помещения высотой от 4,5 до 5 м;
- Технические сооружения, предназначенные для коммуникаций.
Створка люка открывается вручную либо с применением электромеханических устройств. Люки можно использовать для проветривания помещения, а также вентиляции путей эвакуации и коридоров. Специальных требований к чердачным люкам нет. Их так же, как и противопожарные двери, проверяют на огнестойкость в соответствии с ГОСТом.
Чердачные люки от завода «СТРОЙСТАЛЬИНВЕСТ»
В компании «СТРОЙСТАЛЬИНВЕСТ» производят люки стандартного размера 0,7 на 0,7 м. Также возможно изготовление изделий по индивидуальным размерам. Используется холоднокатаная сталь толщиной 1,5 мм. Толщина коробки составляет 84 мм. Створка крепится к раме петлями с закрытыми подшипниками диаметром 20 мм. В полотно монтируется замок NEMEF. Люки отличаются прочным коробом, двойным полотном, пожарной безопасностью и современным внешним покрытием, которое защищает металл от коррозии. Люки легки в эксплуатации и имеют предел огнестойкости 60 минут, который подтвержден в ходе испытаний. Все люки оборудуются маркировочными табличками. К каждому изделию прилагается паспорт.
www.stroistal-invest.ru
чертежи своими руками, размеры Fakro, утепленный в ОБИ и Фактро, установка Велюкс
Чердачный люк с лестницей – отличный вариант, так как конструкция простая в эксплуатации, легкая по весу и не доставит много хлопот при обустройстве. Именно с помощью чердачных лестниц можно с легкостью открыть доступ до верхнего уровня, причем это безопасный и очень удобный способ подъема. Некоторые с помощью люков и раскладных лестниц вовсе экономят пространство, ведь установка обычной лестницы займет не только много места, но и немало материала, а также трудов и времени для монтажа.
Нужны ли чертежи для чердачной лестницы с люком своими руками
Установка чердачной лестницы своими руками вполне возможна, однако, должен быть минимальный запас навыков работы с такими конструкциями.
Необходимо делать лестницу максимально:
- Прочной;
- Безопасной;
- Удобной;
- Устойчивой.
Естественно, можно приобрести готовые лестницы в ОБИ, и нанять мастера по сборке, но это будет несколько дороже по стоимости. Намного лучше сделать лестницы своими руками, ведь для этого просто нужно сделать чертежи, определить конкретные размеры, а также просто следовать инструкции по сборке подобных изделий.
Что касаемо материала, то желательно отдавать предпочтение деревянным лестницам, так как с ним проще всего работать вручную, а смотрятся такие устройства подъема достаточно эстетично и привлекательно. К тому же, у них отличные эксплуатационные свойства. Если грамотно ухаживать за древесиной, то она прослужит длительное время и не принесет проблем.
Оптимальным вариантом древесной породы считается сосна, так как она в точности соответствует таким требованиям, как прочность, долговечность и износоустойчивость и стоит сравнительно недорого.
Для частного дома стоит обустраивать лестницу с одним маршем. Сделать чертеж и саму конструкцию несложно, а благодаря тому, что в ней не нужно создавать площадку, то задача упрощается в несколько раз.
Размеры чердачных лестниц с люком
Лестницы, ведущие на чердак – это разнообразные изделия, которые могут отличаться по форме, комплектации, материалу, а также по способу монтажа и эксплуатации. Неважно, на даче или в доме для постоянного проживания, лестница должна по габаритам соответствовать размерам проема люка. Только в таком случае при эксплуатации не будет проблем.
Очень популярны лестницы из Беларуси, а также модели Велюкс, которые обладают отличным качеством и превосходными техническими характеристиками.
Существуют определенные понятия размеров лестниц, от которых зависит жесткость и тому подобные параметры, и на них стоит обязательно обращать внимание при обустройстве конструкции:
- По высоте складные лестницы, независимо от того, какой материал использовался для их изготовления, металл или дерево, не должны превышать 3,5 м. Излишняя высота делает их более неустойчивыми, а также менее жесткими и, соответственно, прочными. Если пролет большой, то желательно установить лестницу стационарного вида.
- Нужно обязательно взять в учет угол наклона, который будет у лестницы. Он должен колебаться в пределах 60-75 градусов. При угле наклона больше допустимого, лестница становится небезопасной для передвижения, а также будет занимать слишком много места при раскладывании.
- Ступеньки лестницы должны быть параллельные относительно пола, а также каждую нужно снабдить антискользящей бороздкой или накладкой.
Что касаемо люка чердачной лестницы, то он должен быть утепленным, вертикальным по способу открывания. Только в таком случае можно будет избежать сквозняков и проблем при эксплуатации.
Преимущества люка с лестницей на чердак
Независимо от того, какая модель чердачной лестницы будет использоваться, они должны быть безопасными.
Самые популярные фирмы:
- Фарко;
- Velux;
- И им подобные.
Эти конструкции обладают массой преимуществ. Самое главное достоинство состоит в том, что они значительно экономят пространство в помещении. Помимо этого, с их помощью можно безо всякого труда подниматься и спускаться. Они компактные даже в разложенном состоянии. Благодаря тому, что в продаже имеется большой выбор чердачных лестниц, то подобрать изделие, которое будет полностью соответствовать предпочтениям, стоимости и уровню комфортности, совершенно не трудно.
Такие лестницы отлично впишутся в любой интерьер, дизайн и дом, а потому не стоит переживать о том, что ваш дом будет испорчен посредством установки такого механизма.
Важно заметить то, что складные лестницы особенно безопасные, обладают насечками на ступенях, которые исключают скольжение, а некоторые модели вовсе идут со встроенными перилами. Также у раскладных чердачных конструкций есть фиксаторы, которые держат изделие в собранном виде до момента эксплуатации. Чтобы сделать конструкцию максимально безопасной можно, установить наконечники с эффектом антискольжения.
Такие лестницы очень прочные, надежные и, самое главное, недорогие. По весу они могут выдерживать 250 кг. Открыть и закрыть их очень просто, точно так же, как и установить. Для того чтобы начать эксплуатацию, достаточно одного движения руки. Не потребуется использовать специальное оборудование или особо сложные действия.
Выбор люка для чердака с лестницей
При выборе чердачного люка, стоит обращать внимание на конструкцию.
А именно, на:
- Комплектацию;
- Размеры;
- Наличие утеплителя.
Есть изделия, которые уже готовы к установке, и в них есть наружные и нижние планки. Подготовить под такой люк проем намного проще, а значит, не возникнет проблем при обустройстве чердачной лестницы. Разметка делается вручную, а также при помощи таких инструментов, как уровень, желательно лазерный, и рулетка. Стоит заметить, что допустимо монтирование люка, в котором есть наружный кожух. В таком случае, толщина самого люка должна быть несколько меньше толщины перекрытий, чтобы на верхнем уровне люк не выступал и не создавал помеху при передвижении.
Проводя разметку максимально точно, можно исключить нюансы того, что возникнут оплошности и проблемы при монтаже.
При вырезании люка, не стоит забывать про то, что в перекрытиях есть слои гидроизоляции, теплоизоляции и шумоизоляции. Их ни в коем случае нельзя вытягивать наружу, так как это нарушит целостность покрытий и каждого слоя в целом. Их аккуратно загибают, подрезают и фиксируют. Перед установкой люка, нужно проверить соответствие размеров его и проема.
Удобные чердачные лестницы Fakro с люком
На сегодня особой популярностью пользуются чердачные лестницы Fakro. Это конструкции, в которых может быть 3-4 секции. В основном, они изготавливаются из дерева, но возможно наличие металлических элементов.
Для конструкций из натуральной древесины используется сосна, заготовленная в зимний период, благодаря чему изделие более:
- Прочное;
- Долговечное;
- Износоустойчивое.
Сложенное состояние лестницы обладает компактными размерами. Конструкция полностью фиксируется под потолком, а если быть точнее, то под крышкой люка. При приобретении изделия с люком, нужно обратить внимание на наличие особенно прочного замка, который будет держать лестницу. Абсолютно все наборы лестниц Факро имеют в комплекте утепленный люк, что исключает дополнительное прокладывание слоя теплоизоляции, если на втором этаже располагается чердак, а не жилое помещение. На ступенях присутствуют антискользящие выемки, что делает их максимально безопасными. Ступени крепятся по типу ласточкиного хвоста, что упрощает их складывание при отсутствии надобности в эксплуатации. Изделия обладают отличной устойчивостью, так как разрабатываются лучшими специалистами. Модельный ряд лестниц Факро очень большой, а потому есть возможность подобрать конструкцию по нужным размерам, формам и модели.
Обзор: чердачный люк с лестницей (видео)
Эти лестницы станут отличным вариантом для малогабаритных помещений, как для частных, так и для дачных домиков, или вовсе для обычных квартир, если они обладают несколькими уровнями, что сейчас особенно модно.
homeli.ru
Люк противопожарный: конструкция, ГОСТ, размеры, установка
Противопожарный люк – это высоконадёжная металлическая конструкция, сделанная из качественной стали. Огнестойкие металлические изделия применяют для плотного прилегания перекрытия выходов на чердак или подвал, электрощитовых и инженерных коммуникаций, вентиляционных камер и лифтовых шахт.

Люк противопожарный, имеющий высокие показатели защиты от распространения задымления необходим в таких общественных местах, как:
- Больницы, поликлиники и другие медицинские учреждения.
- Административные здания.
- Офисные здания и торговые центры.
- Мотели и гостиницы.
- Кинотеатры.
- Детские дошкольные и школьные учреждения.
Как правильно монтируется конструкция, и кто имеет доступ к ней
Установка противопожарных люков производится исключительно организациями или ИП, имеющими соответствующую лицензию, выданную МЧС. По типу монтажной сборки изделия бывают стеновыми, потолочными и напольными. Из-за отсутствия постоянной нагрузки на стеновые люки толщина дверного полотна и коробки у них меньше.
Потолочные люки оборудованы лестницами: вертикальными или наклонными. Что касается напольных типов конструкций, ведущих в подвальные помещения и подверженных значительной нагрузке, то данные изделия производят с усиленной коробкой и стальным полотном с толщиной, доходящей до 2 мм. Ходить по напольным люкам совершенно безопасно, так как по своей крепости они очень надёжны. Монтируют изделия согласно составленной документации проекта, с указанием типа, предела огнестойкости и взаимодействия с прочим противопожарным оборудованием.
Конструкция и изготовление ППЛ
Изготавливаются огнестойкие люки из гнутого металлического профиля и стальных холоднокатаных листов. Сама конструкция противопожарного люка имеет две основные составляющие – это коробка и дверца, которая навешивается и закрепляется на раму посредством регулируемых петель. При этом полотно может быть изготовлено из одной или двух стальных пластин.
В раме имеется полость, которую заполняют теплоизоляционным материалом. Он также находится и между листами полотна, где само содержимое и порядок укладки его слоёв играют важную роль, потому как благодаря этому обеспечивается необходимая степень огнестойкости.

По периметру рама люка оборудована термоуплотнительной лентой, которая предназначена для усиления защиты от дымового проникновения. При воздействии больших температур она вспучивается и расширяется, благодаря чему ещё более надёжно предотвращает распространение горячего дыма. Сегодня по индивидуальному заказу производители могут изготовить люк противопожарный:
Разные размеры противопожарных люков
Собственно, по своей сути стальные огнестойкие люки – это то же самое, что и металлические двери, но с меньшей площадью. Их размеры варьируются, начиная от 500×700 мм и доходя до 900×1100 мм, что, собственно, зависит от размера
строительного проёма. Люк противопожарный устанавливают во всех случаях, когда нет возможности монтировать дверь, а также при наличии подвальной территории и чердака.

В зданиях таких классов, как Ф1, Ф2, Ф3 и Ф4, разрешается монтаж противопожарного устройства второго типа для выходов на кровлю или же чердак с лестничных площадок. Это значит, что размер противопожарного люка на чердак должен соответствовать параметрам 0,6х0,8 м, при этом он должен быть оборудован раскладными металлическими стремянками. Установка обязательна для зданий с повышенными требованиями к правилам пожаробезопасности или с какой-либо угрозой возгорания.
По закону такие виды конструкций обязательны для установок в массово посещаемых помещениях. Стандартный чердачный люк противопожарный изготавливают из двух профилей с открытым сечением, при этом толщина стального полотна должна быть строго 2 мм. При покупке этот показатель следует проверять с помощью маркировки, подтверждающей соответствие приобретаемого изделия действующим критериям.
Противопожарные люки, ГОСТ и критерии
Стоит заметить, что отдельного регламента, относящегося конкретно к противопожарным люкам, нет. Под ГОСТом подразумеваются методы проведения необходимых испытаний металлических изделий на огнестойкость по существующим предписаниям и стандартам.

Как предусматривают технические характеристики, самый высокий порог пожароустойчивости люка составляет 60 минут. Что касается прилагаемых для открытия усилий, то примерно около 30 кгс можно считать за норму. Установка как потолочных, так и напольных люков допускается только петлями наружу, поскольку конструкция должна открываться именно вверх. Порог минимальной огнестойкости изделия составляет 6 минут.
В каких случаях выручает противопожарное оборудование
Большинство организаций и предприятий, согласно предписаниям законодательства, хранят в архивах своих учреждений громадные объёмы бумажной документации. Как правило, это здания старого типа, в которых годами не менялась электропроводка. По причине этого повышенная нагрузка электросети грозит короткими замыканиями, по вине которых может произойти самовозгорание. Вследствие этого важная документация и прочие дорогие материальные ценности могут быть безвозвратно утеряны.

Менять электропроводку в помещении, взятом в аренду, не рационально, да и ремонт этот может вылиться в огромную копеечку. Но посредством оснащения подобных зданий противопожарными люками их всё-таки можно обеспечить безопасностью.
Обслуживание конструкций
В техническое обслуживание установленных люков входят профилактические осмотры и проверки, которые положено проводить не реже раза в квартал и внепланово после любого аварийного происшествия. Обязательными считаются следующие виды работ:
- Проверка технического состояния доводчика.
- Внешний осмотр люка и проверка состояния его подвижных частей.
- Устранение выявленных неисправностей.
Прочая проверка состояния подвижных частей всей конструкции состоит во внешнем осмотре, очистке от пыли и загрязнений, смазке. Очень важно своевременно устранять различные заедания механизма, которые могут наблюдаться при открытии. Противопожарные люки устанавливают только внутри помещений, где при температуре от -1 до + 40˚С и нормальной влажности срок их эксплуатации будет довольно длительным.

Техника безопасности на службе у человека
Пожар – это разрушительное и страшное явление. И застраховаться от него на все 100% практически невозможно. Но зато вполне доступно существенно снизить риск воспламенения и значительно уменьшить вероятность возникновения огня. И этому поможет правильная и качественная установка противопожарного люка. Грамотный монтаж конструкции может сохранить не только имущество, но и человеческие жизни.
fb.ru
Люк противопожарный 2 го типа для выхода на чердак и кровлю
Описание
Противопожарный люк — это одна из разновидностей противопожарных преград. Его задача состоит в препятствии распространения огня и дыма. Места установки и размеры противопожарных люков определяет СНИП 31-09-97 и уточняет более точно по типам зданий СП 1.13130.2009.
В соответствии со СНИП противопожарные люки необходимо устанавливать:
1. В зданиях классов Ф1, Ф2, Ф3 и Ф4 высотой до 15 м допускается устройство выходов на чердак или кровлю из лестничных клеток через противопожарные люки 2-го типа (Ei-60) с размерами 0,6 х 0,8 м.
2. В качестве аварийного выхода непосредственно наружу из помещений с отметкой чистого пола не ниже — 4,5 м и не выше + 5,0 м через люк размерами не менее 0,6 х 0,8 м.
3. Из технических этажей, предназначенных только для прокладки инженерных сетей, допускается предусматривать аварийные выходы через люки с размерами не менее 0,6 х 0,8 м без устройства эвакуационных выходов.
4. В чердаках зданий, кроме зданий класса Ф1.4, следует предусматривать выходы на кровлю, оборудованные стационарными лестницами, через люки размерами не менее 0,6 х 0,8 м.
5. В зданиях с мансардами следует предусматривать люки в ограждающих конструкциях пазух чердаков.
Теперь видно, что размер противопожарного люка должен быть не менее 0,6 х 0,8 м., при этом мы можем изготовить любой размер люка.
Фактически, конструкция противопожарного люка — это та-же противопожарная дверь только меньшего размера. Двойной притвор, базальтовая вата высокой плотности в полотне и в раме, противопожарный замок, противопожарная ручка, 2 уплотнителя от холодного дыма, терморасширяющаяся лента.
Все противопожарные люки на нашем производстве окрашиваются порошковой краской в любой цвет по шкале RAL. Перед окраской, все люки проходят слой дополнительного фосфатирования, для предотвращения от коррозии.
Чтобы узнать стоимость противопожарного люка в индивидуальной комплектации, обратитесь в наш отдел продаж.
xn——6kcbhenebbadc0ahbf3aqartscavexirxnn8o4e.xn--p1ai
Как сделать люк на чердак своими руками
Практически в любом загородном доме имеется обустроенное чердачное помещение, которое можно выгодно использовать. Чаще всего в нём хранят инструменты, стройматериалы, старые вещи или консервированные припасы, но также его используют и в качестве дополнительной жилой комнаты, если цокольный этаж достаточно утеплён для этих целей.

Обустройство чердачного люка из дерева
В любом случае, чтобы чердачное помещение эксплуатировалось, в него первоначально необходимо попасть. Зачастую вход организуется с уличной стороны, но такой вариант имеет массу неудобств, которые более чем очевидны в холодное время года.
В такие моменты становится ясно, что попадать на чердак было бы гораздо удобнее из внутреннего помещения. К тому же строительство безопасной для эксплуатации уличной лестницы требует больших финансовых вложений. И ко всему прочему, увеличивает риск, что недоброжелатели вздумают взломать замок и попасть внутрь.
Гораздо выгоднее с финансовой стороны и рациональнее из соображений безопасности, не говоря уже об удобстве, организовать лестницу на второй этаж из дома, используя для этих целей специальный люк на чердак, который к тому же может послужить и дополнительным средством противопожарной безопасности.

Конструкция и название элементов чердачного люка
Причём соорудить подобную конструкцию можно самостоятельно без привлечения квалифицированных мастеров.
Вернуться к оглавлениюСодержание материала
Изготовление люка своими руками
Перед тем как начать сооружать люк на чердак своими руками, необходимо продумать ряд моментов, которые будут касаться непосредственно конструкции люка, а также необходимости его утепления. Первое, что нужно продумать – это месторасположение.
Для того чтобы правильно разметить люк на чердак, нужно учитывать особенности кровли:
Место для конструкции необходимо выбрать такое, чтобы утеплённый люк на чердак мог полноценно функционировать, не задевая никаких элементов и не мешая эксплуатации других объектов.

Пример утепленного люка для чердака
При этом нужно учитывать, что к люку будет вести лестница, которая также должна гармонично вписываться в помещение нижнего этажа. В целом люк, вне зависимости от своих особенностей и характеристик, должен соответствовать следующим основным критериям:
- Максимально возможная простота не только монтажа, но и процесса эксплуатации. Механизмы открытия и закрытия люка должны быть лёгкими и не требовать выполнения множества длительных или сложных манипуляций.
- Надёжность конструкция и гарантия безопасности при эксплуатации. Все детали и элементы должны быть хорошо закреплены, крышка обязана полностью открываться и при этом крепко держаться на петлях.
- Дизайн люка и прилегающей к нему лестницы в доме должен соответствовать и гармонично вписываться в общий интерьер, не выделяясь на его фоне.

Дизайн люка вписанного в интерьер чердачного помещения
- Хороший люк, как правило, обладает теплоизоляцией, чтобы в помещении на постоянной основе поддерживался примерно одинаковый температурный режим.
После выбора подходящего места для люка и анализа всех вышеописанных факторов, можно приступать к процессу изготовления.
Давайте рассмотрим, как сделать люк на чердак.
Технология строительства будет состоять в следующем:
- Необходимо собрать раму прямоугольной формы, которая будет иметь равные прямые углы. Для её изготовления лучше всего использовать доски с оптимальной толщиной до 2,5-3 см. Стандартные размеры составляют 60х120 см., но их можно менять в любую сторону, опираясь на личные предпочтения по размерам готового чердачного люка.

Схема для монтажа чердачного люка
- Вторым этапом станет изготовление проёма, который в итоговом варианте должен быть на 4-5 см. больше вырезанной рамы. Такой запас пригодится в дальнейшем для его обшивки и монтажа изоляционного слоя.
- Внутри рамы нужно закрепить дополнительный материал. Если потолок в помещении деревянный, то можно использовать те же самые доски, из которых она и вырезалась. Доски можно заменить фанерой или же древесноволокнистой плитой, которую при необходимости легко покрасить в нужный цвет.
- Пришло время утеплить чердачный люк, для этого крышка изнутри обшивается специальной пароизоляционной плёнкой, а поверх неё прокладывается утеплительная вата или пенополистироловая начинка. Всё это фиксируется деревянными планками и дополнительно закрепляется при помощи универсального клея. Реализуя действия на этом этапе, рекомендуется пользоваться респираторами во избежание несчастных случаев.

Конструкция утепления люка на чердак
- Поверхность люка, находящаяся с обратной стороны, обрабатывается и утепляется точно по такому же принципу, после чего её необходимо обшить фанерой или древесноволокнистой плитой.
- По периметру люка нужно вмонтировать уплотнитель. В качестве его можно использовать любой резиновый материал соответствующей плотности.
- Для люка подойдут стандартные дверные петли, которые необходимо закрепить при помощи шурупов или саморезов.

- Люк устанавливается в готовый проём для него.
- Ручка на люке не является обязательным элементом, но она значительно упростит процесс эксплуатации. Доводчики, защёлки, щеколды, засовы и прочие механизмы можно монтировать по своему усмотрению.

Вариант монтажа ручки для люка и запорного механизма
- Одним из наиболее ответственных шагов является выбор лестницы на чердак. Это касается не только материала, из которого она будет изготовлена, но и разновидностей подобных конструкций. На сегодняшний день существует большое количество вариантов – лестницу можно купить в готовом варианте либо изготовить самостоятельно. Главное требование – высота должна соответствовать расстоянию от люка до пола нижнего этажа. Наиболее рекомендованными считаются варианты с монтажом складной лестницы-трансформера, которая собирается в рабочее состояние только в те моменты, когда планируется её использование, что позволяет эффективно экономить свободное пространство на нижнем этаже.
Установка чердачного люка
Необходимо отметить, что самостоятельное изготовление чердачного люка не является обязательным условием, на современном рынке присутствует множество уже готовых вариантов, которые можно приобрести, после чего останется только вмонтировать люк в проём.
Ввиду широкого ассортимента, диапазоны цен также сильно колеблются и зависят по большей части от материалов, из которых изготовлено изделие. Логично, что металлические люки стоят гораздо дороже своих деревянных аналогов, поскольку отличаются повышенной степенью долговечности и надёжности.
У покупки уже готового люка есть ряд неоспоримых преимуществ по сравнению с вариантом по самостоятельному изготовлению:

Дизайн заводского чердачного люка
- Монтаж легко осуществить усилиями двух людей по инструкции, дающейся в комплекте.
- Параметры лестницы с лёгкостью подстраиваются под необходимые требования, учитывая высоту потолков в помещении.
- На всех покупных моделях замок и сопутствующие механизмы находятся на внутренней поверхности крышки, что делает конструкцию абсолютно незаметной изнутри на плане мансардного помещения.
- Лестница, изготовленная в заводских условиях, отвечает всем требованиям по безопасности во время эксплуатации. Ступеньки сделаны таким образом, чтобы на них невозможно было поскользнуться, что, в свою очередь, уменьшает риск получения травм.

Чертеж с размерами чердачного люка с лестницей
- Все подобные конструкции изготавливаются квалифицированными мастерами, которые предварительно совершают массу сложных расчётов, что делает готовые изделия весьма удобными и компактными.
- Изготавливая люк самостоятельно, не всегда можно заранее оценить внешний вид изделия. У покупной модели дизайн сразу очевиден и понятен, что даёт понимание насколько гармонично конкретное устройство впишется в общий дизайн помещения.
Прежде чем выбирать люк, необходимо тщательно провести целый ряд расчётов. К ним относится высота потолка, площадь помещения нижнего этажа, габариты отверстия под люк, если оно уже имеется. Также потребуется найти ассистента, который смог бы помочь в процессе установки люка, поскольку в одиночку сделать это будет трудновато.

Процесс изготовления самодельного чердачного люка
Последовательность действий должна быть следующей:
- Первоначально вся конструкция поднимается на цокольный этаж.
- Снизу устанавливаются две временные доски, на которые укладывается люк при монтаже. Это действие должно предшествовать закреплению каркаса.
- После того как конструкция была разложена на монтажных досках, её необходимо выровнять, используя для этой цели подпорки.

- Обе части рамы (передняя и задняя) фиксируется при помощи саморезов или шурупов, а все щели и зазоры забиваются любым материалом-изолятором.
- После того как все действия выполнены, можно убирать монтажные доски. Начиная с этого момента, запрещается пользоваться лестницей до завершения процесса установки люком, поскольку это становится небезопасным.

Конструкция для крепления люка
- На боковых механизмах ослабляются крепёжные болты, после чего необходимо разложить лестницу и проверить её на наличие перекосов и прочих дефектов. Если перекосы всё же были обнаружены, то они устраняются при помощи болтов, которые после этого снова надёжно затягиваются.
Готовые покупные люки обычно отличаются лёгкостью монтажа – к ним обычно прилагается инструкция по монтажу и эксплуатации, что позволяет проводить установку даже неподготовленным людям без специальных навыков. Все эти факторы делают чердачные люки привлекательными для большинства людей, обуславливая их растущую популярность.
Вернуться к оглавлениюПротивопожарные люки
Существует и такая разновидность, как противопожарные люки, основная функция которых заключается в препятствовании распространению огня в случае возникновения пожара в доме. В зависимости от качества и индивидуальных характеристик, определяется период времени, на протяжении которого подобные люки не позволяют перекинуться пламени с чердака на нижние помещения или же, наоборот, с жилых этажей на крышу здания.

Чертеж с размерами противопожарного люка
Традиционным материалом для таких изделий является высокопрочная сталь, под которой имеется особая начинка из оснастки, способная отталкивать огонь.
Также большинство моделей имеют специальный уплотнитель, который монтируется по периметру люка, и не позволяет проникать дыму и едкому запаху из горящего помещения в другие комнаты. Кроме того, он защищает и от воздействия высоких температур.
Существуют и противопожарные люки, которые изготавливаются из древесного материала. В этом нет ничего удивительного – подобные изделия обрабатываются специальными лаками и антисептиками, которые обладают огнезащитными характеристиками.
Процесс монтажа противопожарного люка будет отличаться от установки традиционного устройства, поскольку придётся учесть несколько важных моментов:
- Люк обязательно должен быть установлен петлями вверх, чтобы его крышка открывалась строго в чердачное помещение, а не наоборот.

Правильная установка противопожарного люка
- Коробка под такой люк должна быть обязательно усилена, иметь угловую основу и крепиться на специальных петлях. Обычно они идут в стандартном комплекте при покупке люка.
- Учитывая специфику и предназначение люка, в период монтажа необходимо отслеживать все зазоры – их должно быть немного, а в случае возникновения все щели обязательно заполнять огнеупорным материалом.
Оригинальная система открывания чердачного люка
Ручку для люка можно заменить и другой, более оригинальной системой, открывая и закрывая его при помощи специальной верёвки. Для этого необходимо закрепить специальные блоки на стропилах, а в поверхности потолка просверлить отверстие, через которое проводится верёвка или шнур, опускаемый до нужного расстояния.
Верёвка должна оканчиваться крючком или иным элементом, который можно будет надёжно закрепить за настенное кольцо, чтобы зафиксировать положение люка.
Открыть люк при помощи такой системы сможет даже женщина или ребёнок, поскольку он не будет требовать дополнительных усилий. При этом необходимо учитывать, что после утепления люка, он прибавит в своей массе, что незначительно, но усложнит процесс. Поэтому лучше не применять описанные системы на крупных металлических или же иного рода тяжёлых моделях чердачных люков.
planvsem.ru
