Печь для бани своими руками из металла с баком – Чертежи банных печей из металла с размерами
Банная печь из металла своими руками: чертежи + фото
Хорошая банька в своем доме давно стала проверенным средством сохранять здоровье, снимать напряжение и накопленную усталость. В домашних условиях выгодно и удобно использовать банную печь с электронагревом. В доме на природе или на даче лучшим вариантом признана банная печь из металла, работающая на твердом топливе. Сегодня банные печи из металла легко купить, заказать в слесарной мастерской практически на любой вкус, любое топливо и мощность нагрева. Но при наличии смекалки, инструмента и подходящего материала проще и дешевле изготовить банную печь из металла своими руками.

Преимущества такой банной металлической печи неоспоримы:
- Есть возможность «вписать» печь в банное помещение по собственным представлениям об удобстве;
- Малый вес и прочная конструкция банной печи позволяют легко транспортировать даже в собственном автомобиле;
- Конструкция печи позволяет достаточно просто вносить изменения и усовершенствования с минимальными затратами труда и материалов.
Приступая к изготовлению банной печи, стоит определить ее расположение в парной, основные геометрические параметры, исходя из потребностей в нагреве. Чертежи наиболее удачных банных печей из металла можно скачать в интернете, при необходимости сделать свои поправки. Выбирают печь, прежде всего, исходя из удобства использования печью, мощность нагрева принимаем – 1 кг дров на 1 м3 помещения парилки.

Один из наиболее удачных вариантов печки
Для изготовления банной печи не потребуются специальные марки металла, используются доступные сорта листового металла и трубы. Благодаря продуманности конструкции приведенный вариант банной печи из металла реально собрать своими руками, изучив чертежи. Изготовленная по размерам на приведенном чертеже, печь из металла легко прогревает помещение парилки в 15 кубов.
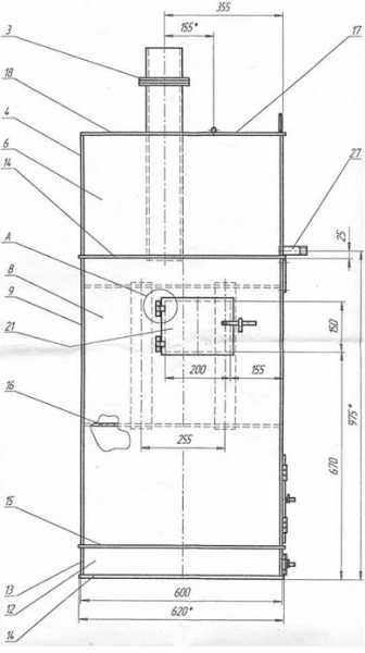
Банная печь разделена на несколько секций, расположенных в одном корпусе – отрезке трубы диаметром 500мм и длиной 1300-1350мм:
- Топочная камера, объемом загрузки до 10 кг дров, находится в нижней части корпуса.
- Каменка, имеющая отдельное отверстие для закладки парного камня и набрызгивания воды.
- Бак с подогреваемой водой. Нагрев происходит через стенку трубы дымохода. Благодаря съемной верхней крышке достаточно просто чистить и обслуживать емкость. Воду можно забирать как через верх, так и используя дополнительный штуцер или кран, вмонтированный в стенку бака.
Кроме основных секций, в конструкции печи использована разделительная камера между каменкой и водяным баком. В этой полости будет интенсивно накапливаться сажа, поэтому через специальное окно, закрытое накладкой, следует периодически ее удалять.

Прежде чем начинать постройку печи, убедитесь в прочности трубной заготовки, отсутствии трещин или локальной деформации металла.
До начала раскройки трубы под банную печь предварительно удалим слой ржавчины и окислов, присутствующих на поверхности металла, с помощью ручного пескоструйного аппарата или щетки для чистки металла. Использовать химические составы на основе фосфорной кислоты не рекомендуется.
Для изготовления банной печки нам будет необходимо:
- Сварочное оборудование и материалы,
- Лист металла толщиной 5мм и размерами 60х350см,
- Фурнитура для изготовления навесов дверок, штуцер или отвод для горячей воды,
- Металлические трубы для выведения газов из топки диаметром 108мм — отрезок в 100см, трубы обогрева каменки диаметром 60мм – четыре отрезка.
Учитывая тот факт, что максимальную опасность для человека представляет угроза отравления угарными газами, разработчиками данной конструкции банной печки были предприняты меры для уменьшения количества сварных швов в топочной части
Последовательность изготовления печи для бани
Размечаем трубу по размерам на чертеже. Из листа металла с помощью газовой сварки или угловой шлифовальной машины вырезаем 6 кругов диаметром 500мм.

Из вырезанных круглых заготовок отбираем две, которые входят внутрь трубы с минимальными зазорами между краями плоских блинов и внутренней стенкой трубы. Эти две пойдут на верхнее и нижнее днище топки.
Размечаем положение верхней крышки топочной камеры на расстоянии 450мм от среза трубы, с помощью мела делаем риски на внутренней поверхности трубной заготовки. Размечаем месторасположение дверцы топочной камеры, поддувала и каменки. Аккуратно вырезаем окошки с помощью «болгарки» — угловой шлифовальной машинки. Вырезанные прямоугольные фрагменты используем для изготовления дверок. Для этого привариваем с помощью электросварки петли навесов в местах крепления дверок.

В круглой заготовке верхней стенки топочной камеры вырезаем четыре круглых отверстия диаметром 60мм и с помощью электросварки ввариваем отрезки жаровых труб, используемых для нагрева каменки. На свободные торцы приваренных труб устанавливаем заготовку верхней стенки каменки и привариваем. В итоге получаем две плоских блина, соединенных между собой четырьмя трубами.

Устанавливаем корпус банной печки в вертикальном положении и помещаем полученный узел из четырех жаровых труб и двух круглых днищ внутрь трубной заготовки. С помощью электросварки привариваем круглую верхнюю стенку топочной камеры на свое место, согласно чертежу.

1, 2, 19, 20, 28,29 – дверцы и элементы топки, поддувала; 3 – задвижка; 7, 8, 9, 10 11, 12, 13 – секции топки и каменки — стенки поддувала; 14, 16, 18– днище; 15 – колосниковая решетка; 17 – отверстие для пополнения воды; 21, 24 – люк для загрузки каменки; 23 – трубы разогрева каменки; 25, 26 — основная труба для отвода газов; 27 – кран отбора горячей воды;
Внимание! Сварку верхнего днища топки следует производить в несколько проходов с максимальным качеством.
Переворачиваем корпус банной печки, устанавливаем вертикально, аналогичным способом привариваем верхнее днище промежуточной камеры. Далее необходимо установить в корпус и приварить круглый блин самодельных колосников, днище печки и днище водяного бака. Для изготовления колосников можно выбрать из двух путей:
- Можно использовать один из блинов-заготовок, предварительно высверлив в центральной части сетку сквозных отверстий диаметром 10мм, отстоящих на расстоянии друг от друга на 15-20 мм. Для этого лучше выбрать самую «прослабленную» в размерах заготовку – ту, у которой самые большие щели между внутренней поверхностью корпуса банной печки и наружным диаметром «блина».
- Более предпочтительным вариантом считается использование готовых чугунных колосников, подходящих по размеру. Для их установки в «блине» болгаркой вырезается окно по размерам колосника, который крепится с помощью четырех болтов и пары полосок металла.
После установки колосников приваривается днище печки — ее нижняя стенка. В корпусе печки металлическая заготовка устанавливается с отступом от края на 10-15мм.

Не менее ответственным этапом является установка днища водяного бака в верхнюю часть банной печи. Конструкцией банной печи из металла предусмотрено, что через центральную часть бака проходит труба отвода продуктов сгорания, и расположена она не соосно с цилиндрическим корпусом печи.
Важно! Приварить дымоход к нижнему основанию бака необходимо с дополнительным контролем геометрии взаимного расположения трубы и днища.
Сварочный шов проваривается минимум дважды, только после этого нижняя стенка с дымоходом устанавливается в корпус банной печи и приваривается по контуру.
Верхняя крышка водяного бака выполняется легкосъемной, для ее крепления на корпусе печки можно использовать пару обычных фиксаторов или же просто придавить сверху тяжелым предметом. На дымоход можно одеть кольцо для уплотнения щели между отверстием в крышке и трубой.
На завершающем этапе навешиваются дверки топочной камеры, поддувала и каменки. Окошко для очистки промежуточной камеры между каменкой и водяным баком лучше закрепить с помощью болтов, с использованием уплотнительной прокладки.
Декоративная отделка
Современные лакокрасочные материалы позволяют защитить даже сильно нагреваемые части печи из металла. Высокая влажность и горячий воздух неизбежно приведут к интенсивному ржавлению поверхности металла, даже закрытой теплоизоляцией или облицованной кирпичом.

Наиболее оптимальным вариантом для обработки поверхности металла будут кремнийорганические краски, выдерживающие нагрев до 250оС. Для стенок топочной секции лучше применить специальные порошковые краски из термореагирующих составов или на основе порошкового алюминия. Испытать стойкость защитного покрытия лучше на отдельных обрезках металла. Поверхность металла банной печи обезжиривается и покрывается в несколько слоев с промежуточным прогревом конструкции.
Установка банной печи из металла
Наиболее предпочтительным вариантом считается установка печи из металла, с выходом загрузочного окна топки и поддувала в помещение предбанника. Для этого к корпусу могут быть добавлены специальные загрузочные короба.
Некоторое усложнение конструкции с лихвой компенсируется преимуществами:
- Протапливать печь и прогревать баню удобнее из предбанника;
- Помещение предбанника будет достаточно прогрето, что тоже добавляет комфорта и удобства пользования баней;
- При неправильной работе печи или проблемах с дымоходом угарные газы не попадут в помещение парилки.

Для установки банной печи из металла необходимо вблизи от корпуса выполнить облицовку стен несгораемыми материалами, допускается применение легкосъемного кожуха — теплоизолятора, закрывающего стенки топочной секции печи. Такое устройство предохранит от ожогов и поможет регулировать температуру в парилке без вмешательства в работу печки. Аналогично следует поступить с трубой дымохода.
Банная печь из металла должна устанавливаться на фундамент, лучше с термостойкой изоляцией и металлической основой.
bouw.ru
Как сделать печь для бани из металла с баком для воды своими руками, чертежи
Как правильно сделать печь для бани своими руками? От ее параметров зависит очень многое – создание комфортной температуры в парилке, быстрый нагрев воздуха, а главное – безопасность. В большинстве случаев в качестве материала изготовления используют металл. Он относительно легко обрабатывается, обладает хорошей теплопроводностью, а готовая конструкция имеет значительно меньший вес, чем кирпичная.
Однако следует соблюдать определенные правила проектирования – иначе ожидаемого эффекта не будет. Поэтому стоит уделить особое внимание к материалу изготовления и виду конструкции будущей печи.
Содержание статьи
Банная печь – элементы конструкции
Принципиальных отличий между самодельными конструкциями и заводскими моделями нет, так как в качестве топлива в большинстве случаев используются дрова, то банная печь должна состоять из таких компонентов:
- Топка. В результате процесса горения твердого топлива, тепло через стальной корпус передается в помещение.
- Зольник. Необходим для концентрации минеральных отходов от сгоревших дров. Кроме этого, он служит элементом подачи воздуха в топку для поддержания пламени.
- Колосниковая решетка. Располагается между зольником и топкой. Служит для подачи воздушной конвекции и удаления твердых продуктов горения из топки.
- Дымоход. Необходим для создания тяги и вывода угарных газов из топки.
- Каменка. Находится в зоне топки, имеет прямой контакт с пламенем. В нее помещаются специальные камни для нагрева и создания пара. В некоторых, для упрощения конструкции самодельной печи не предусматривается.
Эта модель построения не меняется десятилетиями. Помимо своей относительной простоты она дает возможность изготавливать различные по форме и мощности конструкции.
К преимуществам печей для бани из металла, сделанных своими руками можно отнести низкую стоимость, разнообразие конструктивных моделей. Однако при этом они отличаются низкими показателями КПД и небольшой степенью безопасности. В заводских печах на внешние стенки монтируют дополнительные панели, которые предназначены для эффективного нагрева теплого воздуха и защиты от жесткого теплового излучения. В самодельных же моделях поверхность печи не имеет подобной защиты – ее изготовление затратное и не всегда возможно в домашних условиях.
Однако при грамотном подходе к конструкции влияние этого недостатка можно существенно уменьшить.
Примеры конструкций
Прежде чем рассматривать типичные конструкции и их изготовление необходимо определиться с требованиями к материалу. Увы, но в некоторых случаях использование некачественного листового железа может привести не только к быстрому износу изделия, но и к возникновению пожароопасной ситуации. При выборе того или иного вида печи и материала ее изготовления обязательно помните, что баня – это строение с повышенными требованиями к пожарной безопасности.
Железные заготовки элементов банной печи должны отвечать следующим требованиям:
- Толщина стали топки должна быть минимум 4 мм.
- Если при изготовлении используют технологию дуговой сварки, то в обязательном порядке проверяется толщина шва и его герметичность.
Рассмотрим на примерах самодельных печей самые популярные конструкции.
Прямоугольная
Проще всего изготавливать именно такой вид печей – сварку прямых углов можно сделать, даже не имея большого опыта.

Это пример самой простой конструкции. Однако она имеет полноценную каменку и бак для нагрева воды. Диаметр дымоходной трубы должен быть не менее 110 мм, толщина стали – от 4 мм.
Ее недостатком является отсутствие экрана – удлинения камеры сгорания, которое дает возможность устанавливать печь в стене между парилкой предбанником. В некоторых случаях для обеспечения безопасности и лучшего сбережения тепла печь обкладывается термостойким кирпичом.
Однако такая конструкция будет потреблять много топлива, а небольшое расстояние между топкой и дымоходом не даст горячим газам должным образом нагреть поверхность. Поэтому рекомендуется в топке сделать дополнительные конвекционные каналы.
Эффективность работы этой печи намного больше. Но в то же время возрастет трудоемкость изготовления.

Цилиндрические
При небольших площадях бани целесообразно изготавливать конструкции в форме цилиндра.

В качестве материала можно брать толстостенные трубы большого диаметра. Это позволит значительно упростить задачу. Размеры конструкции могут варьироваться. Поэтому рекомендуется сделать предварительный чертеж изделия, исходя из габаритов материалов.
Пример подобной конструкции показан в видеоматериале:
Можно найти большое количество вариантов самодельных печей для бани. Нередко в процессе изготовления многие мастера вносят свои коррективы и новшества. Но неизменным остается одно – хорошее качество материала и выполнение требований пожарной безопасности.
dearhouse.ru
Печь для бани из металла своими руками: чертежи, фото, видео
Металлических печей для бани в продаже много, но хорошие стоят немалых денег. Если есть достаточный опыт сварки металла, можно изготовить печь самому, по своим размерам. О том, как сделать печь для бани из металла (листового), чертежи и фото — дальше.
Содержание статьи
- 1 Печь из металла для бани и сауны — в чем разница
- 2 Самодельные печи для русской бани
- 2.1 Каменка: какого размера и где
- 2.2 Чертежи самодельных банных печей из металла
- 3 Как сделать печь для сауны
- 3.1 Чертежи и схемы
Печь из металла для бани и сауны — в чем разница
Между режимами парения в бане и сауне есть существенная разница. В сауне температура воздуха очень высокая — от 85C и намного выше. При такой температуре влажность высокой быть просто не может — сразу получите ожог, а веник осыпется за пять минут. И она действительно небольшая, порядка 5-15%. В русской же парной температура держится в пределах 55-65°C, изредка поднимаясь до 70°C. При таких температурах влажность «нагоняют» большую — 50-60%.
Один из вариантов сварной печи для сауны
Для обеспечения таких разных задач требуются разные подходы для построения печи. В сауну требуется наибольшая площадь соприкосновения корпуса печи с окружающим воздухом и ускорение прохождения воздушных потоков вдоль стенок. Все подчинено задаче как можно скорее нагреть воздух в парилке. Каменка есть, но она небольшая, открытая, находится, как правило, над топкой. Камни в ней прогреваются максимум до 200-250°C, так как много тепла отдают окружающему воздуху. С такой каменки получить можно немного пара. Но в сауне много и не надо — один/два ковшика дадут 15% влажности. Больше просто не вытерпеть.
В русской парной задача другая — не перегреть помещение и добиться большого количества пара. Причем пар должен быть определенной кондиции — он должен состоять из очень мелких капелек. Его еще называют «сухим» и имеет он высокую температуру — порядка 130-150°C. При таком условии после парения в теле ощущается легкость и прилив сил. Такой пар получают только с раскаленных камней, температура которых не менее 500°C. Чтобы достичь ее камни «упаковывают» внутрь топки — в ней размещают ящик — закрытую каменку.
Тут каменка расположена внутри а сверху приделан бак
Как видите, есть солидные конструктивные отличия. Их надо иметь в виду.
Самодельные печи для русской бани
Что еще надо иметь ввиду при конструировании печи для режима русской парной? То, что имея нагретые металлические стенки удержать температуру в пределах требуемых 60-65°C нереально. Обязательно перетопите. При этом от стенок печи идет жесткое ИК излучение и рядом находится тяжело. Проблема решается двумя способами:
- Футеровкой топки. Внутри топка обкладывается жаростойким кирпичом (шамотным на шамотный раствор). Положить его можно на ребро, тогда толщина футеровки 6 см, а можно найти узкий шамот с ребром 3 см. В любом случае металлические стенки греются незначительно, основная энергия направлена на обогрев каменки. В этом случае надо сразу проектировать топку увеличенных размеров, учитывая, что значительный объем ее занят футеровкой. Минус этого варианта — очень высокая температура дыма, а следовательно — высокая пожарная опасность. Выход — отобрать у дыма большую часть энергии. Самый простой вариант — каменка или бак для воды на трубе. Вариант сложнее — отопительный щиток, в который подается дым непосредственно из печи, а остыв в лабиринте щитка, на выходе он имеет не более 80-120°C.
Футеровка — обложить топку изнутри жаропрочным кирпичом
- Кирпичный экран или саркофаг вокруг металлической печи. Экран складывают из обычного керамического кирпича, в стенке делают окошки или устанавливают дверки чтобы была возможность регулировать степень нагрева воздуха в помещении. Как видим, для поддержания температуры в заданном режиме этот вариант более удобен. Но с практической точки зрения он хуже. Дело в том, что за экраном стенки топки перегреваются (конвекции почти нет и они не остывают). В результате, через некоторое время металл перегорает. Выход — ставить жаропрочную сталь или конструкционную, но большой толщины. В данном случае, чем больше будет толщина металла, тем дольше будет служить печь. По статистике самая проблемная зона — верхняя и задняя поверхность топки. Вот тут постарайтесь поставить самый толстый металл, который найдете.
Снаружи закрыть корпус кирпичным экраном
Еще стоит поговорить о швах. В самодельных печах из металла (в заводских, в принципе, тоже) часто прогорание начинается именно со швов. На производстве данную проблему обходят при помощи гнутых конструкций. В верхней части стараются швов вообще избежать. При изготовлении печи для бани своими руками вы вряд ли сможете согнуть лист металла толщиной 6-10 мм, так что остается только одно — делать швы как можно качественнее.
Каменка: какого размера и где
Необходимое количество камней зависит от объема парной (при условии, что утеплена баня нормально). В разных источниках есть разные рекомендации с большим или меньшим количеством — от 20 до 40 кг на 1 м3. В принципе, чем больше камней, тем легче получить требуемое количество пара, но при условии, что у печи хватит мощности их нагреть.
Проблема в том, что камни разной породы имеют разную плотность, и, следовательно, одна и та же масса занимает разный объем. В принципе, для средней парилки объемом 12-14 м3, размеры каменки примерно такие: 30*40*30 мм. Параметры можно немного изменять, делать шире/уже/выше — смотрите по конструктиву печи.
Каменка может быть разной формы и размера
Соотношение объема топки к объему каменки — сложный теплотехнический расчет, который даже не всякий теплотехник осилить в состоянии. Намного проще воспользоваться готовыми чертежами или экспериментально определенными пропорциями. Как минимум, объем «свободной» от каменки топки не должен быть меньше. Лучше, если даже больше примерно на 30-50%.
Немного о том, в какой части топки лучше всего располагать ящик для камней. Все давно пришли к выводу, что самая высокая температура — в верхней части и у задней стенки. Вот в этом месте и имеет смысл расположить емкость. Во-первых, часть термической нагрузки со свода топки снимется, а во-вторых, камни хорошо нагреются.
Не за бывайте об обслуживании каменки и о том, что туда каким-то образом должна попадать вода. Лючок для обслуживания надо располагать таким образом, чтобы вы могли без особых проблем достать рукой до самого дальнего края. А подачу воды вглубь каменки надо организовать так, чтобы не обжечься. Обычно вставляют трубку или систему трубок, которые расходятся по всей плоскости емкости для камней. Со стороны помещения эта трубка заканчивается воронкой. Трубку обкладывают камнями. При подаче в нее воды, она распределяется по поверхности каменки/камней и испаряется.
Чертежи самодельных банных печей из металла
Эта печь разработана для парной 2*3*2,3 м. Варилась из листового металла толщиной 3 мм.
Печь из металла для бани с закрытой каменкой
Для активизации горения предусмотрено подключение дополнительного воздуховода, проложенного с улицы. Из других решений — ребра жесткости (уголки) приваренные к бокам топки в верхней части топки для того, чтобы при сильном нагреве металл не выгибало.
Следующая схема металлической печи для бани сделана с подачей воздуха в верхнюю часть топки. Это так называемые печи с дожиганием газов. На задней стене приварена пластина из металла. В щель между этой пластиной и задней стенкой топки при помощи трубок-воздуховодов подается воздух из-под колосников. Это нехитрое, вроде, устройство решает сразу две задачи. Во-первых, охлаждает заднюю стенку, снижая вероятность ее прогорания. Во-вторых, воздух подается в верхнюю часть разогретым. Там сосредоточены разогретые до высоких температур дымовые газы, большая часть которых горючая (до 80%). Когда эти газы смешиваются с подогретым воздухом, горючие вещества воспламеняются, температура в верхней части топки становится еще выше, камни нагреваются до более высоких температур. При этом (при использовании сухих дров) топлива требуется намного меньше. На этом принципе построены многие печи длительного горения, но в банных печах он стал использоваться недавно.
Печь с подачей вторичного воздуха
Примерно та же модель, но без дожига, выполнена в другом формате. Тут размеры не указаны, зато проще понять пропорции и расположение различных элементов.
Объемная модель самодельной печи-каменки из металла
В данном случае объем топки составляет около 130% от объема каменки. Нормальное соотношение. Дымоход смещен назад, что не всегда хорошо — могут возникнуть сложности при устройстве дымохода — он может упереться в потолочную балку — придется дымоход изгибать, что нежелательно. Так что насчет расположения трубы — подумайте.
Еще в среде любителей бани постоянно ведутся споры: бак для нагрева воды в парилке — это хорошо или плохо… Одни регулируют влажность открывая/закрывая крышку бака. Их такой вариант устраивает. Другие говорят, что этот пар «тяжелый», и выносят бак в моечное отделение, а воду в нем греют, встроив в топку теплообменник и соединив его с баком трубами. Следующая схема — печь в баню из металла с баком для воды.
Чертеж печи для бани с баком для воды
Конструкция грамотная — при помощи «искрогасителя» путь прохождения дымовых газов длиннее, дольше он остается в топке, лучше нагревает стенки. Если вы не хотите бак, на его место можно уложить камни.
Интересный вариант с баком, который находится в задней части печи. Дымоход сдвинут назад, и проходит через бак. Высота бака большая, теплосъем будет эффективным — температура дымохода на выходе из бака большой не будет точно.
Вариант небольшой печи с большим баком
Интересно устроена каменка. Она не очень большая, но для небольших и средних парилок ее объема хватит. Закрывается она крышкой, что с одной стороны не очень удобно: закрывать крышку после подачи воды на камни будет проблематично. С другой стороны, это удобно в обслуживании.
Разрезы печи и размеры
Как сделать печь для сауны
Как уже говорилось, основная задача этого типа отопительных приборов — быстро «нагнать» требуемую температуру и иметь возможность ее поддерживать. Есть простое решение — поставит вентилятор, который будет обдувать стенки печи, ускоряя нагрев.
Примерно такую же функцию выполняет кожух-конвектор. Это кожух вокруг корпуса печи. Между ним и стенкой топки остается зазор в 1,5-2 см. В эту щель снизу засасывается воздух. Он проходит вдоль стенок, нагревается, заодно остужая стенки. Далее поднимается вверх, разнося тепло по парилке.
Принцип работы конвекционного кожуха
Если корпус печи делают из толстого металла, то кожух можно и из тонкого. Он редко нагревается до больших температур, и перегорание ему не угрожает. Если в печи для сауны каменка будет находится вверху, над топкой, как на фото, то в корпусе можно сделать отверстия для вентилирования каменки. Тогда часть воздуха, который поднимается вдоль стенок, будет попадать в каменку, обдувать камни и нагреваться еще сильнее. Такая каменка называется вентилируемой. Она хороша именно для суховоздушных саун.
Чертежи и схемы
Конструкция печей для сауны проще. Нужна топка нормального размера, в которую помещаются большие поленья. В верхней части, над верхней частью топки привариваются борта каменки, объем которой обычно 20-25 литров. Вариации могут быть по ширине/высоте/глубине, но особых каких-то хитростей нет.
Схемы металлических печей для сауны
Установка бака для нагрева воды в парилке сауны — идея не самая лучшая. Вы не сможете контролировать влажность, а при высоких температурах легко получить ожог. Тем не менее, несколько вариантов установки баков на фото выше.
Другой тип каменки — внутри топки. При желании можно сделать на нее крышку и такую печь можно использовать в двух режимах — с открытой крышкой для сухого парения, с открытой — для получения большего количества пара.
Каменка внутри корпуса
Источник
Тематические статьи
highlogistic.ru
