План двухэтажной бани – планировка двухэтажных конструкций с размерами, строительство угловой бани из газобетона размерами 5 на 3 своими руками
Двухэтажные бани под ключ из бруса, проекты бань в 2 этажа, цены
26 Сентября 2017 2017-09-26
5814
Время чтения 15 минут
Прочитать позжеОтправим материал на почту

Современная баня это не просто парилка с душем, а место для отдыха – душой и телом. Банные процедуры для многих будут неполными, если после них нет возможности посмотреть фильм или сыграть в бильярд. Количество способов организовать досуг это вопрос фантазии, но в любом случае основная проблема здесь заключается в сложности размещения нескольких разноплановых помещений под одной крышей. Выход в такой ситуации это постройка двухэтажных бань, которые с максимальной пользой используют доступное пространство даже на небольшом участке.

Конечно, двухэтажная баня выходит несколько дороже, чем одноэтажный сруб, но полученная площадь себя оправдывает. Двухэтажные бани из бревна и бруса эффективно используют выделенное под строение пространство и пригодятся даже без использования по прямому назначению. Второй этаж можно оборудовать под бильярдную, СПА, мастерскую, студию, тренажёрный зал, спальню, комнату отдыха. Последние будут очень кстати, если приехало много гостей и их потребуется где-то разместить на ночь. Как итог, если пересчитать затраты и полученный эффект, то намного выгоднее может быть баня, 2 этажа которой разместят в себе все необходимое, чем построить несколько одноэтажных построек.
В чем преимущества двухэтажных бань
Построив двухэтажную баню на участке, важно использовать ее с максимальной отдачей. К преимуществам такого сооружения относятся:
-
экономия пространства на участке;
-
функциональность, возможность совмещения нескольких зон;
-
экономия на отоплении;
-
красивый внешний вид, разнообразие решений проектов;
-
при желании, появляется возможность установить небольшой крытый бассейн.
Также двухэтажная баня под ключ может стать полноценным комплексом для отдыха. Пример на видео:
Площадь, занимаемая постройкой, может быть различной, это зависит от возможностей бюджета, но в любом случае, при грамотном распоряжении полученным пространством, можно получить комфортный, уютный, многофункциональный уголок для отдыха на высшем уровне.
При ограниченном бюджете сэкономить поможет проект бани с мансардой. Если же есть возможность возвести массивную постройку, то можно объединить традиционную русскую баню с сауной, разместить рядом бассейн, а террасу использовать в качестве места для посиделок.
Почему выгоднее заказать двухэтажную баню под ключ
Дом-баня под ключ двухэтажная от производителя по готовым проектам очень популярная услуга на рынке. Застройщики предлагают возведение бань, конструкция которых разработана в соответствии со всеми нормами и стандартами, в полной комплектации.
На нашем сайте Вы можете ознакомиться с самыми популярными проектами двухэтажных бань
от строительных компаний, представленных на выставке домов Малоэтажная Страна.
Строительство под ключ для заказчика обладает многими преимуществами, основным из которых является значительная экономия времени. Выбрав понравившуюся баню, оплатив стоимость материалов и цену за услуги, клиент получает полностью продуманное решение, с гарантией от застройщика на качество работ. После подписания договора материалы доставляются на участок, баня собирается, и ее уже можно использовать по назначению.

В итоге, заказывая двухэтажные бани под ключ, вы получите:
-
готовое к использованию здание;
-
быстрое выполнение заказа;
-
качественное строение.
В комплектацию включены: коробка или сруб, кровля, перегородки, двери и окна, а также фундамент. При выборе такого варианта не нужно беспокоиться о покупке материала, кладке печи, расчетах – конструкция будет сделана профессионально и прослужит много лет. В готовый план можно также внести свои корректировки и заказ будет выполнен с учетом пожеланий хозяина.
Выбор материала и габаритов бани
Наиболее популярны бани из дерева, нежели из камня или блоков. Но вот определиться что выбрать – бревно или брус, бывает сложно. Чтобы понять, какой материал подходит для вас, нужно узнать их характеристики.
|
Бревно |
Брус |
|
|
Стоимость за 1 м³ |
Оцилиндрованное – 10000 Неокоренное – 5000 |
Нестроганый – 5000 Высушенный – 10000 Профилированный – 10000 Клееный – 25000 |
|
Монтаж |
Строительство производится специалистами в срок от 2 до 8 недель, эксплуатацию можно начинать примерно через 6 месяцев. |
Длительность постройки составляет от 2 до 6 недель. Возможность построить собственными силами. Использовать по назначению можно в зависимости от влажности материала. |
|
Экологичность |
Экологически чистый материал |
Экологически чистый материал, в случае с клееным брусом нужно обратить внимание на клеевой состав. |
|
Усадка |
Около 15% |
Клееный – примерно 2 % Профилированный – 5% Нестроганый – около 10% |
|
Отделка |
Необходимо конопатить стены, а затем шлифовать |
Конопатить стены нужно в случае с необработанным брусом, профилированный не требует обработки |
|
Эстетичность |
Аутентичность, свойственная старо-русской бане |
Современный внешний облик, возможность различных вариантов |
Важно, что по долговечности, прочности и теплопроводности, материалы практически не отличаются. Отдельно стоит отметить клееный брус, который не дает усадки, остальные ему в этом плане уступают.
Друзья, сегодня проводим эксперимент… как говорится не словом, а делом! Вы спрашиваете у нас из какого материала лучше строить дом? Как избежать ошибок в строительстве и тд Мы адресуем ваши вопросы строителям и экспертам, но в этот раз мы действовали более радикально.
В целом, подбор материала для бани зависит от пожеланий хозяина стройки и его оценки важности того или иного критерия.
Прежде чем начинать строительство и выбирать проект, необходимо определить размер двухэтажной бани. Габариты зависят от нескольких факторов:
-
Является ли баня отдельным строением или пристройкой к дому.
-
Площадь загородного участка и количество свободного пространства.
-
Число людей, которые будут пользоваться баней.
-
Толщина стен и перегородок, утепление и отделка.
-
Планируемые помещения, их количество.
Информация к размышлению про правильность планировки бани на видео:
Обязательным атрибутом бани является высокий порог перед входом – около 15 см. над уровнем пола. Потолок не стоит делать слишком высоким, это увеличит время нагрева, он должен быть не больше 2 м. Рассчитать необходимый размер бани можно по числу членов семьи при одновременном посещении бани. На одного человека рекомендуется, отмерять не менее 1,3 м. площади предбанника, 1 м² в парилке и около 2-2,5 м² в моечном отделении.
Отличаться в габаритах будут круглогодичные и сезонные бани. Если предполагается использование ее зимой, то придется утеплять стены, пол, встраивать отопление, поэтому и размер будет больше.
На нашем сайте Вы можете ознакомиться с самыми популярными проектами бань от строительных компаний, представленных на выставке домов Малоэтажная Страна.
Популярные решения в проектировании двухэтажных бань
На рынке работают ряд компаний, предлагающих готовые проекты двухэтажных бань «под ключ». Несмотря на общую принципиальную схожесть, есть ряд отличий по используемым материалам, и организации пространства. Какое из решений подойдет больше можно узнать только сравнив их между собой.
Проект брусовой или каркасной бани Б6610
Не является полноценной двухэтажной постройкой – организация дополнительного места производится за счет возведения мансардного этажа. Такое решение проектировщиков сложно назвать спорным, так как уклоны крыши сделаны минимальными и мансарда практически не потеряла в полезной площади. С другой стороны такая конструкция позволяет ощутимо уменьшить итоговую стоимость готового сооружения.

Линейные размеры бани составляют 6:6 м, а полезная площадь – 49 м². Первый этаж включает парную, санузел, душ, комната отдыха. Перед входом находится веранда, за ней следует тамбур, а на мансарде просторная спальня. Конструкция бани такого типа в первую очередь направлена на экономию пространства на участке и функциональность. Помимо основного предназначения, ее можно использовать в качестве гостевого домика для размещения гостей.
Проект бани Б6610 предусматривает возможность выбора материала, из которого будет возводиться коробка – по каркасной технологии или из бруса. Так как заранее просчитать стоимость фундамента на конкретной местности невозможно, то в стоимость его не включают, но обычно в штате компании-застройщика есть специалисты, которые помогут с выбором места расположения бани на участке и проконсультируют по поводу материала и разновидности фундамента.
Баня №28 – 6х6 с верандой, мансардой и балконом
Популярность заказа бани «под ключ» обусловлена законным желанием людей сэкономить свое время и, предоставив специалистам возможность делать свою работу, получить на выходе качественную постройку, которой можно сразу же начать пользоваться. Чтобы облегчить клиентам выбор, застройщики собирают популярные решения в каталоги, с которыми можно ознакомиться даже без посещения офиса – на сайте компании.

В каталогах многих застройщиков есть проекты с непримечательными названиями, которые, тем не менее, пользуются неизменной популярностью у клиентов. Одним из таких решений является проект бани с мансардой, которому для монтажа нужен участок земли размерами всего 6х6 метров. Кроме обязательных для бани парной и моечной, проект предусматривает наличие просторной комнаты отдыха, площадью 18 м², и дополнительного помещения на втором этаже, которое можно обустроить под любые потребности: дополнительная спальня, гостевой домик, бильярдная и т.п. Дополнительная изюминка это наличие просторной веранды на первом этаже и широкого балкона на втором. В проекте максимально используется доступное пространство и обеспечиваются комфортные банные процедуры.
В нашем каталоге, Вы можете ознакомиться с самыми популярными компаниями, специализирующиеся на строительстве бань, среди представленных на выставке домов Малоэтажная Страна.
Баня-дом – проект Б-24
Чтобы баня в 2 этажа «под ключ» недорого обошлась своему владельцу, кроме удачного проекта надо также подобрать застройщика, у которого есть собственная производственная база по изготовлению бревен и бруса. Если не придется переплачивать посредникам, то за приемлемую стоимость можно заказать баню, которая будет размерами с небольшой домик и станет полноценным местом для отдыха для своих владельцев.

Баня-дом двухэтажная под ключ, проект Б-24 обладает всеми этими качествами. На первый взгляд сложно хотя бы заподозрить, что это просто баня, ведь единственное что выдает ее назначение – маленькие окна, которые должны хорошо сохранять тепло.
Срок возведения сруба по такому проекту 1-2 недели. По окончании строительства, баня не нуждается в дополнительной внешней обработке, ведь брус придает ей привлекательный внешний вид и обеспечивает хорошую теплоизоляцию. Но при этом надо учитывать, что обычно в озвученную на сайте застройщика стоимость входят сам сруб, перегородки, окна и двери, полы, кровля и прочие мелочи, но фундамент и печь по ряду причин придется просчитывать отдельно. Впрочем, обычно менеджеры всегда готовы дать консультацию по этим вопросам.
Дом-баня № 45 8х10 м. с бассейном
Двухэтажная баня это не обязательно компактное сооружение, которое должно занимать минимум площади. При наличии свободного пространства баня превращается в полноценный центр отдыха, который можно использовать летом и зимой, а второй этаж здесь больше используется для создания колорита и уменьшения количества коридоров и переходов из помещения в помещение.

Изюминка двухэтажной бани-дома под ключ № 45 размерами 8х10 – это наличие бассейна, который обустроен прямо внутри помещения и им можно пользоваться круглый год, независимо от погоды на улице. Расположение бассейна грамотно подобрано таким образом, чтобы он находился под скатом крыши, что одновременно делает потолки выше, а затраты на возведение сруба меньше.
Стандартная комплектация чаще всего включает сруб, кровлю, перегородки, утепление. Материал можно выбрать по желанию предоставляется возможность строительства из оцилиндрованного бревна, обрезного или профилированного бруса. Если баня строится из бревен или обычного бруса, то надо уточнять по поводу гарантии. Из-за усадки таких строений некоторые застройщики предлагают двухступенчатую схему, когда после сдачи готового сруба, первоначальная гарантия дается на год, а после того, как проведена отделка, продлевается до 3 лет.
Баня «Гжелка» – функциональность и красота
Хотя общий план помещений на проекте бани «Гжелка» не особо отличается от подобных решений, но в глаза сразу бросается просторная веранда, к которой пристроена беседка. Это отличное решение, если баню планируется использовать по прямому назначению, а в остальное время задействовать постройку как место для семейных посиделок или гостевой домик.

Планировка помещений на плане примерная – любой застройщик, который будет выбран для возведения сруба, по желанию заказчика внесет в проект необходимые изменения. Обычно это делается бесплатным бонусом к покупке.
Время постройки сруба порядка 2-4 недель. Базовая комплектация это сам сруб, полы, перегородки и стены, утеплитель, окна, двери, крыша, лестница, крыльцо. Если заказывать постройку «под ключ», то отдельно оговаривается стоимость фундамента, выбирается печь и душевое оборудование.
Стандартная гарантия на сруб дается на год.
Это может быть интересно! В статье по следующей ссылке читайте про проекты домов с баней.
Баня 6х6 № 12, с верандой и балконом
Профессиональные строители, которые предлагают своим клиентам услугу подгонки планировки помещений для максимального удобства использования, неоднократно указывают на мелкие изъяны в отдельных проектах. Для бань это чаще всего расположение дверей, определяющее путь из моечной к выходу на улицу.
Нюанс, важный для любителей выбежать из парной, чтобы нырнуть в снег, заключается в уменьшении расстояния до выходной двери. Это нужно чтобы «не растерять пар», пока будешь бежать на улицу и не натрясти снега в комнате для отдыха на обратном пути.

Проект двухэтажной бани из бруса № 12 максимально учитывает особенность такой банной традиции. Кроме расположения помещений на плане видно, что учтено даже направление открывания дверей, поэтому использование бани «Гжелка» будет максимально комфортным.
Лишний плюс в копилку преимуществ проекта это просторные веранда и балкон на мансардном этаже, что добавляет постройке вариантов использования.
Двухэтажная мини-баня БН-18
При резко ограниченном пространстве возникает необходимость уменьшить размеры постройки и максимально эффективно использовать имеющуюся площадь. В таких случаях есть резон заказать мини-баню, примером которой является проект БН-18, размерами 3х5 и дополнительным мансардным этажом.
Хотя подобные бани и относятся к бюджетным проектам, но они придутся по вкусу любителям функциональности и эффективного использования каждого квадратного метра помещения, что позволяет развернуться фантазии и создает своеобразный уют. Чаще всего именно такие помещения со временем становятся отражением характера своего владельца.

Строение создано из профилированного бруса, который прослужит долго и не чувствителен к механическим воздействиям. Благодаря минимальному скосу крыши, мансардный этаж это полноценное помещение площадью 12,5 м². Стандартная комплектация под ключ включает: сруб, перегородки, пол и потолок, крышу, 4 окна и двери, утепление, полки.
При необходимости можно внести свои корректировки в проект, в зависимости от бюджета и предпочтений.
Всесезонная баня с прихожей БМ-13
При суровом зимнем климате проекты помещений должны быть рассчитаны на минимальные теплопотери – в частности это отражается на наличии прихожей. Хотя для стандартной бани такое помещение может показаться излишним, но при использовании постройки в качестве гостевого домика будет очень кстати.
При наступлении теплого времени года во время вечерних посиделок можно оценить практичность совмещения двух сооружений в одном – на террасе площадью 17 м² получится расположиться даже большой компанией.

Ровные скаты крыши несколько уменьшают полезную площадь мансарды, но 25 м² все равно оставляют достаточно места для спальной, бильярдной или гостиной в качестве мини-кинотеатра.
Это может быть интересно! В статье по следующей ссылке читайте про преимущества готовых решений и особенности выбора проекта бани под ключ.
Цены на популярные проекты
Строительство из дерева это специализация многих застройщиков, а возведение двухэтажной бани-дома это популярный вид предоставляемых ими услуг. Такое сооружение станет изюминкой на участке и любимым местом отдыха для всей семьи. Чтобы подобрать оптимальный вариант, далее можно сравнить соотношение внешнего вида постройки и ее стоимости.
![]() |
![]() |
![]() |
|
6х6 от 415 тыс ₽ |
6х6 от 315 тыс ₽ |
5х6 от 275 тыс ₽ |
![]() |
![]() |
![]() |
|
6х6 от 450 тыс ₽ |
7х7,5 от 670 тыс ₽ |
5,4х5,4 от 658 тыс ₽ |
![]() |
![]() |
![]() |
|
5х7 от 535 тыс ₽ |
6х6 от 315 тыс ₽ |
7х10 от 571 тыс ₽ |
![]() |
![]() |
![]() |
|
6х8 от 675 тыс ₽ |
6х6 от 545 тыс ₽ |
6х6 от 597 тыс ₽ |
Отправим материал на почту
m-strana.ru
Проекты двухэтажных бань из бруса и бревна: чертежи, фото, планировка
Когда вы задумали строительство бани, неминуемо возникает вопрос: «А может, стоит сделать ее двухэтажной?». Если позволяет бюджет и есть желание, можно строить два этажа: при незначительном удорожании стоимости (примерно на 25-30%) вы получаете почти двойную площадь. Почему почти? Потому что немалый кусок — по минимуму два квадрата — «съест» лестница. Тем не менее, перенеся комнату отдыха на второй этаж, вы сможете сделать остальные банные помещения более просторными. Но у такого решения есть минус: ноги с непривычки после беганины по лестнице могут «гудеть». Потому, наверное, комната отдыха на втором этаже располагается нечасто. Обычно там жилые или гостевые комнаты.
Содержание статьи
Проекты двухэтажных бань
Для каждого лучший проект — свой. У всех у нас разные привычки и представления о том, как правильно париться в бане. Кто-то предпочитает суховоздушную сауну и ему нужна небольшая парилка: быстрее нагревается. А кто-то предпочитает нежаркую русскую парную, да еще хорошо поработать веником. Тут парилка должна быть больше.
Тоже относительно моечной. Там может быть только душ да обливное ведро, и тогда большая площадь ни к чему. А иногда в моечной устанавливают купели, некоторые даже немалых размеров. А еще бывают мойки с высокими температурами — порядка 30-40°C. В них тогда ставят деревянные топчаны, типа полоков, и отдыхают во влажном и теплом воздухе, не выходя в прохладную (относительно этих помещений) комнату отдыха. Тогда и площади должны быть соответствующими.
Как можно менять планировку, исходя из своих предпочтений. Это проект бани 6 на 3, а в больших размерах возможностей еще большеНо есть несколько правил, которые универсальны:
- Если планируете баню использовать и зимой, входная дверь не должна вести напрямую в комнату отдыха. Должен быть закрытый тамбур. Его можно пристроить, выгородить на веранде или в комнате отдыха. Размеры совсем небольшие — открыть двери и зайти, но так холодный воздух попадает в помещение намного меньше.
- Двери в парилке и моечной должны открываться наружу.
- Для русской бани в парилке должны быть окна. Именно так: два окна. Одно напротив двери размером 50*50 см, второе небольшое под полоком. Эти окна нужны не столько для освещения, сколько для вентиляции. Между заходами в парную необходимо основное окно и двери в парилку открыть, проветрить. Затем снова готовить парилку. А окошко под полоками помогает после бани проветрить саму проблемную область, где обычно и начинаются проблемы.
- В моечной окно тоже необходимо . Служит оно тоже для проветривания, а еще для эвакуации. Так что тут размеры должны быть чуть больше. Если вас смущает, что в них будут заглядывать, поставьте узорчатые или непрозрачные стекла. И проблема решена.
- На втором этаже при планировании помещений в первую очередь нужно определить где будет проходить дымоход, и как его огородить.
Основываясь на этих правилах, вы из любого проекта более-менее подходящего для вас, сможете сделать свой идеальный вариант планировки бани.
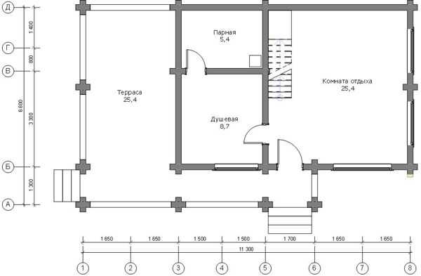
Проект первого этажа бани 6 на 6 + терраса
В этом варианте планировки бани уже выгорожен тамбур. В нем можно будет сделать или поставить шкаф для хранения верхней одежды или банных принадлежностей. Лестница находится в дальнем углу комнаты отдыха.
Проект планировки первого этажа двухэтажной бани из брусаПлощади помещений получаются такие:
- парилка 5 м2;
- моечная 5,8 м2;
- тамбур — 2,4 м2;
- комната отдыха 16 м2;
- терраса 12 м2;
План двухэтажной бани 6 на 6 с двумя входами
Интересный проект бани, подходит для размещения на широкой стороне участка. Имеется два крыльца с пристроенными тамбурами. Одно используется как котельная — оттуда топится банная печь, второе — для входа в комнату отдыха. Единственный минус в этой планировке — моечная от парилки находится через тамбур. Не самое лучшее решение: раздевшись придется проходить через помещение голышом, да еще и помещение холодное. Чтобы устранить его нужно сделать котельную длиннее, и тамбур перенести на место моечной. Это также устранит возможность появления сильного сквозняка — из двух дверей, расположенных напротив.
Интересный проект 2 этажной бани с двумя входамиВ данной планировке площади помещений такие:
- парилка 5 м2;
- моечная 5,6 м2;
- тамбур 1 — 3,9 м2;
- тамбур 2 — 2,5 м2;
- комната отдыха 21 м2;
- терраса 12 м2;
- спальня на втором этаже — 34 м2;
Планировка бани из бруса 5 на 5
За счет того, что по 20 см уходит на создание соединений по углам, «в чистом виде» размер внутренних помещений будет 5 на 5 метров, а по наружному, для фундамента — 5,4*5,4.
В этом проекте парилка имеет приличные размеры — 2,4 на 2,2 метра. В таком варианте можно поставить угловой широкий полок. Один человек сможет лежать, а еще двое — сидеть. Топится печь из комнаты отдыха, одной из стенок выходит в моечную. Рациональное расположение, позволяющее отопить все помещения. Единственное — мощность печи нужно будет брать с приличным запасом.
Проект двухэтажной баниПлощади помещений в таком варианте бани:
- парилка 5,3 м2;
- моечная 3,6 м2;
- тамбур — 3,6 м2;
- комната отдыха 15 м2;
- спальня на втором этаже 25 м2
Особенности двухэтажных бань из бруса
До начала строительства двухэтажной бани придется продумать не только стандартный набор вопросов, насчет утепления и гидроизоляции, но добавятся еще новые:
Второй этаж из бруса или бревен не обязательно делать полностью. Выгнав его на некоторую высоту, остальное можно «добрать» кровлей». Получится баня в полтора этажа…- Как сделать отопление второго этажа. Наиболее распространенный вариант — от трубы банной печи. Но топиться эта печь лишь время от времени, так что необходим второй источник тепла. Это может быть вторая дровяная печь, но уже отопительная. Причем дымоходы должны быть раздельными, иначе дым от верхней печи попадает вниз. В результате оба этажа оказываются задымленными. Часто в качестве источника тепла используют электрические обогреватели, но это если нет перебоев с электропитанием.
- Продумать систему вентиляции или герметичный люк. Если у вас русская баня, лучше и то и другое. Пар поднимается вверх. Его нужно или не пустить на второй этаж (люк) или эффективно вывести (система вентиляции).
И еще вам придется решить, будете вы делать полноценный второй этаж — выгонять стены на всю высоту. Ведь можно сделать мансарду — часть стены будет из бруса, а часть закроется кровлей. Первый вариант более дорогой но второй этаж получается такой же площади, как и первый. Второй — с мансардой — более экономный, но площадь помещений за счет скатов кровли получится меньше.
Так нужно скреплять стены, чтобы их не повело при усушке. Вместо железного бруса ставят еще деревянныйЕсли решите делать мансарду, ее можно тоже сделать по-разному — уложить несколько венцов — три-пять, а все остальное «добрать» крышей. Но тогда крыша должна иметь более сложную ломаную конструкцию. Второй вариант — полтора этажа — это когда из бруса возводят стенку метра на полтора, и только потом идет кровля. Тут можно сделать обычную двускатную кровлю, но с большим уклоном.
Есть еще более экономный вариант: первый этаж сделать из сруба, второй — по каркасной технологии. И в бане будет дерево, и нагрузка на фундамент будет не такой большой. Причем будет тепло. Отличный, да еще и недорогой вариант 2-х этажной бани.
Еще один совет, основанный на практике: перегородки внутри лучше делать каркасные. Во всяком случае, ту, через которую будет проходить печка (если топиться она будет из другой комнаты). Иначе весь брус будет порезан на небольшие куски, ведь чаще всего дальше идут двери в парную. В результате вся перегородка состоит из небольших сегментов, а скрепить их так, чтобы крепеж не мешал усадке (сделать обсаду) — та еще морока.
Об особенностях строительства бань из профилированного бруса читайте тут.
Планировка двухэтажной бани
По опыту многих обладателей бани самый оптимальный размер деревянной бани — 6*6 метров. Дело в размерах пиломатериалов: именно шестиметровые брусья, доски и другие пиломатериалы считаются стандартом. Потому проблем с материалами не возникает. Причем отходов получается тоже минимум.
Второй плюс такой бани — помещения получатся более-менее просторными. Это только на первый взгляд кажется, что площади будет много. В реале, разложив все на бумаге по полочкам, учтя толщину стен и перегородок, отделки, вы будете поражены, тем, что помещения получаются совсем миниатюрными.
Лестница займет, как минимум два квадратных метраРазрабатывая планировку соей бани, так и поступите. Нарисуйте крупно в масштабе план бани. В том же масштабе прорисуйте простенки и стены, впишите лестницу, нарисуйте печку. А потом посчитайте, сколько «в чистом» виде останется площади. Чтобы это не было для вас неприятным сюрпризом по факту строительства.
Но не все могут финансово «потянуть» такую стройку. Тогда, исходя снова-таки из размеров материала, меньше отходов будет в бане из бруса 6*3 м. Проекты есть и для такого варианта, только в этом случае придется или делать совмещенную парилку с моечной, или переносить комнату отдыха на второй этаж.
С другой стороны, можно сэкономить на стройматериалах, если строить, например, баню 6*4 или 6*5. Все пиломаетриалы, которые имеют меньшую длину, чем 6 метров считаются нестандартом. Но такая длина тоже получается достаточно часто. И этот нестандарт продают по ценам, намного ниже. Что характерно, качество древесины при этом не ухудшается.
Так формуют чаши из брусаОднако качественный материал нестандартной длины нужно искать. Если вас не пугает необходимость вести поиски, можно вполне ощутимо сэкономить. Только один момент: покупать стандарт и нестандарт желательно на одной лесопилке — параметры бруса или доски будут одинаковыми. Ни для кого не секрет, что есть определенные погрешности в геометрии пиломатериалов, размеры выдерживают с точностью до миллиметра далеко не все производители. Так что если часть материала закупить на одном предприятии, а часть — на другом, могут возникнуть проблемы со стыковкой.
baniwood.ru
планировка, особенности составления проекта. Варианты проектов бани 5х6 м
Планировка бани 3х4, 6х6, 4х6, 3х5 мойка и парилка отдельно, фото
Дача без бани – дело немыслимое. Каждый уважающий себя хозяин земельного участка и дачного домика стремится построить хоть маленькую, но свою работающую баню. И это понятно: баня – это исконно русская традиция, это отдых и здоровье, в конце концов, говоря современным языком – это релакс. Но просто так баню не простроишь – нужен проект и оптимально подходящая планировка бани. Это – первоочередная задача, а какими бывают проекты, и какой лучше выбрать – поговорим ниже.
Типовой проект маленькой бани
Для участков 3 или 6 соток великолепно подойдет банька площадью 3 х 4 метра, проект которой вы видите на рисунке выше. Принцип бани – наличие парного помещения, и в нашем конкретном случае парилка имеет довольно большую площадь – 8 м2. В ней можно разместить 2-3 полки (лежака), и останется место для каменки. Остальные помещения можно включать в проект по необходимости. Например, без биллиардной в бане можно помыться, а вот в биллиардной без парилки – никак.
Проект русской бани
После порции горячего пара необходимо смыть с себя грязь и усталость, и здесь нужна душевая комната – ее еще называют помывочной. Два квадратных метра для помывки одного человека вполне достаточно, как видно из проекта. Есть даже комната отдыха, в которой можно просто посидеть, попить квасу, отдохнуть перед очередным сеансом пара. Комната для отдыха в нашем типовом проекте имеет площадь 4,5 м2, также, конечно, есть и тамбур, в котором можно организовать небольшую раздевалку.
О необходимых помещениях
Но даже самая миниатюрная баня не может состоять из одной парилки – это просто неудобно. Поэтому в небольших проектах основное помещение делят перегородками на несколько комнат, которым отводят ту или иную роль. Не обязательно делать несущие перегородки и закладывать под них фундамент – достаточно разделить площадь легкими деревянными перегородками, как это показано в проекте ниже. Сама планировка бани достаточно просторная – 4 х 6 метров.
Разделение бани на помещения
Разделение основной постройки на несколько помещений позволит (и это главное) быстро, эффективно и качественно прогревать парилку, не перегревая при этом остальные комнаты, особенно – комнату отдыха. Кроме того, план бани нужно тщательно продумать на предмет свободного доступа ко всем помещениям.
Предбанник
Предназначение предбанника – вход в баню, хранение дров или другого топлива, раздевалка (гардеробная), отделение холодного помещения от прогреваемых печкой. Предбанник – это своего рода терминатор, по одну сторону которого теплый воздух, по другую – холодный. Из предбанника двери должны вести и в душевую комнату, и в парную, и в комнату для отдыха.
Большой предбанник в маленькой бане
Этот план бани размером 3 х 5 метров предусматривает большой и просторный (насколько это позволяют планы строительства и площадь постройки) предбанник, в котором можно при помощи перегородок обустроить все остальные помещения – склад для дров, раздевалку, и т.д. В таком предбаннике можно сделать достаточно большое окно, главное, чтобы окна не было в парной. Двери в парной должны быть только одни, и выходить они должны в тот же предбанник. Из самого предбанника можно попасть во все остальные помещения.
Распространенный проект баниПомывочная или душевая комната
skalice.ru
Двухэтажная баня: советы мастеров и рекомендации проектировщиков. План двухэтажной бани
Планировка бани 4х6, 3х4, 4х5, 5х5, 3х6, 3х5 и других размеров внутри помещения
Иметь собственный земельный участок и не построить баню – это моветон. Даже на небольших садовых участках, где из-за теплиц и грядок негде было расположить полноценный домик, наш человек всегда находил место для русской бани. Что уж говорить о полноразмерных земельных участках категории ИЖС.
Планировка бани 3×4 с указанием всех размеров
Там, где пространство не позволяет строить большую баню, встает сруб с размерами 3*4, а если ограничений по площади нет, то можно замахнуться и на двухэтажный большой дом. При этом любая планировка бани будет включать в себя самое основное – парилку, помывочную и предбанник в различных вариациях. Остальные помещения присутствуют опционально.
Вернуться к оглавлениюСодержание материала
Обязательные помещения в русской бане
Даже самую маленькую баню лучше дробить на помещения внутренними перегородками, чем оставлять одно большое помещение.
Пример планировки небольшой бани размером 6×2,3
Продуманная внутренняя планировка бани – залог успешной эксплуатации. Только разбив и без того небольшую комнату стенами, вы сможете добиться качественного прогрева парилки, из которой не будет уходить пар, хорошо отапливаемой помывочной, с доступом к горячей воде, и защищенному от пара и влаги предбаннику.
Комнату отдыха и прочие помещения в очень маленькой бане, как правило, не делают, предпочитая выносить их за пределы строения.
Это позволяет не только сэкономить и оптимизировать внутреннее пространство, но и более комфортно и продуманно организовать зону отдыха, используя альтернативные варианты.
Предбанник в русской бане
Нужен обязательно, как и в любом капитальном строении. Это небольшое, чаще всего неотапливаемое, хотя бывают исключения, помещение. Его главная задача исключить прямое попадание холодного воздуха во внутренние помещения бани – помывочную и парную.
Проект и планировка бани с предбанником размером 3×5
Чертежи самых скромных по размерам бань представляют предбанник в виде небольшого закутка на две двери – одна ведет на улицу, вторая – внутрь бани, непосредственно в помывочное помещение. Иногда тамбур оснащают несколькими крючками и узкой скамейкой, где можно оставить одежду.
Некоторые проекты бани 6х6 предлагают совмещать тамбур с комнатой отдыха. В этом случае входная дверь с улицы ведет сразу внутрь бани.
Планировка маленькой бани 6×4
Холодный воздух попадает в помещение, где размещается небольшой стол со скамейками или лежаками, а также оборудуется полноценная раздевалка. Предполагается, что комната отдыха настолько хорошо прогревается от банной печи, что холодный воздух с улицы не изменит комфортного микроклимата.
Там, где размеры участка позволяют, тамбур могут совместить с террасой или верандой. В этом случае в теплое время года комнату отдыха оборудуют на улице, на свежем воздухе, а внутренние помещения используются по прямому назначению – под парную и мойку.
Планировка бани с комнатой отдыха размером 7×5
Помывочная комната в русской
skalice.ru
Проекты лучших двухэтажных бань — Строительство бани своими руками (видео и фото)
Издавна баня была только баней – в ней парились, мылись и изредка отдыхали. Сегодня же все больше дачников выбирают проект, в котором постройка парной совмещает в себе две функции: банное помещение и жилую зону. А для этого нередко строится второй этаж, на котором и располагаются комнаты для отдыха и сна, отводя первый только под парилку и моечную. В ход идут также терраса, беседки и пристройки. В итоге получается всего одно сооружение, которое имеет сразу несколько предназначений. Возводить такую конструкцию и дешевле, и быстрее, нежели несколько одноэтажных зданий на одном участке. К тому же двухэтажная баня прекрасно подходит для временного размещения гостей, а также для обустройства личной мастерской, которая отделена от дома.

Проект двухэтажного деревянного дома бани может подразумевать второй этаж как дополнительное место для отдыха.
Проекты представлены в виде галереи в конце статьи — ПЕРЕЙТИ К ПРОЕКТАМ.
Проекты двухэтажных бань, да еще и с пристройками, намного сложнее. Но самостоятельно возвести по ним парную несложно. Главное – выбрать наиболее удачный проект двухэтажной бани, который будет учитывать все особенности местности, все пожелания домочадцев и будет гарантировать легкость и дешевизну обслуживания. На нашем сайте вы можете найти много вариантов проектирования двухэтажной бани. Но для начала важно уяснить для себя некоторые моменты.
Габариты будущей бани
Размеры бани напрямую зависят от того, как много человек будут ее эксплуатировать. Если это – семья из 4-5 человек, то вполне подойдет небольшая двухэтажная баня из бруса. А вот если планируется периодический отдых с друзьями или жить в таком домике нужно будет не один день – лучше сразу выбирать проект более просторной бани, где даже на втором этаже может быть сразу несколько помещений: спальня, комната отдыха, фитнес-зал…
Вам может быть интересно: Сайт о стройматериалах.
Назначение второго этажа
Второй этаж бани можно обустроить в виде спальни, или бильярдной комнаты.
Исходя их того, как именно будет использоваться второй этаж бани, и нужно выбирать проект для строительства. На первом этаже целесообразней оставить только парилку, моечную и предбанник. Комнату отдыха можно оборудовать либо на террасе, либо на втором этаже.
Помещением второго этажа можно распорядиться как угодно: сделать из него бильярдную, спортзал, чайную, летнюю спальню. Но все больше становится популярным делать в таком помещении мини SPA-салон, который становится прекрасным дополнением парилке и моечной. Для этого применяется специальное оформление интерьера, ароматерапия с целебными запахами, устанавливаются различные вибромассажеры. Поэтому, если для строительства был выбран проект двухэтажной бани небольших размеров, именно такой SPA-уголок в ней можно оборудовать, превратив обычную парную в целый комплекс по домашнему оздоровлению.
Если же вам необязателен полноценный второй этаж и вполне утроит мансарда — возможно вам будет интереснее проекты бань с мансардой.
Наличие бассейна
Бассейн в бане делают в отдельной пристройке.
В больших двухэтажных банях нередко строится бассейн – этому позволяет площадь. Замеров и форм такой бассейн может быть любых, но важно помнить, что и от простой воды исходит испарение влаги, а потому гидроизоляция потолка нужна будет и в этом секторе — чтобы жилые помещения на втором этаже не оказались сырыми.
Если же двухэтажная баня небольшого размера, то можно выбрать проект бани с бассейном в особой пристройке. Для этого строится специальное помещение по типу веранды рядом с баней, используя одну из ее стен как общую. Стены такой конструкции могут быть полностью стеклянными – это даже сегодня модно. Но есть и другой вариант – бассейн под террасой. Для этого в землю ставятся особые, прочные стойки, на которые крепится навес. И уже под навесом устанавливается бассейн. Таким образом, наслаждаться прохладной водой после жаркой парилки можно на свежем воздухе, но не под открытым небом.
Система водоотвода
Если баня будет жилой даже только на летнее время, то важно позаботиться о хорошей системе водоотвода. Если дренажный колодец находится достаточно близко к источнику питьевой воды (основному колодцу или неглубокой скважине), то все отходы и вредные вещества из канализационных стоков могут легко попасть через грунтовые воды в источник нормальной воды.
Хорошо, если поблизости есть коллектор – в него несложно врезать трубу. В крайнем случае, можно провести канализационную трубу как можно дальше от бани в специальный ров, но на это лучше брать специальное разрешение от местных властей.
Лестницы
Устройство водоотвода в бане.
При выборе проекта двухэтажной бани не лишним будет обратить внимание на конструкцию лестницы. Если посещение бани планируется быть частым, чем удобнее будет лестница, тем лучше.
Самые компактные варианты, экономящие пространство – это витиеватые лестницы. Но подниматься по ним часто – не всегда комфортно. Более громоздки стандартные ступеньки. Но самый неудачный вариант, пусть и значительно экономящий место в бане, — это лестницы с наружи стен. После пребывания в парилке идти по такому сооружению может быть даже опасно из-за сквозняков. Поэтому изначально лучше выбирать проект с добротной и долговечной лестницей, которая не станет напряжением для позвоночника, а самое главное, — не будет скользить.
Система отопления
Для двухэтажной бани небольших размеров идеальный вариант отопления – кирпичная печь. Прогреваться она будет достаточно медленно, зато равномерно и долго станет отдавать тепло. В парилке будет соблюдаться стабильность температуры, а жилые помещения на втором этаже не будут перегреваться. Для них даже нет нужды проводить специальное отопление – труба, выходящая из первого этажа, будет хорошо прогревать все помещение. Достаточно будет только качественно утеплить стены.
А вот для двухэтажной бани большой площади одной печи для зимнего обогрева всего строения будет мало. Для этого нужно дополнительное отопление, и не самый плохой вариант – газовый тип.
Тип фундамента
Двухэтажные бани имеют более совокупную массу, чем одноэтажные, а потому предполагают возведение более мощного и заглубленного фундамента. Особенно, если баня построена из достаточно тяжелого материала.
Бани из двух жилых этажей на сегодняшний день – дань современному миру, который все больше стремится к практичности и комфорту. И построить собственными руками можно практически любого вида двухэтажные бани: проекты и четкая инструкция есть у нас на сайте. Остается только закупить необходимый строительный материал и мебель. Ведь издавна такие постройки возводились самими хозяевами – без дорогостоящих услуг строительных фирм.
Предлагаем вашему вниманию некоторые проекты:
vasha-banya.com
6 этапов строительства двухэтажной бани [+15 ФОТО]
Современные бани уже давно перестали представлять собой небольшие и невзрачные конструкции, которые не имеют достаточного уровня комфорта и изготовленных с применением древних технологий. Они строятся с применением современных материалов, имеют ввод воды и электричества и при этом обладают различными техническими решениями для повышения функциональности. Именно поэтому двухэтажная баня с террасой считается образцом передового строительства, в котором реализованы все технологии для повышения комфорта.
Любительское фото готовой бани в два этажа с небольшой террасой и балконом
Поэтапное строительство
Прежде всего, нужно отметить, что первый этаж будет приспособлен под парную и помывочную. При этом если двухэтажная каркасная баня будет иметь большие габариты, то там же можно расположить бассейн. Второй этаж лучше выделить для организации комнаты отдыха, где часто устанавливают бильярдный стол, массажный лежак и даже несколько тренажеров.

Вариант проекта с указанием площадей всех комнат
Проект
- Типовое строительство двухэтажной бани всегда начинается с проекта.
- В нем необходимо указать все используемые материалы, способы их монтажа и особенности крепления.
- Также проект двухэтажной бани должен содержать план расположения всех комнат с указанием расстановки предметов интерьера.
- Отдельное внимание уделяют системам коммуникаций, которые обычно состоят из электрической проводки, водоснабжения и вентиляции.

Два варианта планировки с размерами и указанием площади комнат
Совет! Если нет способностей к самостоятельному созданию проекта, то для данного процесса привлекают специалиста. Также можно воспользоваться уже готовыми разработками и чертежами.

Вариант изготовления свайного поля
Фундамент
Считается, что лучше всего делать баню из бруса с габаритами 6х6. Это оптимальные размеры для подобных конструкций и они отлично позволяют реализовать все дополнительные функции строения.
При этом использование данного материала позволяет применять свайный фундамент.
- Необходимо отметить, что такое основание не может выдерживать больших нагрузок, но двухэтажное строение, даже с учетом мансарды оно вполне перенесет.
- Изготовление фундамента производится по специальному проекту под названием «свайное поле».
- Для его создания используют план размещения комнат первого этажа. На нем отмечают места установки свай.

Принципы организации основания на сваях
- Обычно двухэтажные дома с баней садятся на опоры по периметру несущих стен, простенков, а также в местах расположения печей и лестниц. При этом нужно помнить, что на месте стыков всех перегородок нужно также устанавливать сваи.
- После того, как все опоры будут установлены, их перевязывают между собой металлическим швеллером, создавая площадку из квадратов. Для одноэтажных конструкций этого можно не делать, а производить монтаж на пятаки.
Совет! Существует несколько видов свай, каждый из которых разработан для определенного типа почвы. Правильно подобрав опоры, можно значительно усилить основание, сделав его жестче и прочнее.

Внешний вид готовой конструкции
Укладка венцов
- Когда создаются деревянные двухэтажные бани из бруса, то особое внимание уделяют выбору резных замков для создания углов и других соединений. Дело в том, что существует целый ряд различных типов исполнения таких узлов, которые имеют свою особенную конструкцию.
- Обычно профессиональные мастера используют не более трех или четырех способов для угловых соединений, которые используют в зависимости от технических условий или личных пожелании заказчика.

Варианты соединения брусьев
- Стоит отметить, что при возведении стен нужно сразу изготавливать балки перекрытия, лаги, черновые полы и межкомнатные перегородки.
- Если строится дом с габаритами 6х8, то могут возникнуть проблемы с длиной брусьев. Поэтому сразу следует заносить в проект расчетный материал в шесть метров, а значит, одновременно нужно указать тип наращивания и расположение таких соединений.
- Некоторые мастера советуют при создании таких строений использовать клееный брус. Дело в том, что этот материал отлично переносит воздействие влаги, хорошо герметизирует помещение и имеет хороший внешний вид.
- Если было принято решение использовать брус из массива древесины, то перед его установкой следует произвести обработку защитными пропитками, наделяющими изделие дополнительными качествами.

Принцип наращивания бруса
- В качестве уплотнителя применяют рулонную паклю или специальные резиновые прокладки.
- Для соединения между венцами используют деревянные шплинты. Их располагают в заранее подготовленных отверстиях сделанных в шахматном порядке.
- Для фиксации всех элементов инструкция по монтажу советует использовать металлические скобы. Они довольно практичны и очень надежны.
Совет! Все особенности данной конструкции заносят в проект и при монтаже точно исполняют все его указания. В противном случае можно легко допустить ошибку.

Уплотнитель, который устанавливают между венцами
Крыша
- Прежде всего, необходимо отметить, что конструкция кровли должна быть максимально облегченной. Это связанно с типом выбранного фундамента, которому не желательны дополнительные нагрузки.
- Если будущая конструкция имеет габариты 6х4, то для нее вполне подойдет односкатная крыша. Это поможет хорошо сэкономить, но сразу отпадает возможность изготовления мансарды.
- Лучше всего применять для создания стропильной системы брусья меньшего размера и с прямоугольным поперечным сечением. Это поможет снизить вес конструкции без потерь для ее прочности.

Простейший принцип изготовления мансарды
- Фиксацию всех элементов осуществляют металлическими скобами и длинными гвоздями. Однако профессиональные мастера рекомендуют применять специальный крепежный элемент, способный осуществлять зажим в двух или трех плоскостях.
- Кровельная планировка двухэтажной бани обычно ничем не отличается от других строительных объектов и создается по одному принципу.
Совет! Утепление кровли производится на полу чердака. Однако если будет создаваться мансарда, то дополнительно нужно защитить от холода и саму крышу.

Чертеж кровли
Печь
- Для того чтобы отопить помещение с габаритами 6 на 6 и при этом поддерживать определенную температуру во всем здании можно использовать несколько типов организации систем подогрева.
- Самый практичный способ советует в парилке устанавливать кирпичную печь каменку с двумя водяными баками. При этом один из них должен располагаться на трубе дымохода на втором этаже. Это позволит поддерживать комфортную температуру наверху.

Большая печь из кирпича
- Также некоторые мастера советуют своими руками установить дополнительный бак, который связывают с основным резервуаром двумя трубами на разном уровне. Такое решение дает возможность получить большой запас горячей воды и дополнительный нагревательный элемент в помещении.
- Стоит отметить, что такая система отлично работает только при непосредственном использовании парилки. В противном случае в нем будет зимой холодно.

Заводская печь с кирпичной обшивкой
- Еще один метод нагрева подразумевает использование небольшой печи с баком для воды и отдельной системы отопления. При этом можно использовать газовый котел или же специальные многофункциональные отопители для сауны с разветвленным подогревом помещения.
Совет! Выбор печи зависит только от личных предпочтений пользователей и необходимой функциональности изделия.

Принцип размещения печи в строении
Теплоизоляция
Если вся конструкция изготовлена из клееного бруса, то при расположении в мягком климате она в защите от холода не нуждается. Однако при этом нужно особое внимание уделить уплотнителям и герметикам, чтобы в строении не было щелей.
Также рекомендуется использовать жидкий утеплитель. Его цена довольно высока, но именно благодаря ему можно получить защиту от холода, влаги и открытого огня одновременно. При этом данный материал сохраняет внешний вид конструкции, а при добавлении красителя, может его разнообразить.
Помещение сауны лучше утеплять влагостойкими рулонными изделиями со слоем из светоотражающей поверхности. По окончании монтажа комнату полностью зашивают и покрывают специальным защитным составом.

Утепление парилки материалом со светоотражающей поверхностью
Вывод
В представленном видео в этой статье вы найдете дополнительную информацию по данной теме. Также на основании текста, который представлен выше, можно сделать вывод о том, что изготовление современных бань в два этажа является сложным процессом, который требует точных расчетов и подготовительных работ (читайте также статью «Проекты двухэтажных бань из бруса, на чем остановиться»).
Однако двухэтажная баня и дом из бруса, при правильном подходе, могут быть изготовлены всего за один сезон. Для этого нужна лишь четкая координация всех действий и правильно составленный план работ.
9ban.ru
Проект бани 2 этажа
Главная » Планировка » Проект бани 2 этажаДвухэтажные бани: проекты и фото
Баня в два этажа может использоваться не только по прямому назначению. Часто на вторых ярусах обустраивают бильярдные комнаты отдыха, студии и даже спальни. В любом случае если вы запланировали такую стройку, каждый квадрат будет задействован по назначению. На фотографиях ниже будут рассмотрены различные проекты.
Двухэтажная баня обшитая сайдингом.


Планировка первого этажа, выполнена без ущемления какого-либо помещения. Все комнаты просторные и уютные.

Второй этаж немного меньше, но места для обустройства двух жилых комнат вполне достаточно.
Двухэтажная баня с террасой и высоким остеклением.

В планировке первого этажа продуманная просторная комната отдыха, парная и душевая.

Пространства второго этажа вполне достаточно для дополнительных помещений.
Баня в два этажа с мансардой


На первом этаже достаточно места даже для обустройства бассейна, а на втором предусмотрены две уютные спальни и выход на террасу.
superbany.ru












