План второго этажа: Планы двухэтажных домов: примеры удачных проектов
Планировка двухэтажного дома 6х8, 8х8, 9х9, 10х10, 6х6, 7х8, 6х9 и других размеров с мансардой и без нее
Двухэтажный дом имеет свои преимущества и недостатки перед классическим одноэтажным частным домом. Кто-то останавливается на таком варианте, потому что двухэтажный дом выглядит солиднее и презентабельнее, чем дом в один этаж; кто-то выбирает его из-за отсутствия технической возможности построить одноэтажный дом такой же площади. В любом случае, чтобы сооружаемая конструкция оказалась удобной в эксплуатации, нужна тщательная предварительная планировка двухэтажного дома.
Проект, фасад и планировка двухэтажного дома 8х8
Только грамотное распределение помещений и подведение инженерных коммуникаций позволят комфортно себя чувствовать в доме, где два этажа.
Вернуться к оглавлениюСодержание материала
Из чего строить двухэтажный дом
Планировка двухэтажного дома 6х6 с размерами
Возводить двухэтажный дом можно из любых современных строительных материалов, которые сегодня представлены на рынке: из бревна, из бруса, из штучного материала – кирпичный дом, пеноблоков, газоблоков, по каркасной технологии. Выбор ограничивается лишь вашими финансовыми возможностями и вкусовыми предпочтениями. С технологической стороны запретов нет.
Деревянные дома
Традиционный материал для строительства загородного дома. Дерево в любых своих проявлениях остается теплым, надежным и экологически чистым материалом. Деревянные дома из бруса имеют небольшой вес, что позволяет ставить их на облегченные варианты фундамента. Отлично для этих целей подходит мелко заглублённый ленточный, цельная плита или свайный фундамент с обвязкой.
Деревянные дома могут собираться из цельного бруса, клееного, из бревен. И при небольшой ширине стен быть очень теплыми.
Проект и планировка двухэтажного коттеджа 10х10 из бруса
Деревянные дома прекрасно сохраняют тепло и очень быстро нагреваются даже после полного остывания, что актуально для дачных домов, которые используются сезонно или всего несколько раз за зиму.
Внутренняя декоративная отделка деревянного двухэтажного дома может быть минимальна, так как само по себе дерево смотрится очень естественно и красиво. Это преимущество привлекает многих домовладельцев, так как на чистовой ремонт приходится солидная часть всего бюджета стройки.
Один из главных недостатков двухэтажных домов из бруса и бревна – обязательная выдержка собранной коробки. Ее необходимо оставить на срок от 3 месяцев до года, и только после этого делать оконные и дверные проемы, устанавливать стеклопакеты и начинать следующий этап работы. Это необходимо для того, чтобы дома из бруса или бревна окончательно осели и приняли свою неизменяемую форму.
Дома из штучного материала
Дома из кирпича, пеноблоков или подобного материала надежны и долговечны, если построены строго по технологии.
Планировка коттеджа с мансардой 6х9
Такие сооружения имеют внушительный вес, а значит, под них нужно готовить качественный фундамент: сэкономить на этом этапе работ не выйдет. Так как некачественно сделанное основание приведет к тому, что двухэтажный дом будет гулять, по стенам пойдут трещины и его дальнейшая эксплуатация может быть вовсе опасной.
Дома из пеноблоков и прочих штучных материалов, требующих кладки на специальный раствор, больше подходят для постоянного проживания, а не для дачных вариантов.
Такой дом хорошо сохраняет температуру, но только в том случае, если не выстужать его. Как и любое каменное сооружение, подобные дома нужно очень долго топить, чтобы добиться комфортной температуры. Камень долгое время способен поглощать тепло.
Плюсом двухэтажных домов из кирпича и прочих штучных материалов можно назвать свободу в проектировании.
Подробный план дома 6х8
Каменный дом может быть любой формы, с различными архитектурными изысками: балконами, эркерами, закругленными углами, арками и другими элементами. Повторить подобные вещи при строительстве дома из бруса или бревна можно, но крайне сложно.
Дома по каркасным технологиям
Если в двух словах, то – просто, быстро и недорого. Свобода в строительстве, как при работе с кирпичом и блоками, а эксплуатационные качества схожи с домами из дерева. К главным преимуществам такого двухэтажного дома будет относиться:
- Небольшая стоимость всего сооружения;
- Легкий вес, что позволит сэкономить на фундаменте;
- Быстрота возведения, строительные материалы не требуют выдержки;
- Простота и практичность в эксплуатации;
- При использовании экологически чистых материалов, дом не будет уступать деревянному;
- Практически любые размеры и формы строения.
Оптимальные размеры двухэтажного дома
Оптимальным минимальным пятном застройки считается прямоугольник 7х8 метров или квадрат 8х8.
Проект двухэтажного коттеджа 8х8 с террасой и балконом
Именно такие размеры позволяют построить небольшой дачный дом, где будут рационально расположены комнаты, удобно встанет полноценная лестница, а не чердачка, а также останется место не только для кухни, гостиной и хозяйских спален наверху, но и гостям будет, где разместиться.
При меньшем основании строение также может существовать, но тогда планировка двухэтажного дома будет неудобной и нефункциональной. Гостиная превратится в проходную комнату, большую часть полезной площади съест лестница, а наверху, при условии, что строиться будет не полноценный этаж, а мансардный, поместится только одна спальня.
Этот вариант можно рассматривать в качестве дачного домика для одного человека или семейной пары без детей.Верхняя планка размеров двухэтажного дома ограничена только здравым смыслом и конкретными потребностями. Для семьи из двух человек с двумя-тремя детьми вполне будет достаточно двухэтажного дома общей площадью в 110-130 квадратных метров. Если считать общую площадь дома с гаражом, то можно говорить об увеличении площади дома до 200 квадратных метров. Дома свыше этой площади будут очень дороги в эксплуатации и обслуживании, а большая часть помещений, как показывает практика, просто не будет использоваться.
Вернуться к оглавлениюПланировка первого этажа
Чертежи первого этажа двухэтажного дома должны содержать все необходимые помещения для жизни. Среди обязательных:
- Кухня;
- Гостиная;
- Прихожая, она же холл;
- Гостевой санузел;
- Бойлерная;
- Тамбур.
Если позволяет площадь первого этажа, то также здесь могут присутствовать:
- Рабочий кабинет;
- Столовая;
- Гостевая комната.
В том случае, если двухэтажный дом проектируется с гаражом, то гараж. Он входит в общий план первого этажа, располагается под одной крышей и имеет отдельный вход в дом. Как правило, попасть в гараж можно двумя способами: непосредственно из дома и из прихожей, и через главную входную дверь, если заходить через ворота.
Внутренняя планировка может считаться удачной в том случае, если получилось объединить все помещения и избежать появления длинных и узких коридоров. В частном доме коридоры – это неэффективное и бесполезное пространство.
Планировка первого этажа дома из бруса
Редкие проекты с большими коридорными площадями бывают удачными.
Варианты сочетания помещений
Если площадь первого этажа небольшая, то лучше отказаться от множества перегородок и сохранить максимум свободного пространства. Этого можно добиться с помощью студийной планировки. В этом случае кухня, столовая, гостиная и холл представляют собой единое помещение, разделенное на функциональные зоны лишь визуально.
Именно это общее пространство будет выполнять функцию коридора. Именно отсюда можно будет попасть в санузел, гостевую комнату или кабинет, если чертежи их предусматривают их наличие, и конечно на второй этаж. Расположение лестницы в интерьере – незаменимый атрибут двухэтажного дома. Ее можно использовать как естественный разграничитель пространства. Намного реже в качестве проходного помещения используют кухню.
3D планировка и дизайн этажа с совмещенной кухней и столовой
В этом варианте планировки используется островной вариант организации рабочего пространства с обязательной барной стойкой. В зависимости от формы помещения, барная стойка может быть выполнена в форме полукруга, треугольника или быть произвольных очертаний. Но все же это больше западная модель, чем привычная для нас.
Классическую планировку, когда каждая комната имеет свои четкие границы, имеет смысл воплощать тогда, когда площадь комнат немаленькая. И в случае монтажа внутренних перегородок не создастся впечатление замкнутого пространства и клетки. В этом случае кухню можно сделать просторнее и совместить со столовой. Гостиная остается самостоятельным помещением, а прихожая превращается в просторный холл, дополненный лестничным проемом и двумя входными дверями, позволяющими спокойно перемещаться между домом и гаражом, домом и улицей.
Вариант планировки двухэтажного дома 6х6
Вернуться к оглавлениюПланировка второго этажа
Классическая планировка двухэтажного дома презентует верхнюю часть постройки как зону семейного отдыха. Традиционно здесь располагаются спальные комнаты, детские, общий большой санузел с ванной, и небольшой отдельный санузел в спальне родителей. Если размеры дома позволяют, то на втором этаже может расположиться семейная комната – аналог гостиной, но только для домашних. Здесь же обустраивают гардеробную комнату.
Если дом с гаражом, то над этим помещением лучше не располагать спальни и детские комнаты. Проект лучше составить таким образом, чтобы над гаражом расположилась лестничное пространство, зона хранения вещей или гардеробная.
Варианты сочетания помещений
Коридоров на втором этаже также лучше избегать. Самый частый вариант – это небольшой свободный пяточек перед лестницей, на который выходят двери всех комнат.
Вариант планировки второго этажа коттеджа 10х10
Реже – это общая проходная комната, из которой можно уже попасть в спальню или детскую.
Воплощать такой вариант имеет смысл, если площадь дома откровенно немаленькая.
Небольшие двухэтажные дома могут иметь только один санузел на первом этаже, в этом случае все пространство второго этажа занимают спальные комнаты домочадцев.
Реже одну из комнат на втором этаже отводят под гостевую, хотя классический вариант планировки предусматривает гостевую зону на первом этаже.
Комната родителей может быть смежной с небольшой соседней комнатой. Этот вариант актуален тогда, когда в доме есть маленький ребенок. Смежная комната превращается в детскую. Ее удобно использовать с рождения и до 3-4 лет. Затем ребенка переводят в собственную детскую.
Планировка мансардного этажа дома 6х9
В этом случае в них оборудуются отдельные гардеробные для каждого члена семьи. Если потребности в таком количестве места для хранения вещей нет, или иметь отдельную гардеробную каждому члену семьи не позволяет площадь дома, то можно ограничиться одной общей комнатой, разделенной на сектора по количеству домочадцев.
Занимаясь планировкой двухэтажного дома нужно понимать, что большую часть времени вы будете проводить на первом этаже. Гостиная превратится в общую комнату, залу, детскую и рабочий кабинет одновременно. Подниматься на второй этаж все члены семьи будут только для сна. Поэтому общие общее пространство нужно постараться сделать максимально комфортным и просторным, чтобы удобно было всем членам семьи, а для спален можно выделить небольшие комнаты, превратив их в уютное личное пространство каждого члена семьи.
Вернуться к оглавлениюВарианты и примеры планировки
Мансарды стали известны человечеству уже много лет назад, поэтому если вы решили заняться возведением такого здания, то вам обязательно пригодится эта интересная планировка двухэтажного дома с мансардой и 3-мя спальнями на втором этаже.
Если раньше мансардная часть была обустроена только для того, чтобы проживать там лишь в летнее время года, то сейчас в ней можно размещаться круглый год.
Планировка двухэтажного дома с мансардой и верандой
Эта планировка дома весьма удачна, так как отвечает самому взыскательному вкусу. Кроме просторной планировки мансарды имеется подвал, в котором можно хранить вещи либо использовать его как погреб. Основные помещения первого этажа — гостиная и столовая, имеющая выход на веранду, с которой можно сразу попасть в сад. Гостевая спальня позволит проводить вечера, не думая о времени.
Но, конечно, основную прелесть дому придает мансарда, в которой располагаются три спальни и имеется еще одно большое помещение. Тут можно устроить кабинет или бильярдную, поставить спортивные тренажеры, сделать гостевую, так как площадь вполне позволяет это.
проект двухэтажного дома с мансардой и верандой
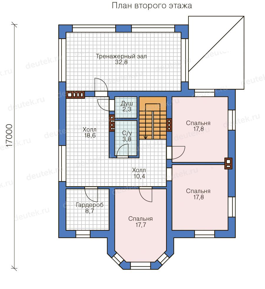
Этот двухэтажный коттедж 6х6 с мансардой предназначается для проживания шести человек. Дом сочетает в себе не только компактность, но и хорошо продуманную планировку. С помощью комбинаций разных цветов пластикового сайдинга можно добиться достаточно интересного решения и оригинальности в оформлении фасадной части здания. На первом этаже в холле удобно располагается ниша, в которой позже может быть обустроена гардеробная комната.
Гостиная, совмещенная со столовой, площадь которой составляет 29.5 кв. м. соединяется с кухней через проем. Площадь кухни составляет 17.0 кв. м, попасть в неё можно через вход со стороны холла. Площадь санузла составляет 5.4 кв. м., это позволяет установить не только ванну с джакузи, но и остальное сантехническое оборудование. Располагается на первом этаже и техническое помещение, его площадь составляет 5.3 кв. м.
план 1 этажа
На втором этаже будут располагаться 3 спальни, площадь которых равна 14.5 кв. м., 14.5 кв. м., 12.8 кв. м. Холл этого этажа имеет хорошее освещение из-за наличия двух окон, бокового и окна, которое располагается на лестничной клетке.
В мансардную часть входит санузел общего пользования, а также две спальные комнаты. С наличием мансарды дом можно считать рациональным сооружением, если рассматривать его в отношении экономичности проводимого строительства.
план 2 этажа
Особенности планировки коттеджа
Особенность данной планировки — это массивный первый этаж по сравнению со вторым. В том случае, если хозяева приходят к выводу, что на втором этаже будет располагаться несколько комнат (как в данном варианте), то все строение будет подвергаться большой нагрузке. Для того чтобы дом смог прослужить большее время, стоит заранее провести все расчеты. Для этого необходимо сравнить площадь коттеджа с предполагаемыми помещениями, с площадью участка земли, которым вы обладаете.
Второй этаж, как и мансардная часть требует большого внимания. Не нужно забывать, что такое помещение – жилое, следовательно, оно должно быть удобным для проживания людей. Для этого стоит правильно подобрать материал для крыши. В качестве наиболее востребованных выделяется несколько видов крыш:
- двускатная;
- двускатная ломаная;
- односкатная крыша.
устройство двускатной крыши дома
Два первых варианта можно отнести к более дешевым видам по стоимости, они же и проще в исполнении. В этих случаях для боковых сторон будут использоваться скаты крыши, торцы – фронтоны. Последние должны быть облицованы таким же материалом, как и первый этаж. Тип крыши и кровельный материал нужно определить ещё на стадии, когда будет происходить подготовка проекта.
Также вам стоит заранее продумать, как вы будете обустраивать и что планируете размещать на мансардном этаже.
Стоит ли делать мансардный этаж в доме
Если вы все-таки решили заняться возведением такого дома, но ещё размышляете над необходимостью мансарды, то лучше определитесь, в каких целях вы собираетесь её использовать.
Для точного решения стоит подробно рассмотреть все плюсы и минусы подобного строения, но только с точки зрения его мансардной части.
Плюсы
- Значительная экономия. Строительство двухэтажного дома с мансардной частью считается более экономичным вариантом, если рассматривать возведение трехэтажного дома, даже несмотря на то, что будут присутствовать расходы на возведение крыши.
- Внешний вид. С помощью сложной двускатной крыши с изломом, а также скатами под различными углами можно добиться интересного внешнего вида и привлечения внимания.
- Интерьер. Используя мансардное помещение можно добиться создания оригинального неповторимого интерьера. Однако для этого нужно правильно обыграть его форму. Именно поэтому, если вы являетесь сторонником оригинальности, то мансарда – именно то, что вам необходимо.
можно сделать вот такую вот оригинальную мансарду в своем доме
Минусы
К сожалению, мансарда обладает своими недостатками:
- Нужно более тщательно подходить к обустройству не только вентиляции, но и теплоизоляции. В случае несоблюдения технологий, могут быть выявлены проблемы с промерзанием, а также с конденсацией влажности.
- Проблема с естественным освещением. В том случае, если дневной свет может попадать через типичные вертикальные окна, которые устанавливаются в конструкцию под названием «скворечник», то она не будет обладать достаточным уровнем освещения. Однако существуют специальные окна, которые помогут в решении этой проблемы.
- «Мертвая зона». Площадь мансардной части практически не отличается от площади дома, но полезная её часть гораздо меньше. Подразумевается пространство у наклонной стены, к которой нельзя приблизиться вплотную. Есть такой вариант, как заказать специальную мебель в это пространство, но тогда может пропасть «изюминка» помещения.
- В этом пространстве нельзя работать, или размещать детскую комнату. Это обусловлено тем, что человек, проживающий в помещении с наклонными стенами, будет ощущать постоянно возникающую угрозу и внутреннее беспокойство.

Общие характеристики дома
Общая площадь всего сооружения составляет 185,5 кв. м. В качестве материала для стен используется газобетонный блок 400 мм, либо кирпич. Монолитная плита потребуется для фундамента. Перекрытие будет осуществляться с использованием деревянных балок. Металлочерепица либо мягкая черепица используется в качестве материала для кровли. Сайдинг разнообразных цветов применяется для наружной отделки.
Теперь можно сделать вывод, что данная схема и планировка двухэтажного дома с мансардой и 3-мя спальнями на втором этаже – это сооружение, которое подойдет не каждой семье по своим техническим особенностям. Однако, это экономичный вариант, ведь мансарда послужит дополнительным этажом.
Планировка двухэтажного дома с гаражом и верандой
Планировка двухэтажного дома, которая будет представлена в данном проекте, совсем новая. Она обладает большим количеством особенностей, среди которых зимний сад и жилые комнаты на первом этаже. Подобный проект замечательно подойдет для большой семьи, которая ценит уют и комфорт.
Итак, попасть в дом можно через два входа:
- Первый (главный) начинается с небольшого крыльца и ведет в тамбур (3,1 кв. м) затем сразу в холл (7.6 кв. м.), из которого можно пройти в остальные жилые комнаты.
- Второй вход начинается с небольшого крыльца, площадь которого 2,3 кв. м. С крыльца вы попадаете в веранду, которую можно использовать, как зимний сад.
Объединение кухни и гостиной
Одна из особенностей данной планировки заключается в совмещении кухни-столовой с гостиной. Таким образом, общая площадь помещения составляет 61,2 кв. м. Подобный интерьер часто рекомендуют профессиональные дизайнеры.
Преимущества:
- Реальное увеличение пространства.
- Границы помещения зрительно расширяются.
- Общение станет более удобным.
- Прием гостей будет более комфортным.
- Во время приготовления пищи хозяйка не будет оторвана от других жильцов.

Недостатки данного подхода:
- Придется чаще проводить генеральные уборки.
- Не исключено распространение ароматов от приготовления пищи, которые не всегда приятны.
Однако, все-таки самый большой минус заключен в том, что гостиная должна быть согласована с кухней, то есть дизайн должен быть схожий, но при этом требуется четко разделить зоны. Для этого могут использоваться следующие приемы:
- Использование барной стойки.
- Размещение кухонной мебели так, что в центре будет располагаться вытяжка, имеющая вид острова.
- Применение освещения.
- Стараться использовать разное напольное покрытие, к примеру, на кухне плитку, а в гостиной ламинат. Именно тогда получится разделительная черта, которую можно провести даже на потолке.
- Необычные цветовые решения на поверхности стен, которые, кстати, можно дублировать на полу.
Мебель постарайтесь подбирать одинаковых и похожих цветов, чтобы показать, что все-таки это единое помещение. Однако, не стоит забывать о простых аксессуарах, именно они помогут акцентировать внимание на том, что вы хотите.
План первого этажа
Окружающая планировка
Выйти из кухни-гостиной можно в холл, причем не через обычные двери, а через арки. Оформить их можно красиво и элегантно, или, наоборот, ярко и броско. Рекомендуется вставить в них разноцветную подсветку. Также из холла можно пройти в санузел (3,7 кв. м.) и гараж (22,7 кв. м). С улицы можно попасть в котельную (7,4 кв. м).
Чаще всего, на первом этаже присутствуют хозяйственные помещения, но эта схема нарушила все стандарты и включает в себя расположение гостевой спальной комнаты на первом этаже. Ее размер 14,4 кв. м. Рекомендуется эту спальню отвести для маленьких детей либо для пожилых членов семьи, которым трудно подниматься и спускаться по лестнице.
Совмещенный гараж
И другая «изюминка» первого этажа заключается в том, что к дому присоединен гараж. Обычно его месторасположение зависит от размеров участка, и оттого, для чего территория вам может пригодиться.
Данная планировка включает в себя тот факт, что участок будет полностью отведен под сад, поэтому для экономии места будет присутствовать гараж, совмещенный с домом. Стоит отметить, что такое решение и строительные работы по этому поводу обойдутся дешевле, нежели возведение отдельно стоящего гаража.
При проектировании гараж лучше всего располагать с северной стороны, именно это и учитывается в нашем проекте. Одним из главных правил является качественная вентиляция. С её наличием в дом не будут попадать пары топлива, а также выхлопные газы.
Преимущества совмещения гаража и здания:
- Экономия средств во время строительства.
- Доступ к жилой части очень удобный.
- Появляется полезная площадь над гаражом и освобождается территория на участке.
- Станет идеальным решением, если у вас небольшая приусадебная территория.
Однако подобное решение не лишено и недостатков:
- Возможное попадание газов в жилые помещения.
- Может произойти нарушение картины интерьера здания.
Зимний сад
Помимо необычной и привлекательной планировки, зимний сад на первом этаже также послужит особенностью всего строения. Он будет пристроен к кухне на первом этаже. Однако сразу стоит отметить, что на это будет уходить огромное количество энергии, особенно весной и осенью. Однако расход энергии все-таки можно немного снизить, если от остальных помещений отгородить его конструкцией, обладающей хорошими теплоизоляционными свойствами. Именно такая схема и работает в данном проекте, от всех остальных комнат, эта территория ограждается обшивкой из гипсокартона.
Зимний сад располагается с южной стороны строения, так как эффект использования солнечной энергии садом, который находился бы с востока или запада, был бы почти на 35% меньше. Крыша над этим местом – крутая, так как на плоской поверхности в зимнее время будет скапливаться много снега, а в летнее время солнечные лучи будут сильно нагревать поверхность.
Второй этаж и его планирование
Второй этаж начинается с холла, который очень просторный – его площадь 18,4 кв. м. На втором этаже именно холл является распределительным местом, откуда можно пройти в любое помещение. Всего на этаже располагаются три спальные комнаты, размеры которых составляют 16,9 кв. м., 14,4 кв. м., 15,9 кв. м. соответственно. Средняя спальня обладает индивидуальной гардеробной комнатой, площадь которой 4,2 кв. м. и ванной (9,5 кв. м), а самая большая комната балконом (11, 4 кв. м.).
Помимо всего этого, второй этаж также включает в себя расположение ванной комнаты для общего использования, её площадь 11,6 кв. м. Вы сможете выйти на второй балкон из холла – площадь данного балкона 3,1 кв. м.
План второго этажа
Подобная планировка двухэтажного дома хорошо подойдет для проживания круглый год. Она может включать в себя необычные дизайнерские решения по поводу оформления внешней части строения. Этот дом сочетает в себе красоту и гармонию.
Планировка 2-этажного дома на небольшом участке
Зачастую даже не приходится мечтать о просторном коттедже для расположения всей семьи, так как участок ограничивается небольшими размерами. Планировка двухэтажного дома на небольшом участке – именно то, что необходимо, ведь большое здание будет выглядеть громоздко и неуклюже, а для зелени места останется совсем немного. Однако небольшой участок не повод отказывать себе и своим близким от большого и просторного дома. Застройщикам, которые хотят заняться возведением двухэтажного домика на небольшом участке, определенно должен понравиться этот проект.
План первого этажа
Перед тем как войти в дом, жилец попадает на крыльцо (5,11 кв. м.), откуда можно пройти в тамбур (3, 92 кв. м.). Из него можно попасть в прихожую-холл (12, 69 кв. м.). С холла проход ведет в кухню-столовую. Она очень просторна, так как площадь составляет 16,29 кв. м., что хватит для расположения сразу двух зон: питания и приготовления пищи. Несмотря на свои габариты, это пространство ещё увеличивается визуально.
Происходит это из-за отсутствия дверей, проход осуществляется через проем во всю стену, который в середине разрывается небольшой каменной перегородкой. Её рекомендуется оформить в оригинальном стиле, так как эта деталь будет служить одной из основных во всем интерьере кухни-столовой.
Если в качестве материала подобрать светлые тона, а в зоне употребления пищи поместить несколько зеркал и окно во весь рост, то визуально пространство станет ещё шире и светлее.
Выглядеть все это будет по-настоящему эффектно. Если использовать такие способы для увеличения пространства, то даже на узком участке можно возвести хороший дом.
Гостиная
Тоже можно сказать и про гостиную, размер которой составляет 24,40 кв. м. В неё можно попасть сразу из столовой, а все советы, которые относились к обустройству этого помещения отлично подойдут и для зала. Стоит отметить, что для создания уютной атмосферы в гостиной располагается открытый камин. Эта деталь интерьера обладает следующими преимуществами:
- Красивый вид открытого огня.
- Открытый камин в доме имеет классический вид.
- Доступная каждому цена.
- Простота в установке кирпичной топки.
- Если камин по каким-либо причинам не работает, то можно использовать имитирование горящего огня, но для этого потребуется предварительно оснастить камин электрической топкой.
Проект загородного дома на небольшом участке
К недостаткам можно отнести:
- Повышен риск возникновения пожара. (Однако, этого можно избежать при правильной эксплуатации и хорошей системой пожарной безопасности).
- Со временем топка может износиться, тогда придется заниматься её перекладыванием.
- Затраты на дрова.
Помимо этих помещений на первом этаже также располагается санузел (4,35 кв. м.), техническое помещение (8,44 кв. м.). Подняться на второй этаж можно с использованием винтовой лестницы. Такой тип подъема используется для пространств, в которых каждый метр на счету.
Представлена она в виде центрального стержня, вокруг которого спиральным образом крепятся ступени. Даже если длина такой ступени будет около одного метра, то места она займет меньше, нежели стандартная ступень обычной маршевой лестницы. Это оригинальное средство подъема добавляет стиля в окружающий интерьер всего дома.
План второго этажа
Как только жилец поднимется на второй этаж, то окажется в холле (7,12 кв. м.). Из него можно пройти в ванную общего пользования, размер которой составляет 8,44 кв. м. На такой площади можно удобно расположить ванную и душевую кабину. Две спальни на втором этаже, размером в 19,26 кв. м. и 13,55 кв. м., обладают выходом на лоджию. Каждая из спален визуально выглядит больше, так как в качестве выхода на лоджию используется стеклянная дверь практически в половину стены. Именно такой прием позволяет «наполнить» комнату светом и легкостью.
Последним помещением на этаже считается ещё одна спальня, размер которой составляет 19,26 кв. м. Площадь этого этажа составляет до 75 кв. м.
Камин
Большое внимание во всей планировке можно уделить камину. Его местоположение будет выбирать хозяин самостоятельно так, как будет удобно ему и его семье. Самым оптимальным местом для его расположения считается гостиная (наш план предусматривает его именно в этой зоне), желательно расположить его около капитальной внутренней стены. Ещё на самой ранней стадии требуется позаботиться о размере, форме, высоте, весе камина. Не стоит забывать о теплоизоляции и используемом материале.
План, предложенного дома, предусматривает его строительство из дерева. В таком случае серьёзный камин стоит располагать только на бетонном основании, отдельном фундаменте, монолитной площадке. Заранее нужно позаботиться и о канале поступления свежего воздуха, взамен того, который уходит из помещения. В противном случае зимой для нормальной циркуляции придется открывать форточку.
Планировка двухэтажного дома на небольшом участке очень легка в реализации. Она замечательно подойдет для проживания 5 человек в течение всего года. Благодаря четкому расположению комнат, дом обладает набором помещений для технической эксплуатации, а также для проживания.
Типовая планировка 2 этажного дома 100 кв. м.
Типовая планировка уютного двухэтажного дома до 100 кв. м. На втором этаже 3 комнаты и ванная, подойдет для семьи из пяти человек.
Уютная и достаточно компактная типовая планировка двухэтажного дома 100 кв. м. Дом отлично послужит для постоянного и сезонного проживания, помимо этого он имеет эффектное оформление фасадной части. Как и многие проекты загородных домов, он включает в себя два этажа, каждый из которых может быть использован по желанию хозяина.
Вернуться к оглавлениюСодержание материала
Типовая планировка двухэтажного дома
Итак, вход в дом начинается с небольшого крыльца, площадь которого 6 кв. м. Далее идет необычный вытянутый тамбур, размеры которого 5,95 кв. м. Такая необычная форма позволяет максимально защитить дом от холода и ветра. Тамбур также служит хорошим хозяйственным помещением. В нем при входе можно оставить верхнюю одежду или обувь, а также здесь можно размещать ведра и тряпки.
типовой проект 2-этажного дома 100 кв. м.
Из тамбура проход ведет в холл, площадь которого 11,66 кв. м. Холл обладает прямоугольной формой и не такой большой площадью, чтобы использовать его в качестве какого-либо помещения или воплощения задумки. Поэтому его просто можно украсить картинами, или покрасить стены яркими цветами. Именно такое решение добавит немного необычности этому строению. В любую комнату на первом этаже можно попасть именно из холла.
Оформление первого этажа
Итак, первое помещение – угловая кухня, площадь которой составляет 12,9 кв. м. Сложно правильно и грамотно расставить все кухонные объекты в помещении, так как хозяйке должно быть удобно перемещаться и готовить.
Еще сложнее будет в том случае, если это пространство нужно будет разбить на две части:
- Для приготовления пищи;
- Для употребления еды.
планировка 1 этажа дома площадью 100 кв. м.
Однако любую задачу можно решить, если рационально подойти к её выполнению. Для начала потребуется определиться с назначениями и задачами. Далее нужно правильно расставить кухонный гарнитур и оборудовать помещение. Всю территорию кухни можно поделить на участки:
- место, где будут храниться продукты;
- зона, где будет происходить разделка продуктов;
- территория основного приготовления.
Существует два обязательных требования, которые должны быть соблюдены в этой планировке:
- Не располагайте газовую плиту напротив окна.
- Не располагайте мойку рядом с плитой.
Таким образом, для зонирования нашей кухни была выбрана следующая планировка. Это полуостровная кухня, которая используется в помещениях любого размера. Она необходима для визуального отделения зоны приготовления от другой части пространства. Самым актуальным считается её использование в кухне совмещенной со столовой.
Этот полуостров может включать в себя расположение разделочного стола, варочной поверхности. Наиболее оптимальным решением считается расположение здесь сервировочного стола, или места для завтрака. Это очень модное решение, которым часто пользуются современные дизайнеры.
Свободная комната и идеи её оформления
И последнее жилое помещение на этаже – комната, площадь которой 14,5 кв. м. Предназначения у неё нет, поэтому владельцы сами его могут выбрать. Предлагаются такие идеи:
- Гостевая комната. Каждый дом, если позволяет площадь, должен иметь такое помещение. Всегда могут нагрянуть дальние родственники и друзья, вот тогда и пригодится это пространство. Оптимальная площадь, минимум мебели и хорошее освещение – все, что нужно.

- Комната для пожилых членов семьи. Если у вас в семье есть такой человек, то это помещение можно отвести именно для него. Удобное расположение вкупе с хорошим освещением создаст атмосферу, подходящую для такого жильца.
- Библиотека. На сегодняшний день создание многих интерьеров не обходится без этого помещения. Размера в 11 кв. м. как раз хватит для размещения полок и стеллажей, а также удобного дивана и пары небольших кресел. Как уже было сказано, освещение здесь хорошее, вид открывается на приусадебный участок, как раз самое место для чтения.
Следующее помещение на этаже – гостиная. Площадь этого помещения – 21,89 кв. м. Для дизайна этой комнаты использовалось сразу несколько цветов, которые прекрасно гармонируют друг с другом. Первое цветовое решение – нежные оттенки бежевых и голубых тонов. Благодаря им, все пространство будто наполняется воздушным светом, который придает изящество.
Также для интерьера и зонирования гостиной комнаты были использованы разнообразные оттенки красного цвета, которые придают всему помещению живость и хорошую энергетику, помимо этого он замечательно разбавляет светлые тона и является отличным дополнением. Также на этаже расположен санузел, площадью 4,25 кв. м.
Планирование второго этажа
Второй этаж обладает исключительно личными апартаментами и санузлом. Всего три спальные комнаты на втором этаже, площади которых 12,9 кв. м., 21,89 кв. м. и 14,5 кв . м. соответственно. Они ничем не отличаются друг от друга, разве что разным расположением на этаже. Площадь холла составляет 11,66 кв. м., в этом месте будет установлено хорошее освещение и будут использованы исключительно мягкие и теплые тона для оформления интерьера.
В углу будет размещено большое мягкое кресло, в котором можно удобно устроиться с интересной книгой в руках. И последнее помещение – ванная площадью 4,42 кв. м.
План второго этажа дома
Таким образом, данная типовая планировка двухэтажного дома замечательно подойдет для проживания семьи, состоящей из пяти человек.
Здесь каждый член семьи сможет найти место для уединения и для отдыха.
План дома с большой открытой террасой
Иметь свой дом мечтает каждая семья. Совсем неважно, какой он будет, главное – это крыша над головой, наличие собственного места проживания, в котором можно делать все что угодно и оформлять его по своему желанию. Данная планировка дома площадью 100 кв. м. предлагает интересные и актуальные идеи для оформления, которые помогут создать уютную обстановку.
Большая открытая терраса в доме предшествует всему строению. Как правило, просторные террасы всегда придают компактному дому оригинальный внешний облик, который остается только правильно подчеркнуть с использованием средств оформления. К примеру, этот проект предусматривает наличие террасы, выполненной из дерева.
Деревянные резные перила лестницы, пол с настилом из досок, даже мебель, использующаяся в оформлении, должна быть выполнена из дерева. В качестве элементов, разбавляющих интерьер, могут присутствовать живые растения, аксессуары, скатерть на столе, и многое другое.
Всего имеется 2 входа в дом.
- Первый, парадный вход начинается с крыльца (4,8 кв. м.). Деревянное крыльцо становится отличным дополнением всего строения.
- Второй, запасной вход начинается с террасы, описанной выше. Выходит он на задний двор дома.
Первый этаж
С террасы можно попасть на веранду дома. Использовать её можно для нескольких целей:
- В качестве места для чаепития и отдыха;
- Застекленная веранда отлично подойдет в качестве зимнего сада;
- Как замену холла и прихожей.
С крыльца путь ведет в тамбур, в котором рекомендуется расположить шкаф-купе. На стенах обязательно должны присутствовать зеркала, внимание стоит уделить хорошему освещению.
план первого этажа дома
Дальше идет просторный коридор, из которого можно попасть почти в любое помещение.
Из коридора можно пройти в кухню с газовой колонкой оформленную в стиле кантри.
Для этого использовалась практичная мебель, встроенная бытовая техника (скрытая от взора), деревянный стол и стулья, зеленые растения. Цветовая гамма – спокойная, приближенная к естественным тонам натуральных материалов.
Кухня одновременно является и гостиной. Такие же тона, такая же практичная и удобная мебель, но только использование техники ограничить нельзя. Рекомендуется применять подобные схожие цвета для оформления. Применять толстые несимметричные линии в дизайне. Использовать лучше всего распашные межкомнатные двери, чтобы подчеркнуть стилевое направление.
Второй этаж
Этот дом 9 на 9 имеет второй этаж. Начинается он с маленького холла (2,5 кв. м.), из которого можно пройти в любую их трех комнат. Первая комната (17,3 кв. м.) является спальней. Вторая комната — кабинет (9,2 кв. м.). И последняя, детская комната на втором этаже (8,4 кв. м.) обладает хорошим освещением, которое в дневное время поступает от двух больших окон, а в темное время суток от ламп и светильников. Предусмотрено также приглушенное ночное освещение, которое желательно использовать во время сна.
План второго этажа дома 100 кв. м. с террасой
Для оформления детской спальни рекомендуется использовать яркую цветовую гамму. Вся мебель и принадлежности должны излучать счастье, радость и веселье. Именно поэтому здесь не подойдет использование неярких или пастельных тонов. Внимательно стоит отнестись даже к выбору мебели.
Таким образом, подобная планировка дома 100 кв. м. очень компактна, однако, может разместить 3 человека. Все помещения оформлены по действующим требованиям и стандартам, с использованием качественных материалов. Во всем строении продумано хорошее освещение, царит уютная атмосфера и покой.Проект двухэтажного дома 160 м2
Проект возможно изменить под индивидуальные требования Заказчика:- Изменение планировок
- Изменение архитектурных решений
- Гараж, навес
- Терраса
- Цокольный этаж
- Балкон
Другие возможные изменения
Проект возможно изменить под индивидуальные требования Заказчика:- Изменение планировок
- Изменение архитектурных решений
- Гараж, навес
- Терраса
- Цокольный этаж
- Балкон
Другие возможные изменения
Проект возможно изменить под индивидуальные требования Заказчика:- Изменение планировок
- Изменение архитектурных решений
- Гараж, навес
- Терраса
- Цокольный этаж
- Балкон
Другие возможные изменения
Проекты домов 2 этажа 4 спальни, фото и цены
Виды проектов домов 2 этажа 4 спальни:
- Готовые проекты: это созданные проекты домов 2 этажа 4 спальни, которые также дешевые по стоимости.
Материал заложен в уже готовые эскизы, на сайте можете с информацией ознакомиться. При желании внести можно изменения и подобрать, например: пеноблоки, кирпич, теплую керамику, дерево, сип панели и т.д. Любой фасад мастера сделают штукатуренный, из камня, из облицовочного кирпича, плитки и т.д. Мы также с легкостью изменение внесем планировки, перенос комнат и изменение в чертежах, такая услуга небольших денег будет стоить. - Индивидуальные проекты: это с нуля созданные эскизы, где мечты, идеи и пожелания заказчика учитываются, то есть дом вашей мечты возводится.
Перед возведением дома определитесь, желаете взять готовый чертеж или заказать индивидуальный.
Преимущество и недостатки домов 2 этажа 4 спальни
Все плюсы и минусы нужно понять перед строительством дома, вот почему для данного вида строительства преимущества и недостатки описаны нами, чтобы вы определились с выбором.
Преимущества:
- Немного места нужно на участке. Дом на маленьком участке будет размещен и больше места сад займет.
- Одноэтажные и двухэтажные дома сравните, и последний в 2 раза меньше места займет, при равной площади фундамента и кровли, поэтому обойдется на порядок дешевле фундамент и крыша.
- Такие дома дорого смотрятся, и имеют распространение большее.
Недостатки:
- В сравнении с аналогичным одноэтажным домом большая нагрузка на фундамент идет. Соответственно используется более основательный фундамент, марка бетона на порядок дороже берется, поэтому дополнительные расходы возьмите во внимание.
- Понадобиться делать леса для облицовки, это незначительные, но расходы денег.
- Возведение межэтажных перекрытий и лестниц обязательно придется делать, поэтому затраты увеличиваются.
- Сложней оборудование коммуникаций перед своим конкурентам.
Итог. Пространство есть для данного вида строительства одним из преимуществ.
Делая свой выбор, учтите, что не только в финансовой стороне каждый вид имеет преимущества, но и недостатки.
Сравните других строений плюсы и минусы (одноэтажных, трехэтажных), чтоб сделать остаточно выбор. Бесплатно по каждому строению, в компании вам расскажут и при выборе рекомендации дадут.
Бесплатные проекты:
Бесплатно взять любой проект можете при условии соблюдения акции. Посмотрите подробности тут.
Остается за клиентом выбор чертежа. Любой готовый эскиз под ваши требования можно изменить, звоните, и менеджеры по вашему желанию подберут эскиз и сэкономят ваше время.
Планировка второго этажа частного дома с фото. 10 лучших фото.
Рассмотрим несколько лучших вариантов планировки второго этажа частного дома с фото. Многие из них — весьма удачные решения для того, чтобы инвестировать в них деньги и потом продать.
1 вариант.
Вся площадь этой постройки составляет 170 м², а жилая — почти 90 м². Традиционно, все 3 спальни, рассчитанные на 6 человек, находятся на втором этаже. Размеры проекта самого дома — 9 м на 10 м.
Чтобы увеличить фото планировки, кликните по нужной фотографии.
Фото второго этажа этого же дома.
2 вариант. Одноэтажный дом размером 10 на 10 метров (10300 на 10450 мм). В плане этого дома 66 м² отводится в качестве жилой площади, а 118 м² составляет вся квадратура.
Второй этаж.
3 вариант планировки второго этажа.
На фото в этом частном доме видно, что общая площадь не превышает 120 м². Из них к жилой относится только 68 м², что делает этот проект не самым удачным с точки зрения инвестиций в дом. Размер проекта этого двухэтажного дома — 9 м на 8 м. Итак, давайте посмотрим на планировку «поближе».
Рассмотрим фото планировки второго этажа.
В этом варианте планировки слишком много места на первом этаже занимает тамбур и прихожая. Эта планировка очень удобна в том случае, если Вы не планируете делать «пристрой» и хотели бы хранить весь свой спортивный и садовый инвентарь прямо внутри дома.
Кстати, есть еще несколько интересных вариантов планировки дома, посмотреть их можно на сайте имуфа.ру. Именно там мы нашли несколько удачных идей планировки. Некоторые из этих вариантов планировки мы опишем ниже.
Фото планировки 4 варианта.
Дом 8,5 м на 8,5 м (8500 на 8500). Квадратура дома представляет собой 67 м² жилой зоны, тогда как вся площадь проекта составляет 117 м².
Вот план первого этажа, а под ним идет фото планировки второго этажа этого одноэтажного здания с мансардой.
Планировка второго этажа.
Балкон у этого дома очень удобно приспособлен под своеобразный «навес» для парковочного места автомобиля.
Минусом является то, что для такой большой планировки предусмотрен такой маленький туалет. Техническое помещение, скорее всего, стоит превратить в ванную комнату и совместить с туалетом. Либо поменять их местами.
5 вариант. Общая площадь частного дома составляет 120 м². Размер этого частного дома составляет 12 метров на 8.
Фото второго этажа этого частного дома.
В этой планировке целых 4 спальни. Одну спальню, расположенную на первом этаже этого частного дома, лучше переоборудовать в обычную жилую комнату.
Еще один минус — кухня довольно маленькая для такой планировки и кухонный стол приходится помещать в гостиную. При этом кухонный стол «мешается» в проходе.
Среди плюсов — есть и терраса, и балкон.
Посмотрите еще несколько интересных вариантов перепланировки в нашей статье про перепланировку частного одноэтажного дома.
Если вам необходима детальная консультация по проведению перепланировки объекта, то обращайтесь в раздел по консультационным услугам или звоните в нашу компанию по телефону: +7 (351) 750-49-71.
Чертежи планов этажей зданий
Когда составляют планы этажей, то обязательно указывают на них названия помещений. Сделать это можно следующими способами:
• Привести их в таблице (экспликации) помещений
• Указать их непосредственно на чертежах
Во втором случае номера помещений нужно поставить в кружках.
Если назначение того или иного помещения понятно и без указания наименования, то оно не наносится на чертеж. Чаще всего так поступают при составлении планов жилых помещений.
План первого типового этажа
Ниже приведено изображение, на котором имеется небольшая часть плана, составленного для типового этажа кирпичного жилого здания. На этом плане указаны размеры и размерные линии, а также нанесены координационные оси.
Привязка вентиляционных каналов, которые следуют из подвала и поэтому обозначены буквой П, дана по оси Б, в продольной стене. Для строительства вентиляционных каналов в поперечных стенах используются развертки стен с каналами, которые относятся к категории специальных чертежей. На планах дано указание того, в какую именно сторону должны открываться все изображенные на их двери. На плане, приведенном ниже, в соответствии с принятыми и действующими правилами и нормами пожарной безопасности, изображено, что входные двери должны открываться наружу, а те, что ведут в квартиру – внутрь. Для обозначения оконных блоков на плане использованы марки ОК2 и ОК3. Антресоли изображаются при помощи прямоугольников с выполненными штриховыми линиями диагоналями.
Положение секущих плоскостей, необходимых для создания соответствующих разрезов, показано на плане разомкнутыми линиями 1 – 1 и 2 – 2.
План второго типового этажа
Согласно действующим правилам, размеры отдельных комнат на планах этажей не проставляются. Дело в том, что они дополняются таким документом, как план секций, имеющий более крупный масштаб. На нем указываются не только все необходимые размеры, но и маркировки перегородок ( ПГ ), маркировки дверей ( Д ). Кроме того, на плане секций производится также обозначение оборудования кухонь и санузлов.
На приведенном ниже рисунке дано изображение фрагмента секций здания, в которой располагается двухкомнатная квартира типовой планировки. На этом плане указаны:
• Размеры всех комнат
• Площади всех комнат (подчеркнутые числа)
• Жилая и полезная площадь квартиры (обозначены с помощью дроби)
• Марки дверных блоков ( ДК, Д2, Д3, Д4 )
• Марки балконных дверных блоков ( БДУ1п )
• Перегородки ( ПГ6, ПГС21 )
• Фрамуги ( Ф4 )
Перегородка, расположенная между двумя соседними квартирами по оси 4 является составной. Ее образуют две перегородки ПГ1, каждая из которых имеет толщину 100 миллиметров. Толщина всех остальных перегородок составляет 80 миллиметров. Согласно действующим правилам и нормам составления строительной документации на рабочих чертежах, входящих в комплект АС, можно изображать санитарно-техническое оборудование и конструктивные элементы зданий.
Секции типового этажа жилого дома
Узлы деревянных коробок
Для изображения таких конструкций, как перегородочные панели, а также различных узлов и деталей деревянных коробок в более крупном масштабе делают отдельные чертежи. На тех из них, что приведены на рисунке слева, выносными элементами изображены детали узлов 1 и 2 (на плане они помечены кружками). При помощи условных изображений на чертежах деталей в разрезах показываются цементный раствор, деревянные элементы и т.п.
Ведомость отделки помещений входит в комплект чертежей архитектурно-строительной части проекта. В ней указывается качество и характер отделки стен, полов, потолков, перегородок, а также столярных изделий, имеющихся во всех помещениях.
Ведомость отделки помещений
При проектировании сборных зданий, все элементы которых изготавливаются промышленным способом (щитовых, панельных), вычерчивание планов этажей производится схематично, а нанесению подлежат только основные размеры.
Кроме поэтажных планов выполняются также монтажные схемы и планы. На них показывается маркировка и расположение друг относительно друга всех конструктивных элементов. Схемы расположения сборных конструкций и монтажные планы являются составными частями комплектов чертежей марки КЖ (конструкции железобетонные).
Часть плана заготовительного цеха
На плане производственного здания, выполненном в масштабе 1:400, все основные элементы сопровождаются как ссылками на деталировочные чертежи (то есть выносные элементы) данного и прочих комплектов ( КМ,КЖ,АР ), так и поясняющими надписями. Узлы помечены кружками, номера выносных элементов приведены на полках, на листы чертежей дана ссылка. Мостовые краны, имеющие грузоподъемность 10 тонн показаны сплошными тонкими линиями, места разрезов определены линиями сечений 1 – 1 и 2 – 2.
В более крупном масштабе ( 1:100 ) выполнен «Фрагмент плана 9 на отметке 6,600». Условные изображения материала нанесены на разрезе колонн и перегородок, кроме того, показаны четверти в оконных проемах и элементы санитарно-технического оборудования.
Чертеж плана производственного здания
В комплект архитектурно-строительных чертежей АС входят также планы полов и кровли, подземных помещений и конструкций, а также схемы расположения перегородок.
Двухэтажные дома (90 фото) — проекты и идеи дизайна
Постройка жилого дома в два этажа является наиболее целесообразным решением. В его пользу говорит то, что можно получить довольно большую полезную площадь, задействовав при этом небольшую часть земельного участка. Этот факт зачастую побуждает строить двухъярусные постройки в частных секторах на городских территориях, где земли не так много, чтобы можно было выстроить шикарный одноэтажный особняк.
К тому же, особенности рельефа не позволяют разогнаться на величественные трех-, четырехэтажные сооружения. В статье мы расскажем о том, какими бывают проекты современных двухэтажных домов, и рассмотрим их преимущества.
Преимущества двухэтажных домов
Помимо значительной экономии пространства, двухэтажные дома имеют и массу других преимуществ. В отличие от одноэтажных построек, где немалую часть занимают коридоры, двухуровневые можно распланировать таким образом, чтобы получить максимальное количество функциональных комнат. Если дом находится за городом, из окон второго этажа будет открываться изумительный вид на окружающие просторы.
Фасады двухэтажных домов позволяют применять больше архитектурных приемов, совмещать отделочные материалы, что смотрится намного красивее, а разнообразие форм крыши придает существенный колорит.
Двухуровневая постройка позволяет зонировать пространство на дневную (гостиная, кухня на первом этаже) и ночную (спальни на втором этаже) зоны.
Строительные материалы
Выбор материалов для строительства и облицовки дома является ключевым моментом, от которого будет зависеть долголетие строения, эстетическая красота, а также комфортное пребывание в нем. Чаще всего в строительстве используют такие материалы, как:
Кирпич, из которого получится удивительно прочный, крепкий дом, в котором будет постоянно сохраняться комфортный микроклимат. Недостаток – большой вес, требующий основательного фундамента, а также относительно длительный период строительства;
Керамические блоки – позволяют построить надежный энергоэффективный дом, но он потребует дополнительной облицовки;
Облегченный бетон – наиболее популярный современный материал, который практически не имеет недостатков. Дом строится довольно быстро, имеет отличную теплоизоляцию, но, поскольку материал хорошо впитывает влагу, необходимо возвести качественный фундамент из монолита или бетонной плиты;
Дерево – экологически чистый, «дышащий» материал, благодаря которому обеспечивается постоянная циркуляция кислорода в помещении.
Деревянные дома имеют высокие теплоизоляционные характеристики и эстетическую привлекательность. Однако древесина подвержена воздействию погодных условий, поэтому потребует периодической обработки специальными средствами;
Каркасные технологии, а также другие различные комбинации, которые, помимо высоких технических характеристик, имеют очень красивый вид, как например, дома в стиле шале, где прекрасно сочетается дерево и камень.
Идеи планировки двухэтажного дома
Современные тенденции стремятся к грамотной рациональной планировке функционального пространства с минимальным количеством проходных комнат. Чаще всего планировка предусматривает расположение зон общего пользования на первом уровне, а личных комнат – на втором. Например, внизу можно обустроить кухню, обеденную зону, гостиную, санузел. Очень удобно и красиво смотрится наличие террасы. Она может быть открытой или закрытой, но в любом случае дает превосходную возможность приблизиться к природе во время обеденного чаепития, вечерних посиделок или празднования торжества. Также можно встретить проекты, где на первом этаже размещают гостевую комнату или спальню для престарелых членов семьи, которым достаточно сложно продвигаться на второй уровень.
Верхний этаж, как мы уже говорили – пространство для комнат личного пользования. Здесь размещают спальни, детские. Хорошим решением станет организация дополнительного санузла, особенно если семья большая (чаще всего его размещают приблизительно в той же части дома, что и на первом этаже – так удобней подводить коммуникации).
Хорошим решением станет строительство подвала, на территории которого можно организовать хранилище или же использовать его под более функциональные помещения, например, спортзал, прачечную, бильярдную, кухню. Для этого еще на стадии строительства нужно позаботиться о прокладке коммуникаций.
Современные проекты двухэтажных домов
На сегодняшний день существует большое количество проектов двухэтажных домов.
Выбрав типовой проект, можно частично сэкономить расходы, а индивидуальный дает намного больше возможностей построить дом, который будет соответствовать всем требованиям той или иной семьи. Далее мы рассмотрим наиболее интересные варианты постройки современного, рационального, комфортного жилья.
Двухэтажный дом с мансардой
Организация мансарды – прекрасное решение, позволяющее получить дополнительные квадратные метры жилой площади вместо подкрышного чулана, который, как правило, со временем превращается в убежище для бытовых ненужностей. Помимо красивого экстерьера, двускатные крыши с окнами, устремленными в небо, дают большой простор для различных дизайнерских решений в оформлении внутреннего пространства. Позаботившись о прокладке всех необходимых коммуникаций (электропроводки, отопления, вентиляции), здесь можно обустроить просторную гардеробную, спальню или уютную детскую комнату. Нередко мансарды дополняют балкончиками, чтобы с высоты любоваться окрестностями.
Двухэтажный дом с плоской крышей
Плоскую крышу двухэтажного дома в наших краях пока можно встретить не часто, хотя на западе такие постройки очень ценятся за красивый дизайн и возможность получить дополнительную площадь. Превосходно смотрятся такие постройки в минималистических направлениях, стилях лофт, хай-тек. На плоской крыше есть возможность организовать территорию для отдыха, установив соответствующую мебель, оформить сад, спортплощадку или даже бассейн. Это хороший вариант для строений с небольшой придомовой территорией.
Купольные двухэтажные дома
Оригинальные сферические постройки удивляют своей красотой, необычностью формы и эргономичностью. В большинстве случаев они строятся каркасным методом с последующей отделкой фанерой и облицовочным материалом. Такие сооружения довольно вместительны и практичны, а круглое основание гораздо лучше справляется с природными катаклизмами (порывистыми ветрами, землетрясениями), чем прямоугольные конструкции.
Купольные дома также могут иметь дополнительные архитектурные элементы – балконы, террасы, гаражи – и поражать своим нестандартным оформлением. Внутреннее пространство организовывается по тем же принципам, что и в обычных строениях, а мебель придется изготовить под заказ, чтобы она органично вписалась в интерьер с округлыми стенами.
Двухэтажный дом в стиле шале
Привлекательный уникальный внешний вид имеют дома в стиле шале. Данное направление зодчества зародилось далеко в Альпах с их суровым климатом, сильными ветрами и снежными заносами, что напрямую отразилось в архитектурных особенностях построек. Дом в стиле шале имеет особенные черты, благодаря которым его трудно спутать с другими постройками: массивная покатая кровля с большими выступами, под которыми нередко располагается балкон, панорамные окна, мощное фундаментальное основание. Такие дома, как правило, имеют каменный цокольный или первый этаж, на котором возводится деревянное строение. Во внутреннем оформлении также должны присутствовать натуральные материалы: массивная деревянная мебель, меховые покрытия, кожаная обивка и пр.
Двухэтажный дом с гаражом
Гараж является чуть ли не обязательным атрибутом загородной жизни, и намного рациональней будет пристроить его к дому. Это доставит дополнительное удобство перемещения; к тому же, здесь нередко обустраивают мастерскую, поэтому в случае, если понадобится какой-либо инструмент для работы по дому, его без труда можно взять, пройдя в гаражную комнату. Поскольку гараж занимает один уровень, его крыша также может быть задействована, например, террасой или балконом.
Двухэтажный дом с панорамными окнами
Еще одно превосходное решение для современных построек. Большие окна дают возможность пропускать достаточно много естественного света в помещение, что характерно для сегодняшних правил оформления интерьера. Поскольку стекло имеет невысокие теплоизоляционные свойства, необходимо позаботиться о приобретении тройных стеклопакетов, а также организации качественной системы отопления.
Стоит отметить, что дома с панорамными окнами больше подходят для загородных участков, которые не обременены соседством с другими постройками, в противном случае возникнет необходимость в обустройстве высокого забора или покупке габаритных штор.
Дуплекс
Строительство дома на две семьи – дуплекса – имеет свои особенности. Здесь все пространство разделено на две автономные территории, каждая из которых имеет свои коммуникации. Семьи могут иметь общую просторную площадь гаража на несколько машин или один большой холл. Входы чаще всего отдельные. В таком доме могут независимо проживать посторонние семейные пары или же одна большая семья из нескольких поколений.
Двухэтажный дом с эркером
Оригинальная выпуклая часть строения не может никого оставить равнодушным. Этот архитектурный элемент использовался в строительстве домов на протяжении столетий, так как имеет высокую эстетическую ценность. В интерьере зоны эркеров дают дополнительную площадь, на которой обустраивают обеденные или гостиные территории. В двухэтажных домах эркера, как правило, оформляются единой конструкцией на два этажа, что придает классические нотки величия.
Двухэтажные дома – фото и проекты
В нашей фотогалерее Вы можете ознакомиться с большим количеством проектов двухэтажных домов, выполненных в различных стилях. Также фото продемонстрируют снимки, где дома имеют дополнительные функциональные архитектурные формы, их способы размещения. Приятного просмотра!
План Просторного Двухэтажного Дома с Фронтальной Крышей и Хозяйкой Второго этажа — 23816JD | Архитектурные проекты
Титульный лист
Титульный лист включает общие примечания и информацию о строительных нормах, стандартах проектирования и спецификациях конструкционных материалов, необходимых для строительства вашего дома.
Спецификация
Спецификация включает графики вентиляции крыши и фундамента, характеристики изоляции и пароизоляции, а также график вентиляции вытяжного вентилятора.
Подробный лист
Подробный лист показывает компоненты здания в крупном масштабе, необходимые для объяснения конструкции опор, фундаментных стен, бетонных плит, каркасных полов и стен, столбов, балок, изоляции, карнизов, крыш, вентиляционных отверстий, лестниц, световых люков , и соединения.
План фундамента
На листе плана фундамента показана планировка подполья, выходного цокольного этажа или плиточного фундамента. План фундамента включает в себя все необходимые примечания, размеры, бетонные стены, опорные площадки, стойки, балки, несущие стены, вентиляционные отверстия, график опор, стальную арматуру и конструктивную информацию.Если вам требуется другой тип фундамента, свяжитесь с нами для внесения изменений в ваш план.
План этажа
План этажа — это горизонтальные разрезы через каждый этаж дома, обычно на высоте 5 футов над полом. На плане этажа показано расположение внутренних и наружных стен, дверей, окон, лестниц, шкафов, шкафов, полов, бытовой техники, сантехники, каминов, столбов и балок. На планах этажей также указаны сводчатые, кессонные потолки или потолки с коробчатыми балками, закрытые проемы и зоны с потолочными перекрытиями.
План каркаса крыши
План каркаса крыши показывает геометрию выступов, выступов, впадин, слуховых окон, уклонов крыши, высоты стен и плит, а также свесов. На плане также показаны все отдельные элементы каркаса крыши, фермы, стропила, балки, световые люки, вентиляционные отверстия в крыше, желоба, водосточные трубы, световые люки, несущие стены под элементами каркаса и точечные нагрузки.
Фасад
На фасаде показаны все четыре стороны дома с описанием кровли, сайдинга и отделочных материалов, дверей, окон, скатов крыши, световых люков, желобов, дымоходов, высоты стен, степени отделки и общей высоты здания.
Лист строительной секции
Строительные секции представляют собой вертикальные разрезы через дом от крыши до фундамента. В разделах показана последовательность строительства снизу вверх, начиная с выемки грунта, далее через фундамент, дренаж, каркас стен и пола, каркас лестницы, каркас крыши, окна, двери, вентиляцию, а также внешнюю и внутреннюю отделку. Также обозначена высота стеновых панелей для каждого этажа.
Планы дома мечты с главной спальней наверху
Планы дома с мастерской (иногда их называют «мастер-план дома» или «планы дома с главной спальней наверху») идеально подходят для пар и одиноких людей, которые хотят уйти от всего этого.Спальни наверху служат барьером от звуков повседневной жизни — будь то шумный телевизор в гостиной, доставка еды через парадный вход, которая сводит собак с ума, или стоны и плескание из кухонной посудомоечной машины. Проще говоря, иногда продуманные планы этажей создают расслабляющее убежище, куда можно сбежать. Например, если вы только что закончили большой проект в жилой зоне на главном уровне, возможность сказать: «Я иду наверх, чтобы вздремнуть» как-то более удовлетворительно, чем сказать: «Я собираюсь прогуляться. Пройдите 5 футов до следующей комнаты и вздремните.«Почему? Потому что подъем по лестнице создает дополнительное пространство между вами и тем, над чем вы только что работали. Будь то просто подъем наверх, чтобы рухнуть в роскошной спальне хозяев после долгого рабочего дня, или отпуск на Багамы раз в год, иногда просто приятно физически уйти от всего этого. Составьте план дома, чтобы помочь вам в этом!
Родители маленьких детей часто предпочитают планы дома, в которых все спальни находятся на одном верхнем уровне дома. Почему? Потому что родителям с маленькими детьми, возможно, придется вставать один или несколько раз за ночь, чтобы сменить подгузник, справиться с кошмаром или дать стакан воды.Если главная спальня находится на одном уровне с другими спальнями, эти приключения будут проще.
Кроме того, размещение гостевых или детских спален на верхнем уровне вашего дома обеспечивает дополнительный уровень безопасности. Например, если произойдет немыслимое, и грабитель войдет в ваш дом, он или она, скорее всего, войдет через главный уровень, а не через спальню наверху.
Просматривая приведенную ниже коллекцию генеральных планов этажей, подумайте, где именно вы хотите разместить свой главный набор.Например, может быть, вы хотите, чтобы ваш мастер-люкс располагался над гаражом, где звуки снизу были бы сведены к минимуму. Также перспективны мастера третьего уровня. Фактически, если простор — это то, что вы ищете, план дома, в котором главная спальня занимает весь третий уровень, может быть именно тем, что прописал врач.
Примечание: Если старение на месте вызывает беспокойство, подумайте о выборе генерального плана дома с лифтом.
Связанные категории включают: Традиционные планы домов
Планировка 2-го этажа хуторя (намного проще 1-го…С надеждой).
План первого этажа был НЕВЕРОЯТНЫМ как для нас, так и для вас. Благодаря вашему вкладу в Arciform, Брайан и я фактически внесли некоторые довольно существенные изменения, о которых Брайан будет писать (мы согласились со многими, но не со всеми идеями). Но на данный момент речь идет о гораздо более простом этаже — это оригинальный пол в спальне, где мы надеемся просто поработать с оригинальной планировкой, внося при этом несколько существенных улучшений в образ жизни в отделах хранения и прачечной.
Расположение наверху было довольно хорошим. Нам нравится просторная площадка и то, как все спальни и ванная выходят на нее. Все три спальни — угловые, с оригинальными окнами и достаточным пространством. Все они хорошо освещены. Наша единственная проблема с его планировкой заключалась в том, что нам нужны были большие туалеты, и мы мечтали иметь штабелируемую стиральную машину и сушилку, чтобы дети могли сами стирать и постельные принадлежности.
В первой версии, которую Энн прислала нам, мы были в восторге от того, что на лестничной площадке стояла не просто штабелируемая стирально-сушильная машина, а целая (если не тесная) прачечная.
Она украла из самой большой спальни (это будет наша комната для гостей), чтобы сделать ее, И в ней даже есть довольно оригинальные окна !! Мы решили иметь это (плюс штабелируемую версию в нашем основном туалете) вместо полноценной прачечной где-нибудь на первом этаже или в подвале (всего 6 футов в высоту и похожа на темницу, поэтому она, скорее всего, не будет пространство, в котором кто-нибудь хочет зависнуть). Опять же, это выбор чистого образа жизни, поскольку мы знаем, что дети с большей вероятностью будут нести большую ответственность за свою стирку, если она рядом с ними (и то же самое с нами).
Если вы хотите увидеть, как я выложу все это в виде видео… проверьте это (дождитесь показа рекламы и наслаждайтесь тем, что я притворяюсь, что стираю в нашей «новой» прачечной)
Рядом туалеты…
Шкафы были довольно маленькими, и, хотя этим детям не нужны были гардеробные, мы знали, что есть место, чтобы сделать их шире и функциональнее. Поэтому мы изменили пространство, чтобы дать им большие туалеты +, чтобы добавить секретный проход между их двумя комнатами (о котором они не перестанут говорить).
Мы не знаем, чья комната, еще TBH. Прямо сейчас они живут в одной комнате, и им это нравится, поэтому они говорят, что хотят жить там в одной комнате, а затем используют вторую спальню как игровую, а третью — как гостевую. Но к тому времени, когда мы действительно переедем, им, возможно, понадобится собственное пространство (Чарли будет 8 , надеюсь, ). Я бы предпочел, чтобы они делились, пока они больше не захотят (мы слышим, что около 10/11 — это когда старший хочет немного уединения, когда они близки к половому созреванию — Боже мой , мы не можем быть так близко к этому !!!) .В любом случае, мы можем позволить им решать, я просто не смогу какое-то время полностью спроектировать комнаты, так как место, где они приземляются, может быть в подвешенном состоянии, поэтому все три комнаты будут изначально спроектированы с большой гибкостью.
